MENDOTA DIRECT VENT MANUAL GAS FIREPLACES SDV35 SDV30 0902
User Manual: DIRECT-VENT GAS FIREPLACES SDV35
Open the PDF directly: View PDF
.
Page Count: 37

MENDOTA MEDALLION
DIRECT VENT
FREESTANDING GAS STOVE
WITH
HEARTHGLO SEALED COMBUSTION SYSTEM
Model SDV-30 NATURAL GAS OR LP GAS
INSTALLATION & OPERATING INSTRUCTIONS
NO. 0902
WARNING: This product must be installed by a licensed plumber or gas fitter when installed in the commonwealth of Massachusetts.
Improper installation, adjustment, alteration, service or maintenance can cause injury or property damage. Refer to this manual. For
assistance or additional information consult a qualified installer, service agency or the gas supplier.
FOR YOUR SAFETY:
IF YOU SMELL GAS:
1. OPEN WINDOWS.
2. DON'T TOUCH ELECTRICAL SWITCHES.
3. DO NOT USE ANY PHONE IN YOUR BUILDING
4. EXTINGUISH ANY OPEN FLAME
5. IMMEDIATELY CALL YOUR GAS SUPPLIER FROM A NEIGHBOR'S PHONE.
6. FOLLOW THE GAS SUPPLIERS INSTRUCTIONS.
7. IF GAS SUPPLIER IS UNAVAILABLE, CALL YOUR FIRE DEPARTMENT.
DO NOT STORE OR USE GASOLINE OR OTHER FLAMMABLE VAPORS & LIQUIDS IN
THE VICINITY OF THIS OR ANY OTHER APPLIANCE.
WARNING: MENDOTA GAS FIREPLACE INSERTS ARE HEAT PRODUCING
APPLIANCES. DO NOT BURN WOOD, PAPER OR OTHER
MATERIALS IN THE INSERT. THE FIREPLACE INSERT IS DESIGNED
AS A SUPPLEMENTAL HEAT SOURCE. IT SHOULD NOT BE USED AS
A WHOLE HOUSE HEATING SYSTEM.
WARNING: IF THE INFORMATION IN THIS MANUAL IS NOT FOLLOWED EXACTLY, A FIRE OR EXPLOSION MANY RESULT CAUSING PROPERTY DAMAGE,
PERSONAL INJURY, OR LOSS OF LIFE. INSTALLATION AND SERVICE MUST BE PERFORMED BY A QUALIFIED INSTALLER, SERVICE AGENCY, OR THE GAS
SUPPLIER.
IMPORTANT: THESE INSTRUCTIONS ARE TO REMAIN WITH THE HOMEOWNER!

1
TABLE OF CONTENTS
TABLE OF CONTENTS..................................................................................................................................................................1
GAS LABEL REPRESENTATION.................................................................................................................................................. 3
LOCATING THE STOVE................................................................................................................................................................4
ELECTRICAL REQUIREMENTS...................................................................................................................................................4
SPECIFICATIONS & CLEARANCES ............................................................................................................................................ 5
INSTALLATION INSTRUCTIONS - BLOWER OPERATION - POWER FAILURE OPERATION ..........................................6
FLUE VENTING .............................................................................................................................................................................. 7
FLUE VENTING INSTRUCTIONS ................................................................................................................................................ 8
VENTING COMPONENTS .............................................................................................................................................................9
FLUE VENTING REQUIREMENTS............................................................................................................................................. 10
MINIMUM RISE THROUGH THE WALL VENTING................................................................................................................12
ELEVATED THROUGH THE WALL VENTING........................................................................................................................ 13
VERTICAL THROUGH THE ROOF VENTING.......................................................................................................................... 14
CATHERDAL CEILING INSTALLTION.....................................................................................................................................15
VERTICAL THROUGH THE ROOF VENTING.......................................................................................................................... 15
GAS SUPPLY REQUIREMENTS ................................................................................................................................................. 17
GAS PRESSURE REQUIREMENTS............................................................................................................................................. 17
INSTALLATION CHECK LIST ....................................................................................................................................................19
LIGHTING INSTRUCTIONS........................................................................................................................................................20
LOG ASSEMBLY VIEW............................................................................................................................................................... 21
LOG INSTALLATION................................................................................................................................................................... 22
THERMOSTAT INFORMATION ................................................................................................................................................. 22
THERMOSTAT INSTALLATION ................................................................................................................................................23
OPTIONAL ON/OFF WALL SWITCH OR REMOTE CONTROL INSTALLATION................................................................23
TROUBLE SHOOTING ................................................................................................................................................................ 24
CUSTOMER SERVICE & TROUBLE SHOOTING..................................................................................................................... 25
BLOWER WIRING ........................................................................................................................................................................ 26
MAINTENANCE............................................................................................................................................................................ 27
NATURAL TO LP CONVERSION ...............................................................................................................................................27
REPLACEMENT PARTS...............................................................................................................................................................29
WARRANTY REGISTRATION....................................................................................................................................................32
WARRANTY..................................................................................................................................................................................34
SPECIFICATIONS
MODEL SDV-30 MEDALLION
High Fire - Adjustable to - Low Fire
BTUH +INPUT NAT. GAS 30,000 21,000
L.P. GAS 30,000 16,000
NOTE: LP CONVERSION KITS ARE INCLUDED WITH EACH STOVE
OVERALL EFFICIENCIES EXCEEDS D.O.E. EFFICIENCY REQUIREMENTS (A.F.U.E.) FOR DIRECT VENT
HEATERS.
FLUE VENT LINER.................................4" INNER; 6 5/8" OUTER, COAXIAL
TOTAL WEIGHT .....................................175 LB.
SAFETY....................................................AGA CERTIFIED PILOT GENERATOR, MILLIVOLT THERMOCOUPLE SYSTEM
ACTIVATED WITH SWITCH OR THERMOSTAT.
GAS REQUIREMENTS...SUPPLY PRESSURE:
NAT. GAS: 7" W.C. [5" W.C. MIN., 11" W.C. MAX.]
L.P. GAS: 11" W.C. [11" W.C. MIN., 13" W.C. MAX.]
GAS INLET: 3/8" N.P.T.
MAIN ORIFICE: #32 NAT, #51 L.P.
Certified under ANSI Z21.11.1-1993 "Vented Room Heaters"; CAN 2.1-M89 "Vented Room Heaters, CAN/CGA 1.17 -
M91 "Gas-fired appliances for use at high altitudes"; ANSI Z21.50-1996, CGA 2.22 - M96 "Vented Gas Fireplaces" and
UL 307B-1987 "Gas Burning Heating Appliances for Mobile Homes", not for use with solid fuel. Approved for bedroom
installations.
Gas appliances must be tested and certified by a nationally recognized testing and certification agency to American National Standards
Institute - ANSI Gas Appliance Safety Standards. The Mendota Freestanding Gas Stove has been tested and certified by Intertek
Testing Services 8431 Murphy Drive, Middleton, WI 53562.
STOVE IS SHIPPED COMPLETELY ASSEMBLED AND PAINTED BLACK METALLIC. INCLUDES BLOWER W/RHEOSTAT, BURNER,
HEARTHGLO SEALED COMBUSTION SYSTEM. GOLD PLATED GRILL RODS, CERAMIC FIBER LOGS & COALS, NEO-CERAM GLASS, PIEZO
PILOT AND AGA CERTIFIED SAFETY SYSTEM. OPTIONS: THERMOSTAT, GOLD PLATED DOOR AND REMOTE CONTROL.

2
CONGRATULATIONS!
You are the owner of a world class heat producing gas direct vent sealed combustion stove.
This elegant, highly efficient stove will be a constant source of comfort and fascination. It will be the focal
point of beauty and interest in your home.
The Mendota Gas Stove is a true heating appliance incorporating the traditional aesthetics of stove fire viewing
with the controllability and fuel efficiency of a home gas furnace. Of particular interest is the low fuel
consumption and brilliant fire viewing afforded by the patented realistic HearthGlo wood fire-like combustion
system.
Carefully read the following instructions prior to actual installation. Proper Mendota Gas Stove installation and
operation will give you years of safe trouble free comfort and enjoyment. If you have any questions regarding
installation or operation of your Mendota Stove please contact your local dealer.
......CAUTION.....
FOR YOUR SAFETY do not install or operate your Mendota Gas Freestanding Stove without first reading and
understanding this manual. Any installation or operational deviation from this manual voids the Mendota Gas
Stove Warranty and may prove hazardous!
Due to high temperatures, the stove should be located out of traffic and away from furniture and draperies.
Children and adults should be alerted to the hazards of high surface temperature and should stay away to avoid
burns or clothing ignition. Young children should be carefully supervised when they are in the same room as the
Mendota Gas Stove.
Clothing or other flammable material should not be placed on or near the stove.
The Mendota Gas Stove is a powerful, efficient heating unit. It has been designed as a major source of
supplemental heat. As with any mechanical appliance there can be component shut downs. It is advisable to
have an alternate (back-up) heat supply.
Installation, repair and any adjustments to logs or burner must be done by a qualified service person. The stove
should be inspected before use and at least annually by a professional service person. More frequent cleaning
may be required due to excessive lint from carpeting, bedding material, carbon build-up, etc. It is imperative
that control compartments, burners and circulating air passageways of the appliance be kept clean. The burner
and pilot flames and logs should be visually checked periodically.
DO NOT use this stove if any part has been under water or exposed to moisture corrosion. Immediately call a
qualified service technician to inspect the stove and replace any part of the control system and any gas control
which has been under water. DO NOT use this stove if the burner does not light immediately. Turn unit off
and call Mendota approved service person if there is any delay in burner light-off.
It is Johnson Gas Appliance Company's policy that no responsibility is assumed by the Company or by any of
its employees or representatives for any damages caused by an inoperable, inadequate, or unsafe condition
which is the result, either directly or indirectly, of any improper operation, installation or servicing procedures.
Building Permit and Installation Inspection Approval Requirements
All installations of Mendota Fireplace and Inserts must comply with all the requirements stated in this Installation
and Operating Instructions Manual. The Dealer and/or installer must also obtain all required Building Permits and
Inspection Approval from the local building inspection department or the local body having jurisdiction.
In order to validate warranty coverage, Mendota may require facsimile copies of the Building Permit and Inspection
Approval forms. Failure to provide adequate proof that the installation conforms to all local requirements and the
requirements stated in the Installation and Operating Instructions Manual will void all applicable warranty.
INSTALLER: THESE INSTRUCTIONS ARE TO REMAIN WITH HOMEOWNER.

3
"LABEL REPRESENTATION"
WARNOCK LISTED GAS-FIRED DIRECT VENT ROOM HEATER
HERSEY POÊLE AU GAZ HOMOLOGUE’, A AÉRATION DIRECTE
GAS LOGO MODEL: SDV-30 MEDALLION
CERTIFIED FOR CANADA HOMOLOGUÉ POUR LE CANADA
This appliance is only for use with the type of gas indicated on the rating plate and may be installed in an after market, permanently located, manufactured (mobile) home where not prohibited by
local codes. See owner's manual for details. This appliance is not convertible for use with other gases, unless a certified kit is used.
Tested to (Testé aux normes) Z21.88-(1998) • CSA 2.33-M98, _________________________________________________
WARNING: Improper installation, adjustment, alteration, service or maintenance can cause property damage, personal injury, or loss of life. Refer to the owner's information manual provided with
this appliance. Installation and service must be performed by a qualified installer, service agency or the gas supplier. Caution: Do not operate with glass panel(s) removed, cracked, or broken.
Replacement of the panel should be done by a licensed service person.
L'AVERTISSEMENT: L' installation, inconvinante, adjustement, modificaton, service ou entretien peut causer iedommages de propriétaire fourni cet appariel. Pourl'assistance ou information
supplémentaire consulte un qualifiée installeur agence de service ou le fournisseur de gaz.
CAUTIONNER: M"poére l'applianeil averre enléve, craque ou casse. Le remplacement du panneau devrair étre fait par une personne de service qualifié ou autorisé.
NOT FOR USE WITH SOLID FUEL (NE DOIT PASÉ UTILISÉ AVEC UN COMBUSIBLE SOLIDE)
NATURAL GAS
(Gaz Naturel) PROPANE GAS
(Gaz de petrole liquefie (GPL))
Input Rating (Btu/hr) 0-1370 m (Entrée nominale) 30,000 30,000
Min. Input Rating (Btu/hr) 0-1370 m (Mininale Entrée nominale) 21,000 16,000
Orifice (DMS) )-1370 m (Orifice) 33 51
Maximum output (Btu/hr) (Sortie maximale) 22,800 23,300
Manifold Pressure (in w.c./kPa) (Pression au collecteur) 3.5 / 0.87 10.0 / 2.5
Manifold Pressure, low (in w.c./kPa) Pression d'entree minimale) 1.7 / 0.42 3.6 / 0.90
Minimum Inlet Pressure (in w.c./kPa) (Pression d'entrée minimale) 5.0 / 1.25 11.0 / 2.75
_______________________________________________
This appliance must be installed in accordance with local codes if any; If not, follow ANSI Z223.1 or (1998)• CAN/CGA-B149 Mobile (Mfd.) home installations must adhere to
to Title 24 CFR, Part 3280, or CSA Z240.4. Convenant égalemént pour installtions dans maisons mobile.
Cet appareil sera installé conformémént avec les codes locaux, le cas écheant. Si aucun code n'existe, suivez la norme ANSI Z223.1 ou la norme CAN/CGA (ACNOR)-B149.
If the vent-air intake system is disasembled for any reason, reinstall per the instructions provided with the ininial instructions.
MINIMUM CLEARANCES FROM COMBUSTIBLE CONSTRUCTION
Unit to sidewall 8 in. (205 mm) Unit top to ceiling 36 in. (915 mm.)
Unit to backwall 2 in. (50 mm.) Vent to enclosure 1 in. (25 mm.)
CAUTION: Hot whil in operation. Do not touch. Keep children, clothing, furniture, and flammable liquids or vapors away. ATTENTION: L'appareil est chaud lorsqu'il fonctionne. Ne pas
toucher l'appareil. Survieller les enfants. Garder les vétements, les meubles, l'essence ou autres liquides a vapeur inflammables loin de l'appareil.
This vented gas fireplace heater is not for use with air filters.
Electrical Rating (Courant nominal): 120 volts 60 Hz Less than 1 Ampere
_______________________________________________a
Manufactured by (Fabriqué par): JOHNSON GAS APPLIANCE
CEDAR RAPIDS, IOWA
DO NOT REMOVE OR COVER THIS LABEL
VEILLEZ Á NE JAMAIS ENLEVER NI DISSIMULER CETTE ÉTIQUETTE
WH# __________________
TEST STANDARD CERTIFICATION
Gas appliances must be tested and certified by a nationally recognized testing and certification laboratory to ANSI (American National Standards Institute) gas appliance
safety standards.
The Mendota Gas Stove has been tested and certified by Intertek Testing Services, 8431 Murphy Drive, Middleton, Wisconsin 53562 to ANSI Z21.88-1998 • CSA 2.33-
M98 "Vented Room Heaters".
This appliance may be installed in an after market permanently located manufactured(mobile) home, where not prohibited by local codes. This applies only for use with
the type(s) of gas indicted on the rating plate. This appliance is not convertible for use with other gases, unless a certified kit is used.
Cet appareil peut être installé dans un maison préfababriquée (mobile) déjà installée à demeur si les règlements locaux le permettent. Cet appraieil doit être utilisé
uniquement avec types de gas indiqués sur la plaque signalétique. Ne pas l'utiliser avec d'autres gas sauf si un kitde conversion certifié est installé.
The Mendota Gas Stove has met all necessary AGA/ANSI Standards and is fully certified for installation in any community.
MAIN GAS CONTROL INSTALLATION
1. DO NOT USE THIS STOVE IF ANY PART HAS BEEN UNDER WATER OR EXPOSED TO MOISTURE CORROSION. IMMEDIATELY CALL A
QUALIFIED SERVICE TECHNICIAN TO INSPECT THE STOVE AND REPLACE ANY PART OF THE CONTROL SYSTEM AND ANY GAS CONTROL
WHICH HAS BEEN UNDER WATER.
2. DO NOT insert any object other than suitable pipe or tubing in the inlet or outlet of the main gas control. Internal damage may occur and result in a hazardous
condition.
3. DO NOT connect the Stove before pressure testing gas piping and checking for gas leaks. Damage may result causing gas leakage.
4. DO NOT grip gas control body with a pipe wrench or vise. Damage may result causing gas leakage. Use inlet or outlet bosses, or special body wrench.
5. DO NOT use "off/on/pilot" gas knob to adjust gas flow.
6. Leak test with a soap solution with main burner "ON".

4
LOCATING THE STOVE
SAFETY AND STRUCTURAL CONCERNS:
The Mendota Direct Vent Freestanding Stove must be installed and serviced by a qualified Mendota approved
service person. Any adjustments to burner, pilot, logs or coal bed must be made by a Mendota approved service
person. Pilot flame must be checked with volt meter. Pilot flame must register a minimum of 250 on the millivolt
meter. If pilot goes out, always wait five (5) minutes before relighting pilot. Always remove the glass when lighting
the pilot. the burner must light immediately and the flame must travel promptly and smoothly around "curve" and
entire burner. The flame must not "lift" off the burner.
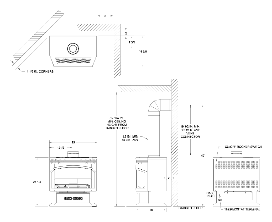
The Mendota Stove may be placed within 2" of a rear wall, within 8" of side walls, within 1 1/2" of corner walls and
29" below an alcove ceiling [See Figure 2: Specifications & Clearances on page 5]. The Stove can be installed on
any rigid floor construction. A metal or wood floor protector extending the full width and depth of the Stove MUST
be used when the Stove is installed on carpet, vinyl or any combustible surface other than wood flooring.
VENTING REQUIREMENTS:
Use only Mendota/approved venting kits when installing your stove. Closely follow venting directions and
requirements. Observe the restriction relating to vent position on exterior of home (see Exterior Vent Locations on
page 7). All vent pipes must be properly twist-locked and "leakproof".
HEATING PERFORMANCE:
The Mendota Direct Vent Freestanding Stove is a true, high efficiency gas heater. With its heat input of 30,000
(30,000 L.P.) BTUH the Mendota Stove will heat a large area of your home if situated to maximize heat circulation.
NOTE: The Stove is a major source of supplemental heat. It should not take the place of a house heating system.
Air movement options for maximizing heat circulation which can be considered are through-the-wall grills or floor
grills, or the continuous operation of central heating blowers or ceiling fans.
The most efficient and successful method for overall heat distribution is a ceiling fan - we recommend this method for the owner who wishes to
maximize hot air distribution and efficient utilization of heat.
The heat input of the Stove can be reduced by slowly turning the Hi/Lo temperature knob on the front of the gas
valve counterclockwise from "Hi" to "Lo". The blower can also be turned down.
Figure 1: Hi/Lo Temperature Knob
ELECTRICAL REQUIREMENTS:
The blower requires a 115 volt electrical service supplied at the Stove location at the time of installation.
The blower must be electrically grounded in accordance with local codes or in the absence of local codes, with the National
Electric Code ANSI/NFPA 70-1987 (CSA C22.1-Canadian Electrical Code) or most current edition. The blower is equipped
with a three-prong (grounding) plug for your protection against shock hazard and should be plugged directly into a properly
grounded three-prong receptacle. DO NOT CUT OR REMOVE THE GROUNDING PRONG FROM THIS PLUG!
If an optional thermostat is being used, thermostat wire should be run from desired thermostat location (or "on/off" switch) to the
terminals located on back of pedestal--See optional thermostat installation section. An inlet hole is provided on the rear of the
pedestal for electrical and gas connections.

5
MENDOTA MEDALLION
MENDOTA DIRECT VENT FREESTANDING GAS STOVE
SPECIFICATIONS & CLEARANCES
Figure 2: Specifications & Clearances

6
INSTALLATION INSTRUCTIONS
The Mendota Stoves must be installed in accordance with local codes, if any, if not, follow the current edition of ANSI Z223.1
(1998 US Installation) or CAN/CGA B149 (Canadian Installations). For mobile home installation, install per the manufactured
home construction and safety standard, title 24 CFR, part #3280 (U.S.) or CAN/CSA Z240 MH (Canada).
The SDV Stove must be installed by a qualified Mendota approved service person.
1. Carefully unpack the stove. Inspect packaging for loose parts. You should find a trivet plate.
2. Position stove in its final desired location [See Page 4]. Be sure to maintain minimum clearances to
combustibles. Check to be sure all venting restrictions and requirements are being followed (See Pg. 7-16).
Circulating room air enters the fan through the back of the pedestal. Carefully check to be certain that
nothing blocks air entry to this area. Lower front door must also be free to open easily for inspection and
servicing of the burner system.
CAUTION: When the Stove is installed directly on carpeting, vinyl or other combustible material other than
wood flooring, the Stove MUST be installed on a metal or wood protection panel extending the full width
and depth of the Stove.
3. Remove front glass window/door by releasing the 4 turn latches behind side doors (rotate latches counter
clock-wise and pull outward) and carefully sliding glass door forward.
4. You are now ready to hook up the gas supply. Be sure gas plumbing instructions [page 17 & 18] and all
state and local codes are carefully followed.
5. Use approved flexible gas connection or rigid piping [depending on state & local codes] to attach burner to
gas supply. Be sure correct size IPT black iron gas supply line is used [See Table 1: Gas Supply Line Sizing
on page 17]. CAREFULLY CHECK FOR GAS LEAKS.
6. Connect gas supply line to 3/8" inlet nipple on the rear of the stove pedestal.
7. To use the blower there must be a 115 Volt electricity source within 5' of Stove. (See Pg. 4 & Pg. 26)
IMPORTANT: Any safety screen, guard, glass, grill, pressure relief cap, etc. removed for servicing a
fireplace/stove must be replaced prior to operating the fireplace/stove.
BLOWER OPERATION
The Mendota SDV30 Stove is designed so the blower operates automatically when main burner is on and rheostat is “on”. The
blower output can be regulated with the rheostat (included). NOTE: There will be a time delay in blower operation during
"heat-up" (approx. 1/2 hour) and extended blower operation during "cool-down" of unit. (approx. 1/2 hour)
OPERATION DURING POWER OUTAGES
The stove is designed to operate during power outages.

7
EXTERIOR VENT LOCATIONS AND RESTRICTIONS
Figure 3: Exterior Vent Locations
∨
∨∨
∨ - Vent Terminal ∧
∧∧
∧ - Air Supply Inlet ≡
≡≡
≡ - Area where terminal is not permitted
A = Clearance above grade, verandah, porch, deck, or balcony
(*12 inches (30 cm) minimum) H = *Not to be installed above a meter/regulator assembly within 3
feet (90 cm) horizontally from the center-line of the regulator
B = Clearance to window or door that may be opened
(*12 inches (30 cm) minimum) I = Clearance to service regulator vent outlet (*6 feet (1.8m)
minimum)
C = Clearance to permanently closed window (minimum 12
inches (30 cm) recommended to prevent condensation on
window)
J = Clearance to non-mechanical air supply inlet to building or the
combustion air inlet to any other appliance.
(*12 inches (30 cm) minimum)
D = Vertical clearance to ventilated soffit located above the
terminal within a horizontal distance of 2 feet (60 cm)
from the center-line of the terminal (18 inches (46 cm)
minimum)
K = Clearance to a mechanical air supply inlet (*6 feet (1.8 m)
minimum)
E = Clearance to unventilated soffit (12 inches (30 cm)
minimum) L = † Clearance above paved side-walk or a paved driveway
located on public property (*7 feet (2.1 m) minimum)
F = Clearance to outside corner - 6 inches (15 cm) M = Clearance under verandah, porch, deck, or balcony (*12 inches
(30 cm) minimum ‡)
G = Clearance to inside corner - 12 inches (30 cm)
† A vent shall not terminate directly above a side-walk or paved driveway which is located between two single family dwellings
and serves both dwellings.
‡ Only permitted if verandah, porch, deck, or balcony, is fully open on a minimum of 2 sides beneath the floor.
* As specified in CGA B1:19 Installation Codes (1991). Note: Local codes or regulations may require different clearances.

8
FLUE VENTING INSTRUCTIONS
The Mendota Stove must be vented using the Mendota/Dura-Vent venting system. All warranties will be voided
and serious fire, health or other safety hazards may result from any of the following actions: Instal-lation of any
damaged component; unauthorized modification of vent system; installation of stove and vent system by
unauthorized personnel; and vent system installation of any components not manufactured or approved by Simpson
Dura-Vent or Mendota; failure to meet all clearance requirements; failure to properly twist-lock all components.
Consult local building codes before beginning the installation.
WARNING
Always maintain required clearances (air spaces) to combustibles to prevent a fire hazard. Do not fill air spaces with
insulation. Check installation instructions for minimum clearance requirements between the outer walls of the vent
pipe and nearby combustible surfaces. Be sure to check the vent termination clear-ance requirements from decks,
windows, soffitts, gas regulators, air supply inlets, and public walkways, as specified in these installation
instructions and local building codes (See page 7).
The gas appliance and vent system must be vented directly to the outside of the building, and never attached to a
chimney serving separate solid fuel or gas burner appliance. Each direct vent gas appliance must have its own
separate vent system. Common vent systems are prohibited.
Do not recess vent termination into a wall or siding.
WE STRONGLY RECOMMEND THAT FIXED LENGTH PIPE SECTIONS BE USED IN PLACE OF
TELESCOPING SECTIONS WHENEVER POSSIBLE
Note: When using Dura-vent DV pipe you must use a silicate stove masonry sealant [Millpak Sealant
#65-06-00909] on all inner pipe joints. On the exterior (air intake) pipe joints, high temperature foil
tape may be used instead of the masonry sealant. Contact your dealer to obtain this sealant material.
DO NOT SEPARATE TELESCOPING SECTIONS. THEY MUST BE USED AS COMPLETE
ASSEMBLIES.
SAFETY PRECAUTIONS FOR THE INSTALLER
1. Wear gloves and safety glasses for protection.
2. Exercise extreme caution when using ladders or on roof tops.
3. Be aware of electrical wiring locations in walls and ceilings.
COMPONENT "TWIST-LOCK" CONNECTION PROCEDURE
Dura-Vent pipe and fittings are designed with special twist-lock connections. Twist-lock procedure is as follows:
four (4) indentations, located on the female ends of pipes and fit-
tings are designed to slide straight in to the male ends of the adjacent pipes and fittings, by orienting the four pipe
identifications so that they match and slide into the four entry slots on the male ends.
Push the pipe sections completely together then twist-lock one section
clockwise, approximately 1/4 turn until the two sections are fully locked. The
female locking lugs will not be visible from the outside on the black pipe or
fittings. They may be located by examining inside of the female ends.
Figure 4: Twist-Lock Piping

9
VENTING COMPONENT INSTALLATION SEQUENCE AND PARTS LIST
ITEM MENDOTA DURAVENT DESCRIPTION
1 45-01-00108 908 6" RIGID VENT STACK (Galvanized)
45-01-00101 908B 6" RIGID VENT STACK (Black)
45-01-00109 907 9" RIGID VENT STACK (Galvanized)
45-01-00102 907B 9" RIGID VENT STACK (Black)
45-01-00081 906 12" RIGID VENT STACK (Galvanized)
45-01-00090 906B 12" RIGID VENT STACK (Black)
45-01-00074 904 24" RIGID VENT STACK (Galvanized)
45-01-00091 904B 24" RIGID VENT STACK (Black)
45-01-00075 903 36" RIGID VENT STACK (Galvanized)
45-01-00092 903B 36" RIGID VENT STACK (Black)
45-01-00076 902 48" RIGID VENT STACK (Galvanized)
45-01-00093 902B 48" RIGID VENT STACK (Black)
45-01-00098 911B 11 - 14 5/8" ADJUSTABLE VENT PIPE (Black)
45-01-00146 911 11 - 14 5/8" ADJUSTABLE VENT PIPE (Galvanized)
45-01-00147 917 17 - 24" ADJUSTABLE VENT PIPE (Galvanized)
45-01-00148 917B 17 - 24" ADJUSTABLE VENT PIPE (Black)
2 45-01-00096 990 90º ELBOW (Galvanized)
45-01-00087 990B 90º ELBOW (Black)
3 45-01-00085 945 45º ELBOW (Galvanized)
45-01-00097 945B 45º ELBOW (Black)
45-01-00142 945G 45º SWIVEL ELBOW (Galvanized)
45-01-00143 945BG 45º SWIVEL ELBOW (Black)
45-01-00144 990G 90º SWIVEL ELBOW (Galvanized)
45-01-00145 990BG 90º SWIVEL ELBOW (Black)
4 45-01-00088 940 ROUND CEILING SUPPORT BOX/WALL THIMBLE
5 45-01-00094 3941 CATHEDRAL CEILING SUPPORT BOX
6 45-01-00095 950 VINYL SIDING STANDOFF
7 45-01-00129 985 HORIZONTAL VENT CAP (Square-High Wind)
8 45-01-00086 963 CEILING FIRESTOP SPACER
9 45-01-00083 145F ATTIC INSULATION SHIELD (12")
10 45-01-00078 943 ROOF FLASHING 0/12 THRU 6/12
45-01-00079 943S ROOF FLASHING 7/12 THRU 12/12 & OVER
11 45-01-00077 953 STORM COLLAR (Galvanized)
12 45-01-00069 991 VERTICAL VENT CAP(High Wind)
13 45-01-00084 989 SUPPORT BAND (Wall strap)
45-01-00099 981 HORIZONTAL SNORKEL TERMINATION CAP (36")
45-01-00100 982 HORIZONTAL SNORKEL TERMINAL CAP (14")
45-01-00106 931 CHIMNEY CONVERSION KIT A Must Buy With 45-01-69 & 45-01-114
45-01-00107 932 CHIMNEY CONVERSION KIT B Must Buy With 45-01-69 & 45-01-114
45-01-00110 933 CHIMNEY CONVERSION KIT C Must Buy With 45-01-69 & 45-01-114
45-01-00140 934 MASONRY CHIMNEY KIT Must Buy With 45-01-69 & 45-01-114
45-01-00104 3951 BRASS TRIM - COLLAR
45-01-00105 3960 BRASS TRIM FOR CATHEDRAL SUPPORT
45-01-00114 2281 35' FLEXIBLE CHIMNEY LINER EXTENSION
HORIZONTAL TERMINATION VERTICAL TERMINATION
Figure 5: Flue Venting Components
If adjustable – telescoping – pipe sections must be used, Millpak 2000° SILICATE STOVE
MASONRY SEALANT (part #65-06-00909)
* NOTE: DO NOT SEPARATE TELESCOPING SECTIONS.
THEY MUST BE USED AS COMPLETE ASSEMBLIES.

10
FLUE VENTING REQUIREMENTS
There are two basic types of venting system installations
A. HORIZONTAL THROUGH THE WALL TERMINATION
1) Minimum rise
2) Elevated rise
B. VERTICAL THROUGH THE ROOF TERMINATION
1) Through typical roof
2) Through existing chimney
Figure 5: Minimum-Maximum Vent Requirements
11
NOTES

12
A-1 MINIMUM RISE THROUGH-THE-WALL VENTING
The minimum vertical rise for vent installation through the wall is 19½" from the top of the stove to the
centerline of the 90º elbow. This distance can be achieved by using a 12" length of vent pipe between the stove
collar and the elbow (see Figure 2: Specifications & Clearances, page 5). NOTE: We recommend always
using the most vertical rise the installation will allow. This maximizes efficiency and flame appearance. This
is especially true for LP gas installations and for installations at higher altitudes. ALWAYS MAINTAIN 1"
CLEARANCES FROM VENT PIPE TO COMBUSTIBLES. Do not fill air spaces with insulation or other
material.
The Medallion Stove must be installed by a qualified Mendota approved service person.
1. Position stove in desired location. See page 7 for guidelines on proper vent cap placement on the exterior
of home. Check to determine if wall studs are in the way when venting system is attached. If this is the
case, you may want to adjust the stove location.
2. Measure up 19½" from top of Stove or 47" from finished floor. (See Figure 2: Specifications & Clearances,
Page 5) and mark wall directly at the center of where the vent pipe will penetrate the wall.
3. Cut and frame a 10" x 10" opening in the wall. The hole must be positioned so the vent system will run
level or have a ¼ " rise AND be perpendicular to the wall. The height of the opening must be located to
meet all local and national building codes and not allow the termination to be easily blocked or obstructed.
If wall being penetrated is non-combustible material, i.e. masonry block, brick, etc., a 7-inch diameter hole
is acceptable.
4. Assemble the components to the stove adapter with pipe seams oriented toward the wall or floor - as much
out of view as possible. Be sure all component connections are in their fully twist-locked, leak tight
position.(See page 8 "TWIST LOCK CONNECTION PROCEDURE") Be sure 2000° sealant is used on the
inner pipe joints of all adjustable (telescoping) pipe sections.
5. The length of the horizontal piece that fits through the wall will be determined by the thickness of the wall.
When installed, the end of the horizontal piece must be flush with the exterior wall of the home. There
MUST be a minimum of 1" air space clearance to combustibles from all vent pieces.
6. Before connecting the horizontal run of vent pipe to the vent terminator, slide the black decorative wall
thimble cover over the vent pipe on the inside of the wall.
7. From the exterior of the home, slide the horizontal vent cap over the end of the horizontal pipe and tightly
secure the cap to the wall with screws. Seal with a high quality caulking.
NOTE: Do not recess vent termination cap into the wall or siding.
IMPORTANT: REFER TO DRAWINGS ON PAGES 9 & 10 WHILE FOLLOWING THESE INSTRUCTIONS.
*NOTE: DO NOT Separate TELESCOPING TELESCOPING SECTIONS USE AS COMPLETE ASSEMBLIES.

13
A-2 ELEVATED RISE THROUGH-THE-WALL VENTING
The maximum vertical rise is 24 ft. when used with a maximum horizontal run of 12 ft. For other venting
configurations within these maximum limits (see Figure 5, page 10).
NOTE: The horizontal run of vent pipe must be level or have a ¼" rise for every 1' of run toward the
termination. Never allow the vent to run downward. This will cause high temperatures and the
possibility of a fire.
USING OFFSETS AND RETURNS: A single 90º vertical-to-horizontal elbow is already calculated into the
allowable maximum 12' horizontal run. Each additional 90º elbow reduces the maximum horizontal distance
by 5'. Example: by using three total 90º elbows the maximum horizontal distance has been reduced to 2 ft. (3 -
1 = 2 elbows x 5' = 2'; 12' Max. - 10' of elbows = 2' of horizontal run). Note: 45º elbows reduce the maximum
horizontal distance by 3 '. Always maintain the proper rise (6' for each elbow used after the initial elbow) for
the calculated total run when using elbows.
SUPPORT: Horizontal runs will require one vent support (part # 45-01-00084) for every 3 ft. of pipe.
CAUTION: If a vertical-to-horizontal elbow is enclosed within a wall, floor or ceiling, a top air space
clearance of 3" must be maintained.
Be sure to maintain a minimum of 1" air space clearances to any combustibles.
IMPORTANT: REFER TO DRAWINGS ON PAGES 9 & 10 WHILE FOLLOWING THESE INSTRUCTIONS.
The Medallion Stove must be installed by a qualified Mendota service person.
1. Position stove in desired location. See page 7 for guidelines on proper vent cap placement on exterior of
home. Check to determine if wall studs are in the way when vent system is attached. If this is the case you
may want to adjust the stove location.
2. Locate position where vent pipe will pass through any ceilings and will penetrate the outside wall. Since
vent pipe sections "overlap" we suggest preassembling and measuring the total vent pipe run so you can
more accurately locate the point where the vent pipe will penetrate the outside wall. Be sure components
are properly twist locked and leak proof. (See Pg. 8 “TWIST LOCK PROCEDURE").
3. Cut and frame a 10" x 10" opening in the outside wall and in any ceiling openings. The outside wall hole
must be positioned so the vent system will run level or have a ¼ " on rise AND be perpendicular to the wall.
The height of the opening must be located to meet all local and national building codes and not allow the
termination to be easily blocked or obstructed. A ceiling firestop spacer (part # 45-01-00086) is required at
any floor (ceiling) opening.
4. Connect vent pipe to the stove adapter on top of stove vent outlet.
5. The horizontal pipe must end flush with the exterior wall of the home. Horizontal pipe will require a proper
support (part # 45-01-00084) every 3 ft. of vent pipe. THERE MUST BE A MINIMUM OF
1" CLEARANCE TO COMBUSTIBLES FROM ALL VENT PIECES. Use decorative wall thimble kit
(Part # 45-01-00088) on inside of wall before connecting horizontal run to vent termination.
6. From the exterior of the home, slide the horizontal vent cap over the end of the horizontal pipe and tightly
secure the vent cap to the wall with screws. Seal with high quality caulking.
NOTE: Do not recess vent termination cap into the wall or siding.

14
B - 1 VERTICAL THROUGH-THE-ROOF VENTING
The maximum vertical run of vent pipe is 36 ft. from the top of the stove. The stove will support a run of a
maximum of 36 ft. Maintain 1" air space clearances on all sides of vents.
The SDV-30 Stove must be installed by a qualified Mendota approved service person.
1. Place the stove in its desired location. Drop a plum bob from the ceiling to the position of the stove flue
exit. Mark the location where the vent will penetrate the ceiling. Drill a small hole at this point. Next,
drop a plum bob from the roof to the hole previously drilled in the ceiling. Mark and drill the spot
where the vent will penetrate the roof. Determine if ceiling joists, roof rafters or other framing will
obstruct the venting system. You may wish to relocate the stove or to offset, to avoid cutting load
bearing members.
2. Cut and frame a 10" x 10" opening in the ceiling centered on the hole drilled in No. 1.
3. To determine the length of the vent pipe required, measure the distance from the stove flue outlet to the
ceiling, the ceiling thickness, the vertical rise in the attic or second story and allow sufficient vent height
above roof line. For two story installations, firestops are required at each floor level. If an offset is
needed in the attic, additional pipe and elbows will be required.
4. Assemble the desired lengths of vent pipe and elbows to reach from the stove flue outlet through the
Round Ceiling Support Box (Part #45-01-00088). Ensure that all pipe and elbow connections are in
their fully twist-lock position. Maintain 1" airspace clearances to combustibles.
5. Cut a 10" x 10" opening in the roof, centered in the small drilled hole placed in the roof in No. 1. The
opening should be a sufficient size to meet all clearance requirements. Continue to assemble lengths of
pipe and elbows necessary to reach the Ceiling Support Box up through the roof line. Galvanized pipe
and elbows may be utilized in the attic, as well as above the roof line. The galvanized finish is desirable
above the roof line due to its higher corrosive resistance.
a) If an offset is necessary, it is important to support the vent pipe every 3 ft. to avoid excessive stress on the elbows and
possible separation. Wall straps are available for this purpose.
b) Whenever possible, use 45º elbows instead of 90º elbows. The 45º elbow offers less restriction to the flow of flue
gases and intake air. If a 90º elbow is necessary there must be a one foot minimum rise from the 90º elbow to the vent
cap or to the next offset. A maximum of two 90ºelbows are allowed per installation.
6. Slip the flashing over the pipe sections protruding through the roof. Secure the base of the flashing to
the roof with roofing nails and seal flashing to roof. Ensure the roofing material overlaps the top edge
of the flashing. Verify you have at least the minimum clearance to combustibles at the roof line.
7. Continue to add pipe sections until the pipe and the vent cap meet the minimum building code
requirements, as outlined in No. 8 on the following page.
a) For multi-story vertical installation, a ceiling firestop (part # 45-01-00086) is required at the second floor and any
subsequent floors. The opening should be framed to 10" x 10" inside dimensions as described in step No. 5.
b) Any occupied areas above the first floor, including closets and storage spaces, which the vertical vent passes through,
must be enclosed. The enclosure may be framed and sheet rocked with standard construction materials, however, be sure
to maintain minimum allowable clearances between the outside of the vent pipe and the combustible surfaces of the
enclosure.
IMPORTANT: REFER TO DRAWINGS ON PAGES 9 & 10 WHILE FOLLOWING THESE INSTRUCTIONS.

15
8. Height "*H" of top of vent cap can be determined as follows:
"H" DIMENSION
ROOF PITCH FEET METERS
FLAT to 6/12 1 .3
7/12 to 9/12 2 .6
10/12 to 12/12 4 1.2
13/12 to 16/12 6 1.8
17/12 to 21/12 8 2.4
9. Complete installation with storm
collar and vent cap.
CATHEDRAL CEILING INSTALLATION
Follow installation procedures outlined in No. 1 and No. 2 under "B-1 VERTICAL VENTING". Using the
plumb bob, mark the centerline of the venting system on the ceiling and roof and drill a small hole through
the ceiling and roof at this point. From the roof, locate the drill hole and mark the outline of the Cathedral
Ceiling Support Box (part #45-01-00094).
Remove shingles or other roof covering as necessary to cut the rectangular hole for the Support Box. Cut
the hole 1/8" larger than the Support Box outline.
Lower the Support Box through the hole in the roof until the bottom of the Support Box protrudes at least 2
inches below the ceiling. Align the Support Box both vertically and horizontally with a level. Temporarily
tack the Sup-port Box in place through the inside walls and into the roof sheathing.
Using tin snips, cut the Support Box from the top corners down to the roof line, and fold the resulting flaps
over the roof sheeting. Before nailing it to the roof, run a bead of no-hardening mastic around the top edges
of the Support Box, to make a seal between the Box and the roof. Clean out any combustible material from
inside the Support Box.
Complete the Cathedral Ceiling Installation by following the same procedures outlined in No. 4 through
No. 9 under "B-1 VERTICAL VENTING" on page 14.

16
B - 2 VERTICAL THROUGH-THE-ROOF VENTING USING AN EXISTING "CLASS A"
METAL CHIMNEY.
If you are replacing a wood stove you may use most existing "Class-A" metal chimneys as part of the venting system
for your Mendota DV Stove. You must incorporate the special Dura-Vent Retro Adapter Kit into existing chimney.
The concept of the direct vent retrofitting is to mate the appropriate adapter to a section (cut to length) of 4-inch
diameter aluminum flex pipe. This is then passed down through the center of the existing chimney system. Three
sizes of Adapters are available which should accommodate most sizes and makes of chimney systems. The
Retrofitting Connector (909B) is then attached to the bottom of the flex pipe. Both the Top Adapter, and the Retro-
fitting Connector are attached to the existing chimney with sheet metal screws. The stove is then connected to the
chimney with black direct vent pipe sections, including an adjustable length
section.
1. After woodstove is removed, carefully sweep the existing chimney.
2. Position stove beneath existing vent system. Make sure the clearances
required are maintained.
3. Remove existing chimney cap. Measure the distance from the top end
of the chimney to the bottom of the ceiling support box, add 3" to this
measurement and cut a section of 4" flex pipe to that length.
4. Connect the end of flex pipe section to the under side of the Adapter
you have selected, using (3) #8 sheet metal screws.
5. Pass the flex pipe down through the center of the chimney system and
center the Adapter on the top of the chimney pipe. Drill (4) 1/8"
diameter holes through the Adapter and into the chimney top. Insure
that you are in fact drilling into the metal on the chimney. Twist lock
the vertical top (0983) onto the Adapter.
6. Pull the flex pipe down through the chimney support box until it
protrudes approximately 3". Connect the flex pipe to the Retro
7. Connector by slipping it into the 4 3/4" diameter sleeve on the top
side of the Connector. Use (3) #8 sheet metal
screws to assemble these two parts.
8. Push the flex pipe back up into the ceiling support box, center the
Retro Connector and screw it into the support box with #8 sheet
metal screws furnished. The holes in the Retro Connector are pre-
punched.
9. The connection between the stove and the Retro Connector may be
completed with section of black direct vent pipe together with an
adjustable length.
B - 3 VERTICAL THROUGH-THE-ROOF VENTING
USING AN EXISTING MASONRY CHIMNEY.
A flexible vent kit is available for converting an existing masonry chimney to
venting a SDV Direct Vent Stove. The kit consists of a heavy duty .010
aluminum flexible liner, masonry flashing, and a vent cap assembly. The chimney
liner kit is available in a 35 ft. Length. Follow installation procedure in B-2
above.
IMPORTANT: Always use Mendota approved direct vent kit parts and vertical chimney caps when installing the Mendota direct
vent kits in class A and masonry chimneys. The vent kits are designed for exclusive use with Mendota Direct Vent Stoves.
IMPORTANT: Always use
Mendota approved direct vent
parts and vertical chimney caps.

17
GAS SUPPLY REQUIREMENTS
Correct gas pressure and proper gas supply line sizing are imperative to the successful performance of your Mendota gas
stove. Be sure the gas supplier or plumber carefully checks for correct gas pressure and gas line sizing when installing the
stove.
It is critical to carefully check for gas leaks when hooking up the stove -- check with soap & water solution.
Be sure to install flex gas line with brass-to-brass fittings to prevent gas leaks at connections.
Gas supply piping must include a drip leg to eliminate the possibility of contaminants entering the gas train. Adhere
strictly to local and national codes.
Note: when converting to LP from natural gas, or natural to LP the conversion kit shall be installed by a qualified service
agency in accordance with the manufacturer's instructions and all applicable codes and requirements of the authorized
having jurisdiction. If the information in these instruction is not followed exactly, a fire, explosion or production of
carbon monoxide may result causing property damage, personal injury or loss of life. The qualified service agency is
responsible for the proper installation of this kit. The installation is not proper and complete until the operation of the
converted appliance is checked as specified in the owner instructions supplied with the kit.
GAS SUPPLY LINE SIZING
The Mendota Gas Stove comes equipped with a 3/8" N.P.T. (1.Ocm) inlet nipple on the back of the pedestal.
The proper gas line diameter must be selected to run from the supply regulator to the Stove. Refer to the following table
for proper gas pipe diameters. Table 1: Gas Supply Line Sizing
PIPE LENGTH
(FEET) SCHEDULE 40 PIPE
INSIDE DIA. TUBING, TYPE L
OUTSIDE DIA.
NAT. L.P. NAT. L.P.
0-10 1/2" (1.3cm) 3/8" (1.0cm) 1/2" (1.3cm) 3/8" (1.0cm)
10-40 1/2" (1.3cm) 1/2" (1.3cm) 5/8" (1.6cm) 1/2" (1.3cm)
40-100 1/2" (1.3cm) 1/2" (1.3cm) 3/4" (2.0cm) 1/2" (1.3cm)
100-150 3/4" (2.0cm) 1/2" (1.3cm) 7/8" (2.3cm) 5/8" (1.6cm)
150-200 3/4" (2.0cm) 1/2" (1.3cm) 7/8" (2.3cm) 3/4" (2.0cm)
NOTE: Some areas allow copper tubing or galvanized pipe - check with local approval agencies and codes. NEVER use plastic pipe.
GAS PRESSURE CHECKING REQUIREMENTS
Brass fittings for checking gas pressure are located on main gas valve. A qualified installer should use then fittings for
setting the correct gas pressure during initial installation. (See “INLET GAS SUPPLY PRESSURE”, page 18).
The Appliance and its individual shutoff valve must be disconnected from the gas supply piping system during any
pressure testing of that system at test pressures in excess of 1/2 PSIG (3.5 kPA).
The appliance must be isolated from the gas supply piping system by closing its individual manual shutoff valve during
any pressure testing of the gas supply piping system at test pressures equal to or less than 1/2 PSIG (3.5 kPa).
FIGURE 6: Piping Detail
NOTE: DO NOT DAMAGE OR KINK THE FLEX
CONNECTOR, CHECK FOR GAS LEAKS WITH
SOAP & WATER SOLUTION.
NOTE: 3/8” FLEX OR RIGID PIPINGMAY BE
USED TO CONNECT GAS SUPPLY TO UNIT.
NOTE: BE SURE TO INSTALL FLEX GAS HOSE
WITH BRASS-TO-BRASS FITTINGS TO PREVENT
LEAKS AT CONNECTIONS

18
GAS PRESSURE REQUIREMENTS
A MAJOR CAUSE OF OPERATING PROBLEMS WITH GAS APPLIANCES CAN BE IMPROPER GAS PRESSURE!
Such problems as changes in flame color or configuration, gas pilot or burner outages, intermittent
operation, changes in heat output, excessive burner noise, etc. are nearly always the result of changes in gas
pressure or improper gas pressure at the time of the installation. The most important item to check during
the installation and the first thing to check when problems occur is gas pressure!
Gas supplies normally enter a residence at 1/2 PSI (13" - 15" W.C.) (3. KPA). A regulator is then placed
inside the residence which drops this pressure to 7" W.C. (1.8 KPA) (Nat. Gas). This "inches to inches"
regulator is of adequate capacity to service the gas appliances (such as dryer, furnace, etc.). If this
regulator's capacity is not sufficient to add the Gas Stove, an additional "inches to inches" regulator must be
installed for the Stove. EXCEPTION: Some codes allow 2 PSI (1.4KPA) supplies to enter the residence, in
which case "pounds to inches" regulators are used.
The following table provides information on correct gas pressure requirements. Be sure your gas supplier
or plumber carefully follow this table.
INLET GAS SUPPLY PRESSURE
DESIRED
PRESSURE MINIMUM
PRESSURE MAXIMUM
PRESSURE MANIFOLD
PRESSURE * AIR SHUTTER
POSITION
NATURAL GAS 7.0" W.C. 5" W.C. 11" W.C. 3.5" W.C. 1/8 " OPEN
L.P. GAS 11.0" W.C. 11" W.C. 13.0" W.C. 10.0" W.C. 1/2" OPEN
* TURN GAS VALVE KNOB TO "HIGH" POSITION. GAS PRESSURES MAY VARY PLUS OR MINUS 5%
* Manifold pressure must be taken at the outlet "manifold" tap and inlet pressure at "inlet" tap with the burner operating
by a qualified installer (see Figure 7: Pressure Test Port).
NOTE: for high altitude (above 5,000 feet) some variations in air shutter settings may be required. Per CAN/CGA 2.17,
if the appliance must be converted for use at high altitude, the following information sticker must be filled out by the
installer and adhered near the appliance rating plate:
Orifice size__________ Manifold Pressure____________ Input (Btu/h)_________________
Date of conversion_____________ Fuel Type___________________ Converted by________________
Figure 7: Pressure Test Port

19
The following Check Off Lists must be completed prior to final operation of the Stove, or
manufacturer's warranty and liabilities will be voided:
INSTALLATION CHECK OFF LIST
! Co-axial vent rigid pipe, wall vent cap or roof vent cap must be installed by a
Mendota approved person in accordance with instructions. All joints must be
secured, "twist-locked" and leak-proof.
! Horizontal or vertical vent cap must be installed "right-side-up" and tightly sealed to
structure per instructions. Vent Caps must be Mendota approved Do not recess vent
cap into the wall or siding.
! Proper exterior and interior clearances for vent systems and locations for wall vent
cap/roof vent cap must be maintained (See pages 8-16).
! Carefully check for correct gas pressure, proper size gas lines (see page 17 & 18) and
for gas leaks.
! 115 V electrical service and gas supply must be installed in accordance with
instructions and local and national codes.
LIGHTING CHECK OFF LIST
! All items on "Installation Check Off List" (see above) must be completed.
! If thermostat or remote control is used, connect to terminals on rear of stove pedestal.
! System millivolt readings (see Pg. 27) must be taken by a qualified installer.
CAUTION: Pilot flame must register a minimum of 250 millivolts.
! Check air shutter opening - 1/8" to 1/4" Nat. gas or 1/2" LP gas (see page 24).
! Carefully follow all Lighting and Log Installation Instructions.
! Make certain that burner lights immediately and flame runs promptly around "curve"
in burner and lights entire burner.
DO NOT proceed with operation unless burner cycles "on/off" without delays.
! Make certain that the flame is "stable" and does not "lift" off burner. If flame
lifts off burner, turn unit off and check that all vent pipes are "twist locked" and leak
proof and vent cap is "right side up".
DO NOT proceed with operation if flame is "lifting off" burner.
! Insure proper placement of logs and coals (See Pg. 22).

20
LIGHTING INSTRUCTIONS
IMPORTANT: Be sure all items on "LIGHTING CHECK OFF LIST" [Pg. 19] have been completed!
CAUTION: If the pilot goes out, be sure to wait a minimum of five minutes before relighting - be sure to always
remove the glass before relighting the pilot.
1. Remove Glass. - ALWAYS LIGHT PILOT WITH GLASS
REMOVED!
2. Make sure any gas supply shut-off cocks are open and
On-Off Switch or thermostat is "OFF".
3. Push in Gas Cock Dial slightly and turn clockwise to "OFF".
NOTE: Dial cannot be turned from "PILOT" to "OFF" unless
dial is pushed in slightly. DO NOT FORCE!
4. Wait five [5] minutes to allow gas which may have
accumulated in main burner compartment to escape. FIGURE 8: Gas Valve
If you smell gas STOP!
5. Turn Gas Cock Dial Counterclockwise to "PILOT" position [See FIGURE 8].
6. Depress Gas Cock Dial and push in red Piezo igniter button. Once pilot ignites, continue depressing dial for
about 1/2 minute. If pilot does not remain ignited, repeat operation allowing a longer period before releasing
Gas Cock Dial.
IMPORTANT: After pilot is lit, Millivolt readings & gas pressure should be taken by qualified installer.
Pilot flame must register a minimum of 250 millivolts.
7. After pilot is lit and before installing logs, turn Gas Dial and Rocker Switch to "ON" and "cycle" the burners
on/off to make certain they ignite promptly and that the flame runs smoothly around entire burner.
NOTE: Logs will produce a strong acrid odor on initial contact with flames (about 2 hrs.).
8. With pilot operating, install logs and coals [See Pg. 22]. With logs/coals in place, "cycle" the burner again to
make sure of prompt ignition of burner, that flame runs smoothly around burner and does not "lift off" burner.
NOTE: Flames may not come through coals until glass is installed and logs are "hot" (approx. 10 Min.). To
make final flame color adjustment wait 15-20 minutes, with glass installed. [See Pg. 26].
9. Reinstall glass. In daily operation, always light burner with glass in place.
10. When heat or a log fire is desired, turn Gas Dial counterclockwise to "ON". Rocker Switch, Thermostat or
Remote Control must also be turned "ON".
11. Main burner should now light IMMEDIATELY and flame should not "lift off" burner. If there is any delay in
ignition or if flame is "lifting off" burner, turn off burners and carefully check for proper installation of
logs/coals, proper pilot flame impingement on burners and thermopile, proper vent system installation. Logs and
coals must not block pilot flame or main burner flame. Vent pipes must be leak proof.
DO NOT PROCEED WITH OPERATION UNLESS BURNERS "CYCLE" ON/OFF WITHOUT DELAYS!
12. To reduce heat output, turn Hi/Lo Knob counterclockwise to desired temperature [See FIGURE 8].
NEVER "over fire" by increasing BTUH above nameplate specifications.
NEVER turn down pilot flame below the required 250 millivolts.
13. Open windows for first two hours of operation.
Notice: Initial start-up will cause some NON-TOXIC "off gassing" of adhesives, binders, paint, etc. Most
nuisance odors will be eliminated after the first 2 hrs. of operation, however, slight amounts may be present
during the first 24 hrs.
SHUT DOWN PROCEDURE:
1. Turn Rocker Switch, Remote Control or Thermostat to "OFF". Pilot will remain lit for return to normal service.
2. For complete shutdown turn Rocker Switch and Gas Cock Dial [FIGURE 8] to "OFF".
FIGURE 8: Gas Valve

21
Log Assembly View
Figure 9: Log Module

22
LOG INSTALLATION
The burner is attached to a metal air plenum (See drawing below). The Burner/Air Plenum Assembly is
designed to be placed in the stove firebox as a one piece unit. The log module for the Stove is a one piece unit
for ease of installation and maximum flame ambiance.
1. Pull open magnetic hinged side door panels located on each side of stove.
Turn the four latches counterclockwise and slide glass door towards you, and off stove. Set aside.
2. Carefully unpack the 4-Log Module. NOTE: Logs are very fragile - handle with care.
3. Place slot in bottom of rear log over. Hanger rest located behind rear burner tube.
4. Carefully place coals in and around log rack and in front of burner. Place rockwool embers on top of coals,
sparingly.
5. Light pilot and cycle on main burner to insure the flame smoothly runs around the curved section of the
burner and lights front burner with no delays. DO NOT proceed with operation unless burner lights with no
delays. It may be necessary to re-position logs or coal beds and to check pilot flame with millivolt meter.
Logs or coals must not obstruct flame movement.
6. Check that flame is "stable" and not "lifting" from burner. If flame "lifts" off burner, turn off unit and check
that all vent pipes are "twist-locked" and leak proof and vent cap is "right-side-up."
DO NOT proceed with operation if flame lifts off burner or if burner does not light IMMEDIATELY.
7. Reinstall glass front and lock in place with the four latches.
NOTE: DO NOT PAINT BURNER - BURNER PORT AREA IS INTENTIONALLY LEFT UNPAINTED.

23
OPTIONAL REMOTE "ON-OFF" WALL SWITCH,
REMOTE CONTROL OR THERMOSTAT INSTALLATION
The Mendota Stove comes equipped with an "ON-OFF" Rocker Switch. This switch is located on
the rear panel of the stove in the upper right corner. An optional "ON-OFF" wall switch, remote
control or thermostat may be purchased to operate the unit. – Leave the rocker switch in “off”
position if these items are needed.
THERMOSTAT INSTALLATION
The wall mounted thermostat should be placed in the same room as the Stove at a level which is
approximately 1/2 the ceiling height (above the reach of small children). Pick an area which
represents the best desired average room temperature. Do not place the thermostat near the Stove.
This can cause short cycling and may cause the room to stay at temperatures below desired set
point. Thermostat can be used as an "on-off" switch, by moving the thermostat temperature setting
lever to far left [OFF] or far right [ON].
NOTE: WHEN USED WITH THE OPTIONAL THERMOSTAT, ROCKER SWITCH MUST
BE IN "OFF" POSITION.
NOTE: IF THERMOSTAT IS OVER 25 FT. FROM STOVE, THE PILOT FLAME MAY NEED TO BE INCREASED UP TO
450 MILLIVOLTS.
IMPORTANT: Thermostat must be 250-750 millivolt rated.
CAUTION: BURNER SHOULD LIGHT IMMEDIATELY AFTER TURNING SWITCH OR THERMOSTAT "ON". IF BURNER
DOES NOT COME ON IMMEDIATELY TURN THE THERMOSTAT SWITCH OFF AND WAIT 60 SECONDS BEFORE
TURNING ON AGAIN. IF BURNER DOES NOT COME ON IMMEDIATELY AFTER SECOND TRY RECHECK COMPLETE
INSTALLATION OF LOGS, PILOT, ETC. TO INSURE PROPER PILOT FLAME IMPINGEMENT ON THE THERMOPILE
AND PROMPT BURNER IGNITION.
NEVER TURN BURNER ON & OFF "QUICKLY" - ALWAYS WAIT 60 SECONDS
OPTIONAL ON/OFF WALL SWITCH OR REMOTE CONTROL INSTALLATION
If Stove is not used principally as a supplementary heating appliance, it may be desirable to use a simple on/off wall
switch or a remote control. The switch may be placed wherever it is most convenient.
When using remote control be sure to hold in button firmly until Stove lights. DO NOT push button and release
quickly before Stove lights. Stove should light immediately and then button can be released. If Stove does not light
immediately, release button, wait 60 seconds and repeat lighting procedure.
NOTE: A quick disconnect terminal strip is provided on the rear pedestal panel, near the floor. The thermostat or remote wall
switch wires directly into this terminal strip. NOTE: Rear mounted "on/off" rocker switch must be in "off" position when
controlling remotely.
Use two-wire, copper lead wire per chart below and install as follows:
CAUTION: This Stove Control is a millivolt system. No additional
power supply can or should be used.
LABEL ALL WIRES PRIOR TO DISCONNECTION WHEN SERVICING CONTROLS. WIRING ERRORS CAN
CAUSE IMPROPER AND DANGEROUS OPERATION. VERIFY PROPER OPERATION AFTER SERVICING.
Figure 10: Rocker Switch
RECOMMENDED MAXIMUM
LEAD LENGTH (TWO-WIRE)
WHEN USING WALL THERMOSTAT
(CP-2 SYSTEM)
WIRE SIZE MAX. LENGTH
14 GA. 100 FT.
16 GA. 64 FT.
18 GA. 40 FT.
20 GA. 25 FT.
22 GA. 18 FT.
Figure 11: Thermostat Wiring

24
TROUBLE SHOOTING MENDOTA GAS SDV STOVE
SYMPTOM PROBABLE CAUSES CORRECTIVE ACTION
1. Thin black coating (soot)
forms on viewing glass.
A. Incorrect gas pressure
B. Not enough combustion air
Have gas supplier check for correct gas pressure (7" W.C.
Nat. Gas; 11" W.C. LP Gas).
If sooting continues open air shutter on burner (see "Gas
Flame Adjustment" below). If sooting still continues call
your Mendota dealer.
NOTE: To clean glass - remove glass and wipe glass with
cloth or paper towel.
2. Humming or whistling
coming from Stove.
A. Normal operating noise.
Some noise is normal. It is caused by the gas supply
flowing through the gas orifice. It is expected from any gas
stove. The noise can be reduced by turning the Hi/Lo Knob
on the control. Turning down the flame will reduce the heat
output of the unit.
3. A change in flame
appearance or burner
operation.
A. A change in gas pressure.
B. Carbon dirt or lint.
Have your gas supplier check for correct gas (7" W.C. Nat.
Gas; 11" W.C. LP Gas). If flame still needs adjustment see
"Flame Adjustment" below.
Clean out carbon, spider webs, lint, etc. from shutter area.
NEVER BLOCK AIR INTAKE OR OUTLET VENTS.
Figure 12: Air Shutter (Back View)
GAS FLAME ADJUSTMENT
1. Air shutter is located behind plate (held on with four screws) behind lower access door.
2. For natural gas: Push shutter all the way in, and pull back out 1/8 to ¼ inch.
3. For L.P. gas: Pull out to full out to full open position.
3. Light pilot, install logs and glass, and burn unit for 2-3 hours.
4. If flame is too "blue" push knob in (close) in small increments. NOTE: Very small changes in shutter
settings make major changes in flame.
5. If flame is too "orange" or is causing sooting on viewing glass pull shutter knob (open) in small increments
until sooting stops. NOTE: If sooting does not stop, turn off stove & call Mendota Service Person.
6. IMPORTANT: Try each new shutter setting approx. 2 hours before making additional changes.

25
CUSTOMER INFORMATION AND TROUBLE-SHOOTING
MAXIMUM ALLOWABLE SURFACE TEMPERATURE
Mendota Stove/Fireplaces comply with UL Standards for maximum surface temperatures on exposed com-
bustible surfaces adjacent to the Insert. The Maximum allowable surface temperature is 117° F. over ambient
(room) temperature. Thus, if a room is 70° – 80°, the exposed combustible surfaces immediately surrounding
the stove can have a surface temperature as high as 187° F. – 200° F. (too hot to touch).
OVER FIRING/UNDER FIRING OF BURNER
NEVER "over fire" units by adjusting gas pressure to increase BTUH above nameplate specifications. Over
firing can cause permanent damage to firebox and deterioration of parts and void warranty.
NEVER "reduce" main burner or pilot flames below required millivolts.
PILOT OUTAGE AND RE-LIGHTING -- MAINTAINING CORRECT PILOT FLAME
If pilot flame goes out always wait a minimum of five minutes before re-lighting. Always remove the glass
when lightly the pilot. The pilot flame must be checked with a millivolt meter and must always be a minimum
of 250 millivolts (See Pg. 27).
CLEANING VIEWING GLASS
The viewing glass should be cleaned periodically. Exterior glass may be cleaned with cleaner as desired.
Interior glass - use soap and water. NEVER USE ABRASIVE CLEANERS, NEVER CLEAN GLASS WHILE
OPERATING, OR WHEN GLASS IS HOT.
NOTE: Additives that are put in gas (both natural and propane) to make it smell, can be harmful to glass and
can leave a white film deposit on the glass. This deposit can be removed with cleaners such as KEL KEM
“Polish Plus” (See your dealer).
In some cases (especially propane) additives can cause “crazing” or etching on the glass. Although this is not
normal, it is not covered under the warranty. The solution may be to change propane suppliers.
Sooting is caused by improper installation or operation. At the first sign of "sooting" (usually a thin black film
on the Fireplace viewing glass or on the outside of the home around the vent cap) the unit must be immediately
turned off and the local Mendota dealer promptly informed. Mendota products are designed and tested to
operate without producing any "sooting" when installed and operated correctly. Mendota dealers will correct
"sooting" problems, but Mendota and their dealers are not responsible for damage caused by excessive sooting
that has not been immediately brought to their attention.
AGA/ANSI APPROVAL
Gas appliances must be tested and certified by a nationally recognized testing and certification laboratory to
ANSI [American National Standards Institute] gas appliance safety standards.
The Mendota Gas Fireplace Insert has been tested and certified by Intertek Testing Services., 8431 Murphy
Drive, Middleton, Wisconsin 53562.
The Mendota Gas Fireplace Inserts have met all necessary AGA/ANSI Standards and are fully certified for
installation in any community.

26
BLOWER WIRING DIAGRAM
WARNING: Use only authorized parts and materials obtained from Johnson Gas Appliance when replacing defective or
damaged glass.
DO NOT substitute other manufacturer's materials or components.
DO NOT operate unit with cracked, broken or missing glass. Contact your authorized dealer or service representative and
request replacement service immediately.
WARNING: NEVER strike, slam or abuse glass door assembly. Injury may result.
GLASS DOOR ASSEMBLY
ITEM
NO. QTY. PART
NUMBER DESCRIPTION
1 1 HA-36-00002 Door Frame Weldment
2 1 65-06-00564 Bay Glass
3 2 HA-35-00050 Door Frame Front Glass Clip
4 4 HA-35-00044 Door Frame Side Glass Clip
5 2 HA-35-00065 Glass Gasket (top/bottom)
6 2 HA-35-00052 Glass Gasket (side)
7 2 HA-35-00066 Glass Gasket Outer
8 18 50-01-00017 Pop Rivet 1/8 x 1/4 Aluminum

27
MAINTENANCE
1. ANNUAL MAINTENANCE OF MENDOTA UNITS IS REQUIRED. The following procedures must be
performed each year by a Mendota approved service person. NOTE: Any adjustments to burner, pilot or logs
must be done by a qualified Mendota service person.
a] Clean all lint and dust build-up around the control. Inspect the condition
of nay wiring under the burner for melting or damage.
b] Remove logs & coals and clean away any foreign matter (lint, carbon,
etc.) on the burner and logs. Be sure the burner ports are "open". Clean
the pilot and under side of the logs for any carbon deposits. NOTE: Logs
should be visually checked for carbon "build-up". If carbon deposits are
visible on logs, unit should be turned off and Mendota service person
contacted.
c] Make sure hot air outlet grills are free from lint and other obstructions. Never
block or obstruct grill openings. Check condition of gaskets, gaskets must be tight, replace if necessary.
d] Check that chimney flue and outlet are open and free of blockage.
e] Before re-installing glass, have qualified service person check the operation of the pilot with millivolt
meter and cycle the burner per LIGHTING INSTRUCTIONS (see Pg. 20).
2. COMBUSTION SYSTEM MILLIVOLT READING:
Millivolt readings must be taken by a qualified installer at the time of installation and after any interruption in
burner operation. These readings will establish proper thermopile millivolt generation and assure trouble-free
burner opera-tion. Readings must be taken with: a.) Pilot ONLY operating. b.) Main Burner
operating.
A. PILOT ONLY OPERATING - Thermostat "OFF" - Minimum Millivolts 250
Using a Millivolt Meter, a millivolt reading should be taken by attaching Meter leads to terminals #1 and #2
on the main gas valve. The Meter must read a minimum of 250 millivolts with the Pilot Light operating,
Thermo-stat turned "OFF" and Main Burner "OFF". To increase or decrease millivolts, (and pilot flame)
adjust pilot screw on control.
B. MAIN BURNER OPERATING - Thermostat "ON" - Minimum Millivolts 100
Using a Millivolt Meter a millivolt reading should be taken by attaching Meter leads to terminals #2 and #3
on the millivolt panel on the main gas valve. The Meter must read a minimum of 100 millivolts with the
Gas Cock Dial turned “ON”, Thermostat "ON" and Main Burner operating. To increase or decrease
millivolts (and pilot flame) adjust pilot screw on control.
3. THE VIEWING GLASS SHOULD BE CLEANED PERIODICALLY.
Exterior glass may be cleaned with cleaner as desired. Interior glass - use KEL KEM "Polish Plus".
WARNING: NEVER CLEAN GLASS WHEN UNIT IS HOT. DO NOT USE ABRASIVE CLEANERS. BREAKAGE AND
SCRATCHES MAY RESULT.
4. PERIODIC VISUAL CHECK OF BURNER AND PILOT FLAMES IS REQUIRED.
FIGURE 13
CHECK
TEST TO TEST CONNECT
METER
LEADS TO
TERMINALS
THERMOSTAT
CONTACTS METER
READING
SHOULD BE
A COMPLETE
SYSTEM 2 & 3 CLOSED 100MV OR
MORE
B THERMO-
PILE
OUTPUT
1 & 2 OPEN GREATER
THAN
250-(cp-2)
C SYSTEM
RESISTANCE 1 & 3 CLOSED LESS THAN
80 (CP-2)
D AUTO/
PILOT
DROPOUT
1 & 2 OPEN BETWEEN
120-30MV

28
NATURAL TO LP GAS CONVERSION
HA-36-00028
This conversion must be made by a qualified service technician.
1. Install main burner orifice #HA-35-00060 (#51 drill) see pg. 20 for location.
Orifice is removed and installed with a ½” deep well socket and ratchet.
2. Install pilot orifice #05-04-00036 (.014”) see pg. 28 for location. Remove and install pilot hood with
7/16” open end wrench. (pilot orifice thimble is located inside pilot hood base)
3. Change L.P. screw (plug) #05-02-00294 as shown below.

29
REPLACEMENT PARTS LIST
SDV-30 – Effective 8-1-2000
ITEM MENDOTA DURAVENT DESCRIPTION
1 45-01-00108 908 6" RIGID VENT STACK (Galvanized)
45-01-00101 908B 6" RIGID VENT STACK (Black)
45-01-00109 907 9" RIGID VENT STACK (Galvanized)
45-01-00102 907B 9" RIGID VENT STACK (Black)
45-01-00081 906 12" RIGID VENT STACK (Galvanized)
45-01-00090 906B 12" RIGID VENT STACK (Black)
45-01-00074 904 24" RIGID VENT STACK (Galvanized)
45-01-00091 904B 24" RIGID VENT STACK (Black)
45-01-00075 903 36" RIGID VENT STACK (Galvanized)
45-01-00092 903B 36" RIGID VENT STACK (Black)
45-01-00076 902 48" RIGID VENT STACK (Galvanized)
45-01-00093 902B 48" RIGID VENT STACK (Black)
45-01-00098 911B 11 - 14 5/8" ADJUSTABLE VENT PIPE (Black)
45-01-00146 911 11 - 14 5/8" ADJUSTABLE VENT PIPE (Galvanized)
45-01-00147 917 17 - 24" ADJUSTABLE VENT PIPE (Galvanized)
45-01-00148 917B 17 - 24" ADJUSTABLE VENT PIPE (Black)
2 45-01-00096 990 90º ELBOW (Galvanized)
45-01-00087 990B 90º ELBOW (Black)
3 45-01-00085 945 45º ELBOW (Galvanized)
45-01-00097 945B 45º ELBOW (Black)
45-01-00142 945G 45º SWIVEL ELBOW (Galvanized)
45-01-00143 945BG 45º SWIVEL ELBOW (Black)
45-01-00144 990G 90º SWIVEL ELBOW (Galvanized)
45-01-00145 990BG 90º SWIVEL ELBOW (Black)
4 45-01-00088 940 ROUND CEILING SUPPORT BOX/WALL THIMBLE
5 45-01-00094 3941 CATHEDRAL CEILING SUPPORT BOX
6 45-01-00095 950 VINYL SIDING STANDOFF
7 45-01-00129 985 HORIZONTAL VENT CAP (Square-High Wind)
8 45-01-00086 963 CEILING FIRESTOP SPACER
9 45-01-00083 145F ATTIC INSULATION SHIELD (12")
10 45-01-00078 943 ROOF FLASHING 0/12 THRU 6/12
45-01-00079 943S ROOF FLASHING 7/12 THRU 12/12 & OVER
11 45-01-00077 953 STORM COLLAR (Galvanized)
12 45-01-00069 991 VERTICAL VENT CAP(High Wind)
13 45-01-00084 989 SUPPORT BAND (Wall strap)
45-01-00099 981 HORIZONTAL SNORKEL TERMINATION CAP (36")
45-01-00100 982 HORIZONTAL SNORKEL TERMINAL CAP (14")
45-01-00106 931 CHIMNEY CONVERSION KIT A Must Buy With 45-01-69 & 45-01-114
45-01-00107 932 CHIMNEY CONVERSION KIT B Must Buy With 45-01-69 & 45-01-114
45-01-00110 933 CHIMNEY CONVERSION KIT C Must Buy With 45-01-69 & 45-01-114
45-01-00140 934 MASONRY CHIMNEY KIT Must Buy With 45-01-69 & 45-01-114
45-01-00104 3951 BRASS TRIM - COLLAR
45-01-00105 3960 BRASS TRIM FOR CATHEDRAL SUPPORT
45-01-00114 2281 35' FLEXIBLE CHIMNEY LINER EXTENSION

30
SDV-30 REPLACEMENT PARTS
PART NO. DESCRIPTION PART NO. DESCRIPTION
55-07-00021 Gold Plated Grill Rod (Each) 05-01-00157 Thermo-Disc (Snap Disc Blower)
65-06-00564 Neoceram Glass 10-10-00104 On-Off Switch
AA-11-00379 Glass Gasket Kit HA-35-00059 Main Orifice - Nat. Gas (#33)
HA-36-00021 Assy, door frame, w/glass HA-35-00060 Main Orifice - L.P. Gas (#51)
HA-35-00047 Door Gasket 05-04-00036 Pilot Orifice - L.P. Gas
35-01-00248 Random Log Module 21" 65-06-00435 Metallic Black Paint - Spray Can
35-01-00240 HearthGlo Coals (Bag) 12 oz. 50-06-00065 Door Latch
35-01-00239 Glowing Inswool (.6 oz. bag) 50-06-00064 Magnet
65-06-00626 Piezo Igniter HA-36-00014 Main Burner Tube Weldment
05-07-00061 Thermopile HA-36-00028 L.P. Kit
05-07-00067 Thermocouple 05-02-00294 L.P. Plug Hi-Low
05-02-00293 Main Gas Valve - Honeywell 05-02-00295 On-Off Ext. Knob
05-04-00035 Pilot Assembly - Nat. Gas 05-02-00297 Hi-Low Ext. Knob
HA-36-00027 Honeywell Valve Assy w/LP
conv. 05-02-00296 Piezo Ext. Knob
65-06-00455 Kel-Kem Glass Polish
15-02-00044 Blower with Motor
10-01-00046 Rheostat 05-02-00281 Gas Valve (SIT) Nat.Gas
35-01-00245 Firebrick - front 05-02-00282 Gas Valve (SIT) LP Gas
HA-36-00019 Valve Assy (SIT) Nat.Gas
HA-36-00020 Valve Assy (SIT) LP Gas
31

32
MENDOTA WARRANTY QUALIFICATION & SERVICE REFERENCE FORM
As a part of Mendota's on-going program of customer satisfaction, this Form verifies proper installation and operation. It is
important as a reference for future service. It insures long life and trouble-free operation of Mendota fireplaces & stoves and
qualifies the owner for Mendota's lifetime limited warranty. Owner should sign Form when completed.
HOME OWNER: __________________________________ DEALER: _________________________________________________
ADDRESS: _______________________________________ ADDRESS: ________________________________________________
CITY/STATE/ZIP: _________________________________ CITY/STATE/ZIP: __________________________________________
SIGNATURE: _____________________________________ PHONE: __________________________________________________
MODEL #: SDV SERIAL #: ______________________DATE INSTALLED: _________________________________________
GAS ________ NAT or _________ L.P.
Mendota Fireplace Inserts are sophisticated, hi-tech gas appliances. All installation and operating instructions must be carefully
followed. The SDV stove must be installed and serviced by a qualified Mendota approved service person.
! APPROVED VENT PIPES AND VENT CAP INSTALLED - Per Manual and manufacturer's specifications
! CHECK FOR PROPER CLEARANCES TO COMBUSTIBLES - Per pipe manufacturer's specifications
! INSTALL PROPER SIZE GAS LINES - CHECK FOR GAS LEAKS - Per Manual
! CHECK FOR CORRECT GAS PRESSURE AT MANIFOLD - Per Manual
a. 3.5 Inches Water Column Maximum - Nat. Gas
b. 10.5 Inches Water Column Maximum - L.P. Gas
! TAKE COMBUSTION SYSTEM MILLIVOLT READINGS
a. Pilot only - [Minimum Millivolts 250] Reading: ________________________
b. Main burner operating - [Minimum Millivolts 100] Reading: ________________________
! CYCLE BURNERS ON/OFF FOR PROMPT IGNITION - Per "LIGHTING INSTRUCTIONS"
Burner must light IMMEDIATELY - Flame must travel promptly around "curve" & light burner.
! INSTALL LOGS AND ADJUST FLAME - Per Manual
Proper pilot flame impingement on thermopile & burner - Air shutter opening: 1/8" - 1/4" Nat. Gas - 1/2" LP
! BRIEF OWNER ON OPERATION AND MAINTENANCE OF UNIT
Light Pilot Operate Burner Explain blower "delay" operation
CUT OUT PAGE AND MAIL TO: JOHNSON GAS APPLIANCE CO., 520 E AVE. N.W. , CEDAR RAPIDS, IOWA 52405 TAPE
SHUT
WARRANTY REGISTRATION
Your Name ___________________________________________________________________________
Address______________________________________________________________________________
City___________________________________________State ______ Zip _______________________
Dealer (Place of Purchase) _______________________________________________________________
City___________________________________________State ______ Zip _______________________
Date of Purchase_________________________ Serial Number _________________________________
Purchaser's Signature ___________________________________________________________________
MENDOTA FREESTANDING STOVE, SDV30
REF: MENDOTA GAS FREESTANDING STOVE

33
--------------------------------------------------------------------------------------------------------------------------------------------------------------
JOHNSON GAS APPLIANCE COMPANY
520 E AVENUE N.W.
CEDAR RAPIDS, IA 52405
POSTAGE
NEEDED
34

35
MENDOTA EXTENDED LIFETIME PROTECTION
AND LIMITED WARRANTY
MENDOTA MEDALLION SDV-30 DIRECT VENT GAS STOVE
Mendota Division of Johnson Gas Appliance Company, 520 E Avenue N.W. Cedar Rapids, Iowa 52405, extends this Extended Lifetime
Protection and Limited Warranty to the original purchaser of a Mendota Gas SDV MEDALLION Stove, Serial Number ,
which is limited and used under normal home conditions.
STANDARD WARRANTY:
JOHNSON GAS APPLIANCE CO., MENDOTA DIVISION, WARRANTS THAT YOUR NEW MENDOTA GAS SDV2 MEDALLION
STOVE IS FREE FROM MANUFACTURING AND MATERIAL DEFECTS FOR A PERIOD OF ONE YEAR FROM THE DATE OF
INSTALLATION, SUBJECT TO THE FOLLOWING CONDITIONS AND LIMITATIONS:
EXTENDED LIFETIME WARRANTY:
THE HEAT EXCHANGER, BURNER TUBE , GLASS, LOGS, EMBERS, OUTER SHIELD AND GOLD PLATING OF THE
MENDOTA SDV2 MEDALLION GAS STOVE ARE WARRANTED FOR THE LIFETIME OF THE ORIGINAL OWNER, SUBJECT
TO PROOF OF PURCHASE AND THE FOLLOWING CONDITIONS AND LIMITATIONS:
1) This new Mendota Stove must be installed by a competent, authorized service contractor. It must be installed and operated at all times in
accordance with the installation and operating instructions furnished with the Stove. Any alteration, willful abuse, accident or misuse of the
product shall nullify this warranty. All adjustments to logs, coals or burner must be made by an authorized Mendota service person.
This limited warranty does not cover the cost of service calls, the cost of labor to remove or install parts covered by this limited warranty,
freight or other transpiration expenses which may be incurred in connection with obtaining performances under this limited warranty. The remedy
for damages as the result of any defects in this product which have been warranted herein is limited to replacement parts and does not include any
incidental, indirect or consequential damages or expenses sustained in connection with the product, including damages to property, except as
provided by law.
2) This warranty is non-transferable and is made to the original retail purchaser, provided the purchase was made through an authorized
Mendota dealer.
Mendota is not responsible for any damage to or malfunction of the Stove unless caused by a defect in material or workmanship from
normal home use. Damage caused by abuse, improper installation , installation by unqualified personnel or breech of conditions of this
limited warranty will excuse Mendota from performance of any part of this limited warranty. This warranty does not cover glass or log
breakage. Logs and embers are warranted against "burn out".
Mendota has the right to investigate and inspect the exact original stove and entire installation (without any alterations or tampering) in the
event a claim is made to determine whether the claimed damage or malfunction was caused by abuse, improper installation or other cause outside
this warranty. Mendota is not responsible for any repairs or material purchases that have not received prior written approval from Mendota.
NOTE: Minor warping of certain parts or discoloration is normal and is not a defect covered by this warranty. Major warping of parts can
be caused by over-firing of your Mendota Stove. Over-firing above rated nameplate specification is as contrary to the manufacturer's instructions
and may void this warranty.
This warranty may not be extended by our representatives or any third party in any manner. The company neither assumes, nor authorizes
any third party to assume, on its behalf, any other liabilities with respect to the sale of this Mendota product.
3) Mendota may at it's discretion, fully discharge all obligations of this warranty by refunding the wholesale price of the defective part(s).
4) All other warranties - expressed or implied - with respect to the product , its components and accessories, or any obligation/liabilities on the
part of the company are hereby expressly excluded. Products made by other manufacturers, sold with the Stove or thereafter, are not covered by
this limited warranty. The use of unauthorized components will make this warranty null and void.
This warranty shall be effective only if the original purchaser of the Mendota appliance is registered with Mendota Division within thirty (30) days
of the date of purchase. Such registration or the failure to register shall not be deemed to create any obligation or liability by the manufacturer and
this warranty with its conditions and limitations shall be the only procedure for obtaining any rights against the manufacturer and expresses the sole
obligation and responsibilities of the manufacturer which are offered to the original purchaser and accepted upon purchase of the appliance.
Mendota reserves the right to make changes at any time without notice, in design, material, specifications, prices and the right to discontinue styles
and products.
Some states do not allow the exclusion of limitation of incidental or consequential damages or limitations on how long an implied warranty lasts, so
the above limitation or exclusion may not apply to you. This warranty gives you specific legal rights and you may also have other rights which vary
from state to state.

Johnson Gas Appliance Company
520 E Avenue N.W. - Cedar Rapids, IA 52405
Mendota Hearth Division
www. Johnsongas.com
9/2002
Part #65-05-00089