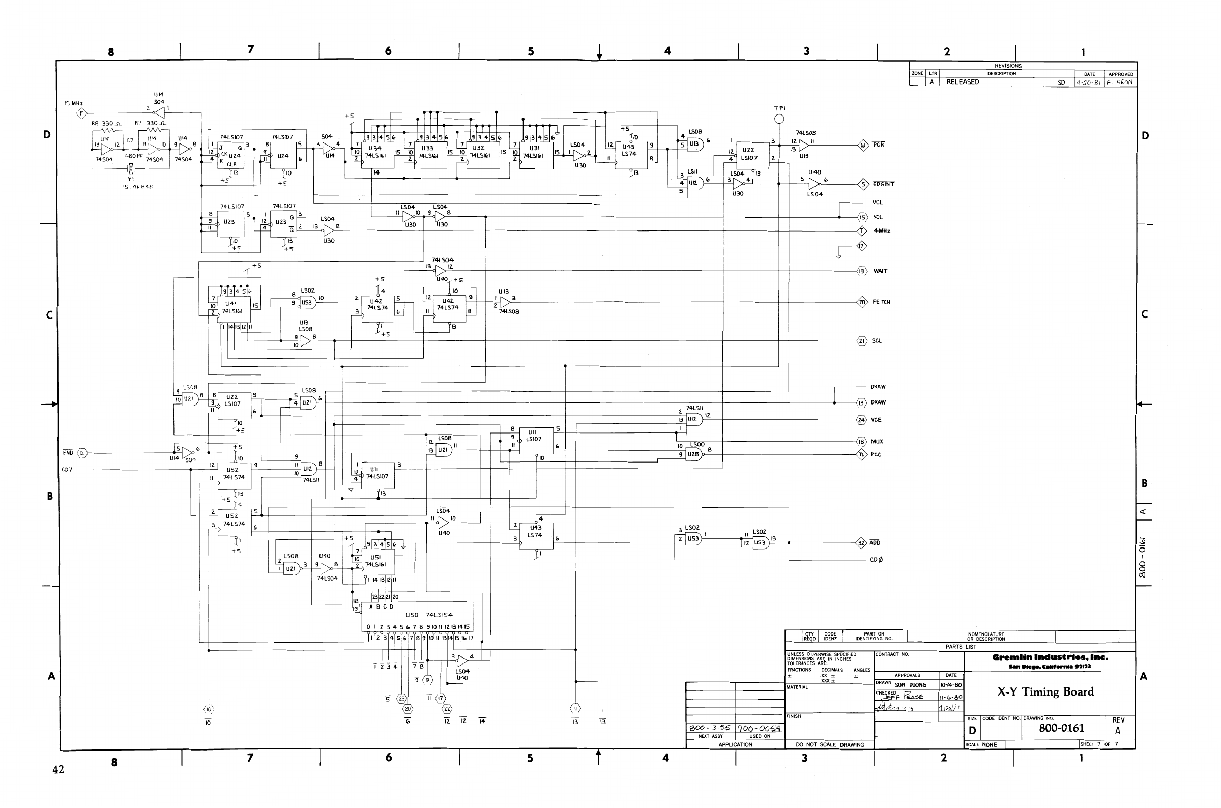
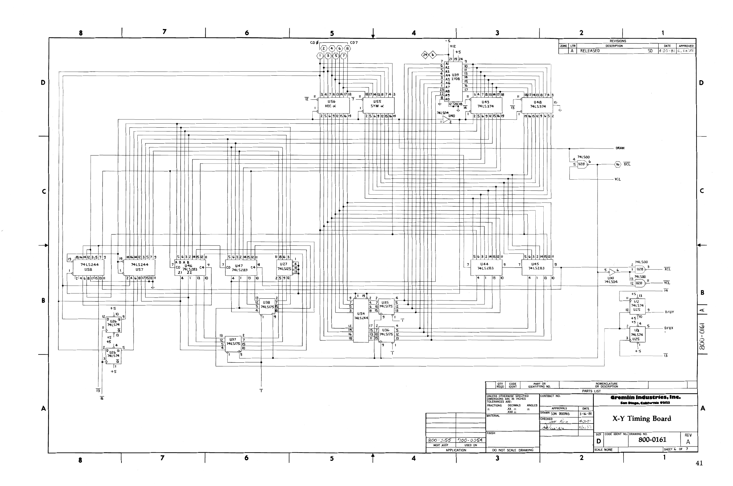
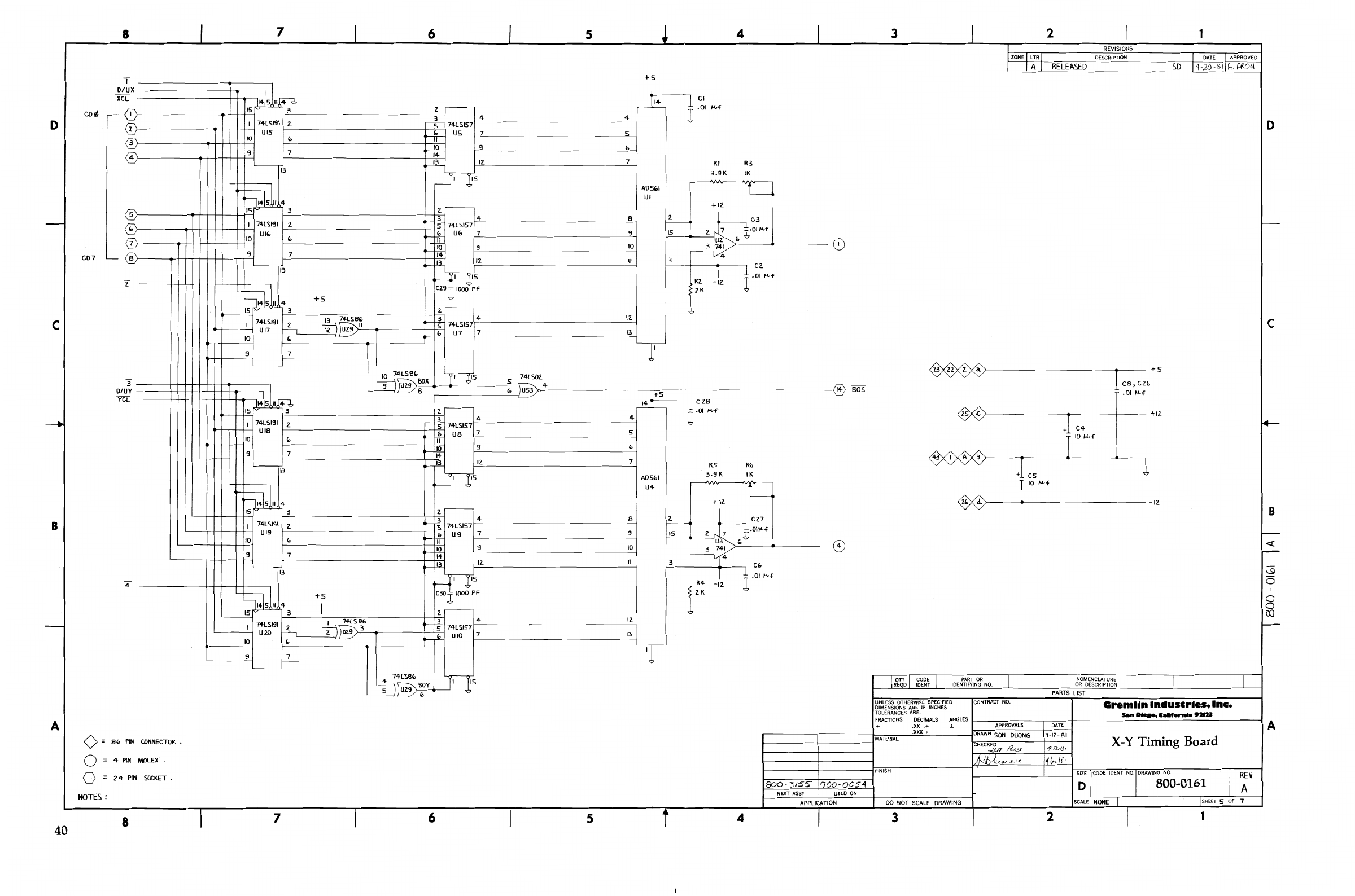
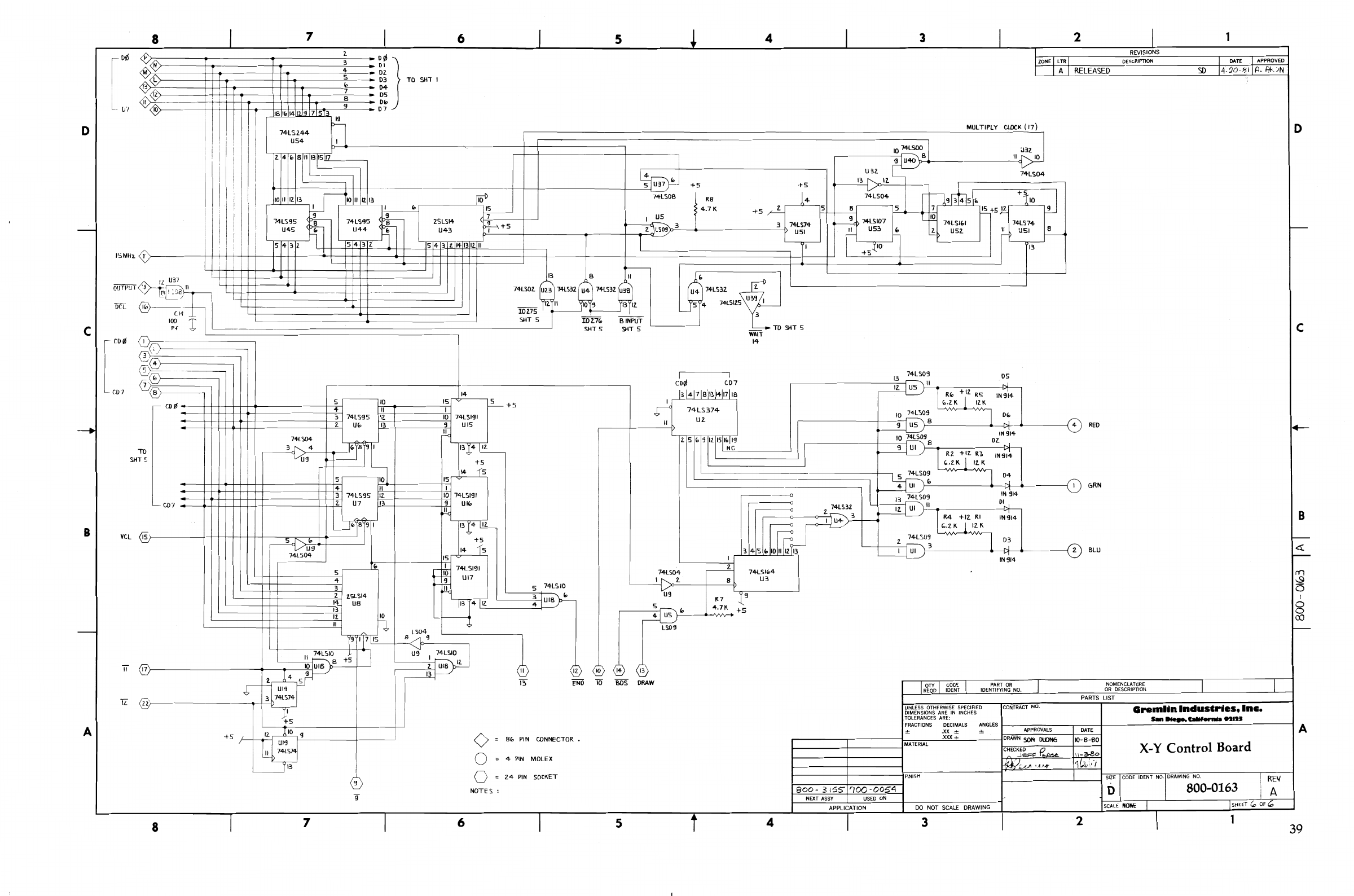
Sega Gremlin Color X Y Monitor

User Manual: Sega Gremlin Color X-Y Monitor

Open the PDF directly: View PDF PDF.
Page Count: 52

Navigation menu