Copy Of MANUAL BAPT BAUR BAUFx Service BAUF
s-bapt-baur-bauf s-bapt-baur-bauf
Service Manual BAPT BAUR BAUF Service Manual BAPT BAUR BAUF
User Manual: Service Manual BAPT BAUR BAUF
Open the PDF directly: View PDF
.
Page Count: 15

BAPT(Prep Table)
BAUR / BAUF
(Undercounter Ref / Frz)
Visit us on the web at www.BLUEAIRinc.com
Service Manual
For
BAPT1, BAPT2, BAPT3
BAUR1, BAUR2, BAUR3, BAUF1, BAUF2

6. TROUBLESHOOTING '---------------------------------------10
FREEZER : BAUF1, BAUF2
CONTENTS
9. DRAIN HEATER
10. RELAY
11. TIMER
12. BI-METAL
13. THERMOSTAT CONTROL
7. DEFROST HEATER
8. FRAME HEATER
4. CAPACITOR
5. EVA FAN MOTOR
6. CONDENSER FAN MOTOR
1. FRONT & DOOR PART
2. EVAPORATOR PART
3. CONDENSING UNIT PART
3. CONDENSER DRYER
4. INNER CABINET & DUCT PART
5. MAIN COMPONENTS '----------------------------------------8
1. COMPRESSOR
1. SPECIFICATIONS '------------------------------------------2
2. WIRING DIAGRAMS '-----------------------------------------3
REFRIGERATOR : BAPT1, BAPT2, BAUR1, BAUR2
REFRIGERATOR : BAPT3, BAUR3
2. COMPRESSOR RELAY
3. FEATURE CHART '------------------------------------------5
1. FRONT VIEW
2. SIDE VIEW
4. PART LIST '------------------------------------------------7

Capacity (cuft)
Exterior Dimension(in) W
(excluding caster 6") D
H
Net Weight(lbs)
Power Voltage
Amps.
Compressor
Refrigerant
Range of Operating
Temperature
Shelving
Vessel
Swing Door
BAUR1 BAUR2 BAUR3 BAUF1 BAUF2
Capacity (cuft) 7 13 20 7 13
Exterior Dimension(in) W 27 1/2 48 2/5 72 1/5 27 1/2 48 2/5
(excluding caster 6") D 30 30 30 30 30
H 29 4/5 29 4/5 29 4/5 29 4/5 29 4/5
Net Weight(lbs) 185 265 350 195 280
Power Voltage
Amps. 3.2A 7.9A 8.1A 8.8A 8.9A
Compressor 1/5HP 3/8HP 3/8HP 1/2HP 1/2HP
Refrigerant
Range of Operating
Temperature
Shelving 24624
Swing Door 12312
* Above specifications are subject to change without prior notice for quality improvement.
* The nameplate (include Serial Number) is located on the upper left of the cabinet interior.
32~40℉ Below 0℉
4
1/6"x6+1/9"x2(8PC)
115V/60Hz
12
26
R-134a R-404a
3
Refrigerator Freezer
UNDERCOUNTER
1/6"x12(12PC)
3/8HP
Model
PRODUCT
20
72 1/5
30
36 1/2
1/6"x12(18PC)
370
115V/60Hz
1/2HP1/5HP
R-134a
32~40℉
1. SPECIFICATIONS
BAPT3
PRODUCT
Model
SANDWICH PREP.
27 1/2 48 2/5
BAPT1 BAPT2
9.9A
200 285
713
30 30
36 1/2 36 1/2
3.2A 7.9A

1. BAPT1, BAPT2, BAUR1, BAUR2
2. BAPT3
3. BAUR3
2. WIRING DIAGRAMS

4. BAUF1
5. BAUF2

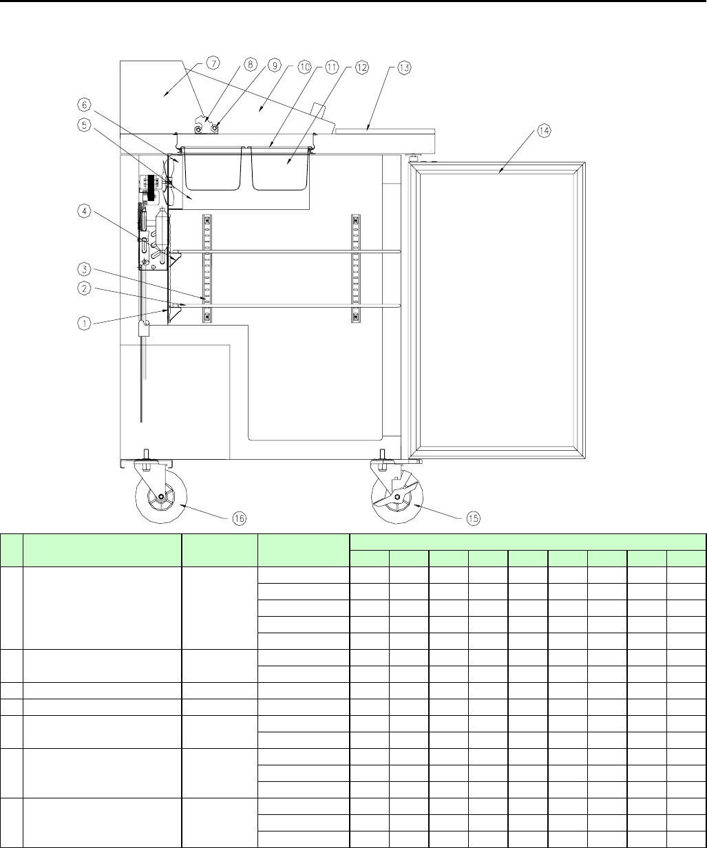
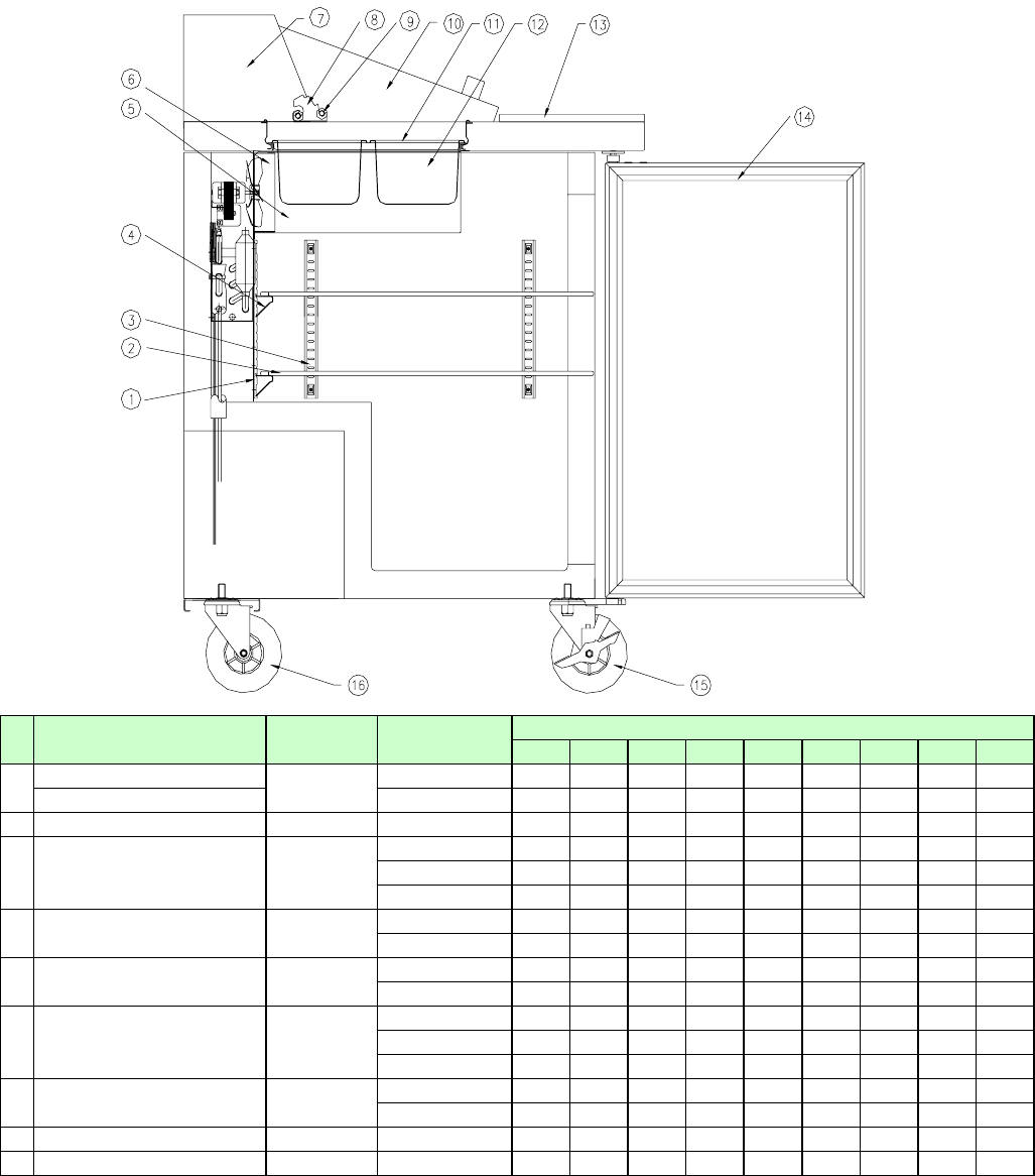
1. TOP COVER FRONT
2. TOP COVER HANDLE
3. TOP COVER BACK
4. CUTTING BOARD
5. DOOR HANDLE
6. DOOR ASSEMBLY
7. CASTER WITH BRAKE
8. CASTER
3. FEATURE CHART
1. FRONT VIEW

9. EVAPORATOR FAN MOTOR 17. TOP COVER HINGE SHAFT
10. EVAPORATOR FAN 18. DOOR HINGE TOP ASSEMBLY
11. EVAPORATOR 19. DOOR HINGE BOTTOM ASSEMBLY
12. SHELF CLIP 20. DOOR GASKET
13. SUCTION PIPE 21. DUCT
14. SHELF PILASTER 22. LOUVER
15. SHELF 23. DUCT VESSEL
16. TOP COVER HINGE
FEATURE CHART
2. SIDE VIEW

BAPT1 BAPT2 BAPT3 BAUR1 BAUR2 BAUR3 BAUF1 BAUF2 BAUF3
1123123123
2123123123
3N/A 1 2 N/A 1 2 N/A 1 2
4111111111
5N/A 1 2 N/A 1 2 N/A 1 2
6111111111
7N/A 1 2 N/A 1 2 N/A 1 2
N/A 1 1 N/A 1 1 N/A 1 1
1 N/A N/A 1 N/A N/A 1 N/A N/A
1 N/A N/A 1 N/A N/A 1 N/A N/A
N/A 4 6 N/A 4 6 N/A 4 6
10 246246246
N/A N/A N/A N/A N/A N/A 1 N/A N/A
N/A N/A N/A N/A N/A N/A N/A 2 3
4. PART LIST
F0131C010HINGE BOTTOM(LEFT) STS304
HINGE BOTTOM (RIGHT) STS304 F0131C020
STS430 URT F0100C030DOOR ASSEMBLY(LEFT)
FRAME COVER(TOP, UNDER)
F0100C020
F0123C130
F0123C120
Quantity
HINGE SHAFT ZNDC2(Cr) F0155C010
SPRING(LEFT) PW2+ZN F0158C010
SPRING(RIGHT) PW2+ZN F0158C020
F0123C110FRAME COVER(LEFT, RIGHT) ABS, L581
F0130C020
1. FRONT & DOOR PART
No
8DOOR ASSEMBLY(RIGHT) STS430 URT
11 CABINET FRAME HEATER
9
Part Number
HINGE TOP ASSEMBLY STS304 F0131C030
F0100C010
F0130C010
115V/25W
Part Name Description
ABS, L584
ABS, L502.5

BAPT1 BAPT2 BAPT3 BAUR1 BAUR2 BAUR3 BAUF1 BAUF2 BAUF3
1 N/A N/A 1 N/A N/A N/A N/A N/A
N/A 1 N/A N/A 1 N/A N/A N/A N/A
N/A N/A 1 N/A N/A 1 N/A N/A N/A
N/A N/A N/A N/A N/A N/A 1 N/A N/A
N/A N/A N/A N/A N/A N/A N/A 1 N/A
N/A N/A N/A N/A N/A N/A N/A N/A 1
2223223234
3223223234
N/A N/A N/A N/A N/A N/A 1 N/A N/A
N/A N/A N/A N/A N/A N/A N/A 1 N/A
N/A N/A N/A N/A N/A N/A N/A N/A 1
1 N/A N/A 1 N/A N/A 1 N/A N/A
N/A 1 1 N/A 1 1 N/A N/A 1
N/A N/A N/A N/A N/A N/A N/A 1 N/A
N/A N/A N/A N/A N/A N/A 1 N/A N/A
N/A N/A N/A N/A N/A N/A N/A 1 N/A
N/A N/A N/A N/A N/A N/A N/A N/A 1
111111N/AN/AN/A
N/A N/A N/A N/A N/A N/A 1 1 1
8N/AN/A1N/AN/A1111
9111111111
10 N/A N/A N/A N/A N/A N/A 1 1 1
11 N/A N/A N/A N/A N/A N/A 2 2 2
BI-METAL PB308 F0170C010
PST-3A F0170C020
POWER SWITCH 125V/12A F0161A010
KNOB ABS F0167A010
7THERMOSTAT CONTROL GNA-240L F0163A020
GNA-204A F0163C010
5SUCTION PIPE AS(EVA.)
OD 1/3" F0100C070
OD 1/3" F0100C080
OD 1/3" F0100C090
6DRAIN HEATER
115V/16W F0130C030
115V/30W F0130C040
115V/43W F0130C050
EVAPORATOR FAN MOTOR 115V/4W F0140C010
EVAPORATOR FAN ABS, 4" F0120C010
4DEFROST HEATER
115V/300W F0130C080
115V/500W F0130C070
115V/700W F0130C060
1EVAPORATOR
4S*3R, 3/8"
5S*3R, 3/8"
F0119C010
4S*3R, 3/8" F0119C020
4S*3R, 3/8" F0119C030
5S*3R, 3/8" F0119C040
F0119C050
5S*3R, 3/8" F0119C060
Part Number Quantity
PART LIST
2. EVAPORATOR PART
No Part Name Description

BAPT1 BAPT2 BAPT3 BAUR1 BAUR2 BAUR3 BAUF1 BAUF2 BAUF3
1 1 N/A 1 1 N/A N/A N/A N/A
N/AN/A1N/AN/A1111
2N/A N/A N/A N/A N/A N/A 1 1 1
3N/A N/A N/A N/A N/A N/A 1 1 1
1 N/A N/A 1 N/A N/A N/A N/A N/A
N/A 1 N/A N/A 1 N/A N/A N/A N/A
N/A N/A 1 N/A N/A N/A N/A N/A N/A
N/A N/A N/A N/A N/A 1 N/A N/A N/A
N/A N/A N/A N/A N/A N/A 1 N/A N/A
N/A N/A N/A N/A N/A N/A N/A 1 N/A
N/A N/A N/A N/A N/A N/A N/A N/A 1
1 N/A N/A 1 N/A N/A N/A N/A N/A
N/A 1 N/A N/A 1 1 N/A N/A N/A
N/A N/A 1 N/A N/A N/A N/A N/A N/A
N/A N/A N/A N/A N/A N/A 1 1 N/A
N/A N/A N/A N/A N/A N/A N/A N/A 1
1 N/A N/A 1 N/A N/A N/A N/A N/A
N/A 1 N/A N/A 1 N/A 1 N/A N/A
N/A N/A 1 N/A N/A 1 N/A N/A N/A
N/A N/A N/A N/A N/A N/A N/A 1 N/A
N/A N/A N/A N/A N/A N/A N/A N/A 1
1 1 N/A 1 1 1 N/A N/A N/A
N/A N/A 1 N/A N/A N/A 1 1 N/A
N/A N/A N/A N/A N/A N/A N/A N/A 1
7111111111
8112111122
9112111122
1 N/A N/A 1 N/A N/A N/A N/A N/A
N/A 1 N/A N/A 1 N/A 1 N/A N/A
N/A N/A N/A N/A N/A 1 N/A 1 N/A
N/A N/A 1 N/A N/A N/A N/A N/A 1
SUCTION PIPE AS(COND.)
F0147C110
F0147C120
6HOT PIPE OD 1/3"
F0147C130
F0129C070
F0140C070
F0129C040
CONDENSER FAN AL Φ200
SD162C-L1U
4
F0120C020
F0129C080
Part Number Quantity
1MAIN POWER CORD 125V/15A F0111C020
F0111C010
3. CONDENSING UNIT PART
No Part Name Description
HARNESS COMP. AWM1015
F0129C050
F0129C060
RELAY UZ2A 110BT F0151C010
TIMER TD-20NT F0151C020
CAE4456Y F0140C050
CAE2420Z F0140C060
F0140A050
SK6A1C-H2Y F0140C040
F0147C060
F0147C070
F0147C080
F0147C090
F0147C100
OD 1/3"
F0147C040
PART LIST
10 CONDENSER
8S*3R, 3/8" F0166C010
8S*4R, 3/8" F0166C020
8S*5R, 3/8" F0166C030
8S*6R, 3/8" F0166C040
DRYER XH-9,30g F0116C010
CONDENSER FAN MOTOR SE-046 F0140A010
F0147C050
5
COMPRESSOR
CAE2432Z

BAPT1 BAPT2 BAPT3 BAUR1 BAUR2 BAUR3 BAUF1 BAUF2 BAUF3
1 N/A N/A 1 N/A N/A 1 N/A N/A
N/A 1 N/A N/A 1 N/A N/A N/A N/A
N/A N/A 1 N/A N/A 1 N/A N/A N/A
N/A N/A N/A N/A N/A N/A N/A 1 N/A
N/A N/A N/A N/A N/A N/A N/A N/A 1
2 N/A 2 2 N/A 2 2 N/A 2
N/A 4 4 N/A 4 4 N/A 4 4
3481248124812
48 16 24 8 16 24 8 16 24
N/A 1 N/A N/A N/A N/A N/A N/A N/A
N/A N/A 1 N/A N/A N/A N/A N/A N/A
1 N/A N/A 1 N/A N/A 1 N/A N/A
N/A 1 N/A N/A 1 N/A N/A 1 N/A
N/A N/A 1 N/A N/A 1 N/A N/A 1
1 N/A N/A N/A N/A N/A N/A N/A N/A
N/A 1 N/A N/A N/A N/A N/A N/A N/A
N/A N/A 1 N/A N/A N/A N/A N/A N/A
SHELF CLIP STS304 F0121C040
2SHELF F0156C010
F0156C020
SWRM-B
(+PE Coating)
F0117C030
F0117C040
F0117C050
F0117C010
F0117C020
No Part Name Description Part Number
4. INNER CABINET & DUCT PART
4-1. INNER CABINET PART
PART LIST
5DUCT VESSEL STS304 F0139C060
F0139C070
Quantity
1DUCT STS304
F0146C010
SHELF PILASTER STS304
7TOP COVER (BACK) STS430
F0112C300
F0112C310
F0112C400
6LOUVER STS304
F0139C010
F0139C020
F0139C030

BAPT1 BAPT2 BAPT3 BAUR1 BAUR2 BAUR3 BAUF1 BAUF2 BAUF3
1 1 1 N/A N/A N/A N/A N/A N/A
1 1 1 N/A N/A N/A N/A N/A N/A
94 4 4 N/A N/A N/A N/A N/A N/A
1 N/A N/A N/A N/A N/A N/A N/A N/A
N/A 1 N/A N/A N/A N/A N/A N/A N/A
N/A N/A 1 N/A N/A N/A N/A N/A N/A
3 NA NA N/A N/A N/A N/A N/A N/A
N/A 5 8 N/A N/A N/A N/A N/A N/A
2 N/A N/A N/A N/A N/A N/A N/A N/A
6 12 18 N/A N/A N/A N/A N/A N/A
1 N/A N/A N/A N/A N/A N/A N/A N/A
N/A 1 N/A N/A N/A N/A N/A N/A N/A
N/A N/A 1 N/A N/A N/A N/A N/A N/A
1 N/A N/A 1 N/A N/A 1 N/A N/A
N/A 2 3 N/A 2 3 N/A 2 3
15 222222222
16 222222222
Quantity
PART LIST
8TOP COVER HINGE(LEFT) STS304 F0131C070
TOP COVER HINGE(RIGHT) F0131C080
4-2. COVER & DUCT PART
No Part Name Description Part Number
11 FIXTURE VESSEL STS304 F0160C020
F0160C030
TOP COVER HINGE SHAFT STS304 F0155C010
10 TOP COVER AS(FRONT) STS430
F0100C040
F0100C050
F0100C060
13 CUTTING BOARD LDPE
F0103C010
F0103C020
F0103C030
12 VESSEL STS304 F0109C040
F0109C030
CASTOR 5" F0110C010
CASTOR WITH BRAKE 5" F0110C020
14 DOOR GASKET PVC-S F0124C010
F0124C020

1. COMPRESSOR
2. COMPRESSOR RELAY
3. CONDENSER DRYER
4. CAPACITOR
5. EVA. FAN MOTOR
6. CONDENSER FAN MOTOR
7. DEFROST HEATER
N/A315㎌, 160VAC N/A
Voltage
SC-028(4W,CCW,3000RPM)
F0140C010
SE-046(9W,CW,1550RPM)
F0140A010
115V/60Hz
N/A
N/A
Part code
300W,44.1Ω 500W,26.5Ω
Spec.
F0130C080 F0130C070
F0140A050 F0140C040
MTRP0052-02 J531Q33E100M
811XHBZZ-53 427PHBYY-53
F0140A050
115V/60Hz
F0140C040F0140C050
XH-9(30g)
N/A12㎌, 250VAC N/A
N/A 115V/60Hz
SD162C-L1U SK6A1C-H2Y SD162C-L1U SK6A1C-H2Y CAE2420Z
CSIR
F0140C060
RSIR RSCR RSIR
SK6A1C-H2Y
RSIR
CAE4456Y
CSIRRSCR
427PHBYY-53 811XHBZZ-53
115V/60Hz
Part code
MTRP0052-02
5. MAIN COMPONENTS
Motor Model
BAPT1 BAPT2 BAUR1 BAUR2 BAUF1Model BAUF2BAUR3
115V/60Hz
R-134a
BAPT3
Refrigerant
Voltage
Comp. Model
Part code
Starting type
F0140C040
Voltage
MTRP0052-02
811XHBZZ-53
3ARR12KP*498
MST16AGZ
N/A
Motor Model
Part code
Voltage
115V/60Hz
R-404a
F0116C010
Strating
N/A
N/A N/AN/A 315㎌, 160VAC
N/A
Voltage
Running 12㎌, 250VAC N/A
Spec.
Part code
Voltage
OL. Model
Relay. Model J531Q33E100M 3ARR12KP*483
MST16AHN

8. FRAME HEATER
9. DRN HEATER
10. RELAY
11. TIMER
12. BI-METAL
13. THERMOSTAT CONTROL
MAIN COMPONENTS
Model BAPT1 BAPT2 BAPT3 BAUR1 BAUR2 BAUR3
Spec. N/A 25W, L100" 25W, L93.7"
BAUF1 BAUF2
Voltage N/A 115V
aN/A 115V
Part code N/A F0130C010 F0130C020
Part code N/A F0130C030 F0130C040
Spec. N/A 16W 30W
Spec. N/A UZ2A 110BT
Part code N/A F0151C010
Voltage N/A 120V
Spec. N/A TD-20NT
Part code N/A F0151C020
Voltage N/A 125V/10A
Spec. N/A PB308
Part code N/A F0170C010
aN/A 125V/15A
Voltage 125V/20A
Spec. GNA-240L N/A
Spec. N/A PST-3A
Part code N/A F0170C020
Part code N/A F0163A010
Part code F0163A020 N/A
Spec. N/A GNA-204A

6. TROUBLESHOOTING
Problem Possible Cause Remedy
Power connection failure Check power cord and plug it in
Power switch is 'off' position Turn it to 'ON' position
Compressor (Freezer model only)
is not start Thermostat is 'off' position Reset it
Overload protector tripped Check the reason and correct
or replace O.L.P if necessary
Wiring is improper or loosed Check wiring against diagram
Control setting incorrect Reset the thermostat
Inadequate air circulation Rearrange products stocked to improve
air circulation
Door not sealing Check the sealing condition and correct it
The unit is not Refrigerant leak Check the leak part and repair / recharge
is not Fan motor defective Check and replace it
refrigerate well Not enough ventilation Move the unit in a well ventilated place
with at least 7inches of clearence
on all sides
Condenser is clogged Clean it
Thermostat defective Replace it
Not enough defrosts occuring
Evaporator a day operation in humid
is not defrost condition
completely Defrost heater defective Replace it
Wiring is improper or loose Check wiring against diagram
Poor sealing around Adjust and clean it
door gasket or replace it if necessery
Condensate Loading of too much warm or Cover products with vinyl wrap
water moist products
overflow Extreme enviroment
(i.e rainy season etc)
BLUEAIR