Contents Singapore CP65 99 WALL 002
User Manual: Singapore CP65-99 WALL-002
Open the PDF directly: View PDF
.
Page Count: 4

Software Verification
PROGRAM NAME:
ETABS
REVISION NO.:
0
EXAMPLE Singapore CP65-99 Wall-002
P-M INTERACTION CHECK FOR A WALL
EXAMPLE DESCRIPTION
The Demand/Capacity ratio for a given axial load and moment are tested in this
example. A reinforced concrete wall is subjected to a factored axial load Pu =
8368 kN and moments Muy = 11967 kN-m. This wall is reinforced as noted
below. The design capacity ratio is checked by hand calculations and the results
are compared with ETABS program results.
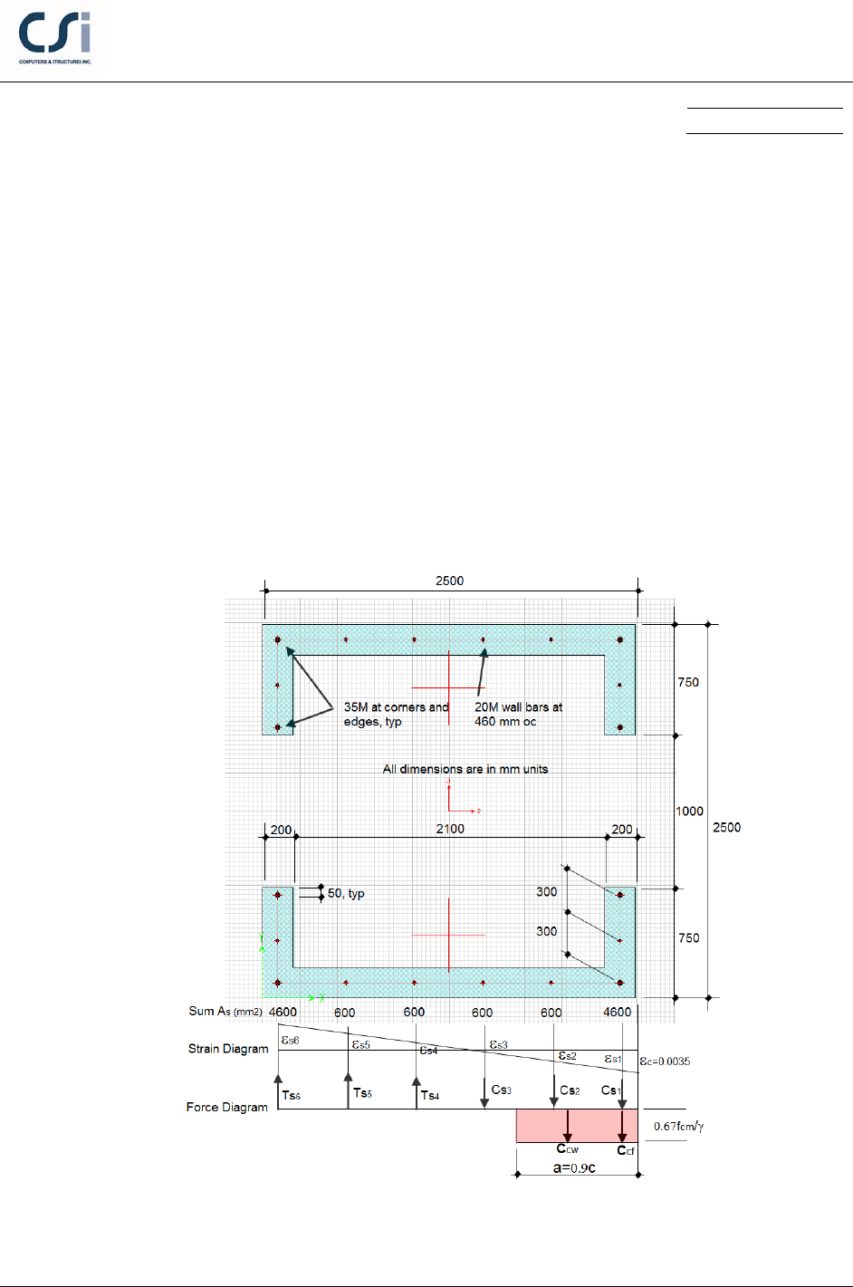
GEOMETRY, PROPERTIES AND LOADING
EXAMPLE Singapore CP65-99 Wall-002 - 1

Software Verification
PROGRAM NAME:
ETABS
REVISION NO.:
0
TECHNICAL FEATURES OF ETABS TESTED
Concrete wall flexural demand/capacity ratio
RESULTS COMPARISON
Independent results are hand calculated and compared with ETABS design
check.
Output Parameter ETABS Independent Percent
Difference
Wall Demand/Capacity Ratio 1.001 1.00 0.10%
COMPUTER FILE: SINGAPORE CP65-99 WALL-002
CONCLUSION
The ETABS results show an acceptable comparison with the independent results.
Material Properties
E = 25000 MPa
ν = 0.2
Section Properties
Design Properties
f ′
c
= 30 MPa
fy = 460 MPa
tb = 200 mm
H = 2500 mm
d = 2400 mm
s = 460 mm
As1= As5 = 4-35M+2-20M (4600 mm^2)
As2, As3, As4, As5 = 2-20M (600 mm^2)
EXAMPLE Singapore CP65-99 Wall-002 - 2

Software Verification
PROGRAM NAME:
ETABS
REVISION NO.:
0
HAND CALCULATION
Wall Strength Determined as follows:
1) A value of e = 1430 mm was determined using
/
uu
eM P=
where
u
M
and
u
P
were
taken from the ETABS test model PMM interaction diagram for pier P1. Values for
u
M
and
u
P
were taken near the balanced condition and large enough to produce a
flexural D/C ratio very close to or equal to one. The depth to the neutral axis, c, was
determined by iteration using an excel spreadsheet so that equations 1 and 2 below
were equal.
2) From the equation of equilibrium:
=+−
n cs
PCCT
where
c
C= +
cw cf
CC
, where
cw
C
and
cf
C
are the area of the concrete web and flange in
compression
( )
0.67 •200• 200
cw cu
m
C fa= −
γ
( )
=cu
0.67 200•2500
m
γ
cf
Cf
12 3
123
0.67 0.67 0.67
ss s
ss c s c s c
s ms ms m
AA A
Cff f f f f
′′ ′
′′′
=−+−+−
γγγ γγγ
456
456
sss
sss
sss
AAA
Tf f f=++
γγγ
( ) ( )
1
11
2 3 456
2 3 456
0.67 0.67 0.67
•200• - 200 200• 2500
0.67 0.67
s
n cu cu s c
m m sm
s s sss
s c s c sss
s m s m sss
A
Pfa f ff
A A AAA
f f f f fff
′′
= + +− +
γ γ γγ
′′
′′
−+−−++
γ γ γ γ γγγ
(Eqn. 1)
3) Taking moments about As6:
( ) ( ) ( )
( ) ( ) ( )
12
2
345
4
12
32
f
cf cw f s s
n
ss s
at
C dd C d t Cdd C s
PeC sT sTs
−
′′
−+ − −+ −+ +
=
′
−−
(Eqn. 2)
EXAMPLE Singapore CP65-99 Wall-002 - 3

Software Verification
PROGRAM NAME:
ETABS
REVISION NO.:
0
where
1
11
0.67
′
= −
γγ
s
ssc
sm
A
Cff
;
0.67
′
= −
γγ
sn
sn sn c
sm
A
Cff
;
0.67
′
= −
γγ
sn
sn sn c
sm
A
Tff
and the bar strains and stresses are determined below.
The plastic centroid is at the center of the section and
d′′
= 1150 mm
1430 1150 2580e ed
′ ′′
=+= + =
mm.
4) Using c = 1160 mm (from iteration),
10.9•1160 1044ac=β= =
mm
5) Assuming the extreme fiber strain equals 0.0035 and c= 1160 mm, the steel stresses
and strains can be calculated. When the bar strain exceeds the yield strain then,
sy
ff=
:
10.0035
′
−
ε=
s
cd
c
= 0.00320;
=ε≤
ss y
f EF
;
1s
f
= 460 MPa
2
0.0035
−−
ε=
s
csd
c
= 0.00181
2s
f
= 362.0 MPa
3
20.0035
′
−−
ε=
s
c sd
c
= 0.00042
3s
f
= 84.4 MPa
46
2−−
ε= ε
−
ss
dc s
dc
= 0.00097
4s
f
= 193.2 MPa
56
−−
ε= ε
−
ss
dcs
dc
= 0.00235
5s
f
= 460.00 MPa
6
0.0035
−
ε=
s
dc
c
= 0.00374
6s
f
= 460.00 MPa
Substituting in Eqn. 1 and 2 and iterating the value of the neutral axis depth until the
two equations are equal give
=
n1
P
8368 kN
=
n2
P
8368 kN
nn
M Pe= =
8368(1430) /1000
= 11,967 kN-m
EXAMPLE Singapore CP65-99 Wall-002 - 4