Washbrook Flo Wise 0.5 High Efficiency Urinal 6590.005 Spec Sheet 4802
User Manual: Washbrook FloWise 0.5 High Efficiency Urinal 6590.005
Open the PDF directly: View PDF
.
Page Count: 2

M153 © 2016 AS America Inc.
spec_6590.001-6575.001 Rev. C 8/16
WASHBROOK® FloWise®
UNIVERSAL URINAL
VITREOUS CHINA
WASHBROOK® FloWise® UNIVERSAL URINAL
• Vitreouschina
• UltraHighEfficiency,LowConsumption.Operates
intherangeof0.125gpfto1.0gpf(0.5Lpfto3.8Lpf)
• Flushingrim
• Elongated14"rimfromnishedwall
• Washoutushaction
• Extendedsidesforprivacy
• 3/4"inletspud
• Outletconnectionthreaded2"inside(NPTF)
• 2wallhangers
• Fixtureonly
• Strainerincluded
• MeetsASMEushrequirementsat0.125to1.0gpf
❏ 6590.001UniversalTopspud
❏ 6515.001UniversalBackspud
Nominal Dimensions:
360x480x664mm
(14-1/8"x18-7/8"x26-1/8")
Recommendedworkingpressure–between
20psiatvalvewhenushingand80psistatic
Compliance Certications -
Meets or Exceeds the Following Specications:
• ASMEA112.19.2-2008/CSAB45.1-08forVitreous
ChinaFixtures
To Be Specied:
❏Color:❏White
❏FlushValve:
1.0gpfFlushValve:Sensor-Operated:
❏ AmericanStandardSelectronic® #6 06 3.101.00 2
DCPower(TopSpud)
❏ AmericanStandardSelectronic®#6 062.101.0 02
ACPower(BackSpud)
1.0gpfFlushValve:Manual-Operated:
❏ AmericanStandard#6045.101.002
0.5gpfFlushValve:Sensor-Operated:
❏ AmericanStandardSelectronic®#6063.051.002
DCPower(TopSpud)
❏ AmericanStandardSelectronic®#6062.051.002
ACPower(BackSpud)
0.5gpfFlushValve:Manual-Operated:
❏ AmericanStandard#6045.051.002
0.125gpfFlushValve:Sensor-Operated:
❏ AmericanStandardSelectronic®#6063.013.002
DCPower(TopSpud)
❏ AmericanStandardSelectronic®#6062.013.002
ACPower(BackSpud)
0.125gpfFlushValve:Manual-Operated:
❏ AmericanStandard#6045.013.002
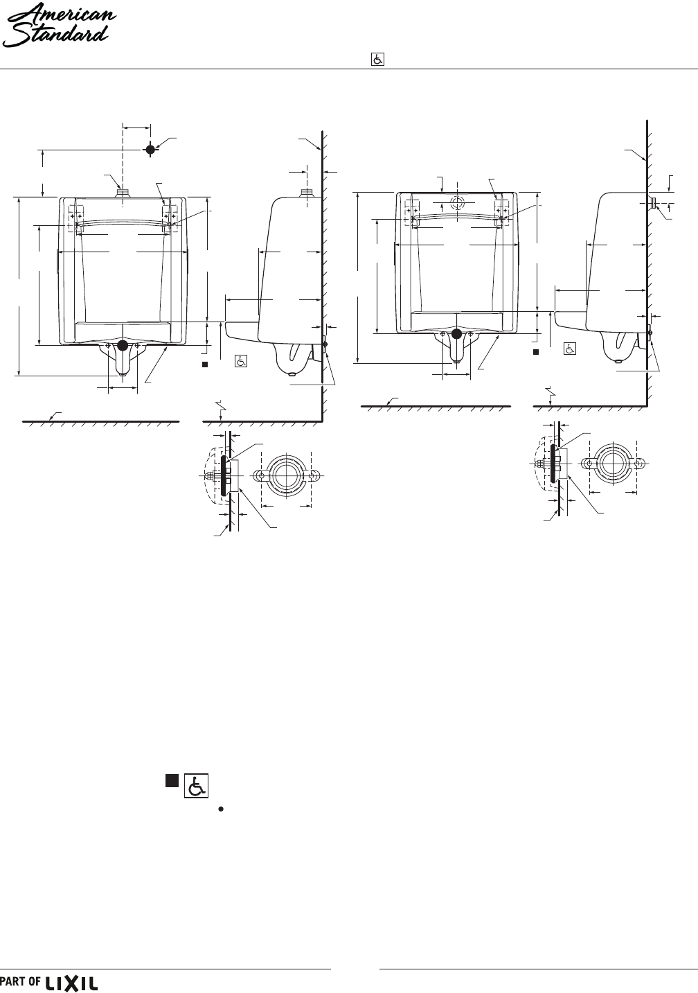
BARRIER FREE
SEEREVERSEFORROUGHING-INDIMENSIONS
When used with
0.125 gpf or 0.5 gpf
urinal flush valves

M154 © 2016 AS America Inc.
spec_6590.001-6575.001 Rev. C 8/16
BARRIER FREE
13mm
(1/2")
102mm
(4")
GASKET
2" N.P.T.
INSIDE THREAD
S
DETAIL OF OUTLET CONNECTION
FINISHED WALL
13mm
(1/2")
121mm
(4-3/4")
3/4"
SPUD
3/4" S.P. S.
OR 3/4" C.W.T.
SUPPLY TO
FLUSH VALV E
438mm
(17-1/4")
664mm
(26-1/8")
REF.
464mm
(18-1/4")
292mm
(11-1/2")
83mm
(3-1/4")
102mm
(4")
480mm
(18-7/8")
343mm
(13-1/2")
C/L OF
OUTLET
K2 HANGERS
8mm X 25mm
(5/16" X 1")
SLOT
64mm
(2-1/2")
235mm
(9-1/4")
360mm
(14-1/8")
2" N.P.T.
FEMALE OUTLET
CONNECTION
13mm
(1/2")
FINISHED FLOOR
FINISHED
WALL
432mm
(17") MAX
610mm
(24")
OPTIONAL
6590.001 TOP SPUD 6515.001 BACK SPUD
51mm
(2")
13mm
(1/2")
102mm
(4")
GASKET
2" N.P.T.
INSIDE THREADS
DETAIL OF OUTLET CONNECTION
FINISHED WALL
13mm
(1/2")
438mm
(17-1/4")
664mm
(26-1/8"
)
REF.
464mm
(18-1/4")
83mm
(3-1/4")
102mm
(4")
480mm
(18-7/8")
343mm
(13-1/2")
C/L OF
OUTLET
K2 HANGERS
8mm X 25mm
(5/16" X 1")
SLOT
235mm
(9-1/4")
360mm
(14-1/8")
2" N.P.T.
FEMALE OUTLET
CONNECTION
13mm
(1/2")
FINISHED FLOOR
FINISHED
WALL
432mm
(17") MAX
610mm
(24")
OPTIONAL
3/4"
SPUD
51mm
(2")
NOTES:
FLUSHVALVENOTINCLUDEDANDMUSTBEORDEREDSEPARATELY.
PROVIDESUITABLEREINFORCEMENTFORALLWALLSUPPORTS.
IMPORTANT:Dimensionsofxturesarenominalandmayvarywithin
therangeoftolerancesestablishedbyANSIStandardA112.19.2.These
measurementsaresubjecttochangeorcancellation.Noresponsibilityis
assumedforuseofsupersededorvoidedpages.
MEETS THE AMERICANS WITH DISABILITIES ACT GUIDELINES
AND ANSI A117.1 ACCESSIBLE AND USABLE BUILDINGS AND
FACILITIES - CHECK LOCAL CODES.
When installed so top of rim is 432mm (17") MAXIMUM from finished floor
.
WASHBROOK® FloWise®
UNIVERSAL URINAL
VITREOUS CHINA