TC42PS14
User Manual: TC42PS14
Open the PDF directly: View PDF
.
Page Count: 116 [warning: Documents this large are best viewed by clicking the View PDF Link!]

© Panasonic Corporation 2009.
Unauthorized copying and distribution is a violation
of law.
ORDER NO.MTNC090323CE
B34 Canada: B07
42 inch Class 1080p Plasma HDTV
Model No. TC-42PS14
GPF12DU Chassis

2
1 Safety Precautions
1.1. General Guidelines
1. When conducting repairs and servicing, do not attempt to modify the equipment, its parts or its materials.
2. When wiring units (with cables, flexible cables or lead wires) are supplied as repair parts and only one wire or some of the
wires have been broken or disconnected, do not attempt to repair or re-wire the units. Replace the entire wiring unit instead.
3. When conducting repairs and servicing, do not twist the Faston connectors but plug them straight in or unplug them straight
out.
4. When servicing, observe the original lead dress. If a short circuit is found, replace all parts which have been overheated or
damaged by the short circuit.
5. After servicing, see to it that all the protective devices such as insulation barriers, insulation papers shields are properly
installed.
6. After servicing, make the following leakage current checks to prevent the customer from being exposed to shock hazards.
1.1.1. Leakage Current Cold Check
1. Unplug the AC cord and connect a jumper between the
two prongs on the plug.
2. Measure the resistance value, with an ohmmeter,
between the jumpered AC plug and each exposed metal-
lic cabinet part on the equipment such as screwheads,
connectors, control shafts, etc. When the exposed metal-
lic part has a return path to the chassis, the reading
should be between 1Mohm and 5.2Mohm.
When the exposed metal does not have a return path to
the chassis, the reading must be .
1.1.2. Leakage Current Hot Check (See
Figure 1.)
1. Plug the AC cord directly into the AC outlet. Do not use
an isolation transformer for this check.
2. Connect a 1.5kohm, 10 watts resistor, in parallel with a
0.15μF capacitors, between each exposed metallic part
on the set and a good earth ground such as a water pipe,
as shown in Figure 1.
3. Use an AC voltmeter, with 1000 ohms/volt or more sensi-
tivity, to measure the potential across the resistor.
4. Check each exposed metallic part, and measure the volt-
age at each point.
5. Reverse the AC plug in the AC outlet and repeat each of
the above measurements.
6. The potential at any point should not exceed 0.75 volts
RMS. A leakage current tester (Simpson Model 229 or
equivalent) may be used to make the hot checks, leakage
current must not exceed 1/2 milliamp. In case a measure-
ment is outside of the limits specified, there is a possibility
of a shock hazard, and the equipment should be repaired
and rechecked before it is returned to the customer.
Figure 1
3
2Warning
2.1. Prevention of Electrostatic Discharge (ESD) to Electrostatically
Sensitive (ES) Devices
Some semiconductor (solid state) devices can be damaged easily by static electricity. Such components commonly are called Elec-
trostatically Sensitive (ES) Devices. Examples of typical ES devices are integrated circuits and some field-effect transistors and
semiconductor [chip] components. The following techniques should be used to help reduce the incidence of component damage
caused by electrostatic discharge (ESD).
1. Immediately before handling any semiconductor component or semiconductor-equipped assembly, drain off any ESD on your
body by touching a known earth ground. Alternatively, obtain and wear a commercially available discharging ESD wrist strap,
which should be removed for potential shock reasons prior to applying power to the unit under test.
2. After removing an electrical assembly equipped with ES devices, place the assembly on a conductive surface such as alumi-
num foil, to prevent electrostatic charge buildup or exposure of the assembly.
3. Use only a grounded-tip soldering iron to solder or unsolder ES devices.
4. Use only an anti-static solder removal device. Some solder removal devices not classified as [anti-static (ESD protected)] can
generate electrical charge sufficient to damage ES devices.
5. Do not use freon-propelled chemicals. These can generate electrical charges sufficient to damage ES devices.
6. Do not remove a replacement ES device from its protective package until immediately before you are ready to install it. (Most
replacement ES devices are packaged with leads electrically shorted together by conductive foam, aluminum foil or compara-
ble conductive material).
7. Immediately before removing the protective material from the leads of a replacement ES device, touch the protective material
to the chassis or circuit assembly into which the device will be installed.
Caution
Be sure no power is applied to the chassis or circuit, and observe all other safety precautions.
8. Minimize bodily motions when handling unpackaged replacement ES devices. (Otherwise ham less motion such as the brush-
ing together of your clothes fabric or the lifting of your foot from a carpeted floor can generate static electricity (ESD) sufficient
to damage an ES device).

4
2.2. About lead free solder (PbF)
Note: Lead is listed as (Pb) in the periodic table of elements.
In the information below, Pb will refer to Lead solder, and PbF will refer to Lead Free Solder.
The Lead Free Solder used in our manufacturing process and discussed below is (Sn+Ag+Cu).
That is Tin (Sn), Silver (Ag) and Copper (Cu) although other types are available.
This model uses Pb Free solder in it’s manufacture due to environmental conservation issues. For service and repair work, we’d
suggest the use of Pb free solder as well, although Pb solder may be used.
PCBs manufactured using lead free solder will have the PbF within a leaf Symbol PbF stamped on the back of PCB.
Caution
• Pb free solder has a higher melting point than standard solder. Typically the melting point is 50 ~ 70 °F (30~40 °C) higher. Please
use a high temperature soldering iron and set it to 700 ± 20 °F (370 ± 10 °C).
• Pb free solder will tend to splash when heated too high (about 1100 °F or 600 °C).
If you must use Pb solder, please completely remove all of the Pb free solder on the pins or solder area before applying Pb sol-
der. If this is not practical, be sure to heat the Pb free solder until it melts, before applying Pb solder.
• After applying PbF solder to double layered boards, please check the component side for excess solder which may flow onto the
opposite side. (see figure below)
Suggested Pb free solder
There are several kinds of Pb free solder available for purchase. This product uses Sn+Ag+Cu (tin, silver, copper) solder. How-
ever, Sn+Cu (tin, copper), Sn+Zn+Bi (tin, zinc, bismuth) solder can also be used.

5
3 Service Navigation
3.1. Service Hint
Board Name Function Board Name Function
P Power Supply C1 Data Driver (Lower Right)
A DC-DC Converter, Tuner
Speaker out, AV Terminal, AV Switch, PC
Digital Signal Processor, SYSTEM MPU, HDMI Switch
Seine 3LV
Format Converter, Plasma AI, Sub-Field Processor
C2 Data Driver (Lower Left)
SC Scan Drive
SS Sustain Drive
SS2 Sustain out (Lower)
SU Scan out (Upper)
Non-serviceable
SU-Board should be exchanged for service.
K Remote receiver, Power LED, C.A.T.S. sensor SD Scan out (Lower)
Non-serviceable
SD-Board should be exchanged for service.
S Power Switch
GK Key Switch

6
3.2. Applicable signals
* Mark: Applicable input signal for Component (Y, PB, PR), HDMI and PC
Note
• Signals other than above may not be displayed properly.
• The above signals are reformatted for optimal viewing on your display.
horizontal frequency (kHz) vertical frequency (Hz) COMPONENT HDMI PC
525 (480) / 60i 15.73 59.94 * *
525 (480) /60p 31.47 59.94 * *
750 (720) /60p 45.00 59.94 * *
1,125 (1,080) /60i 33.75 59.94 * *
1,125 (1,080) /60p 67.43 59.94 *
1,125 (1,080) /60p 67.50 60.00 *
1,125 (1,080) /24p 26.97 23.98 *
1,125 (1,080) /24p 27.00 24.00 *
640 × 400 @70 31.47 70.08 *
640 × 480 @60 31.47 59.94 *
Macintosh13 inch (640 × 480) 35.00 66.67 *
640 × 480 @75 37.50 75.00 *
852 × 480 @60 31.47 59.94 *
800 × 600 @60 37.88 60.32 *
800 × 600 @75 46.88 75.00 *
800 × 600 @85 53.67 85.08 *
Macintosh16 inch (832 × 624) 49.73 74.55 *
1,024 × 768 @60 48.36 60.00 *
1,024 × 768 @70 56.48 70.07 *
1,024 × 768 @75 60.02 75.03 *
1,024 × 768 @85 68.68 85.00 *
Macintosh 21 inch (1,152 ×870) 68.68 75.06 *
1,280 × 1,024 @60 63.98 60.02 *
1,366 × 768 @60 48.36 60.00 *
7
4 Specifications
Power Source AC 120 V, 60 Hz
Power Consumption
Maximum 485 W
Standby condition 0.3 W
Plasma Display panel
Drive method AC type
Aspect Ratio 16:9
Visible screen size 42 inch class (41.6 inches measured diagonally)
(W × H × Diagonal) 36.2 inch × 20.4 inch × 41.6 inch (921 mm × 518 mm × 1,057 mm)
(No. of pixels) 2,073,600 (1,920 (W) × 1,080 (H))[5,760 × 1,080 dots]
Sound
Audio Output 20 W [ 10 W + 10 W ] ( 10 % THD )
PC signals VGA, SVGA, XGA, WXGA, SXGA
Horizontal scanning frequency 31 - 69 kHz
Vertical scanning frequency 59 - 86 Hz
Channel Capability (Digital/Analog) VHF/ UHF: 2 - 69, CATV: 1 - 135
Operating Conditions
Temperature: 32 °F - 104 °F (0 °C - 40 °C)
Humidity: 20 % - 80 % RH (non-condensing)
Connection Terminals
VIDEO IN 1 VIDEO: RCA PIN Type × 1 1.0 V [p-p] (75 Ω)
S-VIDEO: Mini DIN 4-pin Y: 1.0 V [p-p] (75 Ω) C: 0.286 V [p-p] (75 Ω)
AUDIO L-R: RCA PIN Type × 2 0.5 V [rms]
VIDEO IN 2 VIDEO: RCA PIN Type × 1 1.0 V [p-p] (75 Ω)
AUDIO L-R: RCA PIN Type × 2 0.5 V [rms]
COMPONENT IN 1-2 Y: 1.0 V [p-p] (including synchronization)
PB, PR: ±0.35 V [p-p]
AUDIO L-R: RCA PIN Type × 2 0.5 V [rms]
HDMI 1-3 TYPE A Connector × 3
This TV supports [HDAVI Control 4] function.
PC D-SUB 15PIN: R,G,B / 0.7 V [p-p] (75 Ω)
HD, VD / 1.0 - 5.0 V [p-p] (high impedance)
Card slot SD CARD slot × 1
DIGITAL AUDIO OUT PCM / Dolby Digital, Fiber Optic
FEATURES 3D Y/C FILTER
CLOSED CAPTION V-Chip
Photo Viewer HDAVI Control 4
Dimensions (W × H × D)
Including pedestal 40.6 inch × 28.0 inch × 12.9 inch (1,029 mm × 709 mm × 327 mm)
TV Set only 40.6 inch × 26.1 inch × 3.8 inch (4.2 inch) (1,029mm × 661 mm × 94 mm (105 mm))
Mass
Including pedestal 59.6 lb. (27.0 kg)
TV Set only 57.4 lb. (26.0 kg)
Note
• Design and Specifications are subject to change without notice. Mass and Dimensions shown are approximate.

8
5 Service Mode
5.1. How to enter into Service Mode
While pressing [VOLUME ( - )] button of the main unit, press [INFO] button of the remote control three times within 2 seconds.
5.1.1. Key command
[1] button...Main items Selection in forward direction
[2] button...Main items Selection in reverse direction
[3] button...Sub items Selection in forward direction
[4] button...Sub items Selection in reverse direction
[VOL] button...Value of sub items change in forward direction ( + ), in reverse direction ( - )

9
5.1.2. Contents of adjustment mode
• Value is shown as a hexadecimal number.
• Preset value differs depending on models.
• After entering the adjustment mode, take note of the value in each item before starting adjustment.
5.1.3. How to exit
Switch off the power with the [POWER] button on the main unit or the [POWER] button on the remote control.
Main item Sub item Sample Data Remark
ADJUST CONTRAST 46
COLOR 00
TINT 00
SUB-BRT 000
WB-ADJ R-CUT 80
G-CUT 80
B-CUT 80
R-DRV FC
G-DRV FF
B-DRV E8
ALL-CUT 80
ALL-DRV FC
OPTION BOOT ROM Factory Preset
STBY-SET - -
EMERGENCY ON
CLK MODE 00
CLOCK 000
AGING RGBW
VERTICAL LINE
COUNT
ALL WHITE
ALL RED
ALL GREEN
ALL BLUE
ON/OFF
RAMP WHITE
RAMP RED
RAMP GREEN
RAMP BLUE
1% WINDOW
COLOR BAR
A-ZONE B-ZONE/4 TRIO
SCROLL
WHITE FLAME
LOW SETUP RED
LOW SETUP GREEN
LOW SETUP BLUE
RM-SET CODE A Fixed
SRV-TOOL - See next

10
5.2. Service tool mode
5.2.1. How to access
1. Select [SRV-TOOL] in Service Mode.
2. Press [OK] button on the remote control.
5.2.2. Display of SOS History
SOS History (Number of LED blinking) indication.
From left side; Last SOS, before Last, three occurrence before, 2nd occurrence after shipment, 1st occurrence after shipment.
This indication except 2nd and 1st occurrence after shipment will be cleared by [Self-check indication and forced to factory ship-
ment setting].
5.2.3. POWER ON TIME/COUNT
Note : To display TIME/COUNT menu, highlight position, then press MUTE for (3sec).
Time : Cumulative power on time, indicated hour : minute by decimal
Count : Number of ON times by decimal
Note : This indication will not be cleared by either of the self-checks or any other command.
5.2.4. Exit
1. Disconnect the AC cord from wall outlet.

11
5.3. Hotel mode
1. Purpose
Restrict a function for hotels.
2. Access command to the Hotel mode setup menu
In order to display the Hotel mode setup menu, please
enter the following command (within 2 second).
[TV] : Vol. [Down] + [REMOTE] : INPUT (3 times)
Then, the Hotel mode setup menu is displayed.
3. To exit the Hotel mode setup menu
Disconnect AC power cord from wall outlet.
4. Explain the Hotel mode setup menu
item Function
Mode Select hotel mode ON/OFF
Input Select input signal modes.
Set the input, when each time power is
switched on.
Selection:
-/ANTENNA/COMP1/COMP2/HDMI1/
HDMI2/HDMI3/VIDEO1/VIDEO2/PC
Off: give priority to a last memory.
Channel Select channel when input signal is RF.
Set the channel, each time power is switched
on.
Selection:
Any channel number or [-].
[-] means the channel when turns off.
Volume Adjust the volume when each time power is
switched on.
Range:
0 to 100
Vol. Max Adjust maximum volume.
Range:
0 to 100
OSD Ctrl Restrict the OSD.
Selection:
OFF/PATTERN1
• OFF: No restriction
• PATTERN1: restriction
FP Ctrl Select front key conditions.
Selection:
Off/All/Pattern1
• Off: altogether valid.
• All: altogether invalid.
• Pattern: only input key is valid.
Pow Ctrl Select POWER-ON/OFF condition when AC
power cord is disconnected and then con-
nected.
OFF: The same condition when AC power
cord is disconnected.
ON: Forced power ON condition.

12
6 Troubleshooting Guide
Use the self-check function to test the unit.
1. Checking the IIC bus lines
2. Power LED Blinking timing
6.1. Check of the IIC bus lines
6.1.1. How to access
Self-check indication only:
Produce TV reception screen, and while pressing [VOLUME ( - )] button on the main unit, press [OK] button on the remote control
for more than 3 seconds.
Self-check indication and forced to factory shipment setting:
Produce TV reception screen, and while pressing [VOLUME ( - )] button on the main unit, press [MENU] button on the remote con-
trol for more than 3 seconds.
6.1.2. Exit
Disconnect the AC cord from wall outlet.
6.1.3. Screen display
6.1.4. Check Point
Confirm the following parts if NG was displayed.

13
6.2. Power LED Blinking timing chart
1. Subject
Information of LED Flashing timing chart.
2. Contents
When an abnormality has occurred the unit, the protection circuit operates and reset to the stand by mode. At this time, the
defective block can be identified by the number of blinks of the Power LED on the front panel of the unit.

14
6.3. No Power
First check point
There are following 2 states of No Power indication by power LED.
1. No lit
2. Red is lit then turns red blinking a few seconds later. (See 6.2.)

15
6.4. No Picture

16
6.5. Local screen failure
Plasma display may have local area failure on the screen. Fig-1 is the possible defect P.C.B. for each local area.
Fig-1

17
7 Disassembly and Assembly Instructions
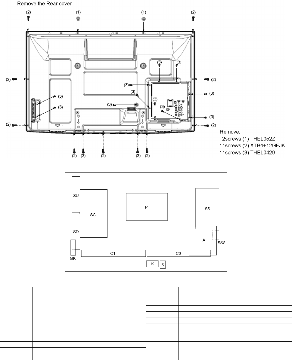
7.1. Remove the Rear cover
1. See Service Hint (Section 3)
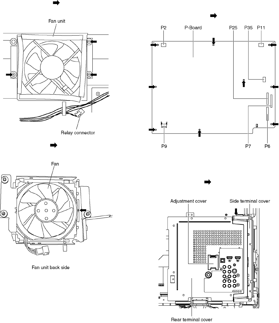
7.2. Remove the Fan
1. Unlock the cable clampers to free the cable.
2. Remove the screws (×3 ).
3. Remove the relay connectors and remove the Fan unit.
4. Remove the screw (×1 ) on the back side.
5. Remove the Fan.
7.3. Remove the P-Board
Caution:
To remove P.C.B. wait 1 minute after power was off for dis-
charge from electrolysis capacitors.
1. Unlock the cable clampers to free the cable
2. Disconnect the connectors (P2, P6, P7, P9, P11, P25 and
P35).
3. Remove the screws (×9 ) and remove the P-Board.
7.4. Remove the Side terminal
cover and Rear terminal cover
1. Remove the claw (×1 ).
2. Remove the Side terminal cover.

18
3. Remove the Adjustment cover.
4. Remove the screws (×4 , ×3 , ×1 ).
5. Remove the Rear terminal cover.
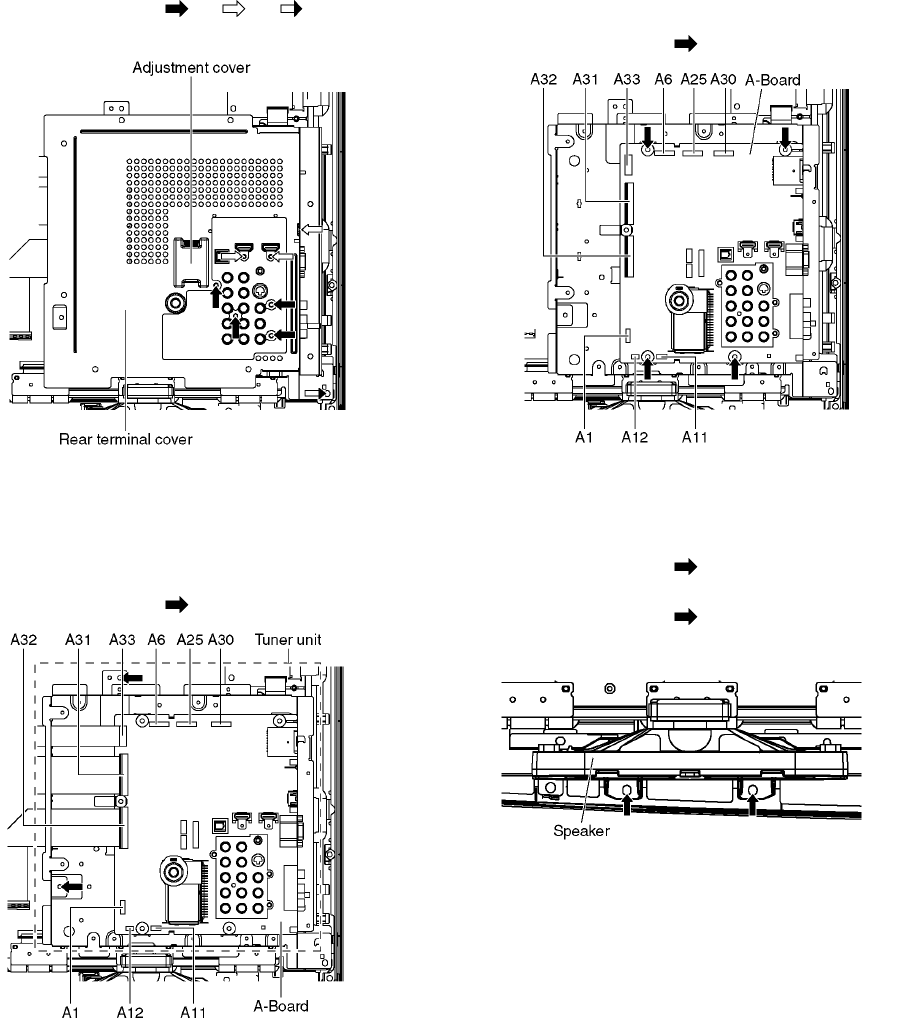
7.5. Remove the Tuner unit
1. Unlock the cable clampers to free the cable.
2. Disconnect the connectors (A1, A6 A11, A12, A25 and
A30).
3. Disconnect the flexible cables (A31, A32 and A33).
4. Remove the screws (×2 ) and remove the Tuner unit.
7.6. Remove the A-Board
1. Remove the Tuner unit. (See section 7.5.)
2. Remove the screws (×4 ) and remove the A-Board.
7.7. Remove the Speakers
1. Unlock the cable clampers to free the cable.
2. Disconnect the relay connector.
3. Remove the screws (×2 ) and remove the Speaker R.
4. Disconnect the connector (A12). (See section 7.5.)
5. Remove the screws (×2 ) and remove the Speaker L.

19
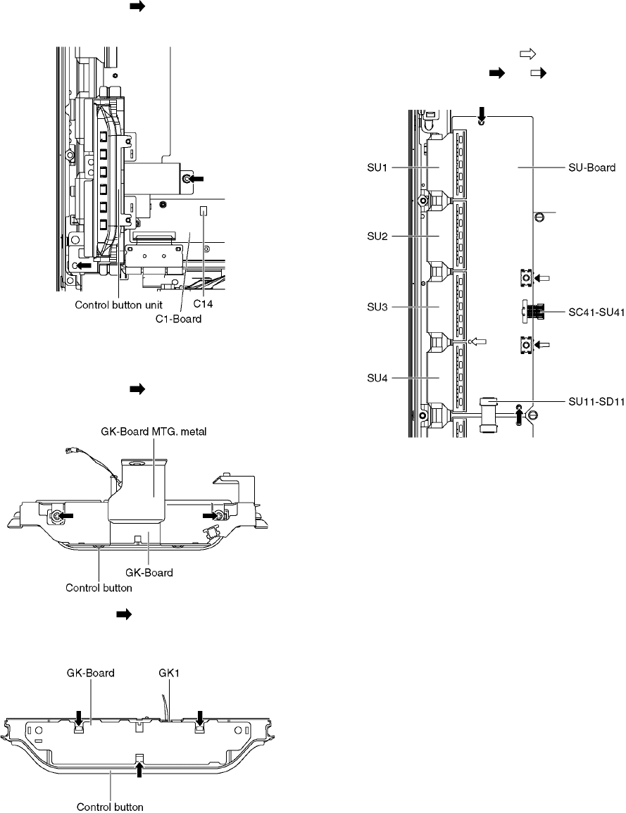
7.8. Remove the Control button unit
1. Disconnect the connector (C14).
2. Remove the screws (×2 ).
3. Remove the Control button unit.
7.9. Remove the GK-Board
1. Remove the Control button unit. (See section 7.8.)
2. Remove the screws (×2 ).
3. Remove the GK-Board MTG. metal.
4. Remove the claw (×3 ).
5. Disconnect the connector (GK1).
6. Remove the GK-Board from Control button.
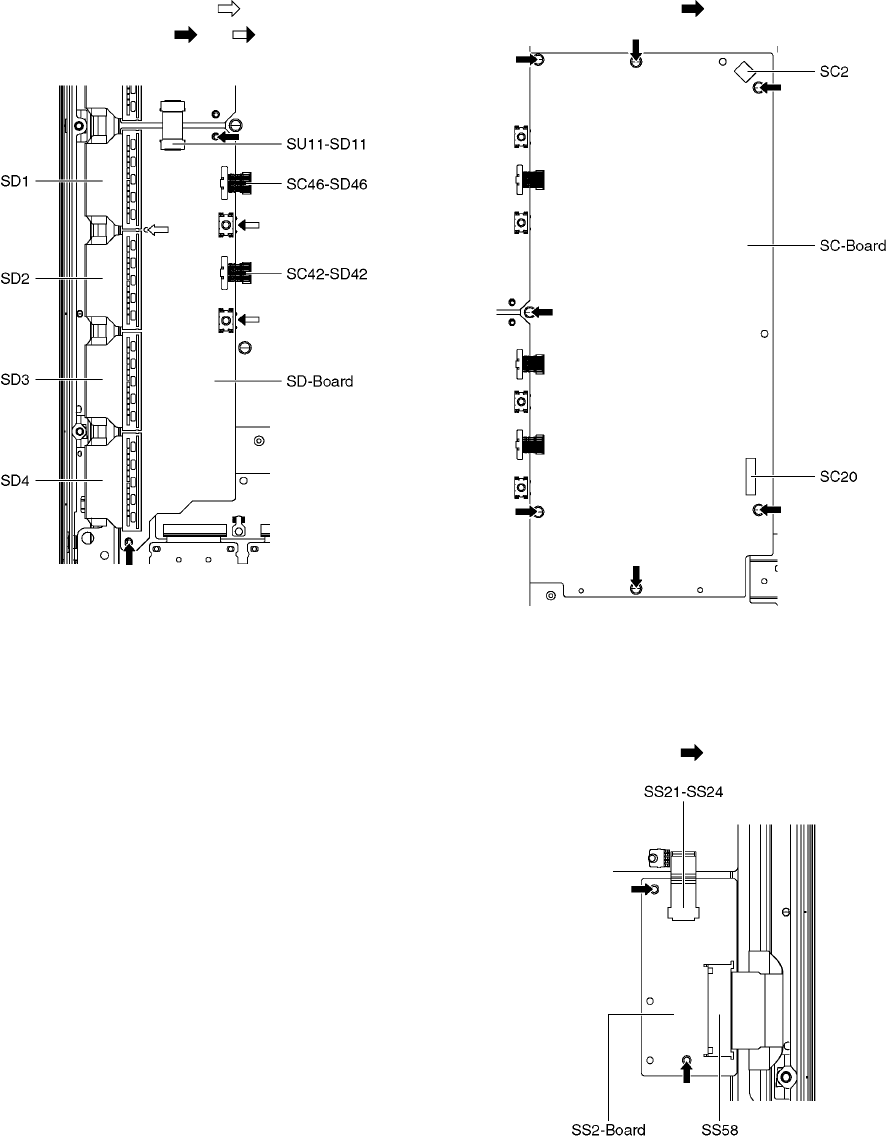
7.10. Remove the SU-Board
1. Remove the flexible cables (SU1, SU2, SU3 and SU4)
connected to the SU-Board.
2. Remove the flexible cable (SU11-SD11) and the bridge
connector (SC41-SU41).
3. Remove the molding prop (×1 ).
4. Remove the screws (×2 , ×2 ) and remove the SU-
Board.

20
7.11. Remove the SD-Board
1. Remove the Control button unit. (See section 7.8.)
2. Remove the flexible cables (SD1, SD2, SD3 and SD4)
connected to the SD-Board.
3. Remove the flexible cable (SU11-SD11) and the bridge
connectors (SC42-SD42 and SC46-SD46).
4. Remove the molding prop (×1 ).
5. Remove the screws (×2 , ×2 ) and remove the SD-
Board.
7.12. Remove the SC-Board
1. Remove the SU-Board and SD-Board. (See section 7.10.
and 7.11.)
2. Unlock the cable clampers to free the cable.
3. Disconnect the connector (SC2).
4. Disconnect the flexible cable (SC20).
5. Remove the screws (×7 ) and remove the SC-Board.
7.13. Remove the SS2-Board
1. Remove the Tuner unit. (See section 7.5.)
2. Disconnect the bridge connector (SS21-SS24) and dis-
connect the flexible cable (SS58).
3. Remove the screws (×2 ) and remove the SS2-Board.

21
7.14. Remove the SS-Board
1. Remove the Tuner unit. (See section 7.5.)
2. Unlock the cable clampers to free the cable.
3. Disconnect the connectors (SS11 and SS33).
4. Disconnect the flexible cables (SS61 and SS64).
5. Disconnect the bridge connector (SS21-SS24).
6. Remove the screws (×7 ) and remove the SS-Board.
7.15. Remove the Hanger metals and
the Stand brackets
1. Remove the Plasma panel section from the servicing
stand and lay on a flat surface such as a table (covered
by a soft cloth) with the Plasma panel surface facing
downward.
2. Remove the Hanger metals (L, R) fastening screws (×4
each) and remove the Hanger metals (L, R).
3. Remove the Stand brackets (L, R) fastening screws (×4
each) and remove the Stand bracket metals (L, R)
and the Stand brackets (L, R).
7.16. Remove the C1-Board
1. Remove the Control button unit. (See section 7.8.)
2. Remove the Hanger metal R and the Stand bracket R.
(See section 7.15.)
3. Remove the flexible cables holder fastening screws (×16
).
4. Disconnect the flexible cables (CB1, CB2, CB3, CB4,
CB5, CB6, CB7 and CB8).
5. Disconnect the connector (C14).
6. Disconnect the flexible cables (C10 and C11).
7. Remove the screws (×4 ) and remove the C1-Board.
7.17. Remove the C2-Board
1. Remove the Tuner unit. (See section 7.5.)
2. Remove the Hanger metal L and the Stand bracket L.
(See section 7.15.)
3. Remove the flexible cables holder fastening screws (×14
).
4. Disconnect the flexible cables (CB9, CB10, CB11, CB12,
CB13, CB14 and CB15).
5. Disconnect the flexible cables (C20 and C21).
6. Disconnect the connectors (C23 and C25).
7. Remove the screws (×4 ) and remove the C2-Board.

22
7.18. Remove the Plasma panel sec-
tion from the Cabinet assy
(glass)
1. Remove the cabinet assy and the plasma panel fastening
screws (×2 ).
2. For leaving the plasma panel from the front frame, pull the
bottom of the cabinet assy forward, lift, and remove.
3. Remove the Rear cover hooks (L, R).
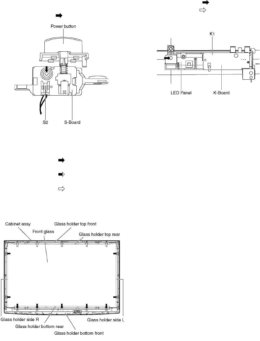
7.19. Remove the S-Board
1. Remove the Cabinet assy. (See section 7.18.)
2. Remove the S-Board shield case.
3. Remove the screws (×2 ) and remove the S-Board
unit.

23
4. Disconnect the connector (S2).
5. Remove the Power button.
6. Remove the screw (×1 ) and remove the S-Board.
7.20. Remove the K-Board
1. Remove the Cabinet assy. (See section 7.18.)
2. Remove the S-Board. (See section 7.19.)
3. Remove the screws (×5 ).
4. Remove the Glass holder bottom rear.
5. Remove the screws (×4 ).
6. Remove the Glass holder side (L, R).
7. Remove the screws (×7 ).
8. Remove the Glass holder top rear and the Glass holder
top front.
9. Remove the Glass holder bottom front.
10. Remove the screw (×1 ).
11. Remove the claw (×1 ).
12. Disconnect the connector (K1) and remove the K-Board
from LED Panel.
7.21. Replace the plasma panel
Caution:
A new plasma panel itself without Hanger metals is
fragile.
To avoid the damage to new plasma panel, carry a new
plasma panel taking hold of the Hanger metals after
assembling the Hanger metals and the Stand brackets.
1. Place a carton box packed a new plasma panel on the flat
surface of the work bench.
2. Open a box and without taking a new plasma panel;
Attach the C1-Board and the C2-Board, connect the flexi-
ble cables from the plasma panel to the C1-Board and the
C2-Board, and fit the flexible cable holders.
3. Attach the Hanger metals and the Stand brackets to the
new plasma panel.
4. Place the plasma panel on the servicing stand taking hold
of the Hanger metals.
5. Attach the cabinet assy and each P.C.Board and so on, to
the new plasma panel.
*When fitting the cabinet assy, be careful not to allow any
debris, dust or handling residue to remain between the
front glass and plasma panel.

24
8 Measurements and Adjustments
8.1. Adjustment Procedure
8.1.1. Driver Set-up
8.1.1.1. Item / Preparation
1. Input a white signal to plasma video input.
2. Set the picture controls as follows.
Picture menu: Vivid
Normal: Set
Aspect: Full
Caution
1. First perform Vsus adjustment.
2. The Vscn voltages are measured from the Vad (Vad_base), but may be measured from the GND (GND_base) in an
unavoidable case.
8.1.1.2. Adjustments
Adjust driver section voltages referring the panel data on the panel data label.
Check or adjust the following voltages with the multimeter.
*See the Panel label.
Name Test Point Voltage Volume Remarks
Vsus TPVSUS (SS) Vsus ± 2V VR251(P) *
Ve TPVE (SS) Ve ± 2.5V Fixed *
Vset TPVSET (SC) 290V ± 9V Fixed
Vad TPVAD (SC) - 195V ± 2V VR16600 (SC)
Vscn TPVSCN (SC) Vad_base : 148V ± 1V
GND_base : - 47V ± 3V
VR16841
(SC)
Vda TP9 (P) 60V + 1V, - 2V Fixed

25
8.1.2. Initialization Pulse Adjust
1. Input the White signal to plasma video input.
2. Set the picture controls as follows.
Picture menu : Vivid
Normal : Set
Aspect : Full
3. Connect Oscilloscope to TPSC1 (SC).
Check the voltage (T2) at 100μs period on the down slop.
8.1.3. P.C.B. (Printed Circuit Board) exchange
8.1.3.1. Caution
1. To remove P.C.B., wait 1 minute after power was off for discharge from electrolysis capacitors.
8.1.3.2. Quick adjustment after P.C.B. exchange
Adjust the following voltages with the multimeter.
*See the Panel label.
Caution:
Absolutely do not reduce Vsus below Ve not to damage the P.C.B.
Test point Volume Level
T2 TPSC1 (SC) VR16601 (SC) 250 V ± 10 V
P.C.B. Name Test Point Voltage Volume Remarks
P Board Vsus TPVSUS (SS) Vsus ± 2V VR251 (P) *
SC Board Vad TPVAD (SC) - 195V ± 2V VR16600 (SC)
SC Board Vscn TPVSCN (SC) Vad_base : 148V ± 1V
GND_base : - 47V ± 3V
VR16841 (SC)
A Board White balance and Sub brightness for NTSC, PAL, HD, PC and 625i signals

26
8.1.4. Adjustment Volume Location
8.1.5. Test Point Location

27
8.2. Adjustment
8.2.1. White balance adjustment
Name of measuring instrument Connection Remarks
• W/B pattern
• Color analyzer
(Minolta CA-100 or equivalent)
Component input
or HDMI input
or ATSC 1080i signal
Panel surface
Procedure Remarks
• Make sure the front panel to be used on the final set is fitted.
• Make sure a color signal is not being shown before adjustment.
• Put the color analyzer where there is little color variation.
1. Set the Picture menu to [vivid] and output the W/B pattern.
2. Check that the color temperature is [Cool].
3. Set to serviceman mode, WB-ADJ.
4. Set [R-CUT] [G-CUT] [B-CUT] the values written in table 1.
5. Attach the sensor of color analyzer to the center of highlight window.
6. Fix G drive at C0h and adjust [B-DRV] and [R-DRV] so x, y value of color analyzer
become the [Color temperature High] in table 2.
7. Increase RGB together so the maximum drive value in RGB becomes FC. That is,
set [ALL DRIVE] to FC.
Execute adjustment again. When that, the maximum value of R/G/B DRV should be FC,
and either R/G/B DRV should be FC.
8. Set color temperature to [Normal].
9. Set [R-CUT] [G-CUT] [B-CUT] the values written in table 1.
10. Attach the sensor of color analyzer to the center of highlight window.
11. Fix G drive at C0h and adjust [B-DRV] and [R-DRV] so x, y value of color analyzer
become the [Color temperature Mid] in table 2.
12. Increase RGB together so the maximum drive value in RGB becomes FC. That is,
set [ALL DRIVE] to FC.
Execute adjustment again. When that, the maximum value of R/G/B DRV should be FC,
and either R/G/B DRV should be FC.
13. Set color temperature to [Warm].
14. Set [R-CUT] [G-CUT] [B-CUT] the values written in table 1.
15. Attach the sensor of color analyzer to the center of highlight window.
16. Fix G drive at C0h and adjust [B-DRV] and [R-DRV] so x, y value of color analyzer
become the [Color temperature Low] in table 2.
17. Increase RGB together so the maximum drive value in RGB becomes FC. That is,
set [ALL DRIVE] to FC.
Execute adjustment again. When that, the maximum value of R/G/B DRV should be FC,
and either R/G/B DRV should be FC.
18. Set color temperature to [Cool].

28

29
9 Block Diagram
9.1. Main Block Diagram
HOTCOLD
(LED:8TIME)
(LED:4TIME)
(LED:7TIMES)
(LED:6TIMES)
(LED:7TIMES)
(LED:12TIMES)
(LED:5TIMES)
(LED:2TIMES)
(LED:3TIMES)
(LED:6TIMES)
(LED:4TIMES)
(LED:11TIMES)
(LED:11TIMES)
(LED:10TIMES)
(LED:10TIMES)
(LED:8TIMES)
(LED:12TIMES)
Vda
DATA
DRIVER
DATA
DRIVER
Vda
DATA
DRIVER
DATA
DRIVER
DATA
DRIVER
SUSTAIN CONTROL
DATA
DRIVER
DATA
DRIVER
DATA
DRIVER
DATA
DRIVER
KEYSCAN1
VIDEO DATA
+5V(P)
C25
Vda
C20
DATA
DRIVER
VIDEO DATA
DATA
DRIVER
+5V(P)
DATA
DRIVER
C10
C1
VIDEO DATA
DATA
DRIVER
C14
+5V(P)
DATA DRIVER (LEFT)
C11 C23
DATA
DRIVER
DATA
DRIVER
DATA DRIVER (RIGHT)
SOS8_SS
C2
C21
+5V(P)
P35
VIDEO DATA
VSUS
KEYSCAN1
CONTROL
PULSE
F15V
SS21
SC42
STB5V
SS33
ON/OFF CONTROL
SOUND15V
POWER MICOM
SCAN
DRIVER
VSUS GEN.
SS2
SUSTAIN CONTROL
+15V(P)
STB5V
(LOWER)
SS-BOARD
SOS DETECT
SCAN OUT (UPPER)
SD11
VSUS
SU41
P2
SUSTAIN
SCAN OUT (LOWER)SD
SD42
P
BUFFER
STANBY
VOLTAGE
RECTIFIER
SUSTAIN DRIVE
VSUS
SU
KEYSCAN1
+15V(P)
PROCESS
VOLTAGE
RECTIFIER
SS11P11
GK
+15V(P)
SCAN
DRIVER
+5V(P)
SD46
F15V
AC CORD
SU11
SUSTAIN
VOLTAGE
RECTIFIER
+5V(P)
KEY SWITCH
P9
VIDEO DATA
VSCAN GEN.
VAD GEN.
SOS8_SS
P34
SUSTAIN CONTROL
+15V(P)
SOS8_SS
VSUS
SC41
GK1
CONNECTOR
Vda
RECTIFIER
POWER
FACTOR
CONTROL
KEY SWITCH
VSET GEN.
P7
MAIN SW1
P6
+5V(P)
+5V(P)
MAIN SW2
P-BOARD
SOS DETECT
POWER SUPPLY
PS SOS4
Vda
VE GEN.
SC2
SS24
ENERGY RECOVERY
RECTIFIER
P25
SC46
VSUS
RELAY
SS
SC-BOARD
FLOTING PART
SOS DETECT
SCAN DRIVESC
SC-BOARD
ENEGRY RECOVERY
SOS DETECT
+5V(P)
SOS7_SC2
SC20
+15V(P)
SOS6_SC1
SCAN CONTROL
FAN POWER
HDMI2
+5V(P)
STB_D3.3V
FLASH
EEPROM
TMDS DATA
POWER LED(R)
SOS6_SC1
L,R
+2.5V(P)
FAN SOS DET
AUDIO SW
SOS8_SS
KEYSCAN3
R
SLOT
REMOTE RECEIVER
SBO2
SBI2
PANEL MICOM
ON
C.A.T.S. SENSOR
(SIDE)
OUT
+5V(P)
C.A.T.S. SENSOR
IFD_OUT
PD3-H
SPEAKER(L)
+15V(P)
SOS6_SC1
+5V(P)
V
+2.5V(P)
REMOTE RECEIVER
SUB5V
SOUND SOS
BT30V
SUB+5V DET
LVDS DATA
SUB9V
A32
TMDS DATA
STB3.3V
FAN SOS
SUB3.3V
HDMI DATA
STB5V
VIDEO2
SUB9V
SD
PLASMA AI
CPG with SS
H/V Sync Control
Sub Filed Processor
Plasma AI
STB3.3V
SUB1.3V
HDMI1
SUB1.3V
F15V
A6
MEMORY
SUB9V
DCDC
+3.3V(S)
R,G,B
BT30V
SUB1.8V
PANEL STATUS
DCDC
SUB9V
SUB1.8V
DCDC
FAN MAX
SUB3.3V
SUB5V
+5V(P)
SUB5V
DCDC
SUB5V
PAMEL SOS
DIGITAL SIGNAL PROCESSOR
TUNER SOS
OPTICAL
Y,PB,PR
COMP1
+9/7.2V
SOUND
TMDS DATA
A31
PANEL STB_ON
L,R
+3.3V(P)
SOS7_SC2
EEPROM
C.A.T.S. SENSOR
DCDC
+1.8V(P)
LED(R)
K
PANEL STATUS
SOUND SOS DET
CIRCUIT
DCDC
PANEL STB_ON
+15V(P)
A/D
OPTICAL AUDIO OUT
F15V
VIDEO DATA
+1.2V(P)
A30
HDMI SW
+5V(S)
+5V(P) DET
SUB+9V DET
STB5V_M
CIRCUIT
LVDS DATA
S
+15V(P) DET
A
SOS8_SS
V
FAN SOS
CONTROL
SIGNAL
A1
VIDEO DATA
Seine3LV
L,R
SUB+3.3V DET
FAN MAX
SD0
F15V
RESET
F15V
DCDC
V,Y,C
+3.3V(P) DET
PAMEL SOS
COMP2
A25
VIDEO SW
+15V(P)
+1.8V(P)
+5V(P)
S2
L,R
BT30V
SD
TUNER
DCDC
A12
POWER
Y,PB,PR
SCAN CONTROL
SD CARD DATA
L,R
AMP
A11
+3.3V(P)
OPTICAL OUT
SYSTEM MPU
STB_D3.3V
A33
HDMI3
L,R
(SIDE)
+3.3V(P)
+5V(P)
POWER SOS
+15V(P)
SOS7_SC2
KEYSCAN1
+9V(S)
SD CARD
VSB_IN
SDIN
+3.3V(STB)
SUSTAIN
CONTROL
SOUND SOS
IIC1
DISCHARGE
CONTROL
HDMI DATA
SOUND15V
AUDIO
SOUND15V
+1.2V(P)
AUDIO
SWITCH
VIDEO1
K1
DDR
SD CARD DATA
+3.3V(STB)
PANEL
MAIN ON
DDR2
POWER LED
REMOTE IN
STB5V
L
POWER SWITCH
TUNER SOS DET
CIRCUIT
TUNER SOS
SPEAKER(R)
FAN_A-B
R,G,B
KEYSCAN1
RESET
HOTCOLD
(LED:8TIME)
(LED:4TIME)
(LED:7TIMES)
(LED:6TIMES)
(LED:7TIMES)
(LED:12TIMES)
(LED:5TIMES)
(LED:2TIMES)
(LED:3TIMES)
(LED:6TIMES)
(LED:4TIMES)
(LED:11TIMES)
(LED:11TIMES)
(LED:10TIMES)
(LED:10TIMES)
(LED:8TIMES)
(LED:12TIMES)
R,G,B
PC

30
9.2. Block (1/4) Diagram
(LED:10TIMES)
(LED:11TIMES)
BT30V
PA5601
STB5V
SUB3.3V
STB3.3V
Q5604
HDMI_3.3V
SUB3.3V
D5521
SUB1.8V
D5522
BT30V
SUB9V
SOUND15V
D5613
SUB1.3V
SUB9V
D5692
Q5603
D5614
SUB2.5V
F15V
SUB9V
SUB5V
SUB5V
STB5V
Q5522
L5442L5441 D5484
D5485
SUB5V
D5615
D5750
D5749
TPF0S
STB5V
SBI2
IC5607
D1_Y
SBO2
IIC1_
EEP
VIDEO2
IC8003
2
F15V DET
+5V(HDMI)
HDMI DATA
0.9V
4
9
ON/OFF
PC_V
Q4530
SUB9V
6
1
SOUND15V
IC8502
PC_G
IC4508
SUB5V
VIDEO1
IC5608
Q4531
Q4529
DET_3
TMDS DATA
CLOCK
DET_2
TV SUB ON
JK4502
COMP2
D5486
EEPROM
DRV
+5V(HDMI)
5
1.3V
DET_1
IC2107
37
L/R
F15V
F15V
PC_HS/VS
OUT
AUDIO
I/F
DROP
PC
ERROR DET
HS/VS
BT30V
PC_R
STB5V
Y/PB/PR
PC_H
3
EEPROM
TV
1
A12
SDIN
HDMI_CEC
A11
+9V
IC8007
RX1
L/R
2.5V
V2
STB_RESET
SUB5V
VIDEO1
SUB3.3V
JK3001
V2_R
PC
L(+)
PC_B
L(-)
L/R
VIDEO
V1
R(+)
F15V
SUB1.3V
P7
DDC_IIC
D1
P6
AUDIO
IIC1_
EEP
JK3701
IF_AGC
IIC0
(SIDE)
HDMI_IN
IIC1
SDIN
LVDS_OUT
SYS_IIC0
TV_R
R/G/B_IN
TV_L
ANT IN
+5V(HDMI)
DET 1,2,3
DDR2 #0
+5V(HDMI)DET 1,2,3
BT30V
IC8002
JK4501
5V 2.5V
IFD_OUT2
8
AFT
F15V
V2_L
SUB9V
V2_V
14
VIDEO2
SUB1.8V
COMP2
COMP1
DDR I/F
DIGITAL SIGNAL PROCESSOR
R/G/B
RESET
STB3.3V
IFD_OUT1
AFT
KEYSCAN3
DTV RESET
DDC3_IIC
SUB9V
IC8004
SYS_IIC2_TU
V
D1
TV_V
COMP1
SUB5V
D2
SOUND15V
SD CARD
IC5606
SUB3.3V
SOUND15V
L/R
JK8302
AUDIO
IF_AGC
V1_R
DDC IIC
D3005
DTV1
D1_L
OPTICAL
9V
DDC1_IIC
L/R
DTV2
DTV5V
IC4501
D2
+1.3V
D1_R
CPU BUS
I/F
+1.8V
D2_Y
VIDEO3
+3.3V
EEPROM
+5V
V1
IC4500
IC8008
SDO
BT30V
MAIN L/R
IC8503
D2_PB
V2
R/G/B
Y/PB/PR
SPEAKER
D2_PR
13
SPDIF
HDMI_CEC
SOUND A/D
IC2109
IIC_IF
TUNER SOS
OUT
SPEAKER_R
L/R
A6
D2_L L/R
STB
VOLTAGE
D2_R
+5V(HDMI)
RESET
HDMI_CEC
DDC2_IIC
RX3
DTV1
IC5480
TMDS DATA
CLOCK
3.3V
RX2
EEPROM
3.3V
COMP2
HS/VS
VIDEO SW
Y/C/V
HS/VS
STB
+3.3V
SYS_IIC0
PC_HS/VS
PC
JK3000
VIDEO4
V1_L
VIDEO1
DDC IIC
5V
1
Y/C
(SIDE)
V1_C
COMP1
3.3V
A
VIDEO2
1
2
HDMI IN 1
+5V
F15V
VIDEO3
3
RGB_CVBS
+5V
SOUND15V
2
HDMI IN 3
+5V
TV SUB ON
D1_PR
DDC IIC
PC
SUB5V
HDMI IN 2
HDMI_CEC
VIDEO4
HDMI SW
STB3.3V
V1_V
R/G/B/H/V
Y/PB/PR
L/R
MUTE
AUDIO AMP
SD CARD
I/F
TV
IC4503
+15V
D1_PB L/R
L_OUT
V1_Y
R(-)
TMDS DATA
CLOCK
TV
Y/C
LVDS DATA
L/R
TV_VIDEO
3.3V
AUDIO SW
V
STB_RESET
CLOCK GEN
L/R
1.8V
MAIN
OUT
ANALOG ASIC
SPEAKER_L
CLOCK
SUB
OUT
SPEAKER
RESET
Seine3LV
SUB MONO
L+R
JK4500
IC8001
R_OUT
DDC_
IIC
TV
IIC0
SD DATA:4bit
SOS DET
+9/7.2V
D5746
D5747
FAN B OVER
VOLTAGE
3
A30
FAN A FAN STOP
FAN A-B
1
FAN SOS
FAN MAX
PANEL MAIN ON
LVDS DATA
HDMI DATA
CLK BUFFER
IC8009
IC3001
VSB_I/F
VINP_VSB
VINN_VSB
TU8300
TUNER
DDRVREF
IC5401
OPTICAL AUDIO OUT
IC5740
F15V
FAN CONT.
NOR FLASH
(LED:10TIMES)
(LED:11TIMES)

31
9.3. Block (2/4) Diagram
(LED:6TIMES)
(LED:8TIMES)
(LED:4TIMES)
(LED:5TIMES)
(LED:10TIMES)
(LED:3TIMES)
(LED:7TIMES)
(LED:2TIMES)
(LED:11TIMES)
P15V
STB3.3V
P3.3V
P5V
D2520
P1.2V
Q1105
P1.8V
STB5V_M
P3.3V
STB_D3.3V
P1.8V
STB3.3V
SUB5V
3
IC9808
PANEL SOS
IIC1
PANEL STATUS
+2.5V
PANEL STB_ON
9
KEYSCAN3
4
POWER LED
6
C.A.T.S.
POWER SWITCH
A1
5
2
IIC3
1.2V
CONTROL DATA
FLASH I/F
2.5V
DDR2
IC9300
CONTROL DATA
5
C11
+1.2V
1
SUB9V
45
K
SUB5V
A32
+15V(P) DET
ADDR/DATA
+5V(P)
PD3-H
+5V(P)
2
TV SUB ON
SUSTAIN CONTROL
AND
PANEL SOS
SOS7_SC2
60
IC1102
STB+3.3V/RESET
FLASH
MEMORY
6
HDMI_CEC
+5V(P)
63
SOS6_SC1
PANEL STATUS
68
SC20
1
TUNER SOS
2
AUX_ON/OFF
SOS6_SC1
XRST,
XRSTSYS
A31
POWER SWITCH
VIDEO DATA
10
SCAN CONTROL
STB RESET
DTV RESET
S
REMOTE IN
KEYSCAN3
RESET
STB RESET
+15V(P)
+5V(P)
FOR
FACTORY
USE
IIC2
2
IIC1
CONTROL DATA
+15V(P)
STB_D3.3V
IIC0
9
STB5V
A
SOS7_SC2
+3.3V(P) DET
DIGITAL SIGNAL PROCESSOR
RESET
15
A17
+5V(P)
+15V(P)
A18
PANEL SOS
12
PANEL STATUS
PANEL SOS
STB+3.3V
KEYSCAN1
HDMI_CEC_
OUT
6
IC9807
29
6
IC9001
+3.3V
14
1
3
SUSTAIN CONTROL
*PLASMA AI
*CPG with SS
*H/V Sync Control
*Sub Filed Processor
*Plasma AI
2
GenX7
IC9902,03
Config(DONE)
KEYSCAN1
STB3.3V
SUB3.3V
UHZ
IC9004
+15V(P)
SUB9V DET
VIDEO DATA
+5V(P)
SOS8_SS
IC9303
SOS8_SS
DISCHARGE CONTROL
5
PANEL MAIN ON
C21
Config(CCLK,DDTATA,PROGB),
FPCLK,FPDATA[1:0],FVSEL
IIC2
3
+1.8V
66
SOS4_PS
1
IIC2
IC9806
VIDEO DATA
1
SCAN CONTROL
68
REMOTE IN
1
ON
POWER LED(R)
TUNER SOS
TEMP SENSOR
IC1100
IC4800
TV SUB ON
SUB3.3V DET
A25
HDMI_CEC_
PU_ON
A33
66
5
+5V(P) DET
VIDEO DATA
3
POWER ON/OFF
1.2V
UHZ
DTV RESET
3.3V
17
REMOTE RECEIVER
P25
IC9003
10
PANEL_MAIN_ON
K1
11
OSD I/F
SW2500
S2
POWER SOS
FOR
FACTORY
USE
IIC2
PANEL STATUS
PANEL STB_ON
DDR I/F
SUB+5V
KEYSCAN3
1.8V
OSD I/F
30
POWER LED
Config(DONE)
+5V(P)
PANEL STB_ON
DRVRST
FPGARST
XRST
C.A.T.S. SENSOR
3.3V
AI SENSOR
TV_VIDEO
8
KEYSCAN3
TV_VIDEO
8
IC9805
PANEL MICOM
EEPROM
SUB5V DET
K1
+3.3V
STB3.3V
R_LED_ON
1
LVDS DATA
LVDS DATA
PANEL
MAIN ON
SYSTEM MPU
IC9500
FAN SOS
FAN MAX FAN SOS
FAN MAX
AFT
AFT
IIC0
SYS_
IIC0
IIC1_
EEP
IIC2
SYS_
IIC2_TU
IIC1
EEPROM
IC1101
SBO2
SBI2
REMOTE
RECEIVER
PC2501
RM2501
C.A.T.S.
SENSOR
(LED:6TIMES)
(LED:8TIMES)
(LED:4TIMES)
(LED:5TIMES)
(LED:10TIMES)
(LED:3TIMES)
(LED:7TIMES)
(LED:2TIMES)
(LED:11TIMES)

32
9.4. Block (3/4) Diagram
HOT COLD
COLDHOT
(LED:4TIMES)
NEED
HOLDER
+15V(SND)
Q551
1
Q557
SS11
6
MAIN SW_ON
11
T501
P7
PC301
+5V(STB)
9
COMPARATOR
12
P34
+15V(P)
1 1
IC352
Q201,Q202
10
IC202
2
P6
IC251
5
1
Q203-Q206
2
+5V(STB)
3
1
1
Vda
ERROR DET
P35 C25
15V
P11
F_15V_ON
9
IC351
LIVE
STB5V_
ON/OFF
T201
3
Q602,Q603
+15V(P)
10A 250V
Vsus
ALL_OFF
PFC CONTROL
VR251
+15V(SND)
P2
L601,L602
IC353
+5V(P)
D501
5V
P25
+5V(P)
VR351
BIAS_PFC
8
2
POWER
CONTROL
TV SUB ON
7
A25
+5V
+5V(STB)
K602
4
AC DET
PC503
FSTB+15V
PC201
STB
ERROR DET
PC501
D603
Vda
IC701
+15V(P)
A6
LIVE
2A 250V
+15V(SND)
Vsus
ERROR DET
Vda
PC504
Vda
NEUTRAL
AC DET
IC601
PHOTO COUPLER
NEUTRAL
+15V(P)
Q502,Q505,Q506
P9
+15V(P)
IC201
6
K605
RF601
52 1
FSTB+15V
IC501
Vda
IC551
T301
POWER MICOM
1
A6
FSTB+15V
+5V(P)
+5V(P)
+15V(P)
Vsus
Vsus
BIAS_MAIN
Vsus
PC502
15V
15V_IN
Vda_IN
Vsus_IN
Q501
Q503,Q504
Q601,Q604
L603
BIAS_PFC
BIAS_MAIN
BIAS CONTROL
SC2
RESONANCE
PHOTO COUPLER
PHOTO COUPLER
PHOTO COUPLER
PHOTO COUPLER
PHOTO COUPLER
TV SUB ON
ALL_OFF
POWER SOS
PANEL_MAIN_ON
RUSH RELAY_ON
MAIN RELAY_ON
SOS4_PS
PANEL_MAIN_ON
STB
CONTROL
P POWER SUPPLY
RECTIFIER
RECTIFIER
AC CORD
FILTER
Q207,Q208
10A 250V
2A 250V
HOT COLD
COLDHOT
(LED:4TIMES)
F351
D351
D353
F603
D504
D253
F601
D552
D254
D203
D551
F501
F602
D609

33
9.5. Block (4/4) Diagram
(LED:6TIMES)
(LED:8TIMES)
(LED:7TIMES)
VF_GND
5V
D16901
D16480
5V
TPVAD
TPSC1TPVSCN
D16493
D16820
TPSOS7
D16725
D16791
D16473
D16721
TPVSUS
D16821
D16920
TPSOS6
VR16601
D16583
VR16600
TPVSET
TPSS1
TPVSUS
D16255
TPVE
D16253
TPSOS8
D16280 D16282 VR16841
CB1
IC17101
C23
CB7
SOS8_SS
CB2
BUFFER
CB4
Vda
P35
CB
12
CB
11
SS33
A31
1
C25
C21
2
+5V(P)
CB3 CB
10
SOS8_SS
Vda
6
CB6 CB8
1
CB5
7
CB
14
CB
13
A32
CB
15
CB9
16
1
Vda
20
C10
5
C11
C20
2466
Vda
1
+5V(P)
+5V(P)
3
+5V(P)
13
+5V(P)
IC17202
VIDEO DATA
CONTROL DATA
PANEL DRIVER PANEL DRIVERPLASMA PANEL
CONTROL DATA
VIDEO DATA
SUSTAIN CONTROL
BUFFER SUSTAIN CONTROL
DATA DRIVER (RIGHT)
C1 C2 DATA DRIVER (LEFT)
59 9
2
18
+5V(P)
3
19
+5V(P)
68
KEYSCAN1
GK
1
GK1
KEYSCAN1
C14
KEY SWITCH
1
KEY SWITCH
BUFFER
IC17201
CPH1
(SC1)
VSET23
GEN.
CEL
4
6
22
5
2
SD
42
IC16501
Q16607
16V-F
IC14601-04
MAIN_STOP
IC16581
Q16441
IC16564
IC16801
IC16791
P2
CPH2
PC16685
SC50
Vscn
+15V(P)
D16871
VSCN-F
VHIZ
9
SC
42
SC
20
Q16490
CERS
CSL
+15V(P)
CEL
CRC1
2
1
IC16792
IC16793
(INIT-F)
CRC2
SEL
CPH1 SIU
OC1
SC
46
15V_F
8
SU
11
D16859
Q16818
9
UHZ
IC14805-08
Q16601
CML
CERS
DC/DC
6
IC16771
CMH
8
Q16452
4
Vfo
D16482
Q16661
IC16464,65
3
SC
41
1
CML
SD
46
IC16490,91
IC14901-05
2
Q16608
CLK
A33
8
LED(G)
(VAD)
VHIZ GEN.
SOS7_SC2
Q16403
Q16621
F_5V_B
IC16563
CLK
OC2
VHIZ
SD1-SD4
IC16692
IC14801-04
3
IC16561,62
2
SCNR_PRO
IC16773
1
PC16461
CML
15V_F
Q16604
OC2
CSL
Q16404
Q16876
CPH2
+5V
+5V(P)
PC16480
VSET23
IC16725
CSH
VSCN
+5V
D16462
CSH
SD
11
SCNR_PRO
Vsus
VOH
VOL
Vad+5V
Vfo
Q16423
19
D16481
CRC2
VSET23
(SC2)
35
8
21
CIS
SU
41
D16860
SU1-SU4
IC16786,87
SC2
CERS
IC14605-08
IC16521
D16461
PC16601
SIU
SOS6_SC1
CMH
Q16424
7
Q16402
Q16422
5
IC16661
IC16784
6
Q16623
4
UHZ
CRC1
OC1
IC16920
IC16724
CIS
4
PC16684
PC16603
CSL
(15V_F)
F_5V_A
SEL
SCAN DRIVESC
SCAN OUT (UPPER)SU
SCAN OUT (LOWER)SD
Q16004
UMH
SS
11
Q16022
13
Q16001
IC16241
USL
SS
64
UML
P11
PC16301
D16042
D16052
7
D16041
Q16051
D16051
UML
SS
33
Q16023
1
+15V
+5V(P)
13
Q16102
1
SS
61
UMH
1
C23
2
1
Q16041
6
2
IC16304
USH
7
PC16191
SS
21
UEH
Q16002
USL
4
SOS8_SS
USH
IC16251
UEH
Q16021
IC16131
Q16101
IC16312
LED(G)
1
IC16151
Vsus
SS SUSTAIN DRIVE
CONNECTOR
SUSTAIN
(LOWER)
SS2
6
1
SS
24
7
2113
SS
58
SHUNT
VE GEN.
PHOTO
COUPLER
REG.
IPD CIRCUIT
PANEL SUSTAIN
PLASMA PANEL
ELECTRODE
ERROR DET
FPC DET
Q16280
DRIVER
VE Gen.
BUFFER
SUSTAIN CONTROL SUSTAIN CONTROL
DRIVER
VSUS Gen.
RECOVERY
ENERGY
ERROR DET
PHOTO COUPLER
CONVERTER
PHOTO COUPLER
INVERTER
PHOTO COUPLER
PHOTO COUPLER
INVERTER
CSH/CMH GATE
DRIVE CIRCUIT
CSL/CML GATE
DRIVE CIRCUIT
PHOTO
COUPLER
ERROR DET
SCAN
SCAN
DRIVER
DRIVER
PANEL SCAN
PLASMA PANEL
ELECTRODES
DRIVER
LOGIC IC
SCAN
DRIVER
SCAN
SHUNT
REG.
COMPARATOR
VSET GEN.
SHUNT REG
COMPARATOR
IPD CIRCUIT
SHUNT REG
VSCN GEN.
IPD CIRCUIT
VAD
GEN.
BUFFER
SCAN CONTROL SCAN
CONTROL
INVERTER
CIRCUIT
SEPA PROTECT
DROP
VOLTAGE
ERROR DET
ERROR DET
PHOTO COUPLER
FOR
FACTORY
USE
IPD CIRCUIT
IC16788,89
(VSCN)
NAND GATE
IC16691
(LED:6TIMES)
(LED:8TIMES)
(LED:7TIMES)
34

35
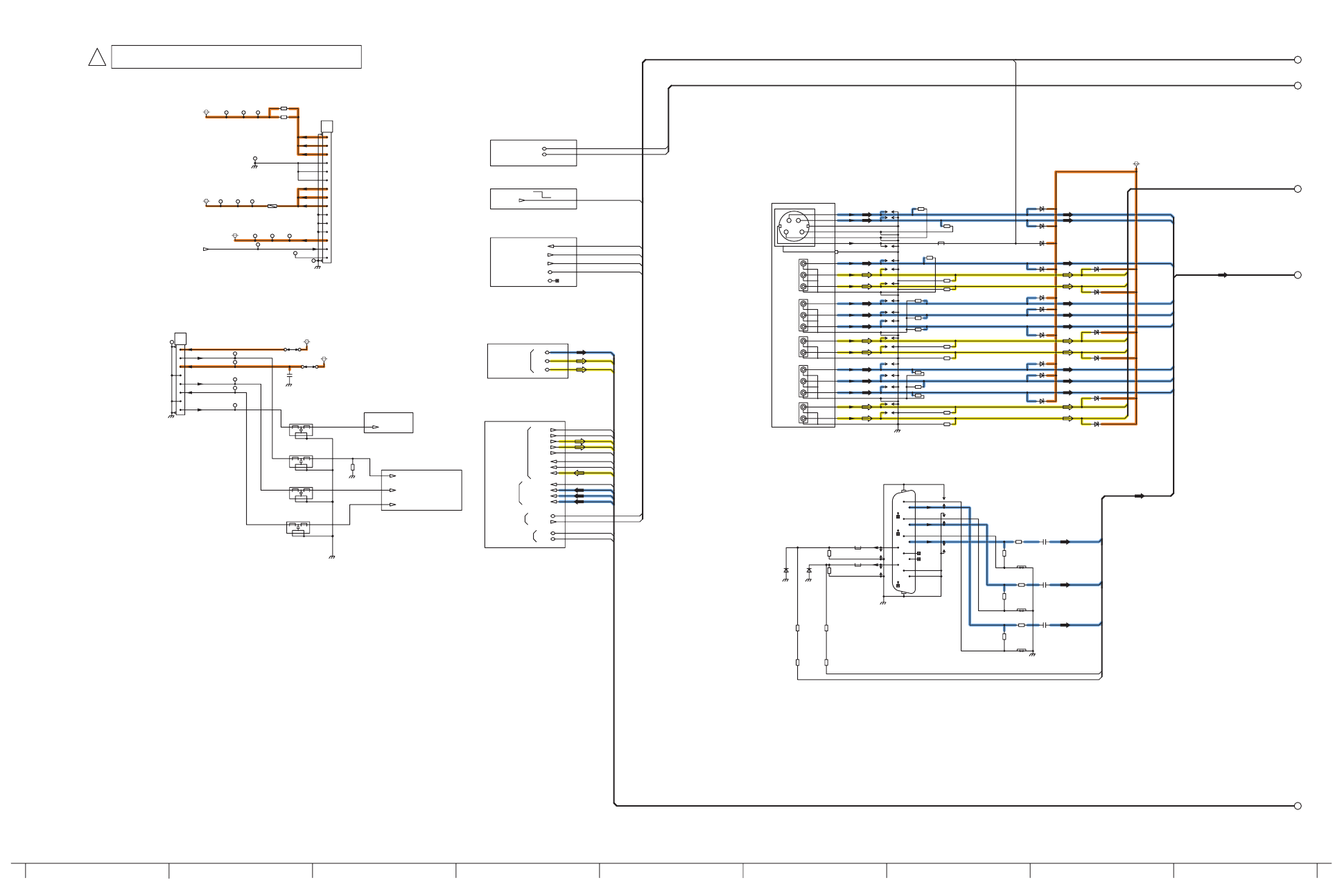
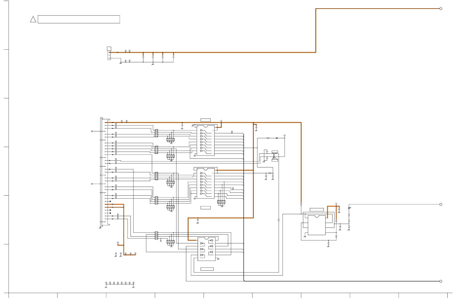
10 Wiring Connection Diagram
10.1. Caution statement.
Caution:
Please confirm that all flexible cables are assembled correctly.
Also make sure that they are locked in the connectors.
Verify by giving the flexible cables a very slight pull.
10.2. Wiring (1)

36
10.3. Wiring (2)

37
10.4. Wiring (3)

38
10.5. Wiring (4)

39
10.6. Wiring (5)
40

41
11 Schematic Diagram
11.1. Schematic Diagram Note

42
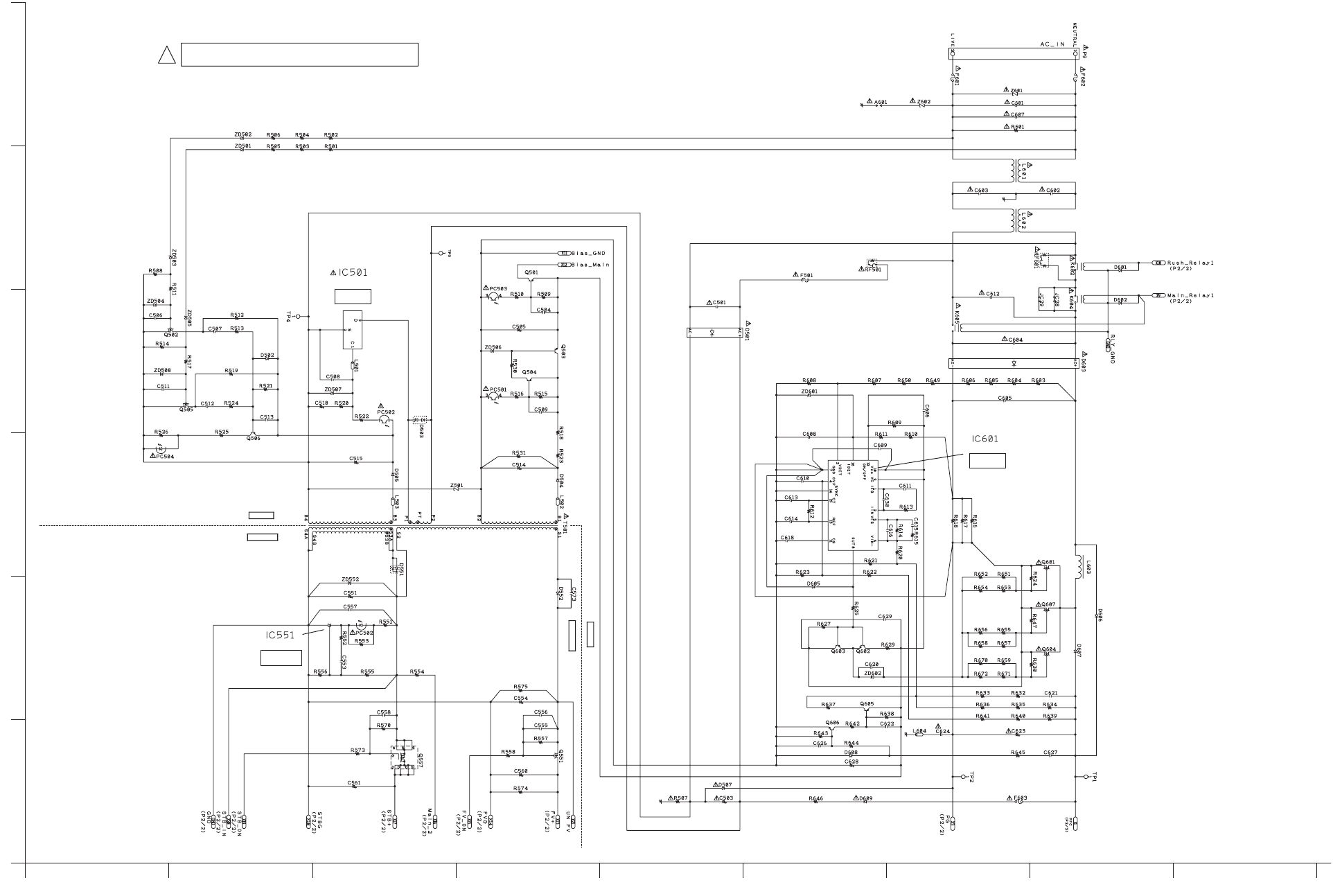
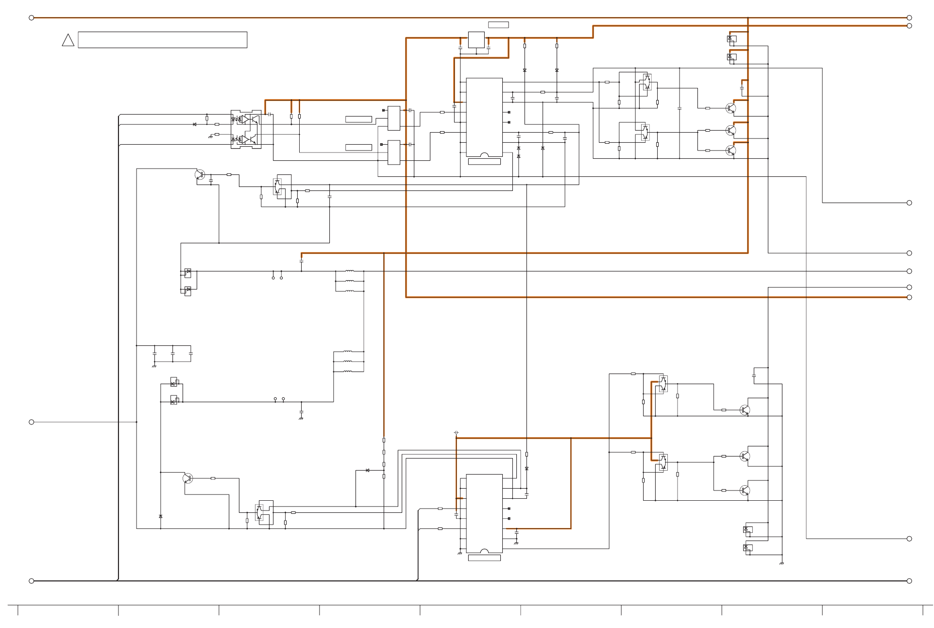
11.2. P-Board (1/2) Schematic Diagram
E
B
4
D
731
C
5
F
2896
A
!P-BOARD ETX2MM747AFF (1/2)
TO
AC CORD
COLD
HOT
COLD
HOT
PFC
CONTROL
STB
CONTROL
STB
ERROR DET
VIKIA431A
MIP3E50MY
VIFA5502MTE1

43
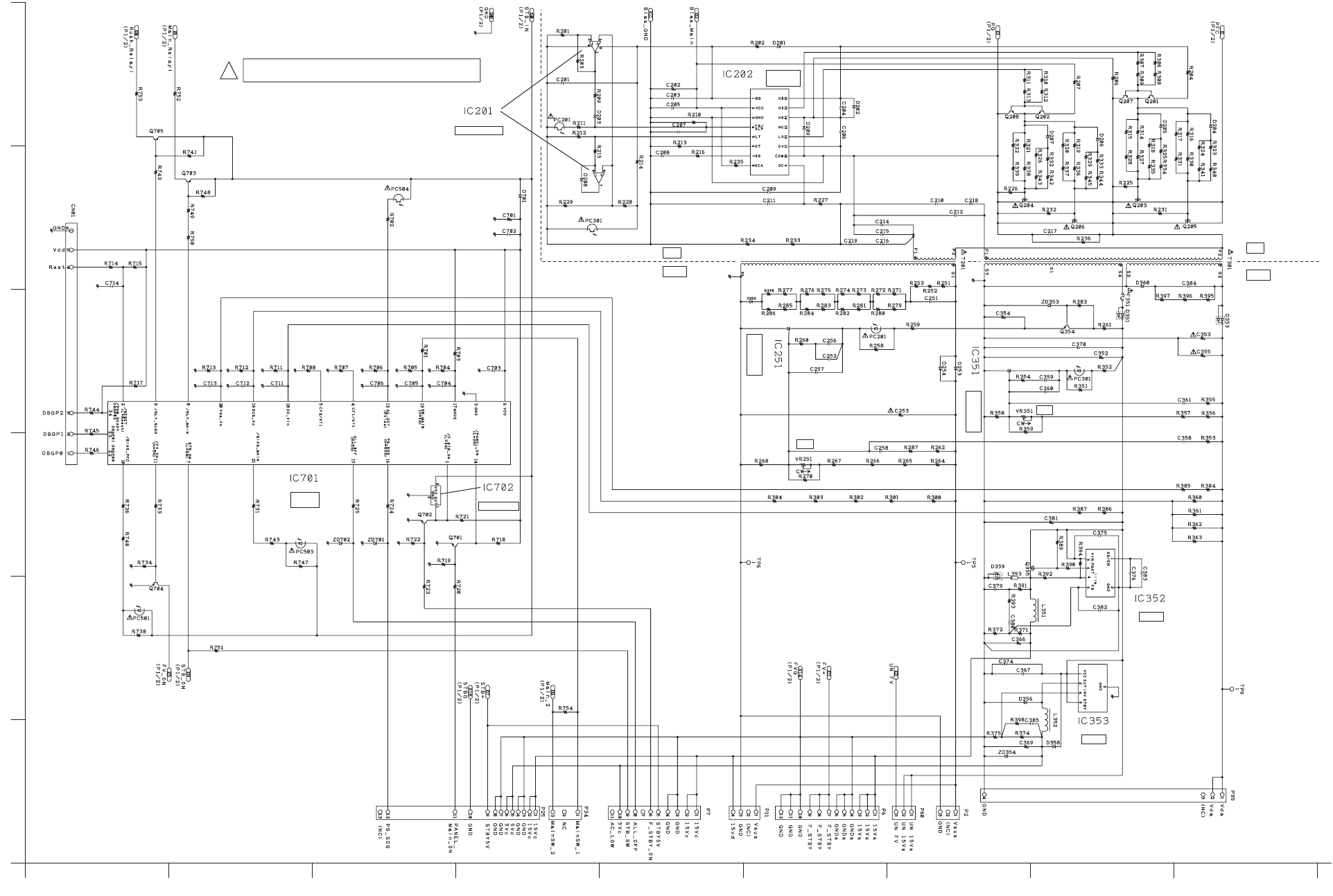
11.3. P-Board (2/2) Schematic Diagram
E
B
4
D
731
C
5
F
2896
A
+5(P)
POWER
CONTROL
Vsus
ERROR DET
Vda
ERROR DET
COMPARATOR
VISSC9101M
VINJM2904ME1
VIKIA431A
VIKIA431A
VIBD9703FP
+15(P)
VISC2628T
POWER
MICOM
VILC87F2G081
TO
A-BOARD
(A6)
TO
A-BOARD
(A6)
TO
A-BOARD
(A25)
TO
C2-BOARD
(C25)
TO
SC-BOARD
(SC2)
TO
SS-BOARD
(SS11)
COLD
HOT
COLD
HOT
Vda
Vsus
!P-BOARD ETX2MM747AFF (2/2)
VIR3111N40AT
REGULATOR

44
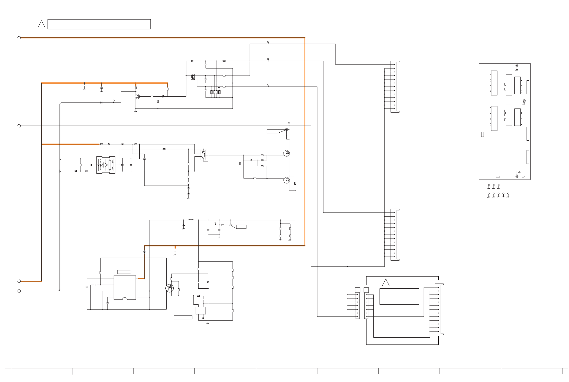
11.4. GK, K and S-Board Schematic Diagram
VCC
GND
OUT
PUSH
C2522
0.1u
16V
C2512
6.3V
10u
D2520
LN1271RALTR
D2512
MAZ80430LL
PC2501
B3JB00000046
RM2501
B3RAD0000160
Q2510
2SD0601A0L
Q2511
2SD0601A0L
R2524
22k
R2517
47
R2542
47k
R2513
5.6k
R2557
5.6k
R2525
820
R2520
220k
R2516
22k
K1
1
2
3
4
5
6
7
8
9
10
FL2500
J0MAB0000201
12
R3765
0
SW3763A
EVQ23405R
R3772
1.74k
R3771
21k
SW3759A
EVQ23405R
R3775
3.16k
R3773
1.62k
SW3764A
EVQ23405R
SW3762A
EVQ23405R
SW3765A
EVQ23405R
C3752
1000p
50V
GK1
1
2
R3774
2.32k
SW3761A
EVQ23405R
SW2500
K0F122A00172
S2
1
2
REMOTE RECEIVER
C.A.T.S. SENSOR
POWER LED
GND
STB3.3V
SUB5V
RM_IN
GND
KEYSCAN3(IN)
C.A.T.S._SENSOR
R_LED_ON
SUB5V
R_LED_ON
STBY3.3V
C.A.T.S.SENSOR
REMOCON
KEY3
GND
KEYSCAN3(OUT)
KEYSCAN
VOL.DN CH.DN CH.UP INPUT/OK MENU VOL.UP
GND
GK-BOARD TNPA4874S
!
K-BOARD TNPA4871S
!
A
F
5
B
42
D
3681 7
C
E
9
POWER SW
S-BOARD TNPA4873S
!
TO
C1-BOARD
(C14)
TO
A-BOARD
(A1)

45
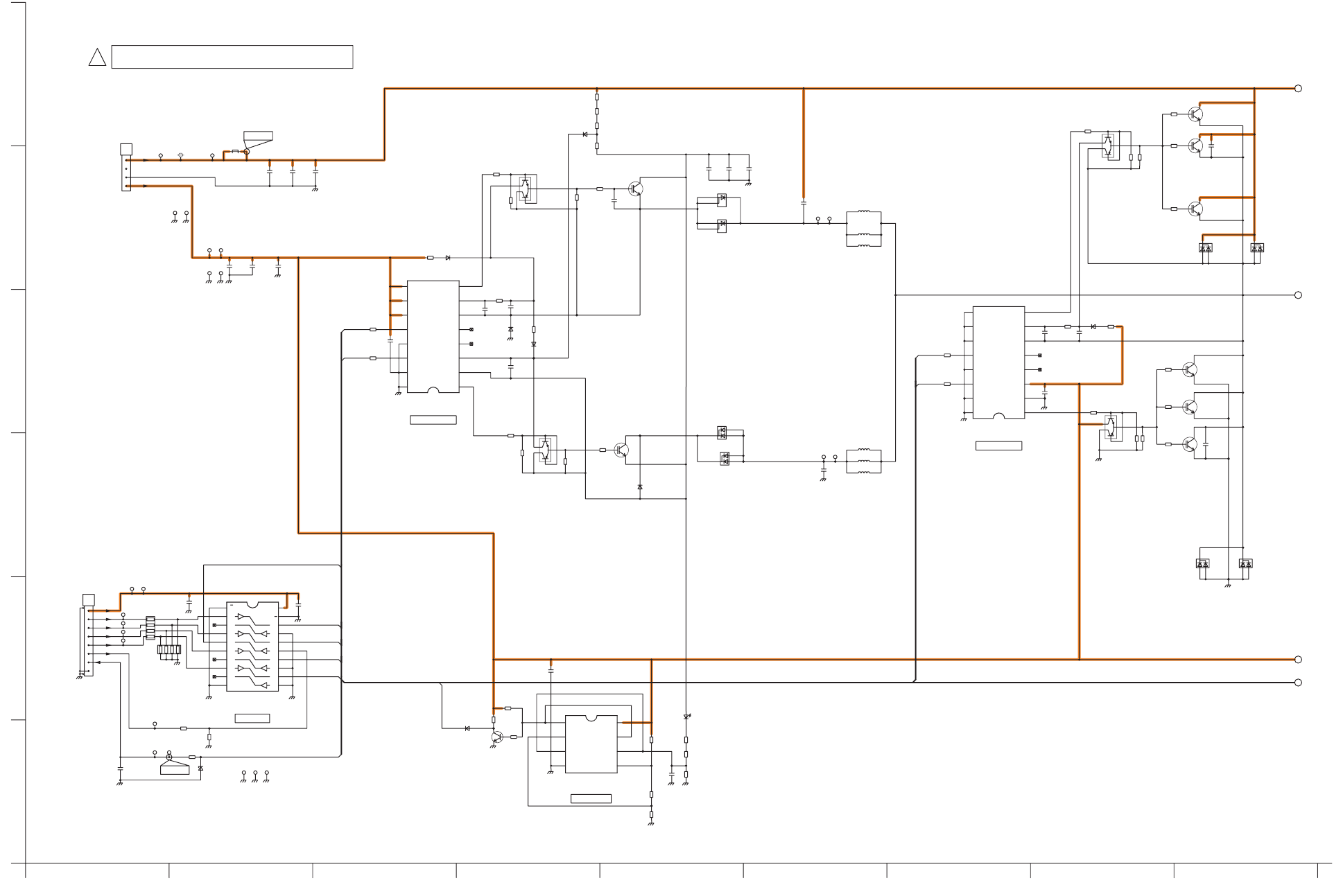
11.5. A-Board (1/15) Schematic Diagram
+
S
P
P
P
P
P
P
P
P
P
P
0.9V
C8081
50V
150p
C8116
3p
50V
C8085
50V 1500p
C8086
16V 0.1u
C8083
16V 0.1u
C8084
16V 0.1u
C8091
16V 0.1u
C8092
16V 0.1u
C8093
50V 1500p
C8094
50V
5p
C8096
16V 0.1u
C8097
16V 0.1u
C8098
6.3V 1u
C8100
16V 0.1u
C8101
16V 0.1u
C8102
16V 0.1u
C8103
16V 0.1u
C8119
16V 0.1u
C8117
16V 0.1u
C8025
16V
0.1u
C8031
6.3V
1u
C8032
10u
10V
C8013
16V
0.1u
C8016
6.3V
1u
C8015
6.3V
1u
C8011
16V
0.1u
C8017
10u
10V
C8012
16V
0.1u
C8118
16V
0.1u
C8110
10u
10V
C8104
6.3V
1u
C8107
50V
1p
C8108
16V
0.1u
C8106
50V
10p
C8105
16V
0.01u
C8109
16V
0.1u
C8115
3p
50V
C8128
16V
0.1u
C8127
16V
0.1u
C8126
10V
1u
C8129
50V
470p
C8130
10V
1u
C8134
16V
0.1u
C8133
10u
10V
C8136
16V
0.1u
C8135
10u
10V
C8132
16V
0.1u
C8131
10u
10V
C8139
16V
0.1u
C8140
16V
0.1u
C8141
16V
0.1u
C8142
16V
0.1u
C8143
16V
0.1u
C8144
16V
0.1u
C8145
16V
0.1u
C8146
16V
0.1u
C8147
16V
0.1u
C8148
16V
0.1u
C8153
16V
0.1u
C8120
16V
0.1u
C8155
6.3V
1u
C8152
16V
0.1u
C8151
16V
0.1u
C8154
6.3V
1u
C8156
10u
10V
C8159
16V
0.1u
C8161
6.3V
1u
C8158
16V
0.1u
C8157
16V
0.1u
C8160
6.3V
1u
C8162
10u
10V
C8163
16V
0.1u
C8164
10u
10V
C8165
10u
10V
C8166
16V
0.1u
C8167
16V
0.1u
C8087
50V 150p
C8180
2.2u
6.3V
C8168
16V
0.1u
C8169
16V
0.1u
C8172
16V
0.1u
C8171
16V
0.1u
C8170
16V
0.1u
C8183
4.7u
10V C8182
4.7u
10V
C8179
16V
0.01u
C8178
16V
0.01u
C8177
16V
0.01u
C8176
16V
0.01u
C8175
16V
0.01u
C8174
16V
0.01u
C8173
16V
0.01u
C8095
16V
0.01u
C8082
16V
0.01u
C8191
50V
1000p
C8192
50V
1000p
C8193
50V
1000p
C8089
50V
12p
C8088
50V
10p
C8124
50V
10p
C8150
100u
2.5V
D8000
MA2J11100L
D8002
B0HCMM000014
IC8001 R2 AVDDP12
IC8001 AC7 EBADD21/NACLE
IC8001 AE6 PIO28/SCL_K
IC8001 AC1 RXN0_B
IC8001 B25 UARXD0
IC8001 R5 AVDDR
IC8001 AF21 DMADONE_N/PIO26
IC8001 C20 CLKX
IC8001 A12 TA1
IC8001 D18 TE2_N
IC8001 AC8 EBADD20
IC8001C21PIO37/PWM74CLKI
IC8001 E6 VDDC
IC8001 G5 VDDC
IC8001 AD6 PIO27/SDA_K
IC8001 AE7 EBADD23/NABSY_N
IC8001 AC2 RXP0_B
IC8001 AD7 EBADD22/NAALE
IC8001 A13 TB1
IC8001 D16 TCLK2_N
IC8001 AB1 RXNC_B
IC8001T1DAOUT1
IC8001 C22 BL0PWM
IC8001 AE5 SCL_DDC_B
IC8001 E10 VDDC
IC8001 V22 VDDDIO
IC8001 R3 BIASDA1
IC8001 AF22 SDCLK/PIO33
IC8001 B5 IRQ0
IC8001 A14 TC1
IC8001 AB2 RXPC_B
IC8001 AE21 DMAACK1/PIO25
IC8001 AF23 SDDAT0/PIO32/TSERROR
IC8001 E11 VDD33
IC8001 M1 VREFP
IC8001 H2 AVDDVSB IC8001 AF25 VDDDC
IC8001 C23 UACTS0_N/PIO8
IC8001 B22 IRBRO
IC8001 AE23 SDDAT1/PIO31/TSSYNC
IC8001 D4 VDDC
IC8001 AE4 SDA_DDC_B
IC8001 J2 P3CKIN
IC8001 F1 VINP_VSB
IC8001 AD4 SDA_DDC_A
IC8001 AB4 VDDC
IC8001 C26 DBGTCK
IC8001 U3 REXT_A
IC8001 T23 VDDDIO
IC8001 F3 IFAGC
IC8001 B24 UATXD0
IC8001 B14 TC1_N
IC8001 AD23 IRQ7/PIO4
IC8001 A17 TD1
IC8001 D5 IRQ2
IC8001 G22 VDD33
IC8001 F5 VDDC
IC8001 AF24 IRQ9/PIO6/TSCLK
IC8001 AD5 SCL_DDC_A
IC8001 U4 P2FIL
IC8001 Y2 RXP1_A
IC8001 B17 TD1_N
IC8001 J23 VDDDIO
IC8001 M3 VREFNEG
IC8001 A18 TE1
IC8001 L4 VREFDA2
IC8001 AD21 SDCD/PIO35
IC8001 Y3 TOUTP_B
IC8001 U1 TOUTP_A
IC8001 AB8 VDDC
IC8001 P22 VDDDIO
IC8001 Y23 DDRVDDA2
IC8001 C24 UARTS0_N/PIO7
IC8001 AE11 EBADD7
IC8001 A16 TCLK1
IC8001 A22 TEST
IC8001 M12 VDDC
IC8001 AC23 VDDDC
IC8001 C12 TA2
IC8001 D24 DBGTDI
IC8001 AD24 VDDDC
IC8001 P2 VREFRIN
IC8001 D17 TD2_N
IC8001 D10 UA2EXCLK/PIO15
IC8001 C5 IRQ1
IC8001 E20 VDD33
IC8001 J25 VDDDIO
IC8001 AF9 EBADD16
IC8001 U24 VDDDIO
IC8001 AD15 EBDAT5
IC8001 AB7 VDDC
IC8001 G2 VREFP_VSB
IC8001 F4 VDDC
IC8001 AC9 EBADD13
IC8001 AF17 EBCLK
IC8001 Y4 AVDD33HDMI
IC8001 B20 COLDRST_N
IC8001 D8 ASDI
IC8001 AD22 SDDAT2/PIO30/TSVALID
IC8001 M2 VREFN
IC8001 P1 VRIN
IC8001 AC22 SDDAT3/PIO29/TS0DATA7
IC8001 E9 VDDC
IC8001 T2 P12CKIN
IC8001 V4 AVDD12HDMI
IC8001 C17 TD2
IC8001 D9 UATXD2
IC8001 N2 VREFBIN
IC8001 AC21 SDWP/PIO36
IC8001 N25 VDDDIO
IC8001 B18 TE1_N
IC8001 AB6 VDDC
IC8001 AB12 VDDC
IC8001 P5 AVDD1
IC8001 M24 VDDDIO
IC8001 A10 LVOPDN
IC8001 G4 AVDDVSB
IC8001 AB11 VDDC
IC8001 K4 P3FIL
IC8001 A21 NC
IC8001 AE19 EBCE0_N
IC8001 D7 ATXO
IC8001 E19 VDDC
IC8001 B16 TCLK1_N
IC8001 AB10 VDD33
IC8001 K2 AVDDP3
IC8001 U2 TOUTN_A
IC8001 AE18 EBCE4_N/NACE_N
IC8001A20XIN27
IC8001 Y22 DDRVDDA1
IC8001 D6 PIO21/HDMI_MUTE
IC8001 AE17 EBACK_N
IC8001 AE25 VDDDC
IC8001 AF18 EBCE3_N/PIO39
IC8001 Y5 AVDD33HDMI
IC8001 M5 AVDDG
IC8001 AF16 EBDAT0
IC8001 F25 VDDDIO
IC8001 F2 PVDDVSB
IC8001 P3 SYNCIN1
IC8001 AD8 EBADD19
IC8001 AE24 IRQ8/PIO5
IC8001 L12 VDDC
IC8001 E3 RFAGC
IC8001 AC14 EBDAT11
IC8001 C6 ASDO
IC8001 C1 I2CCLK0/PIO17
IC8001 AB16 VDDC
IC8001 AF10 EBADD9
IC8001 AD19 EBCE1_N/PIO41
IC8001 V2 RXPC_A
IC8001 J4 AHDIN
IC8001 A7 AMCLKI
IC8001 B8 UATXD1
IC8001 E2 ANTCON
IC8001 R15 VDDC
IC8001 AE14 EBDAT9
IC8001 AC13 EBDAT12
IC8001 J3 AVDIN
IC8001 T15 VDDC
IC8001 AB15 VDDC
IC8001 AF13 EBDAT15
IC8001 V1 RXNC_A
IC8001 A6 ALRCKO
IC8001 AC12 EBADD4
IC8001 T12 VDDC
IC8001 W26 VDDDIO
IC8001 L15 VDDC
IC8001 E23 DBGTMS
IC8001 M15 VDDC
IC8001 AB14 VDD33
IC8001 AD20 DMAACK0/PIO23
IC8001 C10 UACTS2_N/PIO14
IC8001 C16 TCLK2
IC8001 A24 XIN42
IC8001 A5 AMCLKO
IC8001 E21 VDDC
IC8001 B7 ALRCKI
IC8001 AC11 EBADD5
IC8001 AF14 EBDAT8
IC8001 AE13 EBDAT14
IC8001 AD18 EBCE5_N/NARE_N
IC8001 AE10 EBADD10
IC8001 R12 VDDC
IC8001 C9 UARXD2
IC8001 C14 TC2
IC8001 A23 XOUT42
IC8001 E18 AVDDTXBGR
IC8001 K3 BIASDA2IC8001 B6 ABCKO
IC8001 C8 UARTS1_N/PIO10
IC8001 A4 IRQ5/PIO2
IC8001 AD16 EBDAT2
IC8001 AC10 EBADD12
IC8001 AE12 EBADD2
IC8001 AF12 EBADD1
IC8001 Y1 RXN1_A
IC8001B21STCPWM
IC8001 AE2 RXP2_B
IC8001 B23 IRBCLK
IC8001 L2 VREFGIN
IC8001 A8 UARXD1
IC8001 J5 VDD33
IC8001 AA1 RXN2_A
IC8001 E15 PVDDSYS
IC8001 U5 AVDDP12
IC8001 L23 VDDDIO
IC8001 AD17 EBOE_N
IC8001 E24 DBGTRST_N
IC8001 B12 TA1_N
IC8001 AF11 EBADD8
IC8001 AB17 VDD33
IC8001 C7 ABCKI
IC8001 AE22 SDCMD/PIO34/TSREQ
IC8001 AC15 EBDAT4
IC8001 C13 TB2
IC8001 A9 UACTS1_N/PIO11
IC8001 AA2 RXP2_A
IC8001 B13 TB1_N
IC8001 K5 AVDDP3
IC8001 AC16 EBDAT3
IC8001 AE20 DMAREQ1/PIO24
IC8001 AD9 EBADD14
IC8001 V25 VDDDIO
IC8001 D22 PIO38/BL1PWM
IC8001 AA3 TOUTN_B
IC8001 AB19 VDDC
IC8001 C4 IRQ3/PIO0
IC8001 AD12 EBADD3
IC8001 AC17 EBWE_N
IC8001 AF6 HPLUG_B
IC8001 A2 XIN25
IC8001 H3 VREFN_VSB
IC8001 D11 IOVDDLVDS
IC8001 N3 VCM
IC8001 AA4 REXT_B
IC8001 AD13 EBDAT13
IC8001 AF7 ACK_DDC_B
IC8001 AE15 EBDAT6
IC8001 B9 UA1EXCLK/PIO12
IC8001 AB20 VDDC
IC8001 W1 RXN0_A
IC8001 AC18 EBCE6_N/NAWE_N
IC8001 H4 VCM_VSB
IC8001 F22 VDDC
IC8001 D12 TA2_N
IC8001 AD14 EBDAT10
IC8001 A3 XOUT25
IC8001 L1 VGIN
IC8001 AA5 VDDC
IC8001 AF8 EBADD17
IC8001 D21 VDDC
IC8001 AE16 EBDAT1
IC8001 N5 AVDDB
IC8001 D13 TB2_N
IC8001 AB21 VDDC
IC8001 D2 I2CDATA1/PIO18
IC8001 D3 I2CDATA2
IC8001 C3 I2CCLK2
IC8001 D1 I2CDATA0/PIO16
IC8001 C2 I2CCLK1/PIO19
IC8001 W2 RXP0_A
IC8001 E14 VDDC
IC8001 B10 UARTS2_N/PIO13
IC8001 AC19 EBCE2_N/PIO40
IC8001 D23 UA0EXCLK/PIO9
IC8001 H22 VDDDIO
IC8001 D14 TC2_N
IC8001 AB22 VDDDC
IC8001 AE8 EBADD18
IC8001 T3 VREFDA1
IC8001 E4 VDDC
IC8001 AC20 DMAREQ0/PIO22
IC8001 AD1 RXN1_B
IC8001 AD11 EBADD6
IC8001 D15 IOVDDLVDS
IC8001 G1 VINN_VSB
IC8001 T4 P1FIL
IC8001 N1 VBIN
IC8001 B3 IRQ6/PIO3
IC8001 E7 VDD33
IC8001 L3 VREFPOS
IC8001 AE9 EBADD15
IC8001 AB23 VDDDIO
IC8001 AF4 HPLUG_A
IC8001 AD10 EBADD11
IC8001 AF5 ACK_DDC_A
IC8001 V5 AVDD12HDMI
IC8001 E13 VDDC
IC8001 AF15 EBDAT7
IC8001 AE1 RXN2_B
IC8001 AC5 DDC5V_A
IC8001 B4 IRQ4/PIO1
IC8001 AD2 RXP1_B
IC8001 C18 TE2
IC8001 AC6 DDC5V_B
IC8001 D19 IOVDDLVDS
IC8001J1DAOUT2
IC8001 AF19 EBBE1_N/PIO42
IC8001 C25 DBGTDO
IC8001 AE26 VDDDIO
IC8001 AF20 EBBE0_N/PIO20
IC8001 AB25 VDDDIO
C0DBGYY00578
IC8008
1
ON/OFF
2
VSS
3
NC
5
VOUT
4
VIN
IC8003
C0DBEFH00002
1
GND
2
EN
3
VTTS
4
VREF
5
VDDQ
6
VCC
7
VTTIN
8
VTT
C1ZBZ0003992
IC8004
1X1
2S0
3S1
4VIN
5VDD1
6GND1
7CLK1
8CLK2 9
REFOUT
10
CLK3
11
CLK4
12
GND2
13
VDD2
14
S2
15
VDD3
16
X2
C0DBFFD00005
IC8007
1VOUT
2NC
3GND
4Cn Cont 5
Sub 6
VIN 7
L8015
J0JHC0000045
L8022
J0JHC0000045
L8018
J0JHC0000045
L8014
J0JHC0000045
L8020
J0JHC0000045
L8012
J0JHC0000045
L8003
J0JHC0000045
L8017
J0JHC0000045
L8001
J0JHC0000045
L8016
J0JHC0000045
R8117
ELJRF10NJFB
SUB1.8V
SUB3.3V_FIL
SUB3.3V
1.3V_HDMID
2.5V_ADCA
SUB3.3V
SUB1.8V
DDRVREF
DDR_VTT
SUB3.3V_FIL
SUB5V
SUB1.3V
2.5V_PLL3
SUB3.3V
2.5V_DEMO
2.5V_PLL12
3.3V_LVDSIO3.3V_HDMI
SUB2.5V
SUB3.3V
SUB2.5V SUB3.3V
1.3V_LVDSPLL
SUB3.3V
1.3V_DEMO
DDR_VTT
2.5V_PLL12
1.3V_DDRVDA
SUB1.3V
SUB3.3V
2.5V_ADCA
SUB3.3V
2.5V_PLL3
R8171
R8103
R8109
R8114
R8110
R8107
R8108
R8111
R8106
R8112
TP9023
TP9032
TP9033
TP9034
TP9030
TP9040
TP9036
TP9020
TP9041
TP9043
TP9042
TP9038
TP9039
TP9044
TP9022
TP8000
TP9027
TP9024
TP9026
TP9028
TP9025
TP9035
TP9037
TP9031
TP9029
TP9021
HDMI2_DET
AD_BCLK
AG_SRQ_SYSMPU
HDMI3_DET
AG_HOST_IRQ
AG_UART_HEAD
HDMI1_DET
AD_SDO
AD_LRCLK
PANEL_STBY/VCC_ON
BCLK
TMDS_SW_S2
TMDS_SW_S1
SDIN
SPDIF
MCLK
GENX_CLK
HDMI_INT2
LRCLK
TMDS_SW_S3
XECS0
SDDAT2
XERE
RC_E-
SDCLK
EBDAT14
EBADD8
TRST
RXP0_B
SE_EEP_WP
EBADD23/NABSY_N
IFAGC
EBADD1
VINP_VSB
EBDAT0
EBADD7
EBDAT6
SDDAT1
EBADD4
SDCD
TMS
EBDAT1
HPLUG_A
RD_E+
EBADD21/NACLE
RCLK_O-
RE_O-
RE_O+
RD_O-
RD_O+
RC_O+
RC_O-
RB_O+
RB_O-
RA_O-
RA_O+
EBADD15
EBADD14
EBADD13
EBADD12
EBADD11
EBADD10
EBDAT11
EBADD9
RCLK_O+
RA_E-
RCLK_E-
RA_E+
EBDAT4
SCL_DDC_B
RXPC_B
EBDAT10
XEWE0
VRIN
EBADD2
AHDIN
AVDIN
VGIN
VBIN
AG_DTV_XRST
EBADD3
RC_E+
SYNCIN1
RB_E-
SDWP
EBDAT3
TDO
EBDAT8
EBADD18
EBADD19
EBADD20
TCK
EBADD22/NAALE
SBO2
EBDAT5
VINN_VSB
EBDAT12
EBDAT2
EBDAT13
EBADD16
EBADD17
EBDAT15
SBI2
SDDAT0
RXP2_B
RXNC_B
RD_E-
RE_E+
EBDAT9
SDCMD
RCLK_E+
RXN1_B
RB_E+
SDA_DDC_B
SE_SDA1_EEP
SE_SDA0_PANEL
SE_SCL0_PANEL
EBDAT7
RXP1_B
SE_SCL1_EEP
RE_E-
RXN0_B
LVOPDN
AMUTE
RXN2_B
HPLUG_B
SDDAT3
TDI
EBADD6
EBADD5
Q8001
B1ABCF000231
Q8000
B1ABCF000231
R8095
47k
R8118
1.2k
R8113
47
R8147
10k
R8125
100k
R8138
0
1M
R8137
R8129
10k
R8126
10k
R8131
47
R8153
10k
R8119
2.2k
R8121
270k
R8122
1.5k
R8154
22
R8167
22
R2128 33
R2126 22
R2125 22
R8123
1.2k
R2127 100
R8135
47
R8099
2.2k
R8102
2.2k
R8098
4.7k
R8130
47
R8096 4.7k
R8097 4.7k
R8148
10k
R8149
100k
R2139 68
R8120
1k
X8003
H0J270500120
X8002
H0J420500006
X8004
H0J250500094
R4743
2k
L4525
R4742
2k
SUB3.3V
LVDS
HDMI
DAC1
DAC2
SD CARD I/F
42MHz
FLASH
OSC
AUDIO I/F
JTAG I/F
IRQ
UART
E-BASIIC I/F
DMA I/F
2.5V
3.3V
1.3V
3.3V_HDMI
VSB
RESET
DDR2_REG
VCXO
25MHz
33.3MHz
TSCLK
C
A
23 6
F
1 85
E
94
B
7
D
ADC
DDR2_REG 0.9V
SUB 2.5V
3.3V_HDMI
CLOCK GEN
!
A-BOARD TXN/A1ENUUS (1/15) Seine3LV
TO 3/15
TO 5/15
TO 3/15
TO 5/15
TO 3/15
TO 8/15
TO 7/15
TO 5/15
TO 3/15
TO 3/15
TO 3/15
TO 7/15
TO 7/15
TO
7,10/15
TO
8/15
TO 8/15
TO 3,7/15
TO 8/15
TO 5/15
TO 8/15
TO 9/15
TO 11/15
TO 7,12/15
TO 12/15
TO 7/15
C1AB00003078
Seine3LV
IC8001

46
11.6. A-Board (2/15) Schematic Diagram
+
CH0A10
CH0DQS1
CH0DM0
CH0A5
CH0A0
CH0ODT
CH0A3
CH0A11
CH0BA1
CH0A8
CH0BA0
CH0A6
CH0XCS0
CH0XCAS
CH0A2
CH0XRAS
CH0XCK
CH0A4CH0BA2
CH0DM1
CH0CKE
CH0DQS0
CH0A1
CH0XWE
CH0A9
CH0A12
CH0A7
CH0CK
CH0A0
CH0A1
CH0A2
CH0A3
CH0A4
CH0A5
CH0A6
CH0A7
CH0A8
CH0A9
CH0A10
CH0A11
CH0A12
CH0BA0
CH0BA1
CH0BA2
CH0XWE
CH0XRAS
CH0XCAS
CH0XCS0
0.9V
CH0DM0
CH0DM1
CH0DQS0
CH0DQS1
CH0DQ0
CH0DQ2
CH0DQ4
CH0DQ6
CH0DQ8
CH0DQ10
CH0DQ12
CH0DQ14
CH0DQ1
CH0DQ5
CH0DQ3
CH0DQ13
CH0DQ9
CH0DQ15
CH0DQ7
CH0DQ11
CH0CKE
CH0ODT
CH0DQ15
CH0DQ13
CH0DQ7
CH0DQ8
CH0DQ0
CH0DQ9
CH0DQ4
CH0DQ12
CH0DQ6
CH0DQ14
CH0DQ2
CH0DQ1
CH0DQ11
CH0DQ5
CH0DQ10
CH0DQ3
CH0CK
CH0XCK
C8040
50V
1000p
C8048
16V
0.1u
C8043
16V
0.1u
C8036
10u
10V
C8047
16V
0.1u
C8046
16V
0.1u
C8138
50V
1000p
C8149
50V
5p
C8186
2200p
50V
C8185
16V
0.1u
C8184
4.7u
10V
C8189
16V
0.1u
C8042
68u
4V
IC8001
C1AB00003078
A1 VSS
IC8002
C3ABSY000043
A1 VDD
IC8001 E5 VSS
IC8001U25DDRBA0
IC8001 N12 VSS
IC8001 N13 VSS
IC8001 N14 VSS
IC8001P26DDRAD3
IC8001V24DDRCS0_N
IC8001R24DDRAD6
IC8001N22DDRAD12
IC8001J22DDRD0_VREF
IC8001N24DDRAD7
IC8002 J9 VDD
IC8002 L2 BA0
IC8002 F7 LDQS
IC8002 H8 VSSQ
IC8002 P9 VSS
IC8002 P8 A8
IC8002 C1 VDDQ
IC8002 R2 A12
IC8002 B8 VSSQ
IC8002 N7 A6
IC8002 R7 NC
IC8002 H2 VSSQ
IC8002 K2 CKE
IC8002 L3 BA1
IC8002 F3 LDM
IC8002 C9 VDDQ
IC8001 L16 VSS
IC8002 N8 A4
IC8002 K7 RAS
IC8002 J7 VSSDL
IC8001AA26DDRCLK
IC8002 R8 NC
IC8002 P7 A11
IC8002 N1 VSS
IC8002 A9 VDDQ
IC8002 M8 A0
IC8002 D8 VSSQ
IC8002 E8 LDQS
IC8002 A2 NC
IC8002 M3 A1
IC8002 J1 VDDL
IC8002 N2 A3
IC8002 F2 VSSQ
IC8002 E9 VDDQ
IC8002 M2 A10
IC8002 G9 VDDQ
IC8002 G1 VDDQ
IC8002 A7 VSSQ
IC8002 L7 CAS
IC8002 D2 VSSQ
IC8001T25DDRAD2
IC8002 E1 VDD
IC8002 A3 VSS
IC8002 R1 VDD
IC8002 P3 A9
IC8002 C7 VDDQ
IC8002 K3 WE
IC8002 C3 VDDQ
IC8002 K9 ODT
IC8002 R3 NC
IC8001H26DDRDQS0
IC8002 N3 A5
IC8002 G7 VDDQ
IC8002 B7 UDQS
IC8002 B2 VSSQ
IC8002 A8 UDQS
IC8002 F8 VSSQ
IC8002 J2 VREF
IC8002 E2 NC
IC8002 P2 A7
IC8002 E3 VSS
IC8001AA23DDRCAS_N
IC8002 E7 VSSQ
IC8001 N11 VSS
IC8002 L8 CS
IC8001 M11 VSS
IC8001 L13 VSS
IC8001
U23DDRBA1
IC8001 AA25 DDRVSSCLK1
IC8001 R4 AVSSR
IC8001 R1 AVSSP12
IC8001 P4 AGND1
IC8001 T5 AVSSP12
IC8001 Y25 DDRVSSCLK2
IC8001 V3 AVSSHDMI
IC8001 AB3 AVSSHDMI
IC8001 W5 AVSSHDMI
IC8001 W4 AVSSHDMI
IC8001 W3 AVSSHDMI
IC8001 AC3 AVSSHDMI
IC8001 AD3 AVSSHDMI
IC8001 AE3 AVSSHDMI
IC8001 U22 VSSDO
IC8001 AD25 VSSDO
IC8001 T26 VSSDO
IC8001 R25 VSSDO
IC8001 AB26 VSSDO
IC8001 R22 VSSDO
IC8001 AC24 VSSDO
IC8001 W24 VSSDO
IC8001 W22 VSSDO
IC8001 V23 VSSDO
IC8001 N23 VSSDO
IC8001 AA22 VSSDO
IC8001 P24 VSSDO
IC8001 R13 VSS
IC8001 P13 VSS
IC8001 R16 VSS
IC8001 AF26 VSS
IC8001 T13 VSS
IC8001 P15 VSS
IC8001 R14 VSS
IC8001W23DDRRDRV
IC8001 P11 VSS
IC8001 AB9 VSS
IC8001 P12 VSS
IC8001 R11 VSS
IC8001 AF1 VSS
IC8001 P16 VSS
IC8001 T11 VSS
IC8001 AB5 VSS
IC8001 AB13 VSS
IC8001 AC4 VSS
IC8001 T14 VSS
IC8001 AF3 VSS
IC8001 G24 VSSDO
IC8001 K24 VSSDOIC8001 E8 VSS
IC8001J24DDRDQS1
IC8001 L25 VSSDO
IC8002 J3 VSS
IC8001 K22 VSSDO
IC8001 K1 AVSSP3
IC8001 H1 AVSSVSB
IC8001 L5 AVSSP3
IC8001 H25 VSSDO
IC8001 F23 VSSDO
IC8001 G3 AVSSVSB
IC8001 M26 VSSDO
IC8001 M22 VSSDO
IC8001 E17 PVSSSYS
IC8001 E16 PVSSSYS
IC8001 D25 VSSDO
IC8001 E1 PVSSVSB
IC8001 B15 IOVSSLVDS
IC8001 C15 IOVSSLVDS
IC8001 L11 VSS
IC8001 C11 IOVSSLVDS
IC8001 B19 IOVSSLVDS
IC8001 C19 IOVSSLVDS
IC8001 A19 IOVSSLVDS
IC8001 A15 IOVSSLVDS
IC8001 A11 IOVSSLVDS
IC8001 B26 VSS
IC8001 B1 VSS
IC8001N26DDRAD8
IC8001Y24DDRVCAL
IC8001U26DDRAD1
IC8001AC25DDRODT0
IC8001 M14 VSS
IC8001J26DDRDM1
IC8001T24DDRAD0
IC8001 AD26 RQDRVEN
IC8001W25DDRRODT
IC8001 L14 VSS
IC8001 A26 VSS
IC8001 M16 VSS
IC8001 A25 VSS
IC8002 B1 DQ14
IC8002 H3 DQ3
IC8002 F1 DQ6
IC8002 H7 DQ2
IC8002 C2 DQ9
IC8002 D3 DQ11
IC8002 G2 DQ1
IC8002 M9 VDD
IC8002 D9 DQ13
IC8002 H1 DQ4
IC8002 D7 DQ10
IC8002 H9 DQ5
IC8002 F9 DQ7
IC8002 B9 DQ15
IC8002 C8 DQ8
IC8001H24DDRDQ1
IC8001K26DDRDQ12
IC8001E25DDRDQ7
IC8001F24DDRDQ6
IC8001F26DDRDQ4
IC8002 B3 UDM
IC8001D26DDRDQ5
IC8001G23DDRDQ0
IC8001
K23
DDRDQ8
IC8001L22DDRDQ11
IC8001G25DDRDQ2
IC8001H23DDRDQ3
IC8001L26DDRDQ13
IC8001M23DDRDQ14
IC8001L24DDRDQ9
IC8002 M7 A2
IC8001T22DDRAD10
IC8001G26DDRDM0
IC8001 E22 VSS
IC8001R23DDRAD4
IC8001V26DDRBA2
IC8001 D20 VSS
IC8001 E12 VSS
IC8001 H5 VSS
IC8001R26DDRAD5
IC8001Y26DDRBCLK
IC8001 B2 VSS
IC8001AB24DDRCKE
IC8001AA24DDRRAS_N
IC8001AC26DDRWE_N
IC8001P23DDRAD11
IC8001 N16 VSS
IC8001 AF2 VSS
IC8001 T16 VSS
IC8001 AB18 VSS
IC8002 K8 CK
IC8001 N15 VSS
IC8001 P14 VSS
IC8002 L1 NC
IC8001 M4 AVSSG
IC8002 J8 CK
IC8001P25DDRAD9
IC8001 M13 VSS
IC8001 N4 AVSSB
IC8002 G8 DQ0
IC8002 D1 DQ12
IC8001K25DDRDQ10
IC8001 B11 IOVSSLVDS
IC8001M25DDRDQ15
IC8001 E26 VSSDO
IC8002 G3 VDDQ
IC8009
C1CB00002678
1VSS
2INP
3INN
4VSS 5
VDD
6
OUTN
7
OUTP
8
VDD
L8021
J0JCC0000059
L8019
J0JHC0000045
SUB1.8V
SUB1.8V
DDRVREF
DDR_VTT
DDRVREF
R8057 91
R8068 91
R8067 91
R8058 91
R8070 91
R8062 91
R8069 91
R8141
140
R8031
10k
R8063 91
R8116
73.2
R8115
301
R8032
10k
R8134 91
R8026 91
R8073 91
R8139
634
R8065 91
R8061 91
R8124
4.7k
R8066 91
R8150
150
R8056 91
R8072 91
R8075 91
R8059 91
R8101
91
R8064 91
R8100 91
R8060 91
R8027 91
14 17151211 13 181610
DDR2
!
A-BOARD TXN/A1ENUUS (2/15)
DDR2
IC8002
CLK BUFFER
C1AB00003078
Seine3LV
IC8001

47
11.7. A-Board (3/15) Schematic Diagram
+
D.SW
W.P.
S
S
S
S
S
S
S
P
AA_ED1
AA_EA6
AA_ED4
AA_ED13
AA_EA3
AA_EA10
AA_EA21
AA_EA17
AA_XERE
AE_SDCLK
AA_ED2
AA_XECS0
SDA1_EEP
AA_ED11
SE_SCL0_D
AA_EA8
AA_ED15
AA_EA18
AA_EA16
SDA1_EEP
AA_ED14
AA_EA5
AA_ED8
AA_EA13
SCL1_EEP
SCL1_EEP
AA_EA2
AA_EA22
AA_EA11
AA_EA9
SE_SDA0_D
AA_XEWE0
AA_XECS0
AA_ED12
AA_ED5
AA_EA14
SE_SDA0_D
AA_ED10
AA_ED0
AA_ED6
AA_ED7
AA_EA7
AA_EA15
AA_ED3
SE_SCL0_D
AA_ED9
AA_EA4
AA_EA12
AA_EA1
AA_EA20
AA_EA19
AA_EA23
SCL1_EEP
SDA1_EEP
AG_DTV_XRST
AA_EA21
AA_ED11
AA_EA11
AA_EA14
AA_ED12
AA_EA7
AA_EA13
AA_EA8
AA_ED8
AA_ED10
AA_EA6
AA_EA20
AA_ED6
AA_EA5
AA_EA16
AA_ED15
AA_EA4
AA_EA23
AA_ED9
AA_EA19
AA_EA12
AA_ED4
AA_EA15
AA_ED13
AA_ED3
AA_EA18
AA_EA10
AA_ED2
AA_ED5
AA_EA17
AA_EA9
AA_EA22
AA_ED14
AA_ED7
AA_EA1
AA_EA2
AA_EA3
AA_ED0
AA_ED1
AA_XERE
AE_SDCD
AE_SDCMD
AE_SDDAT3
AE_SDDAT1
AE_SDDAT2
AE_SDDAT0
AE_SDWP
AE_SDWP
AE_SDDAT0
AE_SDDAT3
AE_SDCD
AE_SDCLK
AE_SDCMD
AE_SDDAT1
AE_SDDAT2
AG_DTV_XRST
AA_XEWE0
C8506
16V
0.1u
C8501
16V
0.1u
C8517
16V
0.1u
C8533
16V
0.1u
C8537
10u
10V
C8544
10u
10V
C8536
16V
0.01u
C8513
16V
0.1u C8512
16V
0.1u
C8532
16V
47u
*IC8503
1E0
2E1
3E2
4VSS 5
SDA
6
SCL
7
WC
8
VCC
IC8502
1N.C.
2A22
3A15
4A14
5A13
6A12
7A11
8A10
9A9
10 A8
11 A19
12 A20
13 WE
14 RESET
15 A21
16 WP/ACC
17 RY/BY
18 A18
19 A17
20 A7
21 A6
22 A5
23 A4
24 A3
25 A2
26 A1
27 N.C.
28 N.C. 29
Vio
30
N.C.
31
A0
32
CE
33
Vss
34
OE
35
DQ0
36
DQ8
37
DQ1
38
DQ9
39
DQ2
40
DQ10
41
DQ3
42
DQ11
43
Vcc
44
DQ4
45
DQ12
46
DQ5
47
DQ13
48
DQ6
49
DQ14
50
DQ7
51
DQ15/A-1
52
Vss
53
BYTE
54
A16
55
N.C.
56
N.C.
JK8302
K1NA09E00080
1
2
3
4
5
6
7
8
9
10
11
12
L8501
J0JHC0000045
L8500
J0JHC0000045
SUB3.3V
SUB3.3V
SUB3.3V
SUB3.3V
SUB3.3V
SUB3.3V
R8538
R8541
L8506
R8543
R8554
R8539
R8555
R8833
TP8548TP8554
TP8571
TP8570
TP8551
TP8550
TP8569
TP8549
TP8552
TP8553
TP8555
TP8568
AG_DTV_XRST
SE_SCL0_PANEL
XEWE0
XERE
SDCLK
SE_SCL0_D
SDWP
SCL1_EEP
TDI
EBADD13
TRST
EBADD4
EBDAT13
TCK
EBADD22/NAALE
EBADD19
EBADD17
EBADD14
EBDAT15
SE_SCL1_EEP
EBADD12
SE_SDA0_PANEL
EBADD10
SDA1_EEP
EBDAT0
EBDAT3
EBADD11
EBADD2
EBADD18
EBDAT14
EBADD9
SDCD
SDDAT0
SDDAT2
SDDAT3
EBDAT10
EBDAT7
EBDAT9
EBADD5
SDCMD
SE_EEP_WP
EBADD15
EBADD6
EBDAT12
EBDAT6
SE_SDA1_EEP
EBDAT2
SE_SDA0_D
XECS0
EBADD21/NACLE
TDO
EBDAT8
EBDAT5
EBDAT11
SDDAT1
EBADD16
EBADD23/NABSY_N
EBADD7
EBDAT1
TMS
EBADD20
EBDAT4
EBADD8
EBADD1
EBADD3
R8515
EXB28V330JX
R8516
EXB28V330JX
R4089
EXB2HV680JV
R8674
EXB2HV103JV
R8573
EXB2HV680JV
R4081
EXB2HV680JV
R4092
EXB2HV472JV
R4091
EXB2HV680JV
R4090
EXB2HV680JV
R4093
EXB2HV472JV
R4079
EXB2HV680JV
R4097
4.7k
R8552
1.8k
R8520
68
R8704
100
R8517
68
R8579
10k
R8706
47k
R8534
10k
R5137
10k
R8557 4.7k
R8533
10k
R8553
1.8k
R8707
47k
R8556
4.7k
R8519
68
R8529 33
R8512
4.7k
R8558 4.7k
R4098
4.7k
R4099
4.7k
R8580
10k
(A23)
PORT9[4] EEPROM_WP
I2C
Boundary Scan
Seine3LV
GND
3.3V
GND
SDDAT3
SDDAT0
SDCMD
SDDAT1
SD/IC_CARD
SDCLK
SDDAT2
222119 20 2624 25 2723
SD CARD SLOT
NOR FLASH
EEPROM
!
DIGITAL,SD-CARD
TO 1/15
SD_CARD
TO 1/15
TO 10/15
TO 1/15
TO 1,7/15
TO 1/15
TO 1/15
TO 1/15
A-BOARD TXN/A1ENUUS (3/15)
TVRQ508S
TVRQ500AHS

48
11.8. A-Board (4/15) Schematic Diagram
+
+
+
+
+
S
P
P
P
P
P
P
P
P
P
P
P
F15V
AG_SOS
C5663
10V
10u
C5667
50V
100p
C5652
50V
1000p
C5664
10V
10u
C5522
16V
0.1u
C5521
16V
0.1u
C5420
1u
16V
C5418
1u
25V
C5746
10u
10V
C5748
10u
10V
C5756
25V
3300p
C5749
16V
0.01u
C5755
0.1u
25V
C5747
10u
25V
C5726
1u
16V
C5728
470p
50V
C5690
0.1u
16V
C5704
0.047u
10V
C5694
220p
50V
C5720
0.1u
16V
C5725
0.1u
25V
C5688
2.2u
10V
C5718
0.1u
16V
C5729
0.1u
16V
C5705
4.7u
10V
C5693
1u16V C5732
0.1u
16V
C5721
0.1u
16V
C5707
470p
50V
C5692
4.7u
10V
C5698
25V
10u
C5644
0.01u
16V
C5702
10u
25V
C5708
0.1u
16V
C5701
10u
25V
C5719
0.1u
16V
C5691
0.027u
10V
C5733
25V
10u
C5722
0.1u
16V
C5709
0.1u
16V
C5727
0.01u
16V
C5700
5600p
16V
C5723
0.1u
16V
C5699
25V
10u
C5714
1u
25V
C5736
10u
10V
C5724
10u
25V
C5697
25V
10u
C5734
10u
25V
C5703
0.1u
25V
C5764
1u
16V
C5737
10u
10V
C5730
100u
6.3V
C5711
68u
2.5V
C5689
68u
4V
C5713
25V
47u
C5710
68u
2.5V
D5613
MA2J11100L
D5741
B0JCME000037
D5616
MA2J72800L
D5615
MA2J11100L
*D5746
MA2J11100L
D5614
MA2J11100L
D5750
MA2J11100L
D5752
MA2J11100L
D5521
MA3X152D0L
D5522
MA3X152D0L
D5698
B0BC6R600005
D5751
MAZ80330HL
D5573
B0BC01100001
D5697
B0BC6R600005
D5692
MAZ80560LL
D5749
MAZ81100ML
D5693
B0BC6R600005
D5706
B0BC6R600005
C0EBF0000354
IC5606
4
OUT
3
CD
1VSS
2VDD
IC5740
C0DBAYY00462
1BOOT
2VIN
3SW
4GND 5
FB
6
COMP
7
EN
8
SS
C0DBAYY00480
IC5607
1CTL1
2CS1
3FB1
4VO1
5ILIM1
6GND
7CVBLPF
8CTL2
9ILIM2
10 VO2
11 FB2
12 CS2 13
TEST
14
CB2
15
DRVH2
16
LX2
17
DRVL2
18
PGND
19
VB
20
VCC
21
DRVL1
22
LX1
23
DRVH1
24
CB1
C0DBAYY00480
IC5608
1CTL1
2CS1
3FB1
4VO1
5ILIM1
6GND
7CVBLPF
8CTL2
9ILIM2
10 VO2
11 FB2
12 CS2 13
TEST
14
CB2
15
DRVH2
16
LX2
17
DRVL2
18
PGND
19
VB
20
VCC
21
DRVL1
22
LX1
23
DRVH1
24
CB1
C0CBZZE00001
IC5401
OUTPUT 3
2
COMMON
INPUT
1
A30
1
2
3
4
5
6
7
8
9
10
11
12
L5604
J0JHC0000075
L5700
G1C6R8Z00008
L5602
G1C4R7Z00015
L5601
G1C3R3Z00004
L5600
G1C2R2Z00007
L5741
G1C220MA0291
L5603
G1C100MA0203
L5605
G1C100MA0203
L5606
G1C100MA0203
SUB3.3V
SUB5V
STB5V
SUB9V
F15V
F15V
STB3.3V STB5V
F15V
SUB5V
F15V
SUB5V
SUB1.3V
SUB1.8V BT30V
F15V
R5663
VJ5701
VJ5606
VJ5601
VJ5607
VJ5740
VJ5700
VJ5604
VJ5600
VJ5603
VJ5602
VJ5605
TP3506
TP3505
TP2028
TP3508
TP2027
TP5740
TPS0S
TP3504
TP5601
TP3507
TP5602
TP5400
TP5600
TP5700
AG_KEY3
PANEL_MAIN_ON
AG_FAN_MAX
STB_RST
AG_ODU_DET/KEY3
AG_SOS
AG_FAN_SOS
Q5687
B1MBDDA00003
S1G1S2G2
D2 D2 D1 D1
Q5700
B1MBDDA00003
S1G1S2G2
D2 D2 D1 D1
Q5686
B1MBDDA00003
S1G1S2G2
D2 D2 D1 D1
Q5685
B1MBDDA00003
S1G1S2G2
D2 D2 D1 D1
Q5604
B1ABCF000231
Q5603
B1ABCF000231
Q5522
B1ADCE000022
Q5684
B1ADCE000022
R5786
5.6k
R5669
16k
R5544
470
R5188
470
R5536
47k
R5700
82k
R5636
68k
R5641
47k
R5667
100
R5672
5.6
R5538
2.2k
R5673
68
R5651
68k
R5647
47k
R5675
43k
R5676
56k
R5787
150
R5535
22k
R5702
16k
R5537
1.5k
R5785
14.3k
R5638
10k
R5671
27k
R5542
470
R5783
1.37k
R5644
2.2k
R5650
47k
R5679
16k
R5701
13.3k
*R5792
4.7k
R5678
16k
R5797
470
R5674
6.98k
R5635
22k
R5680
5.6
R5070
10k
R5782
39
R5665
100
R5540
470
R5681
1k
R5682
1k
R5790
0
R5646
10k
R5662
10k
R5670
47.5k
R5652
100k
R5666
470
R5677
27k
R5664
1M
R5648
10k
R5796
4.7k
*D5747
MA2J11100L
*R5793
4.7k
SYSTEM MPU
SYSMPU_#36
SYSMPU_#44
CH1=0.7V :310kHz
CH2=1.2V :410kHz
CH1=0.7V :310kHz
CH2=1.2V :410kHz
29 3532 343130
28 33 36
15V->1.3V,15V->1.8V
DC-DC CONVERTER
15V->5V,15V->3.3V
DC-DC CONVERTER
STB RESET
SUB9V
!
POWER SUPPLY
TO 7/15
TO 5/15
TO 7,10/15
TO 7/15
TO 7/15
TO 11/15
TO 7/15
FAN CONT.
TO
FAN A-B
A-BOARD TXN/A1ENUUS (4/15)

49
11.9. A-Board (5/15) Schematic Diagram
V1
COMPONENT2
COMPONENT1
V
R
L
Pb
Pr
CY
Pb
R
R
Y
L
Pr
Y
L
P
P
P
SYS_SDA0
MAIN_Y/CVBS
MAIN_PB/C
SYS_SCL0
RGB_CVBS
MAIN_PR
MCLK
HDMI_INT2
SDIN
BCLK
AD_BCLK
AD_LRCLK
AD_SDO
AVDIN
AHDIN
RF_L
AMP_MUTE
AG_AUDIO_XRST
AG_AUDIO_MUTE
AMUTE
PC_H_IN
PC_V_IN
PC_G_IN
V1_L
V1_R
D2_L
D2_R
D1_L
D1_R
PC_R_IN
RF_R
LRCLK
V1_S_DET
PC_B_IN
AG_SOUND_SOS
V1_S_DET
SPDIF
RF_V
D1_PB
D1_PR
D1_Y
D2_PR
D2_PB
D2_Y
V1_V
V1_Y
V1_C
C4075
0.1u
16V
*C3078
10V
10u
*C3079
10V
10u
*C3080
10V
10u
*D3093
MA2J72800L
*D3094
MA2J72800L
D3080
MAZ81400ML
D3069
MAZ81400ML
D3052
MAZ81400ML
D3079
MAZ81400ML
D3070
MAZ81400ML
D3071
MAZ81400ML
D3072
MAZ81400ML
D3067
MAZ81400ML
D3073
MAZ81400ML
D3063
MAZ81400ML
D3064
MAZ81400ML
D3048
MAZ81400ML
D3066
MAZ81400ML
D3051
MAZ81400ML
D3068
MAZ81400ML
D3065
MAZ81400ML
FL4000
J0HAAB000036
1
2
3
4
FL4003
J0HAAB000036
1
2
3
4
FL4007
J0HAAB000036
1
2
3
4
FL4008
J0HAAB000036
1
2
3
4
JK3000
K1U925A00002
C
Y
G
Y-G
C-G
G
V
L
R
G
Y
PB
PR
G
L
R
G
Y
PB
PR
G
L
R
G
*JK3001
K1FY115B0021
1
2
3
4
5
6
7
8
9
10
11
12
13
14
15
A1
1
2
3
4
5
6
7
8
A6
1
2
3
4
5
6
7
8
9
10
11
12
13
14
15
*L3004
J0JCC0000269
L3200
J0JCC0000059
*L3005
J0JCC0000269
SUB5V
STB3.3V
SOUND15V
F15V
SUB9V
STB5V
VJ3002
VJ3001
VJ3000
PA5601
K5H5022A0031
TP4003
TP3521
TP3523
TP3519
TP3502 TP3503
TP4004
TP3501
TP4006
TP4002
TP3500
TP3527
TP3518
TP3526
TP3522
TP4001
TP3520
TP3528
TP4005
MCLK
AMP_MUTE
SDIN
AG_AUDIO_MUTE
AG_AUDIO_XRST
LRCLK
AG_TV_SUB_ON
BCLK
SPDIF
HDMI_INT2
AD_LRCLK
AG_RMIN
MAIN_Y/CVBS
AG_KEY3
RGB_CVBS
MAIN_PB/C
CAT'S_EYE
MAIN_PR
AG_R_LED_ON
AD_SDO
AG_SOUND_SOS
AD_BCLK
SYS_SCL0
RF_V
SYS_SDA0
V2_S_DET
AHDIN
AMUTE
RF_L
RF_R
V1_S_DET
AVDIN
JS4010
JS4038
*R3116
100
*R3126
0
R3209
75
R3571
0
*R3125
75
*R3119
75
R3202
39k
R3211
75
R3191
39k
R3194
75
*R3120
0
*R3115
0
R3199
75
R3204
39k
R3212
75
R3190
39k
R3208
75
R3192
39k
*R3114
100
R4102
15k
*R3113
0
*R3121
75
R3203
75
R3198
75
R3189
75
R3193
39k
R3570
0
*R3122
0
*R3118
4.7k
*R3117
4.7k
IIC2
SYSTEM MPU
Seine3LV
MUTEOPERATE
MUTE
SYSTEM MPU
G
VD
HD
R
B
KEY3
R_LED
RM
GND
+15V_S
+15V_S
S_GND
F+15V
GND
GND
S_GND
F+15V
F+15V
+15V_S
S_GND
37 38 40 4539 43 4441 42
CONNECTOR
!
Front End
PC IN
AV TERMINAL
TO 7,10/15
TO 7,11/15
TO 7/15
TO 7/15
TO 4/15
TO 1/15
TO 1/15
TO 8/15
TO 1/15
TO 9/15
TO 7,10/15
TO 7/15
TO 10/15
TO
P-BOARD
(P6,P7)
TO
K-BOARD
(K1)
1
2
3
4
5
A-BOARD TXN/A1ENUUS (5/15)

50
11.10. A-Board (6/15) Schematic Diagram
+
+
DRIVE IC
VCC
Vin
GND
Thermal
Pad
SHIELD
SHIELD
V
R
L
S
S
S
S
S
S
P
P
V1_Y
V1_C
MAIN_Y/CVBS
MAIN_PB/C
MAIN_PR
RGB_CVBS
RF_V
D1_PR
D1_Y
D1_PB
D2_PR
D2_Y
D2_PB
D1_L
D1_R
D2_L
D2_R
V1_L
V1_R
V1_V
RF_L
RF_R
SYS_SCL0
SYS_SDA0
SYS_SCL0
SPDIF
AG_AUDIO_XRST
V2_V
V2_R
V2_L
V2_R
AVDIN
AHDIN
V2_L
LRCLK
BCLK
SDIN
SYS_SDA0
PC_R_IN
PC_G_IN
PC_H_IN
PC_V_IN
PC_B_IN
MCLK
AG_AUDIO_XRST
AD_BCLK
AD_LRCLK
AD_SDO
MCLK
AG_SOUND_SOS
AMP_MUTE
V2_V
C3033 10V 1u
C3031 10V 1u
C3030 10V 1u
C3032 10V 1u
C3028 10V 1u
C3029 10V 1u
C3026 10V 1u
C3027 10V 1u
C3042
10V 10u
C3017
16V
0.1u
C3013
10V 10u
C3043
10V 10u
C3044
10V 10u
C3045
10V 10u
C3007
10V 10u
C3010
16V 0.01u
C3050
16V
0.1u
C3046
10V 10u
C3047
10V 10u
C3019
16V
0.1u
C3022
16V
0.1u
C3015
10V 10u
C2104
0.1u
16V
C2148
50V
1000p
C2149
50V
1000p
C2134
50V
0.022u
C2135
50V
0.022u
C2145
50V
0.022u
C2146
50V
1000p
C2144
50V
0.022u
C2143
50V
0.022u
C2123
25V
1u
C2105
10u
10V
C2133
50V
0.1u
C2131
50V
0.47u
C2142
50V
0.022u
C2130
50V
0.47u
C2106
4700p
25V
C2147
50V
1000p
C3157
0.1u
16V
C2137
50V
0.1u
C2138
50V
0.022u
C2103
0.1u
16V
C2108
0.047u
10V
C2136
50V
0.1u
C2109
0.047u
10V
C2132
50V
0.1u
C2139
50V
0.022u
C2107
4700p
25V
C3023
10u
10V
C2110
10u
10V
C3006
10u
10V
C2124
25V
1u
C2207
16V
0.1u
C2116
25V
0.1u
C2114
0.1u
16V
C3001
10V 10u
C2129
0.033u
25V
C2127
0.033u
25V
C2126
0.033u
25V
C2128
0.033u
25V
C3034 10V 1u
C3035 10V 1u
C2213
4.7u
10V
C2210
4.7u
10V
C2211
4.7u
10V
C2204
4.7u
10V
C2205
4.7u
10V
C2206
4.7u
10V
C2150
25V
0.1u
C2141
25V
0.1u
C2140
25V
0.1u
C2118
25V
0.1u
C2212
4.7u
10V
C2152
25V
10u
C2153
16V
0.1u
C2155
4.7u
10V
C3049
10V
100u
C2151
25V
470u
D3005
K7AAAY000003
C0FBAK000026
IC2107
1AINR
2AINL
3CKS1
4VCOM
5AGND
6VA
7VD
8DGND 9
SDTO
10
LRCK
11
MCLK
12
SCLK
13
PDN
14
DIF
15
CKS2
16
CKS0
C1AB00002855
IC3001
1
Gin
2
HDin
3
Rin
4
T DET5
5
CVBSin4
6
T DET4
7
CVBSin3
8
BG
9
Yin3
10
S2 DET3
11
R2/Cin3
12
GND
13
G2/Yin2
14
S2 DET2
15
B2/Cin2
16
T DET3
17
CVBSin1
18
T DET2
19
G1/Yin1
20
S2 DET1
21
B1/Cin1
22
T DET1
23
CVBSin2
24
VCC5V
25
R1
26
State out
27
FBout/T DET10
28
SDA
29 SCL
30 GND
31 G/CY/CVBSout1
32 HD out1
33 B/PB/Cout1
34 VD out1
35 R/Prout1
36 VCC5V
37 SAG CVBSout4
38 Y/Y+C/CVBSout4
39 S2out
40 SAG CVBSout5
41 C/Y+C/CVBSout5
42 GND
43 SAG CVBSout3
44 CVBS/Y+Cout3
45 VCC9V
46 G/CY/Y/CVBSout7
47 O3
48
AU_GND
49
R4out
50
L4out
51
R3out
52
L3out
53
R2out
54 L2out
55 R1out
56 L1out
57 AU1/2Vcc
58 L1in
59 R1in
60 L2in
61 R2in
62 L3in
63 R3in
64 L4in
65 R4in
66 L5in
67 R5in
68 L6in
69 R6in
70 L7in
71 R7in
72 L8in
73
R8in
74
L9in
75
R9in
76
FBin1/O1
77
CVBSin7
78
FBin2/O2
79
CVBSin6
80
VCC9V
81
CVBSin5
82
T DET9
83
Yin4
84
T DET8
85
Cin4
86
VCC5V
87
PBin2/B3
88
L3 DET2
89
CYin2/G3
90
T DET7
91
PRin2/R3
92
T DET6
93
PBin1
94
L3 DET1
95
CYin1
96
HD VD/FBKMUTE
97
PRin1
98
GND
99
Bin
100
VDin
C1AB00003069
IC2109
1
OUT_A
2
PVDD_A
3
PVDD_A
4
BST_A
5
GVDD_OUT
6
SSTIMER
7
OC_ADJ
8
NC
9
AVSS
10
PLL_FLTM
11
PLL_FLTP
12
VR_ANA
13
AVDD
14 FAULT
15 MCLK
16 OSC_RES
17 DVSS
18 VR_DIG
19 PDN
20 LRCLK
21 SCLK
22 SDIN
23 SDA
24
SCL
25
RESET
26 STEST
27 DVDD
28 DVSS
29 GND
30 AGND
31 VREG
32 GVDD_OUT
33 BSD_D
34 PVDD_D
35 PVDD_D
36
OUT_D
37
PGND_CD
38
PGND_CD
39
OUT_C
40
PVDD_C
41
PVDD_C
42
BST_C
43
BST_B
44
PVDD_B
45
PVDD_B
46
OUT_B
47
PGND_AB
48
PGND_AB
JK3701
K4AK08B00004
V
V-G
L
L-G
R
R-G
A12
1
2
A11
1
2
3
L2109
J0JYC0000068
L2104
J0JYC0000068
L3001
J0JYC0000068
L2103
J0JYC0000068
L3000
J0JYC0000068
L2100
J0JYC0000068
L2107
G1C330MA0291
L2106
G1C330MA0291
L2108
G1C330MA0291
L2105
G1C330MA0291
SUB9V
SUB5V
SUB3.3V
SUB3.3V
SUB3.3V
SUB3.3V
SOUND15V
SUB5V
VJ3003
R2057
R2138
R3072
R3073
R2056
R3100
R2375
TP3001
TP2103
TP2102
TP2101
TP3000
TP2104
TP2100
Q2200
B1ADCE000022
Q2201
B1ADCE000022
JS3054
JS3052
JS3051
R3090 220
R3058
220
R3099
68
R3089 220
R3059
220
R3098
68
R3084 220
R3097
68
R3066
75
R2120
3.3
R3075 22
R2113
18.2k
R3716
39k
R3087 220
R3717
39k
R2109
0
R2137 330
R2130 0
R2140
100
*R3127
68
*R3128
68
R2114
10k
R2129 100
R3107
68
R3067
220
R3083 220
22.1k
R2102
R2118
3.3
R2131 100
R2132 100
R2209
1k
R2208
1k
R2121
3.3
R2207
22k
R2206
22k
R2202
15k
R2203
15k
R2204
15k
R2205
15k
R3096
68
R2119
3.3
R3088 220
470
R2100
R3062
220
R3074 22
R3085 220
470
R2101
*R3129
68
R3081 220
R3082 220
R3068
220
R2060
0
R2061 100
R2136 220
R3086 220
R3095
68
OUT1:Main(ADV)
V3/YC3:AV2 Front
V5:nonuse
RENESAS
YPbPr2:Comp2
YPbPr1:Comp1
V1/YC1:AV1 Back
RGB:(PC)
Video Out
OUT7:ADV(SOY)
Video Input
V4:nonuse
Other:-
Audio Input
L1/R1 AV3 Back
L2/R2 RF
L3/R3 Comp1
L4/R4 Comp2
L5/R5 AV1 Back
L6/R6 AV2 Front
L7/R7 (PC)
V6:nonuse
V7:RF
L8/R8 (DVI)
OUT4:Main(ADAV)
Audio Out
OUT2:nonuse
OUT3:Monitor out
OUT1:nonuse
SDA2
MUTE
R+
L+
L-
R-
SCL2
OPERATE
RESET
OPERATE
MUTE
OPERATE
L9/R9 DTV
OUT3:Monitor out
V2:AV3 Back
12.288MHz
I2S
3.072MHz
48KHz
NC
52494846 51 545347 50
3.072MHz
12.288MHz
I2S
48KHz
SOUND A/D
OUT
OPTICAL
AUDIO
AUDIO AMP
!
AV SW,SPEAKER OUT
TO SPEAKER_R
TO SPEAKER_L
SIDE TERMINAL
2
1
5
3
4
AUDIO SW
VIDEO SW
A-BOARD TXN/A1ENUUS (6/15)

51
11.11. A-Board (7/15) Schematic Diagram
S
S
S
AG_FAN_MAX
AG_RMIN
AG_PANEL_READY
AG_R_LED_ON
AG_FAN_SOS
UART_OUT
AG_SOS
UART_IN
AG_TV_SUB_ON
AG_SOUND_SOS
AG_DTV_XRST
AG_ODU_DET/KEY3
AG_AUDIO_XRST
GRAB_MODULE_IIC/PWM_POW_ON
AG_R_LED_ON
AG_TV_SUB_ON
AG_ODU_DET/KEY3
AG_SOUND_SOS
PANEL_STBY/VCC_ON
CAT'S_EYE
AG_FAN_SOS
STB_RST
AG_HOST_IRQ
AG_EDID_WP
AG_UART_HEAD
SBO2
SBI2
AG_AUDIO_MUTE
VI2P20
UART_OUT
UART_IN
AG_SRQ_SYSMPU
SYS_SCL1_EEP
SYS_SDA1_EEP
MPU_BOOT
AG_RMIN
SBO2
SUB9V_SENSE
AG_SOS
SUB5V_SENSE
GRAB_MODULE_IIC/PWM_POW_ON
AG_PANEL_ALARM
MPU_BOOT
AG_HOST_IRQ
AG_HDMI_CEC
AG_EDID_WP
V1_S_DET
AG_AUDIO_XRST
LVOPDN
LVOPDN VI2P20
SBI2
CEC_OUT1
SYS_SCL1_EEP
SYS_SDA1_EEP
SYS_SCL0
SYS_SDA2_TUNER
SYS_SCL2_TUNER
SYS_SCL2_TUNER
SYS_SDA2_TUNER
V2_S_DET
STB_RST
CAT'S_EYE
AG_SRQ_SYSMPU
V1_S_DET
V2_S_DET
AG_PANEL_ALARM
AG_PANEL_READY
SYS_SCL1_EEP
SYS_SDA1_EEP
SYS_SCL0
SYS_SDA0
AG_KEY1
AG_RF_AFT1
AG_DTV_XRST
AG_KEY1
AG_UART_HEAD
AG_HDMI_CEC
PANEL_STBY/VCC_ON
SYS_SDA0
AG_FAN_MAX
C1120
220p
50V
C1108
16V
0.1u
C1128
16V
0.1u
C1123
16V
0.1u
C1117
16V
0.1u
C1122
2200p
50V
C1119
6.3V
1u
C1118
50V
1000p
C1121
50V
1500p
C1124
16V
0.1u
C1107
50V
12p
C1125
10u
10V
C1127
16V 0.1u
C1134
16V 0.01u
C1135
16V
0.01u
D1100
MA2J11100L
C0JBAA000534
IC1102
1
IN_B
2
IN_A
3
GND
5
Vcc
4
OUT_Y
IC1101
1A0
2A1
3A2
4GND 5
SDA
6
SCL
7
WP
8
Vcc
IC1100
C2CBYY000765
1
AVSS
2
P70/TA0IN
3
P71/TA1OUT
4P72/TA3OUT
5P73/TA4IN
6P74/TA5OUT
7P80/TB0IN0/INT5
8P81/TB0IN1/INT6
9P82/TB0OUT0
10 P83/TB0OUT1
11 P90/TXD0
12 P91/RXD0
13 P92/SCLK0/CTS0
14
P93/TXD1
15
P94/RXD1
16
P95/SCLK1/CTS1
17
AM0
18
DVCC
19
X2
20
DVSS
21
X1
22
AM1
23
RESET
24
P96/XT1
25
P97/XT2
26
NMI
27
ALE
28
P00/AD0
29
P01/AD1
30
P02/AD2
31
P03/AD3
32
P04/AD4
33
P05/AD5
34
P06/AD6
35
P07/AD7
36
P10/AD8/A8
37
P11/AD9/A9
38
P12/AD10/A10
39
P13/AD11/A11
40
P14/AD12/A12
41
P15/AD13/A13
42
P16/AD14/A14
43
P17/AD15/A15
44
P20/A0/A16
45
P21/A1/A17
46
P22/A2/A18
47
P23/A3/A19
48
P24/A4/A20
49
P25/A5/A21
50
P30/RD/BOOT
51
P31/WR
52 P32/HWR
53 P40/CS0
54 P41/CS1
55 P42/CS2
56 P60/SCK
57 P61/SO/SDA
58 P62/SI/SCL
59 P63/INT0
60 P50/AN0
61 P51/AN1
62
P52/AN2
63
P53/AN3/ADTRG
64
AVCC
L1100
J0JYC0000068
SUB3.3V
SUB3.3V
SUB3.3V
STB3.3V
STB3.3V
SUB5V
SUB5V
SUB3.3V
SUB3.3V
SUB3.3V
SUB9V
VJ1102
VJ1100
TP1100
TP1102
TP1105
TP002
TP1101
TP1103
TP001
AG_SOUND_SOS
AG_UART_HEAD
STB_RST
AG_RF_AFT1
AG_SOS
CAT'S_EYE
AG_SRQ_SYSMPU
AG_PANEL_READY
AG_ODU_DET/KEY3
AG_FAN_SOS
AG_KEY1
AG_RMIN
SBI2
AG_HOST_IRQ
AG_FAN_MAX
AG_TV_SUB_ON
PANEL_STBY/VCC_ON
AG_AUDIO_MUTE
AG_AUDIO_XRST
GRAB_MODULE_IIC/PWM_POW_ON
SBO2
AG_R_LED_ON
AG_DTV_XRST
VI2P20
AG_EDID_WP
SYS_SDA1_EEP
SYS_SDA0
SYS_SCL0
VIDEO_OUT
V2_S_DET
SYS_SCL2_TUNER
SYS_SDA2_TUNER
AG_PANEL_ALARM
V1_S_DET
LVOPDN
SYS_SCL1_EEP
AG_HDMI_CEC
Q1105
2SK122800L
Q1103
B1ABCF000231
Q1102
B1ABCF000231
Q1100
2SB0709ASL
Q1101
2SB0709ASL
R1168
10k
R1165
2.2k
R1169
4.7k
R1145
470
R1216 47k
R1180
4.7k
R1164
100
R1223
1k
R1233 4.7k
R1224 47k
R1209
4.7k
R1235
4.7k
R1220
10k
R1222
47k
R1175
22k
R1227
7.15k
R1201
4.7k
R1214
33k
R1211
68k
R1232
4.7k
R1183
4.7k
R1170
10k
R1212
47k
R1182
4.7k
R1218
2.2k
R1231
4.7k
R1236
100
R1177
100
R1191
100
R1202
2.2k
R1167
470k
R1238
47k
R1193
4.7k
R1188
10k
R1189
100
R1185
100
R1205
47k
R1225 1k
R1190
27k
R1228
100k
R1239
100k
R1195
0
R1240 4.7k
R1184
4.7k
R1213
68k
R1197 47k
R1171
33k
R1203
2.2k
R1173
47k
R1210
100
R1198 4.7k
R1176
39k
R1226 1k
R1186
100
R1192
100
R1172
22k
R1200
4.7k
R1230
100
R1174
47k
R1166
75
R1237 4.7k
X1100
H0J250500079
VJ1101
C1126
16V
0.1u
C1106
50V
15p
25MHz
TUNER_SDA
SOS
FAN_SOS
SOUND_SOS
KEY3(TV_POWER)
TUNER_SCL
DISPEN
R_LED_ON
FAN_MAX
DTV_XRST
FACT
BOOT
PANEL_READY
HOST_IRQ
SYSMPU_EEP_WP
SDA1
SCL1
KEY1
AI
RF_AF1
HDMI
RMIN
CN to H
Power Supply
LVDS Out
Seine
PANEL_STBY
TV_SUB_ON
PANEL
SERVICE
IIC_TUNER
IIC_SUB_DEVICE
SUB5V_SENSE
CEC_OUT1
PANEL_ALARM
CEC_IN
SRQ_STBMPU
SUB3.3V_SENSE
CEC_OUT2
AUDIOXRST
EDID_WP
G
SD
SCL0
SDA0
CN to C
60 6256 6357 58 59 6155
AND GATE
EEPROM
SYSTEM MPU
SYSTEM MPU,EEPROM
!
TO 4/15
TO 8/15
TO 10/15
TO 5,10/15
TO 5/15 TO 4/15
TO 9/15
TO 5/15
TO 1,12/15
TO 12/15
TO 5/15
TO 5/15
TO 4/15
TO 4,10/15
TO 5,11/15
TO 1/15
TO 1/15
TO 1/15
TO 1,3/15
TO 1/15
TO 12/15
TO 10/15
TO 1,10/15
TO 9,10/15
TO 5,10/15
TO 5/15
TO 9/15
A-BOARD TXN/A1ENUUS (7/15)
TVRQ729S

52
11.12. A-Board (8/15) Schematic Diagram
+
P
P
MAIN_Y/CVBS
MAIN_PB/C
MAIN_PR
AG_EDID_WP
AG_HDMI_CEC
RGB_CVBS
DDC2_SDA
HPD1
RX1_CN
RX1_0N
RX1_2N
AG_HDMI_CEC
AG_EDID_WP
RX2_2N
HPD2
DDC2_SCL
DDC1_SCL
MAIN_PB/C
MAIN_PR
RX1_1N
RX2_CN
RX2_CP
RX2_0N
RX2_0P
RX2_1N
RX2_1P
RX2_2N
RX2_2P
RX2_CN
RX2_0N
RX2_1N
RX1_CN
RX1_CP
RX1_0N
RX1_0P
RX1_1N
RX1_1P
RX1_2N
RX1_2P
DDC1_SDA
DDC1_SCL
DDC2_SCL
DDC2_SDA
HPD2
HPD1
DDC1_SDA
RGB_CVBS
MAIN_Y/CVBS
RX2_2P
RX2_1P
RX2_0P
RX2_CP
AG_EDID_WP
AG_HDMI_CEC
RX1_0P
RX1_CP
RX1_1P
RX1_2P
C4501
0.1u
16V
C4500
0.1u
16V
C4549
6.3V
1u
C4535
16V
0.1u
C4625
16V
0.1u
C4551
16V
0.1u
C4534
16V
0.1u
C4548
6.3V
1u
C4624
16V
0.1u
C4552
6.3V
1u
C4553
25V
4700p
C4558
0.1u
16V
C4555
0.1u
16V
0.1u
16V
C4517
C4520
10V
10u
0.1u
16V
C4513
0.1u
16V
C4514
C4557
0.1u
16V
0.1u
16V
C4521
C4574
0.1u
16V
C4577
0.1u
16V
C4576
0.1u
16V
C4556
0.1u
16V
C4579
10u
10V
C4580
10u
10V
C4581
10u
10V
C4578
10u
10V
C4582
10u
10V
C4554
16V
47u
D4586
B0HCMM000014
D4584
B0HCMM000014
D4585
B0HCMM000014
D4521
EZAEG2A50AX
D4507
EZAEG2A50AX
D4577
EZAEG2A50AX
D4583
EZAEG2A50AX
D4579
EZAEG2A50AX
D4582
EZAEG2A50AX
D4516
EZAEG2A50AX
D4580
EZAEG2A50AX
D4576
EZAEG2A50AX
D4581
EZAEG2A50AX
D4512
EZAEG2A50AX
D4546
EZAEG2A50AX
D4550
EZAEG2A50AX
D4543
EZAEG2A50AX
D4548
EZAEG2A50AX
D4518
EZAEG2A50AX
D4574
EZAEG2A50AX
D4547
EZAEG2A50AX
D4573
EZAEG2A50AX
D4545
EZAEG2A50AX
D4578
EZAEG2A50AX
D4503
EZAEG2A50AX
D4520
EZAEG2A50AX
D4523
EZAEG2A50AX
D4511
EZAEG2A50AX
D4517
EZAEG2A50AX
D4505
EZAEG2A50AX
D4549
EZAEG2A50AX
D4509
EZAEG2A50AX
D4544
EZAEG2A50AX
D4564
B0BC5R6A0275
D4515
B0BC5R6A0275
D4513
B0BC5R6A0275
IC4500
1E0
2E1
3E2
4VSS 5
SDA
6
SCL
7
WC
8
VCC
IC4501
1E0
2E1
3E2
4VSS 5
SDA
6
SCL
7
WC
8
VCC
IC4508
TVRQ585S
1E0
2E1
3E2
4VSS 5
SDA
6
SCL
7
WC
8
VCC
C1AB00003079
IC4503
1
RXTM
2
SDA_C
3
SCL_C
4GND
5CCLKN
6CCLKP
7VCC
8CDT0N
9CDT0P
10 GND
11 CDT1N
12 CDT1P
13 VCC
14 CDT2N
15 CDT2P
16 GND
17 VCC
18
REXT
19
OPACTRLN
20
CEC_TX
21
SELC
22
SELB
23
SELA
24
GND
25
YDT2P
26
YDT2N
27
VCC
28
YDT1P
29
YDT1N
30
GND
31
YDT0P
32
YDT0N
33
VCC
34
YCLKP
35
YCLKN
36
GND
37
GND
38
SCL_SINK
39
SDA_SINK
40
HPD_SINK
41
CEC_RX
42
OUTDIS
43
VCC
44
HPD_A
45
SDA_A
46
SCL_A
47
GND
48
ACLKN
49
ACLKP
50
VCC
51
ADT0N
52
ADT0P
53
GND
54
ADT1N
55
ADT1P
56
VCC
57
ADT2N
58
ADT2P
59
GND
60
CEC_LINE
61
CVCC
62
HPD_B
63
SDA_B
64 SCL_B
65 GND
66 GND
67 BCLKN
68 BCLKP
69 VCC
70 BDT0N
71 BDT0P
72 GND
73 BDT1N
74 BDT1P
75 VCC
76 BDT2N
77 BDT2P
78
GND
79
VCC
80
HPD_C
JK4501
K1FY119D0006
1
2
3
4
5
6
7
8
9
10
11
12
13
14
15
16
17
18
19
JK4502
K1FY119E0005
1
2
3
4
5
6
7
8
9
10
11
12
13
14
15
16
17
18
19
JK4500
K1FY119D0006
1
2
3
4
5
6
7
8
9
10
11
12
13
14
15
16
17
18
19
L4512
J0JYC0000068
L4502
J0JYC0000068
L4500
J0JYC0000068
L4501
J0JYC0000068
L4521
J0JYC0000068
L4503
J0JYC0000068
L4505
J0JYC0000068
L4523 J0JYC0000068
L4508
J0JYC0000068
L4507
J0JYC0000068
L4506
J0JYC0000068
L4504
J0JYC0000068
L4522 J0JYC0000068
SUB3.3V
SUB3.3V
SUB2.5V
R4603
L4524
VJUMP1608-P
TP4527
TP4501
TP4529
TP4500 TP4503
TP4530
TP4506
TP4514TP4513
TP4525
TP4526
TP4502
TP4528
TP4512
TP4508
MAIN_PR
RGB_CVBS
MAIN_PB/C
TMDS_SW_S3
MAIN_Y/CVBS
TMDS_SW_S1
TMDS_SW_S2
HDMI1_DET
HDMI2_DET
HDMI3_DET
RXN0_B
VRIN
AG_EDID_WP
VBIN
AG_HDMI_CEC
VGIN
SDA_DDC_B
HPLUG_A
RXN1_B
SCL_DDC_B
HPLUG_B
RXPC_B
RXP2_B
SYNCIN1
RXN2_B
RXP0_B
RXP1_B
RXNC_B
Q4505
B1ABCF000231
Q4531
B1ABCF000231
Q4529
B1ABCF000231
Q4530
B1ABCF000231
Q4504
B1ABCF000231
Q4528
B1ABCF000231
Q4517
2SB0709ASL
Q4516
2SB0709ASL
Q4515
2SB0709ASL
Q4514
2SB0709ASL
R4607
47k
R4610
47k
R4611
47k
R4640
4.7k
R4612
4.7k
R4616
1k
R4634
220
R4609
47k
R4734
1k
R4615
10k
R4592
10k
R4505
1k
R4593
27k
R4598
220
R4589
10k
R4597
220
R4626
220
R4570
0
R4588
10k
R4617
10k
R4600
47k
R4547
10k
R4567
4.7k
R4613
1k
R4606
4.7k
R4538
47k
R4546
10k
R4540
47k
R4623
56k
R4624
22k
R4625
22k
R4628
22k
R4601
1k
R4596
220
R4504
1k
R4604
10k
R4627
220
R4621
10k
R4587
5.6k
HDMI1
HDMI2
PR
CN_to_H
PB/C
YIN
Seine3LV
Seine3LV
CEC
DDCG
SCL
+5V
HPDT
D1G
D0+
CLKG
N.C.
CLK+
SDA
CLK-
D0-
D0G
D2+
D1+
D2G
D2-
D1-
HDMI3
Seine3LV
69 7165 68 7064 7266 67
EEPROM
EEPROM
EEPROM HDMI SW
HDMI
!
TO 1/15
TO 1/15
TO 1/15
TO 1/15
TO 1/15
TO 5/15
TO 1/15
SYSTEM MPU
TO 7/15
D0G
D2+
CLK+
SDA
D2-
D1-
CEC
D1G
D0+
D1+
D2G
DDCG
SCL
CLK-
D0-
+5V
HPDT
CLKG
N.C.
D1-
CEC
D1G
D0G
N.C.
D1+
D2G
DDCG
SCL
CLK-
D0-
+5V
HPDT
CLKG
D2+
D0+
CLK+
SDA
D2-
A-BOARD TXN/A1ENUUS (8/15)
TVRQ583S
TVRQ584S

53
11.13. A-Board (9/15) Schematic Diagram
+
+
+
S
S
S
IF_Monitor 18
RF_V
AG_RF_AFT1
RF_L
AG_RF_AFT1
RF_R
VIDEO_OUT
RF_L
RF_R
VIDEO_OUT
RF_V
C8404
16V
0.1u
C8306
50V 220p
C8301
50V
1000p
C8304
50V 220p
C8403
16V
0.1u
C8346
16V
0.1u
C8313
50V
1000p
C8402
50V
1000p
C8401
50V
1000p
C8396
50V
220p
C8400
50V
68p
C8394
50V
150p
C8395
50V
220p
C8399
50V
120p
C8398
50V
120p
C8393
33p
50V
C8392
33p
50V
C8302
16V
0.1u
C8305
50V 220p
C8307
16V
0.1u
C8309
50V
0.01u
C8311
35V
22u
C8312
6.3V
220u
C8310
6.3V
220u
L8302
J0JHC0000045
L8303
J0JHC0000045
L8301
J0JHC0000045
L8326
G1CR10JA0020
L8329
G1C56NJ00018
L8327
G1CR10JA0020
L8325
G1C82NJA0075
L8324
G1CR22JA0020
L8328
G1C56NJ00018
L8323
G1CR22JA0020
L8330
G1CR18JA0020
BT30V
SUB5V
R8332
R8301
R8300
TP8303
TP8301
TP8300
TP8304
TP8302
TP8305
RF_L
AG_RF_AFT1
RF_V
RF_R
VIDEO_OUT
VINN_VSB
SYS_SCL2_TUNER
SYS_SDA2_TUNER
VINP_VSB
IFAGC
R8303 47
R8337
0
R8315
1k
R8302 47
R8336
0
R8304
0
R8338
0
R8312
220
R8339
0
R8341
0
TU8300
ENGE6609KF
NC 1
NC 2
NC 3
L-out 4
R-out 5
RF-AGC_Monitor 7
Video-out 8
VB 9
BT_Monitor 11
BTL 12
SDA 14
SCL 15
AFT-out 16
+B 17
IF-AGC 19
IFD-out1 20
IFD-out2 21
ANALOG
ANALOG
77 7973 76 8175 78 8074
TUNER
!
TUNER
TO 1/15
TO 7/15
TO 7,10/15
Seine3LV
TO 7/15
TO 5/15
A-BOARD TXN/A1ENUUS (9/15)
!

54
11.14. A-Board (10/15) Schematic Diagram
+
+
+
SDA1_EEP
SCL1_EEP
SYS_SDA0
SYS_SCL0
SYS_SCL1_EEP
SYS_SDA1_EEP
SCL0_PANEL
SCL0_PANEL
SDA0_PANEL
D_IIC_CONT
AR_PANEL_SCL
AR_PANEL_SDA
SYS_SCL2_TUNER
SYS_SDA2_TUNER
AR_PANEL_SCL
AR_PANEL_SDA
SYS_SDA1_EEP
SYS_SCL1_EEP
SE_SCL0_D
SE_SDA0_D
SCL0_PANEL
SDA0_PANEL
SYS_SDA0
SYS_SCL0
SYS_SCL2_TUNER
SYS_SDA2_TUNER
D_TXD
D_RXD
D_IIC_CONT
D_RXD
D_TXD
SYS_SCL1_EEP
SYS_SDA1_EEP
SDA1_EEP
SCL1_EEP
SE_SCL0_D
SE_SDA0_D
SDA0_PANEL
C4797
50V
1000p
C4796
50V
1000p
C4755
16V
0.1u
C4718
50V
1000p
C4771
50V
1000p
C4762
50V
0.01u
C4711
16V
0.1u
C4751
16V
0.1u
C4779
16V
0.1u
C4761
50V
0.01u
C4772
16V
0.1u
C4721
16V
0.1u
C4712
16V
0.1u
C4753
16V
0.1u
C4742
16V
0.1u
C4703
50V
1000p
C4716
50V
1000p
C4701
50V
1000p
C4727
16V
0.1u
C4795
50V
1000p
C4728
16V
0.1u
C4752
16V
0.1u
C4726
16V
0.1u
C4725
16V
0.1u
C4798
50V
1000p
C4775
16V
0.1u
C4746
50V
1000p
C4713
50V
1000p
C4724
50V
1000p
C4778
16V
0.1u
C4702
16V
0.1u
C4705
16V
0.1u
C4763
50V
0.01u
C4741
50V
1000p
C4715
16V
0.1u
C4776
50V
1000p
C4722
50V
1000p
C4717
50V
1000p
C4744
16V
0.1u
C4743
50V
1000p
C4754
16V
0.1u
C4719
50V
1000p
C4714
50V
1000p
C4777
16V
0.1u
C4704
16V
0.1u
C4774
16V
0.1u
C4773
50V
1000p
C4745
16V
0.1u
C4830
16V
0.1u
C5515
16V
0.1u
C5527
0.47u
50V
C5514
10V
1u
C5531
82p
50V
C5513
10V
1u
C5534
25V
3900p
C5528
0.47u
50V
C5535
10u
10V C5533
50V
1000p
C5516
100u
16V
C5532
35V
22u
C5536
6.3V
47u
D2659
MA2J11100L
D2660
MA22D3900L
D5484
MA3X78900L
D5486
B0BC03900015
D5485
MAZ83600ML
IC4800
C1ZBZ0003775
1SDA
2SCL
3ALERT
4GND 5
A2
6
A1
7
A0
8
V+
C1ZBZ0003972
IC5480
1EN_CLKBF
2CLKOUT
3SDA1
4SCL1
5SDA0
6SCL0
7STB5V
8STB3.3V
9AMUTE
10 SP_MUTE
11 MUTE_VCC
12 AUDIO_MUTE_IN
13 DTB9V
14 MONITOR_MUTE 15
FB
16
GND
17
FC
18
PGND
19
DRV
20
DTV5VOUT
21
DTV5VIN
22
EN_DCDC
23
CD
24
STB_RST
25
SCL
26
SDA
27
SEL
28
CLKIN
A18
1
2
3
4
5
6
7
8
9
10
11
A17
1
2
3
4
5
6
7
8
9
10
11
12
13
14
15
16
17
18
19
20
L5442
G1C470MA0291 L5441
G1C100MA0072
SUB9V
STB5V
STB3.3V
BT30V
SUB3.3V
STB5V SUB5V
STB5V
STB5V
SUB9V
SUB9V
STB3.3V
SUB5V
SUB3.3V
SUB5V
BT30V
TP8531
TP8534
TP8532
TP8567
TP8521
TP8522
TP8529
TP8530
TP8526
TP8505
TP8524
TP8528
TP8527
TP4801
TP8572
TP8503 TP8573
TP8566
TP5489
TP4800
AG_TV_SUB_ON
AG_SRQ_SYSMPU
D_PCB_MODE
AR_LED_R
REMOCON
AMP_MUTE
STB_RST
AR_PANEL_SDA
SCL0_PANEL
SDA0_PANEL
D_IIC_CONT
SCL1_EEP
SYS_SDA1_EEP
SYS_SCL1_EEP
SE_SDA0_D
SYS_SCL2_TUNER
SYS_SCL0
D_TXD
SYS_SDA2_TUNER
AR_PANEL_SCL
SE_SCL0_D
SDA1_EEP
D_RXD
SYS_SDA0
GRAB_MODULE_IIC/PWM_POW_ON
R4177
EXB38V220JV
R4178
EXB38V220JV
R4233
22
R4236
22
R4237
22
R5504
3.4k
R4006
22
R5506
39k
R4821
10k
R4131
22
R4132
22
R5503
100k
R5505
15k
TP102
*JS4018 0
*JS4017 0
TP103
TP100
*JS4019 0
TP101
SRQ1
STB5V
GND
SYSMPU_SDA1 MPU_EEP & FACT
SYSMPU_SCL1 MPU_EEP & FACT
PANEL_EEP SCL
PANEL_EEP SDA
(Panel Dpr.E2PROM)
(Panel Dpr.E2PROM)
GENX6 SRQ
Seine_SCL0
STB3.3V
Panel_TXD
Panel_RXD
(Panel_micro/Temp_sensor)
(AVSW/A_Amp)
(Tuner)
(Tuner)
SYSMPU_SCL2
SYSMPU_SDA2
IIC_CONT
STB5V
Seine_SDA0
SYSTEM MPU
Seine EEPROM
Seine EEPROM
GND
PANEL_LED_R
INEXCH
(AVSW/A_Amp)
SYSMPU_SCL0
SYSMPU_SDA0
(Panel_micro/Temp_sensor)
Panel_TXD
Panel_RXD
IIC_0 IIC_1
PANEL REM_CON
8584 888783 9082 8986
ANALOG ASIC
STB3.3V
STB_RESET
TEMP SENSOR
!
CONNECTOR
TO 5/15
TO 5,7/15
TO 4,7/15
TO 7/15
IIC
TO 7/15
TO 5,7/15
SYSMPU
TO 3/15
SYSTEM MPU
TO 1,7/15
TO 7,9/15
TO 12/15
TO 12/15
TO 12/15
TO 11/15
TO 11/15
TO 11/15
FOR
FACTORY
USE
FOR
FACTORY
USE
Suffix:AH
A-BOARD TXN/A1ENUUS (10/15)

55
11.15. A-Board (11/15) Schematic Diagram
G
G
G
G
G
G
TERM
SIDE
S
S
S
S
S
S
S
S
S
OSD_B
DRVRST
VDATA_DET
STB_SCL01
SFRST
D_XRST
D_XRST
SC_CEL
OSD_CLKIN
STB_SCL02
P_ON/OFF
SC_CRC1
SC_CPH2
RXD_PC
SC_OC1
SC_CSH
SC_SEL
SOS4_PS
SC_OC2
STB_SCL02
OSD_G
FVSEL
SOS4_PS
OSD_R
SC_CSL
SC_SIU
FPGANRST
SC_CPH1
SOS7
TXD_PC
SOS8
OSD_VIN
MCCLK
D_IIC_CONT
OSD_HIN
IIC_SW
STB_SDA02
SOS7_SC2
SC_FPGANRST
PANEL_MAIN_ON
SC_CLK
EEP_WR_CTL
SC_CIS
STB_SDA01
NRST
SC_CMH
SC_CML
VDATA_DET
D_IIC_CONT
OSD_YS
SOS6_SC1
SC_CERS
XI_DONE
SC_UHZ
SIN
SC_CML
SC_CMH
SC_CPH1
SC_CSL
SC_CSH
SC_CEL
SC_CPH2
SC_CIS
FP_CML
FP_CMH
FP_CPH1
FP_CSL
FP_CSH
FP_CEL
FP_CPH2
FP_SCSU
STB_SCL01
STB_SDA01
SCL0_PANEL
SDA0_PANEL
STB_SDA02
STB_SCL02
IIC_SW
P3V_SCL02
P3V_SDA02
SC_UHZ
FP_UHZ
SOS8_SS
SOS7_SC2
SOS6_SC1
SOS6
SOS8
SOS7
SOS6
AUX_ON/OFF
AUX_ON/OFF
NRST
FP_CQR5
FP_CRC2
SC_CQR5
SC_CRC2
SC_CQR5
SC_CRC2
SC_SIU
SC_OC1
SC_FPGANRST
SC_CRC1
SC_OC2
SC_SEL
SC_CERS
SC_CLK
FP_OC1
FP_FPGANRST
FP_CRC1
FP_OC2
FP_SEL
FP_CERS
FP_CLK
FP_SIU
OSD_HI
OSD_CKI
PANEL_STBY/VCC_ON
P_ON/OFF
AG_PANEL_READY
P3V_SDA03
P3V_SCL03
PANEL_MAIN_ON
SFVRST
PROG_M
AG_PANEL_ALARM
STB_SDA02
XRST_SYS
EEP_WR_CTL
C9071
0.1u
25V
C9062
4.7u
10V
C9064
16V
0.1u
C9065
16V
0.1u
C9048
16V 0.1u
C9045
16V
0.1u
C9040
16V
0.1u
C9061
16V
0.1u
C9840
25V
0.01u
C9057
16V
0.1u
C9053
16V
0.1u
C9832
10u
10V
C9859
25V
0.01u
C9044
10V
4.7u
C9052
16V
0.1u
C9063
16V 0.1u
C9047
16V
0.1u
C9858
10u
25V
C9046
16V 0.1u
C9926
10u
10V
C9074
2200p
50V
C9899
10u
10V
C9078
10u
25V
C9072
22u
6.3V
C9073
22u
6.3V
C9080
200p
50V
C9079
22p
50V
C9077
10u
25V
C9069
2200p
50V
C9882
200p
50V
C9869
10u
25V
C9872
10u
25V
C9068
22u
6.3V
C9067
22u
6.3V
C9066
0.1u
25V
C9874
100p
50V
C9049
16V
0.1u
C9036
10V 10u
C9033
16V0.1u
C9037
0.01u
25V
C9035
10V
10u
C9034
16V
0.1u
C9055
16V
0.1u
C9083
22u
6.3V
C9087
0.056u
10V
C9088
10u
25V
C9089
10u
25V
C9084
22u
6.3V
C9091
200p
50V
C9082
0.1u
25V
C9085
2200p
50V
C9846
16V
0.1u
C9837
10u
10V
C9823
10u
25V
C9844
25V
0.01u
C9845
16V
0.1u
D9800
B0JCPD000026
D9110
B0JCGD000002
D9000
B0JCCE000008
F1J1E104A148
FL9806
F1J1E104A148
FL9805
F1J1E104A148
FL9803
C0CBCAC00365
IC9808
1
ON/OFF
2
VSS
3
NC
5
VIN
4
VOUT
*IC9001
1E0
2E1
3E2
4VSS 5
SDA
6
SCL
7
WC
8
VCC
C0DBAYY00478
IC9806
PGND
1
2PGND
3PGND
4SW
5SW
6SW
7BOOT
8NC
9SS/DELAY
10 GND 11
FB
12
FC
13
RT
14
PSET
15
EN
16
NC
17
NC
18
VIN
19
VIN
20
VIN
C0DBAYY00477
IC9805
PGND
1
2PGND
3PGND
4SW
5SW
6SW
7BOOT
8NC
9SS/DELAY
10 GND 11
FB
12
FC
13
RT
14
PSET
15
EN
16
NC
17
NC
18
VIN
19
VIN
20
VIN
C0DBAYY00477
IC9807
PGND
1
2PGND
3PGND
4SW
5SW
6SW
7BOOT
8NC
9SS/DELAY
10 GND 11
FB
12
FC
13
RT
14
PSET
15
EN
16
NC
17
NC
18
VIN
19
VIN
20
VIN
C1ZBZ0003983
IC9004
1
Y5
2
Y4
3
Y3
4
Y2
5
Y1
6
RESET
7
CD_OUT
8
STB33V
9
GND
10
DCDC_OE
11
VIN_OR
12
P_SDA1
13
P_SCL1
14
P_SDA2
15
P_SCL2
16
P33V_IN
17 IIC_SW
18 S_SCL2
19 S_SDA2
20 S_SCL1
21 S_SDA1
22 STB33VIN
23 P33V
24 P_ON_OFF
25 STB5V_IN
26 GND
27 CE
28 A1
29 A2
30 A3
31 A4
32 A5
MNZSFH8KPF3
IC9003
1
P60_SBO0A
2
P61_SBT0A
3
P62_SBI0A
4
P05_IRQ6
5
P06_IRQ7
6
P07_IRQ8
7
P70_SDA0
8
P71_SCL0
9
P50_RMIN_IRQ0
10
P20
11
P21
12
P22
13
P23
14
IVDD
15
VSS
16
P10
17
P11
18
P12
19
P13
20
P14
21
P15
22
P16
23
EXCLKSEL
24
P72_SDA1
25
P73_SCL1
26
P65_SBT2
27
P66_SBI2
28
P30
29 P31
30 P32
31 P33
32 P34
33 P35
34 P36
35 P37
36 VPPEX_(N.C.)
37 IVDD
38 VDD
39 RONA
40 VSS
41 OSCXO
42 OSCXI
43 IVDD
44 P64_SBI1
45 P63_SBT1
46 NBOOT_(N.C.)
47 NRST
48
NTEST
49
SCLOCK_(UND)
50
SDATA_(UND)
51
ENTRG0_(UND)
52
ENTRG1_(UND)
53
TRCCLK_(UND)
54 TRCST_(UND)
55 TRCD0_(UND)
56 TRCD1_(UND)
57 TRCD2_(UND)
58 TRCD3_(UND)
59 P80_ADIN0
60 P81_ADIN1
61 P82_ADIN2
62 P83_ADIN3
63 IVDD
64 VSS
65 P84_ADIN4
66 P85_ADIN5
67 P86_ADIN6
68 P87_ADIN7
69 P90_ADIN8
70 P91_ADIN9
71 P92_ADIN10
72 P93_ADIN11
73
P74_SDA2
74
P75_SCL2
75
P40_TM0IO
76
P41_TM1IO
77
P42_TM2IO
78
P43_TM3IO
79
P44_TM4IO_SYSCLK
80
P00
81
P01
82
P02
83
P03_SBT0B
84
P04_SBO0B
85
P51_IRQ2
86
P52_IRQ3
87
P53_IRQ4
88
P54_IRQ5
89
PA7_VCLKOUT
90
PA6_HOUT
91
PA5_YSOUT
92
PA4_B00
93
PA3_G00
94
PA2_R00
95
PA1_VSYNC_IRQ1
96
PA0_HSYNC
97
VSS
98
OSDXI
99
IVDD
100
VDD
A33
23
29
30
2
12
5
33
14
32
20
28
26
4
9
11
19
22
21
25
8
13
6
31
17
10
34
24
18
1
7
27
16
15
3
35
A25
1
2
3
4
5
6
7
8
9
10
11
12
13
L9002
G1C6R8Z00008
L9802
G1C6R8Z00010
L9001
G1C3R3Z00004
P3.3V
STB_D3.3V
P5V
P15V
P15V
STB5V_M P3.3V
P15V
P15V
STB_D3.3V
STB_D3.3V
P15V
P15V
P3.3V
STB_D3.3V
P5V
STB5V_M
P1.2V
STB_D3.3V
P1.8V
P15V
P2.5V
P3.3V
P5V
P5V
P3.3V
R9150
VJ9012
R9200
R9201
R9186
R9247
R9185
R9151
R9248
TP9000
TP9196
TP9862
TP9079
TP9081
TP9082
TP9198
TP9199
TP9205
TP9206
TP9080
TP9207
TP9006
TP9197
AG_RMIN
GENX_CLK
D_PCB_MODE
REMOCON
AR_LED_R
PANEL_MAIN_ON
Q9807
2SD0601A0L
Q9003
B1ABCF000231
Q9002
B1ABCF000231
Q9004
B1ABCF000231
Q9001
B1ABCF000231
Q9000
B1ABCF000231
R9119
EXB38V470JV
R9208
EXB2HVR000V
R9209
EXB2HVR000V
R9848
EXB2HV470JV
R9849
EXB2HV470JV
R9206
56k
R9103
47k
R9212 47
R9100
47k
R9142 100
R9102
100
R9202 100
R9078
43k
R9105
10k
R9872
10k
R9106
100k
R9108
10k
R9868
100k
R9107 3.3k
R9155 2.7k
R9166
10k
R9215
100k
R9188 2.7k
R9073
4.7k
R9213 47
R9104
4.7k
R9899
10k
R9145 100
R9120 100
R9897
10k
R9898
10k
R9081
47k
R9071
22k
R9115 100
R9124 47
R9091
27k
R9092
12k
R9121
100k
R9072
1k
R9149
4.7k
R9080
15k
R9113
100k
R9873
22
R9205
33k
R9207
24k
R9088
18k
R9902
22
R9874
22
R9187 2.7k
R9101
33k
R9164 10k
R9095
10k
R9152
10k
R9153
10k
R9229
47
R9099
100
R9111 0
R9228
47
R9154 2.7k
R9109
10k
R9250
2.7k
R9249
2.7k
R9129
68k
R9130 47
R9225
2.7k
R9223
2.7k
R9227
0
R9226
0
R9079
27k
R9203
22k
R9077
11k
*R9217
0
R9070
10k
R9110 100
R9189
10k
R9089
15k
R9893
56k
R9871
10k
R9894
18k
R9900
22
C9076
0.015u
16V
C9863
4700p
25V
P5V
SIU
CLK
GND
GND
SC_FPGANRST
GND
UHZ
CSH
CPH1
CERS
CRC2
OC2
CRC1
OC1
CIS
SOS6_SC1
SOS7_SC2
GND
CPH2
GND
CEL
GND
CSL
GND
CMH
CML
+15V
+15V
NC
NCS_ASIC
SCLK
INT_CONF
SOUT
1.2V
3.3V
P5V->FPGA2.5V
GND
NC
CRC2
CQR5
NC
MAIN_CONF
1.8V
GND
GND
+15V
+15V
GND
GND
+5V
+5V
GND
VDATA_DET
PANEL_MAIN_ON
SOS4_PS
STBY5V
INT_CONF
MAIN_CONF
95 99939291 96 97 9894
15V->3.3V
DC-DC CONVERTER
DC-DC CONVERTER
15V->1.8V
15V->1.2V
DC-DC CONVERTER
STB+3.3V/RESET
AVR 2.5V
PANEL MICOM
EEPROM
TO
SC-BOARD
(SC20)
!
PANEL MICOM,EEPROM
TO 4/15
TO 10/15
TO 10/15
TO 5,7/15
TO 10/15
TO
P-BOARD
(P25)
11
12
13
14
A-BOARD TXN/A1ENUUS (11/15)
TVRQ571ADS

56
11.16. A-Board (12/15) Schematic Diagram
P
P
P
FP_UML
L8R_FCCLK
DD_PCD2
FP_OC1
SFLATCH
XI_DONE
DD_PCD3
FP_CSL
DD_PCD1
SFRST
P3V_SDA02
DD_ODED2
FVSEL
FP_USL
FP_CSH
SFVRST
FP_UEH
L8R_PROG
STB_SDA02
FP_CRC2
D_RXD
P3V_SCL02
FP_FPGANRST
DD_CLRD1
AR_PANEL_SCL
FP_CMH
FP_CERS
FP_UMH
FP_VD
AR_PANEL_SDA
FP_CPH1
FP_CEL
FP_CLK
D_XRST
DD_CLRD2
RXD_PC
FP_USH
DD_ODED1
DD_LED1
TXD_PC
FP_SIU
FP_HD
FP_OC2
L8R_CLKMO
DD_PCD4
STB_SCL02
FP_CML
L8R_FPDAT1
FPGANRST
FP_CRC1
D_TXD
L8R_FPCLK
DRVRST
DD_LED2
VI2P20
FP_SCSU
FP_CPH2
FP_UHZ
RA_O+
RCLK_O-
RB_O+
RE_O+
RA_E-
RCLK_E-
RE_E+
RA_O-
RC_E+
RD_O-
RA_E+
RC_O-
RD_E+
RE_O-
RC_O+
RD_O+
RC_E-
RB_E+
RB_O-
RCLK_E+
RD_E-
RCLK_O+
RE_E-
RB_E-
FP_SEL
FP_CQR5
AG_KEY1
VI2P20
PANEL_STBY/VCC_ON
AG_PANEL_READY
AG_PANEL_ALARM
SCL0_PANEL
AR_PANEL_SCL
D_RXD
D_TXD
SDA0_PANEL
AR_PANEL_SDA
L8R_FPDAT0
D_IIC_CONT
C9889
10V
10u
C9825
50V
100p
C9548
16V 0.1u
C9539
16V 0.1u
C9541
16V 0.1u
C9549
16V 0.1u
C9543
16V 0.1u
C9540
16V 0.1u
C9547
16V 0.1u
C9544
16V 0.1u
C9535
16V 0.1u
C9537
16V 0.1u
C9538
16V 0.1u
C9545
16V 0.1u
C9536
16V 0.1u
C9550
16V 0.1u
C9542
16V 0.1u
C9546
16V 0.1u
C1ZBZ0003760
IC9500
1
PROG_B
2
IO_L01P_3
3
IO_L01N_3
4
IO_L02P_3
5
IO_L02N_3/VREF_3
6
VCCINT
7
GND
8
VCCO_3
9
IO_L03P_3/LHCLK0
10
IO_L03N_3/LHCLK1
11
IO_L04P_3/LHCLK2
12
IO_L04N_3/LHCLK3
13
IP
14
GND
15
IO_L05P_3/LHCLK4
16
IO_L05N_3/LHCLK5
17
IO_L06P_3/LHCLK6
18
IO_L06N_3/LHCLK7
19
GND
20
VCCO_3
21
VCCAUX
22
IO_L07P_3
23
IO_L07N_3
24
IO_L01P_2/CSO_B
25
IO_L01N_2/INIT_B
26
IO_L02P_2/DOUT/BUSY
27
IO_L02N_2/MOSI/CSI_B
28
VCCINT
29
GND
30
IP/VREF_2
31
VCCO_2
32
IO_L03P_2/D7/GCLK12
33
IO_L03N_2/D6/GCLK13
34
IO/D5
35
IO_L04P_2/D4/GCLK14
36
IO_L04N_2/D3/GCLK15
37
GND
38
IP_L05P_2/RDWR_B/GCLK0
39
IP_L05N_2/M2/GCLK1
40
IO_L06P_2/D2/GCLK2
41
IO_L06N_2/D1/GCLK3
42
IO/M1
43
IO_L07P_2/M0
44
IO_L07N_2/DIN/D0
45
VCCO_2
46
VCCAUX
47
IO_L08P_2/VS2
48
IO_L08N_2/VS1
49
IO_L09P_2/VS0
50
IO_L09N_2/CCLK
51
DONE
52
GND
53
IO_L01P_1
54 IO_L01N_1
55 VCCO_1
56 VCCINT
57 IO_L02P_1
58 IO_L02N_1
59 GND
60 IO_L03P_1/RHCLK0
61 IO_L03N_1/RHCLK1
62 IO_L04P_1/RHCLK2
63 IO_L04N_1/RHCLK3
64 GND
65 IO_L05P_1/RHCLK4
66 IO_L05N_1/RHCLK5
67 IO_L06P_1/RHCLK6
68 IO_L06N_1/RHCLK7
69 IP/VREF_1
70 IO_L07P_1
71 IO_L07N_1
72 GND
73
VCCO_1
74
VCCAUX
75
TMS
76
TDO
77
TCK
78
IO_L01P_0
79 IO_L01N_0
80 VCCINT
81 GND
82 VCCO_0
83 IO_L02P_0/GCLK4
84 IO_L02N_0/GCLK5
85 IO_L03P_0/GCLK6
86 IO_L03N_0/GCLK7
87 GND
88 IP_L04P_0/GCLK8
89 IP_L04N_0/GCLK9
90 IO_L05P_0/GCLK10
91 IO_L05N_0/GCLK11
92 IO
93 GND
94 IO_L06P_0
95 IO_L06N_0/VREF_0
96 VCCAUX
97 VCCO_0
98
IO_L07P_0
99
IO_L07N_0/HSWAP
100
TDI
P3.3VP1.2V
P3.3V
P2.5V
R9009
R9010
R9011
TP9500
TP9311
HIN
TP9312
VIN
TP9203
TP9200
TP9204
TP9201
TP9202
RA_O-
RA_O+
RC_O-
RC_O+
RB_O+
RCLK_O-
RA_E-
RE_O-
RD_O+
RCLK_E+
RCLK_E-
RA_E+
RB_E-
RB_E+
RC_E-
RC_E+
RD_O-
RCLK_O+
RE_O+
RD_E+
RB_O-
RE_E-
RE_E+
RD_E-
AG_KEY1
VI2P20
D_TXD
AG_PANEL_READY
AR_PANEL_SCL
SDA0_PANEL
AR_PANEL_SDA
D_IIC_CONT
SCL0_PANEL
D_RXD
PANEL_STBY/VCC_ON
AG_PANEL_ALARM
R9839
EXB38V101JV
R9618
330
R9587 47
R9238
100
R9246
100
R9243
100
R9611
68
R9240
100
R9241
100
R9586 47
R9096
4.7k
R9097
4.7k
R9098
4.7k
R9578
4.7k
R9245
100
R9236
100
R9235
100
R9604 10k
R9592
10k
R9239
100
R9242
100
R9616 47
R9594
10k
R9402 47
R9234
100
R9237
100
SC_PULSE
FPGA
to PD3/FPGA
PROG_B from PD2M
FPDAT0
DIN
TDI
TCK
TDO
SASEL
RC_O-
RC_O+
RD_O+
RD_O-
RD_E-
RD_E+
RC_E+
RC_E-
RCLK_E+
GND
RCLK_E-
RA_E-(MSB)
RB_E-
GND
RA_E+(MSB)
GND
RE_E+(LSB)
RE_E-(LSB)
RB_E+
LVDS_DET
RB_O+
RE_O-(LSB)
RE_O+(LSB)
GND
RA_O+(MSB)
GND
RB_O-
RA_O-(MSB)
RCLK_O-
GND
RCLK_O+
LVDS
PANEL_STBY_ON
PANEL_MUTE
DISPENDRVMUTE
PANEL_SOSALARM
PANEL_STATUSREADY
IIC_DATA0
IIC_CLK0
IIC_DATA2
IIC_CLK2
IIC_CONT
TXD
RXD
KEY_SCAN
104 105 108101100 107102 103 106
DISCHARGE CONTROL
!
DISCHARGE CONTROL
TO 1/15
TO 10/15
TO 10/15
TO 10/15
TO 7/15
TO 10/15
TO 7/15
TO 7/15
TO 7/15
TO 1,7/15
21
22
23
24
A-BOARD TXN/A1ENUUS (12/15)
11
12
13
14

57
11.17. A-Board (13/15) Schematic Diagram
D-PCD3
FR_RMD00
L8R_FCCLK
OSD_YS
RMA12
D-LED2
P3V_SDA02
FR_RMD01
RMA19
L8R_ROMRST
FR_RMD15
D_XRST
MCCLK
DD_PCD1
RMA14
SFVRST
SFVRST
RMA04
FP_HD
FP_USH
L8R_ROMOE
RMA20
OSD_CLKIN
FP_UML UML_C2
USH_C2
RMA15
SFRST
SFRST
UMH_C2
FP_UEH
FR_RMD10
RMD04
RMA05
PROG_M
D-PCD2
RMA06
FVSEL
FVSEL
RMD03
L8R_FPDAT0
FP_USL
RMA09
RMA03
L8R_ROMCE
RMD02
FR_RMD03
L8R_ROMWE
RMD01
0V
DD_LED2
FR_RMD05
SFLATCH
L8R_ROMOE
RCLK_O-
L8R_FPDAT1
RMD08
FP_UMH
L8R_ROMCE
RMA00
RCLK_O+
DD_ODED1
P3V_SCL02
L8R_FPCLK
RMD07
D_TRST
RMD15
D-CLRD1
RC_O-
RMA10
RE_O+
RMD06
FR_RMD09
L8R_PROG
DD_PCD3
FR_RMD12
RMD14
RMA18
RC_O+
OSD_VIN
RA_O+
RMD05
RMD00
RMA07
RMA01
DD_ODED2
RMD13
RD_O-
DD_PCD4
D-ODED2
RMA16
FR_RMD02
RB_O-
RMD12
D-PCD1
FR_RMD04
DD_PCD2
DD_CLRD2
RMA17
DD_CLRD1
RD_O+
DD_LED1
RMD11
RB_O+
USL_C2
FP_VD
OSD_HIN
RMD10
RA_O-
RMA08
RMA04
OSD_G
RMD09
UEH_C2
RMA11
FR_RMD14
RMA03
OSD_B
RMA11
RMA10
D_TDI
RMA00
RMA02
OSD_R
D-LED1
RMA09
RMA02
SIN
RMA08
L8R_CLKMO
RMA01
L8R_ROMWE
L8R_ROMRST
RMA12
RMA07
D-PCD4
XRST_SYS
RMA20
FR_RMD08
RMA06
D-CLRD2
D-ODED1
D_XRST
FR_RMD11
RE_O-
RMA13
FR_RMD06
RMA13
RMA05
RMA14
RMA15
RMA16
RMA17
RMA18
RMA19
RC_E+
RD_E+
RB_E-
RC_E-
RB_E+
RCLK_E-
RCLK_E+
RD_E-
RE_E-
RA_E+
RA_E-
RE_E+
OSD_CKI
OSD_HI
D_TMS
D_TCK
D_TDO
FR_RMD07
FR_RMD13
FR_RMD10
RMD05
RMD11
RMD08
RMD15
RMD10
RMD13
RMD12
FR_RMD00
RMD14
RMD09
FR_RMD14
FR_RMD15
FR_RMD09
FR_RMD06
FR_RMD11
FR_RMD01
FR_RMD13
FR_RMD12
RMD03
FR_RMD08
RMD04
FR_RMD07
RMD00
FR_RMD05
RMD07
FR_RMD02
RMD06
FR_RMD03
RMD01
FR_RMD04
RMD02
C9469
16V 0.1u
C9971
50V
15p
C9972
50V
15p
IC9300 U2 DOUTDB06
IC9300 Y1 DOUTDD03
IC9300 AH2 ROMWE
IC9300 AP15 RXOCKN
IC9300 AL19 OSDGI
IC9300 AD6 VI
IC9300 W3 DOUTDA05
IC9300 AM2 SFRST
IC9300 AE1 DOUTDA00
IC9300 AK17 FVSEL
IC9300 W5 DOUTDA03
IC9300 AL1 FPDAT1
IC9300 V4 DOUTDF04
IC9300 AN11 RXEEP
IC9300 AK19 OSDRI
IC9300 AN13 RXOBP IC9300 AN7 RXEBP
IC9300 AF2 CKI
IC9300 AG5 TRST
IC9300 AP13 RXOBN
IC9300 AN12 RXOAP
IC9300 AG1 DI3
IC9300 AL18 OSDVO
IC9300 AN6 RXEAP
IC9300 AK6 SFVRST
IC9300 V3 DOUTDE05
IC9300 AP9 RXECKN
IC9300 AD1 DOUTDE00
IC9300 AJ20 OSDYSI
IC9300 AJ4 FCCLK
IC9300 R6 DOUTDD05
IC9300 AJ17 SCL
IC9300 AP19 XO
IC9300 AP17 RXOEN
IC9300 AJ19 OSDBI
IC9300 P6 DOUTDF05
IC9300 AH6 PROG
IC9300 V2 DOUTDC05
IC9300 Y3 DOUTDB04
IC9300 AD2 DOUTDF00
IC9300 AP8 RXECN
IC9300 AG3 ROMCE
IC9300 AL2 FPDAT0
IC9300 AK18 OSDHO
IC9300 Y5 DOUTDA04
IC9300 AG6 TMS
IC9300 AN8 RXECP
IC9300 AK3 CKMO
IC9300 AP16 RXODN
IC9300 AE2 DOUTDC00
IC9300 V6 DOUTDE03
IC9300 AH3 ROMRESET
IC9300 AJ18 MCCLK
IC9300 AF4 DI4
IC9300 AP10 RXEDN
IC9300 AH4 TDO
IC9300 AN16 RXODP
IC9300 AN9 RXECKP
IC9300 AK16 SDA
IC9300 A4 OCKOUTD
IC9300 U3 DOUTDC06
IC9300 AP20 XI
IC9300 W4 DOUTDB05
IC9300 AK1 XRST
IC9300 AM1 SFLATCH
IC9300 V5 DOUTDD04
IC9300 W1 DOUTDC04
IC9300 AJ2 TCK
IC9300 AP6 RXEAN
IC9300 U1 DOUTDA06
IC9300 AL20 OSDHI
IC9300 AE5 DI0
IC9300 AL17 OSDCKO
IC9300 AN17 RXOEP
IC9300 AN15 RXOCKP
IC9300 AN10 RXEDP
IC9300 AE4 MASK
IC9300 AA3 DOUTDB03
IC9300 A5 OCKOUTU
IC9300 AJ5 FPCLK
IC9300 AN14 RXOCP
IC9300 AF1 HI
IC9300 AL3 SFVO
IC9300 AK20 OSDCKI
IC9300 AF3 DI1
IC9300 Y2 DOUTDF03
IC9300 AD4 DOUTDB00
IC9300 AP7 RXEBN
IC9300 AK2 PRCKO
IC9300 AJ3 TDI
IC9300 AN1 PROG_M
IC9300 AE6 DI2
IC9300 AF5 DI5
IC9300 AP12 RXOAN
IC9300 AH5 XRSTSYS
IC9300 AA5 DOUTDC03
IC9300 AC4 DOUTDD00
IC9300 W2 DOUTDE04
IC9300 AP11 RXEEN
IC9300 AG4 ROMOE
IC9300 AP14 RXOCN
*IC9303
1A15
2A14
3A13
4A12
5A11
6A10
7A9
8A8
9A19
10 NC
11 WE#
12 RESET#
13 NC
14 WP#/ACC
15 RY/BY#
16 A18
17 A17
18 A7
19 A6
20 A5
21 A4
22 A3
23 A2
24 A1 25
A0
26
CE#
27
GND
28
OE#
29
Q0
30
Q8
31
Q1
32
Q9
33
Q2
34
Q10
35
Q3
36
Q11
37
VCC
38
Q4
39
Q12
40
Q5
41
Q13
42
Q6
43
Q14
44
Q7
45
Q15/A-1
46
GND
47
BYTE#
48
A16
P3.3V
TP9078
TP9076
TP9077
R9610
EXB2HV470JV
R9425
EXB2HV470JV
R9426
EXB2HV470JV
R9609
EXB2HV470JV
R9608
EXB2HV470JV
R9970 47
R9987 47
R9385
4.7k
R9968 47
R9989 47
R9967 47
R9969 47
R9598 47
R9975 47
R9977 47
R9988 47
R9966
470
R9983 47
X9900
H0J200500076
LVDS_INPUT
SS_PULSE
IIC
to FLASH
DATA_DRIVER
20MHz(SS)
CCLK for FPGA
CDAT for FPGA
to ucom/FPGA/PD2
SOUT for ucom
SIN for ucom
NCS for ucom
Low Active
PD3H_ROM
114 115113110 112 116111109 117
MN84528
PD3-H
IC9900
FLASH MEMORY
!
PD3-H
22
21
24
23
31
32
33
A-BOARD TXN/A1ENUUS (13/15)
TVRQ622ACS

58
11.18. A-Board (14/15) Schematic Diagram
TERM
SIDE
P
P
D-CLRD1
D-PCD2
D-PCD1
D-ODED1
D-LED1
DD1_2N
DD1_2P
DD1_1N
DD1_1P
DRVCLK1N
DRVCLK1P
DD2_2N
DD2_2P
DD2_1N
DD2_1P
DD3_2N
DD3_2P
DD3_1N
DD3_1P
DRVCLK2N
DRVCLK2P
DD4_2N
DD4_2P
DD4_1N
DD4_1P
DD5_2N
DD5_2P
DD5_1N
DD5_1P
DRVCLK3N
DRVCLK3P
DD6_2N
DD6_2P
DD6_1N
DD6_1P
DD7_2N
DD7_2P
DD7_1N
DD7_1P
DRVCLK4N
DRVCLK4P
DD8_2N
DD8_2P
DD8_1N
DRVCLK5N
DRVCLK5P
DD8_1P
DRVCLK9P
DD15_1N
DD15_1P
DD15_2N
DD15_2P
DRVCLK9N
DD14_1N
DD14_1P
DD14_2N
DD14_2P
DRVCLK8N
DRVCLK8P
DD13_1N
DD13_1P
DD13_2N
DD13_2P
DRVCLK5N
DRVCLK5P
DD12_1N
DD12_1P
DD12_2N
DD12_2P
DRVCLK7N
DRVCLK7P
DD11_1N
DD11_1P
DD11_2N
DD11_2P
DD10_1N
DD10_1P
DD10_2N
DD10_2P
DRVCLK6N
DRVCLK6P
DD9_1N
DD9_1P
DD9_2N
DD9_2P
DD8_1N
DD8_1P
DD8_2N
DD8_2P
DRVCLK4N
DRVCLK4P
DD7_1N
DD7_1P
DD7_2N
DD7_2P
DD6_1N
DD6_1P
DD6_2N
DD6_2P
DRVCLK3N
DRVCLK3P
DD5_1N
DD5_1P
DD5_2N
DD5_2P
DD4_1N
DD4_1P
DD4_2N
DD4_2P
DRVCLK2N
DRVCLK2P
DD3_1N
DD3_1P
DD3_2N
DD3_2P
DD2_1N
DD2_1P
DD2_2N
DD2_2P
DRVCLK1N
DRVCLK1P
DD1_1N
DD1_1P
DD1_2N
DD1_2P
AG_KEY1
C9915
0.1u
16V
C9914
0.1u
16V
C9908
0.1u
16V
C9910
0.1u
16V
C9968
0.1u
16V
C9912
0.1u
16V
C9920
0.1u
16V
C9907
0.1u
16V
C9961
10V 10u
C9906
0.1u
16V
C9916
0.1u
16V
C9909
0.1u
16V
C9918
0.1u
16V
C9917
0.1u
16V
C9911
0.1u
16V
C9141
10V
10u
C9140
0.1u
16V
C9139
10V
10u
C9112
10V 10u
C9111
10V 10u
C9102
0.1u
16V
C9101
0.1u
16V
C9100
0.1u
16V
C9144
0.1u
16V
C9709
0.1u
16V
C9148
10V 1u
C9923
0.1u
16V
C9949
16V 0.1u
C9151
10V 1u
C9957
0.1u
16V
C9113
0.1u
16V
C9925
0.1u
16V
C9700
0.1u
16V
C9154
10V 1u
C9157
10V 1u
C9980
0.1u
16V
C9702
0.1u
16V
C9124
10V 10u
C9954
0.1u
16V
C9704
0.1u
16V
C9962
10V 10u
C9965
0.1u
16V
C9921
0.1u
16V
C9147
10V 1u
C9114
0.1u
16V
C9150
10V 1u
C9706
16V 0.1u
C9153
10V 1u
C9138
0.1u
16V
C9913
0.1u
16V
C9156
10V 1u
C9159
10V
1u
C9967
0.1u
16V
C9713
0.1u
16V
C9155
10V 1u
C9950
16V 0.1u
C9976
0.1u
16V
C9958
0.1u
16V
C9966
10V 10u
C9115
0.1u
16V
C9146
10V 1u
C9922
0.1u
16V
C9149
10V 1u
C9714
16V 0.1u
C9152
10V 1u
C9158
10V
1u
C9703
0.1u
16V
C9977
0.1u
16V
C9924
0.1u
16V
C9701
0.1u
16V
C9970
16V 0.1u
C9123
10V 10u
C9145
10V 1u
C9900
0.1u
16V
C9960
10V 10u
C9956
0.1u
16V
C9904
0.1u
16V
C9973
0.1u
16V
C9143
10V 1u
C9905
0.1u
16V
C9142
10V 1u
C9901
0.1u
16V
C9902
0.1u
16V
C9903
0.1u
16V
C9160
10V 1u
C9163
10V 1u
C9166
10V 1u
C9162
10V 1u
C9165
10V 1u
C9161
10V 1u
C9164
10V 1u
C9167
10V 1u
C9136
0.1u
16V
C9169
10V 1u
C9716
0.1u
16V
C9168
10V 1u
C9134
0.1u
16V
C9715
0.1u
16V
C9135
0.1u
16V
IC9300 T13 VDD12
IC9300 E26 LVDOD17N
IC9300 F15 LVDOD35P
IC9300 B5 DOUTDD15
IC9300 R30 VDD12
IC9300 N29 LVDOD2P
IC9300 D5 DOUTDC15
IC9300 H30 LVDOD11N
IC9300 G5 DOUTDD13
IC9300 H33 LVDOD7P
IC9300 K5 DOUTDB12
IC9300 T29 VDD12
IC9300 W13 VDD12
IC9300 A7 LVDOD45N
IC9300 P4 DOUTDC08
IC9300 G2 DRVCKD7
IC9300 J34 LVDOD6N
IC9300 H5 DOUTDB13
IC9300 F27 LVDOD14P
IC9300 J1 DOUTDE11
IC9300 P31 VDD12
IC9300 F23 LVDOD23P
IC9300 R3 DOUTDA08
IC9300 AA6 DOUTDD02
IC9300 B24 LVDOD21P
IC9300 B26 LVDOD18P
IC9300 H2 DOUTDC12
IC9300 AL5 EXTTRMO0
IC9300 M2 DOUTDD09
IC9300 L1 DRVCKD5
IC9300 V13 VDD12
IC9300 B17 LVDOD30P
IC9300 J2 DOUTDD11
IC9300 A29 LVDOD15N
IC9300 L6 DOUTDA09 IC9300 N2 DOUTDB09
IC9300 AA2 DOUTDF02
IC9300 L4 DOUTDF11
IC9300 A17 LVDOD30N
IC9300 J33 LVDOD6P
IC9300 AM22 VDDR
IC9300 P18 VDD12
IC9300 AJ22 VDDR
IC9300 T3 DOUTDA07
IC9300 N14 VDD12
IC9300 E11 LVDOD41N
IC9300 T1 DRVCKD2
IC9300 T2 DRVCKD3
IC9300 B9 LVDOD42P
IC9300 N21 VDD12
IC9300 N20 VDD12
IC9300 F2 DOUTDA14
IC9300 AC2 DOUTDE01
IC9300 U13 VDD12
IC9300 A23 LVDOD22N
IC9300 A20 LVDOD25N
IC9300 T32 VDD12
IC9300 F26 LVDOD17P
IC9300 F34 LVDOD10N
IC9300 M30 LVDOD5N
IC9300 AP22 VDDR
IC9300 E9 LVDOD44N
IC9300 A9 LVDOD42N
IC9300 R33 VDD12
IC9300 F20 LVDOD26P
IC9300 AN22 VDDR
IC9300 H34 LVDOD7N
IC9300 A25 LVDOD19N
IC9300 B23 LVDOD22P
IC9300 B29 LVDOD15P
IC9300 U22 VDDA
IC9300 A21 LVDOD24N
IC9300 E23 LVDOD23N
IC9300 B12 LVDOD37P
IC9300 T5 DOUTDB07
IC9300 F1 DOUTDF13
IC9300 G33 LVDOD9P
IC9300 E2 DOUTDD14
IC9300 R34 VDD12
IC9300 M5 DOUTDC10
IC9300 R31 VDD12
IC9300 N15 VDD12
IC9300 C1 DOUTDB15
IC9300 L34 LVDOD4N
IC9300 K2 DOUTDD10 IC9300 N4 DOUTDE10
IC9300 E24 LVDOD20N
IC9300 L5 DOUTDE09
IC9300 F4 DOUTDE14
IC9300 U14 VDD12
IC9300 F33 LVDOD10P
IC9300 Y21 DTCPOUT
IC9300 P17 VDD12
IC9300 AA20 VDDR
IC9300 L33 LVDOD4P
IC9300 P30 VDD12
IC9300 B19 LVDOD27P
IC9300 P19 VDD12
IC9300 B16 LVDOD31P
IC9300 AC5 DOUTDA01
IC9300 J3 DOUTDC11
IC9300 A26 LVDOD18N
IC9300 M29 LVDOD5P
IC9300 B21 LVDOD24P
IC9300 N6 DOUTDC09
IC9300 E33 LVDRCK1P
IC9300 N33 LVDOD1P
IC9300 P2 DOUTDB08
IC9300 AK22 VDDR
IC9300 K34 LVDRCK0N
IC9300 R1 DOUTDC07
IC9300 A8 LVDOD43N
IC9300 B11 LVDOD39P
IC9300 AB20 VDDA
IC9300 C6 TCPOUT_1
IC9300 R32 VDD12
IC9300 AA1 DOUTDE02
IC9300 AB21 VDDR
IC9300 AK7 TCPOUT_2
IC9300 E16 LVDOD32N
IC9300 AJ8 TESTIO
IC9300 F16 LVDOD32P
IC9300 R22 VDD12
IC9300 M6 DOUTDE08
IC9300 AL22 VDDR
IC9300 U5 DOUTDF06
IC9300 J29 LVDOD8P
IC9300 E27 LVDOD14N
IC9300 B27 LVDRCK3P
IC9300 B7 LVDOD45P
IC9300 AC6 DOUTDD01
IC9300 AB2 DOUTDB02
IC9300 E15 LVDOD35N
IC9300 U6 DOUTDD06 IC9300 R5 DOUTDE06
IC9300 L2 DRVCKD4
IC9300 E1 DOUTDC14
IC9300 F8 LVDOD47P
IC9300 F24 LVDOD20P
IC9300 B14 LVDOD34P
IC9300 A14 LVDOD34N
IC9300 P15 VDD12
IC9300 A10 LVDOD40N
IC9300 B20 LVDOD25P
IC9300 G1 DOUTDA13
IC9300 J30 LVDOD8N
IC9300 K6 DOUTDF10
IC9300 AP4 EXTTRMO1
IC9300 AB1 DOUTDC02
IC9300 N30 LVDOD2N
IC9300 M34 LVDOD3N
IC9300 A15 LVDOD33N IC9300 A27 LVDRCK3N
IC9300 AB4 DRVCKD1
IC9300 E8 LVDOD47N
IC9300 M4 DOUTDB11
IC9300 P34 LVDOD0N
IC9300 F19 LVDOD29P
IC9300 A11 LVDOD39N
IC9300 E12 LVDOD38N
IC9300 H3 DOUTDA12
IC9300 A13 LVDOD36N
IC9300 P16 VDD12
IC9300 AB3 DRVCKD0
IC9300 B15 LVDOD33P
IC9300 B31 LVDOD12P
IC9300 T30 VDD12
IC9300 Y22 VDDR
IC9300 B8 LVDOD43P
IC9300 A18 LVDOD28N
IC9300 V14 VDD12
IC9300 B30 LVDOD13P
IC9300 B6 LVDOD46P
IC9300 G4 DOUTDC13
IC9300 AC1 DOUTDC01
IC9300 T31 VDD12
IC9300 P3 DOUTDD08
IC9300 G34 LVDOD9N
IC9300 T4 DOUTDF07
IC9300 C5 DOUTDF15
IC9300 AB5 DOUTDF01
IC9300 P20 VDD12
IC9300 A22 LVDRCK4N
IC9300 B25 LVDOD19P
IC9300 T14 VDD12
IC9300 T33 VDD12
IC9300 Y6 DOUTDA02
IC9300 A32 LVDRCK2N
IC9300 AA22 VDDA
IC9300 N34 LVDOD1N
IC9300 V22 VDDR
IC9300 F3 DOUTDB14
IC9300 K1 DOUTDA11
IC9300 A30 LVDOD13N
IC9300 J4 DOUTDD12
IC9300 E20 LVDOD26N
IC9300 M3 DOUTDF09
IC9300 F9 LVDOD44P
IC9300 H29 LVDOD11P
IC9300 G3 DRVCKD6
IC9300 W14 VDD12
IC9300 B28 LVDOD16P
IC9300 E34 LVDRCK1N
IC9300 B13 LVDOD36P
IC9300 A16 LVDOD31N
IC9300 E19 LVDOD29N
IC9300 A31 LVDOD12N
IC9300 K3 DOUTDB10
IC9300 A28 LVDOD16N
IC9300 A19 LVDOD27N
IC9300 A6 LVDOD46N
IC9300 A24 LVDOD21N
IC9300 A12 LVDOD37N
IC9300 R2 DOUTDE07
IC9300 M33 LVDOD3P
IC9300 R29 VDD12
IC9300 D1 DOUTDF14
IC9300 N19 VDD12
IC9300 AD3 DOUTDB01
IC9300 B10 LVDOD40P
IC9300 P21 VDD12
IC9300 N1 DOUTDF08
IC9300 P5 DOUTDD07
IC9300 B22 LVDRCK4P
IC9300 T34 VDD12
IC9300 P22 VDD12
IC9300 H4 DOUTDF12
IC9300 B32 LVDRCK2P
IC9300 B18 LVDOD28P
IC9300 R21 VDD12
IC9300 K33 LVDRCK0P
IC9300 D18 MLVVDD33
IC9300 F10 MLVVDD33
IC9300 G31 MLVVDD33
IC9300 E10 MLVVDD33
IC9300 W21 DPAVDD
IC9300 E17 MLVVDD33
IC9300 W6 VDD33
IC9300 C30 TEST0
IC9300 M1 VDD33
IC9300 E25 MLVVDD33
IC9300 K30 MLVVDD33
IC9300 G30 MLVVDD33
IC9300 L30 MLVVDD33
IC9300 B1 VDD33
IC9300 D9 MLVVDD33
IC9300 D26 MLVVDD33
IC9300 AK10 LVVDD33
IC9300 AB33 VDDIO
IC9300 AD33 VDDIO
IC9300 AK30 VDDIO
IC9300 AF31 VDDIOCK
IC9300 V34 VDDIO
IC9300 AN29 VDDIO
IC9300 AP28 VDDIO
IC9300 AM30 VDDIO
IC9300 AK33 VDDIO
IC9300 AL31 VDDIO
IC9300 Y31 VDDIO
IC9300 AJ14 LVVDD33
IC9300 AK27 VDDIO
IC9300 AE32 VDDIO
IC9300 AL29 VDDIOCK
IC9300 AP34 VDDIO
IC9300 AL26 VDDIO
IC9300 AG34 VDDIO
IC9300 Y29 VDDIO
IC9300 AC29 VDDIO
IC9300 AN24 VDDIO
IC9300 AA32 VDDIO
IC9300 AM25 VDDIO
IC9300 V31 VDDIO
IC9300 AH32 VDDIO
IC9300 AF30 VDDIO
IC9300 AJ29 VDDIO
IC9300 N17 MLVVDD12
IC9300 AB13 LVVDD12
IC9300 AB14 LVVDD12
IC9300 N16 MLVVDD12
IC9300 N22 MLVVDD12
IC9300 N18 MLVVDD12
IC9300 E14 MLVVDD33
IC9300 F5 VDD33
IC9300 D25 MLVVDD33
IC9300 D30 TEST1
IC9300 AP5 VDD33
IC9300 D15 MLVVDD33
IC9300 M31 MLVVDD33
IC9300 C2 VDD33
IC9300 F17 MLVVDD33
IC9300 H31 MLVVDD33
IC9300 E13 MLVVDD33
IC9300 F13 MLVVDD33IC9300 D13 MLVVDD33
IC9300 D12 MLVVDD33
IC9300 G6 VDD33
IC9300 AK12 LVVDD33
IC9300 AK11 LVVDD33
IC9300 H1 VDD33
IC9300 F25 MLVVDD33
IC9300 AL6 A1AVDD_2
IC9300 D20 MLVVDD33
IC9300 AM7 VDD33IC9300 L29 MLVVDD33
IC9300 V1 VDD33
IC9300 E29 MONOUT
IC9300 D21 MLVVDD33
IC9300 AF6 VDD33
IC9300 F21 MLVVDD33
IC9300 AN5 VDD33
IC9300 P1 VDD33
IC9300 AJ12 LVVDD33
IC9300 D16 MLVVDD33
IC9300 C31 TEST
IC9300 J6 VDD33
IC9300 D22 MLVVDD33
IC9300 D14 MLVVDD33
IC9300 E28 MLVVDD33IC9300 D11 MLVVDD33
IC9300 N31 MLVVDD33
IC9300 D28 MLVVDD33
IC9300 AL8 VDD33
IC9300 AK14 LVVDD33
IC9300 F14 MLVVDD33
IC9300 D3 VDD33
IC9300 D23 MLVVDD33
IC9300 E3 VDD33
IC9300 AM5 VDD33
IC9300 L31 MLVVDD33
IC9300 AK13 LVVDD33
IC9300 D24 MLVVDD33
IC9300 E4 VDD33
IC9300 AJ13 LVVDD33
IC9300 D7 A1AVDD_1
IC9300 F31 MLVVDD33
IC9300 K29 MLVVDD33
IC9300 J5 DOUTDE12
IC9300 D29 MLVVDD33
IC9300 D19 MLVVDD33
IC9300 AJ11 LVVDD33
IC9300 AM6 VDD33
IC9300 D27 MLVVDD33
IC9300 AJ9 VDD33
IC9300 AK9 VDD33
IC9300 D8 MLVVDD33
IC9300 F11 LVDOD41P
IC9300 K4 VDD33
IC9300 D10 MLVVDD33
IC9300 J31 MLVVDD33
IC9300 D17 MLVVDD33
IC9300 F22 MLVVDD33
IC9300 E18 MLVVDD33
IC9300 E22 MLVVDD33
IC9300 F28 MLVVDD33
IC9300 AJ10 LVVDD33
IC9300 E21 MLVVDD33
IC9300 P29 VDD12
IC9300 N5 DOUTDA10
IC9300 F12 LVDOD38P
IC9300 AC3 VDD33
IC9300 H6 DOUTDE13
IC9300 F18 MLVVDD33
IC9300 P33 LVDOD0P
IC9300 E6 DOUTDE15
IC9300 D2 DOUTDA15
IC9300 K31 MLVVDD33
A31
1
2
3
4
5
6
7
8
9
10
11
12
13
14
15
16
17
18
19
20
21
22
23
24
25
26
27
28
29
30
31
32
33
34
35
36
37
38
39
40
41
42
43
44
45
46
47
48
49
50
51
52
53
54
55
57
58
59
60
61
62
63
64
65
66
67
68
56
L9700
J0JHC0000117
L9701
J0JHC0000117
L9900
J0JHC0000117
L9901
J0JHC0000117
L9904
J0JHC0000117
L9903
J0JHC0000117
P1.8V
P1.8V_DDR2
P5V
P1.2V
P3.3V
R9702
R9301
*R9210
0
DD5_2+
DD5_1+
NC(KEY)
GND
GND
DD5_2-
DD5_1-
DD1_2+
DD6_2+
DD6_1+
CLR1
GND
PC1
DRVCLK3+
DRVCLK2-
DD1_2-
GND
DRVCLK5+
DRVCLK5-
GND
DRVCLK3-
GND
DRVCLK4+
GND
DRVCLK4-
DD2_2+
DD2_1+
ODE1
DRVCLK1-
LE1
GND
PC2
DRVCLK1+
DD2_2-
DD2_1-
GND
DD1_1+
DD3_2+
DD7_2+
DD3_1+
DD7_1+
DD7_2-
DD7_1-
GND
DD3_2-
GND
DRVCLK2+
DD8_2+
DD3_1-
DD8_1+
DD6_2-
GND
DD6_1-
GND
DD4_2+
DD1_1-
GND
DD4_1+
DD8_2-
DD8_1-
DD4_2-
DD4_1-
GND
P5V/P3.3V
P5V/P3.3V
P5V/P3.3V
NC
GND
125119 122120 121 123 126118 124
PD3-H
IC9900
MN84528
!
PD3-H
TO
C1-BOARD
(C11)
DOWN_LEFT
33
32
31
41
42
43
A-BOARD TXN/A1ENUUS (14/15)

59
11.19. A-Board (15/15) Schematic Diagram
+
TERM
SIDE
P
P
L8R_DQ29L8R_DQ13
L8R_DQ30
L8R_DQ5
L8R_DQ23
L8R_DQS3
L8R_DQ28
L8R_DQ25
L8R_DQ7
L8R_DQS2
L8R_DQ12
L8R_DQ11
L8R_DQ22
L8R_DQ14
L8R_DQ24
L8R_DQ21
L8R_DQS0
L8R_DQ10
L8R_DQ3
L8R_DQ1
L8R_DQ31
L8R_DQ18
L8R_DQ19
L8R_DQ9
L8R_DQ27
L8R_DQ4
L8R_DQ16
L8R_DQ15
L8R_DQ0
L8R_DQ20
L8R_DQ17
SOS8_SS
L8R_DQ8
L8R_DQ6
L8R_DQ26
L8R_DQ2
L8R_DQS1
L8DR_A1
L8R_DQS2
L8R_DQ19
L8DR_A3
L8R_DQ9
L8DR_A8
L8DR_A4
L8DR_A0
L8DR_A4
L8DR_A0
L8R_DQ11
L8DR_XCS0
L8R_DM1
L8R_DQ25
L8DR_CK
L8R_DM3
L8DR_BA0
L8R_DQ27
L8R_DQ3
L8R_DQ30
L8DR_A5
L8DR_ODT
L8DR_A12
L8DR_A7
L8DR_XCS1
L8R_DQ20
L8DR_A11
L8R_DQS3
L8DR_XWE
L8DR_A9
L8DR_BA2
L8R_XDQS3
L8DR_XRAS
L8DR_BA1
L8DR_CK
L8DR_XWE
L8DR_A11
L8DR_A9
L8R_DQ5
L8DR_A2
L8DR_XRAS
L8DR_A10
L8R_DQ28
L8DR_ODT
L8R_DQ23
L8R_DQS0
L8R_DQ31
L8R_DQ16
L8DR_A5
L8R_DQ29
L8R_DQ4
L8R_DQ8
L8DR_A1
L8DR_XCK
L8R_XDQS1
L8DR_BA0
L8R_DQ15
L8R_DQ22
L8DR_XCAS
L8R_DQ13
L8R_XDQS2
L8R_DQS1
L8R_DQ7
L8DR_BA2
L8DR_CKE
L8DR_A6
L8R_DQ1
L8R_DQ26
L8DR_XCK
L8R_DQ24
L8DR_BA1
L8R_DQ17
L8R_DQ12
L8R_DQ6
L8R_DQ10
L8DR_A12
L8DR_A6
L8R_DQ18
L8R_DM0
L8DR_A3
L8R_DQ14
L8DR_A8
L8DR_A10
L8R_DQ2
L8R_XDQS0
L8DR_XCAS
L8DR_CKE
L8DR_CKE
L8R_DM2
L8R_DQ21
L8DR_A2
L8DR_ODT
L8R_DQ0
L8DR_A7
L8R_BA2
L8R_XWE
L8R_XRAS
L8R_XCAS
L8R_XCS1
L8R_XCS0
L8R_ODT
L8R_CK
L8R_XCK
L8R_XDQS0
L8R_XDQS1
L8R_XDQS2
L8R_XDQS3
L8R_A0
L8R_A1
L8R_A2
L8R_A3
L8R_A4
L8R_A5
L8R_A6
L8R_A7
L8R_A8
L8R_A9
L8R_A10
L8R_A11
L8R_A12
L8R_XRAS
L8R_CKE
L8R_XWE
L8R_CK
L8R_ODT
L8R_XCK
L8R_BA1
L8R_XCAS
L8R_XCS0
L8R_XCS1
L8R_BA2
L8DR_XWE
L8DR_BA2
L8DR_XRAS
L8DR_XCS1
L8DR_XCS0
L8DR_XCAS
L8DR_BA0
L8DR_BA1
L8DR_ODT
L8DR_CK
L8DR_XCK
L8DR_A8
L8DR_A9
L8DR_A10
L8DR_A11
L8DR_A12
L8R_BA0
L8R_CKE
L8R_BA0
L8R_BA1
L8R_A12
L8R_A0
L8R_A1
L8R_A2
L8R_A3
L8R_A4
L8R_A5
L8R_A6
L8R_A7
L8R_A8
L8R_A9
L8R_A10
L8R_A11
L8R_DM2
L8R_DM3L8R_DM1
L8R_DM0
UEH_C2
USL_C2
USH_C2
UML_C2
UMH_C2
D-CLRD2
D-PCD4
D-PCD3
D-ODED2
D-LED2
DRVCLK9N
DD12_1P
DD15_1N
DD10_2P
DD14_1N
DD10_1N
DD14_2P
DD13_1N
DD9_1P
DD10_2N
DD15_2N
DD14_2N
DD14_1P
DD11_1N
DD15_2P
DD11_1P
DD9_2N
DD15_1P
DRVCLK8P
DD10_1P
DD12_1N
DD11_2P
DD13_2P
DD13_1P
DD9_2P
DD12_2N
DRVCLK8N
DRVCLK6N
DD11_2N
DD9_1N
DD12_2P
DRVCLK7N
DD13_2N
DRVCLK7P
DRVCLK6P
DRVCLK9P
L8DR_CKE
L8DR_A0
L8DR_A1
L8DR_A2
L8DR_A3
L8DR_A4
L8DR_A5
L8DR_A6
L8DR_A7
DRVRST
C9953
0.1u
16V
C9952
0.1u
16V
C9468
25V
0.01u
C9994
16V
0.1u
C9995
16V
0.1u
C9984
10u
10V
C9992
16V
0.1u
C9990
16V
0.1u
C9991
16V
0.1u
C9987
16V
0.1u
C9993
16V
0.1u
C9997
16V
0.1u
C9986
16V
0.1u
C9988
16V
0.1u
C9985
10u
10V
C9996
16V
0.1u
C9081
0.1u
16V
C9313
16V
0.1u
C9312
16V
0.1u
C9302
16V
0.1u
C9305
16V
0.1u
C9311
16V
0.1u
C9310
16V
0.1u
C9300
16V
0.1u
C9303
16V
0.1u
C9306
16V
0.1u
C9314
16V
0.1u
C9989
68u
4V
IC9300 A1 VSS
IC9902
C3ABRY000040
A1 VDD
IC9903
C3ABRY000040
A1 VDD
IC9902 F3 LDM
IC9902 H9 DQ5
IC9903 E9 VDDQ
IC9903 P7 A11
IC9902 A3 VSS
IC9903 K2 CKE
IC9902 M9 VDD
IC9903 J1 VDDL
IC9903 K3 WE IC9903 P3 A9
IC9903 E8 LDQS
IC9902 M7 A2
IC9903 G7 VDDQ
IC9902 C7 VDDQ
IC9903 F9 DQ7
IC9902 B2 VSSQ
IC9902 D9 DQ13
IC9902 L2 BA0
IC9902 K2 CKE
IC9903 M2 A10
IC9902 P3 A9
IC9902 L3 BA1
IC9902 J2 VREF
IC9903 R7 NC
IC9902 N8 A4
IC9902 K7 RAS
IC9902 R3 NC
IC9903 G2 DQ1
IC9300 AN27 MMXDQS2
IC9300 AE33 MMA10
IC9300 AD31 MMBA2
IC9902 E3 VSS
IC9300 AP26 MMDQS3
IC9902 H1 DQ4
IC9300 AM26 MMDM3
IC9902 P8 A8
IC9300 AF34 MMA7
IC9300 AP25 MMDQ27
IC9300 V30 MMDQ4
IC9300 Y30 MMVREF0
IC9300 Y32 MMXDQS0
IC9300 AH29 MMRODT
IC9300 AM29 MMDQ18
IC9300 AD32 MMXWE
IC9300 AH30 MMXCAS
IC9300 AA33 MMDM1
IC9300 AC30 MMBA0
IC9300 AJ32 MMXCS1
IC9300 AG31 MMXCS0
IC9300 AH33 MMXCK
IC9300 AD34 MMDQ14
IC9300 AN32 MMRDRV
IC9300 AP31 MMDQ22
IC9903 H7 DQ2
IC9902 B3 UDM
IC9300 AB34 MMDQ11
IC9300 AJ25 MMDQ24
IC9300 AA31 MMDQ9
IC9300 AK26 MMVREF1
IC9300 AE29 MMA12
IC9300 AG33 MMA9
IC9300 U31 MMDQ5
IC9300 AF32 MMA1
IC9300 AG30 MMXRAS
IC9903 N3 A5
IC9300 AB32 MMDQ10
IC9300 W31 MMDQ0
IC9300 Y34 MMXDQS1
IC9903 J7 VSSDL
IC9300 AC33 MMDQ15
IC9300 AN34 MMA11
IC9902 F1 DQ6
IC9300 V32 MMDQ3
IC9300 AC31 MMCKE
IC9300 AL27 MMDQ17
IC9300 AB30 MMDQ13
IC9300 AF29 MMODT
IC9300 AM24 MMDQ30
IC9300 AJ27 MMDQ20
IC9300 AK34 MMA6
IC9300 AA34 MMDQS1
IC9300 AK24 MMDQ28
IC9300 U34 MMDQ6
IC9300 AJ34 MMA4
IC9300 AE30 MMA3
IC9300 AL34 MMA8
IC9300 AH34 MMCK
IC9300 W33 MMDQS0
IC9300 AJ31 MMA0
IC9300 AP27 MMXDQS3
IC9300 AN28 MMDQS2
IC9300 AJ28 MMDQ21
IC9300 AL25 MMDQ25
IC9903 D1 DQ12
IC9903 J8 CK
IC9300 AP24 MMDQ31
IC9300 AL30 MMVCAL
IC9903 F2 VSSQ
IC9903 M9 VDD
IC9300 AN31 MMDQ23
IC9300 AJ24 MMDQ29
IC9300 AE34 MMBA1
IC9300 W29 MMDQ1
IC9300 AB29 MMDQ12
IC9300 AK28 MMDQ16
IC9300 AK32 MMA2
IC9300 V33 MMDQ2
IC9300 AP30 MMDQ19
IC9300 AA29 MMDQ8
IC9902 N3 A5
IC9903 P8 A8
IC9903 L3 BA1
IC9300 AN25 MMDQ26
IC9902 A8 UDQS
IC9902 B1 DQ14
IC9903 L2 BA0
IC9903 E3 VSS
IC9903 M8 A0
IC9903 L8 CS
IC9902 G3 VDDQ
IC9903 K9 ODT
IC9903 C8 DQ8
IC9902 G9 VDDQ
IC9903 A8 UDQS
IC9903 J3 VSS
IC9903 M3 A1
IC9903 A7 VSSQ
IC9902 D1 DQ12
IC9903 N2 A3
IC9902 E2 NC
IC9902 E1 VDD
IC9902 A7 VSSQ
IC9903 J2 VREF
IC9902 D8 VSSQ
IC9902 P7 A11
IC9903 B8 VSSQ
IC9903 G8 DQ0
IC9902 J3 VSS
IC9902 G2 DQ1
IC9902 H3 DQ3
IC9902 E9 VDDQ
IC9903 K7 RAS
IC9902 M2 A10
IC9903 C1 VDDQ
IC9903 F7 LDQS
IC9902 P9 VSS
IC9903 R8 NC
IC9903 F3 LDM
IC9903 R1 VDD
IC9902 B7 UDQS
IC9902 C2 DQ9
IC9902 K9 ODT
IC9902 G7 VDDQ
IC9902 G8 DQ0
IC9902 P2 A7
IC9300 W34 MMDM0
IC9903 E2 NC
IC9903 D3 DQ11
IC9902 K3 WE
IC9903 D8 VSSQ
IC9903 A3 VSS
IC9902 D3 DQ11
IC9902 H7 DQ2
IC9902 H8 VSSQ
IC9902 A9 VDDQ
IC9903 C3 VDDQ
IC9903 N1 VSS
IC9300 AD29 MMA5
IC9902 R7 NC
IC9902 L8 CS
IC9902 C1 VDDQ
IC9902 F9 DQ7
IC9902 R8 NC
IC9902 R2 A12
IC9903 E7 VSSQ
IC9903 H1 DQ4
IC9902 F8 VSSQ
IC9903 B9 DQ15
IC9902 K8 CK
IC9903 F1 DQ6
IC9902 J1 VDDL
IC9902 C3 VDDQ
IC9903 C2 DQ9
IC9902 J7 VSSDL
IC9902 M8 A0
IC9903 H9 DQ5
IC9903 G9 VDDQ
IC9902 F2 VSSQ
IC9903 H8 VSSQ
IC9902 D2 VSSQ
IC9903 G1 VDDQ
IC9903 G3 VDDQ
IC9903 J9 VDD
IC9903 C7 VDDQ
IC9903 E1 VDD
IC9903 P2 A7
IC9903 L1 NC
IC9902 N1 VSS
IC9902 N7 A6
IC9903 B3 UDM
IC9902 B9 DQ15
IC9902 L1 NC
IC9902 C8 DQ8
IC9902 A2 NC
IC9903 M7 A2
IC9300 AJ7 VSS
IC9300 C12 MLVVSS
IC9300 AB19 VSS
IC9300 V29 VSS
IC9300 AM21 VSS
IC9300 V16 VSS
IC9300 E32 MLVVSS
IC9300 AJ30 VSS
IC9300 E5 VSS
IC9300 AB22 VSS IC9300 AM3 VSS
IC9300 AN33 VSSIC9300 T21 VSS
IC9300 AA21 VSS
IC9300 R19 VSS
IC9300 AN21 VSS
IC9300 AM12 LVVSSIC9300 C18 MLVVSS
IC9300 AM14 LVVSS
IC9300 AA17 VSS
IC9300 AK4 OCKIN
IC9300 AL24 VSS
IC9300 AN26 VSS
IC9300 C13 MLVVSS
IC9300 U17 VSS
IC9300 Y15 VSS
IC9902 B8 VSSQ
IC9300 U33 VSS
IC9300 W22 VSS
IC9300 AN30 VSS
IC9300 A2 VSS
IC9300 AC34 VSS
IC9300 AB18 VSS
IC9300 F32 MLVVSS
IC9300 AM13 LVVSS
IC9300 F30 VSS
IC9300 AM20 VSS
IC9300 U4 VSS
IC9300 AL21 VSS
IC9300 AN19 VSS
IC9300 AP21 VSS
IC9300 C17 MLVVSS
IC9300 AM23 VSS
IC9300 AJ33 VSS
IC9300 AL15 LVVSS
IC9300 U29 VSS
IC9300 N32 MLVVSS
IC9300 AM8 LVVSS
IC9300 AB6 VSS
IC9300 C32 VSS
IC9300 U20 VSS
IC9300 C28 MLVVSS
IC9300 D6 A1AVSS_1
IC9300 C26 MLVVSS
IC9300 C15 MLVVSS
IC9300 A34 VSS
IC9300 AP3 ID0
IC9300 AL12 LVVSS
IC9300 N3 VSS
IC9300 P14 VSS
IC9300 R4 VSS
IC9300 Y20 VSS
IC9300 AA16 VSS
IC9300 F6 VSS
IC9300 B34 VSS
IC9300 R15 VSS
IC9300 W19 VSS
IC9300 AP23 VSS
IC9300 R18 VSS
IC9300 R13 VSS
IC9300 AA18 VSS
IC9300 AP32 VSS
IC9300 V18 VSS
IC9300 E7 VSS
IC9300 C4 VSS
IC9300 AN4 EXTTRMI1
IC9300 V21 VSS
IC9300 Y18 VSS
IC9300 AL28 VSS
IC9300 AK8 WLBI
IC9300 V19 VSS
IC9300 B33 VSS
IC9300 AJ6 VSS
IC9300 AE3 VSS
IC9300 C3 VSS
IC9300 W17 VSS
IC9300 C14 MLVVSS
IC9300 R14 VSS
IC9300 AB15 VSS
IC9300 Y33 VSS
IC9300 C21 MLVVSS
IC9300 T16 VSS
IC9300 AM17 VSS
IC9300 AL10 LVVSS
IC9300 Y17 VSS
IC9300 AK23 VSS
IC9902 D7 DQ10
IC9300 C20 MLVVSS
IC9300 E31 VSS
IC9300 D4 VSS
IC9300 AM34 VSS
IC9300 Y19 VSS
IC9300 C27 MLVVSS
IC9300 G29 VSS
IC9300 AL13 LVVSS
IC9300 AK31 VSS
IC9300 T19 VSS
IC9300 W16 VSS
IC9300 C19 MLVVSS
IC9300 W30 VSS
IC9300 AJ15 VSS
IC9300 V15 VSS
IC9300 AM10 LVVSS
IC9300 AN23 VSS
IC9300 C24 MLVVSS
IC9300 AE31 VSS
IC9300 AM31 VSS
IC9300 AP29 VSS
IC9300 AM15 LVVSS
IC9300 AB31 VSS
IC9300 C8 MLVVSS
IC9300 U19 VSS
IC9300 R17 VSS
IC9300 T17 VSS
IC9300 AL11 LVVSS
IC9300 AP2 ID2
IC9300 P32 MLVVSS
IC9300 F7 VSS
IC9300 AL4 VSS
IC9300 AB17 VSS IC9300 M32 MLVVSS
IC9300 C7 MLVVSS
IC9300 AC32 VSS
IC9300 AM16 LVVSS
IC9300 AL7 A1AVSS_2
IC9300 Y4 VSS
IC9300 W20 VSS
IC9300 AM19 VSS
IC9300 AG29 VSS
IC9300 T22 VSS
IC9300 AP33 VSS
IC9300 AM11 LVVSS
IC9300 C25 MLVVSS
IC9300 AJ23 VSS
IC9300 AF33 VSS
IC9300 C33 VSS
IC9300 AK5 VSS
IC9300 C11 MLVVSS
IC9300 AK29 VSS
IC9300 AK15 VSS
IC9300 AJ21 VSS
IC9300 AL9 LVVSS
IC9300 C34 VSS
IC9300 W32 VSSIC9300 R20 VSS
IC9300 U16 VSS
IC9300 U21 VSS
IC9300 C10 MLVVSS
IC9300 C16 MLVVSS
IC9300 U18 VSS
IC9300 AA13 VSS
IC9300 AA15 VSS
IC9300 V20 VSS
IC9300 T18 VSS
IC9300 T20 VSS
IC9300 AN18 VSS
IC9300 AA14 VSS
IC9300 AM18 VSS
IC9300 AP1 VSS
IC9300 AH31 VSS
IC9300 AL14 LVVSS
IC9300 D32 VSS
IC9300 C22 MLVVSS
IC9300 AD5 VSS
IC9300 AM27 VSS
IC9300 J32 MLVVSS
IC9300 AL23 VSS
IC9300 AA30 VSS
IC9300 B4 VSS
IC9300 P13 VSS
IC9300 U30 VSS
IC9300 Y16 VSS
IC9300 AL16 VSS
IC9300 AG32 VSS
IC9300 T15 VSS
IC9300 AA4 VSS
IC9300 R16 VSS
IC9300 AM4 EXTTRMI0
IC9300 U15 VSS
IC9300 AL33 VSS
IC9300 L3 VSS
IC9300 AM32 CK33IN
IC9300 AP18 VSS
IC9300 A3 VSS
IC9300 L32 MLVVSS
IC9300 AM33 FPENF
IC9300 F29 VSS
IC9300 AK21 VSS
IC9300 AG2 VSS
IC9300 W15 VSS
IC9300 H32 MLVVSS
IC9300 G7 VSS
IC9300 AN20 VSS
IC9300 AJ26 VSS
IC9300 AN2 VSS
IC9300 B2 VSS
IC9300 AH1 VSS
IC9300 A33 VSS
IC9300 C23 MLVVSS
IC9300 C9 MLVVSS
IC9300 V17 VSS
IC9300 AM9 LVVSS
IC9300 E30 VSS
IC9300 K32 MLVVSS
IC9300 AL32 V_TEST
IC9300 T6 VSS
IC9300 D33 VSS
IC9300 AJ1 VSS
IC9300 W18 VSS
IC9300 AN3 ID1
IC9300 Y14 VSS
IC9300 AD30 VSS
IC9300 AK25 VSS
IC9300 C29 MLVVSS
IC9300 AA19 VSS
IC9300 D34 VSS
IC9300 D31 VSS
IC9903 B2 VSSQ
IC9300 AJ16 IICsync
IC9300 B3 VSS
IC9300 G32 MLVVSS
IC9300 Y13 VSS
IC9300 N13 VSS
IC9300 AB16 VSS
IC9903 B1 DQ14
IC9902 G1 VDDQ
IC9903 F8 VSSQ
IC9902 L7 CAS
IC9903 N8 A4
IC9902 J8 CK
IC9903 A2 NC
IC9903 K8 CK
IC9902 E8 LDQS
IC9902 E7 VSSQ
IC9903 D9 DQ13
IC9902 M3 A1
IC9903 L7 CAS
IC9903 P9 VSS
IC9903 H2 VSSQ
IC9300 U32 MMDQ7
IC9903 C9 VDDQ
IC9902 R1 VDD
IC9903 D2 VSSQ
IC9903 R2 A12
IC9902 H2 VSSQ
IC9903 H3 DQ3
IC9902 C9 VDDQ
IC9300 AM28 MMDM2
IC9902 J9 VDD
IC9903 A9 VDDQ
IC9902 F7 LDQS
IC9903 D7 DQ10
IC9903 N7 A6
IC9903 R3 NC
IC9902 N2 A3
IC9903 B7 UDQS
A32
1
2
3
4
5
6
7
8
9
10
11
12
13
14
15
16
17
18
19
20
21
22
23
24
25
26
27
28
29
30
31
32
33
34
35
36
37
38
39
40
41
42
43
44
45
46
47
48
49
50
51
52
53
54
55
57
58
59
60
61
62
63
64
65
66
67
68
56
P1.8V_DDR2
P1.8V_DDR2
P1.8V_DDR2
P5V
P3.3V
P5V
R9300
R9303
TP9010
Q9302
2SD0601A0L
Q9301
2SD0601A0L
R9370
10k
R9391
100k
R9412 47
R9415 47
R9407 47
R9410 47
R9413 47
R9416 47
R9408 47
R9411 47
R9404 47
R9421 47
R9423 47
R9419 47
R9420 47
R9417 47
R9403
10k
R9401
220
R9371
100k
R10000
75
R9116
100
R9998 220
R9997
1k
R9369
4.7k
R9087
100
R9086 47
R9409 47
R9085 47
R9996
1k
R9999
10k
R9083 0
R9424 47
R9405 47
R9414 47
R9418 47
R9406 47
R9084 0
R9422 47
*R9221
0
R10001
300
DOWN_RIGHT
DDR-Terminate
to DDR
DDR2 #1
DRVCLK6+
DRVSOS8
P5V/P3.3V_DET
DRVCLK6-
GND
GND
USL
DRVCLK9-
LE2
ODE2
UMH
GND
GND
DD9_2-
DD10_2+
DD15_2-
DD15_1-
DRVCLK7+
GND
DD15_2+
PC4
UEH
DD11_2-
PC3
DD14_2-
DRVCLK8+
DD12_1+
GND
DD14_1+
CLR2
GND
GND
GND
DD12_2-
P5V
GND
DD15_1+
DD12_1-
DD9_2+
DD14_2+
DD11_1+
DD10_2-
DD13_1-
DD10_1-
DD11_1-
DRVCLK8-
USH
GND
DD13_2+
DD11_2+
GND
DD9_1+
DD13_1+
GND
DD12_2+
DD13_2-
UML
DD9_1-
GND
GND
DRVCLK7-
NC
DD10_1+
GND
DD14_1-
DRVCLK9+
NC
P5V/P3.3V
130 133128 129127 132131 135134
MN84528
PD3-H
IC9900
IC9903
DDR2 #0
IC9902
PD3-H
!
TO
C2-BOARD
(C21)
43
42
41
A-BOARD TXN/A1ENUUS (15/15)

60
11.20. C1-Board (1/2) Schematic Diagram
TERM
SIDE
TERM
SIDE
TERM
SIDE
TERM
SIDE
TERM
SIDE
TERM
SIDE
TERM
SIDE
TERM
SIDE
AB_LE1
AB_ODE1
AB_PC1
AB_CLR1
AB_LE1
AB_ODE1
AB_PC1
AB_CLR1
AB_LE1
AB_ODE1
AB_PC1
AB_CLR1
AB_LE1
AB_ODE1
AB_PC1
AB_CLR1
AB_LE2
AB_ODE2
AB_PC2
AB_CLR2
AB_LE2
AB_ODE2
AB_PC2
AB_CLR2
AB_LE2
AB_ODE2
AB_PC2
AB_CLR2
AB_LE2
AB_ODE2
AB_PC2
AB_CLR2
DD1_2-
DD1_2+
DD1_1-
DD1_1+
DRVCLK1-
DRVCLK1+
DD2_2-
DD2_2+
DD2_1-
DD2_1+
DRVCLK1-
DRVCLK1+
DD3_2-
DD3_2+
DD3_1-
DD3_1+
DRVCLK2-
DRVCLK2+
DD4_2-
DD4_2+
DD4_1-
DD4_1+
DRVCLK2-
DRVCLK2+
DD5_2-
DD5_2+
DD5_1-
DD5_1+
DRVCLK3-
DRVCLK3+
DD6_2-
DD6_2+
DD6_1-
DD6_1+
DRVCLK3-
DRVCLK3+
DD7_2-
DD7_2+
DD7_1-
DD7_1+
DRVCLK4-
DRVCLK4+
DD8_2-
DD8_2+
DD8_1-
DD8_1+
DRVCLK5-
DRVCLK5+
C17105
250V
0.15u
C17107
10V
1u
C17109
250V
0.15u
C17104
10V
1u
C17108
250V
0.15u
C17110
10V
1u
C17102
250V
0.15u
C17101
250V
0.15u
C17112
250V
0.15u
C17111
250V
0.15u
C17113
10V
1u
C17121
250V
0.15u
C17115
250V
0.15u
C17120
250V
0.15u
C17117
250V
0.15u
C17119
10V
1u
C17125
10V
1u
C17114
250V
0.15u
C17118
250V
0.15u
C17123
250V
0.15u
C17122
10V
1u
C17116
10V
1u
C17124
250V
0.15u
C17106
250V
0.15u
1
3
4
5
7
8
9
11
12
13
14
15
16
17
18
19
20
21
22
23
24
25
26
27
28
29
30
31
32
33
34
35
36
37
38
39
40
41
42
43
44
45
47
48
49
51
52
53
55
1
3
4
5
7
8
9
11
12
13
14
15
16
17
18
19
20
21
22
23
24
25
26
27
28
29
30
31
32
33
34
35
36
37
38
39
40
41
42
43
44
45
47
48
49
51
52
53
55
1
3
4
5
7
8
9
11
12
13
14
15
16
17
18
19
20
21
22
23
24
25
26
27
28
29
30
31
32
33
34
35
36
37
38
39
40
41
42
43
44
45
47
48
49
51
52
53
55
1
3
4
5
7
8
9
11
12
13
14
15
16
17
18
19
20
21
22
23
24
25
26
27
28
29
30
31
32
33
34
35
36
37
38
39
40
41
42
43
44
45
47
48
49
51
52
53
55
1
3
4
5
7
8
9
11
12
13
14
15
16
17
18
19
20
21
22
23
24
25
26
27
28
29
30
31
32
33
34
35
36
37
38
39
40
41
42
43
44
45
47
48
49
51
52
53
55
1
3
4
5
7
8
9
11
12
13
14
15
16
17
18
19
20
21
22
23
24
25
26
27
28
29
30
31
32
33
34
35
36
37
38
39
40
41
42
43
44
45
47
48
49
51
52
53
55
1
3
4
5
7
8
9
11
12
13
14
15
16
17
18
19
20
21
22
23
24
25
26
27
28
29
30
31
32
33
34
35
36
37
38
39
40
41
42
43
44
45
47
48
49
51
52
53
55
1
3
4
5
7
8
9
11
12
13
14
15
16
17
18
19
20
21
22
23
24
25
26
27
28
29
30
31
32
33
34
35
36
37
38
39
40
41
42
43
44
45
47
48
49
51
52
53
55
VDA
VDA
VDA
C1_P5_3.3V
C1_P5_3.3V
VDA
C1_P5_3.3V
C1_P5_3.3V
VDA
VDA
C1_P5_3.3V
VDA VDA
C1_P5_3.3V
C1_P5_3.3V
C1_P5_3.3V
R17118
100
R17117
6.8
R17111
6.8
R17119
100
R17113
100
R17109
100
R17114
100
R17134
100
R17110
200
R17115
200
R17120
200
R17125
200
R17130
200
R17126
6.8
R17133
100
R17121
6.8
R17127
6.8
R17143
100
R17128
100
R17137
6.8
R17139
100
R17132
6.8
R17131
6.8
R17138
100
R17123
100
R17124
100
R17148
4.7k
R17122
6.8
R17107
6.8
R17135
200
R17106
6.8
R17108
100
R17142
6.8
R17141
6.8
R17116
6.8
R17136
6.8
R17140
100
R17145
100
R17112
6.8
R17129
100
R17144
100
GND
GND
GND
VDD1
GND
NC
VDD2
VDD2
LEN
GND
A1N
A2P
VDD2
VDD2
GND
GND
GND
VDD2
GND
NC
GND
NC
NC
GND
CLR
A2N
VDD1
VDD2
VDD2
FXN
VDD2
VDD2
GND
GND
A1P
GND
GND
VDD2
GND
GND
GND
NC
VDD2
DM
GND
GND
NC
DM
NC
VDD2
FXP
ODE
BLK
GND
TEST
VDD2
NC
DM
GND
NC
VDD2
FXP
GND
VDD2
DM
GND
GND
ODE
NC
GND
VDD2
GND
GND
GND
NC
LEN
GND
A1N
A2P
VDD2
VDD2
GND
GND
GND
VDD2
BLK
GND
NC
GND
VDD2
NC
TEST
NC
GND
CLR
A2N
GND
VDD1
VDD2
VDD2
GND
FXN
GND
VDD2
VDD1
VDD2
GND
GND
A1P
GND
VDD2
NC
DM
GND
NC
VDD2
FXP
GND
VDD2
DM
GND
GND
ODE
NC
GND
VDD2
GND
GND
GND
NC
LEN
GND
A1N
A2P
VDD2
VDD2
GND
GND
GND
VDD2
BLK
GND
NC
GND
VDD2
NC
TEST
NC
GND
CLR
A2N
GND
VDD1
VDD2
VDD2
GND
FXN
GND
VDD2
VDD1
VDD2
GND
GND
A1P
GND
VDD2
NC
DM
GND
NC
VDD2
FXP
GND
VDD2
DM
GND
GND
ODE
NC
GND
VDD2
GND
GND
GND
NC
LEN
GND
A1N
A2P
VDD2
VDD2
GND
GND
GND
VDD2
BLK
GND
NC
GND
VDD2
NC
TEST
NC
GND
CLR
A2N
GND
VDD1
VDD2
VDD2
GND
FXN
GND
VDD2
VDD1
VDD2
GND
GND
A1P
GND
GND
VDD1
VDD2
VDD2
NC
TEST
NC
VDD2
DM
NC
FXP
A1N
VDD2
GND
NC
A2P
GND
VDD2
VDD2
GND
VDD2
DM
GND
VDD2
GND
DM
FXP
VDD2
VDD2
GND
GND
BLK
GND
GND
ODE
NC
ODE
NC
GND
GND
GND
VDD2
GND
GND
NC
GND
NC
GND
VDD2
TEST
NC
A1N
VDD2
NC
GND
LEN
GND
VDD2
DM
GND
GND
VDD1
A2P
CLR
A2N
GND
GND
VDD1
GND
GND
GND
VDD2
GND
VDD2
GND
ODE
FXP
NC
NC
A2P
FXN
VDD2
GND
GND
GND
GND
GND
GND
VDD2
VDD2
GND
GND
VDD1
GND
GND
A1P
NC
VDD2
GND
BLK
GND
LEN
A1P
GND
GND
A1N
A2P
NC
VDD2
VDD2
GND
GND
NC
VDD2
NC
VDD2
VDD2
DM
GND
GND
GND
GND
GND
VDD2
VDD2
VDD2
GND
VDD2
CLR
GND
VDD2
BLK
A2N
NC
NC
LEN
GND
NC
GND
VDD1
GND
GND
GND
NC
VDD2VDD2
VDD2
DM
GND
FXN
VDD2
GND
GND
BLK
NC
VDD1
GND
VDD2
GND
GND
NC
FXN
VDD2
GND
GND
GND
VDD2
GND
VDD2
GND
GND
A1P
VDD2
NC
NC
VDD2
GND
GND
VDD2
NC
DM
TEST
NC
GND
DM
GND
GND
NC
A1N
CLR
GND
TEST
A2N
GND
VDD1
VDD2
CLR
GND
GND
VDD2
A2N
NC
VDD2
GND
ODE
FXN
VDD2
GND
VDD2
GND
VDD1
VDD2
VDD2
FXP
GND
LEN
GND
A1P
GND
GND
E
B
4
D
731
C
5
F
2896
A
TO
DRIVER
PANEL DATA
CB1
TO
DRIVER
PANEL DATA
CB2
PANEL DATA
CB3
DRIVER
TO
DRIVER
TO
CB4
PANEL DATA
PANEL DATA
DRIVER
PANEL DATA
CB5
TO
TO
CB7
DRIVER
TO
DRIVER
PANEL DATA
CB6
DRIVER
TO
CB8
PANEL DATA
C1-BOARD TXNC11EFUU (1/2)
!
1
2

61
11.21. C1-Board (2/2) Schematic Diagram
SIDE
TERM
TERM
SIDE
AB_LE1
AB_LE2
AB_ODE1
AB_ODE2
AB_PC1
AB_PC2
AB_CLR1
AB_CLR2
DD2_2+
DD8_1+
DD2_2-
DD8_1-
DD8_2+
DD8_2-
DRVCLK4+
DRVCLK4-
DD7_1+
DD7_1-
DD7_2+
DD7_2-
DD6_1+
DD6_1-
DD6_2+
DD6_2-
DRVCLK3+
DRVCLK3-
DD5_1+
DD5_1-
DD5_2+
DD5_2-
DD4_1+
DRVCLK1+
DD3_1+
DD4_1-
DRVCLK1-
DD3_1-
DD4_2+
DD1_1+
DD3_2+
DD4_2-
DD1_1-
DD3_2-
DRVCLK2+
DD1_2+
DD2_1+
DRVCLK2-
DD1_2-
DD2_1-
AA_PC1_L
AA_ODE_L
AA_PC2_L
AA_CLR_L
AA_CLR_L
AA_PC2_L
AA_PC1_L
AA_ODE_L
AA_LE_L
5V_DET
DRVCLK5-
DRVCLK5+
AA_LE_L
C17103
16V
0.1u
C0JBAZ002692
IC17101
G1 1
2
A1
3
A2
4
A3
5
A4
6
A5
7
A6
8
A7
9
A8
10
GND
11
Y8
12
Y7
13
Y6
14
Y5
15
Y4
16
Y3
17
Y2
18
Y1
19
G2
20
Vcc
C10
1
2
3
4
5
6
7
8
9
10
11
12
13
14
15
16
17
18
19
20
C11
1
2
3
4
5
6
7
8
9
10
11
12
13
14
15
16
17
18
19
20
21
22
23
24
25
26
27
28
29
30
31
32
33
34
35
36
37
38
39
40
41
42
43
44
45
46
47
48
49
50
51
52
53
54
55
57
58
59
60
61
62
63
64
65
66
67
68
56
*C14
1
2
C1_P5_3.3V
VDA
C1_P5_3.3V
C1_P5_3.3V
ZA17104
K4AD01Z00001
ZA17101
K4AD01Z00001
ZA17103
K4AD01Z00001
ZA17102
K4AD01Z00001
R17103
680
R17104
47
R17105
47
*R17102
0
R17101
0
*R17149
0
R17150
1k
R17146
680
R17147
220k
*C17141
50V
100p
55
168
1
C10
C11
1
20
551551551551551551551
DD4_2+
DD1_1-
GND
DD4_1+
DD8_2-
DD8_1-
DD4_2-
DD4_1-
GND
P5V/P3.3V
P5V/P3.3V
P5V/P3.3V
NC
GND
DD5_2+
DD5_1+
KEY
GND
GND
DD5_2-
DD5_1-
DD1_2+
DD6_2+
DD6_1+
CLR
GND
PC1
DRVCLK3+
DRVCLK2-
DD1_2-
GND
DRVCLK5-
GND
DRVCLK3-
GND
DRVCLK4+
GND
DRVCLK4-
DD2_2+
DD2_1+
ODE
DRVCLK1-
LE
GND
PC2
DRVCLK1+
DD2_2-
DD2_1-
GND
DD1_1+
DD3_2+
DD7_2+
DD3_1+
DD7_1+
DD7_2-
DD7_1-
GND
DD3_2-
GND
DRVCLK2+
DD8_2+
DD3_1-
DD8_1+
DD6_2-
GND
DD6_1-
GND
GND
P5V/P3.3V
P5V/P3.3V
GND
NC
GND
GND
NC
Vdat
Vdat
Vdat
NC
Vdat
GND
GND
Vdat
NC
P5V/P3.3V_DET
GND
GND
KEY
GND
1
2
C14
DRVCLK5+
1610 12 14 1511 13 1817
TO
C2-BOARD
(C20)
TO
A-BOARD
(A31)
BUFFER
C1-BOARD TXNC11EFUU (2/2)
!
TO
GK-BOARD
(GK1)
1
2

62
11.22. C2-Board (1/2) Schematic Diagram
SIDE
TERM
TERM
SIDE
AB_ODE3
AB_ODE4
AB_PC3
AB_LE3
AB_LE4
AB_PC4
AB_CLR3
AB_UML
AB_UMH
AA_UEH
AA_UMH
AB_UEH
AB_USL
AB_USH
AA_LE_R
AA_ODE_R
AB_USL
AB_UEH
AB_UML
AB_USH
AA_USL
AA_UML
AA_USH
DRVCLK7-
DD9_1-
DD11_2-
DD9_2+
DD11_2+
AA_UEH
DD9_2-
DD11_1+
DD11_1-
AA_USL
DD9_1+
AA_PC4_R
DD10_2+
AA_USH
DRVCLK7+
DD13_2-
DD10_2-
DD13_1-
DD10_1-
DD12_1+
DRVCLK6+
DD12_2+
DRVCLK6-
DRVCLK8-
DD12_2-
DD13_1+
AA_ODE_R
DD12_1-
DD13_2+
AA_LE_R
DD10_1+
AA_CLR_R
DRVCLK8+
AA_PC3_R
DD15_2+
DD14_1+
DD15_2-
DD14_2+
DD15_1-
DD14_2-
DD14_1-
DRVCLK9-
DD15_1+
AA_UML
DRVCLK9+
AA_PC3_R
AA_PC4_R
AB_CLR4
AB_UMH
AA_UMH
5V_DET
AA_CLR_R
C17202
16V
0.1u
C17203
16V
0.1u
C0JBAZ002692
IC17201
G1
1
2A1
3A2
4A3
5A4
6A5
7A6
8A7
9A8
10 GND 11
Y8
12
Y7
13
Y6
14
Y5
15
Y4
16
Y3
17
Y2
18
Y1
19
G2
20
Vcc
C0JBAZ002692
IC17202
G1
1
2A1
3A2
4A3
5A4
6A5
7A6
8A7
9A8
10 GND 11
Y8
12
Y7
13
Y6
14
Y5
15
Y4
16
Y3
17
Y2
18
Y1
19
G2
20
Vcc
C20
1
2
3
4
5
6
7
8
9
10
11
12
13
14
15
16
17
18
19
20
C21
1
2
3
4
5
6
7
8
9
10
11
12
13
14
15
16
17
18
19
20
21
22
23
24
25
26
27
28
29
30
31
32
33
34
35
36
37
38
39
40
41
42
43
44
45
46
47
48
49
50
51
52
53
54
55
57
58
59
60
61
62
63
64
65
66
67
68
56
C25
1
2
3
4
C23
1
2
3
4
5
6
7
8
C2_P5_3.3V
VDA
SS_5V
SS_5V
SS_5V
VDA
C2_P5_3.3V
C2_P5_3.3V
R17202
EXB38V470JV
R17205
EXB38V470JV
R17206
EXB38V470JV
R17207
EXB38V681JV
R17204
EXB38V681JV
R17203
EXB38V470JV
R17208
EXB38V681JV
R17245
680
R17201
220k
R17260
0
GND
VDA
VDA
NC
UML
UMH
SOS8_SS
GND
P5V
UEH
USL
USH
DD15_1-
DRVCLK7+
GND
DD15_2+
PC4
UEH
DD11_2-
PC3
DD14_2-
DRVCLK8+
DD12_1+
GND
DD14_1+
CLR
GND
GND
GND
DD12_2-
P5V_SS
GND
DD15_1+
DD12_1-
DD9_2+
DD14_2+
DD11_1+
DD10_2-
DD13_1-
DD10_1-
DD11_1-
DRVCLK8-
USH
GND
DD13_2+
DD11_2+
NC
GND
DD9_1+
DD13_1+
GND
DD12_2+
DD13_2-
UML
DD9_1-
GND
GND
DRVCLK7-
NC
DD10_1+
GND
DD14_1-
DRVCLK9+
DRVCLK6+
DRVSOS8
P5V/P3.3V_DET
DRVCLK6-
GND
GND
USL
DRVCLK9-
LE
ODE
UMH
GND
GND
DD9_2-
DD10_2+
DD15_2-
GND
P5V/P3.3V
P5V/P3.3V
GND
GND
NC
GND
NC
P5V/P3.3V_DET
VDA
GND
GND
NC
VDA
VDA
GND
GND
NC
VDA
VDA
P5V/P3.3V
1 73
C
896
E
B
F
45
A
D
2
BUFFER BUFFER
TO
A-BOARD
(A32)
TO
SS-BOARD
(SS33)
TO
P-BOARD
(P35)
TO
C1-BOARD
(C10)
C2-BOARD TXNC21EFUU (1/2)
!
1
2

63
11.23. C2-Board (2/2) Schematic Diagram
TERM
SIDE
TERM
SIDE
TERM
SIDE
TERM
SIDE
TERM
SIDE
TERM
SIDE
TERM
SIDE
DD15_2+
DD11_1-
DRVCLK6-DRVCLK6-
AB_PC3 AB_PC3
AB_ODE3
DRVCLK7+
DD12_2-
DD10_1+
AB_LE3
AB_CLR4
AB_ODE4 AB_ODE4
DRVCLK6+
AB_ODE3
DD12_1+
DRVCLK6+
DD9_1-
AB_LE3
AB_PC4
AB_CLR3
DRVCLK9+
DRVCLK9-
DD13_1+
DD15_1-
AB_PC3
AB_ODE3
DD10_2+
DD10_2-
AB_LE3
AB_CLR3
DD14_1-
AB_CLR3
AB_CLR4
AB_PC3
DD10_1-
DRVCLK7+
AB_ODE3
DRVCLK7-
DD12_2+
DD11_1+
DRVCLK7-
AB_CLR3
AB_LE3
DD14_2-
DD11_2+
DD9_2-
AB_PC4
DD13_2+
DRVCLK8+
AB_PC4
AB_CLR4
AB_LE4
DD14_2+
DRVCLK8-
DD13_1-
DRVCLK8-
DD15_1+
AB_ODE4
DD11_2-
DD9_2+
DD12_1-
DRVCLK8+
DD14_1+
AB_LE4AB_LE4
DD15_2-
DD9_1+
DD13_2-
C17222
250V
0.15u
C17218
10V
1u
C17211
250V
0.15u
C17215
10V
1u
C17208
250V
0.15u
C17213
250V
0.15u
C17205
250V
0.15u
C17207
250V
0.15u
C17209
10V
1u
C17224
10V
1u
C17212
10V
1u
C17214
250V
0.15u
C17204
250V
0.15u
C17210
250V
0.15u
C17217
250V
0.15u
C17206
10V
1u
C17221
10V
1u
C17220
250V
0.15u
C17216
250V
0.15u
C17219
250V
0.15u
C17223
250V
0.15u
1
3
4
5
7
8
9
11
12
13
14
15
16
17
18
19
20
21
22
23
24
25
26
27
28
29
30
31
32
33
34
35
36
37
38
39
40
41
42
43
44
45
47
48
49
51
52
53
55
1
3
4
5
7
8
9
11
12
13
14
15
16
17
18
19
20
21
22
23
24
25
26
27
28
29
30
31
32
33
34
35
36
37
38
39
40
41
42
43
44
45
47
48
49
51
52
53
55
1
3
4
5
7
8
9
11
12
13
14
15
16
17
18
19
20
21
22
23
24
25
26
27
28
29
30
31
32
33
34
35
36
37
38
39
40
41
42
43
44
45
47
48
49
51
52
53
55
1
3
4
5
7
8
9
11
12
13
14
15
16
17
18
19
20
21
22
23
24
25
26
27
28
29
30
31
32
33
34
35
36
37
38
39
40
41
42
43
44
45
47
48
49
51
52
53
55
1
3
4
5
7
8
9
11
12
13
14
15
16
17
18
19
20
21
22
23
24
25
26
27
28
29
30
31
32
33
34
35
36
37
38
39
40
41
42
43
44
45
47
48
49
51
52
53
55
1
3
4
5
7
8
9
11
12
13
14
15
16
17
18
19
20
21
22
23
24
25
26
27
28
29
30
31
32
33
34
35
36
37
38
39
40
41
42
43
44
45
47
48
49
51
52
53
55
1
3
4
5
7
8
9
11
12
13
14
15
16
17
18
19
20
21
22
23
24
25
26
27
28
29
30
31
32
33
34
35
36
37
38
39
40
41
42
43
44
45
47
48
49
51
52
53
55
VDA
C2_P5_3.3V
C2_P5_3.3V
VDA
VDA VDA
VDA
C2_P5_3.3V
VDA VDA
C2_P5_3.3V
C2_P5_3.3V
C2_P5_3.3V
C2_P5_3.3V
ZA17201
K4AD01Z00001
ZA17202
K4AD01Z00001
ZA17204
K4AD01Z00001
ZA17203
K4AD01Z00001
R17214
200
R17237
100
R17222
100
R17231
6.8
R17243
100
R17219
200
R17232
100
R17241
6.8
R17220
6.8
R17239
200
R17218
100
R17247
4.7k
R17244
100
R17211
6.8
R17216
6.8
R17224
200
R17221
6.8
R17217
100
R17213
100
R17226
6.8
R17212
100
R17225
6.8
R17230
6.8
R17215
6.8
R17223
100
R17236
6.8
R17229
200
R17234
200
R17228
100
R17238
100
R17240
6.8
R17210
6.8
R17242
100
R17235
6.8
R17227
100
R17233
100
C25
8
C23
55
C20
4
1
1
1
20
1
155155551551551551
168 C21
FXP
VDD2
LEN
GND
GND
VDD1
VDD2
VDD2
NC
TEST
NC
VDD2
DM
NC
FXP
A1N
VDD2
GND
NC
A2P
GND
VDD2
VDD2
VDD2
GND
NC
VDD2
FXP
DM
GND
VDD2
A1N
VDD2
GND
DM
FXP
VDD2
VDD2
GND
GND
BLK
GND
GND
ODE
NC
ODE
NC
GND
GND
GND
VDD2
GND
GND
NC
GND
NC
GND
VDD2
TEST
NC
DM
A1N
VDD2
GND
NC
GND
LEN
VDD2
GND
VDD2
GND
DM
GND
GND
VDD1
DM
A2P
CLR
VDD2
A2N
GND
VDD2
GND
GND
GND
BLK
VDD1
GND
GND
GND
GND
GND
VDD2
ODE
NC
GND
VDD2
ODE
GND
NC
ODE
FXP
GND
NC
NC
A2P
FXN
GND
VDD2
GND
GND
GND
GND
GND
VDD1
GND
GND
GND
VDD2
GND
VDD2
GND
NC
GND
VDD1
A1P
VDD1
GND
GND
GND
A1P
NC
VDD2
VDD2
VDD2
GND
GND
BLK
GND
BLK
GND
GND
GND
LEN
NC
A1P
GND
FXN
GND
A1P
A1N
VDD2
A2P
GND
NC
GND
VDD2
GND
VDD2
GND
GND
NC
VDD2
NC
VDD2
GND
VDD2
DM
GND
GND
GND
VDD2
NC
GND
GND
VDD2
VDD2
VDD2
VDD2
GND
GND
VDD2
GND
GND
GND
A1P
VDD2
NC
VDD2
CLR
GND
VDD2
BLK
VDD2
VDD2
NC
A2N
NC
NC
NC
NC
LEN
TEST
VDD2
GND
VDD2
NC
GND
DM
GND
VDD1
GND
GND
DM
GND
GND
GND
VDD2
NC
GND
VDD2
DM
VDD2
VDD2
VDD2
VDD1
DM
GND
GND
GND
A2P
VDD2
NC
FXN
CLR
VDD2
CLR
A1N
A2N
GND
GND
GND
BLK
GND
VDD2
GND
GND
NC
VDD2
BLK
TEST
VDD1
VDD1
GND
GND
A2N
VDD2
NC
GND
GND
GND
NC
FXN
NC
NC
VDD2
GND
GND
GND
GND
GND
LEN
VDD2
GND
VDD2
VDD2
GND
GND
A1P
VDD2
NC
NC
GND
NC
CLR
GND
VDD2
GND
NC
GND
GND
VDD2
GND
VDD2
GND
NC
DM
GND
GND
TEST
TEST
VDD1
NC
GND
DM
NC
GND
GND
A2N
FXP
GND
NC
A1N
A1N
GND
CLR
NC
GND
TEST
VDD2
GND
A2N
VDD2
NC
GND
NC
GND
NC
VDD1
A2PA2P
GND
VDD2
VDD2
CLR
ODE
FXN
GND
GND
GND
LEN
VDD2
VDD2
A2N
NC
VDD2
VDD2
VDD2
GND
ODE
GND
VDD2
FXN
VDD2
VDD2
GND
VDD2
VDD1
GND
VDD2
DM
VDD2
GND
GND
GND
VDD1
GND
VDD2
VDD2
GND
GND
FXN
FXP
GND
GND
LEN
GND
VDD2
GND
GND
A1P
VDD2
GND
GND
GND
4C27 1
1511 1814 1710 1612 13
DRIVER
PANEL DATA
CB9
TO
TO
CB10
DRIVER
PANEL DATA
TO
DRIVER
CB11
PANEL DATA
DRIVER
CB12
TO
PANEL DATA
PANEL DATA
TO
CB13
DRIVER
TO
PANEL DATA
CB14
DRIVER
CB15
PANEL DATA
DRIVER
TO
C2-BOARD TXNC21EFUU (2/2)
!
1
2

64
11.24. SC-Board (1/4) Schematic Diagram
+
+
+
TERM
SIDE
15V
MAIN_STOP0
AA_SIU
AA_CLK
AA_CERS
AA_SEL
AA_OC2
AA_SC_FPGANRST
AA_OC1
AA_CPH2
AA_CEL
AA_CSH
AA_CSL
AA_CPH1
AA_CMH
AA_CML
AA_CML2
AA_CRC1
AA_UHZ
AA_CRC2
AA_CIS
5V
VSUS
C16566
50V
0.01u
C16562
16V
1u
C16593
50V
1000p
C16582
16V
1u
C16581
25V
1u
C16564
16V
1u
C16565
50V
0.01u
*C16413
1.5u
250V
*C16412
250V
250u
*C16414
250V
250u
C16563
10V
100u
D16480
MA2J11100L
D16583
B3ABB0000210
IC16581
C0BBBA000024
1A_OUTPUT
2A_-INPUT
3A_+INPUT
4GND 5
B_+INPUT
6
B_-INPUT
7
B_OUTPUT
8
VCC
IC16563
C0JBAB000388
1
2
3
4
5
6
78
9
10
11
12
13
14
C0JBAZ002692
IC16562
G1
1
2A1
3A2
4A3
5A4
6A5
7A6
8A7
9A8
10 GND 11
Y8
12
Y7
13
Y6
14
Y5
15
Y4
16
Y3
17
Y2
18
Y1
19
G2
20
Vcc
C0JBAZ002692
IC16561
G1
1
2A1
3A2
4A3
5A4
6A5
7A6
8A7
9A8
10 GND 11
Y8
12
Y7
13
Y6
14
Y5
15
Y4
16
Y3
17
Y2
18
Y1
19
G2
20
Vcc
SC20
23
29
30
2
12
5
33
14
32
20
28
26
4
9
11
19
22
21
25
8
13
6
31
17
10
34
24
18
1
7
27
16
15
3
35
SC2
1
3
5V
15V
SOS7_SC2
15V
TP71
TP3
TP25
TP1
TP26
TP20
TP23
TP89
TP14
TP40
TP17
TP4
TP34
TP16
TP52
TP19
TP18
TP7TP6
TP29
TP82
TP32
TP22
TP72
TP46
TP28
TP88
TP98
TP97
TP9
TP11
TP8
TP15
TP30 TP35TP31
TP70
TP39
TP36
TP24
TP2
TP10
TP21
TP5
TP33
TP38
TP37
R16564
EXB38V470JV
R16565
EXB38V472JV
R16591
EXB38V472JV
R16566
EXB38V472JV
R16563
EXB38V470JV
R16570
EXB38V472JV
R16567
EXB38V472JV
R16561
EXB38V470JV
R16579
EXB38V470JV
R16568
EXB38V472JV
R16562
EXB38V470JV
*R16586
2.15k
R16588
10k
*R16585
1k
R16584
6.8k
R16593
1.4k
R16590
220
R16583
39k
R16587
2.2k
R16592
4.7k
R16476
4.7k
R16582
39k
*C16418
1.5u
250V
SC_FPGANRST
CRC1
SEL
SIU
CLK
TPSOS7
TPSOS6
(GREEN LED)
NC
NC
GND
RSV
GND
P5V
CMH
SC_FPGANRST
CML
CPH1
CSL CSL
CSH CSH
CML
CMH
P15V
CRC2
RSV
P5V
VSUS
GND
GND
CLK
GND
SIU
SEL
CERS
CIS
CPH1
OC2
SOS6
CPH2
SOS7
GND
NC
CEL
GND
OC1
GND
P15V
CRC1
OC1
UHZ
GND
CERS
OC2
CIS
CPH2
CEL
CRC2
8
F
74
B
3
C
D
E
A
1 9562
BUFFER
BUFFER
INVERTER
VOLTAGE ERROR DET
OPERATES AT 139V OR MORE
AND 67V OR LESS
ERROR DET
TO
A-BOARD
(A33)
UHZ
MID
TO
P-BOARD
(P2)
!
SC-BOARD TXNSC1EFUU (1/4)
1
2
3

65
11.25. SC-Board (2/4) Schematic Diagram
+
+
AA_CML
AA_CSL
AA_CMH
AA_CSH
AA_CML2
VRH
MIDC
MIDF
VRL
C16421
630V
5600p
C16525
25V
4.7u
C16772
25V
4.7u
C16521
25V
1u
C16536
50V
0.1u
C16522
25V
4.7u
C16533
50V
0.1u
C16401
5600p
630V
C16524
25V
4.7u
*C16633
250V
4u
*C16632
250V
4u
C16504
25V
4.7u
C16535
50V
0.1u
C16491
630V
1000p
*C16441
50V
3900p
C16502
25V
4.7u
C16501
25V
1u
C16471
630V
1000p
*C16631
250V
4u
C16505
25V
1u
C16771
16V
1u
C16523
25V
470u
C16503
25V
470u
D16522
B0ECKP000047
D16451
B0ECKP000047
D16523
B0ECHR000001
D16524
B0ECKP000047
D16466
MA2J11100L
D16503
B0ECHR000001
D16536
B0ECHR000001
D16411
MA2J11100L
D16534
B0ECHR000001
*D16422
MA3DF40001TV
*D16421
MA3DF40001TV
*D16481
B0FACP000001
*D16402
B0FACR000006
*D16462
MA3DF46000LW
*D16482
B0FACP000001
*D16401
B0FACR000006
*D16461
MA3DF46000LW
C0JBAB000715
IC16465
1
NC
2
IN_A
3
GND
5
VCC
4
OUT_Y
C0JBAB000715
IC16464
1
NC
2
IN_A
3
GND
5
VCC
4
OUT_Y
C0ZBZ0001324
IC16501
1
LO
2
Vcom
3
VCC2
4
NC
5
NC
6
VS
7
VB
8
HO
9
NC
10
NC
11
VCC
12
HIN
13
NC
14
LIN
15
GND
16
NC
C0ZBZ0001324
IC16521
1
LO
2
Vcom
3
VCC2
4
NC
5
NC
6
VS
7
VB
8
HO
9
NC
10
NC
11
VCC
12
HIN
13
NC
14
LIN
15
GND
16
NC
IC16771
C0CBADC00072
VIN 3
2
COM
VOUT
1
*L16402
G0C1R1KA0206
*L16411
G0C1R1KA0206
*L16412
G0C1R1KA0206
*L16413
G0C1R1KA0206
*L16403
G0C1R1KA0206
*L16401
G0C1R1KA0206
15V
PC16461
B3PBA0000457
1
2
3
45
6
7
8
TP90 TP91
TP93TP92
*Q16424
B1JAEP000004
*Q16402
2PG0110000RP
*Q16452
B1JAEP000006
*Q16423
B1JAEP000004
*Q16404
2PG0110000RP
*Q16422
B1JAEP000004
*Q16441
B1JAEP000007
*Q16403
2PG0110000RP
Q16531
B1HFPFA00001
Q16502
B1HFPFA00001
Q16551
B1HFPFA00001
Q16501
B1HFPFA00001
Q16522
B1HFPFA00001
Q16521
B1HFPFA00001
R16505
10
R16519
47k
R16514
47k
R16513
47k
R16501
100
R16518
47k
R16467
82k
R16531
10
R16522
100
R16507
10
R16521
100
R16536
1
R16532
47k
75
R16504
R16551
10
R16533
47k
*R16441
5.6
R16468
82k
R16410
390
R16411
270
*R16423
7.5
R16466
56k
R16534
1
R16511
47k
*R16403
7.5
R16517
47k
R16552
47k
R16465
27k
*R16452
5.6
*R16424
7.5
*R16404
7.5
75
R16523
*R16402
7.5
R16509
1
R16502
100
R16512
47k
R16415
330
*R16422
7.5
R16414
330
R16553
47k
R16503
10
R16516
47k
R16506
10
R16416
10k
Vad+5V
VOH
VOL
MID
VFG
16V_F
VSUS
VSUS
VAD
16V_F
14 1817121110 1513 16
CSH/CMH GATE
DRIVE CIRCUIT
FET DRIVER
MID
VSUS
INVERTER
INVERTER
FET DRIVER
CSL/CML GATE
DRIVE CIRCUIT
!
SC-BOARD TXNSC1EFUU (2/4)
11
12
13
14
15
16
17
18
193
1
2
Vad+5V
Vad+5V
Vad+5V

66
11.26. SC-Board (3/4) Schematic Diagram
+
+
+
+
+
AA_CERS
AA_CPH1
AA_CPH2
AA_SC_FPGANRST
MAIN_STOP0
AA_CIS
15V_F
AA_CRC1
5V
AA_CEL
AA_CRC2
AA_CERS
AA_UHZ
C16753
25V
4.7u
C16685
50V
0.1u
C16755
25V
4.7u
C16684
50V
0.1u
C16725
25V
4.7u
C16708
50V
0.1u
C16756
25V
4.7u
C16602
50V
22p
C16608
50V
220p
C16472
25V
1u
C16603
630V
1000p
C16724
25V
4.7u
C16773
25V
4.7u
C16604
630V
1000p
C16707
50V
22p
C16723
25V
4.7u
C16641
2200p
630V
C16891
25V
1u
C16666
50V 82p
C16692
50V
0.1u
C16661
630V
1000p
C16662
630V
1000p
C16646
630V
1000p
C16665
50V 82p
C16645
630V
1000p
C16664
50V 82p
C16668
50V
220p
C16675
50V 390p
C16490
16V
1u
C16795
25V
470u
C16791
25V
220u
C16796
25V
470u
C16691
160V
100u
F2A2C101A169
C16721
50V
100u
D16649
MA2J11100L
D16671
MA2J11100L
D16618
B0ECKP000047
D16650
MA2J11100L
D16902
MA2J11100L
D16725
MA2J11100L
D16652
B0ECKP000047
D16653
MA2J11100L
D16624
B0ECKP000047
D16721
B0ECHR000001
D16407
MA22D3900L
D16669
MA2J11100L
D16476
MA2J11100L
D16474
MA2J11100L
D16607
MA2J11100L
D16615
MA2J11100L
D16490
B0ECKP000047
D16765
B0ECHR000001
D16654
MA2J11100L
D16679
B0ECKP000047
D16606
B0ECKM000038
D16619
B0ECKP000047
D16702
MA2J11100L
D16674
B0ECHR000001
D16673
B0ECHR000001
D16491
MA2J11100L
D16865
B0ECKP000047
D16610
MA2J11100L
D16677
MA3X152D0L
D16473
MA3X152D0L
D16901
MA3X152E0L
D16616
MA3X152E0L
D16604
MA3X152E0L
D16920
MA3X152E0L
D16493
MA3X152E0L
*D16643
B0FBCN000007
*D16641
B0FBCN000007
*D16622
B0FBCN000006
*D16621
B0FBCN000006
D16605
MAZ80510LL
D16647
MAZ81500ML
D16648
MAZ80510LL
D16791
MAZ82000ML
D16664
MAZ81500ML
D16608
MAZ81200ML
D16646
MAZ81500ML
D16663
MAZ81500ML
D16678
MAZ815000L
D16475
MAZ80510LL
D16662
MAZ81500ML
D16492
MAZ80470ML
D16625
MAZ82000ML
D16645
MAZ81500ML
D16602
MAZ81500ML
C0DBZMC00006
IC16490
4
REFERENCE
3
CATHODE
1NC
2ANODE
C0DBZMC00006
IC16692
4
REFERENCE
3
CATHODE
1
NC
2
ANODE
C0BBAA000008
IC16491
1
-INPUT
2
GND
3
+INPUT
5
VCC
4
OUTPUT
C0JBAB000715
IC16773
1
NC
2
IN_A
3
GND
5
VCC
4
OUT_Y
C0JBAC000363
IC16691
1
IN_B
2
IN_A
3
GND
5
VCC
4
OUT
C0DBEKA00003
IC16471
1
NC
2
A
3
K
5
A
4
REF
IC16920
C0BBBA000024
1A_OUTPUT
2A_-INPUT
3A_+INPUT
4GND 5
B_+INPUT
6
B_-INPUT
7
B_OUTPUT
8
VCC
IC16661
C0BBBA000024
1A_OUTPUT
2A_-INPUT
3A_+INPUT
4GND 5
B_+INPUT
6
B_-INPUT
7
B_OUTPUT
8
VCC
EHMDD9920
*IC16791
1GND
2GND
3N.C.
4Vin
5Vin
6N.C.
9COM
10 COM
11 Vo-F16V
12 Vo-F32V
IC16724
C0CBADC00072
VIN 3
2
COM
VOUT
1
IC16725
C0CBADC00072
VIN 3
2
COM
VOUT
1
15V
CHA
SCNR_PRO
5V
5V
5V
5V
15V
PC16603
B3PBA0000498
12
34
PC16480
B3PBA0000498
12
34
PC16601
B3PBA0000498
12
34
PC16684
B3PBA0000496
1
2
34
5
6
PC16685
B3PBA0000496
1
2
34
5
6
TP67
TP65
TP68
TP66
Q16490
2SK3018T106
Q16607
B1CBGD000001
Q16647
B1CBGD000001
Q16608
B1CBGD000001
Q16818
B1CBGD000001
*Q16601
B1CERR000025
G
D
S
*Q16660
B1CERR000025
Q16604
B1CHPM000001
G
D
S
Q16602
2SD0601AQL
Q16702
B1ABCF000231
Q16606
2SD0601AQL
Q16645
2SD0601AQL
Q16678
B1ABCF000231
Q16920
B1ABCN000007
Q16668
2SD0601AQL
Q16671
B1ABCF000231
Q16677
2SD0601AQL
Q16676
B1ABCF000231
Q16662
2SD0601AQL
Q16649
B1ABCN000007
Q16471
B1ABCF000231
*Q16623
B1JADN000004
*Q16621
B1JADN000004
*Q16661
B1JAER000003
Q16646
2SB0709ASL
Q16603
2SB0709ASL
Q16624
2SB0709ASL
Q16670
B1ADCN000007
Q16701
B1ADCN000007
Q16675
B1ADCN000007
Q16663
2SB0709ASL
Q16762
B1HFPFA00001
R16653
1.8k
R16612
47
R16686
10k
R16605
1.8k R16617
2.2k
R16695
1.5k
*R16621
220
R16699
10k
R16609
1k
R16613
47k
R16869
47k
R16891
47k
R16606
10k
R16892
47k
R16707
3.9k
*R16493
10k
R16474
1k
R16777
10k
R16615
1.1k
R16475
4.7k
R16650
100k
R16628
47k
R16473
560
R16920
10k
R16904
22k
R16480
4.7k
R16634
470
R16926
2.2k
R16679
7.5k
R16897
1.74k
R16662
10k
R16479
10k
R16478
5.6k
R16604
330
R16896
33k
R16791
1k
1%
R16646
1.18k
R16688
12.7k
R16927
22k
R16658
6.49k
R16610
100k
R16761
10
R16663
6.8k
R16666
22k
R16649
33
R16648
2k
R16656
4.7k
R16651
2k
R16769
75
R16685
220
R16654
47
R16684
220
R16661
1.2k
R16631
10k
R16900
10k
R16471
3.9k
R16674
2k
R16652
8.2k
1
R16765
R16472
2.2k
*R16681
10
R16611
68k
R16614
68k
R16711
4.7k
R16691
56k
R16717
1k
R16664
2k
*R16623
220
*R16683
10
R16608
1k
R16893
47k
R16894
47k
R16496
47
R16660
2.2k
R16497
47k
R16498
10k
R16494
2k
R16607
6.65k
R16692
1.5k
R16627
22
R16762
47k
R16690
4.7k
R16633
22k
R16922
2k
R16776
47
R16680
4.7k
R16673 4.7k
R16712
1k
R16901
4.7k
R16657
10k
R16665
33
R16677
2k
R16678
2k
R16694
56k
R16668
2k
R16667
2k
ERJT08J202V
R16923
10k
R16675
4.7k
0
R16766
R16921
2.61k
R16655
10k
R16602
1k
R16895
47k
R16687
27k
R16763
47k
VR16601
5k
1
2
3
*R16898
2.37k
*R16899
2.26k
*R16490
130k
*R16492
150k
*R16491
120k
*R16495
680
VOL
VSET
VFG
16V_F
VSUS
VSUS
5V_F_A
5V_F_B
VSCN_F
Vad+5V
VOH
32V_F
16V_F
2519 24 272321 22 2620
NAND GATE
COMPARATOR
INVERTER
SEPA PROTECT
SHUNT REG
SHUNT REG
5V_F_B
5V_F_A
5V_F_A
16V_F
16V_F
16V_F
VFG
DC/DC CONVERTER
SHUNT REG
INIT-F
COMPARATOR
SEPA PROTECT
CIRCUIT
VAD
SC-BOARD TXNSC1EFUU (3/4)
!
21
22
23
24
25
26
27
28
29
30
18
19
13
12
14
11
15
16
17
Vad+5V
Vad+5V

67
11.27. SC-Board (4/4) Schematic Diagram
+
+
+
+
AA_CML
AA_CLK
AB_VSET23
AA_OC2
AA_OC1
AA_SEL
AA_SIU
AB_HIZ
AA_CSL
AB_VSET23
AB_HIZ
5V_F_B
VAD
VAD
VSCN_F
C16797
50V
0.1u
C16814
50V
560p
C16863
50V
0.1u
C16821
0.1u
50V
C16869
50V
0.1u
C16867
1u
10V
C16862
1u
10V
C16868
1u
10V
C16844
50V
0.1u
C16860
1u
10V
C16866
1u
10V
C16864
0.1u
50V
C16823
5600p
630V
C16843
50V
0.1u
C16858
0.1u
16V
C16857
4700p
50V
C16856
1u
10V
C16861
0.1u
16V
*C16417
250V
250u
C16813
220V
220u
C16822
400V
47u
C16842
160V
100u
D16715
B0ECHR000001
D16875
MA2J11100L
D16792
MA2J11100L
D16719
B0ECKP000047
D16811
MA2J11100L
D16859
B0HCKS000002
D16477
MA2J11100L
D16720
B0ECKP000047
D16711
B0ECHR000001
D16478
B0HCKS000002
D16713
B0ECHR000001
D16860
B0HCKS000002
D16820
MA3X152E0L
D16874
MAZ80510LL
D16821
MAZ83600ML
D16825
MAZ83300ML
D16714
MAZ815000L
D16717
MAZ83300ML
D16712
MAZ815000L
D16824
MAZ83300ML
D16710
MAZ815000L
C0DBZMC00006
IC16801
4
REFERENCE
3
CATHODE
1NC
2ANODE
C0DBZMC00006
IC16787
4
REFERENCE
3
CATHODE
1NC
2ANODE
C0DBZMC00006
IC16789
4
REFERENCE
3
CATHODE
1NC
2ANODE
C0DBZMC00006
IC16793
4
REFERENCE
3
CATHODE
1NC
2ANODE
C0JBAB000715
IC16564
1
NC
2
IN_A
3
GND
5
VCC
4
OUT_Y
C0BBAA000008
IC16792
1
-INPUT
2
GND
3
+INPUT
5
VCC
4
OUTPUT
IC16788
MIP3900MSSCF
1VDD
2CL
3FB
4LS 5
DRAIN
7
SOURCE
8
SOURCE
IC16786
MIP3900MSSCF
1VDD
2CL
3FB
4LS 5
DRAIN
7
SOURCE
8
SOURCE
MIP9L02MBS
IC16784
1SOURCE
2BY
3FB
5VCC 6
GND
7
V01
8
VOUT
10
DRAIN
SC50
1
2
*SC42
1
2
3
4
5
6
7
8
9
*SC41
1
2
3
4
5
6
7
8
9
*SC46
1
2
3
4
5
6
7
8
9
L16851
G0ZZ00002183
L16472
G0ZZ00002183
L16697
G0C102KA0187
L16698
G0C681MA0065
L16699
G0C471KA0167
SCNR_PRO
CHA
SOS7_SC2
15V
5V
ZA16402
K4CD01000011
ZA16422
TUXJ490
ZA16421
TUXJ490
ZA16403
K4CD01000011
ZA16411
TUXJ490
ZA16401
K4CD01000011
ZA16412
TUXJ490
PC16723
B3PBA0000498
12
34
PC16896
B3PBA0000498
12
34
PC16722
B3PBA0000498
12
34
TP45
TP96
TP60
TP41
TP61
TP62
TP84
TP51
TP43
TP83
TP78
TP81
TP59
TP94
TP102
TP101
TP64
TP44
TP79
TP42
TP80
TP95
Q16817
B1CBGD000001
Q16874
B1CBGD000001
Q16876
B1ABCF000231
Q16882
B1ABCF000231
Q16875
B1ABCF000231
Q16810
B1ABCF000231
Q16743
2SD0601A0L
Q16816
2SD0601AQL
Q16815
B1ABCN000007
Q16884
2SD0601A0L
B1ADCN000007
Q16801
Q16667
2SB0709A0L
R16846
82k
R16696
2.2
R16789
10k
R16804
100k
R16756
12k
R16818
33k
R16877
680
R16715
10k
R16745
22k
*R16802
47k
R16772
4.7k
R16773
1k
R16750
12k
R16844
1.24k
R16820
100k
R16799
1k
R16722
22
R16822
82k
R16823
82k
R16824
33k
*R16832
73.2k
R16838
56k
R16795
200k
R16713
100k
R16737
205k
R16833
10k
R16794
200k
R16749
10k
R16841
56k
R16819
100k
R16723
22
*R16801
47k
R16797
22
R16821
100k
R16785
100k
R16786
100k
R16787
33k
R16752
4.7k
R16783
150k
R16755
12k
R16751
150k
R16714
47k
R16774
27k
R16746
47k
R16742
10k
R16815
2.49k
R16847
4.7k
R16733
470k
R16870
68k
R16829
1k
R16825
150k
R16775
4.7k
R16747
10k
R16720
22
R16798
2.2k
R16826
10k
R16860
8.2
R16851
470k
R16753
220k
R16734
4.99k
R16873
2.49k
R16806
1k
R16731
100k
R16735
187k
R16796
56k
R16721
22
R16573
22
R16813
2.2k
R16719
22
R16812
1.8k
R16744
127k
R16736
187k
R16848
4.7k
VR16600
50k
1
2
3
C16460
630V
3300p
C16903
1200p
630V
*D16871
MAZ83300ML
*R16814
22.1k
*R16845
86.6k
*R16919
7.5k
*R16831
61.9k
*VR16841
20k
1
2
3
*
*
*
TPVSCN
VFG
INVERTER
SC46 SC41SC42
TPSC1
VFG
VAD
VSET
VSCN
5V_F_A
5V_F_A
5V_F_B
5V_F_B
TPVSET
TPVAD
TPVSUS
ERROR DET(54)
-46<Vad+Vscn=-25<-4V
ERROR DET(42)
-69<Vad+Vscn=-47<-27V
Vfo
353433
28 3629 3130 32
VSET GEN.
SHUNT REG
VAD GEN.
VSCN GEN.
SHUNT REG
SHUNT REG
VSUS
32V_F
VFG
VSCN_F VSCN_F
VFG
VAD
SHUNT REG
TO
SU-BOARD
(SU41)
TO
SD-BOARD
(SD42)
FOR
FACTORY
USE
TO
SD-BOARD
(SD46)
VAD
COMPARATOR
VHIZ GEN.
VSET23 GEN.
!
SC-BOARD TXNSC1EFUU (4/4)
21
22
23
24
25
26
27
28
29
30
VAD:-195V
VSET:290V
VSUS:209V
VSCN

68
11.28. SS-Board (1/2) Schematic Diagram
+
+
+
+
AA_SOS8
AA_UMH
AA_UML
AA_USL
AA_USH
AA_UML
AA_UMH
AA_USH
AA_SOS8
AA_UEH
AA_USL
C16152
25V
4.7u
C16251
16V
1u
C16153
25V
4.7u
C16092
630V
1000p
C16133
25V
4.7u
C16135
25V
1u
C16154
25V
4.7u
C16023
630V
5600p
C16002
630V
5600p
C16252
25V
1u
C16131
25V
4.7u
C16243
50V
0.01u
C16242
16V
1u
C16041
50V
3900p
C16151
25V
1u
C16071
630V
1000p
C16104
25V
47p
C16105
25V
47p
*C16203
250V
4u
*C16201
250V
4u
*C16202
250V
4u
*C16018
1.5u
250V
*C16012
250V
250u
*C16013
250V
250u
*C16241
10V
100u
*C16271
25V
220u
D16131
B0ECKP000047
D16153
B0ECKP000047
D16151
B0ECKP000047
D16050
B0ECKP000047
D16255
MA2J11100L
D16032
MA2J11100L
D16152
B0ECKP000047
*D16051
B0FBCN000008
*D16052
B0FBCN000008
*D16022
B0FBCN000008
*D16021
B0FBCN000008
*D16002
B0FBCN000005
*D16001
B0FBCN000005
*D16042
MA3DF46000LW
*D16041
MA3DF46000LW
D16253
B3ABB0000210
D16281
MAZ80510LL
IC16251
C0BBBA000024
1A_OUTPUT
2A_-INPUT
3A_+INPUT
4GND 5
B_+INPUT
6
B_-INPUT
7
B_OUTPUT
8
VCC
C0ZBZ0000895
IC16131
1
LO
2
GND
3
VCC
4
NC
5
NC
6
VS
7
VB
8
HO
9
NC
10
NC
11
NC
12
HIN
13
NC
14
LIN
15
GND
16
NC
C0ZBZ0001324
IC16151
1
LO
2
Vcom
3
VCC2
4
NC
5
NC
6
VS
7
VB
8
HO
9
NC
10
NC
11
VCC
12
HIN
13
NC
14
LIN
15
GND
16
NC
C0JBAZ002811
IC16241
1G
1
21A1
32Y4
41A2
52Y3
61A3
72Y2
81A4
92Y1
10 GND 11
2A1
12
1Y4
13
2A2
14
1Y3
15
2A3
16
1Y2
17
2A4
18
1Y1
19
2G
20
VCC
SS11
1
3
4
SS33
1
2
3
4
5
6
7
8
L16271
G0ZZ00002183
*L16004
G0C1R1KA0206
*L16003
G0C1R1KA0206
*L16014
G0C1R1KA0206
*L16013
G0C1R1KA0206
*L16001
G0C1R1KA0206
*L16015
G0C1R1KA0206
VSUS
TP1
TP41
TP17
TP40
TP34
TP2
TP8
TP33
TP10
TP18
TP16
TP14
TP19
TP21
TP7
TP39
TP13
TP22
TP5
TP37
TP6
TP9
TP20
TP38
Q16251
2SD0601A0L
*Q16001
2PG0060000RP
*Q16022
B1JADP000004
*Q16041
B1JAEN000007
*Q16004
2PG0060000RP
*Q16021
B1JADP000004
*Q16002
2PG0060000RP
*Q16051
B1JAEN000007
*Q16023
B1JADP000004
Q16056
B1HFPFA00001
Q16055
B1HFPFA00001
Q16141
B1HFPFA00001
Q16161
B1HFPFA00001
R16241
EXB38V470JV
R16242
EXB38V472JV
R16137
1
R16280
2.2k
R16021
7.5
R16151
100
R16023
7.5
R16183
47k
R16254
6.8k
R16031
82k
R16260
2.2k
R16171
10
R16001
7.5
R16033
56k
R16230
47
R16143
47k
R16173
47k
75
R16154
R16256
1.5k
R16002
7.5
R16161
10
R16152
100
R16051
5.6
R16034
27k
R16131
100
R16041
5.6
R16155
1
75
R16134
R16255
1.2k
R16257
27k
R16252
39k
R16022
7.5
R16182
47k
R16032
82k
R16231
4.7k
R16172
47k
R16251
1.4k
R16163
47k
R16181
10
R16162
47k
R16142
47k
R16258
10k
R16253
39k
R16159
1
R16132
100
R16141
10
R16004
7.5
(GREEN LED)
TPVSUS
VSUS
GND
TPSOS8
-
15V
P5V
GND
UEH
USH
UML
SOS8_SS
USL
UMH
32
F
51 768
A
E
9
B
C
4
D
DRIVER
VSUS Gen.
FET DRIVER
ENERGY
RECOVERY
FET DRIVER
ERROR DET
BUFFER
TO
P-BOARD
(P11)
TO
C2-BOARD
(C23)
SS-BOARD TXNSS1EFUU (1/2)
!
VSUS:209V
1
2
3
4

69
11.29. SS-Board (2/2) and SS2-Board Schematic Diagram
+
+
+
TERM
SIDE
TERM
SIDE
TERM
SIDE
AA_UML
AA_SOS8
AA_UEH
C16286
0.1u
50V
C16287
0.1u
50V
C16285
0.1u
50V
C16280
25V
1u
C16191
25V
4.7u
C16195
25V
4.7u
C16192
25V
0.1u
C16315
1u
10V
C16317
1u
10V
C16318
0.1u
50V
C16319
50V
0.1u
C16316
0.1u
16V
C16331
250V
1u
*C16314
250V
250u
*C16328
220u
160V
*C16193
25V
47u
D16195
B0ECKP000047
D16194
B0ECKP000047
D16101
MA22D3900L
D16192
MA2J11100L
D16280
MA2J11100L
D16316
B0ECKP000047
D16191
B0ECKP000047
D16317
B0ECKP000047
*D16286
MA2J11100L
D16193
B0ECKP000047
D16285
MA3X152D0L
D16315
MAZ81500ML
D16282
MAZ80680ML
C0DBZMC00006
IC16312
4
REFERENCE
3
CATHODE
1NC
2ANODE
IC16304
MIP3900MSSCF
1VDD
2CL
3FB
4LS 5
DRAIN
7
SOURCE
8
SOURCE
*SS61
1
2
3
4
5
6
7
8
9
10
11
12
13
*SS64
1
2
3
4
5
6
7
8
9
10
11
12
13
SS21
1
2
3
4
5
6
7
L16222
G0ZZ00002183
L16103
G0ZZ00002183
L16303
G0C471KA0167
ZA16002
K4CD01000011
ZA16003
K4CD01000011
ZA16001
K4CD01000011
PC16301
B3PBA0000498
12
34
PC16191
B3PBA0000496
1
2
34
5
6
TP25
TP54
TP26
TP36
TP24 TP27
TP31TP29
TP43
TP51
TP30
TP56
TP42
TP28
Q16102
2SK399500L
G
D
S
*Q16101
2SK399500L
G
D
S
Q16280
2SD0601A0L
Q16191
B1HFPFA00001
R16285
62k
R16284
220k
R16290
330k
R16192
10k
R16104
10
R16320
68k
R16193
75
R16332
470k
R16311
33k
R16191
150
R16195
1
R16101
220
R16102
220
R16302
33k
R16110
47k
R16194
7.5
R16109
10
R16310
33k
R16335
1k
R16105
470k
R16196
7.5
R16116
47k
R16289
330k
R16281
10k
R16288
330k
R16309
33k
R16103
10
R16330
1k
R16282
220
*R16307
68k
R16319
2.49k
R16283
47k
R16334
4.7k
*R16318
68k
*R16317
1.6k
SS58
1
2
3
4
5
6
7
8
9
10
11
12
13
SS24
1
2
3
4
5
6
7
TPSS1
TPVe
12 17151311 181610 14
FPC DET
VE GEN.
SHUNT REG.
SS2-BOARD
!
TNPA4802S
ELECTRODE
SUSTAIN
PANEL
SUSTAIN
ELECTRODE
PANEL
PANEL
ELECTRODE
SUSTAIN
SS-BOARD TXNSS1EFUU (2/2)
!
Ve:140V
1
4
3
2

70
12 Printed Circuit Board
12.1. P-Board
ABCDEFGH I
1
2
3
4
5
6
P-BOARD (FOIL SIDE)
ETX2MM747AFF

71
Parts Location
P-BOARD (FOIL SIDE)
IC201 E-3
IC202 E-4
IC251 C-6
IC351 B-3
IC352 C-2
IC353 B-3
IC501 E-2
IC551 D-1
IC601 G-4
IC701 C-2
IC702 C-1
PC201 D-3
PC301 D-2
PC501 D-2
PC502 F-2
PC503 D-2
PC504 F-2
IC
PHOTO COUPLER
Q201 E-5
Q202 E-4
Q203 D-5
Q204 D-4
Q205 D-5
Q206 D-4
Q207 E-4
Q208 E-4
Q354 C-3
Q355 C-2
Q501 F-4
Q502 G-2
Q503 E-2
Q504 F-3
Q505 G-2
Q506 F-2
Q551 C-2
Q557 D-1
Q602 F-4
Q603 F-3
Q605 G-5
Q606 G-5
Q701 C-1
Q702 C-1
Q703 C-1
Q704 D-2
Q705 C-2
TRANSISTOR
TP1 E-4
TP2 E-4
TP3 E-2
TP4 F-2
TP5 H-6
TP6 H-6
TP9 C-4
TEST POINT
VR251 B-5
VR351 B-3
VOLUME
Parts Location
P-BOARD (COMPONENT SIDE)
IC202 E-4
IC251 G-6
IC351 G-3
IC501 D-2
IC551 E-1
IC
Q203 F-5
Q204 F-4
Q205 F-5
Q206 F-4
Q355 G-2
Q551 F-2
Q501 D-4
Q504 D-3
TRANSISTOR
TP1 D-4
TP2 E-4
TP3 D-2
TP4 D-2
TP5 B-5
TP6 B-6
TP9 G-4
TEST POINT
VR251 G-5
VR351 H-3
VOLUME
P

72
ABCDEFGH I
1
2
3
4
5
6
P-BOARD (COMPONENT SIDE)
ETX2MM747AFF

73
12.2. GK, K, S and SS2-Board
ABCDEFGH I
1
2
3
4
5
6
C12
C15
C16
C20
C21
C22
D12
R13
R16
R17
D20
R20
D24
D25
D26
R24
R25
PC01
RM01
R42
R57
K1
CRNO.25
TNPA4871
AB
AC
AD
K1
Q10
Q11
FL00
PbF
SUFFIX. 10
1
RM01
TNPA4871
K
1
CRNO.25
PbF
REVERSEFOR SUFFIX.SEE
S2
SW2500
PbF
ORDERNO.
12
1S
TNPA4873
S2
SW2500
SEE REVERSE
FOR ORDERNO.
1
2
PbF
1S
TNPA4873
GK1
VOL.D
INPUT/OK
MENU
VOL.U
CH.U
CH.D
SW3763
SW3761
SW3762
SW3764
SW3765
SW3759
ZA3701
ZA3702
GK1
TNPA4874
ORDER NO.
12
C3752
C3753
R3760
R3761
R3764
R3772
R3773
R3774
R3775
GK1
R3765
SW3763
SW3761
SW3762
SW3764
SW3765
D3750
R3762
R3771
SW3759
ZA3701
ZA3702
PbF
TNPA4874 1GK
SEE REVERSE FOR ORDER NO.
1
2
SS24
1
SS2MM2 SS2MM1
SS2
TNPA4802
SS58
PbF
7
1
2
6
ORDER NO.
11 3131
SS24
TNPA4802 1SS2
SS58
PbF
7
1
6
2
SEE REVERSE FOR ORDER NO.
113 113
GK-BOARD (COMPONENT SIDE)
TNPA4874S
GK-BOARD (FOIL SIDE)
TNPA4874S
SS2-BOARD (COMPONENT SIDE)
TNPA4802S
SS2-BOARD (FOIL SIDE)
TNPA4802S
K-BOARD (COMPONENT SIDE)
TNPA4871S
K-BOARD (FOIL SIDE)
TNPA4871S
S-BOARD (COMPONENT SIDE)
TNPA4873S
S-BOARD (FOIL SIDE)
TNPA4873S
SS2
GK
SK

74
12.3. A-Board
ABCDEFGH I
1
2
3
4
5
6
IC5740
TP8300
TP8301
TP8302
TP8303
TP8304
TP8305
IC1100
IC1101
IC1102
TP8503
TP8505
IC9004
TP3501
TP3503
TP3504
TP3505
TP3507
TP3508
TP8521
TP8522
TP8524
TP8526
TP8527
TP8528
TP100
TP8529
TP101
TP102
TP103
TP104
TP3518
TP105
TP3519
TP8530
TP8531
TP8532
TP8534
Q2101
TP3521
Q2102
TP3522
TP3523
Q2104
Q2105
TP3526
TP3527
TP3528
IC9802
IC9803
IC9809
TP8548
TP8549
TP8550
TP8551
TP8552
TP8553
TP8554
TP8555
TP5489
JK3701
TP9500
TP8566
IC2107
TP8567
IC2108
TP8568
IC2109
TP8569 TP8570
TP8571
TP8572
TP8573
TP4500
TP4501
TP4502
TP4503
TP4506
Q5603
TP4508
Q5604
TP4512
TP4513
TP4514
Q8300
TP4519
TP4525
IC5401
TP4526
TP4527
TP4528
TP4529
TP4530
TU8300
IC5606
IC5607
IC5608
TP2027
TP2028
IC8502
IC8503
TP8000
TP9196
TP9197
TP5700
TP9198
TP9199
Q9301
Q9302
TP3000
TP3001
Q5684
Q4504
Q4505
TPS0S
TP001
TP002
TP5740
JK3000
JK3001
TP1100
TP1101
TP1102
TP1103
Q2200
Q4528
TP1105
IC4501
TP9000
TP1110
IC4508
TP9006
TP9200
TP9201
TP9202
TP9203
TP9204
TP9010
TP9205
TP9206
TP9207
TP9208
TP9209
TP4001
TP4002
TP4003
TP4004
TP4005
TP4006
TP9210
TP9020
TP9021
TP9022
TP9023
TP9024
TP9025
TP9026
TP9027
TP9028
TP9029
TP9030
TP9031
TP9032
TP9033
TP9034
TP9035
TP9036
TP9037
TP9038
Q8000
Q8001
TP9039
Q8002
Q8003
TP9040
TP9041
TP9042
TP9043
TP4800
TP9044
TP4801
TP2100
TP2101
TP2102
TP2103
TP2104
IC8003
IC8004
D3005
TP9076
TP9077
TP9078
TP9079
IC3001
Q5740
Q5741
TP9080
TP9081
TP9082
A11 A12
Q1100
TP5400
Q1101
Q1102
Q1103
Q1105
Q1106
TP9862
Q1107
Q1108
TP5600
TP5601
Q9002
TP5602
Q9003
A
A
THERMAL PAD
3
4
1
2
13
45
TNPH0786 1A
PbF
1
4
5
8
17
33
49
64
1
1
45
8
1
16
17
32
1
10 11
20
1
10 11
20
1
10
11
20
VR
L
18
9
16
1
3
45
25
48
37
1
13
REVERSE FOR SUFFIX.SEE
LOUT
ROUT
BTL
SDA
IFAGC
VIDEOOUT
VB
BTMONITOR
AFTOUT
+B
IFMONITOR
IFDOUT2
IFDOUT1
SCL
RFAGCMONITOR
1
12
13
24
1
12
13
24
128
29
56
1
4
5
8
+
COMPONENT2 COMPONENT1
V1
11
6
1
15
10
5
1
4
5
8
1
5
8
4
1
4
5
8
1
8
9
16
+
1
26
51
100
76
311
2
C1106
R5506
L2105
C2210
R8139
C8517
R9868
R2100
C9070
CL9850
Q1103
C8048
L2107
C2211
C9703
TP9196
C8130
R2145
R4611
TP3521
C1108
C9997
C5530
R1220
CL9370
C8175
C5652
TP8553
L8302
R9395
C5726
C5709
D9800
Q9003
R4546
TP9207
CL9383
R5671
R8136
C8136
R9874
CL9101
R2106
C9846
C3051
C5700
D4520
C9715
C8190
C5665
R9873
R1190
C9087
R1165
TP8531
TP8524
TP9077
C9962
CL017
C4716
C8155
CL9331
C2150
R2113
C2130
CL9889
CL9837
R9594
R9166
CL032
C4520
C9123
CL9354
C8309
TP8569
R2108
C2111
D5749
C3050
C5715
TP9029
VJ1101
R8141
C8313
C9062
C9036
C8093
S3028
IC1101
C9995
TP9025
TP1101
Q5684
TP3000
C8167
CL9339
R8098
R8069
IC1102
C1130
S3020
C9152
CL9198
R8170
R1213
L8017
R9871
C9882
R9839
FL3048
C8013
CL027
C9713
R1212
CL9359
L8016
C8127
R1195
C2155
R4630
IC2107
TP8529
TP9080
C4554
CL022
C5693
CL9363
CL9356
D5615
C8501
TP104
TP3505
C9028
D5752
C1122
C5749
TP9036
C9167
C9912
C5694
C9303
C8164
R4096
CL9303
R1194
R9077
CL9093
R8061
L5441
D5750
R9397
TP9043
C9544
CL9387
C9135
L3000
CL9336
R8111
R2146
R1189
R9012
R3204
C5729
C9976
C4726
C9151
TP001
R9303
R8131
CL9338
C8107
R2119
FL3043
VJ2102
R9901
CL9588
R1207
R8143
R5058
CL9330
R1199
L4511
R9425
TP3526
TP3523
C8043
TP9032
R9702
C9124
CL9355
R8516
C9854
R9426
C1120
TP5600
CL9044
Q8000
TP9203
C9157
CL9381
CL9328
R4098
R8102
C2133
TP5489
L9701
C9055
C5763
Q4528
TPS0S
C8191
C5667
C8143
R8303
TP4500
R1166
C9076
Q1106
TP9041
C4551
CL9386
C5691
R1180
R4608
C2100
TP8522
R2058
L2108
TP4006
CL9332
CL9011
C5706
CL021
Q4504
C8162
CL9318
TP4529
R2101
R9419
R8066
D8002
TP1110
C9903
C9702
R5641
CL9308
R4610
C5736
R9969
C9986
C8011
C9546
C9140
R5676
L8015
CL9324
C2141
C2110
CL9867
Q5741
TP2100
C9973
R5675
CL9340
C8536
R2129
FL3050
C2131
IC9802
R9401
R9206
C9966
R2206
D4517
C9310
TP9198
C8132
R9093
C8304
L4523
TP105
C9029
CL9840
S3018
TP9034
C9950
C9911
L3200
CL9319
C9889
R2133
TP4506
R8075
TP8505
C1127
C1123
C9991
CL9007
R9142
C9547
C9921
C9914
C9907
CL9376
R8132
C5644
TP4519
C8108
R9078
C2137
C9842
R1237
C9145
R5678
CL9377
Q9302
CL9326CL9311
R2136
TP4513
IC2108
R5782
C9925
L8022
CL9305
R9200
S3031
CL9849CL9847
R9592
R9587
TP1103
C9309
CL9352
TP4527
C9034
C1134
R3202
C5528
R9370
R1241
C4513
R8130
R8126
CL9322
R2147
R2118
R8072
C5747
C4796
TP2102
C4718
C4514
D5486
R8519
C8125
C2153
C9086
R9403
TP3504
R9010
R2203
R1225
CL9362
C9301
TP9197
D8300
CL9301
CL9102
C2149
IC9809
R8060
C1126
C1121
CL9042
C9952
CL024
C9142
CL9375
CL9365
R8331
R4097
C8310
L9900
TP8548
TP8305
TP8301
C9993
C8015
C9915
R5652
R8116
R8101
C9091
R1170
CL9296
R5701
C9977
CL026
R5677
R9106
R5651
CL9342
R10000
C8305
R9080
TP4508
R1174
TP100
L8308
R2057
TP9028
TP1102
C9149
R1205
C9115
C8169
R8512
CL9306
R8099 C8087
CL9845
R9586
C9988
TP9026
R1239
C9917
R1204
VJ1100
CL9350
C8151
C8506
C8091
S3026
CL9078
CL9844
Q1101
TP9078
TP4005
C9543
R1232
R5664
L8012
C8531
CL9300
C9874
L4508
Q2105
IC5740
D5743
Q1100
C8040
R1230
C8154
L8003
C8114
L9903
D5748
TP5602
TP9206
C9158
CL9379
R8119
R8302
R8104
C8301
C4075
TP8552
TP8526
R5679
R5670
C8140
TP8572
FL3044
C9075
C2101
C5690
VJ1102
R5786
R9404
R9999
R4182
L2109
R1222
C8178
C8533
R2120
TP8530
R1217
R5665
D5613
TP4528
R9247
C2104
CL9231
VJ5604
C5707
R5674
IC5608
CL9309
R9249
Q2102
D5573
R2056
TP2104
C9147
CL9368
C9114
R5647
R8129
IC5401
CL9858
R9009
C1132
R8058
IC8003
R9121
TP3001
R8529
C8152
R5795
C9033
CL9848
S3022
C8012
C9169
R1235
C9143
R8165
Q9301
L3002
TP2028
C8126
C2154
TP8566
R4612
TP8528
CL029
C9161
C9923
R1229
R9110
C9112
C5664
C8112
R9079
TP8568
TP103
TP9082
TP9037
TP9022
CL023
C9709
IC1101-A
R5650
VJ5740
C8133
R9094
Q5603
R1164
D3079
C1129
D1101
R2204
C9165
R9119
CL9373
R8152
R8145
C8163
R4094
R9086
C2116
D1102
CL9839
R3203
C9985
R9371
C9545
R5680
C8159
R8127
VJ5701
C8106
TP8571
L9906
IC9803
CL9608
C5534
D4564
TP4800
C2209
C9150
C9905
R5638
R8112
C9855
C8097
R9997
Q5740
R4180
R4176
C5513
R8108
C9841
C2106
R8067
Q1102
C8046
VJ5602
R9189
FL9300
C9163
C8193
C9701
C8161
CL9317
R2144
R8064
TP9210
IC8503
C2147
C2125
C9970
CL9384
C8176
IC8502
TP4502
D2100
C9837
R9210
C9968
TP9204
C9139
C8528
CL9313
R2130
R9408
C5762
C5750
R9113
C5666
C8142
R1191
L4506
R4616
TP8532
R9216
C5753
TP4002
CL9353
X1100
C8147
R1198
FL3049
C9853
D5747
R9598
TP9033
C9949
D5692
R1208
C8156
R1173
CL9838
TP9200
TP9000
C9922
C4518
CL9380
R9107
R8149
L3003
R10001
C8128
C8306
R9081
R9848
R1175
C8016
D5697
CL9378
C8172
C8544
C8527
R9872
R2137
L4525
L8304
C4558
TP1100
CL9366
C8173
C8165
R8704
C8311
S3025
CL9846
C9996
R5505
C9958
C9156
CL9369
R8341
CL9351
R8706
C8312
R9421
C9035
C1133
S3024
C5728
R4179
TP9044
CL019
R1234
R9118
C9136
L3001
CL9337
TP2027
C8124
C2152
R8073
R8070
CL9607
C5727
C5527
C9134
R8517
CL9335
C8138
C9891
R1177
TP9500
R9422
C8099
C8096
C9967
C4557
D4518
R9105
R1201
CL9358
R2134
R9847
L4504
CL9890
R5785
R8077
CL9841
C1125
R9989
TP9021
C2213
TP002
R1210
CL9364
CL9357
TP5700
D5616
R9092
R1183
C2118
TP3518
CL9092
TP8304
D1100
Q1107
C5732
R9967
C4576
C4512
C9706
CL9334
R2121
R9407
C3049
C5708
CL9371
C8177
C8532
TP8554
C5756
R9369
IC4508
R5673
R5666
C9101
R8107
R9225
R8065
R8031
IC3001
C5704
D4513
C8192
R1209
TP8000
R4092
CL9892
D3080
D5742
R5137
R4538
CL9587
R5662
C8146
R2138
R2107
CL9888
TP3522
D5746
TP9076
CL033
C9542
C8183
C8103
R1172
R9250
R5799
Q2104
TP5601
TP9010
Q2200
R8171
C9900
R2375
R8103
L4505
TP8551
C9980
TP9209
C9159
C9100
C8145
CL9320
IC5606
R1192
C2136
R4617
C2103
C1119
TP9081
TP9035
R2205
TP9006
R1226
CL9374
R1200
R5644
R8109
C8502
R9087
R9846
C1128
C1124
L5606
C9168
R1211
CL9171
C9304
R2140
Q8300
R2124
C9468
R8062 S3019
CL9012
R1240
C9904
R5636
R8110
C8104
C9863
TP3508
R9205
R9987
C5735
C9990
C5529
TP4801
C9920
C9910
C9906
CL9341
C8537
R8113
FL3051
CL9887
R9402
TP3503
C8098
C8032
D8000
TP9027
C9918
C9308
C8168
C8346
S3027
D9000
R8059
R9391
TP2103
C8017
R2208
C9924
C9146
C9312
C9307
R8332
C8150
R2141
R4600
IC9004
S3030
CL9079
S3023
R8057
D4574
TP9202
R8573
C9714
C9306
CL9327
R1197
R1176
TP8550
R5702
TP9201
R1236
C9144
C9138
C8383
C9111
R8115
R8100
R1196
TP4512
R1185
L9700
TP102
L8500
L2103
CL030
C2205
FL8300
R1216
R8311
R8304
R8105
C8302
FL3046
R9223
R9217
C2204
CL9382
R9109
CL9329
C8135
C8513
C5420
L9901
C9845
R9215
D4585
TP9030
TP4003
C2206
R1231
R5663
C8530
X8003
L4512
C2108
C1117
R9593
CL031
R8313
R2111
R1167
C2107
C5755
C8025
L2104
R8106
R9097
CL9891
TP8534
R9996
C8047
VJ5603
C5705
CL020
IC5607
Q2101
CL9851
R9998
IC8004
C5725
R1221
C9704
C2146
R4607
C9053
TP8521
Q1108
R9396
TP9042
C8179
R8124
CL9878
C3052
Q8001
R9900
R1215
L8019
C8141
R4099
R2131
C9081
C2122
C5764
R4547
TP9208
TP1105
C9901
C8144
C8137
R2132
TP4501
TP8527
C1118
L8501
TP4001
R8707
L8001
R1171
C2109
D5745
TP5400
C8042
C9961
D4528
C2207
C4521
R5070
R5635
R8315
R2139
R1188
R1168
TP3527
R5790
R8032
L2106
C9164
R1218
C9102
D5614
C9890
R9248
C2105
L3511
TP9079
C5703
C9162
R5672
C9700
C8160
CL9316
CL9307
TP8549
TP9862
VJ5606
R9116
CL9372
CL9361
JS4010
C2148
C9079
C9069
L8301
R2059
R4101
R5669
CL9360
CL9333
R5787
R9211
L2100
C9953
C9550
C9913C9311
C8170
TP9199
CL9304
C8110
R1184
C9080
TP3507
R8056
D5751
C9965
C9166
C9141
R9104
C9302
L8020
C8131
CL9302
R1193
R2103
S3029
TP8300
C9984
R1224
D5485
C8158
CL9323
C2140
C9085
R9207
C9038
C5745
C5533
C9983
R4743
D5693
Q4505
C8157
C8139
R4662
C5418
R2109
R9616
R9011
C9037
C5737
C8031
C9987
C9954
D5698
C9916
R1203
R5646
R8128
TP3528
R8068
C1131
CL9843
C9957
C9155
C5688
R8140
R2142
R9201
C8092
TP8503
D5706
C3000
CL028
C9160
C4719
R1228
L1100
R8166
C8171
TP4530
C8111
FL4005
C9090
TP8567
R4613
TP101
C9994
C9549
R1238
R9111
R1214
C9113
R8134
C8512
C8113
TP4514
C9093
CL9297
Q1105
VJ5605
TP9040
CL9385
R9893
TP4503
C2114
R9405
L8303
C8036
R4742
R2202
C5692
R9894
R1181
TP8555
C2115
R5788
VJ5601
Q8003
D4512
C9902
R2143
C2119
R9417
R8063
C1107
FL9302
D9110
R5667
CL9082
C5754
D4586
TP9031
TP4004
R9902
R8515
C8148
R3199
R8142
C8153
R8312
C8308
R1186
L4507
R9424
R8095
L8506
R4173
Q8002
R4684
VJ3003
CL9315
R9085
C2123
Q9002
TP9039
TP9205
C9716
C8529
CL9314
TP8573
FL3045
R5789
R4570
C5712
C9153
C4519
C9909
R9108
CL9312
C8307
CL9100
R9849
IC2109
C9074
R5783
FL4506
TP5740
C9908
C5696
C9305
C5663
CL9325
CL9310
R9089
C8109
Q5604
FL3047
R2061
VJ5600
C9956
C9148
C8174
R5648
TP4526
R1145
S3032
C8086
IC1100
S3021
C4774
TP9024
C9154
CL9367
C8166
R8674
C8085
C8083
VJ5607
C4577
C2208
R1233
R1223
R1219
R8125
CL9321
R1169
R5796
TP3501
R9202
R9975
R5700
TP2101
IC4501
R9128
CL9388
R9301
L8014
VJ5700
C8105
TP8570
C2132
R5797
TP9020
C2212
R4095
R9091
R1182
C2117
R9410
C1135
TP8303
S3017
TP9038
TP9023
CL025
C4517
C5695
R1202
C8134
TP4525
R9088
R4640
TP3519
C9040
R8833
CL9842
TP8302
JK3000
JK3001
JK3701
A11
A12
TU8300
D3005
C9551
C9552
C9553
JK8302
A22
JK4500JK4501
JK4502
R8315
C8346
A-BOARD (FOIL SIDE) TXN/A1ENUUS

75
Parts Location
A-BOARD (FOIL SIDE)
Q1100 G-4
Q1101 G-4
Q1102 G-4
Q1103 G-4
Q1105 G-4
Q1106 G-4
Q1107 G-5
Q1108 G-4
Q2101 G-5
Q2102 G-5
Q2104 F-5
Q2105 G-5
Q2200 G-2
Q4504 E-2
Q4505 E-2
Q4528 D-2
Q5603 C-3
Q5604 C-3
Q5684 G-5
Q5740 B-4
Q5741 B-4
Q8000 D-2
Q8001 D-2
Q8002 C-2
Q8003 B-2
Q8300 G-4
Q9002 F-5
Q9003 F-5
Q9301 D-6
Q9302 E-6
TRANSISTOR
IC1100 F-4
IC1101 F-3
IC1102 G-5
IC2107 G-2
IC2108 F-6
IC2109 G-5
IC3001 G-3
IC4501 E-2
IC4508 D-2
IC5401 B-5
IC5606 F-5
IC5607 C-4
IC5608 C-4
IC5740 B-4
IC8003 B-3
IC8004 B-3
IC8502 C-2
IC8503 D-3
IC9004 F-6
IC9802 B-6
IC9803 B-6
IC9809 B-6
ICIC
TP001 G-4
TP002 G-4
TP100 H-2
TP101 H-2
TP102 H-2
TP103 H-2
TP104 H-2
TP105 H-2
TP1100 F-3
TP1101 F-3
TP1102 F-3
TP1103 F-3
TP1105 F-3
TP1110 G-5
TP2027 B-3
TP2028 B-4
TP2100 H-6
TP2101 H-6
TP2102 H-5
TP2103 H-5
TP2104 G-5
TP3000 G-2
TP3001 G-2
TP3501 C-6
TP3503 C-6
TP3504 G-3
TP3505 G-3
TP3507 C-6
TP3508 G-3
TP3518 B-5
TP3519 B-6
TP3521 C-6
TP3522 C-6
TP3523 C-6
TP3526 D-6
TP3527 C-6
TP3528 C-6
TP4001 G-6
TP4002 G-6
TP4003 H-6
TP4004 G-6
TP4005 G-6
TP4006 H-6
TEST POINT
Parts Location
A-BOARD (COMPONENT SIDE)
IC4500 E-2
IC4503 F-2
IC4800 B-2
IC5480 E-3
IC8001 G-2
IC8002 G-3
IC8005 H-3
IC8007 H-2
IC8008 F-1
IC8009 G-2
IC8010 G-3
IC9001 E-6
IC9003 C-5
IC9300 F-5
IC9303 D-5
IC9500 G-5
IC9805 H-4
IC9806 D-5
IC9807 G-5
IC9808 H-6
IC9902 F-5
IC9903 F-4
IC
Q2201 C-2
Q4100 H-3
Q4514 B-2
Q4515 C-2
Q4516 C-2
Q4517 C-3
Q4529 F-3
Q4530 F-3
Q4531 F-3
Q5522 C-3
Q5685 F-4
Q5686 H-4
Q5687 G-4
Q5700 G-4
Q9000 D-6
Q9001 D-6
Q9004 D-6
Q9807 H-6
TP1104 B-5
TP3500 H-5
TP3502 H-5
TP3506 H-5
TP3520 H-5
TP9311 G-4
TP9312 G-4
TRANSISTOR TEST POINT
TP4500 E-3
TP4501 E-2
TP4502 E-2
TP4503 D-2
TP4506 E-2
TP4508 E-2
TP4512 G-2
TP4513 D-1
TP4514 D-1
TP4519 G-2
TP4525 E-2
TP4526 E-2
TP4527 E-2
TP4528 D-2
TP4529 D-2
TP4530 G-5
TP4800 H-2
TP4801 H-2
TP5400 B-5
TP5489 D-3
TP5600 C-3
TP5601 C-3
TP5602 B-3
TP5700 C-3
TP5740 B-3
TP8000 D-3
TP8300 G-3
TP8301 G-3
TP8302 G-4
TP8303 H-4
TP8304 G-4
TP8305 G-4
TP8503 E-4
TP8505 E-4
TP8521 F-4
TP8522 F-4
TP8524 E-4
TP8526 F-4
TP8527 E-4
TP8528 E-4
TP8529 E-4
TP8530 E-4
TP8531 F-4
TP8532 F-4
TP8534 F-4
TP8548 B-1
TP8549 B-1
TP8550 B-2
TP8551 B-2
TP8552 B-2
TP8553 C-1
TP8554 C-1
TP8555 C-1
TP8566 F-4
TP8567 F-4
TP8568 D-2
TP8569 D-3
TP8570 D-3
TP8571 D-3
TP8572 E-4
TP8573 E-4
TP9000 E-5
TP9006 C-5
TP9010 E-6
TP9020 C-3
TP9021 C-3
TP9022 D-4
TP9023 D-3
TP9024 D-4
TP9025 D-3
TP9026 C-3
TP9027 C-3
TP9028 D-4
TP9029 D-3
TP9030 D-4
TP9031 D-3
TP9032 D-3
TP9033 D-3
TP9034 D-4
TP9035 D-3
TP9036 D-4
TP9037 D-4
TP9038 D-4
TP9039 D-4
TP9040 D-3
TP9041 D-4
TP9042 D-4
TP9043 D-4
TP9044 D-3
TP9076 D-4
TP9077 D-4
TP9078 E-4
TP9079 F-5
TP9080 F-6
TP9081 E-6
TP9082 F-5
TP9196 C-5
TP9197 B-4
TP9198 D-5
TP9199 D-5
TP9200 F-5
TP9201 F-6
TP9202 F-6
TP9203 F-6
TP9204 E-6
TP9205 B-4
TP9206 B-4
TP9207 C-4
TP9208 F-6
TP9209 E-6
TP9210 E-5
TP9500 C-5
TP9862 C-5
TPSOS G-3
A

76
ABCDEFGH I
1
2
3
4
5
6
A30
A31
A32
A33
IC9001
IC9003
TP3500
TP3502
Q9807
TP3506
JK8302
TP3520
A1
IC9805
IC9806
IC9807
IC9808
A6
A9
IC4800
JK3701
TP9311
TP9312
TU8300
JK4500
JK4501
JK4502
Q4100
Q5685
Q5686
Q5687
IC9300
IC5480
IC9303
Q4514
Q4515 Q4516
Q4517
IC9500
JK3000
JK3001
TP1104
Q2201
Q4529
IC4500
IC4503
Q4530
Q4531
IC9902
IC9903
Q5700
Q5522
IC8001
IC8002
IC8005
IC8007
IC8008
IC8009
D3005
IC8010
A11
A12
A17
A18
A19
A21
A22
Q9000
Q9001
A25
Q9004
1
34
5
TNPH0786 1A
AP
AN
AM
AL
AK
AJ
AH
AG
AF
AE
AD
AC
AB
nil
PbF
112
1
68
1
68
1
35
1
45
8
1
26
51
76
100
8
1
9
10
1
8
11
10
1
20
11 10
20
1
11
10
20
1
1
34
51
15
14
1
45
8
SUFFIX.
V
LR
1
A
LOUT
BTL
SDA
IFAGC
VIDEOOUT
VB
AFTOUT
+B
IFMONITOR
IFDOUT1
IFDOUT2
BTMONITOR
SCL ROUT
RFAGCMONITOR
19 119 1
19 1
+
A
1
1
15
28
14
1
24
25
48
1
26
51
76 100
COMPONENT2
COMPONENT1
V1
11
6
1
10
5
15
1
45
8
1
41
61 80
21
1
A
+
+
+
+
A
1
1
A
10
1
5
6
1
4
5
7
13
45
1
4
5
8
13
2
1
1
2
19
20
1
11
1
2
19
20
40
39
1
2
B30
B1
A1
A30
113
D5744
A30
A31A32 A33
L5442
L8323
L8324
D3048
C8081
L8325
C8082
L8326
L8327
C8084
L8328
L8329
C8088C8089
D3051
C3075
C3076
D3052
C3077
L8330
C3078
CL9080
C3079
L3512
R5188
IC9001
S3033
IC9003
R3057
C8094
C3080
R3058
S3034
CL9859
C8095
C3081
S3035
R3059
C3082
S3036
S3037
R9203
C3083
TP3500
C3084
C3085
C9039
TP3502
Q9807
D3063
R9208
X9900
D3064
R9209
D3065
TP3506
R3062
D3066
CL9863
D3067
R9400
D3068
R8079
D3069
C9041
CL9866
C9042
R4006
R3066
R3067
C9044
R3068
C9045
R9406
C9046
R9212
R9213
C9047
C9048
D3070
R9409
D3071
C9049
R8082
D3072
R8083
D3073
R8084
R8085
R8086
R3072
R8087
R3073
R9604
R8088
R3074
C9050
R9411
R8089
C9051
R3075
CL9876
R9412
C9052
CL9877
R9413
C9823
R9608
R9414
R9415
C9825
CL9879
R9221
R9609
JK8302
R9416
R9222
C9057
TP3520
R8090
R9418
C9058
R8091
R9226
R8092
R9227
R8093
R9228
C4624
R9610
R9229
R9611
R5791
C4625
R3081
R8096
R5792
R3082
R5793
R8097
D3087
R3083
R5794
R9420
R3084
D3088
D3089
R3085
R4601
C9061
C9832
R4602
R3086
R4603
R9423
C9063
R3087
R9618
R4604
R3088
C9064
IC9805
R4605
A1
R3089
C9065
C9066
IC9806
R4606
IC9807
C9067
C2113
IC9808
D3090
C9068
R9234
R9235
R4609
A6
R9236
D3093
R9237
R3090
D3094
R9238
R9239
A9
D3095 D3097
C9840
R4228
C9071
R3095
D3099
R4229
C9072
R3096
C9073
R3097
C9844
R9240
R4614
IC4800
R3098
C4830
R4615
R9241
R3099
R9242
C9077
R9243
R4618
C9078
C2124
R4230
FL3035
R4231
R9245
C2126
R4232
R9246
FL3036
C2127
R4233
L4500
C2128
FL3038
C2129
L4501
L4502
R2102
R4236
R4237
L4503
R4621
JK3701
C9469
C9082
R4622
C9083
R4623
L9904
C9084
R4624
R4625
C9856
R4626
R4627
C9858
C9088
C2134
R4628
C9471
C9859
C9089
TP9311
C2135
TP9312
C4076
C2138
C4078
C2139
R4821
R2114
IC9903-A
R4633
C9094
R4634
FL3052
C2142
FL3053
C2143
R9070
FL3054
C2144
FL3055
R9071
C9869
C2145
R9072
FL3056
R9073
L4521
L4522
C8100
L4524
PA5601
C8101
R2125
R4641
X8002
C8102
R2126
R4642
C9872
R2127
X8004
R2128
FL4000
X8005
C2151
X8006
FL4003
C2156
R9083
FL4007
R9084
FL4008
FL4009
CL9103
CL9104
C8115
R4079
C8116
C8117
C8118
C8119
R4081
R9095
R9096
C8120
R9098
C8121
R5601
R9099
C8122
FL9803
C8123
R4089
FL9805
FL9806
C9899
C8129
R4090
TU8300
R4091
JS3051 JS3052
R4093
JS3054
R8300
VJ3000
JK4500
R8301
VJ3001
R4675
JK4501
JK4502
VJ3002
C3702
R8114
D8500
R3100
C3704
R3101R3102
R8117
R3103
R8118
R3104
R3105
R3107 R8120
L5700
C8149
R8121
R8122
R8123
JS4011
R8702
R9897
R3113
JS4013
R9898
R3114
R9899
R3115
R3116
R3117
JS4017
JS4018
R3118
R3119
JS4019
R4695
L8013
L8018
R3120
JS4020
L3004
R8135
L3005
R3121
CL9921
JS4022
R3122
R8137 R8138
R8520
CL9154
X9000
R3125
CL9926
R3126
D3707
R3127
D3708
R3128
R5069
L8021
R3129
R8336
C3157
R8337
R8144
C9300
C3158
R8338
CL9161
R8339
R8146
D3712
R8147
D3713
R8148
D3714
D3715
JS4036
R8533
JS4037
R8534
R8340
JS4038
R3716
R8537
R3717
Q4100
R8150
R8538
R8539
R8151
R8153
R8154
C9313
C8180
C9314
C5689
C9315
C8181
R8541
Q5685
C9316
Q5686
C8182
C9317
R8543
Q5687
C8184
C8185
S3701
C8186
S3702
C8187
S3703
C8188
R5668
R9100
C8189
L5741
R9101
R9102
R9103
R8164
C4500
C4501
R8167
C5697C5698
R8168
C8384
C5699
R8169
C8385
R8552
VJ9012
R8553
D5484
R8554
R9300
R8555
R8556
R8557
R8558
C4701
C4702
C4703
IC5480
R9114
C4704
IC9300
R9115
C4705
C8392
R4102
R9117
IC9303
C8393
C8394
R5681
C8395
R5682
C8396
C8397
R1227
C8398
Q4514
L9001
C8399
Q4515
L9002
Q4516
Q4517
CL003
IC9500
R9120
C4711
C4712
R9122
C4713
C4714
R9124
C9535
C4715
C9536
C9537
C4717
C9538
R3174
D4500
JK3000
C9539
R9129
JK3001
D4501
D4503
CL9591
D4505
C4529
C9926
R8576
D4507
C9540
R9130
TP1104
R4504
C4721
Q4529
R8579
C9541
Q2201
D4509
R4505
C4722
C4723
R3568
C4724
C4530
IC4500
R3569
C4725
C4532
IC4503
C4533
C4727
C9548
Q4530
R8580
C4534
C4728
Q4531
D4511
C4535
IC9902
IC9903
R3570
R3571
R3189
D4515
D4516
R3190
R9145
R4131
R3191
R4132
R3192R3193
R3194
D4521
R9149
D4523
C4548
R3198
C4549
L9802
R9150
C4741
R9151
C4742
R9152
C4743
R9153
C4744
R9154
C4745
R9155
C4746
C4552
C4553
C4555
C4556
R2207
IC9902-A
R2209
C4751
C4752
C4753
C4754
R2210
R9164
C4755
R9165
C9960
D4543 D4544
R4734
R4540
D4545
D4546
D4547
D4548
C9969
C5701
C4761
D4549
C5702
C4762
C4763
Q5700
FL9301
D4550
C4574
C5514
C5515
C9971 C9972
C5516
CL9003
C4578
CL9004
C4579
CL9008
C5710 C5711
C4771
C3001
C3002
C4772
C5713
C4773
C3003
C5714
C3004
C4580
C8400
C4775
R9185
C4581
C3005
C8401
C5521
C4776
C5716
C3006
R9186
C8402
C5522
C4582
C4777
C5717
C3007
R9187
C8403
C4583
C5718
C4778
R4174
R9188
C3008
C8404
C4584
C9981 C4779
R4175
C3009
C4585
C5719
C9982
Q5522
R4177
R4178
CL266
R5503
R9578
C5720
R5504
C3010
D8001
C9989
C5721
C3011
R9385
C5722
C3012
C5723
R4567
C3013
C5724
C3014
R9194
R9965
R4181
C5531
C3015
C5532
R9966
C3016
R4183
R9197
C3017
R4184
R9968
C3018
R4185
C3019
C5535
R4186
C9992
C5536
R4187
D4573
R4188
R4189
IC8001
D4575
IC8002
D4576
D4577
D4578
C5730
R9970
R9394
IC8005
C5731
D4579
C3022
IC8007
C5733
C3023
C5734
IC8008
IC8009
C4795
C3026
R9977
C3027
C4797
D4580
C4798
C3028
D4581
D5521
C3029
CL9031
D3005
D4582
D5522
D4583
IC8010
D4584
C3030
C3031
C3032
R4587
C3033
R9983
L5600
R4588
C3034
L5601
R4589
C3035
R5529
L5602
C5746
C3036
L5603
C3037
L5604
C5748
R9988
C3038
L5605
C3039
R8026 R8027
CL9043
R3208
R5530
R3209
A11
CL9045
R4592
A12
R4593
CL9048
D2659
R5535
C3042
R4596
R5536
R5537
R4597
A17
C3043
R4598
R5538
A18
C3044
A19
C3045
R3211
R4599
R5539
C3046
R3212
C5757
C3047
C5758
C3048
D2660
C5759
CL2100
R5540
A21
CL2101
R5541
A22
R5542
R5543
C5760
Q9000
R5544
A25
Q9001
R5545
Q9004
D5741
C3056
A-BOARD (COMPONENT SIDE) TXN/A1ENUUS

77
12.4. C1-Board
ABCDEFGH I
1
2
3
4
5
6
C104
C105
C106
C107
C108
IC101
C109
C110
C111
C112
C113
C114
C115
C116
C117
C118
C119
C120
C121
C122
C123
C124
C125
FL101
FL102
ZA101
ZA102
ZA103
ZA104
C141
C142 R101
R102
R103
R104
R105
R106
R107
R108
R109
R110
R111
R112
R113
R114
R115
R116
R117
R118
R119
R120 R121
R122
R123
R124
R125
R126
R127
R128
R129
R130 R131
R132
R133
R134
R135
R136
R137
R138
R139
R140
R141
R142
R143
R144
R145
R146
R147
R148
R149
R150
CB1
CB2 CB3
CB4 CB5 CB6 CB7
CB8
C10
C11
C14
C101
C102
C103
CR NO.17
TNPA4762 C1
1
PbF
1
1011
20
155
155 155 155
ORDER NO.
1
20
155
1
55 1 55 155 155
1
55 155 1
55
1
55 155
1
55 1
55
1
68
1
20
1
68
12
12
TNPA4762 1C
1
3
PbF
SEE REVERSE FOR ORDER NO.
C1-BOARD (COMPONENT SIDE)
TXNC11EFUU
C1-BOARD (FOIL SIDE)
TXNC11EFUU
Parts Location
C1-BOARD
IC17101 G-2
ICIC
C1

78
12.5. C2-Board
ABCDEFGH I
1
2
3
4
5
6
C20
C21
C23
C25
C27
R291
R292
IC211
CB10
CB11
CB12 CB13 CB14 CB15
C201
C202
C203
C204
C205
C206
C207
C208
C209
IC201
IC202
CB9
C210C211
C212
C213C214
C215
C216C217
C218
C219C220
C221
C222C223
C224
FL202
ZA201
ZA202
ZA203
ZA204
C241
C242
C274 C275
C276
R201
R202
R203
R204
R205
R206
R207
R208
R210
R211
R212
R213
R214
R215
R216
R217
R218
R219 R220
R221
R222
R223
R224 R225
R226
R227
R228
R229
R230
R231
R232
R233
R234
R235
R236
R237
R238
R239
R240
R241
R242
R243
R244
R245
R247
R260
TNPA4763 C21
CR NO.17
PbF
1
20
1
68
155
1
8
14
14
155 155
1
68
ORDER NO.
15 5
1
3
46
155 155 155 155 155 155
155 155
1
10 11
20
1
10
11
20
15 5 155
1
20
3
TNPA4763 1
21
C2
PbF
SEE REVERSE FOR ORDER NO.
C2-BOARD (COMPONENT SIDE)
TXNC21EFUU
C2-BOARD (FOIL SIDE)
TXNC21EFUU
Parts Location
C2-BOARD
IC17201 C-2
IC17202 F-2
IC17211 B-2
ICIC
C2

79
12.6. SC-Board
ABCDEFGH I
1
2
3
4
5
6
SC41
SC42
TP90 TP91 TP92
SC46
TP93
TP94
TP95
TP96
TP97
TP98
L697
SC50
L698
L699
C563
TP101
TP102
TP103 TP104
C592
IC784
IC786
IC788
C791
C795
C796
R713
VR841
R731
ZA421 ZA422 ZA411
ZA412
VR600
VR601
C412
C413
C414
C415
C416
C417
R774
C418
C419
C806
C813
C822
C631
C632
C633
C440
C634
Q401
C635
Q402Q403Q404
Q601
D401D402
C450
C842
C460
Q421Q422
Q423
Q424 D421
Q621
D422
Q622Q623
D621
D622D623
Q441Q442Q443 D441
Q451 Q452 Q453
D641
D642
D643
C691
TP1
TP2
TP4
TP5
TP6
TP7
TP8
Q660
TP9
D461
Q661
D462
D463
L401L402
L403
L404L405
L406
L411
L412
SC2
L413
L414
L415
D481 D482
L416
D483
TP10
TP11
TP14
TP15
TP16
TP17
TP18
TP19
TP20
TP21
TP22
TP23
TP24
TP25
TP26
TP28
TP29
TP30
TP31
TP32
TP33
TP34
TP35
TP36
TP37
TP38
TP39
TP40
TP41
TP42
C503
TP43
TP44
R860
TP45
TP51
TP52
C900
TP59
C901
C902
C903
TP60
L851
TP61
TP62
C523
TP63
TP64
IC791
TP65
TP67
L472
C721
R696
TP70
TP78
TP79
TP80
TP81
TP83
TP84
TP88
TP89
3
12
CRNo.16
1SC
TNPA4844
PbF
1
2
8
91
2
8
9
1
2
8
91
2
5
6
10
1
85
41
8
5
41
SEE REVERSE FOR ORDER NO.
G
C
EG
C
E
G
C
E
G
C
E
G
D
S
AA
K
AA
K
G
C
E
G
C
E
G
C
E
G
C
E
AA
K
G
C
E
AA
K
G
C
E
G
C
E
A
A
K
A
A
K
A
A
K
C
GE
C
GE
C
GE
AA
K
G
C
EG
C
EG
C
E
A
A
K
AA
K
AA
K
G
D
S
AA
K
G
C
E
A
A
K
AA
K
1
3
AA
K
AA
K
AA
K
1
12
SC-BOARD (FOIL SIDE)
TXNSC1EFUU

80
Parts Location
SC-BOARD (FOIL SIDE)
IC16784 H-4
IC16786 I-3
IC16788 H-3
IC16791 I-2
Q16401 C-4
Q16402 C-4
Q16403 C-4
Q16404 B-4
Q16421 E-3
Q16422 E-3
Q16423 E-3
Q16424 D-3
Q16441 D-1
Q16442 C-1
Q16443 C-1
Q16451 E-2
Q16452 F-2
Q16453 F-2
Q16601 G-3
Q16621 D-4
Q16622 C-4
Q16623 C-4
Q16660 F-4
Q16661 F-4
IC
TRANSISTOR
TP1 A-2
TP2 A-2
TP4 A-2
TP5 A-2
TP6 H-2
TP7 G-1
TP8 H-2
TP9 G-2
TP10 H-1
TP11 H-2
TP14 H-1
TP15 G-1
TP16 G-1
TP17 G-2
TP18 G-1
TP19 G-2
TP20 G-1
TP21 G-1
TP22 G-2
TP23 G-1
TP24 H-2
TP25 G-2
TP26 H-2
TP28 F-5
TP29 H-3
TP30 H-2
TP31 H-3
TP32 I-3
TP33 E-2
TP34 H-4
TP35 F-5
TP36 G-2
TP37 G-1
TP38 G-2
TP39 H-1
TP40 H-2
TEST POINT
VOLUME
Parts Location
SC-BOARD (COMPONENT SIDE)
IC16464 F-3
IC16465 F-2
IC16471 A-5
IC16490 A-5
IC16491 A-5
IC16501 G-3
IC16521 E-2
IC16561 B-2
IC16562 B-2
IC16563 B-1
IC16564 C-5
IC16581 G-1
IC16661 D-4
IC16691 E-4
IC16692 C-4
IC16724 D-5
IC16725 C-5
IC16771 F-3
IC16773 C-4
IC16784 A-4
IC16786 A-3
IC16787 B-2
IC16788 B-3
IC16789 C-2
IC16791 A-2
IC16792 C-4
IC16793 C-4
IC16801 B-4
IC16920 C-4
IC
PC16461 F-3
PC16480 A-5
PC16601 A-4
PC16603 A-4
PC16684 A-4
PC16722 B-2
PC16723 A-3
PC16896 A-4
Q16401 G-4
Q16402 G-4
Q16403 H-4
Q16404 H-4
Q16421 E-3
Q16422 E-3
Q16423 E-3
Q16424 F-3
Q16441 F-1
Q16442 G-1
Q16443 G-1
Q16451 E-1
Q16452 E-1
Q16453 D-1
Q16471 B-5
Q16490 A-5
Q16501 G-3
Q16502 G-3
Q16521 E-3
Q16522 E-2
Q16531 G-2
Q16532 H-2
Q16551 E-2
Q16552 E-2
Q16601 C-3
Q16602 B-4
Q16603 C-3
Q16604 C-4
PHOTO COUPLER
TRANSISTOR
TP3 B-2
TP46 B-2
TP66 A-4
TP68 A-4
TP82 B-2
TPSC1 B-5
TPSOS6 B-2
TPSOS7 B-2
TPVAD B-2
TPVSCN A-3
TPVSET C-2
TPVSUS B-3
TEST POINT
VR16600 A-4
VR16601 C-4
VR16841 B-2
VOLUME
TP41 E-5
TP42 F-5
TP43 F-5
TP44 F-5
TP45 E-5
TP51 G-5
TP52 G-1
TP59 G-5
TP60 G-5
TP61 G-5
TP62 G-5
TP63 G-5
TP64 G-3
TP65 I-4
TP67 I-5
TP70 G-1
TP78 G-5
TP79 G-5
TP80 G-5
TP81 G-5
TP83 H-4
TP84 H-4
TP88 H-1
TP89 H-1
TP90 B-2
TP91 B-2
TP92 F-2
TP93 G-2
TP94 H-2
TP95 I-3
TP96 C-5
TP97 H-2
TP98 H-2
TP101 I-4
TP102 I-4
TP103 C-4
TP104 C-4
VR16600 I-4
VR16601 G-4
VR16841 H-2
Q16606 C-4
Q16607 B-4
Q16608 D-4
Q16621 F-4
Q16622 G-4
Q16623 G-4
Q16624 C-4
Q16645 E-4
Q16646 E-4
Q16647 E-4
Q16649 E-4
Q16660 D-4
Q16661 D-4
Q16662 C-4
Q16663 C-4
Q16667 C-2
Q16668 D-4
Q16670 D-4
Q16671 D-4
Q16675 D-4
Q16676 D-4
Q16677 D-4
Q16678 C-4
Q16701 B-4
Q16702 C-4
Q16743 B-5
Q16762 G-4
Q16801 B-4
Q16810 C-4
Q16815 B-2
Q16816 A-4
Q16817 B-3
Q16818 C-4
Q16874 B-2
Q16875 C-2
Q16876 A-2
Q16882 B-3
Q16884 C-3
Q16920 C-4
SC

81
ABCDEFGH I
1
2
3
4
5
6
Q701
SC41
Q702
SC42
D503
SC46
D701
D702
L697
SC50
L698
L699
C753
C754
Q521
C755
C562
Q522
C756
C563
C564
C565
D901
C566
D902
D710
C568
IC561
D711
IC562
D712
IC563
D713
D714
IC564
D715
D522
D523
D717
D524
D719
Q531
Q532
Q920
D720
D721
D723
C771
D725
C772
C773
D534
C581
C582
D536
C583
D920
IC771
D921
IC773
IC581
R501
R502
R503
Q743
R504
R505
Q551
C592
Q552
R506
C593
R507
R509
IC784
IC786
IC787
IC788
C791
IC789
R511
R512
R513
R707
R514
C795 C796
R516
R517
C797
R518
R900
R519
R901
R904
R711
R712
R713
R714
R715
R521
R522
Q762
R523
R717
R719
R720
R721
R722
R723
R531
R919
D765
VR841
R532
R533
R534
R536
R538
R920
R539
R921
R922
R923
R731
R926
R733
R927
R734
R540
R735
ZA421
R542
R736
ZA422
R737
R543
D583
R544
R742
R744
R551
R745
ZA411
R552
ZA412
R746
R553
R747
R749
R750
D791
R751
R752
D792
R753
D793
R754
D794
R561
R755
R562
R756
R563
VR600
R564
R565
VR601
R566
R567
R568
C401
C402
C403
C404
R761
R762
R763
R570
R765
R766
R573
R769
C602
C603
C604
R579
C412
C413
C414
C608
C415
C416
R772
C417
R773
IC490
R774
C418
R775
C419
IC491
R582
R776
R583
R777
R584
R585
R586
C806
R587
R588
C421
IC801
C422
C423
C424
IC691
IC692
R783
R590
R785
R591
C811
R592
R786
R787
C813
R593
C814
R789
R791
R794
C821
R795
ZA401
C822
R796
ZA402
ZA403
C823
R797
R798
C631
PC601
R799
C632
C633
PC603
C827
C440
C634
C441
Q401
C635
C442
Q402
C443
Q403 Q404
Q601
D401
C641
Q602
D402
C642
Q603
C643
C450
Q604
C451
C645
C452
Q606
C646
Q607
C453
D407
C647
Q608
Q801
D602
C842
C843
D604
C844
D605
D411
D606
D607
C460
D608
Q421
C461
Q422 Q423 Q424
D610
Q810
IC464
D615
D421
IC465
C855
Q621
C661
Q815
C856
Q816
D616
D422
C662
Q622
C857
Q623
C663
Q817
D618
C858
Q624
C664
Q818
D619
C471
C665
C472
C666
C668
D811
IC661
C860
D621
IC471
C861
D622
C862
D623
C863
D624
C864
D625
C866
PC896
C867
C868
C869
C481
Q441
C675
Q442
C676
Q443
D820
D821
D824
D825
D441
R401
R402
R403
R404
C684
C490
C491
Q451
PC461
Q645
C685
Q452
Q646
Q453
Q647
Q649
D641 D642
R602
D643
R410
R604
R605
D451
R411
D645
C691
R606
D646
C692
R607
D647
R608
R414
D648
R609
R415
D649
R416
R801
R802
TP3
R804
R610
D650
R611
IC521
C891
R806
R612
D652
R613
D653
R614
Q660
D654
R615
D461
R421
Q661
R422
D462
Q662
D463
R423
R617
Q663
R424
PC480
D465
Q471
D466
Q667
Q668
R812
R813
R814
IC724
L401
R815
IC725
R621
L402
D662
R622
L403
R623
D663
L404
Q670
D664
R818
L405
R819
Q671
D859
L406
R627
D473
D667
R628
IC920
PC684
D474
PC685
Q675
D475
D669
Q676
D476
Q677
D477
D478
D860
R820
Q678
R821
R822
R823
D670
R824
R825
L411
D671
R631
D865
L412
SC2
D672
R826
L413
D673
R633
Q874
D480
R634
L414
D674
R828
Q875
L415
D481
R441
R829
Q876
D482
L416
R442
D483
R443
D677
Q490
D678
D679
D871
R831
R832
R833
D874
D875
Q882
R837
Q884
D490
R838
R451
D491
R452
D492
R646
PC722
R453
D493
PC723
R648
R649
R841
R844
R650
R651
R845
R846
R652
R847
R653
R848
R654
R655
R656
R657
R658
R465
R466
R467
R468
R851
R660
R661
R662
R663
R664
R665
R471
R666
R472
R473
R667
R474
R668
C501
R475
C502
R476
C503
C504
R478
R860
C505
R479
TP46
IC501
R673
R674
R480
R675
R869
R677
R678
R679
C707
C708
R870
R873
C900
R680
R681
C901
C902
R682
R877
C903
R683
R490
R684
R685
R491
R686
R492
R687
R493
R688
R494
C521
L851
R495
C522
R496
C523
R497
C524
R498
R880
IC791
C525
IC792
TP66
C527
IC793
R690
TP68
R691
L472
R692
SC20
R694
R695
C721
R696
C723
C724
TPSOS6
R699
C725
TPSOS7
C533
C535
R891
C536
R892
R893
R894
R895
R896
R897
R898
R899
Q501
TP82
Q502
H.V. DANGERH.V. DANGER
DIP
TPSC1
H.V. DANGER
CRNo.16
SC
1
TNPA4844
H.V. DANGER
42’’
54’’
54’’
42’’
TPVSET
SCMM3
TPVAD
SCMM2
TPVSUS
Discharge
TPVSCN
PbF
1
28
9
12
1
10
11
20
1
10
11
20
17
8
14
13
4
5
12
3
4
1
28
9
2
34
1
1
4
5
3
1
4
5
8
1
2
3
4
1
5
610
14
58
1
4
5
8
1
23
4
ORDER NO.
1
3
4
5
C
G
E
C
GE
C
GE
C
G
E
D
G
S
AA
K
AA
K
G
D
S
12
3
4
C
G
E
C
G
E
C
G
E
C
G
E
1
3
4
5
AA
K
1
4
5
3
C
GE
12
34
AA
K
C
GE
C
GE
1
4
5
8
A
A
K
1
3
4
5
A
A
K
A
A
K
G
C
E
1
2
9
8
G
C
EG
C
E
A
A
K
C
GE
C
GE
C
GE
AA
K
AA
K
AA
K
D
GS
A
A
K
C
GE
A
A
K
A
A
K
1
4
85
3
1
AA
K
AA
K
AA
K
18
9
16
1
8
9
1
12
16
1
34
5
135
SC-BOARD (COMPONENT SIDE)
TXNSC1EFUU

82
12.7. SS-Board
ABCDEFGH I
1
2
3
4
5
6
C193
SS11
SS21
L103
L303
SS53
SS55SS56 SS61
VR001
SS63SS64
C201
C202
C203
C204
C205
C011
C012
C013
C014
C015
C016
C018
Q001 Q002 Q003
Q004
D001
C241
D002
Q021
Q022
Q023
Q024
D021
D022
C271
C272
Q041
Q042
D041
D042
D043
Q051
Q052
D051
D052
D053
L001
L002
L003
L004
TPVSUS
L005
TP2
TP5
TP6
TP7
TP8
TP9
L011
L012
L013
L014
L015
L222
TP10
TP13 TP14
TP16
TP17
TP18
TP19
TP20
TP21
TPSOS8
TP24
TP25
TP26
TP27
TP28
TP29
TP30 TP31
TP33
TP34
TP36
TP38
TP39
TP40
IC304
TP41
TPVe
TPSS1
C314
TP51
TP53TP54
TP56
C328
L271
C331
CR No.16
SS
1
12 3
TNPA4783
PbF
4
1
17
26
113 11311 3
SEE REVERSE FOR ORDER NO.
113 113113
113
G
C
E
G
C
E
G
C
E
G
C
E
AA
K
AA
K
113
11311 3
G
C
E
G
C
E
G
C
E
G
C
E
A
A
K
A
A
K
C
G
E
C
G
E
AA
K
AA
K
A
A
K
C
G
E
C
G
E
A
AK
A
AK
A
A
K
113
113113
113
8
54
1
113
SS-BOARD (FOIL SIDE)
TXNSS1EFUU
Parts Location
SS-BOARD (FOIL SIDE)
IC
Q16001 D-3
Q16002 E-3
Q16003 E-3
Q16004 E-4
Q16021 G-3
Q16022 G-3
Q16023 F-4
Q16024 H-4
Q16041 E-1
Q16042 E-1
Q16051 F-2
Q16052 F-2
IC16304 C-3
TP26 H-1
TP27 B-3
TP28 D-2
TP29 G-4
TP30 A-4
TP31 F-4
TP33 A-3
TP34 A-3
TP36 A-3
TP38 D-2
TP39 E-2
TP40 G-2
TP41 G-2
TP51 G-4
TP53 D-4
TP54 A-4
TP56 A-4
TPSS1 A-4
TPSOS8 A-3
TPVe C-3
TPVSUS C-2
TP2 C-2
TP5 C-1
TP6 C-1
TP7 B-2
TP8 B-3
TP9 A-2
TP10 A-2
TP13 A-2
TP14 A-2
TP16 A-2
TP17 A-2
TP18 A-3
TP19 A-3
TP20 A-3
TP21 A-3
TP24 A-1
TEST POINT
TRANSISTOR
VR16001 C-2
VOLUME
SS

83
ABCDEFGH I
1
2
3
4
5
6
D315
D316
D317
D131
C181
Q141
C182
C183
R101
R102
R103
R104
C191
R105
C192
C193
SS11
R109
C195
C198
R302
R110
D151
D152
D153
R307
Q161
R309
R116
SS21
R310
R311
R312R313
R317
R318
R319
SS33
R320
L103
R131
R132
R134
R135
R136
R137
L303
R330
IC241
R332
R334
R141
R335
R142
R143
Q191
SS53 SS55 SS56
R150
R151
D191
R152
D192
D193
R153
D194
R154
D195
R155
SS61
R159
VR001
SS63 SS64
R161
R162
R163
C001
C002
C003 C004
R171
R172
R173
C201C202
C203
C204
C205
C011
C012
C013
C014
C015
C016
C018
R181
R182
R183
C021
C022
C023
C024
R191
R192
R193
R194
R195
R196
ZA001
ZA002
ZA003
C041
Q001
Q002
C042
Q003
Q004
D001
C241
D002
C242
C243
C244
C051 C052
C251
C252
Q021
Q022
Q023
Q024
IC251
D021
D022
C071
C072
C271
D032
C272
Q041
Q042
C280
R001
D041
C281
R002
D042D043
R003
R004
C284
C285
Q051
C091
C286
C092
Q052
C287
Q055
Q056
D050
D051
Q251
D052
D053
IC312
D253
R021
D255
R022
R023
R024
L001
IC131
L002
L003
L004
L005
R031
R032
R033
R034
R230
L011
R231
L012
L013
L014
Q280
R041
L015
R042
D280
R241
D281
R242
D282
D284
D285
R051
R052
D286
L222
R251
R252
R253
R254
R255 R256
R257
R258
R259
R260
C101
C102
C103
C104
C105
TPSOS8
R280
IC304
R281
R282
R283
R284
R285
R287
R288
C314
R289
C315
C316
C317
C318
C319
R290
C131
C133
C328
C135
L271
PC301
C331
Q101
Q102
D101
C151
C152
C153
C154
C157
IC151
PC191
SSMM1
Discharge
CR No.16
TPVe
TPSS1
DIP
TNPA4783
SS1
50’’
46’’
42’’
54’’
SSMM4
SSMM5
SSMM2
SSMM3
TPVSUS
PbF
4
3
2
1
1
4
1
7
62
13 113 1
8
1
20
11
10
1
ORDER NO.
13 1 13 1 13 1
13 1 13 1 13 1
C
G
E
C
G
E
C
G
E
C
G
E
K
A
A
K
A
A
13 113 1 11313 1
C
G
E
C
G
E
C
G
E
C
G
E
14
58
A
A
K
A
A
K
G
C
E
G
C
E
K
A
A
K
A
A
K
A
A
G
C
E
G
C
E
K
A
A
K
A
A
K
A
A
13 113 1 13 113 1
16
98
1
16
98
1
1
45
8
D
SG
D
SG
18
916
1
1313 1
SS-BOARD (COMPONENT SIDE)
TXNSS1EFUU
Parts Location
SS-BOARD (COMPONENT SIDE)
IC
IC16131 C-4
IC16151 E-1
IC16241 G-3
IC16251 G-2
IC16304 F-3
IC16312 F-2
PC16191 G-4
PC16301 F-2
Q16001 E-3
Q16002 D-3
Q16003 D-3
Q16004 D-4
Q16021 C-3
Q16022 B-3
Q16023 C-4
Q16024 A-4
Q16041 D-1
Q16042 D-1
TRANSISTOR
Q16051 C-2
Q16052 C-2
Q16055 D-1
Q16056 C-1
Q16101 F-4
Q16102 F-3
Q16141 D-4
Q16161 C-4
Q16191 G-4
Q16251 H-2
Q16280 H-3
TPSS1 E-4
TPSOS8 G-3
TPVe F-4
TPVSUS C-2
TEST POINT
VR16001 F-2
PHOTO COUPLER VOLUME
SS
84

85
13 Exploded View and Replacement Parts List
13.1. Exploded View and Mechanical Replacement Parts List
13.1.1. Exploded View

86
13.1.2. Accessories

87
13.1.3. Mechanical Replacement Parts List

88
Safety Ref.
No. Part No. Part Name & Description Q'ty Remarks
1 10030-0047500 BATTERY COVER 1 PAVCA
2 K2CG3YY00029 AC CORD 1 PAVCA
3 L6FAYYYH0094 DC FAN MOTORS 2 PAVCA
4 MD42F12A1J PLASMA DISPLAY PANEL 1
5 N2QAYB000321 REMOTE CONTROLLER 1 PAVCA
6 TBLA3679 STAND POLE R 1
7 TBLA3680 STAND POLE L 1
8 TBLX0088 PEDESTAL STAND 1 PAVCA
9 TBMA282 PANASONIC BADGE 1
10 TBX2AA5301 POWER BUTTON 1 PAVCA
THEJ016J SCREW(AC INRET:2) 2
THEL0429 SCREW 11
THEL052Z SCREW (BC TOP:4) 2
THEL060N SCREW (STAND-TV) 4
THTD013N SCREW 6
THTD020J SCREW(A-PRINT:4) 4
THTF011N SCREW 74
THTF013J SCREW 2
11 TKGA5501S FRONT GLASS 1 PAVCA
12 TKK2AA9501 LED PANEL 1 PAVCA
13 TKK2AA9801 ADJUSTMENT COVER 1 PAVCA
14 TKKL5472 M8 CAP 4
15 TKR2AA00241 REAR COVER HANDLE(L) 1 PAVCA
16 TKR2AA00251 REAR COVER HANDLE(R) 1 PAVCA
TMM16473-1 CLAMPER 1
TMM23417 CLAMPER 2
17 TMM2AD01701A REAR COVER HOOK L 1 PAVCA
18 TMM2AD01702A REAR COVER HOOK R 1 PAVCA
TMME061 CLAMPER 1
TMME224 CLAMPER 4
TMME287 CLAMPER 2
TMME292 CLAMPER 3
TMME332 CLAMPER(HANGER:1) 6
TMME332 CLAMPER (SS:1) 1
TMME345 SPACER 1
19 TMMJ068 RUBBER(FAN) 6
20 TMMJ082 SPONGE(FAN CORNER) 8
21 TMW2AA011 POWER BUTTON BRACKET 1 PAVCA
22 TMXX055 AC CORD CLAMPER 2
23 TMXX062 AC CODE HOLDER 1
24 TMZ2AX0311 STAND BRACKET-L 1 PAVCA
25 TMZ2AX0321 STAND BRACKET-R 1 PAVCA
26 TMZ2AX0371 STAND BRACKET METAL-L 1 PAVCA

89
Safety Ref.
No. Part No. Part Name & Description Q'ty Remarks
27 TMZ2AX0372 STAND BRACKET METAL-R 1 PAVCA
TPD169487 JOINT 4
28 TPEB340 BAG (STAND ACCESSORY) 1
29 TQB2AA0814 INSTRUCTION BOOK(ENG/FRE/SPA) 1 PAVCA
TQZJ059 SCREW USE HANDBILL 1
TSXL519 CABLE (C10-C20/SU11-SD11) 2
TSXL738 CABLE (A20-SC20) 1 PAVCA
TSXL741 CABLE (C11-A31) 1 PAVCA
TSXL744 CABLE (C21-A32) 1 PAVCA
TW-4BS-2L LUG TERMINAL 1
30 TXALK01EFUU AC INLET COMP 1 PAVCA
31 TXFBX01WSER CONTROL BUTTON ASSY 1 PAVCA
32 TXFEA01WSER SPEAKER L ASSY 1 PAVCA
33 TXFEA02WSER SPEAKER R ASSY 1 PAVCA
34 TXFKP07WSER SIDE TERMINAL COVER ASSY 1 PAVCA
35 TXFKU12WSER REAR COVER 1 PAVCA
36 TXFKY01ENUU CABINET ASSY 1 PAVCA
37 TXFPE01RLTU CLEANING CLOTH ASSY 1
TXJA11EFUU SPEAKER LEAD(A11-SPR) 1 PAVCA
TXJA12EQUU SPEAKER LEAD(A12-SPR/SPL) 1 PAVCA
38 VFF2AD008 INSTRUCTION BOOK(CD-ROM) 1 PAVCA
XSB3+6FJ SCREW 3
XTB4+10JFJ SCREW (STAND BRACKET) 8
XTB4+12GFJ SCREW 21
XTB4+12GFJK SCREW 15
XTB4+12GFN TAP SCREW 4
XTS4+12GFN SCREW 2
XTV3+8JFJ SCREW 2
XTW3+10TFJ SCREW 1
XTWT4+Z15DFJ SCREW (SP BOX) 4
XYN3+F8FJ SCREW 1
XYN3+J12FJ SCREW 41
XYN4+E8FJ SCREW 1
XYN4+F10FJ SCREW 22
39 XYN5+F18FN SCREW (STAND POLE) 4
40 XZB17X19C03 POLY BAG (STAND POLE) 1
41 XZB7.5X9D05 POLY BAG (SCREW) 1

90
13.2. Electrical Replacement Parts List
13.2.1. Replacement Parts List Notes

91
13.2.2. Electrical Replacement Parts List
Safety Ref. No. Part No. Part Name &
Description
Pcs Remarks
A1 K1KA08A00506 8P CONNECTOR 1
A6 K1KA15A00148 15P CONNECTOR 1
A11 K1KA03AA0190 3P CONNECTOR 1
A12 K1KA02AA0180 2P CONNECTOR 1
A17 K1KA20AA0009 20P CONNECTOR 1
A18 K1KA11AA0715 11P CONNECTOR 1
A25 K1KA13A00152 13P CONNECTOR 1
A30 K1KA12A00317 12P CONNECTOR 1
A31 K1MY68BA0345 68P CONNECTOR 1
A32 K1MY68BA0345 68P CONNECTOR 1
A33 K1MY35BA0345 35P CONNECTOR 1
C10 K1MN20BA0231 20P CONNECTOR 1
C11 K1MY68BA0345 68P CONNECTOR 1
C14 K1KA02A00787 2P CONNECTOR 1
C20 K1MY20BA0345 20P CONNECTOR 1
C21 K1MY68BA0345 68P CONNECTOR 1
C23 K1KA08B00270 8P CONNECTOR 1
C25 K1KA04BA0107 4P CONNECTOR 1
C1106 F1G1H150A731 C 15UF, 50V 1
C1107 F1G1H120A731 C 12UF, 50V 1
C1108 F1G1C104A116 C 0.10UF, K, 16V 1
C1117 F1G1C104A116 C 0.10UF, K, 16V 1
C1118 F1G1H102A730 C 1000UF, 50V 1
C1119 F1H0J1050012 C 1UF, K, 16V 1
C1120 F1G1H221A731 C 220UF, 50V 1
C1121 F1G1H152A730 C 1500UF, 50V 1 PAVCA
C1122 F1G1H222A730 C 2200UF, 50V 1
C1123 F1G1C104A116 C 0.10UF, K, 16V 1
C1124 F1G1C104A116 C 0.10UF, K, 16V 1
C1125 F1J1A106A043 C 0.010UF, K,
10V
1
C1126 F1G1C104A116 C 0.10UF, K, 16V 1
C1127 F1G1C104A116 C 0.10UF, K, 16V 1
C1128 F1G1C104A116 C 0.10UF, K, 16V 1
C1134 F1G1C103A116 C 0.010UF, K,
16V
1
C2103 F1G1C104A116 C 0.10UF, K, 16V 1
C2104 F1G1C104A116 C 0.10UF, K, 16V 1
C2105 F1J1A106A043 C 0.010UF, K,
10V
1
C2106 F1G1E472A123 C 4200UF, Z, 25V 1
C2107 F1G1E472A123 C 4200UF, Z, 25V 1
C2108 F1G1A473A053 C 0.47UF, 10V 1
C2109 F1G1A473A053 C 0.47UF, 10V 1
C2110 F1J1A106A043 C 0.010UF, K,
10V
1
C2114 F1G1C104A116 C 0.10UF, K, 16V 1
C2116 F1H1E104A129 C 0.1UF, 25V 1
C2118 F1H1E104A129 C 0.1UF, 25V 1
C2123 F1J1E105A171 C 1 UF 25V 1
C2124 F1J1E105A171 C 1 UF 25V 1
C2126 F1H1E333A129 C 0.033UF, 25V 1
C2127 F1H1E333A129 C 0.033UF, 25V 1
C2128 F1H1E333A129 C 0.033UF, 25V 1
C2129 F1H1E333A129 C 0.033UF, 25V 1
C2130 F1J1H474A757 C 0.47UF, 50V 1
C2131 F1J1H474A757 C 0.47UF, 50V 1
C2132 F1J1H104A835 C 0.10UF, 50V 1
C2133 F1J1H104A835 C 0.10UF, 50V 1
C2134 F1H1H223A970 C 0.22UF, K, 50V 1
C2135 F1H1H223A970 C 0.22UF, K, 50V 1
C2136 F1J1H104A835 C 0.10UF, 50V 1
C2137 F1J1H104A835 C 0.10UF, 50V 1
C2138 F1H1H223A970 C 0.22UF, K, 50V 1
C2139 F1H1H223A970 C 0.22UF, K, 50V 1
C2140 F1H1E104A129 C 0.1UF, 25V 1
C2141 F1H1E104A129 C 0.1UF, 25V 1
C2142 F1H1H223A970 C 0.22UF, K, 50V 1
C2143 F1H1H223A970 C 0.22UF, K, 50V 1
C2144 F1H1H223A970 C 0.22UF, K, 50V 1
C2145 F1H1H223A970 C 0.22UF, K, 50V 1
C2146 F1G1H102A730 C 1000UF, 50V 1
C2147 F1G1H102A730 C 1000UF, 50V 1
C2148 F1G1H102A730 C 1000UF, 50V 1
C2149 F1G1H102A730 C 1000UF, 50V 1
C2150 F1H1E104A129 C 0.1UF, 25V 1
C2151 EEEFG1E471P E 470UF, 25V 1
C2152 F1K1E106A136 C 10UF, Z, 25V 1
C2153 F1G1C104A116 C 0.10UF, K, 16V 1
C2155 F1J1A475A039 C 4.7UF, K, 10V 1
C2204 F1J1A475A039 C 4.7UF, K, 10V 1
C2205 F1J1A475A039 C 4.7UF, K, 10V 1
C2206 F1J1A475A039 C 4.7UF, K, 10V 1
C2207 F1G1C104A116 C 0.10UF, K, 16V 1
C2210 F1J1A475A039 C 4.7UF, K, 10V 1
C2211 F1J1A475A039 C 4.7UF, K, 10V 1
C2212 F1J1A475A039 C 4.7UF, K, 10V 1
C2213 F1J1A475A039 C 4.7UF, K, 10V 1
C2512 ECJ3XB0J106M C 10UF, M,6.3V 1
C2522 F1H1C104A143 C 0.1UF, K, 16V 1
C3001 F1J1A106A043 C 0.010UF, K,
10V
1
C3006 F1J1A106A043 C 0.010UF, K,
10V
1
C3007 F1J1A106A043 C 0.010UF, K,
10V
1
C3010 F1G1C103A116 C 0.010UF, K,
16V
1
C3013 F1J1A106A043 C 0.010UF, K,
10V
1
C3015 F1J1A106A043 C 0.010UF, K,
10V
1
C3017 F1G1C104A116 C 0.10UF, K, 16V 1
C3019 F1G1C104A116 C 0.10UF, K, 16V 1
C3022 F1G1C104A116 C 0.10UF, K, 16V 1
C3023 F1J1A106A043 C 0.010UF, K,
10V
1
C3026 F1H1A1050032 C 10UF, 50V 1
C3027 F1H1A1050032 C 10UF, 50V 1
C3028 F1H1A1050032 C 10UF, 50V 1
C3029 F1H1A1050032 C 10UF, 50V 1
C3030 F1H1A1050032 C 10UF, 50V 1
C3031 F1H1A1050032 C 10UF, 50V 1
C3032 F1H1A1050032 C 10UF, 50V 1
C3033 F1H1A1050032 C 10UF, 50V 1
C3034 F1H1A1050032 C 10UF, 50V 1
C3035 F1H1A1050032 C 10UF, 50V 1
C3042 F1J1A106A043 C 0.010UF, K,
10V
1
C3043 F1J1A106A043 C 0.010UF, K,
10V
1
C3044 F1J1A106A043 C 0.010UF, K,
10V
1
C3045 F1J1A106A043 C 0.010UF, K,
10V
1
C3046 F1J1A106A043 C 0.010UF, K,
10V
1
C3047 F1J1A106A043 C 0.010UF, K,
10V
1
Safety Ref. No. Part No. Part Name &
Description
Pcs Remarks

92
C3049 F2G1A101A019 E 100UF, 10V 1
C3050 F1G1C104A116 C 0.10UF, K, 16V 1
C3078 F1J1A106A043 C 0.010UF, K,
10V
1
C3079 F1J1A106A043 C 0.010UF, K,
10V
1
C3080 F1J1A106A043 C 0.010UF, K,
10V
1
C3157 F1G1C104A116 C 0.10UF, K, 16V 1
C3752 F1J1H102A836 C 1000UF, 50V 1
C4075 F1G1C104A116 C 0.10UF, K, 16V 1
C4500 F1G1C104A116 C 0.10UF, K, 16V 1
C4501 F1G1C104A116 C 0.10UF, K, 16V 1
C4513 F1G1C104A116 C 0.10UF, K, 16V 1
C4514 F1G1C104A116 C 0.10UF, K, 16V 1
C4517 F1G1C104A116 C 0.10UF, K, 16V 1
C4520 F1J1A106A043 C 0.010UF, K,
10V
1
C4521 F1G1C104A116 C 0.10UF, K, 16V 1
C4534 F1G1C104A116 C 0.10UF, K, 16V 1
C4535 F1G1C104A116 C 0.10UF, K, 16V 1
C4548 F1H0J1050012 C 1UF, K, 16V 1
C4549 F1H0J1050012 C 1UF, K, 16V 1
C4551 F1G1C104A116 C 0.10UF, K, 16V 1
C4552 F1H0J1050012 C 1UF, K, 16V 1
C4553 F1G1E472A123 C 4200UF, Z, 25V 1
C4554 F2G1C470A022 E 47UF, 16V 1
C4555 F1G1C104A116 C 0.10UF, K, 16V 1
C4556 F1G1C104A116 C 0.10UF, K, 16V 1
C4557 F1G1C104A116 C 0.10UF, K, 16V 1
C4558 F1G1C104A116 C 0.10UF, K, 16V 1
C4574 F1G1C104A116 C 0.10UF, K, 16V 1
C4576 F1G1C104A116 C 0.10UF, K, 16V 1
C4577 F1G1C104A116 C 0.10UF, K, 16V 1
C4578 F1J1A106A043 C 0.010UF, K,
10V
1
C4579 F1J1A106A043 C 0.010UF, K,
10V
1
C4580 F1J1A106A043 C 0.010UF, K,
10V
1
C4581 F1J1A106A043 C 0.010UF, K,
10V
1
C4582 F1J1A106A043 C 0.010UF, K,
10V
1
C4624 F1G1C104A116 C 0.10UF, K, 16V 1
C4625 F1G1C104A116 C 0.10UF, K, 16V 1
C4701 F1G1H102A730 C 1000UF, 50V 1
C4702 F1G1C104A116 C 0.10UF, K, 16V 1
C4703 F1G1H102A730 C 1000UF, 50V 1
C4704 F1G1C104A116 C 0.10UF, K, 16V 1
C4705 F1G1C104A116 C 0.10UF, K, 16V 1
C4711 F1G1C104A116 C 0.10UF, K, 16V 1
C4712 F1G1C104A116 C 0.10UF, K, 16V 1
C4713 F1G1H102A730 C 1000UF, 50V 1
C4714 F1G1H102A730 C 1000UF, 50V 1
C4715 F1G1C104A116 C 0.10UF, K, 16V 1
C4716 F1G1H102A730 C 1000UF, 50V 1
C4717 F1G1H102A730 C 1000UF, 50V 1
C4718 F1G1H102A730 C 1000UF, 50V 1
C4719 F1G1H102A730 C 1000UF, 50V 1
C4721 F1G1C104A116 C 0.10UF, K, 16V 1
C4722 F1G1H102A730 C 1000UF, 50V 1
C4724 F1G1H102A730 C 1000UF, 50V 1
C4725 F1G1C104A116 C 0.10UF, K, 16V 1
C4726 F1G1C104A116 C 0.10UF, K, 16V 1
C4727 F1G1C104A116 C 0.10UF, K, 16V 1
C4728 F1G1C104A116 C 0.10UF, K, 16V 1
C4741 F1G1H102A730 C 1000UF, 50V 1
C4742 F1G1C104A116 C 0.10UF, K, 16V 1
C4743 F1G1H102A730 C 1000UF, 50V 1
C4744 F1G1C104A116 C 0.10UF, K, 16V 1
C4745 F1G1C104A116 C 0.10UF, K, 16V 1
C4746 F1G1H102A730 C 1000UF, 50V 1
C4751 F1G1C104A116 C 0.10UF, K, 16V 1
C4752 F1G1C104A116 C 0.10UF, K, 16V 1
Safety Ref. No. Part No. Part Name &
Description
Pcs Remarks
C4753 F1G1C104A116 C 0.10UF, K, 16V 1
C4754 F1G1C104A116 C 0.10UF, K, 16V 1
C4755 F1G1C104A116 C 0.10UF, K, 16V 1
C4761 F1H1H103A970 C 0.001UF, K,
50V
1
C4762 F1H1H103A970 C 0.001UF, K,
50V
1
C4763 F1H1H103A970 C 0.001UF, K,
50V
1
C4771 F1G1H102A730 C 1000UF, 50V 1
C4772 F1G1C104A116 C 0.10UF, K, 16V 1
C4773 F1G1H102A730 C 1000UF, 50V 1
C4774 F1G1C104A116 C 0.10UF, K, 16V 1
C4775 F1G1C104A116 C 0.10UF, K, 16V 1
C4776 F1G1H102A730 C 1000UF, 50V 1
C4777 F1G1C104A116 C 0.10UF, K, 16V 1
C4778 F1G1C104A116 C 0.10UF, K, 16V 1
C4779 F1G1C104A116 C 0.10UF, K, 16V 1
C4795 F1G1H102A730 C 1000UF, 50V 1
C4796 F1G1H102A730 C 1000UF, 50V 1
C4797 F1G1H102A730 C 1000UF, 50V 1
C4798 F1G1H102A730 C 1000UF, 50V 1
C4830 F1G1C104A116 C 0.10UF, K, 16V 1
C5418 F1J1E105A171 C 1 UF 25V 1
C5420 F1H1C105A145 C 0.01UF, K, 16V 1
C5513 F1H1A1050032 C 10UF, 50V 1
C5514 F1H1A1050032 C 10UF, 50V 1
C5515 F1G1C104A116 C 0.10UF, K, 16V 1
C5516 EEEHB1C101UP C 100PF, J, 16V 1
C5521 F1G1C104A116 C 0.10UF, K, 16V 1
C5522 F1G1C104A116 C 0.10UF, K, 16V 1
C5527 F1J1H474A757 C 0.47UF, 50V 1
C5528 F1J1H474A757 C 0.47UF, 50V 1
C5531 F1G1H820A731 C 82UF, 50V 1
C5532 F2G1V220A020 E 22UF, 35V 1
C5533 F1G1H102A730 C 1000UF, 50V 1
C5534 F1G1E392A123 C 3900UF, Z, 25V 1
C5535 F1J1A106A043 C 0.010UF, K,
10V
1
C5536 F2G0J470A019 E 47UF 6.3V 1
C5644 F1G1C103A116 C 0.010UF, K,
16V
1
C5652 F1G1H102A730 C 1000UF, 50V 1
C5663 F1J1A106A043 C 0.010UF, K,
10V
1
C5664 F1J1A106A043 C 0.010UF, K,
10V
1
C5667 F1G1H101A731 C 100PF, K, 50V 1
C5688 F1H1A225A051 C 22UF, 50V 1
C5689 ECGRL0G680ER C 68UF, J, 4V 1
C5690 F1G1C104A116 C 0.10UF, K, 16V 1
C5691 F1G1A273A053 C 0.27UF, 10V 1 PAVCA
C5692 F1J1A475A039 C 4.7UF, K, 10V 1
C5693 F1H1C105A145 C 0.01UF, K, 16V 1
C5694 F1G1H221A731 C 220UF, 50V 1
C5697 F1K1E106A136 C 10UF, Z, 25V 1
C5698 F1K1E106A136 C 10UF, Z, 25V 1
C5699 F1K1E106A136 C 10UF, Z, 25V 1
C5700 F1G1C562A116 C 5600UF, K, 16V 1 PAVCA
C5701 F1K1E106A136 C 10UF, Z, 25V 1
C5702 F1K1E106A136 C 10UF, Z, 25V 1
C5703 F1H1E104A129 C 0.1UF, 25V 1
C5704 F1G1A473A053 C 0.47UF, 10V 1
C5705 F1J1A475A039 C 4.7UF, K, 10V 1
C5707 F1G1H471A730 C 470UF, 50V 1
C5708 F1G1C104A116 C 0.10UF, K, 16V 1
C5709 F1G1C104A116 C 0.10UF, K, 16V 1
C5710 ECGRL0E680ER C 68UF, J, 2.5V 1
C5711 ECGRL0E680ER C 68UF, J, 2.5V 1
C5713 F2G1E470A021 C 47PF, J, 25V 1
C5714 F1J1E105A171 C 1 UF 25V 1
C5718 F1G1C104A116 C 0.10UF, K, 16V 1
C5719 F1G1C104A116 C 0.10UF, K, 16V 1
C5720 F1G1C104A116 C 0.10UF, K, 16V 1
Safety Ref. No. Part No. Part Name &
Description
Pcs Remarks

93
C5721 F1G1C104A116 C 0.10UF, K, 16V 1
C5722 F1G1C104A116 C 0.10UF, K, 16V 1
C5723 F1G1C104A116 C 0.10UF, K, 16V 1
C5724 F1K1E106A136 C 10UF, Z, 25V 1
C5725 F1H1E104A129 C 0.1UF, 25V 1
C5726 F1H1C105A145 C 0.01UF, K, 16V 1
C5727 F1G1C103A116 C 0.010UF, K,
16V
1
C5728 F1G1H471A730 C 470UF, 50V 1
C5729 F1G1C104A116 C 0.10UF, K, 16V 1
C5730 F2H0J1010009 C 100UF, 6.3V 1
C5732 F1G1C104A116 C 0.10UF, K, 16V 1
C5733 F1K1E106A136 C 10UF, Z, 25V 1
C5734 F1K1E106A136 C 10UF, Z, 25V 1
C5736 F1J1A106A043 C 0.010UF, K,
10V
1
C5737 F1J1A106A043 C 0.010UF, K,
10V
1
C5746 F1K1A106A021 C 0.010UF,
K,6.3V
1
C5747 F1K1E106A136 C 10UF, Z, 25V 1
C5748 F1K1A106A021 C 0.010UF,
K,6.3V
1
C5749 F1G1C103A116 C 0.010UF, K,
16V
1
C5755 F1H1E104A129 C 0.1UF, 25V 1
C5756 F1G1E332A123 C 3300UF, Z, 25V 1 PAVCA
C5764 F1H1C105A145 C 0.01UF, K, 16V 1
C8011 F1G1C104A116 C 0.10UF, K, 16V 1
C8012 F1G1C104A116 C 0.10UF, K, 16V 1
C8013 F1G1C104A116 C 0.10UF, K, 16V 1
C8015 F1H0J1050012 C 1UF, K, 16V 1
C8016 F1H0J1050012 C 1UF, K, 16V 1
C8017 F1J1A106A043 C 0.010UF, K,
10V
1
C8025 F1G1C104A116 C 0.10UF, K, 16V 1
C8031 F1H0J1050012 C 1UF, K, 16V 1
C8032 F1J1A106A043 C 0.010UF, K,
10V
1
C8036 F1J1A106A043 C 0.010UF, K,
10V
1
C8040 F1G1H102A730 C 1000UF, 50V 1
C8042 ECGRL0G680ER C 68UF, J, 4V 1
C8043 F1G1C104A116 C 0.10UF, K, 16V 1
C8046 F1G1C104A116 C 0.10UF, K, 16V 1
C8047 F1G1C104A116 C 0.10UF, K, 16V 1
C8048 F1G1C104A116 C 0.10UF, K, 16V 1
C8081 F1G1H151A731 C 150PF, K, 50V 1
C8082 F1G1C103A116 C 0.010UF, K,
16V
1
C8083 F1G1C104A116 C 0.10UF, K, 16V 1
C8084 F1G1C104A116 C 0.10UF, K, 16V 1
C8085 F1G1H152A730 C 1500UF, 50V 1 PAVCA
C8086 F1G1C104A116 C 0.10UF, K, 16V 1
C8087 F1G1H151A731 C 150PF, K, 50V 1
C8088 F1G1H100A731 C 10PF, K, 50V 1
C8089 F1G1H120A731 C 12UF, 50V 1
C8091 F1G1C104A116 C 0.10UF, K, 16V 1
C8092 F1G1C104A116 C 0.10UF, K, 16V 1
C8093 F1G1H152A730 C 1500UF, 50V 1 PAVCA
C8094 F1G1H5R0A732 C 5.0PF, K, 50V 1
C8095 F1G1C103A116 C 0.010UF, K,
16V
1
C8096 F1G1C104A116 C 0.10UF, K, 16V 1
C8097 F1G1C104A116 C 0.10UF, K, 16V 1
C8098 F1H0J1050012 C 1UF, K, 16V 1
C8100 F1G1C104A116 C 0.10UF, K, 16V 1
C8101 F1G1C104A116 C 0.10UF, K, 16V 1
C8102 F1G1C104A116 C 0.10UF, K, 16V 1
C8103 F1G1C104A116 C 0.10UF, K, 16V 1
C8104 F1H0J1050012 C 1UF, K, 16V 1
C8105 F1G1C103A116 C 0.010UF, K,
16V
1
C8106 F1G1H100A731 C 10PF, K, 50V 1
C8107 F1G1H1R0A748 C 1UF, 50V 1
Safety Ref. No. Part No. Part Name &
Description
Pcs Remarks
C8108 F1G1C104A116 C 0.10UF, K, 16V 1
C8109 F1G1C104A116 C 0.10UF, K, 16V 1
C8110 F1J1A106A043 C 0.010UF, K,
10V
1
C8115 F1G1H3R0A609 C 3 UF, 50V 1
C8116 F1G1H3R0A609 C 3 UF, 50V 1
C8117 F1G1C104A116 C 0.10UF, K, 16V 1
C8118 F1G1C104A116 C 0.10UF, K, 16V 1
C8119 F1G1C104A116 C 0.10UF, K, 16V 1
C8120 F1G1C104A116 C 0.10UF, K, 16V 1
C8124 F1G1H100A731 C 10PF, K, 50V 1
C8126 F1H1A1050032 C 10UF, 50V 1
C8127 F1G1C104A116 C 0.10UF, K, 16V 1
C8128 F1G1C104A116 C 0.10UF, K, 16V 1
C8129 F1H1H471A971 C 470UF, 50V 1
C8130 F1H1A1050032 C 10UF, 50V 1
C8131 F1J1A106A043 C 0.010UF, K,
10V
1
C8132 F1G1C104A116 C 0.10UF, K, 16V 1
C8133 F1J1A106A043 C 0.010UF, K,
10V
1
C8134 F1G1C104A116 C 0.10UF, K, 16V 1
C8135 F1J1A106A043 C 0.010UF, K,
10V
1
C8136 F1G1C104A116 C 0.10UF, K, 16V 1
C8138 F1G1H102A730 C 1000UF, 50V 1
C8139 F1G1C104A116 C 0.10UF, K, 16V 1
C8140 F1G1C104A116 C 0.10UF, K, 16V 1
C8141 F1G1C104A116 C 0.10UF, K, 16V 1
C8142 F1G1C104A116 C 0.10UF, K, 16V 1
C8143 F1G1C104A116 C 0.10UF, K, 16V 1
C8144 F1G1C104A116 C 0.10UF, K, 16V 1
C8145 F1G1C104A116 C 0.10UF, K, 16V 1
C8146 F1G1C104A116 C 0.10UF, K, 16V 1
C8147 F1G1C104A116 C 0.10UF, K, 16V 1
C8148 F1G1C104A116 C 0.10UF, K, 16V 1
C8149 F1G1H5R0A732 C 5.0PF, K, 50V 1
C8150 ECGMX0E101R E 100UF, 10V 1
C8151 F1G1C104A116 C 0.10UF, K, 16V 1
C8152 F1G1C104A116 C 0.10UF, K, 16V 1
C8153 F1G1C104A116 C 0.10UF, K, 16V 1
C8154 F1H0J1050012 C 1UF, K, 16V 1
C8155 F1H0J1050012 C 1UF, K, 16V 1
C8156 F1J1A106A043 C 0.010UF, K,
10V
1
C8157 F1G1C104A116 C 0.10UF, K, 16V 1
C8158 F1G1C104A116 C 0.10UF, K, 16V 1
C8159 F1G1C104A116 C 0.10UF, K, 16V 1
C8160 F1H0J1050012 C 1UF, K, 16V 1
C8161 F1H0J1050012 C 1UF, K, 16V 1
C8162 F1J1A106A043 C 0.010UF, K,
10V
1
C8163 F1G1C104A116 C 0.10UF, K, 16V 1
C8164 F1J1A106A043 C 0.010UF, K,
10V
1
C8165 F1J1A106A043 C 0.010UF, K,
10V
1
C8166 F1G1C104A116 C 0.10UF, K, 16V 1
C8167 F1G1C104A116 C 0.10UF, K, 16V 1
C8168 F1G1C104A116 C 0.10UF, K, 16V 1
C8169 F1G1C104A116 C 0.10UF, K, 16V 1
C8170 F1G1C104A116 C 0.10UF, K, 16V 1
C8171 F1G1C104A116 C 0.10UF, K, 16V 1
C8172 F1G1C104A116 C 0.10UF, K, 16V 1
C8173 F1G1C103A116 C 0.010UF, K,
16V
1
C8174 F1G1C103A116 C 0.010UF, K,
16V
1
C8175 F1G1C103A116 C 0.010UF, K,
16V
1
C8176 F1G1C103A116 C 0.010UF, K,
16V
1
C8177 F1G1C103A116 C 0.010UF, K,
16V
1
C8178 F1G1C103A116 C 0.010UF, K,
16V
1
Safety Ref. No. Part No. Part Name &
Description
Pcs Remarks

94
C8179 F1G1C103A116 C 0.010UF, K,
16V
1
C8180 F1H0J2250008 C 2.2UF, K, 16V 1
C8182 F1J1A475A039 C 4.7UF, K, 10V 1
C8183 F1J1A475A039 C 4.7UF, K, 10V 1
C8184 F1J1A475A039 C 4.7UF, K, 10V 1
C8185 F1G1C104A116 C 0.10UF, K, 16V 1
C8186 F1G1H222A730 C 2200UF, 50V 1
C8189 F1G1C104A116 C 0.10UF, K, 16V 1
C8191 F1G1H102A730 C 1000UF, 50V 1
C8192 F1G1H102A730 C 1000UF, 50V 1
C8193 F1G1H102A730 C 1000UF, 50V 1
C8301 F1G1H102A730 C 1000UF, 50V 1
C8302 F1G1C104A116 C 0.10UF, K, 16V 1
C8304 F1G1H221A731 C 220UF, 50V 1
C8305 F1G1H221A731 C 220UF, 50V 1
C8306 F1G1H221A731 C 220UF, 50V 1
C8307 F1G1C104A116 C 0.10UF, K, 16V 1
C8309 F1H1H103A970 C 0.001UF, K,
50V
1
C8310 EEEHB0J221UP C 220PF, J, 6.3V 1
C8311 F2G1V220A020 E 22UF, 35V 1
C8312 EEEHB0J221UP C 220PF, J, 6.3V 1
C8313 F1G1H102A730 C 1000UF, 50V 1
C8346 F1G1C104A116 C 0.10UF, K, 16V 1
C8392 F1G1H330A731 C 33UF, 50V 1
C8393 F1G1H330A731 C 33UF, 50V 1
C8394 F1G1H151A731 C 150PF, K, 50V 1
C8395 F1G1H221A731 C 220UF, 50V 1
C8396 F1G1H221A731 C 220UF, 50V 1
C8398 F1G1H121A731 C 120PF, K, 50V 1 PAVCA
C8399 F1G1H121A731 C 120PF, K, 50V 1 PAVCA
C8400 F1G1H680A731 C 68UF, 50V 1
C8401 F1G1H102A730 C 1000UF, 50V 1
C8402 F1G1H102A730 C 1000UF, 50V 1
C8403 F1G1C104A116 C 0.10UF, K, 16V 1
C8404 F1G1C104A116 C 0.10UF, K, 16V 1
C8501 F1G1C104A116 C 0.10UF, K, 16V 1
C8506 F1G1C104A116 C 0.10UF, K, 16V 1
C8512 F1G1C104A116 C 0.10UF, K, 16V 1
C8513 F1G1C104A116 C 0.10UF, K, 16V 1
C8517 F1G1C104A116 C 0.10UF, K, 16V 1
C8532 F2G1C470A022 E 47UF, 16V 1
C8533 F1G1C104A116 C 0.10UF, K, 16V 1
C8536 F1G1C103A116 C 0.010UF, K,
16V
1
C8537 F1J1A106A043 C 0.010UF, K,
10V
1
C8544 F1J1A106A043 C 0.010UF, K,
10V
1
C9033 F1G1C104A116 C 0.10UF, K, 16V 1
C9034 F1G1C104A116 C 0.10UF, K, 16V 1
C9035 F1J1A106A043 C 0.010UF, K,
10V
1
C9036 F1J1A106A043 C 0.010UF, K,
10V
1
C9037 F1G1E103A123 C 0.010UF, K,
25V
1
C9040 F1G1C104A116 C 0.10UF, K, 16V 1
C9044 F1J1A475A039 C 4.7UF, K, 10V 1
C9045 F1G1C104A116 C 0.10UF, K, 16V 1
C9046 F1G1C104A116 C 0.10UF, K, 16V 1
C9047 F1G1C104A116 C 0.10UF, K, 16V 1
C9048 F1G1C104A116 C 0.10UF, K, 16V 1
C9049 F1G1C104A116 C 0.10UF, K, 16V 1
C9052 F1G1C104A116 C 0.10UF, K, 16V 1
C9053 F1G1C104A116 C 0.10UF, K, 16V 1
C9055 F1G1C104A116 C 0.10UF, K, 16V 1
C9057 F1G1C104A116 C 0.10UF, K, 16V 1
C9061 F1G1C104A116 C 0.10UF, K, 16V 1
C9062 F1J1A475A039 C 4.7UF, K, 10V 1
C9063 F1G1C104A116 C 0.10UF, K, 16V 1
C9064 F1G1C104A116 C 0.10UF, K, 16V 1
C9065 F1G1C104A116 C 0.10UF, K, 16V 1
C9066 F1H1E104A129 C 0.1UF, 25V 1
Safety Ref. No. Part No. Part Name &
Description
Pcs Remarks
C9067 F1K0J226A008 C 22UF, K,6.3V 1
C9068 F1K0J226A008 C 22UF, K,6.3V 1
C9069 F1G1H222A730 C 2200UF, 50V 1
C9071 F1H1E104A129 C 0.1UF, 25V 1
C9072 F1K0J226A008 C 22UF, K,6.3V 1
C9073 F1K0J226A008 C 22UF, K,6.3V 1
C9074 F1G1H222A730 C 2200UF, 50V 1
C9076 F1G1C153A116 C 0.015UF, K,
16V
1
C9077 F1K1E106A136 C 10UF, Z, 25V 1
C9078 F1K1E106A136 C 10UF, Z, 25V 1
C9079 F1G1H220A731 C 22UF, 50V 1
C9080 F1G1H201A731 C 200 UF, K, 50V 1
C9081 F1G1C104A116 C 0.10UF, K, 16V 1
C9082 F1H1E104A129 C 0.1UF, 25V 1
C9083 F1K0J226A008 C 22UF, K,6.3V 1
C9084 F1K0J226A008 C 22UF, K,6.3V 1
C9085 F1G1H222A730 C 2200UF, 50V 1
C9087 F1G1A563A053 C 0.56UF, 10V 1
C9088 F1K1E106A136 C 10UF, Z, 25V 1
C9089 F1K1E106A136 C 10UF, Z, 25V 1
C9091 F1G1H201A731 C 200 UF, K, 50V 1
C9100 F1G1C104A116 C 0.10UF, K, 16V 1
C9101 F1G1C104A116 C 0.10UF, K, 16V 1
C9102 F1G1C104A116 C 0.10UF, K, 16V 1
C9111 F1J1A106A043 C 0.010UF, K,
10V
1
C9112 F1J1A106A043 C 0.010UF, K,
10V
1
C9113 F1G1C104A116 C 0.10UF, K, 16V 1
C9114 F1G1C104A116 C 0.10UF, K, 16V 1
C9115 F1G1C104A116 C 0.10UF, K, 16V 1
C9123 F1J1A106A043 C 0.010UF, K,
10V
1
C9124 F1J1A106A043 C 0.010UF, K,
10V
1
C9134 F1G1C104A116 C 0.10UF, K, 16V 1
C9135 F1G1C104A116 C 0.10UF, K, 16V 1
C9136 F1G1C104A116 C 0.10UF, K, 16V 1
C9138 F1G1C104A116 C 0.10UF, K, 16V 1
C9139 F1J1A106A043 C 0.010UF, K,
10V
1
C9140 F1G1C104A116 C 0.10UF, K, 16V 1
C9141 F1J1A106A043 C 0.010UF, K,
10V
1
C9142 F1H1A1050032 C 10UF, 50V 1
C9143 F1H1A1050032 C 10UF, 50V 1
C9144 F1G1C104A116 C 0.10UF, K, 16V 1
C9145 F1H1A1050032 C 10UF, 50V 1
C9146 F1H1A1050032 C 10UF, 50V 1
C9147 F1H1A1050032 C 10UF, 50V 1
C9148 F1H1A1050032 C 10UF, 50V 1
C9149 F1H1A1050032 C 10UF, 50V 1
C9150 F1H1A1050032 C 10UF, 50V 1
C9151 F1H1A1050032 C 10UF, 50V 1
C9152 F1H1A1050032 C 10UF, 50V 1
C9153 F1H1A1050032 C 10UF, 50V 1
C9154 F1H1A1050032 C 10UF, 50V 1
C9155 F1H1A1050032 C 10UF, 50V 1
C9156 F1H1A1050032 C 10UF, 50V 1
C9157 F1H1A1050032 C 10UF, 50V 1
C9158 F1H1A1050032 C 10UF, 50V 1
C9159 F1H1A1050032 C 10UF, 50V 1
C9160 F1H1A1050032 C 10UF, 50V 1
C9161 F1H1A1050032 C 10UF, 50V 1
C9162 F1H1A1050032 C 10UF, 50V 1
C9163 F1H1A1050032 C 10UF, 50V 1
C9164 F1H1A1050032 C 10UF, 50V 1
C9165 F1H1A1050032 C 10UF, 50V 1
C9166 F1H1A1050032 C 10UF, 50V 1
C9167 F1H1A1050032 C 10UF, 50V 1
C9168 F1H1A1050032 C 10UF, 50V 1
C9169 F1H1A1050032 C 10UF, 50V 1
C9300 F1G1C104A116 C 0.10UF, K, 16V 1
Safety Ref. No. Part No. Part Name &
Description
Pcs Remarks

95
C9302 F1G1C104A116 C 0.10UF, K, 16V 1
C9303 F1G1C104A116 C 0.10UF, K, 16V 1
C9305 F1G1C104A116 C 0.10UF, K, 16V 1
C9306 F1G1C104A116 C 0.10UF, K, 16V 1
C9310 F1G1C104A116 C 0.10UF, K, 16V 1
C9311 F1G1C104A116 C 0.10UF, K, 16V 1
C9312 F1G1C104A116 C 0.10UF, K, 16V 1
C9313 F1G1C104A116 C 0.10UF, K, 16V 1
C9314 F1G1C104A116 C 0.10UF, K, 16V 1
C9468 F1G1E103A123 C 0.010UF, K,
25V
1
C9469 F1G1C104A116 C 0.10UF, K, 16V 1
C9535 F1G1C104A116 C 0.10UF, K, 16V 1
C9536 F1G1C104A116 C 0.10UF, K, 16V 1
C9537 F1G1C104A116 C 0.10UF, K, 16V 1
C9538 F1G1C104A116 C 0.10UF, K, 16V 1
C9539 F1G1C104A116 C 0.10UF, K, 16V 1
C9540 F1G1C104A116 C 0.10UF, K, 16V 1
C9541 F1G1C104A116 C 0.10UF, K, 16V 1
C9542 F1G1C104A116 C 0.10UF, K, 16V 1
C9543 F1G1C104A116 C 0.10UF, K, 16V 1
C9544 F1G1C104A116 C 0.10UF, K, 16V 1
C9545 F1G1C104A116 C 0.10UF, K, 16V 1
C9546 F1G1C104A116 C 0.10UF, K, 16V 1
C9547 F1G1C104A116 C 0.10UF, K, 16V 1
C9548 F1G1C104A116 C 0.10UF, K, 16V 1
C9549 F1G1C104A116 C 0.10UF, K, 16V 1
C9550 F1G1C104A116 C 0.10UF, K, 16V 1
C9700 F1G1C104A116 C 0.10UF, K, 16V 1
C9701 F1G1C104A116 C 0.10UF, K, 16V 1
C9702 F1G1C104A116 C 0.10UF, K, 16V 1
C9703 F1G1C104A116 C 0.10UF, K, 16V 1
C9704 F1G1C104A116 C 0.10UF, K, 16V 1
C9706 F1G1C104A116 C 0.10UF, K, 16V 1
C9709 F1G1C104A116 C 0.10UF, K, 16V 1
C9713 F1G1C104A116 C 0.10UF, K, 16V 1
C9714 F1G1C104A116 C 0.10UF, K, 16V 1
C9715 F1G1C104A116 C 0.10UF, K, 16V 1
C9716 F1G1C104A116 C 0.10UF, K, 16V 1
C9823 F1K1E106A136 C 10UF, Z, 25V 1
C9825 F1G1H101A731 C 100PF, K, 50V 1
C9832 F1J1A106A043 C 0.010UF, K,
10V
1
C9837 F1J1A106A043 C 0.010UF, K,
10V
1
C9840 F1G1E103A123 C 0.010UF, K,
25V
1
C9844 F1G1E103A123 C 0.010UF, K,
25V
1
C9845 F1G1C104A116 C 0.10UF, K, 16V 1
C9846 F1G1C104A116 C 0.10UF, K, 16V 1
C9858 F1K1E106A136 C 10UF, Z, 25V 1
C9859 F1G1E103A123 C 0.010UF, K,
25V
1
C9863 F1G1E472A123 C 4200UF, Z, 25V 1
C9869 F1K1E106A136 C 10UF, Z, 25V 1
C9872 F1K1E106A136 C 10UF, Z, 25V 1
C9874 F1G1H101A731 C 100PF, K, 50V 1
C9882 F1G1H201A731 C 200 UF, K, 50V 1
C9889 F1J1A106A043 C 0.010UF, K,
10V
1
C9899 F1J1A106A043 C 0.010UF, K,
10V
1
C9900 F1G1C104A116 C 0.10UF, K, 16V 1
C9901 F1G1C104A116 C 0.10UF, K, 16V 1
C9902 F1G1C104A116 C 0.10UF, K, 16V 1
C9903 F1G1C104A116 C 0.10UF, K, 16V 1
C9904 F1G1C104A116 C 0.10UF, K, 16V 1
C9905 F1G1C104A116 C 0.10UF, K, 16V 1
C9906 F1G1C104A116 C 0.10UF, K, 16V 1
C9907 F1G1C104A116 C 0.10UF, K, 16V 1
C9908 F1G1C104A116 C 0.10UF, K, 16V 1
C9909 F1G1C104A116 C 0.10UF, K, 16V 1
C9910 F1G1C104A116 C 0.10UF, K, 16V 1
C9911 F1G1C104A116 C 0.10UF, K, 16V 1
Safety Ref. No. Part No. Part Name &
Description
Pcs Remarks
C9912 F1G1C104A116 C 0.10UF, K, 16V 1
C9913 F1G1C104A116 C 0.10UF, K, 16V 1
C9914 F1G1C104A116 C 0.10UF, K, 16V 1
C9915 F1G1C104A116 C 0.10UF, K, 16V 1
C9916 F1G1C104A116 C 0.10UF, K, 16V 1
C9917 F1G1C104A116 C 0.10UF, K, 16V 1
C9918 F1G1C104A116 C 0.10UF, K, 16V 1
C9920 F1G1C104A116 C 0.10UF, K, 16V 1
C9921 F1G1C104A116 C 0.10UF, K, 16V 1
C9922 F1G1C104A116 C 0.10UF, K, 16V 1
C9923 F1G1C104A116 C 0.10UF, K, 16V 1
C9924 F1G1C104A116 C 0.10UF, K, 16V 1
C9925 F1G1C104A116 C 0.10UF, K, 16V 1
C9926 F1J1A106A043 C 0.010UF, K,
10V
1
C9949 F1G1C104A116 C 0.10UF, K, 16V 1
C9950 F1G1C104A116 C 0.10UF, K, 16V 1
C9952 F1G1C104A116 C 0.10UF, K, 16V 1
C9953 F1G1C104A116 C 0.10UF, K, 16V 1
C9954 F1G1C104A116 C 0.10UF, K, 16V 1
C9956 F1G1C104A116 C 0.10UF, K, 16V 1
C9957 F1G1C104A116 C 0.10UF, K, 16V 1
C9958 F1G1C104A116 C 0.10UF, K, 16V 1
C9960 F1J1A106A043 C 0.010UF, K,
10V
1
C9961 F1J1A106A043 C 0.010UF, K,
10V
1
C9962 F1J1A106A043 C 0.010UF, K,
10V
1
C9965 F1G1C104A116 C 0.10UF, K, 16V 1
C9966 F1J1A106A043 C 0.010UF, K,
10V
1
C9967 F1G1C104A116 C 0.10UF, K, 16V 1
C9968 F1G1C104A116 C 0.10UF, K, 16V 1
C9970 F1G1C104A116 C 0.10UF, K, 16V 1
C9971 F1G1H150A731 C 15UF, 50V 1
C9972 F1G1H150A731 C 15UF, 50V 1
C9973 F1G1C104A116 C 0.10UF, K, 16V 1
C9976 F1G1C104A116 C 0.10UF, K, 16V 1
C9977 F1G1C104A116 C 0.10UF, K, 16V 1
C9980 F1G1C104A116 C 0.10UF, K, 16V 1
C9984 F1J1A106A043 C 0.010UF, K,
10V
1
C9985 F1J1A106A043 C 0.010UF, K,
10V
1
C9986 F1G1C104A116 C 0.10UF, K, 16V 1
C9987 F1G1C104A116 C 0.10UF, K, 16V 1
C9988 F1G1C104A116 C 0.10UF, K, 16V 1
C9989 ECGRL0G680ER C 68UF, J, 4V 1
C9990 F1G1C104A116 C 0.10UF, K, 16V 1
C9991 F1G1C104A116 C 0.10UF, K, 16V 1
C9992 F1G1C104A116 C 0.10UF, K, 16V 1
C9993 F1G1C104A116 C 0.10UF, K, 16V 1
C9994 F1G1C104A116 C 0.10UF, K, 16V 1
C9995 F1G1C104A116 C 0.10UF, K, 16V 1
C9996 F1G1C104A116 C 0.10UF, K, 16V 1
C9997 F1G1C104A116 C 0.10UF, K, 16V 1
C16002 F1L2J562A022 C 5600UF, K,6.3V 1
C16012 F2A2E251A183 E 250UF, 250V 1
C16013 F2A2E251A183 E 250UF, 250V 1
C16018 F0C2E155A252 E 0.015UF, 250V 1
C16023 F1L2J562A022 C 5600UF, K,6.3V 1
C16041 F1H1H392A970 C 3900PF, K, 50V 1
C16071 F1L2J1020001 C 1000UF, K,6.3V 1
C16092 F1L2J1020001 C 1000UF, K,6.3V 1
C16104 F1H1E470A130 C 47UF, K, 25V 1
C16105 F1H1E470A130 C 47UF, K, 25V 1
C16131 F1L1E4750004 C 4.7UF, 25V 1
C16133 F1L1E4750004 C 4.7UF, 25V 1
C16135 F1K1E105A029 C 1UF, Z, 25V 1
C16151 F1K1E105A029 C 1UF, Z, 25V 1
C16152 F1L1E4750004 C 4.7UF, 25V 1
C16153 F1L1E4750004 C 4.7UF, 25V 1
C16154 F1L1E4750004 C 4.7UF, 25V 1
Safety Ref. No. Part No. Part Name &
Description
Pcs Remarks

96
C16191 F1L1E4750004 C 4.7UF, 25V 1
C16192 F1H1E104A129 C 0.1UF, 25V 1
C16193 EEUFC1E470 E 47UF, 25V 1
C16195 F1L1E4750004 C 4.7UF, 25V 1
C16201 F0C2E405A230 E 0.040UF, 250V 1
C16202 F0C2E405A230 E 0.040UF, 250V 1
C16203 F0C2E405A230 E 0.040UF, 250V 1
C16241 F2A1A101A106 E 100UF, 10V 1
C16242 F1H1C105A008 C 1UF, K, 16V 1
C16243 F1H1H103A970 C 0.001UF, K,
50V
1
C16251 F1H1C105A008 C 1UF, K, 16V 1
C16252 F1K1E105A029 C 1UF, Z, 25V 1
C16271 EEUFC1E221 E 220UF, 25V 1
C16280 F1K1E105A029 C 1UF, Z, 25V 1
C16285 F1H1H104A970 C 0.1UF, K, 50V 1
C16286 F1H1H104A970 C 0.1UF, K, 50V 1
C16287 F1H1H104A970 C 0.1UF, K, 50V 1
C16314 F2A2E251A183 E 250UF, 250V 1
C16315 F1H1A1050032 C 10UF, 50V 1
C16316 F1H1C104A143 C 0.1UF, K, 16V 1
C16317 F1H1A1050032 C 10UF, 50V 1
C16318 F1J1H104A835 C 0.10UF, 50V 1
C16319 F1J1H104A835 C 0.10UF, 50V 1
C16328 F2A2C221A195 E 2200UF, 160V 1 PAVCA
C16331 F0C2E105A252 E 0.010UF, 250V 1 PAVCA
C16401 F1L2J562A022 C 5600UF, K,6.3V 1
C16412 F2A2E251A183 E 250UF, 250V 1
C16413 F0C2E155A252 E 0.015UF, 250V 1
C16414 F2A2E251A183 E 250UF, 250V 1
C16417 F2A2E251A183 E 250UF, 250V 1
C16418 F0C2E155A252 E 0.015UF, 250V 1
C16421 F1L2J562A022 C 5600UF, K,6.3V 1
C16441 F1H1H392A970 C 3900PF, K, 50V 1
C16460 F1E2J152A002 C 1500PF, 600V 1
C16471 F1L2J1020001 C 1000UF, K,6.3V 1
C16472 F1K1E105A029 C 1UF, Z, 25V 1
C16490 F1H1C105A008 C 1UF, K, 16V 1
C16491 F1L2J1020001 C 1000UF, K,6.3V 1
C16501 F1K1E105A029 C 1UF, Z, 25V 1
C16502 F1L1E4750004 C 4.7UF, 25V 1
C16503 F2A1E471A102 E 470UF, 25V 1
C16504 F1L1E4750004 C 4.7UF, 25V 1
C16505 F1K1E105A029 C 1UF, Z, 25V 1
C16521 F1K1E105A029 C 1UF, Z, 25V 1
C16522 F1L1E4750004 C 4.7UF, 25V 1
C16523 F2A1E471A102 E 470UF, 25V 1
C16524 F1L1E4750004 C 4.7UF, 25V 1
C16525 F1L1E4750004 C 4.7UF, 25V 1
C16533 F1H1H104A970 C 0.1UF, K, 50V 1
C16535 F1H1H104A970 C 0.1UF, K, 50V 1
C16536 F1H1H104A970 C 0.1UF, K, 50V 1
C16562 F1H1C105A008 C 1UF, K, 16V 1
C16563 F2A1A101A106 E 100UF, 10V 1
C16564 F1H1C105A008 C 1UF, K, 16V 1
C16565 F1H1H103A970 C 0.001UF, K,
50V
1
C16566 F1H1H103A970 C 0.001UF, K,
50V
1
C16581 F1K1E105A029 C 1UF, Z, 25V 1
C16582 F1H1C105A008 C 1UF, K, 16V 1
C16593 F1H1H102A971 C 1000PF, K, 50V 1
C16602 F1H1H220A971 C 22PF, K, 50V 1
C16603 F1K2J102A014 C 1000UF, K,6.3V 1
C16604 F1K2J102A014 C 1000UF, K,6.3V 1
C16608 F1H1H221A971 C 220UF, K, 50V 1
C16631 F0C2E405A230 E 0.040UF, 250V 1
C16632 F0C2E405A230 E 0.040UF, 250V 1
C16633 F0C2E405A230 E 0.040UF, 250V 1
C16641 F1K2J222A014 C 2200UF, K,6.3V 1
C16645 F1K2J102A014 C 1000UF, K,6.3V 1
C16646 F1K2J102A014 C 1000UF, K,6.3V 1
C16661 F1K2J102A014 C 1000UF, K,6.3V 1
C16662 F1K2J102A014 C 1000UF, K,6.3V 1
Safety Ref. No. Part No. Part Name &
Description
Pcs Remarks
C16664 F1H1H820A971 C 82UF, 50V 1
C16665 F1H1H820A971 C 82UF, 50V 1
C16666 F1H1H820A971 C 82UF, 50V 1
C16668 F1H1H221A971 C 220UF, K, 50V 1
C16675 F1H1H391A971 C 391UF, 50V 1
C16684 F1H1H104A970 C 0.1UF, K, 50V 1
C16685 F1H1H104A970 C 0.1UF, K, 50V 1
C16691 F2A2C101A169 E 1000UF, 160V 1
C16692 F1H1H104A970 C 0.1UF, K, 50V 1
C16707 F1H1H220A971 C 22PF, K, 50V 1
C16708 F1H1H104A970 C 0.1UF, K, 50V 1
C16721 F2A1H101A128 E 100UF, 50V 1
C16723 F1L1E4750004 C 4.7UF, 25V 1
C16724 F1L1E4750004 C 4.7UF, 25V 1
C16725 F1L1E4750004 C 4.7UF, 25V 1
C16753 F1L1E4750004 C 4.7UF, 25V 1
C16755 F1L1E4750004 C 4.7UF, 25V 1
C16756 F1L1E4750004 C 4.7UF, 25V 1
C16771 F1H1C105A008 C 1UF, K, 16V 1
C16772 F1L1E4750004 C 4.7UF, 25V 1
C16773 F1L1E4750004 C 4.7UF, 25V 1
C16791 EEUFC1E221 E 220UF, 25V 1
C16795 F2A1E471A102 E 470UF, 25V 1
C16796 F2A1E471A102 E 470UF, 25V 1
C16797 F1H1H104A970 C 0.1UF, K, 50V 1
C16813 F2A2T221A009 E 220UF, 220V 1
C16814 F1H1H561A971 C 560UF, 50V 1
C16821 F1J1H104A835 C 0.10UF, 50V 1
C16822 F2A2G470A187 E 470UF, 400V 1
C16823 F1L2J562A022 C 5600UF, K,6.3V 1
C16842 F2A2C101A169 E 1000UF, 160V 1
C16843 F1J1H104A835 C 0.10UF, 50V 1
C16844 F1J1H104A835 C 0.10UF, 50V 1
C16856 F1H1A1050032 C 10UF, 50V 1
C16857 F1H1H472A970 C 4700PF, K, 50V 1
C16858 F1H1C104A143 C 0.1UF, K, 16V 1
C16860 F1H1A1050032 C 10UF, 50V 1
C16861 F1H1C104A143 C 0.1UF, K, 16V 1
C16862 F1H1A1050032 C 10UF, 50V 1
C16863 F1J1H104A835 C 0.10UF, 50V 1
C16864 F1J1H104A835 C 0.10UF, 50V 1
C16866 F1H1A1050032 C 10UF, 50V 1
C16867 F1H1A1050032 C 10UF, 50V 1
C16868 F1H1A1050032 C 10UF, 50V 1
C16869 F1J1H104A835 C 0.10UF, 50V 1
C16891 F1K1E105A029 C 1UF, Z, 25V 1
C16903 F1E2J332A002 C 3300PF, 600V 1
C17101 F1L2E154A028 E 1500UF, 25V 1
C17102 F1L2E154A028 E 1500UF, 25V 1
C17103 F1H1C104A143 C 0.1UF, K, 16V 1
C17104 F1H1A1050032 C 10UF, 50V 1
C17105 F1L2E154A028 E 1500UF, 25V 1
C17106 F1L2E154A028 E 1500UF, 25V 1
C17107 F1H1A1050032 C 10UF, 50V 1
C17108 F1L2E154A028 E 1500UF, 25V 1
C17109 F1L2E154A028 E 1500UF, 25V 1
C17110 F1H1A1050032 C 10UF, 50V 1
C17111 F1L2E154A028 E 1500UF, 25V 1
C17112 F1L2E154A028 E 1500UF, 25V 1
C17113 F1H1A1050032 C 10UF, 50V 1
C17114 F1L2E154A028 E 1500UF, 25V 1
C17115 F1L2E154A028 E 1500UF, 25V 1
C17116 F1H1A1050032 C 10UF, 50V 1
C17117 F1L2E154A028 E 1500UF, 25V 1
C17118 F1L2E154A028 E 1500UF, 25V 1
C17119 F1H1A1050032 C 10UF, 50V 1
C17120 F1L2E154A028 E 1500UF, 25V 1
C17121 F1L2E154A028 E 1500UF, 25V 1
C17122 F1H1A1050032 C 10UF, 50V 1
C17123 F1L2E154A028 E 1500UF, 25V 1
C17124 F1L2E154A028 E 1500UF, 25V 1
C17125 F1H1A1050032 C 10UF, 50V 1
C17141 F1H1H101A971 C 100UF, 50V 1
Safety Ref. No. Part No. Part Name &
Description
Pcs Remarks

97
C17202 F1H1C104A143 C 0.1UF, K, 16V 1
C17203 F1H1C104A143 C 0.1UF, K, 16V 1
C17204 F1L2E154A028 E 1500UF, 25V 1
C17205 F1L2E154A028 E 1500UF, 25V 1
C17206 F1H1A1050032 C 10UF, 50V 1
C17207 F1L2E154A028 E 1500UF, 25V 1
C17208 F1L2E154A028 E 1500UF, 25V 1
C17209 F1H1A1050032 C 10UF, 50V 1
C17210 F1L2E154A028 E 1500UF, 25V 1
C17211 F1L2E154A028 E 1500UF, 25V 1
C17212 F1H1A1050032 C 10UF, 50V 1
C17213 F1L2E154A028 E 1500UF, 25V 1
C17214 F1L2E154A028 E 1500UF, 25V 1
C17215 F1H1A1050032 C 10UF, 50V 1
C17216 F1L2E154A028 E 1500UF, 25V 1
C17217 F1L2E154A028 E 1500UF, 25V 1
C17218 F1H1A1050032 C 10UF, 50V 1
C17219 F1L2E154A028 E 1500UF, 25V 1
C17220 F1L2E154A028 E 1500UF, 25V 1
C17221 F1H1A1050032 C 10UF, 50V 1
C17222 F1L2E154A028 E 1500UF, 25V 1
C17223 F1L2E154A028 E 1500UF, 25V 1
C17224 F1H1A1050032 C 10UF, 50V 1
C17241 F1H1H101A971 C 100UF, 50V 1
CB1 K1MY55B00002 55P CONNECTOR 1 PAVCA
CB2 K1MY55B00002 55P CONNECTOR 1 PAVCA
CB3 K1MY55B00002 55P CONNECTOR 1 PAVCA
CB4 K1MY55B00002 55P CONNECTOR 1 PAVCA
CB5 K1MY55B00002 55P CONNECTOR 1 PAVCA
CB6 K1MY55B00002 55P CONNECTOR 1 PAVCA
CB7 K1MY55B00002 55P CONNECTOR 1 PAVCA
CB8 K1MY55B00002 55P CONNECTOR 1 PAVCA
CB9 K1MY55B00002 55P CONNECTOR 1 PAVCA
CB10 K1MY55B00002 55P CONNECTOR 1 PAVCA
CB11 K1MY55B00002 55P CONNECTOR 1 PAVCA
CB12 K1MY55B00002 55P CONNECTOR 1 PAVCA
CB13 K1MY55B00002 55P CONNECTOR 1 PAVCA
CB14 K1MY55B00002 55P CONNECTOR 1 PAVCA
CB15 K1MY55B00002 55P CONNECTOR 1 PAVCA
D1100 MA2J11100L DIODE 1
D2512 MA8043LTX ZENER DIODE 1
D2520 LN1271RAL-TR LED 1
D2659 MA2J11100L DIODE 1
D2660 MA22D3900L DIODE 1
D3005 K7AAAY000003 PHOTO LINK 1
D3048 MAZ81400ML ZENER DIODE 1
D3051 MAZ81400ML ZENER DIODE 1
D3052 MAZ81400ML ZENER DIODE 1
D3063 MAZ81400ML ZENER DIODE 1
D3064 MAZ81400ML ZENER DIODE 1
D3065 MAZ81400ML ZENER DIODE 1
D3066 MAZ81400ML ZENER DIODE 1
D3067 MAZ81400ML ZENER DIODE 1
D3068 MAZ81400ML ZENER DIODE 1
D3069 MAZ81400ML ZENER DIODE 1
D3070 MAZ81400ML ZENER DIODE 1
D3071 MAZ81400ML ZENER DIODE 1
D3072 MAZ81400ML ZENER DIODE 1
D3073 MAZ81400ML ZENER DIODE 1
D3079 MAZ81400ML ZENER DIODE 1
D3080 MAZ81400ML ZENER DIODE 1
D3093 MA2J72800L ZENER DIODE 1
D3094 MA2J72800L ZENER DIODE 1
D4503 EZAEG2A50AX DIODE 1
D4505 EZAEG2A50AX DIODE 1
D4507 EZAEG2A50AX DIODE 1
D4509 EZAEG2A50AX DIODE 1
D4511 EZAEG2A50AX DIODE 1
D4512 EZAEG2A50AX DIODE 1
D4513 B0BC5R6A0275 DIODE 1
D4515 B0BC5R6A0275 DIODE 1
Safety Ref. No. Part No. Part Name &
Description
Pcs Remarks
D4516 EZAEG2A50AX DIODE 1
D4517 EZAEG2A50AX DIODE 1
D4518 EZAEG2A50AX DIODE 1
D4520 EZAEG2A50AX DIODE 1
D4521 EZAEG2A50AX DIODE 1
D4523 EZAEG2A50AX DIODE 1
D4543 EZAEG2A50AX DIODE 1
D4544 EZAEG2A50AX DIODE 1
D4545 EZAEG2A50AX DIODE 1
D4546 EZAEG2A50AX DIODE 1
D4547 EZAEG2A50AX DIODE 1
D4548 EZAEG2A50AX DIODE 1
D4549 EZAEG2A50AX DIODE 1
D4550 EZAEG2A50AX DIODE 1
D4564 B0BC5R6A0275 DIODE 1
D4573 EZAEG2A50AX DIODE 1
D4574 EZAEG2A50AX DIODE 1
D4576 EZAEG2A50AX DIODE 1
D4577 EZAEG2A50AX DIODE 1
D4578 EZAEG2A50AX DIODE 1
D4579 EZAEG2A50AX DIODE 1
D4580 EZAEG2A50AX DIODE 1
D4581 EZAEG2A50AX DIODE 1
D4582 EZAEG2A50AX DIODE 1
D4583 EZAEG2A50AX DIODE 1
D4584 B0HCMM000014 DIODE 1
D4585 B0HCMM000014 DIODE 1
D4586 B0HCMM000014 DIODE 1
D5484 MA3X78900L ZENER DIODE 1
D5485 MAZ83600ML ZENER DIODE 1
D5486 B0BC03900015 ZENER DIODE 1
D5521 MA3X152D0L DIODE 1
D5522 MA3X152D0L DIODE 1
D5573 B0BC01100001 ZENER DIODE 1
D5613 MA2J11100L DIODE 1
D5614 MA2J11100L DIODE 1
D5615 MA2J11100L DIODE 1
D5616 MA2J72800L ZENER DIODE 1
D5692 MAZ80560LL ZENER DIODE 1
D5693 B0BC6R600005 ZENER DIODE 1
D5697 B0BC6R600005 ZENER DIODE 1
D5698 B0BC6R600005 ZENER DIODE 1
D5706 B0BC6R600005 ZENER DIODE 1
D5741 B0JCME000037 DIODE 1
D5746 MA2J11100L DIODE 1
D5747 MA2J11100L DIODE 1
D5749 MAZ81100ML ZENER DIODE 1
D5750 MA2J11100L DIODE 1
D5751 MAZ80330HL ZENER DIODE 1
D5752 MA2J11100L DIODE 1
D8000 MA2J11100L DIODE 1
D8002 B0HCMM000014 DIODE 1
D9000 B0JCCE000008 DIODE 1
D9110 B0JCGD000002 DIODE 1
D9800 B0JCPD000026 DIODE 1
D16001 B0FBCN000005 DIODE 1
D16002 B0FBCN000005 DIODE 1
D16021 B0FBCN000008 DIODE 1
D16022 B0FBCN000008 DIODE 1
D16032 MA2J11100L DIODE 1
D16041 MA3DF46000LW ZENER DIODE 1
D16042 MA3DF46000LW ZENER DIODE 1
D16050 B0ECKP000047 DIODE 1
D16051 B0FBCN000008 DIODE 1
D16052 B0FBCN000008 DIODE 1
D16101 MA22D3900L DIODE 1
D16131 B0ECKP000047 DIODE 1
D16151 B0ECKP000047 DIODE 1
D16152 B0ECKP000047 DIODE 1
D16153 B0ECKP000047 DIODE 1
D16191 B0ECKP000047 DIODE 1
D16192 MA2J11100L DIODE 1
D16193 B0ECKP000047 DIODE 1
Safety Ref. No. Part No. Part Name &
Description
Pcs Remarks

98
D16194 B0ECKP000047 DIODE 1
D16195 B0ECKP000047 DIODE 1
D16253 B3ABB0000210 LED 1
D16255 MA2J11100L DIODE 1
D16280 MA2J11100L DIODE 1
D16281 MAZ80510LL ZENER DIODE 1
D16282 MAZ80680ML ZENER DIODE 1
D16285 MA3X152D0L DIODE 1
D16286 MA2J11100L DIODE 1
D16315 MAZ81500ML ZENER DIODE 1
D16316 B0ECKP000047 DIODE 1
D16317 B0ECKP000047 DIODE 1
D16401 B0FACR000006 DIODE 1
D16402 B0FACR000006 DIODE 1
D16407 MA22D3900L DIODE 1
D16411 MA2J11100L DIODE 1
D16421 MA3DF40001TV ZENER DIODE 1
D16422 MA3DF40001TV ZENER DIODE 1
D16451 B0ECKP000047 DIODE 1
D16461 MA3DF46000LW ZENER DIODE 1
D16462 MA3DF46000LW ZENER DIODE 1
D16466 MA2J11100L DIODE 1
D16473 MA3X152D0L DIODE 1
D16474 MA2J11100L DIODE 1
D16475 MAZ80510LL ZENER DIODE 1
D16476 MA2J11100L DIODE 1
D16477 MA2J11100L DIODE 1
D16478 B0HCKS000002 DIODE 1
D16480 MA2J11100L DIODE 1
D16481 B0FACP000001 DIODE 1
D16482 B0FACP000001 DIODE 1
D16490 B0ECKP000047 DIODE 1
D16491 MA2J11100L DIODE 1
D16492 MAZ80470ML ZENER DIODE 1
D16493 MA3X152E0L ZENER DIODE 1
D16503 B0ECHR000001 DIODE 1
D16522 B0ECKP000047 DIODE 1
D16523 B0ECHR000001 DIODE 1
D16524 B0ECKP000047 DIODE 1
D16534 B0ECHR000001 DIODE 1
D16536 B0ECHR000001 DIODE 1
D16583 B3ABB0000210 LED 1
D16602 MAZ81500ML ZENER DIODE 1
D16604 MA3X152E0L ZENER DIODE 1
D16605 MAZ80510LL ZENER DIODE 1
D16606 B0ECKM000038 DIODE 1
D16607 MA2J11100L DIODE 1
D16608 MA8120M ZENER DIODE 1
D16610 MA2J11100L DIODE 1
D16615 MA2J11100L DIODE 1
D16616 MA3X152E0L ZENER DIODE 1
D16618 B0ECKP000047 DIODE 1
D16619 B0ECKP000047 DIODE 1
D16621 B0FBCN000006 DIODE 1
D16622 B0FBCN000006 DIODE 1
D16624 B0ECKP000047 DIODE 1
D16625 MAZ82000ML ZENER DIODE 1
D16641 B0FBCN000007 DIODE 1
D16643 B0FBCN000007 DIODE 1
D16645 MAZ81500ML ZENER DIODE 1
D16646 MAZ81500ML ZENER DIODE 1
D16647 MAZ81500ML ZENER DIODE 1
D16648 MAZ80510LL ZENER DIODE 1
D16649 MA2J11100L DIODE 1
D16650 MA2J11100L DIODE 1
D16652 B0ECKP000047 DIODE 1
D16653 MA2J11100L DIODE 1
D16654 MA2J11100L DIODE 1
D16662 MAZ81500ML ZENER DIODE 1
D16663 MAZ81500ML ZENER DIODE 1
D16664 MAZ81500ML ZENER DIODE 1
D16669 MA2J11100L DIODE 1
D16671 MA2J11100L DIODE 1
Safety Ref. No. Part No. Part Name &
Description
Pcs Remarks
D16673 B0ECHR000001 DIODE 1
D16674 B0ECHR000001 DIODE 1
D16677 MA3X152D0L DIODE 1
D16678 MAZ815000L ZENER DIODE 1
D16679 B0ECKP000047 DIODE 1
D16702 MA2J11100L DIODE 1
D16710 MAZ815000L ZENER DIODE 1
D16711 B0ECHR000001 DIODE 1
D16712 MAZ815000L ZENER DIODE 1
D16713 B0ECHR000001 DIODE 1
D16714 MAZ815000L ZENER DIODE 1
D16715 B0ECHR000001 DIODE 1
D16717 MAZ83300ML ZENER DIODE 1
D16719 B0ECKP000047 DIODE 1
D16720 B0ECKP000047 DIODE 1
D16721 B0ECHR000001 DIODE 1
D16725 MA2J11100L DIODE 1
D16765 B0ECHR000001 DIODE 1
D16791 MAZ82000ML ZENER DIODE 1
D16792 MA2J11100L DIODE 1
D16811 MA2J11100L DIODE 1
D16820 MA3X152E0L ZENER DIODE 1
D16821 MAZ83600ML ZENER DIODE 1
D16824 MAZ83300ML ZENER DIODE 1
D16825 MAZ83300ML ZENER DIODE 1
D16859 B0HCKS000002 DIODE 1
D16860 B0HCKS000002 DIODE 1
D16865 B0ECKP000047 DIODE 1
D16871 MAZ83300ML ZENER DIODE 1
D16874 MAZ80510LL ZENER DIODE 1
D16875 MA2J11100L DIODE 1
D16901 MA3X152E0L ZENER DIODE 1
D16902 MA2J11100L DIODE 1
D16920 MA3X152E0L ZENER DIODE 1
FL2500 J0MAB0000201 LC FILTER 1
FL4000 J0HAAB000036 LC FILTER 1
FL4003 J0HAAB000036 LC FILTER 1
FL4007 J0HAAB000036 LC FILTER 1
FL4008 J0HAAB000036 LC FILTER 1
FL9803 F1J1E104A148 C 0.10UF, Z, 25V 1
FL9805 F1J1E104A148 C 0.10UF, Z, 25V 1
FL9806 F1J1E104A148 C 0.10UF, Z, 25V 1
GK1 K1KA02BA0061 2P CONNECTOR 1
IC1100 C2CBYY000765 IC 1 PAVCA
IC1101 TVRQ729S IC 1 PAVCA
IC1102 C0JBAA000534 IC 1 PAVCA
IC2107 C0FBAK000026 IC 1
IC2109 C1AB00003069 IC 1 PAVCA
IC3001 C1AB00002855 IC 1
IC4500 TVRQ583S IC 1 PAVCA
IC4501 TVRQ584S IC 1 PAVCA
IC4503 C1AB00003079 IC 1 PAVCA
IC4508 TVRQ585S IC 1 PAVCA
IC4800 C1ZBZ0003775 IC 1
IC5401 C0CBZZE00001 IC 1
IC5480 C1ZBZ0003972 IC 1
IC5606 C0EBF0000354 IC 1
IC5607 C0DBAYY00480 IC 1
IC5608 C0DBAYY00480 IC 1
IC5740 C0DBAYY00462 IC 1
IC8001 C1AB00003078 IC 1 PAVCA
IC8002 C3ABSY000043 IC 1 PAVCA
IC8003 C0DBEFH00002 IC 1
IC8004 C1ZBZ0003992 IC 1 PAVCA
IC8007 C0DBFFD00005 IC 1
IC8008 C0DBGYY00578 IC 1
IC8009 C1CB00002678 IC 1
IC8502 TVRQ500AHS IC 1PAVCA
IC8503 TVRQ508S IC 1 PAVCA
IC9001 TVRQ571ADS IC 1PAVCA
Safety Ref. No. Part No. Part Name &
Description
Pcs Remarks

99
IC9003 MNZSFH8KPF3 IC 1
IC9004 C1ZBZ0003983 IC 1
IC9300 MN84528 IC 1
IC9303 TVRQ622ACS IC 1PAVCA
IC9500 C1ZBZ0003760 IC 1
IC9805 C0DBAYY00477 IC 1
IC9806 C0DBAYY00478 IC 1
IC9807 C0DBAYY00477 IC 1
IC9808 C0CBCAC00365 IC 1
IC9902 C3ABRY000040 IC 1 PAVCA
IC9903 C3ABRY000040 IC 1 PAVCA
IC16131 C0ZBZ0000895 IC 1
IC16151 C0ZBZ0001324 IC 1
IC16241 C0JBAZ002811 IC 1
IC16251 C0BBBA000024 IC 1
IC16304 MIP3900MSSCF IC 1
IC16312 C0DBZMC00006 IC 1
IC16464 C0JBAB000715 IC 1
IC16465 C0JBAB000715 IC 1
IC16471 C0DBEKA00003 IC 1
IC16490 C0DBZMC00006 IC 1
IC16491 NJM2406F LINEAR IC 1
IC16501 C0ZBZ0001324 IC 1
IC16521 C0ZBZ0001324 IC 1
IC16561 C0JBAZ001120 IC 1
IC16562 C0JBAZ001120 IC 1
IC16563 C0JBAB000388 IC 1
IC16564 C0JBAB000715 IC 1
IC16581 C0BBBA000024 IC 1
IC16661 C0BBBA000024 IC 1
IC16691 C0JBAC000363 IC 1
IC16692 C0DBZMC00006 IC 1
IC16724 C0CBADC00072 IC 1
IC16725 C0CBADC00072 IC 1
IC16771 C0CBADC00072 IC 1
IC16773 C0JBAB000715 IC 1
IC16784 MIP9L02MBS IC 1
IC16786 MIP3900MSSCF IC 1
IC16787 C0DBZMC00006 IC 1
IC16788 MIP3900MSSCF IC 1
IC16789 C0DBZMC00006 IC 1
IC16791 EHMDD9920 LINEAR IC 1
IC16792 NJM2406F LINEAR IC 1
IC16793 C0DBZMC00006 IC 1
IC16801 C0DBZMC00006 IC 1
IC16920 C0BBBA000024 IC 1
IC17101 C0JBAZ001120 IC 1
IC17201 C0JBAZ001120 IC 1
IC17202 C0JBAZ001120 IC 1
JK3000 K1U925A00002 TERMINAL BOARD 1 PAVCA
JK3001 K1FY115B0021 CONNECTOR 1
JK3701 K4AK08B00004 TERMINAL BOARD 1 PAVCA
JK4500 K1FY119D0006 CONNECTOR 1
JK4501 K1FY119D0006 CONNECTOR 1
JK4502 K1FY119E0005 CONNECTOR 1
JK8302 K1NA09E00080 9P CONNECTOR 1
JS3051 D0GDR00Z0002 M 0 OHM, 1/10W 1
JS3052 D0GDR00Z0002 M 0 OHM, 1/10W 1
JS3054 D0GDR00Z0002 M 0 OHM, 1/10W 1
JS4010 D0GDR00Z0002 M 0 OHM, 1/10W 1
JS4017 D0GBR00Z0002 M 0 OHM J 1/16W 1
JS4018 D0GBR00Z0002 M 0 OHM J 1/16W 1
JS4019 D0GBR00Z0002 M 0 OHM J 1/16W 1
JS4038 D0GDR00Z0002 M 0 OHM, 1/10W 1
K1 K1KA10B00218 10P CONNECTOR 1
L1100 J0JYC0000068 CHIP INDUCTOR 1
L2100 J0JYC0000068 CHIP INDUCTOR 1
L2103 J0JYC0000068 CHIP INDUCTOR 1
L2104 J0JYC0000068 CHIP INDUCTOR 1
Safety Ref. No. Part No. Part Name &
Description
Pcs Remarks
L2105 G1C330MA0291 INDUCTION COIL 1
L2106 G1C330MA0291 INDUCTION COIL 1
L2107 G1C330MA0291 INDUCTION COIL 1
L2108 G1C330MA0291 INDUCTION COIL 1
L2109 J0JYC0000068 CHIP INDUCTOR 1
L3000 J0JYC0000068 CHIP INDUCTOR 1
L3001 J0JYC0000068 CHIP INDUCTOR 1
L3004 J0JCC0000269 CHIP INDUCTOR 1
L3005 J0JCC0000269 CHIP INDUCTOR 1
L3200 J0JCC0000059 CHIP INDUCTOR 1
L4500 J0JYC0000068 CHIP INDUCTOR 1
L4501 J0JYC0000068 CHIP INDUCTOR 1
L4502 J0JYC0000068 CHIP INDUCTOR 1
L4503 J0JYC0000068 CHIP INDUCTOR 1
L4504 J0JYC0000068 CHIP INDUCTOR 1
L4505 J0JYC0000068 CHIP INDUCTOR 1
L4506 J0JYC0000068 CHIP INDUCTOR 1
L4507 J0JYC0000068 CHIP INDUCTOR 1
L4508 J0JYC0000068 CHIP INDUCTOR 1
L4512 J0JYC0000068 CHIP INDUCTOR 1
L4521 J0JYC0000068 CHIP INDUCTOR 1
L4522 J0JYC0000068 CHIP INDUCTOR 1
L4523 J0JYC0000068 CHIP INDUCTOR 1
L5441 G1C100MA0072 INDUCTION COIL 1
L5442 G1C470MA0291 INDUCTION COIL 1
L5600 G1C2R2Z00007 INDUCTION COIL 1
L5601 G1C3R3Z00004 INDUCTION COIL 1
L5602 G1C4R7Z00015 INDUCTION COIL 1 PAVCA
L5603 G1C100MA0203 INDUCTION COIL 1
L5604 J0JHC0000075 CHIP INDUCTOR 1
L5605 G1C100MA0203 INDUCTION COIL 1
L5606 G1C100MA0203 INDUCTION COIL 1
L5700 G1C6R8Z00008 INDUCTION COIL 1
L5741 G1C220MA0291 INDUCTION COIL 1
L8001 J0JHC0000045 CHIP INDUCTOR 1
L8003 J0JHC0000045 CHIP INDUCTOR 1
L8012 J0JHC0000045 CHIP INDUCTOR 1
L8014 J0JHC0000045 CHIP INDUCTOR 1
L8015 J0JHC0000045 CHIP INDUCTOR 1
L8016 J0JHC0000045 CHIP INDUCTOR 1
L8017 J0JHC0000045 CHIP INDUCTOR 1
L8018 J0JHC0000045 CHIP INDUCTOR 1
L8019 J0JHC0000045 CHIP INDUCTOR 1
L8020 J0JHC0000045 CHIP INDUCTOR 1
L8021 J0JCC0000059 CHIP INDUCTOR 1
L8022 J0JHC0000045 CHIP INDUCTOR 1
L8301 J0JHC0000045 CHIP INDUCTOR 1
L8302 J0JHC0000045 CHIP INDUCTOR 1
L8303 J0JHC0000045 CHIP INDUCTOR 1
L8323 G1CR22JA0020 INDUCTION COIL 1
L8324 G1CR22JA0020 INDUCTION COIL 1
L8325 G1C82NJA0075 INDUCTION COIL 1 PAVCA
L8326 G1CR10JA0020 INDUCTION COIL 1 PAVCA
L8327 G1CR10JA0020 INDUCTION COIL 1 PAVCA
L8328 G1C56NJ00018 INDUCTION COIL 1 PAVCA
L8329 G1C56NJ00018 INDUCTION COIL 1 PAVCA
L8330 G1CR18JA0020 INDUCTION COIL 1
L8500 J0JHC0000045 CHIP INDUCTOR 1
L8501 J0JHC0000045 CHIP INDUCTOR 1
L9001 G1C3R3Z00004 INDUCTION COIL 1
L9002 G1C6R8Z00008 INDUCTION COIL 1
L9700 J0JHC0000117 CHIP INDUCTOR 1
L9701 J0JHC0000117 CHIP INDUCTOR 1
L9802 G1C6R8Z00010 INDUCTION COIL 1
L9900 J0JHC0000117 CHIP INDUCTOR 1
L9901 J0JHC0000117 CHIP INDUCTOR 1
L9903 J0JHC0000117 CHIP INDUCTOR 1
L9904 J0JHC0000117 CHIP INDUCTOR 1
L16001 G0C1R1KA0206 PEAKING COIL 1
L16003 G0C1R1KA0206 PEAKING COIL 1
L16004 G0C1R1KA0206 PEAKING COIL 1
L16013 G0C1R1KA0206 PEAKING COIL 1
L16014 G0C1R1KA0206 PEAKING COIL 1
Safety Ref. No. Part No. Part Name &
Description
Pcs Remarks

100
L16015 G0C1R1KA0206 PEAKING COIL 1
L16103 G0ZZ00002183 PEAKING COIL 1
L16222 G0ZZ00002183 PEAKING COIL 1
L16271 G0ZZ00002183 PEAKING COIL 1
L16303 G0C471KA0167 PEAKING COIL 1
L16401 G0C1R1KA0206 PEAKING COIL 1
L16402 G0C1R1KA0206 PEAKING COIL 1
L16403 G0C1R1KA0206 PEAKING COIL 1
L16411 G0C1R1KA0206 PEAKING COIL 1
L16412 G0C1R1KA0206 PEAKING COIL 1
L16413 G0C1R1KA0206 PEAKING COIL 1
L16472 G0ZZ00002183 PEAKING COIL 1
L16697 G0C102KA0187 PEAKING COIL 1
L16698 G0C681MA0065 PEAKING COIL 1
L16699 G0C471KA0167 PEAKING COIL 1
L16851 G0ZZ00002183 PEAKING COIL 1
PA5601 K5H5022A0031 FUSE 1
PC2501 B3JB00000046 IC 1
PC16191 B3PBA0000496 IC 1
PC16301 B3PBA0000498 IC 1
PC16461 B3PBA0000457 IC 1
PC16480 B3PBA0000498 IC 1
PC16601 B3PBA0000498 IC 1
PC16603 B3PBA0000498 IC 1
PC16684 B3PBA0000496 IC 1
PC16685 B3PBA0000496 IC 1
PC16722 B3PBA0000498 IC 1
PC16723 B3PBA0000498 IC 1
PC16896 B3PBA0000498 IC 1
PCB TNPA4874S CIRCUIT BOARD GK 1 (RTL)
PAVCA
PCB TXN/A1ENUUS CIRCUIT BOARD A 1 (RTL)
PAVCA
PCB ETX2MM747AFF CIRCUIT BOARD P 1 (RTL)
PAVCA
PCB TXNC11EFUU CIRCUIT BOARD C1 1 (RTL)
PAVCA
PCB TXNC21EFUU CIRCUIT BOARD C2 1 (RTL)
PAVCA
PCB TXNSC1EFUU CIRCUIT BOARD SC 1 (RTL)
PAVCA
PCB TNPA4785 CIRCUIT BOARD SD 1
PCB TXNSS1EFUU CIRCUIT BOARD SS 1 (RTL)
PAVCA
PCB TNPA4802S CIRCUIT BOARD
SS2
1 (RTL)
PAVCA
PCB TNPA4784 CIRCUIT BOARD SU 1
PCB TNPA4873S CIRCUIT BOARD S 1 (RTL)
PAVCA
PCB TNPA4871S CIRCUIT BOARD K 1 (RTL)
PAVCA
Q1100 2SB0709ASL TRANSISTOR 1
Q1101 2SB0709ASL TRANSISTOR 1
Q1102 B1ABCF000231 TRANSISTOR 1
Q1103 B1ABCF000231 TRANSISTOR 1
Q1105 2SK1228 FET 1
Q2200 B1ADCE000022 TRANSISTOR 1
Q2201 B1ADCE000022 TRANSISTOR 1
Q2510 2SD0601ARL TRANSISTOR 1
Q2511 2SD0601ARL TRANSISTOR 1
Q4504 B1ABCF000231 TRANSISTOR 1
Q4505 B1ABCF000231 TRANSISTOR 1
Q4514 2SB0709ASL TRANSISTOR 1
Q4515 2SB0709ASL TRANSISTOR 1
Q4516 2SB0709ASL TRANSISTOR 1
Q4517 2SB0709ASL TRANSISTOR 1
Q4528 B1ABCF000231 TRANSISTOR 1
Q4529 B1ABCF000231 TRANSISTOR 1
Q4530 B1ABCF000231 TRANSISTOR 1
Q4531 B1ABCF000231 TRANSISTOR 1
Q5522 B1ADCE000022 TRANSISTOR 1
Safety Ref. No. Part No. Part Name &
Description
Pcs Remarks
Q5603 B1ABCF000231 TRANSISTOR 1
Q5604 B1ABCF000231 TRANSISTOR 1
Q5684 B1ADCE000022 TRANSISTOR 1
Q5685 B1MBDDA00003 FET 1
Q5686 B1MBDDA00003 FET 1
Q5687 B1MBDDA00003 FET 1
Q5700 B1MBDDA00003 FET 1
Q8000 B1ABCF000231 TRANSISTOR 1
Q8001 B1ABCF000231 TRANSISTOR 1
Q9000 B1ABCF000231 TRANSISTOR 1
Q9001 B1ABCF000231 TRANSISTOR 1
Q9002 B1ABCF000231 TRANSISTOR 1
Q9003 B1ABCF000231 TRANSISTOR 1
Q9004 B1ABCF000231 TRANSISTOR 1
Q9301 2SD0601ARL TRANSISTOR 1
Q9302 2SD0601ARL TRANSISTOR 1
Q9807 2SD0601ARL TRANSISTOR 1
Q16001 2PG0060000RP TRANSISTOR 1
Q16002 2PG0060000RP TRANSISTOR 1
Q16004 2PG0060000RP TRANSISTOR 1
Q16021 B1JADP000004 TRANSISTOR 1
Q16022 B1JADP000004 TRANSISTOR 1
Q16023 B1JADP000004 TRANSISTOR 1
Q16041 B1JAEN000007 TRANSISTOR 1 PAVCA
Q16051 B1JAEN000007 TRANSISTOR 1 PAVCA
Q16055 B1HFPFA00001 TRANSISTOR 1
Q16056 B1HFPFA00001 TRANSISTOR 1
Q16101 2SK399500L FET 1
Q16102 2SK399500L FET 1
Q16141 B1HFPFA00001 TRANSISTOR 1
Q16161 B1HFPFA00001 TRANSISTOR 1
Q16191 B1HFPFA00001 TRANSISTOR 1
Q16251 2SD0601ARL TRANSISTOR 1
Q16280 2SD0601ARL TRANSISTOR 1
Q16402 2PG0110000RP TRANSISTOR 1
Q16403 2PG0110000RP TRANSISTOR 1
Q16404 2PG0110000RP TRANSISTOR 1
Q16422 B1JAEP000004 TRANSISTOR 1
Q16423 B1JAEP000004 TRANSISTOR 1
Q16424 B1JAEP000004 TRANSISTOR 1
Q16441 B1JAEP000007 TRANSISTOR 1
Q16452 B1JAEP000006 TRANSISTOR 1
Q16471 B1ABCF000231 TRANSISTOR 1
Q16490 B1CBGD000001 FET 1
Q16501 B1HFPFA00001 TRANSISTOR 1
Q16502 B1HFPFA00001 TRANSISTOR 1
Q16521 B1HFPFA00001 TRANSISTOR 1
Q16522 B1HFPFA00001 TRANSISTOR 1
Q16531 B1HFPFA00001 TRANSISTOR 1
Q16551 B1HFPFA00001 TRANSISTOR 1
Q16601 B1CERR000025 FET 1
Q16602 2SD0601AQL TRANSISTOR 1
Q16603 2SB0709ASL TRANSISTOR 1
Q16604 B1CHPM000001 FET 1
Q16606 2SD0601AQL TRANSISTOR 1
Q16607 B1CBGD000001 FET 1
Q16608 B1CBGD000001 FET 1
Q16621 B1JADN000004 TRANSISTOR 1
Q16623 B1JADN000004 TRANSISTOR 1
Q16624 2SB0709ASL TRANSISTOR 1
Q16645 2SD0601AQL TRANSISTOR 1
Q16646 2SB0709ASL TRANSISTOR 1
Q16647 B1CBGD000001 FET 1
Q16649 B1ABCN000007 TRANSISTOR 1
Q16660 B1CERR000025 FET 1
Q16661 B1JAER000003 TRANSISTOR 1
Q16662 2SD0601AQL TRANSISTOR 1
Q16663 2SB0709ASL TRANSISTOR 1
Q16667 2SB0709ARL TRANSISTOR 1
Q16668 2SD0601AQL TRANSISTOR 1
Q16670 B1ADCN000007 TRANSISTOR 1
Q16671 B1ABCF000231 TRANSISTOR 1
Q16675 B1ADCN000007 TRANSISTOR 1
Safety Ref. No. Part No. Part Name &
Description
Pcs Remarks

101
Q16676 B1ABCF000231 TRANSISTOR 1
Q16677 2SD0601AQL TRANSISTOR 1
Q16678 B1ABCF000231 TRANSISTOR 1
Q16701 B1ADCN000007 TRANSISTOR 1
Q16702 B1ABCF000231 TRANSISTOR 1
Q16743 2SD0601ARL TRANSISTOR 1
Q16762 B1HFPFA00001 TRANSISTOR 1
Q16801 B1ADCN000007 TRANSISTOR 1
Q16810 B1ABCF000231 TRANSISTOR 1
Q16815 B1ABCN000007 TRANSISTOR 1
Q16816 2SD0601AQL TRANSISTOR 1
Q16817 B1CBGD000001 FET 1
Q16818 B1CBGD000001 FET 1
Q16874 B1CBGD000001 FET 1
Q16875 B1ABCF000231 TRANSISTOR 1
Q16876 B1ABCF000231 TRANSISTOR 1
Q16882 B1ABCF000231 TRANSISTOR 1
Q16884 2SD0601ARL TRANSISTOR 1
Q16920 B1ABCN000007 TRANSISTOR 1
R1145 ERJ2GEJ471 M 470 OHM,
J,0.063W
1
R1164 ERJ2GEJ101 M 100 OHM,
J,0.063W
1
R1165 ERJ2GEJ222 M 2.2KOHM,
J,0.063W
1
R1166 ERJ2GEJ750 M 75 OHM,
J,0.063W
1
R1167 ERJ2GEJ474 M 470KOHM,
J,0.063W
1
R1168 ERJ2GEJ103 M 10KOHM,
J,0.063W
1
R1169 ERJ2GEJ472 M 4.7KOHM,
J,0.063W
1
R1170 ERJ2GEJ103 M 10KOHM,
J,0.063W
1
R1171 ERJ2GEJ333 M 33KOHM,
J,0.063W
1
R1172 ERJ2GEJ223 M 22KOHM,
J,0.063W
1
R1173 ERJ2GEJ473 M 47KOHM,
J,0.063W
1
R1174 ERJ2GEJ473 M 47KOHM,
J,0.063W
1
R1175 ERJ2GEJ223 M 22KOHM,
J,0.063W
1
R1176 ERJ2GEJ393 M
39KOHM,J,0.063W
1
R1177 ERJ2GEJ101 M 100 OHM,
J,0.063W
1
R1180 ERJ2GEJ472 M 4.7KOHM,
J,0.063W
1
R1182 ERJ2GEJ472 M 4.7KOHM,
J,0.063W
1
R1183 ERJ2GEJ472 M 4.7KOHM,
J,0.063W
1
R1184 ERJ2GEJ472 M 4.7KOHM,
J,0.063W
1
R1185 ERJ2GEJ101 M 100 OHM,
J,0.063W
1
R1186 ERJ2GEJ101 M 100 OHM,
J,0.063W
1
R1188 ERJ2GEJ103 M 10KOHM,
J,0.063W
1
R1189 ERJ2GEJ101 M 100 OHM,
J,0.063W
1
R1190 ERJ2GED273X M 27KOHM
,J,0.063W
1
R1191 ERJ2GEJ101 M 100 OHM,
J,0.063W
1
R1192 ERJ2GEJ101 M 100 OHM,
J,0.063W
1
R1193 ERJ2GEJ472 M 4.7KOHM,
J,0.063W
1
R1195 D0YAR0000007 M 0 OHM 1/4W 1
R1197 ERJ2GEJ473 M 47KOHM,
J,0.063W
1
R1198 ERJ2GEJ472 M 4.7KOHM,
J,0.063W
1
Safety Ref. No. Part No. Part Name &
Description
Pcs Remarks
R1200 ERJ2GEJ472 M 4.7KOHM,
J,0.063W
1
R1201 ERJ2GEJ472 M 4.7KOHM,
J,0.063W
1
R1202 ERJ2GEJ222 M 2.2KOHM,
J,0.063W
1
R1203 ERJ2GEJ222 M 2.2KOHM,
J,0.063W
1
R1205 ERJ2GEJ473 M 47KOHM,
J,0.063W
1
R1209 ERJ2GEJ472 M 4.7KOHM,
J,0.063W
1
R1210 ERJ2GEJ101 M 100 OHM,
J,0.063W
1
R1211 ERJ2GEJ683 M 68KOHM,
J,0.063W
1
R1212 ERJ2GEJ473 M 47KOHM,
J,0.063W
1
R1213 ERJ2GEJ683 M 68KOHM,
J,0.063W
1
R1214 ERJ2GEJ333 M 33KOHM,
J,0.063W
1
R1216 ERJ2GEJ473 M 47KOHM,
J,0.063W
1
R1218 ERJ2GEJ222 M 2.2KOHM,
J,0.063W
1
R1220 ERJ2GEJ103 M 10KOHM,
J,0.063W
1
R1222 ERJ2GEJ473 M 47KOHM,
J,0.063W
1
R1223 ERJ2GEJ102X M 1K OHM J 1/4W 1
R1224 ERJ2GEJ473 M 47KOHM,
J,0.063W
1
R1225 ERJ2GEJ102X M 1K OHM J 1/4W 1
R1226 ERJ2GEJ102X M 1K OHM J 1/4W 1
R1227 D1BB7151A055 M7.15KOHM, 1/10W 1
R1228 ERJ2GEJ104 M 100KOHM,
J,0.063W
1
R1230 ERJ2GEJ101 M 100 OHM,
J,0.063W
1
R1231 ERJ2GEJ472 M 4.7KOHM,
J,0.063W
1
R1232 ERJ2GEJ472 M 4.7KOHM,
J,0.063W
1
R1233 ERJ2GEJ472 M 4.7KOHM,
J,0.063W
1
R1235 ERJ2GEJ472 M 4.7KOHM,
J,0.063W
1
R1236 ERJ2GEJ101 M 100 OHM,
J,0.063W
1
R1237 ERJ2GEJ222 M 2.2KOHM,
J,0.063W
1
R1238 ERJ2GEJ473 M 47KOHM,
J,0.063W
1
R1239 ERJ2GEJ104 M 100KOHM,
J,0.063W
1
R1240 ERJ2GEJ472 M 4.7KOHM,
J,0.063W
1
R2061 ERJ2GEJ101 M 100 OHM,
J,0.063W
1
R2100 ERJ2GEJ471 M 470 OHM,
J,0.063W
1
R2101 ERJ2GEJ471 M 470 OHM,
J,0.063W
1
R2102 D1BB2212A055 M22.1KOHM, 1/10W 1 PAVCA
R2109 D0GBR00Z0002 M 0 OHM J 1/16W 1
R2113 D1BA1822A014 M18.2KOHM, 1/10W 1 PAVCA
R2114 ERJ2GEJ103 M 10KOHM,
J,0.063W
1
R2118 ERJ8GEYJ3R3V M 3.3 OHM, J,1/
8W
1
R2119 ERJ8GEYJ3R3V M 3.3 OHM, J,1/
8W
1
R2120 ERJ8GEYJ3R3V M 3.3 OHM, J,1/
8W
1
R2121 ERJ8GEYJ3R3V M 3.3 OHM, J,1/
8W
1
R2125 ERJ2GEJ220 M 22 OHM,
J,0.063W
1
Safety Ref. No. Part No. Part Name &
Description
Pcs Remarks

102
R2126 ERJ2GEJ220 M 22 OHM,
J,0.063W
1
R2127 ERJ2GEJ101 M 100 OHM,
J,0.063W
1
R2128 ERJ2RKD330 M 33 OHM, J, 2W 1
R2129 ERJ2GEJ101 M 100 OHM,
J,0.063W
1
R2130 D0YAR0000007 M 0 OHM 1/4W 1
R2131 ERJ2GEJ101 M 100 OHM,
J,0.063W
1
R2132 ERJ2GEJ101 M 100 OHM,
J,0.063W
1
R2136 ERJ2GEJ221 M 220 OHM,
J,0.063W
1
R2137 ERJ2GEJ331 M 330 OHM,
J,0.063W
1
R2139 ERJ2GEJ680 M 68 OHM,
J,0.063W
1
R2140 ERJ2GEJ101 M 100 OHM,
J,0.063W
1
R2202 ERJ2GEJ153 M 15KOHM
,J,0.063W
1
R2203 ERJ2GEJ153 M 15KOHM
,J,0.063W
1
R2204 ERJ2GEJ153 M 15KOHM
,J,0.063W
1
R2205 ERJ2GEJ153 M 15KOHM
,J,0.063W
1
R2206 ERJ2GEJ223 M 22KOHM,
J,0.063W
1
R2207 ERJ2GEJ223 M 22KOHM,
J,0.063W
1
R2208 ERJ2GEJ102X M 1K OHM J 1/4W 1
R2209 ERJ2GEJ102X M 1K OHM J 1/4W 1
R2513 D1BB5601A055 M 5.6KOHM, 1/10W 1
R2516 ERJ3GEYJ223 M 22KOHM,J,1/16W 1
R2517 ERJ6GEYJ470V M 47 OHM,J,1/10W 1
R2520 ERJ3GEYJ224 M 220KOHM,J,1/
16W
1
R2524 ERJ3GEYJ223 M 22KOHM,J,1/16W 1
R2525 ERJ3GEYJ821 M820 OHM,J,1/16W 1
R2542 D0GB473JA057 M 47KOHM,J,1/16W 1
R2557 ERJ3GEYJ562 M 5.6KOHM,J,1/
16W
1
R3058 ERJ2GEJ221 M 220 OHM,
J,0.063W
1
R3059 ERJ2GEJ221 M 220 OHM,
J,0.063W
1
R3062 ERJ2GEJ221 M 220 OHM,
J,0.063W
1
R3066 D1BB75R0A055 M 75 OHM, 1/10W 1
R3067 ERJ2GEJ221 M 220 OHM,
J,0.063W
1
R3068 ERJ2GEJ221 M 220 OHM,
J,0.063W
1
R3074 ERJ2GEJ220 M 22 OHM,
J,0.063W
1
R3075 ERJ2GEJ220 M 22 OHM,
J,0.063W
1
R3081 ERJ2GEJ221 M 220 OHM,
J,0.063W
1
R3082 ERJ2GEJ221 M 220 OHM,
J,0.063W
1
R3083 ERJ2GEJ221 M 220 OHM,
J,0.063W
1
R3084 ERJ2GEJ221 M 220 OHM,
J,0.063W
1
R3085 ERJ2GEJ221 M 220 OHM,
J,0.063W
1
R3086 ERJ2GEJ221 M 220 OHM,
J,0.063W
1
R3087 ERJ2GEJ221 M 220 OHM,
J,0.063W
1
R3088 ERJ2GEJ221 M 220 OHM,
J,0.063W
1
R3089 ERJ2GEJ221 M 220 OHM,
J,0.063W
1
R3090 ERJ2GEJ221 M 220 OHM,
J,0.063W
1
Safety Ref. No. Part No. Part Name &
Description
Pcs Remarks
R3095 ERJ2GEJ680 M 68 OHM,
J,0.063W
1
R3096 ERJ2GEJ680 M 68 OHM,
J,0.063W
1
R3097 ERJ2GEJ680 M 68 OHM,
J,0.063W
1
R3098 ERJ2GEJ680 M 68 OHM,
J,0.063W
1
R3099 ERJ2GEJ680 M 68 OHM,
J,0.063W
1
R3107 ERJ2GEJ680 M 68 OHM,
J,0.063W
1
R3113 D0GDR00Z0002 M 0 OHM, 1/10W 1
R3114 ERJ2GEJ101 M 100 OHM,
J,0.063W
1
R3115 D0GDR00Z0002 M 0 OHM, 1/10W 1
R3116 ERJ2GEJ101 M 100 OHM,
J,0.063W
1
R3117 ERJ6GEYJ472V M 4.7K OHM J 1/
10W
1
R3118 ERJ6GEYJ472V M 4.7K OHM J 1/
10W
1
R3119 D1BB75R0A055 M 75 OHM, 1/10W 1
R3120 D0GDR00Z0002 M 0 OHM, 1/10W 1
R3121 D1BB75R0A055 M 75 OHM, 1/10W 1
R3122 D0GDR00Z0002 M 0 OHM, 1/10W 1
R3125 D1BB75R0A055 M 75 OHM, 1/10W 1
R3126 D0GDR00Z0002 M 0 OHM, 1/10W 1
R3127 ERJ2GEJ680 M 68 OHM,
J,0.063W
1
R3128 ERJ2GEJ680 M 68 OHM,
J,0.063W
1
R3129 ERJ2GEJ680 M 68 OHM,
J,0.063W
1
R3189 D1BB75R0A055 M 75 OHM, 1/10W 1
R3190 D0GB393JA041 M 39KOHM,J,1/16W 1
R3191 D0GB393JA041 M 39KOHM,J,1/16W 1
R3192 D0GB393JA041 M 39KOHM,J,1/16W 1
R3193 D0GB393JA041 M 39KOHM,J,1/16W 1
R3194 D1BB75R0A055 M 75 OHM, 1/10W 1
R3198 D1BB75R0A055 M 75 OHM, 1/10W 1
R3199 D1BB75R0A055 M 75 OHM, 1/10W 1
R3202 D0GB393JA041 M 39KOHM,J,1/16W 1
R3203 D1BB75R0A055 M 75 OHM, 1/10W 1
R3204 D0GB393JA041 M 39KOHM,J,1/16W 1
R3208 D1BB75R0A055 M 75 OHM, 1/10W 1
R3209 D1BB75R0A055 M 75 OHM, 1/10W 1
R3211 D1BB75R0A055 M 75 OHM, 1/10W 1
R3212 D1BB75R0A055 M 75 OHM, 1/10W 1
R3570 D0GDR00Z0002 M 0 OHM, 1/10W 1
R3571 D0GDR00Z0002 M 0 OHM, 1/10W 1
R3716 ERJ2GEJ393 M
39KOHM,J,0.063W
1
R3717 ERJ2GEJ393 M
39KOHM,J,0.063W
1
R3765 ERJ6GEY0R00V M 0 OHM J 1/10W 1
R3771 ERJ6ENF2102 M 21KOHM, 1/10W 1
R3772 D1BD1741A044 M1.74KOHM, 1/10W 1
R3773 D1BD1621A044 M1.62KOHM, 1/10W 1 PAVCA
R3774 D1BD2321A044 M2.32KOHM, 1/10W 1 PAVCA
R3775 D1BD3161A044 M3.16KOHM, 1/10W 1 PAVCA
R4006 ERJ2GEJ220 M 22 OHM,
J,0.063W
1
R4079 EXB2HV680J RESISTOR ARRAY 1
R4081 EXB2HV680J RESISTOR ARRAY 1
R4089 EXB2HV680J RESISTOR ARRAY 1
R4090 EXB2HV680J RESISTOR ARRAY 1
R4091 EXB2HV680J RESISTOR ARRAY 1
R4092 EXB2HV472JV RESISTOR ARRAY 1 PAVCA
R4093 EXB2HV472JV RESISTOR ARRAY 1 PAVCA
R4097 ERJ2GEJ472 M 4.7KOHM,
J,0.063W
1
R4098 ERJ2GEJ472 M 4.7KOHM,
J,0.063W
1
R4099 ERJ2GEJ472 M 4.7KOHM,
J,0.063W
1
Safety Ref. No. Part No. Part Name &
Description
Pcs Remarks

103
R4102 ERJ2GEJ153 M 15KOHM
,J,0.063W
1
R4131 ERJ2GEJ220 M 22 OHM,
J,0.063W
1
R4132 ERJ2GEJ220 M 22 OHM,
J,0.063W
1
R4177 EXB38V220JV RESISTOR ARRAY 1
R4178 EXB38V220JV RESISTOR ARRAY 1
R4233 ERJ2GEJ220 M 22 OHM,
J,0.063W
1
R4236 ERJ2GEJ220 M 22 OHM,
J,0.063W
1
R4237 ERJ2GEJ220 M 22 OHM,
J,0.063W
1
R4504 ERJ2GEJ102X M 1K OHM J 1/4W 1
R4505 ERJ2GEJ102X M 1K OHM J 1/4W 1
R4538 ERJ2GEJ473 M 47KOHM,
J,0.063W
1
R4540 ERJ2GEJ473 M 47KOHM,
J,0.063W
1
R4546 ERJ2GEJ103 M 10KOHM,
J,0.063W
1
R4547 ERJ2GEJ103 M 10KOHM,
J,0.063W
1
R4567 D1BB4701A055 M 4.7KOHM, 1/10W 1
R4570 D0YAR0000007 M 0 OHM 1/4W 1
R4587 ERJ3EKF5601 M 5.6KOHM, 1/16W 1
R4588 ERJ2GEJ103 M 10KOHM,
J,0.063W
1
R4589 ERJ2GEJ103 M 10KOHM,
J,0.063W
1
R4592 ERJ2GEJ103 M 10KOHM,
J,0.063W
1
R4593 ERJ2GED273X M 27KOHM
,J,0.063W
1
R4596 ERJ2GEJ221 M 220 OHM,
J,0.063W
1
R4597 ERJ2GEJ221 M 220 OHM,
J,0.063W
1
R4598 ERJ2GEJ221 M 220 OHM,
J,0.063W
1
R4600 ERJ2GEJ473 M 47KOHM,
J,0.063W
1
R4601 ERJ2GEJ102X M 1K OHM J 1/4W 1
R4604 ERJ2GEJ103 M 10KOHM,
J,0.063W
1
R4606 ERJ2GEJ472 M 4.7KOHM,
J,0.063W
1
R4607 ERJ2GEJ473 M 47KOHM,
J,0.063W
1
R4609 ERJ2GEJ473 M 47KOHM,
J,0.063W
1
R4610 ERJ2GEJ473 M 47KOHM,
J,0.063W
1
R4611 ERJ2GEJ473 M 47KOHM,
J,0.063W
1
R4612 ERJ2GEJ472 M 4.7KOHM,
J,0.063W
1
R4613 ERJ2RKF1001 M 1KOHM, 0.063W 1
R4615 ERJ2GEJ103 M 10KOHM,
J,0.063W
1
R4616 ERJ2RKF1001 M 1KOHM, 0.063W 1
R4617 ERJ2GEJ103 M 10KOHM,
J,0.063W
1
R4621 ERJ2GEJ103 M 10KOHM,
J,0.063W
1
R4623 ERJ2GED563X M 56KOHM
,J,0.063W
1
R4624 ERJ2GEJ223 M 22KOHM,
J,0.063W
1
R4625 ERJ2GEJ223 M 22KOHM,
J,0.063W
1
R4626 ERJ2GEJ221 M 220 OHM,
J,0.063W
1
R4627 ERJ2GEJ221 M 220 OHM,
J,0.063W
1
R4628 ERJ2GEJ223 M 22KOHM,
J,0.063W
1
R4634 ERJ2GEJ221 M 220 OHM,
J,0.063W
1
Safety Ref. No. Part No. Part Name &
Description
Pcs Remarks
R4640 ERJ2GEJ472 M 4.7KOHM,
J,0.063W
1
R4734 ERJ2GEJ102X M 1K OHM J 1/4W 1
R4742 D1BB2001A055 M 2KOHM, 1/10W 1
R4743 D1BB2001A055 M 2KOHM, 1/10W 1
R4821 ERJ2GEJ103 M 10KOHM,
J,0.063W
1
R5070 ERJ2GEJ103 M 10KOHM,
J,0.063W
1
R5137 ERJ2GEJ103 M 10KOHM,
J,0.063W
1
R5188 ERJ2GEJ471 M 470 OHM,
J,0.063W
1
R5503 D1BB1003A055 M 100KOHM, 1/10W 1
R5504 D1BB3401A055 M 3.4KOHM, 1/10W 1
R5505 ERJ6GEYJ153V M 15KOHM,J,1/10W 1
R5506 D1BB3902A055 M 39KOHM, 1/10W 1
R5535 ERJ2GEJ223 M 22KOHM,
J,0.063W
1
R5536 ERJ2GEJ473 M 47KOHM,
J,0.063W
1
R5537 ERJ2GEJ152 M 1.5KOHM,
J,0.063W
1
R5538 ERJ2GEJ222 M 2.2KOHM,
J,0.063W
1
R5540 ERJ2GEJ471 M 470 OHM,
J,0.063W
1
R5542 ERJ2GEJ471 M 470 OHM,
J,0.063W
1
R5544 ERJ2GEJ471 M 470 OHM,
J,0.063W
1
R5635 ERJ2GEJ223 M 22KOHM,
J,0.063W
1
R5636 ERJ2GEJ683 M 68KOHM,
J,0.063W
1
R5638 ERJ2GEJ103 M 10KOHM,
J,0.063W
1
R5641 ERJ2GEJ473 M 47KOHM,
J,0.063W
1
R5644 ERJ2GEJ222 M 2.2KOHM,
J,0.063W
1
R5646 ERJ2GEJ103 M 10KOHM,
J,0.063W
1
R5647 ERJ2GEJ473 M 47KOHM,
J,0.063W
1
R5648 ERJ2GEJ103 M 10KOHM,
J,0.063W
1
R5650 ERJ2GEJ473 M 47KOHM,
J,0.063W
1
R5651 ERJ2GEJ683 M 68KOHM,
J,0.063W
1
R5652 ERJ2GEJ104 M 100KOHM,
J,0.063W
1
R5662 ERJ2GEJ103 M 10KOHM,
J,0.063W
1
R5664 ERJ2GEJ105 M 1MOHM,
J,0.063W
1
R5665 ERJ2GEJ101 M 100 OHM,
J,0.063W
1
R5666 ERJ2GEJ471 M 470 OHM,
J,0.063W
1
R5667 ERJ2GEJ101 M 100 OHM,
J,0.063W
1
R5669 D1BB1602A055 M 16KOHM, 1/10W 1
R5670 D1BB4752A055 M47.5KOHM, 1/10W 1
R5671 D1BB2702A055 M 27KOHM, 1/10W 1
R5672 ERJ2GEJ5R6X M 5.6 OHM,
J,0.063W
1
R5673 ERJ2GEJ680 M 68 OHM,
J,0.063W
1
R5674 D1BB6981A055 M6.98KOHM, 1/10W 1 PAVCA
R5675 D1BB4302A055 M 43KOHM, 1/10W 1
R5676 D1BB5602A055 M 56KOHM, 1/10W 1
R5677 D1BB2702A055 M 27KOHM, 1/10W 1
R5678 D1BB1602A055 M 16KOHM, 1/10W 1
R5679 D1BB1602A055 M 16KOHM, 1/10W 1
R5680 ERJ2GEJ5R6X M 5.6 OHM,
J,0.063W
1
R5681 ERJ6GEYJ102V M 1K OHM J 1/10W 1
Safety Ref. No. Part No. Part Name &
Description
Pcs Remarks

104
R5682 ERJ6GEYJ102V M 1K OHM J 1/10W 1
R5700 D1BB8202A055 M 82KOHM, 1/10W 1 PAVCA
R5701 D1BB1332A055 M13.3KOHM, 1/10W 1 PAVCA
R5702 D1BB1602A055 M 16KOHM, 1/10W 1
R5782 ERJ3GEYJ390 M 39 OHM,J,1/16W 1
R5783 D1BB1371A055 M1.37KOHM, 1/10W 1 PAVCA
R5785 D1BB1432A055 M14.3KOHM, 1/10W 1 PAVCA
R5786 ERJ2GEJ562 M 5.6KOHM,
J,0.063W
1
R5787 D1BB1500A055 M 150 OHM, 1/10W 1 PAVCA
R5790 D0YAR0000007 M 0 OHM 1/4W 1
R5792 ERJ2GEJ472 M 4.7KOHM,
J,0.063W
1
R5793 ERJ2GEJ472 M 4.7KOHM,
J,0.063W
1
R5796 ERJ2GEJ472 M 4.7KOHM,
J,0.063W
1
R5797 ERJ2GEJ471 M 470 OHM,
J,0.063W
1
R8026 ERJ2RKF91R0X M 249 OHM,
0.063W
1 PAVCA
R8027 ERJ2RKF91R0X M 249 OHM,
0.063W
1 PAVCA
R8031 D1BB1002A055 M 10KOHM, 1/10W 1
R8032 D1BB1002A055 M 10KOHM, 1/10W 1
R8056 ERJ2RKF91R0X M 249 OHM,
0.063W
1 PAVCA
R8057 ERJ2RKF91R0X M 249 OHM,
0.063W
1 PAVCA
R8058 ERJ2RKF91R0X M 249 OHM,
0.063W
1 PAVCA
R8059 ERJ2RKF91R0X M 249 OHM,
0.063W
1 PAVCA
R8060 ERJ2RKF91R0X M 249 OHM,
0.063W
1 PAVCA
R8061 ERJ2RKF91R0X M 249 OHM,
0.063W
1 PAVCA
R8062 ERJ2RKF91R0X M 249 OHM,
0.063W
1 PAVCA
R8063 ERJ2RKF91R0X M 249 OHM,
0.063W
1 PAVCA
R8064 ERJ2RKF91R0X M 249 OHM,
0.063W
1 PAVCA
R8065 ERJ2RKF91R0X M 249 OHM,
0.063W
1 PAVCA
R8066 ERJ2RKF91R0X M 249 OHM,
0.063W
1 PAVCA
R8067 ERJ2RKF91R0X M 249 OHM,
0.063W
1 PAVCA
R8068 ERJ2RKF91R0X M 249 OHM,
0.063W
1 PAVCA
R8069 ERJ2RKF91R0X M 249 OHM,
0.063W
1 PAVCA
R8070 ERJ2RKF91R0X M 249 OHM,
0.063W
1 PAVCA
R8072 ERJ2RKF91R0X M 249 OHM,
0.063W
1 PAVCA
R8073 ERJ2RKF91R0X M 249 OHM,
0.063W
1 PAVCA
R8075 ERJ2RKF91R0X M 249 OHM,
0.063W
1 PAVCA
R8095 ERJ2GEJ473 M 47KOHM,
J,0.063W
1
R8096 ERJ2GEJ472 M 4.7KOHM,
J,0.063W
1
R8097 ERJ2GEJ472 M 4.7KOHM,
J,0.063W
1
R8098 ERJ2GEJ472 M 4.7KOHM,
J,0.063W
1
R8099 ERJ2GEJ222 M 2.2KOHM,
J,0.063W
1
R8100 ERJ2RKF91R0X M 249 OHM,
0.063W
1 PAVCA
R8101 ERJ2RKF91R0X M 249 OHM,
0.063W
1 PAVCA
R8102 ERJ2GEJ222 M 2.2KOHM,
J,0.063W
1
R8113 ERJ2GEJ470 M 47 OHM,
J,0.063W
1
Safety Ref. No. Part No. Part Name &
Description
Pcs Remarks
R8115 D1BB3010A055 M 301 OHM, 1/10W 1 PAVCA
R8116 ERJ3EKF73R2V M73.2 OHM, ,
0.063W
1 PAVCA
R8117 ELJRF10NJFB INDUCTION COIL 1
R8118 ERJ2GEJ122 M 1.2KOHM,
J,0.063W
1
R8119 ERJ2GEJ222 M 2.2KOHM,
J,0.063W
1
R8120 ERJ2GEJ102X M 1K OHM J 1/4W 1
R8121 ERJ2GEJ274 M 270KOHM,
J,0.063W
1
R8122 ERJ2GEJ152 M 1.5KOHM,
J,0.063W
1
R8123 ERJ2GEJ122 M 1.2KOHM,
J,0.063W
1
R8124 ERJ2GEJ472 M 4.7KOHM,
J,0.063W
1
R8125 ERJ2GEJ104 M 100KOHM,
J,0.063W
1
R8126 ERJ2GEJ103 M 10KOHM,
J,0.063W
1
R8129 ERJ2GEJ103 M 10KOHM,
J,0.063W
1
R8130 ERJ2GEJ470 M 47 OHM,
J,0.063W
1
R8131 ERJ2GEJ470 M 47 OHM,
J,0.063W
1
R8134 ERJ2RKF91R0X M 249 OHM,
0.063W
1 PAVCA
R8135 ERJ2GEJ470 M 47 OHM,
J,0.063W
1
R8137 ERJ2GEJ105 M 1MOHM,
J,0.063W
1
R8138 D0YAR0000007 M 0 OHM 1/4W 1
R8139 ERJ2RKF6340X M 634 OHM,
0.063W
1 PAVCA
R8141 ERJ2RKF1400X M 140 OHM,
0.063W
1 PAVCA
R8147 ERJ2GEJ103 M 10KOHM,
J,0.063W
1
R8148 ERJ2GEJ103 M 10KOHM,
J,0.063W
1
R8149 ERJ2GEJ104 M 100KOHM,
J,0.063W
1
R8150 ERJ2RKF1500X M 150 OHM,
0.063W
1 PAVCA
R8153 ERJ2GEJ103 M 10KOHM,
J,0.063W
1
R8154 ERJ2GEJ220 M 22 OHM,
J,0.063W
1
R8167 ERJ2GEJ220 M 22 OHM,
J,0.063W
1
R8302 ERJ2GEJ470 M 47 OHM,
J,0.063W
1
R8303 ERJ2GEJ470 M 47 OHM,
J,0.063W
1
R8304 D0YAR0000007 M 0 OHM 1/4W 1
R8312 ERJ2GEJ221 M 220 OHM,
J,0.063W
1
R8315 ERJ2GEJ102X M 1K OHM J 1/4W 1
R8336 D0YAR0000007 M 0 OHM 1/4W 1
R8337 D0YAR0000007 M 0 OHM 1/4W 1
R8338 D0YAR0000007 M 0 OHM 1/4W 1
R8339 D0YAR0000007 M 0 OHM 1/4W 1
R8341 D0GDR00Z0002 M 0 OHM, 1/10W 1
R8512 ERJ2GEJ472 M 4.7KOHM,
J,0.063W
1
R8515 EXB28V330J RESISTOR ARRAY 1
R8516 EXB28V330J RESISTOR ARRAY 1
R8517 ERJ2GEJ680 M 68 OHM,
J,0.063W
1
R8519 ERJ2GEJ680 M 68 OHM,
J,0.063W
1
R8520 ERJ2GEJ680 M 68 OHM,
J,0.063W
1
R8529 ERJ2RKD330 M 33 OHM, J, 2W 1
R8533 ERJ2GEJ103 M 10KOHM,
J,0.063W
1
Safety Ref. No. Part No. Part Name &
Description
Pcs Remarks

105
R8534 ERJ2GEJ103 M 10KOHM,
J,0.063W
1
R8552 ERJ2GEJ182 M 1.8KOHM,
J,0.063W
1
R8553 ERJ2GEJ182 M 1.8KOHM,
J,0.063W
1
R8556 ERJ2GEJ472 M 4.7KOHM,
J,0.063W
1
R8557 ERJ2GEJ472 M 4.7KOHM,
J,0.063W
1
R8558 ERJ2GEJ472 M 4.7KOHM,
J,0.063W
1
R8573 EXB2HV680J RESISTOR ARRAY 1
R8579 ERJ2GEJ103 M 10KOHM,
J,0.063W
1
R8580 ERJ2GEJ103 M 10KOHM,
J,0.063W
1
R8674 EXB2HV103JV RESISTOR ARRAY 1
R8704 ERJ2GEJ101 M 100 OHM,
J,0.063W
1
R8706 ERJ2GEJ473 M 47KOHM,
J,0.063W
1
R8707 ERJ2GEJ473 M 47KOHM,
J,0.063W
1
R9070 ERJ2GEJ103 M 10KOHM,
J,0.063W
1
R9071 ERJ2GEJ223 M 22KOHM,
J,0.063W
1
R9072 ERJ2GEJ102X M 1K OHM J 1/4W 1
R9073 ERJ2GEJ472 M 4.7KOHM,
J,0.063W
1
R9077 D1BB1102A055 M 11KOHM, 1/10W 1
R9078 D1BB4302A055 M 43KOHM, 1/10W 1
R9079 D1BB2702A055 M 27KOHM, 1/10W 1
R9080 D1BB1502A055 M 15KOHM, 1/10W 1
R9081 D1BB4702A055 M 47KOHM, 1/10W 1
R9083 D0YAR0000007 M 0 OHM 1/4W 1
R9084 D0YAR0000007 M 0 OHM 1/4W 1
R9085 ERJ2GEJ470 M 47 OHM,
J,0.063W
1
R9086 ERJ2GEJ470 M 47 OHM,
J,0.063W
1
R9087 ERJ2GEJ101 M 100 OHM,
J,0.063W
1
R9088 D1BB1802A055 M 18KOHM, 1/10W 1
R9089 D1BB1502A055 M 15KOHM, 1/10W 1
R9091 D1BB2702A055 M 27KOHM, 1/10W 1
R9092 D1BB1202A055 M 12KOHM, 1/10W 1
R9095 ERJ2GEJ103 M 10KOHM,
J,0.063W
1
R9096 ERJ2GEJ472 M 4.7KOHM,
J,0.063W
1
R9097 ERJ2GEJ472 M 4.7KOHM,
J,0.063W
1
R9098 ERJ2GEJ472 M 4.7KOHM,
J,0.063W
1
R9099 ERJ2GEJ101 M 100 OHM,
J,0.063W
1
R9100 ERJ2GEJ473 M 47KOHM,
J,0.063W
1
R9101 ERJ2GEJ333 M 33KOHM,
J,0.063W
1
R9102 ERJ2GEJ101 M 100 OHM,
J,0.063W
1
R9103 ERJ2GEJ473 M 47KOHM,
J,0.063W
1
R9104 ERJ2GEJ472 M 4.7KOHM,
J,0.063W
1
R9105 ERJ2GEJ103 M 10KOHM,
J,0.063W
1
R9106 ERJ2GEJ104 M 100KOHM,
J,0.063W
1
R9107 ERJ2GEJ332 M 3.3KOHM,
J,0.063W
1
R9108 ERJ2GEJ103 M 10KOHM,
J,0.063W
1
R9109 ERJ2GEJ103 M 10KOHM,
J,0.063W
1
Safety Ref. No. Part No. Part Name &
Description
Pcs Remarks
R9110 ERJ2GEJ101 M 100 OHM,
J,0.063W
1
R9111 D0YAR0000007 M 0 OHM 1/4W 1
R9113 ERJ2GEJ104 M 100KOHM,
J,0.063W
1
R9115 ERJ2GEJ101 M 100 OHM,
J,0.063W
1
R9116 ERJ2GEJ101 M 100 OHM,
J,0.063W
1
R9119 EXB38V470J RESISTOR ARRAY 1
R9120 ERJ2GEJ101 M 100 OHM,
J,0.063W
1
R9121 ERJ2GEJ104 M 100KOHM,
J,0.063W
1
R9124 ERJ2GEJ470 M 47 OHM,
J,0.063W
1
R9129 ERJ2GEJ683 M 68KOHM,
J,0.063W
1
R9130 ERJ2GEJ470 M 47 OHM,
J,0.063W
1
R9142 ERJ2GEJ101 M 100 OHM,
J,0.063W
1
R9145 ERJ2GEJ101 M 100 OHM,
J,0.063W
1
R9149 ERJ2GEJ472 M 4.7KOHM,
J,0.063W
1
R9152 ERJ2GEJ103 M 10KOHM,
J,0.063W
1
R9153 ERJ2GEJ103 M 10KOHM,
J,0.063W
1
R9154 ERJ2RHD272 M 2.7KOHM, J, 2W 1
R9155 ERJ2RHD272 M 2.7KOHM, J, 2W 1
R9164 ERJ2GEJ103 M 10KOHM,
J,0.063W
1
R9166 ERJ2GEJ103 M 10KOHM,
J,0.063W
1
R9187 ERJ2RHD272 M 2.7KOHM, J, 2W 1
R9188 ERJ2RHD272 M 2.7KOHM, J, 2W 1
R9189 ERJ2GEJ103 M 10KOHM,
J,0.063W
1
R9202 ERJ2GEJ101 M 100 OHM,
J,0.063W
1
R9203 ERJ2GEJ223 M 22KOHM,
J,0.063W
1
R9205 ERJ2GEJ333 M 33KOHM,
J,0.063W
1
R9206 ERJ2GED563X M 56KOHM
,J,0.063W
1
R9207 ERJ2GEJ243 M 24KOHM,
J,0.063W
1
R9208 EXB2HVR000 RESISTOR ARRAY 1
R9209 EXB2HVR000 RESISTOR ARRAY 1
R9210 D0GDR00Z0002 M 0 OHM, 1/10W 1
R9212 ERJ2GEJ470 M 47 OHM,
J,0.063W
1
R9213 ERJ2GEJ470 M 47 OHM,
J,0.063W
1
R9215 ERJ2GEJ104 M 100KOHM,
J,0.063W
1
R9217 D0YAR0000007 M 0 OHM 1/4W 1
R9221 D0GDR00Z0002 M 0 OHM, 1/10W 1
R9223 ERJ2RHD272 M 2.7KOHM, J, 2W 1
R9225 ERJ2RHD272 M 2.7KOHM, J, 2W 1
R9226 D0YAR0000007 M 0 OHM 1/4W 1
R9227 D0YAR0000007 M 0 OHM 1/4W 1
R9228 ERJ2GEJ470 M 47 OHM,
J,0.063W
1
R9229 ERJ2GEJ470 M 47 OHM,
J,0.063W
1
R9234 ERJ2GEJ101 M 100 OHM,
J,0.063W
1
R9235 ERJ2GEJ101 M 100 OHM,
J,0.063W
1
R9236 ERJ2GEJ101 M 100 OHM,
J,0.063W
1
R9237 ERJ2GEJ101 M 100 OHM,
J,0.063W
1
R9238 ERJ2GEJ101 M 100 OHM,
J,0.063W
1
Safety Ref. No. Part No. Part Name &
Description
Pcs Remarks

106
R9239 ERJ2GEJ101 M 100 OHM,
J,0.063W
1
R9240 ERJ2GEJ101 M 100 OHM,
J,0.063W
1
R9241 ERJ2GEJ101 M 100 OHM,
J,0.063W
1
R9242 ERJ2GEJ101 M 100 OHM,
J,0.063W
1
R9243 ERJ2GEJ101 M 100 OHM,
J,0.063W
1
R9245 ERJ2GEJ101 M 100 OHM,
J,0.063W
1
R9246 ERJ2GEJ101 M 100 OHM,
J,0.063W
1
R9249 ERJ2RHD272 M 2.7KOHM, J, 2W 1
R9250 ERJ2RHD272 M 2.7KOHM, J, 2W 1
R9369 ERJ2GEJ472 M 4.7KOHM,
J,0.063W
1
R9370 ERJ2GEJ103 M 10KOHM,
J,0.063W
1
R9371 ERJ2GEJ104 M 100KOHM,
J,0.063W
1
R9385 ERJ2GEJ472 M 4.7KOHM,
J,0.063W
1
R9391 ERJ2GEJ104 M 100KOHM,
J,0.063W
1
R9401 ERJ2GEJ221 M 220 OHM,
J,0.063W
1
R9402 ERJ2GEJ470 M 47 OHM,
J,0.063W
1
R9403 ERJ2GEJ103 M 10KOHM,
J,0.063W
1
R9404 ERJ2GEJ470 M 47 OHM,
J,0.063W
1
R9405 ERJ2GEJ470 M 47 OHM,
J,0.063W
1
R9406 ERJ2GEJ470 M 47 OHM,
J,0.063W
1
R9407 ERJ2GEJ470 M 47 OHM,
J,0.063W
1
R9408 ERJ2GEJ470 M 47 OHM,
J,0.063W
1
R9409 ERJ2GEJ470 M 47 OHM,
J,0.063W
1
R9410 ERJ2GEJ470 M 47 OHM,
J,0.063W
1
R9411 ERJ2GEJ470 M 47 OHM,
J,0.063W
1
R9412 ERJ2GEJ470 M 47 OHM,
J,0.063W
1
R9413 ERJ2GEJ470 M 47 OHM,
J,0.063W
1
R9414 ERJ2GEJ470 M 47 OHM,
J,0.063W
1
R9415 ERJ2GEJ470 M 47 OHM,
J,0.063W
1
R9416 ERJ2GEJ470 M 47 OHM,
J,0.063W
1
R9417 ERJ2GEJ470 M 47 OHM,
J,0.063W
1
R9418 ERJ2GEJ470 M 47 OHM,
J,0.063W
1
R9419 ERJ2GEJ470 M 47 OHM,
J,0.063W
1
R9420 ERJ2GEJ470 M 47 OHM,
J,0.063W
1
R9421 ERJ2GEJ470 M 47 OHM,
J,0.063W
1
R9422 ERJ2GEJ470 M 47 OHM,
J,0.063W
1
R9423 ERJ2GEJ470 M 47 OHM,
J,0.063W
1
R9424 ERJ2GEJ470 M 47 OHM,
J,0.063W
1
R9425 EXB2HV470JV RESISTOR ARRAY 1
R9426 EXB2HV470JV RESISTOR ARRAY 1
R9578 ERJ2GEJ472 M 4.7KOHM,
J,0.063W
1
R9586 ERJ2GEJ470 M 47 OHM,
J,0.063W
1
Safety Ref. No. Part No. Part Name &
Description
Pcs Remarks
R9587 ERJ2GEJ470 M 47 OHM,
J,0.063W
1
R9592 D0GA103JA015 M 10KOHM,J,1/16W 1
R9594 ERJ2GEJ103 M 10KOHM,
J,0.063W
1
R9598 ERJ2GEJ470 M 47 OHM,
J,0.063W
1
R9604 ERJ2GEJ103 M 10KOHM,
J,0.063W
1
R9608 EXB2HV470JV RESISTOR ARRAY 1
R9609 EXB2HV470JV RESISTOR ARRAY 1
R9610 EXB2HV470JV RESISTOR ARRAY 1
R9611 ERJ2GEJ680 M 68 OHM,
J,0.063W
1
R9616 ERJ2GEJ470 M 47 OHM,
J,0.063W
1
R9618 ERJ2GEJ331 M 330 OHM,
J,0.063W
1
R9839 EXB38V101JV RESISTOR ARRAY 1
R9848 EXB2HV470JV RESISTOR ARRAY 1
R9849 EXB2HV470JV RESISTOR ARRAY 1
R9868 ERJ2GEJ104 M 100KOHM,
J,0.063W
1
R9871 ERJ2GEJ103 M 10KOHM,
J,0.063W
1
R9872 D1BB1002A055 M 10KOHM, 1/10W 1
R9873 ERJ14YJ220U M 22 OHM, J,1/4W 1
R9874 ERJ14YJ220U M 22 OHM, J,1/4W 1
R9893 D1BB5602A055 M 56KOHM, 1/10W 1
R9894 D1BB1802A055 M 18KOHM, 1/10W 1
R9897 ERJ2GEJ103 M 10KOHM,
J,0.063W
1
R9898 ERJ2GEJ103 M 10KOHM,
J,0.063W
1
R9899 ERJ2GEJ103 M 10KOHM,
J,0.063W
1
R9900 ERJ14YJ220U M 22 OHM, J,1/4W 1
R9902 ERJ14YJ220U M 22 OHM, J,1/4W 1
R9966 ERJ2GEJ471 M 470 OHM,
J,0.063W
1
R9967 ERJ2GEJ470 M 47 OHM,
J,0.063W
1
R9968 ERJ2GEJ470 M 47 OHM,
J,0.063W
1
R9969 ERJ2GEJ470 M 47 OHM,
J,0.063W
1
R9970 ERJ2GEJ470 M 47 OHM,
J,0.063W
1
R9975 ERJ2GEJ470 M 47 OHM,
J,0.063W
1
R9977 ERJ2GEJ470 M 47 OHM,
J,0.063W
1
R9983 ERJ2GEJ470 M 47 OHM,
J,0.063W
1
R9987 ERJ2GEJ470 M 47 OHM,
J,0.063W
1
R9988 ERJ2GEJ470 M 47 OHM,
J,0.063W
1
R9989 ERJ2GEJ470 M 47 OHM,
J,0.063W
1
R9996 ERJ2RKF1001 M 1KOHM, 0.063W 1
R9997 ERJ2RKF1001 M 1KOHM, 0.063W 1
R9998 ERJ2GEJ221 M 220 OHM,
J,0.063W
1
R9999 ERJ2GEJ103 M 10KOHM,
J,0.063W
1
R10000 ERJ2RKF75R0 M 75 OHM, ,
0.063W
1
R10001 ERJ2GEJ301 M 300 OHM,
J,0.063W
1
R16001 D0GF7R5JA047 M 7.5 OHM,J,
0.33W
1
R16002 D0GF7R5JA047 M 7.5 OHM,J,
0.33W
1
R16004 D0GF7R5JA047 M 7.5 OHM,J,
0.33W
1
R16021 D0GF7R5JA047 M 7.5 OHM,J,
0.33W
1
Safety Ref. No. Part No. Part Name &
Description
Pcs Remarks

107
R16022 D0GF7R5JA047 M 7.5 OHM,J,
0.33W
1
R16023 D0GF7R5JA047 M 7.5 OHM,J,
0.33W
1
R16031 ERJ6ENF8202 M 82KOHM, 1/10W 1
R16032 ERJ6ENF8202 M 82KOHM, 1/10W 1
R16033 D1BD5602A044 M 56KOHM, 1/10W 1
R16034 D1BD2702A044 M 27KOHM, 1/10W 1
R16041 D0GF5R6JA047 M 5.6 OHM,J,
0.33W
1
R16051 D0GF5R6JA047 M 5.6 OHM,J,
0.33W
1
R16101 D0GD221JA059 M 220 OHM,J,1/
10W
1
R16102 D0GD221JA059 M 220 OHM,J,1/
10W
1
R16103 D0GD100JA059 M 10 OHM,J,0.25W 1
R16104 D0GD100JA059 M 10 OHM,J,0.25W 1
R16105 ERJ8GEYJ474 M 470KOHM, J,1/
8W
1
R16109 D0GD100JA059 M 10 OHM,J,0.25W 1
R16110 ERJ6GEYF473 M 47KOHM,J,1/10W 1
R16116 ERJ6GEYF473 M 47KOHM,J,1/10W 1
R16131 D0GD101JA036 M 100
OHM,J,0.25W
1
R16132 D0GD101JA036 M 100
OHM,J,0.25W
1
R16134 D0GD750JA059 M 75 OHM,J,0.25W 1
R16137 D0GF1R0JA047 M 1.0 OHM,J,
0.33W
1
R16141 D0GD100JA059 M 10 OHM,J,0.25W 1
R16142 ERJ6GEYF473 M 47KOHM,J,1/10W 1
R16143 ERJ6GEYF473 M 47KOHM,J,1/10W 1
R16151 D0GD101JA036 M 100
OHM,J,0.25W
1
R16152 D0GD101JA036 M 100
OHM,J,0.25W
1
R16154 D0GD750JA059 M 75 OHM,J,0.25W 1
R16155 D0GF1R0JA047 M 1.0 OHM,J,
0.33W
1
R16159 D0GF1R0JA047 M 1.0 OHM,J,
0.33W
1
R16161 D0GD100JA059 M 10 OHM,J,0.25W 1
R16162 ERJ6GEYF473 M 47KOHM,J,1/10W 1
R16163 ERJ6GEYF473 M 47KOHM,J,1/10W 1
R16171 D0GD100JA059 M 10 OHM,J,0.25W 1
R16172 ERJ6GEYF473 M 47KOHM,J,1/10W 1
R16173 ERJ6GEYF473 M 47KOHM,J,1/10W 1
R16181 D0GD100JA059 M 10 OHM,J,0.25W 1
R16182 ERJ6GEYF473 M 47KOHM,J,1/10W 1
R16183 ERJ6GEYF473 M 47KOHM,J,1/10W 1
R16191 ERJ6GEYJ151V M 150 OHM,J,1/
10W
1
R16192 ERJ6GEYJ103V M 10K OHM J 1/
10W
1
R16193 ERJ6GEYJ750 M 75 OHM,J,1/10W 1
R16194 D0GF7R5JA047 M 7.5 OHM,J,
0.33W
1
R16195 D0GF1R0JA047 M 1.0 OHM,J,
0.33W
1
R16196 D0GF7R5JA047 M 7.5 OHM,J,
0.33W
1
R16230 ERJ6GEYJ470V M 47 OHM,J,1/10W 1
R16231 ERJ6GEYJ472V M 4.7K OHM J 1/
10W
1
R16241 EXB38V470J RESISTOR ARRAY 1
R16242 EXB38V472JV RESISTOR ARRAY 1
R16251 D1BD1401A044 M 1.4KOHM, 1/10W 1
R16252 D1BD3902A044 M 39KOHM, 1/10W 1
R16253 D1BD3902A044 M 39KOHM, 1/10W 1
R16254 D1BD6801A044 M 6.8KOHM, 1/10W 1
R16255 D1BD1201A044 M 1.2KOHM, 1/10W 1
R16256 D1BD1501A044 M 1.4KOHM, 1/10W 1
R16257 ERJ6GEYJ273 M 27KOHM,J,1/10W 1
R16258 ERJ6GEYJ103V M 10K OHM J 1/
10W
1
Safety Ref. No. Part No. Part Name &
Description
Pcs Remarks
R16260 ERJ6GEYJ222V M 2.2K OHM J 1/
10W
1
R16280 ERJ6GEYJ222V M 2.2K OHM J 1/
10W
1
R16281 D0GD103JA036 M 10KOHM,J,0.25W 1
R16282 ERJ6GEYJ221V M 220 OHM,J,1/
10W
1
R16283 ERJ6GEYF473 M 47KOHM,J,1/10W 1
R16284 ERJ6GEYJ224 M 220KOHM,J,1/
10W
1
R16285 EXB38V623J RESISTOR ARRAY 1
R16288 D0GF334JA047 M
330KOHM,F,0.33W
1
R16289 D0GF334JA047 M
330KOHM,F,0.33W
1
R16290 D0GF334JA047 M
330KOHM,F,0.33W
1
R16302 ERJ8GEYJ333 M 33KOHM, J,1/8W 1
R16307 ERJ6RBD683 M 68KOHM,J,1/10W 1
R16309 ERJ8GEYJ333 M 33KOHM, J,1/8W 1
R16310 ERJ8GEYJ333 M 33KOHM, J,1/8W 1
R16311 ERJ8GEYJ333 M 33KOHM, J,1/8W 1
R16317 ERJ6RBD162 M 1.6KOHM,J,1/
10W
1
R16318 ERJ6RBD683 M 68KOHM,J,1/10W 1
R16319 ERJ6RBD2491V M 2.49KOHM, 1/
10W
1 PAVCA
R16320 ERJ14YJ683 M 68KOHM, 1/2W 1
R16330 ERJ6GEYJ102V M 1K OHM J 1/10W 1
R16332 ERJ6GEYJ474 M 470KOHM,J,1/
10W
1
R16334 ERJ6GEYJ472V M 4.7K OHM J 1/
10W
1
R16335 ERJ6GEYJ102V M 1K OHM J 1/10W 1
R16402 ERJT08J7R5V M 7.5OHM,J,
0.33W
1
R16403 ERJT08J7R5V M 7.5OHM,J,
0.33W
1
R16404 ERJT08J7R5V M 7.5OHM,J,
0.33W
1
R16410 ERJ6GEYG391 M 390 OHM,F,1/
10W
1
R16411 D1BD2700A044 M 270 OHM, 1/10W 1
R16414 ERJ6GEYJ331V M 330 OHM J 1/
10W
1
R16415 ERJ6GEYJ331V M 330 OHM J 1/
10W
1
R16416 D0GD103JA036 M 10KOHM,J,0.25W 1
R16422 ERJT08J7R5V M 7.5OHM,J,
0.33W
1
R16423 ERJT08J7R5V M 7.5OHM,J,
0.33W
1
R16424 ERJT08J7R5V M 7.5OHM,J,
0.33W
1
R16441 ERJT08J5R6V M 5.6
OHM,F,0.33W
1
R16452 ERJT08J5R6V M 5.6
OHM,F,0.33W
1
R16465 D1BD2702A044 M 27KOHM, 1/10W 1
R16466 D1BD5602A044 M 56KOHM, 1/10W 1
R16467 ERJ6ENF8202 M 82KOHM, 1/10W 1
R16468 ERJ6ENF8202 M 82KOHM, 1/10W 1
R16471 ERJ6GEYG392 M 3.9KOHM,J,1/
10W
1
R16472 ERJ6GEYJ222V M 2.2K OHM J 1/
10W
1
R16473 ERJ6GEYF561 M 560 OHM,F,1/
10W
1
R16474 ERJ6GEYJ102V M 1K OHM J 1/10W 1
R16475 ERJ6GEYJ472V M 4.7K OHM J 1/
10W
1
R16476 ERJ6GEYJ472V M 4.7K OHM J 1/
10W
1
R16478 ERJ6GEYJ562V M 5.6KOHM,J,1/
10W
1
R16479 D0GD103JA036 M 10KOHM,J,0.25W 1
R16480 ERJ6GEYJ472V M 4.7K OHM J 1/
10W
1
R16490 ERJ6RED134V M 130KOHM, 1/10W 1
Safety Ref. No. Part No. Part Name &
Description
Pcs Remarks

108
R16491 ERJ6RED124 M 120KOHM, 1/10W 1
R16492 ERJ6RED154 M 150KOHM, 1/10W 1
R16493 ERJ6RBD103V M 10KOHM,J,1/10W 1
R16494 D1BD2001A044 M 2KOHM, 1/10W 1
R16495 D1BD6800A044 M 680 OHM, 1/10W 1
R16496 ERJ6GEYJ470V M 47 OHM,J,1/10W 1
R16497 ERJ6GEYF473 M 47KOHM,J,1/10W 1
R16498 D0GD103JA036 M 10KOHM,J,0.25W 1
R16501 D0GD101JA036 M 100
OHM,J,0.25W
1
R16502 D0GD101JA036 M 100
OHM,J,0.25W
1
R16503 ERJT06J100V M 10 OHM,F,0.25W 1
R16504 ERJT06J750V M 75 OHM,F,0.25W 1
R16505 ERJT06J100V M 10 OHM,F,0.25W 1
R16506 ERJT06J100V M 10 OHM,F,0.25W 1
R16507 ERJT06J100V M 10 OHM,F,0.25W 1
R16509 ERJT08J1R0V M 1.8OHM,J,
0.33W
1
R16511 ERJ6GEYF473 M 47KOHM,J,1/10W 1
R16512 ERJ6GEYF473 M 47KOHM,J,1/10W 1
R16513 ERJ6GEYF473 M 47KOHM,J,1/10W 1
R16514 ERJ6GEYF473 M 47KOHM,J,1/10W 1
R16516 ERJ6GEYF473 M 47KOHM,J,1/10W 1
R16517 ERJ6GEYF473 M 47KOHM,J,1/10W 1
R16518 ERJ6GEYF473 M 47KOHM,J,1/10W 1
R16519 ERJ6GEYF473 M 47KOHM,J,1/10W 1
R16521 D0GD101JA036 M 100
OHM,J,0.25W
1
R16522 D0GD101JA036 M 100
OHM,J,0.25W
1
R16523 ERJT06J750V M 75 OHM,F,0.25W 1
R16531 ERJT06J100V M 10 OHM,F,0.25W 1
R16532 ERJ6GEYF473 M 47KOHM,J,1/10W 1
R16533 ERJ6GEYF473 M 47KOHM,J,1/10W 1
R16534 ERJT08J1R0V M 1.8OHM,J,
0.33W
1
R16536 ERJT08J1R0V M 1.8OHM,J,
0.33W
1
R16551 ERJT06J100V M 10 OHM,F,0.25W 1
R16552 ERJ6GEYF473 M 47KOHM,J,1/10W 1
R16553 ERJ6GEYF473 M 47KOHM,J,1/10W 1
R16561 EXB38V470J RESISTOR ARRAY 1
R16562 EXB38V470J RESISTOR ARRAY 1
R16563 EXB38V470J RESISTOR ARRAY 1
R16564 EXB38V470J RESISTOR ARRAY 1
R16565 EXB38V472JV RESISTOR ARRAY 1
R16566 EXB38V472JV RESISTOR ARRAY 1
R16567 EXB38V472JV RESISTOR ARRAY 1
R16568 EXB38V472JV RESISTOR ARRAY 1
R16570 EXB38V472JV RESISTOR ARRAY 1
R16573 ERJ6GEYJ220 M 22 OHM,J,1/10W 1
R16579 EXB38V470J RESISTOR ARRAY 1
R16582 D1BD3902A044 M 39KOHM, 1/10W 1
R16583 D1BD3902A044 M 39KOHM, 1/10W 1
R16584 D1BD6801A044 M 6.8KOHM, 1/10W 1
R16585 D1BD1001A044 M 1KOHM, 1/10W 1
R16586 D1BD2151A044 M2.15KOHM, 1/10W 1
R16587 ERJ6GEYJ222V M 2.2K OHM J 1/
10W
1
R16588 D0GD103JA036 M 10KOHM,J,0.25W 1
R16590 ERJ6GEYJ221V M 220 OHM,J,1/
10W
1
R16591 EXB38V472JV RESISTOR ARRAY 1
R16592 ERJ6GEYJ472V M 4.7K OHM J 1/
10W
1
R16593 D1BD1401A044 M 1.4KOHM, 1/10W 1
R16602 ERJ6GEYJ102V M 1K OHM J 1/10W 1
R16604 ERJ6GEYJ331V M 330 OHM J 1/
10W
1
R16605 ERJ6GEYG182 M 1.8KOHM,J,1/
10W
1
R16606 D0GD103JA036 M 10KOHM,J,0.25W 1
R16607 D1BD6651A044 M6.65KOHM, 1/10W 1
R16608 ERJT08J102V M 1KOHM,J, 0.33W 1
Safety Ref. No. Part No. Part Name &
Description
Pcs Remarks
R16609 ERJT08J102V M 1KOHM,J, 0.33W 1
R16610 ERJ6GEYJ104V M 100KOHM,J,1/
10W
1
R16611 ERJ8GEYJ683 M 68KOHM, J,1/8W 1
R16612 ERJT06J470V M 47 OHM,F,0.25W 1
R16613 ERJ8GEYJ473 M 47KOHM, J,1/8W 1
R16614 ERJ8GEYJ683 M 68KOHM, J,1/8W 1
R16615 D1BD1101A044 M1.41KOHM, 1/10W 1
R16617 ERJ6GEYJ222V M 2.2K OHM J 1/
10W
1
R16621 ERJ6GEYJ221V M 220 OHM,J,1/
10W
1
R16623 ERJ6GEYJ221V M 220 OHM,J,1/
10W
1
R16627 ERJ6GEYJ220 M 22 OHM,J,1/10W 1
R16628 ERJ6GEYF473 M 47KOHM,J,1/10W 1
R16631 D0GD103JA036 M 10KOHM,J,0.25W 1
R16633 ERJ6GEYJ223 M 22KOHM,J,1/10W 1
R16634 ERJ6GEYJ471 M 470 OHM,J,1/
10W
1
R16646 D1BD1181A044 M1.18KOHM, 1/10W 1
R16648 ERJT08J202V M 2KOHM,J, 0.33W 1
R16649 ERJT06J330V M 33 OHM,F,0.25W 1
R16650 ERJ6GEYJ104V M 100KOHM,J,1/
10W
1
R16651 ERJT08J202V M 2KOHM,J, 0.33W 1
R16652 ERJ6GEYF822 M 8.2KOHM,F,1/
10W
1
R16653 ERJ8GEYJ182 M 1.8KOHM, J,1/
8W
1
R16654 ERJ6GEYJ470V M 47 OHM,J,1/10W 1
R16655 ERJ6GEYJ103V M 10K OHM J 1/
10W
1
R16656 ERJ8GEYJ472V M 4.7KOHM, J,1/
8W
1
R16657 ERJ6GEYJ103V M 10K OHM J 1/
10W
1
R16658 D1BD6491A044 M6.49KOHM, 1/10W 1
R16660 ERJ6GEYJ222V M 2.2K OHM J 1/
10W
1
R16661 ERJ6GEYJ122V M 1.2KOHM,J,1/
10W
1
R16662 D1BD1002A044 M10.0KOHM, 1/10W 1
R16663 D1BD6801A044 M 6.8KOHM, 1/10W 1
R16664 ERJT08J202V M 2KOHM,J, 0.33W 1
R16665 ERJT06J330V M 33 OHM,F,0.25W 1
R16666 ERJ6GEYJ223 M 22KOHM,J,1/10W 1
R16667 ERJT08J202V M 2KOHM,J, 0.33W 1
R16668 ERJT08J202V M 2KOHM,J, 0.33W 1
R16673 ERJ6GEYJ472V M 4.7K OHM J 1/
10W
1
R16674 ERJT08J202V M 2KOHM,J, 0.33W 1
R16675 ERJ6GEYJ472V M 4.7K OHM J 1/
10W
1
R16677 ERJT08J202V M 2KOHM,J, 0.33W 1
R16678 ERJT08J202V M 2KOHM,J, 0.33W 1
R16679 D1BD7501A044 M 7.5KOHM, 1/10W 1
R16680 ERJ6GEYJ472V M 4.7K OHM J 1/
10W
1
R16681 ERJT06J100V M 10 OHM,F,0.25W 1
R16683 ERJT06J100V M 10 OHM,F,0.25W 1
R16684 ERJ6GEYJ221V M 220 OHM,J,1/
10W
1
R16685 ERJ6GEYJ221V M 220 OHM,J,1/
10W
1
R16686 D0GD103JA036 M 10KOHM,J,0.25W 1
R16687 D1BD2702A044 M 27KOHM, 1/10W 1
R16688 D1BD1272A044 M12.7KOHM, 1/10W 1
R16690 ERJ6GEYJ472V M 4.7K OHM J 1/
10W
1
R16691 ERJ8GEYJ563 M 56KOHM, J,1/8W 1
R16692 ERJ6RBD152 M 1.5KOHM,J,1/
10W
1
R16694 ERJ8GEYJ563 M 56KOHM, J,1/8W 1
R16695 ERJ6RBD152 M 1.5KOHM,J,1/
10W
1
R16696 ERF5TK2R2 W 2.2 OHM, K, 5W 1
Safety Ref. No. Part No. Part Name &
Description
Pcs Remarks

109
R16699 D0GD103JA036 M 10KOHM,J,0.25W 1
R16707 ERJ6GEYG392 M 3.9KOHM,J,1/
10W
1
R16711 ERJ6GEYJ472V M 4.7K OHM J 1/
10W
1
R16712 ERJ6GEYJ102V M 1K OHM J 1/10W 1
R16713 ERG1FJS104D M 100KOHM, J, 1W 1
R16714 ERJ6GEYF473 M 47KOHM,J,1/10W 1
R16715 ERJ6GEYJ103V M 10K OHM J 1/
10W
1
R16717 ERJ6GEYJ102V M 1K OHM J 1/10W 1
R16719 ERJ3GEYJ220 M 22 OHM,J,1/16W 1
R16720 ERJ3GEYJ220 M 22 OHM,J,1/16W 1
R16721 ERJ3GEYJ220 M 22 OHM,J,1/16W 1
R16722 ERJ3GEYJ220 M 22 OHM,J,1/16W 1
R16723 ERJ3GEYJ220 M 22 OHM,J,1/16W 1
R16731 ERG2FJS104D M 100KOHM, J, 2W 1
R16733 ERJ6GEYJ474 M 470KOHM,J,1/
10W
1
R16734 D1BD4991A044 M4.99KOHM, 1/10W 1
R16735 D1BD1873A044 M 187KOHM, 1/10W 1
R16736 D1BD1873A044 M 187KOHM, 1/10W 1
R16737 D1BD2053A044 M 205KOHM, 1/10W 1
R16742 D0GD103JA036 M 10KOHM,J,0.25W 1
R16744 D1BD1273A044 M 127KOHM, 1/10W 1
R16745 D1BD2202A044 M 2.2KOHM, 1/10W 1
R16746 ERJT06J473V M 47KOHM,F,0.25W 1
R16747 ERJT06J103V M 10KOHM,F,0.25W 1
R16749 D0GD103JA036 M 10KOHM,J,0.25W 1
R16750 ERJT06J123 M 12KOHM,F,0.25W 1
R16751 ERJT06J154V M
150KOHM,F,0.25W
1
R16752 ERJ6GEYJ472V M 4.7K OHM J 1/
10W
1
R16753 ERJ6GEYJ224 M 220KOHM,J,1/
10W
1
R16755 ERJT06J123 M 12KOHM,F,0.25W 1
R16756 ERJT06J123 M 12KOHM,F,0.25W 1
R16761 ERJT06J100V M 10 OHM,F,0.25W 1
R16762 ERJ6GEYF473 M 47KOHM,J,1/10W 1
R16763 ERJ6GEYF473 M 47KOHM,J,1/10W 1
R16765 ERJT08J1R0V M 1.8OHM,J,
0.33W
1
R16766 D0GDR00Z0002 M 0 OHM, 1/10W 1
R16769 ERJT06J750V M 75 OHM,F,0.25W 1
R16772 ERJ6GEYJ472V M 4.7K OHM J 1/
10W
1
R16773 ERJ6GEYJ102V M 1K OHM J 1/10W 1
R16774 ERG1SJ273 M 27KOHM, J, 1W 1
R16775 ERJ6GEYJ472V M 4.7K OHM J 1/
10W
1
R16776 ERJ6GEYJ470V M 47 OHM,J,1/10W 1
R16777 ERJ6GEYJ103V M 10K OHM J 1/
10W
1
R16783 ERJT06J154V M
150KOHM,F,0.25W
1
R16785 D1BD1003A044 M 100KOHM, 1/10W 1
R16786 D1BD1003A044 M 100KOHM, 1/10W 1
R16787 D1BD3302A044 M 33KOHM, 1/10W 1
R16789 D0GD103JA036 M 10KOHM,J,0.25W 1
R16791 ERJ6GEYJ102V M 1K OHM J 1/10W 1
R16794 D1BD2003A044 M 200KOHM, 1/10W 1
R16795 D1BD2003A044 M 200KOHM, 1/10W 1
R16796 D1BD5602A044 M 56KOHM, 1/10W 1
R16797 ERJ6GEYJ220 M 22 OHM,J,1/10W 1
R16798 ERJ6GEYJ222V M 2.2K OHM J 1/
10W
1
R16799 ERJ6GEYJ102V M 1K OHM J 1/10W 1
R16801 D1BD4702A044 M 47KOHM, 1/10W 1
R16802 D1BD4702A044 M 47KOHM, 1/10W 1
R16804 ERJ8GEYJ104V M 100KOHM, J,1/
8W
1
R16806 ERJ6GEYJ102V M 1K OHM J 1/10W 1
R16812 ERJ6GEYG182 M 1.8KOHM,J,1/
10W
1
Safety Ref. No. Part No. Part Name &
Description
Pcs Remarks
R16813 ERJ8GEYJ222V M 2.2KOHM, J,1/
8W
1
R16814 D1BD2212A044 M 22KOHM, 1/10W 1
R16815 D1BD2491A044 M2.49KOHM, 1/10W 1
R16818 D1BD3302A044 M 33KOHM, 1/10W 1
R16819 D1BD1003A044 M 100KOHM, 1/10W 1
R16820 D1BD1003A044 M 100KOHM, 1/10W 1
R16821 D1BD1003A044 M 100KOHM, 1/10W 1
R16822 ERJ6ENF8202 M 82KOHM, 1/10W 1
R16823 ERJ6ENF8202 M 82KOHM, 1/10W 1
R16824 D1BD3302A044 M 33KOHM, 1/10W 1
R16825 ERJT06J154V M
150KOHM,F,0.25W
1
R16826 D0GD103JA036 M 10KOHM,J,0.25W 1
R16829 ERJ6GEYJ102V M 1K OHM J 1/10W 1
R16831 D1BD6192A044 M61.9KOHM, 1/10W 1
R16832 D1BD7322A044 M73.2KOHM, 1/10W 1
R16833 D0GD103JA036 M 10KOHM,J,0.25W 1
R16838 ERJ14YJ563U M 56KOHM, 1/2W 1
R16841 ERJ14YJ563U M 56KOHM, 1/2W 1
R16844 D1BD1241A044 M1.24KOHM, 1/10W 1
R16845 D1BD8662A044 M86.6KOHM, 1/10W 1
R16846 D1BD8202A044 M 82KOHM, 1/10W 1
R16847 ERJ6GEYJ472V M 4.7K OHM J 1/
10W
1
R16848 ERJ6GEYJ472V M 4.7K OHM J 1/
10W
1
R16851 ERJ6GEYJ474 M 470KOHM,J,1/
10W
1
R16860 D0D28R2JA021 M 8.2 OHM,J,2W 1
R16869 ERJ8GEYJ473 M 47KOHM, J,1/8W 1
R16870 ERJ14YJ683 M 68KOHM, 1/2W 1
R16873 D1BD2491A044 M2.49KOHM, 1/10W 1
R16877 ERJ6GEYG681 M 680 OHM,J,1/
10W
1
R16891 D1BD4702A044 M 47KOHM, 1/10W 1
R16892 D1BD4702A044 M 47KOHM, 1/10W 1
R16893 D1BD4702A044 M 47KOHM, 1/10W 1
R16894 D1BD4702A044 M 47KOHM, 1/10W 1
R16895 D1BD4702A044 M 47KOHM, 1/10W 1
R16896 D1BD3302A044 M 33KOHM, 1/10W 1
R16897 D1BD1741A044 M1.74KOHM, 1/10W 1
R16898 D1BD2371A044 M2.37KOHM, 1/10W 1
R16899 D1BD2261A044 M22.6KOHM, 1/10W 1
R16900 D0GD103JA036 M 10KOHM,J,0.25W 1
R16901 ERJ6GEYJ472V M 4.7K OHM J 1/
10W
1
R16904 ERJ6GEYJ223 M 22KOHM,J,1/10W 1
R16919 D1BD7501A044 M 7.5KOHM, 1/10W 1
R16920 D0GD103JA036 M 10KOHM,J,0.25W 1
R16921 D1BD2611A044 M2.61KOHM, 1/10W 1
R16922 D1BD2001A044 M 2KOHM, 1/10W 1
R16923 ERJ6GEYJ103V M 10K OHM J 1/
10W
1
R16926 ERJ6GEYJ222V M 2.2K OHM J 1/
10W
1
R16927 ERJ6GEYJ223 M 22KOHM,J,1/10W 1
R17101 D0GDR00Z0002 M 0 OHM, 1/10W 1
R17102 ERJ3GEY0R00 M 0 OHM, 1/16W 1
R17103 EXB38V681J RESISTOR ARRAY 1
R17104 EXB38V470J RESISTOR ARRAY 1
R17105 EXB38V470J RESISTOR ARRAY 1
R17106 ERJT14J6R8U C6.8 OHM, J,1/4W 1
R17107 ERJT14J6R8U C6.8 OHM, J,1/4W 1
R17108 ERJ3GEYJ101 M 100 OHM,J,1/
16W
1
R17109 ERJ3GEYJ101 M 100 OHM,J,1/
16W
1
R17110 ERJ3GEYJ201 M 200 OHM,J,1/
16W
1
R17111 ERJT14J6R8U C6.8 OHM, J,1/4W 1
R17112 ERJT14J6R8U C6.8 OHM, J,1/4W 1
R17113 ERJ3GEYJ101 M 100 OHM,J,1/
16W
1
R17114 ERJ3GEYJ101 M 100 OHM,J,1/
16W
1
Safety Ref. No. Part No. Part Name &
Description
Pcs Remarks

110
R17115 ERJ3GEYJ201 M 200 OHM,J,1/
16W
1
R17116 ERJT14J6R8U C6.8 OHM, J,1/4W 1
R17117 ERJT14J6R8U C6.8 OHM, J,1/4W 1
R17118 ERJ3GEYJ101 M 100 OHM,J,1/
16W
1
R17119 ERJ3GEYJ101 M 100 OHM,J,1/
16W
1
R17120 ERJ3GEYJ201 M 200 OHM,J,1/
16W
1
R17121 ERJT14J6R8U C6.8 OHM, J,1/4W 1
R17122 ERJT14J6R8U C6.8 OHM, J,1/4W 1
R17123 ERJ3GEYJ101 M 100 OHM,J,1/
16W
1
R17124 ERJ3GEYJ101 M 100 OHM,J,1/
16W
1
R17125 ERJ3GEYJ201 M 200 OHM,J,1/
16W
1
R17126 ERJT14J6R8U C6.8 OHM, J,1/4W 1
R17127 ERJT14J6R8U C6.8 OHM, J,1/4W 1
R17128 ERJ3GEYJ101 M 100 OHM,J,1/
16W
1
R17129 ERJ3GEYJ101 M 100 OHM,J,1/
16W
1
R17130 ERJ3GEYJ201 M 200 OHM,J,1/
16W
1
R17131 ERJT14J6R8U C6.8 OHM, J,1/4W 1
R17132 ERJT14J6R8U C6.8 OHM, J,1/4W 1
R17133 ERJ3GEYJ101 M 100 OHM,J,1/
16W
1
R17134 ERJ3GEYJ101 M 100 OHM,J,1/
16W
1
R17135 ERJ3GEYJ201 M 200 OHM,J,1/
16W
1
R17136 ERJT14J6R8U C6.8 OHM, J,1/4W 1
R17137 ERJT14J6R8U C6.8 OHM, J,1/4W 1
R17138 ERJ3GEYJ101 M 100 OHM,J,1/
16W
1
R17139 ERJ3GEYJ101 M 100 OHM,J,1/
16W
1
R17140 ERJ3GEYJ101 M 100 OHM,J,1/
16W
1
R17141 ERJT14J6R8U C6.8 OHM, J,1/4W 1
R17142 ERJT14J6R8U C6.8 OHM, J,1/4W 1
R17143 ERJ3GEYJ101 M 100 OHM,J,1/
16W
1
R17144 ERJ3GEYJ101 M 100 OHM,J,1/
16W
1
R17145 ERJ3GEYJ101 M 100 OHM,J,1/
16W
1
R17146 ERJ3GEYJ681 M 680 OHM,J,1/
16W
1
R17147 ERJ6GEYJ224 M 220KOHM,J,1/
10W
1
R17148 D0GF472JA047 M 4.7KOHM,J,
0.33W
1
R17149 ERJ3GEY0R00 M 0 OHM, 1/16W 1
R17150 D0GB102JA057 M 1KOHM,J,1/16W 1
R17201 ERJ6GEYJ224 M 220KOHM,J,1/
10W
1
R17202 EXB38V470J RESISTOR ARRAY 1
R17203 EXB38V470J RESISTOR ARRAY 1
R17204 EXB38V681J RESISTOR ARRAY 1
R17205 EXB38V470J RESISTOR ARRAY 1
R17206 EXB38V470J RESISTOR ARRAY 1
R17207 EXB38V681J RESISTOR ARRAY 1
R17208 EXB38V681J RESISTOR ARRAY 1
R17210 ERJT14J6R8U C6.8 OHM, J,1/4W 1
R17211 ERJT14J6R8U C6.8 OHM, J,1/4W 1
R17212 ERJ3GEYJ101 M 100 OHM,J,1/
16W
1
R17213 ERJ3GEYJ101 M 100 OHM,J,1/
16W
1
R17214 ERJ3GEYJ201 M 200 OHM,J,1/
16W
1
R17215 ERJT14J6R8U C6.8 OHM, J,1/4W 1
R17216 ERJT14J6R8U C6.8 OHM, J,1/4W 1
Safety Ref. No. Part No. Part Name &
Description
Pcs Remarks
R17217 ERJ3GEYJ101 M 100 OHM,J,1/
16W
1
R17218 ERJ3GEYJ101 M 100 OHM,J,1/
16W
1
R17219 ERJ3GEYJ201 M 200 OHM,J,1/
16W
1
R17220 ERJT14J6R8U C6.8 OHM, J,1/4W 1
R17221 ERJT14J6R8U C6.8 OHM, J,1/4W 1
R17222 ERJ3GEYJ101 M 100 OHM,J,1/
16W
1
R17223 ERJ3GEYJ101 M 100 OHM,J,1/
16W
1
R17224 ERJ3GEYJ201 M 200 OHM,J,1/
16W
1
R17225 ERJT14J6R8U C6.8 OHM, J,1/4W 1
R17226 ERJT14J6R8U C6.8 OHM, J,1/4W 1
R17227 ERJ3GEYJ101 M 100 OHM,J,1/
16W
1
R17228 ERJ3GEYJ101 M 100 OHM,J,1/
16W
1
R17229 ERJ3GEYJ201 M 200 OHM,J,1/
16W
1
R17230 ERJT14J6R8U C6.8 OHM, J,1/4W 1
R17231 ERJT14J6R8U C6.8 OHM, J,1/4W 1
R17232 ERJ3GEYJ101 M 100 OHM,J,1/
16W
1
R17233 ERJ3GEYJ101 M 100 OHM,J,1/
16W
1
R17234 ERJ3GEYJ201 M 200 OHM,J,1/
16W
1
R17235 ERJT14J6R8U C6.8 OHM, J,1/4W 1
R17236 ERJT14J6R8U C6.8 OHM, J,1/4W 1
R17237 ERJ3GEYJ101 M 100 OHM,J,1/
16W
1
R17238 ERJ3GEYJ101 M 100 OHM,J,1/
16W
1
R17239 ERJ3GEYJ201 M 200 OHM,J,1/
16W
1
R17240 ERJT14J6R8U C6.8 OHM, J,1/4W 1
R17241 ERJT14J6R8U C6.8 OHM, J,1/4W 1
R17242 ERJ3GEYJ101 M 100 OHM,J,1/
16W
1
R17243 ERJ3GEYJ101 M 100 OHM,J,1/
16W
1
R17244 ERJ3GEYJ101 M 100 OHM,J,1/
16W
1
R17245 ERJ3GEYJ681 M 680 OHM,J,1/
16W
1
R17247 D0GF472JA047 M 4.7KOHM,J,
0.33W
1
R17260 D0GDR00Z0002 M 0 OHM, 1/10W 1
RM2501 B3RAD0000160 REMOTE SENSOR 1
S2 K1KA02BA0061 2P CONNECTOR 1
SC2 K1KY02B00012 2P CONNECTOR 1
SC20 K1MY35BA0345 35P CONNECTOR 1
SC41 K1KA09AA0707 9P CONNECTOR 1
SC42 K1KA09AA0707 9P CONNECTOR 1
SC46 K1KA09AA0707 9P CONNECTOR 1
SC50 K1KA02AA0193 2P CONNECTOR 1
SS11 K1KY03B00006 3P CONNECTOR 1 PAVCA
SS21 K1KA07A00170 7P CONNECTOR 1
SS24 K1KB07AA0087 7P CONNECTOR 1
SS33 K1KA08B00270 8P CONNECTOR 1
SS58 K1MN13B00091 13P CONNECTOR 1
SS61 K1MN13B00091 13P CONNECTOR 1
SS64 K1MN13B00091 13P CONNECTOR 1
SW2500 K0F122A00172 SWITCREMOTE CON-
TROLH
1
SW3759A EVQ23405R SWITCH 1
SW3761A EVQ23405R SWITCH 1
SW3762A EVQ23405R SWITCH 1
SW3763A EVQ23405R SWITCH 1
Safety Ref. No. Part No. Part Name &
Description
Pcs Remarks

111
SW3764A EVQ23405R SWITCH 1
SW3765A EVQ23405R SWITCH 1
TU8300 ENGE6609KF TUNER 1 PAVCA
VR16600 EVMEASA00B54 CONTROL 50KOHMB
0.3W
1
VR16601 EVMEASA00B53 CONTROL 5KOHMB
0.3W
1
VR16841 EVMEASA00B24 CONTROL 20KOHMB
0.3W
1
X1100 H0J250500079 CRYSTAL 1 PAVCA
X8002 H0J420500006 CRYSTAL 1 PAVCA
X8003 H0J270500120 CRYSTAL 1
X8004 H0J250500094 CRYSTAL 1 PAVCA
X9900 H0J200500076 CRYSTAL 1
ZA16001 K4CD01000011 AV TERMINAL 1
ZA16002 K4CD01000011 AV TERMINAL 1
ZA16003 K4CD01000011 AV TERMINAL 1
ZA16401 K4CD01000011 AV TERMINAL 1
ZA16402 K4CD01000011 AV TERMINAL 1
ZA16403 K4CD01000011 AV TERMINAL 1
ZA17101 K4AD01Z00001 TERMINAL 1
ZA17102 K4AD01Z00001 TERMINAL 1
ZA17103 K4AD01Z00001 TERMINAL 1
ZA17104 K4AD01Z00001 TERMINAL 1
ZA17201 K4AD01Z00001 TERMINAL 1
ZA17202 K4AD01Z00001 TERMINAL 1
ZA17203 K4AD01Z00001 TERMINAL 1
ZA17204 K4AD01Z00001 TERMINAL 1
A601 AYRA652MSV8T ARRESTOR 1
C201 ECJ2XB1H104K C 0.1UF, K, 50V 1
C202 ACKZE1H220T 50V 22PF 1
C203 ECJ2XB1H104K C 0.1UF, K, 50V 1
C204 ACMBB474K2T CERAMIC CHIP
CAPACITOR
1
C205 ACMBB474K2T CERAMIC CHIP
CAPACITOR
1
C206 ACCC3AD470JP CERAMIC CAPACI-
TOR
1
C207 ECJ1VB1H103K C 0.001UF, K,
50V
1
C208 ACMEB224K1T CERAMIC CHIP
CAPACITOR
1
C209 ECJ1VB1H222K C 2200PF, K, 50V 1
C211 ECJ1XC1H101J C 100PF, J, 50V 1
C212 ECWH8333HVB PLASTIC FILM
CAPACITOR(PP)
1
C214 ECWF6104JLB PLASTIC FILM
CAPACITOR(PP)
1
C215 ECWF6104JLB PLASTIC FILM
CAPACITOR(PP)
1
C216 ACDE1SL221JP CERAMIC CAPACI-
TOR
1
C217 ACRR3DD122KP CERAMIC CAPACI-
TOR
1
C218 ACDE1SL100DP CERAMIC CAPACI-
TOR
1
C251 ACDE1R152KT CERAMIC CAPACI-
TOR
1
C252 ACMEB474K1T CERAMIC CHIP
CAPACITOR
1
C253 ACCST230102K Al ELECTROLYTIC
CAPACITOR
1
C256 ACMEB105K1T CERAMIC CHIP
CAPACITOR
1
C257 ECJ1VC1H471J C 470PF J 50V 1
C258 ECQE2224RKF PLASTIC FILM
CAPACITOR
1
C352 ACKZE1V561T ELECTROLYTIC
CAPACITOR
1
C353 ACKZE1K821E Al ELECTROLYTIC
CAPACITOR
1
Safety Ref. No. Part No. Part Name &
Description
Pcs Remarks
C354 ACKZE1H100T 50V 10PF 1
C355 ACKZE1K681E Al ELECTROLYTIC
CAPACITOR
1
C358 ECQE2104SKF 250V 0.1PF 1
C359 ACTBB224K5T CERAMIC CHIP
CAPACITOR
1
C360 ECJ1VC1H471J C 470PF J 50V 1
C361 ECQE2224RKF PLASTIC FILM
CAPACITOR
1
C366 ACKZE1E471LT 25V 470PF 1
C367 ECQV1H105JL 50V 1PF 1
C369 ACKZE1A102ST ELECTROLYTIC
CAPACITOR
1
C370 ACMEB104K5T CERAMIC CHIP
CAPACITOR
1
C374 ACMAB105K5T CERAMIC CHIP
CAPACITOR
1
C375 ACMAB105K5T CERAMIC CHIP
CAPACITOR
1
C376 ACMEB105K1T CERAMIC CHIP
CAPACITOR
1
C379 ECJ1VB1H472K C 4700PF, K, 50V 1
C380 ACMEB333K5T CERAMIC CHIP
CAPACITOR
1
C381 ACKZE1V271T ELECTROLYTIC
CAPACITOR
1
C382 ECJ1VB1H102K C 1000PF, K, 50V 1
C383 ACMEB474K1T CERAMIC CHIP
CAPACITOR
1
C384 ACRC2HD222KP CERAMIC CAPACI-
TOR
1
C385 ECJ1VB1E223K C 0.023UF, K,
25V
1
C501 ACLE103KC PLASTIC FILM
CAPACITOR(Xcap)
1
C503 ACKMQ2W330T Al ELECTROLYTIC
CAPACITOR
1
C504 ECJ1VB1H103K C 0.001UF, K,
50V
1
C505 ACKZE1H220T 50V 22PF 1
C506 ECJ1VB1H102K C 1000PF, K, 50V 1
C507 ECJ1VB1H103K C 0.001UF, K,
50V
1
C508 ACMBB474K2T CERAMIC CHIP
CAPACITOR
1
C509 ECJ1VB1H103K C 0.001UF, K,
50V
1
C510 ACKZE1H100T 50V 10PF 1
C511 ECJ1VB1H102K C 1000PF, K, 50V 1
C512 ECJ1VB1H103K C 0.001UF, K,
50V
1
C513 ECJ1VB1H102K C 1000PF, K, 50V 1
C514 ACKZE1H221T 50V 220PF 1
C515 ACKZE1H220T 50V 22PF 1
C551 ACKZE1A471C 10V 470PF 1
C553 ACMEB474K1T CERAMIC CHIP
CAPACITOR
1
C554 ACKZE1E821LT ELECTROLYTIC
CAPACITOR
1
C555 ACMBB225K2T CERAMIC CHIP
CAPACITOR
1
C556 ACMBB105K2T CERAMIC CHIP
CAPACITOR
1
C557 ECJ2XB1H104K C 0.1UF, K, 50V 1
C558 ECJ1VB1H103K C 0.001UF, K,
50V
1
C560 ACKZE1E221T ELECTROLYTIC
CAPACITOR
1
C561 ACKZE1H100T 50V 10PF 1
C573 ECKD3A221KRP CERAMIC CAPACI-
TOR
1
C601 ACLEMX474KC PLASTIC FILM
CAPACITOR(Xcap)
1
C602 ECKENA221KBR C 221P 250V 1
C603 ECKENA221KBR C 221P 250V 1
C605 ECWF2W105KA PLASTIC FILM
CAPACITOR(PP)
1
Safety Ref. No. Part No. Part Name &
Description
Pcs Remarks

112
C606 ACTEB104K5T CERAMIC CHIP
CAPACITOR
1
C607 ACLEMX474KC PLASTIC FILM
CAPACITOR(Xcap)
1
C608 ACTEB683K5T CERAMIC CHIP
CAPACITOR
1
C609 ACTEB104K5T CERAMIC CHIP
CAPACITOR
1
C610 ACTEB223K5T CERAMIC CHIP
CAPACITOR
1
C611 ECJ1VC1H471J C 470PF J 50V 1
C612 ACLEMX474KC PLASTIC FILM
CAPACITOR(Xcap)
1
C613 ECJ1VC1H471J C 470PF J 50V 1
C614 ACTEB104K5T CERAMIC CHIP
CAPACITOR
1
C615 ACTEB104K5T CERAMIC CHIP
CAPACITOR
1
C616 ACTEB104K5T CERAMIC CHIP
CAPACITOR
1
C618 ECJ1VB1H472K C 4700PF, K, 50V 1
C620 ACMBB474K2T CERAMIC CHIP
CAPACITOR
1
C621 ECQE6472B45 C 4700U 630V 1
C622 ECJ1VB1H103K C 0.001UF, K,
50V
1
C623 ACKMQ2W391KZ Al ELECTROLYTIC
CAPACITOR
1
C624 ECKENA331KBR CERAMIC CAPACI-
TOR
1
C626 ECJ1VB1H102K C 1000PF, K, 50V 1
C627 ECQE6473RKF P 0.047UF,
K,630V
1
C628 ACKZE1H220T 50V 22PF 1
C629 ECQV1H334JL PLASTIC FILM
CAPACITOR
1
C630 ECJ1XC1H102J C 1000PF, J, 50V 1
C701 ACKZE1A221T ELECTROLYTIC
CAPACITOR
1
C702 ACMEB104K5T CERAMIC CHIP
CAPACITOR
1
C703 ACMEB104K5T CERAMIC CHIP
CAPACITOR
1
C704 ECJ1VB1H103K C 0.001UF, K,
50V
1
C705 ACMEB104K5T CERAMIC CHIP
CAPACITOR
1
C706 ECJ2VB1H102K C 1000PF, J, 50V 1
C711 ECJ1VB1H103K C 0.001UF, K,
50V
1
C712 ACMEB224K2T CERAMIC CHIP
CAPACITOR
1
C713 ECJ1VB1H103K C 0.001UF, K,
50V
1
C714 ACMEB223K5T CERAMIC CHIP
CAPACITOR
1
CN01 AKB6B-PH-KS CONNECTOR 1
D201 VDAG01AT DIODE 1
D202 VDAG01AT DIODE 1
D203 MA165TAKU DIODE 1
D204 VDERA83-004T DIODE 1
D205 VDERA83-004T DIODE 1
D206 VDERA83-004T DIODE 1
D207 VDERA83-004T DIODE 1
D208 MA165TAKU DIODE 1
D209 VDAG01AT DIODE 1
D252 VDSAR02LFA4 DIODE 1
D253 VDYG971S8R DIODE 1
D254 VDYG971S8R DIODE 1
D351 VDFCH10A10 DIODE 1
D353 MA3DF3000S DIODE 1
D356 VDRK36C4 DIODE 1
D358 VD1T7GA1 DIODE 1
D359 VDFCHS10A045 DIODE 1
D360 VDSAR02LFA4 DIODE 1
Safety Ref. No. Part No. Part Name &
Description
Pcs Remarks
D501 VDS1WBA80 DIODE 1
D502 MA165TAKU DIODE 1
D503 VXST3D82BL3 DIODE 1
D504 VDAG01AT DIODE 1
D505 VDAG01AT DIODE 1
D507 VD1T7GA1 DIODE 1
D551 VDFCH20B10 DIODE 1
D552 MA2DF3100S DIODE 1
D601 MA165TAKU DIODE 1
D602 MA165TAKU DIODE 1
D603 VDD15XB80 DIODE 1
D605 MA165TAKU DIODE 1
D606 VDS3V60L1 DIODE 1
D607 VDYG982S6R DIODE 1
D608 VDAG01AT DIODE 1
D609 VD1T7GA1 DIODE 1
D701 VDERA83-004T DIODE 1
F351 HU216008BEP FUSE 1
F501 HU5013002PRC CARTRIDGE FUSE 1
F601 HU5013010PRC CARTRIDGE FUSE 1
F602 HU5013010PRC CARTRIDGE FUSE 1
F603 HU216002BEP FUSE 1
IC201 VINJM2904ME1 INTEGRATED CIR-
CUIT
1
IC202 VISSC9101M INTEGRATED CIR-
CUIT
1
IC251 VIKIA431A INTEGRATED CIR-
CUIT
1
IC351 VIKIA431A INTEGRATED CIR-
CUIT
1
IC352 VISC2628T INTEGRATED CIR-
CUIT
1
IC353 VIBD9703FP POWER INTE-
GRATED CIRCUIT
1
IC501 MIP3E50MY POWER INTE-
GRATED CIRCUIT
1
IC551 VIKIA431A INTEGRATED CIR-
CUIT
1
IC601 VIFA5502MTE1 INTEGRATED CIR-
CUIT
1
IC701 VILC87F2G081 INTEGRATED CIR-
CUIT
1
IC702 VIR3111N40AT INTEGRATED CIR-
CUIT
1
K602 ALKT329C93 RELAY 1
K605 ALKT329C93 RELAY 1
L351 AYS1615005Y CHOKE COIL 1
L352 ELC10E470L CHOKE COIL 1
L353 EXCELSA24T FERRITE BEAD
INDUCTOR
1
L501 EXCELSA35T BEAD CHOKE 1
L502 EXCELDR35V CORE 1
L503 EXCELDR35V CORE 1
L601 AYP2512305Y FILTER CHOKE 1
L602 AYP2512305Y FILTER CHOKE 1
L603 ETB42AY11GAD CHOKE COIL 1
L604 EXCELSA35T BEAD CHOKE 1
P2 AKB2P3S-VH CONNECTOR 1
P6 AKB12B-EH-A 12P CONNECTOR 1
P7 AKB11B-EH-A 11P CONNECTOR 1
P9 AKS02B-VT CONNECTOR 1
P11 AKB3P4S-VH-L CONNECTOR 1
P25 AKB13B-PH-KS 13P CONNECTOR 1
P35 AKB4B-PH-KS CONNECTOR 1
PC201 VPS2581AL2HE OPTOISOLATOR 1
PC301 VPS2581AL2HE OPTOISOLATOR 1
PC501 VPS2581AL2HE OPTOISOLATOR 1
PC502 VPS2581AL2HE OPTOISOLATOR 1
Safety Ref. No. Part No. Part Name &
Description
Pcs Remarks

113
PC503 VPS2581AL2HE OPTOISOLATOR 1
PC504 VPS2581AL2HE OPTOISOLATOR 1
Q201 2SC5866T TRANSISTOR 1
Q202 2SC5866T TRANSISTOR 1
Q203 VKFMV19N57ES FET 1
Q204 VKFMV19N57ES FET 1
Q205 VKFMV19N57ES FET 1
Q206 VKFMV19N57ES FET 1
Q207 2SA2094T TRANSISTOR 1
Q208 2SA2094T TRANSISTOR 1
Q354 2SD0601ARL TRANSISTOR 1
Q355 2SJ651 FET 1
Q501 2SB710A-RTX TRANSISTOR 1
Q502 2SK3018TL FET 1
Q503 2SC5866T TRANSISTOR 1
Q504 2SB709-R-RTX TRANSISTOR 1
Q505 2SK3018TL FET 1
Q506 2SB709-R-RTX TRANSISTOR 1
Q551 2SJ651 FET 1
Q557 VKHAT1130R FET 1
Q601 VKFMR23N57E FET 1
Q602 2SC5866T TRANSISTOR 1
Q603 2SA2094T TRANSISTOR 1
Q604 VKFMR23N57E FET 1
Q605 2SB709-R-RTX TRANSISTOR 1
Q606 2SD0601ARL TRANSISTOR 1
Q701 2SD0601ARL TRANSISTOR 1
Q702 2SD0601ARL TRANSISTOR 1
Q703 2SB710A-RTX TRANSISTOR 1
Q704 2SD0601ARL TRANSISTOR 1
Q705 2SB710A-RTX TRANSISTOR 1
R201 D0GB103JA057 M 10K OHM J 1/
16W
1
R202 ERJ6GEYJ100V M 10 OHM,J,1/10W 1
R203 ERJ3GEYJ223 M 22KOHM,J,1/16W 1
R204 ERQ14AJ100JP FUSIBLE METAL
FILM RESISTOR
1
R206 ERQ14ZJ1R0JP FUSIBLE METAL
FILM RESISTOR
1
R207 ERQ14AJ100JP FUSIBLE METAL
FILM RESISTOR
1
R209 ERJ6GEYJ222V M 2.2K OHM J 1/
10W
1
R210 ERJ3GEYJ223 M 22KOHM,J,1/16W 1
R211 ERJ3GEYJ221 M 220 OHM,J,1/
16W
1
R212 ERJ3GEYJ333 M 33KOHM,J,1/16W 1
R213 ERJ3GEYJ223 M 22KOHM,J,1/16W 1
R214 ERJ3GEYJ222 M 2.2KOHM,J,1/
16W
1
R215 ERJ3GEYD153V M 15KOHM,J,1/16W 1
R216 D0GB102JA057 M 1KOHM,J,1/16W 1
R225 ERJ6GEYJ104V M 100KOHM,J,1/
10W
1
R226 ERJ6GEYJ104V M 100KOHM,J,1/
10W
1
R227 ERJ6ENF1001 M 1KOHM, 1/10W 1
R228 ERJ3GEYJ682 M 6.8KOHM,J,1/
16W
1
R229 ERJ3GEYJ472 M 4.7KOHM,J,1/
16W
1
R231 ERJ6GEYJ104V M 100KOHM,J,1/
10W
1
R232 ERJ6GEYJ104V M 100KOHM,J,1/
10W
1
R233 ERJ6ENF82R0 M 82 OHM, 1/10W 1
R234 ERJ6ENF22R0 M 22 OHM, 1/10W 1
R235 ERJ6GEYJ104V M 100KOHM,J,1/
10W
1
R236 ARRCR2F1004T METAL GLAZE
FIXED RESISTOR
1
R251 ARRCR1F1503T METAL GLAZE
FIXED RESISTOR
1
Safety Ref. No. Part No. Part Name &
Description
Pcs Remarks
R252 ARRCR1F1503T METAL GLAZE
FIXED RESISTOR
1
R253 ARRCR1F1503T METAL GLAZE
FIXED RESISTOR
1
R258 D0GB102JA057 M 1KOHM,J,1/16W 1
R259 ERJ6GEYJ102V M 1K OHM J 1/10W 1
R260 ERJ6GEYJ101V M 100 OHM,J,1/
10W
1
R261 D0GB1R0JA057 CHIP RESISTOR 1
R262 ERJ6GEYG681 M 680 OHM,J,1/
10W
1
R264 ERJ6ENF4702 M 47KOHM, 1/10W 1
R265 ERJ6ENF4702 M 47KOHM, 1/10W 1
R266 ERJ6ENF4702 M 47KOHM, 1/10W 1
R267 ERJ6ENF4702 M 47KOHM, 1/10W 1
R268 ERJ6ENF2491 M2.49KOHM, 1/10W 1
R270 ERJ6ENF5492 M54.9KOHM, 1/10W 1
R271 ERJ6GEYJ2R7V M 2.7 OHM,J,1/
10W
1
R272 ERJ6GEYJ2R7V M 2.7 OHM,J,1/
10W
1
R273 ERJ6GEYJ2R7V M 2.7 OHM,J,1/
10W
1
R274 ERJ6GEYJ2R7V M 2.7 OHM,J,1/
10W
1
R275 ERJ6GEYJ2R7V M 2.7 OHM,J,1/
10W
1
R276 ERJ6GEYJ2R7V M 2.7 OHM,J,1/
10W
1
R277 ERJ6GEYJ2R7V M 2.7 OHM,J,1/
10W
1
R278 ERJ6GEYJ2R7V M 2.7 OHM,J,1/
10W
1
R279 ERJ6GEYJ2R7V M 2.7 OHM,J,1/
10W
1
R280 ERJ6GEYJ2R7V M 2.7 OHM,J,1/
10W
1
R281 ERJ6GEYJ2R7V M 2.7 OHM,J,1/
10W
1
R282 ERJ6GEYJ2R7V M 2.7 OHM,J,1/
10W
1
R283 ERJ6GEYJ2R7V M 2.7 OHM,J,1/
10W
1
R284 ERJ6GEYJ2R7V M 2.7 OHM,J,1/
10W
1
R285 ERJ6GEYJ2R7V M 2.7 OHM,J,1/
10W
1
R286 ERJ6GEYJ2R7V M 2.7 OHM,J,1/
10W
1
R287 ERJ6GEYJ511 M 510 OHM,J,1/
10W
1
R300 ERJ6ENF4992 M49.9KOHM, 1/10W 1
R301 ERJ6ENF4992 M49.9KOHM, 1/10W 1
R302 ERJ6ENF4992 M49.9KOHM, 1/10W 1
R303 ERJ6ENF4992 M49.9KOHM, 1/10W 1
R304 ERJ6ENF4992 M49.9KOHM, 1/10W 1
R306 ERJ6GEYJ101V M 100 OHM,J,1/
10W
1
R307 ERJ6GEYJ101V M 100 OHM,J,1/
10W
1
R308 ERJ6GEYJ101V M 100 OHM,J,1/
10W
1
R309 ERJ6GEYJ101V M 100 OHM,J,1/
10W
1
R310 ERJ6GEYJ101V M 100 OHM,J,1/
10W
1
R311 ERJ6GEYJ101V M 100 OHM,J,1/
10W
1
R312 ERJ6GEYJ101V M 100 OHM,J,1/
10W
1
R313 ERJ6GEYJ101V M 100 OHM,J,1/
10W
1
R314 ERJ6GEYJ221V M 220 OHM,J,1/
10W
1
R315 ERJ6GEYJ221V M 220 OHM,J,1/
10W
1
R316 ERJ6GEYJ221V M 220 OHM,J,1/
10W
1
Safety Ref. No. Part No. Part Name &
Description
Pcs Remarks

114
R317 ERJ6GEYJ221V M 220 OHM,J,1/
10W
1
R318 ERJ6GEYJ100V M 10 OHM,J,1/10W 1
R319 ERJ6GEYJ221V M 220 OHM,J,1/
10W
1
R320 ERJ6GEYJ221V M 220 OHM,J,1/
10W
1
R321 ERJ6GEYJ221V M 220 OHM,J,1/
10W
1
R322 ERJ6GEYJ221V M 220 OHM,J,1/
10W
1
R323 ERJ6GEYJ100V M 10 OHM,J,1/10W 1
R324 ERJ6GEYJ100V M 10 OHM,J,1/10W 1
R325 ERJ6GEYJ100V M 10 OHM,J,1/10W 1
R326 ERJ6GEYJ100V M 10 OHM,J,1/10W 1
R327 ERJ6GEYJ221V M 220 OHM,J,1/
10W
1
R328 ERJ6GEYJ221V M 220 OHM,J,1/
10W
1
R329 ERJ6GEYJ100V M 10 OHM,J,1/10W 1
R330 ERJ6GEYJ221V M 220 OHM,J,1/
10W
1
R331 ERJ6GEYJ221V M 220 OHM,J,1/
10W
1
R332 ERJ6GEYJ100V M 10 OHM,J,1/10W 1
R333 ERJ6GEYJ100V M 10 OHM,J,1/10W 1
R334 ERJ6GEYJ100V M 10 OHM,J,1/10W 1
R335 ERJ6GEYJ100V M 10 OHM,J,1/10W 1
R336 ERJ6GEYJ221V M 220 OHM,J,1/
10W
1
R337 ERJ6GEYJ221V M 220 OHM,J,1/
10W
1
R338 ERJ6GEYJ221V M 220 OHM,J,1/
10W
1
R339 ERJ6GEYJ221V M 220 OHM,J,1/
10W
1
R340 ERJ6GEYJ100V M 10 OHM,J,1/10W 1
R341 ERJ6GEYJ100V M 10 OHM,J,1/10W 1
R342 ERJ6GEYJ100V M 10 OHM,J,1/10W 1
R343 ERJ6GEYJ100V M 10 OHM,J,1/10W 1
R344 ERJ6GEYJ100V M 10 OHM,J,1/10W 1
R345 ERJ6GEYJ100V M 10 OHM,J,1/10W 1
R351 D0GB102JA057 M 1KOHM,J,1/16W 1
R352 D0GB102JA057 M 1KOHM,J,1/16W 1
R353 ERJ6GEYJ102V M 1K OHM J 1/10W 1
R354 ERJ6GEYJ102V M 1K OHM J 1/10W 1
R355 ERJ6GEYJ222V M 2.2K OHM J 1/
10W
1
R356 ERJ6ENF2672 M26.7KOHM, 1/10W 1
R357 ERJ6ENF2612 M26.1KOHM, 1/10W 1
R358 ERJ6ENF2491 M2.49KOHM, 1/10W 1
R359 ERJ6ENF1102 M 11KOHM, 1/10W 1
R360 ERJ12YJ473U M 47KOHM,J, 1/2W 1
R361 ERJ12YJ473U M 47KOHM,J, 1/2W 1
R362 ERJ12YJ473U M 47KOHM,J, 1/2W 1
R363 ERJ12YJ473U M 47KOHM,J, 1/2W 1
R371 ERJ6RND1782 CHIP RESISTOR 1
R372 ERJ6RND1001 CHIP RESISTOR 1
R374 ERJ6ENF3301 M 3.3KOHM, 1/10W 1
R375 ERJ6ENF8200 M 820 OHM, 1/10W 1
R383 ERJ6GEYJ223 M 22KOHM,J,1/10W 1
R384 ERJ6ENF3402 M 34KOHM, 1/10W 1
R385 ERJ6ENF3402 M 34KOHM, 1/10W 1
R386 ERJ6ENF1582 M15.8KOHM, 1/10W 1
R387 ERJ6ENF1582 M15.8KOHM, 1/10W 1
R389 ERJ3GEYJ104 M 100KOHM,J,1/
16W
1
R390 ERJ3GEY0R00 M 0 OHM, 1/16W 1
R391 ERJ6GEYJ183V M 18KOHM,J,1/10W 1
R392 ERJ6ENF3921 M3.92KOHM, 1/10W 1
R393 ERJ6GEYJ472V M 4.7K OHM J 1/
10W
1
R394 ERJ6ENF1002 M 10KOHM, 1/10W 1
R395 ERJ6GEYJ683V M 68K OHM J 1/
10W
1
Safety Ref. No. Part No. Part Name &
Description
Pcs Remarks
R396 ERJ6GEYJ683V M 68K OHM J 1/
10W
1
R397 ERJ6GEYJ683V M 68K OHM J 1/
10W
1
R398 D0GB102JA057 M 1KOHM,J,1/16W 1
R501 ARRCR1F8253T METAL GLAZE
FIXED RESISTOR
1
R502 ARRCR1F8253T METAL GLAZE
FIXED RESISTOR
1
R503 ARRCR1F8253T METAL GLAZE
FIXED RESISTOR
1
R504 ARRCR1F8253T METAL GLAZE
FIXED RESISTOR
1
R505 ARRCR1F8253T METAL GLAZE
FIXED RESISTOR
1
R506 ARRCR1F8253T METAL GLAZE
FIXED RESISTOR
1
R507 ARRCR6J825M METAL GLAZE
FIXED RESISTOR
1
R508 ERJ3EKF1303 M 130KOHM, 1/16W 1
R509 D0GB103JA057 M 10K OHM J 1/
16W
1
R510 D0GB183JA057 M 18K OHM J 1/
16W
1
R511 ERJ3GEY0R00 M 0 OHM, 1/16W 1
R512 ERJ3GEYJ224 M 220KOHM,J,1/
16W
1
R513 ERJ3GEYJ223 M 22KOHM,J,1/16W 1
R514 ERJ3EKF1303 M 130KOHM, 1/16W 1
R515 D0GB103JA057 M 10K OHM J 1/
16W
1
R516 D0GB473JA057 M 47KOHM,J,1/16W 1
R517 ERJ3GEY0R00 M 0 OHM, 1/16W 1
R518 ERJ12YJ120 CHIP RESISTOR 1
R519 ERJ3GEYJ224 M 220KOHM,J,1/
16W
1
R520 ERDS2FJ121 C 120 OHM, J,1/
4W
1
R521 ERJ3GEYJ223 M 22KOHM,J,1/16W 1
R522 ERJ6GEYJ180 M 18 OHM,J,1/10W 1
R523 ERJ12YJ120 CHIP RESISTOR 1
R524 ERJ3GEYJ223 M 22KOHM,J,1/16W 1
R525 D0GB103JA057 M 10K OHM J 1/
16W
1
R526 ERJ3GEYJ472 M 4.7KOHM,J,1/
16W
1
R530 ERJ3GEYJ471 M 470 OHM,J,1/
16W
1
R531 ERJ6ENF3303 M 330KOHM, 1/10W 1
R551 ERJ6GEYJ150V M 15 OHM,J,1/10W 1
R552 ERJ3GEYJ472 M 4.7KOHM,J,1/
16W
1
R553 D0GB102JA057 M 1KOHM,J,1/16W 1
R554 ERDS2FJ102 M 1KOHM,J,1/10W 1
R555 ERJ3EKF1072 CHIP RESISTOR 1
R556 ERJ3EKF1002 M 10KOHM, 1/16W 1
R557 ERJ3GEYD153V M 15KOHM,J,1/16W 1
R558 ERJ6GEYF473 M 47KOHM,J,1/10W 1
R570 D0GB473JA057 M 47KOHM,J,1/16W 1
R573 ERJ3GEYJ332 M 3.3KOHM,J,1/
16W
1
R574 ERG2SJ561H M 560 OHM, J, 2W 1
R575 ERJ6GEYJ474 M 470KOHM,J,1/
10W
1
R601 ARRCR5J624M METAL GLAZE
FIXED RESISTOR
1
R603 ERJ6ENF8062 M80.6KOHM, 1/10W 1
R604 ERJ6ENF8062 M80.6KOHM, 1/10W 1
R605 ERJ6ENF8062 M80.6KOHM, 1/10W 1
R606 ERJ6ENF8062 M80.6KOHM, 1/10W 1
R607 ERJ3EKF3302 M 33KOHM, 1/16W 1
R608 ERJ3EKF2701 M 2.7KOHM, 1/16W 1
R609 ERJ3GEYJ104 M 100KOHM,J,1/
16W
1
R610 ERJ3GEYJ100 M 10 OHM,J,1/16W 1
R611 ERJ3GEYJ100 M 10 OHM,J,1/16W 1
R612 ERJ3EKF3162 M31.6KOHM, 1/16W 1
Safety Ref. No. Part No. Part Name &
Description
Pcs Remarks

115
R613 D0GB103JA057 M 10K OHM J 1/
16W
1
R614 ERJ3GEYJ474 M 470KOHM,J,1/
16W
1
R615 D0GB123JA057 M 12K OHM J 1/
16W
1
R616 ARRF2EJR15B METAL PLATE
RESISTOR
1
R617 ARRF2EJR15B METAL PLATE
RESISTOR
1
R618 ARRF2EJR15B METAL PLATE
RESISTOR
1
R620 ERJ3EKF3302 M 33KOHM, 1/16W 1
R621 ERJ3EKF6041 M6.04KOHM, 1/16W 1
R622 ERJ3EKF3242 M32.4KOHM, 1/16W 1
R623 ERJ3EKF6191 M6.19KOHM, 1/16W 1
R624 ERJ6GEYJ472V M 4.7K OHM J 1/
10W
1
R625 ERDS2FJ101 C 100 OHM, J,1/
4W
1
R627 ERDS2FJ154 C 150KOHM, J,1/
4W
1
R629 ERG12SJ150J METAL OXIDE FILM
RESISTOR
1
R630 ERJ6GEYJ472V M 4.7K OHM J 1/
10W
1
R632 ERDS2FJ273 CARBON FILM
RESISTOR
1
R633 ERDS2FJ273 CARBON FILM
RESISTOR
1
R634 ARRCR1F4993T METAL GLAZE
FIXED RESISTOR
1
R635 ARRCR1F4993T METAL GLAZE
FIXED RESISTOR
1
R636 ARRCR1F4993T METAL GLAZE
FIXED RESISTOR
1
R637 ERJ6GEYJ183V M 18KOHM,J,1/10W 1
R638 D0GB103JA057 M 10K OHM J 1/
16W
1
R639 ARRCR1F5363T METAL GLAZE
FIXED RESISTOR
1
R640 ARRCR1F5363T METAL GLAZE
FIXED RESISTOR
1
R641 ARRCR1F5363T METAL GLAZE
FIXED RESISTOR
1
R642 ERJ6GEYF473 M 47KOHM,J,1/10W 1
R643 D0GB103JA057 M 10K OHM J 1/
16W
1
R644 ERJ6ENF3303 M 330KOHM, 1/10W 1
R645 ERDS2FJ334 C 330KOHM, J,1/
4W
1
R646 ARR5B100JC2 5W 10 OHM 1
R649 ERJ6ENF8062 M80.6KOHM, 1/10W 1
R650 ERJ6ENF8062 M80.6KOHM, 1/10W 1
R651 ERJ6GEYG270 M 27 OHM,J,1/10W 1
R652 ERJ6GEYG270 M 27 OHM,J,1/10W 1
R653 ERJ6GEYG270 M 27 OHM,J,1/10W 1
R654 ERJ6GEYG270 M 27 OHM,J,1/10W 1
R659 ERJ6GEYG270 M 27 OHM,J,1/10W 1
R670 ERJ6GEYG270 M 27 OHM,J,1/10W 1
R671 ERJ6GEYG270 M 27 OHM,J,1/10W 1
R672 ERJ6GEYG270 M 27 OHM,J,1/10W 1
R701 ERJ6GEYJ102V M 1K OHM J 1/10W 1
R702 ERJ3GEYJ221 M 220 OHM,J,1/
16W
1
R703 D0GB103JA057 M 10K OHM J 1/
16W
1
R705 ERJ3GEYJ224 M 220KOHM,J,1/
16W
1
R706 ERJ6GEYJ104V M 100KOHM,J,1/
10W
1
R707 D0GB103JA057 M 10K OHM J 1/
16W
1
R708 D0GB103JA057 M 10K OHM J 1/
16W
1
R711 ERJ3EKF4991 M4.99KOHM, 1/16W 1
R712 ERJ3EKF4991 M4.99KOHM, 1/16W 1
R713 ERJ3EKF4991 M4.99KOHM, 1/16W 1
Safety Ref. No. Part No. Part Name &
Description
Pcs Remarks
R714 ERJ3GEYJ101 M 100 OHM,J,1/
16W
1
R715 ERJ3GEYJ514 M 510KOHM,J,1/
16W
1
R717 ERJ3GEYJ104 M 100KOHM,J,1/
16W
1
R718 D0GB103JA057 M 10K OHM J 1/
16W
1
R719 D0GB103JA057 M 10K OHM J 1/
16W
1
R720 D0GB103JA057 M 10K OHM J 1/
16W
1
R721 D0GB103JA057 M 10K OHM J 1/
16W
1
R722 D0GB103JA057 M 10K OHM J 1/
16W
1
R723 D0GB103JA057 M 10K OHM J 1/
16W
1
R724 D0GB152JA057 M 1.5KOHM J 1/
16W
1
R725 D0GB152JA057 M 1.5KOHM J 1/
16W
1
R731 ERJ3GEYJ471 M 470 OHM,J,1/
16W
1
R733 D0GB103JA057 M 10K OHM J 1/
16W
1
R734 D0GB103JA057 M 10K OHM J 1/
16W
1
R736 ERJ3GEYJ821 M820 OHM,J,1/16W 1
R738 D0GB102JA057 M 1KOHM,J,1/16W 1
R740 ERJ3GEYJ821 M820 OHM,J,1/16W 1
R741 D0GB103JA057 M 10K OHM J 1/
16W
1
R742 ERJ3GEYJ821 M820 OHM,J,1/16W 1
R743 ERJ3GEYJ471 M 470 OHM,J,1/
16W
1
R744 ERJ3GEYJ101 M 100 OHM,J,1/
16W
1
R745 ERJ3GEYJ101 M 100 OHM,J,1/
16W
1
R746 ERJ3GEYJ101 M 100 OHM,J,1/
16W
1
R747 D0GB102JA057 M 1KOHM,J,1/16W 1
R748 D0GB103JA057 M 10K OHM J 1/
16W
1
R749 ERJ3GEYJ221 M 220 OHM,J,1/
16W
1
R750 ERJ3GEYJ221 M 220 OHM,J,1/
16W
1
R751 D0GB102JA057 M 1KOHM,J,1/16W 1
R752 ERJ6GEYJ1R0 M 1 OHM,J,1/10W 1
R753 ERJ6GEYJ1R0 M 1 OHM,J,1/10W 1
R754 ERJ3GEY0R00 M 0 OHM, 1/16W 1
RF501 HUA5MC100JP2 THERMAL CUTOFF
WITH RESISTOR
1
RF601 HUY5JA200JP W 20 OHM, J, 5W 1
T201 ETB42BJ16GAD TRANSFORMER 1
T301 ETB35BC28GAD TRANSFORMER 1
T501 ETB29AK1L8AD TRANSFORMER 1
VR251 EVMEASA01B15 VARIABLE RESIS-
TOR
1
VR351 EVMEASA01B54 VARIABLE RESIS-
TOR
1
Z601 ERZVGED751 VARISTOR 1
Z602 ERZVGAD471 VARISTOR 1
ZD353 MA4120NM ZENER DIODE 1
ZD354 MAZ4068NMF ZENER DIODE 1
ZD501 MA4300NMTA ZENER DIODE 1
ZD502 MA4300NMTA ZENER DIODE 1
ZD503 MA4300NMTA ZENER DIODE 1
ZD504 MA4150NMTA ZENER DIODE 1
ZD505 MA4300NMTA ZENER DIODE 1
Safety Ref. No. Part No. Part Name &
Description
Pcs Remarks

116
ZD506 MA4220NM ZENER DIODE 1
ZD507 MA4082NM ZENER DIODE 1
ZD508 MA4150NMTA ZENER DIODE 1
ZD552 MA4062NM ZENER DIODE 1
ZD601 MA4051NM ZENER DIODE 1
ZD602 MA4047NM ZENER DIODE 1
ZD701 MA4036H ZENER DIODE 1
ZD702 MA4036H ZENER DIODE 1
Safety Ref. No. Part No. Part Name &
Description
Pcs Remarks