TK 8180(K) 8180 (K) B51 8692 00
TK-8180 (K) B51-8692-00 TK-8180 (K) B51-8692-00
TK-8180 to the manual 63793751-d83c-47ad-b762-8ef203fa8d7c
User Manual: TK-8180 (K) B51-8692-00
Open the PDF directly: View PDF
.
Page Count: 85
- COVER/CONTENTS
- GENERAL
- SYSTEM SET-UP
- REALIGNMENT
- INSTALLATION
- 1. Ignition Sense Cable (KCT-46 : Option)
- 2. Radio Interface Cable (KCT-40 : Option)
- 3. Horn Alert/P.A. Relay Unit (KAP-2 : Option)
- 4. Control Head Remote Kit (KRK-10 : Option)
- 5. Voice Guide & Storage Unit (VGS-1 : Option)
- 6. Voice Scrambler Board Connection
- 7. ANI Board Connection
- 8. GPS Receiver Connection
- DISASSEMBLY FOR REPAIR
- CIRCUIT DESCRIPTION
- SEMICONDUCTOR DATA
- COMPONENTS DESCRIPTION
- PARTS LIST
- EXPLODED VIEW
- PACKING
- ADJUSTMENT
- TERMINAL FUNCTION
- PC BOARD
- SCHEMATIC DIAGRAM
- INTERCONNECTION DIAGRAM
- BLOCK DIAGRAM
- LEVEL DIAGRAM
- OPTIONAL ACCESSORIES
- SPECIFICATIONS

© 2004-7 PRINTED IN JAPAN
B51-8692-00 (N) 1007
UHF FM TRANSCEIVER
TK-8180
SERVICE MANUAL
Panel assy
(A62-1094-23)
Key top
(K29-9312-21)
Cabinet
(A01-2194-11)
Microphone
(T91-0639-05)
GENERAL .................................................................. 2
SYSTEM SET-UP ...................................................... 3
REALIGNMENT ......................................................... 4
INSTALLATION ......................................................... 7
DISASSEMBLY FOR REPAIR ................................. 13
CIRCUIT DESCRIPTION .......................................... 16
SEMICONDUCTOR DATA ...................................... 20
COMPONENTS DESCRIPTION .............................. 22
PARTS LIST ............................................................. 24
EXPLODED VIEW.................................................... 33
PACKING ................................................................. 34
ADJUSTMENT ........................................................ 35
TERMINAL FUNCTION ........................................... 46
PC BOARD
DISPLAY UNIT (X54-3480-10) ............................ 50
TX-RX UNIT (X57-6990-10) (A/3, C/3) ............... 52
TX-RX UNIT (X57-6990-10) (B/3) ....................... 54
SCHEMATIC DIAGRAM
DISPLAY UNIT (X54-3480-10) ............................ 58
TX-RX UNIT (X57-6990-10) ................................ 60
INTERCONNECTION DIAGRAM ............................ 69
BLOCK DIAGRAM ................................................... 70
LEVEL DIAGRAM .................................................... 72
OPTIONAL ACCESSORIES
KRK-10
(Control Head Remote Kit: 23ft/7m) ......
74
KAP-2 (Horn Alert/P.A. Relay unit) ................... 79
KCT-40 (Radio Interface Cable).......................... 79
KCT-46 (Ignition Sense Cable) ........................... 79
KMC-35 (Microphone) ........................................ 79
KMC-36 (Keypad Microphone) .......................... 79
SPECIFICATIONS ................................. BACK COVER
CONTENTS
TK-8180
2
INTRODUCTION
SCOPE OF THIS MANUAL
This manual is intended for use by experienced techni-
cians familiar with similar types of commercial grade commu-
nications equipment. It contains all required service informa-
tion for the equipment and is current as of this publication
date. Changes which may occur after publication are covered
by either Service Bulletins or Manual Revisions, which are
issued as required.
ORDERING REPLACEMENT PARTS
When ordering replacement parts or equipment informa-
tion, the full part identification number should be included.
This applies to all parts : components, kits, and chassis. If the
part number is not known, include the chassis or kit number
of which it is a part and a sufficient description of the required
component for proper identification.
PERSONAL SAFETY
The following precautions are recommended for personal
safety :
•DONOT transmit if someone is within two feet (0.6
meter) of the antenna.
•DONOT transmit until all RF connectors are secure and
any open connectors are properly terminated.
•SHUT OFF this equipment when near electrical blasting
caps or while in an explosive atmosphere.
•All equipment should be properly grounded before power-
up for safe operation.
•This equipment should be serviced by only qualified tech-
nicians.
PRE-INSTALLATION CONSIDERATIONS
1. UNPACKING
Unpack the radio from its shipping container and check for
accessory items. If any item is missing, please contact
KENWOOD immediately.
2. LICENSING REQUIREMENTS
Federal regulations require a station license for each radio
installation (mobile or base) be obtained by the equipment
owner. The licensee is responsible for ensuring transmitter
power, frequency, and deviation are within the limits permit-
ted by the station license.
Transmitter adjustments may be performed only by a li-
censed technician holding an FCC first, second or general
class commercial radiotelephone operator’s license. There is
no license required to install or operate the radio.
3. PRE-INSTALLATION CHECKOUT
3-1. Introduction
Each radio is adjusted and tested before shipment. How-
ever, it is recommended that receiver and transmitter opera-
tion be checked for proper operation before installation.
3-2. Testing
The radio should be tested complete with all cabling and
accessories as they will be connected in the final installation.
Transmitter frequency, deviation, and power output should
be checked, as should receiver sensitivity, squelch operation,
and audio output. Signalling equipment operation should be
verified.
4. PLANNING THE INSTALLATION
4-1. General
Inspect the vehicle and determine how and where the ra-
dio antenna and accessories will be mounted.
Plan cable runs for protection against pinching or crushing
wiring, and radio installation to prevent overheating.
4-2. Antenna
The favored location for an antenna is in the center of a
large, flat conductive area, usually at the roof center. The
trunk lid is preferred, bond the trunk lid and vehicle chassis
using ground straps to ensure the lid is at chassis ground.
4-3. Radio
The universal mount bracket allows the radio to be
mounted in a variety of ways. Be sure the mounting surface
is adequate to support the radio’s weight. Allow sufficient
space around the radio for air cooling. Position the radio close
enough to the vehicle operator to permit easy access to the
controls when driving.
4-4. DC Power and wiring
1. This radio may be installed in negative ground electrical
systems only. Reverse polarity will cause the cable fuse to
blow. Check the vehicle ground polarity before installation
to prevent wasted time and effort.
2. Connect the positive power lead directly to the vehicle
battery positive terminal. Connecting the Positive lead to
any other positive voltage source in the vehicle is not rec-
ommended.
3. Connect the ground lead directly to the battery negative
terminal.
4. The cable provided with the radio is sufficient to handle
the maximum radio current demand. If the cable must be
extended, be sure the additional wire is sufficient for the
current to be carried and length of the added lead.
5. INSTALLATION PLANNING – CONTROL STATIONS
5-1. Antenna system
Control station. The antenna system selection depends on
many factors and is beyond the scope of this manual. Your
KENWOOD dealer can help you select an antenna system
that will best serve your particular needs.
5-2. Radio location
Select a convenient location for your control station radio
which is as close as practical to the antenna cable entry point.
Secondly, use your system’s power supply (which supplies
the voltage and current required for your system). Make sure
sufficient air can flow around the radio and power supply to
allow adequate cooling.
GENERAL

TK-8180
3
SERVICE
This radio is designed for easy servicing. Refer to the
schematic diagrams, printed circuit board views, and align-
ment procedures contained in this manual.
NOTE
•If you do not intend to use the speaker 3.5-mm jack and
the D-sub 25-pin connector, fit the supplied speaker-jack
cap and D-sub cap to stop dust and sand from getting in.
•If the transceiver is turned ON or OFF when the power-on/
off status message is enabled, the transceiver sends the
status.
GENERAL / SYSTEM SET-UP
Speaker
jack cap
D-sub
cap
Power input
connector
Ignition
sense cable
Antenna
connector
Merchandise received
License and frequency allocated by FCC
Choose the type of transceiver
Transceiver programming
See page 4.
A personal computer (IBM PC or compatible), programming
interface (KPG-46), and programming software (KPG-89D)
are required for programming.
Are you using
the remote kit?
Are you using
the ignition sense cable?
Are you using
the radio interface cable?
Are you using
the public address?
Are you using
the voice guide & storage
unit?
KRK-10
KCT-46
KCT-40
KCT-36 Extension cable
KGP-2A
Modem GPS receiver
or
KGP-2B
Modem GPS controller
or KDS-100
Mobile data terminal
KAP-2
VGS-1
YES
NO
YES
NO
YES
NO
YES
NO
YES
NO
Supplied microphone
Delivery
Are you using
the external speaker?
Are you using
the keypad microphone?
KES-3 or KES-5 External speaker
KMC-32 or KMC-36
YES
NO
YES
NO
Desk top microphone KMC-9C
See page 9.
See page 7.
See page 7.
See page 8.
See page 10.
(Option)
(Option)
(Option)
(Option)
(Option)
(Option)
(Option)
(Option)
(Option)
(Option)
Frequency range RF power Type
450~520MHz 30W
(490~520MHz : 25W) K
SYSTEM SET-UP

TK-8180
4
1. Modes
Mode Function
User mode For normal use.
Panel test mode Used by the dealer to check the funda-
mental characteristics.
Panel tuning mode Used by the dealer to tune the radio.
PC mode Used for communication between the
radio and PC (IBM compatible).
Data programming Used to read and write frequency data
mode and other features to and from the radio.
PC test mode Used to check the radio using the PC.
This feature is included in the FPU.
See panel test.
PC tuning mode Used to tune the radio using the PC.
This feature is included in the FPU.
See panel tuning.
Firmware Used when changing the main program
programming mode of the flash memory.
Clone mode Used to transfer programming data from
one radio to another.
Firmware version Used to confirm the internal firmware
information version.
Clock adjustment mode
Used to adjust date and time.
2. How to Enter Each Mode
Mode Operation
User mode Power ON
Panel test mode [A] + Power ON
PC mode Received commands from PC
Panel tuning mode [Panel test mode] + [S]
Firmware programming mode [S] + Power ON
Clone mode [B] + Power ON
Firmware version information [ ] + Power ON
Clock adjustment mode [C] + Power ON
3. Panel Test Mode
Setting method refer to ADJUSTMENT.
4. Panel Tuning Mode
Setting method refer to ADJUSTMENT.
5. PC Mode
5-1. Preface
The transceiver is programmed by using a personal com-
puter, programming interface (KPG-46) and programming
software (KPG-89D).
The programming software can be used with an IBM PC
or compatible. Figure 1 shows the setup of an IBM PC for
programming.
User mode
Panel test mode
Firmware version information
Panel tuning mode
Data programming mode
PC test mode PC tuning mode
PC mode
Clone mode
Firmware
programming mode
Clock adjustment mode
KPG-89D
IBM PC
KPG-46 or
KPG-46 +
Tuning cable
(E30-3383-05)
Fig. 1
REALIGNMENT

TK-8180
5
5-2. Connection procedure
1. Connect the transceiver to the personal computer with
the interface cable.
2. When the POWER switch on, user mode can be entered
immediately. When PC sends command the radio enter
PC mode, and “PROGRAM” is displayed on the LCD.
When data transmitting from transceiver, the red LED is
lights.
When data receiving to transceiver, the green LED is
lights.
Note:
•The data stored in the personal computer must match
model type, when it is written into the flash memory.
5-3. KPG-46 description
(PC programming interface cable: Option)
The KPG-46 is required to interface the transceiver to the
computer. It has a circuit in its D-subconnector (25-pin) case
that converts the RS-232C logic level to the TTL level.
The KPG-46 connects the modular microphone jack of the
transceiver to the computers RS-232C serial port.
5-4. Programming software KPG-89D description
The KPG-89D is the programming software for the trans-
ceiver supplied on a CD-ROM. This software runs under MS-
Windows 98, ME, Windows 2000 or XP on an IBM-PC or
compatible machine.
The data can be input to or read from the transceiver and
edited on the screen. The programmed or edited data can be
printed out. It is also possible to tune the transceiver.
6. Firmware Programming Mode
6-1. Preface
Flash memory is mounted on the transceiver. This allows
the transceiver to be upgraded when new features are re-
leased in the future. (For details on how to obtain the firm-
ware, contact Customer Service.)
6-2. Connection procedure
Connect the transceiver to the personal computer (IBM
PC or compatible) with the interface cable (KPG-46). (Con-
nection is the same as in the PC Mode.)
Note :
You can only program firmware from the 8-pin micro-
phone connector on the front panel. Using the 25-pin logic
interface on the rear panel will not work.
6-3. Programming
1. Start up the firmware programming software (Fpro.exe).
2. Set the communications speed (normally, 115200 bps)
and communications port in the configuration item.
3. Set the firmware to be updated by File name item.
4. Turn the transceiver power ON with the [S] key held
down. Then, the orange LED on the transceiver lights and
“PROG 115200” is displayed.
5. Check the connection between the transceiver and the
personal computer, and make sure that the transceiver is
in the Program mode.
6. Press write button in the window. When the transceiver
starts to receive data, the [PG] display is blinking.
7. If writing ends successfully, the checksum is calculated
and a result is displayed.
8. If you want to continue programming other transceivers,
repeat steps 4 to 7.
Notes:
•This mode cannot be entered if the Firmware Program-
ming mode is set to Disable in the Programming software.
•When programming the firmware, it is recommend to
copy the data from the floppy disk to your hard disk before
update the radio firmware.
Directly copying from the floppy disk to the radio may not
work because the access speed is too slow.
6-4. Function
1. If you press the [■] key while “PROG 115200” is dis-
played, the display changes to “PROG 19200” (The LED
blinks green) to indicate that the write speed is low speed
(19200 bps). If you press the [■] key again while “PROG
19200” is displayed, the display changes to “PROG
38400” (The LED lights red and orange alternatively). If
you press the [■] key again while “PROG 38400” is dis-
played, the display changes to “PROG 57600” (The LED
blinks orange). If you press the [■] key again while
“PROG 57600” is displayed, the display returns to “PROG
115200” (The LED lights orange).
2. If you press the [ ] key while “PROG 115200” is dis-
played, the checksum is calculated, and a result is dis-
played. If you press the [ ] key again while the
checksum is displayed, “PROG 115200” is redisplayed.
Note:
Normally, write in the high-speed mode.
7. Clone Mode
Programming data can be transferred from one radio to
another by connecting them via their 8-pin microphone con-
nectors. The operation is as follows (the transmit radio is the
master and the receive radio is a slave).
1. Turn the master transceiver power ON with the [B] key
held down. If the read authorization password is set to the
transceiver, the transceiver displays “CLONE LOCK”. If
the password is not set, the transceiver displays “CLONE
MODE”.
2. When you enter the correct password, and “CLONE
MODE” is displayed, the transceiver can be used as the
cloning master. The following describes how to enter the
password.
REALIGNMENT

TK-8180
6
3. How to enter the password with the microphone keypad;
If you press a key while “CLONE LOCK” is displayed, the
number that was pressed is displayed on the transceiver.
Each press of the key shifts the display in order to the left.
When you enter the password and press the [✳] key,
“CLONE MODE” is displayed if the entered password is
correct. If the password is incorrect, “CLONE LOCK” is
redisplayed.
How to enter the password with the [ ] and [ ] keys;
If the [ ] and [ ] keys is pressed while “CLONE LOCK” is
displayed, numbers (0 to 9) are displayed flashing. When
you press the [C] key, the currently selected number is
determined. If you press the [S] key after entering the
password in this procedure, “CLONE MODE” is displayed
if the entered password is correct. If the password is in-
correct, “CLONE LOCK” is redisplayed.
4. Power on the slave transceiver.
5. Connect the cloning cable (Part No. E30-3382-05) to the
modular microphone jacks on the master and slave.
6. Press the [S] key on the master while the master displays
“CLONE MODE”. The data of the master is sent to the
slave. While the slave is receiving the data, “PROGRAM”
is displayed. When cloning of data is completed, the mas-
ter displays “END”, and the slave automatically operates
in the User mode. The slave can then be operated by the
same program as the master.
7. The other slave can be continuously cloned. When the [S]
key on the master is pressed while the master displays
“END”, the master displays “CLONE MODE”. Carry out
the operation in step 4 to 6. Can not be cloned if the over-
write password is programmed to the slave.
Note:
Only the same models can be cloned together.
8. Firmware Version Information
Turn the transceiver ON with the [ ] key held down.
Then, the version is displayed during holding the [ ] key.
9. Clock Adjustment Mode
9-1. Flow chart of operation
Cloning cable
(E30-3382-05)
Fig. 2
[C] + Power ON
MINUTE
HOUR
DAY
MONTH
YEAR
[S]
[S]
[S]
[S]
[S]
[ ] and [ ] keys
[ ] and [ ] keys
[ ] and [ ] keys
[ ] and [ ] keys
[ ] and [ ] keys
Completion
REALIGNMENT

TK-8180
7
2. Radio Interface Cable (KCT-40 : Option)
The KCT-40 connection cable kit is used to connect the
TK-8180 transceiver to the KDS-100 (Mobile data terminal),
KGP-2A (Modem GPS receiver), KGP-2B (Modem GPS con-
troller) or through the KCT-36 extension cable.
2-1. Connecting the KCT-40 cable to the transceiver
1. Remove the D-sub cap on the rear of the transceiver. ( q)
2. Connect the D-sub connector of the KCT-40 to the D-sub
25-pin terminal of the transceiver. ( w)
3. Connect the 15-pin connector of the KCT-40 to a KDS-100,
KGP-2A, KGP-2B or through a KCT-36 extension cable.
(e)
Note : You must setup using the KPG-89D.
KDS-100, KGP-2A,
KGP-2B or through
KCT-36 extension cable
q
e
w
2-2. Terminal function
D-sub 25-pin
TK-7180
Molex 15-pin
KDS-100 KGP-2A/2B
Pin No. Function Pin No. Function Function
1- ---
2- ---
3- ---
4- ---
5DI5DO DO
6- ---
7GND 3 GND GND
8AIO8 9 TXS/LOK TXS/LOK
9TXD2 15 RXD RXD
10 RXD2 14 TXD TXD
11 - ---
12 AIO7 11 MM MM
13 AIO6 6 PTT PTT
14 SB 1 SB SB
15 - ---
16 - ---
17 - ---
18 - ---
19 DEO 4 DI DI
20 AIO5 8 SQ SQ
21 AIO4 10 AM AM
22 AIO3 13 - DISP OFF
23 AIO2 12 - -
24 AIO1 7 DTC DTC
25 - ---
1. Ignition Sense Cable (KCT-46 : Option)
The KCT-46 is an optional cable for enabling the ignition
function. The ignition function lets you turn the power to the
transceiver on and off with the car ignition key.
1-1. Connecting the KCT-46 cable to the transceiver
1. Open the KCT-46 fuse holder and insert a mini blade fuse
(3A). ( q)
2. While holding a clear protective cover, remove the black
cap at the end of the yellow cable (ignition sense cable) of
the transceiver. ( w)
3. Connect the plug of the KCT-46 to the yellow cable termi-
nal of the transceiver. ( e)
4. Connect the other end of the KCT-46 to the ignition line of
the car. ( r)
Note : You must setup using the KPG-89D.
q
w
e
r
Iginition line
of the car
F52-0019-05
Fig. 1
Fig. 2
INSTALLATION

TK-8180
8
r
CN2 u
t
E37-1113-05
y
3. Horn Alert/P.A. Relay Unit (KAP-2 : Option)
The Horn alert (max. 2A drive), Public address and External
speaker function are enabled by installing the KAP-2 in the
TK-8180 transceiver.
3-1. Installing the KAP-2 unit in the transceiver
1. Remove the cabinet, top packing and shielding plate of the
transceiver.
2. Set the KAP-2 relay unit jumper pins according to the pur-
pose of use.
3. Remove the 6-pin jumper connector inserted in the TX-RX
unit (B/3) connector (CN428). ( q)
4. Insert one side of the lead wire with connector (E37-1114-
05) into the relay unit connector (CN3) ( w) and the other
side into the TX-RX unit (B/3) connector (CN428) ( e).
CN428
q
CN428
CN3
E37-1114-05
w
e
5. Place the relay unit at the position shown in Figure 3-2 and
secure it to the chassis with a screw.
6. Remove the cap on the rear of the chassis by pushing it
from the inside with your finger. ( r)
7. Pass the 6-pin connector of the cable (E37-1113-05)
through the chassis hole ( t) and insert the bush into the
chassis hole.
8. Rotate the bush of the cable 90 degrees counterclockwise
as viewed from the rear of the chassis. ( y)
9. Insert the 6-pin connector of the cable into the connector
(CN2) of the KAP-2 relay unit. ( u)
Note : You must setup using the KPG-89D.
Fig. 3-1 Fig. 3-2 Fig. 3-3
Fig. 3-4
INSTALLATION

TK-8180
9
■ Install the KRK-10 rear panel onto the front panel
6. Insert the flat cable attached to the interface unit (B/2) of
the KRK-10 rear panel (A82-0056-01) into the connector
(CN902) of the display unit of the panel ( o). (The flat
cable has been pre-inserted in the connector (CN2) of the
rear panel at the time of shipping.)
Note : The terminal side of the flat cable must face down
when inserting the flat cable into the connector.
7. Fit the four tabs of the rear panel into the front panel. ( !0 )
CN902
CN2 KRK-10 rear panel
!0
o
■
Install the KRK-10 main panel onto the transceiver
4. Insert the flat cable that was removed in step 2 above into
the connector (CN1) of the interface unit (A/2) of the KRK-
10 main panel (A62-1101-01). ( u)
Note : The terminal side of the flat cable must face down
when inserting the flat cable into the connector.
5. Fit the main panel with four tabs onto the front of the
chassis. ( i)
Note : When installing the main panel onto the front of the
chassis, hold down the flat cable with your fingers to pre-
vent it from being caught.
CN1
KRK-10 main panel
u
i
CN902
q
w
e
r
t
y
4. Control Head Remote Kit (KRK-10 : Option)
The KRK-10 remote kit is used to remotely operate a TK-
8180 transceiver.
4-1. Installing the KRK-10 kit to the transceiver
1. Remove the front panel from the transceiver.
2. Install the KRK-10 main panel onto the transceiver.
3. Install the KRK-10 rear panel onto the front panel.
4. Connect the KRK-10 main panel to the rear panel with the
cable.
■ Remove the front panel from the transceiver
1. Lift the two tabs of the panel on the bottom of the trans-
ceiver with a flat-head screwdriver ( q) and remove the
panel from the chassis ( w).
Note : Confirm that the tabs of the speaker hardware fix-
ture and holder is securely fitted in the front panel.
2. Remove the flat cable from the connector (CN902) of the
display unit of the panel. ( e)
3. Fold the black line of the flat cable (in three parts) as
shown in Figure 4-2. ( r, t, y)
y
r
t
Chassis
side
Panel
side
Fig. 4-1
Fig. 4-2
Fig. 4-3
Fig. 4-4
INSTALLATION

TK-8180
10
5.
Voice Guide & Storage Unit (VGS-1 : Option)
5-1. Installing the VGS-1 unit in the transceiver
1. Remove the cabinet, top packing and shielding plate of the
transceiver.
2. Attach two cushions to VGS-1 as shown in Figure 5. ( q)
Note : Be sure not to cover the connector with the bottom
cushion.
3. Insert the VGS-1 connector (CN1) into the TX-RX unit (B/3)
connector (CN403). ( w)
Note : You must setup using the KPG-89D.
CN1
CN403
q
w
Cushion
(G13-1994-04)
20 x 30 x 12 mm
Cushion
(G13-1992-04)
21 x 21 x 2.5 mm
VGS-1
■ Connect the KRK-10 main panel to the rear panel
with the cable
8. Insert one 14-pin connector of the cable (E30-7514-05)
into the connector (CN3) of the interface unit (A/2) of the
main panel. ( !1 )
9. Secure the cable bush on the main panel and fit the water-
proof packing (orange) ( !2 ) securely over top.
CN4
CN3
!8 !8
!7
!6
!5
!2
!2
!3
!4
!4
!1
(Right side)
10. Install the molded cover ( !3 ) over the connector on the
main panel and secure it with two screws ( !4 ).
11. Insert the other 14-pin connector of the cable into the
connector (CN4) of the interface unit (B/2) of the rear
panel. ( !5 )
12. Secure the cable bush on the rear panel and fit the water-
proof packing (orange) ( !6 ) securely over top.
13. Install the molded cover ( !7 ) over the connector on the
rear panel and secure it with two screws ( !8 ).
Note : A cable can be connected from the left side as shown
in the Figure 4-5 or from right side.
However, the 14-pin connector must be connected to correct
direction.
Fig. 4-5
Fig. 5
INSTALLATION

TK-8180
11
8. GPS Receiver Connection
8-1. Installing the GPS receiver
1. Remove the cabinet, top packing and shielding plate of the
transceiver.
2. Remove the front panel from the transceiver.
3. Attach two cushions to the top of the GPS receiver.
4. Attach the GPS receiver to the shield case with two cush-
ions as shown in Figure 8-2.
5. Solder each lead of the GPS receiver to a necessary loca-
tion of each landing on the component side of the TX-RX
unit (B/3).
6. Place the GPS antenna cable in the hollow at the rear of
the chassis. (Fig. 8-2 q )
Note : If the GPS receiver is installed, cut the base of the
convex tab of the top packing with a pair of nippers, or
similar tool. (Fig. 8-3 w )
If the convex tab of the top packing is cut off, the water
proofing property is no longer guaranteed.
Note : You must setup using the KPG-89D.
ANI board
Voice scrambler board
3M double coated cushion
No. 4008 (or No.4408)
25 x 110 mm
7. ANI Board Connection
1. Remove the front panel from the transceiver.
2. Solder each lead of the scrambler board to a necessary
location of each landing on the component side of the TX-
RX unit (B/3).
3. Wrap the scrambler board in a cushion and install it on the
front of the chassis as shown in Figure 7-2.
Note : You must setup using the KPG-89D.
TX-RX unit (B/3)
Solder land
GND (A–)
RXD1
TXD1
TXD2
RXD2
OPT1 (CH BUSY)
OPT3 (KEY)
OPT4 (PTT)
OPT5 (EMERGENCY)
5E (A+)
DTI (DATA OUT)
TCTL (TONE CTRL)
TXO
AUDIH (AUDIO INHIB)
OPT2 (AUX I/O)
STON (SIDE TONE)
RXEO
TXI
RXEI
OPT6
8C
ANI board
TX-RX unit (B/3)
Solder land
GND (GND)
RXD1
TXD1 (PTT)
TXD2
RXD2
OPT1 (CODE SELECT1)
OPT3 (CODE SELECT2)
OPT4 (ECHO PTT)
OPT5 (CODE SELECT8)
5E
DTI
TCTL
TXO (TX OUT)
AUDIH
OPT2 (SCRAMBLE)
STON
RXEO (RX OUT)
TXI (TX IN)
RXEI (RX IN)
OPT6 (CODE SELECT4)
8C (+V)
Voice scrambler
6. Voice Scrambler Board Connection
1. Remove the front panel from the transceiver.
2. Solder each lead of the scrambler board to a necessary
location of each landing on the component side of the TX-
RX unit (B/3).
3. Wrap the scrambler board in a cushion and install it on the
front of the chassis as shown in Figure 7-2.
Note : You must setup using the KPG-89D.
TX-RX unit (B/3)
Solder land
GND (GND)
RXD1 (DATA OUT1)*1
TXD1
TXD2
RXD2 (DATA OUT1)*1
OPT1
OPT3
OPT4
OPT5
5E (+5V)
DTI
TCTL
TXO
AUDIH
OPT2
STON
RXEO
TXI
RXEI
OPT6
8C
GPS receiver
*1 : Depending on the connected optional accessory, the
DATA OUT1 may connect to either RXD1 or RXD2.
Fig. 6
Fig. 7-1
Fig. 7-2
Fig. 8-1
INSTALLATION

TK-8180
12
CN1
CN403
GPS receiver
VGS-1
8-2.
Installing the GPS receiver together with the VGS-1
1. Remove the cabinet, top packing and shielding plate of the
transceiver.
2. Remove the front panel from the transceiver.
3. Attach a cushion to the bottom of the VGS-1 as shown in
Figure 8-5.
Note : Be sure not to cover the connector with the cush-
ion.
TX-RX unit (B/3)
Solder land
GND (GND)
RXD1
TXD1
TXD2
RXD2 (DATA OUT1)
OPT1
OPT3
OPT4
OPT5
5E (+5V)
DTI
TCTL
TXO
AUDIH
OPT2
STON
RXEO
TXI
RXEI
OPT6
8C
GPS receiver
3M Double coated cushion
No. 4016 (or No. 4416)
30 x 25 mm
3M Double coated cushion
No. 4016 (or No. 4416)
30 x 25 mm
GPS receiver
q
w
Fig. 8-2
Fig. 8-3
Fig. 8-4
Fig. 8-5
4. Insert the VGS-1 connector (CN1) into the TX-RX unit (B/3)
connector (CN403).
5. Perform step 3 to 6 of “8-1. Installing the GPS receiver”
described on page 11.
Note : You must setup using the KPG-89D.
INSTALLATION

TK-8180
13
■ Removing the speaker hardware fixture
(J21-8481-03) and holder (J19-5468-03)
1. Remove the speaker lead from the holder hook. ( q)
2. Remove the speaker connector from the display unit con-
nector (CN901). ( w)
3. When removing the speaker hardware fixture, insert a flat-
head screwdriver at the position shown in Figure 2-1 and
tilt it in the direction shown by the arrow. ( e)
4. To remove the holder, insert a flat-head screwdriver into
tab of the holder and tilt it in the direction shown by the
arrow. ( r)
CN901
w
q
e
r
1. Precautions on Disassembly
■ TX-RX PCB (TX-RX unit B/3) Disassembly
1. Remove all screws and antenna terminals on the TX-RX
PCB.
2. Rotate the bush of the power supply cable 90 degrees
counterclockwise as viewed from the rear of the chassis
(q) and remove the power supply cable from the chassis
(w).
3. When the speaker phone jack is pushed up, using your
finger, from the rear of the chassis ( e), the TX-RX PCB is
removed from the chassis.
Note : The TX-RX PCB and D-sub PCB (TX-RX unit A/3) are
connected with a flat cable. Remove them carefully.
4. Turn the TX-RX PCB over and remove the flat cable from
the connector (CN427). ( r)
5. Remove the TX-RX PCB from the chassis.
q
w
e
CN427
r
Fig. 1-1
Fig. 1-3
Fig. 1-2
Fig. 2-1
Fig. 2-2
DISASSEMBLY FOR REPAIR

TK-8180
14
■ Top packing installation procedure
1. Place the top packing over the shielding plate.
2. Fit the convex tab of the top packing into the hollow of the
chassis. ( q)
3. Fit the chassis into the groove of the top packing. ( w)
Verify that the top packing is in close contact with the
chassis.
q
w
■ Securing the Audio IC (IC417) with screws
The screws for the audio IC are 8mm screws. These are
longer than the other screws, so take care not to confuse
them.
■ FINAL shield case (F10-2489-03) installation
procedure
1. Place the shield case on the final section of the TX-RX unit
(B/3).
2. The shield case is installed on the positioning boss of the
chassis by pushing down on “PUSH2” (on the shield case)
while pushing “PUSH1” (stamped on two parts on the
shield case) to the right.
■ Power supply cable installation procedure
1. Pass the power supply cable through the chassis hole
(q) as shown in Figure 4-1 and insert the bush into the
chassis hole.
2. Rotate the bush of the power supply cable 90 degrees
clockwise as viewed from the rear of the chassis. ( w)
3. Align the ignition sense connector (yellow) of the power
supply cable around the chemical capacitor (C801) and
connect it to the TX-RX unit (B/3) connector (CN804).
4. Align the + (positive) terminal of the power supply cable
(red) as shown in Figure 4-2 and fix it to the terminal strip
with a screw.
5. Align the – (negative) terminal of the power supply cable
(black) as shown in Figure 4-2 and fix it to the terminal strip
with a screw.
IC417
CN804
Black
Red
C801
2. Precautions on Reassembly
■ TX-RX PCB (TX-RX unit B/3) Reassembly
1. With the TX-RX PCB turned over, insert the flat cable from
the D-sub PCB (TX-RX unit A/3) into the connector
(CN427) on the TX-RX PCB.
2. Place the TX-RX PCB at its original position, tilt the TX-RX
PCB and install the chassis as shown in Figure 3.
Fig. 3
w
q
Fig. 4-1
Fig. 4-2
Fig. 5
DISASSEMBLY FOR REPAIR

TK-8180
15
qw
■ Installing the holder (J19-5468-03) and speaker
hardware fixture (J21-8481-03)
1. Insert two tabs of the holder (J19-5468-03) into the hol-
lows in the top of the panel. ( q)
2. Push the two tabs of the holder in on the opposite side of
those in step 1 above and fit them into the hollow in the
bottom of the panel. ( w)
Note : Push in the holder until it snaps in place.
3. Install the speaker holder onto the panel. ( e)
Note : To improve water resistance, fit the panel into the
groove of the holder.
4. Place the speaker into the speaker holder.
Note : The speaker must not ride on the holder rib.
5. Place the spacer on the speaker.
6. Insert the hardware fixture (J21-8481-03) into the hollow
of the panel as shown in Figure 7-3, then push two parts
of the hardware fixture and fit it into the hollow of the top
of the panel. (Fig. 7-3 r)
Note : Push in the hardware fixture until it snaps in place.
7. Insert the speaker connector into the display unit connec-
tor (CN901).
8. Place the speaker lead on the holder hook.
■ D-sub cap installation procedure
To improve water resistance, fit the D-sub cap into the D-
sub terminal hardware fixture of the transceiver in the follow-
ing order:
1. Fit the left side ( q) of the D-sub cap into the hardware
fixture.
2. Fit the right side ( w) of the D-sub cap into the hardware
fixture.
3. Fit the center ( e) of the D-sub cap into the hardware fix-
ture.
Verify that the D-sub cap is in close contact with the hard-
ware fixture.
q
w
e
Fig. 6
Fig. 7-1
DISASSEMBLY FOR REPAIR
Spacer
Speaker
Speaker holder
r
e
Fig. 7-2 Fig. 7-3

TK-8180
16
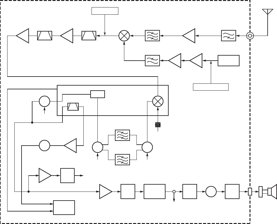
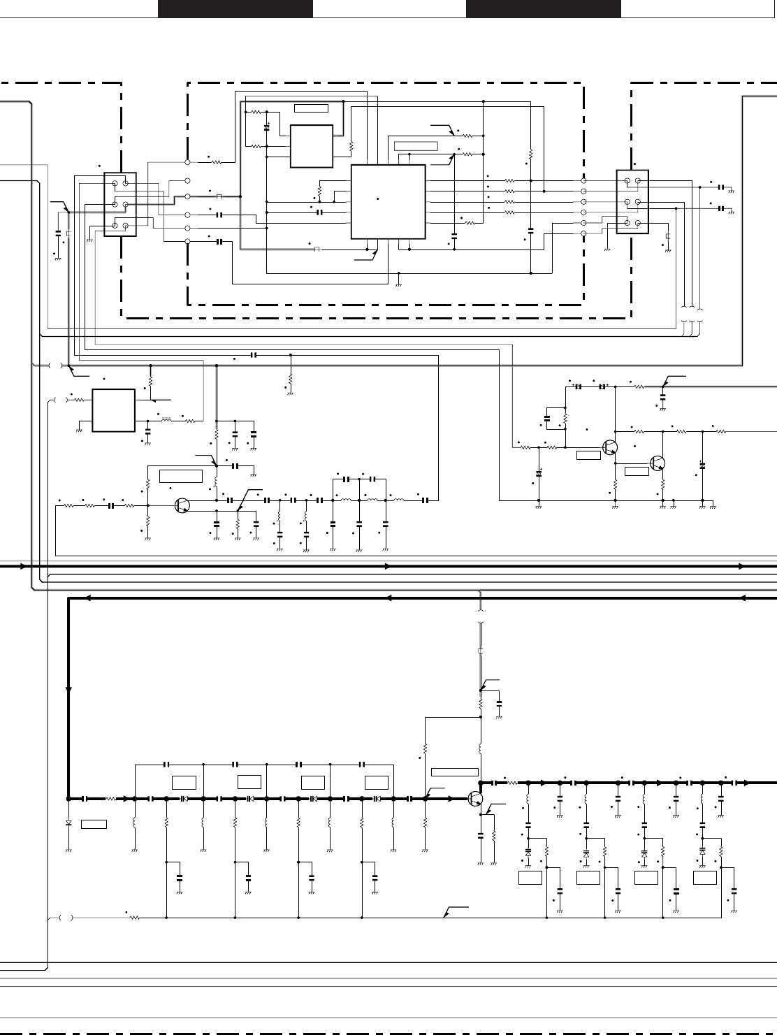
1. Outline
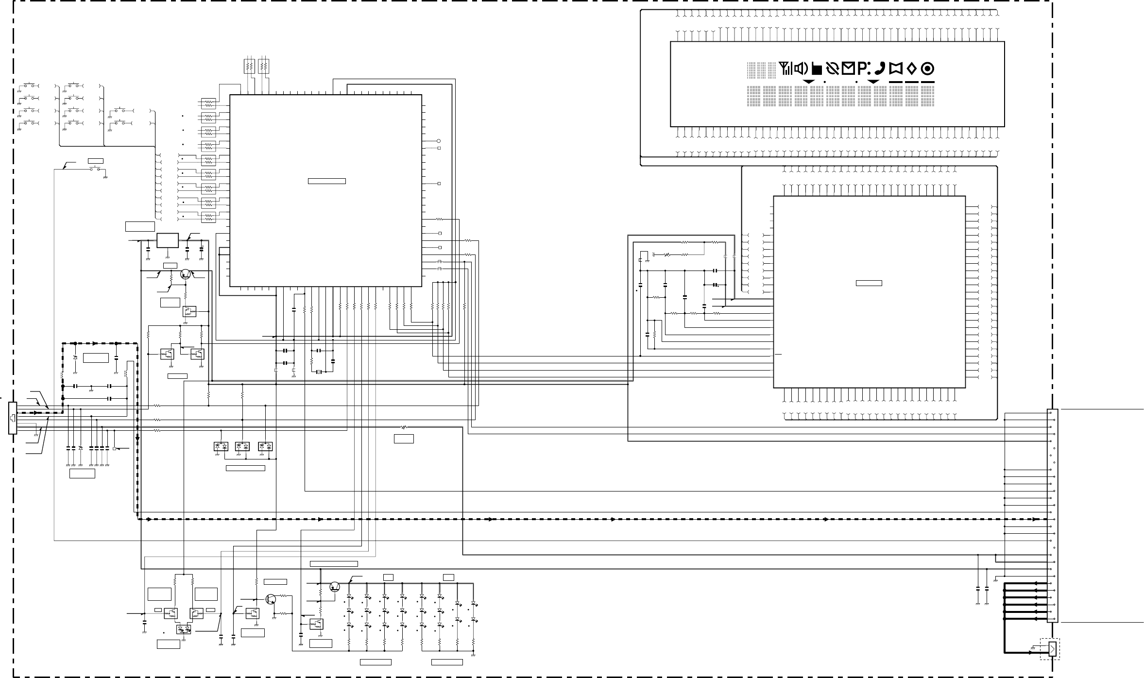
The TK-8180 is a UHF/FM transceiver designed to operate
in the frequency range of 450 to 520MHz. Transmission out-
put power is 30 watts (490~520MHz : 25W). The maximum
channel capacity is 512.
The unit consists of receiver, transmitter, phase-locked
loop (PLL) frequency synthesizer, and control circuits.
2. Receiver Circuit
The receiver is double conversion superheterodyne, de-
signed to operate in the frequency range of 450MHz to
520MHz.
The receiver circuit consists of the following : 2-1 front-
end circuit, 2-2 first mixer, 2-3 IF amplifier circuit, 2-4 audio
amplifier circuit, and 2-5 squelch circuit.
2-1. Front-end Circuit
The front-end circuit consists of former HPF (D107, D108,
D109 and D110), RF amplifier Q103, and latter BPF (D103,
D104, D105 and D106). The BPF covers frequency ranges
450 to 520MHz.
The latter BPF (D103, D104, D105 and D106) attenuates
the unwanted signals, and sends only the necessary signal to
the first mixer.
2-2. First Mixer
The signal from the BPF is heterodyned with the first local
oscillator signal from the PLL frequency synthesizer circuit at
the first mixer DBM (IC171) to become a 44.85MHz first in-
termediate frequency (IF) signal. The first IF signal is fed
through a monolithic crystal filter (XF171) to further remove
spurious signals.
2-3. IF Amplifier
The first IF signal is amplified by Q171 and Q172, and then
enters IC172 (FM system IC). The signal is heterodyned
again with a second local oscillator signal (44.395MHz) with
in IC172 to become a 455kHz second IF signal. The second
IF signal is fed through a 455kHz ceramic filters (CF172;
Wide, CF171; Narrow) to further eliminate unwanted signal,
and the quadrature detection circuit FM-detects the signal to
produce a base-band signal and output it from pin 9.
2-4. Audio Amplifier
The demodulated audio signal from IC172 goes to IC415
through the AF amplifier (IC412) and IC413. The audio signal
goes to an electronic volume (IC410) and is amplified to drive
a loudspeaker by an audio power amplifier (IC417). The audio
output can be provided to external 4Ω speaker through the
speaker jack output (J401) on the rear panel. Q419 is a mute
switch.
IF AMP
Q172
IF AMP
Q171
SW
CFSW
CF171
(Narrow)
CF172
(Wide)
D171
D172
455kHz
DET
NOISE DET
D173
SW
W/N
Q178
SW
CFSW
44.85MHz
1st MIX DBM
IC171
BPF
D103~D106
RF AMP
Q103 HPF
D107~D110
NOISE
AMP
Q175
QUD
FM SYSTEM IC : IC172
RSSI
DET
SQL
X171
44.395MHz
Q306
Buff AMP
Q311
Buff AMP
Q313
LPF
f
RX
–44.85MHz
RX VCO
AMP
IC412 (B/2)
AQUA
-L
IC415
CPU
IC404
IC407
DEO
MUTE
Q419
AF
AMP
IC417
AFO
DAC
IC410
SW
IC413
DAC
IC410
ASQ
RSSI
INT. SP
450~520MHz
RX ANT
TX-RX UNIT (X57-699)
MCF MCF
XF171
(2/2)
XF171
(1/2)
405.15~475.15MHz
CIRCUIT DESCRIPTION
Fig. 1 Receiver circuit

TK-8180
17
2-5. Squelch Circuit
The output signal from IC172 enters FM IC again, then
passed through a band-pass filter.
The noise component output from IC172 is amplified by
Q175 and rectified by D173 to produce a DC Voltage corre-
sponding to the noise level. The DC voltage is sent to the
analog port of the CPU (IC404).
IC172 outputs a DC voltage (RSSI) corresponding to the
input of the IF amplifier.
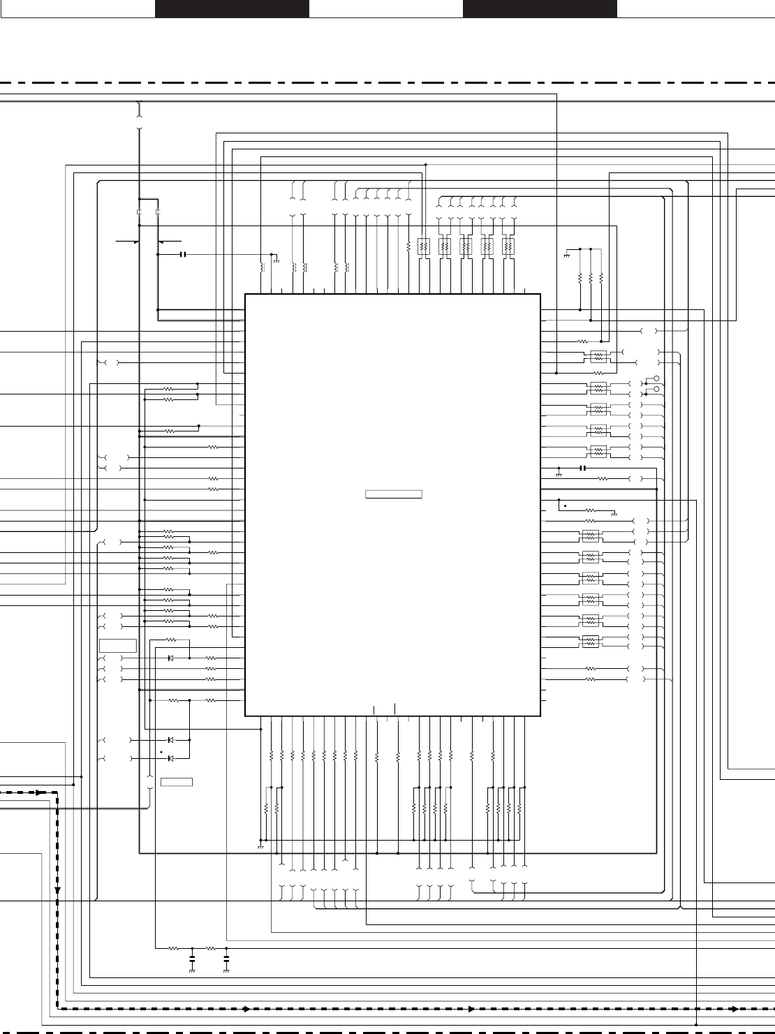
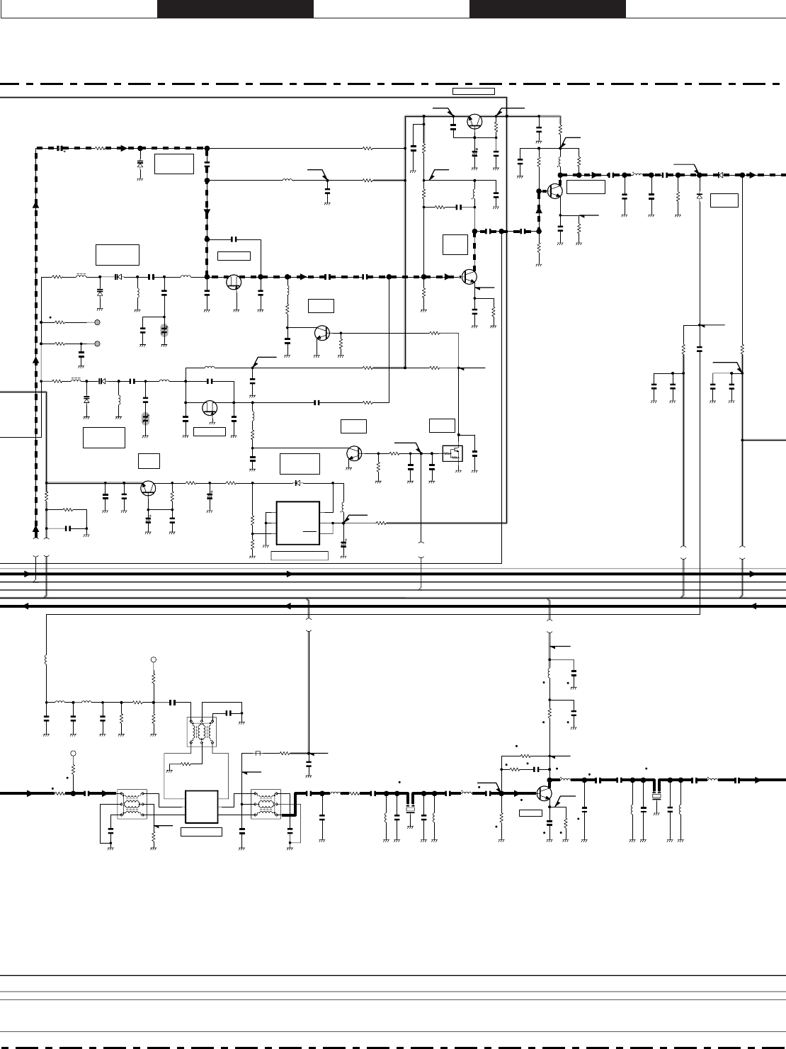
3. Transmitter Circuit
The transmitter circuit consists of the following circuits : 3-
1 microphone circuit, 3-2 modulation level adjustment circuit,
3-3 driver and final power amplifier circuit, and 3-4 automatic
power control circuit.
3-1. Microphone Circuit
The audio signal from the microphone goes into TX-RX
unit (X57-699) from the display unit (X54-348) and passes
through the mute switch (Q416). The audio signal is ampli-
fied by the microphone amplifier (IC414) and is input into the
TXIN terminal of the audio processor (IC415) after passing
through the multiplexer (IC413).
The input audio signal is output from the MOD terminal of
the audio processor (IC415) and is amplified by the audio fre-
quency amplifier (IC412) after passing through the electric
volume (IC410).
3-2. Modulation Level Adjustment Circuit
The audio signal amplified by the audio frequency ampli-
fier (IC412) is added to the low speed data LSD passed
through the low pass filter (IC409). The combined signals is
supplied to the VCO (voltage controlled oscillator) and the
VCXO (voltage controlled crystal oscillator) X301, respec-
tively.
3-3. Driver and Final Power Amplifier Circuit
The transmit signal obtained from the TX VCO buffer am-
plifier Q311, is amplified to approximately +17dBm by the
driver amplifiers Q313, Q1 and Q2. This amplified signal is
passed to the power amplifier module (power module) IC1,
which consists of a MOS-FET amplifier and is capable of
transmission output power.
3-4. Automatic Power Control Circuit
The automatic transmission power control (APC) circuit
stabilizes the transmitter output power at a predetermined
level by detecting the power module output with a diodes
D6, D7 and D8. Diodes D6, D7 and D8 apply a voltage to DC
amplifier IC72 (A/2). IC72 (B/2) compares the APC control
voltage (PC) generated by microprocessor IC404 and DC am-
plifier IC71 (A/2, B/2) with the detection output voltage
from IC72 (A/2) to control the Vgg pin of IC1, and stabilizes
transmission output.
The APC circuit is configured to protect over-current of the
power module due to fluctuations of the load at the antenna
end and to stabilize transmission output at voltage and tem-
perature variations.
AMP
SW
SW
IC414Q416
Q417
AMP
DC
AMP
IC408
LPF
IC409
IC410 IC412IC415
D-SUB
MI2
AQUA-L
MOD
D-SUB
DI
DAC
MB
(for VCXO)
MOD
(for VCO)
MIC
J901
Mojular
jack
DISPLAY UNIT
(X54-348) TX-RX UNIT (X57-699)
IC413
Multi-
plexer TXIN
LSDO
TX VCO
VCXO
16.8MHz
Q307
Q313
Drive
AMP
Q311
Buff
AMP
Q1
Drive
AMP
Q2
Drive
AMP
IC1
Final
AMP
X301
MOD
MB DC
AMP
DC
AMP
PC
MP
SW
D2,D3,
D11
DET DET
D6 D7
DET
D8
ANT
Gate
bias
IC71 IC72
CIRCUIT DESCRIPTION
Fig. 2 Microphone and modultion level adjustment circuit
Fig. 3 Drive and Final power amplifier and automatic power control circuit

TK-8180
18
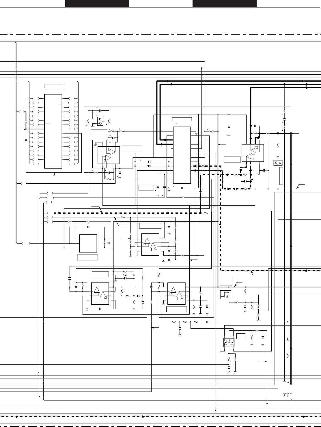
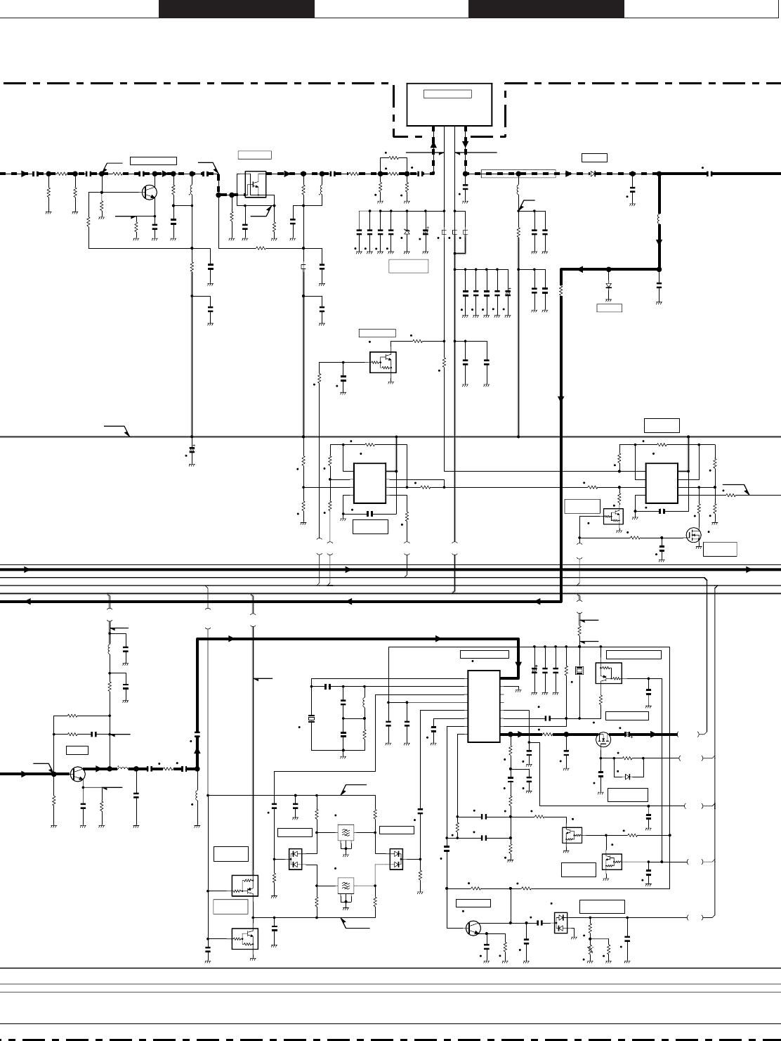
4. Frequency Synthesizer Unit
4-1. Frequency Synthesizer
The frequency synthesizer consists of the TCXO (X301),
VCO, PLL IC (IC301) and buffer amplifiers.
The TCXO generates 16.8MHz. The frequency stability is
2.5ppm within the temperature range of –30 to +60°C. The
frequency tuning and modulation of the TCXO are done to
apply a voltage to pin 1 of the TCXO. The output of the TCXO
is applied to pin 8 of the PLL IC.
The VCO consists of 2VCO and covers a dual range of the
405.15~475.15MHz and the 450~520MHz. The VCO gener-
ates 405.15~475.15MHz for providing to the first local signal
in receive. The operating frequency is generated by Q307 in
transmit mode and Q306 in receive mode. The oscillator fre-
quency is controlled by applying the VCO control voltage, ob-
tained from the phase comparator (IC301) to the variable ca-
pacitor diodes (D308 and D311 in transmit mode and D309
and D313 in receive mode).
The T/R pin of IC404 goes “high” in receive mode causing
Q307 and Q309 to turn off, and Q306, Q308 and Q310 turn
on. The T/R pin goes “low” in transmit mode.
The outputs from Q306 and Q307 are amplified by buffer
amplifier (Q311) and doubled by Q301 and then sent to PLL
IC.
The PLL IC consists of a prescaler, reference divider,
phase comparator, charge pump (The frequency step of the
PLL circuit is 20 or 25kHz). The input signal from the pins 8
and 5 of the PLL IC is divided down to the 20 or 25kHz and
compared at phase comparator. The phase comparator out-
put signal is fed into a low-pass filter (Q302 and Q303) before
being applied to the VCO as a frequency control voltage. This
low-pass filter’s power is supplied by the DC/DC converter
(IC251 and Q251). The DC signal is applied to the CV of the
VCO and locked to keep the VCO frequency constant.
PLL data is output from DT (pin 112), PCK (pin 82) and PLE
(pin 81) of the microprocessor (IC404). The data are input to
the PLL IC when the channel is changed or when transmis-
sion is changed to reception and vice versa. A PLL lock con-
dition is always monitored by the pin 80 (UL) of the micropro-
cessor. When the PLL is unlocked, the UL goes low.
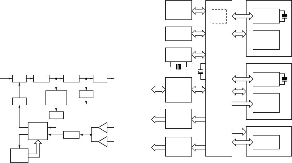
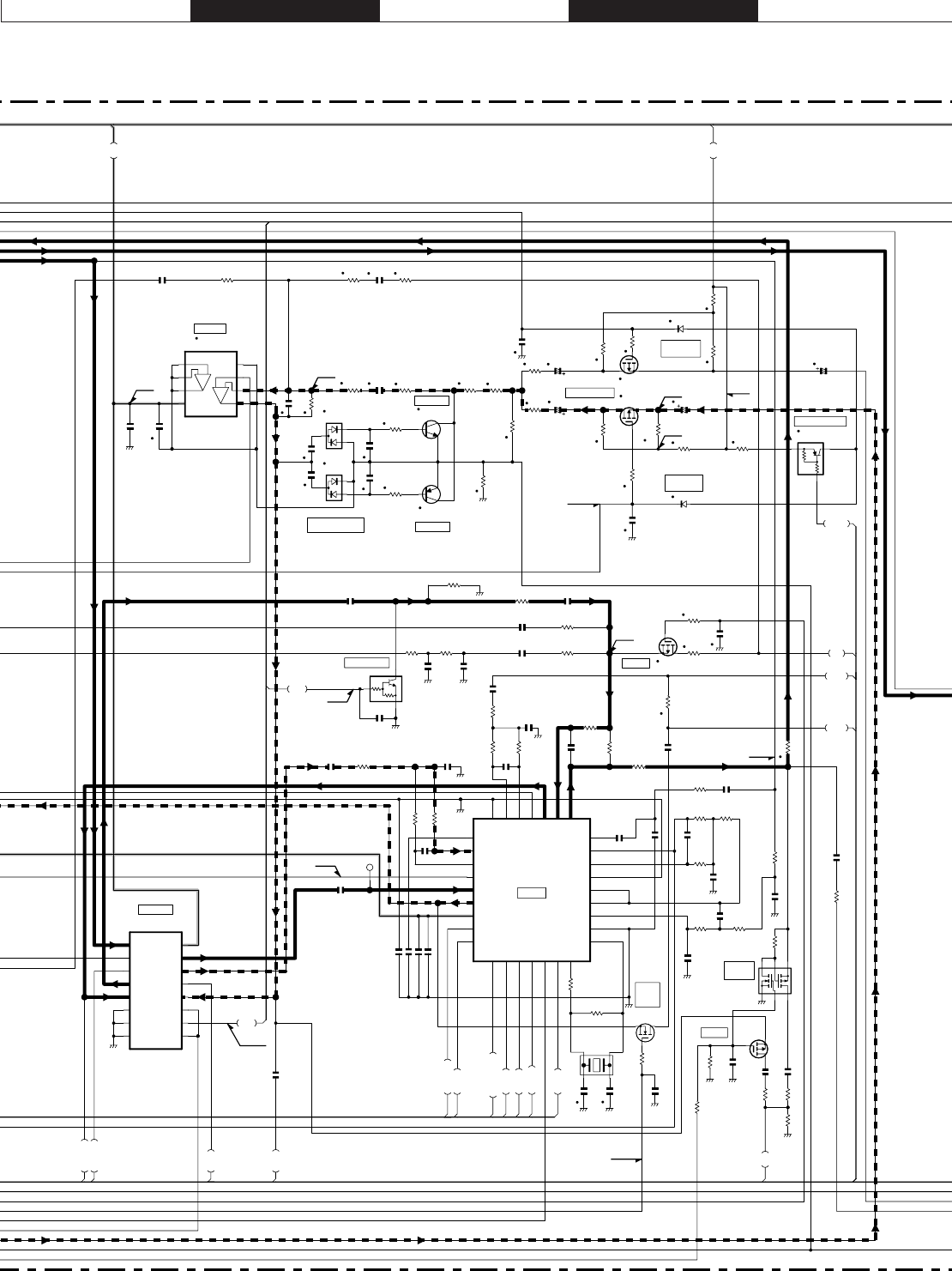
5. Control Circuit
The block diagram of the control circuit is shown in Figure
5.
The CPU (IC404) is a 16-bit microcomputer that contains a
256k-byte Mask ROM and a 20k-byte RAM. This CPU is con-
nected with an external 512k-byte Flash ROM (IC405) and
operates in memory expansion mode.
The Firmware Program is stored in the Flash ROM and the
user data and adjustment data are stored in the EEPROM
(IC401). The CPU and Flash ROM are connected with an 8 bit
bus and the EEPROM and RTC IC (IC402) are connected with
a I2C bus (*1). The RTC IC (IC402) has a clock function and is
controlled by the CPU (IC404).
Serial communication with a PC is performed through two
paths: through the 232C Level converter IC (IC416) and
through the Display Unit Panel CPU (IC902). The 8 bit Shift
Register (IC403) is used as an 8-port Extended Output Port.
IC410 is an 8 bit-8ch D/A converter. The channels are set as
follows:
Ch1 : Modulation balance
Ch2 : Deviation Factor
Ch3 : Max Power Level
Ch4 : Reception tuning circuit
Ch5 : Deviation Factor
Ch6 : Speaker volume
Ch7 : VCXO control voltage
Ch8 : DEO output level
*1: I2C bus is a registered trademark of PHILIPS of the Neth-
erlands.
LPF
BPF
BUFFVCO
PLL
CPU
20
15
5
Doubler
x2
CV
Q313
BUFF
Q311
TCXO
X301
SW
D316
SW D315
To
drive
amp
Q301
To mixer
8
FC
BAL
IC408
MB
T/R
T/R
(TX : Low)
IC301
UL
IC404
DT,PCK,PLE
Q302
Q303
CIRCUIT DESCRIPTION
Fig. 4 PLL block diagram
IC405
Flash
ROM
IC403
8bit Shift
register
IC410
D/A
converter
IC416
232C
Level
converter
IC902
CPU
IC903
LCD
driver
IC401
EEPROM
IC402
RTC IC
Display unit
IC415
AQUA-L
IC413
Multi-
plexer
Signal block
IC301
PLL IC
RF block
Mask
ROM
IC404
CPU
Fig. 5 Control circuit block diagram

TK-8180
19
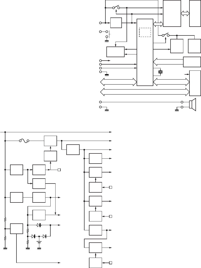
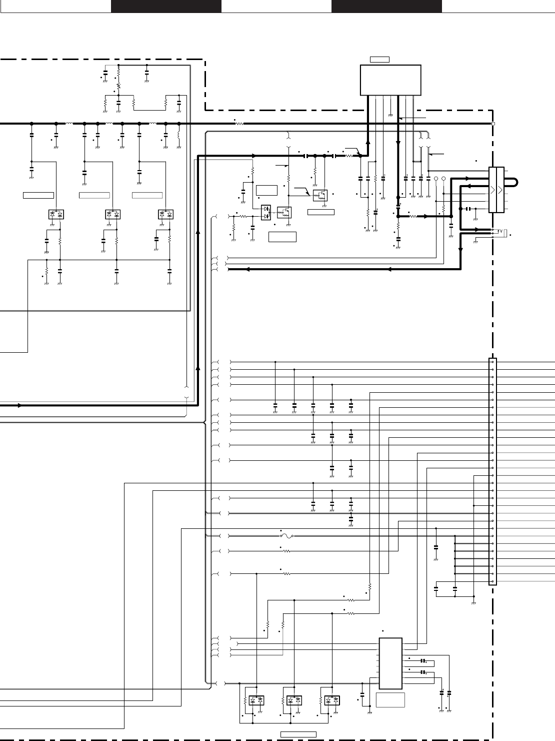
6. Power Supply Circuit
The block diagram of the power supply circuit is shown in
Figure 6.
Power is always supplied from +B to the circuit (5M, +B)
that is always started and the circuits (SB, 8C, 5E, 8T, 8R, 5C,
5R) controlled by the CPU (IC404). When +B is supplied to
the transceiver, Q801, D805 and IC805, regulate the voltage
(5M) which is supplied to the circuit around the CPU. The
CPU starts.
When the CPU detects that the +B voltage is higher than
the voltage prescribed by IC802, the transceiver power (SB)
is turned ON by controlling the SBC signal (Low: transceiver
power OFF, High: transceiver power ON).
The CPU controls the TXC signal (Low: Transmission sys-
tem power OFF, High: Transmission system power ON) dur-
ing transmission to supply power (8T) to the transmission cir-
cuit. The CPU controls the RXC signal (Low: Reception sys-
tem power OFF, High: Reception system power ON) during
reception to supply power (8R, 5R) to the reception circuit.
When the CPU detects the PSW (Power Switch) signal,
IGN (Ignition Sense) signal or INT signal, it controls the SBC
signal and turns the transceiver power (SB) OFF.
If +B is not provided to the transceiver, power is supplied
to only the RTC IC (IC402) through the secondary battery con-
nected with CN401 to back up the clock.
7. Display Circuit
The display unit consists of the Panel CPU (IC902), the
LCD driver (IC903), the TX/BUSY LED, the KEY detection, the
Backlight and the Microphone jack circuits.
The Panel CPU is a 16-bit microcomputer that contains a
64k-byte Mask ROM and a 2k-byte RAM.
The Panel CPU performs serial communication with the
Main CPU (IC404) on the TX-RX unit (B/3) and the Panel CPU
detects keys and sends data communication contents
through the MIC Jack to the Main CPU. The Panel CPU re-
ceives commands from the Main CPU and controls the dis-
play system.
The LCD operates with 1/9 duty under the LCD driver
(IC903) control. The LCD and KEY Backlights are controlled
by Q909. The display brightness of the LCD Backlight can be
changed.
D804
DET
Q802
SW
Q807
SW
IC803
AVR
IC807
AVR
Q803
SW
Q806
SW
Q804
SW
Q808
SW
IC804
AVR
Q805
SW
Q809
SW
Q810
SW
Q812
SW
IC805
AVR
IC802
DET
IC801
DET
Q801,D805
REG
5M
SBC
CN401
CPU
Flash memory
EEPROM
Ext-I/O
CPU #17
: RST1
RTC IC
CPU #24
: INT
Power supply : 10.8~15.7V +B
SB
8C
8T
5E
TXC
8R
RXC
5C
5R
RXC
Final amp.
Audio amp, PA connector
Panel block, D-sub block
Internal option
Panel block
Internal option
TX-drive
APC block
ANT SW
IF block
VCXO, VCO, PLL IC
IF detection IC
DC/DC converter
D/A converter
MIC amp, AQUA
AF block
IF block
F801
5A
IC901
AVR
TX/Busy
LED
RED
GRN
POWER
SW
8C
PSW
Q910
Q909
SB
RST2
SHIFT
PSENS
SPO
GND
RXD, TXD
MIC, ME
HK, PTT, DM, BLC2
IC903
LCD
driver
Function
KEY
FKEY [1~10]
BLCI LCD
back
light
KEY
back
light
DIMM
LCD
SB
MIC
jack
SP
IC902
CPU
Mask
ROM
Fig. 6 Power supply circuit
Fig. 7 Display circuit
CIRCUIT DESCRIPTION

TK-8180
20
Pin No. Port Name I/O Function
1VREF-+5V
2AVCC - +5V
3 SBC O Switched B control
4RXC O RX control
5TXC O TX control
6PCOTX APC adjust
7HSDO O High speed data output
8STSW O Side tone switch
9RTCL/EEPCL O RTC/EEPROM clock
10 HSDIN I High speed data input
11 NC - Non-connection
12 RTDT/EEPDAT I/O RTC/EEPROM data
13 BYTE - +5V
14 CNVSS - DGND (Vss)
15 DMUTE O Det mute
16 AM2 O Audio mute 2
17 RST I Reset
18 Xout O 11.0592MHz clock output
19 DGND - DGND (Vss)
20 Xin I 11.0592MHz clock input
21 VCC1 - +5V
22 NMI - +5V
23 PSW I Power switch input
24 INT I BATT voltage INT
25 INTRA I RTC INT
26 SHIFT/MODEL I/O Beat shift/Model select
27 BEEP O Beep output
28 SPSTB O Shift register strobe
29 SOE O Shift register output enable
30 AIO5 I/O AUX I/O 5
31 AIO9 I/O AUX I/O 9
32 DSTB O D/A converter LD
33 LSDO O Low speed data output
34 RXD2 I RXD2
35 TXD2 O TXD2
36 TXD1 O TXD1/PTT (Scrambler board)
37 Vcc1 - +5V
38 RXD1 I RXD1
39 DGND - DGND (Vss)
40 MM1 O MIC mute 1
41 PSENS I Panel sense
42 TXD O TXD
43 RXD I RXD
44 AFDAT O BB TDATA and DTRCLK
45 AFDIO I/O BB DI/O
46 AFDIR O BB DIR
47 DTRLOAD O BB DTMF enable
48 AFSTD I BB STD
Pin No. Port Name I/O Function
49 LSW O BB LIM switch
50 RDY - +5V
51 NC - Non-connection
52 HOLD - +5V
53 NC - Non-connection
54~57 AIO4~AIO1 I/O AUX I/O 4~1
58 NC - Non-connection
59 RD O Read (RD)
60 NC - Non-connection
61 WR O Write (WR)
62~64 AIO8~AIO6 I/O AUX I/O 8~6
65,66 NC - Non-connection
67 RST2 O Display µ-com reset
68 CS0 O Chip select 0
69 NC - Non-connection
70~79 A18~A9 O Address bus 18~9
80 UL I PLL unlock
81 PLE O PLL enable
82 PCK O PLL clock
83 NC - Non-connection
84 OPT6 I/O Option boad I/F 6
85 VCC2 - +5V
86 A8 O Address bus 8
87 DGND - DGND (Vss)
88~95 A7~A0 O Address bus 7~0
96 IGN I Ignition sense
97 AFRTM I BB RDF/FD
98 TCLK/DTRDO I BB TCLK and DTRDO
99 MM2 O MIC mute2
100 T/R O TX/RX switch
101 AM1 O Audio mute 1
102 EMTON O EM tone switch
103 NC - Non-connection
104~111 D7~D0 I/O Data bus7~0
112 DT O Serial data
113 CK O Serial clock
114 W/N O Wide/Narrow switch
115~117 OPT 1~OPT 3 I/O Option boad I/F 1~3
118,119 OPT 4, OPT 5 O Option boad I/F 4, 5
120 H/L O High/Low power switch
121 THP I TX thermal input
122,123 NC - Non-connection
124 ASQ I RX analog SQ. input
125 RSSI I RX RSSI input
126 NC - Non-connection
127 AGND - AGND (Vss)
128 LSDIN I Low speed data input
SEMICONDUCTOR DATA
Microprocesser : 30625MGP-169GP (TX-RX unit IC404)

TK-8180
21
Pin No. Port Name I/O Function
1~4 NC - Non-connection
5SHIFT O Beat shift
6BYTE-+5V
7CNVSS - GND
8,9 NC - Non-connection
10 RST I Reset
11 Xout O 14.7456MHz clock output
12 GND - GND
13 Xin I 14.7456MHz clock input
14 VCC - +5V
15 NMI - +5V
16 BLC2 O MIC backlight control
17 BLC1 O Key & LCD backlight control
18 DIMM O Dimmer control
19 LEDG O LED green
20 LEDR O LED red
21 NC - Non-connection
22 LCDCK O LCD serial clock
23 LCDDT O LCD serial data
24 LCDCS O LCD chip select
25 LCDRST O LCD reset
26 NC - Non-connection
27 RXD2 I RXD2 (Main µ-com)
28 TXD2 O TXD2 (Main µ-com)
29 PTT/TXD I/O PTT/TXD (COM0)
30 NC - Non-connection
31 DM O MIC DM
32,33 NC - Non-connection
34 HK/RXD I HOOK/RXD (COM0)
35~44 NC - Non-connection
45 TP1 I LCD check
46~59 NC - Non-connection
60 VCC - +5V
61 NC - Non-connection
62 VSS - GND
63~70 NC - Non-connection
71~82 S22~S11 I Non-connection
Pin No. Port Name I/O Function
83 S10 I Front panel key (R down [ ])
84 S9 I Front panel key (R up [ ])
85 S8 I Front panel key (■)
86 S7 I Front panel key (C)
87 S6 I Front panel key (B)
88 S5 I Front panel key (A)
89 S4 I Front panel key (S)
90 S3 I Front panel key ( )
91 S2 I Front panel key (L down [ ])
92 S1 I Front panel key (L up [ ])
93 NC - Non-connection
94 AVSS - GND
95 NC - Non-connection
96 VREF - +5V
97 AVCC - +5V
98~100 NC - Non-connection
Shift Register : BU4094BCFV (TX-RX unit IC403)
Pin No. Port Name I/O Function
1STRB I Storage enable input
2DATA I Serial data input
3CLK I Serial clock input
4Q1OAUX output 1
5Q2OPublic address
6Q3OHorn alert
7Q4OScrambler switch
8Vss -
9Qs O
10 Q’s O
11 Q8 O Ceramic filter switch
12 Q7 O Non-connection
13 Q6 O AUX output 2
14 Q5 O Gate switch
15 OE I Output enable
16 VDD -
SEMICONDUCTOR DATA
Microprocesser : 30302M8-8Z7GP (Display unit IC902)

TK-8180
22
Display unit (X54-3480-10)
Ref. No. Part Name Description
IC901 IC Voltage regulator/ 5V
IC902 IC Microprocessor
IC903 IC LCD driver
Q901,902 Transistor HOOK switch
Q904 Transistor TX indication LED switch
Q905 Transistor BUSY indication LED switch
Q906 Transistor Dimmer switch control
Q907 Transistor Dimmer switch
Q909 Transistor Backlight control switch
Q910 Transistor 8C switch
Q911 Transistor 8C switch control
Q913 Transistor Backlight control
D901,902 Zener diode Voltage protection
D903 Varistor Current limitter
D904~906
Diode Surge protection
D907 LED TX/Busy indication
D909~920
LED LCD backlight
D921~930
LED KEY backlight
TX-RX unit (X57-6990-10)
Ref. No. Part Name Description
IC1 IC Power module
IC71,72 IC DC amp for TX APC
IC171 IC RX 1st mixer
IC172 IC FM IF system IC
IC251 IC DC-DC converter
IC301 IC PLL system IC
IC302 IC PLL CP switch
IC401 IC EEPROM
IC402 IC RTC processor
IC403 IC Shift register
IC404 IC Microprocessor
IC405 IC Flash memory
IC406 IC HSD BPF/HSD compalator
IC407 IC DET amp/Data LPF (DB-25)
IC408 IC LSD buffer amp/VCXO bias amp
IC409 IC LSD LPF/Voltage DC-reference
IC410 IC D/A converter
Ref. No. Part Name Description
IC411 IC RF BPF tuning voltage DC amp
IC412 IC Modulation LPF/DET amp
IC413 IC AF switch IC
IC414 IC MIC amp
IC415 IC AQUA-L
IC416 IC Level converter IC (RS-232C)
IC417 IC Audio IC
IC801 IC Voltage detector (CPU Reset)
IC802 IC Voltage detector (INT)
IC803 IC Voltage regulator/ 8V
IC804,805
IC Voltage regulator/ 5V
IC807 IC Voltage regulator/ 5V
Q1 Transistor TX pre-driver
Q2 Transistor TX driver
Q3 Transistor TX gate switch
Q70 Transistor High/Low power switch
Q72 FET High/Low power switch
Q103 Transistor Front-end LNA
Q171,172 Transistor IF amp
Q173,174 Transistor W/N CF switch control
Q175 Transistor Noise Amp
Q176 FET DET mute switch
Q177 Transistor W/N CF switch control
Q178 Transistor W/N discrete switch
Q179 Transistor W/N CF switch control
Q251 Transistor Ripple filter
Q301 Transistor PLL f-in doubler amp
Q302,303 Transistor PLL LPF
Q306,307 FET TX/RX VCO
Q308~310
Transistor TX/RX VCO switch
Q311 Transistor VCO buffer amp
Q312 Transistor Ripple filter
Q313 Transistor VCO buffer amp
Q402 Transistor Beat shift switch
Q403 FET AF switch (Voice)
Q405 Transistor AQUA control switch
Q406 FET AF switch (LSD)
Q409 Transistor AF mute switch
Q410,411 Transistor MIC AGC
Q412 FET AF mute switch
COMPONENTS DESCRIPTION

TK-8180
23
Ref. No. Part Name Description
Q413,414 FET AF Switch
Q415 FET AF Switch (Voice)
Q416,417 FET MIC mute switch
Q418 Transistor AF mute control switch
Q419 Transistor AF mute switch
Q600 Transistor MIC mute switch
Q701,702 Transistor Inverter switch
Q801 Transistor Voltage regulator/ 8.5V
Q802 Transistor SB control switch
Q803 Transistor 8T switch
Q804 Transistor 8R switch
Q805 Transistor 5R switch
Q806 Transistor 8T control switch
Q807 Transistor SB control switch
Q808 Transistor 8R control switch
Q809 Transistor 5R control switch
Q810 FET SB switch
Q811 Transistor Ignition sense control switch
Q812 Transistor CPU reset switch
D1 Zener diode Voltage protection
D2,3 Diode ANT switch
D6~8 Diode RF detector
D103~110
Variable RF BPF tuning
capacitance diode
D111 Diode ANT switch
D171,172 Diode W/N CF switch
D173 Diode SQ noise-amp detector
D174 Diode DET mute switch control
COMPONENTS DESCRIPTION
Ref. No. Part Name Description
D251 Diode Reverse voltage protection
D308,309 Variable
Frequency control for TX/RX VCO
capacitance diode
D311 Variable Frequency control for TX/RX VCO
capacitance diode
D313 Variable Frequency control for TX/RX VCO
capacitance diode
D314 Variable Modulation control for TX VCO
capacitance diode
D315,316 Diode TX/RX band switch
D402~404
Diode RTC battery control
D405,406 Zener diode Voltage protection
D407 Diode DC detector
D408,409 Diode MIC-amp AGC detector
D412~414
Diode Surge protect
D416 Diode AF mute control
D417,418 Diode Isolator
D421~423
Diode Voltage protection
D600,601 Diode MIC mute control
D701 Zener diode Voltage protection
D702,703 Diode Voltage protection
D704~708
Diode Surge protect
D709,710 Zener diode Voltage protection
D711~713
Diode Surge protect
D714 Zener diode Voltage protection
D801 Surge absorber Voltage protection
D802 Diode DC reverse connection protect
D804,805 Zener diode Voltage protection

TK-8180
24
PARTS LIST
✽ New Parts. indicates safety critical components.
Parts without Parts No. are not supplied.
Les articles non mentionnes dans le Parts No. ne sont pas fournis.
Teile ohne Parts No. werden nicht geliefert.
L: Scandinavia K:USA P:Canada
Y: PX (Far East, Hawaii) T:England E:Europe
Y:AAFES (Europe) X:Australia M:Other Areas
Ref. No.
Address
Parts No. Description Desti-
nation
New
parts
Ref. No.
Address
Parts No. Description Desti-
nation
New
parts
11B✽A01-2194-11 CABINET
23A✽A62-1094-23 PANEL ASSY
42A✽B09-0681-03 CAP (KAP-2)
51D✽B62-1766-10 INSTRUCTION MANUAL
72BE04-0167-05 RF COAXIAL PECEPTACLE (M)
82B✽E30-7520-05 DC CORD (PIG TAIL)
92C✽E30-7523-05 DC CORD ASSY (WATER-PROOF)
10 2A ✽E37-1110-05 FLAT CABLE (30P/D-SUB)
11 1A ✽E37-1118-05
LEAD WIRE WITH CONNECTOR (SHORT CABLE)
12 2A ✽E37-1120-05 FLAT CABLE (30P/TX-RX)
13 3B ✽E37-1124-05
LEAD WIRE WITH CONNECTOR (2P/SP)
15 2B ✽F10-2488-02 SHIELDING PLATE (CHASSIS)
16 1A ✽F10-2489-03 SHIELDING CASE (FINAL)
17 1A ✽F10-2490-03 SHIELDING CASE (VCO)
18 1C F52-0024-05 FUSE (BLADE) 15A/32V
20 3B ✽G10-1342-04 FIBROUS SHEET (BIRITSUKI)
21 2A ✽G11-4290-04 RUBBER SHEET (CHASSIS)
22 1B ✽G11-4343-04 SHEET
23 1A G13-2018-04 CUSHION
24 2B ✽G13-2047-04 CUSHION (DC SCREW)
25 1B ✽G53-1613-01 PACKING (SHIELD PLATE)
26 3A ✽G53-1614-23 PACKING (CHASSIS)
27 1A ✽G53-1616-03 PACKING (PHONE JACK)
28 2B ✽G53-1626-03 PACKING (D-SUB OUTER)
29 3B ✽G53-1643-04 PACKING (DC CORD)
30 3B ✽G53-1645-03 PACKING (D-SUB INNER)
31 2A ✽G53-1662-04 PACKING (O RING)
32 2C ✽H02-0624-03 INNER PACKING CASE
33 2D ✽H12-3170-01 PACKING FIXTURE (LOWER)
34 1D ✽H12-3171-03 PACKING FIXTURE (UPPER)
36 2D H25-2352-04 PROTECTION BAG (250/350/0.07)
37 3D ✽H52-2069-02 ITEM CARTON CASE
39 1C J19-1584-05 HOLDER (ACCESSORY)
40 3B ✽J19-5464-13 HOLDER (SP)
41 3B ✽J19-5468-02 HOLDER (PANEL)
42 2B ✽J21-8479-02 HARDWARE FIXTURE (D-SUB)
43 3B ✽J21-8481-03 HARDWARE FIXTURE (SP)
44 2C J29-0662-03 BRACKET (ACCESSORY)
45 3B ✽J30-1289-04 SPACER (SP)
47 3A ✽K29-9312-21 KEY TOP
A2BN09-2409-05 HEXAGON HEAD SCREW (D-SUB)
B 1A,2A ✽N67-3008-48
PAN HEAD SEMS SCREW W (FINAL IC)
C
1A,2A,2B
✽N87-2606-48
BRAZIER HEAD TAPTITE SCREW (ANT,PCB)
D1AN87-2608-46
BRAZIER HEAD TAPTITE SCREW (AUDIO IC)
49 2C ✽N99-2039-05 SCREW SET (ACCESSORY)
51 3B ✽T07-0750-05 SPEAKER
52 1C ✽T91-0639-05 MICROPHONE (ACCESSORY)
54 2A W09-0971-05 LITHIUM CELL
101 3B ✽B11-1825-04 FILTER (LCD)
102 3B ✽B38-0888-05 LCD
D907 B30-2151-05 LED (R/G)
D909-920 ✽B30-2281-05 LED (Y)
D921-930 ✽B30-2282-05 LED (Y)
C904 CC73GCH1H101J CHIP C 100PF J
C906 CK73GB1H103K CHIP C 0.010UF K
C907,908 CK73HB1H102K CHIP C 1000PF K
C909-911 CC73GCH1H101J CHIP C 100PF J
C912,913 CK73GB1H102K CHIP C 1000PF K
C914 CC73GCH1H101J CHIP C 100PF J
C915 CK73GB1H102K CHIP C 1000PF K
C916,917 CK73GB1C104K CHIP C 0.10UF K
C918 C92-0628-05 CHIP-TAN 10UF 10WV
C920 CC73GCH1H101J CHIP C 100PF J
C921 CK73GB1H102K CHIP C 1000PF K
C922 CK73GB1H103K CHIP C 0.010UF K
C924,925 CC73GCH1H100D CHIP C 10PF D
C926-928 CK73GB1H102K CHIP C 1000PF K
C930 CK73GB1H103K CHIP C 0.010UF K
C931 C92-0784-05 CHIP-TAN 4.7UF 10WV
C932-934 CK73GB1H103K CHIP C 0.010UF K
C935 CK73GB1H471K CHIP C 470PF K
C936 CK73GB1C104K CHIP C 0.10UF K
C937 CK73GB1H103K CHIP C 0.010UF K
C938 CK73GB1H102K CHIP C 1000PF K
103 3B ✽E29-1202-04 INTER CONNECTOR (LCD)
CN901 E40-5704-05 PIN ASSY
CN902 ✽E40-6372-05 FLAT CABLE CONNECTOR
J901 3B E08-0877-05 MODULAR JACK
104 3B ✽G11-4342-04 SHEET
105 3B ✽J19-5467-03 HOLDER (LCD)
106 3B ✽J21-8470-03 HARDWARE FIXTURE (LCD)
-✽J31-0551-05 COLLAR
L901,902 L40-1095-85 SMALL FIXED INDUCTOR (1.0UH)
L903-907 L92-0140-05 FERRITE CHIP
L908,909 L92-0163-05 BEADS CORE
X901 ✽L77-1956-05 CRYSTAL RESONATOR (14.7456MHZ)
CP901-911 RK75HA1J101J CHIP-COM 100 J 1/16W
R901 RK73GB1J102J CHIP R 1.0K J 1/16W
R903 RK73GB1J471J CHIP R 470 J 1/16W
R904 RK73GB1J102J CHIP R 1.0K J 1/16W
R905 RK73GB1J472J CHIP R 4.7K J 1/16W
R907 RK73GB1J333J CHIP R 33K J 1/16W
R909-911 RK73GB1J473J CHIP R 47K J 1/16W
R913-916 RK73HB1J474J CHIP R 470K J 1/16W
R917 RK73FB2A471J CHIP R 470 J 1/10W
R918 RK73FB2A271J CHIP R 270 J 1/10W
R919 RK73HB1J102J CHIP R 1.0K J 1/16W
R920 R92-1368-05 CHIP R 0 OHM
R925 RK73HB1J471J CHIP R 470 J 1/16W
R926 RK73HB1J473J CHIP R 47K J 1/16W
TK-8180 DISPLAY UNIT (X54-3480-10)
TK-8180 (Y51-5030-10)
DISPLAY UNIT (X54-3480-10)

TK-8180
25
PARTS LIST
Ref. No.
Address
Parts No. Description Desti-
nation
New
parts
Ref. No.
Address
Parts No. Description Desti-
nation
New
parts
R927-935 RK73HB1J102J CHIP R 1.0K J 1/16W
R936 RK73HB1J103J CHIP R 10K J 1/16W
R939 RK73GB1J472J CHIP R 4.7K J 1/16W
R940 RK73HB1J101J CHIP R 100 J 1/16W
R941 RK73HB1J102J CHIP R 1.0K J 1/16W
R942 RK73EB2B470J CHIP R 47 J 1/8W
R943 RK73EB2B101J CHIP R 100 J 1/8W
R944 R92-1368-05 CHIP R 0 OHM
R945 RK73GB1J103J CHIP R 10K J 1/16W
R947-950 RK73FB2A101J CHIP R 100 J 1/10W
R951,952 RK73FB2A391J CHIP R 390 J 1/10W
R953,954 RK73FB2A821J CHIP R 820 J 1/10W
R955-958 RK73HB1J472J CHIP R 4.7K J 1/16W
R959 RK73HB1J103J CHIP R 10K J 1/16W
R962,963 RK73GB1J103J CHIP R 10K J 1/16W
R967 RK73HB1J271J CHIP R 270 J 1/16W
R969 R92-1368-05 CHIP R 0 OHM
R970 RK73GB1J103J CHIP R 10K J 1/16W
R971 RK73HB1J102J CHIP R 1.0K J 1/16W
D901,902 02DZ18(X,Y) ZENER DIODE
D903 MINISMDC020 VARISTOR
D904-906 DA204U DIODE
IC901 TA78L05F MOS IC
IC902 ✽30302M8-8Z7GP MCU
IC903 ✽LC75810T-8726 MOS IC
Q901,902 DTC144EE DIGITAL TRANSISTOR
Q904-906 DTC114EE DIGITAL TRANSISTOR
Q907 2SC2873(Y) TRANSISTOR
Q909,910 ✽12A02CH TRANSISTOR
Q911 DTC114EE DIGITAL TRANSISTOR
Q913 DTC114EE DIGITAL TRANSISTOR
TH901 ✽S1R103J440H THERMISTOR
C1 CK73GB1H102K CHIP C 1000PF K
C2-5 CC73GCH1H101J CHIP C 100PF J
C6 C92-0585-05 CHIP-TAN 4.7UF 16WV
C7,8 CC73GCH1H101J CHIP C 100PF J
C9 CC73GCH1H060D CHIP C 6.0PF D
C10 CC73GCH1H101J CHIP C 100PF J
C13-15 CC73GCH1H101J CHIP C 100PF J
C16 CC73GCH1H060D CHIP C 6.0PF D
C17 CC73GCH1H220J CHIP C 22PF J
C18 CK73GB1H471K CHIP C 470PF K
C19 CC73GCH1H470J CHIP C 47PF J
C20 CC73GCH1H101J CHIP C 100PF J
C21 CK73FB1H471K CHIP C 470PF K
C22 CK73GB1H471K CHIP C 470PF K
C24 C92-0606-05 CHIP-TAN 4.7UF 10WV
C25 C93-0550-05 CHIP C 1.0PF C
C26 CC73GCH1H220J CHIP C 22PF J
C27 CC73GCH1H470J CHIP C 47PF J
C28 CC73GCH1H101J CHIP C 100PF J
C29-31 CK73GB1H471K CHIP C 470PF K
C32 ✽C92-0834-05 ELECTRO 47UF 25WV
C33-35 CC73GCH1H101J CHIP C 100PF J
C38-40 CC73GCH1H220J CHIP C 22PF J
C42 C93-0555-05 CHIP C 5.0PF C
C43 CC73FCH1H030C CHIP C 3.0PF C
C44 C93-0573-05 CHIP C 120PF J
C45 C93-0553-05 CHIP C 3.0PF C
C47 CC73GCH1H0R5B CHIP C 0.5PF B
C48 CC73GCH1H030B CHIP C 3.0PF B
C49 CC73GCH1H101J CHIP C 100PF J
C50 C93-0558-05 CHIP C 8.0PF D
C51 CC73GCH1H101J CHIP C 100PF J
C52 CC73GCH1H0R5B CHIP C 0.5PF B
C53 C93-0560-05 CHIP C 10PF D
C55 CC73GCH1H020B CHIP C 2.0PF B
C56 CC73GCH1H101J CHIP C 100PF J
C57 CC73GCH1H0R5B CHIP C 0.5PF B
C58 CC73GCH1H020B CHIP C 2.0PF B
C59 CC73GCH1H101J CHIP C 100PF J
C60 C93-0556-05 CHIP C 6.0PF D
C61,62 CC73GCH1H101J CHIP C 100PF J
C74 CC73GCH1H101J CHIP C 100PF J
C76,77 CK73GB1H471K CHIP C 470PF K
C79,80 CK73GB1H471K CHIP C 470PF K
C119 CC73GCH1H050B CHIP C 5.0PF B
C121 CK73GB1H471K CHIP C 470PF K
C124 CC73GCH1H100D CHIP C 10PF D
C125 CK73GB1H471K CHIP C 470PF K
C127 CC73GCH1H220J CHIP C 22PF J
C128 CC73GCH1H090B CHIP C 9.0PF B
C129 CK73GB1H471K CHIP C 470PF K
C130 CC73GCH1H050B CHIP C 5.0PF B
C131 CK73GB1H471K CHIP C 470PF K
C132 CC73GCH1H220J CHIP C 22PF J
C133 CC73GCH1H060B CHIP C 6.0PF B
C134 CC73GCH1H030B CHIP C 3.0PF B
C135 CC73GCH1H220J CHIP C 22PF J
C136 CC73GCH1H040B CHIP C 4.0PF B
C137 CK73GB1H471K CHIP C 470PF K
C138 CC73GCH1H050B CHIP C 5.0PF B
C139 CK73GB1H471K CHIP C 470PF K
C140 CC73GCH1H220J CHIP C 22PF J
C141 CC73GCH1H090B CHIP C 9.0PF B
C142 CK73GB1H471K CHIP C 470PF K
C143 CK73GB1H103K CHIP C 0.010UF K
C144 CC73GCH1H070B CHIP C 7.0PF B
C145 CC73GCH1H1R5B CHIP C 1.5PF B
C146 CK73GB1H471K CHIP C 470PF K
C147 CC73GCH1H050B CHIP C 5.0PF B
C148 CC73GCH1H010B CHIP C 1.0PF B
C149 CK73GB1H471K CHIP C 470PF K
C150 CC73GCH1H050B CHIP C 5.0PF B
C151 CC73GCH1H010B CHIP C 1.0PF B
C152 CK73GB1H471K CHIP C 470PF K
C153 CC73GCH1H050B CHIP C 5.0PF B
C154 CC73GCH1H1R5B CHIP C 1.5PF B
C155,156 CK73GB1H471K CHIP C 470PF K
C171 CC73GCH1H060B CHIP C 6.0PF B
C173 CC73GCH1H120J CHIP C 12PF J
C175 CC73GCH1H060B CHIP C 6.0PF B
C176-178 CK73GB1H471K CHIP C 470PF K
C181 CK73GB1H471K CHIP C 470PF K
C182,183 CK73GB1H103K CHIP C 0.010UF K
C184 CK73GB1H471K CHIP C 470PF K
C185 CK73GB1H103K CHIP C 0.010UF K
TX-RX UNIT (X57-6990-10)
DISPLAY UNIT (X54-3480-10)
TX-RX UNIT (X57-6990-10)

TK-8180
26
PARTS LIST
Ref. No.
Address
Parts No. Description Desti-
nation
New
parts
Ref. No.
Address
Parts No. Description Desti-
nation
New
parts
C186 CC73GCH1H330J CHIP C 33PF J
C187 CC73GCH1H390J CHIP C 39PF J
C188,189 CC73GCH1H040B CHIP C 4.0PF B
C190 CC73GCH1H390J CHIP C 39PF J
C192-194 CK73GB1H103K CHIP C 0.010UF K
C195 CK73GB1H471K CHIP C 470PF K
C196,197 CK73GB1H103K CHIP C 0.010UF K
C198 CC73GCH1H680J CHIP C 68PF J
C199 CC73GCH1H390J CHIP C 39PF J
C200,201 CC73GCH1H040B CHIP C 4.0PF B
C202 CC73GCH1H390J CHIP C 39PF J
C204-206 CK73GB1H103K CHIP C 0.010UF K
C207 CK73GB1H471K CHIP C 470PF K
C208,209 CK73GB1H103K CHIP C 0.010UF K
C210 CC73GCH1H680J CHIP C 68PF J
C211 CC73GCH1H100D CHIP C 10PF D
C212 CK73GB1H471K CHIP C 470PF K
C213 CK73GB1H103K CHIP C 0.010UF K
C214 CK73GB1C104K CHIP C 0.10UF K
C215 CC73GCH1H180J CHIP C 18PF J
C216 CC73GCH1H150J CHIP C 15PF J
C217 CK73GB1H102K CHIP C 1000PF K
C218 CK73GB1H103K CHIP C 0.010UF K
C219 CK73FB1C105K CHIP C 1.0UF K
C220,221 CK73GB1C104K CHIP C 0.10UF K
C222 CK73GB1H102K CHIP C 1000PF K
C223 CK73GB1C104K CHIP C 0.10UF K
C224,225 CC73GCH1H271J CHIP C 270PF J
C226,227 CK73GB1H102K CHIP C 1000PF K
C228 CK73GB1C104K CHIP C 0.10UF K
C229 CK73GB1C333K CHIP C 0.033UF K
C230 CK73GB1H103K CHIP C 0.010UF K
C231 CC73GCH1H820J CHIP C 82PF J
C232,233 CK73GB1H102K CHIP C 1000PF K
C234 CK73FB1C224K CHIP C 0.22UF K
C235 CK73GB1C104K CHIP C 0.10UF K
C236 CK73GB1H103K CHIP C 0.010UF K
C237 C92-0712-05 CHIP-TAN 22UF 6.3WV
C238 CK73GB1H103K CHIP C 0.010UF K
C239,240 CK73GB1C104K CHIP C 0.10UF K
C241 CK73GB1H102K CHIP C 1000PF K
C251,252 CK73GB1H471K CHIP C 470PF K
C253 CK73GB1H103K CHIP C 0.010UF K
C255 C92-0694-05 CHIP-TAN 10UF 16WV
C256 CK73GB1H103K CHIP C 0.010UF K
C257 C92-0519-05 CHIP-TAN 1.0UF 25WV
C258 C92-0516-05 CHIP-TAN 4.7UF 16WV
C259 C92-0628-05 CHIP-TAN 10UF 10WV
C260-262 CC73GCH1H101J CHIP C 100PF J
C299 CC73GCH1H0R5B CHIP C 0.5PF B
C302 CC73GCH1H0R5B CHIP C 0.5PF B
C306 CC73GCH1H100D CHIP C 10PF D
C307 CK73GB1H471K CHIP C 470PF K
C308 CC73GCH1H100D CHIP C 10PF D
C309 CC73GCH1H101J CHIP C 100PF J
C311 CC73GCH1H390J CHIP C 39PF J
C312 C92-0555-05 CHIP-TAN 0.047UF 35WV
C314 CK73FB1E104K CHIP C 0.10UF K
C316 CC73GCH1H080D CHIP C 8.0PF D
C317 CC73GCH1H101J CHIP C 100PF J
C318 C92-0657-05 CHIP-TAN 2.2UF 20WV
C320 C92-0657-05 CHIP-TAN 2.2UF 20WV
C322 CK73GB1E473J CHIP C 0.047UF J
C323 CK73GB1H471K CHIP C 470PF K
C324 CK73GB1C104K CHIP C 0.10UF K
C325 CK73GB1H102K CHIP C 1000PF K
C327 CK73FB1E224K CHIP C 0.22UF K
C331 CK73GB1H103K CHIP C 0.010UF K
C333 CC73GCH1H050B CHIP C 5.0PF B
C334 CK73GB1H102K CHIP C 1000PF K
C335 CK73GB1C223K CHIP C 0.022UF K
C338 C92-0502-05 CHIP-TAN 0.33UF 35WV
C339 CK73GB1H471K CHIP C 470PF K
C342 CK73GB1H102K CHIP C 1000PF K
C343 C92-0628-05 CHIP-TAN 10UF 10WV
C346,347 CC73GCH1H220G CHIP C 22PF G
C350 CC73GCH1H080D CHIP C 8.0PF D
C351 CC73GCH1H0R5B CHIP C 0.5PF B
C352 CC73GCH1H120J CHIP C 12PF J
C353 CC73GCH1H471J CHIP C 470PF J
C354 CC73GCH1H040B CHIP C 4.0PF B
C355 CC73GCH1H050B CHIP C 5.0PF B
C356 CC73GCH1H0R5B CHIP C 0.5PF B
C357 CC73GCH1H060B CHIP C 6.0PF B
C358 CC73GCH1H050B CHIP C 5.0PF B
C359,360 CC73GCH1H070B CHIP C 7.0PF B
C361-363 CC73GCH1H471J CHIP C 470PF J
C364 CC73GCH1H0R5B CHIP C 0.5PF B
C365 CC73GCH1H0R3B CHIP C 0.3PF B
C367 CK73GB1H102K CHIP C 1000PF K
C368 CC73GCH1H471J CHIP C 470PF J
C369,370 CK73GB1H471K CHIP C 470PF K
C371 C92-0560-05 CHIP-TAN 10UF 6.3WV
C372 CC73GCH1H220J CHIP C 22PF J
C373 CC73GCH1H471J CHIP C 470PF J
C374 CK73GB1H102K CHIP C 1000PF K
C375 CC73GCH1H270J CHIP C 27PF J
C376-378 CK73GB1H471K CHIP C 470PF K
C379 CC73GCH1H060D CHIP C 6.0PF D
C380,381 CK73GB1H471K CHIP C 470PF K
C382 CK73GB1H103K CHIP C 0.010UF K
C383 CK73GB1H102K CHIP C 1000PF K
C384 CK73GB1H103K CHIP C 0.010UF K
C385 CK73GB1H471K CHIP C 470PF K
C386 C92-0713-05 CHIP-TAN 10UF 6.3WV
C387,388 CC73GCH1H050C CHIP C 5.0PF C
C389 CC73GCH1H060B CHIP C 6.0PF B
C390 CC73GCH1H120J CHIP C 12PF J
C391 CC73GCH1H020B CHIP C 2.0PF B
C392 CC73GCH1H120J CHIP C 12PF J
C393 CC73GCH1H060B CHIP C 6.0PF B
C394 CC73GCH1H040B CHIP C 4.0PF B
C395 CC73GCH1H020B CHIP C 2.0PF B
C396 CK73GB1H103K CHIP C 0.010UF K
C397 CC73GCH1H120J CHIP C 12PF J
C398 CC73GCH1H010B CHIP C 1.0PF B
C400 CK73FB1A105K CHIP C 1.0UF K
C403 CK73HB1A104K CHIP C 0.10UF K
C404 CC73HCH1H050C CHIP C 5.0PF C
C406 CC73GCH1H0R3B CHIP C 0.3PF B
TX-RX UNIT (X57-6990-10)

TK-8180
27
PARTS LIST
Ref. No.
Address
Parts No. Description Desti-
nation
New
parts
Ref. No.
Address
Parts No. Description Desti-
nation
New
parts
C407 CK73GB1H103K CHIP C 0.010UF K
C408,409 CC73HCH1H150G CHIP C 15PF G
C410-412 CK73GB1C104K CHIP C 0.10UF K
C420,421 CC73GCH1H101J CHIP C 100PF J
C422 CK73GB1H102K CHIP C 1000PF K
C423 CK73FF1C105Z CHIP C 1.0UF Z
C424 CK73GB1H102K CHIP C 1000PF K
C425-428 CC73GCH1H101J CHIP C 100PF J
C429 CK73GB1A105K CHIP C 1.0UF K
C430,431 CC73GCH1H101J CHIP C 100PF J
C432 CK73GB1H102K CHIP C 1000PF K
C433 CK73GB1C104K CHIP C 0.10UF K
C434 CK73GB1H561K CHIP C 560PF K
C435 CK73GB1H102K CHIP C 1000PF K
C436,437 CC73GCH1H101J CHIP C 100PF J
C438 CK73GB1E103K CHIP C 0.010UF K
C439 CK73GB1H102K CHIP C 1000PF K
C440 CK73GB1C104K CHIP C 0.10UF K
C441 CK73FB0J106K CHIP C 10UF K
C442 CK73GB1C104K CHIP C 0.10UF K
C443 CK73GB1H103K CHIP C 0.010UF K
C444 CC73GCH1H390J CHIP C 39PF J
C445 CC73GCH1H150J CHIP C 15PF J
C446 CK73GB1H103K CHIP C 0.010UF K
C447 CK73HB1A333K CHIP C 0.033UF K
C448 CC73GCH1H101J CHIP C 100PF J
C450 CK73FB0J106K CHIP C 10UF K
C451 CK73GB1H103K CHIP C 0.010UF K
C452 CC73GCH1H101J CHIP C 100PF J
C453 CK73GB1C104K CHIP C 0.10UF K
C454 CK73GB1H103K CHIP C 0.010UF K
C455 C92-0589-05 CHIP-TAN 47UF 6.3WV
C457 CK73GB1H471K CHIP C 470PF K
C459 C92-0628-05 CHIP-TAN 10UF 10WV
C460-463 CK73GB1H103K CHIP C 0.010UF K
C464 CK73HB1A333K CHIP C 0.033UF K
C465 CC73GCH1H220J CHIP C 22PF J
C467,468 CK73GB1H103K CHIP C 0.010UF K
C469 CK73GB1C104K CHIP C 0.10UF K
C470 CK73GB1H103K CHIP C 0.010UF K
C472 CK73GB1C104K CHIP C 0.10UF K
C475 CC73GCH1H101J CHIP C 100PF J
C476 CK73GB1C104K CHIP C 0.10UF K
C477 CK73GB1H102K CHIP C 1000PF K
C478 CC73HCH1H101J CHIP C 100PF J
C479,480 CK73GB1H102K CHIP C 1000PF K
C481 CK73HB1H102K CHIP C 1000PF K
C482 CK73FB1A475K CHIP C 4.7UF K
C483 CK73GB1H103K CHIP C 0.010UF K
C484 CK73FB1A475K CHIP C 4.7UF K
C485 CK73FB1A105K CHIP C 1.0UF K
C487 CK73HB1H102K CHIP C 1000PF K
C488 CC73GCH1H120J CHIP C 12PF J
C489 CK73GB1C104K CHIP C 0.10UF K
C490 CK73HB1H102K CHIP C 1000PF K
C491,492 CK73GB1C104K CHIP C 0.10UF K
C493 CK73FB1A475K CHIP C 4.7UF K
C495 CC73GCH1H181J CHIP C 180PF J
C496 CK73GB1C104K CHIP C 0.10UF K
C497 CK73GB1H102K CHIP C 1000PF K
C498 CC73HCH1H101J CHIP C 100PF J
C499 CK73GB1H821K CHIP C 820PF K
C500 CC73HCH1H101J CHIP C 100PF J
C501 CC73GCH1H220J CHIP C 22PF J
C502 CK73HB1H102K CHIP C 1000PF K
C503 CC73GCH1H680J CHIP C 68PF J
C504 CK73HB1H102K CHIP C 1000PF K
C505,506 CK73GB1A105K CHIP C 1.0UF K
C507 CK73GB1C104K CHIP C 0.10UF K
C511 CK73GB1C104K CHIP C 0.10UF K
C512,513 CK73GB1H102K CHIP C 1000PF K
C514 CC73GCH1H820J CHIP C 82PF J
C515,516 CK73HB1H102K CHIP C 1000PF K
C517 CK73GB1H103K CHIP C 0.010UF K
C518 CK73GB1C104K CHIP C 0.10UF K
C519,520 CK73GB1H102K CHIP C 1000PF K
C524 CK73GB1H102K CHIP C 1000PF K
C525,526 CK73GB1C104K CHIP C 0.10UF K
C528 CK73GB1H222K CHIP C 2200PF K
C529 CC73GCH1H470J CHIP C 47PF J
C530 CK73FB0J106K CHIP C 10UF K
C531 CK73GB1H102K CHIP C 1000PF K
C532 CK73GB1E123K CHIP C 0.012UF K
C533 CK73GB1E153K CHIP C 0.015UF K
C534 CK73GB1H102K CHIP C 1000PF K
C535 CK73GB1C683K CHIP C 0.068UF K
C536,537 CK73GB1C104K CHIP C 0.10UF K
C538 CK73GB1H102K CHIP C 1000PF K
C539,540 C92-0628-05 CHIP-TAN 10UF 10WV
C541 CK73GB1C104K CHIP C 0.10UF K
C542 CK73GB1H102K CHIP C 1000PF K
C543,544 C92-0628-05 CHIP-TAN 10UF 10WV
C545 CK73HB1H102K CHIP C 1000PF K
C546 CK73GB1H103K CHIP C 0.010UF K
C547-549 CK73HB1H102K CHIP C 1000PF K
C550 CC73HCH1H101J CHIP C 100PF J
C551-553 CK73HB1H102K CHIP C 1000PF K
C554 CC73HCH1H101J CHIP C 100PF J
C555-557 CK73HB1H102K CHIP C 1000PF K
C558 CC73HCH1H101J CHIP C 100PF J
C559 CK73HB1H102K CHIP C 1000PF K
C560,561 CK73GB1C104K CHIP C 0.10UF K
C562-565 C92-0519-05 CHIP-TAN 1.0UF 25WV
C566 CK73FB1C105K CHIP C 1.0UF K
C567 CC73HCH1H101J CHIP C 100PF J
C568 CK73HB1H102K CHIP C 1000PF K
C570 CK73FB1C105K CHIP C 1.0UF K
C572,573 CK73GB1H102K CHIP C 1000PF K
C574 C92-0672-05 ELECTRO 22UF 16WV
C575 ✽C92-0834-05 ELECTRO 47UF 25WV
C576 ✽C92-0836-05 ELECTRO 330UF 16WV
C577 CK73GB1C104K CHIP C 0.10UF K
C578 ✽C92-0834-05 ELECTRO 47UF 25WV
C579 CK73GB1H102K CHIP C 1000PF K
C580 ✽C92-0834-05 ELECTRO 47UF 25WV
C581,582 CK73GB1H102K CHIP C 1000PF K
C583 CK73GB1H471K CHIP C 470PF K
C584 CC73GCH1H220J CHIP C 22PF J
C585-587 CC73GCH1H101J CHIP C 100PF J
C588 CK73GB1H102K CHIP C 1000PF K
TX-RX UNIT (X57-6990-10)

TK-8180
28
PARTS LIST
Ref. No.
Address
Parts No. Description Desti-
nation
New
parts
Ref. No.
Address
Parts No. Description Desti-
nation
New
parts
C591 CK73GB1C104K CHIP C 0.10UF K
C592,593 CC73GCH1H070D CHIP C 7.0PF D
C594 CK73GB1H471K CHIP C 470PF K
C595 CC73GCH1H101J CHIP C 100PF J
C701 CK73GB1H102K CHIP C 1000PF K
C702-704 CC73GCH1H101J CHIP C 100PF J
C705-711 CK73GB1H102K CHIP C 1000PF K
C712 CC73GCH1H101J CHIP C 100PF J
C713 CK73GB1H102K CHIP C 1000PF K
C714,715 CC73GCH1H101J CHIP C 100PF J
C716,717 CK73GB1H102K CHIP C 1000PF K
C718-720 CC73GCH1H101J CHIP C 100PF J
C721 CK73GB1H102K CHIP C 1000PF K
C722,723 CC73GCH1H101J CHIP C 100PF J
C801 C92-0777-05 ELECTRO 1000UF 25WV
C802 CK73GB1H102K CHIP C 1000PF K
C803 CK73GB1E473J CHIP C 0.047UF J
C804 CC73GCH1H471J CHIP C 470PF J
C805 CK73GB1H102K CHIP C 1000PF K
C806 CC73GCH1H101J CHIP C 100PF J
C807 CK73GB1E473J CHIP C 0.047UF J
C808 CK73GB1C104K CHIP C 0.10UF K
C809 CC73GCH1H471J CHIP C 470PF J
C810 CK73GB1E473J CHIP C 0.047UF J
C811,812 CK73GB1C104K CHIP C 0.10UF K
C813,814 CC73GCH1H471J CHIP C 470PF J
C815 C92-0585-05 CHIP-TAN 4.7UF 16WV
C816 C92-0628-05 CHIP-TAN 10UF 10WV
C817 CC73GCH1H471J CHIP C 470PF J
C818 CK73GB1H472K CHIP C 4700PF K
C819,820 CK73GB1C104K CHIP C 0.10UF K
C821 C92-0585-05 CHIP-TAN 4.7UF 16WV
C822 CC73GCH1H471J CHIP C 470PF J
C823 CK73GB1H102K CHIP C 1000PF K
C824 CK73GB1H103K CHIP C 0.010UF K
C825 CK73HB1H102K CHIP C 1000PF K
C826 CK73GB1H471K CHIP C 470PF K
C831,832 C92-0585-05 CHIP-TAN 4.7UF 16WV
TC301,302 C05-0396-05 CERAMIC TRIMMER CAP (8PF)
CN1-3 E23-1081-05 TERMINAL
CN13 E23-1081-05 TERMINAL
CN100-102 E23-1081-05 TERMINAL
CN202,203 E23-1081-05 TERMINAL
CN301,302 ✽E40-6404-05 PIN ASSY
CN322,323 E23-1081-05 TERMINAL
CN326 E23-1081-05 TERMINAL
CN329 E23-1081-05 TERMINAL
CN403 ✽E40-6361-05 PIN ASSY
CN427 ✽E40-6371-05 FLAT CABLE CONNECTOR
CN428 ✽E40-6373-05 PIN ASSY
CN429 ✽E40-6412-05 FLAT CABLE CONNECTOR
CN701 ✽E40-6371-05 FLAT CABLE CONNECTOR
CN802,803 ✽E23-1260-04 TERMINAL
CN804 E40-3246-05 PIN ASSY
CN815 E23-1081-05 TERMINAL
J401 E11-0425-05 3.5D PHONE JACK (3P)
J701 E58-0494-05 SUB SOCKET (D)
F401 ✽F53-0352-05 FUSE (2A)
F801 F53-0278-05 FUSE (5A)
CN401 J19-5386-05 HOLDER
CD171 L79-1701-05 TUNING COIL
CF171 L72-0986-05 CERAMIC FILTER
CF172 L72-0998-05 CERAMIC FILTER
L1 L40-1875-92 SMALL FIXED INDUCTOR (18NH)
L2 L92-0140-05 FERRITE CHIP
L3 L40-2275-92 SMALL FIXED INDUCTOR (22NH)
L4 L92-0140-05 FERRITE CHIP
L5,6 L92-0179-05 FERRITE CHIP
L7 L34-4638-05 AIR-CORE COIL
L8 ✽L34-4758-05 AIR-CORE COIL
L9,10 ✽L34-4743-05 AIR-CORE COIL
L12 ✽L34-4743-05 AIR-CORE COIL
L13 L34-4482-05 AIR-CORE COIL
L101 L41-8268-14 SMALL FIXED INDUCTOR
L108 L92-0140-05 FERRITE CHIP
L109 L41-1878-14 SMALL FIXED INDUCTOR
L110-113 L34-4565-05 AIR-CORE COIL
L114-117 L41-8268-14 SMALL FIXED INDUCTOR
L119 L41-3378-14 SMALL FIXED INDUCTOR
L171,172 L41-1578-14 SMALL FIXED INDUCTOR
L173,174 L39-1421-05 TOROIDAL COIL
L175 L92-0140-05 FERRITE CHIP
L176 L39-1421-05 TOROIDAL COIL
L177 ✽L41-2785-14 SMALL FIXED INDUCTOR
L178,179 ✽L41-3988-14 SMALL FIXED INDUCTOR
L180 L40-6875-92 SMALL FIXED INDUCTOR (68NH)
L181 L40-1001-86 SMALL FIXED INDUCTOR (10UH)
L182 L40-1085-92 SMALL FIXED INDUCTOR (100NH)
L183,184 ✽L41-3988-14 SMALL FIXED INDUCTOR
L185 L40-6875-92 SMALL FIXED INDUCTOR (68NH)
L186 L40-1001-86 SMALL FIXED INDUCTOR (10UH)
L187 L40-1085-92 SMALL FIXED INDUCTOR (100NH)
L188 L40-8281-86 SMALL FIXED INDUCTOR (0.82UH)
L189 L40-1091-86 SMALL FIXED INDUCTOR (1.0UH)
L251 ✽L33-1468-05 SMALL FIXED INDUCTOR
L301 L40-2295-85 SMALL FIXED INDUCTOR (2.2UH)
L302 L92-0140-05 FERRITE CHIP
L304-306 L92-0140-05 FERRITE CHIP
L309,310 L40-1095-85 SMALL FIXED INDUCTOR (1.0UH)
L311,312 L41-1098-08 SMALL FIXED INDUCTOR
L314 L34-4607-05 AIR-CORE COIL
L315-317 L41-1098-08 SMALL FIXED INDUCTOR
L318,319 L40-2275-92 SMALL FIXED INDUCTOR (22NH)
L320 L40-1075-92 SMALL FIXED INDUCTOR (10NH)
L321 L40-8265-92 SMALL FIXED INDUCTOR (8.2NH)
L322 ✽L41-5668-14 SMALL FIXED INDUCTOR
L323 L41-4763-14 SMALL FIXED INDUCTOR
L324 ✽L41-2263-14 SMALL FIXED INDUCTOR
L325 L34-4605-05 AIR-CORE COIL
L326 L41-1098-08 SMALL FIXED INDUCTOR
L327 L40-3375-92 SMALL FIXED INDUCTOR (33NH)
L328 L40-2275-92 SMALL FIXED INDUCTOR (22NH)
L401,402 L92-0138-05 FERRITE CHIP
L403-407 L92-0140-05 FERRITE CHIP
L408 L92-0138-05 FERRITE CHIP
L409 L92-0140-05 FERRITE CHIP
L410,411 L92-0179-05 FERRITE CHIP
L701,702 L92-0140-05 FERRITE CHIP
TX-RX UNIT (X57-6990-10)

TK-8180
29
PARTS LIST
Ref. No.
Address
Parts No. Description Desti-
nation
New
parts
Ref. No.
Address
Parts No. Description Desti-
nation
New
parts
X171 L77-1762-05 CRYSTAL RESONATOR (44.395MHZ)
X301 L77-1952-05 TCXO (16.8MHZ)
X401 L77-1802-05 CRYSTAL RESONATOR (32768HZ)
X403 L77-1965-05 CRYSTAL RESONATOR (3.6864MHZ)
X404 L77-1950-05 CRYSTAL RESONATOR (11.0592MHZ)
XF171 ✽L71-0618-05 MCF (44.85M)
CP401 R90-0740-05 MULTIPLE RESISTOR
CP402-417 RK75HA1J102J CHIP-COM 1.0K J 1/16W
R1 RK73GB1J821J CHIP R 820 J 1/16W
R2 RK73GB1J5R6J CHIP R 5.6 J 1/16W
R3 RK73GB1J821J CHIP R 820 J 1/16W
R4 RK73GB1J333J CHIP R 33K J 1/16W
R5 RK73GB1J682J CHIP R 6.8K J 1/16W
R6 RK73GB1J221J CHIP R 220 J 1/16W
R7 RK73GB1J100J CHIP R 10 J 1/16W
R8 RK73GB1J471J CHIP R 470 J 1/16W
R9 RK73GB1J220J CHIP R 22 J 1/16W
R10 RK73GB1J561J CHIP R 560 J 1/16W
R11 RK73GB1J272J CHIP R 2.7K J 1/16W
R12 RK73GB1J100J CHIP R 10 J 1/16W
R13 RK73GB1J331J CHIP R 330 J 1/16W
R14 R92-1252-05 CHIP R 0 OHM J 1/16W
R15 RK73FB2A221J CHIP R 220 J 1/10W
R16,17 RK73FB2A470J CHIP R 47 J 1/10W
R18 RK73FB2A221J CHIP R 220 J 1/10W
R19 RK73GB1J151J CHIP R 150 J 1/16W
R21 RK73GB1J331J CHIP R 330 J 1/16W
R22 RK73GB1J102J CHIP R 1.0K J 1/16W
R23 RK73GB1J682J CHIP R 6.8K J 1/16W
R24 RK73GB1J104J CHIP R 100K J 1/16W
R25 R92-1261-05 CHIP R 150 J 1/2W
R26 RK73GB1J103J CHIP R 10K J 1/16W
R27 RK73GB1J104J CHIP R 100K J 1/16W
R28 R92-1252-05 CHIP R 0 OHM J 1/16W
R29 RK73GB1J823J CHIP R 82K J 1/16W
R30 R92-1061-05
JUMPER REST
0 OHM
R31 RK73GB1J332J CHIP R 3.3K J 1/16W
R33 R92-1252-05 CHIP R 0 OHM J 1/16W
R38 R92-1252-05 CHIP R 0 OHM J 1/16W
R71 RK73GB1J563J CHIP R 56K J 1/16W
R72 RK73GB1J333J CHIP R 33K J 1/16W
R75 RK73GB1J473J CHIP R 47K J 1/16W
R76-78 RK73GB1J104J CHIP R 100K J 1/16W
R79 RK73GB1J224J CHIP R 220K J 1/16W
R81,82 RK73GB1J104J CHIP R 100K J 1/16W
R84 RK73GB1J124J CHIP R 120K J 1/16W
R85 RK73GB1J104J CHIP R 100K J 1/16W
R86 RK73GB1J824J CHIP R 820K J 1/16W
R87 RK73GB1J823J CHIP R 82K J 1/16W
R88,89 RK73GB1J104J CHIP R 100K J 1/16W
R90 RK73GB1J334J CHIP R 330K J 1/16W
R108 R92-1252-05 CHIP R 0 OHM J 1/16W
R109 RK73GB1J102J CHIP R 1.0K J 1/16W
R115,116 RK73GB1J183J CHIP R 18K J 1/16W
R119 R92-1252-05 CHIP R 0 OHM J 1/16W
R120 RK73GB1J221J CHIP R 220 J 1/16W
R121-124 RK73GB1J104J CHIP R 100K J 1/16W
R126 R92-1252-05 CHIP R 0 OHM J 1/16W
R129-133 RK73GB1J104J CHIP R 100K J 1/16W
R134 R92-1252-05 CHIP R 0 OHM J 1/16W
R171 RK73GB1J271J CHIP R 270 J 1/16W
R172 RK73GB1J180J CHIP R 18 J 1/16W
R173 RK73GB1J271J CHIP R 270 J 1/16W
R174 RK73GB1J680J CHIP R 68 J 1/16W
R175 RK73GB1J222J CHIP R 2.2K J 1/16W
R176 RK73GB1J470J CHIP R 47 J 1/16W
R177 RK73GB1J102J CHIP R 1.0K J 1/16W
R178 R92-1252-05 CHIP R 0 OHM J 1/16W
R179 RK73GB1J102J CHIP R 1.0K J 1/16W
R180 RK73GB1J821J CHIP R 820 J 1/16W
R181 RK73GB1J331J CHIP R 330 J 1/16W
R182 RK73GB1J332J CHIP R 3.3K J 1/16W
R183 RK73GB1J680J CHIP R 68 J 1/16W
R184 RK73GB1J100J CHIP R 10 J 1/16W
R185 RK73GB1J821J CHIP R 820 J 1/16W
R186 RK73GB1J331J CHIP R 330 J 1/16W
R187 RK73GB1J332J CHIP R 3.3K J 1/16W
R188 RK73GB1J680J CHIP R 68 J 1/16W
R189 RK73GB1J100J CHIP R 10 J 1/16W
R190 RK73GB1J153J CHIP R 15K J 1/16W
R191,192 RK73GB1J223J CHIP R 22K J 1/16W
R193 RK73GB1J473J CHIP R 47K J 1/16W
R194,195 RK73GB1J223J CHIP R 22K J 1/16W
R196 RK73GB1J153J CHIP R 15K J 1/16W
R197,198 RK73GB1J334J CHIP R 330K J 1/16W
R199 RK73GB1J560J CHIP R 56 J 1/16W
R200 RK73GB1J332J CHIP R 3.3K J 1/16W
R202 RK73GB1J472J CHIP R 4.7K J 1/16W
R203 RK73GB1J332J CHIP R 3.3K J 1/16W
R204 RK73GB1J222J CHIP R 2.2K J 1/16W
R205 RK73GB1J332J CHIP R 3.3K J 1/16W
R206 RK73GB1J102J CHIP R 1.0K J 1/16W
R207 RK73GB1J473J CHIP R 47K J 1/16W
R208 RK73GB1J392J CHIP R 3.9K J 1/16W
R209 RK73GB1J100J CHIP R 10 J 1/16W
R210 RK73GB1J272J CHIP R 2.7K J 1/16W
R212 RK73GB1J104J CHIP R 100K J 1/16W
R217 R92-1252-05 CHIP R 0 OHM J 1/16W
R221 RK73GB1J473J CHIP R 47K J 1/16W
R251 RK73GB1J102J CHIP R 1.0K J 1/16W
R252 RK73GB1J472J CHIP R 4.7K J 1/16W
R253 RK73GB1J103J CHIP R 10K J 1/16W
R254,255 R92-1252-05 CHIP R 0 OHM J 1/16W
R256 RK73GB1J124J CHIP R 120K J 1/16W
R257 RK73GB1J153J CHIP R 15K J 1/16W
R258 RK73GB1J220J CHIP R 22 J 1/16W
R295 R92-1252-05 CHIP R 0 OHM J 1/16W
R298 R92-1368-05 CHIP R 0 OHM
R301 R92-1252-05 CHIP R 0 OHM J 1/16W
R302 RK73GB1J100J CHIP R 10 J 1/16W
R303 RK73GB1J561J CHIP R 560 J 1/16W
R305 RK73GB1J560J CHIP R 56 J 1/16W
R306 RK73GB1J183J CHIP R 18K J 1/16W
R307 R92-1252-05 CHIP R 0 OHM J 1/16W
R308 RK73GB1J392J CHIP R 3.9K J 1/16W
R309,310 RK73GB1J101J CHIP R 100 J 1/16W
R311 RK73GB1J182J CHIP R 1.8K J 1/16W
R312 RK73GB1J102J CHIP R 1.0K J 1/16W
R315 RK73GB1J102J CHIP R 1.0K J 1/16W
TX-RX UNIT (X57-6990-10)

TK-8180
30
PARTS LIST
Ref. No.
Address
Parts No. Description Desti-
nation
New
parts
Ref. No.
Address
Parts No. Description Desti-
nation
New
parts
R316 RK73GB1J104J CHIP R 100K J 1/16W
R317 R92-1252-05 CHIP R 0 OHM J 1/16W
R318 R92-2577-05 METAL-R 1.8K J 1/4W
R319 RK73GB1J100J CHIP R 10 J 1/16W
R320 RK73GB1J180J CHIP R 18 J 1/16W
R321 RK73GB1J103J CHIP R 10K J 1/16W
R322 R92-1252-05 CHIP R 0 OHM J 1/16W
R323 RK73GB1J102J CHIP R 1.0K J 1/16W
R325 RK73GB1J154J CHIP R 150K J 1/16W
R326 RK73GB1J271J CHIP R 270 J 1/16W
R327 RK73GB1J100J CHIP R 10 J 1/16W
R330 RK73GB1J100J CHIP R 10 J 1/16W
R332 RK73GB1J100J CHIP R 10 J 1/16W
R333-335 R92-1252-05 CHIP R 0 OHM J 1/16W
R336 RK73GB1J102J CHIP R 1.0K J 1/16W
R337 RK73GB1J103J CHIP R 10K J 1/16W
R339 RK73GB1J104J CHIP R 100K J 1/16W
R340 RK73GB1J101J CHIP R 100 J 1/16W
R341,342 RK73GB1J181J CHIP R 180 J 1/16W
R343 RK73GB1J472J CHIP R 4.7K J 1/16W
R344 RK73GB1J470J CHIP R 47 J 1/16W
R345,346 R92-1252-05 CHIP R 0 OHM J 1/16W
R347 RK73GB1J472J CHIP R 4.7K J 1/16W
R348 RK73GB1J103J CHIP R 10K J 1/16W
R349,350 RK73GB1J333J CHIP R 33K J 1/16W
R351 RK73GB1J472J CHIP R 4.7K J 1/16W
R352 RK73GB1J100J CHIP R 10 J 1/16W
R353 RK73GB1J472J CHIP R 4.7K J 1/16W
R355 RK73GB1J560J CHIP R 56 J 1/16W
R356,357 RK73GB1J103J CHIP R 10K J 1/16W
R358 RK73GB1J822J CHIP R 8.2K J 1/16W
R359 RK73GB1J101J CHIP R 100 J 1/16W
R360 RK73GB1J121J CHIP R 120 J 1/16W
R361 RK73GB1J221J CHIP R 220 J 1/16W
R362 R92-1252-05 CHIP R 0 OHM J 1/16W
R365,366 RK73GB1J222J CHIP R 2.2K J 1/16W
R367 RK73GB1J332J CHIP R 3.3K J 1/16W
R369 R92-1252-05 CHIP R 0 OHM J 1/16W
R370 RK73GB1J103J CHIP R 10K J 1/16W
R371 R92-1252-05 CHIP R 0 OHM J 1/16W
R373 RK73GB1J100J CHIP R 10 J 1/16W
R375 RK73GB1J331J CHIP R 330 J 1/16W
R376,377 R92-1252-05 CHIP R 0 OHM J 1/16W
R378 RK73GB1J103J CHIP R 10K J 1/16W
R400 RK73HH1J105D CHIP R 1.0M D 1/16W
R401 ✽RK73HH1J362D CHIP R 3.6K D 1/16W
R402 RK73HH1J512D CHIP R 5.1K D 1/16W
R403 RK73HH1J105D CHIP R 1.0M D 1/16W
R405,406 RK73HB1J474J CHIP R 470K J 1/16W
R407 RK73HB1J103J CHIP R 10K J 1/16W
R410 RK73HB1J103J CHIP R 10K J 1/16W
R411,412 RK73HB1J474J CHIP R 470K J 1/16W
R414 RK73HB1J103J CHIP R 10K J 1/16W
R415 RK73HB1J474J CHIP R 470K J 1/16W
R416 R92-1368-05 CHIP R 0 OHM
R418,419 RK73HB1J473J CHIP R 47K J 1/16W
R420 RK73HB1J334J CHIP R 330K J 1/16W
R421,422 RK73HB1J473J CHIP R 47K J 1/16W
R423 R92-1368-05 CHIP R 0 OHM
R424-427 RK73HB1J102J CHIP R 1.0K J 1/16W
R428 R92-1368-05 CHIP R 0 OHM
R429,430 RK73HB1J471J CHIP R 470 J 1/16W
R431 R92-1368-05 CHIP R 0 OHM
R432 RK73HB1J102J CHIP R 1.0K J 1/16W
R434 RK73HB1J473J CHIP R 47K J 1/16W
R435 RK73HB1J102J CHIP R 1.0K J 1/16W
R437 R92-1368-05 CHIP R 0 OHM
R439 R92-1368-05 CHIP R 0 OHM
R440-444 RK73HB1J102J CHIP R 1.0K J 1/16W
R445,446 RK73GB1J103J CHIP R 10K J 1/16W
R447 RK73HB1J474J CHIP R 470K J 1/16W
R448 RK73HB1J102J CHIP R 1.0K J 1/16W
R449 RK73HB1J474J CHIP R 470K J 1/16W
R450 RK73HB1J102J CHIP R 1.0K J 1/16W
R451 RK73HB1J474J CHIP R 470K J 1/16W
R452 RK73HB1J102J CHIP R 1.0K J 1/16W
R453 RK73HB1J474J CHIP R 470K J 1/16W
R454 RK73HB1J102J CHIP R 1.0K J 1/16W
R455,456 RK73HB1J471J CHIP R 470 J 1/16W
R457 RK73HB1J473J CHIP R 47K J 1/16W
R458,459 RK73HB1J474J CHIP R 470K J 1/16W
R461 RK73HB1J474J CHIP R 470K J 1/16W
R465 RK73GB1J473J CHIP R 47K J 1/16W
R466 RK73HB1J473J CHIP R 47K J 1/16W
R467 R92-1368-05 CHIP R 0 OHM
R468 RK73HB1J473J CHIP R 47K J 1/16W
R469 RK73HB1J102J CHIP R 1.0K J 1/16W
R470 RK73GB1J102J CHIP R 1.0K J 1/16W
R471,472 RK73HB1J102J CHIP R 1.0K J 1/16W
R473,474 R92-1252-05 CHIP R 0 OHM J 1/16W
R475 RK73GB1J101J CHIP R 100 J 1/16W
R476 RK73HB1J473J CHIP R 47K J 1/16W
R477,478 RK73HB1J474J CHIP R 470K J 1/16W
R481 RK73HB1J474J CHIP R 470K J 1/16W
R482 RK73HB1J473J CHIP R 47K J 1/16W
R483-486 R92-1252-05 CHIP R 0 OHM J 1/16W
R487 RK73GB1J185J CHIP R 1.8M J 1/16W
R488,489 R92-1252-05 CHIP R 0 OHM J 1/16W
R490 RK73GB1J184J CHIP R 180K J 1/16W
R491 R92-1252-05 CHIP R 0 OHM J 1/16W
R492 RK73GB1J684J CHIP R 680K J 1/16W
R493 RK73GB1J105J CHIP R 1.0M J 1/16W
R494,495 RK73GB1J472J CHIP R 4.7K J 1/16W
R496 RK73GB1J104J CHIP R 100K J 1/16W
R497 RK73GB1J332J CHIP R 3.3K J 1/16W
R498 RK73GB1J274J CHIP R 270K J 1/16W
R499 RK73GB1J104J CHIP R 100K J 1/16W
R500 R92-1252-05 CHIP R 0 OHM J 1/16W
R501 RK73GB1J472J CHIP R 4.7K J 1/16W
R502 RK73GB1J103J CHIP R 10K J 1/16W
R503 RK73GB1J104J CHIP R 100K J 1/16W
R504 RK73GB1J103J CHIP R 10K J 1/16W
R505 RK73GB1J683J CHIP R 68K J 1/16W
R506,507 RK73GB1J224J CHIP R 220K J 1/16W
R508 RK73GB1J102J CHIP R 1.0K J 1/16W
R509 RK73GB1J333J CHIP R 33K J 1/16W
R511 RK73HB1J152J CHIP R 1.5K J 1/16W
R512 RK73GB1J153J CHIP R 15K J 1/16W
R513 RK73GB1J564J CHIP R 560K J 1/16W
R514 RK73GB1J183J CHIP R 18K J 1/16W
TX-RX UNIT (X57-6990-10)

TK-8180
31
PARTS LIST
Ref. No.
Address
Parts No. Description Desti-
nation
New
parts
Ref. No.
Address
Parts No. Description Desti-
nation
New
parts
R515 RK73GB1J104J CHIP R 100K J 1/16W
R517 RK73GB1J223J CHIP R 22K J 1/16W
R519 RK73GB1J104J CHIP R 100K J 1/16W
R520 R92-1252-05 CHIP R 0 OHM J 1/16W
R521 RK73GB1J473J CHIP R 47K J 1/16W
R522 RK73GB1J104J CHIP R 100K J 1/16W
R523 RK73GB1J564J CHIP R 560K J 1/16W
R524 RK73GB1J103J CHIP R 10K J 1/16W
R525 RK73HB1J152J CHIP R 1.5K J 1/16W
R526 RK73GB1J274J CHIP R 270K J 1/16W
R527 RK73GB1J392J CHIP R 3.9K J 1/16W
R528 RK73GB1J473J CHIP R 47K J 1/16W
R529 RK73GB1J684J CHIP R 680K J 1/16W
R530 RK73GB1J334J CHIP R 330K J 1/16W
R531 RK73GB1J103J CHIP R 10K J 1/16W
R532 RK73GB1J102J CHIP R 1.0K J 1/16W
R533 RK73GB1J104J CHIP R 100K J 1/16W
R534 RK73GB1J273J CHIP R 27K J 1/16W
R535 RK73GB1J394J CHIP R 390K J 1/16W
R536 RK73GB1J153J CHIP R 15K J 1/16W
R539 RK73GB1J393J CHIP R 39K J 1/16W
R540 RK73GB1J473J CHIP R 47K J 1/16W
R541,542 R92-1252-05 CHIP R 0 OHM J 1/16W
R545 RK73GB1J103J CHIP R 10K J 1/16W
R546 R92-1252-05 CHIP R 0 OHM J 1/16W
R548 RK73GB1J823J CHIP R 82K J 1/16W
R549 RK73GB1J473J CHIP R 47K J 1/16W
R550 RK73GB1J472J CHIP R 4.7K J 1/16W
R552 RK73GB1J103J CHIP R 10K J 1/16W
R553 RK73GB1J472J CHIP R 4.7K J 1/16W
R554 RK73GB1J563J CHIP R 56K J 1/16W
R555 RK73GB1J123J CHIP R 12K J 1/16W
R556 RK73GB1J563J CHIP R 56K J 1/16W
R557 RK73GB1J472J CHIP R 4.7K J 1/16W
R558 RK73GB1J394J CHIP R 390K J 1/16W
R559 RK73GB1J124J CHIP R 120K J 1/16W
R560 RK73GB1J394J CHIP R 390K J 1/16W
R563 RK73GB1J394J CHIP R 390K J 1/16W
R565 R92-1252-05 CHIP R 0 OHM J 1/16W
R566 RK73GB1J105J CHIP R 1.0M J 1/16W
R567 RK73GB1J394J CHIP R 390K J 1/16W
R568 RK73GB1J124J CHIP R 120K J 1/16W
R569 RK73GB1J104J CHIP R 100K J 1/16W
R570 RK73GB1J154J CHIP R 150K J 1/16W
R571 RK73GB1J124J CHIP R 120K J 1/16W
R572 R92-1368-05 CHIP R 0 OHM
R573 RK73GB1J682J CHIP R 6.8K J 1/16W
R574,575 R92-1368-05 CHIP R 0 OHM
R576 RK73GB1J224J CHIP R 220K J 1/16W
R578 R92-1368-05 CHIP R 0 OHM
R579 RK73GB1J223J CHIP R 22K J 1/16W
R580,581 RK73GB1J151J CHIP R 150 J 1/16W
R582 RK73GB1J105J CHIP R 1.0M J 1/16W
R583,584 R92-1252-05 CHIP R 0 OHM J 1/16W
R585 RK73GB1J184J CHIP R 180K J 1/16W
R586 RK73GB1J102J CHIP R 1.0K J 1/16W
R587 RK73GB1J154J CHIP R 150K J 1/16W
R588 RK73GB1J472J CHIP R 4.7K J 1/16W
R589,590 R92-1252-05 CHIP R 0 OHM J 1/16W
R591 R92-1368-05 CHIP R 0 OHM
R592 R92-1252-05 CHIP R 0 OHM J 1/16W
R594 RK73GB1J681J CHIP R 680 J 1/16W
R595 RK73GB1J274J CHIP R 270K J 1/16W
R596 R92-1252-05 CHIP R 0 OHM J 1/16W
R597 RK73GB1J105J CHIP R 1.0M J 1/16W
R598 RK73GB1J472J CHIP R 4.7K J 1/16W
R599 RK73GB1J184J CHIP R 180K J 1/16W
R600 RK73GB1J472J CHIP R 4.7K J 1/16W
R601 RK73GB1J474J CHIP R 470K J 1/16W
R602 RK73GB1J105J CHIP R 1.0M J 1/16W
R603,604 R92-1252-05 CHIP R 0 OHM J 1/16W
R606 R92-1252-05 CHIP R 0 OHM J 1/16W
R607 RK73GB1J274J CHIP R 270K J 1/16W
R608 RK73GB1J184J CHIP R 180K J 1/16W
R609 RK73GB1J223J CHIP R 22K J 1/16W
R610 RK73GB1J154J CHIP R 150K J 1/16W
R611 RK73GB1J103J CHIP R 10K J 1/16W
R612,613 RK73GB1J104J CHIP R 100K J 1/16W
R614 R92-1368-05 CHIP R 0 OHM
R615,616 RK73GB1J472J CHIP R 4.7K J 1/16W
R617 RK73GB1J104J CHIP R 100K J 1/16W
R618 RK73GB1J224J CHIP R 220K J 1/16W
R619 RK73GB1J104J CHIP R 100K J 1/16W
R620 RK73GB1J224J CHIP R 220K J 1/16W
R621,622 R92-0670-05 CHIP R 0 OHM
R623,624 RK73GB1J473J CHIP R 47K J 1/16W
R625 RK73GB1J472J CHIP R 4.7K J 1/16W
R629,630 R92-0670-05 CHIP R 0 OHM
R632 RK73GB1J473J CHIP R 47K J 1/16W
R633 R92-0670-05 CHIP R 0 OHM
R636 R92-0670-05 CHIP R 0 OHM
R641,642 RK73GB1J472J CHIP R 4.7K J 1/16W
R643 RK73GB1J471J CHIP R 470 J 1/16W
R644 RK73GB1J102J CHIP R 1.0K J 1/16W
R645 RK73GB1J562J CHIP R 5.6K J 1/16W
R646 RK73GB1J472J CHIP R 4.7K J 1/16W
R647 RK73GB1J104J CHIP R 100K J 1/16W
R648 RK73GB1J222J CHIP R 2.2K J 1/16W
R651 R92-1252-05 CHIP R 0 OHM J 1/16W
R652 RK73GB1J561J CHIP R 560 J 1/16W
R653 RK73GB1J2R2J CHIP R 2.2 J 1/16W
R654 R92-0670-05 CHIP R 0 OHM
R655 R92-1252-05 CHIP R 0 OHM J 1/16W
R657 RK73HB1J472J CHIP R 4.7K J 1/16W
R658 R92-1368-05 CHIP R 0 OHM
R659 RK73GB1J333J CHIP R 33K J 1/16W
R661 RK73GB1J472J CHIP R 4.7K J 1/16W
R663,664 RK73GB1J472J CHIP R 4.7K J 1/16W
R701-705 RK73GB1J473J CHIP R 47K J 1/16W
R706-710 RK73GB1J471J CHIP R 470 J 1/16W
R711-713 RK73GB1J473J CHIP R 47K J 1/16W
R714-720 RK73GB1J471J CHIP R 470 J 1/16W
R800 RK73HH1J105D CHIP R 1.0M D 1/16W
R801 RK73GB1J224J CHIP R 220K J 1/16W
R802 RK73GB1J334J CHIP R 330K J 1/16W
R803 RK73GB1J103J CHIP R 10K J 1/16W
R804 RK73HH1J104D CHIP R 100K D 1/16W
R805 RK73GB1J471J CHIP R 470 J 1/16W
R806,807 RK73GB1J103J CHIP R 10K J 1/16W
R808,809 RK73GB1J473J CHIP R 47K J 1/16W
TX-RX UNIT (X57-6990-10)

TK-8180
32
PARTS LIST
Ref. No.
Address
Parts No. Description Desti-
nation
New
parts
Ref. No.
Address
Parts No. Description Desti-
nation
New
parts
R811,812 RK73GB1J103J CHIP R 10K J 1/16W
R813 RK73GB1J472J CHIP R 4.7K J 1/16W
R814 RK73GB1J473J CHIP R 47K J 1/16W
R815 RK73GB1J683J CHIP R 68K J 1/16W
R818 RK73GB1J473J CHIP R 47K J 1/16W
R900-903 R92-1368-05 CHIP R 0 OHM
D1 02DZ5.6(X,Y) ZENER DIODE
D2 XB15A709 DIODE
D3 XB15A407A2GB DIODE
D6-8 HSM88AS DIODE
D103-106 1SV286 VARIABLE CAPACITANCE DIODE
D107-110 ✽1SV291 VARIABLE CAPACITANCE DIODE
D111 HVC131 DIODE
D171,172 DAN235E DIODE
D173 RB706F-40 DIODE
D174 MA2S111 DIODE
D251 1SS388 DIODE
D308,309 ✽BB664 VARIABLE CAPACITANCE DIODE
D311 ✽BB664 VARIABLE CAPACITANCE DIODE
D313 ✽BB664 VARIABLE CAPACITANCE DIODE
D314 1SV278 VARIABLE CAPACITANCE DIODE
D315,316 HVC131 DIODE
D402-404 1SS388 DIODE
D405 EMZ6.8N ZENER DIODE
D406 02DZ5.1(Y) ZENER DIODE
D407 RB706F-40 DIODE
D408,409 MA742 DIODE
D412-414 DA204U DIODE
D416 DAN202U DIODE
D417,418 1SS388 DIODE
D421-423 1SS388 DIODE
D600,601 1SS388 DIODE
D701 02DZ18(X,Y) ZENER DIODE
D702,703 1SS355 DIODE
D704-708 DA204U DIODE
D709,710 02DZ18(X,Y) ZENER DIODE
D711-713 DA204U DIODE
D714 02DZ18(X,Y) ZENER DIODE
D801 22ZR-10D SURGE ABSORBER
D802 DSA3A1 DIODE
D804 02DZ18(X,Y) ZENER DIODE
D805 02CZ9.1(X,Y) ZENER DIODE
IC1 2A ✽RA30H4452M-23 MOS IC
IC71,72 TA75W01FU MOS IC
IC171 ✽SPM5001 MOS IC
IC172 TA31136FN MOS IC
IC251 ✽MAX5026EUT+T MOS IC
IC301 ADF4111BCP7 MOS IC
IC302 TC7S66FU MOS IC
IC401 AT24256N10SI27 ROM IC
IC402 RV5C386A MOS IC
IC403 BU4094BCFV MOS IC
IC404 30625MGP-169GP MPU
IC405 AT29C040A-90TI ROM IC
IC406-409 TC75W51FU MOS IC
IC410 M62364FP MOS IC
IC411 LMC7101BIM5 MOS IC
IC412 TC75W51FU MOS IC
IC413 ✽TC7MZ4053FK MOS IC
IC414 TC75W51FU MOS IC
IC415 ✽AQUA-L MOS IC
IC416 ADM202EARN MOS IC
IC417 2A ✽TA7252AP ANALOG IC
IC801 S-80942CNNBG9C MOS IC
IC802 XC61CN5002NR MOS IC
IC803 TA7808F ANALOG IC
IC804 TA7805F MOS IC
IC805 NJM78L05UA BI-POLAR IC
IC807 ✽XC6201P502PR MOS IC
Q1 2SC5108(Y) TRANSISTOR
Q2 2SC5192 TRANSISTOR
Q3 DTC114EE DIGITAL TRANSISTOR
Q70 DTC114EE DIGITAL TRANSISTOR
Q72 2SK1824 FET
Q103 2SC3357 TRANSISTOR
Q171,172 2SC5108(Y) TRANSISTOR
Q173 DTA114EE DIGITAL TRANSISTOR
Q174 DTC144EE DIGITAL TRANSISTOR
Q175 2SC4617(Q) TRANSISTOR
Q176 2SK1824 FET
Q177 DTC144EE DIGITAL TRANSISTOR
Q178 DTA144EE DIGITAL TRANSISTOR
Q179 DTC144EE DIGITAL TRANSISTOR
Q251 2SC4617(S) TRANSISTOR
Q301 2SC5108(Y) TRANSISTOR
Q302,303 2SC4116(BL) TRANSISTOR
Q306,307 2SK508NV(K52) FET
Q308,309 2SC4116(GR) TRANSISTOR
Q310 DTC114EE DIGITAL TRANSISTOR
Q311 2SC5108(Y) TRANSISTOR
Q312 2SC4617(S) TRANSISTOR
Q313 2SC5108(Y) TRANSISTOR
Q402 DTC114YE DIGITAL TRANSISTOR
Q405 DTA114EE DIGITAL TRANSISTOR
Q406 HN1J02FU FET
Q409 DTC363EU DIGITAL TRANSISTOR
Q410 2SC4116(Y) TRANSISTOR
Q411 2SA1586(Y,GR) TRANSISTOR
Q412 2SK1824 FET
Q413,414 2SJ243 FET
Q415 HN1L02FU FET
Q416,417 2SJ243 FET
Q418 DTC114EE DIGITAL TRANSISTOR
Q419 DTC363EU DIGITAL TRANSISTOR
Q600 DTA144EE DIGITAL TRANSISTOR
Q701,702 2SD2114K(W) TRANSISTOR
Q801 2SC2873(Y) TRANSISTOR
Q802 DTC114EE DIGITAL TRANSISTOR
Q803-805 ✽12A02CH TRANSISTOR
Q806-809 DTC114EE DIGITAL TRANSISTOR
Q810 ✽2SJ645 FET
Q811 DTC114TE DIGITAL TRANSISTOR
Q812 DTC114EE DIGITAL TRANSISTOR
TH1 S1R104J475H THERMISTOR
TH171 ✽S1R473J475H THERMISTOR
TX-RX UNIT (X57-6990-10)

TK-8180
33
EXPLODED VIEW
3
2
1
BA
Right Side
Front
Rear
1
16
23
25
22
15
24
17
27
11
12
54
10
29
8
30
42
28
431
7
21
26
41
20
20
20
20
105
101
103
102
106
47
2
40
51
45
43
13
IC1
Cx2
Cx2
Cx2
Cx2 Cx3
Cx3
C
C
C
C
C
C
C
C
C
C
B
B
Bx2
D
TX-RX unit
(B/3) TX-RX unit
(C/3) Cx2
A
A
Display unit
701
702
703
704
705
706
103
104 x2
IC417
J901
TX-RX
unit (A/3)
A: N09-2409-05
B M3 x 8 : N67-3008-48
C M2.6 x 6 (Br-Tap) : N87-2606-48
D M2.6 x 8 (Br-Tap) : N87-2608-46
Parts with the exploded numbers larger than 700 are not supplied.

TK-8180
34
PACKING
Parts with the exploded numbers larger than 700 are not supplied.
3
2
1
DC
5 Instruction manual
(B62-1766-10)
9 DC cord assy
(Water-proof)
(E30-7523-05)
18 Fuse (Blade)
15A/32V
(F52-0024-05) x 2
32 Inner packing case
(H02-0624-03)
33 Packing fixture (Lower)
(H12-3170-01)
34 Packing fixture (Upper)
(H12-3171-03)
36 Protection bag
(H25-2352-04)
37 Item carton case
(H52-2069-02)
39 Holder
(J19-1584-05)
44 Bracket
(J29-0662-03)
49 Screw set
(N99-2039-05)
52 Microphone
(T91-0639-05)
707 Pamphlet x 2

TK-8180
35
Controls
Panel Test Mode
■ Test mode operation features
This transceiver has a test mode.
To enter test mode,
press [A] key and turn power on. Hold [A] key until fre-
quency version appears on LCD.
Test mode can be inhib-
ited by programming. To exit test mode, switch the power
on again. The following functions are available in test mode.
■ Key operation
Key “FNC” not appears
Function Display
[S]
Shifts to Panel tuning mode
-
[A] Function on “FNC” appears
[B]
MSK 1200bps and 2400bps 2400bps : icon appears
[C] Test signaling CH up Signaling No.
[]/[ ]
Test frequency CH up/down
Channel No.
[]/[ ]Volume up/down -
[ ] Squelch on/off
[■]Narrow/Wide 4k/Wide 5k Narrow : “n”,
Wide 4k : “s”,
Wide 5k : “w”
Microphone key
[PTT] Transmit -
[0] to [9] Use as the DTMF keypad. -
and [A], If a key is pressed during
[B], [C], transmission, the DTMF
[D], [#], corresponding to the key
[✳]that was presses is sent.
Key “FNC” appears
Function Display
[S] High power / Low power Low : icon appears
[A] Function off -
[B] Compander on/off On : icon appears
[C] Beat shift on/off On : icon appears
[]/[ ]Function off -
[]/[ ]Function off -
[ ] Squelch level 0 On : icon appears
[■]LCD all lights LCD all point appears
Microphone key
[PTT] Transmit -
[0] to [9] and
Function off -
[A], [B], [C],
[D], [#], [✳]
Notes :
•If a [S], [A], [B], [C] key is pressed during transmission, the
DTMF corresponding to the key that was pressed is sent.
•The “Wide 4k” can not use, please skip it.
• LED indicator
Red LED Lights during transmission.
Green LED Lights when there is carrier.
• Sub LCD indicator
“FNC” Appears at function on.
• LCD display in panel test mode
Power
switch
Modular
MIC jack
Programmable
function keys
Volume
Up/Down key
Channel
Up/Down key
LCD
n1 1
–
Channel No.
n : Narrow
s : Wide 4k
w : Wide 5k
Signaling No.
■ Frequency and Signaling
The set has been adjusted for the frequencies shown in
the following table. When required, readjust them following
the adjustment procedure to obtain the frequencies you want
in actual operation.
• Test frequency
CH RX (MHz) TX (MHz)
1 485.05000 485.10000
2 450.05000 450.10000
3 519.95000 519.90000
4 485.00000 485.00000
5 485.20000 485.20000
6 485.40000 485.40000
7~16 - -
ADJUSTMENT

TK-8180
36
• Test signaling
No. RX TX
1None None
2None 100Hz Square Wave
3LTR Data : LTR Data :
AREA=0, GOTO=12 AREA=0, GOTO=12
HOME=12 HOME=12
ID=47, FREE=25 ID=47, FREE=25
4QT : 67.0Hz QT : 67.0Hz
5QT : 151.4Hz QT : 151.4Hz
6QT : 210.7Hz QT : 210.7Hz
7QT : 254.1Hz QT : 254.1Hz
8DQT : D023N DQT : D023N
9DQT : D754I DQT : D754I
10 DTMF : 159D DTMF : 159D
11 None DTMF Code 9
12 2-tone : 2-tone :
A : 304.7Hz A : 304.7Hz
B : 3106.0Hz B : 3106.0Hz
13 Single Tone : 979.9Hz Single Tone : 979.9Hz
14 None Single Tone : 1000Hz
15 5-tone (CCIR 12345) 5-tone (CCIR 12345)
16 None MSK
17 MSK : MSK :
Preamble : 0xAAAA Preamble : 0xAAAA
Sync : 0x23EB Sync : 0x23EB
Data : 0x230960C6AAAA Data : 0x230960C6AAAA
CRC : 0xC4D7 CRC : 0xC4D7
Note : The “5-tone signaling” can not use, please skip it.
Panel Tuning Mode
■ Preparations for tuning the transceiver
Before attempting to tune the transceiver, connect the
unit to a suitable power supply.
Whenever the transmitter is turned, the unit must be con-
nected to a suitable dummy load (i.e. power meter).
The speaker output connector must be terminated with a
4Ω dummy load and connected to an AC voltmeter and an
audio distortion meter or a SINAD measurement meter at all
times during tuning.
■ Transceiver tuning
(To place transceiver in tuning mode)
Press [S] key, now in tuning mode. Use [B] key to write
tuning data through tuning modes, and [ ]/[ ] to adjust tun-
ing requirements (1 to 256 appeares on LCD).
Use [C] key to select the adjustment item through tuning
modes. Use [A] key to adjust 3 or 5 reference level adjust-
ments, and use [■] key to switch between Wide 5k/Wide 4k/
Narrow.
Channel appears on LCD. Set channel according to tuning
requirements.
• LCD display in panel tuning mode
nBAL 256
Adjustment item
n : Narrow
s : Wide 4k
w : Wide 5k
Adjustment value (1~256)
■ Key operation
Key Function
Push Hold (1 second)
[S]
End of panel tuning mode
-
[A] To enter 3 or 5 reference -
level adjustments
[B]
Writes the adjustment value
-
[C]
Go to next adjustment item
Back to last adjustment item
[]/[ ]
Adjustment value up/down
Continuation up/down
[]/[ ]Volume level up/down Continuation up/down
[ ] Squelch on/off -
[■]Selects Narrow, -
Wide 4k, Wide 5k
■ 3 or 5 reference level adjustments frequency
Tuning point RX (MHz) TX (MHz)
Low 450.05000 450.10000
Low’ 467.55000 467.60000
Center 485.05000 485.10000
High’ 502.55000 502.60000
High 519.95000 519.90000
■ Adjustment item and Display (✳✳✳ : 1~256)
Order Adjustment item Display
1Frequency FREQ ✳✳✳
2Shift 1 SHFT1 ✳✳✳
3Shift 2 SHFT2 ✳✳✳
4Max high power M HPWR ✳✳✳
5Max low power M LPWR ✳✳✳
6High power HPWR ✳✳✳
7Low power LPWR ✳✳✳
8Balance B A L ✳✳✳
9Max deviation DEV ✳✳✳
10 QT Q T ✳✳✳
11 DQT D Q T ✳✳✳
12 LTR L T R ✳✳✳
13 DTMF DTMF ✳✳✳
14 MSK M S K ✳✳✳
15 Tone TONE ✳✳✳
16 Sensitivity 1 SENS1 ✳✳✳
17 Squelch S Q L ✳✳✳
18 Low RSSI LRSSI ✳✳✳
19 Squelch tight SQLT ✳✳✳
20 High RSSI HRSSI ✳✳✳
ADJUSTMENT

TK-8180
37
■ Flow chart
Note : The “Wide 4k” can not use, please skip it.
Frequency
[C]
Shift 1
[C]
Shift 2
[C]
High power
[C]
Low power
[C]
Balance Narrow
[C] [C]
[C] [C]
[C][A]
Balance Wide 4k Balance Wide 5k
Max deviation Narrow
[C] [A]
Max deviation Wide 4k Max deviation Wide 5k
QT Narrow
[C] [C]
[C] [C]
[C][A]
QT Wide 4k QT Wide 5k
DTMF Narrow
[C] [C] [C]
DTMF Wide 4k DTMF Wide 5k
MSK Narrow
[C] [C] [C]
MSK Wide 4k MSK Wide 5k
Tone Narrow
[C] [C] [C]
Tone Wide 4k Tone Wide 5k
LTRNarrow
[C] [C][A]
LTRWide 5k
DQT Narrow
Low RSSI Narrow
[C] [C] [C][A]
Low RSSI Wide 4k
[C] [A] [A]
[A] [A]
[A] [A]
[A] [A]
Squelch Wide 4k
Low RSSI Wide 5k
Squelch tight Narrow
[C] [C] [C][A]
Squelch tight Wide 4k Squelch tight Wide 5k
High RSSI Narrow
[C] [C] [C][A]
High RSSI Wide 4k High RSSI Wide 5k
Squelch Narrow
[C] [C][A]
Squelch Wide 5k
[C] [A]
DQT Wide 4k DQT Wide 5k
[A]
[A]
Sensitivity 1
[C]
[A]
[A]
[A]
3 reference level
adjustments
3 reference level
adjustments
5 reference level
adjustments
5 reference level
adjustments
[C]
Max high power
[C]
Max low power
[A]
[A]
5 reference level
adjustments
5 reference level
adjustments
3 reference level
adjustments
3 reference level
adjustments
3 reference level
adjustments
3 reference level
adjustments
3 reference level
adjustments
5 reference level
adjustments
3 reference level
adjustments
3 reference level
adjustments
3 reference level
adjustments
3 reference level
adjustments
[ ] [ ] [ ]
[ ] [ ] [ ]
[ ] [ ] [ ]
[ ] [ ] [ ]
[ ] [ ]
[ ] [ ] [ ]
[ ] [ ] [ ]
[ ] [ ] [ ]
[ ] [ ] [ ]
[ ] [ ] [ ]
[ ] [ ] [ ]
[ ] [ ] [ ]
3 reference level
adjustments
3 reference level
adjustments exit
[C]
Low
[C]
Center
[C]
High
[A]
[A]
[A]
5 reference level
adjustments
5 reference level
adjustments exit
[C]
Low
[C]
Low’
[C]
Center
[C]
High’
[C]
High
[A]
[A]
[A]
[A]
[A]
ADJUSTMENT

TK-8180
38
Test Equipment Required for Alignment
Test Equipment Major Specifications
1. Standard Signal Generator Frequency Range 400 to 520MHz
(SSG) Modulation Frequency modulation and external modulation
Output 0.1µV to greater than 1mV
2. Power Meter Input Impedance 50Ω
Operation Frequency 400 to 520MHz or more
Measurement Capability Vicinity of 50W
3. Deviation Meter Frequency Range 400 to 520MHz
4. Digital Volt Meter Measuring Range 1 to 20V DC
(DVM) Accuracy High input impedance for minimum circuit loading
5. Oscilloscope DC through 30MHz
6. High Sensitivity Frequency Range 10Hz to 600MHz
Frequency Counter Frequency Stability 0.2ppm or less
7. Ammeter 13A or more
8. AF Volt Meter Frequency Range 50Hz to 10kHz
(AF VTVM) Voltage Range 3mV to 3V
9. Audio Generator (AG) Frequency Range 50Hz to 5kHz
Output 0 to 1V
10. Distortion Meter Capability 3% or less at 1kHz
Input Level 50mV to 10Vrms
11. Voltmeter Measuring Range 10 to 1.5V DC or less
Input Impedance 50kΩ/V or greater
12. 4Ω Dummy Load Approx. 4Ω, 20W
13. Regulated Power Supply 13.6V, approx. 20A (adjustable from 9 to 20V)
Useful if ammeter requipped
1
8
1 : BLC
2 : +B
3 : GND
4 : PTT/TXD
(PC serial data
from radio)
MIC connector (Front panel view)
5 : MICE
6 : MIC
7 : HOOK/RXD
(PC serial data
to radio)
8 : DM
Test cable for microphone input (E30-3360-08)
3
2
4
5
6
7
8
3
1
2
4
5
6
7
8
1GREEN
RED
BLACK
BLUE
SHIELD
WHITE
GRAY
YELLOW
PTT
E
MIC-E
MIC
HK
Tuning cable (E30-3383-05)
Adapter cable (E30-3383-05) is
required for injecting an audio if
PC tuning is used.
See “PC Mode” section fot the
connection.
Lead wire +
MIC
Shield wire –
ADJUSTMENT
to transceiver
to VGS-1
Check Jig for the VGS-1
KENWOOD part : W05-1127-00

TK-8180
39
Item Condition
Measurement Adjustment
Specifications/Remarks
Test-
equipment Unit Terminal PartsUnit Method
ADJUSTMENT
1. Setting 1) Power supply voltage
DC power supply terminal : 13.6V
2) SSG standard modulation
[Wide 5k] MOD : 1kHz, DEV : 3kHz
[Wide 4k] MOD : 1kHz, DEV : 2.4kHz
[Narrow] MOD : 1kHz, DEV : 1.5kHz
2. VCO lock [Panel test mode]
Power meter
Rear ANT TX-RX TC301 8.1V ±0.1V
voltage 1) CH-Sig : 3-1 panel (B/3)
• RX
2) CH-Sig : 2-1 DVM TX-RX CV Check 1.5V±0.5V
(B/3)
• TX [Panel tuning mode] LPWR* TX-RX TC302 8.1V ±0.1V
3) CH-Sig : 3-1 (B/3)
PTT : ON
4) CH-Sig : 2-1 Check 1.5V±0.5V
PTT : ON
* TX can be continued on unlock condition in panel tuning mode.
1. Frequency 1) Adj item : [FREQ] f. counter Rear ANT Front [ ],[ ]Center frequency Note : After replacing the
adjust Adjust : [✳✳✳]panel panel ±100Hz VCXO (X301) align frequency.
PTT : ON
2. Frequency 1) Adj item : [SHFT1] [L SHFT1] ±100Hz
shift 1 Adjust : [✳✳✳]
Low frequency+5.00kHz
adjust 2) Adj item : [L SHFT1] → [C SHFT1]
[C SHFT1] → [H SHFT1]
Center frequency+5.00kHz
Adjust : [✳✳✳][H SHFT1]
PTT : ON
High frequency+5.00kHz
3. Frequency 1) Adj item : [SHFT2] [L SHFT2] ±100Hz
shift 2 Adjust : [✳✳✳]
Low frequency+6.25kHz
adjust 2) Adj item : [L SHFT2] → [C SHFT2]
[C SHFT2] → [H SHFT2]
Center frequency+6.25kHz
Adjust : [✳✳✳][H SHFT2]
PTT : ON
High frequency+6.25kHz
4. Max high 1) Adj item : [MHPWR]
Power meter
[L MHPWR], ±3W
power Adjust : [✳✳✳][L’ MHPWR],
adjust 2) Adj item : [L MHPWR] → [C MHPWR]
[L’ MHPWR] → [C MHPWR]→
: 33W
[H’ MHPWR] → [H MHPWR]
[H’ MHPWR],
Adjust : [✳✳✳][H MHPWR]
PTT : ON : 28W
Common Section
Item Condition
Measurement Adjustment
Specifications/Remarks
Test-
equipment Unit Terminal PartsUnit Method
Transmitter Section (K market model skips adjustment of Wide 4k)

TK-8180
40
Item Condition
Measurement Adjustment
Specifications/Remarks
Test-
equipment Unit Terminal PartsUnit Method
ADJUSTMENT
5. Max low 1) Adj item : [MLPWR]
Power meter
Rear ANT Front [ ],[ ]15W ±1W
power Adjust : [✳✳✳]panel panel
adjust 2) Adj item : [L MLPWR] →
[L’ MLPWR] → [C MLPWR]→
[H’ MLPWR] → [H MLPWR]
Adjust : [✳✳✳]
PTT : ON
6. High power 1) Adj item : [HPWR]
Power meter
[L HPWR], ±1W
adjust Adjust : [✳✳✳]Ammeter [L’ HPWR], 9A or less
2) Adj item : [L HPWR] → [C HPWR]
[L’ HPWR] → [C HPWR] → : 30W
[H’ HPWR] → [H HPWR] [H’ HPWR],
Adjust : [✳✳✳][H HPWR]
PTT : ON : 25W
7. High power [Panel test mode] Check 25~35W
check 1) CH-Sig : 1-1 9A or less
PTT : ON
2) CH-Sig : 2-1
PTT : ON
3) CH-Sig : 3-1 21~29W
PTT : ON 9A or less
8. Low power 1) Adj item : [LPWR] Front [ ],[ ]5.0W ±0.5W
adjust Adjust : [✳✳✳]panel 5A or less
2) Adj item : [L LPWR] →
[L’ LPWR] → [C LPWR] →
[H’ LPWR] → [H LPWR]
Adjust : [✳✳✳]
PTT : ON
9. Low power [Panel test mode] Check 3.5~6.5W
check 1) CH-Sig : 1-1 5A or less
Set low power (Push [S])
PTT : ON
2) CH-Sig : 2-1
PTT : ON
3) CH-Sig : 3-1
PTT : ON
10. DQT 1) Adj item : [n BAL]
Power meter
Rear ANT Front [ ],[ ]Make the demodu-
balance Adjust : [✳✳✳]panel panel lation waves into
adjust Deviation meter filter square waves.
LPF : 3kHz Deviation Front Modular
HPF : OFF meter panel MIC jack
• Narrow 2) Adj item : [nL BAL] →
Oscilloscope
[nC BAL] → [nH BAL] AG
Adjust : [✳✳✳]AF VTVM
PTT : ON
• Wide 4k 3) Adj item : [s BAL]
Adjust : [✳✳✳]
PTT : ON
• Wide 5k 4) Adj item : [w BAL]
Adjust : [✳✳✳]
PTT : ON

TK-8180
41
Item Condition
Measurement Adjustment
Specifications/Remarks
Test-
equipment Unit Terminal PartsUnit Method
ADJUSTMENT
11. Max DEV 1) Adj item : [n DEV]
Power meter
Rear ANT Front [ ],[ ]2.10kHz ±0.10kHz
adjust Adjust : [✳✳✳]panel panel (According to the
AG : 1kHz/50mV at MIC terminal
larger +, –)
Deviation meter filter Deviation Front Modular
LPF : 15kHz meter panel MIC jack
HPF : OFF
Oscilloscope
• Narrow 2) Adj item : [nL DEV] → AG
[nC DEV] → [nH DEV] AF VTVM
Adjust : [✳✳✳]
PTT : ON
• Wide 4k 3) Adj item : [s DEV] 3.30kHz ±0.10kHz
Adjust : [✳✳✳](According to the
PTT : ON larger +, –)
• Wide 5k 4) Adj item : [w DEV] 4.20kHz ±0.10kHz
Adjust : [✳✳✳](According to the
PTT : ON larger +, –)
12. MIC [Panel test mode] Check 2.5~3.5kHz
sensitivity 1) CH-Sig : 1-1
check
AG : 1kHz/5mV at MIC terminal
(Wide 5k only) PTT : ON
13.
QT deviation
1) Adj item : [n QT] Front [ ],[ ]0.35kHz ±0.05kHz
adjust Adjust : [✳✳✳]panel
Deviation meter filter
LPF : 3kHz
HPF : OFF
• Narrow 2) Adj item : [nL QT] →
[nC QT] → [nH QT]
Adjust : [✳✳✳]
PTT : ON
• Wide 4k 3) Adj item : [s QT] 0.60kHz ±0.10kHz
Adjust : [✳✳✳]
PTT : ON
• Wide 5k 4) Adj item : [w QT] 0.75kHz ±0.10kHz
Adjust : [✳✳✳]
PTT : ON
14. DQT 1) Adj item : [n DQT] 0.35kHz ±0.05kHz
deviation Adjust : [✳✳✳]
adjust Deviation meter filter
LPF : 3kHz
HPF : OFF
• Narrow 2) Adj item : [nL DQT] →
[nC DQT] → [nH DQT]
Adjust : [✳✳✳]
PTT : ON
• Wide 4k 3) Adj item : [s DQT] 0.60kHz ±0.10kHz
Adjust : [✳✳✳]
PTT : ON
• Wide 5k 4) Adj item : [w DQT] 0.75kHz ±0.10kHz
Adjust : [✳✳✳]
PTT : ON

TK-8180
42
Item Condition
Measurement Adjustment
Specifications/Remarks
Test-
equipment Unit Terminal PartsUnit Method
ADJUSTMENT
15. LTR 1) Adj item : [n LTR]
Power meter
Rear ANT Front [ ],[ ]0.75kHz ±0.10kHz
deviation Adjust : [✳✳✳]panel panel
adjust Deviation meter filter
LPF : 3kHz Deviation Front Modular
HPF : OFF meter panel MIC jack
• Narrow 2) Adj item : [nL LTR] →
Oscilloscope
[nC LTR] → [nH LTR] AG
Adjust : [✳✳✳]AF VTVM
PTT : ON
• Wide 3) Adj item : [w LTR] 1.00kHz ±0.10kHz
Adjust : [✳✳✳]
PTT : ON
16. DTMF 1) Adj item : [n DTMF] 1.5kHz ±0.1kHz
deviation Adjust : [✳✳✳]
adjust Deviation meter filter
• Narrow LPF : 15kHz
HPF : OFF
PTT : ON
• Wide 4k 2) Adj item : [s DTMF] 2.4kHz ±0.1kHz
Adjust : [✳✳✳]
PTT : ON
• Wide 5k 3) Adj item : [w DTMF] 3.0kHz ±0.1kHz
Adjust : [✳✳✳]
PTT : ON
17. MSK 1) Adj item : [n MSK] 1.5kHz ±0.1kHz
deviation Adjust : [✳✳✳]
adjust Deviation meter filter
• Narrow LPF : 15kHz
HPF : OFF
PTT : ON
• Wide 4k 2) Adj item : [s MSK] 2.4kHz ±0.1kHz
Adjust : [✳✳✳]
PTT : ON
• Wide 5k 3) Adj item : [w MSK] 3.0kHz ±0.1kHz
Adjust : [✳✳✳]
PTT : ON
18. TONE 1) Adj item : [n TONE] 1.5kHz ±0.1kHz
deviation Adjust : [✳✳✳]
adjust Deviation meter filter
• Narrow LPF : 15kHz
HPF : OFF
PTT : ON
• Wide 4k 2) Adj item : [s TONE] 2.4kHz ±0.1kHz
Adjust : [✳✳✳]
PTT : ON
• Wide 5k 3) Adj item : [w TONE] 3.0kHz ±0.1kHz
Adjust : [✳✳✳]
PTT : ON

TK-8180
43
Item Condition
Measurement Adjustment
Specifications/Remarks
Test-
equipment Unit Terminal PartsUnit Method
ADJUSTMENT
1. Sensitivity 1) Adj item : [SENS1] SSG Rear ANT Front [ ],[ ]Enter the following Note : After replacing the
adjust Adjust : [✳✳✳]panel panel adjustment values EEPROM (IC401) aline
2) Adj item : [L SENS1] → AF VTVM EXT. SP to the transceiver sensitivity.
[L’ SENS1] → [C SENS1] →
Oscilloscope
by pressing [ ] and
[H’ SENS1] → [H SENS1] [ ] keys.
Adjust : [✳✳✳][L SENS1] : 70
[L’ SENS1] : 90
[C SENS1] : 115
[H’ SENS1] : 138
[H SENS1] : 164
After setting the
adjustment value,
press [B] key.
The adjustment
value will be stored
in memory.
2. Sensitivity [Panel test mode] Check 12dB SINAD or more
check 1) CH-Sig : 1-1
SSG output
Wide 5k : –116dBm (0.35µV)
(MOD : 1kHz/±3kHz)
Narrow : –116dBm (0.35µV)
(MOD : 1kHz/±1.5kHz)
3. Squelch 1) Adj item : [n SQL] After input signal After adjusting SQL, check
(Preset) Adjust : [✳✳✳]from SSG, press [B] SQL open/close.
adjust SSG output :
12dB SINAD level
key. That numeric SSG 12dB SINAD level + 4dB
• Narrow (MOD : 1kHz/±1.5kHz) will be stored in : Open
memory. SSG 12dB SINAD level – 6dB
2) Adj item : [nL SQL] → : Close
[nC SQL] → [nH SQL] [nC SQL] MOD 1kHz/±1.5kHz
Adjust : [✳✳✳][sC SQL] MOD 1kHz/±2.4kHz
[wC SQL] MOD 1kHz/±3.0kHz
• Wide 4k 3) Adj item : [s SQL]
Adjust : [✳✳✳]
SSG output :
12dB SINAD level
(MOD : 1kHz/±2.4kHz)
4) Adj item : [sL SQL] →
[sC SQL] → [sH SQL]
Adjust : [✳✳✳]
• Wide 5k 5) Adj item : [w SQL]
Adjust : [✳✳✳]
SSG output :
12dB SINAD level
(MOD : 1kHz/±3.0kHz)
6) Adj item : [wL SQL] →
[wC SQL] → [wH SQL]
Adjust : [✳✳✳]
Receiver Section (K market model skips adjustment of Wide 4k)

TK-8180
44
Item Condition
Measurement Adjustment
Specifications/Remarks
Test-
equipment Unit Terminal PartsUnit Method
ADJUSTMENT
4. Low RSSI 1) Adj item : [n LRSSI] SSG Rear ANT After input signal The following erroneous
adjust Adjust : [✳✳✳] panel from SSG, press [B] performance may occur if any
• Narrow SSG output :
12dB SINAD level
AF VTVM EXT. SP key. That numeric irregular RSSI adjustment,
(MOD : 1kHz/±1.5kHz)
Oscilloscope
will be stored in such as pressing the [B] key
memory. assigned for determination
2) Adj item : [nL LRSSI] → when it is the ANT OPEN
[nC LRSSI] → [nH LRSSI] state, is performed.
Adjust : [✳✳✳] • The antenna bar ( ) cannot
appear correctly.
• Wide 4k 3) Adj item : [s LRSSI] • Scan does not stop.
Adjust : [✳✳✳]
SSG output :
12dB SINAD level
(MOD : 1kHz/±2.4kHz)
4) Adj item : [sL LRSSI] →
[sC LRSSI] → [sH LRSSI]
Adjust : [✳✳✳]
• Wide 5k 5) Adj item : [w LRSSI]
Adjust : [✳✳✳]
SSG output :
12dB SINAD level
(MOD : 1kHz/±3.0kHz)
6) Adj item : [wL LRSSI] →
[wC LRSSI] → [wH LRSSI]
Adjust : [✳✳✳]
5. Squelch 1) Adj item : [n SQLT] After input signal After adjusting SQL, check
(Tight) Adjust : [✳✳✳]from SSG, press [B] SQL open/close.
adjust SSG output key. That numeric SSG 12dB SINAD level +10dB
• Narrow : 12dB SINAD+5dB level will be stored in : Open
(MOD : 1kHz/±1.5kHz) memory. SSG 12dB SINAD level
: Close
2) Adj item : [nL SQLT] →
[nC SQLT] MOD 1kHz/±1.5kHz
[nC SQLT] → [nH SQLT]
[sC SQLT] MOD 1kHz/±2.4kHz
Adjust : [✳✳✳]
[wC SQLT] MOD 1kHz/±3.0kHz
• Wide 4k 3) Adj item : [s SQLT]
Adjust : [✳✳✳]
SSG output
: 12dB SINAD+5dB level
(MOD : 1kHz/±2.4kHz)
4) Adj item : [sL SQLT] →
[sC SQLT] → [sH SQLT]
Adjust : [✳✳✳]
• Wide 5k 5) Adj item : [w SQLT]
Adjust : [✳✳✳]
SSG output
: 12dB SINAD+5dB level
(MOD : 1kHz/±3.0kHz)
6) Adj item : [wL SQLT] →
[wC SQLT] → [wH SQLT]
Adjust : [✳✳✳]

TK-8180
45
Item Condition
Measurement Adjustment
Specifications/Remarks
Test-
equipment Unit Terminal PartsUnit Method
ADJUSTMENT
6. High RSSI 1) Adj item : [n HRSSI] SSG Rear ANT After input signal The following erroneous
adjust Adjust : [✳✳✳] panel from SSG, press [B] performance may occur if any
• Narrow SSG output : –70dBm AF VTVM EXT. SP key. That numeric irregular RSSI adjustment,
(MOD : 1kHz/±1.5kHz)
Oscilloscope
will be stored in such as pressing the [B] key
memory. assigned for determination
2) Adj item : [nL HRSSI] → when it is the ANT OPEN
[nC HRSSI] → [nH HRSSI] state, is performed.
Adjust : [✳✳✳] • The antenna bar ( ) cannot
appear correctly.
• Wide 4k 3) Adj item : [s HRSSI] • Scan does not stop.
Adjust : [✳✳✳]
SSG output : –70dBm
(MOD : 1kHz/±2.4kHz)
4) Adj item : [sL HRSSI] →
[sC HRSSI] → [sH HRSSI]
Adjust : [✳✳✳]
• Wide 5k 5) Adj item : [w HRSSI]
Adjust : [✳✳✳]
SSG output : –70dBm
(MOD : 1kHz/±3.0kHz)
6) Adj item : [wL HRSSI] →
[wC HRSSI] → [wH HRSSI]
Adjust : [✳✳✳]
Adjustment Points
TC301
TC302
ANT
CV
CV
RXD
TXD
RST2
PSW
PSENS
TX-RX UNIT (B/3)
Foil side view
TX-RX UNIT (B/3)
Component side view

TK-8180
46
Display unit (X54-3480-10)
Pin No.
Name Description
CN901 (to internal speaker)
1GND Ground.
2 SPO Speaker output.
CN902 (to TX-RX unit B/3 CN429)
1SPO Speaker input.
2SPO Speaker input.
3SPO Speaker input.
4SPO Speaker input.
5SPO Speaker input.
6SPO Speaker input.
7GND Ground.
88C 8V input.
9SB Power input of switched power supply.
10 SB Power input of switched power supply.
11 NC Non-connenction.
12 PSW Detection signal output of power switch.
13 GND Ground.
14 GND Ground.
15 MIC MIC signal output.
16 ME MIC ground.
17 GND Ground.
18 PSENS Detection signal output of display unit.
19 RST2 Reset signal input.
20 GND Ground.
21 GND Ground.
22 GND Ground.
23 NC Non-connenction.
24
SHIFT/MODEL
Control signal input of beat-shift function.
25 NC Non-connenction.
26 5C 5V output.
27 TXD Serial data signal input.
28 RXD Serial data signal output.
29 GND Ground.
30 GND Ground.
J901 (MIC jack)
1BLC MIC backlight control.
2SB DC 13.6V±15%, 200mA typ.
3E Ground.
Pin No.
Name Description
4 PTT/TXD PTT : PTT input, TXD : Serial data output.
5ME MIC ground.
6MIC MIC signal input.
7
HOOK/RXD
HOOK : Hook detection, RXD : Serial data input.
8DM MIC data detection.
TX-RX unit (X57-6990-10) (A/3)
Pin No.
Name Description
CN701 (to TX-RX unit B/3 CN427)
1AUXIO6 AUX input/output 6.
2AUXIO7 AUX input/output 7.
3AUXIO1 AUX input/output 1.
4AUXIO2 AUX input/output 2.
5RXD2 Serial data output 2.
6AUXIO3 AUX input/output 3.
7TXD2 Serial data input 2.
8AUXIO4 AUX input/output 4.
9AUXIO8 AUX input/output 8.
10 AUXIO5 AUX input/output 5.
11 AUXIO9 AUX input/output 9.
12 AUXO1 AUX input 1.
13 TXD1 Serial data input 1.
14 AUXO2 AUX input 2.
15 RXD1 Serial data output 1.
16 GND Ground.
17 ME MIC ground.
18 MI2 External MIC output.
19 DEO Detected signal input.
20 GND Ground.
21 5C 5V.
22 DI Data signal output.
23 AFO RX filtered audio input.
24 SB Power input after power switch.
25 SB Power input after power switch.
26 SB Power input after power switch.
27 SB Power input after power switch.
28 SB Power input after power switch.
29 SB Power input after power switch.
30 NC Non-connenction.
TERMINAL FUNCTION

TK-8180
47
Pin No.
Name Description
J701 (ACC 25-pin)
1NC Non-connenction.
2RXD1 Serial data input 1. RS-232C level.
Input voltage range : ±30V max.
L≤0.4V, H≥2.4V, Zi≥5kΩ
3TXD1 Serial data output 1. RS-232C level.
L≤–5V, H≥5V/3kΩ load, Zo≤2kΩ
4AUXI/O9 AUX input/output 9.
Active low with 47kΩ pull-up to 5V
5DI Data signal input.
Data input level adjustable (2.0Vp-p typ.)
6MI2 External MIC input. DC-coupled
7GND Ground.
8AUXI/O8 AUX input/output 8. Same as AUXI/O9
9TXD2 Serial data output 2. TTL level.
L≤0.7V, H≥4.2V/25kΩ load, Zo≤1kΩ
10 RXD2 Serial data input 2. TTL level.
Input voltage range : +5/0V max.
L≤0.8V, H≥4.2V
11 GND Ground.
12 AUXI/O7 AUX input/output 7. Same as AUXI/O9
13 AUXI/O6 AUX input/output 6. Same as AUXI/O9
14 SB Power output after power switch.
DC13.6V±15%, 2.0A max.
15 AUXO2 AUX output 2. Open collector (500mA max.)
(Default none) L≤0.3V
16 AUXO1 AUX Output 1. Same as AUXO2
17 AFO RX filtered audio output (DC-coupled).
AF low level output.
Wide : 700mVp-p typ.
Narrow : 700mVp-p typ.
(Standard modulation)
18 GND Ground.
19 DEO Detected signal output (DC-coupled).
AF output level adjustable (740mVp-p typ.)
20 AUXI/O5 AUX input/output 5. Same as AUXI/O9
21 AUXI/O4 AUX input/output 4. Same as AUXI/O9
22 AUXI/O3 AUX input/output 3. Same as AUXI/O9
23 AUXI/O2 AUX input/output 2. Same as AUXI/O9
24 AUXI/O1 AUX input/output 1. Same as AUXI/O9
25 ME MIC ground.
TX-RX unit (X57-6990-10) (B/3)
Pin No.
Name Description
CN301 (to TX-RX unit C/3)
1REF Reference signal otput to the PLL IC.
2Fin Complementary signal output to the PLL IC.
3 CPGND Ground.
45C 5V output.
5GND Ground
6CP
Signal input from charge pump block in the PLL IC.
CN302 (to TX-RX unit C/3)
1UL Control signal input form the PLL IC.
2PLE Control signal output to the PLL IC.
3DT Control signal output to the PLL IC.
4 PCK Control signal output to the PLL IC.
5GND Ground.
6 DGND Ground.
CN403 (to VGS-1)
1OPT1 VGS busy signal input. Option boad I/F 1.
Output : L≤0.45V, H≥4.7V/25kΩ load
Input : L≤1.0V, H≥4.0V, Input voltage : 0V~5.0V
2OPT3 VGS playback signal input. Option boad I/F 3.
Output : L≤0.45V, H≥4.7V/25kΩ load
Input : L≤1.0V, H≥4.0V, Input voltage : 0V~5.0V
3RXD1 Serial data input.
Input : L≤1.0V, H≥4.0V, Input voltage : 0V~5.0V
4TXD1
Serial data output / PTT singanl output (SC20-460).
Output : L≤0.45V, H≥4.7V/25kΩ load
5CLK Serial clock output.
6OPT4 VGS enable output. Option boad I/F 4.
Output : L≤0.45V, H≥4.7V/25kΩ load
7USEL
UART speed select output. L : 19200bps fixed
8OPT5 VGS reset signal output. Option boad I/F 5.
Output : L≤0.45V, H≥4.7V/25kΩ load
9 DGND Ground.
10 AGND Ground.
11 AO VGS audio input. Zin≥10kΩ, 1Vp-p max,
Input Voltage : 0V~5.0V
12 AI VGS audio output. Zo≥10kΩ
13 AGND Ground.
14 5E 5V power supply output. 78mA max
15 STON Side tone input. 1kHz, 5Vp-p
TERMINAL FUNCTION

TK-8180
48
Pin No.
Name Description
16 DTI Data signal input.
Zin≥22kΩ, 600±200mVp-p
17 TCTL Speaker mute signal input.
Input : L≤1.0V, H≥4.0V, Input voltage : 0V~5.0V
18 NC Non-connection.
19 AUDIH MIC mute signal input.
20 OPT2 Option boad I/F 2.
Output : L≤0.45V, H≥4.7V/25kΩ load
Input : L≤1.0V, H≥4.0V, Input voltage : 0V~5.0V
21 TXO MIC signal output (AC coupled) before pre-
emphasis. Zo>2.2kΩ, 130±50mVp-p typ.
22 RXEO Audio signal output (DC coupled) after de-
emphasis. Zo>30kΩ, 1±0.3Vp-p typ.
23 RXEI Audio signal input (DC coupled) after de-
emphasis. Zin>15kΩ, 1±0.3Vp-p typ.
24 TXI MIC signal input (AC coupled) before pre-
emphasis. Zin>22kΩ, 500±50mVp-p typ.
25 OPT6 Option boad I/F 6.
Output : L≤0.45V, H≥4.7V/25kΩ load
26 8C Power input after power switch.
8.0V typ, 100mA max
CN427 (to TX-RX unit A/3 CN701)
1NC Non-connenction.
2SB Power output after power switch.
3SB Power output after power switch.
4SB Power output after power switch.
5SB Power output after power switch.
6SB Power output after power switch.
7SB Power output after power switch.
8AFO RX filtered audio output.
9DI Data signal input.
10 5C 5V.
11 GND Ground.
12 DEO Detected signal output.
13 MI2 External MIC input.
14 ME MIC ground.
15 GND Ground.
16 RXD1 Serial data input 1.
17 AUXO2 AUX output 2.
18 TXD1 Serial data output 1.
Pin No.
Name Description
19 AUXO1 AUX output 1.
20 AUXIO9 AUX input/output 9.
21 AUXIO5 AUX input/output 5.
22 AUXIO8 AUX input/output 8.
23 AUXIO4 AUX input/output 4.
24 TXD2 Serial data output 2.
25 AUXIO3 AUX input/output 3.
26 RXD2 Serial data input 2.
27 AUXIO2 AUX input/output 2.
28 AUXIO1 AUX input/output 1.
29 AUXIO7 AUX input/output 7.
30 AUXIO6 AUX input/output 6.
CN428
1SB Power output of switched power supply.
2 SPI Speaker output.
3SPO Speaker input.
4PA Control signal output of PA function.
5HOR Control signal output of Horn alert function.
6GND Ground.
CN429 (to Display unit CN902)
1(DM) Reserve.
2GND Ground.
3RXD Serial data signal input.
4TXD Serial data signal output.
5NC Non-connenction.
65C 5V output.
7
SHIFT/MODEL
Control signal output of beat-shift function.
8(CLK) Reserve.
9(LCDDO) Reserve.
10 (LCDDI) Reserve.
11 (LCDRST) Reserve.
12 RST2 Reset signal output.
13 PSENS Detection signal input of display unit.
14 GND Ground.
15 ME MIC ground.
16 MIC MIC signal input.
17 GND Ground.
18 GND Ground.
19 PSW Detection signal input of power switch.
20 NC Non-connenction.
TERMINAL FUNCTION

TK-8180
49
Pin No.
Name Description
21 SB Power output of switched power supply.
22 SB Power output of switched power supply.
23 8C 8V output.
24 GND Ground.
25 SPO Speaker output.
26 SPO Speaker output.
27 SPO Speaker output.
28 SPO Speaker output.
29 SPO Speaker output.
30 SPO Speaker output.
CN804
1IGN Ignition sense input.
2GND Ground.
Solder Land
Name Description
to ANI board
GND (A–) Ground.
OPT1 TX sens signal output. Conv. L : TX, H : Not TX
(CH BUSY) LTR L : Link complete, H : Not link complete
L≤0.45V, H≥4.7V/25kΩ load
OPT3 TX control signal input. Active low.
(KEY) L≤1.0V, H≥ : 4.0V, Input voltage 0V~5.0V
OPT4 PTT signal output. L : TX, H : Not TX
(PTT) L≤0.45V, H≥4.7V/25kΩ load
OPT5 Emergency signal output.
(EMERGENCY)
L : Emergency function is operated,
H : Emergency function is not operated
L≤0.45V, H≥4.7V/25kΩ load
5E (A+) 5V power supply (78mA max.).
DTI Data signal input. Zin>22kΩ, 600±200mVp-p
(DATA OUT) (Standard modulation)
TCTL Speaker mute signal input. H : Unmute
(TONE CTRL) L≤0.8V, H≥4.2V, Input voltage : 0V~5.0V
AUDIH MIC mute signal input. L : Mute
(AUDIO INHIB)
OPT2 Emergency signal input. Active low.
(AUX I/O) L≤1.0V, H≥ : 4.0V, Input voltage 0V~5.0V
STON Side tone input. 1kHz, 5Vp-p
(SIDE TONE)
Name Description
to Scrambler board
GND (GND) Ground.
TXD1 PTT signal output. L : TX, H : Not TX
(PTT) L≤0.45V, H≥4.7V/25kΩ load
(PTT signal input) Actiive low.
L≤1.0V, H≥4.0V, Inut voltage : 0V~5.0V
OPT1 (DODE Scramble code signal output 1.
SELECT1) L≤0.45V, H≥4.7V/25kΩ load
OPT3 (CODE Scramble code signal output 2.
SELECT2) L≤0.45V, H≥4.7V/25kΩ load
OPT4 Echo PTT signal output. L : TX, H : Not TX
(ECHO PTT) L≤0.45V, H≥4.7V/25kΩ load
OPT5 (CODE Scramble code signal output 4.
SELECT8) L≤0.45V, H≥4.7V/25kΩ load
TXO MIC signal output (AC coupled) before
(TX OUT) pre-enphasis. Zo>2.2kΩ, 130±50mVp-p typ.
(Standard modulation)
OPT2 Scrambler control signal output.
(SCRAMBLE) L : ON, H : OFF. L≤0.45V, H≥4.7V/25kΩ load
RXEO Audio signal output (DC coupled) after
(RX OUT) de-enphasis. Zo>30kΩ, 1±0.3Vp-p typ.
(Standard modulation)
TXI MIC signal input (AC coupled) before
(TX IN) pre-enphasis. Zin>2.2kΩ, 130±50mVp-p typ.
(Standard modulation)
RXEI Audio signal input (DC coupled) after
(RX IN) de-enphasis. Zin>15kΩ, 1±0.3Vp-p typ.
(Standard modulation)
OPT6 (CODE Scramble code signal output 3.
SELECT4) L≤0.45V, H≥4.7V/25kΩ load
8C (+V) 8V AVR output. 8.0V typ, 100mA max.
to GPS receiver
GND (GND) Ground.
RXD1*1Data output.
(DATA OUT1)
RXD2*1Data output.
(DATA OUT1)
5E (+5V) 5V
*1 : Depending on the connected optional accessory, the DATA
OUT1 may connect to either RXD1 or RXD2.
TERMINAL FUNCTION

50
JIHGFEDCBA
1
2
3
4
5
6
7
8
9
10
11
12
13
14
CP909
CP910
CP911
Q901
Q902
Q904 Q905
Q906
Q907
B
C
E
Q909
Q910
1
29 30
GND
RXD
5C
GND
GND
PSENS
ME
GND
PSW
SB
8C
SPO
SPO
SPO
GND
TXD
NC
NC
GND
RST2
GND
MIC
GND
NC
SB
GND
SPO
SPO
SPO
2
Q911
Q913
L901
L902
L903
L904
L908
L909
R901
R903
R904
R905
R907
R909
R910
R911
R913
R914
R915
R916
R917 R918
R919
CN901
CN902
R920
R925
R926R927
R928
R929
R930
R931
R932
R933 R934
R935
R936
R939
C904
R940
R941
C906
R942
C907
R943
R944
C908
C909
R945
C910
X901
C911
C912
C913 1GND
SPO
2
C914
C915
SP2
C916
C917
C918
R955
R956
R957
R958
R959
C920
C921
C922
C924 C925
C926
R962
C927
R963
C928
C
9
C932
C933
C934
R970
C935
C936
C938
D901
D902
D903
D904
D905
D906
IC901
O
G
I
IC902
CP901
CP902
CP903
CP904
CP905
CP906
CP907
ED1
CP908
J901
8
2
7
1
D907
D909
D910
D911
D915
COM8_1
COM9_1
COM1_1
COM2_1
COM3_1
COM4_1
COM5_1
COM6_1
COM7_1
COM8_2
COM9_2
SEG16
SEG17
SEG18
SEG19
SEG20
SEG21
SEG22
SEG23
SEG24
SEG25
SEG31
SEG32
SEG33
COM7_2
COM6_2
COM5_2
COM4_2
COM3_2
COM2_2
SEG1
SEG2
SEG3
SEG4
SEG5
SEG6
SEG7
SEG8
SEG9
SEG10
SEG11
SEG12
SEG13
SEG14
SEG15
SEG26
SEG27
SEG28
D916
D917
D921
D922
D923
D927
D928
E
E
BLC
BLC
PSW
LEFT UP
LEFT DOWN
SA
TP1
DM
DM
HK
HK
ME
ME
MIC
MIC
PTT
PTT
SB
SB 2
8
7
1
+
1100
76
75
51
50
26
25
1
100
SHIFT/MODEL
TK-8180 PC BOARD
DISPLAY UNIT (X54-3480-10) Component side view (J72-0932-09)
DISPLAY UNIT (X54-3480-10) Foil side view (J72-0932-09)

51
JKLMNOPQRS
1
2
3
4
5
6
7
8
9
10
11
12
13
14
9
09
CP910
L905
L906
L907
TH901
R943
R947
R948
R949
R950
R951
R952
R953
R954
R955
R956
R957
R958
R959
R967
R969
C930
C931
9
33
R971
IC903
ED1
C937
D912
D913
D914
SEG31
SEG32
SEG33
SEG34
SEG35
SEG41
SEG42
SEG43
SEG44
SEG45
SEG51
SEG52
SEG53
SEG54
SEG55
SEG61
SEG62
SEG63
SEG64
SEG65
SEG71
SEG72
SEG73
SEG74
SEG75
SEG26
SEG27
SEG28
SEG29
SEG30
SEG36
SEG37
SEG38
SEG39
SEG40
SEG46
SEG47
SEG48
SEG49
SEG50
SEG56
SEG57
SEG58
SEG59
SEG60
SEG66
SEG67
SEG68
SEG69
SEG70
D918
D919
D920
D924
D925
D926
D929
D930
<BC
>
RIGHT UP
RIGHT DOWN
1
100
25 26
50
51
7576
J72-0932-09
J72-0932-09
DISPLAY UNIT (X54-3480-10) Component side view (J72-0932-09)
DISPLAY UNIT (X54-3480-10) Foil side view (J72-0932-09)
PC BOARD TK-8180
Component side
Foil side
Layer 1
Layer 2
Layer 3
Layer 4
Component side
Foil side
Layer 1
Layer 2
Layer 3
Layer 4
Ref. No.
Address
D907 3C
D909 3G
D910 3H
D911 3I
D912 3K
D913 3L
D914 3N
D915 4G
D916 4H
D917 4I
D918 4K
D919 4L
Ref. No.
Address
D920 4N
D921 6F
D922 6G
D923 6I
D924 6O
D925 6M
D926 6K
D927 3D
D928 5D
D929 3P
D930 5P
Ref. No.
Address
IC901 10C
IC902 12H
IC903 12K
Q901 10D
Q902 10D
Q904 12B
Q905 12C
Q906 10I
Q907 9I
Q909 9H
Ref. No.
Address
Q910 10D
Q911 9D
Q913 9H
D901 10C
D902 12D
D903 9F
D904 9C
D905 10C
D906 10C

JKLMNOPQRSIHGFEDCBA
1
2
3
4
5
6
7
8
9
10
11
12
13
14
1
2
3
4
5
6
7
8
9
10
11
12
13
14
CP909
CP910
CP911
Q901
Q902
Q904 Q905
Q906
Q907
B
C
E
Q909
Q910
1
29 30
GND
RXD
5C
GND
GND
PSENS
ME
GND
PSW
SB
8C
SPO
SPO
SPO
GND
TXD
NC
NC
GND
RST2
GND
MIC
GND
NC
SB
GND
SPO
SPO
SPO
2
Q911
Q913
L901
L902
L903
L904
L905
L906
L907
L908
L909
R901
R903
R904
R905
R907
R909
R910
R911
R913
R914
R915
R916
R917 R918
R919
CN901
CN902
R920
R925
R926R927
R928
R929
R930
R931
R932
R933 R934
R935
R936
R939
C904
R940
R941
TH901
C906
R942
C907
R943
R944
C908
C909
R945
R947
R948
R949
C910
X901
C911
C912
C913 1GND
SPO
2
C914
R950
C915
SP2
R951
C916
R952
C917
R953
C918
R954
R955
R956
R957
R958
R959
C920
C921
C922
C924 C925
C926
R962
C927
R963
C928
R967
R969
C930
C931
C932
C933
C934
R970
C935
R971
C936
C938
D901
D902
D903
D904
D905
D906
IC901
O
G
I
IC902 IC903
CP901
CP902
CP903
CP904
CP905
CP906
CP907
ED1
CP908
J901
8
2
7
1
C937
D907
D909
D910
D911
D912
D913
D914
D915
COM8_1
COM9_1
COM1_1
COM2_1
COM3_1
COM4_1
COM5_1
COM6_1
COM7_1
COM8_2
COM9_2
SEG16
SEG17
SEG18
SEG19
SEG20
SEG21
SEG22
SEG23
SEG24
SEG25
SEG31
SEG32
SEG33
SEG34
SEG35
SEG41
SEG42
SEG43
SEG44
SEG45
SEG51
SEG52
SEG53
SEG54
SEG55
SEG61
SEG62
SEG63
SEG64
SEG65
SEG71
SEG72
SEG73
SEG74
SEG75
COM7_2
COM6_2
COM5_2
COM4_2
COM3_2
COM2_2
SEG1
SEG2
SEG3
SEG4
SEG5
SEG6
SEG7
SEG8
SEG9
SEG10
SEG11
SEG12
SEG13
SEG14
SEG15
SEG26
SEG27
SEG28
SEG29
SEG30
SEG36
SEG37
SEG38
SEG39
SEG40
SEG46
SEG47
SEG48
SEG49
SEG50
SEG56
SEG57
SEG58
SEG59
SEG60
SEG66
SEG67
SEG68
SEG69
SEG70
D916
D917
D918
D919
D920
D921
D922
D923
D924
D925
D926
D927
D928
E
E
BLC
BLC
D929
D930
PSW
LEFT UP
LEFT DOWN
SA
<BC
>
RIGHT UP
RIGHT DOWN
TP1
DM
DM
HK
HK
ME
ME
MIC
MIC
PTT
PTT
SB
SB 2
8
7
1
+
1100
76
75
51
50
26
25
1
100
25 26
50
51
7576
J72-0932-09
J72-0932-09
SHIFT/MODEL
TK-8180 PC BOARD
DISPLAY UNIT (X54-3480-10) Component side view (J72-0932-09) DISPLAY UNIT (X54-3480-10) Component side view (J72-0932-09)
DISPLAY UNIT (X54-3480-10) Foil side view (J72-0932-09) DISPLAY UNIT (X54-3480-10) Foil side view (J72-0932-09)
PC BOARD TK-8180
Component side
Foil side
Layer 1
Layer 2
Layer 3
Layer 4
Component side
Foil side
Layer 1
Layer 2
Layer 3
Layer 4
Ref. No.
Address
D907 3C
D909 3G
D910 3H
D911 3I
D912 3K
D913 3L
D914 3N
D915 4G
D916 4H
D917 4I
D918 4K
D919 4L
Ref. No.
Address
D920 4N
D921 6F
D922 6G
D923 6I
D924 6O
D925 6M
D926 6K
D927 3D
D928 5D
D929 3P
D930 5P
Ref. No.
Address
IC901 10C
IC902 12H
IC903 12K
Q901 10D
Q902 10D
Q904 12B
Q905 12C
Q906 10I
Q907 9I
Q909 9H
Ref. No.
Address
Q910 10D
Q911 9D
Q913 9H
D901 10C
D902 12D
D903 9F
D904 9C
D905 10C
D906 10C

52
JIHGFEDCBA
1
2
3
4
5
6
7
8
9
10
11
12
13
14
R706
R707
R708
R709
R710
R717
R718
R719
CN701
C705
C706
C707
C708
C709
C710
C711
C712
C713
C714
C715
C716
C717
C718
C719
C720
C721
C722
C723
D709
D710
1
30
D714
25
13
CP
5C
Fin
GND
CPGND
REF
PLE
PCK
DGND
UL
DT
GND
J72-0931-19 A/3
J72-0931-19 C/3
14
1
NC
SB
SB
SB
SB
SB
SB
AFO
DI
5C
GND
DEO
MI2
ME
GND
RXD1
AUXO2
TXD1
AUXO1
AUXIO9
AUXIO5
AUXIO8
AUXIO4
TXD2
AUXIO3
RXD2
AUXIO2
AUXIO1
AUXIO7
AUXIO6
1
5610
11
15
1620
L304
L305
R301
R319
R320
R321
R323
R325
R327
R330
R332
C309
C322
C335
R373
IC301
C396
C397
Component side
Foil side
Layer 1
Layer 2
Layer 3
Layer 4
Component side
Foil side
Layer 1
Layer 2
Layer 3
Layer 4
TX-RX UNIT (X57-6990-10) (A/3) Component side view (J72-0931-19 A/3)
TX-RX UNIT (X57-6990-10) (C/3)
Component side view (J72-0931-19 C/3)
Ref. No. Address
D709 6G
D710 6G
D714 6F
Ref. No. Address
IC301 12E
TK-8180 PC BOARD

53
ABCDE FGH I J
1
2
3
4
5
6
7
8
9
10
11
12
13
14
25
13
J701
Q701 Q702
L701
L702
R701R702
R703R704R705 R711R712R713
R714
R715
R716
R720
C701
C702 C703C704
D701
D702
D703
D704D705
D706D707D708 D711D712D713
+
J72-0931-19 A/3
J72-0931-19 C/3
14
1
26
GND
27
GND
AUX
I/O6
AUX
I/O1
AUX
I/O2
AUX
I/O3
AUX
I/O4
AUX
I/O5
AUX
I/O7
AUX
I/O8
AUX
I/O9 GND
MEDEOGNDAFOSB AUXO1AUXO2
GND RXD2TXD2MI2DITXD1RXD1NC
1
34
5
R308
R377
R378
IC302
C386
Component side
Foil side
Layer 1
Layer 2
Layer 3
Layer 4
Component side
Foil side
Layer 1
Layer 2
Layer 3
Layer 4
TX-RX UNIT (X57-6990-10) (C/3)
Foil side view (J72-0931-19 C/3)
TX-RX UNIT (X57-6990-10) (A/3) Foil side view (J72-0931-19 A/3)
PC BOARD TK-8180
Ref. No. Address
Q701 6C
Q702 6D
D701 7D
D702 6D
D703 6C
Ref. No. Address
D704 7G
D705 7F
D706 6G
D707 6G
D708 6E
Ref. No. Address
D711 6H
D712 6H
D713 6F
Ref. No. Address
IC302 11E

54
JIHGFEDCBA
1
2
3
4
5
6
7
8
9
10
11
12
13
14
C20
R400
C21
C22
R403
C24
R600
R603
R604
R606
R800
R801 R802
R804
R612
R806
R613
CN403
R807
R615
R809 R616
R617
R618
R619
R811
R812
R620
R621
R622
R623
R624
R625R629
R630
R632
R633
R636
R445
R446
R641
R642
R643
R644
R645
R646
R648
C801
C802
C
C803
IC7
1
C420
C421
R651
C422
R652
R653
C424
R654
C425
R655
C426
C427
C428
R465
C813
C814
C430
C818
C431
C819
C432
C435
C436
C437
R473
R474
C439
R475
C823
C824
C826
C441
C6
C444
C445
C446
R483
R484
R485
C831
R486
C832
R487
R488
R489
D1
C450
C454
C260
R491
C261
R496
R498
R499
D405
D406
C467
D408
D409
D600
D601
D412
C472
L
3
D413
D414
D416
D418
D801
D802
D421
D422
C483
L32
3
L324
IC414
C498
IC801
IC802
R302
R
R503
R508
L4
R900
R901
R902
R903
C30
2
C500
C501
C505
X301
C506
R542
R545
R546
R14
R549
R15
R16
R17
R18
C511
R19
C512C513
R552
R21
R362
Q3
F401
R569
C339
C530
C534
R572
R573
R574
C538
R575
C539
F801
C540
C542
C543
R580
C544
R581
C546
R586
R589
R590
R591
R592
R594
R595
R596
R597
C560
C561
C562
C563
C564
Q600
C565 C566
Q410
Q411
R71
R72
Q413
R75
Q416
R76
Q417
R77
Q418
C570
Q419
C572
Q803
C573
Q804
C574
C575
Q806
C576
C577
Q808
C578
C579
L410
L411
C580
Q811
Q812
C585
C586
C587
C588
C398
C592 C593
C595
C17
C18
C19
J401
EXT. SP
CN804
IGN
GND
1
2
8T
CN428
1
6GND
HOR
PA
SPO
SPI
SB
+
CN803
GND
+
+
SB
+
IC417
1
7
CN802
+B
+
+
PA HOR
5C
IC416
1
89
16
TTL
RS-232C
+
+
+
+
CN401
BATT
CLKC
32K
CHAE
1
45
8
+
+
+
+
1
23
4
G
S
D
G
SD
1
DM
GND
RXD
TXD
NC
5C
SHIFT/MODEL
CLK
LCDDO
LCDDI
LCDRST
RST2
PSENS
GND
ME
MIC
GND
GND
PW
NC
SB
SB
8C
GND
SPO
SPO
SPO
SPO
SPO
SPO
30
CN429
J72-0931-19 B/3
GND
RXD1
TXD1
TXD2
RXD2
OPT1
OPT3
OPT4
OPT5
5E
DTI
TCTL
AD-0 AD-1
5M
IC410
1
12 13
24
14
32
IC407
1
45
8
AO EXTLIM
AI
8C
1
OPT1
RXD1
CLK
USEL
DGND
AO
AGND
STON
TCTL
AUDIH
TXO
RXEI
OPT6
OPT3
TXD1
OPT4
OPT5
AGND
AI
5E
DTI
NC
OPT2
RXEO
TXI
8C
2
26 25
++
IC807
O
G
I
5E
TXO
AUDIH
OPT2
STON
RXEO
TXI
RXEI
OPT6
8C
G
SD
RXO RXI
+
+
1
1
8
5
4
CN
1
5
UL
DT
GND
TK-8180 PC BOARD TX-RX UNIT (X57-6990-10) (B/3)
Component side view (J72-0931-19 B/3)

55
JKLMNOPQRS
1
2
3
4
5
6
7
8
9
10
11
12
13
14
C
20
C
22
D173
D174
C25
R212
C26
C27
C28
C29
R217
C31
C32
R221
C42
C44
C45
C50
C53
C60
C211
C212
C214
C220
C221
C222
C223
C224
C74
C225
C226
C76
C227
C77
C228
C229
IC71
IC72
C231
C233
C234
C235
C236
C237
C241
R295
R298
C260C261
C262
Q301
Q302Q303
Q70
Q72
L301
L302
L110
L111
L112
L306
L113
L320
L321
L322
L323
L324
TH1
L327
R109
R302
R303
Q171
R305
R306
R307
Q175
R115
R309
Q176
Q177
Q179
R310
R311
R312
R121
R315
R122
R316
R123
R317
R124
L4
R318
L5
R126
L6
R322
R326
R133
R134
L181
L182
L188
R333
C302
C306
C307
C308
C311
X301
C312
C314
C316
C317
C318
C127
C128
C129
C320
C323
C130
C324
C131
R21
C132
R362
C133
C327
C134
C135
C136
R26
C137
C138
R369
C139
R177
C331
C333
C140
R30
R370
R31
C141
R371
C142
R180
C338
R181
XF171
XF171
C339
R376
R182
R183
R184
R197
R198
R199
D103
D104
D105
D106
TH171
CD171
X171
R71
R72
R75
R76
R77
R78
R79
R81
C192
R82
C193
C194
R84
C195
R85
C389
C196
R86
C197
R87
C198
R88
R89
C390
C391
C392
C393
R90
C394
C395
C398
R200
R202 R203
C
17
R204
R205
C
19
R206
R207
IC1
4
+
18
54
18
54
8T
G
SD
+
+
+
CN301
1
56
2Fin
5C
CP
REF
CPGND
GND
CN302
GND
1
56
2PLE
PCK
DGND
UL
DT
GND
+
CV
BPF
LO
GND
GND 5R
8R
IC172
1
89
16
CF172
WIDE +
CF171
NARROW
G
S
D
TX-RX UNIT (X57-6990-10) (B/3)
Component side view (J72-0931-19 B/3)
PC BOARD TK-8180
Component side
Foil side
Layer 1
Layer 2
Layer 3
Layer 4
Ref. No.
Address
IC1 3K
IC71 7J
IC72 7L
IC172 9P
IC407 7G
IC410 8F
IC414 11E
IC416 8D
IC417 5C
IC801 11B
IC802 2G
IC807 12H
Q3 7I
Q70 7K
Q72 7L
Q171 11P
Q175 10O
Q176 9P
Q177 9O
Q179 10O
Q301 8L
Q302 10L
Q303 11L
Q410 12D
Q411 12D
Q413 10I
Q416 12C
Q417 11D
Q418 6D
Q419 7D
Ref. No.
Address
Q600 11C
Q803 2E
Q804 2D
Q806 2E
Q808 3D
Q811 2F
Q812 11C
D1 5I
D103 8M
D104 9M
D105 10M
D106 10M
D173 10O
D174 10P
D405 8G
D406 7F
D408 11E
D409 11D
D412 9D
D413 9C
D414 8C
D416 6D
D418 7D
D421 13E
D422 13E
D600 12C
D601 11C
D801 6F
D802 6G

JKLMNOPQRSIHGFEDCBA
1
2
3
4
5
6
7
8
9
10
11
12
13
14
1
2
3
4
5
6
7
8
9
10
11
12
13
14
C20
R400
C21
C22
D173
R403
D174
C24
C25
R212
C26
C27
C28
C29
R217
R600
R603
R604
C31
R606
C32
R221
R800
R801 R802
R804
R612
R806
R613
CN403
R807
R615
R809 R616
C42
R617
R618
C44
R619
C45
R811
R812
R620
R621
R622
R623
R624
C50
R625
C53
R629
R630
R632
R633
C60
C211
C212
R636
C214
R445
R446
R641
R642
R643
C220
R644
C221
R645
C222
R646
C223
C224
C74
R648
C225
C801
C226
C802
C76
C227
C77
C803
C228
C229
IC71
IC72
C420
C421
R651
C422
R652
R653
C424
R654
C231
C425
R655
C426
C233
C427
C234
C428
C235
R465
C236
C237
C813
C814
C430
C818
C431
C819
C432
C435
C241
C436
C437
R473
R474
C439
R475
C823
C824
C826
C441
C6
C444
C445
C446
R483
R484
R485
C831
R486
C832
R487
R488
R489
D1
R295
C450
R298
C454
C260
R491
C261
C262
Q301
R496
Q302Q303
R498
R499
D405
D406
C467
Q70
D408
D409
Q72
D600
L301
D601
L302
L110
L111
L112
D412
C472
L306
L113
D413
D414
D416
D418
D801
D802
D421
D422
C483
L320
L321
L322
L323
L324
TH1
L327
IC414
C498
IC801
IC802
R109
R302
R303
Q171
R305
R306
R307
Q175
R115
R309
Q176
Q177
Q179
R503
R310
R311
R312
R508
R121
R315
R122
R316
R123
R317
R124
L4
R318
L5
R126
L6
R322
R900
R901
R902
R326
R903
R133
R134
L181
L182
L188
R333
C302
C306
C307
C308
C500
C501
C505
C311
X301
C506
R542
C312
C314
R545
R546
C316
C317
R14
C318
R549
R15
R16
C127
R17
C128
R18
C129
C511
R19
C512C513
C320
R552
C323
C130
C324
C131
R21
C132
R362
C133
C327
C134
C135
C136
R26
C137
Q3
C138
R369
C139
F401
R177
C331
C333
C140
R30
R370
R31
C141
R371
C142
R180
C338
R181
XF171
XF171
R569
C339
R376
R182
R183
R184
C530
C534
R572
R573
R574
C538
R575
C539
F801
C540
C542
R197
C543
R198
R580
C544
R199
R581
C546
R586
D103
D104
D105
R589
D106
R590
R591
R592
R594
R595
R596
R597
TH171
C560
CD171
C561
C562
C563
C564
Q600
C565 C566
Q410
X171
Q411
R71
R72
Q413
R75
Q416
R76
Q417
R77
Q418
R78
C570
Q419
R79
C572
Q803
C573
Q804
C574
C575
Q806
C576
C577
Q808
C578
R81
C579
C192
R82
C193
C194
R84
L410
C195
R85
L411
C389
C196
R86
C197
R87
C198
C580
R88
Q811
R89
Q812
C390
C585
C391
C586
C392
C587
C393
C588
R90
C394
C395
C398
C592 C593
C595
R200
R202 R203
C17
R204
C18
R205
C19
R206
R207
J401
EXT. SP
CN804
IGN
GND
1
2
8T
CN428
1
6GND
HOR
PA
SPO
SPI
SB
+
CN803
GND
+
+
SB
+
IC417
1
7
CN802
+B
+
+
PA HOR
5C
IC416
1
89
16
TTL
RS-232C
+
+
+
+
CN401
BATT
CLKC
32K
CHAE
1
45
8
+
+
+
+
1
23
4
G
S
D
G
SD
1
DM
GND
RXD
TXD
NC
5C
SHIFT/MODEL
CLK
LCDDO
LCDDI
LCDRST
RST2
PSENS
GND
ME
MIC
GND
GND
PW
NC
SB
SB
8C
GND
SPO
SPO
SPO
SPO
SPO
SPO
30
CN429
J72-0931-19 B/3
GND
RXD1
TXD1
TXD2
RXD2
OPT1
OPT3
OPT4
OPT5
5E
DTI
TCTL
AD-0 AD-1
5M
IC410
1
12 13
24
14
32
IC407
1
45
8
AO EXTLIM
AI
8C
1
OPT1
RXD1
CLK
USEL
DGND
AO
AGND
STON
TCTL
AUDIH
TXO
RXEI
OPT6
OPT3
TXD1
OPT4
OPT5
AGND
AI
5E
DTI
NC
OPT2
RXEO
TXI
8C
2
26 25
++
IC807
O
G
I
5E
TXO
AUDIH
OPT2
STON
RXEO
TXI
RXEI
OPT6
8C
G
SD
RXO RXI
+
+
1
IC1
4
+
18
54
18
54
8T
G
SD
+
+
+
CN301
1
56
2Fin
5C
CP
REF
CPGND
GND
CN302
GND
1
56
2PLE
PCK
DGND
UL
DT
GND
+
CV
BPF
LO
GND
GND 5R
8R
IC172
1
89
16
CF172
WIDE +
CF171
NARROW
G
S
D
TK-8180 PC BOARD TX-RX UNIT (X57-6990-10) (B/3)
Component side view (J72-0931-19 B/3)
TX-RX UNIT (X57-6990-10) (B/3)
Component side view (J72-0931-19 B/3)
PC BOARD TK-8180
Component side
Foil side
Layer 1
Layer 2
Layer 3
Layer 4
Ref. No.
Address
IC1 3K
IC71 7J
IC72 7L
IC172 9P
IC407 7G
IC410 8F
IC414 11E
IC416 8D
IC417 5C
IC801 11B
IC802 2G
IC807 12H
Q3 7I
Q70 7K
Q72 7L
Q171 11P
Q175 10O
Q176 9P
Q177 9O
Q179 10O
Q301 8L
Q302 10L
Q303 11L
Q410 12D
Q411 12D
Q413 10I
Q416 12C
Q417 11D
Q418 6D
Q419 7D
Ref. No.
Address
Q600 11C
Q803 2E
Q804 2D
Q806 2E
Q808 3D
Q811 2F
Q812 11C
D1 5I
D103 8M
D104 9M
D105 10M
D106 10M
D173 10O
D174 10P
D405 8G
D406 7F
D408 11E
D409 11D
D412 9D
D413 9C
D414 8C
D416 6D
D418 7D
D421 13E
D422 13E
D600 12C
D601 11C
D801 6F
D802 6G

56
JIHGFEDCBA
1
2
3
4
5
6
7
8
9
10
11
12
13
14
D171
D172
R210
R601
R
C30
CN202
CN203
R608
C34
R609
C35
C38
C39
R610
R611
IC171
C43
C47
C48
C49
C200
C201
C51
C202
C52
C204
C205
C55
C206
C56
C207
C57
C208
C58
C209
C59
C400
C210
C61
C62
C213
C215
R251
C216
R252
C217
R253
C218
R254
C219
R255
R256R257
R258
R647
C79
C230
C80
C232
R
C238
C239
R661
R663
C240
R664
C1
C2
C3
C4
C5
C7
C8
C9
C251
C252
C253
C255
C256
C257
C258
C259
D2
Q103
D3
D6
D7
D8
C459
Q306
Q307
C4
6
Q308
L101
Q309
Q310
L108
L109
C469
Q311
Q312
Q313
L114
L115
L309
L116
L117
C477
C479
L119
L310
L311
L312
C480
L314
L315
C482
L316
L317
C4
8
L318
L319
L325
C492
L326
L328
C499
D251
CN13
R108
Q172
Q173
Q174
R116
Q178
R119
IC251
CN100 CN101 CN102
R507
R120
L1
L2
L3
L171
L172
L173 L7
L174
L8
R129
L175
L9
L176
L177
L178
L179
R130 R131 R132
L180
L183
L184
L10
L185
R521
L186
L12
L187
R523
L13
L189
R334
R335
R336
R337R339
R530
CN322 CN323
R340
R341
CN326
R342
R343
R344
CN329
R345
R346
R347
R348
C119
R349
C503
C507
R10
R350
C121
R11
R351
R12
R352
R13
R353
C124
C125
R355
TC301
TC302
R356
R357
R358
R359
C514
R553
C517
C518
R360
C519
R555
R361
C325
R55
R22
R557
R23
R558
R24
R171
R25
Q1
R365
R366
R172
Q2
R173
R367
R27
R28
R174
C520
R175
R29
R176
R178
C524
R179
C525
C526
C334
C
R567
R33
C143
C144
R568
R1
C145
R375
C146 R2
R3
C147
R38
C148
R4
C149
R185
C531
R5
R186
R6
R187
R7
R188
R570
R8
R189
R571
C535
R9
C342
C537
C343 +
C150
C151
C152
R576
C346
C153
C347
R190
C154
C155
R191
R579
R192
C156
R193
R194
R195
R196
C350
C351
C352
R583
C353
C354
R584
R585
C355
C356
R587
C357
R588
C358
C359
D107
D108
D109
C360
C361
C362
C363
D110
C364
D111
C171
C365
C173
C367
R598
C368
D308
C175
D309
C369
C176
C177
C178
Q409
C370 C371
D311
C372
C373
D313
D314
C374
C181
D315
C375
C182
Q412
D316
C376
C183
C377
C184
Q414
C378
C185
Q415
C379
C186
C187
C188
C189
C380
C381
C382
C383
C190
C384
C385
C387
C388
C199
C584
CN1 CN2
CN3
C591
C594
Q251
C10
C13
C14
C15
C16
L251
R208 R209
ANT
+
16
43
B
C
E
1
23
4
S
G
D
S
G
D
+
CV
+++
1
34
6
1
34
6
Q406
1
34
6
D
G
S
+
1
2
5
2
3
1
45
8
IC412
J72-0931-19 B
/
TK-8180 PC BOARD TX-RX UNIT (X57-6990-10) (B/3)
Foil side view (J72-0931-19 B/3)

57
JKLMNOPQRS
1
2
3
4
5
6
7
8
9
10
11
12
13
14
R401R402
R405 R406
R407
R601
R602
R410
R411
R412
R607
C33
R414
R608
R415
R416
R418
R419
R803
R610
R611
R805
R420
R808
C40
R614
R421
R422
R423
R424
R425
R426
R427
R428
R429
R813
R814
R815
R818
R430
R431
R432
R434R435
R437
R439
C403
R440
C404
R441
R442
C406
R443
C407
R444
C408 C409
R447
R448
R449
CN815
C410
C411
X401
C412
X403
X404
R450
R451R452
R453R454
R455
R456
R457
R458
C804
R459
C805
C806
C807
C808
C809
C423
R461
R657
R658
C810
C429
C811
R659
C812
R466
R467
R468
R469
C815
C816
C817
R661
C433
R470
C434
6
4
R471
R472
C820
C438
C821
C822
R476
R477
R478
C825
C440
C442
C443
R481
R482
C447
C448
C451
C452
C453
R490
C455
R492
C457
R493
R494
C459
R495
R497
C460
C461
D402
C462
C463
D403
C464
D404
C465
D407
C468
C469
C470
C475
C476
D417
C478
D804
D805
8
0
C481
C482
D423
C484
C485
C487
C488
C489
C490
C491
IC411
C492
C493
C495
C496
C497
C499
IC803
IC804
R500
R501
R502
R504
R505 R506
R507
R509
R511
R512
R513
R514
R515
R517
R519
R520
2
1
R522
R523
R524
R525
R526
R527
R528
R529
R530
R531
R532
R533
R534
R535
R536
R539
C502
C503
R540
C504
R541
C507
R548
R550
C514
C515
C516
C517
C518
R554
R555
R556
5
7
5
8
R559
C520
R560
C524
5
25
C526
R563
C528
R565
C529
R566
R567
R568
C531
C532
C533
R570
R571
C535
C536
C537
R576
R578
C541
C545
R582
R583
C547
C548
R584
R585
C549
R587
R588
C550
C551
C552
C553
C554
C555
C556
C557
C558
C559
Q402
R598
R599
Q405
C567
C568
Q412
Q414
1
5
L401
L402
L403
L404
L405
L406
Q802
L407
L408
L409
Q805
Q807
Q809
Q810
C581
C582
C583
C584
C591
1
3
Q406
34
D
G
S
IC409
1
45
8
+
IC415
19
10
16
17
25
26
32
1
45
8
IC412
D
G
S
IC413
1
89
16
IC405
1
1617
32
IC403
1
89
16
1
45
8
IC406
+
1
34
5
O
I
G
+
+
G
S
D
+
IC805
O
G
I
Q801
B
C
E
1
45
8
IC408
IC404
38
3964
65
1
102
103 128
CP412
CP413
CP414 CP415
CP416 CP417
CP408
CP409
CP410
CP411
CP407
CP402
CP403
CP404
CP405
CP406
RXDTXDRST2PSW
PSENS
IC401
1
45
8
CP401
IC402
1
56
10
O
G
I
CN427
1
30
NC
SB
SB
SB
SB
SB
SB
AFO
DI
5C
GND
DEO
MI2
ME
GND
RXD1
AUXO2
TXD1
AUXO1
AUXIO9
AUXIO5
AUXIO8
AUXIO4
TXD2
AUXIO3
RXD2
AUXIO2
AUXIO1
AUXIO7
AUXIO6
0
931-19 B/3
TX-RX UNIT (X57-6990-10) (B/3)
Foil side view (J72-0931-19 B/3)
PC BOARD TK-8180
Component side
Foil side
Layer 1
Layer 2
Layer 3
Layer 4
Ref. No.
Address
IC171 11D
IC251 12H
IC401 10P
IC402 10Q
IC403 9M
IC404 11N
IC405 11M
IC406 8M
IC408 7M
IC409 8J
IC411 8L
IC412 11J
IC413 12K
IC415 9K
IC803 4P
IC804 2L
IC805 6O
Q1 7G
Q2 7H
Q103 7E
Q172 9B
Q173 9D
Q174 9D
Q178 10C
Q251 12G
Q306 9G
Q307 10H
Q308 9G
Q309 10H
Q310 9I
Q311 9H
Q312 11H
Q313 9G
Q402 11P
Q405 11K
Q406 11J
Q409 9J
Ref. No.
Address
Q412 11J
Q414 12J
Q415 12J
Q801 6N
Q802 3N
Q805 2M
Q807 3M
Q809 2N
Q810 4N
D2 6B
D3 6D
D6 6B
D7 5B
D8 4B
D107 7C
D108 7C
D109 7D
D110 7D
D111 7B
D171 9D
D172 10D
D251 12H
D308 11H
D309 11F
D311 11I
D313 11F
D314 9H
D315 9F
D316 8F
D402 9P
D403 10P
D404 9P
D407 12J
D417 9P
D423 9P
D804 3N
D805 6N

JKLMNOPQRSIHGFEDCBA
1
2
3
4
5
6
7
8
9
10
11
12
13
14
1
2
3
4
5
6
7
8
9
10
11
12
13
14
D171
R401
D172
R402
R210
R405 R406
R407
R601
R602
R410
C30
R411
R412
CN202
R607
C33
CN203
R414
R608
C34
R609
C35
R415
R416
R418
C38
R419
C39
R803
R610
R611
R805
R420
R808
C40
R614
IC171
R421
R422
R423
C43
R424
R425
R426
R427
C47
R428
C48
R429
C49
R813
R814
R815
R818
C200
R430
C201
R431
C51
C202
R432
C52
C204
R434
C205
R435
C55
C206
C56
C207
R437
C57
C208
C58
C209
R439
C59
C400
C403
C210
R440
C404
R441
C61
R442
C406
C62
C213
R443
C407
R444
C408
C215
C409
R251
C216
R252
C217
R447
R253
C218
R448
R254
C219
R449
CN815
R255
R256R257
C410
R258 C411
X401
C412
X403
X404
R450
R451R452
R453
R647
R454
R455
R456
R457
R458
C804
R459
C805
C79
C806
C807
C808
C809
C423
C230
C80
R461
C232
R657
R658
C810
C429
C811
R659
C812
R466
R467
C238
R468
C239
R469
C815
C816
C817
R661
C433
R663
C240
R470
C434
R664
R471
R472
C820
C438
C821
C822
R476
R477
R478
C825
C1
C2
C3
C440
C4
C5
C442
C443
C7
C8
R481
C9
C251
R482
C252
C447
C253
C448
C255
C256
C257
C258
C259
D2
Q103
D3
C451
C452
D6
D7
C453
D8
R490
C455
R492
C457
R493
R494
C459
R495
R497
Q306
Q307
C460
Q308
L101
C461
Q309
D402
C462
C463
D403
C464
D404
C465
D407
C468
Q310
L108
L109
C469
Q311
Q312
Q313
C470
L114
L115
C475
L309
L116
C476
L117
C477
D417
C478
C479
L119
D804
L310
D805
L311
L312
C480
L314
C481
L315
C482
L316
L317
D423
C484
L318
C485
L319
C487
C488
C489
C490
C491
IC411
L325
C492
L326
C493
L328
C495
C496
C497
C499
IC803
IC804
D251
CN13
R108
Q172
Q173
Q174
R116
Q178
R500
R119
R501
IC251
R502
R504
CN100
R505
CN101
R506
CN102
R507
R120
L1
R509
L2
L3
L171
L172
L173 L7
L174
L8
R129
L175
R511
L9
L176
R512
L177
R513
L178
R514
L179
R515
R517
R130 R131
R519
R132
L180
L183
L184
R520
L10
L185
R521
L186
R522
L12
L187
R523
L13
R524
L189
R525
R526
R527
R528
R334
R529
R335
R336
R337R339
R530
R531
R532
CN322
R533
CN323
R534
R340
R535
R341
R536
CN326
R342
R343
R344
CN329
R539
R345
R346
R347
R348
C119
R349
C502
C503
R540
C504
R541
C507
R10
R350
C121
R11
R351
R12
R352
R13
R353
C124
R548
C125
R355
TC301
TC302
R356
R357
R358
R359
R550
C514
C515
C516
R553
C517
C518
R554
R360
C519
R555
R361
C325
R556
R22
R557
R23
R558
R24
R171
R559
R25
Q1
R365
R366
R172
Q2
R173
R367
R27
R28
R174
C520
R175
R29
R176
R178
R560
C524
R179
C525
C526
R563
C528
C334
R565
C529
R566
R567
R33
C143
C144
R568
R1
C145
R375
C146 R2
R3
C147
R38
C148
R4
C149
R185
C531
R5
R186
C532
R6
R187
C533
R7
R188
R570
R8
R189
R571
C535
R9
C536
C342
C537
C343 +
C150
C151
C152
R576
C346
C153
C347
R190
C154
R578
C155
R191
R579
R192
C156
R193
R194
R195
C541
R196
C350
C545
C351
R582
C352
R583
C547
C353
C548
C354
R584
R585
C549
C355
C356
R587
C357
R588
C358
C359
D107
D108
C550
D109
C551
C552
C553
C554
C360
C555
C361
C556
C362
C557
C363
D110
C558
C364
D111
C171
C559
C365
Q402
C173
C367
R598
C368
D308
C175
R599
Q405
D309
C369
C176
C177
C178
Q409
C370 C371
D311
C372
C567
C373
D313
C568
D314
C374
C181
D315
C375
C182
Q412
D316
C376
C183
C377
C184
Q414
C378
C185
Q415
L401
C379
C186
L402
C187
L403
C188
L404
C189
L405
L406
Q802
L407
C380
L408
L409
Q805
C381
C382
C383
Q807
C190
C384
Q809
C385
C387
C388
Q810
C199
C581
C582
C583
C584
CN1 CN2
CN3
C591
C594
Q251
C10
C13
C14
C15
C16
L251
R208 R209
ANT
+
16
43
B
C
E
1
23
4
S
G
D
S
G
D
+
CV
+++
1
34
6
1
34
6
Q406
1
34
6
D
G
S
IC409
1
45
8
+
IC415
19
10
16
17
25
26
32
1
45
8
IC412
D
G
S
IC413
1
89
16
IC405
1
1617
32
IC403
1
89
16
1
45
8
IC406
+
1
34
5
O
I
G
+
+
G
S
D
+
IC805
O
G
I
Q801
B
C
E
1
45
8
IC408
IC404
38
3964
65
1
102
103 128
CP412
CP413
CP414 CP415
CP416 CP417
CP408
CP409
CP410
CP411
CP407
CP402
CP403
CP404
CP405
CP406
RXDTXDRST2PSW
PSENS
IC401
1
45
8
CP401
IC402
1
56
10
O
G
I
CN427
1
30
NC
SB
SB
SB
SB
SB
SB
AFO
DI
5C
GND
DEO
MI2
ME
GND
RXD1
AUXO2
TXD1
AUXO1
AUXIO9
AUXIO5
AUXIO8
AUXIO4
TXD2
AUXIO3
RXD2
AUXIO2
AUXIO1
AUXIO7
AUXIO6
J72-0931-19 B/3
TK-8180 PC BOARD TX-RX UNIT (X57-6990-10) (B/3)
Foil side view (J72-0931-19 B/3)
TX-RX UNIT (X57-6990-10) (B/3)
Foil side view (J72-0931-19 B/3)
PC BOARD TK-8180
Component side
Foil side
Layer 1
Layer 2
Layer 3
Layer 4
Ref. No.
Address
IC171 11D
IC251 12H
IC401 10P
IC402 10Q
IC403 9M
IC404 11N
IC405 11M
IC406 8M
IC408 7M
IC409 8J
IC411 8L
IC412 11J
IC413 12K
IC415 9K
IC803 4P
IC804 2L
IC805 6O
Q1 7G
Q2 7H
Q103 7E
Q172 9B
Q173 9D
Q174 9D
Q178 10C
Q251 12G
Q306 9G
Q307 10H
Q308 9G
Q309 10H
Q310 9I
Q311 9H
Q312 11H
Q313 9G
Q402 11P
Q405 11K
Q406 11J
Q409 9J
Ref. No.
Address
Q412 11J
Q414 12J
Q415 12J
Q801 6N
Q802 3N
Q805 2M
Q807 3M
Q809 2N
Q810 4N
D2 6B
D3 6D
D6 6B
D7 5B
D8 4B
D107 7C
D108 7C
D109 7D
D110 7D
D111 7B
D171 9D
D172 10D
D251 12H
D308 11H
D309 11F
D311 11I
D313 11F
D314 9H
D315 9F
D316 8F
D402 9P
D403 10P
D404 9P
D407 12J
D417 9P
D423 9P
D804 3N
D805 6N

58
TK-8180 SCHEMATIC DIAGRAM
7
6
5
4
3
2
1
ABCDE
X54-348 1/2
C906 0.01u
C917
0.1u
C918
10u10
C912 1000p
C909 100p
D901
02DZ18(X,Y)
R904
1k
R903
470
C904 100p
J901
8
7
6
5
7
3
2
1
C916
0.1u
C915 1000p
R901
1k
D906
DA204U
D904
DA204U
IC901
TA78L05F
2
COM
3
IN
1
OUT
C927
1000p
R943
100
R939
4.7k
D905
DA204U
R905
4.7k
R909
47k
R911
47k
R907
33k
Q913
DTC114EE
Q906
DTC114EE
C928
1000p
Q901
DTC144EE
Q902
DTC144EE
26
27
28
29
30
31
32
33
34
35
36
37
38
39
40
41
42
43
44
45
46
47
48
49
50
51
52
53
54
55
56
57
58
59
60
61
62
63
64
65
66
67
68
69
70
71
72
73
74
75
76
77
78
79
80
81
82
83
84
85
86
87
88
89
90
91
92
93
94
95
96
97
98
C925
10p
R919 1k
R936 10k
L903
R926 47k
L904
R932 1k
R933 1k
R934 1k
R935 1k
R927 1k
R928 1k
R914 470k
R915 470k
R944
0
Q905
DTC114EE
C921
1000p
R918
270
C926
1000p
R917
470
Q904
DTC114EE
D926
D920
D917
D913 D912
D925
D911
D916
D919
D923
D915
D922
D910
D921
R950
100
R949
100
R948
100
R947
100
D909
D918
D914
L902
1u
C910
100p
C911
100p
C914
100p
C913
1000p
L901
1u
R929 1k
R930 1k
R931 1k
R916 470k
CP901
100*2
CP902
100*2
CP903
100*2
CP904
100*2
CP905
100*2
CP906
100*2
CP907
100*2
CP908
100*2
CP909
100*2
CP910
100*2
CP911
100*2
D924
R953
820
D927
D928
R954
820
D929
D930
12A02CH
Q910
Q911
DTC114EE
R962
10k
R963
10k
C936 0.1u
R970
10k
R910
47k
D907
B30-2151-05
R913 470k
R920
0
R942
47
12A02CH
Q909
R945
10k
R952
390
R951
390
R925 470
C938 1000p
R941
1k
R940
100
L909
L908
C924
10p
C922
0.01u
C920
100p
FKEY[1]
FKEY[2]
FKEY[3]
FKEY[4]
FKEY[6]
FKEY[5]
FKEY[7]
FKEY[8] FKEY[10]
FKEY[9]
FKEY[10]
FKEY[9]
FKEY[8]
FKEY[7]
FKEY[6]
FKEY[5]
FKEY[4]
FKEY[3]
FKEY[2]
FKEY[1]
HK
E
MIC
PTT
DM
SB
BLC
ME
SP2
TX BUSY
LCD Key
DISPLAY UNIT (X54-3480-10)
VOLTAGE
REGULATOR/5V
TX
INDICATION
LED SW
BUSY
INDICATION
LED SW
DIMMER SW
CONTROL
BACKLIGHT
CONTROL
BACKLIGHT CONTROL SW
8C SW
8C SW
CONTROL
HOOK SW
Q901,902
VOLTAGE
PROTECTION
VOLTAGE
PROTECTION
TX/BUSY
INDICATION
POWER
SW_8C
LCDCS
LCDRST
LCDDT
LCDCK
5C
SB
RX
TX
8C
PSW
ME
RST
X901
L77-1956-05
SURGE PROTECTION
D904-906
LCD BACKLIGHT
D909-920
KEY BACKLIGHT
D921-930
2SC2873(Y)
Q907
DIMMER SW
NC
RXD2
TXD2
PTT/TXD
NC
DM
NC
NC
HK/RXD
NC
NC
NC
NC
NC
NC
NC
NC
NC
NC
TP1
NC
NC
NC
NC
NC
NC
NC
NC
NC
NC
NC
NC
NC
NC
VCC
NC
VSS
NC
NC
NC
NC
NC
NC
NC
NC
S22
S21
S20
S19
S18
S17
S16
S15
S14
S13
S12
S11
S10
S9
S8
S7
S6
S5
S4
S3
S2
S1
NC
AVSS
NC
VREF
AVCC
NC
NC
NC
D903
MINISMDC020
CURRENT
LIMITER
B30-2281-05
B30-2281-05
B30-2282-05
B30-2281-05
B30-2282-05
B30-2281-05
B30-2282-05
B30-2282-05
D902
02DZ18(X,Y)
NC
NC
NC
NC
SHIFT
BYTE
CNVSS
NC
NC
RST
Xout
VSS
Xin
VCC
NMI
BLC2
BLC1
DIMM
LEDG
LEDR
NC
LCDCK
LCDDT
LCDCS
LCDRST
1
2
3
4
5
6
7
8
9
10
11
12
13
14
15
16
17
18
19
20
21
22
23
24
25
99
100
IC902
30302M8-8Z7GP
MICROPROCESSOR
4.97V
5.05V
7.84V
7.84V
7.10V
7.84V
5.02V
4.61V
13.3V
T:0.01V
R:5.02V
5.03V
T:4.80V
R:0.01V
R:0.01V
BUSY:4.83V
0V
0.66V
4.62V
7.10V
7.84V
7.79V
5.04V
0.01V

59
SCHEMATIC DIAGRAM TK-8180
7
6
5
4
3
2
1
JIHGF
X54-348 2/2
-t
C908 1000p
C907 1000p
S1
S2
S3
S4
S5
S6
S7
S8
S9
S10
S11
S12
S13
S14
S15
S16
S17
S18
S19
S20
S21
S22
S23
S24
S25
26
S26
27
S27
28
S28
29
S29
30
S30
31
S31
32
S32
33
S33
34
S34
35
S35
36
S36
37
S37
38
S38
39
S39
40
S40
41
S41
42
S42
43
S43
44
S44
45
S45
46
S46
47
S47
48
S48
49
S49
50
S50
51
52
53
54
55
56
57
58
59
60
61
62
63
64
65
66
67
68
69
70
71
72
73
74
75
76
77
78
79
80
81
82
83
84
85
86
87
88
89
90
91
92
93
94
95
96
97
98
R957
4.7k
R956
4.7k
C935 470p
R955
4.7k
R958
4.7k
R959 10k
C931
4.7u10
CN902
1
2
3
4
5
6
7
8
9
10
11
12
13
14
15
16
17
18
19
20
21
22
23
24
25
26
27
28
29
30
R971
1k
R967
270
R969
0
CN901
1
2
C933
0.01u
C934
0.01u
C932
0.01u
C937
0.01u
C930
0.01u
TH901
S1R103J440H
100k
L907
COM8_1
COM9_1
COM1_1
COM2_1
COM3_1
COM4_1
COM5_1
COM6_1
COM7_1
COM8_2
COM9_2
SEG16
SEG17
SEG18
SEG19
SEG20
SEG21
SEG22
SEG23
SEG24
SEG25
SEG31
SEG32
SEG33
SEG34
SEG35
SEG41
SEG42
SGE43
SEG44
SEG45
SEG51
SEG52
SEG53
SEG54
SEG55
SEG61
SEG62
SEG63
SEG64
SEG65
SEG71
SEG72
SEG73
SGE74
SEG75 47
48
49
50
51
52
53
54
55
56
57
58
59
60
61
62
63
64
65
66
67
68
69
70
71
72
73
74
75
76
77
78
79
80
81
82
83
84
85
86
87
88
89
90
91
92
S[1]
S[2]
S[3]
S[4]
S[5]
S[6]
S[7]
S[8]
S[9]
S[10]
S[11]
S[12]
S[13]
S[14]
S[15]
S[26]
S[27]
S[28]
S[29]
S[30]
S[36]
S[37]
S[38]
S[39]
S[40]
S[46]
S[47]
S[48]
S[49]
S[50]
S[56]
S[57]
S[58]
S[59]
S[60]
S[66]
S[67]
S[68]
S[69]
S[70]
COM[2]
COM[3]
COM[4]
COM[5]
COM[6]
COM[7]COM[8]
COM[9]
COM[1]
COM[2]
COM[3]
COM[4]
COM[5]
COM[6]
COM[7]
COM[8]
COM[9]
S[16]
S[17]
S[18]
S[19]
S[20]
S[22]
S[21]
S[23]
S[24]
S[31]
S[25]
S[32]
S[33]
S[35]
S[34]
S[41]
S[42]
S[44]
S[43]
S[45]
S[51]
S[53]
S[52]
S[54]
S[55]
S[62]
S[61]
S[63]
S[64]
S[71]
S[65]
S[72]
S[73]
S[75]
S[74]
S[75]
S[74]
S[73]
S[72]
S[71]
S[70]
S[69]
S[67]
S[66]
S[68]
S[65]
S[62]
S[61]
S[64]
S[63]
S[56]
S[57]
S[60]
S[59]
S[58]
S[55]
S[54]
S[52]
S[53]
S[51]
S[46]
S[47]
S[48]
S[49]
S[50]
S[45]
S[41]
S[43]
S[44]
S[42]
S[36]
S[39]
S[40]
S[38]
S[37]
S[35]
S[33]
S[34]
S[32]
S[31]
S[26]
S[30]
S[28]
S[29]
S[27]
L905
L906
COM[2]
COM[9]
COM[8]
COM[3]
COM[4]
COM[1]
COM[5]
COM[6]
COM[7]
SP CONNECTOR
SPO
SPO
SPO
SPO
SPO
SPO
GND
8C
SB
SB
NC
PSW
GND
GND
MIC
ME
GND
PSENS
RST2
NC
SHIFT/MODEL
NC
5C
TXD
RXD
GND
GND
GND
GND
GND
TX
RX
8C
SB
LCDRST
SW_8C
LCDCK
LCDCS
5C
LCDDT
PSW
ME
RST
LCD
B38-0888-05
IC903
LC75810T-8726
LCD DRIVER
S[5]
S[2]
S[4]
S[3]
S[1]
S[10]
S[12]
S[11]
S[8]
S[14]
S[13]
S[9]
S[7]
S[6]
S[15]
S[16]
S[21]
S[22]
S[24]
S[18]
S[17]
S[19]
S[23]
S[20]
S[25]
SEG70
SEG69
SEG68
SEG67
SEG66
SEG60
SEG59
SEG58
SEG57
SEG56
SEG50
SEG49
SEG48
SEG47
SEG46
SEG40
SEG39
SEG38
SEG37
SEG36
SEG30
SEG29
SEG28
SEG27
SEG26
SEG15
SEG14
SEG13
SEG12
SEG11
SEG10
SEG9
SEG8
SEG7
SEG6
SEG5
SEG4
SEG3
SEG2
SEG1
COM2_2
COM3_2
COM4_2
COM5_2
COM6_2
COM7_2
1
2
3
4
5
6
7
8
9
10
11
12
13
14
15
16
17
18
19
20
21
22
23
24
25
26
27
28
29
30
31
32
33
34
35
36
37
38
39
40
41
42
43
44
45
46
1
2
3
4
5
6
7
8
9
10
11
12
13
14
15
16
17
18
19
20
21
22
23
24
25
99
100
S76
S77
S78
CoM10/S79
CoM9/S80
CoM8
CoM7
CoM6
CoM5
CoM4
CoM3
CoM2
CoM1
VDD
VLCD
VLCD0
VLCD1
VLCD2
VLCD3
VSS
oSC
RES
CE
CL
DI
S51
S52
S53
S54
S55
S56
S57
S58
S59
S60
S61
S62
S63
S64
S65
S66
S67
S68
S69
S70
S71
S72
S73
S74
S75
TO TX-RX UNIT (B/3) CN429
5.05V
7.43V
DISPLAY UNIT (X54-3480-10)
Note : The components marked with a dot (•) are parts of layer 1.

-t
C906 0.01u
C917
0.1u
C918
10u10
C912 1000p
C909 100p
D901
02DZ18(X,Y)
R904
1k
R903
470
C904 100p
J901
8
7
6
5
7
3
2
1
C916
0.1u
C915 1000p
R901
1k
D906
DA204U
D904
DA204U
IC901
TA 78L05F
2
COM
3
IN
1
OUT
C927
1000p
R943
100
R939
4.7k
D905
DA204U
R905
4.7k
R909
47k
R911
47k
R907
33k
C908 1000p
C907 1000p
Q913
DTC114EE
Q906
DTC114EE
C928
1000p
Q901
DTC144EE
Q902
DTC144EE
S1
S2
S3
S4
S5
S6
S7
S8
S9
S10
S11
S12
S13
S14
S15
S16
S17
S18
S19
S20
S21
S22
S23
S24
S25
26
S26
27
S27
28
S28
29
S29
30
S30
31
S31
32
S32
33
S33
34
S34
35
S35
36
S36
37
S37
38
S38
39
S39
40
S40
41
S41
42
S42
43
S43
44
S44
45
S45
46
S46
47
S47
48
S48
49
S49
50
S50
51
52
53
54
55
56
57
58
59
60
61
62
63
64
65
66
67
68
69
70
71
72
73
74
75
76
77
78
79
80
81
82
83
84
85
86
87
88
89
90
91
92
93
94
95
96
97
98
R957
4.7k
R956
4.7k
C935 470p
R955
4.7k
R958
4.7k
R959 10k
C931
4.7u10
26
27
28
29
30
31
32
33
34
35
36
37
38
39
40
41
42
43
44
45
46
47
48
49
50
51
52
53
54
55
56
57
58
59
60
61
62
63
64
65
66
67
68
69
70
71
72
73
74
75
76
77
78
79
80
81
82
83
84
85
86
87
88
89
90
91
92
93
94
95
96
97
98
C925
10p
R919 1k
R936 10k
L903
R926 47k
L904
R932 1k
R933 1k
R934 1k
R935 1k
R927 1k
R928 1k
R914 470k
R915 470k
R944
0
Q905
DTC114EE
C921
1000p
R918
270
C926
1000p
R917
470
Q904
DTC114EE
D926
D920
D917
D913 D912
D925
D911
D916
D919
D923
D915
D922
D910
D921
R950
100
R949
100
R948
100
R947
100
D909
D918
D914
L902
1u
C910
100p
C911
100p
C914
100p
C913
1000p
L901
1u
R929 1k
R930 1k
R931 1k
R916 470k
CP901
100*2
CP902
100*2
CP903
100*2
CP904
100*2
CP905
100*2
CP906
100*2
CP907
100*2
CP908
100*2
CP909
100*2
CP910
100*2
CP911
100*2
D924
R953
820
D927
D928
R954
820
D929
D930
CN902
1
2
3
4
5
6
7
8
9
10
11
12
13
14
15
16
17
18
19
20
21
22
23
24
25
26
27
28
29
30
12A02CH
Q910
Q911
DTC114EE
R962
10k
R963
10k
R971
1k
R967
270
C936 0.1u
R969
0
R970
10k
R910
47k
CN901
1
2
D907
B30-2151-05
C933
0.01u
C934
0.01u
C932
0.01u
C937
0.01u
R913 470k
C930
0.01u
R920
0
TH901
S1R103J440H
100k
R942
47
12A02CH
Q909
R945
10k
R952
390
R951
390
R925 470
C938 1000p
R941
1k
R940
100
L909
L908
C924
10p
C922
0.01u
C920
100p
L907
COM8_1
COM9_1
COM1_1
COM2_1
COM3_1
COM4_1
COM5_1
COM6_1
COM7_1
COM8_2
COM9_2
SEG16
SEG17
SEG18
SEG19
SEG20
SEG21
SEG22
SEG23
SEG24
SEG25
SEG31
SEG32
SEG33
SEG34
SEG35
SEG41
SEG42
SGE43
SEG44
SEG45
SEG51
SEG52
SEG53
SEG54
SEG55
SEG61
SEG62
SEG63
SEG64
SEG65
SEG71
SEG72
SEG73
SGE74
SEG75 47
48
49
50
51
52
53
54
55
56
57
58
59
60
61
62
63
64
65
66
67
68
69
70
71
72
73
74
75
76
77
78
79
80
81
82
83
84
85
86
87
88
89
90
91
92
S[1]
S[2]
S[3]
S[4]
S[5]
S[6]
S[7]
S[8]
S[9]
S[10]
S[11]
S[12]
S[13]
S[14]
S[15]
S[26]
S[27]
S[28]
S[29]
S[30]
S[36]
S[37]
S[38]
S[39]
S[40]
S[46]
S[47]
S[48]
S[49]
S[50]
S[56]
S[57]
S[58]
S[59]
S[60]
S[66]
S[67]
S[68]
S[69]
S[70]
COM[2]
COM[3]
COM[4]
COM[5]
COM[6]
COM[7]COM[8]
COM[9]
COM[1]
COM[2]
COM[3]
COM[4]
COM[5]
COM[6]
COM[7]
COM[8]
COM[9]
S[16]
S[17]
S[18]
S[19]
S[20]
S[22]
S[21]
S[23]
S[24]
S[31]
S[25]
S[32]
S[33]
S[35]
S[34]
S[41]
S[42]
S[44]
S[43]
S[45]
S[51]
S[53]
S[52]
S[54]
S[55]
S[62]
S[61]
S[63]
S[64]
S[71]
S[65]
S[72]
S[73]
S[75]
S[74]
S[75]
S[74]
S[73]
S[72]
S[71]
S[70]
S[69]
S[67]
S[66]
S[68]
S[65]
S[62]
S[61]
S[64]
S[63]
S[56]
S[57]
S[60]
S[59]
S[58]
S[55]
S[54]
S[52]
S[53]
S[51]
S[46]
S[47]
S[48]
S[49]
S[50]
S[45]
S[41]
S[43]
S[44]
S[42]
S[36]
S[39]
S[40]
S[38]
S[37]
S[35]
S[33]
S[34]
S[32]
S[31]
S[26]
S[30]
S[28]
S[29]
S[27]
L905
L906
COM[2]
COM[9]
COM[8]
COM[3]
COM[4]
COM[1]
COM[5]
COM[6]
COM[7]
FKEY[1]
FKEY[2]
FKEY[3]
FKEY[4]
FKEY[6]
FKEY[5]
FKEY[7]
FKEY[8] FKEY[10]
FKEY[9]
FKEY[10]
FKEY[9]
FKEY[8]
FKEY[7]
FKEY[6]
FKEY[5]
FKEY[4]
FKEY[3]
FKEY[2]
FKEY[1]
HK
E
MIC
PTT
DM
SB
BLC
ME
SP2
TX BUSY
LCD Key
SP CONNECTOR
SPO
SPO
SPO
SPO
SPO
SPO
GND
8C
SB
SB
NC
PSW
GND
GND
MIC
ME
GND
PSENS
RST2
NC
SHIFT/MODEL
NC
5C
TXD
RXD
GND
GND
GND
GND
GND
TX
RX
8C
DISPLAY UNIT (X54-3480-10)
SB
LCDRST
SW_8C
LCDCK
LCDCS
5C
LCDDT
VOLTAGE
REGULATOR/5V
TX
INDICATION
LED SW
BUSY
INDICATION
LED SW
DIMMER SW
CONTROL
BACKLIGHT
CONTROL
BACKLIGHT CONTROL SW
8C SW
8C SW
CONTROL
HOOK SW
Q901,902
VOLTAGE
PROTECTION
VOLTAGE
PROTECTION
TX/BUSY
INDICATION
PSW
ME
RST
LCD
B38-0888-05
POWER
IC903
LC75810T-8726
LCD DRIVER
S[5]
S[2]
S[4]
S[3]
S[1]
S[10]
S[12]
S[11]
S[8]
S[14]
S[13]
S[9]
S[7]
S[6]
S[15]
S[16]
S[21]
S[22]
S[24]
S[18]
S[17]
S[19]
S[23]
S[20]
S[25]
SW_8C
LCDCS
LCDRST
LCDDT
LCDCK
5C
SB
RX
TX
8C
PSW
ME
RST
X901
L77-1956-05
SURGE PROTECTION
D904-906
LCD BACKLIGHT
D909-920
KEY BACKLIGHT
D921-930
2SC2873(Y)
Q907
DIMMER SW
NC
RXD2
TXD2
PTT/TXD
NC
DM
NC
NC
HK/RXD
NC
NC
NC
NC
NC
NC
NC
NC
NC
NC
TP1
NC
NC
NC
NC
NC
NC
NC
NC
NC
NC
NC
NC
NC
NC
VCC
NC
VSS
NC
NC
NC
NC
NC
NC
NC
NC
S22
S21
S20
S19
S18
S17
S16
S15
S14
S13
S12
S11
S10
S9
S8
S7
S6
S5
S4
S3
S2
S1
NC
AVSS
NC
VREF
AVCC
NC
NC
NC
SEG70
SEG69
SEG68
SEG67
SEG66
SEG60
SEG59
SEG58
SEG57
SEG56
SEG50
SEG49
SEG48
SEG47
SEG46
SEG40
SEG39
SEG38
SEG37
SEG36
SEG30
SEG29
SEG28
SEG27
SEG26
SEG15
SEG14
SEG13
SEG12
SEG11
SEG10
SEG9
SEG8
SEG7
SEG6
SEG5
SEG4
SEG3
SEG2
SEG1
COM2_2
COM3_2
COM4_2
COM5_2
COM6_2
COM7_2
1
2
3
4
5
6
7
8
9
10
11
12
13
14
15
16
17
18
19
20
21
22
23
24
25
26
27
28
29
30
31
32
33
34
35
36
37
38
39
40
41
42
43
44
45
46
D903
MINISMDC020
CURRENT
LIMITER
B30-2281-05
B30-2281-05
B30-2282-05
B30-2281-05
B30-2282-05
B30-2281-05
B30-2282-05
B30-2282-05
D902
02DZ18(X,Y)
1
2
3
4
5
6
7
8
9
10
11
12
13
14
15
16
17
18
19
20
21
22
23
24
25
99
100
S76
S77
S78
CoM10/S79
CoM9/S80
CoM8
CoM7
CoM6
CoM5
CoM4
CoM3
CoM2
CoM1
VDD
VLCD
VLCD0
VLCD1
VLCD2
VLCD3
VSS
oSC
RES
CE
CL
DI
S51
S52
S53
S54
S55
S56
S57
S58
S59
S60
S61
S62
S63
S64
S65
S66
S67
S68
S69
S70
S71
S72
S73
S74
S75
NC
NC
NC
NC
SHIFT
BYTE
CNVSS
NC
NC
RST
Xout
VSS
Xin
VCC
NMI
BLC2
BLC1
DIMM
LEDG
LEDR
NC
LCDCK
LCDDT
LCDCS
LCDRST
1
2
3
4
5
6
7
8
9
10
11
12
13
14
15
16
17
18
19
20
21
22
23
24
25
99
100
IC902
30302M8-8Z7GP
MICROPROCESSOR
TO TX-RX UNIT (B/3) CN429
4.97V
5.05V
7.84V
7.84V
7.10V
7.84V
5.02V
4.61V
13.3V
T:0.01V
R:5.02V
5.03V
T:4.80V
R:0.01V
R:0.01V
BUSY:4.83V
0V
0.66V
4.62V
7.10V
7.84V
7.79V
5.04V
5.05V
7.43V
0.01V

60
TK-8180 SCHEMATIC DIAGRAM
7
6
5
4
3
2
1
ABCDE
X57-699 1/9
D
D
D
D
C815
4.7u16
R815
68k
C804
470p
2
COM
3IN 1
OUT
C812
0.1u
C817
470p
C802
1000p
R805
470
R813
4.7k
R802
330k
R807
10k
C806
100p
C810
0.047u
Q806
DTC114EE
Q808
DTC114EE
R812
10k
R814
47k
R806
10k
R808
47k
C808
0.1u
C819 0.1u
3
GND
1IN 2
OUT
C813
470p
C811
0.1u
C816
10u10
C821
4.7u16
Q802
DTC114EE
C820
0.1u
C807
0.047u
C822 470p
C809
470p
Q809
DTC114EE
R809
47k
C805
1000p
Q807
DTC114EE
R811
10k
R801
220k
D805
02CZ9.1(X,Y)
C803
0.047u
C814 470p
R803
10k
C801
1000u25
IC803
TA7808F
3
GND
1IN 2
OUT
D801
22ZR-10D
D802
DSA3A1
2SC2873(Y)
Q801
12A02CH
Q803
12A02CH
Q804
2SJ645
Q810
1VSS
2VDD
4
3
1
2
4VSS
3NC
C406
0.3p
D403
1SS388
D402
1SS388
1
2
3
4
5
6
7
8
9
10
C410
0.1u
CP401
100
D404
1SS388
1
2
3
45
6
7
8
1STRB
2DATA
3CLK
4Q1
5Q2
6Q3
7Q4
8VSS 9
10
11
12
13
14
15
16
C407 0.01u
C824
0.01u
C823
1000p
CN802
CN803
CN804
2
1
L410
L411
R800
1M
R818
47k
C826
470p
Q811
DTC114TE
R804
100k
C818
4700p
Q402
DTC114YE
C408
15p
Q812
DTC114EE
C832
4.7u16
2
VSS
3VIN 1
VOUT
C831
4.7u16
+B
SB
5M
5M
8C
5E
8T
TCTL
DATAO U T
R485 0
C424 1000p
RXEMAO
SIDETONE
OPT2
C587 100p
C427 100p
C595 100p
TXAO
C436 100p
RXEMAI
C588 1000p
C431 100p
C439 1000p
OPT4
C435 1000p
R491 0
C425 100p
C430 100p
AUDIH
R403 1M
R483 0
R473 0
AI
R488 0
R486 0
C422 1000p
C432
1000p
C420 100p
R484 0
C421 100p
OPT3
TXD1
C428 100p
C585 100p
OPT5
RXD1INT
AO
C437 100p
R489 0
R487 1.8M
CN403
2OPT3
1OPT1
4TXD1
3RXD1
6OPT4
5CLK
8OPT5
7USEL
10 AGND
9DGND
12 AI
11 AO
14 5E
13 AGND
16 DTI
15 STON
18 NC
17 TCTL
20 OPT2
19 AUDIH
22 RXEO
21 TXO
24 TXI
23 RXEI
26 8C
25 OPT6
C586 100p
C426 100p
R474 0
R574
0
C502 1000p
C490 1000p
C481 1000p
C487 1000p
R572
0
R902 0
R901 0
C500 100p
C498 100p
C515 1000p
CN429
1
2
3
4
5
6
7
8
9
10
11
12
13
14
15
16
17
18
19
20
21
22
23
24
25
26
27
28
29
30
R575
0
R900 0
C478 100p
C516 1000p
C504 1000p
R903 0
R400 1M
LCDRST
R591
0
RXAI
OPT1
OPT3
OPT4
OPT5
OPT2
RXD1INT
TXD1
TXD2
RXD2
5E
DATAO U T
TCTL
TXAO
TXAI
RXEMAO
AUDIH
SIDETONE
RXEMAI
8C
5E
5M
8R
5C
5M
5R
PSENS
LCDDO
LCDDI
RST2
5C
SB
8C
RXD
TXD
PSW
SPO
DM
OPT1
D421
1SS388
D422
1SS388
R446
10k
R445
10k
RXAO
TXAI
8C
5M
SB CONTROL SW
SB CONTROL SW
VOLTAGE
PROTECTION
VOLTAGE
DETECTOR(INT)
IGNITION SENS
CONTROL SW
CPU RESET SW
VOLTAGE
REGULATOR
/8.5V
VOLTAGE
PROTECTION
RTC PROCESSOR
BEAT SHIFT SW
VOLTAGE
REGULATOR/8V
8T CONTROL SW
8T SW
8R SW
VOLTAGE
REGULATOR/5V
5R CONTROL SW
SHIFT
REGISTER
DC REVERSE
CONNECTION
PROTECT
D801
VOLTAGE
PROTECTION
D802
SB SW
IC803
8R CONTROL SW
TX-RX UNIT (X57-6990-10)(B/3)
SBC
CK
IGN
IGN
SPO
GND
GND
GND
NC
(LCDDO)
8C
ME
SPO
(DM)
SB
(LCDDI)
5C
NC
MIC
SPO
SPO
(LCDRST)
RXD
SB
SHIFT/MODEL
GND
SPO
RST2
SPO
GND
TXD
(CLK)
PSW
PSENS
VOUT
VIN
D804
02DZ18(X,Y)
IC802
XC61CN5002NR
oUT
CD
F801
F53-0278-05 RTC BATTERY
CONTROL
D402-404
R402
5.1k(D)
R401
3.6k(D)
C404
5p
C403
0.1u
CN401
J19-5386-05
IC402
RV5C386A
32KOUT
SCL
SDA
INTRB
VSSINTRA
CLKC
OSCOUT
OSCIN
VDD
INT
INTRA
RST
IC401
AT24256N10SI27
EEPROM
SDA
SCL
WP
VCC
A0
A1
NC
GND
IC804
TA7805F
12A02CH
Q805
5R SW
MIC
CK
RXC
SPSTB
ME
OPT6
SOE
RTCL/EEPCL
XIN
DT
SBC
XOUT
RTDT/EEPDAT
INT
INTRA
SPSTB
TXC
RST
SHIFT/MODEL
5M
OPT6
8C
TXD2
OPT2
RXD1
GND
AUDIH
TXD1
STON
TCTL
5E
RXEO
DTI
OPT3
TXI
RXD2
TXO
OPT4
OPT5
RXEI
OPT1
RXO
RXI
QS
Q’S
Q8
Q7
Q6
Q5
OE
VDD
IC403
BU4094BCFV
CFSW
GSW
HOR
AO1
AO2
PA
+B
GND
GND
IGN
VOLTAGE
DETECTOR
(CPU RESET)
IC801
S-80942CNNBG9C
VOLTAGE
PROTECTION
D421,422
X404
L77-1950-05
C409
15p
C411
0.1u
VOLTAGE
REGULATOR/5V
IC807
XC6201P502PR
IC805
NJM78L05UA
VOLTAGE
REGULATOR/5V
X401
L77-1802-05
TO DISPLAY UNIT CN902
4.99V8.21V
T:12.7V
R:13.5V
7.96V
T:7.83V
T:7.96V
R:7.97V
T:7.2V
R:7.95V T:4.95V
R:0.003V
R:7.95V
T:7.94V
R:7.25V T:0.005V
R:4.93V
5V
R:4.98V
4.28V
T:7.91V
R:7.46V
4.99V
4.99V
4.99V
4.99V
T:7.60V
R:8.09V
8.83V

61
SCHEMATIC DIAGRAM TK-8180
JIHGF
X57-699 2/9
D
D
D
D D
D
R434 47k
R451 470k
C423
1u
R418 47k
L401
R420 330k
R461 470k
R431 0
R458 470k
L406
R453 470k
R482
47k
R432 1k
R419 47k
R405 470k
C412
0.1u
5M
5M
R424 1k
R428 0
R469
1k
L402
R467 0
R447 470k
R411 470k R427 1k
R430 470
R422 47k
R481 470k
R421 47k
R426 1k
R406 470k
R449 470k
R470 1k
R429 470 R471 1k
R425 1k
R414 10k
R465 47k
R457 47k
R410
10k
R459 470k
R415 470k
R468 47k
R472 1k
L407
R657 4.7k
R658 0
R511
1.5k
R525
1.5k
C464
0.033u
C447
0.033u
R412 470k
R477 470k
R478 470k
R416 0
D417
1SS388
D418
1SS388
IC404
30625MGP-169GP
1
2
3
4
5
6
7
8
39
40
41
42
43
44
45
46
47
48
49
50
51
52
53
54
55
56
57
58
59
60
61
62
63
64
65
66
67
68
69
70
71
72
73
74
75
76
77
78
79
80
81
82
83
84
85
86
87
88
89
90
91
92
93
94
95
96
97
98
103
104
105
106
107
108
109
110
111
112
113
114
115
116
117
118
119
120
121
122
123
124
125
126
127
128
CP402 1k
CP403 1k
CP404 1k
CP405 1k
CP406 1k
CP407
1k
CP408
1k
CP409
1k
CP410
1k
CP411
1k
CP412
1k
CP413
1k
CP414
1k
CP415
1k
CP416
1k
CP417
1k
AIO9
AIO5
PSW
RXD1INT
L405
L404
L403
D2
D0
D3
D1
D4
D5
D6
D7
OPT5
OPT4
OPT3
OPT2
OPT1
RSSI
W/N
ASQ
THP
H/L
A2
A3
A0
A1
A5
A6
A7
A4
TCLK/DTRDO
A8
A9
A11
A11
A12
A13
A14
A15
A16
A17
A18
CSO
5C
AM2
PC
T/R
PCK
PLE
UL
RST2
TXD
RXD
PSENS
AFDAT
AFDIO
AFDIR
AFSTD
DTRLOAD
AI04
AI03
AI02
AI01
AI07
AI08
RD
WR
TXD2
TXD1
RXD2
D423
1SS388
R407 10k
5M
AFRTM
RXD1EXT
AI06
DMUTE
SPSTB
CK
RXC
MIC
ME
OPT6
SOE
SPSTB
RST
XOUT
INT
INTRA
SHIFT/MODEL
DT
TXC
SBC
RTDT/EEPDAT
RTCL/EEPCL
XIN
MICROPROCESSOR
ISOLATOR
D417,418
5M
BEEP
IGN
HSDIN
HSDO
DSTB
LSDIN
DT
CK
D423
VOLTAGE
PROTECTION
ME
STSW
MM1
LSDIN
OPT6
RXC
SCSW
LSW
CK
LSDO
MIC
BEEP
EMTON
HSDIN
HSDO
DSTB
DT
MM2
AM1
R452
R439
R450
R437
R456
R443
R435
R444
R455
R442
R440
R448
R454
R441
R423
R466
R476
1k
0
1k
0
470
1k
1k
1k
470
1k
1k
1k
1k
1k
0
47k
47k
DGND
MM1
PSENS
TXD
RXD
AFDAT
AFDIO
AFDIR
DTRLOAD
AFSTD
LSW
RDY
NC
HOLD
NC
AI04
AIO3
AIO2
AIO1
NC
RD
NC
WR
AIO8
AIO7
AIO6
NC
NC
RST2
CS0
NC
A18
A17
A16
A15
A14
A13
A12
A11
A10
A9
UL
PLE
PCK
NC
OPT6
VCC2
A8
DGND
A7
A6
A5
A4
A3
A2
A1
A0
IGN
AFRTM
TCLK/DTRDO
MM2
T/R
AM1
EMTON
NC
D7
D6
D5
D4
D3
D2
D1
D0
DT
CK
W/N
OPT1
OPT2
OPT3
OPT4
OPT5
H/L
THP
NC
NC
ASQ
RSSI
NC
AGND
LSDIN
VREF
AVCC
SBC
RXC
TXC
PC
HSDO
STSW
RTCL/EEPCL
HSDIN
NC
RTDT/EEPDAT
BYTE
CNVSS
DMUTE
AM2
RST
XOUT
DGND
XIN
VCC1
NMI
PSW
INT
INTRA
SHIFT/MODEL
BEEP
SPSTB
SOE
AIO5
AIO9
DSTB
LSDO
RXD2
TXD2
TXD1
VCC1
RXD1
9
11
12
13
14
15
16
17
18
19
20
21
22
23
24
25
26
27
28
29
30
31
32
33
34
35
36
37
38
10
99
100
101
102
4.987V 4.989V
TX-RX UNIT (X57-6990-10) (B/3)

62
TK-8180 SCHEMATIC DIAGRAM
KLMNO
X57-699 3/9
D
IC405
AT29C040A-90TI
1
2
3
4
5
6
7
8
9
10
11
12
13
14
15
16 17
18
19
20
21
22
23
24
25
26
27
28
29
30
31
32
IC410
M62364FP
1
2
3
4
5
6
7
8
9
10
11
12
13
14
15
16
17
18
19
20
21
22
23
24
C429 1u
C454 0.01u
R553
4.7k
C463
0.01u
R540 47k
R532
1k
C475
100p
C477
1000p
R536
15k
C479
1000p
R545
10k
R541 0
R550
4.7k
R548
82k
C470
0.01u
R557
4.7k
C472
0.1u
R542
0
Q405
DTA114EE
R527
3.9k
R528
47k
R494 4.7k
R501
4.7k
C443
0.01u
C433
0.1u
R495 4.7k
C438 0.01u
R493
1M
C440 0.1u
C452
100p
R500
0
R519
100k
C448
100p
R514
18k
C459
10u10
C453
0.1u
R520
0
R505
68k
R515
100k
R512
15k
R506
220k
C457
470p
R504
10k
R513
560k
C451
0.01u
R517
22k
1
2
3
4VSS 5
6
7
8
VDD
1
2
3
4VSS 5
6
7
8
VDD
IC408
TC75W51FU
1
2
3
4VSS 5
6
7
8
VDD
R522
100k
R526 270k
R533
100k
C462 0.01u
1
OUTPUT
2
V+
3
INPUT+ 4
5
IC412
TC75W51FU
1
2
3
4VSS 5
6
7
8
VDD
R530
330k
R521
47k
R523
560k
C460
0.01u
C465
22p
C469
0.1u
D407
RB706F-40 R539
39k
R535
390k
R529
680k
IC407
TC75W51FU
1
2
3
4
VSS
5
6
7
8VDD
R496
100k
R498
270k
C444
39p
D406
02DZ5.1(Y)
C446
0.01u
C445
15p
R503
100k
R499
100k
R534
27k
C441
10u
C450 10u
R508
1k
R565
0
4
61
2
3
5
R554
56k
R556
56k
R555
12k
C467 0.01u
C455 47u6.3 R546
0
C584
22p
C400
1u
R509
33k
R549
47k
R475
100
R663
4.7k
R664
4.7k
D405
EMZ6.8N
A4
A12
A15
A16
A18
A5
A6
A7
A17
A14
A13
A11
A8
A9
WR
A3
A2
A1
A0
D0
D1
D2
D3
D4
D5
D6
D7
RD
A10
CSO
L408
TV
MB
10CL
5C
5M
DEO
DI
SIDETONE
DATAOUT
MP
RXDET
MOD
LSD BUFFER AMP/
VCXO BIAS AMP
LSDO
+
+
–
–
-
-
+
+
MODULATION
LPF/DEF AMP
–
–
+
+
DET AMP/
DATA LPF (DB-25)
VOLTAGE
PROTECTION
VOLTAGE
PROTECTION
FLASH MEMORY
D/A CONVERTER
OPT6
ME
MIC
CK
SCSW
RXC
STSW
BEEP
LSW
MM1
DC DETECTOR
MM2
DT
DSTB
HSDIN
HSDO
AQUA
CONTROL
SW
LSDIN
EMTON
AM1
LSD LPF/VOLTAGE
DC-REFERENCE
RF BPF TUNING
VOLTAGE DC AMP
LSW
BEEP
MM1
LSDO
EMTON
A11
A9
A8
A13
A14
A17
WE
VCC
A18
A16
A15
A12
A7
A6
A5
A4 A3
A2
A1
A0
Io0
Io1
Io2
GND
Io3
Io4
Io5
Io6
Io7
CE
A10
oE
VIN1
VOUT1
VOUT2
VIN2
VDD
LD
CLK
DI
VIN3
VOUT3
VOUT4
VIN4
VIN5
VOUT5
VOUT6
VIN6
DO
VDAref
RESET
GND
VIN7
VOUT7
VOUT8
VIN8
DT
AM1
AF
V_REF
MM2
STSW
SCSW
CK
RXC
ME
OPT6
LSDIN
MIC
MM1
BEEP
LIMLV
AGND
IC409
TC75W51FU
IC406
TC75W51FU
INPUT-
V-
IC411
LMC7101BIM5
HSD BPF/HSD
COMPALATOR
C434
560p
R492
680k
R490
180k
R497
3.3k
R507
220k
C442
0.1u
R502
10k
Q406
HN1J02FU
AF SW
(LSD)
–
–+
+
–
–
+
+
1.53V
0.87V
4.99V
2.49V
2.50V
2.50V
2.50V
4.98V
2.50V
2.49V
2.50V
4.92V
4.98V
2.48V
TX-RX UNIT (X57-6990-10) (B/3)

63
SCHEMATIC DIAGRAM TK-8180
TSRQP
X57-699 4/9
A
A
A
C517
0.01u
C506
1u
R585
180k
R570
150k
C480
1000p
C518
0.1u
C528
2200p
R552
10k
C520
1000p
C489 0.1u
R599
180k
C535
0.068u
R610
150k
R586
1k
R597
1M
C491
0.1u
C485
1u
R576
220k
R568
120k
R606
0
C538
1000p
R559
120k
C488
12p
R581
150
C484 4.7u
R563
390k
R571
120k
R608
180k
C505
1u
C482 4.7u
R587
150k
C495
180p
R566
1M
R609
22k
C531
1000p
IC415
AQUA-L
1
2
3
4
5
6
7
8
9
10
TCLK/DTRDO
11
TDATA/DTRCLK
12
DI/O
13
RDF/FD
14
SCLK
15
DIR
16
XOUT
17
18
19
20
21
22
23
24
25
26
27
28
29
30
31
32
C524
1000p
R616
4.7k
C533
0.015u
2SJ243
Q413
R600
4.7k
C537
0.1u
R596
0
R580
150
R583
0
2SJ243
Q417
R578
0
R560
390k
R567
390k
C525
0.1u
C532
0.012u
R588
4.7k
C503
68p
C534
1000p
C499
820p
C526
0.1u
C514
82p
C493 4.7u
R558
390k
C507
0.1u
C529
47p
R603
0
R602
1M
R607
270k
R601
470k
C492
0.1u
R598
4.7k
C476
0.1u
C536
0.1u
C497
1000p
R524
10k
1
2
3
4
VSS
5
6
7
8VDD
R594
680
R589
0
C511
0.1u
R573
6.8k
C501
22p
R569
100k
C496
0.1u
C483
0.01u
R592
0
R604
0
2SJ243
Q416
C540
10u10
C539
10u10
C544
10u10
C543
10u10
R613
100k
R619
100k
R612
100k
R617
100k
R615
4.7k
R618
220k
R620
220k
C542
1000p
C530
10u
R614
0
C541
0.1u
1
2
3
4
5
6
7
89
10
11
12
13
14
15
16
C519
1000p
C591
0.1u
2SK1824
Q412
C592
7p
C593
7p
R595
270k
D601
1SS388
Q600
DTA144EE
R647
100k
R584
0
R659
33k
R661
4.7k
C513
1000p
C512
1000p
R590
0
Q409
DTC363EU
T/R
R579
22k
AM2
RXEMAI
RXEMAO
AI
AO
RXAO
AUDIH
5C
TCLK/DTRDO
DTRLOAD
AFSTD
AFDAT
AFDIO
AFRTM
AFDIR
RXAI
R646
4.7k
5C
AF SW
V_REF
AM1
AF
AF MUTE SW
DT
MM2
DT
AM1
MIC-AMP
AGC DETECTOR
D408,409
MIC AGC
MIC AGC
MIC MUTE SW
MIC MUTE SW
Q416,417
AF
MUTE
SW
MIC MUTE
CONTROL
LSDIN
OPT6
ME
RXC
CK
SCSW
STSW
MIC
MM1
BEEP
OPT6
STSW
CK
RXC
LSDIN
LIMLV
AGND
AM1
AF
IC413
TC7MZ4053FK
AF SW IC
IC414
TC75W51FU
MIC AMP
D408
MA742
D409
MA742
2SC4116(Y)
Q410
2SA1586(Y,GR)
Q411
AF SW
RXAF
RXAFIN
EXPOUT
FILTERO
RXINO
RXIN
AGND
XIN
VSS
AMP3P
AMP3N
AMP3O
AMP4P
AMP4N
AMP4O
DTRAIN
AGNDIN
TXIN
TXINO
LIMLV
EXTLIMIN
MOD
VDD
DTRLOADN
STD
C
B
A
0X
1X
XCoM
YCoM
VCC
1Y
0Y
1Z
ZCoM
0Z
INH
VEE
GND
TXAI
TXAO
X403
3.6864MHz
L77-1965-05
R582
1M
Q415
HN1L02FU
AF SW
(VOICE)
2SJ243
Q414
R611
10k
ME
MI2
AFO
D600
1SS388
MIC MUTE
CONTROL
C468
0.01u
C461
0.01u
R531
10k
–
–
+
+
4.98V
2.50V
4.93V
2.49V
2.81V
R:4.90V
T:0V
R:4.92V
T:0V
R:4.98V
T:0V
2.49V
4.83V
4.88V
4.98V
TX-RX UNIT (X57-6990-10) (B/3)

64
TK-8180 SCHEMATIC DIAGRAM
UVWXY
X57-699 5/9
A
VC
GND
2SC4116(BL)
Q303
2SC4116(BL)
Q302
C327
0.22u
R303
560 R333
0
R317
0
R302
10
R305
56
L301
2.2u
L302
R131
100k
C148
1p
C152
470p
C150
5p
L114
8.2n
C155
470p
L117
8.2n
C154
1.5p
C146
470p
C149
470p
C151
1p
R129
100k
C144
7p
R130
100k
L115
8.2n
L116
8.2n
R132
100k
C145
1.5p
C153
5p
C124
10p
R122
100k C133
6p
C121 470p
D103
1SV286
R116
18k
C142
470p
C134
3p
C137
470p
R120 220
D104
1SV286
R121
100k
L111
L34-4565-05
5T
C131
470p
R124
100k
C132
22p
C136
4p
R123
100k
C140
22p
C141
9p
D105
1SV286
C125
470p
L109
18n
C135
22p
R119
0
2SC3357
Q103
L110
L34-4565-05
5T
C127
22p
C139
470p
C138
5p
R115
18k
C129
470p
C119
5p
C130
5p
D106
1SV286
R311
1.8k
C318
2.2u20
C320
2.2u20
R322
0
R316
100k
R326
270
C338
0.33u35
R307
0
C333
5p
R371
0
C391
2p
L327
33n
C302
0.5p
L320
10n
C393
6p
L322
5.6n
L321
8.2n
C395
2p
C389
6p
L324
2.2n
2SC5108(Y)
Q301
C390
12p
L323
4.7n
R306
10k
C392
12p
C311
39p
C339
470p
C308
10p
R309
100
C398
1p(B)
C394
4p
C317
100p
R310
100
C312
0.047u35
R318
1.8k
C147
5p
C316
8p
C156
470p
R133
100k
R134
0
C323
470p
C324
0.1u
C331 0.01u
R332 10
R325
150k
R321
10k
R330 10
C335
0.022u
CN302
12
34
56
R320
18
CN301
12
34
56
C397
12p
C309
100p
C396
0.01u
1
2
3
4
5
6
7
8
9
10
11
12
13
14
15
16
17
18
19
20
R323 1k
R327 10
R373
10
R319
10
R108
0
L305
C306
10p
C128
9p
L304
R370
10k
L101
8.2n
D111
HVC131
R376
0
R369
0
C262
100p
C260
100p
C261
100p
R308
3.9k
R377
0
0
1IN/OUT
2OUT/IN
3GND 4
5
R378
10k
C322
0.047u
R362
0
C386
10u6.3
R301
MB
5C
L108
8R
TV
L306
PCK
UL
PLE
C307 470p
AM1
5C
Fin
CP
GND
DGND
GND
PCK
DT
PLE
UL
CPGND
REF
TX-RX UNIT (X57-6990-10)(C/3)
PLL SYSTEM IC
DT
PLL F_IN
DOUBLER AMP
PLL LPF
ANT SW
FRONT-END LNA
RF BPF
TUNING
RF BPF
TUNING
RF BPF
TUNING
RF BPF
TUNING
PLL LPF
ME
5C
MI2
AFO
D108
1SV291
RF BPF
TUNING
D107
1SV291
RF BPF
TUNING
D109
1SV291
RF BPF
TUNING
D110
1SV291
RF BPF
TUNING
ME
MI2
AFO
L113
L34-4565-05
5T
L112
L34-4565-05
5T
oUTPUT
VCC
X301
16.8MHz
L77-1952-05
AM1
CV
11CL
IC301
ADF4111BCP7
CE
CLK
DATA
LE
MUXOUT
DVDD
DVDD
VP
Rset
CP
CPGND
AGND
AGND
RFinB
RFinA
AVDD
AVDD
RFEin
DGND
DGND
PLL CP SW
IC302
TC7S66FU
CONT
VCC
CPGND
REF
Fin
GND
CP
5C
C314
0.1u
R312
1k
4.99V
4.99V
4.99V
4.99V
4.99V
4.99V
0.31V
10.36V
7.90V
2.46V
3.22V
FL:2.5V
FC:4.0V
FH:5.8V
4.75V
TX-RX UNIT (X57-6990-10) (B/3)

65
SCHEMATIC DIAGRAM TK-8180
ADACABAAZ
X57-699 6/9
C384
0.01u
C382
0.01u
C185
0.01u
D315
HVC131
D316
HVC131
C385
470p R367
3.3k
C380
470p
C186 33p
C383
1000p
R365
2.2k
C374
1000p
R254
0
R255
0
R253
10k
R356
10k
R352 10
C255
10u16
C257
1u25
C370
470p
C253
0.01u
C256
0.01u
C381
470p
R251
1k
R252
4.7k
R257
15k
C258
4.7u16
D251 1SS388
R256
120k
R258
22
C371
10u6.3
R366
2.2k
R126
0
C176
470p
R172
18
C175
6p
L172
15n
R173
270
L171
15n C181
470p
R171
270
C173
12p
R175
2.2k
C178
470p
C171
6p
1
2
3
4S2
5S1
6G2
C177
470p
C182
0.01u
R174
68
L175 R176
47
C184
470p
C183
0.01u
C376
470p
R359
100
C375
27p
R358
8.2k
R360
120
C378
470p
2SC5108(Y)
Q313
R357
10k
L319
22n
C377
470p
R361
220
C379
6p
C252
470p
C251
470p
C369 470p
C360
7p
C343
10u10
C342
1000p
C364
0.5p
C355
5p
R351
4.7k
L312
1.0u
C351
0.5p(B)
L326
1.0u
C357 6p
L311
1.0u
R344
47
R345
0
D314
1SV278
C346
22p
R337
10k
D309
BB664
R341
180
C353
470p
C350
8p
L316
1.0u
D313
BB664
L317
1.0u
C365
0.3p
C362
470p
R335
0
C352
12p
R336
1k
R342
180
R343
4.7k
TC301
8p
C363
470p
C347
22p
C361
470p
D308
BB664
D311
BB664
R347
4.7k
C356
0.5p
R340
100
R339
100k
C354
4p
TC302
8p
R334
0
C368
470p
C372
22p
R349
33k
L318
22n
R350
33k
R355
56
Q310
DTC114EE
C367
1000p
C373
470p
R353
4.7k
C388
5p
C387
5p
L328
22n
R375
330
C594
470p
C325
1000p
C334
1000p
R180
820
C187
39p
C196
0.01u
R178
0
C193
0.01u
L182
100n
C198
68p
L180
68n
C201 4p
C192
0.01u
C204
0.01u
C194
0.01u
R184
10
C199
39p
L181
10u
C190
39p
L185
68n
R182
3.3k
R183
68
C188 4p
C195
470p
R181
330
C189 4p
C202
39p
C200 4p
C197
0.01u
L178 390n
L179 390n
L183 390n
L184 390n
L177
270n
R179
1k
R177
1k
R315
1k
L119
33n
C358
5p(B)
L310
1u
C359
7p(B)
1PGND
2GND
3FB 4
5
6
L251
10u
L309
1u
T/R
5R
5R
R348
10k
MOD
10CL
5R
8T
C299
0.5p
CV
CV
DC-DC CONVERTER
REVERSE
VOLTAGE
PROTECTION
D315,316
VCO BUFFER
AMP
VCO
BUFFER
AMP
MODULATION
CONTROL
FOR TX VCO
TX/RX
BAND SW
TX/RX
VCO SW
D309,313
FREQUENCY
CONTROL FOR
TX/RX VCO
ME
AM1
5C
MI2
AFO
8T
AM1
CV
11CL
FREQUENCY
CONTROL FOR
TX/RX VCO
D308,311
2SK508NV(K52)
Q307
TX/RX VCO
L325
L34-4605-05
12.5n
2SC4116(GR)
Q309
TX/RX
VCO SW
2SC4617(S)
Q312
RIPPLE FILTER
2SC4116(GR)
Q308
TX/RX
VCO SW
2SK508NV(K52)
Q306
TX/RX VCO
IC251
MAX5026EUT+T
SHDN
VCC
LX
2SC4617(S)
Q251
RIPPLE
FILTER
L173
L39-1421-05
G1
D1
D2
L176
L39-1421-05 XF171
L71-0618-05
XF171
L71-0618-05
ME
MI2
AFO
L174
L39-1421-05
L314
L34-4607-05
17.5n
L315 1.0u
2SC5108(Y)
Q311
RX 1ST MIXER
IC171
SPM5001
2SC5108(Y)
Q171
IF AMP
1.02V
T:2.84V
R:2.13V
T:0V
R:2.83V
4.3V
T:3.55V
R:0V
3.86V
3.69V
R:4.88V
T:0V
R:0V
T:2.3V
4.99V
4.97V
4.35V
0.87V
0.07V
4.41V
4.96V
0.84V
3.94V
3.93V
4.50V
0.39V
TX-RX UNIT (X57-6990-10) (B/3)

66
TK-8180 SCHEMATIC DIAGRAM
AE AF AG AH AI
X57-699 7/9
-t
R199
56
R210
2.7k
Q178
DTA144EE
C215
18p
C222
1000p R197
330k
C213
0.01u
C217
1000p
X171
L77-1762-05
R203
3.3k
C216
15p
C225
270p
C218
0.01u
R205
3.3k
R200
3.3k
C232 1000p
R190
15k
C220
0.1u
R198
330k
C224
270p
R209
10
R193
47k
C234
0.22u
C238
0.01u
R202
4.7k
R212
100k
C214
0.1u
R207
47k
C231
82p
C221
0.1u
C223
0.1u
C228
0.1u
L189
1u
C233
1000p
R208 3.9k
C230 0.01u
C226
1000p
R206
1k
C229
0.033u
D173
RB706F-40
C236
0.01u
C42
5p
R17
47
L4
R16
47
L6
C27 47p
R15
220
C21
470p
R86
820k
R18
220
R77 100k
R14
0
C6
4.7u16
R21
330
C44
120p
1
2
3
45
6
7
8
C18
470p
R89
100k
C32 47u25
R75
47k
C19 47p
L7
10T
R84
120k
R79
220k
C20 100p
2SK1824
Q72
L5
Q3
DTC114EE
C28 100p
C29 470p
R71
56k
R76
100k
D1
02DZ5.6(X,Y)
R19
150
R85 100k
C33
100p
R87
82k
R88
100k
C22 470p
R72
33k
C34 100p
C24
4.7u10
R25
150
1/2
R82
100k
IC71
TA75W01FU
1
2
3
45
6
7
8
C35 100p
R78
100k
R81
100k
C17 22p
C1
1000p
C26 22p
D171
DAN235E
R196
15k
R191
22k
R194
22k
R192
22k
R195
22k
Q174
DTC144EE
Q173
DTA114EE
2SK1824
Q176
D174
MA2S111
C235
0.1u
TH171
47k
C237
22u6.3
C239
0.1u
C240
0.1u
R2
5.6
R10 560
C15
100p
C7
100p
C5
100p
R7
10
R4
33k
R1
820
R13
330
L3
22n
C3
100p
R8
470
2SC5108(Y)
Q1
R3
820
R6
220
C14
100p
R5
6.8k
L2
C2
100p
C4
100p
L1
18n
R9
22
C10
100p
C9
6p
R12
10
R11
2.7k
C8
100p
C16
6p
IC1
RA30H4452M
1RF_IN
2VGG
3VDD
4RF_oUT
C74
100p
C38 22p
C39 22p
C40
22p
D2
XB15A709
C43
3p
C25
1p
C13
100p
C259 10u10
C219
1u
C76 470p C77 470p
R188
68
C206
0.01u
C210
68p
C211
10p
R189
10
C209
0.01u
C212
470p
L188
820n
C205
0.01u
R187
3.3k
L186
10u
R186
330
L187
100n
R217
0
R185
820
C207
470p
C208
0.01u
1
2
3
4
5
6
7
89
10
11
12
13
14
15
16
C143
0.01u
R109
1k
R204
2.2k
C227
1000p
C241
1000p
R221
47k
Q2
2SC5192
R90
330k
Q70
DTC114EE
Q177
DTC144EE
Q179
DTC144EE
R38
0
R28
0
L8
2.5T
5R
CFSW
5C
GSW
+B
PC
MP
H/L
RXDET
RSSI
ASQ
W/N
5C
DMUTE
DC AMP
FOR TX APC
DC AMP
FOR TX APC
W/N CF SW
W/N CF SW
CONTROL
TX PRE-DRIVER
DET MUTE SW
CONTROL
DET MUTE SW
W/N DISCRETE SW
SQ NOISE-AMP
DETECTOR
Q177,179
W/N CF SW
CONTROL
TX DRIVER
TX GATE SW
HIGH/LOW
POWER SW
ANT SW
VOLTAGE
PROTECTION
HIGH/LOW
POWER SW
W/N CF SW
CONTROL
ME
MI2
AFO
8T
AM1 AM1
8T
POWER MODULE
2SC5108(Y)
Q172
IF AMP
D3
XB15A407A2GB
ANT SW
IN2+
IN2-
OUT-B
VCC
OUT1
IN1-
IN1+
VEE
IC72
TA75W01FU
OUT1
IN1-
IN1+
VEE IN2+
IN2-
OUT-B
VCC
CF172
L72-0998-05
CF171
L72-0986-05
D172
DAN235E
W/N CF SW
AFOUT
QUAD
IFOUT
RSSI
N-DET
N-REC
GND
MIXIN
OSCIN
OSCOUT
MIXOUT
VCC
IFIN
DEC
FILOUT
FILIN
IC172
TA31136FN
FM IF SYSTEM IC
CD171
L79-1701-05
2SC4617(Q)
Q175
NOISE AMP
ME
MI2
AFO
1.6V
0.84V
0.12V
1.12V
0.61V
H:3.44V
L:3.03V
H:13.02V
L:13.39V
H:3.21V
L:1.19V
N:4.85V
4.99V
4.94V
4.99V
4.96V
4.37V
0.07V
0.84V
W:4.96V
T:7.81V
R:0V
TX-RX UNIT (X57-6990-10) (B/3)

67
SCHEMATIC DIAGRAM TK-8180
ANAMALAKAJ
X57-699 8/9
-t
J401
R654
0
C581
1000p
C583
470p
R655
0
D6
HSM88AS
ANT
D7
HSM88AS
CN428
1
2
3
4
5
6
C57
L10
1.5T
C48
L13
9.5T
C53
10p
C58
L9
1.5T
C60
6p
C50
8p
C45
3p
C47
L12
1.5T
R26
10k
C51
100p
R27
100k
C49
100p
C59
100p
R29
82k
C61
100p
C52
C55
C56
100p
R24
100k
D8
HSM88AS
C62
100p
R33
0
C79
470p
TH1
100k
C30
470p
C31
470p
R23
6.8k
C80
470p
R22
1k
R31
3.3k
R625 4.7k
R624 47k
C565 1u25
R630
0
D414
DA204U
1000p
R622
0
C546
0.01u
C559
1000p
R623 47k
R621
0
F401
F53-0352-05
1
2
3
4
5
6
7
89
10
11
12
13
14
15
16
R633
0
R629
0
R643
470
C563 1u25
D413
DA204U
1000p
D412
DA204U
C567
100p
R636
0
C564 1u25
C562 1u25
CN427
1
2
3
4
5
6
7
8
9
10
11
12
13
14
15
16
17
18
19
20
21
22
23
24
25
26
27
28
29
30
Q418
DTC114EE
C570
1u
C574 22u16
R642
4.7k
C560
0.1u
1
2
3
4
5
6
7
R648
2.2k
R653
2.2
C576
330u16
C577
0.1u
R641
4.7k
R632
47k
Q419
DTC363EU
R651 0
R645
5.6k
C561
0.1u
D416
DAN202U
C566
1u
R644
1k
R30
0
5C
TCTL
HOR
PA
SPO
AIO6
AIO7
AIO1
AIO2
AIO3
AIO4
AIO8
AIO5
AO1
AO2
DEO
AIO9
5C
SB
DI
TXD2
TXD1
RXD2
5C
THP
SB
INPUT
NF
D.C
GND
OUT PUT
BOOTSTRAP
VCC
SB
RXD1EXT
EXT.SP
SB
SPI
GND
HOR
PA
SPO
AUXIO4
AUXIO6
RXD2
SB
AUXO1
GND
GND
SB
TXD2
AUXIO2
SB
RXD1
DEO
AUXIO9
AFO
AUXIO1
AUXIO5
SB
AUXO2
MI2
SB
AUXIO7
AUXIO3
AUXIO8
NC
TXD1
ME
5C
SB
LEVEL
CONVERTER
IC (RS-232C)
AF MUTE
CONTROL
AF MUTE
CONTROL SW
AF MUTE SW
RF DETECTOR
DI
ME
MI2
AFO
AM1
8T
RF DETECTOR RF DETECTOR
0.5p(B)
3p(B)
2p(B)
0.5p(B)
0.5p(B)
2p(B)
1000p
1000p
47u25
47u25
1000p
47u25
560
1000p
C582
C572
C575
C579
C578
R652
C580
C573
C555
1000p
C545
1000p
C551
1000p
C548
1000p
C547
1000p
C549
1000p
C552
1000p
C556
1000p
C557
1000p
C553
1000p
C558
100p
C550
100p
C554
100p
SURGE PROTECT
D412-414
C1+
V+
C1-
C2+
C2-
V-
T2OUT
R2IN
R2OUT
T2IN
T1IN
R1OUT
R1IN
T1OUT
GND
VCC
IC416
ADM202EARN
C825
C568
IC417
TA7 2 52AP
AUDIO IC
4.99V
1.44V
13.61V
4.41V
6.76V
TX-RX UNIT (X57-6990-10) (B/3)

68
TK-8180 SCHEMATIC DIAGRAM
7
6
5
4
3
2
1
AO AP AQ AR AS
X57-699 9/9
Note : The components marked with a dot (•) are parts of layer 1.
D
E
E
E
E
E
E
E
E
E
E
E
E
E
E
E
E
E
E
E
E
E
E
E
E E
E
E
E
E
E
E
E
E
E
E
E
E
L409
CN322 CN323 CN326 CN329CN100 CN102CN101
CN2 CN3CN1CN203CN202 CN13 CN815
C702
100p
R709
470
D709
02DZ18(X,Y)
D707
DA204U
C703
100p
D713
DA204U
R706
470
C720
100p
C715
100p
C707
1000p
C712
100p
D702
1SS355
C719
100p
C713
1000p
2SD2114K(W)
Q702
C711
1000p
R708
470
C721
1000p
R712 47k
C714
100p
R719
470
L701
R716
470
R717
470
D704
DA204U
CN701
1
2
3
4
5
6
7
8
9
10
11
12
13
14
15
16
17
18
19
20
21
22
23
24
25
26
27
28
29
30
C716
1000p
R713 47k
R707
470
R714
470
R720
470
D712
DA204U
R710
470
R718
470
R715
470
2SD2114K(W)
Q701
C701
1000p
L702
D714
02DZ18(X,Y)
D705
DA204U
R711 47k
D706
DA204U
C718
100p
C723 100p
C708
1000p
C722 100p
C709
1000p
C705
1000p
D708
DA204U
D711
DA204U
C710
1000p
C706
1000p
C704
100p
D710
02DZ18(X,Y)
D703
1SS355
C717
1000p
J701
1
2
3
4
5
6
7
8
9
11
10
12
13
14
15
16
17
18
19
20
21
22
23
24
25
26
27
R295
0
R298
0
VCO
(E23-1081-05)
RX-FRONT
(E23-1081-05)
TX-MODULE
(E23-1081-05)
TX-DRIVE
(E23-1081-05)
AVR
(E23-1081-05)
RX-IF GND
TXD1
RXD2
ME
AUXI/O1
AUXO1
AUXI/O5
AUXI/O9
TXD2
AUXI/O3
DI
AFO
MI2
RXD1
AUXI/O4
AUXI/O6
GND
(DEFAULT)
AUXI/O8
GND
GND
AUXI/O2
DEO
AUXO2
NC
SB
AUXI/O7
VOLTAGE
PROTECTION
VOLTAGE
PROTECTION
INVERTER SW
VOLTAGE
PROTECTION
VOLTAGE
PROTECTION
TX-RX UNIT (X57-6990-10)(A/3)
TTL SPECIFICATION
VOLTAGE
PROTECTION
INVERTER SW
RX-IF
(E23-1081-05)
VOLTAGE
PROTECTION
RXD1
DEO
SB
SB
AFO
DI
AUXIO4
MI2
AUXO1
NC
SB
AUXIO6
TXD1
RXD2
AUXIO8
AUXIO2
GND
AUXIO3
SB
GND
AUXIO7
AUXO2
SB
SB
AUXIO5
AUXIO9
ME
TXD2
5C
AUXIO1
R702
R701
R705
R704
R703
47k
47k
47k
47k
47k
SURGE PROTECT
D704-708,711-713
D701
02DZ18(X,Y)

-t
D
D
D
D
D
D
D
D
A
D
D D
-t
A
D
A
A
E
E
E
E
E
E
E
E
E
E
E
E
E
E
E
E
E
E
E
E
E
E
E
E E
E
E
E
E
E
E
E
E
E
E
E
E
R199
56
R210
2.7k
C384
0.01u
Q178
DTA144EE
C215
18p
C222
1000p R197
330k
C213
0.01u
C217
1000p
X171
L77-1762-05
R203
3.3k
C216
15p
C225
270p
C218
0.01u
R205
3.3k
R200
3.3k
C232 1000p
R190
15k
C220
0.1u
R198
330k
C382
0.01u
C224
270p
R209
10
R193
47k
C185
0.01u
C234
0.22u
C238
0.01u
R202
4.7k
R212
100k
C214
0.1u
R207
47k
C231
82p
C221
0.1u
D315
HVC131
C223
0.1u
C228
0.1u
D316
HVC131
C385
470p
L189
1u
C233
1000p
R208 3.9k
R367
3.3k
C230 0.01u
C380
470p
C226
1000p
R206
1k
C186 33p
C383
1000p
C229
0.033u
R365
2.2k
D173
RB706F-40
C236
0.01u
C374
1000p
VC
GND
R254
0
R255
0
R253
10k
2SC4116(BL)
Q303
2SC4116(BL)
Q302
C327
0.22u
R356
10k
R352 10
R303
560
C255
10u16
R333
0
C257
1u25
C370
470p
C253
0.01u
C256
0.01u
R317
0
C381
470p
C815
4.7u16
R815
68k
C804
470p
2
COM
3IN 1
OUT
C812
0.1u
C817
470p
C802
1000p
R805
470
R813
4.7k
R802
330k
R807
10k
C806
100p
C810
0.047u
Q806
DTC114EE
Q808
DTC114EE
R812
10k
R814
47k
R806
10k
R808
47k
C808
0.1u
C819 0.1u
3
GND
1IN 2
OUT
C813
470p
C811
0.1u
C816
10u10
C821
4.7u16
Q802
DTC114EE
C820
0.1u
C807
0.047u
C822 470p
C809
470p
Q809
DTC114EE
R809
47k
C805
1000p
Q807
DTC114EE
R811
10k
R801
220k
D805
02CZ9.1(X,Y)
C803
0.047u
C814 470p
R803
10k
C801
1000u25
IC803
TA7808F
3
GND
1IN 2
OUT
R302
10
R251
1k
R252
4.7k
D801
22ZR-10D
D802
DSA3A1
J401
R654
0
C581
1000p
C583
470p
R655
0
2SC2873(Y)
Q801
12A02CH
Q803
12A02CH
Q804
C42
5p
R17
47
L4
R16
47
L6
C27 47p
R15
220
C21
470p
R86
820k
R18
220
R77 100k
R14
0
C6
4.7u16
R21
330
C44
120p
1
2
3
45
6
7
8
C18
470p
R89
100k
C32 47u25
R75
47k
C19 47p
L7
10T
R84
120k
R79
220k
C20 100p
2SK1824
Q72
L5
Q3
DTC114EE
C28 100p
C29 470p
R71
56k
R76
100k
D1
02DZ5.6(X,Y)
R19
150
R85 100k
C33
100p
R87
82k
R88
100k
C22 470p
R72
33k
C34 100p
D6
HSM88AS
C24
4.7u10
R25
150
1/2
R82
100k
IC71
TA 7 5 W01FU
1
2
3
45
6
7
8
C35 100p
R78
100k
ANT
R81
100k
C17 22p
C1
1000p
D7
HSM88AS
C26 22p
D171
DAN235E
R196
15k
R191
22k
R194
22k
R192
22k
R195
22k
Q174
DTC144EE
Q173
DTA114EE
R257
15k
C258
4.7u16
D251 1SS388
R256
120k
R258
22
R305
56
2SK1824
Q176
D174
MA2S111
C235
0.1u
TH171
47k
2SJ645
Q810
1VSS
2VDD
4
3
1
2
4VSS
3NC
IC405
AT29C040A-90TI
1
2
3
4
5
6
7
8
9
10
11
12
13
14
15
16 17
18
19
20
21
22
23
24
25
26
27
28
29
30
31
32
C406
0.3p
R434 47k
R451 470k
C423
1u
R418 47k
L401
R420 330k
R461 470k
R431 0
R458 470k
L406
R453 470k
R482
47k
R432 1k
R419 47k
R405 470k
C412
0.1u
5M
5M
R424 1k
R428 0
R469
1k
L402
R467 0
R447 470k
R411 470k R427 1k
R430 470
R422 47k
R481 470k
R421 47k
R426 1k
R406 470k
R449 470k
R470 1k
R429 470 R471 1k
R425 1k
R414 10k
R465 47k
R457 47k
R410
10k
R459 470k
R415 470k
R468 47k
D403
1SS388
D402
1SS388
1
2
3
4
5
6
7
8
9
10
C410
0.1u
CP401
100
D404
1SS388
1
2
3
45
6
7
8
1STRB
2DATA
3CLK
4Q1
5Q2
6Q3
7Q4
8VSS 9
10
11
12
13
14
15
16
IC410
M62364FP
1
2
3
4
5
6
7
8
9
10
11
12
13
14
15
16
17
18
19
20
21
22
23
24
C429 1u
C454 0.01u
C407 0.01u
C517
0.01u
C506
1u
R585
180k
R570
150k
C480
1000p
R553
4.7k
C518
0.1u
C463
0.01u
C528
2200p
R552
10k
C520
1000p
C489 0.1u
R540 47k
R532
1k
R599
180k
C535
0.068u
R610
150k
R586
1k
C475
100p
R597
1M
C491
0.1u
C485
1u
R576
220k
C477
1000p
R568
120k
R606
0
C538
1000p
R559
120k
C488
12p
R536
15k
C479
1000p
R581
150
C484 4.7u
R563
390k
R571
120k
R545
10k
R608
180k
C505
1u
C482 4.7u
R587
150k
C495
180p
R541 0
R566
1M
R609
22k
C531
1000p
IC415
AQUA-L
1
2
3
4
5
6
7
8
9
10
TCLK/DTRDO
11
TDATA/DTRCLK
12
DI/O
13
RDF/FD
14
SCLK
15
DIR
16
XOUT
17
18
19
20
21
22
23
24
25
26
27
28
29
30
31
32
C524
1000p
R616
4.7k
C533
0.015u
2SJ243
Q413
R600
4.7k
R550
4.7k
C537
0.1u
R548
82k
R596
0
R580
150
C470
0.01u
R583
0
2SJ243
Q417
R578
0
R560
390k
R567
390k
C525
0.1u
C532
0.012u
R588
4.7k
C503
68p
R557
4.7k
C534
1000p
C472
0.1u
C499
820p
R542
0
C526
0.1u
C514
82p
C493 4.7u
R558
390k
C507
0.1u
C529
47p
R603
0
R602
1M
R607
270k
R601
470k
Q405
DTA114EE
C492
0.1u
R527
3.9k
R528
47k
R598
4.7k
C476
0.1u
C536
0.1u
R494 4.7k
R501
4.7k
C443
0.01u
C433
0.1u
R495 4.7k
C438 0.01u
R493
1M
C440 0.1u
C497
1000p
C452
100p
R500
0
R519
100k
C448
100p
R514
18k
C459
10u10
C453
0.1u
R520
0
R505
68k
R515
100k
R512
15k
R506
220k
C457
470p
R504
10k
R513
560k
C451
0.01u
R517
22k
R524
10k
1
2
3
4VSS 5
6
7
8
VDD
1
2
3
4VSS 5
6
7
8
VDD
IC408
TC75W51FU
1
2
3
4VSS 5
6
7
8
VDD
R522
100k
R526 270k
R533
100k
C462 0.01u
1
OUTPUT
2
V+
3
INPUT+ 4
5
IC412
TC75W51FU
1
2
3
4VSS 5
6
7
8
VDD
R530
330k
R521
47k
R523
560k
C460
0.01u
C465
22p
C469
0.1u
D407
RB706F-40 R539
39k
R535
390k
R529
680k
1
2
3
4
VSS
5
6
7
8VDD
R594
680
R589
0
C511
0.1u
R573
6.8k
C501
22p
R569
100k
C496
0.1u
C483
0.01u
IC407
TC75W51FU
1
2
3
4
VSS
5
6
7
8
VDD
R496
100k
R498
270k
C444
39p
D406
02DZ5.1(Y)
C446
0.01u
C445
15p
R503
100k
R499
100k
R592
0
C824
0.01u
C823
1000p
CN428
1
2
3
4
5
6
R604
0
2SJ243
Q416
R534
27k
C540
10u10
C539
10u10
C544
10u10
C543
10u10
R613
100k
R619
100k
R612
100k
R617
100k
R615
4.7k
R618
220k
R620
220k
C542
1000p
R472 1k
L407
C441
10u
C450 10u
C530
10u
R508
1k
R614
0
C541
0.1u
L301
2.2u
C371
10u6.3
C237
22u6.3
L409
1
2
3
4
5
6
7
89
10
11
12
13
14
15
16
C519
1000p
R565
0
4
61
2
3
5
R366
2.2k
L302
C239
0.1u
C240
0.1u
R657 4.7k
R658 0
R131
100k
C148
1p
C152
470p
C150
5p
L114
8.2n
C155
470p
L117
8.2n
C154
1.5p
C146
470p
C149
470p
C151
1p
R129
100k
C144
7p
R130
100k
L115
8.2n
L116
8.2n
R132
100k
C145
1.5p
C153
5p
C124
10p
R122
100k C133
6p
R126
0
C176
470p
C121 470p
D103
1SV286
R116
18k
C142
470p
C134
3p
C137
470p
R120 220
D104
1SV286
R121
100k
L111
L34-4565-05
5T
C131
470p
R124
100k
C132
22p
C136
4p
R123
100k
C140
22p
C141
9p
D105
1SV286
C125
470p
L109
18n
C135
22p
R119
0
2SC3357
Q103
L110
L34-4565-05
5T
C127
22p
C139
470p
C138
5p
R115
18k
C129
470p
C119
5p
C130
5p
D106
1SV286
R172
18
C175
6p
L172
15n
R173
270
L171
15n C181
470p
R171
270
C173
12p
R175
2.2k
C178
470p
C171
6p
1
2
3
4S2
5S1
6G2
C177
470p
C182
0.01u
R174
68
L175 R176
47
C184
470p
C183
0.01u
C376
470p
R359
100
C375
27p
R358
8.2k
R360
120
C378
470p
2SC5108(Y)
Q313
R357
10k
L319
22n
C377
470p
R361
220
C379
6p
R2
5.6
R10 560
C15
100p
C7
100p
C5
100p
R7
10
R4
33k
R1
820
R13
330
L3
22n
C3
100p
R8
470
2SC5108(Y)
Q1
R3
820
R6
220
C14
100p
R5
6.8k
L2
C2
100p
C4
100p
L1
18n
R9
22
C10
100p
C9
6p
R12
10
R11
2.7k
C8
100p
C16
6p
IC1
RA30H4452M
1
RF_IN
2
VGG
3
VDD
4
RF_oUT
C74
100p
C38 22p
C39 22p
C40
22p
D2
XB15A709
C43
3p
C57
L10
1.5T
C48
L13
9.5T
C53
10p
C58
L9
1.5T
C60
6p
C50
8p
C45
3p
C47
L12
1.5T
R26
10k
C51
100p
R27
100k
C49
100p
C59
100p
R29
82k
C61
100p
R311
1.8k
C318
2.2u20
C320
2.2u20
R322
0
R316
100k
R326
270
C338
0.33u35
R307
0
C333
5p
R371
0
C391
2p
L327
33n
C302
0.5p
L320
10n
C393
6p
L322
5.6n
L321
8.2n
C395
2p
C389
6p
L324
2.2n
2SC5108(Y)
Q301
C390
12p
L323
4.7n
R306
10k
C392
12p
C311
39p
C339
470p
C308
10p
R309
100
C398
1p(B)
C394
4p
C317
100p
R310
100
C252
470p
C251
470p
C369 470p
C360
7p
C343
10u10
C342
1000p
C364
0.5p
C355
5p
R351
4.7k
L312
1.0u
C351
0.5p(B)
L326
1.0u
C357 6p
L311
1.0u
R344
47
R345
0
D314
1SV278
C346
22p
R337
10k
D309
BB664
R341
180
C353
470p
C350
8p
L316
1.0u
D313
BB664
L317
1.0u
C365
0.3p
C362
470p
R335
0
C352
12p
R336
1k
R342
180
R343
4.7k
TC301
8p
C363
470p
C347
22p
C361
470p
D308
BB664
D311
BB664
R347
4.7k
C356
0.5p
R340
100
R339
100k
C354
4p
TC302
8p
R334
0
C368
470p
C372
22p
R349
33k
L318
22n
R350
33k
R355
56
Q310
DTC114EE
C367
1000p
C373
470p
R353
4.7k
C312
0.047u35
C25
1p
R318
1.8k
C147
5p
C316
8p
C156
470p
C13
100p
R554
56k
R556
56k
R555
12k
R133
100k
C259 10u10
C219
1u
C76 470p C77 470p
C467 0.01u
R134
0
C591
0.1u
C388
5p
C387
5p
L328
22n
R375
330
C594
470p
C325
1000p
C334
1000p
R511
1.5k
R525
1.5k
C464
0.033u
C447
0.033u
R188
68
R180
820
C187
39p
C196
0.01u
C206
0.01u
C210
68p
R178
0
C193
0.01u
L182
100n
C198
68p
C211
10p
L180
68n
R189
10
C201 4p
C192
0.01u
C209
0.01u
C204
0.01u
C194
0.01u
R184
10
C212
470p
L188
820n
C199
39p
L181
10u
C205
0.01u
C190
39p
R187
3.3k
L185
68n
R182
3.3k
L186
10u
R186
330
R183
68
C188 4p
C195
470p
R181
330
L187
100n
C189 4p
R217
0
R185
820
C202
39p
C200 4p
C207
470p
C197
0.01u
C208
0.01u
L178 390n
L179 390n
L183 390n
L184 390n
1
2
3
4
5
6
7
89
10
11
12
13
14
15
16
2SK1824
Q412
C323
470p
C324
0.1u
L177
270n
CN802
CN803
CN804
2
1
C455 47u6.3
R179
1k
R177
1k
C52
C55
C56
100p
R24
100k
D8
HSM88AS
C62
100p
R33
0
C79
470p
TH1
100k
C30
470p
C31
470p
R23
6.8k
C80
470p
R22
1k
C331 0.01u
R332 10
R325
150k
R321
10k
R330 10
C335
0.022u
CN302
12
34
56
R320
18
CN301
12
34
56
C397
12p
C309
100p
C396
0.01u
1
2
3
4
5
6
7
8
9
10
11
12
13
14
15
16
17
18
19
20
R323 1k
R327 10
R373
10
R319
10
C143
0.01u
R315
1k
R546
0
C584
22p
R108
0
L305
C400
1u
R509
33k
C306
10p
R109
1k
R204
2.2k
C227
1000p
C241
1000p
R221
47k
L410
L411
R800
1M
CN322 CN323 CN326 CN329CN100 CN102CN101
CN2 CN3CN1CN203CN202 CN13 CN815
C128
9p
R818
47k
C826
470p
L304
Q811
DTC114TE
R804
100k
R549
47k
R412 470k
R477 470k
R478 470k
Q2
2SC5192
R416 0
D417
1SS388
D418
1SS388
C818
4700p
Q402
DTC114YE
C408
15p
R90
330k
Q70
DTC114EE
Q177
DTC144EE
Q179
DTC144EE
R370
10k
Q812
DTC114EE
C592
7p
C593
7p
R31
3.3k
L101
8.2n
L119
33n
R595
270k
D601
1SS388
Q600
DTA144EE
R647
100k
D111
HVC131
R38
0
C358
5p(B)
R376
0
R369
0
R28
0
R584
0
R659
33k
L310
1u
C359
7p(B)
R475
100
1PGND
2GND
3FB 4
5
6
IC404
30625MGP-169GP
1
2
3
4
5
6
7
8
39
40
41
42
43
44
45
46
47
48
49
50
51
52
53
54
55
56
57
58
59
60
61
62
63
64
65
66
67
68
69
70
71
72
73
74
75
76
77
78
79
80
81
82
83
84
85
86
87
88
89
90
91
92
93
94
95
96
97
98
103
104
105
106
107
108
109
110
111
112
113
114
115
116
117
118
119
120
121
122
123
124
125
126
127
128
L8
2.5T
L251
10u
R661
4.7k
R663
4.7k
R664
4.7k
C513
1000p
C512
1000p
C262
100p
C260
100p
C261
100p
R308
3.9k
R377
0
0
1IN/OUT
2OUT/IN
3GND 4
5
R378
10k
C832
4.7u16
2
VSS
3VIN 1
VOUT
C831
4.7u16
C322
0.047u
R362
0
C386
10u6.3
R301
D405
EMZ6.8N
CP402 1k
CP403 1k
CP404 1k
CP405 1k
CP406 1k
CP407
1k
CP408
1k
CP409
1k
CP410
1k
CP411
1k
CP412
1k
CP413
1k
CP414
1k
CP415
1k
CP416
1k
CP417
1k
C702
100p
R709
470
D709
02DZ18(X,Y)
D707
DA204U
C703
100p
D713
DA204U
R706
470
C720
100p
C715
100p
C707
1000p
C712
100p
D702
1SS355
C719
100p
C713
1000p
2SD2114K(W)
Q702
C711
1000p
R708
470
C721
1000p
R712 47k
C714
100p
R719
470
L701
R716
470
R717
470
D704
DA204U
CN701
1
2
3
4
5
6
7
8
9
10
11
12
13
14
15
16
17
18
19
20
21
22
23
24
25
26
27
28
29
30
C716
1000p
R713 47k
R707
470
R714
470
R720
470
D712
DA204U
R710
470
R718
470
R715
470
2SD2114K(W)
Q701
C701
1000p
L702
D714
02DZ18(X,Y)
D705
DA204U
R711 47k
D706
DA204U
C718
100p
C723 100p
C708
1000p
C722 100p
C709
1000p
C705
1000p
D708
DA204U
D711
DA204U
C710
1000p
C706
1000p
C704
100p
D710
02DZ18(X,Y)
D703
1SS355
C717
1000p
J701
1
2
3
4
5
6
7
8
9
11
10
12
13
14
15
16
17
18
19
20
21
22
23
24
25
26
27
+B
SB
5M
5M
8C
5E
8T
TCTL
DATAO U T
R485 0
C424 1000p
RXEMAO
SIDETONE
OPT2
C587 100p
C427 100p
C595 100p
TXAO
C436 100p
RXEMAI
C588 1000p
C431 100p
C439 1000p
OPT4
C435 1000p
R491 0
C425 100p
C430 100p
AUDIH
R403 1M
R483 0
R473 0
AI
R488 0
R486 0
C422 1000p
C432
1000p
C420 100p
R484 0
C421 100p
OPT3
TXD1
C428 100p
C585 100p
OPT5
RXD1INT
AO
C437 100p
R489 0
R487 1.8M
CN403
2OPT3
1OPT1
4TXD1
3RXD1
6OPT4
5CLK
8OPT5
7USEL
10 AGND
9DGND
12 AI
11 AO
14 5E
13 AGND
16 DTI
15 STON
18 NC
17 TCTL
20 OPT2
19 AUDIH
22 RXEO
21 TXO
24 TXI
23 RXEI
26 8C
25 OPT6
C586 100p
C426 100p
R474 0
R574
0
C502 1000p
C490 1000p
C481 1000p
C487 1000p
R572
0
R902 0
R901 0
C500 100p
C498 100p
C515 1000p
CN429
1
2
3
4
5
6
7
8
9
10
11
12
13
14
15
16
17
18
19
20
21
22
23
24
25
26
27
28
29
30
R575
0
R900 0
C478 100p
C516 1000p
C504 1000p
R903 0
R400 1M
LCDRST
R591
0
RXAI
AIO9
AIO5
PSW
RXD1INT
A4
A12
A15
A16
A18
A5
A6
A7
A17
A14
A13
A11
A8
A9
WR
A3
A2
A1
A0
D0
D1
D2
D3
D4
D5
D6
D7
RD
A10
CSO
L405
L404
L403
D2
D0
D3
D1
D4
D5
D6
D7
OPT5
OPT4
OPT3
OPT2
OPT1
RSSI
W/N
ASQ
THP
H/L
A2
A3
A0
A1
A5
A6
A7
A4
TCLK/DTRDO
A8
A9
A11
A11
A12
A13
A14
A15
A16
A17
A18
CSO
L408
R625 4.7k
R624 47k
C565 1u25
R630
0
D414
DA204U
1000p
R622
0
C546
0.01u
C559
1000p
R623 47k
R621
0
F401
F53-0352-05
1
2
3
4
5
6
7
89
10
11
12
13
14
15
16
R633
0
R629
0
R643
470
C563 1u25
D413
DA204U
1000p
D412
DA204U
C567
100p
R636
0
C564 1u25
C562 1u25
CN427
1
2
3
4
5
6
7
8
9
10
11
12
13
14
15
16
17
18
19
20
21
22
23
24
25
26
27
28
29
30
R590
0
Q409
DTC363EU
T/R
Q418
DTC114EE
C570
1u
C574 22u16
R642
4.7k
C560
0.1u
1
2
3
4
5
6
7
R648
2.2k
R653
2.2
C576
330u16
C577
0.1u
R641
4.7k
R632
47k
Q419
DTC363EU
R651 0
R645
5.6k
C561
0.1u
D416
DAN202U
C566
1u
R644
1k
MB
R30
0
OPT1
OPT3
OPT4
OPT5
OPT2
RXD1INT
TXD1
TXD2
RXD2
5E
DATAO U T
TCTL
TXAO
TXAI
RXEMAO
AUDIH
SIDETONE
RXEMAI
8C
5E
5C
5M
8R
5C
5M
5R
AM2
PSENS
LCDDO
LCDDI
RST2
5C
SB
8C
RXD
TXD
PSW
SPO
PC
T/R
PCK
PLE
UL
RST2
TXD
RXD
PSENS
AFDAT
AFDIO
AFDIR
AFSTD
DTRLOAD
AI04
AI03
AI02
AI01
AI07
AI08
RD
WR
TV
MB
10CL
5C
5M
DEO
DI
5C
5C
DM
OPT1
L108
L309
1u
D421
1SS388
D422
1SS388
R446
10k
R445
10k
TXD2
TXD1
RXD2
D423
1SS388
R407 10k
R579
22k
R295
0
R298
0
SIDETONE
DATAO U T
AM2
RXEMAI
RXEMAO
5M
AI
AO
RXAO
AUDIH
MP
RXDET
T/R
5R
5R
R348
10k
8R
MOD
10CL
5R
8T
5R
CFSW
5C
GSW
+B
PC
MP
H/L
RXDET
RSSI
ASQ
W/N
TCTL
HOR
PA
SPO
AIO6
AIO7
AIO1
AIO2
AIO3
AIO4
AIO8
AIO5
AO1
AO2
DEO
AIO9
5C
SB
DI
TXD2
TXD1
RXD2
5C
5C
TCLK/DTRDO
AFRTM
DTRLOAD
AFSTD
AFDAT
AFDIO
AFRTM
AFDIR
TV
5C
RXAI
RXAO
RXD1EXT
TXAI
AI06
MOD
THP
8C
SB
INPUT
NF
D.C
GND
OUT PUT
BOOTSTRAP
VCC
SB
R646
4.7k
5C
L306
PCK
UL
PLE
5M
C307 470p
C299
0.5p
DMUTE
DMUTE
RXD1EXT
EXT.SP
LSD BUFFER AMP/
VCXO BIAS AMP
LSDO
+
+
–
–
-
-
+
+
MODULATION
LPF/DEF AMP
–
–
+
+
SB
SPI
GND
HOR
PA
SPO
AM1
CV
5C
Fin
CP
GND
DGND
GND
PCK
DT
PLE
UL
CV
VCO
(E23-1081-05)
RX-FRONT
(E23-1081-05)
TX-MODULE
(E23-1081-05)
TX-DRIVE
(E23-1081-05)
AVR
(E23-1081-05)
CPGND
REF
TX-RX UNIT (X57-6990-10)(C/3)
RX-IF GND
TXD1
RXD2
ME
AUXI/O1
AUXO1
AUXI/O5
AUXI/O9
TXD2
AUXI/O3
DI
AFO
MI2
RXD1
AUXI/O4
AUXI/O6
GND
(DEFAULT)
AUXI/O8
GND
GND
AUXI/O2
DEO
AUXO2
NC
SB
AUXI/O7
SB CONTROL SW
SB CONTROL SW
VOLTAGE
PROTECTION
VOLTAGE
DETECTOR(INT)
IGNITION SENS
CONTROL SW
CPU RESET SW
VOLTAGE
REGULATOR
/8.5V
VOLTAGE
PROTECTION
RTC PROCESSOR
BEAT SHIFT SW
VOLTAGE
REGULATOR/8V
8T CONTROL SW
8T SW
8R SW
VOLTAGE
REGULATOR/5V
5R CONTROL SW
SPSTB
CK
RXC
MIC
ME
OPT6
DET AMP/
DATA LPF (DB-25)
VOLTAGE
PROTECTION
VOLTAGE
PROTECTION
FLASH MEMORY
D/A CONVERTER
SHIFT
REGISTER
OPT6
ME
MIC
CK
SCSW
RXC
STSW
BEEP
LSW
MM1
AUXIO4
AUXIO6
RXD2
SB
AUXO1
GND
GND
SB
TXD2
AUXIO2
SB
RXD1
DEO
AUXIO9
AFO
AUXIO1
AUXIO5
SB
AUXO2
MI2
SB
AUXIO7
AUXIO3
AUXIO8
NC
TXD1
ME
5C
SB
DC DETECTOR
MM2
DT
DSTB
HSDIN
HSDO
AQUA
CONTROL
SW
LSDIN
AF SW
EMTON
AM1
V_REF
AM1
AF
AF MUTE SW
SOE
SPSTB
RST
XOUT
INT
INTRA
SHIFT/MODEL
DT
TXC
SBC
RTDT/EEPDAT
RTCL/EEPCL
XIN
LSD LPF/VOLTAGE
DC-REFERENCE
PLL SYSTEM IC
LEVEL
CONVERTER
IC (RS-232C)
RF BPF TUNING
VOLTAGE DC AMP
DC-DC CONVERTER
REVERSE
VOLTAGE
PROTECTION
DC AMP
FOR TX APC
DC AMP
FOR TX APC
MICROPROCESSOR
DT
MM2
DTDT
AM1
AF MUTE
CONTROL
AF MUTE
CONTROL SW
AF MUTE SW
W/N CF SW
W/N CF SW
CONTROL
PLL F_IN
DOUBLER AMP
PLL LPF
DC REVERSE
CONNECTION
PROTECT
D801
VOLTAGE
PROTECTION
D802
RF DETECTOR
ANT SW
FRONT-END LNA
RF BPF
TUNING
RF BPF
TUNING
RF BPF
TUNING
RF BPF
TUNING
PLL LPF
D315,316
VCO BUFFER
AMP
VCO
BUFFER
AMP
MODULATION
CONTROL
FOR TX VCO
TX/RX
BAND SW
TX/RX
VCO SW
D309,313
FREQUENCY
CONTROL FOR
TX/RX VCO
TX PRE-DRIVER
DET MUTE SW
CONTROL
DET MUTE SW
W/N DISCRETE SW
MIC-AMP
AGC DETECTOR
D408,409
MIC AGC
MIC AGC
SQ NOISE-AMP
DETECTOR
Q177,179
W/N CF SW
CONTROL
TX DRIVER
TX GATE SW
MIC MUTE SW
MIC MUTE SW
Q416,417
SB SW
HIGH/LOW
POWER SW
AF
MUTE
SW
ANT SW
VOLTAGE
PROTECTION
VOLTAGE
PROTECTION
INVERTER SW
ISOLATOR
D417,418
MIC MUTE
CONTROL
VOLTAGE
PROTECTION
VOLTAGE
PROTECTION
5M
LSW
BEEP
MM1
LSDO
EMTON
LSDIN
OPT6
ME
RXC
CK
SCSW
STSW
MIC
MM1
BEEP
OPT6
STSW
CK
RXC
ME
LSDIN
LIMLV
AGND
IC803
8R CONTROL SW
VOLTAGE
PROTECTION
HIGH/LOW
POWER SW
W/N CF SW
CONTROL
DI
TX-RX UNIT (X57-6990-10)(B/3)
TX-RX UNIT (X57-6990-10)(A/3)
TTL SPECIFICATION
BEEP
ME ME ME
AM1
AF
VOLTAGE
PROTECTION
INVERTER SW
RX-IF
(E23-1081-05)
AM1
5C5C
VOLTAGE
PROTECTION
SBC
CK
IGNIGN
IGN
HSDIN
HSDO
DSTB
LSDIN
DT
CK
MI2
AFO
MI2
AFO
MI2
AFO
MI2
AFO
8T8T
AM1AM1 AM1 AM1
D423
VOLTAGE
PROTECTION
CV
11CL
8T 8T
POWER MODULE
RF DETECTOR RF DETECTOR
IC413
TC7MZ4053FK
AF SW IC
SPO
GND
GND
GND
NC
(LCDDO)
8C
ME
SPO
(DM)
SB
(LCDDI)
5C
NC
MIC
SPO
SPO
(LCDRST)
RXD
SB
SHIFT/MODEL
GND
SPO
RST2
SPO
GND
TXD
(CLK)
PSW
PSENS
VOUT
VIN
D804
02DZ18(X,Y)
IC802
XC61CN5002NR
oUT
CD
F801
F53-0278-05 RTC BATTERY
CONTROL
D402-404
R402
5.1k(D)
R401
3.6k(D)
C404
5p
C403
0.1u
CN401
J19-5386-05
IC402
RV5C386A
32KOUT
SCL
SDA
INTRB
VSS
INTRA
CLKC
OSCOUT
OSCIN
VDD
INT
INTRA
RST
IC401
AT24256N10SI27
EEPROM
SDA
SCL
WP
VCC
A0
A1
NC
GND
IC804
TA 7805F
12A02CH
Q805
5R SW
MIC
CK
RXC
SPSTB
ME
OPT6
SOE
RTCL/EEPCL
XIN
DT
SBC
XOUT
RTDT/EEPDAT
INT
INTRA
SPSTB
TXC
RST
SHIFT/MODEL
5M
OPT6
8C
TXD2
OPT2
RXD1
GND
AUDIH
TXD1
STON
TCTL
5E
RXEO
DTI
OPT3
TXI
RXD2
TXO
OPT4
OPT5
RXEI
OPT1
RXO
RXI
QS
Q’S
Q8
Q7
Q6
Q5
OE
VDD
IC403
BU4094BCFV
CFSW
GSW
HOR
AO1
AO2
PA
ME
STSW
MM1
LSDIN
OPT6
RXC
SCSW
LSW
CK
LSDO
MIC
BEEP
EMTON
HSDIN
HSDO
DSTB
DT
MM2
AM1
R452
R439
R450
R437
R456
R443
R435
R444
R455
R442
R440
R448
R454
R441
R423
R466
R476
1k
0
1k
0
470
1k
1k
1k
470
1k
1k
1k
1k
1k
0
47k
47k
DGND
MM1
PSENS
TXD
RXD
AFDAT
AFDIO
AFDIR
DTRLOAD
AFSTD
LSW
RDY
NC
HOLD
NC
AI04
AIO3
AIO2
AIO1
NC
RD
NC
WR
AIO8
AIO7
AIO6
NC
NC
RST2
CS0
NC
A18
A17
A16
A15
A14
A13
A12
A11
A10
A9
UL
PLE
PCK
NC
OPT6
VCC2
A8
DGND
A7
A6
A5
A4
A3
A2
A1
A0
IGN
AFRTM
TCLK/DTRDO
MM2
T/R
AM1
EMTON
NC
D7
D6
D5
D4
D3
D2
D1
D0
DT
CK
W/N
OPT1
OPT2
OPT3
OPT4
OPT5
H/L
THP
NC
NC
ASQ
RSSI
NC
AGND
LSDIN
VREF
AVCC
SBC
RXC
TXC
PC
HSDO
STSW
RTCL/EEPCL
HSDIN
NC
RTDT/EEPDAT
BYTE
CNVSS
DMUTE
AM2
RST
XOUT
DGND
XIN
VCC1
NMI
PSW
INT
INTRA
SHIFT/MODEL
BEEP
SPSTB
SOE
AIO5
AIO9
DSTB
LSDO
RXD2
TXD2
TXD1
VCC1
RXD1
9
11
12
13
14
15
16
17
18
19
20
21
22
23
24
25
26
27
28
29
30
31
32
33
34
35
36
37
38
10
99
100
101
102
A11
A9
A8
A13
A14
A17
WE
VCC
A18
A16
A15
A12
A7
A6
A5
A4 A3
A2
A1
A0
Io0
Io1
Io2
GND
Io3
Io4
Io5
Io6
Io7
CE
A10
oE
VIN1
VOUT1
VOUT2
VIN2
VDD
LD
CLK
DI
VIN3
VOUT3
VOUT4
VIN4
VIN5
VOUT5
VOUT6
VIN6
DO
VDAref
RESET
GND
VIN7
VOUT7
VOUT8
VIN8
DT
AM1
AF
V_REF
MM2
STSW
SCSW
CK
RXC
ME
OPT6
LSDIN
MIC
MM1
BEEP
LIMLV
AGND
IC409
TC75W51FU
IC406
TC75W51FU
INPUT-
V-
IC411
LMC7101BIM5
HSD BPF/HSD
COMPALATOR
IC414
TC75W51FU
MIC AMP
D408
MA742
D409
MA742
2SC4116(Y)
Q410
2SA1586(Y,GR)
Q411
AF SW
RXAF
RXAFIN
EXPOUT
FILTERO
RXINO
RXIN
AGND
XIN
VSS
AMP3P
AMP3N
AMP3O
AMP4P
AMP4N
AMP4O
DTRAIN
AGNDIN
TXIN
TXINO
LIMLV
EXTLIMIN
MOD
VDD
DTRLOADN
STD
C
B
A
0X
1X
XCoM
YCoM
VCC
1Y
0Y
1Z
ZCoM
0Z
INH
VEE
GND
TXAI
TXAO
X403
3.6864MHz
L77-1965-05
R582
1M
Q415
HN1L02FU
AF SW
(VOICE)
2SJ243
Q414
R611
10k
ME
MI2
AFO
D108
1SV291
RF BPF
TUNING
D107
1SV291
RF BPF
TUNING
D109
1SV291
RF BPF
TUNING
D110
1SV291
RF BPF
TUNING
ME
MI2
AFO
L113
L34-4565-05
5T
L112
L34-4565-05
5T
oUTPUT
VCC
X301
16.8MHz
L77-1952-05
AM1
CV
11CL
IC301
ADF4111BCP7
CE
CLK
DATA
LE
MUXOUT
DVDD
DVDD
VP
Rset
CP
CPGND
AGND
AGND
RFinB
RFinA
AVDD
AVDD
RFEin
DGND
DGND
PLL CP SW
IC302
TC7S66FU
CONT
VCC
FREQUENCY
CONTROL FOR
TX/RX VCO
D308,311
2SK508NV(K52)
Q307
TX/RX VCO
L325
L34-4605-05
12.5n
2SC4116(GR)
Q309
TX/RX
VCO SW
2SC4617(S)
Q312
RIPPLE FILTER
2SC4116(GR)
Q308
TX/RX
VCO SW
2SK508NV(K52)
Q306
TX/RX VCO
IC251
MAX5026EUT+T
SHDN
VCC
LX
2SC4617(S)
Q251
RIPPLE
FILTER
L173
L39-1421-05
G1
D1
D2
L176
L39-1421-05 XF171
L71-0618-05
XF171
L71-0618-05
2SC5108(Y)
Q172
IF AMP
ME
MI2
AFO
L174
L39-1421-05
L314
L34-4607-05
17.5n
L315 1.0u
2SC5108(Y)
Q311
D3
XB15A407A2GB
ANT SW
IN2+
IN2-
OUT-B
VCC
OUT1
IN1-
IN1+
VEE
IC72
TA 7 5 W01FU
OUT1
IN1-
IN1+
VEE IN2+
IN2-
OUT-B
VCC
CF172
L72-0998-05
CF171
L72-0986-05
D172
DAN235E
W/N CF SW
AFOUT
QUAD
IFOUT
RSSI
N-DET
N-REC
GND
MIXIN
OSCIN
OSCOUT
MIXOUT
VCC
IFIN
DEC
FILOUT
FILIN
IC172
TA31136FN
FM IF SYSTEM IC
CD171
L79-1701-05
2SC4617(Q)
Q175
NOISE AMP
ME
MI2
AFO
0.5p(B)
3p(B)
2p(B)
0.5p(B)
0.5p(B)
2p(B)
1000p
1000p
47u25
47u25
1000p
47u25
560
1000p
C582
C572
C575
C579
C578
R652
C580
C573
C555
1000p
C545
1000p
C551
1000p
C548
1000p
C547
1000p
C549
1000p
C552
1000p
C556
1000p
C557
1000p
C553
1000p
C558
100p
C550
100p
C554
100p
SURGE PROTECT
D412-414
C1+
V+
C1-
C2+
C2-
V-
T2OUT
R2IN
R2OUT
T2IN
T1IN
R1OUT
R1IN
T1OUT
GND
VCC
IC416
ADM202EARN
RXD1
DEO
SB
SB
AFO
DI
AUXIO4
MI2
AUXO1
NC
SB
AUXIO6
TXD1
RXD2
AUXIO8
AUXIO2
GND
AUXIO3
SB
GND
AUXIO7
AUXO2
SB
SB
AUXIO5
AUXIO9
ME
TXD2
5C
AUXIO1
R702
R701
R705
R704
R703
47k
47k
47k
47k
47k
+B
GND
GND
IGN
VOLTAGE
DETECTOR
(CPU RESET)
IC801
S-80942CNNBG9C
VOLTAGE
PROTECTION
D421,422
X404
L77-1950-05
C409
15p
C411
0.1u
VOLTAGE
REGULATOR/5V
IC807
XC6201P502PR
IC805
NJM78L05UA
VOLTAGE
REGULATOR/5V
X401
L77-1802-05
C434
560p
R492
680k
R490
180k
R497
3.3k
R507
220k
C442
0.1u
R502
10k
Q406
HN1J02FU
AF SW
(LSD)
D600
1SS388
MIC MUTE
CONTROL
C468
0.01u
C461
0.01u
R531
10k
CPGND
REF
Fin
GND
CP
5C
C314
0.1u
R312
1k
RX 1ST MIXER
IC171
SPM5001
2SC5108(Y)
Q171
IF AMP
C825
C568
SURGE PROTECT
D704-708,711-713
D701
02DZ18(X,Y)
TO DISPLAY UNIT CN902
IC417
TA 7 2 52AP
AUDIO IC
–
–+
+
–
–
+
+
–
–
+
+
1.53V
0.87V
4.99V
4.99V
4.99V
4.99V
4.99V
4.99V
0.31V
10.36V
1.6V
1.02V
T:2.84V
R:2.13V
T:0V
R:2.83V
4.3V
T:3.55V
R:0V
3.86V
3.69V
R:4.88V
T:0V
R:0V
T:2.3V
4.99V
7.90V
4.97V
4.35V
0.87V
2.46V
3.22V
FL:2.5V
FC:4.0V
FH:5.8V
4.99V8.21V
T:12.7V
R:13.5V
7.96V
T:7.83V
T:7.96V
R:7.97V
T:7.2V
R:7.95V T:4.95V
R:0.003V
R:7.95V
T:7.94V
R:7.25V T:0.005V
R:4.93V
5V
R:4.98V
4.28V
T:7.91V
R:7.46V
4.99V
0.84V
0.12V
1.12V
0.61V
H:3.44V
L:3.03V
H:13.02V
L:13.39V
H:3.21V
L:1.19V
N:4.85V
4.99V
4.94V
4.99V
4.96V
4.37V
0.07V
0.84V
0.07V
4.41V
4.96V
0.84V
4.99V
4.99V
4.987V 4.989V
4.99V
2.49V
2.50V
2.50V
2.50V
4.98V
2.50V
2.49V
2.50V
4.98V
2.50V
4.93V
2.49V
4.92V
4.98V
2.48V
2.81V
R:4.90V
T:0V
R:4.92V
T:0V
R:4.98V
T:0V
2.49V
4.83V
4.88V
4.98V
4.99V
1.44V
13.61V
4.41V
W:4.96V
4.99V
4.75V
3.94V
3.93V
4.50V
T:7.81V
R:0V
T:7.60V
R:8.09V
8.83V
0.39V
6.76V

TK-8180
69
CN429
(DM)
GND
RXD
TXD
NC
5C
SHIFT/MODEL
(CLK)
(LCDDO)
(LCDDI)
(LCDRST)
RST2
PSENS
GND
ME
MIC
GND
GND
PSW
NC
SB
SB
8C
GND
SPO
SPO
SPO
SPO
SPO
SPO
CN701
AUXIO6
AUXIO7
AUXIO1
AUXIO2
RXD2
AUXIO3
TXD2
AUXIO4
AUXIO8
AUXIO5
AUXIO9
AUXO1
TXD1
AUXO2
RXD1
GND
ME
MI2
DEO
GND
5C
DI
AFO
SB
SB
SB
SB
SB
SB
NC
CN902
GND
GND
RXD
TXD
5C
NC
SHIFT/MODEL
NC
GND
GND
GND
RST2
PSENS
GND
ME
MIC
GND
GND
PSW
NC
SB
SB
8C
GND
SPO
SPO
SPO
SPO
SPO
SPO
CN427
AUXIO6
AUXIO7
AUXIO1
AUXIO2
RXD2
AUXIO3
TXD2
AUXIO4
AUXIO8
AUXIO5
AUXIO9
AUXO1
TXD1
AUXO2
RXD1
GND
ME
MI2
DEO
GND
5C
DI
AFO
SB
SB
SB
SB
SB
SB
NC
LCD
B38-0888-05
DISPLAY UNIT
(X54-3480-10)
ANT
26 PIN BOARD TO BOARD CONNECTOR
DGND
CN403
OPT6
OPT2
AO
1
TXD1
AGND
OPT3
TXI
TXO
5E
DTI
CLK
OPT4
AUDIH
RXEO
NC
USEL
26
RXD1
AI
8C
STON
RXEI
OPT5
AGND
TCTL
OPT1
INT. SP
J701
SB
SPI
SPO
HOR
GND
PA
CN301 CN302
REF
Fin
CPGND
5C
GND
CP
UL
PLE
DT
PCK
GND
DGND
1
6
1
6
DM
PTT
HK
E
MIC
SB
ME
BLC
8
1
1
30
30
1
1
30
30
1
COM
1~9
SEG
1~75
CN901
J901
CN428
R30
SPO
GND
EXT. SP
NC
SB RXD1
AUXO2 TXD1
AUXO1
AUXI/O9
AFO DI
GND MI2
DEO
GND
AUXI/O5 AUXI/O8
AUXI/O4 TXD2
AUXI/O3
RXD2
AUXI/O2
GND
AUXI/O1
AUXI/O7
ME
AUXI/O6
1
2
2
IGN
1
CN804
GND
1
6
1
2
3
4
5
6
7
8
9
10
11
12
13
14
15
16
17
18
19
20
21
22
23
24
25
AUDIO IC
TA7252AP
IC417
1
7
1
POWER
MODULE
RA30H4452M
IC1
4
–
DC 13.6 V
+
TX-RX UNIT
(X57-6990-10) (B/3)
TX-RX UNIT
(X57-6990-10) (C/3)
TX-RX UNIT
(X57-6990-10) (A/3)
INTERCONNECTION DIAGRAM

70
AGC
MIC
AMP
MI2
IC414
TC75W51FU
8C
MM2
MOD TX
VCO
RX
VCO
IN V
SW
VCXO
T/R
Q302,Q303
2SC4116(BL)*2
Q309
2SC4116
(GR)
DISPLAY UNIT
(X54-348)
AVR
BUSY
LED
RXD2
TXD2
X901
14.7456MHz
SW
SW
8C
TX
LED SW
8C
SP
POWER SW
PSW
RED
11CL
LCD
DRIVER
IC903
LC75810T
-8726
Q913,Q909
DTC114EE,12A02CH
Q904
DTC114EE
Q905
DTC114EE
5V, 8C
Q417
2SJ243
Q416
2SJ243
IC901
TA78L05F
5V
VDD
INT. SP
BLC1
GR E
LDT
LCK
LRES
LCS
SCSW
SCSW
5M
TXD
RXD
BEAT
SHIFT 11.0592MHz
RST1
INT
IGN
5C
SHIFT/MODEL
Q402
DTC114YE
D408,D409
MA742*2
Q410,Q411
2SC4116(Y)
2SA1586(Y,GR)
CF SW
DET
ASQ
Q175
2SC4617(Q)
D173
RB706F-40
Q310
DTC114EE
Q307: 2SK508NV(
K
D308,D311,D314:
B
Q306: 2SK508NV(
D309,D313: BB66
4
5R X171
44.395MHz
Q176
2SK1824
DC-DC
Converter
5C
Q308
2SC4116(GR)
IC251
MAX5026EUT+T
5CUL
PLE
DT
PCK
5C
CV
Ripple
Filter
Q251
2SC4617(S)
D802
DSA3A1
D801
22ZR-10D
D804,Q802
02DZ18(X,Y)
DTC114EE
+B
SB
DC
13.6V
PROTECT
PROTECT
SW
SW
AVR
8V 8C
5C
RST1
8T
Voltage
DETECTOR INT
IGN
IGN
SENS
IC802
XC61CN5002NR
Q810
2SJ645
Q807
DTC114EE
IC803
TA7808F
Q803,Q806
12A02CH,DTC114EE
Q804,Q808
12A02CH,DTC114EE
Q805,Q809
12A02CH,DTC114EE
Q811
DTC114TE
IC801
S-80942CNNBG9C
IC804
TA7805F
Q801,D805
2SC2873(Y),02CZ9.1(X,Y)
5R
5M
IC805
NJM78L05UA
TXC
RXC
8R
RXC
SBC
PSENS
PSW
DMUTE
Xout
Xin
RXDET
SW
THP, UL, ASQ,
RSSI, HSDIN,
LSDIN
MM1
OPT1, OPT2,
OPT3, OPT4,
OPT5
MB
10CL
DIMMER
SW
DIMMER LCD BackLight*12
KEY BackLight*10
8C
LCD
SEG*75
COM*9
VDD
VLCD
BLC
SB
E
PTT
ME
MIC
HOOK
DM
MIC
AFO
DIMM
RST RST2
D904,D905,D906
DA204U
MUTE
SW
5E
AMP
FM IC
SW
CF
CF
D171
DAN235E
TXIN
CF171
CF172
IC413
TC7MZ4053FK(2/3)
IC413
TC7MZ4053FK
(1/3)
IC413
TC7MZ4053
FK(3/3)
IC412
TC75W51FU(2/2)
IC407
TC75W
5C
SW
X301
16.8MHz
IC807
XC6201P502PR
IC415
Audio proce
s
AQUA-L
PTT
DM
BLC
PTT/TXD1
10KEY
DIMMER
S [1:10]
Q906,Q907
DTC114EE, 2SC2873(Y)
DTRLOAD, AFSTD,
TCLK/DTRDO,
AFDAT, AFDIO
AFRTM, CK, AFDIR
HK/RXD
DM
BLC2
5C
Xin
Xout
Q901,Q902
DTC144EE
X404
LSDI LPF
5C
I
C
TC75
W
HSDO
SW MUTE
SW
AM2
Q409
DTC363EU BEEP
HSDO
T/R
VGS-1
REC SRC
REC SRC
Q415
HN1L02FU
STSW
STSW
Q413
2SJ243
Q414
2SJ243
Q406
HN1J02FU
RXAF
AI
AO
SW
HSDO
EMTON
Q406
HN1J02FU
ANI Board
DATA
OUT
Scrambler Board
TXAI
TXAO
RXOUT
RXIN
PROTECT
AVR
8.5V
AVR
5V
AVR
5V
Voltge
DETECTOR
SW
SW
SW
SW AVR
5V
IC301
ADF4111BCP7
PLL
Active
Loop
Filter
I
C
TA3
AMP
SIDE
TONE
SW
SW
SW
SW
SW
Noise AMP
µ-com
IC404
30625MGP-*
*
µ-com
IC902
30302M8-***GP
Protect
Surge
Protect
*3
TK-8180 BLOCK DIAGRAM

71
BLOCK DIAGRAM TK-8180
DAC
IC410
M62364FP
AUX I/O1~
AUX I/O9
EEPROM
IC401
AT24256N10SI27
Flash ROM
IC405
AT29C040A-90TI
RTC
IC402
RV5C386A
ANT
SW
TUNE
TV
D3: XB15A407A2GB
D2: XB15A709
D111: HVC131
Q103
2SC3357
Mixer
IC171
SPM5001
IC1
RA30H4452M
IN V T/R
T/R
Q311
2SC5108(Y)
Q301
2SC5108(Y)
Q313
2SC5108(Y)
*2
FC AM
IC417
TA7252AP
CD
RSSI
5CL
5C
+B
D [0:7] RTCL/
EEPCL
RTDT/
EEPDAT
5M 5M
Q419
DTC363EU
TV
DT,CK,DSTB
NC
GND AFO SB
RXD2 TXD2 TXD1 RXD1AUX I/O6 AUX I/O7 AUX I/O8 AUX I/O9GND GND MI2 DI
ME AUX I/O1 AUX I/O2 AUX I/O3 AUX I/O4 AUX I/O5 DEO AUXO2AUXO1
Surge
Protect
AUXO1~
AUXO2
D702,D703,D709,D710
1SS355,02DZ18(X,Y)
D413,D414
DA204U
D704~D708
D711~D713,D412
DA204U
AUXI/O1~
AUXI/O9
5C
5C
5C
D103,D104
D105,D106
1SV286*4
D107,D108
D109,D110
1SV291*4
CF SW
Q178
DTA144EE
8R
Q310
DTC114EE
Q
307: 2SK508NV(K52)
308,D311,D314: BB664*2,1SV278
Q
306: 2SK508NV(K52)
D
309,D313: BB664*2
Q2
2SC5192
:
IC72
TA75W01FU(1/2)
IC72
TA75W01FU
(2/2)
GAIN
SW
H/L
HiPo: 0V/LoPo: 5V
POW
AMP
8T
DC
AMP
DC
AMP DC
AMP
8T
PO DET
PO REF
ATT
TEMP
DET
THP
ATTLPF
HPF
BPF
5R
RF AMP
5R
X171
4
.395MHz
SW
TX
450~520MHz
RX Local
405.15~475.15MHz
BPF
Buff AMPBuff AMP
Q72
2SK1824
5C
G
R)
5
C
5M
INTRA
5C
Q312
2SC4617(S)
EXT.
SP
1
6
PA
SPO
SPI
Shift Register
IC403
BU4094BCFV
SPSTB1, SOE,
CK, DT
Xin
Xout
3.6864MHz
SP
X401
32.768kHz
T
2,
T
4,
AF
IC412
TC75W51FU(1/2)
IC409
TC75W51FU(1/2)
IC407
TC75W51FU(1/2)
5C
IC411
LMC7101BIM5
10CL
LSDO BAL
MOD
MOD HOR
GND
PC MP
GSW
8T
1234567
8910111213
15 14
16
17181920212223
24
25
AFO
DEO
MI2
DI
ME
SB
GND
RS232
DRIVER
5C
TXD1,RXD1
TXD2,RXD2
TXD1,RXD1
TXD2,RXD2
IC416
ADM202EARN
POW
DET
D6
HSM88AS
D7
HSM88AS
D8
HSM88AS
LPF
APC
8T 8T
8T
MCF
2Pole
MCF
2Pole
W/N
F
M IC
SW
CF
CF
E
D172
DAN235E
AF
XF171 XF171
Q171
2SC5108(Y)
CD171
CF171
CF172
MUTE
SW
DEO
DEO
IC407
TC75W51FU(2/2)
5C
Q3
DTC114EE
IC71
TA75W01FU(1/2)
IC71
TA75W01FU(2/2)
TH1
S1R104J475H
INV
DI
Q418
DTC114EE
5C
MB
5C
IC408
TC75W51FU(1/2)
IC408
TC75W51FU
(2/2)
5C
IC415
Audio processor
AQUA-L
5M
D
, AFSTD,
R
DO,
A
FDIO
C
K, AFDIR
MP
AFO
X403
SB
D
ILPF
COMP
HSDI
5C 5C
IC406
TC75W51FU
RXAF
8T
Q1
2SC5108(Y)
8T
D315,D316
HVC131*2
T/R
SW
8T
5R
ATT
LPF
SIDE TONE
7
Ripple
Filter
GATE
SW POW
DET
POW
DET
IC172
TA31136FN
AMP
IF AMP
AF AMP
5R
Q172
2SC5108(Y)
IF AMP
Surge
Protect
Surge
Protect
AUXO1
PA
HOR
SCSW
CFSW
AUXO2
GSW
DT, CK,
PCK, PLE,
TXC, RXC, SBC
T/R, W/N,
DMUTE,
RECSRC/SELF,
AM, AM2
EMTON,
DSTB,
APC,
HSDO,
LSDO,
BEEP
MM1, MM2
H/L,
STSW
µ-com
IC404
30625MGP-***GP
A [0:18],
RD, WR,
CS0
ACC D-Sub 25pin
ACC 26pin
1 OPT1
3 RXD1
5 CLK
7 USEL
9 DGND
11 AO
13 AGND
15 STON
17 TCTL
19 AUDIH
21 TXO
23 RXEI
25 OPT6
OPT3 2
TXD1 4
OPT4 6
OPT5 8
AGND 10
AI 12
5E 14
DTI 16
NC 18
OPT2 20
RXEO 22
TXI 24
8C 26

TK-8180
72
W: 5.0mVrms
N: 6.3mVrms
W: 5.0mVrms
N: 6.3mVrms
21
IC414
W: 72.5mVrms
N: 91.3mVrms
12 14
IC413
W: 72.5mVrms
N: 91.3mVrms
26
IC415
W: 340mVrms
N: 180mVrms
43
IC410
W: 140mVrms
N: 70mVrms
21
IC412
W: 96mVrms
N: 48mVrms
W
N
MIC
TX
VCO
–122.0dBm –112.0dBm –117.0dBm –118.5dBm –108.0dBm
–105.5dBm
–119.5dBm
HPF BPF
L173 L176
IC171
XF171
(1/2)
–109.5dBm
XF171
(2/2)
ANT
Q103 Q171 Q172
Radio Frequency 44.85MHz
SG input level for 12dB SINAD ar
e
connecting SG to each point via
a
Q307
TX-RX unit (B/3)
MIC input : 3kHz DEV. (Wide), 1.5kHz DEV. (Narrow) at 1kHz MOD.
Transmitting frequency : Center frequency
LEVEL DIAGRAM
Receiver Section
Transmitter Section

TK-8180
73
LEVEL DIAGRAM
67
IC412
526
IC415
315mVrms 190mVrms 88mVrms 4.00Vrms
115
IC413
16 15
IC410
15
IC417
14
IC1
9
6mVrms
4
8mVrms
W: –83.5dBm
N: –83.0dBm
W: –86.0dBm
N: –86.0dBm
–0.5dBm
TX
V
CO
+2.5dBm +8dBm +17dBm
450~490MHz : 30W
490~520MHz : 25W
0
dBm
0
5.5dBm
200mVrms
16
35
9
CF171/
CF172
IC172
7
2
4Ω
J401
455kHz Audio Frequency
S
INAD are obtained Measured by
oint via a 0.01µF capacitor. AF VTVM
AF level obtained when the AF output level is adjusted for 4.00V/4Ω
with the front panel AF VOL control. Measured with AF voltmeter
connected to the external speaker jack, receiving a –53dBm SSG
signal modulated at 1kHz, DEV. WIDE 3kHz (NARROW 1.5kHz).
Q313
Q
307
Q1 Q2
ANT
TX-RX unit
(B/3)Power module
Wattmeter by 50Ω

TK-8180
74
■ External View
1 ✽ A62-1101-01 MAIN PANEL
2 ✽ A82-0056-11 REAR PANEL
4 ✽ E30-7514-05 TRUNK CABLE
5 ✽ E37-1121-05 FLAT CABLE
7 ✽ F07-1884-03 MOLDING COVER
9 ✽ G53-1614-23 PACKING
11 ✽ H12-3163-03 PACKING FIXTURE
12 H25-0029-04 PROTECTION BAG (60/110/0.07)
13 H25-2327-04 PROTECTION BAG (100/250/0.07)
14 H25-2352-04 PROTECTION BAG (250/350/0.07)
15 ✽ H52-2042-02 ITEM CARTON CASE
17 J29-0698-03 BRACKET
A N08-0550-04 DRESSED SCREW
B ✽ N80-2608-48 PAN HEAD TAPTITE SCREW
19 ✽ N99-2040-05 SCREW SET
C14 CK73GB1H102K CHIP C 1000PF K
C41 CK73GB1H102K CHIP C 1000PF K
CN1 E40-6371-05 FLAT CABLE CONNECTOR
CN2 E40-6412-05 FLAT CABLE CONNECTOR
CN3,4 E40-6377-05 PIN ASSY
L2,3 L40-1091-86 SMALL FIXED INDUCTOR (1.0UH)
L5,6 L40-1091-86 SMALL FIXED INDUCTOR (1.0UH)
R1 RK73GB1J473J CHIP R 47K J 1/16W
D2 MINISMDM075/24 VARISTOR
D3-6 DA204U DIODI
D9-11 DA204U DIODE
D12-20 ✽AVRM1608080MAA VARISTOR
IC1,2 TC7WT125FU MOS IC
OPTIONAL ACCESSORIES: KRK-10
(Control Head Remote Kit: 23ft/7m)
■ Parts List
Ref. No.
Address
Parts No. Description
New
parts
KRK-10
✽ : New Parts
INTERFACE UNIT (X46-3310-20)
■ Components Description
Ref. No. Part Name Description
IC1,2 IC Buffer amp
D2 Varistor Current limiter
D3~6 Diode Surge protect
D9~11 Diode Surge protect
D12~20 Varistor Surge protect

TK-8180
75
2 Rear panel
(A82-0056-11)
1 Main panel
(A62-1101-01)
4 Trunk cable
(E30-7514-05)
4 Trunk cable
(E30-7514-05)
7 Molding cover
(F07-1884-03)
7 Molding cover
(F07-1884-03)
9 Packing
(G53-1614-23)
Interface unit
(X46-3310-20) (A/2)
Interface unit
(X46-3310-20) (B/2)
5 Flat cable
(E37-1121-05)
B Pan head taptite screw
(N80-2608-48) x 4
B Pan head taptite screw
(N80-2608-48) x 4
■ Exploded View and Packing
OPTIONAL ACCESSORIES: KRK-10
(Control Head Remote Kit: 23ft/7m)
12 Protection bag
(H25-0029-04)
7 Molding cover
(F07-1884-03)
12 Protection bag (H25-0029-04)
A Dressed screw (N08-0550-04) x 2 13 Protection bag
(H25-2327-04)
13 Protection bag
(H25-2327-04)
13 Protection bag
(H25-2327-04)
17 Bracket
(J29-0698-03)
19 Screw set
(N99-2040-05)
14 Protection bag
(H25-2352-04)
4 Trunk cable
(E30-7514-05) 11 Packing fixture
(H12-3163-03)
15 Item carton case
(H52-2042-02)

TK-8180
76
C41
D2
D3
D4
D5
D6
D9
D10
D11
D12
1
30
D13
D14
D15
D16
D17
D18
D19
D20
L2
L3
L5
L6
IC1
1
45
8
IC2
1
45
8
R1 1
30
SPI
SPI
SPI
SPI
SPI
SPI
GND
8C
SB
SB
NC
PSW
GND
GND
MIC
ME
GND
PSENS
RST2
LCDRST
LCDDI
LCDDO
CLK
SHIFT
5C
NC
TXD
RXD
GND
DM
SPI
SPI
SPI
SPI
SPI
SPI
GND
8C
SB
SB
NC
PSW
GND
GND
MIC
ME
GND
PSENS
RST2
LCDRST
LCDDI
LCDDO
CLK
SHIFT
NC
5C
TXD
RXD
GND
DM
CN1
CN2
C14
CN3
CN4
RST2
GND
TXD RXD
SHIFT
PSENS
ME
MIC
PSW 5C
SB
8C
SPI
J72-0934-09 B/2
J72-0934-09 A/2
J72-0934-09 B/2
J72-0934-09 A/2
SPI
8C
PSW
5C
MIC
ME
TXD RXD
PSENS
SB
GND
RST2
SHIFT
1
14
RST2
SHIFT
GND
TXD
RXD
PSENS
ME
MIC
PSW
GND
SB
8C
GND
SPI
SPI
GND
8C
SB
GND
PSW
MIC
ME
PSENS
RXD
TXD
GND
SHIFT
RST2 14
1
Component side
Foil side
Layer 1
Layer 2
Component side
Foil side
Layer 1
Layer 2
INTERFACE UNIT (X46-3310-20)
Component side view (J72-0934-09)
INTERFACE UNIT (X46-3310-20)
Foil side view (J72-0934-09)
■ PC Board
OPTIONAL ACCESSORIES: KRK-10
(Control Head Remote Kit: 23ft/7m)

TK-8180
77
■ Schematic Diagram
INTERFACE UNIT (X46-3310-20) (A/2)
OPTIONAL ACCESSORIES: KRK-10
(Control Head Remote Kit: 23ft/7m)
A
A
A
A
A
IC1
1G1
2A1
3Y2
4GND 5
A2
6
Y1
7
G2
8
VCC
IC2
1G1
2A1
3Y2
4GND 5
A2
6
Y1
7
G2
8
VCC
D2
IC1 : TC7WT125FU
D2 : MINISMDM075/24
D3~6 : DA204U
D12~19 : AVRM1608080MAA
IC2 : TC7WT125FU
D9~11 : DA204U
D20 : AVRM1608080MAA
D3
D5
D4
D6
C14 1000p
C41 1000p
D9
D11
D10
CN1
E40-6371-05
1
SPI
2
SPI
3
SPI
4
SPI
5
SPI
6
SPI
7
GND
8
8C
9
SB
10
SB
11
NC
12
PSW
13
GND
14
GND
15
MIC
16
ME
17
GND
18
PSENS
19
RST2
20
(LCDRST)
21
(LCDDI)
22
(LCDDO)
23
(CLK)
24
SHIFT
25
5C
26
NC
27
TXD
28
RXD
29
GND
30
(DM)
CN3
E40-6377-05
1SPI
2GND
38C
4SB
5GND
6PSW
7MIC
8ME
9PSENS
10 RXD
11 TXD
12 GND
13 SHIFT
14 RST2
L2 1u
L3 1u
L6 1u
L5 1u
R1 47k
CN4
E40-6377-05
1
RST2
2
SHIFT
3
GND
4
TXD
5
RXD
6
PSENS
7
ME
8
MIC
9
PSW
10
GND
11
SB
12
8C
13
GND
14
SPI
CN2
E40-6412-05
1(DM)
2GND
3RXD
4TXD
55C
6NC
7SHIFT
8(CLK)
9(LCDDO)
10 (LCDDI)
11 (LCDRST)
12 RST2
13 PSENS
14 GND
15 ME
16 MIC
17 GND
18 GND
19 PSW
20 NC
21 SB
22 SB
23 8C
24 GND
25 SPI
26 SPI
27 SPI
28 SPI
29 SPI
30 SPI
D12
D13
D14
D15
D16
D17
D18
D19
D20
Radio Side
Display Side
INTERFACE UNIT (X46-3310-20) (B/2)

TK-8180
78
■ Terminal Function
Pin No.
Name Description
CN1 (Radio side)
1SPI Speaker input.
2SPI Speaker input.
3SPI Speaker input.
4SPI Speaker input.
5SPI Speaker input.
6SPI Speaker input.
7GND Ground.
88C 8V input.
9SB Power input of switched power supply.
10 SB Power input of switched power supply.
11 NC -
12 PSW Detection signal output of Power switch.
13 GND Ground.
14 GND Ground.
15 MIC MIC signal output.
16 ME MIC ground.
17 GND Ground.
18 PSENS Detection signal output of Display unit.
19 RST2 Reset signal input.
20
(LCDRST)
Reserve.
21 (LCDDI) Reserve.
22 (LCDDO) Reserve.
23 (CLK) Reserve.
24 SHIFT Control signal input of Beat-Shift function.
25 5C 5V input.
26 NC -
27 TXD Serial data signal input.
28 RXD Serial data signal output.
29 GND Ground.
30 (DM) Reserve.
CN2 (Display side)
1(DM) Reserve.
2GND Ground.
3RXD Serial data signal input.
4TXD Serial data signal output.
55C 5V input.
6NC -
7SHIFT Control signal output of Beet-Shift function.
8(CLK) Reserve.
9(LCDDO) Reserve.
10 (LCDDI) Reserve.
11
(LCDRST)
Reserve.
12 RST2 Reset signal output.
13 PSENS Detection signal input of Display unit.
14 GND Ground.
Pin No.
Name Description
15 ME MIC ground.
16 MIC MIC signal input.
17 GND Ground.
18 GND Ground.
19 PSW Detection signal input of Power switch.
20 NC -
21 SB Power output of switched power supply.
22 SB Power output of switched power supply.
23 8C 8V output.
24 GND Ground.
25 SPI Speaker output.
26 SPI Speaker output.
27 SPI Speaker output.
28 SPI Speaker output.
29 SPI Speaker output.
30 SPI Speaker output.
CN3 (Radio side)
1 SPI Speaker output.
2GND Ground.
38C 8V output.
4SB Power output of switched power supply.
5GND Ground.
6PSW Detection signal input of Power switch.
7MIC MIC signal input.
8ME MIC ground.
9PSENS Detection signal input of Display unit.
10 RXD Serial data signal input.
11 TXD Serial data signal output.
12 GND Ground.
13 SHIFT Control signal output of Beat-Shift function.
14 RST2 Reset signal output.
CN4 (Display side)
1RST2 Reset signal input.
2SHIFT Control signal input of Beat-Shift function.
3GND Ground.
4TXD Serial data signal input.
5RXD Serial data signal output.
6PSENS Detection signal output of Display unit.
7ME MIC ground.
8MIC MIC signal output.
9PSW Detection signal output of Power switch.
10 GND Ground.
11 SB Power input of switched power supply.
12 8C 8V input.
13 GND Ground.
14 SPI Speaker input.
OPTIONAL ACCESSORIES: KRK-10
(Control Head Remote Kit: 23ft/7m)

TK-8180
79
OPTIONAL ACCESSORIES
KAP-2 (Horn Alert/P.A. Relay Unit)
■ External View
KCT-40 (Radio Interface Cable)
■ External View
KCT-46 (Ignition Sense Cable)
■ External View
KMC-35 (Microphone)
■ External View
KMC-36 (Keypad Microphone)
■ External View

TK-8180
KENWOOD CORPORATION
2967-3, Ishikawa-machi, Hachioji-shi, Tokyo, 192-8525 Japan
KENWOOD U.S.A. CORPORATION
P. O. BOX 22745, 2201 East Dominguez Street, Long Beach, CA 90801-5745, U.S.A.
KENWOOD ELECTRONICS CANADA INC.
6070 Kestrel Road, Mississauga, Ontario, Canada L5T 1S8
KENWOOD ELECTRONICS DEUTSCHLAND GMBH
Rembrücker Str. 15, 63150 Heusenstamm, Germany
KENWOOD ELECTRONICS BELGIUM N.V.
Leuvensesteenweg 248 J, 1800 Vilvoorde, Belgium
KENWOOD ELECTRONICS FRANCE S.A.
13, Boulevard Ney, 75018 Paris, France
KENWOOD ELECTRONICS U.K. LIMITED
KENWOOD House, Dwight Road, Watford, Herts., WD18 9EB United Kingdom
KENWOOD ELECTRONICS EUROPE B.V.
Amsterdamseweg 37, 1422 AC Uithoorn, The Netherlands
KENWOOD ELECTRONICS ITALIA S.p.A.
Via G. Sirtori, 7/9 20129 Milano, Italy
KENWOOD IBERICA S.A.
Bolivia, 239-08020 Barcelona, Spain
KENWOOD ELECTRONICS AUSTRALIA PTY. LTD.
(A.C.N. 001 499 074)
16 Giffnock Avenue, Centrecourt Estate, North Ryde, N.S.W. 2113 Australia
KENWOOD ELECTRONICS (HONG KONG) LTD.
Unit 3712-3724, Level 37, Tower one Metroplaza, 223 Hing Fong Road, Kwai Fong, N.T., Hong Kong
KENWOOD ELECTRONICS SINGAPORE PTE LTD.
1 Genting Lane #07-00 Kenwood Building, Singapore 349544
GENERAL
Frequency range ....................................... 450~520MHz
Number of channels .................................. Zone : Max. 128 per radio Ch/GID : Max. 250 per zone
(Max. 512 [Conv. Ch’s + GID’s] total per radio)
Channel spacing ........................................ Wide : 25kHz Narrow : 12.5kHz
Operating voltage ...................................... 13.6V DC ±15%
Current drain
Standby.................................................. 0.4A
Receive .................................................. 1.0A
Transmit................................................. 9.0A
Duty cycle ................................................. Transmit : 20%
Operating temperature range.................... –22°F~+140°F (–30°C~+60°C)
Frequency stability .................................... ±0.00025% (–22°F~+140°F)
Antenna impedance .................................. 50Ω
Channel frequency spread ........................ 70MHz
Dimensions (W x H x D) ............................ 6-5/16 x 1-3/4 x 6-3/16 in. (160 x 45 x 157 mm)
(Projections not included)
Weight (net) .............................................. 3.31lbs. (1.5kg)
RECEIVER (Measurements made per EIA/TIA-603)
Sensitivity (12dB SINAD)........................... Wide : 0.25µVNarrow : 0.28µV
Selectivity .................................................. Wide : 80dB Narrow : 67dB
Intermodulation distortion ......................... W/N : 75dB (±50, 100kHz)
Spurious response .................................... 85dB
Audio output (4Ω impedance) ................... 4W with less than 5% distortion
TRANSMITTER (Measurements made per EIA/TIA-603)
RF power output ....................................... 30 to 1W (490~520MHz : 25 to 1W)
Spurious response .................................... 70dB
Type of emission ....................................... Wide : 16K0F3E Narrow : 11K0F3E
FM hum & noise ....................................... Wide : 50dB Narrow : 45dB
Audio distortion ......................................... W/N : 3%
Microphone impedance ............................ 600Ω
SPECIFICATIONS