FC_TXSR403_8340 TXSR403
User Manual: TXSR403
Open the PDF directly: View PDF
.
Page Count: 149 [warning: Documents this large are best viewed by clicking the View PDF Link!]

TX-SR403/8340
SERVICE MANUAL
SERVICE MANUAL
220-230V AC, 50/60HzS MGR
Ref. No. 3861
042005
TX-SR403 Silver and Golden model
AV RECEIVER
MODEL TX-SR403
MODEL TX-SR8340
TX-SR8340 Golden model
220-230V AC, 50/60HzG MGR
220-230V AC, 50/60HzG MGR
RC-605S
TONE +STEREO
LISTENING MODE
DISPLAY
DIGITAL INPUT
DIMMER MEMORY
TUNING MODE
RETURN
TUNING / PRESET
ENTER
SETUP
STANDBY
STANDBY/ON
CLEAR
PHONES MULTl CH DVD VIDEO 1/VCR VIDEO 2 VIDEO 3 TAPE TUNER CD
MASTER VOLUME
A SPEAKERS B
MUTING
MENUTOP MENU
SP A
/
B
SETUPRETURN
RANDOM
SUBTITLE
PLAY MODE
AUDIO REPEAT
RC-605S
--
/
---
TAPE /AM P
ON STANDBY
DIMMER SLEEP
INPUT SELECTOR
REMOTE MODE
V
1
V
2
V
3
C
DTAPE TUNER
DVD
MULTI CH
LISTENING MODE
DISPLAY
TEST
TONE
CH SEL
SURROUND
STEREO
CINE FLTR
LEVEL
+
LEVEL
-
L NIGHT
VOL
CDR
MD
DVD
RECEIVER
C
D
+10
0
CLR
123
456
789
ENTER
CH
DISC
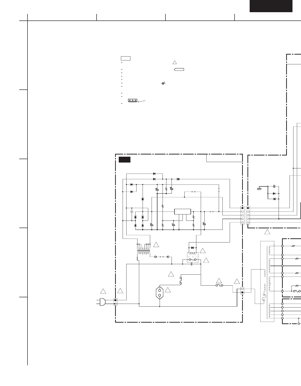
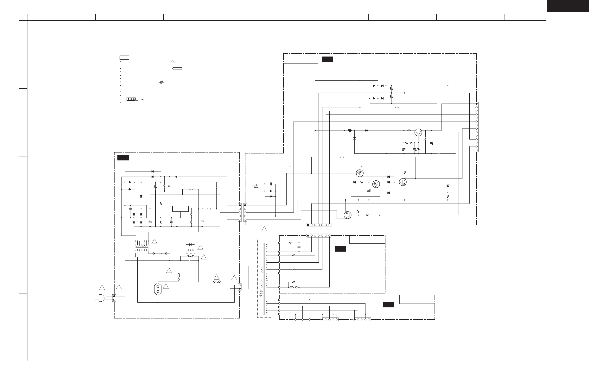
SAFETY-RELATED COMPONENT
WARNING!!
COMPONENTS IDENTIFIED BY MARK ON THE
SCHEMATIC DIAGRAM AND IN THE PARTS LIST ARE
CRITICAL FOR RISK OF FIRE AND ELECTRIC SHOCK.
REPLACE THESE COMPONENTS WITH ONKYO
PARTS WHOSE PART NUMBERS APPEAR AS SHOWN
IN THIS MANUAL.
MAKE LEAKAGE-CURRENT OR RESISTANCE
MEASUREMENTS TO DETERMINE THAT EXPOSED
PARTS ARE ACCEPTABLY INSULATED FROM THE
SUPPLY CIRCUIT BEFORE RETURNING THE
APPLIANCE TO THE CUSTOMER.

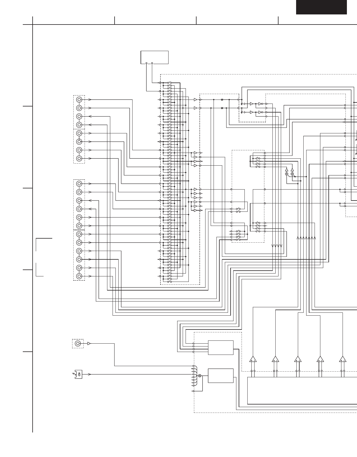
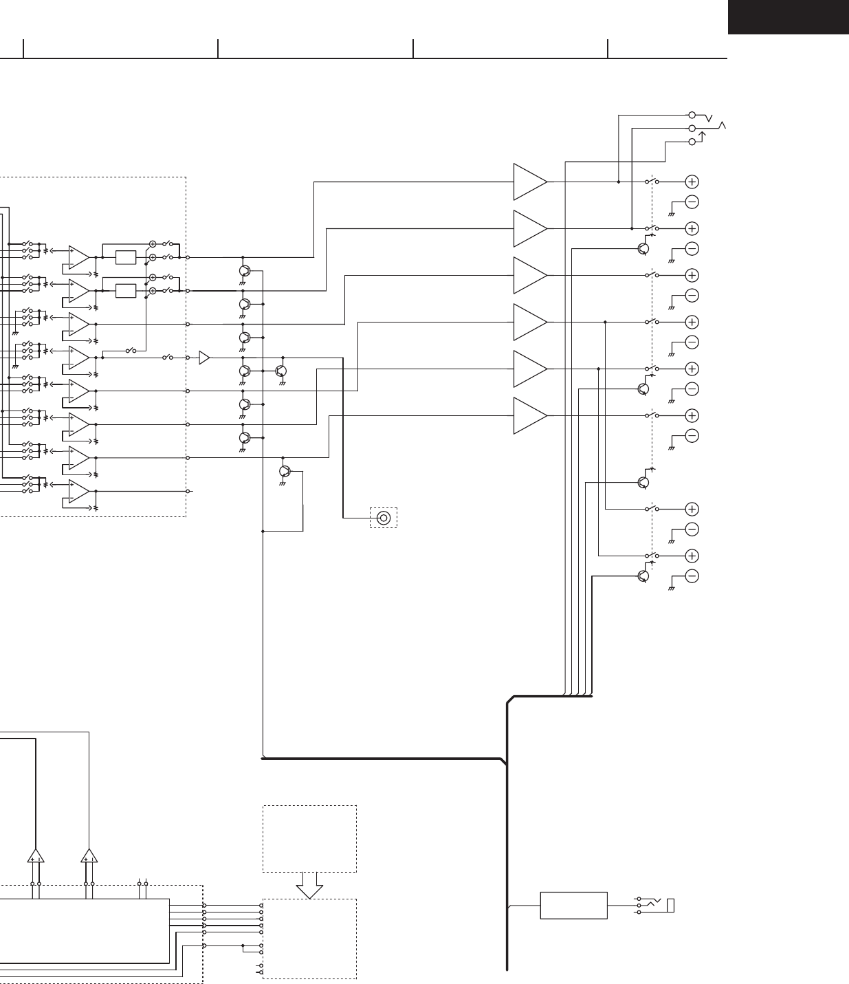
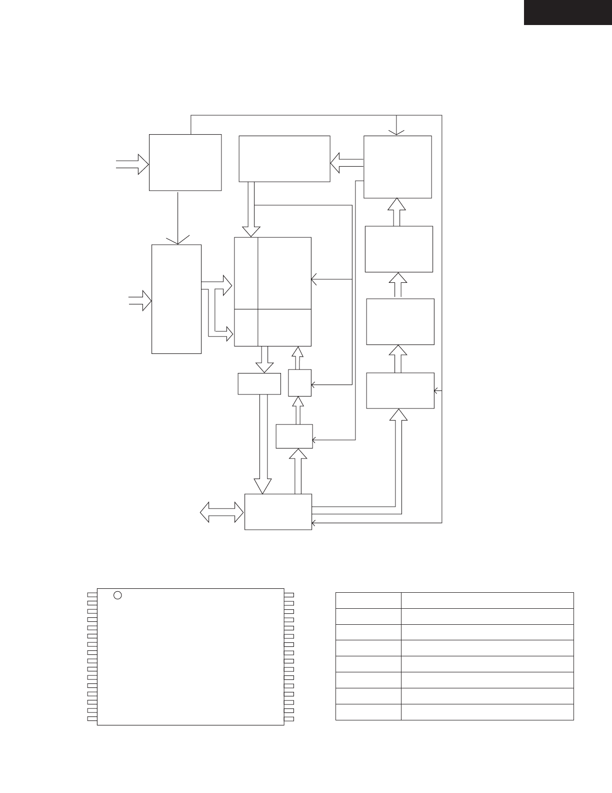
TX-SR403/8340TX-SR403/8340
BLOCK DIAGRAM
FL_PO
FR_PO
CT_PO
SBL_PO
TAPE_OUT_R
TAPE_OUT_L
V2_OUT_L
V2_OUT_R
Z2_R
Z2_L
MIX_R
MIX_L
SOURCE_L
SOURCE_R
RECOUT_L
RECOUT_R
MCH_SR
MCH_SL
MCH_SW
MCH_CT
ADLT+
ADRT+
ADLT-
ADRT-
ADRT-
ADRT+
ADLT+
ADLT-
DAC_FL
DAC_CT
DAC_SW
DAC_FR
DAC_SR
DAC_SBL
DAC_SL
VOLIN_SBR
VOLIN_SBL
RX2
Z2RL
SBRL
SPRLCS
SW_PO
AMUT
SL_PO
SR_PO
RX0
HPIN
SPRLF
TUNER UNIT
NJW1157
CD
TAPE OUT
TAPE IN
VIDEO3 IN
VIDEO2 IN
VIDEO1 OUT
VIDEO1 IN
DVD
(MULTI INPUT)
COAXIAL
DIGITAL IN
OPTICAL
RI
RI
INTERFACE
PREOUT
SUBWOOFER
FRONT-A
R
CENTER
SURROUND
PHONES
FRONT-B
SURROUND
BACK
SPEAKERS
TONE
TONE
-6dB
-6dB
+9.7dB
+20.2dB
DIR
2ch ADC
CS42518
8ch DAC
LPF
DSP
CS494003
FLASH ROM
MX29LV040
LPF
LPF
LPF
LPF
LPF
LPF
4M Bit
NJU7311
POWER
AMPLIFIER
+29dB
+29dB
+29dB
+29dB
+29dB
+29dB
52
53
54
55
56
57
58
59
60
61
62
63
64
65
66
67
68
69
70
71
73
73
51
74
41
43
23
25
22
24
26
21
27
29
28
30
44
42
46
45
48
47
93
92
91
95
90
89
88
86
85
84
83
87
82
81
80
7
6
5
4
3
2
1
94
8
9
8
12
17
10
19
20
21
11
18
4
25
3
26
2
27
22
7
23
6
5
24
16
15
14
13
49
48
43
42
47
46
45
44
50
37
36
107
118
106
81
80
86
134
109
110
58
54
63
62
64
1
35
34
32
33
31
30
28
29
26
27
21
20
22
23
+
+
A
A
To Microprocessor
INVERT
VOLUME
L
R
L
L
R
FRONT
CENTER
SURROUND
SUBWOOFER
L
R
L
R
A
1
2
3
4
5
BCDEFGH

TX-SR403/8340TX-SR403/8340
BLOCK DIAGRAM
FL_PO
FR_PO
CT_PO
SBL_PO
TAPE_OUT_R
TAPE_OUT_L
V2_OUT_L
V2_OUT_R
Z2_R
Z2_L
MIX_R
MIX_L
SOURCE_L
SOURCE_R
RECOUT_L
RECOUT_R
MCH_SR
MCH_SL
MCH_SW
MCH_CT
ADLT+
ADRT+
ADLT-
ADRT-
ADRT-
ADRT+
ADLT+
ADLT-
DAC_FL
DAC_CT
DAC_SW
DAC_FR
DAC_SR
DAC_SBL
DAC_SL
VOLIN_SBR
VOLIN_SBL
RX2
Z2RL
SBRL
SPRLCS
SW_PO
AMUT
SL_PO
SR_PO
RX0
HPIN
SPRLF
TUNER UNIT
NJW1157
CD
TAPE OUT
TAPE IN
VIDEO3 IN
VIDEO2 IN
VIDEO1 OUT
VIDEO1 IN
DVD
(MULTI INPUT)
COAXIAL
DIGITAL IN
OPTICAL
RI
RI
INTERFACE
PREOUT
SUBWOOFER
FRONT-A
R
CENTER
SURROUND
PHONES
FRONT-B
SURROUND
BACK
SPEAKERS
TONE
TONE
-6dB
-6dB
+9.7dB
+20.2dB
DIR
2ch ADC
CS42518
8ch DAC
LPF
DSP
CS494003
FLASH ROM
MX29LV040
LPF
LPF
LPF
LPF
LPF
LPF
4M Bit
NJU7311
POWER
AMPLIFIER
+29dB
+29dB
+29dB
+29dB
+29dB
+29dB
52
53
54
55
56
57
58
59
60
61
62
63
64
65
66
67
68
69
70
71
73
73
51
74
41
43
23
25
22
24
26
21
27
29
28
30
44
42
46
45
48
47
93
92
91
95
90
89
88
86
85
84
83
87
82
81
80
7
6
5
4
3
2
1
94
8
9
8
12
17
10
19
20
21
11
18
4
25
3
26
2
27
22
7
23
6
5
24
16
15
14
13
49
48
43
42
47
46
45
44
50
37
36
107
118
106
81
80
86
134
109
110
58
54
63
62
64
1
35
34
32
33
31
30
28
29
26
27
21
20
22
23
+
+
A
A
To Microprocessor
INVERT
VOLUME
L
R
L
L
R
FRONT
CENTER
SURROUND
SUBWOOFER
L
R
L
R
A
1
2
3
4
5
BCDEFGH

TX-SR403/8340
SPECIFICATIONS
Audio Outputs
Analog Outputs TAPE, VIDEO1
Subwoofer Pre Outputs 1
Speaker Outputs SP-A (L, C, R, SL, SR, SB) + SP-B (L, R)
Phones 1
Specifications and features are subject to change without notice.
Power Supply AC 220/230 V, 50/60 Hz
Power Consumption 370 W
Stand-by Power Consumption 0.5 W
Dimensions
(W x H x D) 435 x 150 x 369 mm
17-1/8" x 5-7/8" x 14-1/2"
Weight 8.6 kg (19.0 lbs.)
Video Outputs
S-Video MONITOR, VIDEO1
Composite MONITOR, VIDEO1
Audio Inputs
Digital Inputs Optical: 1
Coaxial: 1
Analog Inputs DVD(MULTICHANNEL), VIDEO1,
VIDEO2, VIDEO3, TAPE, CD
Multichannel Inputs 6
General
Power Output
2 channel driven: 110 W + 110 W (6 , 1kHz, JEITA)
Dynamic Power 160 W + 160 W (3 , Front)
125 W + 125 W (4 , Front)
85 W + 85 W (8 , Front)
THD
(Total Harmonic Distortion) 0.08% (Power Rated)
Damping Factor 60 (Front, 1kHz, 8 )
Input Sensitivity and Impedance 200 mV/ 47 k (LINE)
Output Level and Impedance 200 mV/ 470 (REC OUT)
Frequency Response 10 Hz.100 kHz/ +1 dB-3 dB (Direct
mode)
Tone Control 10 dB, 50 Hz (BASS)
10 dB, 20 kHz (TREBLE)
Signal to Noise Ratio 100 dB (LINE IHF-A)
Speaker Impedance 6 -16
Amplifier Section
Input Sensitivity/Output Level
and Impedance 1 Vp-p /75 (S-Video Y)
0.28 Vp-p /75 (S-Video C)
1 Vp-p /75 (Composite)
Video Section
FM
Tuning Frequency Range 87.5 MHz. 108.0 MHz
Usable Sensitivity Stereo: 17.2 dBf 2 V(75 IHF)
Mono: 11.2 dBf 1 V(75 IHF)
Signal to Noise Ratio Stereo: 70 dB (IHF-A)
Mono: 76 dB (IHF-A)
THD Stereo: 0.3% (1kHz)
Mono: 0.2% (1kHz)
Frequency Response 30 Hz -15 kHz / 1 dB
Stereo Separation 45 dB (1kHz)
AM
Tuning Frequency Range 522 kHz-1611 kHz
Usable Sensitivity 30 V
Signal to Noise Ratio 40 dB
THD 0.70%
Tuner Section
Video Inputs
S-Video DVD, VIDEO1, VIDEO2
Composite DVD, VIDEO1, VIDEO2, VIDEO3

SERVICE PROCEDURE
TX-SR403/8340
1. Replacing the fuses
This symbol located near the fuse indicates that the
fuse used is show operating type, For continued protection against
fire hazard, replace with same type fuse, For fuse rating, refer to
the marking adjacent to the symbol.
Ce symbole indique que le fusible utilise est e lent.
Pour une protection permanente, n'utiliser que des fusibles de meme
type. Ce demier est indique la qu le present symbol est apposre.
2. To initialize the unit
The AV receiver uses a battery-less memory backup system in order to retain radio presets and other settings
when it's unplugged or in the case of a power failure.
Although no batteries are required, the AV receiver must be plugged into an AC outlet in order to charge the
backup system. Once it has been charged, the AV receiver will retain the settings for several weeks,
although this depends on the environment and will be shorter in humid climates.
1. Press and the hold down the VIDEO 1/VCR button , then press the STANDBY/ON button when the unit is Power ON.
2. After " Clear " is displayed, the preset memory and each mode stored in the memory, are initialized and will return to
the factory settings.
4. Memory Backup
<Note>
Main microprocessor Q701 only.
1. Press and the hold down the DISPLAY button , then press the STANDBY/ON button when the unit is Power on.
Version is displayed on FL display only for 3 seconds.
2. Press the STANDBY/ON button to Power off.
3. To check version of microprocessor
Ver.1.01/05305a
Ex.
REF NO.
F902
F902 or
F902 or
F903
F903 or
F903 or
F6901
F6901 or
F6902
F6902 or
PART NAME
FUSE
FUSE
FUSE
FUSE
FUSE
FUSE
FUSE
FUSE
FUSE
FUSE
DESCRIPTION
3.15A-SE-EAK FUSE
3.15A-SE-TL250V
3.15A-SE-TL250V
2.5A-SE-EAK FUSE
2.5A-SE-TL250V
2.5A-SE-TL250V
8A-UL
8A-T/UL-ST2
8A-UL
8A-T/UL-ST2
PART NO.
252076
252242
252276
252075
252241
252275
252198
252261
252198
252261
REMARKS
!
!
!
!
!
!
!
!
!
!

OPERATION CHECK-1
SPEAKER PROTECT-1 (DC VOLTAGE DETECTION)
TX-SR403/8340
1. Press and the hold down the CD button , then press the STANDBY/ON button when the unit is Power ON.
" Test - _ " is displays it only for 5 seconds.
2. Press the VIDEO 3 button, while the character of " Test - _ " is displayed.
Unit will be in the state of " Test-4-00 ".
3. Repeatedly press TONE+ button until the character of " Test-4-21 " is displayed.
[Procedure]
<Note>
No load. No input.
Test - _
Test - 4-00
[When]
1. Exchange power transistors (Q6050 - Q6065).
2. Exchange amplifier PC board ass'y (NAAF-8523).
Test - 4-21
Checking the operation starts automatically as follows.
Test - 4-21
Test - 4-22
Test - 4-25
Test - 4-23
Test - 4-24
Protect OK
Protect OK
Protect
Protect OK
Protect OK
Protect OK
Test - 4-35
Clear
Turn off
Front L ch
Check
If all channel are OK, the character of " Test - 4 - 35 " is displayed.
4. Press the STANDBY/ON button.
Front R ch
Check
Center ch
Check
Surround L ch
Check
Surround R ch
Check
Blinks
Test - 4-26
Protect OK
Surround Back ch
Check

OPERATION CHECK-2
SPEAKER PROTECT-2 (CURRENT DETECTION)
TX-SR403/8340
1. Press and the hold down the CD button , then press the STANDBY/ON button when the unit is Power ON.
" Test - _ " is displays it only for 5 seconds.
2. Press the VIDEO 3 button, while the character of " Test - _ " is displayed.
Unit will be in the state of " Test-4-00 ".
3. Repeatedly press TONE+ button until the character of " Test-4-35 " is displayed.
4. Connect the Dummy load of 3 ohms to the Front Lch speakers terminal.
At this time, check the speaker relay is not turned off.
5. Connect the dummy load of 1 ohm to the Front Lch speakers terminal.
At that time, you check the speaker relay is turned off and " Protect " is displayed.
Disconnect the dummy load at once when check the display of " Protect ".
6. Check other channels according to the same procedure.
[Procedure]
<Note>
No input.
Do not check two or more channels at the same time.
Do not connect dummy load to speaker terminals fro seconds 2 or more.
Test - _
Test - 4-00
[When]
1. Exchange power transistors (Q6050 - Q6065).
2. Exchange amplifier PC board ass'y (NAAF-8523).
Test - 4-35
Clear
Turn off
7. Press the STANDBY/ON button.
Test - 4-35
Protect
Test - 4-35
Blinks

OPERATION CHECK-3
CONTROL OF POWER SUPPLY (OUTPUT SENSOR AND THERMAL SENSOR)
TX-SR403/8340
Test - _
Test - 4-00
Test - 4-37
Clear
Turn off
Test - 4-37 FM STEREO
Blinks
Ver. 0.50/05131a
<Ex.>
<Ex.> T: 25 C/ 77 F
Clear
Turn off
Output sensor
1. Press and the hold down the CD button , then press the STANDBY/ON button when the unit is Power ON.
" Test - _ " is displays it only for 5 seconds.
2. Press the VIDEO 3 button, while the character of "Test - _" is displayed.
Unit will be in the state of " Test-4-00 ".
3. Repeatedly press TONE+ button until the character of " Test-4-37 " is displayed.
4. Adjusts MASTER VOLUME to Max. position.
At this time, check the character of " FM STEREO " displayed.
And, check relay RL6901 and RL6902 are turned off in 2- 3 seconds.
5. Press the STANDBY/ON button.
[Procedure]
<Note>
No output. No input.
[When]
1. Exchange power transistors (Q6050 - Q6065).
2. Exchange power amplifier PC board ass'y (NAAF-8523).
3. Exchange thermal sensor PC board ass'y (NAETC-8526).
Thermal sensor
1. Press and hold down the DISPLAY button, then press the STANDBY button when the unit is power ON.
" Ver. 0.50/05131a " is displays it only for 2 seconds.
2. Press the TONE button, while the character of " Ver.0.50/05131a " is displayed.
3. Check the displayed temperature is +/-20 C of the ambient temperatures.
4. Press STANDBY/ON button.

OPERATION CHECK-4
DSP DEBUG MODE
TX-SR403/8340
E1A48K015FF 23o
Ver. 0.50/05131a
<Ex.>
1 42 5 6 87 103 9
Check the operation of the circuit around DSP by the display in this mode.
This information helps to pursue the faulty point.
UNLOCK
E = UNLOCK
= LOCK
1
Digital Selecter
D = DIGITAL
A = ANALOG
1 = COAX1
2 = OOAX2
3 = OPT1
4 = OPT2
5 = OPT3
7 = FRONT
2
Sampling Frequency
96 = 96kHz
48 = 48kHz
44 = 44kHz
32 = 32kHz
-- = Not detect
3
AUTOBOOT DSP AB CODE
0 = FLASH
1 = ab_ac3_pl2
2 = ab_dts_pl2
3 = ab_neo6
4 = sgen_ab
5 = ab_pl2fs
6 = ab_dts_6dol
7 = ab_dts9624
8 = aac_pl2
6
Pre Emphasis
K = OFF
e = ON
4
DSP Detect Format
00 = Null
01 = Dolby Digital
03 = Pause
04 = MPEG1 L1
05 = MPEG1 L23/ MPEG2 w/o
06 = MPEG2 w/e
07 = MPEG2 AAC
08 = MPEG2 L1
09 = MPEG2 L2/3
9
DSP Decode
o = Decode OK
x = Decode NG
-- = Analog in
10
To set in DSP debug mode
1. Press and hold down the DISPLAY button, then press the STANDBY button when the unit is power ON.
" Ver. 0.50/05131a " is displays it only for 2 seconds.
2. Press the DISPLAY button, while the character of " Ver.0.50/05131a " is displayed.
To exit
Press STANDBY/ON button.
--------- DIR --------- ------ MEMORY/DOWNLOAD -----
DIR Status
0 = ANALOG
1 = PCM
2 = NOT_PCM
3 = DATA
4 = DTSCD
5 = MCH
6 = NOT DECIED
5
------------------------- DSP ----------------------------------------
Content of display
AUTOBOOT DSP C CODE
0 = ac_dts9624
1 = c_neo6
2 = c_oos_no_sd
3 = c_oos
4 = c_oob
5 = c_pl2
6 = c_pl2xthx
7 = c_thx
8 = c_spsetup
9 = version
7
DSP Status
00 = Power off
01 = Power on wait
10 = DSP reset
11 = DSP reset wait
12 = DSP AB boot ready
13 = DSP AB boot start
14 = DSP AB boot
15 = DSP C boot ready
16 = DSP C boot start
17 = DSP C boot
18 = DSP soft reset
20 = DSP C app start
821 = DSP C HW Config set
22 - 2A = DSP C SW Config set
3F = DSP C kick start
40 = DSP AB App start
41 = DSP AB HW Config set
42 - 4B = DSP AB SW Config set
AF = DSP ab kick start
0B = DTS1
0C = DTS2
0D = DTS3
1B = MPEG2 AAC1
1C = MPEG2 AAC2
20 = Silent
22 = DTS CD
23 = PCM

TX-SR403/8340
TX-SR403/8340
EXPLODED VIEWS-1
A003
x 28 pcs.
A004
x 4 pcs.
A051
x 6 pcs.
A004
x 2 pcs.
A023
x 4 pcs.
A004
x 3 pcs.
A003
x 2 pcs.
A003
x 3 pcs.
A013
x 6 pcs. A015
x 3 pcs.
A016
x 2 pcs.
A055
x 4 pcs.
A056
x 8 pcs.
A004
x 4 pcs.
A002
x 13 pcs.
U18 P101
P703
T901
P901
F902
A401
A028
A405
A050
A052
A413
U01
U03
U04
U05
U06
U14
U11
U13
U15
U02
U16
U17
U08
U09
A001 A025
A025
A412
A065
A406
A004
A420
A430
A411
A402
F903c
F903
A010
A011
A040
A045
A048
A004
A004
A046
A004
A004
A004
A004
A014 A030
F6901
F6902
A004
x 4 pcs.
A004
x 3 pcs
A025
A014
Refer to <Fig-1> in
EXPLODED VIEWS-2

TX-SR403/8340
TX-SR403/8340
EXPLODED VIEWS-2
<Fig-1>
Q6060
Q6061
Q6062
Q6063
Q6064
Q6065
Q6055
Q6054
Q6053
Q6052
Q6050
Q6051
Q6050A
x12
A037
x12

TX-SR403/8340
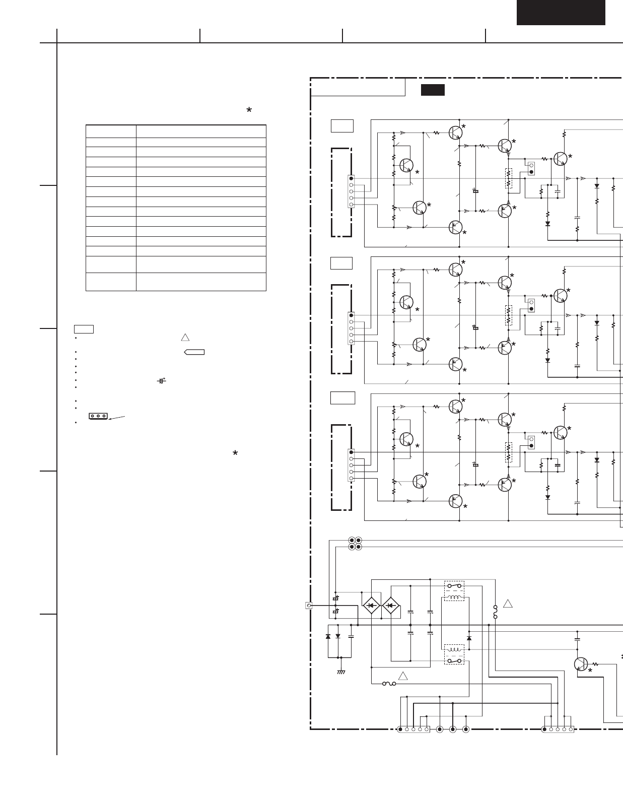
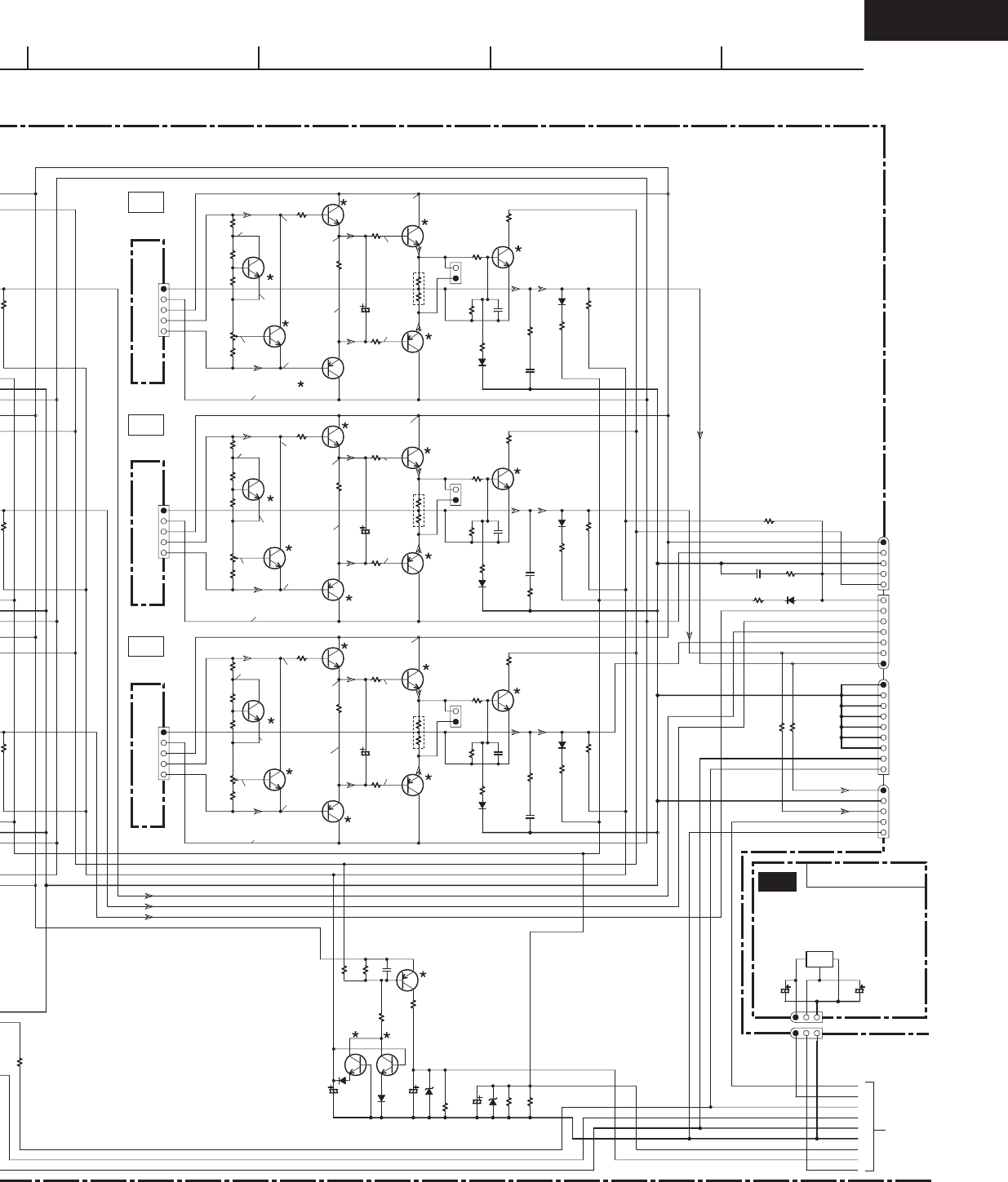
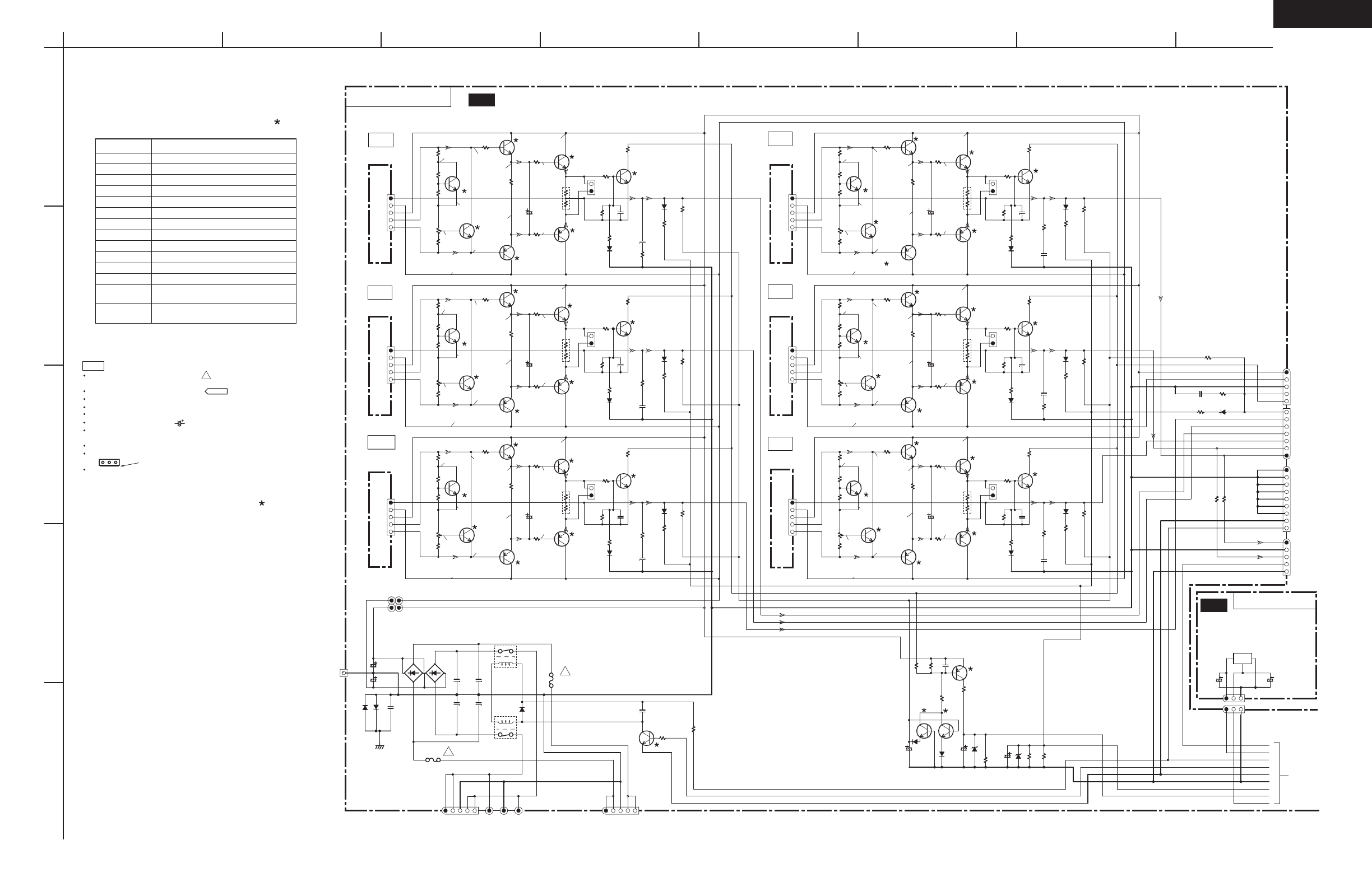
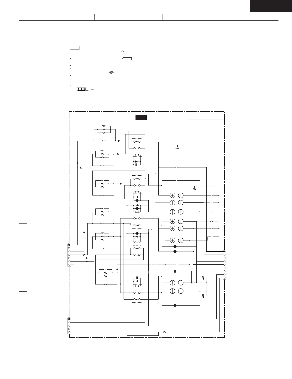
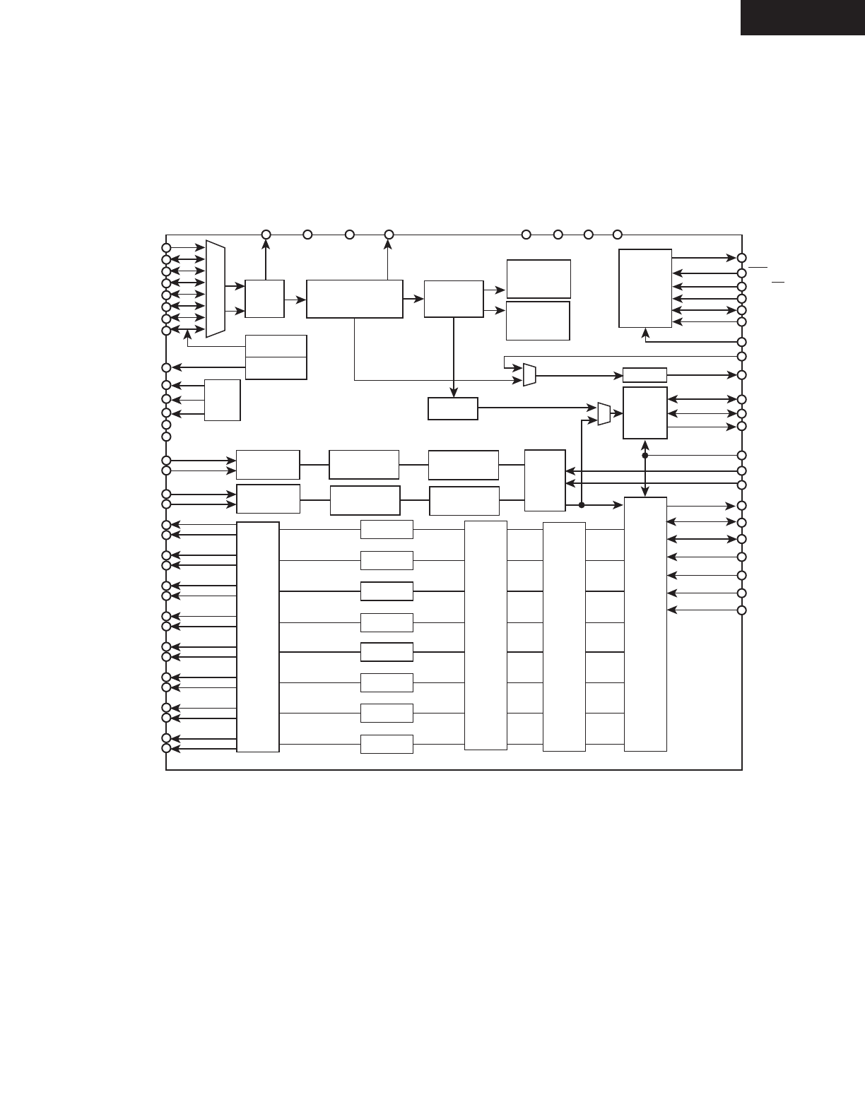
SCHEMATIC DIAGRAMS-1
AUDIO INPUT SECTION
TX-SR403/8340
J5658
J5659
J5654
J5620
J5644
J5620
RL5700
P6906
P5505
JL5501A JL5501B
D9005
D3SBA20
P9502
P5503
P311B
P301 P302
P303
P5504
D5672
D5671
Q5640
2.5V7
3.3V5
5.0V2
GND4
MODE1
NC6
VCC
3
Q5630
5
6
4
7
Q5503
5
6
4
7
Q5503
NJM4565M-D
3
8
2
1
Q5630
NJM4565M-D
3
8
2
1
R5809
R5808
R5813
R5814
R5812
R5811
R5595
10K
R5594
10K
R5590
10K
R5597
1.2K
R5596
470
R5598
10K
R5593
1.2K
R5592
470
R5591
10K
R5599
10K
R5634
10K
R5633
1.2K
R5632
15K
R5631
47K
R5630
220
Q5671
GI
O
Q5672
GIO
C5591
330J
C5590
330J
C5631
221J
C5632
103J
C5555 472J
C5554
224J
C5552
472J
C5551
224J
C9020
NC
C9021
NC
C5666 C5667
C5671
C5672
C5652
NC
C5569 10/50
C5570 10/50
C9010
4700/16
C5663
10/50
C5662
10/50
C5660
10/50
C5661
10/50
C5650
NC
C5653
NC
C5651
NC
C5640
22/50
C5643
22/50 C5642
22/50
C5641
22/50
C5668
220/25
C5669
220/25
C5673
220/25
C5674
220/25
C5576 10/50
C5567 10/50
C5568 10/50
C5571 10/50
C5630
10/16
C5664
220/25
C5665
220/25
C5608
47/50
C5609
47/50
C5606
NC
C5607
C5600
47/50
C5601
47/50
C5602
47/50
C5604
47/50
C5605
47/50
C5603
47/50
C5574 10/50
C5575 10/50
C5572 10/50
C5573 10/50
C5564
10/50
C5565
10/50
C5578 1/50
C5577 10/50
C5566 10/50
C5560 47/25
C5563 47/25
C5562 47/25
C5561 47/25
C5559 47/25
C5558 47/25
C5557 47/25
C5556 47/25
C5553
4.7/50
C5550
4.7/50
D9020 NC
D9021
RN1N4003
D5650
D9011
NC
D5651
D5711
D5710
D5700
NC
Q5650
NC
Q5661 79M12HF
GIO
Q5655 NC
GIO
Q5660 78M12HF
GIO
Q5654
NC
GI
O
Q5652
NC
Q5651
NC
Q5700
NC
Q5617
Q5616
Q5611
Q5610
Q5615
Q5614
Q5613
Q5612
Q5609
Q5608
Q5607
Q5606
Q5601
Q5600
Q5605
Q5604
Q5603
Q5602
Q5653
NC
PURE AUDIO SWITCH
C9017
102J
C9005
334J MMT
C5710
103J
C5709
NC
C5708
103J
C5707
103J
C5706
103J
C5704
NC
C5705
103J
C5703
NC
C5701
NC
C5702
103J
C5712
C5512
NC
C5511
NC
C5510
221J
C5509
221J
C5711
NC
C5532
NC
C5531
NC
C5530
NC
C5529
102J
C5528
NC
C5527
NC
C5526
NC
C5525
NC
C5524
221J
C5523
221J
C5514
221J
C5506
NC
C5505
NC
C5516
NC
C5515
NC
C5522
221J
C5521
221J
C5520
C5519
221J
C5518
221J
C5517
221J
C5513
221J
C5508
221J
C5507
221J
C5504
C5503
221J
R5672
22
R5671
22
R5665
R5661
22
R5660
12
R5651
NC
R5650
NC
R5656
NC
R5652
NC
R5653
NC
R5655
NC
R5640
0.22
R5682
100K
R5681
100K
R5680
100K
R5581
220
R5582
220
R5583
220
R5552
56K
R5551
56K
R5550
NC
R5549
NC
R5704
R5706 R5664
R5668 NC
R5662
22
R5666
22
R5667
22
R5663
22
R5626
R5627
100
R5620
R5621
R5622
R5624
R5623
R5625
R5608
NC
R5609
NC
R5618
NC
R5619
NC
R5606
NC
R5607
R5616
R5617
270
R5600
220K
R5601
220K
R5610
R5611
R5604
220K
R5605
220K
R5614
R5615
R5602
220K
R5603
220K
R5612
R5613
R5587 220
R5588 220
R5589 220
R5572
NC
R5571
NC
R5532
NC
R5531
NC
R5570
R5569
22K
R5530
NC
R5529
100
R5568
NC
R5567
NC
R5528
NC
R5527
NC
R5566
NC
R5565
NC
R5526
NC
R5525
NC
R5564
56K
R5563
56K
R5524
330
R5523
330
R5562
56K
R5561
56K
R5560
NC
R5559
NC
R5558
NC
R5557
NC
R5554
NC
R5553
NC
R5548
NC
R5547
NC
R5544
NC
R5543
NC
R5556
56K
R5555
56K
R5546
56K
R5545
56K
R5503
330
R5522
330
R5521
330
R5520
330
R5519
330
R5518
330
R5517
330
R5516
330
R5515
330
R5514
330
R5513
330
R5508
330
R5507
330
R5506
330
R5505
330
R5504
330
R5
CK
NC
L_COM4
R_COM2
L_COM2
VDD
R1
R2
R_COM
R3
R4
R6
R_COM3
R7
R_COM4
DATA
VSS
ST
NC
L7
L_COM3
L6
L5
L4
L3
L_COM
L2
L1
VEE
Q5502
NJU7311AM
1
2
3
4
5
6
7
8
9
10
11
12
13
14
15 16
17
18
19
20
21
22
23
24
25
26
27
28
29
30
COUT
ROUT
LOUT
TCCAP
VDDOUT2
VSSOUT2
GND
GND
SWBIN
RBBIN
LBBIN
RSBIN
LSBIN
CBIN
RBIN
LBIN
SWAIN
RBAIN
LBAIN
RSAIN
CAIN
LSAIN
RAIN
LAIN
LATCH
CLOCK
DAT
DGND
NC
R12IN
L12IN
R11IN
L11IN
R10IN
L10IN
R9IN
L9IN
R8IN
L8IN
R7IN
L7IN
R6IN
L6IN
R5IN
L5IN
R4IN
L4IN
R3IN
L3IN
R2IN
L2IN
R1IN
L1IN
VSSOUT
VDDOUT
FR-
FR+
FL-
FL+
DCR_IN
DCR_OUT
DCL_IN
DCL_OUT
DCCAP_SW
DCCAP_RB
DCCAP_LB
DCCAP_RS
DCCAP_LS
GND
GND
DCCAP_C
DCCAP_R
DCCAP_L
REC_A4R
REC_A4L
REC_A3R
REC_A3L
REC_A2R
REC_A2L
REC_A1R
REC_A1R
REC_A1L
REC_A1L
V-
V+
GND
GND
FIL_TR
FIL_BR
DC_R2
DC_R1
FIL_TL
FIL_BL
DC_L2
DC_L1
SWOUT
RBOUT
LBOUT
RSOUT
LSOUT
Q5501
NJW1157B
1
2
3
4
5
6
7
8
9
10
11
12
13
14
15
16
17
18
19
20
21
22
23
24
25
26
27
28
29
30
31
32
33
34
35
36
37
38
39
40
41
42
43
44
45
46
47
48
49
50
51
52
53
54
55
56
57
58
59
60
61
62
63
64
65
66
67
68
69
70
71
72
73
74
75
76
77
78
79
80
81
82
83
84
85
86
87
88
89
90
91
92
93
94
95
96
97
98
99
100
MPU_GND
AMUT
Z2MUT
ADRT-
ADRT+
ADLT-
ADLT+
TUPACK_L
TUPACK_R
VIDEO4_L
VIDEO4_R
VLTNDAT
VLTNCLK
VLTNSTB
DAC_SBR
DAC_FL
DAC_FR
DAC_SBL
DAC_SW
5V
MIC
SB/PREMUTE
POFF
FSWSTB
FSWCLK
FSWDAT
10S
2.5VDSP
3.3VDSP
DAC_CT
DAC_SL
DAC_SR
-7V
+7V
+12VA
-12VA
-5V_VIDEO
+5V_VIDEO
A_GND
VOLH
THRM
PRO
VPOWER
HPDET
APOWER
SEC1H
-VP
FLAC2
FLAC1
FSWSTB
FSWCLK
FSWDAT
TAPEOUT_R
SOURCE_R
V1OUT_R
Z2_R
DAC_SBR
DAC_FR
DMIXR
VPOWER
+12V
DMIXL
TAPEOUT_R
-12V
DAC_FL
DAC_SBL
V1OUT_L
Z2_L
SOURCE_L
CD_R
APOWER
A_GND
-12V
DGND
+12V
-VP
POFF
10S
CD_L
MULTI_SW
MULTI_SR
MULTI_SL +24V
MULTI_C
TAPEOUT_L AIN_R
MPUGND
VLTNDAT
VLTNCLK
VLTNSTB
A1_GND
TAPE_R AIN_L FL_OUT
FR_OUT
CT_OUT
TAPE_L SL_OUT
SR_OUT
SBL_OUT
VIDEO3_R SBR_OUT
SW_OUT
VIDEO3_L
MIC
+12VD
MIC
V2OUT_R VIDEO4_R
VIDEO4_L
TUPACK_R
V2OUT_L TUPACK_L
TUNER_R
TUNER_L
CD_R
CD_L
TAPE_R
TAPE_L
V1OUT_R
VIDEO3_R
VIDEO3_L
VIDEO2_R VIDEO2_R
VIDEO2_L VIDEO2_L
VIDEO1_R
V1OUT_L VIDEO1_L
MULTI_R Z2_L SW
MULTI_L Z2_R
VIDEO1_R
VIDEO1_L
ADRT-
ADRT+
ADLT-
ADLT+
AIN_R
AIN_L
MULTI_R
AIN_L
MULTI_L
SOURCE_L
Z2_L
SW
SBR_OUT
SBL_OUT
SL_OUT
SR_OUT
Z2_R
FL_OUT
AIN_R
CT_OUT
FR_OUT
SB/PREMUTE
MULTI_SR
SOURCE_R
MULTI_SL
MULTI_SW
MULTI_C
AMUT
Z2MUT
PRE_R
PRE_L
PRE_SR
PRE_SL
PRE_SW/SBL
PRE_C
PRE_SR
PRE_SL
PRE_SW/SBL PRE_R
PRE_SBR
PRE_SW/SBL
PRE_L
PRE_C
PRE_SBR
PRE_SW/SBL
TO_P6906
TO NCPS-8546
FLAC2
FLAC1
+24V
-24V
APOWER
POFF
10S
-12V
+12V
-VP
TO POWER AMP
TO NADG-8514
P7907
P7905
P7904
P7903
P7902
TO NADG-8514
TO NADG-8514
TO NADG-8514
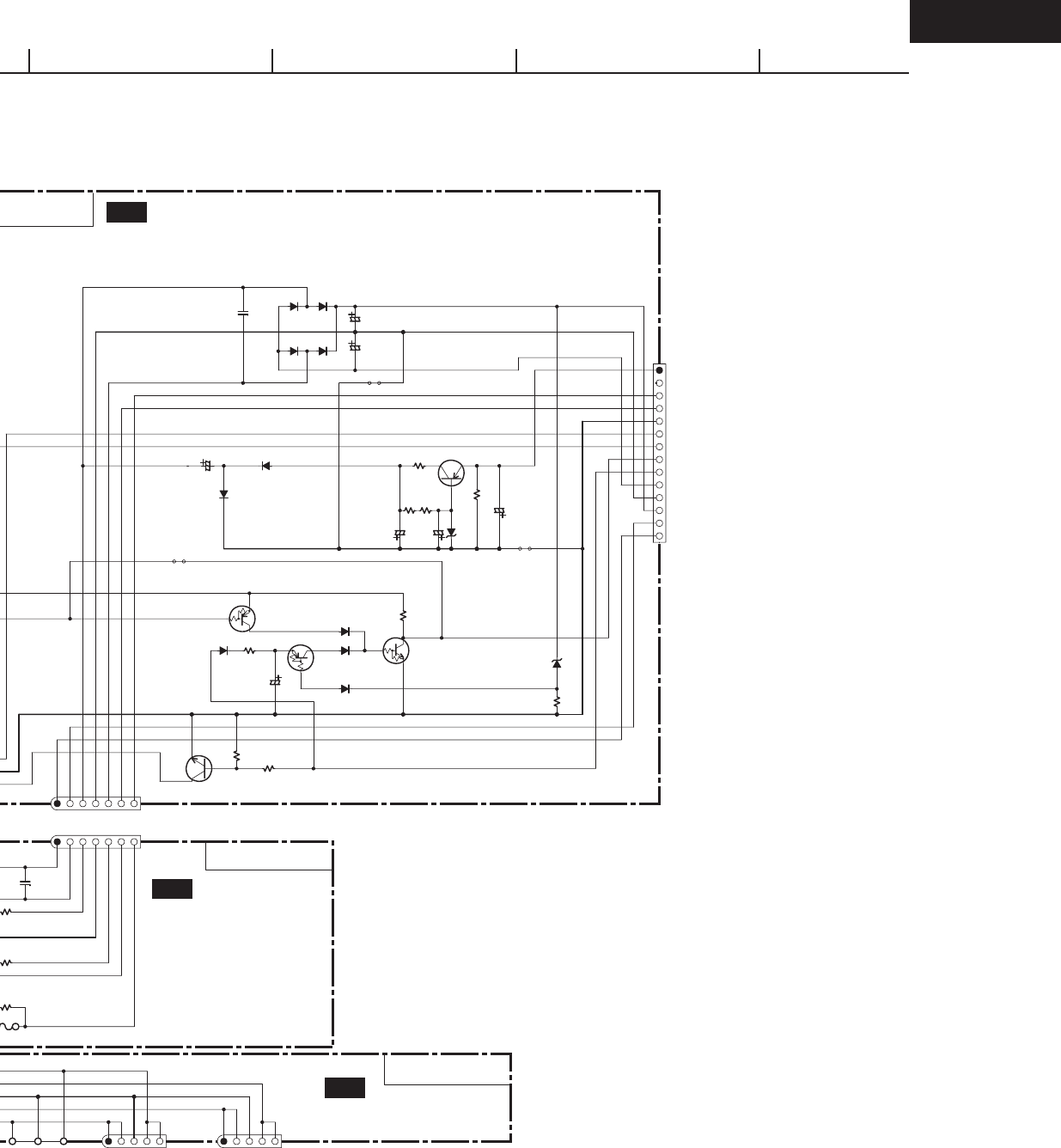
NAAF-8523 (1/2)
VIDEO3 IN
CENTER
SURR L
FRONT L
VIDEO1 IN
VIDEO1 OUT
VIDEO2 IN
TAPE IN
TAPE OUT
CD
U05
AMPLIFER PC BOARD
TO
NAAF-8523(2/2)
DVD IN
FRONT R
SURR R
SUBWOOFER
PREOUT
SUBWOOFER
221J
221J
NC
<Note>
NC=No mount of parts.
AN34060A
NC
NC
330
330
NC
NC
NC
NC
NC
NC
NC
MTZ6.8C
MTZ6.8C
68(1W)
68(1W)
220/25
220/25
NC
0
NC
NC
NC
NC
NC
NC
2.2K
2.2K
2.2K
2.2K
2.2K
2.2K
NC
220K
10/50
NC
0
NC
NC
0
0
0
0
0
NC
NC
NC
NC
NC
102J
NC
TO NAAF-8550
NC
NC
NC
RN1441
NC
NC
RN1441
RN1441
RN1441
RN1441
RN1441
RN1441
RN1441
RN1441
A
1
2
3
4
5
BCDEFGH

TX-SR403/8340
SCHEMATIC DIAGRAMS-1
AUDIO INPUT SECTION
TX-SR403/8340
J5658
J5659
J5654
J5620
J5644
J5620
RL5700
P6906
P5505
JL5501A JL5501B
D9005
D3SBA20
P9502
P5503
P311B
P301 P302
P303
P5504
D5672
D5671
Q5640
2.5V7
3.3V5
5.0V2
GND4
MODE1
NC6
VCC
3
Q5630
5
6
4
7
Q5503
5
6
4
7
Q5503
NJM4565M-D
3
8
2
1
Q5630
NJM4565M-D
3
8
2
1
R5809
R5808
R5813
R5814
R5812
R5811
R5595
10K
R5594
10K
R5590
10K
R5597
1.2K
R5596
470
R5598
10K
R5593
1.2K
R5592
470
R5591
10K
R5599
10K
R5634
10K
R5633
1.2K
R5632
15K
R5631
47K
R5630
220
Q5671
GI
O
Q5672
GIO
C5591
330J
C5590
330J
C5631
221J
C5632
103J
C5555 472J
C5554
224J
C5552
472J
C5551
224J
C9020
NC
C9021
NC
C5666 C5667
C5671
C5672
C5652
NC
C5569 10/50
C5570 10/50
C9010
4700/16
C5663
10/50
C5662
10/50
C5660
10/50
C5661
10/50
C5650
NC
C5653
NC
C5651
NC
C5640
22/50
C5643
22/50 C5642
22/50
C5641
22/50
C5668
220/25
C5669
220/25
C5673
220/25
C5674
220/25
C5576 10/50
C5567 10/50
C5568 10/50
C5571 10/50
C5630
10/16
C5664
220/25
C5665
220/25
C5608
47/50
C5609
47/50
C5606
NC
C5607
C5600
47/50
C5601
47/50
C5602
47/50
C5604
47/50
C5605
47/50
C5603
47/50
C5574 10/50
C5575 10/50
C5572 10/50
C5573 10/50
C5564
10/50
C5565
10/50
C5578 1/50
C5577 10/50
C5566 10/50
C5560 47/25
C5563 47/25
C5562 47/25
C5561 47/25
C5559 47/25
C5558 47/25
C5557 47/25
C5556 47/25
C5553
4.7/50
C5550
4.7/50
D9020 NC
D9021
RN1N4003
D5650
D9011
NC
D5651
D5711
D5710
D5700
NC
Q5650
NC
Q5661 79M12HF
GIO
Q5655 NC
GIO
Q5660 78M12HF
GIO
Q5654
NC
GI
O
Q5652
NC
Q5651
NC
Q5700
NC
Q5617
Q5616
Q5611
Q5610
Q5615
Q5614
Q5613
Q5612
Q5609
Q5608
Q5607
Q5606
Q5601
Q5600
Q5605
Q5604
Q5603
Q5602
Q5653
NC
PURE AUDIO SWITCH
C9017
102J
C9005
334J MMT
C5710
103J
C5709
NC
C5708
103J
C5707
103J
C5706
103J
C5704
NC
C5705
103J
C5703
NC
C5701
NC
C5702
103J
C5712
C5512
NC
C5511
NC
C5510
221J
C5509
221J
C5711
NC
C5532
NC
C5531
NC
C5530
NC
C5529
102J
C5528
NC
C5527
NC
C5526
NC
C5525
NC
C5524
221J
C5523
221J
C5514
221J
C5506
NC
C5505
NC
C5516
NC
C5515
NC
C5522
221J
C5521
221J
C5520
C5519
221J
C5518
221J
C5517
221J
C5513
221J
C5508
221J
C5507
221J
C5504
C5503
221J
R5672
22
R5671
22
R5665
R5661
22
R5660
12
R5651
NC
R5650
NC
R5656
NC
R5652
NC
R5653
NC
R5655
NC
R5640
0.22
R5682
100K
R5681
100K
R5680
100K
R5581
220
R5582
220
R5583
220
R5552
56K
R5551
56K
R5550
NC
R5549
NC
R5704
R5706 R5664
R5668 NC
R5662
22
R5666
22
R5667
22
R5663
22
R5626
R5627
100
R5620
R5621
R5622
R5624
R5623
R5625
R5608
NC
R5609
NC
R5618
NC
R5619
NC
R5606
NC
R5607
R5616
R5617
270
R5600
220K
R5601
220K
R5610
R5611
R5604
220K
R5605
220K
R5614
R5615
R5602
220K
R5603
220K
R5612
R5613
R5587 220
R5588 220
R5589 220
R5572
NC
R5571
NC
R5532
NC
R5531
NC
R5570
R5569
22K
R5530
NC
R5529
100
R5568
NC
R5567
NC
R5528
NC
R5527
NC
R5566
NC
R5565
NC
R5526
NC
R5525
NC
R5564
56K
R5563
56K
R5524
330
R5523
330
R5562
56K
R5561
56K
R5560
NC
R5559
NC
R5558
NC
R5557
NC
R5554
NC
R5553
NC
R5548
NC
R5547
NC
R5544
NC
R5543
NC
R5556
56K
R5555
56K
R5546
56K
R5545
56K
R5503
330
R5522
330
R5521
330
R5520
330
R5519
330
R5518
330
R5517
330
R5516
330
R5515
330
R5514
330
R5513
330
R5508
330
R5507
330
R5506
330
R5505
330
R5504
330
R5
CK
NC
L_COM4
R_COM2
L_COM2
VDD
R1
R2
R_COM
R3
R4
R6
R_COM3
R7
R_COM4
DATA
VSS
ST
NC
L7
L_COM3
L6
L5
L4
L3
L_COM
L2
L1
VEE
Q5502
NJU7311AM
1
2
3
4
5
6
7
8
9
10
11
12
13
14
15 16
17
18
19
20
21
22
23
24
25
26
27
28
29
30
COUT
ROUT
LOUT
TCCAP
VDDOUT2
VSSOUT2
GND
GND
SWBIN
RBBIN
LBBIN
RSBIN
LSBIN
CBIN
RBIN
LBIN
SWAIN
RBAIN
LBAIN
RSAIN
CAIN
LSAIN
RAIN
LAIN
LATCH
CLOCK
DAT
DGND
NC
R12IN
L12IN
R11IN
L11IN
R10IN
L10IN
R9IN
L9IN
R8IN
L8IN
R7IN
L7IN
R6IN
L6IN
R5IN
L5IN
R4IN
L4IN
R3IN
L3IN
R2IN
L2IN
R1IN
L1IN
VSSOUT
VDDOUT
FR-
FR+
FL-
FL+
DCR_IN
DCR_OUT
DCL_IN
DCL_OUT
DCCAP_SW
DCCAP_RB
DCCAP_LB
DCCAP_RS
DCCAP_LS
GND
GND
DCCAP_C
DCCAP_R
DCCAP_L
REC_A4R
REC_A4L
REC_A3R
REC_A3L
REC_A2R
REC_A2L
REC_A1R
REC_A1R
REC_A1L
REC_A1L
V-
V+
GND
GND
FIL_TR
FIL_BR
DC_R2
DC_R1
FIL_TL
FIL_BL
DC_L2
DC_L1
SWOUT
RBOUT
LBOUT
RSOUT
LSOUT
Q5501
NJW1157B
1
2
3
4
5
6
7
8
9
10
11
12
13
14
15
16
17
18
19
20
21
22
23
24
25
26
27
28
29
30
31
32
33
34
35
36
37
38
39
40
41
42
43
44
45
46
47
48
49
50
51
52
53
54
55
56
57
58
59
60
61
62
63
64
65
66
67
68
69
70
71
72
73
74
75
76
77
78
79
80
81
82
83
84
85
86
87
88
89
90
91
92
93
94
95
96
97
98
99
100
MPU_GND
AMUT
Z2MUT
ADRT-
ADRT+
ADLT-
ADLT+
TUPACK_L
TUPACK_R
VIDEO4_L
VIDEO4_R
VLTNDAT
VLTNCLK
VLTNSTB
DAC_SBR
DAC_FL
DAC_FR
DAC_SBL
DAC_SW
5V
MIC
SB/PREMUTE
POFF
FSWSTB
FSWCLK
FSWDAT
10S
2.5VDSP
3.3VDSP
DAC_CT
DAC_SL
DAC_SR
-7V
+7V
+12VA
-12VA
-5V_VIDEO
+5V_VIDEO
A_GND
VOLH
THRM
PRO
VPOWER
HPDET
APOWER
SEC1H
-VP
FLAC2
FLAC1
FSWSTB
FSWCLK
FSWDAT
TAPEOUT_R
SOURCE_R
V1OUT_R
Z2_R
DAC_SBR
DAC_FR
DMIXR
VPOWER
+12V
DMIXL
TAPEOUT_R
-12V
DAC_FL
DAC_SBL
V1OUT_L
Z2_L
SOURCE_L
CD_R
APOWER
A_GND
-12V
DGND
+12V
-VP
POFF
10S
CD_L
MULTI_SW
MULTI_SR
MULTI_SL +24V
MULTI_C
TAPEOUT_L AIN_R
MPUGND
VLTNDAT
VLTNCLK
VLTNSTB
A1_GND
TAPE_R AIN_L FL_OUT
FR_OUT
CT_OUT
TAPE_L SL_OUT
SR_OUT
SBL_OUT
VIDEO3_R SBR_OUT
SW_OUT
VIDEO3_L
MIC
+12VD
MIC
V2OUT_R VIDEO4_R
VIDEO4_L
TUPACK_R
V2OUT_L TUPACK_L
TUNER_R
TUNER_L
CD_R
CD_L
TAPE_R
TAPE_L
V1OUT_R
VIDEO3_R
VIDEO3_L
VIDEO2_R VIDEO2_R
VIDEO2_L VIDEO2_L
VIDEO1_R
V1OUT_L VIDEO1_L
MULTI_R Z2_L SW
MULTI_L Z2_R
VIDEO1_R
VIDEO1_L
ADRT-
ADRT+
ADLT-
ADLT+
AIN_R
AIN_L
MULTI_R
AIN_L
MULTI_L
SOURCE_L
Z2_L
SW
SBR_OUT
SBL_OUT
SL_OUT
SR_OUT
Z2_R
FL_OUT
AIN_R
CT_OUT
FR_OUT
SB/PREMUTE
MULTI_SR
SOURCE_R
MULTI_SL
MULTI_SW
MULTI_C
AMUT
Z2MUT
PRE_R
PRE_L
PRE_SR
PRE_SL
PRE_SW/SBL
PRE_C
PRE_SR
PRE_SL
PRE_SW/SBL PRE_R
PRE_SBR
PRE_SW/SBL
PRE_L
PRE_C
PRE_SBR
PRE_SW/SBL
TO_P6906
TO NCPS-8546
FLAC2
FLAC1
+24V
-24V
APOWER
POFF
10S
-12V
+12V
-VP
TO POWER AMP
TO NADG-8514
P7907
P7905
P7904
P7903
P7902
TO NADG-8514
TO NADG-8514
TO NADG-8514
NAAF-8523 (1/2)
VIDEO3 IN
CENTER
SURR L
FRONT L
VIDEO1 IN
VIDEO1 OUT
VIDEO2 IN
TAPE IN
TAPE OUT
CD
U05
AMPLIFER PC BOARD
TO
NAAF-8523(2/2)
DVD IN
FRONT R
SURR R
SUBWOOFER
PREOUT
SUBWOOFER
221J
221J
NC
<Note>
NC=No mount of parts.
AN34060A
NC
NC
330
330
NC
NC
NC
NC
NC
NC
NC
MTZ6.8C
MTZ6.8C
68(1W)
68(1W)
220/25
220/25
NC
0
NC
NC
NC
NC
NC
NC
2.2K
2.2K
2.2K
2.2K
2.2K
2.2K
NC
220K
10/50
NC
0
NC
NC
0
0
0
0
0
NC
NC
NC
NC
NC
102J
NC
TO NAAF-8550
NC
NC
NC
RN1441
NC
NC
RN1441
RN1441
RN1441
RN1441
RN1441
RN1441
RN1441
RN1441
A
1
2
3
4
5
BCDEFGH

TX-SR403/8340
SCHEMATIC DIAGRAMS-1
AUDIO INPUT SECTION
J5658
J5659
J5654
J5620
J5644
J5620
RL5700
P6906
P5505
JL5501A JL5501B
D9005
D3SBA20
P9502
P5503
P311B
P301 P302
P303
P5504
D5672
D5671
Q5640
2.5V7
3.3V5
5.0V2
GND4
MODE1
NC6
VCC
3
Q5630
5
6
4
7
Q5503
5
6
4
7
Q5503
NJM4565M-D
3
8
2
1
Q5630
NJM4565M-D
3
8
2
1
R5809
R5808
R5813
R5814
R5812
R5811
R5595
10K
R5594
10K
R5590
10K
R5597
1.2K
R5596
470
R5598
10K
R5593
1.2K
R5592
470
R5591
10K
R5599
10K
R5634
10K
R5633
1.2K
R5632
15K
R5631
47K
R5630
220
Q5671
GI
O
Q5672
GIO
C5591
330J
C5590
330J
C5631
221J
C5632
103J
C5555 472J
C5554
224J
C5552
472J
C5551
224J
C9020
NC
C9021
NC
C5666 C5667
C5671
C5672
C5652
NC
C5569 10/50
C5570 10/50
C9010
4700/16
C5663
10/50
C5662
10/50
C5660
10/50
C5661
10/50
C5650
NC
C5653
NC
C5651
NC
C5640
22/50
C5643
22/50 C5642
22/50
C5641
22/50
C5668
220/25
C5669
220/25
C5673
220/25
C5674
220/25
C5576 10/50
C5567 10/50
C5568 10/50
C5571 10/50
C5630
10/16
C5664
220/25
C5665
220/25
C5608
47/50
C5609
47/50
C5606
NC
C5607
C5600
47/50
C5601
47/50
C5602
47/50
C5604
47/50
C5605
47/50
C5603
47/50
C5574 10/50
C5575 10/50
C5572 10/50
C5573 10/50
C5564
10/50
C5565
10/50
C5578 1/50
C5577 10/50
C5566 10/50
C5560 47/25
C5563 47/25
C5562 47/25
C5561 47/25
C5559 47/25
C5558 47/25
C5557 47/25
C5556 47/25
C5553
4.7/50
C5550
4.7/50
D9020 NC
D9021
RN1N4003
D5650
D9011
NC
D5651
D5711
D5710
D5700
NC
Q5650
NC
Q5661 79M12HF
GIO
Q5655 NC
GIO
Q5660 78M12HF
GIO
Q5654
NC
GI
O
Q5652
NC
Q5651
NC
Q5700
NC
Q5617
Q5616
Q5611
Q5610
Q5615
Q5614
Q5613
Q5612
Q5609
Q5608
Q5607
Q5606
Q5601
Q5600
Q5605
Q5604
Q5603
Q5602
Q5653
NC
PURE AUDIO SWITCH
C9017
102J
C9005
334J MMT
C5710
103J
C5709
NC
C5708
103J
C5707
103J
C5706
103J
C5704
NC
C5705
103J
C5703
NC
C5701
NC
C5702
103J
C5712
C5512
NC
C5511
NC
C5510
221J
C5509
221J
C5711
NC
C5532
NC
C5531
NC
C5530
NC
C5529
102J
C5528
NC
C5527
NC
C5526
NC
C5525
NC
C5524
221J
C5523
221J
C5514
221J
C5506
NC
C5505
NC
C5516
NC
C5515
NC
C5522
221J
C5521
221J
C5520
C5519
221J
C5518
221J
C5517
221J
C5513
221J
C5508
221J
C5507
221J
C5504
C5503
221J
R5672
22
R5671
22
R5665
R5661
22
R5660
12
R5651
NC
R5650
NC
R5656
NC
R5652
NC
R5653
NC
R5655
NC
R5640
0.22
R5682
100K
R5681
100K
R5680
100K
R5581
220
R5582
220
R5583
220
R5552
56K
R5551
56K
R5550
NC
R5549
NC
R5704
R5706 R5664
R5668 NC
R5662
22
R5666
22
R5667
22
R5663
22
R5626
R5627
100
R5620
R5621
R5622
R5624
R5623
R5625
R5608
NC
R5609
NC
R5618
NC
R5619
NC
R5606
NC
R5607
R5616
R5617
270
R5600
220K
R5601
220K
R5610
R5611
R5604
220K
R5605
220K
R5614
R5615
R5602
220K
R5603
220K
R5612
R5613
R5587 220
R5588 220
R5589 220
R5572
NC
R5571
NC
R5532
NC
R5531
NC
R5570
R5569
22K
R5530
NC
R5529
100
R5568
NC
R5567
NC
R5528
NC
R5527
NC
R5566
NC
R5565
NC
R5526
NC
R5525
NC
R5564
56K
R5563
56K
R5524
330
R5523
330
R5562
56K
R5561
56K
R5560
NC
R5559
NC
R5558
NC
R5557
NC
R5554
NC
R5553
NC
R5548
NC
R5547
NC
R5544
NC
R5543
NC
R5556
56K
R5555
56K
R5546
56K
R5545
56K
R5503
330
R5522
330
R5521
330
R5520
330
R5519
330
R5518
330
R5517
330
R5516
330
R5515
330
R5514
330
R5513
330
R5508
330
R5507
330
R5506
330
R5505
330
R5504
330
R5
CK
NC
L_COM4
R_COM2
L_COM2
VDD
R1
R2
R_COM
R3
R4
R6
R_COM3
R7
R_COM4
DATA
VSS
ST
NC
L7
L_COM3
L6
L5
L4
L3
L_COM
L2
L1
VEE
Q5502
NJU7311AM
1
2
3
4
5
6
7
8
9
10
11
12
13
14
15 16
17
18
19
20
21
22
23
24
25
26
27
28
29
30
COUT
ROUT
LOUT
TCCAP
VDDOUT2
VSSOUT2
GND
GND
SWBIN
RBBIN
LBBIN
RSBIN
LSBIN
CBIN
RBIN
LBIN
SWAIN
RBAIN
LBAIN
RSAIN
CAIN
LSAIN
RAIN
LAIN
LATCH
CLOCK
DAT
DGND
NC
R12IN
L12IN
R11IN
L11IN
R10IN
L10IN
R9IN
L9IN
R8IN
L8IN
R7IN
L7IN
R6IN
L6IN
R5IN
L5IN
R4IN
L4IN
R3IN
L3IN
R2IN
L2IN
R1IN
L1IN
VSSOUT
VDDOUT
FR-
FR+
FL-
FL+
DCR_IN
DCR_OUT
DCL_IN
DCL_OUT
DCCAP_SW
DCCAP_RB
DCCAP_LB
DCCAP_RS
DCCAP_LS
GND
GND
DCCAP_C
DCCAP_R
DCCAP_L
REC_A4R
REC_A4L
REC_A3R
REC_A3L
REC_A2R
REC_A2L
REC_A1R
REC_A1R
REC_A1L
REC_A1L
V-
V+
GND
GND
FIL_TR
FIL_BR
DC_R2
DC_R1
FIL_TL
FIL_BL
DC_L2
DC_L1
SWOUT
RBOUT
LBOUT
RSOUT
LSOUT
Q5501
NJW1157B
1
2
3
4
5
6
7
8
9
10
11
12
13
14
15
16
17
18
19
20
21
22
23
24
25
26
27
28
29
30
31
32
33
34
35
36
37
38
39
40
41
42
43
44
45
46
47
48
49
50
51
52
53
54
55
56
57
58
59
60
61
62
63
64
65
66
67
68
69
70
71
72
73
74
75
76
77
78
79
80
81
82
83
84
85
86
87
88
89
90
91
92
93
94
95
96
97
98
99
100
MPU_GND
AMUT
Z2MUT
ADRT-
ADRT+
ADLT-
ADLT+
TUPACK_L
TUPACK_R
VIDEO4_L
VIDEO4_R
VLTNDAT
VLTNCLK
VLTNSTB
DAC_SBR
DAC_FL
DAC_FR
DAC_SBL
DAC_SW
5V
MIC
SB/PREMUTE
POFF
FSWSTB
FSWCLK
FSWDAT
10S
2.5VDSP
3.3VDSP
DAC_CT
DAC_SL
DAC_SR
-7V
+7V
+12VA
-12VA
-5V_VIDEO
+5V_VIDEO
A_GND
VOLH
THRM
PRO
VPOWER
HPDET
APOWER
SEC1H
-VP
FLAC2
FLAC1
FSWSTB
FSWCLK
FSWDAT
TAPEOUT_R
SOURCE_R
V1OUT_R
Z2_R
DAC_SBR
DAC_FR
DMIXR
VPOWER
+12V
DMIXL
TAPEOUT_R
-12V
DAC_FL
DAC_SBL
V1OUT_L
Z2_L
SOURCE_L
CD_R
APOWER
A_GND
-12V
DGND
+12V
-VP
POFF
10S
CD_L
MULTI_SW
MULTI_SR
MULTI_SL +24V
MULTI_C
TAPEOUT_L AIN_R
MPUGND
VLTNDAT
VLTNCLK
VLTNSTB
A1_GND
TAPE_R AIN_L FL_OUT
FR_OUT
CT_OUT
TAPE_L SL_OUT
SR_OUT
SBL_OUT
VIDEO3_R SBR_OUT
SW_OUT
VIDEO3_L
MIC
+12VD
MIC
V2OUT_R VIDEO4_R
VIDEO4_L
TUPACK_R
V2OUT_L TUPACK_L
TUNER_R
TUNER_L
CD_R
CD_L
TAPE_R
TAPE_L
V1OUT_R
VIDEO3_R
VIDEO3_L
VIDEO2_R VIDEO2_R
VIDEO2_L VIDEO2_L
VIDEO1_R
V1OUT_L VIDEO1_L
MULTI_R Z2_L SW
MULTI_L Z2_R
VIDEO1_R
VIDEO1_L
ADRT-
ADRT+
ADLT-
ADLT+
AIN_R
AIN_L
MULTI_R
AIN_L
MULTI_L
SOURCE_L
Z2_L
SW
SBR_OUT
SBL_OUT
SL_OUT
SR_OUT
Z2_R
FL_OUT
AIN_R
CT_OUT
FR_OUT
SB/PREMUTE
MULTI_SR
SOURCE_R
MULTI_SL
MULTI_SW
MULTI_C
AMUT
Z2MUT
PRE_R
PRE_L
PRE_SR
PRE_SL
PRE_SW/SBL
PRE_C
PRE_SR
PRE_SL
PRE_SW/SBL PRE_R
PRE_SBR
PRE_SW/SBL
PRE_L
PRE_C
PRE_SBR
PRE_SW/SBL
TO_P6906
TO NCPS-8546
FLAC2
FLAC1
+24V
-24V
APOWER
POFF
10S
-12V
+12V
-VP
TO POWER AMP
TO NADG-8514
P7907
P7905
P7904
P7903
P7902
TO NADG-8514
TO NADG-8514
TO NADG-8514
NAAF-8523 (1/2)
VIDEO3 IN
CENTER
SURR L
FRONT L
VIDEO1 IN
VIDEO1 OUT
VIDEO2 IN
TAPE IN
TAPE OUT
CD
U05
AMPLIFER PC BOARD
TO
NAAF-8523(2/2)
DVD IN
FRONT R
SURR R
SUBWOOFER
PREOUT
SUBWOOFER
221J
221J
NC
<Note>
NC=No mount of parts.
AN34060A
NC
NC
330
330
NC
NC
NC
NC
NC
NC
NC
MTZ6.8C
MTZ6.8C
68(1W)
68(1W)
220/25
220/25
NC
0
NC
NC
NC
NC
NC
NC
2.2K
2.2K
2.2K
2.2K
2.2K
2.2K
NC
220K
10/50
NC
0
NC
NC
0
0
0
0
0
NC
NC
NC
NC
NC
102J
NC
TO NAAF-8550
NC
NC
NC
RN1441
NC
NC
RN1441
RN1441
RN1441
RN1441
RN1441
RN1441
RN1441
RN1441
A
1
2
3
4
5
BCDEFGH

TX-SR403/8340TX-SR403/8340
SCHEMATIC DIAGRAMS-2
DSP SECTION
DACDA3
DACDA4
RESET
CNVSS
FCLK
FBUSY
AMUT
SBZ2MUT
SD
STEREO
FTXD
FRXD
FTXD
APOWER
VCSDA
REMIN
VCSCL
FRXD
FCLK
FBUSY
DIGSDI
SA15/EA18
SA14/EA17
SD13/EA16
SD12/EA15
SD10/EA13
SD9/EA12
SD8/EA11
A9
A8
A7
SD_CKE
A6
A5
A4
SD_CKO
SD11/EA14
D1
D0
D2
D3
D5
D6
D7
SD_WE
SD_LDQM
SD_CS
BA/EA19
A10
A0
A1
A2
A3
CAS
RAS
SD_UDQM
SD12/EA15
SD11/EA14
SD10/EA13
SD9/EA12
SD8/EA11
A9
A8
A7
A6
A5
SD13/EA16
SD_CKO
BT_OE
BT_CS
D0
D1
D2
D3
D4
D5
D6
D7
A10
A0
A1
A3
A2 A4
SA14/EA17
SA15/EA18
BT_WE
DACDA2
DACDA1
DACBCK
DACLRCK
SRCLRCK
SRCDO
DSPCS_3V
A0
A1
A2
A3
RAS
CAS
DSPCLKIN
ADSDO
D7
SD_UDQM
SA15/EA18
SA14/EA17
SD13/EA16
SD12/EA15
SD11/EA14
SD10/EA13
SD9/EA12
SD8/EA11
A8
A7
SD_CKE
A6
A5
A4
BA/EA19
A10
A9
DIGSDI_3V
DSPFINT_3V
DSPINT_3V
BT_WE
BT_OE
BT_CS
SD_WE
D0
D1
D2
DSPRST_3V D3
D4
SD_LDQM
DSPBUSY_3V D5
D6
FIL_SBL
COAX1
FIL_SBR
TX
DIRRST_3V
DIRINT_3V
DIRCS_3V
DIGCLK_3V
OPT1
DIGSDO_3V
DIGSDI_3V
RDSDAT
+VCC
+VCC
+VBOOT
+VSD
+PLLVDD
+VDSP
DIGCLK_3V
DIGSDO_3V
DSPFCS_3V
D4
FIL_SL
FIL_SR
VOLDAT
VOLCLK
VOLSTB
FIL_FR
FIL_FL
FSWSTB
FSWCLK
FSWSDO
DAC_SBR
DAC_SBL
FIL_SW
FIL_CT
+12VA
DAC_SW
APOWER
SEC1H
VOLH
THERMAL
PROTECT
FAC1
FAC2
-VP
Z2MUT
V4_R
V4_L
GNDV4A
MICOUT
GNDMIC
TU_R
TU_L
GNDTU
+5VCPU
PLLCLK
PLLSDO
PLLCE
FSWSTB
FSWSDO
FSWCLK
FLDCLK
OSDCS
FLDSDO
V4Y
V4C
V4V
VIDEO-5V
OPT2
COAX2
OPT3
OPTF
IRIN
SEC1H
-12VA
-12VA
-12VA
KEY1
KEY0
KEYINT3
KEYINT2
KEYINT1
KEYINT0
KEY3
KEY2
OSDCS
VOLA
HPDET
VOLB
MICDET
RDSSIG
RDSCLK
VOLH
THERMAL
PROTECT
CAS
RAS
SD_CS
SD_CKE
SD_UDQM
SD_LDQM
SD_WE
SD_CS
+3.3DSPIO
DSPBUSY_3V
DSPINT
DIGSDI
DSPFINT
DSPBUSY
DIRINT_3V
DIRINT0
DSPRST_3V
DIGCLK_3V
DIGSDO_3V
DSPCS_3V
DSPFCS_3V
DIRRST_3V
DIRCS_3V
DSPRST
DIGCLK
DIGSDO
DSPCS
DSPFCS
DIRRST
DIRCS
COAX1
COAX2
OPT1
TX
DIGSDI_3V
DSPINT_3V
VIDEO+5V/SW+12V
+12VA
+12VTRG
RDSSIG
DET
RDSCLK
RDSDAT
VMUT
VCRST
VCSCL
VCSDA
SDET
SYNC
SPRLZ2
SPRLSB
SPRLCS
SPRLF
VSYNC
+12V/SW+12V
DIRINT0
DSPFINT_3V
DAC_FR
DAC_FL
GNDDG
GNDDG
VPOWER
HPDET
+12VA
DAC_CT
DAC_SL
DAC_SR
-7V
+7V
SBZ2MUT
GND+12V
-12VA
GND+7
+10S
POFFV
+5VDIS
+5VDSP
+12VTRG
GNDV
VIDEO-5V
VIDEO+5V/
SW+12V
POFFV
+3.3V
+2.5V
GNDDG
ADRT-
ADRT+
ADLT-
ADLT+
AMUT
Z2MUT
DIRINT1
SRCBCK
SDET
SYNC
VMUT
VCRST
AMUTA
SBZ2MUTA
Z2MUTA
RESET
CNVSS
INT3
INT2
INT1
BAND
SPRLCS
SPRLSB
SPRLZ2
FLDCLK
FLDCS
FLDRST
FSWSDO
FSWSTB
FSWCLK
FLDSDO
DIGSDO
VOLSTB
VOLCLK
VOLDAT
DIGCLK
DSPBUSY
DSPINT
DSPFINT
PLLCLK
PLLSDO
PLLCE
TUMUT
SPRLF
FCE
DSPRST
FEPM
TRGZ2
SYSOUT
LEDSTBY
LEDZONE2
LEDPURE
SYSIN
APOWER
VPOWER
DIRCS
DIRRST
DSPFCS
DSPCS
POFF
VSYNC
SD
TUMUT
DET
TU_R
GNDTU
TU_L
STEREO
GNDMIC
MICDET
+7V
OPTF
MICOUT
-7V
V4C
GND+7
V4Y
V4V
V4_L
GNDV4A
V4_R
LEDPURE
LEDSTBY
VOLB
VOLA
KEYINT3
FAC1
FAC2
-VP
+5VDIS
KEYINT2
KEYINT1
KEYINT0
REMIN
FLDRST
FLDCS
FLDCLK
FLDSDO
KEY1
KEY0
KEY2
KEY3
LEDZONE2
GNDDG
GNDDG
+5.6DIS
TO FLASH WRITER
RI
P703A
DIGITAL IN
NADG-8514
23P
TO TUNER UNIT
TO NADIS-8513 TO NAVD-8549
NC
TO NAAF-8523
C707
104Z
C752
474K
R748
2.2K
NC
474K
R749
2.2K
R511
NC
R521
NC
R531
NC
R551
NC
R541
NC
R532
NC
R562
NC
R512
NC
R572
NC
R522
NC
R502
NC
R542
NC
R794 4.7K
R795 4.7K
R793 4.7K
R790 4.7K
R791 4.7K
R792 4.7K
R789 4.7K
R797
4.7K
R718 220
R719
220
R729 10
R730 10
R732 220
R734 220
R733 220
R736 220
R731 220
R758 220
C754
470/6.3
+
C511
NC
C512
NC
C502
NC
C708
104Z
C288
104Z
C287
NC
C284
NC
NC
022M
C282
104Z
R226
47
Q282 NC
1VCC0
2DQ0
3DQ1
4GNDQ1
5DQ2
6DQ3
7VCCQ1
8DQ4
9DQ5
10 GNDQ2
11 DQ6
12 DQ7
13 VCCQ2
14LDQM
15 _WE
16 _CAS
17 _RAS
18 _CS
19 A11
20 A10
21 A0
22 A1
23 A2
24 A3
25 VCC1 26
GND1
27
A4
28
A5
29
A6
30
A7
31
A8
32
A9
33
NC1
34
CKE
35
CLK
36
UDQM
37
NC2
38
VCCQ3
39
DQ8
40
DQ9
41
GNDQ3
42
DQ10
43
DQ11
44
VCCQ4
45
DQ12
46
DQ13
47
GNDQ4
48
DQ14
49
DQ15
50
GND2
R261 10K
R260 10K
C205
122J
R25610K
R25510K
R25110K
R25010K
C213
104Z
C217
104Z
C216
104Z
R234 10K
R236 10K
R259 47
R238 47
R257
330
R258
2.7K
C206
680J
C204
2.2M
+
L202
022M
C214
104Z
C215
104Z
C210
104Z
C212
104Z
R22510K
R224
10K R223
10K R222
10K R221
10K R220
10K
R218
10K R217
10K R216
10K
R209
10K
C219
101J
R219
10K C208
104Z
R270 220
C207104Z
R208
10K
R2693.3K
R266
10K C209
104Z
Q201
CS494003
109
AUDATA1
110
AUDATA0
111
CMPCLK,FSCLKN2
112
HDATA2,GPIO2
113
VSS3
114
VDD3
115
HDATA3,GPIO3
116
HDATA0,GPIO0
117 CMPREQ,FLRCLKN2
118 CMPDAT,FSDATAN2
119 FLRCLKN1
120 _WR,_DS,GPIO10
121 _RD,R/_W,GPIO11
122 PLLVSS
123 FILT2
124 FILT1
125 PLLVDD
126 XTALO
127 CLKIN,XTALI
128 CLKSEL
129 _CS,GPIO9
130 A0,GPIO13
131 FSDATAN1
132 VDD4
133 VSS4
134 FSCLKN1,STCCLK2
135 _SCS
136 SCDIN
137 VSS5
138 VDD5
139
A1, GPIO12
140
SCDOUT, SCDIO
141
HINBSY, GPIO8
142
SCCLK
143
UHS,_CS_OUT,GPIO17
144
_RESET
1UHS0,GPIO18
2UHS1,GPOI19
3_INTREQ
4FA1,FSCDIN
5GPOI20
6FA0,FSCCLK
7FSCDIO,FSCDOUT
8GPIO21
9FDAT7
10 VDD6
11 VSS6
12 FHS0,_FWR,_FDS
13 FSH1,_FRD,FR/_W
14 FDAT6
15 _FCS
16 _FINTREQ
17 FDBCK
18 FDAT5
19 FDAT4
20 VDD7
21 VSS7
22 FDAT3
23 FDBDA
24 FDAT2
25 DBDA
26 DBCK
27 FDAT1
28 TEST
29 FDAT0
30 _NV_WE,GPIO16
31 _NV_OE,GPIO15
32 _NV_CS,GPIO14
33 _SD_WE
34 SD_DATA0,EXTD0
35 SD_DATA1,EXTD1
36 SD_DATA2,EXTD2
37
SD_DATA3,EXTD3
38
SD_DATA4,EXTD4
39
SD_DQM0
40
SD_DATA5,EXTD5
41
VSSSD4
42
VDDSD4
43
SD_DATA6,EXTD6
44
SD_DATA7,EXTD7
45
SD_DQM1
46
SD_DATA15,EXTA18
47
SD_DATA14,EXTA17
48
NC5
49
SD_DATA13,EXTA16
50
VSSSD3
51
VDDSD3
52
SD_DATA12,EXTA15
53
SD_DATA11,EXTA14
54
SD_DATA10,EXTA13
55
SD_DATA9,EXTA11
56
SD_ADAT8,EXTA11
57
VSSSD2
58
VDDSD2
59
SD_CLK_OUT
60
SD_ADDR9,EXTA9
61
SD_CLK_IN
62
SD_ADDR8,EXTA8
63
SD_ADDR7,EXTA7
64
SD_CLK_EN
65
SD_ADDR6,EXTA6
66
SD_ADDR5,EXTA5
67
SD_ADDR4,EXTA4
68
_SD_CS
69
VSSSD1
70
VDDSD1
71
SD_BA,EXTA19
72
SD_ADDR10,EXTA10
73
SD_ADDR0,EXTA0
74
SD_ADDR1,EXTA1
75
SD_ADDR2,EXTA2
76
SD_ADDR3,EXTA3
77
_SD_RAS
78
_SD_CAS
79
SDATAN3,GPIO27
80
SDATAN2,GPIO26
81
SDATAN1,GPIO25
82
SDATAN0,GPIO24
83
NC4
84
NC3
85
LRCLKN,GPIO23
86
SCLKN,GPIO22
87
LRCLK1
88
NC2
89
NC1
90
VDD1
91
VSS1
92
AUDATA7,XMT958B,GPIO31
93
AUDATA6,GPIO30
94
AUDATA5,GPIO29
95
HDATA7,GPIO7
96
HDATA6,GPIO6
97
HDATA5,GPIO5
98
SCLK1
99
MCLK
100
VDD2
101
VSS2
102
AUDATA4,GPIO28
103
HDATA4,GPIO4
104
SCLK0
105
HDATA3,GPIO3
106
AUDATA3,XMT958A
107
AUDATA2
108
LRCLK0
109 :
110 :
111 :
112 :
113 :
114 :
115 :
116 :
139 :
140 :
141 :
142 :
143 :
144 :
: 43
: 42
: 41
: 40
: 39
: 38
: 37
L201
022M
R212
10K R235 10K
L281
022M
R473
180
R463
180
R474
180
R464
180
R465
180
R476
180
R466
180
R477
180
R467
R478
0
R468
R453 R443 R454
R444 R455 R445 R456
R446 R457 R447 R458
R448
R433
R423
R434
R424
R425
470
R436
R426
R437
R427
R438
NC
R428
NC
R413
3.3K
R403
3.3K
R414
3.3K
R404
3.3K
R415
3.3K
R405
3.3K
R416
3.3K
R406
3.3K
R417
R407
3.3K
R418
NC
R408
NC
C303
104Z
L302
022M
L303
022M
C428
NC
C418
NC
681
C427
C426
C416
C415
C425
C413
C423
C307
NC
R441
R451
R412
3.3K
R402
3.3K
C412 C422
C311
104Z
C411
C402 C403 C405 C406 C407 C408
NC
C421
R472
180
R462
180
L301
022M
C331
330J
R401
3.3K
R411
3.3K
R431
R421
R435
R471
180
R475
180
R461
180
C401
C501
NC
R501
NC
R552
NC
R561
NC
R571
NC
R581
NC
R582
NC
R621 10K
R624 10K
R622 10K
R632 10K
R631 10K
R646 10K
R641 10K
R636 10K
R639 10K
R640 10K
R642 10K
R747
2.2K
C751
NC
Q421
CS42518-CQZR
17 VQ
18 FLT+
19 REFGND
20 AOUTB4-
21 AOUTB4+
22 AOUTA4+
23 AOUTA4-
24 VA
25 AGND1
26 AOUTB3-
27 AOUTB3+
28 AOUTA3+
29 AOUTA3-
30 AOUTB2-
31
AOUTB2+:31
32
AOUTA2+:32
33 AOUTA2-
34 AOUTB1-
35 AOUTB1+
36 AOUTA1+
37 AOUTA1-
38 MUTEC
39 LPFLT
40 AGND2
41 VARX
42 RXP7/GP7
43 RXP6/GP6
44 RXP5/GP5
45 RXP4/GP4
46 RXP3/GP3
47 RXP2/GP2
48 RXP1/GP1
49
49:RXP0
50
50:TXP
51
VD2
52
DGND2
53
VLS
54
SAI_SDOUT
55
RMCK
56
CX_SDOUT
57
ADCIN2
58
ADCIN1
59
OMCK
60
SAI_LRCK
61
SAI_SLCK
62
62:CX_SDIN4
63
63:CX_SDIN3
64
64:CX_SDIN2
1
CX_SDIN1
2
CX_SCLK
3
CX_LRCK
4
VD1
5
DGND1
6
VLC
7
CCLK/SCL
8
CDOUT/SAD
9
CDIN/AD1
10
CS/AD0
11
INT1
12
_RST
13
AINR-
14
AINR+
15
AINL+
16
AINL-
R800
220
R604 1M
C710
104Z
R693 2.7K
R694 2.7K
R695 2.7K
R696 2.7K
R708 10K
C711
104Z
R612 47K
R759 220
R753 NC
R303 47
R301 47
R314 47
R318 47
R319 47
R313 47
R317 47
R312 47
D701
1SS355
D708
1SS355
R205
10K
R24910K
R659
NC
R658
NC
R717
10K
C301
220/6.3
+
R305 220
R304 220
R306 220
R307 220
R308 220
R309 220
C308
220/6.3
+
C715 102K
C716 102K
C718 102K
C717 102K
C719 102K
C720 102K
C721 102K
C722 102K
E301
1
2
3
4
C531 220/16
+
C532 220/16
+
C102 101J
R102 100K
C103 101J
R773
330
P721
L701
470K
R242 10K
R239 10K
R240 10K
C420
153J
C419
153J
C404
333J
C312
220/6.3
+
R691
NC
R699 NC
R698 0
D302
D304
D306
D308
D303
D305
D307
D301
L203
022M
P401A
9
8
7
6
5
4
3
2
1
R334 NC
R333 330
R337 NC
R335 NC
R336 NC
L171
022M
L173
LM182
L172
LM182
P751A
9
8
7
6
5
4
3
2
1
R774 NC
D707
UDZS5.1B
R783 1K
R784 1K
R782 NC
R781
1K
C712 104Z
R661 22K
R674 0
R673 220K
R442 R452
R422
R432
R103
47K
C701
100/16
+
R7711K
R7721K
R7751K
R7661K
R7671K
R7651K R663 22K
R763
1K
R332
330
R331
NC
C171 104Z
Q501:B
NC
12
3
Q503:A
NC
7
4
5
6
8
Q502:A
NC
7
4
5
6
8
Q501:A
NC
7
4
5
6
8
Q502:B
NC
12
3
Q503:B
NC
12
3
R325
3.9K
C302 NC
C313
NC
R275
R276
R277
R272
R273
R271
R274
Q281
MX26LV040-70
17 A3
18 A2
19 A1
20 A0
21 DQ0
22 DQ1
23 DQ2
24 VSS
25 DQ3
26 DQ4
27 DQ5
28 DQ6
29 DQ7
30_CE
31 A10
32_OE 1
A11
2
A9
3
A8
4
A13
5
A14
6
A17
7
_WE/A18
8
VCC
9
A18/VPP
10
A16
11
A15
12
A12
13
A7
14
A6
15
A5
16
A4
R165
220
R164
220
C152
104Z
R163
220
Q152
TC74HCT7007AF
8OUT4
9IN4
10OUT5
11IN5
12OUT6
13IN6
14 VCC 1
2
3
4
5
6
7
GND
R161
220
Q151
TC74VHC541FT
11 Y8
12 Y7
13 Y6
14 Y5
15 Y4
16 Y3
17 Y2
18 Y1
19 _G2
20 VCC 1
_G1
2
A1
3
A2
4
A3
5
A4
6
A5
7
A6
8
A7
9
A8
10
GND
C151
104Z
C140 104Z
C133
080D
C137
NC
L134
022M
R134 10K
R138 NC
C136
NC
L133
022M
Q131
TC74HCU04AF
1
2
3
4
5
6
7GND 8
OUT4
9
IN4
10
OUT5
11
IN5
12
OUT6
13
IN6
14
VCC
R139
220K
C141
104Z
R141
220
U131
IN
VCC
GND
R135
NC
C134
NC
C135
NC
C132
104K
R131
75
C131
101J
C146
104Z
P132
JL121B
1
2
3
4
5
6
C704
DX-5R5L224
+
R140
NC
R166
3.3K
R162
220
R133
220K
R137
220K
R683
0
R647
1K
R648
NC
R649
NC
R203
3.3K
R215
3.3K
R202
3.3K
R201
3.3K
R211
3.3K R210
3.3K
Q404:A
NJM4580M-D
7
4
5
6
8
Q403:A
NJM4580M-D
7
4
5
6
8
Q402:A
NJM4580M-D
7
4
5
6
8
Q401:A
NJM4580M-D
7
4
5
6
8
Q401:B
NJM4580M-D
12
3
Q403:B
NJM4580M-D
1
2
3
Q404:B
NJM4580M-D
12
3
Q402:B
NJM4580M-D
12
3
L211
LL241
X171
12.288MHz
R171 1M
R602 10K
R629 1K
R630 1K
P2004
1
2
3
4
5
6
7
8
9
10
11
12
13
R311
2.7K
C310
473K
C309
222J
C117
NC
C116
NC R114 NC
C113 NC
C115 NC
L111
NC
Q111 NC
9T2
10 T1
11 VSS2
12 VDD2
13 XI
14 XO
15 NC
16 RCLK 1
QUAL
2
RDATA
3
Vref
4
MUX
5
VDD1
6
VSS1
7
VSS3
8
CMP
X111
NC
R323 56
R322 56
R324 56
C305 NC
D101
UDZS5.1B
C101 100/16
+
C306
100/16
+
R321 56 C321 10/50
+
C323 10/50
+
C322 10/50
+
C324 10/50
+
C111
NC
+
C114 NC
+
C702
100/16
+
C703
100/16
+
C705
100/16
+
C201
100/16
+
C202
100/16
+
C283
NC
+
C203
100/16
+
C281
100/16
+
C139 100/16
+
C145
100/16
+
D706
1SS355
R132
10
R136
NC
R681 10K
C713 102K
C714102K
R682 NC
C526 10/50
+C525 10/50
+C523 10/50
+
D703
1SS355
Q705
RN2402
Q712
RN2402
Q711
RN1404
Q714
NC
Q713
NC
Q716
NC
Q715
NC
Q702
NC
1O
3
G
2
I
R786
R787
R785
R788
R686
R687
R685
R688
C332
330J
C334
C336
C333
C335
R112
R111
R113
P2005
1
2
3
4
5
6
7
8
9
10
11
12
13
JL402B
1
2
3
4
5
6
7
C524 10/50
+
R598
R592
0R591
0R597
R594
0
R593
0R595
0R596
0
X701
6.000MHz
Q703
RN1404
P303A
1
2
3
4
5
6
7
8
9
10
11
12
13
14
15
16
17
18
19
20
P311A
1
2
3
4
5
6
7
8
9
10
P302A
1
2
3
4
5
6
7
8
9
10
11
12
13
14
15
16
17
18
19
20
P301A
1
2
3
4
5
6
7
8
9
10
D702
1SS355
Q721
S812C56AUA-C3K
2I
1G
3
O
C172
120J
C173
120J
Q171 TC7WU04FU
1
2
3
4GND 5
6
7
8
VD
R302
47
L311 LM182
L312 LM182
R315 47
R316
47
L313 LM182
C104
3.3/50
+
C706
1/50
+
C749
NC
+
C748
NC
+
C747
10/50
+
R709 220
Q731
RN1404
Q732
RN1404
R710 220
R727 220
R728 220
R650 NC
R651 NC
R652 NC
R653 NC
R101
560
R601
1K
C709
104Z
Q701
81
82
83
84
85
86
87
88
89
90
91
92
93
94
95
96
97
98
99
100
1
2
3
4
5
6
7
8
9
10
11
12
13
14
15
16
17
18
19
20
21
22
23
24
25
26
27
28
29
30
31
32
33
34
35
36
37
38
39
40
41
42
43
44
45
46
47
48
49
50
51
52
53
54
55
56
57
58
59
60
61
62
63
64
65
66
67
68
69
70
71
72
73
74
75
76
77
78
79
80
C723
104Z
R61810K
R605
0
R104
47K
R105 47K
R107 47K
R106 47K
P101A
1
2
3
4
5
6
7
8
9
10
11
12
13
14
15
C105
3.3/50
+
40
39
38
37
36
35
34
33
32
31
30
29
28
27
26
25
24
23
22
21
20
19
18
17
16
15
14
13
12
11
10
9
8
7
6
5
4
3
2
1
R603
0
D712
D711
C304 47/25
+
L131
022K
L132
NC
C325
222J
R326
3.9K
C326
222J
U02 DSP PC BOARD
OPTICAL
COAXIAL
: 72
: 71
: 70
: 69
: 68
: 67
: 66
M30622MGP-236FPU0
SPRLSB
SPRLCS
SPRLF/SPRLSW
TUMUT
PLLCE
PLLSDO
PLLCLK
~STEREO/PLLSDI
~SD
VPOWER
APOWER
VCC2
SEC1H
VSS
VOLH
THERMAL
PROTECT
FANCTRL
FANH
NU
RDSDAT
RDSSIG
SYSIN
NU
~RDSCLK
~SYSOUT
LEDPURE
NU
~LEDSTBY
HPRL
FLDSDO
FLDCLK
FLDCS
~FLDRST
FSWSDO
FSWSTB
FSWCLK
BYTE
CNVSS
COMPA
COMPB
~RESET
XOUT
VSS
XIN
VCC1
~NMI
---
~REMIN
POFF
DIRINT1
DIRINT0
~DIRCS
~DIRRST
~DSPFCS
~DSPCS
VMUTMON
VMUTV1
VCTRLA
VCTRLB
---
---
FCE
VOLDAT
VOLCLK
VOLSTB
DSPRST
FEPM
DSPFINT
DSPINT
DSPBUSY
DIGCLK
DIGSDI
DIGSDO
INIT3
INIT2
INIT1
BAND
~KEYINT3
~KEYINT2
~KEYINT1
~KEYINT0
KEY3
KEY2
KEY1
AVSS
97 : KEY0
98 : VREF
99 : AVCC
100 : NU
FBUSY : 34
FCLK : 33
FRXD : 32
FTXD : 31
SPRLB : 50
AMUT : 49
81 : HPDET
82 : NU
83 : VOLB
84 : VOLA
NC
0
NC
NC
NC
NC
470
3.3K
470
C417
0
4.7K 0
472
4.7K
0
180
681
470
470
472J 472J
4.7K
4.7K
470
681J 681J
681J
4.7K
470
470
470
470
4.7K
4.7K
681J
681J
4.7K 472J
470
470
470
470
681J 681J 681J
681J
4.7K
4.7K 472J
472J 4.7K
4.7K 4.7K
R271 - 277
: 10K
NC
NC
NC
NC
C138
NC
NC 0
0
0
0
0
10K
10K
NC
NC
NC
NC
681
NC
A
1
2
3
4
5
BCDEFGH

TX-SR403/8340TX-SR403/8340
SCHEMATIC DIAGRAMS-2
DSP SECTION
DACDA3
DACDA4
RESET
CNVSS
FCLK
FBUSY
AMUT
SBZ2MUT
SD
STEREO
FTXD
FRXD
FTXD
APOWER
VCSDA
REMIN
VCSCL
FRXD
FCLK
FBUSY
DIGSDI
SA15/EA18
SA14/EA17
SD13/EA16
SD12/EA15
SD10/EA13
SD9/EA12
SD8/EA11
A9
A8
A7
SD_CKE
A6
A5
A4
SD_CKO
SD11/EA14
D1
D0
D2
D3
D5
D6
D7
SD_WE
SD_LDQM
SD_CS
BA/EA19
A10
A0
A1
A2
A3
CAS
RAS
SD_UDQM
SD12/EA15
SD11/EA14
SD10/EA13
SD9/EA12
SD8/EA11
A9
A8
A7
A6
A5
SD13/EA16
SD_CKO
BT_OE
BT_CS
D0
D1
D2
D3
D4
D5
D6
D7
A10
A0
A1
A3
A2 A4
SA14/EA17
SA15/EA18
BT_WE
DACDA2
DACDA1
DACBCK
DACLRCK
SRCLRCK
SRCDO
DSPCS_3V
A0
A1
A2
A3
RAS
CAS
DSPCLKIN
ADSDO
D7
SD_UDQM
SA15/EA18
SA14/EA17
SD13/EA16
SD12/EA15
SD11/EA14
SD10/EA13
SD9/EA12
SD8/EA11
A8
A7
SD_CKE
A6
A5
A4
BA/EA19
A10
A9
DIGSDI_3V
DSPFINT_3V
DSPINT_3V
BT_WE
BT_OE
BT_CS
SD_WE
D0
D1
D2
DSPRST_3V D3
D4
SD_LDQM
DSPBUSY_3V D5
D6
FIL_SBL
COAX1
FIL_SBR
TX
DIRRST_3V
DIRINT_3V
DIRCS_3V
DIGCLK_3V
OPT1
DIGSDO_3V
DIGSDI_3V
RDSDAT
+VCC
+VCC
+VBOOT
+VSD
+PLLVDD
+VDSP
DIGCLK_3V
DIGSDO_3V
DSPFCS_3V
D4
FIL_SL
FIL_SR
VOLDAT
VOLCLK
VOLSTB
FIL_FR
FIL_FL
FSWSTB
FSWCLK
FSWSDO
DAC_SBR
DAC_SBL
FIL_SW
FIL_CT
+12VA
DAC_SW
APOWER
SEC1H
VOLH
THERMAL
PROTECT
FAC1
FAC2
-VP
Z2MUT
V4_R
V4_L
GNDV4A
MICOUT
GNDMIC
TU_R
TU_L
GNDTU
+5VCPU
PLLCLK
PLLSDO
PLLCE
FSWSTB
FSWSDO
FSWCLK
FLDCLK
OSDCS
FLDSDO
V4Y
V4C
V4V
VIDEO-5V
OPT2
COAX2
OPT3
OPTF
IRIN
SEC1H
-12VA
-12VA
-12VA
KEY1
KEY0
KEYINT3
KEYINT2
KEYINT1
KEYINT0
KEY3
KEY2
OSDCS
VOLA
HPDET
VOLB
MICDET
RDSSIG
RDSCLK
VOLH
THERMAL
PROTECT
CAS
RAS
SD_CS
SD_CKE
SD_UDQM
SD_LDQM
SD_WE
SD_CS
+3.3DSPIO
DSPBUSY_3V
DSPINT
DIGSDI
DSPFINT
DSPBUSY
DIRINT_3V
DIRINT0
DSPRST_3V
DIGCLK_3V
DIGSDO_3V
DSPCS_3V
DSPFCS_3V
DIRRST_3V
DIRCS_3V
DSPRST
DIGCLK
DIGSDO
DSPCS
DSPFCS
DIRRST
DIRCS
COAX1
COAX2
OPT1
TX
DIGSDI_3V
DSPINT_3V
VIDEO+5V/SW+12V
+12VA
+12VTRG
RDSSIG
DET
RDSCLK
RDSDAT
VMUT
VCRST
VCSCL
VCSDA
SDET
SYNC
SPRLZ2
SPRLSB
SPRLCS
SPRLF
VSYNC
+12V/SW+12V
DIRINT0
DSPFINT_3V
DAC_FR
DAC_FL
GNDDG
GNDDG
VPOWER
HPDET
+12VA
DAC_CT
DAC_SL
DAC_SR
-7V
+7V
SBZ2MUT
GND+12V
-12VA
GND+7
+10S
POFFV
+5VDIS
+5VDSP
+12VTRG
GNDV
VIDEO-5V
VIDEO+5V/
SW+12V
POFFV
+3.3V
+2.5V
GNDDG
ADRT-
ADRT+
ADLT-
ADLT+
AMUT
Z2MUT
DIRINT1
SRCBCK
SDET
SYNC
VMUT
VCRST
AMUTA
SBZ2MUTA
Z2MUTA
RESET
CNVSS
INT3
INT2
INT1
BAND
SPRLCS
SPRLSB
SPRLZ2
FLDCLK
FLDCS
FLDRST
FSWSDO
FSWSTB
FSWCLK
FLDSDO
DIGSDO
VOLSTB
VOLCLK
VOLDAT
DIGCLK
DSPBUSY
DSPINT
DSPFINT
PLLCLK
PLLSDO
PLLCE
TUMUT
SPRLF
FCE
DSPRST
FEPM
TRGZ2
SYSOUT
LEDSTBY
LEDZONE2
LEDPURE
SYSIN
APOWER
VPOWER
DIRCS
DIRRST
DSPFCS
DSPCS
POFF
VSYNC
SD
TUMUT
DET
TU_R
GNDTU
TU_L
STEREO
GNDMIC
MICDET
+7V
OPTF
MICOUT
-7V
V4C
GND+7
V4Y
V4V
V4_L
GNDV4A
V4_R
LEDPURE
LEDSTBY
VOLB
VOLA
KEYINT3
FAC1
FAC2
-VP
+5VDIS
KEYINT2
KEYINT1
KEYINT0
REMIN
FLDRST
FLDCS
FLDCLK
FLDSDO
KEY1
KEY0
KEY2
KEY3
LEDZONE2
GNDDG
GNDDG
+5.6DIS
TO FLASH WRITER
RI
P703A
DIGITAL IN
NADG-8514
23P
TO TUNER UNIT
TO NADIS-8513 TO NAVD-8549
NC
TO NAAF-8523
C707
104Z
C752
474K
R748
2.2K
NC
474K
R749
2.2K
R511
NC
R521
NC
R531
NC
R551
NC
R541
NC
R532
NC
R562
NC
R512
NC
R572
NC
R522
NC
R502
NC
R542
NC
R794 4.7K
R795 4.7K
R793 4.7K
R790 4.7K
R791 4.7K
R792 4.7K
R789 4.7K
R797
4.7K
R718 220
R719
220
R729 10
R730 10
R732 220
R734 220
R733 220
R736 220
R731 220
R758 220
C754
470/6.3
+
C511
NC
C512
NC
C502
NC
C708
104Z
C288
104Z
C287
NC
C284
NC
NC
022M
C282
104Z
R226
47
Q282 NC
1VCC0
2DQ0
3DQ1
4GNDQ1
5DQ2
6DQ3
7VCCQ1
8DQ4
9DQ5
10 GNDQ2
11 DQ6
12 DQ7
13 VCCQ2
14LDQM
15 _WE
16 _CAS
17 _RAS
18 _CS
19 A11
20 A10
21 A0
22 A1
23 A2
24 A3
25 VCC1 26
GND1
27
A4
28
A5
29
A6
30
A7
31
A8
32
A9
33
NC1
34
CKE
35
CLK
36
UDQM
37
NC2
38
VCCQ3
39
DQ8
40
DQ9
41
GNDQ3
42
DQ10
43
DQ11
44
VCCQ4
45
DQ12
46
DQ13
47
GNDQ4
48
DQ14
49
DQ15
50
GND2
R261 10K
R260 10K
C205
122J
R25610K
R25510K
R25110K
R25010K
C213
104Z
C217
104Z
C216
104Z
R234 10K
R236 10K
R259 47
R238 47
R257
330
R258
2.7K
C206
680J
C204
2.2M
+
L202
022M
C214
104Z
C215
104Z
C210
104Z
C212
104Z
R22510K
R224
10K R223
10K R222
10K R221
10K R220
10K
R218
10K R217
10K R216
10K
R209
10K
C219
101J
R219
10K C208
104Z
R270 220
C207104Z
R208
10K
R2693.3K
R266
10K C209
104Z
Q201
CS494003
109
AUDATA1
110
AUDATA0
111
CMPCLK,FSCLKN2
112
HDATA2,GPIO2
113
VSS3
114
VDD3
115
HDATA3,GPIO3
116
HDATA0,GPIO0
117 CMPREQ,FLRCLKN2
118 CMPDAT,FSDATAN2
119 FLRCLKN1
120 _WR,_DS,GPIO10
121 _RD,R/_W,GPIO11
122 PLLVSS
123 FILT2
124 FILT1
125 PLLVDD
126 XTALO
127 CLKIN,XTALI
128 CLKSEL
129 _CS,GPIO9
130 A0,GPIO13
131 FSDATAN1
132 VDD4
133 VSS4
134 FSCLKN1,STCCLK2
135 _SCS
136 SCDIN
137 VSS5
138 VDD5
139
A1, GPIO12
140
SCDOUT, SCDIO
141
HINBSY, GPIO8
142
SCCLK
143
UHS,_CS_OUT,GPIO17
144
_RESET
1UHS0,GPIO18
2UHS1,GPOI19
3_INTREQ
4FA1,FSCDIN
5GPOI20
6FA0,FSCCLK
7FSCDIO,FSCDOUT
8GPIO21
9FDAT7
10 VDD6
11 VSS6
12 FHS0,_FWR,_FDS
13 FSH1,_FRD,FR/_W
14 FDAT6
15 _FCS
16 _FINTREQ
17 FDBCK
18 FDAT5
19 FDAT4
20 VDD7
21 VSS7
22 FDAT3
23 FDBDA
24 FDAT2
25 DBDA
26 DBCK
27 FDAT1
28 TEST
29 FDAT0
30 _NV_WE,GPIO16
31 _NV_OE,GPIO15
32 _NV_CS,GPIO14
33 _SD_WE
34 SD_DATA0,EXTD0
35 SD_DATA1,EXTD1
36 SD_DATA2,EXTD2
37
SD_DATA3,EXTD3
38
SD_DATA4,EXTD4
39
SD_DQM0
40
SD_DATA5,EXTD5
41
VSSSD4
42
VDDSD4
43
SD_DATA6,EXTD6
44
SD_DATA7,EXTD7
45
SD_DQM1
46
SD_DATA15,EXTA18
47
SD_DATA14,EXTA17
48
NC5
49
SD_DATA13,EXTA16
50
VSSSD3
51
VDDSD3
52
SD_DATA12,EXTA15
53
SD_DATA11,EXTA14
54
SD_DATA10,EXTA13
55
SD_DATA9,EXTA11
56
SD_ADAT8,EXTA11
57
VSSSD2
58
VDDSD2
59
SD_CLK_OUT
60
SD_ADDR9,EXTA9
61
SD_CLK_IN
62
SD_ADDR8,EXTA8
63
SD_ADDR7,EXTA7
64
SD_CLK_EN
65
SD_ADDR6,EXTA6
66
SD_ADDR5,EXTA5
67
SD_ADDR4,EXTA4
68
_SD_CS
69
VSSSD1
70
VDDSD1
71
SD_BA,EXTA19
72
SD_ADDR10,EXTA10
73
SD_ADDR0,EXTA0
74
SD_ADDR1,EXTA1
75
SD_ADDR2,EXTA2
76
SD_ADDR3,EXTA3
77
_SD_RAS
78
_SD_CAS
79
SDATAN3,GPIO27
80
SDATAN2,GPIO26
81
SDATAN1,GPIO25
82
SDATAN0,GPIO24
83
NC4
84
NC3
85
LRCLKN,GPIO23
86
SCLKN,GPIO22
87
LRCLK1
88
NC2
89
NC1
90
VDD1
91
VSS1
92
AUDATA7,XMT958B,GPIO31
93
AUDATA6,GPIO30
94
AUDATA5,GPIO29
95
HDATA7,GPIO7
96
HDATA6,GPIO6
97
HDATA5,GPIO5
98
SCLK1
99
MCLK
100
VDD2
101
VSS2
102
AUDATA4,GPIO28
103
HDATA4,GPIO4
104
SCLK0
105
HDATA3,GPIO3
106
AUDATA3,XMT958A
107
AUDATA2
108
LRCLK0
109 :
110 :
111 :
112 :
113 :
114 :
115 :
116 :
139 :
140 :
141 :
142 :
143 :
144 :
: 43
: 42
: 41
: 40
: 39
: 38
: 37
L201
022M
R212
10K R235 10K
L281
022M
R473
180
R463
180
R474
180
R464
180
R465
180
R476
180
R466
180
R477
180
R467
R478
0
R468
R453 R443 R454
R444 R455 R445 R456
R446 R457 R447 R458
R448
R433
R423
R434
R424
R425
470
R436
R426
R437
R427
R438
NC
R428
NC
R413
3.3K
R403
3.3K
R414
3.3K
R404
3.3K
R415
3.3K
R405
3.3K
R416
3.3K
R406
3.3K
R417
R407
3.3K
R418
NC
R408
NC
C303
104Z
L302
022M
L303
022M
C428
NC
C418
NC
681
C427
C426
C416
C415
C425
C413
C423
C307
NC
R441
R451
R412
3.3K
R402
3.3K
C412 C422
C311
104Z
C411
C402 C403 C405 C406 C407 C408
NC
C421
R472
180
R462
180
L301
022M
C331
330J
R401
3.3K
R411
3.3K
R431
R421
R435
R471
180
R475
180
R461
180
C401
C501
NC
R501
NC
R552
NC
R561
NC
R571
NC
R581
NC
R582
NC
R621 10K
R624 10K
R622 10K
R632 10K
R631 10K
R646 10K
R641 10K
R636 10K
R639 10K
R640 10K
R642 10K
R747
2.2K
C751
NC
Q421
CS42518-CQZR
17 VQ
18 FLT+
19 REFGND
20 AOUTB4-
21 AOUTB4+
22 AOUTA4+
23 AOUTA4-
24 VA
25 AGND1
26 AOUTB3-
27 AOUTB3+
28 AOUTA3+
29 AOUTA3-
30 AOUTB2-
31
AOUTB2+:31
32
AOUTA2+:32
33 AOUTA2-
34 AOUTB1-
35 AOUTB1+
36 AOUTA1+
37 AOUTA1-
38 MUTEC
39 LPFLT
40 AGND2
41 VARX
42 RXP7/GP7
43 RXP6/GP6
44 RXP5/GP5
45 RXP4/GP4
46 RXP3/GP3
47 RXP2/GP2
48 RXP1/GP1
49
49:RXP0
50
50:TXP
51
VD2
52
DGND2
53
VLS
54
SAI_SDOUT
55
RMCK
56
CX_SDOUT
57
ADCIN2
58
ADCIN1
59
OMCK
60
SAI_LRCK
61
SAI_SLCK
62
62:CX_SDIN4
63
63:CX_SDIN3
64
64:CX_SDIN2
1
CX_SDIN1
2
CX_SCLK
3
CX_LRCK
4
VD1
5
DGND1
6
VLC
7
CCLK/SCL
8
CDOUT/SAD
9
CDIN/AD1
10
CS/AD0
11
INT1
12
_RST
13
AINR-
14
AINR+
15
AINL+
16
AINL-
R800
220
R604 1M
C710
104Z
R693 2.7K
R694 2.7K
R695 2.7K
R696 2.7K
R708 10K
C711
104Z
R612 47K
R759 220
R753 NC
R303 47
R301 47
R314 47
R318 47
R319 47
R313 47
R317 47
R312 47
D701
1SS355
D708
1SS355
R205
10K
R24910K
R659
NC
R658
NC
R717
10K
C301
220/6.3
+
R305 220
R304 220
R306 220
R307 220
R308 220
R309 220
C308
220/6.3
+
C715 102K
C716 102K
C718 102K
C717 102K
C719 102K
C720 102K
C721 102K
C722 102K
E301
1
2
3
4
C531 220/16
+
C532 220/16
+
C102 101J
R102 100K
C103 101J
R773
330
P721
L701
470K
R242 10K
R239 10K
R240 10K
C420
153J
C419
153J
C404
333J
C312
220/6.3
+
R691
NC
R699 NC
R698 0
D302
D304
D306
D308
D303
D305
D307
D301
L203
022M
P401A
9
8
7
6
5
4
3
2
1
R334 NC
R333 330
R337 NC
R335 NC
R336 NC
L171
022M
L173
LM182
L172
LM182
P751A
9
8
7
6
5
4
3
2
1
R774 NC
D707
UDZS5.1B
R783 1K
R784 1K
R782 NC
R781
1K
C712 104Z
R661 22K
R674 0
R673 220K
R442 R452
R422
R432
R103
47K
C701
100/16
+
R7711K
R7721K
R7751K
R7661K
R7671K
R7651K R663 22K
R763
1K
R332
330
R331
NC
C171 104Z
Q501:B
NC
12
3
Q503:A
NC
7
4
5
6
8
Q502:A
NC
7
4
5
6
8
Q501:A
NC
7
4
5
6
8
Q502:B
NC
12
3
Q503:B
NC
12
3
R325
3.9K
C302 NC
C313
NC
R275
R276
R277
R272
R273
R271
R274
Q281
MX26LV040-70
17 A3
18 A2
19 A1
20 A0
21 DQ0
22 DQ1
23 DQ2
24 VSS
25 DQ3
26 DQ4
27 DQ5
28 DQ6
29 DQ7
30_CE
31 A10
32_OE 1
A11
2
A9
3
A8
4
A13
5
A14
6
A17
7
_WE/A18
8
VCC
9
A18/VPP
10
A16
11
A15
12
A12
13
A7
14
A6
15
A5
16
A4
R165
220
R164
220
C152
104Z
R163
220
Q152
TC74HCT7007AF
8OUT4
9IN4
10OUT5
11IN5
12OUT6
13IN6
14 VCC 1
2
3
4
5
6
7
GND
R161
220
Q151
TC74VHC541FT
11 Y8
12 Y7
13 Y6
14 Y5
15 Y4
16 Y3
17 Y2
18 Y1
19 _G2
20 VCC 1
_G1
2
A1
3
A2
4
A3
5
A4
6
A5
7
A6
8
A7
9
A8
10
GND
C151
104Z
C140 104Z
C133
080D
C137
NC
L134
022M
R134 10K
R138 NC
C136
NC
L133
022M
Q131
TC74HCU04AF
1
2
3
4
5
6
7GND 8
OUT4
9
IN4
10
OUT5
11
IN5
12
OUT6
13
IN6
14
VCC
R139
220K
C141
104Z
R141
220
U131
IN
VCC
GND
R135
NC
C134
NC
C135
NC
C132
104K
R131
75
C131
101J
C146
104Z
P132
JL121B
1
2
3
4
5
6
C704
DX-5R5L224
+
R140
NC
R166
3.3K
R162
220
R133
220K
R137
220K
R683
0
R647
1K
R648
NC
R649
NC
R203
3.3K
R215
3.3K
R202
3.3K
R201
3.3K
R211
3.3K R210
3.3K
Q404:A
NJM4580M-D
7
4
5
6
8
Q403:A
NJM4580M-D
7
4
5
6
8
Q402:A
NJM4580M-D
7
4
5
6
8
Q401:A
NJM4580M-D
7
4
5
6
8
Q401:B
NJM4580M-D
12
3
Q403:B
NJM4580M-D
1
2
3
Q404:B
NJM4580M-D
12
3
Q402:B
NJM4580M-D
12
3
L211
LL241
X171
12.288MHz
R171 1M
R602 10K
R629 1K
R630 1K
P2004
1
2
3
4
5
6
7
8
9
10
11
12
13
R311
2.7K
C310
473K
C309
222J
C117
NC
C116
NC R114 NC
C113 NC
C115 NC
L111
NC
Q111 NC
9T2
10 T1
11 VSS2
12 VDD2
13 XI
14 XO
15 NC
16 RCLK 1
QUAL
2
RDATA
3
Vref
4
MUX
5
VDD1
6
VSS1
7
VSS3
8
CMP
X111
NC
R323 56
R322 56
R324 56
C305 NC
D101
UDZS5.1B
C101 100/16
+
C306
100/16
+
R321 56 C321 10/50
+
C323 10/50
+
C322 10/50
+
C324 10/50
+
C111
NC
+
C114 NC
+
C702
100/16
+
C703
100/16
+
C705
100/16
+
C201
100/16
+
C202
100/16
+
C283
NC
+
C203
100/16
+
C281
100/16
+
C139 100/16
+
C145
100/16
+
D706
1SS355
R132
10
R136
NC
R681 10K
C713 102K
C714102K
R682 NC
C526 10/50
+C525 10/50
+C523 10/50
+
D703
1SS355
Q705
RN2402
Q712
RN2402
Q711
RN1404
Q714
NC
Q713
NC
Q716
NC
Q715
NC
Q702
NC
1O
3
G
2
I
R786
R787
R785
R788
R686
R687
R685
R688
C332
330J
C334
C336
C333
C335
R112
R111
R113
P2005
1
2
3
4
5
6
7
8
9
10
11
12
13
JL402B
1
2
3
4
5
6
7
C524 10/50
+
R598
R592
0R591
0R597
R594
0
R593
0R595
0R596
0
X701
6.000MHz
Q703
RN1404
P303A
1
2
3
4
5
6
7
8
9
10
11
12
13
14
15
16
17
18
19
20
P311A
1
2
3
4
5
6
7
8
9
10
P302A
1
2
3
4
5
6
7
8
9
10
11
12
13
14
15
16
17
18
19
20
P301A
1
2
3
4
5
6
7
8
9
10
D702
1SS355
Q721
S812C56AUA-C3K
2I
1G
3
O
C172
120J
C173
120J
Q171 TC7WU04FU
1
2
3
4GND 5
6
7
8
VD
R302
47
L311 LM182
L312 LM182
R315 47
R316
47
L313 LM182
C104
3.3/50
+
C706
1/50
+
C749
NC
+
C748
NC
+
C747
10/50
+
R709 220
Q731
RN1404
Q732
RN1404
R710 220
R727 220
R728 220
R650 NC
R651 NC
R652 NC
R653 NC
R101
560
R601
1K
C709
104Z
Q701
81
82
83
84
85
86
87
88
89
90
91
92
93
94
95
96
97
98
99
100
1
2
3
4
5
6
7
8
9
10
11
12
13
14
15
16
17
18
19
20
21
22
23
24
25
26
27
28
29
30
31
32
33
34
35
36
37
38
39
40
41
42
43
44
45
46
47
48
49
50
51
52
53
54
55
56
57
58
59
60
61
62
63
64
65
66
67
68
69
70
71
72
73
74
75
76
77
78
79
80
C723
104Z
R61810K
R605
0
R104
47K
R105 47K
R107 47K
R106 47K
P101A
1
2
3
4
5
6
7
8
9
10
11
12
13
14
15
C105
3.3/50
+
40
39
38
37
36
35
34
33
32
31
30
29
28
27
26
25
24
23
22
21
20
19
18
17
16
15
14
13
12
11
10
9
8
7
6
5
4
3
2
1
R603
0
D712
D711
C304 47/25
+
L131
022K
L132
NC
C325
222J
R326
3.9K
C326
222J
U02 DSP PC BOARD
OPTICAL
COAXIAL
: 72
: 71
: 70
: 69
: 68
: 67
: 66
M30622MGP-236FPU0
SPRLSB
SPRLCS
SPRLF/SPRLSW
TUMUT
PLLCE
PLLSDO
PLLCLK
~STEREO/PLLSDI
~SD
VPOWER
APOWER
VCC2
SEC1H
VSS
VOLH
THERMAL
PROTECT
FANCTRL
FANH
NU
RDSDAT
RDSSIG
SYSIN
NU
~RDSCLK
~SYSOUT
LEDPURE
NU
~LEDSTBY
HPRL
FLDSDO
FLDCLK
FLDCS
~FLDRST
FSWSDO
FSWSTB
FSWCLK
BYTE
CNVSS
COMPA
COMPB
~RESET
XOUT
VSS
XIN
VCC1
~NMI
---
~REMIN
POFF
DIRINT1
DIRINT0
~DIRCS
~DIRRST
~DSPFCS
~DSPCS
VMUTMON
VMUTV1
VCTRLA
VCTRLB
---
---
FCE
VOLDAT
VOLCLK
VOLSTB
DSPRST
FEPM
DSPFINT
DSPINT
DSPBUSY
DIGCLK
DIGSDI
DIGSDO
INIT3
INIT2
INIT1
BAND
~KEYINT3
~KEYINT2
~KEYINT1
~KEYINT0
KEY3
KEY2
KEY1
AVSS
97 : KEY0
98 : VREF
99 : AVCC
100 : NU
FBUSY : 34
FCLK : 33
FRXD : 32
FTXD : 31
SPRLB : 50
AMUT : 49
81 : HPDET
82 : NU
83 : VOLB
84 : VOLA
NC
0
NC
NC
NC
NC
470
3.3K
470
C417
0
4.7K 0
472
4.7K
0
180
681
470
470
472J 472J
4.7K
4.7K
470
681J 681J
681J
4.7K
470
470
470
470
4.7K
4.7K
681J
681J
4.7K 472J
470
470
470
470
681J 681J 681J
681J
4.7K
4.7K 472J
472J 4.7K
4.7K 4.7K
R271 - 277
: 10K
NC
NC
NC
NC
C138
NC
NC 0
0
0
0
0
10K
10K
NC
NC
NC
NC
681
NC
A
1
2
3
4
5
BCDEFGH

TX-SR403/8340
SCHEMATIC DIAGRAMS-2
DSP SECTION
DACDA3
DACDA4
RESET
CNVSS
FCLK
FBUSY
AMUT
SBZ2MUT
SD
STEREO
FTXD
FRXD
FTXD
APOWER
VCSDA
REMIN
VCSCL
FRXD
FCLK
FBUSY
DIGSDI
SA15/EA18
SA14/EA17
SD13/EA16
SD12/EA15
SD10/EA13
SD9/EA12
SD8/EA11
A9
A8
A7
SD_CKE
A6
A5
A4
SD_CKO
SD11/EA14
D1
D0
D2
D3
D5
D6
D7
SD_WE
SD_LDQM
SD_CS
BA/EA19
A10
A0
A1
A2
A3
CAS
RAS
SD_UDQM
SD12/EA15
SD11/EA14
SD10/EA13
SD9/EA12
SD8/EA11
A9
A8
A7
A6
A5
SD13/EA16
SD_CKO
BT_OE
BT_CS
D0
D1
D2
D3
D4
D5
D6
D7
A10
A0
A1
A3
A2 A4
SA14/EA17
SA15/EA18
BT_WE
DACDA2
DACDA1
DACBCK
DACLRCK
SRCLRCK
SRCDO
DSPCS_3V
A0
A1
A2
A3
RAS
CAS
DSPCLKIN
ADSDO
D7
SD_UDQM
SA15/EA18
SA14/EA17
SD13/EA16
SD12/EA15
SD11/EA14
SD10/EA13
SD9/EA12
SD8/EA11
A8
A7
SD_CKE
A6
A5
A4
BA/EA19
A10
A9
DIGSDI_3V
DSPFINT_3V
DSPINT_3V
BT_WE
BT_OE
BT_CS
SD_WE
D0
D1
D2
DSPRST_3V D3
D4
SD_LDQM
DSPBUSY_3V D5
D6
FIL_SBL
COAX1
FIL_SBR
TX
DIRRST_3V
DIRINT_3V
DIRCS_3V
DIGCLK_3V
OPT1
DIGSDO_3V
DIGSDI_3V
RDSDAT
+VCC
+VCC
+VBOOT
+VSD
+PLLVDD
+VDSP
DIGCLK_3V
DIGSDO_3V
DSPFCS_3V
D4
FIL_SL
FIL_SR
VOLDAT
VOLCLK
VOLSTB
FIL_FR
FIL_FL
FSWSTB
FSWCLK
FSWSDO
DAC_SBR
DAC_SBL
FIL_SW
FIL_CT
+12VA
DAC_SW
APOWER
SEC1H
VOLH
THERMAL
PROTECT
FAC1
FAC2
-VP
Z2MUT
V4_R
V4_L
GNDV4A
MICOUT
GNDMIC
TU_R
TU_L
GNDTU
+5VCPU
PLLCLK
PLLSDO
PLLCE
FSWSTB
FSWSDO
FSWCLK
FLDCLK
OSDCS
FLDSDO
V4Y
V4C
V4V
VIDEO-5V
OPT2
COAX2
OPT3
OPTF
IRIN
SEC1H
-12VA
-12VA
-12VA
KEY1
KEY0
KEYINT3
KEYINT2
KEYINT1
KEYINT0
KEY3
KEY2
OSDCS
VOLA
HPDET
VOLB
MICDET
RDSSIG
RDSCLK
VOLH
THERMAL
PROTECT
CAS
RAS
SD_CS
SD_CKE
SD_UDQM
SD_LDQM
SD_WE
SD_CS
+3.3DSPIO
DSPBUSY_3V
DSPINT
DIGSDI
DSPFINT
DSPBUSY
DIRINT_3V
DIRINT0
DSPRST_3V
DIGCLK_3V
DIGSDO_3V
DSPCS_3V
DSPFCS_3V
DIRRST_3V
DIRCS_3V
DSPRST
DIGCLK
DIGSDO
DSPCS
DSPFCS
DIRRST
DIRCS
COAX1
COAX2
OPT1
TX
DIGSDI_3V
DSPINT_3V
VIDEO+5V/SW+12V
+12VA
+12VTRG
RDSSIG
DET
RDSCLK
RDSDAT
VMUT
VCRST
VCSCL
VCSDA
SDET
SYNC
SPRLZ2
SPRLSB
SPRLCS
SPRLF
VSYNC
+12V/SW+12V
DIRINT0
DSPFINT_3V
DAC_FR
DAC_FL
GNDDG
GNDDG
VPOWER
HPDET
+12VA
DAC_CT
DAC_SL
DAC_SR
-7V
+7V
SBZ2MUT
GND+12V
-12VA
GND+7
+10S
POFFV
+5VDIS
+5VDSP
+12VTRG
GNDV
VIDEO-5V
VIDEO+5V/
SW+12V
POFFV
+3.3V
+2.5V
GNDDG
ADRT-
ADRT+
ADLT-
ADLT+
AMUT
Z2MUT
DIRINT1
SRCBCK
SDET
SYNC
VMUT
VCRST
AMUTA
SBZ2MUTA
Z2MUTA
RESET
CNVSS
INT3
INT2
INT1
BAND
SPRLCS
SPRLSB
SPRLZ2
FLDCLK
FLDCS
FLDRST
FSWSDO
FSWSTB
FSWCLK
FLDSDO
DIGSDO
VOLSTB
VOLCLK
VOLDAT
DIGCLK
DSPBUSY
DSPINT
DSPFINT
PLLCLK
PLLSDO
PLLCE
TUMUT
SPRLF
FCE
DSPRST
FEPM
TRGZ2
SYSOUT
LEDSTBY
LEDZONE2
LEDPURE
SYSIN
APOWER
VPOWER
DIRCS
DIRRST
DSPFCS
DSPCS
POFF
VSYNC
SD
TUMUT
DET
TU_R
GNDTU
TU_L
STEREO
GNDMIC
MICDET
+7V
OPTF
MICOUT
-7V
V4C
GND+7
V4Y
V4V
V4_L
GNDV4A
V4_R
LEDPURE
LEDSTBY
VOLB
VOLA
KEYINT3
FAC1
FAC2
-VP
+5VDIS
KEYINT2
KEYINT1
KEYINT0
REMIN
FLDRST
FLDCS
FLDCLK
FLDSDO
KEY1
KEY0
KEY2
KEY3
LEDZONE2
GNDDG
GNDDG
+5.6DIS
TO FLASH WRITER
RI
P703A
DIGITAL IN
NADG-8514
23P
TO TUNER UNIT
TO NADIS-8513 TO NAVD-8549
NC
TO NAAF-8523
C707
104Z
C752
474K
R748
2.2K
NC
474K
R749
2.2K
R511
NC
R521
NC
R531
NC
R551
NC
R541
NC
R532
NC
R562
NC
R512
NC
R572
NC
R522
NC
R502
NC
R542
NC
R794 4.7K
R795 4.7K
R793 4.7K
R790 4.7K
R791 4.7K
R792 4.7K
R789 4.7K
R797
4.7K
R718 220
R719
220
R729 10
R730 10
R732 220
R734 220
R733 220
R736 220
R731 220
R758 220
C754
470/6.3
+
C511
NC
C512
NC
C502
NC
C708
104Z
C288
104Z
C287
NC
C284
NC
NC
022M
C282
104Z
R226
47
Q282 NC
1VCC0
2DQ0
3DQ1
4GNDQ1
5DQ2
6DQ3
7VCCQ1
8DQ4
9DQ5
10 GNDQ2
11 DQ6
12 DQ7
13 VCCQ2
14LDQM
15 _WE
16 _CAS
17 _RAS
18 _CS
19 A11
20 A10
21 A0
22 A1
23 A2
24 A3
25 VCC1 26
GND1
27
A4
28
A5
29
A6
30
A7
31
A8
32
A9
33
NC1
34
CKE
35
CLK
36
UDQM
37
NC2
38
VCCQ3
39
DQ8
40
DQ9
41
GNDQ3
42
DQ10
43
DQ11
44
VCCQ4
45
DQ12
46
DQ13
47
GNDQ4
48
DQ14
49
DQ15
50
GND2
R261 10K
R260 10K
C205
122J
R25610K
R25510K
R25110K
R25010K
C213
104Z
C217
104Z
C216
104Z
R234 10K
R236 10K
R259 47
R238 47
R257
330
R258
2.7K
C206
680J
C204
2.2M
+
L202
022M
C214
104Z
C215
104Z
C210
104Z
C212
104Z
R22510K
R224
10K R223
10K R222
10K R221
10K R220
10K
R218
10K R217
10K R216
10K
R209
10K
C219
101J
R219
10K C208
104Z
R270 220
C207104Z
R208
10K
R2693.3K
R266
10K C209
104Z
Q201
CS494003
109
AUDATA1
110
AUDATA0
111
CMPCLK,FSCLKN2
112
HDATA2,GPIO2
113
VSS3
114
VDD3
115
HDATA3,GPIO3
116
HDATA0,GPIO0
117 CMPREQ,FLRCLKN2
118 CMPDAT,FSDATAN2
119 FLRCLKN1
120 _WR,_DS,GPIO10
121 _RD,R/_W,GPIO11
122 PLLVSS
123 FILT2
124 FILT1
125 PLLVDD
126 XTALO
127 CLKIN,XTALI
128 CLKSEL
129 _CS,GPIO9
130 A0,GPIO13
131 FSDATAN1
132 VDD4
133 VSS4
134 FSCLKN1,STCCLK2
135 _SCS
136 SCDIN
137 VSS5
138 VDD5
139
A1, GPIO12
140
SCDOUT, SCDIO
141
HINBSY, GPIO8
142
SCCLK
143
UHS,_CS_OUT,GPIO17
144
_RESET
1UHS0,GPIO18
2UHS1,GPOI19
3_INTREQ
4FA1,FSCDIN
5GPOI20
6FA0,FSCCLK
7FSCDIO,FSCDOUT
8GPIO21
9FDAT7
10 VDD6
11 VSS6
12 FHS0,_FWR,_FDS
13 FSH1,_FRD,FR/_W
14 FDAT6
15 _FCS
16 _FINTREQ
17 FDBCK
18 FDAT5
19 FDAT4
20 VDD7
21 VSS7
22 FDAT3
23 FDBDA
24 FDAT2
25 DBDA
26 DBCK
27 FDAT1
28 TEST
29 FDAT0
30 _NV_WE,GPIO16
31 _NV_OE,GPIO15
32 _NV_CS,GPIO14
33 _SD_WE
34 SD_DATA0,EXTD0
35 SD_DATA1,EXTD1
36 SD_DATA2,EXTD2
37
SD_DATA3,EXTD3
38
SD_DATA4,EXTD4
39
SD_DQM0
40
SD_DATA5,EXTD5
41
VSSSD4
42
VDDSD4
43
SD_DATA6,EXTD6
44
SD_DATA7,EXTD7
45
SD_DQM1
46
SD_DATA15,EXTA18
47
SD_DATA14,EXTA17
48
NC5
49
SD_DATA13,EXTA16
50
VSSSD3
51
VDDSD3
52
SD_DATA12,EXTA15
53
SD_DATA11,EXTA14
54
SD_DATA10,EXTA13
55
SD_DATA9,EXTA11
56
SD_ADAT8,EXTA11
57
VSSSD2
58
VDDSD2
59
SD_CLK_OUT
60
SD_ADDR9,EXTA9
61
SD_CLK_IN
62
SD_ADDR8,EXTA8
63
SD_ADDR7,EXTA7
64
SD_CLK_EN
65
SD_ADDR6,EXTA6
66
SD_ADDR5,EXTA5
67
SD_ADDR4,EXTA4
68
_SD_CS
69
VSSSD1
70
VDDSD1
71
SD_BA,EXTA19
72
SD_ADDR10,EXTA10
73
SD_ADDR0,EXTA0
74
SD_ADDR1,EXTA1
75
SD_ADDR2,EXTA2
76
SD_ADDR3,EXTA3
77
_SD_RAS
78
_SD_CAS
79
SDATAN3,GPIO27
80
SDATAN2,GPIO26
81
SDATAN1,GPIO25
82
SDATAN0,GPIO24
83
NC4
84
NC3
85
LRCLKN,GPIO23
86
SCLKN,GPIO22
87
LRCLK1
88
NC2
89
NC1
90
VDD1
91
VSS1
92
AUDATA7,XMT958B,GPIO31
93
AUDATA6,GPIO30
94
AUDATA5,GPIO29
95
HDATA7,GPIO7
96
HDATA6,GPIO6
97
HDATA5,GPIO5
98
SCLK1
99
MCLK
100
VDD2
101
VSS2
102
AUDATA4,GPIO28
103
HDATA4,GPIO4
104
SCLK0
105
HDATA3,GPIO3
106
AUDATA3,XMT958A
107
AUDATA2
108
LRCLK0
109 :
110 :
111 :
112 :
113 :
114 :
115 :
116 :
139 :
140 :
141 :
142 :
143 :
144 :
: 43
: 42
: 41
: 40
: 39
: 38
: 37
L201
022M
R212
10K R235 10K
L281
022M
R473
180
R463
180
R474
180
R464
180
R465
180
R476
180
R466
180
R477
180
R467
R478
0
R468
R453 R443 R454
R444 R455 R445 R456
R446 R457 R447 R458
R448
R433
R423
R434
R424
R425
470
R436
R426
R437
R427
R438
NC
R428
NC
R413
3.3K
R403
3.3K
R414
3.3K
R404
3.3K
R415
3.3K
R405
3.3K
R416
3.3K
R406
3.3K
R417
R407
3.3K
R418
NC
R408
NC
C303
104Z
L302
022M
L303
022M
C428
NC
C418
NC
681
C427
C426
C416
C415
C425
C413
C423
C307
NC
R441
R451
R412
3.3K
R402
3.3K
C412 C422
C311
104Z
C411
C402 C403 C405 C406 C407 C408
NC
C421
R472
180
R462
180
L301
022M
C331
330J
R401
3.3K
R411
3.3K
R431
R421
R435
R471
180
R475
180
R461
180
C401
C501
NC
R501
NC
R552
NC
R561
NC
R571
NC
R581
NC
R582
NC
R621 10K
R624 10K
R622 10K
R632 10K
R631 10K
R646 10K
R641 10K
R636 10K
R639 10K
R640 10K
R642 10K
R747
2.2K
C751
NC
Q421
CS42518-CQZR
17 VQ
18 FLT+
19 REFGND
20 AOUTB4-
21 AOUTB4+
22 AOUTA4+
23 AOUTA4-
24 VA
25 AGND1
26 AOUTB3-
27 AOUTB3+
28 AOUTA3+
29 AOUTA3-
30 AOUTB2-
31
AOUTB2+:31
32
AOUTA2+:32
33 AOUTA2-
34 AOUTB1-
35 AOUTB1+
36 AOUTA1+
37 AOUTA1-
38 MUTEC
39 LPFLT
40 AGND2
41 VARX
42 RXP7/GP7
43 RXP6/GP6
44 RXP5/GP5
45 RXP4/GP4
46 RXP3/GP3
47 RXP2/GP2
48 RXP1/GP1
49
49:RXP0
50
50:TXP
51
VD2
52
DGND2
53
VLS
54
SAI_SDOUT
55
RMCK
56
CX_SDOUT
57
ADCIN2
58
ADCIN1
59
OMCK
60
SAI_LRCK
61
SAI_SLCK
62
62:CX_SDIN4
63
63:CX_SDIN3
64
64:CX_SDIN2
1
CX_SDIN1
2
CX_SCLK
3
CX_LRCK
4
VD1
5
DGND1
6
VLC
7
CCLK/SCL
8
CDOUT/SAD
9
CDIN/AD1
10
CS/AD0
11
INT1
12
_RST
13
AINR-
14
AINR+
15
AINL+
16
AINL-
R800
220
R604 1M
C710
104Z
R693 2.7K
R694 2.7K
R695 2.7K
R696 2.7K
R708 10K
C711
104Z
R612 47K
R759 220
R753 NC
R303 47
R301 47
R314 47
R318 47
R319 47
R313 47
R317 47
R312 47
D701
1SS355
D708
1SS355
R205
10K
R24910K
R659
NC
R658
NC
R717
10K
C301
220/6.3
+
R305 220
R304 220
R306 220
R307 220
R308 220
R309 220
C308
220/6.3
+
C715 102K
C716 102K
C718 102K
C717 102K
C719 102K
C720 102K
C721 102K
C722 102K
E301
1
2
3
4
C531 220/16
+
C532 220/16
+
C102 101J
R102 100K
C103 101J
R773
330
P721
L701
470K
R242 10K
R239 10K
R240 10K
C420
153J
C419
153J
C404
333J
C312
220/6.3
+
R691
NC
R699 NC
R698 0
D302
D304
D306
D308
D303
D305
D307
D301
L203
022M
P401A
9
8
7
6
5
4
3
2
1
R334 NC
R333 330
R337 NC
R335 NC
R336 NC
L171
022M
L173
LM182
L172
LM182
P751A
9
8
7
6
5
4
3
2
1
R774 NC
D707
UDZS5.1B
R783 1K
R784 1K
R782 NC
R781
1K
C712 104Z
R661 22K
R674 0
R673 220K
R442 R452
R422
R432
R103
47K
C701
100/16
+
R7711K
R7721K
R7751K
R7661K
R7671K
R7651K R663 22K
R763
1K
R332
330
R331
NC
C171 104Z
Q501:B
NC
12
3
Q503:A
NC
7
4
5
6
8
Q502:A
NC
7
4
5
6
8
Q501:A
NC
7
4
5
6
8
Q502:B
NC
12
3
Q503:B
NC
12
3
R325
3.9K
C302 NC
C313
NC
R275
R276
R277
R272
R273
R271
R274
Q281
MX26LV040-70
17 A3
18 A2
19 A1
20 A0
21 DQ0
22 DQ1
23 DQ2
24 VSS
25 DQ3
26 DQ4
27 DQ5
28 DQ6
29 DQ7
30_CE
31 A10
32_OE 1
A11
2
A9
3
A8
4
A13
5
A14
6
A17
7
_WE/A18
8
VCC
9
A18/VPP
10
A16
11
A15
12
A12
13
A7
14
A6
15
A5
16
A4
R165
220
R164
220
C152
104Z
R163
220
Q152
TC74HCT7007AF
8OUT4
9IN4
10OUT5
11IN5
12OUT6
13IN6
14 VCC 1
2
3
4
5
6
7
GND
R161
220
Q151
TC74VHC541FT
11 Y8
12 Y7
13 Y6
14 Y5
15 Y4
16 Y3
17 Y2
18 Y1
19 _G2
20 VCC 1
_G1
2
A1
3
A2
4
A3
5
A4
6
A5
7
A6
8
A7
9
A8
10
GND
C151
104Z
C140 104Z
C133
080D
C137
NC
L134
022M
R134 10K
R138 NC
C136
NC
L133
022M
Q131
TC74HCU04AF
1
2
3
4
5
6
7GND 8
OUT4
9
IN4
10
OUT5
11
IN5
12
OUT6
13
IN6
14
VCC
R139
220K
C141
104Z
R141
220
U131
IN
VCC
GND
R135
NC
C134
NC
C135
NC
C132
104K
R131
75
C131
101J
C146
104Z
P132
JL121B
1
2
3
4
5
6
C704
DX-5R5L224
+
R140
NC
R166
3.3K
R162
220
R133
220K
R137
220K
R683
0
R647
1K
R648
NC
R649
NC
R203
3.3K
R215
3.3K
R202
3.3K
R201
3.3K
R211
3.3K R210
3.3K
Q404:A
NJM4580M-D
7
4
5
6
8
Q403:A
NJM4580M-D
7
4
5
6
8
Q402:A
NJM4580M-D
7
4
5
6
8
Q401:A
NJM4580M-D
7
4
5
6
8
Q401:B
NJM4580M-D
12
3
Q403:B
NJM4580M-D
1
2
3
Q404:B
NJM4580M-D
12
3
Q402:B
NJM4580M-D
12
3
L211
LL241
X171
12.288MHz
R171 1M
R602 10K
R629 1K
R630 1K
P2004
1
2
3
4
5
6
7
8
9
10
11
12
13
R311
2.7K
C310
473K
C309
222J
C117
NC
C116
NC R114 NC
C113 NC
C115 NC
L111
NC
Q111 NC
9T2
10 T1
11 VSS2
12 VDD2
13 XI
14 XO
15 NC
16 RCLK 1
QUAL
2
RDATA
3
Vref
4
MUX
5
VDD1
6
VSS1
7
VSS3
8
CMP
X111
NC
R323 56
R322 56
R324 56
C305 NC
D101
UDZS5.1B
C101 100/16
+
C306
100/16
+
R321 56 C321 10/50
+
C323 10/50
+
C322 10/50
+
C324 10/50
+
C111
NC
+
C114 NC
+
C702
100/16
+
C703
100/16
+
C705
100/16
+
C201
100/16
+
C202
100/16
+
C283
NC
+
C203
100/16
+
C281
100/16
+
C139 100/16
+
C145
100/16
+
D706
1SS355
R132
10
R136
NC
R681 10K
C713 102K
C714102K
R682 NC
C526 10/50
+C525 10/50
+C523 10/50
+
D703
1SS355
Q705
RN2402
Q712
RN2402
Q711
RN1404
Q714
NC
Q713
NC
Q716
NC
Q715
NC
Q702
NC
1O
3
G
2
I
R786
R787
R785
R788
R686
R687
R685
R688
C332
330J
C334
C336
C333
C335
R112
R111
R113
P2005
1
2
3
4
5
6
7
8
9
10
11
12
13
JL402B
1
2
3
4
5
6
7
C524 10/50
+
R598
R592
0R591
0R597
R594
0
R593
0R595
0R596
0
X701
6.000MHz
Q703
RN1404
P303A
1
2
3
4
5
6
7
8
9
10
11
12
13
14
15
16
17
18
19
20
P311A
1
2
3
4
5
6
7
8
9
10
P302A
1
2
3
4
5
6
7
8
9
10
11
12
13
14
15
16
17
18
19
20
P301A
1
2
3
4
5
6
7
8
9
10
D702
1SS355
Q721
S812C56AUA-C3K
2I
1G
3
O
C172
120J
C173
120J
Q171 TC7WU04FU
1
2
3
4GND 5
6
7
8
VD
R302
47
L311 LM182
L312 LM182
R315 47
R316
47
L313 LM182
C104
3.3/50
+
C706
1/50
+
C749
NC
+
C748
NC
+
C747
10/50
+
R709 220
Q731
RN1404
Q732
RN1404
R710 220
R727 220
R728 220
R650 NC
R651 NC
R652 NC
R653 NC
R101
560
R601
1K
C709
104Z
Q701
81
82
83
84
85
86
87
88
89
90
91
92
93
94
95
96
97
98
99
100
1
2
3
4
5
6
7
8
9
10
11
12
13
14
15
16
17
18
19
20
21
22
23
24
25
26
27
28
29
30
31
32
33
34
35
36
37
38
39
40
41
42
43
44
45
46
47
48
49
50
51
52
53
54
55
56
57
58
59
60
61
62
63
64
65
66
67
68
69
70
71
72
73
74
75
76
77
78
79
80
C723
104Z
R61810K
R605
0
R104
47K
R105 47K
R107 47K
R106 47K
P101A
1
2
3
4
5
6
7
8
9
10
11
12
13
14
15
C105
3.3/50
+
40
39
38
37
36
35
34
33
32
31
30
29
28
27
26
25
24
23
22
21
20
19
18
17
16
15
14
13
12
11
10
9
8
7
6
5
4
3
2
1
R603
0
D712
D711
C304 47/25
+
L131
022K
L132
NC
C325
222J
R326
3.9K
C326
222J
U02 DSP PC BOARD
OPTICAL
COAXIAL
: 72
: 71
: 70
: 69
: 68
: 67
: 66
M30622MGP-236FPU0
SPRLSB
SPRLCS
SPRLF/SPRLSW
TUMUT
PLLCE
PLLSDO
PLLCLK
~STEREO/PLLSDI
~SD
VPOWER
APOWER
VCC2
SEC1H
VSS
VOLH
THERMAL
PROTECT
FANCTRL
FANH
NU
RDSDAT
RDSSIG
SYSIN
NU
~RDSCLK
~SYSOUT
LEDPURE
NU
~LEDSTBY
HPRL
FLDSDO
FLDCLK
FLDCS
~FLDRST
FSWSDO
FSWSTB
FSWCLK
BYTE
CNVSS
COMPA
COMPB
~RESET
XOUT
VSS
XIN
VCC1
~NMI
---
~REMIN
POFF
DIRINT1
DIRINT0
~DIRCS
~DIRRST
~DSPFCS
~DSPCS
VMUTMON
VMUTV1
VCTRLA
VCTRLB
---
---
FCE
VOLDAT
VOLCLK
VOLSTB
DSPRST
FEPM
DSPFINT
DSPINT
DSPBUSY
DIGCLK
DIGSDI
DIGSDO
INIT3
INIT2
INIT1
BAND
~KEYINT3
~KEYINT2
~KEYINT1
~KEYINT0
KEY3
KEY2
KEY1
AVSS
97 : KEY0
98 : VREF
99 : AVCC
100 : NU
FBUSY : 34
FCLK : 33
FRXD : 32
FTXD : 31
SPRLB : 50
AMUT : 49
81 : HPDET
82 : NU
83 : VOLB
84 : VOLA
NC
0
NC
NC
NC
NC
470
3.3K
470
C417
0
4.7K 0
472
4.7K
0
180
681
470
470
472J 472J
4.7K
4.7K
470
681J 681J
681J
4.7K
470
470
470
470
4.7K
4.7K
681J
681J
4.7K 472J
470
470
470
470
681J 681J 681J
681J
4.7K
4.7K 472J
472J 4.7K
4.7K 4.7K
R271 - 277
: 10K
NC
NC
NC
NC
C138
NC
NC 0
0
0
0
0
10K
10K
NC
NC
NC
NC
681
NC
A
1
2
3
4
5
BCDEFGH

TX-SR403/8340TX-SR403/8340
SCHEMATIC DIAGRAMS-3
POWER AMPLIFIER SECTION-1
Refer to following table about the parts displayed by mark " ".
THE COMPONENTS IDENTIFIED BY MARK ARE CRITICAL FOR SAFETY
REPLACE ONLY WITH PART NUMBER SPECIFIED.
VOLTAGE (MEASURED WITH VOLTMETER) IS DC VOLTAGE.(NO INPUT SIGNAL).
ALL PNP TRANSISTORS ARE EQUIVALENT TO 2SA1015-GR UNLESS OTHERWISE NOTED.
ALL NPN TRANSISTORS ARE EQUIVALENT TO 2SC1815-GR UNLESS OTHERWISE NOTED.
ALL DIODES ARE EQUIVALENT TO 1SS133 UNLESS OTHERWISE NOTED.
ELECTROLYTIC CAPACITORS ( ) ARE IN uF/WV.
ALL CAPACITORS ARE IN pF/50WV UNLESS OTHERWISE NOTED.
EX) 030- 3pF 330- 33pF 331- 330pF 333- 0.033uF
ALL RESISTORS ARE IN OHMS 1/4WATTS UNLESS OTHERWISE NOTED.
THE THICK LINES ON PC BOARD ARE THE PRINTING SIDE OF THE PARTS.
EX) PRINTING SIDE
CIRCUIT IS SUBJECT TO CHANGE FOR IMPROVEMENT.
!
NOTE
<Note>
NC=No mount of parts.
P6011B
TO NAAF-8523
(BUS-BAR)
P5503A
TO NAAF-8523
D5005
MTZJ5.6B
DZ-5.6BSB
D5004
MTZJ5.6B
DZ-5.6BSB
D5003
MTZJ5.6B
DZ-5.6BSB
D5000
MTZJ5.6B
DZ-5.6BSB
D5001
MTZJ5.6B
DZ-5.6BSB
D5002
MTZJ5.6B
DZ-5.6BSB
C5005
101K
C5095
101K
C5035
NC
C5085
040C
C5004
101K
C5094
101K
C5034
NC
C5084
040C
C5003
101K
C5093
101K
C5033
NC
C5083
040C
C5000
101K
C5090
101K
C5030
NC
C5080
040C
C5001
101K
C5091
101K
C5031
NC
C5081
040C
C5002
101K
C5092
101K
C5032
NC
C5082
040C
C5025
10/50
C5015
10/50
C5045
220/16
C5055
47/50
C5105
10/63
C5115
10/63
C5024
10/50
C5014
10/50
C5044
220/16
C5054
47/50
C5104
10/63
C5114
10/63
C5023
10/50
C5013
10/50
C5043
220/16
C5053
47/50
C5103
10/63
C5113
10/63 C5020
10/50
C5010
47/50
C5040
220/16
C5050
47/50
C5100
10/63
C5110
10/63
C5021
10/50
C5011
47/50
C5041
220/16
C5051
47/50
C5101
10/63
C5111
10/63
C5022
10/50
C5012
10/50
C5042
220/16
C5052
47/50
C5102
10/63
C5112
10/63
R5025
330
R5105
100K
R5115
1K
R5005
1K
R5015
56K
R5135
18K R5205
NC
R5045 2.2K
R5055
4.7K
R5095
100K
R5075
NC R5085
470
R5065
1.2K
R5195
10
(1/4W)
R5185
10
(1/4W)
R5175
100
(1/4W)
R5165
100(1/4W)
R5035
120K
R5235 120K
R5024
330
R5104
100K
R5114
1K
R5004
1K
R5014
56K
R5134
18K R5204
NC
R5044 2.2K
R5054
4.7K
R5094
100K
R5074
NC R5084
470
R5064
1.2K
R5194
10
(1/4W)
R5184
10
(1/4W)
R5174
100
(1/4W)
R5164
100(1/4W)
R5034
120K
R5234 120K
R5023
330
R5103
100K
R5113
1K
R5003
1K
R5013
56K
R5133
18K R5203
NC
R5043 2.2K
R5053
4.7K
R5093
100K
R5073
NC R5083
470
R5063
1.2K
R5193
10
(1/4W)
R5183
10
(1/4W)
R5173
100
(1/4W)
R5163
100(1/4W)
R5033
120K
R5233 120K
R5020
330
R5100
100K
R5110
1K
R5000
1K
R5010
56K
R5130
22K R5200
22K
R5040 2.2K
R5050
4.7K
R5090
100K
R5070
NC R5080
470
R5060
1.2K
R5190
10
(1/4W)
R5180
10
(1/4W)
R5170
100
(1/4W)
R5160
100 (1/4W)
R5030
120K
R5230 120K
R5021
330
R5101
100K
R5111
1K
R5001
1K
R5011
56K
R5131
22K R5201
22K
R5041 2.2K
R5051
4.7K
R5091
100K
R5071
NC R5081
470
R5061
1.2K
R5191
10
(1/4W)
R5181
10
(1/4W)
R5171
100
(1/4W)
R5161
100(1/4W)
R5031
120K
R5231 120K
R5022
330
R5102
100K
R5112
1K
R5002
1K
R5012
56K
R5132
18K R5202
NC
R5042 2.2K
R5052
4.7K
R5092
100K
R5072
NC R5082
470
R5062
1.2K
R5192
10
(1/4W)
R5182
10
(1/4W)
R5172
100
(1/4W)
R5162
100(1/4W)
R5032
120K
R5232 120K
Q5035
Q5034
Q5033 Q5030
Q5031
Q5032
Q5005 Q5015
Q5055
Q5045
Q5004 Q5014
Q5054
Q5044
Q5003 Q5013
Q5053
Q5043
Q5000 Q5010
Q5050
Q5040
Q5001 Q5011
Q5051
Q5041
Q5002 Q5012
Q5052
Q5042
-0.65V
0V
-0.1V
-42.5V
-43.1V
-48.0V
48.0V
-47.5V
-1.1V
1.1V
47.5V
47.0V
-47.0V
-0.65V
0V
-0.1V
-42.5V
-43.1V
-48.0V
48.0V
-47.5V
-1.1V
1.1V
47.5V
47.0V
-47.0V
-0.65V
0V
-0.1V
-42.5V
-43.1V
-48.0V
48.0V
-47.5V
-1.1V
1.1V
47.5V
47.0V
-47.0V
-0.65V
0V
-0.1V
-42.5V
-43.1V
-48.0V
48.0V
-47.5V
-1.1V
1.1V
47.5V
47.0V
-47.0V
-0.65V
0V
-0.1V
-42.5V
-43.1V
-48.0V
48.0V
-47.5V
-1.1V
1.1V
47.5V
47.0V
-47.0V
-0.65V
0V
-0.1V
-42.5V
-43.1V
-48.0V
48.0V
-47.5V
-1.1V
1.1V
47.5V
47.0V
-47.0V
P6003A
NF
-B1
+B1
B+
B-
P6004A
NF
-B1
+B1
B+
B-
P6005A
NF
-B1
+B1
B+
B-
P6002A
NF
-B1
+B1
B+
B-
P6001A
NF
-B1
+B1
B+
B-
P6000A
NF
-B1
+B1
B+
B-
P5504A
TO NAAF-8523
P5019
E
SBR
SBL
SR
SL
C
R
L
NAAF-8550
TO NAAF-8523
U17
DRIVER AMPLIIER PC BOARD
TO NAAF-8523
TO NAAF-8523
TO NAAF-8523 TO NAAF-8523
TO NAAF-8523
SL
SR
SB
FL
FR
C
Transistors
CIRCUIT NO.
Q5000 - 5002
Q5010 - 5012
DESCRIPTION
2SC2240-BL
Q5003 - 5005
Q5013 - 5015 2SC2240-BL, KTC3200-BL
Q5040 - 5045
2SA949-Y
Q5050 - 5055
Q5030 -5035
2SC2229-Y
2SC1815-GR, BL
A
1
2
3
4
5
BCDEFGH

TX-SR403/8340TX-SR403/8340
SCHEMATIC DIAGRAMS-3
POWER AMPLIFIER SECTION-1
Refer to following table about the parts displayed by mark " ".
THE COMPONENTS IDENTIFIED BY MARK ARE CRITICAL FOR SAFETY
REPLACE ONLY WITH PART NUMBER SPECIFIED.
VOLTAGE (MEASURED WITH VOLTMETER) IS DC VOLTAGE.(NO INPUT SIGNAL).
ALL PNP TRANSISTORS ARE EQUIVALENT TO 2SA1015-GR UNLESS OTHERWISE NOTED.
ALL NPN TRANSISTORS ARE EQUIVALENT TO 2SC1815-GR UNLESS OTHERWISE NOTED.
ALL DIODES ARE EQUIVALENT TO 1SS133 UNLESS OTHERWISE NOTED.
ELECTROLYTIC CAPACITORS ( ) ARE IN uF/WV.
ALL CAPACITORS ARE IN pF/50WV UNLESS OTHERWISE NOTED.
EX) 030- 3pF 330- 33pF 331- 330pF 333- 0.033uF
ALL RESISTORS ARE IN OHMS 1/4WATTS UNLESS OTHERWISE NOTED.
THE THICK LINES ON PC BOARD ARE THE PRINTING SIDE OF THE PARTS.
EX) PRINTING SIDE
CIRCUIT IS SUBJECT TO CHANGE FOR IMPROVEMENT.
!
NOTE
<Note>
NC=No mount of parts.
P6011B
TO NAAF-8523
(BUS-BAR)
P5503A
TO NAAF-8523
D5005
MTZJ5.6B
DZ-5.6BSB
D5004
MTZJ5.6B
DZ-5.6BSB
D5003
MTZJ5.6B
DZ-5.6BSB
D5000
MTZJ5.6B
DZ-5.6BSB
D5001
MTZJ5.6B
DZ-5.6BSB
D5002
MTZJ5.6B
DZ-5.6BSB
C5005
101K
C5095
101K
C5035
NC
C5085
040C
C5004
101K
C5094
101K
C5034
NC
C5084
040C
C5003
101K
C5093
101K
C5033
NC
C5083
040C
C5000
101K
C5090
101K
C5030
NC
C5080
040C
C5001
101K
C5091
101K
C5031
NC
C5081
040C
C5002
101K
C5092
101K
C5032
NC
C5082
040C
C5025
10/50
C5015
10/50
C5045
220/16
C5055
47/50
C5105
10/63
C5115
10/63
C5024
10/50
C5014
10/50
C5044
220/16
C5054
47/50
C5104
10/63
C5114
10/63
C5023
10/50
C5013
10/50
C5043
220/16
C5053
47/50
C5103
10/63
C5113
10/63 C5020
10/50
C5010
47/50
C5040
220/16
C5050
47/50
C5100
10/63
C5110
10/63
C5021
10/50
C5011
47/50
C5041
220/16
C5051
47/50
C5101
10/63
C5111
10/63
C5022
10/50
C5012
10/50
C5042
220/16
C5052
47/50
C5102
10/63
C5112
10/63
R5025
330
R5105
100K
R5115
1K
R5005
1K
R5015
56K
R5135
18K R5205
NC
R5045 2.2K
R5055
4.7K
R5095
100K
R5075
NC R5085
470
R5065
1.2K
R5195
10
(1/4W)
R5185
10
(1/4W)
R5175
100
(1/4W)
R5165
100(1/4W)
R5035
120K
R5235 120K
R5024
330
R5104
100K
R5114
1K
R5004
1K
R5014
56K
R5134
18K R5204
NC
R5044 2.2K
R5054
4.7K
R5094
100K
R5074
NC R5084
470
R5064
1.2K
R5194
10
(1/4W)
R5184
10
(1/4W)
R5174
100
(1/4W)
R5164
100(1/4W)
R5034
120K
R5234 120K
R5023
330
R5103
100K
R5113
1K
R5003
1K
R5013
56K
R5133
18K R5203
NC
R5043 2.2K
R5053
4.7K
R5093
100K
R5073
NC R5083
470
R5063
1.2K
R5193
10
(1/4W)
R5183
10
(1/4W)
R5173
100
(1/4W)
R5163
100(1/4W)
R5033
120K
R5233 120K
R5020
330
R5100
100K
R5110
1K
R5000
1K
R5010
56K
R5130
22K R5200
22K
R5040 2.2K
R5050
4.7K
R5090
100K
R5070
NC R5080
470
R5060
1.2K
R5190
10
(1/4W)
R5180
10
(1/4W)
R5170
100
(1/4W)
R5160
100 (1/4W)
R5030
120K
R5230 120K
R5021
330
R5101
100K
R5111
1K
R5001
1K
R5011
56K
R5131
22K R5201
22K
R5041 2.2K
R5051
4.7K
R5091
100K
R5071
NC R5081
470
R5061
1.2K
R5191
10
(1/4W)
R5181
10
(1/4W)
R5171
100
(1/4W)
R5161
100(1/4W)
R5031
120K
R5231 120K
R5022
330
R5102
100K
R5112
1K
R5002
1K
R5012
56K
R5132
18K R5202
NC
R5042 2.2K
R5052
4.7K
R5092
100K
R5072
NC R5082
470
R5062
1.2K
R5192
10
(1/4W)
R5182
10
(1/4W)
R5172
100
(1/4W)
R5162
100(1/4W)
R5032
120K
R5232 120K
Q5035
Q5034
Q5033 Q5030
Q5031
Q5032
Q5005 Q5015
Q5055
Q5045
Q5004 Q5014
Q5054
Q5044
Q5003 Q5013
Q5053
Q5043
Q5000 Q5010
Q5050
Q5040
Q5001 Q5011
Q5051
Q5041
Q5002 Q5012
Q5052
Q5042
-0.65V
0V
-0.1V
-42.5V
-43.1V
-48.0V
48.0V
-47.5V
-1.1V
1.1V
47.5V
47.0V
-47.0V
-0.65V
0V
-0.1V
-42.5V
-43.1V
-48.0V
48.0V
-47.5V
-1.1V
1.1V
47.5V
47.0V
-47.0V
-0.65V
0V
-0.1V
-42.5V
-43.1V
-48.0V
48.0V
-47.5V
-1.1V
1.1V
47.5V
47.0V
-47.0V
-0.65V
0V
-0.1V
-42.5V
-43.1V
-48.0V
48.0V
-47.5V
-1.1V
1.1V
47.5V
47.0V
-47.0V
-0.65V
0V
-0.1V
-42.5V
-43.1V
-48.0V
48.0V
-47.5V
-1.1V
1.1V
47.5V
47.0V
-47.0V
-0.65V
0V
-0.1V
-42.5V
-43.1V
-48.0V
48.0V
-47.5V
-1.1V
1.1V
47.5V
47.0V
-47.0V
P6003A
NF
-B1
+B1
B+
B-
P6004A
NF
-B1
+B1
B+
B-
P6005A
NF
-B1
+B1
B+
B-
P6002A
NF
-B1
+B1
B+
B-
P6001A
NF
-B1
+B1
B+
B-
P6000A
NF
-B1
+B1
B+
B-
P5504A
TO NAAF-8523
P5019
E
SBR
SBL
SR
SL
C
R
L
NAAF-8550
TO NAAF-8523
U17
DRIVER AMPLIIER PC BOARD
TO NAAF-8523
TO NAAF-8523
TO NAAF-8523 TO NAAF-8523
TO NAAF-8523
SL
SR
SB
FL
FR
C
Transistors
CIRCUIT NO.
Q5000 - 5002
Q5010 - 5012
DESCRIPTION
2SC2240-BL
Q5003 - 5005
Q5013 - 5015 2SC2240-BL, KTC3200-BL
Q5040 - 5045
2SA949-Y
Q5050 - 5055
Q5030 -5035
2SC2229-Y
2SC1815-GR, BL
A
1
2
3
4
5
BCDEFGH

TX-SR403/8340
SCHEMATIC DIAGRAMS-3
POWER AMPLIFIER SECTION-1
Refer to following table about the parts displayed by mark " ".
THE COMPONENTS IDENTIFIED BY MARK ARE CRITICAL FOR SAFETY
REPLACE ONLY WITH PART NUMBER SPECIFIED.
VOLTAGE (MEASURED WITH VOLTMETER) IS DC VOLTAGE.(NO INPUT SIGNAL).
ALL PNP TRANSISTORS ARE EQUIVALENT TO 2SA1015-GR UNLESS OTHERWISE NOTED.
ALL NPN TRANSISTORS ARE EQUIVALENT TO 2SC1815-GR UNLESS OTHERWISE NOTED.
ALL DIODES ARE EQUIVALENT TO 1SS133 UNLESS OTHERWISE NOTED.
ELECTROLYTIC CAPACITORS ( ) ARE IN uF/WV.
ALL CAPACITORS ARE IN pF/50WV UNLESS OTHERWISE NOTED.
EX) 030- 3pF 330- 33pF 331- 330pF 333- 0.033uF
ALL RESISTORS ARE IN OHMS 1/4WATTS UNLESS OTHERWISE NOTED.
THE THICK LINES ON PC BOARD ARE THE PRINTING SIDE OF THE PARTS.
EX) PRINTING SIDE
CIRCUIT IS SUBJECT TO CHANGE FOR IMPROVEMENT.
!
NOTE
<Note>
NC=No mount of parts.
P6011B
TO NAAF-8523
(BUS-BAR)
P5503A
TO NAAF-8523
D5005
MTZJ5.6B
DZ-5.6BSB
D5004
MTZJ5.6B
DZ-5.6BSB
D5003
MTZJ5.6B
DZ-5.6BSB
D5000
MTZJ5.6B
DZ-5.6BSB
D5001
MTZJ5.6B
DZ-5.6BSB
D5002
MTZJ5.6B
DZ-5.6BSB
C5005
101K
C5095
101K
C5035
NC
C5085
040C
C5004
101K
C5094
101K
C5034
NC
C5084
040C
C5003
101K
C5093
101K
C5033
NC
C5083
040C
C5000
101K
C5090
101K
C5030
NC
C5080
040C
C5001
101K
C5091
101K
C5031
NC
C5081
040C
C5002
101K
C5092
101K
C5032
NC
C5082
040C
C5025
10/50
C5015
10/50
C5045
220/16
C5055
47/50
C5105
10/63
C5115
10/63
C5024
10/50
C5014
10/50
C5044
220/16
C5054
47/50
C5104
10/63
C5114
10/63
C5023
10/50
C5013
10/50
C5043
220/16
C5053
47/50
C5103
10/63
C5113
10/63 C5020
10/50
C5010
47/50
C5040
220/16
C5050
47/50
C5100
10/63
C5110
10/63
C5021
10/50
C5011
47/50
C5041
220/16
C5051
47/50
C5101
10/63
C5111
10/63
C5022
10/50
C5012
10/50
C5042
220/16
C5052
47/50
C5102
10/63
C5112
10/63
R5025
330
R5105
100K
R5115
1K
R5005
1K
R5015
56K
R5135
18K R5205
NC
R5045 2.2K
R5055
4.7K
R5095
100K
R5075
NC R5085
470
R5065
1.2K
R5195
10
(1/4W)
R5185
10
(1/4W)
R5175
100
(1/4W)
R5165
100(1/4W)
R5035
120K
R5235 120K
R5024
330
R5104
100K
R5114
1K
R5004
1K
R5014
56K
R5134
18K R5204
NC
R5044 2.2K
R5054
4.7K
R5094
100K
R5074
NC R5084
470
R5064
1.2K
R5194
10
(1/4W)
R5184
10
(1/4W)
R5174
100
(1/4W)
R5164
100(1/4W)
R5034
120K
R5234 120K
R5023
330
R5103
100K
R5113
1K
R5003
1K
R5013
56K
R5133
18K R5203
NC
R5043 2.2K
R5053
4.7K
R5093
100K
R5073
NC R5083
470
R5063
1.2K
R5193
10
(1/4W)
R5183
10
(1/4W)
R5173
100
(1/4W)
R5163
100(1/4W)
R5033
120K
R5233 120K
R5020
330
R5100
100K
R5110
1K
R5000
1K
R5010
56K
R5130
22K R5200
22K
R5040 2.2K
R5050
4.7K
R5090
100K
R5070
NC R5080
470
R5060
1.2K
R5190
10
(1/4W)
R5180
10
(1/4W)
R5170
100
(1/4W)
R5160
100 (1/4W)
R5030
120K
R5230 120K
R5021
330
R5101
100K
R5111
1K
R5001
1K
R5011
56K
R5131
22K R5201
22K
R5041 2.2K
R5051
4.7K
R5091
100K
R5071
NC R5081
470
R5061
1.2K
R5191
10
(1/4W)
R5181
10
(1/4W)
R5171
100
(1/4W)
R5161
100(1/4W)
R5031
120K
R5231 120K
R5022
330
R5102
100K
R5112
1K
R5002
1K
R5012
56K
R5132
18K R5202
NC
R5042 2.2K
R5052
4.7K
R5092
100K
R5072
NC R5082
470
R5062
1.2K
R5192
10
(1/4W)
R5182
10
(1/4W)
R5172
100
(1/4W)
R5162
100(1/4W)
R5032
120K
R5232 120K
Q5035
Q5034
Q5033 Q5030
Q5031
Q5032
Q5005 Q5015
Q5055
Q5045
Q5004 Q5014
Q5054
Q5044
Q5003 Q5013
Q5053
Q5043
Q5000 Q5010
Q5050
Q5040
Q5001 Q5011
Q5051
Q5041
Q5002 Q5012
Q5052
Q5042
-0.65V
0V
-0.1V
-42.5V
-43.1V
-48.0V
48.0V
-47.5V
-1.1V
1.1V
47.5V
47.0V
-47.0V
-0.65V
0V
-0.1V
-42.5V
-43.1V
-48.0V
48.0V
-47.5V
-1.1V
1.1V
47.5V
47.0V
-47.0V
-0.65V
0V
-0.1V
-42.5V
-43.1V
-48.0V
48.0V
-47.5V
-1.1V
1.1V
47.5V
47.0V
-47.0V
-0.65V
0V
-0.1V
-42.5V
-43.1V
-48.0V
48.0V
-47.5V
-1.1V
1.1V
47.5V
47.0V
-47.0V
-0.65V
0V
-0.1V
-42.5V
-43.1V
-48.0V
48.0V
-47.5V
-1.1V
1.1V
47.5V
47.0V
-47.0V
-0.65V
0V
-0.1V
-42.5V
-43.1V
-48.0V
48.0V
-47.5V
-1.1V
1.1V
47.5V
47.0V
-47.0V
P6003A
NF
-B1
+B1
B+
B-
P6004A
NF
-B1
+B1
B+
B-
P6005A
NF
-B1
+B1
B+
B-
P6002A
NF
-B1
+B1
B+
B-
P6001A
NF
-B1
+B1
B+
B-
P6000A
NF
-B1
+B1
B+
B-
P5504A
TO NAAF-8523
P5019
E
SBR
SBL
SR
SL
C
R
L
NAAF-8550
TO NAAF-8523
U17
DRIVER AMPLIIER PC BOARD
TO NAAF-8523
TO NAAF-8523
TO NAAF-8523 TO NAAF-8523
TO NAAF-8523
SL
SR
SB
FL
FR
C
Transistors
CIRCUIT NO.
Q5000 - 5002
Q5010 - 5012
DESCRIPTION
2SC2240-BL
Q5003 - 5005
Q5013 - 5015 2SC2240-BL, KTC3200-BL
Q5040 - 5045
2SA949-Y
Q5050 - 5055
Q5030 -5035
2SC2229-Y
2SC1815-GR, BL
A
1
2
3
4
5
BCDEFGH

TX-SR403/8340TX-SR403/8340
SCHEMATIC DIAGRAMS-4
POWER AMPLIFIER SECTION-2
JL6603A
TO NAETC
-8548
SRSPE
SLSPE
SBRSPE
SBLSPE
CSPE
RSPE
LSPE
Q6380
LM61CIZ THERMAL SENSOR
G
O
V
JL6402B
JL6402A
JL6600A
TO NAETC
-8548
P6011A
(BUS BAR)
TO NAAF-8550
P6906
C6920
C6703
223Z
C6903
104J
P6000B
NF
-B1
+B1
B+
B-
P6001B
NF
-B1
+B1
B+
B-
P6002B
NF
-B1
+B1
B+
B-
P6003B
NF
-B1
+B1
B+
B-
P6004B
NF
-B1
+B1
B+
B-
P6005B
NF
-B1
+B1
B+
B-
D6704
MTZJ5.1B
DZ5.1BSB
D6703
MTZJ5.1B
DZ5.1BSB
D6905 D6904
JL891B
TO NAETC
-8516
JL6952A
TO NAPS-8524
JL6951A
TO NAPS-8524
JL6200A
NC
J011
J010
J011A
J010A
P995
P996
NC
P997
F6901
F6902
RL6902
RL6901
P6081
ID+
ID-
P6082
ID+
ID-
P6080
ID+
ID-
P6083
ID+
ID-
P6084
ID+
ID-
P6085
ID+
ID-
Q6703
Q6041
Q6061
Q6042
Q6062
Q6040
Q6060
Q6043
Q6063
Q6044
Q6064
Q6045
Q6065
D6006
D6701
D6702
D6906
D6000
D6001
D6002
D6003
D6902
D6901
D6901, 6902 :
RL1N40003, GP104003E
D6004
D6005
D6011
D6012 D6010
D6013
D6014
D6015
R6101
0.22 X2
(2W)
R6102
0.22 X2
(2W)
R6100
0.22 X2
(2W)
R6103
0.22 X2
(2W)
R6104
0.22 X2
(2W)
R6105
0.22 X2
(2W)
R6041
2K
R6042
2K
R6040
2K
R6043
2K
R6044
2K
R6045
2K
C6236
NC
C6905
334J 100V
C6904
334J 100V
C6907
104J
C6906
104J
C6231
473J
C6233
473J C6230
473J
C6232
473J
C6234
473J
C6235
473J
C6051
NC
C6052
NC
C6050
NC
C6053
NC
C6054
NC
C6055
NC
C6380
NC C6381
NC
C6706
100/16
C6701
100/16
C6901
C6902
C6704
1/100
C6041
47/50
C6042
47/50
C6040
47/50
C6043
47/50
C6044
47/50
C6045
47/50
R6751
390
(1/2W)
R6750
390
(1/2W)
R6902
1K
R6901
10
(1/2W)
R6176 NC
R6186 NC
R6236
NC
R6708
33K
R6702
10K
R6701
22K R6704
47K
R6709
5.6K
R6710
33K
R6706
220K
R6180
47K
R6170
47K
R6181
47K
R6231
8.2 (1W)
R6171
47K
R6182
47K
R6172
47K
R6183
47K
R6233
8.2 (1W)
R6173
47K
R6230
8.2(1W)
R6232
8.2(1W)
R6184
47K
R6174
47K
R6234
8.2(1W)
R6185
47K
R6175
47K
R6235
8.2(1W)
R6031
470
R6001
5.6K
R6011
3.9K
R6071
82
(1/4W)
R6051
3.3K
R6161
33K
R6151
12K
R6021 2.2
(1/4W) R6081
0.22
(1/4W)
R6091
0.22
(1/4W)
R6191
220K
R6141
22K
R6032
470
R6002
5.6K
R6012
3.9K
R6072
120
(1/4W)
R6052
3.3K
R6162
33K
R6152
12K
R6022 2.2
(1/4W) R6082
0.22
(1/4W)
R6092
0.22
(1/4W)
R6192
220K
R6142
22K
R6030
470
R6000
5.6K
R6010
3.9K
R6070
82
(1/4W)
R6050
3.3K
R6160
33K
R6150
12K
R6020 2.2
(1/4W) R6080
0.22
(1/4W)
R6090
0.22
(1/4W)
R6190
220K
R6140
22K
R6033
470
R6003
5.6K
R6013
3.9K
R6073
120
(1/4W)
R6053
3.3K
R6163
33K
R6153
12K
R6023 2.2
(1/4W) R6083
0.22
(1/4W)
R6093
0.22
(1/4W)
R6193
220K
R6143
22K
R6034
470
R6004
5.6K
R6014
3.9K
R6074
120
(1/4W)
R6054
3.3K
R6164
33K
R6154
12K
R6024 2.2
(1/4W) R6084
0.22
(1/4W)
R6094
0.22
(1/4W)
R6194
220K
R6144
22K
R6035
470
R6005
5.6K
R6015
3.9K
R6075
220
(1/4W)
R6055
3.3K
R6165
33K
R6155
12K
R6025 2.2
(1/4W) R6085
0.22
(1/4W)
R6095
0.22
(1/4W)
R6195
220K
R6145
22K
Q6901
Q6702Q6701
Q6011
Q6021
Q6031
Q6071
Q6051
Q6012
Q6022
Q6032
Q6072
Q6052
Q6010
Q6020
Q6030
Q6070
Q6050
Q6013
Q6023
Q6033
Q6073
Q6053
Q6014
Q6024
Q6034
Q6074
Q6054
Q6015
Q6025
Q6035
Q6075
Q6055
-0.3V
1.0V 1.1V
0.6V
-0.6V
-0.4V
-1.1V
-48.0V
-0.6V
0.6V
48.0V
-0.3V
1.0V 1.1V
0.6V
-0.6V
-0.4V
-1.1V
-48.0V
-0.6V
0.6V
48.0V
-0.3V
1.0V 1.1V
0.6V
-0.6V
-0.4V
-1.1V
-48.0V
-0.6V
0.6V
48.0V
-0.3V
1.0V 1.1V
0.6V
-0.6V
-0.4V
-1.1V
-48.0V
-0.6V
0.6V
48.0V
-0.3V
1.0V 1.1V
0.6V
-0.6V
-0.4V
-1.1V
-48.0V
-0.6V
0.6V
48.0V
-0.3V
1.0V 1.1V
0.6V
-0.6V
-0.4V
-1.1V
-48.0V
-0.6V
0.6V
48.0V
+B1
-B1
E
SBRSP
IPRO
SBRSP
SBLSP
SRSP
SLSP
CSP
RSP
LSP
RLGND
+24V
HPL
HPR
HPDET
5V
+24V
SEC1H
RLGND
MPUGND
VOLH
PRO
THRM
NAAF-8523 (2/2)
NAETC-8526
U05
AMPLIFIER PC BOARD
U08
THERMAL SENSOR
PC BOARD
TO NAAF-8523 (1/2)
Refer to following table about the parts displayed by mark " ".
THE COMPONENTS IDENTIFIED BY MARK ARE CRITICAL FOR SAFETY
REPLACE ONLY WITH PART NUMBER SPECIFIED.
VOLTAGE (MEASURED WITH VOLTMETER) IS DC VOLTAGE.(NO INPUT SIGNAL).
ALL PNP TRANSISTORS ARE EQUIVALENT TO 2SA1015-GR UNLESS OTHERWISE NOTED.
ALL NPN TRANSISTORS ARE EQUIVALENT TO 2SC1815-GR UNLESS OTHERWISE NOTED.
ALL DIODES ARE EQUIVALENT TO 1SS133 UNLESS OTHERWISE NOTED.
ELECTROLYTIC CAPACITORS ( ) ARE IN uF/WV.
ALL CAPACITORS ARE IN pF/50WV UNLESS OTHERWISE NOTED.
EX) 030- 3pF 330- 33pF 331- 330pF 333- 0.033uF
ALL RESISTORS ARE IN OHMS 1/4WATTS UNLESS OTHERWISE NOTED.
THE THICK LINES ON PC BOARD ARE THE PRINTING SIDE OF THE PARTS.
EX) PRINTING SIDE
CIRCUIT IS SUBJECT TO CHANGE FOR IMPROVEMENT.
!
NOTE
<Note>
NC=No mount of parts.
TO NAAF-8550
TO NAAF-8550
TO NAAF-8550
TO NAAF-8550
TO NAAF-8550
TO NAAF-8550
FL
FR
C
SL
SR
SB
Refer to following table about the parts displayed by mark " ".
Transistors
CIRCUIT NO.
Q6010 - 6015
DESCRIPTION
2SC1740S-S
Q6020 - 6025 2SC1740S-S
Q6030 - 6032 2SC5171, 2SC5993-Q, P
Q6040 - 6042 2SA1930, 2SA2140-Q, P
2SA1930, 2SA
Q6070 - 6075 2SC2240-GR, BL
Q6701, 6702 2SC2240-GR, BL, KTC3200-GR, BL
Q6703
Q6901
KTA1268-BL, GR, 2SA992-E, F
2SA1123-R
KTC3199-GR, 2SC2458-GR,
2SC1740S-R, S
Q6060 - 6062
Q6063 - 6065
2SA1941-O, R, MP100S-Y, P, O
KTA1962A-O, R, MP100S-Y, P, O
IDLING
ADJ.
IDLING
ADJ.
IDLING
ADJ.
IDLING
ADJ.
IDLING
ADJ.
IDLING
ADJ.
8A/125V
8A/125V
8200/68
8200/68
D6904, 6905 : D5SBA20, RBV602, RS603M-B42
Q6033 - 6035 2SC5171, 2SC5511-E
Q6043 - 6045
Q6050 - 6052
Q6053 - 6055
2SC5198-O, R, MN100S-Y, P, O
KTC5242A-O, R, MN100S-Y, P, O
NC
NC
NC
!
!
A
1
2
3
4
5
BCDEFGH

TX-SR403/8340TX-SR403/8340
SCHEMATIC DIAGRAMS-4
POWER AMPLIFIER SECTION-2
JL6603A
TO NAETC
-8548
SRSPE
SLSPE
SBRSPE
SBLSPE
CSPE
RSPE
LSPE
Q6380
LM61CIZ THERMAL SENSOR
G
O
V
JL6402B
JL6402A
JL6600A
TO NAETC
-8548
P6011A
(BUS BAR)
TO NAAF-8550
P6906
C6920
C6703
223Z
C6903
104J
P6000B
NF
-B1
+B1
B+
B-
P6001B
NF
-B1
+B1
B+
B-
P6002B
NF
-B1
+B1
B+
B-
P6003B
NF
-B1
+B1
B+
B-
P6004B
NF
-B1
+B1
B+
B-
P6005B
NF
-B1
+B1
B+
B-
D6704
MTZJ5.1B
DZ5.1BSB
D6703
MTZJ5.1B
DZ5.1BSB
D6905 D6904
JL891B
TO NAETC
-8516
JL6952A
TO NAPS-8524
JL6951A
TO NAPS-8524
JL6200A
NC
J011
J010
J011A
J010A
P995
P996
NC
P997
F6901
F6902
RL6902
RL6901
P6081
ID+
ID-
P6082
ID+
ID-
P6080
ID+
ID-
P6083
ID+
ID-
P6084
ID+
ID-
P6085
ID+
ID-
Q6703
Q6041
Q6061
Q6042
Q6062
Q6040
Q6060
Q6043
Q6063
Q6044
Q6064
Q6045
Q6065
D6006
D6701
D6702
D6906
D6000
D6001
D6002
D6003
D6902
D6901
D6901, 6902 :
RL1N40003, GP104003E
D6004
D6005
D6011
D6012 D6010
D6013
D6014
D6015
R6101
0.22 X2
(2W)
R6102
0.22 X2
(2W)
R6100
0.22 X2
(2W)
R6103
0.22 X2
(2W)
R6104
0.22 X2
(2W)
R6105
0.22 X2
(2W)
R6041
2K
R6042
2K
R6040
2K
R6043
2K
R6044
2K
R6045
2K
C6236
NC
C6905
334J 100V
C6904
334J 100V
C6907
104J
C6906
104J
C6231
473J
C6233
473J C6230
473J
C6232
473J
C6234
473J
C6235
473J
C6051
NC
C6052
NC
C6050
NC
C6053
NC
C6054
NC
C6055
NC
C6380
NC C6381
NC
C6706
100/16
C6701
100/16
C6901
C6902
C6704
1/100
C6041
47/50
C6042
47/50
C6040
47/50
C6043
47/50
C6044
47/50
C6045
47/50
R6751
390
(1/2W)
R6750
390
(1/2W)
R6902
1K
R6901
10
(1/2W)
R6176 NC
R6186 NC
R6236
NC
R6708
33K
R6702
10K
R6701
22K R6704
47K
R6709
5.6K
R6710
33K
R6706
220K
R6180
47K
R6170
47K
R6181
47K
R6231
8.2 (1W)
R6171
47K
R6182
47K
R6172
47K
R6183
47K
R6233
8.2 (1W)
R6173
47K
R6230
8.2(1W)
R6232
8.2(1W)
R6184
47K
R6174
47K
R6234
8.2(1W)
R6185
47K
R6175
47K
R6235
8.2(1W)
R6031
470
R6001
5.6K
R6011
3.9K
R6071
82
(1/4W)
R6051
3.3K
R6161
33K
R6151
12K
R6021 2.2
(1/4W) R6081
0.22
(1/4W)
R6091
0.22
(1/4W)
R6191
220K
R6141
22K
R6032
470
R6002
5.6K
R6012
3.9K
R6072
120
(1/4W)
R6052
3.3K
R6162
33K
R6152
12K
R6022 2.2
(1/4W) R6082
0.22
(1/4W)
R6092
0.22
(1/4W)
R6192
220K
R6142
22K
R6030
470
R6000
5.6K
R6010
3.9K
R6070
82
(1/4W)
R6050
3.3K
R6160
33K
R6150
12K
R6020 2.2
(1/4W) R6080
0.22
(1/4W)
R6090
0.22
(1/4W)
R6190
220K
R6140
22K
R6033
470
R6003
5.6K
R6013
3.9K
R6073
120
(1/4W)
R6053
3.3K
R6163
33K
R6153
12K
R6023 2.2
(1/4W) R6083
0.22
(1/4W)
R6093
0.22
(1/4W)
R6193
220K
R6143
22K
R6034
470
R6004
5.6K
R6014
3.9K
R6074
120
(1/4W)
R6054
3.3K
R6164
33K
R6154
12K
R6024 2.2
(1/4W) R6084
0.22
(1/4W)
R6094
0.22
(1/4W)
R6194
220K
R6144
22K
R6035
470
R6005
5.6K
R6015
3.9K
R6075
220
(1/4W)
R6055
3.3K
R6165
33K
R6155
12K
R6025 2.2
(1/4W) R6085
0.22
(1/4W)
R6095
0.22
(1/4W)
R6195
220K
R6145
22K
Q6901
Q6702Q6701
Q6011
Q6021
Q6031
Q6071
Q6051
Q6012
Q6022
Q6032
Q6072
Q6052
Q6010
Q6020
Q6030
Q6070
Q6050
Q6013
Q6023
Q6033
Q6073
Q6053
Q6014
Q6024
Q6034
Q6074
Q6054
Q6015
Q6025
Q6035
Q6075
Q6055
-0.3V
1.0V 1.1V
0.6V
-0.6V
-0.4V
-1.1V
-48.0V
-0.6V
0.6V
48.0V
-0.3V
1.0V 1.1V
0.6V
-0.6V
-0.4V
-1.1V
-48.0V
-0.6V
0.6V
48.0V
-0.3V
1.0V 1.1V
0.6V
-0.6V
-0.4V
-1.1V
-48.0V
-0.6V
0.6V
48.0V
-0.3V
1.0V 1.1V
0.6V
-0.6V
-0.4V
-1.1V
-48.0V
-0.6V
0.6V
48.0V
-0.3V
1.0V 1.1V
0.6V
-0.6V
-0.4V
-1.1V
-48.0V
-0.6V
0.6V
48.0V
-0.3V
1.0V 1.1V
0.6V
-0.6V
-0.4V
-1.1V
-48.0V
-0.6V
0.6V
48.0V
+B1
-B1
E
SBRSP
IPRO
SBRSP
SBLSP
SRSP
SLSP
CSP
RSP
LSP
RLGND
+24V
HPL
HPR
HPDET
5V
+24V
SEC1H
RLGND
MPUGND
VOLH
PRO
THRM
NAAF-8523 (2/2)
NAETC-8526
U05
AMPLIFIER PC BOARD
U08
THERMAL SENSOR
PC BOARD
TO NAAF-8523 (1/2)
Refer to following table about the parts displayed by mark " ".
THE COMPONENTS IDENTIFIED BY MARK ARE CRITICAL FOR SAFETY
REPLACE ONLY WITH PART NUMBER SPECIFIED.
VOLTAGE (MEASURED WITH VOLTMETER) IS DC VOLTAGE.(NO INPUT SIGNAL).
ALL PNP TRANSISTORS ARE EQUIVALENT TO 2SA1015-GR UNLESS OTHERWISE NOTED.
ALL NPN TRANSISTORS ARE EQUIVALENT TO 2SC1815-GR UNLESS OTHERWISE NOTED.
ALL DIODES ARE EQUIVALENT TO 1SS133 UNLESS OTHERWISE NOTED.
ELECTROLYTIC CAPACITORS ( ) ARE IN uF/WV.
ALL CAPACITORS ARE IN pF/50WV UNLESS OTHERWISE NOTED.
EX) 030- 3pF 330- 33pF 331- 330pF 333- 0.033uF
ALL RESISTORS ARE IN OHMS 1/4WATTS UNLESS OTHERWISE NOTED.
THE THICK LINES ON PC BOARD ARE THE PRINTING SIDE OF THE PARTS.
EX) PRINTING SIDE
CIRCUIT IS SUBJECT TO CHANGE FOR IMPROVEMENT.
!
NOTE
<Note>
NC=No mount of parts.
TO NAAF-8550
TO NAAF-8550
TO NAAF-8550
TO NAAF-8550
TO NAAF-8550
TO NAAF-8550
FL
FR
C
SL
SR
SB
Refer to following table about the parts displayed by mark " ".
Transistors
CIRCUIT NO.
Q6010 - 6015
DESCRIPTION
2SC1740S-S
Q6020 - 6025 2SC1740S-S
Q6030 - 6032 2SC5171, 2SC5993-Q, P
Q6040 - 6042 2SA1930, 2SA2140-Q, P
2SA1930, 2SA
Q6070 - 6075 2SC2240-GR, BL
Q6701, 6702 2SC2240-GR, BL, KTC3200-GR, BL
Q6703
Q6901
KTA1268-BL, GR, 2SA992-E, F
2SA1123-R
KTC3199-GR, 2SC2458-GR,
2SC1740S-R, S
Q6060 - 6062
Q6063 - 6065
2SA1941-O, R, MP100S-Y, P, O
KTA1962A-O, R, MP100S-Y, P, O
IDLING
ADJ.
IDLING
ADJ.
IDLING
ADJ.
IDLING
ADJ.
IDLING
ADJ.
IDLING
ADJ.
8A/125V
8A/125V
8200/68
8200/68
D6904, 6905 : D5SBA20, RBV602, RS603M-B42
Q6033 - 6035 2SC5171, 2SC5511-E
Q6043 - 6045
Q6050 - 6052
Q6053 - 6055
2SC5198-O, R, MN100S-Y, P, O
KTC5242A-O, R, MN100S-Y, P, O
NC
NC
NC
!
!
A
1
2
3
4
5
BCDEFGH

TX-SR403/8340
SCHEMATIC DIAGRAMS-4
POWER AMPLIFIER SECTION-2
JL6603A
TO NAETC
-8548
SRSPE
SLSPE
SBRSPE
SBLSPE
CSPE
RSPE
LSPE
Q6380
LM61CIZ THERMAL SENSOR
G
O
V
JL6402B
JL6402A
JL6600A
TO NAETC
-8548
P6011A
(BUS BAR)
TO NAAF-8550
P6906
C6920
C6703
223Z
C6903
104J
P6000B
NF
-B1
+B1
B+
B-
P6001B
NF
-B1
+B1
B+
B-
P6002B
NF
-B1
+B1
B+
B-
P6003B
NF
-B1
+B1
B+
B-
P6004B
NF
-B1
+B1
B+
B-
P6005B
NF
-B1
+B1
B+
B-
D6704
MTZJ5.1B
DZ5.1BSB
D6703
MTZJ5.1B
DZ5.1BSB
D6905 D6904
JL891B
TO NAETC
-8516
JL6952A
TO NAPS-8524
JL6951A
TO NAPS-8524
JL6200A
NC
J011
J010
J011A
J010A
P995
P996
NC
P997
F6901
F6902
RL6902
RL6901
P6081
ID+
ID-
P6082
ID+
ID-
P6080
ID+
ID-
P6083
ID+
ID-
P6084
ID+
ID-
P6085
ID+
ID-
Q6703
Q6041
Q6061
Q6042
Q6062
Q6040
Q6060
Q6043
Q6063
Q6044
Q6064
Q6045
Q6065
D6006
D6701
D6702
D6906
D6000
D6001
D6002
D6003
D6902
D6901
D6901, 6902 :
RL1N40003, GP104003E
D6004
D6005
D6011
D6012 D6010
D6013
D6014
D6015
R6101
0.22 X2
(2W)
R6102
0.22 X2
(2W)
R6100
0.22 X2
(2W)
R6103
0.22 X2
(2W)
R6104
0.22 X2
(2W)
R6105
0.22 X2
(2W)
R6041
2K
R6042
2K
R6040
2K
R6043
2K
R6044
2K
R6045
2K
C6236
NC
C6905
334J 100V
C6904
334J 100V
C6907
104J
C6906
104J
C6231
473J
C6233
473J C6230
473J
C6232
473J
C6234
473J
C6235
473J
C6051
NC
C6052
NC
C6050
NC
C6053
NC
C6054
NC
C6055
NC
C6380
NC C6381
NC
C6706
100/16
C6701
100/16
C6901
C6902
C6704
1/100
C6041
47/50
C6042
47/50
C6040
47/50
C6043
47/50
C6044
47/50
C6045
47/50
R6751
390
(1/2W)
R6750
390
(1/2W)
R6902
1K
R6901
10
(1/2W)
R6176 NC
R6186 NC
R6236
NC
R6708
33K
R6702
10K
R6701
22K R6704
47K
R6709
5.6K
R6710
33K
R6706
220K
R6180
47K
R6170
47K
R6181
47K
R6231
8.2 (1W)
R6171
47K
R6182
47K
R6172
47K
R6183
47K
R6233
8.2 (1W)
R6173
47K
R6230
8.2(1W)
R6232
8.2(1W)
R6184
47K
R6174
47K
R6234
8.2(1W)
R6185
47K
R6175
47K
R6235
8.2(1W)
R6031
470
R6001
5.6K
R6011
3.9K
R6071
82
(1/4W)
R6051
3.3K
R6161
33K
R6151
12K
R6021 2.2
(1/4W) R6081
0.22
(1/4W)
R6091
0.22
(1/4W)
R6191
220K
R6141
22K
R6032
470
R6002
5.6K
R6012
3.9K
R6072
120
(1/4W)
R6052
3.3K
R6162
33K
R6152
12K
R6022 2.2
(1/4W) R6082
0.22
(1/4W)
R6092
0.22
(1/4W)
R6192
220K
R6142
22K
R6030
470
R6000
5.6K
R6010
3.9K
R6070
82
(1/4W)
R6050
3.3K
R6160
33K
R6150
12K
R6020 2.2
(1/4W) R6080
0.22
(1/4W)
R6090
0.22
(1/4W)
R6190
220K
R6140
22K
R6033
470
R6003
5.6K
R6013
3.9K
R6073
120
(1/4W)
R6053
3.3K
R6163
33K
R6153
12K
R6023 2.2
(1/4W) R6083
0.22
(1/4W)
R6093
0.22
(1/4W)
R6193
220K
R6143
22K
R6034
470
R6004
5.6K
R6014
3.9K
R6074
120
(1/4W)
R6054
3.3K
R6164
33K
R6154
12K
R6024 2.2
(1/4W) R6084
0.22
(1/4W)
R6094
0.22
(1/4W)
R6194
220K
R6144
22K
R6035
470
R6005
5.6K
R6015
3.9K
R6075
220
(1/4W)
R6055
3.3K
R6165
33K
R6155
12K
R6025 2.2
(1/4W) R6085
0.22
(1/4W)
R6095
0.22
(1/4W)
R6195
220K
R6145
22K
Q6901
Q6702Q6701
Q6011
Q6021
Q6031
Q6071
Q6051
Q6012
Q6022
Q6032
Q6072
Q6052
Q6010
Q6020
Q6030
Q6070
Q6050
Q6013
Q6023
Q6033
Q6073
Q6053
Q6014
Q6024
Q6034
Q6074
Q6054
Q6015
Q6025
Q6035
Q6075
Q6055
-0.3V
1.0V 1.1V
0.6V
-0.6V
-0.4V
-1.1V
-48.0V
-0.6V
0.6V
48.0V
-0.3V
1.0V 1.1V
0.6V
-0.6V
-0.4V
-1.1V
-48.0V
-0.6V
0.6V
48.0V
-0.3V
1.0V 1.1V
0.6V
-0.6V
-0.4V
-1.1V
-48.0V
-0.6V
0.6V
48.0V
-0.3V
1.0V 1.1V
0.6V
-0.6V
-0.4V
-1.1V
-48.0V
-0.6V
0.6V
48.0V
-0.3V
1.0V 1.1V
0.6V
-0.6V
-0.4V
-1.1V
-48.0V
-0.6V
0.6V
48.0V
-0.3V
1.0V 1.1V
0.6V
-0.6V
-0.4V
-1.1V
-48.0V
-0.6V
0.6V
48.0V
+B1
-B1
E
SBRSP
IPRO
SBRSP
SBLSP
SRSP
SLSP
CSP
RSP
LSP
RLGND
+24V
HPL
HPR
HPDET
5V
+24V
SEC1H
RLGND
MPUGND
VOLH
PRO
THRM
NAAF-8523 (2/2)
NAETC-8526
U05
AMPLIFIER PC BOARD
U08
THERMAL SENSOR
PC BOARD
TO NAAF-8523 (1/2)
Refer to following table about the parts displayed by mark " ".
THE COMPONENTS IDENTIFIED BY MARK ARE CRITICAL FOR SAFETY
REPLACE ONLY WITH PART NUMBER SPECIFIED.
VOLTAGE (MEASURED WITH VOLTMETER) IS DC VOLTAGE.(NO INPUT SIGNAL).
ALL PNP TRANSISTORS ARE EQUIVALENT TO 2SA1015-GR UNLESS OTHERWISE NOTED.
ALL NPN TRANSISTORS ARE EQUIVALENT TO 2SC1815-GR UNLESS OTHERWISE NOTED.
ALL DIODES ARE EQUIVALENT TO 1SS133 UNLESS OTHERWISE NOTED.
ELECTROLYTIC CAPACITORS ( ) ARE IN uF/WV.
ALL CAPACITORS ARE IN pF/50WV UNLESS OTHERWISE NOTED.
EX) 030- 3pF 330- 33pF 331- 330pF 333- 0.033uF
ALL RESISTORS ARE IN OHMS 1/4WATTS UNLESS OTHERWISE NOTED.
THE THICK LINES ON PC BOARD ARE THE PRINTING SIDE OF THE PARTS.
EX) PRINTING SIDE
CIRCUIT IS SUBJECT TO CHANGE FOR IMPROVEMENT.
!
NOTE
<Note>
NC=No mount of parts.
TO NAAF-8550
TO NAAF-8550
TO NAAF-8550
TO NAAF-8550
TO NAAF-8550
TO NAAF-8550
FL
FR
C
SL
SR
SB
Refer to following table about the parts displayed by mark " ".
Transistors
CIRCUIT NO.
Q6010 - 6015
DESCRIPTION
2SC1740S-S
Q6020 - 6025 2SC1740S-S
Q6030 - 6032 2SC5171, 2SC5993-Q, P
Q6040 - 6042 2SA1930, 2SA2140-Q, P
2SA1930, 2SA
Q6070 - 6075 2SC2240-GR, BL
Q6701, 6702 2SC2240-GR, BL, KTC3200-GR, BL
Q6703
Q6901
KTA1268-BL, GR, 2SA992-E, F
2SA1123-R
KTC3199-GR, 2SC2458-GR,
2SC1740S-R, S
Q6060 - 6062
Q6063 - 6065
2SA1941-O, R, MP100S-Y, P, O
KTA1962A-O, R, MP100S-Y, P, O
IDLING
ADJ.
IDLING
ADJ.
IDLING
ADJ.
IDLING
ADJ.
IDLING
ADJ.
IDLING
ADJ.
8A/125V
8A/125V
8200/68
8200/68
D6904, 6905 : D5SBA20, RBV602, RS603M-B42
Q6033 - 6035 2SC5171, 2SC5511-E
Q6043 - 6045
Q6050 - 6052
Q6053 - 6055
2SC5198-O, R, MN100S-Y, P, O
KTC5242A-O, R, MN100S-Y, P, O
NC
NC
NC
!
!
A
1
2
3
4
5
BCDEFGH

SCHEMATIC DIAGRAMS-5
SPEAKER TERMINAL SECTION
TX-SR403/8340
THE COMPONENTS IDENTIFIED BY MARK ARE CRITICAL FOR SAFETY
REPLACE ONLY WITH PART NUMBER SPECIFIED.
VOLTAGE (MEASURED WITH VOLTMETER) IS DC VOLTAGE.(NO INPUT SIGNAL).
ALL PNP TRANSISTORS ARE EQUIVALENT TO 2SA1015-GR UNLESS OTHERWISE NOTED.
ALL NPN TRANSISTORS ARE EQUIVALENT TO 2SC1815-GR UNLESS OTHERWISE NOTED.
ALL DIODES ARE EQUIVALENT TO 1SS133 UNLESS OTHERWISE NOTED.
ELECTROLYTIC CAPACITORS ( ) ARE IN uF/WV.
ALL CAPACITORS ARE IN pF/50WV UNLESS OTHERWISE NOTED.
EX) 030- 3pF 330- 33pF 331- 330pF 333- 0.033uF
ALL RESISTORS ARE IN OHMS 1/4WATTS UNLESS OTHERWISE NOTED.
THE THICK LINES ON PC BOARD ARE THE PRINTING SIDE OF THE PARTS.
EX) PRINTING SIDE
CIRCUIT IS SUBJECT TO CHANGE FOR IMPROVEMENT.
!
NOTE
<Note>
NC=No mount of parts.
RL6605
RL6603
RL6600
RL6602
RL6607
L6600 S1.3C
L6604 S1.3C
L6605
S1.3C
L6601 S1.3C
L6602S1.3C
L6603S1.3C
J6602
J6628
J6629
J6631
J6604
J6617
J6634
SW
J6638
SB
J6633
R6610 22
R6600 22
R6613 22
R6603 22
R6690 10
(1/2W)
R6614 22
R6604 22
R6615 22
R6605 22
R6611 22
R6601 22
R6612 22
R6602 22
D6605
D6603
D6600
D6602
D6607
C6642 103J
C6655
102J
C6654
102J
C6653
102J
C6651
102J
C6650
102J
C6652
102J
C6641 103J
C6640 103J
C6647 103J
C6605 103Z
C6603
103Z
C6644 103J
C6600
103J
C6657
102J
C6658
102J
C6607
103Z
C6643 103J
C6648 103J
C6602
103J
C6645 103J
JL2006B
TO NAVD-8549
JL6600B
TO NAAF-8523
L
R
CENTER SPEAKER
L
R
SURROND BACK
SPEAKER
JL6603B
TO NAAF-8523
P6607
FRONT SPEAKERS-B
L
R
P6690
LSP
RSP
CSP LSPE
SLSP RSPE
SRSP CSPE
SBLSP SLSPE
SBRSP SRSPE
SBLSPE
SBRSPE
RLGND
+24V
RLGND
Z2RLD
SBRLD
CSRLD
FRLD
NAETC-8548
(SW)
U15
SPEAKER TERMINAL PC BOARD
FRONT SPEAKERS-A
SURROND SPEAKERS
NC
NC
NC
NC
NC
NC
A
1
2
3
4
5
BCD

TX-SR403/8340TX-SR403/8340
SCHEMATIC DIAGRAMS-6
POWER SUPPLY SECTION
U14
SEC. TERMINAL-1
PC BOARD
THE COMPONENTS IDENTIFIED BY MARK ARE CRITICAL FOR SAFETY
REPLACE ONLY WITH PART NUMBER SPECIFIED.
VOLTAGE (MEASURED WITH VOLTMETER) IS DC VOLTAGE.(NO INPUT SIGNAL).
ALL PNP TRANSISTORS ARE EQUIVALENT TO 2SA1015-GR UNLESS OTHERWISE NOTED.
ALL NPN TRANSISTORS ARE EQUIVALENT TO 2SC1815-GR UNLESS OTHERWISE NOTED.
ALL DIODES ARE EQUIVALENT TO 1SS133 UNLESS OTHERWISE NOTED.
ELECTROLYTIC CAPACITORS ( ) ARE IN uF/WV.
ALL CAPACITORS ARE IN pF/50WV UNLESS OTHERWISE NOTED.
EX) 030- 3pF 330- 33pF 331- 330pF 333- 0.033uF
ALL RESISTORS ARE IN OHMS 1/4WATTS UNLESS OTHERWISE NOTED.
THE THICK LINES ON PC BOARD ARE THE PRINTING SIDE OF THE PARTS.
EX) PRINTING SIDE
CIRCUIT IS SUBJECT TO CHANGE FOR IMPROVEMENT.
!
NOTE
<Note>
NC=No mount of parts.
Q9023
NC
Q9021
NC
Q9022
NC
P9502A
TO NAAF-8523
Q930
NC
ACG
I O
RL901
T902
1
3
4
F902
F9501
P931A
P931B
C921
223Z
C901
103M / 275VAC
D9023
D9024
D9022
D9025
D934
D935
D933
D9013
D9009,9013 :
RL1N4003,
GP104003E
D9009
D9706
D925
D930
D931
D932
D922
D9004
D9003
D9002
D9001
D9001 - 9004 : RL1N4003
D924
D923 D921
D9705
J962
J955
NC
J919
J924
J956
J922
J921
C9001
334J
MMT
C9708
222J
C9591
104J
R9023
NC
R9022
NC
R9024
NC
R934
100K
R931
NC
R923
1K
R922
10K
R932
NC
R933
NC
R930
NC
R9594
8.2 (1/2W)
R9593
0.22 (1/2W)
R9592
0.47 (1/2W)
R9591
0.47(1/2W)
C9021
NC
C933
4.7/50
C922
2200/16
C930
100/35
C9016
10/50
C9015
10/50
C9009
220/35
C9014
470/63
C932
NC
C931
NC
C9003
1000/35
C9004
470/35
P918
P917
8
9
10
11
12
14
13
P996P995
NC
P997
15
16
17
18
19
Q921
KTC3199-GR
2SC2458-GR, BL
P912
P901A
AC-H
AC-G
P901
T901
THERMAL
FUSE
JL6952B
TO NAAF-8523
JL6951B
TO NAAF-8523
JL9501B
JL9501A
R9002 22
(1/2W)
R9005
330K
R9004
8.2K
R9003
8.2K
D9026
NC
D9012
MTZJ36D
E9001
Q9002 KTA1268,
2SA1970-R
+24V
S3GND
-24V
SEC2-1
SEC2-2
-VP
MPUGND
+12VD
+10VS
FLAC2
POWER
POFFV
FLAC1
POFFVP POFFVP
+10VS
+12VD
MPUGND
FLAC1
FLAC2
SEC3-2
S3GND
SEC3-1
SEC2-2
SEC2-1
POWERD POWERD
GND
FLAC1
FLAC2
SEC3-2
SEC3-1
SEC2-2
SEC2-1
NAPS-8547
NAPS-8546
NAPS-8544
NAETC-8524
U06
SEC. TERMINAL-2
PC BOARD
U13
POWER SUPPLY-2 PC BOARD
U11
POWER SUPPLY-1 PC BOARD
AC IN
220-230V, 50/60Hz
T3.15AL 250V
F903
T2.5AL250V
P902
AC OUTLET
100W MAX
NPT-1519GQ
NPT-1514G
NC
NC
!
!!
!
!
!
!
!
!
!
NC
NC
NC
NC
A
1
2
3
4
5
BCDEFGH

TX-SR403/8340TX-SR403/8340
SCHEMATIC DIAGRAMS-6
POWER SUPPLY SECTION
U14
SEC. TERMINAL-1
PC BOARD
THE COMPONENTS IDENTIFIED BY MARK ARE CRITICAL FOR SAFETY
REPLACE ONLY WITH PART NUMBER SPECIFIED.
VOLTAGE (MEASURED WITH VOLTMETER) IS DC VOLTAGE.(NO INPUT SIGNAL).
ALL PNP TRANSISTORS ARE EQUIVALENT TO 2SA1015-GR UNLESS OTHERWISE NOTED.
ALL NPN TRANSISTORS ARE EQUIVALENT TO 2SC1815-GR UNLESS OTHERWISE NOTED.
ALL DIODES ARE EQUIVALENT TO 1SS133 UNLESS OTHERWISE NOTED.
ELECTROLYTIC CAPACITORS ( ) ARE IN uF/WV.
ALL CAPACITORS ARE IN pF/50WV UNLESS OTHERWISE NOTED.
EX) 030- 3pF 330- 33pF 331- 330pF 333- 0.033uF
ALL RESISTORS ARE IN OHMS 1/4WATTS UNLESS OTHERWISE NOTED.
THE THICK LINES ON PC BOARD ARE THE PRINTING SIDE OF THE PARTS.
EX) PRINTING SIDE
CIRCUIT IS SUBJECT TO CHANGE FOR IMPROVEMENT.
!
NOTE
<Note>
NC=No mount of parts.
Q9023
NC
Q9021
NC
Q9022
NC
P9502A
TO NAAF-8523
Q930
NC
ACG
I O
RL901
T902
1
3
4
F902
F9501
P931A
P931B
C921
223Z
C901
103M / 275VAC
D9023
D9024
D9022
D9025
D934
D935
D933
D9013
D9009,9013 :
RL1N4003,
GP104003E
D9009
D9706
D925
D930
D931
D932
D922
D9004
D9003
D9002
D9001
D9001 - 9004 : RL1N4003
D924
D923 D921
D9705
J962
J955
NC
J919
J924
J956
J922
J921
C9001
334J
MMT
C9708
222J
C9591
104J
R9023
NC
R9022
NC
R9024
NC
R934
100K
R931
NC
R923
1K
R922
10K
R932
NC
R933
NC
R930
NC
R9594
8.2 (1/2W)
R9593
0.22 (1/2W)
R9592
0.47 (1/2W)
R9591
0.47(1/2W)
C9021
NC
C933
4.7/50
C922
2200/16
C930
100/35
C9016
10/50
C9015
10/50
C9009
220/35
C9014
470/63
C932
NC
C931
NC
C9003
1000/35
C9004
470/35
P918
P917
8
9
10
11
12
14
13
P996P995
NC
P997
15
16
17
18
19
Q921
KTC3199-GR
2SC2458-GR, BL
P912
P901A
AC-H
AC-G
P901
T901
THERMAL
FUSE
JL6952B
TO NAAF-8523
JL6951B
TO NAAF-8523
JL9501B
JL9501A
R9002 22
(1/2W)
R9005
330K
R9004
8.2K
R9003
8.2K
D9026
NC
D9012
MTZJ36D
E9001
Q9002 KTA1268,
2SA1970-R
+24V
S3GND
-24V
SEC2-1
SEC2-2
-VP
MPUGND
+12VD
+10VS
FLAC2
POWER
POFFV
FLAC1
POFFVP POFFVP
+10VS
+12VD
MPUGND
FLAC1
FLAC2
SEC3-2
S3GND
SEC3-1
SEC2-2
SEC2-1
POWERD POWERD
GND
FLAC1
FLAC2
SEC3-2
SEC3-1
SEC2-2
SEC2-1
NAPS-8547
NAPS-8546
NAPS-8544
NAETC-8524
U06
SEC. TERMINAL-2
PC BOARD
U13
POWER SUPPLY-2 PC BOARD
U11
POWER SUPPLY-1 PC BOARD
AC IN
220-230V, 50/60Hz
T3.15AL 250V
F903
T2.5AL250V
P902
AC OUTLET
100W MAX
NPT-1519GQ
NPT-1514G
NC
NC
!
!!
!
!
!
!
!
!
!
NC
NC
NC
NC
A
1
2
3
4
5
BCDEFGH

TX-SR403/8340
SCHEMATIC DIAGRAMS-6
POWER SUPPLY SECTION
U14
SEC. TERMINAL-1
PC BOARD
THE COMPONENTS IDENTIFIED BY MARK ARE CRITICAL FOR SAFETY
REPLACE ONLY WITH PART NUMBER SPECIFIED.
VOLTAGE (MEASURED WITH VOLTMETER) IS DC VOLTAGE.(NO INPUT SIGNAL).
ALL PNP TRANSISTORS ARE EQUIVALENT TO 2SA1015-GR UNLESS OTHERWISE NOTED.
ALL NPN TRANSISTORS ARE EQUIVALENT TO 2SC1815-GR UNLESS OTHERWISE NOTED.
ALL DIODES ARE EQUIVALENT TO 1SS133 UNLESS OTHERWISE NOTED.
ELECTROLYTIC CAPACITORS ( ) ARE IN uF/WV.
ALL CAPACITORS ARE IN pF/50WV UNLESS OTHERWISE NOTED.
EX) 030- 3pF 330- 33pF 331- 330pF 333- 0.033uF
ALL RESISTORS ARE IN OHMS 1/4WATTS UNLESS OTHERWISE NOTED.
THE THICK LINES ON PC BOARD ARE THE PRINTING SIDE OF THE PARTS.
EX) PRINTING SIDE
CIRCUIT IS SUBJECT TO CHANGE FOR IMPROVEMENT.
!
NOTE
<Note>
NC=No mount of parts.
Q9023
NC
Q9021
NC
Q9022
NC
P9502A
TO NAAF-8523
Q930
NC
ACG
I O
RL901
T902
1
3
4
F902
F9501
P931A
P931B
C921
223Z
C901
103M / 275VAC
D9023
D9024
D9022
D9025
D934
D935
D933
D9013
D9009,9013 :
RL1N4003,
GP104003E
D9009
D9706
D925
D930
D931
D932
D922
D9004
D9003
D9002
D9001
D9001 - 9004 : RL1N4003
D924
D923 D921
D9705
J962
J955
NC
J919
J924
J956
J922
J921
C9001
334J
MMT
C9708
222J
C9591
104J
R9023
NC
R9022
NC
R9024
NC
R934
100K
R931
NC
R923
1K
R922
10K
R932
NC
R933
NC
R930
NC
R9594
8.2 (1/2W)
R9593
0.22 (1/2W)
R9592
0.47 (1/2W)
R9591
0.47(1/2W)
C9021
NC
C933
4.7/50
C922
2200/16
C930
100/35
C9016
10/50
C9015
10/50
C9009
220/35
C9014
470/63
C932
NC
C931
NC
C9003
1000/35
C9004
470/35
P918
P917
8
9
10
11
12
14
13
P996P995
NC
P997
15
16
17
18
19
Q921
KTC3199-GR
2SC2458-GR, BL
P912
P901A
AC-H
AC-G
P901
T901
THERMAL
FUSE
JL6952B
TO NAAF-8523
JL6951B
TO NAAF-8523
JL9501B
JL9501A
R9002 22
(1/2W)
R9005
330K
R9004
8.2K
R9003
8.2K
D9026
NC
D9012
MTZJ36D
E9001
Q9002 KTA1268,
2SA1970-R
+24V
S3GND
-24V
SEC2-1
SEC2-2
-VP
MPUGND
+12VD
+10VS
FLAC2
POWER
POFFV
FLAC1
POFFVP POFFVP
+10VS
+12VD
MPUGND
FLAC1
FLAC2
SEC3-2
S3GND
SEC3-1
SEC2-2
SEC2-1
POWERD POWERD
GND
FLAC1
FLAC2
SEC3-2
SEC3-1
SEC2-2
SEC2-1
NAPS-8547
NAPS-8546
NAPS-8544
NAETC-8524
U06
SEC. TERMINAL-2
PC BOARD
U13
POWER SUPPLY-2 PC BOARD
U11
POWER SUPPLY-1 PC BOARD
AC IN
220-230V, 50/60Hz
T3.15AL 250V
F903
T2.5AL250V
P902
AC OUTLET
100W MAX
NPT-1519GQ
NPT-1514G
NC
NC
!
!!
!
!
!
!
!
!
!
NC
NC
NC
NC
A
1
2
3
4
5
BCDEFGH

TX-SR303/8340TX-SR403/8340
SCHEMATIC DIAGRAMS-7
DISPLAY SECTION
THE COMPONENTS IDENTIFIED BY MARK ARE CRITICAL FOR SAFETY
REPLACE ONLY WITH PART NUMBER SPECIFIED.
VOLTAGE (MEASURED WITH VOLTMETER) IS DC VOLTAGE.(NO INPUT SIGNAL).
ALL PNP TRANSISTORS ARE EQUIVALENT TO 2SA1015-GR UNLESS OTHERWISE NOTED.
ALL NPN TRANSISTORS ARE EQUIVALENT TO 2SC1815-GR UNLESS OTHERWISE NOTED.
ALL DIODES ARE EQUIVALENT TO 1SS133 UNLESS OTHERWISE NOTED.
ELECTROLYTIC CAPACITORS ( ) ARE IN uF/WV.
ALL CAPACITORS ARE IN pF/50WV UNLESS OTHERWISE NOTED.
EX) 030- 3pF 330- 33pF 331- 330pF 333- 0.033uF
ALL RESISTORS ARE IN OHMS 1/4WATTS UNLESS OTHERWISE NOTED.
THE THICK LINES ON PC BOARD ARE THE PRINTING SIDE OF THE PARTS.
EX) PRINTING SIDE
CIRCUIT IS SUBJECT TO CHANGE FOR IMPROVEMENT.
!
NOTE
<Note>
NC=No mount of parts.
LEDZONE2
LEDPURE
KEYINT0
KEY0_2
+BLED
LEDSTBY
FLDRST
FLDCS
FLDCLK
FLDSDO
MICMUT
LEDVOL
LEDPURE
GNDLED
+BLED
LEDZONE2
KEYINT0
GNDTACT
KEY0_2
MICDET
MICOUT
GNDV4V
GNDV4
V4V
V4_L
V4_R
+5VDIS
+7V
V4Y
V4C
OPTF
FLDRST
FLDCS
FLDCLK
FLDSDO
REMIN
GNDMIC
-7V
LEDPURE
LEDSTBY
LEDZONE2
FAC1
FAC2
+5.6S
KEYINT3
KEYINT2
KEYINT1
KEYINT0
KEY3
KEY2
KEY1
KEY0
GNDCPU
VOLA
VOLB
-VP
STANDBY
NADIS-8513
CD
TUNER
TAPE
VIDEO 3
VIDEO 2
VIDEO 1
VCR
DVD DVD
MULTI CH
MEMORY
DIGITAL
INPUT
DISPLAY
LISTENING
MODE >
LISTENING
MODE <
STEREO
TONE+
TONE-
TONE
TUNNIG UP
TUNING
DOWN
PRESET
UP
PRESET
DOWN
ENTER
SETUP
RETURN
TUNING
MODE
DIMMER
NAETC-8516
NASW-8515
SPEAKERS B
SPEAKERS A
STANDBY/ON
TO NAAF-8523
TO NADG-8514
C816
473Z
R804 220
R805 220
C807
101J C808
101J C809101J
C815
473Z
C813104Z
C814104Z
C804
104Z
C803 101J
C805
104Z
C806
101J
Q802
M66005
49
SEG2
50
SEG1
51
SEG0
52
VCC2
53
DIG15/SEG39
54
DIG14/SEG38
55
DIG13/SEG37
56
DIG12/SEG36
57
DIG11
58
DIG10
59
DIG9
60
DIG8
61
DIG7
62
DIG6
63
DIG5
64
DIG4
1
DIG03
2
DIG02
3
DIG01
4
DIG00
5
_RESET
6
_CS
7
SCK
8
SDATA
9
P1
10
P0
11
VCC1
12
XOUT
13
XIN
14
VSS
15
SEG35
16
SEG34
17
SEG33
18
SEG32
19
SEG31
20
SEG30
21
SEG29
22
SEG28
23
SEG27
24
VP
25
SEG26
26
SEG25
27
SEG24
28
SEG23
29
SEG22
30
SEG21
31
SEG20
32
SEG19
33
SEG18
34
SEG17
35
SEG16
36
SEG15
37
SEG14
38
SEG13
39
SEG12
40
SEG11
41
SEG10
42
SEG9
43
SEG8
44
SEG7
45
SEG6
46
SEG5
47
SEG4
48
SEG3
C801
474J
R801
27K
C818
223Z
R807
220
R821
2.2K
D811
UDZS7.5B
D821
R808
100K
JL832A
1
2
3
JL831A
7
6
5
4
3
2
1
S818
S817
S816
S815
S814
S813
S811
S812
R831
330
C821 104Z
C822 104Z
L812
022M
C812 104Z
L811 022M
C811 473Z
R811
10K
R813
10K
R812
10K
R814
10K
R828
1K
R841
330
R842
470
R843
560
R844
820
R845
1.2K
R846
2.2K
R847
3.9K
S848
S847
S846
S843
S842
S841
S845
S840
S801
R851
330
R852
470
R853
560
R854
820
R855
1.2K
R856
2.2K
R857
3.9K
R858
12K
S828
S827
S826
S825
S824
S823
S821
S822
S829
R861
330
R862
470
R863
560
R864
820
R865
1.2K
R866
2.2K
R867
3.9K
R868
12K
S839
S838
S837
S836
S835
S834
S833
S831
S832
C825
102K
R827
100
C824
NC
Q801
16BT127GNK
59 F12
58 F11
55 1G
54 2G
53 3G
52 4G
51 5G
50 6G
49 7G
48 8G
47 9G
46 10G
45 11G
44 12G
43 13G
42 14G
41 15G
40 16G
39 P1
38 P2
37 P3
36 P4
35 P5
34 P6
33 P7
32 P8
31 P9
30 P10
29 P11
28 P12
27 P13
26 P14
25 P15
24 P16
23 P17
22 P18
21 P19
20 P20
19 P21
18 P22
17 P23
16 P24
15 P25
14 P26
13 P27
12 P28
11 P29
10 P30
9P31
8P32
7P33
6P34
5P35
2F22
1F21
S851
R803 3.3K
R802 3.3K
C892
104Z
E891
E892 C894 102K
C893 102K
L893 022M
P891
1
8
7
3
2
4
5
C891
104Z
L891 022M
L892 022M
R893
R892
R891
R823
NC
R824
NC
JL832B
3
2
1
JL831B
1
2
3
4
5
6
7
R822
NC
R832
470
S803
S802 R825
NC
R826
NC
S808
S804
S809
R834
820
R835
1.2K
R836
2.2K
S807
S805
S806
R833
560
D824
1
D822
Q824
NC Q822
NC
JL891A
1
2
3
4
5
Q803
2SC2712
Q823
NC
Q821
NC
C820 104Z
C819 104Z
C802
100/6.3
+
C817
33/50
+
U821
2
3
1
C823
100/6.3
+
D823
JL833A
3
2
1
R806
220
1
2
3
4
5
6
7
8
9
10
11
12
13
14
15
16
17
18
19
20
21
22
23
24
25
26
27
28
29
30
31
32
33
34
35
36
37
38
39
40
R810 100
U01
DISPLAY PC BOARD
U03 SWITCH PC BOARD
U04
HEADPHONE JACK
PC BOARD
PHONES
FL TUBE
MASTER
VOLUME
23P
P703B
NC
NC
NC
NC
NC
NC
NC
NC
NC
NC
NC
NC
NC
NC
NC
NC
NC
NC
NC
NC
NC
NC
NC
NC
A
1
2
3
4
5
BCDEFGH

TX-SR303/8340TX-SR403/8340
SCHEMATIC DIAGRAMS-7
DISPLAY SECTION
THE COMPONENTS IDENTIFIED BY MARK ARE CRITICAL FOR SAFETY
REPLACE ONLY WITH PART NUMBER SPECIFIED.
VOLTAGE (MEASURED WITH VOLTMETER) IS DC VOLTAGE.(NO INPUT SIGNAL).
ALL PNP TRANSISTORS ARE EQUIVALENT TO 2SA1015-GR UNLESS OTHERWISE NOTED.
ALL NPN TRANSISTORS ARE EQUIVALENT TO 2SC1815-GR UNLESS OTHERWISE NOTED.
ALL DIODES ARE EQUIVALENT TO 1SS133 UNLESS OTHERWISE NOTED.
ELECTROLYTIC CAPACITORS ( ) ARE IN uF/WV.
ALL CAPACITORS ARE IN pF/50WV UNLESS OTHERWISE NOTED.
EX) 030- 3pF 330- 33pF 331- 330pF 333- 0.033uF
ALL RESISTORS ARE IN OHMS 1/4WATTS UNLESS OTHERWISE NOTED.
THE THICK LINES ON PC BOARD ARE THE PRINTING SIDE OF THE PARTS.
EX) PRINTING SIDE
CIRCUIT IS SUBJECT TO CHANGE FOR IMPROVEMENT.
!
NOTE
<Note>
NC=No mount of parts.
LEDZONE2
LEDPURE
KEYINT0
KEY0_2
+BLED
LEDSTBY
FLDRST
FLDCS
FLDCLK
FLDSDO
MICMUT
LEDVOL
LEDPURE
GNDLED
+BLED
LEDZONE2
KEYINT0
GNDTACT
KEY0_2
MICDET
MICOUT
GNDV4V
GNDV4
V4V
V4_L
V4_R
+5VDIS
+7V
V4Y
V4C
OPTF
FLDRST
FLDCS
FLDCLK
FLDSDO
REMIN
GNDMIC
-7V
LEDPURE
LEDSTBY
LEDZONE2
FAC1
FAC2
+5.6S
KEYINT3
KEYINT2
KEYINT1
KEYINT0
KEY3
KEY2
KEY1
KEY0
GNDCPU
VOLA
VOLB
-VP
STANDBY
NADIS-8513
CD
TUNER
TAPE
VIDEO 3
VIDEO 2
VIDEO 1
VCR
DVD DVD
MULTI CH
MEMORY
DIGITAL
INPUT
DISPLAY
LISTENING
MODE >
LISTENING
MODE <
STEREO
TONE+
TONE-
TONE
TUNNIG UP
TUNING
DOWN
PRESET
UP
PRESET
DOWN
ENTER
SETUP
RETURN
TUNING
MODE
DIMMER
NAETC-8516
NASW-8515
SPEAKERS B
SPEAKERS A
STANDBY/ON
TO NAAF-8523
TO NADG-8514
C816
473Z
R804 220
R805 220
C807
101J C808
101J C809101J
C815
473Z
C813104Z
C814104Z
C804
104Z
C803 101J
C805
104Z
C806
101J
Q802
M66005
49
SEG2
50
SEG1
51
SEG0
52
VCC2
53
DIG15/SEG39
54
DIG14/SEG38
55
DIG13/SEG37
56
DIG12/SEG36
57
DIG11
58
DIG10
59
DIG9
60
DIG8
61
DIG7
62
DIG6
63
DIG5
64
DIG4
1
DIG03
2
DIG02
3
DIG01
4
DIG00
5
_RESET
6
_CS
7
SCK
8
SDATA
9
P1
10
P0
11
VCC1
12
XOUT
13
XIN
14
VSS
15
SEG35
16
SEG34
17
SEG33
18
SEG32
19
SEG31
20
SEG30
21
SEG29
22
SEG28
23
SEG27
24
VP
25
SEG26
26
SEG25
27
SEG24
28
SEG23
29
SEG22
30
SEG21
31
SEG20
32
SEG19
33
SEG18
34
SEG17
35
SEG16
36
SEG15
37
SEG14
38
SEG13
39
SEG12
40
SEG11
41
SEG10
42
SEG9
43
SEG8
44
SEG7
45
SEG6
46
SEG5
47
SEG4
48
SEG3
C801
474J
R801
27K
C818
223Z
R807
220
R821
2.2K
D811
UDZS7.5B
D821
R808
100K
JL832A
1
2
3
JL831A
7
6
5
4
3
2
1
S818
S817
S816
S815
S814
S813
S811
S812
R831
330
C821 104Z
C822 104Z
L812
022M
C812 104Z
L811 022M
C811 473Z
R811
10K
R813
10K
R812
10K
R814
10K
R828
1K
R841
330
R842
470
R843
560
R844
820
R845
1.2K
R846
2.2K
R847
3.9K
S848
S847
S846
S843
S842
S841
S845
S840
S801
R851
330
R852
470
R853
560
R854
820
R855
1.2K
R856
2.2K
R857
3.9K
R858
12K
S828
S827
S826
S825
S824
S823
S821
S822
S829
R861
330
R862
470
R863
560
R864
820
R865
1.2K
R866
2.2K
R867
3.9K
R868
12K
S839
S838
S837
S836
S835
S834
S833
S831
S832
C825
102K
R827
100
C824
NC
Q801
16BT127GNK
59 F12
58 F11
55 1G
54 2G
53 3G
52 4G
51 5G
50 6G
49 7G
48 8G
47 9G
46 10G
45 11G
44 12G
43 13G
42 14G
41 15G
40 16G
39 P1
38 P2
37 P3
36 P4
35 P5
34 P6
33 P7
32 P8
31 P9
30 P10
29 P11
28 P12
27 P13
26 P14
25 P15
24 P16
23 P17
22 P18
21 P19
20 P20
19 P21
18 P22
17 P23
16 P24
15 P25
14 P26
13 P27
12 P28
11 P29
10 P30
9P31
8P32
7P33
6P34
5P35
2F22
1F21
S851
R803 3.3K
R802 3.3K
C892
104Z
E891
E892 C894 102K
C893 102K
L893 022M
P891
1
8
7
3
2
4
5
C891
104Z
L891 022M
L892 022M
R893
R892
R891
R823
NC
R824
NC
JL832B
3
2
1
JL831B
1
2
3
4
5
6
7
R822
NC
R832
470
S803
S802 R825
NC
R826
NC
S808
S804
S809
R834
820
R835
1.2K
R836
2.2K
S807
S805
S806
R833
560
D824
1
D822
Q824
NC Q822
NC
JL891A
1
2
3
4
5
Q803
2SC2712
Q823
NC
Q821
NC
C820 104Z
C819 104Z
C802
100/6.3
+
C817
33/50
+
U821
2
3
1
C823
100/6.3
+
D823
JL833A
3
2
1
R806
220
1
2
3
4
5
6
7
8
9
10
11
12
13
14
15
16
17
18
19
20
21
22
23
24
25
26
27
28
29
30
31
32
33
34
35
36
37
38
39
40
R810 100
U01
DISPLAY PC BOARD
U03 SWITCH PC BOARD
U04
HEADPHONE JACK
PC BOARD
PHONES
FL TUBE
MASTER
VOLUME
23P
P703B
NC
NC
NC
NC
NC
NC
NC
NC
NC
NC
NC
NC
NC
NC
NC
NC
NC
NC
NC
NC
NC
NC
NC
NC
A
1
2
3
4
5
BCDEFGH

TX-SR303/8340
SCHEMATIC DIAGRAMS-7
DISPLAY SECTION
THE COMPONENTS IDENTIFIED BY MARK ARE CRITICAL FOR SAFETY
REPLACE ONLY WITH PART NUMBER SPECIFIED.
VOLTAGE (MEASURED WITH VOLTMETER) IS DC VOLTAGE.(NO INPUT SIGNAL).
ALL PNP TRANSISTORS ARE EQUIVALENT TO 2SA1015-GR UNLESS OTHERWISE NOTED.
ALL NPN TRANSISTORS ARE EQUIVALENT TO 2SC1815-GR UNLESS OTHERWISE NOTED.
ALL DIODES ARE EQUIVALENT TO 1SS133 UNLESS OTHERWISE NOTED.
ELECTROLYTIC CAPACITORS ( ) ARE IN uF/WV.
ALL CAPACITORS ARE IN pF/50WV UNLESS OTHERWISE NOTED.
EX) 030- 3pF 330- 33pF 331- 330pF 333- 0.033uF
ALL RESISTORS ARE IN OHMS 1/4WATTS UNLESS OTHERWISE NOTED.
THE THICK LINES ON PC BOARD ARE THE PRINTING SIDE OF THE PARTS.
EX) PRINTING SIDE
CIRCUIT IS SUBJECT TO CHANGE FOR IMPROVEMENT.
!
NOTE
<Note>
NC=No mount of parts.
LEDZONE2
LEDPURE
KEYINT0
KEY0_2
+BLED
LEDSTBY
FLDRST
FLDCS
FLDCLK
FLDSDO
MICMUT
LEDVOL
LEDPURE
GNDLED
+BLED
LEDZONE2
KEYINT0
GNDTACT
KEY0_2
MICDET
MICOUT
GNDV4V
GNDV4
V4V
V4_L
V4_R
+5VDIS
+7V
V4Y
V4C
OPTF
FLDRST
FLDCS
FLDCLK
FLDSDO
REMIN
GNDMIC
-7V
LEDPURE
LEDSTBY
LEDZONE2
FAC1
FAC2
+5.6S
KEYINT3
KEYINT2
KEYINT1
KEYINT0
KEY3
KEY2
KEY1
KEY0
GNDCPU
VOLA
VOLB
-VP
STANDBY
NADIS-8513
CD
TUNER
TAPE
VIDEO 3
VIDEO 2
VIDEO 1
VCR
DVD DVD
MULTI CH
MEMORY
DIGITAL
INPUT
DISPLAY
LISTENING
MODE >
LISTENING
MODE <
STEREO
TONE+
TONE-
TONE
TUNNIG UP
TUNING
DOWN
PRESET
UP
PRESET
DOWN
ENTER
SETUP
RETURN
TUNING
MODE
DIMMER
NAETC-8516
NASW-8515
SPEAKERS B
SPEAKERS A
STANDBY/ON
TO NAAF-8523
TO NADG-8514
C816
473Z
R804 220
R805 220
C807
101J C808
101J C809101J
C815
473Z
C813104Z
C814104Z
C804
104Z
C803 101J
C805
104Z
C806
101J
Q802
M66005
49
SEG2
50
SEG1
51
SEG0
52
VCC2
53
DIG15/SEG39
54
DIG14/SEG38
55
DIG13/SEG37
56
DIG12/SEG36
57
DIG11
58
DIG10
59
DIG9
60
DIG8
61
DIG7
62
DIG6
63
DIG5
64
DIG4
1
DIG03
2
DIG02
3
DIG01
4
DIG00
5
_RESET
6
_CS
7
SCK
8
SDATA
9
P1
10
P0
11
VCC1
12
XOUT
13
XIN
14
VSS
15
SEG35
16
SEG34
17
SEG33
18
SEG32
19
SEG31
20
SEG30
21
SEG29
22
SEG28
23
SEG27
24
VP
25
SEG26
26
SEG25
27
SEG24
28
SEG23
29
SEG22
30
SEG21
31
SEG20
32
SEG19
33
SEG18
34
SEG17
35
SEG16
36
SEG15
37
SEG14
38
SEG13
39
SEG12
40
SEG11
41
SEG10
42
SEG9
43
SEG8
44
SEG7
45
SEG6
46
SEG5
47
SEG4
48
SEG3
C801
474J
R801
27K
C818
223Z
R807
220
R821
2.2K
D811
UDZS7.5B
D821
R808
100K
JL832A
1
2
3
JL831A
7
6
5
4
3
2
1
S818
S817
S816
S815
S814
S813
S811
S812
R831
330
C821 104Z
C822 104Z
L812
022M
C812 104Z
L811 022M
C811 473Z
R811
10K
R813
10K
R812
10K
R814
10K
R828
1K
R841
330
R842
470
R843
560
R844
820
R845
1.2K
R846
2.2K
R847
3.9K
S848
S847
S846
S843
S842
S841
S845
S840
S801
R851
330
R852
470
R853
560
R854
820
R855
1.2K
R856
2.2K
R857
3.9K
R858
12K
S828
S827
S826
S825
S824
S823
S821
S822
S829
R861
330
R862
470
R863
560
R864
820
R865
1.2K
R866
2.2K
R867
3.9K
R868
12K
S839
S838
S837
S836
S835
S834
S833
S831
S832
C825
102K
R827
100
C824
NC
Q801
16BT127GNK
59 F12
58 F11
55 1G
54 2G
53 3G
52 4G
51 5G
50 6G
49 7G
48 8G
47 9G
46 10G
45 11G
44 12G
43 13G
42 14G
41 15G
40 16G
39 P1
38 P2
37 P3
36 P4
35 P5
34 P6
33 P7
32 P8
31 P9
30 P10
29 P11
28 P12
27 P13
26 P14
25 P15
24 P16
23 P17
22 P18
21 P19
20 P20
19 P21
18 P22
17 P23
16 P24
15 P25
14 P26
13 P27
12 P28
11 P29
10 P30
9P31
8P32
7P33
6P34
5P35
2F22
1F21
S851
R803 3.3K
R802 3.3K
C892
104Z
E891
E892 C894 102K
C893 102K
L893 022M
P891
1
8
7
3
2
4
5
C891
104Z
L891 022M
L892 022M
R893
R892
R891
R823
NC
R824
NC
JL832B
3
2
1
JL831B
1
2
3
4
5
6
7
R822
NC
R832
470
S803
S802 R825
NC
R826
NC
S808
S804
S809
R834
820
R835
1.2K
R836
2.2K
S807
S805
S806
R833
560
D824
1
D822
Q824
NC Q822
NC
JL891A
1
2
3
4
5
Q803
2SC2712
Q823
NC
Q821
NC
C820 104Z
C819 104Z
C802
100/6.3
+
C817
33/50
+
U821
2
3
1
C823
100/6.3
+
D823
JL833A
3
2
1
R806
220
1
2
3
4
5
6
7
8
9
10
11
12
13
14
15
16
17
18
19
20
21
22
23
24
25
26
27
28
29
30
31
32
33
34
35
36
37
38
39
40
R810 100
U01
DISPLAY PC BOARD
U03 SWITCH PC BOARD
U04
HEADPHONE JACK
PC BOARD
PHONES
FL TUBE
MASTER
VOLUME
23P
P703B
NC
NC
NC
NC
NC
NC
NC
NC
NC
NC
NC
NC
NC
NC
NC
NC
NC
NC
NC
NC
NC
NC
NC
NC
A
1
2
3
4
5
BCDEFGH

SCHEMATIC DIAGRAMS-8
VIDEO SECTION
TX-SR403/8340
U16 VIDEO PC BOARD
THE COMPONENTS IDENTIFIED BY MARK ARE CRITICAL FOR SAFETY
REPLACE ONLY WITH PART NUMBER SPECIFIED.
VOLTAGE (MEASURED WITH VOLTMETER) IS DC VOLTAGE.(NO INPUT SIGNAL).
ALL PNP TRANSISTORS ARE EQUIVALENT TO 2SA1015-GR UNLESS OTHERWISE NOTED.
ALL NPN TRANSISTORS ARE EQUIVALENT TO 2SC1815-GR UNLESS OTHERWISE NOTED.
ALL DIODES ARE EQUIVALENT TO 1SS133 UNLESS OTHERWISE NOTED.
ELECTROLYTIC CAPACITORS ( ) ARE IN uF/WV.
ALL CAPACITORS ARE IN pF/50WV UNLESS OTHERWISE NOTED.
EX) 030- 3pF 330- 33pF 331- 330pF 333- 0.033uF
ALL RESISTORS ARE IN OHMS 1/4WATTS UNLESS OTHERWISE NOTED.
THE THICK LINES ON PC BOARD ARE THE PRINTING SIDE OF THE PARTS.
EX) PRINTING SIDE
CIRCUIT IS SUBJECT TO CHANGE FOR IMPROVEMENT.
!
NOTE
<Note>
NC=No mount of parts.
JL2006A
Y
Y
YC
C
C
P1003
YC
CY
P1004
P2005A
P1002
P1001
Q1009
2SA933-S
KTA1267-GR
Q1004
2SA933-S
KTA1267-GR
VIDEO OUT
VCC
VIN4
VIN3
VIN2
GND
VIN1
B
A
Q1013 LA7956
1
2
3
4
5
6
7
8
9
VIDEO OUT
VCC
VIN4
VIN3
VIN2
GND
VIN1
B
A
Q1012 LA7956
1
2
3
4
5
6
7
8
9
VIDEO OUT
VCC
VIN4
VIN3
VIN2
GND
VIN1
B
A
Q1003 LA7956
1
2
3
4
5
6
7
8
9
Q1018
RN1241
Q1015
RN1241 Q1016
RN1241
Q1017
Q1002
RN1241
Q1010
RN1241
Q1008
RN1241
Q1007
RN1241
Q1011
RN1241
Q1001
RN1241
Q1006
DTA114ES
KRA102M
Q1005
DTA114ES
KRA102M
D1002
D1001
C1005
470/16
C1007 2.2/50
C1015
470/16
C1009 2.2/50
C1013 2.2/50
C1021
47/25
C1025
47/25
C1011
470/16
C1001
2.2/50
C1017
2.2/50
C1003
470/16
C1002
2.2/50
C1004
2.2/50
C1023
47/25
C1027
223Z
C1026
NC
C1022
NC
C1024
223Z
C1020
223Z
C1016
223Z
C1006 223Z
C1014
223Z
C1008 223Z
C1012 223Z
C1010
223Z
C1032
223Z
R1022 75
R1021 75
R1020 75
R1019 75
R1006
75
R1016 75
R1015 75
R1012 75
R1011 75
R1025
680K
R1017 100K
R1018 100K R1014 75
R1013 75
R1026
680K
R1027
680K
R1028
220
R1030
680K
R1024
100K
R1023 100K
R1010
220
R1031
75
R1005
75
R1007
680K
R1001
75
R1008
680K
R1002
75
R1009
680K
R1003
75
R1004
100K
+12V
GND
A
B
VMUT2
MONIMUTE
SPRLZ2
SPRLSB
SPRLCS
SPRLF
GND
+12V
B
A
VM2
VM1
CSRLD
SBRLD
FRLD
Z2RLD
RLGND
TO NAETC-8548
TO NADG-8514
NAVD-8549
DVD IN
MONITOR
OUT
OUT
IN
VIDEO-2
IN
VIDEO-1
DVD IN
VIDEO-1
OUT
INVIDEO-2
IN
VIDEO-3
IN
MONITOR
OUT
VIDEO
S VIDEO
RN1241
A
1
2
3
4
5
BCD

TX-SR403/8340
PC BOARD CONNECTION DIAGRAM
TX-SR403/8340
P1088
P1002
DVD DVD
VIDEO 1 VIDEO 1
VIDEO 2 VIDEO 2
VIDEO 3
MONITOR MONITOR
P1001 P1004 P1003
FM ANT. AM ANT.
JL2006A TUNER UNIT
P2005A
OPTICAL COAXIAL
DIGITAL IN
RI
P721
E301
P312
U131
P303A
P301A
P101A
P751A
P703A
P311A
P302A
P2005
JL832A
P703B
U821 Q801
P6000A P6001A P6002A P6003A
P5504A P5019
P6011B
P6004A P6005A
Q6055Q6065Q6054Q6064Q6053Q6063Q6052Q6062Q6051Q6061Q6050Q6060
P6011C
JL5501B
JL6402A
P311B
P6000 P6001 P6002 P6003 P6004
P302
P301
P303
P6005
JL6951A
JL891B
JL6600A
JL6603A
PRE OUT DVD CDTAPEVIDEO 1
VIDEO
2VIDEO
3
E301A
P7902P7903P7904P7905P7907 P5505
P5504
F6901
F6902
JL5501A
P9502
JL6952A
P9606
P6600 P6607
FRONT-BSURROUND
JL6600B JL6603B JL2006B
P931A
P9502A
P9002
JL9501B
F902
F903
P901A P912
P931B
MAIN TRANSFORMER
JL9501A
JL6952B
JL6951B
P891
PHONES
JL832B
JL891A
JL6402B
Q6380
AC IN
SUB
TRANSFORMER
CENTERFRONT-A SURROUND
BACK
SPEAKERS
U13
NAPS-8546
POWER SUPPLY-2
PC BOARD
U11
NAPS-8544
POWER SUPPLY-1
PC BOARD
U14
NAPS-8547
SEC. TERMINAL-1
PC BOARD
U04
NAETC-8516
HEADPHONE JACK
PC BOARD
U03
NASW-8515
SWITCH PC BOARD U01
NADIS-8513
DISPLAY PC BOARD
U17
NAAF-8550
DRIVER AMPLIFIER
PC BOARD
U05
NAAF-8523
AMPLIFIER PC BOARD
U16
NAVD-8549
VIDEO PC BOARD
U02
NADG-8514
DSP PC BOARD
U08
NAETC-8526
THERMAL SENSOR
PC BOARD
U06
NAPS-8524
SEC. TERMINAL-2
PC BOARD
U15
NAETC-8548
SPEAKER TERMINAL PC BOARD
JUMPER WIRE
SOCKET
FLAT CABLE
BOARD TO BOARD

TX-SR403/8340
PC BOARD CONNECTION DIAGRAM
TX-SR403/8340
P1088
P1002
DVD DVD
VIDEO 1 VIDEO 1
VIDEO 2 VIDEO 2
VIDEO 3
MONITOR MONITOR
P1001 P1004 P1003
FM ANT. AM ANT.
JL2006A TUNER UNIT
P2005A
OPTICAL COAXIAL
DIGITAL IN
RI
P721
E301
P312
U131
P303A
P301A
P101A
P751A
P703A
P311A
P302A
P2005
JL832A
P703B
U821 Q801
P6000A P6001A P6002A P6003A
P5504A P5019
P6011B
P6004A P6005A
Q6055Q6065Q6054Q6064Q6053Q6063Q6052Q6062Q6051Q6061Q6050Q6060
P6011C
JL5501B
JL6402A
P311B
P6000 P6001 P6002 P6003 P6004
P302
P301
P303
P6005
JL6951A
JL891B
JL6600A
JL6603A
PRE OUT DVD CDTAPEVIDEO 1
VIDEO
2VIDEO
3
E301A
P7902P7903P7904P7905P7907 P5505
P5504
F6901
F6902
JL5501A
P9502
JL6952A
P9606
P6600 P6607
FRONT-BSURROUND
JL6600B JL6603B JL2006B
P931A
P9502A
P9002
JL9501B
F902
F903
P901A P912
P931B
MAIN TRANSFORMER
JL9501A
JL6952B
JL6951B
P891
PHONES
JL832B
JL891A
JL6402B
Q6380
AC IN
SUB
TRANSFORMER
CENTERFRONT-A SURROUND
BACK
SPEAKERS
U13
NAPS-8546
POWER SUPPLY-2
PC BOARD
U11
NAPS-8544
POWER SUPPLY-1
PC BOARD
U14
NAPS-8547
SEC. TERMINAL-1
PC BOARD
U04
NAETC-8516
HEADPHONE JACK
PC BOARD
U03
NASW-8515
SWITCH PC BOARD U01
NADIS-8513
DISPLAY PC BOARD
U17
NAAF-8550
DRIVER AMPLIFIER
PC BOARD
U05
NAAF-8523
AMPLIFIER PC BOARD
U16
NAVD-8549
VIDEO PC BOARD
U02
NADG-8514
DSP PC BOARD
U08
NAETC-8526
THERMAL SENSOR
PC BOARD
U06
NAPS-8524
SEC. TERMINAL-2
PC BOARD
U15
NAETC-8548
SPEAKER TERMINAL PC BOARD
JUMPER WIRE
SOCKET
FLAT CABLE
BOARD TO BOARD

TX-SR303/303E
PRINTED CIRCUIT BOARD VIEWS-1
TX-SR303/303E
U01 DISPLAY PC BOARD
(NADIS-8513)
Side A
A
1
2
3
4
5
BCDEFGH

TX-SR303/303E
PRINTED CIRCUIT BOARD VIEWS-1
TX-SR303/303E
U01 DISPLAY PC BOARD
(NADIS-8513)
Side A
A
1
2
3
4
5
BCDEFGH

TX-SR303/303E
PRINTED CIRCUIT BOARD VIEWS-1
U01 DISPLAY PC BOARD
(NADIS-8513)
Side A
A
1
2
3
4
5
BCDEFGH

TX-SR303/303E
PRINTED CIRCUIT BOARD VIEWS-2
TX-SR303/303E
U01 DISPLAY PC BOARD
(NADIS-8513)
Side B
A
1
2
3
4
5
BCDEFGH

TX-SR303/303E
PRINTED CIRCUIT BOARD VIEWS-2
TX-SR303/303E
U01 DISPLAY PC BOARD
(NADIS-8513)
Side B
A
1
2
3
4
5
BCDEFGH

TX-SR303/303E
PRINTED CIRCUIT BOARD VIEWS-2
U01 DISPLAY PC BOARD
(NADIS-8513)
Side B
A
1
2
3
4
5
BCDEFGH

TX-SR303/303E
PRINTED CIRCUIT BOARD VIEWS-3
TX-SR303/303E
U02 DSP PC BOARD
(NADG-8514)
Side A
A
1
2
3
4
5
BCDEFGH

TX-SR303/303E
PRINTED CIRCUIT BOARD VIEWS-3
TX-SR303/303E
U02 DSP PC BOARD
(NADG-8514)
Side A
A
1
2
3
4
5
BCDEFGH

TX-SR303/303E
PRINTED CIRCUIT BOARD VIEWS-3
U02 DSP PC BOARD
(NADG-8514)
Side A
A
1
2
3
4
5
BCDEFGH

TX-SR303/303E
PRINTED CIRCUIT BOARD VIEWS-4
TX-SR303/303E
U02 DSP PC BOARD
(NADG-8514)
Side B
A
1
2
3
4
5
BCDEFGH

TX-SR303/303E
PRINTED CIRCUIT BOARD VIEWS-4
TX-SR303/303E
U02 DSP PC BOARD
(NADG-8514)
Side B
A
1
2
3
4
5
BCDEFGH

TX-SR303/303E
PRINTED CIRCUIT BOARD VIEWS-4
U02 DSP PC BOARD
(NADG-8514)
Side B
A
1
2
3
4
5
BCDEFGH

TX-SR303/303E
PRINTED CIRCUIT BOARD VIEWS-5
U03 SWITCH PC BOARD
(NASW-8515)
Side A Side B
U04 HEADPHONE JACK PC BOARD
(
NAETC-8516
)
S
ide
A
Side B
A
1
2
3
4
5
BCD

TX-SR303/303E
PRINTED CIRCUIT BOARD VIEWS-6
TX-SR303/303E
C
5
C5602
C5603
C5605
C5560
C5562
C5556
C5558
C5561
C5563
C5559
C5557
C5576
C5577
C5573
C5572
C5574
C5578
C5550
C5553
C5552
C5551
C5554
C5555
C5666
C5667
C5674
C5673
J5582
J5583 C5566
C5567
C5609
C5608
J5570
C5564
C5565
J5598
J5615
J5599
J5614
J5617
J5603
J5602
J5601
J5600
J5619
J5581
C5664
C5665
J5635
J5613
J5611
J5597
J5595
J5566
J5565
J5564
J5563
J5562
J5561
J5560
J5559
J5544
J5545
J5543
J5542
J5541
J5540
J5539
J5513
J5518
J5517
J5512
J5516
J5596
J5612
J5594
J5593
R5707
R5703
R5701
R5705
J5524
J5520
C5575
J5521
J5522
J5523
J5567
J5568
J5569
C5669 C5668
J5616
J5546
J5528
J5548
J5547
C5671
C5672
J5549
J5526
J5511 J5536 J5558 J5580 J5609 J5631
J5534 J5557 J5592 J565
1
J564
9
J565
0
J5590
J5591
J5555
J5556
J5632
J5633
J5587
J5588
J5537
J5538
J5578 J5610
J5634
J5589
J5554 J5579 J5630
J5629J5607
J5608
J5577
P5505
J5552
JL6200A
J5509
J5510
J5508
J5505
J5507
J5506
J5531 J5533
J5576
J5627
J5585
J5606 J5626
J5584
P303 P302
J5535
J5532
J5553 J5586
J5628
C5504C5503
J5502
R5682
R5664 J5574
J5573 J5572
J5571
J5527
J5525
R5666
R5667
Q5655
C5641
C5642
C5643
J5550
J5551
C5653 C5652
J5504
J5529
J5530
J5519
J5514
C5660
C5661
C5640
C5650
C5651
R5672
R5671
D5650
J5501
R5665
D5671 D5672
Q5653
Q5650
R5650
R5640
J5575
R5651
J5604 R5660
R5661
JL5501B
J5623
J5605
J5622
J5625
R5668
JL6402A
J5503
J5618
J5515
2NCAF-8523
25138523B
E301A
P7901 P7902
P7903 P7904
P6846
J5621
J5644
C5663
C5662
J5624
P301
5VDSP
GND
POFF
10S
+5V_V
-5V_V
GND_V
GND_V
12V_TRI
5V_DIS
3.3V_DSP
2.5V_DSP
GND_DSP
GND_DSP
ADLT+
ADLT-
ADRT+
ADRT-
Z2MUT
AMUT
SBMUT
GND_12V
-12V
+12V
GND_7V
+7V
-7V
DAC_SR
DAC_SL
DAC_CT
DAC_SW
DAC_SBL
DAC_FR
DAC_FL
DAC_SBR
FSWDAT
FSWCLK
DGND
FSWSTB
VLTNSTB
VLTNCLK
VLTNDAT
MIC
GND_MIC
V4R
V4L
GND_V4
TUPACK_R
TUPACK_L
GND_TU
C6042
R6082
R6012
R6002
R603
2
BE
D6013
ID-ID+
NF
-B1
B+
B-
EB
E
B
BE
BE
R6183
D6003
R6173
R6163
R6143
P6083
J6051
R6193
C6053
Q6073
R6153
J5813
Q6043
C6043
R6083
R6073
Q6033
Q6023
R6023
R6013
R6003
R6033
R6043
R6053
+B1
P6003
Q6063
R6093
R6103
Q6013
J5803
Q6053
BE
D6014
ID-ID+
NF
-B1
B+
B-
EB
E
B
BE
BE
R6184
D6004
R6174
R6164
R6144
P6084
J6052
R6194
C6054
Q6074
R6154
J5812
Q6044
C6044
R6084
R6074
Q6034
Q6024
R6024
R6014
R6004
R6034
R6044
R6054
+B1
P6004
Q6064
R6094
R6104
Q6014
J5802
Q6054
BE
D6015
ID-ID+
NF
-B1
B+
B-
EB
E
B
BE
BE
R6185
D6005
R6175
R6165
R6145
P6085
J6053
R6195
C6055
Q6075
R6155
J5811
Q6045
C6045
R6085
R6075
Q6035
Q6025
R6025
R6015
R6005
R6035
R6045
R6055
+B1
P6005
Q6065
R6095
R6105
Q6015
J5801
Q6055
Q5654 Q5660
Q5640 Q5661
Q5661B
BIAS
BIAS
BIAS
P7901 P7902 P7903 P7904
SL
SR
SBL
J5817
J5818
P6850
P6851
C5565
C5563
C5560
C5558
C5564
C5562
C5559
C5557 C5556
C5566
C5561
C5564C5565
25
20
30
7
7
7
7
17
25
25
25
25
17
15
20
20
12
15
20
20
20
20
15
12
25
27
30
25
15
15
20
20
12
20
15
15
30
30
25
25
30
7
20
25
22
22
17
20
15 22 15 22 15 22
20
27
27
27
27
20 20
2525 12 12
7
30
2727
25
25
22
15
25
17
730
20
20
22
30
12
27
30 30
30
12
12
20
12
17
20
30
15
30
7
20
25
20
30
12
20
20
U05 AMPLIFIER PC BOARD
(NAAF-8523)
Component side
A
1
2
3
4
5
BCDEFGH

TX-SR303/303E
PRINTED CIRCUIT BOARD VIEWS-6
TX-SR303/303E
C5607
C5606
C5600
C5601
C5602
C5603
C5604
C5605
J5640
C5609
C5608
P5504
J5691
J5693
J5690
J5705
J5671
J5672
J5692
J5704
J5706
RL5700
RL5700
J5664
J5658
J5659
J5660
J5661
J5662
J5663
D5700
C5664
C5665
C5630
J5653
J5639
J5637
J5636
J5635
J5613
J5638
J5612
J5643
J5641
P5503
J011
J010
P995
C6902
C6902
C6901
C6901
C6905
C6904
P997
P996
RL6901
RL6901
RL6902
RL6902
J6105
D6904
D6905
J5710
J5709 J5711
F6901A
F6901B
F6902A
F6902B
C6906
C6907
J6006
J6007
R6902
R6605
C6920
R6901
D6906
Q6901
P9502
JL6952A
JL6951A
J5695
J5712
JL6603A
C6236
R6236
R6235C6235
C6234
R6234
R6233
C6233
C6232
R6232
R6231
C6231
C6230
R6230
J5729
J5730
J5707
J5708
D6901
C6903
D6902
P6906
J5728
J5652 J5668 J5689 J5701
J5651 J5688
J5724
J5722
J5723
J5702
J5703
J5686
J5687
J5649
J5650
-B1
J011A
J010A
J5669
J5670
J5666 J5699
J5735J5725J5700
J5685
J5634 J5667
J5720
J5721
J5732
J5733
J5719
J5717
J5718
J5714
J5715
J5716
J5734
J5682
J5698
J5697
J5684
J5683
J5696
J5646
J5647
J5629
R6701
R6708
B
Q6701
D6702
Q6702
D6701
C6701
R6709
C6706
R6710
D6704
Q6703
R6702
C6703
C6704
R6706
D6703
R6704
J5676
J5679
JL891B
J5731
J5627
J5645 J5677J5626
J5648
J5665
J5681
J5680
R6750
R6751
J5737
J5736
R6176
R6186
D6006
J5727
J5726
J5675
J5674
J5738
J5678
J5620
P6844
P6845
J5694
D9005
D9005A
C9010
C9010
JL5501A
L5501B
C9020
C9020
D9020
C9005
D9011
J5739
J5740
J5742
C9017
P311B
J5673
J5657
C5570
C5571
C5568
C5569
J5654
J5656 J5655
J5743
J5741
C9021
C9021
D5711
C5712
D5710
J5713
J5642
P6011C
P
7904
P7905 P7906 P7907 P7908
D9021
J5744
+B1
BE
D6010
ID-ID+
NF
-B1
B+
B-
EB
E
B
BE
BE
R6180
D6000
R6170
R6160
R6140
P6080
J6048
R6190
C6050
Q6070
R6150
J5816
Q6040
C6040
R6080
R6070
Q6030
Q6020
R6020
R6010
R6000
R6030
R6040
R6050
+B1
P6000
Q6060
R6090
R6100
Q6010
J5806
Q6050
BE
D6011
ID-ID+
NF
-B1
B+
B-
EB
E
B
BE
BE
R6181
D6001
R6171
R6161
R6141
P6081
J6049
R6191
C6051
Q6071
R6151
J5815
Q6041
C6041
R6081
R6071
Q6031
Q6021
R6021
R6011
R6001
R6031
R6041
R6051
+B1
P6001
Q6061
R6091
R6101
Q6011
J5805
Q6051
BE
D6012
ID-ID+
NF
-B1
B+
B-
EB
E
B
BE
BE
R6182
D6002
R6172
R6162
R6142
P6082
J6050
R6192
C6052
Q6072
R6152
J5814
Q6042
C6042
R6082
R6072
Q6032
Q6022
R6022
R6012
R6002
R6032
R6042
R6052
+B1
P6002
Q6062
R6092
R6102
Q6012
J5804
Q6052
J5746
J5745
FUSE_CHK
8A 125V
F6902
F6901
A
B
BIAS
BIAS
BIAS
P7905 P7906 P7907 P7908
L
R
C
P6849
L
AGND
R
DET
DGND
JL6600A
15
7
7
12
7
12
12
7
7
7
12
15
15
15
20
15
7
30
30
30 15
12
12
20
20
25
25
2
215 22 15 22
27
27
27
27
27
27
20 20
1217122525 12
30
30
7
7
30
30
30
7
7
7
15
7
7
7
30
30
12
30
30
7
7
7
30 12
30 20
27
30
30
20
27
12
12
7
12
12
12
7
5
7
25
25
20
U05 AMPLIFIER PC BOARD
(NAAF-8523)
Component side
A
1
2
3
4
5
BCDEFGH

TX-SR303/303E
PRINTED CIRCUIT BOARD VIEWS-6
C5607
C5606
C5600
C5601
C5602
C5603
C5604
C5605
C5560
C5562
C5556
C5558
C5561
C5563
C5559
C5557
C5576
C5577
C5573
C5572
C5574
C5578
C5550
C5553
C5552
C5551
C5554
C5555
C5666
C5667
C5674
C5673
J5582
J5583 C5566
C5567
J5640
C5609
C5608
P5504
J5691
J5693
J5690
J5705
J5671
J5672
J5692
J5704
J5706
J5570
C5564
C5565
J5598
J5615
J5599
J5614
RL5700
RL5700
J5664
J5658
J5659
J5660
J5661
J5662
J5663
D5700
J5617
J5603
J5602
J5601
J5600
J5619
J5581
C5664
C5665
C5630
J5653
J5639
J5637
J5636
J5635
J5613
J5611
J5597
J5595
J5566
J5565
J5564
J5563
J5562
J5561
J5560
J5559
J5544
J5545
J5543
J5542
J5541
J5540
J5539
J5513
J5518
J5517
J5512
J5516
J5638
J5596
J5612
J5594
J5593
R5707
R5703
R5701
R5705
J5643
J5641
J5524
J5520
C5575
J5521
J5522
J5523
J5567
J5568
J5569
C5669 C5668
J5616
J5546
J5528
J5548
J5547
C5671
C5672
J5549
P5503
J5526
J011
J010
P995
C6902
C6902
C6901
C6901
C6905
C6904
P997
P996
RL6901
RL6901
RL6902
RL6902
J6105
D6904
D6905
J5710
J5709 J5711
F6901A
F6901B
F6902A
F6902B
C6906
C6907
J6006
J6007
R6902
R6605
C6920
R6901
D6906
Q6901
P9502
JL6952A
JL6951A
J5695
J5712
JL6603A
C6236
R6236
R6235C6235
C6234
R6234
R6233
C6233
C6232
R6232
R6231
C6231
C6230
R6230
J5729
J5730
J5707
J5708
D6901
C6903
D6902
P6906
J5728
J5511 J5536 J5558 J5580 J5609 J5631 J5652 J5668 J5689 J5701
J5534 J5557 J5592 J5651 J5688
J5724
J5722
J5723
J5702
J5703
J5686
J5687
J5649
J5650
J5590
J5591
J5555
J5556
-B1
J011A
J010A
J5669
J5670
J5632
J5633
J5587
J5588
J5537
J5538
J5578 J5610 J5666 J5699
J5735J5725J5700
J5685
J5634
J5589
J5554 J5579 J5630 J5667
J5720
J5721
J5732
J5733
J5719
J5717
J5718
J5714
J5715
J5716
J5734
J5682
J5698
J5697
J5684
J5683
J5696
J5646
J5647
J5629J5607
J5608
J5577
P5505
R6701
R6708
B
Q6701
D6702
Q6702
D6701
C6701
R6709
C6706
R6710
D6704
Q6703
R6702
C6703
C6704
R6706
D6703
R6704
J5676
J5679
JL891B
J5731
J5552
JL6200A
J5509
J5510
J5508
J5505
J5507
J5506
J5531 J5533
J5576
J5627
J5585
J5606 J5645 J5677J5626
J5584
P303 P302
J5535
J5532
J5553 J5586
J5628 J5648
J5665
J5681
J5680
R6750
R6751
J5737
J5736
R6176
R6186
D6006
J5727
J5726
J5675
J5674
J5738
C5504C5503
J5502
R5682
R5664 J5574
J5573 J5572
J5571
J5527
J5525
R5666
R5667
Q5655
C5641
C5642
C5643
J5550
J5551
C5653 C5652
J5504
J5529
J5530
J5519
J5514
J5678
J5620
C5660
C5661
C5640
C5650
C5651
R5672
R5671
D5650
J5501
P6844
P6845
J5694
R5665
D5671 D5672
Q5653
Q5650
R5650
R5640
J5575
R5651
J5604 R5660
R5661
D9005
D9005A
C9010
C9010
JL5501A
JL5501B
C9020
C9020
D9020
C9005
D9011
J5739
J5740
J5742
C9017
J5623
J5605
P311B
J5622
J5625
J5673
R5668
JL6402A
J5657
C5570
C5571
C5568
C5569
J5654
J5656 J5655
J5743
J5741
C9021
C9021
D5711
C5712
D5710
J5503
J5713
J5618 J5642
J5515
2NCAF-8523
25138523B
E301A
P6011C
P7901 P7902
P7903 P7904
P7905 P7906 P7907 P7908
P6846
J5621
D9021
J5644
C5663
C5662
J5624
P301
J5744
+B1
5VDSP
GND
POFF
10S
+5V_V
-5V_V
GND_V
GND_V
12V_TRI
5V_DIS
3.3V_DSP
2.5V_DSP
GND_DSP
GND_DSP
ADLT+
ADLT-
ADRT+
ADRT-
Z2MUT
AMUT
SBMUT
GND_12V
-12V
+12V
GND_7V
+7V
-7V
DAC_SR
DAC_SL
DAC_CT
DAC_SW
DAC_SBL
DAC_FR
DAC_FL
DAC_SBR
FSWDAT
FSWCLK
DGND
FSWSTB
VLTNSTB
VLTNCLK
VLTNDAT
MIC
GND_MIC
V4R
V4L
GND_V4
TUPACK_R
TUPACK_L
GND_TU
BE
D6010
ID-ID+
NF
-B1
B+
B-
EB
E
B
BE
BE
R6180
D6000
R6170
R6160
R6140
P6080
J6048
R6190
C6050
Q6070
R6150
J5816
Q6040
C6040
R6080
R6070
Q6030
Q6020
R6020
R6010
R6000
R6030
R6040
R6050
+B1
P6000
Q6060
R6090
R6100
Q6010
J5806
Q6050
BE
D6011
ID-ID+
NF
-B1
B+
B-
EB
E
B
BE
BE
R6181
D6001
R6171
R6161
R6141
P6081
J6049
R6191
C6051
Q6071
R6151
J5815
Q6041
C6041
R6081
R6071
Q6031
Q6021
R6021
R6011
R6001
R6031
R6041
R6051
+B1
P6001
Q6061
R6091
R6101
Q6011
J5805
Q6051
BE
D6012
ID-ID+
NF
-B1
B+
B-
EB
E
B
BE
BE
R6182
D6002
R6172
R6162
R6142
P6082
J6050
R6192
C6052
Q6072
R6152
J5814
Q6042
C6042
R6082
R6072
Q6032
Q6022
R6022
R6012
R6002
R6032
R6042
R6052
+B1
P6002
Q6062
R6092
R6102
Q6012
J5804
Q6052
BE
D6013
ID-ID+
NF
-B1
B+
B-
EB
E
B
BE
BE
R6183
D6003
R6173
R6163
R6143
P6083
J6051
R6193
C6053
Q6073
R6153
J5813
Q6043
C6043
R6083
R6073
Q6033
Q6023
R6023
R6013
R6003
R6033
R6043
R6053
+B1
P6003
Q6063
R6093
R6103
Q6013
J5803
Q6053
BE
D6014
ID-ID+
NF
-B1
B+
B-
EB
E
B
BE
BE
R6184
D6004
R6174
R6164
R6144
P6084
J6052
R6194
C6054
Q6074
R6154
J5812
Q6044
C6044
R6084
R6074
Q6034
Q6024
R6024
R6014
R6004
R6034
R6044
R6054
+B1
P6004
Q6064
R6094
R6104
Q6014
J5802
Q6054
BE
D6015
ID-ID+
NF
-B1
B+
B-
EB
E
B
BE
BE
R6185
D6005
R6175
R6165
R6145
P6085
J6053
R6195
C6055
Q6075
R6155
J5811
Q6045
C6045
R6085
R6075
Q6035
Q6025
R6025
R6015
R6005
R6035
R6045
R6055
+B1
P6005
Q6065
R6095
R6105
Q6015
J5801
Q6055
Q5654 Q5660
Q5640 Q5661
Q5661B
J5746
J5745
FUSE_CHK
8A 125V
F6902
F6901
A
B
BIAS
BIAS
BIAS
BIAS
BIAS
BIAS
P7901 P7902 P7903 P7904 P7905 P7906 P7907 P7908
L
R
C
SL
SR
SBL
P6849
J5817
J5818
P6850
P6851
L
AGND
R
DET
DGND
C5565
C5563
C5560
C5558
C5564
C5562
C5559
C5557 C5556
C5566
C5561
C5564C5565
JL6600A
25
20
15
7
7
12
7
12
12
7
7
7
30
7
7
7
7
12
17
25
25
25
25
17
15
15
15
20
20
12
15
20
20
20
20
15
12
25
27
30
25
15
15
20
20
15
12
20
15
15
7
30
30
25
25
30
7
20
25
22
22
17
20
30
30
30 15
12
12
20
20
25
25
15 22 15 22 15 22 15 22 15 22
20
27
27
27
27
27
27
27
27
27
27
20 20 20 20
12171225252525 12 12 12
30
30
7
7
30
30
30
7
7
7
15
7
7
7
30
30
12
30
30
7
30
27
27
7
7
25
25
22
15
25
17
730
20
20
22
30 30 12
12
27
30 30
30 20
27
30
30
20
27
12
12
12
12
20
12
17
20
30
15
30
7
7
12
20
12
12
7
25
7
25
2520 20
30
12
20
20
U05 AMPLIFIER PC BOARD
(NAAF-8523)
Component side
A
1
2
3
4
5
BCDEFGH

TX-SR303/303E
PRINTED CIRCUIT BOARD VIEWS-7
TX-SR303/303E
Q5501
Q5501
R5501 R5502
R5700
R5702
R5704
R5706
R5605 R5604 R5602R5603
Q5671
Q5672
Q5630
R5632
R5633
R5634
R5630
R5631
C5631
C5632
R5592
R5593
R5590
R5594
C5590
R5597
R5596
C5591
R5598
R5595
R5806
R5802
R5663
R5662
R5805
R5807
R5541 R5542
C5501 C5502
R5503
R5543
R5504
R5544
R5506
R5505
R5545 R5546
C5506C5505 R5547
R5507
R5508
R5548
C5508
C5507
C5514
R5554
R5514R5513
R5553
C5513 R5515
R5555
C5515 C5516
R5556
R5516 R5517
R5557
C5517 C5518
R5558
R5518 R55
R55
C5
5
R5549
C5509
R5550
C5510
R5552
C5512
R5551
C5511
R5681
R5680
R5583
R5582
R5581
R5589
R5588
R5587
D5651
R5804R5803
C5701
C5702
C5703
C5704
C5705
C5706
C5707
R5801
R5810
R5808
R5809
Q5651
Q5652
R5656
R5812
R5811
R5653
R5652
R5655
R5800
R5813
R5814
1
FLAC
FLAC
+24V
-24V
GND
APOWER
POFF
10S
-12V
GND
+12V
-VP
SEC1H
VOLH
THRM
PRO
30
31 50
5180
81
100
1
30
15
16
Q5502
Q5502
1
R5599
1
Q5503
R5591
U05 AMPLIFIER PC BOARD
(NAAF-8523)
Soldering side
A
1
2
3
4
5
BCDEFGH

TX-SR303/303E
PRINTED CIRCUIT BOARD VIEWS-7
TX-SR303/303E
Q5600 Q5610
Q5601 Q5611
R5600
R5610 R5620
R5611 R5621
R5601
R5607
R5627R5617
R5626R5616
R5606
Q5617Q5607 Q5616Q5606
Q5609
Q5608
R5605
R5625R5615
R5624R5614
R5604
Q5615Q5605 Q5614Q5604
Q5602 Q5612
Q5603 Q5613
R5602
R5612 R5622
R5613 R5623
R5603
R5633
R5634
R5630
C5632
R5619
R5618
R5609
R5608
Q5700
P6011A
5
18
5
58
5
18 R5519
R5559
C5519 C5520
R5560
R5520
R5562
C5522
R5522
C5521
R5561
R5521
R5523
C5524
R5564
C5523
R5563 R5524
C5525
R5565
R5525
C5526
R5566
R5526
R5527
C5527
R5567 C5528
R5528
R5568
C5529
R5529
R5569 C5530
R5570
R5530
R5531
C5531
C5532
R5571
R5572
R5532
C5708
C5709
C5710
C5711
P6011B
-VP
FLAC
FLAC
VPOWER
HPDET
APOWER
SEC1H
VOLH
THRM
PRO
1
U05 AMPLIFIER PC BOARD
(NAAF-8523)
Soldering side
A
1
2
3
4
5
BCDEFGH

TX-SR303/303E
PRINTED CIRCUIT BOARD VIEWS-7
Q5501
Q5501
R5501 R5502
R5700
R5702
R5704
R5706
Q5600 Q5610
Q5601 Q5611
R5600
R5610 R5620
R5611 R5621
R5601
R5607
R5627R5617
R5626R5616
R5606
Q5617Q5607 Q5616Q5606
Q5609
Q5608
R5605
R5625R5615
R5624R5614
R5604
Q5615Q5605 Q5614Q5604
Q5602 Q5612
Q5603 Q5613
R5602
R5612 R5622
R5613 R5623
R5603
Q5671
Q5672
Q5630
R5632
R5633
R5634
R5630
R5631
C5631
C5632
R5619
R5618
R5609
R5608
Q5700
R5592
R5593
R5590
R5594
C5590
R5597
R5596
C5591
R5598
R5595
R5806
R5802
R5663
R5662
R5805
R5807
R5541 R5542
P6011A
C5501 C5502
R5503
R5543
R5504
R5544
R5506
R5505
R5545 R5546
C5506C5505 R5547
R5507
R5508
R5548
C5508
C5507
C5514
R5554
R5514R5513
R5553
C5513 R5515
R5555
C5515 C5516
R5556
R5516 R5517
R5557
C5517 C5518
R5558
R5518 R5519
R5559
C5519 C5520
R5560
R5520
R5562
C5522
R5522
C5521
R5561
R5521
R5523
C5524
R5564
C5523
R5563 R5524
C5525
R5565
R5525
C5526
R5566
R5526
R5527
C5527
R5567 C5528
R5528
R5568
C5529
R5529
R5569 C5530
R5570
R5530
R5531
C5531
C5532
R5571
R5572
R5532
R5549
C5509
R5550
C5510
R5552
C5512
R5551
C5511
R5681
R5680
R5583
R5582
R5581
R5589
R5588
R5587
D5651
R5804R5803
C5701
C5702
C5703
C5704
C5705
C5706
C5707
C5708
C5709
C5710
C5711
R5801
R5810
R5808
R5809
Q5651
Q5652
R5656
R5812
R5811
R5653
R5652
R5655
R5800
R5813
R5814
1
P6011B
FLAC
FLAC
+24V
-24V
GND
APOWER
POFF
10S
-12V
GND
+12V
-VP
-VP
FLAC
FLAC
VPOWER
HPDET
APOWER
SEC1H
VOLH
THRM
PRO
30
31 50
5180
81
100
1
30
15
16
Q5502
Q5502
1
R5599
1
Q5503
R5591
U05 AMPLIFIER PC BOARD
(NAAF-8523)
Soldering side
A
1
2
3
4
5
BCDEFGH

TX-SR303/303E
PRINTED CIRCUIT BOARD VIEWS-8
JL6952B
JL6951B
J6403
J6412
J6402
J6413
J6408
J6409
J6401
J6405
J6406
J6404
J6407
J6410
J6411
P995A
19 18 17 16 15
P996A
P997A
NCPS-8524
25138524
0
RED
BLU
BLK
Q6380
P6380
C6380
C6381
JL6402B
THRM
+5V
MPUGND
G
O
V
0
NCETC-8526
25138526
12
12
17
17
15
25
7
7
U06 SEC. TERMINAL-2 PC BOARD
(NAPS-8524)
Component side
U08 THERMAL SENSOR PC BOARD
(NAETC-8526)
Component side
A
1
2
3
4
5
BCD

TX-SR303/303E
PRINTED CIRCUIT BOARD VIEWS-9
NCPS-8544
25138544C
T3.15AL250V
6.3A 125V
P902
P902
P901A
T902
T902
AC-G
S902
S902
F902B
F902A
F901B
F901A
F903A
F903B
D925
AC-H
120V220V
POWERD
MPUGND
+12VD
+10VS
POFFVP
F903
F901
F902
P926 P925
J901
J906
RL901
RL901
C901
C901 J914
J907
J918
J900
P912
P912
J902
AC CORD
TRANS-IN
C930
J905
Q930
J917
J913
J916
J915
D930
D931
C922
J909
J911
J908
J912
D923
D921
D922
D924 C921
D932
J921
J922
R930
R931
J903
J910
J919
C931
C932
R932
R933
C
I
G
O
A
C922
5A 125V
P931B
P909
D935
R934
D933
J923
P917
P918
J924
D934
C933
NNLL
AC-GAC-H
0
1234
578
56789
17
12
17
17
12
7
7
12
20 30 12
27
1720
7
17
27
7
U11 POWER SUPPLY-1 PC BOARD
(NAPS-8544)
Component side
A
1
2
3
4
5
BCD

TX-SR303/303E
PRINTED CIRCUIT BOARD VIEWS-10
25138547
NCPS-8547
14 13 12 11 10 9 8
JL9501A
0
F9501B
F9501A
R9593
R9591
R9592
R9594
C9591
2.5A 125V
F9501
NCPS-8546
25138546
JL9501B
FLAC1
FLAC2
S3GND
SEC3-2
SEC3-1
SEC2-2
SEC2-1
C9001
C9004
C9004
C9003
C9003
C9009
C9009
C9014
C9014
R9003
R9004 R9002
Q9002
D9012
R9005
C9015
C9016
R9007
J951
P9002 P9003
E9001
POFFVP
+10VS
+12VD
MPUGND
POWERD
D9706
D9705
C9708
J950
D9002
D9001
D9003
D9004
J954
J952
P9502A
J953 D9009
D9013
J955
J963
Q921
R922
R923
P931A
FLAC2
FLAC1
+24V
S3GND
-24V
POWER
POFFV
+10VS
+12VD
MPUGND
SEC2-1
SEC2-2
-VP
BE
E
BQ9021
Q9023
Q9022
C9021
J960
D9022 R9022
J961
D9026
R9024
D9025
J959
D9024
D9023
R9023
J958
J957
E
E
E
B
B
B
NC
J962
J956
D9027
C9022
R924
J964
R9025
2
7
7
27
25
7
7
20
15
20
22
U13 POWER SUPPLY-2 PC BOARD
(NAPS-8546)
Component side
U14 SEC. TERMINAL-1 PC BOARD
(NAPS-8547)
Component side
A
1
2
3
4
5
BCD

TX-SR303/303E
PRINTED CIRCUIT BOARD VIEWS-11
L6600
L6600
L6601
L6601
R6600
R6610
R6611
SWE
SW
SBE
SB
R6601
J6602
J6604
SLSPE
SRSPE
CSPE
RSPE
LSPE
BREBLE BRBL
JL6600B JL6603B
SBLSPE
SBRSPE
RLGND
+24V
LSP
RSP
CSP
SLSP
SRSP
SBLSP
SBRSP
RL6600
RL6600
J6603
D6600
C6600
D6603
C6603
R6614
R6603
J6628
R6613
L6603
L6603
RL6603
RL6603
R6604
J6629
L6604
L6604
J6605
J6606
R6616
J6635
R6606
L6606
L6606
R6605
J6631
L6605
L6605
R6615
J6623
J6614
J6615
R6690 RL6605
RL6605
RL6607
RL6607
D6605
D6607
C6605
C6607
FRLD
Z2RLD
CSRLD
RLGND
SBRLD
P6607
P6607
RL6602
RL6602 L6602
L6602
R6602
J6617
R6612
C6643
C6653 C6644 C6655 C6645
C6641
C6651C6640 C6657 C6647 C6648 C6658
LE L RE R CE C SLE SL SRE SR
C6650
J6616
J6621
J6609 J6633
J6632
J6619
J6620
P6690
D6602
C6602
J6625
J6622
J6627
J6630
J6624 J6626
J6607
J6613
J6611
J6608
J6612
J6600
J6601
J6618
J6610
J6636
J6640
NCETC-8548
25138548 0
P6600
P6600
C6642
C6652
C6654
J6641
J6638
J6634
JL2006B
12
7
12
17
15 22
12
12
12
17
7
20 17
12
22
17
7
27
25
30
27
15
U15 SPEAKER TERMINAL
PC BOARD
(NAETC-8548)
Component side
A
1
2
3
4
5
BCD

TX-SR303/303E
PRINTED CIRCUIT BOARD VIEWS-12
C1001
C1002
C1003
C1004
C1005
C1006
C1007
C1008
C1009
C1010
C1011
C1012
C1013
C1014
C1015
C1016
C1020
C1021
C1022
C1023
C1024
C1025
C1026
C1027
D1002
D1001
Q1001
Q1002
Q1003
Q1004
Q1005
Q1006
Q1007
Q1008
Q1009
Q1010
Q1011
Q1012 Q1013
R1001
R1002
R1003
R1004
R1005
R1006
R1007
R1008
R1009
R1010
R1011
R1012
R1013
R1014
R1015
R1016
R1017
R1018
R1019
R1020
R1021
R1022
R1023
R1024
R1025
R1026
R1027
R1028R1030
P2005A P1088
SPRLF
SPRLCS
SPRLSB
SPRLZ2
MONIMUTE
V1MUTE
CONTB
CONTA
G
+12V
Q1015
Q1016
Q1017
Q1018
CONTC
CONTD
FRONTV
DVD
V2-IN MONITOR
DVD-IN
V1-OUT V1-IN
V2-IN
V1-IN
J1026
J1025
J1024
Z2RLD
SBRLD
CSRLD
FRLD
RLGND
P1002
P1002
P1001
P1001
P1004
P1004
P1003
P1003 V3-IN
MONITORV1-OUT
J1004
J1006
J1005
J1007
J1012
J1011
J1010
J1009
J1014
C1032
C1017
R1031
J1031
J1032
J1028
J1019
J1017
J1013
J1027
J1015
J1008
J1030
J1029
J1016
J1021
J1020
J1034
J1033
J1022
J1023
J1018
J1003
J1001
J1002
25138549
NCVD-8549
0
B
B
B
B
B
B
B
B
BBBB
E
E
E
E
E
E
E
E
BE
BE
P1089
JL2006A
EEEE
J1035
30
15
27
15
15
15
7
15
17
7
12
15
12
22
20
17
15
U16 VIDEO PC BOARD
(NAVD-8549)
Component side
A
1
2
3
4
5
BCD

TX-SR303/303E
PRINTED CIRCUIT BOARD VIEWS-13
NCAF-8550
25138550
P6001A
P5504A P5503A
L
R
SBL
SBR
SL
SR
C
B-
B+
+B1
-B1
NF
B-
B+
+B1
-B1
NF
P6011B
L
CR
SL
SBR
P5019
JL6006A
B-
B+
+B1
-B1
NF
P6000A
P6002A
NF
-B1
+B1
B+
B-
P6003AP6004A
B-
B+
+B1
-B1
NF
P6005A
E
E
E
E
J5009 J5013
J5010
J5012
J5011
J5008
J5007
J5006J5005
J5003 J5004
SR
SBL
J5001
J5002
J5000
E
E
P6022
P6021
NF
-B1
+B1
B+
B-
B-
B+
+B1
-B1
NF
0
C5054 R5184
R5194
R5204
Q5034
R5164
R5064
R5094
R5104
D5004
Q5054
C5094
R5134
R5114
J5134
C5114
C5104
R5174
Q5044
R5074
R5084C5024
R5054 C5084
R5034
R5234
J5144
B
B
B
E
E
E
C5053 R5183
R5193
R5203
Q5033
R5163
R5063
R5093
R5103
D5003
Q5053
C5093
R5133
R5113
J5133
C5113
C5103
R5173
Q5043
R5073
R5083C5023
R5053 C5083
R5033
R5233
J5143
B
B
B
E
E
E
C5052 R5182
R5192
R5202
Q5032
R5162
R5062
R5092
R5102
D5002
Q5052
C5092
R5132
R5112
J5132
C5112
C5102
R5172
Q5042
R5072
R5082C5022
R5052 C5082
R5032
R5232
J5142
B
B
B
E
E
E
C5051 R5181
R5191
R5201
Q5031
R5161
R5061
R5091
R5101
D5001
Q5051
C5091
R5131
R5111
J5131
C5111
C5101
R5171
Q5041
R5071
R5081C5021
R5051 C5081
R5031
R5231
J5141
B
B
B
E
E
E
C5050 R5180
R5190
R5200
Q5030
R5160
R5060
R5090
R5100
D5000
Q5050
C5090
R5130
R5110
J5130
C5110
C5100
R5170
Q5040
R5070
R5080C5020
R5050 C5080
R5030
R5230
J5140
B
B
B
E
E
E
C5055 R5185
R5195
R5205
Q5035
R5165
R5065
R5095
R5105
D5005
Q5055
C5095
R5135
R5115
J5135
C5115
C5105
R5175
Q5045
R5075
R5085C5025
R5055 C5085
R5035
R5235
J5145
B
B
B
E
E
E
C5011
R5041
R5011
R5021
C5041
Q5011
Q5001
R5001
B
B
E
E
C5001
C5031
C5012
R5042
R5012
R5022
C5042
Q5012
Q5002
R5002
B
B
E
E
C5002
C5032
C5013
R5043
R5013
R5023
C5043
Q5013
Q5003
R5003
B
B
E
E
C5003
C5033
C5014
R5044
R5014
R5024
C5044
Q5014
Q5004
R5004
B
B
E
E
C5004
C5034
C5016
R5046
R5016
R5026
C5046
Q5016
Q5006
R5006
B
B
E
E
C5006
C5036
C5015
R5045
R5015
R5025
C5045
Q5015
Q5005
R5005
B
B
E
E
C5005
C5035
C5010
R5040
R5010
R5020
C5040
Q5010
Q5000
R5000
B
B
E
C5000 C5030 E
C5056 R5186
R5196
R5206
Q5036
R5166
R5066
R5096
R5106
D5006
Q5056
C5096
R5136
R5116
J5136
C5116
C5106
R5176
Q5046
R5076
R5086C5026
R5056 C5086
R5036
R5236
J5146
B
B
B
E
E
E
1717
17
20
30
17 12
30
20
17 30
U17 DRIVER AMPLIFIER
PC BOARD
(NAAF-8550)
Component side
A
1
2
3
4
5
BCD

TX-SR403/8340
IC BLOCK DIAGRAMS AND TERMINAL DESCRIPTIONS-1
Q201: CS494003CQZ (Multi-Standard Audio Decoder)-1/11
BLOCK DIAGRAM
PIN LAYOUT
SD_ADDR10, EXTA10
SD_BA, EXTA19
VDDSD1
VSSSD1
SD_CS
SD_ADDR4, EXTA4
SD_ADDR5, EXTA5
SD_ADDR6, EXTA6
SD_CLK_EN
SD_ADDR7, EXTA7
SD_ADDR8, EXTA8
SD_CLK_IN
SD_ADDR9, EXTA9
SD_CLK_OUT
VDDSD2
VSSSD2
SD_DATA8, EXTA11
SD_DATA9, EXTA12
SD_DATA10, EXTA13
SD_DATA11, EXTA14
SD_DATA12, EXTA15
VDDSD3
VSSSD3
SD_DATA13, EXTA16
NC5
SD_DATA14, EXTA17
SD_DATA15, EXTA18
SD_DQM1
SD_DATA7, EXTD7
SD_DATA6, EXTD6
VDDSD4
VSSSD4
SD_DATA5, EXTD5
SD_DQM0
SD_DATA4, EXTD4
SD_DATA3, EXTD3
LRCLK0
AUDATA2
AUDATA3, XMT958A
HDATA3, GPIO3
SCLK0
HDATA4, GPIO4
AUDATA4, GPIO28
VSS2
VDD2
MCLK
SCLK1
HDATA5, GPIO5
HDATA6, GPIO6
HDATA7, GPIO7
AUDATA5, GPIO29
AUDATA6, GPIO30
AUDATA7, XMT958B, GPIO31
VSS1
VDD1
NC1
NC2
LRCLK1
SCLKN, GPIO22
LRCLKN, GPIO23
NC3
NC4
SDATAN0, GPIO24
SDATAN1, GPIO25
SDATAN2, GPIO26
SDATAN3, GPIO27
SD_CAS
SD_RAS
SD_ADDR3, EXTA3
SD_ADDR2, EXTA2
SD_ADDR1, EXTA1
SD_ADDR0, EXTA0
AUDATA1
AUDATA0
CMPCLK, FSCLKN2
HDATA2, GPIO2
VSS3
VDD3
HDATA1, GPIO1
HDATA0, GPIO0
CMPREQ, FLRCLKN2
CMPDAT, FSDATAN2
FLRCLKN1
WR, DS, GPIO10
RD, R/W, GPIO11
PLLVSS
FILT2
FILT1
PLLVDD
XTALO
CLKIN, XTALI
CLKSEL
CS, GPIO9
A0, GPIO13
FSDATAN1
VDD4
VSS4
FSCLKN1, STCCLK2
SCS
SCDIN
VSS5
VDD5
A1, GPIO12
SCDOUT, SCDIO
HINBSY, GPIO8
SCCLK
UHS2, CS_OUT, GPIO17
RESET
UHS0, GPIO18
UHS1, GPIO19
INTREQ
FA1, FSCDIN
GPIO20
FAO, FSCCLK
FHS2, FSCDIO, FSCDOUT
GPIO21
FDAT7
VDD6
VSS6
FHS0, FWR, FDS
FHS1, FRD, FR/W
FDAT6
FCS
FINTREQ
FDBCK
FDAT5
FDAT4
VDD7
VSS7
FDAT3
FDBDA
FDAT2
DBDA
DBCK
FDAT1
TEST
FDAT0
NV_WE, GPIO16
NV_OE, GPIO15
NV_CS, GPIO14
SD_WE
SD_DATA0, EXTD0
SD_DATA1, EXTD1
SD_DATA2, EXTD2
75
80
85
90
95
100
105
70
65
60
55
50
45
40
110
115
120
125
130
135
140
144
1
5
10
15
20
25
30
35
External Memory
Interface
Digital
Audio
Output
DAO 0
DAO 1
GPIO and I/O
Controller
Parallel or Serial
Host Interface
DSP C
Serial
Audio
Interface
SAI 1
SAI 0
SAI 2
SAI 3
Programmable
32 - Bit DSP
DSP
ROM
DSP
RAM
Multi-Standard
Audio decoder
Compressed
Digital
Interface
Digital
Audio
Input
Frame
Shifter
Input
Buffer
RAM
DSP AB
PLL Clock
Manager
Internal Bus
Shared Memory
Parallel or Serial
Host Interface

TX-SR403/8340
IC BLOCK DIAGRAMS AND TERMINAL DESCRIPTIONS-2
Q201: CS494003CQZ (Multi-Standard Audio Decoder)-2/11
TERMINAL DESCRIPTION
FILT1 --- Phase-Locked Loop Filter
Connects to an external filter for the on-chip phase-locked loop.
FILT2 --- Phase-Locked Loop Filter
Connects to an external filter for the on-chip phase-locked loop.
CLKIN, XTALI --- External Clock input / Crystal Oscillator input
CS494003 clock input. This pin accepts an external clock input signal that is used to drive the
internal core logic. When in internal clock mode (CLKSEL == VSS), this input is connected to
the internal PLL from which all internal clocks are derived. When in external clock mode
(CLKSEL == VDD), this input is connected to the DSP clock. Alternatively, a 12.288 MHz
crystal oscillator can be connected between XTALI and XTALO. INPUT
XTALO --- Crystal Oscillator Output
CLKSEL --- DSP Clock select
This pin selects the internal source clock. When CLKSEL is low, CLKIN is connected to the
internal PLL from which all internal clocks are derived. When CLKSEL is high, the PLL is
bypassed and the external clock directly drives all input logic. INPUT
FDAT7 --- DSPAB Bidirectional Data Bus
In parallel host mode, these pins provide a bidirectional data bus to DSPAB. These pins have
an internal pull-up.
BIDIRECTIONAL - Default : INPUT
FA0, FSCCLK --- Host Parallel Address Bit Zero or Serial Control Port Clock
In parallel host mode, this pin serves as one of two address input pins used to select one of
four parallel resisters. In serial host mode, this pin serves as the serial control clock signal,
specifically as the SPI clock input. INPUT
FDAT6
FDAT5
FDAT4
FDAT3
FDAT2
FDAT1
FDAT0
Crystal oscillator output. OUTPUT

TX-SR403/8340
IC BLOCK DIAGRAMS AND TERMINAL DESCRIPTIONS-3
Q201: CS494003CQZ (Multi-Standard Audio Decoder)-3/11
FA1, FSCDIN --- Host Address Bit One or SPI Serial Control Data input
FHS1, FRD, FR/W --- Mode Select Bit 1 or Host Parallel Output Enable or Host Parallel R/W
FHS0, FWR, FDS --- Mode Select Bit 0 or Host Write Strobe or Host Data Strobe
FCS --- Host Parallel Chip Select, Host Serial SPI Chip Select
In parallel host mode, this pin serves as the active-low chip-select input signal. In serial host
SPI mode, this pin is used as the active-low chip-select input signal. INPUT
FHS2, FSCDIO, FSCDOUT --- Mode Select Bit 2 or Serial Control Port data Input and Output,
Parallel Port Type Select
FINTREQ --- Control Port Interrupt Request
Open-drain interrupt-request output. This pin is driven low to indicate that the DSP has
outgoing control data that should be read by the host.
OPEN DRAIN I/O - Requires 3.3k Ohm Pull - Up
FSCLKN1, STCCLK2 --- PCM Audio Input Bit Clock
Digital-audio bit clock input. FSCLKN1 operates asynchronously from all other DSPAB clocks.
In master mode, FSCLKN1 is derived from DSPAB's internal clock generator. The active edge
of FSCLKN1 can be programmed by the DSP.
BIDIRECTIONAL - Default: INPUT
In parallel host mode, this pin serves as one of two address input pins used to select one of
four parallel resisters. In SPI serial host mode, this pin serves as the data input. INPUT
DSPAB control port mode select bit 1. This bit is one of 3 control port select bits that are
sampled on the rising edge of RESET to determine the control port mode of DSPAB. In Intel
parallel host mode, this pin serves as the active-low data bus enable input. In Motorola parallel
host mode, this pin serves as the read-high/write-low control input signal. In serial host mode,
this pin can serve as the external memory active-low data-enable output signal.
BIDIRECTIONAL - Default: INPUT
DSPAB control port mode select bit 0. This bit is one of 3 control port select bits that are
sampled on the rising edge of RESET to determine the control port mode of DSPAB. In Intel
parallel host mode, this pin serves as the active-low data-write-input strobe. In Motorola
parallel host mode, this pin serves as the active-low data-strove-input signal. In serial host
mode, this pin can serves as the external-memory active-low write-enable output signal.
BIDIRECTIONAL - Default: INPUT
DSPAB control port mode select bit 2. This bit is one of 3 control port select bits that are
sampled on the rising edge of RESET to determine the control port mode of DSPAB. In SPI
mode this pin serves as the data output pin. In parallel host mode, this pin is sampled at the
rising edge of RESET to configure the parallel host mode as an Intel type bus or as a
Motorola type bus. BIDIRECTIONAL - Default: INPUT

IC BLOCK DIAGRAMS AND TERMINAL DESCRIPTIONS-4
Q201: CS494003CQZ (Multi-Standard Audio Decoder)-4/11
TX-SR403/8340
FLRCLKN1 --- PCM Audio Input Sample Rate clock
Digital-audio frame clock input. FLRCLKN1 typically is run at the sampling frequency.
FLRCLKN1 operates asynchronously from all other DSPAB clocks. The polarity of FLRCLKN1
for a particular subframe can be programmed by the DSP.
BIDIRECTIONAL - Default: INPUT
FSDATAN1 --- PCM Audio Data Input One
Digital-audio data input can accept from one compressed line or 2 channels of PCM data.
FSDATAN1 can be sampled with either edge of FSCLKN1, depending on how FSCLKN1 has
been configured. INPUT
CMPCLK, FSCLKN2 --- PCM Audio Input Bit Clock
Digital- audio bit clock input. FSCKN2 operates asynchronously from all other DSPAB clocks.
The active edge of FSCLKN2 can be programmed by the DSP.
BIDIRECTIONAL - Default: INPUT
CMPDAT, FSDATAN2 --- PCM Audio Data Input Number Two
Digital-audio data input that can accept either one compressed line or 2 channels of PCM
data. FSDATAN2 can be sampled with either edge of FSCLK2, depending on how FSCLKN2
has been configured.
BIDIRECTIONAL - Default: INPUT
FDBCK --- Reserved
This pin is reserved and should be pulled up with an external 3.3k resistor. INPUT
FDBDA --- Reserved
This pin is reserved and should be pulled up with an external 3.3k resistor.
BIDIRECTIONAL - Default: INPUT
PLLVDD --- PLL Supply Voltage
2.5V PLL supply.
PLLVSS --- PLL Ground Voltage
PLL ground.
RESET --- Master Reset Input
Asynchronous active-low master reset input. Reset should be low at power-up to initialize the
DSP and to guarantee that the device is not active during initial power-on stabilization periods.
At the rising edge of reset the host interface mode of DSPAB is selected contingent on the
state of the FHS0, FHS1, and FHS2 pins. At the rising edge of reset the host interface mode
of DSPC is selected contingent on the state of the UHS0, UHS1, and UHS2 pins. If reset is
low all bidirectional pins are high-Z inputs. INPUT

IC BLOCK DIAGRAMS AND TERMINAL DESCRIPTIONS-5
Q201: CS494003CQZ (Multi-Standard Audio Decoder)-5/11
TX-SR403/8340
TEST --- Reserved
This should be tied low for normal operation. INPUT
MCLK --- Audio Master Clock
Bidirectional master audio clock. As an output, MCLK provides a low jitter oversampling clock.
MCLK supports all standard oversampling frequencies. BIDIRECTIONAL - Default: INPUT
SCLK0 --- Audio Output Bit Clock
Bidirectional digital-audio output bit clock for AUDATA0, AUDATA1, AUDATA2, and AUDATA3.
As an output, SCLK0 can provide 32 Fs, 64 Fs, 128 Fs, 256 Fs or 512 Fs frequencies and is
synchronous to MCLK. As an input, SCLK0 is independent of MCLK.
BIDIRECTIONAL - Default: INPUT
SCLK1 --- Audio Output Bit Clock
Bidirectional digital-audio output bit clock for AUDATA4, AUDATA5, AUDATA6, and AUDATA7.
As an output, SCLK1 can provide 32 Fs, 64 Fs, 128 Fs, 256 Fs, or 512 Fs frequencies and is
synchronous to MCLK. As an input, SCLK1 is independent of MCLK.
BIDIRECTIONAL - Default: INPUT
LRCLK0 --- Audio Output Sample Rate Clock
Bidirectional digital-audio output frame clock for AUDATA0, AUDATA1, AUDATA2, and
AUDATA3. AS an output, LRCLK0 can provide all standard output sample rates up to 192 kHz
and is synchronous to MCLK. As input, LRCLK0 is independent of MCLK.
BIDIRECTIONAL - Default: INPUT
LRCLK1 --- Audio Output Sample Rata Clock
Bidirectional digital-audio output frame clock for AUDATA4, AUDATA5, AUDATA6, and
AUDATA7. AS an output, LRCLK1 can provide all standard output sample rates up to 192 kHz
and is synchronous to MCLK. As input, LRCLK1 is independent of MCLK.
BIDIRECTIONAL - Default: INPUT
AUDATA0 --- Digital Audio Output 0
PCM digital-audio data output. OUTPUT
AUDATA1 --- Digital Audio Output 1
PCM digital-audio data output. OUTPUT
AUDATA2 --- Digital Audio Output 2
PCM digital-audio data output. OUTPUT

TX-SR403/8340
IC BLOCK DIAGRAMS AND TERMINAL DESCRIPTIONS-6
Q201: CS494003CQZ (Multi-Standard Audio Decoder)-6/11
SDATAN0, GPIO24 --- PCM Audio Input Data, General Purpose I/O
Digital-audio PCM data input. This pin can act as a general-purpose input or output that can
be individually configured and controlled by DSPC. BIDIRECTIONAL - Default: INPUT
LRCLKN, GPIO23 --- PCM Audio Input Sample Rate Clock, General Purpose I/O
Digital-audio frame clock input. LRCLKN operates asynchronously from all other DSPAB
clocks. The polarity of LRCLKN for a particular subframe can be programmed by the DSP.
this pin can act as a general-purpose input or output that can be individually configured and
controlled by DSCP. BIDIRECTIONAL - Default: INPUT
SLCKN, GPIO22 --- PCM Audio Input Bit Clock, General Purpose I/O
Digital-audio bit clock that is an input. SCLKN operates asynchronously from all other DSPAB
clocks. The active edge of SCLKN can be programmed by the DSP. This pin can act as a
general-purpose input or output that can be individually configured and controlled by DSPC.
BIDIRECTIONAL - Default: INPUT
DBDA --- Debug Data
Must be tied high to 3.3k ohms resistor. BIDIRECTIONAL - Default: INPUT
DBCK --- Debug Clock
Must be tied high to 3.3k ohm resistor. INPUT
AUDATA7, XMT958B, GPIO3 --- Digital Audio Output 7, S/PDIF Transmitter, General Purpose I/O
CMOS level output that contains a biphase-mark encoded (S/PDIF) IEC60958 signal or digital
audio data which is capable of carrying two channels of PCM digital audio. This pin can also
act as a general-purpose input or output that can be individually configured and controlled by
DSCP. BIDIRECTIONAL - Default: OUTPUT
AUDATA6, GPIO30 --- Digital Audio Output 6, General Purpose I/O
PCM digital-audio data output. This pin can act as a general-purpose input or output that can
be individually configured and controlled by DSPC. BIDIRECTIONAL - Default: OUTPUT
AUDATA5, GPIO29 --- Digital Audio Output 5, General Purpose I/O
PCM digital-audio data output. This pin can act as a general-purpose input or output that can
be individually configured and controlled by DSPC. BIDIRECTIONAL - Default: OUTPUT
PCM digital-audio data output. This pin can act as a general-purpose input or output that can
be individually configured and controlled by DSPC. BIDIRECTIONAL - Default: OUTPUT
AUDATA4, GPIO28 --- Digital Audio Output 4, General Purpose I/O
AUDATA3, XMT958A --- Digital Audio Output 3, S/PDIF Transmitter
CMOS level output that outputs a biphase-mark encoded (S/PDIF) IEC60958 signal or digital
audio data which is capable of carrying two channels of PCM digital audio. OUTPUT

TX-SR403/8340
IC BLOCK DIAGRAMS AND TERMINAL DESCRIPTIONS-7
Q201: CS494003CQZ (Multi-Standard Audio Decoder)-7/11
SDATAN1, GPIO25 --- PCM Audio Input Data, General purpose I/O
Digital-audio PCM data input. This can act as a general-purpose input or output that can
be individually configured and controlled by DSPC. BIDIRECTIONAL - Default: INPUT
SDATAN2, GPIO26 --- PCM Audio Input Data, General purpose I/O
Digital-audio PCM data input. This can act as a general-purpose input or output that can
be individually configured and controlled by DSPC. BIDIRECTIONAL - Default: INPUT
SDATAN3, GPIO27 --- PCM Audio Input Data, General purpose I/O
Digital-audio PCM data input. This can act as a general-purpose input or output that can
be individually configured and controlled by DSPC. BIDIRECTIONAL - Default: INPUT
SCS --- Host Serial SPI Chip Select
SPI mode active-low chip-select input signal. INPUT
SCCLK --- Serial Control Port Clock
This pin serves as the serial SPI clock input. INPUT
SCDIN --- SPI Serial Control Data Input
In SPI mode this pin serves as the data input pin. INPUT
SCDOUT, SCDIO --- Serial Control Port Data Input and Output
In SPI mode this pin serves as the data output pin. BIDIRECTIONAL - Default: OUTPUT in
SPI mode.
INTREQ --- Control Port Interrupt Request
Open-drain interrupt-request output. This pin is driven low to indicate that DSPC has outgoing
control data and should be serviced by the host.
OPEN DRAIN I/O - Requires 3.3k Ohm Pull-Up
HDATA7, GPIO7 --- DSPC Bidirectional Data Bus, General Purpose I/O
HDATA6, GPIO6
HDATA5, GPIO5
HDATA4, GPIO4
HDATA3, GPIO3
HDATA2, GPIO2
HDATA1, GPIO1

TX-SR403/8340
IC BLOCK DIAGRAMS AND TERMINAL DESCRIPTIONS-8
Q201: CS494003CQZ (Multi-Standard Audio Decoder)-8/11
HDATA0, GPIO0
In parallel host mode, these pins provide a bidirectional data bus. These pins can also act as
general purpose input or output pins that can be individually configured and controlled by
DSPC. These pins have an internal pull-up. BIDIRECTIONAL - Default: INPUT
A0, GPIO13 --- Host Parallel Address Bit 0, General Purpose I/O
In parallel host mode, this pin serves as the LS Bit of a two bit address input used to select
one of four parallel registers. This pin can act as a general-purpose input or output that can be
individually configured and controlled by DSPC. BIDIRECTIONAL - Default: INPUT
A1, GPIO12 --- Host Address Bit 1, General Purpose I/O
In parallel host mode, this pin serves as the MS Bit of a two bit address input used to select
one of four parallel registers. This pin can act as a general-purpose input or output that can be
individually configured and controlled by DSPC. BIDIRECTIONAL - Default: INPUT
RD, R/W, GPIO11 --- Host Parallel Output Enable, Host Parallel R/W, General Purpose I/O
In parallel host mode, this pin serves as the active-low data bus enable input. In Motorola
parallel host mode, this pin serves as the read-high/white-low control input signal. This pin can
act as a general-purpose input or output that can be individually configured and controlled by
DSPC. This pin has an internal pull-up. BIDIRECTIONAL - Default: INPUT
WR, DS, GPIO10 --- Host Write Strobe, Host Data Strobe, General Purpose I/O
In Intel parallel host mode, this pin serves as the active-low data bus enable input. In Motorola
parallel host mode, this pin serves as the read-high/write-low control input signal. In serial host
mode, this pin can serve as a general purpose input or output bit. This pin can act as a
general-purpose input or output that can be individually configured and controlled by DSPC.
This pin has an internal pull-up.
BIDIRECTIONAL - Default: INPUT
CS, GPIO9 --- Host Parallel Chip Select, General Purpose I/O
In parallel host mode, this pin serves as the active-low chip-select input signal. This pin can
act as a general-purpose input or output that can be individually configured and controlled by
DSPC. This pin has an internal pull-up. BIDIRECTIONAL - Default: INPUT
HINBSY, GPIO8 --- Input host Message Status, General Purpose I/O
This pin is indicates that serial or parallel communication data written to the DSP has not been
read yet. This pin can act as a general-purpose input or output that can be individually
configured and controlled by DSPC. This pin has an internal pull-up. BIDIRECTIONAL
Default: OUTPUT
SD_DATA15, EXTA18 --- SDRAM Data Bus, SRAM External Address Bus
SD_DATA14, EXTA17
SD_DATA13, EXTA16
SD_DATA12, EXTA15
SD_DATA11, EXTA14
SD_DATA10, EXTA13

TX-SR403/8340
IC BLOCK DIAGRAMS AND TERMINAL DESCRIPTIONS-9
Q201: CS494003CQZ (Multi-Standard Audio Decoder)-9/11
SD_DATA9, EXTA12
SD_DATA8, EXTA11
SDRAM data bus 15:8. SRAM external address bus 18:11. OUTPUT
SD_DATA7, EXTD7 --- SDRAM Data Bus, SRAM External Data Bus
SD_DATA6, EXTD6
SD_DATA5, EXTD5
SD_DATA4, EXTD4
SD_DATA3, EXTD3
SD_DATA2, EXTD2
SD_DATA1, EXTD1
SD_DATA0, EXTD0
SDRAM data bus 7:0. SRAM external data bus 7:0. BIDIRECTIONAL - Default: INPUT
SD_ADDR10, EXTA10 --- SDRAM Address Bus, SRAM External Address Bus
SD_ADDR9, EXTA9
SD_ADDR8, EXTA8
SD_ADDR7, EXTA7
SD_ADDR6, EXTA6
SD_ADDR5, EXTA5
SD_ADDR4, EXTA4
SD_ADDR3, EXTA3
SD_ADDR2, EXTA2
SD_ADDR1, EXTA1
SD_ADDR0, EXTA0
SDRAM address bus 10:0. SRAM external address bus 10:0. OUTPUT
SD_CLK_OUT --- SDRAM Clock Output
SDRAM clock output. OUTPUT
SD_CLK_IN --- SDRAM Re-timing Clock Input
SDRAM re-timing clock input. INPUT
SD_CLK_EN --- SDRAM Clock Enable
SDRAM clock enable. OUTPUT

IC BLOCK DIAGRAMS AND TERMINAL DESCRIPTIONS-10
Q201: CS494003CQZ (Multi-Standard Audio Decoder)-10/11
TX-SR403/8340
SD_BA, EXTRA19 --- SDRAM Bank Address Select, SRAM External Address Bus
SDRAM bank address select, SRAM external address bus 19. OUTPUT
SD_CS --- SDRAM Chip select
SDRAM chip select. OUTPUT
SD_RAS --- SDRAM Row Address Strobe
SDRAM row address strobe. OUTPUT
SD_CAS --- SDRAM Column Address Strobe
SDRAM column address strobe. OUTPUT
SD_WE --- SDRAM Write Enable
SDRAM write enable. OUTPUT
SD_DQM1 --- SDRAM Data Mask 1
SDRAM data mask 1. OUTPUT
SD_DQM0 --- SDRAM Data Mask 2
SDRAM data mask 0. OUTPUT
NV_CS, GPIO14 --- SRAM Chip Select, General Purpose I/O
SRAM/FLASH chip select. This pin can act as a general-purpose input or output that can be
individually configured and controlled by DSPC. BIDIRECTIONAL - Default: OUTPUT
NV_OE, GPIO15 --- SRAM Output Enable, General Purpose I/O
SRAM/FLASH output enable. This pin can act as a general-purpose input or output that can
be individually configured and controlled by DSPC. BIDIRECTIONAL - Default: OUTPUT
NV_WE, GPIO16 --- SRAM Write Enable, General Purpose I/O
SRAM/FLASH write enable. This pin can act as a general-purpose input or output that can be
individually configured and controlled by DSPC. BIDIRECTIONAL - Default: OUTPUT
UHS2, CS_OUT, GPIO17 --- Mode Select Bit 2, External Serial Memory Chip Select,
General Purpose I/O
DSPC control port mode select bit 2. This pin is sampled at the rising edge of RESET and is
one of three pins used to select the control port mode. In serial control port mode, this pin can
serve as an output to provide the chip-select for a serial EEPROM. This pin can act as a
general-purpose input or output that can be individually configured and controlled by DSPC.
BIDIRECTIONAL - Default: INPUT

TX-SR403/8340
IC BLOCK DIAGRAMS AND TERMINAL DESCRIPTIONS-11
Q201: CS494003CQZ (Multi-Standard Audio Decoder)-11/11
UHS0, GPIO18 --- Mode Select Bit 0, General Purpose I/O
DSPC control port mode select bit 0. This pin is sampled at the rising edge of RESET and is
one of three pins used to select the control port mode. This pin can act as a general-purpose
input or output that can be individually configured and controlled by DSPC.
BIDIRECTIONAL - Default: INPUT
UHS1, GPIO19 --- Mode Select Bit 1, General Purpose I/O
DSPC control port mode select bit 1. This pin is sampled at the rising edge of RESET and is
one of three pins used to select the control port mode. This pin can act as a general-purpose
input or output that can be individually configured and controlled by DSPC.
BIDIRECTIONAL - Default: INPUT
GPIO20 --- General Purpose I/O
This pin can act as a general-purpose input or output that can be individually configured and
controlled by DSPC. This pin has an internal pull-up.
BIDIRECTIONAL - Default: INPUT
GPIO21 --- General Purpose I/O
This pin can act as a general-purpose input or output that can be individually configured and
controlled by DSPC. This pin has an internal pull-up.
BIDIRECTIONAL - Default: INPUT
VDD [7:1] --- 2.5V Supply Voltage
VSS --- 2.5V Ground
2.5V supply voltage.
2.5V ground.
NC[5:1] --- No Connect
Recommended tie to ground.
VDDSD [4:1] --- 3.3V SDRAM / SRAM / EPROM Interface Supply
3.3V SDRAM / SRAM / EPROM supply.
VSSSD --- 3.3V SDRAM / SRAM / EPROM interface Ground
3.3V ground.

TX-SR403/8340
IC BLOCK DIAGRAM AND TERMINAL DESCRIPTIONS-12
Q281: MX26LV040 (4M-Bit CMOS Single Voltage 3V Only High Speed Flash Memory)
PIN LAYOUT TERMINAL DESCRIPTION
BLOCK DIAGRAM
CONTROL
INPUT
LOGIC
PROGRAM/ERASE
HIGH VOLTAGE WRITE
STATE
MACHINE
(WSM)
STATE
REGISTER
MX29LV040
FLASH
ARRAY
X-DECODER
ADDRESS
LATCH
AND
BUFFER
Y-PASS GATE
Y-DECODER
ARRAY
SOURCE
HV COMMAND
DATA
DECODER
COMMAND
DATA LATCH
I/O BUFFER
PGM
DATA
HV
PROGRAM
DATA LATCH
SENSE
AMPLIFIER
Q0-Q7
A0-A18
#CE
#OE
#WE
A11
A9
A8
A13
A14
A17
WE#
VCC
A18
A16
A15
A12
A7
A6
A5
A4
1
2
3
4
5
6
7
8
9
10
11
12
13
14
15
16
OE#
A10
CE#
Q7
Q6
Q5
Q4
Q3
GND
Q2
Q1
Q0
A0
A1
A2
A3
32
31
30
29
28
27
26
25
24
23
22
21
20
19
18
17
MX26LV040
Pin Name Description
A0~A18 Address Input
Q0~Q7 Data Input/Output
CE# Chip Enable Input
WE# Write Enable Input
OE# Output Enable Input
GND Ground Pin
VCC +3.0V single power supply

IC BLOCK DIAGRAMS AND TERMINAL DESCRIPTIONS-13
Q421 : CS42518 (8-Ch Codec with S/PDIF Receiver)-1/4
BLOCK DIAGRAM
TX-SR403/8340
INT
DAC#1
DAC#2
DAC#5
DAC#4
DAC#3
DAC#6
DAC#7
DAC#8
AD1/CDIN
SDA/CDOUT
SCL/CCLK
VLC
OMCK
RMCK
SAI_LRCK
SAI_SCLK
SAI_SDOUT
VLS
ADCIN1
ADCIN2
CX_SDOUT
CX_LRCK
CX_SCLK
CX_SDIN1
CX_SDIN2
CX_SDIN3
CX_SDIN4
RXP0
RXP1/GPO1
RXP2/GPO2
RXP4/GPO4
RXP3/GPO3
RXP7/GPO7
RXP6/GPO6
RXP5/GPO5
MUTEC
FILT+
VQ
REFGND
VA
AGND
AINL+
AINL-
AINR+
AINR-
AOUTA1+
AOUTA1-
AOUTB1+
AOUTB1-
AOUTA2+
AOUTA2-
AOUTB2+
AOUTB2-
AOUTA3+
AOUTA3-
AOUTB3+
AOUTB3-
AOUTA4+
AOUTA4-
AOUTB4+
AOUTB4-
RST
AD0/CS
TXP VARX AGND LPFLT DGND DGND VD VD
Analog Filter
Digital Filter
Volume Control
ADC#1
ADC#2
DEM
ADC
Serial
Data
Digital Filter
Digital Filter
Gain & Chip
Gain & Chip
Internal MCLK
CODEC
Serial
Port
Rx
GPO
MUTE
C&U Bit
Data Buffer
Format
Detector
Clock/Data
Recovery S/P DIF
Decoder
Ref
Control
Port
Mult/Div
Serial
Audio
Interface
Port

TX-SR403/8340
IC BLOCK DIAGRAMS AND TERMINAL DESCRIPTIONS-14
Q421 : CS42518 (8-Ch Codec with S/PDIF Receiver)-2/4
PIN LAYOUT
TERMINAL DESCRIPTION
Pin Name # Pin Description
CX_SDIN1
CX_SDIN2
CX_SDIN3
CX_SDIN4
1
64
63
62
Codec Serial Audio Data Input (Input) - Input for two's complement serial audio data.
CX_SCLK CODEC Serial Clock (Input/Output) - Serial clock for the CODEC serial audio interface
CX_LRCK
VD
DGND
VLC
SCL/CCLK
SDA/CDOUT
AD1/CDIN
CODEC Left Right Clock (Input/ Output) - Determines which channel, Left or Right, is currently active on
the CODEC serial audio data line.
Digital Power (Input) - Positive power supply for the digital section.
Digital Ground (Input) - Ground reference. Should be connected to digital ground.
Control Port Power (Input) - Determines the required signal level for the control port.
Serial Control Port Clock (Input) - Serial clock for the serial control port. Requires an external pull-up
resistor to the logic interface voltage in I2C mode as shown in the Typical Connection Diagram.
Serial Control Data (Input/Output) - SDA is a data I/O line in IC mode and requires an external pull-up
resistor to the logic interface voltage, as shown in the Typical connection Diagram. CDOUT is the output
data line for the control port interface in SPI mode.
Address Bit 1 (I2C)/Serial Control Data (SPI) (Input) - AD1 a chip address pin in I2C mode; CDIN is
the input data line for control port interface in SPI mode.
2
3
4
51
5
52
6
7
8
9
RXP1/GP01
RXP1/GP01
RXP1/GP01
RXP1/GP01
RXP1/GP01
RXP1/GP01
RXP1/GP01
VARX
AGND
LPFLT
MUTEC
AOUTA1-
AOUTA1+
AOUTB1+
AOUTB1-
AOUTA2-
CX_SDIN2
CX_SDIN3
CX_SDIN4
SAI_SCLK
SAI_LRCK
OMCK
ADCIN1
ADCIN2
CX_SDOUT
RMCK
SAI_SDOUT
VLS
DGND
VD
TXP
RXPO
CX_SDIN1
CX_SCLK
CX_LRCK
VD
DGND
VLC
SCL/CCLK
SDA/CDOUT
AD1/CDIN
AD0/CS
INT
RST
AINR-
AINR+
AINL+
AINL-
VQ
FILT+
REFGND
AOUTB4-
AOUTB4+
AOUTA4+
AOUTA4-
VA
AGND
AOUTB3-
AOUTB3+
AOUTA3+
AOUTA3-
AOUTB2-
AOUTB2+
AOUTA2+
48
47
46
45
44
43
42
41
40
39
38
37
36
35
34
33
1
2
3
4
5
6
7
8
9
10
11
12
13
14
15
16
64
63
62
61
60
59
58
57
56
55
54
53
52
51
50
49
17
18
19
20
21
22
23
24
25
26
27
28
29
30
31
32
CS42518

IC BLOCK DIAGRAMS AND TERMINAL DESCRIPTIONS-15
Q421 : CS42518 (8-Ch Codec with S/PDIF Receiver)-3/4
TX-SR403/8340
Pin Name # Pin Description
AD0/CS 10 Address Bit 0 (I2C)/Control Port Chip Select (SPI) (INput) - AD0 is a chip address pin in I2C mode; CS
is the chip select signal in SPI mode.
INT 11 Interrupt (Ountput) - The CS42518 will generate an interrupt condition as per the Interrupt Mask register.
RST 12 Reset (Input) - The device enters a low power mode and all internal registers are reset to their default
settings when low.
AINR-
AINR+
13
14
Differential right Channel Analog Input (Input) - Signals are presented differentially to the delta-sigma
modulators via the AINR+/- pins.
AINL-
AINL+
15
16
Differential right Channel Analog Input (Input) - Signals are presented differentially to the delta-sigma
modulators via the AINR+/- pins.
VQ 17 Quiescent Voltage (Output) - Filter connection for internal quiescent reference voltage.
FILT+ 18 Positive Voltage Reference (Output) - Positive reference voltage for the internal sampling circuits.
REFGND 19 Reference Ground (Input) - Ground reference for the internal sampling circuits.
AOUTA1 +, -
AOUTB1 +, -
AOUTA2 +, -
AOUTB2 +, -
AOUTA3 +, -
AOUTB3 +, -
AOUTA4 +, -
AOUTB4 +, -
36, 37
35, 34
32, 33
31, 30
28, 29
27, 26
22, 23
21, 20
Differential Analog Output (Output) - The full-scale differential analog output level is specified in the
Analog Characteristics specification table.
VA
VARX
24
41
Analog Power (Input) - Positive power supply for the analog section.
AGND 25
40
Analog Ground (Input) - Ground reference. Should be connected to analog ground.
MUTEC 38 Mute Control (Output) - The Mute Control pin outputs high impedance following an initial power -on con-
dition or whenever the PDN bit is set to a "1", forcing the codec into power -down mode. The signal will
remain in a high impedance state as long as the part is in power-down mode. The Mute Control pin goes
to the selected "active" state during reset, muting, or if the master clock to left/right clock frequency ratio
is incorrect. This pin is intended to be used as a control for external mute circuits to prevent the clicks
and pops that can occur in any single supply system. The use of external mute circuits are not manda-
toy but may be desired for designs requiring the absolute minimum in extraneous clicks and pops.
LPFLT 39 PLL Loop Filer (Output) - An RC network should be connected between this pin and ground.
RXP7/GPO7
RXP6/GPO6
RXP5/GPO5
RXP4/GPO4
RXP3/GPO3
RXP2/GPO2
RXP1/GPO1
42
43
44
45
46
47
48
S/PDIF Receiver Input/ General Purpose Output (Input/ Output) - Receiver inputs for S/PDIF encoded
data. The CS42518 has an internal 8:2 multiplexer to select the active receiver port, according to the
Receiver Mode Control 2 resister. These pins can also be configured as general purpose output pins,
ADC Overflow indicators or Mute Control outputs according to the RXP/General Purpose Pin Control
resisters.
RXP0 49 S/PDIF Receiver Input (Input) - Dedicated receiver input for S/PDIF encoded data.
TXP 50 S/PDIF Transmitter Output (Output) - S/PDIF encoded data output, mapped directly from one of the
receiver inputs as indicated by the Receiver Mode Control 2 resister.
VLP 53 Serial Port Interface Power (Input) - Determines the required signal level for the serial port interfaces.
SAI_SDOUT 54
Serial Audio Interface Serial Data Output (Output) - Output for two's complement serial audio PCM
data from the S/PDIF incoming stream. This pin can also be configured to transmit the output of the inter-
nal and external ADCs.
RMCK 55 Recovered Master Clock (Output) - Recovered master clock output from the External Clock Reference

IC BLOCK DIAGRAMS AND TERMINAL DESCRIPTIONS-16
Q421 : CS42518 (8-Ch Codec with S/PDIF Receiver)-4/4
TX-SR403/8340
Pin Name # Pin Description
CL_SDOUT 56 CODEC Serial Data Output (Output) - Output for two's complement serial audio data the internal
and external ADCs.
ADCIN1
ADCIN2
58
57
External ADC Serial Input (Input) - The CS42518 provides for up two external stereo analog to digital
converter inputs to provide a maximum of six channels on serial data output line when the CS42518
is placed in One Line mode.
OMCK 59 External Reference Clock (Input) - External clock reference that must be within the ranges specified in
currently active on the serial audio data line.
SAI_LRCK 60 Serial Audio Interface Left/Right Clock (Input/Output) - Determines which channel, Left of Right, is
currently active on the serial audio data line.
SAI_LRCK 61 Serial Audio Interface Serial Clock (Input/Output) - Serial clock for the Serial Audio Interface

TX-SR403/8340
IC BLOCK DIAGRAM AND TERMINAL DESCRIPTIONS-17
Q802: M66005 (FL tube driver)
BLOCK DIAGRAM
TERMINAL DESCRIPTION
These pins are used to connect to digit pins of VFD.
RESET Reset input This pin is used to initialize the internal state of the M66004.
CS Chip select input "L" : Communication with the MCU is possible.
"H" : Any instruction from the MCU is neglected.
SCK Shift clock input At the rising edge from "L" to "H", input data is shifted.
SDATA Serial data input Character code or command data to display is input from MSB.
XIN,
XOUT
Clock input
Clock output
This pin is used to connect a resister and a capacitor externally to
set oscillation frequency.
DIG00 ~
DIG15
Digit output
SEG00 ~
SEG39
Segment output
P0, P1 Output port (static operation)
VSS GND
VP Negative power supply for VFD drive.
VCC1
VCC2
Positive power supply for internal logic.
Positive power supply for high-pressure-resistant output port.
SYMBOL PIN NAME DESCRIPTIONPIN NO.
13
14
15
16
21,
20
1~12
61~64
23~31
33~59
17, 18
19
60
22
32
These pins are used to connect to segment pins of VFD.
14
15
16
CGROM
(35bit x 160)
CGRAM
(35bit x 16)
code
write
data
dot data
write
code
select
12
1
DIG00
DIG11
scan pulse
CS
SCK
SDATA
21
20
XIN
XOUT
13
RESET
18
17
2P0
P1
19
60
22
32
Vcc1
Vcc2
Vss
Vp
Code/
command
control
circuit
Bank 1 : 8bit x 16
Bank 2 : 8bit x 64 Segment
output
circuit
Segment/
Digit
select/
output
circuit
Clock
generator timing
clock Display
controller
Serial
receive
circuit
Display code RAM
Digit
output
circuit
59
33
31
23
64
63
62
61
DIG12/SEG36
DIG13/SEG37
DIG14/SEG38
DIG15/SEG39
SEG00
SEG26
SEG27
SEG35
24 SEG34

TX-SR403/8340
IC BLOCK DIAGRAM AND TERMINAL DESCRIPTIONS-18
Q1003, 1012, 1013 : LA7956 (Video switch)
BLOCK DIAGRAM
TRUTH TABLE
S2
(Pin 2)
H
L
H
L
S3
(Pin 3)
H
H
L
L
Vin1
(Pin 4)
ON
OFF
OFF
OFF
Vin2
(Pin 6)
OFF
ON
OFF
OFF
Vin3
(Pin 8)
OFF
OFF
ON
OFF
Vin4
(Pin 9)
OFF
OFF
OFF
ON
driver control
6dB
amp
video switch
(4input 1output)
123 4
VIDEO
OUT
A B VINI
5
GND
6
VIN2
7
VCC
8
VIN3
9
VIN4

TX-SR403/8340
IC BLOCK DIAGRAMS AND TERMINAL DESCRIPTIONS-19
Q5501: NJW1157(8-CHANNEL ELECTRONIC VOLUME WITH INPUT SELECTOR)-1/2
BLOCK DIAGRAM
RECA1L
RECA2L
RECA1R
RECA3L
RECA2R
RECB2L
RECB2R
R1IN
FL+
FL-
CBIN
RBBIN
RBBIN
GND
V+
V-
CLOCK
FR+
FR-
LOUT
ROUT
COUT
RSOUT
RECB1L
RECA3R
RECB1R
L1IN
L2IN
L3IN
L4IN
L5IN
L6IN
L7IN
R2IN
R3IN
R4IN
R5IN
R6IN
R7IN
L8IN
R8IN
CAIN
LSAIN
RSAIN
LBAIN
RBAIN
SWAIN
SW
SW
LAIN
RAIN
LBIN
RBIN
L9IN
R9IN
L10IN
R10IN
L11IN
R11IN
L12IN
R12IN
SSW
BSW
TSW
Multi-Channel Input A
Input Selector REC Out Selector
2 Channel Input
Supply
Voltage
COM
Interface DATA
LATCH
TONE
TONE
SWOUT
RBOUT
LBOUT
LSOUT
Amp
Gain
Multi-Channel Input B
DCLA1DCLA2
DCRA1DCRA2
Att Gain
Att Gain
SWBIN
LBBIN
LSBIN
Multi-channel
Volume
FIL1_R
FIL2_R
FIL3_R
FIL3_L
FIL2_L
FIL1_L
FIL4_R
FIL4_L

IC BLOCK DIAGRAMS AND TERMINAL DESCRIPTIONS-20
Q5501: NJW1157(8-CHANNEL ELECTRONIC VOLUME WITH INPUT SELECTOR)-2/2
TERMINAL DESCRIPTON
TX-SR403/8340
No.
1
2
3
4
5
6
7
8
9
10
11
12
13
14
15
16
17
18
19
20
21
22
23
24
25
26
27
28
29
30
31
32
33
34
35
36
37
38
39
40
41
42
43
44
45
46
47
48
49
50
SYMBOL
LOUT
ROUT
COUT
LSOUT
RSOUT
LBOUT
RBOUT
SWOUT
DC_L1
DC_L2
FIL_BL
FIL_TL
DC_R1
DC_R2
FIL_BR
FIL_TR
N.C.
N.C.
V+
V-
REC_A1L
REC_A1R
REC_A2L
REC_A2R
REC_A3L
REC_A3R
REC_B1L
REC_B1R
REC_B2L
REC_B2R
DCCAP_L
DCCAP_R
DCCAP_C
GND
GND
DCCAP_LS
DCCAP_RS
DCCAP_LB
DCCAP_RB
DCCAP_SW
DCL_OUT
DCL_IN
DCR_OUT
DCR_IN
FL+
FL-
FR+
FR-
VDDOUT
VSSOUT
FUNCTION
Lch output
Rch output
Cch output
LSch output
RSch output
LBch output
RBch output
SWch output
Lch Bass filter DC cut capacitor output terminal
Lch Bass filter DC cut capacitor input terminal
Lch Bass filter terminal
Lch Treble filter terminal
Rch Bass filter DC cut capacitor output terminal
Rch Bass filter DC cut capacitor input terminal
Rch Bass filter terminal
Rch Treble filter terminal
No Connect
No Connect
+ Power supply voltage input
- Power supply voltage input
"Input selector" Lch REC output A1
"Input selector" Rch REC output A1
"Input selector" Lch REC output A2
"Input selector" Rch REC output A2
"Input selector" Lch REC output A3
"Input selector" Rch REC output A3
"Input selector" Lch REC output B1
"Input selector" Rch REC output B1
"Input selector" Lch REC output B2
"Input selector" Rch REC output B2
Switching noise rejection capacitor
Switching noise rejection capacitor
Switching noise rejection capacitor
Ground
Ground
Switching noise rejection capacitor
Switching noise rejection capacitor
Switching noise rejection capacitor
Switching noise rejection capacitor
Switching noise rejection capacitor
"Input selector" Lch output
"Multi-channel selector" Lch input
"Input selector" Rch output
"Multi-channel selector" Rch input
"Input selector gain control" Lch no-inverted output
"Input selector gain control" Lch inverted output
"Input selector gain control" Rch no-inverted output
"Input selector gain control" Rch inverted output
Internal Digital +Power Supply Output
Internal Digital -Power Supply Output
No.
51
52
53
54
55
56
57
58
59
60
61
62
63
64
65
66
67
68
69
70
71
72
73
74
75
76
77
78
79
80
81
82
83
84
85
86
87
88
89
90
91
92
93
94
95
96
97
98
99
100
SYMBOL
L1IN
R1IN
L2IN
R2IN
L3IN
R3IN
L4IN
R4IN
L5IN
R5IN
L6IN
R6IN
L7IN
R7IN
L8IN
R8IN
L9IN
R9IN
L10IN
R10IN
L11IN
R11IN
L12IN
R12IN
N.C.
DGND
DATA
CLOCK
LATCH
LAIN
RAIN
CAIN
LSAIN
RSAIN
LBAIN
RBAIN
SWAIN
LBIN
RBIN
CBIN
LSBIN
RSBIN
LBBIN
RBBIN
SWBIN
GND
GND
VSSOUT2
VDDOUT2
TCCAP
FUNCTION
"Input selector" Lch input 1
"Input selector" Rch input 1
"Input selector" Lch input 2
"Input selector" Rch input 2
"Input selector" Lch input 3
"Input selector" Rch input 3
"Input selector" Lch input 4
"Input selector" Rch input 4
"Input selector" Lch input 5
"Input selector" Rch input 5
"Input selector" Lch input 6
"Input selector" Rch input 6
"Input selector" Lch input 7
"Input selector" Rch input 7
"Input selector" Lch input 8
"Input selector" Rch input 8
"Input selector" Lch input 9
"Input selector" Rch input 9
"Input selector" Lch input 10
"Input selector" Rch input 10
"Input selector" Lch input 11
"Input selector" Rch input 11
"Input selector" Lch input 12
"Input selector" Rch input 12
No Connect
Digital Ground
Control data signal input
Clock signal input
Latch signal input
Multi-channel Lch input A
Multi-channel Rch input A
Multi-channel Cch input A
Multi-channel LSch input A
Multi-channel RSch input A
Multi-channel LBch input A
Multi-channel RBch input A
Multi-channel SWch input A
Multi-channel Lch input B
Multi-channel Rch input B
Multi-channel Cch input B
Multi-channel LSch input B
Multi-channel RSch input B
Multi-channel LBch input B
Multi-channel RBch input B
Multi-channel SWch input B
Ground
Ground
Internal Digital -Power Supply Output 2
Internal Digital +Power Supply Output 2
Switching noise rejection capacitor

TX-SR403/8340
IC BLOCK DIAGRAMS AND TERMINAL DESCRIPTIONS-21
Q5502: NJU7311AM (Analog Function Switch)
BLOCK DIAGRAM
TERMINAL DESCRIPTION
L1
L2
L-COM1
L3
L4
L-COM2
L5
L6
L-COM3
L7
L-COM4
ST
R1
R-COM1
R2
R3
R4
R-COM2
R5
R6
R-COM3
R7
R-COM4
CK
DATA
VSS
VDD
VEE
Latch Circuit
Level Shifter
Control Circuit
Latch Circuit
Level Shifter
1
2
3
4
5
6
7
8
9
10
11
12
14
15
16
17
19
20
21
22
23
24
25
26
27
28
29
30
VEE
L1
L2
L-COM1
L3
L4
L-COM2
L5
L6
L-COM3
L7
L-COM4
ST
VSS
CK
DATA
R-COM4
R7
R-COM3
R6
R5
R-COM2
R4
R3
R-COM1
R2
R1
VDD
Pin No. Pin Name Description Pin No. Pin Name Description
Negative Voltage Supply
Analog switch input/output
Analog switch input/output
L1, L2, Common
Analog switch input/output
Analog switch input/output
L3, L4 common
Analog switch input/output
Analog switch input/output
L5, L6 Common
Analog switch input/output
L7 Common
Chip enable
GND
Clock input
Data input
R7 Common
Analog switch input/output
R5, R6 Common
Analog switch input/output
Analog switch input/output
R3, R4 Common
Analog switch input/output
Analog switch input/output
R1, R2, Common
Analog switch input/output
Analog switch input/output
Positive voltage supply

TX-SR403/8340
IC BLOCK DIAGRAMS AND TERMINAL DESCRIPTIONS-22
Q5640: AN34060A (3 Output Voltage Regulator)
BLOCK DIAGRAM
TERMINAL DESCRIPTION
Description
MODE 1
REG 1
VCC
GND
REG 2
VCC
REG 3
Function
WHEN MODE 1 pin is 5V, REG 1 output is "H".
WHEN MODE 1 pin is "H", REG 1 output is 5.0V (Io1(peak) = 300mA min).
Connected to Power supply
Connected to IC substrate
WHEN MODE 1 pin is "H", REG 2 output is 3.3V (Io2(peak) = 200mA min).
Connected to Power supply
WHEN MODE 1 pin is "H", REG 3 output is 2.5V (Io3(peak) = 600mA min).
Pin No.
1
2
3
4
5
6
7
Pre
Drive
VCC Output
Pre
Drive
Peak Current
Protection &
Thermal Protection
Reference Voltage
136
27
4
5
VCC
VCC
Pre
Drive

FL TUBE VIEW
Q801: 16BT127GNK
TX-SR403/8340
(1G-15G)
1-1
15G 14G 13G 12G 11G 10G 9G
16G
8G 7G 6G 5G 4G 3G 2G 1G
2-1 3-1 4-1 5-1
1-2 2-2 3-2 4-2 5-2
1-3 2-3 3-3 4-3 5-3
1-4 2-4 3-4 4-4 5-4
1-5 2-5 3-5 4-5 5-5
1-6 2-6 3-6 4-6 5-6
1-7 2-7 3-7 4-7 5-7
P1
P2
P3
P4
P5
P6
P7
P8
P9
P10
P11
P12
P13
P14
P15
P16
P17
P18
1-1
2-1
3-1
4-1
5-1
1-2
2-2
3-2
4-2
5-2
1-3
2-3
3-3
4-3
5-3
1-4
2-4
3-4
15G-1G
16G
P19
P20
P21
P22
P23
P24
P25
P26
P27
P28
P29
P30
P31
P32
P33
P34
P35
-
4-4
5-4
1-5
2-5
3-5
4-5
5-5
1-6
2-6
3-6
4-6
5-6
1-7
2-7
3-7
4-7
5-7
15G-1G
16G

MICROPROCESSOR TERMINAL DESCRIPTIONS-1
Q701: M30622MGP-236FPU0
TX-SR403/8340
Pin No. Pin name I/O Description
1
2
3
4
5
6
7
8
9
10
11
12
13
14
15
16
17
18
19
20
21
22
23
24
25
26
27
28
29
30
31
32
33
34
35
36
37
38
39
40
41
42
43
44
45
46
47
48
49
50
FLDSDO
FLDCLK
FLDCS
~FLDRST
FSWSDO
FSWSTB
FSWCLK
BYTE
CNVSS
COMPA
COMPB
~RESET
XOUT
VSS
XIN
VCC1
~NMI
---
~REMIN
POFF
DIRINT1
DIRINT0
~DIRCS
~DIRRST
~DSPFCS
~DSPCS
VMUTMON
VMUTV1
VCTRLA
VCTRLB
FTXD
FRXD
FCLK
FBUSY
DIGSDO
DIGSDI
DIGCLK
DSPBUSY
~DSPINT
~DSPFINT
~FEPM
~DSPRST
VOLSTB
VOLCLK
VOLDAT
~FCE
---
---
AMUT
SPRLB
O
O
O
O
O
O
O
---
---
O
O
I
---
---
---
---
I
I
I
I
I
I
O
O
O
O
O
O
O
O
O
I
O
O
O
I
O
I
I
I
O
O
O
O
O
I
O
O
O
O
H
CLK
H
L
H
H
H
---
---
L
L
L
---
---
---
---
L
L
L
H
H
H
L
L
L
L
L
L
H
H
H
H
CLK
H
H
H
CLK
H
L
L
H
L
H
CLK
H
H
H
H
H
H
Act.
Output serial data for control of FL driver IC.
Output serial clock for control of FL driver IC.
Output chip select for FL driver IC.
Output reset signal for FL driver IC.
Output serial data for control of function switch (NJU7311).
Output strobe for control of function switch (NJU7311).
Output serial clock for control of function switch (NJU7311).
Select of external bus width. Connect to ground.
Select of processor mode.
Not used.
Notused.
Input signal for system reset.
Connected to oscillator.
Ground.
Connected to oscillator.
Power supply.
Not used.
Not used.
Input signal from remote sensor.
Input signal of power failure detection.
Not used.
Input signal of interrupt request detection of DSP C.
Output signal for chip select of DIR/CODEC.
Output signal for reset of DIR/CODEC.
Output signal for chip select of DSP A/B.
Output signal for chip select of DSP C.
Output control signal for video mute of monitor out.
Output control signal for video mute of video-1.
Output control signal of video switch IC.
Output control signal of video switch IC.
For writing of flash microprocessor.
For writing of flash microprocessor.
For writing of flash microprocessor.
Output reset signal for DSPIC.
Output signal for serial communications with DIR/ CODEC/DSP IC.
Input signal for serial communications with DIR/ CODEC/DSP IC.
Output clock for serial communications with DIR/ CODEC/DSP IC.
Input signal of detect busy signal of DSP C.
Input signal of detect interrupt request signal of DSP C.
Input signal of detect interrupt request signal of DSP AB.
For writing of flash microprocessor.
Output reset signal for DSP IC.
Output strobe for control of volume IC.
Output serial clock for control of volume IC.
Output serial data for control of volume IC.
For writing of flash microprocessor.
Not used.
Not used.
Output signal of audio mute.
Output control signal for relay drive of speakers-B.

MICROPROCESSOR TERMINAL DESCRIPTIONS-2
Q701: M30622MGP-236FPU0
TX-SR403/8340
Pin No. Pin name I/O Description
51
52
53
54
55
56
57
58
59
60
61
62
63
64
65
66
67
68
69
70
71
72
73
74
75
76
77
78
79
80
81
82
83
84
85
86
87
88
89
90
91
92
93
94
95
96
97
98
99
100
Act.
SPRLSB
SPRLCS
SPRLF/SPRLSW
TUMUT
PLLCE
PLLSDO
PLLCLK
~STEREO/PLLSDI
~SD
VPOWER
APOWER
VCC2
SEC1H
VSS
VOLH
THERMAL
PROTECT
FANCTRL
FANH
NU
RDSDAT
RDSSIG
SYSIN
NU
~RDSCLK
~SYSOUT
LEDPURE
NU
~LEDSTBY
HPRL
HPDET
NU
VOLB
VOLA
INIT3
INIT2
INIT1
BAND
~KEYINT3
~KEYINT2
~KEYINT1
~KEYINT0
KEY3
KEY2
KEY1
AVSS
KEY0
VREF
AVCC
NU
O
O
O
O
O
O
O
I
I
O
O
---
O
---
I
I
I
O
O
---
I
I
I
---
I
O
O
---
O
O
I
---
I
I
I
I
I
I
I
I
I
I
I
I
I
---
I
---
---
---
H
H
H
H
H
H
CLK
L
L
H
H
---
H
---
A/D
A/D
H
L
L
---
H
H
H
---
L
L
H
---
L
H
H
---
H
H
A/D
A/D
A/D
A/D
L
L
L
L
A/D
A/D
A/D
---
A/D
---
---
---
Output control signal for relay drive of surround back speakers.
Output control signal for relay drive of center and surround speakers.
Output control signal for relay drive of front speakers.
Output signal of tuner mute.
Output chip enable for PLL IC of tuner.
Output serial data for PLL IC of tuner.
Output serial clock for PLL IC of tuner.
Input detection of stereo signal, and serial data of PLL IC.
Input detection signal of demodulation of tuner.
Output control signal of power supply of the video circuit.
Output control signal of main power supply.
Power supply.
Output control signal for power supply of amplifier section.
Ground.
Input detection signal of speaker output level.
Input detection signal of thermal detection.
Input detection signal of over current of speaker output.
Output control signal of cooling fan. Function control.
Output control signal of cooling fan. Speed control.
Not used.
Not used.
Not used.
Input signal of RI (system control).
Not used.
Not used.
Output signal of RI (system control).
Not used.
Not used.
Output control signal of Standby LED.
Output control signal for relay drive of headphone.
Input detection signal of headphone state.
Not used.
Input signal of rotary encoder.
Input signal of rotary encoder.
For initial setting-3.
For initial setting-2.
For initial setting-1.
For initial setting of tuner band and step.
Input signal of operation keys.
Input signal of operation keys.
Input signal of operation keys.
Input signal of operation keys.
Input signal of operation keys.
Input signal of operation keys.
Input signal of operation keys.
Ground for A/D.
Input signal of operation keys.
Power supply for reference of A/D.
Power supply.
Not used.

ADJUSTMENT PROCEDURE-1
IDLING CURRENT ADJUSTMENT
TX-SR403/8340
[Procedure]
<Note> No load and No signal
Refer to <Fig->1 in "ADJUSTMENT PROCEDURES-2" about the adjustment points and the measuring points.
1. Before Idling adjustment, turn the trimming resistors to counter clockwise.
2. Connect the DC voltmeter to test points.
Connect 100-ohm resistance near the terminal of the two poles of a Jig terminal.
6. Wait for 4 - 6 minutes. (Heat running)
7. Re-adjust the trimming resistors as following procedure.
Adjustment point
(Trimming resistor)
R6040
R6041
R6042
R6043
R6044
R6045
Adjustment value
2.5 mV
2.5 mV
2.5 mV
1.5 mV
1.5 mV
1.5 mV
Measuring point
(Test point)
P6080
P6081
P6082
P6083
P6084
P6085
Adjustment point
R6040, R6041 and
R6042
R6043, R6044 and
R6045
Adjustment value
9 mV
Leave it as it is
11 mV
6 mV
Leave it as it is
8 mV
Measured value
In case below 9 mV
In case 9 - 11 mV
In case over 11 mV
In case below 6 mV
In case 6 - 8 mV
In case over 8 mV
3. Connect the AC power cord to wall outlet.
4. Press the STANDBY/ON button into the power on.
5. Adjust the trimming resistors as following procedure immediately after power on.
Channel
Left
Right
Center
Surround Left
Surround Right
Surround Back
Channel
Left, Right
and Center
Surround Left,
Surround Right and
Surround Back
ID+
ID-
Test point
DC voltmeter Jig terminal
100 ohms
1/4watts
8. Disconnect the DC voltmeter.
9. Press the STANDBY/ON button into the power off.
10. Disconnect the AC power cord.
Specifications
( In a stable state)
12 +/- 3 mV
9 +/- 3 mV
Idling current are stabilized in about
10 minutes after a power supply on.
Mark
L
R
C
SL
SR
SBL
[When]
Exchange Power transistors (Q6051 - Q6064) and Power amplifier PC board (NAAF-8523).

ADJUSTMENT PROCEDURE-2
IDLING CURRENT ADJUSTMENT
TX-SR403/8340
Front side
<Fig-1>
ID-ID+
P6080
R6040
ID-ID+
P6081
R6041
ID-ID+
P6082
R6042
ID-ID+
P6083
R6043
ID-ID+
P6084
R6044
ID-ID+
P6085
R6045
BIAS BIAS BIAS BIAS BIAS BIAS
LRCSL SR SBL
U09
POWER AMPLIFIER PC BOARD
(NAAF-8523)
R6042P6082
ID+ ID-
Trimming
resistor
Test
point
C
R6041P6081
ID+ ID-
Trimming
resistor
Test
point
R
R6040P6080
ID+ ID-
Trimming
resistor
Test
point
L
R6045P6085
ID+ ID-
Trimming
resistor
Test
point
SBL
R6044P6084
ID+ ID-
Trimming
resistor
Test
point
SR
R6043P6083
ID+ ID-
Trimming
resistor
Test
point
SL (Surround
Back)

TX-SR403/8340
PACKING PROCEDURE
RIGHT
BOTTOM
RIGHT
TOP
TX-SR403(G)
TX-SR403(G)
TX-SR403(G)
LEFT
TOP
LEFT
BOTTOM
Front
Left
Front
Left
SP-B
/
Zone 2
Left
SP-B
/
Zone 2
Left
Surround
Right
Surround
Right
Surround Back
Right
Surround Back
Right
Zone 2
Right
Zone 2
Right
Front
Left
Front
Left
SP-B
/
Zone 2
Left
SP-B
/
Zone 2
Left
Front
Right
Front
Right
SP-B
/
Zone 2
Right
SP-B
/
Zone 2
Right
Front
Right
Front
Right
SP-B
/
Zone 2
Right
SP-B
/
Zone 2
Right
Surround
Right
Surround
Right
Center
Center
Center
Center
Surround
Left
Surround
Left
Surround
Left
Surround
Left
Surround Back
Right
Surround Back
Right
Zone 2
Right
Zone 2
Right
Surround Back
Left
Surround Back
Left
Zone 2
Left
Zone 2
Left
Surround Back
Left
Surround Back
Left
Zone 2
Left
Zone 2
Left
12
3
Speaker Cable
A610
A613
A611
A613
A613
A625
A613
A655
A655
A615
A615
A650
<RB>
<LT>
<LB>
Front side
Front side
marking
Right top side
marking
Front side
marking
Right bottom side
marking
Front side
marking
Front side
marking
Left bottom side
marking
A613
<RT>
A601
(LT & LB & RT & RB)
Left top side
marking
A821
A845
A820
A812
A801 A635
A811
Keep LABEL(SP Cable) inside
first page of Instruction manual.
A802
A803

1/62 PAGE
TX-SR403/8340
<Notes>
(S) : Silver model only
(B) : Black model only
<403GR>: TX-SR403 Chinese model only
<8340GR>: TX-SR8340 Chinese model only
EXPLODED VIEW PARTS LIST
REF. NO. NAME DESCRIPTION Q'TY PART NO REMARKS
EV A001 RETAINER (F) 1 27141972
EV A002 SCREW 3TTB+10B(BC) 13 838430108
EV A003 SCREW 3TTB+8B(BC) 37 838430088
EV A004 SCREW 3TTB+8B(CU)SR 20 801618
EV A010 CHASSIS --- 1 27100460A
EV A011 TAPE TAPE(CLOTH-16U) (1) 29110083
EV A013 WIRE TIE BSK-1 6 260208
EV A014 CLIP CS-1U 2 27255004
EV A015 HOLDER KGLS-14RT 3 27190524
EV A016 HOLDER HOLDER 2 27190991
EV A023 SCREW 4TTC+8C(BC) 4 830440089
EV A025 TAPE TAPE(CLOTH-16U) (1) 29110083
EV A028 BUSHING S-RELIEF #2271 1 27300750 !
EV A030 HEAT SINK AS. 1 27160563B
EV A037 SCREW 3SMS8W.SW+14B(BC) 12 801433
EV A040 BRACKET (U) 1 27130986
EV A045 SHLD PLT (R) 1 27150504
NOTE : THE COMPONENTS IDENTIFIED BY THE MARK
! ARE CRITICAL FOR RISK OF FIRE AND
ELECTRIC SHOCK. REPLACE ONLY WITH PART
NUMBER SPECIFIED.

2/62 PAGE
EV A046 PLA RIVET P3035B 1 880016
EV A048 CUSHION t3 x 50 x 10 2 28141563
EV A050 COVER --- 1 28184926 <403GR>, (S)
EV A050 COVER --- 1 28184922 <403GR>, (G)
EV A050 COVER --- 1 28184922 <8340GR>, (G)
EV A051 SCREW 3TTB+8B(UN) 6 838930088
EV A052 LABEL (COVER) 1 29364123
EV A055 LEG LEG 4 27175319B
EV A056 CUSHION --- 8 28141494
EV A065 CLEAR PLT --- 1 28192065A
EV A401 REAR PANEL HT-R8340MGR 1 27123408 <8340GR>
EV A401 REAR PANEL TX-SR403MGR 1 27123407 <403GR>
EV A402 HOLDER (OUTLET) 1 27191143
EV A405 F PANEL --- 1 27212766B <403GR>, (S)
EV A405 F PANEL --- 1 27212765B <403GR>, (G)
EV A405 F PANEL --- 1 27212767B <8340GR>
EV A406 FACET (ST) 1 28198998A
EV A411 KNOB (POW) 1 28326299 <403GR>, (S)
EV A411 KNOB (POW) 1 28326297 <403GR>, (G)
EV A411 KNOB (POW) 1 28326297 <8340GR>, (G)
EV A412 KNOB (SEL) 1 28326303 <403GR>, (S)
EV A412 KNOB (SEL) 1 28326301 <403GR>, (G)
EV A412 KNOB (SEL) 1 28326301 <8340GR>, (G)

3/62 PAGE
EV A413 KNOB (PRE) 1 28326306 <403GR>, (S)
EV A413 KNOB (PRE) 1 28326306 <403GR>, (G)
EV A413 KNOB (PRE) 1 28326306 <8340GR>, (G)
EV A420 BADGE --- 1 28135298 <403GR>, (S)
EV A420 BADGE BADGE 1 28135245 <8340GR>, (G)
EV A420 BADGE BADGE 1 28135245 <8340GR>, (G)
EV A425 RETAINER (BRO) 1 27141873
EV A430 KNOB (VOL)AS 1 28326319 <403GR>, (S)
EV A430 KNOB (VOL)AS 1 28326317 <403GR>, (G)
EV A430 KNOB (VOL)AS 1 28326317 <8340GR>, (G)
EV F902 FUSE 3.15A-SE-EAK FUSE 1 252076 !
EV F902 or FUSE 3.15A-SE-TL250V ( 1) 252242 !
EV F902 or FUSE 3.15A-SE-TL250V ( 1) 252276 !
EV F903 FUSE 2.5A-SE-EAK FUSE 1 252075 !
EV F903 or FUSE 2.5A-SE-TL250V ( 1) 252241 !
EV F903 or FUSE 2.5A-SE-TL250V ( 1) 252275 !
EV F903C LABEL T2.5AL250V 1 29361747
EV F6901 FUSE 8A-UL 1 252198 !
EV F6901 or FUSE 8A-T/UL-ST2 ( 1) 252261 !
EV F6902 FUSE 8A-UL 1 252198 !
EV F6902 or FUSE 8A-T/UL-ST2 ( 1) 252261 !
EV P101 FFC NCFC7-150512 1 2047150512
EV P703 FFC NCFC5-232022 1 2045232022
EV P901 AC CORD AS-CCC 1 253355VOL !
EV P901 or AC CORD AS-CCC ( 1) 253377LTK !
EV Q6050 TR 2SC5198-O 1 2203063
EV Q6050 or TR 2SC5198-R ( 1) 2203062
EV Q6050 or TR MN100S-O ( 1) 2203653
EV Q6050 or TR MN100S-Y ( 1) 2203654
EV Q6050 or TR MN100S-P ( 1) 2203656
EV Q6050A ISO SHEET AC238 12 223024

4/62 PAGE
EV Q6051 TR 2SC5198-O 1 2203063
EV Q6051 or TR 2SC5198-R ( 1) 2203062
EV Q6051 or TR MN100S-O ( 1) 2203653
EV Q6051 or TR MN100S-Y ( 1) 2203654
EV Q6051 or TR MN100S-P ( 1) 2203656
EV Q6052 TR 2SC5198-O 1 2203063
EV Q6052 or TR 2SC5198-R ( 1) 2203062
EV Q6052 or TR MN100S-O ( 1) 2203653
EV Q6052 or TR MN100S-Y ( 1) 2203654
EV Q6052 or TR MN100S-P ( 1) 2203656
EV Q6053 TR KTC5242A-O 1 2203953
EV Q6053 or TR MN100S-O ( 1) 2203653
EV Q6053 or TR MN100S-Y ( 1) 2203654
EV Q6053 or TR MN100S-P ( 1) 2203656
EV Q6053 or TR KTC5242A-R ( 1) 2203952
EV Q6054 TR KTC5242A-O 1 2203953
EV Q6054 or TR MN100S-O ( 1) 2203653
EV Q6054 or TR MN100S-Y ( 1) 2203654
EV Q6054 or TR MN100S-P ( 1) 2203656
EV Q6054 or TR KTC5242A-R ( 1) 2203952
EV Q6055 TR KTC5242A-O 1 2203953
EV Q6055 or TR MN100S-O ( 1) 2203653
EV Q6055 or TR MN100S-Y ( 1) 2203654
EV Q6055 or TR MN100S-P ( 1) 2203656
EV Q6055 or TR KTC5242A-R ( 1) 2203952
EV Q6060 TR 2SA1941-O 1 2203053
EV Q6060 or TR 2SA1941-R ( 1) 2203052
EV Q6060 or TR MP100S-O ( 1) 2203643
EV Q6060 or TR MP100S-Y ( 1) 2203644
EV Q6060 or TR MP100S-P ( 1) 2203646
EV Q6061 TR 2SA1941-O 1 2203053

5/62 PAGE
EV Q6061 or TR 2SA1941-R ( 1) 2203052
EV Q6061 or TR MP100S-O ( 1) 2203643
EV Q6061 or TR MP100S-Y ( 1) 2203644
EV Q6061 or TR MP100S-P ( 1) 2203646
EV Q6062 TR 2SA1941-O 1 2203053
EV Q6062 or TR 2SA1941-R ( 1) 2203052
EV Q6062 or TR MP100S-O ( 1) 2203643
EV Q6062 or TR MP100S-Y ( 1) 2203644
EV Q6062 or TR MP100S-P ( 1) 2203646
EV Q6063 TR KTA1962A-O 1 2203943
EV Q6063 or TR MP100S-O ( 1) 2203643
EV Q6063 or TR MP100S-Y ( 1) 2203644
EV Q6063 or TR MP100S-P ( 1) 2203646
EV Q6063 or TR KTA1962A-R ( 1) 2203942
EV Q6064 TR KTA1962A-O 1 2203943
EV Q6064 or TR MP100S-O ( 1) 2203643
EV Q6064 or TR MP100S-Y ( 1) 2203644
EV Q6064 or TR MP100S-P ( 1) 2203646
EV Q6064 or TR KTA1962A-R ( 1) 2203942
EV Q6065 TR KTA1962A-O 1 2203943
EV Q6065 or TR MP100S-O ( 1) 2203643
EV Q6065 or TR MP100S-Y ( 1) 2203644
EV Q6065 or TR MP100S-P ( 1) 2203646
EV Q6065 or TR KTA1962A-R ( 1) 2203942
EV <Notes>
EV When replacement the following the transistor, made from the same HFE rank as the original type.
EV Ref. No. : Q6050 - 6060, Q6051 - 6061, Q6052 - 6062, Q6053 - 6063, Q6054 - 6064, Q6055 - 6065
EV T901 P TRANS NPT-1514G 1 2301795 !
EV U01 DISPLAY PC board ass'y NADIS-8513-1D 1 1B068513-1D
EV U02 DSP PC board ass'y NADG-8514-1D 1 1B068514-1D
EV U03 SWITCH PC board ass'y NASW-8515-1D 1 1B068515-1D

6/62 PAGE
EV U04 HEADPHONE JACK PC board ass'y NAETC-8516-1D 1 1B068516-1D
EV U05 AMPLIFIER PC board ass'y NAAF-8523-1D 1 1B068523-1D
EV U06 SEC. TERMINAL-2 PC board ass'y NAPS-8524-1D 1 1B068524-1D
EV U08 THERMAL SENSOR PC board ass'y NAETC-8526-1D 1 1B068526-1D
EV U09 HOLDER PC board ass'y NAETC-8527-1D 1 1B068527-1D
EV U11 POWER SUPPLY-1 PC board ass'y NAPS-8544-1D 1 1B068544-1D
EV U13 POWER SUPPLY-2 PC board ass'y NAPS-8546-1D 1 1B068546-1D
EV U14 SEC. TERMINAL-1 PC board ass'y NAPS-8547-1D 1 1B068547-1D
EV U15 SPEAKER TERMINAL PC board ass'y NAETC-8548-1D 1 1B068548-1D
EV U16 VIDEO PC board ass'y NAVD-8549-1D 1 1B068549-1D
EV U17 DRIVER AMPLIFIER PC board ass'y NAAF-8550-1D 1 1B068550-1D
EV U18 TUNER UNIT TFCE1E512A 1 240135
TX-SR403/8340
PC BOARD PARTS LIST
U01 DISPLAY PC BOARD (NADIS-8513-1D)
U02 DSP PC BOARD (NADG-8514-1D)
U03 SWITCH PC BOARD (NASW-8515-1D)
U04 HEADPHONE JACK PC BOARD (NAETC-8516-1D)
CIRCUIT NO. NAME DESCRIPTION Q'TY PART NO REMARKS
PCB1 U131 PHT CP GP1FAV51RKF5 1 24120129
PCB1 U821 REMO SENS GP1UM281XKVFH=16MM 1 241361
PCB1 Q801 FL TUBE 16BT127GNK 1 213028
PCB1 Q801A HOLDER (FL) 1 27191222B
PCB1 Q131 IC 74HCU04F 1 222740046R2
PCB1 Q151 IC TC74VHC541FT 1 22274541ER2TO
PCB1 Q151 or IC SN74AHC541PWR ( 1) 22274541IR2TI
PCB1 Q152 IC TC74HCT7007AF 1 222740077R2TO
PCB1 Q171 IC TC7WU04FU 1 22240935R2
PCB1 Q201 IC CS494003CQZ 1 22242039R3

7/62 PAGE
PCB1 Q281 IC (DSP ROM) EN29LV040A-70TCP (0145) 1222W0043R301456
PCB1 Q401 IC NJM4580M-D 1 22241448R2
PCB1 Q402 IC NJM4580M-D 1 22241448R2
PCB1 Q403 IC NJM4580M-D 1 22241448R2
PCB1 Q404 IC NJM4580M-D 1 22241448R2
PCB1 Q421 IC CS42518-CQZR-D 1 22242229R2
PCB1 Q701 IC (MAIN MICROPROCESSOR) M30622MGP-236FPU0 1 22242250R3
PCB1 Q721 IC S-812C56AUA-C3K 1 22242207R2
PCB1 Q802 IC M66005-0001AHP 1 22242208R3
PCB1 Q703 TR UNR2213 1 2217140R2
PCB1 Q703 or TR RN1404 ( 1) 2214490R2
PCB1 Q703 or TR KRC104S ( 1) 2216210R2
PCB1 Q705 TR UNR2111 1 2217110R2
PCB1 Q705 or TR RN2402 ( 1) 2214530R2
PCB1 Q705 or TR KRA102S ( 1) 2216220R2
PCB1 Q711 TR UNR2213 1 2217140R2
PCB1 Q711 or TR RN1404 ( 1) 2214490R2
PCB1 Q711 or TR KRC104S ( 1) 2216210R2
PCB1 Q712 TR UNR2111 1 2217110R2
PCB1 Q712 or TR RN2402 ( 1) 2214530R2
PCB1 Q712 or TR KRA102S ( 1) 2216220R2
PCB1 Q731 TR UNR2213 1 2217140R2
PCB1 Q731 or TR RN1404 ( 1) 2214490R2
PCB1 Q731 or TR KRC104S ( 1) 2216210R2
PCB1 Q732 TR UNR2213 1 2217140R2
PCB1 Q732 or TR RN1404 ( 1) 2214490R2
PCB1 Q732 or TR KRC104S ( 1) 2216210R2
PCB1 Q803 TR KTC3875-GR 1 2216175R2
PCB1 Q803 or TR 2SC2712-GR ( 1) 2213145R2
PCB1 D101 ZENER D HZU5.1B 1 224660514R2
PCB1 D101 or ZENER D UDZS5.1B ( 1) 224550510R2

8/62 PAGE
PCB1 D301 C-DIODE MA2J111 1 223279R2
PCB1 D301 or C-DIODE 1SS352 ( 1) 223234R2
PCB1 D301 or C-DIODE 1SS355 ( 1) 223269R2
PCB1 D302 C-DIODE MA2J111 1 223279R2
PCB1 D302 or C-DIODE 1SS352 ( 1) 223234R2
PCB1 D302 or C-DIODE 1SS355 ( 1) 223269R2
PCB1 D303 C-DIODE MA2J111 1 223279R2
PCB1 D303 or C-DIODE 1SS352 ( 1) 223234R2
PCB1 D303 or C-DIODE 1SS355 ( 1) 223269R2
PCB1 D304 C-DIODE MA2J111 1 223279R2
PCB1 D304 or C-DIODE 1SS352 ( 1) 223234R2
PCB1 D304 or C-DIODE 1SS355 ( 1) 223269R2
PCB1 D305 C-DIODE MA2J111 1 223279R2
PCB1 D305 or C-DIODE 1SS352 ( 1) 223234R2
PCB1 D305 or C-DIODE 1SS355 ( 1) 223269R2
PCB1 D306 C-DIODE MA2J111 1 223279R2
PCB1 D306 or C-DIODE 1SS352 ( 1) 223234R2
PCB1 D306 or C-DIODE 1SS355 ( 1) 223269R2
PCB1 D307 C-DIODE MA2J111 1 223279R2
PCB1 D307 or C-DIODE 1SS352 ( 1) 223234R2
PCB1 D307 or C-DIODE 1SS355 ( 1) 223269R2
PCB1 D308 C-DIODE MA2J111 1 223279R2
PCB1 D308 or C-DIODE 1SS352 ( 1) 223234R2
PCB1 D308 or C-DIODE 1SS355 ( 1) 223269R2
PCB1 D701 C-DIODE MA2J111 1 223279R2
PCB1 D701 or C-DIODE 1SS352 ( 1) 223234R2
PCB1 D701 or C-DIODE 1SS355 ( 1) 223269R2
PCB1 D702 C-DIODE MA2J111 1 223279R2
PCB1 D702 or C-DIODE 1SS352 ( 1) 223234R2
PCB1 D702 or C-DIODE 1SS355 ( 1) 223269R2
PCB1 D703 C-DIODE MA2J111 1 223279R2

9/62 PAGE
PCB1 D703 or C-DIODE 1SS352 ( 1) 223234R2
PCB1 D703 or C-DIODE 1SS355 ( 1) 223269R2
PCB1 D706 C-DIODE MA2J111 1 223279R2
PCB1 D706 or C-DIODE 1SS352 ( 1) 223234R2
PCB1 D706 or C-DIODE 1SS355 ( 1) 223269R2
PCB1 D707 ZENER D HZU5.1B 1 224660514R2
PCB1 D707 or ZENER D UDZS5.1B ( 1) 224550510R2
PCB1 D708 C-DIODE MA2J111 1 223279R2
PCB1 D708 or C-DIODE 1SS352 ( 1) 223234R2
PCB1 D708 or C-DIODE 1SS355 ( 1) 223269R2
PCB1 D711 C-DIODE MA2J111 1 223279R2
PCB1 D711 or C-DIODE 1SS352 ( 1) 223234R2
PCB1 D711 or C-DIODE 1SS355 ( 1) 223269R2
PCB1 D811 ZENER D HZU7.5B 1 224660754R2
PCB1 D811 or ZENER D UDZS7.5B ( 1) 224550750R2
PCB1 D821 LED SLI-343URC-TE7 1 225449
PCB1 X171 CRYSTAL HC-49U0312.288MHz 1 3010414
PCB1 X171A TAPE TAPE(CLOTH-8U) (1) 29110082
PCB1 X701 CERA LOCK CSTCR6M0055-R0 1 3010397R2
PCB1 L131 CHOKE COIL NCH-1471 1 231237K022R2
PCB1 L131 or CHOKE COIL NCH-1587-022M ( 1) 233533M022R2
PCB1 L133 CHOKE COIL NCH-1471 1 231237K022R2
PCB1 L133 or CHOKE COIL NCH-1587-022M ( 1) 233533M022R2
PCB1 L134 CHOKE COIL NCH-1471 1 231237K022R2
PCB1 L134 or CHOKE COIL NCH-1587-022M ( 1) 233533M022R2
PCB1 L171 CHOKE COIL NCH-1471 1 231237K022R2
PCB1 L171 or CHOKE COIL NCH-1587-022M ( 1) 233533M022R2
PCB1 L172 EMIFIL BK1608LM182-T 1 230958R1
PCB1 L173 EMIFIL BK1608LM182-T 1 230958R1
PCB1 L201 CHOKE COIL NCH-1471 1 231237K022R2
PCB1 L202 CHOKE COIL NCH-1471 1 231237K022R2

10/62 PAGE
PCB1 L203 CHOKE COIL NCH-1471 1 231237K022R2
PCB1 L281 CHOKE COIL NCH-1471 1 231237K022R2
PCB1 L301 CHOKE COIL NCH-1471 1 231237K022R2
PCB1 L302 CHOKE COIL NCH-1471 1 231237K022R2
PCB1 L303 CHOKE COIL NCH-1471 1 231237K022R2
PCB1 L311 EMIFIL BK1608LM182-T 1 230958R1
PCB1 L312 EMIFIL BK1608LM182-T 1 230958R1
PCB1 L313 EMIFIL BK1608LM182-T 1 230958R1
PCB1 L701 CHOKE COIL NCH-1479 1 231237K470R2
PCB1 L811 CHOKE COIL NCH-1471 1 231237K022R2
PCB1 L811 or CHOKE COIL NCH-1587-022M ( 1) 233533M022R2
PCB1 L812 CHOKE COIL NCH-1471 1 231237K022R2
PCB1 L812 or CHOKE COIL NCH-1587-022M ( 1) 233533M022R2
PCB1 L891 CHOKE COIL NCH-1471 1 231237K022R2
PCB1 L891 or CHOKE COIL NCH-1587-022M ( 1) 233533M022R2
PCB1 L892 CHOKE COIL NCH-1471 1 231237K022R2
PCB1 L892 or CHOKE COIL NCH-1587-022M ( 1) 233533M022R2
PCB1 L893 CHOKE COIL NCH-1471 1 231237K022R2
PCB1 L893 or CHOKE COIL NCH-1587-022M ( 1) 233533M022R2
PCB1 C101 VR C CE04W16V-100M(VR) 1 394641017
PCB1 C102 C-CERA C CC725CH1H-101J1 1 342101014R1
PCB1 C103 C-CERA C CC725CH1H-101J1 1 342101014R1
PCB1 C104 VR C CE04W50V-3.3M(VR) 1 394680337
PCB1 C105 VR C CE04W50V-3.3M(VR) 1 394680337
PCB1 C131 C-CERA C CC725CH1H-101J1 1 342101014R1
PCB1 C132 C-CERA C CK725B1C-104K1 1 332121045R1
PCB1 C133 C-CERA C CC725CH1H-080D1 1 342100802R1
PCB1 C139 VR C CE04W16V-100M(VR) 1 394641017
PCB1 C140 C-CERA C CK725F1E-104Z1 1 332161040R1
PCB1 C141 C-CERA C CK725F1E-104Z1 1 332161040R1
PCB1 C145 VR C CE04W16V-100M(VR) 1 394641017

11/62 PAGE
PCB1 C146 C-CERA C CK725F1E-104Z1 1 332161040R1
PCB1 C151 C-CERA C CK725F1E-104Z1 1 332161040R1
PCB1 C152 C-CERA C CK725F1E-104Z1 1 332161040R1
PCB1 C171 C-CERA C CK725F1E-104Z1 1 332161040R1
PCB1 C172 C-CERA C CC725CH1H-120J1 1 342101204R1
PCB1 C173 C-CERA C CC725CH1H-120J1 1 342101204R1
PCB1 C201 VR C CE04W16V-100M(VR) 1 394641017
PCB1 C202 VR C CE04W16V-100M(VR) 1 394641017
PCB1 C203 VR C CE04W16V-100M(VR) 1 394641017
PCB1 C204 CHIP TANTAL CS772SB1C-2.2M 1 395640227R2
PCB1 C205 C SERA C CC725CH1H-122J1 1 342101224R1
PCB1 C206 C-CERA C CC725CH1H-680J1 1 342106804R1
PCB1 C207 C-CERA C CK725F1E-104Z1 1 332161040R1
PCB1 C208 C-CERA C CK725F1E-104Z1 1 332161040R1
PCB1 C209 C-CERA C CK725F1E-104Z1 1 332161040R1
PCB1 C210 C-CERA C CK725F1E-104Z1 1 332161040R1
PCB1 C212 C-CERA C CK725F1E-104Z1 1 332161040R1
PCB1 C213 C-CERA C CK725F1E-104Z1 1 332161040R1
PCB1 C214 C-CERA C CK725F1E-104Z1 1 332161040R1
PCB1 C215 C-CERA C CK725F1E-104Z1 1 332161040R1
PCB1 C216 C-CERA C CK725F1E-104Z1 1 332161040R1
PCB1 C217 C-CERA C CK725F1E-104Z1 1 332161040R1
PCB1 C219 C-CERA C CC725CH1H-101J1 1 342101014R1
PCB1 C281 VR C CE04W16V-100M(VR) 1 394641017
PCB1 C282 C-CERA C CK725F1E-104Z1 1 332161040R1
PCB1 C301 VR C CE04W6.3V-220M(VR) 1 394622217
PCB1 C302 C-CERA C CK725F1E-104Z1 1 332161040R1
PCB1 C304 VX C CE04W50V-47M(VX) 1 393384707
PCB1 C305 C-CERA C CK725F1E-104Z1 1 332161040R1
PCB1 C306 VR C CE04W16V-100M(VR) 1 394641017
PCB1 C307 C-CERA C CK725F1E-104Z1 1 332161040R1

12/62 PAGE
PCB1 C308 VR C CE04W6.3V-220M(VR) 1 394622217
PCB1 C309 C-CERA C CK725B1H-222K1 1 332102225R1
PCB1 C310 C-CERA C CK725B1H-473K1 1 332104735R1
PCB1 C311 C-CERA C CK725F1E-104Z1 1 332161040R1
PCB1 C312 VR C CE04W6.3V-220M(VR) 1 394622217
PCB1 C313 C-CERA C CK725F1E-104Z1 1 332161040R1
PCB1 C321 VX C CE04W50V-10M(VX) 1 393381007
PCB1 C322 VX C CE04W50V-10M(VX) 1 393381007
PCB1 C323 VX C CE04W50V-10M(VX) 1 393381007
PCB1 C324 VX C CE04W50V-10M(VX) 1 393381007
PCB1 C325 TF C ECQ-B50V-222J 1 374722224
PCB1 C326 TF C ECQ-B50V-222J 1 374722224
PCB1 C331 C-CERA C CC725CH1H-330J1 1 342103304R1
PCB1 C332 C-CERA C CC725CH1H-330J1 1 342103304R1
PCB1 C401 TF C ECQ-B50V-472J 1 374724724
PCB1 C402 TF C ECQ-B50V-472J 1 374724724
PCB1 C403 TF C ECQ-B50V-472J 1 374724724
PCB1 C404 TF C ECQ-V50V-333J 1 374723334
PCB1 C405 TF C ECQ-B50V-472J 1 374724724
PCB1 C406 TF C ECQ-B50V-472J 1 374724724
PCB1 C407 TF C ECQ-B50V-472J 1 374724724
PCB1 C411 C-CERA C CC725CH1H-681J1 1 342106814R1
PCB1 C412 C-CERA C CC725CH1H-681J1 1 342106814R1
PCB1 C413 C-CERA C CC725CH1H-681J1 1 342106814R1
PCB1 C415 C-CERA C CC725CH1H-681J1 1 342106814R1
PCB1 C416 C-CERA C CC725CH1H-681J1 1 342106814R1
PCB1 C417 C-CERA C CC725CH1H-681J1 1 342106814R1
PCB1 C419 TF C ECQ-B50V-153J 1 374721534
PCB1 C420 TF C ECQ-B50V-153J 1 374721534
PCB1 C421 C-CERA C CC725CH1H-681J1 1 342106814R1
PCB1 C422 C-CERA C CC725CH1H-681J1 1 342106814R1

13/62 PAGE
PCB1 C423 C-CERA C CC725CH1H-681J1 1 342106814R1
PCB1 C425 C-CERA C CC725CH1H-681J1 1 342106814R1
PCB1 C426 C-CERA C CC725CH1H-681J1 1 342106814R1
PCB1 C427 C-CERA C CC725CH1H-681J1 1 342106814R1
PCB1 C523 VX C CE04W50V-10M(VX) 1 393381007
PCB1 C524 VX C CE04W50V-10M(VX) 1 393381007
PCB1 C525 VX C CE04W50V-10M(VX) 1 393381007
PCB1 C526 VX C CE04W50V-10M(VX) 1 393381007
PCB1 C531 VR C CE04W16V-220M(VR) 1 394642217
PCB1 C532 VR C CE04W16V-220M(VR) 1 394642217
PCB1 C701 VR C CE04W16V-100M(VR) 1 394641017
PCB1 C702 VR C CE04W16V-100M(VR) 1 394641017
PCB1 C703 VR C CE04W16V-100M(VR) 1 394641017
PCB1 C704 EDL C DX-5R5L224 1 3000079
PCB1 C705 VR C CE04W16V-100M(VR) 1 394641017
PCB1 C706 VR C CE04W50V-1M(VR) 1 394680107
PCB1 C707 C-CERA C CK725F1E-104Z1 1 332161040R1
PCB1 C708 C-CERA C CK725F1E-104Z1 1 332161040R1
PCB1 C709 C-CERA C CK725F1E-104Z1 1 332161040R1
PCB1 C710 C-CERA C CK725F1E-104Z1 1 332161040R1
PCB1 C711 C-CERA C CK725F1E-104Z1 1 332161040R1
PCB1 C712 C-CERA C CK725F1E-104Z1 1 332161040R1
PCB1 C713 C-CERA C CK725B1H-102K1 1 332101025R1
PCB1 C714 C-CERA C CK725B1H-102K1 1 332101025R1
PCB1 C715 C-CERA C CK725B1H-102K1 1 332101025R1
PCB1 C716 C-CERA C CK725B1H-102K1 1 332101025R1
PCB1 C717 C-CERA C CK725B1H-102K1 1 332101025R1
PCB1 C718 C-CERA C CK725B1H-102K1 1 332101025R1
PCB1 C719 C-CERA C CK725B1H-102K1 1 332101025R1
PCB1 C720 C-CERA C CK725B1H-102K1 1 332101025R1
PCB1 C721 C-CERA C CK725B1H-102K1 1 332101025R1

14/62 PAGE
PCB1 C722 C-CERA C CK725B1H-102K1 1 332101025R1
PCB1 C723 C-CERA C CK725F1E-104Z1 1 332161040R1
PCB1 C724 TF C ECQ-V50V-124J 1 374721244
PCB1 C747 VX C CE04W50V-10M(VX) 1 393381007
PCB1 C751 C-CERA C CK732B1C-474K 1 337394745R1
PCB1 C754 VX C CE04W50V-10M(VX) 1 393381007
PCB1 C801 MMT C MMT50V-474J 1 375524744
PCB1 C802 ELECT C CE04W6.3V-100M(S) 1 353721019
PCB1 C803 C-CERA C CC725CH1H-101J1 1 342101014R1
PCB1 C804 C-CERA C CK725F1E-104Z1 1 332161040R1
PCB1 C805 C-CERA C CK725F1E-104Z1 1 332161040R1
PCB1 C806 C-CERA C CC725CH1H-101J1 1 342101014R1
PCB1 C807 C-CERA C CC725CH1H-101J1 1 342101014R1
PCB1 C808 C-CERA C CC725CH1H-101J1 1 342101014R1
PCB1 C809 C-CERA C CC725CH1H-101J1 1 342101014R1
PCB1 C811 C-CERA C CK725F1H-473Z1 1 332154730R1
PCB1 C812 C-CERA C CK725F1E-104Z1 1 332161040R1
PCB1 C813 C-CERA C CK725F1E-104Z1 1 332161040R1
PCB1 C814 C-CERA C CK725F1E-104Z1 1 332161040R1
PCB1 C815 C-CERA C CK725F1H-473Z1 1 332154730R1
PCB1 C816 C-CERA C CK725F1H-473Z1 1 332154730R1
PCB1 C817 ELECT C CE04W50V-33M 1 355783309
PCB1 C818 C-CERA C CK725F1H-473Z1 1 332154730R1
PCB1 C819 C-CERA C CK725F1E-104Z1 1 332161040R1
PCB1 C820 C-CERA C CK725F1E-104Z1 1 332161040R1
PCB1 C821 C-CERA C CK725F1E-104Z1 1 332161040R1
PCB1 C822 C-CERA C CK725F1E-104Z1 1 332161040R1
PCB1 C823 ELECT C CE04W6.3V-100M(S) 1 353721019
PCB1 C825 C-CERA C CK725B1H-102K1 1 332101025R1
PCB1 C891 C-CERA C CK725B1H-102K1 1 332101025R1
PCB1 C892 C-CERA C CK725B1H-102K1 1 332101025R1

15/62 PAGE
PCB1 C893 C-CERA C CK725B1H-102K1 1 332101025R1
PCB1 C894 C-CERA C CK725B1H-102K1 1 332101025R1
PCB1 C896 TF C ECQ-V50V-124J 1 374721244
PCB1 R101 C-CARBON R RN72K1J-561JE 1 435035614R1
PCB1 R102 C-CARBON R RN72K1J-104JE 1 435031044R1
PCB1 R103 C-CARBON R RN72K1J-473JE 1 435034734R1
PCB1 R104 C-CARBON R RN72K1J-473JE 1 435034734R1
PCB1 R105 C-CARBON R RN72K1J-473JE 1 435034734R1
PCB1 R106 C-CARBON R RN72K1J-223JE 1 435032234R1
PCB1 R107 C-CARBON R RN72K1J-473JE 1 435034734R1
PCB1 R111 C-CARBON R RN72K1J-000JE 1 435030004R1
PCB1 R112 C-CARBON R RN72K1J-000JE 1 435030004R1
PCB1 R113 C-CARBON R RN72K1J-000JE 1 435030004R1
PCB1 R131 C-CARBON R RN72K1J-750JE 1 435037504R1
PCB1 R132 C-CARBON R RN72K1J-221JE 1 435032214R1
PCB1 R133 C-CARBON R RN72K1J-224JE 1 435032244R1
PCB1 R134 C-CARBON R RN72K1J-103JE 1 435031034R1
PCB1 R137 C-CARBON R RN72K1J-224JE 1 435032244R1
PCB1 R139 C-CARBON R RN72K1J-224JE 1 435032244R1
PCB1 R141 C-CARBON R RN72K1J-221JE 1 435032214R1
PCB1 R161 C-CARBON R RN72K1J-221JE 1 435032214R1
PCB1 R162 C-CARBON R RN72K1J-221JE 1 435032214R1
PCB1 R163 C-CARBON R RN72K1J-221JE 1 435032214R1
PCB1 R164 C-CARBON R RN72K1J-221JE 1 435032214R1
PCB1 R165 C-CARBON R RN72K1J-221JE 1 435032214R1
PCB1 R166 C-CARBON R RN72K1J-332JE 1 435033324R1
PCB1 R171 C-CARBON R RN72K1J-105JE 1 435031054R1
PCB1 R201 C-CARBON R RN72K1J-332JE 1 435033324R1
PCB1 R202 C-CARBON R RN72K1J-332JE 1 435033324R1
PCB1 R203 C-CARBON R RN72K1J-332JE 1 435033324R1
PCB1 R205 C-CARBON R RN72K1J-103JE 1 435031034R1

16/62 PAGE
PCB1 R208 C-CARBON R RN72K1J-103JE 1 435031034R1
PCB1 R209 C-CARBON R RN72K1J-103JE 1 435031034R1
PCB1 R210 C-CARBON R RN72K1J-332JE 1 435033324R1
PCB1 R211 C-CARBON R RN72K1J-332JE 1 435033324R1
PCB1 R212 C-CARBON R RN72K1J-103JE 1 435031034R1
PCB1 R215 C-CARBON R RN72K1J-332JE 1 435033324R1
PCB1 R216 C-CARBON R RN72K1J-103JE 1 435031034R1
PCB1 R217 C-CARBON R RN72K1J-103JE 1 435031034R1
PCB1 R218 C-CARBON R RN72K1J-103JE 1 435031034R1
PCB1 R219 C-CARBON R RN72K1J-103JE 1 435031034R1
PCB1 R220 C-CARBON R RN72K1J-103JE 1 435031034R1
PCB1 R221 C-CARBON R RN72K1J-103JE 1 435031034R1
PCB1 R222 C-CARBON R RN72K1J-103JE 1 435031034R1
PCB1 R223 C-CARBON R RN72K1J-103JE 1 435031034R1
PCB1 R224 C-CARBON R RN72K1J-103JE 1 435031034R1
PCB1 R225 C-CARBON R RN72K1J-103JE 1 435031034R1
PCB1 R234 C-CARBON R RN72K1J-103JE 1 435031034R1
PCB1 R235 C-CARBON R RN72K1J-103JE 1 435031034R1
PCB1 R236 C-CARBON R RN72K1J-103JE 1 435031034R1
PCB1 R238 C-CARBON R RN72K1J-470JE 1 435034704R1
PCB1 R239 C-CARBON R RN72K1J-103JE 1 435031034R1
PCB1 R240 C-CARBON R RN72K1J-103JE 1 435031034R1
PCB1 R242 C-CARBON R RN72K1J-103JE 1 435031034R1
PCB1 R249 C-CARBON R RN72K1J-103JE 1 435031034R1
PCB1 R250 C-CARBON R RN72K1J-103JE 1 435031034R1
PCB1 R251 C-CARBON R RN72K1J-103JE 1 435031034R1
PCB1 R255 C-CARBON R RN72K1J-103JE 1 435031034R1
PCB1 R256 C-CARBON R RN72K1J-103JE 1 435031034R1
PCB1 R257 C-CARBON R RN72K1J-331JE 1 435033314R1
PCB1 R258 C-CARBON R RN72K1J-272JE 1 435032724R1
PCB1 R259 C-CARBON R RN72K1J-470JE 1 435034704R1

17/62 PAGE
PCB1 R260 C-CARBON R RN72K1J-103JE 1 435031034R1
PCB1 R261 C-CARBON R RN72K1J-103JE 1 435031034R1
PCB1 R266 C-CARBON R RN72K1J-103JE 1 435031034R1
PCB1 R269 C-CARBON R RN72K1J-332JE 1 435033324R1
PCB1 R270 C-CARBON R RN72K1J-221JE 1 435032214R1
PCB1 R271 C-CARBON R RN72K1J-103JE 1 435031034R1
PCB1 R272 C-CARBON R RN72K1J-103JE 1 435031034R1
PCB1 R273 C-CARBON R RN72K1J-103JE 1 435031034R1
PCB1 R274 C-CARBON R RN72K1J-103JE 1 435031034R1
PCB1 R275 C-CARBON R RN72K1J-103JE 1 435031034R1
PCB1 R276 C-CARBON R RN72K1J-103JE 1 435031034R1
PCB1 R277 C-CARBON R RN72K1J-103JE 1 435031034R1
PCB1 R301 C-CARBON R RN72K1J-470JE 1 435034704R1
PCB1 R302 C-CARBON R RN72K1J-470JE 1 435034704R1
PCB1 R303 C-CARBON R RN72K1J-470JE 1 435034704R1
PCB1 R304 C-CARBON R RN72K1J-221JE 1 435032214R1
PCB1 R305 C-CARBON R RN72K1J-221JE 1 435032214R1
PCB1 R306 C-CARBON R RN72K1J-221JE 1 435032214R1
PCB1 R307 C-CARBON R RN72K1J-221JE 1 435032214R1
PCB1 R308 C-CARBON R RN72K1J-221JE 1 435032214R1
PCB1 R309 C-CARBON R RN72K1J-221JE 1 435032214R1
PCB1 R311 C-CARBON R RN72K1J-272JE 1 435032724R1
PCB1 R312 C-CARBON R RN72K1J-470JE 1 435034704R1
PCB1 R313 C-CARBON R RN72K1J-470JE 1 435034704R1
PCB1 R314 C-CARBON R RN72K1J-470JE 1 435034704R1
PCB1 R315 C-CARBON R RN72K1J-470JE 1 435034704R1
PCB1 R316 C-CARBON R RN72K1J-470JE 1 435034704R1
PCB1 R317 C-CARBON R RN72K1J-470JE 1 435034704R1
PCB1 R318 C-CARBON R RN72K1J-470JE 1 435034704R1
PCB1 R319 C-CARBON R RN72K1J-470JE 1 435034704R1
PCB1 R321 C-CARBON R RN72K1J-560JE 1 435035604R1

18/62 PAGE
PCB1 R322 C-CARBON R RN72K1J-560JE 1 435035604R1
PCB1 R323 C-CARBON R RN72K1J-560JE 1 435035604R1
PCB1 R324 C-CARBON R RN72K1J-560JE 1 435035604R1
PCB1 R325 C-CARBON R RN72K1J-392JE 1 435033924R1
PCB1 R326 C-CARBON R RN72K1J-392JE 1 435033924R1
PCB1 R332 C-CARBON R RN72K1J-331JE 1 435033314R1
PCB1 R333 C-CARBON R RN72K1J-331JE 1 435033314R1
PCB1 R338 C-CARBON R RN72K1J-000JE 1 435030004R1
PCB1 R339 C-CARBON R RN72K1J-000JE 1 435030004R1
PCB1 R340 C-CARBON R RN72K1J-000JE 1 435030004R1
PCB1 R341 C-CARBON R RN72K1J-000JE 1 435030004R1
PCB1 R401 C-CARBON R RN72K1J-332JE 1 435033324R1
PCB1 R402 C-CARBON R RN72K1J-332JE 1 435033324R1
PCB1 R403 C-CARBON R RN72K1J-332JE 1 435033324R1
PCB1 R404 C-CARBON R RN72K1J-332JE 1 435033324R1
PCB1 R405 C-CARBON R RN72K1J-332JE 1 435033324R1
PCB1 R406 C-CARBON R RN72K1J-332JE 1 435033324R1
PCB1 R407 C-CARBON R RN72K1J-332JE 1 435033324R1
PCB1 R411 C-CARBON R RN72K1J-332JE 1 435033324R1
PCB1 R412 C-CARBON R RN72K1J-332JE 1 435033324R1
PCB1 R413 C-CARBON R RN72K1J-332JE 1 435033324R1
PCB1 R414 C-CARBON R RN72K1J-332JE 1 435033324R1
PCB1 R415 C-CARBON R RN72K1J-332JE 1 435033324R1
PCB1 R416 C-CARBON R RN72K1J-332JE 1 435033324R1
PCB1 R417 C-CARBON R RN72K1J-332JE 1 435033324R1
PCB1 R421 C-CARBON R RN72K1J-471JE 1 435034714R1
PCB1 R422 C-CARBON R RN72K1J-471JE 1 435034714R1
PCB1 R423 C-CARBON R RN72K1J-471JE 1 435034714R1
PCB1 R424 C-CARBON R RN72K1J-471JE 1 435034714R1
PCB1 R425 C-CARBON R RN72K1J-471JE 1 435034714R1
PCB1 R426 C-CARBON R RN72K1J-471JE 1 435034714R1

19/62 PAGE
PCB1 R427 C-CARBON R RN72K1J-471JE 1 435034714R1
PCB1 R431 C-CARBON R RN72K1J-471JE 1 435034714R1
PCB1 R432 C-CARBON R RN72K1J-471JE 1 435034714R1
PCB1 R433 C-CARBON R RN72K1J-471JE 1 435034714R1
PCB1 R434 C-CARBON R RN72K1J-471JE 1 435034714R1
PCB1 R435 C-CARBON R RN72K1J-471JE 1 435034714R1
PCB1 R436 C-CARBON R RN72K1J-471JE 1 435034714R1
PCB1 R437 C-CARBON R RN72K1J-471JE 1 435034714R1
PCB1 R441 C-CARBON R RN72K1J-472JE 1 435034724R1
PCB1 R442 C-CARBON R RN72K1J-472JE 1 435034724R1
PCB1 R443 C-CARBON R RN72K1J-472JE 1 435034724R1
PCB1 R444 C-CARBON R RN72K1J-472JE 1 435034724R1
PCB1 R445 C-CARBON R RN72K1J-472JE 1 435034724R1
PCB1 R446 C-CARBON R RN72K1J-472JE 1 435034724R1
PCB1 R447 C-CARBON R RN72K1J-472JE 1 435034724R1
PCB1 R448 C-CARBON R RN72K1J-000JE 1 435030004R1
PCB1 R451 C-CARBON R RN72K1J-472JE 1 435034724R1
PCB1 R452 C-CARBON R RN72K1J-472JE 1 435034724R1
PCB1 R453 C-CARBON R RN72K1J-472JE 1 435034724R1
PCB1 R454 C-CARBON R RN72K1J-472JE 1 435034724R1
PCB1 R455 C-CARBON R RN72K1J-472JE 1 435034724R1
PCB1 R456 C-CARBON R RN72K1J-472JE 1 435034724R1
PCB1 R457 C-CARBON R RN72K1J-472JE 1 435034724R1
PCB1 R458 C-CARBON R RN72K1J-000JE 1 435030004R1
PCB1 R461 C-CARBON R RN72K1J-181JE 1 435031814R1
PCB1 R462 C-CARBON R RN72K1J-181JE 1 435031814R1
PCB1 R463 C-CARBON R RN72K1J-181JE 1 435031814R1
PCB1 R464 C-CARBON R RN72K1J-181JE 1 435031814R1
PCB1 R465 C-CARBON R RN72K1J-181JE 1 435031814R1
PCB1 R466 C-CARBON R RN72K1J-181JE 1 435031814R1
PCB1 R467 C-CARBON R RN72K1J-181JE 1 435031814R1

20/62 PAGE
PCB1 R468 C-CARBON R RN72K1J-000JE 1 435030004R1
PCB1 R471 C-CARBON R RN72K1J-181JE 1 435031814R1
PCB1 R472 C-CARBON R RN72K1J-181JE 1 435031814R1
PCB1 R473 C-CARBON R RN72K1J-181JE 1 435031814R1
PCB1 R474 C-CARBON R RN72K1J-181JE 1 435031814R1
PCB1 R475 C-CARBON R RN72K1J-181JE 1 435031814R1
PCB1 R476 C-CARBON R RN72K1J-181JE 1 435031814R1
PCB1 R477 C-CARBON R RN72K1J-181JE 1 435031814R1
PCB1 R478 C-CARBON R RN72K1J-000JE 1 435030004R1
PCB1 R591 C-CARBON R RN72K1J-000JE 1 435030004R1
PCB1 R592 C-CARBON R RN72K1J-000JE 1 435030004R1
PCB1 R593 C-CARBON R RN72K1J-000JE 1 435030004R1
PCB1 R594 C-CARBON R RN72K1J-000JE 1 435030004R1
PCB1 R595 C-CARBON R RN72K1J-000JE 1 435030004R1
PCB1 R596 C-CARBON R RN72K1J-000JE 1 435030004R1
PCB1 R597 C-CARBON R RN72K1J-000JE 1 435030004R1
PCB1 R601 C-CARBON R RN72K1J-102JE 1 435031024R1
PCB1 R602 C-CARBON R RN72K1J-103JE 1 435031034R1
PCB1 R603 C-CARBON R RN72K1J-000JE 1 435030004R1
PCB1 R604 C-CARBON R RN72K1J-105JE 1 435031054R1
PCB1 R605 C-CARBON R RN72K1J-000JE 1 435030004R1
PCB1 R612 C-CARBON R RN72K1J-473JE 1 435034734R1
PCB1 R618 C-CARBON R RN72K1J-103JE 1 435031034R1
PCB1 R621 C-CARBON R RN72K1J-103JE 1 435031034R1
PCB1 R622 C-CARBON R RN72K1J-103JE 1 435031034R1
PCB1 R624 C-CARBON R RN72K1J-103JE 1 435031034R1
PCB1 R629 C-CARBON R RN72K1J-103JE 1 435031034R1
PCB1 R630 C-CARBON R RN72K1J-103JE 1 435031034R1
PCB1 R631 C-CARBON R RN72K1J-103JE 1 435031034R1
PCB1 R632 C-CARBON R RN72K1J-103JE 1 435031034R1
PCB1 R636 C-CARBON R RN72K1J-103JE 1 435031034R1

21/62 PAGE
PCB1 R639 C-CARBON R RN72K1J-103JE 1 435031034R1
PCB1 R640 C-CARBON R RN72K1J-103JE 1 435031034R1
PCB1 R641 C-CARBON R RN72K1J-103JE 1 435031034R1
PCB1 R642 C-CARBON R RN72K1J-103JE 1 435031034R1
PCB1 R646 C-CARBON R RN72K1J-103JE 1 435031034R1
PCB1 R647 C-CARBON R RN72K1J-102JE 1 435031024R1
PCB1 R661 C-CARBON R RN72K1J-223JE 1 435032234R1
PCB1 R663 C-CARBON R RN72K1J-223JE 1 435032234R1
PCB1 R673 C-CARBON R RN72K1J-224JE 1 435032244R1
PCB1 R674 C-CARBON R RN72K1J-000JE 1 435030004R1
PCB1 R681 C-CARBON R RN72K1J-103JE 1 435031034R1
PCB1 R683 C-CARBON R RN72K1J-000JE 1 435030004R1
PCB1 R688 C-CARBON R RN72K1J-103JE 1 435031034R1
PCB1 R693 C-CARBON R RN72K1J-272JE 1 435032724R1
PCB1 R694 C-CARBON R RN72K1J-272JE 1 435032724R1
PCB1 R695 C-CARBON R RN72K1J-272JE 1 435032724R1
PCB1 R696 C-CARBON R RN72K1J-272JE 1 435032724R1
PCB1 R698 C-CARBON R RN72K1J-000JE 1 435030004R1
PCB1 R708 C-CARBON R RN72K1J-103JE 1 435031034R1
PCB1 R709 C-CARBON R RN72K1J-221JE 1 435032214R1
PCB1 R710 C-CARBON R RN72K1J-221JE 1 435032214R1
PCB1 R717 C-CARBON R RN72K1J-103JE 1 435031034R1
PCB1 R719 C-CARBON R RN72K1J-221JE 1 435032214R1
PCB1 R729 C-CARBON R RN72K1J-100JE 1 435031004R1
PCB1 R730 C-CARBON R RN72K1J-100JE 1 435031004R1
PCB1 R731 C-CARBON R RN72K1J-221JE 1 435032214R1
PCB1 R732 C-CARBON R RN72K1J-221JE 1 435032214R1
PCB1 R733 C-CARBON R RN72K1J-221JE 1 435032214R1
PCB1 R734 C-CARBON R RN72K1J-221JE 1 435032214R1
PCB1 R736 C-CARBON R RN72K1J-221JE 1 435032214R1
PCB1 R747 C-CARBON R RN72K1J-222JE 1 435032224R1

22/62 PAGE
PCB1 R758 C-CARBON R RN72K1J-221JE 1 435032214R1
PCB1 R759 C-CARBON R RN72K1J-221JE 1 435032214R1
PCB1 R763 C-CARBON R RN72K1J-102JE 1 435031024R1
PCB1 R765 C-CARBON R RN72K1J-102JE 1 435031024R1
PCB1 R766 C-CARBON R RN72K1J-102JE 1 435031024R1
PCB1 R767 C-CARBON R RN72K1J-102JE 1 435031024R1
PCB1 R771 C-CARBON R RN72K1J-102JE 1 435031024R1
PCB1 R772 C-CARBON R RN72K1J-102JE 1 435031024R1
PCB1 R773 C-CARBON R RN72K1J-331JE 1 435033314R1
PCB1 R775 C-CARBON R RN72K1J-102JE 1 435031024R1
PCB1 R781 C-CARBON R RN72K1J-102JE 1 435031024R1
PCB1 R783 C-CARBON R RN72K1J-102JE 1 435031024R1
PCB1 R784 C-CARBON R RN72K1J-102JE 1 435031024R1
PCB1 R785 C-CARBON R RN72K1J-000JE 1 435030004R1
PCB1 R786 C-CARBON R RN72K1J-000JE 1 435030004R1
PCB1 R787 C-CARBON R RN72K1J-000JE 1 435030004R1
PCB1 R788 C-CARBON R RN72K1J-103JE 1 435031034R1
PCB1 R789 C-CARBON R RN72K1J-472JE 1 435034724R1
PCB1 R790 C-CARBON R RN72K1J-472JE 1 435034724R1
PCB1 R791 C-CARBON R RN72K1J-472JE 1 435034724R1
PCB1 R792 C-CARBON R RN72K1J-472JE 1 435034724R1
PCB1 R793 C-CARBON R RN72K1J-472JE 1 435034724R1
PCB1 R794 C-CARBON R RN72K1J-472JE 1 435034724R1
PCB1 R795 C-CARBON R RN72K1J-472JE 1 435034724R1
PCB1 R797 C-CARBON R RN72K1J-472JE 1 435034724R1
PCB1 R800 C-CARBON R RN72K1J-221JE 1 435032214R1
PCB1 R801 C-CARBON R RN72K1J-273JE 1 435032734R1
PCB1 R802 C-CARBON R RN72K1J-332JE 1 435033324R1
PCB1 R803 C-CARBON R RN72K1J-332JE 1 435033324R1
PCB1 R804 C-CARBON R RN72K1J-221JE 1 435032214R1
PCB1 R805 C-CARBON R RN72K1J-221JE 1 435032214R1

23/62 PAGE
PCB1 R806 C-CARBON R RN72K1J-221JE 1 435032214R1
PCB1 R807 C-CARBON R RN72K1J-221JE 1 435032214R1
PCB1 R808 C-CARBON R RN72K1J-104JE 1 435031044R1
PCB1 R810 C-CARBON R RN72K1J-101JE 1 435031014R1
PCB1 R811 C-CARBON R RN72K1J-103JE 1 435031034R1
PCB1 R812 C-CARBON R RN72K1J-103JE 1 435031034R1
PCB1 R813 C-CARBON R RN72K1J-103JE 1 435031034R1
PCB1 R814 C-CARBON R RN72K1J-103JE 1 435031034R1
PCB1 R821 C-CARBON R RN72K1J-222JE 1 435032224R1
PCB1 R827 C-CARBON R RN72K1J-101JE 1 435031014R1
PCB1 R828 C-CARBON R RN72K1J-102JE 1 435031024R1
PCB1 R831 C-CARBON R RN72K1J-331JE 1 435033314R1
PCB1 R832 C-CARBON R RN72K1J-471JE 1 435034714R1
PCB1 R833 C-CARBON R RN72K1J-561JE 1 435035614R1
PCB1 R834 C-CARBON R RN72K1J-821JE 1 435038214R1
PCB1 R835 C-CARBON R RN72K1J-122JE 1 435031224R1
PCB1 R836 C-CARBON R RN72K1J-222JE 1 435032224R1
PCB1 R841 C-CARBON R RN72K1J-331JE 1 435033314R1
PCB1 R842 C-CARBON R RN72K1J-471JE 1 435034714R1
PCB1 R843 C-CARBON R RN72K1J-561JE 1 435035614R1
PCB1 R844 C-CARBON R RN72K1J-821JE 1 435038214R1
PCB1 R845 C-CARBON R RN72K1J-122JE 1 435031224R1
PCB1 R846 C-CARBON R RN72K1J-222JE 1 435032224R1
PCB1 R847 C-CARBON R RN72K1J-392JE 1 435033924R1
PCB1 R851 C-CARBON R RN72K1J-331JE 1 435033314R1
PCB1 R852 C-CARBON R RN72K1J-471JE 1 435034714R1
PCB1 R853 C-CARBON R RN72K1J-561JE 1 435035614R1
PCB1 R854 C-CARBON R RN72K1J-821JE 1 435038214R1
PCB1 R855 C-CARBON R RN72K1J-122JE 1 435031224R1
PCB1 R856 C-CARBON R RN72K1J-222JE 1 435032224R1
PCB1 R857 C-CARBON R RN72K1J-392JE 1 435033924R1

24/62 PAGE
PCB1 R858 C-CARBON R RN72K1J-123JE 1 435031234R1
PCB1 R861 C-CARBON R RN72K1J-331JE 1 435033314R1
PCB1 R862 C-CARBON R RN72K1J-471JE 1 435034714R1
PCB1 R863 C-CARBON R RN72K1J-561JE 1 435035614R1
PCB1 R864 C-CARBON R RN72K1J-821JE 1 435038214R1
PCB1 R865 C-CARBON R RN72K1J-122JE 1 435031224R1
PCB1 R866 C-CARBON R RN72K1J-222JE 1 435032224R1
PCB1 R867 C-CARBON R RN72K1J-392JE 1 435033924R1
PCB1 R868 C-CARBON R RN72K1J-123JE 1 435031234R1
PCB1 S801 PUSH SW NPS-111-S681 1 25035718
PCB1 S801 or PUSH SW NPS-111-S677 ( 1) 25035714
PCB1 S807 PUSH SW NPS-111-S681 1 25035718
PCB1 S807 or PUSH SW NPS-111-S677 ( 1) 25035714
PCB1 S808 PUSH SW NPS-111-S681 1 25035718
PCB1 S808 or PUSH SW NPS-111-S677 ( 1) 25035714
PCB1 S809 PUSH SW NPS-111-S681 1 25035718
PCB1 S809 or PUSH SW NPS-111-S677 ( 1) 25035714
PCB1 S811 PUSH SW NPS-111-S681 1 25035718
PCB1 S811 or PUSH SW NPS-111-S677 ( 1) 25035714
PCB1 S812 PUSH SW NPS-111-S681 1 25035718
PCB1 S812 or PUSH SW NPS-111-S677 ( 1) 25035714
PCB1 S813 PUSH SW NPS-111-S681 1 25035718
PCB1 S813 or PUSH SW NPS-111-S677 ( 1) 25035714
PCB1 S815 PUSH SW NPS-111-S681 1 25035718
PCB1 S815 or PUSH SW NPS-111-S677 ( 1) 25035714
PCB1 S816 PUSH SW NPS-111-S681 1 25035718
PCB1 S816 or PUSH SW NPS-111-S677 ( 1) 25035714
PCB1 S817 PUSH SW NPS-111-S681 1 25035718
PCB1 S817 or PUSH SW NPS-111-S677 ( 1) 25035714
PCB1 S818 PUSH SW NPS-111-S681 1 25035718
PCB1 S818 or PUSH SW NPS-111-S677 ( 1) 25035714

25/62 PAGE
PCB1 S821 PUSH SW NPS-111-S681 1 25035718
PCB1 S821 or PUSH SW NPS-111-S677 ( 1) 25035714
PCB1 S822 PUSH SW NPS-111-S681 1 25035718
PCB1 S822 or PUSH SW NPS-111-S677 ( 1) 25035714
PCB1 S823 PUSH SW NPS-111-S681 1 25035718
PCB1 S823 or PUSH SW NPS-111-S677 ( 1) 25035714
PCB1 S824 PUSH SW NPS-111-S681 1 25035718
PCB1 S824 or PUSH SW NPS-111-S677 ( 1) 25035714
PCB1 S825 PUSH SW NPS-111-S681 1 25035718
PCB1 S825 or PUSH SW NPS-111-S677 ( 1) 25035714
PCB1 S826 PUSH SW NPS-111-S681 1 25035718
PCB1 S826 or PUSH SW NPS-111-S677 ( 1) 25035714
PCB1 S827 PUSH SW NPS-111-S681 1 25035718
PCB1 S827 or PUSH SW NPS-111-S677 ( 1) 25035714
PCB1 S828 PUSH SW NPS-111-S681 1 25035718
PCB1 S828 or PUSH SW NPS-111-S677 ( 1) 25035714
PCB1 S829 PUSH SW NPS-111-S681 1 25035718
PCB1 S829 or PUSH SW NPS-111-S677 ( 1) 25035714
PCB1 S831 PUSH SW NPS-111-S681 1 25035718
PCB1 S831 or PUSH SW NPS-111-S677 ( 1) 25035714
PCB1 S832 PUSH SW NPS-111-S681 1 25035718
PCB1 S832 or PUSH SW NPS-111-S677 ( 1) 25035714
PCB1 S833 PUSH SW NPS-111-S681 1 25035718
PCB1 S833 or PUSH SW NPS-111-S677 ( 1) 25035714
PCB1 S834 PUSH SW NPS-111-S681 1 25035718
PCB1 S834 or PUSH SW NPS-111-S677 ( 1) 25035714
PCB1 S835 PUSH SW NPS-111-S681 1 25035718
PCB1 S835 or PUSH SW NPS-111-S677 ( 1) 25035714
PCB1 S836 PUSH SW NPS-111-S681 1 25035718
PCB1 S836 or PUSH SW NPS-111-S677 ( 1) 25035714
PCB1 S837 PUSH SW NPS-111-S681 1 25035718

26/62 PAGE
PCB1 S837 or PUSH SW NPS-111-S677 ( 1) 25035714
PCB1 S838 PUSH SW NPS-111-S681 1 25035718
PCB1 S838 or PUSH SW NPS-111-S677 ( 1) 25035714
PCB1 S839 PUSH SW NPS-111-S681 1 25035718
PCB1 S839 or PUSH SW NPS-111-S677 ( 1) 25035714
PCB1 S851 R ENCODE EC12E2425 1 25065655
PCB1 P101A SOCKET NSCT-15P2108 1 25052211
PCB1 P132 PIN JACK NPJ-1PDBL291 1 25045473
PCB1 P132 or PIN JACK NPJ-1PDO554 ( 1) 25045772
PCB1 P301A SOCKET NSCT-10P2190 1 25052293
PCB1 P302A SOCKET NSCT-20P2200 1 25052303
PCB1 P303A SOCKET NSCT-20P2200 1 25052303
PCB1 P311A SOCKET AS NSAS-20P1043 1 2002A392025UL
PCB1 P312 HOLDER HOLDER(CLAMP) 1 27190540-1
PCB1 P703A SOCKET NSCT-23P2257 1 25052360
PCB1 P703Aor SOCKET NSCT-23P2441 ( 1) 25052544
PCB1 P703B SOCKET NSCT-23P2257 1 25052360
PCB1 P703Bor SOCKET NSCT-23P2441 ( 1) 25052544
PCB1 P721 ST JACK LGY2502-0200C 1 25045696
PCB1 P751A SOCKET NSCT-9P2427 1 25052530
PCB1 P2005 PLUG NPLG-13P0968 1 25056018
PCB1 P891 ST JACK MSJ-064-05A SR 1 25045783
PCB1 P891 or ST JACK YKB21-5005 ( 1) 25045724
PCB1 E301 TRM NTM-1P233(M1969) 1 25060302
PCB1 E301A ISO PLT --- 1 28175316
PCB1 E891 RETAINER KANAGU 1 27141059
PCB1 JL832A WIRE HOL NSCT-3P894 1 25051107
PCB1 JL832B WIRE HOL NSCT-3P894 1 25051107
PCB1 JL891A WIRE HOL NSCT-5P896 1 25051109
U05 AMPLIFIER PC BOARD (NAAF-8523-1D)

27/62 PAGE
U06 SEC. TERMINAL-2 PC BOARD (NAPS-8524-1D)
U08 THERMAL SENSOR PC BOARD (NAETC-8526-1D)
U09 HOLDER PC BOARD (NAETC-8527-1D)
CIRCUIT NO. NAME DESCRIPTION Q'TY PART NO REMARKS
PCB2 Q5501 IC NJW1157B 1 22242193R3
PCB2 Q5502 IC NJU7311AM 1 22242209R2
PCB2 Q5503 IC NJM4580M-D 1 22241448R2
PCB2 Q5630 IC NJM4580M-D 1 22241448R2
PCB2 Q5640 IC AN34060A 1 22242205
PCB2 Q5660 IC(REGURATOR) 7812HF(TA7812S) 1 222780124TOS
PCB2 Q5660 or IC(REGULATOR) 78M12HF ( 1) 222780125
PCB2 Q5660A SCREW 3P+10FN(BC) 1 82143010
PCB2 Q5661 IC(REGURATOR) 79012HF(TA79012S) 1 222790124TOS
PCB2 Q5661 or IC(REGULATOR) 79M12HF ( 1) 222790125
PCB2 Q5661A SCREW 3P+10FN(BC) 1 82143010
PCB2 Q5661B HEAT SINK RAD-213 1 27160570
PCB2 Q6380 IC LM61CIZ 1 22242212
PCB2 Q5600 TR RN1441 1 2215410R2
PCB2 Q5601 TR RN1441 1 2215410R2
PCB2 Q5602 TR RN1441 1 2215410R2
PCB2 Q5603 TR RN1441 1 2215410R2
PCB2 Q5604 TR RN1441 1 2215410R2
PCB2 Q5605 TR RN1441 1 2215410R2
PCB2 Q5607 TR RN1441 1 2215410R2
PCB2 Q5617 TR RN1441 1 2215410R2
PCB2 Q6010 TR 2SC1740S-S 1 2213285
PCB2 Q6011 TR 2SC1740S-S 1 2213285
PCB2 Q6012 TR 2SC1740S-S 1 2213285
PCB2 Q6013 TR 2SC1740S-S 1 2213285
PCB2 Q6014 TR 2SC1740S-S 1 2213285

28/62 PAGE
PCB2 Q6015 TR 2SC1740S-S 1 2213285
PCB2 Q6020 TR 2SC1740S-S 1 2213285
PCB2 Q6021 TR 2SC1740S-S 1 2213285
PCB2 Q6022 TR 2SC1740S-S 1 2213285
PCB2 Q6023 TR 2SC1740S-S 1 2213285
PCB2 Q6024 TR 2SC1740S-S 1 2213285
PCB2 Q6025 TR 2SC1740S-S 1 2213285
PCB2 Q6030 TR 2SC5171 1 2203010
PCB2 Q6030 or TR 2SC5993-Q,P ( 1) 2217161
PCB2 Q6031 TR 2SC5171 1 2203010
PCB2 Q6031 or TR 2SC5993-Q,P ( 1) 2217161
PCB2 Q6032 TR 2SC5171 1 2203010
PCB2 Q6032 or TR 2SC5993-Q,P ( 1) 2217161
PCB2 Q6033 TR 2SC5171 1 2203010
PCB2 Q6033 or TR 2SC5511-E ( 1) 2203845
PCB2 Q6034 TR 2SC5171 1 2203010
PCB2 Q6034 or TR 2SC5511-E ( 1) 2203845
PCB2 Q6035 TR 2SC5171 1 2203010
PCB2 Q6035 or TR 2SC5511-E ( 1) 2203845
PCB2 Q6040 TR 2SA1930 1 2203000
PCB2 Q6040 or TR 2SA2140-Q,P ( 1) 2217151
PCB2 Q6041 TR 2SA1930 1 2203000
PCB2 Q6041 or TR 2SA2140-Q,P ( 1) 2217151
PCB2 Q6042 TR 2SA1930 1 2203000
PCB2 Q6042 or TR 2SA2140-Q,P ( 1) 2217151
PCB2 Q6043 TR 2SA1930 1 2203000
PCB2 Q6043 or TR 2SA2005-E ( 1) 2203835
PCB2 Q6044 TR 2SA1930 1 2203000
PCB2 Q6044 or TR 2SA2005-E ( 1) 2203835
PCB2 Q6045 TR 2SA1930 1 2203000
PCB2 Q6045 or TR 2SA2005-E ( 1) 2203835

29/62 PAGE
PCB2 Q6070 TR 2SC2240-GR 1 2211405
PCB2 Q6070 or TR 2SC2240-BL ( 1) 2211406
PCB2 Q6071 TR 2SC2240-GR 1 2211405
PCB2 Q6071 or TR 2SC2240-BL ( 1) 2211406
PCB2 Q6072 TR 2SC2240-GR 1 2211405
PCB2 Q6072 or TR 2SC2240-BL ( 1) 2211406
PCB2 Q6073 TR 2SC2240-GR 1 2211405
PCB2 Q6073 or TR 2SC2240-BL ( 1) 2211406
PCB2 Q6074 TR 2SC2240-GR 1 2211405
PCB2 Q6074 or TR 2SC2240-BL ( 1) 2211406
PCB2 Q6075 TR 2SC2240-GR 1 2211405
PCB2 Q6075 or TR 2SC2240-BL ( 1) 2211406
PCB2 Q6701 TR 2SC2240-GR 1 2211405
PCB2 Q6701 or TR 2SC2240-BL ( 1) 2211406
PCB2 Q6701 or TR KTC3200-BL ( 1) 2215896
PCB2 Q6701 or TR KTC3200-GR ( 1) 2215895
PCB2 Q6702 TR 2SC2240-GR 1 2211405
PCB2 Q6702 or TR 2SC2240-BL ( 1) 2211406
PCB2 Q6702 or TR KTC3200-BL ( 1) 2215896
PCB2 Q6702 or TR KTC3200-GR ( 1) 2215895
PCB2 Q6703 TR KTA1268-BL 1 2215886
PCB2 Q6703 or TR 2SA1123-R ( 1) 2214974
PCB2 Q6703 or TR 2SA992-E ( 1) 2211793
PCB2 Q6703 or TR 2SA992-F ( 1) 2211792
PCB2 Q6703 or TR KTA1268-GR ( 1) 2215885
PCB2 Q6901 TR KTC3199-GR 1 2215864
PCB2 Q6901 or TR 2SC1740S-R ( 1) 2213284
PCB2 Q6901 or TR 2SC1740S-S ( 1) 2213285
PCB2 Q6901 or TR 2SC2458-GR ( 1) 2212115
PCB2 D5671 ZENER D MTZJ6.8C 1 224470683
PCB2 D5672 ZENER D MTZJ6.8C 1 224470683

30/62 PAGE
PCB2 D5710 DIODE 1SS133 1 223163
PCB2 D5710 or DIODE 1SS133(DS) ( 1) 223280
PCB2 D5710 or DIODE 1SS270A ( 1) 223205
PCB2 D5711 DIODE 1SS133 1 223163
PCB2 D5711 or DIODE 1SS133(DS) ( 1) 223280
PCB2 D5711 or DIODE 1SS270A ( 1) 223205
PCB2 D6000 DIODE 1SS133 1 223163
PCB2 D6000 or DIODE 1SS133(DS) ( 1) 223280
PCB2 D6000 or DIODE 1SS270A ( 1) 223205
PCB2 D6001 DIODE 1SS133 1 223163
PCB2 D6001 or DIODE 1SS133(DS) ( 1) 223280
PCB2 D6001 or DIODE 1SS270A ( 1) 223205
PCB2 D6002 DIODE 1SS133 1 223163
PCB2 D6002 or DIODE 1SS133(DS) ( 1) 223280
PCB2 D6002 or DIODE 1SS270A ( 1) 223205
PCB2 D6003 DIODE 1SS133 1 223163
PCB2 D6003 or DIODE 1SS133(DS) ( 1) 223280
PCB2 D6003 or DIODE 1SS270A ( 1) 223205
PCB2 D6004 DIODE 1SS133 1 223163
PCB2 D6004 or DIODE 1SS133(DS) ( 1) 223280
PCB2 D6004 or DIODE 1SS270A ( 1) 223205
PCB2 D6005 DIODE 1SS133 1 223163
PCB2 D6005 or DIODE 1SS133(DS) ( 1) 223280
PCB2 D6005 or DIODE 1SS270A ( 1) 223205
PCB2 D6010 DIODE 1SS133 1 223163
PCB2 D6010 or DIODE 1SS133(DS) ( 1) 223280
PCB2 D6010 or DIODE 1SS270A ( 1) 223205
PCB2 D6011 DIODE 1SS133 1 223163
PCB2 D6011 or DIODE 1SS133(DS) ( 1) 223280
PCB2 D6011 or DIODE 1SS270A ( 1) 223205
PCB2 D6012 DIODE 1SS133 1 223163

31/62 PAGE
PCB2 D6012 or DIODE 1SS133(DS) ( 1) 223280
PCB2 D6012 or DIODE 1SS270A ( 1) 223205
PCB2 D6013 DIODE 1SS133 1 223163
PCB2 D6013 or DIODE 1SS133(DS) ( 1) 223280
PCB2 D6013 or DIODE 1SS270A ( 1) 223205
PCB2 D6014 DIODE 1SS133 1 223163
PCB2 D6014 or DIODE 1SS133(DS) ( 1) 223280
PCB2 D6014 or DIODE 1SS270A ( 1) 223205
PCB2 D6015 DIODE 1SS133 1 223163
PCB2 D6015 or DIODE 1SS133(DS) ( 1) 223280
PCB2 D6015 or DIODE 1SS270A ( 1) 223205
PCB2 D6701 DIODE 1SS133 1 223163
PCB2 D6701 or DIODE 1SS133(DS) ( 1) 223280
PCB2 D6701 or DIODE 1SS270A ( 1) 223205
PCB2 D6702 DIODE 1SS133 1 223163
PCB2 D6702 or DIODE 1SS133(DS) ( 1) 223280
PCB2 D6702 or DIODE 1SS270A ( 1) 223205
PCB2 D6703 ZENER D MTZJ5.1B 1 224470512
PCB2 D6703 or ZENER D DZ-5.1BSB ( 1) 224850512
PCB2 D6704 ZENER D MTZJ5.1B 1 224470512
PCB2 D6704 or ZENER D DZ-5.1BSB ( 1) 224850512
PCB2 D6901 DIODE 1SS133 1 223163
PCB2 D6901 or DIODE 1SS133(DS) ( 1) 223280
PCB2 D6901 or DIODE 1SS270A ( 1) 223205
PCB2 D6902 DIODE 1SS133 1 223163
PCB2 D6902 or DIODE 1SS133(DS) ( 1) 223280
PCB2 D6902 or DIODE 1SS270A ( 1) 223205
PCB2 D6904 DIODE D5SBA20 1 22380130F
PCB2 D6904 or DIODE RBV602 ( 1) 22380038F
PCB2 D6904 or DIODE RS603M-B42 ( 1) 22380274F
PCB2 D6905 DIODE D5SBA20 1 22380130F

32/62 PAGE
PCB2 D6905 or DIODE RBV602 ( 1) 22380038F
PCB2 D6905 or DIODE RS603M-B42 ( 1) 22380274F
PCB2 D6906 DIODE 1SS133 1 223163
PCB2 D6906 or DIODE 1SS133(DS) ( 1) 223280
PCB2 D6906 or DIODE 1SS270A ( 1) 223205
PCB2 D9005 DIODE D3SBA20 1 22380271F
PCB2 D9005 or DIODE RS403M ( 1) 22380285F
PCB2 D9011 DIODE RL1N4003 1 22380260
PCB2 D9011 or DIODE GP104003E ( 1) 22380035
PCB2 C5503 TF C ECQ-B50V-221K 1 374722215
PCB2 C5504 TF C ECQ-B50V-221K 1 374722215
PCB2 C5507 C-CERA C CC725CH1H-221J1 1 342102214R1
PCB2 C5508 C-CERA C CC725CH1H-221J1 1 342102214R1
PCB2 C5509 C-CERA C CC725CH1H-221J1 1 342102214R1
PCB2 C5510 C-CERA C CC725CH1H-221J1 1 342102214R1
PCB2 C5513 C-CERA C CC725CH1H-221J1 1 342102214R1
PCB2 C5514 C-CERA C CC725CH1H-221J1 1 342102214R1
PCB2 C5517 C-CERA C CC725CH1H-221J1 1 342102214R1
PCB2 C5518 C-CERA C CC725CH1H-221J1 1 342102214R1
PCB2 C5519 C-CERA C CC725CH1H-221J1 1 342102214R1
PCB2 C5520 C-CERA C CC725CH1H-221J1 1 342102214R1
PCB2 C5521 C-CERA C CC725CH1H-221J1 1 342102214R1
PCB2 C5522 C-CERA C CC725CH1H-221J1 1 342102214R1
PCB2 C5523 C-CERA C CC725CH1H-221J1 1 342102214R1
PCB2 C5524 C-CERA C CC725CH1H-221J1 1 342102214R1
PCB2 C5529 C-CERA C CC725CH1H-102J1 1 342101024R1
PCB2 C5550 VX C CE04W50V-4.7M(VX) 1 393380477
PCB2 C5551 MMT C MMT50V-224J 1 375522244
PCB2 C5552 TF C ECQ-B50V-472J 1 374724724
PCB2 C5553 VX C CE04W50V-4.7M(VX) 1 393380477
PCB2 C5554 MMT C MMT50V-224J 1 375522244

33/62 PAGE
PCB2 C5555 TF C ECQ-B50V-472J 1 374724724
PCB2 C5556 VX C CE04W25V-47M(VX) 1 393354707
PCB2 C5557 VX C CE04W25V-47M(VX) 1 393354707
PCB2 C5558 VX C CE04W25V-47M(VX) 1 393354707
PCB2 C5559 VX C CE04W25V-47M(VX) 1 393354707
PCB2 C5560 VX C CE04W25V-47M(VX) 1 393354707
PCB2 C5561 VX C CE04W25V-47M(VX) 1 393354707
PCB2 C5562 VX C CE04W25V-47M(VX) 1 393354707
PCB2 C5563 VX C CE04W25V-47M(VX) 1 393354707
PCB2 C5564 VX C CE04W50V-10M(VX) 1 393381007
PCB2 C5565 VX C CE04W50V-10M(VX) 1 393381007
PCB2 C5566 VX C CE04W50V-10M(VX) 1 393381007
PCB2 C5567 VX C CE04W50V-10M(VX) 1 393381007
PCB2 C5568 VX C CE04W50V-10M(VX) 1 393381007
PCB2 C5569 VX C CE04W50V-10M(VX) 1 393381007
PCB2 C5570 VX C CE04W50V-10M(VX) 1 393381007
PCB2 C5571 VX C CE04W50V-10M(VX) 1 393381007
PCB2 C5572 VX C CE04W50V-10M(VX) 1 393381007
PCB2 C5573 VX C CE04W50V-10M(VX) 1 393381007
PCB2 C5574 VX C CE04W50V-10M(VX) 1 393381007
PCB2 C5575 VX C CE04W50V-10M(VX) 1 393381007
PCB2 C5576 VX C CE04W50V-10M(VX) 1 393381007
PCB2 C5577 VX C CE04W50V-10M(VX) 1 393381007
PCB2 C5578 VX C CE04W50V-1M(VX) 1 393380107
PCB2 C5590 C-CERA C CC725CH1H-330J1 1 342103304R1
PCB2 C5591 C-CERA C CC725CH1H-330J1 1 342103304R1
PCB2 C5600 VX C CE04W50V-47M(VX) 1 393384707
PCB2 C5601 VX C CE04W50V-47M(VX) 1 393384707
PCB2 C5602 VX C CE04W50V-47M(VX) 1 393384707
PCB2 C5603 VX C CE04W50V-47M(VX) 1 393384707
PCB2 C5604 VX C CE04W50V-47M(VX) 1 393384707

34/62 PAGE
PCB2 C5605 VX C CE04W50V-47M(VX) 1 393384707
PCB2 C5607 VX C CE04W50V-10M(VX) 1 393381007
PCB2 C5608 VX C CE04W50V-47M(VX) 1 393384707
PCB2 C5609 VX C CE04W50V-47M(VX) 1 393384707
PCB2 C5630 VX C CE04W50V-10M(VX) 1 393381007
PCB2 C5631 C-CERA C CC725CH1H-221J1 1 342102214R1
PCB2 C5632 C-CERA C CK725B1H-103K1 1 332101035R1
PCB2 C5640 VX C CE04W50V-22M(VX) 1 393382207
PCB2 C5641 VX C CE04W50V-22M(VX) 1 393382207
PCB2 C5642 VX C CE04W50V-22M(VX) 1 393382207
PCB2 C5643 VX C CE04W50V-22M(VX) 1 393382207
PCB2 C5660 VX C CE04W50V-10M(VX) 1 393381007
PCB2 C5661 VX C CE04W50V-10M(VX) 1 393381007
PCB2 C5662 VX C CE04W50V-10M(VX) 1 393381007
PCB2 C5663 VX C CE04W50V-10M(VX) 1 393381007
PCB2 C5664 VX C CE04W25V-100M(VX) 1 393351017
PCB2 C5665 VX C CE04W25V-100M(VX) 1 393351017
PCB2 C5666 VX C CE04W25V-220M(VX) 1 393352217
PCB2 C5667 VX C CE04W25V-220M(VX) 1 393352217
PCB2 C5668 VX C CE04W25V-220M(VX) 1 393352217
PCB2 C5669 VX C CE04W25V-220M(VX) 1 393352217
PCB2 C5673 VX C CE04W25V-220M(VX) 1 393352217
PCB2 C5674 VX C CE04W25V-220M(VX) 1 393352217
PCB2 C5702 C-CERA C CK725B1H-103K1 1 332101035R1
PCB2 C5705 C-CERA C CK725B1H-103K1 1 332101035R1
PCB2 C5707 C-CERA C CK725B1H-103K1 1 332101035R1
PCB2 C5708 C-CERA C CK725B1H-103K1 1 332101035R1
PCB2 C5710 C-CERA C CK725B1H-103K1 1 332101035R1
PCB2 C5712 TF C ECQ-B50V-102J 1 374721024
PCB2 C6040 ELECT C CE04W50V-47M(VZ) 1 394584707
PCB2 C6041 ELECT C CE04W50V-47M(VZ) 1 394584707

35/62 PAGE
PCB2 C6042 ELECT C CE04W50V-47M(VZ) 1 394584707
PCB2 C6043 ELECT C CE04W50V-47M(VZ) 1 394584707
PCB2 C6044 ELECT C CE04W50V-47M(VZ) 1 394584707
PCB2 C6045 ELECT C CE04W50V-47M(VZ) 1 394584707
PCB2 C6230 TF C ECQ-V50V-473J 1 374724734
PCB2 C6231 TF C ECQ-V50V-473J 1 374724734
PCB2 C6232 TF C ECQ-V50V-473J 1 374724734
PCB2 C6233 TF C ECQ-V50V-473J 1 374724734
PCB2 C6234 TF C ECQ-V50V-473J 1 374724734
PCB2 C6235 TF C ECQ-V50V-473J 1 374724734
PCB2 C6701 VR C CE04W16V-100M(VR) 1 394641017
PCB2 C6703 CERA C CK45F50V-223Z 1 335622230
PCB2 C6704 VX C CE04W100V-1M(VX) 1 393390107
PCB2 C6706 VR C CE04W16V-100M(VR) 1 394641017
PCB2 C6901 ELECT C CE69W63V-8200MA 1 3504419
PCB2 C6901 or ELECT C CE69W63V-8200MB ( 1) 3504420
PCB2 C6902 ELECT C CE69W63V-8200MA 1 3504419
PCB2 C6902 or ELECT C CE69W63V-8200MB ( 1) 3504420
PCB2 C6903 TF C ECQ-B50V-102J 1 374721024
PCB2 C6904 TF C ECQ-V100-334J 1 374733344
PCB2 C6905 TF C ECQ-V100-334J 1 374733344
PCB2 C6906 TF C ECQ-V50V-104J 1 374721044
PCB2 C6907 TF C ECQ-V50V-104J 1 374721044
PCB2 C9005 MMT C MMT50V-334J 1 375523344
PCB2 C9010 VR C CE04W16V-4700M(VR) 1 394644727
PCB2 C9017 TF C ECQ-B50V-102J 1 374721024
PCB2 R5503 C-CARBON R RN72K1J-331JE 1 435033314R1
PCB2 R5504 C-CARBON R RN72K1J-331JE 1 435033314R1
PCB2 R5505 C-CARBON R RN72K1J-331JE 1 435033314R1
PCB2 R5506 C-CARBON R RN72K1J-331JE 1 435033314R1
PCB2 R5507 C-CARBON R RN72K1J-331JE 1 435033314R1

36/62 PAGE
PCB2 R5508 C-CARBON R RN72K1J-331JE 1 435033314R1
PCB2 R5513 C-CARBON R RN72K1J-331JE 1 435033314R1
PCB2 R5514 C-CARBON R RN72K1J-331JE 1 435033314R1
PCB2 R5515 C-CARBON R RN72K1J-331JE 1 435033314R1
PCB2 R5516 C-CARBON R RN72K1J-331JE 1 435033314R1
PCB2 R5517 C-CARBON R RN72K1J-331JE 1 435033314R1
PCB2 R5518 C-CARBON R RN72K1J-331JE 1 435033314R1
PCB2 R5519 C-CARBON R RN72K1J-331JE 1 435033314R1
PCB2 R5520 C-CARBON R RN72K1J-331JE 1 435033314R1
PCB2 R5521 C-CARBON R RN72K1J-331JE 1 435033314R1
PCB2 R5522 C-CARBON R RN72K1J-331JE 1 435033314R1
PCB2 R5523 C-CARBON R RN72K1J-331JE 1 435033314R1
PCB2 R5524 C-CARBON R RN72K1J-331JE 1 435033314R1
PCB2 R5529 C-CARBON R RN72K1J-101JE 1 435031014R1
PCB2 R5545 C-CARBON R RN72K1J-563JE 1 435035634R1
PCB2 R5546 C-CARBON R RN72K1J-563JE 1 435035634R1
PCB2 R5551 C-CARBON R RN72K1J-563JE 1 435035634R1
PCB2 R5552 C-CARBON R RN72K1J-563JE 1 435035634R1
PCB2 R5555 C-CARBON R RN72K1J-563JE 1 435035634R1
PCB2 R5556 C-CARBON R RN72K1J-563JE 1 435035634R1
PCB2 R5561 C-CARBON R RN72K1J-563JE 1 435035634R1
PCB2 R5562 C-CARBON R RN72K1J-563JE 1 435035634R1
PCB2 R5563 C-CARBON R RN72K1J-563JE 1 435035634R1
PCB2 R5564 C-CARBON R RN72K1J-563JE 1 435035634R1
PCB2 R5569 C-CARBON R RN72K1J-223JE 1 435032234R1
PCB2 R5581 C-CARBON R RN72K1J-221JE 1 435032214R1
PCB2 R5582 C-CARBON R RN72K1J-221JE 1 435032214R1
PCB2 R5583 C-CARBON R RN72K1J-221JE 1 435032214R1
PCB2 R5587 C-CARBON R RN72K1J-221JE 1 435032214R1
PCB2 R5588 C-CARBON R RN72K1J-221JE 1 435032214R1
PCB2 R5589 C-CARBON R RN72K1J-221JE 1 435032214R1

37/62 PAGE
PCB2 R5590 C-CARBON R RN72K1J-103JE 1 435031034R1
PCB2 R5591 C-CARBON R RN72K1J-103JE 1 435031034R1
PCB2 R5592 C-CARBON R RN72K1J-471JE 1 435034714R1
PCB2 R5593 C-CARBON R RN72K1J-122JE 1 435031224R1
PCB2 R5594 C-CARBON R RN72K1J-103JE 1 435031034R1
PCB2 R5595 C-CARBON R RN72K1J-103JE 1 435031034R1
PCB2 R5596 C-CARBON R RN72K1J-471JE 1 435034714R1
PCB2 R5597 C-CARBON R RN72K1J-122JE 1 435031224R1
PCB2 R5598 C-CARBON R RN72K1J-103JE 1 435031034R1
PCB2 R5599 C-CARBON R RN72K1J-103JE 1 435031034R1
PCB2 R5600 C-CARBON R RN72K1J-224JE 1 435032244R1
PCB2 R5601 C-CARBON R RN72K1J-224JE 1 435032244R1
PCB2 R5602 C-CARBON R RN72K1J-224JE 1 435032244R1
PCB2 R5603 C-CARBON R RN72K1J-224JE 1 435032244R1
PCB2 R5604 C-CARBON R RN72K1J-224JE 1 435032244R1
PCB2 R5605 C-CARBON R RN72K1J-224JE 1 435032244R1
PCB2 R5607 C-CARBON R RN72K1J-224JE 1 435032244R1
PCB2 R5610 C-CARBON R RN72K1J-222JE 1 435032224R1
PCB2 R5611 C-CARBON R RN72K1J-222JE 1 435032224R1
PCB2 R5612 C-CARBON R RN72K1J-222JE 1 435032224R1
PCB2 R5613 C-CARBON R RN72K1J-222JE 1 435032224R1
PCB2 R5614 C-CARBON R RN72K1J-222JE 1 435032224R1
PCB2 R5615 C-CARBON R RN72K1J-222JE 1 435032224R1
PCB2 R5617 C-CARBON R RN72K1J-271JE 1 435032714R1
PCB2 R5620 C-CARBON R RN72K1J-000JE 1 435030004R1
PCB2 R5621 C-CARBON R RN72K1J-000JE 1 435030004R1
PCB2 R5622 C-CARBON R RN72K1J-000JE 1 435030004R1
PCB2 R5623 C-CARBON R RN72K1J-000JE 1 435030004R1
PCB2 R5624 C-CARBON R RN72K1J-000JE 1 435030004R1
PCB2 R5625 C-CARBON R RN72K1J-000JE 1 435030004R1
PCB2 R5627 C-CARBON R RN72K1J-101JE 1 435031014R1

38/62 PAGE
PCB2 R5630 C-CARBON R RN72K1J-221JE 1 435032214R1
PCB2 R5631 C-CARBON R RN72K1J-473JE 1 435034734R1
PCB2 R5632 C-CARBON R RN72K1J-153JE 1 435031534R1
PCB2 R5633 C-CARBON R RN72K1J-122JE 1 435031224R1
PCB2 R5634 C-CARBON R RN72K1J-103JE 1 435031034R1
PCB2 R5640 CARBON R R25J-0.22 1 415472294
PCB2 R5660 METAL O R RS2WBJ-12 1 442721204
PCB2 R5661 METAL O R RS2WBJ-22 1 442722204
PCB2 R5662 C-CARBON R RN72K1J-220JE 1 435032204R1
PCB2 R5663 C-CARBON R RN72K1J-220JE 1 435032204R1
PCB2 R5664 METAL O R RS1WBJ-68 1 443626804
PCB2 R5665 METAL O R RS1WBJ-68 1 443626804
PCB2 R5666 CARBON R R16J-22 1 417342204
PCB2 R5667 CARBON R R16J-22 1 417342204
PCB2 R5671 CARBON R R16J-22 1 417342204
PCB2 R5672 CARBON R R16J-22 1 417342204
PCB2 R5681 C-CARBON R RN72K1J-104JE 1 435031044R1
PCB2 R5682 CARBON R R16J-100K 1 417341044
PCB2 R5704 C-CARBON R RN72K1J-331JE 1 435033314R1
PCB2 R5706 C-CARBON R RN72K1J-331JE 1 435033314R1
PCB2 R5800 C-CARBON R RN72K1J-000JE 1 435030004R1
PCB2 R5801 C-CARBON R RN72K1J-000JE 1 435030004R1
PCB2 R5802 C-CARBON R RN72K1J-000JE 1 435030004R1
PCB2 R5803 C-CARBON R RN72K1J-000JE 1 435030004R1
PCB2 R5804 C-CARBON R RN72K1J-000JE 1 435030004R1
PCB2 R5805 C-CARBON R RN72K1J-000JE 1 435030004R1
PCB2 R5806 C-CARBON R RN72K1J-000JE 1 435030004R1
PCB2 R5807 C-CARBON R RN72K1J-000JE 1 435030004R1
PCB2 R5808 C-CARBON R RN72K1J-000JE 1 435030004R1
PCB2 R5809 C-CARBON R RN72K1J-000JE 1 435030004R1
PCB2 R5810 C-CARBON R RN72K1J-000JE 1 435030004R1

39/62 PAGE
PCB2 R5814 C-CARBON R RN72K1J-000JE 1 435030004R1
PCB2 R6000 CARBON R R16J-5.6K 1 417345624
PCB2 R6001 CARBON R R16J-5.6K 1 417345624
PCB2 R6002 CARBON R R16J-5.6K 1 417345624
PCB2 R6003 CARBON R R16J-5.6K 1 417345624
PCB2 R6004 CARBON R R16J-5.6K 1 417345624
PCB2 R6005 CARBON R R16J-5.6K 1 417345624
PCB2 R6010 CARBON R R16J-3.9K 1 417343924
PCB2 R6011 CARBON R R16J-3.9K 1 417343924
PCB2 R6012 CARBON R R16J-3.9K 1 417343924
PCB2 R6013 CARBON R R16J-3.9K 1 417343924
PCB2 R6014 CARBON R R16J-3.9K 1 417343924
PCB2 R6015 CARBON R R16J-3.9K 1 417343924
PCB2 R6020 NF CARBON R R25J-2.2 1 415470224
PCB2 R6021 NF CARBON R R25J-2.2 1 415470224
PCB2 R6022 NF CARBON R R25J-2.2 1 415470224
PCB2 R6023 NF CARBON R R25J-2.2 1 415470224
PCB2 R6024 NF CARBON R R25J-2.2 1 415470224
PCB2 R6025 NF CARBON R R25J-2.2 1 415470224
PCB2 R6030 CARBON R R16J-470 1 417344714
PCB2 R6031 CARBON R R16J-470 1 417344714
PCB2 R6032 CARBON R R16J-470 1 417344714
PCB2 R6033 CARBON R R16J-470 1 417344714
PCB2 R6034 CARBON R R16J-470 1 417344714
PCB2 R6035 CARBON R R16J-470 1 417344714
PCB2 R6040 TRIM R N06HR2KBC 1 5210390
PCB2 R6041 TRIM R N06HR2KBC 1 5210390
PCB2 R6042 TRIM R N06HR2KBC 1 5210390
PCB2 R6043 TRIM R N06HR2KBC 1 5210390
PCB2 R6044 TRIM R N06HR2KBC 1 5210390
PCB2 R6045 TRIM R N06HR2KBC 1 5210390

40/62 PAGE
PCB2 R6050 CARBON R R16J-3.3K 1 417343324
PCB2 R6051 CARBON R R16J-3.3K 1 417343324
PCB2 R6052 CARBON R R16J-3.3K 1 417343324
PCB2 R6053 CARBON R R16J-3.3K 1 417343324
PCB2 R6054 CARBON R R16J-3.3K 1 417343324
PCB2 R6055 CARBON R R16J-3.3K 1 417343324
PCB2 R6070 NF CARBON R R25J-82 1 415478204
PCB2 R6071 NF CARBON R R25J-82 1 415478204
PCB2 R6072 NF CARBON R R25J-82 1 415478204
PCB2 R6073 NF CARBON R R25J-120 1 415471214
PCB2 R6074 NF CARBON R R25J-120 1 415471214
PCB2 R6075 NF CARBON R R25J-220 1 415472214
PCB2 R6080 CARBON R R25J-0.22 1 415472294
PCB2 R6081 CARBON R R25J-0.22 1 415472294
PCB2 R6082 CARBON R R25J-0.22 1 415472294
PCB2 R6083 CARBON R R25J-0.22 1 415472294
PCB2 R6084 CARBON R R25J-0.22 1 415472294
PCB2 R6085 CARBON R R25J-0.22 1 415472294
PCB2 R6090 CARBON R R25J-0.22 1 415472294
PCB2 R6091 CARBON R R25J-0.22 1 415472294
PCB2 R6092 CARBON R R25J-0.22 1 415472294
PCB2 R6093 CARBON R R25J-0.22 1 415472294
PCB2 R6094 CARBON R R25J-0.22 1 415472294
PCB2 R6095 CARBON R R25J-0.22 1 415472294
PCB2 R6100 CEMENT R RSS2WK-0.22 1 4800071
PCB2 R6100 or METAL PR MPC708-2WK-0.22 ( 1) 4500027
PCB2 R6100 or OTHER R RGC22-0.22 OHMK ( 1) 4000131
PCB2 R6101 CEMENT R RSS2WK-0.22 1 4800071
PCB2 R6101 or METAL PR MPC708-2WK-0.22 ( 1) 4500027
PCB2 R6101 or OTHER R RGC22-0.22 OHMK ( 1) 4000131
PCB2 R6102 CEMENT R RSS2WK-0.22 1 4800071

41/62 PAGE
PCB2 R6102 or METAL PR MPC708-2WK-0.22 ( 1) 4500027
PCB2 R6102 or OTHER R RGC22-0.22 OHMK ( 1) 4000131
PCB2 R6103 CEMENT R RSS2WK-0.22 1 4800071
PCB2 R6103 or METAL PR MPC708-2WK-0.22 ( 1) 4500027
PCB2 R6103 or OTHER R RGC22-0.22 OHMK ( 1) 4000131
PCB2 R6104 CEMENT R RSS2WK-0.22 1 4800071
PCB2 R6104 or METAL PR MPC708-2WK-0.22 ( 1) 4500027
PCB2 R6104 or OTHER R RGC22-0.22 OHMK ( 1) 4000131
PCB2 R6105 CEMENT R RSS2WK-0.22 1 4800071
PCB2 R6105 or METAL PR MPC708-2WK-0.22 ( 1) 4500027
PCB2 R6105 or OTHER R RGC22-0.22 OHMK ( 1) 4000131
PCB2 R6140 CARBON R R16J-22K 1 417342234
PCB2 R6141 CARBON R R16J-22K 1 417342234
PCB2 R6142 CARBON R R16J-22K 1 417342234
PCB2 R6143 CARBON R R16J-22K 1 417342234
PCB2 R6144 CARBON R R16J-22K 1 417342234
PCB2 R6145 CARBON R R16J-22K 1 417342234
PCB2 R6150 CARBON R R16J-12K 1 417341234
PCB2 R6151 CARBON R R16J-12K 1 417341234
PCB2 R6152 CARBON R R16J-12K 1 417341234
PCB2 R6153 CARBON R R16J-12K 1 417341234
PCB2 R6154 CARBON R R16J-12K 1 417341234
PCB2 R6155 CARBON R R16J-12K 1 417341234
PCB2 R6160 CARBON R R16J-33K 1 417343334
PCB2 R6161 CARBON R R16J-33K 1 417343334
PCB2 R6162 CARBON R R16J-33K 1 417343334
PCB2 R6163 CARBON R R16J-33K 1 417343334
PCB2 R6164 CARBON R R16J-33K 1 417343334
PCB2 R6165 CARBON R R16J-33K 1 417343334
PCB2 R6170 CARBON R R16J-47K 1 417344734
PCB2 R6171 CARBON R R16J-47K 1 417344734

42/62 PAGE
PCB2 R6172 CARBON R R16J-47K 1 417344734
PCB2 R6173 CARBON R R16J-47K 1 417344734
PCB2 R6174 CARBON R R16J-47K 1 417344734
PCB2 R6175 CARBON R R16J-47K 1 417344734
PCB2 R6180 CARBON R R16J-47K 1 417344734
PCB2 R6181 CARBON R R16J-47K 1 417344734
PCB2 R6182 CARBON R R16J-47K 1 417344734
PCB2 R6183 CARBON R R16J-47K 1 417344734
PCB2 R6184 CARBON R R16J-47K 1 417344734
PCB2 R6185 CARBON R R16J-47K 1 417344734
PCB2 R6190 CARBON R R16J-220K 1 417342244
PCB2 R6191 CARBON R R16J-220K 1 417342244
PCB2 R6192 CARBON R R16J-220K 1 417342244
PCB2 R6193 CARBON R R16J-220K 1 417342244
PCB2 R6194 CARBON R R16J-220K 1 417342244
PCB2 R6195 CARBON R R16J-220K 1 417342244
PCB2 R6230 METAL R RNU1WCJ-8.2 1 453630824
PCB2 R6231 METAL R RNU1WCJ-8.2 1 453630824
PCB2 R6232 METAL R RNU1WCJ-8.2 1 453630824
PCB2 R6233 METAL R RNU1WCJ-8.2 1 453630824
PCB2 R6234 METAL R RNU1WCJ-8.2 1 453630824
PCB2 R6235 METAL R RNU1WCJ-8.2 1 453630824
PCB2 R6701 CARBON R R16J-22K 1 417342234
PCB2 R6702 CARBON R R16J-10K 1 417341034
PCB2 R6704 CARBON R R16J-47K 1 417344734
PCB2 R6706 CARBON R R16J-220K 1 417342244
PCB2 R6708 CARBON R R16J-33K 1 417343334
PCB2 R6709 CARBON R R16J-5.6K 1 417345624
PCB2 R6710 CARBON R R16J-33K 1 417343334
PCB2 R6750 METAL O R RS1/2WBJ-390 1 443523914
PCB2 R6751 METAL O R RS1/2WBJ-390 1 443523914

43/62 PAGE
PCB2 R6901 METAL O R RS1/2WBJ-10 1 443521004
PCB2 R6902 CARBON R R16J-1K 1 417341024
PCB2 RL6901 RELAY SW NRL-1P5A-DC12-102 1 25065526
PCB2 RL6901 or RELAY NRL-1P5A-DC12-127 ( 1) 25065561
PCB2 RL6902 RELAY SW NRL-1P5A-DC12-102 1 25065526
PCB2 RL6902 or RELAY NRL-1P5A-DC12-127 ( 1) 25065561
PCB2 P301 PLUG NPLG-10P0965 1 25056015
PCB2 P302 PLUG NPLG-20P0975 1 25056025
PCB2 P303 PLUG NPLG-20P0975 1 25056025
PCB2 P311B PLUG NPLG-10P138 1 25055154
PCB2 P5504 SOCKET AS NSAS-26P1494 1 2009990954UL
PCB2 P5504 or SOCKET AS NSAS-26P1527 ( 1) 2009990966UL
PCB2 P5505 TRM(SCREW) NEGITANSI M3 1 25065425
PCB2 P6000B PLUG NPLG-5P0960 1 25056010
PCB2 P6001B PLUG NPLG-5P0960 1 25056010
PCB2 P6002B PLUG NPLG-5P0960 1 25056010
PCB2 P6003B PLUG NPLG-5P0960 1 25056010
PCB2 P6004B PLUG NPLG-5P0960 1 25056010
PCB2 P6005B PLUG NPLG-5P0960 1 25056010
PCB2 P6011C TRM NTM-1P232(M1700) 1 25060301
PCB2 P6080 PLUG NPLG-2P29 1 25055038
PCB2 P6081 PLUG NPLG-2P29 1 25055038
PCB2 P6082 PLUG NPLG-2P29 1 25055038
PCB2 P6083 PLUG NPLG-2P29 1 25055038
PCB2 P6084 PLUG NPLG-2P29 1 25055038
PCB2 P6085 PLUG NPLG-2P29 1 25055038
PCB2 P6380 RETAINER (PTH) 1 27141884-1
PCB2 P6380 or RETAINER (PTH) ( 1) 27141884
PCB2 P6844 WS CLAMP CB-71683(L=50) 1 260261
PCB2 P6845 WS CLAMP CB-71683(L=50) 1 260261
PCB2 P6849 WS CLAMP CB-71683(L=50) 1 260261

44/62 PAGE
PCB2 P6850 HOLDER HOLDER(CLAMP) 1 27190540-1
PCB2 P6851 HOLDER HOLDER(CLAMP) 1 27190540-1
PCB2 P6906 TRM(SCREW) NEGITANSI M3 1 25065425
PCB2 P7902 PIN JACK NPJ-6PDWWWRRR561 1 25045779
PCB2 P7902 or PIN JACK NPJ-6PDBL159 ( 1) 25045300
PCB2 P7903 PIN JACK NPJ-4PDWWRR624 1 25045845
PCB2 P7903 or PIN JACK NPJ-4PDBL162 ( 1) 25045303
PCB2 P7904 PIN JACK NPJ-4PDWWRR624 1 25045845
PCB2 P7904 or PIN JACK NPJ-4PDBL162 ( 1) 25045303
PCB2 P7905 PIN JACK NPJ-6PDWLGREP562 1 25045780
PCB2 P7905 or PIN JACK NPJ-6PWRLGGP493 ( 1) 25045697
PCB2 P7907 PIN JACK NPJ-1PDP555 1 25045773
PCB2 P7907 or PIN JACK NPJ-1PDP510 ( 1) 25045720
PCB2 P9502 SOCKET 14PK-FJ 1 25053058
PCB2 F6901A FUSE HOL NSCT-1P2031 1 25052133 !
PCB2 F6901B FUSE HOL NSCT-1P2031 1 25052133 !
PCB2 F6902A FUSE HOL NSCT-1P2031 1 25052133 !
PCB2 F6902B FUSE HOL NSCT-1P2031 1 25052133 !
PCB2 E301A TRM NTM-1P232(M1700) 1 25060301
PCB2 J010 CRIMP AS CRIMP AS 1 2069925226UL
PCB2 J011 CRIMP AS CRIMP AS 1 2069925153UL
PCB2 JL891B SOCKET NSCT-5P97 1 25050269
PCB2 JL5501A WIRE HOL NSCT-12P883 1 25051096
PCB2 JL5501B WIRE HOL NSCT-12P883 1 25051096
PCB2 JL6402A WIRE HOL NSCT-3P874 1 25051087
PCB2 JL6402B WIRE HOL NSCT-3P874 1 25051087
PCB2 JL6600A WIRE HOL NSCT-7P898 1 25051111
PCB2 JL6603A WIRE HOL NSCT-9P900 1 25051113
PCB2 JL6951A WIRE HOL NSCT-5P896 1 25051109
PCB2 JL6951B WIRE HOL NSCT-5P896 1 25051109
PCB2 JL6952A WIRE HOL NSCT-5P896 1 25051109

45/62 PAGE
PCB2 JL6952B WIRE HOL NSCT-5P896 1 25051109
U11 POWER SUPPLY-1 PC BOARD (NAPS-8544-1D)
U13 POWER SUPPLY-2 PC BOARD (NAPS-8546-1D)
U14 SEC. TERMINAL-1 PC BOARD (NAPS-8547-1D)
U15 SPEAKER TERMINAL PC BOARD (NAETC-8548-1D)
U16 VIDEO PC BOARD (NAVD-8549-1D)
U17 DRIVER AMPLIFIER PC BOARD (NAAF-8550-1D)
CIRCUIT NO. NAME DESCRIPTION Q'TY PART NO REMARKS
PCB3 Q1003 IC LA7956 1 22241759
PCB3 Q921 TR 2SC2458-GR 1 2212115
PCB3 Q921 or TR 2SC2458-BL ( 1) 2212116
PCB3 Q921 or TR KTC3199-GR ( 1) 2215864
PCB3 Q1001 TR RN1241-A 1 2213631
PCB3 Q1001 or TR RN1241-B ( 1) 2213632
PCB3 Q1002 TR RN1241-A 1 2213631
PCB3 Q1002 or TR RN1241-B ( 1) 2213632
PCB3 Q1004 TR 2SA933S-R 1 2213354
PCB3 Q1004 or TR 2SA933S-S ( 1) 2213355
PCB3 Q1004 or TR KTA1267-GR ( 1) 2215995
PCB3 Q1005 TR DTA114ES 1 2213510
PCB3 Q1005 or TR KRA102M ( 1) 2215770
PCB3 Q1006 TR DTA114ES 1 2213510
PCB3 Q1006 or TR KRA102M ( 1) 2215770
PCB3 Q1007 TR RN1241-A 1 2213631
PCB3 Q1007 or TR RN1241-B ( 1) 2213632
PCB3 Q1008 TR RN1241-A 1 2213631
PCB3 Q1008 or TR RN1241-B ( 1) 2213632
PCB3 Q1009 TR 2SA933S-R 1 2213354
PCB3 Q1009 or TR 2SA933S-S ( 1) 2213355

46/62 PAGE
PCB3 Q1009 or TR KTA1267-GR ( 1) 2215995
PCB3 Q1010 TR RN1241-A 1 2213631
PCB3 Q1010 or TR RN1241-B ( 1) 2213632
PCB3 Q1011 TR RN1241-A 1 2213631
PCB3 Q1011 or TR RN1241-B ( 1) 2213632
PCB3 Q1012 IC LA7956 1 22241759
PCB3 Q1013 IC LA7956 1 22241759
PCB3 Q1015 TR RN1241-A 1 2213631
PCB3 Q1015 or TR RN1241-B ( 1) 2213632
PCB3 Q1016 TR RN1241-A 1 2213631
PCB3 Q1016 or TR RN1241-B ( 1) 2213632
PCB3 Q1017 TR RN1241-A 1 2213631
PCB3 Q1017 or TR RN1241-B ( 1) 2213632
PCB3 Q1018 TR RN1241-A 1 2213631
PCB3 Q1018 or TR RN1241-B ( 1) 2213632
PCB3 Q5000 TR 2SC2240-BL 1 2211406
PCB3 Q5001 TR 2SC2240-BL 1 2211406
PCB3 Q5002 TR 2SC2240-BL 1 2211406
PCB3 Q5003 TR 2SC2240-BL 1 2211406
PCB3 Q5003 or TR KTC3200-BL ( 1) 2215896
PCB3 Q5004 TR 2SC2240-BL 1 2211406
PCB3 Q5004 or TR KTC3200-BL ( 1) 2215896
PCB3 Q5005 TR 2SC2240-BL 1 2211406
PCB3 Q5005 or TR KTC3200-BL ( 1) 2215896
PCB3 Q5010 TR 2SC2240-BL 1 2211406
PCB3 Q5011 TR 2SC2240-BL 1 2211406
PCB3 Q5012 TR 2SC2240-BL 1 2211406
PCB3 Q5013 TR 2SC2240-BL 1 2211406
PCB3 Q5013 or TR KTC3200-BL ( 1) 2215896
PCB3 Q5014 TR 2SC2240-BL 1 2211406
PCB3 Q5014 or TR KTC3200-BL ( 1) 2215896

47/62 PAGE
PCB3 Q5015 TR 2SC2240-BL 1 2211406
PCB3 Q5015 or TR KTC3200-BL ( 1) 2215896
PCB3 Q5030 TR 2SA949-Y 1 2211354
PCB3 Q5031 TR 2SA949-Y 1 2211354
PCB3 Q5032 TR 2SA949-Y 1 2211354
PCB3 Q5033 TR 2SA949-Y 1 2211354
PCB3 Q5034 TR 2SA949-Y 1 2211354
PCB3 Q5035 TR 2SA949-Y 1 2211354
PCB3 Q5040 TR 2SC2229-Y 1 2211634
PCB3 Q5041 TR 2SC2229-Y 1 2211634
PCB3 Q5042 TR 2SC2229-Y 1 2211634
PCB3 Q5043 TR 2SC2229-Y 1 2211634
PCB3 Q5044 TR 2SC2229-Y 1 2211634
PCB3 Q5045 TR 2SC2229-Y 1 2211634
PCB3 Q5050 TR 2SC1815-GR 1 2211255
PCB3 Q5050 or TR 2SC1815-BL ( 1) 2211256
PCB3 Q5051 TR 2SC1815-GR 1 2211255
PCB3 Q5051 or TR 2SC1815-BL ( 1) 2211256
PCB3 Q5052 TR 2SC1815-GR 1 2211255
PCB3 Q5052 or TR 2SC1815-BL ( 1) 2211256
PCB3 Q5053 TR 2SC1815-GR 1 2211255
PCB3 Q5053 or TR 2SC1815-BL ( 1) 2211256
PCB3 Q5054 TR 2SC1815-GR 1 2211255
PCB3 Q5054 or TR 2SC1815-BL ( 1) 2211256
PCB3 Q5055 TR 2SC1815-GR 1 2211255
PCB3 Q5055 or TR 2SC1815-BL ( 1) 2211256
PCB3 Q9002 TR KTA1268-GR 1 2215885
PCB3 Q9002 or TR KTA1268-BL ( 1) 2215886
PCB3 Q9002 or TR 2SA970-GR ( 1) 2211395
PCB3 Q9002 or TR 2SA970-BL ( 1) 2211396
PCB3 D921 DIODE 1SS133(DS) 1 223280

48/62 PAGE
PCB3 D921 or DIODE 1SS133 ( 1) 223163
PCB3 D921 or DIODE 1SS270A ( 1) 223205
PCB3 D922 DIODE 1SS133(DS) 1 223280
PCB3 D922 or DIODE 1SS133 ( 1) 223163
PCB3 D922 or DIODE 1SS270A ( 1) 223205
PCB3 D923 DIODE 1SS133(DS) 1 223280
PCB3 D923 or DIODE 1SS133 ( 1) 223163
PCB3 D923 or DIODE 1SS270A ( 1) 223205
PCB3 D924 DIODE 1SS133(DS) 1 223280
PCB3 D924 or DIODE 1SS133 ( 1) 223163
PCB3 D924 or DIODE 1SS270A ( 1) 223205
PCB3 D925 DIODE 1SS133(DS) 1 223280
PCB3 D925 or DIODE 1SS133 ( 1) 223163
PCB3 D925 or DIODE 1SS270A ( 1) 223205
PCB3 D930 DIODE 1SS133(DS) 1 223280
PCB3 D930 or DIODE 1SS133 ( 1) 223163
PCB3 D930 or DIODE 1SS270A ( 1) 223205
PCB3 D931 DIODE 1SS133(DS) 1 223280
PCB3 D931 or DIODE 1SS133 ( 1) 223163
PCB3 D931 or DIODE 1SS270A ( 1) 223205
PCB3 D932 DIODE 1SS133(DS) 1 223280
PCB3 D932 or DIODE 1SS133 ( 1) 223163
PCB3 D932 or DIODE 1SS270A ( 1) 223205
PCB3 D933 DIODE 1SS133(DS) 1 223280
PCB3 D933 or DIODE 1SS133 ( 1) 223163
PCB3 D933 or DIODE 1SS270A ( 1) 223205
PCB3 D934 ZENER D DZ-5.1BSB 1 224850512
PCB3 D934 or ZENER D MTZJ5.1B ( 1) 224470512
PCB3 D935 DIODE 1SS133(DS) 1 223280
PCB3 D935 or DIODE 1SS133 ( 1) 223163
PCB3 D935 or DIODE 1SS270A ( 1) 223205

49/62 PAGE
PCB3 D1001 DIODE 1SS133(DS) 1 223280
PCB3 D1001 or DIODE 1SS133 ( 1) 223163
PCB3 D1001 or DIODE 1SS270A ( 1) 223205
PCB3 D1002 DIODE 1SS133(DS) 1 223280
PCB3 D1002 or DIODE 1SS133 ( 1) 223163
PCB3 D1002 or DIODE 1SS270A ( 1) 223205
PCB3 D5000 ZENER D DZ-5.6BSB 1 224850562
PCB3 D5000 or ZENER D MTZJ5.6B ( 1) 224470562
PCB3 D5001 ZENER D DZ-5.6BSB 1 224850562
PCB3 D5001 or ZENER D MTZJ5.6B ( 1) 224470562
PCB3 D5002 ZENER D DZ-5.6BSB 1 224850562
PCB3 D5002 or ZENER D MTZJ5.6B ( 1) 224470562
PCB3 D5003 ZENER D DZ-5.6BSB 1 224850562
PCB3 D5003 or ZENER D MTZJ5.6B ( 1) 224470562
PCB3 D5004 ZENER D DZ-5.6BSB 1 224850562
PCB3 D5004 or ZENER D MTZJ5.6B ( 1) 224470562
PCB3 D5005 ZENER D DZ-5.6BSB 1 224850562
PCB3 D5005 or ZENER D MTZJ5.6B ( 1) 224470562
PCB3 D6600 DIODE 1SS133(DS) 1 223280
PCB3 D6600 or DIODE 1SS133 ( 1) 223163
PCB3 D6600 or DIODE 1SS270A ( 1) 223205
PCB3 D6602 DIODE 1SS133(DS) 1 223280
PCB3 D6602 or DIODE 1SS133 ( 1) 223163
PCB3 D6602 or DIODE 1SS270A ( 1) 223205
PCB3 D6603 DIODE 1SS133(DS) 1 223280
PCB3 D6603 or DIODE 1SS133 ( 1) 223163
PCB3 D6603 or DIODE 1SS270A ( 1) 223205
PCB3 D6605 DIODE 1SS133(DS) 1 223280
PCB3 D6605 or DIODE 1SS133 ( 1) 223163
PCB3 D6605 or DIODE 1SS270A ( 1) 223205
PCB3 D6607 DIODE 1SS133(DS) 1 223280

50/62 PAGE
PCB3 D6607 or DIODE 1SS133 ( 1) 223163
PCB3 D6607 or DIODE 1SS270A ( 1) 223205
PCB3 D9001 DIODE RL1N4003 1 22380260
PCB3 D9001 or DIODE GP104003E ( 1) 22380035
PCB3 D9002 DIODE RL1N4003 1 22380260
PCB3 D9002 or DIODE GP104003E ( 1) 22380035
PCB3 D9003 DIODE RL1N4003 1 22380260
PCB3 D9003 or DIODE GP104003E ( 1) 22380035
PCB3 D9004 DIODE RL1N4003 1 22380260
PCB3 D9004 or DIODE GP104003E ( 1) 22380035
PCB3 D9009 DIODE RL1N4003 1 22380260
PCB3 D9009 or DIODE GP104003E ( 1) 22380035
PCB3 D9012 ZENER D DZ-36BSD 1 224853604
PCB3 D9012 or ZENER D MTZJ36D ( 1) 224473604
PCB3 D9013 DIODE RL1N4003 1 22380260
PCB3 D9013 or DIODE GP104003E ( 1) 22380035
PCB3 D9705 DIODE 1SS133(DS) 1 223280
PCB3 D9705 or DIODE 1SS133 ( 1) 223163
PCB3 D9705 or DIODE 1SS270A ( 1) 223205
PCB3 D9706 DIODE 1SS133(DS) 1 223280
PCB3 D9706 or DIODE 1SS133 ( 1) 223163
PCB3 D9706 or DIODE 1SS270A ( 1) 223205
PCB3 T902 P TRANS NPT-1519GQ 1 2301811 !
PCB3 L6600 S COIL S-1.3C 1 231176S
PCB3 L6601 S COIL S-1.3C 1 231176S
PCB3 L6602 S COIL S-1.3C 1 231176S
PCB3 L6603 S COIL S-1.3C 1 231176S
PCB3 L6604 S COIL S-1.3C 1 231176S
PCB3 L6605 S COIL S-1.3C 1 231176S
PCB3 C901 IS C ECQU2A103MLC 1 3800039 !
PCB3 C901 or IS C LE103-C3.5 ( 1) 3800042S !

51/62 PAGE
PCB3 C901 or IS C RE275V-103M ( 1) 3500196S !
PCB3 C921 CERA C CK45F50V-223Z 1 335622230
PCB3 C922 VR C CE04W16V-2200M(VR) 1 394642227S
PCB3 C930 VR C CE04W35V-100M(VR) 1 394661017
PCB3 C933 VR C CE04W50V-4.7M(VR) 1 394680477
PCB3 C1001 VR C CE04W50V-2.2M(VR) 1 394680227
PCB3 C1002 VR C CE04W50V-2.2M(VR) 1 394680227
PCB3 C1003 VR C CE04W16V-470M(VR) 1 394644717
PCB3 C1004 VR C CE04W50V-2.2M(VR) 1 394680227
PCB3 C1005 VR C CE04W16V-470M(VR) 1 394644717
PCB3 C1006 CERA C CK45F50V-223Z 1 335622230
PCB3 C1007 VR C CE04W50V-2.2M(VR) 1 394680227
PCB3 C1008 CERA C CK45F50V-223Z 1 335622230
PCB3 C1009 VR C CE04W50V-2.2M(VR) 1 394680227
PCB3 C1010 CERA C CK45F50V-223Z 1 335622230
PCB3 C1011 VR C CE04W16V-470M(VR) 1 394644717
PCB3 C1012 CERA C CK45F50V-223Z 1 335622230
PCB3 C1013 VR C CE04W50V-2.2M(VR) 1 394680227
PCB3 C1014 CERA C CK45F50V-223Z 1 335622230
PCB3 C1015 VR C CE04W16V-470M(VR) 1 394644717
PCB3 C1016 CERA C CK45F50V-223Z 1 335622230
PCB3 C1017 VR C CE04W50V-2.2M(VR) 1 394680227
PCB3 C1020 CERA C CK45F50V-223Z 1 335622230
PCB3 C1021 VR C CE04W25V-47M(VR) 1 394654707
PCB3 C1023 VR C CE04W25V-47M(VR) 1 394654707
PCB3 C1024 CERA C CK45F50V-223Z 1 335622230
PCB3 C1025 VR C CE04W25V-47M(VR) 1 394654707
PCB3 C1027 CERA C CK45F50V-223Z 1 335622230
PCB3 C1032 CERA C CK45F50V-223Z 1 335622230
PCB3 C5000 TF C ECQ-B50V-101K 1 374721015
PCB3 C5001 TF C ECQ-B50V-101K 1 374721015

52/62 PAGE
PCB3 C5002 TF C ECQ-B50V-101K 1 374721015
PCB3 C5003 TF C ECQ-B50V-101K 1 374721015
PCB3 C5004 TF C ECQ-B50V-101K 1 374721015
PCB3 C5005 TF C ECQ-B50V-101K 1 374721015
PCB3 C5010 VX C CE04W50V-47M(VX) 1 393384707
PCB3 C5011 VX C CE04W50V-47M(VX) 1 393384707
PCB3 C5012 VX C CE04W50V-10M(VX) 1 393381007
PCB3 C5013 VX C CE04W50V-10M(VX) 1 393381007
PCB3 C5014 VX C CE04W50V-10M(VX) 1 393381007
PCB3 C5015 VX C CE04W50V-10M(VX) 1 393381007
PCB3 C5020 VX C CE04W50V-10M(VX) 1 393381007
PCB3 C5021 VX C CE04W50V-10M(VX) 1 393381007
PCB3 C5022 VX C CE04W50V-10M(VX) 1 393381007
PCB3 C5023 VX C CE04W50V-10M(VX) 1 393381007
PCB3 C5024 VX C CE04W50V-10M(VX) 1 393381007
PCB3 C5025 VX C CE04W50V-10M(VX) 1 393381007
PCB3 C5040 VX C CE04W25V-220M(VX) 1 393352217
PCB3 C5041 VX C CE04W25V-220M(VX) 1 393352217
PCB3 C5042 VX C CE04W25V-220M(VX) 1 393352217
PCB3 C5043 VX C CE04W25V-220M(VX) 1 393352217
PCB3 C5044 VX C CE04W25V-220M(VX) 1 393352217
PCB3 C5045 VX C CE04W25V-220M(VX) 1 393352217
PCB3 C5050 VX C CE04W50V-47M(VX) 1 393384707
PCB3 C5051 VX C CE04W50V-47M(VX) 1 393384707
PCB3 C5052 VX C CE04W50V-47M(VX) 1 393384707
PCB3 C5053 VX C CE04W50V-47M(VX) 1 393384707
PCB3 C5054 VX C CE04W50V-47M(VX) 1 393384707
PCB3 C5055 VX C CE04W50V-47M(VX) 1 393384707
PCB3 C5080 CERA C CC45SL50V-040C 1 345020401
PCB3 C5081 CERA C CC45SL50V-040C 1 345020401
PCB3 C5082 CERA C CC45SL50V-040C 1 345020401

53/62 PAGE
PCB3 C5083 CERA C CC45SL50V-040C 1 345020401
PCB3 C5084 CERA C CC45SL50V-040C 1 345020401
PCB3 C5085 CERA C CC45SL50V-040C 1 345020401
PCB3 C5090 TF C ECQ-B50V-101K 1 374721015
PCB3 C5091 TF C ECQ-B50V-101K 1 374721015
PCB3 C5092 TF C ECQ-B50V-101K 1 374721015
PCB3 C5093 TF C ECQ-B50V-101K 1 374721015
PCB3 C5094 TF C ECQ-B50V-101K 1 374721015
PCB3 C5095 TF C ECQ-B50V-101K 1 374721015
PCB3 C5100 VR C CE04W63V-10M(VR) 1 394671007
PCB3 C5101 VR C CE04W63V-10M(VR) 1 394671007
PCB3 C5102 VR C CE04W63V-10M(VR) 1 394671007
PCB3 C5103 VR C CE04W63V-10M(VR) 1 394671007
PCB3 C5104 VR C CE04W63V-10M(VR) 1 394671007
PCB3 C5105 VR C CE04W63V-10M(VR) 1 394671007
PCB3 C5110 VR C CE04W63V-10M(VR) 1 394671007
PCB3 C5111 VR C CE04W63V-10M(VR) 1 394671007
PCB3 C5112 VR C CE04W63V-10M(VR) 1 394671007
PCB3 C5113 VR C CE04W63V-10M(VR) 1 394671007
PCB3 C5114 VR C CE04W63V-10M(VR) 1 394671007
PCB3 C5115 VR C CE04W63V-10M(VR) 1 394671007
PCB3 C6600 TF C ECQ-B50V-103J 1 374721034
PCB3 C6602 TF C ECQ-B50V-103J 1 374721034
PCB3 C6603 CERA C CK45F50V-103Z 1 335621030
PCB3 C6605 CERA C CK45F50V-103Z 1 335621030
PCB3 C6607 CERA C CK45F50V-103Z 1 335621030
PCB3 C6640 TF C ECQ-B50V-103J 1 374721034
PCB3 C6641 TF C ECQ-B50V-103J 1 374721034
PCB3 C6642 TF C ECQ-B50V-103J 1 374721034
PCB3 C6643 TF C ECQ-B50V-103J 1 374721034
PCB3 C6644 TF C ECQ-B50V-103J 1 374721034

54/62 PAGE
PCB3 C6645 TF C ECQ-B50V-103J 1 374721034
PCB3 C6647 TF C ECQ-B50V-103J 1 374721034
PCB3 C6648 TF C ECQ-B50V-103J 1 374721034
PCB3 C6650 CERA C CK45B50V-102K 1 335321025
PCB3 C6651 CERA C CK45B50V-102K 1 335321025
PCB3 C6652 CERA C CK45B50V-102K 1 335321025
PCB3 C6653 CERA C CK45B50V-102K 1 335321025
PCB3 C6654 CERA C CK45B50V-102K 1 335321025
PCB3 C6655 CERA C CK45B50V-102K 1 335321025
PCB3 C6657 CERA C CK45B50V-102K 1 335321025
PCB3 C6658 CERA C CK45B50V-102K 1 335321025
PCB3 C9001 MMT C MMT50V-334J 1 375523344
PCB3 C9003 VR C CE04W35V-1000M(VR) 1 394661027
PCB3 C9004 VR C CE04W35V-470M(VR) 1 394664717
PCB3 C9009 VR C CE04W35V-220M(VR) 1 394662217
PCB3 C9014 VR C CE04W63V-470M(VR) 1 394674717
PCB3 C9015 VX C CE04W50V-10M(VX) 1 393381007
PCB3 C9016 VX C CE04W50V-10M(VX) 1 393381007
PCB3 C9591 MMT C MMT50V-104J 1 375521044
PCB3 C9708 CERA C CK45B50V-222K 1 335322225
PCB3 R922 CARBON R R16J-10K 1 417341034
PCB3 R923 CARBON R R16J-1K 1 417341024
PCB3 R934 CARBON R R16J-100K 1 417341044
PCB3 R1001 CARBON R R16J-75 1 417347504
PCB3 R1002 CARBON R R16J-75 1 417347504
PCB3 R1003 CARBON R R16J-75 1 417347504
PCB3 R1004 CARBON R R16J-100K 1 417341044
PCB3 R1005 CARBON R R16J-75 1 417347504
PCB3 R1006 CARBON R R16J-75 1 417347504
PCB3 R1007 CARBON R R16J-680K 1 417346844
PCB3 R1008 CARBON R R16J-680K 1 417346844

55/62 PAGE
PCB3 R1009 CARBON R R16J-680K 1 417346844
PCB3 R1010 CARBON R R16J-220 1 417342214
PCB3 R1011 CARBON R R16J-75 1 417347504
PCB3 R1012 CARBON R R16J-75 1 417347504
PCB3 R1013 CARBON R R16J-75 1 417347504
PCB3 R1014 CARBON R R16J-75 1 417347504
PCB3 R1015 CARBON R R16J-75 1 417347504
PCB3 R1016 CARBON R R16J-75 1 417347504
PCB3 R1017 CARBON R R16J-100K 1 417341044
PCB3 R1018 CARBON R R16J-100K 1 417341044
PCB3 R1019 CARBON R R16J-75 1 417347504
PCB3 R1020 CARBON R R16J-75 1 417347504
PCB3 R1021 CARBON R R16J-75 1 417347504
PCB3 R1022 CARBON R R16J-75 1 417347504
PCB3 R1023 CARBON R R16J-100K 1 417341044
PCB3 R1024 CARBON R R16J-100K 1 417341044
PCB3 R1025 CARBON R R16J-680K 1 417346844
PCB3 R1026 CARBON R R16J-680K 1 417346844
PCB3 R1027 CARBON R R16J-680K 1 417346844
PCB3 R1028 CARBON R R16J-220 1 417342214
PCB3 R1030 CARBON R R16J-680K 1 417346844
PCB3 R1031 CARBON R R16J-75 1 417347504
PCB3 R5000 CARBON R R16J-1K 1 417341024
PCB3 R5001 CARBON R R16J-1K 1 417341024
PCB3 R5002 CARBON R R16J-1K 1 417341024
PCB3 R5003 CARBON R R16J-1K 1 417341024
PCB3 R5004 CARBON R R16J-1K 1 417341024
PCB3 R5005 CARBON R R16J-1K 1 417341024
PCB3 R5010 CARBON R R16J-56K 1 417345634
PCB3 R5011 CARBON R R16J-56K 1 417345634
PCB3 R5012 CARBON R R16J-56K 1 417345634

56/62 PAGE
PCB3 R5013 CARBON R R16J-56K 1 417345634
PCB3 R5014 CARBON R R16J-56K 1 417345634
PCB3 R5015 CARBON R R16J-56K 1 417345634
PCB3 R5020 CARBON R R16J-330 1 417343314
PCB3 R5021 CARBON R R16J-330 1 417343314
PCB3 R5022 CARBON R R16J-330 1 417343314
PCB3 R5023 CARBON R R16J-330 1 417343314
PCB3 R5024 CARBON R R16J-330 1 417343314
PCB3 R5025 CARBON R R16J-330 1 417343314
PCB3 R5030 CARBON R R16J-120K 1 417341244
PCB3 R5031 CARBON R R16J-120K 1 417341244
PCB3 R5032 CARBON R R16J-120K 1 417341244
PCB3 R5033 CARBON R R16J-120K 1 417341244
PCB3 R5034 CARBON R R16J-120K 1 417341244
PCB3 R5035 CARBON R R16J-120K 1 417341244
PCB3 R5040 CARBON R R16J-2.2K 1 417342224
PCB3 R5041 CARBON R R16J-2.2K 1 417342224
PCB3 R5042 CARBON R R16J-2.2K 1 417342224
PCB3 R5043 CARBON R R16J-2.2K 1 417342224
PCB3 R5044 CARBON R R16J-2.2K 1 417342224
PCB3 R5045 CARBON R R16J-2.2K 1 417342224
PCB3 R5050 CARBON R R16J-4.7K 1 417344724
PCB3 R5051 CARBON R R16J-4.7K 1 417344724
PCB3 R5052 CARBON R R16J-4.7K 1 417344724
PCB3 R5053 CARBON R R16J-4.7K 1 417344724
PCB3 R5054 CARBON R R16J-4.7K 1 417344724
PCB3 R5055 CARBON R R16J-4.7K 1 417344724
PCB3 R5060 CARBON R R16J-1.2K 1 417341224
PCB3 R5061 CARBON R R16J-1.2K 1 417341224
PCB3 R5062 CARBON R R16J-1.2K 1 417341224
PCB3 R5063 CARBON R R16J-1.2K 1 417341224

57/62 PAGE
PCB3 R5064 CARBON R R16J-1.2K 1 417341224
PCB3 R5065 CARBON R R16J-1.2K 1 417341224
PCB3 R5080 CARBON R R16J-470 1 417344714
PCB3 R5081 CARBON R R16J-470 1 417344714
PCB3 R5082 CARBON R R16J-470 1 417344714
PCB3 R5083 CARBON R R16J-470 1 417344714
PCB3 R5084 CARBON R R16J-470 1 417344714
PCB3 R5085 CARBON R R16J-470 1 417344714
PCB3 R5090 CARBON R R16J-100K 1 417341044
PCB3 R5091 CARBON R R16J-100K 1 417341044
PCB3 R5092 CARBON R R16J-100K 1 417341044
PCB3 R5093 CARBON R R16J-100K 1 417341044
PCB3 R5094 CARBON R R16J-100K 1 417341044
PCB3 R5095 CARBON R R16J-100K 1 417341044
PCB3 R5100 CARBON R R16J-100K 1 417341044
PCB3 R5101 CARBON R R16J-100K 1 417341044
PCB3 R5102 CARBON R R16J-100K 1 417341044
PCB3 R5103 CARBON R R16J-100K 1 417341044
PCB3 R5104 CARBON R R16J-100K 1 417341044
PCB3 R5105 CARBON R R16J-100K 1 417341044
PCB3 R5110 CARBON R R16J-1K 1 417341024
PCB3 R5111 CARBON R R16J-1K 1 417341024
PCB3 R5112 CARBON R R16J-1K 1 417341024
PCB3 R5113 CARBON R R16J-1K 1 417341024
PCB3 R5114 CARBON R R16J-1K 1 417341024
PCB3 R5115 CARBON R R16J-1K 1 417341024
PCB3 R5130 CARBON R R16J-22K 1 417342234
PCB3 R5131 CARBON R R16J-22K 1 417342234
PCB3 R5132 CARBON R R16J-18K 1 417341834
PCB3 R5133 CARBON R R16J-18K 1 417341834
PCB3 R5134 CARBON R R16J-18K 1 417341834

58/62 PAGE
PCB3 R5135 CARBON R R16J-18K 1 417341834
PCB3 R5160 NF CARBON R R25J-100 1 415471014
PCB3 R5161 NF CARBON R R25J-100 1 415471014
PCB3 R5162 NF CARBON R R25J-100 1 415471014
PCB3 R5163 NF CARBON R R25J-100 1 415471014
PCB3 R5164 NF CARBON R R25J-100 1 415471014
PCB3 R5165 NF CARBON R R25J-100 1 415471014
PCB3 R5170 NF CARBON R R25J-100 1 415471014
PCB3 R5171 NF CARBON R R25J-100 1 415471014
PCB3 R5172 NF CARBON R R25J-100 1 415471014
PCB3 R5173 NF CARBON R R25J-100 1 415471014
PCB3 R5174 NF CARBON R R25J-100 1 415471014
PCB3 R5175 NF CARBON R R25J-100 1 415471014
PCB3 R5180 NF CARBON R R25J-10 1 415471004
PCB3 R5181 NF CARBON R R25J-10 1 415471004
PCB3 R5182 NF CARBON R R25J-10 1 415471004
PCB3 R5183 NF CARBON R R25J-10 1 415471004
PCB3 R5184 NF CARBON R R25J-10 1 415471004
PCB3 R5185 NF CARBON R R25J-10 1 415471004
PCB3 R5190 NF CARBON R R25J-10 1 415471004
PCB3 R5191 NF CARBON R R25J-10 1 415471004
PCB3 R5192 NF CARBON R R25J-10 1 415471004
PCB3 R5193 NF CARBON R R25J-10 1 415471004
PCB3 R5194 NF CARBON R R25J-10 1 415471004
PCB3 R5195 NF CARBON R R25J-10 1 415471004
PCB3 R5200 CARBON R R16J-22K 1 417342234
PCB3 R5201 CARBON R R16J-22K 1 417342234
PCB3 R5230 CARBON R R16J-120K 1 417341244
PCB3 R5231 CARBON R R16J-120K 1 417341244
PCB3 R5232 CARBON R R16J-120K 1 417341244
PCB3 R5233 CARBON R R16J-120K 1 417341244

59/62 PAGE
PCB3 R5234 CARBON R R16J-120K 1 417341244
PCB3 R5235 CARBON R R16J-120K 1 417341244
PCB3 R6600 CARBON R R16J-22 1 417342204
PCB3 R6601 CARBON R R16J-22 1 417342204
PCB3 R6602 CARBON R R16J-22 1 417342204
PCB3 R6603 CARBON R R16J-22 1 417342204
PCB3 R6604 CARBON R R16J-22 1 417342204
PCB3 R6605 CARBON R R16J-22 1 417342204
PCB3 R6610 CARBON R R16J-22 1 417342204
PCB3 R6611 CARBON R R16J-22 1 417342204
PCB3 R6612 CARBON R R16J-22 1 417342204
PCB3 R6613 CARBON R R16J-22 1 417342204
PCB3 R6614 CARBON R R16J-22 1 417342204
PCB3 R6615 CARBON R R16J-22 1 417342204
PCB3 R6690 METAL O R RS1/2WBJ-10 1 443521004
PCB3 R9002 METAL O R RS1/2WBJ-22 1 443522204
PCB3 R9003 CARBON R R16J-8.2K 1 417348224
PCB3 R9004 CARBON R R16J-8.2K 1 417348224
PCB3 R9005 CARBON R R16J-330K 1 417343344
PCB3 R9591 METAL R RNU1/2WCJ-0.47 1 453534794
PCB3 R9592 METAL R RNU1/2WCJ-0.47 1 453534794
PCB3 R9593 METAL R RNU1/2WCJ-0.22 1 453532294
PCB3 R9594 METAL R RNU1/2WCJ-8.2 1 453530824
PCB3 RL901 RELAY NRL-1P5A-DC9-179 1 25065669 !
PCB3 RL6600 RELAY NRL-2P5A-DC24-158 1 25065618
PCB3 RL6600 or RELAY NRL-2P5A-DC24-129 ( 1) 25065563
PCB3 RL6602 RELAY NRL-2P5A-DC24-158 1 25065618
PCB3 RL6602 or RELAY NRL-2P5A-DC24-129 ( 1) 25065563
PCB3 RL6603 RELAY NRL-2P5A-DC24-158 1 25065618
PCB3 RL6603 or RELAY NRL-2P5A-DC24-129 ( 1) 25065563
PCB3 RL6605 RELAY NRL-2P5A-DC24-158 1 25065618

60/62 PAGE
PCB3 RL6605 or RELAY NRL-2P5A-DC24-129 ( 1) 25065563
PCB3 RL6607 RELAY NRL-2P5A-DC24-158 1 25065618
PCB3 RL6607 or RELAY NRL-2P5A-DC24-129 ( 1) 25065563
PCB3 P901A PLUG NPLG-2P631 1 25055675 !
PCB3 P901Aor PLUG 1-1123724-2 ( 1) 25056402 !
PCB3 P902 AC OUTLET AC-181-GB-11VGY5311 1 25053032 !
PCB3 P912 PLUG NPLG-2P631 1 25055675 !
PCB3 P912 or PLUG 1-1123724-2 ( 1) 25056402 !
PCB3 P931A PLUG NPLG-5P0960 1 25056010
PCB3 P931B SOCKET NSCT-5P2185 1 25052288
PCB3 P1001 PIN JACK NPJ-3PDYYY560 1 25045778
PCB3 P1001 or PIN JACK NPJ-3PDYE158 ( 1) 25045299
PCB3 P1002 PIN JACK NPJ-3PDYYY560 1 25045778
PCB3 P1002 or PIN JACK NPJ-3PDYE158 ( 1) 25045299
PCB3 P1003 SOCKET MDC-073V-BBB LF 1 25053034
PCB3 P1003 or SOCKET NSCT-12P1355 ( 1) 25051568
PCB3 P1004 SOCKET MDC-072V-BB LF 1 25053033
PCB3 P1004 or SOCKET NSCT-8P1535 ( 1) 25051748
PCB3 P1088 TRM(SCREW) NEGITANSI M3 1 25065425
PCB3 P2005A SOCKET NSCT-13P2193 1 25052296
PCB3 P5019 TRM(SCREW) NEGITANSI M3 1 25065425
PCB3 P5504A PLUG NPLG-13P141 1 25055157
PCB3 P6000A SOCKET NSCT-5P2185 1 25052288
PCB3 P6001A SOCKET NSCT-5P2185 1 25052288
PCB3 P6002A SOCKET NSCT-5P2185 1 25052288
PCB3 P6003A SOCKET NSCT-5P2185 1 25052288
PCB3 P6004A SOCKET NSCT-5P2185 1 25052288
PCB3 P6005A SOCKET NSCT-5P2185 1 25052288
PCB3 P6011B RETAINER (BUS) 1 27141965
PCB3 P6011C TAPE TAPE(CLOTH-16U) (1) 29110083
PCB3 P6600 TRM NTM-12PDML349 1 25060420

61/62 PAGE
PCB3 P6600 or TRM NTM-12PDML361 ( 1) 25060432
PCB3 P6607 TRM NTM-4PDML357 1 25060428
PCB3 P6607 or TRM NTM-4PDML364 ( 1) 25060435
PCB3 P6690 TRM(SCREW) NEGITANSI M3 1 25065425
PCB3 P9002 TRM(SCREW) NEGITANSI M3 1 25065425
PCB3 P9502A PLUG 14R-FJ 1 25056566
PCB3 F902A FUSE HOL NSCT-1P2031 1 25052133 !
PCB3 F902B FUSE HOL NSCT-1P2031 1 25052133 !
PCB3 F903A FUSE HOL NSCT-1P2031 1 25052133 !
PCB3 F903B FUSE HOL NSCT-1P2031 1 25052133 !
PCB3 E9001 RETAINER KANAGU 1 27141059
PCB3 JL2006A WIRE HOL NSCT-5P896 1 25051109
PCB3 JL2006B SOCKET NSCT-5P97 1 25050269
PCB3 JL6600B SOCKET NSCT-7P99 1 25050271
PCB3 JL6603B SOCKET NSCT-9P101 1 25050273
PCB3 JL9501A WIRE HOL NSCT-7P898 1 25051111
PCB3 JL9501B WIRE HOL NSCT-7P898 1 25051111
TX-SR403/8340
PACKING PROCEDURE PARTS LIST
REF. NO. NAME DESCRIPTION Q'TY PART NO REMARKS
PV A601 PAD AS 1 29092259A
PV A610 POLY BAG POLY BAG(850 x 650) 1 29100034-1A
PV A611 SHEET --- 1 29095906
PV A613 TAPE NITTO NO.29 (1) 29110149
PV A615 PP TAPE W48 OPP TAPE (1) 29110148
PV A625 POLY BAG 350 x 250 1 29100097-1A
PV A635 LABEL (SP CABLE) 1 29363059A
PV A650 CARTON --- 1 29054340 <403GR>, (S)
PV A650 CARTON --- 1 29054341 <403GR>, (G)

62/62 PAGE
PV A650 CARTON --- 1 29054342 <8340GR>, (G)
PV A655 EAN LABEL --- 1 29364076 <403GR>, (S)
PV A655 EAN LABEL --- 1 29364077 <403GR>, (G)
PV A655 EAN LABEL --- 1 29364078 <8340GR>, (G)
PV A801 INS MANUAL En(TX-SR403) 1 29343959A
PV A802 INS MANUAL Cs(TX-SR403/8340) 1 29344048A
PV A803 INST SHEET U4EnCsFrEs(TX-SR303) 1 29355527
PV A811 REMO CON RC-605S 1 24140605
PV A812 BATTERY R6/AA(UM-3) 2 3010194
PV A812 or BATTERY R6/AA(UM-3) 2 3010054
PV A820 ANT COIL NMA-3057 1 232140
PV A821 FM ANT AS Type W 1 292191
PV A845 WRNTY CARD MGR 1 29365098A

TX-SR403/8340
ONKYO EUROPE UK Office
Suite 1, Gregories Court, Gregories Road, Beaconsfield, Buckinghamshire, HP9 1HQ
UNITED KINGDOM Tel: +44-(0)1494-681515 Fax: +44(0)-1494-680452
ONKYO U.S.A. CORPORATION
18 Park Way, Upper Saddle River, N.J. 07458, U.S.A.
Tel: 201-785-2600 Fax: 201-785-2650 http://www.us.onkyo.com/
ONKYO EUROPE ELECTRONICS GmbH
Liegnitzerstrasse 6, 82194 Groebenzell, GERMANY
Tel: +49-8142-4401-0 Fax: +49-8142-4401-555 http://www.eu.onkyo.com/
Sales & Product Planning Div. : 2-1, Nisshin-cho, Neyagawa-shi, OSAKA 572-8540, JAPAN
Tel: 072-831-8023 Fax: 072-831-8124
ONKYO CORPORATION
http://www.onkyo.com/
HOMEPAGE
ONKYO CHINA LIMITED
Units 2102-2107, Metroplaza Tower I, 223 Hing Fong Road, Kwai Chung,
N.T., HONG KONG Tel: 852-2429-3118 Fax: 852-2428-9039
http://www.ch.onkyo.com/