PDF Toshiba Strata DK 24 56 96 Manual
Strata DK 24-56-96 Manual Strata DK 24-56-96 Manual
User Manual: PDF T E X T F I L E S
Open the PDF directly: View PDF
.
Page Count: 676 [warning: Documents this large are best viewed by clicking the View PDF Link!]
- General Description
- Installation
- Table of Contents
- Chapter 1 - Introduction
- Chapter 2 - System Description
- Chapter 3 - Site Requirements
- Chapter 4 - System Configuration
- Chapter 5 - KSU Installation
- Chapter 6 - Printed Circuit Board Installation
- Table of Contents
- 1. General
- 2. PCB Installation Overview
- 3. Common Control Unit
- 4. Electronic Telephone Interface Unit
- 5. Standard Telephone Interface Unit
- 6. Standard/Electronic Telephone Interface Unit
- 7. CO Lint Unit
- 8. E & M Tie Line Unit
- 9. Option Interface Unit
- 10. External Page Interface Unit
- 11. Installation-PCB for Rel. 3
- 12. PCB Installation Overview Rel. 3
- 13. PDKU Rel. 3
- 14. PCTU Rel. 3
- 15. PEKU
- 16. PSTU
- 17. PESU
- 18. PCOU
- 19. PEMU
- 20. PIOU and PIOUS
- 21. PEPU
- Chapter 7 - Telephone Installation
- Chapter 8 - Peripherals Installation
- Table of Contents
- 1. General
- 2. Reserve Power/Power Failure Options
- 3. Music-On-Hold/Background Music Options
- 4. Relay Control Options
- 5. External Speaker Unit (HESB) Options
- 6. External Page Options
- 7. Station Message Detail Recording (SMDR) Printer
- 8. Maintenance Terminal Options
- 9. Voicemail/Auto Attendant Options
- 10. Alarm Sensor Installation
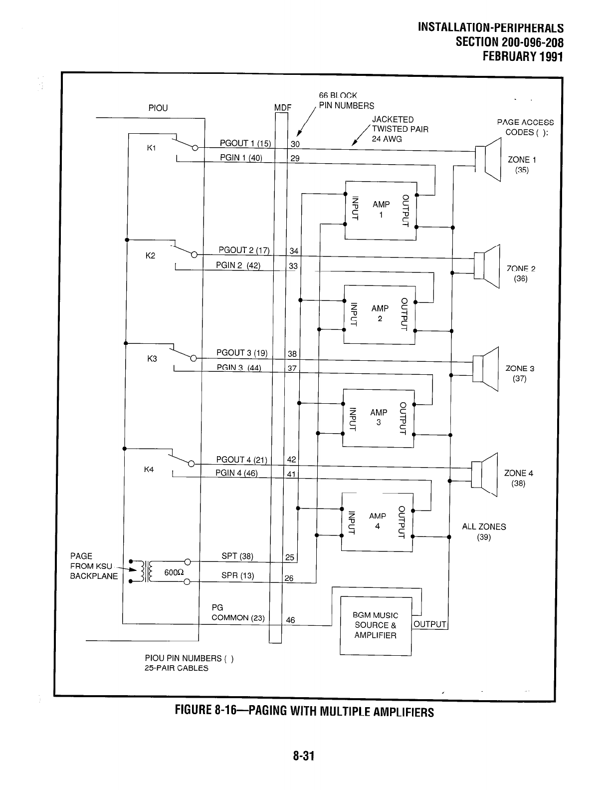
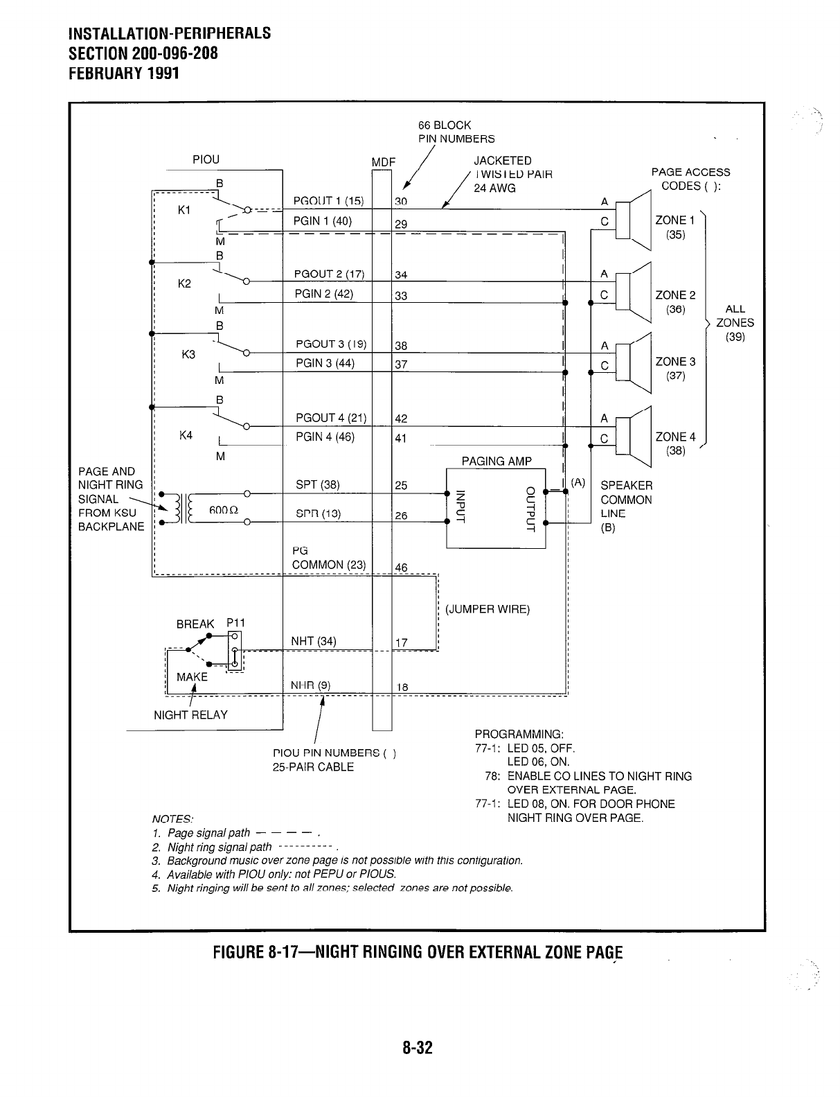
- 11. Night Ringing Over External Zone Page
- 12. Data Interface Unit Installation
- 13. Two-CO Line External Amplified Conference
- Chapter 9 - Wiring Diagrams
- Programming Procedures
- Chapter 1 - Introduction
- Chapter 2 - Instructions/Record Sheets
- Table of Contents
- 1. General
- 2. Toll Restriction
- 3. Toll Restriction Overview
- 4. Completing the Toll Restriction System Record
- 5. Least Cost Routing
- 6. Least Cost Routing Overview
- 7. Completing the Least Cost Routing System Record
- System Record Sheets
- Software Releases
- Program Number Index
- Programs 00-97 (In Numerical Order with Sections Cross Referenced)
- Prgramming Key Sequence Overview
- 90 Initializing Program 00-89
- 92 Initializing Speed Dial Numbers, ID Codes, Character Message Memory, Timed Reminder, Digital Telephone Volume Levels, and
- 03 Flexible PCB Slot Assignments
- 00 Software Check/Remote Password
- 04 Port/Station Number Assignment
- 05 Flexible Access Code Numbering
- 10-1 System Assignments, Part One of Two
- 10-2 System Assignments, Part Two of Two
- 10-3 Amplified Conference (External)
- 12 System Assignments - Basic Timing
- 13 Defining the Message Center
- 15 Assigning DP/DTMF, Tenant Service to Individual CO Lines
- 16 Assigning CO Line Groups
- 17 TIE Line Page/Handsfree Answerback
- 19 Alternate Background Music (BGM) Source Slot Assignment
- 20 Data Interface Unit (DIU: PDIU-DI and PDIU-DS) Configuration
- 21 Modem Pool Port Assignments
- 22 Station Hunting (Data Calls)
- 28 DSS Console, Attendant Electronic Telephone Assignments
- 29-1 DSS Button Assignment, DSS Console 1
- 29-2 DSS Button Assignment, DSS Console 2
- 29-3 DSS Button Assignment, DSS Console 3
- 29-4 DSS Button Assignment, DSS Console 4
- 29 Initialized DSS and Digital DSS Console Key Assignments
- 30 Station Class of Service
- 31 Station Class of Service
- 32 Automatic Preference
- 33 Station Hunting (Voice Calls)
- 34 Hold Recall Timing
- 35 Station Class of Service
- 36 Fixed Call Forward
- 37 Ring Transfer (Camp-on) Recall Time
- 38 Electronic and Digital Telephone Buttonstrip Type
- 39 Flexible Key Assignment Reference Guide
- 40 Station CO Line Access
- 41 Station Outgoing Call Restriction
- 42-0 CO Line to PBX Connection
- 42-4 - 8 PBX Access Code
- 43 0+ Credit Card Dialing Option
- 44A Emergency Bypass of Verified Account Codes
- Programs 44B through 48 - Toll Restriction
- 44B Toll Restriction Traveling Class Override Codes
- 45-1 Toll Restriction Dial Plan
- 45-2 Toll Restriction Disable
- 45-3 - 6 Equal Access/Special Common Carrier Numbers and Authorization Code Digit Length
- 45-8 - 9 Toll Restriction Override Code
- 46-2 - 4 Toll Restriction Allowed/Denied Area Codes Assigned by Class
- 46-6 - 8 Toll Restriction Allowed/Denied Office Codes Assigned by Class
- 46-10 Toll Restriction Class 1 Parameters
- 46-20 Toll Restriction Class 2 Parameters
- 46-30 Toll Restriction Class 3 Parameters
- 46-40 Toll Restriction Class 4 Parameters
- 47 Toll Restriction Exception Office Codes
- 48 Station Toll Restriction Classification
- Programs 50 through 56 - Least Cost Routing
- 50-1 Least Cost Routing Parameters
- 50-2 Least Cost Routing Home Area Code
- 50-31 - 35 Least Cost Routing Special Codes
- 50-4 Least Cost Routing Long Distance Information Route Plan
- 50-5 Least Cost Routing Call Route Plan Number
- 50-6 Least Cost Routing Dial Zero Timeout
- 51 Least Cost Routing Area Codes
- 52 Least Cost Routing Office Code Exceptions for Specified Area Code
- 53 Least Cost Routing Schedule Assignments
- 54 Least Cost Routing Route Definition
- 55-0 Least Cost Routing Modified Digits-Delete
- 55-1 - 2 Least Cost Routing Modified Digits-Add
- 56 Least Cost Routing Station Group Assignments
- 60 Station Message Detail Recording Output/Account Code Digit Length
- 69 Verified Account Codes
- 70 Verified Account Code Toll Restriction Assignments
- 77-1 Doorphone Selections
- 77-2 Doorphone Busy Signal Assignments
- 78 CO Line Special Ringing Assignments - DISC/IMDU/Night Ringing Over External Page
- 79 Door Phone Ringing
- 80 Electronic and Digital Telephone Ringing
- 8_ (1-9) CO LINE/STATION RINGING ASSIGNMENTS
- 90 & 92
- 93 CO Line Identification
- 97 Station Message Detail Recording Data Printout Options
- Operating Procedures
- Fault Finding Procedures
- Remote Administration & Maintenance Procedures
- Table of Contents
- 1. Using Remote Administration and Maintenance
- 2. General Description
- 3. Hardware Requirements
- 4. Set-Up
- 5. Local Terminal
- 6. Remote Terminal Site
- 7. Mode Selection
- 8. Program Mode
- 9. Data Dump Mode
- 10. Test Mode
- 11. Message Mode
- 12. Speed Dial Mode
- 13. Mode Exit
- 14. Discontinue Operation
- 15. Equipment Compatibility
TOSHIBA
STRATA DK
Strata DK Release 2 & 3
DK24 – DK56 – DK96
Digital Key Telephone Systems

3
.I
TOSHIBA AMERICA INFORMATION SYSTEMS, INC.
I
PUBLICATION INFORMATION
z-. -. .
Toshiba America Information Systems, Inc., Telecommunication Systems Division, reserves
the right, without prior notice, to revise this information publication for any reason, including, but not
limited to, utilization of new advances in the state of technical arts or to simply change the design of
this document.
Further, Toshiba America Information
Systems,
Inc., Telecommunication Systems Division,
also reserves the right without prior notice, to make such changes in equipment design or components
as engineering or manufacturing methods may warrant.
WARRANTY
Toshiba America Information Systems, Inc., (“TAIS”) warrants that this telephone equipment
(except for fuses, lamps, and other consumables) will, upon delivery by TAIS or an authorized TAlS
dealer to a retail customer in new condition, be free from defects in material and workmanship for
twelve (12) months after delivery. This warranty is void (a) if the equipment is used under other than
normal use and maintenance conditions, (b) if the equipment is modified or altered, unless the
modification or alteration is expressly authorized by TAIS,
(c)
if the equipment is subject to abuse,
neglect, lightning, electrical fault, or accident, (d) if the equipment is repaired by someone other than
TAIS or an authorized TAIS dealer, (e) if the equipment is defaced or missing, or (f) if the equipment
is installed or used in combination or in assembly with products not supplied by TAIS and which are
not compatible or are of inferior quality, design, or performance.
The sole obligation of TAIS or Toshiba Corporation under this warranty, or under any other
legal obligation with respect to the equipment, is the repair or replacement by TAIS or its authorized
dealer, with new or refurbished parts (at their option) of such defective or missing parts as are causing
the malfunction. If TAIS or one of its authorized dealers does not replace or repair such parts, the retail
customer’s sole remedy will be a refund of the price charged by TAIS to its dealers for such parts as
are proven to be defective, and which are returned to TAlS through one of its authorized dealers within
the warranty period and no later than thirty (30) days after such malfunction, whichever first occurs.
Under no circumstances will the retail Customer or any user or dealer or other person be
entitled to any direct, special, indirect, consequential, or exemplary damages, for breach of contract,
tort, or otherwise. Under no circumstances will any such person be entitled to any sum greater than
the purchase price paid for the item of equipment that is malfunctioning.
To obtain service under this warranty, the retail customer must bring the malfunction of the
machine to the attention of one of TAIS authorized dealers within the twelve (12) month period and
no later than thirty (30) days after such malfunction, whichever first occurs. Failure to bring the
malfunction to the attention of an authorized TAIS dealer within the prescribed time results in the
customer being not entitled to warranty service.
THEREARENOOTHERWARRANTlESFROMElTHERTOSHlBAAMERlCAINFORMATlON
SYSTEMS, INC., OR TOSHIBA CORPORATION WHICH EXTEND BEYOND THE FACE OF THIS
WARRANTY.ALLOTHERWARRANTlES,EXPRESSORlMPLlED,lNCLUDlNGTHEWARRANTlES
OF MERCHANTABILITY, FITNESS FOR A PARTICULAR PURPOSE, AND FITNESS FOR USE,
ARE EXCLUDED.
No TAIS dealer and no person other than an officer of TAIS may extend or modify this
warranty. No such modification or extension is effective unless it is in writing. ,

STRATA DK
GENERAL END USER INFORMATION
The STRATA DK Electronic Digital Key telephone systems
are registered in accordance with the provisions of Part 68 of
the Federal Communications Commission’s Rules and Regu-
lations.
FCC REQUIREMENTS
Means of Connection:
The Federal Communications Com-
mission (FCC) has established rules which permit the
STRATA DK system to be connected directly to the tele-
phone network. Connection points are provided by the
telephone company-connections for this type of cus-
tomer-provided equipment will not be provided on coin
lines. Connections to party lines are subject to state tariffs.
Incidence of Harm:
If the system is malfunctioning, it may
also be disrupting the telephone network. The system
should be disconnected until the problem can be deter-
mined and repaired. If this is not done, the telephone
company may temporarily disconnect service. If possible,
they will notify you in advance, but, if advance notice is not
practical, you will be notified as soon as possible. You will
be informed of your right to file a complaint with the FCC.
Service or Repair:
For service or repair, contact your local
Toshiba telecommunications distributor. To obtain the
nearest Toshiba telecommunications distributor in your
area, call Toshiba America Information Systems, Inc.,
Telecommunication Systems Division in Irvine, CA (714)
583-3700.
Telephone Network Compatibility:
The telephone company
may make changes in its facilities, equipment, operations,
and procedures. If such changes affect the compatibility or
use of the STRATA DK system, the telephone company will
notify you in advance to give you an opportunity to maintain
uninterrupted service.
Notification of Telephone Company:
Before connecting a
STRATA DK system to the telephone network, the tele-
phone company may request the following:
1) Your telephone number.
2) FCC registration number:
l
STRATA DK may be configured as a Key or Hybrid
telephone system. The appropriate configuration for
your system is dependent upon your operation of the
system.
l
If the operation of your system is only manual selec-
tion of outgoing lines, it may be registered as a Key
telephone system.
l
If your operation requires automatic selection of out-
going lines, such as dial access, Least Cost Routing,
Pooled Line Buttons, etc., the system must be regis-
tered-as a Hybrid telephone system. In addition to the
above, certain features (TIE Lines, Off-premises
Stations, etc.) may also require Hybrid telephone
system registration in some areas.
l
If you are unsure of your type of operation and/or the
appropriate FCC registration number, contact your
local Toshiba telecommunications distributor for as-
sistance.
DKSU Manufactured in Japan
Key system: CJ69XA-10242-KF-E
Hybrid system: CJ69XA-10243-MF-E
DKSU Manufactured in USA as of November 1989
Key system: CJ687N-10578-KF-E
Hybrid system: CJ687N-10579-MF-E
3) Ringer equivalence number: 0.28 (see Table A). The
ringer equivalence number (REN) is useful to determine
the quantity of devices which you may connect to your
telephone line and still have all of those devices ring when
your number is called. In most areas, but not all, the sum
of the RENs of all devices connected to one line should not
exceed five (5.08). To be certain of the number of devices
you may connect to your line, as determined by the REN,
you should contact your local telephone company to ascer-
tain the maximum REN for your calling area.
4) Network connection information USOC jack required:
RJ14C, RJ2EX, RJPGX, RJ21X (see Table A). Items 2,3
and 4 are also indicated on the equipment label.
RADIO FREQUENCY INTERFERENCE
Warning: This equipment generates, uses, and can radi-
ate radio frequency energy and if not installed and used in
accordance with the manufacturer’s instruction manual, may
cause interference to radio communications. It has been
tested and found to comply with the limits for a Class A
computing device pursuant to Subpart J of Part 15 of FCC
Rules, which are designed to provide reasonable protection
against such interference when operated in a commercial
environment. Operation of this equipment in a residential area
is likely to cause interference; in which case, the user, at his
own expense, will be required to take whatever measuresrnay
be required to correct the interference.
This system is listed with Underwriters Laboratory.
LISTED
0
!L
49L7
E89891
IMPORTANT NOTICE - MUSIC-ON-HOLD
In accordance with U.S. Copyright Law, a license may be required from the American Society of Composers, Authors and
Publishers, or other similar organization, if radio or TV broadcasts are transmitted through themusic-on:hold feature of this
telecommunication system. Toshiba America Information Systems, Inc., hereby disclaims any liability arising out of the failure to
obtain such a license.

StrataExr
GENERAL DESCRIPTION

7 STRATA DK
GENERAL DESCRIPTION
DECEMBER 1990
b *)
PARAGRAPH
1
2
3
4
TABLE
A
B
C
D
E
F
G
H
I
J
K
L
M
N
0
P
TABLE OF CONTENTS
SUBJECT
TABLE of CONTENTS ........................................................................................
GENERAL ...........................................................................................................
Summary .........................................................................................................
Technology ......................................................................................................
Maintenance and Programming ......................................................................
PERIPHERAL HARDWARE DESCRIPTIONS ....................................................
Digital Telephones ...........................................................................................
Electronic Telephones .....................................................................................
Toshiba Peripherals .........................................................................................
Customer-supplied Peripherals .......................................................................
SYSTEM HARDWARE DESCRIPTION ..................................................... .
........
Key Service Units ............................................................................................
System Operation ............................................................................................
Printed Circuit Boards ......................................................................................
System Capacity and Configuration ................................................................
FEATURES .........................................................................................................
System Features .............................................................................................
Digital and Electronic Telephone Features.. ....................................................
GLOSSARY OF ACRONYMS .............................................................................
TABLE LIST
SUBJECT
MAXIMUM CONFIGURATIONS ..........................................................................
GENERAL REQUIREMENTS .............................................................................
RESERVE POWER TIME ...................................................................................
DATA INTERFACE SPECIFICATIONS ..............................................................
STATION LOOP REQUIREMENTS ....................................................................
NETWORK REQUIREMENTS ............................................................................
SYSTEM TON ES ................................................................................................
COMMON CONTROL INFORMATION ...............................................................
OPTIONAL INTERFACE PCB OPTIONS ...........................................................
SYSTEM CAPACITIES .......................................................................................
UNIVERSAL SLOT CONFIGURATIONS ............................................................
OPTIONAL SUBASSEMBLIES ...........................................................................
OPTIONAL UNITS ..............................................................................................
SYSTEM FEATURES .........................................................................................
DIGITAL AND ELECTRONIC TELEPHONE FEATURES.. .................................
STANDARD TELEPHONE FEATURES.. ............................................................
i
1
1
1
3
3
3
7
9
13
13
13 -
15
17
25
27
29
39
48
2
4
5
10
12
13
14
20
21
22
23
25
26
27
28
29
-I-
i

STRATA DK
GENERAL DESCRIPTION
DECEMBER 1990
TABLE OF CONTENTS (continued)
*-.
FIGURE LIST -.
FIGURE NO.
1
2
3
4
5
6
7
8
9
IO
11
12
13
14
15
16
17
18A
188
19
20
^__
SUBJECT PAGE
STRATA DK
PERIPHERALS ...
.............................................................................. III
STRATA DK24,
DK56,
and DK96 CABINETS .................................................... 1
20-button DIGITAL TELEPHONE ....................................................................... 5
20-button LIQUID CRYSTAL DISPLAY DIGITAL TELEPHONE.. ....................... 5
INTEGRATED DATA INTERFACE UNIT (PDIU-DI) ........................................... 6
DIGITAL DIRECT STATION SELECTION CONSOLE ....................................... 7
1 O-button ELECTRONIC TELEPHONE .............................................................. 8
20-button ELECTRONIC TELEPHONE .............................................................. 8
20-h&m
LIQUID CRYSTAL DISPLAY ELECTRONIC TELEPHONE ............... 8
DIRECT STATION SELECTION CONSOLE ...................................................... 9
STAND-ALONE DATA INTERFACE UNIT (PDIU-DS) ....................................... 9
DOOR
PHONE ....................................................................................................
11
DOOR PHONE/LOCK CONTROL UNIT (HDCB) ............................................... 11
EXTERNAL SPEAKER (HESB) ..........................................................................
12
DK24 CABINET INTERIOR ................................................................................. 15
DK56 CABINET INTERIOR ................................................................................. 16
DK96 CABINET INTERIOR ................................................................................. 16
DK FUNCTIONAL BLOCK DIAGRAM ................................................................ 18
DK FUNCTIONAL BLOCK DIAGRAM ................................................................ 19
DIGITAL TELEPHONE DIAGRAM ...................................................................... 46
ELECTRONIC TELEPHONE DIAGRAM.. ........................................................... 47
-ii-


1 GENERAL
Summary
STRATA DK digital key telephone systems are
advanced key/hybrids that are electrically com-
patible with the public telephone network (loop
start CO lines and E & M TIE lines) and can
function in PBX or Centrex environments.
NOTE:
Every time “CO line” is mentioned hereafter,
the information also applies to Centrex and
PBX lines.
Each system can be configured as key or
hybrid, with separate Federal Communications
Commission registration numbers for each type.
The appropriate configuration for an individual
system depends on its function.
STRATA DK24, DK56, and DK96 models are
very similar in design. Figure 1 illustrates the
impressive range of basic features and options
available on all three systems; Figure 2 shows
the cabinets and their relative sizes. To accom-
modate a wide variety of users’ application and
expansion needs, system cabinet configurations
are extremely flexible.
FIGURE L-STRATA DK24, DK56, and
DK96 CABINETS
The functional difference between models is
primarily one of capacity (see Table A). STRATA
STRATA DK
GENERAL DESCRIPTION
DECEMBER 1990
DK24 can be configured in possible combina-
tions extending from 32 stations and 8 CO lines
to a square system of 16 X- 16.’ STRATA DK56
can be configured in possible combinations
extending from 56 stations and 4 CO lines to 24
stations and 20 CO li:tes. STRATA DK96 combi-
nations extend from 96 stations and 8 CO lines
to 40 stations and 36 CO lines (see Table A).
Toshiba digital telephones are connected to
the system with l-pair cabling. With a 2B+D
ISDN-type digital link, this single pair transmits
and receives simultaneous voice and data along
with control information. Toshiba electronic tele-
phones are connected to the system with 2-pair
cabling, and can access most of the same
advanced features as the digital telephones.
Solid-state digital electronics inside the key serv-
ice unit translate digital signals from the electron-
ic and digital telephone dialpads into either
DTMF tones or rotary dial signals, depending on
the central office’s requirements (see Peripheral
Hardware Descriptions). Many customer-sup-
plied standard telephones and auto attendant/
voice mail devices are also compatible with the
systems, because the systems provide end-to-
end DTMF signaling between digital and elec-
tronic telephones and devices connected to
standard telephone ports.
Technology
STRATA DK digital key telephone systems
apply the following technology:
Pulse Code Modulation: The system is com-
pletely digital. Therefore, talk paths operate
through digital switching, as opposed to ana-
log crosspoints. Analog-to-digital and digital-
to-analog conversion is accomplished by
CODECs on station and CO line PCBs. Pulse
Code Modulation technology allows fully non-
blocking intercom and outside line talk paths.
Stored Program Control: The system uses a
16-bit microprocessor to achieve stored pro-
gram control. System operating software is
stored in read only memory (ROM). The sys-
tem’s individual configuration and custom pro-
-l-

I:
1, STRATA DK
j GENERAL DESCRIPTION
i DECEMBER 1990
TABLE A
MAXIMUM CONFIGURATIONS 1
40
36
32
28
24
AVAILABLE
CO LINES 20
16
8
4
DK24 (PCTUS) DK24 (PCTU)4
0 8 1624324048566472808896
AVAILABLE STATION PORTS
Maximum Configurations
DK56
CO lines Stations
20 24
16 32
l-l
12 40
8 48
4 56
DI 96
CO lines
36 40
32 48
28 56
24 64
20 72
16 80
12 88
8 96
Stations
NOTES:
1. The above station capacities apply to any combination of standard telephones, 6500-series
electronic telephones, and IOOO-series digital telephones. Station capacities using older
Toshiba electronic telephones are given in STRATA DK installation documentation.
2.
installing a TIE line (PEMU) PCB or an optional interface (PIOU, PIOUS, or PEW) PCB
reduces available CO lines by four or available ports by eight.
3. The DK24’s 32-station limit is a result of power supply capacity.
4. PCTUZ or PCTU3. I
-2-

STRATA DK
GENERAL DESCRIPTION
DECEMBER 1990
grarnming is stored in random access memory
(RAM). RAM
is protected by a lithium battery,
which has at least a six year life span.
Microprocessors: The system’s main micropro-
cessor is a 16-bit 68000-type that operates at
a clock speed of 8 MHz. It is located on the
system’s control board (PCTU). Local micro-
processors are located on all printed circuit
boards. The local microprocessor is an 8-bit
TMP90C840-type that operates at a clock
speed of 10 MHz.
Custom Electronic Circuitry: Use of large scale
integration (LSI) technology enables STRATA
DK circuit design to be simple and efficient.
More circuitry fits onto smaller printed circuit
boards (PCBs) and affords a compact system.
Widespread use of CMOS circuits minimize
the system’s power requirements.
Power Supply: The system uses a switching-
type power supply to generate *5VDC and
-24VDC. Mechanical circuit breakers on the
front panel, which may be reset if necessary,
protect these DC voltages.(See Table B for
General Requirements).
l
The source of the power used is a stan-
dard 117VAC, 15 amp circuit. The power
supply has a built-in battery charger to
maintain customer-supplied batteries
which can be connected as a backup. This
allows full normal system operation for a
number of hours in the event of a primary
power failure. (For more detail, see Table
Q
Maiqtenance and Programming
As a result of large scale integrated circuitry,
STRATA DK
telephone systems have a minimal
number of printed circuit board types. Less time
is spent isolating board failures. This directly
translates to saving time and money.
Hardware maintenance and repair procedures
describe how to quickly and easily locate,
remove, and replace defective modules, with
minimal or no system downtime.
A remote administration -and ma’intenance
option can be added to install and maintain cus-
tomer software, and to test hardware from
remote locations.
On-site maintenance and programming is
accomplished using:
l
The 20-button LCD digital or electronic
telephone designated for programming
and maintenance, always connected to
station port 05. This telephone may be
used as a normal station when not used
for programming.
-or-
* An on-site ASCII terminal connected to an
optional maintenance port.
2 PERIPHERAL
HARDWARE DESCRIPTIONS
A wide variety of peripheral equipment is com-
patible with all three systems (see Figure 1).
Peripherals fall under four different categories:
digital telephones, electronic telephones,
Toshiba-supplied peripherals, or customer-sup-
plied peripherals. This section describes the
Toshiba-supplied equipment. When applicable,
system interface information is included.
Digital Telephonest
There are two digital telephone models avail-
able. The phones are enclosed in a stylish,
impact-resistant case with a charcoal gray matte
finish, and blend easily into any progressive
office environment.
Both digital telephone models and the digital
DSS console (see Digital Direct Station Selection
Console) have the same dimensions:
Height: 3.6 in. (92 mm)
Width: 7.3 in. (184 mm)
Length: 9.0 in. (229 mm)
In standard form, all digital telephones may be
wall mounted without additional equipment and
are hearing aid compatible.
t Requires
Release 3
software.
-3-
i

STRATA DK
GENERAL DESCRIPTION
DECEMBER 1990
TABLE B
GENERAL REQUIREMENTS -.
Primary power
Input AC
AC frequency
DK24 power supply
DK56 power supply
DK96 power supply
Environmental specifications
Operating temperature
Operating humidity
Storage temperature
Power supply
DC voltage output
specification
a5 w 135VAC
50/60 Hz
65 watts
140 watts
230 watts
32 ..a 104°F (0 - 40°C)
20 - 60% relative humidity without condensation
- 4 M 158°F (-20 M 70°C)
-24VDC: (-26.3 w -27.8VDC)
+5VDC: (+4.5 w +5.5VDC)
- 5VDC: (- 4.5 m - 5.5VDC)
Battery charger characteristics
PSTU or PESU (circuits 1 & 2)
Ring voltage
Charger: current limiting
Nominal float voltage: 2.275 volts/cell
Charge current: 0.7 amps maximum
Battery discharge cut-off voltage: 20.5 +_ 0.5VDC
Square wave output with high/low option jumper:
Low position, 130 + 20VDC peak-to-peak (no-load)
High position, 190 + 25VDC peak-to-peak (no-load)
Ringing capability
PEW or PSTU modem interface data rate
BTU rating
DK24
Two ringers maximum per circuit, high or low
position
9600 bps maximum
PART QTY
PEKU 3 103 BTUs (30 watt hours)
PCOU 2
PCTUS 1
PIOUS 1
EKTs 24
DK56 PEKU 5
PCOU 3
PCTU 1
EKTs 40
205 BTUs (60 watt hours)
DK96 PEKU 9
PCOU 5
PCTU 1
EKTs 72
346 BTUs (102 watt hours)
-4-

STRATA DK
GENERAL DESCRIPTION
DECEMBER 1990
TABLE C
RESERVE POWER TIME
TYPICAL RESERVE POWER DURATION ESTIMATES *
Time is estimated with the following considerations:
1. Batteries have full charge at start of operation.
2.
Batteries (2) are connected in series.
8. Batteries are 12VDC, rated at 80 amp/hours each.
4. System is operating at full load traffic with LCD phones.
5. Batteries used for this test are
gel-Cell
and maintenance-free. Reserve duration will vary
&pending
upon battery type, age, and manufacturer. These figures should only be used as an estimate.
Each digital telephone also features a
standard modular handset cord and is connected
to the system with a single-pair modular line cord
which can transmit and receive simultaneous
voice and data.
20-button Digital Telephone (Figure 3):
The
1020H provides handsfree answerback capa-
bilitv on intercom lines.
FIGURE 3-20-button DIGITAL TELEPHONE
20-button Liquid Crystal Display Digital
Telephone (Figure
4): The 1020SD is avail-
able as a full speakerphone with a 32-charac-
ter, alphanumeric liquid crystal display (LCD)
field. The numerous LCD features include:
l
Alphanumeric Messaging
l
Called Station Messaging
l
Calling Station Messaging
l
Busy Station Messagingt
l
Group/Remote Station Messaging?
l
Busy Lamp Field (BLF) Indication
l
CO line Identification
l
Speed Dial Memo
l
Timed Reminders with Messaging
l
Intercom User Name/Number Display
l
Call Duration Display
l
DateiTime of Day
l
Call Progress Information
FIGURE 4-20-button LIQUID CRYSTAL DISPLAY
DIGITAL TELEPHONE
Digital Telephone Upgrade Options:
Digital
Telephones can be upgraded to transmit and
receive simultaneous voice and data. They
t Requires Release 3 software.
-5-

STRATA DK
GENERAL DESCRIPTION
DECEMBER 1990
can also be upgraded with off-hook call
anounce, loud ringing bell, and headset inter-
face capability.
l
Simultaneous Voice and Data: Digital
telephones may be upgraded with an inte-
grated data interface unit (PDIU-DI) to
receive and transmit simultaneous voice
and data; data and voice calls can be
made independently of each other. The
PDIU-DI (Figure 5) is easily installed,
replacing the usual digital telephone base.
Asynchronous data devices, such as per-
sonal computers and terminals, can be
connected to the standard RS-232 connec-
tor of the PDIU-DI. Station users are able
to transmit and receive RS-232 data over
the PDIU-DI-equipped digital telephone’s
single twisted wire pair. 2B+D technology
enables the digital telephone and the
PDIU-DI to share the same wire pair and
station port (see Table D).
FIGURE 54NTEGRATED DATA INTERFACE UNIT
(PDIU-DI)
NOTE:
The PDIU-DI will function with all slots,
except slots 11 w 14 in DK96.
l
Off-hook Call Announce Upgrade: If
equipped with an off-hook call announce
(OCA) upgrade assembly, each digital tele-
phone may receive intercom calls when
the handset is off-hook.
l The OCA upgrade assembly for digital
t Requires Release 3 software
telephones is a small printed circuit
board, DVSU, which installs inside the
telephone base-with plug-in cormectors.
l Only those telephones programmed to
receive OCA announcements require a
DVSU.
l An extra wire pair is not required for
digital telephones to receive or originate
OCA, and no other subassemblies are
required for the Digital Telephone
Interface PCB (PDKU).
l Loud Ringing Bell/Headset Upgrade:
Each digital telephone may also be
upgraded to provide a loud ringing bell
interface and a modular headset interface.
To accomplish this, an upgrade assembly
consisting of a small PCB (HHEU) installs
inside the phone with a plug-in connector.
The loud ringing bell and headset options
are available simultaneously on a digital
telephone.
l Loud Ringing Bell: An external speak-
er (HESB) can be directly connected to
the upgraded phone. When the phone e
rings, the HESB produces a loud tone
that mimics the phone’s ring. On voice
first intercom calls, the HESB amplifies
the caller’s voice announcement. See
the External Speaker option.
l Headset: Most standard headsets plug
into the HHEU jack and are compatible
with the digital telephone.
Option Combinations: A digital telephone may
use most of the .available upgrade options
simultaneously. For example, the same station
may be upgraded with a digital DSS console,
OCA, loud ringing bell, and headset. Digital
telephones upgraded with the PDIU-DI cannot
be wall mounted or upgraded with the loud
ringing bell, headset, or OCA interface, but
can be connected with digital DSS consoles.
Digital Direct Station Selection Consolet: The
Digital Direct Station Selection (DDSS) con-
sole is an optional, dedicated answering sta-
tion incorporating
a’busy
lainp field (Figure 6), (
and can only be used with a digital telephone.
-6-

It is normally used on systems with a heavy
volume of incoming calls. A DDSS console
may be used with any digital station connected
to the first circuit on the digital telephone inter-
face PCB (PDKU). Up to four DDSS consoles
can be supported with a PCTU3 PCB.
0
0
0
DDSS consoles are equipped with auto-
matic line hold, and voice or tone signaling
capability. The consoles have 60 flexible
buttons, each with an associated LED (the
DDSS button LEDs will light red or green
depending on the button function). Each
flexible button can be assigned one of the
following functions:
All call page (pre-assigned)
CO line appearance
Direct station selection with busy LED
Night transfer (pre-assigned tenant 1 or
tenant 2, if necessary)
Speed dial
Each DDSS console requires one station
port on a PDKU, always the eighth circuit.
A DDSS console must be assigned to a
particular station when the system configu-
ration is defined in programming. All four
DDSS consoles can be assigned to one
station, or four different DDSS consoles
may be assigned to four different stations
(or any intermediate combination). The
same DDSS console may not be assigned
to more than one station.
FIGURE 6- DIGITAL DIRECT STATION
SELECTION CONSOLE
STRATA DK
GENERAL DESCRIPTION
DECEMBER 1990
Electronic Telephones
- Four different models of 6500-series electronic
telephones are available. The phones are en-
closed in a stylish, impact-resistant case (either
ash white or charcoal gray) with a matte finish,
and blend easily into any progressive office envi-
ronment. Toshiba electronic telephones that are
compatible with the analog STRATA/STRATA,
key telephone systems are also compatible with
the STRATA DK systems. However, some fea-
tures may vary (e.g. LCD and busy lamp field
telephones).
All 6500-series electronic telephones and DSS
consoles have the same dimensions:
Height: 3.6 in (92 mm)
Width: 7.0 in (178 mm)
Length: 9.0 in (229 mm)
In standard form all electronic telephones may
be wall mounted without additional equipment,
and they are also hearing aid compatible.
Each electronic telephone also features a
standard modular handset cord, and is connect-
ed to the system with a 2-pair modular line cord.
Various upgrade options, such as the off-hook
call announce and loud ringing bell upgrade
assemblies, require special wiring. A 3-pair mod-
ular line cord is required for off-hook call
announce, and a custom external speaker cable
is required for the loud ringing bell.
lo-button Electronic Telephone (Figure 7):
The 6510 model is available in two variations;
as a speakerphone or with handsfree answer-
back capability on intercom lines.
20-button Electronic Telephone (Figure 8):
The 6520 model is available with handsfree
answerback capability on intercom lines.
20-button Liquid Crystal Display Electronic
Telephone (Figure 9): The 6520SD is avail-
able only as a speakerphone with a 32-char-
acter, alphanumeric liquid crystal display
(LCD) field. The numerous LCD features
include:
l
Alphanumeric Messaging
-7-

STRATA DK
GENERAL DESCRIPTION
DECEMBER 1990
”
FIGURE 7-IO-button ELECTRONIC TELEPHONE
FIGURE 8-20-button ELECTRONIC TELEPHONE
l Called Station Messaging
l Calling Station Messaging
l Busy Station Messagingt
l Group/Remote Station Messaging-t
l Busy Lamp Field (BLF) Indication
l CO Line Identification
l Speed Dial Memo
l Timed Reminders with Messages
l Intercom User Name/Number Display
l Call Duration Display
System software allows the customer to
assign feature buttons on all electronic tele-
phones in a completely flexible manner.
j-Requires
Release 3
software
-8-
FIGURE 9-20-button LIQUID CRYSTAL DISPLAY
ELECTRONIC TELEPHONE
Electronic Telephone Upgrade Options: All
electronic telephones may be upgraded with
off-hook call announce, loud ringing bell, and
headset capability.
l Off-hook Call Announce Upgrade: Each
electronic telephone may be upgraded to
receive intercom calls when the handset is
off-hook by installing an off-hook call
announce upgrade assembly.
l The assembly consists of two PCBs,
HVSU and HVSI, which install inside the
telephone base with plug-in connectors.
l Only those telephones programmed to
receive OCA announcements require
the OCA upgrade.
l Each station PCB (PEKU or PESU) that
supports electronic telephones with
OCA capability must be equipped with
an EOCU subassembly.
l Loud Ringing Bell/Headset Upgrade:
Each electronic telephone may also be
upgraded to provide a loud ringing bell
interface and a modular headset interface.
To accomplish this, an upgrade assembly
consisting of a small PCB (HHEU) installs
inside the phone with a plug-in connector.
l An external speaker (HESB) can be
directly connected to the upgraded
phone. When-the phone rings, the
HESB produces a loud tone that mimics

the phone’s ring. On voice first intercom
calls, the HESB amplifies the caller’s
voice announcement. See the External
Speaker option.
l Most standard headsets plug into the
HHEU jack and are compatible with the
electronic telephone.
l
An electronic telephone may use all avail-
able upgrade options simultaneously. For
example, the same station may be upgrad-
ed with a DSS console, OCA, a loud ring-
ing bell, and a headset.
Direct Station Selection Console: The Direct
Station Selection (DSS) console is an optional,
dedicated answering station incorporating a
busy lamp field (Figure 10). It is normally used
on systems with a heavy volume of incoming
calls. A DSS console may be used with any
station connected to the first circuit on a PEKU
PCB. Up to four DSS consoles can be sup-
ported with a PCTU PCB, and up to three with
a PCTUS PCB.
DSS consoles are equipped with automatic
line hold, and voice or tone signaling capa-
bility. The consoles have 60 flexible but-
tons, each with an associated LED. Each
flexible button can be assigned one of the
following functions:
l
All call page (pre-assigned)
0 CO line appearance
l
Direct station selection with busy LED
l
Night transfer (pre-assigned tenant 1 or
tenant 2, if necessary)
l
Speed dial
Each DSS console requires two station
ports (circuits 7 and 8) on an electronic
telephone interface PCB (PEKU). Only one
DSS console may be installed on a partic-
ular PEKU.
A D$S console must be assigned to a par-
ticular station when the system configura-
tion is defined in programming. All four
DSS consoles can be assigned to one sta-
tion, or four different DSS consoles may be
assigned to four different stations (or any
intermediate combination). The same DSS
console may not be assigned to more than
one station.
STRATA DK
GENERAL DESCRIPTION
DECEMBER1990
FIGURE10
DIRECTSTATIONSELECTIONCONSOLE
Toshiba Peripherals
This section describes each peripheral item
that is available from Toshiba. Configuration and
connection considerations are noted when appli-
cable. For more detail regarding PCB interfaces,
see Printed Circuit Boards.
Stand-alone Data Interface Unit (PDIU-DS)t:
The PDIU-DS (Figure 11) is used for making
switched data connections for modem pooling,
printer sharing, and host/mainframe computer
accessing. LEDs on the front panel indicate
transmission status. Each PDIU-DS requires
FlGUREll-STAND-ALONEOATAINTERFACE
UNlT(PDIU-OS)
t Requires Release 3 software
-9-

STRATA DK
GENERAL DESCRIPTION
DECEMBER 1990
TABLED
DATA INTERFACE SPECIFICATIONS =
ITEM SPECIFICATIONS
Terminal Interface Specification RS-232C (EIA)
V.24/V.28 (CCITT)
Data Transmission Speed
Flow Control
Automatic Dialing
Up to 19.2kbps, asynchronous
Half and full duplex, utilizing RTS/CTS/CD control leads
Based on AT commands:
l
Data speed of AT command is 300,600,
1200,2400,4800, or 9600
l
Data bit: 7 or 8 bits
l
Stop bit: 1 or 2 bits
. Parity bit: even, odd, or no parity
Maximum Distance: KSU to DKTAMJ
or DIU stand-alone
l
With local power; 1000 feet with 1 -pair (24 AWG)
l
With battery back-up: 330 feet with 1 -pair or 1000 feet
with 2-pair (24 AWG)
Number of Wire Pairs 1 -pair or 2-pair (24 AWG)
POWER: Lights when power is on
LED Indicators (stand-alone DIU only) READY: Lights when DTE and DIU are ready
CONNECT: Lights when DIU is in transmission or ringing mode
Automatic Disconnect Timeout Forced hang up when DIU does not detect space
signal on SD or RD within nine minutes
LSI Technology
l
One-chip CPU with a clock frequency of 12.288MHz
l
Memory: ROM, 16KB; RAM, 512kb
l
Ping-pong transmission: LSI with bearer transmission rate of
512kbps, 2B+D-type link
STRATA DK
Option Compatibility
Digital telephones with integrated DIU:
l
No HHEU (headset/loud ringing bell)
l
No wall mount
l
No DVSU (off-hook call announce)
l
Compatible with associated digital DSS console
l
DIU to DTE/DCE device: 8-wires,
Cabling/Connectors
50 feet maximum, 24 AWG: compatible with RJ-45, 8-wire
modular cable and RJ-45 to DB25 RS-232 modular adaptors
l
Stand-alone DIU: RJll modular connector
l
Integrated DIU: connected inside digital telephone
l
Stand-alone DIU jumper plugs enable straight wire connection
to a DTE or DCE device without null-modem cables or adapton
-lO-

STRATA DK
GENERALDESCRIPTION
DECEMBER1990
one 2B+D station port on a PDKU (see Printed
Circuit Boards) and will function on one wire
NOTES:
1. The PDIU-DS will function with all slots,
except slots 11 u 14 in DK96.
2. Modems, printers, and mainframes are
connected to the standard RS-232
DB25 connector on the PDIU-DS (see
Table 0).
Door Phone: In one of its most popular applica-
tions, the door phone (Figure 12) mounts out-
side a building, next to a locked door whose
entry requires screening. An individual located
outside the building who wants to speak with
someone inside simply presses the button on
the door phone. A distinctive tone will then
sound over the speakers of the digital and/or
electronic telephones defined to do so through
system programming. Any digital or electronic
telephone user can answer and converse with
the individual at the door phone. If the system
is properly configured, the user can allow entry
using a door lock button on the digital or elec-
tronic telephone.
l
A door phone also functions as a sound
monitor. Any telephone can call the door
phone and listen to sounds within its
immediate area.
l
Up to twelve door phones can be support-
FlGURE12-DOORPHONE
ed with a PCTU, up to nine with a PCTUS.
A door phone/lock control unit
- (HDCB-Figure 13) must be installed to
support up to three door phones (or two
door phones and one door lock control).
Each HDCB requires one station port on
an electronic telephone interface PCB
(PEKU or PESU). Only one HDCB can be
installed on a particular PEKU or PESU.
FlGURE13-DOORPHONE/LOCK
CONTROLUNlT(HDCB)
NOTE:
The PDKU cannot support an HDCB.
l
Door lock control requires an optional
interface PCB (PIOU, PEPU, or PIOUS)
and/or an HDCB. Up to five door lock con-
trols can be installed, but each door lock
controlled by an HDCB reduces the door
phone capacity on that HDCB from three
to two.
External Speaker: The HESB external speaker
unit is a 6-inch, 3-watt speaker with a built-in
amplifier (Figure 14). A +12 VDC power supply
(HACU-120) is included with each external
speaker. It connects to the back panel with an
8-foot cord and plugs into a 117VAC, 60 Hz
outlet. The HESB has three applications:
l
Amplified Paging Speaker: Allows the
HESB to be used as a paging speaker,
reducing the need for other manufacturers’
paging equipment.
-ll-
i

STRATADK
GENERALDESCRIPTION
DECEMBER1990
FlGURE14-EXTERNALSPEAKER(HESB)
l
Amplified Talkback Speaker: When used
in conjunction with external page, an
HESB can be installed as a talkback
device. The HESB is connected to the
door phone, which is used as a micro-
phone to provide talkback capability.
l
Loud Ringing Bell: Allows the voice/tone
of a paging/ringing call to any digital tele-
phone or 6500-series electronic tele-
phone to be amplified. When an HESB is
connected as a loud ringing bell, an
HHEU upgrade assembly must be
installed in the digital or electronic tele-
phone’s base. See the loud ringing
bell/headset telephone upgrade in the last
section. An external speaker cable
(HESC-65 for electronic telephones;
HESC-65A for digital telephones) con-
nects the station to the speaker.
TABLEE
STATION LOOPREQUIREMENTS
Device Description Max Loop Resistance Max Distance from Number of
(Including Device) KSU to Device Wire Pairs’
PEKU
(ckts 1 - 8)
Electronic
telephone,
400hms iOOOft.(303m) All need
2-pair.
PLJ’ door phone/ EKTs which
control boxes receive OCA
(ckts 5 w 8) calls need
PEKU 3-pair!
(ckts 7 & 8) DSS consoles
200hms 500ft.(152 m)
PSTU Standard Approx. 3000 ft. (909 m)
(ckts 1 m 8) telephones, with 150 ohm device. See
P&J 2 voice mail,
3000hms
manufacturer’s product 1 -pair
auto attendant, specifications for exact
(ckts 1 & 2) etc. resistance of device.
PDKU Digital
(ckts 1 w 8) telephones
400hms lOOOfL(303m) 1
-pair
PDKU
(ckt 8) DDSS consoles
200hms lOOOfL(303m) 1
-pair
PDKU Shares digital
(ckts 1 m 8) PDIU-DI
400hms lOOOfL(303m)
telephone
wire-pair?
PDKU
(ckts 1 * 8) PDIU-DS
400hms lOOOfL(303m) 1
-pair3
NOTES:
1. Use 24 A WG twisted pairs.
2. PESU circuits 3 and 4 are not used. I
3. Two-pair or larger wire is required to achieve maximum range.
-12-

STRATA DK
GENERAL DESCRIPTION
DECEMBER 1990
TABLE F
NETWORK REQUIREMENTS
PCB Facility Ringer
Interface Code Network Jack Equivalence
PCOU
(Loop start line) 02LS2 RJ14C 0.2B
PEMU
(Type I, TIE line)
2-wire TLllM RJ2EX N/A
4-wire TL31 M RJ2GX N/A
PESU/PSTU
(Off-premises station) OL13A RJ21 X N/A
(see note)
NOTE:
On PEW, circuits I and 2 only provide off-premises capability.
Power Failure Transfer Unit: An optional exter-
nal power failure transfer unit (DPFT) may be
connected to the system with a PSTU PCB to
provide emergency service in the event of a
power failure. Up to eight CO lines are
switched directly to dedicated conventional
telephones (customer-provided 2500- or 500-
type) for incoming and outgoing calls. When
power is restored, stations/CO lines reserved
for power failure transfer will automatically
return to normal service. Standard telephones
that are connected to the PESU PCB can also
be connected to the DPFT to provide emer-
gency service.
Customer-supplied Peripherals
All three STRATA DK digital key systems sup-
port many other commonly used peripheral
devices which can be supplied by the customer.
Several of these devices are listed below (with
the supporting PCB or data interface unit noted):
l
Auto attendant device (PSTU or PESU)
l
Dictation equipment (PSTU or PESU)
l
External maintenance modem (PIOU or
PIOUS)
l
Facsimile (PSTU or PESU)
0 Local maintenance terminal (PIOU or PIOUS)
l
Modem (PSTU, PESU, or PDIU-DS)t
l
Paging system (PIOU, PIOUS, or PEPU)
l
Radio paging equipment (PSTU or PESU)
l
Remote maintenance terminal (PIOU or
PIOUS with IMDU)
l
Standard telephones (PSTU or PESU)
l
SMDR printer/call accounting device (PIOU
or PIOUS)
l
Voice mail messaging system (PSTU or
PESU)
l
Printers (PDIU-DS)t
l
Personal Computers (PDIU-Dl)t
l
Mainframe Computer Access (PDIU-DS)t
3 SYSTEM HARDWARE DESCRIPTION
Key Service Units
Key Service Unit Exterior: All three systems
can be mounted on a wall or table top. The
basic key service unit consists of a single
metal cabinet (Figure 2) with the following
dimensions. Weight measurements approxi-
mate fully loaded systems.
STRATA DK24
Height: 10.6 in (269 mm)
Width: 16.0 in (406 mm)
Depth: 9.1 in (230 mm)
Weight: 194 Ibs (9 kg)
t Requires Release 3
software
-13-

STRATA DK
GENERAL DESCRIPTION
DECEMBER 1990
TABLE G
SYSTEM TONES -.
Idle Ring tone 1 5001640 Hz, modulated by 16 Hz, 1 sec. ON-3 sec. OFF
electronic
telephones Ring tone 2 600/800 Hz, modulated by 16 Hz, 1 sec. ON-3 sec. OFF
Ring transfer 540/760 Hz, modulated by 16 Hz, 1 sec. ON-3 sec. OFF
co
Line Busy station (camp-on) 2400 Hz, modulated by IO Hz, 1 sec. ON-3 sec. OFF
Standard telephone or
VOiCf? mail port: 20
Hz,
Normal ring option: 1 sec. ON-3 sec. OFF
Distinctive ring option
(standard telephone):
0.4 sec. ON-O.2 sec.
OFF-O.4 sec. ON-3 sec. OFF
TIE line
400
Hz, 0.25 sec. ON-O.25 sec. OFF
or DISA To busy station or
line calls
400
Hz, 0.25 sec. ON-O.25 sec. OFF
(programmable option’)
Tone first (EKT ring signal)
500
Hz, 1 sec. ON-3 sec. OFF
Door A&C 870 Hz, 1 sec.1710 HZ, 2-0.5 sec. (5 rings)
phone B 870 Hz, 0.5 sec./71 0 HZ, 2-0.5 sec. (5 rings)
Busy override/DND override
2400
Hz, 1 sec. ON-3 sec. OFF
Dial (intercom) 400 Hz, continuous
Ringback
400
Hz, 1 sec. ON-3 sec. OFF
Intercom
Line Busy
400
Hz, 0.25 sec. ON-O.25 sec. OFF
Calls Do not disturb
400
Hz, 0.125 sec. ON-O.125 sec. OFF
Voice page warning 500 Hz, 1 sec. ON (via electronic telephone speaker)
OCA warning 500 Hz, 1 sec. ON only (via electronic telephone speaker)
Executive/privacy override warning 500 Hz, 1 sec. ON only (via handset or speaker)
Hold recall 2400 Hz, modulated by 10 Hz, 1 sec. ON-l sec. OFF
Standard telephone ringing
20
Hz, 1 sec. ON-3 sec. OFF
Voice Answer: DTMF “A”
Mail
Special Disconnect: DTMF “D” 80/l 60 msec., dual-tone
Tones Recall: DTMF “B”
Verified account code ‘Ode valid
400
Hz, 0.5 sec. ON
Special
Zonfirma- confirmation tones2 Code not valid 400 Hz, 0.125 sec. ON-O.1 25 sec. OFF-O.125 sec. ON
[ion
rones Station option programming
confirmation tones (call forward,
400
Hz, 1 sec. ON
timed reminders, etc.)
NOTES:
1. Requires
Release 3
software.
2.
Tones are sent only to the station that enters the not to the outside party.
-14-

STRATA DK
GENERAL DESCRIPTION
DECEMBER 1990.
STRATA DK56
Height: 15.0 in (380 mm)
Width: 16.1 in (410 mm)
Depth: 9.1 in (230 mm)
Weight: 37.5 Ibs (17 kg)
STRATA DK96
Height: 18.7 in (475 mm)
Width: 19.7 in (500 mm)
Depth: 9.1 in (230 mm)
Weight: 55.1 Ibs (25 kg)
Key Service Unit Interiors:
l
The DK24 cabinet interior (Figure 15) has
one shelf with seven PCB slots, labeled
PCTU, SO1 w S06. The power supply is
positioned vertically on the right side of the
shelf, and is installed at the factory.
l
The DK56 cabinet interior (Figure 16) has
one shelf with nine PCB slots, labeled
PCTU, SO1 w S08. The power supply is
positioned horizontally above the shelf,
and is installed at the factory.
l
The DK96 cabinet interior (Figure 17) has
two shelves. The top shelf has eight PCB
slots, labeled SO1 N S08; the bottom has
seven PCB slots, labeled PCTU, SO9 N
S14. The power supply is positioned ver-
tically to the right of the shelves, and is
installed at the factory.
System Printed Circuit Board Slots: Each
system is equipped with universal PCB slots
that are extremely flexible and can be config-
ured to suit individual customer needs. All
station, CO line and optional PCBs are the
same size, and use the same connector type
to mount into the cabinet’s backplane.
Therefore, any PCB can be installed in any
universal slot, with the exception of the PCTU
or PCTUS, which must be installed in the slot
labeled PCTU.
System Operation
A system consists of a key service unit and
up to either 32 stations in DK24, 56 stations in
DK56, and 96 stations in DK96 (station loop
b
FIGURE 15-DK24 CABINET INTERIOR
-15-
i

STRATADK
GENERALDESCRIPTION
DECEMBER1990
Pl
FlGURE16-DK56 CABINET INTERIOR
FlGURE17-DK96 CABINETINTERIOR
-16-

f
lengths, network requirements, and system tone
patterns are summarized in Tables E, F, and G,
respectively).
The system can have several options config-
ured, as illustrated in the functional block dia-
gram (Figures 18A and 18B).
As represented in the functional block dia-
gram, the system’s cabinet contains a power
supply and printed circuit boards appropriate to
the user’s configuration. PCBs include the com-
mon control unit (PCTU2, PCTU3, or PCTUS),
DTMF receiver subassembly (CRCU-4 or CRCU-
8), option interface unit (PIOU, PIOUS, or
PEPU), remote maintenance modem subassem-
bly (IMDU), CO line unit (PCOU), E & M TIE line
unit (PEMU), digital telephone interface unit
(PDKU)t, electronic telephone interface unit
(PEKU), off-hook call announce subassembly
(EOCU), standard telephone interface unit
(PSTU), and a combination electronic/standard
telephone interface unit (PESU).
!iD Printed Circuit Boards
Most STRATA DK system hardware options
are integrated within the system cabinet. Each
major PCB measures 7.5 x 5.5 inches (190 x 140
mm) and mounts in a PCB slot in the shelf with a
44-pin backplane connector.
PCB external connections are made to the
Main Distribution Frame (MDF) using the follow-
ing industry-standard connectors:
l
25pair Amphenol Female: Connects digital
telephones, electronic telephones, standard
telephones, and most peripherals.
l
Modular: Connects CO lines, E & M TIE
lines, station message detail recording port
(W-232), and maintenance port (RS-232).
l
Terminals: MOH and some peripherals.
The following list includes every PCB that can
be installed in the key service unit. Each PCB’s
function is described, along with applicable con-
figuration and connection details.
Common Control Unit (PCTU): The PCTU is
the system’s controller PCB, and must be
STRATA DK
GENERALDESCRIPTION
DECEMBER1990
installed for the system to operate. It contains
the system’s main 16-bit, 68000-type micro-
-processor and microprocessor bus, battery-
protected memory circuits, time switch logic,
conference logic, and system tones. The
PCTU also has a music-on-hold/background
music source interface, and connectors to
mount an optional DTMF receiver PCB
(CRCU) for DISA, TIE lines, standard tele-
phones and peripherals. There are three ver-
sions of PCTU PCBs available: PCTUS,
PCTU2, and PCTU3. PCTUS and PCTU2 pro-
vide Release 2 features; PCTU3 provides
Releases 2 and 3 features. See Table H for
PCTU comparison and compatibility.
DTMF Receiver Subassembly (CRCU): An
optional DTMF receiver PCB mounts onto the
PCTU piggy-back style. It translates DTMF
signals from direct inward system access
(DISA) CO lines, TIE lines, standard tele-
phones or peripheral devices to data signals
for the system.
l
One CRCU option must be installed for the
system to receive DTMF dialing. Both 4-
and 8-circuit CRCUs are available (CRCU-
4 and CRCU-8).
l
CRCU DTMF receiver circuits are shared
by users, i.e. a receiver is seized for dial-
ing and then released for the next call.
Option Interface Unit (PIOU): The PIOU pro-
vides a circuit interface with the peripheral
options, including external paging functions,
alarm interface, SMDR, and remote mainte-
nance. Table I shows details of each feature.
Simplified Option Interface Unit (PIOUS): A
reduced model of the PIOU, the PIOUS pro-
vides an interface with the peripheral options
shown in Table I.
External Page Interface Unit (PEPU): Also a
reduced model of the PIOU, the PEPU pro-
vides a circuit interface with the peripheral
options shown in Table I.
Remote Maintenance fvlodem’ Subassembly
(IMDU): An optional built-in modem provides
the system with a link to off-site programming
-17-

STRATA DK
GENERAL DESCRIPTION
DECEMBER 1990
z4. DKSU 24/56/96
-
PCOU
LINE
P-PAIR
~ _ MODCORD LOOP START
LINE PCB
(4 CIRCUITS)
LINE ‘2-PAIR
1 AND2 MODULAR
P-PAIR ’ - JACK
~ _ MODCORD 1 *
I I
MODULAR ’ -
LOOP START LINES
* FIC: 02LS2
. USOC: RJI 4C
. REN: 0.2B
I I
i id 4 E&M
L4t
bW kl
L%
I
I I I I 1 *I ~~
TIE-LINE
l-z-l I I
E&M TIE LINES
I I
I I 3 PCB 31 ,“,:: I l-l+
. FIC:
2-W; TLI 1 M
4-W: TL31 M
usoc:
2-W; RJPEX
4-W; RJPGX
S-PAIR
MOD CORD
I
‘3-PAIR
1 MODULAR 1
JACK cl i%
MDF
!MlNG TERMINAL OR MODEM
CALL ACCOUNTING DEVICE f!-fj opTlo;~N~~;C~~y 1
MAIN DISTF
FRAME MC
I&
.
REN:
NIA
I
25PAIR AMPHENOL
(PlOU/PEPU)
OR
SPRING TERMINAL STRIP I
AMPLIFIED PAGE OUTPUT
MUSIC SOURCE: EXTERNAL ZC
BACKGROUND MUSIC I
DOOR LOCK OR BGM MUTE CONTROL RELA\I
MAIN
PCTU
CONTROL PCB (SEE TABLE B)
TWISTED PAIR ’
NIGHT BELL OR MOH (CONTROL RELAY)
ALARM RELAY SENSOR 1
EXTERNAL ZONE PAGE RELAYS (4 ZONES)
EXTERNAL PAGE AMPLIFIER
-1 II RECEIVER II I
MUSIC SOURCE: BACKGROUND AND/OR -
I
I
MUSIC-ON-HOLD I \
, - TWISTED PAIR MOHlBGM
VOLUME
CONTROL
FIGURE 18A-DK FUNCTIONAL BLOCK DIAGRAM
-18-

STRATADK
GENERALDESCRIPTION
DECEMBER1990
MI-IF
HESB
t ---
- - - - E!%J 24/56/96
jl$:,“:::::r,:,
l”lYl
__-w--v, - --
k
-LOUD’ .
I
. .
8
z
BGM SOURCE
TO STATIONS
2- (
tbi i r
tttt
$F;;;;;;;pD
DOOR PHONES AND LOCK CONTROLS
PSTU
(8 STD CIRCUITS)
or
.
PESU
(ZSTDC(.CUTS)(
STANDARD TELEPHONE
(NOTE 1) POWER FAILURE
, -&‘(PSTU ONLY) TRANSFER UNIT
(8 DIGITAL CIRCUITS) (8 DIGITAL CIRCUITS)
DIGITAL ELECTRONIC TELEPHONE/ DIGITAL ELECTRONIC TELEPHONE/
DIU STATION PCB DIU STATION PCB
PDKU”
25.PAIR
AMPHENOL
(FEMALE)
1 I I I
n I
1 1 CABLES .Li
125-PAIR
‘CABLE -
! -
1
-.-....-
TELEPHONE3
PPSU
MODULAR CORDS
I NOTES:
117VAC
(15 AMP)
m/fin H7
Can be on-premises or off-premises
(OPS: FC = OL13A; USOC = RJ2X)
7 external devices connected to the PCTU, 2. Al,
PFS// P1
I LVV, , I ‘OU, PSTU, PEMU, and PCOU must be
industry-standard and supplied by the customer.
All devices connected to the PDKU and PEKU are
Toshiba proprietary.
Requires Release 3.
- PBTC CABLE
.IED
FlGURE18B-DKFUNCTIONALBLOCKDIAGRAM
-19-
i

STRATA DK
GENERAL DESCRIPTION
DECEMBER 1990
TABLE H
COMMON CONTROL INFORMATION _
Item PCTU2/PCTU3
CPU type 68000/i 6 bit
Clock speed 8 MHZ
Conference channels 32
PCTUS
68000/i 6 bit
8 MHZ
14
ROM memory
RAM memory
Personal LCD message
memory (10 w 19)
Personal speed dial LCD memo
memory (10 m 49)
Verified account codes
l
512KB (PCTU2)
l
768KB (PCTU3)
l
256KB (PCTU2)
l
384KB (PCTU3)
10 messages
32 characters each
16 LCD stations max.
512KB
128KB
10 messages
32 characters each
6 LCD stations max.
40 memos
12 characters each
16 LCD stations max.
l
PCTU2-none
l
PCTU3-300 codes,
4 w 15 digit each max.
40 memos
12 characters each
6 LCD stations max.
None
Personal timed reminder LCD memo
memory (605 w 609)
5 reminder memos
32 characters each
16 LCD stations max.
5 memos
32 characters each
6 LCD stations max.
System speed dial memory (60 m 99) 1 40 numbers, 20 digits each, shared by all stations in the system.
Station speed dial memory (10 N 49) 40 numbers, 20 digits each, separately available to all stations
in the system.
System LCD message memory (60 m 99) 40 messages, 32 characters each, shared by all LCD stations in
the system
System speed dial LCD memo memory
(60 - 99)
Personal timed reminder memory
(605 - 609)
40 memos, 12 characters each, shared by all LCD stations in
the system.
5 timed reminders, separately available to all stations in
the system.
NOTES:
1. The PCTUS is compatible with DK24 only; however, the PCTU may be used with all systems.
2. The PCTU and PCTUS provide MOH/BGM interface with volume control and support either CRCU-4 or -8.
3. See Tables J and K for PCTU and PCTUS configuration information.
4. PCTU2, PCTU3, and PCTUS ROMs are not interchangeable.
-2o-

NOTE:
X = the option is provided.
and maintenance equipment, such as a per-
sonal computer or ASCII terminal. The IMDU
has an internal maintenance channel and
does not require a dedicated CO line or station
port. Data transmission speed can be set at
300 or 1200 BPS full duplex.
l
The IMDU mounts on top of the option
interface unit (PIOU or PIOUS) piggy-back
style.
STRATADK
GENERALDESCRIPTION
DECEMBER1990
TABLEI
OPTIONALINTERFACE-PCB OPTIONS
Interface Option PIOU
Unamplified page output (single zone, 600 ohms, duplex) X
Amplified page output (single zone, 3 watts, 8 ohms) X
Zone page interface (unamplified, 4 zones) X
Night transfer or music-on-hold control relay X
Door lock or external amplifier control relay X
PIOUS
X
X
X
PEPU
X
X
X
X
I
I I I I
Alarm sensor
SMDR output (RS-232/6-wire modular connector)
Maintenance port for a local ASCII terminal or external
modem (RS-232/6-wire modular connector)
Remote maintenance modem (IMDU subassembly, no
external connector)
X X
X X
X X
X X
CO Line Unit (PCOU): The PCOU provides the
system with four loop-start CO lines and a
standard, built-in automatic busy redial (ABR)
circuit.
Each CO line can be programmed to
be either DTMF or dial pulse. In addition, each
CO line has a 3 dB pad option switch to con-
trol excessive loudness resulting from close
proximity
to the PBX or central office. Each
CO line circuit provides built-in gas tubes for
limited protection from lightning.
l
A maximum of four PCOU PCBs can be
installed in
DK24
to provide sixteen CO
lines, five
PCOU PCBs can be
installed in
DK56 to provide twenty CO lines, and nine
in
DK96 to provide thirty-six CO lines.
l
Connections from the PCOU to the MDF
are made with modular connectors, each
with two circuits.
E 81 M TIE Line Unit (PEMU): The PEMU pro-
vides for E & M Type I signaling, immediate-
start TIE lines. Each PEMU reduces the maxi-
mum system capacity by four CO lines and
four stations (four CO lines and eight stations
if the PCTUS is used). A choice between 2- or
4-wire transmission is available as a jumper-
plug option.
l
A maximum of one PEMU can be installed
in DK24 to provide four TIE lines, two in
DK56 to provide eight TIE lines, and three
in DK96 to provide twelve TIE lines (see
Table K for details).
l
Connections from the PEMU to the MDF
are made with modular connectors, each
with one circuit.
Digital Telephone Interface Unit (PDKU)t: The
PDKU provides eight
ports for digital tele-
phones and data interface units (PDIU-DI
and
PDIU-DS). It can support one DDSS console.
PDKUs supporting digital telephones with off-
hook call announce do not require an EOCU.
t Requires Release 3 software
-21-
i

STRATA DK
GENERAL DESCRIPTION
DECEMBER 1990
TABLE J
YE_. SYSTEM CAPACITIES -.
Item PCTU2/PCTIIR
I PCTIIC
..-... _ ----.. -.-- . W,“V
System compatibility DK24, DK56, and DK96 DK24
6 max, DK24
Universal PCB slot capacity 8 max, DK56 6 max
14 max, DK96
32 max, DK24
Station port capacity 56 max, DK56 24 max
96 max, DK96
16 max, DK24
CO line capacity 20 max, DK56 16 max
36 max, DK96
4 max, DK24
TIE line capacity 8 max, DK56 4 max
12 max, DK96
DSS consoles: DSSDDSS 4 max 3 max
Door phones 12 max 9 max
Simultaneous 4-party conferences 8 max 3 max
LCD stations w/personal message memory 16 max 6 max
Door lock controls 5 max 4 max
21 max, DK24
PDIU-DI (PCTU3 only) 53 max, DK56
80 max, DK96 Not supported
24 max, DK24
PDIU-DS (PCTU3 only) 56 max, DK56
80 max, DK98
Not
supported
The PDKU does not support door phones or
background music source connection.
l
Each digital telephone requires one port on
the PDKU; the maximum number of digital
telephones per PDKU is eight. Each DDSS
console requires only one port (always cir-
cuit 8), and reduces the maximum number
of
digital telephones by one. Each PDIU-
DS requires one PDKU port, and each
PDIU-DI shares the same port with its
accompanying telephone.
l
Connections from the PDKU to the MDF
are made with 25pair amphenol connec-
tors. Each port normally uses single-pair
wiring. No extra wiring is required for off-
hook call announce.
l
A maximum of four PDKUs can normally
be installed in DK24 to provide thirty-two
digital telephone ports, seven in DK56 to
.
provide fifty-six digital telephone ports, and
twelve in DK96 to provide ninety-six digital
telephone ports.
Electronic Telephone Interface Unit (PEKU):
The PEKU provides eight ports for electronic
telephones. It can be configured for off-hook
call announce by installing an EOCU. It can
also be configured to support a DSS console
and/or door phone control unit (HDCB). One
designated PEKU port can be connected to a
customer-supplied background music source
to feed music to all electronic telephones.
l
Each electronic telephone requires one
port; the maximum num,ber of electronic
telephones per PEKU is eight. The up-
grade for off-hook call announce does not
require a port. Each DSS console requires
two ports and reduces the maximum
-22-


/
I
/ i
I
./
STRATA DK
GENERAL DESCRIPTION
DECEMBER 1990
number of electronic telephones by two;
each HDCB takes one port, and reduces
*-the maximum by one.
l Connections from the PEKU to the MDF
are made with 25-pair amphenol connec-
tors. Each port normally uses 2-pair wiring;
3-pair wiring is required when off-hook call
announce is supported.
l A maximum of three PEKUs can normally
be installed in DK24 to provide twenty-four
electronic telephone ports, seven in DK56
to provide fifty-six electronic telephone
ports, and twelve in DK96 to provide nine-
ty-six electronic telephone ports (see Table
4
NOTE:
The system capacities above apply only
when connecting 6500-series telephones to
PEKU PCBs. If earlier series Toshiba elec-
tronic telephones are used, the capacities
are reduced (see Table K).
Off-hook Call Announce Upgrade Unit
(EOCU): An optional off-hook call announce
upgrade unit mounts on top of the PEKU or
PESU piggy-back style. It is required on every
PEKU or PESU that supports stations receiv-
ing off-hook call announce. The unit provides
two off-hook call announce channels, which
are shared by all electronic telephone circuits
on a PEKU or PESU. An EOCU is not required
on PDKUs supporting stations with off-hook
call announce (see Table L).
Standard Telephone Interface Unit (PSTU):
The PSTU provides an interface between
standard telephones and the system. It adds
eight standard telephone ports, and has a 20
Hz square-wave ring generator.
l In addition, the PSTU provides support for
numerous Toshiba-supplied and customer-
supplied peripherals. Toshiba peripherals
include:
l Digital Voice Messaging Systems: One
standard telephone port is required for
each voice mail port.
l Power Failure Transfer Unit: The
PSTU
provides a -24VDC output for controlling
a power failure’;fransfer unit.(DPFT).
Customer-supplied peripherals include
those listed below:
l Auto attendant device
l Dictation equipment
l Facsimile
l Off-premises station
l Modem
l Standard telephone
l Voice mail device
A maximum of three PSTUs can normally
be installed in DK24, providing twenty-four
standard telephone ports; seven PSTUs
can normally be installed in DK56, provid-
ing fifty-six standard telephone ports; and
twelve in DK96, providing ninety-six stan-
dard telephone ports (see Table K).
Connections from the PSTU to the MDF
are made with 25pair amphenol connec-
tors, one pair per port.
If any devices which send DTMF signals
are connected to the PSTU, a CRCU must
be installed on the PCTU2, PCTU3, or
PCTUS.
Standard/Electronic Telephone Interface Unit
(PESU): The PESU PCB provides an inter-
face with a combination of two standard tele-
phone and four electronic telephone circuits.
The two standard circuits are identical to
PSTU circuits, providing an interface with
standard telephones and/or peripheral
devices. The four electronic telephone circuits
are identical to the PEKU circuits; they provide
interface to Toshiba electronic telephones
(with/without off-hook call announce), BGM
source connection, and an HDCB, but do not
support a DSS console.
l The PESU can accept an EOCU sub-
assembly PCB to support electronic tele-
phones that receive off-hook call
announce.
l If any devices that are connected to the
PESU standard telephone ports send
DTMF signals, a CRCU must be installed
on the PCTU PCB.
-24-

STRATADK .
GENERALDESCRIPTION
DECEMBER1990
b TABLEL
OPTIONALSUBASSEMBLIES ^
Subassembly Host Capacity Function
EOCU PEKU and PESU 1 for PEKU or PESU
that supports OCA Provides OCA path for 8 circuits
on PEKU or 4 circuits on PESU.
CRCU
(4 or 8 circuits) PCTU or PCTUS 1 per PCTlkystem Provides DTMF receiver for DISA,
standard telephone circuits, and TIE lines.
IMDU PIOU or PIOUS 1 per PlOWsystem Provides remote maintenance
interface with built-in modem.
HHEU
HVSU
HVSI
DVSU
6500-series EKT/
1 OOO-series DKT
6500-series EKT
6500-series EKT
1 OOO-series DKT
1 per EKT/DKT
1 per EKT
1 per EKT
1 per DKT
Provides interface for headset and loud
ringing bell.
Provides interface for EKT to receive OCA.
Provides interface for EKT to receive OCA.
Provides interface for DKT to receive OCA.
System Capacity and Configuration
This section provides an overview of system
configuration requirements and considerations.
port/CO line capacity. Generally, each optional
PCB, e.g. PEMU, PIOU, PIOUS, or PEPU,
installed in the cabinet occupies a slot that may
have been used to support eight station ports or
four CO lines.
Table A I illustrates each system’s various
station/CO line capacities.
For
example, the
STRATA DK96 system can have 36 CO lines and
40 stations. Optional upgrades impact the station
The number of station ports or CO lines pro-
vided by each PCB is given in Table K. Tables L
and M list each type of subassembly and option-
al unit that can be installed.
-25-

STRATA DK
GENERAL DESCRIPTION
DECEMBER 1990
TABLE M
OPTIONAL UNITS
-.
Option unit Interface Capacity Function
HDSS 6560 PEKU (circuits 7 & 8) 4 per system with PCTU2/3 Provides a 60-button DSS console
:DSS console) 3 with PCTUS that functions with electronic
telephones. Buttons are flexibly
assigned as CO line, speed dial,
and DSS.
DDSS10605 PDKU (circuit 8) 4 per system with PCTUB Provides a 60-button DSS
(Digital DSS console that functions with
Console) digital telephones. Buttons
are flexibly assigned as CO
line, speed dial, and DSS.
HDCB (door PEKU or PESU (circuit 5) 4 per system with PCTU2/3 Provides MDFB door phone and
Ihone control) 3 with PCTUS door lock control interface.
MDFB HDCB control box 12 per system (PCTU2
l
Door monitor with two-way talk
(each HDCB supports or 3)
9 per system (PCTUS) path to system telephones.
three MDFBs)
l
Door bell that rings designated
electronic and digital telephones.
l
Microphone for talkback when
paged over HESB amplified speaker
HESB
DPFT
PIOU, PIOUS, or PEPU for 1 per PIOU, PIOUS, External page amplifier
page, speaker, or amplifier or PEPU and speaker.
DKT/EKT with HHEU PCB 1 per DKTIEKT (with Loud ringing bell.
for loud ringing bell HHEU PCB)
PSTU
2
max, DK24
3
max, DK56 Connects up to 8 CO lines directly
5 max, DK96 to standard telephones if the
system’s AC power is removed.
ntegrated DIU PDKU via DKT 8 per PDKU;
(PDIU-Dl)5 1 per DKT Used for transmitting and receiving
data between terminals, personal
computers and devices connected
to other PDIU-Dls or to modems,
printers and computers connected
to PDIU-DSs. The PDIU-DI is also
used to provide personal computer
access to outside dial up data
services and/or bulletin boards via
modem pooling.
Zandalone DIU PDKU (any circuit) 8 per PDKU For making RS-232 switched data
(PDIU-DS)5 connections for modem pooling,
printer sharing, and host!
mainframe computer accessing.
DSS AND DDSS CONSOLE NOTES:
1. No additional hardware is required to use the DSS and DDSS consoles.
2. The DDSS and DSS consoles are assigned to associated digital and electronic telephones,
respectively
in programming.
3. DDSS and DSS consoles cannot be connected to
PESU
electronic telephone circuits.
DOOR PHONE NOTES:
1. A maximum of three HDCBs are allowed per system equipped with a PCTUS or four HDCBs
with a PCTU2/3, to support up to nine or twelve door phones (MDFBs), respectively.
2. One electronic telephone (PEKU or PESU) port, always the fifth circuit port, is required per HDCB.
3. HDCBs can only be connected to PEKU or PESU port numbers 04, 12,20, and/or 28.
4. One
door
lock control can be configured on each HDCB in place of one
door phone.,
5. HDCBs cannot be connected to PDKU station ports.
6. Requires Release 3 software.
-26-

STRATA DK
GENERAL DESCRIPTION
DECEMBER 1990
4 FEATURES
STRATA DK digital key systems Offer a broad range of features and services, which are summarized ‘..
in Tables N, 0, and P. * .
0
0
0
0
0
0
0
0
0
0
0
0
0
0
0
0
0
0
0
l
l
l
l
l
l
TABLE N
SYSTEM FEATURES
The system features listed below function on all STRATA DK systems.
Standard
Account Codes (Forced/Voluntary/Verifiedt)
l
All Call Voice Page
l
Alternate Point Answer
l
Automatic Hold/Park Recall 0
Automatic Release from Hold/DISA
l
Background Music*
l
Centrex/PBX Compatible
l
Centrex Ringing Repeat
l
CO Line Groups
l
CO Line Queuing
l
Conferencing
l
Credit Card Dialingt
l
DAY/NIGHT Modes 0
Delayed Ringing
Distinctive CO Line/Intercom Ringing
l
DTMF Back Tone
l
DTMF and Dial Pulse CO Line Compatible
l
DTMF Signal Time (80/l 60 ms)
l
Dual FCC Registration
l
Flexible Button Assignment
Flexible Intercom Numbering
Flexible Line Ringing Assignment
l
Immediate
l
Delay 1
l
Delay 2
Flexible Port/Line Assignment
Group Paging
l
Least Cost Routing
Live System Programming
Memory Protection
l
Message Waiting Optional
Alarm Sensor*
l
Data Switchingt*
l
Direct Inward System Access
l
Door Lock Control*
Door Phones
Night Ringing Over External Page*
l
l
Night Pickup Code
l
Night Ringing Over Selected Page Zones
l
Off-premises Station
l
Page Interface
Music-on-Hold*
Night Ringing Answer Code
Non-blocking Talk Paths
Outgoing Call Restriction
Pooled CO Lines
Privacy/Non-privacy
Station Hunting
System Programming through Station
System Speed Dial
Tandem CO Line Connections
Tenant Service
Toll Restriction
Toll Restriction Override by System Speed
Dial
Transfer Privacy
Traveling Class of Service?
Unlimited Handsfree Intercom Paths
Unrestricted Call Transfer over Intercom
Voice Mail Interface
l
Automated Attendant
l
Call Forward to Voice Mailbox
l
Message Waiting Indication
l
Voice Mail Control via Digital/Electronic
Station
l
Feature Integration
l
Voice Mail identification Codes
Voice or Tone Signaling
l
Voice First
l
Tone First
Wall or Table Mounting
Page Zones
Power Failure Transfer*
Relay Service*
. External Page/Door Lock Relay
l
Night/Hold Relay
Remote Administration and Maintenance*
Reserve Power*
Station Message Detail Recording*
TIE Lines
*May require customer-supplied peripheral hardware; see the detailed feature descriptions
t Requires
Release 3 software.
-27-

STRATA DK
GENERAL DESCRIPTION
DECEMBER 1990
TABLE 0
c--. DIGITAL AND ELECTRONIC TELEPHONE FEATURES .
The station features listed below are accessible from each digital and electronic telephone.
l
Account Code Button
l
Automatic Busy Redial
l
Automatic Callback
l
Automatic Hold/Park Recall
l
Automatic Line Selection
l
Background Music with Station Control*
l
Busy Override
l
Call Forward
l
All Calls
l
Busy
l
No Answer
l
Busy/No Answer
l
Fixed
l
Call Park
l
Call Pickup
l
Call Transfer with Camp-on
l
CO/Centrex/PBX Feature Buttons
l
Direct Station Selection Buttons
l
DISA Security Code Revision
l
Distinctive LED Indications
l
Incoming Call
. In-use
l
On-hold
l
Distinctive Station Ringing
l
Do Not Disturb
l
Do Not Disturb Override
l
Data Button
l
Direct Station Selection Console Features
l
Automatic Line Hold
l
Flexible Buttons
l
All Call Voice Page Button
l
CO Lines
l
DSS
9 Night Transfer Button
l
Speed Dial
l
Voice or Tone Signaling
l
Call Forward Override
l
Liquid Crystal Display Features
l
Alphanumeric Messaging
Standard
l
DP/DTMF Mode Change
l
Exclusive Hold
l
Executive Override
l
Fixed Call Forward
l
Handsfree Answerback
l
Hearing Aid Compatible
l
Message Waiting/Flash
l
Microphone Control Button
l
Modem Button
l
Modular Handset and Line Cords
l
On-hook Dialing
l
Pooled Line Buttons
l
Privacy Button-t
l
Privacy Release Button
l
Privacy Override
l
Private CO Lines
l
Pushbutton Dialing
l
Release Button
l
Remote Retrieval of Held Calls
l
Repeat Last Number Dialed
l
Ringing Line Preference
l
Saved Number Redial
l
Speed Dial Buttons
l
Station Speed Dial
l
Timed Reminder
l
Toll Restriction Override Code Revision
Optional
l
Busy Lamp Field Indication
l
Busy Station Messagingt
l
Called Station Messaging
l
Calling Station Messaging
l
CO Line Identification
l
Group Station Messagingt
l
Intercom Name/Number Display
l
Speed Dial Memo
l
Station Identification
l
Timed Reminders with Messages
l
Modular Headset Interface
l
Off-hook Call Announce
*May require customer-supplied peripheral hardware; see the detailed feature descriptions
t Requires Release 3 software.
-28-

STRATADK
GENERALDESCRIPTION
DECEMBER1990
TABLEP
STANDARD TELEPHONE FEATURES _
The
features listed below are accessible from a standard telephone by dialing access codes. See
both System Features and Digital and Electronic Telephone Features sections for detailed descriptions.
Standard
l
All Call Voice Page 0
l
Automatic Callback 0
l
Automatic Hold/Park Recall 0
l
Busy Override 0
l
Call Forward 0
l
All Calls 0
l
Busy 0
l
No Answer 0
l
Busy/No Answer 0
l
Call Park 0
l
Call Pickup 0
l
Call Transfer with Camp-on 0
l
Centrex/PBX Compatible 0
l
CO Line Queuing
l
Conference (four party, including two CO
l
lines)
l
Distinctive Ringing (CO vs. Intercom calls)
l
Do Not Disturb Override
0
0
Optional
l
Direct Inward System Access 0 Off-premises Station
DP/DTMF Mode Change
Executive Override
Forced and Voluntary Account Codes
Group Paging
Least Cost Routing
Message Waiting (set only, not receive)
Night Pickup Code
Remote Retrieval of Held Calls
Repeat Last Number Dialed
Station Hunting
Speed Dial (Station and System)
Toll Restriction
Toll Restriction Override by System Speed
Dial
Toll Restriction Override Code Revision
Voice Mail Interface
Voice Signaling (to, not from)
System Features
Account Codes (Forced/Voluntary/Verified)t:
Account codes may be forced or voluntary;
and may be verified or not. Account code digit
length is 4 u 15 digits and set system wide;
this digit length applies to all types and combi-
nations of account codes used in the system.
Account codes are sent out on the system’s
SMDR port with each call record as calls are
completed.
l
Forced: Each station may be required
(forced by programming) to enter an
account code before being allowed to dial
a telephone number from selected CO
lines,
l
A station may be forced to dial account
codes on some CO lines but not others,
depending on how the CO line is set in
t
Requires
Release 3
software.
system programming-forced or volun-
tary.
l
Each station in the system may be pro-
grammed so that account codes
entered from that station will be verified
or not verified.
l
Voluntary: Voluntary account codes may
be entered by any station at any time dur-
ing a telephone call by pressing the
B button or dialing an access
code.
l
If a voluntary
account
code is dialed
from a digital or electronic telephone,
the call will not be interrupted. If dialed
from a standard telephone, the call will
be placed on hold while the code is
being entered; therefore, the account
code is normally entered from standard
telephones at’ the beginning or end of
the telephone conversation.
-29-

STRATA DK
GENERAL DESCRIPTION
DECEMBER 1990
l Each station in the system may be pro-
*---- grammed so that account codes entered
from that station will be verified or not
verified.
l Verifiedt: Each station is set independent-
ly in system programming so that account
codes, forced and voluntary, will be verified
or not verified.
l The system may be programmed to
have 300 verified account codes
total-voluntary and forced.
l A verified account code may be system
programmed so that all the digits (4 N
15) of the code are verified, or only the
first portion (programmable length) of
the code is verified. 300 blocks of par-
tially verified account codes can be
established, and each of these blocks
can contain a near limitless amount of
variations. For example, if the required
length of each account code in the sys-
tem is five digits, and if each of the
available 300 verified account codes is
three digits, then there would be 100
combinations (00 u 99) for each verified
account code. In this instance, there
would be 30,000 partially verified
account codes available, 100 combina-
tions for each of the 300 verified
account code blocks.
l Each verified account code can be
assigned to a toll restriction class of
service in system programming. When a
verified account code is dialed at a sta-
tion, that station’s normal toll restriction
class is temporarily replaced by the veri-
fied account code’s toll restriction class
of service (the station reverts back to its
normal restriction class when the call is
completed). The account code will be
sent out on that station’s SMDR call
record.
l Verified account codes may be added,
deleted, or changed by users from sta-
tions enabled to in system program-
ming.
NOTE:
The 911 emergency number bypasses
forced verified account code requiremenkt
t Requires Release 3 software.
Alarm Sensor: When configured with a cus-
tomer-supplied alarm, the sensor detects
when the alarm relay-is activated -and causes
all digital and electronic telephones to sound a
startling tone. The digital or electronic tele-
phone alarm tone is reset from any station pro-
grammed with an m button. This feature is
optional, and an option interface PCB (PIOU
or PIOUS) is required in order to support it.
All Call Voice Page*: A user can page to all
station speakers simultaneously by dialin a 2-
digit access code or by pressing the A
d but-
ton. The system can also be programmed to
page to an external zone speaker as part of
the all call page. See External Page Interface
and External Zone Paging.
Alternate Point Answer: Allows users to
answer transferred CO calls from any station
that shares the CO line button’s appearance.
Automatic Hold/Park Recall+: If a station parks
or puts a call on hold, and a pre-programmed
period of time lapses without the call being
retrieved, the call automatically sounds a dis-
tinctive reminder tone at the station which initi-
ated the hold/park. Each’station’s recall time
can be set individually in programming.
Automatic Release from Hold/DISA: If a CO
line is put on hold (or is used for a DISA call),
and the outside party hangs up, the system
disconnects automatically, releasing the CO
line(s). Individual CO lines can be program-
med to either recognize or ignore the discon-
nect signal from the central office. This feature
will not operate unless the telephone compa-
ny’s central office provides a disconnect signal
to the system.
Background Music: Background music can be
broadcast two different ways; over digital
and/or electronic telephone speakers, and
over optional external paging speakers.
l When background music is broadcast over
digital and/or electronic telephone speak-
ers, the music source connects directly to
the system’s controller PCB (PCTU) or a
designated (PEKU or PESU) station port.
No optional hardware is required.
l When external speakers are used, an
option interface PCB (PIOU, PIOUS, or
*Available using standard or electronic telephones.
-3o-


STRATA DK
GENERAL DESCRIPTION
DECEMBER 1990
data equipment, including personal computers,
printers, and modems. Asynchronous data can
t%?ransmitted at speeds up to 19.2 kpbs. The
system allows personal computer (PC) key-
board dialing (up to 9600 bps) using the AT
command set. When used in conjunction with
PC desk top software, dial-by-name and other
dial directories may be set up inside the PC.
The system provides four data security groups
to restrict data calls between groups. The sys-
tem also provides program options to allow
modems to be used in pooling groups.
DAY/NIGHT Modes: The system has three
available modes, DAY, DAY2 and NIGHT.
Each mode can be assigned a distinct CO-to-
station ringing arrangement for handling calls
differently. The system can be programmed
with either two or three modes (which can be
changed by any station programmed with a
q
button):
Two modes: Three modes:
DAY DAY
NIGHT DAY2
NIGHT
Delayed Ringing: If a CO line call rings to a sta-
tion and is not answered, alternate stations
can be programmed to ring 12 or 24 seconds
later. Twelve seconds is approximately 3 rings;
24 seconds, 6 rings. Delayed ringing is selec-
tively provided for each line, by each station.
Direct Inward System Access: Using a DTMF
telephone, outside callers can dial internal sta-
tions (DISC) or outgoing CO lines directly,
without going through a receptionist or opera-
tor. Any number of CO lines can be pro-
grammed with the direct inward system access
(DISA) feature.
l
The caller dials the DISA CO line number
and hears ringing. Then, a tone sounds for
nine seconds. While the tone is sounding,
the caller may dial a station number or out-
going CO line access code. If a busy sta-
tion is dialed, the caller can dial another
station. If no number is dialed and the
nine-second interval elapses, the call is
transferred to a pre-assigned ringing
arrangement.
l
If set in program memory, an optional
security code must be dialed to make
DISA calls throtigh the system via CO
lines, but is never required to dial internal
stations directly. The DISA security code (1
u 15 digits) may be set, changed, or can-
celed from system programming and/or
designated stations. If the DISA security
code is not set in memory, it is not neces-
sary for dialing out on CO lines via DISA.
l
A built-in 4-minute timer automatically dis-
connects DISA calls in situations where
the central office does not provide a
release signal. After a warning tone, this
timer can be reset by the caller dialing B to
extend the call another four minutes as
many times as required to finish the call.
This timer is always operational during
DISA calls to prevent CO line lock-up.
l
A CRCU PC6 must be installed on the
PCTU PCB to allow DISA operation.
l
A DISA CO line can be assigned to any
Night Transfer ringing mode, allowing CO
lines to ring normally in one mode (i.e.
DAY) and become DISA lines when the
system is transferred to another mode (see
DAY/NIGHT Modes).
l
DISA CO line calls have complete system
privacy and cannot be overridden.
l
The system provides DISA class of serv-
ice, which allows Toll Restriction to be
applied to DISA CO line calls.
Distinctive CO Line/Intercom Ringing+: When
CO and intercom calls ring a station, the ring-
ing is different. This helps the user determine
the type of each incoming call before answer-
ing. (This feature is optional for single-line tele-
phones and standard for digital and electronic
telephones.)
l
A further distinction is available for elec-
tronic telephones as a station feature.
Stations in close proximity may be pro-
grammed for a unique ring on incoming
CO calls. This allows individual station
users to recognize their telephone’s ring-
ing. See Station Features, Distinctive
Station Ringing.
*Available using standard or electronic telephones.
-32-

Door Lock Control: Any telephone program-
med with a door lock button can unlock a door.
Pressing the button activates the electronic
door lock, and the lock opens for 3 or 6 sec-
onds, as specified in programming. The actual
electronic door lock mechanism must be sup-
plied by the customer. This feature is optional.
An option interface PCB (PIOU, PIOUS, or
PEPU) or an HDCB is required to support it.
Up to five door lock controls can be installed
with a designated button for each (four are
provided by each of up to four HDCBs and
one via either a PIOU, PIOUS, or PEPU-see
System Features, Relay Service). If a PCTUS
is installed, the maximum number of door lock
controls is four.
Door Phones: The door phone has several
applications.
0
0
For example, it can be used in conjunction
with door lock control, outside an entrance
which must be screened. When a button is
pressed on the door phone, any or all digi-
tal and/or electronic telephones in the sys-
tem can be programmed to ring with a dis-
tinct door phone tone. Any digital or elec-
tronic telephone can answer the ring and
converse with the person at the door
phone. The door lock can be opened if the
person requires entry.
Door phones may be programmed to ring
any combination of digital and/or electronic
telephones; they may even be pro-
grammed to ring over external page when
the system is in NIGHT mode.
A second function of the door phone is that
of a monitor. Any telephone can call the
door phone and monitor its immediate
area.
A maximum of twelve door phones are
allowed per system with a PCTU2/3 and
nine with a PCTUS. A maximum of four
HDCBs can be installed to.support up to
three door phones each. Each HDCB
requires the support of one electronic tele-
phone interface unit (PEKU or PESU).
When multiple door phones are installed,
they may ring with two distinct door phone
STRATA DK
GENERAL DESCRIPTION
DECEMBER 1990
tones. See Toshiba Peripheral Equipment,
Door Phone Control Unit.
_
NOTE: *
The PDKU cannot support an HDCB.
DTMF Back Tone: The system can be pro-
grammed to allow or prevent DTMF tones from
being returned to an electronic or digital tele-
phone when its user dials on CO lines or
sends digits to voice mail.
DTMF and Dial Pulse CO Line Compatible*:
The system works with either DTMF or rotary
dial pulse CO lines programmed on a line-by-
line basis.
DTMF Signal Time (801160 ms): The standard
DTMF dial signal time is 160 milliseconds, but
it may be reduced to 80, if the central office or
peripheral equipment, such as voice mail
devices, will function with the reduced signal
time. The DTMF signal time is set indepen-
dently for CO line outdialing and voice mail
auto dial digits via system programming.
Dual FCC Registration: The system can be
configured as either key or hybrid, with sepa-
rate FCC registration numbers for each type.
The appropriate configuration for an individual
system depends on its function. For more
details; refer to General End User Information,
located in the front of this document.
Flexible Button Assignment: Each digital tele-
phone has 20 buttons and each electronic
telephone has 10 or 20 buttons which may be
flexibly programmed as a CO or as any of the
different types of features.
Flexible Intercom Numbering*: A station inter-
com number can be programmed to have up
to four digits. The numbers can be assigned to
any station port, and can be programmed in
any sequence.
Flexible Line Ringing Assignment: Each CO
line can be programmed to ring (or not ring) at
each station in the system. A different ringing
*Available using standard or electronic telephones.
-33-

STRATA DK
GENERAL DESCRIPTION
DECEMBER 1990
assignment may be assigned to the system for
zach DAY, DAY2 or NIGHT mode (see
DAY/NIGHT Modes). If a station is pro-
grammed to ring for a particular CO line, then
a choice may be made between three timing
specifications:
l
Immediate: Stations assigned IMMEDI-
ATE timing ring as soon as the CO line
rings into the system.
l
Delay 1: If stations with IMMEDIATE tim-
ing have not answered within 12 seconds
(three rings), stations assigned DELAY 1
timing begin ringing also.
l
Delay 2: If the above stations have not
answered within 24 seconds (6 rings), sta-
tions assigned DELAY 2 timing begin ring-
ing also.
Flexible Port/Line Assignment: The system’s
universal slots can be assigned to station, CO
line, or E & M TIE line PCBs in a variety of
custom configurations. See System Capacity
and Configuration.
Group Paging*: Dialing a 2-digit access code
permits a user to make vocal announcements
to one of four internal station groups or all sta-
tions simultaneously. Any station receiving an
announcement can directly access the origina-
tor by dialing a code, although any other sta-
tion receiving the announcement will be cut
off. Stations are assigned to groups when the
system is programmed. This feature is inde-
pendent of external paging zones, which reach
external speakers (see External Zone Paging).
Least Cost Routing*: Eight different routing
plans may be designed to automatically place
outgoing calls using the most cost-efficient
method. Three different LCR time schedules
can be set up for the business day. Each
schedule can use a different priority sequence
to place calls, depending on the time of day.
Stations can be grouped into one of four class-
es of LCR. Each class has its own routing pri-
ority. Selected station users may have priority
use of a line, even when the route with the
lowest cost is not available. LCR is compatible
with ABR and two CO line conference.
*Available using standard or electronic telephones.
Live System Programming: Programming the
system does not normally interrupt service.
When the system is>rogrammed on-site, only
the station executing commands loses normal
function. When the system is programmed
from a remote terminal, all stations remain
functional. Service is only interrupted for hard-
ware upgrades.
Memory Protection: If the power fails, the sys-
tem has an internal battery backup that pro-
tects data and the customer’s programmed
configuration. This information will be main-
tained within a powerless system for approxi-
mately six years.
Message Waiting: Any station and most voice
mail devices can leave a message waiting
indication at a digital or an electronic station
which causes the called digital station’s MES-
SAGE LED or called electronic station’s
MW/FL LED to flash. In such a case, the sta-
tion user can either automatically recall the
originating station or voice mail device, or can-
cel the indication without responding. Up to
three indications sent by other stations will be
queued. A fourth indication is always reserved
for the Message Center.
l
The system message waiting feature inte-
grates with most voice mail/auto attendant
devices by providing special codes that
allow the device to set and cancel the
message waiting LEDs on the digital and
electronic telephones. The digital and elec-
tronic teleohones automatically retrieve the
message ‘via the m-and m
buttons respectively.
Music-on-Hold*: A customer-supplied music
source, such as a radio or tape player, can be
connected to the system. CO lines or stations
placed on hold connect to the music-on-hold
source, and the holding party hears music.
l
The music source can be connected
directly to the controller PCB (PCTU or
PCTUS). An optional interface PCB is not
required to support this feature. However,
if the system is to be-configured with a
tape recorder that plays a pre-recorded
-34-

STRATA DK
GENERAL DESCRIPTION
DECEMBER 1990
0
message to holding parties, the option
interface unit PCB (PIOU, PIOUS, or
PEPU) is suggested.
The interface PCB has a relay that can be
programmed to control a tape player every
time a call is placed on hold. When the
relay activates, the tape plays. When the
call goes off hold, the tape stops. The tape
recorder does not need to run continuously
in order for the taped message to reach
holding parties (see Relay Service).
Music-on-hold and background music can
share a music source or have individual
music sources (see Background Music).
Night Ringing Over External Page*: When the
system is in Night mode, and an incoming call
from a CO line or door phone is received, the
system can be programmed for ringing to
sound over an external speaker. When this
feature is used, persons working after-hours
are more likely to answer important calls,
especially if they work away from a telephone.
The customer-supplied external speaker
requires an option interface PCB (PIOU,
PIOUS, or PEPU) to support it. See Night
Ringing Over Selected Page Zones.
l
Any station in the system can answer the
call by dialing the Night Pickup code.
Night Ringing Over Selected Page Zones+:
CO lines can be programmed to night ring
over selected PIOU page zones via customer-
supplied paging equipment. The lines can be
divided into two groups (tenant 1 and tenant 2)
which can then be assigned to night ring over
the selected zones, 1 N 4.
Non-blocking Talk Paths*: All CO and inter-
com lines can be used at the same time. The
system can operate at full capacity at all times.
Off-premises Station: An off-premises station
is a standard telephone located off-site from
the system. Each is supported by one stan-
dard telephone interface (PSTU or PESU)
port, and normally requires a special line from
the central office. Each PSTU supports up to
eight off-premises stations, and each PESU
supports up to two off-premises stations.
Outgoing Call Restrictioti: Statidns’can be
selectively restricted from originating calls over
any number of CO lines. Only outgoing calls
are restricted. The same stations can receive
incoming calls over the restricted CO lines.
Page Interface*: Dialing a 2-digit code permits
user access to a customer-provided external
speaker through an internal 3-watt amplifier, or
a two-way 600-ohm voice path is available for
use with a customer-supplied talkback speak-
er/amplifier. The external amplifier and speak-
er are optional, and an option interface PCB
(PIOU, PIOUS, or PEPU) is required to sup-
port them.
NOTES:
1.
2.
Page can be accessed by all stations
and TIE lines (optional), but not
DISA/DISC lines.
The 3-watt amplifier is included with
either a PlOlJ or PEPU, but not on the
PIOUS.
Page Zones*: Dialing a 2-digit access code per-
mits a user to page to one of four external
zones or all zones simultaneously. External
zones are composed of customer-supplied
speaker(s) and amplifier(s). This feature is
independent of group paging, which reaches
internal station groups (see Group Paging).
The external speakers required to operate this
feature are optional. An option interface PCB
(PIOU) is required to support them. The
PIOUS or PEPU provides one external zone
only.
NOTE:
Zone page can be accessed by all stations
and TIE lines, but not DISA/DISC lines.
Pooled CO Lines: Several CO lines can be
pooled to appear under one station CO line
button. CO lines can’ be pooled in categories,
e.g., all WATS lines in one pool, all regular CO
t Requires Release 3 software. *Available using standard or electronic telephones.
-35-

STRATA DK
GENERAL DESCRIPTION
DECEMBER 1990
lines in another pool, etc.
*---Outgoing pooled line buttons override sys-
tem LCR, and cannot be used to set up
tandem CO calls.
l Pooled line buttons can be used to set up
two-CO line conference calls with one or
two stations.
Power Failure Transfer: Up to eight CO lines
are switched directly to up to eight dedicated
conventional telephones (customer-provided
2500- or 500-type) for incoming and outgoing
calls. This feature requires an external unit,
the power failure transfer unit (DPFT). A stan-
dard telephone interface unit (PSTU) is
required to supply the DPFT with a -24VDC
control signal and ground connections.
Privacy/Non-privacy: The system can be pro-
grammed to be totally private or non-private,
or any combination of private/non-private on a
station-by-station basis. The system is in pri-
vate mode by default, meaning that station
users, by pressing the CO line button, cannot
access a CO line that is in-use by another sta-
tion. Station users, however, can change their
individual station’s mode via the privacy
release button. Users having stations with
common CO line appearances can access a
CO line that is currently in use by a non-pri-
vate user. Up to three stations may converse
on a single CO line via non-private operation.
See Station Features, Privacy Release Button
and Privacy Override.
NOTES:
1. In private systems (default), all stations
are denied Privacy Override.
2. In nonprivate systems, all stations are
allowed Privacy Override.
Relay Service: Two relays provide signals to
activate optional external equipment. Each
relay can be optionally configured to be nor-
mally open or normally closed. Each relay can
be programmed to perform one function only.
Relays and their optional functions are as fol-
lows:
l External Page/Door Lock
Relay: This
relay can be programmed to activate one
of the following functions: .
l External Page: An external music
source can be connected to the system
to provide background music over exter-
nal speakers. When a paging announce-
ment is made over the external speak-
ers, the external page relay mutes the
background music.
l Door Lock Control: This relay controls
an electronic door lock. When the sta-
tion door lock button is pressed, the
door is unlocked by the relay for either 3
or 6 seconds as specified in program-
ming.
l Night/Hold Relay: This relay can be pro-
grammed with one of the following func-
tions:
l Night Relay: The night relay activates if
the system is in night mode and there is
an incoming CO line or door phone ring.
In programming, the relay can be set to
activate continuously (for indirect (
answering machine control) or pulsating
at 1 second ON/3 seconds OFF (for a
night bell) when a CO line or door phone
rings.
l Hold Relay: The hold relay activates
any time a CO line is on hold. It is nor-
mally used to control the music-on-hold
source. A common source controlled by
this relay is a tape deck (see Music-on-
Hold).
NOTES:
1. Door lock control is also provided via
HDCBs (see Door Lock Control).
2. Both relays reside on the option inter-
face PCB (PIOU, PIOUS, or PEPU).
Therefore, a PIOU, PIOUS, or PEPU is
required for any relay functions dis-
cussed above.
Remote Administration and Maintenance:
System administration, programming, and
maintenance can be performed from a remote l
-36-

location, over a customer-supplied ASCII ter-
minal and modem. The system remains live,
with no interruption to operation.
l
Remote access of system programming/
maintenance is accomplished by calling in
on CO lines that connect to the mainte-
nance modem (direct ring or transfer). A
customer-supplied commercial modem or
an internal modem unit (IMDU) with a sup-
porting option interface PCB (PIOU or
PIOUS) are required to support this fea-
ture.
Reserve Power: Two customer-supplied 12-volt
batteries can be connected to the system as a
power failure backup. The batteries are con-
nected to the system’s standard power supply,
therefore, no optional interface PCB is
required. When electrical power is intact, the
battery continuously trickle charges to capaci-
ty. The battery charger is built into the power
supply. In the event of a power failure, the sys-
tem automatically switches over to battery
power without any interruption to existing calls
or other normal system function. The length of
time reserve power will operate depends upon
the number of batteries provided, and the sys-
tem load (see Table B).
IMPORTANT NOTES:
1. Local ordinances may dictate battery
type, housing, and installation
method.
2. Batteries must be connected when
the system is operating via AC power
(if batteries are installed after the AC
power fails, they will not operate the
system).
3. Batteries are connected to the sys-
tem with the Toshiba-supplied PBTC-
3M cable.
Station Hunting*: When a called station is
busy, the call will hunt to an assigned station.
If the assigned station is busy, the call hunts to
the next assigned station, and so on. The call
is eventually routed to the first idle station. The
hunting sequence can be either consecutive or
non-consecutive, and is fully flexible. If a hunt
-37-
STRATA DK
GENERAL DESCRIPTION
DECEMBER 1990
station is call forwarded, calls to the station will
ring at the forwarded destination-not the hunt
_ destination.
Station Message Detail Recording: The sys-
tem provides detailed information regarding
both incoming and outgoing calls. The infor-
mation includes time and duration of a call, as
well as the called number. It can also include
account codes entered (forced and voluntary),
the time it took to answer a call, and the sta-
tion to which a call was transferred. Calls may
be screened to print out all calls, outgoing
only, or outgoing long distance calls only.
l
The system provides the information
through an RS-232 port (ASCII), which is
compatible with most commercial printers
and call accounting devices. Such cus-
tomer-supplied peripherals may be capa-
ble of providing sophisticated account
tracking and reporting features.
l
Station message detail recording is option-
al, and an option interface PCB (PIOU or
PIOUS) is required to support it.
System Programming through Station: The
system is easily programmed through an LCD-
type digital or electronic telephone connected
to PEKU port 05. The programming electronic
telephone functions the same as any other
station when it is not in programming mode.
See Live System Programming.
System Speed Dial*: Up to 40 system speed
dial numbers can be stored by the digital or
electronic telephone connected to PEKU port
00. Each number can be up to 20 digits, and
IO of the 40 numbers can be linked to any
other speed dial number to automatically dial
up to 37 digits. Any station in the system can
speed dial the stored number by pressing a 2-
digit access code or a previously programmed
q
button. Names may be assigned to each
number for LCD telephone users. Speed dial
buttons (locked or fixed) can be configured for
one-button access to Centrex/PBX features. A
fixed
q
button cannot be changed except by
station 200. See Station Features, Speed Dial
Buttons and Station Speed Dial.
*Available using standard or electronic telephones.

STRATA DK
GENERAL DESCRIPTION
DECEMBER 1990
Tandem CO Line Connections: This feature
altews an unattended line-to-line connection,
leaving the originating station free to make
another call. For supervision purposes, the
originating station must have both CO line but-
ton appearances to allow tandem operation.
Therefore, tandem calls cannot be set-up from
standard telephones, digital telephones, or
electronic telephones using LCR, pooled line
buttons, or CO line access codes.
Tenant Service: Two small businesses in the
same office building which do not each require
a full system can share a system. Each ten-
ant’s CO line buttons appear in the correct
sequence on stations. Each tenant can have
two dedicated DSS consoles. Tenants can
also call each other directly. Tenants can have
separate:
l
LCR and toll restriction plans.
l
Night transfer ringing assignments.
l
Flexible door phone and CO line ringing
assignments.
TIE Lines: TIE lines can be installed to link
STRATA DK systems to one another, or to link
a STRATA DK system to a PBX or any other
system with TIE lines. System configuration
allows a maximum of four TIE lines on DK24,
eight on DK56, and twelve on DK96. TIE lines
are interfaced via the PEMU PCB, each of
which provides four circuits. TIE lines are E &
M Type I signaling, optional 2- or 4-wire trans-
mission, immediate start.
l
Paging system (external and station
speakers) access by far-end callers origi-
nating TIE line calls can be denied or
allowed in system programming.
l
System programming allows or denies
handsfree answerback on incoming TIE
line calls.
l
Off-hook call announce is not available
over TIE lines.
Toll Restriction*: Stations can be individually
restricted from making toll calls. Four restric-
tion levels can be defined, each allowing or
denying specific area and office codes, long
distance information calls, international calls,
t Requires Release 3 software.
and/or operator-assisted calls. Each station is
assigned any one of t.he available restriction
levels or no restrictionT Individual CO lines can 4
be defined as unrestricted. By dialing one of
the two toll restriction override codes pro-
grammed into the system, a user can bypass
toll restriction. Also, a user can temporarily
change a station’s toll restriction class (See
Station Features: Traveling Class of Service,
Toll Restriction Override Code Revision, and
Verified Account Codes).T
Toll Restriction Override by System Speed
Dial*: System speed dial numbers can be
programmed to override toll restrictions. For
instance, when employees need to access a
toll number that falls into a restricted area/
office code for work purposes, an employer
can program the particular toll number as a
system speed dial number. Even if their sta-
tions are toll restricted, they can access the
number with speed dialing.
Transfer Privacy: Optional transfer privacy can
be programmed system-wide. When transfer
privacy is programmed and an outside call is 4
answered by one station, then transferred to
another station, it can only be answered by the
second station, or by a station with directed
call pickup. Other stations cannot pick up the
transferred call with a CO line button. See
Alternate Point Answer and Directed Call
Pickup.
Traveling Class of Service-t: The normal toll
restriction class of a station can be temporarily
changed to another class. Each of the four toll
restriction classes can be assigned a four-digit
code. If one of these codes is entered at any
station, the station will assume the class asso-
ciated with the code for the next dialed num-
ber. The station will revert back to its normal
toll restriction class for subsequent calls. In
system programming, any station can be
assigned to change these codes. The traveling
class code data is not sent out the SMDR port
and will not print out on station call records.
Traveling class codes can be added, deleted,
or changed by users from stations selected in
programming. I
*Available using standard or electronic telephones.
-38-

Unlimited Handsfree Intercom Paths: All inter-
com lines can carry handsfree conversations
simultaneously. Because intercom paths are
non-blocking, the’ number is only limited by the
amount of digital and electronic stations.
0
Unrestricted Call Transfer over Intercom: Any
CO line call can be transferred to any station
over the intercom line. A station does not need
a specific CO line’s appearance in order to
answer the call.
box. VM ID codes can be up to 16 digits in
length and will dial automatically on for-
warded and hunt-type calls, or when
responding to an MW indication.
To support a voice mail system, an option-
al standard telephone interface unit PCB
(PSTU or PESU) must be installed in the
STRATA DK system.
Voice Mail Interface*: The system can be con-
figured with a Toshiba- or customer-supplied
voice mail messaging system. Depending
upon the voice mail product installed, some or
all of the following features may be provided:
call routing, message handling, information
management, etc.
l
Automated Attendant: An integrated
Automated Attendant can streamline the
system’s call answering capability. Addi-
tionally, the supervised transfer capability
virtually eliminates unanswered or missed
calls.
l
Call Forward to Voice Mailbox: Each
telephone user can forward calls directly to
a personal mailbox. The caller bypasses
the usual sequence of voice mail.com-
mands, and simply leaves a message after
hearing a tone.
Voice or Tone Signaling*:‘ Each method suits
different business needs, and the calling sta-
tion can select the other setting at any time,
regardless of the system’s programming. In
addition, the intercom tone can be optionally
disabled, via system programming, to each
station individually to allow room sound moni-
toring. The system can be programmed to
announce calls in one of two ways:
l
Voice First: Can be more convenient,
enabling the called party to answer without
touching the station. A distinctive intercom
tone sounds over the receiving station’s
speaker, followed by the caller’s voice.
l
Tone First: Ensures a conversation’s pri-
vacy. The intercom tone sounds over the
receiving station’s speaker every four sec-
onds, until the station user answers the
call. See Station Features, Distinctive
Ringing.
l
Message Waiting Indication: When a
message is recorded in a user’s mailbox,
the voice mail system automatically sets a
message waiting indication at the user’s
station. When the station user listens to
the message, he/she can erase the mes-
sage, allowing the voice mail device to
automatically turn off the indication.
l
Voice Mail Control via Station: Station
users can control voice mail equipment
from their telephone dialpads.
l
Feature Integration: The integration of
special voice mail features in STRATA DK
system software enable the systems to
work together more efficiently.
l
Voice Mail Identification Codes: Each
station user can set VM ID codes to auto-
matically route calls directly to his/her mail-
Wall or Table Mounting: The cabinet can be
mounted on the wall or table top. Special
brackets shipped with every cabinet may be
installed on the rear of the cabinet to provide
recommended clearance from the mounting
surface.
Digital and Electronic Telephone Features
Account Code Buttont: Allows users to enter
voluntary account code (verified or not) during
a conversation without interrupting the conver-
sation.
Automatic Busy Redial: If a station user dials
an outside number and gets a busy signal, the
user can hang up and have automatic busy
redial (ABR) dial the number until the call com-
pletes. ABR retries the number either every 30
or 60 seconds up to 15 times. When the call
t Requires Release 3 software. *Available using standard or electronic telephones.
STRATA DK
GENERAL DESCRIPTION
DECEMBER 1990
-39-

,*
!
j:
STRATA OK
GENERAL DESCRIPTION
DECEMBER 1990 ’
successfully completes, the originating station
.%eunds a distinctive ABR tone. No optional
hardware is required to support ABR. ABR is
compatible with LCR.
Automatic Callback*: If a station user dials
another station over an intercom line and gets
a busy signal, the user can hang up and have
automatic callback (ACB) redial the number.
When the busy station is freed, ACB calls the
originating station. When the originating sta-
tion user answers the ACB recall, the system
rings the called station. The callback request
will stay active indefinitely until either the
called station is freed, or the caller cancels the
ACB request.
programmed to ring at a single station (and
that station is forwarded). All CO lines trans-
ferred to a forwarded station.will forward,
When a station is in a call forward mode, it is
allowed to originate telephone calls as usual.
There are five different call forward modes
available for each station. Each mode is
set/canceled by the station user via individual
call forward buttons or dial access codes. The
call forward modes are:
l
All Calls: When a station is idle or busy,
all calls to the station will forward immedi-
ately and the station will not ring.
l
Busy: When a station is busy, all calls to
the station will forward immediately. When
the station is idle, incoming calls will ring
normally.
Automatic Hold/Park Recall*: A CO line or
l
No Answer: When a station is idle, calls
intercom call placed on-hold or parked will to the station ring for 12 seconds2 and then
automatically recall the station after a previ-
ously programmed time period. A different forward. When the station is busy, incom-
time period can be selected for each station. ing calls will receive busy tone when call-
ing the station.
Automatic Line Selection: Each station can be
programmed so that when the handset is lifted
or the m button is pressed, a CO line, CO
line group, or intercom line is automatically
accessed.
Background Music with Station Control: A
station user may control background music
playing over the station’s speaker. The music
may be switched on or off and the volume may
be adjusted to suit the individual user. A desig-
nated station (200) can control (on/off) back-
ground music played over the external page
speakers.
l
Busy/No Answer: When a station is idle,
calls to the station ring for 12 seconds and
then forward. When the station is busy,
incoming calls will forward immediately.
l
Fixed: When the station is either idle or
busy, all incoming calls will forward imme-
diately and the station will not ring. Fixed
call forward is different from the other call
forward modes in that the destination sta-
tion is set once in system programming,
not selected each time the user sets the
station in a call forward mode.
Busy Override*: Upon calling a busy station
and receiving a busy tone, the caller can dial 1
to sound a tone burst to the called station.
Busy Override is available to all stations and
cannot be blocked.
NOTES:
1. The alternate station or device is select-
ed by the station user when setting call
forward (all calls, busy, no answer, and
busy/no answer). With fixed call forward,
the alternate station or device is select-
ed in system programming for each sta-
tion.
Call Forwarding: When a station is set in a call
forward mode, calls to the forwarded station
are routed to an alternate station or voice mail
device. This feature applies to both intercom
and designated CO line calls. Incoming CO
line calls will forward only if the CO lines are
2. If voice first, one ring tone will occur,
then voice announce. If tone first or CO
line call, three rings occur before for-
warding activates.
3. The system’can 66 programmed to
allow the DSS (or DDSS) console or
*Available using standard or electronic telephones.
-4o-

4.
5.
6.
7.
associated telephone to override the
call forward feature and ring stations set
in the call forward mode. This allows
attendants to notify users that may have
forgotten their telephones are in the call
forward mode.
Call forward takes precedence over sta-
tion hunting destinations.
All call forward modes are available to
all stations; however, only one mode
can be activated on a particular station
at a time.
If system power is removed, call forward
information remains set on stations
when power is restored.
The call forward destination station can
call the forwarding station.
Call Park*: A station can place an existing call
on park/hold and consult by placing another
call. After consulting, the original call can be
retrieved. This feature can also be used to
park an outside CO line call, then page a per-
son internally to pick up the call. Any station
can’pick up the parked CO line calls selective-
ly by dialing an access code plus the CO line
number.
NOTE:
When a call is parked, the CO line LED will
flash at the on-hold rate.
Call Pickup*: By going off-hook and dialing an
access code, any station can pick up:
Calls on-hold or parked (selectively).
Calls ringing at other stations.
An external page.
CO line ringing at night over external page
or niaht bell.
Call”pickup (m) buttons can be as-
signed to stations to automatically pick up
calls.
Call Transfer with Camp-on*: Allows an out-
side call to be transferred to an idle or busy
station (camp-on). Recall occurs if the call is
not answered within a specified time period.
The recall time period is flexible, and can be
programmed for different times for individual
STRATA DK
GENERAL DESCRIPTION
DECEMBER 1999
stations. The recall time set in programming
for each station is the time it will take to recall
- the station when it originates a transfer that is
not answered.
CO/Centrex/PBX Feature Buttons: Speed dial
buttons can be used to store access codes,
plus any flashes or pauses necessary to
access features through a host switching sys-
tem. These fixed feature buttons can only be
changed by the station connected to port 00.
Every fixed feature button assigned to the sta-
tion reduces the system speed dial numbers
by one.
Data Buttont: Allows manual dialing of internal
data calls, data interface unit to data interface
unit connections.
Direct Station Selection Buttons: By pressing
an assigned button, a station user can ring the
selected station. The button’s LED gives an
indication of whether or not the station is busy.
DSS and DDSS Console Features: The follow-
ing features operate on all DSS and DDSS
consoles:
Automatic Line Hold: By pressing a sta-
tion’s m button, the attendant automati-
cally places a CO line on hold and rings
the selected station.
Flexible Buttons: Each DSS and DDSS
console has 60 flexible buttons. Each but-
ton can be assigned one of the following
functions:
All Call Voice Page: The
q
button
allows the attendant to voice page all
station speakers simultaneously. It is
pre-assigned and must be located at
button 59.
CO line: Pressing a
q
button access-
ses a CO line (incoming or outgoing).
Direct Station Selection: Pressing a
m button calls (or transfers a call to)
the selected station.
Night Transfer: Pressing the
q
button
puts the system ringing pattern in DAY,
DAY2 or NIGHT mode. See System
t Requires Release 3 soft ware. *Available using standard or electronic telephones.
-41-

STRATA DK
GENERAL DESCRIPTION
DECEMBER 1990
Features, Day/Night Mode, for a defini-
+-- tion of these ringing modes. If the sys-
tem has tenant service, then the DDSS
and/or DSS consoles specified for the
second tenant have independent control
over ringing modes. The
q
button is
pre-assigned and must be button 60.
l
Speed Dial: Pressing an
q
button
dials a telephone number automatically.
Voice or Tone Signaling: DSS and DDSS
consoles may be programmed for voice- or
tone-first signaling, independent of the sys-
tem’s assignment. As with all stations, the
DSS or DDSS console attendant may
choose the alternate mode at any time.
See Voice or Tone Signaling.
Call Forward Override: Either the
DSSDDSS console or its associated tele-
phone can be programmed to call stations
even when the station has call forward set.
This allows attendants to notify users that
may have forgotten their telephones are in
the call forward mode.
DISA Security Code Revision: To ensure confi-
dentiality, only stations selected in program-
ming can set, change, or cancel the DISA
security code (1 N 15 digits).
Distinctive LED Indications: A station or CO
Line LED flashes distinctively to indicate differ-
ent states:
Exclusive Hold and CO Line Confer-
ence: Lines that are placed on exclusive
hold or are on a conference call will flash
at double the on-hold rate (see Exclusive
Hold).
Incoming Call: An LED flashes distinc-
tively at the called station.
In-use: Other stations see a steadily lit
LED, and the LED on the in-use station
flashes distinctively.
-42-
On-hold: Other stations see a distinctive
on-hold flash. The used station’s LED
flashes at a special on-hold rate.
Distinctive Station Ringing: System-wide, CO
lines and intercom lines ring differently from
*Available using standard or electronic telephones.
each other, as described in System Features,
Distinctive CO Line/intercom Ringing. Elec-
tronic telephone stations in close.proximity can
be programmed to ring differently. This allows
station users whose phones are near each
other to easily distinguish between their
incoming CO line calls. Two different tones are
available for incoming CO line calls:
l
Tone 1: 5001640 Hz, modulated by 16 Hz
l
Tone 2: 600/800 Hz, modulated by 16 Hz
Do Not Disturb: When a station user does not
want to be disturbed, the w button can be
pressed, and users calling that station will get
a fast busy signal.
Do Not Disturb Override*: A privileged user,
by dialing a 1, can send a tone to a station that
is in the do not disturb mode. DND override
cannot be blocked for selected stations.
DP/DTMF Mode Change*: Allows a station to
change CO out-dialing signal modes from dial
pulse (DP) to DTMF (or vice versa) by press-
ing the m button. ,
Exclusive Hold: A station user can press the
m button twice to hold a call and not allow
it to be picked up by any other party whose
station has the same CO line appearance.
Exclusive hold calls can be picked up with the
remote retrieval of held calls feature, although
the party picking up the call must know it is
there (no LED indication of a holding call is
given to any station except the station originat-
ing the exclusive hold).
Executive Override*: A privileged user can
enter any conversation in the system by dial-
ing 8. An optional warning tone sounds to noti-
fy conversing parties that an additional party is
about to enter the conversation.
NOTE:
Executive override can be blocked selec-
tively to any station in system programming.
This provides security fo.r modem (data)
calls, voice mail calls, fax calls, etc.

Executive override is not blocked by the
m button.
Fixed Call Forward: Station feature buttons can
be programmed to put the station in call for-
ward mode (with one touch) to a fixed station,
e.g., receptionist’s station or a voice mail sys-
tem. The destination is fixed in programming
and cannot be changed by the station user.
Handsfree Answerback: When a voice-
announced intercom call comes in, an elec-
tronic telephone user can answer without lift-
ing the handset.
Hearing Aid Compatible: All Toshiba tele-
phones are hearing aid compatible.
Liquid Crystal Display Features: The following
features operate on all LCD model telephones:
l Alphanumeric Messaging: System and
personal messages display on the 32-
character LCD. Up to 40 system messages
can be used by all LCD stations. In addi-
tion, a number of stations can program a
maximum of 10 personal messages (see
Note). Both letters and numbers are
allowed in the messages. The LCD mes-
sages are fully editable.
l Busy Station Messagingt: When
reaching a busy LCD station, a mes-
sage can be sent to that station (a tone
will be heard). The busy station may
also return a message to the calling sta-
tion’s LCD. The two stations may contin-
ue this procedure to carry on a “silent”
conversation.
l Called Station Messaging: An LCD
message can be left for another LCD
station. When the other LCD user
answers the message indication, the
LCD displays any message that has
been left.
l Calling Station Messaging: A mes-
sage displayed on a called station’s LCD
automatically displays on a calling sta-
tion’s LCD when the called station is
dialed.
-43-
STRATA DK
GENERAL DESCRIPTION
DECEMBER 1990
l Group Station Messagingt: Allows any
station to set a Called or. Calling station
Message for a group-of stations.
Busy Lamp Field Indication: The LCD
can indicate the on-/off-hook status of all
stations in the system. Station status dis-
plays in increments of 20, listed by station
port number.
CO Line Identification: Each CO line can
be assigned a 16-character alphanumeric
name. All LCD phones using a named line
display the line’s name and/or number.
Intercom Name/Number Display: Allows
LCD station users to set a title (e.g. your
name, lobby, etc., up to 16 characters) in
station memory. The title displays on the
top row of the station’s LCD when it is idle,
and is displayed on the bottom row of
another LCD station when calling that sta-
tion. The title is programmed from each
station individually and may be set and
cleared easily with an access code. It is
sent on direct intercom, forwarded, and
hunt type calls. Any station type (non-LCD,
standard telephone, and/or voice mail port)
may be programmed from station 200 to
send a title to the LCD stations they call.
Speed Dial Memo: A number of LCD tele-
phone users can assign names (up to 12
characters) to each of their 40 personal
speed dial numbers (see Note). A user can
scroll through the list of names on the LCD
and make a selection. When selected, the
number is automatically dialed by pressing
a (9 button. All system speed dial num-
bers may be set with LCD memo for use
with all LCD phones.
Station Identification: A station’s number
is displayed on its LCD when the handset
is on-hook. A station’s number is also dis-
played on another station’s LCD when it is
calling that station.
Timed Reminders with Messages: This
feature enhances the timed reminder fea-
ture, which is available to all digital and
electronic telephones. Up to five separate
messages can be set at a number of LCD
telephones (see Note). The messages dis-
play at the programmed time and are
accompanied by a tone. Each message
t Requires Release 3 software.


STRATA DK
GENERAL DESCRIPTION
DECEMBER 1990
using privacy override (this allows a confer-
ence of up to three stations and one outside
w-04.
NOTES:
1. Privacy override can be blocked selec-
tively to any station in system program-
ming (this provides security for modem,
fax, and voice mail calls).
2. This feature allows a system to be total-
ly private or non-private, or any combi-
nation, on a station-by-station basis via
system programming. If all stations are
allowed privacy override, the system is
non-private. If all stations are denied pri-
vacy override, the system is private.
Individual stations can be allo wed/de-
nied privacy override in any combina-
tion.
3. DISA CO line calls cannot be overrid-
den.
Private CO Lines: CO lines can be restricted to
appear only on selected stations.
Pushbutton Dialing: All Toshiba telephones are
equipped with pushbutton dialpads.
Release Button: A release (m) button can be
programmed on digital and electronic tele-
phones, allowing the user to disconnect from
an existing call without having to go on-hook
to press the hookswitch. This flexible button is
useful on stations that are equipped with
headsets.
Remote Retrieval of Held/Parked Calls*:
Calls placed on-hold or parked by a station
can be picked up by a different station with the
m button or the access code. Calls on
exclusive hold may be picked up from a
remote station using this feature, although the
party picking up the call must know the call is
on-hold, since no LED indication of a holding
call is given to any station except the station
originating the exclusive hold. If more than one
CO line is on-hold. the lines can be selectivelv
retrieved by dialing b u plus the line number
cm - q ,.
Repeat Last Number Dialed*: The last number
dialed by a station is stored in system memory,
- and may be redialed automatically b access-
ing a CO line and pressing the 1 or = D
b but-
ton. See Saved Number Redial.
Ringing Line Preference: A station automati-
cally answers whichever line is ringing when
there are a number of appearing lines. The
line can be answered by. iifting the handset or
by pressing the m button. The ringing line
is automatically selected.
Saved Number Redial: A programmable m
button stores the number that was just dialed
for redialing at a later time. It may be used at
any time and is exclusive of repeat last num-
ber dialed.
Speed Dial Buttons:
q
buttons can be as-
signed to each station during programming.
Each
q
button on the station can store a pre-
programmed telephone number (up to 20 dig-
its, including pause and flash signals). When
the station user presses a programmed
q
button, the station automatically dials the
stored number. See System Features, System
Speed Dial.
Station Speed Dial*: In addition to system
speed dial, each station can store a private list
of up to 40 telephone numbers, each up to 20
digits. Flashes and pauses may also be stored
in speed dial memory. Stored numbers, flash-
es, and pauses are dialed automatically by
pressing pre-programmed
q
buttons or by
dialing the code for the specific memory loca-
tion.
Timed Reminder: Five separate reminders can
be set at any digital or electronic telephone,
even if it has no LCD. A reminder tone sounds
at the pre-set time. Each reminder may be set
to ring only once, or at the same time daily.
Toll Restriction Override Code Revision*: To
ensure confidentiality, only selected stations in
the system can change the codes for bypass-
ing toll restriction. Stations are selected in pro-
gramming. See System Features, Toll
Restriction.
-45-

STRATA DK
GENERAL DESCRIPTION
DECEMBER 1990
‘rd.
HANDSET
SPEAKER
VOLUME \
UP/DOWN
CONTROL
BUTTONS ’
MODULAR
CORD \
LCD DISPLAY*
\
MICROPHONE
ON/OFF BUTTON
AND LED INDICATOR
r
mmmmfi?
rmmm-m
mmmmm
mmmmm
*Available on LCD model only
\ ’ d
DIALPAD
SPEAKER ON/OFF
BUTTON AND LED
INDICATOR
.
I LCD CONTROL
BUTTONS
/ FLASH
BUTTON
FLEXIBLE
FEATURE
BUTTONS
MESSAGE WAITING
BUTTON AND LED
INDICATOR
-TRANSFER/
CONFERENCE
BUTTON
+ LAST
NUMBER
REDIAL
BUTTON
J-l OLD
BUTTON
FIGURE 19-DIGITAL TELEPHONE DIAGRAM
-46-

STRATA DK
GENERAL DESCRIPTION
DECEMBER 1990
DIALPAD LCD DISPLAY*
\ \
HANDSET
\- \ \ -
\ Y
MODE BUTTON*
SPEAKER II II
MODULAR
CORD
CONF/TRNS
01 on
FLEXIBLE
BUTTONS
\ MICROPHONE
MEMO TRAY
CONFERENCE/
SPEAKER TRANSFER VOLUME
ON/OFF BUTTON BUTTON CONTROL
*Available on LCD model only
FIGURE PO-ELECTRONIC TELEPHONE DIAGRAM
-47-
I

STRATA DK
GENERAL DESCRIPTION
DECEMBER 1990
GLOSSARY OF ACRONYMS
"BPS
CO
CODECs
CRCU
CRCU-4
CRCU-8
DISA
DISC
DK
DPFT
DSS
DDSSt
EOCU
FCC
HDCB
HESB
HHEU
HVSI
HVSU
Bits per second-baud rate.
Central off ice.
Coder/decoder semiconductor.
DTMF receiver subassembly-
optional DTMF receiver upgrade for
the PCTU2/3 or PCTUS.
4-circuit DTMF receiver subassem-
bly.
8-circuit DTMF receiver subassem-
bly.
Direct inward system access.
Direct inward station calling.
Digital key.
Power failure transfer unit-emer-
gency backup unit.
Direct station selection.
Digital direct station selection.
Off-hook call announce subassem-
bly-optional PCB upgrade to PEKU
or PESU for OCA (not needed on
PDKU).
Federal Communication Commis-
sion.
Door phone control unit-peripheral
to support door phone or door lock
option.
External speaker unit-speaker box
with built-in amplifier.
A subassembly to upgrade an elec-
tronic telephone with a headset
and/or loud ringing bell.
A subassembly to upgrade
tronic telephone with OCA.
A subassembly to upgrade
tronic telephone with OCA.
an elec-
an elec-
IMDU
KSU
LCD
LED
LSI
MDF
MDFB
OCA
PBX
PCB
PCM
PCOU
PCTU
PDKlJt
PDIU-Dlt
Remote mamtenance modem sub-
assembly.
Key service unit.
Liquid crystal display.
Light emitting diode-busy lamp
indication.
Large scale integration.
Main distribution frame.
Door phone unit.
Off-hook call announce.
Private branch exchange.
Printed circuit board.
Pulse code modulation.
CO line unit-PCB option that pro-
vides the system with four CO lines.
Common control unit-the system’s
controller PCB (there are three ver-
sions, PCTU2, PCTU3, and
PCTUS).
Digital telephone interface unit-sta-
tion port PCB-supports digital tele-
phones and digital interface units
(PDIU-Dls and PDIU-DSs). It can
also support a DDSS console.
Integrated data interface
unit-integrated into the base of a
digital telephone, it is used for
transmitting and receiving data
between terminals/personal
computers and devices connected to
other PDIU-Dls or to modems,
printers, and computers connected
to PDIU-DSs. The PDIU-DI also
provides personal computer access
to outside dial-up data services
and/or bulletin boards via modems.
,
4
t Requires Release 3 software.
-48-

PDIU-DSt
Stand-alone data interface unit-
used for modem pooling, printer
sharing, and access to a host/main-
frame computer.
PEKU
Electronic key telephone interface
unit-station port PCB-supports
eight electronic telephones.
PEMU
E & M TIE line unit-supports four
Type I E & M TIE lines.
PEPU External page interface unit.
PESU
Combination standard/electronic
telephone interface unit-station port
PCB-supports two standard tele-
phones (or peripheral devices) and
four electronic telephones.
STRATA DK
GENERAL DESCRIPTION
DECEMBER 1990
PIOU Option interface unit-PCB that sup-
ports peripheral options.
PIOUS ‘Option interface-unitia reduced
version of the PIOU PCB that sup-
ports peripheral options.
PSTU Standard telephone interface unit-
optional PCB interface for eight stan-
dard phones (or peripheral devices).
RAM Random access memory.
ROM Read only memory.
-f Requires Release 3 software.
-49-

TOSHIBA SYSTEM PRACTICES
DIGITAL KEY TELEPHONE SYSTEMS INSTALLATION-INTRODUCTION
SECTION 200-096-201
FEBRUARY 1991
Strata@bzc
RELEASE 1,2, and 3
INSTALLATION
Chapter One-Introduction
Chapter Two-System Description
Chapter Three-Site Requirements
Chapter Four-Configuration
Chapter Five-KSU Installation
Chapter Six-Printed Circuit Board Installation
Chapter Seven-Telephone Installation
Chapter Eight-Peripheral Installation
Chapter Nine-Wiring Diagrams
Section 200-096-201
Section 200-096-202
Section 200-096-203
Section 200-096-204
Section 200-096-205
Section 200-096-206
Section 200-096-207
Section 200-096-208
Section 200-096-209

INSTALLATION-INTRODUCTlON
SECTION 200-096-201
FEBRUARY1991
TABLEOFCONTENTS
PARAGRAPH SUBJECT
1
PURPOSE ...............................................................................................................
2 ORGANIZATION .....................................................................................................
3 REFERENCE DOCUMENTATION .........................................................................
3.10
Fault Finding Procedures ....................................................................................
3.20 General Description .............................................................................................
3.30 User Guides ........................................................................................................
3.40 System Record ....................................................................................................
3.50 Programming .......................................................................................................
3.60 Remote Maintenance and Administration ...........................................................
4 SYSTEM MNEMONICS/TERMS .............................................................................
4.10 Use of Notes, Important Notes, Cautions, and Warnings.. ..................................
5 INSPECTION, PACKAGING, and STORAGE ........................................................
5.00 Inspection ............................................................................................................
5.10 Packaging and Storage .......................................................................................
PAGE
l-l
l-l
l-l
l-l
l-l
l-l
l-l
l-l
l-l
l-l
1-4
1-4
1-4
1-4
l-i

1 PURPOSE
1.00
The purpose of this manual is to provide
detailed step-by-step instructions for installing and
programming STRATA DK systems.
1
.Ol
This chapter provides an overview of manual
organization; a list of reference documentation
that supports the installed system; a list of system
mnemonics; and inspection, packaging and stor-
age guidelines.
2 ORGANIZATION
2.00 This manual is organized in modular chap-
ters for easy removal and replacement of updated
materials. The chapters are as follows:
Chapter One - Introduction
Chapter Two - System Description
Chapter Three - Installation Site Requirements
Chapter Four - System Configuration
Chapter Five - KSU Cabinet Installation
Chapter Six - PCB Installation
Chapter Seven - Telephone Installation
Chapter Eight - Peripherals Installation
Chapter Nine - System Wiring and Main Dis-
tribution Frame Arrangements
3 REFERENCE DOCUMENTATION
3.00 The STRATA DK digital key systems are
supported by the following complement of refer-
ence documentation:
3.10 Fault Finding Procedures:
Hardware trou-
bleshooting and diagnostic information presented
in flowchart form.
3.20 General Description:
An overview of the
systems and their features.
3.30
User Guides:
Detailed step-by-step guides
for system operation.
3.40 System Record:
A series of tables used to
record the system’s software features and con-
figuration programming.
3.50 Programming:
Detailed step-by-step in-
structions on how to enter data in the System
INSTALLATION-INTRODUCTION
SECTION 200-096-201
FEBRUARY 1991
Record, and program the system from the com-
pleted System Record Sheets. LCD responses
are included to provide clear guidance ‘for the
programmer.
3.60 Remote Maintenance and Administration:
Programming and maintenance procedures spe-
cially adapted for remote maintenance and ad-
ministration terminal use. Detailed, step-by-step
instructions are provided, complete with the termi-
nal responses.
NOTE:
These procedures also apply when using a
local ASCII terminal connected directly to the
DK system.
4 SYSTEM MNEMONICS/TERMS
4.00 Mnemonics are used to identify the system’s
hardware, operation, and features. The following
alphabetical listing describes the mnemonics used
in this manual.
BPS:
Bits Per Second-Unit of measure that re-
fers to the transmission speed (baud rate) of
electronic signals. It is used when describing
modem operation.
CO: Central Office-The facility which houses
switching equipment that provides telephone
service (CO lines, E & M TIE lines, Centrex
lines, etc.) for the immediate geographical area.
CO Line:
A term used to define the STRATA DK
hardware circuit that connects to the Central
Office network line pair. Each CO line and TIE
line circuit is assigned a CO line number in
system software.
CODECs:
Coder/Decoders-Semiconductors that
allow the system to process analog-to-digital
and digital-to-analog conversions.
CRCU-4: An optional upgrade to the system’s
controller PCB (PCTU or PCTUSI) that pro-
vides a 4-circuit DTMF receiver for system DISA
CO lines, E & M TIE lines, and standard tele-
phones.
I-1

INSTALLATION-INTRODUCTION
SECTION 200-096-201
FEBRUARY1991
CRCU-8: An optional upgrade to the system’s
controller PCB (PCTU or PCTUS) that provides
an 8-circuit DTMF receiver for system DISA CO
lines, E & M TIE lines, and standard telephones.
I
DDSS (Release3): Digital Direct Station Selection
Console-A console to facilitate processing a
heavy load of incoming calls. The DDSS console
is usually associated with adedicated attendant’s
telephone.
DISA (Release 2 and higher): Direct Inward
System Access-A feature available for CO
lines that allows an outside party to access a
system’s internal stations or outgoing CO lines*
without going through an operator or automated
attendant. An optional security code may be set
to prevent unauthorized access to outgoing CO
lines for through system calling.
DK: Digital Key.
DPFT: Power Failure/Emergency Transfer Unit-
An optional backup unit that provides emer-
gency service during power failures.
DSS: Direct Station Selection Console-A con-
sole to facilitate processing a heavy load of
incoming calls. The DSS console is always
associated with a dedicated attendant elec-
tronic telephone station.
I
DVSU (Release 3): A subassembly that equips a
digital telephone with off-hook call announce
capability.
EOCU: Off-hook Call Announce Subassembly-
An optional upgrade to the Electronic Tele-
phone Interface Unit PCB (PEKU) that provides
supportforstations with off-hookcall announce.
FCC: Federal Communication Commission-The
telecommunication industry’s federal regulatory
agency. All Toshiba hardware is FCC listed or
approved.
HDCB: Door Phone Control Box-A peripheral
hardware unit that supports optional door
phones.
HESB: External Speaker Box-A speaker/ampli-
fier that can be configured with the system to
provide a variety of functions. .
. . .
,I:
HESC-65: A cable used to connect electronic
telephones (HHEU) to the HESB for the loud
ringing-bell option.
HESC-65A (Release 3): A cable that connects an
HHEU-equipped digital or electronic telephone
to an HESB for the loud ringing bell option. I
HHEU: Loud Ringing Bell/Headset Jack Interface
Upgrade Unit-A small PCB upgrade for use
inside a digital telephone or a 6500-series elec- I
tronic telephone that allows a speaker (HESB)
and/or a headset to be installed with the station.
HVSI:
The second of two subassemblies that
comprise the upgrade assembly that equips an
electronic telephone with Off-hook Call An-
nounce capability.
HVSU: One of two subassemblies that comprise
the upgrade assembly that equips an electronic
telephone with Off-hook Call Announce capabil-
ity.
IMDU: Remote Maintenance Modem Interface
Unit-A subassembly installed on a PIOU or
PIOUS PCB that allows the system to be con-
nected with a remote maintenance/administra-
tion terminal.
KSU: Key Service Unit-The system’s cabinet
with its common equipment.
LCD: Liquid Crystal Display-The display on digi-
tal and electronic telephones. I
LED: Light Emitting Diode-The indicators lo-
cated on printed circuit boards, digital telephones, I
and electronic telephones.
LSI: Large Scale Integration-Related to circuit
design technology. STRATA DK printed circuit
boards use LSI circuit design.
MDF: Main Distribution Frame-The wiring frame
usually located in a phone closet.
*Release 2 software and higher
1-2

INSTALLATION-INTRODUCTION
SECTION 200-096-201
FEBRUARY1991
MDFB:
Door Phone Box-A peripheral two-way
speaker box option.
OCA:
Off-hook Call Announce.
PBX:
Private Branch Exchange-lndustry-stan-
dard term which refers to a telephone switch,
usually on-premises, which serves an individual
company, and is connected to a public tele-
phone exchange through the CO.
PCB:
Printed Circuit Board.
PCM:
Pulse Code Modulation-A widely used
form of digital telephone switching.
PCOU:
CO Line Interface Unit-An optional PCB
that provides the system with four CO lines.
PCOUP:
The PCOU2 is a direct replacement for
the PCOU. Their fit/form/function is identical;
however, for manufacturing reasons, the PCOU
was phased out in favor of the PCOU2.
PCTU
1, 2,
or
3: Common Control Unit-The
system’s controller PCB. It supports up to 14
universal slots, 96 station ports, and 36 CO
lines. The PCTUl supports
Release
1 software;
the PCTU2 supports
Release
2 software; and
the PCTU3 supports
Release
3 software. All
three PCTU versions are compatible with all DK
systems-DK24, DK56, and DK96.
PCTUS:
Common Control Unit-The controller
PCB for the DK24. It supports up to six universal
slots, 24 station ports and 16 CO lines. It also
supports
Release
2 software. The PCTUS is
compatible with DK24 only.
PDIU-DI (Release
3): Integrated Data Interface
Unit-Integrated into the base of a digital tele-
phone, it is used for transmitting and receiving
data between terminals/personal computers and
devices connected to other PDIU-Dls or to mo-
dems, printers, and computers connected to
PDIU-DSs. The PDIU-DI is also used to provide
personal computer access to outside dial-up
data services and/or bulletin boards via modem
pooling.
PDIU-DS (Release
3): Stand-alone Data Interface
Unit-Used for modem pooling, printer sharing,
and access to a host/mainframe computer.
PDKU (Release
3): Digital Telephone Interface
Unit-An optional PCB that provides thesystem
with eight digital telephone circuits. In addition
to digital telephones, the PDKU can support
data interface units (stand-alone and integrated)
and a digital DSS console.
PEKU:
Electronic Telephone Interface Unit-An
optional PCB that provides the system with
eight electronic telephone circuits.
PEMU:
E & M TIE Line Unit-An optional PCB that
provides the system with support for four E & M
Type I TIE lines.
PEPU:
External Page Interface Unit-An optional
PCB (essentially a reduced model of the PIOU)
that provides support and/or circuit interface for
optional hardware peripherals and upgrades
associated with external paging functions.
PESU (Release 2 and higher):
Standard/Elec-
tronic Interface PCB-An optional PCB that pro-
vides the system with a combination of two
standard and four electronic telephone circuits.
The standard telephone circuits may also be
connected to optional hardware peripherals, such
as voice mail, auto attendant, and fax machines.
PIOU:
Option Interface Unit-An optional PCB
that provides support and/or circuit interface for
optional hardware peripherals and upgrades.
PIOUS:
The same as the PIOU, with some excep-
tions; most notably, the PIOUS has one external
paging interface zone, while the PIOU has four.
NOTE:
Each system will support on/y one of the
following PCBs: PIOU, PlOUS or
PEW.
Port:
A term used to identify a station circuit
location. Each station and TIE line hardware
circuit is assigned to a port number in system
software.
1-3

INSTALLATION-INTRODUCTION
SECTION 200-096-201
FEBRUARY1991
PPTC:
A Toshiba-supplied adapter that is used to
connect the modular SMDR and/or maintenance
ports of the PIOU or PIOUS to the DB-25 con-
nector of a printer, terminal, modem or call
accounting machine.
PBTC:
A Toshiba-supplied cable used to connect
customer-supplied batteries to any DK PPSU
power supply for emergency reserve power.
PSTU:
Standard Telephone Interface Unit-An
optional PCB with built-in ring generator that
provides interface for eight standard telephones
or optional hardware peripherals (voice mail,
auto attendant, fax machine, etc).
PSTUS:
Standard Telephone Interface Unit-Pro-
vides same function as the PSTU with the addi-
tion of a switch to select high or low ringing
generator voltage.
RAM:
Random Access Memory-Refers to the
type of system memory that holds individual
system configuration and feature programming.
RAM is read/write memory, and can be easily
revised in programming.
ROM:
Read Only Memory-Refers to the type of
system memory that holds static software that
comprises the mechanics of the features’ func-
tions. ROM is only revised by Toshiba software
engineers.
4.10 Use of Notes, Important Notes, Cautions,
and Warnings
4.11
Notes call attention to specific items to elabo-
rate, or to refer the reader to other information.
4.12 Important Notes are used when the informa-
tion is considered to be very important.
4.13 Cautions call attention to the possibility of
equipment being damaged if the instructions are
not followed closely.
4.14 Warnings are used when the given tasks
involved could cause the possibility of personal
injury or death to the technician.
5.00
5.01
5 INSPECTION, PACKAGING,
and STORAGE _
Inspection
When the system is received, examine all
packages carefully and note any visible damage.
If any damage is found, do not open the packages.
Contact the delivery carrier immediately and make
the proper claims.
5.02 Check the system against the packing slip. If
it is determined that equipment is missing, contact
the delivery carrier and your supplier immediately.
5.03 After unpacking (and before installing), check
the system against the packing list and inspect all
equipment for damage. If equipment is missing or
damaged, contact your supplier immediately.
5.04 Be sure to retain original packaging materi-
als for reuse when storing or transporting system
hardware.
5.10 Packaging and Storage
CAUTION!
When handling (installing, removing, ex-
amining) PCBs, do not touch the back
(soldered) side or edge connector. Al-
ways hold the PCB by its edges.
5.11
When packaging and storing the system,
remove PCBs from the system cabinet (the power
supply may remain installed in the cabinet for
storage and shipment). Printed circuit boards
should be packaged in their original antistatic bags
for protection against electrostatic discharge. Be
sure to package equipment in its original shipping
containers.
1-4

TOSHIBASYSTEMPRACTICES
DIGITALKEYTELEPHONESYSTEMS INSTALLATION-SYSTEM DESCRIPTION
SECTION 200-096-202
FEBRUARY1991
RELEASE 1,2, and 3
INSTALLATION
CHAPTER TWO
SYSTEM DESCRIPTION

INSTALLATION-SYSTEM DESCRIPTION
SECTlON200-096-202
FEBRUARY1991
TABLEOFCONTENTS
PARAGRAPH SUBJECT 'PAGE
1
1.10
2
2.00
2.10
2.20
2.30
3
3.10
3.20
3.30
4
4.10
4.20
5
6
6.10
7
8
8.00
8.10
8.20
8.30
8.40
9
10
11
11.00
11.10
11.20
11.30
11.40
11.50
TABLE
2-A
2-B
2-c
2-D
2-E
2-F
2-F
2-G
GENERAL ...............................................................................................................
System Description .......... ...................................................................................
SYSTEM TECHNOLOGY .......................................................................................
Custom Electronic Circuitry .................................................................................
Microprocessors ..................................................................................................
Stored Programming ...........................................................................................
Pulse Code Modulation (PCM) ............................................................................
KEY SERVICE UNITS (KSU) ..................................................................................
DK24 KSU Interior ...............................................................................................
DK56 KSU Interior ...............................................................................................
DK96 KSU Interior ...............................................................................................
POWER SUPPLIES ................................................................................................
Reserve Power ....................................................................................................
Battery Charger ...................................................................................................
POWER FAILURE/EMERGENCY TRANSFER UNIT .............................................
* PRINTED CIRCUIT BOARD DESCRIPTIONS .......................................................
2-1
2-1
2-1
2-1
2-1
2-2
2-2
2-2
2-2
2-2
2-4
2-4
2-5
2-6
2-6
2-6 I
Printed Circuit Boards ......................................................................................... 2-7
SYSTEM CONTROLS AND INDICATORS ............................................................. 2-12
PERIPHERAL EQUIPMENT ................................................................................... 2-12
Electronic Telephones ......................................................................................... 2-12
Electronic Telephone Upgrade Options .............................................................. 2-13
Direct Station Selection Console ......................................................................... 2-18
Toshiba-supplied Peripherals .............................................................................. 2-18
Customer-supplied Peripherals ........................................................................... 2-19
RELEASE 3 INFORMATION ................................................................................... 2-19
PRINTED CIRCUIT BOARDS (Release 3) ............................................................. 2-19
PERIPHERAL EQUIPMENT (Release 3) ................................................................ 2-20
Digital Telephones ............................................................................................... 2-20
Digital Telephone Upgrade Options (Release 3) ................................................. 2-20
Digital Direct Station Selection Console (Release 3) .......................................... 2-20
Stand-alone Data Interface Unit: PDIU-DS (Release 3) ...................................... 2-21
Toshiba-supplied Peripherals (Release 3) .......................................................... 2-21
Customer-supplied Peripherals ........................................................................... 2-21
TABLELIST
TITLE PAGE
TYPICAL RESERVE POWER FUNCTION ESTIMATES.. ...................................... 2-5
COMMON CONTROL UNIT DATA ......................................................................... 2-10
INTERFACE PCB OPTIONS .................................................................................. 2-11
DK24 MODEL CONTROLS AND INDICATORS.. ................................................... 2-14
DK56 MODEL CONTROLS AND INDICATORS ..................................................... 2-I 5
DK96 MODEL CONTROLS AND INDICATORS.. ................................................... 2-16
DK96 MODEL CONTROLS AND INDICATORS (continued) ......... . ............ . ............ 2-17
PCB CONTROLS AND INDICATORS .................................................................... 2-17
*See Paragraph 9 for more information
2-i

INSTALLATION-SYSTEM DESCRIPTION
SECTION 200-096-202
FEBRUARY1991
FIGURE LIST I*
FIGURE
2-1
2-2
2-3
2-4
2-5
2-6
2-7
2-8
2-9
2-10
2-10
2-11
2-12
2-13
2-14
2-15
2-16
2-17
TITLE 'PAGE
DK24/56/96 KSUs ............................................................................................... 2-1
DK24 KSU INTERIOR ......................................................................................... 2-2
DK56 KSU INTERIOR ......................................................................................... 2-3
DK96 KSU INTERIOR ......................................................................................... 2-3
DK24 POWER SUPPLY FRONT PANEL ........................................................... 2-4
DK56 POWER SUPPLY FRONT PANEL ........................................................... 2-4
DK96 POWER SUPPLY FRONT PANEL ........................................................... 2-5
POWER FAILURE TRANSFER UNIT (DPFT) .................................................... 2-6
DPFT FUNCTIONAL BLOCK DIAGRAM ............................................................ 2-7
SYSTEM FUNCTIONAL BLOCK DIAGRAM.. ..................................................... 2-8
SYSTEM FUNCTIONAL BLOCK DIAGRAM (continued). ................................... 2-9
LOCATION OF DK24 CONTROLS AND INDICATORS ..................................... 2-12
LOCATION OF DK56 CONTROLS AND INDICATORS ..................................... 2-12
LOCATION OF DK96 CONTROLS AND INDICATORS ..................................... 2-12
LOCATION OF PCB CONTROLS AND INDICATORS ....................................... 2-13
HVSU and HVSI .................................................................................................. 2-13
HHEU .................................................................................................................. 2-18
DOOR PHONE/LOCK CONTROL UNIT (HDCB) ............................................... 2-19
2-ii

INSTALLATION-SYSTEM DESCRIPTION
SECTION 200-096-202
FEBRUARY 1991
1 GENERAL 2 SYSTEM TECHNOLOGY
1.00
This chapter provides a discussion of the
technology employed in the STRATA DK system
design, and a detailed description of the system
hardware, including the basic equipment cabinet
(key service unit), PCB options, and system pe-
ripheral equipment. A description of system con-
trols and indicators is also provided.
1 .I 0 System Description
1 .I 1
A STRATA DK system consists essentially
of a key service unit (KSU) cabinet (Figure 2-l)
which houses the power supply and a number of
PCBs. The quantity and type of PCBs, telephones,
and peripherals installed depends on the user’s
requirements. The primary differences between
models are KSU sizes, PCB capacities, and power
supplies.
1.12 Hardware for all three system types is iden-
tical, with the exception of the KSUs and power
supplies. Differences between models are identi-
fied, as applicable.
2.00 Custom Electronic Circuitry
2.01 STRATA DK system circuitry employs Large
Scale Integration technology to increase system
efficiency while allowing a reduction in physical
size. Use of CMOS circuits, when applicable,
minimizes the system’s power requirements.
2.10 Microprocessors
2.11 Main Microprocessor.
The systems em-
ploy a 16-bit, 68000-type microprocessor, operat-
ing at a speed of 8 MHz, for stored program control.
The main microprocessor is located on the Com-
mon Control Unit (PCTU or PCTUSI PCB).
2.12 Local Microprocessors.
Local micropro-
cessors are located on most PCBs and in elec-
tronic telephones. The local microprocessors in
the KSU are 8-bit, TMP90C840-type microproces-
sors, which operate at a clock speed of 10 MHz.
llllll StrataDKB@ StrataDKB@
illill Illill
TOSHIBA TOSHIBA
lllll/ lllll/
TOSHIBA TOSHIBA
Strata izmsm Strata izmsm
~~lllll~~’
lllllll~l’
TOSHIBA TOSHIBA
FIGURE Z-l--DK24/56/96 KSUs
2-1

INSTALLATION-SYSTEM DESCRIPTION
SECTION 200-096-202
FEBRUARY 1991
2.20 Stored Programming
2.21 System Operating Software.
System op-
erating software is stored in ROM, and is revised
only by Toshiba software engineers.
2.22 Configuration and Custom Programming.
Each system’s individual configuration and cus-
tom programming is stored in RAM. The contents
of system RAM is user-developed and -pro-
grammed based on the system’s configuration
and the user’s requirements. System RAM is pro-
tected by a lithium battery with a shelf life of
approximately six years.
2.30 Pulse Code Modulation (PCM)
2.31
PCM technology allows fully non-blocking
intercom and outside line talk paths. Talk paths
operate through digital switching, as opposed to
analog crosspoints. Analog-to-digital and digital-
to-analog conversion is accomplished by CODEC
integrated circuits.
3 KEY SERVICE UNITS (KSU)
3.01 The STRATA DK KSUs consist of single,
free-standing cabinets that can be configured for
either wall or table-top mounting. One-inch rubber
feet on the base of the cabinet ensure that proper
clearance is maintained when the KSU is table-top
mounted. The KSU interior houses the PCBshelves
and the power supply.
3.02 External dimensions and approximate
weights for the DK24, DK56, and DK96 models are
listed below. Weights are based on cabinets con-
taining a full complement of PCBs.
DK24
Height: 10.6 in. (269 mm)
Width: 16.0 in. (406 mm)
Depth: 9.0 in. (229 mm)
Weight: 19.4 Ibs (9 kg)
DK56
Height: 15.0 in. (381 mm)
Width: 16.0 in. (406 mm)
Depth: 9.0 in. (229 mm)
Weight: 37.5 Ibs (17 kg)
DK96
Height: 18.6 in. (475 mm)
Width: 19.6 in. (500 mm)
Depth: 9.0 in. (229 mm)
Weight: 55.1 Ibs (25 kg)
3.10 DK24 KSU Interior
3.11
The DK24 KSU interior has one shelf (Figure
2-2) with seven available PCB slots, labeled PCTU
and SO1 w S06. Only the PCTU slot serves a
dedicated function.
FIGURE 2-2-DK24 KSU INTERIOR
3.12 Each PCB slot (SO1 N S06) incorporates a
standard 40-pin female connector located in the
same vertical position on the KSU’s backplane.
This standardization enables any of the optional
PCBs to be installed in any slot. The PCTU slot
incorporates the same 40-pin female connector,
but it is set 0.25-inch higher, so that only a PCTU
or PCTUSl PCB may be installed in the slot.
3.13 The power supply is factory-installed,
mounted vertically into the right side of the PCB
shelf, and is secured with two combination slotted/
Phillips mounting screws at the right side of the
cabinet.
3.20 DK56 KSU interior
3.21 The DK56 KSU interior also has just one
shelf (Figure 2-3), but with nine available PCB
2-2

INSTALLATION-SYSTEM DESCRIPTION
SECTION 200-096-202
FEBRUARY1991
.
FlGURE2-3-DK56 KSUINTERIOR
FIGURE Z-4-DK96 KSU INTERIOR
2-3

INSTALLATION-SYSTEM DESCRIPTION
SECTION 200-096-202
FEBRUARY 1991
slots. These slots are labeled PCTU and SO1 w
S08; only the PCTU slot serves a dedicated func-
tion.
3.22 Each PCB slot (SO1 N S08) incorporates a
standard 40-pin female connector located in the
same vertical position on the KSU’s backplane.
This standardization enables any of the optional
PCBs to be installed in any slot. The PCTU slot
incorporates the same 40-pin female connector,
but it is set 0.25-inch higher, so that only a PCTU
PCB may be installed in the slot.
3.23 The power supply is factory-installed,
mounted horizontally above the PCB shelf, and is
secured with four combination slotted/Phillips
mounting screws.
3.30 DK96 KSU Interior
3.31 The cabinet interior has two shelves (Figure
2-4). The top shelf has eight available PCB slots
labeled SO1 N S08. The bottom shelf has seven
available PCB slots labeled PCTU and SO9 N S14.
Only the PCTU slot serves a dedicated function.
3.32 Each PCB slot (SO1 w S14) incorporates a
standard 40-pin female connector located in the
same vertical position on the KSU’s backplane.
This standardization enables any of the optional
PCBs to be installed in any available slot. The
PPSU 24
080
@I
LG -24”, -24”z @ CIRCUIT
FGOOd I BREAKERS
CONN---^- I iSGQ 3 l-l
BATTERY
FIGURE 2-5-DK24 POWER SUPPLY
FRONT PANEL
PCTU slot incorporates the same 40-pin female
connector, but it is set 0.25-inch higher, so that
only a PCTU PCB may be installed in the slot.
3.33 The power supply is factory-installed,
mounted vertically (to the right of the two PCB
shelves), and is secured with four combination
slotted/Phillips mounting screws.
4 POWER SUPPLIES
4.00 STRATA DK systems incorporate single-
chassis, switching-type power supplies. The power
supplies for the three models are functionally iden-
tical (except for power capacity), although they
differ in appearance due to cabinet sizes and
mounting considerations. The DK24 model uses a
PPSU24 power supply (Figure 2-5), DK56 uses a
PPSU56 (Figure 2-6), and DK96 uses a PPSU96
(Figure 2-7).
4.01 The power supplies generate *5VDC and
-24VDC output voltages (that are protected by
mechanical circuit breakers located on the power
supply front panel). Input voltage is provided by a
standard 117VAC, 15 amp circuit. Electrical char-
acteristics include:
l
Primary Power
l
Input AC: 85VAC w 135VAC
l
AC Frequency: 50/60 Hz
l
Wattage: DK24/65, DK56/140,
DK96/230
VOLTAGE LEDs POWER SWITCH
\
AC INPUT
CIRCUIT
BREAKERS BATTERY
CONNECTOR
FIGURE 2-6-DK56 POWER SUPPLY
FRONT PANEL
2-4

INSTALLATION-SYSTEM DESCRIPTION
SECTION 200-096-202
FEBRUARY1991
l
DC Voltage Output Specifications
. -24VDC; -26.3 w -27.8
. &/DC; +4.5 w +5.5
. -5VDC; -4.5 N -5.5
l
Circuit Breakers
l
24; -24V
l
56; -24V
l
96; -24V, +5V
4.10
Reserve Power
4.11
Twocustomer-supplied, 12-volt batteries (80
ampere hours maximum) can be connected in
series to the system as a power failure backup. In
the event of a power failure, the system automati-
cally switches over to battery power without any
interruption to existing calls or other normal sys-
tem functions. The length of time reserve power
operates depends on the system, size and number
of batteries provided, and the system load. Typical
reserve power duration estimates are provided in
Table 2-A.
4.12 AToshiba-supplied, g-foot battery cable, part
number PBTC, supports the reserve battery instal-
lation.
CIRCUIT
BREAKERS <
BATTERY
CONNECTOR
\
AC INPUT
RECEPTACLE
VOLTAGE
LEDs
/
POWER
’ SWITCH
FlGURE2-7-OK96 POWERSUPPLY
FRONTPANEL
TABLE2-A
TYPICALRESERVEPOWERFUNCTIONESTIMATES
Quantities of PCBs
Installed (Including PCTU)
234567 8 9 IO 11 12 13 14 15
Estimated Operation
Time (Hours)
71 45 31 23 19 16 13.5 11.5 10 9 8 7 6 5
Approximate (-24V) Current
Drain (DC Amperes)
1 1.7 2.4 3.1 3.8 4.5 5.2 6 6.6 7.3 8 8.7 9.4 10
Time is estimated with the following considerations:
(I) Batteries have full charge at start of operation.
(2)
Batteries (2 ea.) are connected in series.
(3) Batteries are 12 VDC, rated at 80 amp/hours each.
(4) System is operating at full load traffic with LCD-type telephones.
(5) Batteries used for this test are gel-cell, maintenance-free batteries. Reserve duration will vary
depending on battery type and manufacturer. These figures should only be used as an estimate.
2-5

INSTALLATION-SYSTEM DESCRIPTION
SECTION 200-096-202
FEBRUARY 1991
IMPORTANT NOTES:
1. Local ordinances may dictate battery
type and installation details.
2. The reserve power batteries must be
installed while commercial AC power
is applied to the system to allow the
power supply reserve relay to operate.
If batteries are connected after AC
power is lost, the batteries WILL NOT
power the system and the system W/L L
NOT operate.
4.20 Battery Charger
4.21
To allow full normal system operation during
a power failure, the power supply has a built-in,
current limiting battery charger that maintains cus-
tomer-supplied batteries. Electrical characteris-
tics of the battery charger include:
l
Nominal float voltage: 2.275 volts/cell
l
Charge current: 0.7 amps maximum
l
Battery discharge cut-off voltage: 20.5 *O.!?V
5 POWER FAILURE/EMERGENCY
TRANSFER UNIT
5.00 The Power Failure/EmergencyTransfer Unit
(DPFT) provides an optional means of ensuring
uninterrupted telephone operation in the event of
a power failure. The DPFT (Figure 2-8) automati-
cally connects selected CO lines to standard tele-
phone lines in the event of a power failure, while
CO LINE TEL LINE
POWER FAILURE TRANSFER
FIGURE 2-8-POWER FAILURE
TRANSFER UNIT (DPFT)
permitting normal operation when the system is in
service.
5.01
The DPFT is a self-contained module that
mounts externally to the system’s KSU, typically
near the MDF. Connections to the CO lines, stan-
dard telephones and the cabinet are made with
two50-pinamphenol-typeconnectorson theDPFT.
5.02 The DPFT consists of eight normally open
relays, connecting the telephones to PSTU (Stan-
dard Telephone Interface Unit) PCB circuits and
the CO lines to PCOU (CO Line Unit) PCB circuits
(Figure 2-9). If a power failure occurs, the relays
close, connecting the telephones directly to the
CO lines. Calls can then be placed from the se-
lected standard telephones, over the CO lines,
completely bypassing the system.
5.03 When the DPFT is reset after a transfer,
existing PFT conversations are protected. Individ-
ual circuits are restored only when they become
idle.
6 PRINTED CIRCUIT BOARD
DESCRIPTIONS
6.00 Twelve types of PCBs are available for use in
STRATA DK systems. A maximum of seven PCBs
can be installed in DK24, nine in DK56, and fifteen
in DK96.
6.01 With the exception of the PCTU and PCTUSl
PCBs, PCB size and connector provisions are
standardized. All PCBs, including the PCTU/
PCTUSl, measure 7.5 x 5.5 in (190 x 140 mm).
The PCBs connect to the KSU’s backplane with
identical 40-pin male connectors. Except for the
PCTU/PCTUSl PCBs, the connectors are posi-
tioned in the same location on each board type.
6.02 PCB external connections are made to the
Main Distribution Frame (MDF) using the following
industry-standard connectors:
l
25-pair Amphenol Female:
Twenty-five-pair
amphenol connectors connect electronic tele-
phones, standard telephones and most periph-
erals. I
l
Modular:
Modular jacks connect CO lines, E &
M TIE lines, the Station Message Detail Re-
2-6

INSTALLATION-SYSTEM DESCRIPTION
SECTION 200-096-202
FEBRUARY1991
CO LINE I
I I
PCOU
R I
R I I
I I
DPFT T
T
oT
STANDARD
TELEPHONE
PSTU
R
NOTES:
1. One of eight DPFT circuits.
2. Conditions of AC power on.
-24 VDC
INDICATING
AC POWER ON
FlGURE2-9-DPFTFUNCTIONALBLOCKDIAGRAM
cording port (RS-232 signaling), and the Re-
mote Administration and Maintenance port (RS-
232 signaling).
l
Terminals:
Screwterminalsconnect MOH/BGM
to the PCTU or PCTUSI , and spring-clip termi-
nals connect peripherals to the PIOUS.
6.10 Printed Circuit Boards
6.11 The following paragraphs provide functional
descriptions, along with applicable configuration
and connection details, for all PCBs available for
installation in STRATA DK systems. Refer to Fig-
ure 2-10 for a pictorial overview of each PCB’s
peripheral connections.
PCTU (Common Control Unit):
The PCTU is a
system controller PCB. PCTUl is equipped with
Release 1
software and PCTU2 with
Release 2
software. The PCTU must be installed in DK56
and DK96, and is optional for DK24. The PCTU
contains the system’s main microprocessor and
microprocessor bus, battery-protected memory
circuits, time switch logic, conference logic, and
system tones. The PCTU also has a music-on-
hold/background music source interface, and
connectors to mount an optional DTMF re-
ceiver PCB (CRCU) for DISA, TIE lines, stan-
dard telephones and peripherals. See Table 2-
B for more PCTU details.
PCTUSl (Common Control Unit):
The PCTUSI
is a reduced version of the PCTU. It is equipped
with STRATA DK
Release 2
software features,
but it supports fewer universal slots, stations
and CO lines than the PCTU. The PCTUSI is
intended for use with the DK24 only.
NOTE:
See Table 2-B for a comparison of PCTU and
PCTUSI PCBs.
CRCU (DTMF Receiver Subassembly):
The
CRCU is an optional DTMF receiver PCB which
mounts on the PCTU or PCTUSI piggy-back
style. It translates DTMF signals from Direct
Inward Station Access (DISA) CO lines, TIE
lines, standard telephones, or peripheral de-
2-7

INSTALLATION-SYSTEM DESCRIPTION
SECTlON200-096-202
FEBRUARY1991
DKSU 24/56/96
PCOU
LINE
3AND4
*
7
LOOP START
LINE PCB
(4 CIRCUITS)
LINE ‘Z-PAIR
1 AND2 MODULAR
JACK
*
7
r
-
-
-
-
-
-
-
LOOP START LINES 2-PAIR
MOD CORD I * FIC: 02LS2
. USOC: RJ14C
. REN: 0.28
-
H
,’
-
H
H
H
1
2-PAIR
MODCORD
MODULAR ’
’ BLOCKS
PEMU
E&M
TIE-LINE
PCB
2 OR 4 WIRE
CENTRAL OFFICE/
CENTREX/PBX
E&M TIE LINES c
. FIC:
2-W; TLI 1 M
4-W; TL31 M
* usoc:
2-W; RJ2EX
4-W; RJ2GX %PAIR
MODULAR
JACK
. REN:
N/A
I
25.PAIR AMPHENOL
r
(PIOUIPEPU)
OR
SPRING TERMINAL STRIP
(PIOUS) )
FRAMZ
AMPLIFIED PAGE OUTPUT (3 WATTS) - 3-PAIR /
MODLUAR
CORDS
il
MUSIC SOURCE: EXTERNALZONE PAGE I
BACKGROUND MUSIC D
DOOR LOCK OR BGM MUTE CONTROL RELAY
-
-
I
MAIN
PCTU
CONTROL PCB (SEE TABLE B
NIGHT BELL OR MOH (CONTROL RELAY)
2-
TWISTED PAIR
~
MOHlBGM
ALARM RELAY SENSOR -
CRCU
(OPTIONAL)
~
EXTERNAL ZONE PAGE RELAYS (4 ZONES)
MUSIC SOURCE: BACKGROUND AND/OR -
MUSIC-ON-HOLD - I \
TWISTED PAIR MOHIBGM
VOLUME
1 \ CONTROL
FlGURE2-lo-SYSTEM FUNCTIONALBLOCKDIAGRAM
DTMF
RECEIVER
(4OR8
CIRCUITS)
:
2-8

INSTALLATION-SYSTEM DESCRIPTION
SECTION 200-096-202
FEBRUARY1991
PEKU
(6 EKT CIRCUITS)
or
PESU
(4 EKT CIRCUITS)
5,
ANALOG
ELECTRONIC
TELEPHONE
t-
STATION PCB 25-PAIR
AMPHENOL
5
EOCU
(FEMALE)
(OPTIONAL
- r7r.D cnn nrn\
MDF
-I I
BGM SOURCE
TO STATIONS
PHONES AND
CK CONTROLS
I! (NOTEI) ,
I I $41 1 -24Fa4 POWER FAILURE 1
TRANSFER UNIT
DIGITAL ELECTRONIC TELEPHONE/
DIU STATION PCB
DIGITAL CONSOLE3
24 VDC CHARGER I
ro PCB
NOTES:
1 BATT I
AC INPUT- 117VAC
1. Can be on-premises or off-premises
- +
e (15AMP)
+-~------------I
50160 HZ
(OPS: FC = OL 13A; USOC = RJ2X)
2. All external devices connected to the PCTU,
cxm PBTC CABLE
I
-
12 VOLT +
BAmERY
PEW, PIOU, PSTU, PEMU, and PCOU must
, I be industry-standard and supplied by the
customer. All devices connected to the
CUSTOMER-SUPPLIED
PDKU and PEKU are Toshiba proprietary.
BAmERIES
3. Requires Release 3.
FlGURE2-IO-SYSTEM FUNCTIONAL BLOCK DlAGRAM(continued)
2-9

INSTALLATION-SYSTEM DESCRIPTION
SECTION 200-096-202
FEBRUARY1991
TABLE2-B
COMMONCONTROLUNITDATA
I
NOTES:
1. PCTU2 replaces PCTUl.
2. Except for the ROM version, PCTU2 and PCTUl are identical.
I 3. PCTU (1, 2, or 3) ROM is not interchangeable with PCTUSl ROM.
4. All PCTU versions provide MOHIBGM input and volume control.
I 5. PCTU3 ROM is not interchangeable with PCTUl or 2 ROM.
vices into data signals for the system. The
CRCU option must be installed for the system to
receive DTMF dialing. Both 4-circuit (CRCU-4)
and
8-circuit (CRCU-8) units are available, de-
pending on system traffic. The DTMF receivers
are shared by users; they are seized for dialing,
then released for the next call.
PIOU (Option Interface Unit):
The PIOU provides a
circuit interface with peripheral options as shown in
Table 2-C.
PIOUS (Option Interface Unit):
A reduced version of
the PIOU, the PIOUS provides a circuit interface with
peripheral options as shown in Table 2-C.
IMDU (Remote Maintenance Modem Subassem-
bly):
The IMDU is an optional built-in modem
which provides the system with a link to off-site
programming and maintenance equipment, such
as a personal computer or ASCII terminal. The
IMDU has an internal maintenance channel and
does not require a dedicated CO line or station
port. Data transmission speed can be set at 300
or 1200 BPS full duplex.
PEPU (External Page Interface Unit):
A reduced ver-
sionofthePIOU,thePEPUprovidesacircuitinterface
with peripheral options as shown in Table 2-C.
PESU (Standard/ElectronicTelephone Interface
Unit):
This optional PCB provides the system
with a combination of two standard and four
electronic telephone circuits. The standard tele-
phone circuits may also be connected to op-
tional hardware peripherals such as voice mail,
auto attendant and fax machines. The PESU
has a ring generator for the standard telephone
circuits which can be set for high- or low-ring
voltage. PESU electronic telephone circuits can
be configured for off-hook call announce by
installing an optional off-hook call announce
upgrade unit (EOCU). The PESU supports
HDCB and door phone/locks, but not DSS con-
soles or music-on-hold separation.
PCOU (CO Line Unit):
The PCOU provides the
system with four loop-start CO lines and a
standard, built-in automatic busy redial (ABR)
circuit. Each CO line can be programmed for
either rotary or dial pulse. In addition, each CO
line has a 3 dB pad option switch to control
excessive loudness resulting from close prox-
imity to the PBX or central office. Each CO line
circuit provides built-in gas tubes for limited
protection from lightning.
PCOU2 (CO Line Unit):
The PCOU2 is a direct
replacement for the PCOU. Their fit, form, and
function are identical; however, for manufactur-
ing reasons, the PCOU was phased out in favor
of the PCOU2. .
PEMU (E & M TIE Line Unit):
The PEMU provides
four E & M Type I signaling (2- or 4-wire, imme-
2-10

INSTALLATION-SYSTEM DESCRIPTION
SECTION 200-096-202
FEBRUARY1991
TABLE24
INTERFACEPCBOPTIONS
RS-232 SMDR
Output Jack X, M X, M
RS-232 Maintenance Jack
for a Local ASCII Terminal X, M X, M
or External Modem
Remote Maintenance
Modem (IMDU) K p x, p
A = Amphenol Connector P = Piggy-back PCB X = Option equipped
M = 6-pair Modular Connector T = Terminal Connector
diate start) TIE lines. Each PEMU reduces the
system capacity by four CO lines and four sta-
tion ports in DK56 and DK96, and by four CO
lines and eight station ports in DK24.
shared by all circuits on a PEKU or PESU.
PSTU (Standard Telephone Interface Unit):
The
PSTU provides an interface between standard
telephones and the system. It adds eight stan-
dard telephone ports, and has a 20H2, 19OV
peak-to-peak square wave ring generator (no
load). In addition, the PSTU provides support for
numerous Toshiba-supplied and customer-
supplied peripherals, including:
l
Toshiba-supplied (optional):
l
INTOUCH Digital Voice Messaging Sys-
tem
PEKU (Electronic Telephone Interface Unit):
The
PEKU provides eight ports for electronic telephones.
It can be configured for off-hook call announce by
installing an optional off-hookcall announce upgrade
unit (EOCU). It can also be configured to support a
DSS console, door phone control unit (HDCB), and/
or BGM source interface.
EOCU (Off-hook Call Announce Upgrade Unit): l
Power Failure Transfer Unit (DPFT)
The EOCU is an optional off-hookcall announce
l
Customer-supplied (optional):
upgrade unit which mounts on top of the PEKU
l
Auto Attendant device
or PESU piggy-backstyle. It is required on every
l
Dictation Equipment
PEKU or PESU that supports stations receiving
l
Facsimile .
off-hook call announce. The unit provides two
l
Modem
off-hook call announce channels, which are
l
Voice Mail Device
2-11

INSTALLATION-SYSTEM DESCRIPTION
SECTION 200-096-202
FEBRUARY 1991
NOTE:
As of November 1989, the PSTU is equipped
with a jumperplug to change the ring genera-
tor no load output from 79OV peak-to-peak
square wave (high) to 130V peak-to-peak
square wave (low). The low setting is used
with peripherals that are sensitive to high-ring
voltage (almost all peripherals function with
high-ring voltage).
7 SYSTEM CONTROLS AND INDICATORS
7.00 System controls and indicators are located
inside the KSU. Controls and indicators may be
accessed only by removing the cabinet’s front
cover. Controls and indicators are located on the
power supply, KSU chassis, and on various PCBs.
FIGURE 2-ll-LOCATION OF DK24 CONTROLS
AND INDICATORS
8 9 10
FIGURE 2-12-LOCATION OF DK56 CONTROLS
AND INDICATORS
FIGURE 2-13-LOCATION OF DK96 CONTROLS
AND INDICATORS
7.01 Controls and indicators for the DK24 model
are shown in Figure 2-11 and described in Table 2-
D; for DK56, see Figure 2-12 and Table 2-E, and
for DK96, see Figure 2-13 and Table 2-F. PCB
controls and indicators are shown in Figure 2-14
and described in Table 2-G.
8 PERIPHERAL EQUIPMENT
8.00 Electronic Telephones
8.01 Four 6500-series electronic telephones are
compatible with the STRATA DK systems. They
are the 6510 (two versions), the 6520, and the
6520SD. See the Genera/ Description for a more
complete description of these phones.
NOTE:
All electronic telephones compatible with the
analog STRA TA/STRA TAe key telephone
systems are also compatible withlhe STRATA
DK systems and vice versa. However, some
features or volume levels may vary.
2-12

INSTALLATION-SYSTEM DESCRIPTION
SECTION 200-096-202
FEBRUARY1991
PI& 50-PIN
AMPHENOL
CONNECTOR
II
BAUD
\ VRl:
3-WATT
CONNECTOR
LINE
NUMBER
P
LINE
NUMBER
1 “HtARTBEAT”
LED
(PCTUI, 2,3
ONLY)
VRl
MOHIBGM
VOLUME
CONTROL
LINE
PIOU PIOUS PEPU PCTU 1,2,&3 PCOU
PCTUS (17 2)
FlGURE2-14-LOCATIONOFPCBCONTROLSANDlNDlCATORS
PEMU
8.10 Electronic Telephone Upgrade Options
8.11
All electronic telephones may be upgraded
with off-hook call announce, loud ringing bell and
headset capability. Any electronic telephone may
use all available upgrade options simultaneously.
All electronic telephones may be wall mounted
without additional equipment. They are also hear-
ing aid-compatible.
installing an OCA upgrade assembly. The as-
sembly consists of two PCBs, the HVSU and the
HVSI (Figure 2-15), which install inside the
telephone base with plug-in connectors.
NOTE:
Only those telephones programmed to re-
ceive OCA announcements require the OCA
upgrade.
8.12 Each electronic telephone also features a
standard modular handset cord, and is connected
to the system with a 2-pair modular line cord (7-foot
cord included). Various upgrade options, such as
the off-hook call announce and loud ringing bell
upgrade assemblies, require the telephone to be
connected to the system with special wiring. A 3-
pair modular line cord is required for off-hook call
announce, and a custom external speaker cable
(HESC-65) is required for the loud ringing bell.
HVSU and HVSI (Off-hook Call Announce Up-
grade):
Each electronic telephone may be up-
graded to receive intercom handsfree answer-
back calls when the handset is off-hook by
FlGURE2-15-hVSUandHVSl
2-13

INSTALLATION-SYSTEM DESCRIPTION
SECTION 200-096-202
FEBRUARY1991
TABLE2-D
DK24MODELCONTROLSANDlNDlCATORS
CONTROL/INDICATOR
Figure 2-11 Item No.) TYPE OF COMPONENT
POWER Switch (I) Two-position rocker switch
DESCRIPTION
Power switch for application of AC
input power from wall socket to KSU
power supply
AC Power Cord (2) 10 3-prong plug with power cord Cord for application of AC
power from wall outlet
Interface connector for LG/FG ground
LG/FG Connector (3) 2-pin keyed male connector strap (ground strap must remain
installed in LG/FG connector for all
system applications)
SG/FG Terminal (4) Two-terminal screw-type
Block terminal block
Terminal connections for SG/FG
ground strap (ground strap must
remain installed on SG/FG terminal
block for all system applications)
BATT +/- Connector (5) 2-pin keyed male connector Interface connector for reserve power
batteries
-G Terminal (not shown) Combination slotted/Phillips screw KSU frame ground terminal
-24VI Circuit Circuit breaker for power supply
Breaker
63)
Push-to-reset circuit breaker -24VDC output to PCB slots SO1
and S02, SO3
-24V2 Circuit
Breaker (g) Push-to-reset circuit breaker Circuit breaker for power supply
-24VDC output to PCB slots S04,
S05, and SO6
POWER Indicator (11) Green LED Lights to indicate power switch is set
to ON (AC input power is applied to
power supply)
+5V Indicator (12) Green LED Lights to indicate presence of +5VDC
output from power supply
-5V Indicator (13) Green LED Lights to indicate presence of -5VDC
output from power supply
-24V Indicator (14) Green LED Lights to indicate presence of -24V
output from power supply
2-14

INSTALLATION-SYSTEM DESCRIPTION
SECTION 200-096-202
FEBRUARY1991
TABLE2-E
DK56MODELCONTROLSANDlNDlCATORS
CONTROL/INDICATOR
Figure 2-12 Item No.) TYPE OF COMPONENT DESCRIPTION
ON/OFF Switch (1) Two-position rocker switch Power switch for application of AC
input power from wall socket to KSU
power supply
AC IN Connector (2) 3-pin keyed male connector Interface connector for application of
AC power from wall outlet
Interface connector for LG/FG ground
LG/FG Connector (3) 2-pin keyed male connector strap (ground strap must remain
installed in LG/FG connector for all
system applications)
SG/FG Terminal
Block (4) Two-terminal screw-type
terminal block
Terminal connections for SG/FG
ground strap (ground strap must
remain installed on SG/FG terminal
block for all system applications)
BATT +/- Connector (5) 2-pin keyed male connector Interface connector for reserve power
batteries
-G Terminal (not shown) Combination slotted/Phillips screw KSU frame ground terminal
DC OUT Connector (7) 7-pin keyed male connector Interface connector for application of
power supply +5VDC and -24VDC
outputs to KSU’s backplane
-24V1 Circuit
Breaker
Circuit breaker for power supply
(8) Push-to-reset circuit breaker -24VDC output to PCB slots SO1
and SO2
-24V2 Circuit
Breaker
Circuit breaker for power supply
(9) Push-to-reset circuit breaker -24VDC output to PCB slots S03, S04,
and SO5
-24V3 Circuit
Breaker
Circuit breaker for power supply
(10) Push-to-reset circuit breaker -24VDC output to PCB slots S06, S07,
and SO8
POWER Indicator (11) Green LED Lights to indicate ON/OFF switch is sei
to ON (AC input power is applied to
power supply)
t5V Indicator (12) Green LED Lights to indicate presence of +5VDC
output from power supply
-5V Indicator (13) Green LED Lights to indicate presence of -5VDC
output from power supply
2-15

INSTALLATION-SYSTEM DESCRIPTION
SECTION 200-096-202
FEBRUARY1991
TABLE2-F
DK96MODELCONTROLSANDlNDlCATORS
CONTROL/INDICATOR
Figure 2-13 Item No.) TYPE OF COMPONENT DESCRIPTION
3N/OFF Switch (1) Two-position rocker switch Power switch for application of AC
input power from wall socket to KSU
power supply
AC IN Connector (2) 3-pin keyed male connector Interface connector for application of
AC power from wall outlet
Interface connector for LG/FG ground
LG/FG Connector (3) 2-pin keyed male connector strap (ground strap must remain
installed in LG/FG connector for all
system applications)
Terminal connections for SG/FG
SG/FG Terminal Two-terminal screw-type ground strap (ground strap must
Block (4) terminal block remain installed on SG/FG terminal
block for all system applications)
BATT +/- Connector (5) 2-pin keyed male connector Interface connector for reserve power
batteries
FG Terminal (not shown) Combination slotted/Phillips screw KSU frame ground terminal
7-pin keyed male connector Interface connector for application of
DC OUT Connector (7) power supply +5VDC and -24VDC
outputs to KSU’s backplane
-24Vl Circuit
Breaker
Circuit breaker for power supply
(8) Push-to-reset circuit breaker -24VDC output to PCB slots SO1
and SO2
-24v2
CirCUit
Breaker (9) Push-to-reset circuit breaker Circuit breaker for power supply
-24VDC output to PCB slots S03, S04,
and SO5
-24v3
ChIXit
Breaker
Circuit breaker for power supply
(, o) Push-to-reset circuit breaker -24VDC output to PCB slots S06, S07,
and SO8
-24v4
CitYNit
Breaker
Circuit breaker for power supply
(, , ) Push-to-reset circuit breaker -24VDC output to PCB slots SO9, Sl 0,
and Sl 1
-24&i
CirCUit
Breaker
Circuit breaker for power supply
(, 2) Push-to-reset circuit breaker -24VDC output to PCB slots S12, S13,
and S14
POWER Indicator (13) Green LED Lights to indicate ON/OFF switch is se
to ON (AC input power is applied to
power supply)
+5Vl Indicator (14) Green LED Lights to indicate presence of +5VDC
output from power supply (for KSU’s
upper PCB shelf backplane)
,’
2-16

INSTALLATION-SYSTEM DESCRIPTION
SECTION 200-096-202
FEBRUARY1991
TABLE2-F
DK96MODELCONTROLSANDlNDlCATORS(continued) .
CONTROL/lNOlCATOR
(Figure 2-13 Item No.) TYPE OF COMPONENT DESCRIPTION
Lights to indicate presence of +5VDC
+5V2 Indicator (15) Green LED output from power supply (for KSU’s
lower PCB shelf backplane)
-5V Indicator (16) Green LED Lights to indicate presence of -5VDC
output from power supply
+5V1 Circuit
Breaker
-45V2 Circuit
Breaker
Push-to-reset circuit breaker Circuit breaker for power supply +5VDC
(17) output to KSU’s upper PCB shelf
Push-to-reset circuit breaker Circuit breaker for power supply +5VDC
(18) output to KSU’s lower PCB shelf
TABLE2-G
PCBCONTROLSANDINDICATORS
CONTROL/INDICATOR
(Figure 2-14) TYPE OF COMPONENT DESCRIPTION
Selects baud rate for TTY or modem;
PIOU/PIOUS Baud Rate Two-position, spring-loaded, 300 baud is selected when switch is in
Selector (SW2) locking push-button switch locked position, 1200 baud is selected
when switch is in released position
Lights when 300 baud rate is selected,
PIOU/PIOUS Baud Rate
Indicator (CD4) Red LED by Baud Rate Selector (5); goes off when
1200 baud rate is selected
PIOU Page Background Trim potentiometer (VRI) Adjusts volume of 3-watt amplifier
Music Volume Control for page background music feature
PEMU E & M TIE Line Four red LEDs Light to indicate the applicable E & M TIE
Indicators line is in operation
PCTU “Heartbeat” Red LED Flashes to indicate operation
Indicator (CD3) (l/4 second on-l/4 second off)
PCTU/PCTUSI Music-on-
Hold/Background Music Trim potentiometer Adjusts volume for music-on-hold/
Volume Control (VRI) background music feature
PCOU/PCOU2 CO Line
Indicators Four red LEDs
Lights to indicate the applicable CO line
is in operation (NOTE: CO line indicators
will not light unless PCOU is connected
to a CO line)
2-17

INSTALLATION-SYSTEM DESCRIPTION
SECTION 200-096-202
FEBRUARY1991
HHEU (Loud Ringing Bell/Headset Upgrade):
Each electronic telephone may also be upgraded
to provide a loud ringing bell interface and a
modular headset jack by installing a loud ringing
bell/headset upgrade assembly (Figure 2-l 6).
The assembly consists of a small PCB (HHEU)
which installs on the main PCB, inside the tele-
phone, with a plug-in connector (HESC-65).
l
An external speaker/amplifier is directly con-
nected to the upgraded phone. When the
phone rings, the speaker sounds a loud tone
that mimics the phone’s ring. See the HESB
(external speaker) option.
l
Most standard headsets are compatible with
the HHEU jack.
NOTE:
It is recommended not to equip the OCA
feature when using an HHEU feature be-
cause all voice paths are switched over the
electronic telephone speaker during an OCA
call.
8.20 Direct Station Selection Console
8.21 The Direct Station Selection (DSS) console
is an optional dedicated answering station. It is
normally used on systems with a heavy volume of
incoming calls. However, a DSS console may be
used with one of four designated electronic tele-
phones. Both DK56 and DK96 models can support
up to four DSS consoles. DK24 can also support
up to four DSS consoles, if its controller PCB is the
PCTU; however, a DK24 with a PCTUSI PCB can
only support up to three DSS consoles. For more
information on DSS console features, see the
General Description.
8.22 A DSS console must be assigned to a par-
ticular station when the system configuration is
defined in programming. All four DSS consoles
can be assigned to asingle station, orfourdifferent
DSS consoles may be assigned to four different
stations (or any intermediate combination). The
same DSS console may not be assigned to more
than one station.
NOTE: I
8.23 Each DSS console requires two station ports One door lock control is supported by any of
(circuits 7 and 8) on an electronic telephone Inter- the Option Interface PCBs (PIOU, or PIOUS,
FlGURE2-16-HHEU
face PCB (PEKU). Only one DSS console may be
installed on a particular PEKU. DSS consoles can
not be installed on PESU electronic telephone
circuits 7 and 8.
8.30 Toshiba-supplied Peripherals
8.31 This section describes each peripheral item
manufactured by Toshiba for use with the STRATA
DK systems. Configuration and connection con-
siderations are noted where applicable.
8.32 Door Phone.
Up to 12 door phones may be
installed on any STRATA DK system. Five of the
door phones may be associated with the door lock.
When used in this manner, the door phone is
mounted outside a building, next to a locked door
whose entry requires screening. A door phone can
also function as a sound monitor-any electronic
telephone can call the door phone’s station num-
ber and listen to sounds within its immediate area.
Up to three door phones or two door phones and
one door lock can be connected to each HDCB
door phone control unit (Figure 2-17). See the
General Description for more details.
8.33 Door Lock Control.
The door lock control
allows a user to momentarily (three or six seconds)
open an electronic door lock bv pressing a button
(m) on an electronic telephone. -
2-18

FIGURE 2-17-DOOR PHONE/LOCK CONTROL
UNIT (HDCB)
or PEPU) and/orjack B of each HDCBf for up
to five door lock controls.
8.34 External Speaker.
The external speaker
option is a 3-watt, 6 inch speaker with a built-in 3-
watt amplifier. A +12VDC power supply (HACU-
120) is provided with each external speaker, which
connects to the speaker’s back panel. An 8’ cord is
provided to plug in the power supply to a 117VAC,
60 Hz outlet. The HESB has three applications:
paging speaker, talk-back speaker, and amplified
ringing bell. See the
General Description
for more
application details.
8.35 Voice Messaging System.
The Messaging
System helps a business significantly improve the
effectiveness of its telephonecommunication. See
the
Genera/ Description
for more feature details.
8.36 The STRATA DKsystems use in-band DTMF
tone signaling to interface with the INTOUCH
system. The PSTU and/or PESU must be installed
in the STRATA DK KSU in order to support the
Voice Messaging System.
8.37 INTOUCH interfaces with the STRATA DK
system through the MDF using standard connec-
tors. Each voice mail port requires a 1 -pair wiring
connection to the MDF, and one port on the PSTU/
,, PESU, as well as special programming in the
STRATA DK to act as a voice mail port.
INSTALLATION-SYSTEM DESCRIPTION
SECTION 200-096-202
FEBRUARY 1991
8.40 Customer-supplied Peripherals
.
8.41 The STRATA DK systems support many
other commonly used peripheral devices which
can be supplied by the customer. Examples of
these devices are listed below, with theconnecting
system PCB noted in parentheses:
l
Auto-attendant Device (PSTU and PESU)
l
Dictation Equipment (PSTU and PESU)
l
External Maintenance Modem (PIOU or PIOUS)
l
Facsimile (PSTU and PESU)
l
Local Maintenance Terminal (PIOU or PIOUS)
l
Modem (PSTU and PESU)
l
Paging System (PIOU or PIOUS or PEPU)
l
Radio Paging Equipment (PSTU and PESU)
l
Remote Maintenance Terminal (PIOU or IMDU)
l
Standard Telephones (PSTU and PESU)
l
SMDR Printer/Call Accounting Device (PIOU or
PIOUS)
l
Voice Mail Messaging System (PSTU and PESU)
9 RELEASE 3 INFORMATION
9.00 The following contains
Release 3
information
relevant to Chapter 2’s contents. Descriptions of
the new printed circuit boards, the new digital
telephones, digital telephone upgrade upgrade
options, and new Toshiba-supplied peripherals
are provided.
IO PRINTED CIRCUIT BOARDS
(Release 3)
10.00 PDKU (Digital Telephone Interface Unit):
The PDKU provides eight ports for digital tele-
phones and or Data Interface Units. It can also be
configured to support a DDSS console. The PDKU
does not need an EOCU (off-hook call announce
upgrade unit) to support digital telephones equipped
with off-hook call announce capability. Also, the
PDKU cannot support a door phone control unit
(HDCB), and/or BGM source interface.
l
The PDKU measures 7.5 by 5.5 inches (190 by
140 mm) and connects to the KSU’s backplane
with a 40-pin male connector.
l
The PDKU connects to the Main Distribution
Frame (MDF) using a 25pair female amphenol
connector.
t Release 2 and higher
2-19

INSTALLATION-SYSTEM DESCRIPTION
SECTION 200-096-202
FEBRUARY 1991
10.01 PCTU3 (Common Control Unit):
The lat-
est version of the common control unit is PCTU3,
which contains
Release
3 software. The PCTU3
can be installed in DK96, DK56, and DK24. Like
earlier PCTU versions, the PCTU3 contains the
system’s main microprocessor and microproces-
sor bus, battery-protected memory circuits, time
switch logic, conference logic, and system tones.
The PCTU3 also has a music-on-hold/background
music source interface, and connectors to mount
an optional DTMF receiver PCB (CRCU) for DISA,
TIE lines, standard telephones, and peripherals.
l
The PCTU3 measures 7.5 by 5.5 inches (190 by
140 mm) and connects to the KSU’s backplane
with a 40-pin male connector.
11 PERIPHERAL EQUIPMENT
11 .OO Digital Telephones (Release 3)
11 .Ol
There are twodigital telephones, the 1020SD
and the 1020H, compatible with the STRATA DK
systems. See the General Description for a more
complete description of these phones.
11 .I 0 Digital Telephone Upgrade Options
(Release 3)
11.11
Digital telephones may be upgraded to
transmit and receive simultaneous voice and data.
They may also be upgraded with off-hook call
announce, loud ringing bell, and headset capabil-
ity. If the telphone is upgraded to transmit and
receive simultaneous voice and data, it cannot be
upgraded with any of the other options. However,
it can be upgraded simultaneously with off-hook
call announce and loud ringing bell or headset
capability.
11 .I2 Each digital telephone also features a
standard modular handset cord, and is connected
to the system with a single-pair modular line card
(7 feet length cord included). No extra wire pair is
required for the various upgrade options, but a
custom external speaker cable (HESC-65A) is
required for the loud ringing bell.
PDIU-DI (Integrated data interface unit):
Digital
telephones may be upgraded with a PDIU-DI to
receive and transmit simultaneous voice and
data; data and voice calls can be made indepen-
dently of each other. The PDIU-DI is easily
installed, replacing the normal digtal telephone
base.
NOTES:
1. The PDIU-DI will function with all slots,
except slots 1 I w 14 in DK96.
2. PDKU circuits 1 N 7can support PDIU-Dls.
DVSU (Off-hookCall Announce Upgrade):
Each
digtal telephone may be upgraded to receive
intercom handsfree answerback calls when the
handset is off-hook by installing an OCA up-
grade assembly. This assembly, called the
DVSU, is installed inside the telephone base
with plug-in connectors.
HHEU (Loud Ringing Bell/Headset Upgrade):
Each digital telephone may also be upgraded to
provide a loud ringing bell interface and a modu-
lar headset jack by installing a loud ringing bell/
headset upgrade assembly. The assembly
consists of a small PCB (HHEU) which is in-
stalled inside the telephone base with plug-in
connectors.
11.20 Digital Direct Station Selection Console
(Release 3)
11.21
The Digital Direct Station Selection Con-
sole (DDSS) is an optional, dedicated answering
station incorporating a busy lamp field, and it can
be used with electronic or digital telephones. It is
normally used on systems with a heavy volume of
incoming calls. A DDSS console may be used with
one of four designated telephones. If equipped
with a PCTU3, DK96, DK56, and DK24 can sup-
port up to four DDSS consoles (DK24, if equipped
with the PCTUS, will not support DDSS consoles).
For more information on DDSS console features,
see the General Description.
11.22
A DDSS console must be assigned to a
particular station when the system configuration is
defined in programming. All four DDSS consoles
can be assigned to asingle’station, orfourdifferent
DDSS consoles may be assigned to four different
2-20


PARAGRAPH
1
2
3
3.00
3.10
4
5
5.10
I
6
7
7.10
TABLE
3-A
3-B
3-c
FIGURE
3-l
3-2
INSTALLATION-SITEREQUIREMENTS
SECTION 200-096-203
FEBRUARY1991
TABLEOFCONTENTS .
SUBJECT PAGE
GENERAL. . . . . . . . . . . . . . . . . . . . . . . . . . . . . . . . . . . . . . . . . . . . . . . . . . . . . . . . . . . . . . . . . . . . . . . . . . . . . . . . . . . . . . . . . . . . . . . . . . . . . . . . . . . . . . . 3-l
INPUT POWER REQUIREMENTS . . . . . . . . . . . . . . . . . . . . . . . . . . . . . . . . . . . . . . . . . . . . . . . . . . . . . . . . . . . . . . . . . . . . . . . . . 3-l
SITE CONSIDERATIONS . . . . . . . . . . . . . . . . . . . . . . . . . . . . . . . . . . . . . . . . . . . . . . . . . . . . . . . . . . . . . . . . . . . . . . . . . . . . . . . . . . . . . . . 3-l
Clearance and Location Requirements . . .
. . . . . . . . . . . . . . . . . . . . . . . . . . . . . . . . . . . . . . . . . . . . . . . . . . . . . . . . . . . . 3-l
Electrical/Environmental Requirements and Characteristics . . . . . . . . . . . . . . . . . . . . . . . . . . . . . . . 3-l
CABLE LENGTHS/NETWORK REQUIREMENTS . . . . . . . . . . . . . . . . . . . . . . . . . . . . . . . . . . . . . . . . . . . . . . . . . 3-2
GROUNDING REQUIREMENTS . . . . . . . . . . . . . . . . . . . . . . . . . . . . . . . . . . . . . . . . . . . . . . . . . . . . . . . . . . . . . . . . . . . . . . . . . . . . 3-2
Earth Ground Test . . . . . . . . . . . . . . . . . . . . . . . . . . . . . . . . . . . . . . . . . . . . . . . . . . . . . . . . . . . . . . . . . . . . . . . . . . . . . . . . . . . . . . . . . . . . . . . 3-2
SITE CONSIDERATIONS (continued) . . . . . . . . . . . . . . . . . . . . . . . . . . . . . . . . . . . . . . . . . . . . . . . . . . . . . . . . . . . . . . . . . . . . 3-5
GROUNDING REQUIREMENTS (continued) . . . . . . . . . . . . . . . . . . . . . . . . . . . . . . . . . . . . . . . . . . . . . . . . . . . . . . . . . 3-5
Second Ground Test . . . . . . . . . . . . . . . . . . . . . . . . . . . . . . . . . . . . . . . . . . . . . . . . . . . . . . . . . . . . . . . . . . . . . . . . . . . . . . . . . . . . . . . . . . . 3-5
TABLE LIST
TITLE PAGE
LOOP REQUIREMENTS . . . . . . . . . . . . . . . . . . . . . . . . . . . . . . . . . . . . . . . . . . . . . . . . . . . . . . . . . . . . . . . . . . . . . . . . . . . . . . . . . . . . . . . 3-3
NETWORK REQUIREMENTS . . . . . . . . . . . . . . . . . . . . . . . . . . . . . . . . . . . . . . . . . . . . . . . . . . . . . . . . . . . . . . . . . . . . . . . . . . . . . . . . 3-3
SUMMARY OF ELECTRICAL/ENVIRONMENTAL CHARACTERISTICS . . . . . . . . . . . . . . 3-4
FIGURE LIST
TITLE PAGE
DK24/56 MINIMUM CLEARANCE REQUIREMENTS . . . . . . . . . . . . . . . . . . . . . . . . . . . . . . . . . . . . . . . . . . . . 3-l
DK96 MINIMUM CLEARANCE REQUIREMENTS . . . . . . . . . . . . . . . . . . . . . . . . . . . . . . . . . . . . . . . . . . . . . . . . . 3-l
I 3-3 KSU GROUNDING DIAGRAM . . . . . . . . . . . . . . . . . . . . . . . . . . . . . . . . . . . . . . . . . . . . . . . . . . . . . . . . . . . . . . . . . . . . . . . . . . . . . . . . 3-5
3-i

1 GENERAL
1.00
This chapter defines the installation site re-
quirements necessary to ensure a proper operat-
ing environment for STRATA DK systems. Also
included are input power requirements, site con-
siderations, cable lengths/network requirements,
and grounding requirements.
2 INPUT POWER REQUIREMENTS
2.00 The systems require an input power source
of 117VAC nominal (85VAC N 135VAC), 50/60 Hz,
15 amps. The AC outlet must be dedicated to
system use, fused, and grounded (refer to Para-
graph 5).
2.01 To avoid accidental power turn-off, it is recom-
mended that an ON/OFF wall switch not be used on
this dedicated AC circuit.
2.02 A reserve power source (two customer-
supplied l2-volt batteries) may be connected to
the system to serve as a power failure backup.
3 SITE CONSIDERATIONS
3.00 Clearance and Location Requirements
3.01 The KSU may be table-top or wall mounted.
Figure 3-l (DK24/56) and Figure 3-2 (DK96) show
the minimum clearance requirements for both
mounting options.
TOP VIEW
DK24/56 UNIT ‘f”
- I 6” b
I
I
d 2” -
I
I
I
I
I
I
I
I
I
I
I
I
I
2” I+
I
I
I
I
I
I
I
I
I
I
I
FRONT WORK SPACE
APPROXIMATELY 36”
t
I FIGURE 3-l-DK24/56 MINIMUM
CLEARANCE REQUIREMENTS
INSTALLATION-SITE REQUIREMENTS
SECTION 200-096-203
FEBRUARY 1991
TOP VIEW
l/2”
DK96 UNIT J
FRONT WORK SPACE
APPROXIMATELY 36”
+
I-ItilJKt 3-Z-UK96 MINIMUM
CLEARANCE REQUIREMENTS
3.02 The following conditions must be considered
when selecting a location for the KSU:
The location MUST BE:
l
Dry and clean
l
Well ventilated
l
Well illuminated
l
Easily accessible
The location MUST NOT BE:
l
Subject to extreme heat or cold
l
Subject to corrosive fumes, dust, or other air-
borne contaminants
l
Subject to excessive vibration
l
Next to television, radio, office automation, or
high frequency equipment
NOTE:
See Paragraph 6 for more site considera-
tions. I
3.03 If reserve power is to be installed, the batter-
ies will require a well-ventilated location close
(within nine feet) to the KSU (the Toshiba-supplied
battery cable is 9 feet in length).
3.10 Electrical/Environmental Requirements
and Characteristics
3.11
The electrical/environmental requirements
and characteristics for each system are provided
in Table 3C.
3-1

INSTALLATION-SITE REQUIREMENTS
SECTION 200-096-203
FEBRUARY 1991
4 CABLE LENGTHS/NETWORK
REQUIREMENTS
4.00 Table 3-A lists system loop requirements.
Table 3-B lists system network requirements. The
KSU must be located to allow compliance with the
specified requirements.
5 GROUNDING REQUIREMENTS
5.00 The system requires a solid earth ground for
proper operation. Failure to provide such a ground
may lead to confusing trouble symptoms and, in
extreme cases, system failure. The ground con-
nection is provided by the “third wire ground” from
the commercial power outlet.
NOTE:
The ground must be dedicated.
5.01 At most installations in the continental United
States, the ground provided by the “third wire
ground” at the commercial power outlet is satisfac-
tory for system requirements. However, in a small
percentage of installations, this ground may be
installed incorrectly. Before installing a system,
test the third wire ground for continuity by either
measuring the resistance between the third prong
terminal (earth ground) and a metal cold water
pipe (maximum: 5 ohms), or by using a commer-
cially available earth ground indicator.
5.02 If neither procedure is possible, perform the
earth ground test procedure in Paragraph
5.10.
I
NOTE:
See Paragraph 7 for more grounding re-
quiremen ts.
5.10 Earth Ground Test
WARNING!
Hazardous voltages that may cause death
or injury are exposed during the folio wing
test. Use great care when working with AC
power line voltage.
1) Obtain a suitable voltmeter, and set it for a
possible reading of up to 250 VAC.
2) Connect the meter probes between the two
main AC voltage terminals (white and black
wires) on the wall outlet. The reading obtained
should be between 100 - 120 VAC.
3) Move one of the meter probes to the third
terminal (green wire ground). Either the same
reading or a reading of zero volts should be
obtained.
4) If the reading is zero volts, leave one probe on
the ground terminal and move the other probe
to the second voltage terminal.
CAUTION!
If a reading of zero volts is obtained on
both voltage terminals (white wire to green
wire, black wire to green wire), the out/et is
not properly grounded. Omit steps 5 and
6, and proceed directly to step 7.
5) If a reading of zero volts on one terminal, and a
reading of 100 - 120 VAC on the other terminal
is obtained, remove both probes from the out-
let.
6) Set the meter to the “OHMS/Rx1 ” scale. Place
one probe on the ground terminal, and the other
probe on the terminal that produced a reading
of zero volts. The reading should be less than 1
ohm.
CAUTION!
If the reading is more than one ohm, then
the outlet is not adequately grounded.
7) If the above tests show the outlet is not properly
grounded, the condition should be corrected
(per Article 250 of the National Electrical Code)
by a qualified electrician before the system is
connected.
3-2

INSTALLATION-SITE REQUIREMENTS
SECTION 200-096-203
FEBRUARY1991
TABLE3-A
LOOPREQUIREMENTS
Device Description
PEKU
(ckts 1 w 8) Electronic
P&J’
telephone,
door phone/
(ckts 5 N 8) control boxes
PEKU
(ckts 7 & 8) DSS consoles
Max Loop Resistance Max Distance from
(Including Device) KSU to Device
40 ohms 1000 ft. (303 m)
20 ohms 500 ft. (152 m)
Number of
Wire Pairs 1
All need 2-pair.
EKTs which
receive OCA
calls need
3-pair.’
PSTU
(ckts 1 * 8)
P&J 2
(ckts 1 & 2)
PDKU
(ckts 1 N 8)
PDKU
(ckt 8)
PDKU
(ckts 1 N 7)
PDKU
(ckts 1 w 7)
Standard
telephones,
voice mail,
auto attendant,
etc.
Digital
telephones
DDSS consoles
PDIU-DI
PDIU-DS
300 ohms
40 ohms
40 ohms
40 ohms
40 ohms
Approx. 3000 ft. (909 m)
with 150 ohm device. See
manufacturer’s product 1 -pair
specifications for exact
resistance of device.
1000 ft. (303 m) 1 -pair
1000 ft. (303 m) 1 -pair
Shares digital
1000 ft. (303 m) telephone
wire-pair?
1000 ft. (303 m) 1 -pair3
NOTES:
1. Use 24 A WG twisted pairs.
2. PESU circuits 3 and 4 are not used.
3. Two-pair may be required to achieve maximum range (see Chapter 9).
TABLE3-B
NETWORKREQUIREMENTS
TOSHIBA
Circuit Board
Pcou/Pcou2
(Loop Start Line)
Facility
Interface Code
02LS2
Network
Jack
RJl4C
Ringer
Equivalence
0.26
PEMU
(Type I, TIE Line)
2-wire
TLllM R2JEX N/A
4-wire
PSTU/PESU (circuits 1 & 2)
(Off-premises Line) OLl3A RJ21 X N/A
3-3

INSTALLATION-SITE REQUIREMENTS
SECTION 200-096-203
FEBRUARY1991
TABLE34
SUMMARY
OFELECTRICAL/ENVIRONMENTALCHARACTERlSTlCS .
GENERAL
Primary Power
Input AC
AC Frequency
DK24 power supply
DK56 power supply
DK96 power supply
85VAC - 135VAC
50/60 Hz
65 watts
140 watts
230 watts
I
Environmental Specifications
Operating Temperature
Operating Humidity
Storage Temperature
32 - 104°F (0 * 40°C)
20 * 80% relative humidity (without condensation)
-4 - 158°F (-20 * 70°C)
Power Supply
DC Voltage Output
Specification
-24VDC; -26.3 m -27.8
+ 5VDC; + 4.5 m + 5.5
- 5VDC; - 4.5 - - 5.5
Battery Charger
Characteristics
Charger; current limiting
Nominal Float Voltage; 2.275 volts/cell
Charge Current; 0.7 amps maximum
Battery Discharge Cut-off Voltage; 20.5 f 0.5V
PSTU (before November 1989)
Ring Voltage
Ringing Capability
Square Wave:
190 f 20V peak-to-peak (no load)
up to two ringers maximum per circuit.
PSTU2/PESU (circuits 1 & 2)
Ring Voltage
Square Wave:
Low position 130 +_ 20V peak-to-peak (no load)
High position 190 f 25V peak-to-peak (no load)
Ringing Capability
Two ringers maximum per circuit, high or low position
BTU Rating
DK24
PEKU 3 103 BTUs (30 wh)
PCOU 2
PCTUS 1
PIOUS 1
Electronic Telephone 24
DK56
PEKU 5 205 BTUs (60 wh)
PCOU 3
PCTU 1
Electronic Telephone 40
I
DK96
PEKU 9 348 BTUs (102 wh)
PCOU 5
PCTU 1
Electronic Telephone 72
‘\
I
3-4

6 SITE CONSIDERATIONS (continued)
6.00 The following precautions should be adhered
to when installing telephone wiring:
GROUND 1; THIRD WIRE GRO;ND
\ TO AC POWER CORD
WARNING!
1. Never install the telephone wiring dur-
ing a lightning storm.
2. Never install the telephone jacks in wet
locations unless the jack is specifically
designed for wet locations.
3. Never touch uninsulated telephone
wires or terminals unless the telephone
line has been disconnected at the net-
work interface.
4. Use caution when installing or modify-
ing telephone lines.
7 GROUNDING REQUIREMENTS (continued)
7.00 In addition to the grounding provisions in
Paragraph 5, the following grounding provisions
must be adhered to (Figure 3-3):
1) Redundant and independent equipment
grounding conductors are to be installed be-
tween the product and the wiring system ground.
2) One of the equipment grounding conductors
(ground 1) shall be an insulated grounding
conductor that is not smaller in size and is
equivalent in insulation material and thickness
to the grounded and ungrounded branch-circuit
supply conductors, except that it is green with
or without one or more yellow stripes. The
grounding conductor is to be installed as part of
the circuit that supplies that system and is to be
connected to ground at the service equipment.
3) The other conductor (ground 2) shall comply
with the general rules for grounding contained
in Article 250 of the National Electrical Code,
NFPA 70, but shall not depend on the cord and
plug of the product.
7.10 Second Ground Test
WARNING!
Hazardous voltages that may cause death
INSTALLATION-SITE REQUIREMENTS
SECTION 200-096-203
FEBRUARY 1991
THIRD WIRE
AC GROUND
\ \
DKSU
\ II
A+
t A
ELECTRICAL
SYSTEM GROUND
POWER
’ SUPPLY
BUILDING GROUND OR
COLD WATER PIPE
*f
INSULATED
GROUND WIRE FRAME GROUND
SCREW ON DKSU
GROUND 2; PER GENERAL RULES
OF ARTICLE 250 OF
THE NATIONAL
ELECTRICAL CODE, NFPA70
FIGURE 3-3 KSU GROUNDING DIAGRAM
or injury may be exposed during the
following test. Use great care when
working with AC power line voltage.
1) Refer to Figure 3-3.
2) Disconnect the AC plug of the system to make
sure that the two earth ground paths are
separated.
3) With a suitable volt/ohm meter, perform a
reading between A and B. Verify that the
readings do not exceed the figures listed below.
If they do, the condition must be corrected by a
qualified electrician before the system is con-
nected.
A to B: 1 volt maximum
then
A to B: 1 ohm maximum
3-5

INSTALLATION-SITE REQUIREMENTS
SECTION 200-096-203
FEBRUARY1991
?
I’
This page intentionally left blank
3-6

TOSHIBASYSTEM PRACTICES
DIGITALKEYTELEPHONESYSTEMS INSTALLATION-CONFIGURATION
SECTION 200-096-204
FEBRUARY1991
Stra taExx
RELEASE 1,2, and 3
INSTALLATION
CHAPTER FOUR
SYSTEM CONFIGURATION

INSTALLATION-CONFIGURATION
SECTION 200-096-204
FEBRUARY1991
PARAGRAPH
TABLEOFCONTENTS
SUBJECT .
PAGE
1
1.10
2
I
2.10
2.20
2.30
2.40
2.50
1 2.60
2.70
2.80
I 2.90
3
4
4.00
4.10
4.20
I
4.30
4.40
TABLE
4-A
4-B
4-c
4-D
4-E
4-F
FIGURE
4-1
4-2
INTRODUCTION .....................................................................................................
System Considerations.. ......................................................................................
OPTION INTERFACING . ... .....................................................................................
DDSSDSS Consoles ..........................................................................................
Data Interface Units (PDIU-DI and PDIU-DS) .....................................................
Door Phones .......................................................................................................
E & M TIE Lines .
. . ...............................................................................................
Off-hook Call Announce ......................................................................................
Data and Modems with Release 1 or 2 ...............................................................
Miscellaneous ......................................................................................................
Ports .... ................................................................................................................
CO Lines .............................................................................................................
WORKSHEETS .......................................................................................................
CONFIGURATION GUIDE, WORKSHEET 1 ......................................................
CONFIGURATION GUIDE, WORKSHEET 2.. ....................................................
CONFIGURATION GUIDE, WORKSHEET 3.. ....................................................
CONFIGURATION GUIDE, WORKSHEET 4.. ....................................................
CONFIGURATION GUIDE, WORKSHEET 5.. ....................................................
CONFIGURATION GUIDE, WORKSHEET 6.. ....................................................
CONFIGURATION GUIDE, WORKSHEET 7.. ....................................................
SYSTEM HARDWARE CONFIGURATION ............................................................
General ................................................................................................................
System Hardware Assignment Record ...............................................................
Door Phone Hardware Configuration Notes ........................................................
DSSDDSS Console Hardware Configuration Notes.. .........................................
Data Interface Unit (DIU) Configuration Notes ....................................................
TABLELIST
TITLE
DK24/DK56/DK96 MAXIMUM CONFIGURATIONS . . . . . . . . . . . . . . . . . . . . . . . . . . . . . . . . . . . . . . . . . . . . . . .
SYSTEM CONTROL PCB (PCTU) CONFIGURATION INFORMATION . . . . . . . . . . . . . . . .
UNIVERSAL SLOT/PCB CAPACITIES . . . . . . . . . . . . . . . . . . . . . . . . . . . . . . . . . . . . . . . . . . . . . . . . . . . . . . . . . . . . . . .._..
OPTIONAL INTERFACE PCB INFORMATION . . . . . . . . . . . . . . . . . . . . . . .._.............................
OPTIONAL ADD-ON UNIT CONFIGURATION . . . . . . . . . . . . . . . . . . . . . . . . . . . . . . . . . . . . . . . . . . . . . . . . . . . . . .
OPTIONAL SUBASSEMBLY PCB CONFIGURATION . . . . . . . . . . . . . . . . . . . . . . . . . . . . . . . . . . . . . . . . . . .
FIGURE LIST
TITLE
PCB CONFIGURATION CHART . . . *................................................................,......
HARDWARE CONFIGURATION EXAMPLE . . . . . . . . . . . . . . . . . . . . . . . . . . . . . . . . . . . . . . . . . . . . . . . . . . . . . . . . . .
4-1
4-l
4-3
4-3
4-4
4-5
4-5
4-5
4-6
4-7
4-7
4-7
4-7
4-8
4-10
4-12
4-13
4-14
4-15
4-17
4-23
4-23
4-23
4-25
4-26
4-26
PAGE
4-2
4-18
4-19
4-20
4-21
4-22
PAGE
4-1
4-28
4-i

INSTALLATION-CONFIGURATION
SECTION 200-096-204
FEBRUARY 1991
I
1 INTRODUCTION
1.01 STRATA DK systems are flexible in their
ability to meet varied system needs. A modular
building block approach allows the addition of vari-
ous parts to meet system needs and applications.
A universal slot concept is used in the KSU, which
means that a PCB slot in the KSU can accept any
one of a number of different PCBs. This is con-
trasted with a dedicated slot approach (used in
previous STRATA systems), where a particular slot
can only accept a specific PCB, such as a CO line
interface PCB. DK24 has six universal slots, DK56
has eight, and DK96 has 14. This increased flexibil-
ity in STRATA DK means that tradeoffs can be
made between the number of CO lines and stations
in a system application. This is illustrated in Figure
4-1.
1.02 Figure 4-l shows that in most configurations,
four CO lines can be traded for eight stations.
Conversely, for every eight stations that are given
up, four CO lines can be added. The maximum
quantities of 16 CO lines for DK24,20 CO lines for
DK56, and 36 CO lines for DK96 are based on
squared systems. Software allows 16 CG lines with
PCTUSl and 36 CO lines with PCTU (1, 2, or 3). 1
Similarly, the 24 station (PCTUSI) and 96 station
(PCTUI, 2, or 3) limits are software limitations. I
1.10 System Considerations
1.11 When no external options or TIE lines are
installed and only CO lines and station PCBs are
exchanged, the maximum configurations can be
summarized in Table 4-A.
1.12 Table 4-A shows the maximum number of
1 OOO-series digital telephone, 6500-series tele-
phones, and/or standard telephones that can exist
in each system. Due to power availability, the
numbers decrease if using 2000-, 3000-, 6000-, or
6005-series electronic telephones, a PEMU PCB,
or digital telephones with PDIU-Dls connected. I
When mixing different series telephones and/or if a
PEMU PCB is installed, use the Configuration
Guide, worksheet 7, to verify that the power sup-
plied is greater than the power used.
40
36
32
28
24
AVAILABLE
CO LINES
20
16
12
8
4
NOTES (DK24):
1. 24 stations are available 0
with PCTUSl -equipped DK24.
2. 32 stations are available
with PCTU-(1, 2, or 3) equipped
(WITHOUT
SYSTEM OPTIONS)
AVAILABLE STATION PORTS
DK24. I
-_-__-- - . --- --~~~
FIGURE 4-l-PCB CONFIGURATION CHART
4-1

INSTALLATION-CONFIGURATION
SECTION 200-096-204
FEBRUARY1991
DK24 (PCTUS)
I CO Lines
16 16 16 16
12 24 12 24
8 24 8 32
4 24 4 323
0 24 0 323
Stations
Table 4-A
OK24/56/96 MAXIMUM CONFIGURATIONS
DK 24 (PCTU 1,2. or 31 DK56 (PCTU 1.2. or :
I I
CO Lines Stations
.
CO Lines
, ,
Stations
20 24
16 32
12 40
8 48
4 56
0 64
DK96 (PC-
CO Line5
36
32
28
24
20
16
12
8
1, 2, or:
Stations
NOTES:
1. The station capacities apply to any combination of standard telephones, IOOO-series digital
telephones and 6500-series electronic telephones (only). Station capacities using other
Toshiba electronic telephones are given on worksheet 7.
2. Installing a TIE line (PEMU) PCB or an optional interface (PIOU/PIOUS/PEPU) PCB
reduces available CO lines by four or available station ports by eight.
3. The DK24’s 32-station limit is a result of power supply capacity.
40
48
56
64
72
80
88
96
1 .13 System Control PCB Considerations. DK
systems can be configured with one of four ver-
I
sions of control PCBs: PCTUl , PCTU2, PCTU3, or
PCTUSI. The PCTUl, 2, and 3 have the same
configuration capacity and can be used in all three
system models. The PCTUI provides Release 1
I features; the PCTU2 provides Release 2 features;
and the PCTU3 provides Release 3 features. The
PCTUSl provides Release 2features, but has less
I system capacity than a PCTU (1, 2, or 3). The
PCTUS is designed to function in DK24 only; if a
PCTUS is installed in DK56 or DK96, the system
will not operate correctly. The configuration capaci-
ties of each PCTU PCB are shown in Table 4-B.
This table shows the maximum capacities of all the
options, stations, and lines for each configuration.
These capacities reflect maximum stand alone
capacities and do not indicate combined capacity
of the many possible configurations when mixing
options, stations, and lines. Use the configuration
worksheets to determine combined capacities.
I
1.14 The digital telephone interface unit PCB
(PDKU) provides an interface for eight digital tele-
phones. The PDKU also provides interface for the
PDIU-DI and PDIU-DS data interface units. The
electronic telephone interface unit PCB (PEKU)
provides an interface for eight electronic telephone
circuits. The standard telephone interface unit PCB
(PSTU) can accommodate eight standard tele-
phones or like devices. The standard/electronic
telephone interface unit PCB (PESU) supports up
to two standard and four electronic telephones. The
PESU is intended for configurations that require
less than three standard telephone ports and/or
less than five electronic telephone ports, on systems
that mix standard and electronic telephones.
1.15 Up to four CO lines can be connected with the
CO line unit PCB (PCOU).
1 .16 With the exception of the control PCB which
has its own dedicated slot, any of these PCBs can
be used in any of the universal slots (DK24 has six
universal slots, DK56 has eight, and DK96 has 14).
Table 4-C shows all the PCBs which can be in-
stalled in universal slots and the maximum quantity
of each PCB allowed per system. It is useful to
consider some examples of system configuration
as follows:
Example 1-A small business requires a system to
handle six CO lines, 12 electronic telephones
and three standard rotary type telephones.
l
The PCBconfiguration (in addition to Release
1 or 2 common equipment) is as follows:
4-2

0
Two PCOU PCBs
Two PEKU PCBs
One PSTU PCB
Each of these PCBs requires one universal
slot, so a total of five slots is required. There-
fore, a DK24 can be used.
Example
2-A bank branch office needs nine CO
I lines, seven electronic telephones, five digital
telephones, and 11 standard rotary type tele-
phones.
l
The PCB configuration (in addition to
Release
3 common equipment) is as follows:
Three PCOU PCBs
One PEKU PCB
I One PDKU PCB
Two PSTU PCBs
l
The configuration requires seven universal
slots; therefore, DK24 is ruled out, because
it has only six universal slots. Offering 14
universal slots, DK96 could be used, but it is
a little too big for the office’s needs at the
moment. DK56, with its eight universal slots,
could meet those needs immediately. Also,
DK56 could accomodate some expansion of
lines or stations in this case, since there
would be one empty universal slot.
Example
3-A large travel agency needs 18 CO
I
lines, 14 electronic telephones, 14 digital tele-
phones, nine standard DTMF telephones and
one FAX machine, all connected to one system.
l
Since DTMF is required, an additional
subassembly (CRCU) is needed to translate
DTMF to signals that STRATA DK can un-
derstand. The CRCU is a subassembly that
mounts on the common control PCB (PCTU),
which is part of the STRATA DK common
equipment. The PCTU has its own dedicated
slot in the KSU separate from the available
universal slots. In summary, an additional
subassembly (CRCU) is required for DTMF
but the maximum number of universal slots
remains at six for DK24, eight for DK56, and
14 for DK96. Lastly, a FAX machine is treated
like a standard telephone and can use DTMF
dialing, since the capability exists in the
system because of the standard DTMF tele-
phones.
l
The PCB configuration (in addition to com-
0
2.01
INSTALLATION-CONFIGURATION
SECTION 200-096-204
FEBRUARY 1991
mon equipment) is as follows:
Five PCOU PCBs .
Two PEKU PCBs
Two PDKU PCBs I
One PSTU PCB
One PESU PCB
One CRCU subassembly
Each of these PCBs, except for the CRCU,
requires one universal slot. Therefore, a total
of 11 slots are required. This is beyond the
capacity of DK24 and DK56 (six and eight
slots, respectively) but well within DK96’s
capacity.
2 OPTION INTERFACING
Numerous options, such as a paging ampli-
fier, external page interface (one zone), relay con-
trol, etc., require an additional PC6 called the
PEPU. If even more options are required, such as
multi-zone paging, alarm sensor, SMDR or remote
maintenance, then the PIOU or a PIOUS PCB
would be needed. Table 4-D provides more details
about the capabilities of these PCBs. Only one of
these PCBs would be needed in a STRATA DK
system because the PIOU can do everything the
PEPU or PIOUS can do and more. If any of these
options are required, one universal slot is needed
to accommodate the appropriate PCB, thereby
reducing the maximum CO line/station capabilities
by eight station ports or four CO lines. Only one
option PCB is allowed per DK system.
2.10 DDSS and DSS Consoles
2.11 Up to four DSS consoles can be accomodated
by DK24, DK56, or DK96 equipped with a PCTUI
or 2 (PCTUl or 2 does not support DDSS con-
soles). Up to four DDSS consoles, or up to four DSS
consoles, or any combination up to four can be
accommodated by a DK24, DK56, or DK96
equipped with a PCTU3. A DK24 equipped with a
PCTUSl can support up to three DSS consoles
only (PCTUSl cannot support DDSS consoles). In
addition, the application of DDSS consoles is flex-
ible so that one to four DDSS consoles can be
assigned to one digital or electronic telephone, or
one DDSS console to each of four digital or elec-
tronic telephones, or any intermediate combination
(this also applies to DSS consoles and electronic
4-3

INSTALLATION-CONFIGURATION
SECTION 200-096-204
FEBRUARY1991
telephones). Each DDSS console does not require
a specialized interface PCB; instead, each DDSS
console takes the place of one digital telephone on
a PDKU PCB. However, only one DDSS console
may be interfaced to a PDKU, and it must interface
to circuit 8. Likewise, each DSS console does not
require a specialized interface PCB; instead, each
DSS console takes the place of two electronic
telephones on a PEKU PCB. However, only one
DSS console may be interfaced to a PEKU, and it
must interface to circuits 7 and 8. Table 4-E pro-
vides more details regarding DDSS and DSS con-
soles.
Example
4-An end user requires nine CO lines,
15 electronic telephones, one DSS console and
external paging.
l
If external paging speakers can be driven
with 3 watts or less, then the PEPU PCB can
be employed as the paging amplifier. Since
each DSS console requires the equivalent of
two electronic telephones for interface, a
total of 17 equivalent electronic telephones
must be interfaced and, therefore, three
PEKU PCBs are needed. Aside from com-
mon equipment, the PCBs required for this
configuration are as follows:
Three PCOU PCBs
Three PEKU PCBs
One PEPU PCB
l
A total of seven universal slots are needed
(which is within the maximum of DK56’s eight
universal slots).
Example
5-A mid-sized business needs 15 CO
1 lines, 12 digital telephones, two DDSS consoles,
14 electronic telephones, two DSS consoles,
external paging system interface to drive an
existing 8-ohm speaker, and SMDR.
l
Because SMDR is a requirement, the PIOU
amplified page output and SMDR interface
will be needed. This unit can also handle the
external paging system interface require-
ment. Two DDSS consoles require the
equivalent of two digital telephone circuits in
addition to the 12 digital telephones, for a
total of 14 digital telephone circuits; this
results in the installation of two PDKU PCBs.
Two DSS consoles require the equivalent of
four electronic telephones, for a total of 18
electronic telephone circuits; this results in
the installation of three PEKU PCBs. The -
final PCB configuration (in addition to corn- .j
mon equipment) is:
Four PCOU PCBs
Three PEKU PCBs
Two PDKU PCBs I
One PIOU PCB
l
The total universal slots needed equals 10,
so that a DK96 would be sold to this busi-
ness.
2.20 Data Interface Units (PDIU-DI and PDIU-DS)
2.21 Integrated Data Interface Unit (PDIU-DI):
Digital telephones may be equipped with a PDIU-
DI. The PDIU-DI is not astand-alone unit, and must
be attached to a digital telephone. Each system can
support amaximum numberof PDIU-Dls, asshown
in Table 4-B. The PDIU-DI and the digital telephone
it is integrated into share the same circuit on the
PDKU PCB.
2.22 Stand-alone Data Interface Unit (PDIU-DS):
Each PDIU-DS requires one circuit on a PDKU
PCB. A PDIU-DS can be connected to any circuit
on a PDKU, and as many as eight can be con-
nected to a PDKU. Unlike the PDIU-DI, the PDIU-
DS does not share a circuit with a digital telephone.
Therefore, each PDIU-DS reduces the digital tele-
phone maximum capacity by one. Each system can
suppot-tamaximumnumberofPDIU-DSs,asshown
in Table 4-B.
NOTE:
1. The PDIU-DI and PDIU-DS will function
with all slots, except slots 11 - 14 in DK96.
2. PDKU circuits 1 - 7 can support PDIU-Dls
and PDIU-DSs.
Example
6-A small law firm requires three CO
lines, IO digital telephones (all of which will be
equipped with a PDIU-DI connected to a per-
sonal computer) and two PDIU-DSs connected
to modems.
l
The telephones will require IO PDKU circuits
and the modem/PDIU-DSs two more. The
PDIU-Dls do not require a dedicated circuit,
because they share one with the digital tele-
phones to which they are connected. A total
of 12 digital circuits are required for this
configuration; therefore, two PDKUs would
4-4

INSTALLATION-CONFIGURATION
SECTION 200-096-204
FEBRUARY1991
be needed. The three CO linescan be handled
by one PCOU PCB.
The two modems are configured in a system
modem pool and if no dedicated CO lines are
provided, then one standard telephone
(PSTWPESU) station port is required for
each; therefore a PESU or PSTU would be
needed. The PCBs required for this configu-
ration are as follows:
Two PDKUs
One PCOU
One PESU or PSTU
A total of four universal stations needed.
A DK24 would suffice for this configura-
tion.
Example
~-TWO tenants in one building require,
on a combined basis, 13 CO lines, 23 electronic
telephones, eight standard DTMF telephones, a
FAX machine, four DSS consoles, remote main-
tenance, and an interface to their alarm system.
l
The PIOUS PCB can provide remote mainte-
nance for their telephone system and also act
as an alarm sensor to alert employees through
electronictelephones. An IMDU subassembly
on the PIOUS fulfills the need of a modem for
remote maintenance, but does not deduct
from the universal slot count. The four DSS
consoles need to be interfaced as eight elec-
tronic telephones in addition to the 23 elec-
tronic telephones (resulting in a total of 31
equivalent electronic telephones). Therefore,
a total of four PEKU PCBs would be installed,
which would each have a DSS console con-
nected. One FAX machine in addition to eight
standard telephones means that one PSTU
and one PESU PCB are needed. Because
DTMF is coming into the system, a CRCU
needs to be installed, but does notdeductfrom
the universal slots available. The total PCB
requirement (in addition to common equip-
ment) is as follows:
Four PCOU PCBs
Four PEKU PCBs
One PSTU PCB
One PESU PCB
One PIOUS PCB
One IMDU subassembly
One CRCU subassembly
l
A total of 11 universal slots are required, so
a STRATA DK96 can fill the bill.
2.30 Door Phones
2.31 Up to 12 door phones (MDFB) can be accom-
modated by either a DK24, DK56, or a DK96
equipped with a PCTU (1,2, or 3). However, DK24
equipped with PCTUSI can support only nine door
phones. A door phone control (HDCB) interface
unit is required for every three door phones. Each
HDCB is interfaced to a STRATA DKsystem via the
PEKU or PESU PCB, and must occupy circuit 5 on
either PCB. For system configuration, each HDCB
must be considered equivalent to an electronic
telephone as far as consuming station capacity.
Table 4-E provides more details regarding HDCB
configuration.
2.40 E & M TIE Lines
2.41 Each PEMU PCB provides interface to four
TIE lines. Up to four TIE lines can be accommo-
dated by DK24, up to eight by DK56, and up to
twelve by DK96. TIE lines (PEMU) are the same as
CO lines (PCOU), when considering the maximum
total outside lines in a system. The maximum lines
per system are 16 for DK24,24 for DK56, and 36 for
DK96. In addition, each PEMU uses up station
ports so that the software-limited station capacity of
a system is reduced with every PEMU added. The
number of station ports consumed by the PEMU
depends on the type of PCTU used. If a PCTU (1,
2, or 3) is installed, the PEMU reduces the system
station capacity by four. If a PCTUSI is installed,
each PEMU reduces the station capacity by eight.
This is of concern only in a DK24 system that
requires more than 16 stations. Each PEMU added
to a system uses up one universal slot.
NOTE:
DK24’s limit of four TIE lines (one PEMU) is
due to power supply capacity. Do not exceed
this limit.
2.50 Off-hook Call Announce
2.51 If upgraded, each digital and electronic tele-
phone can receive off-hook call announce (OCA)
calls. In addition, PEKU PCBs supporting elec-
4-5

INSTALLATION-CONFIGURATION
SECTION 200-096-204
FEBRUARY1991
tronic telephones with OCA must also be upgraded
with an EOCU subassembly. However, PDKU PCBs
supporting digital telephones with OCA require no
such upgrade. Telephones calling to an OCA-
equipped digital or electronic telephone do not
require an upgrade.
l
To receive OCA calls, a digital telephone must be
upgraded with asubassembly called DVSU. Each
digital telephone can be so equipped.
l
To receive OCA calls, an electronic telephone
must be upgraded with two subassemblies, HVSU
and HVSI. Each electronic telephone can be so
equipped; there is no limit. Also, each PEKU or
PESU PCB supporting telephones equipped for
OCA must be upgraded with an EOCU. This means
that every electronic telephone which must re-
ceive an OCA call must be connected to a PEKU
or PESU equipped with the EOCU subassembly.
Therefore, OCA-equipped electronic telephones
should be kept in groups of four in concert with a
particular PESU and in groups of eight with a
particular PEKU. Since the EOCU is a subassem-
bly on the PEKU or PESU, it does not reduce the
number of available universal slots.
l
All system slots, except DK96’s 11-l 4and DK24’s
05 and 06 with PCTUSl , support telephone OCA
receiving.
2.60 Data and Modems with Release 1 or 2
2.61
Passing data at up to 9600 bits per second
through the STRATA DK standard telephone ports
is possible. To accomplish this function, an exter-
nal, commercially available modem is required.
Most typically, the modem will be housed in a
personal computer and have its own two-wire
modular connection. It is interfaced to STRATA DK
via a PSTU or PESU PCB as if it were a standard
telephone. The IMDU modem discussed previ-
ously in Example 6 can only be used with the PIOU
or PIOUS PCB for remote maintenance.
IMPORTANT NOTE:
For data applications requiring more func-
tions than that provided by a personal
computer and modem, it is recommended
to use the STRATA DK data interface units,
PDIU-DI and PDIU-DS. This includes data
applications such as modem pooling,
printer sharing, PC-to-PC file transfer, etc.
Example
8-A sizable business needs 15 CO lines,
three E&M TIE lines, 37 electronic telephones,
two DSS consoles, four door phones, three
standard telephones, a FAX machine, three
modems, off-hookcall announceforseven of the
37 electronic telephones, and three-zone pag-
ing. The customer also wishes to use the Direct
Inward System Access (DISA) feature.
l
The four door phones require two HDCBs
since each HDCB has a maximum of three
door phones. Each HDCB interfaces as an
equivalent electronic telephone. The two DSS
consoles count as the equivalent of four
electronic telephones, in addition to the two
for the HDCBs and the 37 actual electronic
telephones, resulting in 43 equivalent elec-
tronic telephones. The system, therefore,
requires six PEKU PCBs. One of the PEKUs
needs an EOCU PCB to accommodate the
seven electronic telephones that will have
off-hookcall announce. This particular PEKU
should be one that does not interface a DSS
console, because the DSS console inter-
faces as the equivalent of two electronic
telephones, so only six electronic telephones
could have the OCA feature. These seven
electronic telephones should, therefore, have
certain station numbers in order to save the
extra expense of additional EOCU PCBs.
l
The equivalent of seven standard telephones
need to be interfaced, so only one PSTU is
required. A CRCU PCB will be required for
the DISA feature, since DTMF tones will be
coming into the KSU. Therefore, the stan-
dard telephones and like devices can use
DTMF without any additional cost. If only one
zone of external paging is needed, a PEPU
or PIOUS PCB could do the job. But three
zones are required, so a PIOU PCB will be
installed. For 15 CO lines, four PCOU PCBs
are needed. Only one PEMU PCB is required
for the three TIE lines. The PEMU uses up
four stations from the total station capacity,
but no extra hardware is required because of
this, and this system is very far from using the
maximum station capacity so it is not of
concern here.
l
In summary, the total PCB requirement (in
addition to common equipment) is as fol-
lows:
4-6

Four PCOU PCBs
One PEMU PCB
Six PEKU PCBs
One PSTU PCB
One PIOU PCB
One EOCU subassembly
One CRCU subassembly
l
A total of 13 universal slots (one for each of
the PCBs with the prefix “P”) will be used in
this DK96 system. It is working with 18 tele-
phone lines and 48 station devices so it is
quite a large system. Another five electronic
telephones could be added without requiring
use of another universal slot.
2.70 Miscellaneous
2.71
Other hardware items may be needed in a
particular system configuration. These include the
DPFT power failure transfer unit, used to connect
CO lines to standard telephones in the event of a
power outage; the HESB speaker/amplifier, which
may interface with an digital or electronic telephone;
the HHEU headset interface, which may be re-
quired to hook up an HESB or a headset to a digital
or 6500-series electronic telephone; an HESC-65
cable, to connect the HESB to a 6500-series
electronic telephone; a PBTC-3M cable, for con-
nection to reserve batteries or a PPTC connector
for an SMDR printer, TTY, or remote maintenance
terminal interface. More details on these miscella-
neous items can be found in Table 4-F, the General
Description, and other Installation chapters.
I
NOTE:
An HESC-65A only is required to connect a
digital telephone to an HESB; this cable can
also be used with 6500-series electronic
telephones.
2.80 Ports
2.81 Interfaces to each of some devices (such as
telephones) in the STRATA DK system can be
referred to as ports. Therefore, a PEKU, PDKU,
I PSTU, and PESU PCB can be said to have station
ports (see Note 2). STRATA DK system program-
ming uses port numbers to identify which device
will be equipped with desired features or operation.
INSTALLATION-CONFIGURATION
SECTION 200-096-204
FEBRUARY1991
The first port number is 00 and can continue up to
95 with a PCTU (1,2, or 3) PCB and up Jo 23 with
a PCTUS PCB. Port 00 is usually intercom station 200, 1
and is designated as the primary system attendant
station. Intercom numbering can becompletely flexibly
assigned, but is best left to the consecutive standard
numbering of 200 N 295 with PCTU (1, 2, and 3) and 1
200 N 223 with PCTUSl . User guides are written using
this standard plan, and LCD digital and electronic 1
telephone busy fields will be meaningful only if the last
two digits of the intercom number are consecutive,
starting with 00.
NOTES:
1. Each PEMU uses four station ports and four
CO lines; however, if the PEMU is installed in
a DK24 with a PCTUSl PCB, on/y 16 station
ports are available for station interface using
PEKU, PSTU, or PESU PCBs, because the
PCTUSassigns, eightstationports to the PEMU
PCB.
2. Each PEW provides two standard and four
electronic telephone ports for a total of six
stationports; however, two nonfunctioningpotis
(circuits 3 and 4) are automatically assigned to
the PESU so a total of eight station ports are
allocated to each PESU PCB installed.
2.90 CO Lines
2.91 Telephone network CO lines interface to the
STRATA DK PCOU PCB. Four circuits are provided by
each PCOU. These circuits are identified as CO lines
in DK system software and are not considered as ports
but are in addition to ports when considering total
system station and line capacity.
NOTE:
Each PEMUuses four CO lines in system software
as well as four PCTU 1,2,3 or eight PCTUS ports
in system software.
3 WORKSHEETS
3.00 To use a methodical step-by-step procedure to
configure a system, worksheets are provided in this
section. Use of these worksheets will automatically
consider all of the various factors.
4-7

INSTALLATION-CONFIGURATION
SECTION 200-096-204
FEBRUARY 1991
CONFIGURATION GUIDE, WORKSHEET 1
Customer: Location:
Complete Worksheet 1 before proceeding with other worksheets.
Al. DSS consoles required (refer to HDSS in Table 4-E): 1 (Al) HDSS I
A2. Door phones/locks required (refer to HDCB in Table 4-E): 1 (A2) HDCBs 1
A3. Electronic telephones required (refer to PEKU and PESU in Table 4-C):
NOTE:
If upgrading an existing STRATA DKsystem using ZOOO-/3000-/6000-/6005-series electronic telephones
and/or if the system requires TIE lines (PEMU), refer to the System Power Check, Worksheet 7.
I
(A3)Total electronic telephones I
A4. Does the customer require separate music sources for music-on-hold (MOH) and background
music (BGM). Yes or no? (A4) . If separate sources are required, one PEKU port is needed
for the BGM source connection.
A5. External amplifier for two-CO line amplified conference (4 maximum).
I
(A5) Two-CO line conference amplifiers: I
NOTE:
External amplifiers are customer-supplied.
AAl. DDSS consoles required (refer to DDSS in Table 4-E): 1 (AAl) DDSS
AA2. PDIU-DSs required (refer to PDIU-DS in Table 4-E): 1 (AA2) PDIU-DS
AA3. Digital telephones with or without PDIU-DI data interface unit base required (refer to PDKU in
Table 4-C):
r+yl=I (AA3) Total digital telephones
NOTE:
If upgrading an existing STRATA DK system to add digital telephones with PDIU-DI base and/or if the
system requires TIE lines (PEMU), refer to the System Power Check, Worksheet 7.
Bl . Number of standard telephones required (refer to PSTU and PESU in Table 4-C).
(Bl) Standard telephones: ’
4-a

INSTALLATION-CONFIGURATION
SECTION 200-096-204
FEBRUARY 1991
WORKSHEET 1 (continued)
B2. Number of auxiliary devices/ports, i.e., voice mail ports, auto attendant ports, fax machines,
modems (refer to PSTU and PESU in Table 4-C).
I( )
B2 Auxiliary devices: I
C. Number of CO lines required (refer to PCOU in Table 4-C):
D. Number of E&M TIE lines required (refer to PEMU in Table 4-C):
E.
Does the customer require options that interface with a PIOU, PIOUS, or PEPU PCB? Yes
No--- (refer to Table 4-D). Enter optional interface PCB type:
Optional Interface PCB:
F. Does the customer require other optional features (yes or no for each): battery backup-, power
failure transfer unit-, DTMF signals from standard telephone ports-, off-hook call
announce-, headsets-, built-in remote maintenance-, loud ringing bell-, talkback
amplifier-, external pageamplifier/speaker-, door phones-, door lock controls-, PDIU-DI
-- 1
NOTE:
These options are configured on Worksheet 6 after completing Worksheets 2 - 5.
G. Complete Worksheets 2 N 5.
4-9

INSTALLATION-CONFIGURATION
SECTION 200-096-204
FEBRUARY 1991
CONFIGURATION GUIDE, WORKSHEET 2
(PEKLVPDKU PCB requirements)
Customer Location
B. PEKU PCBs (eight station ports)
1. Determine the total PEKU ports required using Chart 1.
CHART I-PEKU PORT REQUIREMENTS
Equipment Type: Equipment
Quantity x (Ports/
per) = Ports Used
DSS consoles: (Al) x 2 =
(see Worksheet 1, Al)
HDCB controllers:
VW
x 1 =
(see Worksheet 1, A2)
Electronic telephones: (A3) x 1 =
(see Worksheet 1, A3)
BGM/MOH separation: (A4) x 1 =
(see Worksheet 1, A4)
Conference amplifiers: VW x 2 =
(see Worksheet 1, A5)
Total PEKU Ports =
2. Determine the minimum PEKU PCBs required using Chart 2.
CHART P-MINIMUM PEKU PCB REQUIREMENTS
-r
01-08 09-16 17-24 25-32 33-40 41-48 49-56 57-64
3 4 5 6 7 8
65 - 72 73 - 80
I
9 IO
81 - 88 89 - 96
11 12
3. Determine the actual PEKU PCBs required using Charts 1 and 2 as follows:
Actual PEKUs (AT) = (Am) or (Al) or (A2) whichever is the largest number.
Actual PEKU PCBs = -..-.Jv 1
4. PESU:
In a configuration that requires less than five electronic telephone station-ports, a PESU
PCB may be used in place of a PEKU PCB. The PESU supports HDCBs and a BGM source .:.
connection as well as electronic telephones. It does not support a DSS console. Normally, only .I’
one PESU is installed in a system (see PSTU, Worksheet 3).
4-l 0

INSTALLATION-CONFIGURATION
SECTION 200-096-204
FEBRUARY 1991
CONFIGURATION GUIDE, WORKSHEET 2
(continued)
(PEKWPDKU PCB requirements)
Customer Location
AA. PDKU PCBs (eight station ports)
1. Determine the total PDKU ports required using Chart IA.
CHART IA-PDKU PORT REQUIREMENTS
Equipment Type: Equipment
Quantity x (Ports/
per) = Ports Used
DDSS consoles: (AAI) x 1 =
(see Worksheet 1, AAI)
PDIU-DSs: (AA2) x 1 =
(see Worksheet 1, AA2)
Digital telephones (with VW x 1 =
or without PDIU-Dls):
(see Worksheet 1, AA3)
Total PDKU Ports =
L
2. Determine the minimum
PDKU PCBs required using Chart 2A.
CHART PA-MINIMUM PDKU PCB REQUIREMENTS
Total
Ports
01-08 09-16 17-24 25-32 33-40 41-48 49-56 57-64 65-72 73-80 81-88 89-96
(Chart IA)
Minimum
PDKU 1
2 3 4 5 6 7 8 9 10 11 12
PCBs
(AAm)
3. Determine the actual
PDKU PCBs required using Charts IA and 2A as follows:
Actual PDKUs (AAT) = (AAm) or (AAl) whichever is the largest number.
Actual PDKU PCBs = -(AAT) 1
4-11

INSTALLATION-CONFIGURATION
SECTION 200-096-204
FEBRUARY 1991
CONFlGURJiTlON GUIDE, WORKSHEET 3
(PSTWPESU PCB requirements)
B. PSTU PCBs (eight station ports)
1. Determine the total PSTU ports required using Chart 3.
CHART 3-PSTU PORT REQUIREMENTS
Equipment Type: Equipment
Quantity X Ports = Ports Used
Standard telephones: WI x 1 =
(see Worksheet 1, Bl)
Other devices:
WI
x 1 =
(see Worksheet 1, B2)
Total PSTU Ports =
2. Determine the actual PSTU PCB requirements using Chart 4.
CHART 4-ACTUAL PSTU PCB REQUIREMENTS
Total
Ports
(Chart 3)
PSTU
PCBs
1 Actual PSTU PCBs = (BT1)I
81 - 88 89 - 96
12
3. PESU:
In a configuration requiring less than two PSTU station ports, a PESU PCB can be used
in place of a PSTU PCB. Normally, only one PESU is installed in a system.
Actual PESU PCBs -(BT.9
4-12

INSTALLATION-CONFIGURATION
SECTION 200-096-204
FEBRUARY 1991
CONFIGURATION GUIDE, WORKSHEET 4
C. PCOU PCBs (four CO lines)
1. Enter the number of CO lines required from Paragraph C of Worksheet 1.
CO lines
2. Determine the number of PCOU PCBs using Chart 5.
CHART 5-ACTUAL PCOU PCB REQUIREMENTS
co
Lines
01-04 05-08 09-12 13-16 17-20 21-24 25-28 29-32 33-36
(C) above
PCOU
PCBs
1 2 3 4 5 6 7 8 9
Actual PCOU PCBs = -.Ac-u (
D. PEMU PCBs (four TIE lines)
1. Enter the number of TIE lines from Paragraph D of Worksheet 1.
TIE lines
2. Determine the number of PEMU PCBs using Chart 6.
CHART 6-ACTUAL PEMU PCB REQUIREMENTS
TIE
Lines
01 -04 05-08 09-12
(D) above
PEMU
1 2 3
PCBs
I
Actual PEMU PCBs = -..Aw )
E. PIOU/PIOUS/PEPU PCBs (see Paragraph E of Worksheet 1)
Enter type of optional interface from Paragraph E of Worksheet 1 if required. Only one per system.
Actual Interface PCB -.wW I
4-13

INSTALLATION-CONFIGURATION
SECTION 200-096-204
FEBRUARY 1991
I
I
I
I
I
I
I
I
I
I
CONFIGURATION GUIDE, WORKSHEET 5
F. System and Slot Check .
1. Add total PCB/slot requirements (from Worksheets 2 N 4): AT + AAT+ BTl + BT2 + CT + DT + ET
= total. PCB/slot
IMPORTANT NOTE!
One or two additional slots should always be considered for future growth.
2. If total is six or less, use
DK24
and
PCTUSl
with the following considerations:
a. Total PEKU/PSTU/PESU PCBs combined: three or less (no PEMU equipped).
b. Total PEKU/PSTU/PESU PCBs combined: two or less (PEMU equipped).
c. Total PCOU PCBs:.four or less.
d. Total PEMU PCBs: one or less. DK24 with PCTUS
e. DSS consoles: three or less.
f. HDCB controllers: three or less.
g. If using 2000~/3000-/6000-/6005series electronic telephones and/or a PEMU, use Power
Check, Worksheet 7.
3. if total is six or less, use
DK24
and
PCTU (1,
2, or 3) with the following considerations:
a. Total PDKU/PEKU/PSTU/PESU PCBs combined: four or less (no PEMU equipped).
b. Total PDKU/PEKU/PSTU/PESU PCBs combined: three or less (PEMU equipped).
c. Total PCOU PCBs: six or less.
d. Total PEMU PCBs: one or less. DK24 with PCTUl , 2, or 3
e. Combined DDSS and DSS consoles: four or less.
f. HDCB controllers: four or less.
g. If using 2000-/3000-/6000-/6005series electronic telephones, PDIU-Dls, and/or a PEMU, use
Power Check, Worksheet 7.
4. If total is eight or less, use
DK56
and
PCTU (1,
2, or 3) with the following considerations:
a. PDKU/PEKU/PSTU/PESU PCBs combined: eight or less.
b. PCOU PCBs: eight or less.
c. PEMU PCBs: two or less.
d. PEMU and PCOU: eight or less. DK56 with PCTUI, 2, or 3
e. Combined DDSS and DSS consoles: four or less.
f. HDCB controllers: four or less.
g. If using 2000-/3000-/6000-/6005-series electronic telephones, PDIU-Dls, and/or a PEMU, use
Power Check, Worksheet 7.
5. If this total is above eight, use
DK96
and
PCTU (1,
2, or 3) with the following considerations:
a. PDKU/PEKU/PSTU/PESU PCBs combined: 12 or less.
b. PCOU PCBs: nine or less.
c. PEMU PCBs: three or less
d. PEMU and PCOU: nine or less. DK96 with PCTUl , 2, or 3
e. Combined DDSS and DSS consoles: four or less.
f. HDCB controllers: four or less.
g. If using 2000-/3000-/6000-/6005-series electronic telephones, PDIU-Dls, and/or a PEMU, use
Power Check, Worksheet 7. I
NOTE:
PDKU and DDSS rewire PCTU3.
4-14

INSTALLATION-CONFIGURATION
SECTION 200-096-204
FEBRUARY 1991
CONFIGURATION GUIDE, WORKSHEET 6
(miscellaneous option requirements) .
G. CRCU PCBs (refer to Table 4-F):
1. A CRCU (-4 or -8) must be installed on the PCTUSl or PCTU2 or PCTU3 PCB if the customer
has TIE lines, DISA CO lines, or is using standard telephones or voice mail type devices
connected to PSTU or PESU standard telephone ports.
2. For normal traffic, a CRCU-4 (providing four DTMF receiver circuits) will be sufficient. However,
for extremely high traffic requirements, a CRCU-8 (providing eight DTMF receiver circuits) may
be required.
CRCU-4 or CRCU-8
NOTE:
Only one CRCU can be used per system.
H. EOCU (refer to Table 4-F):
An EOCU must be installed on each PEKU and/or PESU that is connected to electronic telephones
receiving off-hook voice announcements (OCA).
Actual EOCU PCBs
NOTES:
1. One EOCU for each PEKU or PEW that supports electronic telephones that must receive OCA.
2. Be sure thatproperconsideration is given to where the PEKU or PESU is placed to provide the most
efficient use of the 8-circuit EOCU. The PESU only provides four electronic telephone ports; the
DSS consoles take a way two ports on a PEKU; an HDCB takes a way one port on a PESU or PEKU.
3. AnEOCU(OCA)willnotfunctioninslotsll - 14onDK96andslots05-06onDK24withPCTUSl.
I. DVSU (refer to Table 4-F):
One DVSU is required for each digital telephone receiving OCA.
Actual DVSU
J. HVSWHVSI (refer to Table 4-F):
One HVSU and one HVSI is required for each electronic telephone receiving 00,.
Actual HVSU and HVSI
K. IMDU PCB (refer to Table 4-F):
One IMDU PCB must be installed on the PIOU or PIOUS PCB to provide built-in remote maintenance
capability.
L. HHEU PCB (refer to Table 4-F):
One HHEU PCB must be installed in each digital and electronic telephone that
suppo& a headset
or
connects to an HESB providing a loud ringing bell.
Actual HHEU PCBs
4-15

INSTALLATION-CONFIGURATION
SECTION 200-096-204
FEBRUARY 1991
M.
N.
0.
P.
Q.
R.
S.
I
T.
CONFIGURATION GUIDE, WORKSHEET 6 (Continued)
HESG65A (refer to Table 4-F): .
One HESC-65A modular connecting cable is required to connect the HESB to the HHEU in each digital
telephone requiring the loud ringing bell option. The HESC-65A can also be used to connect HHEU-
equipped 6500-series electronic telephones to HESBs for the loud ringing bell option.
Actual HESC-65A
HESC-65 Cable (refer to Table 4-F):
One HESC-65 modular connecting cable is required to connect the HESB to the HHEU in each
electronic telephone requiring the loud ringing bell option.
Actual HESC-65:
HESB Amplifier/Speaker (refer to Table 4-E):
1. One HESB is required for each digital and electronic telephone providing the loud ringing bell
option.
2. One HESB is optional to provide single-zone external page connected to either a PIOU, PIOUS,
or PEPU (customer-supplied amplifiers/speakers may be used in place of HESB).
3. One HESB is optional to provide a talkback amplifier/page speaker connected to a PIOU, PIOUS,
or PEPU (a customer-supplied talkback amplifier/page speaker may be used in place of HESB).
PBTC-3M Cable:
pizziGl
One PBTC-3M cable is required for each system that requires battery backup (batteries are customer-
supplied). piiEziq
PPTC Adaptor (Modular to RS-232)
A PPTC is required (one each) to connect a printer or call accounting device to the PIOU or PIOUS
SMDR port; or to connect a modem or ASCII terminal to the PIOU or PIOUS maintenance port (TTY).
p7E-l
DPFT Unit:
The DPFT provides a means to connect eight selected CO lines to standard telephones in the event
of a power failure. p-j
MDFB:
The MDFB door phone unit plugs into the HDCB control box to provide a door phone. Three MDFBs
can be connected to each HDCB. The MDFB may also be connected to the HESB amplifier/speaker
to provide page talkback.
PDIU-DI (refer to Table 4-B): piq
,
Digital telephones must be equipped with a PDIU-DI to transmit and receive voice and data.
Actual PDIU-Dls
4-16

INSTALLATION-CONFIGURATION
SECTION 200-096-204
FEBRUARY 1991
CONFIGURATION GUIDE, WORKSHEET 7
(System Power Check)
Total Power Used:
Equipment Type: Equipment
Quantity x Power Used =
(Factor)
Power Used
1 OOO-series digital telephone
2000-series electronic telephone
3000-series electronic telephone
6000-series electronic telephone
6005-series electronic telephone
6500-series electronic telephone
DDSSDSS console*
PDIU-DI
PDIU-DS
Standard telephone
PEMU PCB
X (1.0) =
X (2.0) =
X (2.5) =
X (2.0) =
X (2.0) =
X (1.0) =
X (0.8) =
X (0.5) =
X (0.8) =
X (1.0) =
X (8.0) =
Total Power Used
* All series.
Power Supplied:
Power Supply
PPSU 24
PPSU 56
PPSU 96
Power Criteria:
-1 - 71 Must be greater than zero.
Configuration Power Check:
Power Supplied7 -T = ’ ’
Total Power Used
’
Must be Greater than Zero
4-17

INSTALLATION-CONFIGURATION
SECTION 200-096-204
FEBRUARY1991
TABLE4-B
SYSTEMCONTROLPCB(PCTU)CONFlGURATlONlNFORMATlON
Control Board Version PCTUl/PCTUP/PCTU3 PCTUS
System Compatibility
DK24/56/96 DK24 only
PCTUI -Release 1
DK Feature Set
PCTU2-Release 2 Release 2
PCTU3-Release 3
Universal PCB Slot
Capacity
Station Port
Capacity
CO Line Capacity
(squared systems)
TIE Line Capacity
DSS or DDSS Consoles
(or combination)
6 max with DK24
8 max with DK 56
14 max with DK96
32 max with DK24
56 max with DK 56
96 max with DK96
16 max with DK24
20 max with DK 56
36 max with DK96
4 max with DK24
8 max with DK 56
12 max with DK96
4 max
6 max
24 max
16 max
4 max
3 max
Door Phones
12 max 9 max
Door Lock Controls I
5 max (R2 and R3)
1 max (Rl) 4 max
Simultaneous
Multi-party Conference I
8 max 3 max
CRCU (-4 or -8)
Option I
1 max
PCTU MOH/BGM
Connection I
1 max
I
1 max
PDIU-DI
(PCTU3 only)
PDIU-DS
(PCTU3 only)
21 max with DK24
53 max with DK56
80 max with DK96
24 max with DK24
56 max with DK56
80 max with DK96
Not Supported
Not Supported
Personal Message/Memo
Memory for LCD Stations
Alternate BGM Connection
Simultaneous External
Amplified Two-CO Line
Conference Calls
16 stations max 6 stations max
(see Note 1) (see Note 1)
1 max (R2 and R3) 1 max
4 max (R3) Not Supported
NOTES:
1. This only applies to LCD personal memory; all stations in any DK system can be an LCD
telephone.
2. In the DK24 and DK56 PDIU-Dls and PDIU-DSs are limited by the systempower capacity
per worsheet 8; both DlUs are limited to slots 0 1- IO in the DK96. .’
4-18

INSTALLATION-CONFIGURATION
SECTION 200-096-204
FEBRUARY1991
Vinted Circuits per
Zircuit Printed
Board Circuit Board
PCB Maximum Capacities
(Ports/Lines)
DK24 DK56 DK96
PCTUSl PCTU PCTU PCTU
(l/2/3) (l/2/3) (l/2/3)
Interface to:
0
I
PDKU
8/Digital Telephone
=W=
(POETS,
Digital)
JCTU3)
(without PDIU-DI)
(with PDIU-DI)
8/Electronic Telephone
PEKU ’
(Ports, Electronic)
3 4 8 12 * Digital Telephones
- DSS Consoles
(24) (32) (64) (96) * PDIU-DI
(N/A) (32) (64) (96) * PDIU-DS
(N/A)
(21 j5
(53?
W5
3 4 8 12 * Electronic Telephones
* HDCB Door Phone Box
* DSS Consoles
(24) (32) (64) (96) * BGM Source
* EOCU PCB for OCA
* Amplified Conference
* Standard Telephones
(r
PC
i
PSTU
8/Standard Telephone 3 4 7 12 * Voice Mail Ports
* FAX
(Ports, Standard) (24) (32)
(56) (96)
* Dictation Machine
* Off-premises Stations
* Other similar devices
PESU 2
2/Standard Telephone
equires
4/Electronic Telephone 3 5 8 12 Standard: Same as PSTU
‘TU2 and (Ports Standard/
shove)
Electronic)
(6/12) (1 O/20) (16/32) (24/48) ;~~t;&~ame as PEKU
4/CO Lines 4 5 7
PCOU
9 * Central Office
(Lines)
(16) (20) (28)
(36) Loop-Start Lines
PEMU 3
4/TIE Lines 1 1 2 3 * E&M TIE Lines
- Type I - Signaling
(Lines) (4) (4)
(8) (12)
- 2 or 4 wire transmission
- Immediate start
I
C
PIOU,
PIOUS
See Table 4-F 1 1 1 1 See Table 4-F
)r PEPU
NOTES:
TABLE4-C
UNIVERSAL SLOT/PCB CAPACITIES
1. The appropriate capacities apply to 1 OOO-series digital and 6500-series electronic telephones only.
if other Toshiba electronic telephones (2000-, 3000-, 6000-) are used, refer to Paragraph 1.12.
2. The PESU provides two standard telephone circuits identical to PSTU circuits and four electronic
telephone circuits identical to PEKU circuits. Normally only one PESU is installed in a system that
requires a mix of standard and electronic telephone circuits. A PESU is installed instead ofa PSTU,
if only one or two standard telephone circuits are needed. A PESU is installed instead of a PEKU
if only four or less electronic telephone circuits are needed, The PESU supports the door phone
option and the BGM source but not DSS consoles.
3. The maximum number of PEMU PCBs is determined by the system’s power supply capability
(caution: do not exceed the numbers shown); also; if a PEMU is installed in a DK24 with a PCTUS
PCB, only 16 station ports are available for telephones.
4. Only one type of peripheral interface PCB (PiOU, PIOUS, PEPU) may be installed per system.
5. The number of digital telephones with PDIU-Dis is limited by the system’s power capacity per
Worksheet 7. Also, PDIU-Dis are limited to slots 01 N 10 in DK96 (see Table 4-B for details).
4-19

INSTALLATION-CONFIGURATION
SECTION 200-096-204
FEBRUARY 1991
TABLE 4-D
OPTIONAL INTERFACE PCB INFORMATION
Interface Option
Unamplified Page Output
(Single zone, 600 ohms duplex)
Amplified Page Output
(Single zone, 3 watts, 8 ohms)
Zone Page Interface
(Unamplified, 4 zones)
Night Transfer or Music-on-Hold,
Control Relay
Door Lock or External Amplifier
Control Relay
PIOU
X
X
X
X
X
PIOUS
X
X
X
PEPU
X
X
X
X
Alarm Sensor
SMDR Output (RS-232/6-wire
modular connector)
Maintenance Port for a Local ASCII
Terminal or External Modem
(RS-232/6-wire modular connector)
X X
X X
X X
Remote Maintenance Modem (IMDU
subassembly, no external connector) X X
NOTE:
‘x” indicates the option is provided.
-.
.i
4-20

INSTALLATION-CONFIGURATION
SECTION 200-096-204
FEBRUARY 1991
TABLE 4-E
OPTIONAL ADD-ON UNIT CONFIGURATION
Option
Unit Interface
PCB Capacity Function
Provides a 60-button console
HDSS 4/system (PCTUI, 2, or 3) that functions with electronic
(DSS console) PEKU (circuits 7 & 8) 3/system (PCTUSl) telephones. Buttons are flexibly
assigned as CO line, speed dial
and DSS.
HDCB Each HDCB provides interface for
(door 4IsYstem (PCTUt , 2, or 3)
phone/lock PEKU or PESU (circuit 5) up to three door phones (MDFBs)
3/system (PCTUSl)
control) or two door phones and one
door lock.
l
Door monitor with two-way talk
MDFB HDCB path to system telephones.
(door phone) ‘2’system (PCTU1’ 2, Or 3,
l
Doorbell that rings designated
S/system (PCTUSl) digital and electronic telephones
l
Microphone for talkback amplifie
with HESB.
HESB
(amplified
speaker)
PIOUIPIOUS/PEPU External page amplifier
for page/speaker/amplifier 1 per PIOU/PIOUS/PEPU and speaker (talkback with
MDFB).
Electronic telephone with Loud ringing bell.
HHEU PCB for loud 1 per electronic telephone
(with HHEU PCB)
ringing bell
Provides a 60-button DDSS
console that functions with digital
DDSS console PDKU (circuit 8) 4 per system with PCTUB telephones. Buttons are flexibly
assigned as CO line, speed dial,
and DSS.
PDIU-DI* Digital telephone 1 per digital telephone
with PCTU3
(see Table 4-B)
Used for transmitting and
receiving data between terminals,
personal computers, and devices
connected to other PDIUs. The
PDIU-DI is also used to provide
personal computer access to
outside dial up data services
and/or bulletin boards via modem
pooling.
PDIU-DS* PDKU (any circuit) 8 per PDKU with For making switched data
PCTU3 connections for modem pooling,
(see Table 4-B) printer sharing, and host/
mainframe computer accessing.
DSS CONSOLE NOTES:
1. No additional hardware is required to use the DSSDDSS consoles.
2. The DDSS and DSS consoles are assigned to associated digital and electronic telephones in programming.
3. DDSS or DSS consoles cannot be connected to PEW electronic circuits.
4. DDSS or DSS consoles can be flexibly assigned to designated electronic and digital telephone stations; up to
four DSS and/or DDSS consoles may be assigned to a designated electronic or digital telephone station.
DOOR PHONE NOTES:
1. A maximum of four door phone control boxes (HDCBs) are allowed per system, equipped with a PCTU (I, 2, or 3)
or three HDCBs with a PCTUSl, to support up to twelve or nine door phones (MDFBs), respectively.
2. One electronic telephone (PEKWPESU)
poti,
always the 5th circuit port, is required per door phone control
box (HDCB).
3. HDCBs can only be connected to PEKU or PESU port numbers 04, 12,20, and 28.
4. One door lock control can be configured on each HDCB in place of one door phone.
5. PDKU does not support HDCBIMDFB door phones.
* PDIU-DI and PDIU-DS capacity is limited by system power (PPSU) or universal slots availability (see Table 4-B
for details). I I
4-21

INSTALLATION-CONFIGURATION
SECTION 200-096-204
FEBRUARY 1991
TABLE 4-F
OPTIONAL SUBASSEMBLY PCB CONFIGURATION
Subassembly
PCB Main PCB (Mount) Capacity Function
Provide off-hook call
EOCU’ PEKU or PESU One for each PEKU or announce path for all
PESU that supports OCA electronic telephone
circuits of main PCB
CRCU PCTU (1, 2, or 3) or Provides DTMF receiver for
(4
or 8 PCTUSl One per PCTU/system DISA, standard telephone/\/M
circuits) circuits and TIE lines
IMDU PIOU and PIOUS One per PIOU or PIOUS/ Remote maintenance
system interface with built-in modem
HHEU
HVSU
HVSI
DVSU
6500-series electronic
telephone and 1 OOO-
series digital telephone
6500-series electronic
telephone
6500-series electronic
telephone
1 OOO-series digital
telephone
One per electronic or
digital telephone
One per electronic
telephone
One per electronic
telephone
One per digital
telephone
Interface for headset and
loud ringing bell2
Interface for electronic
telephone to receive
off-hook call announce
Interface for electronic
telephone to receive
off-hook call announce
Interface for digital
telephone to receive
off-hook call announce
NOTES:
1, An EOCU (OCA) will not function in slots 11 * 140n DK96orslots05-060n DK24 with PCTUSl.
2. One HESC-65 cable (for electronic telephones) or one HESC-65A cable (for digital or electronic
telephones) is required to connect the HHEU to the HESB for the loud ringing bell option.
4-22

4 SYSTEM HARDWARE CONFIGURATION
4.00 General
4.01
The following provides guidelines to config-
ure the system’s PCB slots, including the recom-
mended order in which the PCBs and PCB options
should be assigned to specific slots.
4.02 This section does not detail the physical in-
stallation nor the wiring of PCBs or options. It is
provided as a guide to plan and record the system
hardware configuration. Installation practices for
PCBs are provided in Chapter 6, and the DDSS,
DSS console, and door phone options are in Chap-
ter 7.
4.03 The quantity of each type of PCB and option
must be determined by the guidelines given in
Worksheets 1 N 7 prior to using the following
guidelines.
4.10 System Hardware Assignment Record
4.11
Locate the record sheet for
Program 03
in the
Basic System Record Sheets, Section 200-096-300.
The system’s PCB configuration should be re-
corded on this record sheet.
NOTE:
Record sheets are also available separately
from the manual.
4.12
On the
Program 03
record sheet, record the
following information for PCBs: slot assignments,
option assignments, code assignments, station
port assignments, and line number assignments.
The recommended procedures for recording this
information is in Paragraphs 3.13 m 3.18 (refer to
Figure 4-2 for an example of each item to be
recorded).
4.13 PCB slot assignments-Record
in the PCB
type row on
Program 03’s
record sheet (in the or-
der shown below) the type of PCB that should be
installed in each slot.
l
PCTU:
Assign the PCTU to the PCTU slot,
slot
00.
INSTALLATION-CONFIGURATION
SECTION 200-096-204
FEBRUARY 1991
NOTE:
PCTU codes 91, 92, and 93 apply to a!/ PCTU
types (PCTUI, PCTUZ, PCTU3, and PCTUS1). 1
PDKUand PEKU:Assign
all PDKU and PEKU PCBs, 1
starting with
slot 01
and continuing in numerical or-
der without skipping slots until all PDKU and PEKU
PCBs are assigned. I
PSTU:
Assign all PSTU PCBs, starting with the
lowest numbered empty slot
and continuing with-
out skipping slots until all PSTU PCBs are assigned.
PESU:
Assign all PESU PCBs, starting with the
lowest numbered empty slot
and continuing with-
out skipping slots until all PESU PCBs are assigned.
PCOU:
Assign all PCOU PCBs, starting with the
lowest numbered empty slot
and continuing with-
out skipping slots until all PCOU PCBs are assigned.
PEMU:
Assign all PEMU PCBS, starting with the
lowest numbered empty slot
and continuing with-
out skipping slots until all PEMU PCBs are assigned.
PIOUIPIOUSIPEPU:
Assign the PIOU, PIOUS, or
PEPU PCBs in
slot 06
of DK24, in
slot 08
of DK56,
or in
slot 14
of DK96.
NOTE:
The same code (41) is used for either PIOU,
PIOUS, or PEPU.
4.14 PCB Option Assignments-Some
PCBs
may have subassembly options (PCTU/CRCU,
PIOU(S)/IMDU, PEKU/EOCU, PESU/EOCU) or
special peripheral equipment (PDKU/DDSS, PEKU/ 1
DSS, PEKU/HDCB, PESU/HDCB) connected to se-
lected ports. These options require special PCB
identification codes in
Program 03;
therefore, it is
necessary to record each option (in the options row)
on the record sheet.
l
CRCU:
If the PCTU is to be equipped with a
CRCU, record the CRCU-4 or CRCU-8 under
the PCTU slot. A special PCB code is required
for the PCBs that support the CRCU option.
l
EOCU:
If a PEKU is required to support off-hook
call announce, record EOCU underthe appropri-
ate PEKU slots. A special PCB code is required
for PEKU PCBs that support the EOCU option.
An EOCU (OCA) will not function in slots 11 w 14
on DK96 and slots 05 and 06 on DK24 with
PCTUSl. I
4-23

INSTALLATION-CONFIGURATION
SECTlON200-096-204
FEBRUARY1991
NOTE:
The above also applies when the EOCU is
installed on a PEW PCB.
l
DSS: If a PEKU is required to support a DSS
console, record DSSl, DSS2, DSS3, and/or
DSS4, as needed, under the appropriate PEKU
slots. Start with DSSl in the lowest DSS-sup-
porting PEKU slot, and continue, as required, to
DSS4 in the highest PEKU slot that is to support
a DSS console. A special PCB code is required
for PEKU PCBs that support the DSS console
option (refer to DSS console hardware configu-
ration notes at the end of this section).
I
NOTE:
The above also applies when connecting
DDSSs to PDKU PCBs.
l
HDCB: If a PEKU is required to support a door
phone control box, record HDCB 04, HDCB 12,
HDCB 20, and HDCB 28 under the appropriate
PEKU slots. Start with HDCB 04 in the first PEKU
slot, and continue without skipping a PEKU slot, as
required, to HDCB 28 in the fourth PEKU slot. A
special PCB code is not required for PEKU PCBs
that support the HDCB option (refer to door phone
hardware configuration notes at the end of this
section).
NOTE:
The above also applies when HDCBs are con-
nected to PEW PCBs.
l
IMDU: If the PIOU is to be equipped with a remote
maintenance modem, record IMDU underthe PIOU
slot. A special PCB code is not required for PIOU
PCBs that support the IMDU option.
NOTE:
The above also applies when the IMDU is installed
on a PIOUS PCB.
I
l
PDIU-DS: If one or more PDIU-DS is connected to
a PDKU, record the port it interfaces with under the
appropriate PDKU slot. A special PCB code is not
required for PDKUs that support PDIU-DSs.
l
PDIU-DI: If a PDIU-DI is connected to a digital :.,
telephone, the PDIU-DI and the digital telephone 1’
will share the same PDKU station port. A special
PCB code in Program 03 is not required for PDKU
PCBs that support digital telephones with PDIU-
Dls. I
4.15 PCB Code Assignments-Each PCB type
has an identification code that must be entered in
Program 03. If the PCB supports an option, a
special PCB code may have to be entered to
identify the PCB plus the option. Record the appro-
priate PCB code in the PCB code row of the
Program 03 record sheet. Use the sequential order
shown below:
l
PCTU (1,2,3, or S): Assign the appropriate PCB I
code (91, 92, or 93) to the PCTU slot:
l
PCB Code 91: PCTU without CRCU
l
PCB Code 92: PCTU with CRCU-4
l
PCB Code 93: PCTU with CRCU-8
l
PDKU: Assign the appropriate PCB code (62 or
64) to all PDKU slots:
l
PCB Code 62: PDKU without DDSS
l
PCB Code 64: PDKU with DDSS
l
PEKU: Assign the appropriate PCB code (21,
22, 23, or 24) to all PEKU slots:
l
PCB Code 21: PEKU without options
l
PCB Code 22: PEKU with EOCU
l
PCB Code 23: PEKU with DSS
l
PCB Code 24: PEKU with DSS and EOCU
l
PSTU: Assign PCB code 31 to all PSTU slots.
l
PESU: Assign appropriate PCB code (25 or 26)
to all PESU slots:
l
PCB Code 25: PESU without EOCU
l
PCB Code 26: PESU with EOCU
NOTE:
A special code is not required for the HDCB if
connected to a
PEKU
or
PESU.
l
PCOU: Assign PCB code 11 to all PCOU slots.
l
PEMU: Assign PCB code 13 to all PEMU slots.
l
PIOU/PIOUS/PEPU: Assign PCB code 41 to the
PIOU, PIOUS, or PEPU slot.
NOTE:
A special code is not reqbired for-the IMDU if
equipped on the PIOU or PIOUS.
4-24

4.16 Station Port Assignments-Station
ports are
provided by the PDKU, PEKU, PSTU, and PESU
I PCBs. Each PDKU, PEKU, or PSTU PCB provides
eight station ports. The PESU provides six func-
tioning station ports, although it is allocated eight
(see Paragraph 2.60). Each PEMU uses four or
eight station ports to support TIE lines. Each of the
PCBs must have station port numbers assigned.
Record the station port numbers in the station port
numbers row on
Program
03’s record sheet. Record
m information for each slot equipped with a PDKU,
PEKU, PSTU, PESU, or PEMU PCB in the order
shown below:
1
l
PDKU and/or PEKU station ports:
Assign
station port numbers, starting with ports 00 N 07
under
slot 01,
advancing incrementally at eight
1 port numbers per PDKU and/or PEKU slot. As-
sign the numbers in numerical order until station
I ports are assigned to all PDKU and/or PEKU
slots.
l
PSTU station ports:
Assign station port num-
bers, starting where the last station port number
stopped, advancing incrementally at eight port
numbers per PSTU slot. Assign the numbers in
numerical order until station ports are assigned
to all PSTU slots.
l
PESU station ports:
Assign station port num-
bers, starting where the last station port number
stopped, advancing incrementally at eight port
numbers per PESU slot. Assign the numbers in
numerical order until station ports are assigned
to all PESU slots.
NOTE:
PEW circuits 1 and 2 are standard telephone
ports; 3 and 4 are not used but allocated to the
PEW slot, and circuits 5 - 8 are electronic
telephone ports.
l
PEMU station ports:
Assign station port num-
bers, starting where the last station port number
stopped, advancing incrementally at four port
numbers per PEMU slot. Assign the numbers in
numerical order until station ports are assigned
to all PEMU slots.
NOTE:
If a PEMU is installed in a PCTUS 1 -controlled
DK24, only 16stationports willbe available for
INSTALLATION-CONFIGURATION
SECTION 200-096-204
FEBRUARY1991
station interface using PDKU, PEKU, PESU, 1
and PSTU PCBs. If it is installed in a PCTU (I,
2, or 3)-controlled DK24, 24 stations will be I
available, because of power supply capacity.
4.17 CO Line Number Assignments-Line
cir-
cuits are provided by the PCOU and PEMU PCBs.
Each PCOU provides four line circuits for CO loop
start line connections, and each PEMU provides
four line circuits to support TIE lines (each of the
PCBs must have line numbers assigned). Record
CO line numbers in the CO/TIE line numbers row
on
Program
03’s record sheet. Record information
for each slot equipped with a PCOU or PEMU in the
order shown below:
l
PCOU line numbers:
Assign CO line numbers,
starting with lines01 N 04 in the lowest numbered
PCOU slot, advancing incrementally at four line
numbers per PCOU slot. Assign the numbers in
numerical order until CO lines are assigned to all
PCOU slots.
l
PEMU line numbers:
Assign TIE line numbers,
starting with the next line above the highest
PCOU line, advancing incrementally at four line
numbers per PEMU slot.
4.18 PCB Additions-To
add PCBs to an existing
installation, assign the PCBs in the order described
above. Start with the lowest numbered empty slot
and continue without skipping a slot until all PCBs
are assigned. Then, using the guidelines described
above, record the new PCB configuration informa-
tion on the record sheet for
Program 03.
NOTE:
PEMU PCBs should be first moved to higher
slot numbers to create the necessary number
of empty slots for additions. Be sure to repro-
gram for the new PEMU positions, including
new station number assignments for the
PEMU(s).
4.20 Door Phone Hardware Configuration Notes
l
A maximum of 12 door phones are allowed per
system with PCTU (1, 2, or 3) and nine with
PCTUSI. Each door phone must be connected
to an HDCB.
l
A maximum of three door phones may be con-
4-25

INSTALLATION-CONFIGURATION
SECTION 200-096-204
FEBRUARY1991
netted to one HDCB.
l
A maximum of four HDCBs are allowed per
system with PCTU(l, 2, or 3) and three with
I PCTUSl .
l
One PEKU or PESU circuit, always circuit num-
ber 5, is required per HDCB. PDKU does not
I support the HDCB.
l
HDCBs can only be connected to PEKU or
PESU port numbers 04, 12,20, and 28.
l
Always install HDCBs to PEKU or PESU PCBs
that are in lower slot numbers than PEMU PCBs.
This is required to maintain alignment of PEKU
and/or PESU circuit 5 and PEKU and/or PESU
port numbers 04, 12,20, and 28.
l
HDCBs do not require a special PCB code in
Program 03.
l
HDCB assignments are found in
Programs 77-
1, 77-2, and 79.
l
Door phones can be programmed to ring at any
I digital and electronic telephone (no limit within
the system).
l
Door phones do not ring standard telephones .
l
Cut
W9
on all PEKUs and PESUs that support an
HDCB.
4.30 DSS/DDSS Console Hardware Configura-
tion Notes
A maximum of four DDSS consoles or four DSS
consoles (or any combination up to four) is
allowed per system with PCTU(1, 2, or 3) and
three with PCTUS.
DDSS consoles operate with PCTU3 only, while
DSS consoles operate with PCTUI, 2, or 3 or
PCTUS.
DDSS consoles normally operate in conjunction
with digital telephones. Each DDSS console is
assigned to an associated digital telephone (on
circuit 1 of the same PDKU), which in turn are
referred to as a DDSS/attendant telephone.
DSS consoles normally operate in conjunction
with electronic telephones. Each DSS console is
assigned to an associated electronic telephone
(on circuit 1 of the same PEKU), which in turn are
referred to as a DSS/attendant telephone.
DDSS consoles will operate with electronic tele-
phones and DSS consoles will operate with
digital telephones.
One PDKU PCB is required for each DDSS/
attendant telephone.
One PEKU PCB is required for each DSS/atten-
dant telephone.
DDSS consoles are always connected to PDKU
circuit 8, and the associated digital telephone is
always connected to PDKU circuit 1 (for a total of
two PDKU ports per DDSS console/attendant
telephone). I
DSS consoles are always connected to PEKU
circuits 7 and 8, and the associated attendant
telephone is always connected to PEKU circuit 1
(for a total of three PEKU ports per DSS console/
attendant telephone).
PDKWDDSS slots are identified and assigned in
Program
03 with special PCB code 64 (refer to
Figure 4-2). I
PEKWDSS slots are identified and assigned in
Program
03 with special PCB codes 23 or 24
(refer to Figure 4-2).
DSS consoles and attendant telephones are
automatically assigned as DSSl/ATTl , DSS2/
ATT2, DSS3/ATT3, or DSS4/ATT4, starting with
the lowest DSSPEKU slots and continuing, in
consecutive order, to the highest DSSPEKU
slot (this also applies to DDSS consoles and
attendant telephones).
Each DSS console is assigned to the attendant
telephone connected to the same PEKU PCB
supporting that DSS console; however, DSS
consoles may be flexibly reassigned (in
Program
28) to any of the designated attendant tele-
phones
allowing a maximum of four DSS con-
soles assigned to one attendant telephone (this
also applies to digital telephones).
DSS console buttons may be flexibly assigned
(in
Program
29) as CO line buttons, DSS (hot
line) buttons, and speed dial buttons.
4.40 Data Interface Unit (DIU) Configuration
Notes
l
The integrated data interface unit (PDIU-DI)
shares the same wire pair and PDKU station
circuit with the digital telephone to which it is
connected. The PDIU-DI requires a PCTU3
control PCB. The PDIU-DI capacity is shown in
Table 4-B.
l
The PDIU-DI is a DCE type device that normally
connects to a personal computer serial commu-
4-26

INSTALLATION-CONFIGURATION
SECTION 200-096-204
FEBRUARY1991
nications port or ASCII terminal.
l
The stand-alone data interface unit (PDIU-DS)
requires one PDKU station circuit and one or two
pair of wires (see Chapter 9 for wiring informa-
tion). PDIU-DS capacity is shown in Table 4-B.
l
PDIU-DSs may be configured as a DTE or DCE
type device and connect to modems, printers, or
host mainframe computers.
4-27

INSTALLATION-CONFIGURATION
SECTION 200-096-204
FEBRUARY 1991
DK 96 (Top Shelf)
SLOT NO. 01 02 03 . 04 05 06 07 08
‘bh%NS t?xYi/A771 Dssz/7~2
Dss/A~3 DDJcf4/
Iv/u--Ds
r%zBo4 iweB 72 74m
14
ad5)
.-
~’ EU&?fl) EOiUfh) PD/M-D/
,‘._’ h-9
‘STA. PORi N0.s : 00 w 07 08-Z- 16-23 a-31 32-39 40-47 48-55 -
i.
COME LINE NO.S - - - - - - _ 07-N
DK 96 PCB CODE
(Bottom Shelf) Reference Table
SLOT NO. 00 09 10 11 I I
PCB CODE 92 M M 25 13 00 41
i’CB TYPE PCTU ,WW ,WU PESM PEMh’
0PTlON”S’
lrxx4
STA. PORT N0.s - - - 56-63 64-67
CO/TIE iNi! hi& - 05-08 09-12 - 13-16
PORTS/TYPE
CRCU4 1
YZ NUNt
PEPU
41 INUN t
I I I
NONE
PESU
PESU
EOCU
PDKU
PDKU
w/DDSS
00 NONE
25 8lSTA.
26 8fSTA.
62 8fSTA.
64 8lSTA.
FIGURE 4-P-HARDWARE CONFIGURATION EXAMPLE
4-28

TOSHIBASYSTEMPRACTICES
DIGITALKEYTELEPHONESYSTEMS INSTALLATION-KSU
SECTION 200-096-205
FEBRUARY1991
StrataTax
RELEASE 1,2, and 3
INSTALLATION
CHAPTER FIVE
KSU INSTALLATION

INSTALLATION-KSU
SECTION 200-096-205
FEBRUARY1991
PARAGRAPH
TABLEOFCONTENTS
SUBJECT . 'PAGE
1
2
2.10
2.20
2.30
3
4
4.10
4.20
5
6
FIGURE
5-1
5-2
5-3
5-4
GENERAL . . . . . . . . . . . . . . . . . . . . . . . . . . . . . . . . . . . . . . . . . . . . . . . . . . . . . . . . . . . . . . . . . . . . . . . . . . . . . . . . . . . . . . . . . . . . . . . . . . . . . . . . . . . . . . . . .
KSU INSTALLATION . . . . . . . . . . . . . . . . . . . . . . . . . . . . . . . . . . . . . . . . . . . . . . . . . . . . . . . . . . . . . . . . . . . . . . . . . . . . . . . . . . . . . . . . . . . . . . . .
Wall Mounting . . . . . . . . . . . . . . . . . . . . . . . . . . . . . . . . . . . . . . . . . . . . . . . . . . . . . . . . . . . . . . . . . . . . . . . . . . . . . . . . . . . . . . . . . . . . . . . . . . . . . . . .
Table-top Mounting . . . . . . . . . . . . . . . . . . . . . . . . . . . . . . . . . . . . . . . . . . . . . . . . . . . . . . . . . . . . . . . . . . . . . . . . . . . . . . . . . . . . . . . . . . . . . . .
KSU AC Power and Ground . . . . . . . . . . . . . . . . . . . . . . . . . . . . . . . . . . . . . . . . . . . . . . . . . . . . . . . . . . . . . . . . . . . . . . . . . . . . . . . . . .
POWER SUPPLY TEST PROCEDURE . . .
. . . . . . . . . . . . . . . . . . . . . . . . . . . . . . . . . . . . . . . . . . . . . . . . . . . . . . . . . . . . . . . .
POWER SUPPLY REMOVAL AND REPLACEMENT . . . . . . . . . . . . . . . . . . . . . . . . . . . . . . . . . . . . . . . . . . . . . .
Power Supply Removal . . . . . . . . . . . . . . . . . . . . . . . . . . . . . . . . . . . . . . . . . . . . . . . . . . . . . . . . . . . . . . . . . . . . . . . . . . . . . . . . . . . . . . . . .
Power Supply Replacement . . . . . . . . . . . . . . . . . . . . . . . . . . . . . . . . . . . . . . . . . . . . . . . . . . . . . . . . . . . . . . . . . . . . . . . . . . . . . . . . . .
CIRCUIT BREAKER DISTRIBUTION . .
. . . . . . . . . . . . . . . . . . . . . . . . . . . . . . . . . . . . . . . . . . . . . . . . . . . . . . . . . . . . . . . . . . . . .
VOLTAGE TROUBLESHOOTING . . . . . . . . . . . . . . . . . . . . . . . . . . . . . . . . . . . . . . . . . . . . . . . . . . . . . . . . . . . . . . . . . . . . . . . . . . . .
5-1
5-1
5-1
5-1
5-1
5-2
5-2
5-2
5-3
5-4
5-4
FIGURE LIST
TITLE PAGE
WALL MOUNTING BRACKET INSTALLATION . . . . . . . . . . . . . . . . . . . . . . . . . . . . . . . . . . . . . . . . . . . . . . . . . . . . . . . 5-1
PPSU24 FRONT PANEL AND DC OUT TEST POINTS . . . . . . . . . . . . . . . . . . . . . . . . . . . . . . . . . . . . . . . . . . 5-3
PPSU56 FRONT PANEL AND DC OUT TEST POINTS . . . . . . . . . . . . . . . . . . . . . . . . . . . . . . . . . . . . . . . . . . 5-3
PPSU96 FRONT PANEL AND DC OUT TEST POINTS . . . . . . . . . . . . . . . . . . . . . . . . . . . . . . . . . . . . . . . . . . 5-4
LOWER LEFT OF DK24, BACKPLANE PCB (PMB-824) . . . . . . . . . . . . . . . . . . . . . . . . . . . . . . . . . . . . . . . . . 5-4
KSU WALL MOUNTING . . . .
. . . . . . . . . . . . . . . . . . . . . . . . . . . . . . . . . . . . . . . . . . . . . . . . . . . . . . . . . . . . . . . . . . . . . . . . . . . . . . . . . . . . . . . . 5-5
5-i

INSTALLATIQN-KSU
SECTION 200-096-205
FEBRUARY 1991
1 GENERAL
1 .OO This chapter provides the procedures neces-
sary to install the DK KSUs. The chapter includes
mounting considerations, grounding instructions,
and instructions to test the power supply. Instruc-
tions to remove and replace the power supply are
also provided.
2 KSU INSTALLATION
2.00 The KSU may be either wall-mounted or
table-top mounted. The following paragraphs
provide procedures for both mounting options.
2.01 To optimize airflow and ventilation:
l
Ensure that the installation site provides the
minimum clearances specified in Installation
Site Requirements, Section 200-096-203,
Paragraph 3.
l
Do not block the ventilation holes at the rear
and both sides of the KSU.
2.10 Wall Mounting
1) Install the three wall-mounting brackets (packed
in the shipping carton with the KSU) on the rear
of the KSU in both upper corners, and at the
bottom center. Secure each bracket to the KSU
with the back panel screws and the screws
supplied with the brackets (see Figure 5-l).
NOTE:
The KSU back panel should not be removed.
2) Mark the appropriate mounting screw locations
on the wall by using Figure 5-1, or hold the KSU
against the wall at the selected mounting lo-
cation. Mark the positions of the holes in the flat
part of each mounting bracket where they
contact the wall. Mounting screws will be in-
stalled at these locations.
NOTE:
Wall anchors are required for dry-wall sur-
faces where studs do not align with the
I mounting screw locations (see Figure 5-6).
1 3) Install two 1.25-inch long panhead wood screws
approximately half way into the wall at the
upper mounting bracket locations.
$15.9 in. (DK96) \
FIGURE 5-I
WALL MOUNTING BRACKET INSTALLATION
4) Hang the KSU from the top two mounting
screws.
5) Install a third 1.25-inch panhead wood screw I
through the hole in the bottom mounting bracket.
6) Tighten the three mounting screws firmly to
secure the KSU to the wall.
2.20 Table-top Mounting
2.21
Table-top mounting requires no special in-
stallation procedures. However, it is suggested
that the top wall-mounting brackets be installed to
ensure adequate ventilation at all times.
NOTE:
Do not install the KSU directly on the floor.
2.30 KSU AC Power and Ground
2.31
Ensure the system AC power and earth
ground complies with the requirements listed in
Installation Site Requirements, Section 200-096-
203, prior to connecting the AC power plug.
NOTE:
TheACpowermustbe dedicated to the KSU.
Do not use power/ground intended for an-
other piece of equipment.
2.32 Ensure that
SG/FG
and
LG/FG
ground straps
are installed.
5-1

INSTALLATION-KSU
SECTION 200-096-205
FEBRUARY 1991
3 POWER SUPPLY TEST PROCEDURE
3.00 Perform the power supply test procedure
with all PCBs removed from the KSU.
NOTE:
Refer to System Description, Section 200-096-
202, for illustrations and descriptions of KSU
controls and indicators.
1) Plug the AC power cable into the AC IN con-
nector and to the AC wall socket.
NOTE:
The DK24 power cable is permanent/y con-
nected to the power supply.
2) Lightly press all power supply circuit breakers
to ensure they have not accidentally opened
during shipment.
3) Set the power supply power switch to ON.
Ensure that the power supply indicators light as
follows:
. DK24:
l
POWER indicator
l
-24V indicator
l
+5V indicator
l
-5V indicator
l
-24V, W V, (circuit breakers)
. DK56:
l
POWER indicator
l
+5V indicator
. -5V indicator
l
-24V, W V, (circuit breakers)
. DK96:
l
POWER indicator
l
-5V indicator
l
+5V, indicator
l
+5V, indicator
l
-24V, W V,(circuit breakers)
4) Using a multimeter (set to the appropriate range),
measure the voltages at the pins of the DC OUT
connector for DK56/DK96 or the PI backplane
connector for DK24 as shown in Figures 5-2,5-
3, or 5-4. Ensure that the voltages fall within the
ranges specified. If a measured voltage falls
outside of the acceptable range, remove the
DC power plug from the power supply DC OUT
connector (DK56/96) or PI backplane con-
nectar (DK24) and measure again. If a meas-
ured voltage is still unacceptable, rep!ace the
power supply (refer to Paragraph 4).
DC Voltage Range Specifications
-24V: -26.3 - -27.0
-5V: -4.5 - -5.5
+5V: +4.5 - +5.5
3.01 To test the power supply voltages with all
circuit boards installed, install the circuit boards
and then use the procedure in Paragraph 3.00 for
the PPSU56/96, but follow the four steps below to
test the PPSU24.
1) Loosen the four screws holding the panel on
the back of the KSU.
2) Lift the panel up and pull it off of the KSU.
3) On the lower left side of the backplane PCB
(PMB-824), the test points for the various volt-
ages are marked. Refer to Figure 5-5.
4) Using the multimeter (set to the appropriate
range), measure the voltages at the desig-
nated test points.
NOTE:
The multimeter test probes must have sharp
tips to penetrate solder mask on backplane
PCB.
4 POWER SUPPLY REMOVAL AND
REPLACEMENT
4.00 The following paragraphs provide procedures
necessary to remove and replace faulty power
supplies.
4.10 Power Supply Removal
4.11 DK24. Refer to Figure 5-2 and remove the
power supply in accordance with the following
steps:
1) Remove screws (2) on right side of the KSU.
2) Slide the power supply out and gently remove
it from the KSU.
5-2

INSTALLATION-KSU
SECTION 200-096-205
FEBRUARY1991
ii?
a
-
!
FG
2
-
?
-
CABLE FROM REAR
OF POWER SUPPLY
-24v2 -5v
BATTERY
CONNECTOR
-24V, +5V DG
CONNECTOR VOLTAGE
LED’s
Pi I
III III,
,
BACKPLANE
KSU (FRONT VIEW)
PPSU 24 Irr
0 \
. POWER
,POWER
SWITCH
’ CIRCUIT
\
BREAKER
MOUNTING
SCREWS ON
RIGHT SIDE
-\
TEST POINTS CORD
FlGURE5-2-PPSU24FRONTPANELANDDCOUTTESTPOlNTS
3) Reach behind the power supply and discon-
nect the cable at the
PI
backplane connector
4.12 DK56/96. Refer to Figures 5-3 and 5-4 and
remove the power supply in accordance with the
following steps:
1) Squeeze the locking tab on the DC OUT plug,
and remove the plug from the DC OUT con-
nector.
2) Remove the four combination slotted/Phillips
mounting screws from the power supply front
panel.
3) Slide the power supply out.
4.20 Power Supply Replacement
4.21 DK24 Refer to Figure 5-2 and replace the
PPSU24 in accordance with the following steps:
1) Slide the power supply partially in to the right
end of the PCB slot shelf.
PPSU56
PPSU.56 8
DC OUT TEST POINTS
DC OUT
I 0000
-24V2 -24v3 DG -5v
7
FIGURES-3-PP~U~~FRONTPANELANDDC
OUTTESTPOINTS
5-3

INSTALLATION-KSU
SECTION 200-096-205
FEBRUARY 1991
DC OUT
+SJ,
0 0’
-5V,
-24Vj -24V2
0 0
-24V3
0
PPSU96
(”
FIGURE 5-4-PPSU96 FRONT PANEL AND DC
OUT TEST POINTS
2) Reach behind the power supply, and connect
the cable from the rear of the power supply into
connector Pl on the KSU backplane.
3) Slide the power supply completely into the slot
and secure it with screws (2) on the right side of
the KSU.
4.22 DK56196. Refer to Figures 5-3 or 5-4, and
replace the power supply in accordance with the
following steps:
1) Slide the new power supply into the opening in
the KSU.
2) Align the mounting screw holes on the power
supply’s front panel with the holes in the KSU’s
power supply mounting bracket.
3) Secure the power supply with the four combina-
tion slotted/Phillips screws.
4) Insert the DC OUT cable plug into the DC OUT
connector (this is a keyed plug that can only be
FIGURE 5-5-LOWER LEFT OF DK24,
BACKPLANE PCB (PMB-824)
inserted one way). Insert the plug into the
connector until its locking tab engages.
5 CIRCUIT BREAKER DISTRIBUTION
5.00 Referto Fault Finding, Section 200-096-500,
Tables B, C, and D for circuit breaker distribution.
6 VOLTAGE TROUBLESHOOTING
6.00 Refer to Fault Finding, Section 200-096-500,
Paragraph 6, for voltage troubleshooting.
5-4

INSTALLATION-KSU
SECTION 200-096-205
FEBRUARY 1991
STUD .
FIGURE 5-6-KSU WALL MOUNTING
NOTE:
If mounting the KSU directly to a wall, be sure to align screws with studs behind the wall; if using a hard
board between the KSU and the wall, install screws first to hard board, and then secure hard board
to the wall, making certain that screws are aligned with studs.
5-5

INSTALLATION-KSU
SECTION 200-096-205
FEBRUARY1991
This page intentionally left blank
5-6

TOSHIBASYSTEMPRACTICES
OIGITALKEYTELEPHONESYSTEMS INSTALLATION-PCB
SECTION 200-096-206
FEBRUARY1991
Strata”mcx
RELEASE 1,2, and 3
INSTALLATION
CHAPTER SIX
PRINTED CIRCUIT BOARD INSTALLATION
IMPORTANT!
It is strongly advisable to install PCBs in the positions and the
manner specified in Paragraph 2. IO.

INSTALLATION-PCB
SECTION 200-096-206
FEBRUARY1991
‘\ i
/
IMPORTANT INITIAL INSTALLATION NOTES:
These minimum installation steps must be carried out for proper system operation.
1. Set PCTU jumper plug for BATTERY OPERATION; otherwise, all programmed customer
data will be lost on power down.
2. Place PEPLJ, PIOUS, or PIOU PCB in highest slot number of KSU.
3. Place all other PCBs in KSU from lowest slot number to highest in the following order:
PCTU or PCTUS
PEKU or PDKU (starting at Slot 01)
PSTUPSTU2
PESU
Pcou/Pcou2
PEMU
4. Run Program 90. Initialize Programs 00 - 97, and turn power OFF for 5 seconds, then
turn power back ON.
5. Run Program 92.
6. Enter the hardware configuration with Program 03, exit the programming mode, and turn
power OFF for 5 seconds, then turn power back ON.
WHEN LATER ADDING KSU PCBs:
1. Move PEMU PCBs to a higher slot number to create empty slots for additions.
2. Install new PCBs and reprogram with Program 03. Change PEMU station numbers or
reassign stations.
3. Program new features, options, etc. created by new additions.

PARAGRAPH
1
2
2.10
2.20
2.30
2.40
2.50
3
3.00
3.10
3.20
3.30
3.40
4
4.00
4.10
4.20
4.30
4.40
5
5.00
5.10
5.20
5.30
5.40
6
6.00
6.10
6.20
6.30
6.40
7
7.00
7.10
7.20
7.30
7.40
8
8.00
8.10
8.20
8.30
8.40
9
9.00
9.10
GENERAL ................................................................................................................. 6-l
*PCB INSTALLATION OVERVIEW ........................................................................... 6-l
PCB Installation Considerations ............................................................................ 6-1
Recommended Universal PCB Slot Assignments ................................................. 6-l
Station and Line Expansion ................................................................................... 6-I
PCB Option Considerations .......... ........................................................................ 6-2
PCB Installation Power Supply Considerations.. ................................................... 6-2
*COMMON CONTROL UNIT (PCTU or PCTUSl) .................................................... 6-2
General .................................................................................................................. 6-2
PCTU Hardware Options ....................................................................................... 6-2
PCTU Installation Procedures ........... .................................................................... 6-5
PCTU Wiring ......................................................................................................... 6-6
PCTU Programming Overview .............................................................................. 6-6
*ELECTRONIC TELEPHONE INTERFACE UNIT (PEKU) ....................................... 6-6
General .................................................................................................................. 6-6
PEKU Hardware Options ....................................................................................... 6-6
PEKU Installation Procedures ............................................................................... 6-9
PEKU Wiring ......................................................................................................... 6-9
PEKU Programming Overview .............................................................................. 6-9
*STANDARD TELEPHONE INTERFACE UNIT (PSTU). .......................................... 6-9
General .................................................................................................................. 6-9
PSTU (1 and 2) Hardware Options ....................................................................... 6-10
PSTU Installation Procedures ........... .................................................................... 6-11
PSTU Wiring .......................................................................................................... 6-11
PSTU Programming Overview .............................................................................. 6-11
*STANDARD/ELECTRONIC TELEPHONE INTERFACE UNIT (PESU) .................. 6-11
General .................................................................................................................. 6-11
PESU Hardware Options ....................................................................................... 6-13
PESU Installation Procedures ............................................................................... 6-14
PESU Wiring ......................................................................................................... 6-14
PESU Programming Overview .............................................................................. 6-14
*CO LINE UNIT (PCOU) ........................................................................................... 6-14
General .................................................................................................................. 6-14
PCOU Hardware Options ...................................................................................... 6-15
PCOU Installation Procedures .......... .................................................................... 6-15
PCOU Wiring ......................................................................................................... 6-15
PCOU Programming Overview ............................................................................. 6-15
*E & M TIE LINE UNIT (PEMU) ................................................................................ 6-17
General .................................................................................................................. 6-17
PEMU Hardware Options ...................................................................................... 6-17
PEMU Installation Procedures .............................................................................. 6-17
PEMU Wiring. ........................................................................................................ 6-19
PEMU Programming Overview ............................................................................. 6-19
*OPTION INTERFACE UNIT (PIOU and PIOUS) ..................................................... 6-19
General .................................................................................................................. . 6-19
PIOU and PIOUS Hardware Options .................................................................... 6-22
*see Paragraphs 11 - 21 for
Release
3 considerations.
INSTALLATION-PCB
SECTION 200-096-206
FEBRUARY1991
TABLEOFCONTENTS
SUBJECT . ,PAGE
6-i

INSTALLATION-PCB
SECTION 200-096-206
FEBRUARY 1991
PARAGRAPH
TABLE OF CONTENTS (continued)
SUBJECT
.‘:
. PAGE 2,’
9.20
9.30
9.40
IO
10.00
10.10
10.20
10.30
10.40
II
I2
I3
13.00
13.10
13.20
13.30
13.40
I4
I5
I6
I7
I8
I9
20
21
FIGURE
6-I
6-2
6-3
6-4
6-5
6-6
6-7
6-8
6-9
6-10
6-11
6-12
6-13
6-14
6-15
PIOU and PIOUS Installation Procedures ............................................................. 6-23
PIOU and PIOUS Wiring ....................................................................................... 6-23
PIOU and PIOUS Programming Overview.. .......................................................... 6-23
*EXTERNAL PAGE INTERFACE UNIT
(PEPU)
....................................................... 6-24
General .................................................................................................................. 6-24
PEPU Hardware Options ....................................................................................... 6-24
PEPU Installation Procedure ................................................................................. 6-25
PEPU Wiring ......................................................................................................... 6-25
PEPU Programming Overview .............................................................................. 6-25
INSTALLATION-PCB FOR RELEASE 3 ................................................................... 6-25
PCB INSTALLATION OVERVIEW (Release 3) ........................................................ 6-26
PDKU (Release 3) ..................................................................................................... 6-26
General .................................................................................................................. 6-26
PDKU Hardware Options ...................................................................................... 6-26
PDKU Installation Procedures ............................................................................... 6-27
PDKU Wiring ......................................................................................................... 6-27
PDKU Programming Overview .............................................................................. 6-27
PCTU (Release 3) ..................................................................................................... 6-27
PEKU (Release 3) ..................................................................................................... 6-27
PSTU (Release 3) ..................................................................................................... 6-27
PESU (Release 3) ....... . ............................................................................................. 6-28
PCOU (Release 3) .................................................................................................... 6-28
PEMU (Release 3) .................................................................................................... 6-28
PIOU AND PIOUS (Release 3) ................................................................................. 6-28
PEPU (Release 3). .................................................................................................... 6-28
FIGURE LIST
TITLE PAGE
PCTU CONTROLS, INDICATORS, AND INTERFACE CONNECTORS.. ................ 6-3
PCTUSI CONTROLS, INDICATORS, AND INTERFACE CONNECTORS ............. 6-3
DTMF RECEIVER UNIT (CRCU) INSTALLATION ................................................... 6-5
PEKU CONTROLS AND INTERFACE CONNECTORS ........................................... 6-7
OFF-HOOK CALL ANNOUNCE UNIT (EOCU) INSTALLATION .............................. 6-7
PSTU (l/2) AND SUBUNIT (SSTU) .......................................................................... 6-10
PESU PCB OPTION LOCATION AND IDENTIFICATION.. ...................................... 6-12
PCOU CONTROLS, INDICATORS, AND INTERFACE CONNECTORS ................. 6-15
PEMU CONTROLS AND INDICATORS ................................................................... 6-17
PIOU CONTROLS, INDICATORS, AND INTERFACE CONNECTORS ................... 6-20
PIOUS PCB SWITCH/JUMPER, OPTION LOCATION.. ........................................... 6-20
REMOTE MAINTENANCE MODEM UNIT (IMDU) INSTALLATION ........................ 6-23
PEPU CONTROLS, INDICATORS, AND INTERFACE CONNECTORS.. ................ 6-24
PDKU INTERFACE CONNECTORS ........................................................................ 6-26
PCTU3 CO,NTROLS, INDICATORS, AND INTERFACE CONNECTOR .................. 6-28
I
,’
*see Paragraphs 11 - 21 for Release 3 considerations.
6-ii

TABLE
6-A
6-B
6-C
6-D
6-E
6-F
6-G
6-H
6-l
INSTALLATION-PCB
SECTION 200-096-206
FEBRUARY1991
TABLELIST
SUBJECT . 'PAGE
PCTU AND PCTUS CONTROLS, INDICATORS, AND INTERFACE
CONNECTORS ......................................................................................................... 6-4
PEKU CONTROLS AND INTERFACE CONNECTORS ........................................... 6-8
PSTU CONTROLS AND INTERFACE CONNECTORS ........................................... 6-10
PESU CONTROLS AND INTERFACE CONNECTORS ........................................... 6-13
PCOU CONTROLS, INDICATORS, AND INTERFACE CONNECTORS ................. 6-16
PEMU CONTROLS, INDICATORS, AND INTERFACE CONNECTORS ................. 6-18
PIOU CONTROLS AND INTERFACE CONNECTORS ............................................ 6-21
PIOUS CONTROLS AND INTERFACE CONNECTORS.. ........................................ 6-22
PEPU CONTROLS AND INTERFACE CONNECTORS ........................................... 6-25
6-iii

1 GENERAL
1 .Ol
This chapter provides procedures for installa-
tion of STRATA DK system printed circuit boards
(PCBs). This includes installation instructions, PCB
optional configuration information, and wiring and
programming considerations for each PCB.
1.02 Begin PCB installation only after completion
of KSU installation.
NOTE:
Be sure the power supply has been tested,
and the ground has been checked.
2 PCB INSTALLATION OVERVIEW
2.01 STRATA DK system KSUs are shipped with
only the power supply installed. No PCBs are
included. PCBs must be installed in accordance
with the configuration information obtained and
developed in System Configuration, Section 200-
096-204.
2.10 PCB Installation Considerations
2.11
The PCTU or PCTUSI (DK24 only) PCB
must be installed in the PCTU slot. PCB slots SO1
- SO6 (DK24), PCB slots SO1 - SO8 (DK56), and
PCB slots SO1 a S14 (DK96) are universal; any of
the optional PCBs may be installed in any available
slot, as long as the system is programmed to
recognize the chosen configuration. However, it is
recommended that station PCBs (PEKUs, PSTUs,
PESUs), and CO line/E & M TIE line PCBs (PCOUs
and PEMUs) be installed in a certain order. Use of
these configuration recommendations will reduce
reprogramming in future system expansion, and
keep the system station and CO line numbering
scheme simple.
2.12 DK24/56/96 PCB Configuration Recom-
mendations.
First install station PCBs (PEKU,
PSTU, and PESU) from left to right and then CO
line/E & M TIE line PCBs (PCOUs and PEMUs)
from left to right, and optional PCBs (PIOU, PIOUS
or PEPU) from right to left, so that vacant slots are
in the middle.
2.20 Recommended Universal PCB Slot
Assignments
INSTALLATION-PCB
SECTION 200-096-206
FEBRUARY 1991
2.21 The following steps describe the recom-
mended installation order and slot assignments for
STRATA DK system station, line, and peripheral
PCBs. Installation order is the same for all systems.
1)
2)
3)
Install all PEKU PCBs, from left to right, start-
ing with slot 01. Do not skip slots.
Then install all PSTU PCBs, from left to right,
starting with the lowest numbered empty slot.
Do not skip slots.
Then install all PESU PCBs, from left to right,
starting with the lowest numbered empty slot.
Do not skip slots.
NOTE:
Normally, one PEW is installed instead of a
PEKU or PSTU in configurations that require
less than three standard telephone ports or
less than five electronic telephone ports.
4)
5)
6)
Then install all PCOU PCBs, from left to right,
starting with the lowest numbered empty slot.
Do not skip slots.
Then install all PEMU PCBs, from left to right,
starting with the lowest numbered empty slot.
Do not skip slots.
Install a PIOU, PIOUS, or PEPU in the last slot
(slot 06 in DK24, slot 08 in DK56, or slot 14 in
DK96).
2.30 Station and Line Expansion
2.31 If station or line PCBs (PEKU, PSTU, PESU,
PCOU, and/or PEMU) must be added to an existing
installation, install the PCBs in the order recom-
mended in Paragraph 2.20, starting with the lowest
numbered empty slot. For example, if it is neces-
sary to add eight standard telephones and four CO
lines, install a PSTU PCB in the lowest numbered
empty slot and then a PCOU PCB in the next empty
slot. Do not skip slots.
2.32 If PEKU, PSTU, PERU and/or PCOU PCBs
are added, it is advisable to move any PEMU PCBs
to the right to make room for the new PCBs.
6-1

INSTALLATION-PCB
SECTION 200-096-206
FEBRUARY 1991
NOTE:
For initial system programming, install an
electronic telephone station PCB (PEKU) in
slot 01, and connect a ZO-button LCD elec-
tronic telephone to port 05. It is suggested that
a live telephone not be connected to port 05 to
avoid accidentally entering the programming
mode.
2.40 PCB Option Considerations
2.41
STRATA DK PCBs may be configured for a
variety of hardware and software options. Hard-
ware options are defined as either internal (gener-
ally related to optional PCB subassemblies) or
external (related to connection of peripheral equip-
ment such as background music, voice mail, etc).
Hardware and software options for each PCB are
identified in the individual PCB installation proce-
dures in this chapter.
2.42 PCB Hardware Options.
Each PCB must be
configured for the applicable hardware options
prior to installation of the PCB in the KSU. Configu-
ration instructions for internal hardware options are
provided in the individual PCB installation proce-
dures in this chapter. Configuration instructions for
external hardware options are provided in Periph-
eral Installation, Section 200-096-208.
2.43 PCB Software Options.
PCBs are config-
ured for software options through programming,
after installation of the PCBs in the KSU. A pro-
gramming overview for each PCB is provided in the
individual PCB installation procedures in this chap-
ter. Refer to the Programming Procedures, Section
200-096-300, for detailed programming instruc-
tions.
2.50 PCB Installation Power Supply Consid-
erations
2.51
Whenever removing or installing PCBs, ob-
serve the following requirements:
1) The power supply
must
be OFF whenever
removing or installing the PCTU PCB.
2) It is recommended that the power supply be
OFF, whenever possible, when removing or
installing PEKU, PSTU, PESU, PCOU, PEMU,
PIOU, PIOUS, and PEPU PCBs.
3 COMMON CONTROL UNIT
(PCTU OR PCTUSI)
3.00 General
3.01
The Common Control Unit (PCTU) PCB pro-
vides centralized control for the KSU. The PCTU
incorporates a 68000-type microprocessor and
contains custom time switch and conference LSI
circuitry. One PCTU must be installed in STRATA
DK24, DK56, and DK96 models.
3.02 There are three PCTU versions (PCTUI ,
PCTU2, and PCTUSI). The capacity and/or func-
tion of each PCTU model is different, so it is
important to use the correct PCTU in each DK
system.
3.03 PCTUl/PCTU2isintendedforusewith DK56/
96, but may also be used in DK24. The PCTUSl
may
only
be used in DK24. The detailed differ-
ences between the PCTU versions aredescribed in
Paragraph
6.10
and Table 2-B of Section 200-096-
202.
NOTE:
Any further reference to the PCTU in this
section applies to PCTUl, PCTUZ, AND
PCTUSI.
3.04 The PCTU may be equipped with an optional
4- or 8-circuit DTMF receiver (CRCU-4 or CRCU-
8), allowing the PCTU to receive tone dialing.
DTMF signals transmit from DISA, CO lines, TIE
lines and PSTU/PESU standard ports, and the
PCTU converts these signals to digital data for the
STRATA DK system CPU.
3.05 PCTU and PCTUSI controls, indicators, and
interface connectors are shown in Figures 6-1 and
6-2 and described in Table 6-A.
3.10 PCTU Hardware Options
3.11
The PCTU supports the following hardware
options: -:
6-2

INSTALLATION-PCB
SECTION 200-096-206
FEBRUARY1991
L
BATTERY OCI VERSION
ROMS
BACKPLANE CONNECTOR P8 P9
FlGURE6-I-PCTIJ CONTROLS,INOICATORS, ANOINTERFACECONNECTORS
BATTERY 00 VERSION
BACKPLANE CONNECTOR P8 ’ P9
r,n,,nr r. n mnTl.na CL-..--*. A .I.-.------ ----
rllr~Kt I)-Z-rLI I US1 WN 1 KUL8, INuicAI UK& AND INTERFACE CONNECTORS
6-3

INSTALLATION-PCB
SECTION 200-096-206
FEBRUARY1991
TABLE6-A
PCTUANDPCTUSCONTROLS,INDICATORS,ANDlNTERFACECONNECTORS
CONTROL/INDICATOR/
CONNECTOR
(Figures 6-I & 6-2)
PCTU ON/OFF
Jumper Pl
TYPE OF COMPONENT DESCRIPTION
Three-terminal jumper plug Enables PCTU (1 & 2 only) PCB for
operation. Should always be in ON position
DTM F Receiver
Connector P2 1 O-pin connector Interface connector for optional DTMF
Receiver P2 Unit subassembly
(used in conjunction with P3, P8, and P9).
DTM F Receiver
Connector P3 6-pin connector Interface connector for optional DTMF
Receiver P3 Unit subassembly
(used in conjunction with P2, P8, and P9).
MoH’BGM Music ‘Ource Interface connector for Music-
Connector P6 Two-terminal connector on-Hold (MOH)/Background Music
source.
BATT Battery Strap
P7
Interface connector for on-board lithium
Three-terminal jumper plug battery that protects configuration data
stored in system RAM.
DTM F Receiver
Connector P8 1 O-pin connector Interface connector for optional DTMF
Receiver P8 Unit subassembly
(used in conjunction with P2, P3, and P9).
DTMF Receiver
Connector P9 6-pin connector
MOH/BGM Music Source Trim
potentiometer
Volume Control VRI
Heartbeat Indicator Red LED
Interface connector for optional DTMF
Receiver P9 Unit subassembly
(used in conjunction with P2, P3, and P8).
Adjusts volume for Music-on-
Hold/Background Music feature.
Flashes to indicate operation (l/4-second
on-l/4-second off); (PCTUl, 2, or 3 only).
l
Internal Options
CAUTION!
l
DTMF Receiver Unit, four circuit (CRCU-4)
Do not remove insulating shield from back
l
DTMF Receiver Unit, eight circuit (CRCU-8)
l
External Options
of PCTU PCB. If shield comes off, do not
allow the backof the PCB to contact metal.
l
Music-on-Hold/Background Music (con-
nected to P6 and VR1 level control)
NOTE:
1) Remove the PCTU and CRCU from their
protective packaging.
Refer to Peripheral Equipment Installation,
Section 200-096-208, for installation of ex-
ternal options.
NOTE:
PCTU connectors P2, P3, P8, and P9 are
positioned to allow installation of the CRCU (-4
or -8) only in the proper position,
3.12 DTMF Receiver Unit (CRC&4 or CRCU-8)
Installation. Install the DTMF Receiver Unit (CRCU)
in accordance with the following steps: 2) Mate CRCU connectors Jl, J2, J3, and J4
6-4

INSTALLATION-PCB
SECTION 200-096-206
FEBRUARY1991
J2
CRCU (-4 or -8)
\! ! J3
\ P9
P8
ROM (4 each)
Located under CRCU
J4
FlGURE6-3-DTMF RECEIVER UNlT(CRCU)lNSTALLATlON
with PCTU connectors P2, P3, P8, and
P9
(refer to Figure 6-3).
3) Apply firm, even pressure to CRCU to ensure
proper mating of connectors.
3.20 PCTU Installation Procedures
3.21
Install the PCTU in accordance with the fol-
lowing steps: CAUTION!
Do
not remove plastic insulating shield
from back of PCTU PCB. If shield comes
off, do not allow the back of the PCB to
con tact metal.
1) Remove the PCB from its protective packag-
ing.
2) Set the PCTU
Pl
switch to the ON position
(PCTU,l or 2 only, not on PCTUSl).
3) Set the PCTU P7 battery strap
(BATT)
to the
ON position.
NOTE:
The PCTU is shipped from the factory with the
P7battery strap in the OFFposition. Ensure it
is moved to the ON position when installing
the PCTU to protect customer configuration
information stored in the PCTU RAM.
4) Ensure the PCTU has been configured for the
appropriate hardware options (refer to Para-
graph 3.10).
NOTE:
Ensure the PCTU’s component side is facing
right when installing it in the KSU.
IMPORTANT NOTE:
The power supply must be OFF when in-
stalling the PCTU PCB.
5) Insert the PCTU into slot 00, labeled
PCTU,
and
apply firm, even pressure to ensure proper
mating of connectors:
6) After installing the PCTU, gently pull the PCB
6-5

INSTALLATION-PCB
SECTION 200-096-206
FEBRUARY 1991
outward. If the connectors are properly mated,
a slight resistance will be felt.
NOTES:
1. Do not adjust trimmer capacitor C4. The
capacitor is factory-calibrated.
2. When transporting the PCTU, keep the P7
battery strap in the ON position if it is de-
sired to save the configuration data stored
in PCTU RAM (the battery will protect
RAM for approximately six years); other-
wise, to conserve the lithium battery, move
P7 to the OFF position. When packaging
the PCTU, use only a non-conductive
material enclosure, such as plain paper.
Conductive material can cause the inter-
nal battery to discharge and erase mem-
ory in the PCB.
3.30 PCTU Wiring
3.31
Refer to MOH/BGM Wiring Diagram, Section
200-096-208, for PCTU wiring/interconnecting de-
tails.
3.40 PCTU Programming Overview
3.41
After initially installing a new and unused
PCTU, all on-board RAM memory needs to be
erased by running
Programs
90 and 92. If RAM
contains configuration or feature data from previ-
ous programming that should be retained, either do
not run these programs or use them selectively.
See the Programming Procedures, Section 200-
096-300.
3.42 The following parameters may be specified,
through programming, for the PCTU:
Program 03
l
Specify code 91 to indicate a normal PCTU.
l
Specify code 92 or 93 to indicate a PCTU with
DTMF Receiver Unit (CRCU-4 or CRCU-8, re-
spectively) option installed.
NOTE:
Codes 9 1,92, and 93 apply to both the PCTU
and PCTUSl.
Program 12
l
Select the seize time of the CRCU circuit.
4 ELECTRONIC TELEPHONE INTERFACE
UNIT (PEKU) .
4.00 General
4.01 The Electronic Telephone Interface Unit
(PEKU) provides eight ports for electronic tele-
phones. Depending on system configuration, DK24
can support up to four PEKUs with PCTU (1 or 2)
and three PEKUs with PCTUSI ; DK56 can support
up to eight PEKU PCBs, and DK96 up to twelve
PEKU PCBs.
4.02 The number of electronic telephones that can
be connected to PEKU PCBs in a system depends
on the series of telephones used. This is due to
power capacity. It is recommended that the current
6500-series be used, because this series con-
sumes the least amount of power. The maximum
number of 6500-series electronic telephones al-
lowed in DK24 is 32, in DK56 is 64, and in DK96 is
96. If using an electronic telephone series other
than, or mixed with, the 6500-series, see the con-
figuration chapter, Section 200-096-204, work-
sheet 7.
4.03 The PEKU can be configured for Off-hook
Call Announce (to receive OCA calls) by installing
an Off-hook Call Announce Unit (EOCU). It can
also be configured to support a DSS console, a
Door Phone/Lock Control Box (HDCB), and an
external Background Music (BGM) source connec-
tor. DSS consoles, HDCBs, and the BGM source,
are wired directly to the PEKU and require no
additional hardware, but do require specific ports/
circuits.
4.04 PEKU controls and interface connectors are
shown in Figure 6-4 and described in Table 6-B.
4.10 PEKU Hardware Options
4.11
The PEKU supports the following hardware
options:
Internal Options
l
Off-hook Call Announce Unit (EOCU)
External Options I
l
DSS console
l
Door Phone/Lock
l
BGM source connection
6-6

INSTALLATION-PCB
SECTION 200-096-206
FEBRUARY1991
W5, cut for y
BGM
option
W9, cut for -
HDCB option
50-PIN AMPHENOL CONNECTOR (FEMALE)
/-
BACKPLANE CONNECTOR
FlGURE6-4-PEKUCONTROLSANDlNTERFACECONNECTORS
NOTE:
Refer to Telephone Installation, Sections200-
096-207 and 200-096-208, for installation of
external options.
4.12 Off-hook Call Announce (EOCU) Instal-
lation.
Install the Off-hook Call Announce Unit
(EOCU) in accordance with the following steps:
1) Remove the PCB from its protective packag-
ing.
NOTE:
PEKU connectors
PlO, P20, P40, P50,
and
P60 are positioned to allow installation of the
EOCU only in the proper position (see Figure
6-4).
2) Mate EOCU connectors
JIO, J20, J40, J50,
and J60with PEKU connectors
Pl 0, P20, P40,
P50,
and P60 (refer to Figure 6-5).
3) Apply firm, even pressure to EOCU to ensure
proper mating of connectors.
6-7
.
, P40
J20 JIO
I
(EOCU)lNSTALLATlON

INSTALLATION-PCB
SECTION 200-096-206
FEBRUARY 1991
TABLE 6-B
PEKU CONTROLS AND INTERFACE CONNECTORS
CONTROL/INDICATOR/
CONNECTOR (Figure 6-4) TYPE OF COMPONENT DESCRIPTION
Off-hook Call
Announce PlO 1 O-pin connector
Interface connector for optional Off-hook
Call Announce subassembly
connector (used in conjunction with P20,
P40, P50, and P60).
Off-hook Call
Announce P20 1 O-pin connector
Off-hook Call
Announce P40 1 O-pin connector
Off-hook Call
Announce P50 1 O-pin connector
Interface connector for optional Off-hook
Call Announce subassembly
connector (used in conjunction with PlO,
P40, P50, and P60).
Interface connector for optional Off-hook
Call Announce subassembly
connector (used in conjunction with PlO,
P20, P50, and P60).
Interface connector for optional Off-hook
Call Announce subassembly
connector (used in conjunction with PlO,
P20, P40, and P60).
Off-hook Call
Announce P60 1 O-pin connector
Interface connector for optional Off-hook
Call Announce subassembly
connector (used in conjunction with PlO,
P20, P40, and P50).
DSSEKT DSS Console/
Electronic Telephone Two-position slide switch Configures PEKU for operation with either
SW1 Switch a DSS console or electronic telephones.
Door Phone W9 Jumper
Wire White jumper wire When cut, configures PEKU for
installation of an optional HDCB.
BGM source connection
W5 Jumper Wire White jumper wire When cut, configures PEKU for BGM
source connection (PEKU must be
installed in slot 01, port 02, circuit 3).
.
4) Use a 3-pair cable for making connections
2)
Set the
SW1 DSS/EKT
switch to
DSS.
between the PEKU and the Off-hook Call
Announce (OCA) electronic telephone. Refer
to Wiring Diagrams, Section 200-096-209, for
wiring/interconnecting details.
5) Refer to Telephone Installation, Section 200-
096-207, for procedures to upgrade electronic
telephones for OCA.
4.13 DSS Console Configuration.
Configure the
PEKU to support a DSSconsole in accordance with
the following steps:
1) Remove the PCB from its protective packag-
ing.
3) Refer to Telephone Installation, Section 200-
096-207, for installation procedures for the
DSS console. Each DSS console requires
dedicated use of circuits 7 and 8 of a oarticular
PEKU PCB.
4.14 Door Phone/LockConfiguration.
Configure
the PEKU to support a Door Phone and/or Door
Lock in accordance with the following steps:
1) Remove the PCB from its protective packag-
ing.
2) If an HDCB will be connected to the PEKU, cut
6-8

the
W9
Door Phone jumper wire on the PEKU
PCB.
3) Refer to Telephone Installation, Section 200-
096-207, for installation procedures for the
HDCB, control box and associated door
phones (MDFBs).
4) Each HDCB requires dedicated use of circuit
5 of a particular PEKU PCB.
4.15 Background Music Configuration.
Config-
ure the PEKU to support a background music
source in accordance with the following steps:
1) Remove the PCB from its protective packag-
ing.
2) Cut the
W5
(BGM) jumper wire on the PEKU
PCB.
3) Refer to Peripherals Installation, Section 200-
096-208, for installation procedures for BGM
connection.
NOTE:
The PEKU must be installed in slot 01 to allow
a
4)
BGM connection.
In
Program 10-2,
set
LED
09 ON to enable
the PEKU (port 02) BGM source to be sent to
electronic telephone speakers and/or PIOU,
PIOUS, PEPU PCBs.
4.20 PEKU Installation Procedures
4.21 Install the PEKU in accordance with the fol-
lowing steps:
1)
2)
Remove the PCB from its protective packag-
ing.
Ensure the PEKU has been configured for the
appropriate hardware options (refer to Para-
graph 4.10).
NOTE:
Ensure the PEKU’s component side is facing
right when installing it in the KSU .
3) Insert the PEKU into the appropriate slot (refer
to Paragraph 2.12), and apply firm, even
4)
INSTALLATION-PCB
SECTION 200-096-206
FEBRUARY 1991
pressure to ensure proper mating of connec-
tors. .
After installing the PEKU, gently pull the PCB
outward. If the connectors are properly mated,
a slight resistance will be felt.
4.30 PEKU Wiring
4.31
Refer to PEKU Wiring Diagrams, Section
200-096-290, for wiring/interconnecting details.
4.40 PEKU Programming Overview
4.41
The following parameters may be specified,
through programming, for the PEKU:
Program 03
l
Specify code 21 to indicate a station line PEKU.
l
Specify code 22 to indicate a PEKU configured
for OCA.
l
Specify code 23 to indicate a PEKU configured
for a DSS console.
l
Specify code 24 to indicate a PEKU configured
for OCA and a DSS console.
l
Door phones do not require a special code.
Program 1 O-2
l
Used for BGM connection.
Programs 28 and 29
l
Used for DSS assignments.
Programs 77-1 and 77-2
l
Used for HDCB assignments,
5 STANDARD TELEPHONE INTERFACE
UNIT (PSTU)
5.00 General
5.01
The Standard Telephone Unit (PSTU) pro-
vides an interface between standard telephones or
two-wire devices and the system. Each PSTU PCB
adds eight standard telephone lines to the system.
There is no limit, other than the station size con-
straints of the PCTU PCB, to the number of PSTU
PCBs that can be installed in the system.
NOTE:
For the system to recognize the DTMF tones
generated by a standard telephone (or any
other device connected to a PSTU port), a
DTMF Receiver Unit (CRCU-4 or CRCU-8)
6-9

INSTALLATION-PCB
SECTION 200-096-206
FEBRUARY1991
SSTU
SUBUNIT
50-PIN AMPHENOL CONNECTOR (FEMALE) Wl Ring Voltage
t \ H = 19OV F-P
I h I
1: II , L=13OVP-P
I I /C^.. me-r, I 111 1,
\rul r3 I u \ v.4)
and PSTU2 only)
0,
BACKPLANE CONNECTOR
HtiUKt ti-ti-t’S I U (l/Z) ANU SUWNI I (SS I U)
must be installed on the Common Control Unit
(PCTU) (refer to Paragraph 3).
5.02 PSTU controls are shown in Figure 6-6 and
described in Table 6-C.
P or 19OV P-P. The
Wl
jumper plug is used to set
the voltage level. Most standard telephones and
two-wire devices require the 19OV P-P level;
however, some devices may experience ring-trip
with 19OV P-P and they require the 13OV P-P level.
5.10 PSTU (1 and 2) Hardware Options
5.11 There are two PSTU versions (1 and 2): They
are identical except for the ring generator. The ring
generator on the original version (V.3) of PSTUl is
fixed at a 19OV P-P level, while the ring generator
on PSTUl (V.4) and PSTU2 can be set for 13OV P-
NOTE:
PSTUl (V.4) became available in November
1989. PSTUl (V.3) was discontinued.
5.12 Set the PSTUI (V.4) or PSTU2 ring generator
level as required:
* WI
set to H (19OV P-P).
TABLE 6-C
PSTUCONTROLSANDINTERFACECONNECTORS
CONTROL/INDICATOR/
CONNECTOR
(Figure 6-6) TYPEOFCOMPONENT DESCRIPTION
Ring Voltage Wl Jumper
r
Sets ring generator voltage level for all
Plug (PSTUl (V.4) and Three-terminal jumper circuits (PSTU2 only).
PSTU2 only) H=190VP-P .
L = 130v P-P
6-10

l
Wl
set to L (13OV P-P).
l
Two ringers maximum per port (H or L).
5.20 PSTU Installation Procedures
5.21
Install the PSTU in accordance with the fol-
lowing steps:
1) Remove the PCB from its protective packag-
ing. The protective shield on the back of the
PSTU is designed to protect the installer from
potentially hazardous ring voltage. Do not
remove this shield.
2) Ensure that the PSTU subunit (SSTU) is se-
curely attached to the PSTU (refer to Figure 6-
6).
NOTE:
Wl, the ring generator level option, should be
set in the H position (factory) for initial instal-
lation.
3) Insert the PSTU into the appropriate slot, and
apply firm, even pressure to ensure proper
mating of connectors.
4) After installing the PSTU, gently pull the PCB
outward. If the connectors are properly mated,
a slight resistance will be felt.
5.30 PSTU Wiring
5.31
Refer to PSTU Wiring Diagram, Section 200-
096-209, for wiring/interconnecting details.
5.32 The PSTU is registered for use with OLl3A
type lines for off-premises stations.
5.40 PSTU Programming Overview
5.41
The following parameters may be specified,
through programming, for the PSTU:
Program 03
l
Specify code 31 for all slots that have PSTUs
installed.
Program 31
l
Used to configure all PSTU ports connected to
INSTALLATION-PCB
SECTION 200-096-206
FEBRUARY 1991
Voice Mail or Auto Attendant devices (see Voice
Mail Installation, Section 200-096-208, for more
details). .
Program 1 O-2
l
Used to set standard telephone ringing option.
6 STANDARD/ELECTRONIC TELEPHONE
INTERFACE UNIT (PESU)
6.00 General
6.01
The Standard/Electronic Telephone Unit
(PESU) provides two standard interface circuits (1
and 2) identical to PSTU circuits for connection
between standard telephones, or two wire devices,
and the system. It also provides four electronic
telephone interface circuits (5 N 8) identical to
PEKU circuitsforconnecting electronictelephones,
BGM, or one HDCB. The PESU provides a ring
generator for circuits 1 and 2 (with a ring voltage of
either 19OV P-P or 13OV P-P).
l
The PESU does not support a DSS console
connection.
l
The PESU provides connectors to mount the
EOCU for OCA to electronic telephones.
l
The PESU supports HDCB and BGM connec-
tion.
l
PESU Requires
Release
2 software.
NOTE:
A CRCU (-4 or -8) must be installed on the
PCTU or PCTUS 1 for the system to recognize
DTMF tones sent from standard telephones or
other two-wire devices that are connected to
the PEW.
6.02 The maximum number of PESUs allowed
per system is shown below:
Electronic
System PESUs Std Telephone PCTU
DK24 3 6 12 w
DK24 5 10 20 (1 or2)
DK56 8 16 32 (1 or2)
DK96 12 24 48 (1 or2)
6.03 The PESU controlsand interface connectors
are shown in Figure 6-7 and described in Table
6-D.
6-11

INSTALLATION-PM
SECTION 200-096-206
FEBRUARY1991
50-PIN
AMPHENOL
CONNECTOR
(FEMALE)
/
CUT W7 ONLY IF BGM IS CONNECTED TO
PORT 07, CIRCUIT 8, SLOT 01.
OPTIONAL
EOCU, EQUIP
FOR OCA
FEATURE
v
,‘i
iw
iw &G&-i
,~~~ I ___-_---_--_____--____________ $,
CUT W9 FOR
DOOR PHONE
OPTION (HDCB
ON CIRCUIT 5)
Illk I ;j
BACKPLANE
I
j P80 CONNECTOR
: ;
I ;
___
0
0
UP
g
P90 PESU
3ING VOLTAGE OPTION (PORTS 1 & 2): ESTS: STANDARD TELEPHONE
- = LOW LEVEL (13OV P-P) INTERFACE, ALWAYS EQUIPPED
i = HIGH LEVEL (19OV P-P) FROM FACTORY
NOTE: Connect two ringers maximum per port (H or L).
FlGURE6-7-PESU PCB OPTION LOCATION AND IDENTIFICATION
6-12

INSTALLATION-PCB
SECTION 200-096-206
FEBRUARY1991
TABLE6-D
PESUCONTROLSANDINTERFACECONNECTORS
I I .
CONTROL/INDICATOR/
CONNECTOR (Figure 6-7) TYPE OF COMPONENT DESCRIPTION
Off-hook Call
Announce PlO 1 O-pin connector
Interface connector for optional Off-hook
Call Announce subassembly
connector (used in conjunction with P20,
P40. P50. and P60).
Off-hook Call
Announce P20
Off-hook Call
Announce P40
Off-hook Call
Announce P50
Off-hook Call
Announce P60
1 O-pin connector
1 O-pin connector
1 O-pin connector
1 O-pin connector
Interface connector for optional Off-hook
Call Announce subassembly
connector (used in conjunction with PlO,
P40, P50. and P60).
Interface connector for optional Off-hook
Call Announce subassembly
connector (used in conjunction with PlO,
P20, P50, and P60).
Interface connector for optional Off-hook
Call Announce subassembly
connector (used in conjunction with PlO,
P20, P40, and P60).
Interface connector for optional Off-hook
Call Announce subassembly
connector (used in conjunction with PlO,
P20. P40. and P50).
Ring Voltage Jumper
Plug P90 Three-terminal jumper
Sets ring generator voltage level for
circuits 1 and 2.
H = 19OV P-P (factory setting)
L= 130v P-P
Door Phone W9 Jumper
Wire White jumper wire When cut, configures PESU, circuit 5 for
installation of an optional HDCB.
BGM W7 Jumper Pack White jumper wire When cut, configures PESU, port 07,
circuit 8, for BGM source connection
(slot 01 only)
6.10 PESU Hardware Options
6.11
The PESU supports the following hardware
6.12 Off-hook Call Announce (EOCU) Installa-
tion.
Install the Off-hook Call Announce in accor-
dance with the following steps:
options:
l
Internal option:
Off-hook Call Announce
(EOCU).
1) Remove the PCB from its protective packag-
ing.
l
Externbl option:
Door Phone/Lock.
NOTE:
Refer to Telephone Installation, Section ZOO-
096-207, for installation of external options.
NOTE:
PEW connectors PlO, P20, P40, P50, and
P60 are positioned to allow installation qf the
EOCU only in the proper position (refer to
Figure 6- 7).
6-13

INSTALLATION-PCB
SECTION 200-096-206
FEBRUARY 1991
2)
3)
4)
5)
Mate the EOCU connectors
JIO, 520, J40, J50,
and J60 with the PESU connectors
PI 0, P20,
P40, P50,
and P60 (refer to Figure 6-7).
Apply firm, even pressure to the EOCU to
ensure proper mating of connectors.
Use 3-pair cable for connecting the PESU and
the OCA electronic telephone (refer to Wiring
Diagrams, Section 200-096-209, for wiring/
interconnecting details).
Refer to Telephone Installation, Section 200-
096-207, for procedures to add OCA to elec-
tronic telephones.
6.20 PESU Installation Procedures
6.21 Install the PESU in accordance with the fol-
lowing steps:
1)
2)
3)
4)
5)
6)
7)
Remove the PCB from its protective packag-
ing. The protective shield on the back of the
PESU is designed to protect the installer from
potentially hazardous ring voltage. Do not
remove this shield.
Ensure that the PESU subunit (ESTS) is se-
curely attached to the PESU (refer to Figure 6-
7).
If the electronic telephones connected to the
PESU must receive OCA calls, install the
EOCU subassembly PCB on the PESU per
Paragraph 6.12.
If an HDCB is connected to PESU circuits, cut
w9.
If BGM is connected to port 07, circuit 8, slot
01, cut w7.
Ensure that the ring voltage option,
P90,
is set
to the “H” position for initial installation. The “L”
position is used if devices connected to the
PESU trip ring voltage before answer.
Insert the PESU into the appropriate slot, and
apply firm, even pressure to ensure proper
mating of connectors. :. \
8) After installing the PESU, gently pull the PCB
outward. If the connectors are properly mated,
a slight resistance will be felt.
6.30 PESU Wiring
6.31
Refer to PESU Wiring Diagram, Section 200-
096-209, for wiring/interconnecting details.
6.40 PESU Programming Overview
.’
6.41 The following parameters may be specified,
through programming, for the PESU:
Program 03
Specify code 25 for all slots that have PESUs
without EOCU.
Specify code 26 for all slots that have PESUs
equipped with EOCU.
NOTE:
A special code is not required to connect an
HDCB or BGM to a PEW.
Program 31
l
Configures the PESU circuits 1 and 2forconnec-
tion to Voice Mail or Auto Attendant devices.
Program 1 O-2
l
Sets the standard telephone ring cadence for
normal or distinctive ringing and BGM source
connection.
Programs 77-1 and 77-2
l
Assigns an HDCB to a PESU port
7 CO LINE UNIT (PCOU)
7.00 General
7.01 Each CO Line Unit (PCOU) PCB adds four
CO lines to the system. The PCOU provides Ring
Detection, Dial Outpulsing and Hold; as well as
Automatic Busy Redial circuitry. Each CO line can
be programmed for DTMF or dial pulse. Depending
on system configuration, DK24 can support up to
four PCOUs, DK56 up to five, and DK96 up to nine.
NOTE:
There are two PCOU versions (1 and 2). They
are identical in fit/form/function and are inter-
changeable in all DK system models. .:
6-14

INSTALLATION-PCB
SECTION 200-096-206
FEBRUARY1991
CO LINE MODULAR CO LINE MODULAR CO LINE MODULAR CO LINE MODULAR
JACK CIRCUITS 1 AND 2 JACK CIRCUITS 1 AND 2 /JACK CIRCUITS 3 AND 4 JACK CIRCUITS 3 AND 4
BACKPLANE CONNECTOR BACKPLANE CON 1
FIGURE 6-8-PCOUCONTROLS,INDICATORS,ANDlNTERFACECONNECTORS
7.02 PCOU controls, indicators, and interface con-
nectors are shown in Figure 6-8 and described in
Table 6-E.
7.10 PCOU Hardware Options
7.11
There are no hardware options supported by
the PCOU.
7.20 PCOU Installation Procedures
7.21 Install the PCOU in accordance with the fol-
lowing steps:
1) Remove the PCB from its protective packag-
ing.
NOTE:
ThedBPADswitchesSWlOl throughSW401
control excessive loudness resulting from close
proximity to the CO or PBX telephone office by
providing a -3 dB signal level drop to, or from,
the PBX or CO when set to the 3 position.
Switches are factory-set to the 0 (0 dB signal
level drop) position.
2) If the KSU is located within one mileof the PBX
or CO telephone office, set dB
PAD
switches
SW101
through
SW401
to the 3 (-3 dB signal
level drop) position.
NOTE:
Ensure the PCOU’s component side is facing
right when installing it in the KSU.
3) Insert the PCOU into the appropriate slot
(referto Paragraph 7.21), andapplyfirm, even
pressure to ensure proper mating of connec-
tors.
4) After installing the PCOU, gently pull the PCB
outward. If the connectors are properly mated,
a slight resistance will be felt.
7.30 PCOU Wiring
7.31
Refer to PCOU Wiring Diagram, Section 200-
096-209, for wiring/interconnecting details.
7.40 PCOU Programming Overview
7.41
The following parameters may be specified,
6-15

INSTALLATION-PCB
SECTION 200-096-206
FEBRUARY1991
TABLE 6-E
PCOUCONTROLS,INOICATORS,ANDlNTERFACECONNECTORS
CONTROL/INDICATOR/
CONNECTOR
(Figure 6-8) TYPE OF COMPONENT DESCRIPTION
CO Line Circuit 1
Indicator CD1 12 Red LED
Lights to indicate CO line circuit 1 is in
operation (NOTE: CO line indicator will
not light unless PCOU is connected to
a CO).
CO Line Circuit 2
Indicator CD21 2 Red LED
Lights to indicate CO line circuit 2 is in
operation (NOTE: CO line indicator will
not light unless PCOU is connected to
a CO).
CO Line Circuit 3
Indicator CD31 2 Red LED
Lights to indicate CO line circuit 3 is in
operation (NOTE: CO line indicator will
not light unless PCOU is connected to
a CO).
CO Line Circuit 4
Indicator CD41 2 Red LED
Lights to indicate CO line circuit 4 is in
operation (NOTE: CO line indicator will
not light unless PCOU is connected to
a CO).
Jl Connector Modular connector Interface connector for CO line circuits
1 and 2.
J2 Connector Modular connector Interface connector for CO line circuits
3 and 4.
PAD Switch SW1 01 Two-position slide Enables -3dB signal level drop for CO line
circuit 1.
PAD Switch SW201 Two-position slide Enables -3dB signal level drop for CO line
circuit 2.
PAD Switch SW301 Two-position slide Enables -3dB signal level drop for CO line
circuit 3.
PAD Switch SW401 Two-position slide Enables -3dB signal level drop for CO line
circuit 4.
through programming, for the PCOU:
l
Specify code 11 for the applicable PCB slots
Program 03
where each PCOU is installed.
Program 1 O-l
l
Allows/denies two-CO Line Conference and
DISA.
Program 15
l
Assigns DTMF/DP Dialing, Tenant Service, DISA,
and a number of additional attributes to each CO
line.
Program 16
l
Assigns CO lines to groups 81 N 89, and dial 9
l
Assigns stations access to CO lines (incoming
group.
and outgoing access).
Program 41
l
Assigns stations access to CO lines (outgoing
Program 40
only).
Program 42-0, l-8
l
Assigns behind PBXCENTREX operation to
each CO line. I
Programs 45 - 48
l
Defines Toll Restrictions for any CO line.
6-16

INSTALLATION-PCB
SECTION 200-096-206
FEBRUARY 1991
TIE LINE 2 TIE LINE 3 TIE LINE 4
GROUND/ /h/f
FACTORY
POSITIONS)
P403
BACKPLANE CONNECTOR P103 P203
CI~IIPC E n
q
ennli twrm~ni e nfiln ~klnlnn~fin~
riuunL v-3- rmviu cluiy i nuL3 nlYu IlVulbHI UK3
Programs 50 - 56
l
Defines Least Cost Routing using CO lines.
Program 78
l
Assigns special ringing of CO lines: Night Ring
Over Page, DISA, IMDU.
Programs 81 - 89
l
Assigns CO lines to ring selected stations.
l
Assigns Delayed Ringing to any CO line.
Program 93
l
Assigns names to CO lines.
8 E & M TIE LINE UNIT (PEMU)
8.00 General
8.01
Each E & M TIE Line Unit (PEMU) PCB
provides four TIE line interface circuits.
l
PEMU TIE lines may be configured for either 2-
or 4-wire transmission with Type I signaling.
l
The TIE lines provide immediate start operation
only.
l
Each PEMU reduces system capacity by four
CO lines and four or eight station ports.
l
DK24 supports a maximum of one PEMU PCB,
DK56 a maximum of two, and DK96 a maximum
of three.
NOTES:
I. For the system to recognize the DTMF
tones generated by incoming TIE lines, a
CRCU (-4 or -8) must be installed on the
PCTWPCTUS I (refer to Paragraph 3).
2. The PEMU PCB uses four CO lines and
four station ports in software. Only 24
station ports are available with the
PCTUSi; however, in a DK24, only 16
station ports (not 20) will be available to
stations connected to PESU, PEKU, or
PSTU PCBs. A PCTU is required to sup-
port up to 24 stations and 4 TIE lines in a
DK24.
8.02 PEMU controls, indicators, and interfacecon-
nectars are shown in Figure 6-9 and described in
Table 6-F.
8.10 PEMU Hardware Options
8.11
There are no additional hardware options
supported by the PEMU. *
8.20 PEMU Installation Procedures
6-17

INSTALLATION-PCB
SECTION 200-096-206
FEBRUARY1991
TABLE 6-F
PEMU
CONTROLS,INDICATORS,ANDlNTERFACECONNECTORS
CONTROL/INDICATOR/ 1
CONNECTOR
(Figure 6-9) TYPEOFCOMPONENT DESCRIPTION
TIE Line Circuit 1
Indicator CD1 02 Red LED Lights to indicate TIE line 1 is in operation
TIE Line Circuit 2
Indicator CD202
TIE Line Circuit 3
Indicator CD302
TIE Line Circuit 4
Indicator CD402
Lights to indicate TIE line 2 is in operation
Red LED
Red LED
Lights to indicate TIE line 3 is in operation
Lights to indicate TIE line 4 is in operation
E & M TIE Line
Connector J101
E & M TIE Line
Connector J201
Modular connector
Modular connector
Interface connector for E & M TIE line
circuit 1.
Interface connector for E & M TIE line
circuit 2.
E & M TIE Line
Connector J301 Modular connector Interface connector for E & M TIE line
circuit 3.
E & M TIE Line
Connector J401 Modular connector Interface connector for E & M TIE line
circuit 4.
FG Jumper P3 Three-terminal jumper 1 Enables or disables -48V ground to FG.
GND/BAT Jumper
PlOl Three-terminal jumper M-lead origination for TIE line 1 (must
be in BAT position per FCC requirements)
GND/BAT Jumper
PI02 Three-terminal jumper M-lead origination for TIE line 1 (must
be in BAT position per FCC requirements)
GND/BAT Jumper
P201
GND/BAT Jumper
P202
Three-terminal jumper
Three-terminal jumper
M-lead origination for TIE line 2 (must
be in BAT position per FCC requirements)
M-lead origination for TIE line 2 (must
be in BAT position per FCC requirements)
GND/BAT Jumper
P301 Three-terminal jumper M-lead origination for TIE line 3 (must
be in BAT position per FCC requirements)
GND/BAT Jumper
P302 Three-terminal jumper
GND/BAT Jumper
P401 Three-terminal jumper
M-lead origination for TIE line 3 (must
be in BAT position per FCC requirements)
M-lead origination for TIE line 4 (must
be in BAT position per FCC requirements)
6-18

INSTALLATION-PCB
SECTION 200-096-206
FEBRUARY 1991
TABLE 6-F
PEMU CONTROLS, INDICATORS, AND INTERFACE CONNECTORS (continued)
I
CONTROL/INDICATOR
(Figure 6-9) TYPE OF COMPONENT DESCRIPTION
GND/BAT Jumper
P402
2Wl4W Jumper
P103
Three-terminal jumper
Three-terminal jumper
M-lead origination for TIE line 4 (must
be in BAT position per FCC requirements)
Selects 2- or 4-wire configuration
for E & M TIE line circuit 1.
I
2Wl4W Jumper
P203 Three-terminal jumper Selects 2- or 4-wire configuration
for E & M TIE line circuit 2.
I
2W/4W Jumper
P303
I
Three-terminal jumper Selects 2- or 4-wire configuration
for E & M TIE line circuit 3.
I
2Wl4W Jumper
P403
I
Three-terminal jumper Selects 2- or 4-wire configuration
for E & M TIE line circuit 4.
8.21 Install the PEMU in accordance with the fol-
lowing steps:
1) Remove the PCB from its protective packag-
ing.
2) Determine if the E & M TIE lines will be config-
ured as 2- or 4-wire. Set
2W/4W
switches
PI 03,
P203, P303,
and P403 to the appropriate po-
sitions.
3) Set the
FG
jumper P3 to the 2-3 position.
4)
Set all
GNDlBAT
jumpers to the
BAT
position
for connection to the telephone network.
NOTE:
The GND position is used to connect PEMU
circuits back-to-back on premises only, 1000
feet maximum (E & M lead wires must be
crossed).
5) Insert the PEMU into the appropriate slot (refer
to Paragraph 2.21) and apply firm, even pres-
sure to ensure proper mating of connectors.
6) After installing the PEMU, gently pull the PCB
outward. If the connectors are properly mated,
a slight resistance will be felt.
8.30 PEMU Wiring
8.31 In Section 200-096-209, refer to PEMU (2W
or 4W) wiring diagram for wiring/interconnecting
details, and to secondary protector diagram for
secondary protector information. I
8.40 PEMU Programming Overview
8.41
The following parameters may be specified,
through programming, for the PEMU:
Program 03
l
Specify code 13 for applicable PCB slots where
each PEMU is installed.
Program 1 O-l
l
Allows or denies two-CO Line Conference.
Program 15
l
Assigns tandem connections to TIE lines.
Program 17
l
Assigns Page/Handsfree Answerback.
NOTE:
When a PEMU is installed in a system, it
automatically assumes the next consecutive
CO line and station port numbers. If the sys-
tem is equipped with a PCTU(1 or Z), the
PEMU assumes four CO line and four station
port numbers. However, with a PCTUSI, on/y
16 station ports will be available for stations
connected to a PEKU, PESU, or PSTU PCB.
9 OPTION INTERFACE UNIT
(PIOU AND PIOUS)
9.00 General
9.01
The Option Interface Unit (PIOU or PIOUS)
6-19

INSTALLATION-PCB
SECTION 200-096-206
FEBRUARY1991
50-PIN AMPHENOL CONNECTOR (FEMALE) CD4 SW2 SMDR TTY
.
BACKPLANE CONNECTOR
FIGURE 6-IO-PIOU CONTROLS, INDICATORS, AND INTERFACE CONNECTORS
J’& NOT FACTORY
INSTALLED FOR BELL
MODEM SPECIFICATION
OPTIONAL IMDU PCB
REMOTE MAINTENANCE
CONNECTOR
TB
TERMIN
STRIP
FlGURE6-II-PIOUS PCB SWITCH/JUMPER,OPTlON LOCATION
6-20

INSTALLATION-PCB
SECTION 200-096-206
FEBRUARY1991
TABLE6-G
PIOU
CONTROLSANDINTERFACECONNECTORS .
CONTROL/INDICATOR/
CONNECTOR
(Figure 6-I 0) TYPE OF COMPONENT DESCRIPTION
SMDR/TTY Interface
Connector J3 Dual modular connector
IMDU Connector PI 1 O-pin connector
Interface connector for SMDR printer/
call accounting device and
maintenance terminal/modem.
Interface connector for Remote
Maintenance Modem piggy-back module.
IMDU Connector P2 g-pin connector Interface connector for Remote
Maintenance Modem piggy-back module.
IMDU Connector P3 3-pin connector Interface connector for Remote
Maintenance Modem piggy-back module.
M/B Make/Break
Jumper Plug PI 0
M/B Make/Break
Jumper Plug PI 1
Three-terminal jumper plug External Page/Door Lock Control Relay
MAKE or BREAK jumper plug.
Three-terminal jumper plug Night/Hold Relay MAKE or BREAK
jumper plug.
Alarm Sensor N.O./N.C. Three-terminal jumper plug Alarm sensor normally open or normally
Jumper Plug P12 closed jumper pluo.
CCITT/BELL Jumper
Plug P13
SMDR Baud Rate
Switch SW1
Three-terminal jumper plug IMDU or external modem operating
specification jumper plug.
Two-position slide switch Selects baud rate (300 or 1200 bps) for
SMDR printer or call accounting device.
TTY Baud Rate Switch
SW2 Two-position locking push- Selects baud rate (300 or 1200 bps) for
button switch Remote Maintenance Modem piggy-back
module (IMDU) or external TTY iack.
Modem/TTY Switch
SW3 I Two-position slide switch Enables PIOU for operation with IMDU
modem or TTY jack.
SPO/SPI Internal/External Selects built-in 3-watt amplifier (SPI) or
Amplifier Switch Two-position slide switch 600-ohm output (SPO) for external
SW4 page/BGM operation.
Volume Control
VRl Trim potentiometer Adjusts volume of built-in 3-watt amplifier.
provides a circuit interface with the system periph-
eral options. A maximum of one PIOU or PIOUS
PCB can be installed in the system. The PIOU and
PIOUS support the same options, except the PI-
OUS does not support Built-in Amplifier or Zone
Paging (see Paragraph
9.11).
NOTE:
If a PIOU is installed, then a PIOUS cannot be
installed, and vice versa.
9.02 PIOU controls, indicators, and interface
connectors are shown in Figure 6-10 and de-
6-21

INSTALLATION-PCB
SECTION 200-096-206
FEBRUARY1991
TABLE6-H
PlOUSCONTROLSANOlNTERFACECONNECTORS
CONTROL/INDICATOR/
CONNECTOR
(Figure 6-11) TYPE OF COMPONENT DESCRIPTION
SMDRTTY Interface
Connector J3 Dual modular connector Interface connector for SMDR printer/
call accounting device and
maintenance terminal/modem.
IMDU Connector PI 1 O-pin connector Interface connector for Remote
Maintenance Modem piggy-back module.
IMDU Connector P2 g-pin connector Interface connector for Remote
Maintenance Modem piggy-back module.
IMDU Connector P3 3-pin connector Interface connector for Remote
Maintenance Modem piggy-back module.
M/B Make/Break Jumper External Page/Door Lock Control Relay
WI Wire jumper MAKE or BREAK jumper.
M/B Make/Break Jumper Night/Hold Relay MAKE or BREAK
w2 Wire jumper jumper.
_
Alarm Sensor N.O./N.C. Alarm sensor normally open or normally
w3 Wire jumper closed jumper.
CCITT/BELL Jumper
w4* Wire jumper IMDU or external modem operating spec-
ification jumper plug. (BELL = NO W4)
SMDR Baud Rate
Switch SW1
TTY Baud Rate Switch
SW2
Two-position slide switch Selects baud rate (300 or 1200 bps) for
SMDR printer or call accounting device.
Two-position locking push- Selects baud rate (300 or 1200 bps) for
button switch Remote Maintenance Modem piggy-back
module (IMDU) or external TTY jack.
Modem/TTY Switch
SW3 Two-position slide switch Enables PIOUS for operation with IMDU
modem or TTY jack.
*Most modems in USA require BELL specification: W4 not factory-installed.
scribed in Table 6-G. PIOUS information is pro-
vided in Figure 6-l 1 and Table 6-H.
9.10 PIOU and PIOUS Hardware Options
9.11
The PIOU and PIOUS support the following
hardware options:
Internal Options
l
Remote Maintenance Modem Unit (IMDU)
External Options
l
Built-in Paging Amplifier (PIOU only)
l
Door Lock Control or External Amplifier Control
l
Alarm Sensor
l
External Paging 6OOQ (duplex) Interface
l
Zone Page, 4-zones (PIOU only)
l
Local Maintenance Terminal or Modem
l
Music-on-Hold Control or Night Relay Control
0 SMDR Printer or Call Accounting Port
l
Remote Maintenance Port
NOTE:
Refer to Peripheral Eqyipmen t Ins talla tion,
Section 200-096-208, for installation of exter-
nal options.
6-22

J3
J2
q
q
q
q
d
q
q
0
q
q
0
0
-Jl
I
FIGURE 6-12--REMOTE MAINTENANCE MODEM
UNIT (IMDU) INSTALLATION
9.12 Remote Maintenance Modem Unit (IMDU)
Installation.
Install the Remote Maintenance Mo-
dem Unit (IMDU) in accordance with the following
steps:
1) Remove the PCB from its protective packag-
ing.
2)
Set the SW2 baud rate switch on the front panel
to 300 or 1200, as appropriate, after the PIOU
has been installed in the KSU (in-300 bps-
out-l 200 bps).
3) Set SW3 to MODEM position for IMDU opera-
tion.
4) Set the P13 jumper plug on the PIOU to the
BELL position; or, cut the W4 jumper on the
PIOUS for BELL operation.
5) Mate IMDU connectors
Jl, J2,
and J3 with
PIOU or PIOUS connectors
Pl, P2,
and P3
(refer to Figure 6-l 2).
NOTE:
PIOU or PlOUS connectors PI, P2, and P3
arepositioned to allow installation of the IMDU
on/y in the proper position.
6) Refer to Programming Procedures, Section
200-096-300, Program 77-1,
and set LED 14
to ON to enable IMDU operation.
INSTALLATION-PCB
SECTION 200-096-206
FEBRUARY 1991
NOTE:
The IMDU default station intercom number is
19.
7) Apply firm, even pressure to IMDU to ensure
proper mating of connectors.
NOTE:
Refer to Remote Maintenance Procedures,
Section 200-096-400, for information regard-
ing the IMDU.
9.20 PIOU and PIOUS Installation Proce-
dures
9.21
Install the PIOU or PIOUS in accordance with
the following steps:
1) Remove the PCB from its protective packag-
ing.
2) Ensure the PIOU or PIOUS has been config-
ured for the appropriate hardware options
(refer to Paragraph
9.10
and Section 200-096-
208).
NOTE:
Ensure the PIOUS or PIOUS’component side
is facing right when installing it in the KSU.
3) Insert the PIOU or PIOUS into the last slot (slot
06 for DK24, slot 08 for DK56, and slot 14 for
DK96 ), and apply firm, even pressure to
ensure proper mating of connectors.
4) After installing the PIOU or PIOUS, gently pull
the PCB outward. If the connectors are properly
mated, a slight resistance will be felt.
9.30 PIOU and PIOUS Wiring
9.31 Refer to Peripheral Equipment Installation,
Section 200-096-208; and Wiring Diagrams, Sec-
tion 200-096-209, for PIOU/PIOUS wiring/inter-
connecting details.
9.40 PIOU and PIOUS Programming Over-
view
9.41
The following parameters may be specified,
6-23

INSTALLATION-PCB
SECTION 200-096-206
FEBRUARY 1991
50-PIN AMPHENOL CONNECTOR (FEMALE)
r \ Pi0 PI1
I - I .VRl I /
-SW4
BACKPLANE CONNECTOR
FIGURE 6-13-PEPU CONTROLS, INDICATORS, AND INTERFACE CONNECTORS
through programming, for the PIOU and PIOUS:
Program 77-l
l
Assigns relay control and IMDU options.
Program 60
l
Assigns SMDR options.
Program 1 O-2
l
Enables External Page with All Call Page (ac-
cess code 39 only, not AC button).
Program 78
l
Enables Night Ringing over External Page.
10 EXTERNAL PAGE INTERFACE UNIT
(PEPU)
10.00 General
10.01 The External Page Interface Unit (PEPU)
provides a circuit interface with the system periph-
eral options. The PEPU is similar to the PIOU, but
supports fewer peripherals. In general, PEPU-sup-
ported peripherals are related to paging and relay
control functions.
NOTE:
If a PIOU or PIOUS is installed, then a PEPU
cannot be installed.
10.02 PEPU controls, indicators, and interface
connectors are shown in Figure 6-l 3 and described
in Table 6-l.
10.10 PEPU Hardware Options
10.11 The PEPU supports the following hardware
options:
External Options
l
Built-in Paging Amplifier
l
Door Lock Control or External Amplifier Control
l
External Paging 6OOQ (duplex) Interface (one
zone)
l
Music-on-Hold Control or Night Relay Control
NOTE:
Refer to Peripheral Equipment Installation,
Section 200-096-208; and Wiring Diagrams,
Section 200-096-209, for installation of exter-
nal options. I
10.12 PEPU does not include the following PIOU
options:
6-24

INSTALLATION-PCB
SECTION 200-096-206
FEBRUARY 1991
TABLE 6-l
PEPU CONTROLS AND INTERFACE CONNECTORS .
CONTROL/INDICATOR/
CONNECTOR
(Figure 6-13)
. -
M/B Make/Break
Jumper Plug PI0
TYPE OF COMPONENT DESCRIPTION
Three-terminal jumper plug External Page/Door Lock Control Relay
MAKE or BREAK jumper plug.
I
M/B Make/Break
Jumper Plug PI 1 Three-terminal jumper plug Night/Hold Relay MAKE or BREAK jumper
plug.
Two-position slide switch Selects built-in 3-watt amplifier or
600-ohm output for External Page/BGM
operation.
I Trim potentiometer Adjusts volume of built-in 3-watt amplifier.
l
Alarm Sensor
l
Four-zone Page
l
SMDR Port
l
Remote Maintenance Modem or ASCII terminal
Connector
l
IMDU Connection
10.20 PEPU Installation Procedure
10.21 Install the PEPU in accordance with the
following steps:
1) Remove the PCB from its protective packag-
ing.
2) Ensure the PEPU has been configured for the
appropriate hardware options (refer to Para-
graph
10.10
and Section 200-096-208).
NOTE:
Ensure the PEP& component side is facing
right when installing it in the KSU.
3) insert the PEPU into the last slot (slot 06 of
DK24, slot 08for DK56, and slot 14for DK96),
and apply firm, even pressure to ensure proper
mating of connectors,
4
.) After installing the PEPU, gently pull the PCB
6-25
outward. If the connectors are properly mated,
a slight resistance will be felt.
10.30 PEPU Wiring
10.31
Refer to Peripheral Equipment Installation,
Section 200-096-208; and Wiring Diagrams, Sec-
tion 200-096-209, forwiring/interconnecting details.
10.40 PEPU Programming Overview
10.41
The following parameters may be specified,
through programming, for the PEPU:
Program 77-1
l
Assigns relay control options.
Program 1 O-2
l
Assigns External Page to All Call Page (access
l
Enables Night Ringing over External Page.
code 39 only, not AC button).
Program 78
11 INSTALLATION-PCB FOR RELEASE 3
11
.Ol The following contains
Release
3 informa-
tion. This information includes complete installa-
tion instructions for the new digital telephone inter-
face PCB, the PDKU. In addition, the instructions
for the other PCBs, including the PCTU, are up-
dated to reflect the new software release.

INSTALLATION-PCB
SECTION 200-096-206
FEBRUARY 1991
12 PCB INSTALLATION OVERVIEW
(RELEASE 3)
12.01
PCBslot installation considerationsdiscussed
in Paragraph 2 are the same with
Release 3,
except
for one change: with
Release
3, the PDKU PCB or
the PEKU PCB should be installed in slot I-previ-
ously only the PEKU was recommended. It does not
matter whether it’s the PEKU or the PDKU installed
in slot 1. However, it is recommended that they be the
first PCBs installed from left to right.
13 PDKU (RELEASE 3)
13.00 General
13.01 The Digital Telephone Interface Unit (PDKU)
provides eight ports/circuits for digital telephones.
Depending on system configuration, DK24 (with
PCTU3 only, not PCTUSI) can support up to four
PDKUs, DK56 can support up to eight PDKUs, and
DK96 can support up to 12. The PDKU can also be
configured for PDIU-Dls, PDIU-DSs, and a DDSS
console. DDSS consoles and PDIU-DSs are wired
directly to the PDKU and require no additional
hardware, but do require their own dedicated
ports/circuits. The PDIU-DI shares with its accom-
panying digital telephone the same wire pair and
circuit on the PDKU. The PDKU (Figure 6-14) has
no controls.
13.10 PDKU Hardware Options
13.11
The PDKU supports the hardware options
noted below. Unlike the other PCBs, there are no
controls on the PDKU that need to be set for
options.
internal option:
l
none
External option:
l
DDSS console
. PDIU-DS
. PDIU-DI
13.12 Hardware Configuration
13.13 DDSS Console Configuration.
Refer to
Telephone Installation, Chapter 7, for installation
procedures for the DDSS console. Each DDSS
BACKPLANE
50-PIN AMPHENOL CONNECTOR (FEMALE)
, \
CONNECTOR I
FIGURE 6-14-PDKU INTERFACE CONNECTION
6-26

console requires dedicated use of circuit 8 of a
particular PDKU PCB.
13.14 PDIU-DS Configuration.
Refer to Periph-
erals Installation, Chapter 8, for installation proce-
dures for the PDIU-DS. A PDIU-DS can be con-
nected to circuits 1 N 7 on a PDKU; the circuit must
be dedicated to the PDIU-DS.
13.15 PDIU-DI Configuration.
Refer to Telephone
Installation, Chapter 7, and Peripherals Installation,
Chapter 8, for installation procedures for the PDIU-
DI. PDIU-Dls can be equipped with any digital tele-
phone connected to PDKU circuits 1 N 7, but the
quantity is limited (see Table 4-B in Chapter 4).
13.20 PDKU Installation Procedures
13.21
Install the PDKU in accordance with the
following steps:
1) Remove the PCB from its protective packag-
ing.
2) Insert the PDKU into the appropriate slot, and
apply firm, even pressure to ensure proper
mating of connectors.
NOTE:
Ensure the PDKU’s component side is facing
right when installing it in the KSU.
4) After installing the PDKU, gently pull the PCB
outward. If the connectors are properly mated,
a slight resistance will be felt.
13.30 PDKU Wiring
13.31
Refer to PDKU Wiring Diagrams, Chapter 9,
for wiring/interconnecting details.
13.40 PDKU Programming Overview
13.41
The following parameters may be specified,
through programming, for the PDKU:
Program 03
l
Specify code 62 to indicate a station line PDKU.
e Specify code 64 to indicate a PDKU configured
for a DDSS console.
INSTALLATION-PCB
SECTION 200-096-206
FEBRUARY 1991
Programs 20,21, and 22
l
Use to configure PDIU-Dls and PDIU-DSs.
Programs 28 and 29 .
l
Use for DDSS assignments.
Program 30
l
Adjusts initial off-hook volume level for digital
telephone handsets.
Program 92-5
l
Initializes initial ringing, speaker, and muted ring
volume levels of digital telephones.
14 PCTU (RELEASE 3)
14.01
For PCTU3 (Figure 6-15) installation in-
structions, see Paragraph 3. The PCTU3 PCB has
the same station and CO line capacity and per-
formsthesamefunction as the PCTUl and PCTU2:
It provides centralized control for the KSU. PCTU3
is intended for use with DK56 and DK96; it can also
be used with DK24.
NOTE:
The PI jumper, which is on the PCTU 1 and 2,
is not on the PCTU3. Its function is automatic
with PCTU3 (see Table 6-A).
15 PEKU (RELEASE 3)
15.00 For PEKU installation instructions, see
Paragraph 4. PCTU3 supports the same number of
PEKUs, electronic telephones, and options as
PCTUl and PCTU2.
15.01 Alternate Background Music (BGM)
Configuration.
With
Release3,
a BGM source can
be connected to a PEKU in any slot. With
Program
19,
identify the slot. Adhere to all other steps in
Paragraph 4.15.
15.02 External Amplifier Connection.
With
Re-
lease
3, a customer-supplied two way external
amplifier may be connected to PEKU ports. With
Program 1
O-3, identify these ports. See Chapter 8
for amplifier installation information.
16 PSTU (RELEASE 3)
16.00 For PSTU installation instructions, see
Paragraph 5. PCTU3 supports the same number of
6-27

INSTALLATION-PCB
SECTION 200-096-206
FEBRUARY 1991
P7, shown in /
OFF
position
LITHIUM /
BATTERY
BACKPLANE
HEARTBEAT LED P2 P3
00 VERSION
FIGURE 6-15-PCTU3 CONTROLS, INDICATORS, AND INTERFACE CONNECTOR
PSTUs as PCTUl and PCTU2. It also supports the
same hardware options and has the same pro-
gramming parameters.
19 PEMU (RELEASE 3)
17 PESU (RELEASE 3)
17.00 For PESU installation instructions, see
Paragraph 6. PCTU3 supports the same number
of PESUs as PCTUI and PCTU2. It also supports
the same hardware options and has the same
programming parameters.
19.00
For PEMU installation instructions, see
Paragraph 8. PCTU3 supports the same number of
PEMUs as PCTUI and PCTU2. It also supports no
hardware options and has the same programming
parameters.
20 PIOU AND PIOUS (RELEASE 3)
17.01 PESU Programming Overview.
With Re-
lease
3, a BGM source can be connected to a
PESU in any slot. With
Program 19,
identify that
slot (see Paragraph 6.40).
20.00 For PIOU and PIOUS installation instruc-
tions, see Paragraph 9. Like PCTUI and 2, PCTU3
supports only one PIOU or one PIOUS. It supports
the same PIOU and PIOUS hardware options and
has the same programming parameters with one
addition: PCTU3 allows night ringing over selected
PIOU page zones by Tenant 1 and/or Tenant 2 CO
lines in
Program 77-l.
18 PCOU (RELEASE 3) 21 PEPU (RELEASE 3)
18.00 For PCOU installation instructions, see
Paragraph 7. PCTU3 supports the same number of
PCOUs as PCTUI and PCTU2. It also has the
same PCOU programming parameters.
21.00 For PEPU installation instructions, see
Paragraph 10. Like PCTUI and 2, PCTU3 supports
only one PIOU, or one PIOUS, or one PEPU. It
supports the same PEPU hardware options and
has the same programming parameters.
6-28

TOSHIBASYSTEMPRACTICES
DIGITALKEYTELEPHONESYSTEMS INSTALLATION-TELEPHONE
SECTION 200-096-207
FEBRUARY1991
Stra ta7mx
RELEASE 1,2, and 3
INSTALLATION
CHAPTER SEVEN
TELEPHONE INSTALLATION

INSTALLATION-TELEPHONE
SECTION 200-096-207
FEBRUARY1991
TABLEOFCONTENTS
SUBJECT . PAGE
GENERAL
................................................................................................................. 7-l
ELECTRONIC TELEPHONE UPGRADE OPTIONS ................................................ 7-l
Electronic Telephone Upgrade Installation.. .......................................................... 7-l
Carbon Handset Option.. ....................................................................................... 7-3
Beep Strap ............................................................................................................ 7-3
Microphone/Speaker Threshold (speakerphone only) .......................................... 7-3
STATION INSTALLATION REQUIREMENTS .......................................................... 7-3
Electronic Telephone Connections ........................................................................ 7-4
Standard Telephone Connections ......................................................................... 7-5
DSS Console Connections. ................................................................................... 7-5
HDCB Door Phone/Lock Control Box Installation ................................................. 7-6
Door Phone Installation ......................................................................................... 7-6
DIGITAL TELEPHONE UPGRADE OPTIONS.. ........................................................ 7-7
Digital Telephone Upgrade Installation ................................................................. 7-7
Digital Telephone Connections ............................................................................. 7-l 1
DDSS Console Connections ............. .................................................................... 7-11
PDIU-DI Connections ............................................................................................ 7-12
PDIU-DS Connections ........................................................................................... 7-12
PARAGRAPH
1
2
2.10
2.20
2.30
2.40
3
3.10
3.20
3.30
3.40
3.50
4
4.10
4.20
4.30
4.40
4.50
FIGURE
7-l
7-2
7-3
7-4
7-5
7-6
7-7
7-8
7-9
7-10
7-11
7-12
FIGURE LIST
TITLE PAGE
REMOVING ELECTRONIC TELEPHONE BASE . . . . . . . . . . . . . . . . . . . . . . . . . . . . . . . . . . . . . . . . . . . . . . . . . . . . . 7-l
HHEU INSTALLATION . . . . . . . . . . . . . . . . . . . . . . . . . . . . . . . . . . . . . . . . . . . . . . . . . . . . . . . . . . . . . . . . . . . . . . . . . . . . . . . . . . . . . . . . . . . . . . 7-2
ELECTRONIC TELEPHONE PCB CONNECTIONS . . . . . . . . . . . . . . . . . . . . . . . . . . . . . . . . . . . . . . . . . . . . . . . . 7-2
HESC-65 CABLING . . . . . . . . . . . . . . . . . . . . . . . . . . . . . . . . . . . . . . . . . . . . . . . . . . . . . . . . . . . . . . . . . . . . . . . . . . . . . . . . . . . . . . . . . . . . . . . . . . 7-2
HVSI/HVSU INSTALLATION . . . . . . . . . . . . . . . . . . . . . . . . . . . . . . . . . . . . . . . . . . . . . . . . . . . . . . . . . . . . . . . . . . . . . . . . . . . . . . . . . . . . 7-3
HANDSET HANGER INSTALLATION .
. . . . . . . . . . . . . . . . . . . . . . . . . . . . . . . . . . . . . . . . . . . . . . . . . . . . . . . . . . . . . . . . . . . . . 7-4
ELECTRONIC TELEPHONE WALL MOUNTING BASE ROTATION . . . . . . . . . . . . . . . . . . . . . . . 7-5
DOOR PHONE INSTALLATION . . . . . . . . . . . . . . . . . . . . . . . . . . . . . . . . . . . . . . . . . . . . . . . . . . . . . . . . . . . . . . . . . . . . . . . . . . . . . . . 7-6
PDIU-DI/DIGITAL TELEPHONE INSTALLATION . . . . . . . . . . . . . . . . . . . . . . . . . . . . . . . . . . . . . . . . . . . . . . . . . . . . . 7-8
HHEU INSTALLATION FOR DIGITAL TELEPHONE . . . . . . . . . . . . . . . . . . . . . . . . . . . . . . . . . . . . . . . . . . . . . . . 7-9
DIGITAL TELEPHONE PCB CONNECTIONS AND STRAPS . . . . . . . . . . . . . . . . . . . . . . . . . . . . . . . . . . 7-9
DVSU INSTALLATION .
. . . . . . . . . . . . . . . . . . . . . . . . . . . . . . . . . . . . . . . . . . . . . . . . . . . . . . . . . . . . . . . . . . . . . . . . . . . . . . . . . . . . . . . . . . . . . 7-10
7-i

INSTALLATION-TELEPHONE
SECTION 200-096-207
FEBRUARY 1991
1 GENERAL
1.00
This chapter provides the general instruc-
tions to connect electronic telephones, digital
telephones, standard telephones (including door
phones and door locks), and DSSDDSS consoles
to DK systems.
1.01
The chapter also includes procedures to
upgrade electronic and digital telephones for Loud
Ringing Bell/Headset Interface and Off-hook Call
Announce capability, and to wall-mount electronic
and digital telephones.
2 ELECTRONIC TELEPHONE
UPGRADE OPTIONS
2.00 Electronic telephones may be upgraded to
include a Loud Ringing Bell/Headset Interface and
Off-hook Call Announce capability.
2.01 Loud Ringing Bell/Headset (HHEU)
Upgrade.
The Loud Ringing Bell/Headset (HHEU)
upgrade enables an external speaker (HESB) and
a headset to be connected to the electronic tele-
phone. In this configuration, the HESB serves as a
loud ringing bell.
NOTE:
Refer to Peripheral Equipment Installation,
Section 200-096-208, for installation proce-
dures for the HESB.
2.02 Off-hook Call Announce (OCA)
Upgrade.
The Off-hook Call Announce (HVSU/
HVSI) upgrade allows the telephone to receive
calls when the handset is off the hook.
2.10 Electronic Telephone Upgrade Instal-
lation
2.11 HHEU Upgrade Installation.
Install the Loud
Ringing Bell/Headset (HHEU) upgrade in accor-
dance with the following steps:
NOTE:
If the telephone is equipped with the Loud
Ringing Bell/headset (HHEU) and OCA (HVW
HVSU) upgrades, the HHEU version must be
HHEU IA, V.2 or later.
7-I
HANDSET PLASTIC
FIGURE 7-I-REMOVING ELECTRONIC
TELEPHONE BASE
1) Loosen the four captive screws securing the
telephone base (Figure 7-l ), and remove the
base.
2) Using a screwdriver or other suitable tool,
remove the plastic tab located on the back of
the base (Figure 7-l). The HHEU modular
connector will be accessed through this
opening.
3) On the HHEU, set the
SW601
switch to the
Headset position for HESB and/or headset
connection (Figure 7-2).
4A) Connect the HESC-65 or HESC-65A cable
(either one) to
P601
of the HHEU if the Loud
Ringing Bell option is required (see Figure 7-
4), and refer to HESB Option Installation,
Section 200-096-208.
4B) For the telephone speaker only (not the
headset receiver) to receive OCA, cut one
side of the R607 resistor on the HHEU and
then remove the resistor so that no electrical
connection exists. (see Figure 7-2).

INSTALLATION-TELEPHONE
SECTION 200-096-207
FEBRUARY1991
COMPONENT SIDE OF HHEU
FEED THROUGH TO HESB
FOR HESC-65 CABLE
HESC-65A CABLE
HHEU P601
FlGURE7-2-HHEUINSTALLATION FIGURE 7-4-HESC-65 CABLING
HKT6520KSD
CONNECTOR
5) Position the HHEU PCB on the standoffs
inside the base (Figure 7-2), and secure with
the two screws provided.
6) Connect the HHEU PCB to the electronic
telephone PCB as shown in Figure 7-3.
7) Cut HHEU strap shown in Figure 7-3.
NOTE:
HHEU strap must be replaced if the HHEU
PCB is removed from the telephone.
8) Reinstall the electronic telephone base and
secure it with its four captive screws.
CONNECTOR
CARBON STRAPS
2.12 HVSUIHVSI Upgrade Installation. Install
theoff-hookcall announce (HVSU/HVSI) upgrade
in accordance with the following steps:
HHEU STRAP
W203
1) Remove the base as described in Paragraph
2.11.
NOTE:
FlGURE7-3-ELECTRONICTELEPHONEPCB
CONNECTIONS
Exercise care when as?embling the HVSU
PCB to the HVSI PCB to prevent damage to
the connectorpins; also, verify that the HVSU
. .._ \
_’
: :.
, .I
7-2

INSTALLATION-TELEPHONE
SECTION 200-096-207
FEBRUARY 1991
PCB is aligned with the silk-screened image
on the HVSI PCB.
2) Align the
P5
connector on the HVSI PCB with
its receptacle on the HVSU PCB (Figure 7-5).
Apply firm, even pressure to the PCBs to
ensure that the connectors mate properly
(they click).
3) Position the HVSU/HVSI assembly on the
standoffs inside the base, and secure with the
two screws provided.
4) Connect the HVSU/HVSI PCBs to the elec-
tronic telephone PCB as shown in Figure 7-3.
5) Reinstall the electronic telephone base and
secure it with its four captive screws.
2.20 Carbon Handset Option
2.21 If a carbon type handset is used with the
6500-series electronic telephone, it is necessary
to cut two jumper straps located on the main PCB
inside the telephone. To cut the jumpers:
1) Remove the base as described in Paragraph
2.11.
2) Refer to Figure 7-3, and locate the carbon
straps
W201
and W202. Cut both straps.
3) Reinstall the electronic telephone base and
secure it with its four captive screws,
2.30 Beep Strap
2.31
If the beep strap is cut, the beep sound that
occurs whenever the feature or dialpad buttons
are pressed is eliminated (refer to Figures 7-1 and
7-3).
1) Remove the four captive screws securing the
6500-series electronic telephone base to the
telephone and remove the base.
2) Locate and cut the beep strap.
3) Reinstall the electronic telephone base and
secure in place using the four captive screws.
TO HVSU .
CONNECTOR
ON MAIN PCB
INSIDE
TELEPHONE HSVI fl
FIGURE 7-5-HVSI/HVSU INSTALLATION
2.40 Microphone/Speaker Threshold (speak-
erphone only)
2.41
If the speaker cuts off frequently because
high ambient noise levels interrupt conversations
during handsfree operation, set the Room Noise
switch to the HI position (see Figures 7-1 and 7-3).
1) Remove the four captive screws securing the
6500-series electronic telephone base to the
telephone and remove the base.
2) Locate the Room Noise switch and push it
carefully to the HI position using a paper clip
or tip of a pencil.
3) Reinstall the electronic telephone base and
secure in place using the four captive screws.
3 STATION INSTALLATION
REQUIREMENTS
3.00 Wiring Diagrams, Chapter 9, provide point-
to-point wiring diagrams for connecting electronic
7-3

INSTALLATION-TELEPHONE
SECTION 200-096-207
FEBRUARY1991
telephones, standard telephones, DSS consoles,
and door phones/locks to STRATA DK systems.
The following paragraphs provide general require-
ments for telephone installation.
3.01 Refer to the Programming Procedures, Sec-
tion 200-096-300, for programming requirements
and procedures.
3.10 Electronic Telephone Connections
3.11
Electronic telephones are connected to the
PEKU or PESU PCB (via the MDF) with standard
twisted-pair jacketed telephone cable. Two-pair
wiring, as a minimum, is required for telephone
connection. However, 3-pair wiring is recom-
mended to permit future upgrades, such as Off-
hook Call Announce. To accommodate the elec-
tronic telephone line cord, the cable should be
terminated in a modular station connector block
(RJ-25) at the station location. The standard
modular electronic telephone cord length is 7 feet
(the maximum allowed length is 25 feet).
I
NOTE:
See Section 200-096-209 for secondarypro-
tector information.
3.12 The overall length of the station cable run
from the KSU to the telephone must not exceed
1,000 feet (305 M), if using 24 AWG cable.
CAUTION!
When installing the station cable, do not
run parallel to and with@ 3 feet of an AC
power line. AC power lines should be
crossed at right (90”) angles only. In par-
ticular, avoid running station wire pairs
near devices thatgenerate electricalnoise,
such as neon or fluorescent Iigh t fixtures.
3.13 Electronic Telephone Wall Mounting.
Electronic telephones may be mounted on a wall
or any other flat, vertical surface to which the base
can besecured. When selecting the mounting site,
consider the electronic telephone’s weight and the
additional stresses to which the mounting will be
subjected. Wall mount electronic telephones in
accordance with the following steps:
7-4
NOTE:
All electronic and digital telephone models
are wall mounted in the same manner:
1) Remove the base as described in Paragraph
2.11.
2) Using a suitable cutter, remove the handset
hanger from the base (refer to Figure 7-l).
Insert the handset hanger in the slot provided
on the front of the telephone (Figure 7-6).The
hanger fits in the notch on the handset.
3) Rotate the telephone base 180” and secure it
to the telephone with its four captive screws
(Figure 7-7).
4) Connect the electronic telephone to the wall
modular connector with a cord approximately
four inches long (available at most telephone
supply companies). Route the cord into the
hollow portion of the base.
5) Mount the electronic telephone on the wall
mounting modular connector plate.
HANDSET
HANGER
\
FlGURE7-6-HANDSETHANGERINSTALLATION '

FIGURE ‘I-7-ELECTRONIC TELEPHONE WALL
MOUNTING BASE ROTATION
3.20 Standard Telephone Connections
3.21 Standard telephones areconnected to PSTU
or PESU (via the MDF) with standard twisted-pair
jacketed telephone cable. Single-pair wiring is
required for telephone connection (refer to Wiring
Diagrams, Section 200-096-209, for wiring/inter-
connecting details).
I
NOTE:
See Section 200-096-209 for secondarypro-
tector information.
3.22 The standard telephone cable’s overall loop
resistance, connected on- or off-premises, is 300
ohms maximum, including the telephone resis-
tance. This also applies to all devices connected to
PESU or PSTU standard telephone circuits.
3.23 Astandard telephone connected off-premises
via the telephone network should interface with
INSTALLATION-TELEPHONE
SECTION 200-096-207
FEBRUARY 1991
OL13A lines (or equivalent) and connect to an
RJ21 X FIC jack (or equivalent). _
3.30 DSS Console Connections
3.31 DSS consoles must be located adjacent to
an electronic telephone (preferably an LCD model).
DSS consoles are connected to the PEKU (via the
MDF) using standard 2-pair, twisted pair, jacketed
telephone cable. To connect the console use only
the data pair of circuits 7 and 8. To accommodate
the DSS console connection, the instrument end of
the cable should be terminated in a modular sta-
tion connector block (RJ-11). Refer to Wiring Dia-
grams, Section 200-096-209, for wiring/intercon-
necting details.
3.32 The overall length of the DSS console cable
run from the KSU to the console must not exceed
500 feet (152 M), if using 24 AWG cable.
CAUTION!
When installing the DSS console cable, do
not run parallel to and within 3 feet of an
AC power line. AC power lines should be
crossed at right (90”) angles only. Avoid
running DSS console wire pairs near de-
vices that generate electrical noise, such
as neon or fluorescent light fixtures.
3.33 DSS Console Configuration
3.34 The following considerations should be made
when installing DSS consoles:
l
A PEKU PCB is required to use the DSS console.
(The DSS switch on the PEKU must be set to
DSS.)
l
PESU does not support DSS consoles.
l
A maximum of four DSS consoles are allowed
per system (three in a DK24 if a PCTUS is used).
l
Two PEKU ports are required for each DSS
console (always circuits 7 and 8).
l
Only one DSS console may be connected to a
PEKU.
3.35 DSS Programming Overview
Program 28 I
l
Assigns DSS console(s) to electronic tele-
phones.
7-5

INSTALLATION-TELEPHONE
SECTION 200-096-207
FEBRUARY1991
Program 29
l
Assigns DSS console’s individual button func-
tions.
3.40 HDCB Door Phone/Lock Control Box In-
stallation
3.41
The HDCB Door Phone Control Box sup-
ports three door phones (MDFB), or two door
phones and one door lock control. Wiring connec-
tions for the HDCB are the same as for an elec-
tronic telephone.
3.42 The overall combined length of the HDCB
and MDFB cable run from the KSU to the tele-
phone must not exceed 1,000 feet (305 M), if
using 24 AWG cable.
CA UT/ON!
When installing the HDCB or MDFB cable,
do not run parallel to and within 3 feet of
an ACpower line. AC power lines should
be crossed at right (90”) angles only.
A void running the HDCB/MDFB wire pairs
near devices that generate electrical
noise, such as neon or fluorescent light
fixtures.
3.43 Refer to Wiring Diagrams, Section 200-096-
209, for wiring/interconnecting details. The fol-
lowing considerations should be made when in-
stalling door phones:
l
A maximum of four HDCBs are allowed per
I system with PCTU(l, 2, or 3); three HDCBs are
allowed with PCTUS.
l
One electronic telephone (PEKU or PESU) port
(always the 5th circuit port) is required for each
HDCB.
l
HDCBs can only be connected to PEKU or
PESU port numbers 04, 12, 20, and 28.
l
Only one HDCB may be connected to a PEKU
or PESU.
l
Cut jumper W9 on any PEKU/PESU PCB which
will support an HDCB.
I
NOTE:
PDKUs do not support HDCBs.
TWO WALL
MOUNTING
HOLES
DOOR PHONE
FlGURE7-8-OOORPHONElNSTALLATlON
3.44 Door Phone/Lock Programming Consid-
erations
Program 03
l
PEKU or PESU slotssupporting door phonesdo
not require a special PCB code.
Program 77-1
l
Assigns HDCB port numbers and Night Ringing
over External Page.
Program 77-2
l
Busy-out unused MDFB positions; identify which
HDCBs support the Door Lock option.
Program 39
l
Assigns the m N m buttons to elec-
tronic and digital telelphones. I
3.50 Door Phone Installation
3.51
Mount door phones (MDFBs) to a wall or
vertical surface in accordance with the following
steps (Figure 7-8): I -:
7-6

INSTALLATION-TELEPHONE
SECTION 200-096-207
FEBRUARY1991
1) Remove the screw from the bottom of the
cover. Detach the cover from the base and
metal frame.
2) Position the metal frame and base to the
mounting surface and secure with two 1 -inch
pan head wood screws.
3) Attach cover to the metal frame and base.
4 DIGITAL TELEPHONE
UPGRADE OPTIONS
4.00 The following contains digital telephone in-
stallation instructions. It includes step-by-step di-
rections and drawings on how to upgrade digital
telephones to transmit and receive simultaneous
voice and data calls. Instructions are also provided
for the loud ringing bell/headset and off-hook call
announce upgrades.
4.01 Simultaneous Voice and Data (Integrated
Datalnterface Unit: PDIU-DI) Upgrade.
PDIU-DI-
equipped digital telephones can transmit and re-
ceive simultaneous voice and data calls made
independently of each other. Asynchronous de-
vices, such as personal computers and terminals,
can be connected to the standard RS-232 connec-
tor of the PDIU-DI. Station users are able to
transmit and receive RS-232 data over the PDIU-
DI equipped telephone’s single twisted wire pair.
4.02 Data calls can be manually dialed with a
m button and disconnected with am but-
ton (see
Program
39); or, if the PDIU-DI equipped
digital telephone is connected to a personal com-
puter or ASCII terminal, standard “AT” dialing
commands may be dialed from the terminal’s or
computer’s keyboard to place data or voice calls.
PDIU-DI equipped digital telephones may also be
assigned a m button
(see Program 39)
to
reserve a modem or monitor modem availability
and status.
NOTES:
I. If the digital telephone is equipped with a
PDIU-DI, it cannot be wall-mounted or
upgraded for loud ringing bell/headset or
off-hook call announce.
2. The PDIU-DI will function in all systems,
except for slots 7 I - 14 in DK96..
3. The PDIU-DI can be connected to any digital
telephone connected to PDKU circuits 1 w 7.
4.03 Loud Ringing Bell/Headset.
The loud ring-
ing bell/headset upgrade (HHEU) enables an
external speaker (HESB) and/or a headset to be
connected to the digital telephone. In this configu-
ration, the HESB serves as a loud ringing bell.
NOTE:
A Toshiba HESC-65A cable is required to
connect the HHEU in a digital telephone to
the HESB. The HHEU must be version V3.0
or later for HESB operation (not required for
headset operation).
4.04 Off-hook Call Announce (DVSU).
The off-
hookcall announce (OCA) upgrade allows a digital
telephone to receive calls when the handset is off-
hook. To receive OCA calls, a digital telephone
must be upgraded with a DVSU; the telephone
making the call does not require a DVSU. (The
DVSU’s function in the digital telephone is the
same as the HVSU/HVSI assembly’s function in
the electronic telephone.) An additional wire pair is
not required for digital telephones that receive
OCA calls.
NOTE:
The HHEU must be version V3.0 or later for
digital telephones supporting both the loud
ringing bell/ headset and OCA upgrades.
4.10 Digital Telephone Upgrade Installation
4.11 PDIU-DI Installation.
Install the PDIU-DI in
accordance with the following steps:
1) Loosen the four captive screws securing the
digital telephone base, and remove it.
2) Refer to Figure 7-9, and insert the two PDIU-
DI wire connectors into the digital telephone’s
bottom PCB, observing the red wire for cor-
rect positioning.
3) On the digital telephone cut the DIU strap:
W302 on DKT 1020H or
-W401
on DKT
1020SD (see Figure 7-9).
7-7

INSTALLATION-TELEPHONE
SECTION 200-096-207
FEBRUARY1991
TOP ASSEMBLY
RS-232 (FEMALE)
DE-25 CONNECTOR
/
-/
TO P2 OF
BOTTOM
PC6
IMPORTANT: DO NOT CONNECT DIU
CABLES TO HHEU CONNECTOR
-.- -.
DIGITAL TELEPHONE BASE
FlGURE7-9-PDIU-DI/DIGITALTELEPHONElNSTALLATlON
NOTE:
The DIU strap must be replaced if the PDIU-
DI is removed from the telephone.
4) Attach the PDIU-DI to the bottom of thedigital
telephone and secure with the four captive
screws (Figure 7-l).
5) Remove the telephone number directory tray
from the original telephone base and install it
on the PDIU-DI telephone base (Figure 7-9).
Bend tray by squeezing its sides so it bows
slightly to remove and reinstall.
NOTES:
1. The PDIU-DI and accompanying digital
telephone share the same wire pair and
PDKU port.
2. To install data devices to the PDIU-DI,
RS-232 connector, see Chapter 8, PDIU-
DI/PDIU-DS Data Device Installation.
4.12 PDIU-DI Programming Overview
Program 03
l
No special code required.
Program 39
l
Assigns them, m, andmra buttons.
Programs 20 and 22
l
PDIU configuration.
4.13 HHEU Upgrade Installation. Install the loud
ringing bell/headset (HHEU) upgrade in accor-
dance with the following steps:
NOTE:
The HHEU installed in a digital telephone
must be V.3 or greater.
1) Loosen the four captive screws securing the
telephone base (Figure 7-l), and remove the
base.
2) Using a screwdriver or other suitable tool,
remove the plastic tab located on the back of
the base (Figure 7-I); the HHEU modular
connector for the headset will be accessed
through this opening.
,
7-8

INSTALLATION-TELEPHONE
SECTION 200-096-207
FEBRUARY1991
3) Set the
SW601
switch on the HHEU to
HEADSET for the headset/loud bell applica-
tion (Figure 7-10).
4A) Connect the HESC-65A cable to P601 of the
HHEU if the loud ringing bell option is re-
quired (see Figure 7-10).
4B) If the headset receiver is not to receive OCA,
cut one side of the R607 resistor on the HHEU
(Figure 7-10) and then remove the resistor to
eliminate electrical contact.
5) Position the HHEU PCB on the standoffs
inside the base (Figure 7-10) and securewith
the two screws provided.
6) Connect the HHEU PCB to the telephone’s
upper PCB (Figure 7-l l), labelled DKTl O-
SUB(SPF).
7A) Refer to Figure 7-11, and locate the EXSP,
W305, strap on the upper PCB, and cut it if an
HHEU will be connected to an HESB for the
loud ringing bell option.
COMPONENT SIDE OF HHEU (V.3 or later)
FlGURE7-lo-HHEUINSTALLATION
FOR DIGITALTELEPHONE
.
W401-1020SD
W302-1020H
FlGURE7-II-DIGITALTELEPHONEPCB
CONNECTIONSANDSTRAPS
7B) Refer to Figure 7-l 1, and locate the HHEU
strap, W303, on the upper PCB, and cut it if an
HHEU will be connected to a headset.
8) Reinstall the telephone base (Figure 7-l),
and secure it with its four captive screws.
NOTES:
1. The HESC-65A cable is for lOOO-series
digital telephones and 6500-series elec-
tronic telephones. The HESC-65 cable is
for 6500-series electronic telephones only.
2. If using the HESB as a loud ringing bell,
refer to Section 200-096-208, External
Speaker (HESB) Options, for wiring de-
tails.
4.14 DVSU Upgrade Installation.
Install the off-
hook call announce (DVSU) upgrade in accor-
dance with the following steps.
1) Loosen the four captive screws securing the
telephone base (Figure 7-l), and remove the
base.
2) Loosen the four captive screws securing the
metal plate to the standoffs inside the base
where the DVSU wi,fl be installed (Figure 7-
12). Remove the metal plate, which can be
discarded.
7-9

INSTALLATION-TELEPHONE
SECTION 200-096-207
FEBRUARY1991
3) Position the DVSU PCB on the standoffs
(Figure7-12),andsecurewiththefourscrews
provided.
4) Connect the DVSU wire plugs to the connec-
tors labelled DVSU on both of the telephone’s
PCBs (Figures 7-l 1 and 7-12).
IMPORTANT NOTE!
Make sure that the DVSU wire plugs are
connected to the proper connectors.
5) Reinstall the telephone base (Figure 7-l),
and secure it with its four captive screws.
4.15 Carbon Straps:
If a carbon-type handset or
headset is used with the digital telephone, two
jumper straps on the telephone’s upper PCB,
labelled DKT-SUB(SPF), must be cut. To cut the
straps:
1) Loosen the four captive screws securing the
telephone base (Figure 7-l), and remove the
base.
IMPORTANT!
Make sure that the DVSU wire
TO DVSU plugs are inserted into the
correct UPPER and LOWER
CONNECTOR PC0 connectors of the
ON UPPER
PCB
telephone. Do not plug DVSU
INSIDE into HHEU connector.
TELEPHONE
FlGURE7-12-OVSUINSTALLATION
2) Refer to Figure 7-l 1, and locate the CARBON
straps,
W301
and W302, and cut them.
.
3) Reinstall the telephone base (Figure 7-l),
and secure it with its four captive screws.
4.16 Beep Strap.
A beep is emitted whenever a
dialpad button or flexible button is pressed. This
beep can be eliminated if the BEEP strap is cut. To
cut the strap:
1) Loosen the four captive screws securing the
telephone base (Figure 7-l), and remove the
base.
2) Refer to Figure 7-l 1, and locate the BEEP
strap,W304, on the telephone’s upper PCB,
labelled DKTl O-SUB(SPF), and cut it.
3) Reinstall the telephone base (Figure 7-I)
and secure it with its four captive screws.
4.17 Microphone/Speaker Threshold (speak-
erphone only).
If the speaker cuts off frequently
during handsfree operation because of high ambi-
ent noise levels, set the ROOM NOISE switch to
the high position. To set the switch:
1) Loosen the four captive screws securing the
telephone base (Figure 7-l ), and remove the
base.
2) Refer to Figure 7-l 1, locate the ROOM NOISE
switch on the telephone’s upper PCB, la-
belled DKTlO-SUB(SPF), and push it care-
fully to the high (H) position.
3) Reinstall the telephone base (Figure 7-l),
and secure it with its four captive screws.
4.18 Wall Mounting.
Digital telephones mount on
walls and other vertical surfaces the same way
electronic telephones do. See Paragraph 3.13.
NOTE:
Digital telephones equipped with PDIU-Dls
cannot be wall mounted.
7-10

4.20 Digital Telephone Connections
4.21
Wiring Diagrams, Section 200-096-209,
provide point-to-point MDF wiring diagrams for
connecting digital telephones, DDSS consoles,
and PDIU-DSs to STRATA DK systems. Refer to
Programming Procedures, Section 200-096-300,
for programming requirements and procedures.
The following paragraphs provide general re-
quirements for telephone installation.
WARNING!
1. Never install the telephone wiring dur-
ing a lightning storm.
2. Never install the telephone jacks in
wet locations unless the jack is spe-
cifically designed for wet locations.
3. Never touch uninsulated telephone
wires or terminals unless the telephone
line has been disconnected at the net-
work interface.
4. Use caution when installing or modify-
ing telephone lines.
4.22 Digital telephonesareconnected to the PDKU
(via the MDF) with standard twisted-pair jacketed
telephone cable. Single-pair wiring is sufficient
unless the system must operate on reserve power
or in the case of a digital telephone with a PDIU-DI.
In these cases, two-pair wiring should be used for
extra power (see Section 200-096-209 for details).
To accommodate the digital telephone line cord,
the cable should be terminated in a modular sta-
tion connector block (RJ-1 1 ) at the station location.
The standard modular digital telephone cord length
is 7 feet (the maximum allowed length is 25 feet).
4.23 The overall length of the station cable (single
pair) run from the KSU to the telephone or PDIU-
DS must not exceed 1,000 feet (305 M) if using 24
AWG cable and being powered by the PPSU. If
operating on battery backup or if PDIU-Dls are
installed, a second pair of wires is required for
stations to operate effectively at 1000 feet (see
digital telephone and DIU MDF wiring require-
ments in Section 200-096-209).
CAUTION!
When installing the station cable, do not
run parallel to and within 3 feet of an AC
INSTALLATION-TELEPHONE
SECTION 200-096-207
FEBRUARY1991
power line. AC power lines should be
crossed at right (90”) angles only. In par-
ticular, avoid running station wire pairs
near devices thatgenerateelectricalnoise,
such as neon or fluorescent light fixtures.
4.30 DDSS Console Connections
4.31
DDSS consoles must be located adjacent to
a digital or electronic telephone (preferably an
LCD model). DDSS consoles are connected to the
PDKU (viathe MDF) using standard twisted single-
pair or two-pair jacketed telephone cable (maxi-
mum 1000 feet, 303 M). The console uses only
circuit 8on the PDKU. To accommodate the DDSS
console connection, the instrument end of the
cable should be terminated in a modular station
connector block (RJ-11). Refer to Wiring Dia-
grams, Section 200-096-209, for wiring/intercon-
necting details, including cable length limitations.
CAUTION!
When installing the station cable, do not
run parallel to and within 3 feet of an AC
power line. AC power lines should be
crossed at right (90”) angles only. In par-
ticular, avoid running station wire pairs
neardevices thatgenerateelectricalnoise,
such as neon or fluorescent light fixtures.
4.32 DDSS Console Configuration.
The follow-
ing considerations should be made when installing
DDSS consoles:
l
A PDKU PCB is required to use the DDSS
console.
l
A maximum of four DDSS consoles are allowed
per system.
l
One PDKU circuit is required for each DDSS
console (always circuit 8).
l
Only one DDSS console may be connected to a
PDKU.
4.33 DDSS Programming Overview
Program 03
l
Code 64 identifies PDKU slots that support
DDSS consoles. I
Program 28
l
Assigns DDSS console(s) to digital telephones.
7-11

INSTALLATION-TELEPHONE
SECTION 200-096-207
FEBRUARY1991
Program 29
l
Assigns DDSS console’s individual button func-
tions.
4.40 PDIU-DI Connections
4.41 A digital telephone with an integrated data
interface unit (PDIU-DI) requires one wire pair and
one PDKU circuit (See Paragraph 4.20 for digital
telephonewiring information and Section 200-096-
208 for instructions on how to connect peripheral
devices to PDIU-Dls).
4.50 PDIU-DS Connections
4.51 The stand-alone data interface (PDIU-DS) is
connected to a single dedicated PDKU circuit with
standard twisted-pair jacketed telephone cable.
Single-pair wiring is sufficient, unless the system
must operate on reserve power. In this case, two-
pair wiring should be used (see Section 200-096-
208for more wiring information and instructions on
how to connect peripheral devices to PDIU-DSs).
NOTE:
PDIU-DSs can be connected to PDKU cirucits
I - 7. I
‘.
-.
.
,’
7-12

TOSHIBASYSTEM PRACTICES
DIGITALKEYTELEPHONESYSTEMS INSTALLATION-PERIPHERALS
SECTION 200-096-208
FEBRUARY1991
Stra ta@mcr
RELEASE 1,2, and.3
INSTALLATION
CHAPTER EIGHT
PERIPHERALS INSTALLATION

INSTALLATION-PERIPHERALS
SECTION 200-096-208
FEBRUARY1991
PARAGRAPH
TABLEOFCONTENTS
SUBJECT . PAGE
1
2
2.10
2.20
3
3.10
3.20
4
4.10
4.20
5
5.10
5.20
6
6.00
6.10
7
7.10
7.20
8
8.10
8.20
8.30
9
9.00
9.10
9.20
10
11
12
12.00
12.10
12.20
12.30
12.40
12.50
12.60
12.70
12.80
13
13.00
14
GENERAL ...............................................................................................................
RESERVE POWER/POWER FAILURE OPTIONS.. ...............................................
Reserve Power Option ........................................................................................
Power Failure Emergency Transfer Option .........................................................
MUSIC-ON-HOLD/BACKGROUND MUSIC OPTIONS ..........................................
Music-on-Hold (MOH) Option ..............................................................................
Background Music (BGM) Options ......................................................................
RELAY CONTROL OPTIONS .................................................................................
External Page/Door Lock Relay Options .............................................................
Night Transfer/Music-on-Hold Relay Options ......................................................
EXTERNAL SPEAKER UNIT (HESB) OPTIONS.. ..................................................
System Hardware Requirements ........................................................................
HESB Option Installation .....................................................................................
EXTERNAL PAGE OPTIONS .................................................................................
System Hardware Requirements ........................................................................
External Page Option Installation ........................................................................
STATION MESSAGE DETAIL RECORDING (SMDR) PRINTER/CALL
ACCOUNTING DEVICE OPTIONS.. .......................................................................
EXAMPLE l-Ring, No Answer DISA Call .........................................................
EXAMPLE 2-DISA Internal Station Call ............................................................
EXAMPLE 3-DISA Outgoing CO Line Call .......................................................
SMDR Hardware Requirements ..........................................................................
SMDR Printer/Call Accounting Device Installation ..............................................
MAINTENANCE TERMINAL OPTIONS.. ................................................................
Maintenance Terminal/External Modem Option System Hardware
Requirements ......................................................................................................
Local Maintenance Terminal Installation .............................................................
Remote Maintenance Option Installation ............................................................
VOICE MAIL/AUTO ATTENDANT OPTIONS .........................................................
System Hardware Requirements ........................................................................
INTOUCH Digital Voice Messaging System ........................................................
Customer-supplied Voice Mail Messaging Systems.. ..........................................
ALARM SENSOR INSTALLATION ......... ................................................................
NIGHT RINGING OVER EXTERNAL ZONE PAGE (Release 3) ............................
DATA INTERFACE UNIT INSTALLATION (Release 3) ..........................................
General ............................................... .................................................................
Common DIU Connections ..................................................................................
EIA Interface Leads (Signals). .............................................................................
DIP Switch Options .............................................................................................
PDIU-DI to Personal Computer (PC) Installation ................................................
PDIU-DS to Printer Installation ............................................................................
PDIU-DS to Modem Installation ...........................................................................
PDIU-DS Disassembly and Assembly.. ...............................................................
PDIU-DI/PDIU-DS Installation Tests ...................................................................
TWO-CO LINE EXTERNAL AMPLIFIED CONFERENCE (RELEASE 3) ...............
General ................................................................................................................
BATTERY CARE .....................................................................................................
I
IMPORTANT!
8-1
8-1
8-1
8-1
8-2
8-2
8-3
8-4
8-5
8-6
8-7
8-8
8-8
8-10
8-10
8-10
8-11
8-12
8-12
8-13
8-13
8-13
8-13
8-13
8-14
8-14
8-15
8-15
8-15
8-15
8-17
8-38
8-38
8-38
8-39
8-39
8-40
8-41
8-42
8-43
8-44
8-55
8-62
8-62
8-63
Digital telephones can access all features available to electronic telephones.
8-i

INSTALLATION-PERIPHERALS
SECTION 200-096-208
FEBRUARY1991
FIGURE LIST
TITLE
RESERVE POWER/BATTERY WIRING.. .............................................................
DPFT CIRCUIT DIAGRAM.. ..................................................................................
MUSIC-ON-HOLD AND BACKGROUND MUSIC FUNCTIONAL DIAGRAM .......
MUSIC SOURCE CONFIGURATION A.. ..............................................................
MUSIC SOURCE CONFIGURATION
B
................................................................
MUSIC SOURCE CONFIGURATION C.. ..............................................................
PIOU/PEPU RELAY CONTROL FUNCTIONAL WIRING DIAGRAM ...................
PIOUS RELAY CONTROL FUNCTIONAL WIRING DIAGRAM.. ..........................
DOOR LOCK CONTROL OPTION (PIOU/PIOUS/PEPU) ....................................
MULTIPLE DOOR LOCK CONTROL OPTIONS (HDCB) .....................................
HESB/ELECTRONIC TELEPHONE WITH LOUD RINGING BELL WIRING.. ......
HESB/DIGITAL TELEPHONE WITH LOUD RINGING BELL WIRING .................
HESB/AMPLIFIED SPEAKER WIRING ................................................................
HESB/TALKBACK AMPLIFIED SPEAKER WIRING ............................................
PAGE AND BGM USING SAME AMPLIFIER (PIOU/PIOUS/PEPU) ....................
PIOU ZONE, PAGE/BGM/NlGHT RING (SEPARATE AMPLIFIERS) ..................
PAGING WITH MULTIPLE AMPLIFIERS .............................................................
NIGHT RINGING OVER EXTERNAL ZONE PAGE.. ............................................
SMDR PRINTOUT EXAMPLES ...........................................................................
PIOU/PIOUS SMDR CABLE CONNECTIONS .....................................................
PIOU/PIOUS TTY PORT (PROGRAM 97) DATA DUMP EXAMPLE ..................
PIOU/PIOUS (TTY) MAINTENANCE PORT (EXTERNAL MODEM OR
ASCII TERMINAL). ................................................................................................
VOICE MAIL/AUTO ATTENDANT BLOCK DIAGRAM .........................................
ALARM SENSOR BLOCK DIAGRAM (PIOU/PIOUS) ..........................................
HESB WALL MOUNTING .....................................................................................
STRATA DK DATA INSTALLATION EXAMPLE BLOCK DIAGRAM ....................
PDIU-DI/PDIU-DS SW1 DIP SWITCH INFORMATION ........................................
PDIU-DS DISASSEMBLY/ASSEMBLY DIAGRAM ...............................................
PDIU-DS JUMPER PLUG OPTlONS/RS-232 CONNECTOR INFORMATION ....
PDIU-DI TO IBM AT-TYPE COMPUTER RS-232 CONNECTOR/CABLE
CONNECTIONS ....................................................................................................
PDIU-DI TO IBM XT-TYPE COMPUTER, RS-232 CONNECTOR/CABLE
CONNECTIONS ....................................................................................................
PDIU-DS TO TOSHIBA PRINTER, RS-232 CONNECTOR/CABLE
CONNECTIONS ....................................................................................................
PDIU-DS TO HAYES TYPE SMART MODEM, RS-232 CONNECTOR/
CABLE CONNECTIONS .......................................................................................
PDIU-DI/PDIU-DS MODULAR CABLE/RJ-45 ADAPTER CONNECTIONS.. .......
PDIU-DI/PDIU-DS MODULAR CORDS AND RJ-45/RS-232 ADAPTER PIN
CONNECTIONS ....................................................................................................
PC TO PC TEST CALL USING AT COMMANDS .................................................
PC TO PRINTER TEST CALL USING MANUAL DIALING.. .................................
INTERNAL PC TO EXTERNAL PC TEST CALL USING AT COMMANDS.. ........
EXTERNAL PC TO INTERNAL PC TEST CALL USING AT COMMANDS L .........
PC AUTO DIAL VOICE CALL TEST .....................................................................
AMPLIFIED TWO-CO LINE CONFERENCE AND/OR AMPLIFIED DISA
FUNCTIONAL WIRING DIAGRAM .......................................................................
FIGURE
8-1
8-2
/ 8-3
8-4
8-5
8-6
8-7
8-8
8-9
8-10
8-11
I 8-11A
8-12
8-13
8-14
I 8-15
8-16
8-17
8-18
8-19
8-20
8-21
8-22
8-23
8-24
8-25
8-26
8-27
8-28
8-29
8-30
8-31
8-32
8-33
8-34
8-35
8-36
8-37
8-38
8-39
8-40
PAGE
8-18
8-19
8-20
8-21
8-21
8-22
8-23
8-24
8-25
8-25
8-26
8-26A
8-27
8-28
8-29
8-30
8-31
8-32
8-33
8-34
8-35
8-36
8-37
8-37
8-38
8-45
8-46
8-47
8-48
8-49
8-50
8-51
8-52
8-53
8-54
8-55
8-56
8-57
8-59
8-61
8-64
8-ii

1 GENERAL
1
.OO This chapter provides procedures necessary
to connect optional peripheral equipment to
STRATA DK systems. The installation instructions
for each peripheral option include hardware re-
quirements, PC6 configuration, interconnection/
wiring requirements, and programming considera-
tions, as applicable.
1
.Ol Peripheral equipment is connected to system
PCBs. Refer to PCB Installation, Section 200-096-
206, for PCB installation instructions and PCB
configuration information.
1.02
Figures are located in the middle and at the
end of this chapter.
2 RESERVE POWER/POWER FAILURE
OPTIONS
2.00 STRATA DK systems offer two options to
protect system operation in the event of a power
failure; the Reserve Power option, and the Power
Failure Emergency Transfer option.
2.10 Reserve Power Option
2.11
STRATA DK system power supplies provide
the capability of connecting a reserve power source
(battery backup) to ensure uninterrupted system
operation in the event of a power failure. A pre-
assembled interface cable for installation of the
Reserve Power option is available from Toshiba
(PBTC-3M).
2.12 Refer to KSU Installation, Section 200-096-
205, for site requirements for the reserve power
batteries.
IMPORTANT NOTE!
Local ordinances may dictate battery type
and installation details.
2.13 Reserve Power Installation.
Install the Re-
serve Power option in accordance with the follow-
ing steps (refer to Figure 8-l):
1) Connect the
PBTCSM
black jumper wire from
the positive terminal of one 12VDC battery to
the negative terminal of the second 12VDC
battery.
INSTALLATION-PERIPHERALS
SECTION 200-096-208
FEBRUARY 1991
2) Ensure that a serviceable lo-ampere fuse is
installed in the in-line fuse holder of the
,PBTC-
3M
battery cable.
3) Connect the white lead of the
PBTC-3M
bat-
tery cable to the open positive terminal of the
12VDC battery. Connect the black lead to the
open negative terminal of the second 12VDC
battery.
IMPORTANT NOTE!
The KSU must be connected to the AC
power source, and the power supply ON/
OFF switch set to ON prior to the final step
of connecting the reserve power batteries
to the po wer supply via the BA TT +/- recep
tacle. If the batteries are connected after
AC power is lost, reserve power will not
function.
4) Connect the
PBTC3M
battery cable two-prong
male plug to the power supply BATT +/- re-
ceptacle.
5) To test reserve power operation, disconnect
the system AC power plug with the power
supply power
ON/OFF
switch in the ON po-
sition. The system should continue to operate
without any interruption.
NOTE:
See Paragraph 14 for battery care require-
ments. I
2.20 Power Failure Emergency Transfer Op-
tion
2.21
The Power Failure Transfer Unit (DPFT) pro-
vides a means of automatically connecting up to
eight selected CO lines directly to designated stan-
dard telephones in the event of a power failure. The
DPFT allows normal operation of the selected CO
lines and standard telephones when the system is
in service. When power is restored, each telephone
is independently reconnected to the system after
that telephone is finished with its direct CO line call.
The DPFT is normally installed on the Main Distri-
bution Frame (MDF).
2.22 A circuit diagram of the DPFT is shown in
Figure 8-2.
8-l

INSTALLATION-PERIPHERALS
SECTION 200-096-208
FEBRUARY 1991
2.23 Power Failure Emergency Transfer Instal-
lation.
Install the DPFT in accordance with the
following steps:
1) Mount the DPFT on or near the MDF.
NOTE:
Refer to Wiring Diagrams, Section ZOO-096-
209, Figures 9- 14 and 9- 15 for MDF intercon-
necting tables.
2)
3)
4)
5)
6)
7)
Using 25-pair cables with amphenol-type con-
nectors (female for DPFT connector
Jl,
male
for DPFT connector
J2),
connect the DPFT to
two 66-type quick-connect blocks.
Connect the CO lines selected for emergency
use to the DPFT
Jl
-block “CO-TIP” and “CO-
RING” terminals.
Connect the PCOU or PCOU2 circuits related
to the emergency CO lines to the DPFT
Jl-
block “PCOU-TIP” and “PCOU-RING” termi-
nals.
Connect the standard telephone stations se-
lected for emergency use to the DPFT J2-block
“TEL-TIP” and “TEL-RING” terminals.
Connect the PSTU or PESU (circuits 1 & 2)
circuits related to the emergency standard
telephones to DPFT J2-block”PSTU-TIP”and
“PSTU-RING” terminals.
Connect the DPFT to the PSTU DG and -24V
terminals (refer to Wiring Diagrams, Section
200-096-209, for PSTU and PCOU wiring/
interconnecting details).
NOTE:
The -24 V and DG ground terminals are avail-
able on PSTU only, not on PESU.
8) To test the operation of the DPFT, turn the
system power switch
OFF,
and verify that CO
dial tone is available at each standard tele-
phone connected to the DPFT. Also, call back
to each telephone using an outside line.
3 MUSIC-ON-HOLD/BACKGROUND
MUSIC OPTIONS
3.00 STRATA DK systems provide a Music-on-
Hold option for CO/E & M TIE lines, and digital,
electronic and standard telephones connected to
the system. A variety of Background Music options
are also provided (refer to Figure 8-3). .
.‘\,
,:
3.10 Music-on-Hold (MOH) Option
3.11
The Music-on-Hold (MOH) option allows con-
nection of an external music source, such as a tape
recorder or tuner, to the system for MOH. The
PCTU and PCTUSl PCBs provide the interface for
connection of the external musicsource. The PIOU,
PIOUS, or PEPU MOH relay provides on/off control
for the MOH source. MOH source and MOH relay
contact specifications are:
l MOH Source Specifications
l
Input Impedance: 600 ohms
l
Input Voltage (recommended levels)
Minimum: 0.14 VRMS (-15 dBm)
Maximum: 0.77 VRMS (0 dBm)
l Relay Contact Specifications
l
Voltage: 24VDC maximum
l
Current: 1 ampere maximum
IMPORTANT NOTICE!
MUSIC-ON-HOLD
In accordance with U.S. Copyright Law, a
license may be required from the Ameri-
can Society of Composers, Authors, and
Publishers (ASCAP), or other similar or-
ganization, if copyrighted music is trans-
mitted through the Music-on-Hold feature
of this telecommunications system.
Toshiba America Information Systems,
inc., hereby disclaims any liability arising
out of the failure to obtain such a license.
3.12 Music-on-Hold Installation.
Install the Mu-
sic-on-Hold option in accordance with the following
steps (refer to Figure 8-3):
1)
2)
3)
Connect the external music source to PCTU
or PCTUSl connector terminal P6.
Rotate the PCTU or PCTUSI volume control
(VRl)
to adjust Music-on-Hold volume: clock-
wise increases volume; counterclockwise de-
creases volume. Listen to the CO line on-hold
when setting MOH to the proper volume.
I
If MOH relay control is required, access
Pro-
gram 77-l.
Set
LED
05 to ON to configure the
8-2

MOH/Night Transfer Control relay for the MOH
function. This feature requires the installation
of a PIOU, PIOUS, or PEPU PCB.
4A) Set PIOU or PEPU jumper plug
Pll
to
MAKE
or
BREAK
position as required:
l
MAKE
(M)-Shorts the normally open
contacts (pins 9 and 34) when MOH is
activated.
l
BREAK(B)-Opens
the normally closed
contacts (pins 9 and 34) when MOH is
activated.
4B) Solder PIOUS jumper
W2
to
MAKE
or
BREAK
position if required:
l
MAKE
(M)-Shorts the normally open
contacts (NHT and NHR) when any CO
line is in the hold condition.
l
BREAK (B)-Opens the normally closed
contacts (NHT and NHR) when any CO
line is in the hold condition.
5) MOH (CO line or intercom hold) is applied from
the PCTU or PCTUS through the KSU cabinet’s
backplane to the PEMU, PCOU, PEKU, PESU,
and PSTU to provide Music-on-Hold for E & M
I TIE lines, CO lines, electronic/digital tele-
phones, and single-line stations, respectively.
6) MOH is also applied through the PCTU Page/
Background Music (BGM) control to provide
I BGM to electronic/digital telephone speakers
and external page (refer to Paragraph 3.20).
3.20 Background Music (BGM) Options
3.21
The Background Music options allow music
to play over optional external speakers (external
page system) and/or electronic telephone speak-
ers. The system allows BGM to be configured any
of the three ways described below:
1) Configuration A-one music source: This
configuration allows BGM and MOH to share
the same music source (see Figure 8-4). With
thisconfiguration, the MOH/BGM musicsource
is connected to terminal P6 of the PCTU or
PCTUS PCB. The music source is sent to CO
I lines/stations on hold, to electronic/digital
INSTALLATION-PERIPHERALS
SECTION 200-096-208
FEBRUARY1991
telephone speakers with BGM turned on (via
m 110 or m button) and to the external
page system via the PIOU, PIOUS; or’PEPU
optional interface unit (only one optional inter-
face PCB can be installed in a DK system).
2) Configuration B-two music sources: This
configuration allows the MOH source to be
connected to P6 of the PCTU or PCTUS PCB
(as in Configuration A) and a separate BGM
source to be connected to circuit 3 of a PEKU
or circuit 8 of a PESU PCB (see Figure 8-5).
With this configuration, the MOH source is
sent only to CO lines/stations on hold, while
the BGM source is sent directly to electronic/
digital telephone speakers and to the external I
page system via the PIOU, PIOUS, or PEPU
optional interface unit.
3) Configuration C-three music sources: This
configuration allows the MOH source to be
connected to P6 of the PCTU or PCTUSl (as
in Configuration A). The digital or electronic
telephone BGM source is connected to circuit
3 of a PEKU or circuit 8 of a PESU PCB (as in
Configuration B), and aseparate BGM source I
is sent to the external page speakers via the
PIOU PCB (see Figure 8-6). When a separate
BGM source is connected to the PIOU, two
customer-supplied amplifiers are required to
drive the external speakers. One amplifier
drives the speakers for BGM when page is idle
and the other amplifier drives the speakers
during page. The PIOU switches BGM or
page to the external speakers via the zone
relays (the PIOUS and PEPU do not provide
zone relays, therefore Configuration C is not
possible with these PCBs).
3.22 MOH Source as Background Music Instal-
lation.
Install the MOH/Background Music option
in accordance with the following steps (refer to
Figure 8-3):
1) Ensure that the Music-on-Hold option is in-
stalled in accordance with Paragraph 3.12.
I
2) The output of the PCTU or PCTUSI page/
BGM control is applied through the backplane
8-3

INSTALLATION-PERIPHERALS
SECTION 200-096-208
FEBRUARY 1991
3)
to the output select switch (SW4) on the PIOU
or PEPU.
Set the SW4 switch to either
SPO
or
SPI,
as
required:
SPO-Directs external page and non-
amplified BGM to the HESB or external
amplifier (pins 13 and 38).
SPI-Directs external page and BGM
through the on-board 3-watt amplifier to
the external speaker output (pins 25 and
50).
NOTE:
The PIOUS provides non-amplified BGM/
page output only (SPT and SPR, see Figure
8-8).
4)
5)
When using an HESB or external amplifier for
paging/BGM, adjust volume using the HESB
or amplifier volume control.
When using the internal amplifier for paging/
BGM, adjust the volume using the volume
control
(VRl)
on the PIOU/PEPU PCB.
3.23 BGM Source to PEKU or PESU Installa-
tion.
A BGM source can be connected to either a
PEKU or PESU. This music will be sent to all
electronic/digital telephones and to the external
page system via PIOU, PIOUS, or PEPU. This
BGM source is separated from the MOH source
connected to the PCTU or PCTUS PCB. Connect
the BGM source to the PEKU or PESU in accor-
dance with the following steps (Figure 8-5):
I
NOTE:
Releases 1
and 2 require that the BGM PEKU
or PEW must be in slot 01;
Release 3
allows
the BGM PEKU or PESU to be in any slot as
signed in
Program 19.
1) Using the programming electronic telephone
or a terminal, set
LED 09
to ON in
Program
10-2
if the BGM source connects to PEKU,
circuit 3. If the BGM source is connected to
PESU, circuit 8, set LED IO to ON in
Pro-
I gram 1
O-2. If using PCTU3, identify the BGM
slot via
Program 19.
2)
3)
4)
Connect the tip and ring circuit 03 of a PEKU
to the 600 Q output of the BGM source per
Figure 8-5 or connect the BGM output to
circuit 8, of a PESU PCB.
If BGM is connected, cut
W5
on the PEKU or
W7 on the PESU PCB that BGM is connected
Using the BGM source’s volume control, ad-
just the BGM volume to the desired level
while listening to BGM via an electronic tele-
phone speaker and/or the external page
speakers. When BGM is sent to external
speakers via a PIOU or PIOUS or PEPU
PCB, use the external amplifier volume con-
trol to balance the BGM and page volume
levels.
3.24 External Background Music Installation.
The external background music options are closely
associated with the external paging options. Refer
to Paragraph 6 for external paging amplifier in-
stallation.
4 RELAY CONTROL OPTIONS
4.00 Two relays are provided on PIOU, PIOUS,
and PEPU PCBs to control the operation of periph-
eral equipment (see Figures 8-7 and 8-8):
l
External Page/Door Lock Relay (DET/DER)
l
Night Transfer/Music-on-Hold Relay (NHT/
NHR)
4.01 Each relay may be configured to provide one
of two possible control functions. Additionally,
each relay may be configured as normally open
(MAKE) or normally closed (BREAK). Electrical
specifications for the relay contacts are:
Voltage:
l
24VDC maximum
Current:
l
1 ampere maximum
CA UT/ON!
Do not connect relays directly to 12OvAC
power source. *
8-4

NOTE:
Refer to the Programming Procedures, Section
200-096-300, as necessary when instructed to
program the PIOU, PIOUS, or PEPU in the
following paragraphs.
4.10 External Page/Door Lock Relay Options
with PIOU, PIOUS, or PEPU.
4.11
The External Page/Door Lock Relay may be
programmed for either the external page function or
the door lock control function (refer to Figures 8-6
and 8-7).
4.12 When configured in
Program 77-1
for the ex-
ternal page function, the relay controls an external
music source connected to the PIOU, PIOUS or
PEPU to provide background music over external
speakers. When a paging announcement is made
over the external speakers, the external page relay
mutes the background music.
4.13 When configured in
Program 77-1
for the door
lock control function, the relay controls an external
door lock. When a station’s door lock button (DRLK
0) is pressed, the door lock control relay unlocks the
doorfor3or6seconds,asspecifiedinprogramming.
4.14 External Page Control.
Configure the PIOU,
PIOUS, or PEPU for the external page mute function
in accordance with the following steps (refer to
Figure 8-7 or 8-8):
1) Access
Program 77-1.
Set
LED 07
to OFF to
configure the external page/door lock relay for
the external page function.
2A) Set the jumper plug
PI0
on the PIOU or PEPU
jumper plug to the
MAKE
or BREAK position as
required:
l
MAKE-Shorts the normally open con-
tacts (pins 7 and 32) when external page
is activated.
l
BREAK-Opens the normally closed
contacts (pins 7 and 32) when external
page is activated.
2B) Solder the jumper WI on the PIOUS to the
MAKE
or
BREAK
position as required:
l
MAKE-Shorts the normally open con-
tacts (DET and DER) when external page
is activated.
INSTALLATION-PERIPHERALS
SECTION 200-096-208
FEBRUARY1991
l
BREAK-Opens the normally closed
contacts (DET and DER) when e)cternal
page is activated.
3) Refer to Figures 8-7 and 8-8 for wiring/intercon-
necting details. Connect the PIOU, PIOUS, or
PEPU to the MDF as required for the external
paging function.
4.15 Door Lock Control (PIOU or PIOUS or PEPU).
Configure the PIOU, PIOUS, or PEPU for the door
lockcontrol function in accordance with the following
steps (refer to Figure 8-9):
NOTE:
Only one door lock control is available using an
optional inten’ace PCB (PIOU, PIOUS, or PEPU),
because only one interface PCB is allowed.
1)
2)
34
W
4)
Access
Program 77-l.
Set
LED 07
to ON to
configure the external page/door lock relay for
the door lock control function.
Access
Program 77-I.
Set
LED 20
to OFF for a 3-
second door lock activation time, or set LED 20 to
ON for a 6-second door lock activation time.
Set the PI0 jumper plug on the PIOU or PEPU
to the MAKE or BREAK position, as required:
MAKE-Shorts the normally open con-
tacts (pins 7 and 32) when a station’s door
lock button is pressed.
BREAK-Opens the normally closed
contacts (pins 7 and 32) when a station’s
door lock button is pressed.
Solder the WI jumper plug on the PIOUS to the
MAKE or BREAK position as required:
MAKE-Shorts the normally open con-
tacts (DET and DER) when a station’s
door lock button is pressed.
BREAK-Opens the normally closed
contacts (DETand DER) when astation’s
door lock button is pressed.
Refer to Figure 8-9 for wiring/interconnecting
details. Connect the PIOU, PIOUS, or PEPU to
the MDF as required for the door lock control
function.
4.16 Door Lock Control (HDCB).
With
Release 2
software, the B output jack of each HDCB can be
8-5

INSTALLATION-PERIPHERALS
SECTION 200-096-208
FEBRUARY1991
configured to provide one door lock control; this
allows up to four door lock controls to be provided
by HDCBs if the system is equipped with a PCTU2
or three door lock controls if with a PCTUSl (see
Figure 8-10). Each door lock control installed re-
duces the system’s door phone capacity by one.
Any electronic telephone can be programmed with
door lock buttons that can control any of the door
locks that are connected to properly configured
HDCBs. Configure each HDCB door lockcontrol as
follows:
1)
2)
3)
4)
5)
6)
7)
8)
9)
Cut jumper W9of the particular PEKU or PESU
that will connect to the HDCB.
Connect circuit 5 VT/VR and DT/DR pairs to
the HDCB HKSU modular jack per Figure 9-3.
Connect the door lock wire pair to the HDCB
modular B-jack (pins 3 & 4) per Figure 9-3.
On the HDCB, set
SW1
to the
DOOR
position.
On the HDCB, set
SW2
to the
LOCK
position.
In
Program 77-1,
set the door lock activation
for three or six seconds, and enable the PESU
or PEKU ports for HDCB connection.
In
Program
77-2, enable the HDCB B-jack for
door lock operation.
In
Program
39, assign m 1 N m 1
buttons to the desired stations per the
customer’s record sheet.
Check each m button from each station:
The HDCB modular B-jack (pins 3 & 4) will
momentarily close (threeorsixseconds) when
the appropriate m button is pressed.
4.17 HDCB/DRLK Assignments Guide
I
PEKU or PESU
First (fifth circuit) 04 1 m 0, Code 72
Second (fifth circuit) 12 2 =I, Code 73
Third (fifth circuit) 20 3 ml, Code 74
Fourth (fifth circuit) 28 4 ml, Code 75
(PCTU2 only)
NOTES:
1.
See Programs 39, 77-1,
and 77-2 tp pro-
gram assignments.
2. HDCB hardware option settings for door
lock control operation:
l
Set
SW1
(jumper) to DOOR position.
l
Set SW2 (switch) to LOCKposition.
3. Doorlock4isnotavailablewiththePCTlJSl.
4.20 Night Transfer/Music-on-Hold Relay Op
tions with PIOU, PIOUS, or PEPU
4.21 The NHT/NHR relay may be programmed for
either the night relay or the MOH relay function
(refer to Figures 8-7 and 8-8).
4.22 When configured for the night transfer function
with
Program 77-1,
the relay activates if the system
is in the NIGHT mode. The relay may be
d
ro-
grammed to activate continuously when the key
(only) is set to NIGHT mode (for indirect answering
machine control); or to pulsate at l-second ON/3-
seconds OFF (for a night bell) when incoming CO
lines ring (NT1 = tenant 1 CO lines; NT2 = tenant 2
CO lines) per
Program 15.
4.23 When configured for the Music-on-Hold func-
tion with
Program 77-1,
the relay activates any
time a CO line is on hold. In this configuration, the
relay is normally used to control the Music-on-Hold
source.
4.24 Night Transfer Relay Control.
Configure the
PIOU, PIOUS, or PEPU for the Night Transfer
Relay function in accordance with the following
steps (refer to Figures 8-7 and 8-8):
1)
2)
Access
Program 77-l.
Set
LED 05
to
OFF
to
configure the Night/Hold Relay for the Night
Relay function.
Access
Program 77-1.
Set
LED
06 to provide
continuous or pulsating relay activation as
follows:
l
OFF-Programs the relayforcontinuous
activation when m button (only) is set.
l
ON-Programs the relay for pulsating
activation when them or m button is
set to NIGHT mode and a tenant 1 or
tenant 2 CO line rings.
8-6

NOTE:
CO lines must be enabled in
Program 78
for
the NT pulsating relay function.
3) Access Programs 87, 88, and 89 to set the
CO lines that will activate the relay (when the
system is in the NIGHT mode).
4) Access Program 39 to program a Night
Transfer button (NT1 or NT2) on all tele-
phones that are to transfer the system into the
NIGHT mode.
5) Access Programs 29-1 N 29-4 to program a
Night Transfer button (NT1 or NT2) on all DSS
consoles that are to transfer the system into
the NIGHT mode.
NOTE:
Program29-4is
notavailable when a PCTUSI
PCB is installed.
6) If tenant operation is required, access Program
15 to set the CO lines for tenant 1 (m) or
tenant 2 (m) operation.
7A) Set the PI 1 jumper plug on the PIOU or PEPU
to the MAKE or BREAK position, as required:
l
MAKE-Shorts the normally open con-
tacts (pins 9 and 34) when the night relay
is activated.
l
BREAK-Opens the normally closed
contacts (pins 9 and 34) when the night
relay is activated.
7B) Solder the jumper W2 on the PIOUS to the
MAKE or BREAK position, as required:
l
MAKE-Shorts the normally open con-
tacts (NHT and NHR) when the night
relay is activated.
l
BREAK-Opens the normally closed
contacts (NHT and NHR) when night
relay is activated.
8) Refer to Figures 8-7 and 8-8 for wiring/inter-
connecting details. Connect the PIOU, PI-
OUS, or PEPU to the MDF as required for the
night relay function.
INSTALLATION-PERIPHERALS
SECTION 200-096-208
FEBRUARY 1991
NOTE:
Door phones programmed to ring over exter-
nalpage in night mode
(Program 77-i)
db not
activate the NT relay.
4.25 MOH Relay Control. Configure the PIOU,
PIOUS, or PEPU for the MOH relay function in
accordance with the following steps (refer to Fig-
ures 8-7 and 8-8):
1)
24
2B)
3)
5
Access Program 77-l. Set LED 05 to ON to
configure the Night/MOH relay for the MOH
relay function.
Set the Pll jumper plug on the PIOU or PEPU
to the MAKE or BREAK position, as required:
l
MAKE-Shorts the normally open con-
tacts (pins 9 and 34) when any CO line is
on hold.
l
BREAK-Opens the normally closed
contacts (pins 9 and 34) when any CO
line is on hold.
Solder the W2 jumper on the PIOUS to the
MAKE or BREAK oosition, as required:
MAKE-Shorts the normally-open con-
tacts (NHT and NHR) when any CO line
is on hold.
BREAK-Opens the normally closed
contacts (NHT and NHR) when any CO
line is in on hold.
Refer to Figures 8-7 and 8-8 for wiring/inter-
connecting details. Connect the PIOU, PI-
OUS, or PEPU to the MDF as required for the
MOH relay function.
EXTERNAL SPEAKER UNIT (HESB)
OPTIONS
5.00 STRATA DK systems provide three options
utilizing an HESB:
5.01 Loud Ringing Bell Option. The Loud Ring-
ing Bell option allows the voice first or ringing signal
tone to be amplified without the use of other manu-
facturers’ equipment. The voice first and signal
tone can be amplified on all 6500-series electronic
8-7

INSTALLATION-PERIPHERALS
SECTION 200-096-208
FEBRUARY1991
telephones and 1 OOO-series digital telephones
equipped with HHEU PCBs (refer to Section 200-
096-207). The HESB automatically turns off once
the ringing call or voice first has been manually
answered from the electronic or digital telephone.
This turn-off feature prevents audio feedback prob-
lems.
5.02 Amplified Speaker Option. The Amplified
Speaker option allows the HESB to be configured
as a paging speaker. The HESB is connected to the
PIOU, PIOUS, or PEPU 600-ohm page output to
provide an amplified external speaker.
5.03 Talkback Amplified Speaker Option. The
Talkback Amplified Speaker option allows a talkback
speaker to be provided in areas where a telephone
is not needed, such as in conjunction with a door
phone. In this configuration, the HESB is connected
to the PIOU, PIOUS, or PEPU 6OOQ (duplex) output
and is used as the amplifier and speaker. The door
phone unit (MDFB) is connected to the HESB, and
serves as a microphone to provide talkback opera-
tion (the MDFB pushbutton is inoperative, and the
unit serves only as a microphone for talkback).
NOTE:
The PIOU, PIOUS, and PEPU 600 Q (duplex)
page output is compatible with most commer-
cially available talkback amplifiers.
5.10 System Hardware Requirements
5.11 System hardware requirements vary de-
pending on the HESB option selected. Refer to the
following installation procedures for the system
hardware requirements for each option.
5.20 HESB Option Installation
5.21 Loud Ringing Bell Installation. Install the
HESB Loud Ringing Bell option in accordance with
the following steps (refer to Figure 8-l 1 for elec-
tronic or 8-l 1 A for digital telephones).
1) Connect a jumper between terminals 6 and 7
on the HESB TBI terminal block.
2) Connect a jumper between terminals 5 and 8
on the HESB TBI terminal block.
3) Connect a jumper between terminals 4 and 5
on the HESB TB2 terminal block.
NOTES:
1.
2.
4)
5)
6)
7)
8)
9)
t
t
t
t
HESB connections made in steps 4 N 7
may be accomplished using the HESB
VOICE modular jack instead of the TBI
terminal block.
Install an HHEU PCB and HESC-65 cable
in the 6500-series electronic telephone
per Section 200-096-207 before pro-
ceeding with steps 4 and 5.
Connect terminal 1 of the HESB TBI terminal
Ilock to the red (+) wire of the HESC-65 cable
Jsing a modular block per Figure 8-l 1.
Connect terminal 2 of the HESB TBI terminal
slack to the green (-) wire of the HESC-65
:able using a modular block per Figure 8-l 1.
Connect terminal 3 of the HESB TBI terminal
Ilock to pin 3 of the electronic telephone’s
nodular block (VOICE-TIP).
Connect terminal 4 of the HESB TBI terminal
Yock to pin 4 of the electronic telephone’s
nodular block (VOICE-RING).
Connect the HACU-120 power supply’s +12V
ead to terminal 1 of the HESB TB2 terminal
Ilock, and connect the power supply’s OV lead
0 terminal 2.
Plug the provided power cord into the power
supply and to a 117VAC, 60Hz power source.
NOTE:
See Figure 8-24 for HESB wall mounting
instructions.
5.22 Loud Ringing Bell Test. Test the Loud Ring-
ing Bell installation in accordance with the following
steps:
1)
2)
3)
Make a CO or station call to the station config-
ured for the loud ringing bell.
l
Ringing will be heard over the HESB.
Adjust the HESBvolume control to the desired
level.
If ringing is heard at the station, but not over
the HESB, perform the following check while
the station is ringing:
a) Using a suitable voltmeter, measure volt-
age across terminals 1 (+) and 2 (-) of the
HESB TBI terminal block.
l
Voltage indication should be 4.5 N
5.0 VDC.
8-8

NOTE:
Ringing stops once the call is manually an-
swered. There shouldbe NO voltagepotential
across terminals I and 2.
b) If voltage is not as specified during ring-
ing, check that the electronic telephone
wiring connections to the HESB have
been made properly (wires to terminals 1
and 2 of the HESBTBI terminal block may
have been reversed).
5.23 Amplified Speaker Installation. Install the
HESB Amplified Speaker option in accordance
with
1)
the following steps (refer to Figure 8-l 2):
Connect a jumper between terminals 1 and 2
of the HESB TBI terminal block.
2) Connect a jumper between terminals 6 and 7
of the HESB TBI terminal block.
3) Connect a jumper between terminals 5 and 8
of the HESB TBI terminal block.
4) Connect a jumper between terminals 3 and 4
of the HESB TB2 terminal block.
5) Connect a jumper between terminals 5 and 6
of the HESB TB2 terminal block.
64
Connect the PIOU or PEPU 600-ohm page
output (pins 13 and 38) to terminals 3 and 4 of
the HESB TBI terminal block.
6B)
Connect the PIOUS 600-ohm page output
(SPT and SPR) to terminals 3
and 4
of the
HESB TBI terminal block.
7) Connect the power supply’s +12V lead to ter-
minal 1 of the HESB TB2 terminal block, and
connect the OV lead to terminal 2.
8)
Plug the provided power cord into the power
supply and to a 117VAC, 60Hz power source.
9) Set the PIOU or PEPU SW4 switch to the SPO
position.
5.24 Amplified Speaker Test. Test the amplified
speaker installation in accordance with the follow-
ing steps:
INSTALLATION-PERIPHERALS
SECTION 200-096-208
FEBRUARY1991
1) Make an external page.
l
Page should be heard over the HESB.
.
2) Adjust the HESBvolume control to the desired
level.
5.25 Talkback Amplified Speaker Installation.
Install the HESB Talkback Amplified Speaker op-
tion in accordance with the following steps (refer to
Figure 8-13):
1) Connect a jumper between terminals 1 and 2
of the HESB TBI terminal block.
2) Connect a jumper between terminals 3 and 4
of the HESB TB2 terminal block.
3) Connect a jumper between terminals 5 and 6
of the HESB TB2 terminal block.
NOTE:
HESB connections made in steps 4 w 7 may
be accomplished using the HESB VOICE and
door phone modular jack instead of the TBI
terminal block.
4)
5)
6)
7)
84
84
9)
10)
Connect terminal 7 of the HESB TBI terminal
block to pin Ll of the MDFB.
Connect terminal 8 of the HESB TBI terminal
block to pin L2 of the MDFB.
Connect terminal 9 of the HESB TBI terminal
block to pin 1 of the MDFB.
Connect terminal 10 of the HESB TBI termi-
nal block to pin 2 of the MDFB.
Connect the PIOU or PEPU 600-ohm page
output (pins 13 and 38) to terminals 3 and 4 of
the HESB TBI terminal block.
Connect the PIOUS 600-ohm
(SPT and SPR) to terminals 3
HESB TBI terminal block.
page output
and 4 of the
Set the PIOU or PEPU SW4 switch to the SPO
position.
Connect the HACU-1,20’s +I 2V lead to termi-
nal 1 of the HESB TB2 terminal block, and
connect the OV lead to terminal 2.
8-9

INSTALLATION-PERIPHERALS
SECTION 200-096-208
FEBRUARY 1991
11) Plug the provided power cord into the power
supply and to a 117 VAC, 60Hz power source.
5.26 Talkback Amplified Speaker Test.
Test the
Talkback Amplified Speaker installation in accor-
dance with the following steps:
1) Make an external page.
l
Page will be heard over the HESB.
2) Verify that someone speaking into the door
phone can be heard at the paging station (with
this application, pressing the door phone but-
ton is not required to talkback through the door
phone).
6 EXTERNAL PAGE OPTIONS
6.00 System Hardware Requirements
6.01
STRATA DK systems offer a variety of exter-
nal page options. Additionally, a BGM option is
available with each external page option. DK sys-
tems support:
l
Paging with BGM (same amplifier).
l
Zone paging with BGM (separate amplifiers).
l
Zone paging with BGM (multiple amplifiers).
NOTE:
The PIOU PCB only is equipped with zone
paging.
6.02 Either a PIOU, PIOUS, or PEPU PCB is
required to support the external paging/BGM op-
tions. The PIOU will support any of the paging/BGM
options. The PEPU and PIOUS will support only the
paging with BGM (same amplifier) option.
6.10 External Page Option installation
6.11
All paging connections are made via the
PIOU or PEPU amphenol connectors or the PIOUS
TBl
terminal to the MDF.
6.12 Page (single zone) with BGM (same ampli-
fier).
In this configuration, paging and BGM are
amplified by a common customer-supplied paging
amplifier. When the external page access code is
dialed, the external page control relay is activated,
which applies a short (or open) to the amplifier mute
control to mute the music. Install this option in
accordance with the following steps (refer to Figure
8-14):
1)
2)
3)
4)
5)
Connect the input no. 1 from the paging ampli-
fier to pins 13 (SPR) and 38 (SPT) of the PIOU
or PEPU; or connect to SPT and SPR of the
PIOUS.
Connect the paging amplifier mute terminal to
pins 7 and 32 of the PIOU or PEPU; or connect
to DET and DER of the PIOUS.
Connect the music source to the input no. 2 of
the paging amplifier.
Connect the speaker to the paging amplifier
output.
Verify that the PIOU or PEPU
PlO
jumper plug
is in the
MAKE
position or that the PIOUS
WI
jumper wire is in the
MAKE
position.
6.13 Zone Page with BGM (separate amplifi-
ers).
This configuration provides multiple-zone
paging capability. The output of the paging ampli-
fier is routed back to the PIOU, where it is switched
to one of four sets of speakers by PIOU relays
Kl
through K4. The relay selected is determined by
the access code dialed by the station user. Default
access codes are:
l
Kl/zone 1 = 35
l
K2/zone 2 = 36
l
K3/zone 3 = 37
l
K4/zone 4 = 38
l
All zones = 39
NOTE:
Multi-zone page output rating is 30W/maxi-
mum at 300 ohms.
6.14 An all zone page code (39) is also available as
an option
(see Program
10-2). When the all page
code is dialed, all four relays are activated to permit
simultaneous paging to all speaker zones and all
electronic telephone speakers. Install this option in
accordance with the following steps (refer to Figure
8-15):
1) Connect the input from the paging amplifier to
pins 13 (SPR) and 38 (SPT) of the PIOU.
2) Connect the BGM music source to the music
amplifier input. *
3) Connect the paging amplifier output to the “M”
8-10

contact’s PIOU relays
Kl
- K4 and the “C”
terminal of zone 1 - zone 4 speakers.
4) Connect the BGM music amplifier output to
terminal 23 (PG COMMON) of the PIOU, and
to zone 1 - zone 4 speakers.
6.15 Zone Page with BGM (multiple amplifiers).
This configuration also provides multiple-zone
paging capability, as in Paragraph 6.13. However,
separate amplifiers are used for each zone. Install
this option in accordance with the following steps
(refer to Figure 8-l 6):
1)
2)
3)
4)
5)
Connect the inputs from the paging amplifiers
to pins 13 (SPR) and 38 (SPT) of the PIOU.
Connect the music source to the music ampli-
fier input.
Connect the paging amplifier outputs to PIOU
relays
Kl
- K4 and zone 1 - zone 4 speakers.
Connect the music amplifier output to terminal
23 (PG COMMON) of the PIOU, and to the “C”
terminal of zone 1 - zone 4 speakers.
Connect zone 1 - zone 4 speakers “A” termi-
nal to the “B” contact of the PIOU relays Kl-
K4 respectively.
6.16 Night Ringing over External Page Zones
(PIOU only).
To allow the night ringing signal to be
sent over zone paging, install the paging amplifier
in accordance with the following steps (refer to
Figure 8-17). (Steps 1 - 6 are performed at the
MDF ’
1)
2)
3)
4)
5)
Cross-connect the amplifier input to pins 13
(SPR) and 38 (SPT) of the PIOU PCB.
Cross-connect the amplifier output A to the
PGINl - PGIN4 connector from the PIOU.
Cross-connect the amplifier output B to the
zone 1 - zone 4 speaker common line.
Cross-connect the PIOU PGOUTI - PGOUT4
to zone 1 - zone 4 speakers.
Cross-connect the amplifier output A to pin 9
(NHR) of the PIOU.
INSTALLATION-PERIPHERALS
SECTION 200-096-208
FEBRUARY 1991
6) Cross-connect a jumper from pin 34 (NHT) to
pin 23 (PG COMMON) from the PIOU PCB.
.
7)
In
Program 77-1,
set
LED 05 to OFF
and 06
to
ON.
Set
LED
08 to ON if door phones are
to ring over external page when the system is
in NIGHT mode.
8)
In
Program
78, enable the CO lines that are to
ring via external page when the system is set
in the NIGHT mode.
9)
In
Program
39, assign themormbuttons
to electronic telephones per the System Rec-
ord Sheets (see Note 2).
10) Press them or m button on an electronic
telephone to set the system into the NIGHT
mode. Test by calling into the system on a CO
line assigned
(Program
78) to night ring over
external page.
l
When ringing sounds (see Note 2) over
the page, press m 1 Ef 1 to answer.
NOTES:
1. All zones will ring with this option; night
ringing to selected zones is not possible.
2. The m or m buttons put CO lines in
NIGHT ring mode per
Program 15;
NT1 -
TENANT l/NT2-TENANT 2 CO line as-
signment.
7 STATION MESSAGE DETAIL
RECORDING (SMDR) PRINTER/CALL
ACCOUNTING DEVICE OPTIONS
7.00 An SMDR printer or call accounting device
may be connected to the system to provide a hard-
copy record of station activity (incoming, outgoing,
and transferred calls account code entries) on CO
lines or a printout of the customer data base. Call
record data is printed out at the completion of each
call, provided the call was at least 10 seconds in
length. Program SMDR with
Program
60, and use
Program
97 to have the SMDR printer display the
customer data base.
7.01 SMDR will send out special names for the
following types of calls: .
l
MSS:
Prints on DISA or DISC calls to stations
(see Note).
8-11

INSTALLATION-PERIPHERALS
SECTION 200-096-208
FEBRUARY1991
l
MODM:
Prints on calls to the IMDU remote
maintenance modem (station 19).
l
DISA:
Prints on DISA calls to CO lines when
calling through the system CO-to-CO.
NOTE:
MSS willprintonlyon DISA orDlSCcalls thatare
answered 10 seconds after the DK dial tone is
sent to the calling party. If the call is answered
before 10 seconds, the call will register as a
normal incoming call and the MSS/transfer
portion of the call will not print out.
7.02 Figure 8-l 8 shows a sample SMDR printout
and describes the contents of each column of the
printout. The following examples show several call
record samples and describe the sequence of
events which occurred to generate the call records.
NOTE:
SMDR printout “time of day” and day/month/
year (DD/MM/YY) is the same as the system
clock time/date setby the station connected to
port 00. SMDR DD/MM/YY will print out each
time 50 call records are generated.
SMDR PRINTOUT EXAMPLES
Direct Inward System Access (DISA) CO Lines
NOTE:
DISA station calls print out as MSS.
EXAMPLE l-Ring, No Answer DISA Call
Call Sequence A
Outside caller rings CO line 03 (CO line 03 is
programmed as a DISA line).
Line 03 returns intercom dial tone to caller after
two ring cycles (5 N 6 seconds).
Caller does nothing.
After 32 seconds, call is disconnected.
Printout
A
prints after disconnect at 4:59.
PRINTOUT A
03 MSS 04:59 00:00:32 00:06
EXAMPLE 2-DISA Internal Station Call
Call Sequence B
I
l
Outside caller rings CO line 03 (CO line 03 is
programmed as a DISA line).
l
Line 03 returns intercom dial tone to caller after
two ring cycles (5 N 6 seconds).
l
Caller dials 203.
,
.1’
l
After 48 seconds from start of call, station 203
answers.
l
Printout
B
prints after station 203 answers the
call at 4:32. I
NOTE:
MSS will not print if the call is answered within
IO seconds from when the caller receives dial
tone.
PRINTOUT B
03 MSS 04:32 00:00:48 00:05 203
EXAMPLE 3-DISA Outgoing CO Line Call
NOTE:
DISA CO line calls print out as DISA.
Call Sequence C
l
Outside caller rings CO line 01 (line 01 is pro- I
grammed as DISA).
l
Line 01 returns intercom dial tone after two ring
cycles (5 N 6 seconds).
l
Caller dials 703 to access CO line 03 (outgoing).
l
Caller dials the DISA security code and receives
CO dial tone.
l
Caller dials the telephone number and con-
verses when the call is answered.
l
Caller hangs up.
l
The call releases, and Printout C prints after the
call disconnects at 12:22. I
NOTES:
1.
2.
If the CO provides the auto release (AR)
signal (see Program 15), the call discon-
nects when either party hangs up.
If the auto release signal is not returned,
the CO lines will remain seized until the
DISA disconnect timer releases the call
(approximately five minutes).
PRINTOUT C
Auto Release signal:
03 DISA 12:22 00:02;01 (outgoing)
01 DISA 12:22 00:02;01 (incoming)
Disconnect Timer: s
01 DISA 12:24 00:04;57 (incoming)
03 DISA 12:24 00:04;57 (outgoing)
8-12

7.03 System Program Data Printout.
If a printer
is connected to the SMDR port, customer program
information stored in the PCTU or PCTUSI RAM
may be printed out for reference by using
Program
97 (see Paragraph 7.14).
7.10 SMDR Hardware Requirements
7.11
A DK system must be equipped with a PIOU
or PIOUS PC6 to support the SMDR printer/call
accounting device option. Connection of the printer
or call accounting device to the PIOU or PIOUS
PCB is accomplished with a 3-pair modular cord (7
feet maximum) and a PPTC connector adaptor
(refer to Figure 8-19 for details). Call record data is
ASCII-formatted, 8 bits, no parity, 1 -stop bit.
7.12 The PIOU or PIOUS contains a call record
buffer which stores call record data (for up to 50
calls) when the printed or call accounting device is
turned off, or when no device is connected to the
SMDR port. No further call records are stored after
the buffer is filled. When the printer or call account-
ing device is made operational, an “ERROR
BUFFER OVERFLOW” message is printed to indi-
cate that the buffer was full, and that some call
information may have been lost.
7.13 SMDR Programming Considerations
7.14 SelectableprogrammingoptionsfortheSMDR
printer or call accounting device are:
Program 60
l
Item 3-Selects the records of outgoing calls or
outgoing and incoming calls to be printed.
l
Item 4-Selects digit length of account code (4 to
15 digits).
l
Item 5-Allows only long distance call records to
be printed.
Program 97
l
Allows system program data to be printed via the
SMDR port (refer to Figure 8-20 for an example
printout).
NOTES:
1. An SMDR printer must be connected to
the SMDR port to use the printout option
selected by Program 97.
2. Call record data is lost when program data
is printed out using
Program 97.
INSTALLATION-PERIPHERALS
SECTION 200-096-208
FEBRUARY 1991
7.20 SMDR Printer/Call Accounting Device In-
stallation
7.21 Install the SMDR printer/call accounting de-
vice option in accordance with the following steps
(refer to Figures 8-19, 9-l 7, and 9-l 9):
1)
2)
3)
4)
Connect the interface cable and the PPTC
adaptor from the PIOU or PIOUS SMDR port
to the SMDR printer or call accounting device
DB25 connector.
Set the PIOU or PIOUS
SW1
switch to the
appropriate baud rate (300 or 1200 bps), as
determined by the baud rate of the printer or
call accounting device.
Set the printer or call accounting device to 8-
bits/no parity/one stop bit.
Program
(Program 60)
the system for the re-
quired SMDR printer/call accounting device
options (refer to Paragraph 7.13 and the Pro-
gramming Procedures, Section 200-096-300).
8 MAINTENANCE TERMINAL OPTIONS
8.00 A customer-supplied maintenance terminal
may be connected to the system (PIOU or PIOUS)
either locally or remotely. The maintenance termi-
nal (ASCII terminal) allows system programming
and testing to be accomplished. Also, the IMDU
modem or an external maintenance modem (300 or
1200 baud full-duplex) can be connected to allow
system programming and testing to be accom-
plished from a remote location.
NOTE:
An external modem is required for Remote
Maintenance if an IMDU is not installed on the
PIOU or PIOUS. The IMDU has a built-in
maintenance channel for remote connection;
however, an external modem requires a CO
line, PSTU or PESU port.
8.10 Maintenance Terminal/External Modem
Option System Hardware Requirements
8.11
The STRATA DK system must be equipped
with a PIOU or PIOUS PCB to support the mainte-
nance terminal/external modem options. Connect-
ing the maintenance terminal or external mainte-
8-13

INSTALLATION-PERIPHERALS
SECTION 200-096-208
FEBRUARY1991
nance modem to the PIOU or PIOUS PCB is
accomplished with a standard 3-pair modular cord
and a PPTC adaptor connected to the PIOU or
PIOUS TTY jack (refer to Figure 8-21).
NOTE:
If the IMDUmodem is used, the PPTC adapter
or modular cord is not required.
8.20 Local Maintenance Terminal Installation
8.21 Install the ASCII terminal in accordance with
the following steps (refer to Figure 8-21):
1) Connect the 3-pair modular cable (or 24 AWG
twisted pairs) and the PPTC adaptor from the
PIOU or PIOUS TTY port to the remote main-
tenance terminal DB25 connector.
2) Set the PIOU or PIOUS SW2 switch to match
the modem or terminal baud rate:
l
Push in for 300 bps (baud rate indicator
CD4 is lighted); let out (by pushing again)
for 1200 bps (CD4 is not lighted).
3) Set the PIOU or PIOUS SW3switch to
theTTY
position.
4) Set the P13 jumper plug on the PIOU to the
BELL
configuration, or cut the W4 jumper on
the PIOUS (also for
BELL
configuration).
NOTE:
The PI3 (PIOU) and W4 (PIOUS) CCITT
configurations are not normally used in the
USA.
5) Programming and system testing, via the
maintenance terminal, is described in the
Remote Maintenance Procedures, Section
200-096-400.
NOTE:
If the electronic telephone connected to pot?
05 is in the program mode, programming from
the maintenance terminal is not allowed.
8.30 Remote Maintenance Option Installation
8.31 IMDU Maintenance Modem.
The IMDU
modem mounts on the PIOU or PIOUS PCB and
provides 300 or 1200 bps, full-duplex communica-
tion for remote maintenance. If the IMDU is em-
ployed, a dedicated CO line, PSTU, oi PESU
connection is not required. Connection of the re-
mote maintenance terminal is through existing sys-
tem CO lines via intercom number 19. Refer to the
PIOU or PIOUS portion of Section 200-096-206 for
details on hardware installation and programming
requirements. Remote Maintenance Procedures,
Section 200-096-400, provides more information
about using the IMDU for remote maintenance.
.:
:
8.32 External Maintenance Modem Installation.
Install the external modem in accordance with the
following steps (refer to Figure 8-21):
NOTE:
The Toshiba PPTC IX-232 modular-to-D925
adaptor is factory-configured for ASCII termi-
nal connection. Pins 2 and 3 of the adaptor
must be reversed for external modem connec-
tion.
1)
2)
3)
4)
Connect the modular cord from the PIOU or
PIOUS TTY port to the PPTC adapter and
then to the external maintenance modem RS-
232 25pin connector.
Connect the external maintenance modem
line-side to a dedicated CO line (tip and ring)
or to a dedicated PSTU or PESU standard
telephone port (tip and ring). Refer to Wiring
Diagrams, Section 200-096-209, for wiring/
interconnecting details.
Set the PIOU or PIOUS SW2 switch to match
the modem or terminal baud rate:
l
Push in for 300 bps (baud rate indicator
CD4/LED is lighted); let out for 1200 bps
(CD4 is not lighted).
Set the PIOU or PIOUS SW3switch to the TTY
position.
NOTE:
The PIOU or PIOUS SW3 switch is set to the
MODEM position for IMDU operation only.
5) Set the
PI3
jumper plug on the PIOU to the
BELL
configuration, or cut the W4 jumper on
the PIOUS (also for
BELL
configuration).
-.,
. . :;’
8-14

NOTE:
The P13 (PIOU) or W4 (PIOUS) CCITT con-
figurations are not normally used in the USA.
6) Programming and system testing, via the exter-
nal maintenance modem, is described in the
Remote Maintenance Procedures, Section 200-
096-400. Access to the external maintenance
modem is accomplished as follows:
If the modem is connected to adedicated
CO line, call the CO line number to estab-
lish modem communication.
If the modem is connected to a PSTU or
PESU port, call a DK CO line that can be
transferred to (or programmed to ring)
the PSTU or PESU modem port to estab-
lish modem communication.
9 VOICE MAIL/AUTO ATTENDANTOPTIONS
9.00 System Hardware Requirements
9.01 Systems may be configured to support a
Toshiba INTOUCH Digital Voice Messaging Sys-
tem, a customer-supplied voice mail messaging
system, or auto attendant.
9.02 The STRATA DK system must be equipped
with a PSTU or PESU PCB to support the voice mail
or auto attendant option. The PSTU is equipped
with eight standard telephone circuits, and the
PESU is equipped with two. A CRCU (-4 or -8)
subassembly must be installed on the PCTU or
PCTUSI PCB. The voice mail/auto attendant op-
tion may be connected to any standard telephone
circuit at the MDF block.
9.10 INTOUCH Digital Voice Messaging Sys-
tem
9.11
STRATA DK systems are designed to sup-
port the full range of features offered by the IN-
TOUCH Digital Voice Messaging System. IN-
TOUCH provides various call routing, message
handling, and information management features,
including:
l
Automated Attendant
0 Call Forward to Voice Mailbox
l
Message Waiting Indication
l
Voice Mail Control from Electronic Telephone
INSTALLATION-PERIPHERALS
SECTION 200-096-208
FEBRUARY 1991
l
System Monitoring
l
Feature Integration .
9.12 A block diagram of voice mail/auto attendant-
to-PSTU or -PESU connection is shown in Figure
8-22. See section 200-096-206for PSTU and PESU
installation.
9.13 STRATA DK/INTOUCH Programming
Considerations.
Some features of STRATA DK
system programming are unique to INTOUCH, and
are not available for customer-supplied voice mail
messaging systems. These programming features
are:
Answer (A) Tone.
The STRATA DK stations
will send an answer tone to INTOUCH when the
station answers an INTOUCH call.
Disconnect (D) Tone.
The STRATA DK sta-
tions will send a disconnect tone to INTOUCH
when the station hangs up while connected to
INTOUCH.
NOTE:
Bothansweranddisconnecttonesprovidemore
efficient INTOUCH port use. Always enable
these options. Both options are enabled by
accessing Program 31, and setting LED 15 to
ON (LEDs 16 and 17 must also be ON to allow
A and D tones).
B Tone Signals.
Stations send a recall (B) tone
to INTOUCH whenever INTOUCH answers a
transfer (camp-on) recall from a station that did
not answer an INTOUCH blind transfer. (The B
tone notifies INTOUCH that the call is a recall
and not a new call, allowing INTOUCH to re-
spond with the appropriate greeting.) For this
feature to operate, INTOUCH must be equipped
with
Version B.06
software or above; and the
DK PSTU or PESU voice mail ports must have
LEDs 19 and 20 turned
ON
in
Program 31.
9.14 INTOUCH Installation.
Use the above in-
formation in concert with Paragraphs 9.23 and 9.24
to install INTOUCH.
9.20 Customer-supplied Voice Mail Messaging
Systems
9.21 STRATA DK systems are designed to sup-
port a wide range of customer-supplied voice mail
8-15

INSTALLATION-PERIPHERALS
SECTION 200-096-208
FEBRUARY1991
messaging systems. Depending on the voice mail
system used, some of the features available with
INTOUCH (refer to Paragraph
9.10)
may be avail-
able
with the customer-supplied system.
9.22 Voice Mail (PSTU or PESU Port) Program-
ming Considerations
9.23 Voice mail (all types) PSTU or PESU port
programming is accomplished using
Programs 31
and
IO-2
(refer to Programming Procedures, Sec-
tion 200-096-300, for details). Voice mail (VM) pro-
gramming features are:
l
VM Groups-This
feature groups VM PSTU or
PESU ports together so that message waiting
set/cancel signals appear to originate from the
lowest port in the VM group. All VM ports con-
nected to a particular VM machine should
be set
in the same VM group
(Program 31,
LEDs 05 N
08).
l
Message Waiting
Set/Cancel-If the VM ma-
chine has the ability to dial a code, plus the
appropriate station numbers to set or cancel the
message waiting LEDs on electronic telephones,
program the VM machine to dial the following
sequences
(Program 10-2,
LED 04):
1) To set a MW LED, the VM machine must
dial Ii+ station number.
2) To cancel a MW LED, the VM machine
must dial Ii+ station number.
NOTE:
Only dial codes 63 and 64 are set in the VM
device configuration; the VM device will dial
the station number automatically to set/cancel
the MW LED.
l
No Conference
VM-Prevents undesired
three-party connections during VM call trans-
fers. All VM ports should be set for No Conf
(Program 31,
LED 09).
l
Privacy Override
Deny-Prevents stations from
overriding (breaking in) in-progress VM calls
(Program 31,
LED 18).
l
End-to-End
Signaling-Allows VM port
DTMF operation. All VM ports should be set for
end-to-end signaling
(Program 31,
LED 17).
NOTE:
The CRCU (-4 or -8) must be installed on the
PCTU or PCTUSI to allow End-to-End Sig-
naling. . .
Receive Auto Call Forward ID
Codes-Pro-
vides auto digits from call forwarded stations to
direct callers to stations’ mailboxes. All VM ports
should be
set to
re,ceive
auto
ID code
(Program
31, LED 16).
9.24 Voice Mail Program Checklist.
The follow-
ing items should be verified before programming
voice mail:
1) Set INTOUCH Maintenance Menu system
parameters to “D” = STRATA DK (see
INTOUCH installation and Maintenance
Manual for other parameter settings).
2) STRATA DK programs:
Program
95 Initialization clears voice mail
auto dial codes.
Program
03: Verify that a CRCU (-4 or -8) is
installed on the PCTU to allow the VM/AA to
send DTMF tones.
Program
04: Assigns station numbers to
VM/AA ports (initialized numbers recom-
mended).
Program
05: First digit of special codes 63
and 64 (initialized numbers recommended).
Program 1 O-l
: Set the system for voice first,
and program the VM/AA device to dial the
suffix as “1” after station numbers.
Program 10-2:
Set LEDs 04 for set/cancel
operation and 06 ON for the VM to detect 80
msec. tones.
Program 13:
If the VM/AA device is the
message center, set the lowest VM port as
the message center.
Program 31:
Turn LEDs 05,09, and 15 N 20
ON for the PESU or PSTU ports that are
connected to the INTOUCH VM/AA ports.
Do not set these options for standard tele-
phone or electronic telephone station ports.
NOTE:
A, D, and B tones should be enabled only for
VM/AA devices that respond to these tones.
l
Program
33: Set the PESU and PSTU ports
that are connected to the VM/AA ports
8-16

to a hunting sequence, starting with the Iow-
est port hunting to the next highest port, etc.
The last hunt should be to an attendant.
l
Program
35: LEDs 01 and 02 must be ON
for stations to receive the message indica-
tion (MW LED flashing) from a VM device.
l
Program
36: Set fixed call forward to VM/
AA port per customer requirements.
l
Program
37: Set the timer for the VM/AA
ports to 22 seconds minimum to allow call
forward no answer to work on VM transferred
calls.
l
Program
39: Set the MW/FL, CFF, RDL
and SDS buttons on the electronic tele-
phones that will be used to communicate
with the VM/AA device.
l
Programs 81
N 89: Verify that the ringing
assignments to the VM/AA devices are set
per customer requirements.
l
Programs
16,40,41,45 N 48 and 50 N 56:
Verify that outgoing CO line access is al-
lowed on VM ports to allow the VM/AA beeper
notification feature to operate.
9.25 Voice Mail System Installation.
Install the
voice mail messaging system in accordance with
the following steps:
1) Ensure that the PSTU or PESU PCB is in-
stalled in the system per Section 200-096-206.
2) Connect the voice mail messaging system to
the selected PSTU or PESU standard tele-
phone port (refer to Wiring Diagrams, Section
200-096-290, for PSTU and PESU wiring/
interconnecting details).
3) Program the system for the required voice
mail messaging features (refer to Paragraphs
9.13
and 9.22).
4) Ensure that a CRCU (-4 or -8) is installed on
the PCTU or PCTUSl PCB, and verify that the
PCTU code in
Program 03
is for CRCU op-
eration as required.
5) Perform additional voice mail messaging sys-
tem programming as applicable (refer to cus-
tomer-supplied installation/programming
manuals).
INSTALLATION-PERIPHERALS
SECTION 200-096-208
FEBRUARY 1991
NOTE:
Some voice mail devices may ring tcip when
called; in
this
case, set the ring voltage jumper
to L (low position) on the PEW or PSTUZ
PCB connected to the voice mail device.
10 ALARM SENSOR INSTALLATION
10.00
The PIOU or PIOUS PCB provides a circuit
that can be set to detect a relay open or closed
condition from a facility alarm system. When the
sensor is activated, all electronic telephones will
sound an alarm signal. The electronic telephone
alarm signal can be reset by any electronic tele-
phone with an alarm reset button (see
Program 39).
10.01 Alarm Sensor Options.
Jumper plug
PI2
on the PIOU is used to set the alarm sensor to
detect an open or closed condition from the facility
alarm system. Set
PI2
as follows (refer to Figure
8-23) :
l
To detect a closed condition, set
PI 2
to the N.O.
position.
l
To detect an open condition, set
PI 2
to the NC.
position.
10.02 Jumper
W3
on the PIOUS is used to set the
alarm sensor to detect an open or closed condition
from the facility alarm system. Solder the W3
jumper wire as follows (refer to Figure 8-22):
l
To detect a closed condition, solder W3 to the
normal open position.
l
To detect an open condition, solder W3 to the
normal closed position.
10.03 Alarm Sensor Wiring.
Refer to Figure
8-23, and connect the facility alarm system relay
contacts to the PIOU/PIOUS PCB.
8-17

INSTALLATION-PERIPHERALS
SECTION 200-096-208
FEBRUARY1991
PPSU
24/56/96
+
BATT :
-
TWO-PRONG
MALE CONNECTOR
(PRE-ASSEMBLED) PBTC-3M
BATTERYCABLE
WITH RING TERMINALS
AND PPSU CONNECTOR
(LENGTH 9 FEET)
IN-LINE
FUSE HOLDER
IOA
(FUSE PROVIDED) WHITE
POWER SUPPLY 16AWG
- + - +
ACTUAL
SIZE
\
12VDC
BATTERY
RING TERMINALS 3/8 IN. BLACK JUMPER
WITH RING TERMINALS
(PROVIDED)
FlGURE8-I-RESERVE POWER/BATTERYWlRlNG
8-18

INSTALLATION-PERIPHERALS
SECTION 200-096-208
FEBRUARY1991
I
TO PSTU3-Ti ; > J2-27
’ J2-2
TO PSTU3-RI I>
I
I
I
I
I
I
I
I
TO PCOU-Tl 14 Ji-27
I
’ Ji-2
TO PCOU-RI )
4
I
I
I
J2-26 < ‘TO TEL-T1
J2-1 ’
< 1 TO TEL-RI
I
I
I
I
TELEPHONE
I
I I
CURRENT DETECTOR 1
I
I
-z c+.Y
- I
I I
l J.c
a Ji-26
- + IT0 CO-T1
I
I
l p =
Jl-1 ’
* (TO CO-RI
I
I I
i
DG
PSTU
CONTROL
!
-24V
(INPUT) ;
4
Ji-50
I
I
I
I
I
I
I
I
I
I
(INPUT) ;
RELAY
Ji-25
NOTES:
1. Representation of first of eight circuits.
2. Conditons shown with ACpower (-24VDC) off.
3. PEW (circuits 1 and 2) T/R may also be connected.
FlGURE8-2-DPFTCIRCUIT DIAGRAM
8-19

INSTALLATION-PERIPHERALS
SECTION 200-096-208
FEBRUARY 1991
TWISTED PAIR PCTU SEE MDF TIP & RING .
24 AWG. VRl WIRING DIAGRAMS (CHAPTER 9)
El
0
MOH/BGM
VOLUME CONTROL BACKPLANE TIE LINES
P6 r)
C.O. LINES
MAX. SINGLE-LINE
1 I 0 MUSIC STATIONS
-@
MUSIC-
ON-HOLD
l---i
SOURCE *
ON/OFF
CONTROL
1 (24VOLT 1
1
MOH
CONNECTOR PAGE OR
VP BACKGROUND *DIGITAL AND
PAGEIBGM MUSIC _ PEKU ELECTRONIC
CONTROL + TELEPHONE
OR SPEAKERS
PESU -
(CKT 5-8)
DIGITAL AND
ELECTRONIC TELEPHONE
BGM DIAL CODE
* MOH SQICE SPECIFICATIONS:
* INPUT IMPEDANCE: 6OOQ
l
INPUT VOLTAGE:
RECOMMENDED LEVELS,
MIN. = 0.14 VRMS (-15 dBm)
MAX. = 0.77 VRMS (0 dBm)
TT’PICAL MOHSQURCES:
. TAPE PLAYER
. TUNER
BACKPLANE
481 -ON
480.OFF OR m BUTTON
NHT/NHR,
IF USING PIOUS
PIOU/PEPU/PIOUS
SPO 600R I
OPTIONAL
EXTERNAL PAGE/
BGM OUTPUTS
(38) HESB OR
L AMPLIFER
(13), &
‘2PFAKFR
II I
OPTIONAL PAGE OUTPUT
SWITCH 6OOn OR
I
EX:ERNAL BGM DIAL
lQ\ 3-WATT 8fi. CODE FROM
-. -^---. ..- _ ,lGITAL
( ) PIN N0.s OF PIOU/PEPU \ \-I
tLtC; I KUNIC; & I
AMPHENOL CONNECTOR\ MOH @Q I TELEPHC- .-- 3NES
-B
,I I
NIGHT PORT 00 ONLY:
TRANSFER
L (34) CONTI 3OL 491 -ON
490-OFF
I
MOH/NT RELAl
RELAY CONTACT
JUMPER PLUG
r
SELECT
.._I I I
(MAKE OR BREAK)
IVlUi-l
PROG. 77-1, 05
NOTE:
L
-II
3-watt amp and S W4 are available RELAY CONTACT SPECIFICATION:
with PIOU and PEPU only; W2, IF 24 VOLT D.C. MAX.
PIOUS provides 600 ohm output only. USING PIOUS
(SEE FIGURE 8-8) 1 .O AMPERE, MAX.
FIGURE 8-3-MUSIC-ON-HOLD AND BACKGROUND MUSIC FUNCTIONAL DIAGRAM
(SEE MDF WIRING DIAGRAM FOR DETAILS)
8-20

INSTALLATION-PERIPHERALS
SECTION 200-096-208
FEBRUARY1991
.
r-_-----_.
MOH/BGM
SOURCE (SHARED)
600 Q, O-l VOLT RMS
pEq j
(BGM: 481 ON/480 OFF)
I-
(BGM WHEN PAGE IS IDLE)
(8Q OR 6OOQ OUTPUT)
FlGURE8-4-MUSIC SOURCE CONFIGURATION A
MOH SOURCE -___-----____
f VRl (VOLUME)
PESU 2.5PAIR CONNECTOR
VT = P40, BK-S
VR = P15, S-BK
SLOT XX*, CIRCUIT 8
PEKU 25PAIR CONNECTOR
VT = P30, W-S
VR = P5, S-W
SLOT XX*, CIRCUIT 3
(BGM: 481 ON/480 OFF)
* IF USING PCTU2, SLOT XX MUST
BE SLOT 01; SLOT XX IS DETERMINED
BY PROGRAM 19 WHEN USING PCTUS. I
FlGURE8-5-MUSIC SOURCE CONFIGURATION B
8-21

INSTALLATION-PERIPHERALS
SECTION 200-096-208
FEBRUARY1991
0,
%
MOH SOURCE b
PESU 25PAIR CONNECTOR
VT = P40, BK-S
VR = P1.5, S-BK
SLOT Xx*, CIRCUIT 8
CUT W7 ON PESU
PROG IO, LED 1 O/ON
PEKU 25PAIR CONNECTOR
VT = P30, W-S
VR = P.5, S-W
SLOT Xx*, CIRCUIT 3
CUT W5 ON PEKU
PROG 10, LED 09/ON
MOH (t!$ CO LINES AND
------------- STATIONS ON-HOLD
-----------_
P6, TERMINAL
f VRl (VOLUME)
PESU
OR PEKU
IN SLOT XX*
I
* IF USING PCUT2, SLOT XX --------------____________
I
MUST BE SLOT 01; WHEN I
USING PCTU3, SLOT XX IS I
I
DETERMINED BY PROGRAM 19. i
I ‘--+
I
EXTERNALSPEAKER
BGM SOURCE I
I
AMPLIFIER I
, @/3GM p
(BGM: 481 ON/480 OFF)
1
PAGE
+ 6OOQ + AMPLIFIER
PAGE, 1: - I
‘\
\
0
I-TI
&iv-j
PAGE
OR BGM
I
TOEXTERNAL
PAGE SPEAKER I
AYS
n”ll”f-ill
(BGM WHEN PAGE IS IDLE)
WITH PAGE
ZONE REL
Ar-l-I\IATC
----- BACKPLANE WIRING
- INSTALLATION WIRING
0
Ol
FlGURE8-6-MUSIC SOURCE CONFIGURATION C
8-22

INSTALLATION-PERIPHERALS
SECTION 200-096-208
FEBRUARY 1991
OR
BGM
FROM
PCTU
PlOUlPEPU PCB
~~
---. . ---.. -. -_..-. . .-
PAGE CONTROL
32 R-O 13
7 O-R 1 14
I
t
r---
I I
8~2
SP.Tl II- 50 v-s I 49 I
r-l
DOOR
LOCK
-^..---.
rfl
SP.TO
6OOQ (DUPLEX)
SP.RO
38 Bk-Gn 25
13 Gn-Bk 26 AMPLIF :IER z 1 1 SPEAKER
I
3 WATTSP.Rl 11 -25 -_-- s~v-r
---
.5” ,---- -----------, ( ,
BREAK =
NH T.
NH R.
CONTROL
34 R-Br 17
9 Br-R 18 iT
T I
II I III
\
MDF
SELECT RELAY FUNCTION
WITH PROGRAM 77- 1: CONNECTIONS
NIGHT RELA Y OR ALL WIRES SHOULD IT BELL
MOH CONTROL BE JACKETED 24 AWG
TWISTED PAIRS
NOTE:
Dotted lines and solid lines differentiate optional connections
where applicable; do not connect both options simutaneously.
I HtJt
PLAYER
a
OHil
SPEAKER
i
TO MUSIC-ON-HOLD
INPUT ON PCTU PCB
FIGURE 8-7-PIOU/PEPU RELAY CONTROL FUNCTIONAL WIRING DIAGRAM
8-23

INSTALLATION-PERIPHERALS
SECTION 200-096-208
FEBRUARY 1991
/
KSU BACKPLANE
SPT
BREAK
&-$$+
DER
BREAK
&-$a+
I
NORMAL OPEN
ALMT
ALMR
PIOUS
1
L
l
All wing connections must be 24 A WG twisted pairs.
; ; MUTE
; ; CONTROL
I * DOOR
DE I
A LOCK
CONTROL
l-
MOH
1 SOURCE
. . . .
UNIT
FACILITY
4LM ALARM
UNIT
RELAY OPTIONS:
l
Kl (DE): DOOR LOCK OR AMP MUTE CONTROL; PROGRAM 77-1, LED 07
l
K2 (NH): NIGHT RELAY OR MUSIC-ON-HOLD CONTROL; PROGRAM 77-1, LED 05
l
Kl & K2: 24 VDC, 1 AMP MAXIMUM
FIGURE 8-8-PIOUS RELAY CONTROL FUNCTIONAL WIRING DIAGRAM
8-24

INSTALLATION-PERIPHERALS
SECTlON200-096-208
FEBRUARY1991
/
25PAIR
PIOU/PEPU AMPHENOL MDF SEE FIGURE 8-7
/A’ FOR WIRING
B/-* DET PIN 34, R-BR ” 17
-----
I -’ &PI0
I M TO DOOR LOCK
I PIN 9, BR-R
I
I
DER ‘1 18
I
I
I
I
I
SEE PROGRAM 77-1,
NOTE:
DRLK 0 assigned to electronic 1
telephones in Program 39, j
code 71 controls PIOU, PIOUS, ;
or PEPU door lock relay. I- _ _ - _ TO DOOR LOCK
Kl/Pi 0 (24VDC, 1 .O AMP MAX.)
TERMINAL ON FRONT EDGE OF PCB
FlGURE8-g--DOOR LOCK CONTROL OPTlON(PIOU/PIOUS/PEPU)
FOR DETAILS: MODULAR JACKS A, B, C (I-PAIR EACH)
DKSU SEE FIGURE 9-3 CONNECT TO MODULAR PINS 3 AND 4
(PESU OR PEKU
SEE NOTE) J HDCB NO. 1 - 4
CIRCUIT 1000 FT MAX
l
KSU A
NO. 5 VT/VR, DT/DR 3:
PORT - TO DOOR LOCK
NO. _ p. ( -24 VDC 1 .O AMP MAX.)
SEE NOTE
I
I
I
C DOOR PHONE C
I
1
pzE-2-t-i
DRLK I - 4 assigned to NOTE:
electronic telephones See Paragraph 4.17 for HDCB assignments
in Program 39, code -.
See note. and hardware option settings.
I
FlGURE8-IO-MULTIPLEOOORLOCKCONTROLOPTlONS(HOCB)
8-25

INSTALLATION-PERIPHERALS
SECTION 200-096-208
FEBRUARY 1991
HESB (REAR VIEW)
VlVL I I, I
I I I I
VOICE RING I
JUMPER WIRES:
TBI TB2
5-8 4-5
6-7
TBI -VOICE
1 -6
2 - 1
3-3 12345678910
L!rLL
NOT USED1
4-4
124AWG/- 1
JACKETED
TWISTED
PAIR
FROM
ELECTRONIC
TELEPHONE
TO HESB
I
HACU-120
117/VAC TO
12 VDC
1 Vl”L
_ ___. ,, _ _
MUUULAH ’ f \mIm= nnnR
PHONE
Y”“,
CONNECTO-- ‘O” n”
KS
IL” U”
MAY r- ---- 3E USED
v v-v-
117
VAC
-B2
MDF
66 Bl
r
-0CK
JACKETED
TWISTED PAIR
24 AWG
OCA _
TIP
PZ
l-r
(CKT 5-8)
1654 211
123456
r-l
w ELECTRONIC
TELEPHONE
6500-SERIES
HHEU
INSTALL HHEU PCB
INTO BASE OF
ELECTRONIC TELEPHONE
FIGURE 8-II-HESB/ELECTRONIC TELEPHONE WITH LOUD RINGING BELL WIRING
8-26

INSTALLATION-PERIPHERALS
SECTION 200-096-208
FEBRUARY1991
HESB (REAR VIEW)
HACU-120
117NAC TO CONNECTORS 12v ov
12 VDC MAY BE USED
AC iom(jTB2
POWER 12345
SUPPLY 12v ov L-
IDF
5 BLOCK STATION CABLING
VOLUME CONTROL
Q
(+)
t-1
INTERNAL I
WIRING: I (L2)
TBI -VOICE I I I
1-6 10~01 TBI
2-1 12345678910
3-3 I I
JUMPER WIRES:
TBI TB2
2-10 4-5
TIP
RING
PT
PR
JACKETED
TWISTED PAIR
24 AWG
24 AWG
JACKETED
TWISTED
PAIR
FROM
ELECTRONIC
TELEPHONE
TO HESB
>TION
kV-
1 HHEU (V.3) 1
INSTALL HHEU ClRCl
CARD INTO BASE OF
.--_ __.
- CABLE
JIT (V.3)
DKT
PER HHEU INSTALLTION INFORMATION
IN CHAPTER 7.
FlGURE8-VA-HESB/OIGITALTELEPHONEWlTH LOUD RINGING BELLWIRING
8-26A

INSTALLATION-PERIPHERALS
SECTION 200-096-208
FEBRUARY1991
This page is intentionally left blank.
8-268

INSTALLATION-PERIPHERALS
SECTION 200-096-208
FEBRUARY1991
.
is allowed per system.
VOLUME CONTRO
CABLE
JUMPER WIRES:
TBl TB2
6-7
INTERNAL WIRING: VOICE DOOR PHONE
TBI v VOICE
3v
4F
NOTE:
The 600 ohm page output sends
three types of signals
during system operation:
l
Voice page
l
Background music
l
Night ringing 117VAC
TO
12 VDC
FIGURE 8-IP-HESBIAMPLIFIEO SPEAKER WIRING
8-27

INSTALLATION-PERIPHERALS
SECTION 200-096-208
FEBRUARY1991
MDFB (REAR VIEW)
NOTE:
Only one interface PCB
(PIOU, PIOUS, or PEPU)
is allowed per system.
m
12LlL2
DOOR PHONE
1
PIOUS TBI MDF TALKBACK
- IIll
600 Q MICROPHONE k-t-t-k
IAruirrizn
SPT
PAGE
-. .--. .- SPR DUPLEX --
+A
LlT\“r\L I LU
TWISTED
PAIR
24 AWG
PIOU OR
PEPU
I
I 0
MDF BLOCK I
PIN NUMBERS JACKETED ~ :
nl J
n
J
TWISTED i j
PAlR24AWG j j
DUUIL \ , k” I ,
PAGE - SPR (13, GN-BK) 26 <DUPLEX> j
OUTPUT
MDF VOLUME CONTROL
66 BLOCK
25 PAIR
CABLE
JUMPER WIRES: I
TBl TB2
l-2 3-4
5-6
INTERNAL WIRING:
MODULAR TBl
CONNECTOR , ,
12345678910
MAY BE USED U
“+ 6543211654321 1
VOICE DOOR PHONE
12v ov
TBI - VOICE
4 -4
3 ---+3
TBI - DOOR PHONE
7
10 z i
123456
8
9
12v ov
Y
u uw JUMPERS
The 600 ohm duplex page output is
, ;;:; 1 HE= (REAR VIEW) ~
compatible with most commercially 117VACTOl2VDC
available talkback amplifiers.
NOTE:
8-28

INSTALLATION-PERIPHERALS
SECTION 200-096-208
FEBRUARY1991
66 BLOCK
PIOU/PEPU
PIN NUMBERS EXTERNAL
PAGING AMP 1
NIGHT RING
AND PAGE
31
SPT (38) 25
t 0 ?-
FROM KSU ‘4 6OOQ SPR (13) 5 g ‘-
BACKPLANE 26 0 s 2 ,-
B - 5
EXTERNAL PAGE/ Pi0 DET (32) 13
DOOR LOCK RELAY MUTE2 &
(SEE PROGRAM 77-l DER (7) 14 0
PIOU/PEPU PIN
NUMBERS
25PAIR CABLE MUSIC
SOURCE
NOTE:
Only one optional interface PCB (PIOU, PIOUS, or PEPU)
allowed per system.
PIOUS MDF EXTERNAL
TBl PAGING AMP
,_. . -.\NE SPT -J i$ z
NIGHT RING
AND PAGE /.-- KSU BAcKPI 1
FROM KSU b.??ii 5
BACKPLANE SPR 6f$
~_ ” 2
PI0 DET--I- :,g;
DER “,’
MUTE2 1
gd 0
f
/
EXTERNAL PAGE/
DOOR LOCK RELAY
(SEE PROGRAM 77-l)
FIGURE 8-14-PAGE AND BGM USING SAMEAMPLlFlER(PIOU/PIOUS/PEPU)
8-29

INSTALLATION-PERIPHERALS
SECTION 200-096-208
FEBRUARY1991
NIGHT
RINGING
AND/OR
66 BLOCK
PIN NUMBERS
PIOU JACKETED
_------ --- 1 -/ TWISTED PAIR
B 24 AWG
30 A-
Kl I PGOUTI (15)
/
l 1 PGIN 1 (40) 2g c ZONE 1
M I
B I
0 I
, PGOUT 2 (17) 34 A
K2 1 PGIN 2 (42) 1 133
I
-
K3
I
1 PGOUT4 (21) 42 A
FROM -
KSU
BACKPLANE
--
ZONE 2
ZONE 3
1 K4 ," ’ PGIN 4 (46) 1 141 1 lc 11 IZONE
PAGE ----. I +-IllC A I \ I , ,--
” I I
I
I PG
1 COMMON (23) 46
MUSIC AMP
__-- 1
I /-
PIOU PIN NUMBERS () BGM
25.PAIR CABLE MUSIC
SOURCE
(TO EXTERNAL
SPEAKER ONLY)
NIGHT RINGING PROGRAM ASSIGNMENTS
(SEE PARAGRAPH 11 OF SECTION 200-096-208)
SPEAKER
COMMON
LINE
OPTIONAL
CONNECTION
I
Program 77-1 Zone/ LED ON
I
LED OFF
Key/LED Relay Assignment Assignment I
1 1 K4 1 Tenant 2 COs 1 Tenant 1 COs 1
K3 1 Tenant 2 COs 1 Tenant 1 COs 1
11 K2
10 Kl
Tenant 2 COs Tenant 1 COs
Tenant 2 COs Tenant 1 COs
NOTE:
See Paragraphs 6 and 11 for zone pacling installation instructions.
FIGURE 8-15-PIOU ZONE, PAGE/BGM/NIGHT RlNG(SEPARATEAMPLIFIERS)
8-30

INSTALLATION-PERIPHERALS
SECTION 200-096-208
FEBRUARY1991
MDF PIN NUMBERS
1
-i
JACKETED
J
PAGE ACCES!
TWISTED PAIR
24 AWG CODES ( ):
PGOUT 1 (15) 30
1 PGIN 1 (40) 29 ZONE 1
(35)
66 BLOCK
PIOU
ZONE 2
(36)
ZONE 3
(37)
ZONE 4
(38)
ALL ZONFS
SPT (38)
SPR (13)
0
(39)
25
26
PIOU PIN NUMBERS ( )
25PAIR CABLES
I
FlGURE8-16-PAGING WITH MULTIPLEAMPLIFIERS
8-31

INSTALLATION-PERIPHERALS
SECTION 200-096-208
FEBRUARY1991
PIOU
66 BLOCK
PIN NUMBERS
PAGE ACCESS
CODES ( ):
ZONE1 ’
(35)
ZONE 2
(36) ALL
) ZONES
(39)
ZONE 3
(37)
I
PGOUT 4 (21) 42 I Al
K4 I PGIN 4 (46) 41 I c ZONE 4
M
PAGE AND j PAGING AMP 1 (38) ’
NIGHT RING : SPT (38) 25 ” z ,A (A) SPEAKER
e 1 COMMON
60052 SPR (13) 26 4 : LINE
5” ; W
PG ‘I
COMMON (23) 46
I____.._______---___---~~.....-.-.--.....--...-----
BREAK PI1
j (JUMPER WIRE) i
NHT (34) 17 j
I c \ I ,.,
~~~~~~~~......~_________________________~~~~~ I
NIGHT RELAY
PROGRAMMING:
PIOU Plkl NUMBERS ( )
25.PAIR CABLE
77-1: LED 05, OFF.
LED 06, ON.
78: ENABLE CO LINES TO NIGHT RING
OVER EXTERNAL PAGE.
77-i: LED 08, ON. FOR DOOR PHONE
NOTES: NIGHT RING OVER PAGE.
1. Page signal path - - - -
2. Nightringsignalpath ----------.
3. Background music over zone page is not possible with this configuration.
4. Available with PIOU only: not PEPU or PIOUS.
5. Night ringing will be sent to all zones; selected zones are not possible.
FIGUREa-17-NIGHTRINGING OVEREXTERNALZONEPAGE
8-32

INSTALLATION-PERIPHERALS
SECTION 200-096-208
FEBRUARY1991
0 7 / 0 6 / 9 0 <DD/MM/YY, EVERY FIFTY CALL RECORDS> .
01 205 08:14 00:00;22 123456987 456789
01 MODM
08:15 00:00;18 0O;OO <DlSACALLTOlMDU>
03 200 08:16 00:00;28 00;08 202
0
3
D I SA
0 8 : 16 0 0 : 0 0 ; 15 <OUTGOING DISA ACCESS BY INCOMING DISA Ol>
0 1 D I SA
0 8 : 17 0 0 : 0 0 ; 2 5 <INCOMING DISA AND ACCESS CO 03 OUTGOING>
03
MSS
08:18 00: 00;12 00;06 205 <205ANSWERSDlSA CALL 12SECONDSAFTERDKDIAL TONE>
03 205 08:19 00:00;22
-
03 202 08:19 00:00;16 First Digit (varies) Last (always this column)
04 200 08:20 00:00;34 12345678912345678965412365
02 200 08:22 00:00;22 7 14 5 8 3 3 7 0 0 First Digit (varies) Last
01 205 08:23 00:00;40 7145833700 123456789456321
*
*
$ F
'I
%
ij
LL
Account Code
(4-15 digits)
- Outgoing Telephone Number (l-26 digits)
Station to which the CO Line was transferred (1-4 digits)
CO Line Incoming Ring Duration Before Answer (MM:SS)
Call Duration (HH:MM:SS, see Note 1)
- Time of Day (HH:MM; hour and minute the call was released)
- Station Number (l-4 digits; see Note 2)
CO Line Number (01-36)
NOTES:
1. Call Duration (incoming, outgoing, or transfer) must be 10 seconds (minimum)
to generate a call record printout.
2. MSS: Is a Direct-inward (DISA) CO call to a station that is not answered; or, answered after
IO seconds. If a station answers a DISA call before 10 seconds elapse, the call will register
as a normal incoming call. DISA calls always register 05- 06 seconds ring before answer duration time.
MODM: Is a call to the IMDU, Remote Maintenance Modem.
DISA: Direct-inward (DISA) call thru the system via CO to CO connection.
* 3. Field column information is provided for SMDR output formatting purposes.
4. The call record data is ASCII formatted, 8 bits; no parity, 1 -stop bit.
5. Special dial printout:
Tone = “T”
Long pause = “L”
Flash = ‘IF”
Pause = YV
FlGURE8-18-SMDRPRINTOUTEXAMPLES ,
8-33

INSTALLATION-PERIPHERALS
SECTION 200-096-208
FEBRUARY1991
BASIC CONNECTION .
DB25
PIOU
PI&S
Modular
Cord,(7 ft. max) yaty, \
\r
Printer
or Call
Accounting
Device
SADR 56 ft. max
Modular 24 A WG Wire /y
Jack Twisted Pair Toshiba
Modularized PPTCIA-SM,
RS232, Modular
DATA FORMAT:
l
ASCII
l
8-bits
l
No parity
l
l-stop bit
to DB25 Adaptor
BASIC WIRING (see: PIOU or PIOUS TTY and SMDR Wiring in Chapter 9 for more detail)
PIOU, SMDR Jack PPTCl A-5M Adaptor RS-232
Modular Pin No. Modular Pin No. DB25 Pin No. Lead Name
1 To - 6 To - 3 RD
2
To - 5 To - 2 TD
3 To - 4 To - 6 DSR
4 To - 3 To - 20 DTR
5 To -
2
To - 8 CD
6 To - 1 To - 7 SG
4 Jumper to 5 RTS to CTS
FlGURE8-19-PIOU/PIOUSSMDRCABLECONNECTlONS
8-34

INSTALLATION-PERIPHERALS
SECTION 200-096-208
FEBRUARY1991
.
CO LINE NUMBERS
81
81
81
81
81
81
81
T
/ 40 33 32 25
00 11111111 11111111
01 00000000 00000000
02 00000000 00000000
03 00000000 00000000
04 00000000 00000000
05 00000000 00000000
06 00000000 00000000
t CO LINE 36
STATION PORT NUMBERS
24 17 16 9
11111111 11111111
00000000 00000000
00000000 00000000
00000000 00000000
00000000 00000000
00000000 00000000
00000000 00000000
8
11
00
\
14- (CO LINE)
llllll- U-EDs ON)
oooooo- WEDS OFF)
00000000
00000000
00000000
00000000
00000000
L
CO LINE 01
L
PROGRAM NUMBER
NOTES:
1. In this example all lines are programmed to immediately ring the station at port 00 only,
2. CO lines 37-40
are not
used.
3. 0 = LED off, I = LED on.
FlGURE8-20-PIOU/PIOUSTTYPORT(PROGRAM97)DATADUMPEXAMPLE
I
8-35

INSTALLATION-PERIPHERALS
SECTION 200-096-208
FEBRUARY 1991
BASIC CONNECTION
DB25
PIOU
P&S
3-pair Plug Line Side of
External Modem Dedicated PSTU
ASCII Terminal J Port (T&R) or
7
2
or Direct to
_ External Modem f Dedicated
TTY 50 ft. max
Central Office
Modular 24 A WG Wire T&R Connection
Toshiba of External
Line (T&R)
Jack Twisted Pair
Modularized PPTCIA-SM, 2 Modem Only
RS232, Modular
l
7-bits
to DB25 Adaptor
l
Even parity
l
l-stop bit
L
ASCII TERMIN
BASIC WIRING
\L
(see: PIOU/PIOUS TTY and SMDR Wiring in Chapter 9 for more detail)
I I
PIOU, SMDR Jack PPTCI A-5M Adaptor
,-I RS-232
Modular Pin No. Modular Pin No. DB2.5 Pin No. / Lead Name
1 To - 6 To - 3 1 RD
2 To - 5 To - 2 TD
3 To - 4 To - 6 DSR
4 To - 3 To - 20 DTR
5 To - 2 To -
a
CD
6 To - 1 To - 7 SG
1 4Jumperto5 1 RTS to CTS
EXTERNAL MODEM
BASIC WIRING (see: PIOU/PIOUS TTY and SMDR Wiring in Chapter 9 for more detail)
PIOU, SMDR Jack PPTCl A-5M Adaptor ~ RS-232
“““‘la;; Modular’l
3 To - 4 To -
4 To - 3 To -
5To- / 2 To -
6 To - 1 To -
t DB25 Pin No. / Lead Name
G++
:
4 Jumper to 5 RTS to CTS
I
IMPORTANT:
* PPTClA-SM, pins 2 & 3 must be reversed
in the field, as shown, for modem connection.
FIGURE 8-21-PIOU/PIOUS (TTY) MAINTENANCE PORT (EXTERNAL MODEM OR ASCII-TERMINAL)
8-36

INSTALLATION-PERIPHERALS
SECTION 200-096-208
FEBRUARY 1991
3
.
PCTU NOTE:
PCo:US
The CRCU (-4 or -8) must be installed on the
PCTU or PCTlJSl to allow VM DTMF dialing.
p!GzEq
VOICE MAIL/AUTO ATTENDANT
I
I I MDF MACHINE
PSTU (CKT l-8)
PESU (CiiT 1 & 2) 4
25.PIN CABLE
(8 CIRCUITS PER PSTUJ
(2 CIRCUITS PER PEW)
PSTUPESU CIRCUIT TIP & RING
(1 PAIR PER PORT)
FIGURE 8-22-VOICE MAIL/AUTO ATTENDANT BLOCK DIAGRAM
PIOU PIN NUMBERS () 66 BLOCK
PIOU PCB 25PAIR CABLE MDF PIN NUMBERS
N.C. ~ ALMT (36) 21
ALARM 4 FACILITY
P12 SENSOR ALMR (11) ALARM
22 SYSTEM
N.O. 25.PAIR
CABLE
PIOUS PCB TWISTED
PAIR
ORMAL CLOSE
FIGURE 8-23-ALARM SENSOR BLOCK DIAGRAM (PIOU/PIOUS)
8-37

INSTALLATION-PERIPHERALS
SECTION 200-096-208
FEBRUARY 1991
- ONE WALL
MOUNTING
HOLE
Mount the HESB to a wall or vertical surface in
accordance with the following steps:
1) Find a suitable location on the mounting
surface for the HESB.
2) Screw a 1.25inch panhead wood screw
into the mounting surface.
3) Hang the HESB from the screw in the
mounting surface.
FIGURE 8-24-HESB WALL MOUNTING
11 NIGHT RINGING OVER EXTERNAL
ZONE PAGE (RELEASE 3)
11.00
In systems shared by two tenants, each
tenant’s CO lines can be assigned to night ring
separate PIOU external page zones (Figure 8-25).
This feature can also be used in one-tenant systems.
11.01
With shared systems, for example, tenant
l’s night ringing CO lines could be programmed to
ring PIOU external page zones 1 and 2, while
tenant 2’s lines could be programmed to ring zones
3 and 4. In non-shared systems, night ringing CO
lines can be assigned to ring all of the zones or just
selected zones.
11.02
The following programs must be used to
assign CO lines to ring selected PIOU page zones:
l
Program 78-1:
Assigns CO lines, tenant 1 and
tenant 2, that will night ring over PIOU external
page zones.
l
Program 15-5:
Assigns CO lines to tenant
tenant 2. Lines are initialized as tenant 1. 1 or
l
Program 77-1 (LEDs
10 w 13): Assigns tenant 1
and tenant 2 CO lines to night ring specific PIOU
external page zones.
l
Program
39: Assigns appropriate
q
, m
(tenant I), and m (tenant 2) buttons to elec-
tronic and digital telephones.
NOTES:
I. See Paragraph 6 and Figure 8- 15 for PIOU
zone paging ins talla tion instructions.
2. Any sta tion can pick up CO lines that night
ring over external page zones by dialing
IlmB
12 DATA INTERFACE UNIT
INSTALLATION (RELEASE 3)
12.00 General
12.01 Release
3 provides two types of Data Inter-
face Units (DIUs) that enable digital telephone
users to simultaneously transmit and receive data
on the same PDKU station port and wire pair while
communicating on a voice call. One unit, called the
integrated DIU (PDIU-DI), becomes part of the
digital telephone, replacing the telephone’s base;
the other unit, is a small self-contained unit called
the stand-alone DIU (PDIU-DS). Each DIU is
powered by the PDKU it is connected to; therefore,
no external power is required.
12.02 Both DlUs can be connected to standard
Electronic Industries Association (EIA) RS-232
asynchronous serial data devices. EIA devices are
divided into two categories: data communication
equipment (DCE) and data terminal equipment
(DTE). Common DCE devices are modems and
some printers; common DTE devices are personal
computers, ASCII terminals, and some printers.
The PDIU-DI operates like a DCE and connects
directly to DTE devices using standard RS-232
cables. Depending on how its internal jumper plugs
are configured, the PDIU-DS can either operate
like a DTE and connect to DCE devices; or operate
like a DCE device and connect to a DTE device. In
most applications, DTE and,DCE devices exchange
data between each other via the standard RS-232
cable connection.
8-38

12.03 DlUs can function with DCE and DTE de-
vices at data speeds of up to 19.2 kbps. However,
keyboard dialing using AT commands (from a PC
or terminal connected to a DIU) is limited to 9600
bps. A speed of 19.2 kbps can be achieved when
dialing from a PDIU-DI-equipped digital telephone
dialpad, but many PC software programs do not yet
handle 19.2 kbps in an error-free manner. DIU data
transmisssion speed is set by the first ATcommand
that the DIU receives once it is in the command
state; if manual dialing or receiving calls in the auto
answer (default) mode, the transmission speed is
transparent.
IMPORTANT NOTE!
To use the PDIU-DI or PDIU-DS with AT
commands, communications software or a
PC program that performs terminal emula-
tion must be used. A Tcommands cannot be
issued from the computer’s operating sys-
tem prompt.
12.10 Common DIU Connections
12.11
The block diagram in Figure 8-25 illustrates
common DIU connections. In this example, PDIU-
Dls are connected to personal computers (PC1 and
PC2), and PDIU-DSs are connected to a serial
printer and modems. The personal computer users
can transfer files internally, print files on the same
printer, and access the modem pool to send/re-
ceive data to/from an external personal computer
or dial up data service.
12.12 To access these devices, a data call connec-
tion must be established between the DIUs. This is
accomplished by dialing the destination DIU from a
digital telephone dialpad or from a PC keyboard
using standard AT dial commands. PDIU-Dls share
the same intercom numbers/ports with the digital
telephone to which they are connected, while PDIU-
DSs have their own. The INT and DATA LEDs on the
digital telephone tell the system whether a voice or
data call is being made: the INT LED, voice calls; and
the DATA LED initiates data calls. When dialing from
a keyboard with AT commands, B 0 1 is typed for
voice calls, and 10 m w for data calls.
12.13
Installation instructions for these devices
are provided in Paragraphs
12.40
thru
12.70.
Call
INSTALLATION-PERIPHERALS
SECTION 206-096-208
FEBRUARY1991
paths and scenarios for five types of data test calls
are provided in Paragraphs 12.82 N 12.86. Step-by-
step data calling procedures are provided in the
Data Interface User Guide in the Installation &
Maintenance Manual, Operating Procedures.
12.20 EIA Interface Leads (Signals)
12.21
Both DlUs operate with the ten standard EIA
RS-232 interface leads (signals) on which signal-
ing data is transmitted and received. DlUs connect
to serial data devices with standard RS-232 cables,
available from telephone supply stores (see Fig-
ures 8-29 m 8-34). The PDIU-DVPDIU-DS requires
ten signals for some applications, but can function
with eight using modular cords and connectors with
RJ45/DB25 adapters for other applications. If un-
certain which signals are necessary for an applica-
tion, all ten should be connected.
IMPORTANT NOTES!
1. The PDIU-DI is always a DCE device;
the PDIU-DS may be a DTE or DCE,
depending on how its internal jumpers
(I- 9) are configured (see Figure 8-28).
2. In the descriptions below, when a sig-
nal is ON, its potential is
about
seven
volts positive relative to signal ground
(pin 7); when a signal is OFF, it is about
7 volts negative relative to the signal
ground (pin 7).
l
Frame Ground (FG, Pin 1):
The FG signal (EIA
circuit AA) is a protective or safety ground which
is bonded to the PDIU-DI/PDIU-DS PCB. If re-
quired by local codes, the FG should be con-
nected to external ground.
l
Signal Ground (SG, Pin
7): The SG signal (EIA
circuit AB) establishes the common ground ref-
erence for all other PDIU and data device signals
and must be wired for all applications.
l
Transmit Data (TD, Pin
2): DTE devices trans-
mit and DCE devices receive data on the TD lead
(EIA circuit BA). Before the DTE device can
transmit the TD signal, the RTS, CTS, DSR, and
DTR signals (all discussed below) must be ON.
The TD signal is OFF in the idle state.
l
Receive Data (RD, Pi’n 3):
The DCE -device
transmits data to the DTE device on the RD lead
(EIAcircuit BB); the DTE receives dataon the RD.
8-39

INSTALLATION-PERIPHERALS
SECTION 200-096-208
FEBRUARY1991
l
Request to Send (RTS, Pin
4): Some DTE de-
vices send an RTS signal (EIA circuit CA) to the
DCE devicewhen they are ready to transmit data
on the TD lead. If the DTE device does not
generate the RTS signal, the DIU DIP switch
SWI-4
should be set ON to inform the DIU.
Sometimes, the DTE/DCE device may use RTS/
CTS for Ready/Busy type flow control, in these
cases DIP switch
SWI-4
should be OFF (see
Figure 8-26 for DIP switch information).
l
Clear to Send (CTS, Pin 5):
The DCE device
sends the CTS signal (EIA circuit CB) which
indicates that it is prepared to transmit data to the
line side. The DCE device sends this signal only
when it receives the RTS signal from the DTE
device. Sometimes, the DTE/DCE device may
use RTS/CTS for Ready/Busy type flow control;
in these cases, dip switch
SWI-4
should be OFF
(see Figure 8-26 for DIP switch information).
l
Data Set Ready (DSR, Pin
6): When connected
to the communication channel and prepared to
exchange control characters to initiate data
transmission, the DCE device sends the DSR
signal (EIA circuit CC) to the DTE device. If the
PDIU DIP switch
SWI-2
is set ON, DSR will be
ON continuously; if the switch is set OFF, DSR
follows DTR (if DSR is ON, DTR is ON, etc.)
SW1
-2 should be OFF in most cases (see Figure
8-26 for DIP switch information).
l
Data Carrier Detect (DCD, Pin 8):
The DCE
device sends the DCD signal (DCD, Pin 8) when
receiving the carrier signal on the line side.
Before transmitting or receiving data, most DTE
devices require that the DCD be ON. If the carrier
signal is removed by the remote end or lost due
to a fault condition on the line, the DCE notifies
the DTE device by an OFF condition with the
DCD signal; PDIU DIP switch
SWI-2
is set ON to
set the DCD ON continuously; if set OFF, the
DCD signal will only be ON when connection
between two DlUs is established and OFF when
aconnection is not established.
SWI-2
isset OFF
when the DTE/DCE uses the DTR/DSR signals
for Ready/Busy flow control (see Figure 8-26 for
DIP switch information).
l
Data Terminal Ready (DTR, Pin
20): The DTE
device sends the DTR signal (EIA circuit CD) to
the DCE device, prompting the DCE device to
open the communication line. The line is closed
and the call disconnected when the DTE device
quits sending the DTR signal. DTR may be sent
any time to indicate that the DTE is ready to
transmitorreceivedata.DIPswitchSWl-ishould
be set OFF in most cases (see Figure 8-26 for
DIP switch information).
l
Ring Indicator (RI, Pin
22): The RI signal (EIA
circuit CE) is sent by the DCE device to the DTE
device. Whenever the DCE device receives a
ringing signal on the line side, it turns the RI
signal ON. If DIU DIP switch
SWI-3
is set ON,
the RI signal will be on continuously if ringing; if
the switch is set OFF, the RI signal will be one
second ON/three seconds OFF when the DIU
detects ringing signal.
12.30 DIP Switch Options
12.31
The PDIU-DI and the PDIU-DS each have a
four-control DIP switch which can be configured for
signaling options. The switch is located on the
bottom of the PDIU-DI, and on the back panel of the
PDIU-DS (see Figure 8-26).
l SWI-1
: Normally this switch is set ON to discon-
nect devices from DlUs automatically. The con-
nection is maintained if data is exchanged be-
tween the device and the DIU within eight to nine
second intervals. If
SWI-1
is OFF on the called
and calling DIU, data calls will remain connected
until released manually.
IMPORTANT NOTE!
SWl-1 ON, auto disconnect, is in effect
only for D/Us that have AT commands
enabled in Program 20 (LED 02 ON).
l
SWI-2:
This switch is placed in the ON position
when the PDIU-DI (or PDIU-DS configured like a
DCE) must hold DCD and DSR ON continu-
ously. If
SWI-2
is OFF, DSR follows DTR and
DCD will be ON only when the DIU is connected
on a data call to another DIU.
SWI-2
should be
OFF on a DIU when it is connected to a personal
computer that uses a communications software
program to establish data calls with AT com-
mands.
l
SWI-3:The PDIU-DI (or PDIU-DSconfiguredas
a DCE) sends the Ring Indicate (RI) signal to the
computer to tell the computer (DTE) that the
PDIU isreceivinganincomingcall.SWl-3should
be ON for the DIU to send RI steady, and OFF to
send at one second ON/three seconds OFF in-
tervals.
8-40

INSTALLATION-PERIPHERALS
SECTION 200-096-208
FEBRUARY1991
l
SWI-4:
This switch is placed in the ON position
if the computer does not output the RTS signal.
Sometimes, the DTE device may use RTSKTS
for Ready/Busy flow control, in these cases
SWl-4
should be OFF. In this case the DCD
signal of the calling DTE is used as the RTS lead
of the called DTE and the DCD signal of the
called DTE is used as the RTS signal of the other
DTE. In this case a signal which stops the DTE
from transmitting data (usually the CTS lead)
should be cross-connected to the DIU’s DCD
signal. Consult the DTE device or application
software documentation to determine which type
of flow control is required.
12.40 PDIU-DI to Personal Computer (PC) In-
stallation
12.41
The PDIU-DI always functions as a DCE
device; it transmits data on the Receive Data lead
(RD) and receives data on the Transmit Data lead
(TD). Most personal computers function as a DTE
device; PCs transmit data on the TD lead and
receive data on the RD lead. Follow the steps below
to install the PDIU-DI to a DTE, PC:
NOTES:
1. Use the steps below when installing an
ASCII terminal, personal computer, or any
other DTE device to a PDIU-DI.
2. The PDIU-DI can connect to a DCE
computer or any other DCE-type device
using a specially configured W-232 cable
or adapter; but this application is rarely
required.
1) Install the digital telephone that is to be
equipped with PDIU-DI per the instructions in
Section 200-096-207 and the drawing in Sec-
tion 200-096-209.
2) Install the PDIU-DI under the digital telephone
per the instructions in Section 200-096-207.
NOTE:
The PDIU-DI always operates as a DCE de-
vice; therefore, unlike the PDIU-DS, it has no
internal jumpers.
3) Connect the appropriate RS-232 cable be-
tween the PDIU-Dl’s DB-25female connector
and the PC’s appropriate asynchronous serial
communications port connector (C‘OM port).
IMPORTANT NOTE!
Check the PC manufacturer’s serial com-
munica tion port interface documentation
for correct RS-232 pin requirements; re-
quirements vary with each manufacturer.
The number of ElA RS232signals required
(8, 9, or IO wires) depends on the applica-
tion. When EIA signal requirements are not
known, connect the 10 EIA signals listedin
Paragraph 12.20. Figures 8-29 and 8-30
provide diagrams for connecting RS-232
cables between PDIU-Dls and Toshiba lap
top, and IBM, XT and AT PCs.
4) SetthePDIU-DI DIPswitch
(SWl-I-4)forthe
desired application. Figure 8-26 shows the
DIP switch locations and Paragraph 12.30
describes switch functions.
5)
Access
Program
20 to configure the PDIU-DI
for DTE-type connection and
Program 39
for
data button assignments of the digital tele-
phone connected to the PDIU-DI.
Program 20
l
The port number entered for the PDIU-DI
in
Program
20 is the port number of the
digital telephone to which the PDIU-DI is
connected.
l
LED 01:
Should always be ON for PDIU-
DI ports.
l
LED
02: Should be ON for PDIU-DI ports,
unless the PC user will never use DIU AT
commands (other than ATDD, ATDT,
and ATD) and never require the PDIU-DI
to send result codes to display on the PC
display screen. Frequently, it is difficult to
determine the full extent of these re-
quirements; so it is recommended to turn
LED 02 ON. See the Data Interface User
Guidein the Operating Procedures of the
Installation and Maintenance Manualfor
information regarding D!U ATcommands
and result codes.
l
LEDs
03
and
04: Should be OFF for
PDIU-DI ports.
8-41

INSTALLATION-PERIPHERALS
SECTION 200-096-208
FEBRUARY1991
l
LED
05: Should be ON if the system is
installed behind a PBX or Centrex that
uses access codes to make external
calls or to insert a pause following DIU
access of an outside line.
l
LEDs 17
m 20: Used to establish data
security groups. PDIU stations are only
allowed to make calls to PDlUs in the
same data group to which they are as-
signed.
Program 39
l
The following data call buttons can be
assigned digital telephones equipped with
and mm.
buttons to data
devices as required. Do not assign m
buttons to data devices; m buttons are
used for voice calls only.
12.50 PDIU-DS To Printer Installation
12.51 The STRATA DK
(Release
3) enables serial
printers (laser, dot matrix, or other types) to be
connectedtostand-alonedatainterfaceunits(PDIU-
DSs). Digital telephones equipped with PDIU-Dls
can share access to these printers. Serial printers
operate as DCE or DTE devices, depending on the
vendor; the PDIU-DS can be connected to either
type, since it can be configured as a DTE or DCE
device. (The PDIU-DS comes from the factory
configured as a DCE device.) Follow the steps
below to install the PDIU-DS to a serial printer.
NOTES:
1. Only serial printers (not parallel) that con-
form to EIA RS-232signaling requirements
can be connected to PDIU-DSs.
2. In rare applications, it may be desired to
connectprinters to PDIU-Dls. Refer to the
printer’s ins talla tion instructions.
1) Consult theserial printer’s documentation and
determine if the printer operates as a DCE or
DTE device:
l
If the printer is a DCE device: Disas-
semble the PDIU-DS and configure it to
operate like a DTE device by placing the
jumper plugs
(PI - P9)
in the “B-C” (MO-
DEM) position. Reassemble the PDIU-
DS, and mark “B-C” on the bottom iden-
tification label for future reference. (Para-
graph 12.70 provides PDIU-DS disas-
sembly/assembly instructions, and Figure
8-28 provides jumper plug information.)
l
If the printer is a DTE device: It may not
be necessary to disassemble the PDIU-
DS, since it comes direct from the factory
configured as a DCE device. However, if
uncertain, disassemble the PDIU-DS and
verify that jumper plugs
(Pl - P9)
are in
the “A-B” (DTE) position. Reassemble
the PDIU-DS and mark “A-B” on the
bottom identification label for future ref-
erence. (Paragraph
12.70
provides PDIU-
DS disassembly/assembly instructions,
and Figure 8-28 provides jumper plug
information.)
2) Connect the PDIU-DS to the appropriate PDKU
circuit perwiring diagrams in Section 200-096-
209 and information provided in Section 200-
096-207.
3) Connect the appropriate RS-232 cable be-
tween the printer and the PDIU-DS (see Fig-
ure 8-31 for an example printer cable connec-
tion).
4) If steps 2 and 3 are done properly, the Power
and Ready LEDs on the PDIU-DS should light
when the printer is turned on and ready.
5) Set the PDIU-DS DIP switch
(SWI-1 - 4)
for
the desired application. Figure 8-26 shows the
DIP switch locations and Paragraph 12.30
describes switch functions.
IMPORTANT NOTE!
Check the printer’s serial documentation
for correct RS-232 pin requirements. The
requirements vary with each manufacturer.
6)
Use
Program
20 to configure the PDIU-DS to
connect to a serial printer (see Pogramming
Section 200-096-302 for instructions and
record sheets).
l
LED 01:
Should al’ways be-ON for PDIU-
DS ports.
8-42

INSTALLATION-PERIPHERALS
SECTION 200-096-208
FEBRUARY1991
l
LED
02: Should be OFF for PDIU-DS
ports connected to printers.
l
LED 03:
Should be OFF for PDIU-DS
ports that connect to DTE- or DCE-type
printers.
l
LED 04:
Should always be ON for PDIU-
DS ports.
l
LED
05: Should be OFF for PDIU-DS
ports connected to printers.
l
LEDs
17 -, 20: Data security groups can
be used to allow or deny digital telephones
equippedwith PDIU-Dlsaccessto PDIU-
DS ports connected to a printer. DIU
stations can only make datacalls to DlUs
in the same data security group.
7) Program
22should be used to configure PDIU-
DSs to hunt if more than one PDIU-DS con-
nected to the same printer/server.
lines and modems, it is recommended to connect
modems to PSTU/PESU standard station ports in
a modem pool configuration. The RS-232 side of
the modem connects to the PDIU-DSwith standard
RS-232 cables; the PDIU-DS line side (RJ-11 con-
nector) always connects to its own individual PDKU
port. Use the instructions below to install modems
to PDIU-DSs.
1) Configure the PDIU-DS as a DTE device:
Disassemble the PDIU-DS and place jumper
plugs
Pl
y
P9
in the”B-C’position (MODEM).
Reassemble the PDIU-DS and mark “B-C” on
the bottom identification label for future refer-
ence. (Paragraph 12.70 provides PDIU-DS
disassembly/assembly instructions and Fig-
ure 8-28 provides jumper plug information.)
2) Connect the PDIU-DS to the appropriate PDKU
circuit per the wiring diagrams in Section 200-
12.60 PDIU-DS To Modem Installation
12.61
With
Release
3 software, STRATA DK en-
ables asynchronous-type (not synchronous) mo-
dems to be connected to PDIU-DSs. This allows
PDIU-DI equipped digital telephones that are con-
nected to personal computers, terminals, and other
devices to share access to a modem or modem
pool.
IMPORTANT NOTE!
Modems must be “smart modems” that
respond to ATcommandsandreturn result
codes. Modems are customer-supplied.
12.62 A modem(s) can be accessed internally for
outgoing data calls or externally for incoming data
calls. Modems operate as DCE devices; so PDIU-
DSs that are connected to them must be configured
to operate like a DTE device. In the example
installation in Figure 8-25, the line side of the two
modems are connected to PSTU/PESU ports to
establish a modem pool; however, the line side of
modems could be connected directly to a dedicated
CO line. If modems are connected directly to tele-
phone network CO lines, automatic transfer of CO
line voice calls to system modems (data call) will
not function as described in the Data Interface User
Guide. For best operation and utilization of CO
096-209.
3) Connect the appropriate RS-232 cable be-
tween the modem and the PDIU-DS. Figure8-
32 shows an example PDIU-DS to “smart
modem” RS-232 connection.
IMPORTANT NOTE!
All ten PDIU-DS EIA leads (signals) should
be connected to the modem. Consult the
modem’s documentation for correct RS-
232 pin requirements; the requirements
may vary with each manufacturer.
4) Connect the line side of the modem to a PSTU
or PESU standard telephone circuit or a
dedicated CO line (consult the modem’s
documentation to install the it to a CO line).
Section 200-096-209 provides PESU/PSTU
station port wiring information.
5) Set the PDIU-DS DIP switch
(SWl-1 - 4)
for
thedesiredapplication. Figure8-26shows the
DIP switch location and Paragraph 12.30
describes switch functions.
6) Use the programs below to configure the
PDIU-DS to connect to an asynchronous
modem (see programming Section 200-096-
302 for explanations and record sheets).
8-43

INSTALLATION-PERIPHERALS
SECTION 200-096-208
FEBRUARY1991
Program 20
LED 01:
Should always be ON for PDIU-
DS ports
LEDO2:
Should be ON for PDIU-DS ports
connected to modems, enabling the use
of AT commands and result codes when
incoming calls are made from outside the
system to modems connected to PDIU-
DSs.
LED
03: Should be set ON for PDIU-DS
ports connected to modems.
LED
04: Should always be ON for PDIU-
DS ports.
LED
05: Should be ON if the system is
installed behind a PBX/Centrex that uses
access codes to place outgoing trunk
calls.
LEDs
17 W 20: Data security groups can
be used to allow or deny digital tele-
phones equipped with PDIU-Dls access
to the PDIU-DS ports connected to a
modem. DIU stations can only make data
calls to DlUs in the same data security
group.
Program 21
l
For each PDIU-DS/modem pair, assign
the ports on the PDKU and PSTU (or
PESU) thatwill beconnectedtothe PDIU-
DS and modem, respectively.
Program 22/33
l
If more than one modem/PDIU-DS pair is
configured as a system modem pool, the
PDIU-DSs should be set to hunt each
other in
Program
22. The modem PSTU
or PESU ports should be set to hunt each
other in
Program 33.
Program 31
@ LED 18 should be turned on for all PESU
or PSTU station ports that are connected
to modems. This provides data security
by preventing executive or privacy over-
ride of modem calls.
12.70 PDIU-DS Disassembly and Assembly
12.71
To set the jumper plugs
(Pl - P9)
on the PCS
inside the PDIU-DS for DCE or DTE operation, the
PDIU-DS must be disassembled. Disassemble the
PDIU-DS in accordance with the following steps:
12.72 Disassembling the PDIU-DS
1) Remove the four screws securing the bottom
panel to the rest of the unit (see Figure 8-27).
These screws are not captive; so place to-
gether where they can be easily accessed.
2) Remove the bottom panel.
3) Remove the PCB inside the PDIU-DS by
lifting the back panel from its side grooves.
4) Turn the PCB over and set the jumper plugs
(Pl
N
P9)
as follows:
l
If the PDIU-DS is connected to a DTE,
set the plugs to the “A-B” position.
l
If the PDIU-DS is connected to a DCE
device, set the plugs to the “B-C” posi-
tion.
NOTE:
Do not cut PDIU-DSjumper wires for DKinstal-
lations. Jumper wires are for PERCEPTION
applications on/y.
12.73 Assembling the PDIU-DS
1) Position the back panel to the PCB (see Fig-
ure 8-27).
2) Slide the back panel down into its side grooves.
3) Attach the bottom panel, and secure with the
four non-captive screws.
8-44

INSTALLATION-PERIPHERALS
SECTION 200-096-208
FEBRUARY1991
’ 9PTOP, PC 1
NOTES:
1. KS-232 cable and connector
STRATA DKSU (Release 3)
information is provided in
LrEi 2’ ;igg&ene
9-21.
MDI
DKT/PDIU -- -
-
3. Modem MDF station wiring to
PSTU or PESU is in Section
200-096-209, Figures 9-6 and
9-8.
DIAL-UP
COMPUTER
SERVICE
TELEPHO IS-232’
I-DI
11 1
RS-
RS- --... --
runu
(PORT 03) I
I
PCOU
LINE *
I1
MDF
l-l
n
RS
I i i
I :
MDF3 I I ! :
TELEPHONE
LINE Y
AODEM
‘OOL
1
OR I
PST” I ;
I ,lTr\“l- nn\ I ’
I
MODEMt#~ 1
I i :
RS-
I
PC3
FIGURE&25-STRATA
DKDATAINSTALLATIONEXAMPLEBLOCKDIAGRAM
8-45

INSTALLATION-PERIPHERALS
SECTION 200-096-208
FEBRUARY 1991
PDIU-DI (BOTTOM VIEW)
DIP SWITCH
8 ACCESS FROM BOTTOM
- OUTSIDE OF PDIU-DI
r
DIP SWITCH SWI BACK VIEW
(ACCESS FROM BACK
- OUTSIDE OF PDIU-DS)
n u
DIRECTORY TRAY:
’ REMOVE FROM ORIGINAL ’
TELEPHONE BASE AND
INSTALL ON PDIU-DI BASE
4
3 f n n - q
PDIU-DI DIGITAL TELEPHONE BASE
PDIU-DS (REAR VIEW) I
I
DB25 CONNECTOR (FEMALE) MODULAR
FOR DTE OR DCE RS-232 CONNECTOR
CABLE CONNECTION FOR PDKU LINE
CONNECTION
NOTES: NOTES:
1. DIU port must have
LED 02, ON in Program 20
to enable auto disconnect. -
2. See Paragraphs 12.20
and 12.30 for more details
regarding S WI option
settings.
1. DIU port must have
LED 02, ON in Program 20
to enable auto disconnect.
2. See Paragraphs 12.20
and 12.30 for more details
regarding S WI option
settings.
PDIU-DI AND -DS SW1 DIP SWITCH (1 _ 4) FUNCTIONS
fi
SWITCH FUNCTION INITIAL
POSITION
SW1
(1)
Forced hang up when DIU does not
detect space signal on TD or RD for
about 9 minutes
OFF
ON: enable (auto-disconnect)l
OFF: disable
SW1
(2)
DCD, DSR control
ON: continuous on
OFF: DSR depends on DTR
(DCD is on during
OFF
communication state)
SW1
(3) RI control
ON: RI is on continuously during
ringing state
OFF
OFF: RI is 1 set ON/3 set OFF
during ringing state
SW1
(4)
RTS control
ON: DTE doesn’t have RTS signal
OFF: DIE has RTS signal (ready/busy
flow control: RTS/CTS:DCD)
OFF
FIGURE 8-26-PDIU-DVPDIU-DS SW1 DIP SWITCH INFORMATION FIGURE 8-26-PDIU-DI/PDIU-DS SW1 DIP SWITCH INFORMATION
8-46

INSTALLATION-PERIPHERALS
SECTION 200-096-208
FEBRUARY1991
.
NOTE:
Do not cut jumper wires for
STRATA DK installations.
Jumper wires are for PERCEPTION
applications only.
8-47

INSTALLATION-PERIPHERALS
SECTION 200-096-208
FEBRUARY 1991
PDIU-DS (FRONT VIEW) PDIU-DS (REAR VIEW)
MODULAR JACK
FOR CONNECTING
I- OR 2-PAIR
E FIGURE 8-26 FOR
(1 - 4) OPTIONS
INFORMATION
(SEE PARAGRAPH 12.72)
Pl - P9 LOCATED ON PCB INSIDE
OF PDIU-DS UNIT (SEE NOTES)
n I
RI J
DTR RS-232, DB25
(FEMALE) CONNECTOR
I
SIGNAL DIRECTION
PDIU-DS CONNECTED TO DTE PDIU-DS CONNECTED TO DCE
SIGNAL
ABBREVIATON
SIGNAL NAME/
FUNCTION
FUNCTION:
PDIU-DS SIGNAL A-B
PIN NO. DIRECTION (DTE MODE)
FUNCTION:
SIGNAL B-C
DIRECTION (MODEM MODE)
FG FRAME GROUND 1
SG SIGNAL GROUND 7
TD TRANSMIT DATA
RD I RECEIVE DATA
DTR 1 DATA TERMINAL READY 1 20 1 DTE DIU P3
ND FUNCTION OF PI - P9
MODEM DIU 1 P2
MODEM DIU P6
MODEM DIU I P3
MODEX DIU I P0
MODEM DIU 1 P9
NOTES:
1. Mode select (Pl - P9) ‘A-B” if PDIU-DS IS connected to a terminal-type device (DTE).
2. Mode select (Pl - P9) “B-C” if PDIU-DS is connected to a modem-type device (DCE).
3. See Figure 8-27 to disassemble/assemble PDIU-DI.
4. Some RS-232 leads go by different names depending on the equipment manufacturer.
FIGURE 8-28-PDIU-DS JUMPER PLUG OPTIONWRS-232 CONNECTOR INFORMATION
8-48

INSTALLATION-PERIPHERALS
SECTION 200-096-208
FEBRUARY1991
TOSHIBA LAPTOP OR IBM AT-TYPE
PERSONAL COMPUTER (DTE)
PIN DESIGNATIONS
PDIU-DI
(FUNCTIONS LIKE A DCE)
PIN DESIGNATIONS
CoK:RT
PDIU-DI
123456789 PIN# 1 2 3 4 5 6 7 8 20 22
NAME DCD RD TD DTR SG DSR RTS CTS RI NAME FG TD RD RTS CTS DSR SG DCD DTR RI
Rear view of asynchronous (serial)
communication interface connector (DB9) of Rear view of PDIU-DI DB25,
RS-232 female connector
Toshiba laptop or IBM AT personal computer
CONNECTOR
DB9
FEMALE
CONNECTOR
4
5
22
Pin to pin connections are
confiqured as a straight cable,
not as a null modem cable
(50 ft max, 24AWG;
customer supplied).
NOTES:
7. Some RS-232 E/A leads may be called by other names by some manufacturers.
2. The computer receives data on pin 2 (RD) and sends data on pin 3 (TO). ,
FIGURE 8-29-PDIU-DI TO IBM AT TYPE COMPUTER RS-232 CONNECTOR/CABLE CONNECTIONS
8-49

INSTALLATION-PERIPHERALS
SECTION 200-096-208
FEBRUARY1991
IBM XT PERSONAL COMPUTER
OR ASCII TERMINAL
(FUNCTIONS LIKE A DTE)
DB25 PIN DESIGNATIONS
PDIU-DI
PIN# 1 2 3 4 5 6 7 8 20 22
NAME FG TD RD FITS CTS DSR SG DCD DTR RI
Rear view of personal computer
PDIU-DI
PIN# 1 2 3 4 5 6 7 8 20 22
NAME FG TD RD RTS CTS DSR SG DCD DTR RI
PDIU-DI
(FUNCTIONS LIKE A DCE)
DB25 PIN DESIGNATIONS
RS-232 CABLE
.
DB25 DB25
PIN# NAME PIN #
8 DCD 8
3 RD 3
2 TD 2
20 DTR 20
7 SG 7
6 DSR 6
4 RTS 4
5 CTS 5
22 RI 22
1 FG 1
IBM PC AT modem style (serial)
DB25 to DB2.5 (M/F) E-232
cable (50 ft max, 24 AWG,
customer supplied).
NOTE:
The PC/ASCII terminal receives data on pin 3 (RD) and transmits data on pin 2 (TO).
I
FIGURE 8-30-POIU-DITOIBMXTTYPE COMPUTER, RS-232 CONNECTOR/CABLE CONNECTIONS
8-50

INSTALLATION-PERIPHERALS
SECTION 200-096-208
FEBRUARY1991
TOSHIBA PS321 SL PRINTER
(FUNCTIONS LIKE A DTE)
DB25 PIN DESIGNATIONS
PRINTER
PIN# 1 2 3 4 5 6 7 8 20 22
NAME FG TD RD RTS N/C DSR SG DCD DTR RI
PDIU-DS
(CONFIGURED IN THE “CONNECT TO DTE” MODE:
PI - P9
q
A-B SO PDIU FUNCTIONS LIKE A DCE)
DB25 PIN DESIGNATIONS
PDIU-DS
PIN# 1 2 3 4 5 6 7 8 20 22
NAME FG TD RD RTS CTS DSR SG DCD DTR RI
Rear view of Drinter
(50 ft max, 24 AWG;
customer supplied).
NOTES:
1. The printer receives data on pin 3 (RD) and transmits data on pin 2 (TO).
2. The PDIU-DS should be in the connect to DTE mode (Pl m P9 are strapped A-B),
so that it transmits data on pin 3 (RD) and receives data on pin 2 (TO).
FlGURE8-31-PDIU-DSTOTOSHlBAPRINTER,RS-232CONNECTOR/CABLE CONNECTIONS
8-51

INSTALLATION-PERIPHERALS
SECTION 200-096-208
FEBRUARY 1991
HAYES-TYPE SMART MODEM
(FUNCTIONS LIKE A DCE) PDIU-DS
(CONFIGURED IN THE “CONNECT TO MODEM”
MODE, PI - P9 = B-C, SO IT FUNCTIONS LIKE A DTE)
MODEM PDIU-DS
PIN# 1 2 3 4 5 6 7 8 20 22 PIN# 1 2 3 4 5 6 7 8 20 22
NAME FG TD RD FITS CTS DSR SG DCD DTR RI NAME FG TD RD RTS CTS DSR SG DCD DTR RI
Rear view of modem DB25 connector Rear view of PDIU-DS DB25, connector
W-232 CABLE
(50 ft max, 24 AWG;
customer supplied)
NOTES:
1. Modem receives data on pin 2 (TO) and transmits data on pin 3 (RD).
2. The PDIU-DS must be in the connect to modem mode (Pl - P9 strapped B-C) so that it transmits
data on pin 2 (TO) and receives data on pin 3 (RD).
FIGURE 8-32-PDIU-OS TO HAYES-TYPE SMART MODEM, RS-232 CONNECTOR/CABLE CONNECTIONS
8-52

INSTALLATION-PERIPHERALS
SECTION 200-096-208
FEBRUARY1991
CONNECTION EXAMPLE 1
DIGITAL TELEPHONE
.
TOSHIBA LAPTOP OR IBM AT TYPE
PERSONAL COMPUTER (PC)
PDIU-DI BASE TYPE 1 MODULAR ADAPTER’
TYPE B MODULAR CORD (CROSSED)
(50 ft max, 24AWG)
TYPE 2 MODULAR ADAPTER’
IMPORTANT!
Will not function with applications that require the RI signal to PC.
CONNECTION EXAMPLE 2
DIGITAL TELEPHONE IBM PC OR XT TYPE
PERSONAL COMPUTER (PC)
PDIU-DI BASE MODULAR ADAPTER’
TYPE A MODULAR CORD (STRAIGHT)
(50 ft max, 24AWG)
TYPE 2 MODULAR ADAPTER’
IMPORTANT!
Will not function with applications that require the RI signal to PC.
CONNECTION EXAMPLE 3
TOHSIBA P321 SL OF SIMILAR
STAND-ALONE DIU
I
PDIU-DS
TANDARD TYPE SERIAL PRINTER
TYPE 2 MODULAR ADAPTER’
TYPE A MODULAR CORD’
(50 ft max, 24AWG)
TYPE 2 MODULAR ADAPTER’
NOTES:
1. See Figure 8-34 for detailedpin out information of modular cords and adapters.
2. Never use modular cords and adapters when connecting a PDIU-DI/PDIU-DS to a modem.
3. Connection examples 1 and 2 work when using the PDIU-DI to make calls with personal computer
applications (auto-dialers, printer sharing, outgoing modem calls, etc). If the PC PDIU-DI must receive
calls, the RI lead is normally required; therefore, a standard RS-232 cable must be used (see Figures
8-29 and 8-30).
4. In Connection Example 3, PDIU-DS must be in the connect to DTE mode
(Pl
B
P9,
strapped A-B).
5. All modular cords and adapters are customer-supplied. I
FlGURE8-33-PDIU-DI/PDIU-DS MODULAR CABLE/RJ-45ADAPTER CONNECTIONS
8-53

INSTALLATION-PERIPHERALS
SECTION 200-096-208
FEBRUARY 1991
TYPE 1 0 .
RJ45 TO DB9 (FEMALE) ADAPTER
87654321
8 7 6 5 4 2
1 N/C RJ45
DSR RTS RD DCD TD GND CTS RI LEAD
NAME
6 7 2
b
3 5 8 9
DB9
54321
oo”oooooo
9876
TYPE 2
RJ45 TO DB25 (MALE) ADAPTER
I!3
87654321
8 7 6 5 4 3 2
1 N/C RJ45
CTS SG DTR TD DCD RD RTS DSR RI LEAD
NAME
5 7 2((j 22 DB25
TYPE 3
RJ45 TO DB25 (FEMALE) ADAPTER
L3
87654321
8 7 6 5 4 3 2
1 N/C RJ45
CTS SG DTR TD DCD RD RTS DSR RI LEAD
NAME
5 7 2&iz&j 22 DB25
TYPE A
RJ45 FLAT MODULAR
CORD (STRAIGHT)
RJ45 STRAIGHT THROUGH
FRONT :
:
z
i
RJ45 CROSS PINNING
TYPE B
RJ45 FLAT MODULAR
CORD (CROSSED)
Modular Cords (50 ft max, 24AWG; customer supplied) I
FIGURE 8-34-POIU-DI/PDIU-DS MODULAR CORDS AND RJ-45/RS-232 ADAPTER PIN CONNECTIONS
8-54
i

INSTALLATION-PERIPHERALS
SECTION 200-096-208
FEBRUARY1991
.
LAPTOP PC 1
STRATA DK (Release 3)
LAPTOP PC 2
FlGURE8-35-PCTO PCTESTCALLUSINGATCOMMANDS
12.80 PDIU-DVPDIU-DS
Installation Tests
12.81 Paragraphs 12.82 -+ 12.86 provide tests for
five DIU call applications. The telephone and port
numbers used in these figures are provided for
explanation purposes only; when actually testing,
use port and telephone numbers appropriate for
the system. Each of these tests can be conducted
with manual dialing from adigital telephone’sdialpad
or AT dialing from a personal computer’s keyboard;
however, only the preferred method of dialing for
application is presented. The Data hterface User
Guide in the Operating Procedures section of this
manual has additional information useful for the
tests.
12.82 PC-to-PC Test Call Using AT Commands
(see Figure 8-35)
2) Make sure PC 1 and PC 2 are on-line with a
communications software package and that
the communication parameters of each PC
and communication software package are set
to the same values (data transmission rate,
parity, data bits, stop bits, flow control, etc.).
3) From PC l’s keyboard, type~~~~~~[and
press m (AT commands must be capital
letters).
l
The DATA LEDs will be lit on DKT 200
and 201
l
PC 1 displays, CONNECT XXXX.
l
PC 2 displays, RING.
l
PC 1 and PC 2 are connected as shown
by the thick solid lines. PDIU-Dls are
now in the communication mode.
1) DIU Programming:
l
Program
20: Ports 00 and 01. LEDs 01,
02, and 17 ON; all other LEDs OFF.
l
Program
39: Ports 00 and 01. m (56)
and m (54) buttons should be pro-
vided.
l
Default settings for PDIU-DI S-Registers.
4) Typing from PC 1 keyboard will display on
PC
2 display and vice versa.
5) To terminate the call:
a) Type 1 B 4 from either PC keyboard.
l
The PC screen displays, OK:
b) Type lR[3f rom the PC keyboard used
in step 5a.
8-55

INSTALLATION-PERIPHERALS
SECTION 200-096-208
FEBRUARY1991
STRATA DK (Release 3)
nnne I
RS-
RS-
FlGURE8-36-PCTO PRINTERTESTCALL USING MANUAL DIALING
l
PC 1 and PC 2 screens both display,
NO CARRIER.
l
The Data LEDs on each DKT are off.
12.83 PC to Printer Test Call Using Manual
Dialing (see Figure 8-36)
1) DIU Programming:
l
Program 20: Port 01. LEDs 01, 02, and
17 ON; all other LEDs OFF.
l
Program 20: Port 03. LEDs 01,04, and
17 ON; all other LEDs OFF.
l
Program 39: Port 01. m (56) and
m (54) buttons should be provided.
l
Default settings for PDIU-DI, S-Registers.
2) Make sure the PC is configured to print data
from its serial COM port (the PC COM port
connected to DKT/PDIU-DI port 01). This is
normally accomplished using the DOS and
MODE commands.
3) Using the manufacturer’s documentation,
make sure the communication parameters
(data speed, parity, data bits, stop bits, etc.) of
the PC COM port match the printer’s serial
interface parameters.
4) To connect the PC to the printer, press the
DKT’s m button and dial 111 .
l
The CONNECT on the PDIU-DS will be
lit.
l
The connection between the PC and the
printer is completed, as shown by the
thick lines above (PDIU-DS 203 is in the
communication mode).
l
If busy tone is sent to the DKT, the
connection is not complete; press m
and try step 4 again.
5) Operate the PC to print data as required.
6) To terminate the call, press the DKT’s m
button.
I
8-56

INSTALLATION-PERIPHERALS
SECTION 200-096-208
FEBRUARY 1991
LAPTOP PC 1
STRATA DK (Release 3) 583-3700
7-l
-
TELEPHONE
PC2
FIGURE 8-37-INTERNAL PC TO EXTERNAL PC TEST CALL USING AT COMMANDS
12.84 Internal PC to External PC Test Call Using
AT Commands (see Figure 8-37)
1) DIU Programming:
l
Program
20: Port 00. LEDs 01,02, and
17 ON; all other LEDs OFF.
l
Program
20: Port 04. LEDs 01, 02, 03,
04, and1 7 ON; all other LEDs OFF.
l
Program
21: PDKU port 04 assigned
with PSTU oort 08.
l
Program 39:
Port 00. [iKEI (56), m
(54), and ma (55) buttons should
be provided.
l
Default settings for PDIU-DI and PDIU-
DS S-Registers.
2) Make sure PC 1 and PC 2 are on-line with a
communications software package and that
the communication parameters of each PC
and communication software package are set
to the same values (data transmission rate,
parity, data bits, stop bits, flow control, etc.).
3) From PC l’s keyboard, type1~~~~~~and
press m (AT commands must be capital
letters).
l
The DATA LED on DKT 200 will be lit.
l
The CONNECT LED on PDIU-DS 204
will be lit.
l
The screen on PC 1 displays, CON-
NECT XXXX, where XXXX is the data
transmission speed set by the communi-
cations software.
l
At this time, PC 1 and PDIU-DS 204 are
connected as shown by the thick lines
above (PDIU-DS 204 is in the communi-
cation mode); PC 1 is now linked directly
to the RS-232 side of the internal mo-
dem; PC 1 can issue AT commands to
the internal modem, which is now in the
command mode.
l
If PDKWPDIU-DS port 04 is the only
DIU port connected -to the modem
(Program
20, LED 03 ON), the MODEM
LEDs on all DKTs will be lit.
8-57

INSTALLATION-PERIPHERALS
SECTION 200-096-208
FEBRUARY1991
4) From PC l’s keyboard, type~~~~~~~~~
[[IIiand press=.
l
The internal modem (208) goes off-hook,
dials 701 to seize the CO line, and then
dials the external modem’s telephone
number (674-4700).
l
The external modem rings and auto an-
swers; the modems handshake and es-
tablish communications.
l
If the modems send result codes, the
screen on PC 1 displays, CONNECT
XXXX, where XXXX is the data transmis-
sion speed set by the communication
software.
l
At this time PC 1 and PC 2 are con-
nected, as shown by the thick lines above,
to exchange data (file transfers, type
messages, etc.).
5) To terminate the call:
a) VwEEEf rom either PC keyboard.
l
The PC screen displays, OK.
b) TweWllf rom the PC keyboard used
in step 5a.
l
PC 1 and PC 2 screens both display,
NO CARRIER.
l
The DATA LED on DKT 200 will be
unlit.
\ . ‘,
.i
./
. .
8-58

INSTALLATION-PERIPHERALS
SECTION 200-096-208
FEBRUARY 1991
STRATA DK (Release 3)
INTERNAL
MODEM
(208)
PDKU
(PORT04) -
LAPTOP PC
1
DKT/PDIU-DI
I
I
PC2
FIGURE 8-38-EXTERNAL PC TO INTERNAL PC TEST CALL USING AT COMMANDS
12.85 External PC to Internal PC Test Call Using
AT Commands (see Figure 8-38)
1) DIU Programming:
l
Program
20: Port 00. LEDs 01,02, and1 7
the communication parameters of each PC
and communication software package are set
to the same values (data transmission rate,
parity, data bits, stop bits, flow control, etc.).
0N;all other LEDs OFF.
l
Program
21: PDKU port 04 assigned
l
Program
20: Port 04. LEDs 01, 02, 03,
04, and17 ON; all other LEDs OFF.
3)
b;m PdCp2’s
t 0 an
keyb&, type~~~~~~~~~
ress m.
l
The external modem oriainates the call
l
to STRATA CO line 01. ”
CO line 01 rings incoming to the internal
modem (PSTU port 08).
with PSTU port 08.
l
Program 39:
Port 00. m (56), m
(54), and mra (55) buttons should
be provided.
l
Program 81:
Port 08. LED 01 ON (CO
line 01 rings PSTU port 08).
l
Internal modem: set to auto answer
(SO=l).
l
Default settings for PDIU-DI and PDIU-
DS, S-Registers.
2) Make sure PC 1 and PC 2 are on-line with a
communications software package and that
l
The internal modem rings and auto an-
swers; the modems handshake and es-
tablish communications.
l
If the modems send result codes, the
PC’s screens display, CONNECTXXXX,
where XXXX is the data transmission
speed set by the communications soft-
ware.
l
At this time, PC’2 is connected to PDIU-
DS (204), as shown by the thick lines
above (PDIU-DS 204 is in the command
8-59

INSTALLATION-PERIPHERALS
SECTION 200-096-208
FEBRUARY1991
mode). PC 2 can now issue AT com-
mands to PDIU-DS 204.
l
If PDKWPDIU-DS port 04 is the only
PDIU port connected to a modem
(Pro-
gram
20, LED 03 ON), then the MODEM
LEDs on all DKTs will light.
4) From PC 2’s keyboard, type~~~~~~~and
press= (AT commands must be capital
letters); this prompts PDIU-DS (204) to dial
and connect to PDIU-DI (200).
l
The CONNECT LED on the PDIU-DS
(204) will be lit; the DATA and MODEM
LEDs on DKT 200 will also be lit.
l
The screens on PC 1 and PC 2 display,
CONNECT XXXX, where XXXX is the
data transmission speed set by the com-
munication software.
l
At this time, PC 1 and PC 2 are con-
nected, as shown by the thick lines, to
exchange data (file transfers, typed mes-
sages, etc.).
5) To terminate the call:
a) Type [I 1 from either PC keyboard.
l
The PC screen displays, OK.
b) ~w000f rom the PC keyboard used
in step 5a.
l
PC 1’s and PC 2’s screens both dis-
play, NO CARRIER.
l
The DATA and MODEM LEDs on
DKT 200 will turn off.
-.\,
.I
,
,
..’
8-60

INSTALLATION-PERIPHERALS
SECTlON200-096-208
FEBRUARY1991
LAPTOP PC 2
STRATA DK (Release 3)
DIALED LINE
I
FlGURE8-39-PCAUTO DIALVOICECALLTEST
12.86 PC Auto Dial Voice Call Test (see Figure
8-39)
There are many off-the-shelf, IBM/MS-DOS com-
patible, desktop organizer software packages that
provide an auto dialer function. One of these is the
terminal resident SideKick. It is used in this section
for test explanation purposes only. If you choose
another auto dialer software package, the detailed
response may be different than that shown here.
1) DIU Programming:
Program
20: Port 01. LEDs 01, 02, and 17
ON; all other LEDs OFF.
Program
39: Port 01. m (56) and m
(54) buttons are optional; if the PDIU-DI is
only used for the PC auto dial application, the
m and m buttons are unnecessary.
2) Make sure that the auto dial application soft-
ware is installed on the PC root directory and
that the communication parameters of the PC
and application software are set to the same
values (in this test example, Sidekick
“SKINSTAL” program).
4) To auto dial using Sidekick from the PC key-
board:
a) Press the m and m keys simulta-
neously.
l
The PC screen displays the Sidekick
menu window.
b) Pressm twice (Sidekick prompts “search
for INITials:“todisplayonthe PC’sscreen).
c) Type the initials or name of the person or
oroanization vou wish to auto dial.
d) Press~.
l
Sidekick finds and highlights the de-
sired name/number.
e) Press m again.
l
DKT/PDIU-DI 201 seizes the appro-
priate CO line and auto dials the
selected telephone number.
l
The LEDs of the DKT’smand CO
line 01 buttons will be lit (if assigned
in
Program 39).
l
Dial tone, DTMF tones, and ringback
or busy tones are audible from the
DKT’s speaker.
5) Take the DKT’s handset off-hook at any time
3
#) Make sure that a dialing directory consisting of after the telephone number is dialed (press
names and telephone numbers you wish to the m bar to release the m button
auto dial is installed within the application only); or, remain on-hook and use the DKT’s
software (include the appropriate STRATA speakerphone to talk when the called party
CO line access code prefixing each telephone answers (LCD model only, do not press the
number). m bar when using the speakerphone).
8-61

INSTALLATION-PERIPHERALS
SECTION 200-096-208
FEBRUARY 1991
6) To terminate the call anytime:
a) If off-hook, press the m bar and
place the DKT handset on-hook.
b) If talking via the speakerphone, press the
m bar.
13 TWO-CO LINE EXTERNAL
AMPLIFIED CONFERENCE (RELEASE 3)
13.00 General.
13.01
Customer-supplied two-way amplifiers can
be installed to amplify two-CO line tandem and/or
conference calls. As many as four amplifiers can be
installed to support up to four of these calls occur-
ring simultaneously. If three amplifiers are installed,
three simultaneous calls can be supported, and so
on. If all amplifiers are being used, then subsequent
two-CO line tandem calls and/or conference calls
will be unamplified. Each amplifier is connected to
two designated PEKU station ports and will auto-
matically be switched into a two-CO line connection
established between any CO lines in the system.
13.02 Amplified Talk Path.
Figure 8-40 pro-
vides a functional diagram of a two-CO line
amplified conference connection (an R-TEC
VFR5050 amplifier is used here). The talk
path for the connection is as follows: outside
party 1 -public telephone network-PCOU,
CKTX-PCTU3-PEKU, port A-into AMP,
CKTA-Out AMP, CKT B-PEKU, port B-
PCTU3-PCOU, CKTY-public telephone
network-outside party 2. This path is two-
way so when outside party 2 talks, the talk
level is amplified in the reverse direction.
NOTE:
Only the outside party 1 talk path is amplified
to/from a system telephone when it is con-
nected into a two-CO line conference.
13.03 Amplifier Requirements
l
Customer-supplied (four maximum).
l
Must be FCC-registered, Part 68, and
provide automatic gain control.
l
Each amplifier requires two PEKU sta-
tion ports.
l
Refer to the amplifier manufacturer’s in-
stallation documentation for amplifier
grounding instructions. .
13.04 Installation:
Connect a two-way amplifier to
the STRATA DK system in accordance with the
following steps (see Figures 8-40 and 9-24).
1) At the main distribution frame (MDF), connect
the voice pair (VT, VR, port A) of circuit 2 on
the designated PEKU PCB to one input of the
customer-supplied two-way amplifier. In the
example in Figure 8-40, this is CKTA (Central
Office Side A) of the VFR5050.
2) At the MDF, connect the voice pair (VT, VR,
port B) of circuit 3 on the designated PDKU
PCB to the other input of the amplifier. In the
Figure 8-40 example, this is CKTB (subscriber
side B) of VFR5050.
3) Plug the amplifier’s power cord into the 117
VAC (standard) wall outlet.
4) Set the gain and other amplifier parameters
options per the amplifier manufacturer’s in-
stallation documentation.
5) Program the STRATA DK system as follows:
l
Program 10-3:
Enables the appropriate
PEKU PCB ports for amplifier connec-
tion. Only enable the ports that will be
connected with the amplifier(s).
l
Program 15-5:
Enables appropriate CO
lines for tandem connection.
l
Program IO-I
: LEDs 19 and 20 must be
ON.
l
Program 10-2:
LED 18 must be ON.
NOTE:
LED 19 should be ON if it is certain that an
amplifier will always be available for two-CO
line conference connection (four maximum,
simultaneously). If this LED is ON and a
two-CO line connection is established without
an external amplifier, the STRATA DKstation
may be unbalanced and receive a hum noise.
LED 19 provides additional station amplifica-
tion when externalamplifiers areswitchedinto
two-CO line connections.
8-62

I 14 BATTERY CARE
WARNING!
To reduce the risk of fire or injury to per-
sons, read and follow these instructions:
1. Use only the following type and size
batteries: 12-volt, gelcell.
2. Do not dispose of the batteries in a fire.
The cells may explode. Check with lo-
cal codes for possible special disposal
instructions.
3. Do not open or mutilate the batteries.
Released electrolyte is corrosive and
may cause damage to the eyes or skin.
It may be toxic if swallowed.
INSTALLATION-PERIPHERALS
SECTION 200-096-208
FEBRUARY 1991
4. Exercise care in handling batteries in
order not to short the battery with con-
duction materials such as rings; brace-
lets, and keys. The battery or conduc-
tor may overheat and cause burns.
5. Charge the batteries provided with or
identified for use with this product only
in accordance with the instructions and
limitations specified in this manual.
6. Observe proper polarity orientation
between the batteries and battery
charger.
8-63

INSTALLATION-PERIPHERALS
SECTION 200-096-208
FEBRUARY 1991
!
.’
R-TEC EDGE
CONNECTOR
R-TEC EDGE
CONNECTOR
R-TEC, VFR5050
AMPLIFIER
(see NOTES)
STRATA DK 24156196 ,24AWG r
T. P51
OUTSIDE
PARTY 1 ,
PEKU 25.PAIR
, CABLE
PCOU PCTU3
f
CKT, X
---
CM
ONFERENC
WITCH
CKT, Y
f---
l
I
I
I
I
I
I
l
I
I
p”“‘“i/ /VT(2), P2RW6Ni
(CKT 2)
R, P33
--Id
AMP
Z4AWG
TWISTEC
‘AIR
T. P41
PUBLIC
TELEPHONE
OUTSIDE NETWORK
PARTY 2
p”“$ /VT(3), P3ONv-s /
m
CKTB
R, P49
(CKT3) ffj=f
J
P35
Pi7
1
L
R-TEC, PSI 6
POWER ADAPTER
(NOTES)
w DW
ANY PCOU LINE ’
MAY BE USED FOR
CONFERENCE; SEE
PROGRAMMING NOTES
FOR TANDEM AND/OR
DISA CO LINES 1 PSTU 1 1 THAT SETS UP
2-CO LINE
CONFERENCE
CALL
NOTES (PROGRAMMING):
l
Program 10-3,
circuit assignments (Release 3):
I- I
PROGRAM 10-3
PEKU PORT CONF. PEKU SLOT PEKU PORT PEKU DUPLEX
ENABLE KEY/LED POSITION NUMBER CIRCUIT AC-PLUG
NOTES (Amplifier):
LED 01, ON 2nd
LED 02, ON 3rd
LED 03, ON 4th
LED 04, ON 5th
A = 09
B=lO
A= 17
B=18
A = 25
B = 26
A = 33
B = 34
CKT2
CKT3
CKT2
CKT3
CKT2
CKT3
CKT2
CKT3
1. All amplifier equipment is customer dealer-supplied.
2. Use a 2-way, telephone CO line amplifier that is FCC Part 68
registered and provides automatic gain control; the above
example is with a Reliance Electric Co., R-TEC VFR5050
(VVSG) Repeater, with 500-X or 500-X-CT mounting
assembly and a PSI 6 power adapter.
3. Recommended switch settings for VFR5050 are:
l
Program 1 O-1,
key LED 19 and 20 ON.
l
FLAT GAIN (I, 2, 4, 8): all ON
l
Program 15-5,
enable appropriate CO lines for
l
Equalizer (1 - 5): all OFF
tandem connection.
l
Sensitivity: NORM
l
Program 78-2,
enable appropriate CO lines if
l
Sl screw: down = Data DIS OFF
amplified DISA is required. 4. The above R-TEC options may be different for some
l
Program 10-2,
key LED 18 ON. installations; see R-TEC VFR5050 installation Practice
For LED 19, see note in Paragraph 13.04. before installing VFR5050.
FIGURE 8-40-AMPLIFIED TWO-CO LINE CONFERENCE AND/OR
AMPLIFIED DISA FUNCTIONAL WIRING DIAGRAM
8-64

TOSHIBA SYSTEM PRACTICES
DIGITAL KEY TELEPHONE SYSTEMS INSTALLATION-WIRING DIAGRAMS
SECTION 200-096-209
FEBRUARY 1991
Strata@Bcc
RELEASE 1,2, and 3
INSTALLATION
CHAPTER NINE
WIRING DIAGRAMS

INSTALLATION-WIRING DIAGRAMS
SECTION 200-096-209
FEBRUARY 1991
TABLEOFCONTENTS
PARAGRAPH SUBJECT . ,PAGE
1
2
2.10
2.20
2.30
2.40
2.50
TABLE
9-A
9-B
9-c
9-D
FIGURE
9-A
9-I
9-2
9-3
9-4
9-5
9-6
9-7
9-8
9-9
9-l 0
9-11
9-12
9-13
9-14
9-15
9-16
9-17
9-18
9-l 9
9-20
9-21
9-22
9-23
9-24
GENERAL ............................................................................................................... 9-1
WIRING DIAGRAMS ............................................................................................... 9-1
Station Wiring Diagrams ...................................................................................... 9-1
CO/TIE Line Wiring Diagrams ............................................................................. 9-1
Power Failure Cut-through (DPFT) Wiring Diagrams .......................................... 9-I
PIOU,PIOUS, and PEPU Wiring Diagrams ......................................................... 9-1
Power Supply DC Out Wiring Diagrams.. ............................................................ 9-I
TABLE LIST
TITLE PAGE
FCC REGISTRATION NUMBERS DK24/56/96 ...................................................... 9-I
STATION LOOP REQUIREMENTS.. ...................................................................... 9-2
NETWORK REQUIREMENTS ................................................................................ 9-2
DIGITAL TELEPHONE/DIU/DDSS CONSOLE/LOOP LIMITS ............................... 9-2A 1
FIGURE LIST
TITLE PAGE
SECONDARY PROTECTOR DIAGRAM ................................................................ 9-2C 1
MDF WIRING/ELECTRONIC TELEPHONE TO PEKU .......................................... 9-3
MDF WIRING/DSS/BLF CONSOLE AND ASSOCIATED ELECTRONIC
TELEPHONE WIRING TO PEKU ........................................................................... 9-4
MDF WIRING-DOOR PHONE/LOCK TO PEKU/PESU .......................................... 9-5
PEKU BACKGROUND MUSIC CONNECTION ...................................................... 9-6
PEKU STATION/MDF CROSS CONNECT RECORD ............................................ 9-7
MDF WIRING/STANDARD TELEPHONE, VOICE MAIL, DPFT TO PSTU/PSTU2 9-8
PSTU STATION/MDF CROSS CONNECT RECORD ............................................ 9-9
PESU CIRCUIT CARD WIRING DIAGRAM.. .......................................................... 9-10
PESU STATION/MDF CROSS CONNECT RECORD ............................................ 9-11
MDF WIRING/CO LINES TO PCOU ....................................................................... 9-12
MDF WIRING/2-WIRE TIE LINE TO PEMU.. .......................................................... 9-13
MDF WIRING/4-WIRE TIE LINE TO PEMU.. .......................................................... 9-14
PCOU/PEMU/MDF CROSS CONNECT RECORD.. ............................................... 9-15
DPFT CONNECTOR Jl/TERMINAL SEQUENCE & DESIGNATIONS/CENTRAL
OFFICE LINE CONNECTION & DPFT CONTROL.. ............................................... 9-16
DPFT CONNECTOR J2/TERMINAL SEQUENCE & DESIGNATIONS/STATION
LINE CONNECTION ............................................................................................... 9-17
MDF WIRING/PIOU OR PEPU PERIPHERALS (25PAIR) .................................... 9-18
PIOU/TTY AND SMDR WIRING ............................................................................. 9-19
PIOUS PAGE/RELAY/ALARM CONNECTIONS .................................................... 9-20
PIOUS SMDR/TTY OPTIONS AND WIRING.. ........................................................ 9-21
DK24/56/96 POWER SUPPLY DC OUT CONNECTOR/CABLES ......................... 9-22
MDF WIRING FOR DIGITAL TELEPHONES (DKTS) AND DIGITAL DSS
CONSOLE (DDSS) TO PDKU ................................................................................ 9-23
MDF WIRING FOR DIGITAL TELEPHONES (DKTS) WITH PDIU-DI AND
PDIU-DS TO PDKU .................................................................................................
PDKU STATION/MDF CROSS CONNECT RECORD ............................................
MDF WIRING/AMPLIFIED TWO-CO LINE CONFERENCE ................................... I
9-24
9-25
9-26
9-i

1 GENERAL
1
.OO This chapter contains point-to-point wiring
diagrams for connection of telephones, lines, pe-
ripheral equipment, and power supply to the DK
systems. Wiring diagrams are divided into groups
according to the PCB which provides the interface
for, or controls the operation of, the associated
equipment. Table A provides FCC registration
numbers and a summary of electrical characteris-
tics related to DK circuit wiring.
l
Figure 9-22-MDF Wiring for Digital Tele-
phones (DKTs) With PDIU-DI and PDIU-DS to
PDKU
l
Figure 9-23-PDKU Station/MDF Cross Con-
nect Record
l
Figure 9-24-MDF Wiring/Amplified Two-CO
Line Conference
2.20 CO/TIE Line Wiring Diagrams
0 Figure 9-IO-MDF Wiring/CO Lines to PCOU
l
Figure 9-1 l-MDF Wiring/2-Wire TIE Line to
PEMU
2 WIRING DIAGRAMS
l
Figure 9-12-MDF Wiring/4-Wire TIE Line to
PEMU
2.01 The following paragraphs list and identify the
l
Figure 9-l 3-PCOU/PEMU/MDF Cross Con-
wiring diagrams provided in this chapter. nect Record
I 2.10 Station Wiring Diagrams
l
Figure g-A-Secondary Protector Diagram
l
Figure 9-I-MDF Wiring/Electronic Telephone
to PEKU
l
Figureg-2-MDF Wiring/DSS/BLF Console and
Associated ElectronicTelephone Wiring to PEKU
l
Figure 9-3-MDF Wiring-Door Phone/Lock to
PEKU/PESU
2.30 Power Failure Cut-through (DPFT) Wir-
ing Diagrams
l
Figure 9-14-DPFT Connector Jl/Terminal
Sequence & Designations/Central Office Line
Connection & DPFT Control
l
Figure 9-15--DPFT Connector J2ITerminal
Sequence & Designations/Station Line Con-
nection
l
Figure 9-4-PEKU Background Music Connec-
tion
0 Figure 9-5-PEKU Station/MDF Cross Connect
Record
2.40 PIOU, PIOUS, and PEPU Wiring Diagrams
e Figure 9-16-MDF Wiring/PIOU or PEPU Pe-
ripherals (25pair)
l
Figure 9-6-MDF Wiring/Standard Telephone,
Voice Mail, DPFT to PSTU/PSTU2
l
Figure 9-7-PSTU Station/MDF Cross Connect
Record
l
Figure 9-17-PIOU/TTY and SMDR Wiring
l
Figure 9-18-PIOUS Page/Relay/Alarm
Connections
l
Figure 9-8-PESU Circuit Card Wiring Diagram
l
Figure 9-9-PESU Station/MDF Cross Connect
Record
I
l
Figure 9-21-MDF Wiring for Digital Telephones
(DKTs) and Digital DSS (DDSS) Consoles
l
Figure 9-19-PIOUS SMDRITTY Options and
Wiring
2.50 Power Supply DC Out Wiring Diagrams
l
Figure 9-20-DK24/56/96 Power Supply DC
Out Connector/Cables
INSTALLATION-WIRING DIAGRAMS
SECTION 200-096-209
FEBRUARY 1991
TABLE 9-A
FCC REGISTRATION NUMBERS DK24/56/96
Manufacture Country
Made in Japan
Before October 1989
Made in U.S.A.
After September 1989
Key System
CJ69XA-10242-KF-E
CJ687N-10578-KF-E
Hybrid System
CJ69XA-10243-MF-E
CJ687Nrl0579-MF-E
9-1

INSTALLATION-WIRING DIAGRAMS
SECTION 200-096-209
FEBRUARY 1991
TABLE 9-B
STATION LOOP REQUIREMENTS
Device Description
PEKU
(ckts 1 - 8) Electronic
P%JZ
telephone,
door phone/
control boxes
(ckts 5 - 8)
PEKU
(ckts 7 & 8) DSS consoles
Max Loop Resistance Max Distance from
(Including Device) KSU to Device
40 ohms 1000 ft. (303 m)
20 ohms 500 ft. (152 m)
Number of
Wire Pairs 1
All need 2-pair.
EKTs which
receive OCA
calls need
3-pair.’
PSTU Standard Approx. 3000 ft. (909 m)
(ckts 1 - 8) telephones, with 150 ohm device. See
P&U * voice mail, 300 ohms manufacturer’s product
auto attendant, specifications for exact
(ckts 1 & 2) etc. resistance of device.
PDKU Digital
(ckts 1 - 8) telephones 40 ohms 1000 ft. (303 m)
PDKU
(ckt 8) DDSS consoles 40 ohms 1000 ft. (303 m)
PDKU
(ckts 1 - 7) PDIU-DI 40 ohms 1000 ft. (303 m)
PDKU
(ckts 1 - 7) PDIU-DS 40 ohms 1000 ft. (303 m)
NOTES:
1. Use 24 A WG twisted pairs.
2. PESU circuits 3 and 4 are not used.
3. Two-pair or larger wire is required to achieve maximum range, see table 9-D.
1 -pair
1 -pair
1 -pair
Shares digital
telephone
wire-pair?
1 -pair3
TABLE 9-C
NETWORK REQUIREMENTS
I
TOSHIBA TOSHIBA
Printed Circuit Board Printed Circuit Board
I
Pcou/Pcou2 Pcou/Pcou2
(Loop Start Line) (Loop Start Line)
PEMU PEMU
(Type I, TIE Line) (Type I, TIE Line)
2-wire 2-wire
4-wire 4-wire
PESU*/PSTU/PSTU2
(Off-premises
Station)
02LS2 RJ14C 0.2B
TLIlM RJ2EX N/A
TL31 M RJ2GX N/A
OL13A RJ21 X N/A
I
*Circuits 1 and 2
Facility
Interface Code Ringer
Equivalence
9-2

INSTALLATION-WIRING DIAGRAMS
SECTION 200-096-209
FEBRUARY 1991
TABLE 9-D
DIGITAL TELEPHONE/DIU/DDSS CONSOLE/LOOP LIMITS .
PPSU 1 OOOft (303m) 1 OOOft (303m)
DDSSI 060A Battery Backup 500ft (151m) 1 OOOft (303m)
*Battery backup applies to instances when the system is being powered
by batteries exclusively.
9-2A

INSTALLATION-WIRING DIAGRAMS
SECTION 200-096-209
FEBRUARY1991
This page is intentionally blank.
9-2B

INSTALLATION-WIRING DIAGRAMS
SECTION 200-096-209
FEBRUARY1991
BUILDING #l
BUILDING #2
TELEPHONE
&I Secondary protectors
PEMU PEMU
PCOU PCOU
1 I
E&M TIE LINE
CO LINE
HtiUHt Y-A-StWNDARY
PROTECTOR DIAGRAM
IMPORTANT!
To protect against transient voltages and currents, secondary protectors must be installed if
there is outside wiring (Figure 9-A). These protectors, which contain fast semiconductors in
addtion to fuses, shall comply with the requirements forsecondarypro tectors for communica tion
circuits, UL 497A. As of October I, 1990, the following manufacturers offer secondary
protectors that are UL listed.
9-2c

INSTALLATION-WIRING DIAGRAMS
SECTION 200-096-209
FEBRUARY1991
1. Certron Corp; Anaheim, California 92807
l
Secondary protector: Model 08450.
2. Curtis Mfg. Co. lnc; Jaffrey, New Hampshire 03452
l
Secondary protector: Model Diamond Chip. For indoor use on the protected side of the
telephone circuit only.
3. Oneac Corp; Libertyville, Illinois 60048
l
Secondary protector: Model OnLine 614+ and OnLine DG/S.
For indoor use on the
protected side of primary telephone protector only.
4. Siemon Co.; Watertown, Connecticut 06795
l
Secondary protector for communication circuits: Model PM-2305. Intended for use with
Listed Siemon 66Ml Block: Models PG-04, -25, -50, or PK-04 ground kit and Listed Type
I enclosure. For use on the protected side of a Listed Primary Telecommunications
Protector for indoor use only.
5, Simplex Time Recorder Co.; Gardner, Massachusetts 07440
l
Isolated loop circuit protectors: Models 2081-9027 and 2081-9028. Intended for use
between data communication equipment or signal lines of building system equipment.
Install and test the secondary protectors per the installation instructions of the applicable
manufacturer.
9-2D


INSTALLATION-WIRING DIAGRAMS
SECTION 200-096-209
FEBRUARY 1991
TO P
C EKU W/FEMALE
:ONNECTOR BRIDGING
VOICE Tl
DATA Ti
DATA RI
=+r CIRCUIT 4 1
654321
R1
OCA
Rl
STATION CABLE
TWISTED PAIR 1 PAIR
IG
CIRCUIT 5
NOTE: See Program 28
for electronic telephone
CIRCUIT 6 to DSS assignments.
VOICE PAIR-NOT USED
CIRCUIT 7 DATA TIP 7
DATA RING 7) I TELEPHONE
IR-NOT USED ASSOCIATED
WITH DSS/BLF
‘ATION
CIRCUIT 3 ELECTRONIC
TELEPHONE
CIRCUIT 4 RECEIVES
OFF-HOOK CALLS
NOTE: Place
PEKlJ SW1 to DSS.
GN-Y 1 18 -
&;
LY-BR ! 44 ;
k BR-V ! 24 ;
NOTE: See Program 27 to assign DSS buttons. loop resistance: 20 ohms
from PEKU to DSS (500 ft). DSS/BLF CONSOLE
FIGURE 9-2
MDF WIRING/DSS/BLF CONSOLE AND ASSOCIATED ELECTRONIC TELEPHONE WIRING TO PEKU
9-4

INSTALLATION-WIRING DIAGRAMS
SECTION 200-096-209
FEBRUARY1991
TO PEKU OR PESU
W/FEMALE CONNECTOR BR’DG’NG
/-I InP
66M150 SPLIT BLOCK ’
CIRCUIT 5
CIRCUIT 6
CIRCUIT 7
CIRCUIT 8
NOT USED
SCREW
1654321 u uuun I I l”lYL n
MDFB (REAR VIEW)
( , ; 4 , / lDOO$--1
I
VR
VT
MDFB
DOOR
PHONE B
OR DOOR
LOCK
CONTROL
I I I
See Note I l J
See Note 2 1 MDFB (DOOR PHONE) STATION #s
See Note 3
NOTES:
26
1
161
1
162
1
163
1. On PEKU or PESU, cut W9. See Programs 39,
77-I. 77-2, and 79.
2. HDCB “B” output options:
SWI: Always in DOOR position.
SW2: DOOR position; “B” connects to door phone.
LOCK (Release 2 only) position;
“B” connects to door lock.
3. Door phones may be connected to circuit 5 on
ports 4, 12,20 and 28 only. I
FlGURE9-3-MOFWIRING-DOOR PHONE/LOCKTO PEKU/PESU
9-5

INSTALLATION-WIRING DIAGRAMS
SECTION 200-096-209
FEBRUARY 1991
TO PEKU W/FEMALE
‘CONNECTOR BRIDGING STATION CABLING (24 AWG, TWISTED PAIRS)
VOICE Tl (VT)
1
VOICE RI (VR)
DATA Tl (DT)
DATA Rl (DR) J
TO ELECTRONIC TELEPHONE 1
(PORT 00)
CIRCUIT 2 TO ELECTRONIC
TELEPHONE (PORT 01)
I.
Available with R2 software only.
BACKGROUND MUSIC
\,R9 l!=mRT n3\ - SOURCE OUTPUT
(600 OHMS; 1 V RMS MAX)
CAUTION:
To avoid distortion, do not
connect port 02 to 8-ohm outputs.
PTRONIC
.03)
CIRCUIT 4 TO ELEC
TELEPHONE (PORT
CIRCUIT 5 TO ELEC
TELEPHONE OR
:TRONIC
36
NOTES:
I. PEKU must be installed in slot 01.
2. Program 10-2, button/LED 09 “‘on’: fo.
BGM connection to port 02.
3. Cut W5 jumper on PEKU in slot 01.
4. Provide BGM to electronic telephone
and external page (PIOU/PIOUS/PEF
5. Volume is adjusted at BGM source
on/y (not at PEKU).
r
spe,
‘U). akers
A
--
II ! DR 1 OR DSS (PORT 06)
~-j$--#~~ 1 -0CATi (OT)
1
OCA Rl (OR) TO EL
1-1 /_- -- ‘- ’ - .ECTRONIC TELEPHONES THAT RECEIVE
oc
CIRCUIT 2 TO ELECTRONIC TELEPHONES THAT RECEIVE OCA
CIRCUIT 3 TO ELECTRONIC TELEPHONES THAT RECEIVE OCA
CIRCUIT 4 TO ELECTRONIC TELEPHONES THAT RECEIVE OCA
CIRCUIT 5 TO ELECTRONIC TELEPHONES THAT RECEIVE OCA
CIRCUIT 6 TO ELECTRONIC TELEPHONES THAT RECEIVE OCA
CIRCUIT 7 TO ELECTRONIC TELEPHONES THAT RECEIVE OCA
CIRCUIT 8 TO ELECTRONIC TELEPHONES THAT RECEIVE OCA
NOT USED
L v-o -a
<o-v 22 44
< V-GN 48~
r, GN-V 23 46
< V-BR 49 47
BR-V 1 24
1
FIGURE 9-4-PEKU BACKGROUND MUSIC CONNECTION
9-6

INSTALLATION-WIRING DIAGRAMS
SECTION 200-096-209
FEBRUARY1991
MDF BLOCK NO. DKSU SLOT NO. .
NOTES:
1. Indicate if BGM or electronic telephone is connected (see Program IO-2 and 19); BGM connects to VT
and VR, circuit 3 only (DT and DR not used).
2. Indicate if electronic telephone or HDCB (allowed HDCB port numbers: 04, 12, 20, 28).
3. Indicate if electronic telephone or DSS no. 1, 2, 3, or 4.
4. Copy for each PEKU installed.
5. OCA wiring not shown, see MDF-to-electronic telephone wiring.
FlGURE9-5-PEKUSTATION/MDFCROSSCONNECTRECORD
9-7

INSTALLATION-WIRING DIAGRAMS
SECTION 200-096-209
FEBRUARY 1991
TO PSTU OR PSTU2
W/FEMALE CONNECTOR BRlDGlNG
CLIPS
a&
TIP 1
RING 1
3
EEIC
1
NOT USED
a&
T2
R2
1
NOT USED
T3
py+
R3
III
1
NOT USED
JACKETED TWISTED STATION CABLE
24AWG .
7
5 -
0-BK 1 12 &&
LY-BL I 41 mr-
USED
USED
USED
USED
MODULAR
CORD
123456
I I
TIP RING
1 STANDARD TELEPHONE. 1
VOICE MAIL PORT, OR
SIMILAR DEVICE
NOTES:
1. All cable 24 A WG; max loop resistance -
300 ohms from PSTU to standard
telephone/VM port.
2. Standard telephones may be on- or
off-premises. Off-premises connection
is made via OL 13A FIG, and RJ2lX jack
3. Connect up to two telephone ringers
to each Tip and Ring pair.
4. WI, ring voltage option;
L = 13ov P-P
H= 19OVP-P
5. Two ringers maximum per port, “H” or “L
position.
1
NOT
T8
R8
I
-
BR-Y 19 &+
NOT USED
DPFT
POWER FAILURE
TRANSFER BOX
(Jl)
66M150 SPLIT BLOCK ’
FIGURE 9-6-MDF WIRING/STANDARD TELEPHONE, VOICE MAIL, DPFT TO PSTU/PSTUP
9-8

INSTALLATION-WIRING DIAGRAMS
SECTION 200-096-209
FEBRUARY 1991
.
MDF BLOCK NO. DKSU SLOT NO.
NOTES:
1. Indicate if standard telephone, voice mail port, etc.
2. Copy for each PSTU installed.
FIGURE 9-7 -PSTU STATION/MDF CROSS CONNECT RECORD
9-9

INSTALLATION-WIRING DIAGRAMS
SECTION 200-096-209
FEBRUARY 1991
‘-
TO PESU W/FEMALE
CONNECTOR R2SIDGING CLIPS STATION CABLING JACKETED TWISTED PAIRS (24 AWG)
=;
TIP 1
RING 1
I?
RJll
TIP db RING
--
Ii---z- ! 1 CIRCUIT 3
US54321 u
Two-ringers max may be
connected (high or low)
to Tip/Ring.
--- -1
VOICE Tl (VT) 5
18 VOICE RI (VR) 5
191 DATA Tl (DT) 5
DATA Rl (DR) 5
-
-
-
DR
5-k -
III
BK-GNI 38 & OCAT #(IIIIBL
” ,III,,
OT AND OR:
I I I I I I
654321
ONLY IF
ELECTRONIC
-
2 GN-BKI 13 &
TELEPHONE
RECEIVES
n
m I”’ lClRCUlT8TO OFF-HOOK CALL
STATION ANNOUNCE CALLS
ELECTRONIC TELEPHONE
’ hn HDCB
I “T(
SFF
GN-Y I 18
--
II ! I I I VVJ b/u I ,r n&B IS CONNECTED TO CIRCUIT 5
Dnn D’h’c ‘IA’ TAGE OPTION (CIRCUIT 1 & 2):
J 1
XVEL (13OV P-k)
H = HIGH LEVEL (19OV P-P)
J
NOTES: (Electronic telephone circuits 5-8)
1. To receive OCA, the 6500-series electronic telephone
must have HVSI and HVSU installed.
2. Program 31, button/LED 03 must be “on”for
electronic telephone to receive OCA.
3. An HHEU must be installed inside 6500series electronic
telephones for headset or HESB; loud bell option.
4. All cable 24 A WG. max 40 ohm looo resistance
LV-BR ! 49 ;
from PESlJ to electronic telephone’(1000 ft).
5. DSS connection is not available with PESU; HDCB may
be connected to circuit 5, BGM to circuit 8, slot 1.
66M150
SPLIT BLOCK NOTES: (Standard telephone circuits 1 & 2)
1. All cable 24 A WG; max loop resistance 300 ohms from PESU to standard telephone/VM port.
2. Standard telephones may be on- or off-premises. Off-premises connection is made via
OL 13A FIG, and RJ21 X jack.
3. Two ringers max per port.
FIGURE 9-8-PESU CIRCUIT CARD WIRING DIAGRAM
9-10

INSTALLATION-WIRING DIAGRAMS
SECTION 200-096-209
FEBRUARY 1991
MDF BLOCK NO. DKSU SLOT NO. .
NOTES:
1. Indicate if standard telephone, voice mail port, electronic telephone or HDCB (allowed HDCB
port numbers: 04, 12, 20, 28).
2. Indicate if HDCB or electronic telephone.
3. DSS No. I, 2, 3 or 4 is not allowed.
4. Copy for each PESU installed.
5. OCA wiring not shown, see MDF-to-electronic telephone wiring.
6. Indicate if BGM or electronic telephone is connected (slot 01 only); BGM connects to
VT and VR, circuit 8 only (DT and DR not used).
FIGURE 9-9-PESU STATlON/MDF CROSS CONNECT RECORD
9-11

INSTALLATION-WIRING DIAGRAMS
SECTION 200-096-209
FEBRUARY1991
TO
ETWORK BRIDGING
66M150 SPLIT BLOCK
TELCO-PROVIDED
MODULAR BLOCK,
625-TYPE OR
EQUIVALENT
MODULAR
CORD
PCOU
m pi
\!!! !J
PCOU
PIN-OUT
NETWORK JACK: RJ14C
FIC: 02LS2
FIGURE9-IO-MDFWIRING/CO LINESTO PCOU I
9-12

INSTALLATION-WIRING DIAGRAMS
SECTION 200-096-209
FEBRUARY 1991
TO
NETWORK BRIDGING
MODULAR
CORD
123456
r-7
*
l
1 M
TELCO-PROVIDED
MODULAR BLOCK,
625-TYPE OR
EQUIVALENT
PEMU
2-WEE
*NOT USED PEMU
PIN-OUT u
NETWORK JACK: RJ2EX
FIC: TLl 1 M
FIGURE 9-ll-MDF WIRING/2-WIRE TIE LINE TO PEMU
9-13

INSTALLATION-WIRING DIAGRAMS
SECTION 200-096-209
FEBRUARY 1991
TO
NETWORK
-
BRIDGING
CLIPS
MODULAR
CORD
r
; El1
4Fi
SAME
3
L
2
Tl
1
M
SAME
1
TELCO-PROVIDED
MODULAR BLOCK,
625TYPE OR
EQUIVALENT
PEMU
NETWORK JACK: RJ2GX
FIC: TL31 M PIN-OUT
FIGURE 9-12-MDF WIRING/4-WIRE TIE LINE TO PEMU
9-14

INSTALLATION-WIRING DIAGRAMS
SECTION 200-096-209
FEBRUARY1991
CO LINE CROSS-CONNECT RECORD
I 1
7
8
cl
I I 1-i I I
L,
28
7Q
TIE LINE CROSS-CONNECT RECORD .
I
MDF F
NUMB
l-7
2-WIRE
4-WIRI
RJ2EX
RJ2G>
; 1 NUMBER 1 (PEMU)
FlGURE9-13-PCOU/PEMU/MDFCROSSCONNECTRECORD
9-15

INSTALLATION-WIRING DIAGRAMS
SECTION 200-096-209
FEBRUARY1991
PAIR PIN COLOR LEAD PCOU PCB
~-CODE DESIGNATION FUNCTION POSITION
1T
R
2T
R
26 W-BI
1 BI-W
27 w-o
2 o-w
TIP-CO #1
RING-CO #l
TI P-PCOU #l
RING-PCOU #l
23T 48
R 23
24T 49
R 24
25T 50
R 25
V-G SPARE
G-V SPARE
V-Br SPARE
Br-V SPARE
v-s PFT DG PFT GROUND (INPUT) PSTU/PIN 50
s-v PFT -24V PFT -24V (INPUT) PSTU/PIN 25
FIGURE 9-14
DPFTCONNECTORJl
TERMlNALSEQUENCE&DESlGNATlONS '
CENTRALOFFlCELlNECONNECTlON&DPFTCONTROL
:,
.,,
9-16

INSTALLATION-WIRING DIAGRAMS
SECTION 200-096-209
FEBRUARY 1991
PAIR
1T
R
PIN
26
1
COLOR LEAD FUNCTION PSTU PCB
CODE DESIGNATION POSITION
W-BI T TIP-TEL #l
BI-W R RING-
R
24T
R
25T
23
49
24
G-V
V-Br
Br-V
SPARE
SPARE
SPARE
50 I v-s SPARE
I R 25 I s-v SPARE
FIGURE 9-15
DPFT CONNECTOR 52
TERMINAL SEQUENCE & DESIGNATIONS
STATION LINE CONNECTION
9-17

INSTALLATION-WIRING DIAGRAMS
SECTION 200-096-209
FEBRUARY 1991
PEPU/PIOU PCB PIOU 25PR. MDF 66M
, CONNECTIONS BLOCK
1 l
PIN COLOR PIN
MULTI-ZONE PAGE
30W MAX./COMP(
3nn (
l-l--T
3SITE IMPEDANCE
--- 3HMS
PG.OUT 1 15 S-Bk 30
PG.IN 1 40 Bk-S 29
PG.OUT 2 17 O-Y 34
PIOU
ONLY
PAGE ’
OR BGM
FROM
PCTU
PG.IN 2 42 Y-O 33 0
PG.OUT 3 19 Br-Y 38
PG.IN 3 44 Y-Br 37 0
I T
PG.OUT4 11 21 BI-V 1 42 I
PG.IN 4 46 V-BI 41
SELECT RELAY FUNCTION -a
WITH PROGRAM 77-l
DOOR LOCK OR II
AMP. CONTROL II I
J SP.TO
PG.
COMMON
38 Bk-Gn
13 Gn-Bk 26 AMPLIFIER ’
- MULTI-ZONE ’
~.~3~~~~~v,s~--~~-- ___________ I ____
-.-_25_-.-SIV ---- 54--.-------
23 Gn-V 46
I I
PLAYER EXTERNAL
1
BACKGROUND
MUSIC
SOURCE
TH PROGRAM 77-i:
;HT RELAY OR
MOH CONTROL
CONNECTIONS . *
W
f
ALL WIRES SHOULD TO MUSIC-ON-HOLD
BE JACKETED 24 AWG. BELL INPUT ON PCTU PCB
TWISTED PAIRS P6 CONNECTOR.
I
ALL
ZONE
PAGE
(39)
FIGURE 9-16-MDF WIRING/PIOU OR PEPU PERIPHERALS (25-PAIR)
I
:-:
9-18

INSTALLATION-WIRING DIAGRAMS
SECTION 200-096-209
FEBRUARY1991
DB-25 RS-232
WALE) \4
TO ASCII
TERMINAL
OR
EXTERNAL
MODEM
.7-BIT
. EVEN PARITY
. l-STOP BIT
OTE 2: Wire colors may vary with other
types of modular adaptors.
MAINTENANCE PlOlJ
PORT \ CARD +
DB-25 RS-232
(MALE)
TO PRINTER
OR
CALL
ACCOUNTING
DEVICE
.8-BIT
. NO-PARITY
l
ONE-STOP BIT
!32/MODULAR
STATION MESSAGE
I DETAIL RECORDING
L
K
MODULAR
JACK
NOTE 3: PIOU option settings:
SW1 - Sets the SMDR baud rate
to be 300 or 1200 BPS.
SW2 - Sets the PIOU programming speed to be
300 or 1200 BPS (for /MD/J or TTYjack).
LED CO4 ‘On”= 300 BPS/SW2 set ‘ln”.
LED CO4 “Off” = 1200 BPS/SW2 set “Out’:
S W3 - Sets the PIOU to operate with the
IMDU or an external device
connected to the TTY modular iack.
MODEM
TTY
- For IMDU operation.
- For ASH/ terminal
or external modem.
PIOU MODULAR PIN-OUT
- ,-,-PAIR
FEMALE
AMP.
JACK)
SEE
PIOLJ/MDF
DRAWING
IN THIS
SECTION
PPTC PIN-OUT
P13 - Sets the IMDU and TTY jack
for be// or CCITT specification.
FIGURE9-17-PIOU/TTYAND SMDRWIRING
9-19

INSTALLATION-WIRING DIAGRAMS
SECTION 200-096-209
FEBRUARY1991
KSU BACKPLANE
SPT
BREAK DET
Kl b
DER
BREAK NHT
K2 b NHR
NORMAL OPEN
ALMT
ALMR
““’
PIOUS
TBI MDF -
1
HESB
OR
PAGE
AMPLIFIER
B
MOH
l
All wiring connections must be 24 A WG twisted pairs.
. Dotted lines show optional connections; only one optional connection is allowed.
RELAY OPTIONS:
l
Ki (DE): DOOR LOCK OR AMP MUTE CONTROL; PROGRAM 77-1, LED 07
l
K2 (NH): NIGHT RELAY OR MUSIC-ON-HOLD CONTROL; PROGRAM 77-1, LED 05
l
Kl & K2: 24 VDC, 1 AMP MAXIMUM
FlGURE9-18-PIOUS PAGE/RELAY/ALARM CONNECTIONS
9-20

INSTALLATION-WIRING DIAGRAMS
SECTION 200-096-209
FEBRUARY1991
DB-25 RS-232 NOTE 1: If connected to external modem.
(MALE)
.hYzzx=
Y\
interchange pin 2 and pin 3.
TE 2: Wire colors may vary with other
types of modular adaptors.
. EVEN PARITY
PIOUS
MAINTENANCE CARD t
PORT
TYSG \
TYCD 6
TYDTR
TYDSR
TYTD
TYRD 3 1
DB-25 RS-232 ADAPTOR PART NO. PPTC SMSG
SMCD 6
SMDTR
TO PRINTER
SMTD
SMRD 3
SMDSR 1
/
STATION MESSAGE
DETAIL RECORDING
PORT
. NO-PARITY
l
I-STOP BIT
NOTE 3: PIOU option settings:
SW1 - Sets the SMDR baud rate
to be 300 or 1200 BPS.
S W2 - Sets the PIOU programming speed to be
300 or 1200 BPS (for IMDlJ or TTY jack).
LED CO4 ‘On” = 300 BPS/SW2 set “In”.
LED CO4 “Off” = 1200 BPS/SW2 set “Out”.
SW3 - Sets the PlOlJ to operate with the
IMDU or an external device
connected to the TTY modular jack.
J.JQDE+JJ - For IMDU operation.
Iw - For ASCII terminal
or external modem.
W4 - Sets the IMDU and TTY jack
for be/f or CC/77 specification.
BELL - “W4 not installed”.
PIOU MODULAR PIN-OUT DOOR LOCK/
AMP, MUTE
NIGHT
RELAY/ MOH
CONTROL
ALARM
PPTC PIN-OUT
FlGURE9-19-PIOUS SMDR/TTYOPTlONSAND WIRING
9-21

INSTALLATION-WIRING DIAGRAMS
SECTION 200-096-209
FEBRUARY 1991
VOLTAGE OUTPUT SPECIFICATION
FOR PPSU24/56/96
NOMINAL RANGE
-24V -26.3 - -27.8
+5v +4.5 - +5.5
-5v -4.5 .” -5.5
CABLE FROM REAR OF
POWER SUPPLY
POWER SUPPLY PPSU56 FRONT PANEL CONNECTOR
DC POWER (1)
(4
(3) / DC OUT (PIN NUMBERS)
PLUG-IN - -
CONNECTION -24Vl DG +5v
(4) (5)
(6)
(7)
PIN NUMBERS - ~ ~ -
-24V2 -24V2 DG -5v DC POWER CABLE
COLORS/DESIGNATION
1234567 DK56 KSU
BACKPLANE
YEL -24Vl
FG
Pl-4
Pl-l,2
Pl-5
Pi-TB2
Pl-4
Pl-I, 2
Pl -TBl
Pl-6
DC POWER CABLE DK96 KSU BACKPLANE
POWER SUPPLY COLOR/DESIGNATIONS PMBl, 2
FRONT PANEL
CONNECTOR PPSU96 FG Pl-6
DC OUT
63)
’ RED +5Vl Pi-4
(PIN NUMBERS) (1) 1
+5Vl -5Vl 2 GRN DG Pl-1,2
(9) I I
(9) 3 YEL -24Vl Pl-TBl
DG DG 4 YEL -24V2 Pl-5
(3) 1 YEL -24V2 P4-TB3
-24Vl (‘0) 1 5
-24V2 6 GRN DB P4-1,2
(4) 7
-24V3 RED +5V2 P4-4
BLU -5V1 PI-3
GRN DG Pl-2,1
YEL -24V2 Pi -TB2
YEL -24V5 P4-5
GRN DG P4-I, 2
BLU -5V2 P4-3
1’ FG P4-6
DC POWER PLUG-IN
CONNECTOR PIN NUMBERS
FIGURE
!J-ZIJ-UKZ4/56/!36
POWER SUPPLY DC OUT CONNECTOR/CABLES
. ‘.
9-22

INSTALLATION-WIRING DIAGRAMS
SECTION 200-096-209
FEBRUARY 1991
TO PDKU
W/FEMALE CONNECTOR ;;/;2’“” STATION CABLING JACKETED TWISTED PAIRS
Tl (VOICE/DATA) 24AWG (1 OR 2 PAIR, SEE NOTE 2) .
(GND) RI (VOICE/DATA) I I I
CIRCUIT 2 TO DKT2
CIRCUIT 3 TO DKT3
r
CIRCUIT 4 TO DKT4
1 0R PDIU-DS
ILAR
GND (-) GND
C-J
PR T R
PT
CIRCUIT 5 TO DKT5 MODU
OR PDIU-DS CORD
CIRCUIT 6 TO DKT6
OR PDIU-DS
DIGITAL
TELEPHONE (DKT 1)
(WITH OR WITHOUT PC
CIRCUIT 7 TO DKT7
OR PDIU-DS NJ-DI)
P
T8 (VOICE/DATA)
R8 (VOICE/DATA)
-YXX’D, FEY3 _ _
_PR @DD. POWER)
-----_--
$1
RJll
co -
_I a--+
/
(SEE NOTE 2)
iI
PR T R
NOT USED
\ (4
m--II, d
66M150 SPLIT BLOCK ’ DDSSlBLF CONSOLE
(CIRCUIT 8 ONLY)
-OR-
DIGITAL
TELEPHONE (DKT 8)
NOTES:
1. Voltage levels:
T, PT = -26.3 - 27.8 VDC
R, PR = 0.0 VDC (GND)
(Reference to SG ground)
2. T/R wires are a/ways required; PT/PR are additional power wires required only for
long station runs per Table 9-D. PT/PR may be used with normal station runs also.
FIGURE 9-21-MDF WIRING FOR DIGITAL TELEPHONES (DkTS)
AND DIGITAL DSS CONSOLE (DDSS) TO PDKU
9-23



INSTALLATION-WIRING DIAGRAMS
SECTION 200-096-209
FEBRUARY 1991
TO PEKU W/FEMALE
CONNECTOR BRIDGING
LW-BR 1 29
h BR-Y I 19
BR-V 1 24
CIRCUIT 1 TO EKT
CUSTOMER SUPPLIED
TWO-WAY AMPLIFIER
OR
LINE REPEATERS (SEE NOTE 1)
PEKU, CIRCUIT 2 VOICE PAIR PORT A (CENTRAL OFFICE SIDE)
NOT USED
PEKU, CIRCUIT 3 VOICE PAIR PORT B (SUBSCRIBER SIDE)
NOT USED (SEE NOTE 2)
TO 117VAC
CIRCUIT 4 TO EKT
NOTES:
CIRCUIT 5 TO EKT
OR HDCB
CIRCUIT 6 TO EKT
1. Amplifier or Repeater must have
Automatic Gain Control and be
FCC Registered from Port 68.
2. Refer to Manufacturer’s Installation
Documentation for Amplifier or
Line Repeater Pin numbering.
3. Connect to PEKU circuits only,
do not connect to PEW, PSTU,
CIRCUIT 7 TO EKT
OR DSS
or PDKU circuits.
CIRCUIT 8 TO EKT
OR DSS
SYSTEM PROGRAMS
OCA Tl (OT)
OCA Rl (OR)
CIRCUIT 2
CIRCUIT 3
CIRCUIT 4
CIRCUIT 5
CIRCUIT 6
CIRCUIT 7
CIRCUIT 8
NOT USED
l
Program 10-3, circuit assignments:
PROGRAM 10-3 PEKU SLOT PEKU PORT PEKU
KEY/LED POSITION NUMBER CIRCUIT
LED 01, ON 2nd A = 09 CKT2
B=lO CKT3
l
Program 10-1, key LED 19 and 20 ON.
l
Program 15-5, enable appropriate CO
lines for tandem connection.
l
Program 78-2, enable appropriate CO
lines if amplified DISA is required.
l
Program 10-2, key LED 18 and 19 ON.
FIGURE 9-24-MDF WIRING/AMPLIFIED TWO-CO LINE CONFERENCE
9-26

PROGRAMMINGPROCEDURES-INTRODUCTION
SECTION 200-096-301
FEBRUARY1991
Stratalzx
RELEASE 1,2, and 3
PROGRAMMING PROCEDURES
CHAPTER ONE
INTRODUCTION

PROGRAMMINGPROCEDURES-INTRODUCTION
SECTION 200-096-301
FEBRUARY1991
PARAGRAPH
1
2
2.10
2.20
3
3.10
3.20
3.30
3.40
4
4.10
4.20
4.30
TABLE
I-A
I-B
I-C
I-D
I-E
I-F
I-G
FIGURE
l-l
l-2
l-3
l-4
l-5
l-6
TABLEOFCONTENTS
SUBJECT
TABLE OF CONTENTS ...............................................................................
PURPOSE ....................................................................................................
ORGANIZATION ..........................................................................................
Chapter One-Introduction ....................................................................
Chapter Two-System Record Sheets and Instructions ........................
GENERAL PROGRAMMING INSTRUCTIONS ...........................................
Programming Data Entry Overview.. ......................................................
Programming Data Variations ................................................................
Preparing the System for Programming .................................................
General Programming Procedures.. .......................................................
INITIALIZING THE SYSTEM ........................................................................
Initialize Programs 00 - 97 Data With Program 90 ................................
Initialize Speed Dial Numbers, Character Message Memory, Timed
Reminders, Digital Telephone Volume, and Call Forward Backup
Memory With Program 92 ......................................................................
After Initialization ....................................................................................
TABLE LIST
SUBJECT
SIMPLE PROGRAM: PROGRAM 33 (STATION HUNTING) . . . . . . . . . . . . . . . . . . . . . .
MULTIDIMENSIONAL PROGRAM: PROGRAM 30 (STATION
CLASS OF SERVICE) . . . . . . . . . . . . . . . . . . . . . . . . . . . . . . . . . . . . . . . . . . . . . . . . . . . . . . . . . . . . . . . . . . . . . . . . . . . . . ..~.
PROGRAM SO/INITIALIZING PROGRAMS 00 - 97 . . . . . . . . . . . . . . . . . . . . . . . . . . . . . . . . . . .
PROGRAM 92/lNITIALIZING SPEED DIAL NUMBERS, ID CODES,
CHARACTER MESSAGE MEMORY, TIMED REMINDERS, DIGITAL
TELEPHONE VOLUME, AND CALL FORWARD BACKUP MEMORY . . . . . .
PROGRAM 03IFLEXIBLE PCB SLOT ASSIGNMENTS . . . . . . . . . . . . . . . . . . . . . . . . . . . . .
PROGRAM OOSOFTWARE CHECK AND REMOTE MAINTENANCE
SECURITY CODE ASSIGNMENTS . . . . . . . . . . . . . . . . . . . . . . . . . . . . . . . . . . . . . . . . . . . . . . . . . . . . . . . . . . . .
PROGRAM 04/PORT AND STATION NUMBER ASSIGNMENT . . . . . . . . . . . . . . .
FIGURE LIST
SUBJECT
PROGRAMMING BUTTON SEQUENCE OVERVIEW . . . . . . . . . . . . . . . . . . . . . . . . . . . . . . .
INITIALIZING DATA FOR PROGRAMS 00 - 97 WITH PROGRAM 90 . . . . . .
INITIALIZING SPEED DIAL NUMBERS, ID CODES, CHARACTER
MESSAGE MEMORY, TIMED REMINDERS, DIGITAL TELEPHONE
VOLUME, AND CALL FORWARD BACKUP MEMORY WITH
PROGRAM 92 . . . . . . . . . . . . . . . . . . . . . . . . . . . . . . . . . . . . . . . . . . . . . . . . . . . . . . . . . . . . . . . . . . . . . . . . . . . . . . . . . . . . . . . . . . . . .
SETTING SYSTEM DATE . . . . . . . . . . . . . . . . . . . . . . . . . . . . . . . . . . . . . . . . . . . . . . . . . . . . . . . . . . . . . . . . . . . . . . . . . . .
SETTING SYSTEM TIME . . . . . . . . . . . . . . . . . . . . . . . . . . . . . . . . . . . . . . . . . . . . . . . . . . . . . . . . . . . . . . . . . . . . . . . . . . . .
SETTING SYSTEM DAY OF WEEK . . . . . . . . . . . . . . . . . . . . . . . . . . . . . . . . . . . . . . . . . . . . . . . . . . . . . . . . . . .
PAGE
i
l-l
l-l
l-l
l-l
l-l
l-l
l-l
l-2
l-6
l-6
l-6
l-6
l-6
PAGE
l-3
l-4
l-7
l-9
I-II
I-12
I-14
PAGE
l-2
l-8
I-IO
I-15
I-15
I-15

1 PURPOSE
1 .OI
The purpose of this programming section is to
provide the system installer with instructions to set
the detailed feature configuration and operation of
the system.
1.02
This chapter provides an overview of the
programming section, its organization, and its
general programming instructions.
1.03
For easy reference, every paragraph is
numbered.
2 ORGANIZATION
2.00 This programming section is organized in
modular chapters. The chapters are titled as fol-
lows:
2.10 Chapter One- Introduction (Section 200-
096-301):
Begins with an overview of the section’s
purpose and organization. Also included are basic
instructions on how to program the system with a
20-button LCD digital or electronic telephone, some
general programming notes, and a description of
system initialization.
2.20 Chapter Two-System Record Sheets and
Instructions (Section
200-096-302): Provides a
record sheet for every program (00 W 97), including
toll restriction and least cost routing, and instructions
on how to fill them out. The system programmer
programs the system from the data on the record
sheets. Program cross-referencetables in numerical
and alphabetical order are also included.
3 GENERAL PROGRAMMING
INSTRUCTIONS
3.01 General Programming Instructions provide
an overview of system programming considera-
tions. Data is entered from System Record Sheets
at the 20-button LCD digital or electronic telephone
connected to port 05. System Record Sheets docu-
ment a specific system’s data configuration, includ-
ing attributes of a feature or group of features. The
record sheets are organized by program number.
3.10 Programming Data Entry Overview
3.11
Keystrokes for entering data from System
Record Sheets follow a pattern, consisting of a
PROGRAMMING PROCEDURES-INTRODUCTION
SECTION 200-096-301
FEBRUARY 1991
5step process described below, and illustrated in
Figure
l-l. Button (key) sequences that stay the
same for every program are abbreviated, and
shaded.
Button sequences that are unique for
every program are white.
1)
2)
3)
4)
5)
In step 1, enter Programming Mode by pressing
aseriesof buttons. See Figure l-l.
Tosavespace
on the recordsheets, abbreviation “‘A”is used to
denote the beginning sequence.
“A” buttons are
shaded.
In step 2, enter the Program Number. This
sequence is unique for every program. The
buttons are white, and never abbreviated.
In step 3, enter Program Data. Again, this se-
quence is unique for every program. The buttons
are white and never abbreviated. To make an-
other entry, repeat step 3 until ready to exit the
current program.
In step 4, exit the current program. This se-
quence never changes. To save space on the
record sheets, abbreviation “Z” is used to de-
note the ending sequence (as in “Z” of “from A to
Z”). “Z” buttons are shaded. Upon exiting the
current program, repeat step 2 to enter another
program, or continue with step 5 to exit program-
ming mode entirely.
In step 5, exit Programming Mode by pressing
the same buttons as in step 4. This sequence
also never changes.
3.12 Each System Record Sheet has the abbrevi-
ated button sequence shown in Figure 1-I for its
program illustrated at the top of the sheet.
3.20 Programming Data Variations
3.21
There are two different ways to enter data in
step 3 of a program: pressing the buttons on the
dialpad, and pressing the LED buttons. Many pro-
grams are multidimensional, and involve both types
of entry.
3.22 Simple Programs:
Simple programs, such
as
Program
33, only require data to be specified
through the dialpad. Data entered from the dialpad
displays on the programming electronic or digital
telephone’s LCD, along with prompts and confir-
mations. See Table 1 -A for step-by-step data entry
instructions for
Program 33.
l-l

PROGRAMMING PROCEDURES-INTRODUCTION
SECTION 200-096-301
FEBRUARY1991
another vowam
more data
1
~T;l~T;l~~s,,,n~~fispKRIg*~!~lT;;lT;;l~!SPKR~~~
/~--7--\---T--
Step 1 Step 2 Step 3 Step 4 Step 5
Enter Program Mode Enter Program Number Enter Program Data Exit Current Program Exit Program Mode
\, ; *\ I
-:
‘0 :- (LED buttons)
-. I
and/or
tl-II
FIGUREI-I-PROGRAMMINGBUTTONSEQUENCEOVERVIEW
3.23 Multidimensional Programs:
Once a pro-
gram number is entered, the first dimension (usu-
ally a CO line number, a station port number, or a
range of ports) must be specified. Upon specifying
this first dimension on the dialpad, programming
button LEDs 01 N 36 light in the default configura-
tion. The status of each LED can be changed by
pressing its associated button. Pressing the button
while its LED is lit turns the LED off; pressing the
button while its LED is off turns the LED on.
Pro-
gram
30 is a multidimensional program; see Table
1-B for step-by-step data entry instructions for
Program 30.
l
Range Programming:
When programming a
range of station ports, the station’s program-
ming LEDs indicate whether the data pro-
grammed matches for all items in the range:
l LED On:
Indicates that all ports in the range
are programmed with the data choice that
lights the particular LED.
l LED Off:
Indicates that all ports in the range
are programmed with the data choice that
does not light the particular LED.
l LED Flashing:
Indicates that data is cur-
rently inconsistent for all ports in the range.
Some may be programmed with the LED
on; some with the LED off.
3.24 Programming Button/LED Buttonstrip
Template:
A special buttonstrip template is placed
over the 20 buttons located to the right of the
dialpad on the programming LCD electronic tele-
phone, or over the 20 buttons above the dialpad on
the programming LCD digital telephone. The tem- I
plate assigns numbers to each of the 20 buttons
that coincidewith tables found in the System Record
for programming purposes. It includes assignments
for on-hook programming, to identify programming
LED buttons 01 -- 20; and assignments for off-hook
programming, to identify programming LED but-
tons 21 N 36 (shaded). Templates are supplied with
each manual.
3.30 Preparing the System for Programming
3.31 This section explains how to prepare a sys-
tem for programming, including minimum hard-
ware requirements, and directions to clear the
system’s memory.
3.32 Minimum Hardware Requirements:
A sys-
tem must have the following minimum hardware
installed for programming, as described in Instal-
/&ion, Section 200-096-209:
l Power Supply:
The power supply must test
satisfactorily.
1-2

PROGRAMMINGPROCEDURES-INTRODUCTION
SECTION 200-096-301
FEBRUARY1991
TABLEl-A
SIMPLEPROGRAM: PROGRAM33
(STATION HUNTING)
I
Press...
Step
m + LED keys
#’
Action description LCD RESPONSE . . .
1. Use the programming LCD electronic or digital telephone NO. 205
connected to port 05 - circuit 6. JAN 20 SUN 06:43
Make sure the programming button strip template is
installed on the programming telephone (see
Paragraph 3.24).
2.
HmlEBE~
Enter programming mode.
3. mII=
PROGRAM MODE
Access Program 33. System beeps after m key PROGRAM = 33
is pressed to indicate program number may be entered. DATA STORE
4. m
Prepare the system for a station port selection.
5. 111 -II!
33 SELECT =
Select the port number of the Hunt From station. A 33 SELECT = (00 - 95)
range of ports can be entered as specified in on the HUNT TO =
record sheet. After the Hunt From ports are entered,
press the fl button.
Enter the port number of the Hunt To point, as recorded 33 SELECT = (00 - 95)
on the system record sheet. Press LED key 01 to delete HUNT TO = (00 - 95)
a digit from Hunt To point ports.
7. m
Secure data in system programming.
8. m
Prepare system for another selection (go back to
step 5), or exit Program 33 (continue with step 9).
9. [I=
Secure Program 33 data in system memory.
0. m
Exit Program 33. Enter another program number or
exit programming mode (go to step 11).
Speaker beeps to indicate it is exiting Program 33.
33 SELECT = (00 - 95)
DATA PROGRAMMED
33 SELECT =
33 SELECT = ##
DATA PROGRAMMED
PROGRAM =
1. [Bm NO. 205
Exit programming mode. JAN 20 SUN 06:58
I
1-3

PROGRAMMINGPROCEDURES-INTRODUCTION
SECTION 200-096-301
FEBRUARY1991
TABLEl-B
MULTIDIMENSIONALPROGRAM: PROGRAM30
(STATION CLASS OFSERVICE)
Press...
Step
m + LED keys
#
Action description LCD RESPONSE . . .
I
1. Use the programming LCD digital or electronic NO. 205
telephone connected to port 05 - circuit 6. JAN 20 SUN 06:43
Make sure the programming button strip template is
installed on the programming telephone (see
Paragraph 3.24).
2. m[[E[
PROGRAM MODE
Enter programming mode.
3. =Nlm
PROGRAM = 30
Access Program 30. System beeps after m DATA STORE
key is pressed to indicate a program number may
be entered.
4. m 30
SELECT =
Prepare system for a port number selection.
5. ml! -IRE 30 SELECT = (00 - 95)
Enter the port number where the station bein
is connected. Use two digits, followed by a * key.
If
defined
A range of ports may be entered at once by using the
1 key. (See Note on system record sheet.)
6. LED keys 01 - 20
LED keys 01 m 20 activate features for each station port
or port range. Make the following selections by turing
the appropriate key led ON or OFF for each item (01 m
20) for each port, as marked on the system record
sheet:
LED 01: Speakerphone Enabled.
LED 02: Microphone Key Lock Enabled.
LED 03: Microphone ON at Start of Call.
LED 04: Not Used.
LED 05: Speed Dial Allowed.
LED 06: Automatic Busy Redial Access Enabled.
LED 07: Automatic Off-hook Call Announce.
LED 08: Forced Account Code Enabled.
LED 09: Toll Restriction Override Code Revision
Authority
LED 10: DISA Security Code Change Allowed
LED 11: Dial Pulse (DTMF Off) for Standard
Telephone
1-4

PROGRAMMINGPROCEDURES-INTRODUCTION
SECTION 200-096-301
FEBRUARY1991
TABLE I-B (continued)
MULTIDIMENSIONALPROGRAM: PROGRAM30,
STATION CLASSOFSERVICE
Press...
Step
m + LED keys
#
Action description LCD RESPONSE . . .
6. LED keys 01 - 20 (continued)
LED 12 and 13: Digital Telephone Handset Receiver
Volume (Release 3).
LED 14: Account Codes Verified (Release 3).
LED 15: Verified Account Code Revision Authority
(Release 3)
LED 16: Traveling Class of Service Code Revision
Authority (Release 3).
LED 17: Do Not Disturb Override Allowed.
LED 18: Executive Override Allowed.
LED 19: Privacy Overrided Allowed
LED 20: Not Used
If programming a port range, the LED indications are
as follows:
l
LED-ON, all ports in range are enabled for that
item.
l
LED-OFF, all ports in range are disabled for that
item.
l
LED-FLASHING, some ports in range are enabled
and some ports are disabled.
7. m
Secure data in system programming.
8. m
Prepare system for another selection (go back to
step 5), or exit Program 30 (continue with step 9).
30 SELECT = (00 -, 95)
DATA PROGRAMMED
30 SELECT =
9. iim
Secure Program 30 data in system memory.
10. m
Exit Program 30. Enter another program number (see
Table Q), or exit programming mode (go to step 11).
System beeps to indicate it is exiting Program 30.
11. [[m
Exit programming mode.
30 SELECT = ##
DATA PROGRAMMED
PROGRAM =
NO. 205
JAN 20 SUN 06:58
1-5

PROGRAMMING PROCEDURES-INTRODUCTION
SECTION 200-096-301
FEBRUARY 1991
0
I .
0
PCTU
or
PCTUS (Common Control Unit PCB):
A PCTU or PCTUS must be installed, and have
its jumpers set for live operation.
PEKU, PESU, or PDKU in slot 01
LCD program telephone connected to port 05,
equipped with programming template.
3.33 Minimum Software Requirements:
To pre-
pare the system software for programming, clear
the memory by initializing its data (with
Programs
90 and 92), as specified in this Section, Paragraph
4, lnifializing the System.
Next,
Program 03
must
be completed to inform software of the system’s
hardware configuration. Basic system program-
ming can then begin.
3.40 General Programming Procedures
3.41 The general procedure for programming a
system follows:
1)
2)
3)
4)
5)
6)
Programs
90 and 92 must be run to initialize the
system, this sets the following elements to initial
status:
2) Placethesystem powerswitch in theON position.
3) Follow the steps in Table 1 -C.
l
Data for
Programs 00 - 97
l
Speed Dial Memory
l
Character Message Memory
l
Timed Reminders
l
Digital Telephone Volume Levels
l
Call Forward Memory (POWER OFF then
4.20 Initialize Speed Dial Numbers, Character
Message Memory, Timed Reminders, Digital
Telephone Volume, and Call Forward Backup I
Memory with Program 92
ON).
Program
03 must be run to inform the software
of the system hardware configuration.(POWER
OFF then ON).
4.21 Complete this step if the system is being
installed for the first time, or when all currently
programmed speed dial numbers or the like must
be deleted. Follow the steps in Table 1 -D and refer
to Figure l-3.
Ensure that the Basic System Record, Toll Re-
striction System Record and Least Cost Routing
System Record have been filled out. If they have
been filled out, continue with step 4. If not,
determine the customer’s hardware/software
configuration and continue with step 3.
4.30 After Initialization
In Section 200-096-302, complete record sheets
for basic programming, toll restriction, and least
cost routing.
4.31 Immediately after initializing the system,
Program
03 must be run to inform the software of
the system hardware configuration (see Table
I-E),
Program
00 to assign remote maintenance
security codes and to check the system software
level (see Table 1-F); and
Program
04 to assign
station numbers (see Table 1 -G).
From an LCD telephone connected to port 05
equipped with a programming template, enter
data from the record sheets. For help in entering
this data, see example Tables 1-A and 1-B in
this chapter.
4.32 Anytime after initialization, the time and date
can be set. This is not accomplished from the
programming station, but rather from the electronic
or digital telephone connected to port 00 (usually I
station number 200). Refer to Figures l-4, 1-5 and
1-6.
Set the date, time and day from an LCD tele- 4.33 All programs are entered from the LCD elec- :
phone connected to port 00. tronic or digital telephone connected to port 05. I
4 INITIALIZING THE SYSTEM
4.01 This section exolains how to oreiare the
system software for programming. The ‘system’s
memory must be cleared by initializing its data.
Initializing data activates standard data assignments
(stored in ROM).
4.10 Initialize Programs 00 - 97 Data with
Program
90: Always initialize a system when it is
first installed, or when its software must be brought
to the default configuration. If only minor pro-
gramming changes are being added to a system in
which the programming is basically correct, skip
this section. Follow the steps in Table 1-C and
Figure l-2.
1) Ensure that the system meets minimum hard-
ware requirements specified in Paragraph 3.32.
1-6

PROGRAMMINGPROCEDURES-INTRODUCTION
SECTION 200-096-301
FEBRUARY1991
TABLE14
PROGRAM90 .
INITIALIZING PROGRAMS 00- 97
Press...
See Program 90System Record Sheet
Step m + LED keys
# Action description LCD RESPONSE . . .
1. Use the programming LCD electronic or digital telephone
with programming template connected to port 05 - circuit 6. NO.
205
JAN 20 SUN
06:30
2. ImEW PROGRAM MODE
Enter programming mode.
3. ~~~~
Access Program 90. System beeps after m PROGRAM = 90
DATA STORE
button is pressed to indicate the program number
can be entered.
4. m
Prepare system for the programs to be initialized. 90 SELECT =
5. 11110 +LEDkeysOl &02
Enter program numbers individually or in a range.
For a range, separate the low program number and
the high program number with an asterisk.
90 SELECT = OO"97
DATA CLR
6. m 90 SELECT = 00*97
Secure data in system programming. LEDs 01 DATA PROGRAMMED
and 02 flash.
7. m 90 SELECT =
Prepare system for another selection (go back to
step 5), or exit Program 90 (continue with step 8).
8. [[m 90 SELECT = ##
Secure Program 90 data in system memory. DATA PROGRAMMED
9. m PROGRAM =
Exit Program 90. Enter another program number (see
Table D), or exit programming mode (go to step 10).
System beeps to indicate it’s exiting Program 90.
10. mm NO.
205
Exit programming mode. JAN 20 SUN
06:42
NOTE:
The system will not allow the m
LED to light to reenter the programming mode.
11. If all programs or just Program 32 were initialized above,
POWER OFF for 5 seconds then POWER ON.
This resets Station 205 auto preference to select
intercom when m key is pressed.
I
IMPORTANT NOTE
Always initialize Programs 00 w 97 when installing a PCTU that
is being installed for the first time for a particular configuration.
1-7

PROGRAMMING PROCEDURES-INTRODUCTION
SECTION 200-096-301
FEBRUARY1991
.
EXITprogramming mode
\ If all programs
\
Enter programming mode Program(s) to be initialized END Program 90 for 5 sec. then
Button I and 2 LEDs must be lit POWER ON
Initialize
Programs
00 - 97 every time:
l
Installing a new system
l
To bring a system’s programming back to the default setting.
Specify the range as follows: maHaT;
To
initialize one program at a time, enter just the individual program number, then 1.
FIGUREI-P-INITIALIZING DATAFOR PROGRAMS 00- 97WlTH PROGRAM 90
I-8

PROGRAMMINGPROCEDURES-INTRODUCTION
SECTION 200-096-301
TABLE14 FEBRUARY1991
PROGRAM92
INITIALIZING SPEED DIAL NUMBERS, ID CODES, .
CHARACTERMESSAGEMEMORY,TlMED REMINDERS,
D;GITALTELEPHONEVOLUME,ANDCALLFORWARD BACKUPMEMORY
. . .
Step
m + LED keys
#
Action description LCD RESPONSE . . .
1. Use the programming LCD electronic or digital telephone NO.
205
with programming template connected to port 05 - circuit 6. JAN 20 SUN
06:43
2. HmEBEB
PROGRAM MODE
Enter programming mode.
System beeps after m button is pressed to indicate
when to enter program number.
3. =IIm
PROGRAM = 92
Access Program 92. DATA STORE
4. m
92 SELECT =
Prepare system for selection of programs to initialize.
For new system installation perform all 1 - 4.
Select one of the following.
5.
A
0 + LED keys 01 & 03
92 SELECT = 1
Clears station speed dial, voice mail ID codes, and LCD EACH DIAL CLR
memos assigned to station speed dial numbers.
OR
B
1 + LED keys 01 & 04
92 SELECT = 2
Clears system speed dial and LCD memos assigned to COMMON DIAL CLR
system speed dial numbers.
OR
C i + LED keys 02 & 03
92 SELECT = 3
Clears character message memory (station and system) MSG CLR
and user name display.
OR
D
[ + LED keys 02 & 04
92 SELECT = 4
Clears timed reminders. TMR REMINDER CLR
OR
E
1 + LED keys 01 & 05
92 SELECT = 5
Presets the Ring/Speaker, Mute Ring, and Intercom DKT VR INITIAL
Tone/BGM, volume levels of all digital telephones
to approximately midrange
(Release 3).
OR
F
1 + LED keys 03 & 04
92 SELECT = 9
Clears Call Forward Memory except Fixed Call Forward BACK UP RAM CLR
Memory
(Release
2 and above).
6. m
92 SELECT = (1-O)
Secure data in system programming.
Repeat
steps 4 - 6 DATA PROGRAMMED
until steps 5A - 5F are completed (see note).
7. m
92 SELECT =
Prepare system for another selection (go back to
step 5), or exit Program 92 (continue with step 8).
8. I[=
92 SELECT = ##
Secure Program 92 data in system memory. DATA PROGRAMMED
9. m PROGRAM =
Exit Program 92. Enter another program number (see
Table C), or exit programming mode (go to step IO).
System beeps to indicate it’s exiting Program 92.
0. [ilgg I fro.
205
Exit programming mode. JAN 20 SUN
06:58
NOTE:
If the call forward memory was cleared, cycle system power after
forward LCD displays or call forward button LED indications.
1-9
Step 6, if it is required to reset telephone call

PROGRAMMING PROCEDURES-INTRODUCTION
SECTION 200-096-301
FEBRUARY 1991
more data
Enter programming mode
SELECT= (as below, ED ProgreT 7-
Specify if initializing Station Autodial, EXIT programming
System Autodial,Character Message mode
Memory or Timed Reminders:
p-$J@)L Clears Station Speed Dial, Voice Mail ID Codes,
and LCD memos Assigned to Station Speed Dial numbers.
pJ%J@ Clears System Speed Dial and LCD memos assigned to
System Speed Dial numbers.
Clears Character Message Memory (Station and System).
Clears Timed Reminders.
Initialize Digital Telephone Ring/Speaker, Mute Ring,
and Intercom ToneBGM volume levels (Release 3).
FIGURE I-3-INITIALIZING SPEED DIAL NUMBERS, ID CODES, CHARACTER MESSAGE MEMORY,
TIMED REMINDERS, DIGITAL TELEPHONE VOLUME, AND CALL FORWARD BACKUP MEMORY WITH
PROGRAM 92
I-IO

PROGRAMMING PROCEDURES-INTRODUCTION
SECTION 200-096-301
FEBRUARY1991
TABLEl-E
PROGRAM03
Press...
FLEXIBLEPCBSLOTASSIGNMENTS
Ster, m + LED keys
ft’
I,
Action description LCD
RESPONSE . . .
1. Use the programming LCD electronic or digital telephone NO. 205
with programming template connected to port 05 - circuit 6. JAN 20 SUN 06:43
2. WmE~P~ PROGRAM MODE
Enter programming mode.
3. moom
Access Program 03. After m key is pressed, system PROGRAM = 03 DATA STORE
beeps to indicate program number may be entered.
4. m
Prepare system for a selection.
5. Dial a PCB slot number (00-14) using the dial.
The system defaults as follows:
55
Initialized data assigns slot 00 to be a non-optioned
PCTU without CRCU.
50
Initialized data assigns slot 01 to be a non-optioned
PEKU without door phone, DSS console or OCA.
55-0~
Initialized data assigns slots 02 N 14 to be empty.
6. ~~-~[
Dial the PCB code recorded on the record sheet.
Refer to the PCB code reference table on Program
03
System Record Sheet for a definition of the codes.
03 SELECT =
03 SELECT = (00 _ 14)
CARD = (91, 21 or 00)
03 SELECT = 00
CARD = 91 =SLOT NUMBER
03 SELECT = 01
CARD=21 =SLOT NUMBER
03 SELECT = 02
CARD = 00 -%T NUMBER
03
SELECT = (00 - 14)
CARD = (00 - 93)
7. m
Secure data in system programming.
03
SELECT = (00 +. 14)
DATA PROGRAMMED
8. m
03 SELECT =
Prepare system for another selection (go back to
step 5), or exit Program 03 (continue with step 9).
9. [jm 03 SELECT = ##
Secure Program 03 data in system memory. DATA PROGRAMMED
0. m PROGRAM =
Exit Program 03. Enter another program number (see
Table E), or exit programming mode (go to step 11).
System beeps to indicate it’s exiting Program 03.
1. [[m NO. 205
Exit programming mode. JAN 20 SUN 06:58
2. In order to secure Program 03 entries, POWER OFF
for 5 seconds, then POWER ON.
I
I-II

PROGRAMMING PROCEDURES-INTRODUCTION
SECTION 200-096-301
FEBRUARY1991
TABLEI-F
PROGRAM00
SOFTWARECHECKANDREMOTEMAINTENANCESECURITYCODEASSIGNMENTS
Press...
Step
w + LED keys
ti
Action description LCD RESPONSE . . .
I
1. Use the programming LCD electronic or digital telephone NO. 205
with programming template connected to port 05 - circuit 6.
JAN 20 SUN
06:43
2. mElWEB PROGRAM MODE
Enter programming mode.
3. =Iim
PROGRAM = 00
Speaker beeps to indicate when to enter program DATA STORE
number. Access Program 00.
4. m
00 SELECT =
Prepare system for a selection.
5.
Select one of the following attributes:
A. 1 00 SELECT = 0
View the software version. This attribute is not editable.
l
DXnn= PCTUl OR PCTU2 VERSION
OR
l
DVno= PCTUS VERSION
l
PCMnn = PCTU3 VERSION
NOTE:nu= THE ACTUAL VERSION
NUMBER AND LETTER
B. iaB11 00 SELECT = 1
Define the Level 1 remote maintenance security code PASSWORD = 0000
from the System Record Sheet (four digit max.). Level 1
allows remote access to all programs and data.
Default Level 1 security code is “0000.”
OR
c. 01111 00 SELECT = 2
Define the Level 2 remote maintenance security code PASSWORD = 0000
from the System Record Sheet (four digit max.). Level 2
allows remote entry to Programs 30 m 39 and 77 w 89
only. Default Level 2 security is “0000.”
OR
D. 1 00 SELECT = 8
View the software RAM Checksum. This attribute is not SUM = xxxxxxxxx
editable. The default checksum may change.
OR
E. 1 00 SELECT = 9
View the PPSU Power Cycle Counter. This attribute is COUNTER = XXXX
not editable. The counter indicates the number of times
power is removed from the system after
Program 00
was initialized via
Program 90.
6. m
00 SELECT = (0,1,2,8 or 9)
Secure data in system programming. DATA PROGRAMMED
(Only works for “1” and “2”)
7. m
00 SELECT =
Prepare system for another selection (go back to
step 5), or exit Program 00 (continue with step 8).
1-12

PROGRAMMING PROCEDURES-INTRODUCTION
SECTION 200-096-301
FEBRUARY 1991
TABLE 1-F (Continued)
PROGRAM 00
SOFTWARE CHECK AND REMOTE MAINTENANCE SECURITY CODE ASSIGNMENTS
Press...
Step B + LED keys
Action description
8". filrmr;l
LCD RESPONSE . . .
00 SELECT = ##
Secure Program 00 data in system memory.
DATA PROGRAMMED
9.
m PROGRAM =
Exit Program 00. Enter another program number (see
Table D), or exit programming mode (go to step IO).
System.beeps to-indicate it’s exiting Program do.
10. ljm
NO. 205
Exit programming mode.
JAN 20 SUN 06:58
1-13

PROGRAMMING PROCEDURES-INTRODUCTION
SECTION 200-096-301
FEBRUARY1991
TABLEl-G
PROGRAM04
Press...
PORT/STATIONNUMBERASSlGNMENT
m + LED keys
#’
Action description LCD RESPONSE . . .
I. Use the programming LCD electronic or digital telephone NO. 205
with programming template connected to port 05 - circuit 6. JAN 20 SUN 06:43
2. 5mEEEclo PROGRAM MODE
Enter programming mode.
3. ~~~~
Access Program 04. System beeps after m PROGRAM = 04
DATA STORE
is pressed to indicate a program number may be entered.
4. m 04 SELECT =
Prepare system for a selection.
5. Iii -i@ 04 SELECT = 00
Select the number of the port (use two digits). INT = 200
Initialized data assigns station numbers 200 - 295.
6. 1111 04 SELECT = 00 - 95
Enter the port’s station number from the record INT = XXXX
sheet (four digits max.).
NOTE:
Station numbers must not exceed four digits, or
conflict with feature access codes listed in Program
05 System Record Sheet.
7. m
Secure data in system programming.
8. m
Prepare system for another port selection (go back
to step 5), or exit Program 04 (continue with step 8).
9. EEm
Secure Program 04 data in system memory.
0. m
Exit Program 04. Enter another program number (see
Table F), or exit programming mode (go to step 10).
System beeps to indicate it’s exiting Program 04.
1. EErmn
Exit programming mode.
04 SELECT = (00 - 95)
DATA PROGRAMMED
04 SELECT =
04 SELECT = ##
DATA PROGRAMMED
PROGRAM =
NO. 205
JAN 20 SUN 06:58
,’
1-14

PROGRAMMINGPROCEDURES-INTRODUCTION
SECTION 200-096-301
FEBRUARY1991
HOW TO SET THE DATE
The date must be set from the electronic or digital telephone assigned to Port 00.
Press the following button sequence with the handset on the hook:
Date in year/month/day (
format (YYMMDD). If month
or day is a single digit, precede
with a zero (0).
If the electronic
telephone has a
Redial button
programmed, press
it instead.
FIGUREI-4-SETTING SYSTEM DATE
HOW TO SET THE TIME
The time must be set from the electronic telephone or digital assigned to Port 00.
Press the following button sequence with the handset on the hook:
Time in hours/minutes/seconds
format (HHMMSS from 000000
to 235959). If any of these values
is a single digit, precede with a
zero (0).
I
If the electronic
telephone has a
Redial button
programmed, press
it instead.
FIGUREI-5-SETTING SYSTEMTIME
HOW TO SET THE DAY
The day must be set from the electronic or digital telephone assigned to Port 00
Press the following button sequence with the handset on the hook:
Enter the digit for today’s day: 2
1 = Sunday
2 = Monday
3 = Tuesday
4 = Wednesday
5 = Thursday
I
If the electronic
telephone has a
Redial button
programmed, press
it instead.
6 = Friday
7 = Saturday
FlGUREl-6-SETTINGSYSTEM DAYOFWEEK
1-15

PROGRAMMINGPROCEDURES-INSTRUCTIONS/SYSTEMRECORDS
SECTION 200-096-302
FEBRUARY1991
trata@mx
RELEASE 1,2, and 3
PROGRAMMING PROCEDURES
CHAPTER TWO
INSTRUCTIONS/RECORD SHEETS

PROGRAMMINGPROCEDURES-INSTRUCTIONS/SYSTEMRECORDS
SECTION 200-096-302
FEBRUARY1991
IMPORTANT INITIAL INSTALLATION NOTES:
These minimum installation steps must be carried out for proper system operation.
0
7. Set PCTU jumper for
BATTERY OPERATION;
otherwise, all programmed customer data will
be lost on power down.
2. Place PEPU, PIOU, or PIOUS PCB in highest slot number of KSU,
3. Place all other PCBs in KSU from lowest slot number to highest in the following order:
I
PCTU or PCTlJSl (always slot 00)
PEKU or PDKU (starting at Slot 01)
PESU (Release 2 and above)
PSTU
PCOU
PEMU
4. Run Program 90. Initialize Programs 00 - 97, and turn power OFF for 5 seconds, then turn
power back ON.
5. Run Program 92.
6. Enter the hardware configuration with Program 03, exit the programming mode, and turn
power OFF for 5 seconds, then turn power back ON.
WHEN LATER ADDING KSU PCBs:
1. Move PEMU PCBs to a higher slot number to create empty slots for additions.
2. Install new PCBs and reprogram with Program 03. Change PEMU station and CO line
numbers or reassign stations.
3. Program new features, options, etc. created by new additions.

PROGRAMMINGPROCEDURES-INSTRUCTIONS/SYSTEMRECORDS
SECTION 200-096-302
FEBRUARY1991
TABLEOFCONTENTS
1
1.10
1.20
2
3
3.00
3.10
1 f.10
4.20
4.30
4.40
4.50
4.60
4.70
4.80
4.90
4.100
5
6
6.00
6.20
7
7.10
7.20
7.30
7.40
PAGE
i
ii
2-l
2-l
2-l
2-19
2-19
2-19
2-20
2-20
2-21
2-21
2-22
2-22
2-23
2-23
2-23
SUBJECT
IMPORTANT INITIAL INSTALLATION NOTES ..........................................
TABLE OF CONTENTS ..............................................................................
GENERAL ...................................................................................................
Record Sheet Data Entry ........................................................................
Basic System Record Instructions ..........................................................
TOLL RESTRICTION ..................................................................................
TOLL RESTRICTION OVERVIEW.. ............................................................
Toll Restriction Methods ..........................................................................
Toll Restriction Features .........................................................................
COMPLETING THE TOLL RESTRICTION SYSTEM RECORD .................
Program 44B-Toll Restriction Traveling Class Override Codes.. ..........
Program 45-l--Toll Restriction Dial Plan ...............................................
Program 45-2-Toll Restriction Disable ..................................................
Program 45-3 -, 6-Equal Access/Special Common Carrier Numbers
and Authorization Code Digit Length ......................................................
Program 45-8 N g-Toll Restriction Override Code ................................
Program 46-2 N 4-Toll Restriction Allowed/Denied Area Codes
Assigned by Class ...................................................................................
Program 46-6 N 8-Toll Restriction Allowed/Denied Office Codes
Assigned by Class ...................................................................................
Program 46-l 0 N 40-Toll Restriction Class Parameters
(Classes 1 u 4) ........................................................................................
Program 47-Toll Restriction Exception Office Codes Assigned by
Area Codes (Table 1 N 8) ........................................................................
Program 48-Station Toll Restriction Classification.. ..............................
LEAST COST ROUTING.. ...........................................................................
LEAST COST ROUTING OVERVIEW ........................................................
Definition .................................................................................................
Conditions ...............................................................................................
COMPLETING THE LEAST COST ROUTING SYSTEM RECORD ...........
LCR CO Line Programming Reference Table.. .......................................
Program 50 Series-LCR Definitions.. ....................................................
Route Plan Overview ..............................................................................
Program 55 Series-LCR Modified Digits Tables ...................................
SYSTEM RECORD SHEETS ......................................................................
Strata DK Software Releases .................................................................
Release 2 Software Guide ......................................................................
Release 3 Software Guide ......................................................................
Program Number Index ...........................................................................
Toll Restriction System Record Sheet ....................................................
Least Cost Routing System Record Sheet.. ............................................
2-24
2-24
2-24
2-25
2-25
2-25
2-27
2-28
2-28
2-28
2-29
2-32
2-33
2-35
2-36
2-38
2-41
2-123
2-137

PROGRAMMINGPROCEDURES-INSTRUCTIONS/SYSTEMRECORDS
SECTION 200-096-302
FEBRUARY1991
TABLELIST
TABLE SUBJECT PAGE
2-A PROGRAMS 00 w 97 IN NUMERICAL ORDER WITH
SECTIONS CROSS-REFERENCED . . . . . . . . . . . . . . . . . . . . . . . . . . . . . . . . . . . . . . . . . . . . . . . . . . . . . . . . . . 2-43
2-B ACCOUNT CODE PROGRAM OPTION MATRIX . . . . . . . . . . . . . . . . . . . . . . . . . . . . . . . . . . . . . . 2-153
2-c OVERRIDE OPTION MATRIX . . . . . . . . . . . . . . . . . . . . . . . . . . . . . . . . . . . . . . . . . . . . . . . . . . . . . . . . . . . . . . . . . . . . 2-154
FIGURE LIST
I
FIGURE
2-1
2-2
SUBJECT PAGE
LCR OPERATIONAL BLOCK DIAGRAM . . . . . . . . . . . . . . . . . . . . . . . . . . . . . . . . . . . . . . . . . . . . . . . . . . . . 2-26
PROGRAMMING KEY SEQUENCE OVERVIEW . . . . . . . . . . . . . . . . . . . . . . . . . . . . . . . . . . . . . . . 2-46
. . .
-Ill-

PROGRAMMING PROCEDURES-INSTRUCTIONS/SYSTEM RECORDS
SECTION 200-096-302
FEBRUARY 1991
1 GENERAL
1.00
This chapter consists of System Record
Sheets, and instructions on how to fill out each of
the them. The chapter begins with the instructions:
first the basic program, followed by toll restriction,
and then least cost routing. The remainder of
the chapter contains the system record sheets,
organized in the same sequence as the
instructions.
1 .I 0 Record Sheet Data Entry
1 .I
1 The system record sheets are used to record
the assignment of features or operation of each
program. Each sheet is organized to accept an “X”
or a series of digits as a selection to be recorded in
the space provided. The following descriptions or
considerations of the various programming choices
available will be helpful in filling out of the System
Record Sheets.
1.12
Initialized data information can be found in
the Notes at the bottom of each System Record
Sheet.
1.20 Basic System Record Instructions
Program 90-Initializing Programs:
All cus-
tomer data can be cleared and set to the
initialized state for any program or range of
programs. If the system is being installed for
the first time, this program must be run to erase
random data from RAM which may have been
caused by the PCTUs jumper movement to
the internal battery. Initialized data information
can be found at the bottom of each Progra.m
System Record Sheet. If the system is being
installed in a new location, all programs (00 -
97) should be initialized.
Program 92-Initializing Speed Dial Numbers,
ID Codes, Character Message Memory,
Timed Reminders, Call Forward, and
Digital Telephone Volume Levels:
All previ-
ously entered or random data (of the type
listed) is cleared by this program. This program
must be run when first installing a system or
PCTU.
Program 03-Flexible PCB Slot Assignments:
The software must be informed as to what type
of PCB and PCB option(s) are installed in each
slot of the KSU. Use the PCB Code Reference
Table on the
Program
03 record sheet to de-
termine the proper PCB Code. Always enter
PCTU or PCTUS in slot 00. Enter options from
the choice of CRCU-4, CRCU-8, EOCU, DDSS, 1
or DSS. Also enter HDCB where installed-
this will become useful elsewhere. Record
station ports assigned to the PDKU, PEKU, m
PSTU, PESU and PEMU interfaces. Enter CO/
TIE line numbers for the PCOU and PEMU
PCBs. Always enter the code for the PIOU or
PIOUS or PEPU in the last slot. This record
sheet is the main record for the hardware
configuration of the entire system. An example
of the proper recording of
Program 03
can be
found at the end of Section 200-096-304. Im-
portant: After complete entry of
Program 03,
turn the KSU power supply switch off and wait
five seconds before turning back on. This will
set in memory all of the configuration data
entered in
Program 03.
Program 00-Software Check/Remote Mainte-
nance Security Code Assignments:
l
Level 1 Security
Code-Remote Mainte-
nance security code which allows entry to
all programs and data.
l
Level 2 Security
Code-Remote Mainte-
nance security code which allows entry to
Programs
30 - 39 and 77 - 89.
Program 04-Port/Station Number Assignment:
Initialized station numbers are 200 - 295. Door
phone standard numbering is 151 - 159 and
161 - 163; the internal modem (IMDU) is 19,
and port 99 is the DISA COS port. This num-
bering cannot be changed with
Program 04.
The system automatically assigns door phone
station numbers if a door phone is specified in
Program 77-1;
only the first digit can be
changed by using
Program
05. Station num-
ber assignment is fully flexible so that each
station can have any number assigned up to
four digits. However,
if the first digit is not 2,
access code conflicts may-exist (see Pro-
gram
05), and a new system numbering plan
2-1

PROGRAMMING PROCEDURES-INSTRUCTIONWSYSTEMRECORDS
SECTION 200-096-302
FEBRUARY1991
will have to be carefully worked out. All User
Guides are written using the standard access
codes and station numbers. If desired, an
electronic telephone accompanying a DSS
console (or a digital telephone accompanying
a DDSS console) can have a station number of
0 or 01, etc. without conflict. If no assignment
is made in
Program
04, the system, upon
powering up, will automatically assign eight
station numbers for each PDKU, PEKU, PESU
and PSTU installed and four for each PEMU.
This is done in sequence of ascending slot
numbers for station numbers 200 and up. If
station numbers are assigned in
Program 04
then they are fixed to a slot number-any
movement of PEKU, PESU or PSTU station
cards must be accompanied by reassignment
in
Program
04 or else the telephones will have
their station numbers changed.
Program 05-Flexible Access Code Number-
ing:
The first digit of a feature access code may
be changed to a different digit or to two digits.
Digits after this prefix cannot be changed.
Standard access codes are shown as refer-
ence in the
Program
05 System Record Sheet.
Some do not change (such as Automatic Call-
back) and are shown with N/A for not affected.
Access code conflicts may exist if new
access codes are assigned;
a new system
numbering plan will haveto becarefully worked
out. Pay particular attention to the internal
modem (#19) and door phones. Station num-
ber assignment may have to be changed using
Program 04.
Program IO-l-System Assignments 1:
The
following options are available on a system-
wide basis.
l
Two CO Conference, LED 20-Two CO
lines can be conferenced with one or two
telephones (digital, electronic, or standard).
Conference (see LED 19) in this program
must be enabled for this feature to work.
Also, two CO line conference must be
allowed for DISA use of outgoing lines.
l
Conference, LED
19-The ability of sta-
tions to perform any conference can be
allowed or disallowed system-wide.
l
Ring Detect Time, LED
18-This should
be set to normal unlessconnected to Central
Office/CENTREX lines that send ring sig-
nals less than 120 milliseconds
(Release 1
is short-ring only;
Release
2 and above is
optional).
, ,
.::
l
Intercom Volume PAD, LED 17--“ON”
reduces station to station intercom volume.
LED 17 should be OFF in all cases except
where extreme quiet room noise is ex-
pected.
l
ABR Cycles, LED
12-If activated from an
electronic or digital telephone, Automatic
Busy Redial will retry dialing a telephone
numberonacolineifafarend busy signal
is detected. The choice is given of retrying
10 or 15 times before terminating. This
feature is not available with standard tele-
phones.
l
ABR Redial Time, LED
11-Upon detec-
tion of a far end busy signal on a CO line,
Automatic Busy Redial will retry either once
every 30 seconds or once every minute.
l
System Speed Dial Override, Toll Re-
striction, LED 1
O-System Speed Dial (*60
N *99) can be chosen to override Toll
Restriction.
l
Exclusive Hold, LED
09-Exclusive Hold
allows electronic and digital telephones to
place calls on hold (by pressing them
key twice) so that other stations cannot
pick up the held call with a CO line button.
This feature can be disabled on a system-
wide basis. Any station can pick up an
exclusive hold call by using the call pickup
code.
l
Alternate Point Answer/Transfer Pri-
vacy, LED
08-If Transfer Privacy is se-
lected, a transferred call can only be an-
swered at the called station upon transfer
of that call. With Alternate Point Answer,
any electronic or digital telephone with the 1
appropriate CO line button can pick up a
call transferred to another telephone. In
either case, call pickup will function from
any station.
l
Ring Transfer, LED
07-This option de-
fines station operation for transferring CO
line calls. If Ring Transfer is allowed, the
2-2

PROGRAMMING PROCEDURES-INSTRUCTIONS/SYSTEMRECORDS
SECTION 200-096-302
FEBRUARY1991
system will allow “blind” transfers-the
transferring station may release a trans-
ferred call before the called party answers.
If not allowed, the system will allow super-
vised station must
answer before the transferring station re-
leases. If Ring Transfer is not allowed,
immediate recall occurs if “blind”transfer is
attempted.
l
CO Repeat Ringing, LED 06-If selected,
the incoming ringing timing pattern at a
station will be the same as the CO line
ringing pattern. This is used mainly with
CENTREX or PBX systems which may
vary the ring pattern to distinguish between
intercom and incoming calls, etc. If Stan-
dard Ringing is chosen, CO line station
ringing will be a 1 second on, 3 seconds off
cycle regardless of the incoming ring pat-
tern. Some Central Offices have ringing
characteristics such that this option would
not be desirable.
l
Incoming Call Abandon Timing, LED
05-The amount of time between incom-
ing CO line ring signals determines when
the system will discontinue (abandon)
sending ringing tones to stations. The
choice of 6 or 8 seconds is dependent on
the CO ring pattern. This assignment has
no effect if the CO Repeat Ringing option is
used.
l
DTMF Signal Time, LED 04-DTMF sig-
nals sent out to CO lines can be either 80
or 160 milliseconds in length. DTMF to
PSTU/PESU ports (including Voice Mail
ports) are not affected by this assignment.
See Program 1 O-2 for PSTU/PESU DTMF
timing.
l
DP Make Ratio, LED 03-Dial Pulse tim-
ing sent out to CO lines can be changed
from the normal 40% make ratio to 33%.
This selection only applies to those CO
lines assigned in Program 15 to signal
dialing with dial pulse instead of DTMF.
l
CO Line Reseize Guard Time, LED 02-
Should be set for 0.45 seconds for most
installations. Set guard time for 1.5 seconds
(using Program IO-I, LED 02 ON and
Program 42-O), if CO lines experience the
following situations: no dial tone when a
line is released and reseized immediately;
or, when operating behind CENTREX or
PBX, false hookflash signals are sent to
the Central Office when stations release
and reseize the same CO line immediately
(Release 2 and above).
l
Tone First/Voice First-Electronic and
Digtial Telephone, LED 01-With Voice
First, an intercom call to an electronic or
digital telephone will be preceded by a one
second burst of tone, followed by voice
communication via the handsfree answer-
back function. For Tone First, repetitive
intercom ring tone is sent in a 1 -second on,
3-seconds off pattern. Conversion from
one form to the other can be made by
dialing an additional digit of 0 from the
calling station.
Program IO-2-System Assignments 2: The
following options are available on a system-
wide basis.
l
Stations Use External Amplified Con-
ference, LED 19-Thisfeatureshould only
be used (LED 19 ON) if an external
amplifier(s) (Program 1 O-3) is used for two-
CO line conference calls. This will provide
additional amplification to the station dur-
ing a two-CO line conference call. If an
external amplifier is not switched into two
CO line conference calls in all cases, LED
19 must be OFF to prevent line unbalance
which may cause HUM noise on the station
talk path during two CO-line conference
calls.
l
Two CO Line Conference, LED 18-LED
18 should be ON whenever two CO line
(Tandem, DISA, TIE) connection is allowed
in Program 15-5 and Program 1 O-l, LEDs
19 and 20. This will increase the volume
level between the two outside parties on a
Tandem (two-CO-line) connection; but, it
will not affect station volume if conferenced
into the Tandem connection. This option is
not associated with external amplified
conference (Program 1 O-3).
l
Executive Overfide Waining Totie,
LED
16-Executive Override allows a station (if
2-3

PROGRAMMINGPROCEDURES-INSTRUCTIONWSYSTEMRECORDS
SECTION 200-096-302
FEBRUARY1991
assigned in
Program
30) to break into and
overhear an existing station conversation.
A warning tone can be set optionally to be
heard by the conversing parties.
l
External Page Included with All Call
Page, LED
15-If the all call voice page
access code (39) is dialed, external page
(all zones) may be included or omitted with
this option. This option does not affect the
All Call (m) button function; them button
activates electronic and digital telephone
speakers only, never external page.
l
Privacy Override Warning Tone, LED
14-Privacy Override allows a station to
enter into, and overhear, an existing CO
line conversation by pressing a CO line
button (if the called station is assigned in
Program
30). A warning tone can be set
optionally to be heard by the conversing
parties.
l
Auto Callback Camp-on Tone, LED 13-
1
A busy called digital or electronic telephone
user may optionally hear a one-time beep
tone (from the speaker) signifying that an-
other station has tried to call and has
activated the Automatic Callback feature.
l
CO Line Beep Tone, LED
12-If this LED
is lit, a beep tone will be sent every three
minutes to stations on outgoing CO line
calls.
l
DTMF Tone Return, LED 1
I-This option
can delete DTMF tones that are returned to
I digital or electronic telephones when
manually dialing or speed dialing. It also
eliminates auto dial digits returned to call-
ers when digits are automatically sent to
voice mail ports on forwarded calls
(Re-
lease
2 and above).
l
Background Music/Music-on-Hold
Separation, LEDs IO and
9-A separate
background music source can be sent to
I digital telephone speakers, electronic
telephone speakers, and external page
speakers, while another music-on-hold
source can be sent to outside lines or
I
internal stations on hold. With
Release 3,
the background music source connects to
circuit 3 of a PEKU PCB or circuit 8 of a
PESU PCB in any s!ot
(see Program 19).
With
Release
2, the background music .,,
connects to the same circuits on the same -:
PCBs, except that the PEKU or PESU
must be installed in slot 01. No matter what
release, the music-on-hold source con-
nects to the PCTU or PCTUS PCB’s P6
terminal.
l
Display Dialed Number Timing, LED 08-
An LCD telephone will display a dialed
number for either 15 or 60 seconds before
the display changes back to the normal
time and date format.
l
Standard Telephone Distinctive Ring,
LED
07-The outside-call ring pattern to
standard telephones, can be made distinct
from the intercom ring pattern. If Distinctive
Ring is enabled, the CO-line call ring pat-
tern will be 0.2-seconds on, 0.4-seconds
off, 0.2-seconds on, 3.4-seconds off; if
Distinctive Ring is not enabled, the pattern
will be per
Program 10-1,
LED 06. Inter-
com calls, with or without Distinctive Ring
enabled, ring 1 -second on and 3-seconds
off. This option is available with
Release 2
and above software only.
l
Voice Mail Identification Code, DTMF
Signal Time, LED
06-DTMF digits auto-
matically sent to PSTUIPESU voice mail
ports can be sent in either 80- or 160-
millisecond bursts. This applies to digits
sent via voice mail identification code 656/
657 set at each station. This option is
available with
Release
2 and above soft-
ware only.
l
TIE/DISA Busy Tone Cadence, LED 05
(Release
3)-Select the busy tone ca-
dence for DISA/TIE lines with this LED.
Light the LED for a 0.5 second cadence
(Bell Precise Busy Tone Cadence); Leave
it OFF for the STRATA 0.25 second busy
tone cadence. The Bell Precise Busy Tone
cadence should be selected so callers will
know that they have reached a busy station
when calling in on a TIE or DISA line. If it is
not selected, the busy tone may be confused
with the reorder tone cadence.
l
VM Message Waiting Cancel Via Dial 1
DAutomatic, LED
u4--“Diai~~‘should be
enabled if the DK system is connected to a
2-4

PROGRAMMINGPROCEDURES-INSTRUCTIONS/SYSTEMRECORDS
SECTION 200-096-302
FEBRUARY1991
voice mail system that sets station Mes-
sage Waiting (MW) LEDs by dialing Ii+
station number. This insures the message
LED remains flashing until all VM mes-
sages have been retreived, at which time
the VM machine should cancel the MW
LED by dialing Ii+ station number. With
Dial 11 enabled, MW indications set on a
station from Voice Mail ports will not auto-
matically be cancelled by the DK system
when the station calls Voice Mail to retrieve
messages. If “Automatic” is selected, the
flashing message waiting LED is canceled
any time a station calls the VM machine
and the VM machine answers.The dial 1 B
option is available with
Release
2 and
above.
NOTE:
Message Waiting cancel via “Dial 1 m + sta-
tion number” only applies to VM ports that
have LEDs 76 and
17
set
“ON”
in
Program
31.
l
Ringing Modes, LED03-Two
choices are
available for ringing modes invoked by the
Night Transfer button. They are DAY, DAY
2, NIGHT (3 modes) or DAY, NIGHT (2
modes). The 3-mode selection is useful for
alternate answering positions. These
modes are switched via them but-
tons
(Programs
29 and 39) which control
CO line ring assignments
(Programs 78
and 81 W 89).
I
l
Call Forward Override From DDSSDSS
Console, LED
02-If a station has acti-
vated call forwarding, all calls to that sta-
tion will be forwarded to another number
I except for calls from the DDSS or DSS
console position. A choice exists of whether
to call forward from the console itself or
from the digital or electronic telephone
assigned to it. If the console calls (using the
DSS console station buttons) are for-
warded, the attendant telephone will not be
forwarded, and vice versa. This allows the
console operator flexibility in reaching a
station user.
I
l
Tone First/Voice First-DDSSDSS Con-
sole, LED
01-Intercom calls from the
DDSS or DSS console can operate differ-
ently from calls by their attendant tele-
phones as far as Tone First/Voice First
(see Program IO-l).
Program lo-3-(LED 01 -, 04, Release
3): Turn
on LED 01 - 04 to identify which PEKU ports
should be connected to external amplifiers.
External Amplified Conference is provided by
customer-supplied two-way amplifiers con-
nected to system PEKU ports to provide ampli-
fication of “two-CO” line calls. Up to four am-
plifiers can be connected (2 PEKU ports for
each amplifier) to amplify up to four “two-CO”
line calls simultaneously. The amplifier is
switched into the call automatically when a
two-CO line call is established, amplifiers are
switched into calls starting from the lowest
PEKU ports to the highest (see record sheet).
Skipping PEKU ports is allowed. Example: The
first amplifier can be connected to PEKU ports
17 and 18, skipping ports 09 and 10. In this
case LED 02 should be ON and LED 01 should
be OFF. Caution: The DK system allows up to
eight simultaneous two-CO line conference
connections, the amplifiers are switched in
automatically starting with the first two-CO line
call, calls made after the last amplifier is used
will not be amplified.
(See Program 10-1,
LED
19 and
20; Program 1
O-2, LED 18 and 19; and
Program 15-5
for more information regarding
two-CO line conference.)
NOTE:
The external amplifiers will also be auto-
maticallyswitched into two-CO line DISA and
TIE line calls.
Program 12-System Assignments-Basic
Timing:
l
Pause Timing, Code
3-Pauses may be
programmed in speed dial numbers by the
station users. The length of these short
pauses can be set system wide for either
1.5 or 3 seconds. The long pause (a differ-
ent user selection) is 10 seconds. This
pause timing also applies to pauses in-
serted while dialing via Data Interface Units
(PDIUs).
l
Flash Timing, Code
4-When on a CO
2-5

PROGRAMMING PROCEDURES-INSTRUCTIONWSYSTEMRECORDS
SECTION 200-096-302
FEBRUARY1991
line, a station user can press the Message
Waiting/Flash button and the CO line will
open (flash) for a period of either 2 sec-
onds, 0.2 seconds or 0.5 seconds depend-
ing on this assignment. A flash can also
be activated by dial code-II.
In general, this choice reflects whether to
disconnect and regain dial tone (2 sec-
onds),ortousePBXorCENTREXfeatures
which require a flash signal (0.5 seconds).
This flash timing also applies to flashes
inserted when dialing via Data Interface
Units (DIUs).
NOTE:
The 0.2 seconds option is not normally used
in the United States.
l
Pause After Flash, Code
%--Some Cen-
tral Offices or CENTREXfacilities require a
period of time after a flash signal before
they can accept dialing signals. A selection
of pause timing is available to automatically
delay any dialing signals after flash. This
timing applies to speed dial calls (with flash
signals between the telephone number
digits) as well as manual dialing.
l
CRCU Seize Time, Code
g-One channel
of the CRCU DTMF receiver/decoder is
seized when it is needed for the decoding
process, such as with a standard telephone
with DTMF dialpad. When placing outgo-
ing calls with DTMF standard telephones,
the talk path to the outside party is not “cut-
through” until the CRCU circuit is released.
The release time of the CRCU channel can
be programmed for a time between 1 and
9 seconds (initialized timing is 4 seconds);
this is the time it takes to release the CRCU
circuit after the last digit is dialed. The
choice of timing is a trade-off between CO
line time to connect and user speed. If the
time is too long, the outside called party
may answer before the voice path is “cut-
through,” and the caller will not be heard. If
the time is too short, a user inputting DTMF
tones could be cut off prematurely from
using other features, such as speed dial.
NOTE:
If no digits are dialed after accessicg an
outside line, the CRCU remains seized for ‘15
seconds and then drops; however, the CO
line remains connected.
Program 13-Defining the Message Center:
Each digital and electronic telephone can re-
ceive a maximum of four message waiting
indications. One of these four is reserved for
the designated Message Center. Typically, the
telephone (digital or electronic) accompanying
a DDSS or DSS console will be the Message
Center. However, if incoming traffic to a DDSS
or DSS console attendant is heavy, another
station may be assigned to be the Message
Center.
Program 15-Assigning DP/DTMF, Tenant
Service to Individual CO Lines:
l
Automatic Release (AR) on Voice Mail
Calls, Code 0 (Release
3)-If the Central
Office sends the AR signal after a CO line
call hangs up before the VM/auto atten-
dant transfers a call, “D” tone will be sent to
the voice mail port, releasing and clearing
that port for another call. If the outside
caller hangs up after the VM/auto atten-
dant hook flashes (to transfer the call), “D”
tone will not be sent to release the call.
l
CO Outgoing Signal, Code
l-Each CO
line can be independently assigned to have
either Dial Pulse or DTMF signaling.
l
CO Dial Pulse Rate, Code
2-If a CO line
is assigned Dial Pulse signaling, the rate
can be either 20 or IO pulses per second.
Some Central Offices do not reliably ac-
cept 20 pulses per second.
l
Automatic Release (AR), Code
3-Some‘
Central Offices will provide an AR signal
when the far-end calling party hangs up. If
the system CO line is on-hold when this
signal occurs, it will be automatically dis-
connected if this option is activated. Two-
CO line DISA calls always release when
AR is sent. DISA release via AR is not
related to this program
(Release
2 and
above).
2-6

IMPORTANT NOTE:
This option can not always be utilized
because some Central Offices may send
unreliable AR signaling or no AR signal-
ing.
0
0
I
0
AR Time,
Code 4-AR signaling timing is
different depending on the Central Office
equipment. An assignment choice exists
between Crossbar or ESS Central Offices.
Tandem CO Line Connection, Code 5-
Once a two CO line conference call is
made by an electronic or digital telephone
user, that user may drop out of the con-
ference and optionally leave the two CO
lines connected. The choice exists for
each CO line that may have this capability.
This option must be enabled to allow CO
lines to be used for outgoing DISA calls (for
Release
2 and above).
CO Line Tenant Assignment, Code 6-
A system may be effectively split into two
parts in order to serve two tenants using
the same system in a shared arrangement.
This assignment dedicates CO lines to one
tenant or the other. If tenant service is not
desired, leave the assignments all fortenant
1, as initialized.
NOTE:
The m and m buttons control CO ring
modes for tenant 1 and tenant2, respectively.
l
Forced Account Code (verified or non-
verified), Code
7-If the Forced Account
Code feature is used
(see Program 30)
a
station user is required to enter an account
code before aC0 line call can be completed.
A choice exists for each CO line.
l
Operation After CO Line Flash, Code
8-If a standard telephone user is on an
existing CO line call and performs a hook-
switch flash, a DTMF receiver channel
may or may not be connected, depending
on this assignment. If the CO is a rotary dial
only type, the CRCU must be seized after
flash when dialing from DTMF standard
telephones. The CRCU will decode the
dialed tones and send dial pulses to the CO
line.
PROGRAMMINGPROCEDURES-INSTRUCTIONS/SYSTEMRECORDS
SECTION 200-096-302
FEBRUARY1991
Program 16-Assigning CO Line Groups: CO
lines may be accessed with a dialing code
instead of with a CO line button. Up-to ‘eight
groups may be accessed by dialing 81 w 89;
this is useful for WATS lines or other facilities,
and is heavily used in Least Cost Routing and
Pooled Line Key Assignments. Ageneral group
for outside calling is available with a dial 9
access code, which is the initialized state for all
CO lines.
Program 16
is used to assign each
CO line to one of these groups. Do not attempt
to assign a CO line to more than one group. A
CO line need not be assigned to a group. If CO
lines are not used, they should be taken out of
all groups, including the Dial 9 group. ABR will
not function if unconnected lines are assigned
to a line group.
Program 17-TIE Line Page/Handsfree An-
swerback:
The external page and handsfree
answerback features can be optionally acti-
vated for each TIE line. For reference pur-
poses, on the System Record Sheet, enter the
slot number where each PEMU is installed.
This program does not assign TIE lines to slot
numbers; the CO/TIE line number (01 N 36) is
needed for input to this program, but is actually
determined by the PEMU’s slot position in the
KSU.
Program
03 contains the CO/TIE line
number needed for input.
Program 19-Alternate Background Music
(BGM) Source Slot Assignment (Release
3): An alternate BGM source sent to electronic
telephones, digital telephones, and the exter-
nal page output can be connected to a PEKU
or PESU PCB in any universal slot; this Pro-
gram identifies that slot. Identify in
Program 1 O-
2, LED 09 or 10, whether a PEKU or PESU will
be connected to the alternate source (the BGM
source can only be connected to circuit 3 of a
PEKU or circuit 8 of a PESU PCB). When
the alternate BGM source is programmed
and connected to the system, the music
source connected to the PCTU PCB will con-
tinue to be sent to CO lines or stations that are
on-hold.
NOTE:
The alternate BGM source cannot be
2-7

PROGRAMMINGPROCEDURES-INSTRUCTIONWSYSTEMRECORDS
SECTION 200-096-302
FEBRUARY1991
connected to a PSTU or PDKU station
circuit.
Program 20-Data Interface Unit (DIU: PDIU-DI
and PDIU-DS) Configuration (Release 3):
This program identifies the PDKU station ports
connected to DlUs and the type of DIU connected.
NOTE:
DlUs can be connected to ports associated
with PDKU circuits 1 - 7.
l
LED
Ol- Light this LED if there is a PDIU-DI or
PDIU-DS connected to the PDKU port. Each
PDIU-DI (integrated data interface unit) uses
the same PDKU port as the station it is connected
to, and each PDIU-DS (stand-alone data inter-
face unit) requires a separate PDKU port.
l
LED
02- If the DIU must respond to AT
commands and return result codes, this LED
should be lit. DIU “AT” commands and
“result’codes are listed in the Data interface
User Guide in the Operating Procedures
section of this manual. If LED 02 is not lit, the
DIU will only respond to ATdialingcommands
(ATDT, ATD, and ATDD) and will not return
result codes. If the DIU is connected to a
terminal or a personal computer with com-
munication software, LED 02 should be ON
to enable “AT’commands with “result”codes.
If the DIU is connected to a modem, LED 02
should be ON. If the DIU is connected to a
printer, LED 02 should be ON.
l
LED
03-If a PDIU-DS is connected to the
PDKU port, identify whether the PDIU-DS is
connected to a modem (LED ON) or not
connected to a modem (LED OFF). If not
connected to a modem (LED OFF), the con-
nected device can be a DCE or DTE. This
option is not necessary for PDIU-Dls, because
they are not normally connected to modems.
l
LED
04-Light this LED if a PDIU-DS is
connected to the PDKU port; leave OFF, if a
PDIU-DI is connected. If a PDIU-DI is con-
buttons assigned to it in
Program 39.
l
LED
05-If the system CO lines are con-
nected to a PBX, CENTREX, or a Central
Office that is slow to return dial tone after
2-8
seizure, light this LED to insert a pause p ‘-.:.:
before and after the PBX or CENTREX ,
access code is dialed by the DIU &s6; light
LED 05 to automatically insert a pause
before network telephone numbers are
auto-dialed by DIUs.
NOTE:
The pause length is set in Program 12-3, and
COlines behind PBX/CENTREXare assigned
in Programs 42-O and
42-1 - 8.
l
LEDs 17
w 20-Data security groups can
be set to block data calls between DIUs.
DlUs can only make data calls to DlUs in
the same security group. LEDs 17 m 20
assign the DIU to the appropriate security
group: light LED 17 for group 1; LED 18, for
group 3; LED 19, for group 2; and LED 20,
for group 4.
Typical LED settings for
Program 20.
l
PDIU-DI Connected to a Terminal or
Personal Computer-LEDs
01, 02, and
17 ON; all other LEDs OFF.
@ PDIU-DS Connected to a Printer-LEDs
01,02,04, and 17 ON; all other LEDs OFF.
l
PDIU-DS Connected to a Modem-LEDs
01, 02, 03, 04, and 17 ON; all other
LEDs
OFF.
Program 21-Modem Pool Port Assignments
(Release
3): With this program, identify mo-
dems connected to PSTU or PESU standard
telephone ports (line side of modem) and PDKU/
PDIU-DS ports (RS-232side of modem). Each
selection pair assigns the modem to the sys-
tem modem pool. With data security groups
(Program
20, LED 17 N 20) and the call the
blocking feature
(Program 31,
LED 04), mo-
dem access can be denied or allowed to data
users.
NOTES:
1. When modems are connected to PSTU
ports, the executive/privacy override
blocking feature (Program 31, LED. 18)
should be enabled for the modem PSTU
ports.

PROGRAMMINGPROCEDURES-INSTRUCTIONSKXTEMRECORDS
SiCTlON 200-096-302
FEBRUARY1991
2. Digitaltelephones with PDIU-Dls thatmusi
access modems from a pool require a
m button assigned in
Program 39.
3. PDKU/PDIlJ-DS ports that are connected to
modems in the modern pool should be set with
LEDs 01, 02, 03, and
04
“0N”in
Program 20.
4. If a modem connected to PDIU-DS is
connected to a telephone network CO
line, instead of a PSTU or PESU station
port,
Program 21
should not be used.
5.
Use
Program
22 to assign modem/PDIU-
DS station a hunt sequence.
NOTE:
DlUs can be connected to ports associated
with PDKU circuits 1 - 7.
Program
22-Data Interface Unit (DIU) Station
Hunting:
If a DIU station (printer, modem, etc.) is
busy, data station hunting allows the data call to that
station to hunt to an alternate DIU station assigned
in this program. if the hunted DIU station is busy, the
system will ring the next “hunt-to” station, and so on.
If all DIU stations in the “hunt-to”sequence are busy,
then the data caller will receive a busy tone. It is
recommended that all PDIU-DSPDKU station ports
grouped in a modem pooling or printer pooling/
server configuration be placed into a hunt-sequence
arrangement with
Program 22. Program
22 applies
to PDIU-DS and PDIU-DI data stations.
NOTE:
When a PDIU-DSis connected to a modem(s)
assigned to the system modem pool in
Pro-
gram
21, modem hunting is automatic when
the user presses the DATA button to transfer
a CO line call to a modem; however, if the
user dials the modem’s PDIU-DS’s station
number, modem hunting will follow the hunt
sequence specified in
Program 22.
Program 28-DSS Console/Attendant Elec-
tronic Telephone and DDSS Console/
Attendant Digital Telephone Assign-
ments:
Up to four DDSS consoles, or four
DSS consoles, or any combination of the
two types of consoles up to four may be in-
stalled. A DDSS console must be connected
to circuit 8 of a PDKU, and a DSS console
must be connected to circuits 7 and 8 of a
PEKU. The telephone connected to circuit 1 of
the PCB supporting a console is designated
as an Attendant telephone. Consoles and
telephones are numbered 1 w 4 as they are
installed from the lowest to highest slot
number. For example, if a PEKU in slot 01
had a DSS console connected to circuits 7
and 8, then the DSS console would be
DSS console #I and the electronic tele-
phone would be Attendant telephone #I. Be-
cause more than one console can be assigned to
an attendant telephone, the detailed arrangement
must be programmed. Initialized data assigns one
console to one attendant telephone, both con-
nected to the same PDKU or PEKU PCB.
NOTES:
1. DDSS consoles and digital telephones
are only available with
Release 3.
2. DSS console #4 is not available with the
PCTUS PCB.
Program 29-DSS Console Button Assignments:
The buttons on the DDSS and DSS consoles
may be flexibly assigned asmbuttons, CO line
buttons, or speed dial buttons. The standardly
equipped Night Transfer and All Call buttons may
be changed to one of these three types, but not
vice versa. Station speed dial buttons assigned
to a DDSS or DSS console share the associated
Attendant digital or electronic telephone’s speed
dial memory. The personal speed dial numbers
of the DSSDDSS circuit port(s) are not available.
Initialized data assigns the 60 buttons to be
stations 200 N 257, All Call and Night Transfer.
Each of the four possible consoles can be inde-
pendently programmed.
Program 30-Station Class of Service:
l
Privacy Override, LED
19-Privacy
Override allows a station to enter into and
overhear an existing CO line conversation
by pressing a common CO line button. A
maximum of two stations may override an
existing “station to CO line” conversation.
A warning tone may be setpptionally-see
Program 10-2.
The choice is for which
station is allowed to override calls with
2-9

PROGRAMMINGPROCEDURES-INSTRUCTIONS/SYSTEMRECORDS
SECTION 200-096-302
FEBRUARY1991
I
Privacy Override. Privacy Override of DISA
two-CO line calls is not allowed.
NOTES:
1. To configure the DK system to operate as
nonpriva te, allow privacy override from all
stations.
2. Privacy override can be blocked by a
station via the PRIVACYbutton (Program
39) or by the executive/privacy blocking
option (Program 31, LED 18).
3. See Table 2-C at the end of this chapter.
l
Executive Override, LED 18-Executive
Override allows a station to break into and
overhear an existing station conversation
by dialing the digit 1 after the busy station
number. A warning tone may be set option-
ally-see Program 1 O-2. The option is for
which calling station can use Executive
Override.
NOTE:
Executive override can be blocked by sta-
tions that have executive/privacy blocking
enabled in Program 37, LED 18; the m
m button does not block executive over-
ride. See Table 2-C at the end of this chapter.
l
DND Override, LED 17-An electronic or
digital telephone can have a button pro-
grammed for Do Not Disturb (DND). When
called, a station with DND activated will
return very fast busy tone (four tones per
second). If the caller presses the additional
digit 1 on the dial-pad, a DND Override
tone will be heard on the called station’s
speaker. Theassignment isforwhich calling
station can use DND Override.
l
Toll Restriction Traveling Class Code
Change, LED 16 (Release 3)-If this LED
is lit for a port, the station occupying it can
change the 4-digit Toll Restriction Travel-
ing Class of Service Codes established in
Program 44B. Stations selected for this
feature must follow the dialing sequences
below to change the codes:
Class 1: m + ~~ I+ the 4-digit code + i
or=
Class 2: m + III+ the 4-digit code + 1
or=
Class
3: m + III+ the 4-digit code + $
or=
Class 4: m + i Ii+ the 4-digit code + 6
or=
l
Verified Account Code Change, LED 15
(Release 3)-If selected for this feature, a
station can change the Verified Account
Codes established in Program 69. Se-
lected stations must dial the the following
sequence to change the codes:
~+~II]~+~~~-B~~+Verified
Account Code + 6 or m
l
Verified Account Code, LED 14 (Re-
lease 3)-If this feature is selected, all
account codes (forced or voluntary) dialed
by the station will be verified per account
codes set in Program 69. If the station user
fails to dial one of these specific verified
account codes, the call cannot be executed
(forced), or the account code will not be
validated for the SMDR call report (volun-
tary).
l
Handset Volume Level, LEDs 12 and 13
(Release 3)-This program sets for each
digital telephone the handset’s initial off-
hook volume level. This level can be
changed with the digital telephone’s
volume control button while the handset is
off-hook, but it will return to the default level
set in this program after the handset is
placed on-hook.
l
The volume level range for digital tele-
phone handsets is 1 N 9, with 1 as the
lowest. Anytime a handset is off-hook, its
volume level can be adjusted anywhere
between 1 y 9. The level setting estab-
lished in this program, however, can only
be from 2 w 5. This level is set with LEDs 12
and 13:
For level 5: Both LEDs ON (High)
For level 4: LED 12, OFF; LED 13, ON
For level 3: LED 42, ON;- LED 13, OFF
(Initialized setting)
For level 2: Both LEDs OFF (Low)
,
2-10

PROGRAMMINGPROCEDURES-INSTRUCTIONS/SYSTEMRECORDS
SECTION 200-096-302
FEBRUARY1991
NOTE:
Program 92-5
(LEDs 0 1 and 05) does not
affect receiver handset volume levels.
l
Dial Pulse (DTMF Off), LED Ii-If
any
device connected to a PSTU or PESU port
does not require the CRCU for DTMF de-
coding, it should be programmed for dial
pulse. When that device goes off-hook, the
CRCU will not be accessed, thereby re-
ducing potential traffic to the CRCU.
l
Change DISA Security Code, LED lo-
This allows a selected station to change
the DISA security code by dialing m +I1
1 (Release
2 and above).
l
Change TR Override Code, LED
09-Two
Toll Restriction Override codes are avail-
able in the system. When one of these
codes is dialed from any station, all Toll
Restriction is bypassed. These codes can
be changed only by stations assigned in
this program by dialing m + 1 h [ or m
+ 111 for codes 1 and 2, respectively.
l
Forced Account Code, LED
08-If this
feature is selected, a station user (using a
CO line with Forced Account Code “re-
quired”in Program 15-7) is required to enter
an account code before a CO line call can
be completed. If forced account codes
should be verified, turn on LED 14 in
Pro-
gram
30. The digit length of forced account
codes is determined in
Program 60-4.
l
OCA Automatic, LED 07-A
busy elec-
tronic or digital telephone can receive a
second voice communication on intercom
via handsfree answerback if the Off-hook
Call Announce (OCA) feature is installed. If
a calling station does not have the auto-
matic function, the user must dial an extra
digit of 1 after hearing busy tone in order to
gain access to OCA. Initialized data makes
all stations automatic for OCA.
I
l
ABR Access, LED
06-The Automatic
Busy Redial (ABR) feature can be enabled
or denied for each station. The system will
select the last CO line in the originating line
group each time ABR is initiated (also see
Program IO-I).
NOTE:
ABR is restricted via
Program 4 1
in
R&lease
1 software; ABR overrides
Program 41
in
Release
2 and above software.
Program 41
is normally used with LCR; therefore, ABR
may not function with least cost routing (LCR)
in
Release 1,
but will always function with
LCR with
Release
2 and above software.
l
Speed Dial, LED
05-A station may be
denied the use of speed dial (station and
system) with this program. Initialized data
sets speed dial allowed to every port.
l
Microphone (MIC) On at Start of Call,
LED
03-The microphone (and MIC LED)
can be selected to be on or off at the start
of a call if the Push On/Push Off mode (see
m Button Lock) is chosen.
NOTE:
When receiving intercom calls, the flexible
m button
(Program
39) can control the
microphone to prevent room monitoring and
handsfree answerback.
l
m Button Lock, LED
02-An electronic
or digital telephone micro hone can be
turned onoroff by using the dib button. Two
modes of operation are available. A mo-
mentary operation requires that the m
button be continuously pressed to disable
the microphone. A Button Lock operation
allows an alternate action Push On/Push
Off of the m button. LED 02 should be
ON if microphone lock operation is
desired.
l
Speakerphone Enabled, LED
01-Any
electronic or digital full speakerphone 1
operation can be disabled by assignment
with this program. If disabled, a speaker-
phone will act as a handsfree electronic or
digital telephone. Initialized data enables 1
all speakerphones.
Program 31-Station Class of Service:
This
program sets most VM portass.ignments. Each
PESU/PSTU port connected to INTOUCH
2-11

PROGRAMMINGPROCEDURES-INSTRUCTIONS/SYSTEMRECORDS
SECTION 200-096-302
FEBRUARY1991
should have the following LEDs turned ON: 04,
05, 09, 15, 16, 17, 18, 19, 20. These LED’s
should be set ON for VM ports only, not for
telephone ports.
NOTE:
LED 04 may be ON or OFF, depending on
VM/AA device operation. See the LED 04
write up that follows.
l
INTOUCH (B + Station Number), LED
20-This feature is associated with an
INTOUCH Digital Voice Messaging Sys-
tem connected to a PSTU or PESU port.
DTMF “B” tone followed by the station
number is sent to INTOUCH in situations in
which INTOUCH would not normally know
the location from which a call was coming,
such as hold recall or blind ring transfer
recall. This allows INTOUCH to respond
more intelligently with appropriate voice
prompts. This LED should be lit for PSTU
or PESU ports connected to VM devices
only, not for station ports connected to
telephones.
NOTES:
1. INTOUCH (B No Station) mustbe enabled
to allow this function.
2. This is available only with INTOUCH soft-
ware Release B.06 and above.
l
INTOUCH (B No Station), LED 19-DTMF
“B” tone is sent to INTOUCH to signify
a recall situation where INTOUCH
already knows the recalling station num-
ber. Again, thisallows INTOUCH to respond
more intelligently with appropriate voice
prompts. This LED should be lit for PSTU
or PESU ports connected to VM devices
only, not for station ports connected to
telephones.
NOTE:
This is available only with INTOUCH software
Release B.06 and above.
l
Executive and Privacy Override Block-
ing (Modem), LED 18-This feature de-
nies any other station to break in with
Privacy or Executive Override to the called
station’s connection. It should be‘used for
PSTU and PESU ports connected to a
modem or Voice Mail/Auto Attendant in
order to ensure data and voice security at
that port. This feature may also be used to
deny override of any station.
NOTE:
1. Themmbuttonmaybeusedto
disable privacy blocking on a call-by-call
basis; this button cannot disable execu-
tive override blocking.
2. If a modem is assigned to the system
modem pool in Program 21, use this op-
tion to provide data security (LED 18 ON
for modem PSTU ports assigned in Pro-
gram 21).
3. If using the system modem pool for data
calls that must be switched between voice
and data, LED 18 should be OFF for the
modem PSTUportsassignedin Program21.
l
End/End Signal RCV (VM), LED 17-
Activation of this option allows End to End
Signaling of DTMF tones through the sys-
tem. It is required on all Voice Mail-PSTUI
PESU ports in order to have proper signal-
ing communication.
l
Receive VM ID Code, LED 16-When a
station is call forwarded to a voice mail
system, certain Identification (ID) DTMF
tones will automatically be sent to direct
the call to a specific mailbox (VM ID Code
656). The automatic ID is also sent to the
voice mail device when electronic or digital
telephone users retrieve messages via the
Intercom and Message Waiting buttons
(VM ID Code 657). The voice mail port
must be programmed for this feature to
allow the receiving of DTMF digits.
@ INTOUCH Integration (A/D), LED 15-
This option will cause an answer tone
(DTMF “A”tone) to be automatically sent to
INTOUCH when a station answers, and a
disconnect tone (DTMF “D” tone) when a
station disconnects. This al-lows INTOUCH
to respond quickly rather than waiting a
2-12

PROGRAMMINGPROCEDURES-INSTRUCTIONS/SYSTEMRECORDS
SECTION 200-096-302
FEBRUARY1991
I .
I
I .
0
0
0
long time in time-out situations.
Group Page 1 - 4, LEDs 11 w 14-lnter-
corn paging can be directed to digital and/
or electronic telephone speakers in a group
arrangement. Up to four groups are pos-
sible. This program assigns each
electronic and digital telephone to the
groups. An electronic or digital telephone
can be assigned to as many groups as
desired.
All Call Page Allowed-Electronic and
Digital Telephones, LED 1 O-Any station
may be allowed to receive an All Call page.
This does not alter the station’s ability to
initiate an All Call page. Initialized data
allows every port to receive an All Call
page.
VM (No Conference), LED 09-If acti-
vated, a station is prohibited from having
any conference calls. It should be used for
voice mail ports in order to prevent unde-
sirable conference calls.
VM Group 1 - 4, LED 05 - 08-The sys-
tem allows up to four voice mail station port
groups to be configured for support of up to
four voice mail or auto attendant devices.
One group is intended for each different
machine. All PSTU and PESU ports
connected to a particular VM machine
should be assigned to the same VM group.
The purpose of the VM grouping is to allow
efficient use of the message waiting set
and cancel operations from the VM ma-
chine. Since each digital and electronic
telephone can only have a maximum of
four messages waiting, the voice mail de-
vice should set MW only once, regardless
of how many messages there are.
Voice Mail to Voice Mail Call Blocking,
LED 04 (Release 3)-This prevents voice
mail/auto attendant ports from call for-
warding to other voice mail ports during
screened or supervised voice mail transfers.
If auto attendant calls are screened or
supervised, this LED should be ON for all
voice mail/auto attendant ports; if voice
mail/auto attendant calls are blind trans-
ferred, this LED should be OFF for all voice
mail/auto attendant ports.
l
OCA Enabled (Receive), LED 03-Any
digital or electronic telephone equipped
with Off-hook Call Announce (OCA) should
be assigned this option. If assigned, the
station will be allowed to receiveOCA. This
program does not affect the station’s ability
to originate OCA.
l
Handsfree No Warning, LED 02-Nor-
mally, a 1 -second warning tone is sent to a
handsfree digital or electronic telephone to
inform the user that someone is calling and
1
that he can be heard. If the warning tone is
not desired at the calleddigital or electronic
telephone, this assignment can disable it.
This will also prevent ringing the digital or
electronic telephone as a ring-first situa-
tion, allowing silent room monitoring of the
area surrounding the telephone. Initialized
data activates the warning tone for all ports.
l
Handsfree Disabled, LED Ol-It is pos-
sible to disable the intercom handsfree
function on any digital or electronic tele-
phone.
Program 32-Automatic Preference: Automatic
Preference for electronic or digital telephones
(see note 2) via handset off-hook or m I
button is the automatic connection to CO lines
or intercom under various conditions. With
Ringing Line Preference, a digital or electronic
telephonegoing off-hook(orpressing them
button) may be automatically connected to the
lowest CO line ringing in without having to
press a CO line button or dial an access code.
If no CO lines are ringing and an electronic or
digital telephone goes off-hook, the station can 1
be automatically connected to intercom or to a
CO line. The CO line connected can be the
lowest numbered CO line available on the
telephone or the highest idle CO line from a
selected group (1 +- 8).
NOTES:
1. The programming digital or electronic 1
telephone, port 05, is set to auto select
Intercom any time system power is turned
OFF then ON.
2. This program does hot app& to standard
telephones. To allow system features to I
2-13

SECTION 200-096-302
FEBRUARY1991
I
be accessed, standard telephones always
receive system intercom dial tone when
originating calls.
Program 33-Station Hunting (Voice Calls
Only):
If a station is busy, Station Hunting
allows the ringing of an alternate station as
defined by the assignments in this program. If
the hunted to station is busy, the system will try
to ring the next hunt to station, and so on. If a
hunt to station is in call forward, the call forward
overrides the hunt. A CO Line will hunt from a
station only if it has been assigned to ring at
that station exclusively (see
Programs 81 u
89).
Program 34-Hold Recall Timing:
Each station
can have a different time (from 011 to 160
seconds) from placing a call on hold or park to
the point of hold recall. Each setting is inde-
pendent of any other station setting.
Program 35-Station Class of Service:
l
LCD Individual Message, LED
05-This
I option allows LCD digital and electronic
telephones to store up to ten personal
messages and offers the option of entering
alphanumeric memosforeach of the LCD’s
station speed dial numbers. A maximum of
16 or 6 LCD telephones can have LCD
personal memory depending on the
control PC6 used: lG/PCTU, G/PCTUS.
This program defines which ports can have
this feature. Initialized data assigns the
lowest ports to have this ability. The soft-
ware will only accept a maximum of 16/6
port assignments-a low port must be dis-
abled before adding a port above the initial-
ized ports.
l
Message Waiting (RCV), LED
04-If the
message waiting indication is not desired
I on an electronic or digital telephone, this
program can be used to deny it. This does
not affect that station’s ability to send a
message waiting indication to another sta-
tion.
I
l
LCD Type/32/12, LED
OP-Digital and
6500-series LCD electronic telephones
have a 32-character display. Therefore,
PROGRAMMINGPROCEDURES-INSTRUCTIONS/SYSTEMRECORDS
assignments should be left in the initialized
state of 32 characters. LED 02 must be ON
to receive voice mail message waiting
indication.
l
LCD Display, LED
01-This option should
be used (LED 01 ON) for all stations (even
non- LCD) unless it is desired to disable the
station’s LCD and message waiting LED
function.
Program 36-Fixed Call Forward:
Fixed Call
Forwarding is different from other station Call
Forwarding options. It is fixed in terms of the
destination station number which is assigned
in this program. The station usercannot change
this destination as is possible with other station
Call Forwarding options. This feature is valu-
able for forwarding to voice mail devices or to
an attendant. If Fixed Call Forwarding is set on
a station, the station will not ring and all calls
will forward.
Program 37-Ring Transfer (Camp-on) Recall
Time:
If a busy or ringing station does not
answer a call sent to it via call transfer, the
station originating the transfer will be recalled
after a certain amount of time. This time is set
independently for each originating station by
this program (011 N 999 seconds). Initialized
data sets all stations for a 32-second recall
time. Ring Transfer must first be enabled for
the system by
Program
IO-1 , LED 07 on.
Program 38-Digital and Electronic Telephone
Buttonstrip Type:
Three digital telephone and
four standard electronic telephone button ar-
rangements are provided (see System Record
Sheet). It is best to start with one of these three
or four, and then move on to
Program 39
where individual buttons may be programmed.
Initialized data treats all ports as 20-button
types with 17 CO lines, Intercom, DND and
MW/FL for electronic telephones or flash for
digital telephones.
Program 39-Flexible Buttonstrip Assignment:
Program
38 should be run first: Forty different
types of button assignments are possible
(see System Record Sheet for details). Any of
2-14

PROGRAMMINGPROCEDURES-INSTRUCTIONS/SYSTEMRECORDS
SECTION 200-096-302
FEBRUARY1991
the flexible buttons (10 or 20) can be
programmed.
Program 40-Station CO Line Access: Any
station can have access to as many CO lines
as desired. Any station denied access (either
to make a call orto answer a call) to a CO line
cannot seize that line by dialing an access or
pickup code or by using a CO line button. This
also denies access via Least Cost Routing.
Use this program to divide CO lines for Tenant
Service. If only outgoing access is to be pre-
vented, use Program 41. Use Program 40 to
deny CO line call pick-up.
Program 41-Station Outgoing Call Restric-
tion: Each station can be restricted from
outgoing access to each CO line. If so re-
stricted, that station can still answer a ringing
CO line or pick up a call on hold. All Call Pickup
functions operate normally. This does notdeny
access via LCR. Program 41 denies ABR in
Release 1 software; ABR overrides Program
41 in Release 2 and above software.
Program 42-CO Line To PBXKENTREX Con-
nection & PBXKENTREX Access Codes:
The system recognizes PBX/CENTREX ac-
cess codes via Programs 42-1 - 8. Program
42-O informs the software which CO lines are
connected to a PBX or to CENTREX. This
combination allows Toll Restriction and speed
dialing to function properly. This program must
be utilized toallow (afterflash) PBX/CENTREX
features to operate on incoming calls.
Program 43-O+ Credit Card Dialing Option
(Release 3): Selected stations can bypass their
normal toll restriction assignment by seizing a
CO line and then dialing a 0. Both the station
and the CO line must be enabled for this
feature with this program. After seizing the CO
line, the station user is required to dial a spe-
cific number of digits, which includes the lead-
ing 0. This digit-length requirement forces the
user to dial a telephone number or a telephone
number plus a credit card number; as a result,
these calls are billed to the credit card, and
operator-placed calls are not billed to the CO
line. The digit length, 1 - 30 numbers, is set in
Program 60-7. This length is determined by
the system’s call routing method. .
l
If calls are routed via least cost routing
(LCR), the digit length should usually be
set at 12, the length, including 0, of the
telephone numbers dialed on 0+ credit
card calls. Do not add the amount of digits
in the credit card (usually 14), although
these numbers will be dialed by the user
after system LCR seizes the line and the
system dials the telephone number (see
Note).
l
When not dialing via LCR, the digit length
should usually be 26, the sum of the digits
in the telephone (12) and credit card (14)
numbers.
IMPORTANT NOTE:
More digits than the length set in Program
60-7 are allowed to be dialed; there is no
limit to the amount of digits that can be
dialed.
Program 44A-Emergency Bypass of Verified
Account Code (Release 3): This program
exempts numbers up to four digits, such as the
emergency91 1 number,fromVerifiedAccount
Code dialing restrictions. As many as three of
these special numbers can be programmed.
When dialed, these numbers will be sent out
the CO line immediately, bypassing any Veri-
fied Account Code dialing restrictions set in
Programs 69 and 30, Key/LEDs 8 and 14. If
CO lines are behind CENTREX or PBX, pro-
gram the appropriate 1 or 2 digit CENTREX/
PBX trunk access code in front of the emer-
gency number. Example: If PBX trunk access
code is81, then program 8191 in Program44A-
51 to allow 911 to bypass forced account code
dial requirements.
NOTES:
1. If CO lines are behind PBXor CENTREX,
program the PBX/CENTREXoutside trunk
access code (See Program 42-O and
42- 1 to assign CO lines andaccess codes
for behind PBX/&N TREX operation).
2. If Verified Account Codes assigned in
2-15

PROGRAMMINGPROCEDURES-INSTRUCTIONS/SYSTEMRECORDS
SECTION 200-096-302
FEBRUARY1991
Program 69 conflict (duplicate) with emer-
gency or other type telephone numbers
set in
Program 44A, Program 44A
has
priority.
3. Toll Restriction and DISA parameters re-
quirements are not affected by this
program.
Programs 45 - 48 Toll Restriction:
All Toll Re-
striction program information is provided later
in this chapter.
Programs 50 - 56-Least Cost Routing:
All
Least Cost Routing program information is
provided later in this chapter.
Program 60-SMDR Output/Account Code Digit
Length:
l
SMDR Output, Item
3-System output to
a Station Message Detail Recording
(SMDR) device can include information for
both incoming and outgoing calls, or only
for outgoing calls. Local and long distance
call data will be sent out.
l
Forced/Voluntary/Verified Account
Code Digit Length, Item
4-The account
code entered at a station can vary in length
from 4 - 15 digits. For Forced Account
Code use, a call will not be completed
unless the specified number of digits is
entered by a station user.ln the case of
voluntary account codes, the account code
will not be sent tot he SMDR call record
unless the specified number of digits are
dialed. See
Program
69 for Verified Ac-
count Codes.
l
SMDR Printout Options, Item
5-This
option selectively deletes local call data
and allows long distance/toll call data only
to be sent out the SMDR port. The type of
long distance/toll call data that prints out is
selected by long distance prefix codes 0, 1,
00, or 1 or 0.
l
DISA Security Code, Item
6-The op-
tional security code (1 - 15 digits) is re-
quired for incoming DISA calls to access
outgoing CO lines. If the DISA security
code is not set in programming, DISA us-
ers can access outgoing CO lines without
dialing a security code. This code is not
required for DISA/DISC internal calls to
stations. The DISA security code can’also
be changed from stations enabled in
Pro-
gram
30. DISA access of outgoing CO
calls is available with
Release
2 and above
software only.
l
Credit Card Call Digit Length, Item 07
(Release
3)-Station users bypassing toll
restriction with the ‘IO+” Credit Card Calling
feature
(Program
43) must dial a prede-
termined number of digits including the”0.”
This predetermined number is established
with Item 7. This length can be 1 - 30 digits.
Program 69-Verified Account Codes (Release
3): Up to 300 Verified Account Codes may be
added, deleted or changed with
Program 69.
Each Verified Account Code can be 1 - 15
digits long, but cannot exceed the length re-
quirement set in
Program
60-4. The following
programs and options should be considered
when establishing Verified Account Codes.
l
Account Code Digit Length-Program
60-4 sets the digit length that must be
dialed for all account codes: Forced (veri-
fied/nonverified) and Voluntary (verified/
nonverified).
l
Full and Partially Verified Account
Codes-Verified Account Codes can con-
tain the same number of digits (full Verified
Account Code) or less (partially Verified
Account Code) than the length set in
Pro-
gram
60-4. If partially verified, the first part
of the account code is verified and the
remainder is not. For example, if Verified
Account Code
2734
is set in
Program 69,
but the digit length is set to eight in
Program
60-4, then the user must dial 2734 plus any
other four digits to enter a partially Verified
Account Code. There are many applica-
tions for partially Verified Account Codes.
For instance, using the code in the ex-
ample above, the numbers 2734 could be
the user’s dial restriction code and the
remaining four digits could be a customer-
client code, a sales order, etc.
l
Verifed Account Code Toll Restriction
Assignments (Release
3)-A Toll
2-16

PROGRAMMINGPROCEDURES-INSTRUCTIONS/SYSTEMRECORDS
SECTION 200-096-302
FEBRUARY1991
Restriction Class can be assigned with
Program 70 to each of the 300 Verified
Account Codes.
l
Verified Account Code Dial Require-
ment (Release 3)-Verified Account Code
Dial Requirement is assigned on a station-
by-station basis in Program 30, LED 140N.
All Account Codes dialed (forced or volun-
tary) from stations assigned in this pro-
gram will be verified.
l
Code Change-Stations selected in Pro-
gram 30, LED 15 ON, can change Verified
Account Codes (VAC) by dialing the
following:
~+~~~+ono-ooo+VAC+~or~
l
Verified Account Codes: Forced/Volun-
tary Program Options (Release 3)-Any
station can dial a Voluntary Account Code
after accessing a CO line ( 0
F
11; or,
with Release 3, dial 1 1 @ or press the
B button). Forced Account Code
requirements are assigned via station and
CO line program options: stations are as-
signed in Program 30, LED 08 ON; and
CO lines are assigned in Program 15-7.
Stations must dial Verified Account Codes
when assigned in Program 30, LED 14 ON.
Program 70-Verified Account Code Toll Re-
striction Assignments (Release 3): A Toll
Restriction Class can be assigned with this
program to each of the 300 Verified Account
Codes assigned in Program 69. Therefore,
when a Forced Verified Account Code is dialed
at a station, the station temporarily assumes
the toll restriction class assigned to the Verified
Account Code. When Program 70 is initial-
ized, all Verified Account Codes are assigned
as not toll restricted (data = 00). Verified Ac-
count Code Toll Restriction class assignments
are not user programmable; so if the assign-
ments are not known, it is recommended to
assign a number (block) of Verified Account
Codes to each type of toll restriction class. For
example:
VACs 000 - 050 = no restriction
VACs 051 - 100 = total restriction
VACs 101 - 150 = Class 1
etc.
Program 77-I-Peripheral Options:
l
Door LockTime, LED 20-The Door Lock
relay contact may be programmed to’oper-
ate for either 3 or 6 seconds (applies to
PIOU, PIOUS, PEPU, and HDCB door lock
controls).
l
PEKU Port Number/HDCB, LEDs 16 -
1 g--Door phone/lock existence is defined
by this program. Door phone/lock control-
lers (HDCB) can only exist at ports 04, 12,
20 and 28, and can only be installed on the
5th circuit of a PEKU and/or PESU. After
assignment of an HDCB, door phone num-
bers (151 - 159, 161 - 163) will effectively
replace the station number assignment in
Program 04. The door lock option is set via
Program 77-2.
NOTE:
HDCB4, port28, is not available with PCTUS.
l
IMDU Modem, LED 14-Informs the soft-
ware that an internal Remote Maintenance
modem (IMDU) is installed. Its station
number is 19 (unless the access code
prefix has been changed with Program05).
l
Night Ringing over External PageZones,
LEDs 10 - 13 (Release 3): For each ex-
ternal paging zone, Tenant 1 or Tenant 2
CO lines can be selected with this program
to night ring. For this feature to work, the
appropriate CO lines must be programmed
to night ring overexternal page in Program
78. Tenant assignments are made in
Program 15.
NOTE:
The PIOU option PCB must be installed to
allow this option.
l
Door Phone Ring On External Page,
LED08-If adoor phone button is pressed,
a ring tone can be enabled or disabled to
external paging when the system is in night
mode. Activation of a m button is re-
quired to activate this feature. The m
does not apply to door phones.
l
Door Lock Relay/External Page Relay,
LED 07-A relay on the PIOU, PIOUS or
2-17

PROGRAMMINGPROCEDURES-INSTRUCTIONWSYSTEMRECORDS
SECTION 200-096-302
FEBRUARY1991
PEPU can be assigned to operate with the
Door Lock function or with External Page
for mute control. The door lock button is
assigned in
Program 39;
the door lock
activation time is assigned in
Program
77-1.
This door lock function is not associ-
ated with the HDCB door lock; it is an
addition to HDCB door locks.
l
NT Relay, LED
06-A relay, located on the
PIOU, PIOUS or PEPU, can be assigned to
operate in one of two Night Transfer modes
(see next item, MOH/NT Relay). In one
mode, the relay will activate for 1 second,
and then be idle for 3 seconds when a CO
line rings (incoming), and the system is in
the night mode. The intended application is
to control an external ringing device at
night.
Program 78
must have Ring Over
External Page activated for this feature. In
the second mode, the relay will operate
continuously after Night Transfer (m
m) has been activated. One application
is for control of an external answering
machine.
l
MOH/NT Relay, LED
05-A relay, located
on the PIOU, PIOUS or PEPU, can be
assigned to operate in one of two applica-
tions. A choice must be made between use
for Night Transfer application (see NT Relay
above) or Music-on-Hold (MOH). If used
for MOH, the relay will activate when any
CO line or station is placed on hold. The
intended application is to control a tape
player which is used as a Music-on-Hold
source.
called door phone does not exist. Door
phones 1 A, 1 B, 1 C are numbered 151, .. -3,
152, 153, respectively, and are connected .”
to the HDCB at port 04. Door phones 2A,
2B, 2C are numbered 154, 155, 156, re-
spectively, and are connected to the HDCB
at port 12, etc.
l
Each HDCB B-jack output can be config-
ured as a door lock control. Door lock
control buttons for HDCB door locks are
assigned to electronic or digital telephones
in
Program
39. Door lock activation time is
1
set in
Program 77-l.
A maximum of four
HDCB door lock controls are available with
a PCTU PCB; three are provided with a
PCTUS PCB. Each HDCB requires one
PEKU or PESU electronic telephone port.
These door locks are not associated with,
but are in addition to, the door lock
provided by the PIOU, PIOUS, or
PEPU PCBs. HDCB door lock control is
available with
Release
2 and above soft-
ware only.
Program 78-CO Line Special Ringing Assign-
ments:
l
Ring Over External Page During Night
Mode, Feature
I-This program selects
which CO lines will activate ringing over
external paging facilities during the NT1 or
NT2 modes. The NT Relay will also be
activated if it is in the l-second on/
3-seconds off mode.
Program 77-2-Door Phone and Door Lock
Busy Assignments:
l
Each door phone controller (HDCB) can
interface with up to three door phones. The
system treats each HDCB as a station.
Therefore, this is quite different from all
other station arrangements using electronic
telephones or standard telephone devices.
The system does not automatically know
how many door phones are connected to
each HDCB, so it must be told. This pro-
gram is used to enter that information so
that a caller will receive fast busy tone if the
l
DISA/DISC CO Line Assignment, Fea-
ture
2-This program assigns CO lines to
be used with the Direct Inward Station
Calling (DISC) and the Direct Inward Sys-
tem Access (DISA)features
(Release2and
above). These CO lines may be set for
DISCDISA operation during the different
system modes of DAY, DAY2 and NIGHT.
A CO line will switch to normal ringing after
ten seconds if the outside caller does not
use the DISA/DISC feature. Normal
function of these lines occurs for outgoing
calls. DISA, which allows outgoing CO line
access and internal station calling, is
available with
Rel6ase
2 and above soft- ‘-
ware only.
2-18

NOTE:
An optional security code for DISA outgoing
CO calls is available via Program 60-6.
l
Ring IMDU Maintenance Modem, Fea-
ture
5-IMDU Remote Maintenance mo-
dem can be accomplished with this pro-
gram. Different alternatives are available
for the system modes of DAY, DAY2, and
NIGHT. If none of these are selected, the
IMDU can still be reached on station 19
with the DISCDISA feature or by a Ring
Transfer from the DSS console attendant
or any other station. IMDU station 19 must
be enabled with
Program 77-1.
Program 79-Door Phone Ringing:
o Muted Ring to Busy Electronic and
I
Digital Telephone, LED
20-If all elec-
tronic and digital telephones are busy, and
a door phone button is pressed, a muted
ring tone can be sent to selected digital and
electronic telephones, as defined with this
program (only the lowest port in the appro-
priate ringing group will mute ring).
l
Door Phone Ring, LEDs 01
w 12-When
a door phone button is pressed, selected
digital and/or electronic telephones will ring
as assigned with this program. See
Pro-
gram
77-2 description for an explanation
of the door phone A, B, and C numbering
scheme.
1 Program 80-Electronic and Digital Telephone
Ringing Tones:
Distinctive system ringing
sends a different ring tone for CO line ringing
than that for intercom ringing. In addition, CO
I line ringing at electronic and digital telephones
can be different from one phone to another.
Two choices are available; one is 500 Hz
modulated with 640 Hz (PERCEPTION ring
tone), while the other is 600 Hz modulated with
800 Hz (STRATA ring tone). Two electronic or
I digital telephones that are close in proximity
can then have distinctive CO line ringing, as
chosen with this program.
Programs 81 w 89-CO Line Ringing Assign-
ments:
A wide variety of CO line ringing to
PROGRAMMING PROCEDURES-INSTRUCTIONS/SYSTEM RECORDS
SECTION 200-096-302
FEBRUARY 1991
stations can be programmed into the system.
Nine categories exist, which are DAY IMMEDI-
ATE, DAY DELAY 1, DAY DELAY 2,‘DAY2
IMMEDIATE, DAY2 DELAY 1, DAY2 DELAY
2, NIGHT IMMEDIATE, NIGHT DELAY 1, and
NIGHT DELAY 2. DAY, DAY2 and NIGHT
refer to the three modes of the Night Transfer
key. DELAY 1 is a 12-second delay of ringing
signal to an electronic or digital telephone, and
DELAY 2 is a 24-second delay of ringing. The
delay functions are mainly used in CENTREX
applications but can be used for other situ-
ations. If delayed ringing occurs, the station
that initially rings will continue to ring with
subsequent delayed ring stations.
Program 93-CO Line Identification:
This pro-
vides alphanumeric names (to appear on LCD
telephones) to CO lines such as WATS BAND
5, FXTO NY, MR JONES, etc. The names may
be up to 16 alphanumeric characters each,
and display when the CO line is being used by
an LCD station.
Program 97-Printing Program Data Through
SMDR:
Contents of each program can be sent
to the SMDR port for a hard copy printout.
Setting Date, Time and Day:
The current date,
time, and day of the week can be set from the
electronic or digital telephone connected to
port 00 (usually station 200). These cannot be
set from the programming electronic or digital
telephone at port 05.
2 TOLL RESTRICTION
2.01 The following provides the programmer with
an overview of the Toll Restriction feature and
step-by-step instructions to fill in the Toll Restric-
tion System Record Sheets.
3 TOLL RESTRICTION OVERVIEW
3.00 Toll Restriction Methods
3.01
Toll Restriction screens and selectively
restricts outgoing calls using three different meth-
ods. Each type of restriction can be programmed
2-19

PRDGRAMMlNG PROCEDURES-INSTRUCTIONS/SYSTEM RECORDS
SECTION 200-096-302
FEBRUARY 1991
for individual stations. Toll Restriction can also be
enabled/disabled for each outgoing CO line in the
system.
Exception office code access is accomplished with
the Six-digit Toll Restriction method described
earlier. .
3.02 Simple Toll Restriction:
The first method,
Simple Toll Restriction, only involves the first digit
dialed. The system can be programmed to reject
outgoing calls beginning with
0
or 1 (see
Program
48).
3.14 Emergency, Information, and Toll-free
Long Distance Toll Restriction Override:
Toll
restricted stations may be allowed to dial special
codes such as
911
for emergency response,
l-41 1
or
411
for information, or 800 prefix toll-free calls
(Program 46).
3.03 Three-digit Toll Restriction:
The second
method, Three-digit Toll Restriction, involves the
system analyzing the area code dialed, and
selectively allowing/disallowing outgoing
calls following the criteria defined in Area
Code Tables 1
- 4 (see Program 46,
codes
2 - 4).
IMPORTANT!
Always be sure to provide access to emer-
gency numbers such as 911.
3.04 Six-digit Toll Restriction:
The third
method, Six-digit Toll Restriction, involves
the system analyzing the area code and the
office code, and selectively allowing/dis
allowing outgoing calls following the criteria de-
fined in Area Code Tables 1 - 4 and Office Code
Tables
1 - 4 (see Program
46, codes 2 - 4 and
6 - 8).
3.15 Toll Restriction Override by System Speed
Dial:
System speed dial numbers can be pro-
grammed to override toll restriction (see Basic
System Features,
Program IO-I).
3.10 Toll Restriction Features
3.16 Toll Restriction/Traveling Class Override 1
Codes:
Up to two Toll Restriction Override Codes
can be defined. When dialed at a toll restricted
station, these codes enable the station user to
override toll restrictions defined at the station
(Program44Bor458-9).Codesmaybechanged 1
by stations chosen in programming (see Basic
System Features,
Program 30).
3.11
For description purposes, Toll Restriction is
divided into several components, or sub-features.
The sub-features operate independently of the
restriction methods just described, although they
may employ these methods.
3.12 Station Priority Classes 1
-. 4: Four classes
of Toll Restriction can be defined to assign differ-
ent levels of priority to individual stations. Classes
can be defined so each is progressively more
restrictive by allowing or denying specific area or
office codes, calls to long distance information,
international calls, and operator assisted calls
(Programs 46-10 - 40).
3.17 Special Common Carrier Authorization:
Toll Restriction can be programmed to recognize
Other Common Carrier (OCC) telephone num-
bers, directory numbers, authorization codes,
and PBX access codes. The system starts
inspecting numbers for toll restriction purposes
after the recognizable code is dialed
(Program
45-3 - 6).
4 COMPLETING THE TOLL
RESTRICTION SYSTEM RECORD
3.13 Office Code Exception Tables:
Class 1 - 4
restrictions can be further modified by defining as
many as eight exception tables to allow or deny
access to specific office codes that fall within
previously restricted area codes
(Program 47).
4.01 The following instructions explain how to
complete System Record Sheets used to program
the Toll Restriction feature. They are arranged in
the same order in which the tables appear in the
Toll Restriction System Record Sheets. The fol-
lowing instructions are intended to give a concise
general definition of the programming characteris-
tics defined by each record sheet.
2-20
‘\
..
/
. .
:i

NOTES:
1. On each record sheet, mark an X in the
space provided to indicate that a choice is
selected. Unless otherwise specified, this
indicates the key LED is lit. When appro-
priate, indicate digits to be entered using
the station dialpad.
2. Initialized data and considerations are
documented when applicable.
4.10 Program 44B-Toll Restriction/Traveling
Class Override Codes (Release 3)
4.11 Each of the four toll restriction classes estab-
lished in Program 46 can be assigned a code with
this program. If one of these codes is entered at a
station, the station will assume the code’s class for
that call. When the call is complete, the station
returns to its regular class assigned in Program 48.
The traveling class code data is not sent out the
SMDR port and will not print out on station call
records.
NOTE:
Stations selected in Program 30, LED 16 ON,
can add, change, or delete the codes set in
Program 44. See Program 30 for more in-
formation regarding station revision of over-
ride codes.
4.20 Program 45-I-Toll Restriction Dial Plan
4.21 A dial plan must be defined for the Toll
Restriction software to recognize the typical dial-
ing sequence of long distance/local calls made
from the system’s home area code, and identify
area and office codes. The dialing plan defines
several components of a telephone number for
long distance calling:
l
Long Distance Prefix I-In most areas, a 1
must be the first digit dialed for long distance
calling. In such areas, the area code is dialed
right away. The dial plan defines whether the
prefix 1 is required for a particular installation’s
long distance calling.
l
Area/Office Code Numbering Schemes-In
most places, the middle digit of an area code is
0 or 1, and the middle digit of an office code is
2- 9. Toll Restriction examines the first
PROGRAMMINGPROCEDURES-INSTRUCTIONS/SYSTEMRECORDS
SECTION 200-096-302
FEBRUARY1991
three-digit sequence dialed and determines
whether it is an area code or an office code.
l
If the middle digit is 0 or 1, then
the se-
quence is an area code.
l
IfthemiddledigitdoesnotequalOorl,then
the sequence is an office code, and the
office code parameters of the selected
dialing plan apply.
4.22 An exception to this rule exists. In some
places, area and office codes are interchange-
able. The middle digit is always 0 or 1 (see Code
3 selection). In such a case, the system only knows
that three digits dialed are an area code if 0 is di-
aled before them. If 01 is not dialed first, the system
knows the three digits are an office code. The dial
plan defines the numbering scheme applicable to
the installation site.
l
Office Codes: Office Code elements are de-
fined as follows:
l N=2-9
l x=0-9
l
NXX = interchangeable with area code;
2nd digit may be 0 or 1.
l
NNX = not interchangeable with area code;
2nd digit may not be 0 or I.
4.23 Equal Access Codes and Special Common
Carrier Authorization Codes may be entered as
exceptions to the dialing plan in Program 45-3 m 6.
4.24 Selections: On the record sheet for Program
45-1, choose one of the following dial plans by
marking an X in the space next to the code.
l
Plan 1 for dialing plan AC+NNX/l+NNX with
Release 1 and 2 or AC+NXX/l+NNX with
Release 3 should be selected if the installa-
tion is in a location where a user places a long
distance call to a destination outside the area
code without dialing 0 before dialing the area
code. The user places a long distance call to a
destination in the same area code by dialing 0
directly before the office code.
l
When using this plan, the system recognizes
the following:
l
The first three digits of a ten-digit number is
an area code if the middle digit is 6 or 1.
l
With Release 1 and 2, the first three digits
dialed immediately after a 0 in an
2-21

PROGRAMMINGPROCEDURES-INSTRUCTIONWSYSTEMRECORDS
SECTION 200-096-302
FEBRUARY1991
eight-digit string are a non-interchange-
l
A ten-digit string is not recognized.
able office code (the middle digit mustbe 2
l
The first three digits in a seven-digit string :
w 9); or, with
Release
3, the first three digits
dialed immediately after a 0 in an eight-
are an office code. (There is no distinction
between local call dialing and long dis-
digit string is an interchangeable office tance dialing within the area code.)
code (the middle digit may be 0 or 1).
l
Digits 5 N 7 in an 11 -digit string may be an
l
A seven-digit string starting with an office interchangeable office code as well.
code is a local call.
l Plans
4 and 5 are not used in the United States.
l
An 11 -digit string is not recognized.
Plan
2 for dialing plan
l+AC+NNX/l+NNX
with
Release 1
and 2 or
1 +AC+NXX/l +NNX
with
Release 3
should be selected if the
installation is in a location where a user places
a long distance call to a destination outsidethe
area code by dialing a[ before dialing the area
code. The user places a long distance call to a
destination in the same area code by dialing a
0 directly before the office code
When using this plan, the system recognizes
the following:
l
The first three digits following a
1
in an li-
digit number are an area code, if the middle
digit is 0 or
1.
l
With
Release 1
and 2, the first three digits
dialed after a
1
in an eight-digit string are a
non-interchangeable office code (the
middle digit must be 2 w 9); or, with
Re-
lease
3, the first three digits dialed imme-
diately after ai in an eight-digit string is an
interchangeable office code (the middle
digit may be 0 or 1).
l
Digits 5 N 7 in an 11 -digit string may be an
interchangeable office code as well.
Plan
3 for dialing plan
1 +AC+NXX/NNX
should
be selected if the installation is in a location
where a user places a long distance call to a
destination outside the area code by dialing a
0 before dialing the area code. The user places
a long distance call to adestination in the same
area code by simply dialing the number, with-
out a
1
in front. The area and office codes may
be interchangeable. The system differentiates
between them whenever it sees the digit 0
dialed.
When using this plan, the system recognizes
the following:
l
If i is the first number dialed in an 11 -digit
string, the next three digits are an area
code.
NOTE:
Program 45-1 must be completed for the
Least Cost Routing feature to function prop-
erly. See LCR Program 50-l.
4.30 Program 452-Toll Restriction Disable
4.31
Selected CO lines may be programmed to be
exempt from any toll restrictions defined in this
section. Mark the exempt CO lines with an X on the
record sheet. Initialized data leaves all LEDs off,
which causes all CO lines to be affected by toll
restrictions defined.
NOTE:
Toll Restrictions disabled in this program
override station toll restrictions defined in
Program 48.
4.40 Program 45-3 w 6-Equal Access/Special
Common Carrier Numbers and Authorization
Code Digit Length
4.41
The purpose of this program is to notify the
system of how many digits to ignore before it
appliesToll Restriction. This enables the system to
allow the use of Special Common Carrier authori-
zation codes.
4.42 Special Common Carrier (SPCC) telephone
numbers may be defined to notify the system to
modify restrictions when the station user is dialing
a long distance carrier. The user dials a code to
access the carriers. Original restrictions re-acti-
vate after the carrier number is dialed.
4.43 There are two elements toll restriction soft-
ware must verify for a user to successfully com-
plete long distance calling:
l
The first five digits of the number dialed to ..’
.’
2-22

access the long distance special common car-
rier (SPCC).
l
The total number of digits belonging to the
authorization code of the SPCC.
4.44
Items
3
and
5: Enter the first five digits of the
SPCC telephone number in the spaces labeled
SPCCl Telephone Number (item 3) or SPCCZ
Telephone Number (item 5) on the record sheet.
The initialized state assigns “00000” to items 3 and
5.
4.45
Items 4 and
6: Enter each SPCC’s authori-
zation code digit length. The number of digits
allowed (including the first five specified in items 3
and 5) ranges from 00 - 99. Initialized data assigns
“00” to items 4 and 6. Enter two digits on the record
sheet.
4.46 A restricted station is not able to place a toll
call through a long distance carrier by dialing the
SPCCI or SPCC2 telephone number if the station
is denied from that number in other toll restriction
programs. Upon recognizing the first five digits
dialed, Toll Restriction software is notified to allow
the number of digits programmed in items 4 or 6
(00 N 99, including the first five dialed as SPCCI or
2).
4.47 The system interprets data to be a seven-
digit local call to an SPCC. Only five digits of the
seven-digit number are entered; therefore, the
last two digits are don’t care digits. Any number
dialed that has the same first five digits as the
carrier, the system will assume the SPCC is being
called.
IMPORTANT NOTE:
For items 4 and 6, do not enter more digits
than necessary for the authorization code.
If too many digits are allowed, toll restric-
tions may be ignored.
4.50 Program 45-8 ,- g--Toll Restriction
Override Code
4.51 Two different codes may be dialed by
any station user to override station-specific
restrictions.
PROGRAMMINGPROCEDURES-INSTRUCTIONS/SYSTEMRECORDS
SECTION 200-096-302
FEBRUARY1991
4.52 Fill in the codes on the record sheet. They
must be four digits each. .
4.53 Selected stations in the system are able to
alter the override code. These stations are defined
by
Program
30. To change the codes from se-
lected stations:
Code 1: m+1iI+code +I
Code2: m+@li+code+$
4.60 Program 46-2 W 4-Toll Restriction
Allowed/Denied Area Codes Assigned by
Class
4.61
Four Toll Restriction classes can be defined
for the system. Each class area code provides for
a different combination of restrictions.
4.62 This program defines the area codes al-
lowed or denied for each Toll Restriction class.
Area code tables for classes 1 N 4 can each
describe area codes that are allowed or denied for
the class. The tables (in memory) operate as allow
tables. If an area code exists in a table (displays
with mu), then it is allowed. Anything not displaying
is not allowed. Initialized dataallows all areacodes
for each class (all codes are in all tables). All
allowed area codes can be displayed (11) for each
class.
4.63 For each class, choose whether the record
table is used to record allowed area codes in
memory (ALLOWED) or denied area codes not in
memory (DENIED). Enter the area codes that
define the set.
4.70 Program 46-6 W 8-Toll Restriction
Allowed/Denied Office Codes Assigned by
Class
4.71
This program defines the office codes al-
lowed or denied for each Toll Restriction Class
within the home area code. Office code tables for
classes 1 N 4 can each describe office codes
allowed or denied for the class. The tables (in
memory) operate as allow tables. If an office code
exists in a table (displays with 1 i), then it is al-
lowed. Anything not displaying js not allowed.
Initialized data allows all office codes in the home
area code for each class.
2-23

PROGRAMMINGPROCEDURES-INSTRUCTIONS/SYSTEMRECORDS
SECTION 200-096-302
FEBRUARY1991
4.72 For each class, choose whether the record
table is used to record allowed office codes in
memory (ALLOWED) or denied office codes not in
memory (DENIED). Enter the office codes that
define the set.
4.80 Program 46-l 0 -,4O-Toll Restriction Class
Parameters (Classes 1 -, 4)
4.81
This program defines parameters of each
Toll Restriction class, including dialing plan restric-
tions and exceptions to previous restrictions.
4.82 Toll Restriction exceptions and dialing plan
restrictions may be defined for each class.
Program
46-10
assigns class 1 restriction exceptions and
parameters; 46-20 assigns class 2; 46-30 assigns
class 3; 46-40 assigns class 4. This program also
relates to
Program 47. See Program 47
for more
explanation.
4.83 To define the proper parameters for a Toll
Restriction class, make the appropriate selections
on the record sheet designated for classes 1 w 4:
l
LED 01: 0 Restricted-Mark
an X next to LED
01 if operator or operator-assisted calls are
restricted for the class being defined.
IMPORTANT NOTE:
To allow 0 + dialing (LED 01 must be off),
codes 020
- 099 must be allowed in Pro-
gram 46, and digit free must be allowed in
Program 48. Warning-Allowing 0 + dial-
ing also allows operator-assisted toll calls.
l
LED 02: 01 Restricted-Mark
an X next to
LED 02 if overseas operator or unassisted
overseas operator calls are restricted for the
class being defined.
l
LED 03: 1 +AC+555 and AC+555 Allowed-
Mark an X next to LED 03 to allowthe particular
class to call all restricted area codes plus the
office code of 555, including out-of-area di-
rectory assistance calls. Turning the LED off
does not necessarily deny information calls.
This may also be accomplished in the office
code table and/or the area/office code excep-
tion tables.
. LEDsll m 18: Area Code/Office Code Ex-
ception Tables 1
w 8-Select the exception
tables that apply to the class being defined by
marking an X in the box. Exception tables for
both area and office codes will be defined in
Program 47.
..>,
i
’
NOTE:
Each class can be assigned any or all of the
eight available office code exception tables.
4.90 Program 47-Toll Restriction Exception
Office Codes Assigned by Area Codes (Table
l-8)
4.91
This program defines exceptions to previ-
ously defined office code restrictions for up to eight
area codes, allowing six-digit toll restriction. Office
codes entered in Tables 1 - 8 are opposite of what
is defined for the area code by
Program 46-2 -, 8.
For instance, if
Program 46
denies area code 714,
entering office codes 530 and 555 into an excep-
tion table for area code 714 will allow those office
codes.
4.92 Eight exception tables are available. Each
area code with exception office codes requires a
table. Each table may hold up to 800 exception
office codes.
4.93 Enter the areacode and required office codes
on the record sheet.
4.100 Program 48-Station Toll Restriction
Classification
4.101
This program assigns a combination of two
restrictions to each station port defined in the
system. Thefirstfeature is Digit Restriction and the
second is Station Restriction Assignment.
4.102 Digit Restrict Code:
If Digit Restrict is en-
abled for a particular station, the station is able to
dial the number of digits defined in the
Program
45-l
toll restriction dialing plan.
l
1: Enable Digit Restriction-Enter 1
in the
Digit Restrict Code column, next to the port
number to enable the r$strictioti for the station. :
2-24

This is used to prevent a user from dialing a
second call when dial tone is returned from a
CO after the outside party disconnects.
l
2: Disable Digit Restriction-Enter 0 in
the
Digit Restrict Code column, next to the port
number to disable digit restriction for the sta-
tion. This allows toll restricted users to dial any
number of digits (i.e., to an external voice mail
device, computer, etc.).
4.103 Station Restrict Code:
The second fea-
ture assigns Toll Restriction to individual station
ports, in addition to previous restrictions. It includes
seven different choices. One of the choices must
be entered for each port. Initialized data assigns 0
or no restrictions to all ports. The seven choices
are explained as follows.
NOTE:
Station restrictions are overridden by CO
lines disabled as defined in
Program 45-2.
If
a station port has appearance of a CO line
with restrictions disabled, the restrictions will
be removed from the station on an individual
CO line basis through
Program 45-Z.
l
0: No Station Toll Restriction-Enter 0
in the
Station Restrict Code column, next to the port
number, to remove toll restrictions from the
station.
l
1: Area CodeToll Restriction-Enter 1
in the
Station Restrict Code column, next to the port
number If the selected station must be re-
stricted from dialing all area codes.
l
2: Area Code Toll Restriction and “0” or “1”
as a 1st or 2nd
Digit-Enter 2 in the Station
Restrict Code column, in the space available
for the port number, if the selected station must
be restricted from dialing all area codes, and 0
or
1
when used as a first or second digit. This
restriction prevents the station from making
any long distance calls or operator-assisted
calls, in addition to outgoing calls outside the
home area code. In applicable areas, this
prevents long distance office codes from being
dialed (if l+NNX).
l
3: Class 1 Toll Restriction-Enter 3
in the
Station Restrict Code column in the space
provided for the port number, if the selected
PROGRAMMING PROCEDURES-INSTRUCTIONS/SYSTEM RECORDS
SECTION 200-096-302
FEBRUARY 1991
station will be assigned to the Class 1 level of
restriction. Class 1 area and office code re-
strictions are defined in
Program 46,
a’nd ex-
ception office code tables in 46-10.
l
4: Class 2 Toll Restriction-Enter 4
in the
Station Restrict Code column in the space
provided for the port number, if the selected
station will be assigned to the Class 2 level of
restriction. Class 2 area and office code re-
strictions are defined in
Program
46, and ex-
ception office code tables in 46-20.
l
5: Class 3 Toll Restriction-Enter 5
in the
Station Restrict Code column in the space
provided for the port number, if the selected
station will be assigned to the Class 3 level of
restriction. Class 3 area and office code re-
strictions are defined in
Program
46, and ex-
ception office code tables in 46-30.
l
6: Class 4 Toll Restriction-Enter 6
in the
Station Restrict Code column in the space
provided for the port number, if the selected
station will be assigned to the Class 4 level of
restriction. Class 4 area and office code re-
strictions are defined in
Program
46, and ex-
ception office code tables in 46-40.
5 LEAST COST ROUTING
5.01
The following provides the programmer an
overview of the Least Cost Routing feature and
step-by-step instructions to fill in the Least Cost
Routing System Record Sheets.
6 LEAST COST ROUTING OVERVIEW
6.00 Definition
6.01
The Least Cost Routing (LCR) feature en-
ables the system to automatically route each out-
going voice and data call over common carriers
and selected CO lines. The customer chooses
these lines for the specific time of day, and for
system users with varying priorities. If the system
is programmed properly, LCR can select the most
economical route, helping save money. If the
best routes are unavailable, users with priority
can access more expensive outgoing routes.
Several elements of LCR must be defined in
programming.
2-25

PROGRAMMINGPROCEDURES-INSTRUCTIONWSYSTEMRECORDS
SECTION 200-096-302
FEBRUARY1991
User dials telephone number (see note).
1
System analyzes telephone number, and
checks it against most Program 50 options.
* LCR Parameters (50-l)
* LCR Special Codes (50-31 - 35)
* LCR Long Distance Information Plan
Number (50-4)
. LCR Local Call Plan Number (50-5)
* LCR Dial Zero Time Out (50-6)
NOTE:
If the telephone number is restricted by system
Toll Restriction, the caller will receive busy tone
and LCR will be canceled immediately.
TN0
c
System searches all office code exception
tables entered into LCR plans 1 - 8 with
Program 52.
if it is an area code or an office code.
System checks all area code
tables entered into the LCR plans
1 - 8 through Program 51.
NO
(I.!
Call
not
completed.
System checks the time of day. (This must
be set properly by station port 00.)
1
Selects the appropriate schedule (1, 2 or 3)
Determines the station’s group assignment
as specified in Program 56. Within the
Selects the route definition as defined
by Program 54 for the CO line group
(Program 16), and activates the modified
digits table instructions defined through
Program 55.
The system selects the first available route
definition (Ist, 2nd, 3rd or 4th choice) that
represents both CO line group and modified
digits table.
I f I
Verifies the CO line access, as defined by
Program 40. Within a CO line group, the
system checks to see if access is allowed
System selects a CO line and dials number.
i
(CALL COMPLETED)
FIGUREP-l-LCROPERATIONALBLOCKDIAGRAM
2-26

PROGRAMMINGPROCEDURES-INSTRUCTIONS/SYSTEMRECORDS
SECTlON200-096-302
FEBRUARY1991
NOTE:
For LCR to function properly, CO line groups
must be created in
Program 16; CO
line re-
strictions set in
Programs
40 and 41; and the
area dialing plan assigned in
Program 45- 1.
6.02 LCR General Parameters:
Enables fea-
tures including a warning tone for last choice route
number, a comfort dial tone during LCR process-
ing, and the Long Distance Information dialing
plan.
6.03 LCR Home Area Code:
Notifies LCR soft-
ware of the area code of the installation site.
6.04 LCR Special Codes:
Notifies LCR of special
emergency and operator codes that will be
automatically routed as a local call, without unnec-
essary delay.
6.05 Long Distance Information Plan Number:
Notifies LCR software how to route a long distance
information call.
6.06 Local Call Plan Number:
Notifies LCR
software which call routing plan is specifically
designed to handle local and special calls.
6.07 LCR Timeout after 0 (Zero) is Dialed:
Notifies the system of the time delay to the user
after dialing a 0, before a regular operator is
accessed.
6.08 LCR Area Codes:
As many as eight sepa-
rate area code tables can be defined; one for each
available call routing plan. Each table defines the
area codes that are handled by the particular
routing plan.
6.09 LCR Office Code Exceptions for Area
Codes:
As many as eight LCR office code
exception tables may be defined to inform LCR
software how to handle specific office codes within
area codes. According to the tables defined,
specific exception office codes can be routed
through a different call plan than the overall area
code plan.
6.10 LCR Schedule Assignments:
Call routing
plans 1 N 8 can send the outgoing calls of different
groups of stations according to a time Schedule,
and call route definitions.
6.11 LCR Route Definitions:
Groups of CO lines
assigned to special common carriers, foreign ex-
change lines, or other special services can be
specified as call routes.
6.12 LCR Modified Digit Assignments:
Carrier
codes can be programmed to dial automatically
when a call is placed over the appropriate route.
Digits can be added to the front or back of special
common carrier codes or other access numbers to
make placing calls an invisible process for the
user. Digits may also be deleted from the front of
the dialed number.
6.13 LCR Station Access Priority Assignments:
Each station port defined in the system may be
assigned to one of four station priority groups. The
groups can have varying access to the defined call
routes at different times of day. Each group is
partitioned from the other groups.
6.20 Conditions
6.21
A number of conditions apply to LCR assign-
ment. Asummaryof each is listed here. Paragraph
7, Completing the Least Cost Routing Record
Sheets, gives more detailed explanations and
examples of how the conditions relate to the pro-
gramming process.
6.22 If a station has direct CO appearances, or
pooled CO line buttons programmed to allow direct
outgoing line access, LCR will be bypassed using
the pooled line or a CO line button.
6.23 LCR accommodates special code dialing,
such as
911
for emergency response,
l-411
or
411
for information, or 800 area code toll-free
numbers. These calls can be directed to the local
call route. Examples are given in Paragraph 4 (see
Program 50-31 - 35).
2-27

PROGRAMMING PROCEDURES-INSTRUCTIONS/SYSTEM RECORDS
SECTION 200-096-302
FEBRUARY 1991
IMPORTANT NOTE:
assigned to groups 81 - 88. Refer to the com-
Always provide emergency service ac-
pleted record sheet in
Program 16
for this
cess for numbers such as 911.
information. .
6.24 Basic System Record programs related to
LCR include:
2)
3)
4)
Under the column labeled “CO Line Type/Corn-
ments,” enter the service type, the common
carrier name, or the line type for each line
group, e.g., local line, Foreign Exchange (FX)
to 818 (LA), WATS (out of state), etc.
Program
16 defines which outgoing CO lines
are assigned to CO line groups 81 - 88.
Program
40 denies a station complete CO line
access. This also applies to LCR.
Program 41
restricts outgoing CO line calls to
selected stations. These stations may make
outgoing calls through LCR. In this Program,
Release 1
software denies ABR;
Release 2
and above software allows ABR.
7 COMPLETING THE LEAST COST
ROUTING SYSTEM RECORD
NOTE:
All stations using LCR should be ALLOWED
CO
line access in
Program
40, and DENIED
CO
line access in
Program 41.
7.01 The following instructions explain comple-
tion of the System Record Sheets used to program
LCR. Instructions are arranged in the same order
as data tables in the Least Cost Routing System
Recordand the programming instruction tables in
Chapter 3. The instructions are intended to give a
concise, general definition of LCR characteristics
defined by each record sheet.
NOTES:
1. On each record sheet, enter required data
in the space provided to make a selection,
unless otherwise specified.
2. The initialized state and considerations
are documented on the record sheet.
7.10 LCR CO Line Programming Reference
Table
7.11
This table is intended for reference only.
Information relevant to LCR is compiled here from
Basic System Programming.
1) Under the column labeled “CO Lines in Group
(01 - 36),” enter the numbers of the CO lines
Refer to Basic System Record,
Program 40,
to
restrict stations from incoming and outgoing
access of CO lines, including using LCR. All
stations that must use LCR to make outgoing
calls must NOT be restricted in this program.
These restrictions do apply to LCR.
Refer to Basic System Record,
Program 41,
to
restrict stations from accessing outgoing CO
lines, except through LCR. All stations that
must use LCR for outgoing calls must be re-
stricted from CO line access in this program.
7.20 Program 50 Series-LCR Definitions
7.21 Program 50-I-LCR Parameters:
This
program defines general operating parameters for
LC R software.
NOTE:
Mark an X in the column to indicate which
programming button LEDs should be lit. Ini-
tialized data leaves all L EDs OFF.
LED Key 01
ON: LCR software is enabled system-wide.
OFF:
LCR software is disabled. None of the
LCR programming referred to by this section is
recognized. Dial 9 access assigned in
Program
16
is enabled.
LED Key 02
l
Not used.
LED Key 03
l
ON: LCR routes long distance information
(LDI) calls over the plan number specified in
Program 50-4.
2-28

PROGRAMMINGPROCEDURES-INSTRUCTIONS/SYSTEMRECORDS
SECTION 200-096-302
FEBRUARY1991
l
OFF:
LCR routes LDI calls using area codes
specified in route plans 1 -8, as it would for any
other call.
LED Key 04
l
ON: Station users hear a simulated dial tone
immediately after dialing the access LCR code
(typically 9), until the first digit of the phone
number is dialed. The dial tone is simulated to
assure the user of the system’s proper opera-
tion, but it is not a functional dial tone.
l
OFF:
Station users hear nothing after dialing
the LCR access code until the destination rings
or issues a busy signal.
LED Key 05
l
ON: The user is notified with a warning tone to
indicate that LCR has routed the call over the
least desirable route number. The most expen-
sive route is typically programmed to be the
least desirable. A user has three choices upon
hearing the warning tone:
a) Ignore the tone, LCR places the call using
the least desirable route.
b) Hang up and try later to save money.
c) Activate the Automatic Call Back feature.
The appropriate CO line group calls the
user back when a more desirable route
number becomes available.
l
OFF:
No warning tone sounds.
7.22 Program 50-2-LCR Home Area Code:
Enter the local areacode in the spaces provided on
the record sheet. Initialized data leaves the home
area code blank.
l
LCR matches the area code entered here with
the LCR route plan containing the home area
code in its Area Code Table (the home area
code is later entered into one of the eight
available LCR route plans through
Program
51).
Thus, LCR is informed of how to handle
local calls.
l
Typically, systems are configured to have the
LCR route plan containing the home area code
as the same as the local route plan defined in
Program
50-5. This is typically programmed
by the installer to be route plan number 1,
rather than the default plan 8.
7.23 Programs 50-31 m 35-LCR Special Codes:
Five Special Codes may be entered in spaces
provided next to 31 - 35. The codes may be a
maximum of four digits, and should include items
such as
911
for emergency calls, and 411 or
I-411
for local information, etc. Initialized data leaves all
codes blank.
l
When any of these codes are dialed, LCR is
flagged to treat the call as follows:
l
The call will be sent over the local call route
plan specified in
Program 50-5.
l
No additional digits need to be dialed. They
are not necessary. Therefore, the call is put
through immediately.
7.24 Program 50-4-LCR Long Distance Infor-
mation (LDI) Plan Number:
Enter the number of
the LCR route plan (1 - 8) over which long distance
information calls will be routed. Typically, long
distance information calls are routed over the local
call route defined in
Program 50-5.
If the long distance information plan is chosen
in
Program
50-l) the call is routed as defined
by this table.
Initialized data assigns plan 8 to be the LDI
route plan.
7.25 Program 50-5-LCR Local Call Plan Num-
ber:
Of the eight route plans available for LCR call
processing, one must be defined as the Local Call
Plan, typically route plan 1. Enter the number of the
plan (1 - 8) over which local calls, operator-
assisted/O+ calls, and special code calls will be
routed.
7.26 Program 50-6-LCR Dial 0 (Zero) Time-
out:
Enter the maximum number of seconds LCR
waits for a user to dial additional digits after a 0,
before it routes the call to an operator for assis-
tance. LCR will wait this number of seconds to
receive additional digits that will indicate charge
calls, collect calls or other 0+ calls.
l
The allowed range is 04 - IO seconds. Always
enter two digits. Initialized data assigns an
LCR dial zero time-out value of 06 seconds.
7.30 Route Plan Overview
7.31 Four groups of programs define eight sepa-
2-29

PROGRAMMING PROCEDURES-INSTRUCTIONWSYSTEMRECORDS
SECTION 200-096-302
FEBRUARY1991
rate LCR route plans. They are
Programs 51 w 54.
The purpose of the plan scheme is to provide the
system with directions for routing all possible calls,
made by all possible users at all possible times of
day. Eight separate plans provide the customer
flexibility enough to route different area codes and
exception officecodes over different CO linegroups.
7.32 Initialized data assigns all calls to plan eight.
Any assignments made in
Programs 51 w 54
for
plans 1 - 7 will exempt the defined call from being
made on route plan 8. Likewise, any phone num-
ber not specified in routes 1 - 7 automatically
defaults to route plan 8.
its Area Code Table.The home area code
must be entered into one of the eight avail-
able LCR route plans through Program 31).
Thus, LCR is informed of how to handle local
calls. Typically, systems are configured to have
the LCR route plan containing the home area
code as the same as the local route plan
defined in Program 50-5. This usually is pro-
grammed by the installer to be route plan
number I, rather than the default plan 8.
7.33 Tables for
Programs
51- 54 appear on LCR
Route Plan Numbers 1 - 8. The following instruc-
tions reveal how to fill in individual tables within the
plans. Each of the following program tables must
be completed for all plans.
7.34 Program 51- LCR Area Code Tables:
Every route plan can be assigned to define a set of
area codes and/or office codes.
l
The purpose of
Program 51
is to define which
area code calls are placed over which LCR
Plan Number (1 - 8). Initialized data assigns all
possible area codes (000 - 999) to LCR Plan
8. Therefore, calls made to all area codes will
be routed over route definitions defined in
Program
54 for plan 8, following the time
schedule specified by
Program
53 for plan 8
(unless other assignments are made in plans 1
- 7).
7.35 Program 52-LCR Office Code Excep-
tions for Specified Area Code:
The purpose of
the Office Code Exception Table is to enable the
customer the flexibility of routing specific office
codes through a different call plan than other office
codes used with that area code.
l
Eight LCR office code exception tables may be
defined for the overall LCR scheme. Any num-
ber of exception code tables may be assigned
to each route plan, although each exception
table may only be used once system-wide.
l
Every route plan can be assigned to define a
set of area codes and office code exceptions or
a set of office code exceptions.
l
This program applies to both examples listed
below. In the first case, an office code excep-
tion table does not need to be defined in
addition to the area codes in
Program 51,
but
it may. In the second case, the plan may only
pertain to exception office codes for certain
area codes.
l
For example, any area code entered in a
Program 51
LCR area code table for plans 1 -
7 is subtracted from plan 8. An area code
cannot be lost. If it is subsequently deleted
from plans 1 - 7, LCR software automatically
adds it to plan 8.
l
To fill in record sheets for plans 1 - 8:
l
Check the box by Area Code Table.
l
Enter the applicable area codes, three
digits per box.
NOTE:
Remember that LCR matches the home area
code entered in Program 50-Z with the LCR
route p/an containing the home area code in
Example
l-In the first example, office code ex-
ception tables will be defined to the area code
table. Use the continuation sheet to define the
exception office codes. As many as eight of the
office code exception tables may be linked to a
plan, but each exception table may only be used
once. When using the continuation sheet, be
sure that the same exception table is not as-
signed to more than one plan.
l
Turn to the continuation sheet (that follows
plan 8 record sheet).
l
Determine the plan number where the ex-
ception office codes will be rooted.
l
Fill in the area code of the exception office
codes in the spaces provided by the cor-
rect plan number. These office codes will
2-30

PROGRAMMINGPROCEDURES-INSTRUCTIONS/SYSTEMRECORDS
SiCTlON 200-096-302
FEBRUARY1991
be routed differently than the overall area
code.
l
Enter the specific office codes that are to
be routed differently.
Example
2-m the second example, the route
plan only applies to office code exceptions. The
first office code exception table may be docu-
mented on the LCR Plan record sheet:
l
Check the box on the record sheet next to
Office Code Exception Table number.
l
Enter the number of the exception table
(1 - 8). Make sure this table number is not
entered on any other plan, or on the con-
tinuation sheet.
l
Enter the applicable area code.
l
Enter the specific office codes that are to
be routed differently than the area code.
7.36 Program 53-LCR Schedule Assign-
ments:
This program assigns up to three time
schedules to each plan. Each time schedule con-
sists of four different route definition choices (de-
fined in
Program
54) available to the four station
groups (defined in
Program
56). It may be helpful
to complete
Program
54 portions of the plans and
Program
56 before proceeding.
Typical Installation without time scheduling
feature-In
most cases, an installation will not
require use of the time schedule feature. To reflect
this on the record sheets for plans 1 - 8:
1:
Enter the same
Schedule Start Times
for
Schedules
1 and 2. Use military time, in the
format HH:MM (Hours:Minutes). Fill in all four
digits. Initialized data assigns “0000” to all
times.
l
If LCR software sees schedules 1 and 2
have the same start times, then it only
looks at schedule 1 for route definitions.
2: Enter
Route Definition Numbers
for
Sched-
ules 1
and 2. Four definitions may be entered
for each group.
l
LCR Station (Class) Groups 1 - 4 are
assigned in
Program 56.
l
LCR Route Definition numbers I- 4 are
defined in
Program 54.
l
The order in which the route definitions are
entered defines the order of LCR line se-
lection. The most desirable route should
be entered in the leftmost position, and the
least desirable route in the rightmost posi-
tion.
l
If
“1”
is assigned to Station Group 1, and
1
for route definition only, then those as-
signed will only be able to use route defini-
tion 1, thereby restricting them during times
that route definition 1 is not allowed.
l
Keep in mind that the route definition num-
ber is being entered, not the CO line group
number. The definitions are assigned in
Program 54.
Installation requiring timeschedulingfeature-
When an installation requires the time scheduling
feature to be programmed, three “shifts” of route
definitions can be assigned per station group. To
reflect this on the record sheet, substitute step 1 of
the procedure described for the typical customer
with the following:
1:
Enter the
Schedule Start Times
for
Sched-
ules 1,2
and 3. Use military time, in the format
HH:MM
(Hours:Minutes). Fill in all four digits.
Initialized data assigns “0000” to all times.
l
Start time for schedule 2 is the stop time for
schedule 1.
l
Start time for schedule 3 is the stop time for
schedule 2.
l
Start time for schedule 1 is the stop time for
schedule 3.
7.37 Program 54-LCR Route Definition:
The
purpose of this program is to define four different
ways of routing calls for each of the eight LCR
plans. Define each route by selecting and entering:
1: CO Line Group (1
- 8): Refer to the LCR CO
Line Programming Reference Table completed
at the beginning of the LCR record sheets.
l
Each CO line group represents a type of
service, e.g., special common carrier, for-
eign exchange, local line group, etc.
l
Program 16
assigns CO lines to CO line
groups 1 - 8 (81 ‘- 88).
l
Program
40 denies incoming and outgo-
2-31

PROGRAMMINGPROCEDURES-INSTRUCTIONS/SYSTEMRECORDS
SECTION 200-096-302
FEBRUARY1991
ing CO line access to stations, including
LCR access.
l
Program 41
allows CO line access to sta-
tions using LCR only for outgoing calls
when enabled.
2: Modified Digits Table (1
W 6): Refer to
Pro-
grams
55-0, 55-l and 55-2. The system
handles CO line groups differently, according
to which modified digits table was assigned in
Program 54.
7.40 Program 55 Series-LCR Modified Digits
Tables
7.41
This program defines six modified digits tables
for LCR call handling. Each modified digits table
assigns editing steps that include:
l
Deleting a pre-defined quantity of digits from
the front of the number dialed
(Program 55-O).
l
Adding a pre-defined number to the front of the
number dialed
(Program 55-l).
l
Adding a pre-defined number to the end of the
number dialed
(Program 55-2).
7.42 The purpose of this program is to define call
handling so the route definition used by LCR is
invisible to the station user. The station user handles
all calls the same way. The goal is for LCR to
remember the dialing peculiarities of each call
route, so the user doesn’t need to know.
7.43 Program 55-O-LCR Modified Digits-De-
lete:
Enter the
Quantity of Digits
that should be
deleted from the front of the numberdialedfor each
of the six
Table Numbers
in the
Delete Digits
Table.
The maximum number is ten. Always make
the entry two digits.
7.44 Program 55-l -LCR Modified Digits-Add
to Front of Dialed Number:
Enter the digits that
must be added to the front of the number dialed in
the
Add Digits Table.
The maximum quantity of
digits is 22, including pauses.
l
Length of pause can be indicated by using
codes (Pl N P8) specified in the
Pause Entry
ReferenceTable.
Each pause takes ttio digits
of memory space.
l
Try to allow for the longest wait, e.g., make the
pause longer, rather than shorter, to accom-
modate the length of time a carrier may need to
access the service tones, etc.
7.45 Program 55-2-LCR Modified Digits-Add
to End of Dialed Number:
Enter the digits that
must be added to the end of the number dialed in
the
Add Digits Table.
The maximum quantity of
digits is 22, including pauses.
l
Length of pause can be indicated by using
codes (PI N P8) specified in the
Pause Entry
Reference Table.
Each pause takes two digits
of memory space.
l
Try to allow for the longest wait, e.g., make the
pause longer, rather than shorter, to accom-
modate the length of time a carrier may need to
access the service tones, etc.
7.46 Program 56-LCR Station Group Assign-
ment:
The purpose of this program is to assign all
defined station ports to one of four LCR Station
Groups.
l
Station groups are completely independent of
one another. Therefore, each station group
must be defined separately.
l
Software does not automatically assign the
highest, all-inclusive routing priority to class 1
stations, making all routes available to class 2,
3 and 4 stations available to class 1 as well.
l
Instead, stations are assigned to independent
groups (partitioned). Completely flexible as-
signment of routing definitions to groups is
allowed, with no one group’s definition affect-
ing another’s, Each group’s route definitions
are specified to activate separately according
to the time schedules set by
Program 53.
1:
Enter the station group number next to the port
number.
2-32

PROGRAMMINGPROCEDURES-INSTRUCTIONS/SYSTEMRECORDS
SECTlON200-096-302
FEBRUARY1991
SYSTEM RECORD SHEETS
RELEASE 1,2, and 3
2-33

PROGRAMMING PROCEDURES-INSTRUCTIONS/SYSTEMRECORDS
SECTION 200-096-302
FEBRUARY1991
IMPORTANT INITIAL INSTALLATION NOTES:
These minimum installation steps must be carried out for proper system operation.
1.
2.
3.
I
4.
5.
6.
1.
2.
3.
Set PCTU jumper plug for BATTERY OPERATION; otherwise, all programmed customer
data will be lost on power down.
Place PEP& PIOU, or PIOUS PCB in highest slot number of KSU.
Place all other PCBs in KSU from lowest slot number to highest in the following order:
PCTU or PCTUS (always Slot 00)
PEKU or PDKU (starting at Slot 01)
PESU (Release 2 and above)
PSTU
PCOU
PEMU
Run Program 90. Initialize Programs 00 - 97, and turn power OFF for five seconds, then
turn power back ON.
Run Program 92.
Enter the hardware configuration with Program 03, exit the programming mode, and turn
power OFF for five seconds, then turn power back ON.
WHEN LATER ADDING KSU PCBs:
Move PEMU PCBs to a higher slot number to create empty slots for additions.
Install new PCBs and reprogram with Program 03. Change PEMU station and CO line
numbers or reassign stations.
Program new features, options, etc. created by new additions.
2-34

PROGRAMMINGPROCEDURES-INSTRUCTIONS/SYSTEMRECORDS
SECTION 200-096-302
FEBRUARY1991
STRATADKSOFTWARERELEASES
Software Guide:
This is a reference guide that provides updated information regarding software enhancenients to
the STRATA Digital Key (DK) System.
DKSoftware Identification:
The DKoperating software is stored on Read Only Memory (ROM) chips and is identified
by ROM Version.
There are four ROM chips in a DK ROM set, which are installed on a processor control circuit PCB. There are four
versions of PCTU: PCTU3 is the
Release
3 version; PCTU2 is the
Release
2 version and PCTUS is the
Release
2
version for use with DK24 only; PCTUl is the first released version. PCTUI can be upgraded to PCTU2 by changing
PROMS supplied in the Toshiba PURR2 upgrade kit. All PCTUS PCBs, used in STRATA DK24, contain
Release
2
version software. PCTUI, PCTU2, and PCTUS cannot be upgraded to PCTU3,
Release 3.
The ROM version may be displayed by running
Program
00-O from the local programming telephone or remote
programming terminal. The ROM version is also printed on the label attached to each of the four ROM chips in a set.
The last two or three characters on the label identify the ROM version: e.g., 2K,
lG,
etc. as shown below:
ROM LABEL,
PCTU(l and 2) TYPE
I I
L
1
L$ q cm
-
ifl
ROM LABEL, PCTUS TYPE
I 1
L
P
) 0 Em
+
ROM LABEL, PCTU(3) TYPE
I I
L
PI
CF
-
fl cl lxl
-
ifl
L IDENTIFIES
L
L IDENTIFIES
ROM VERSION
L
ROM VERSION
IDENTIFIES PCTU IDENTIFIES PCTU
IC SOCKET THAT IC SOCKET THAT
HOLDS ROM: HOLDS ROM:
9 = IC9 9 = IC9
O=ICiO 0 = IClO
3=IC13 4 = lC14
4 = IC14 5 = IC15
~ INDICATES THAT ROM
IS FOR PCTU (1 or 2)
INDICATES THAT ROM
IS FOR PCTUS
I-- IDENTIFIES
L
ROM VERSION
IDENTIFIES PCTU
IC SOCKET THAT
HOLDS ROM:
9 = IC9
O=IClO
3=IC13
4 = ICI4
INDICATES THAT ROM
IS FOR PCTU3
IMPORTANT NOTE:
PCTU(1 and 2) ROM (PCA), PCTUS ROM (PCD), and
PCTU(3) ROM (PCM) are not interchangeable.
System Record Sheets:
The same System Record Sheets are used for a// STRATA DK models and are updated
with each DK software release. Each updated and new record sheet will be dated when released and may be inserted
in the original document to replace the outdated record sheet (the record sheets released with the original PCA2K
software are dated June 1989).
On the record sheets, the letters “R2” note options available with
Release
2 and above only (see the software guide
for the R2 option list). All program options that are not noted with “R2”are available with a//STRATA DK software. The
letters “R3” note options available with
Release 3
software only (see the software guide for the’R3 option- list). All
program options available with “R2” are also available with
Release 3
software.
2-35

PROGRAMMINGPROCEDURES-INSTRUCTIONS/SYSTEMRECORDS
SECTION 200-096-302
FEBRUARY1991
RELEASE2(R2)SOFTWAREGUlDE
With the exception of Busy and Group Station LCD Messaging, all items available with RI software ‘-3,
are available with R2 software; items listed below are available with R2 software and above only. -*’
Item Description *Related Programs Comments
PESU PCB OJ, Code 25 and 26 Station PCB, supports 2 standard
telephones, 4 electronic telephones
BGM/MOH separation 10-2, key/LED 09 Separates music-on-hold and background
music; 2 music sources required
HDCB, door lock option 39, Code 72,73,74,75 Allows HDCB, port B, to be optioned as a
77-2, key/LED 4, 8, 12, 16 door lock control; 4 maximum
Release key 39, Code 76 Provides more efficient way of releasing
calls (headset or handset)
SMDR, print toll only 60-5 0, 1, 2, 3, 4
-I Allows system SMDR to send SMDR data
for long distance calls only
Pickup code to selectively pickup None Provides the call park/page for
CO lines on-hold pickup function for outside call
DISA - same as DISC but allows 60-6 = security code DISA code must be entered to call out on
access to outgoing
CO
line Port 99 = COS class CO lines via DISA (optional).
78 assigns DISA CO lines 4-minute disconnect timer (reset-dial “0”).
-
DISA security code change from 30, key/LED 10 Allows stations designated in programming
-
station to change the DISA code
Call forward busy, no answer, 39 codes: 57 = BNA/604 Calls forward if station is busy, does not
-
busy/no answer 58 = NAl603 answer, or busy/no answer
59 = BSYI602
FIXED call forward displays on 36 LCD displays that phone has fixed call
LCD - forward set
2 CO line conference with standard 10-I and 15-5 Allows a standard telephone to set up a
telephone conference with 2 CO lines
Distinctive ringing for CO/lnt to 10-2, key/LED 07 on Standard telephone ringing pattern is
standard telephone different between intercom and CO line call
“NAME” display on LCD None Called LCD displays name/number
of calling station
Auto-preference and pooled line None Changes off-hook and pooled line
seizure operate like STRATA e operation to allow fast release/seize
DSS transfers call when answering None CO lines ring transfer automatically when
another call-like STRATA, pressing another CO line key-
*All program numbers are underlined in this column.
2-36

PROGRAMMINGPROCEDURES-INSTRUCTIONS/SYSTEMRECORDS
SECTION 200-096-302
FEBRUARY1991
RELEASE2(R2)SOFTWAREGUlDE (continued)
With the exception of Busy and Group Station LCD Messaging, all items available with RI software
are available with R2 software; items listed below are available with R2 software and abbvi! only.
Item Description
80/160 DTMF
option for
VM ID
Codes
Immediate drop when Toll
Restricted digits are recognized
CO line, incoming ring detector
time change: (120/223 ms)
ABR overrides Program 41
Change RM prompt from DKTS
Version 1 .O to DK Connect
Message waiting cancel from
voice mail port only by:
Dial 64 and station number
Operation change when sending
“D” tone to VM
*Related Programs
1 o-2
None
10-1, key 18
None
None
10-2, key/LED 4
None
Comments
Allows Voice Mail auto digits to be sent at 80
or160ms
Call
drops as soon as a restricted number
sequence is detected
Changes CO ringing detect time to
eliminate false ring-ins from some COs
Allows ABR to function with all LCR
program configurations
Changes Remote Maintenance prompt
to verify that IMDU connection is made
Deletes auto-cancel of MW LED when VM
answers a call from a station that has
MW LED from voice mail
Prevents disconnects when VM device
does not recognize “D” tone to drop
connection
Ring detect time option
Two-CO line via access
code or LCR
DTMF tone return
l
Manual dialing
l
Voice mail I.D. auto digits
(dial codes 656 and 657)
l
Speed dialing
10-J, key/LED 18
None
10-2, key/LED II
Ring detect time INITIALIZES TO NORMAL
to eliminate
CO line false rings
Allows two-CO line conference to be set up
from electronic and standard telephones via
81 - 88,701 - 736, and LCR dial 9
Deletes DTMF tone returned to electronic
telephones when manual dialing and
speed dialing; deletes DTMF tones from
callers when the called station forwards
the call to voice mail. DTMF digits are still
sent out to CO line and voice mail ports.
Call forward backup memory
92-J key/LED 03 and 04 Clears call forward backup memory when
system is first initialized
Call forward memory save None Station call forward information is retained
during system power down; when power is
returned, stations will forward as before
power loss.
CO line reseize guard time option lx, key/LED 02
42-0, key/LED 01 - 36
Allows CO line reseize guard time to be
changed from 0.45 seconds to 1.5 seconds
to meet
central office and CENTREX seize/
hookflash timing requirements
*All program numbers are underlined in this column.
2-37

PROGRAMMINGPROCEDURES-INSTRUCTlONS/SYSTEMRECORDS
SECTION 200-096-302
FEBRUARY1991
RELEASE3(R3)SOFTWAREGUlDE
All items available with RI and R2 software are available with R3
software; items listed below are available with R3 software only.
Item Description
Night ringing over selected
page zones
*Related Programs Comments
77-1, key/LEDs 10 - 13 Allows CO lines to ring over selected PIOU
B,i -3 page zones. CO lines can be placed into
two groups (tenant 1 and tenant 2), and
each group can be assigned to night ring
over different PIOU paging zones.
Digital telephone volume level
initialization
92-5, keys/LEDs 01 and 05 Sets digital telephone volume levels to
their initialized settings: ring, busy override,
Intercom (muted) ring, speaker, and BGM.
Digital telephone handset receive
volume level set for individual
telephones
30, keys/LEDsl2 and 13
Initialize data is Level 3. Allows the initial off-hook volume level to
be set individually for each digital tele-
phone. The setable range is from level 2 to
5 (5 = loudest). The digital telephone can
be manually adjusted using the volume
control for each call over the full range of 1
to 9.
Privacy button 3, Code 53 Allows non-private stations to deny privacy-
override to other stations when privacy
button is activated. This prevents overrride
calls by pressing common CO line button
appearances.
Busy and group station LCD station None Busy station messaging:
messaging which is available in
RI,
Allows an LCD message to be sent (live)
but not R2, is available in R3 to a busy LCD station.
Group station messaging:
Allows an LCD station to set a “called or
calling station message” for another
station or a group of stations.
“O+” credit card calls that bypass
toll restriction but do not allow
operator placed calls
43 and 60-7 _ - Selected stations can be configured in
programming to be allowed “O+” dialing
which will override toll restriction on
selected CO lines or all CO lines. If a
station does not dial a programmable
number of digits after dialing “O”, the call
will be disconnected after 10 seconds.
Data Interface Station Hunting 22
- Allows data calls to busy data stations to
hunt to an idle data station. This program is
separate from voice call hunting,
Program
33. Voice and data calls to the same
station can hunt to different stations.
*All program numbers are underlined in this column.
2-38

PROGRAMMING PROCEDURES-INSTRUCTIONS/SYSTEM RECORDS
SECTION 200-096-302
FEBRUARY 1991
RELEASE 3 (R3) SOFTWARE GUIDE (continued)
All items available with RI and R2 software are available with R3
software; items listed below are available with R3 software only.
Item Description *Related Programs Comments
PDKU PCB OJ, Code 62 and 64 Station PCB, supports 8 Toshiba digital
telephones (DKT) or 7 DKTs and one
digital, direct station selection console
(DDSS). Also supports up to 8 stand-alone
data interface units (PDIU-DS) and DKT
integrated data interface units (PDIU-DI).
Bell Precise Busy Tone cadence is 10-2, key/LED 05 Allows STRATA DK busy tone cadence to
sent from STRATA DK to outside be changed from 0.25 seconds on/off
callers that dial busy numbers to 0.5 seconds on/off. For busy TIE line
when calling into DK on TIE, DISC, or DISCYDISA calls.
or DISA CO lines
Automatic release of Voice Mail 15, Code 0 Selected CO lines will detect the Automatic
ports when outside caller hangs up Release (AR) signal (calling party control)
if sent from the CO line when the calling
party hangs-up on a voice mail call. This
prompts “D” tone to be sent to the PSTU
or PESU voice mail port causing the voice
mail machine to release. AR can be
detected between voice mail answer and
hookflash to transfer.
Verifiable account codes 70
3, key/LED 14
69, 60-4, 15-7
Verified Account Code with Toll Restriction
class assignments. Up to 300 verifiable
account codes (4 u 15 digits) can be
set in system programming.
Voice mail (VM) to VM call blocking 3-J, key/LED 4 Prevents VM ports from call forwarding or
hunting to other VM ports during screened
or supervised VM transfers.
Switched Data: 20, key/LEDs 01 w 05 Allows digital telephones with DlUs
l
Simultaneous voice/data over a connected to personal computers to make
single wire pair via DKT with an h button, Code 56 data calls internal to other DKT/DIUs with
integrated data interface unit -1 key, Code 54 PC for file transfers, etc. Allows DKTs with
(PDIU-DI) Dra button, Code 55 DlUs to make external data calls over the
l
Modem pooling and printer sharing 21, 22 public telephone network automatically
using a stand-alone data interface via modems connected to stand-alone DIN
unit (PDIU-DS) specially programmed to auto-connect in
l
Data security group 1 m 4 2J, key/LEDs 17 u 20 customer configuration programming.
*All program numbers are underlined in this column.
2-39

PROGRAMMING PROCEDURES-INSTRUCTIONS/SYSTEM RECORDS
SECTION 200-096-302
FEBRUARY 1991
RELEASE 3 (R3) SOFTWARE GUIDE (continued)
All items available with RI and R2 software are available with R3
software; items listed below are available with R3 software only.
Item Description *Related Programs Comments
Emergency number override of
verified/forced account code 44A (51 - 53)
- Allows up to three emergency numbers
(911, etc.) to be programmed to bypass
the forced (verified or nonverified) account
code dialing requirement.
Traveling class of service 44B (1 - 4)
- This feature allows a toll restriction
override code to be assigned to each
station class (class 1 - 4). When the toll
restriction override code is dialed from a
telephone, the telephone will assume the
class the code is assigned to until the call is
complete. The telephone will return to its
normal class when the call is complete.
B button 39, Code 50 Flexible button, allows voluntary account
codes to be entered anytime without
interrupting existing conversations.
Amplified Conference
(External)
10-1, LEDs 01 - 04
10-2, LEDs 18 and 19
10-3
Allows up to four customer-supplied
amplifiers to be connected to selected
system PEKU ports. The amplifiers
automatically switch into two CO line
(Tandem) and two CO line/station
conference calls. The amplifiers increase
the transmission volume level that is
typically degraded because of added
telephone network losses during two CO
line calls. Two line DISA and TIE line
calls are also amplified.
Flexible BGM connection 12, IO-3 Allows alternate BGM source and
external page output connection to any
slot with a PEKU or PESU installed.
*All program numbers are underlined in this column.
2-40

PROGRAMMING PROCEDURES-INSTRUCTIONS/SYSTEM RECORDS
SECTION 200-096-302
FEBRUARY 1991
PROGRAM NUMBER INDEX
FEATURE OR TOPIC PROGRAM NO.
Account Codes
70, 39, 69,15, 30, 60
Alarm Sensor 39
All Call Voice Page
05, IO-2,31,39
Alternate Point Answer
10-l
Amplified Conference (External) 10-2, IO-3
Automatic Busy Redial
IO-I, 16,30, 39
Automatic Callback
0539, 10-2
Automatic Hold Recall
34
Automatic Preference
32
Automatic Release Hold/VM Port
15
Background Music 05, 10-2,
19,
39
Busy Override 05
Busy Tone Cadence Change
10-2
Call Blocking (VM Ports)
31
Call Forwarding (all types)
lo-2,36,39
Call Pickup
lo-1,15,39
Call Transfer with Camp-on
10-l
Camp-on
lo-1,37
Centrex/PBX Compatible
42-0,42-l - 8
Centrex Ringing Repeat
10-l
CO/Centrex/PBX Feature Buttons 39, 42-0, 42-l - 8
CO Line Access 39,
40, 41
CO Line Alpha Identification 93
CO Line Groups
16
CO Line Reseize Guard Time
10-1,42-O
CO Line Queuing
05,16
CO Line Ringing
78,81 - 89
Conferencing
IO-i,15
Credit Card Calls (0 + dialing)
43, 60-7
Data Port/DIU Configuration
20,21,22, 39
DAY/NIGHT Mode
10-2, 78, 81 m 89
Delayed Ringing
82, 83, 85, 86,88, 89
Digital Telephone
03,30,38, 92-5
Direct Inward Station Calling (DISC)
78
Direct Inward System Access (DISA) 15,
1 O-l, 60, 78
Direct Station Selection Buttons
29-l u 29-4, 39
Distinctive Station Ringing
IO-2,80
Do Not Disturb
05,39
Do Not Disturb Override
05,30
Door Lock Control
39, 77-1, 77-2
Door Phones
05, 77-1, 77-2, 79
.
FEATURE OR TOPIC PROGRAM NO.
DSS Console Features
03,28,29-l m 29-4,10-2
DSS EKT 39
DTMF and Dial Pulse Assignments
10-1, 15, 30, 39
DTMF Receiver (CRCU) Operation
03, 12, 15
DTMF Signal Time, CO lines (80/l 60 ms)
10-l
DTMF Signal Time, VM Ports (80/160 ms)
IO-2
DTMF Tone Return
IO-2
Emergency Numbers
44A 1
Exclusive Hold
10-l
Executive Override
05,10-2, 30
External Page Interface
10-2, 77-1, 78
External Zone Paging
05, 77-1
Fixed Call Forwarding
36,39
Flash Timing
12
Flexible Access Code Numbering
05
Flexible Button Assignments
38,39
Flexible Intercom Numbering
04, 05, 39
Flexible Line Ringing Assignment
81 - 89
Flexible PCB Slot Configuration
03
Forced and Voluntary Account Codes
15, 30, 60, 39
Group Paging
05,31
Handsfree Answerback
17,31
Hold/Park Recall Timing
34
Initialization (system programs) 90
Initialization (system/personal memory) 92
Intercom Access
Least Cost Routing
Liquid Crystal Display Features
Message Center
Message Waiting/Flash
Microphone Control
Modem Pool Port Assignment
Music-on-Hold
Night Pickup Code
Night Ringing over External Page
Night Transfer
Off-hook Call Announce
On-hook Dialing
Outgoing Call Restriction I
Paging-EKT
Passwords-Remote Programming
39
50- 56
10-2, 35, 39
13
12, 35, 39
30,39
21
77-l
05
15, 77-1, 78
29, 39, 77-1, 78
03, 30, 31
32
41
31,39
00
2-41

PROGRAMMING PROCEDURES-INSTRUCTIONS/SYSTEM RECORDS
SECTION 200-096-302
FEBRUARY 1991
PROGRAM NUMBER INDEX (continued)
FEATURE OR TOPIC PROGRAM NO.
Pause Timing
12,39
PBX Access Code
42-l m 42-8
PBX Backup
42-O
Pooled CO Lines
16,39
Pooled Line Buttons
16,39
Port/Station Number Assignment
04
Privacy/Non-Privacy
31,30,39
Privacy Override
lo-2,30,31
Private CO Lines 39
Redial Last Number 39
Relay Service
77-l
Remote Administration
and Maintenance 00,
77-1,78
Repeat Last Number Dialed
30,39
Ringing Line Preference
32,81 - 89
Saved Number Redial 39
Security Code (DISA)
30,60
Security Code (R. Maintenance) 00
Slot Assignment
03
Speakerphone Assignment
30
FEATURE OR TOPIC PROGRAM NO.
Speed Dial
lo-1,30, 39
Speed Dial Clear 92
Standard Telephone Ringing Options
IO-2
Station Class of Service
30,31, 35
Station Hunting (Data Calls) 22 I
Station Hunting (Voice Calls)
33
Station Message Detail Recording
60,97
Tandem CO Line Connections
IO-l, 15
Tenant Service
15,39
TIE Lines
03,17
Toll Restriction
10,30,41 -48
Toll Restriction Override
lo-1,30, 39
Toll Restriction Override Code Revision
30
Transfer Privacy
10-l
Traveling Class
44B
Verifiable Account Codes
15,30,60,69, 70 I
Voice Mail Interface
lo-2,31,39
Voice or Tone Signaling
05,10-l, lO-2
Volume Reset (Digital Telephones) 92-9 (
Voluntary Account Codes 39
2-42

Program
Number
00
03
04
05
1 O-l
1 o-2
I 10-3
12
13
15
16
17
19
20
21
22
28
PROGRAMMINGPROCEDURES-INSTRUCTIONS/SYSTEMRECORDS
SECTION 200-096-302
FEBRUARY1991
TABLE2-A
PROGRAMS00-97INNUMERlCALORDERWlTHSECTlONSCROSS-REFERENCED
Title
(Applicable Sections)
Software Check/Remote Password
Assignments
(Basic System)
Flexible PCB Slot Assignments
(Basic System)
Port/Station Number Assignment
(Basic System)
Flexible Access Code Numbering
(Basic System)
System Assignments, Part One of Two
(Basic System)
System Assignments, Part Two of Two
(Basic System)
Amplified Conference (External)
(Basic System)
System Assignments - Basic Timing
(Basic System)
Defining the Message Center
(Basic System)
Assigning DP/DTMF, Tenant Service to
Individual CO Lines
(Basic System)
Assigning CO Line Groups (Dial 9 or
81 w 88)
(Basic System)
TIE Line Page/Handsfree Answerback
(Basic System)
Alternate Background Music (BGM)
Source Slot Assignment
(Basic System)
Data Interface Unit (DIU: PDIU-DI and
PDIU-DS) Configuration
(Basic System)
Modem Pool Port Assignments
(Basic System)
Station Hunting (Data Calls)
(Basic System)
DSS Console, Attendant Electronic
Telephone Assignments
(Basic System)
Program
Number
29-l
29-2
29-3
29-4
30
31
32
33
34
35
36
37
38
39
40
41
42-O
42-l -8
43
2-43
Title
(Applicable Sections)
DSS Button Assignment, DSS Console 1
(Basic System)
DSS Button Assignment, DSS Console 2
(Basic System)
DSS Button Assignment, DSS Console 3
(Basic System)
DSS Button Assignment, DSS Console 4
(Basic Sys tern)
Station Class of Service
(Basic System)
Station Class of Service
(Basic System)
Automatic Preference
(Basic System)
Station Hunting (Voice Calls)
(Basic System)
Hold Recall Timing
(Basic System)
Station Class of Service
(Basic System)
Fixed Call Forward
(Basic System)
Ring Transfer (Camp-on) Recall Time
(Basic System)
Electronic
and
Digital Telephone
Buttonstrip Type
(Basic System)
Flexible Buttonstrip Assignment
(Basic System)
Station CO Line Access
(Basic System)
Station Outgoing Call Restriction
(Basic System)
CO Line to PBX Connection
(Basic Sys tern)
PBX Access Code
(Basic System) I
0+ Credit Card Dialing Option
(Basic Sys tern) I

PROGRAMMING PROCEDURES-INSTRUCTIONS/SYSTEM RECORDS
SECTION 200-096-302
FEBRUARY 1991
TABLE 2-A
PROGRAMS 00 - 97 IN NUMERICAL ORDER WITH SECTIONS CROSS-REFERENCED (continyed)
Program
Number
I
44A
448
45-1
45-2
45-3-6
45-8-9
46-2-4
46-6-8
46-10
46-20
46-30
46-40
47
48
50-l
50-2
Title
(Applicable Sections)
Emergency Bypass of Verified Account
Codes
(Basic System)
Toll Restriction Traveling Class Override
Codes
(Toll Restriction)
Toll Restriction Dial Plan
(Toll Restriction)
Toll Restriction Disable
(Toll Restriction)
Equal Access/Special Common Carrier
Numbers and Authorization Code Digit
Length
(Toll Restriction)
Toll Restriction Override Code
(Toll Restriction)
Toll Restriction Allowed/Denied Area
Codes Assigned by Class
(Toll Res friction)
Toll Restriction Allowed/Denied Office
Codes Assigned by Class
(Toll Restriction)
Toll Restriction Class 1 Parameters
(Toll Restriction)
Toll Restriction Class 2 Parameters
(Toll Restriction)
Toll Restriction Class 3 Parameters
(Toll Restriction)
Toll Restriction Class 4 Parameters
(Toll Restriction)
Toll Restriction Exception Office Codes
Assigned by Area Code
(Toll Restriction)
Station Toll Restriction Classification
(Toll Restriction)
Least Cost Routing Parameters
(Least Cost Routing)
Least Cost Routing Home Area Code
(Least Cost Routing)
Program
Number
50-31-35
50-4
50-5
50-6
51
52
53
54
55-o
55-l -2
56
60
69
70
77-1
77-2
Title
(Applicable Sections}
Least Cost Routing Special Codes
(Least Cost Routing)
Least Cost Routing Long Distance
Information Route Plan
(Least Cost Routing)
Least Cost Routing Call Route Plan
Number
(Least Cost Routing)
Least Cost Routing Dial Zero Timeout
(Least Cost Routing)
Least Cost Routing Area Codes
(Least Cost Routing)
Least Cost Routing Office Code
Exceptions for Specified Area Code
(Least Cost Routing)
Least Cost Routing Schedule
Assignments
(Least Cost Routing)
Least Cost Routing Route Definition
(Least Cost Routing)
Least Cost Routing Modified Digits-
Delete
(Least Cost Routing)
Least Cost Routing Modified Digits-Add
(Least Cost Routing)
Least Cost Routing Station Group
Assignments
(Least Cost Routing)
Station Message Detail Recording
Output/Account Code Digit Length
(Basic System)
Verified Account Codes
(Basic System)
Verified Account Code Toll Restriction
Assignments
(Basic System)
Doorphone Selections
(Basic System) ,
Doorphone Busy Signal Assignments
(Basic System)
2-44

PROGRAMMINGPROCEDURES-INSTRUCTIONS/SYSTEMRECORDS
SECTION 200-096-302
FEBRUARY1991
TABLE2-A
PROGRAMS OO-971N NUMERICALORDERWITH SECTIONS CROSS-REFERENCED (contiguecl)
Program Title Program Title
Number
(Applicable Sections)
Number
(Applicable Sections)
78 CO Line Special Ringing Assignments - 86 DAY2 DELAY2 Ringing
DISC/IMDU/Night Ringing Over External
(Basic System)
Page
(Basic System)
87 NIGHT IMMEDIATE Ringing
(Basic System)
79
80
Door Phone Ringing
(Basic System)
88 NIGHT DELAY1 Ringing
(Basic System)
Electronic and Digital Telephone Ringing
Tones
8g NIGHT DELAY2 Ringing
(Basic System) (Basic System)
81
82
83
84
85
DAY IMMEDIATE Ringing
(Basic System)
DAY DELAY1 Ringing
(Basic System)
DAY DELAY2 Ringing
(Basic System)
DAY2 IMMEDIATE Ringing
(Basic System)
DAY2 DELAY1 Ringing
(Basic System)
90
Initializing Program 00-89
(Basic System)
92
Initializing Speed Dial Numbers, ID Codes,
Character Message Memory, Timed
Reminder, Digital Telephone Volume
Levels, and CO Line Identifications
(Basic System)
93
97
CO Line Identification
(Basic System)
Station Message Detail Recording Data
Printout Options
(Basic System)
2-45

PROGRAMMING PROCEDURES-INSTRUCTIONS/SYSTEM RECORDS
SECTION 200-096-302
FEBRUARY 1991
another program
more data
~~~~T;ll~nn~!~...~-~l;in~!~~~~,
/T/T\
Step 1 Step 2 Step 3 Step 4 Step 5
Enter Program Mode Enter Program Number Enter Program Data Exit Current Program Exit Program Mode
NOTE: IhI\-! ..
Varies depending upon how the
Automatic Off-hook Preference
is programmed. It can be:
I
-I
Z
Normal, when port 05 is set with auto preference code 01 in Program 32
Note If m and m keys are on
the programming telephone.
FIGURE P-P-PROGRAMMING KEY SEQUENCE OVERVIEW
The System Record contains programming forms for
Programs
00 - 97. A System Record should be filled
out for each system installed as detailed in Chapters 1 and 2.
Each programming form is supplemented with a guide for entering data from the form. The guide illustrates
the key sequence a programmer must press, with the exception of sequences common to all programs, e.g.,
entering programming mode (A), exiting current program (Z), and exiting programming mode (Z). To save space,
these common sequences are coded, as illustrated in
Figure
2-2. The m and m keys are also coded ‘3
and “H” to save space.
NOTE:
Programs 90,92, and 03 are out of order and placed in frontpurposely because they must always be completed first,
and in this order. Upon completing these steps, begin with Program 00.
2-46

PROGRAMMINGPROCEDURES-INSTRUCTIONS/SYSTEM RECORDS
SECTION 200-096-302
FEBRUARY1991
PROGRAM90
INITIALIZING PROGRAMS 00 - 97
Enter programming mode be initialized
LEDs must be lit
Key 1 and 2
LEDs must flash EXIT
programming
mode
IMPORTANT
Initialize Programs 00 - 97 every time :
l
A new system is installed
l
To bring a system’s programming back to the default setting.
Specifiy the range as folio ws: m m m m F[
To initialize one program at a time, just enter the individual
program number, then m
NOTES:
1. Always complete
Program
90 at new system installs, before
programming anything else. Skipping this step may cause erraticsystem
behavior.
2. Follow instructions in Table I-C (Section
200-096-301)
to c/ear this data.
3. When
Program
90 is run, it will initialize any program or range of
Programs without cycling system power. System power may be cycled
to cause
Program
32 to initialize the programming station with Intercom
autopreference. This allows the programming station to enter the
Programming Mode using the m key ( B= m 11 i 1 m.
WARNING!
Running this program will erase customer data.
2-47

PROGRAMMING PROCEDURES-INSTRUCTIONS/SYSTEM RECORDS
SECTION 200-096-302
FEBRUARY 1991
PROGRAM 92
INITIALIZING SPEED DIAL NUMBERS, ID CODES CHARACTER MESSAGE MEMORY, TIMED
. REMINDERS, DIGITAL TELEPHONE VOLUME, AND CALL FORWARD BACKUP RAM
more data
/
Enter programming mode
Clears Station Speed Dial, Voice Mail ID Codes,
and LCD memos assigned to Station Speed Dial numbers.
Clears System Speed Dial and LCD memos assigned to
System Speed Dial numbers.
Clears Character Message Memory (Station and System)
and user Name/Number display.
Clears Timed Reminders.
Resets digital telephone volume levels to initialized settings. This sets
Infercorn Tone/BGM, busy overrride (muted ring), and speaker/ringing
volume to approximately mid-range on all DKTs
(Release 3). 4
q
Clears Call Forward Memory
(all stations,
Release
2 and above).
NOTES:
1. IMPORTANT: It is mandatory to complete all parts of
Program 92
at every
new system install. If
Program
92 is not completed certain feature operations
may cause erratic system behavior.
2.
Use the instructions in Table 7-D (Section 200-096-301) to clear this data.
3. Program
92-9 does not affect fixed call forward settings.
4. Program 92-5 does not affect digital telephone handset
receiver volume
levels. To set off-hook handset receiver volume levels individually for each
digital telephone,
see Program 30, LEDs
12 and 13.
5. Power “OFF” and “ON” is required to clear telephone LCD Call Forward
Displays and Call Forward button LEDs. Call Forward memory is c/eared
when
Program
92-4 is run, even if system power is not cycled.
.
WARNING!
Running this program will erase customer data. I
2-48

PROGRAMMINGPROCEDURES-INSTRUCTIONS/SYSTEMRECOROS
SECTION 200-096-302
FEBRUARY1991
PROGRAM03
FLEXIBLEPCBSLOTASSIGNMENTS
To Store Data ,*
~-~~~~~~~~~n-nln-n-r;?-n-~
CARD = PCB Code
See Note 6. See Reference Table
DK24156
SLOT NO. 00 01 NOTES:
DK24. slots 00 - Ofi on/v
PCTUS, ports 00 - 23
PCTU(2), ports 00 - 96
PCTU(3), ports 00 - 96
I , I
1 w/DSS
1. See instructions in Table 1-E (Section 200-096-301) to input the data from this record.
2. Shaded rows on tables are for configuration purposes only,
3. A PCTU (PCB codes 91, 92 or 93) must be installed in slot 00 (labeled PCTU).
4. A PEKU , PESU or PDKU is always installed in slot 01.
5. Initialized data reads slot 00 = 91, slot 01 = 21, slots 02 - 14 = 00.
6. System PCB slots are labeled PCTU, SO1 - S14. For programming, these tables label the
same slots 00 (PCTU) - 14.
7. PESU circuits: 1 and 2, standard telephones; 3 and 4, not used; 5 - 8, electronic telephones.
Total 8 station ports used in software; available with Release 2, and above.
8. PCTUl, PCTU2, PCTU3 (PCTUS in DK24 only).
9. PCTUl, PCTlJ2 orPCTlJ3only.
10. OCA or PDIU-DI/PDIU-DS is not available with slots 11 - 14.
11. PDIU-DI/PDIU-DS will function with either PDKU code 62 or 64; a special code is not
required (Release 3).
12. System Power must always be cycled after running Program 03.
13. PCTlJ3 is required when a PDKU is installed.
I
2-49

PROGRAMMING
PROCEDURES-INSTRUCTIONWSYSTEMRECORDS
SECTION 200-096-302
FEBRUARY1991
PROGRAM00
‘\
SOFTWARE CHECK/REMOTE MAINTENANCE SECURITY CODE ASSIGNMENTS .
SELECT = Select Code
Enter 0 to check S/W version.
Enter 1 to change 1st level password.
Enter 2 to change 2nd level password.
Enter 8 to check software sum.
Enter 9 to check counter.
Password Codes
Enter the 4-digit password.
See Note 3.
Select
Code
0
1
2
8
9
NOTES:
Item Password or S/W Check Codes
ROM Version =
1st Level Password =
2nd Level Password =
Software RAM Checksum =
See Note 4.
Power Cycle Counter =
nnnmn See Note 5.
1. See instructions in Table 1 -F (Section 200-096-301) to program the system
with this information.
2. Initialized passwords are 0000.
3. The LCD responds as follows, when a selection is made:
0 Version =
1 Password =
2 Password =
8 Sum=
9 Counter =
4. This selection is not programmable. It identifies the system’s software
version as follows:
LEIIIU LEl~~00
STRATA DK IT T I ROM Version 7 I ROM Version
L X = PCTU, V = PCTUS L PCTU3
DX = Release 1 (RI) software (PCTUI)
DX = Release 2 (R2) software (PCTUZ)
DV = Release 2 (R2) software (PCTUS)
PCM = Release 3 (R3) software (PCTU3)
5. These selections are not programmable. They are for factory test purposes
on/y. The Checksum and Counter vary as customer data is entered.
2-50

PROGRAMMING PROCEDURES-INSTRUCTIONS/SYSTEM RECORDS
SECTION 200-096-302
FEBRUARY 1991
PROGRAM 04
PORT/STATION NUMBER ASSIGNMENT
SELECT = Port Number INT = Station Number
80
81 82 83 84 85 86 87 88 89 90 91 92 93 94 95
NOTES:
1. Follow instructions in Table I-G (Section 200-096-301) to enter this data.
2. Shaded portions of the table are for configuration purposes only.
3. If a station number is assigned, and ‘ERROR”displays on the LCD, the station number has already been assigned to another port.
4. Station numbers default to 200 - 295. New station number assignments willnot activate on individualstation LCDs until the handset
goes on/off hook.
5. If an assigned station number conflicts with a default feature access code, no error message is issued. The stations LCD reflects
the conflicting number. When another station attempts to dial the number, the station will not ring. Instead, the feature activates.
6. If station numbers that conflict with feature access codes must be assigned, use Program 05 to change the access code first.
7. The station connected to port 05 has exclusive ability to program the system.
8. PEKU ports 04, 12,20 and 28 may be configured to support Door Phone Control Boxes (HDCBs). See Program 77-l.
9. Door phone and modem (IMDU) station numbers are pre-assigned as follows:
IMDlJ modem number:
l
Modem= 19
Door phone numbers: . Port 04 = 151, 152, 153; Port 12 = 154, 155, 156
Port20= 157, 158, 159; Port28= 161, 162, 163
10. To insert a blank, press LED key 0 1; range programming is possible.
11. PEKU circuit 3 or PESU circuit 8 is the optional BGM connecting port circuit. This BGM PCB must be installed in slot 01 in Release
2, but can be in any slot with Release 3 (see Program 19).
12. Port 99 = DISA COS port (Release 2); DISA Port 99 is normally used in Program 40,41, and 48.
13. May be used to connect two-CO line external conference amplifier (customer-supplied) to PEKU PCB (see Program 10-3).
14. Last port available when using PCTUS control PCB.
15. PDKU requires Release 3 (PCTU3).
16. DlUs can be connected to ports associated with PDKU circuits 1 - 7.
I
2-51

PROGRAMMINGPROCEDURES-INSTRUCTIONS/SYSTEMRECORDS
SECTION 200-096-302
FEBRUARY1991 PROGRAM05
FLEXIBLEACCESSCODENUMBERING
pi--p-jSpq7-p-j-~~-~n-~-~-~
T--T
SELECT = Access Code l-9 SPECIAL DIAL = New Access Codes
from the Table Below See Note 6 Below.
I
kcess New
Code Features Affected (N/A = Not Affected) Acces!
Codes
0
Unused
1 Voice First/Tone First (N/A)(l) Station LCD Messages (1 O-1 9)
Door Phones (151-l 63) Station Speed Dial Set (10 - 49)
IMDU Access (19)
2 Busy Override (N/A) (2) Station Numbers N/A 200 - 295
Do Not Disturb Override (N/A) (2) Off-hook Call Announce (N/A) (2)
Executive Override (N/A) (3)
3 All Call Voice Page (30) External Page (35-38)
All Call Voice Page with External Spkrs (39) Group Page (Internal) (31-34)
Automatic Callback (N/A) (4) Flash (45)
CO Line Queuing (N/A) (4) Account Code Input (46)
Station Number Display (401) T.R. Override/T. Class Code Input (47)
4 Port Number Display (402) BGM Over Stations - ON (481)
Hold/Park (41) BGM Over Stations - OFF (480)
Hold/Park Pickup (42) BGM Over External Speakers ON (491)
Automatic Busy Redial (44) BGM Over External Speakers OFF (490)
Automatic Busy Redial Cancel (44) Cancel Message Waiting at Station (No MW
Message Waiting Answer (408) key) I (409)
5 (*50) Voluntary Account Code (R3)
Call Pickup Station (5+Station No.), Ringing CO Line (59), Telephone Page (530), (R2)
(R2) Directed Pickup of CO Line on Hold (5700, 00 = 01 w 36), External Page (531, 535 m 538)
Call Forward (601, R2: 602, 603, 604) Date Set (651)
Timed Reminder (605-609) Time Set (652)
6 MNV for Voice Mail ON (63+Station No.) Weekday Set (653)
M/W for Voice Mail OFF (64+Station No.) T.R. Override Code Change (654, 655)
Voice Mail ID Code Set (Call Fwd, 656) System Speed Dial/LCD Messages (60-99)
Voice Mail ID Code Set (Ans. MW, 657) (R2) LCD User Name (621-Set, 620-Reset)
LCD Message Set (68) (R2) DISA Security Code Change (658)
6101 - DKT Mute Ring Adjust (R3) 659 - Verified Account Code Changed (R3)
6102 - DKT Ring Level Adjust (R3) 622 * 625 Traveling Class Code 1 w 4 Changed (R3)
7 CO Outgoing Calls (701-736)
Message Waiting Set/Cancel (N/A) (7)/l (77)
8 CO Group Outgoing Calls (81-88)
9 Least Cost Routing or CO Group Hunt (9)
. ,?.---
/vu I t?J:
1. For more information, see the instructions preceding the record sheets.
2. Be sure access code changes do not conflict with existing access code or station numbering schemes. Refer to Program 04 -Port/Station Number
Assignment.
3. To insert a blank, press programming key 01.
4. If access codes are being changed to a number that is current/y assigned, change the current/y assigned code to an unused code first. In the ..’
initialized state, the only unused code is zero (0).
5. The initialized station number sequence of 200 - 295 may not be globally changed through Program 05. Make changes through Program 04.
6. Access codes can be replaced by 2 digits. Standard Access codes are shown for reference.
2-52

PROGRAMMlNGPROCEOURES-INSTRUCTIONS/SYSTEMRECORDS
SECTION 200-096-302
FEBRUARY1991
PROGRAMlO-
SYSTEMASSIGNMENTS,PARTl OF2
~~-~~~~~-~~-~~~~-~~-T;1
7
\
SELECT = 7 Key LEDs
Light LEDs as described
in the table below
NOTES:
1. For more information, see the instructions preceding the record sheets.
2. Initialized data lights LEDs 07, 08, 09, 18, 19 and 20.
3. LED 04 DTMF Signal Time applies to manual and speed dial tones sent out of the system via CO or TIE lines. LED 04 does
not apply to Call Forward or Voice Mail ID DTMF tones sent to voice mail ports. (See Program 10-2, LED 06, for tones sent
to Voice Mail ports.)
4. If ring transfer is allowed, set Ring Transfer Recall time in Program 37; if ring transfer is not allowed (LED 07 off), the station
will recall immediately if transfer is attempted.
5. Standard ring pattern is 1 sec. on, 3 sec. off.
6. Release 1 software detects short ring signals only.
7. Two CO conference must be allowed for DISA operation.
8. CO line guard time is the time interval the system requires to release a CO line and allow it to be re-seized. If LED 02 is off, all
lines are set with 0.45 second guard time: if LED is on, guard time is 0.45 or 1.5 seconds per Program 42-O.
2-53

PROGRAMMINGPROCEDURES-INSTRUCTIONS/SYSTEMRECORDS
SECTION 200-096-302
FEBRUARY1991 PROGRAM10-2
SYSTEMASSIGNMENTS,PART2OF2
SELECT = 2 Key L EL&
Light LEDs as defined by the table below.
ALL LEDs with an “x” should be lit when you finish
BUTTON/LED 1 X 1 LED On I LED Off
20
19”
1R
- -
Station External Amp Conference No External Amplifier Connected
Two CO Line Conference No Two CO Line Conference
17
I I
16
2
Executive Override Warning Tone/ON Executive Override Warning Tone/OFF
157 2 External Page included with All Call Page Not Included
14
2
Privacy Override Warning Tone/ON Privacy Override Warning Tone/OFF
13 Send Auto Callback Camp-on Tone 3 No Callback Tone
I
12 CO Line 3 min Beep Tone No Beep Tone
(R2) 11 No DTMF Tone Returns DTMF Tone Return
(R2) lo4 BGM connected to PESU, Circuit 81° EKT connected to PESU, CKT 8
(R2) 09 4 BGM connected to PEKU, Circuit 3” EKT connected to PEKU, CKT 3
08 Display Dialed Number/l min. Display Dialed Number/l 5 sec.
(R2) 076 I I
Standard Tel. CO Ring
per Prog. 1 O-l, LED 06 Standard Tel. CO Ring Distinctive
(R2) 06 5 VM ID Code DTMF Signal Time 80 ms 160 ms
(R3) 05 TIE/DISA Busy Tone, 0.5 second cadence9 TIE/DISA Busy Tone, 0.25 second cadence
(R2) 04 MW cancel from VM; dial 1 I& Station No. MW cancel from VM: Automatic
03
I I
Ringing Modes/3
I
Ringing Modes/2
02 2 Hunt/C.F. override from console’s phone Hunt/C.F. override from console
01 Tone First (from DSS Console) Voice First (from DSS Console)
NOTES:
1. For more information, see the instructions preceding the record sheets.
2.
Initialized data lights LEDs 02, 14, 15 and 16.
3. Called party receives notification tone when calling party activates ACB.
4. BGM connected to PEKU, Circuit 3 or PEW, Circuit 8 will be sent to electronic
(optional).
5. VM ID code DTMF signal time is fixed at 160 msec for Release 1 software.
and digital telephone speakers and external page
6. The ring pattern for standard telephone, distinctive ring on incoming CO calls is: 0.2 sec. on/O.4 sec. off, 0.2 sec. on/O.4 sec. off, 3 sec.
off; intercom ring is always 1 sec. on, 3 sec. off. This does not apply to VM Ports (Program 31, LED 17 on) which are always standard
7. g%rna/ speakers and a// electronic and digital telephones are paged by dia/ing:miB
Them key is used to page a// electronic telephones
Only;
external speakers are not included when using the a key.
8. Deletes DTMF tones returned to electronic telephones when dialing from dialpad or speed dialing; also deletes auto dial digits from
callers that are call forwarded to voice mail. This does not affect the actual DTMF tones sent out to the CO or voice mail.
9. 0.5 second cadence, Bell Standard Busy Tone, should be enabled so outside callers are not confused by STRATA 0.25 second busy
tone when calling busy number on DISA and TIE line calls
IO.
PESUPEKU must be in SLOT 01 if using Release 2 software; PESLUPEKU can be in any universal slot assigned in Program 79-7 if
using Release 3 software.
Il. Important: LED 19 should be OFF unless external amplifiers are used for two-CO line/station conference (see Program 10-3). If LED 19
is ON, the station may be unbalanced and receive HUM if external amplifier with Auto-Gain-Control is not connected.
2-54

PROGRAMMINGPROCEDURES-INSTRUCTIONS/SYSTEMRECORDS
SECTION 200-096-302
FEBRUARY1991
PROGRAM lO-3(Release 3)
TWOCO-LINECONFERENCE/DlSAAMPLlFlERCONNECTlONPORTASSlGNMENTS .
~-pJq-qpq-py-q-j-JpqT-pl
7 \
SELECT = 3 Key LEDs
Light LEDs as defined by the table below.
ALL LEDs with an ‘x” should be lit when you finish.
06
05
(R3) 04
(R3) 03
(R3) 02
(R3) 01
PEKU Ports 33,34 - Amp. 4 Connected Ports 33, 34 - Stations Connected
PEKU Ports 25,26 - Amp. 3 Connected Ports 25,26 - Stations Connected
PEKU Ports 17,18 - Amp. 2 Connected Ports 17,18 - Stations Connected
PEKU Ports 09, IO - Amp. 1 Connected Ports 09,lO - Stations Connected
NOTES:
1. For more information, see the
2. Initialized data: all LEDs off. instructions preceding the record sheets.
3. See Section 200-096-208, Paragraph 13 for connecting up to four two-way amplifiers for use on tandem,
DISA and conference telephone calls.
4. Important: Only enable the PEKU ports that are actually connected on amplifiers.
5. Amplifiers are switched into two-CO line calls automatically, one amplifier for each call, starting from the
lowest ports enabled to the highest. Skipping ports is allowed. Two-CO line calls established after all
amplifiers are in use will not be amplified.
6. See Program 10-2, LED 18 and 19; Program 10-1, L EDs 19 and 20; and Program 15-5 for more
information regarding two-CO line conference/tandem.
2-55

PROGRAMMING PROCEDURES-INSTRUCTIONS/SYSTEM RECORDS
SECTION 200-096-302
FEBRUARY 1991
PROGRAM 12
SYSTEM ASSIGNMENTS - BASIC TIMING
SELECT = i-9 SELECT CODE = Enter required
Enter program code, code for the time listed in the
3 - 9, from table below. table below. See Note 3.
Brogram Code Function Time Required
Code
36
46
5
9
Pause Timing
q
1 1.5 sec.
(Speed Dial) 0 2 3.0 sec.
0 1 0.5 sec.
Flash Timing4 0 2 2.0 sec.
W
q
0.2 sec.5
0 0 no pause
Pause After Flash
(Voice Path Delay) 0 1 1.5 sec.
0 2 3 sec.
CRCU Inter-digital Release 0 1 1 sec.
Time (Standard Phone) through through
9 sec.
NOTES:
1. For more information, see the instructions preceding the record sheets.
2. Initialized data programs timing as follows: Code 3 = 1, Code 4 = 2, Code 5 = 0, and
Code 9 = 4.
3. When programming Code 9, the LCD responds with LINE TIME = instead of SEL ECT
CODE =.
4. The duration of time the PCOUcircuitopens Tip & Ring when them keyispressed,
or hookflash code m 11 is dialed.
5. This timing is not used in the United States.
6. This timing applies to voice calls originated from telephones and voice or data calls
originated by system Data Interface Units (PDIU-DI or -DS).
: ‘,
.!
2-56

PROGRAMMINGPROCEDURES-INSTRUCTIONS/SYSTEMRECORDS
SECTION 200-096-302
FEBRUARY1991
PROGRAM13
OEFINBNGTHEMESSAGECENTER
7-T
SELECT = 1 PORT = Port Number
Enter the
port
number of the
station to be defined
as the Message Center.
Port
Number
/VOTES:
1. For more information, see the instructions preceding the record sheets.
2. Any electronic or digital telephone may receive (and store) up to 3 message waiting
indications from any other electronic or digital telephone. A fourth message waiting
indication may be set by the Message Center electronic or digital telephone only,
3. The Message Center is allowed to perform “Message Waiting, ” even if disallowed on
all other stations.
4. Initialized data = no port assigned.
5. The message center feature should be assigned to the customer’s main answering
position: a station or the lowest port (in VM group) of the customer’s voice mail device
(see Program 31
for VM group port assignment), whichever the customer specifies.
2-57

I
PROGRAMMING PROCEDURES-INSTRUCTIONS/SYSTEM RECORDS
SECTION 200-096-302
FEBRUARY 1991
PROGRAM 15
ASSIGNING DP/DTMF, TENANT SERVICE TO INDIVIDUAL CO LINES
pq-pJlr;lr;lppJyJ-pq-pl-pJ .
SELECT = Program Code 7 /
Key LEDs = CO Line
Specify
CO
lines by setting LED keys, as defined by the table below.
All L EDs with an “X” should be lit when finished.
n-hook
CO Lines 01 - 20
‘rogram LED Status
Code Program (LED Keys)
ON OFF
01 02 03 04 05 06 07 08 09 10 11 12 13 14 15 16 171 18 19 21
(01) (02)(03) (04) (05) (08)(07) (08) (09)(10)(11)(12)(13)(14)(15)(16)(17)(18)(19)(2~
0 (R3) AR VM Calls’ Detect Ignore
1 CO Outgoing Signal DP6 DTMF I
2 CO Dial Pulse Rate
(Pulse per sec.) 20 PPS 10 PPS
3 AR Hold 4 Recognize Ignore / I
4 AR Timing4 Crossbar ESS (Electronic)
95 msec. 450 msec.
5 Tandem CO Line Connection Equipped5
with Station Dropout Not Equipped
6 CO Line Tenant Assignment Tenant 2 Tenant 1
7 Forced Account Code Equipped Not Equipped
8 No CRCU CRCU
Operation After Flash after flash after flash
Off-hook
Program
Code Program
0 (R3) AR VM Calls 7
1 CO Outgoing Signal
Detect
DP
Ignore
ESS (Electronic)
450 msec.
Not Equipped
Tenant 1 I ‘I I
Not Equipped
CRCU
4 AR Timing 4 Crossbar
95 msec.
5 Tandem CO Line Connection
with Station Dropout Equipped
6 CO Line Tenant Assignment Tenant 2
7 Forced Account Code Equipped
I I
8 Operation After Flash No CRCU
after flash
NOTES:
1. For more information, see the instructions preceding the record sheets.
2. Initialized data is all L EDs OFF.
3. Shaded areas indicate that the handset must be off-hook during programming.
Program CO lines 01 through 20 with handset on-hook
Program CO lines 21 through 36 with handset off-hook
4. AR = Automatic Release signal. This is a momentary-open of the CO line loop provided by some Central Offices. If programmed to
recognize AR, CO lines on-hold will drop when the outside party hangs up and the CO sends AR signal. Two-CO line DISA calls always
release with AR. DISA line release is not related to this program.
6, Tandem connection must be equipped for all DISA CO lines and all other lines used for two-CO line conference.
6. If a CO line is set for Dial Pulse (DP) operation, themkey must be programmed on stations that must send DTMF tones over the CO
lines
(see Program 39,
-key).
I
7. When AR is sent on a CO line call because the outside caller hangs-up, ‘D” tone will be sent to the voice mail port
(PSTu/PESU), prompting the voice mail machine to release and clear the port for another call. Detection is from VM answer to VM
hookflash; it is not in effect after the VM or auto attendant operates the hookflash to transfer the call.
2-58

PROGRAMMINGPROCEDURES-INSTRUCTIONS/SYSTEMRECORDS
SECTION 200-096-302
FEBRUARY1991
PROGRAM16
ASSIGNING CO LlNEGROUPS(DIAL9 OR 81-88)
~l-~l~~~I-~l~-~~l-~l-~~
7 \
SELECT = CO Line Group Key LEDs
On/y enter the last digit of Specify which CO lines are assigned to the
the CO line group (1 - 8) to group by setting LEDs as defined by the table
be defined, or enter 0 for below. All LEDs with an “X” should be lit when finished.
Dial 9 group. See Note 2.
NOTES:
1. For more information, see the instructions preceding the record sheets.
2. Program CO lines l-20 by setting LEDs l-20 with the handset on-hook;
Program CO lines 2 l-36 by setting LEDs 1 - 16 with the handset off-hook;
3. Initialized data assigns all CO lines to the Dial 9 group.
2-59

PROGRAMMINGPROCEDURES-INSTRUCTIONS/SYSTEMRECORDS
SECTION 200-096-302
FEBRUARY1991
PROGRAM17
TIELlNEPAGE/HANDSFREEANSWERBACK
I,-,In~p-j-~~p@&T-j-~-p-j
/
Select = TIE Line 2 Key/LED 01 to enable
Enter the number of the the Page/Handsfree Answerback
CO line designated as a Feature on the TIE line defined.
TIE line (01 - 36). See Note 4.
See Notes 3 and 6.
I -~~ 1
me
ine)
36
Keym
LED Lit
X=ON
I
PEMU 1 I I I
PCB 2 I
PEMU 2
PCB
Slot No.
NOTES:
1. For more information, see the instructions preceding the record sheets.
2. System page access to external TIE line callers and handsfree answerback to stations receiving TIE line calls can be allowed
with this program.
3. Shadedareas of the table are for configuration purposes. Refer to Program 03 to find the PEMU PCB slot numbers. Program
03 must be completed prior to this program.
4. Be sure to specify both digits of the CO line assigned as a TIE line. If the 0 before a single digit (01 - 09) is left out, the LCD
displays what is entered, but key LED 01 cannot be programmed.
5, All 20 key LEDs light if pressed, but only key LED 0 1 has a programming function.
6. Initialized data does not assign Page/Handsfree Answerback to any TIE line. LED 01 stays off for all CO lines.
7. A range of TIE lines may be programmed by entering
/
Low TIE (CO) High TIE (CO)
line in range line in range
8. Maximum PEMU PCBs allowed because of power supply limits: DK24 = 1 PEMU, DK56 = 2 PEMUs, DK96 = 3 PEMUs.
9. If PEMU is installed with PCTUS PCB, only 16 station ports are available.
IO.
I
When a PEMU is installed, it is automatically assigned to the next consecutive CO line andstation
p&s:
if the system is
quipped
with a PCTU (1,2, or 3) the PEMU assumes four CO lines and four station ports; with a PCTUS it assumes four CC lines and
eight station ports.
2-60

PROGRAMMING PROCEDURES-INSTRUCTIONS/SYSTEM RECORDS
SECTION 200-096-302
FEBRUARY 1991
PROGRAM 19
BACKGROUND MUSIC SLOT IDENTIFICATION (RELEASE 3) _
SELECT =’ 1 SLOf(O1 - 14)
DK96: 01 - 14
DK56: 01 - 08
DK24: 01 - 06
Slot number of PEKU or PEW
connected to background
music (5GM) source
NOTES:
1. For more information, see the instructions preceding the record sheets.
2. If PEKU, the BGM source must be wired to Circuit 3.
3. If PEW, the BGM source must be wired to Circuit 8.
4. LED 09 (PEKU) or LED IO (PEW) in Program IO-2 must be lit also.
5. BGM cannot be connected to the PDKU or PSTU PCBs.
2-61

PROGRAMMINGPROCEDURES-INSTRUCTIONS/SYSTEMRECORDS
SECTION 200-096-302
FEBRUARY1991
PROGRAM20
PDKUDATAPORTCONFlGURATlON(RELEASE3)
Select = PDKU Port Number that is connected to
PDIU-DS or to DKT with PDIU-DI. Keys/LEDs
1 - 5 defines data
port type;
KeWLEDs
17 - 20 assigns data port to security group.
PDKU Port Number n n n-n PDKU Port Number n n
1
7
I
-
06 I I
PDKU Port Number 1 1 11
KEYI
LED X LED ON LED OFF
Data Security Not
Group 4 Included
Data Security Not
Group 2 Included
Data Security Not
Group 3 Included
Data Security Not
Group 1 Included
16
I I
15
14
13
12
11
10
09
08
07
06
05
04
Auto Pause 4 No Auto
Behind PBX Pause
DIU-DS DIU-DI
Connected Connected
03 DIU-DS to
Modem
Connection
DIU-DS to other
type DCE or DTt
1. For more information, see the mnstrucbons preceding the record sheets.
Group 4 Included
Data Security Not
Group 2 Included
Data Security Not
Group 3 Included
Data Security Not
Group 1 Included
I
16
1 1 I
I l5 I I
I ” I I
I ‘O I I
I O9 I I
I O7 I I
2. Initialized data: LED 17 ON, all others OFF.
3. Copy this page if more than three D/Us are installed.
4. Auto pause will be inserted after a Centrex or PBX access code is dialed by a DIU: CO line must be assigned in Program 42-0, and must nave
accesscodeassignedin Program42(1-8). Pause timeisdeterminedbyProgram 12-3. Apause willalsobeinsertedafterthe DKCOllneaccess
code
is
dialed (by the PDIU) in all cases if LED 05 is turned on.
5. DlUs can be connected to ports associated with
PDKU circuits 1 -
7.
2-62

PROGRAMMINGPROCEDURES-INSTRUCTIONS/SYSTEMRECORDS
SECTION 200-096-302
FEBRUARY1991
PROGRAM21
MODEMPOOLPORTASSlGNMENTS(RELEASE3)
_1
PDKU/PDIlJ-DS, Port Number TSTlJlModem Port Number
PDKWPDIU-DS, Port Number I r PSTWModem Port Number
Assignment 1 I-m
Assignment 2 I-D
Assignment 3 I-D
Assignment 4 I-En
Assignment 5 I-LIEI
Assignment 6 I-ELII
Assignment 7 I-D
Assignment 8 I-D
Assignment 9 I-D
Assignment ICI II -(I
NOTES:
1. For more information, see the instructions preceding the record sheets.
2. Initialized data is blank.
3. Copy this page if more than 10 modems are assigned to modem pool.
4. Requires Release 3 software.
5. D/Us can be connected to any ports associated with P DKU circuits 1 - 7.
2-63

PROGRAMMING PROCEDURES-INSTRUCTIONS/SYSTEM RECORDS
SECTION 200-096-302
FEBRUARY 1991
PROGRAM 22
DATA INTERFACE UNIT (DIU) STATION HUNTING (DATA CALLS ONLY; RELEASE 3)
SELECT = Port Number (00-95)
Enter the PDKU/DIU port
number of the Hunt From
station. See Note 3 for
entering a range of ports.
HUNT TO = (00-95)
Enter the Hunt To
PDKlUDIU port
number. See Note 4.
Port
E
Hunt To
32 33 34 35 36 37 38 39 40 41 42 43 44 45 46 47
48 49 50 51 52 53 54 55 56 57 58 59 60 61 62 63
64 65 66 67 68 69 70 71 72 73 74 75 76 77 78 79
80 81 82 83 84 85 86 87 88 89 90 91 92 93 94 95
NOTES:
1. For more information, see the instructions preceding the record sheets.
2. Initialized data does not assign Hunt To points to any port.
3. A range of ports may be assigned by pressing the following key sequence:
4. Press LED key 0 I to delete a digit from Hunt To port. 17[7~0[7
/ \
5. Program 22
applies to PDILJ-DI and PDIU-DS data stations. If program- Lowport
ming a PDIU-DI station, use the associated digital telephone port number;
the PDIU-DS is programmed using its own unique port number.
High port
,
2-64

PROGRAMMINGPROCEDURES-INSTRUCTIONS/SYSTEMRECORDS
SECTION 200-096-302
FEBRUARY1991
PROGRAM28
DSSCONSOLE/ATTENDANTELECTRONlCTELEPHONEASSlGNMENTSAND _
DlGlTALDSSCONSOLE/ATTENDANTDlGlTALTELEPHONEASSlGNMENTS
p-j-p--p-pqp-j-p-j~rpT-p-j-~
7 SELECT= (l-4) &ATT (1 4)
= -
Enter the DSS Enter the attendant electronic or digital
console number. telephone number. See Notes 4 and 5.
See Note 3.
DSS PEKU/ DSS/DDSS
DDSS PDKU PCBs Console
(Lowest Slot to Highest) Number
Attendant Electronic/
Digital Telephone
Number
(1,2,3 or4)
Low Slot Number: 1
Slot Number:
2
Slot Number:
’ High Slot Number:
3
4
NOTES:
1. For more information, see the instructions preceding the record sheets.
2. A digital DDSS console can be assigned to an electronic telephone, and a DSS console can be assigned
to a digital telephone. DDSS is supported by PCTU3 only, DSS is supported by PCTU I, PCTUZ, PCTU3,
and PCTUS.
3. Refer to Program 03, Flexible PCB Slot Assignments, for the PCB slots of PEKUs and PDKUs configured
to support consoles.
4. The system automatically assigns the console supported by the PEKU or PDKU in the lowest-number PCB
slot to be console number 1. See Note 7.
5. The system automatically assigns the telephone connected to the 1st station pot? on a console PDKU or
PEKU to be attendant number 1. See Note 7.
6. If more than one console is associated with one attendant telephone, then specify the same number
attendant telephone for all consoles associated with it.
7. Shaded information is for configuration purposes only.
8. Initialized data assigns console #l to attendant telephone #I; console #2 to attendant telephone #2;
console #3 to attendant telephone #3, and console #4 to attendant telephone #4.
9. Console #4 is not available with PCTUS PCB.
I
2-65

PROGRAMMINGPROCEDURES-INSTRUCTIONS/SYSTEMRECOROS
SECTION 200-096-302
FEBRUARY1991
PROGRAM29-1
DIGITALDSSANDDSSCONSOLEKEYASSIGNMENTS
CONSOLE1
SELECT = 1
DSS Number 1-4:
Each system can have up to 4 No. 01 - No. 20
Press the LED/key that dial, CO line access, or DSS
consoles. Enter the console to which is in the same position station access code to the
keys are being assigned (DSS console 1). as the console key being key chosen. See code
DSS Key Group 1-3: assigned. The LED table below for the keys
Each console has three groups lights and the LCD to enter. See Notes 4 and 5.
of 20 LED keys. Choose displays the console
the group to be assigned, key’s number.
Console 1
Code Table
I
f NOTES:
Ill
I
92 I
1. For more information, see the instructions preceding the record sheets.
2. Initialized data associates the PEKU or PDKU’S console with the telephone
connected to PEKU or PDKlJ’s first port. See Program 28 to reassign consoles
to other telephones.
3. When assigning CO line access keys (0 1 - 36), the associated telephone must be
assigned access to the CO line also. See Program 40.
4. The
q
and
q
keys may be changed tom,
q
arm keys, but they may not
be reassigned to other key locations.
5. Initialized data assigns
q
(Code 89) to Group No. 3 key 19 andm (Code 91) to
Group No. 3 key 20 on all consoles. All other keys are initialized as DSS keys to
ports 00 - 57, in sequential order.
6. Initialized key assignments are shown after Program 29.
7. Important: Onlyprogramm,
q
, m,
q
, andm buttons;programming other
feature buttons on a console may cause system operation problems.
2-66

PROGRAMMINGPROCEDURES-INSTRUCTIONS/SYSTEMRECORDS
SECTION 200-096-302
FEBRUARY1991
PROGRAM29-2
DIGITALDSSANDDSSCONSOLEKEYASSIGNMENTS
CONSOLE2
SELECT = 2
DSS Number 1-4:
Each system can have up to 4
No. 01 - No. 20
Press the LED/key that dia!, CO line access, or DSS
consoles. Enter the console to which is in the same position station access code to the
keys are being assigned (DSS console 2).
as the conso’e key being key chosen. See code
DSS Key Group 1-3:
assigned. The LED table below for the keys
Each console has three groups lights and the LCD to enter, See Notes 4 and 5.
of 20 LEDs/keys. Choose displays the console
the group to be assigned. key’s number.
Group No. 1
1 16
1 14
Code Table
Key Type Code
Station Speed Dial *10 -*49
System Speed Dial *60 - *99
CO Line Access 01 - 36
DSS (Station Access) #OO - #95
AC 89
NT1 91
NT2 92
Console 2
Grow No. 2
~ 2. Key/Code 1o Key/Code
04 14
03 13
02 12
01 11
Group No. 3
Key/Code Key/Code
I 20
09
19
08 18
07 17
06 16
I 15
I 14
02 12
01 11
I
NOTES:
1. For more information, see the instructions preceding the record sheets.
2. Initialized data associates the PEKU or PDKU’s console with the telephone
connected to PEKU or PDKU’s first port. See
Program 28
to reassign consoles
to other telephones.
3. When assigning CO line access keys (0 1 - 36), the associated telephone must
be assigned access to the
CO
line also. See
Program 40.
4. Them andm keys may be changed tom, [9 arm keys, but they may not
be reassigned to other key locations.
5. Initialized data assigns
q
(Code 89) to Group No. 3 key 19 and
q
(Code 91)
to Group No. 3 key 20 on all consoles. All other keys are initialized as DSS keys
to ports 00 - 57, in sequential order.
6. Initialized key assignments are shown after
Program 29.
7. Important:
Onlyprogram@,
q
, m,
q
, andm buttons;programming other
feature buttons on a console may cause system operation problems.
2-67

I
PROGRAMMINGPROCEDURES-INSTRUCTIONS/SYSTEMRECORDS
SECTION 200-096-302
FEBRUARY1991
PROGRAM29-3
DIGITALDSSANDDSSCONSOLEKEYASSIGNMENTS
CONSOLE3
SELECT = 2
DSS Number l-4:
Each system can have up to 4 No. 01 - No. 20 dial, CO line access, or DSS
consoles. Enter the console to which Press the LED/key that
is in the same position station access code to the
keys are being assigned (DSS console 2). as the console key being key chosen. See code
DSS Key Group l-3: assigned. The LED table below for the keys
Each console has three groups lights and the LCD to enter. See Notes 4 and 5.
of 20 LEDs/keys. Choose displays the console
the group to be assigned. key’s number.
Console 3
Code Table
Key Type Code
Station Speed Dial *10 -*49
System Speed Dial *60 - *99
CO Line Access 01 - 36
DSS (Station Access) #00 - #95
AC 89
NT1 91
NT2 92
Group No. 3
Key/Code Key/Code
10
20
09 19
08 18
07 17
06 16
05 15
04 14
03 13
02 12
01 11
NOTES:
1. For more information, see the instructions preceding the record sheets.
2. Initialized data associates the PEKU or PDKU’s console with the telephone
connected to PEKU or PDKU’s firstport. See Program 28 to reassign consoles
to other telephones.
3. When assigning CO line access keys (01 - 36), the associated telephone must
be assigned access to the CO line also. See Program 40.
4. Them andm keys may be changed tom, (9 arm keys, but they may not
be reassigned to other key locations.
5. Initialized data assigns
q
(Code 89) to Group No. 3 key 19 and
q
(Code 91)
to Group No. 3 key 20 on all consoles. All other keys are initialized as DSS keys
to ports 00 - 57, in sequential order.
6. Initialized key assignments are shown after Pro ram 29.
7. Important: Onlyprogramm,
q
, m,
q
, andh buttons;programming other
feature buttons on a console may cause system operation problems.
/
’
2-68

PROGRAMMINGPROCEDURES-INSTRUCTIONS/SYSTEMRECOROS
SECTION 200-096-302
FEBRUARY1991
PROGRAM29-4
DIGITALOSSANDDSSCONSOLEKEYASSIGNMENTS .
SELECT = 2
DSS Number l-4:
Each system can have up to 4 No. 01 - No. 20
consoles. Enter the console to which Press the LED/key that station access code to the
keys are being assigned (DSS console 2). is in the same position
as the console key being key chosen. See code
DSS Key Group l-3: assigned. The LED table below for the keys
Each console has three groups lights and the LCD to enter. See Notes 4 and 5.
of 20 L EDs/keys. Choose displays the console
the group to be assigned. key’s number.
Console 4
I Code Table
1 Nf3TF.q.
I Key Type
Code .-. --.
1.
I For more information, see the instructions preceding the record sheets.
^ , . .
1 Station Speed Dial 1 *IO - *49 1
1 DSS (Station Access) 1 #00 - #95 1
I
92 I
2.
miuallzeu uata assoaates the PEKU or PDKU’S console with the telephone
connected to PEKU or PDKU’s firstport. See Program 28 to reassign consoles
to other telephones.
3. When assigning CO line access keys (0 I - 36), the associated telephone must
be assigned access to the CO line also. See Program 40.
4. Them andm keys may be changed tom, m arm keys, but they may not
be reassigned to other key locations.
5. Initialized data assigns
q
(Code 89) to Group No. 3 key 19 andm (Code 91)
to Group No. 3 key 20 on all consoles. All other keys are initialized as DSS keys
to ports 00 - 57, in sequential order.
6. Initialized key assignments are shown after Program 29.
7. Important: Onlyprogramm,
q
, m,
q
, andm buttons;programming other
feature buttons on a console may cause system operation problems.
I
I
2-69

PROGRAMMING PROCEDURES-INSTRUCTIONS/SYSTEM RECORDS
SECTION 200-096-302
FEBRUARY 1991
PROGRAM 29
INITIALIZED DSS AND DIGITAL DSS CONSOLE KEY ASSIGNMENTS
#09 #19
#08 #18
#07 #17
#06 #16
PCTU (1,2, or 3)
#29 #39
#28 #38
#27 #37
#26 #36
#49 NTl(91)
#48 AC (89)
#47 #57
#46 #56
#05 #15 #25 #35 #45 #55
#04 #14 #24 #34 #44 #54
#03 #13 #23 #33 #43 #53
#02 #12 #22 #32 #42 #52
#Ol #ll #21 #31 #41 #51
#OO #IO #20 #30 #40 #50
. .
:, Speed Dial Keys Vi
.
. .
. .
2-70

PROGRAMMINGPROCEDURES-INSTRUCTIONS/SYSTEMRECOROS
SECTION 200-096-302
FEBRUARY1991
PROGRAM30
STATION CLASSOFSERVICE
(PORTS 00 -31)
SELECT = Port Number(s) 1 I Key LEDs
Enter the port number(s) to which class Light LEDs for the port specified in the
of service must be assigned. See Note 4 last step. All Key.s/LEDs marked with
for entering a range of ports. an “X” in the table below should be lit.
Feature Key Port Numbers 00-31
LED 00101 ~02~03~04/05~06/07~08~09~10~11~12~13~14~15~16~17~18/19~20~21~22~23~24/25/26~27
/
I I I III III I III I III I I
Change Verified A.C. (R3)”
Account Codes Verified (R3)
Digital Tele. Recv. Vol. (R3)14
Digital Tele. Recv. Vol. (R3)14
Chanae DISA Securitv Code8 IR21
” 3 I I .-
Change TR Override Code 12 09
Forced Acc’t Code 08 /Jo 1 1 '
OCNBusy Override Automatic5 07
I I I I I I I I
ABR Access Enabled
Speed Dial Allowed
I I I
MIC on at Start of Call 13 l03liilI1
I / I I j iii i i Ii i iii i iii I I
MIC Key Lock Enabled I3 1 02 11 i j 1 j 1 j 1 j i I i j
i i I
Speakerphone Enabled
1011 I I / II i / I I I
28 29 30 3
NOTES:
1. For more information, see the instructions preceding the record sheets.
2. Initialized data reads LEDs 01, 05, 07, and 12 ON for all ports.
3.
Ports 32 - 95 on next page. The same notes apply to all ports.
4. A range of ports may be specified by entering _
q [7’El00
Low port in range i -High port in range
5. If this LED is turned OFF, OCA and Busy Override must be accessed manually by dialing1 If kept ON, ACB and Executive Override
cannot be accessed.
6. If all stations are allowed Privacy Override, (the system will be non-private), allowing up to three telephones to talk on the same CO line.
7. See Program 10-2 to enable/disable Priv./Exec./DND override warnina tones.
8. Change DISA security code is available with Release 2 and above softw>re only. To change DISA code from selected stations: Dial
mBII+code+i.
9. DP or DTMF is specified for standard telephones only, PSTU or PEW (circuits 1 and 2).
IO. To change a 4-digit Traveling Class Override (T. C. 0.) code: Dial m +
q
0
q
+ code + 1.
lxln =lil-Cl assl,~II-Class2,~~0-Class3,~~~-Class4.
Il. To change verified account codes from selected stations: Dialm + III+ Code Number (000 - 299) + code
(I - 15 digits) + 1, Note that the total account code digit length is set in Program 60-4; all digits do not have to be verified.
12. To change the 4-digit T. R. override codes (1 or 2) from selected stations: Dialm + 111 + coae + 3 arm + 1 B 8+ code + I.
13. MIC ON/OFF at start of call (LED 03 ON = MIC ON, LED 03 OFF = MIC OFF) is only in effect if MIC key lock is enabled (LED 02 = ON).
14. There are nine handset receiver volume levels, 1 * 9 (9 being the highest). The initial off-hook /eve/ can be set anywhere from level 2 to 5. Set the initial
level with one of the following combinations: Level 2 = 12 OFF/13 OFF; Level 3 = 12 ON/l3 OFF [default level); Level 4 = 12 OFF/13 ON;
Level 5 = 12 ON/13 ON.
2-71

PROGRAMMINGPROCEDURES-INSTRUCTIONS/SYSTEMRECORDS
SECTION 200-096-302
FEBRUARY1991
PROGRAM30
STATION CLASS OFSERVICE
(PORTS32-95) .:
.
Feature
Priv. Override Allowed’
Exec. Override Allowed 7
DND Override Allowed’
Change T.C.O. Code (R3) lo
Key
LED 3213313413E
20 i
19 I
18
17
16 I
ChangeVerified A.C. (R3) I1 15 1 / ~
Account Codes Verified (R3) 14 1 I
Digital Tele. Recv. Vol. (R3)14 13 1 j
Digital Tele. Recv. Vol. (R3)14 12 / 1
Dial Pulse (DTMF Off) g 11 i
Change DISA Security Code (R2)8 10 1
Change TR Override Codei 1 09 1 1 I 1
Forced Account Code 1081 1 / ~
OCAIBusy Override Automatic 5 07 1 i ~
ABR Access Enabled
Speed Dial Allowed
MIC on at Start of Call ‘3 03
MIC Key Lock Enabled 13 02
Speakerphone Enabled 01 1
Port Numbers 32-63
40~41~42~43~44~45~46~47~48/49~50~51~52~53~54~55~56~57~58~59~60~61i62~6:
i-i . i 1
ii1 1
I
!I I I
II /
I I I
Feature Key Port Numbers 64-95
LED 64165 66~67 68 69/7Oi71 72173 74 75 76 77178179 80/81182183 84185 86187 88 89 gojgl 92l93l94lg
20 /
Priv. Override Allowed’
Exec. Override Allowed’
19 1
18
DND Override Allowed 7 17
Change T.C.O. Code (R3)l”
ChangeVerified A.C. (R3)” 15
Account Codes Verified (R3)
Digital Tele. Recv. Vol. (R3)14
Digital Tele. Recv. Vol. (R3)14 12 /
Dial Pulse (DTMF Off) g 11
Change DISA Security Code (R2)8
Change TR Override Code12
Forced Acc’t Code
OCAJBusy Override Automat; 5
ABR Access Enabled
Speed Dial Allowed
MIC on at Startif Call I3
MIC Key Lock Enabled I3
Speakerphone Enabled
Notes from page 2-71 apply.
2-72

PROGRAMMINGPROCEDURES-INSTRUCTIONS/SYSTEMRECORDS
SECTION 200-096-302
FEBRUARY1991
PROGRAM31
STATIONCLASSOFSERVICE
(PORTSOO-31)
SELECT = Port Number(s) Key LEDs
Enter the port number(s) Light LEDs for the port specified in
to which class of service the last step. All keys/LEDs marked with
must be assigned. an “X” in the table below should be lit.
See Note 4 for entering
a range of ports.
I
Feature I
I I Key Port NumbersOO-31
LED 00 01102103 04 05 06 07 08109110 11 12 13 14 15 16 17/18~19~20/21~22~23~24/25~26~27~28~29~30~31
INTOUCH (B + Station No.) 20 I I I I I I I I I III i 1
INTOUCH (B No Station) 19
Block Exec./Priv. Ovr. 8 18
End/End Sional Rev (VM) 17 I I
Receive VM ID Code 16
INTOUCH Integration (AID) 15
Group Page 4 - EKTs/DKTs 14
-
I I
GroupPage3-EKTs/DKTs 113 1 1 1 I I 1 1 / I / 1 / I
I I I I I I I I I I I I !
I I I I I I I I I I I I I / I
1
Group Page 2 - EKTs/DKTs 12 I
Group Page 1 - EKTs/DKTs 11
All Call Page Allowed - EKTs/DKTs lo
VM (No Conference) 09
VM Group 4 08
VM Group 3 07
VM Group 2 06
VM Group 1 05
VM to VM Call Blocking (R3) 7 04
---I I
OCA Enabled (Receive) 03
Handsfree No Warning 02
Handsfree Disabled 01
* I I I I
I
NOTES:
1. For more information, see the instructions preceding the record sheets.
2. Initialized data reads LED IO ON for all ports.
3. Ports 32 - 95 on next page. The same notes apply.
4. A range of ports may be specified by entering
q owno
7 \
Low port
High port
5. IfkeyLED 15islit, keyLED 17mustbelit.
in range in range
IfkeyLED lgislit, keyLED 17mustbelit.
If key LED 20 is lit, key LEDs 17 and 19 must both be lit.
6. INTOUCH B + Station No.19 No Station requires INTOUCH software Release B.06 or above.
7. VM to VM call block should be “ON” for all VM (PSTWPESU) ports if the Voice
Mail/Auto Attendant machine
does supervised and/or screened transfer.
8. Block Exec./Priv. override (LED 18 “ON’7 prevents Privacy Override to the selected Station unless the
m key is “0N”at that station; this option (LED 18 “ON’:, prevents executive override to the station
under all conditions.
2-73

PROGRAMMINGPROCEDURES-INSTRUCTIONS/SYSTEMRECORDS
SECTION 200-096-302
FEBRUARY1991
PROGRAM31
STATIONCLASSOFSERVICE
(PORTS32-95)
Feature Key Port Numbers 32 - 63
LED 32~33~34/35~36/37~38/39~40~41/42~43~44~45~46~47~48/49~50~51~52/53~54~55~56/57~58~59~60~61~62~63
INTOUCH (B+Station No.) 20 / / I I I 1 I I I I I I I I I I I I
I I I I I I I I I I I I
, -...-,-..,”
Group Page 3 - EKTs/DKTs 13
Group Page 2 - EKTs/DKTs 12
Group Page 1 - EKTs/DKTs 11
All Call Page Allowed - EKT!
. ,. . ,. - .
Feature Key Port Numbers 64 - 95
LED 64165166j67168/69170171172/73174175176177j78/79180181182183184185186187188189190191192l93/94/95
INTOUCH (B+Station No.) 20 1 1 / I / I / 1 1 1 1 I / j / I I I I I I I I
I I I I I I I j
INTOUCH (B No Station) 19
Block Exec./Priv. Ovr. * 18
End/End Signal Rev. (VM) 17
Receive VM ID Code 16
INTOUCH Integration (AID) 15 1
- -IL--
Group Page 4 - EKTs/DKTs 14
I
Group Page 3 - EKTs/DKTs 13
Group Page 2 - EKTslDKTs 12
Group Page 1 - EKTs/DKTs 11
All Call Page Allowed - EKTs/DKTs lo
I VM (No Conference) 09
VM Group 4 08
VM Group 3 07
VM Group 2 06
VM Group 1 05
VM to VM Call Blocking (R3) 7 04
OCA Enabled (Receive) 03
Handsfree No Warning 02
Handsfree Disabled 01
1
Notes from page 2-73 apply. I
2-74

PROGRAMMINGPROCEDURES-INSTRUCTIONS/SYSTEMRECOROS
SECTION 200-096-302
FEBRUARY1991
PROGRAM32
AUTOMATICPREFERENCE .
I-I-IS~H-151011~-0-nOl-)-I-I-I
SELECT = Port Number / / ~~ ‘-\ Automatic Preference Code:
Enter the port number of the
station having preference defined.
See Note 3 below for entering
a
range of
ports.
Enter 00 for no selection.
DA JA = Ringing Code
Enter 0 I for intercom.
Enter 0 to disable Ringing Line Preference. Enter 02 for lowest CO line.
Enter 1 to enable Ringing Line Preference. Enter 11 - 18 for Line Groups I- 8.
18
19
20
21
22
23
24
25
26
36
37
49
50
51
52
Port Ringing Automatic
Number (,“zfyj Preference
Code
64
65
66
67
68
69
70
71
72
73
74
-?c
76
77
83
84
85
86
87
NOTES:
1. For more information, see the instructions preceding the record sheets.
2. Initialized data assigns Ringing Code 1 and Automatic Off-hook Code 00 for al/ports. Power up sequence assigns Automatic Off-hook Code
0 1 to programming port 05.
3. To enter a range of ports dial the following key sequence: ’
4. Automatic Preference applies to Off-hook and onwoo
speaker key.
5. This program applies to electronic and digital telephones 7-- \
only; standard telephones always select the system Low port
High
port
intercom path when going off-hook. I
2-75

PROGRAMMING PROCEDURES-INSTRUCTIONS/SYSTEM RECORDS
SECTION 200-096-302
FEBRUARY 1991
PROGRAM 33
I STATION HUNTING (VOICE CALLS ONLY)
SELECT = Port Number (00-95)
Enter the port number
of the Hunt From station.
See Note 3 for entering
a range of ports.
HUNT TO = (00-95)
Enter the Hunt To
port number.
See Note 4.
32 33 34 35 36 37 38 39 40 41 42 43 44 45 46 47
48 49 50 51 52 53 54 55 56 57 58 59 60 61
62 63
64 65 66 67 68 69 70 71 72 73 74 75 76 77 78 79
80 81 82 83 84 85 86 87 88 89 90 91 92 93 94 95
NOTES:
1. For more information, see the instructions preceding the record sheets.
2. Initialized data does not assign Hunt To points to any port.
3. A range of ports may be assigned by pressing the following key sequence:
4. Press LED/key 01 to delete a digit from Hunt To port.
q OHOI7
7 \
5. If a Hunt station is in Call Forward, calls will be directed to the forwarded Low port
destination.
6. CO lines will Hunt if they are programmed to ring at the Hunt station only;
CO lines that ring at more than one station in any given ring program (81-
89) will not Hunt.
High port
2-76

Port
k
Seconds
PROGRAMMING PROCEDURES-INSTRUCTIONS/SYSTEM RECORDS
SECTION 200-096-302
FEBRUARY 1991
PROGRAM 34
HOLD/PARK RECALL TIMING
SELECT = Port Number (00-95) HOLD TIME = Seconds
Enter the port number having Enter the number of seconds the
its Hold/Park Recall Time defined. system will wait. Use three digits,
See Note 4 for entering a Acceptable range is 000 or
range of ports. 011-160. See Note 3.
i
32 33 34 35 36 37 38 39 40 41 42 43 44 45 46 47
48 49 50 51 52 53 54 55 56 57 58 59 60 61 62 63
64 65 66 67 68 69 70 71 72 73 74 75 76 77 78 79
80 81 82 83 84 85 86 87 88 89 90 91 92 93 94 95
NOTES:
1. For more information, see the instructions preceding the record sheets.
2. Initialized data assigns a Hold/Park recall time of 032 seconds to al/ports.
3. Enter 000 for no hold recall. Enter 0 11% 160 for 11 to 160 seconds.
4. Enter a range of ports by keying in the following sequence: 00~00
/
Lo’w port High port
2-77

PROGRAMMINGPROCEDURES-INSTRUCTIONS/SYSTEMRECORDS
SECTION 200-096-302
FEBRUARY1991
PROGRAM35
STATION CLASSOFSERVICE
(PORTS 00-31)
p-pJ-qqpl-pJJ-/-q-~pp-pl
7 /
SELECT = Port Number (00-95) LED Keys
Enter the port number(s) being Select LEDs to light for the port specified in the
defined. See Note 3 for last step. All LEDs marked with an “X” in the table
entering a range of ports. below should be lit.
Feature LED Port Numbers (00-31)
Keys 00/01~02~03~04~05~06~07~08~09~10~11~12~13~14~15~16~17~18/19~20~21~22~23)24/25/26~27~28/29/30~31
20 I I I I I I I I I I I I I I I I I I I II/I III I I
19
18
17 I I
16
15
14
13
12
I
11
10 ------------------
09
08
07 I I, I, I, I, I I, 1,
06
LCD Indiv. Messaae4
Message Waiting (RCV)
LCD Type/32-ON/12-OFF5 1 02 1
NOTES:
1. For more information, see the instructions preceding the record sheets.
2. Initialized data reads key/LED 05 lit for
ports
00- 15, and
keys/LEDs 01, 02, and 04 lit for ports 00-95.
3. Enter a range of ports by keying in the following sequence: 17OHOO
/ \
Low port High port
I
4. The maximum number of LCD stations that may be assigned personal message/speed dial memos/
timed reminder memos is I6 with PCTU (1,2, or 3) and 6 with PCTUS. Initialized data assigns the lo west
port numbers: 00 N 15 with PCTLJ; 00 w 05 with PCTUS.
5. Key L EDs 0 1, 02 and 04 should be lit for all stations connected to voice mail ports to allow proper voice
mail integration.
Key LED 01 and 02 should be lit for all stations (even non-LCD), unless it is desired to disable the LCD
and message waiting indication. I
6. Ports 32 N 95 are found on the next page. The same notes apply.
2-78

PROGRAMMINGPROCEDURES-INSTRUCTIONS/SYSTEMRECORDS
SECTION 200-096-302
FEBRUARY1991
PROGRAM35
STATIONCLASSOFSERVICE
(PORTS32-95)
Feature
t
Port Numbers (32-63)
'38 39 1201
1-4 1 I I I II I I, /
40 41 42143 44 45 46 47 48 49 50151 52 53 54155 56157 58 59 60161162 63
.a,-. I I I I I I I I I I I
.- I I I
17
16
15
I I I I I I
14
09
08
07
06
LCD Indiv. Message4 05
Message Waiting (RCV) 04
03
LCD Type/32-ON/12-OFF 5 02
I
Feature LED Port Numbers (64-95)
Yevs 64/65~66~67i68~69~70~71~72i73~74~7Si76i77178~78~80~81 /87~8.118LL/8~18618718s184~sn~91
kd92194/95
’ I -. -- -- - -- -- - - - -- -. -- -- -. --i--1-. - - - - - - - I - - I - - -
20
LCD Indiv. Message4
1 Messaae Waitina (RCV\
19
18
I I
17
16
15
14
13
i 1
12
,
11
10
09
08
07 I I
06
I I I I I
05
LCD Display 5 IO11 I I
Notes from page 2-78 apply.
2-79

PROGRAMMING PROCEDURES-INSTRUCTIONS/SYSTEM RECORDS
SECTION 200-096-302
FEBRUARY 1991
I
PROGRAM 36
FIXED CALL FORWARD (VOICE CALLS ONLY)
/ -7
SELECT = Port Number (00-95) FORWARD TEL = Port Number (00-95)
Enter the port number of the Enter the port number of
station that needs a Fixed the station or VM port that
Call Forward location will be call forwarded to
assigned. See Note 3 for when the Fixed Call Forward
a range of ports. key is pressed.
32 33 34 35 36 37 38 39 40 41 42 43 44 45 46 47
48 49 50 51 52 53 54 55 56 57 58 59 60 61 62 63
64 65 66 67 68 69 70 71 72 73 74 75 76 77 78 79
80 81 82 83 84 85 86 87 88 89 90 91 92 93 94 95
NOTES:
1. For more information, see the instructions preceding the record sheets.
2. initialized data does not assign a Fixed Call Forward location to any port.
3. To enter a range of ports, key in the following sequence: nom00
/ \
4. Press LED/key 0 1 to enter blanks.
Low port High port
5. See Program
39, code 86, to assign Fixed Call Forward keys on EKTs.
6. Fixed Call Forward will forward all calls to the designated port.
7. Stations that have fixed call forward set will not ring.
8. Program
92-9 does not clear fixed call forward memory.
2-80

Port
E
Hold
Time
PROGRAMMINGPROCEDURES-INSTRUCTIONS/SYSTEMRECORDS
SECTION 200-096-302
FEBRUARY1991
PROGRAM37
RlNGTRANSFER(CAMP-0N)RECALLTlME
SELECT = Port Number (00-95) HOLD TIME = Ring Transfer Recall Time
Enter the number of the port that Enter the Ring Transfer Recall
needs a Ring Transfer Recall time Time (in seconds). The acceptable
assigned. See Note 3 for range is 011 - 999 seconds. Use
entering a range of ports. three digits. See Note 4.
NOTES:
1. For more information, see the instructions preceding the record sheets.
2. Initialized data assigns a Ring Transfer Recall Time of 032 seconds to all ports.
3. To enter a range of ports, key in the sequence:
q OHO[7
/ \
Low port High port
4. The acceptable range of Ring Transfer Recall Times is 1 I seconds to 999 seconds (16.65 minutes).
5. Ring Transfer Recall Time is the time it takes to recalla station
that originates an
unanswered or busy
(camped-on) transferred call.
6. Ring Transfer must be allowed
(Program 10-1,
LED 07 “ON’~ for transfer recall to function; otherwise
Recall will be immediate.
32 33 34 35 36 37 38 39 40 41 42 43 44 45 46 47
48 49 50 51 52 53 54 55 56 57 58 59 60 61 62 63
64 65 66 67 68 69 70 71 72 73 74 75 76 77 78 79
80 81 82 83 84 85 86 87 88 89 90 91 92 93 94 95
2-81

PRO( RAMMING PROCEDURES-INSTRUCTIONS/SYSTEM RECORDS
SECT ON 200-096-302
FEBR UARY 1991
PROGRAM 38
I ELECTRONIC AND DIGITAL TELEPHONE KEYSTRIP TYPE
SELECT= Port Number (00-95) KEY MENU = Code
Enter the port number of the Enter the appropriate code as follows:
station that needs a keystrip
defined. See Note 4 for
entering a range of ports.
20-key (B)
20-key (C)
See Note 5.
1 32
1 33
11 1 12 13 14 15
I
1
I
I
I
I
I
I
I
48 49 50 51 52 53 54 55 56 57 58 59 60 61 62 63
64 65 66 67 ‘68 69 70 71 72 73 74 75 76 77 78 79
I / I ,
I I / I
I
80 al a2 a3 a4 a5 a6 a7 88 a9 90 91 92 93 94 95
NOTES:
1.
2.
3.
4.
5.
For more information, see the instructions preceding the record sheets.
Initialized data assigns Code 3 1 to all ports.
Always complete Program 38 before proceeding to 39.
To enter a range of ports, key in the sequence:
q 01*1017
7
\
Low port High port
The default electronic telephone keystrips assigned by the codes follow:
Code 2 1 Code 3 1
1 O-key ZO-key (A)
Code 32
ZO-key (B)
2-82
Code 33
20-key (C)

PROGRAMMINGPROCEDURES-INSTRUCTIONS/SYSTEMRECOROS
SECTION 200-096-302
FEBRUARY1991
PROGRAM 38(continued)
ELECTRONICAND DIGITALTELEPHONEKEYSTRIPTYPE
6. The default digital telephone keystrips assigned by the codes are as follows:
1 co15 1 co16 1 co17 1 DND IFLASH 1
Code 3 1
20-key (A)
Code 32
20-key (B)
7. The digital telephone keystrip for code 33, shown below, is not provided with your system; however,
it still can be assigned.
PAU RDL SDS DND FLASH
SD2 SD3 SD4 SD5 SD6
co5 CO6 co7 CO8 SD1
/NT co1 co2 co3 co4
Code 33
20-key (C)
2-83

PROGRAMMING PROCEDURES-INSTRUCTIONS/SYSTEM RECORDS
SECTION 200-096-302
FEBRUARY 1991 PROGRAM 39
FLEXIBLE KEY ASSIGNMENT REFERENCE GUIDE
l_el-i~lool-I-IS~~-~-~~n~-I-~.
SELECT = Port Number
7 / c,L. ~~
or range. See Note 4. Press LED key to be
defined. See tables Enter the appropriate code that corresponds
on the following pages. to the feature to be assigned. See the
feature code reference table below.
Forwards calls to selected
Releases data call
NOTES:
1. For more information,
record sheets. see the instructions preceding the
Key
Name Abbrv. Code Notes
Door Lock 1 thru DRLKl
Door Lock 4 !
DFiLK2 73
II 72 Momentarily unlocks door
(HDCB 1 - 4, DRLKB 74 (3 or 6 sec.). See Prog. 77,
W
DRLK4 75 and 77-2.
Intercom INT 00 Intercom line access key
LCD Message MSG 81 Begins LCD message
selection
Message Waiting
and Flash MW/FL 99 Provides message waiting
LED and Flash key
Microphone
cut-off
Sets microphone on/off for
MC0 88 incoming handsfree
intercom calls
Modem (R3)
Night Transfer
Tenant 1
Night Transfer
Tenant 2
MODEM 88 Used to reserve modem
in modem pool
NT1 91 Sets Tenant 1 CO
DAY/NIGHT ringing mode
NT2 Sets Tenant 2 CO
92 DAY/NIGHT ringing mode
Pause PAU 95 Sets a pause in Speed
Dial. See
Program
12-3
Pause (Long) PAW) 93 Sets a 1 O-second pause
in Speed Dial
Pooled Line PL 61 - Multiple CO lines may
68 appear under one key
Privacy (R3) PRIVACY 53 Prevents Privacy Override
(not Ext. Over.)
Privacy Release
Redial Last
Number (1 key)
PRV 79 Changes station Privacy
RLS mode to Non-private for CC
RDL 96 Redials the last
number
Release (R2)
Save Last
Number
Speed Dial
Select ([ key)
RLS 76 Releases current call
and makes station idle
Saves last number dialed
SAVE 85 for future speed dial
SDS 97 Begins speed dial
selection
Speed Dial
Speed Dial
(Fixed)
Tone
SD *10- Reserves key for
*49 station speed dial
SD(F) **“9”- $;;i$ap~ti;~or set
TONE 90 CO dial signals set to
tone or pulse
2. Complete Program 38 before Program 39.
3. Initialized data assigns keystrip pattern associated with Code 31 from Program 38.
4. Specify a range of ports by keying in
q nHnn
Lowport ’
5. IEm
\igh port
- Sets pauses in Speed Dial if telephone does not have a pause key.
-
6. m&m Sets flashes in Speed Dial if telephone has a pause key.
- Both keys must be programmed on electronic telephone; not allowed separately. Recommended on all
7.
q
stations using voice mail, since they allow easy access of [ andi DTMF keys.
- Codes 61 .- 68 represent CO line groups 81 w 88.
- Maximum 4
q
keys per pooled line group on each station.
2-84
I

PROGRAMMINGPROCEDURES-INSTRUCTIONS/SYSTEMRECOROS
SECTION 200-096-302
FEBRUARY1991
PROGRAM39
FLEXIBLEKEYASSIGNMENTFORPORTS TO-
/ /
Port Number Key
\
PDKU or
Code PEKU SLOT NO. .
(W
63’)
FW
1 CO36 1
PORT NO.
100 LCD0
200 DIU 0
LOCATION:
iiifxq?
08
07
ia
17
06 1 I
PORT NO.
lOI LCD0
20tlDIUO
LOCATION:
(R3)
(R3)
VW
032)
W)
(W
(R3)
PORT NO.
LOCATION:
Key Code
10
09
08
loo LCD0
20DDIUO
Key Code
20
19
la
07 07 17 17
06 06 16 16
05 05 15 15
04 04 14 14
03 03 13 13
02 02 12 12
01 1 Ill 1 I
KEY CODE
PL 61 - 68
PRIVACY 53
PRV RLS 79
RDL3 96
RLS 76
SAVE a5
SDS3 97
SD2 *10 m
*49
SD(F) 2 * 60 -
* 99
TONE 90
PORT NO. 100 LCDu
200
DIU 0
LOCATION:
1
09 19
08 18
07 17
06 16
05 15
04 14
03 13
02 12
PORT NO.
100 LCD0
200DIUO
LOCATION:
Key
10
Code Key
20
Code
PORT NO.
100 LCDu
200DIUO
(R3) I
(9
I
NOTES: 1. See Program 39 on previous page for more flexible key information.
2. DSS buttons are used for Voice calls only; Speed Dial (SD) buttons are used for VoiCe and/or DATA calls~
3. To allow a station to set 1 and i DTMF tones in speed dial numbers, the station must have the SDS and RDL
buttons. 1000 series Digital Telephone only require the m button because the wm b&ton is permanent
and replaces the m function.
2-85

PROGRAMMINGPROCEDURES-INSTRUCTIONS/SYSTEMRECORDS
SECTION 200-096-302
FEBRUARY1991 PROGRAM40
STATIONCOLINEACCESS
(PORTSOO-35)
SELECT = Port Numbers Key LEDs = CO Lines
Light LEDs
for the
port(s)
specified.
06 06
05 05
04 04
03 03
02 02
01 01
NOTES:
1. For more information, see the instructions preceding the record sheets.
2. Ports 36 - 71 on next page. The same notes apply.
3.
4. Initialized data reads all LEDs ON for all CO lines. Complete CO line access is allowed on all ports.
Denying access in this program applies to all access options, including LCR.
5. This program also denies Pickup CO line access.
6. A range of ports may be entered by keying in: onwoo ’
Low port in range J Tgh port in range
2-66

PROGRAMMINGPROCEDURES-INSTRUCTIONS/SYSTEMRECORDS
SECTION 200-096-302
PROGRAM40 FEBRUARY1991
STATION CO LINEACCESS
(PORTS36-71)
SELECT = Port Numbers KeyLEDs = CO Lines
Light LEDs for the port(s) specified.
Key
Co LED Port Numbers 36-71
36137138139140/41142143144/45146/47148/49~50~51~52~53~54~55~56 57 58 59 60 61 6263 64 65 66 67 68 69 70 7
36 16
Ill I I I I I I I I I I I I II
35 15
34 14
33 13
32 12
31 11
20 20
19 19
18 18
17 17
16 16
15 15
14 14
13 13
12 12,
11 11
10 10
09 09
08 08
07 07
06 06
05 05
04 04
03 03
02 02
01 01
NOTE:
Ports 72 - 95 and 99 on next page. The same notes apply.
2-87

PROGRAMMING PROCEDURES-INSTRUCTIONS/SYSTEM RECORDS
SECTION 200-096-302
FEBRUARY 1991
PROGRAM 40
STATION CO LINE ACCESS -I/
:;
(PORTS 72 - 95, AND 99) .J’
SELECT = Port Numbers Key LEDs = CO Lines
Light L EDs for the port(s) specified.
1 I I tl i i i I i i i i i i i I i i
i
UL
;; ni
E
20
19
_,’
2-88

PROGRAMMINGPROCEDURES-INSTRUCTIONS/SYSTEMRECORDS
SECTION 200-096-302
PROGRAM41 FEBRUARY1991
STATION OUTGOING CALLRESTRICTION
(PORTSOO-35)
SELECT = Port Numbers Key LkDs = CO Lines
Light LEDs for the port(s) to be restricted.
Key
Port Numbers 00-35
Co LED 00/01(02~03~04~05~06~07~08~09~10~11~12~13~14~15~16~17~18~19~20~21~22/23~24~25~26~27~28~29~30~31~32/33~34~3!
1 36 16 II I I I I I III I I I I I I I I I I I I I I
,
-II
I I I
I I I I I I
L” L” i
19 19 -
18 18
17 17 / !-
';
16 16 /I I
15 15
14 14
x 13 13
g 12 12 1 I I
f 11 11 5 I 10 10 I 1, ! ,
09 09 I I
08 08
07 07 /
06 06
05 05
04 04 ( /
03 03
02 02
01 01
NOTES:
1. For more information, see the instructions preceding the record sheets.
2. Ports 36 - 71 on next page. The same notes apply to all ports.
3. Initialized data reads all LEDs OFF for all CO lines (all stations allowed outgoing access to all CO lines).
4. This program denies all outgoing calls except when using least cost routing.
5, A range of ports may be entered by keying in:
6. With
Release I
software, CO lines
q owoo ’
restricted (LED “ON’:, in
Program 41 L
-High port in range
may not be accessed for ABR calls; Low port in range
with
Release
2 and above, restricted CO lines
may be accessed for A BR calls.
2-89

PROGRAMMINGPROCEDURES-INSTRUCTIONS/SYSTEMRECORDS
SECTION 200-096-302
FEBRUARY1991
PROGRAM41
STATION OUTGOING CALL RESTRICTION
(PORTS 36 -71)
SELECT = Port Numbers Key LEDs = CO Lines
Light LEDs for the port(s) to be restricted.
Key
Port Numbers 36-71
Co LED 36~37~38~39~40~41~42~43~44~45~46~47~48/49~50~51~52~53~54~55~56~57~58~59~60~61~6~63~64~65~66~67~68~69~70~71
t 36 16
II I III I III I III I III I III III I I III II
NOTE: Ports 72 - 95 and 99 on next page. The same notes apply.
2-90

PROGRAMMINGPROCEDURES-INSTRUCTIONS/SYSTEMRECORDS
SECTION 200-096-302
FEBRUARY1991
PROGRAM41
STATION OUTGOING CALL RESTRICTION
(PORTS72-95,AND99) .
SELECT = Port Numbers Key LEDs = CO Lines
Light LEDs for the port(s) to be restricted.
NOTE: 99 is used to restrict DISA access to CO lines for outgoing calls through the system.
2-91

PROGRAMMING PROCEDURES-INSTRUCTIONS/SYSTEM RECORDS
SECTION 200-096-302
FEBRUARY 1991
PROGRAM 42-O
CO LINE TO PBX/CENTREX CONNECTION
SELECi = 0 Spe‘cify CO lines by
setting
key
LEDs as defined by the table
below.
NOTES:
1. For more
information, see the irtstructions preceding the record sheets.
2.
Initialized data reads all LEDs OFF for all CO lines. I
3. This progam must be utilized to allow CENTREWPBX (after flash) features to operate.
4. If CO line is programmed for behind CENTREWPBX (LED ON), re-seize guard time is 1.5 seconds. If CO line
is programmed for normal operation guard time is
0.45
seconds.
See Program
10-1, Key/LED
02 (Release 2
and above).
2-92
,’

PROGRAMMINGPROCEDURES-INSTRUCTIONS/SYSTEMRECORDS
SECTION 200-096-302
FEBRUARY1991
PROGRAM42-1-8
PBX/CENTREXACCESSCODES
SELECT = I-8 /- TCCESS CODE =
PBX Access Code Group Enter a P-digit access
Enter the PBX Group code for the group,
number 1 - 8 that needs as defined by the table
an access code assigned. below. See Note 3.
PBXZENTREX
Access Code
Number
2 I
NOTES:
1. For more information, see the instructions preceding the record sheets.
2. Initialized data assigns no access codes to PBX groups.
3.
l
If access code is single digit, enter the first digit and press key/L ED
0
1
as second digit.
l
Press LED key 0 1 to delete a digit.
l
Press key/LED 02 for don’t care. For example, pressingI+ key/LED 02
allows 80 N 89.
4. This program must be utilized to allow correct toll restriction and CEN-
TREX/PBX transfer operation.
2-93

PROGRAMMINGPROCEDURES-INSTRUCTIONS/SYSTEMRECOROS
SECTION 200-096-302
FEBRUARY1991
PROGRAM43 ,- .
STATION/COLlNECREOlTCAROCALLALLOWEO(RELEASE3) -.
.;
(PORTSOO-35) . ,,'
~-~~r;;1l~-~nn~-~-l~-~-r;1
7 \
SELECT = Station Port Numbers Key LEDs = CO Lines
Assigned to allow dial O+ calls with selected stations
Key
Port Numbers7
DO-35
Co LED 00~01(02/03~04~05~06/07~08~09/10~11~12/13~14/15~16~17~18~19~20)21~22~23~24~25~26~27~28~29/30~31~32/33~34/3!
1 36 16
II I III I III I III I III I III I/I/ I III I I
33 13
32 12
08 08
07 07
06 06
05 05
04 04
03 03
02 02
01 01
NOTES:
1. For more information, see the instructions preceding the record sheets.
2. For Stations and CO lines enabled in this program: O+ calls override system toll restriction, and calls will
disconnect automatically if the number of digits set in
Program
60-7 is not dialkd when-“0”is dialed as
the first digit. This restricts the operator from placing calls that would be charged back to the telephone
line.
2-94

PROGRAMMINGPROCEDURES-INSTRUCTIONS/SYSTEMRECORDS
SECTION 200-096-302
FEBRUARY1991
PROGRAM43
STATION/CO LINECREDITCAROCALLALLOWED
(PORTS 36 -71) .
ppy--ijT;11~-~InnT;;I-~~-T;?-~~
/ \
SELECT = Station Port Numbers Key LEDs = CO Lines
Assigned to allow dial O+ calls with selected stations
Key
Co LED Port Numbers 36-71
jO/51152153154155156/57~58159160161~62/63164165166167168~69170~7
NOTE: Ports 72 - 95 and 99 on next page. The same notes apply.
2-95

PROGRAMMING PROCEDURES-INSTRUCTIONS/SYSTEM RECORDS
SECTION 200-096-302
FEBRUARY 1991
PROGRAM 43
STATION/CO LINE CREDIT CARD CALL ALLOWED
(PORTS 72 - 95)
SELECT = Station Port Nhnbsrs Key LEDs = CO Lines
Assigned to allow dial O+ calls with selected stations.
co Key
Port Numbers 72-95
LED 72 73 74 75 76 77 78 79 80 81 82 83 84 85 86 87 88 89 90 91 92 93 94 9519
36 16
35 15
34 14 -
33 13
32 12 Ill I I ,
x 31 11
8 30 10
f 3Q na I I
. . . . .
5 10 10
I-
1 --+
/ /
I I '- ILL
09 09
f-m fl8 I
06 06
05 05
04 04 I I I I
03 03
02 02 '
2-96

PROGRAMMINGPROCEDURES-INSTRUCTIONS/SYSTEMRECORDS
SECTION 200-096-302
FEBRUARY1991
PROGRAM44A(RELEASE3)
EMERGENCYBYPASSOFFORCED/VERIFIEDACCOUNTCODES
SELECT = 51,52, or 53 -
to set emergency
number 1,2 or 3
Emergency Number
Emergency Number 2: Em
Emergency Number 3: Em
SELECT = II-
NOTES:
- DATA = 3 or 4 digit emergency
telephone number
To enter blanks,
Press: LED/Key
q
Example
911 = initialized Data
9911 (Note 2)
L- DATA = 3 or 4-digit telephone number
1. The emergency telephone numbers assigned in this program will be sent out the CO line
immediately when dialed; they will bypass the forced/verified account code dialing restriction.
2. If CO lines are behind PBX or CENTREX, program the PBWCENTREX outside trunk access code:
Example: “9”. A pause is automatically inset-ted following the first 9. See Programs 42-O and 42-I
to assign the CO line and access code for behind PBWCENTREX operation. Also, if the system CO
lines are behind CENTREX/PBX, the CENTREXIPBX trunk access codes must be programmed in
front of the emergency telephone number. Example: If the CENTREXYPBX access code is ‘9: then
enter 99 I 1 in Program 44-51.
3. If verified account codes assigned in Program 69 conflict (are the same) with emergency telephone
numbers assigned in Program 44A; Program 44A has priority.
4. This feature is for use with forced (verified or nonverified) account codes, but not with ABR and
DISA. It also does not override Toll Restriction; emergency numbers must be allowed using system
Toll Restriction tables per normal Toll Restriction programming procedures.
5. Program 448 is related to Toll Restriction and is placed with the other Toll Restriction programs in
this chapter.
2-97

PROGRAMMINGPROCEDURES-INSTRUCTIONWSYSTEMRECORDS
SECTION 200-096-302
FEBRUARY1991
Programs 44B through 48 can be found in the
Toll Restriction System Record section.
Programs 50 through 56 can be found in the
Least Cost Routing System Record section.
2-98

PROGRAMMINGPROCEDURES-INSTRUCTIONS/SYSTEMRECOROS
SECTION 200-096-302
PROGRAM60
SMDROUTPUT/ACCOUNTCODEDlGlTLENGTH
FEBRUARY1991
NOTES:
1. For more information, see the instructions preceding the record sheets.
2. For Selection 3, initialized data assigns SMDR output to be enabled for incoming calls that are answered.
3. For selection 4, initialized data assigns a g-digit length to all Forced/Voluntary Account Codes.
4. If PBX code is dialed, numbers dialed after the code will be checked.
5. If A/C, O/C or SPCC code begins with “Of’, “I “, or “00’; that call will print out.
6. When accessing LCR feature, all digits sent to CO will be output.
7. Programming 60-3-U (printout outgoing call only) is still available.
8. Key/LED
7 = blank, key/LED 2 = don’t
care.
9. If a security code is not programmed, outgoing CO line access via DISA will not require a security code
when dialing. I
10. See Program 69 for verified account codes (R3).
11. Number of digits required when “0” is the first digit dialed; if this number of digits is not dialed, the system will
disconnect the call after 20 seconds. “0” is counted as a digit. Example: 0 + I + 714 + 583 - 3700 = 12
digits; 12 should be programmed as a minimum in this case.
2-99
SELECT = 3 - 6 (Item) A
Make a selection to indicate
which item is being assigned.
Select 3 for SMDR output.
Select 4 to assign Forced/Voluntary
Account code digit length, etc.
For “3” SMD~ COR = 0 or I (Data)
Enter one digit to indicate SMDR output operation.
0 = No Incoming
Record
1 = Incoming and Outgoing Record
For “4” ACCOUNT = 04 - 15
Enter the number of digits allowed
for forced/voluntary account codes.
The range is 04 - 15. Enter two digits.
For “5” TOLL DIAL
Enter one digit (the range is 0 - 5).
For “6” DATA = DISA security code; 1 -
For “7” CREDIT = Credit Card Digits; 1 - 15 digits.
30 digits
Item Description Data
SMDR Output when a call is completed. (SMDR COR)
3 0 = Outgoing Only 1 = Incoming and Outgoing 0
‘°Forced/Voluntary Account Code Digit (ACCOUNT)
4 Length 04 - 15.
(Digits are verified per
Prog.
30, Key/LED 14, III
and
Prog. 69.
Printout options (TOLL DIAL DATA
Toll Dial = 0
17 All Calls (Note 7) 0
W 5 = El
1 Dial “0” calls only
= 0 2 Dial “1” calls only
= 3
0 Dial “00” calls only
= III
4 Dial “I”, “0”, calls only
= 0 5 Dial “1” or “00” calls only
DISA Security Code9 (may be changed DATA
W’) 6
from station, per
Program 30) [7-o
Credit card call digit length, 01 - 30 digits, CREDIT”
(R3) 7
(see Program 43)
q III
I

PROGRAMMING PROCEDURES-INSTRUCTIONS/SYSTEM RECORDS
SECTION 200-096-302
FEBRUARY 1991
PROGRAM 69 (RELEASE 3)
VERIFIED ACCOUNT CODES (000 m 049)
SELECT = Verified Account Code Number (VACN) 1 I- Verified Account Code (1 - 15 digits)
VERIFIED ACCOUNT CODE (1 -
VACN 15 DIGITS)
1
2 3 4
5
6 7 8
9 10 11
12 13 14
l!
I I I I I I I I I I I I I I
006
008
016
I I I I III Ill I I
023
024
VERIFIED ACCOUNT CODE (1 - 15
VACN DIGITS)
1
2 3 4 5 6 7 8
9 IO 11
12 13 14
It
025
026
027
028
1
032
036
038
042
048
NOTES:
1. Account code format
l
Account code digit length is defined in
Program
60-4 (4 - 15 digits).
l
To dial an account code, station users must always dial the quantity of digits defined in
Program 60-4.
l
If the quantity of digits in a verified account code is the same as the account code digit length in
Program
60-4, then all digits will be verified; if the quantity of digits are less, then only those digits will be verified.
2. Account codes may not conflict (be the same as) emergency numbers in
Program 44A.
.;’
2-100

PROGRAMMINGPROCEDURES-INSTRUCTIONS/SYSTEMRECORDS
SECTlON200-096-302
FEBRUARY1991
PROGRAM69(RELEASE3)
VERlFlEDACCOUNTCODES(050-099)
7 More Codes 1 .
SELECT = Verified Account Code Number (VACN) 1
VERIFIED Al
VACN
l-r
12
CCOUNT CODE (1 - 15 DIGITS)
I- Verified Account Code (1 - 15 digits)
. 1 VERIFIED ACCOUNT CODE (1 - 15 DIGITS)
VACN
1 12 13 1415 16 17 18 ~9~10~11~12(13~14~15 -
076
077
078
083
084
085
087
097
098
099
Notes from page 2- 100 apply.
2-101

PROGRAMMINGPROCEDURES-INSTRUCTIONS/SYSTEMRECORDS
SECTION 200-096-302
FEBRUARY1991 PROGRAM69(RELEASE3)
VERIFIED ACCOUNTtODES(lOO'-149)
7 More Codes 7
lXl-~S~H1!lSOC
SELECT = Verified Account Code Number (VACq
COUNT CODE (1 - 15 DIGITS) 1 VERIFIEDAC
VACN 1 2 3 4 5 1617 18 ~9~10~11~12~13~14~15
100
1 i i i i i i i i i I
107,,,,,,,,,,,,,,,
108
116
118
l~-~-*q-ppp--j-p-j
L Verified Account Code (1 - 15 digits)
-
,
1 VAIN!* ACCOUNT CODE (1 - 15 DIGITS)
2-102

PROGRAMMINGPROCEDURES-INSTRUCTIONS/SYSTEMRECORDS
SECTION 200-096-302
PROGRAM69(RELEASE3) FEBRUARY1991
VERlFlEDACCOUNTCODES(150-199)
7 More Codes -
SELECT = Verified Account Code Number (VACN) - L- Verified Account Code 11 w 15 diaits)
Notes from page 2- 100 apply.
2-103

PROGRAMMING PROCEDURES-INSTRUCTIONS/SYSTEMRECORDS
SECTION 200-096-302
FEBRUARY1991 PROGRAM69(RELEASE3)
VERlFlEDACCOUNTCODES(200-249)
I- More Codes -I
SELECT = Verified Account Code Number (VACNI 1
VACN VERIFIED ACCOUNT CODE (1 - 15 DIGITS)
1
Notes from page 2- 7 00 apply.
L-- Verified Account Code (1 - 15 dioits)
2-104

PROGRAMMINGPROCEDURES-INSTRUCTIONS/SYSTEMRECORDS
SECTION 200-096-302
FEBRUARY1991
PROGRAM69(RELEASE3)
VERlFlEDACCOUNTCODES(250-299)
SELECT = Verified Account Code Number
(VACN) 1
-VERIFIED ACCOUNT CODE (1 - 15 DIGITS) 1
VACN
1 2 3 4 5 6 7 8 9 10 11 12 13 14 15
255
256
257
258
259
260
261
-
262
-
266
267
268
L Verified
Account Code (I - 75 digits)
CODE (1 - 15 DIGITS)
Notes from page 2- 100 apply.
2-105

PROGRAMMlNGPROCEDURES-INSTRUCTIONS/SYSTEMRECORDS
SECTION 200-096-302
FEBRUARY1991
PROGRAM70(RELEASE3)
VERlFlEDACCOUNTCODETOLLRESTRlCTlONASSlGNMENTS
(VAC 000 - 099)
SELECT = Verified Account
y DATA = VAC &yjt
Code
Number
(VACN)
000 - 299
Restriction Cod;? 0 or 7
Enter 0 for no digit restriction.
Enter 1 for digit restriction.
NOTES:
1 063 1 1 I
VAC Restrict Code (0 - 6)
Enter 0 for No Station To// Restriction.
Enter 1 for Area Code Toll Restriction.
Enter 2 for Area Code Toll Restriction
and 0 or 1 as 1st or 2nd digit.
Enter 3 for Class 1 Toll Restriction.
Enter 4 for Class 2 Toll Restriction.
Enter 5 for Class 3 Toll Restriction.
Enter 6 for Class 4 Toll Restriction.
\
1. For more information, see the instructions preceding the record sheets.
2. Initialized data reads 00 for all VACNs.
3. This restriction overrides the normal station restriction assigned in
Program
48 when ‘a
VAC
is entered at the
station. The station resumes its Program 48 restriction after the call is disconnected. .*
4. Range programming is not available.
2-106

PROGRAMMINGPROCEDURES-INSTRUCTIONS/SYSTEMRECORDS
SECTlON200-096-302
FEBRUARY1991
PROGRAM70(RELEASE3)
VERlFlEDACCOUNTCODETOLLRESTRlCTlONASSlGNMENTS
(VAClOO-199)
SELECT = Verified Account
____-----------,-‘;-7
DATA = VA C Digit VAC Restriction Code (0 - 6)
Code Number (VACN) Restriction Code 0 or 1 Enter 0 for No Station Toll Restriction.
Enter 0 for no digit restriction. Enter I for Area Code Toll Restriction.
Enter 1 for digit restriction. Enter 2 for Area Code Toll Restriction
and 0 or I as 1st or 2nd digit.
Enter 3 for Class 1 Toll Restriction.
Enter 4 for Class 2 Toll Restriction.
Enter 5 for Class 3 Toll Restriction.
Enter 6 for Class 4 Toll Restriction.
106 1 I
in7 I
108 1
109 I
VAC Digit
Restrict
VACN Code
164
165
166
167
168
169
170
171
172
173
174
“AC
Restrict
Code
3
3
Notes from page 2- IO6 apply.
2-107

PROGRAMMINGPROCEDURES-INSTRUCTIONS/SYSTEMRECORDS
SECTION 200-096-302
FEBRUARY1991
PROGRAM70(RELEASE3)
VERlFlEDACCOUNTCODETOLLRESTRlCTlONASSlGNMENTS ,
(VAC200-299) /'
SELECT = Verified Account
Code Number (VACN) Restriction Code 0 or 1
Enter 0 for no digit restriction.
Enter I for digit restriction.
VAC Restriction Code (0 - 6)
Enter 0 for No Station Toll Restriction.
Enter 1 for Area Code Toll Restriction.
Enter 2 for Area Code Toll Restriction
and 0 or 1 as 1st or 2nd digit.
Enter 3 for Class 1 Toll Restriction.
Enter 4 for Class 2 Toll Restriction.
Enter 5 for Class 3 Toll Restriction.
Enter 6 for Class 4 Toll Restriction.
228 1
Notes from page 2- 106 apply.
2-108

PROGRAMMING PROCEDURES-INSTRUCTIONS/SYSTEM RECORDS
SECTION 200-096-302
FEBRUARY 1991
PROGRAM 77-1
PERIPHERAL OPTIONS
(DOOR PHONES/IMDU/PIOU/PIOUS/PEPU)
p-pJT;lT;llpJ-pJr;l-$-JYJ-pJ-r;1
7 \
SELECT = 1 LED Key
Light the key.s/LEDs that are marked
with an X in the table below.
NOTES:
1. For more information, see the instructions preceding the record sheets.
2. Initialized data leaves all LEDs off.
3. HDCB
= Door Phone Control Box. Up to four HDCBs may be installed in a system. They must be
assigned a PEKU or PEW port number to operate.
4. If a modem unit (IMDU) is installed on a PIOU or PIOUS, it can be accessed by dialing station 19.
5. If NT1 is turned on at an electronic or digital telephone, then the door phone will ring over external page.
6. This option applies to the PIOU/PIOUS/PEPU Door Lock Control (DRLK 0) assigned to electronic or
digital telephone keys using Code 71 in
Program
39; it does not apply to HDCB door locks.
7. HDCB4 is available with PCTU (1, 2, or 3), but not with PCTUSI.
8. Assigns Tenants 1 and 2 CO lines to night ring over PIOU external paging zones 1 - 4 (see the
Installation Section 200-096-208 for more information regarding night ringing over selected paging
zones).
2-109

I
PROGRAMMINGPROCEDURES-INSTRUCTIONS/SYSTEMRECORDS
SECTION 200-096-302
FEBRUARY1991
PROGRAM77-2
DOORPHONEBUSYSIGNAL/DOORLOCKASlGNMENTS
SELECT = 2 LED Key
Light the LED keys marked with
an X in the table below.
LED x
Kev LED ON LED OFF
20 - -
19 - -
18 - -
17 -
16 (R2) HDCB4 B-jack is Door Lock Control #44
15 Door phone 4C Busy Out
14 Door phone 4B Busy Out
13 Door phone 4A Busv Out
-
B is connected to Door Phone 4B
No Busy Signal
No Busy Signal
No Busv Sianal
12 (R2)
11
10
HDCB3 B-jack is Door Lock Control #3
Door phone 3C Busy Out
Door phone 3B Busy Out
09
Door phone 3A Busy Out
08 (R2) HDCB2 B-jack is Door Lock Control #2
07 Door phone 2C Busy Out
06 Door phone 2B Busy Out
05 Door phone 2A Busv Out
B is connected to Door Phone 3B
No Busy Signal
No Busy Signal
No Busy Signal
B is connected to Door Phone 2B
No Busy Signal
No Busy Signal
No Busv Sianal
04 (R2)
03
02
HDCBl B-jack is Door Lock Control #l
Door phone 1 C Busy Out
Door phone 1 B Busy Out
B is connected to Door Phone 1 B
No Busy Signal
No Busy Signal
01 I I
Door phone 1A Busy Out No Busy Signal
NOTES:
1. For more information, see the instructions preceding the record sheets.
2. initialized data reads all LEDs OFF.
3. HDCB Door Lock Control is available with
Release
2 and higher.
4. HDCB4 is not available with PCTUS.
5. HDCB cannot be connected to PDKU or PSTU ports.
HDCB PEKU/PESU Port Assignments
2-110

PROGRAMMINGPROCEDURES-INSTRUCTIONS/SYSTEMRECORDS
SECTION 200-096-302
FEBRUARY1991
PROGRAM78
CO LINESPECIAL RINGING ASSIGNMENTS
DISA/IMDU/NIGHT RINGING OVER EXTERNAL PAGE
I,-,I~~~-~nn -f+JqYy-p-pJ
/7- \
SELECT = Feature Number Code CO Line
Enter Feature Number Enter Code Specify CO lines by setting LED keys
1, 2or5. Number 1-3. as defined by the tab/e below.
All LEDs with an “X” should be
lit when finished.
On-hook
CO Lines 01 - 20
Feature Code \
Number Feature Description (LED Keys)
01 02 03 04 05 06 07 08 09 10 11 12 13 14 15 16 17 16 19 2'
(01)(02)(03)(04)(05)(06)(07)(08)(09)(10)(11)(12)(13)(14)(15)(16)(17)(16)(19)(2
1 3 Ring Over External Page5 during NIGHT mode
1 DISAIDISC CO Line during DAY Mode 4
2 2 DISAIDISC CO Line during DAY2 Mode4
3 DISAIDISC CO Line during NIGHT Mode4
1 Ring IMDU Maint. Modem during DAY Mode
I
5 2 Ring IMDU Maint. Modem during DAY2 Mode
3 Ring IMDU Maint. Modem during NIGHT Mode
Off-hook
Feature Description
2 2 DISAIDISC CO Line during DAY2 Mode4
3 DISA/DISC CO Line during NIGHT Mode4
1 Ring IMDU Maint. Modem during DAY Mode
5 2 Ring IMDU Maint. Modem during DAY2 Mode
3 Ring IMDU Maint. Modem during NIGHT Mode
NOTES:
1. For more information, see the instructions preceding the record sheets.
2. Initialized data leaves all LEDs off.
3. Shaded table indicates that the handset must be set off-hook during programming.
l
Program CO lines 01 through 20 with handset on-hook.
l
Program CO lines 21 through 36 with handset off-hook.
4. DISA, which allows outgoing CO line access as well as (DISC) internal calling, is available with
Release 2 and above; for DISA,
see Programs 10-1,
15, 60, 40, 41, 48, and 03, code 92 or 93
(for DISA, the CRCU PCB must be installed on the PCTU).
5. See Program 77-1
for night ringing configuration.
I
2-111

PROGRAMMINGPROCEDURES-INSTRUCTIONWSYSTEMRECORDS
SECTION 200-096-302
FEBRUARY1991
PROGRAM79
DOOR PHONERINGING
(PORTSOO-31)
SELECT = Port Number Key LEDs
Enter the port number having Select keys indicated in the
Door Phone Ringing table below.
assigned.
Feature I
Kf
LE
?Y
Port Numbers 00-31
:D 00~01/02~03104 05 06 0708/09/10 11 12 13 14 15 16 17 18 19 20 21 22 23 24 25 26 272829 30 31
IMuted ringto busy EKT/DK$l 20 1 / /
NOTES:
1. For more information, see the instructions preceding the record sheets.
2. Ports 32 - 95 on next page. The same notes apply to all ports.
3. Initialized data does not assign door phone ringing to any station port.
All LEDs are OFF.
4. A range of ports may be entered by keying in the following: noHa
/ \
Lowport High port
in range in range
I
5. Door phones can ring any number of elecfronic and digital telephones, but do
not ring
standard telephones or ofher devices connected to PESU or PSTU station ports.
6. On/y the lowest port in a ringing group will receive muted ring tone if all EKTs/DKTs
in
the
ringing group are busy and the door phone key is pressed.
2-112

PROGRAMMINGPROCEDURES-INSTRUCTIONS/SYSTEMRECORDS
SECTION 200-096-302
FEBRUARY1991
PROGRAM79
DOOR PHONE RINGING
(PORTS 32 - 95) .
Notes from page 2- I 12 apply.
2-113

I
PROGRAMMING
PROCEDURES-INSTRUCTIONWSYSTEMRECORDS
SECTION 200-096-302
FEBRUARY1991
PROGRAM80
ELECTRONIC
AND DlGlTALTELEPHONERlNGlNGTONES(C0 LINECALLS)
/
SELECT = Port Number
Enter number of port
having its ringing tone
defined. See Note 4 for
entering a range of ports.
7
Ringing Tone Code
Enter 1 for Tone 1 (500/640 Hz).
Enter 2 for Tone 2 (600/800 Hz).
Ringing Tone (Code) Port Numbers 00-31
00 01 02 03 04 05 06 07 08 09 10 11 12 13 14 15 16 17 18 19 20 21 22 23 24 25 26 27 28 29 30 31
Tone 1 (1)
I Tone 2 (2) I I I I I I I I I I I I I I I
I I I I I I I I I I I I I I I I I I
Ringing Tone (Code) Port Numbers 32-63
32 33134 35 36 3738 39 40 41 42 43 4445 46 47 48 49 50 51 52153154 55 56157158 59 60 61 62 63
Tone 1 (1)
I Tone 2 (2)
I I I I I I I I I I I I I I I I I I I I
1 I
I I I I I I I I I I I I I
Ringing Tone (Code) Port Numbers 64-95
64 65 66 67 68 69 70 71 72 73 74 75 76 77 78 79 80 81/82/83 84 85 86 87 88 89 90191 92 93 94 95
Tone 1 (1)
Tone 2 (2)
NOTES:
1. For more information, see the instructions preceding the record sheets.
2. Initialized data assigns Tone I to all station ports.
3. Tone 1 is 500 Hz modulated with 640 Hz.
Tone 2 is 600 Hz modulated with 800 Hz.
4. A range of ports may be specified by entering
q omn17
/ \
Low port High port
in range in range
2-114

PROGRAMMINGPROCEDURES-INSTRUCTIONS/SYSTEMRECORDS
PROGRAM80 (l-9)
SECTION 200-096-302
FEBRUARY1991
8w 24 second delay 8m 24 second delay 8 H 24 second delay
CO LINE/STATION RINGING ASSIGNMENTS
(Ports 00 -35)
pq-pJ-Tj~pq-~~~~-~~-~-~~ .
/
SELECT = 1 - 9 %LECT = Port Number(s) \ Key LEDs = CO Lines
for type of ringing of station(s) that must ring assigned to ring selected port number(s)
Selected CO lines ring selected station ports per Ringing Program options as follows:
80 Immediate
IDAY/ 8H 12 second delay mi :i ~?~~~~ delay m ii ~~~~~~ delay
-
Key
Port Numbers 00-35
Co LED 00~01)02~03~04~05~06/07~08~09/10111112/13~14/15~16/17/18~19~20~21~22/23~24/25/26/27~28~29/30~31~32~33~34~3!
I
?G
1c II I I I I I I I I I I I I I I I I I I I I I I I I I I I I I I
NOTES:
1. For more information, see the instructions preceding the record sheets.
2. Ports 36 - 71 on next page.
3. Initialized data reads all LEDs ON for port 00 in Program 81 and port 01 in Program 87, all other LEDs are OFF.
4.
5. If a CO line must Call Forward or Hunt from a station, the line must be assigned to ring at that station on/y.
A range of ports may be selected.
2-115

PROGRAMMING PROCEDURES-INSTRUCTIONS/SYSTEM RECORDS
SECTION 200-096-302
FEBRUARY 1991 PROGRAM 80 (1 - 9)
CO LINE/STATION RINGING -ASSliiNMENTS
(Ports 36 - 71)
pq-pJ-q~~-~~~~-f+J~-~-~ .
SELECT = 1 - 9 -SELECT = Port hbnd&J \ Key LEDs = CO Lines
for type of ringing of station(s) that must ring assigned to ring selected port number(s)
Selected CO lines ring selected station ports per Ringing Program options as follows:
80 Immediate 8B Immediate
I
80 Immediate
DAY 80 12 second delay m 80 12 second delay m 8m 12 second delay
80 24 second delay 8m 24 second delay 8
q
24 second delay
Key
Port Numbers 36-71
Co LED 36~37~38~39~40~41/42/43~44~45~46/47~48~49~50~51~52~53~54~55~56~57~58j59~60~61~62~63~64~65~66~67~68~69~70~7~
1
36 16
II I III III I
I I I I I I I I I I I I I I I I Illi I
NOTES: ’
1. Ports
72
- 95 on next page. Notes from the previous page apply to all ports.
2. Initialized data reads all LEDs OFF.
2-116

PROGRAMMINGPROCEDURES-INSTRUCTIONS/SYSTEMRECORDS
SECTION 200-096-302
FEBRUARY1991
PROGRAMB[7 (l-9)
CO LINE/STATION RINGING ASSIGNMENTS .
(Ports 72 - 95)
SELECT= l-9’ SELECT = Port Numberis) \ Key LEDs = CO Lines
for type of ringing of station(s) that must ring assigned to ring selected port number(s)
Selected CO lines ring selected station ports per Ringing Program options as follows:
80 Immediate 8a Immediate
(DAY1 80 12 second delay IDAY2/ 80 12 second delay m ii ~~~~~~
d&y
8m 24 second delay 8m 24 second delay 8B 24 second delay
F ;i &J
5 28 08
27 07
NOTE:
Initialized data reads all LEDs OFF. Notes from previous page apply.
2-117

PROGRAMMING PROCEDURES-INSTRUCTIONS/SYSTEM RECORDS
SECTION 200-096-302
FEBRUARY 1991
System Record Sheets for
Programs
90 and 92 are in
the beginning of this section because they must be
executed before any other programs.
2-118

PROGRAMMINGPROCEDURES-INSTRUCTIONS/SYSTEMRECORDS
SECTION 200-096-302
FEBRUARY1991
PROGRAM93
CO LINE IDENTIFICATION
SELECT = 1 Choose the key LED for
the CO line being named.
See Note 2.
CO Line Identification
Enter the CO line identification
(16 alphanumeric characters is the maximum).
See Note 4 for LCD message editing.
NOTES:
1. For more information, see the instructions preceding
the record sheets.
2.
Program CO lines 01 - 20 by setting LEDs 1 - 20
with the handset on-hook. Program CO lines 21 - 36
by setting LEDs 1 - 16 with the handset off-hook.
3. Initialized data assigns no identification message
to CO lines.
a
4. Special editing keys include 1 to toggle from alphabetic to
numeric,.
0 rboves cuisor to right;
i moves cursor to left;
1 increments letters, etc.
-Key CO
I I.-- l CO Line Identification (16 Characters Max. - Enter One Per Sauare)
LED une
16 ( (36)
15 / (35)
. I
16 (16)
15 (15)
14
05 I (05) 1
flA 1 lnA\ 1
“7 \ ,
03 (ii,
I
06 ( (06) 1
2-119

PROGRAMMINGPROCEDURES-INSTRUCTIONS/SYSTEMRECORDS
SECTION 200-096-302
FEBRUARY1991
PROGRAM 93(continued)
CO LlNElNDENTlFlCATlONALPHA/NUMERIC ENTRY
1) Enter
Program
93 and select the desired CO line.
2) Use the guide below to enter CO line identification information.
Numeric Mode
“0” to “9” are treated as numerals.
NOTE: Key pad starts out in
Numeric
Mode.
Use 1 key to switch to
Alpha
Mode.
Alpha Mode
Moves cursor to
right, and starts
special character
entry when in
the Alpha Mode
Moves cursor
to left.
; A; DE
GHI JKL MN0
El El 161
PRS TUV WXY
Scrolls alpha and
special characters
Changes from
Numeric to
Alpha Mode
and vice versa
Alpha Entry (Example): Special Character Entry:
A-1
‘IQ”
--t m B
B--W “Z” --t n m m
C--WI “:‘I --t fl 1 B 1
T l-
Alpha Entry
Character Sequence
‘I/.
T
-0y~1
Special Entry I
Character Sequence
2-120

PROGRAMMINGPROCEDURES-INSTRUCTIONS/SYSTEMRECORDS
SECTION 200-096-302
FEBRUARY1991
PROGRAM97
PRINTINGPROGRAMDATATHROUGHSMDR
-7 \
SELECT = Program Number DATA PRINT miim
to be printed on SMDR. Printout begins.
See Note 2 for entering Cancels printout
a range of programs. at any time.
NOTES:
1. For more information, see the instructions preceding the record sheets.
2. Enter a range of programs by keying
q omno
/ \
Low program High program
in range in range
2-121

PROGRAMMING PROCEDURES-INSTRUCTIONS/SYSTEM RECORDS
SECTION 200-096-302
FEBRUARY 1991
SETTING THE DATE,
TIME AND DAY
HOW TO SET THE DATE
The date can be set only from the electronic or digital telephone assigned to port 00. Press
the following key sequence with the handset on the hook:
Date in year/month/day
format (YYMMDD). If month
or day is a single digit, precede
with a zero (0).
l-
If the EKT
has a Redial key
programmed, press
it instead,
HOW TO SET THE TIME
The time can be set only from the electronic or digital telephone assigned to port 00. Press
the following key sequence with the handset on the hook:
- #
II
Time in hours/minutes/seconds d If the EKT
format (HHMMSS from 000000 to
235959). If any of these values is has a Redial key
a single digit, precede with a zero (0). programmed, press
it instead.
HOW TO SET THE DAY
The date can be set only from the electronic or digital telephone assigned to port 00. Press
the following key sequence with the handset on the hook:
piqI”Tmn-n-m
l-l-
Enter the digit for today’s day: 1 If ‘the EKT
1 = Sunday
2 = Monday has a Redial key
3 = Tuesday programmed, press
it instead.
4 = Wednesday
5 = Thursday
6 = Friday
7 = Saturday
I
RDL
NOTES:
1. The date, time and day can be set immediately following initialization or after programming is Gocompleted.
2.
1
The system should not be in programming mode for the date, time and day to be set.
3. Set date, time and day from station 200, connected to PEKU or PDKU port 00.
2-122

PROGRAMMINGPROCEDURES-INSTRUCTIONS/SYSTEMRECORDS
SECTION 200-096-302
FEBRUARY1991
PROGRAMMING PROCEDURES
TOLL RESTRICTION SYSTEM RECORD SECTION
Programs 44B - 48
2-123

PROGRAMMINGPROCEDURES-INSTRUCTIONS/SYSTEMRECOROS
SECTION 200-096-302
FEBRUARY1991
PROGRAM44B
TOLLRESTRlCTlONCLASS(l-4)OVERRlOECODES
SELECT = Toll restriction J
Class 1 - 4 - DATA = &digit Toll Restriction Code
for Selected Class
Code for Toll Restriction Class
Code for Toll Restriction Class El 00110
Code for Toll Restriction Class El 0000
Code for Toll Restriction Class
El q ono
SELECT
q T
L DATA = 4-Digit code
NOTES:
1. For more information, see the instructions preceding the record sheets.
2. Classes I - 4 are defined in
Program 46.
3. When the Toll Restriction override code is dialed, the station’s class defined in Program 48 will be
changed to the class assigned to the code in
Program 448.
4.
Do not use same codes set in
Program 45 (8 - 9).
5. Stations enabled in
Program
30, Key/LED I6 “ON”, are allowed to enter and change
Toll Restriction
Class (I N 4) override codes.
‘,
2-124

PROGRAMMINGPROCEDURES-INSTRUCTIONS/SYSTEMRECORDS
SECTION 200-096-302
FEBRUARY1991
PROGRAM45-1
LCR/lOLLRESTRlCTlON DIALPLAN
SELECT = 1 DA-TA = Plan 1 - 5
Enter codes 1 - 5 to indicate
the dial plan for the system.
Releases 1 and 2
X Plan Toll Restriction/LCR
Dial Plans
5 0+ (Note 7)
4 Universal (Note 7)
3 1 +AC+NXX/NNX
2 1 +AC+NNX/i +NNX
1 AC+NNX/l +NNX
Release 3
X Plan
5
4
3
2
1
Toll Restriction/LCR
Dial Plans
0+ (Note 7)
Universal (Note 7)
1 +AC+NXX/NNX
1 +AC+NXX/l +NNX
AC+NXX/l +NNX
IMPORTANT: The correct Dial Plan must be assigned to allow system LCR and/
or Toll Restriction to function properly.
NOTES:
1. Initialized data assigns Dial Plan Code 1 to the system,
2. InNXXandNNX,X=O-9, N=2-9.
3. NXX = Office code (interchangeable; 2nd digit can be I or 0).
4. NNX = Office code (not interchangeable; 2nd digit cannot be 1 or 0).
5. AC = Area Code.
6. 0+, and universal (code 5 + 4) are not used in USA.
7. 1+ NNX indicates 1 may be dialed before office codes.
2-125

PROGRAMMINGPROCEDURES-INSTRUCTIONWSYSTEMRECORDS
SECTION 200-096-302
FEBRUARY1991
PROGRAM45-2
TOLL RESTRICTION DISABLE
p-pJ~~~-pJ-+Q$pYl-r;1-r;1
/ \
SELECT = 2 LED Keys
Specify CO lines by setting key
LEDs as defined by the table
below. All LEDs with an “X”
should be lit when finished.
LED 1 CO I
Key Line
16 36
15 35
14 34
ON = Disable Toll Restric
X
,
NOTES:
g 10 30
09 29
08 28
1 06 1 26 1
1 07 1 27 1
05 25
04 24
03 23
02 22
01 21
20 20
19 19
18 18
17 17
16 16
15 15
14 14
m
1. For more information, see the instructions preceding the record sheets.
2. Program CO lines 0 I w 20 by setting LEDs 01 * 20 with the handset on-hook.
Program CO lines 2 I w 36 by setting L EDs 0 I w 16 with the handset off-hook.
3. Initialized data reads all LEDs OFF for all CO lines.
2-126

PROGRAMMINGPROCEDURES-INSTRUCTIONS/SYSTEMRECORDS
SECTION 200-096-302
FEBRUARY1991
PROGRAM45-3-6
SPEClALCOMMONCARRlER(SPCC)NUMBERSANDAUTHORlZATlONCODEDlGlTLENGTH
SELECT = Item 3-6’
Enter Item number
3-6 from table below.
DiTA =
First five digits of the
SPCC Number, or digit
length specified in the
table below. See Note 3.
Item Description
3 SPCCI Number
4 Authorization Code 1
Digit Length (00 - 99)
5 SPCC2
6 Authorization Code 2
Digit Length (00 - 99)
1 st five digits of SPCC
Data = Number or
Digit Length
III
nunnO
no
NOTES:
I. For more information, see the instructions preceding the record
sheets.
2. Initialized data assigns “0O”data to items 4 and 6, and assigns
blank data to items 3 and 5.
3. When editin
0 Press ’ to move cursor.
i
l
Press LED key 01 to delete or leave a blank.
l
Press LED key 02 for don’t care.
4. Do not enter a digit length greater than necessary or Toll
Restriction may be able to be defeated.
2-127

PROGRAMMINGPROCEDURES-INSTRUCTIONWSYSTEMRECORDS
SECTION 200-096-302
FEBRUARY1991
PROGRAM45-B,9
TOLLRESTRICTIONOVERRIDECODE >\
. I'
m-mmHm-I-IS10-1700I7-IH1-lm-m 77
SELECT = 8 or 9 DATA = Code
Enter 8 to Select Code 1. Enter the 4-digit code
Enter 9 to Select Code 2. from the table below.
Select = Code (4 digits)
8 Code 1
9 Code 2
NOTES:
1. For more information, see the instructions preceding the record sheets.
2. When editing the data field, use key LED 0 1 to delete a digit; key LED 02
for don’t care.
3. Initialized data leaves code assignments blank.
4. Codes may be revised by station users specified in
Program 30,
key LED
09.
5. Do not use same 4-digit codes set in
Program 44B,
Toll Restriction Class
(I - 4) Override codes.
Program
45 (8 - 9) overrides
Program 448
(1 - 4) if same codes are used.
2-128

PROGRAMMINGPROCEDURES-INSTRUCTIONS/SYSTEMRECORDS
SECTION 200-096-302
FEBRUARY1991
PROGRAM46-2-4
TOLLRESTRlCTlONALLOWED/DENIEDAREACODESASSlGNEDBYCLASS
~-~~~~-~100~-000-1-I-I-I-I
/ 2ior 4 SELECT = Class Number y DATA Area Codes
inter one of the
=
Enter toll restriction Enter or display
class number 1 - 4. following numbers: area codes.
2 = add to memory, 3 = delete See Notes 3 and 4.
from memory,4# = display
allowed codes in memory.
NOTES:
1. For more information, see the 4. Several ranges or individual area codes may be entered by separating
instructions preceding the record them with a 1 key.
sheets. 5. Tables with deny box checked do not represent memory. All area codes
2. Initialized data includes all area in memory are allowed.
codes in all classes.
3. A range of area codes
can be entered by pressing:
q nnwoonr;;lnnnwnnn
\\
Low Area High Area Denotes end of string
Code Code
2-129

PROGRAMMINGPROCEDURES-INSTRUCTIONS/SYSTEMRECORDS
SECTION 200-096-302
FEBRUARY1991
PROGRAM46-6-8
TOLLRESTRlCTlONALLOWED/DENIED OFFICECODESASSIGNED BYCLASS
SELECT = Class Number
6,
7or8
Enter toll restriction Enter one of the following DATA = Office Codes
class number 1 - 4. numbers: 6 = add to memory, Enter or display
7 = delete from memory, office codes.
8# = display allowed codes See Notes 3 and 4.
in memory.
Class )21 Allowed 0
Off ice Codes
Denied ) (Check one)
I
Class 131
I
I I I I I I
Allowed 0 Denied n (Check one)
Off ice Codes
I I I I I I
NOTES:
1.
2.
3.
For more information, see the 4. Several ranges or individual office codes may be entered bv seoarating
them with a B key.
instructions preceding the
record sheets.
initialized data allows all
office codes in all classes.
A range of office codes
can be entered by pressing:
5. Tables with the denied box checked do not represent memory. All Office
Codes in memory are allowed.
Low Office
Code High Office Denotes end of string
Code
2-130

PROGRAMMINGPROCEDURES-INSTRUCTIONS/SYSTEMRECORDS
SECTlON200-096-302
FEBRUARY1991
PROGRAM46-10
TOLLRESTRlCTlONCLASSl PARAMETERS
p-p-p$jp-pJ~pT-j4&p-pl
/ \
SELECT= 10 Key LEDs
Enter IO on the Light every key LED marked with
keypad for class 1. an X in the table below.
LED 1 X 1 LED OFF
20
19
18 Table 8 Area/Office Exception Not Selected
17 Table 7 Area/Office Exception Not Selected
16 Table 6 Area/Office Exception Not Selected
15 Table 5 Area/Office Exception Not Selected
14 Table 4 Area/Office Exception Not Selected
13 Table 3 Area/Office Exception Not Selected
12 Table 2 Area/Office Exception Not Selected
11
10
Table 1 Area/Office Exception Not Selected
09 I I
08
07
06
05
04
I I
03 1 + A/C + 555IAC + 555 Allowed Per Area Code Restriction
02 01 Restricted Allowed
01 I I 0 Restricted I Allowed
NOTES:
1. For more information, see the instructions preceding the record sheets.
2.
Initialized data leaves all LEDs OFF.
2-131

PROGRAMMINGPROCEDURES-INSTRUCTIONS/SYSTEMRECORDS
SECTION 200-096-302
FEBRUARY1991
PROGRAM46-20
TOLLRESTRICTION CLASS2PARAMETERS
p-p-pj~~-~~p$fJ)-p-pl-~
/ \
SELECT = 20 Key LEDs
Enter 20 on the Light every key LED marked with
keypad for class 2. an X in the table below.
NOTES:
1. For more information, see the instructions preceding the record sheets.
2. Initialized data leaves all LEDs OFF.
2-132

PROGRAMMINGPROCEDURES-INSTRUCTIONS/SYSTEMRECORDS
SECTION 200-096-302
FEBRUARY1991
PROGRAM46-30
TOLLRESTRlCTlONCLASS3PARAMETERS
SELECT = 30 Key LEDs
Enter 30 on the Light every key LED marked with
keypad for class 3. an X in the table below.
NOTES:
1. For more information, see the instructions preceding the record sheets.
2. Initialized data leaves all LEDs OFF.
2-133

PROGRAMMINGPROCEDURES-INSTRUCTIONWSYSTEMRECORDS
SECTION 200-096-302
FEBRUARY1991
PROGRAM46-40
TOLLRESTRICTION CLASS4PARAMETERS
~-pJ-q-qrqq-qq~-~-~-~
7-+\
SELECT = 40 Key LEDs
Enter 4 on the Light every key LED marked with
keypad for class 4. an X in the table below.
0 Restricted
NOTES:
1. For more information, see the instructions preceding the record sheets,
2. Initialized data leaves all LEDs OFF.
2-134

PROGRAMMINGPROCEDURES-INSTRUCTIONS/SYSTEMRECORDS
SECTION 200-096-302
FEBRUARY1991
PROGRAM47
TOLLRESTRlCTlONEXCEPTlONOFFlCECODESASSlGNEDBYAREACODE
(TABLESlAND2)
SELECT = Exception Table 1 - 8
Enter the number of the
exception table, 1 - 8. A new
exception table is needed for
each area code with office
codes that are exceptions
to restriction.
AREA CODE =
I\
DATA =
Enter the area code. Enter or display office code(s).
See Note 3. See Notes 4 and 5.
SELECT = Exception Table 1 - 8
Enter the number of the
2,3or4
exception table, 1 - 8 again. Enter 2 to add to the exception table.
Enter 3 to delete from the exception table.
Enter 4# to display the exception
table’s office codes.
Exception Table (1 - 8) [7
Area Code
Exception Table (1 - 8) 0
Area Code
NOTES:
1.
2.
3.
4.
5.
6.
I Record of Exception Office Codes (Data)
I I I I I
For more information, see the instructions preceding the record
sheets.
Initialized data assigns no office codes to tables.
On/y one area code may be
entered per exception table.
TO
enter a range of office codes, key in
Several ranges or individual office nnnT;;lnnnT;;lnnnmmnn
codes may be entered by separating / r-l-
them with a 1 key.
Low Office High Office Denotes end of string
Copy as required,
Code Code
maximum eight exception tables.
2-135

PROGRAMMINGPROCEDURES-INSTRUCTIONS/SYSTEMRECORDS
SECTION 200-096-302
FEBRUARY1991
PROGRAM48
STATION TOLL RESTRICTION CLASSIFICATION :~
. .'
SELECT = Port Number(s)
Enter the port number(s) of the
station(s) being defined.
See Note 4 for entering a range.
01 I
02
NOTES:
1. For more information, see the instructions preceding the record sheets.
2. Initialized data reads “10” for all ports.
3. Port 99 is DISA COS assignment.
4. A range of ports may be entered DOB00 ’
/ \
Low port in High port in
range range
Digit Restriction Code 0 or 1
Enter 0 for no digit restriction.
Enter 1 for digit restriction.
Port
Number
32
33
34
35
36
37
38
39
40
41
42
43
44
45
46
47
48
49
50
51
52
53
54
55
56
57
58
59
60
61
62
63
Digit Station
Restrict Restrict
Code Code
Station Restriction Code (0 - 6)
Enter 0 for No Station Toll Restriction.
Enter 1 for Area Code Toll Restriction.
Enter 2 for Area Code Toll Restriction
and 0 or 1 as 1st or 2nd digit.
Enter 3 for Class 1 Toll Restriction.
Enter 4 for Class 2 Toll Restriction.
Enter 5 for Class 3 Toll Restriction.
Enter 6 for Class 4 Toll Restriction.
Digit Station
Port Restrict Restrict
Number Code Code
64
65
66
67
68
69
70
71
-^
/z
73
74
2-136

PROGRAMMlNGPROCEOURES-INSTRUCTIONS/SYSTEMRECORDS
SECTION 200-096-302
FEBRUARY1991
PROGRAMMING PROCEDURES
LEAST COST ROUTING SYSTEM RECORD SECTION
Programs 50 - 56
2-137

PROGRAMMINGPROCEDURES-INSTRUCTIONWSYSTEMRECORDS
SECTION 200-096-302
FEBRUARY1991
LCRCOLINEPROGRAMING
1) Use Program 16 to assign CO lines in groups per the reference chart below.
CO Line Group Reference Chart
Line Group
1
(81)
2 (82)
3 (33)
4 034)
5
(85)
6 (86)
7
107\
CO Lines in
Group (1 - 36) CO Line Type/Comments
2)
Use Program 40 to allow CO lines access to stations using LCR for outgoing calls.
3) Use Program 41 to deny outgoing CO line access except for LCR access.
Important: Area code and office code structure must be defined by Program 45-l
(Toll Restriction Dial Plan) for LCR to work properly.
4) Use Program 45-1 to enable the dial plan that is appropriate for the area where LCR calls will originate.
PROGRAM50-1
LCRPARAMETERS
SELECT = 1
Press Key LEDs for each LCR parameter.
LED Key X LED On LED Off
1 Enable System LCR No LCR
2 Not Used Not Used
3 555 LDI Route Per Program 50-4 Per Area Code Table
4 Dial Tone After LCR Access Silent
5 Warning Tone Last Choice Route No. No Warning Tone
NOTES:
7. For more information, see the instructions preceding the record sheets.
2. Program 40 denies CO line access via LCR and denies all other access methods.
3. Program 41 allows CO line access via LCR but denies all other outgoing access methods:
(701-736, 81-88, CO key).
4. initialized data: All LEDs OFF.
2-138

PROGRAMMINGPROCEDURES-INSTRUCTIONS/SYSTEMRECORDS
SECTION 200-096-302
FEBRUARY1991
PROGRAM50-2
LCRHOMEAREACODE
SELECT= 2 DATA = Home Area Code
Enter the local area code.
LCR Home Area Code
NOTES:
1. For more information, see the instructions preceding the record sheets.
2. Typically this code is entered in
Program 51
table for the LCR route plan number defined for the local
calls in
Program 50-5.
3. Initialized data leaves the home area code blank.
PROGRAM50-31-35
LCRSPECIALCODES
SELECT = 31~ 35 DATA = Special Code
Enter 31 - 35 to indicate Enter the code from the table below.
the special code.
31
32
33
34
35
Special Code
I
Examples
l-411
911
611
NOTES:
1. For more information, see the instructions preceding the record sheets.
2. Initialized data leaves all codes blank.
3. Press LED key 01 to erase data; and leave blank.
4. These calls follow the local call route defined in
Program 50-5.
2-139

PROGRAMMING PROCEDURES-INSTRUCTIONS/SYSTEM RECORDS
SECTION 200-096-302
FEBRUARY 1991
PROGRAM 50-4 .-
LCR LONG DISTANCE INFORMATION (LDI) PLAN NUMBER
7-l
SELECT = 4 DATA = LDI Route Plan (1 - 8)
Identify the LDI Route Plan
by entering 1 - 8.
NOTES:
LDI Plan Number:
0 (1
-8)
1. For more information, see the instructions preceding the record sheets.
2. Initialized data assigns LDI Plan Number 8.
3. Typically, LDI Plan Number = Local Call Plan Number.
PROGRAM 50-5
LCR LOCAL CALL PLAN NUMBER
SELECT = 5 DATA = Local Route Plan (1 - 8)
Identify the Local Route Plan
by entering 1 - 8.
NOTES:
Local Call Plan Number:
0 (1
-8)
1. For more information, see the instructions preceding the record sheets.
2. Initialized data assigns plan 8 to be the local call plan.
3. The local plan handles special codes and operator calls.
PROGRAM 50-6
LCR DIAL ZERO TIMEOUT
7-T
SELECT = 6 DATA = Timeout Value
Enter a timeout value from
04 - IO seconds long.
NOTES:
Dial Zero Timeout:
I7 (04 - IO seconds)
1. For more information, see the instructions preceding the record sheets. I
2. Initialized data assigns an LCR Dial Zero Timeout value of 06.
3. This value determines pause time before sending a call on to an operator, etc.
2-l 40

PROGRAMMINGPROCEDURES-INSTRUCTIONS/SYSTEMRECORDS
SECTION 200-096-302
FEBRUARY1991
PROGRAM51
LCRAREACOOES
SELECT = LCR -
‘Ian N”mber (’ * ‘) Action Code:’ ’ DATA = Area Code(s)
Enter 2 to add code to table. (3 digits)
Enter 3 to delete code from table.
Enter 4# to display codes in table.
DATA = Area Code(s) DATA = Area Code(s) DATA = Area Code(s) DATA = Area Code(s) DATA = Area Code(s) DATA = Area Code(s) DATA = Area Code(s) DATA = Area Code(s)
NOTES: NOTES:
1. For more information, see the instructions preceding the record sheets. 1. For more information, see the instructions preceding the record sheets.
2. Initialized data leaves Tables 1 - 7 blank; all codes (000 - 999) are initialized in Table 8. 2. Initialized data leaves Tables 1 - 7 blank; all codes (000 - 999) are initialized in Table 8.
3. To enter a range of Area Codes, press 3. To enter a range of Area Codes, press
Low Area Code High
Area Code besignates
end of string
4. Several ranges or individual codes can be expressed at once by separating them with a 1 key.
2-141

PROGRAMMINGPROCEDURES-INSTRUCTIONWSYSTEMRECORDS
SECTION 200-096-302
FEBRUARY1991
PROGRAM51
LCRAREACOOES
SELECT = LCR y T 7 DATA
‘Ian N”mber (I * 8, Action Code: Area Code(s)
Enter 2 to add code to table. (3 digit;
Enter 3 to delete code from table.
Enter 4# to display codes in table.
DATA = Area Code(s) DATA = Area Code(s) DATA = Area Code(s) DATA = Area Code(s)
NOTES:
1. For more information, see the instructions preceding the record sheets.
2. Initialized data leaves Tables 1 - 7 blank; all codes (000 - 999) are initialized in Table 8.
3. To enter a range of Area Codes, press
Low Area Code High
Area Code besignates
end of string
4. Several ranges or individual codes can be expressed at once by separating them with a 1 key.
2-142

PROGRAMMINGPROCEDURES-INSTRUCTIONS/SYSTEMRECORDS
SECTION 200-096-302
FEBRUARY1991
PROGRAM52
LCROFFlCECODEEXCEPTlONSFORSPEClFlEDAREACODE
To assign Office Code Exception Table (1 - 4) to an LCR Plan:
SELECT= Office Code / /
Exception Table (l-8) Action Code DATA = (See below)
Action Code Function Action Codes DATA =
Assign Exception Table to LCR Plan 0 0 El LCR Plan 1 w 8
Assign Area Code to LCR Plan
q
1 q nu
3-digit Area Code
Add Office Codes to Exception Table 0 2 IIKI 3-digit Office Code
Delete Office Codes from Exception Table 0 lIKl
Display Office Codes in Exception Table film morel#l nnn
3-digit Office Code
3-digit Office Code
Office Code Exception Table
q
for Area Code m
Assign to LCR Route Plan Number 0 Office Codes:
Office Code Exception Table
q
for Area Code m
Assign to LCR Route Plan Number 0 Office Codes:
Office Code Exception Table 131 for Area Code m
Assign to LCR Route Plan Number u Office Codes:
Office Code Exception Table
q
for Area Code m
Assign to LCR Route Plan Number 0 Office Codes:
NOTES:
1. For more information, see the instructions preceding the record sheets,
2. Initialized data leaves all codes blank.
3. To enter a range of office codes, press
Low ‘Office Code High ‘Designates
Office Code end of String
4. Several ranges or individual codes can be expressed at once by separating them with a i key.
5. Copy as required, maximum eight Office Code Exception Tables.
2-143

PROGRAMMING PROCEDURES-INSTRUCTIONS/SYSTEM RECORDS
SECTION 200-096-302
FEBRUARY 1991
PROGRAM 52
LCR OFFICE CODE EXCEPTIONS FOR SPECIFIED AREA CODE
To assign Office Code Exception Table (5 - 8) to an LCR Plan:
more data
___._____---._____._____________________------,
SELECT = Office Code /’ 1
Exception Table (l-8) Action Code DATA = (See below)
Action Code Function Action Codes DATA
q
Assign Exception Table to LCR Plan
q
0 0
LCR Plan 1 w 8
Assign Area Code to LCR Plan 0 1 lzlnlo 3-digit Area Code
Add Office Codes to Exception Table II 2
q III
3-digit Office Code
Delete Office Codes from Exception Table 0 [710
l-ilm morem nnn
3-digit Office Code
Display Office Codes in Exception Table 3-digit Office Code
Office Code Exception Table
q
for Area Code I[
Assign to LCR Route Plan Number 0 Office Codes:
Office Code Exception Table m for Area Code m
Assign to LCR Route Plan Nuzr
q I I I ,
Office Codes:
Office Code Exception Table
q
for Area Code m
Assign to LCR Route Plan Number
q
Office Codes:
Office Code Exception Table
q
for Area Code RI
Assign to LCR Route Plan Number
q
Office Codes:
NOTES:
1. For more information, see the instructions preceding the record sheets.
2. Initialized data leaves all codes blank.
3. To enter a range of office codes, press
Low Office Code High
Office Code Designates
end of String I
4. Several ranges or individual codes can be expressed at once by separating them with a [ key.
2-144

PROGRAMMING PROCEDURES-INSTRUCTIONS/SYSTEM RECORDS
SECTION 200-096-302
FEBRUARY 1991
PROGRAM 53
LCR SCHEDULE ASSIGNMENTS
FOR LCR PLAN NO. 1 AND 2
more data
,
SELECT =
SELECT Start TM
II
Start TM
Schedule (1 * 3)
Plan1
LCR Plan 2
HHMM
(HH =OO-23
MM = 00 - 59)
LCR Plan
- I I HHMM
Schedule (1 s 3) --I
(HH =OO-23
Action co;c ’ 1 MM = 00 -5%
SELECT DATA
(Ryte Choices)
I
SELFCT DATA
(Ryte Choices)
Schedule 1
Route Choices
For Plan 1
1 1 1
1 1 2
~
1 1 3
1 1 4
Schedule 2
Route Choices
For Plan 1
Schedule 3
Route Choices
For Plan 1
LCR Plan -
Schedule (1 +. 3)
1 2 1
1 2 2
~
1 2 3
1 2 4
1 3 1
1 3 2
I3
1 3 3
1 3 4
---
--i I I
I 1
-r-l--T-T
1st 2nd 3rd Last
LCR Staticn ’ 1 (Route Definition
Group No. (1 N 4) No’s (1 - 4)
(see
Program 56 )
From
Program 54 )
Start TM
Schedule
Plan 2
.&art TM or DATA
SELECT Start TM
(1 -3)
Schedule 1
Route Choices
For Plan 2
Schedule 2
Route Choices
For Plan 2
Schedule 3
Route Choices
For Plan 2
LCR Plan-
214
1st 2nd 3rd Last
Schedule (1 w 3) - 1
LCR Stati.n ’ 1 (Route Definition
Group No. (1 w 4) No’s (1 - 4)
(see Program 56 )
From
Program 54 )
NOTES:
1. For more information, see the instructions preceding the record sheets.
2. Initialized data assigns starting time as 0000 and Route Definitions as blank for all schedules.
3. If schedules 1 & 2 start at the same time, then Time of Day schedule change does not occur, and data
only needs to be entered for schedule 1.
4. Press LED key 01 to erase data (LED does not light).
2-145

PROGRAMMING PROCEDURES-INSTRUCTIONS/SYSTEM RECORDS
SECTION 200-096-302
FEBRUARY 1991
PROGRAM 53
LCR SCHEDULE ASSIGNMENTS
FOR LCR PLAN NO. 3 AND 4
more data
._
SELECT = Start TM or DATA
SELECT Start TM SELECT Start TM
Start TM
Schedule (1 - 3)
I I
Plan 3
I ’ ’ ’ J
LCR Plan 2
TT
HHMM
Start TM
Schedule (1 - 3)
Plan 4
LCR Plan A I I Ht
--- i M M
Schedule fl - 3) AI (HH =OO-23
Schedule (1 - 3) -.----
Action co;lc ’ 1 ‘MM = 00 - 59)
SELFCT DATA (Ryte Choices) SELECT DATA (Rpute Choices)
I
311
312
3 1 3
3 1 4
3 2 1
3 2 2
El
3 2 3
3 2 4
Schedule 1
Route Choices
For Plan 3
Schedule 1
Route Choices
For Plan 4
Schedule 2
Route Choices
For Plan 3
Schedule 2
Route Choices
For Plan 4
33 1
3 3 2
ml
333
3 3 4
---
43 1
432
I#
433
434
Schedule 3
Route Choices
For Plan 4
Schedule 3
Route Choices
For Plan 3
LCR Plan A I I I
1st 2r!rd 3rd Last LCR Plan 27
Schedule (1 - 3) 1
Group No. (1 - 4)
(see Program 56 ) From Program 54 )
LCR Station
Group No. (1 - 4)
(see Program 56 )
-r-T-T-r
1st 2nd 3rd Last
(Route Definition
No’s (1 - 4)
From Program 54 )
NOTES:
1. For more information, see the instructions preceding the record sheets.
2. Initialized data assigns starting time as 0000 and Route Definitions as blank fo.r all schedules.
3. If schedules I & 2 start at the same time, then Time of Day schedule change does not occur, and data
on/y needs to be entered for schedule 1.
4. Press LED key 01 to erase data (LED does not light).
2-146

PROGRAMMINGPROCEDURES-INSTRUCTIONS/SYSTEMRECORDS
SECTION 200-096-302
FEBRUARY1991
PROGRAM53
LCRSCHEDULEASSIGNMENTS
FORLCRPLANNO.5AND6
more data
I
/
SELECT =
SELECT Start TM
II
Start TM
Schedule (1 - 3) 5 2
Plan 5 ml$fq
---
LCR Plan 2 HHMM
(HH =OO-23
MM = 00 - 59)
Start TM
Schedule (1 - 3)
Plan J?-
LCR Plan -
Schedule (1 - 3)
Action Code
-7-
- I I
I
(HH =OO-23
MM = 00 +. 59)
SELFCT DATA (Route Choices) SELFCT DATA (Rcute Choices)
Schedule 1
Route Choices
For Plan 5
Schedule 2
Route Choices
For Plan 5
Schedule 3
Route Choices
For Plan 5
LCR Plan I
Schedule (1 - 3)
I I
1st 2nd 3rd Last
LCR Stati.n ’ 1 (Route Definition
Group No. (1 - 4) No’s (1 - 4)
(see Program 56 ) From Program 54 )
NOTES:
Start TM or DATA
SELECT Start TM
Schedule 1
Route Choices
For Plan J&
Schedule 2
Route Choices
For Plan 6
Schedule 3
Route Choices
For Plan 6
--
LCR Plan 1
T
Schedule (1 - 3) 1
-rITr-
1st 2nd 3rd Last
LCR Station
Group No. (1 - 4)
(see Program 56 )
T
(Route Definition
No’s (1 - 4)
From Program 54 )
1. For more information, see the instructions preceding the record sheets,
2. Initialized data assigns starting time as 0000 and Route Definitions as blank for all schedules.
3. If schedules I& 2 start at the same time, then Time of Day schedule change does not occur, and data
only needs to be entered for schedule 1.
4. Press LED key 01 to erase data (LED does not light).
2-147

PROGRAMMING PROCEDURES-INSTRUCTIONS/SYSTEM RECORDS
SECTION 200-096-302
FEBRUARY 1991
PROGRAM 53
LCR SCHEDULE ASSIGNMENTS
FOR LCR PLAN NO. 7 AND 8
more data
1
Start TM
Schedule
Plan 7
SELECT =
SELECT Start TM
LCR Plan JTT HHMM
SELECT DATA (Route Choices)
Schedule 1
Route Choices
For Plan 7
Schedule 2
Route Choices
For Plan 7
I
Schedule 3
Route Choices
For Plan 7
1st 2nd 3rd Last
LCR Plan -
Schedule (1 m 3)
LCR Station
Group No. (1 N 4)
(see Program 56 )
(Route Definition
No’s (1 * 4)
From Program 54 )
\
Start TM or DATA
SELECT Start TM
Start TM
Schedule (1 w 3)
Plan 8
LCR Plan 2
TT
HHMM
Schedule (1 w 3) -
SELECT DATA (Ryte Choices)
I
Schedule 1
Route Choices
For Plan 8
Schedule 2
Route Choices
For Plan 8
Schedule 3
Route Choices
For Plan 8
LCR Plan 2
Schedule (1 w 3) ---I
LCR Station
Group No. (1 m 4)
(see Program 56 )
1st 2nd 3rd Last
(Route Definition
No’s (1 m 4)
From Program 54 )
NOTES:
1. For more information, see the instructions preceding the record sheets.
2. Initialized data assigns starting time as 0000 and Route Definitions as blank for all schedules.
3. If schedules 1 & 2 start at the same time, then Time of Day schedule change does not occur, and data
only needs to be entered for schedule 1.
4. Press LED key 0 1 to erase data (LED does not light).
2-148

PROGRAMMINGPROCEDURES-INSTRUCTIONS/SYSTEMRECORDS
SECTION 200-096-302
FEBRUARY1991
PROGRAM54
LCRROUTE DEFlNlTlONTABLES(l-4)
SELECT
q
Route Definition Table
for LCR Plan
q
Route Definition Table
for LCR Plan
q
Route Definition Table
for LCR Plan
q
Table
SELECT =
Enter Data
$
II
CODE =
-CODE
q
CO line group and
modified digits table
NOTES:
1. For more information, see the instructions preceding the record sheets.
2. Initialized data is “11”.
2-149

PROGRAMMINGPROCEDURES-INSTRUCTIONWSYSTEMRECORDS
SECTION 200-096-302
FEBRUARY1991
PROGRAM54
LCR ROUTE DEFlNlTlONTABLES(5-8)
SELECT =
Enter Data
SELECT = I
$
,p
Route Definition Table
for LCR Plan
q
mm
mm
Route Definition Table
for LCR Plan 161
-
m
m
Route Definition Table
for LCR Plan
q
--) 8 2
mm
8 3
8 4
CODE =
-CODE
q
CO line group and
modified digits table
LCR Plan No. (5 - 8)
Route Definition Number
Modified digits table 1 - 6,
see Program 55
CO line group 1 - 8,
see Program 16
NOTES:
1. For more information, see the instructions preceding the record sheets.
2. Initialized data is “11 ‘I.
2-150

PROGRAMMINGPROCEDURES-INSTRUCTIONS/SYSTEMRECOROS
SECTION 200-096-302
FEBRUARY1991
PROGRAM55
LCR MODIFIED DIGITSTABLES
PROGRAM 55-O LCR MODIFIED DIGITS - DELETE FROM FRONT
/ \
SELECT = Modified Digits FIGURE = Quantity of Digits
Table I - 6 (six available) (00 - IO) to be deleted.
PROGRAM 55-1 and 2 LCR MODIFIED DIGITS - ADD
p-p--pj~~-~nn l ** p-p-j-p-l
/7--l
SELECT = Modified Digits Table (1 - 6)
/
Enter 1 to add digits in front of number dialed
Enter 2 to add digits at end of number dialed
CODE = Digits added (up to 22). Enter the
digits to be added. Pauses may be
coded as described in the pause entry
reference table below.
DELETE DIGITS TABLES PAUSE ENTRY REFERENCE
(Program 55-1,55-2)
Special Keys:
Key/LED
11 - Clear
10 - Convert DP to DTMF
ADD DIGITTABLES
Add to FRONT of Dialed Number (Program 55-l)
TableNo. 1 2 3 4 5 6 7 8 9 10 11 12 13 14 15 16 17 18 19 20 21 22 Comments
1
2
3
4
5
6
Add to END of Dialed Number (Program 55-2)
TableNo. 1 2 3 4 5 6 7 8 9 10 11 12 13 14 15 16 17 18 19 20 21 22 Comments
1
2
3
4
5
6
NOTES:
1.
For
more information, see the instructions preceding the record sheets.
2. Initialized data leaves all tables blank except Delete Digits, which are all 00.
2-151

PROGRAMMINGPROCEDURES-INSTRUCTIONWSYSTEMRECORDS
SECTION 200-096-302
FEBRUARY1991
PROGRAM56
LCRSTATIONGROUPASSIGNMENT
SELECT = Port number(s)
Enter port numbers of stations /
being assigned. See Note 3
for entering a range of ports.
EnteJLCR station Group (I - 4)
Port LCR Station Port LCR Station Port LCR Station Port LCR Station
Number Grow No. (1 - 41 Number Grow No. (I - 41 Number Grow No. I1 - 4) Number Grauo No. (1 - 4)
66
67
68
69
70
71
NOTES:
1. For more information, see the instructions preceding the record sheets.
2. Initialized data assigns all stations to group 1.
3. To enter a range of ports, press rlnT;;lrlrl
4. Refer to
Program 53.
Low Port High Port
2-152

,PROGRAMMiNG PROCEOUfI&lIiSfRUCTlO’NS/SYSTEM RECORDS
SECTION 200-096-302
FEBRUARY 1991
This tab/e below shows the program options for st&iot% atWC0 lines for verified, forced and voluntary account code
dialing. 1
Account Code
Dial Plan
Verified (Forced)
Verified (Voluntary)
TABLE 2-B
ACCOUNT CODE PROGRAM OPTION MATRIX
Verified (Voluntary)
Verified (Voluntary)
Not Verified (Forced)
Not Verified (Voluntary)
Not Verified (Voluntary)
Not Verified (Voluntary)
Account Code
Program Options
._’
Station CO Line
Verified Forced Forced
Program 30 Program 30 Program 15-7
LED 14 LED 08 CO LED
On On On
On On Off
On Off On
On Off Off
Off On On
Off On Off
Off Off On
Off Off Off
.
‘\ system
Initialization

PROGRAMMINGPROCEDURES-INSTRUCTIONWSYSTEMRECORDS
SECTION 200-096-302
FEBRUARY1991
TABLE2-C
OVERRIDE OPTION MATRIX
Station B
Button Options (Program 39)
I No Yes On On On On
NOTES:
1. Station “A” attempts to override Executive or Privacy) Station “BY
Id
2. Normally only one button .
l
’ or m is assigned to a telephone (Program 39) depending on how it
should operate with Privacy Override.
3. Program 30, Key/LED 13 is turned “ON” for Station A, allowing Station A to have executive override to Station
6 for al/possibilities in this table. If Program 30, LED 13 is “OFF” for station A, then it can never executive override
any station.
2-154

OPERATING PROCEDURES
SECTION 200-096-400
FEBRUARY1991
Stra ta7-m~
OPERATING PROCEDURES

OPERATING PROCEDURES
SECTION 200-096-400
FEBRUARY 1991
TABLE of CONTENTS
SUBJECT
DIRECT STATION SELECTION CONSOLE
STANDARD TELEPHONE
ELECTRONIC TELEPHONE
LIQUID CRYSTAL DISPLAY FEATURES ELECTRONIC TELEPHONE
DIGITAL TELEPHONE
LIQUID CRYSTAL DISPLAY FEATURES DIGITAL TELEPHONE

DIRECT STATION
SELECTION CONSOLE
U S E R G U I D E
STRATA” DK
DIGITAL KEY
TELEPHONE SYSTEMS
STRATA DK24
DK56 AND DK96
RELEASE
1,
2, & 3
DIRECT STATION SELECTION
CONSOLE USER GUIDE
The Direct Station Selection console has been designed for use
where the volume of incoming calls warrants a dedicated call
forwarding location.
Similar in shape and size to the electronic and digital telephone,
the DSS console makes an attractive and easy-to-use compan-
ion for the busy attendant. It features 60 buttons with associated
LEDs. The DSS console buttons can be programmed as sta-
tions, CO lines, or speed dial buttons. A total of four consoles can
be installed in a system.
There are two DSS console models, the HDSS6560 (compatible
with electronic telephones) and the DDSSlO60 (compatible with
digital telephones). All features for both models are executed the
same way. However, their LED color displays differ on some
functions. The HDSS6560 LEDs are always red; the DDSS106O’s
are red, except in the following situations:
1) A CO line LED will be green on a DDSS1060 when the CO
line is in-use by the console user and the CO line does not
appear on the consoles associated telephone.
2) A DSS button’s LED will be green when calling or transfer-
ring a CO call to a station; the LED becomes red when the
call is camped on to or answered by the station.
BUTTON FUNCTIONS
Your DSS console may be provided with the following buttons
(these buttons are assigned flexibly in system programming, see
the back page of this guide for initialized assignments):
ALL CALL BUTTON @
A single dedicated button that provides direct access to all
electronic/digital telephone or external speakers for paging.

q
LINE BUTTONS
Provides direct access of individual CO lines for incoming and
outgoing calls. In most cases, only those CO lines that cannot fit
on the accompanying electronic telephone will be placed on the
DSS.
DIRECT STATION SELECTION m BUlTONILED
Provides one-touch dialing to call another station. A dedicated
button may be provided for each station up to the limits of the
console(s). The associated LED displays the busy/idle status of
the station.
NIGHT TRANSFER BUTTON m
Controls the system’s CO/PBX line ringing atterns. Different
ringing patterns are chosen by pressing the iii button.
SPEED DIAL BUTTONS
q
Provides one-touch dialing of up to 20 digits for each button after
accessing dial tone. Personal and System Speed Dial numbers
may be flexibly assigned.
* These buttons may be programmed as DSS, GO line, or Speed
Dial buttons.
OPERATIONS
ALL CALL PAGE
TO PAGE ALL STATIONS:
1) Lift the handset.
2) Press the
q
button.
l
AC LED lights steadily.
3) Make your announcement in a normal voice level.
4) Hang up when you have completed your announcement.
CALL ANSWERING CO LINE/INTERCOM
Use the same procedures as with an electronic or digital tele-
phone.
TO TRANSFER A CO LINE CALL TO AN IDLE STATION:
1) Press the m button corresponding to the station to be
called.
l
CO line is placed on hold automatically.
l
CO LED flashes at double the On-hold rate.
l
DSS console station LED flashes.
l
You hear a single ring tone.
2) Announce the call. You can speak with the station user
without pressing any other buttons.
3) Hang up.
l
CO LED changes to the On-hold flash rate.
l
CO line rings the called station.
l
CO LED illuminates steadily when the called station
connects with the transferred call.
TO TRANSFER A CO LINE CALL TO A BUSY STATION:
1) Press the m button corresponding to the station to be
called.
l
CO line is placed on hold automatically.
l
CO LED flashes at double the On-hold rate.
l
DSS console station LED flashes.
l
You hear a single ring tone.
2) Hang up.
l
CO LED changes to the On-hold flash rate.
l
CO line rings the called station.
l
CO LED illuminates steadily when the called station
connects with the transferred call.
NOTES:
1. The call will recall you and camp-on is cancelled if the
station does notpick it up within a pre-determined time.
Inform the caller of the situation, and repeat the proce-
dure (if necessary).
2. You may reconnect to a transferred line (anytime before
it is answered) by pressing the appropriate
q
button.
3. The Busy Override feature may be used instead of Gall
Transfer with Camp-on. See the Electronic or Digital
Telephone User Guide for details.
CALL TFANSFER WITH CAMP-ON
Allows you to transfer an outside call to a station that is either
busy or idle.
3
,

DDSS/DSS CONSOLE CALL FORWARD
OVERRIDE
Calls to Forwarded stations will ring the dialed station and will not
forward. This feature can be used to notify a person who forgets
to deactivate the call forward feature after returning to the office.
TO RING A FORWARDED STATION:
Call that station from your dialpad and not the console’s m
button assigned to that station.
NOTE:
This option may be reversed in system programming; i.e.,
m button calls will not forward and telephone dialpad
calls will.
NIGHT TRANSFER
1) Different ringing patterns are chosen by pressing the
q
button (NT1 or NT2, see notes).
2) Depending upon system programming, either two or three
night transfer patterns are available. The active pattern is
shown by the state of the NT LED:
Three-pattern Two-pattern
DAY OFF OFF
DAY 2 FLASH N/A
NIGHT ON ON
NOTES:
1. For Non-tenant Service: Ringingpattern can be changed
by any DSS console(s).
2. Fqr Tenant Service: CO lines are assigned and con-
trolled independently:
NTl, TENANT 1 CO Lines
NT2, TENANT 2 CO Lines
3. In Tenant Service, one system is split so two busi-
nesses can use their telephones independently of
each other.
DATE/TIME/DAY ADJUSTMENT
This operation is possible from port 00 only (usually station 200).
Station 200 is typically an attendant station for a DSS console.
TO SET DATE
1) Place handset on-hook.
2) Dial m110.
3) Dial the time (year/month/day) in the format YYMMDD.
Enter a leading 0 for any single digit month or day.
4) Press the [ (or m button.
0 Listen for confirmation tone.
TO SET TIME
1) Place handset on-hook.
2) Dial WiII.
3) Dial the time (hour/minute/second) in the 24-hour clock
format HHMMSS. Enter a leading’0 for any single digit
entered.
4) Press the 1 (or m ) button.
0 Listen for confirmation tone.
TO SET DAY
1) Place handset on-hook.
2) Dial WIiI.
3) Dial the day
l
1 = Sunday
l 2 = Monday
03 = Tuesday
l 4 = Wednesday
l 5 = Thursday
06 = Friday
07 = Saturda
4) Press the i (or -
l
cd button.
0 Listen for confirmation tone.
4 5

STRATA DK24 DSS Console Buttons STRATA DK56 and 96 DSS/DDSS
Console Buttons
I 1
Initialized DSS console button assignments for the DK24 sys-
tem; assignments are flexible and may be changed by service
personnel.
I 1
Initialized DSSIDDSS console button assignments for the DK56
and 96 systems; assignments are flexible and may be changed
by service personnel.
6

STANDARD
TELEPHONE
U S
E R
G U I D E
STRATA" DK
DIGITAL KEY
TELEPHONE SYSTEMS
STRATA DK24
DK56 AND DK96
RELEASE 1, 2, & 3
TABLE OF CONTENTS
General Information .............................................................. 1
Outside Calls ........................................................................ 2
Intercom Calls ....................................................................... 3
Automatic Callback-Intercom ................................................ 4
Call Forwarding.. ................................................................... 5
Call Holding .......................................................................... 6
Call Transfer with Camp-on .................................................. 7
Conference Calls .................................................................. 8
Door Phone.. ......................................................................... 10
Flash CO Line ....................................................................... 10
Account Code Calls .............................................................. 11
Message Sending ................................................................. 12
Override ................................................................................ 12
Paging ................................................................................... 13
Repeat Last Number Dialed ................................................. 14
Speed Dial ............................................................................ 14
Voice/Tone Signaling Programmable Option.. ...................... 15
CO Line Queuing .................................................................. 15
Call Pickup.. .......................................................................... 16
Call Park ............................................................................... 16
Direct Inward System Access (DISA) ................................... 17
Toll Restriction Override/Traveling Class ............................. 20
Index ..................................................................................... 21

GENERAL INFORMATION
Using a standard telephone with your STRATA DK digital tele-
phone system provides easy access to the wide range of
features listed in this guide.
Intercom dial tone must be heard before dialing; if you have just
lifted the handset, you will hear intercom dial tone. During a
conversation, intercom dial tone is obtained by “flashing” the
hookswitch (plunger) located in the handset cradle. To flash,
depress the hookswitch momentarily (for about a l/2 second),
and you will hear intercom dial tone.
Periodically in this guide you will see footnote numbers either
imbedded in the sentence or at the end of a sentence. (For
example: When the partyanswers,2flash the hookswitch.) These
numbers refer you to the notes following the feature. Each note
will have a corresponding number, to provide you with additional
important information about that feature.
IMPORTANT!
All features in thisguideare available with each STRATA DK
system and most with each software version (Releases 1,2,
and 3). Exceptions are duly noted.

OUTSIDE CALLS INTERCOM CALLS
TO MAKE AN OUTSIDE CALL
1) Lift the handset
l
You will hear intercom dial tone.
2) Dial the CO line access code.*
3) Listen for CO (outside line) dial tone.
4) Dial the desired telephone number.
5) Hang up when the call is completed.
*Dial 1 to access the general group or to use /east cost
dial a CO line number d 11 * 0 11); or dial
to access line groups 1 * 8, respectively.
TO RECEIVE AN INCOMING CALL
1) You will hear ringing (two short rings every four seconds’ or
one ring every four seconds*).
2) Lift the handset.
3) Hang up when the call is completed.
NOTES:
1. Two short rings indicate a direct outside call (optional
with
Release
2 and higher).
2. One ring every four seconds indicates an intercom call
or a transferred outside call.
TO MAKE AN INTERCOM CALL
1) Lift the handset.
l
You will hear intercom dial tone.
2) Dial the desired station number.
l
You will hearasingle ring tone if calling to an electronic
or digital telephone.
3) Speak when the ring tone ends.*
4) Hang up when the call is completed.
* If you are calling another standard telephone, ring tones
will continue. Wait for an answer. Tone signaling can be
accomplished when calling an electronic or digital tele-
phone by dialing 0 after the station number.
TO RECEIVE AN INTERCOM CALL
1) You will hear a ringing signal (1 second on-3 seconds off).
2) Lift the handset and speak to the caller.
3) Hang up when the call is completed.
2

AUTOMATIC CALLBACK-Intercom
After reaching a busy (fast busy-two tones per second) or DND
station (very fast busy-four tones per second) on an intercom
call, you may use Automatic Callback.
TO USE AUTOMATIC CALLBACK
1) Dial a to set Automatic Callback.
l
Busy tone stops.
l
You will hear dial tone for two seconds and then busy
tone again.
2) You may go on-hook or make other calls while waiting for
the called station to become available.
3) When the called station becomes idle:
l
Your telephone will ring at a fast rate.
4) Answer the call within nine seconds to prevent the callback
from being cancelled.
l
You will hear a single tone.
5) Proceed to voice announcement.
6) Proceed with the conversation.
NOTES:
1. You may cancel the request anytime prior to the
callback by lifting the handset and dialing B I.
2. If, after answering a callback, you hear a busy tone, it
means
the called pafly has already received or origi-
nated anottier call. Your request is
not
cancelled. You
will be called again the next time the station becomes
idle.
TO CALL FORWARD (CF)
1) Lift the handset.
l
You will hear intercom dial tone.
2) Dial fl B CI.
l
a B 0 = Call forward-all calls
l
flIB= Call forward-busy
(Release
2 and higher)
l
NIB= Call forward-no answer
(Release 2
and
higher)
l
i 1 m = Call forward-busy/no answer
(Release 2
and
higher)
0 You will receive confirmation tone.
3) Dial the desired station number to which calls will be
forwarded.
l
You will receive confirmation tone again, then busy
tone.
4) Hang up.
l
Calls will be forwarded to that number.
NOTES:
1. You may continue using your phone in the usual
manner while Call forwarding
is in
effect.
2. If call forward-all calls is set, your telephone will not ring
when it is called.
3. If call forward is set:
l
CO lines that ring your station
only
will forward-
CO lines
that
ring
more
than
one
station will
not
forward.
l
CO line calls transferred to your station will forward.
l
Intercom calls will forward.
l
Call forward redirects the station hunt feature.
TO CANCEL CALL FORWARDING
1) Lift the handset.
l
You will hear intercom dial tone.
2) Dial i@i.
l
You will receive confirmation tone again, then busy
tone.
3) Hang up.
4 5

CALL HOLDING CALL TRANSFER WITH CAMP-ON
TO HOLD A CALL
1) While connected to an outside call, flash the hookswitch.
l
You will hear intercom dial tone.
2) Dial 10 and hang up (at least 2 seconds).
l
You may now originate or receive other calls.
TO RETURN TO CALL ON HOLD*
1) Lift the handset.
l
You will hear intercom dial tone.
2) Dial B 1.
l
You will be reconnected with the call.
NOTES:
1. If you do not return to the call within a designated time
period, your telephone will ring to recall you.
2. Any other station can pick up the held call by:
l
Dialing m B + N (N = the intercom number of the
station that laced the call on hold).
l
Dialing m ii 0 + N (N = the number, 0 1 m 36, of the
held CO line),
Release
2 and higher.
This feature allows you to transfer an outside call to a station that
is either idle or busy.
TO TRANSFER A CALL
1) While connected to an outside line, flash the hookswitch (l/
2 second).
l
You will hear intercom dial tone.
2) Dial the station number to which the call is to be transferred.
3A) If the called station is idle:
l
You will hear a single ring tone.
4A) Announce the call when the station answers, or hang up to
ring-transfer the call.* . . or. .
3B) If the called station is busy:
l
You will hear busy tone.
48) Hang up.
l
The call is camped-on to the busy station.*
NOTES:
1. Flash the hookswitch to reconnect to the line before it
is transferred. (If the called station has lifted the hand-
set or depressed the m button, a conference will be
formed by the hookswitch flash.)
2. The call will recall you and camp-on is cancelled if the
station does not answer within a predetermined time.
Inform the caller of the situation, and repeat the proce-
dure, if necessary.
6

CONFERENCE CALLS CONFERENCE CALLS
(continued)
8
TO CONFERENCE UP TO THREE STATIONS ON ONE CO
LINE
While connected to an established CO line call (incoming or
outgoing):
1) Flash the hookswitch.
l
You will hear intercom dial tone.
l
The existing call will be on hold.
2) Dial the number of the desired station.
3) Flash the hookswitch after the party answers.*
l
All parties will be conferenced.
4) Repeat to add another station. (Two stations, plus yours,
and one CO line is maximum.)
5) Hang up when the call is completed.
TO CONFERENCE UP TO FOUR STATIONS ON INTERCOM
1) Establish a standard two-station intercom call.
2) Flash the hookswitch.
l
You will hear intercom dial tone.
l
The existing call will be on hold.
3) Dial the number of the desired station.
4) Flash the hookswitch after the party answers.*
l
All parties will be conferenced. /
5) Repeat steps 2 * 4 one more time, if necessary to add
another station.
6) Hang up when the call is completed.
*Called party must come off-hook or depress the m
button. If you receive a busy tone or no answer, return to
the original connection by flashing the hookswitch.
TO CONFERENCE UP TO TWO STATIONS AND TWO CO
LINES (Release
2 and higher)
While connected to an established CO line call (incoming or
outgoing):,
1) Flash the hookswitch.
l
You will hear intercom dial tone.
l
The existing call will be on hold.
2) Dial the access code ( ) for another CO line.’
3) Dial the desired telephone number of the second party.
4) Flash the hookswitch after the party answers.’
l
All parties will be conferenced.
5) To connect another station flash the hookswitch.
l
You will hear intercom dial tone.
l
The existing calls will be on hold.
6) Dial the number of the desired station.
7) Flash the hookswitch after the party answers.2
l
All parties will be conferenced. (Two stations, includ-
ing yours, and two CO lines are maximum.)
8) Hang up when the call is completed.
NOTES:
1. All access codes are allowed depending on system
programming: 70 1 N 736, line numbers; 81 m 88, line
group numbers; or 9, for LCR or general group, with
Release 2 and higher.
2. If the second outside patty does not answer or is busy,
hang up to receive an immediate recall from the first
Party.
3. While the conference is being set up, all outside parties
are held separately and cannot converse with each
other.
4. If a 4-party conference is set, either inside station will
maintain the conference if the other hangs up. But one
station must remain in the conference to maintain the
outside connections.
9

DOOR PHONE ACCOUNT CODE CALLS
TO CALL/MONITOR A DOOR PHONE
1) Lift the handset.
l
You will hear intercom dial tone.
2) Dial the intercom number for the desired door location.
151 Location
152 Location
153 Location
154 Location
155 Location
156 Location
157 Location
158 Location
159 Location
161 Location
162 Location
163 Location
3) Hang up when the call is completed or when you no longer
wish to monitor the door phone.
NOTE:
Door phones will not ring standard telephones.
FLASH CO LINE
Some CO line features like conferencing, Centrex features or
behind PBX operation require “flashing” the CO (or like) line.
TO FLASH A CO LINE
1) Momentarily press hookswitch.
2) Dial91
l
You will receive dial tone.
Account codes can be forced or voluntary, and, with Release 3
only, verified or nonverified.
TO ENTER FORCED ACCOUNT CODE (Outgoing only)
1) Lift the handset.
l
You will hear intercom dial tone.
2) Dial the CO line access code (701 - 736, 81 - 88, 9).
l
You will hear dial tone (see note).
3) Dial the account code digits ( ).
l
You will hear dial tone if a valid code is dialed.
. . . or. . .
l
You will hear busy tone if an invalid code is dialed (with
verified account code option, Release 3 only)
4) Dial the outside number.
NOTE:
If a CO line is accessed using LCR (diale), dial tone is not
returned.
EMERGENCY OVERRIDE OF FORCED ACCOUNT CODE
DIALING REQUIREMENTS
With Release 3, forced account code requirements can be
bypassed by three emergency numbers, including 911. See your
system administrator for these numbers:
1) 911 2) - 3)-
TO ENTER VOLUNTARY ACCOUNT CODE (Incoming or
Outgoing)
After completing an external call (incoming or outgoing), do not
hang up:
1) Flash the hookswitch (the speech path is broken).
l
You will hear intercom dial tone.
2) Dial[i.
l
You will hear intercom dial tone.
3) Dial the account code digits ( ).
10 11

ACCOUNT CODE CALLS
(continued)
OVERRIDE
(continued)
4A) Hang up or resume talking.
. . . or. . .
4B) If voluntary account codes are verified (Release 3):
l
If a valid code is dialed, you will hear one confirmation
burst tone. Hang up or resume talking.
l
If an invalid code is dialed, you will hear two confirma-
tion burst tones. Repeat steps 1 N 3 to enter another
code, or hang up, or resume talking.
MESSAGE SENDING
TO SET MESSAGE WAITING TO AN ELECTRONIC OR
DIGITAL TELEPHONE
1) Lift the handset.
l
You will hear intercom dial tone.
2) Dial the station number.
3) Dial 0.
4) Hang up handset.
TO CANCEL MESSAGE WAITING SET AT AN ELECTRONIC
OR DIGITAL TELEPHONE
1) Lift the handset.
l
You will hear intercom dial tone.
2) Dial the station number.
3) Dial m 0.
4) Hang up the handset.
OVERRIDE
After reaching a busy station (fast busy-two tones per second),
you may signal that station that a call is waiting.
TO INITIATE A BUSY OVERRIDE SIGNAL
1) Dial 1.
l
A tone signal will be heard at the busy station.
2) After reaching a DND station (very fast busy-four tones
per second), you may signal that station that a call is
waiting.
12
TO OVERRIDE DND (Programmable Option)
1) Dial B.
l
A tone signal will be heard at the DND station indicat-
ing an override call.
2) After reaching a busy station, Executive Override allows
you to enter an established conversation.
TO INITIATE EXECUTIVE OVERRIDE (Programmable Option)
Dial 1.
l
A tone signal will be heard prior to entering the
conversation.
PAGING
TO PAGE
1) Lift the handset.
2) Listen for intercom dial tone and dial the following:
iI= All Call (all electronic and digital telephones)
10 = Group #l
B B = Group #2
[I = Group #3
1 i = Group #4
11 w B I= External Page Zones
Bi = All Call (with External Page).*
3) Make your announcement in a normal voice level and
repeat it.
4) Hang up when you have completed your announcement.
*Programmable option; also see call pickup.
13

REPEAT LAST NUMBER DIALED VOICE/TONE SIGNALING
PROGRAMMABLE OPTION
TO USE REPEAT LAST NUMBER DIALED
1) Lift the handset.
l
You will hear intercom dial tone.
2) Dial 1.
l
You will hear dial tone and the number will be dialed.
SPEED DIAL
TO STORE A STATION SPEED DIAL NUMBER
1) Lift the handset.
l
You will hear intercom dial tone.
2) Dial 11.
l
You will hear a short tone.
3) Dial 1 p.
4) Dial a 2-digit dialing code (10 w 49).
5) Dial the CO line access code to be stored (701 * 736,81 w
89, 9).
6) Dial the telephone number to be stored (20 digits maxi-
mum, including the digits dialed in step 5).
7) Dial 1.
l
You will hear a short tone.
l
Your telephone number has been stored for future
use.
TO DIAL SPEED DIAL TELEPHONE NUMBER
1) Lift the handset.
l
You will hear intercom dial tone.
2) Dial 1.
l
You will hear intercom dial tone.
3) Dial’the 2-digit dialing code for the desired telephone
number. Use 10 w 49 for telephone numbers you have
previously stored. Use 60 w 99 for system speed dial
numbers.
l
You will hear CO dial tone and the system will auto-
matically dial the number for you.
TO MAKE A TONE SIGNAL CALL
1) Call an electronic telephone via intercom.
l
You will hear one ring, then you will be able to voice
announce.
2) To activate the ring tone, dial 0.
l
The called telephone will begin ringing.
NOTE:
Calls made to standard telephones will ring signal only.
CO LINE QUEUING
This feature provides a means for station users to be placed in
a waiting queue for a busy outgoing CO line group, and to be
called back when a CO line in the group is available.
TO USE CO LINE QUEUING
1) If all CO lines are busy, you will hear a fast busy tone after
dialin
i
1 or other CO access codes.
2) Dial 1 to set Automatic Callback.
l
Busy tone will stop, you will hear dial tone for two
seconds and then busy tone again.
l
You may go on-hook or make other calls while waiting
for a CO line to become available.’
3) When a CO line becomes idle:
l
Your telephone will ring at a fast rate.
4) Lift the handset within six seconds to prevent the callback
from being cancelled.
l
You will hear CO dial tone.3
5) Dial the desired telephone number.2
14 15

CO LINE QUEUING
(continued)
CALL PARK
(continued)
NOTES:
1. You may cancel the request at anytime prior to the
actual callback by lifting the handset and dialing 0 1.
2. If the call wasp/aced using LCR (dials), the telephone
number is automatically redialed in step 4.
3. If, after answering a callback, you hear a busy tone, it
means the trunk has already been accessed or re-
ceivedan incoming call. Your request is not cancelled.
You will be called again the next time a trunk becomes
idle.
CALL PICKUP
TO ANSWER A CALL THAT IS PAGING, RINGING OR ON
HOLD
1) Lift the handset.
l
You will hear intercom dial tone.
2) Dial 1.
3) Dial one of the following:
Station number (intercom, CO and on hold)
1 m = Intercom Page
Ba = External Page
I= Any CO line ringing.
CALL PARK
Park allows you to hold an existing call and consult with an
internal station or external CO line call, then return to the original
call.
TO PARK
1) While connected to an outside call, flash the hookswitch.
l
‘You will hear intercom dial tone.
2) Dial 10 and listen for confirmation tone (call is parked).
3) Hang up (remain on-hook for at least two seconds).
l
You may now originate or receive other calls.’
TO RETRIEVE THE PARKED CALL (from any station*)
If you parked the call:
1) Lift the handset.
l
You will hear intercom dial tone,
2) DiallI.
From any other station:
A. Dial 10 0 Q (a Ct tI = the number of the station that parked
the call). . . . or. . .
6. Dial 11 QQ (CI Q = the number of the parked CO line, can
be 01 u 36).3
NOTES:
1. lfyour station has a predetermined hold recall time set,
theparkedcallwillrecallyourstationatthattime. lfyour
station is busy at recall time, recall will occur when your
station becomes idle.
2. Youcanpageanotherperson topickup theparkedcall.
3. Selected pickup of held CO lines is available with
Release 2 and higher.
DIRECT INWARD SYSTEM ACCESS (DISA)
When calling into your system from the outside on certain
telephone lines.
TO MAKE A DIRECT INWARD STATION CALL USING
DISA
1) Call the DISA CO line telephone number:
2) Listen for the ringback tone signal, and then listen for the
intercom dial tone’ (if busy tone is received, try again).
3) Dial the intercom number of the desired station.
l
You will be connected when the station answers.2
. . . or. . .
l
If you receive busy tone orwish to dial another number
while ringing the station, press the 1 button to receive
dial tone, allowing another number to be dialed.
16 I
. ,
17

DIRECT INWARD SYSTEM
ACCESS (DISA)
(continued)
TO CALL THROUGH YOUR SYSTEM ON AN OUTGOING CO
LINE USING DISA (Release 2 and higher)
1) Call the DISA CO line telephone number:
2) Listen for the ringback tone signal, and then listen for the
STRATA DK intercom dial tone’ (if busy tone is received, try
again).
3) Dial the access code3 ( ) of the CO line or CO line group
that is to be used to place the outgoing call.
4A) If a DISA security code is required4, dial the code and listen
for CO dial tone.5
4B) If a DISA security code is not required, listen for CO dial
tone.
5) After receiving CO dial tone, dial the desired telephone
number.
6) A timer tone will sound6 approximately four minutes after
the time the call was made. Dial 1 to reset the timer7 each
time the tone sounds (this allows an additional four minutes
of conversation).
7) Hang up when the call is completed.
NOTES:
1. Dial tone will be present for 10 seconds to allow direct
dialing of station intercom number or CO line access
code. If a number is not dialed, the system automati-
ca/ly causes the DISA CO line to ring at telephones as
a normal incoming call. However, if the call is not
answered within 15 seconds after the ringing starts, it
will disconnect.
2A. If the station does not answer after six rings or twenty-
four seconds, whichever occurs first, a busy tone will
be sent. Diali to return to dial tone and dial the same
or another number.
DIRECT INWARD SYSTEM
ACCESS (DISA)
(continued)
2B. If you wish to call another station after completing a
DISA station call, it is necessary for the internal patty
to transfer your call.
3. A direct CO line or line group access code must be
dialed (701 N 736 or 81 w 88). The LCR code (9) is not
allowed.
4. The DISA security code is a system program option.
5. If the correct code is not entered, the call will be
disconnected.
6. Allpatties will hear the timer tone and timer reset DTMF
tone.
7. If the timer is not reset, the call will disconnect approxi-
mately one minute after the timer tone is sent.
8. Station and system page is not available to DISA
callers.
DISA SECURITY CODE ENTRY/CHANGE/CANCEL
From designated station(s) only.
1) Lift the handset.
l
Receive intercom dial tone.
2) Dial CI CL 0’ (3-digit access code).
l
Receive confirmation tone.
3) Dial the new DISA security code” (0 . . . Q-1 N 15 digits).
4) Press the m button.
l
Receive confirmation tone.
NOTES:
I. For security purposes, the 3-digit access code is not
published; it is available from your telephone system
maintenance provider.
2. If a DISA security code is not entered in step 3, the
security code will be cancelled and outgoing line ac-
cess via DISA will not require a security code.
18
19

TOLL RESTRICTION OVERRIDE/TRAVELING
CLASS
Toll restriction at a station can be completely overridden, or, with
Release 3, the station’s normal class can be changed to another
class (traveling class). The following procedure applies to com-
plete Toll Restriction override codes and to Toll Restriction
Traveling Class (1 y 4) override codes.
TO OVERRIDE TOLL RESTRICTION AT A STATION FOR A
SINGLE CALL
1) Acess a CO line, as normal.
2) Flash the hookswitch, then dial 1 I.
l
If there was dial tone, it will now cease.
3) Dial the Toll Restriction Override Code (four digits).
l
You hear dial tone.
4) Dial the desired telephone number.
Account Code Calls ............................................................ 1 1
Automatic Callback-Intercom.. ............................................ 4
Call Forwarding .................................................................. 5
Call Holding ........................................................................ 6
Call Park ............................................................................. 16
Call Pickup.. ........................................................................ 16
Call Transfer with Camp-on ................................................ 7
CO Line Queuing ................................................................ 15
Conference Calls ................................................................ 8
Direct Inward System Access (DISA) ................................. 17
Door Phone ........................................................................ 10
Flash CO Line.. ................................................................... 10
General Information ............................................................ 1
Intercom Calls.. ................................................................... 3
Message Sending ............................................................... 12
Outside Calls ...................................................................... 2
Override .............................................................................. 12
Paging ................................................................................ 13
Repeat Last Number Dialed ............................................... 14
Speed Dial .......................................................................... 14
Toll Restriction Override/Traveling Class ........................... 20
Voice/Tone Signaling Programmable Option ..................... 15
20 21
(. ,:

ELECTRONIC
TELEPHONE
U S E R G U I D E
TABLE OF CONTENTS
STRATA" DK
DIGITAL KEY
TELEPHONE SYSTEMS
STRATA DK24
DK56 AND DK96
RELEASE
1,
2, & 3
GENERAL INFORMATION ...................................................... 1
Button Descriptions.. ............................................................. 2
LED Indications.. ................................................................... 6
FEATURE USE ........................................................................ 8
Outside Calls ........................................................................ 8
On-hook Dialing .................................................................... 9
Group Listening .................................................................... 10
Automatic Off-hook Selection Programmable Option ........... 10
Repeat Last Number Dialed Programmable Option ............. 11
Auto Busy Redial .................................................................. 11
Speed Dial ............................................................................ 12
Speed Dial Buttons Programmable Option ........................... 13
Saved Number Redial Programmable Option ...................... 14
Telephone Number Storage ................................................. 14
* and # DTMF Tone Dialing .................................................. 16
Tone/Pulse Dialing Programmable Option ........................... 17
Privacy Override Programmable Option ............................... 18
Privacy Release Programmable Option.. .............................. 19
Intercom Calls ....................................................................... 19
Handsfree Answerback.. ....................................................... 20
Microphone Cut-off Programmable Option ........................... 20
Off-hook Call Announce (OCA) Optional Feature.. .............. .20
Call Transfer with Camp-on .................................................. 21
Conference Calls .................................................................. 24
Call Forward-All Calls ........................................................... 26
Call Forward-Busy ................................................................ 26
Call Forward-No Answer.. ..................................................... 27
Call Forward-Busy/No Answer.. ............................................ 28
Call Forward-Fixed ............................................................... 29
Call Holding .......................................................................... 29
Exclusive Hold ..................................................................... .30
Call Pickup ............................................................................ 31
Do Not Disturb ...................................................................... 31
Automatic Callback (Intercom) .............................................. 32
Account Code Calls .................................................. . .......... .33

TABLE OF CONTENTS
(continued)
DIALPAD
\
Paging ................................................................................... 36
Door Phone.. ......................................................................... 37
Handsfree Monitoring ........................................................... 38
Alarm Reset .......................................................................... 38
Background Music (BGM) ..................................................... 38
Background Music Over External Speakers ......................... 39
Direct Inward System Access (DISA) ................................... 39
Direct Station Selection Buttons (Hotline)
Programmable Option ......................................................... 41
Door Lock ............................................................................ .41
Message Waiting .................................................................. 42
Night Transfer Programmable Option ................................... 44
Override Calls ....................................................................... 44
Speakerphone ...................................................................... 45
Microphone Control ............................................................. .46
Two (Tandem) CO Line Connection ..................................... 47
Timed Reminders ................................................................. 48
Toll Restriction Override/Traveling Class ............................. 49
Tone Signaling Programmable Option .................................. 50
Voice Mail (VM) .................................................................... 50
CENTREX APPLICATION ........................................................ 52
INDEX ....................................................................................... 53
HANDSET
\
FLEXIBLE
BUTTONS
‘FEATURE AND
FUNCTION LEDS
lo-button - Electronic Telephone
,.:

GENERAL INFORMATION
DIALPAD
HANDSET
\
SPEAKER
\
MODULAR
HANDSET
CORD
\
FEATUREAND
FUNCTION LEDS
MICROPHONE
ON/OFF BUTTON CONTROL
20-button - Electronic Telephone
FLEXIBLE
BUTTONS
Your electronic telephone has been designed to provide easy
access to the wide range of features offered by your telephone
system. Each phone is equipped with a dialpad, 14, or 24 feature
buttons, a speaker with volume control, a ringer volume control,
and a handset.
All feature buttons are plainly marked to indicate their function.
Four buttons have fixed assignments:=, m, m,
and-m. The remaining 10 or 20 buttons are assigned flexibly
as w buttons, or as access buttons for various features.
Voice and ring tone volume levels are controlled by separate
adjustable slides located at the bottom of the front panel. The
right control adjusts speaker volume for dial tone and voice level;
the left control adjusts ring tone and voice announcement vol-
ume.
This guide also contains a section on the Centrex Application,
which enhances the system feature capability when installed
behind a Centrex or PBX system.
Periodically in this auide vou will see footnote numbers either
,
imbedded in the sentence or at the end of a sentence. (For
example: When the party answers,2 press the m
button.) These numbers refer YOU to the notes followina the
feature. Each note will have a conesponding number, to provide
you with additional important information about that feature.
NOTE:
Wherever a CO line is indicated, it can also be a Centrex
(CTX) and/or PBX line.
IMPORTANT!
Ail of the features in this guide are available with each
STRATA DK system and most with each software
version (Releases I, 2, and 3). Exceptions are duly
no ted. Also, please be a ware that some of the features
listed in this guide may not appear on your telephone
due to hardware configuration or programming.

GENERAL INFORMATION GENERAL INFORMATION
BUlTON DESCRIPTIONS BUTTON DESCRIPTIONS (continued)
ACCOUNT CODE BUTTON B (Release 3 only)
Allows a station user to enter a voluntary account code anytime
during a CO line call without interrupting the conversation.
ALARM RESET BUTTON m
A station programmable option that will turn off the electronic
telephone alarm if connected to a facility alarm mechanism.
ALL CALL VOICE PAGE BUTTON
q
A single dedicated button that allows a station to voice page all
of the electronic/digital telephones in the system simultaneously.
AUTOMATIC BUSY REDIAL BUlTON m
Allows the user to set up an Automatic Busy Redial after
receiving busy tone on a dialed CO line call.
AUTOMATIC CALLBACK BUTTON m
Recalls a busy or Do Not Disturb station on intercom as soon as
that station becomes idle. Also used for CO line queuing.
BACKGROUND MUSIC BUTTON m
Allows background music to be switched on/off of the station
speaker.
CALL FORWARD-ALL CALLS BUTTON m
With this feature, all calls will forward to another station.
CALL FORWARD-BUSY BUTTONS (Release 2 and higher)
Whenever the called station is busy, this feature forwards calls
to another station.
CALL FORWARD-BUSY/NO ANSWER BUTTON m
(Release 2 and higher)
Whenever the called station is busy or does not answer prior to
a predetermined period, this feature forwards calls to another
station. lfthe called station is busy, the calls forward immediately.
All non-answered calls (station is not busy) forward after either
three rings or 12 seconds, whichever occurs first.
CALL FORWARD-NO ANSWER BUTTON m (Release 2
and higher)
Whenever the called station does not answer after either three
rings or 12 seconds, whichever occurs first, this feature forwards
calls to another station.
CALL FORWARD-FIXED BUTTON m
Sets Call Forward to a pre-assigned station. (The destination
station is assigned in system programming.)
NOTE:
CO line calls will forward on/y if the CO line is programmed
to ring at one station (and that station has set the Call
Forward feature). If a CO line is programmed to ring at more
than one station, the CO line will not forward.
CALL PICKUP BUTTON m
Initiates directed call pickup of CO line, intercom, and page calls.
CALL PICKUP BUlTONS m and m
If the system is shared by two tenants, the m button picks
up Tenant 1 ringing CO line calls and them button picks up
Tenant 2 ringing CO line calls.
CENTRAL OFFICE LINE BUTTON
q
Accesses an outside line.
CONFERENCE/TRANSFER BUTTON m
Sets up conference calls and also used to transfer calls.
DIRECT STATION SELECTION BUTTON(s) w
Causes a preselected station to ring by ressing an assigned
I&
button. The LED associated with each D button provides the
status (idle/busy) of the station assigned to the button.

GENERAL INFORMATION GENERAL INFORMATION
BUTTON DESCRIPTIONS (continued)
DO NOT DISTURB BUTTON m
Locks the individual station in or out of the Do Not Disturb mode.
DOOR LOCK BUTTON r_inm
Controls a door lock mechanism.
HOLD BUTTON m
Holds internal or outside calls.
INTERCOM BUTTON m
Accesses an intercom line.
MESSAGE SELECT BUTTON m
Allows system and personal messages to be displayed on the
32-character Liquid Crystal Display (LCD).
MESSAGE WAITING/FLASH BUTTON m
m:
q
:
The MW/FL LED flashes to indicate a message is waiting.
Disconnects and recalls dial tone on a CO line, or is used
to access Centrex or PBX features.
q
: Also used to enter a pause or flash signal when program-
ming speed dial numbers.
MICROPHONE BUTTON m
Controls the microphone off/on while telephone is in use.
MICROPHONE CUTOFF BUTTON m
Allows astation to turn its microphoneoff/on while idle. Functional
when station receives calls; them key controls the microphone
when the station originates calls.
NIGHT TRANSFER BUTTON
q
Controls the system’s CO line ringing pattern for after hours
incoming calls.
BUTTON DESCRIPTIONS (continued)
PAUSE BUTTON m
Applies a l/2- or 2-second pause when used in programming
speed dial numbers (time is set in system programming).
PAUSE (LONG) BUTTON m
Inserts a IO-second pause when used in programming speed
dial numbers.
POOLED LINE BUTTON
q
Allows a group of CO lines to appear under one button.
PRIVACY BUTTON m (Release 3 only)
Blocks Privacy Override of CO lines from stations that have
common CO line button appearances. This button does not block
Busy and Executive Override.
PRIVACY RELEASE BUTTON m
Releases privacy on a CO line so another station can enter the
conversation.
REDIAL BUlTON m
Redials the last telephone number dialed.
RELEASE BUTTON m (Release 2 and higher)
This feature disconnects the existing call and places the station
into an idle condition, whether the electronic telephone is on- or
off-hook.
SAVE BUTTON m
Saves a telephone number after dialing and automatically redials
that number when button is pressed in the idle state.
SPEAKER BUTTON m
Turns the speaker on/off. The speaker button will also, select a
CO or intercom line if programmed for auto preference in system
programming. Also, used to disconnect when the handset is in
the cradle.
4

GENERAL INFORMATION GENERAL INFORMATION
BUllON DESCRIPTIONS (continued)
SPEED DIAL BUTTON
q
Provides single-button speed dial of personally assigned tele-
phone number.
SPEED DIAL (FIXED) BUTTON m
This button dials a pre-assigned number or Centrex/PBX feature
access code.
SPEED DIAL SELECT m
Provides access to station or system speed dial numbers.
TONE BUTTON m
Changes the outgoing dialing of the CO line in use from dial pulse
to tone signaling.
LED INDICATIONS
CO INCOMING CALL
A slow flash rate (l/2-second on- l/2-second off) indicates the
CO line on which the call is ringing.
CONFERENCE
Avery fast flash rate (10 impulses per second (IPS)) indicates the
CO line presently in the Conference mode. Other stations’ LEDs
also show a steady (busy) indication for these lines.
EXCLUSIVE HOLD
A very fast flash rate (10 IPS) indicates the CO line is placed on
Exclusive Hold at the holding station. The LED is on steady
(busy) on all other stations.
LED INDICATIONS (continued)
INTERCOM CALL
A pulsating on/off flash rate (10 IPS for 1 second on and 1 second
off) appears on the INT LED at the station that is being called.
IN-USE
A steady, double flash rate (2 second on-l/8-second off-l /8-
second on-l/8-second off) indicates the CO line presently in
use at the station that originated the call. Other stations’ LEDs are
on steady for that time.
ON-HOLD
A fast (4 IPS) flash rate (l/8-second on-l /8-second off) indicates
the CO line placed on hold at the station. The LEDs of the CO line
on hold flash at a medium rate (3/4-second on-l/4-second off)
at the other stations. If using the Pooled Line button, the hold
indication is only at the station that places the call on hold.
HOLD RECALL
Aquickflash rate matching the tones (2 IPS for 1 second-l 0 IPS
for 1 second) reminds a station which line has been on hold for
the programmed period of time.
6

FEATURE USE FEATURE USE
OUTSIDE CALLS OUTSIDE CALLS (continued)
2) Lift the handset or press the
q
button.
l
PL LED on steady.
3) A muted ringing indicates a new incoming call, or recall.
4) Transfer the present call or place it on hold.
5) Press and release the hookswitch to answer the next call.
6) Repeat steps 4 and 5 until all calls are completed.
7) Hang up.
TO MAKE AN OUTGOING CALL (Direct Access)
1) Lift the handset.
2) Press any available
q
line button (or
q
button).
l
Listen for dial tone.
l
CO/PL LED flashes at the In-use rate.
3) Dial the desired telephone number.
4) Hang up when the call is completed.
TO MAKE AN OUTGOING CALL (Dial Access)
!) Lift the handset.
2) Press the m button.
0 Listen for intercom tone.
l
INT LED flashes at In-use rate.
3) Dial CO line access code’
l
Listen for CO dial tone.2
4) Dial desired number.
5) Hang up when the call is completed.
NOTES:
1. Dial1 to access the genera/group or to use Least Cost
Routinu; or dial iandaCO?inenumber(O[ -1m;or
dk i/i a .m 11 to access line group I * 8, respective/y.
2. CO dial tone is not returned when dialing via LCR, dial
1; intercom dial tone may be returned, depending on
system programming.
TO RECEIVE AN INCOMING CALL
1) You hear a ringing tone.
l
CO LED flashes at the CO Incoming Call rate.
2) Press m line button and lift the handset.
l
,CO LED flashes at the In-use rate.
3) Hang up when the call is completed.
TO RECEIVE INCOMING CALLS WITH POOLED LINE
BUTTONS
1) Ringing tone is heard.
l
PL LED flashes at the CO Incoming Call rate.
NOTES:
1. A transfertoa busystation willautomatically Camp-on.
2. If step 5 is performed before step 4, the current call is
terminated.
ON-HOOK DIALING
(Handsfree model only-see Speakerphone for speaker-
phone electronic telephones)
TO MAKE AN OUTSIDE CALL
1) Leave the handset on-hook.
2) Press any availablemline button (arm button) and listen
for dial tone, or follow previous directions for Dial Access.
l
LED flashes at the In-use rate.
3) Dial the desired telephone number.
4) Lift the handset when the distant party answers.*
5) Hang up when the call is completed.
TO MAKE AN INTERCOM CALL
1) Leave the handset on-hook.
2) Press the m button.
l
INT LED flashes at the In-use rate.
3) Dial the desired station number.
l
You hear a single ring tone.*
4) Lift the handset to converse.
5) Hang up when the call is completed.
*Ifbusy tone is heard, press them button to disconnect.
8

GROUP LISTENING REPEAT LAST NUMBER DIALED
PROGRAMMABLE OPTION
Allows all persons present to hear the distant party’s responses.
TO USE GROUP LISTENING
1) With the handset off-hook, press and hold them button
then place the handset on-hook and release the m
button.
l
SPKR and MIC LEDs light and the distant party’s voice
is heard via the telephone’s speaker.
2) When local response is required, lift the handset off-hook.
l
SPKR and MIC LEDs go off.
l
Telephone speaker is silenced.
l
Handset is activated.
NOTE:
Repeat the procedure as required.
AUTOMATIC OFF-HOOK SELECTION
PROGRAMMABLE OPTION
Allows Automatic Off-hook Selection of either an intercom path,
a CO line, or a CO line group. (The particulars must be pro-
grammed by your system administrator.)
NOTE:
The m button also selects the designated line/group
automatically.
TO MAKE A CALL
Lift the handset.
l
You will be connected to the option programmed.
NOTE:
If you hear silence after going off-hook, you must press the
m button or a
q
line button before making a call.
This feature enables you to automatically redial the last number
called by pressing the m button. If your telephone does not
have an m button, the 1 button serves the same function.
TO REDIAL LAST NUMBER CALLED
1) Lift the handset.
2) Press any available [9 line button.
l
Listen for dial tone.
3) Press the m (or the 1) button.
l
The last telephone number you dialed will automati-
cally be redialed.
4) Hang up when the call is completed.
AUTO BUSY REDIAL
After reaching a busy outside number, the system will automati-
cally redial that number at programmed intervals.
TO USE AUTO BUSY REDIAL
1) Access any available CO line and dial the outside tele-
phone number.
l
Receive busv tone.
2) Press the m button (or m I@.
l
ABR LED blinks (or hear confirmation tone).
3) Hang up (or press them button).
4) At programmed intervals (30 or 60 seconds), the system
will redial the number (15 times maximum).
l
With each attempt, if busy, ABR will reset for next try.
5) When the connection is made and the called party is
ringing:
l
CO (or INT) and SPKR LEDs blink.
l
Ringing tone is heard.
6) Pick up handset (or press the m button) and, wait for
party to answer.
10 11

FEATURE USE FEATURE USE
AUTO BUSY REDIAL (continued)
TO CANCEL ABR
Press the m button (or m 1 I).
NOTES:
1. ABR will not be attempted while the station is busy on
another call but will continue to time-out.
2. With each attempt:
SPEED DIAL (continued)
5) Press the m (or the i) button.
6) Dial the 2-digit speed dial code for the second telephone
number to be dialed.
7) Repeat the above steps for each subsequent number to be
dialed.
l
Your system will automatically dial the numberforyou.
8) Hang up when the call is completed.
NOTE:
lfyour telephone does not have an= button, the 1 button
serves the same function.
The CO (or IiT) and SPKR LEDs blink when the line
is seized.
Dial tone is heard via the speaker.
Telephone number is redialed.
If busy, ABR will reset and try again.
If a connection is made, ring tone sounds until called
party answers.
If the originatin station does not pick up the handset
d33
(orpress the w - button) after a connection is made
(it willring back three times), ACB mute ring sounds for
30 seconds and then the call disconnects.
SPEED DIAL
TO CALL A SPEED DIAL NUMBER
1) Lift the handset.
2) Press any available
q
line button.
l
Listen for dial tone.
3) Press the w (or the 1) button (see Note).
4) Dial the 2-digit speed dial code for the desired telephone
number.
t Your system will automatically dial the number for you.
5) Hang up when the call is completed.
TO CHAIN DIAL AUTOMATICALLY
Dials two or more speed dial numbers during one call.
1) Lift the handset.
2) Press any available (9 line button.
F Listen for dial tone.
3) Press them (or the 1) button (see Note).
4) Dial the 2-digit speed dial code for the first telephone
number to be dialed.
SPEED DIAL BUTTONS
PROGRAMMABLE OPTION
After accessing a CO line, speed dial is available by pressing an
q
button instead of a2-digit access code. Eachm button stores
one telephone number (up to 20 digits).’
TO STORE A TELEPHONE NUMBER*
1) Do not lift the handset.
2) Press the * (or m) and 1 (or m) buttons, respectively.
3) Press the al D button you wish to use.
4) Dial the telephone number to be stored (20 digits maxi-
mum).3
5) Press the 8 (or m) button to record the number in
memory.
6) Repeat the above steps for each
q
button.
NOTES:
1. Up to 37 digits by linking two speed dial numbers (see
the link procedure that follows).
2. Repeat this procedure to replace the stored telephone
numbers with new ones.
3. It may be necessary to insert a pause after the CO line
access code to allow for dial tone delay. If so, press the
m (or m button after entering the Centrex or
PBX access code (see Telephone Number Storage-
Pauses).
12 13

FEATURE USE FEATURE USE
SPEED DIAL BUTTONS
PROGRAMMABLE OPTION (continued)
4. To store * or # DTMF tones in soeed dial numbers. the
telephone that stores the numbers must have them
and m buttons.
SAVED NUMBER REDIAL
PROGRAMMABLE OPTION
This feature enables you to store a dialed telephone number and
later redial that number by pressing a single button.
TO SAVE A TELEPHONE NUMBER
1) Lift the handset.
2) Obtain dial tone.
3) Dial the desired telephone number.
4) Press the m button.
l
The telephone number is saved for future use.
TO DIAL A SAVED TELEPHONE NUMBER
1) Lift the handset.
2) Obtain dial tone.
3) Press the m button.
l
Saved number will be automatically dialed.
TELEPHONE NUMBER STORAGE
STORING A SYSTEM SPEED DIAL NUMBER
System speed dial telephone numbers can be stored in the
system memory by station 200 only.
1) Do not lift the handset.
2) Press the 1 and p (or m and m) buttons, respectively.
3) Dial a 2-digit speed dial code.
l
System speed dial codes run consecutively from 60 N
99.
4) Dial the telephone number to be stored (20 digits maxi-
mum).
5) Press them(orm) button to record the telephone number
in memory.
TELEPHONE NUMBER STORAGE (continued)
6) Repeat the steps above with every telephone number to be
stored (up to the maximum of 40).
7) Write down the speed dial codes and telephone numbers
for future reference.
NOTE:
Repeat steps I N 5 to replace the stored telephone num-
bers with new ones.
TO STORE PAUSES (l/2- or 2-second/lo-second) and
FLASHES (Hookflash) ALONG WITH SPEED DIAL NUMBERS
r m) button to store a pause.
button to store a flash. The flash must be
stored as the first entry: a flash cannot be stored after a digit
is entered into the speed dial number.
NOTES:
7. If am button is not available, them button will
store auses only, not flashes.
Lb
2. The 8i button is i/2- or 2-seconds per system pro-
gram assignments.
3. A lo-second pause is programmed using the m
button.
STORING A STATION SPEED DIAL NUMBER
Speed dial telephone numbers can be stored by each station.
1) Do not lift the handset.
2) Press the 1 and 1 (or m and m buttons, respectively.
3) Dial a 2-digit speed dial code.
l
Station speed dial codes run consecutively from 10 *
49.
4) Dial the telephone number to be stored (20 digits maxi-
mum).
5) Press the 1 button to record the number in memory.
6) Repeat the above steps with every number to be stored (up
to the maximum of 40).
7) Write down the speed dial codes and telephone numbers
for future reference.

FEATURE USE
TELEPHONE NUMBER STORAGE (continued)
NOTE:
FEATURE USE
To store * or # DTMF tones in speed dial numbers, the
tele
cd
hone that stores the numbers must have them and
- D buttons.
TO LINK TWO SPEED DIAL NUMBERS UNDER ONE
q
BUlTON
You can link a second number to a number stored in one of ten
locations in the system speed dial memory (90 - 99). This allows
up to 37 digits to be stored under one speed dial button or code.
Any station can link any of its assigned speed dial numbers (10
- 49) to codes 90 - 99, however station 200 is required for linking
codes 60 - 89. (All other procedures for entering numbers apply.)
1) Press the m and 1 (or m and m) buttons.
2) Dial an applicable 2-digit speed dial code (10 - 49 for all
stations, 60 - 99 at station 200 only).
3) Press the fl (or m) button.
4) Dial the 2-digit code to which this number will be linked (90
- 99).
5) Dial the number to be chained (17 digits maximum).
6) Press the 1 (or m) button to record the number in
memory.
NOTE:
The number stored in location 90 m 99 will dial out first,
followed by the number linked to it in location 10 m 49 or 60
N 89. The company’s special carrier access telephone
numbers are normally stored in locations 90 w 99, allowing
other numbers to be linked to them to dial both numbers
using a one-button speed dial.
* AND # DTMF TONE DIALING
When the * or # tones must be output (for computer input service
or other use), the speed dial feature must be disabled
manual dialing of thepandmbuttons. (Applicable only if
m buttons are not programmed.)
* AND # DTMF TONE DIALING (continued)
TO OUTPUT * AND # DTMF TONES
1) Lift the handset.
2) Press any available
q
line button.
3) Dial any desired directory number.
4) To enable * and # tones to be sent, press 11.
NOTE:
Only manual dialing will be possible; the special * and #
tones as well as digits 0 * 9 will be output as DTMF tones
when dialed. The speed dial feature will be restored when
the station is disconnected or placed on hold.
TONE/PULSE DIALING
PROGRAMMABLE OPTION
For some CO lines, calls must be made using rotary dial pulses.
In order to access remote equipment requiring tones in these
areas (such as automatic tellers or answering machines), you
must change to DTMF tone sending after you have dialed the
outside directory number.
Pressing them button changes the dialing status of the CO
line in use: TONE LED ON indicates DTMF tones are output; LED
OFF indicates dial pulses are output.
TO CHANGE TO TONE SENDING
After you have dialed a telephone number and the call is in
progress, press the m button.
l
TONE LED goes on.
l
Pressing the dialpad buttons will cause DTMF tones to be
transmitted.
NOTE:
After the m button is pressed, the TONE LED will
remain on and DTMF tones will be sent when dialing until
the callis released. When originating orreceiving a new CO
line call, the system automaticallyplaces the line in the dial
pulse mode until the m button is used.
17

FEATURE USE
PRIVACY OVERRIDE
PROGRAMMABLE OPTION
Allows stations with common CO line buttons to override an
existing conversation by pressing the busym line button. Up to
two stations maximum may override an existing CO line-to-
station call (allowing a total of up to three stations being con-
nected to an outside line)
TO ENTER AN EXISTING CALL BETWEEN A CO LINE AND
ANOTHER STATION
Press the busy
q
line button.
l
An optional tone signal is heard by the connected parties
prior to the new station entering the conversation.
NOTE:
To allow Privacy Override, the overriding station must be
programmed with Privacy Override; or, the Privacy Re-
lease LED must be on at the talking station (see Privacy
Release).
PRIVACY BUTTON PROGRAMMABLE OPTION (Release 3
only)
This option blocks any station programmed with Privacy Over-
ride from entering your CO line conversation by pressing a
common CO line button.
TO MAKE ALL CO LINES ON YOUR STATION PRIVATE
Press the m button.
TO CANCEL PRIVACY
Press the IswLll,‘;m’l button again
NOTE:
Privacy will not block Busy Override or Executive Override.
PRIVACY RELEASE
PROGRAMMABLE OPTION
The m button allows any other station to enter an in-
progress CO line call (see Privacy Override).
TO USE PRIVACY RELEASE FEATURE
Press the m button.
l
PRV RLS LED goes on.
l
Your station does not have CO line privacy.
l
Any station user can press a common CO line button to
enter your conversation.
INTERCOM CALLS
TO MAKE AN INTERCOM CALL (Voice First)
1) Lift the handset.
2) Press the m button (see Note).
l
You hear intercom dial tone.
l
INT LED flashes at the In-use rate.
3) Dial the desired station number.
l
You hear a single ring tone.
4) Speak when the ring tone ends.
5) Hang up when the call is completed.
NOTES:
1. See Automatic Off-hook Selection.
2. Tone Signaling can be accomplished by dialing0 after
the station number.
TO RECEIVE AN INTERCOM CALL
1) You hear a single long tone, followed by the caller’s voice.
l
INT LED flashes at the Incoming Call rate.
2) Lift the handset.
l
INT LED flashes at the In-use rate.
3) Hang up when the call is completed.
18
.,_..
19
x _a.,’

FEATURE USE FEATURE USE
HANDSFREE ANSWERBACK
TO RECEIVE AN INTERCOM CALL (HANDSFREE)
1) You will hear a single long tone, followed by the caller’s
voice.
l
INT LED flashes at the Incoming Call rate.
2) Leave the handset on-hook.
3) Speak at a normal voice level in the direction of the
telephone.
NOTE:
The m button must be pressed (or the handset must be
taken off-hook) before placing an intercom call on hold.
MICROPHONE CUT-OFF
PROGRAMMABLE OPTION
The m button allows a station to turn its microphone off/on
while idle. Handsfree Answerback is inoperable while the micro-
phone is off; provides privacy by blocking room monitor to calling
parties.
TO USE MICROPHONE CUT-OFF
1) Press the m button.
l
MC0 LED goes on.
l
Micro hone is turned off.
2)
Press the km 0 button to turn the microphone on again.
l
MC0 LED goes off.
NOTE:
Functional when telephone receives calls, them button
controls the microphone when the telephone originates
calls.
OFF-HOOK CALL ANNOUNCE (OCA)
OPTIONAL FEATURE
Allows a .station user to call and speak to an off-hook, busy
electronic telephone through the speaker, if that called station
has optional OCA feature.
OFF-HOOK CALL ANNOUNCE (OCA)
OPTIONAL FEATURE (continued)
TO USE OFF-HOOK CALL ANNOUNCE
1) Lift the handset.
2) Call the desired station.
l
Hear warning tone.
l
If busy tone is heard, dial 1.
3) Speak to called party (automatic OCA).
TO FORCE A DISCONNECT
A forced disconnect allows the called station to disconnect the
OCA call.
l
Press the SPKR button to disconnect an OCA caller.
NOTES:
1. DND revents OCA calls.
2. The I& andm buttons can prevent the OCA caller
from listening to your conversation.
CALL TRANSFER WITH CAMP-ON
Allows you to transfer an outside call to a station that is either idle
or busy.
TO TRANSFER A CALL
1) While connected to an outside call, press them
button.
l
CO LED changes to the Conference flash rate.
l
INT LED flashes at the In-use rate.
2) Dial the station number to which the call is to be transferred.
3A) If the called station is idle:
l
You hear a single ring tone.
4A) Announce the call.
5A) Hang up.
l
INT LED goes off.
l
CO LED changes to the On-hold flash rate:
l
CO line rings the called station.’
20
21

FEATURE USE
CALL TRANSFER WITH CAMP-ON (continued) CALL TRANSFER WITH CAMP-ON (continued)
l
CO LED illuminates steadily when the called station
connects with the transferred call.
l
If the station fails to answer the call, you will receive a
recall ring after a predetermined time.
. . . or. . .
3B) If the called station is busy:
l
Busy tone is heard.
4B) Hang up.
l
INT LED goes off.
l
CO LED changes to On-hold flash rate.
l
CO line is camped-on to the called station.’
l
Called station hears a warning tone.
l
CO LED illuminates steadily when the station con-
nects with the transferred call.2
NOTES:
1. You may reconnect to a transferred line (anytime
before it is answered) by pressing the appropriatem
button or dialm 0 B if them line does not appear on
your telephone.
2. The call will recall you and camp-on is cancelled if the
station does not pick it up within a predetermined time.
Inform the caller of the situation, and repeat the proce-
dure (if necessary).
TO ANSWER A TRANSFERRED CALL (if your station is idle)
1) Voice Signaling:
a) You will hear a single long tone, followed by an
’ announcement.
l
INT LED flashes at the Incoming Call rate.
b) Acknowledge the announcement.
c) When the transferring station hangs up, you will hear
a ringing tone.
l
CO LED changes to the Incoming Call flash rate.
d) Press the appropriate [9 button.
l
CO LED changes to the In-use flash rate.
NOTE:
If your electronic telephone has the Ringing Line Prefer-
ence feature, you may press the m button or lift the
handset instead of pressing the
q
button.
2) Tone Signaling:
a) You will hear intercom ringing.
l
INT LED flashes at the Incoming Call rate.
b) Lift the handset (or press the m button).
l
INT LED changes to the In-use flash rate.
c) Speak to the transferring station.
d) You will be connected to the outside call when the
transferring station hangs up.
l
INT LED goes off.
l
The LED of the transferred CO line changes to
the In-use flash rate.
TO ANSWER A TRANSFERRED CALL (if your station is
busy)
1) You will hear a l-second warning tone.
l
The outside call is camped-on to your station.
l
CO LED flashes at the On-hold rate.
2) You have several choices:
a) Press the appropriate m button.
l
Existing call is terminated.
l
The new line is answered and its LED changes to
the In-use flash rate.
bl) Hang up. . . . or. . .
l
Existing call is terminated.
l
The camped-on line rings at your station.
l
CO LED changes to the Incoming Call flash rate.
b2) Press them button (or lift the handset) to answer the
call.
l
CO LED changes to the In-use flash rate.
. . . or. . .
22 23

FEATURE USE FEATURE USE
CALL TRANSFER WITH CAMP-ON (continued)
cl) Press the m button (if conversing on a CO line).
l
Existing CO call is put on hold.
l
The camped-on line rings at your station.
l
CO LED changes to the Incoming Call flash rate.
c2) Press the
q
button to answer the call.
l
CO LED changes to the In-use flash rate.
CONFERENCE CALLS
TO CONFERENCE UP TO TWO STATIONS AND TWO CO
LINES, OR THREE STATIONS AND ONE CO LINE
Establish a CO line call using a CO line button, dial the appropri-
ate access code, or you may already be talking on a CO line call.
TO ADD A SECOND CO LINE
1) Press the m button.
l
You hear intercom dial tone.
l
CO LED flashes at the Conference rate.
l
INT LED flashes at the fast rate.
2) Access a second CO line’ and dial the next telephone
number.*
3) Press the m button after the party answers.
l
CO LEDs flash at the In-use rate.
l
All parties will be conferenced.
NOTES:
1. Press a
q
line button or dial an access code: 701 *
736, line number; 87 w 88, line group number; or with
Releases
2 and 3, LCR access code “9” is allowed.
2. If you receive a busy tone or no answer, return to the
original connection by pressing the
q
button. If the
line is not on your telephone, hang up and the original
connection will recall you immediately.
CONFERENCE CALLS (continued)
TO ADD ANOTHER STATION
1) Press the m button.
l
You hear intercom dial tone.
l
CO LED flashes at the Conference rate.
l
INT LED flashes at the In-use rate.
2) Dial the number of the other station.’
3) Press the m button after the party answers.*
l
CO LED(s) will flash at the In-use rate.
l
All parties will be conferenced.
4) Repeat to add another party:
l
Three stations/one CO line maximum.
5) Hang up when conference call is completed.
NOTES:
1. If you receive a busy tone or no answer, return to the
original connection by pressing the m but-
ton.
2. Thenewstation willnotbeconferencedunless the user
lifts the handset or presses the m button to answer.
TO CONFERENCE UP TO FOUR STATIONS ON ONE
INTERCOM LINE
1) Establish a two-station intercom call.
2) Press the m button.
l
You hear intercom dial tone.
l
INT LED flashes at the Conference rate.
3) Dial the third station’s number.
4) Press the m button after the party answers.
l
INT LED flashes at the In-use rate.
l
All parties will be conferenced.
5) To add the fourth party, repeat steps 2 * 4.
24 25

FEATURE USE
CALL FORWARD-ALL CALLS CALL FORWARD-BUSY (continued)
For Intercom and CO line calls (all calls will forward to a selected
station at all times-your station will not ring when called).
TO SET CALL FORWARD-ALL CALLS
1) Press the m button (or dial m 1 m 0).
l
CFAC LED flashes (or hear confirmation tone).
2) Dial the station number to which calls will forward.
l
Listen for confirmation tone if 110 was dialed.
3) Press the m (or m button.
l
CFAC LED on steady.
l
Calls will forward to stored station number.
TO CANCEL CALL FORWARD-ALL CALLS
Press the m button (or dial m [I 0).
l
CFAC LED goes off (or hear confirmation tone).
l
Press SPKR button if INT 6 0 1 was dialed.
NOTE:
If call forward is set:
l
CO lines that ring your station only will forward-CO
lines that ring more than one station will not forward.
l
CO line calls transferred to your station will forward.
l
Intercom calls will forward.
l
Call forward redirects the station hunt feature.
l
Call forward must be set before the call is received.
CALL FORWARD-BUSY (Release 2 and higher)
When your station is busy, all calls will forward immediately.
When your station is idle, calls will ring at your station as usual.
TO SET CALL FORWARD-BUSY
1) Press the m button (or dial m B w I).
l
CFB LED flashes (or hear confirmation tone).
2) Dial the station number to which calls will forward.
l
Listen for confirmation tone if 111 was dialed.
3) Press them (or m button.
l
CFB LED on steady.
l
Calls will forward to stored station number.
TO CANCEL CALL FORWARD-BUSY
Press the m button (or dial m 1 m i).
l
CFB LED goes off (or hear confirmation tone).
l
Press SPKR button if INT 6 0 2 was dialed.
NOTE:
If call forward is set:
l
CO lines that ring your station only will forward-CO
lines that ring more than one station will not forward.
l
CO line calls transferred to your station will forward.
l
Intercom calls will forward.
l
Call forward redirects the station hunt feature.
l
Call forward must be set before the call is received.
CALL FORWARD-NO ANSWER (Release 2 and higher)
For Intercom and CO line calls (all calls will forward to a selected
station whenever your telephone is not answered within 12
seconds or three rings, whichever occurs first).
TO SET CALL FORWARD-NO ANSWER
1) Press the m button (or dial m 11 B.
l
CFNA LED flashes (or hear confirmation tone).
2) Dial the station number to which calls will forward
l
Listen for confirmation tone if B 11 was dialed.
3) Press the m (or m) button.
l
CFNA LED on steady.
l
Calls will forward to stored station number.
TO CANCEL CALL FORWARD-NO ANSWER
Press the m button (or dial m 11 I). ’
l
CFNA LED goes off (or hear confirmation tone);
l
Press SPKR button if INT 6 0 3 was dialed.
26
‘.. ,;:
27
. . . ..A

FEATURE USE
CALL FORWARD-NO ANSWER (continued)
NOTE:
If call forward is set:
l
CO lines that ring your station only will forward-CO
lines that ring more than one station will not forward.
l
CO line calls transferred to your station will forward.
l
Intercom calls will forward.
l
Call forward redirects the station hunt feature.
l
Call forward must be set before the call is received.
CALL FORWARD-BUSY/NO ANSWER
(Release 2 and higher)
For Intercom and CO line calls (all calls will forward immediately
to a selected station whenever your telephone is busy, or if not
answered calls will forward within 12 seconds or three rings,
whichever occurs first).
TO SET CALL FORWARD-BUSY/NO ANSWER
1) Press the I;l=fllm button (or dial m 1 m I).
l
CFB/NA LED flashes (or hear confirmation tone).
2) Dial the station number to which calls will forward.
l
Listen for confirmation tone if 11 i was dialed.
3) Press them (or m) button.
l
CFB/NA LED on steady.
l
Calls will forward to stored station number.
TO CANCEL CALL FORWARD-BUSY/NO ANSWER
Press the m button (or dial m i 11).
l
CFB/NA LED goes off (or hear confirmation tone).
l
Press SPKR button if INT 6 0 4 was dialed. ’
NOTE: ’
If call forward is set:
l
CO lines that ring your station only will forward-CO
lines that ring more than one station will not forward.
l
CO line calls transferred to your station will forward.
l
Intercom calls will forward.
CALL FORWARD-BUSY/NO ANSWER (continued)
l
Call forward redirects the station hunt feature.
l
Call forward must be set before the call is received.
CALL FORWARD-FIXED
All intercom and CO line calls to your station will forward to a
predetermined station or voice mail device. The “Forward to”
station/device is determined (Fixed) in system programming for
each station. Your station will not ring when Call Forward-Fixed
is set.
TO USE FIXED CALL FORWARD (ALL CALLS)
1) Press the m button.
l
CFF LED on steady.
l
All calls will forward to the fixed programmed station.
2) To cancel, press the m button again.
. CFF LED off.
NOTE:
If call forward is set:
l
CO lines that ring your station only will forward-CO
lines that ring more than one station will not forward.
l
CO line calls transferred to your station will forward.
l
Intercom calls will forward.
l
Call forward redirects the station hunt feature.
l
Call forward must be set before the call is received.
CALL HOLDING
TO HOLD A CALL (CO line or a button appears on your
station)
While connected to a CO line or intercom call, press them
button.
l
CO or intercom LED flashes at the On-hold rate. ,
l
To reconnect the call, press the CO or INT button on hold.
28 29

FEATURE USE
CALL HOLDING (continued) EXCLUSIVE HOLD (continued)
NOTE: NOTE:
Regarding handsfree answerback,
an
intercom call must
be answered by pressing the m button or lifting the
handset before it can be placed on hold.
TO HOLD/PARK A CALL AND PLACE ANOTHER CALL (CO
line does not appear on your station)
When a CO line is placed on Exclusive Hold, it may be
picked up at another station by dialing a and the station
number that placed the call on Exclusive Hold; however it
cannot be picked up by pressing a common (9 button at
another station.
1)
2)
3)
4)
While connected to a CO or intercom call press the
m button and dial fl .
To make another call, press the I& or a[9 button and dial
the desired number.
Hang up or press the m button when the call is com-
pleted.
To retrieve the held call made in step 1, press them button
and dial 15 (see Note 3).
NOTES:
1.
2.
3.
The on-hold recall tone will be heard within a predeter-
mined time.
The heldcallmaybe releasedautomaticallyif the other
party hangs up (if the CO provides a hold-release
signal).
When a CO line is placed on hold, it may be picked up
from any station:
l
Press a 0 button with common appearance.
%
l
Press the button and dial I+ N (N = the holding
station’s intercom number).
l
Press the m button and dial 11 + N (N = the
’ holding CO line’s number-O 1 w 36, Release 2 and
higher).
EXCLUSIVE HOLD
TO USE EXCLUSIVE HOLD (CO line must appear on your
station)
While connected to an outside call, press them button twice.
l
CO LED flashes at a fast (10 IPS) rate.
l
To reconnect the call, press the CO button that is on hold.
CALL PICKUP
TO PICK UP RINGING CO LINE (Tenant l/Tenant 2 Line
Groups)
Press them or= button (or press them button and
dial 11).
TO DIRECT PICK UP ONE OF THE FOLLOWING
1) Station: Press the m button + station number (inter-
com, ringing or held CO line).
2) Intercom Page: Press the m button + 11.
3) External Page: Press the
l
4) CO line on hold: Press the
q
Kn”$!~(OO=CO
line number: 01 u 36, Release 2 and higher).
5) Any ringing CO line: Press the m button + m .
NOTE:
Ifa button is not available, press m + 1 instead of
the button.
DO NOT DISTURB
Allows you to prevent incoming calls from accessing your station.
You can still make out-going calls.
TO USE DO NOT DISTURB MODE
Press the m button.
l
DND LED goes on.
30
. . .
‘. ,_’
31

FEATURE USE FEATURE USE
DO NOT DISTURB (continued) AUTOMATIC CALLBACK (INTERCOM) (continued)
TO RELEASE THE DO NOT DISTURB MODE
Press the m button.
l
DND LED goes off.
NOTES:
1. Do Not Disturb prevents Off-hook Call Announce.
2. Outside calls will mute ring your station while in the
DND mode.
AUTOMATIC CALLBACK (INTERCOM)
After reaching a busy or DND station on an intercom call, you
may use Automatic Callback.
TO USE AUTOMATIC CALLBACK
1) Press them button (or dial 0) to set Automatic Callback.
l
Busy tone stops.
l
You will hear dial tone for two seconds and then busy
tone again.
2) Go on-hook. You may make other calls while waiting for the
called station to become available.
3) When the called station becomes idle:
l
Your telephone rings at a fast rate.
4) Answer the call within nine seconds to prevent the callback
from being cancelled.
l
You hear a single tone, as if making a regular intercom
call.
5) Proceed to voice announcement.
6) Proceed with the conversation.
NOTES:
1. You may cancel the re uest anytime prior to the
callback by pressing the ’
button and-dial 1 m. lb : button (or press the m
2. If, after answering a callback, you hear a busy tone, it
means the called party has already received or origi-
nated another call. Your request is not cancelled. You
will be called again the next time the station is idle.
CO LINE QUEUING
Provides a means for station users to be placed in a waiting
queue for a busy outgoing CO line group, and to be called back
when a CO line in the group is available.
TO USE CO LINE QUEUING
1) If all outgoin lines are busy,
dil ii
ou will hear busy tone.
2) Press the A : button (or dial 1) to set Automatic Callback.
l
Busy tone stops. You will hear dial tone for two
seconds and then busy tone again.
l
You may go on-hook or make other calls while waiting
for a trunk to become available.’
3) When a CO line becomes idle:
l
Your telephone rings at a fast rate.
l
CO LED flashes at the Incoming Call rate.
4) Lit? the handset within six seconds to prevent the callback
from being cancelled.
l
You hear CO dial tone.3
l
CO LED flashes at the In-use rate.
5) Dial the desired telephone number.2
6) Hang up when the call is completed.
NOTES:
1. You may cancel the request at any time prior to the
actual callback by
11 (or press the A ressing them button and dialing
I$ : button).
2. If the original call was made using LCR (dial @, the
telephone number is automatically dialed in step 4.
3. If, after answering a callback, you hear a busy tone, it
means the trunk has already been seized or received
an incoming call. Yourrequest is not cancelled. You will
be called again the next time a trunk becomes idle.
ACCOUNT CODE CALLS e
On some calls, you may be required (forced) to dial an account
code before dialing an outside number. On other calls, you may
32 33

FEATURE USE FEATURE USE
ACCOUNT CODE CALLS (continued) ACCOUNT CODE CALLS (continued)
wish to record an account code voluntarily after either dialing an
outside number or receiving an incoming call. The code you enter
will be recorded on the Station Message Detail Recording
(SMDR) printout with the details of your call. With Release3 only,
account codes may be verified or nonverified.
TO RECORD A FORCED ACCOUNT CODE (Outgoing Calls
Only)
1) Access a CO line.’
l
You hear dial tone.2
2) Dial the -digit account code with the dialpad.
l
Dial tone stops after you dial the first digit.
l
You will hear dial tone after you press the last digit of
a valid account code.
. . . or. . .
l
You will hear busy tone after you press the last digit of
an invalid code (Release 3 only).
3) Dial the outside directory number.
NOTES:
1. Press a (9 button, dial a CO line access code, or dial
1 to call via LCR.
2. If calling via LCR, CO dial tone will not be returned.
3. Unless you dial the correct number of digits, you will not
receive dial tone.
4. Any digits dialed after the code will be treated as part
of the outside directory number.
EMERGENCY OVERRIDE OF FORCED ACCOUNT CODE
DIALING REQUIREMENTS
With Release 3, forced account code requirements can be by-
passed by three emergency numbers, including 911. See your
system administrator for these numbers: 1) 911 2)
3)
TO RECORD A VOLUNTARY ACCOUNT CODE WITH
RELEASES 1 AND 2 (Incoming or Outgoing)
1) After completing an incoming or outgoing call, do not hang
2) Lfkss the m button and dial 11.
3) Dial the I-digit account code on the dialpad.
4) Hang up after entering the account code.
NOTE:
The account code may be entered using steps 2 and 3
anytime the call is in progress, however, it is not recom-
mended the conversation will be interrupted after you enter
step 2.
TO RECORD A VOLUNTARY ACCOUNT CODE WITH
RELEASE 3 (Incoming or Outgoin )
1) Anytime during the call, dial II B
8 or press the B
button (the conversation will not be interrupted).
2) Dial the account code.
l
If the code is valid, you will hear a confirmation burst
tone (about l/2 second duration).
. . . or. . .
l
Ifthecode is invalid, you will heartwo short confirmation
burst tones. Repeat steps 1 and 2 to dial another
account code. . . . or. . .
l
If the code is nonverified, you will not hear a confirma-
tion tone after an account code is entered.
NOTE:
Confirmation tones are inaudible to the other party.
TOADD,DELETE,ORCHANGEVERlFlEDACCOUNTCODES
FROM STATIONS SELECTED IN SYSTEM PROGRAMMING
1) Press m and dial the verified account code change ac-
cess code Q Ci CI (see Note).
l
You will hear confirmation tone.
34
35
k. ,

FEATURE USE FEATURE USE
ACCOUNT CODE CALLS (continued)
2) Dial the three-digit verified account code number tI Cl It
(000 - 299).
3) Dial the verified account code O...Ct (4 * 15 digits).
4) Press the 1 or m button to store the code.
l
You will hear confirmation tone.
5) Repeat steps 1 w 4 to enter more verified account codes.
DOOR PHONE
NOTE:
For security reasons, the account code change access
code is not given in this guide. Contact your telephone
system maintenance provider for this access code.
PAGING
TO PAGE
1) Lift the handset.
2) Press the m button and dial the following:
14 = All Call (electronic and digital telephones only)
10 = Station Group #1
iI= Station Group #2
Ii= Station Group #3
iI= Station Group #4
l
= All Call (with External Page)*
88 w 1 B = External Page Zones (1 w 4)*
3) Make your announcement in a normal voice level and
repeat it.
4) Hang up when you have completed your announcement.
*Progqmmable Option
TO PAGE ALL CALL TO ELECTRONIC TELEPHONES ONLY
1) Lift the handset.
2) Press the
q
button.
3) Make your announcement in a normal voice level and
repeat it.
4) Hang up when you have completed your announcement.
TO ANSWER THE DOOR PHONE
1) You hear a distinctive ringing tone.
2) Lift the handset.
l
INT LED lights.
l
You are connected to the door phone.
3) Hang up when the call is completed.
TO CALL/MONITOR A DOOR PHONE
1) Lift the handset.
2) Press them button.
l
You hear intercom dial tone.
l
INT LED flashes at the In-use rate.
3) Dial the intercom number for the desired door location.
151 Location
152 Location
153 Location
154 Location
155 Location
156 Location
157 Location
158 Location
159 Location
161 Location
162 Location
163 Location
4) Hang up when the call is completed or when you no longer
wish to monitor the door phone.
TO USE A DOOR PHONE
1) Press the button and then release it.
l
You hear a distinctive ringing tone.
2) When answered, speak at a normal voice level in the
direction of the door phone.
NOTE:
The
q
button does not access external page speakers.
36 37

FEATURE USE FEATURE USE
HANDSFREE MONITORING BACKGROUND MUSIC OVER EXTERNAL SPEAKERS
Calls placed on hold by the distant party may be monitored
handsfree.
TO USE HANDSFREE MONITORING
1) While connected to a call, press and hold them button.
2) Place the handset on-hook.
3) Release the m button.
l
Sounds from the distant party are heard via the
telephone’s speaker.
4) Lift the handset to continue the conversation when the
distant party returns.
ALARM RESET
A programmable option used with an optional alarm system to
on the system’s electronic telephone.
button resets the alarm signal on the
telephones.
BACKGROUND MUSIC (BGM)
If a BGM music source is connected to your system, you may
listen to background music via your station’s speaker, or over the
external page speakers.
TO LISTEN TO BGM ON YOUR TELEPHONE SPEAKER
Press the m button and dial g 10 (or press the m button).
l
Adjust volume with the VOL control on the front of your
phone.
TO CANCEL BGM ON YOUR TELEPHONE SPEAKER
Press the m button and dial a 11 (or press the m button).
NOTE:
Station number200 is the only station that can turn External
BGM On/Off.
TO ALLOW BGM OVER EXTERNAL PAGE
Press the m button and dial 110.
TO CANCEL BGM OVER EXTERNAL PAGE
Press the m button and dial 11 I.
DIRECT INWARD SYSTEM ACCESS (DISA)
When calling into your system from the outside on certain
telephone lines.
TO MAKE A DIRECT INWARD STATION CALL USING DISA
1) Using a DTMF telephone, call the DISA CO line telephone
number:--
2) Listen for the ringback tone signal, and then listen for the
intercom dial tone’ (if busy tone is received, try again).
3) Dial the intercom number of the desired station.
l
You will be connected when the station answers*,
. . . or. . .
l
If you receive busy tone or wish to dial another number
while ringing the station, press the a button to receive
dial tone, allowing another number to be dialed.
TO CALL THROUGH YOUR SYSTEM ON AN OUTGOING CO
LINE USING DISA (Release 2 and higher)
1) Using a DTMF telephone, call the DISA CO line telephone
number:--
2) Listen for the ringback tone signal, and then listen for the
STRATA DK intercom dial tone’ (if busy tone is received, try
again).
3) Dial the access code3 ( ) of the CO line or CO line group
that is to be used to place the outgoing call.
4A) If a DISA security code is required4, dial the code and listen
for CO dial tone.5
38
‘.;:, ,:’
39

FEATURE USE FEATURE USE
DIRECT INWARD SYSTEM ACCESS (DISA) (continued)
4B) If a DISA security code is not required, listen for CO dial
tone.
5) After receiving CO dial tone, dial the desired telephone
number.
6) A timer tone will sound6 approximately four minutes after
the time the call was made. Dial 1 to reset the timer’ each
time the tone sounds (this allows an additional four minutes
of conversation).
7) Hang up when the call is completed.
NOTES:
1. Dial tone will be present for 10 seconds to allow direct
dialing of station intercom number or CO line access
code. If a number is not dialed, the system automati-
cally causes the DISA CO line to ring at telephones as
a normal incoming call. However, if the call is not
answered within 15 seconds after the ringing starts, it
will disconnect.
2A. Ifthestationdoes not answeraftersixringsortwenty-
four seconds, whichever comes first, busy tone will be
sent. Dial1 to return to dial tone and dial the same or
another number.
213. If you wish to call another station after completing a
DISA station call, it is necessary for the internal party
to transfer your call.
3. A direct CO line or line group access code must be
dialed (701 m 736 or 81 w 88). The LCR code (9) is not
allo wed.
4. The DISA security code is a system program option
that may or may not be required.
5. If the correct code is not entered, the call will be
disconnected.
6. Allparties will hear the timer tone and timer reset DTMF
tone.
7. If the timer is not reset, the call will disconnect approxi-
mately one minute after the timer tone is sent.
8. Station and system page cannot be accessed on DISA
calls.
DIRECT INWARD SYSTEM ACCESS (DISA) (continued)
DISA SECURITY CODE ENTRY/CHANGE/CANCEL
(Release 2 and higher)
From designated station(s) only.
1) Press thembutton and dial QQ 0’ (3-digit access code).
0 Receive confirmation tone.
2) Dial the new DISA security code2 (Q . Q-1 m 15 digits).
3) Press the B (or m) button.
l
Receive confirmation tone.
NOTES:
1. For security purposes, the 3-digit access code is not
published, it is available from your telephone system
maintenance provider.
2. If a DISA security code is not entered in step 2, the
security code will be cancelled and outgoing line ac-
cess via DISA will not require a security code.
DIRECT STATION SELECTION BUTTONS (HOTLINE)
PROGRAMMABLE OPTION
Allows stations to be connected directly by pressing a m
button. The button’s LED independently shows the status (idle/
busy) of that station. If connected to a CO line, pressing this
button will put the party on hold. Transfer the call as you would
normally, by voice announcing or camping on by hanging up.
DOOR LOCK
Pressing the m button momentarily activates a switch con-
nected to a door lock or similar device.
Door Lock Button
DRLK 0
DRLK 1
DRLK 2
DRLK 3
DRLK 4
Location
40 41

FEATURE USE FEATURE USE
MESSAGE WAITING MESSAGE WAITING (continued)
If someone calls your telephone and you are unable to answer,
the calling party may set the Message Waiting indicator (a
flashing LED) on the called party’s telephone.
The Message Waiting indicator is the MW/FL LED on the IO- or
20-button electronic telephone.
Up to four Message Waiting indications may be queued on the
message indicator at one time. One of the four message indica-
tions is always reserved for the Message Center; the other three
may be set from any other telephone or voice mail device.
The button associated with the message indicator on the lo- or
20-button telephone is shown as MW/FL.
TO ANSWER A MESSAGE WAITING INDICATION ON YOUR
TELEPHONE
1) If the MWIFL LED is flashi
handset, press the m and ur telephone: Lift the
buttons, respectively.
l
This calls the station that set the message indicator.
l
Wait for an answer to receive the message.
NOTE:
If there is no answer, hang up and try at a later time (the
MW/FL LED continues to flash).
2) After receiving the message, place the handset on hook.
l
If the MW/FL LED turns off, you have no more mes-
sages.
0. If the MW/FL LED continues to flash, you have more
messages-repeat steps 1 and 2 to retrieve them.
l
If the flashing message LED was turned on by a voice
mail device, the device will cancel the indication after
a short delay. The cancel time depends on the voice
mail device’s parameters.
NOTE;
our telephone does not have a m button, dialm
TOSETTHEMESSAGEWAlTlNGINDlCATORONANOTHER
TELEPHONE
1) At yourtelephone: Lift the handset, press them button and
dial the desired intercom number.
2) If the called telephone does not answer: Press them
button to set the message indication (or dial I).
l
The MW/FL LED flashes at the called telephone.
l
The MW/FL LED illuminates steady at your telephone.
3) Place the handset on-hook.
l
The MW/FL LED flashes at the called telephone.
l
The MW/FL LED turns off at your station.
e The MW/FL LED continues to flash at the called
telephone.
TO CANCEL THE MESSAGE WAITING INDICATION SET
FROM YOUR TELEPHONE
Lift the handset, dial the intercom number of the telephone that
has the message indication, and press them button twice
(or dial 10).
TO CANCEL THE MESSAGE WAITING INDICATION SET ON
YOUR TELEPHONE
1) Answer the Message Waiting indication and receive the
message.
NOTE:
Thecalledpartymustanswer(off-hookorm button) for
the message indication to be canceled.
. . . or. . .
2) Press them button (do not press them button first).
NOTE:
If your telephone does not have a m button, the
message indication can be canceled by dialing m a m 1.
42 ‘.
. . . .
I.._
43
/’

FEATURE USE FEATURE USE
NIGHT TRANSFER
PROGRAMMABLE OPTION
OVERRIDE CALLS (continued)
On an optional basis, your system can function with two or three
ringing patterns. If three patterns are selected, they are desig-
nated DAY, DAY 2, and NIGHT. If only two patterns are selected,
DAY and NIGHT designations are used.
In both cases, different ringing patterns are chosen by pressing
the
q
button. Certain CO lines may be enabled in system pro-
gramming to switch from normal operation to DISA line opera-
tion.
The active pattern is shown by the state of the NT LED as follows:
DAY
DAY 2
NIGHT
Three-pattern
OFF
FLASH
ON
Two pattern
OFF
N/A
ON
OVERRIDE CALLS
TO INITIATE A BUSY OVERRIDE SIGNAL
After reaching a busy station, you may signal that station that a
call is waiting by dialing 1.
l
A tone signal is heard at the busy station.
NOTE:
If the Off-hook Cal/Announce option is installed on the busy
stat@, then you may talk.
TO OVERRIDE DND (Programmable Option For Selected
Stations)
After retiching a DND station, you may signal that station that a
call is waiting by dialing 1.
l
A tone signal is heard at the DND station.
TO INITIATE EXECUTIVE OVERRIDE (Programmable Option
For Selected Stations)
After reaching a busy station, Executive Override allows you to
enter an established conversation by dialing 1.
l
An optional tone signal is heard by the called parties prior to
entering the conversation.
NOTE:
Privacy override and off-hook call announce are in a
separate section of this guide; see the index.
SPEAKERPHONE
TO MAKE AN OUTSIDE CALL (On-hook Dialing)
1) Leave the handset on-hook.
2) Press any available
q
button (or them button + access
code).
l
Listen for dial tone.
l
CO LED flashes at the In-use rate.
3) Dial the desired telephone number.
4) Speak at a normal voice level in the direction of the
telephone.
5) Press the m button when the call is completed to
disconnect.
TO RECEIVE AN INCOMING CALL
1) You hear a ringing tone.
2) Leave the handset on-hook.
3) Press them button next to the flashing LED (CO Incoming
Call rate).
l
CO LED flashes at the In-use rate.
4) Speak at a normal voice level in the direction of the
telephone.
5) Press the m button when the call is completed to
disconnect.
44 45

FEATUREUSE FEATURE USE
SPEAKERPHONE (continued) MICROPHONE CONTROL (continued)
TO MAKE AN INTERCOM CALL (On-hook Dialing)
1) Leave the handset on-hook.
2) Press the m button.
l
Listen for intercom dial tone.
l
INT LED flashes at the In-use rate.
3) Dial the desired station number.
l
You hear a single ring tone.
4) Speak at a normal voice level in the direction of the
telephone.
5) Press the m button when the call is completed to
disconnect.
MICROPHONE CONTROL
The MIC button is used to switch the electronic telephone’s
microphone from ON to OFF or vise versa while the telephone is
in use (also see Microphone Cut-off- button). The MIC
LED indicates the status of the microphone:
LED MICROPHONE
ON ON
OFF OFF
All electronic telephones can answer intercom calls handsfree
(on-hook) via the microphone, but only a speakerphone can talk
handsfree when originating CO line or intercom calls while on-
hook.
The microphone and accompanying LED are always ON when
receiving intercom calls to allow handsfree answerback, and
may be ON or OFF when beginning to place an on-hook CO line
or intercom call.
l
Each station’s microphone may be set in system program-
ming to be ON or OFF at the start of handsfree dialing.
l
Each station’s m button may be set in system program-
ming to switch ON/OFF with one touch or to switch ON/OFF
only while pressed.
NOTES:
1. To change from speakerphone to handset:
l
Lift handset.
l
Return handset on-hook.
on off-hook call
announce calls for privacy.
TWO (TANDEM) CO LINE CONNECTION
TO ESTABLISH A TANDEM CO LINE CONNECTION (TRK-
TRK)
1) While connected on an established CO line call (incoming
l
You hear intercom dial tone.
l
CO LED flashes at the Conference rate.
l
INT LED flashes at the In-use rate.
3) Access a second CO line and dial the next telephone
number.’
4) Press the m button after the party answers.2
l
CO LEDs flash at the In-use rate.
l
All parties will be conferenced.
5) Press them button.
l
You hear intercom dial tone.
l
CO LEDs flash at the Exclusive Hold rate (10 IPS).
l
INT LED flashes at the In-use rate.
6) Hang up.
l
Both CO LEDs continue flashing at the Exclusive Hold
rate.
l
INT LED goes off.
l
COs are connected and in Exclusive Hold on your
station.
l
Connection is released automatically when parties
hang UP.~
46 ., 47

FEATURE USE FEATURE USE
TIMED REMINDERS (continued)
TWO (TANDEM) CO LINE CONNECTION (continued)
On some systems, the connection must be supervised and
released as follows:
1) Press either
q
button.
l
Both CO LEDs flash at the In-use rate.
l
You will be connected to both CO lines.
2) If the parties have hung up, go back on-hook.
l
Both CO LEDs go off.
l
Connection is released.
3) If the parties are still talking, proceed to step 5 above.
NOTES:
1. CO lines may be accessed bypressing am line button
or by dialing access codes (line number, 70 1 - 736; line
group, 81 - 88; or with
Release
2 and higher, LCR
access “9” is allowed),. however, both CO lines must
appear (buttons) on the telephone to allow the station
to monitor the tandem connection.
2. If you receive a busy tone or no answer, return to the
original connection by pressing the original [9 line
button.
3. Depends on the public telephone company; some
provide auto disconnect and some do not.
TIMED REMINDERS
Allows five separate reminders to be set at each station. These
reminders will be an audible beeping at the times (hour and
minute) set by the station user. They can occur just once or
repeated on a daily basis.
TO ENTER A TIMED REMINDER
1) Dial~+~~~-~~~.Y ou h ave a choice of five different
reminders.
2) Enter the desired time (24-hour clock format; i.e., HHMM).
3) Dial 1 if reminder will be repeated every day, or 0 if it is a
one-time reminder only.
4) Press 1 (or m button to record the time in memory.
l
A beeping tone will be heard for 30 seconds (or until
cancelled by going off-hook) when the hour and min-
ute occur.
TO CANCEL A TIMED REMINDER
NOTE:
Repeat for reminders 1 m b - 1 B 1.
TOLL RESTRICTION OVERRIDE/TRAVELING CLASS
Toll restriction at a station can be completely overridden, or, with
Release 3, the station’s normal class can be changed to another
class (traveling class). Use the following procedure to completely
override or to change a station’s toll restriction class.
TO OVERRIDE TOLL RESTRICTION AT A STATION FOR A
SINGLE CALL
1) Access a CO line as normal.
2) Press the m button and dial 0 0.
l
If there was dial tone, it will noti cease.
3) Dial the Toll Restriction Override Code (four digits).
l
You will hear dial tone.
4) Dial the desired telephone number.
TO ADD, DELETE, OR CHANGE TOLL RESTRICTION
OVERRIDE OR TRAVELING CLASS CODES FROM
STATIONS SELECTED IN SYSTEM PROGRAMMING.
1) Press m and dial the three-digit toll restriction override
change access code CI CII 0”.
l
You will hear confirmation tone.
2) Dial the four-digit override code It Cl It It.
3) Press the 1 or m button to store code.
48
49

FEATURE USE
TOLL RESTRICTION OVERRIDE/TRAVELING CLASS
(continued)
l
You will hear confirmation tone.
4) Repeat steps 1 w 4 to enter more toll restriction override or
traveling codes.
NOTES:
7. Traveling class is available with Release 3 only.
2. For security reasons, the change access code is not
provided in this guide. It is available from your tele-
phone system maintenance provider.
TONE SIGNALING
PROGRAMMABLE OPTION
Provides ringing on incoming intercom calls when voice an-
nouncing is not activated.
TO MAKE A TONE SIGNAL CALL
1) Call another station via intercom.
l
The called party hears one ring, then our voice.
2) To send ring tone to the called party, dial Iii
.
3) Speak to the party when the call is answered.
TO ANSWER A TONE SIGNAL CALL
1) Lift the handset or press the m button (handsfree an-
swerback is inoperative).
2) Hang up when the call is completed.
, VOICE MAIL (VM)
Whenever your station is call forwarded to voice mail, certain
digits will automatically be sent to the voice mail unit to direct the
call to your voice mail box.
TO STORE THE DIGITS TO BE SENT
VOICE MAIL (VM) (continued)
and pauses to be sent (see Note).
button to store data.
NOTE:
Use m or= button to store pauses.
When you wish to retrieve your messages from voice mail,
certain digits will automatically be sent to the voice unit to play
back your messages after you press the message waiting button.
TO STORE THE DIGITS TO BE SENT
1) Press the m button.
2) Dial RIO.
3) Dial the re
i uired di its and pauses to be sent.
4) Press the * (or d) button to store data.
TO RETRIEVE MESSAGES
Press the m and m buttons.
TO CLEAR ALL DIGITS
1) Press m. 0.
).
NOTE:
The above procedures are required for initial VM set-up
only. The digits remain in memory until changed.
1) Press the m button.
2) Dial 111.
50 :,, .’

INDEX
CENTREX APPLICATION
Your system may be equipped with the Centrex Application,
which enhances the system feature capability when installed
behind a Centrex or PBX system.
Your electronic telephone may be equipped with one or more of
the enhanced Centrex features listed below:
A) Flexible Intercom Numbering (up to four digits)
A station intercom number can be three or four digits. It is,
therefore, possible to match a station’s intercom and Cen-
trex line extension number. Dial the entire station number
when indicated.
NOTE:
To avoid system numbering plan conflicts, some access
code numbers may have to be changed.
B) Centrex Feature Buttons
Certain Centrex features may be operated by pressing a
button on your electronic telephone. The Centrex access
code, including the necessary Flash and/or Pause sequence,
is activated when the appropriate button is pressed. Press
the appropriate Centrex feature button instead of dialing a
Centrex access code when operation of the feature is
desired. See your Centrex or PBX Operations Manual for
specific details.
C) Ringing Repeat
The distinctive ring patterns available in your Centrex sys-
tem are automatically repeated with your electronic tele-
phone, allowing you to answer appropriately for either out-
side, inside or callback calls.
D) Delayed Ringing
CO or Centrex line(s) may be programmed for a 12-second
and/or 24-second ring delay at stations to permit alternate
answering conditions. Answer the line when your electronic
telephone is ringing.
Account Code Calls ............................................................ 33
Alarm Reset ........................................................................ 38
Auto Busy Redial ................................................................ 11
Automatic Callback (Intercom) ........................................... 32
Automatic Off-hook Selection Programmable Option.. ....... 10
Background Music (BGM) .................................................. 38
Background Music Over External Speakers ....................... 39
Button Descriptions ............................................................ 2
Call Forward-All Calls ......................................................... 26
Call Forward-Busy .............................................................. 26
Call Forward-Busy/No Answer ........................................... 28
Call Forward-Fixed ............................................................. 29
Call Forward-No Answer .................................................... 27
Call Holding ........................................................................ 29
Call Pickup.. ........................................................................ 31
Call Transfer with Camp-on ................................................ 21
CENTREX Application ........................................................ 52
Conference Calls ................................................................ 24
Direct Inward System Access (DISA) ................................. 39
Direct Station Selection Buttons (Hotline)
Programmable Option ....................................................... 41
Do Not Disturb .................................................................... 31
Door Lock ........................................................................... 41
Door Phone ........................................................................ 37
Exclusive Hold .................................................................... 30
Group Listening .................................................................. 10
Handsfree Answerback ...................................................... 20
Handsfree Monitoring ......................................................... 38
Intercom Calls.. ................................................................... 19
LED Indications .................................................................. 6
Message Waiting ................................................................ 42
Microphone Control ............................................................ 46
Microphone Cut-off Programmable Option ......................... 20
Night Transfer Programmable Option ................................. 44
Off-hook Call Announce (OCA) Optional Feature .............. 20
On-hook Dialing ............................................................ .:. ... 9
Outside Calls ...................................................................... 8
52

INDEX
(continued)
Override Calls ..................................................................... 44
Paging ................................................................................ 36
Privacy Override Programmable Option ............................. 18
Privacy Release Programmable Option ............................. 19
Repeat Last Number Dialed Programmable Option ........... 11
Speakerphone .................................................................... 45
Speed Dial .......................................................................... 12
Speed Dial Buttons Programmable Option.. ....................... 13
Saved Number Redial Programmable Option .................... 14
Telephone Number Storage ............................................... 14
Timed Reminders ............................................................... 48
Toll Restriction Override/Traveling Class ........................... 49
Tone/Pulse Dialing Programmable Option ......................... 17
Tone Signaling Programmable Option ............................... 50
Two (Tandem) CO Line Connection ................................... 47
Voice Mail (VM) .................................................................. 50
* and # DTMF Tone Dialing ................................................ 16
54 :

LIQUID CRYSTAL
DISPLAY FEATURES
ELECTRONIC
TELEPHONE
U S E R G U I D E
STRATA” DK
DIGITAL KEY
TELEPHONE SYSTEMS
STRATA DK24
DK56 AND DK96
RELEASE 1, 2, & 3
TABLE OF CONTENTS
LIQUID CRYSTAL DISPLAY ..................................................
SUMMARY OF LCD FUNCTIONS .........................................
DATE/TIME/DAY ADJUSTMENT ...........................................
CALL FORWARD DISPLAY ...................................................
STATION-TO-STATION MESSAGE WAITING ......................
VOICE MAIL (VM) ...................................................................
BUSY FIELD DISPLAY.. .........................................................
MODE EXIT ............................................................................
DISA SECURITY CODE: ADD/DELETE/CHANGE ................
TOLL RESTRICTION OVERRRlDE/TRAVELlNG
CLASS CODE CHANGE .....................................................
VERIFIED ACCOUNT CODE CHANGE.. ...............................
MESSAGE ADMINISTRATION FUNCTIONS ........................
Adding to a Preprogrammed Message ................................
Editing or Setting a New Calling Station Message ..............
Preprogramming System Messages.. ..................................
Recording A Message .........................................................
Storing A Message ..............................................................
LCD NAME/NUMBER DISPLAY.. ...........................................
SPEED DIAL MEMO.. .............................................................
TIMED REMINDERS WITH MEMO.. ......................................
MESSAGE SENDING .............................................................
Called Station Messaging ....................................................
Group Called Station Messaging .........................................
Calling Station Messaging ...................................................
Group Calling Station Messaging ........................................
Busy Station Messaging ......................................................
MESSAGE DIRECTORY ........................................................
USER NAME/NUMBER DIRECTORY.. ..................................
SPEED DIAL MEMO DIRECTORY ........................................
INDEX ........................................................................... .:. .......
1
2
12
13
14
15
16
16
16
17
18
19
19
20
20
21
22
22
25
26
27
27
28
29
29
31
32
33
34
39

HANDSET
\
SPEAKER
\
MODULAR
CORD
DIALPAD LCD DISPLAY
FEATURE AND
FUNCTION LEDS
VOLUME
ON/OFF BUTTON BUmON CONTROL
‘AVAILABLE ON LCD MODEL ONLY
, SCROLL BUTTON’
I PAGE BUTTON’
- MODE BUmON*
FLEXIBLE
- BUTTONS
20btton Liquid Crystal Display Telephone
LIQUID CRYSTAL DISPLAY
In its idle state, the 32-character Liquid Crystal Display (LCD)
feature on your electronic telephone gives you an accurate desk
clock and calendar combination. When you have an outside call in
progress, an elapsed time display gives a constant reminder of the
call duration. In addition, a variety of information displays and
feature prompting make your call handling more efficient. Alphanu-
meric messaging capability is also provided. All display functions
occur automatically as call processing proceeds.
SCRL u
[l]pAGED
MODE 0
The uses of the three buttons shown above are:
SCRL: 1) Scrolls through message waiting numbers.
2) Scrolls through the speed dial digits (if more than 16
digits) when in mode 8.
PAGE: 1) Changes Busy Field groups.
2) Used by station 200 to record a user NAME/NUMBER
for another station. Station 200 must be an LCD elec-
tronic telephone to record NAME/NUMBER display for
any other station type.
3) Changes displays (date/time, elapsed time, message,
call forward, dialed number).
4) Scrolls through speed dial numbers when using mode
8.
MODE: 1) To enter/exit various mode functions (see below).
2) To cancel beeping tone when using timed reminders.
‘.
1

LIQUID CRYSTAL DISPLAY
(continued)
MODE DEFINITION
MODE 0: Used to exit another mode and return to clock/calendar
display.
MODE 1: Busy Field display.
MODE 2: Busy station messaging
(Releases 1
and 3).
MODE 4: Called station messaging.
MODE 8: Speed dial number check and memo dialing.
MODE 94: Remote called station messaging
(Releases 1
and 3).
MODE 95: Remote calling station messaging
(Releases 1
and 3).
A)
Account Codes
SUMMARY OF LCD FUNCTIONS
Type
When Displayed
When you press a CO line that requires
a forced (verified or nonverified) ac-
count code; or dial 111, or press the
B button to enter a voluntary
(verified or nonverified) account code
(Release 3).
When you press a CO line that requires
a forced (nonverified) account code, or
when you press m 1 B to en-
teravoluntary (nonverified) account code
(Releases 1
and 2).
When you dial a verified voluntary ac-
count code that is not valid
(Release 3).
SUMMARY OF LCD FUNCTIONS
(continued)
I
NO. NNN
CODE VERIFIED
1
I
NO. NNN
DIAL RESTRICTED I
)DIALTELkE:~
DIAL TEL NUMBER
B) Auto Busy Redial
WW
C) Automatic
Callback (ACB)
I 1
I
NO. NNN
INT NNN ACB SET I
I
NO. NNN
NNN ACB I
I
NO. NN'N
LINE 10 ACB I
I I
When you dial a verified voluntary ac-
count code that is set in the system
account code memory
(Release 3).
When you dial a verified forced account
code that is not valid
(Release 3).
After you dial a verified forced account
code that is valid
(Release 3).
After you dial a forced or voluntary ac-
count code
(Releases 1
and 2).
After setting auto busy redial, your dis-
play prompts you that it has been set.
When the system retrieves the call, your
display shows the called number.
When the called station is ringing, your
station’s CO LED (or INT LED) and SPKR
LED will flash and a warning beep will
sound.
When you set automatic callback at a
busy station, its number is displayed.
When you receive an automatic call-
back, the station number you called is
displayed.
When you receive an automatic callback
for a CO line, the seized line’snumber is
displayed.

D)
Automatic Line Selection
1) Intercom Line
If your station automatically accesses an
I is displayed.
mtercom lme when you go off-hook, INT
2) CO Line
pEq
If your station automatically accesses a
CO line when you go off-hook, the num-
ber of the seized CO line is displayed.
3) Dial Access Code
pz?q
When you access a CO line by dialing a
COlinegroupaccesscode, theaccessed
CO line number is displayed.
El
Alphanumeric Messaaes
F)
Busy Field
SUMMARY OF LCD FUNCTIONS
(continued)
piE=q Your station will display the called num-
ber, followed by LINE NN ACB.
I
00 0....5....
10 . . . . ...7.. I
(
,
Messages of up to 32 characters may be
used in alphanumeric messaging. Mes-
sages may either be programmed or set
as one-time messages. (Messages may
also be used with a timed reminder.)
The Busy Field display indicates, in
groups of 10, the last two digits of the
station numbers that are busy or set for
DND. The top display indicates that
stations X00, X05, and Xl 7 are either in
use or in DND; the bottom display indi-
cates the same for stations X27, X32,
X34, and X39. If the m button is
pressed, the 00/l 0 group will change to
10/20, and the busy/DND states of that
group of stations will be displayed. The
station roups will increment each time
the WA
da button is pressed, thereby
displaying all stations.
SUMMARY OF LCD FUNCTIONS
(continued)
G) Call Forward
rzl
H) Call Pickup
pLizi%q
When you initiate any type of call for-
ward, the LCD displays, CALL FOR-
WARD TO.
After you set call forward, the station
number to which your calls will be for-
warded is displayed, along with one of
the following abbreviations:
CF-AC (Call Forward-All Calls)
CF-BUSY (Call Forward-Busy)
CF-NA (Call Forward-No Answer)
CF-B/NA (Call Forward-Busy/No
Answer)
CF-FIXED (Call Forward-Fixed)
NOTE:
Call Forward-Busy, Call Forward-No
Answer, and Call Forward-Busy/No An-
swerare available only with
Release 2
or
higher.
When your call is forwarded to another
station, the station you called is shown. It
then changes to the station to which your
call was forwarded.
When a call is forwarded to your station,
the calling station number is displayed
on the left and the station called is dis-
played on the right.
When you pick up an intercom call, the
calling station’s number is displayed on
the left and the station number called is
displayed on the right. ’
:I
‘\ I”

Calling Number-Intercom
When you receive an intercom call, the
calling station’s number is displayed.
J)
CO Line Identification
I
DR. JONES OETICE I
The CO lines can be programmed to
display an identifying name of up to 16
characters. The name will be displayed
on outgoing and incoming calls.
K)
CO Line Number
SUMMARY OF LCD FUNCTIONS
(continued)
Your LCD telephone displays informa-
tion noting that your call to station NNN
was picked up by station NNN.
1) Incoming Call
m
Incoming CO call-If your station is pro-
grammed for incoming ringing on that
CO line.
Transferred CO call-CO line is trans-
ferred to your station in the ringing state
by another station.
Camped-on CO call-CO line was
camped-on to your busy station and rings
your station when you hang up.
2) When Call Is Answered
The display changes to indicate calling
R status.
3) Hold
You have put a CO line call on hold at
-1 your station.
SUMMARY OF LCD FUNCTIONS
(continued)
4) Hold Recall
Held call automatically recalls your sta-
tion after a programmed period of time.
5) Outgoing
(
When you manually select a CO line, it is
displayed. This display is replaced by the
dialed number as you dial.
6) CO Line Queuing (Callback)
When the CO line queuing feature rings
back to your station with an available CO
line, that line number will be displayed.
L) Date/Time
I. Press them button to display
date/time when talking on a CO
line.
2. The date/time is adjusted on a
system-wide basis by the station
located in port 00 (usually station
200).
M) Dialed Number
1) CO Line
The digits are displayed as you dial over
m 1 Manual
dialing
erther a CO,lrne or the intercom using:
l
Automatic dialing
l
Repeat last number dialed
l
Saved number redial

SUMMARY OF LCD FUNCTIONS
(continued)
SUMMARY OF LCD FUNCTIONS
(continued)
2) Intercom
If you are calling on a CO line, the display
’ will automatickly change from dialeb
number to elapsed time after a pro-
grammed period of time.
N) Door Phone/Monitor When you are called from a door phone,
its designating characters are displayed.
When you call a door phone, its desig-
nating characters are displayed.
NOTE:
The doorphone designators are NA, NB,
and/or NC (N = 1 Y 4, and indicates which
of the 12 possible door phones is calling
or is being called).
0) Elapsed Time While you are making an outgoing CO
line call, the elapsed time of the call is
displayed. Elapsed time automatically
replaces the dialed number on the dis-
play after a programmed period of time.
(Timing begins when a [9 button is
pressed.)
NOTES:
1. On a CO line call, the display can be
alternated between date/time,
elapsed time, and dialed number by
pressing the m button.
2. Elapsed time is displayed for 15 sec-
onds after you hang up, and then
changes automatically to date/time.
P)
Intercom Number Display
If an access code is entered (m 110,
m [I 0 when on a CO line), the
programmed intercom number will be
displayed.
Q) LCD Name/Number Display (Release 2 and higher)
1) Idle station
m
2) Called station
A name or title may be set in memory for
each station. When an LCD station is
idle, the name displays on the top line of
the LCD. When a station calls an LCD
station, the name of the calling station
displays on the bottom line of the called
station’s LCD.
R) Least Cost Routing (LCR)
‘When you are making a call via LCR,
your display will prompt you to dial
a number by displaying, DIAL TEL
NUMBER.
S) Message Waiting
(
I
slrm! NNN
JAN 01 SUN 12:19 I
I
NO. NNN
CALL 203 201 200 I
As you dial the number, it is shown on
your display.
When you set message waiting at an-
other station, the number of that station
is displayed.
When you hang up after setting message
waiting at another station, a reminder is
shown on the top row of your display.
Your display will show the numbers of up
to three stations that have left messages
for you. Four numbers may be’stored in
message memory (see Recalling
Station).

SUMMARY OF LCD FUNCTIONS
(continued)
T) Message Waiting/Voice Mail
When a message waiting voice mail is
displayed, a “V” will follow the station
number. A I‘+” indicates that there is a
station message in memory. Press the
m button to rotate through the
numbers.
U) Off-hook Call Announce
When you off-hook call announce to a
I ber of that station.
busy station, your LCDdisplays the num-
When another station off-hook call an-
nounces to your station, your LCD dis-
plays the number of that station.
V) Overrides
1) Busy Override
When you activate the override feature
after calling a busy station, the station
number and the feature are displayed.
Your LCD telephone displays the num-
ber of a station initiating override when
you are on the telephone. The number
will remain displayed until override is
disconnected.
2) Executive Override
(
When you initiate executive override,
your LCD telephone displays the num-
ber of the station that is overridden. The
station that receives the override dis-
plays your station number. The number
will remain displayed until the call is
ended.
SUMMARY OF LCD FUNCTIONS
(continued)
3) Do Not Disturb (DND) Override
The station you have called is in the do
not disturb mode.
I
NO. NNN
NNNDND OVR I
I
NO. NNN
NNN DND OVR I
4) Privacy Override
I
NO. NNN
NNN PRV OVRD I
Recallina Station
Speed Dial Memo
I
*ll TOSHIBA
7145833700 I
When you initiate do not disturb override,
the station number you have overridden
is displayed.
When another station overrides do not
disturb at your station, its number is
displayed. (Thedisplay remains until the
end of override.)
When a station presses a busy line but-
ton to enter an existing conversation:
The station that initiates the override
displays the CO line identification on the
LCD. The overridden station’s LCD dis-
plays initiating station’s number. (The
display remains until the end of the call.)
When a transferred call goes unan-
swered, it will recall to the station that
transferred it. The display shows the CO
line number and the station number to
which it was originally transferred.
When using Speed Dial Memo (mode 8),
the name and number are displayed.
TOSHIBA is the memo (up to 12
characters).
714 583 3700 is the number, (up to 16
digits).
10
11

SUMMARY OF LCD FUNCTIONS (continued)
Y) Toll Restriction Override Codes
‘II
Z) Two-CO Line Calls
1) Tandem
2) Conference
m
3) Amplified
m
After vou access a CO line and Dress
mlIsm!i
to dial a complete toll
restriction override or traveling class code
(traveling class override codes are
available with
Release 3
only) your LCD
display will prompt you to dial a code.
After you establish atwo-CO line confer-
ence call and then release. N, and N,
identify the connected CO lines.
When you are talking with two external
parties on two CO lines. N, and N,
identify the connected CO lines.
When you are talking with two external
parties on two CO lines that are externally
amplified (optional with
Release 3).
DATE/TIME/DAY ADJUSTMENT
This operation is possible from port 00 only (usually station 200).
TO S&T DATE
1) Place handset on-hook.
2) Dial mBi0.
3) Dial the date (year/month/day) in the format YYMMDD. Enter
0 Listen for confirmation tone.
2)
3)
4)
DATE/TIME/DAY ADJUSTMENT (continued)
Dial main.
Dial thetime (hour/minute/second) in the24-hourclockformat
HHMMSS. Enter a leading 0 for any single digit entered.
Press the 1 (or m button.
0 Listen for confirmation tone.
TO SET DAY
1) Place handset on-hook.
2) Dial m@II.
3) Dial the day.
l
0 = Sunday
l
1 = Monday
l
1 = Tuesday
l
B = Wednesday
l
1 = Thursday
l
1 = Friday
l
0 = Saturday
4) Press the B (or B button.
0 Listen for confirmation tone.
CALL FORWARD DISPLAY
TO SET CALL FORWARD
When any type of call forward is initiated, the CALL FORWARD TO
prompt displays on the lower row of the LCD.
When your station has call forward set, the LCD displays as shown
(NNN = the forward to number).
1) Call Forward-All Calls
PressmimB+NNN+m
(orm+NNN+m.
2) Call Forward-Busy
(Releases
2 and 3)
Press~~~~+NNN+~
(orm+NNN+m. ’
TO SET TIME
1) Place handset on-hook.
12
13

CALL FORWARD DISPLAY
(continued)
STATION-TO-STATION MESSAGE WAITING
(continued)
5) To clear the MWIFL LED from the calling statio
button, dial the station number and press the
twice (or 0 I).
3) Call Forward-No Answer (Releases 2 and 3)
Press~~~~+ N N N +m
(or=+ N N N +m).
4) Call Forward-Busy/No Answer (Releases 2 and 3)
PressmiII+NNN+m
(or=+ N N N +m).
5) Call Forward-Fixed Press the m button.
NOTES:
1. Tocancelcallforward,press~~~[~(orpressthe
call forward button used to set call forward).
2. If call forward is set:
l
CO lines that ring at your station only will forward (CO
lines that ring into more than one station will not forward).
l
CO line calls transferred to your station will forward.
l
Intercom calls will forward.
l
Call forward redirects the station hunt feature.
STATION-TO-STATION MESSAGE WAITING
TO USE STATION-TO-STATION MESSAGE WAITING
1) Lift the handset.
2) Dial the desired station number.
l
If there is no answer (busy or DND), press the m
button (or dial 0). This causes the MW/FL LED on the
called station to flash.
l
The called station’s LCD displays the calling station’s
number.
3) The called station user presses them and m buttons to
return, the call.
4) To clear the MW/FL LED from the called station, press the
m button.
NOTE:
Up to four message waiting displays may be stored on the
LCD. Thestationnumberin the left-mostposition willbecalled
when the m button is pressed. To rotate the station
numbers, press the m button. The fourth message is re-
served for the Message Center.
VOICE MAIL (VM)
Whenever your station is call forwarded to voice mail, certain digits
will automatically be sent to the voice mail unit to direct the call to
your mailbox.
TO STORE THE DIGITS TO BE SENT
1) Press the m button.
2) Dial Iii.
0 The LCD disolavs. 6 5 6 ID CODE SET.
3) Dial the digits (up toi 6) and pauses (m) to be sent.
l
The LCD displays the digits and pauses.
4) Press the m button to store data.
0 Listen for confirmation tone.
When you want to retrieve your messages from voice mail, certain
digits will automatically be sent to the voice mail unit to play back
your messages.
TO STORE THE DIGITS TO BE SENT
1) Press the m button.
2) Dial iii.
l
The LCD displays, 6 5 7 ID CODE SET.
3) Dial the required digits and pauses to be sent. ’
l
The LCD displays the data as it is entered.
4) Press the fl button to store data.
0 Listen for confirmation tone.
15

16
VOICE MAIL
(continued)
TO RETRIEVE MESSAGES
Press the m and m buttons.
TO CLEAR ALL DIGITS
1) Press the m button.
2) Dial~~~orI~~.
3) Press the b button.
NOTES:
1. The above procedures are required for initial VM set-up
only. The digits remain in memory until changed.
2, Digits are not sent to camped-on VM calls.
BUSY FIELD DISPLAY
TO DISPLAY BUSY FIELD STATUS ON THE LCD DISPLAY
1) Press the m button.
l
The LCD displays, MODE NO.?
2) Dial 1. Refer to the figure in Summary of LCD Functions.
3) Press the m button to rotate Busy Field groups.
MODE EXIT
TO EXIT ANY MODE
1) Press the m button.
l
The LCD displays, MODE NO.?
2) Dial 1.
l
The LCD displays date/day/time.
DISA SECURITY CODE: ADD/DELETE/CHANGE
From desighated station(s) only.
TO STORE NEW DISA SECURITY CODE
1) Press the m button and dial 0 D cI1 (3-digit access code).
DISA SECURITY CODE: ADD/DELETE/CHANGE
(continued)
l
Receive confirmation tone.
-1
2) Dial the new DISA security code (Q . . . Q).’
3) Press the 1 button.
l
Receive confirmation tone.
NOTES:
1. Forsecuritypurposes, the 3-digit access code is notgiven
in this guide. It is available from your telephone system
maintenance provider.
2. The DISA security code can be 1 m 15 digits.
3. To cancel the DISA code, complete steps 1 and 3,
skipping step 2. If the DISA code is canceled, outgoing
access of CO lines on DISA calls willnot require a security
code.
TOLL RESTRICTION OVERRIDE/TRAVELING
CLASS CODE CHANGE
TO ADD, DELETE, OR CHANGE TOLL RESTRICTION
OVERRIDE OR TRAVELING CLASS’ CODES FROM
STATIONS SELECTED IN SYSTEM PROGRAMMING.
1) Press m and dial the three-digit toll restriction override
change access code Cl Q Q.2
l
You will hear confirmation tone.
-1
2) Dial the four-digit override code 0 CI Q Q. ,
k... i i
17

TOLL RESTRICTION OVERRIDE/TRAVELING
CLASS CODE
(continued)
3) Press the B (or m)button to store code.
l
You will hear confirmation tone.
VERIFIED ACCOUNT CODE CHANGE
(continued)
4) Press the 1 (or m)button to store code
l
You will hear confirmation tone.
I
NO. NNN
DATA PROGRAMMED I
NO. NNN
DATA PROGRAMMED I
4) Repeat steps 1 w 4 to enter up to four traveling class codes or
two toll restriction override codes.
NOTES:
1. Traveling class is available with
Release 3
only.
2. For security reasons, the change access code is not
provided in this guide. It is available from your telephone
system maintenance provider.
VERIFIED ACCOUNT CODE CHANGE (Release 3)
TO ADD, DELETE, OR CHANGE VERIFIED ACCOUNT
CODES FROM STATIONS SELECTED IN SYSTEM
PROGRAMMING
1) Press m and dial the verified account code change access
code Q D CI (see Note).
1 VERIFY
A::.SF 1
2) Dial the three-digit verified account code number Cl CI Q
(000 - 299).
5) Repeat steps 1 w 4 to enter more verified account codes.
NOTE:
For security reasons, the change access code is not provided
in this guide. It is available from your telephone system
maintenance provider.
MESSAGE ADMINISTRATION FUNCTIONS
ADDING TO A PREPROGRAMMED MESSAGE
When you select a message, it appears on your station display. A
cursor (-) also appears immediately to the right of the last letter in
the message. You can now input additional information (up to atotal
of 32 digits for each message). Some system messages may
expect you to add more information. For example:
3) Dial the verified account code c3 . . . Q (4 w 15 digits).
1) CALL
l
Add a station or outside telephone number.
2) BACK AT
l
Add the time you will return.
3) RETURN AT
l
Add the date you will return.
VERIFIED ACCOUNT CODE
ACCOUNT CODE NDMBEiR
NOTE:
Refer to Recording a Message for adding to a preprogrammed
message.
18
19

MESSAGE ADMINISTRATION FUNCTIONS
(continued)
EDITING OR SETTING A NEW CALLING STATION MESSAGE
You can set a completely new, personalized message by overwrit-
ing any of the existing preprogrammed messages. To do this,
simply call up one of the messages as explained previously. When
the cursor appears to the right of the message, shift it to the left
margin and write your new message over the preprogrammed one.
The new message will remain on your station until canceled. It will
then be erased and the original preprogrammed message will be
restored.2
NOTES:
1) Refer to Recording a Message
for
leaving a new message
at your station.
2) Messages 60 - 99 will be erased. Messages 10 - 19 will
remain in memory until changed.
PREPROGRAMMING SYSTEM MESSAGES
System messagescan only be programmed or permanently changed
at portO0, station number (usually200). Five preprogrammed
messages are automatically stored in memory when the Alphanu-
meric Messaging with LCD feature is initialized.
60) OUT TO LUNCH
61) IN A MEETING
62) CALL
63) BACK AT
64) RETURN ON
You can us‘e these messages and add 35 more messages designed
specifically for your system, or you can overwrite the initialized
messages and program up to IO of your own. Any messages
programmed at port 00 will remain in memory until canceled from
port 00 or until the system is reinitialized. After reinitialization, only
the original five messages will be in memory.
System me’ssages are written and stored in memory as explained
in Storing a Message.
MESSAGE ADMINISTRATION FUNCTIONS
(continued)
RECORDING A MESSAGE
Use this procedure to enter the characters of a personal message
(10 m 19) or system message (60 y 99), to add to a preprogrammed
message, or to edit and set a new message. After calling up a
message on your display (see Storing a Message, steps 1 and 2),
perform one of the following procedures:
TO RECORD A MESSAGE
1) Press the1 button to access alpha characters. Refer to Figure
1 for an explanation of the dialpad buttons.
2) Move the cursor (-) to the desired position (the left edge of the
display for a new message, or two spaces to the right of the
preprogrammed message to add information).
3) Press the button that has the letter you want to enter. Use the
a button to shift from letter to letter on the button. For example:
l
If you press 1, a D will be displayed. By pressing I, the D
is changed to E. By pressing 1 again, the E is changed to
F. Press a again and the F changes to D.
l
To enter a space, press 1.
4) If you want to enter a number, press the 1 button to change to
numeric characters. Numbers are also entered on thedialpad.
Press the 1 button again to return to alpha characters.
0 button moves cursor
to the
right (also used
to access special \r
characters and to
enter “blanks” in the
alpha mode)
f-
Each button has three
letters that are used in
cursor to the left
1 button is used to shift between the three letters on each
alpha button (also used to access special characters)’
FIGURE I-DIALPAD INFORMATION
20
21
_I

MESSAGE ADMINISTRATION FUNCTIONS
(continued)
5)
6)
The following special characters are set by pressing Band then
pressing 1 to step through the available characters:
Q, z, :, -, +, I.
When the message is complete, press them button (or, if
you do not have a m button, press the m button).
l
Your message is now stored on your station.
STORING A MESSAGE
TO STORE A MESSAGE
1) Press the m (or m 1 b button.
l
The MSG LED flashes.
l
LCD displays, MSG NO.?
2) Dial the 2-digit message number to be stored.
0 Personal (10 m 19).
l
System (60 m 99 port 00 only).
3) Use the Recording a Message procedure to enter the mes-
sage characters.
4) Press them (or m button.
l
The MSG LED lights steadily.
l
The LCD displa s, MSG.
5) Press them (or iii Ilm button.
l
The MSG LED goes out.
l
The message is now stored.
LCD NAME/NUMBER DISPLAY
(Release 2 and higher)
This feature allows you to store a title (such as your name,
telephone number, location, etc.) in system memory. This title (i.e.,
LOBBY) wifl display on your station’s LCD while it is idle, and it will
appear at other stations’ LCDs when they are called from your
station. Name display information for non-LCD telephones or voice
mail/auto attendant devices may be stored from station 200. When
NAME/NUMBER is recorded for non-LCD telephones or other
devices, their NAME/NUMBER is displayed on LCD telephones
when called.
LCD NAME/NUMBER DISPLAY
(continued)
TO ENTER NAME/NUMBER INFORMATION FROM YOUR
STATION
1) Press the m button and dial 110.
l
USER NAME? will appear on the upper line of the LCD.
l
Current information will appear on the lower line of the
LCD.
2) Enter the new information via the dialpad (refer to Record LCD
Messages for method).
l
Uo to 16 characters can be recorded.
3) Press the m button.
l
The new information is stored.
m
TO CLEAR NAME/NUMBER DISPLAY
Press the m button, dial 111 and press the m button.
l
Listen for confirmation tone, then busy tone.
During clear:
After clear:
NOTES:
1. Your title will appear on the LCD during direct intercom,
forwarded, and hunted calls. On override or OCA calls,
the LCD will not display the title.
2. After a name is cleared, it may be redisplayed at anytime
by dialing m 110.
3.
A
name is displaced by message and call forward settings
if they are set.
4. To erase NAME/NUMBER information from memory,
repeat steps 1 - 3 above and enter blanks in step 2.
Blanks are entered by pressing 1 in the alpha mode.
22 23

LCD NAME/NUMBER DISPLAY
(continued)
SPEED DIAL MEMO
TO ENTER NAME/NUMBER INFORMATION FOR ANOTHER
STATION OR VOICE MAIL DEVICE FROM STATION 200
1) Press the m button and dial 111.
USER NAME? will appear on the upper line of the LCD.
l
l
Current information for station 200 will appear on the
lower line of the LCD.
I
USER NAME?
TOSHIBA EXT.200 I
2) Press the m button.
l
The LCD displays, DEST. EKT NO.?
3) Dial the intercom number (fl m 1) of the NAME/NUMBER
information to be recorded.
l
The LCD displays, DEST EKT NO. NNN.
4) Press the m button.
l
USER NAME? will appear on the upper line of the LCD.
l
Current information for station NNN will appear on the
lower line of the LCD.
5) Enterthe new information via the dialpad (referto Record LCD
Message method).
l
Up to 16 characters can be recorded.
6) Press the m button.
l
The new information is stored and appears on the top line
of station NNN’s LCD.
l
Station 200’s LCD returns to the normal idle display.
NOTES:
1. To erase the NAME/NUMBER information of another
station from station 200, repeat steps 1 - 6 above and
enter blanks in step 5. Blanks are entered by pressing 0
in the alpha mode.
2. Station NNN may set and clear the NAME/NUMBER
feature anytime:
l
Set:mBI&
0 Clear: m B B I, “ / c ear” eliminates the display when
calling, but does not erase it from memory; on/y station
200canerase the NAME/NlJMBERofanon-LCDstation.
Allows an LCD user to program a 12-character name for each of his/
her 40 personal speed dial numbers. The memo pad of names may
be stepped through to select the appropriate party. Memos may
also be added to the 40 system speed dial codes via the station
connected to port 00, station number (usually 200).
TO PROGRAM NAMES AND NUMBERS
1) Press the [I buttons.
2) Dial the desired speed dial number.
l
The LCD displays, # * NNN SPEED DIAL.
3) Press the m button.
l
The LCD displays, # *NNN _ SPEED DIAL.
4) Enter the name or memo (refer to Recording a Message).
5) Press the m button.
l
The LCD displays, *NN MEMO SPEED DIAL.
6) Enter the desired telephone number (16 digits maximum).
7) Press the 1 button to record data in memory.
TO DIAL A SPEED DIAL NUMBER
1) Press the m button.
l
The LCD displa s, MODE NO.?
2) Dial~tIo2.(CiQ= ii I-IIoraI-ib.
l
The s eed dial number apears with name or memo.
ib
3) Press the
l
A button to scan the directory for the appropri-
ate number/memo.
4) Press any available
q
button.
5) The number is dialed.
NOTES:
1. A station must be enabled via system programming for
LCD message memory.
2. Personal speed dial code numbers are 10 - 49, and
system numbers, stored from station 200 on/y, are 60 -
99.
3. Speed dial numbers and memos aiid their corresponding
Z-digit codes may be recorded on the record sheet pro-
vided in back of this guide.
24
25

SPEED DIAL MEMO (continued) MESSAGE SENDING
TO CHECK A SPEED DIAL NUMBER
1) Press m 1.
2) Dial a 2-digit speed dial number (see Note).
3) If the number is longer than 16 digits, press them button
to display the remaining digits.
NOTE:
Personal (10 w 19) and system (60 w 99).
TIMED REMINDERS WITH MEMO
Allows five separate messages to be set at each LCD station. These
messages will be displayed at the times (hour and minute) set by the
station user. They can either be displayed just once or repeated on
a daily basis.
TO SET A TIMED REMINDER WITH MEMO
1) Press the m button.
2) Dial a 3-digit reminder number (11 m N 1 i 1).
3) Enter the desired time (24-hour clock format; i.e., HHMM) for
the message to be displayed.
4) Dial 1 if the message is to be repeated every day, or fl if it is
a one-time message only.
5) Enter the desired message number.*
6) Press the 1 button to record the data in memory.
0 Listen for confirmation tone.
l
The message will be displayed at the specified time, and
a beeping tone will be heard for 30 seconds (or until it is
canceled by pressing the m button).
* Personal (10 w 19) and system (60 m 99). The message does
not display when setting a timed reminder-it displays when
the remjnder activates. Messages are set using the Record
a Message method.
The Alphanumeric Messaging feature on your LCD electronic
telephone enables you to set short text (up to 32 characters) at your
station to ensure that you do not miss important calls. Any station
may record a message; however, only stations with the LCD are
able to display messages. To record messages, see the message
administration functions in this guide.
Your system has up to 40 preprogrammed messages that may be
sent to other LCD electronic telephones. You can temporarily add
to or change any of these messages, in order to leave a personal-
ized message at your station (see Note).
Some stations may record and save up to 10 personal messages to
be used for all types of station messaging. This is a station option
that is enabled in system programming.
NOTE:
Storedmessages and their corresponding message number(s)
may be recorded on the record sheet provided in the back of
this guide.
CALLED STATION MESSAGING
Your station number and a message indication may be sent to
another LCD station. When that station responds, it will receive the
message.
TO SET A CALLED STATION MESSAGE
1)
2)
3)
4)
5)
6)
Dial the station number (station does not answer).
Press the m button.
l
The LCD displays, MODE?
Dial 1.
l
The LCD displays, MW TO STNNN MSG NO?
Enter the desired message number.*
l
The LCD displays, INT NNN MW SET.
Press the m button to release.
!6 27

MESSAGE SENDING (continued) MESSAGE SENDING (continued)
7) CALL NNM is displayed at the called station and the MW/FL
LED flashes.
8) SENT NNM is displayed at your station.
*Personal (IO - 19), system (60 - 99).
TO RECEIVE A CALLED STATION MESSAGE
Press the m and m buttons.
GROUP CALLED STATION MESSAGING
(Releases 1 and 3 only)
Allows a station to set a Called Station Message for a group of
stations.
TO SET A “CALLED STATION” MESSAGE FOR ANOTHER
STATION OR GROUP OF STATIONS
1) Press them button.
l
The LCD displays, MODE?
2) Dial 11.
l
The LCD displays, MODE 94 DEST EKT NO.?
3) Dial the “destination” station’s number (or enter 30 for all
stations, or 31 - 34 for page groups).
l
The LCD displays, MODE 94 DEST EKT NO.NN.
4) Press the m button.
l
The LCD displays, MODE 94 ORG EKT NO.?
5) Dial the “originating” station’s number.*
l
The LCD displays, MODE 94 ORG EKT NO.NN.
6) Press the m button.
l
The LCD displays, MSG NO.?
7) Enter‘the desired message’s number.
l
The LCD displays, the message.
8) Press the m button.
l
The LCD displays, MSG NO.?
9) Press the m button.
l
The LCD displays, MODE NO.?
IO) Dial 1.
l
The LCD displays, date/day/time.
Ii) The LCD displays, SENT NN M, at originating station.
12) The originating station number and a message indication are
displayed on the destination station LCD.
*Your number or another station number.
TO RECEIVE CALLED STATION MESSAGE
1) Press the m and m button.
CALLING STATION MESSAGING
TO SET A MESSAGE (ON YOUR LCD)THAT WILL BE RECEIVED
BY LCD TELEPHONES THAT CALL YOUR TELEPHONE
1) Press the m button.
l
The MSG LED flashes.
l
The LCD displays, MSG NO.?
2) Dial the number of the message you want (see Note).
l
The selected message is displayed.
3) Press the m button.
l
The MSG LED lights steadily.
NOTE:
Personal (10 - 19) and system (60 - 99).
GROUP CALLING STATION MESSAGING
TO SET A CALLING STATION MESSAGE FOR ANOTHER
STATION
1) Press the m button.
l
The LCD displays, MODE?
2) Dial 11.
l
The LCD displays, MODE 95 DEST EKT NO.?
3) Dial the “destination” station number.
l
The LCD displays, MODE 95 DEST EKT NO.NN.
4) Press the m button.
l
The LCD displays, MSG NO.?
5) Enter the desired message number.
l
The LCD displays the message.
6) Press the m button.
l
The LCD displays, MSG NO.?
28
. ,J
29

MESSAGE SENDING
(continued)
MESSAGE. SENDING
(continued)
NOTE:
Group calling station messaging allows you to set a calling
station message
for on/y
one station
at a time.
7) Press the mmq button.
l
The LCD displays. MODE NO.?
8)
Dial 1.
l
Your LCD shows the time and date.
l
The message is displayed at the “destination” station.
l
Any station calling the “destination” station receives the
message.
TO SET A MESSAGE IF YOU DO NOT HAVE Am BUTTON
1) Press the m button.
l
The INT LED lights.
2) Dial ma.
3) Dial the number of the message you want (see Note).
4) Press the m button.
l
The INT LED goes out (your message is now stored).
NOTE:
Persona/ (70 - 79) and system (60 - 99).
TO CANCEL A MESSAGE THAT HAS BEEN SET AT YOUR
STATION
Press the m button.
l
The MSG LED goes out.
TO CANCEL A MESSAGE IF YOU DO NOT HAVE A m
Bull-ON \
1) Press the m button.
l
The INT LED lights.
2) Dialmg. -
3) Press’ the m button.
l
The INT LED goes out.
BUSY STATION MESSAGING
(Releases 1 and 3 only)
When reaching a busy LCD station, a message can be sent to that
station (an audible tone will be heard). The busy station may also
return a message to the calling station’s LCD. The two stations may
continue this procedure to carry on a “silent” conversation.
TO SEND A MESSAGE TO A BUSY STATION
1) Call the desired station.
l
Listen for busy tone.
2) Press the m button.
l
The LCD displays, MODE NO.?
3) Dial I.
l
The LCD displays, OVER TO STNN MSG NO?
4) Enter the desired message number.*
l
The LCD displays the message.
5) Press the m button.
l
The LCD displays, MSG SEND.
6) The destination station beeps four times and the message is
displayed for 30 seconds, or until originating station hangs up.
*Personal (10 - 19) and system (60 - 99).
TO RETURN A MESSAGE (Within 30 Seconds) FROM THE
BUSY STATION AFTER RECEIVING A “BUSY STATION”
MESSAGE.
1) Press the m button.
l
The LCD displays, MODE NO?
2) Dial 1.
l
The LCD displays, OVER TO STNN MSG NO?
3) Enter the desired message number.*
l
The LCD displays the message.
4) Press the m button.
l
The LCD displays, MSG SEND.
NOTE:
A personal message (10 - 19) will remain stored in memory.
30 31

MESSAGE DIRECTORY
Messages are limited to 32 alphanumeric characters and are
displayed in two rows of 16.
This directory is provided for reference and recording messages.
Message #
Message #
Message #
Message #
Message #
Message #
Message #
NAME/NUMBERS are limited to 16 alphanumeric characters and
are displayed on the top row of idle LCD stations and the bottom row
of called LCD stations.
This directory is provided for station 200 reference and recording of
other station NAME/NUMBERS.
Station #
DATE DAY TIME
Station #
DATE DAY TIME
Station #
DATE DAY TIME
Station #
DATE DAY TIME
Station #
DATE DAY TIME
Station #
DATE DAY TIME.
32 j.. I
‘.
33
_ ;.y’

SPEED DIAL MEMO DIRECTORY
Speed Dial memos are limited to 12 characters for the memo (top
row of LCD) and 16-digits/pauses for the dial number (bottom row
of LCD).
This directory is provided for recording Speed Dial numbers with
memos.
* Code: 12-Character Memo: (Example)
*
10
-MEMO HERE
SPEED DIAL# HERE
*
*
*
\
*
*
* Code: 12-Character Memo:
*
35

* Code: 12-Character Memo: * Code: 12-Character Memo:
*
1
*
*
*
*
* \
* .-
EE
!
*
*
*
*
*
*
*
36

INDEX
* Code: 12-Character Memo:
*
*
*
*
*
*
,
Adding to a Preprogrammed Message ................................. 19
Busy Field Display ................................................................ 16
Busy Station Messaging ....................................................... 31
Call Forward Display.. ........................................................... 13
Called Station Messaging ..................................................... 27
Calling Station Messaging .................................................... 29
Date/Time/Day Adjustment ................................................... 12
DISA Security Code: Add/Delete/Change ............................ 16
Editing or Setting a New Calling Station Message ............... 20
Group Called Station Messaging .......................................... 28
Group Calling Station Messaging ......................................... 29
LCD Name/Number Display ................................................. 22
Liquid Crystal Display ........................................................... 1
Mode Exit .............................................................................. 16
Message Administration Functions ....................................... 19
Message Directory ................................................................ 32
Message Sending ................................................................. 27
Preprogramming System Messages.. ................................... 20
Recording a Message ........................................................... 21
Speed Dial Memo ................................................................. 25
Speed Dial Memo Directory .................................................. 34
Station-to-Station Message Waiting ..................................... 14
Storing a Message ................................................................ 22
Summary of LCD Functions.. ................................................ 2
Timed Reminders with Memo ............................................... 26
Toll Restriction Override/Traveling Class Code Change ...... 17
User Name/Number Directory .............................................. 34
Verified Account Code Change ............................................ 18
Voice Mail (VM) .................................................................... 15
38
39

DIGITAL
TELEPHONE
U S E R G U I D E
TABLE OF CONTENTS
STRA
D
TE
I
:1
TA@ DK
GITAL KEY
.EPHONE SYSTEMS
STRATA DK24
DK56 AND DK96
RELEASE 3
GENERAL INFORMATION ...................................................... 1
Button Descriptions.. ............................................................. 2
Volume Controls . .................................................................. 6
LED Indications . . . .................................................................. 8
FEATURE USE . . ...................................................................... 10
Outside Calls . ... .................................................................... 10
On-hook Dialing .................................................................... 11
Group Listening .................................................................... 12
Automatic Off-hook Selection Programmable Option ........... 12
Repeat Last Number Dialed ................................................. 13
Auto Busy Redial Programmable Option .............................. 13
Speed Dial ............................................................................ 14
Speed Dial Buttons Programmable Option ........................... 15
Saved Number Redial Programmable Option ...................... 16
Telephone Number Storage ................................................. 16
* and # DTMF Tone Dialing .................................................. 19
Tone/Pulse Dialing Programmable Option ........................... 19
Privacy Override Programmable Option ............................... 20
Privacy Button Programmable Option .................................. 21
Privacy Release Programmable Option.. .............................. 21
Intercom Calls ....................................................................... 21
Handsfree Answerback.. ....................................................... 22
Microphone Cut-off Programmable Option ........................... 23
Off-hook Call Announce (OCA) Optional Feature.. ............... 23
Call Transfer with Camp-on .................................................. 24
Conference Calls .................................................................. 26
Call Forward-All Calls ........................................................... 28
Call Forward-Busy ................................................................ 29
Call Forward-No Answer.. ..................................................... 29
Call Forward-Busy/No Answer.. ............................................ 30
Call Forward-Fixed ............................................................... 31
Call Holding .......................................................................... 32
Exclusive Hold ...................................................................... 33
Call Pickup.. .......................................................................... 33
Do Not Disturb .......................................................... , ........... 34

TABLE OF CONTENTS
(continued)
Automatic Callback (Intercom) .............................................. 34
Account Code Calls .............................................................. 36
Paging ................................................................................... 38
Door Phone.. ......................................................................... 39
Handsfree Monitoring .......................................................... .40
Alarm Reset ......................................................................... .40
Background Music
(BGM)
.................................................... .40
Background Music Over External Speakers ........................ .41
Direct Inward System Access (DISA) .................................. .41
Direct Station Selection Buttons (Hotline)
Programmable Option ......................................................... 43
Door Lock ............................................................................. 44
Message Waiting ................................................................. .44
Night Transfer Programmable Option ................................... 46
Override Calls ....................................................................... 47
Speakerphone (DKT 1020SD Only) ..................................... 47
Microphone Control ............................................................. .48
Two (Tandem) CO Line Connection ..................................... 49
Timed Reminders ................................................................. 51
Toll Restriction Override/Traveling Class ............................. 51
Tone Signaling Programmable Option .................................. 52
Voice Mail (VM) .................................................................... 53
CENTREX APPLICATION ........................................................ 55
INDEX ....................................................................................... 56
HANDSET
SPEAKER \
MODULAR
HANDSET
CORD\
SPEAKER ON/OFF
BUlTON AND LED
INDICATOR
I
MICROPHONE
ON/OFF BUTTON
AND LED INDICATOR
FLEXIBLE
FEATURE
BUTTONS
MESSAGE WAITING
BUTTON AND LED
INDICATOR
CONFERENCE/
TRANSFER
BUlTON
LAST
NUMBER
REDIAL
BUTTON
tlOLD
BUTTON
20-button Digital Telephone

GENERAL INFORMATION
Toshiba digital telephones can access a wide range of useful
features. This user guide provides brief, step-by-step instruc-
tions for each of these features, which are activated by access
codes or feature buttons. It is possible that your digital telephone
cannot access all of the listed features; this is because feature
accessibility is assigned on a phone-by-phone basis in system
programming.
Each digital telephone includes a dialpad, 26 feature buttons,
and volume control up-and-down buttons. The feature buttons
on each side of the dialpad are fixed, and their functions cannot
be changed. The feature buttons above the dialpad are flexible
and can be changed in programming.
All of the flexible feature buttons and some of the fixed feature
buttons have LEDs. These LEDs indicate call status by their color
and flash rate. Activated LEDs can be one of two colors, red or
green. If a station user makes or receives a CO line or intercom
call, the intercom or appropriate CO line LED on the telephone
will be green. If a common CO line is accessed, the line’s LED will
be red at the stations not on the line. If a feature button is
activated, its LED will be red.
This guide also contains a section on the Centrex Application,
which enhances the system feature capability when installed
behind a Centrex or PBX system.
NOTE:
Wherever a CO line is indicated, it can also be a Centrex
and/or PBX line.
IMPORTANT!
Some of the features listed in this guide may not
appear on your telephone due to hardware
configuration or programming.

GENERAL INFORMATION
BU-ITON DESCRIPTIONS BUTTON DESCRIPTIONS (continued)
CALL FORWARD-NO ANSWER BUTTON m
Whenever the called station does not answer after either three
rings or 12 seconds, whichever occurs first, this feature forwards
calls to another station.
ACCOUNT CODE BUTTON B
Allows a station user to enter a voluntary account code anytime
during a CO line call without interrupting the conversation.
ALARM RESET BUTTON m
A station programmable option that will turn off the digital
telephone alarm if connected to a facility alarm mechanism.
ALL CALL VOICE PAGE BUTTON
q
A single dedicated button that allows a station to voice page all
of the digital/electronic telephones in the system simultaneously.
AUTOMATIC BUSY REDIAL BUTTON m
Allows the user to set up an Automatic Busy Redial after
receiving busy tone on a dialed CO line call.
AUTOMATIC CALLBACK BUTTON m
Recalls a busy or Do Not Disturb station on intercom as soon as
that station becomes idle. Also used for CO line queuing.
BACKGROUND MUSIC BUTTON m
Allows background music to be switched on/off the station
speaker.
CALL FORWARD-ALL CALLS BUTTON m
With this feature, all calls will forward to another station.
CALL FORWARD-BUSY BUTTON m
Whenever the called station is busy, this feature forwards calls
to another station.
CALL FORWARD-BUSY/NO ANSWER BUTTON m
Whenever the called station is busy or does not answer prior to
a predetermined period, this feature forwards calls to another
station. If the called station is busy, the calls forward immediately.
All non-answered calls (station is not busy) forward after either
three rings or 12 seconds, whichever occurs first.
CALL FORWARD-FIXED BUTTON m
Sets Call Forward to a station assigned in system programming.
NOTE:
CO line calls will forward on/y if the CO line is programmed
to ring at one station. If a CO line is programmed to ring at
more than one station, the CO line will not forward.
CALL PICKUP BUTTON m
Initiates directed call pickup of CO line, intercom, and page calls.
CALL PICKUP BUTTONS m and m
If the system is shared by two tenants, the m button picks
up Tenant 1 ringing CO line calls and them button picks up
Tenant 2 ringing CO line calls.
CENTRAL OFFICE LINE BUTTON m
Accesses an outside line.
CONFERENCE/TRANSFER BUTTON m
Sets up conference and transfer calls.
DATA BUlTON m
Allows manual dialing for internal data calls.
See
the
Data In-
terface User Guide.
DATA RELEASE BUTTON m
Releases data calls.
See
the
Data Interface User Guide.
DIRECT STATION SELECTION BUTTON(s) w
Rings a preselected station. The LED associated with each m
button provides the status (idle/busy) of the station assigned to
the button.
2

GENERAL INFORMATION
BUTTON DESCRIPTIONS (continued)
DO NOT DISTURB BUlTON m
Locks the individual station in or out of the Do Not Disturb mode.
DOOR LOCK BUTTON m
Controls a door lock mechanism.
FLASH BUTTON m
Can be used to perform the following functions: Disconnect and
recall dial tone on a CO line; access Centrex or PBX features;
and enter a pause or flash signal when programming speed dial
numbers.
HOLD BUTTON m
Holds internal or outside calls.
INTERCOM BUTTON m
Accesses an intercom line.
MESSAGE SELECT BU’ITON m
Allows system and personal messages to be displayed on the
32-character Liquid Crystal Display (LCD).
MESSAGE WAITING BUTTON DXm
The message LED flashes to indicate a message is waiting.
MICROPHONE BUTTON m
Controls the microphone off/on while telephone is in use.
MODEM BUTTON m
Used to reserve a modem from a pool, to indicate that your
telephone.is connected to a modem, or that all modems in the
pool are busy. See the Data Interface User Guide.
MICROPHONE CUTOFF BUTTON m
Allows a station to turn its microphone off/on while idle. Func-
tional when station receives calls; the m button controls the
microphone when the station originates calls.
BUlTON DESCRIPTIONS (continued)
NIGHT TRANSFER BUTTON
q
Controls the system’s CO line ringing pattern for after hours
incoming calls.
PAUSE BUTTON m
Applies a l/2- or 2-second pause when used in programming
speed dial numbers (time is set in system programming).
PAUSE (LONG) BUTTON m
Inserts a lo-second pause when used in programming speed
dial numbers.
POOLED LINE BUTTON
q
Allows a group of CO lines to appear under one button.
PRIVACY BUTTON m
Blocks Privacy Override of CO lines from stations that have
common CO line button appearances. This button does not block
Busy and Executive Override.
PRIVACY RELEASE BUTTON m
Releases privacy on a CO line so another station can enter the
conversation.
REDIAL BUTTON m
Redials the last telephone number dialed.
RELEASE BUlTON m
This feature disconnects the existing call and places the station
into an idle condition, whether the digital telephone is on- or off-
hook.
SAVE BUTTON m
Saves a telephone numberafterdialing and automatically redials
that number when button is pressed in the idle state.,

GENERAL INFORMATION
BUTTON DESCRIPTIONS
(continued)
SPEAKER BUTTON m
Turns the speaker on/off. The speaker button will also select a
CO or intercom line if programmed for auto preference in system
programming. Also, used to disconnect when the handset is in
the cradle.
VOLUME CONTROLS
(continued)
SPEED DIAL BUTTON
q
Provides single-button speed dial of a personally assigned
telephone number.
SPEED DIAL (FIXED) BUTTON m
This button dials a pre-assigned number or Centrex/PBX feature
access code.
SPEED DIAL SELECT m
Provides access to station or system speed dial numbers.
TONE BUlTON m
Changes the outgoing dialing of the CO line in use from dial pulse
to tone signaling.
VOLUME CONTROLS
These two- buttons, left of the dialpad, control the ring,
speaker, handset, and muted tone burst volume levels. The
buttons consist of two arrows: one that points up, and one that
points down. To increase any of the volume levels listed above,
press the, upward pointing arrow; to decrease any of the levels,
press the downward pointing arrow.
IMPORTANT!
Either‘buttonmustbehelddown foratleastaneigthof
a second for any volume change to occur. If either
button is continually held down, the volume will
continually change until the button is released.
TO ADJUST RING TONE (Also Controls Incoming Handsfree
Intercom Volume Before Answer)
1) Ensure that the handset is on-hook.
2) Press the m button continuous ring tone will be
heard.
3) Hold down the m button until the desired ring vol-
ume is set. . ..or...
1) Press m and dial 10 m I.
15 seconds or until disconnected.
button until the desired ring vol-
ume is set.
TO ADJUST THE HANDSET VOLUME
While the handset is off-hook on an established call, press
them button until the desired volume is achieved.
TO ADJUST THE SPEAKER VOLUME (On-hook Call Origi-
nation, Intercom and CO Dial Tone; Incoming Handsfree
Answerback after Answer; and BGM)
Presswand then press the-button until desired
volume is set. . ..or...
While on an On-hook call, press them button until
desired volume is set.
TO ADJUST INCOMING INTERCOM HANDSFREE VOLUME
While receiving a handsfree intercom call, press the
m button until the desired volume is set.
TO ADJUST MUTED TONE BURST*
1) Press the m button and dial 10 B 1.
2) Press them button until the desired volume is set.
* The muted tone burst is a warning-type tone that is used with
a number of features, including Busy
Override, ‘Do
Not
Disturb Override, and Call Waiting. This tone warns or
informs users that another party is calling their telephone
when it is busy or in Do Not Disturb mode.
6
7

GENERAL INFORMATION
LED INDICATIONS
CO INCOMING CALL
A slow flash rate (i/2-sec. on-l/2-sec. off) indicates the CO/
PBX line on which the call is ringing.The line’s LED will be red on
all stations with this button.
CONFERENCE
Avery fast flash rate (10 impulses per second (IPS)) indicates the
CO line presently in the Conference mode. Other stations’ LEDs
also show a steady (busy) indication for these lines. The line LED
of the digital telephone that initiates the conference will be green.
All other stations’ LEDs will be red.
EXCLUSIVE HOLD
A very fast flash rate (10 IPS) indicates the CO line is placed on
Exclusive Hold at the holding station. The LED is on steady
(busy) on all other stations. The holding station’s LED will be
green, and other stations’ LEDs will be red.
FLEXIBLE FEATURE BUTTON ACCESS
The LED of a flexible feature button (such as m, m,
m, etc.) will be red at the station that activated it. Stations
do not share these buttons with each other; therefore, other
stations’ LEDs will not be affected.
HOLD RECALL
A quick flash rate matching the tones (2 IPS for 1 sec.-l 0 IPS
for 1 sec.) reminds a station which line has been on hold for the
programmed period of time. The line LED of the holding station
will be green during Hold Recall. All other stations’ LEDs will be
red.
INTERCOM CALL
A pulsating on/off flash rate (IO IPS for 1 sec. on-l sec. off)
appears on the INT LED at the station that is being called. The
INT LEDsof the called and calling stations will be green during
the ring state and the conversation. Both stations’ MIC and
SPEAKER LEDs will be red.
GENERAL INFORMATION
LED INDICATIONS (continued)
IN-USE
A steady, double flash rate (2 sec. on-l/8-sec. off-l/8-sec.
on-l/8-sec. off) indicates the CO line presently in use at the
station that originated the call. Other stations’ LEDs are on
steady for that time. The line LED will be green at the station that
is participating in the CO call. Other stations’ LEDs will be red.
ON-HOLD
A fast (4 IPS) flash rate (l/8-sec. on-l /8-sec. off) indicates the
CO line placed on hold at the station. The LEDs of the CO line on
hold flash at a medium rate (3/4-sec. on-l/4-sec. off) at the
other stations. If using the Pooled Line button, the hold indication
is only at the station that places the call on hold. The line LED will
be green at the station that placed the call on hold. All other
stations’ LEDs will be red.

FEATURE USE FEATURE USE
OUTSIDE CALLS OUTSIDE CALLS (continued)
TO MAKE AN OUTGOING CALL (DirectAccess)
1) Lift the handset.
2) Press any available
q
line button (or
q
button).
l
Listen for dial tone.
l
CO/PL LED flashes green at the In-use rate.
3) Dial the desired telephone number.
4) Hang up when the call is completed.
TO MAKE AN OUTGOING CALL (Dial Access)
1) Lift the handset.
2) Press the m button.
0 Listen for intercom tone.
l
INT LED flashes green at In-use rate.
3) Dial CO line access code’ .
l
Listen for CO dial tone.*
4) Dial desired number.
5) Hang up when the call is completed.
NOTES:
1. Dial1 to access the genera/group or to use Least Cost
Routing; or dial 0 and a CO line number fi 0 w B B,; or
dial0 0 w 11 to access line group I w 8, respective/y.
2. CO dial tone is not returned when dialing via LCR, dial
1; intercom dial tone may be returned, depending on
system programming.
TO RECEIVE AN INCOMING CALL
1) You hear a ringing tone.
l
‘CO LED flashes red at the CO Incoming Call rate.
2) Press (9 line button and lift the handset.
l
CO LED flashes green at the In-use rate.
3) Hang up when the call is completed.
TO RECEIVE INCOMING CALLS WITH POOLED LINE
BUTTON
1) Ringing tone is heard.
l
PL LED flashes red at the CO Incoming Call rate.
2) Lift the handset or press the
q
button.
l
PL LED is on steady green.
3) A muted ringing indicates a new incoming call, or recall.
4) Transfer the present call or place it on hold.
5) Press and release the hookswitch to answer the next call.
6) Repeat steps 4 and 5 until all calls are completed.
7) Hang up.
NOTES:
1. A transfer to a busy station willautomatically Camp-on.
2. If step 5 is performed before step 4, the current call is
terminated.
ON-HOOK DIALING
TO MAKE AN OUTSIDE CALL
1) Leave the handset on-hook.
2) Press any availablem line button (arm button) and listen
for dial tone, or follow previous directions for Dial Access.
l
LED flashes green at the In-use rate.
3) Dial the desired telephone number.
4) Lift the handset when the distant party answers.*
5) Hang up when the call is completed.
TO MAKE AN INTERCOM CALL
1) Leave the handset on-hook.
2) Press the m button.
l
INT LED flashes green at the In-use rate
3) Dial the desired station number.
l
You hear a single ring tone.*
4) Lift the handset to converse.
5) Hang up when the call is completed.
*If busy tone is heard, press the m button to dis-
connect.
10
\ i
\\ :’
11

FEATURE USE FEATURE USE
GROUP LISTENING REPEAT LAST NUMBER DIALED
Allows all persons present to hear the distant party’s responses.
TO USE GROUP LISTENING
1) With the handset off-hook, press and hold the m
button then place the handset on-hook and release the
m button.
l
SPEAKER and MIC LEDs light and the distant party’s
voice is heard via the telephone’s speaker.
2) When local response is required, lift the handset off-hook.
l
SPEAKER and MIC LEDs go off.
l
Telephone speaker is silenced.
l
Handset is activated.
AUTOMATIC OFF-HOOK SELECTION
PROGRAMMABLE OPTION
Allows Automatic Off-hook Selection of either an intercom path,
a CO line, or a CO line group. (The particulars must be pro-
grammed by your system administrator.)
NOTE:
The m button also selects the designated line/
group automatically.
TO MAKE A CALL
Lift the handset.
l
You will be connected to the option programmed.
NOTE:
hear silence aftergoing off-hook, you mustpress the
button or a [9 line button before making a call.
This feature enables you to automatically redial the last number
called by pressing the m button. The 1 button serves the
same function.
TO REDIAL LAST NUMBER CALLED
1) Lift the handset.
2) Press any available (9 line button.
l
Listen for dial tone.
3) Press them (or the b button.
l
The last telephone number you dialed will automati-
cally be redialed.
4) Hang up when the call is completed.
AUTO BUSY REDIAL
PROGRAMMABLE OPTION
After reaching a busy outside number, the system will automati-
cally redial that number at programmed intervals.
TO USE AUTO BUSY REDIAL
1) Access any available CO line and dial the outside tele-
phone number.
l
Receive busy tone.
2) Press the m button (or m [ b.
l
ABR LED blinks red or hear confirmation tone).
3) Hang up (or press the b button).
4) At programmed intervals (30 or 60 seconds), the system
will redial the number (15 times maximum).
l
With each attempt, if busy, ABR will reset for next try.
5) When the connection is made and the called party is
ringing:
l
CO (or INT) and SPEAKER LEDs blink green.
l
Ringing tone is heard.
6) Pick up handset (or press the m button) and wait
for party to answer,
13
13

FEATURE USE
AUTO BUSY REDIAL (continued)
TO CANCEL ABR
Press the m button (or m 1 I).
NOTES:
1. ABR will not be attempted while the station is busy on
another call but will continue to time-out.
2. With each attempt:
The CO (or IiT) and SPEAKER LEDs blink when the
line is seized.
Dial tone is heard via the speaker.
Telephone number is redialed.
If busy, ABR will reset and try again.
If a connection is made, ring tone sounds until called
party answers.
If the originatin station does not pick up the handset
(or press the h button) after a connection is
made (it will ring back three times), ACB mute ring
sounds for 30 seconds and then the call disconnects.
SPEED DIAL
TO CALL A SPEED DIAL NUMBER
1) Lift the handset.
2) Press any available
q
line button.
l
Listen for dial tone.
3) Press the m (or the [) button (see Note).
4) Dial the 2-digit speed dial code for the desired telephone
number.
l
‘Your system will automatically dial the number for you.
5) Hang up when the call is completed.
TO CHAIN DIAL AUTOMATICALLY
Dials two or more speed dial numbers during one call.
1) Lift the handset.
2) Press any available
q
line button.
l
Listen for dial tone.
SPEED DIAL (continued)
3) Press them (or the 1) button (see Note).
4) Dial the 2-digit speed dial code for the first telephone
number to be dialed.
5) Press them (or the 1) button.
6) Dial the 2-digit speed dial code for the second telephone
number to be dialed.
7) Repeat the above steps for each subsequent number to be
dialed.
l
Yoursystem will automatically dial the number for you.
8) Hang up when the call is completed.
NOTE:
lfyour telephone does not have an= button, the 1 button
serves the same function.
SPEED DIAL BUTTONS
PROGRAMMABLE OPTION
After accessing a CO line, speed dial is available by pressing an
q
button instead of a 2-digit access code. Eachm button stores
one telephone number (up to 20 digits).’
TO STORE A TELEPHONE NUMBER*
1) Do not lift the handset.
2) Press the 1 (or m) and fl (or m) buttons, respec-
tively.
3) Press the
q
button you wish to use.
4) Dial the telephone number to be stored (20 digits maxi-
mum).3
5) Press the 1 (or m) button to record the number in
memory.
6) Repeat the above steps for each
q
button.
NOTES:
1. Up to 37 digits by linking two speed dial numbers (see
the link procedure that follows).
14 15
./’

FEATURE USE FEATURE USE
SPEED DIAL BUTTONS TELEPHONE NUMBER STORAGE (continued)
PROGRAMMABLE OPTION (continued)
2. Repeat this procedure to replace the stored telephone
numbers with new ones.
3. It may be necessary to insert a pause after the CO line
access code to allow for dial tone delay. If so, press the
m (arm button after entering the Centrex or
PBXaccesscode (see Telephone NumberStorage-Pauses).
4. To store * or # DTMF tones in speed dial numbers, the
tele hone that is used to store the numbers must have
the lb D button. These tones can be entered anywhere
in a speed dial number.
2)
3)
Press the 1 and 1 (or m and m buttons, respec-
tively.
Dial a 2-digit speed dial code.
l
System speed dial codes run consecutively from 60 N
99.
4)
5)
6)
7)
Dial the telephone number to be stored (20 digits maxi-
mum).
Press the 1 (or mm button to record the telephone
number in memory.
Repeat the steps above with every telephone number to be
stored (up to the maximum of 40).
Write down the speed dial codes and telephone numbers
for future reference.
SAVED NUMBER REDIAL
PROGRAMMABLE OPTION
This feature enables you to store a dialed telephone number and
later redial that number by pressing a single button.
TO SAVE A TELEPHONE NUMBER
1) Lift the handset.
2) Obtain dial tone.
3) Dial the desired telephone number.
4) Press the m button.
l
The telephone number is saved for future use.
TO DIAL A SAVED TELEPHONE NUMBER
1) Lift the handset.
2) Obtain dial tone.
3) Press the m button.
l
Saved number will be automatically dialed.
TELEPHONE NUMBER STORAGE
NOTE:
Repeat steps 1 w 5 to replace the stored telephone num-
bers with new ones.
TO STORE PAUSES (l/2- or 2-second/lo-second) and
FLASHES (Hookflash) ALONG WITH SPEED DIAL NUMBERS
1) Press them (or m) button to store a pause. Pauses
can be inserted anv where in speed dial number.
2) Press them button to store a flash. The flash must be
stored as the first entry, a flash cannot be stored after a digit
is entered into the speed dial number.
NOTES:
7. If a m button is not available, the m button will
store a ause (flashes cannot be stored).
G$
2. The - A button is l/2- or P-seconds per system pro-
gram assignments.
3. A lo-second pause is programmed using the m
button.
STORING A SYSTEM SPEED DIAL NUMBER
System speed dial telephone numbers can be stored in the
system memory by station 200 only.
1) Do not lift the handset.
16

FEATURE USE FEATURE USE
TELEPHONE NUMBER STORAGE (continued) TELEPHONE NUMBER STORAGE (continued)
STORING A STATION SPEED DIAL NUMBER
Speed dial telephone numbers can be stored by each station.
1) Do not lift the handset.
2) Press the [ and i (or m and m) buttons, respec-
tively.
3) Dial a 2-digit speed dial code.
l
Station speed dial codes run consecutively from 10 N
49.
4) Dial the telephone number to be stored (20 digits maxi-
mum).
5) Press the 1 button to record the number in memory.
6) Repeat the above steps with every number to be stored (up
to the maximum of 40).
7) Write down the speed dial codes and telephone numbers
for future reference.
TO LINK TWO SPEED DIAL NUMBERS UNDER ONE
q
BUTTON
You can link a second number to a number stored in one of ten
locations in the system speed dial memory (90 N 99). This allows
up to 37 digits to be stored under one speed dial button or code.
Any station can link any of its assigned speed dial numbers (10
w 49) to codes 90 N 99, however station 200 is required for linking
codes 60 w 89. (All other procedures for entering numbers apply.)
1) Press the 1 and i (or m and m) buttons.
2) Dial an applicable 2-digit speed dial code (10 m 49 for all
stations, 60 w 99 at station 200 only).
3) Press the 1 (or m) button.
4) Dial the 2-digit code to which this number will be linked (90
- 99).
5) Dial the number to be chained (17 digits maximum).
6) Press the 1 (or m) button to record the number in’
memory.
NOTE:
The number stored in location 90 - 99 will dial out first,
followed by the number linked to it in location IO - 49 or 60
- 89. The company’s special carrier access telephone
numbers are normally stored in locations 90 - 99, allowing
other numbers to be linked to them to dial both numbers
using a one-button speed dial.
* AND # DTMF TONE DIALING
When the * or # tones must be output (for computer input service
or other use), the speed dial feature must be disabled to ermit
manual dialing of the1 and 1 buttons. (Applicable only if 55
D and
m buttons are not programmed.)
TO OUTPUT * AND # DTMF TONES
1) Lift the handset.
2) Press any available
q
line button.
3) Dial any desired directory number.
4) To enable * and # tones to be sent, press 11 first.
NOTE:
Only manual dialing will be possible; the special * and #
tones as well as digits 0 - 9 will be output as DTMF tones
when dialed. The speed dial feature will be restored when
the station is disconnected or placed on hold.
TONE/PULSE DIALING
PROGRAMMABLE OPTION
For some CO lines, calls must be made using rotary dial pulses.
In order to access remote equipment requiring tones in these
areas (such as automatic tellers or answering machines), you
must change to DTMF tohe sending after you have dialed the
outside directory number.
Pressing them button changes the dialing status of the CO
line in use: TONE LED ON indicates DTMF tones are output; LED
OFF indicates dial pulses are output.
.,.
‘\,:; ,:,
19

FEATURE USE FEATURE USE
TONE/PULSE DIALING
PROGRAMMABLE OPTION (continued)
TO CHANGE TO TONE SENDING
After you have dialed a telephone number and the call is in
progress, press the m button.
TONE LED goes on.
Pressing the dialpad buttons will cause DTMF tones to be
transmitted.
NOTE:
After :hem button is pressed, the Tone LED will remain
on and DTMF tones will be sent when dialing until the call
is released. When originating or receiving a new CO line
call, the system automatically places the line in the dial
pulse mode until the m button is used.
PRIVACY OVERRIDE
PROGRAMMABLE OPTION
Allows stations with common CO lines to override an existing
conversation by pressing the busy
q
line button. Up to two
stations maximum may override an existing CO line-to-station
call (allowing a total of up to three stations being connected to an
outside line).
TO ENTER AN EXISTING CALL BETWEEN A CO LINE AND
ANOTHER STATION
Press the busy m line button.
l
An optional tone signal is heard by the connected parties prior
to the new station entering the conversation.
NOTE: ’
To allow Privacy Override, the overriding station must be
programmed with Privacy Override; or, the Privacy Re-
lease LED must be on at the talking station (see Privacy
Release).
PRIVACY OVERRIDE (continued)
PROGRAMMABLE OPTION
PRIVACY BUTTON
PROGRAMMABLE OPTION
This option blocks any station programmed with Privacy Over-
ride from entering your CO line conversation by pressing a
common CO line button.
TO MAKE ALL CO LINES ON YOUR STATION PRIVATE
Press the m button.
TO CANCEL PRIVACY
Press the m button again
NOTE:
Privacy willnot block Busy Override or Executive Override.
PRIVACY RELEASE
PROGRAMMABLE OPTION
On a private system, activating them button allows any
other station to enter an in-progress CO line call (see Privacy
Override).
TO USE PRIVACY RELEASE FEATURE
Press the m button.
l
PRV RLS LED goes on.
l
Your station does not have CO line privacy.
INTERCOM CALLS
TO MAKE AN INTERCOM CALL (Voice First)
1) Lift the handset.
2) Press the m button (see Note).
l
You hear intercom dial tone.
31

FEATURE USE
INTERCOM CALLS (continued) MICROPHONE CUT-OFF
PROGRAMMABLE OPTION
l
INT LED flashes green at the In-use rate.
3) Dial the desired station number.
l
You hear a single ring tone.
4) Speak when the ring tone ends.
5) Hang up when the call is completed.
NOTES:
1. See Automatic Off-hook Selection.
2. Tone Signaling can be accomplished by dialing0 after
the station number.
TO RECEIVE AN INTERCOM CALL
1) You hear a single long tone, followed by the caller’s voice.
l
INT LED flashes green at the Incoming Call rate.
2) Lift the handset.
l
INT LED flashes green at the In-use rate.
3) Hang up when the call is completed.
HANDSFREE ANSWERBACK
TO RECEIVE AN INTERCOM CALL (HANDSFREE)
1) You will hear a single long tone, followed by the caller’s
voice.
l
INT LED flashes green at the Incoming Call rate.
l
MIC LED is on steady red, indicating your microphone
is active.
l
SPEAKER LED flashes red.
2) Leave the handset on-hook.
3) Speak at a normal voice level in the direction of the
telephone.
NOTE: .
The m button must be pressed (or the handset must be
taken off-hook) before placing an intercom call on hold.
The m button allows a station to turn its microphone off/on
while idle. Handsfree Answerback is inoperable while the micro-
phone is off.
TO USE MICROPHONE CUT-OFF
1) Press the m button.
l
MC0 LED goes on.
l
Micro hone is turned off.
2) Press the l!im 0 button to turn the microphone on again.
l
MC0 LED goes off.
OFF-HOOK CALL ANNOUNCE (OCA)
OPTIONAL FEATURE
Allows a station user to call and speak to an off-hook, busy digital
telephone through the speaker. The called digital telephone
must be equipped for OCA capability.
TO USE OFF-HOOK CALL ANNOUNCE
1) Lift the handset.
2) Call the desired station.
l
Hear warning tone.
l
If busy tone is heard, dial m.
3) Speak to called party (automatic OCA).
TO FORCE A DISCONNECT
A forced disconnect allows the called station to disconnect the
OCA call.
l
Press the m button to disconnect an OCA caller.
NOTES:
1. DND revents OCA calls.
2. The Iti andm buttons can prevent the OCA caller
from listening to your conversation.
!2 23

FEATURE USE FEATURE USE
CALL TRANSFER WITH CAMP-ON CALL TRANSFER WITH CAMP-ON (continued)
Allows you to transfer an outside call to a station that is either idle
or busy.
TO TRANSFER A CALL
1) While connected to an outside call, press them
button.
l
CO LED remains green, but changes to the Confer-
ence fast flash rate.
l
INT LED flashes at the In-use rate.
2) Dial the station number to which the call is to be transferred.
3A) If the called station is idle:
l
You hear a single ring tone.
4A) Announce the call.
5A) Hang up.
l
INT LED goes off.
l
CO LED remains green, but changes to the On-hold
flash rate.
l
CO line rings the called station.’
l
CO LED changes to steady red when the called station
connects with the transferred call.
l
If the station fails to answer the call, you will receive a
recall ring after a predetermined time.
. . . or. . .
38) If the called station is busy:
l
Busy tone is heard.
4B) Hang up.
l
INT LED goes off.
l
CO LED remains green, but changes to On-hold flash
rate.
l
CO line is camped-on to the called station.’
l
Called station hears a warning tone.
l
CO LED changes to steady red when the station
connects with the transferred call.2
NOTES:
1. You may reconnect to a transferred line (anytime
before it is answered) by pressing the appropriate
q
button or dia/m [ 1 if them line does not appear on
your telephone.
2. The call will recall you and camp-on is cancelled if the
station does notpick it up within a predetermined time.
Inform the caller of the situation, and repeat the proce-
dure (if necessary).
TO ANSWER ATRANSFERRED CALL (if your station is idle)
1) Voice Signaling:
a) You will hear a single long tone, followed by an
announcement.
l
INT LED flashes green at the Incoming Call rate.
b) Acknowledge the announcement.
c) When the transferring station hangs up, you will hear
a ringing tone.
l
CO LED changes from red to green at the Incom-
ing Call flash rate.
d) Press the appropriate
q
button.
l
CO LED changes to the In-use flash rate.
NOTE:
If your digital telephone has Line Preference
feature, you may press the button or lift the
handset instead of pressing the [9 button,
2) Tone Signaling:
a) You will hear intercom ringing.
l
INT LED flashes green at the Incoming Call rate.
b) Lift the handset (or press the B button).
l
INT LED changes to the In-use flash rate.
c) Speak to the transferring station.
d) You will be connected to the outside call when the
transferring station hangs up.
l
INT LED goes off.
l
The LED of the transferred CO line changes to
green at the In-use flash rate.
24 25

FEATURE USE FEATURE USE
CALL TRANSFER WITH CAMP-ON (continued) CONFERENCE CALLS (continued)
TO ANSWER A TRANSFERRED CALL (if your station is
busy)
1) You will hear a l-second warning tone.
l
The outside call is camped-on to your station.
l
CO LED flashes green at the On-hold rate.
2) You have several choices:
a) Press the appropriate
q
button.
l
Existing call is terminated.
l
The new line is answered and its LED changes to
the In-use flash rate.
bl) Hang up. . . . or. . .
l
Existing call is terminated.
l
The camped-on line rings at your station.
l
CO LED changes to the Incoming Call flash rate.
b2) Press them button (or lift the handset) to answer the
call.
l
CO LED changes to the In-use flash rate.
. . or. . .
cl) Press them button (if conversing on a CO line).
l
Existing CO call is put on hold.
l
The camped-on line rings at your station,
l
CO LED changes to the Incoming Call flash rate.
c2) Press the (9 button to answer the call.
l
CO LED changes to the In-use flash rate.
CONFERENCE CALLS
TO CONFkRENCE UP TO TWO STATIONS AND TWO CO
LINES, OR THREE STATIONS AND ONE CO LINE
Establish a CO line call using a CO line button, dial the appropri-
ate access code, or you may already be talking on a CO line call.
TO ADD A SECOND CO LINE
1) Press the m button.
e You hear intercom dial tone.
l
CO LED flashes green at the Conference rate.
l
INT LED flashes green at the fast rate.
2) Access a second CO line’ and dial the next telephone
number.*
3) Press the m button after the party answers.
l
Both CO LEDs flash green at the In-use rate.
l
All parties will be conferenced.
NOTES:
1. Press a
q
line button or dial an access code: 70 1 -
736, line number; 81 - 88, line group number; or, 9,
LCR access code.
2. If you receive a busy tone or no answer, return to the
original connection by pressing the
q
button. If the
line is not on your telephone, hang up and the original
connection will recall you immediately.
TO ADD ANOTHER STATION
1) Press the m button.
l
You hear intercom dial tone.
l
CO LED flashes green at the Conference rate.
l
INT LED flashes green at the In-use rate.
2) Dial the number of the other station.’
3) Press the m button after the party answers.2
l
CO LED(s) will flash at the In-use rate.
l
All parties will be conferenced.
4) Repeat to add another party:
l
Three stations/one CO line maximum.
5) Hang up when conference call is completed.
NOTES
1. If you receive a busy tone or no answer, return to the
original connection by
pressing the m but-
ton.
2. Thenewstation willnotbeconferencedunless the user
lifts the handset or presses the m button to answer.
26 27

FEATURE USE FEATURE USE
CONFERENCE CALLS
(continued)
CALL FORWARD-ALL CALLS
(continued)
TO CONFERENCE UP TO FOUR STATIONS ON ONE
INTERCOM LINE
1) Establish a two-station intercom call.
2) Press them button.
l
You hear intercom dial tone.
l
INT LED flashes green at the Conference rate.
3) Dial the third station’s number.
4) Press the m button after the party answers.
l
INT LED flashes at the In-use rate.
l
All parties will be conferenced.
5) To add the fourth party, repeat steps 2 N 4.
CALL FORWARD-ALL CALLS
For Intercom and CO line calls (all calls will forward to a selected
station at all times-your station will not ring when called).
TO SET CALL FORWARD-ALL CALLS
1) Press the m button (or dial m B 10).
l
CFAC LED flashes (or hear confirmation tone).
2) Dial the station number to which calls will forward.
l
Listen for confirmation tone if 110 was dialed.
3) Press the m (or m) button.
l
CFAC LED on steady red.
l
Calls will forward to stored station number.
TO CANCEL CALL FORWARD-ALL CALLS
Press the m button (or dial m 11 m.
l
CFAC LED oes off (or hear confirmation tone).
l
Pressdbutton ifmIIiwasdialed.
NOTE: ’
If call forward is set:
l
CO lines that ring your station only will forward-CO
lines that ring more than one station will not forward.
l
CO line calls transferred to your station will forward.
l
Intercom calls will forward.
l
Call forward redirects the station hunt feature.
l
Call forward must be set before the call is received.
CALL FORWARD-BUSY
When your station is busy, all calls will forward immediately.
When your station is idle, calls will ring at your station as usual.
TO SET CALL FORWARD-BUSY
1) Press the m button (or dial m 1 B B).
l
CFB LED flashes red (or hear confirmation tone).
2) Dial the station number to which calls will forward.
l
Listen for confirmation tone if 111 was dialed.
3) Press the m (or m) button.
l
CFB LED on steady.
l
Calls will forward to stored station number.
TO CANCEL CALL FORWARD-BUSY
Press the m button (or dial m i 1 B.
l
CFB LED oes off (or hear confirmation tone).
l
Press&button if~~~~wasdialed.
NOTE:
If call forward is set:
l
CO lines that ring your station only will forward-CO
lines that ring more than one station will not foward.
l
CO line calls transferred to your station will forward.
l
Intercom calls will forward.
l
Call forward redirects the station hunt feature.
l
Call forward must be set before the call is received.
CALL FORWARD-NO ANSWER
For Intercom and CO line calls (all calls will forward to’s selected
station whenever your telephone is not answered. within 12
seconds or three rings, whichever occurs first).
29

FEATURE USE
CONFERENCE CALLS (continued) CALL FORWARD-BUSY/NO ANSWER (continued)
TO SET CALL FORWARD-NO ANSWER
1) Press the m button (or dial m 11 a).
l
CFNA LED flashes red (or hear confirmation tone).
2) Dial the station number to which calls will forward
’
l
Listen for confirmation tone if B 1 u was dialed.
3) Press the m (or m) button.
l
CFNA LED on steady.
l
Calls will forward to stored station number.
TO CANCEL CALL FORWARD-NO ANSWER
Press the m button (or dial m 11 B).
l
CFNA LED oes off (or hear confirmation tone).
l
Pressdbutton if~~[~wasdialed.
NOTE:
If call forward is set:
l
CO lines that ring your station only will forward-CO
lines that ring more than one station will not forward.
l
CO line calls transferred to your station will forward.
l
Intercom calls will forward.
l
Call forward redirects the station hunt feature.
l
Call forward must be set before the call is received.
CALL FORWARD-BUSY/NO ANSWER
For intercom and CO line calls (all calls will forward immediately
to a selected station whenever your telephone is busy, or if not
answered calls will forward within 12 seconds or three rings,
whichever ‘occurs first).
TO SET CALL FORWARD-BUSY/NO ANSWER
1) Press the m button (or dial m 1 i I).
l
CFB/NA LED flashes red (or hear confirmation tone).
2) Dial the station number to which calls will forward.
l
Listen for confirmation tone if B B 1 was dialed.
3) Press’ the m (or m) button.
l
CFB/NA LED on steady.
l
Calls will forward to stored station number.
TO CANCEL CALL FORWARD-BUSY/NO ANSWER
Press the m button (or dial m B B I).
l
CFB/NA LED oes off (or hear confirmation tone).
l
Press d button if mimm was dialed.
NOTE:
If call forward is set:
l
CO lines that ring your station only will forward-CO
lines that ring more than one station will not forward.
l
CO line calls transferred to your station will forward.
l
intercom calls will forward.
l
Call forward redirects the station hunt feature.
l
Call forward must be set before the call is received.
CALL FORWARD-FIXED
All intercom and CO line calls to your station will forward to a
predetermined station or voice mail device. The “Forward to”
station/device is determined (Fixed) in system programming for
each station. Your station will not ring when Call Forward-Fixed
is set.
TO USE FIXED CALL FORWARD (ALL CALLS)
1) Press the m button.
l
CFF LED on steady red.
l
All calls will forward to the fixed programmed station.
2) To cancel, press the m button again.
. CFF LED off.
NOTE:
If call forward is set:
l
CO lines that ring your station only will forward-CO
lines that ring more than one station will noiforward.
30 31

FEATURE USE
CALL FORWARD-FIXED (continued) CALL HOLDING (continued)
l
CO line calls transferred to your station will forward.
l
Intercom calls will forward.
l
Call forward redirects the station hunt feature.
l
Call forward must be set before the call is received.
FEATURE USE
l
Press a
%
0 button with common appearance.
l
Press the button and dial I+ N (N = the holding
station’s intercom number).
l
Press the m button and dial 1 0 + N (N = the
holding CO line’s number-0 1 m 36).
CALL HOLDING EXCLUSIVE HOLD
TO HOLD A CALL (CO line or m button appears on your
station)
While connected to a CO line or intercom call, press them
button.
l
CO or intercom LED flashes green at the On-hold rate.
l
To reconnect the call, press them arm button on hold.
NOTE:
Regarding handsfree answerback, an intercom call must
be answered by pressing the m button or lifting the
handset before it can be placed on hold.
TO HOLD/PARK A CALL AND PLACE ANOTHER CALL (CO
line does not armear on vour station)
1)
2)
3)
4)
While connected to a-CO or intercom call press them
m button and dial 10.
To make another call, press themor am button and dial
the desired number.
Hang up or press the m button when the call is
completed.
To retrieve the held call made in step 1, press them button
and dial D 1 (see Note 3).
NOTES:
1. The on-hold recall tone will be heard within a predeter-
mined time.
2. The heldcallmay be releasedautomatically if the other
party, hangs up (if the CO provides a hold-release
signal).
3. When a CO line is placed on hold, it may be picked up
from any station:
TO USE EXCLUSIVE HOLD (CO line must appear on your
station)
While connected to an outside call, press them button twice.
l
CO LED flashes green at a fast 10 IPS) rate.
l
To reconnect the call, press the h 0 button that is on hold.
NOTE:
When a CO line is placed on Exclusive Hold, it may be
picked up at another station by dialing 1 and the station
number that placed the call on Exclusive Hold; however it
cannot be picked up by pressing a common
q
button at
another station.
CALL PICKUP
TO PICK UP RINGING CO LINE (Tenant l/Tenant 2 Line
Groups)
Press them or m button (or press the m button and
dial 1 I).
TO DIRECT PICK UP ONE OF THE FOLLOWING
1) Station: Press the m button + station number (inter-
com, ringing or held CO line).
2) Intercom Page: Press the m button + 11.
3) External Page: Press the m button + IB.
4) CO line on hold: Press them button + 0 Cl Q (Cl Cl = CO
line number: 01 * 36).
5) Any ringing CO line: Press them button + 1.
32 33

FEATURE USE
CALL PICKUP (continued)
NOTE:
If am button is not available, press m + 1 instead of
the m button.
DO NOT DISTURB
Allows you to prevent incoming calls from accessing your station.
You can still make outgoing calls.
TO USE DO NOT DISTURB MODE
Press them button.
l
DND LED goes on steady red.
TO RELEASE THE DO NOT DISTURB MODE
Press the m button.
l
DND LED goes off.
NOTES:
1. Do Not Disturb prevents Off-hook Call Announce.
2. Outside calls will mute ring your station while in the
DND mode.
AUTOMATIC CALLBACK (INTERCOM)
After reaching a busy or DND station on an intercom call, you
may use Automatic Callback.
TO USE AU,TOMATIC CALLBACK
1) Press them button (or dial 1) to set Automatic Callback.
l
Busy tone stops.
l
You will hear dial tone for two seconds and then busy
tone again.
2) Go on-hook. You may make other calls while waiting for the
called station to become available.
3) When the called station becomes idle:
l
Your telephone rings at a fast rate.
4) Answer the call within nine seconds to prevent the callback
from being cancelled.
l
You hear a single tone, as if making a regular intercom
call.
5) Proceed to voice announcement.
6) Proceed with the conversation.
FEATURE USE
AUTOMATIC CALLBACK (INTERCOM) (continued)
NOTES:
1. You may cancel the re uest anytime prior to the
button and dial m m. ib
callback by pressing the ’ : button (or press the m
2. If, after answering a callback, you hear a busy tone, it
means the called party has already received or origi-
nated another call. Your request is not cancelled. You
will be called again the next time the station becomes
idle.
CO LINE QUEUING
Provides a means for station users to be placed in a waiting
queue for a busy outgoing CO line group, and to be called back
when a CO line in the group is available.
TO USE CO LINE QUEUING
1) If all outgoin lines are busy, you will hear busy tone.
dl
2) Press the A 5 button (or dial 1) to set Automatic Callback.
l
Busy tone stops. You will hear dial tone for two
seconds and then busy tone again.
l
You may go on-hook or make other calls while waiting
for atrunk to become available.’
3) When a CO line becomes idle:
l
Your telephone rings at a fast rate.
l
CO LED flashes green at the Incoming Call rate.
4) Lift the handset within six seconds to prevent the callback
from being cancelled.
l
You hear CO dial tone.3
l
CO LED flashes at the In-use rate.
34
“,.~ ,
35

FEATURE USE FEATURE USE
AUTOMATIC CALLBACK (INTERCOM) (continued)
5) Dial the desired telephone number.*
6) Hang up when the call is completed.
NOTES:
1. You may cancel the request at any time prior to the
actual callback by
11 (or press the A
ressing them button and dialing
$1 : button).
2. If the original call was made using LCR (dial m, the
telephone number is automatically dialed in step 4.
3. If, after answering a callback, you hear a busy tone, it
means the trunk has already been seized or received
an incoming call. Yourrequest is not cancelled. You will
be called again the next time a trunk becomes idle.
ACCOUNT CODE CALLS
On some calls, you may be required (forced) to dial an account
code before dialing an outside number. On other calls, you may
wish to record an account code voluntarily after either dialing an
outside number or receiving an incoming call. The code you enter
will be recorded on the Station Message Detail Recording
(SMDR) printout with the details of your call. Account codes may
be verified or nonverified.
TO RECORD A FORCED ACCOUNT CODE (Outgoing Calls
Only)
1) Access a CO line.’
l
You hear dial tone.*
2) Dial the -digit account code with the dialpad.
l
Dial tone stops after you dial the first digit.
l
You will hear dial tone after you press the last digit of
a valid account code.
. . . or. . .
l
You will hear busy tone after you press the last digit of
an invalid code.
3) Dial the outside directory number.
ACCOUNT CODE CALLS (continued)
NOTES:
I. Press a
q
button, dial a CO line access code, or dial
1 to call via LCR.
2. 1 calling via LCR, CO dial tone will not be returned.
3. Unless you dial the correct number of digits, you willnot
receive dial tone.
4. Any digits dialed after the code will be treated as part
of the outside directory number.
EMERGENCY OVERRIDE OF FORCED ACCOUNT CODE
DIALING REQUIREMENTS
Forced account code requirements can be bypassed by three
emergency numbers, including 911. See your system adminis-
trator for these numbers:
1) 911 2) 3)
TO RECORD A VOLUNTARY ACCOUNT CODE (Incoming
or Outgoing)
1) Anytime during the call, dial p 11 or press the B
button (the conversation will not be interrupted).
2) Dial the account code.
l
If the code is valid, you will hear a confirmation burst
tone (l/2 second duration).
. . . or. . .
l
If the code is invalid, you will heartwoshortconfirmation
burst tones. Repeat steps 1 and 2 to dial another
account code, or hang up.
. . . or. . .
l
If the code is nonverified, you will not hear a confirma-
tion tone.
NOTE:
Confirmation tones are inaudible to the other party.

FEATURE USE
ACCOUNT CODE CALLS (continued) PAGING (continued)
TOADD,DELETE,ORCHANGEVERlFlEDACCOUNTCODES
FROM STATIONS SELECTED IN SYSTEM PROGRAMMING
1) Press m and dial the verified account code change ac-
cess code Ci D 0 (see Note).
l
You will hear confirmation tone.
2) Dial the three-digit verified account code number CI CI 0
- (000 - 299).
3) Dial the verified account code CI . . . Q (1 * 15 digits).
4) Press the 1 or m button to store the code.
l
You will hear confirmation tone.
5) Repeat steps 1 w 4 to enter more verified account codes.
NOTE:
For security reasons the account code change access
code is not given in this guide. Contact your telephone
system maintenance provider for this access code.
PAGING
TO PAGE
1) Lift the handset.
2) Press the m button and dial the following:
B I= All Call (electronic and digital telephones only)
10 = Station Group #l
Ii= Station Group #2
iI= Station Group #3
m I= Station Group #4
Is
l
= All Call (with External Page)*
w i I= External Page Zones (1 w 4)*
3) Make your announcement in a normal voice level and
repeat it.
4) Hang up when you have completed your announcement.
*Programmable Option
TO PAGE ALL CALL TO DIGITAL AND ELECTRONIC
TELEPHONES ONLY
1) Lift the handset.
2) Press the
q
button.
3) Make your announcement in a normal voice level and
repeat it.
4) Hang up when you have completed your announcement.
NOTE:
The
q
button does not access external page speakers.
DOOR PHONE
TO ANSWER THE DOOR PHONE
1) You hear a distinctive ringing tone.
2) Lift the handset.
l
INT LED lights.
l
You are connected to the door phone.
3) Hang up when the call is completed.
TO CALL/MONITOR A DOOR PHONE
1) Lift the handset.
2) Press them button.
l
You hear intercom dial tone.
l
INT LED flashes at the In-use rate.
3) Dial the intercom number for the desired door location.
151 Location
152 Location
153 Location
154 Location
155 Location
156 Location
157 Location
158 Location
159 Location
161 Location
162 Location
163 Location
4) Hang up when the call is completed or when you no longer
wish to monitor the door phone.
38 !
x>..*-
39

FEATURE USE FEATURE USE
DOOR PHONE (continued) BACKGROUND MUSIC (BGM) (continued)
TO USE A DOOR PHONE
1) Press the button and then release it.
l
You hear a distinctive ringing tone.
2) When answered, speak at a normal voice level in the
direction of the door phone.
HANDSFREE MONITORING
Calls placed on hold by the distant party may be monitored
handsfree.
TO USE HANDSFREE MONITORING
1) While connected to a call, press and hold the m
button.
2) Place the handset on-hook.
3) Release the m button.
l
Sounds from the distant party are heard via the
telephone’s speaker.
4) Lift the handset to continue the conversation when the
distant party returns.
ALARM RESET
A programmable option used with an optional alarm system to
on the system’s electronic telephone.
button resets the alarm signal on the
telephones.
, BACKGROUND MUSIC (BGM)
If a BGM music source is connected to your system, you may
listen to background musicviayour station’s speaker, or over the
external page speakers.
TO LISTEN TO BGM ON YOUR TELEPHONE SPEAKER
Press the w button and dial 110 (or press the m button).
l
Adjust volume with the VOL control on the front of your
phone.
TO CANCEL BGM ON YOUR TELEPHONE SPEAKER
Press the m button and dial 111 (or press the m button).
TO CONTROL BGM VOLUME
1) Press them button.
2) Press the m button and adjust to the desired level
while listenin to system Intercom tone.
3) Press d after setting volume level.
l
The relative volume level of BGM will be the same as
Intercom tone.
BACKGROUND MUSIC OVER EXTERNAL SPEAKERS
NOTE:
Stationnumber200is theonlystation thatcan turn External
BGM on/off.
TO ALLOW BGM OVER EXTERNAL PAGE
Press the m button and dial 110.
TO CANCEL BGM OVER EXTERNAL PAGE
Press the m button and dial 111.
DIRECT INWARD SYSTEM ACCESS (DISA)
When calling into your system from the outside on certain
telephone lines.
TO MAKE A DIRECT INWARD STATION CALL USING DISA
1) Using a DTMF telephone, call the DISA CO line telephone
number. -
2) Listen fox ringback tone signal, and then listen for the
intercom dial tone’ (if busy tone is received, try again).
3) Dial the intercom number of the desired station.
l
You will be connected when the station answers*,
. . . or. . .
All
41

FEATURE USE FEATURE USE
42
DIRECT INWARD SYSTEM ACCESS (DISA) (continued)
l
If you receive busy tone or wish to dial another number
while ringing the station, press the 1 button to receive
dial tone, allowing another number to be dialed.
TO CALL THROUGH YOUR SYSTEM ON AN OUTGOING CO
LINE USING DISA
1) Using a DTMF telephone, call the DISA CO line telephone
number:--
2) Listen for the ringback tone signal, and then listen for the
STRATA DKintercom dial tone’ (if busytone is received, try
again).
3) Dial the access code3 ( )oftheCOlineorCOlinegroup
that is to be used to place the outgoing call.
4A) If a DISA security code is required4, dial the code and listen
for CO dial tone.5
46) If a DISA security code is not required, listen for CO dial
tone.
5) After receiving CO dial tone, dial the desired telephone
number.
6) A timer tone will sound6 approximately four minutes after
the time the call was made. Dial [i to reset the timer’ each
time the tone sounds (this allows an additional four minutes
of conversation).
7) Hang up when the call is completed.
NOTES:
1. Dial tone will be present for 10 seconds to allow direct
dialing of station intercom number or CO line access
code. If a number is not dialed, the system automati-
cally causes the DISA CO line to ring at telephones as
a normal incoming call. However, if the call is not
answered within 15 seconds after the ringing starts, it
will disconnect.
2A. If the station does not answerafiersix rings or twenty-
four seconds, whichever comes first, busy tone will be
sent. Dial 1 to return to dial tone and dial the same or
another number.
-. ,,
DIRECT INWARD SYSTEM ACCESS (DISA) (continued)
2B. If you wish to call another station after completing a
DISA station call, it is necessary for the internal party
to transfer your call.
3. A direct CO line or line group access code must be
dialed (70 I - 736 or 81 - 88). The LCR code (9) is not
allowed.
4. The DISA security code is a system program option
that may or may not be required.
5. If the correct code is not entered, the call will be
disconnected.
6. Allpatties will hear the timer tone and timer reset DTMF
tone.
7. If the timer is not reset, the call will disconnect approxi-
mately one minute after the timer tone is sent.
8. Station and System Page cannot be accessed on DISA
calls.
DISA SECURITY CODE ENTRY/CHANGE/CANCEL
From designated station(s) only.
1) Press them button and dial Cl 0 Et1 (3-digit access code).
l
Receive confirmation tone.
2) Dial the new DISA security code* (It . . . Q-1 * 15 digits).
3) Press the 1 (or m) button.
l
Receive confirmation tone.
NOTES:
1. For security purposes; the 3-digit access code is not
published, it is available from your telephone system
maintenance provider.
2. If a DISA security code is not entered in step 2, the
security code will be cancelled and outgoing line ac-
cess via DISA will not require a security code.
DIRECT STATION SELECTION BUTTONS (HOTLINE)
PROGRAMMABLE OPTION
Allows stations to be connected directly by pressing a w
button. The button’s LED independently shows the status (idle/
43

FEATURE USE FEATURE USE
DIRECT STATION SELECTION BUTTONS (HOTLINE)
PROGRAMMABLE OPTION (continued)
busy) of that station. If connected to a CO line, pressing this
button will put the party on hold. Transfer the call as you would
normally, by voice announcing or camping on by hanging up.
DOOR LOCK
Pressing the m button momentarily activates a switch con-
nected to a door lock or similar device.
Door Lock Button
DRLK 0
DRLK 1
DRLK 2
DRLK 3
DRLK 4
Location
MESSAGE WAITING
If someone calls your telephone and you are unable to answer,
the calling party may set the Message Waiting indicator (a
flashing red LED) on your telephone.
The Message Waiting indicator is the MESSAGE LED.
Up to four Message Waiting indications may be queued on the
message indicator at one time. One of the four message indica-
tions is always reserved for the Message Center; the other three
may be set from any other telephone or voice mail device.
TO ANSWER A MESSAGE WAITING INDICATION ON YOUR
TELEPHONE
1) If the MESSAGE LED is flash elephone: Lift the
handset, press the m and buttons, respec-
tively.
l
This calls the station that set the message indicator.
l
Wait for an answer to receive the message.
MESSAGE WAITING (continued)
NOTE:
If there is no answer, hang up and try at a later time (the
MESSAGE LED continues to flash).
2) After receiving the message, place the handset on hook.
If the MESSAGE LED turns off, you have no more
messages.
If the MESSAGE LED continues to flash, you have
more messages-repeat steps 1 and 2 to retrieve
them.
If the flashing message LED was turned on by a voice
mail device, the device will cancel the indication after
a short delay. The cancel time depends on the voice
mail device’s parameters.
NOTE: telephone does not have a B button, dial
TOSETTHEMESSAGEWAlTlNGINDICATORONANOTHER
TELEPHONE
1) At your telephone: Lift the handset, press them button and
dial the desired intercom number.
2) If the called telephone does not answer: Press the
B button to set the message indication (or dial@.
l
The MESSAGE LED flashes at the called telephone.
l
The MESSAGE LED illuminates steady at your tele-
phone.
3) Place the handset on-hook.
l
The MESSAGE LED flashes at the called telephone.
l
The MESSAGE LED turns off at your station.
l
The MESSAGE LED continues to flash at the called
telephone.
TO CANCEL THE MESSAGE WAITING INDICATION SET
FROM YOUR TELEPHONE
Lift the handset, dial the intercom number of the telephone that
44

FEATURE USE FEATURE USE
MESSAGE WAITING (continued)
has the message indication, and pressthe-buttontwice
(or dial 1 I).
TO CANCEL THE MESSAGE WAITING INDICATION SET ON
YOUR TELEPHONE
1) Answer the Message Waiting indication and receive the
message.
OVERRIDE CALLS
NOTE:
The called party must answer (off-hook or m
button) for the message indication to be canceled.
or .
2) Press the B button (do not press the m button
first).
NOTE:
If your telephone does not have a DXa button, the
message indication can be canceled by dialing m 111.
NIGHT TRANSFER
PROGRAMMABLE OPTION
On an optional basis, your system can function with two or three
ringing patterns. If three patterns are selected, they are desig-
nated DAY, DAY 2, and NIGHT. If only two patterns are selected,
DAY and NIGHT designations are used.
In both cases, different ringing patterns are chosen by pressing
the
q
button. Certain CO lines may be enabled in system pro-
gramming to switch from normal operation to DISA line opera-
tion.
The active pattern is shown by the state of the NT LED as follows:
Three-pattern Two pattern
DAY OFF OFF
DAY 2 FLASH N/A
NIGHT ON ON
TO INITIATE A BUSY OVERRIDE SIGNAL
After reaching a busy station, you may signal that station that a
call is waiting by dialing 1.
l
A tone signal is heard at the busy station.
NOTE:
If the Off-hook Cal/Announce option is installed on the busy
station, then you may talk.
TO OVERRIDE DND (Programmable Option For Selected
Stations)
After reaching a DND station, you may signal that station that a
call is waiting by dialing B.
l
A tone signal is heard at the DND station.
TOINITIATE EXECUTlVEOVERRlDE(ProgrammableOption
For Selected Stations)
After reaching a busy station, Executive Override allows you to
enter an established conversation by dialing 1.
l
An optional tone signal is heard by the called parties prior
to entering the conversation.
NOTE:
Privacy Override and Off-hook-Call Announce are de-
scribed in separate sections of this guide and are listed in
the index.
SPEAKERPHONE
(DKT 1020SD ONLY)
TO MAKE AN OUTSIDE CALL (On-hook Dialing)
1) Leave the handset on-hook.
2) Press any available
q
button (or them button + access
code).
l
Listen for dial tone.
l
CO LED flashes green at the In-use rate.
3) Dial the desired telephone number.
\: ,.i
/ 47

FEATURE USE FEATURE USE
MICROPHONE CONTROL
(continued)
SPEAKERPHONE
(continued)
4) Speak at a normal voice level in the direction of the
telephone.
5) Press the m button when the call is completed to
disconnect.
TO RECEIVE AN INCOMING CALL
1,) You hear a ringing tone.
2) Leave the handset on-hook.
3) Press the w button next to the flashing red LED (CO
Incoming Call rate).
l
CO LED flashes at the In-use rate.
4) Speak at a normal voice level in the direction of the
telephone.
5) Press the m button when the call is completed to
disconnect.
TO MAKE AN INTERCOM CALL (On-hook Dialing)
1) Leave the handset on-hook.
2) Press the m button.
l
Listen for intercom dial tone.
l
INT LED flashes green at the In-use rate.
3) Dial the desired station number.
l
You hear a single ring tone.
4) Speak at a normal voice level in the direction of the
telephone.
5) Press them button when the call is completed to
disconnect.
MICROPHONE CONTROL
The m button is used to switch the digital telephone’s micro-
phone from on to off or vice versa while the telephone is in use
(also see Microphone Cut-off- button). The red MIC LED
indicates the status of the microphone:
LED MICROPHONE
ON ON
OFF OFF
All digital telephones can answer intercom calls handsfree (on-
hook) via the microphone, but only a speakerphone can talk
handsfree when originating CO line or intercom calls while on-
hook.
The microphone and accompanying LED are always ON when
receiving intercom calls to allow handsfree answerback, and
may be on or off when beginning to place an on-hook CO line or
intercom call.
l
Each station’s microphone may be set in system program-
ming to be on or off at the start of handsfree dialing.
l
Each station’sm button may be set in system programming
to switch on/off with one touch or to switch on/off only while
pressed.
NOTES:
1. To change from speakerphone to handset:
l
Lift handset.
2. To change from hands
l
Press and hold the
l
Return handset on-hook.
l
Release the m button.
3. The m and m buttons function on off-hook call
announce calls for privacy.
TWO (TANDEM) CO LINE CONNECTION
TO ESTABLISH A TANDEM CO LINE CONNECTION (TRK-TRK)
1) While connected on an established CO line call (incoming
button.
l
You hear intercom dial tone.
l
CO LED flashes green at the Conference rate.
l
INT LED flashes green at the In-use rate. *
3) Access a second CO line and dial the next telephone
number.’
4) Press the m button after the party answers.2

TWO (TANDEM) CO LINE CONNECTION (continued) TIMED REMINDERS
l
CO LEDs flash green at the In-use rate.
l
All parties will be conferenced.
5) Press the m button.
l
You hear intercom dial tone.
l
CO LEDs flash green at the Exclusive Hold rate (10
IPS).
l
INT LED flashes at the In-use rate.
6) Hang up.
l
Both CO LEDs continue flashing at the Exclusive Hold
rate.
l
INT LED goes off.
l
COs are connected and in Exclusive Hold on your
station.
l
Connection is released automatically when parties
hang UP.~
On some systems, the connection must be supervised and
released as follows:
1) Press either
q
button.
l
Both CO LEDs flash at the In-use rate.
l
You will be connected to both CO lines.
2) If the parties have hung up, go back on-hook.
. Both CO LEDs go off.
l
Connection is released.
3) If the parties are still talking, proceed to step 5 above.
NOTES:
1. CQ lines maybe accessedbypressing a(9 line button
or by dialing access codes (line number, 70 1 - 736; line
group, 81 - 88; or, LCR access 9); however, both CO
lines must appear (buttons) on the telephone to allow
the station to monitor the tandem connection.
2. If you receive a busy tone or no answer, return to the
original connection by pressing the original
q
line
button.
3. Depends on the public telephone company; some
provide auto disconnect and some do not.
Allows five separate reminders to be set at each station. These
reminders will be an audible beeping at the times (hour and
minute) set by the station user. They can occur just once or
repeated on a daily basis.
TO ENTER A TIMED REMINDER
1) Dialm+iII-iII.Y ou h ave a choice of five different
reminders.
2) Enter the desired time (24-hour clock format; i.e., HHMM).
3) Dial 1 if reminder will be repeated every day, or 0 if it is a
one-time reminder only.
4) Press 1 (or m) button to record the time in memory.
l
A beeping tone will be heard for 30 seconds (or until
cancelled by going off-hook) when the hour and min-
ute occur.
TO CANCEL A TIMED REMINDER
1) Dialm+i11.
2) Press 1 (om).
NOTE:
Repeat for reminders B II- 111.
TOLL RESTRICTION OVERRIDE/TRAVELING CLASS
Toll restriction at a station can be completely overridden, or the
station’s normal class can be changed to another class (traveling
class). Use the following procedure to completely override or to
change a station’s toll restriction class.
TO OVERRIDE TOLL RESTRICTION AT A STATION FOR A
SINGLE CALL
1) Lift the handset.
2) Press a Toll Restricted
q
button.*
l
Listen for dial tone.
l
CO LED flashes at the In-use rate.
3) Press the m button
and dial 4 0.
50 _.... : / 51

FEATURE USE FEATURE USE
TOLL RESTRICTION OVERRIDE/TRAVELING CLASS
(continued)
l
You no longer hear dial tone.
4) Dial the Toll Restriction Override Code (four digits).
l
You hear dial tone.
5) Dial the desired telephone number.
* Or press the m button and dial access a CO line.
TO ADD, DELETE, OR CHANGE TOLL RESTRICTION
OVERRIDE OR TRAVELING CLASS CODES FROM
STATIONS SELECTED IN SYSTEM PROGRAMMING.
1) Press m and dial the three-digit toll restriction override
change access code CI a Q 2.
l
You hear confirmation tone.
2) Dial the four-di it override code L;I Cl Ci CI.
3) Press the B or - D A
ibm button to store code.
l
You will hear confirmation tone.
4) Repeat steps 1 w 4 to enter more toll restriction override or
traveling codes.
NOTE:
For security reasons, the change access code is not
provided in this guide. It is available from your telephone
sys tern maintenance provider.
TONE SIGNALING
PROGRAMMABLE OPTION
Provides rtnging on incoming intercom calls when voice an-
nouncing is not activated.
TO MAKE A TONE SIGNAL CALL
1) Call another station via intercom.
l
The called party hears one ring, then our voice.
2) To send ring tone to the called party, dial i .
3) Speak to the party when the call is answered.
TONE SIGNALING PROGRAMMABLE OPTION (continued)
TO ANSWER A TONE SIGNAL CALL
1) Lift the handset or press the m button (handsfree
answerback is inoperative).
2) Hang up when the call is completed.
VOICE MAIL (VM)
Whenever your station is call forwarded to voice mail, certain
digits will automatically be sent to the voice mail unit to direct the
call to your voice mail box.
TO STORE THE DIGITS TO BE SENT
1) Press the m button.
2) Dial 111.
3) Dial the di its (u to 16 and pauses to be sent (see Note).
4) Press the\ (or w) button to store data.
NOTE:
Use m or= button to store pauses.
When you wish to retrieve your messages from voice mail,
certain digits will automatically be sent to the voice unit to play
back your messages after you press the message waiting button.
TO STORE THE DIGITS TO BE SENT
1) Press the m button.
2) Dial BRi.
3) Dial the re uired di its and pauses to be sent.
4) Pressthei(or&)buttontostoredata.
TO RETRIEVE MESSAGES
Press the m and m buttons.
TO CLEAR ALL DIGITS
1) Press m.
2) Dial~~Ior~~~.
3) Press 1 (or m).
53

FEATURE USE CENTREX APPLICATION
VOICE MAIL (VM)
(continued)
NOTE:
The above procedures are required for initial VM set-up
on/y. The digits remain in memory until changed.
Your system may be equipped with the Centrex Application,
which enhances the system feature capability when installed
behind a Centrex or PBX system.
Your digital telephone may be equipped with one or more of the
enhanced Centrex features listed below:
A) Flexible intercom Numbering (up to four digits)
A station intercom number can be three or four digits. It is,
therefore, possible to match a station’s intercom and Cen-
trex line extension number. Dial the entire station number
when indicated.
NOTE:
To avoid system numbering plan conflicts, some access
code numbers may have to be changed.
B) Centrex Feature Buttons
Certain Centrex features may be operated by pressing a
button on your digital telephone. The Centrex access code,
including the necessary Flash and/or Pause sequence, is
activated when the appropriate button is pressed. Press the
appropriate Centrex feature button instead of dialing a
Centrex access code when operation of the feature is
desired. See your Centrex or PBX Operations Manual for
specific details.
C) Ringing Repeat
The distinctive ring patterns available in your Centrex sys-
tem are automatically repeated with your digital telephone,
allowing you to answer appropriately for either outside,
inside or callback calls.
D) Delayed Ringing
CO or Centrex line(s) may be programmed for a 12-second
and/or 24-second ring delay at stations to permit alternate
answering conditions. Answer the line when your digital
telephone is ringing.
54 ._ :_,
55

INDEX INDEX
(continued)
Account Code Calls .
........................................................... 36
Alarm Reset ........................................................................ 40
Auto Busy Redial Programmable Option ............................ 13
Automatic Callback (Intercom) ........................................... 34
Automatic Off-hook Selection Programmable Option.. ....... 12
Background Music (BGM) .................................................. 40
Background Music Over External Speakers ....................... 41
Button Descriptions ............................................................ 2
Call Forward-All Calls ... ...................................................... 28
Call Forward-Busy .............................................................. 29
Call Forward-Busy/No Answer ........................................... 30
Call Forward-Fixed ............................................................. 31
Call Forward-No Answer ..... ............................................... 29
Call Holding ........................................................................ 32
Call Pickup.. ........................................................................ 33
Call Transfer with Camp-on ................................................ 24
CENTREX Application ........................................................ 55
Conference Calls ................................................................ 26
Direct Inward System Access (DISA) ................................. 41
Direct Station Selection Buttons (Hotline)
Programmable Option.. ..................................................... 43
Do Not Disturb .................................................................... 34
Door Lock.. .
........................................................................ 44
Door Phone . .
...................................................................... 39
Exclusive Hold .................................................................... 33
Group Listening .................................................................. 12
Handsfree Answerback . .................................................... 22
Handsfree Monitoring ......................................................... 40
Intercom Calls.. . .................................................................. 21
LED Indications .................................................................. 8
Message Waiting ................................................................ 44
Microphone Control ............................................................ 48
Microphone Cut-off Programmable Option ......................... 23
Night Transfer Programmable Option ................................. 46
Off-hook Call Announce (OCA) Optional Feature .............. 23
On-hook Dialing. ................................................................. 11
Outside Cglls . ..................................................................... 10
Override Calls .....................................................................
Paging ................................................................................
Privacy Button Programmable Option ................................
Privacy Override Programmable Option .............................
Privacy Release Programmable Option .............................
Repeat Last Number Dialed ...............................................
Speakerphone (DKT 1020SD Only) ...................................
Speed Dial ..........................................................................
Speed Dial Buttons Programmable Option .........................
Saved Number Redial Programmable Option ....................
Two (Tandem) CO Line Connection ...................................
Telephone Number Storage ...............................................
Timed Reminders ...............................................................
Toll Restriction Override/Traveling Class ...........................
Tone/Pulse Dialing Programmable Option .........................
Tone Signaling Programmable Option ...............................
Voice Mail (VM) ..................................................................
Volume Control ...................................................................
* and # DTMF Tone Dialing ................................................
47
38
21
20
21
13
47
14
15
16
49
16
51
51
19
52
53
6
19
EC E7

STRA
LIQUID CRYSTAL
DISPLAY FEATURES
DIGITAL
TELEPHONE
U S E R G U I D E
A” DK
D I TAL KEY
TELEPHONE SYSTEMS
STRATA DK24
DK56 AND DK96
RELEASE 3
TABLE OF CONTENTS
LIQUID CRYSTAL DISPLAY .................................................. 1
SUMMARY OF LCD FUNCTIONS ......................................... 2
DATE/TIME/DAY ADJUSTMENT ........................................... 12
CALL FORWARD DISPLAY ................................................... 13
STATION-TO-STATION MESSAGE WAITING ...................... 14
VOICE MAIL (VM) ................................................................... 15
BUSY FIELD DISPLAY.. ......................................................... 16
MODE EXIT ............................................................................ 16
DISA SECURITY CODE: ADD/DELETE/CHANGE ................ 16
TOLL RESTRICTION OVERRRlDE/TRAVELlNG
CLASS CODE CHANGE ..................................................... 17
VERIFIED ACCOUNT CODE CHANGE.. ............................... 18
MESSAGE ADMINISTRATION FUNCTIONS ........................ 18
Adding to a Preprogrammed Message ................................ 18
Editing or Setting a New Calling Station Message .............. 19
Preprogramming System Messages.. .................................. 19
Recording A Message ......................................................... 20
Storing A Message .............................................................. 21
LCD NAME/NUMBER DISPLAY.. ........................................... 22
SPEED DIAL MEMO.. ............................................................. 24
TIMED REMINDERS WITH MEMO.. ...................................... 26
MESSAGE SENDING ............................................................. 26
Called Station Messaging .................................................... 27
Group Called Station Messaging ......................................... 27
Calling Station Messaging ................................................... 28
Group Calling Station Messaging ........................................ 29
Busy Station Messaging ...................................................... 30
MESSAGE DIRECTORY ........................................................ 32
USER NAME/NUMBER DIRECTORY.. .................................. 33
SPEED DIAL MEMO DIRECTORY ................................ . ....... 34
INDEX ..................................................................................... 39

LIQUID CRYSTAL DISPLAY
HANDSET
SPEAKER
VOLUME
UP/DOWN
CONTROL
BUTTONS
MODULAR
HANDSET
CORD\
LCD DISPLAY*
d
\ /
MICROPHONE
ON/OFF BUTTON
AND LED INDICATOR
\ \
DIALPAD
SPEAKER ON/OFF
BUTTON AND LED
INDICATOR
LCD CONTROL
BUTTONS
FLEXIBLE
‘FEATURE
BUTTONS
, MESSAGE WAITING
BUTTON AND LED
INDICATOR
-CONFERENCE/
TRANSFER
BUTTON
. LAST
NUMBER
REDIAL
BUTTON
kOLD
BUTTON
20-button Liquid Crystal Display Digital Telephone
In its idle state, the 32-character Liquid Crystal Display (LCD)
feature on your digital telephone gives you an accurate desk clock
and calendar combination. When you have an outside call in
progress, an elapsed time display gives a constant reminder of the
call duration. In addition, a variety of information displays and
feature prompting make your call handling more efficient. Alphanu-
meric messaging capability is also provided. All display functions
occur automatically as call processing proceeds.
MODE PAGE SCRL
non
The uses of the three buttons shown above are:
SCRL: 1) Scrolls through message waiting numbers.
2) Scrolls through the speed dial digits (if more than 16
digits) when in mode 8.
PAGE: 1) Changes Busy Field groups.
2) Used by station 200 to record a user NAME/NUMBER
for another station. Station 200 must be an LCD digital
electronictelephone to record NAME/NUMBER display
for any other station type.
3) Changes displays (date/time, elapsed time, message,
call forward, dialed number).
4) Scrolls through speed dial numbers when using mode
8.
MODE: 1) To enter/exit various mode functions (see below).
2) To cancel beeping tone when using timed reminders.
1

LIQUID CRYSTAL DISPLAY
(continued)
MODE DEFINITION
MODE 0: Used to exit another mode and return to clock/calendar
display.
MODE 1: Busy Field display.
MODE 2: Busy station messaging.
MODE 4: Called station messaging.
MODE 8: Speed dial number check and memo dialing.
MODE 94: Remote called station messaging.
MODE 95: Remote calling station messaging.
SUMMARY OF LCD FUNCTIONS
Type
A) Account Codes
I
NO. NNN
ENTER ACCT CODE I
I I
I
NO. NNN
CODE VERIFIED I
When Displayed
When you press a CO line that requires
a forced (verified or nonverified) ac-
count code; or dial 111, or press the
B button to enter a voluntary
(verified or nonverified) account code.
When you dial a verified voluntary ac-
count code that is not valid.
When you dial a verified voluntary ac-
count code that is set in the system
account code memory.
After you dial a verified forced account
m code that is valid.
B) Auto Busy Redial (ABR)
HOLD LINE NN
ABR SET I
After setting auto busy redial, your dis-
play prompts you that it has been set.
SUMMARY OF LCD FUNCTIONS
(continued)
(.,,
When you dial a verified forced account
code that is not valid.
When the system retrieves the call, your
display shows the called number.
When the called station is ringing, your
station’s CO LED (or INT LED) and SPKR
LED will flash and a warning beep will
sound.
I,,,,
Your station will display the called num-
ber, followed by LINE NN ACB.
C) Automatic Callback (ACB)
When you set automatic callback at a
busy station, its number is displayed.
When you receive an automatic call-
m displayed.
back, the station number you called is
NO.
NNN When you receive an automatic callback
w displayed.
for a CO line, the seized line’s number is
D) Automatic Line Selection
1) Intercom Line
If your station automatically accesses an
I is displayed.
Intercom line when you go off-hook, INT
3

4
Alphanumeric Messages
F)
Busy Field
pYY?Fg
I
20 . . . . ...7..
30 ..2.4....9 I
I
FORWARD TO NNN
DATE & TIME I
G)
Call Forward
SUMMARY OF LCD FUNCTIONS
(continued)
2) CO Line
pizciq
If your station automatically accesses a
CO line when you go off-hook, the num-
ber of the seized CO line is displayed.
3) Dial Access Code
)I
When you access a CO line by dialing a
CO line group access code, the accessed
CO line number is displayed.
Messages of up to 32 characters may be
used in alphanumeric messaging. Mes-
sages may either be programmed or set
as one-time messages. (Messages may
also be used with a timed reminder.)
The Busy Field display indicates, in
groups of 10, the last two digits of the
station numbers that are busy or set for
DND. The top display indicates that
stations X00, X05, and Xi 7 are either in
use or in DND; the bottom display indi-
cates the same for stations X27, X32,
X34, and X39. If the m button is
pressed, the 00/l 0 group will change to
10/20, and the busy/DND states of that
group of stations will be displayed. The
station roups will increment each time
the
l
A
Lzik button is pressed, thereby
displaying all stations.
When you initiate any type of call for-
ward, the LCD displays, CALL FOR-
WARD TO.
SUMMARY OF LCD FUNCTIONS
(continued)
After you set call forward, the station
number to which your calls will be for-
warded is displayed, along with one of
the following abbreviations:
CF-AC (Call Forward-All Calls)
CF-BUSY (Call Forward-Busy)
CF-NA (Call Forward-No Answer)
CF-B/NA (Call Forward-Busy/No
Answer)
CF-FIXED (Call Forward-Fixed)
I
H) Call Pickup
l--izzi
When your call is forwarded to another
station, the station you called is shown. It
then changes to the station to which your
call was forwarded.
When a call is forwarded to your station,
the calling station number is displayed
on the left and the station called is dis-
played on the right.
When you pick up an intercom call, the
calling station’s number is displayed on
the left and the station number called is
displayed on the right.
Your LCD telephone displays informa-
tion noting that your call to station NNN
was picked up by station NNN.
I) Calling Number-Intercom
When you receive an intercom call, the
calling station’s number is displayed.
J) CO Line Identification
The CO lines can be programmed to
display an identifying name of up to 16

SUMMARY OF LCD FUNCTIONS
(continued)
SUMMARY OF LCD FUNCTIONS
(continued)
I
DR. JONES OFFICE I
K)
CO Line Number
1) Incoming Call
characters. The name will be displayed
on outgoing and incoming calls.
Incoming CO call-If your station is pro-
grammed for incoming ringing on that
CO line.
Transferred CO call-CO line is trans-
ferred to your station in the ringing state
by another station.
Camped-on CO call-CO line was
camped-on to your busy station and rings
your station when you hang up.
2) When Call Is Answered
3) Hold
p!isEcq
4) Hold Recall
pizE!q
5) Outgoing
The display changes to indicate calling
status.
You have put a CO line call on hold at
your station.
Held call automatically recalls your sta-
tion after a programmed period of time.
When you manually select a CO line, it is
displayed. Thisdisplay is replaced by the
dialed number as you dial.
6) CO Line Queuing (Callback)
When the CO line queuing feature rings
back to your station with an available CO
line, that line number will be displayed.
Date/Time
Dialed Number
1) CO Line
(
2) Intercom
I
Idle Telephone
NOTES:
I. Press them button to display
date/time when talking on a CO
line.
2. The date/time is adjusted on a
system-wide basis by the station
located in port 00 (usually station
200).
The digits are displayed as you dial over
either a CO line or the intercom using:
l
Manual dialing
l
Automatic dialing
l
Repeat last number dialed
l
Saved number redial
NOTE:
lfyou are calling on a CO line, the display
will automatically change from dialed
number to elapsed time after a pro-
grammed period of time.
Door Phone/Monitor
When you are called from a door phone,
m. Its designating characters are displayed.
I., When you call a door phone, its desig-
nating characters are displayed.
NOTE:
The doorphone designators are NA, Nl3,
and/or NC (N = 1 w 4, and indicates which
7

SUMMARY OF LCD FUNCTIONS
(continued)
of the 12 possible door phones is calling
or is being called).
0) Elapsed Time
While you are making an outgoing CO
line call, the elapsed time of the call is
displayed. Elapsed time automatically
replaces the dialed number on the dis-
play after a programmed period of time.
(Timing begins when a
q
button is
pressed .)
NOTES:
1. On a CO line call, the display can be
alternated between date/time,
elapsed time, and dialed number by
pressing the m button.
2. Elapsed time is displayed for 15 sec-
onds after you hang up, and then
changes automatically to date/time.
Q)
Intercom Number Display
If an access code is entered (ma 10,
m 111 when on a CO line), the
programmed intercom number will be
displayed.
LCD NAME/NUMBER Display
1) Idle Station
A name or title may be set in memory for
each station. When an LCD station is
idle, the name displays on the top line of
2) Cal!ed Station
the LCD. When a station calls an LCD
station, the name of the calling station
I station’s LCD.
displays on the bottom line of the called
SUMMARY OF LCD FUNCTIONS
(continued)
Least Cost Routing
ki!iEzJ
Message Waiting
I
NO. NNN
INT NNN MW SET I
I
SENTNNN
JAN 01 SUN 12:19 I
I
NO. NNN
CALL 203 201 200 I
ww
When you are making a call via LCR,
your display will prompt you to dial
a number by displaying, DIAL TEL
NUMBER.
As you dial the number, it is shown on
your display.
When you set message waiting at an-
other station, the number of that station
is displayed.
When you hang up aftersetting message
waiting at another station, a reminder is
shown on the top row of your display.
Your display will show the numbers of up
to three stations that have left messages
for you. Four numbers may be stored in
message memory (see Recalling
Station).
Message Waiting/Voice Mail
When a message waiting voice mail is
displayed, a “V” will follow the station
number. A “+‘I indicates that there is a
station message in memory. Press the
m button to rotate through the
numbers.
Off-hook Call Announce
When you off-hook call announce to a
” ber of that station.
busy statron, your LCDdisplays the num-
’
‘. ,,
9

SUMMARY OF LCD FUNCTIONS
(continued)
SUMMARY OF LCD FUNCTIONS
(continued)
I
NO. NNN
NN BUSY OVR I
V) Overrides
1) Busy Override
2) Executive Override
I
NO. NNN
NNNEXECOVRD I
When another station off-hook call an-
nounces to your station, your LCD dis-
plays the number of that station.
When you activate the override feature
after calling a busy station, the station
number and the feature are displayed.
Your LCD telephone displays the num-
ber of a station initiating override when
you are on the telephone. The number
will remain displayed until override is
disconnected.
When you initiate executive override,
your LCD telephone displays the num-
ber of the station that is overridden. The
station that receives the override dis-
plays your station number. The number
will remain displayed until the call is
ended.
3) Do Not Disturb (DND) Override
1 I
I
NO. NNN
INT NN??DND I
The station you have called is in the do
not disturb mode.
When you initiate do not disturb override,
the station number you have overridden
is displayed.
When another station overrides do not
disturb at your station, its number is
displayed. (The display remains until the
end of override.)
4) Privacy Override
When a station presses a busy line but-
ton to enter an existing conversation:
The station that initiates the override
displays the CO line identification on the
LCD. The overridden station’s LCD dis-
plays initiating station’s number. (The
display remains until the end of the call.)
W) Recalling Station
When a transferred call goes unan-
swered, it will recall to the station that
transferred it. The display shows the CO
line number and the station number to
which it was originally transferred.
X) Speed Dial Memo
When using Speed Dial Memo (mode 8),
the name and number are displayed.
TOSHIBA is the memo (up to
characters).
714 583 3700 is the number (up to
digits).
Y) Toll Restriction Override Codes
12
16
a CO line and press
i 0 to dial a complete toll
’ restriction override or traveling class
code, your LCD display will prompt you
to dial a code.
Z) Two-CO Line Calls
1) Tandem
After you establish a two-CO line confer-
ence call and then release. ,N, and N,
identify the connected CO lines.
10 11

SUMMARY OF LCD FUNCTIONS (continued)
2) Conference
When you are talking with two external
parties on two CO lines. N, and N,
identify the connected CO lines.
3) Amplified
When you are talking with two external
lGGZZl nally amplified.
partres on two CO lines that are exter-
DATE/TIME/DAY ADJUSTMENT
This operation is possible from port 00 only (usually station 200).
TO SET DATE
1) Place handset on-hook.
2) Dialmi10.
3) Dial the date (year/month/day) in the format YYMMDD. Enter
l
Listen for confirmation tone.
TO SET TIME
1) Place handset on-hook.
2) Dial WiiB.
3) Dial thetime (hour/minute/second) in the24-hourclockformat
HHMMSS. Enter a leading 0 for any single digit entered.
4) Press the 1 (or mq) button.
0 Listen for confirmation tone.
TO SET DAY
1) Place handset on-hook.
2) Dial miil.
3) Dial the day.
l
0 = Sunday
4 = Monday
l
B = Tuesday
DATE/TIME/DAY ADJUSTMENT (continued)
l
m = Wednesday
l
1 = Thursday
l
1 = Friday
l
i = Saturday
4) Press the a (or m button.
0 Listen for confirmation tone.
CALL FORWARD DISPLAY
TO SET CALL FORWARD
When any type of call forward is initiated, the CALL FORWARD TO
prompt displays on the lower row of the LCD.
When your station has call forward set, the LCD displays as shown
(NNN = the forward to number).
Call Forward-All Calls
pi?iE!q
PressmBfli+NNN+m
(orm+NNN+m.
Call Forward-Busy
pjgq PressmiaB+ N N N+m
(orm+NNN+m).
Call Forward-No Answer
pi!TEq
PressmlmI+NNN+w
(or=+ N N N +m).
Call Forward-Busy/No Answer
Press~~~~+NNN+~
(orm+NNN+a).
Call Forward-Fixed Press the m button.
12 13

CALL FORWARD DISPLAY
(continued)
NOTES:
1. Tocance/ca//forward,press~~~~~ (orpress
the call forward button used to set call forward).
2. If call forward is set:
l
CO lines that ring at your station only will forward (CO
lines that ring into more than one station willnot forward).
l
CO line calls transferred to your station will forward.
l
Intercom calls will forward.
l
Call forward redirects the station hunt feature.
STATION-TO-STATION MESSAGE WAITING
TO USE STATION-TO-STATION MESSAGE WAITING
1)
2)
3)
4)
5)
Lift the handset.
Dial the desired station number.
l
If there is no answer (busy or DND), press the-
button (or dial I). This causes the MESSAGE LED on the
called station to flash.
l
The called station’s LCD displays the calling station’s
number.
The called station user presses the m and B
buttons to return the call.
To clear the MESSAGE LED from the called station, press the
B button.
To clear the MESSAGE LED from the calling station, press the
m button, dial the station number and press the Dam
button twice (or 0 B.
NOTE:,
Up to four message waiting displays may be stored on the
LCD. Thestationnumberin theleft-mostposition willbecalled
n is pressed. To rotate the station
button. The fourth message is re-
served for the Message Center.
VOICE MAIL (VM)
Whenever your station is call forwarded to voice mail, certain digits
will automatically be sent to the voice mail unit to
direct the call to
your mailbox.
TO STORE THE DIGITS TO BE SENT
1) Press the m button.
2) Dial 111.
l
The LCD displays, 6 5 6 ID CODE SET.
3) Dial the digits (up to 16) and pauses (B to be sent.
l
The LCD displays the digits and pauses.
4) Press the 1 button to store data.
l
Listen for confirmation tone.
When you want to retrieve your messages from voice mail, certain
digits will automatically be sent to the voice mail unit to
play back
your messages.
TO STORE THE DIGITS TO BE SENT
Press the m button.
Dial 110.
l
The LCD displays, 6 5 7 ID CODE SET.
1)
2)
3)
4)
Dial the required digits and pauses to be sent.
l
The LCD displays the data as it is entered.
Press the 1 button to store data.
l
Listen for confirmation tone.
TO RETRIEVE MESSAGES
Press the m and B buttons.
TO CLEAR ALL DIGITS
1) Press the m button.
2) Dial~~~or~~~.
3) Press the 1 button.
NOTES:
1. The above procedures are required for initial VM set-up
only. The digits remain in memory until changed.
2. Digits are not sent to camped-on VM calls.
14
15

16
TO DISPLAY BUSY FIELD STATUS ON THE LCD DISPLAY
1) Press the m button.
l
The LCD displays, MODE NO.?
2) Dial 0. Refer to the figure in Summary of LCD Functions.
3) Press the m button to rotate Busy Field groups.
MODE EXIT
TO EXIT ANY MODE
1) Press the m button.
l
The LCD displays, MODE NO.?
2) Dial 1.
l
The LCD displays date/day/time.
DISA SECURITY CODE: ADD/DELETE/CHANGE
From designated station(s) only.
TO STORE NEW DISA SECURITY CODE
1) Press them button and dial CI 0 0’ (3-digit access code).
0 Receive confirmation tone.
(
2) Dial the new DISA security code (a . . . Q).’
3) Press the 1 button.
0 Receive confirmation tone.
NOTES:
1. For securitypurposes, the 3-digit access code is not given
in this guide. It is available from your telephone system
maintenance provider.
2. The DISA security code can be 1 m 15 digits.
3. To .cancel the DISA code, complete steps 1 and 3,
. .
DISA SECURITY CODE: ADD/DELETE/CHANGE
(continued)
skipping step 2. If the DISA code is canceled, outgoing
access of CO lines on DISA calls will not require a security
code.
TOLL RESTRICTION OVERRIDE/TRAVELING
CLASS CODE CHANGE
TO ADD, DELETE, OR CHANGETOLL RESTRICTION OVERRIDE
OR TRAVELING CLASS CODES FROM STATIONS SELECTED
IN SYSTEM PROGRAMMING.
1) Press m and dial the three-digit toll restriction override
change access code Q 0 CL2
l
You will hear confirmation tone.
2) Dial the four-digit override code c3 Q Lt CI.
I
NO. N’NN
ENTER OUR CODE ~~0~ I
3) Press the 1 (or m)button to store code.
l
You will hear confirmation tone.
I
NO. NNN
DATA PROGRAMMED I
4) Repeat steps 1 * 4 to enter up to four traveling class codes or
two toll restriction override codes.
NOTE:
For security reasons, the change access code is notprovided
in this guide. It is available from your telephone system
maintenance provider.
_ ;i 17

VERIFIED ACCOUNT CODE CHANGE
TO ADD, DELETE, OR CHANGE VERIFIED ACCOUNT CODES
FROM STATIONS SELECTED IN SYSTEM PROGRAMMING
1) Press m and dial the verified account code change access
code Q Q Q (see Note).
2) Dial the three-digit verified account code number Q Ct CI
(000 - 299).
3) Dial the verified account code CL . . . 0 (4 w 15 digits).
VERIFIED ACCOUNT CODE
ACCOUNT CODE NUMBER
4) Press the a (or -button to store code.
l
You will hear confirmation tone.
5) Repeat steps 1 N 4 to enter more verified account codes.
NOTE:
For security reasons, the change access code is not provided
in this guide. It is available from your telephone system
maintenance provider.
\
MESSAGE ADMINISTRATION FUNCTIONS
ADDING TO A PREPROGRAMMED MESSAGE
When you select a message, it appears on your station display. A
cursor (-) also appears immediately to the right of the last letter in
the message. You can now input additional information (up to a total
MESSAGE ADMINISTRATION FUNCTIONS
(continued)
of 32 digits for each message). Some system messages may
expect you to add more information. For example:
1)
2)
3)
CALL
l
Add a station or outside telephone number.
BACK AT
l
Add the time you will return.
RETURN AT
l
Add the date you will return.
NOTE:
Refer to Recording a Message for adding to a preprogrammed
message.
EDITING OR SElTlNG A NEW CALLING STATION MESSAGE
You can set a completely new, personalized message by overwrit-
ing any of the existing -preprogrammed messages. To do this,
simply call up one of the messages as explained previously. When
the cursor appears to the right of the message, shift it to the left
margin and write your new message over the preprogrammed one.
The new message will remain on your station until canceled. It will
then be erased and the original preprogrammed message will be
restored.’
NOTES:
1. Refer to Recording a Message for leaving a new message
at your station.
2. Messages 60 w 99 will be erased. Messages 70 a 79 will
remain in memory until changed.
PREPROGRAMMING SYSTEM MESSAGES
System messages can only be programmed or permanently changed
at portO0, station number (usually200). Five preprogrammed
18 19

MESSAGE ADMINISTRATION FUNCTIONS
(continued)
MESSAGE ADMINISTRATION FUNCTIONS
(continued)
messages are automatically stored in memory when the Alphanu-
meric Messaging with LCD feature is initialized.
60) OUT TO LUNCH
61) IN A MEETING
62) CALL
63) BACK AT
64) RETURN ON
You can use these messages and add 35 more messages designed
specifically for your system, or you can overwrite the initialized
messages and program up to IO of your own. Any messages
programmed at port 00 will remain in memory until canceled from
port 00 or until the system is reinitialized. After reinitialization, only
the original five messages will be in memory.
System messages are written and stored in memory as explained
in Storing a Message.
RECORDING A MESSAGE
Use this procedure to enter the characters of a personal message
(10 w 19) or system message (60 w 99), to add to a preprogrammed
message, or to edit and set a new message. After calling up a
message on your display (see Storing a Message, steps 1 and 2),
perform one of the following procedures:
TO RECORD A MESSAGE
1) Press the 1 button to access alpha characters. Refer to Figure
1 for an explanation of the dialpad buttons.
2) Move the cursor (-) to the desired position (the left edge of the
display for a new message, or two spaces to the right of the
preprogrammed message to add information).
3) Press the button that has the letter you want to enter. Use the
1 button to shift from letter to letter on the button. For example:
l
If you press 1, a D will be displayed. By pressing a, the D
is changed to E. By pressing 1 again, the E is changed to
F. Press 1 again and the F changes to D.
l
To enter a space, press 0.
0 button moves cursor
to the right (also used
Each button has three
to access special 1
characters and to
enter “blanks” in the
alpha mode)
1 button moves the
cursor to the left -II w I#I-~~~~~~~~
f
b button is used to shift between the three letters on each
alpha button (also used to access special characters)
FIGURE l-DIALPAD INFORMATION
4) If you want to enter a number, press the1 button to change to
numeric characters. Numbers are also entered on the dialpad.
Press the 1 button again to return to alpha characters.
5) The following special characters are set by pressing iand then
pressing i to step through the available characters:
Q, Z, :, -, +, I.
6) When the message is complete, press them button (or, if
you do not have am button, press them button).
l
Your message is now stored on your station.
STORING A MESSAGE
TO STORE A MESSAGE
1) Press the m (or m 1 m button.
l
The MSG LED flashes.
l
LCD displays, MSG NO.?
2) Dial the 2-digit message number to be stored.
l
Personal (10 w 19).
l
System (60 N 99 port 00 only).
3) Use the Recording a Message procedure to enter the mes-
sage characters.
20
.~. -,
21
i....i’

MESSAGE ADMINISTRATION FUNCTIONS
(continued)
LCD NAME/NUMBER DISPLAY
(continued)
4) Press the m (or m) button.
l
The MSG LED lights steadily.
l
The LCD displays, MSG.
5) Press the m (or m 11 m) button.
l
The MSG LED goes out.
l
The message is now stored.
TO CLEAR NAME/NUMBER DISPLAY
Press the m button, dial 1 [I and press the m button.
l
Listen for confirmation tone, then busy tone.
During clear:
I.,,,
LCD NAME/NUMBER DISPLAY
This feature allows you to store a title (such as your name,
telephone number, location, etc.) in system memory. This title (i.e.,
LOBBY) will display on your station’s LCD while it is idle, and it will
appear at other stations’ LCDs when they are called from your
station. Name display information for non-LCD telephones or voice
mail/auto attendant devices may be stored from station 200. When
NAME/NUMBER is recorded for non-LCD telephones or other
devices, their NAME/NUMBER is displayed on LCD telephones
when called.
After clear:
piziziq
NOTES:
1. Your title will appear on the LCD during direct intercom,
forwarded, and hunted calls. On override or OCA calls,
the LCD will not display the title.
2. After a name is cleared, it may be redisplayed at anytime
by dialing m 1 B 0.
3. A name is displaced by message and call forward settings
if they are set.
TO ENTER NAME/NUMBER INFORMATION FROM YOUR
STATION
4. To erase NAME/NUMBER information from memory,
repeat steps 1 - 3 above and enter blanks in step 2.
Blanks are entered by pressing 0 in the alpha mode.
1)
2)
3)
Press the m button and dial 111.
l
USER NAME? will appear on the upper line of the LCD.
l
Current information will appear on’the lower line of the
LCD.
p!iiEcq
Enterthe new information viathe dialpad (referto Record LCD
Messages for method).
l
Up to 16 characters can be recorded.
Press the B button.
l
The new information is stored.
TO ENTER NAME/NUMBER INFORMATION FOR ANOTHER
STATION OR VOICE MAIL DEVICE FROM STATION 200
1) Press the m button and dial 110.
l
USER NAME? will appear on the upper line of the LCD.
l
Current information for station 200 will appear on the
lower line of the LCD.
piiiEzq
2) Press them button.
l
The LCD displays, DEST. EKT NO.?
3) Dial the intercom number (111) of the NAME/NUMBER
information to be recorded.
l
The LCD displays, DEST EKT NO. NNN.
!2 23

SPEED DIAL MEMO
(continued)
LCD NAME/NUMBER DISPLAY
(continued)
4) Press the m button.
l
USER NAME? will appear on the upper line of the LCD.
l
Current information for station NNN will appear on the
lower line of the LCD.
5) Enter the new information viathe dialpad (referto Record LCD
Message method).
l
Up to 16 characters can be recorded.
6) Press the m button.
l
The new information is stored and appears on the top line
of station NNN’s LCD.
l
Station 200’s LCD returns to the normal idle display.
NOTES:
1. To erase the NAME/NUMBER information of another
station from station 200, repeat steps 1 w 6 above and
enter blanks in step 5. Blanks are entered by pressing 0
in the alpha mode.
2. Station NNN may set and clear the NAME/NUMBER
feature anytime:
l
Set:mi]a.
l
Clear: m 11 [I “ I m, c ear” eliminates the display when
calling, but does not erase it from memory; only station
200canerase the NAME/NUMBERofanon-LCDstation.
SPEED DIAL MEMO
Allows an LCD user to program a 12-character name for each of his/
her 40 personal speed dial numbers. The memo pad of names may
be stepped%through to select the appropriate party. Memos may
also be added to the 40 system speed dial codes via the station
connected to port 00, station number (usually 200).
TO PROGRAM NAMES AND NUMBERS
1) Press the m fl buttons.
2) Dial the desired speed dial number.
l
The LCD displays, # * NNN SPEED DIAL.
3) Press the m button.
l
The LCD displays, # *NNN _ SPEED DIAL.
4) Enter the name or memo (refer to Recording a Message).
5) Press the m button.
l
The LCD displays, *NN MEMO SPEED DIAL.
6) Enter the desired telephone number (16 digits maximum).
7) Press the [ button to record data in memory.
TO DIAL A SPEED DIAL NUMBER
1) Press the m button.
l
The LCD displa s, MODE NO.?
2) DialiQLl*.(QCL= ii I-IIorlI-om.
l
The s eed dial number apears with name or memo.
3) Press the - A
bl button to scan the directory for the appropri-
ate number/memo.
4) Press any available
q
button.
5) The number is dialed.
NOTES:
1.
2.
3.
A station must be enabled via system programming for
LCD message memory.
Personal speed dial code numbers are 10 w 49, and
system numbers, stored from station 200 only, are 60 N
99.
Speed dial numbers and memos and their corresponding
P-digit codes may be recorded on the record sheet pro-
vided in back of this guide.
TO CHECK A SPEED DIAL NUMBER
1) Press mq 0.
2) Dial a 2-digit speed dial number (see Note).
3) If the number is longer than 16 digits, press them button
to display the remaining digits.
NOTE:
Personal (IO w 19) and system (60 m 99).
25

TIMED REMINDERS WITH MEMO
Allows five separate messages to be set at each LCD station. These
messages will be displayed at the times (hour and minute) set by the
station user. They can either be displayed just once or repeated on
a daily basis.
TO SET A TIMED REMINDER WITH MEMO
1) Press the m button.
2) Dial a 3-digit reminder number flI1 m 11 I).
3) Enter the desired time (24-hour clock format; i.e., HHMM) for
the message to be displayed.
4) Dial 1 if the message is to be repeated every day, or 0 if it is
a one-time message only.
5) Enter the desired message number.*
6) Press the 1 button to record the data in memory.
l
Listen for confirmation tone.
l
The message will be displayed at the specified time, and
a beeping tone will be heard for 30 seconds (or until it is
canceled by pressing the mmd button).
* Personal (10 N 19) and system (60 N 99). The message does
not display when setting a timed reminder-it displays when
the reminder activates. Messages are set using the Record
a Message method.
MESSAGE SENDING
The Alphanumeric Messaging feature on your LCD digital tele-
phone enables you to set short text (up to 32 characters) at your
station to ensure that you do not miss important calls. Any station
may record a message; however, only stations with the LCD are
able to display messages. To record messages, see the message
administration functions in this guide.
Your system has up to 40 preprogrammed messages that may be
sent to other LCD digital or electronic telephones. You can tempo-
rarily add to or change any of these messages, in order to leave a
personalized message at your station (see Note).
MESSAGE SENDING (continued)
Some stations may record and save up to 10 personal messages to
be used for all types of station messaging. This is a station option
that is enabled in system programming.
NOTE:
Stored messages and their corresponding message number(s)
may be recorded on the record Sheet provided in the back of
this guide.
CALLED STATION MESSAGING
Your station number and a message indication may be sent to
another LCD station. When that station responds, it will receive the
message.
TO SET A CALLED STATION MESSAGE
1) Dial the station number (station does not answer).
2) Press the mmd button.
l
The LCD displays, MODE?
3) Dial 1.
l
The LCD displays, MW TO STNNN MSG NO?
4) Enter the desired message number.*
l
The LCD dis lays the message.
5) Press the A
2
button.
l
The LCD dis la s, INT NNN MW SET.
6) Press the button to release.
7) CALL NNM is displayed at the called station and the MES-
SAGE LED flashes.
8) SENT NNM is displayed at your station.
*Personal (10 m 19), system (60 N 99).
TO RECEIVE A CALLED STATION MESSAGE
Press the m and B buttons.
GROUP CALLED STATION MESSAGING
Allows a station to set a Called Station Message for a group of
stations.
26 27

MESSAGE SENDING (continued) MESSAGE SENDING (continued)
TO SET A “CALLED STATION” MESSAGE FOR ANOTHER
STATION OR GROUP OF STATIONS
1) Press the m button.
l
The LCD displays, MODE?
2) Dial ID.
l
The LCD displays, MODE 94 DEST EKT NO.?
3) Dial the “destination” station’s number (or enter 30 for all
stations, or 31 - 34 for page groups).
l
The LCD displays, MODE 94 DEST EKT NO.NN.
4) Press the m button.
l
The LCD displays, MODE 94 ORG EKT NO.?
5) Dial the “originating” station’s number.*
l
The LCD displays, MODE 94 ORG EKT NO.NN.
6) Press the m button.
l
The LCD displays, MSG NO.?
7) Enter the desired message’s number.
l
The LCD displays, the message.
8) Press the m button.
l
The LCD displays, MSG NO.?
9) Press the m button.
l
The LCD displays, MODE NO.?
IO) Dial 1.
l
The LCD displays, date/day/time.
11) The LCD displays, SENT NN M, at originating station.
12) The originating station number and a message indication are
displayed on the destination station LCD.
*Your number or another station number.
TO RECEIYE CALLED STATION MESSAGE
1) Press the m and m button.
CALLING STATION MESSAGING
TOSETAMESSAGE(ONYOURLCD)THATWILLBERECElVED
BY LCD TELEPHONES THAT CALL YOUR TELEPHONE
1) Press, the m button.
l
The MSG LED flashes.
l
The LCD displays, MSG NO.?
2) Dial the number of the message you want (see Note).
l
The selected message is displayed.
3) Press the m button.
l
The MSG LED lights steadily.
NOTE:
Personal (IO - 19) and system (60 - 99).
GROUP CALLING STATION MESSAGING
TO SET A CALLING STATION MESSAGE FOR ANOTHER
STATION
1) Press the mxq button.
l
The LCD displays, MODE?
2) Dial PI.
l
The LCD displays, MODE 95 DEST EKT NO.?
3) Dial the “destination” station number.
l
The LCD displays, MODE 95 DEST EKT NO.NN.
4) Press the m button.
l
The LCD displays, MSG NO.?
5) Enter the desired message number.
l
The LCD displays the message.
6) Press the m button.
l
The LCD displays, MSG NO.?
NOTE:
Group calling station messaging allows you to set a calling
station message for only one station at a time.
7) Press the w button.
l
The LCD displays, MODE NO.?
8) Dial 1.
l
Your LCD shows the time and date.
l
The message is displayed at the “destination” station.
l
Any station calling the “destination” station receives the
message.
28
.’
29

MESSAGE SENDING
(continued)
MESSAGE SENDING
(continued)
TO SET A MESSAGE IF YOU DO NOT HAVE Am BUTTON
1) Press the m button.
l
The INT LED liahts.
2) DialBI. y
3) Dial the number of the message you want (see Note).
4) Press the m button.
l
The INT LED goes out (your message is now stored).
NOTE:
Personal (10 - 19) and system (60 - 99).
TO CANCEL A MESSAGE THAT HAS BEEN SET AT YOUR
STATION
Press the m button.
l
The MSG LED goes out.
TO CANCEL A MESSAGE IF YOU DO NOT HAVE A m
BUlTON
1) Press the m button.
l
The INT LED liahts.
”
2) Dial 11.
3) Press the m button.
l
The INT LED goes out.
NOTE:
A personal message (10 - 19) will remain stored in memory.
BUSY STATION MESSAGING
When reaching a busy LCD station, a message can be sent to that
station (an audible tone will be heard). The busy station may also
return a message to the calling station’s LCD. The two stations may
continue this procedure to carry on a “silent” conversation.
2) Press the m button.
l
The LCD displays, MODE NO.?
3) Dial 1.
l
The LCD displays, OVER TO STNN MSG NO?
4) Enter the desired message number.*
l
The LCD displays the message.
5) Press them button.
l
The LCD displays, MSG SEND.
6) The destination station beeps four times and the message is
displayed for 30 seconds, or until originating station hangs up.
*Personal (10 - 19) and system (60 - 99).
TO RETURN A MESSAGE (Within 30 Seconds) FROM THE
BUSY STATION AFTER RECEIVING A “BUSY STATION”
MESSAGE.
1) Press the m button.
l
The LCD displays, MODE NO?
2) Dial 1.
l
The LCD displays, OVER TO STNN MSG NO?
3) Enter the desired message number.*
l
The LCD displays the message.
4) Press the m button.
l
The LCD displays, MSG SEND.
TO SEND A MESSAGE TO A BUSY STATION
1) Call the desired station.
l
Listen for busy tone.
30 31

MESSAGE DIRECTORY USER NAME/NUMBER DIRECTORY
Messages are limited to 32 alphanumeric characters and are
displayed in two rows of 16.
This directory is provided for reference and recording messages.
Message #
Message #
Message #
Message #
Message #
I
Message #
Message #
NAME/NUMBERS are limited to 16 alphanumeric characters and
are displayed on the top row of idle LCD stations and the bottom row
of called LCD stations.
This directory is provided for station 200 reference and recording of
other station NAME/NUMBERS.
Station #
DATE DAY TIME
Station #
DATE DAY TIME
Station #
DATE DAY TIME
Station #
DATE DAY TIME
Station #
DATE DAY TIME
Station #
DATE DAY TIME
32 33

SPEED DIAL MEMO DIRECTORY
Speed Dial memos are limited to 12 characters for the memo (top
row of LCD) and 16-digits/pauses for the dial number (bottom row
of LCD).
This directory is provided for recording Speed Dial numbers with
memos.
* Code: 12-Character Memo: (Example)
* 10
-MEMO HERE
SPEED DIAL# HERE
*
*
*
,
*
*
* Code: 12-Character Memo:
*
*
*
*
*
EEE
35

* Code:
*
12-Character Memo:
*
*
*
*
*
\
* .-
* Code: 12-Character Memo:
*
*
*
*
*
*
*
36
_*
i” 37

* Code:
*
12-Character Memo:
*
*
*
*
*
r * -
INDEX
Adding to a Preprogrammed Message ................................. 18
Busy Field Display ................................................................ 16
Busy Station Messaging ....................................................... 30
Call Forward Display.. ........................................................... 13
Called Station Messaging ..................................................... 27
Calling Station Messaging .................................................... 28
Date/Time/Day Adjustment.. ................................................. 12
DISA Security Code: Add/Delete/Change ............................ 16
Editing or Setting a New Calling Station Message ............... 19
Group Called Station Messaging .......................................... 27
Group Calling Station Messaging ......................................... 29
LCD Name/Number Display ................................................. 22
Liquid Crystal Display ........................................................... 1
Mode Exit .............................................................................. 16
Message Administration Functions ....................................... 18
Message Directory ................................................................ 32
Message Sending ................................................................. 26
Preprogramming System Messages.. ................................... 19
Recording a Message ........................................................... 20
Speed Dial Memo ................................................................. 24
Speed Dial Memo Directory.. ................................................ 34
Station-to-Station Message Waiting ..................................... 14
Storing a Message ................................................................ 21
Summary of LCD Functions.. ................................................ 2
Timed Reminders with Memo ............................................... 26
Toll Restriction Override/Traveling Class Code Change ...... 17
User Name/Number Directory .............................................. 33
Verified Account Code Change ............................................ 18
Voice Mail ............................................................................. 15
38 39

TOSHIBASYSTEM PRACTICES
ELECTRONICKEYTELEPHONESYSTEM STRATADKFAULTFINDING
SECTlON200-096-500
FEBRUARY1991
Stratalzx
RELEASE 1,2, and 3
FAULT FINDING PROCEDURES

PARAGRAPH SUBJECT
1
2
3
4
5
6
7
7.01
7.10
TABLE OF CONTENTS . . . . . . . . . . . . . . . . . . . . . . . . . . . . . . . . . . . . . . . . . . . . . . . . . . . . . . . . . . . . . . . . . . . . . . . . . . . . . . . . . . . . . . . . . . i
GENERAL . . . . . . . . . . . . . . . . . . . . . . . . . . . . . . . . . . . . . . . . . . . . . . . . . . . . . . . . . . . . . . . . . . . . . . . . . . . . . . . . . . . . . . . . . . . . . . . . . . . . . . . . . . . . . . . 1
FAULT CLASSIFICATION . . . . . . . . . . . . . . . . . . . . . . . . . . . . . . . . . . . . . . . . . . . . . . . . . . . . . . . . . . . . . . . . . . . . . . . . . . . . . . . . . . . . . . 1
FAULT CLEARING PROCEDURES . . . . . . . . . . . . . . . . . . . . . . . . . . . . . . . . . . . . . . . . . . . . . . . . . . . . . . . . . . . . . . . . . . . . . . . 1
DEFECTIVE APPARATUS RETURNS . . . . . . . . . . . . . . . . . . . . . . . . . . . . . . . . . . . . . . . . . . . . . . . . . . . . . . . . . . . . . . . . . . . 2
FAULT IDENTIFICATION AND ELIMINATION PROCEDURES . . . . . . . . . . . . . . . . . . . . . . . . . . . . 2
POWER SUPPLY . . . . . . . . . . . . . . . . . . . . . . . . . . . . . . . . . . . . . . . . . . . . . . . . . . . . . . . . . . . . . . . . . . . . . . . . . . . . . . . . . . . . . . . . . . . . . . . . . . . . 2
STATION CABLE CONTINUITY CHECK . . . . . . . . . . . . . . . . . . . . . . . . . . . . . . . . . . . . . . . . . . . . . . . . . . . . . . . . . . . . . . . 3
Voltmeter Test . . . . . . . . . . . . . . . . . . . . . . . . . . . . . . . . . . . . . . . . . . . . . . . . . . . . . . . . . . . . . . . . . . . . . . . . . . . . . . . . . . . . . . . . . . . . . . . . . . . . . . . . . 3
Ohmmeter Test . . . . . . . . . . . . . . . . . . . . . . . . . . . . . . . . . . . . . . . . . . . . . . . . . . . . . . . . . . . . . . . . . . . . . . . . . . . . . . . . . . . . . . . . . . . . . . . . . . . . . . . 4
FLOWCHARTS
CHARTNO 1 -
CHART NO 2 -
CHART NO. 3 -
CHART NO. 4 -
CHART NO. 5 -
CHART NO. 6 -
CHART NO. 7 -
CHART NO. 8 -
CHART NO. 9 -
CHART NO. 10 -
CHART NO. 11 -
CHART NO. 12 -
CHART NO. 13 -
CHART NO. 14 -
FAULT CLASSIFICATION .................................................. 5
POWER FAULTS.. .............................................................. 7
STATION FAULTS .............................................................. 8
KSU FAULTS ...................................................................... 10
CO LINE FAULTS ............................................................... 11
INTERCOM FAULTS .......................................................... 14
DSS CONSOLE FAULTS ................................................... 15
SPEED DIAL FAULTS ........................................................ 17
MOH, BGM, PAGE & RELAY FAULTS .............................. 18
SMDR FAULTS.. ................................................................. 20
PSTU FAULTS .................................................................... 21
DOOR PHONE FAULTS.. ................................................... 22
TIE LINE FAULTS.. ............................................................. 25
REMOTE MAINTENANCE/TTY FAULTS ........................... 26
TABLELIST
TABLE
A
B
C
D
E
F
G
H
TITLE PAGE
FLOWCHARTS. . . . . . . . . . . . . . . . . . . . . . . . . . . . . . . . . . . . . . . . . . . . . . . . . . . . . . . . . ..*........................................... 1
DK24 CIRCUIT BREAKER DISTRIBUTION . . . . . . . . . . . . . . . . . . . . . . . . . . . . . . . . . . . . . . . . . . . . . . . . . . . . . . . . . . . 3
DK56 CIRCUIT BREAKER DISTRIBUTION . . . . . . . . . . . . . . . . . . . . . . . . . . . . . . . . . . . . . . . . . . . . . . . . . . . . . . . . . . . 3
DK96 CIRCUIT BREAKER DISTRIBUTION . . . . . . . . . . . . . . . . . . . . . . . . . . . . . . . . . . . . . . . . . . . . . . . . . . . . . . . . . . . 3
STATION CABLE CONTINUITY CHECK USING VOLTMETER . . . . . . . . . . . . . . . . . . . . . . . . . . . . 4
STATION CABLE CONTINUITY CHECK USING OHMMETER . . . . . . . . . . . . . . . . . . . . . . . . . . . . . 4
STATION CABLE CONTINUITY CHECK USING VOLTMETER (PDKU) . . . . . . . . . . . . . . . 27
STATION CABLE CONTINUITY CHECK USING OHMMETER (PDKU) . . . . . . . . . . . . . . . . 27 I
FIGURE LIST
FIGURE
1
2
TITLE PAGE
FLOWCHART SYMBOLS . . . . . . . . . . . . . . . . . . . . . . . . . . . . . . . . . . . . . . . . . . . . . . . . . . . . . . . . . . . . . . . . . . . . . . . . . . . . . . . . . . . . . . . 1
BACKPLANE CONNECTORS PI (DK24), PI & P4 (DK56/96)‘............: . . . . . . . . . . . . . :... 2
STRATADKFAULTFINDING
SECTION 200-096-500
FEBRUARY1991
TABLEDFCDNTENTS .
PAGE

1 GENERAL IMPORTANT!
1 .Ol This section describes the maintenance pro-
cedures used to diagnose faults in the STRATA DK
digital key telephone system. Faults are classified
and then cleared by replacing the malfunctioning
unit and performing operational tests in the se-
quences prescribed by the fault clearing flowcharts
in Paragraph 5.
Many system features are assigned, en-
abled or disabled using software entries
as described in
Programming Procedures.
It is important to verify that the system
programming is correct and functional
before troubleshooting the hardware.
2 FAULT CLASSIFICATION
2.01 A Fault Classification Flowchart is provided to
ensure that fault clearing is pursued in a logical
sequence (Chart No. 1).
3.02 In newsystems, or when the PCTU or PCTUSI
PCB has been changed, the initialization proce-
dure must be performed before testing. The system
data stored on the original PCTU or PCTUSI will be
protected from loss by the backup battery on that
PCB. Therefore, the initialization sequence should
nof be performed if the original PCB is reinstalled.
NOTE:
2.02 An assumption is made in the flowcharts that
the fault was discovered and reported by an elec-
tronic telephone user. All faults, therefore, are
classified according to the way they would appear
at the electronic telephone.
2.03 Faults and associated flowcharts in Table A
are organized into the following categories:
In this section all information relating to the
PCTU PCB applies to the PCTlJSl, PCTUl,
PCTU2, and PCTU3 unless otherwise stated. 1
3.03 Faults in the system are cleared by replacing
PCBs, electronic telephones or the power supply,
as instructed in the flowcharts.
TABLE A
FLOWCHARTS
3.04 Five symbols are used in the flowcharts,
which are identified in Figure 1.
Start and end of a
flowchart sequence.
Flowchart Title
1
Fault Classification
2 Power Faults
3 Station Faults
4 KSU Faults
5 CO Line Faults
6 Intercom Faults
7 DSS Console Faults
8 Speed Dial Faults
9 MOH, BGM, Page & Relay Faults
10 SMDR Faults
11 PSTU Faults
12 Door Phone Faults
13 TIE Line Faults
14 Remote Maintenance/TTY Faults
3 FAULT CLEARING PROCEDURES
3.01 Before attempting to clear any fault, ensure
that it is in the system and not caused by associated
external equipment, such as wiring, MOH source,
etc.
STRATA DK FAULT FINDING
SECTION 200-096-500
FEBRUARY 1991
Important notes
affecting the fault
clearing procedure. -----I-.-
Question to be answered
YES or NO.
Progression TO or FROM
another flowchart location.
Letters and numbers denote
the exact entrance or exit
points.
Statement of a
required action.
I c
FIGURE l-FLOWCHART SYMBOLS

STRATA DK FAULT FINDING
SECTION 200-096-500
FEBRUARY 1991
3.05 The flowcharts are sequentially arranged to
permit rapid fault localization within the system.
All
fault clearing must begin with the Fault Classifica-
tion Flowchart, which is arranged in the correct fault
locating sequence.
3.06 The following precautions must be observed
when handling PCBs:
DO
NOT:
l
Drop a PCB.
l
Stack one PCB on top of another.
l
Handle a PCB without discharging any static
electricity from your person by touching the
grounded cabinet.
0 Touch PCB contacts with your fingers.
IMPORTANT!
If the fault is not cleared by substituting a
PCB, the original PCB must be reinstalled
in the cabinet before trying another PCB.
4 DEFECTIVE APPARATUS RETURNS
4.01 When adefective system apparatus is shipped
for repair, the apparatus must be packed in a
suitable container (the original box is highly recom-
mended), as follows:
c) Plastic bags for electronic telephones, KSU,
etc. .
4.02 NEVER WRITE ON THE APPARATUS IT-
SELF! Describe the nature of the defect on an
information tag. Attach the tag to the front of the unit
with string (not wire) so the tag can remain attached
during the testing and repair process. Return tags
are available from Toshiba America Information
Systems, Inc., TSD Division.
4.03 If different and/or additional faults are created
in the system by substituting a PCB, tag and return
the substitute PCB as a defective unit.
5 FAULT IDENTIFICATION and
ELIMINATION PROCEDURES
5.01 The PCTU PCB may contain a “soft” fault due
to static electricity. If it is found defective during the
fault finding procedures, attempt to clear a soft fault
prior to returning the PCTU PCB for repair. The
correct procedure for this is to reinstall the PCTU,
perform the initialization procedure, and then re-
program the system as necessary to test for the
fault. If the fault returns after these procedures are
performed, tag the defective PCTU and return it for
repair.
6 POWER SUPPLY
a) Paper container for the PCTU PCB.
b) Anti-static containers for all other PCBs.
6.01 If a DC power fault is detected, all PCBs
should be disconnected from the backplane con-
nectars to eliminate them as the cause of the power
CABLE FROM REAR
OF POWER SUPPLY
wz
g$gi;g
FG -24V2 -5V
-24Vl +5V DG
CONNECTOR
BACKPLANE
FG 6
-24V3 5
+5VI 4
-5Vl 3
DG 2
DG 1
-24Vl TBl
-24V2 TB2
Pl P4
DK 56196 -24V4 TB3 DK 96
FG
-24V5
+5V2
-5V2
DG
DG
i-l
Check between pins 1 and 2 (DG) and the desired voltage.
OBSERVE THE CORRECT POLARITY..
FIGURE P-BACKPLANE CONNECTORS Pl (DK24), PI & P4 (DK56/96)
-2-

STRATA DK FAULT FINDING
SECTION 200-096-500
FEBRUARY 1991
problem. The Power Supply Test Procedure in
Paragraph 3, Section 200-096-205, Installation, can
be employed to further isolate possible causes
before removal of the KSU back cover or the power
supply unit. Figure 2 shows backplane connector
Pl and P4 and voltages at each pin. Voltages
should fall within the following ranges:
Nominal Range
-24V -26.3 - -27.8
+5v +4.5 - +5.5
-5v -4.5 - -5.5
6.02 If voltage checks indicate a power supply
fault, replace the power supply with a correctly
operating unit. Refer to Section 200-096-200, In-
stallation, for power supply installation procedures.
TABLE B
DK24 CIRCUIT BREAKER DISTRIBUTION
TABLE D’
OK96 CIRCUITBREAKER DlSTRlBUilO'N
I 1
Circuit Backplane PCB
Breaker bwwr)
NOTE:
+5 volts goes to all PCB slots.
-5 volts goes to all PCB slots.
Backplane PCB ( PCTUSI 1
7 STATION CABLE CONTINUITY CHECK
1 -24Vl 1 Slot 01, 02, 03 I - I
7.01 Voltmeter Test
-24V2 Slot 04, 05, 06 -
+5v All slots +5v
I -5V I All slots I -5v I
TABLE C
DK56 CIRCUIT BREAKER DISTRIBUTION
Circuit Breaker
-24Vl
Backplane PCB
Slots 01, 02
PCTU
I
-24V2
I
Slots 03, 04, 05
I - I
I
-24V3
I
Slots 06, 07, 08
I-I
NOTE:
+5 volts goes to all PCB slots.
-5 volts goes to all PCB slots.
6.03 The circuit breaker distribution charts show
which voltages supply the various slot locations. If
a circuit breaker pops out, this chart will help to
identify a malfunctioning PCB (reference Tables B,
C, and D).
7.02 The continuity of the cable run between the
HKSU and the electronic telephone is checked with
a voltmeter as follows:
NOTE:
Perform the following at the locations indi-
ca ted:
I. Modular block: Check all station cables.
2. MDF: Check cable from KSU to MDF.
1) Disconnect the electronic telephone.
2) Using a DC voltmeter, measure between the
wires of the two pairs to verify the readings
shown in Table E (Refer to Table G on page
27 for a PDKU). I
3) An improper reading indicates an open,
crossed or shorted wire.
4) For the MDF-to-electronic telephone cable, a
more precise check is made using an ohm-
meter.
-3-

STRATADKFAULTFINDING
SECTION 200-096-500
FEBRUARY1991
7.10 Ohmmeter Test
7.11
The continuity of the cable run between the
KSU and the electronic telephone is checked with
an ohmmeter as follows:
1) Disconnect the electronic telephone.
2) At the MDF, remove the bridging clips.
3) Using an ohmmeter, measure the resistance
between all combinations of the four wires at
the modular block. All measurements should
TABLEE
STATION CABLECONTINUITY
CHECKUSINGVOLTMETER
*Nominal voltage-within the limits of -26.3 N
-27.8 VDC while under AC power.
exceed 1 M ohm (Refer to Table H on page 27
for a PDKU). I
‘\,
./
. ,I’
4) At the MDF, place shorting jumper wires be-
tween the T and R of pair #I (green-red), the
T and R of pair #2 (black-yellow) and the T and
R of pair #3 (blue-white).
5) At the modular block, measure the resistance
between all wire combinations. The proper
readings are shown in Table F (Refer to Table
H on page 27 for PDKU). I
TABLEF
STATION CABLECONTINUITY
CHECKUSINGOHMMETER
NOTES:
1. This is maximum allowable reading.
2. The green-red, black-yellow and white-
blue measurements should be within 10%
of each other.
-4-

STRATA DK FAULT FINDING
SECTION 200-096-500
FEBRUARY 1991
CHART NO. 1
FAULT CLASSIFICATION
Please read the
maintenance
information
before proceeding.
Start here to
clear faults in
STRATA DK Systems.
__- _... - _____- y
due to erroneous programming.
1 YES
Check
circuit breakers
and power
indicators.
I
YES
To n A r--IT-
NOTE:
Any time a flowchart refers to
PCTU, the information applies to
I
PCTUI, PCTU2, PCTU3 and/or
PCTUSl.
-5-

STRATA DK FAULT FINDING
SECTION 200-096-500
FEBRUARY 1991
From
CHART NO. 1
FAULT CLASSIFICATION (cont.)
INT
aae 14
From
Maintenance/
Fault should
have been
classified.
Return to Page 5.
To
-6-

STRATA DK FAULT FINDING
SECTION 200-096-500
FEBRUARY 1991
CHART NO. 2
POWER FAULTS
From
‘rYES
Power down and
lightly press all
circuit breakers.
Remove all
PCBs and power
down and press
breakers.
Y
YES
Refer to the Voltage
Distribution chart and
install PCBs one at a time
until faulty PCB is found.
Tag the
defective unit(s)
and return for
repair.
A
Call Service
Center for
assistance.
YES
-7-

STRATA DK FAULT FINDING
SECTION 200-096-500
FEBRUARY 1991
CHART NO. 3
STATION FAULTS
Fault Classification
\
fault. ’
Flowchart? I
Fromm
\/
[Pages 15\-&YES
NO
“;/
Replace the
it an OCA electronic telephone
and line cord.
Replace HVSWHVSI
in electronic telephone
or DVSU in
digital telephone.
.
Tag the
defective unit(s)
and return for
repair.
q-z-)
NOTE: The maximum distance between
” , the electronic telephone and KSU
.’ is 1,000 ft. using 24 AWG cable.
To
-B-

STRATA DK FAULT FINDING
SECTION 200-096-500
FEBRUARY 1991
CHART NO. 3
STATION FAULTS (cont.)
Replace the
EOCU on the
all stations on PEKU, appropriate PEKU
or PESU, if used, or
replace the PDKU.
‘ES
Replace the PCTU,
initialize the system
and reprogram
as required.
defective unit(s)
and return for
Call the
Service Center
for assistance.
-9-

STRATA DK FAULT FINDING
SECTION 200-096-500
FEBRUARY 1991
CHART NO. 4
KSU FAULTS
Fault Classification
Go to
Page 5 to
classify fault.
at the electronic
Remove all PCBs
from the KSU
except: PEKU, PCTU,
PESU, or PDKU.
accessed by ports
PESU, or PDKU,
/ ~~
intercom be
\
l
Reinstall all PCBs, I
one at a time. Tag the
l
If trouble occurs, --) defective unit(s) ar Id
replace suspected return for repair.
PCB.
(r-i
END
-lO-

STRATA DK FAULT FINDING
SECTION 200-096-500
FEBRUARY 1991
CHART NO. 5
CO LINE FAULTS
Fault Classification
Go to
Page 5 to
classify fault.
Call the
Service Center
for assistance.
Reprogram
as required.
Replace
appropriate
PCOU.
Verify operation
of that CO/PBX
line.
Replace the
appropriate
m,-.,-., , -- 3. I
Verify continuity
of wiring between
the PCOU and the
connecting block.
Replace
the wiring.
cc;
END
.-
From
Tag the
defective unit(s)
and return for
repair.
END
I--
,
-ll-

STRATA DK FAULT FINDING
SECTION 200-096-500
FEBRUARY 1991
CHART NO. 5
CO LINE FAULTS (cont.)
Remove all
PCBs from the
KSU except:
* PCTU
. PEKU (PESU) (PDKU)
NOTES:
1. Perform the initialization
Reinstall PCBs
one at a time.
If troubles occur,
replace suspected PCB.
l-----i
Tag the
defective unit(s)
and return for
repair.
I I
23
END
-12-

STRATA DK FAULT FINDING
SECTION 200-096-500
FEBRUARY 1991
CHART NO. 5
CO LINE FAULTS (cont.)
Replace all PCBs,
Call the
Service Center
/ for assistance. 1
(’
END
-13-

STRATA DK FAULT FINDING
SECTION 200-096-500
FEBRUARY 1991
CHART NO. 6
INTERCOM FAULTS
/ Did \ I
I I
Replace the
appropriate
PEKU, PESU, or PDKU,
if used.
Tag the
defective unit(s)
and return for
repair.
23
END
From
ICl
This
‘3
Page
Replace
the PCTU
I
NO
Call Service Center
for assistance.
-14-

STRATA DK FAULT FINDING
SECTION 200-096-500
FEBRUARY 1991
CHART NO. 7
DSS CONSOLE FAULTS*
here from the
Fault Classification
Go to
Page 5 to
classify fault.
Reprogram
as required.
-5
END
To/--l
telephone switch in
the DSS position?
Set switch
to DSS position.
wiring from PEKU
(circuits 7 and 6)
or PDKU (circuit 8)
and DSS/DDSS console.
Tag the defective
unit and return
* Procedures also apply to digital DSS consoles.
-15-

STRATA DK FAULT FINDING
SECTION 200-096-500
FEBRUARY 1991
CHART NO. 7
DSS CONSOLE FAULTS (cont.)
Replace
the PCTU.
Replace
the PEKU
or PDKU.
defective unit(s)
and return for
e3
END
-16-

Sfart here to clear
Speed Dialing faulfs.
STRATA DK FAULT FINDING
SECTION 200-096-500
FEBRUARY 1991
CHART NO. 8
SPEED DIAL FAULTS
NOTES:
1. Perform the initialization
sequence before
proceeding.
2. Reprogram as required.
here from the
Fault Classification
Replace
the PCTU
:-L:
END
Call the
Service Center
for assistance.
(i>
END
-17-

STRATADKFAULTFINDING
SECTION 200-096-500
FEBRUARY1991
CHARTNO.
MOH, BGM, PAGE & RELAY FAULTS
Start here to
c/ear faults wifh
Music-on-Hold, ------
Background Music,
Paging.
From
MBP
Page 6
-----9
- Verify external
equipment.
1 / - Verify pr;mming
on one CO/PBX the PCOU.
T
YES
Tag the
defective PCB(s)
and return for
repair.
.^
.:
.
23
END
-I&
:

STRATA DK FAULT FINDING
SECTION 200-096-500
FEBRUARY 1991
CHART NO. 9
MOH, BGM, PAGE & RELAY FAULTS (cont.)
- Verify external
only over external b equipment.
* Verify programming.
Replace
the PCTU.
Tag the
defective part(s)
and return for
repair.
/
Replace PIOU or
l-----l
PEPU or PIOUS PCB,
if used.
L
Call the
Service Center for
assistance.
-19-

STRATA DK FAULT FINDING
SECTION 200-096-500
FEBRUARY 1991
CHART NO. 10
SMDR FAULTS
From -
/ MDR \
Start here to clear
SMDR faults. ______
Page 6
---------;;i
here from the
Fault Classification
* Switch settings (PIOU or PIOUS)
or PIOUS.
I
Replace
the PCTU.
1 I
NOTES:
1. Perform the initialization
sequence before
proceeding.
2. Reprogram as required.
Tag the
defective unit(s)
and return for
repair.
I
END
Call the
Service Center
for assistance.
-2o-

STRATA DK FAULT FINDING
SECTION 200-096-500
FEBRUARY 1991
CHART NO. 11
PSTU FAULTS
Go to
Fault Classification
NOTE:
Verify the following:
- Programming.
. Station wirina.
- Standard telephone.
- Auxiliary de vice
appropriate PSTU
or PESU, if used.
Tag the
defective unit(s)
and return for
Ir’,
END
NOTE:
If ‘Ring-Trip” is the fault, set the ring generator jumper plug
to the ‘L” (Low) position. The ring generator jumper plug is
equipped on the PEW and PTSU2 PCBs.
-21-

STRATA DK FAULT FINDING
SECTION 200-096-500
FEBRUARY 1991
Start here to c/ear
Door Phone faults.
CHART NO. 12
DOOR PHONE FAULTS
______---_____
Y I
YES
[YES
-22-

STRATA DK FAULT FINDING
SECTION 200-096-500
FEBRUARY 1991
CHART NO. 12
DOOR PHONE FAULTS (cont.)
Replace the
door phone.
Program system
for DP output.
Verify HDCB
strapping and wiring
(correct if necessary).
Service Center
for assistance.
From
Replace
1 the HDCB. [ @
Tag defective unit(s)
and return for repair.
CL,
END
-23-

STRATA DK FAULT FINDING
SECTION 200-096-500
FEBRUARY 1991
CHART NO. 12
DOOR PHONE FAULTS (cont.)
programmed properly
Recheck
HDCB output
programming.
1
YES
( END )
From/-----Y
Program system
for door phone
usage.
Call the
Service Center
for assistance.
23
END
-24-

STRATA DK FAULT FINDING
SECTION 200-096-500
FEBRUARY 1991
CHART NO. 13
TIE LINE FAULTS
Fault Classification
Verify
programming.
Contact TELCO
line, repair line). operate correctly?
YES
Call the
Service Center
for assistance.
-25-

STRATADKFAULTFINDING
SECTION 200-096-500
FEBRUARY1991
CHART NO. 14
REMOTE MAINTENANCE/TTY FAULTS
NOTES:
1. Verify programming.
2. Verify G-232 cable
and pin-out
connection to TTY.
3. Ensure proper CO /ins
operation for remote
maintenance modem.
1
YES
Call the
Service Center
for assistance.
Replace the
PIOU or PIOUS PCB.
Tag the
defective PCB
and return for
repair.
I
c-5
END
-26-

STRATA DK FAULT FINDING
SECTION 200-096-500
FEBRUARY 1991
TABLE G (PDKU)
STATION CABLE CONTINUITY
CHECK USING VOLTMETER
TABLE H (PDKU)
STATION CABLE CONTINUITY
CHECK USING OHMMETER
FROM TO
Pair Wire Color Pair Wire Color Resistance
1 T Green 2 T Black 14 ohms
1 R Red 2 T Black 370 ohms
1 T Green 2 R Yellow 980 ohms
1 R Red 2 R Yellow 5 ohms
1 T Green 1 R Red 983 ohms
2 T Black 2 R Yellow 12 ohms
-27-

TOSHIBA SYSTEM PRACTICES
DIGITAL KEY TELEPHONE SYSTEMS REMOTE ADMIN & MAINT PROCEDURES
SECTION 200-096-600
FEBRUARY 1991
StrataTax
RELEASE 1,2, and 3
REMOTE
ADMINISTRATION & MAINTENANCE
PROCEDURES

REMOTE AOMIN & MAINT PROCEDURES
SECTION 200-096-600
FEBRUARY 1991
TABLE of CONTENTS
PARAGRAPH SUBJECT . PAGE
1
2
3
4
4.00
4.10
4.20
4.30
5
5.00
5.10
5.20
6
6.00
6.10
6.20
6.30
7
7.00
8
8.00
8.10
8.20
8.30
8.40
9
9.00
IO
10.00
10.10
II
11.00
11.10
11.20
I2
12.00
I3
I4
14.00
14.10
15
TABLE of CONTENTS .......................................................................................................
FIGURE LIST.. .......... .........................................................................................................
USING REMOTE ADMINISTRATION AND MAINTENANCE ............................................
GENERAL DESCRIPTION ................................................................................................
HARDWARE REQUIREMENTS ........................................................................................
SET-UP .......... ....................................................................................................................
General ..........................................................................................................................
Hardware Verification ....................................................................................................
Programming ............ .....................................................................................................
On-site Testing ..............................................................................................................
LOCAL TERMINAL ............................................................................................................
Requirements ................................................................................................................
Set-up .......... ..................................................................................................................
Local Operation .............................................................................................................
REMOTE TERMINAL SITE.. ..............................................................................................
Requirements ................................................................................................................
Set-up ............................................................................................................................
Remote Operation ....... ..................................................................................................
Operation .......................................................................................................................
MODE SELECTION ...........................................................................................................
Selecting a Mode ...........................................................................................................
PROGRAM MODE .............................................................................................................
General ..........................................................................................................................
System Record Sheets ..................................................................................................
Program Types ..............................................................................................................
Multiple Station (Range) Programming.. ........................................................................
Programming Procedures. .............................................................................................
DATA DUMP MODE. .........................................................................................................
General ..........................................................................................................................
TEST MODE ......................................................................................................................
General ............ ..............................................................................................................
CO Line Testing .............................................................................................................
MESSAGE MODE.. ............................................................................................................
General ..........................................................................................................................
Remote Called Station Message Mode .........................................................................
Remote Calling Station Message Mode ........................................................................
SPEED DIAL MODE.. ........................................................................................................
General .........................................................................................................................
MODE EXIT ............ ...........................................................................................................
DISCONTINUE OPERATION ............................................................................................
Local Terminal ...............................................................................................................
Remote Terminal .......... .................................................................................................
EQUIPMENT COMPATIBILITY .........................................................................................
REMOTE MAINTENANCE PROCEDURES INDEX ..........................................................
MESSAGE RECORD SHEET.. ..........................................................................................
I
i
ii
I
2
2
2
2
3
3
3
3
3
3
4
4
4
5
5
5
6
6
6
6
6
6
7
7
7
7
8
8
9
9
9
9
9
IO
IO
IO
IO
IO
IO
IO
60
61

REMOTE ADMIN & MAINT PROCEDURES
SECTION 200-096-600
FEBRUARY 1991
TABLE LIST . .
TABLE
RM-A
RM-B
FIGURE
1
2
3
4
5
SUBJECT . PAGE
SECTION FLOWCHART . .
. . . . . . . . . . . . . . . . . . . . . . . . . . . . . . . . . . . . . . . . . . . . . . . . . . . . . . . . . . . . . . . . . . . . . . . . . . . . . . . . . . . . . . . . . . . . . . . . . 1
PROGRAMMING PROMPTS . . . . . . . . . . . . . . . . . . . . . . . . . . . . . . . . . . . . .
. . . . . . . . . . . . . . . . . . . . . . . . . . . . . . . . . . . . . . . . . . . . . . . . . . . . . . . . 6
RM-C thru RM-BL . . . . . . . . . . . . . . . . . . . . . . . . . . . . . . . . . . . . . . . . . . . . . . . . . . . . . . . . . . . . . . . . . . . . . . . . . . . . . . . . . . . . . . . . . . . . . . . . . . . . 11-59
FIGURE LIST
SUBJECT PAGE
PIOUS/IMDU CIRCUIT DIAGRAM . . . . . . . . . . . . . . . . . . . . . . . . . . . . . . . . . . . . . . . . . . . . . . . . . . . . . . . . . . . . . . . . . . . . . . . . . . . . . . . . . . . . . 2
LOCAL TERMINAL CONNECTION . . . . . . . . . . . . . . . . . . . . . . . . . . . . . . . . . . . . . . . . . . . . . . . . . . . . . . . . . . . . . . . . . . . . . . . . . . . . . . . . . . . . 4
DATA DUMP PRINTOUT EXAMPLE . . . . . . . . . . . . . . . . . . . . . . . . . . . . . . . . . . . . . . . . . . . . . . . . . . . . . . . . . . . . . . . . . . . . . . . . . . . . . . . . . . 7
SAMPLE PRINTOUT OF SYSTEM MESSAGES . . . . . . . . . . . . . . . . . . . . . . . . . . . . . . . . . . . . . . . . . . . . . . . . . . . . . . . . . . . . . . . 8
TEST MODE FUNCTION DIAGRAM . . . . . . . . . . . . . . . . . . . . . . . . . . . . . . . . . . . . . . . . . . . . . . . . . . . . . . . . . . . . . . . . . . . . . . . . . . . . . . . . . . 8

REMOTE ADMIN & MAINT PROCEDURES
SECTION 200-096-600
FEBRUARY 1991
1 USING REMOTE ADMINISTRATION AND MAINTENANCE
1.01
Table RM-A is provided as a quick reference aid in using this section.
TABLE RM-A-SECTION FLOWCHART
General Description: The functions available on
1 are explained in Paragraph 2 1
STRATA DK systems via a Local or Remote Terminal
The hardware and installation requirements are
explained in Paragraphs 3 and 4.
I 7
To set-up and operate a Local
I I
To set-up and operate a Remote
Terminal, see Paragraph 5. Terminal, see Paragraph 6.
To enter Operation Modes from a Local or Remote
Terminal:
l
Program
l
Data Printout
l
Test
l
LCD Message Entry
l
Speed Dial Entry
See Paragraph 7.
review speed dial
via a terminal;
I
To exit and/or change modes; Paragraph 13.
To terminate Local and Remote Terminal operation;
Paragraph 14.
Paragraph 15 provides an equipment compatibility list.
-1
-l-

REMOTE ADMIN ii MAINT PROCEDURES
SECTION 200-096-600
FEBRUARY 1991
2 GENERAL DESCRIPTION
2.01 Remote Administration and Maintenance is
accomplished with a remote terminal/modem com-
municating over the public telephone network via a
Modem Unit (IMDU) installed in the STRATA DK
KSU. The IMDU is a built-in modem so an external,
customer-supplied modem is not required (see
Figure 1).
Test Mode:
Provides for testing of STRATA DK
CO lines and stations.
Data Dump Mode:
Provides a complete printout of
all or individual STRATA DK customer data base
programs, including speed dial numbers and
LCD messages.
Message Mode:
Provides for sending, adding, or
changing electronic telephone LCD messages.
(300or1200 BPS)
Speed Dial Mode:
Allows station and system speed
dial numbers to be programmed remotely.
NOTE:
TELEPHONE
All the functions in the preceding paragraph
are a/so available via a terminal connected
directly to the on-site PIOUS PC9 or a termi-
nal with a modem connected to a PSTU port
(Paragraph 5).
2.05 There are two levels of Remote Administra-
tion and Maintenance.
INTERNAL MODEM (IMDU)
Level 1:
Allows access to all programs.
FIGURE l-PIOUS/IMDU CIRCUIT DIAGRAM
Level
2: Allows access to
Programs
30 m 39 and
77 -- 89, which pertain only to individual station
options such as button assignments, class of
service, etc.
2.02 Remote Administration and Maintenance calls
may connect to the IMDU automatically via pro-
grammable CO line ringing assignments
(Program
78), or manually via the standard call transfer
feature at intercom number 19. Automatic connec-
tion allows remote programming to be accom-
plished after business hours without on-site assis-
tance via night ringing assignments.
2.06 Each Remote Administration and Mainte-
nance level has a different programmable pass-
word for customer data base protection. This al-
lows a customer to make certain station moves,
adds, and changes in Level 2; while protecting the
critical system assignments in Level 1 (refer to
Program 00).
2.03 An external modem may be used and can be
connected as detailed in Figure 8-21, Section 200-
096-208. In this case, either a dedicated CO line or
a dedicated PSTU port is required for a remote
terminal connection.
3 HARDWARE REQUIREMENTS
3.01 The STRATA DK KSU must be equipped with
a PIOUS PCB and either an IMDU (subassembly)
modem or a modem external to the KSU.
2.04 Remote Administration and Maintenance al-
lows the following functions to be accomplished
remotely:
4 SET-UP
4.00 General
Program Mode:
Provides for complete program-
4.01
This section assumes that fhe system has
ming of all STRATA DK programs (including been properly installed per the appropriate section
speed dial adds/changes). in this manual.
‘X
-2-

4.02 The following items must be completed on-
site for Remote Administration and Maintenance to
be operational.
4.10 Hardware Verification
4.11
Verify the PIOUSIMDU or external modem is
installed per instructions in the appropriate installa-
tion section of this manual (refer to Sections 200-
096-206 and 200-096-208).
4.20 Programming
4.21
If an IMDU is
Program 77-l.
used, enable the IMDU in
4.22 If Remote Administration and Maintenance
calls are to connect to the IMDU automatically,
assign the designated CO lines to ring the IMDU
intercom number (19) in
Program
78 as required
(use standard STRATA DK programming proce-
dures).
4.23 Program the security codes for Levels 1 and
2 as in the Programming Procedures, Section 200-
096-300. Reference
Program 00.
NOTE:
The security codes are initialized as “0000”.
These codes may also be changed via a local
or rem0 te terminal.
4.30 On-site Testing
4.31
From any working station, test the functioning
of the IMDU.
1) Press the m button.
l
Receive intercom dial tone.
2) Dial 0 1.
l
Receive modem tone from the IMDU after
a 2-second delay.
3) Press the m button to release.
4) Make an incoming call over each CO line that
is programmed to ring the IMDU (station 19).
l
Receive modem tone from the IMDU after
a 2-second delay with each call.
REMOTE AOMIN & MAINT PROCEDURES
SECTION 200-096-600
FEBRUARY 1991
NOTE:
This test checks basicprogramming and IMDU
operation, and should be completed -before
continuing with Remote Administration and
Maintenance installation.
5) If a terminal is to be utilized on-site, refer to
Paragraph 5. For off-site programming referto
Paragraph 6.
5 LOCAL TERMINAL
5.00 Requirements
5.01
The KSU must have a PIOU(S) PCB installed
(refer to Sections 200-096-208 and 200-096-209
for wiring information).
5.02 The local terminal must have an EIA RS-232
interface, communicate in ASCII code at 300 or
1200 bps, have a standard typewriter-type key-
board, and display data via a CRTdisplay or printer.
A personal computer capable of emulating the
described terminal may also be used (see Figure 2
and Paragraph 15).
5.03 Operating the terminals, local or remote, is
identical. The only difference is the physical con-
nection and the method used to establish initial
communications.
5.10 Set-up
5.11
Refer to Figure 2 and verify that the local
terminal is connected and set-up as follows:
1) Connect the RS-232 cable to the terminal
connector and the PlOU(S) TTY connector.
NOTE:
If a personal computer is being used, connect
the cable to the serial “COM”pot?.
2)
3)
4)
5)
Set the terminal baud rate to match the PIOU(S)
setting (PIOU[S], SW2).
Set the terminal for “Full Duplex” operation.
Set the keyboard for “Caps Lock” on.
Set the terminal parameters to:
Word length: 7 bits s
Stop bits: 1
Parity: Even
-3-

REMOTE ADMIN & MAINT PROCEDURES
SECTION 200-096-600
FEBRUARY 1991
LOCAL
TERMINAL
PPTC
MODULAR TO DB25
/
ADAPTOR
RS-232
I
(300
OR 1200 PBS)
I
50‘ FEET MAX. 24 AtiG
KSU .
_ p’ou(s) INTERNAL
See Peripherals Installation, Section 200-096-208,
for detailed pin-out information.
5.20 Local Operation
5.21
Use the procedure below to establish com-
munications between the local terminal and the
PIOU(S) so that programming may be accom-
plished via the terminal.
NOTE:
Hereafter, whenever the term
q
is used, it
means the return or enter key, depending on
the keyboard being used. m means the
space bar. An empty square indicates one of
several characters will appear in that location
(either on the terminal’s screen or in a print-
out).
1) Set-up the terminal as described in Paragraph
5.10.
2) Set the terminal to on-line.
3) Set “Caps Lock” on (upper case).
4)
Press
q
key.
l
The system responds, and the terminal
displays:
* DKTS VERSION 1.0 or DK CONNECT
t-1
> CODE
5) Type the 4digit security code, and press
q
.
l
The system responds, and the terminal
displays:
OK
MODE
NOTE:
The security code can be entered any time the
CODE prompt appears.
6) To continue, go to Paragraph 7.
6 REMOTE TERMINAL SITE
6.00 Requirements
6.01 Terminal:
The terminal must interface with
an asynchronous modem, communicate in ASCII
code at 300 or 1200 bps, have a standard type-
writer-type keyboard, and display data via a CRT
display or printer. A personal computer capable of
emulating the described terminal may also be used
(see Figure 1 and Paragraph
15).
6.02
Modem:
The modem must be full-duplex
asynchronous, operate at’ 300 or- 1200 bps and
have an RS-232 interface to connect with a termi-
-4-

nal or PC (as described in Paragraph 5). It must
interface with the public telephone network and be
compatible with Bell 103 or 212 modem specifica-
tions.
6.10 Set-up
6.11
Refer to Figure 1 and verify that the remote
terminal is connected and set-up as follows:
1) Connect the terminal and modem together
with the RS-232 cable.
NOTE:
If a personal computer is being used, connect
the cable to the serial “C0M”pot-t.
2)
3)
4)
5)
Connect the modem line input to a CO/PBX
line for access to the public telephone net-
work.
Set the terminal and modem baud rate to
match the PIOU(S) setting.
Set the terminal and modem for “Full Duplex”
operation.
Set the terminal parameters to:
Word length: 7 bits
Stop bits: 1
Parity: Even
6.20 Remote Operation
6.21 Automaticconnectionviaringingassignments:
To establish communication between the remote
terminal and the IMDU, call the number of the
system CO line assigned to ring the IMDU via the
remote terminal/modem set-up:
1) Observe the following:
l
When the CO line rings-in, it will connect
to the IMDU and the IMDU will respond by
returning modem tone to the remote mo-
dem.
l
The remote modem will return modem
tone to the IMDU and communication will
be established.
l
When communication is established, the
terminal will display: CONNECTED or
COMMUNICATIONS (see Note).
REMOTEADMlN&MAlNTPROCEDURES
SECTION 200-096-600
FEBRUARY1991
2) To continue, enter the security code per Para-
graph 6.30.
6.23 Manual connection via call transfer!
1)
2)
3)
4)
Using a telephone (at the remote location) that
can switch to the terminal/modem, dial the
number of a system CO line.
When the call is answered, request that it be
transferred to station 19 (the IMDU).
After the call is transferred
tion is established with the
call from the telephone to
dem.
Observe the following:
and communica-
IMDU, switch the
the terminal/ma-
l
When the CO line is transferred, it will
connect to the IMDU.
l
The IMDU and the remote modem will
respond to each other with modem tone
and communication is established.
l
When communication is established, the
terminal will display: CONNECTED or
COMMUNICATIONS (see Note).
NOTES:
1. If the connection is not completed or com-
munication is unsuccessful, the remote
terminal will display: NO CARRIER.
2. If this is the case, check that the equip-
mentisinstalledperParagraph5.70or6.10
of this section and try again.
6.30 Operation
6.31 Once communication is established between
the remote terminal and the IMDU, follow the steps
below to enter the security code and receive the
MODE prompt.
NOTE:
Hereafter, whenever the term
q
is used, it
means the return or enter kev. deoendina on
the keyboard being used. m mean; the
space bar. An empty square indicates one of
several characters will appear in that location
(either on the terminal’s screen or in a print-
out). I
1) Set the keyboard for ‘Caps Lock” on.
-5-

REMOTE ADMIN 81 MAINT PROCEDURES
SECTION 200-096-600
FEBRUARY 1991
2) Press the
q
key.
l
The system responds, and the terminal
displays:
DKTS VERSION 1.0 (DK CONNECT) R2
XODE
* The software version number is identified in
Program 00.
3) Enter the 4-digit security code and press the
q
key.
l
The system responds, and the terminal
displays:
OK
MODE
7 MODE SELECTION
7.00 Selecting a Mode
7.01 To enter an operating mode, establish com-
munication with the terminal, enter the security
code, and press the
q
key to receive the MODE
prompt.
NOTE:
Refer to Paragraphs 5.10 or 6.10 to accom-
plish the above.
1) Set the keyboard for ‘Caps Lock” on (the
mode name must be entered in capital let-
ters).
2) At the MODE prompt, enter the desired mode
name (Table RM-B).
3) Press the
q
key.
4) Verify the correct prompt return (Table RM-B).
TABLE RM-B-PROGRAMMING PROMPTS
Mode Function Mode Name Prompt Return
Program PROG P
Data Dump
DUMP
D
Test TEST
T
LCD Messages MESG (NONE)
SDeed Dial No.
REPT R
8 PROGRAM MODE
8.00 General .
8.01
Data governing overall system operation and
feature execution for the systems are stored in
read-only memory (ROM) and cannot be altered in
the field. However, the data controlling operation of
the various options, both system and station, are
stored in random-access memory (RAM) and can
easily be changed according to individual installa-
tion requirements.
8.02 All options are controlled by selections made
in the System Record Sheet. An initialization proc-
ess is provided for verifying predetermined system
assignments. The installer can then proceed with
any necessary changes.
8.03 Internal battery power is provided to prevent
loss of system data memory in the event of a power
failure.
8.10 System Record Sheets
8.11
Before system data can be programmed, the
System Record Sheets which contain the customer
data base must be available (see Programming,
Section 200-096-305).
8.20 Program Types
8.21
There are three types of programs:
Type 1:
All Type 1 programs use the same proce-
dure; however, each key/LED has a different
meaning, depending on the program number.
The status of these data is reviewed, changed,
and stored in system memory using Type 1
program procedures.
Type 2:
All Type 2 programs follow the same entry
procedure; however, they require port number
and key/LED entries. Each key/LED has adiffer-
ent meaning, depending on the program num-
ber.
Type3:
In this type program, the information shown
in the System Record Sheet indicates the data to
be stored in system memory. Each program has
a different meaning, and the data is reviewed,
changed or stored in memory using an individual
procedure for each program.
-6-

8.30 Multiple Station (Range) Programming
8.31
Some programs select options for individual
stations (where 0 0 represents the port number
being programmed). To save time, it is possible to
program all ports or a range of ports simultane-
ously.
8.32 Multiple station programming is accomplished
by substituting a range of ports (0 0 10 0) for
the port number part (0 0) of the program.
Example, all ports: w 1 111
8.33 When the multiple station range is entered,
the terminal displays existing data as follows:
Y
or
N: Data is the same for all ports in the dialed
group. Y = key/LEDs “ON”; N = key/LEDs”OFF”.
U:
Key/LED is “ON” for at least one, but not all
ports in that group.
8.40 Programming Procedures
1) Refer to a completed System Record Sheet.
2) Place the terminal into the program mode per
Paragraph 7.
3) Program procedures are categorized and given
in the order below. Use these procedures to
store System Record Sheet data in working
memory.
a) Initialization procedures:
REMOTE ADMIN & MAINT PROCEDURES
SECTION 200-096-600
FEBRUARY 1991
These procedures must be completed
whenever a PCTU or PCTUSl PCB is
first installed. .
b) Type 1 programs:
1 O-l, 1 O-2,1 O-3,15,16,42-0,77-1,77-2.
c) Type 2 programs:
Station Class of Service;
17,20,30,31,35,40,41,43,79,81 - 89.
d) Type 3 programs:
l
Initialization; 90, 92
l
General; 00, 03, 04, 05, 12,
13, 21,
22,28,29,32,33,34,36,37,38,39,
42-1 - 8, 44, 60,69, 70, 78,80,93.
l
Toll Restriction; 45 w 48.
l
Least Cost Routing; 50 w 56.
9 DATA DUMP MODE
9.00 General
9.01
This mode allows three types of data to be
displayed or output to a printer: STRATA DK Pro-
grams (Customer Data Base), Speed Dialing
Numbers (Station/System), and LCD Messages
(Station/System).
9.02 The three procedures for the Data Dump
mode are called: Program Dump, Speed Dialing
Dump, and LCD Messages Dump.
9.03 Program Dump:
While in the dump mode,
enter “PRG” and up to three characters and press
q
. The three alphanumeric characters represent
a program group or a particular program, i.e., ALL,
03, 04, 10, 39, etc. For a printout example, see
Figure 3.
CO LINE NUMBERS
40 33 32 25 24 17
81 00 11111111 11111111 11111111
81 01 00000000 00000000 00000000
81 02 00000000 00000000 00000000
81 03 00000000 00000000 00000000
81 04 00000000 00000000 00000000
81 05 00000000 00000000 00000000
81 06 00000000 00000000 00000000
t CO LINE 36
STATION PORT NUMBER
PROGRAM NUMBER
16 9
11111111
00000000
00000000
00000000
00000000
00000000
00000000
-*I :SELECT(LED
11111111
PN)
00000000
00000000
00000000
00000000
00000000
00000000
t- CO LINE 01
FIGURE 3-DATA DUMP PRINTOUT EXAMPLE
-7-

REMOTE ADMIN & MAINT PROCEDURES
SECTION 200-096-600
FEBRUARY 1991
dialing codes for either an individual station, 10 0 .\,
>MODE DUMP
(all stations and system data) 1 m B (system data .’
D MSG SYS
only). .
SYS M60 OUT TO LUNCH
9.05 LCD Messages Dump: While in the dump
SYS M61 IN A MEETING
mode, enter “MSG” and two or three characters
SYS M62 CALL
SYS M63 BACK AT
and press
q
. The characters represent stored
SYS M64 RETURN ON
messages for either an individual station, 101 (all
SYS M65
stations and system data) or 4 m H (system data
SYS M66
only). For a printout example, see Figure 4.
SYS M67
SYS M68
9.06 Tables provide a quick reference to the step-
SYS M69
by-step procedures to output the appropriate data.
D
IO TEST MODE
FIGURE 4-SAMPLE PRINTOUT OF
SYSTEM MESSAGES
10.00 General
NOTE:
10.01 The remote test mode can be used to test
Programs are output only in the groups indi- STRATA DK stations and CO line circuits from an
cated. To print out or review a program not off-site location.
included above, use Program Mode proce-
dures. 10.02 This testing function is accomplished by
accessing stations from the remote terminal, and
9.04 Speed Dialing Dump: While in the dump activating various buttons on the electronic tele-
mode, enter “REP” and two or three characters and phone to make telephone calls, set function but-
press
q
. The characters represent the speed tons, change the system time and date, etc. (see
Figure 5).
REMOTE SITE
REMOTE
PUBLIC TELEPHONE
NETWORK KSU
t\ I
TERMINAL
MODEM _
CO LINE
(300 or 1200 BPS)
REMOTE
STATION B CO LINE CO LINE B
I \
Electronic Telephone XX
CONNECTION
:
FIGURE 5-TEST MODE FUNCTION DIAGRAM

REMOTE ADMIN & MAINT PROCEDURES
SECTION 200-096-600
FEBRUARY 1991
IMPORTANT! 11 .lO Remote Called Station Message Mode
Any electronic telephone button can be
activated from the remote terminal at any
time while in the Test Mode (even while the
end user is using the electronic telephone).
Therefore, caution must be used toprevent
service interruption or interference. The
Test Mode provides status tests to check
whetherornotastationorCOlineisinuse.
The status checks should always be made
before performing other tests.
11 .I 1
Allows the terminal to set a Called Station
Message for an originating station with the destina-
tion of the message being a station or group of
stations.
11 .I
2 When the message is set, the MW/FLLED(s)
on the destination station(s) flash.
10.10 CO Line Testing
11 .I
3 When a destination station calls the originat-
ing station, the message is displayed on the desti-
nation station’s LCD.
10.11
To test CO line transmission, two or three
CO lines must be available at the remote site (see
Figure 5).
10.12
CO line testing is accomplished by using all
of the following three methods:
Mode 94:
To edit and/or review a Called Station
Message before setting it, use this mode. It will
print out the existing message and allow addi-
tions to it (such as a time or a date) before it is set.
(The message cannot be changed with this
mode-just added to.)
1)
2)
3)
Call station B at the remote site via the STRATA
system and then place the line on hold (trans-
mission is checked at the remote site via
MOH).
Establish a talk path between the two remote
stations (B & C) via a CO-to-CO connection
through STRATA.
Establish a talk path between a remote station
and the time or weather service via a CO-to-
CO connection through STRATA.
10.13
The procedures in the tables provide ex-
amples of the types of tests and functions that can
be accomplished with the Test Mode. These proce-
dures do not cover all the possible tests that can be
performed remotely; however, by using the prin-
ciples given, other tests are possible.
11 MESSAGE MODE
11 .OO General
11 .Ol
This mode allows a local or remote terminal
to set Called and Calling Station LCD messages for
station users. The messages may be system or
station type and are stored in their respective
memory locations when set.
Mode
96: To add or change a Called Station Mes-
sage before setting it, use this mode. It does not
display the existing message, but allows a com-
pletely new message to be entered before it is
set.
11.20 Remote Calling Station Message Mode
11.21
Allows the terminal to set a Calling Station
Message for a station. The message will be set on
the station’s LCD and is automatically displayed on
other stations’ LCDs whenever they call that sta-
tion.
Mode
95: To edit and/or review a Calling Station
Message before setting it, use this mode. It will
display the existing message and allow additions
to it (such as a time or adate) before it is set. (The
message cannot be changed with this mode-
just added to.)
Mode 97:
To add or change a Calling Station
Message before setting it, use this mode. It does
not display the existing message, but allows a
completely new message to be entered before it
is set.
11.22
Use the procedures in the tables to set
messages via Modes 94/96 and 95/97.
-9-

REMOTE ADMIN & MAINT PROCEDURES
SECTION 200-096-600
FEBRUARY 1991
12 SPEED DIAL MODE
12.00 General
12.01 The Speed Dial Mode can be used to add or
change speed dial numbers to any of the system
speed dial memory locations (60 N 99) and to any
station speed dial memory locations (IO w 49).
12.02 Chain speed dial numbers can also be
programmed using the Speed Dial Mode. See the
Electronic Telephone User Guide for more infor-
mation regarding chain speed dialing operation.
12.03 To program speed dial numbers, enter the
REPT mode per Paragraph 7 of this section. Then
use the Speed Dial Mode Procedure at the end of
this section.
13 MODE EXIT
2) Verify that the modem drops the line.
13.01 Exit the current mode per Paragraph 13.02
and select the desired mode via Paragraph 7.
13.02 To exit the PROG, DUMP, TEST or SPEED
DIAL mode:
l
At the P, D, T or R prompt, enter mm[amand
observe:
>MODE
13.03
To exit the MESG mode:
l
At anvtime while in the messaae mode. enter:
a 1 a and observe:
NOTE:
To exit the Message Mode, the terminal key-
board must be in lower case.
. .
\
14 DISCONTINUE OPERATION ,’
.
14.00 Local Terminal
14.01
Exit current operating mode via Paragraph
13 and observe that the MODE prompt is displayed
on the terminal.
14.10 Remote Terminal
14.11 Exit current operating mode via Paragraph
13
and observe that the MODE prompt is displayed
on the terminal.
14.12
To discontinue remote operation:
1) Take the terminal off-line.
15 EQUIPMENT COMPATIBILITY
15.01
Below is a list of equipment that is known to
be compatible with STRATA DK Remote Admini-
stration and Maintenance. This list does not show
all of the equipment that will work, only the equip-
ment that has been proven compatible in the field
or lab.
15.02 As additional equipment is proven compat-
ible, it will be added to an up-dated list.
I
TERMINALS I MODEMS
Texas Instruments
Silent 700
Panasonic KXD-4920
Hayes: Smartmodem
1200
Universal Data Systems:
Model 103J LP
U.S. Robotics: Password
COMPUTERS 1 SOFTWARE 1
Toshiba: T3100/20,
Tl 100, & Ti 000 Crosstalk or equivalent
I I’
-lO-

REMOTEADMlN&MAlNTPROCEDURES
SECTION 200-096-600
FEBRUARY1991
TABLERM-C
PROGRAM90
INITIALIZING PROGRAMS 00 - 97
iTEP ACTION DISPLAY/PRINTOUT
1
Enter the Program Mode
>MODE PROG
At the >MODE prompt enter 1 1 H 1
q
.
2 Enter Program Number 90
P 90
Press
q
. P90
3 To Initialize All Programs Enter 1 1 i 1 0
P90 00-97
NOTE: Single programs can be initialized by entering a single
program number plus B . Group numbers are separated by an 1 .
4 Enter key number 1 0.
P90 00-97
01 N
5 Change 01 key to “ON” by entering 1 P9O 00-97 01 N Y
6 Press m P9O 00-97 01 N Y
02 N
7 Change 02 key to “ON” by entering a . P90 (IO-97 01 N Y
02
N Y
8 Pressm . P90 00-97 01 N
Initialization complete.
02
N Y
NOTE: If program data is not entered correctly, then
q
will
P90
not respond. To retry, press F
q
.
9 Exit Program 90:
P90 #
Press njm . P
10
Enter Program 77:
P77
Press iim .
11 Press [ 0 1 P77 1 14 N
then:mm P77 1 14 N Y
P77
12
To Exit this Program:
Press In(9 .
IMPORTANT NOTE:
If al/programs are initialized, the “IMDU enabled” has a/so been turned off in
Program W-1, LED 14.
If using the IMDU for remote programming, go into Program 77-1 and turn key/LED 14 on as shown
in steps 9, IO, and 11. If this is not completed, remote programming must be reactivated
locally
from
the programming electronic telephone.
-ll-

REMOTEADMIN & MAINTPROCEDURES
SECTION 200-096-600
FEBRUARY1991
TABLERM-D
PROGRAM92
STATION SPEED DIAL, SPEED DIAL MEMO,VMID CODES
INITIALIZATION .
iTEP ACTION DISPLAY/PRINTOUT
1 Enter Program Mode
>MODE PROG
At the >MODE prompt, enter i m m B
q
.
2 Enter Program Number 92
P 92
Press
q
. P92
3 Enter 0 . P92
P92 1
4 Enter key number: 1 0. P92
P92 1 01 N
5 Change key 01 to “ON” by entering 0 . P92
P92 1 01 N Y
6 Press m two times. P92
P92 1 01 N Y
02 N
03 N
7 Change key 03 to “ON” by entering 1 P92
P92 1 01 N Y
02 N
03 N Y
8 Press
q
P92
Initialization complete. P92 1 01 N Y
NOTE: If program data is not entered correctly,
q
will
02 N
not respond. To retry, press ),111=11=1
q
03 N Y
. P92
9
Clear system speed dial using the procedure on the next page.
-12-

REMOTEADMlN&MAlNTPROCEDURES
SECTION 200-096-600
FEBRUARY1991
-
-
-
-
-
-
-
L
TABLERM-E
PROGRAM 92(continued)
SYSTEM SPEED DIAL, SPEED DIAL MEMO INITIALIZATION
;TEP ACTION DISPLAY/PRINTOUT
1 Enter Program Mode
>MODE PROG
At the >MODE prompt, enter w m 1 B
q
.
2 Enter Program Number 92
P 92
Press
q
. P92
3 Enter 1 . P92
P92 2
4 Enter key number 1 0 . P92
P92 2 01 N
5 Change 01 key to “ON” by entering 1 . P92
P92 2 01 N Y
6 Press m three times. P92
P92 2 01 N Y
02 N
03 N
04 N
7 Change key 04 to “ON” by entering 1 . P92
P92 2 01 N Y
02 N
03 N
04 N Y
8 Press
q
. P92
initialization complete. P92 2 01 N Y
NOTE: If program data is not entered correctly,
q
will 02 N
not respond. To retry, press m
q
03 N
04 N Y
P92
9
Clear LCD message memory, using the procedure on the
next page.
-13-

REMOTE ADMIN & MAINT PROCEDURES
SECTION 200-096-600
FEBRUARY 1991
TABLE RM-F
PROGRAM 92 (continued)
LCD CHARACTER MESSAGE MEMORY INITIALIZATION
iTEP ACTION DISPLAY/PRINTOUT
1 Enter Program Mode >MODE PROG
At the >MODE prompt, enter 4 B w H
q
.
2 Enter Program Number 92 P 92
Press [9 P92
3 Enter m . P92
P92 3
4 Enter key number 1 1. P92
P92 3 02 N
5 Change 02 key to “ON” by entering 1 P92
P92 3 02 N Y
6 Press m . P92
P92 3 02 N Y
03 N
7 Change key 03 to “ON” by entering 1 P92
P92 3 02 N Y
03 N Y
8 Press [9 . P92
Initialization complete. P92 3 02 N Y
NOTE: If program data is not entered correctly,
q
will 03 N Y
not respond. To retry, press m
q
P92
.
9 Clear the timed reminders using the procedure on the next page.
. -_j
:
-14-

REMOTE AOMIN 81 MAINT PROCEDURES
SECTION 200-096-600
FEBRUARY 1991
TABLE RM-G
PROGRAM 92 (continued)
TIMED REMINDERS INITIALIZATION
;TEP ACTION DISPLAY/PRINTOUT
1 Enter Program Mode
>MODE PROG
At the >MODE prompt, enter i B m 1
q
.
2 Enter Pro ram Number 92
d
P 92
Press - P92
3 Enter1 . P92
P92 4
4 Enter key number 11 P92
P92 4 02 N
5 Change key 02 to “ON” by
entering [ . P92
P92 4 02 N Y
6 Press m two times. P92
P92 4 02 N Y
03 N
04 N
7 Change key 04 to “ON” by P92
entering [ . P92 4 02 N Y
03 N
04 N Y
8 Press
q
P92
Initialization complete. P92 4 02 N Y
NOTE: If program data is not entered correctly,
q
will 03 N
not respond. To retry, press m
q
04 N Y
. P92
9 To exit this program, press 11
q
.
-15-

REMOTEADMlN&MAlNTPROCEDURES
SECTION 200-096-600
FEBRUARY1991
STEP/
TABLERM-Gl
PROGRAM 92(continued)
DlGlTALTELEPHONEVOLUMELEVELlNlTlALlZATlON .
ACTION DISPLAY/PRINTOUT
1
Enter Program Mode
>MODE PROG
At the >MODE prompt, enter w B 1 H
q
. P
2 Enter Program Number 92
P 92
Press
q
. P92
3 Enter 1 . P92 5
4 Enter
q
; change key 01 to “ON” by entering a. P92 5 01 N Y
5 Press m four times. P92 5 01 N Y
02 N
03 N
04 N
05 N
6 Change key 05 to “ON” by entering 1. P92 5 01 N Y
02 N
03 N
NOTE: If program data is not entered correctly, [9 will not 04 N
respond. To retry, press ),11131=1
q
. 05 N Y
7 Press
q
. P92 5 01 N Y
Initialization complete. 02 N
03 N
04 N
05 N
P92
8 To exit this program, press m B (9.
,
-16-

REMOTE ADMIN & MAINT PROCEDURES
SECTION 200-096-600
FEBRUARY 1991
TABLE RM-GP
PROGRAM 92 (continued)
CALL FORWARD BACKUP RAM INITIALIZATION
STEP ACTION DISPLAY/PRINTOUT
1
Enter Program Mode
>MODE PROG
At the S-MODE prompt, enter 1 1 m @
q
2 P
92
P92
I I
3 Enter1 . P92
P92 9
4 Enter key number 11 . P92
P92 9 03 N
5 Change key 03 to “ON” by P92
entering B . P92 9 03 N Y
1 I
6 Press m . P92
P92 9 03 N Y
04 N
7
I I
Change key 04 to “ON” by P92
entering 1 . P92 9 03 N Y
04 N Y
8 Press
q
P92
Initialization complete. P92 9 03 N Y
I I
NOTE: If program data is not entered correctly,
q
will
not respond. To retry, press m
q
.
04 N Y
P92
9 To exit this program, press [[m .
IMPORTANT NOTE:
This program clears call forward memory for all stations, but does not reset the call forward
indication on the station (call forward LCD information and/or call forward button/LED), To
clear station call forward indications, system power must be turned OFF for five seconds, then
ON. Fixed call forward is not cleared by this program.
-16A-

REMOTEAOMIN & MAINTPROCEDURES
SECTION 200-096-600
FEBRUARY1991
TABLERM-H
TYPEIPROGRAMPROCEDUREEXAMPLE
(PROGRAMS: IO-I, 10-2, 1 O-3, 15-0, 15-1, 16,42-O, 77-1,77-2) .
STEP/ ACTION DISPLAY/PRINTOUT
1
Enter Program Mode
>MODE PROG 0
At the >MODE prompt, enter B 1 m @
q
. P
2 Enter Program Number
P 10
Refer to the record sheet and enter the desired
Example:
Program IO-I,
enter 0 1, press d
rogram number. PlO
- .
Enter Program Code or Digit(s) Per Record Sheet
3 El
or other digit required. PlO 1
NOTE: Most programs do not require a second digit.
4 Enter Key/LED Number
PlO 1 01 g (see
note)
Enter the desired key/LED number. I
Example: Key/LED 01, enter 1 n .
5 To Change Key/LED Status
Pl0 1 01 N Y
Refer to the System Record Sheet and change the key/LED
status, if required (Y or N).
Example: Enter 1
6 To Advance to Next Key/LED
PlO 1 01 Y
Press m Repeat step 5 if necessary. 02 N
7 To Review Key/LED Status Change
Enter
q
. PlO 1
01 Y- Key LED “ON”
-
Re-enter steps 3 and 4.
Key LED Number
Program Code
NOTE: This step is optional and not required to save data. LL
Program Number
8 To Exit Program/Store Data
PlO
A) To store data, press
q
B) To exit this program, press 1 1, then press
q
. PlO ##
P
C) Continue returning to step 2 until all Type 1 programs
are completed.
9
To Exit the Program Mode
> MODE
Pressu[m .
IO
To Enter Another Mode
Press
mmmim (datadump)
OlMiW (test)
m 0 H H q
(LCD messages)
moii[9 (speed dial)
NOTE:
Y = key/LED “ON’: N = key/LED “OFF”
D
T
(no prompt)
R
-16B-

REMOTE ADMIN & MAINT PROCEDURES
SECTION 200-096-600
FEBRUARY 1991
TABLE RM-I
TYPE 2 PROGRAM PROCEDURE EXAMPLE
.
,81 - 89)
DISPLAY/PRINTOUT
>MODE PROG
P
I
(PROGRAMS: 17,20,30,31,35,40,41,43,
i
ACTION
iTEF
1 Enter Program Mode
At the >MODE prompt, enter 4 1 m 1
q
.
Enter Program Number
Refer to the record sheet and enter the desired program number.
Example: Program 30, enter1 m, press
q
.
Enter Port Number 0 0 or Port Range 0 0 10 0
Refer to the System Record Sheet and enter the desired
port number(s). Example: 1 1.
Press i key.
2
P
30
3
P30
P30 04
4
P30 04#
5 Enter the Desired Key/LED Number
Example: Key/LED 01, enter: 1 0.
P30 04#
01
N_ (Note
iIf
6 To Change Key/LED Status
Refer to the System Record Sheet and change the key/LED
status, if required (Y or N).
Example: Enter a
P30 04# 01 N Y
7 To Advance to Next Key/LED
Press m (repeat step 6 if necessary).
8 To Review Key/LED Status Change
Press
q
Re-enter steps 3, 4, and 5.
9 To Exit Program/Store Data
A) To store data, press
q
B) To exit this program, press 1 1, then press
q
.
C) Continue returning to step 2 until all Type 2 programs
are completed.
>MODE
To Exit the Program Mode
Press aim
11 To Enter Another Mode,
Press
NImlm (datadump)
OINIm (test)
~~~~~ (LCD messages)
~~~~~ (speed dial)
D
T
(no prompt)
R
VOTE:
Y = key/LED(s) “ON”, N = key/LED(s) “OFF”; U = key/LED(s) ‘0N”some parts and ‘OFF” other parts,
-17-

REMOTEADMlN&MAlNTPROCEDURES
SECTION 200-096-600
FEBRUARY1991
TABLERM-J
PROGRAM00
SOFTWARECHECK/REMOTEMAINTENANCE-SECURITYCODE .
TEP ACTION DISPLAY/PRINTOUT
’
Enter Program Mode
>MODE PROG
At the >MODE prompt, enter NlH H[9 . P
2 Enter Program Number 00 I? 00
Press
q
. PO0
3 To Check Software Version
PO0 0 Version = Do 00
Enter Action Code
0. System will display the version of software
POO
that is in the PCTU(S).
PCTU type
Press
q
Software version
4 To Change Level 1 Security Code
PO0 1 0000
Enter Action Code
1. The system will display the present PO0
level 1, 4-digit code. Refer to the System Record Sheet
and change if required. Press (9 .
5 To Change Level 2 Security Code
PO0 2 0000
Enter Action Code
2. The system will display the present PO0
level 2, 4-digit code. Refer to the System Record Sheet
and change if required. Press
q
.
6 To Exit This Program
Press 1 1
q
.
PO0 ##
P
-18-

REMOTEADMlN&MAlNTPROCEDURES
SECTlON200-096-600
FEBRUARY1991
TABLERM-K
PROGRAM03
FLEXIBLEPCBSLOTASSIGNMENTS
;TEP ACTION DISPLAY/PRINTOUT
1
Enter the Program Mode
>MODE PROG
At the >MODE prompt, enter w 1 m 1 (9. P
2 Enter Program Number 03
P 03
Press
q
. PO3
3 Enter the Slot Number
PO3
Refer to the System Record Sheet and enter the desired PO3 00 91
slot number.
Example: Slot number 00, enter 1 1.
4 Enter the PCB Code Number
PO3
Refer to the System Record Sheet and enter the desired PO3 00 91 92
PCB code number.
Example: PCB code 92, enter 1 1 .
5
To Exit Program/Store Data
PO3
A) To store data, press
q
. PO3 00 91 92
B) Continue returning to step 3 until all
Program 03
PO3 ##
data is entered. P
C) To exit this program, press 1 1, press
q
6 Turn system power “OFF” for 5 seconds and then turn
Remote maintenance is disconnected.
power “ON” to store data in working memory (see Notes).
IMPORTANT NOTES:
1. This program must be completed with on-site assistance (after installing PCBs) because the
system must be powered down momentarily after PCB code entry.
2. Even though PCB codes display as being changed, they are not entered into working memory until
the system DC power is cycled OFF and ON.
3, If PCB codes are not entered into working memory by cycling DC power, PCB options will not
function.
4.
Only
Program
03 requires the system power to be turned OFF and ON to store data into working
memory.
-19-

REMOTEAOMlN&MAlNTPROCEOURES
SECTION 200-096-600
FEBRUARY1991
TABLERM-L
PROGRAM04
PORT/STATIONNUMBERASSlGNMENT
;TEP ACTION DISPLAY/PRINTOUT
1 Enter the Program Mode
>MODE PROG
At the >MODE prompt enter i m @ H
q
P
2 Enter Program Number 04
P 04
Press
q
. PO4
3 Enter the Port Number
PO4
Refer to the System Record Sheet and enter the desired PO4 01
port number.
Example: Port number 01, enter a 0.
4
Press 1 key. PO4
System displays present station number. Refer to the PO4 Ol# 201 206
System Record Sheet and enter the desired station number.
Example: Station number 206, enter 1 1 1.
5 To Exit Program/Store Data
PO4
A) To store data; press
q
PO4 ##
B) Continue returning to step 3 until all
Program 04
P
data is entered.
C) To exit this program, press fl 1 [9 .
NOTE:
A blank is displayed by ‘N”.
TABLERM-M
PROGRAM05
FLEXIBLEACCESSCOOENUMBERING
iTEP ACTION DISPLAY/PRINTOUT
1
Enter the Program Mode
>MODE PROG
At the >MODE prompt, enter i 0 u H
q
.
2 Enter Program Number 05
P 05
Press
q
PO5
3 Enter Access Code number that you wish to change (0 - 9)
PO5 4 4
Example: 4 (if it was not previously changed, the system
will print another 4. If it has been previously changed,
the system will print the number to which it was changed).
4 Change the number if required (one or two digits)
PO5 4 4 6
Example: Change to 6, press
q
5 Continue returning to step 3 until all required access
codeshavebeenchanged.
6
To Exit this Program
P
Press 1 1
q
.
,
NOTE:
Program 10,
use Type I procedure.
-2o-

REMOTEADMlN&MAlNTPROCEDURES
SECTION 200-096-600
FEBRUARY1991
TABLERM-N
PROGRAM12
SYSTEM ASSIGNMENTS-BASICTIMING
;TEP ACTION DISPLAY/PRINTOUT
1
Enter the Program Mode
>MODE PROG
At the >MODE prompt, enter w m B 1
q
. P
2 Enter Program Number 12
P 12
Press
q
. P12
3 Check the record sheet and enter the program code that is P12 3 1
required.
As an example, feature 3, enter 1.
The present selection will be displayed.
4 Refer to the record sheet and change if required. P12 3 1 2
As an example, change it to 2.
Enter 1 .
5
To Exit Program/Store Data
P12
A) To store data, press
q
. p12
# #
B) Continue returning to step 3 until all
Program 12
data is P
entered.
C) To exit this program, press 1 1
q
TABLERM-0
PROGRAM13
DEFININGTHEMESSAGECENTER
STEP ACTION DISPLAY/PRINTOUT
1
Enter the Program Mode
>MODE PROG
At the >MODE prompt, enter 1 1 1 H
q
. P
2 Enter Program Number 13
P 13
Press
q
. P13
3 Enter the number a . The present port number will be displayed. P13
P13 1 NN
4 Refer to the record sheet and enter the required port number. P13 1 NN 00
Example: Port 00, enter 1 1
q
. P13
5
To Exit this Program
P13 ##
Press B 1
q
. P
NOTES:
1. A blank is displayed by ‘N”.
2. Programs 15, 16, use Type 1 procedure.
Program 77, use Type 2 procedure.
-21-

REMOTEAOMlN&MAlNTPROCEDURES
SECTION 200-096-600
FEBRUARY1991
TABLERM-01
PROGRAM21
MODEMPOOLING
;TEP ACTION DISPLAY/PRINTOUT
Enter Program Mode
At the >MODE prompt, enter 1 a 11
q
, >MODE PROG
P
Enter Program Number 21
P 21
Press
q
. P21
3 Refer to the System Record Sheet, and enter the required pot-t
number for the PDIU-DS.
Example: port 04; Enter: m 1.
P21 04
4 Press 1.
The system will display the presently selected PSTU port number. P21 04 # NN
5 Refer to the System Record Sheet, and enter the required PSTU
port number.
Example: port 06; Enter: 11.
P21 04 # NN 06
6
To Exit Program/Store Data
A) To store data, press
q
.
6) Continue returning to step 3 until all
Program 21
data
is entered.
P21 04 # m 06
p21 # #
P
C) To exit this program, press u 1
q
.
TABLERM-02
PROGRAM22
DATASTATlONHUNTlNG(DATACALLONLY)
iTEF
1
2
ACTION DISPLAY/PRINTOUT
Enter the Program Mode
At the >MODE prompt, enter i m m B
q
. >MODE PROG
P
Enter Pro ram Number 22
d
Press - . P 22
P22
3 Refer to the record sheet and enter the required
port number.
Example: Port 03, enter 1 1.
P22 03
4 Enter 1 . The present data will be displayed. P22 03# NN
Refer to the record sheet and enter the port number
that will be the hunt point.
Example: Port 00, enter 1 1
P22 03# NN 00
To Exit Program/Store Data
A) To store data, press
q
.
B) Continue returning to step 3 until all
Program 22
data is entered.
C) To exit this program, press 1 0
q
.
P22 03# NN 00
p22 ##
P
-22-

iTEF
1
2
3
4
REMOTEADMlN&MAlNTPROCEDURES
SECTION 200-096-600
FEBRUARY1991
TABLERM-P
PROGRAM28
DSSCONSOLE/ATTENDANTELECTRONlCTELEPHONEASSlGNMENTS .
ACTION
Enter Program Mode
At the >MODE prompt, enter i 1 1 B
q
.
Enter Program Number 28
Press
q
Refer to the System Record Sheet and enter the required DSS
console number (1 - 4).
The system will display the electronic telephone to which the
DSS console is assigned.
Example: DSS console number 1 is assigned to electronic
telephone number 1.
Refer to the System Record Sheet and change if required.
Example: Assign DSS console 1 to electronic telephone 2.
Enter: B .
To Exit Program/Store Data
A) To store data, press
q
B) Continue returning to step 3 until all data has
been entered for this program.
C) To exit this program, press 1 1
q
.
DISPLAY/PRINTOUT
>MODE PROG
P
P 28
P28
P28 1 1 2
P28 1 1 2
P28 # #
P
NOTES:
This program also applies to digital DSS consoles and digital telephones.
-22A-

REMOTEADMIN & MAINTPROCEDURES
SECTION 200-096-600
FEBRUARY1991
This page intentionally left blank.
I
-22B-

REMOTEADMlN&MAlNTPROCEDURES
SECTION 200-096-600
FEBRUARY1991
TABLERM-Q
PROGRAM29
DSSCONSOLEBUTTONASSIGNMENTS
iTEP ACTION DISPLAY/PRINTOUT
1 Enter Program Mode
>MODE PROG
At the >MODE prompt, enter 1 m 1 @
q
P
2 Enter Program Number
P 29
PressIim P 29
3 Enter Console Number and Keystrip Group Number
Press 0 0
p4lo
T - Ke:::y:;::::;;,-::j
4 Enter the 2-digit Key Number to be Programmed (01 - 20): 00
(current feature code displays 0 0 0 after key entry).
p2g 0 0 0 0 17 0 0
Key%
5
Enter New (2- or 3-digit) Feature Code
Press0 0 or 0 0 0
p2gQ cl o,o 0 II 0 cl 0 17
~ - I I
T - 3;!dg:;;ze ‘i
Key No. Old New
Console code code
Key group
6
Press m to go to next key. P29
or
Press
q
to store data.
7
Continue with step 3 until all
Program
29 data is entered.
a
To Exit this Program
Press i[m .
NOTE:
Program 30,31; use Type 2 procedure.
-23-

REMOTEADMIN &MAlNTPROCEDURES
SECTION 200-096-600
FEBRUARY1991
TABLERM-R
PROGRAM32
AUTOMATICPREFERENCE
;TEP ACTION DISPLAY/PRINTOUT
1
Enter the Program Mode
>MODE PROG
At the >MODE prompt, enter i m 4 B
q
. P
2 Enter the Program Number 32
P 32
Press
q
. P32
3 Refer to the record sheet and enter the required port number. P32 01
Example: Port 01, enter 1 0
4 Enter $. The present status for this port will be displayed. P32 01# 100
5 Refer to the record sheet and enter the required P32 01 # 100 0
ringing code. Example: Code 0, enter 1 .
6 Refer to the record sheet and enter the required
automatic off-hook code. Example: Code 11, enter 0 0
P32 01# 100 011
7 To Exit Program/Store Data P32 01# 100 011
A) To store data, press
q
. P32
##
B) Continue returning to step 3 until all
Program
32 data P
is entered.
C) To exit this program, press 9 f
q
.
TABLERM-S
PROGRAM33
STATION HUNTING
iTEP ACTION DISPLAY/PRINTOUT
1
Enter the Program Mode
>MODE PROG
At the >MODE prompt, enter i a m H
q
. P
2 Enter Pro ram Number 33
d
P 33
Press - . P33
3 Refer to the record sheet and enter the required P33 03
port number.
Example: Port 03, enter 1 1.
4 Enter 1 The present data will be displayed. P33 03# NN
5 Refer to the record sheet and enter the port number P33 O3# NN 00
that will be the hunt point.
Example: Port 00, enter 1 1
6
To Exit Program/Store Data
P33 03# NN 00
A) To store data, press (9 .
P33 ##
B) Continue returning to step 3 until all
Program 33
P
data is entered.
C) To exit this program, press 1 1
q
.
-24-

REMOTEADMlN&MAlNTPROCEDURES
SECTION 200-096-600
FEBRUARY1991
TABLERM-T
PROGRAM34
HOLDRECALLTIMING .
STEP ACTION DISPLAY/PRINTOUT
1 Enter the Program Mode
>MODE PROG
At the >MODE prompt, enter 1 B n H
q
. P
2 Enter Program Number 34
P 34
Press
q
. P34
3
Refer to the record sheet and enter the required P34 05
port number.
Example: Port 05, enter 1 i .
4
Press1 The present data will be displayed. P34 05# 032
5 Refer to the record sheet and enter the required timing. P34 05# 032 160
Example: 160 seconds, enter 0 1 a.
6 To Exit Program/Store Data
P34 05# 032 160
A) To store data, press
q
P34 ##
B) Continue returning to step 3 until all
Program 34
P
data has been entered.
C) To exit this program, press i m
q
.
iVOTE:
k~gtatn 35, use Type 2 procedure.
TABLERM-U
PROGRAM36
FIXEDCALLFORWARD
STEP ACTION I DISPLAY/PRINTOUT
1
Enter the Program Mode
>MODE PROG
At the >MODE prompt, enter 1 B a 1
q
P
2 Enter Pro ram Number 36
P 36
Press
d
- . P36
3 Refer to the System Record Sheet and enter the P36 00
port number for the station that will have a Fixed
I Call Forward key. Example: Port 00, enter 1 1 . I
4 1 Press 1 . The present data will be displayed. P36 00# NN
5 Refer to the System Record Sheet and enter P36 00# ma 04
the port to be forwarded to when the Fixed
Call Forward key is pressed. Example: Port 04, enter 1 a
6
To Exit Program/Store Data
P36 00# NN 04
A) To store data, press
q
P36 ##
B) Continue returning to step 3 until all
Program 36
P
data is entered.
C) To exit this program, press E 1 [9. .
-25-

REMOTEADMlN&MAlNTPROCEDURES
SECTlON200-0'96-600
FEBRUARY1991
TABLERM-V
PROGRAM37
RlNGTRANSFER(CAMP-0N)RECALLTlME
iTEP ACTION DISPLAY/PRINTOUT
1
Enter the Program Mode
>MODE PROG
At the >MODE prompt, enter a a w a
q
. P
2 Enter the Program Number 37
P 37
Pressm . P37
3 Refer to the System Record Sheet and enter the P31 01
required port number. Example: Port 01, enter 1 0
4 Press B System will display the present ring transfer P37 01# 064
recall time.
5 Refer to the System Record Sheet and enter P37 01# 064 070
the required ring transfer timeout.
Example: 70 seconds. Enter 1 0 m.
6
To Exit Program/Store Data
P37 01# 064 070
A) To store data, press [9 P37 ##
B) Continue returning to step 3 until all
Program 37
P
data is entered.
C) To exit this program, press 1 1
q
‘.
-26-

REMOTEADMIN &MAlNTPROCEDURES
SECTlON200-096-600
FEBRUARY1991
TABLERM-W
PROGRAM38
ELECTRONICTELEPHONEBUTTONSTRIPTYPE
ITEP ACTION DISPLAY/PRINTOUT
1
Enter the Program Mode
>MODE PROG
At the >MODE prompt, enter 1 m 1 1
q
P
2 Enter the Program Number 38
P 38
Press
q
. P38
3
Refer to the System Record Sheet and enter the P38 00
required port number. Example: Port 00, enter 1 a
4
Press1 . The system will display the present electronic P38 00# 31
telephone code.
5 Refer to the System Record Sheet and enter P38 00# 31 21
the required electronic tele hone code number.
Example: Code 21, enter io .
6 To Exit Program/Store Data
P38 00# 31 21
A) To store data, press
q
P38 ##
B) Continue returning to step 3 until all
Program 38
P
data is entered.
C) To exit this program, press a 1
q
.
-27-

REMOTE ADMIN & MAINT PROCEDURES
SECTION 200-096-600
FEBRUARY 1991
TABLE RM-X
PROGRAM 39
FLEXIBLE BUTTON ASSIGNMENT
;TEP ACTION DISPLAY/PRINTOUT
1
Enter the Program Mode
>MODE PROG
At the >MODE prompt, enter i 0 H H
q
. P
2 Enter the Program Number 39
P 39
Press
q
. P39
3 Refer to the System Record Sheet and enter P39 00
the required port number.
Example: Port 00, enter 1 1.
4 Press B P39 00 #
5 Refer to the System Record Sheet and enter P39 OO# 01 00
the key number.
Example: Key 01, enter 1 0
The system will display the feature code presently
assigned to this key.
6 Refer to the System Record Sheet and enter the required P39 OO# 01 00 01
feature code (2 or 3 digits .
Example: Code 01, enter @ 0.
b
7 To select next key number, press m . P39 OO# 01 00 01
Continue returning to step 6 until all port 02 02
00 features are programmed.
8 Press
q
to store data. P39
9
A) Continue returning to step 3 until all
Program 39
P39 OO# 01 00 01
data has been entered. 02 02
B) To exit this program and store data, press 1 1
q
. p39 # #
P
NOTES:
1. Programs 40,4
1; use Type 2 procedure.
2. Program
42-O; use Type I procedure.
>.
-28-

REMOTEADMlN&MAlNTPROCEDURES
SECTION 200-096-600
FEBRUARY1991
TABLERM-Y
PROGRAM42-1-8
PBXACCESSCODE
TEP ACTION DISPLAY/PRINTOUT
1 Enter Program Mode
>MODE PROG
At the >MODE prompt, enter i 0 m a
q
. P
2 Enter Program Number 42
Press W . P 42
P42
3 Refer to the System Record Sheet and enter the required P42 1 NN
PBX group number (1 - 8).
System will display present PBX access code.
4 Refer to the System Record Sheet and enter the required P42 1 NN 9N
access code.
N = Space
# = Don’t care
Example: 9, enter B 1 .
5
To Exit Program/Store Data
P42 1 NN 9N
A) To store data press
q
. P42 ##
B) Return to step 3 to continue in this
C) To exit this program, press 1 1 $
rogram. P
- .
NOTES:
1. Programs
45 - 48, Toll Restriction Procedures, begin after
Program 93.
2. Programs
50 N 56, LCR Procedures, begin after
Program 48.
-29-

REMOTE ADMIN & MAINT PROCEDURES
SECTION 200-096-600
FEBRUARY 1991
TABLE RM-2
PROGRAM 60
SMDR OUTPUT/ACCOUNT CODE DIGIT LENGTH
iTEP ACTION DISPLAY/PRINTOUT
1 Enter Program Mode
>MODE PROG
At the >MODE prompt, enter u a m m
q
P
2 Enter Program Number 60
P 60
Press
q
P60
3
Allow SMDR printout on incoming and outgoing calls. P60 3 1
Enter: Action code 3.
P60
System will print out “1” if incoming and outgoing calls will be
printed on SMDR. A “0” will be printed out if only outgoing calls
will be printed.
Refer to the System Record Sheet and change (to 1 or 0), if
required, and press
q
.
4A
Set Account Code Digit Length
P60 4 06
Enter: Action code 4.
The system will display the number of digits allowed in the
account code. The default is 06.
Refer to the System Record Sheet and enter the required number
of digits (04 - 15).
4B
SMDR Toll Calls Only
P60 5 0
Enter: Action code 5.
The system will display the presently selected feature (0 - 5).
The default is 0. Refer to the System Record Sheet and enter the
required feature code.
4C Enter DISA ID Code
P60 6 -
Enter: Action code 6.
System will display last entered ID code number. Default = Blank.
5 To Exit Program/Store Data
P60 6 NNNN
A) To store data, press
q
.
B) To exit this program, press1 1
q
.
P60 ##
P
NOTE:
Programs 77-I & 77-2, use Type I procedure.
. .
-3o-

REMOTEADMlN&MAlNTPROCEDURES
SECTION 200-096-600
FEBRUARY1991
TABLERM-Zl
PROGRAM69
VERIFIABLEACCOUNTCODEENTRY I
iTEP ACTION DISPLAY/PRINTOUT
1
Enter Program Mode
>MODE PROG
At the >MODE prompt, enter i a m H
q
. P
2 Enter Program Number 69
P 69
Press
q
. P69
3 Refer to the System Record Sheet, and enter the required code P69 001 Nknnm-N
number (000 - 299).
Example: code number 001; Enter: B 10.
The system will display the present account code number
assigned to 001.
Note:
The number of
digits
will be as defined in Program 60-4.
4 Refer to the System Record Sheets, and enter the required P69 001 NIWNNN 987654
account code number.
Example: number 987654; Enter: B 10 im 1.
5
To Exit Program/Store Data
P69 001 NNNNNN 987654
A) To store data, press (9. P69 ##
B) Continue returning to step 3 until all
Program
69 data P
is entered.
C) To exit this program, press 1 B
q
.
,
-3OA-

REMOTEADMlN&MAlNTPROCEDURES
SECTION 200-096-600
FEBRUARY1991
TABLERM-ZP
PROGRAM70
VERlFYACCOUNTCODE/TOLLRESTRlCTlONASSlGNMENT
STEP ACTION DISPLAY/PRINTOUT
1
Enter Program Mode
>MODE PROG
At the >MODE prompt, enter i 1 H 1
q
. P
2 Enter Program Number 70
P 70
Press a. P70
3 Refer to the System Record Sheet, and enter the required code P70 002 00
number (000 - 299).
Example: code number 002; Enter: 111.
The system will display the present digit Restrict (Y) and Toll
Restriction Status (Z) for entered code number.
4 Refer to the System Record Sheet, and enter the required P70 002 00 13
digit Restrict and Toll Restriction data.
Example: digit Restrict (1) and Toll Restriction (3);
Enter: 11.
5
To Exit Program/Store Data
P70 002 00 13
A) To store data, press
q
. P70 ##
B) Continue returning to step 3 until all
Program 70
data P
is entered.
C) To exit this program, press 11
q
.
-3OB-

REMOTEAOMIN &MAlNTPROCEDURES
SECTlON200-096-600
FEBRUARY1991
TABLERM-AA
PROGRAM78
CO LINESPECIAL RINGING ASSIGNMENTS-DISA/IMDU/NIGHTRlNGlNG OVER EXTERNAL-PAGE
;TEP ACTION DISPLAY/PRINTOUT
1 Enter Program Mode
>MODE PROG
At the >MODE prompt, enter i 0 m H
q
. P
2 Enter Program Number 78
P 78
Press
q
. P78
3 Refer to the System Record Sheet and enter the feature number P78 1
for the feature to be programmed.
Example: Feature code 1, enter 0 .
4 Refer to the System Record Sheet and enter the code number P78 13
for the area of the feature being programmed.
Example: Code 3, enter 1
5 Refer to the System Record Sheet and enter the CO line keys that ~78 13 01 N
will be associated with this feature. 02 N Y
Example: CO key 01, enter 1 1.
The system will designate whether the CO key/LED is on/off.
Refer to the System Record Sheet and change if required.
Press= to display next CO key/LED.
6
To Exit Program/Store Data
P78 13 01 N
A) To store data, press [9 . 02 N Y
B) Continue returning to step 3 until all data has been entered P78 ##
for this program. P
C) To exit this program, press 1 1
q
NOTE:
Program 79 uses Type 2 procedure.
-31-

REMOTEADMIN &MAlNTPROCEDURES
SECTION 200-096-600
FEBRUARY1991
TABLERM-AB
PROGRAM80
ELECTRONICTELEPHONERINGINGTONES .
;TEP ACTION DISPLAY/PRINTOUT
1 Enter Program Mode.
>MODE PROG
At the >MODE prompt enter B 0 a B
q
. P
2 Enter Program Number 80
P 80
Press
q
P80
3 Refer to the System Record Sheet and enter the required P80 01
port number.
Example: Port 01, enter ip .
4 Press E key. P80 01# 1
The system will display 1 or 2 corresponding to tone 1 or tone 2.
5 Refer to the System Record Sheet and change if required. P80 01# 1 2
Example: Tone 2, enter 1 .
6
To Exit Program/Store Data
P80 Ol# 1 2
A) To store data, press
q
P80 ##
B) Continue returning to step 3 until all data has been entered
P
for this program.
C) To exit this program, press 1 a
q
.
NOTE:
Programs 81 - 89 use Type 2 procedure.
-32-

iTEF
1
2
3 Enter Action Code 1
4
5
REMOTEADMlN&MAlNTPROCEDURES
SECTION 200-096-600
FEBRUARY1991
TABLERM-AC
PROGRAM93
CO LINE IDENTIFICATION
ACTION
Enter Program Mode
At the >MODE prompt, enter u m H H
q
.
Enter Program Number 93
Press
q
.
Refer to the System Record Sheet and enter the appropriate
CO line number.
Example: CO line 2, enter i 1 .
The system will display previously entered identification
characters (up to 16 characters).
Refer to the System Record Sheet and change identification
if required: 00.. . . . . . . . .[70 (16 characters maximum).
Example: OVERSEAS.
To Exit Program/Store Data
A) To store data, press
q
.
B) Continue returning to step 3 until all data has been entered
for this program.
C) To exit this program, press 1 1
q
DISPLAY/PRINTOUT
>MODE PROG
P
I? 93
P93
p93 I 02
r-m fupfo 76)
L Current I.D.
P93 1 02 non (upto 16)
OVERSEAS
P93 1 02 nnn lupto 76)
OVERSEAS
pg3 ##
P
NOTE:
Use m to clear characters.
TABLERM-AD
PROGRAM45-1
TOLL RESTRICTION DIAL PLAN
STEP1 ACTION I DISPLAY/PRINTOUT
1
Enter the Program Mode
>MODE PROG
At the >MODE prompt, enter w 0 1 H
q
. P
2 Enter Program Number 45
P 45
Press
q
. P45
3
P45 1 1
Enter the number 1.
The system will display the present dial plan code number (1 - 5).
4 Refer to the record sheet and enter the required code number. P45 1 1 2
Example: Code 2, enter 1 .
5 To Exit Program/Store Data
A) To store data, press
q
.
8) To exit this program, press 1 1
q
.
P45 1 1 2
P45 # #
P
-33-

REMOTEADMIN &MAlNTPROCEDURES
SECTION 200-096-600
FEBRUARY1991
TABLERM-AD1
PROGRAM44(AORB)
TOLLRESTRlCTlONTRAVELlNGCLASSOVERRlDECODEENTRY .
STEP ACTION DISPLAY/PRINTOUT
1 Enter Program Mode
>MODE PROG
At the >MODE prompt, enter a 0 B a
q
. P
2 Enter Program Number
44 (Do not enter A or B) P 44
Press
q
. P44
3
Refer to the System Record Sheet and enter the required Toll P44 1 NNNN
Restriction Class number (1 - 4).
Example: Class 1; Enter: [.
The system will display the present override code assigned to
that class number.
4
Refer to the System Record Sheet and enter the required override ~44 1 NNNN 3456
code number.
Example: 3456; Enter 1 n i i.
5 To Exit Program/Store Data
P44 1 NNNN 3456
A) To store data, press
q
. p44 ##
B) Continue returning to step 3 until all
Program
44 data P
is entered.
C) To exit this program, press 11
q
.
-34-

REMOTEAOMlN&MAlNTPROCEOURES
SECTION 200-096-600
FEBRUARY1991
TABLERM-AE
PROGRAM45-2
TOLL RESTRICTION DISABLE
iTEP ACTION DISPLAY/PRINTOUT
1 Enter the Program Mode
>MODE PROG
At the >MODE prompt, enter i 1 H H
q
. P
2 Enter Program Number 45
P 45
Press
q
. P45
3 Enter the number B. P45 2
4 Refer to the record sheet and enter the required CO line number. P45 2 01 N
Example: CO line 01, enter1 0. The system will display
N or Y to define if the LED is on or off.
5 Refer to the System Record Sheet and change the CO line P45 2 01 N Y
status as required (Y or N). 02 N
Press m to step to next CO line number.
6 To Exit Program/Store Data
P45 2 01 N Y
A) To store data, press
q
. 02 N
B) To exit this program, press1 1
q
p45 ##
P
TABLERM-AF
PROGRAM45-3-6
EQUALACCESS,SPEClALCOMMONCARRlERNUMBERSandAUTHORlZATlONCODEDlGlTLENGTH
iTEP ACTION DISPLAY/PRINTOUT
1
Enter Program Mode
>MODE PROG
At the >MODE prompt, enter 1 0 H H
q
. P
2 Enter Program Number 45
P 45
Press
q
. P45
3 Refer to the record sheet and enter the item number (3 - 6). P45 3 NNNNN
Example: Item 3, enter 1 . The system will display
the present equal access number or EAl Code.
4 Refer to the System Record Sheet and enter the required number. ~45 3 NNNNN 12345
Example: 12345, enter 0 1 1 8 1
q
. P45
5 Enter code number 4. The system will display present authorization ~45 4 oo 12
code digit length. Refer to the System Record Sheet and enter P45
the required authorization code number digit length.
Example: 12, enter: 0 1
q
6 To exit this program, press B B
q
. p45 ##
P
NOTE:
Items 5 and 6 are entered the same way as 3 and 4, respectively.
-34A-

REMOTEADMlN&MAlNTPROCEDURES
SECTION 200-096-600
FEBRUARY1991
This page intentionally left blank.
-34B-

REMOTEADMIN &MAlNTPROCEDURES
SECTION 200-096-600
FEBRUARY1991
TABLERM-AG
PROGRAM45-8-9
TOLLRESTRICTIONOVERRIDECODE
STEP ACTION DISPLAY/PRINTOUT
1
Enter the Program Mode
>MODE PROG
At the >MODE prompt, enter i 1 w @
q
. P
2 Enter the Program Number 45
P 45
Press
q
. P45
3 Refer to the System Record Sheet and enter 1 or 1 for the P45 8 NNN'N
desired code number. The system will display the present
override code number.
4
Refer to the record sheet and enter a new number if required. P45 8 NNNN 1234
Example: 1234. Enter: 0 # Ff 1 .
5 To Exit Program/Store Data
P45 8 NNNN 1234
A) To store data, press (9 .
p45 ##
B) To exit this program, press B m
q
P
TABLERM-AH
PROGRAM46-2-4
TOLLRESTRlCTlONALLOWED/DENIEDAREACODESASSlGNEDBYCLASS
TEP ACTION
DISPLAY/PRINTOUT
1
Enter Program Mode
>MODE PROG
At the >MODE prompt, enter i m H H
q
P
2 Enter Program Number 46
P 46
Press
q
. P46
3 Enter class number (1 m 4). P46 0
L
Class Number
4 Enter g,I,orIm P46 00
l
1 -to add codes to memory (allow). c
2,3or4
l
1 -to delete codes from memory (deny).
l
1 m -to display codes in memory (allowed codes). ALLOW? or DENY?
5 Refer to the System Record Sheet and enter the area code or P46 X Y
area code group. Single 000. Group 1700 * nfln ALLOW 1700-000
Press m to enter more codes. or DENY
6 Press m to temporarily store data. Press
q
when P46
completed.
7 Continue returning to step 3 until all data input is completed for
this program.
8
To Exit this Program
Press 1 1 (9.
P46 # #,
P
-35-

REMOTEADMlN&MAlNTPROCEDURES
SECTION 200-096-600
FEBRUARY1991
TABLE RM-AI
PROGRAM46-6-8
TOLLRESTRlCTlONALLOWED/DENIED OFFICECODESASSIGNED BYCLASS .
iTEP ACTION DISPLAY/PRINTOUT
1
Enter Program Mode
>MODE PROG
At the >MODE prompt, enter a B H n
q
P
2 Enter Program Number 46
P 46
Press
q
. P46
3 Enter class number (1 m 4). P46 0
L
Class Number
4 Enter i,I,orim P46 [7[7
. 1 -to add codes to memory (allowed).
1 6,7,or8
l
0 -to delete codes from memory (deny).
l
1 m - to display codes in memory (allowed codes).
5 Refer to the System Record Sheet and enter the office code or P46 x Y
office code group. Single 00[7. Group [7fln * 000 . ALLOW uun -000
Press m to enter more codes. or DENY
6 Press m to temporarily store data. Press
q
when P46
completed.
7 Continue returning to step 3 until all data input is completed for
this program.
8
To Exit this Program
P46 # #
Press 1 a
q
. P
. .
>,
.
-36-

REMOTEADMlN&MAlNTPROCEDURES
SECTION 200-096-600
FEBRUARY1991
TABLERM-AJ
PROGRAM46-10-40
TOLLRESTRICTION CLASSPARAMETERS
TEP ACTION DISPLAY/PRINTOUT
1 Enter Program Mode
>MODE PROG
At the >MODE prompt, enter @ 1 m H
q
. P
2 Enter Program Number 46
P 46
Press
q
P46
3
Refer to the System Record Sheet and enter the toll restriction
class number (1 - 4). Then enter the number 1. P46 10
Example: Class 1, enter 0 1.
4
Refer to the System Record Sheet and enter the required P46 10 11 TABLE 1 N
key/LED number.
Example: Key number 11, enter 0 0 . The system will display
the status of the key/LED.
5 Refer to the System Record Sheet and change if required (Y or N). ~46 10 ii TABLE 1 N Y
To access next key number, press m . 12 TABLE 2 N
6 To Exit Program/Store Data
P46 10 11 TABLE 1 N Y
A) To store data, press
q
. 12 TABLE 2 N
B) To exit this program, press1 1 (9.
P46 ##
P
-37-

REMOTEADMlN&MAlNTPROCEDURES
SECTION 200-096-600
FEBRUARY1991
TABLERM-AK
PROGRAM47
TOLLRESTRICTIONEXCEPTION OFFICECODESASSIGNEDBYAREACODE .
iTEP ACTION DISPLAY/PRINTOUT
1 Enter Program Mode
>MODE PROG
At the >MODE prompt, enter 1 0 m 1
q
P
2 Enter Program Number 47
P 47
Pressm . P47
3 Enter exception table (1 - 8) and press 0 . P47 Y 1 AREA CODE NNN
4 Refer to the System Record Sheet and enter the required area P47 Y 1 AREA CODE NNN 714
code and press
q
. P47
Example: AC 714, enter 610 1
q
.
5a
To Add Exception Office Codes to Table
l
Enter exception table (1 - 8) and press B P47 01
l
Enter exception codes 000 or 000 1 ~~~ . Except
l
Press m to add more codes.
l
Press m (9 to store codes. Except 000
5b
To Delete Exception Office Codes from Table
l
Enter exception table (1 - 8) and press 1 P47 01
l
Enter exception codes ~~~ or ~~~ 1 000 . Delete
l
Press m to delete more codes.
l
Press m
q
to store codes. Delete 000
5c To Display Exception Office Codes in Table
l
Enter exception table (1 - 8) and press 1 m . P47 ng
l
Press m to display more codes. Except no0
l
Press
q
to exit display.
6 To Exit Program/Store Data: 1 1
q
P47 Y 2
Exceptn[70
P47 # #
P
-38-

REMOTEAOMlN&MAlNTPROCEDURES
SECTlON200-096-600
FEBRUARY1991
s
TABLERM-AL
PROGRAM48
STATION TOLL RESTRICTION CLASSIFICATION
iTEP ACTION DISPLAY/PRINTOUT
1 Enter the Program Mode
>MODE PROG
At the >MODE prompt, enter 1 a m 1
q
. P
2 Enter Program Number 48
P 48
Pressm . P48
3 Refer to the System Record Sheet and enter the required port P48 0 0
number.
Example: Port 00, enter 1 1
4
Press 1 key. The system will display the present data as a P48 0 0 # 13
2-digit code: The first digit designates digit free or digit restrict.
The second digit is the station restriction code. Refer to the
System Record Sheet and change if required.
5 To Exit Program/Store Data
A) To store data, press
q
P48 0 0 # 13
p48 # #
B) Continue returning to step 3 until all data is recorded for this
P
program.
C) To exit this program, press 1 1 (9.
TABLERM-AM
PROGRAM50-1
LCRPARAMETERS
STEP ACTION DISPLAY/PRINTOUT
1
Enter Program Mode
>MODE PROG
At the >MODE prompt, enter i m m 1
q
. P
2 Enter Program Number 50.
P 50
Press
q
. P50
3 Enter 0 . Refer to the System Record Sheet and enter the required ~50 1 01 N
key/LED number.
Example: Key 01, enter1 0 .
4 Refer to the System Record Sheet and change key/LED status, P50 1 01 N
if required. 02 N
Press m to move to next key/LED.
5
To Exit Program/Store Data
P50 1 01 N
A) To store data, pressm 02 N
B) To exit this program, press [ 1
q
. p50 # #
P
-39-

REMOTEADMlN&MAlNTPROCEDURES
SECTION 200-096-600
FEBRUARY1991
TABLERM-AN
PROGRAM50-2
LCRHOMEAREACODE
;TEP ACTION DISPLAY/PRINTOUT
1
Enter Program Mode
>MODE PROG
At the >MODE prompt, enter i 0 1 H [9. P
2 Enter Program Number 50
P 50
Pressm P50
3 Enter the number 1 . The system will display the last area code P50 2 NNN
programmed. Refer to the System Record Sheet and change
if required.
4 To Exit Program/Store Data
P50 2 NNN
A) To store data, press
q
. P50 # #
B) To exit this program, press 1 1
q
. P
TABLERM-A0
PROGRAM50-31-35
LCRSPECIALCODES
ACTION
1 1 Enter Proaram Mode
At the >M6DE prompt, enter i 1 m 1
q
.
2 Enter Program Number 50
Press
q
.
3 Refer to the System Record Sheet and enter 31 - 35 as required.
Example: 31, enter 1 1.
System will display previously programmed number. Refer to the
System Record Sheet and change if required.
4
To Exit Program/Store Data
A) To store data, press
q
.
B) Continue returning to step 3 until all data for this program has
been entered.
C) To exit this program, press 1 1 m .
DISPLAY/PRINTOUT
>MODE PROG
P
P 50
P50
P50 31 NNNN
P50 31 NNNN
P50 # #
P
-4o-

REMOTE ADMIN & MAINT PROCEDURES
SECTION 200-096-600
FEBRUARY 1991
TABLE RM-AP
PROGRAM 50-4
LCR LDI PLAN NUMBER
TEP ACTION DISPLAY/PRINTOUT
1
Enter Program Mode
>MODE PROG
At the >MODE prompt, enter-1 0 a 1 a. P
2 Enter Program Number 50
P 50
Press
q
. P50
3 Enter the number 8
P50 4 1
The system will display the present LDI route number.
Refer to the System Record Sheet and change if required.
4
Exit Program/Store Data
P50 4 1
A) To store data, pressm . P50 # #
B) To exit this program, press 1 1
q
P
TABLE RM-AQ
PROGRAM 50-5
LCR LOCAL CALL PLAN NUMBER
;TEP ACTION DISPLAY/PRINTOUT
1
Enter Program Mode
>MODE PROG
At the >MODE prompt, enter 1 0 0 1
q
. P
2 Enter Program Number 50
P 50
Press
q
. P50
3 Enter the number B
P50 5 1 2
The system will display the present local route plan number.
Refer to the System Record Sheet and change if required.
Example: 2, enter 1 .
4 Exit Program/Store Data
P50 5 1 2
A) To store data, press
q
P50 # #
B) To exit this program, press 1 B
q
. P
-41-

REMOTEADMIN & MAINTPROCEDURES
SECTION 200-096-600
FEBRUARY1991
TABLERM-AR
PROGRAM!iO-6
LCRDIALZEROTIMEOUT
STEP ACTION DISPLAY/PRINTOUT
1 Enter Program Mode
>MODE PROG
At the >MODE prompt, enter m @ m @
q
. P
2 Enter Program Number 50
Press (9 .
3 Enter the number @
The system will display the present dial zero timeout.
Refer to the System Record Sheet and change if required.
Example: 10, enter 0 1.
P 50
P50
P50 6 06 10
4 Exit Program/Store Data
A) To store data, press
q
.
B) To exit this program, press B 1
q
.
P50 6 06 10
p50 # #
P
TABLERM-AS
PROGRAM51
LCRAREACODES
;TEPl ACTION
1
Enter Program Mode
At the >MODE prompt, enter 1 1 1 a (9.
2 Enter Proaram Number 51
1 Press
q
-.
3
Refer to the System Record Sheet and enter the required
route plan number (1 w 8).
Example: Route plan 1, enter 0.
Enter 1, i,or I-
. 1 - To add area codes to table.
l
B -To delete area codes from table.
l
1 m - to display area codes in table,
continue to press m to display more codes.
Press
q
to exit display.
5
7
Enter codes on0 or 000 1 000 and
press m after each code entry.
6 Exit Program/Store Data
A) To store data, pressm
B) Continue returning to step 3 until all data has been
entered for this program.
C) To exit this program, press 1 1
q
.
DISPLAY/PRINTOUT
>MODE PROG
P
P 51
P51
P51 1
P51Utl - 2,3or4
T Plan No.
p51 uu
nnn <-CODES
p51 ml
El
P51 12
212
or IDO - 0017
p51 # #
P :.,
:i
:
-42-

REMOTEADMIN &MAlNTPROCEDURES
SECTlON200-096-600
FEBRUARY1991
TABLERM-AT
PROGRAM52
LCROFFlCECODEEXCEPTlONSFORSPEClFlEDAREACODE
iTEP ACTION DISPLAY/PRINTOUT
1
Enter Program Mode
>MODE PROG
At the >MODE prompt, enter B 0 m a
q
. P
2 Enter Program Number 52
P 52
Pressm . P52
3 Define Route Plan Number
P52 10 0 3
Refer to the System Record Sheet and enter the
L LCR Plan No.
exception table number (1 m 8).
!-
L
Example: Table 1, enter 8.
Action Code
Enter Action code 1 .
Exception Table No.
The system will print out the currently defined route
plan number. Refer to the System Record Sheet and
enter
new plan number if required. Example: Change to 3.
4 Define Area Code Number
Press [9 . P52 ll~tl~212
P52
Enter exception table number (1 - 8) defined in step 3.
Enter Action code 0
The system will print out the currently defined area
--iI
k
Area Code
Action Code
Exception Table No.
code number. Refer to the System Record Sheet and enter the
new area code number if required.
Example: Change to 212, enter 1 0
Press
q
. 1.
5 Display Office Codes
P52 14
Enter exception table number defined in step 3.
Enter Action code 1 .
Press m to dis la ooooodOOO
5s
previously selected office codes.
Continually press
l
’ until all previously selected T
Office Codes
codes have been displayed, then press
q
.
6
To Add 2) or Delete (3) Office Codes
d
P52 12
Press - . 300-325
Enter exception table number defined in step 3. P52
Refer to the System Record Sheets and enter 1
to add office codes or 1 to delete office codes.
Example: Add office codes 300-325
Enter 1 (OrI )1111111m
7
To Exit Program/Store Data
Data was stored when
q
was pressed in step 6. P52
# #
A) P
B) Continue returning to step 3 until all data is entered
for this program.
-43-

REMOTEADMIN & MAINTPROCEDURES
SECTION 200-096-600
FEBRUARY1991
TABLERM-AU
PROGRAM53
LCRSCHEDULEASSIGNMENT
STEP ACTION DISPLAY/PRINTOUT
1 Enter Program Mode
>MODE PROG
At the >MODE prompt, enter i 1 B 1
q
. P
2 Enter Program Number 53
P 53
Press
q
. P53
3 Define Route Plan Number
P53 1
Refer to the System Record Sheet and enter the route
plan number (1 - 8).
Example: Route Plan 1, enter 1.
4 Define Schedule Number
P53 1 1
Refer to the System Record Sheet and enter the required
schedule number (1 - 3).
Example: Schedule 1, enter 0 .
5 Enter Code Number 0
P53 1 1 0 0000 0800
The system will display the previously selected time for P53
the route plan number (step 3) and the schedule number (step 4).
Refer to the System Record Sheet and change the time if required.
Example: Change to 0800. Enter 1 1 1 1 .
Press
q
and repeat steps 3, 4, and 5 for all lanskchedules.
NOTE: Enter time using 24hour format: [3 m b m .
6 Priority Class Assignment
P53 1 1 1 NNNN 12
Enter the route plan number as defined in step 3. P53
Enter the schedule number as defined in step 4.
Refer to the System Record Sheet and enter the required
station group number (1 - 4).
Example: Group 1, enter 0 .
The system will display the previously entered route definition
numbers (reference
Program 54).
Refer to the System Record Sheet and enter required
route definition numbers 1 - 4) and press
q
Example: Enter1 and 1 - .
b
Continue to repeat steps 3, 4, and 6 until all plans/schedules
are entered.
7 To Exit Program/Store Data
P53 # #
A) Data was stored when pressing
q
in step 6. P
B) Continue returning to step 3 until all data is entered
for this program.
C) To exit this program.
Press 1 1
q
.
-44-

REMOTEAOMlN&MAlNTPROCEDURES
SECTION 200-096-600
FEBRUARY1991
TABLERM-AV
PROGRAM54
LCR ROUTE DEFINITION
STEP ACTION DISPLAY/PRINTOUT
1
Enter Program Mode
>MODE PROG
At the >MODE prompt, enter i 0 m H
q
. P
2 Enter Program Number 54
P 54
Press
q
. P54
3 Enter Route Plan Number
P54 1
Refer to the System Record Sheet and enter the required
route plan number (1 - 8).
Example: Route plan 1, enter 1.
4 Enter Route Definition Number
P54 12 11 32
Refer to the System Record Sheet and enter the required
route definition number (1 - 4).
Example: Enter route definition number 2, enter 1 .
The system will display the previously entered CO line
group number (1 - 8) and the modified digits table number (1 - 6).
Refer to the System Record Sheet and enter the CO line
group and modified digit numbers as required, then press
q
.
Example: Change the CO line grou
modified digits table to 2. Enter: 1 Ii
number to 3 and the
q
.
L
!Y
Modified Digit Table No.
CO Line Group No.
Route Definition No.
Plan No.
5
To Exit Program/Store Data
P54 12
11
32
A) To store data, press
q
P54
##
B) Continue returning to step 3 until all data has been entered P
for this program.
C) To exit this program, press 1 1
q
.
-45-

REMOTE ADMIN & MAINT PROCEDURES
SECTION 200-096-600
FEBRUARY 1991
TABLE RM-AW
PROGRAM 55-O
LCR MODIFIED DIGITS-DELETE .
STEP ACTION DISPLAY/PRINTOUT
1 Enter Program Mode
>MODE PROG
At the >MODE prompt, enter B m B 1
q
. P
2 Enter Program Number 55
P 55
Press
q
P55
3 Enter Modified Digits Table Number
P55 1
Refer to the System Record Sheet and enter the modified
digits table number (1 - 6).
Example: Enter modified digits table number 1, entern .
4 Enter Code 0
P55 10 00 10
The system will display any previously entered number of
digits to be deleted (01 - 10).
Refer to the System Record Sheet and change number if required.
Example: Change to 10, enter:0 1.
5
To Exit Program/Store Data
P55 10 00 10
A) To store data, press
q
. P55 ##
B) Continue returning to step 3 until all data has been entered
P
for this program.
C) To exit this program, press @ 1
q
.
‘:
-46-

REMOTEADMIN &MAlNTPROCEDURES
SECTION 200-096-600
FEBRUARY1991
TABLERM-AX
PROGRAM55-1
LCR MODIFIED DIGITS-ADD
;TEP ACTION DISPLAY/PRINTOUT
I Enter Program Mode
>MODE PROG
At the >MODE prompt, enter i m m a
q
. P
2 Enter Program Number 55
P 55
Press
q
. P55
3 Enter Modified Digits Table Number
P55 1
Refer to the System Record Sheet and enter the required
modified digits table number (1 - 6).
Example: Enter table number 1, enter [ .
4 Enter Code 1
P55 11~~~ (up to22
digits)
The system will display any previously entered digits (up to 22). 1234P3
Refer to the System Record Sheet and enter new numbers,
if required.
Example: Enter~~~~~~ .
NOTE: Pause codes may also be entered. To enter pauses,
press “P” plus the pause number (1 - 8).
Special Code Input
Pause = 11% iI.
Tone = 0 at beginning of digits to convert.
Clear = 1 as first digit, then
q
.
5
To Exit Program/Store Data
P55 11mIl
A) To store data, press
q
1234P3
B) Continue returning to step 3 until all data has been entered P55 ##
for this program. P
C) To exit this program, press 1 1
q
.
-47-

REMOTEAOMIN & MAINTPROCEDURES
SECTION 200-096-600
FEBRUARY1991
TABLERM-AY
PROGRAM 55-2
LCR MODIFIED DIGITS-END
iTEP ACTION DISPLAY/PRINTOUT
1
Enter Program Mode
>MODE PROG
At the >MODE prompt, enter B H B 1
q
P
2 Enter Program Number 55
P 55
Press
q
. P55
3 Enter Modified Digits Table Number
P55 1
Refer to the System Record Sheet and enter the required
modified digits table number (1 - 6).
Example: Enter table number 1, enter 0.
4 Enter Code 2
p55 12
nnn (up fo22digifs)
The system will display any previously entered digits (up to 22). 1234P3
Refer to the System Record Sheet and enter new numbers,
if required.
Example: Enter 1 u 11 i m .
NOTE: Pause codes may also be entered. To enter pauses,
press “P”plus the pause number (I - 8).
Special Code Input
Pause = Na - NB
Tone = 0 at beginning of digits to convert.
Clear = m as first digit, then
q
5 To Exit Program/Store Data
P55 12
otlotl (up to 22digits)
A) To store data, press [9 . 1234P3
9) Continue returning to step 3 until all data has been entered P55 ##
for this program. P
C) To exit this program, press4 1
q
-4B-

REMOTEADMlN&MAlNTPROCEDURES
SECTION 200-096-600
FEBRUARY1991
TABLERM-AZ
PROGRAM56
LCRSTATIONGROUPASSIGNMENT
STEP1 ACTION I DISPLAY/PRINTOUT
1
Enter Program Mode
>MODE PROG
At the z-MODE prompt, enter w a 1 H
q
. P
2 Enter Program Number 56
P 56
Press (9 P56
3 Enter Port Number
4
Refer to the System Record Sheet and enter the
required port number, [70 or 00 Ino.
Example: Port 01, enter 1 0.
Press OKey
(if single port 00 entry in step 3).
The system will display any previously entered group number (1 - 4).
Refer to the System Record Sheet and change as required.
Example: Change to 4, enter1 .
P56 01
P56 01# 1 4
5 To Exit Program/Store Data
A) To store data, press
q
.
B) Continue returning to step 3 until all data has been entered
for this program.
C) To exit this program, press1 1
q
.
P56 Ol# 1 4
P56 ##
P
-49-

REMOTE ADMIN & MAINT PROCEDURES
SECTION 200-096-600
FEBRUARY 1991
TABLE RM-BA
PROGRAM DATA DUMP
STEP ACTION DISPLAY/PRINTOUT
1
Enter the Data Dump Mode
>MODE DUMP
At the >MODE prompt, enter 1 m m 1
q
. D
2
To Output Program Data
Enter 1 g Inn
q
D PROGun
00 = Program number or 110 for all programs.
3
I I
To Stop Printout at Any Time
Enter JrRr=ll$m .
TABLE RM-BB
SPEED DIALING DATA DUMP
STEP ACTION DISPLAY/PRINTOUT
1 Enter the Data Dump Mode
>MODE DUMP
At the >MODE prompt, enter 1 1 1 a
q
. D
2
To Output Speed Dialing Data
Enter B a 1 nnn [9 ---or--- 1 0 4 00
q
UOU =MO or 811
00 = Port number for individual station speed dial.
3
To Stop Printout at Any Time
D
Enter mm .
-5o-

REMOTEAOMIN &MAlNTPROCEDURES
SECTlOti200-096-600
FEBRUARY1991
TABLERM-BC
LCOMESSAGING DATADUMP
STEP ACTION DISPLAY/PRINTOUT
1 Enter the Data Dump Mode
>MODE DUMP
At the >MODE prompt, enter m 1 m i
q
.
*
To Output Message Data D MSGnuu
Enter @ H H nnn
q
---or--- m 1 100
q
mo =m or 8i8
00 = Pot-t number of individual station.
3
I /
To Stop Printout at Any Time
D
Enter mm I
-51-

REMOTE AOMIN & MAINT PROCEDURES
SECTION 200-096-600
FEBRUARY 1991
TABLE RM-BD
MODE 95
REMOTE CALLING STATION MESSAGING (ADD/REVIEW/CHANGE) .
iTEP ACTION DISPLAY/PRINTOUT
1
Enter the Message Mode
>MODE MESG
At the >MODE prompt, enter m 0 1 a
q
.
2
To Add Or Review a Calling Station Message
m 95
Set the terminal keyboard to the lower case (cap lock off) and
enter QII.
NOTE:
Enter “m” anytime it is desired to start over in this procedure.
3 Enter 1 1 1 (XXX = station number where the message will be
m95 XXX
set and stored).
4 Enter B [7(7 (p = page command and m95 xxx ~017
[Ml
00 = 2-digit message memory location: IO - 19 personal
messages and 60 = 99 = system message).
NOTES:
1. To store system messages permanently, EKT XXX must be the
station at port 00.
2. After 1 00 IS entered, the previously stored message is
displayed. If there is no stored message, nothing is displayed.
5 To Change Previous Message
m95 xxx ~00
W+l
Set the terminal keyboard to upper case and change message
(alphanumeric, 32 characters max.).
6 To Set the Message on EKT XXX’s LCD
Set the terminal keyboard to lower case and enter BmI .
m95 XXX
p mo[M+] p
m0
-L Zero
7 To Exit the Message Mode
m0
At any time, enter 111 (lower case). 9
> MODE
NOTES:
I. To cancel a message set via Mode 95, use Mode 97 procedure.
2. [M] represents the message entered.
3. With
Release 2
software only, remote calling station messaging is not available from electronic
telephones, but it is available from ASCII terminals connected to the TTYport or via IMDU on the
PIOU
or
PIOUS.
-52-

REMOTEADMlN&MAlNTPROCEDURES
SECTlON200-096-600
FEBRUARY1991
TABLERM-BE
MODE97
REMOTECALLINGSTATION MESSAGlNG(ADD/CHANGE)
TEP ACTION DISPLAY/PRINTOUT
1 Enter the Message Mode
>MODE MESG
At the >MODE prompt, enter m 0 lI[9 .
2
To Add a Message
(or change a previously stored message) m 97
Set the terminal keyboard to lower case (caps lock off) and
enter 110
NOTE:
Enter I’m” at anytime it is desired to start over in this procedure.
3 Enter 1 1 0(XxX = station number for which the message will m97 XXX
be set and stored).
4 Enter: 1 00 (p = page command and
170 = 2-digit message memory location: IO * 19 personal m97 XXX p 00
messages and 60 w 99 = system messages).
NOTE:
To store system message change permanently, EKT XXX must be
station assigned to port 00.
5 To Add a Message
m97 XXX P 00
[Ml
Set the terminal keyboard to upper case and enter message
(alphanumeric, 32 characters max.). New message displays as
it is entered.
6 To Set the Message on the Electronic Telephone’s LCD
Set the terminal keyboard to lower case and enter 1 m 1 m97 XXX P 00
WI
P
m JL Zero
7 To Exit the Message Mode
m0
At any time, enter 1 b 1 (lower case). q
>MODE
NOTES:
1. To cancel a message set via Mode 95, use Mode 97 with any message number in
step 4, use this
procedure and skip step 5.
2. [M] represents the message entered.
3. With Release 2 software only, remote calling station messaging is not available from electronic
telephones, but it is available from ASCII terminals connected to the TTY port or via IMDU on the
PIOU or PIOUS.
-53-

REMOTE AOMIN & MAINT PROCEDURES
SECTION 200-096-600
FEBRUARY 1991
TABLE RM-BF
MODE 94
REMOTE CALLED STATION MESSAGING (ADD/REVIEW/CHANGE) .
iTEP ACTION DISPLAY/PRINTOUT
1
Enter the Message Mode
>MODE MFSG
At the >MODE prompt, enter m 0 1 H [9 .
2
To Add Or Review a Called Station Message m
94
Set the terminal keyboard to the lower case (cap lock off) and
enter min.
3 Enter 0 1 0(XxX = Destination station number or destination m94 xxx
group number [30 = all stations, 31-34 per system,
Program 311).
4 Enter 11 m 1 (p = page command [lower case] and
1 u 13 = originating station number). m94 XXX p YYY
5 Enter Ino (p = page command [lower case] and
00 = 2-digit message memory location: 10 - 19 personal m94 XXX p YYY pun [M]
messages and 60 u 99 = system messages).
After b 00 is entered, the previously stored message (M) is
displayed. (If there is no stored message, nothing is displayed.)
6
To Change the Message (M+)
m94 Xxx p YYY pun [M+]
Set the terminal keyboard to upper case and change message
as required (alphanumeric, 32 characters max. for total message).
7
To Set Message
Set the terminal keyboard to lower case and enter B 11 . m94 XXX p YYY pun [M+] p
m0
Destination station: MW/FL LED flashes, “CALL YYYM” is
displayed.
-L
Zero
Origination station: “SENT XXXM” is displayed.
8
To Exit the Message Mode
m0
At any time, enter1 11 (lower case). q
>MODE
NOTES:
1. Press 1 at any time to start over.
2. [M] represents the message entered.
3. With
Release
2 software on/y, remote called station messaging is not available from electronic
telephones, but it is available from ASCII terminals connected to the
TTYport or via III/ID(J on the
PIOU or PIOUS.
-54-

STEP
1
2
6
7
8
REMOTEADMIN &MAlNTPROCEDURES
SECTlON200-096-600
FEBRUARY1991
TABLERM-BG
MODE96
REMOTECALLEDSTATION MESSAGlNG(ADD/CHANGE)
ACTION
Enter the Message Mode
At the >MODE prompt, enter fl 0 a H
q
.
To Change or Add a New Called Station Message
Set the terminal keyboard to the lower case (cap lock off) and
enter Q[I
NOTE:
Enter “m” (lower case) anytime it is desired to start over
in this procedure.
Enter 1 1 13 (XXX = destination station number or destination
station group number - 30 = all EKTs, 31 - 34 per system,
Program 31).
Enter ![[I (p = page command and YYY = originating
station number).
Enter B 00 (p = page command and
00 = 2-digit message memory location: 10 * 19 personal
messages and 60 w 99 = system messages).
To Add the New Message [M]
Set the terminal keyboard to upper case and enter message
as required (alphanumeric, 32 characters max.). New message
displays as it is entered.
To Set the Message
Set the terminal keyboard to lower case and enter B 11 .
Destination station: MW/FL LED flashes, “CALL YYYM” is
displayed on LCD.
Origination station: “SENT XXXM” is displayed on LCD.
To Exit the Message Mode
At any time, enter m 11 (lower case).
DISPLAY/PRINTOUT
>MODE MESG
m 96
m96 XXX
m96 XXX p YYY
m96 XXX p YYY pflo
m96 XXX p YYY pnn[M]
m96 XXX p YYY pnn[M] p
m0
-L
Zero
m0
q
>MODE
NOTES:
1. [M] represents the message entered.
2. With
Release
2 software only, remote called station messaging is not available from electronic
telephones, but it is available from ASCII terminals connected to the TTYport or via IMDU on the
PIOU or PIOUS.
-55-

REMOTE ADMIN & MAINT PROCEDURES
SECTION 200-096-600
FEBRUARY 1991
TABLE RM-BH
STATION/CO LINE STATUS CHECK .
iTEP ACTION DISPLAY/PRINTOUT
1
Enter the Test Mode
>MODE TEST
At the >MODE prompt, enter 0 1 1 0
q
.
2
To Check Station Line Status
T SEKT XX IDLE ON-HOOK
Enter B 0 1 1 1 1 B I= port number. T
Possible status: Idle on-hook, idle off-hook, busy on-hook,
busy off-hook.
IMPORTANT!
To prevent service interference, station line status must be
idle on-hook before initiating a test from that station.
3
To Check CO Line Status
T SCOYY - BUSY
Enter 1 B m 1 13 1 I= CO line number. T
Possible status: Idle, busy.
4
To Exit the Test Mode
T QUIT
At the T prompt, enter H 1 0 1
q
. > MODE
TABLE RM-BI
GENERAL STATION ACCESS AND BUTTON ACTIVATION
iTEP ACTION DISPLAY/PRINTOUT
1 Enter the Test Mode
>MODE TEST
At the >MODE prompt, enter 0 1 1 fi
q
. T
2
T TKXX KYY
T
XX = Port number and YY = key number.
NOTE: Key numbers begin at 01.
3
To Activate A Function Key
TTKXXF
Enter 1 1 1 a a D F = function key designator
4
T
pSPKR1 S
HOLD ( H
CONF C F = S, H, C, M
MIC M
4
To Access A CO Line (via CO Access Code) and Dial Out
Enteri~~~[3~~~~~ 0~~~~~0 q .
TT=X K01 -onnn[7tlo
T
AAA = 1, 2, or 3-digit CO line access code and
0 = telephone number.
To Access A CO Line (via CO Line Key and Dial Out
5 Enter~~~~~~~ nn~~nfl~b-
YY = CO line number.
Telephone Number
6
To Exit the Test Mode
At T prompt, enter m B 0 0
q
. ,
-56-

REMOTEADMlN&MAlNTPROCEDURES
SECTION 200-096-600
FEBRUARY1991
TABLERM-BJ
CO LINETEST
STEP ACTION DISPLAY/PRINTOUT
1
Enter the Test Mode
>MODE TEST
At the >MODE prompt, enter 1 B 1 0
q
.
2
To Verify Station/CO Line Status
T SEKT XX IDLE ON-HOOK
~~'ip,n,'~~t~~'~~;,~r~~ 11’ ‘(1 f _O,&?ZZ~~~~r). 9 SC0
yy
IDLE
3
Call Remote Station B
(from SEKT XX and CO line YY)
Enter I[3 1113 1 i ~~~iJOOO[9. T ‘I-K xx KYY~~~[7tlfl~
T
(0 = station B’s telephone number)
Answer station B.
NOTE:
If the system is equipped with MOH, go to step 4. If the line must
be tested via a CO-to-CO connection, go to step 6.
4 A) Press the T TKXX H
Enter 1 m
0 D key on TK XX (station B on hold).
QEI. T
B) Listen at station B and check that the transmission from the
music source is acceptable.
C) Press the
l
D
Enter 0
m
key on TKXX (to release the call). T TKXX S
ma T
5 Continue returning to step 2 until all CO lines are tested.
6
To Set Up A CO-to-CO Connection
T TKXX C
Press the m key on 0 [3 1 1 T
Enter 0 1 1 1 1 q
NOTES:
1. Station B is connected via step 3.
2. Verify that Program 15-5 allows CO-to-CO connections.
3. The next step must be completed immediate/y to avoid
dial tone timeout.
7 Call station C (or local time/weather) via CO line C.
Enter: 0 [3 1111 i oooooC!Eia T ‘JXXX KYYOOOnOnn
T
1 1 = CO line C’s key number and [7 = telephone number of
station C.
Answer station C (or verify time/weather connection) and go to
next step.
8 Press the m key on STXX to establish a conference TTKXXC
between all parties. T
9 If you wish to tie the two CO lines together and hang up: TTKXXC
Enter 0 [3 0 1 m q .
TTKXX S
Enter 0 [3 1 1 B q .
T
10 Continue returning to step 2 until all CO lines are tested.
11
To Exit the Test Mode, .
At the T prompt, enter m m 0 0
q
.
-57-

REMOTE ADMIN 81 MAINT PROCEDURES
SECTION 200-096-600
FEBRUARY 1991
TABLE RM-BK
SYSTEM DATE/DAY/TIME SETTING PROCEDURE
iTEP ACTION
1
Enter the Test Mode
At the >MODE prompt, enter 1 0 4 0
q
.
2 :~t~~'o""o'"o~~oo~~~~~~~~~~~.
3 :FEyo”~; “o”b 0 11 B [3 [3 m &I Q Q 1 q .
4 ~t:;to”so”‘o’~~w~~ 1111 q .
(D = day of week with Sunday = 1 - Saturday = 7)
5
To Exit the Test Mode
At T prompt, enter m [rl 0 1
q
.
DISPLAY/PRINTOUT
>MODE TEST
T
T TKOO KOl 651YYMMDD#
T
TTKOO EC01 652HHMMSS#
TTKOO KOl 653D#
T
-58-

REMOTEADMIN &MAlNTPROCEDURES
SECTION 200-096-600
FEBRUARY1991
TABLERM-BL
SPEED DlALMODE(CHANGE/REVIEW)
iTEP ACTION DISPLAY/PRINTOUT
1 Enter the Speed Dial Mode
>MODE REPT
At the >MODE prompt, enter 11 iam .
2 Enter the station port number for which the speed ROO
dial number will be programmed
Press 0 0 r Station Port Number
--L (00 - 95)
NOTE: If pro ramming system speed dial, enter
port number u 1 .
B
3 Enter Speed Dial Memory Location to be Programmed Ron OnN
Press 0 0 (current memory will display)
-II- 10 w 49 Station TT
Memory Nothing in
60 - 99 System location memory
4
1) To enter speed dial number (20 digits max) Ron OoN
T 20.digit number T on . . . . . . . . . . 00
Press OO.......... 00
2) To enter chain dial number
Press a 0 0 6 .‘114’?.n.u~.b”r&
T System speed dial location (90 * 99)
(Refer to Electronic Telephone User Guide for information
regarding chain dialing.)
New speed dial number
Special Entries: F=Flash; P=l 5 or 3-set Pause (Prog. 12);
L=lO-set Pause; N=Clear Memory.
5
To store data, press
q
R
NOTE: If program entry is not correct, [9 will not
respond. To try again, press m
q
.
>MODE
-59-

REMOTE ADMIN & MAINT PROCEDURES
SECTION 200-096-600
FEBRUARY 1991
Remote Maintenance Procedures Index
Initialization Procedures: Page Number:
System Programs (90) 11
Station Speed Dial (92) 12
System Speed Dial (92) 13
LCD Messages (92) 14
Timer Reminders (92) 15
Program Procedure Program Type Page Number
TYPE 1
1
16
TYPE 2 2 17
00 3 18
03 3 19
04 3 20
05 3 20
10 1 16
12 3 21
13 3 21
15 1 16
16 1 16
17 2 17
28 3 22
29 3 23
30 2 17
31 2 17
32 3 24
33 3 24
34 3 25
35 2 17
36 3 25
37 3 26
38 3 27
39 3 28
40 2 17
41 2 17
42-O 1 16
42-l * 8 3 29
45-l 3 33
45-2 3 34
45-3 - 6 3 34
45-8 - 9 3 35
46-10 - 40 3 37
46-2 - 4 3 35
46-6 - 8 3 36
47 3 38
Program Procedure
48
50-l
50-2
50-31 - 35
50-4
50-5
50-6
51
52
53
54
55-o
55-l
55-2
56
60
77
78
79
80
81 - 89
93
.
Program Type Page Number
3
39
3
39
3 40
3 40
3 41
3 41
3 42
3 42
3 43
3 44
3 45
3 46
3 47
3 48
3 49
3 30
1 16
3 31
2 17
3 32
2 17
3 33
DATA DUMP PROCEDURES
System Programs
Speed Dial Numbers
LCD Messages
Remote
LCD Messaging Procedures
Remote Calling Station (Edit)
Remote Calling Station (New)
Remote Called Station (Edit)
Remote Called Station (New)
Remote
Test Procedures
Station/Line Status Check
Station Key Activation
CO Line Test
Set: Date/Day/Time
Remote
Speed Dial (Change/Review)
50
50
51
Page Number
52
53
54
55
56
56
57
58
59
.;
-6O-

REMOTEADMIN &MAlNTPROCEDURES
SECTlON200-096-600
FEBRUARY1991
MESSAGE RECORD SHEET-Use several sheets if necessary
MESG.#
MESG.#
MESG.#
MESG.#
MESG.#
MESG.#
MESG.#
MESG.#
MESG.#
MESG.#
MESG.#