TC303 Part Catalogue TTC 303
2014-03-18
: Ttc-303 Part Catalogue TTC-303_part_catalogue tirechangers manuals s
Open the PDF directly: View PDF
.
Page Count: 30

ED.07/2008
PARTCATALOGUE
TC‐303
TIRECHANGER
ED.10
/
2011

2/30
REV.012011
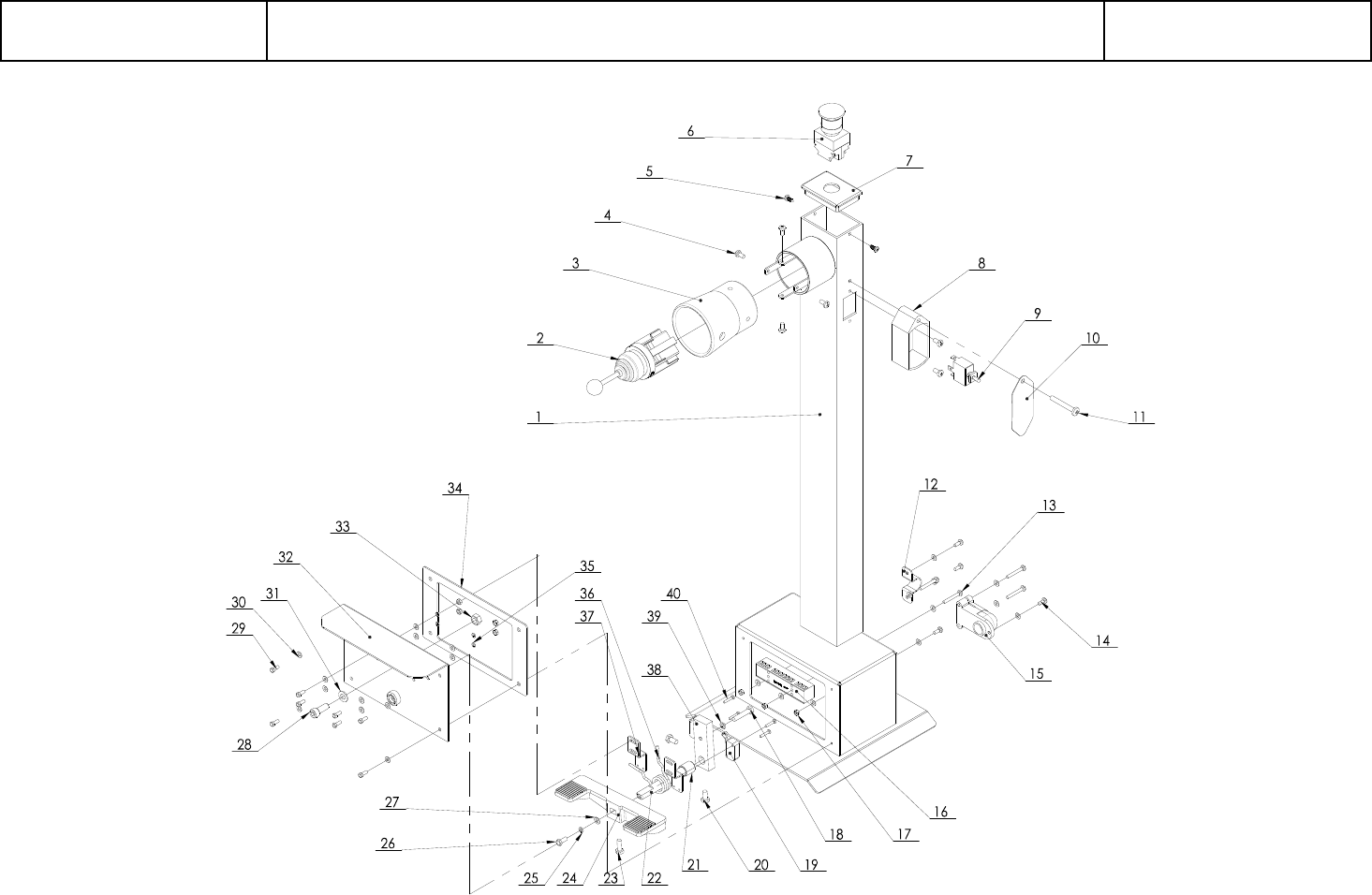
GENERALASSEMBLYTAV.0ED.10/11

3/30
REV.012011
ITEM PART NO. DESCRIPTION QTY REMARK
1 YC8-2000000A Chuck arm 1
2 0215021 Greaser M8X1 - GB1152 1
3 YC8-BZ-0 Hydraulic unit 1
4 0203006 Nut M8 - GB6170 3
5 0205008 Washer D.8 - GB/T97.1 3
6 S551-00D Electric unit 1
7 0201065 Screw M10X30 - GB/T5781 4
8 0205011 Washer D.10 - GB/T97.1 8
9 YC8-2400991B Too arm pin 1
10 YC8-3001067 Washer 3
11 0201092 Screw M14X30 - GB/T5781 3
12 YC8-1000000 Frame and carriage 1
13 YC8-60-0 Arm cylinder 1
14 0212021 Seeger D.30 - GB/T894.1 2
15 YC8-3001069 U bolt 1
16 0206012 Screw M4X10 - GB/T818 2
17 0205002 Washer D.4 - GB/T97.1 2
18 YC8-3000948C Cover 1
19 0203011 Nut M10 - GB6170 2
20 YC8-2400935A Support 1
21 0212003 Seeger D.24 - GB/T894.1 24 2
22 YC8-4399289 Washer 2
23 YC8-3001003B Pin 1
24 0202024 Screw M6X12 - GB/T70.1 7
25 0205006 Washer D.6 - GB/T97.1 5
26 YC8-2400949 Cylinder cover 1
27 YC8-2000000B Chuck 1
GENERALASSEMBLYTAV.0ED.10/11

4/30
REV.012011
28 YC8-3001074 Cylinder cover 1
29 0202056 Screw M10X16 - GB/T70.1 2
30 YC8-60B-0 Carriage cylinder 1
31 YC8-2001000 Tools 1
32 YC8-3001004A Arm shaft 1
33 YC8-3000988 Pin 1
34 YC8-2002000 Pedal control 1
GENERALASSEMBLYTAV.0ED.10/11

5/30
REV.012011
CHUCKARMTAV.1.0ED.10/11

6/30
REV.012011
ITEM PART NO. DESCRIPTION QTY REMARK
1 YC8-2400985 Chuck arm 1
2 0511119 Felt 115X106X5 1
3 YC8-3001738 Ring for felt 1
4 YC8-3001056 Spacer 2
5 YC8-3001057 Self-lubricated washer 2
6 YC8-4299308 Steel ring 2
7 GB1235 O-ring 90X5.3 2
8 0606064 Under cap D.13 1
9 0205011 Washer D.10 - GB/T97.1 18
10 0201049 Screw M10X30 - GB/T5783 4
11 YC8-2400974 Motor support 1
12 0201068 Screw M10X40 - GB/T5782 6
13 0205010 Washer D.10 - GB/T96 4
14 0209032 Screw M8X12 - GB/T80 1
15 YC8-3000975 Motor pulley 1
16 0202043 Screw M8X12 - GB/T70.1 4
17 0205008 Washer D.8 - GB/T97.1 2
18 YC8-2400943 Belt casing 1
19 0511051 Driven belt V 760 2
20 YC8-4299330 Spacer 1
21 0208007 Washer D.10 - GB/T93 5
22 0203011 Nut M10 - GB6170 5
23a 0509086 Double speed motor 220V/60HZ/3PH 1.3KW/1.8KW 1
23b 0509099 Motor 220V/60Hz/1PH 1.5KW 1
24 YC8-3001041 Bush for chuck rod 2
25 GB/T3452.1 O-ring 97.5X3.55 1
26 0201051 Screw M10X45 - GB/T5782 6
CHUCKARMTAV.1.0ED.10/11

7/30
REV.012011
27 0201030 Screw M10X30 - GB/T5781 1
28 0203006 Nut M6 - GB6170 25
29 YC8-2400995 Cover 1
30 YC8-3001051 Gasket 1
31 GB/T276 Bearing 6205 2
32 0204014 Nut M16X1.5 - GB/T6173 2
33 YC8-3001114 Washer 1
34 YC8-3001115 Spacer 1
35 0214009 Bearing 51205 - GB/T301 2
36 0202024 Screw M6X12 - GB/T70.1 2
37 YC8-3001010 Oil screen 1
38 0213025 Tab 8X30 - GB/T1096 1
39 0213029 Tab 20X60 - GB/T1096 2
40 YC8-3010838A Helical gear 1
41 YC8-3000998 Cover 1
42 YC8-4199258 Oil plug 1
43 0202032 Screw M6X16 - GB/T70.1 22
44 YC8-6609764 Pivot union cover 1
45 0215024 Oil level indicator M27X1.5 - GB1160.2 1
46 0305018 Oil plug 3/8 1
47 0313012 Washer 3/8 1
48 0202026 Screw M6X30 - GB/T70.1 1
49 YC8-3001009 Worm support 1
50 YC8-3010861b Worm screw 1
51 YC8-3000999a Spacer 1
52 YC8-3001052b Driven pulley 1
53 YC8-3001068 Washer 1
CHUCKARMTAV.1.0ED.10/11

8/30
REV.012011
54 0201062 Screw M10X20 - GB/T5783 1
55 YC8-3008803 Wheel locking plate 2
56 YC8-140-0G Chuck cylinder 1
CHUCKARMTA
V
.1.0ED.10/11

9/30
REV.012011
HYDRAULICUNITTAV.3.0ED.10/11

10/30
REV.012011
ITEM PART NO. DESCRIPTION QTY REMARK
1 303-BZ-0 Power unit 1
2 0212005 Seeger D.20 - GB/T894.1 2
3 0312002 Gasket 60X44 2
4 YC8-60-3 Piston 2
5 YC8-60B-6 Spacer 1
6 0309022 O-ring 24X2.4 - GB1235 2
7 YC8-60B-4 Piston rod 1
8 0302003 1/4 union 1
9 0313001 Washer 1/4 25
10 303-WW2140 Hydraulic hose L=2140 1
11 YC8-60B-10 Cylinder liner 1
12 303-WJ2700 Hydraulic hose L=2700 1
13 0309032 O-ring 60X3.1 - GB1235 2
14 YC8-60-5 Cylinder guide cover 2
15 0305006 Guide ring 30X25X2.5 - GB/T15242.2 2
16 0310009 Sealing ring 30X38X7 2
17 0309027 O-ring 35X3.1 - GB1235 2
18 0311005 Scraper D.30 2
19 BZ-GZ-002 Special screw 1
20 0304010 Rotation union 1/4 1
21 BZ-720B-0401 Special screw 1
22 0305002 Union 1/4 2
23 0307020 Stop valve BP17000000 2
24 303-WJ1300 Hydraulic hose L=1300 2
25 303-ZJ250 Hydraulic hose L=250 1
26 YC8-60-10 Cylinder liner 1
27 YC8-60-4 Cylinder shaft 1
HYDRAULICUNITTAV.3.0ED.10/11

11/30
REV.012011
28 YC8-140-6 Cylinder shaft 1
29 0204005 Self -locking nut M10 - GB/T889.1 8
30 YC8-140-7 Cylinder guide cover 1
31 0309049 O-ring 195X5.7 GB1235 1
32 0305012 Guide ring 40X12X2.5 - GB/T15242.2 1
33 0309046 O-ring 140X3.1 GB1235 1
34 0310013 Sealing ring 40X50X6 1
35 0309025 O-ring 32X3.1 - GB1235 1
36 YC8-140-5 Piston 1
37 0212006 Seeger D.26 - GB/T894.1 1
38 0312008 Gasket 140X115X25.4 1
39 0202057 Screw M10X70 - GB/T70.1 4
40 0202065 Screw M10X60 - GB/T70.1 8
41 YC8-140-4 Cylinder liner 1
42 GB1235 O-ring 30X3.1 1
43 0305001 Plug QD07 1
44 GB/T70.1 Screw M6X30 3
45 YC8-140-3 Pin 1
46 Q211 Sealing ring 20X3.53 3
47 C-2C120-85-7 Ring 3
48 0302007 Union 1/4 3
49 303-ZW170 Hydraulic hose L=170 1
50 0302004 Union 1/4 1
51 0307052 Pressure gauge 250bar 1
52 YC8-140-2 Pivot union body 1
53 303-JJ430 Hydraulic hose L=430 2
54 0201026 Screw M8X16 - GB/T5783 1
HYDRAULICUNITTAV.3.0ED.10/11

12/30
REV.012011
55 0205009 Washer D.8 - GB/T96 1
56 303-WJ1800 Hydraulic hose L=1800 2
57 YC8-60-0 Arm cylinder 1
58 YC8-140-0 Chuck cylinder 1
59 YC8-60B-0 Carriage cylinder 1
HYDRAULICUNITTAV.3.0ED.10/11

13/30
REV.012011
A
POWERUNITTAV.3.1ED.10/11
16

14/30
REV.012011
ITEM PART NO. DESCRIPTION QTY REMARK
1 0301005 Gear pump 4.2CC 1
2 0305011 Oil filter 3/8 1
3 5T9-06ST Union 2
4 BZ-G18X100 Oil draining pipe 1
5 YC8-4197872 Motor flange 1
6 GB/T70.1 Screw M10X16 4
7 YC8-4197873C Pump joint 1
8 YC8-4197873A Rubber absorber 1
9 0209009 Screw M6X8 - GB/T80 1
10 YC8-4197873B Motor joint 1
11a 0509085 Motor 220V/60HZ/3Ph 1.1KW 1
11b 0509099 Motor 220V/60HZ/1PH 1.5KW 1
12 0205011 Washer D.10 - GB/T97.1 4
13 0202061 Screw M10X25 - GB/T70.1 4
14 1B-06-04WD Nipple 6
15 0305018 Oil plug 3/8 2
16 0307046 Multiple base with solenoid valves PR09007B 1
17 0305003 Union 3/8 2
18 0305004 Union 3/8 2
19 YC8-3010652 Oil lever plug 1
20 GB/T5783 Screw M8X16 A 7
21 0205008 Washer D.8 - GB/T97.1 7
22 YC8-6609758 Tank cover 1
23 0305045 Special nut 2
24 YC8-2409757 Oil tank 1
25 0313012 Washer 3/8 6
26 0205006 Washer D.6 - GB/T97.1 4
POWERUNITTAV.3.1ED.10/11

15/30
REV.012011
27 0208005 Washer D.6 - GB/T93 4
28 0202026 Screw M6X30 - GB/T70.1 4
29 303-ZY(5/16)390 Hydraulic hose L=390 1
30 0307108 Interface block PR09007C 1
31 0307096 ED06Z Modular directional valve 24Vdc C161401002 2
32 K211524000 Stud M8x190 3
33 C012506000 Washer D.8 DIN128A 3
34 C010506000 Nut M8 UNI 5588 3
35 C160001000 Standard connector black 6
36 C000110000 Seal OR 108 (8.73X1.78) NBR70 2
37 0307097 ED08Z Modular directional valve 24Vdc C161403002 1
38 0307098 2/2 Electric valve normally open VE3-NA V389674A20 1
39 C166455OC2 S-CE+C coil 24Vcc 18W with connector 1
40 V388904A23 VM15 Relief valve 80-250bar 1
41 C011707000 Ball sealing plug MB800-080 5
42 C011804000 Sealing plug D.7 3
43 V389209000 VU3/8" Check valve 1
44 0307108 Closing plate with P port 3/8"BSPP R933003329 1
POWERUNITTAV.3.1ED.10/11

16/30
REV.012011
ELECTRICUNITTAV.6.0ED. 10
/
11

17/30
REV.012011
ITEM PART NO. DESCRIPTION QTY REMARK
1 454134800 Wiring terminal L=370 1
2 0501002 Contactor AC24V 1
3 0206015 Screw M4X16 - GB/T818 1
4 0508006 Rectifier - 3510 1
5 0501004 Contactor AC24V 2
6 0206016 Screw M4X20 - GB/T818 3
7 0205002 Washer D.4 - GB/T97.1 8
8 0505025 Power switch 20A 1
9 CC-850222 Switch support 1
10 0206040 Screw M6X12 - GB/T818 2
11 0208005 Washer D.6 - GB/T93 2
12 0205006 Washer D.6 - GB/T97.1 2
13 0206012 Screw M4X10 - GB/T818 4
14 0208002 Washer D.4 - GB/T93 4
15 454052300 Transformer 115VA 1
16 1064503030 Front cover 1
17 454060502 Power switch lever 1
18 S551-02-5 Gasket 1
19 1064503040 Back cover 1
20 S551-6 Pin 4
21 0211001 Seeger D.3.5 - GB/T896 4
22 0505013 Pole change switch - HZ5-LW26-20A 1
23 0502023 Pilot lamp AC24V 1
24 S551-4 Hook 2
25 S551-5 Clamp 2
26 0508012 Cable relief M27 1
27 0508011 Cable relief M18 1
ELECTRICUNITTAV.6.0ED.10
/
11

18/30
REV.012011
28 454122200 Cable connector 14P 1
29 0507118 Conduit connector 2
30 0206014 Screw M5X6 - GB/T818 2
31 0206019 Screw M4X6 - GB/T818 18
32 CC-850221 Support 1
33 454130600 Guide 35X145 1
34 0507001 Guide 35X110 1
35 0205004 Washer D.5 - GB/T97.1 4
36 0208003 Washer D.5 - GB/T93 4
37 0206024 Screw M5X10 - GB/T818 4
38 0501020 Circuit breaker 6.3-10A 1
39a 0504009 Overload cutoff 16A 10X38 for 380V/400V 3
39b 0504013 Overload cutoff 32A 10X38 for 220V/230V 2
40 CC-850223 Support 2
41 0507009 Terminal board 2
42 454121600 LED - IN5408 6
43 0206017 Screw M4X25 - GB/T818 4
ELECTRICUNITTAV.6.0ED.10
/
11

19/30
REV.012011
FRAME ANDCARRIAGETAV.12.0 ED.10/11

20/30
REV.012011
ITEM PART NO. DESCRIPTION QTY REMARK
1 YC8-2400989A Frame 1
2 YC8-4299252 Carriage terminal unit 2
3 YC8-2400979 Carriage 1
4 0201063 Screw M10X25 - GB/T5781 8
5 0205011 Washer D.10 - GB/T97.1 21
6 0201054 Screw M10X85 - GB/T5782 10
7 YC8-3000980A Carriage slide 4
8 YC8-4299307 Scraper 8
9 YC8-3001062 Side plate 8
10 0202024 Screw M6X12 - GB/T70.1 24
11 0204012 Nut M10 - GB/T 6172.1 4
12 0209024 Screw M10X25 - GB/T77 4
13 YC8-2404501 Cover 1
14 0206031 Screw M6X10 - GB/T818 4
15 0201064 Screw M10X25 - GB/T5783 3
16 YC8-2400990C Ramp 1
17 0201099 Screw M16X90 - GB/T5782 2
18 YC8-4299251 Roller 2
19 0203017 Nut M16 - GB/T6170 2
FRAMEANDCARRIAGETAV.12.0 ED.10/11

21/30
REV.012011
CHUCKTAV.27.0 ED.10/11

22/30
REV.012011
ITEM PART NO. DESCRIPTION QTY REMARK
1 0201105 Screw M18X1.5X100 - GB/T5785 8
2 YC8-4399974 Copper washer 16
3 YC8-2400929b Chuck left arm 4
4 0213039 Elastic pin 12X60 - GB/T119.1 4
5 0212016 Seeger D.18 - GB/T894.1 8
6 YC8-3000993 Pin 4
7 YC8-3001044a Connection rod 8
8 0201107 Screw M18X1.5X85 - GB/T5785 4
9 YC8-3000968 Special screw 4
10 YC8-3000992 Bar 4
11 CC-510101 Clamp 4
12 0202060 Screw M10X20 - GB/T70.1 8
13 YC8-3000924 Clamp support 4
14 0204007 Nut M12 - GB/T889.1 4
15 YC8-2400931b Chuck right arm 4
16 0204010 Nut M18X1.5 - GB/T6184 12
17 0204019 Nut M33X2.0 - GB/T6173 1
18 YC8-3001050a Turntable cross 1
19 YC8-3000994 Spacer 4
20 0311008 Scraper D.40 1
21 YC8-4299309 Steel ring for scraper 1
22 YC8-3010893A Bush for chuck rod 1
23 YC8-2401794A Chuck turntable 1
24 YC8-3005740A Chuck protection 4
25 0205008 Washer D.8 - GB/T97.1 4
26 0202097 Screw M8X10 - GB/T70.1 4
CHUCKTAV.27.0ED.10/11

23/30
REV.012011
TOOLSTAV.31.0 ED.10/11

24/30
REV.012011
ITEM PART NO. DESCRIPTION QTY REMARK
1 0205022 Washer D.20 - GB/T97.1 1
2 YC8-3001039 Roller 1
3 0213035 Split pin 4X28 - GB/T91 1
4 YC8-2400983d Tool holder 1
5 YC8-3001030b Lever 1
6 0213005 Elastic pin 6X18 - GB/T879.1 2
7 0213001 Elastic pin 10X20 - GB/T879.1 1
8 YC8-3001040 Spring 1
9 YC8-3001028 Connection rod 1
10 YC8-3001029 Sliding bolt 1
11 0213007 Elastic pin 8X30 - GB/T879.1 1
12 CC-620005 Spring 1
13 0204014 Nut M16X1.5 - GB/T6173 2
14 YC8-3010837 Pin 2
15 YC8-1000835 Long tool 1
16 0204011 Nut M27 - GB/T889.1 1
17 CC-620004 Spring connection 1
18 YC8-2410832d Support 1
19 CC-620002 Bead breaking disk bush 2
20 CC-620003 Spacer 1
21 YC8-4396915 Steel shim 2
22 0215021 Greaser M8X1 - GB1152 1
23 YC8-2410857a Bead breaking disk 1
24 CC-620001 Pin 1
25 YC8-2400984 Expeller 1
26 YC8-3001038 Spring 1
27 0202039 Screw M8X130 - GB/T70.1 1
TOOLSTAV.31.0 ED.10/11

25/30
REV.012011
28 0201049 Screw M10X30 - GB/T5783 1
29 YC1-3000114 Bead breaking spring 1
30 0204012 Nut M10 - GB/T6172.1 1
31 YC8-3001031b Cam 1
32 0205021 Washer D.18 - GB/T97.1 1
33 0201108 Screw M18X50 - GB/T5783 1
34 YC8-2400932d Hook 1
TOOLSTAV.31.0 ED.10/11

26/30
REV.012011
PADELCONTROLTAV.34.0 ED.10
/
11

27/30
REV.012011
ITEM PART NO. DESCRIPTION QTY REMARK
1 YC8-2406762 Pedal unit base 1
2 0505010 Manipulator 1
3 0606020 Rubber cover 1
4 0206024 Screw M5X10 - GB/T818 6
5 0207035 Screw ST4.2X12 - GB/T845 2
6 0502044 Emergency switch LAY37-02 1
7 J3A-200006 Cap A 1
8 T-23-02B Switch support 1
9 0505016 Commutator 1
10 T-23-03A Switch cover 1
11 0206039 Screw M6X45 - GB/T818 1
12 YC8-3001069 U bolt 1
13 0206018 Screw M4X30 - GB/T818 4
14 0206012 Screw M4X10 - GB/T818 4
15 YC8-3000901 Harness holder 1
16 0507009 Terminal board 1
17 0203002 Nut M4 - GB/T6170 7
18 0201019 Screw M6X30 - GB/T5780 1
19 0505014 Micro switch 2
20 0201010 Screw M6X12 - GB/T5781 2
21 YC8-3001135 Spacer 1
22 YC8-3015413 Spring support 1
23 0201012 Screw M6X16 - GB/T5781 1
24 YC8-3015412 Pedal 1
25 0208003 Washer D.5 - GB/T93 1
26 0201006 Screw M5X12 - GB/T5781 1
27 0205004 Washer D.5 - GB/T97.1 1
PADELCONTROLT
A
V.34.0 ED.10
/
11

28/30
REV.012011
28 0202045 Screw M8X20 - GB/T70.1 1
29 0201001 Screw M4X10 - GB/T5781 8
30 0205002 Washer D.4 - GB/T97.1 23
31 0205008 Washer D.8 - GB/T97.1 1
32 YC8-2400977 Pedal box 1
33 0203008 Nut M8 - GB/T6170 1
34 YC8-3001138 Gasket 1
35 0208002 Washer D.4 - GB/T93 4
36 YC8-3007133b Pedal control spring 1
37 YC8-3001143a Switch support 2
38 YC8-3001131 Lever 1
39 0208005 Washer D.6 - GB/T93 1
40 0206002 Screw M3X16 - GB/T818 4
PADELCONTROLTAV.34.0 ED.10
/
11

29/30
REV.012011
ACCESSORIES ED.10
/
11

30/30
REV.012011
ITEM PART NO. DESCRIPTION QTY REMARK
1 DB-11 Pliers 1
2 YC8-F200000 Pliers for alloy rim Art. 138/90 1 Optional
3 YC8-F202001 Alloy protection 1
4 YC8-F201001 Block 1
5 0209037 Screw M6X10 - GB/T80 1
6 YC8-F100200 Clamping extension kit Art. 140/90 4 Optional
7 YC8-F100201 Clamping extension 1
8 YC8-F100202 Short clamp 1
9 YC8-F100203 Long clamp 1
10 YC8-F100105 Special screw 2
11 0201148 Screw M12X40 - GB/T5783 1
12 YC8-F100100 Clamp protection kit Art. 137/90 4 Optional
13 YC8-F100101 Clamp protection 1
14 YC8-F100102 Plastic insert 1 1
15 YC8-F100103 Plastic insert 2 1
16 YC8-F100104 Plastic insert 3 1
17 511040 Short tire lever 24" 1
18 DB-12T Long bead lifting lever 1
19 0511009 Tire ring lifting lever Art. 148/90 1 Optional
ACCESSORIES ED.10
/
11