V20 Service Manual V 20 V20Spare Parts
User Manual: V-20
Open the PDF directly: View PDF
.
Page Count: 108 [warning: Documents this large are best viewed by clicking the View PDF Link!]
- V20 Spare Parts
- Maintenance and General Information
- Inlet Covers
- Main Relief Cartridges Options
- Outlet Cover
- Outlet Cover 8644
- Outlet Cover With Conversion Port Non Load Sense 6770
- Outlet Cover With Solenoid Cartridge Non Load Sense
- V20 LS Outlet Cover (No Load Sense Bleed-Down Plug)
- V20 LS Outlet Cover With Load Sense Bleed-Down Plug
- Coversion Port Option Plugs for 6670 Outlet Cover
- Load Sense Bleed-Down Plug for 6770LS Outlet Cover
- Work Sections
- 3 Way 3 Position Parallel and Tandem Work Sections
- 4 Way 3 Position Parallel and Tandem Work Sections
- 4 Way 4 Position Parallel and Tandem Work Sections
- 4 Way 3 Position V20LO Lockout Work Section
- 4 Way 3 Position Parallel and Tandem Work Sections with KO
- V20 Externall Piloted Solenoid Work Sections
- V20P & V20T Tandem 4 Way Solenoid Work Sections
- V20P and V20T Solenoid Work Sections with Handle
- 4 Way 3 Position Series Work Sections
- 4 Way 4 Positon Float Series Work Sections
- V20LS Load Sensing Work Section
- V20LS Load Sensing Work Section with Flow Control
- V20PC Pressure Compensated Manual Work Sections
- V20PC Pressure Compensated Solenoid Work Sections
- V20 Split and Combined Flow Mid Inlet Sections
- Utility Sections
- Open Center
- Closed Center Load Sensing Utility Section
- Unloading Utility Section
- Unloading Section Applications
- Unloading Utility Section No Power Beyond
- Unloading Utility Section Power Beyond Option
- Mechanical Pressure Build Up Valve Cartridge
- Power Beyond Sleeves for Use in Utility Sections
- Closed Center Plug in Utility Sections
- Pressure Reducing Valve Cartridge
- No Pressure Reduction Valve Plug
- Bleed Down Plug Use in Unloading Utility Sections
- Unloading Valve Cartridge for Use in Unloading Utility Sections
- Positioner Kits
- Spring-Return and Manual Spool Positioner Kits
- Detented Spool Positioner Kits
- Sprint Return Spool Positioner Kits
- Installation and Adjustment R Detent Positioners
- Spring Extended Positioner Kits
- Electro-Magnetic Detent Positioner Kits
- Installation Procedures Electro-Magnetic Detent Positioners
- Pressure Detent Release KO Positioner Kits
- Rotary W Spool Positioner Kits
- 4 Position Float Spool Positioner Kits For Non-Series Sections
- 4 Position Float Spool Positioner Kits for V20S Series Sections
- PA Pneumatic Spool Actguator Kit
- Installation Instructions for PA Pneumatic Actuators
- HR Hydraulic Remote Spool Actuator Kit Positioner End
- HR Hydraulic Remote Spool Actuator Kit Spool Clevis End
- HRO Hydraulic Remote Spool Actuator Kit Positioner End
- HRO Hydraulic Remote Spool Actuator Kit Spool Clevis End
- HRH Hydraulic Remote Spool Actuator Kits
- Model V20 SOL-E Solenoid Actuator Kits
- Model V20 SOL-E Solenoid Actuator Installation Procedures
- Model V20 SOL-E Solenoid Installation Procedures
- SOL-E Solenoid Cartridges
- SOL and EPC Solenoid Actuators
- SOL-IH AND EPC-IH Solenoid Actuators with Handle
- SOL-IH AND EPC-IH Handle Assembly
- SOL-IH AND EPC-IH Solenoid Bonnet Assembly
- Solenoid Coil Connector Type Identification
- On/Off SOL Solenoid Cartridge and Replacement Coil Kits
- Bonnet Conversion for 2 Way 2 Position Operation
- Solenoid Bonnet Spool Travel Limiter/Override Kits
- Solenoid Bonnet With Handle Spool Travel Limiter Kit
- Load Check and Coversion
- Work Port Relief Cartridges
- Model RC
- Model RCS
- Anti-Cavitation Check
- CRA Anti-Cav Cartridges
- CRA Work Port Relief Installation Procedures
- RCPC Work Port Relief Cartridges
- Anti-Drift Cartridges For V20LS and V20PC Sections
- Lockout Cartridges for V20LO Sections
- RP20 Pilot Operated Relief Cartridges
- Work Port Flow Controls V20C and V20LS Sections
- Work Prot Dump Valve Cartridges
- Seal Retainer and Spool Wiper Kits
- Handle Bracket Kits
- Protective Spool Boot Kits
- Vertical and Horizontal Handle Kits
- Work POrt Restrictors
- Port Plugs
- Buna-N and Viton O-Ring Cross Reference

Hydraulics
GRESEN
R
Model V20
Sectional Body
Directional Control Valve
Service and Parts Manual
Maximum Operating Pressure: 3500 PSI (242 bar)
Minimum Filtration Required: 10 Micron
The information in this Service Manual was current at the time of publication. This information is
subject to change at any time without notice.
Model V20 Service and Parts Manual No. Revision: 08-01-2002 (Replaces: SC-1102 ~ Revision 2/92)

Model V20 Service and Parts Manual (Catalog No. SC-1102) Rev: 08-26-2002 2
Table of Contents
Section Seal Replacement and Section Seal Kits ................................................................................ Page 3
Spool Seal Replacement and Spool Seal Kits ..................................................................................... Page 4
Model V20 Manual Work Section ......................................................................................................... Page 5
Model V20 [SOL] and [EPC] Solenoid Work Sections .......................................................................... Page 6
Model V20 [SOL] and [EPC] Solenoid Work Section with Handle ........................................................ Page 7
K-6125 Spring-Return Spool Positioner Kit .......................................................................................... Page 8
CK-6012 ‘D’ Detented Spool Positioner Kit .......................................................................................... Page 9
‘R’ Detent - Spring Return Spool Positioner Kits ................................................................................ Page 10
CK-6173 ‘PA’ Pneumatic Spool Actuator Kit ...................................................................................... Page 11
Installation Instructions for CK-6173 Pneumatic Actuators ................................................................ Page 12
K-6128 Hydraulic Remote ‘HR’ Spool Actuator Kit ............................................................................. Page 13
K-6129 Hydraulic Remote ‘HR’ Spool Actuator Kit ............................................................................. Page 14
K-6130 Hydraulic Remote ‘HRO’ Spool Actuator Kit .......................................................................... Page 15
K-6131 Hydraulic Remote ‘HRO’ Spool Actuator Kit .......................................................................... Page 16
On/Off [SOL] Solenoid Actuator Assembly ......................................................................................... Page 17
Proportional [EPC] Solenoid Actuator Assembly ................................................................................ Page 18
On/Off [SOL-IH] Solenoid Actuator Assembly .................................................................................... Page 19
Proportional [EPC-IH] Solenoid Actuator Assembly ........................................................................... Page 20
Solenoid Actuator (with Handle) Removal & Installation .................................................................... Page 21
On/Off Solenoid Cartridge Kits (K-CRT-SXXX) .................................................................................. Page 22
Proportional Solenoid Cartridge Kits (K-CRT-EXXX) ......................................................................... Page 23
2-Way, 2-Position (Plugged) Solenoid Bonnet Conversion ................................................................ Page 24
Solenoid Bonnet Spool Travel Limiter/Override Kits .......................................................................... Page 25
Solenoid Bonnet (with Handle) Spool Travel Limiter Kit ..................................................................... Page 26
K-6215 Compensator Plug Kit ............................................................................................................ Page 27
Model ‘RCPC’ Work Port Relief Cartridge .......................................................................................... Page 28
Standard & Heavy Duty Seal Retainer Kits ........................................................................................ Page 29
Handle Bracket and Spool Boot Kits .................................................................................................. Page 30
Vertical and Horizontal Handle Kits .................................................................................................... Page 31
Service Product Warranty, April 1996 ................................................................................................ Page 32
The information in this Service Manual was current at the time of publication. This information is
subject to change at any time without notice.

Model V20 Service and Parts Manual (Catalog No. SC-1102) Rev: 08-26-2002 3
V20 Work Section Housing Identification
Warning
There is a visual similarity between Gresen’s Model V20
Directional Control Valve closed center and open center
work sections. Work sections for these two valve
assemblies should NEVER be intermixed or interchanged
without prior consultation with the factory.
Intermixing a V20C, V20LS or V20PC closed center section
with a V20P, V20T or V20S work section will convert the
complete valve bank to closed center operation and in some
cases, could render the valve assembly inoperable and
cause damage to components in the hydraulic circuit.
Work Section Casting No. Location
8072 (V20P 'Parallel')
8112 (V20T 'Tandem')
10954 (V20RP 'Parallel')
10762 (V20RT 'Tandem)
11483 (V20S 'Series')
11571 (V20LO 'Lockout'
8364 (V20C 'Closed Center')
8364 (V20LS 'Load Sense)
8364 (V20PC 'Pressure Comp')
PB OUT
Inlet Cover Casting No. Location
7736 (Flow Control Inlet)
8398 (Standard Inlet)
Outlet Cover Casting No. Location
8644 (Top Outlet)
6770 (End Outlet)
Mid-Inlet Casting No. Location
6825 (Split or Combined Flow)
Utility Section Casting No. Location
7820 (Internal or External Pilot)
Unloader Section Casting No. Location
22952 (With or Without Pilot)
Figure 1. Casting Identification Numbers

Model V20 Service and Parts Manual (Catalog No. SC-1102) Rev: 08-26-2002 4
K-61XX Assembly Stud Kits
K-6121 or K-6156 Section Seal Kits
(See Figure 3)
Assembly Stud
(3 Studs per Kit)
09310006 Nut
(3 Nuts per Kit)
Torque to 25 - 28 Ft Lbs [34 - 38 Nm]
(This is a dry torque spec - Reduce torque by 8 Ft Lbs
[11 Nm] for oiled tie bolts)
Figure 2. K-61XX Stud Kit Components
Kit No. and Description Number of Mid Sections Using: Tie Bolts and Nut Part Numbers
Part Number Kit No. No. 6770 Outlet No. 8644 Outlet Bolt No. (3) per Kit Nut No. (3) per Kit
12807001
12808001
12809001
12810001
12811001
12812001
12813001
12814001
12815001
12697001
12816001
K-6104
K-6105
K-6106
K-6107
K-6108
K-6109
K-6110
K-6111
K-6112
K-6113
K-6114
One Section
Two Sections
Three Sections
Four Sections
Five Sections
Six Sections
Seven Sections
Eight Sections
Nine Sections
Ten Sections
Eleven Sections
-----
One Section
Two Sections
Three Sections
Four Sections
Five Sections
Six Sections
Seven Sections
Eight Sections
Nine Sections
Ten Sections
09120124
09120129
09120301
08100004
08100005
08100006
08100007
08100008
08100009
08100010
08100011
09310106
09310106
09310106
09310106
09310106
09310106
09310106
09310106
09310106
09310106
09310106
Notes: When using the 8644 Right End Cover, add one section to assure proper stud length.
Torque Specifications
Replace the stud nuts and torque evenly to 25 - 28 Ft
Lbs [34 - 38 Nm]. This is a dry stud torque spec.
Reduce torque spec to 18 - 20 Ft Lbs [25 - 27 Nm] for
oily studs.
CAUTION
If the stud nuts are not tightened to the proper
torque, valve spools may bind or stick, or cause O-
Ring seals to extrude.

Model V20 Service and Parts Manual (Catalog No. SC-1102) Rev: 08-26-2002 5
Section Seal Identificaton and Section Seal Kits
Section Seal Changes
As of April 1, 1991, the section seals for the V20
changed. The new versions have larger cross section
(the old was .070, the new is .103) and different
configurations for open center and closed center
sections. It is important to note that the seal kits
include all O-Rings (new and old), therefore there will
be some left unused.
WARNING
Do not pre-lube the O-Ring section seals prior to
installation. Make sure that the O-Rings and valve
counterbores are dry. Compression of lubricants
can distort the valve body causing spool bind.
(Prior To April 1, 1991)
All Work Sections, Mid-Inlets,
Utility Sections and Outlet Covers
(After April 1, 1991)
Open Center Work Sections
4
55 5
66
(After April 1, 1991)
Closed Center Work Sections, Mid-Inlets,
Utility Sections and Outlet Covers
4
4
55
66
6
1
12 2
33
3
Refer To The Warning Prior To Installing Section Seals
Figure 3. Section Seal Identification
Section Seal Kits
Ref No. Part No. Description Quantity
1
2
3
4
5
6
08340001
10749001
06814002
06815002
08316001
21857001
21733001
21866001
K-6121 Open Center Section Seal Kit (Includes all Seals Listed Below)
K-6156 Load Sense Section Seal Kit (Includes all Seals Listed Below)
O-Ring Section Seal (Serviced in K-6121 & K-6156 Seal Kits)
O-Ring Section Seal (Serviced in K-6121 & K-6156 Seal Kits)
O-Ring Section Seal (Serviced in K-6121 & K-6156 Seal Kits)
O-Ring Section Seal (Serviced in K-6121 & K-6156 Seal Kits)
O-Ring Section Seal (Serviced in K-6121 & K-6156 Seal Kits)
O-Ring Section Seal (Serviced in K-6121 & K-6156 Seal Kits)
2
2
3
3
3
3
K-6121 and K-6156 Section Seal Kits include the same seal part numbers. The quantities of seals in each kit are different.

Model V20 Service and Parts Manual (Catalog No. SC-1102) Rev: 08-26-2002 6
Spool Seal Replacement and Spool Seal Kits
1
Positioner End Handle End
Spool Chamfer
10954
5432
Figure 4. Spool Seal Removal
Warning: DO NOT hold the spool with a pliers or wrench. This will destroy the finish.
Spool Seal Removal
These instructions apply to valves which have been
removed from machines. If room permits rebuilding on the
machine, first disconnect any lines which could hold
pressure or supply oil into the valve assembly. It is
recommended to drain the valve prior to rebuilding.
For clarification, the control handle side of the valve is
considered the front side. The seal retainer plate (Item 3) is
the larger round plate with a hole in the center and two half
round notches opposite each other on the outer edge.
1. Remove the bonnet and spool positioner hardware
(Item 1) from the back of the work section. Keep parts
in order of disassembly. If the work section does not
include a handle assembly, prevent the spool from
turning or moving by inserting a screw driver through
clevis slot, or running a rod through the pin hole and
using it as a handle.
2. Remove the complete handle, handle bracket or seal
retainer hardware (Item 2) from the front of the work
section.
3. Push the spool into the housing from the front of the
valve until the front seal is exposed. Since the spool
seals can be replaced externally, it is not necessary to
remove the spool from the housing. Remove the
retainer plate washers (Item 3), back-up washers (Item
4), and spool seals (Item 5).
4. Remove the back seal in the same manner.
Note: The back spool seal is located inside the detent
sleeve in V20 Float sections. Refer to Figures 60 &
61 for parts illustration for float positioner.
5. Remove the bonnet and spool positioner assembly
parts (Item 1) from the back of the work section. Keep
in order of disassembly.

Model V20 Service and Parts Manual (Catalog No. SC-1102) Rev: 08-26-2002 7
Spool Seal Replacement and Spool Seal Kits
1
Positioner End Handle End
Spool Chamfer
10954
5432
Figure 5. Spool Seal Installation
Spool Seal Kits
Ref No. Part No. Description Quantity
1
2
3
4
5
07385001
12741001
12786001
06752001
03265001
07700001
K-6035 Standard Buna-N Spool Seal Kit (Includes Items 4 and 5 Only)
K-6125 Spool Positioner Assembly (See Figures 52 thru 62 for Positioner Options)
K-6033 Seal Retainer Assembly (See Figures 96 thru 99 for Handle End Options)
Seal Retainer Plate
Back-Up Washer
Buna-N Spool Seal (Serviced in K-6035 Spool Seal Kit)
1
1
2
2
2
Spool Seal Installation
Front Spool Seal Installation (O-Ring Spool Seal)
1. Push the spool into the housing from the front side of
the valve until the chamfer on the spool is flush with the
bottom of the seal gland. Install O-Ring spool seal into
the seal gland.
2. Place the new back-up washer (Item 4) over the spool
and up against the spool seal .
3. Place the seal retainer plate (Item 3) over the spool
and up against the back-up washer. Push firmly into
place.
4. Hold the seal retainer plate against the valve body and
push the spool from the back side thru the seal
approximately ¼ inch.
Back Seal Installation (Standard 3- and 4-Way Sections)
5. Push the spool into the housing from the back side
until the end of the spool is flush with the valve back
face, not the bottom of the seal gland. If the spool is
pushed in too far, the metering notches and/or spool
land may be moved into the seal area on the front end
of the valve. If this happens, DO NOT push the spool
back into the valve. Disassemble the seal assembly
and carefully remove the seal from the spool.
Reassemble per Steps 1 thru 4.
6. Install O-Ring spool seal and backup washer into the
seal gland in the same manner as in the front side.
7. Reassemble (in reverse order) all hardware
disassembled in Steps 1 & 2, Spool Seal Removal.
Back Seal Installation (Float Work Sections Only)
(Refer to Figures 60 & 61 for Float Positioner illustration)
5. With the float positioner disassembled from the spool,
slip the retainer sleeve over the spool into the
counterbore in the valve housing. Slide the spool seal
onto the spool and against the retainer sleeve.
6. Install the face seal O-Ring into the spotface in the end
of the detent sleeve. Slip the detent sleeve onto the
spool, over the spool seal, and up against the valve
housing.
7. Reassemble (in reverse order) all hardware
disassembled in Steps 1 & 2, Spool Seal Removal.

Model V20 Service and Parts Manual (Catalog No. SC-1102) Rev: 08-26-2002 8
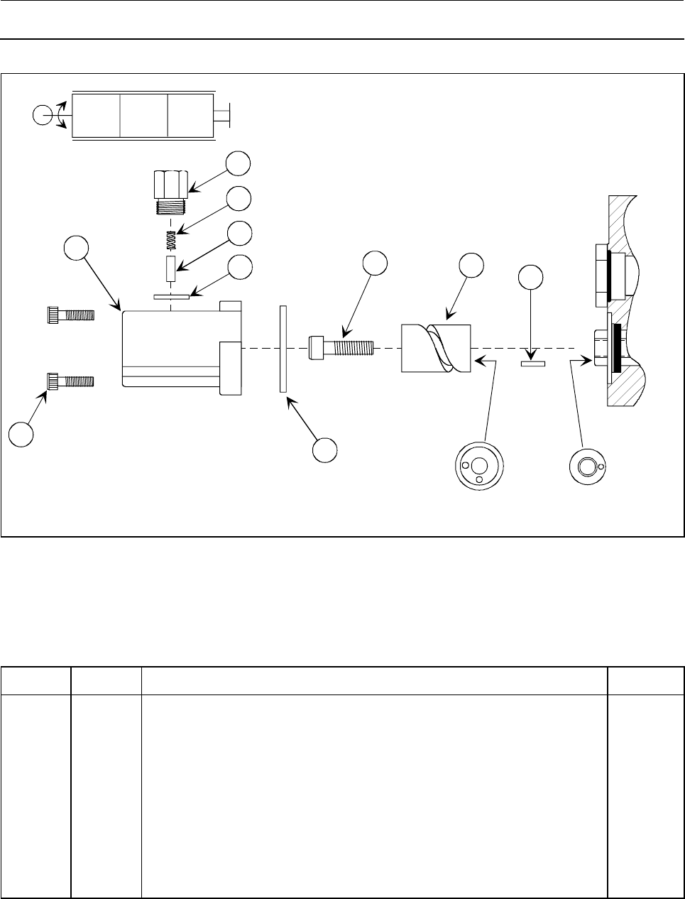
Model V20 Directional Control Valve – Typical Main Assembly
1
25
6
1
3
8
11
9
4
7
10
Figure 6. Model V20 Directional Control Valve – Typical Main Assembly
Ref No. Description Refer To Page(s):
1
2
3
4
5
6
7
8
9
10
11
Assembly Bolts and Nuts
Inlet Cover Housing
Main Relief Cartridge
Port Plugs
Section Seals
Mid Sections/Mid-Inlets/Utility Sections
Spool Positioners
Handles
Work Port Relief Cartridge
Outlet Cover Housing
Outlet Cover Conversion Options

Model V20 Service and Parts Manual (Catalog No. SC-1102) Rev: 08-26-2002 9
Special Note Regarding Back-Up Rings
Back-Up Rings in Used Seal Kits
Many of the plugs and cartridges used in the Gresen
product line utilize back-up rings. Therefore, many of
the seal kits in this Service Manual include back-up
rings, some of which are continuous back-up rings.
Since the continuous back-up rings are installed at the
factory using a special sizing tool, only replace this
back-up ring if it has been damaged.
(Continuous) Back-Up Rings
Preparing the Back-Up Ring for Installation
If the continuous back-up ring should need
replacing, follow these simple procedures.
1. Using a single edge razor blade, carefully
cut through the back-up ring in an angle
as shown in the drawing.
Caution: Make only one diagonal cut thru the
back-up ring. Do not separate the
ring into two pieces.
2. Slip the back-up ring over the cartridge
and into place.
Carefully make one cut thru Back-Up
Ring at approximately 30 degree angle
as shown here.

Model V20 Service and Parts Manual (Catalog No. SC-1102) Rev: 08-26-2002 10
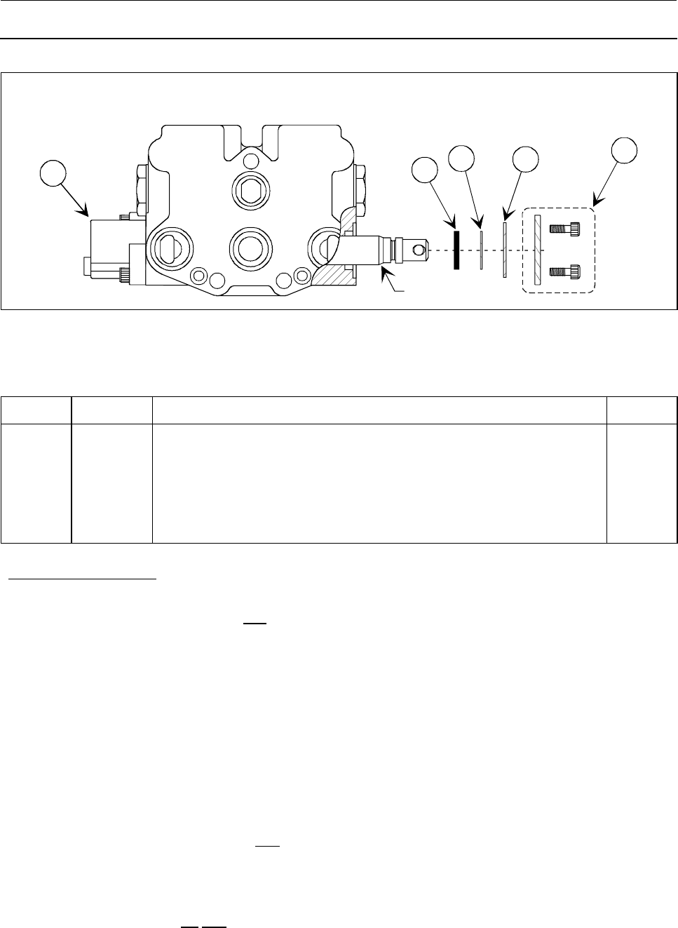
No. 8398 Inlet Cover
No. 8398 Inlet Cover
No. 8398 Inlet Covers offers top and end inlet and outlet
ports. All unused ports must be plugged.
If a gauge port is required, a port plug may be drilled and
tapped for a 1/4" NPTF or SAE 4 and installed in the unused
inlet port.
Port Plugs and the main relief cartridge are the serviceable
components located in the inlet cover.
Main Relief Cartridge Options
No. 8398 Inlet Covers are machined to accept the inlet
(main) relief valve cartridge. Main relief cartridges are
available in the following options:
Model WH – Differential Area Relief – Available in internal
shim adjustable, externally adjustable, and dual pressure
versions.
Model RP51 – Pilot Operated Relief - Available in externally
adjustable, tamper resistant and dual pressure versions.
No Relief Plug – Must be used when no main relief is
required.
1
3
3
2
3
Figure 7. No. 08120xxx Inlet Cover Assembly – Using 08398xxx Inlet Cover Housing
Ref No. Part No. Description Quantity
1
2
3
08398xxx
06532xxx
08853xxx
11387xxx
08950xxx
08950xxx
27005xxx
12797001
06089001
Inlet Cover Housing
WH Relief Cartridge (See Figure 9)
WHA Relief Cartridge (See Figure 10)
WH Dual Pressure Relief Cartridge (See Figure 11)
RP51A Relief Cartridge (See Figure 12)
RP51N Relief Cartridge (See Figure 12)
RP51 Dual Pressure Relief Cartridge (See Figure 13)
CK-6132 No Relief Cavity Plug (See Figure 14)
SAE 12 Port Plug (Plug Selection Determined by Inlet Porting – Refer to Page 105 for
a listing of available port plugs.
1
1
1
1
1
1
1
1
A/R
No. 08398 Inlet Cover Housing are available in many porting configurations. Contact the Gresen factory for help in identifying
No. 08398 housing part numbers.

Model V20 Service and Parts Manual (Catalog No. SC-1102) Rev: 08-26-2002 11
No. 7736 Inlet Cover with Flow Control
No. 7736 Inlet Cover
This inlet cover offers top and end inlet and end outlet ports.
All unused ports must be plugged. Port plugs, inlet relief
cartridge, and the flow control are the serviceable
components located in the inlet cover.
Inlet Flow Control Option
This cover is equipped with an adjustable flow control
assembly. Installation of the conversion plug in the excess
flow port will permit use of the excess flow for power beyond
applications.
Oil will only be directed out this port when a work section is
actuated. With all sections in neutral, oil is directed thru
open center and back to tank.
Main Relief Cartridge Options
No. 7736 inlet covers are machined to accept the inlet
(main) relief valve cartridge. Main relief cartridges are
available in the following options:
Model WH – Differential Area Relief – Available in internal
shim adjustable, externally adjustable, and dual pressure
versions.
Model RP51 – Pilot Operated Relief - Available in externally
adjustable, tamper resistant and dual pressure versions.
No Relief Plug – Must be used when no main relief is
required.
2
3
1
Internal Conversion Plug -
Must be installed to use the
Excess Flow (Power Beyond)
option
5
4
Figure 8. No. 07737xxx Inlet Cover Assembly – Using 07736xxx Inlet Cover Housing
Ref No. Part No. Description Quantity
1
2
3
4
5
07736xxx
07400xxx
06532xxx
08853xxx
11387xxx
08950xxx
08950xxx
27005xxx
12797001
06089001
00947001
Inlet Cover Housing
Flow Control Assembly (See Figure 15)
WH Relief Cartridge (See Figure 9)
WHA Relief Cartridge (See Figure 10)
WH-Dual Pressure Relief Cartridge (See Figure 11)
RP51A Relief Cartridge (See Figure 12)
RP51N Relief Cartridge (See Figure 12)
RP51 Dual Pressure Relief Cartridge (See Figure 13)
CK-6132 No Relief Cavity Plug (See Figure 14)
SAE 12 Port Plug (Plug Selection Determined by Inlet Porting – Refer to Page 105 for
a listing of available port plugs.
Excess Flow Conversion Plug (1/2” NPTF)
1
1
1
1
1
1
1
1
1
A/R
1
No. 07736 Inlet Cover Housing are available in many porting configurations. Contact the Gresen factory for help in identifying
No. 07736 housing part numbers.

Model V20 Service and Parts Manual (Catalog No. SC-1102) Rev: 08-26-2002 12
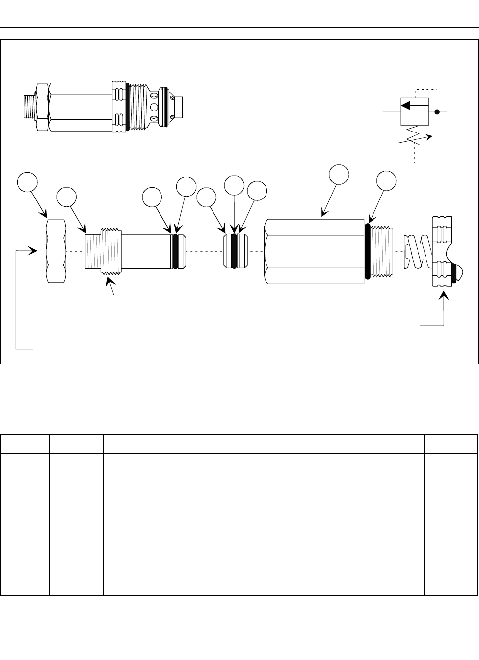
Model ‘WH’ and ‘WHA’ (Differential Poppet) Main Relief Cartridges
3
7
6
5
Torque to: 14 Ft Lbs
(19 Nm)
8
9
1
2
4
Torque to: 20 Ft Lbs
(27 Nm)
Figure 9. Model ‘WH’ and ‘WHA’ (Differential Poppet) Main Relief Cartridges (Model WH Shown)
Ref No. Part No. Description Quantity
1
2
3
4
5
6
7
8
9
06532xxx
08853xxx
07523001
12727001
01718001
09020022
01615001
06533001
03936001
00458001
00459001
00462001
01869001
07638001
07078001
01870001
07497001
11912001
02707001
01880001
Model WH Relief Cartridge, Complete (Specify Pressure Setting When Ordering)
Model WHA Relief Cartridge, Complete (Specify Pressure Setting When Ordering)
K-19003 WH Relief Seal Kit (Includes Items 1, 2, 3 & 8 )
K-19002 Relief Poppet Service Kit (Contains Item 5 - Poppet and Seal Assembly)
O-Ring Seal (Serviced in K-19003 Relief Seal Kit)
Back-Up Ring (Serviced in K-19003 Relief Seal Kit)
O-Ring Seal (Serviced in K-19003 Relief Seal Kit)
WH Relief Body
Poppet
Shim (.040 inch [1,0 mm] thick)
Shim (.020 inch [0,5 mm] thick)
Shim (.010 inch [0,25 mm] thick)
Spring (500 - 1249 PSI [35 - 87 bar] Pressure Range)
Spring (1250 - 1749 PSI [88 - 122 bar] Pressure Range)
Spring (1750 - 1999 PSI [123 - 140 bar] Pressure Range)
Spring (2000 - 2599 PSI [141 - 183 bar] Pressure Range)
Spring (2600 - 2999 PSI [184 - 209 bar] Pressure Range)
Spring (3000 - 3500 PSI [210 - 245 bar] Pressure Range)
O-Ring Seal (Serviced in K-19003 Relief Seal Kit)
Relief Cap
1
1
1
1
1
A/R
A/R
A/R
1
1
1
1
1
1
1
1
Buna-N seals are standard for all Gresen valve assemblies. For Viton seals, contact the Gresen factory in Minneapolis.
Model WHA Relief Cartridge replaces Items 8 & 9 with the CK-19001 External Adjustment Kit shown in Figure 10.
Do not attempt to change shims or springs in these reliefs unless you have the capability to test for proper pressure setting.
Without the capability to test you may exceed the maximum pressure rating of the product or draw the relief spring solid, which in
turn means there is no relief (NR).
Continuous Back-Up Rings are installed at the factory using special sizing tools. It is Not necessary to replace the original
Back-Up Rings unless they have been damaged. See Page 9 for Back-Up Ring Preparation and Installation procedures.

Model V20 Service and Parts Manual (Catalog No. SC-1102) Rev: 08-26-2002 13
CK-19001 (K-WH-A) External Adjustment Kit
Torque Relief Cartridge To:
20 Ft Lbs [27 Nm]
Torque to: 20 Ft Lbs
(27 Nm)
1
Relief Valve Cartridge With
Relief Cap Removed - Refer
To Individual Relief Cartridges
For Servicing Information.
2
3
4
5
6
7
Torque to: 15 Ft Lbs
(20 Nm)
Model 'WHA' Shown Here
Figure 10. CK-19001 (K-WH-A) External Adjustment Kit
Note: This Kit May Be Used On Model WH (Figure 9), RC (Figure 85), RCS (Figure 86), RCPC
(Figure 90) and CRA (Figure 88) Relief Cartridges
Ref No. Part No. Description Quantity
1
2
3
4
5
6
7
06489001
06489002
11481001
01818001
02707001
03498001
03496001
03500001
03497001
CK-19001 External Adjustment Kit (Contains All Items listed here)
K-19015 Adjustment Kit Seal Kit (Contains Items 2 and 3 Only)
Piston
O-Ring Seal
O-Ring Seal
Adjustment Adapter
Adjustment Stem
Jam Nut
Acorn Nut
1
1
1
1
1
1
1
Buna-N seals are standard for all Gresen valve assemblies.
Do not attempt to adjust these reliefs unless you have the capability to test the reliefs for proper pressure setting. Without the
capability to test you may exceed the maximum pressure rating of the product or draw the relief spring solid, which in turn means
there is no relief (NR).

Model V20 Service and Parts Manual (Catalog No. SC-1102) Rev: 08-26-2002 14
K-19006 Dual Pressure Relief Head Kit
Torque Relief Cartridge To:
20 Ft Lbs [27 Nm]
Torque to: 20 Ft Lbs
(27 Nm) 1
5
Torque to:
15 Ft Lbs
(20 Nm)
2
3
4
76
8
9
Adjustment Screw
1. Turn full in to shim-set high pressure.
2. Back off to set low pressure.
Model WH-2S Dual Pressure
Relief Cartridge Shown Here
Relief Valve Cartridge With
Relief Cap Removed - Refer
To Individual Relief Cartridges
For Servicing Information.
Remote Pilot Port is SAE 4
Figure 11. K-19006 Dual Pressure Relief Head Kit
Note: This Kit May Be Used On Model WH (Figure 9), RC (Figure 85), RCS (Figure 86), RCPC
(Figure 90) and CRA (Figure 88 ) Relief Cartridges
Ref No. Part No. Description Quantity
1
2
3
4
5
6
7
8
9
12731001
12194002
02707001
08931001
09021113
09000113
08932001
06839001
09021016
08933001
09302014
K-19006 Dual Pressure Relief Head Kit (Contains All Items listed here)
K-19016 Relief Head Seal Kit (Contains Items 1, 3, 4, 6 & 7)
O-Ring Seal
Body
Back Up Ring
O-Ring Seal
Piston
O-Ring Seal
Back Up Ring
Adjustment Screw
Hex Jam Nut
1
1
1
1
1
1
1
1
1
Buna-N seals are standard for all Gresen valve assemblies.
Do not attempt to adjust these reliefs unless you have the capability to test the reliefs for proper pressure setting. Without the
capability to read pressure, you may exceed the maximum pressure rating of the product or compress the relief spring solid,
which in turn means there is no relief (NR).
Continuous Back-Up Rings are installed at the factory using special sizing tools. It is Not necessary to replace the original
Back-Up Rings unless they have been damaged. See Page 9 for Back-Up Ring Preparation and Installation procedures.

Model V20 Service and Parts Manual (Catalog No. SC-1102) Rev: 08-26-2002 15
Model ‘RP51’ Main Relief Cartridges
Torque Relief Cartridge To:
20 Ft Lbs [27 Nm]
13
2
RP51-A RP51-N
4
Figure 12. Model ‘RP51’ (Pilot-Operated) Main Relief Cartridges
NOTE
Due to close tolerances on working parts, the RP51
Pilot-Operated Relief Valve is not field serviceable. If
service other than external seal replacement is
required, replace the complete cartridge.
Ref No. Part No. Description Quantity
1
2
3
4
08950005
08950014
08950006
08950011
08427001
01718001
09020022
01615001
10034001
RP51-A Cartridge, Adjustable from 1000 - 3500 PSI [69 – 240 bar]
RP51-A-LP Cartridge, Adjustable from 500 - 999 PSI [35 – 239 bar]
RP51-N Cartridge, Tamper Resistant, Preset 1000 – 3500 PSI [69 – 240 bar]
RP51-N-LP Cartridge, Tamper Resistant, Preset 500 – 999 PSI [35 – 239 bar]
K-28062 Plug Seal Kit (Contains Items 1 thru 3 Only) See Note Below
O-Ring Seal
Back Up Ring
O-Ring Seal
Tamper Resistant Cap (Installed at the factory on RP51-N Versions Only)
1
1
1
1
Buna-N seals are standard for all Gresen valve assemblies.
Specify relief valve pressure setting when ordering. Do NOT attempt to adjust these relief valves unless you have the
capability to test the reliefs for proper pressure setting. Without the capability to test you may exceed the maximum pressure
rating of the product or draw the relief spring solid, which in turn means there is no relief (NR).
RP51-N and RP51-N-LP Cartridges are preset at the factory and then the Tamper Resistant Cap is installed.
Continuous Back-Up Rings are installed at the factory using special sizing tools. It is Not necessary to replace the original
Back-Up Rings unless they have been damaged. See Page 9 for Back-Up Ring Preparation and Installation procedures.

Model V20 Service and Parts Manual (Catalog No. SC-1102) Rev: 08-26-2002 16
Model ‘RP51 - Dual Pressure’ Main Relief Cartridges
Torque Relief Cartridge To:
20 Ft Lbs [27 Nm]
13
2
RP51-A Dual
Pressure Relief
Remote Pilot Source
P
T
Low Pressure
Adjustment Locknut
High Pressure
Adjustment Locknut
SAE 4 Pilot Port For
Remote Pilot Source
(Minimum of 700 PSI
[48 bar] Required)
Figure 13. Model ‘RP51 – Dual Pressure’ Main Relief Cartridges
NOTE
Due to close tolerances on working parts, the RP51
Dual Pressure Pilot-Operated Relief Valve is not field
serviceable. If service other than external seal
replacement is required, replace the complete cartridge.
Ref No. Part No. Description Quantity
1
2
3
4
27005001
08427001
01718001
09020022
01615001
10034001
RP51-A-DP Cartridge, Dual Pressures, Adjustable from 1000 - 3500 PSI [69 –
240 bar]
K-28062 Plug Seal Kit (Contains Items 1 thru 3 Only) See Note Below
O-Ring Seal
Back Up Ring
O-Ring Seal
Tamper Resistant Cap (Installed at the factory on RP51-N Versions Only)
1
1
1
1
Buna-N seals are standard for all Gresen valve assemblies.
Specify relief valve pressure setting when ordering. Do NOT attempt to adjust these relief valves unless you have the
capability to test the reliefs for proper pressure setting. Without the capability to test you may exceed the maximum pressure
rating of the product or draw the relief spring solid, which in turn means there is no relief (NR).
Continuous Back-Up Rings are installed at the factory using special sizing tools. It is Not necessary to replace the original
Back-Up Rings unless they have been damaged. See Page 9 for Back-Up Ring Preparation and Installation procedures.

Model V20 Service and Parts Manual (Catalog No. SC-1102) Rev: 08-26-2002 17
CK-6132 Main Relief ‘NR’ Cavity Plug
Torque Relief Cavity Plug To:
20 Ft Lbs [27 Nm]
13
24
Tank
Inlet
Figure 14. CK-6132 Main Relief ‘NR’ Cavity Plug
Ref No. Part No. Description Quantity
1
2
3
4
12797001
08427001
01718001
09020022
01615001
06760001
CK-6132 No Relief ‘NR’ Plug Kit (Contains All Items Listed Below)
K-28062 Plug Seal Kit (Contains Items 1 thru 3 Only)
O-Ring Seal (Serviced in K-28062 Plug Seal Kit)
Back-Up Ring (Serviced in K-28062 Plug Seal Kit)
O-Ring Seal (Serviced in K-28062 Plug Seal Kit)
Relief Cavity Plug
1
1
1
1
Buna-N seals are standard for all Gresen valve assemblies. For Viton seals, contact the Gresen factory in Minneapolis.
Continuous Back-Up Rings are installed at the factory using special sizing tools. It is Not necessary to replace the original
Back-Up Rings unless they have been damaged. See Page 9 for Back-Up Ring Preparation and Installation procedures.

Model V20 Service and Parts Manual (Catalog No. SC-1102) Rev: 08-26-2002 18
Inlet Cover Flow Control – Used In 07737xxx Inlet Assemblies
12345
678910
11 12
Torque to: 12 Ft Lbs
(16 Nm)
Figure 15. Inlet Cover Flow Control
Ref No. Part No. Description Quantity
1
2
3
4
5
6
7
8
9
10
11
12
12833001
12832001
13110001
07990001
12834001
03236001
03731101
00563001
03906001
03911001
06309001
03902001
03908001
09001012
03882001
07400006
07400007
07400005
01819001
01821001
K-6067 (3 to 16 GPM - 11 to 60 lpm) Flow Control Kit (Contains Item 10 thru 12 Only)
K-6068 (8 to 25 GPM - 30 to 95 lpm) Flow Control Kit (Contains Item 10 thru 12 Only)
K-6193 (4 to 25 GPM - 15 to 95 lpm) Flow Control Kit (Contains Item 10 thru 12 Only)
K-6065 Flow Control Seal Kit (Contains Items 5, 7, 8, 11 & 12 Only)
K-6066 Flow Control Adjustment Kit (Contains Items 1 thru 8 Only)
Knob
Hex Head Screw
Lock Washer
Cap
O-Ring Seal (Serviced in K-6065 Seal Kit)
Flow Adjuster (Standard)
Flow Adjuster (Optional - 3 inch [76 mm] stem)
Back-Up Ring (Serviced in K-6065 Seal Kit)
O-Ring Seal (Serviced in K-6065 Seal Kit)
Spring
Flow Control Assembly (3 to 16 GPM [11 to 60 lpm]) (Serviced in K-6067 F/C Kit)
Flow Control Assembly (4 - 25 GPM [15 - 95 lpm]) (Serviced in K-6193 F/C Kit)
Flow Control Assembly (8 to 25 GPM [30 to 95 lpm]) (Serviced in K-6068 F/C Kit)
O-Ring Seal (Serviced in K-6065 Seal Kit)
Back-Up Ring (Serviced in K-6065 Seal Kit)
1
1
4
4
1
1
1
1
1
1
1
1
1
1
1
Buna-N seals are standard for all Gresen valve assemblies. For Viton seals, contact the Gresen factory in Minneapolis.
Continuous Back-Up Rings are installed at the factory using special sizing tools. It is Not necessary to replace the original
Back-Up Rings unless they have been damaged. See Page 9 for Back-Up Ring Preparation and Installation procedures.

Model V20 Service and Parts Manual (Catalog No. SC-1102) Rev: 08-26-2002 19
No. 8644 Outlet Cover
No. 8644 Outlet Cover
This cover offers top, end or bottom outlet ports in addition
to a top power beyond port. All unused outlet ports must be
plugged.
An internal plug (09435108) is available for conversion to
closed center or power beyond.
Caution:
No. 8644 Outlet Cover may only be used in open center and
closed center (high pressure standby) systems. They may
not be used with V20LS Work Sections.
Internal Conversion Plug
(Must be installed for conversion to
Power Beyond or Closed Center)
2
PB OUT
Port Plug Installed in PB port will convert
the valve to Closed Center when the
Internal Conversion Plug is installed.
3
1
5
5
4
4
Figure 16. No. 8644 Outlet Cover
Ref No. Part No. Description Quantity
1
2
3
4
5
08340001
08644xxx
09435108
06089001
21857001
21733001
K-6121 Section Seal Kit (Includes Ref No’s. 3 & 4)
Outlet Cover Housing
Internal Conversion Plug (SAE 8 Socket Head)
SAE 12 Port Plug (Plug Selection Determined by Inlet Porting – Refer to Page for a
listing of available port plugs.
O-Ring Seal (Serviced in K-6121 Section Seal Kit)
O-Ring Seal (Serviced in K-6121 Section Seal Kit)
1
1
A/R
2
2
Buna-N seals are standard for all Gresen valve assemblies. For Viton seals, contact the Gresen factory.
No. 08644 Outlet Cover Housing are available in many porting configurations. Contact the Gresen factory for help in identifying
No. 08644 housing part numbers.

Model V20 Service and Parts Manual (Catalog No. SC-1102) Rev: 08-26-2002 20
No. 6770 Outlet Cover With Conversion Port – Non Load Sense
No. 6770 Outlet Cover
This outlet cover offers an end outlet port (port on left). A
second (conversion) port is located in the center of the outlet
cover. This port accepts the closed center or power beyond
conversion plugs.
Closed Center Conversion
Provides a “Closed Center” system by plugging the open
center flow passage. This is normally used with a variable
displacement pump.
A closed center plug is installed in the option port in the
outlet cover.
Power Beyond Conversion
Provides for proper hook-up of an additional valve
“downstream”. The Power Beyond Sleeve prevents
subjecting the exhaust core to back pressure.
A power beyond sleeve is installed in the option port in the
outlet cover to convert to power beyond.
Caution: Never attempt to plug the power beyond
sleeve, as this will convert the valve to “Closed Center”.
Conversion Port
(Accepts Power Beyond Sleeves
and Closed Center Conversion Plugs)
1
2
3
3
44
Figure 17. No. 6770 (Open Center) Outlet Cover Assembly
Ref No. Part No. Description Quantity
1
2
3
4
08340001
06770xxx
06395001
12735001
12745001
12746001
12747001
12748001
12749001
21857001
21733001
K-6121 Section Seal Kit (Includes Ref No’s. 3 & 4 Only)
Outlet Cover Housing
K-6016 Conversion Plug (See Figure 15)
CK-6015 (Optional) Closed Center Plug (See Figure 15)
CK-6017 (Optional) 1/2” NPT Power Beyond Sleeve (See Figure 15)
CK-6018 (Optional) SAE 8 Power Beyond Sleeve (See Figure 15)
CK-6019 (Optional) SAE 10 Power Beyond Sleeve (See Figure 15)
K-6168 (Optional) SAE 12 Power Beyond Sleeve (See Figure 15)
K-6060 (Optional) SAE 16 Male Power Beyond Sleeve (See Figure 15)
O-Ring Seal (Order K-6121 Section Seal Kit)
O-Ring Seal (Order K-6121 Section Seal Kit)
1
1
1
1
1
1
1
1
2
2
Buna-N seals are standard for all Gresen valve assemblies. For Viton seals, contact the Gresen factory.
No. 06770 Outlet Cover Housing are available in many porting configurations. Contact the Gresen factory for help in identifying
No. 06770 housing part numbers.

Model V20 Service and Parts Manual (Catalog No. SC-1102) Rev: 08-26-2002 21
No. 6770 Outlet Cover With Solenoid Cartridge – Non Load Sense
No. 6770 Outlet Cover
This outlet cover offers an end outlet port (port on left). A
second (conversion) port is located in the center of the outlet
cover. This port accepts the closed center or power beyond
conversion plugs.
Power Beyond Conversion
A power beyond sleeve is installed in the option port in the
outlet cover to convert to power beyond.
1
3
3
44
12 V.D.C.
2
Figure 18. No. 6770 Outlet Cover With Solenoid Cartridge
Ref No. Part No. Description Quantity
1
2
3
4
08340001
06770xxx
12968001
12969001
12970001
21857001
21733001
K-6121 Section Seal Kit (Includes Ref No’s. 3 & 4 Only)
Outlet Cover Housing
CK-6177 12VDC Build Up Cartridge - See Figure xx
CK-6178 24VDC Build Up Cartridge - See Figure xx
CK-6179 Mechanical Build Up Cartridge Kit – See Figure xx
O-Ring Seal (Order K-6121 Section Seal Kit)
O-Ring Seal (Order K-6121 Section Seal Kit)
1
1
1
1
2
2
Buna-N seals are standard for all Gresen valve assemblies. For Viton seals, contact the Gresen factory.
No. 06770 Outlet Cover Housing are available in many porting configurations. Contact the Gresen factory for help in identifying
No. 06770 housing part numbers.

Model V20 Service and Parts Manual (Catalog No. SC-1102) Rev: 08-26-2002 22
No. 6770 V20LS Outlet Cover (No Load Sense Bleed-Down Plug)
No. 6770 Outlet Cover
The outlet cover offers top and end outlet ports. The
unused outlet port must be plugged.
12
Solenoid Pilot Seal Counterbores
3
4
5
534
5
Figure 19. No. 6770 V20LS Outlet Cover Assembly
Ref No. Part No. Description Quantity
1
2
3
4
5
10749001
06770xxx
00073001
21857001
21733001
21866001
K-6156 Section Seal Kit (Includes Ref No’s. 3 thru 5)
Outlet Cover Housing
3/8” - 18 NPTF Port Plug
O-Ring Seal (Serviced in K-6156 Section Seal Kit)
O-Ring Seal (Serviced in K-6156 Section Seal Kit)
O-Ring Seal (Serviced in K-6156 Section Seal Kit)
1
1
2
2
A/R
Buna-N seals are standard for all Gresen valve assemblies. For Viton seals, contact the Gresen factory.
No. 06770 Outlet Cover Housing are available in many porting configurations. Contact the Gresen factory for help in identifying
No. 06770 housing part numbers.

Model V20 Service and Parts Manual (Catalog No. SC-1102) Rev: 08-26-2002 23
No. 6770LS Outlet Cover (With Load Sense Bleed-Down Plug)
No. 6770LS Outlet Cover
The outlet cover offers top and end outlet ports. The
unused outlet port must be plugged.
Port plugs and bleed-down cartridges are field serviceable
components located in the outlet cover.
Optional Outlet Plugs
Bleed-Down Plug
Solenoid Pilot Seal Counterbores
1
2
3
4
355
5
4
Figure 20. No. 6770LS Outlet Cover Assembly
Ref No. Part No. Description Quantity
1
2
3
4
5
10749001
06770xxx
16012001
21857001
21733001
21866001
K-6156 Section Seal Kit (Includes Ref No’s. 3 thru 5)
Outlet Cover Housing
K-6255 Bleed-Down Cartridge Kit (See Figure 16)
O-Ring Seal (Serviced in K-6156 Section Seal Kit)
O-Ring Seal (Serviced in K-6156 Section Seal Kit)
O-Ring Seal (Serviced in K-6156 Section Seal Kit)
1
1
2
2
1
Buna-N seals are standard for all Gresen valve assemblies. For Viton seals, contact the Gresen factory.
No. 06770 Outlet Cover Housing are available in many porting configurations. Contact the Gresen factory for help in identifying
No. 06770 housing part numbers.

Model V20 Service and Parts Manual (Catalog No. SC-1102) Rev: 08-26-2002 24
Conversion Port Option Plugs for 6770 Outlet Cover
K-6016
Conversion Plug Kit
Conversion Port Location
Note: Not All 06770 Housings Have
The Conversion Port Machined
CK-6015
Closed Center Plug Kit
CK-6017
CK-6018
CK-6019
K-6168
Power Beyond Sleeve Kits
K-6060
Power Beyond Sleeve Kit
Figure 21. Conversion Plugs for 6770 Outlet Cover (Open Center)
Ref No. Part No. Description Quantity
1
2
3
4
5
6
06395001
12735001
12745001
12746001
12747001
12748001
12749001
06418001
01727001
01830001
01833001
01835001
01836001
01913001
07716001
02709001
09020017
01721001
K-6016 Conversion Plug Kit - Supplied as Standard (Includes Ref No’s. 1 & 2)
CK-6015 Closed Center Plug Kit (Includes Ref No’s. 2, 4, 5 & 6)
CK-6017 1/2” NPT Power Beyond Sleeve Kit (Includes Ref No’s. 3 thru 6)
CK-6018 SAE 8 Power Beyond Sleeve Kit (Includes Ref No’s. 3 thru 6)
CK-6019 SAE 10 Power Beyond Sleeve Kit (Includes Ref No’s. 3 thru 6)
K-6168 SAE 12 Power Beyond Sleeve Kit (Includes Ref No’s. 3 thru 6)
K-6060 SAE 16 Power Beyond Sleeve Kit (Includes Ref No’s. 3 thru 6)
K-6025 Plug Seal Kit (Includes Ref No’s. 4 thru 6 Only)
Conversion Plug
Closed Center Plug
Power Beyond Sleeve with 1/2” NPT Port
Power Beyond Sleeve with SAE 8 Port
Power Beyond Sleeve with SAE 10 Port
Power Beyond Sleeve with SAE 12 Port
Power Beyond Sleeve with SAE 16 Male Connection
O-Ring Seal (Serviced in K-6025 Plug Seal Kit)
Back-Up Ring (Serviced in K-6025 Plug Seal Kit)
O-Ring Seal (Serviced in K-6025 Plug Seal Kit)
1
1
1
1
1
1
1
1
1
1
Buna-N seals are standard for all Gresen valve assemblies. For Viton seals, contact the Gresen factory.
Continuous Back-Up Rings are installed at the factory using special sizing tools. It is Not necessary to replace the original
Back-Up Rings unless they have been damaged. See Page 9 for Back-Up Ring Preparation and Installation procedures.

Model V20 Service and Parts Manual (Catalog No. SC-1102) Rev: 08-26-2002 25
Load Sense Bleed-Down Plug for 6770LS Outlet Cover
K-6255 Bleed Down Cartridge Kit
Cleaning Instructions?????
1 Required per LS System
1
Load Sense Bleed-Down Plug
3
2
4
5
6
7
Clean Threads and Apply Loctite
Ref. No. 242 Thread Locking
Compound to Ref No. 7 prior to installation
Figure 22. Load Sense Bleed-Down Plug for 6770LS Outlet Cover
Ref No. Part No. Description Quantity
1
2
3
4
5
6
7
16012002
16088001
22249001
02708001
22489001
09001115
11839001
12293001
11056001
K-6240 Bleed-Down Cartridge Kit (Includes All Ref No’s Listed Below)
K-6269 Cartridge Seal Kit (Includes Ref No’s. 2 and 4 Only)
Bleed-Down Plug
O-Ring Seal (Serviced in K-6269 Cartridge Seal Kit)
.018 Orifice Screw (Standard)
O-Ring Seal (Serviced in K-6269 Cartridge Seal Kit)
Filter Screen
Back-Up Washer
Locking Screw
1
1
1
1
1
2
1
Buna-N seals are standard for all Gresen valve assemblies. For Viton seals, contact the Gresen factory.
Optional Orifice Screws are available from the Gresen factory. Available bleed hole diameters sizes are: .020, .030 & .040.
The Load Sense Bleed-Down Plug can be converted to a no-bleed assembly in the field by replacing the Orifice Screw with a
solid screw – Gresen Part Number 09275304. Install plug flush or slightly below surface.

Model V20 Service and Parts Manual (Catalog No. SC-1102) Rev: 08-26-2002 26
3-Way, 3-Position Parallel & Tandem Work Sections
8
5
3
4
5
2
6
7
1
Parallel
B
OC PT
Tandem B
OC
T P
Figure 23. 3-Way, 3-Position Parallel & Tandem Work Sections (Parallel Housing Shown Here)
Ref No. Part No. Description Quantity
1
2
3
4
5
6
7
8
07018001
08072xxx
10954xxx
08112xxx
10762xxx
08083001
12741001
12933001
06754001
12742001
12786001
07385001
07054001
00947001
K-6027 Work Section Service Kit - Standard Buna-N O-Rings
V20P Parallel Work Section Housing (Not Serviceable)
V20RP Parallel Work Section Housing (Not Serviceable)
V20T Tandem Work Section Housing (Not Serviceable)
V20RT Tandem Work Section Housing (Not Serviceable)
3-Way Spool (Not Serviceable)
K-6125 (V20P and V20T) Spring-Return Spool Positioner Kit (See Figure 6)
K-6207 (V20RP and V20RT) Spring-Return Spool Positioner Kit (See Figure 6)
3-Way Conversion Plug
K-6030 Load Check Plug Assembly (See Figures 24 thru 25 for Options)
K-6033 Seal Retainer Kit (See Figures 26 thru 29 for Handle End Options)
K-6035 Spool Seal Assembly (Serviced in Spool Seal Kits - See Figure 2)
SAE 10 Port Plug (Plug Selection Determined By Port Size)
½” - 14 NPT Port Plug
1
1
1
1
1
1
1
1
2
1
2
1
1
Work Section Service Kits include all the seals and back-up rings required to service one V20 work section.
Contact the Gresen factory in Minneapolis for porting options.
The work section housing and spool are matched and are not sold separately.
Warning: If you are using the free flow (F4) spool configuration in a cylinder lift application, it must be used in conjunction with a
load holding device. A load holding device will prevent the load from free falling when the spool is in the neutral position. A free
falling load could cause serious bodily injury or property damage if the holding device is not installed.
Manual Positioners and Actuators will NOT work on Solenoid Work Section housings.
Do not install the load check poppet and spring on the same side that the conversion plug (Item 4) is installed.

Model V20 Service and Parts Manual (Catalog No. SC-1102) Rev: 08-26-2002 27
4-Way, 3-Position Parallel & Tandem Work Sections
4
3
4
2
5
6
1
Parallel
BA
OC P
T
Tandem
BA
OC
P
T
Figure 24. 4-Way, 3-Position Parallel & Tandem Work Sections (Tandem Housing Shown Here)
Ref No. Part No. Description Quantity
1
2
3
4
5
6
07018001
08072xxx
10954xxx
08112xxx
10762xxx
08084001
08108001
12741001
12933001
12742001
12786001
07385001
K-6027 Work Section Service Kit - Standard Buna-N O-Rings
V20P Parallel Work Section Housing (Not Serviceable)
V20RP Parallel Work Section Housing (Not Serviceable)
V20T Tandem Work Section Housing (Not Serviceable)
V20RT Tandem Work Section Housing (Not Serviceable)
4-Way Spool (Not Serviceable)
4-Way Free Flow Spool (Not Serviceable)
K-6125 (V20P and V20T) Spring-Return Spool Positioner Kit (See Figure 6)
K-6207 (V20RP and V20RT) Spring-Return Spool Positioner Kit (See Figure 6)
K-6030 Load Check Plug Assembly (See Figures 24 thru 25 for Options)
K-6033 Seal Retainer Kit (See Figures 26 thru 29 for Handle End Options)
K-6035 Spool Seal Assembly (Serviced in Spool Seal Kits - See Figure 2)
1
1
1
1
1
1
1
1
2
1
2
Work Section Service Kits include all the seals and back-up rings required to service one V20 work section.
Contact the Gresen factory in Minneapolis for porting options.
The work section housing and spool are matched and are not sold separately.
Warning: If you are using the free flow (F4) spool configuration in a cylinder lift application, it must be used in conjunction with a
load holding device. A load holding device will prevent the load from free falling when the spool is in the neutral position. A free
falling load could cause serious bodily injury or property damage if the holding device is not installed.
Manual Positioners and Actuators will NOT work on Solenoid Work Section housings.

Model V20 Service and Parts Manual (Catalog No. SC-1102) Rev: 08-26-2002 28
4-Way, 4-Position Float Parallel & Tandem Work Sections
4
3
4
2
5
6
1
Parallel
P
OC
T
B A
Tandem
P
OC
T
B A
Figure 25. 4-Way, 4-Position Float Parallel & Tandem Work Sections (Parallel Housing Shown Here)
Ref No. Part No. Description Quantity
1
2
3
4
5
6
07019001
08072xxx
10954xxx
08112xxx
10762xxx
08085001
12888001
12742001
12786001
07385001
K-6028 Float Work Section Service Kit - Standard Buna-N O-Rings
V20P Parallel Work Section Housing (Not Serviceable)
V20RP Parallel Work Section Housing (Not Serviceable)
V20T Tandem Work Section Housing (Not Serviceable)
V20RT Tandem Work Section Housing (Not Serviceable)
4-Way Float Spool (Not Serviceable)
K-6127 4-Position Float Spool Positioner Kit (See Figure 6)
K-6030 Load Check Plug Assembly (See Figures 24 thru 25 for Options)
K-6033 Seal Retainer Kit (See Figures 26 thru 29 for Handle End Options)
K-6035 Spool Seal Assembly (Serviced in Spool Seal Kits - See Figure 2)
1
1
1
1
1
1
2
1
1
Work Section Service Kits include all the seals and back-up rings required to service one V20 work section.
Contact the Gresen factory in Minneapolis for porting options.
The work section housing and spool are matched and are not sold separately.
3-Position Spool Positioners and Actuators will NOT work on Float Work Sections.

Model V20 Service and Parts Manual (Catalog No. SC-1102) Rev: 08-26-2002 29
4-Way, 3-Position ‘V20LO’ Lockout Work Section
4
3
4
2
6
7
1
5
B A
P
T
OC
Figure 26. 4-Way, 3-Position ‘V20LO’ Lockout Work Section
Ref No. Part No. Description Quantity
1
2
3
4
5
6
7
07018001
11571xxx
08397001
12741001
12933001
06638001
11572001
12786001
07385001
K-6027 Work Section Service Kit - Standard Buna-N O-Rings
V20LO Lockout Work Section Housing (Not Serviceable)
4-Way Lockout Spool (Not Serviceable)
K-6125 (V20P and V20T) Spring-Return Spool Positioner Kit (See Figure 6)
K-6207 (V20RP and V20RT) Spring-Return Spool Positioner Kit (See Figure 6)
K-6024 Lockout Check Plug Assembly (See Figure 24)
Unlocking Piston
K-6033 Seal Retainer Kit (See Figures 26 thru 29 for Handle End Options)
K-6035 Spool Seal Assembly (Serviced in Spool Seal Kits - See Figure 2)
1
1
1
1
2
1
1
1
Work Section Service Kits include all the seals and back-up rings required to service one V20 work section.
Contact the Gresen factory in Minneapolis for porting options.
The work section housing and spool are matched and are not sold separately.

Model V20 Service and Parts Manual (Catalog No. SC-1102) Rev: 08-26-2002 30
4-Way, 3-Position Parallel & Tandem Work Sections with ‘KO’
3
4
2
4
1
5
6
OC
T
Parallel
BA
P
Tandem
BA
P
OC
T
Figure 27. 4-Way, 3-Position Parallel & Tandem Work Sections with ‘KO’ (Tandem Housing Shown Here)
Ref No. Part No. Description Quantity
1
2
3
4
5
6
07018001
08072xxx
10954xxx
08112xxx
10762xxx
08534001
08542002
12742001
12786001
07385001
K-6027 Work Section Service Kit - Standard Buna-N O-Rings
V20P Parallel Work Section Housing (Not Serviceable)
V20RP Parallel Work Section Housing (Not Serviceable)
V20T Tandem Work Section Housing (Not Serviceable)
V20RT Tandem Work Section Housing (Not Serviceable)
4-Way ‘KO’ (Knockout) Spool (Not Serviceable)
3-Position ‘KO’ Spool Positioner Kit (See Figure 6)
K-6030 Load Check Plug Assembly (See Figures 24 thru 25 for Options)
K-6033 Seal Retainer Kit (See Figures 26 thru 29 for Handle End Options)
K-6035 Spool Seal Assembly (Serviced in Spool Seal Kits - See Figure 2)
1
1
1
1
1
1
2
1
1
Work Section Service Kits include all the seals and back-up rings required to service one V20 work section.
Contact the Gresen factory in Minneapolis for porting options.
The work section housing and spool are matched and are not sold separately.
‘KO’ Knockout Spool Positioners will NOT work with standard spools.

Model V20 Service and Parts Manual (Catalog No. SC-1102) Rev: 08-26-2002 31
Model V20 Externally Piloted Solenoid Work Sections
1
2
4
8
4
3
675
T
BA
OC P
Figure 28. Model V20 Externally Piloted Solenoid Work Sections (Parallel 4-Way Section Shown)
Ref No. Part No. Description Quantity
1
2
3
4
5
6
7
8
07018001
08072xxx
10954xxx
08112xxx
10762xxx
08084001
08108001
10490001
12742001
07385001
07700001
03265001
12786001
K-6027 Work Section Service Kit - Standard Buna-N O-Rings
V20P Parallel Work Section Housing (Not Serviceable)
V20RP Parallel Work Section Housing (Not Serviceable)
V20T Tandem Work Section Housing (Not Serviceable)
V20RT Tandem Work Section Housing (Not Serviceable)
4-Way Spool (Not Serviceable)
4-Way Free Flow Spool (Not Serviceable)
K-6167 12VDC Solenoid Actuator Kit (See Figure 6)
K-6030 Load Check Plug Assembly (See Figures 24 thru 25 for Options)
K-6035 Spool Seal Assembly (Serviced in Spool Seal Kits - See Figure 2)
O-Ring Seal (Serviced in Spool Seal Kits – Figure 2)
Back-Up Ring (Serviced in Spool Seal Kits – Figure 2)
K-6033 Seal Retainer Kit (See Figures 26 thru 29 for Handle End Options)
1
1
1
1
1
1
1
2
1
1
1
1
Buna-N seals are standard for all Gresen valve assemblies.
Work Section Service Kits include all the seals and back-up rings required to service one V26PC work section, including spool
seals. Do NOT install spool seals into V26PC Solenoid Work Sections.
SAE porting standard. Contact the Gresen factory in Minneapolis for optional porting.
The work section housing and spool are matched and are not sold separately.
Warning: If you are using the free flow (F4) spool configuration in a cylinder lift application, it must be used in conjunction with a
load holding device. A load holding device will prevent the load from free falling when the spool is in the neutral position. A free
falling load could cause serious bodily injury or property damage if the holding device is not installed. Be sure to clear the work
area prior to testing the cylinder lift application to avoid a potential dangerous situation.
Continuous Back-Up Rings are installed at the factory using special sizing tools. It is Not necessary to replace the original
Back-Up Rings unless they have been damaged. See Page 9 for Back-Up Ring Preparation and Installation procedures.

Model V20 Service and Parts Manual (Catalog No. SC-1102) Rev: 08-26-2002 32
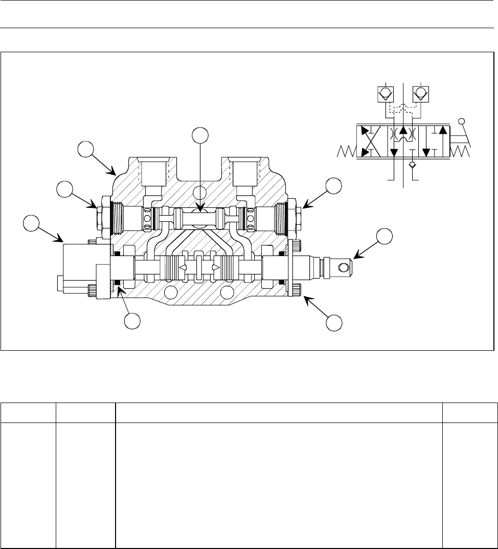
‘V20P’ Parallel & ‘V20T’ Tandem 4-Way Solenoid Work Sections
4
5
3
2
1
[EPC] Schematic
(4-Way Shown) BA
OC PT
5
Bonnet Seals
(Located in Work Section Body)
7
8
6
[SOL] Schematic
(4-Way Shown)
BA
OC PT
Figure 29. ‘V20P’ Parallel & ‘V20T’ Tandem 4-Way Solenoid Work Sections (Parallel Housing Shown)
Ref No. Part No. Description Quantity
1
2
3
4
5
6
7
8
10954xxx
10762xxx
21500001
21504001
21477xxx
21475xxx
21478xxx
21476xxx
12742001
21866001
21801001
07773001
K-6 V20 Solenoid Work Section Service Kit - Buna-N O-Rings
V20RP ‘Parallel’ Solenoid Work Section Housing (Not Serviceable)
V20RT ‘Tandem’ Solenoid Work Section Housing (Not Serviceable)
4-Way Solenoid Spool (Not Serviceable)
4-Way Free Flow Solenoid Spool (Not Serviceable)
On/Off [SOL] Solenoid Actuator Assembly - ‘A’ End (See Figure 14)
Proportional [EPC] Solenoid Actuator Assembly - ‘A’ End (See Figure 14)
On/Off [SOL] Solenoid Actuator Assembly - ‘B’ End (See Figure 14)
Proportional [EPC] Solenoid Actuator Assembly - ‘B’ End (See Figure 14)
K-6030 Load Check Plug Kit (See Figure 24)
O-Ring Seal
O-Ring Seal
O-Ring Seal
1
1
1
1
1
1
1
1
2
2
2
4
Buna-N seals are standard for all Gresen valve assemblies.
Work Section Service Kits include all the seals and back-up rings required to service one V26PC work section, including spool
seals. Do NOT install spool seals into V26PC Solenoid Work Sections.
SAE porting standard. Contact the Gresen factory in Minneapolis for optional porting.
The work section housing and spool are matched and are not sold separately.
Warning: If you are using the free flow (F4) spool configuration in a cylinder lift application, it must be used in conjunction with a
load holding device. A load holding device will prevent the load from free falling when the spool is in the neutral position. A free
falling load could cause serious bodily injury or property damage if the holding device is not installed. Be sure to clear the work
area prior to testing the cylinder lift application to avoid a potential dangerous situation.

Model V20 Service and Parts Manual (Catalog No. SC-1102) Rev: 08-26-2002 33
Manual Positioner and Actuators will NOT work on Solenoid Type Work Section housings.
‘V20P’ & ‘V20T’ Solenoid Work Sections with Handle
4
5
3
2
1
5
Bonnet Seals
(Located in Work Section Body)
7
8
6
[EPC-IH]
Schematic
(4-Way Shown)
BA
OC P
T
[SOL-IH]
Schematic
(4-Way Shown)
BA
OC P
T
Figure 30. ‘V20P’ & ‘V20T’ Solenoid Work Sections with Handle
Ref No. Part No. Description Quantity
1
2
3
4
5
6
7
10954xxx
10762xxx
21500001
21504001
21561xxx
21475xxx
21478xxx
21476xxx
12742001
21801001
21866001
07773001
K-6 V20 Solenoid Work Section Service Kit - Buna-N O-Rings
V20RP ‘Parallel’ Solenoid Work Section Housing (Not Serviceable)
V20RT ‘Tandem’ Solenoid Work Section Housing (Not Serviceable)
4-Way Solenoid Spool (Not Serviceable)
4-Way Free Flow Solenoid Spool (Not Serviceable)
On/Off [SOL] Solenoid Actuator with Handle - ‘A’ End (See Figure 14)
Proportional [EPC] Solenoid Actuator with Handle - ‘A’ End (See Figure 14)
On/Off [SOL] Solenoid Actuator Assembly - ‘B’ End (See Figure 14)
Proportional [EPC] Solenoid Actuator Assembly - ‘B’ End (See Figure 14)
K-6030 Load Check Plug Kit (See Figure 24)
O-Ring Seal
O-Ring Seal
O-Ring Seal
1
1
1
1
1
1
1
1
1
2
2
4
Buna-N seals are standard for all Gresen valve assemblies.
Work Section Service Kits include all the seals and back-up rings required to service one V26PC work section, including spool
seals. Do NOT install spool seals into V26PC Solenoid Work Sections.
SAE porting standard. Contact the Gresen factory in Minneapolis for optional porting.
The work section housing and spool are matched and are not sold separately.
Warning: If you are using the free flow (F4) spool configuration in a cylinder lift application, it must be used in conjunction with a
load holding device. A load holding device will prevent the load from free falling when the spool is in the neutral position. A free
falling load could cause serious bodily injury or property damage if the holding device is not installed. Be sure to clear the work
area prior to testing the cylinder lift application to avoid a potential dangerous situation.
Manual Positioner and Actuators will NOT work on Solenoid Type Work Section housings.

Model V20 Service and Parts Manual (Catalog No. SC-1102) Rev: 08-26-2002 34
4-Way, 3-Position ‘Series’ Work Sections
4
3
4
2
5
6
1
4-Way
B A
P
OC
T
4-Way Free Flow B A
P
OC
T
Figure 31. 4-Way, 3-Position ‘Series’ Work Section
Ref No. Part No. Description Quantity
1
2
3
4
5
6
11499001
11483xxx
11245001
12653001
12933001
12953001
12786001
07385001
K-6209 V20S Series Work Section Service Kit - Standard Buna-N O-Rings
V20S ‘Series’ Work Section Housing (Not Serviceable)
4-Way ‘Series’ Spool (Not Serviceable)
4-Way ‘Series’ Free Flow Spool (Not Serviceable)
K-6207 Spring-Return Spool Positioner Kit (See Figure 6)
K-6203 ‘Series’ Load Check Plug Assembly (See Figures 24 thru 25 for Options)
K-6033 Seal Retainer Kit (See Figures 26 thru 29 for Handle End Options)
K-6035 Spool Seal Assembly (Serviced in Spool Seal Kits - See Figure 2)
1
1
1
1
2
1
2
Work Section Service Kits include all the seals and back-up rings required to service one V20S ‘Series’ work section.
Contact the Gresen factory in Minneapolis for porting options.
The work section housing and spool are matched and are not sold separately.
Warning: If you are using the free flow (F4) spool configuration in a cylinder lift application, it must be used in conjunction with a
load holding device. A load holding device will prevent the load from free falling when the spool is in the neutral position. A free
falling load could cause serious bodily injury or property damage if the holding device is not installed.
Manual Positioners and Actuators will NOT work on Solenoid Work Section housings.

Model V20 Service and Parts Manual (Catalog No. SC-1102) Rev: 08-26-2002 35
4-Way, 4-Position Float ‘Series’ Work Sections
4
3
4
2
5
6
1
4-Position Float B A
P
OC
T
Figure 32. 4-Way, 3-Position ‘Series’ Float Work Section
Ref No. Part No. Description Quantity
1
2
3
4
5
6
11500001
11483xxx
11377001
12701001
12953001
12786001
07385001
K-6210 V20S Series Work Section Service Kit - Standard Buna-N O-Rings
V20S ‘Series’ Work Section Housing (Not Serviceable)
4-Way ‘Series’ Float Spool (Not Serviceable)
K-6208 ‘Series’ Float Spool Positioner Kit (See Figure 6)
K-6203 ‘Series’ Load Check Plug Assembly (See Figures 24 thru 25 for Options)
K-6033 Seal Retainer Kit (See Figures 26 thru 29 for Handle End Options)
K-6035 Spool Seal Assembly (Serviced in Spool Seal Kits - See Figure 2)
1
1
1
2
1
1
Work Section Service Kits include all the seals and back-up rings required to service one V20S ‘Series’ work section.
Contact the Gresen factory in Minneapolis for porting options.
The work section housing and spool are matched and are not sold separately.
3-Position Spool Positioners and Actuators will NOT work on Float Work Sections.

Model V20 Service and Parts Manual (Catalog No. SC-1102) Rev: 08-26-2002 36
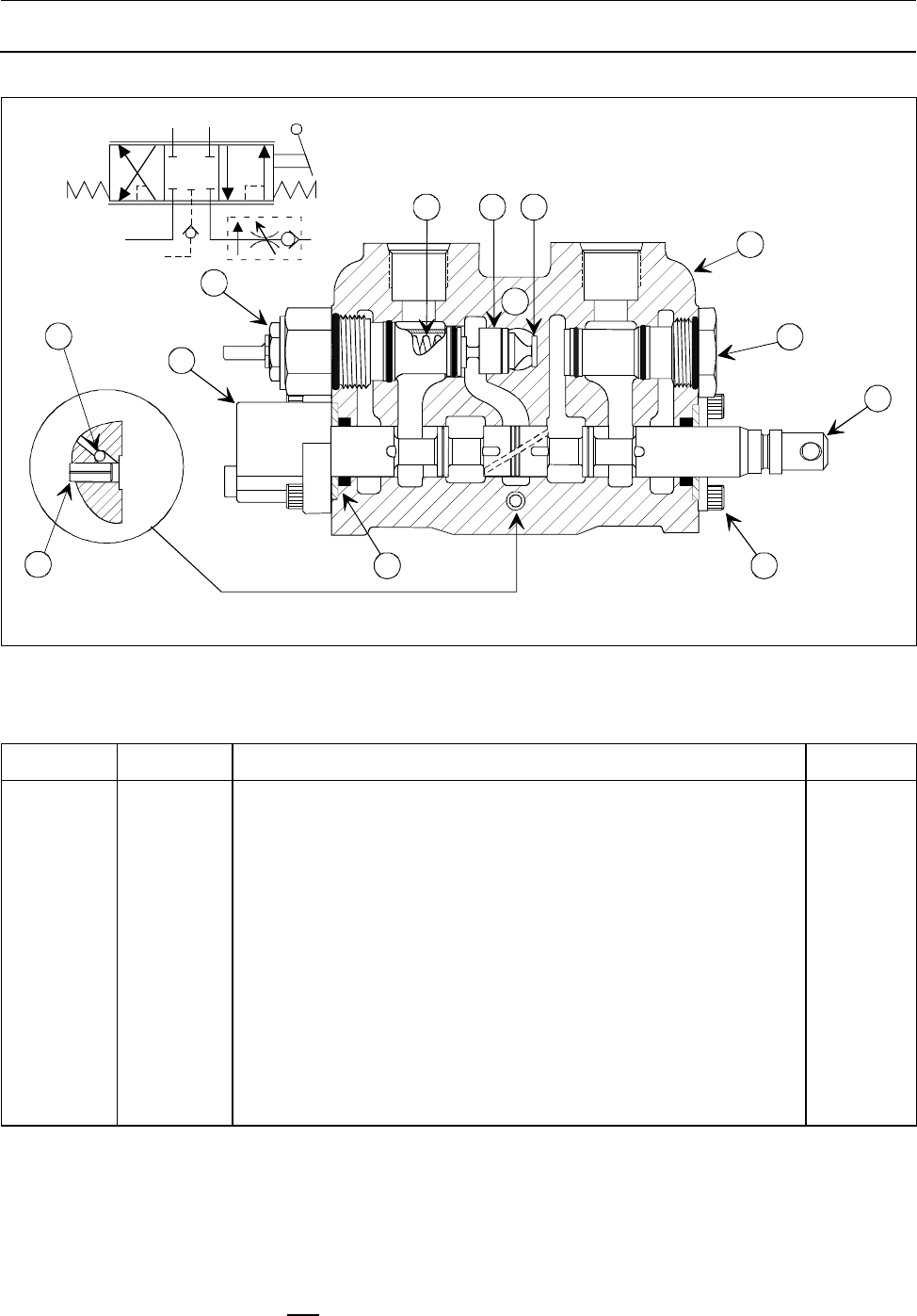
V20LS ‘Load Sensing’ Work Sections
4
2
9
5
3
8
1
Note: The Spring Pin and Load Sense Ball Are Not Serviceable
Items. Do NOT Remove Them From The Valve Housing
6
7
A
P
B
T
LS 4-Way
P
B
T
LS 3-Way
A
P
B
T
LS 4-Way Free Flow
Figure 33. V20LS ‘Load Sensing’ Work Sections
Ref No. Part No. Description Quantity
1
2
3
4
5
6
7
8
08364xxx
08388001
12741001
12742001
12786001
07385001
07397001
08392001
K- V20 Work Section Service Kit - Standard Buna-N O-Rings
V20LS Work Section Housing (Not Serviceable)
4-Way Load Sensing Spool (Not Serviceable)
K-6125 Spool Positioner Kit (See Figures 6 thru 13 for Positioner Options)
K-6030 Load Check Plug Assembly (See Figure )
K-6033 Seal Retainer Kit (See Figures 26 thru 29 for Handle End Options)
K-6035 Spool Seal Assembly (Serviced in Spool Seal Kits - See Figure 2)
Load Sense Check Ball (Not Serviceable)
Spring Pin (Not Serviceable)
1
1
1
2
1
2
1
1
Buna-N seals are standard for all Gresen valve assemblies.
Work Section Service Kits include all the seals and back-up rings required to service one V20 work section.
SAE porting standard. Contact the Gresen factory in Minneapolis for optional porting.
The work section housing and spool are matched and are not sold separately.
Warning: If you are using the free flow (F4) spool configuration in a cylinder lift application, it must be used in conjunction with a
load holding device. A load holding device will prevent the load from free falling when the spool is in the neutral position. A free
falling load could cause serious bodily injury or property damage if the holding device is not installed.
Manual Positioners and Actuators will NOT work on Solenoid Work Section housings.

Model V20 Service and Parts Manual (Catalog No. SC-1102) Rev: 08-26-2002 37
V20LS ‘Load Sensing’ Work Section With Flow Control
4
2
12
5
3
1
Note: The Spring Pin And Load Sense Ball Are Not Serviceable Items.
Do NOT Remove Them From The Valve Housing
6 7 8
9
10 11
Do Not Remove - Stop Is Installed
With Loctite and Threads Staked.
A
P
B
TLS
Figure 34. V20LS ‘Load Sensing’ Work Section With Flow Control
Ref No. Part No. Description Quantity
1
2
3
4
5
6
7
8
9
10
11
12
08364xxx
08388001
12741001
12742001
10981001
10983001
10982001
10984001
07397001
08392001
07385001
12786001
K- V20 Work Section Service Kit - Standard Buna-N O-Rings
V20LS-W/FC Work Section Housing (Not Serviceable)
4-Way Load Sensing Spool (Not Serviceable)
K-6125 Spool Positioner Kit (See Figures 6 thru 13 for Positioner Options)
K-6030 Load Check Plug Assembly (See Figure )
Flow Control Cartridge (See Figure )
Flow Control Spring (See Figure )
5-25 GPM Flow Control Piston (See Figure )
Flow Control Stop (Not Serviceable – Do NOT Remove)
Load Sense Check Ball (Not Serviceable – Do NOT Remove)
Spring Pin (Not Serviceable – Do NOT Remove)
K-6035 Spool Seal Assembly (Serviced in Spool Seal Kits - See Figure 2)
K-6033 Seal Retainer Kit (See Figures 26 thru 29 for Handle End Options)
1
1
1
1
1
1
1
1
1
1
2
1
Buna-N seals are standard for all Gresen valve assemblies.
Work Section Service Kits include all the seals and back-up rings required to service one V20 work section.
SAE porting standard. Contact the Gresen factory in Minneapolis for optional porting.
The work section housing and spool are matched and are not sold separately.
Warning: If you are using the free flow (F4) spool configuration in a cylinder lift application, it must be used in conjunction with a
load holding device. A load holding device will prevent the load from free falling when the spool is in the neutral position. A free
falling load could cause serious bodily injury or property damage if the holding device is not installed.
Manual Positioners and Actuators will NOT work on Solenoid Work Section housings.

Model V20 Service and Parts Manual (Catalog No. SC-1102) Rev: 08-26-2002 38
V20PC ‘Pressure Compensated’ Manual Work Sections
1
4
567
4
2
10
P
LS
T
B A
P
LS
T
B A
3
4-Way4-Way Free Flow
Note: The Spring Pin And Load Sense Ball Are Not Serviceable Items.
Do NOT Remove Them From The Valve Housing
8
911
Figure 35. V20PC ‘Pressure Compensated’ Manual Work Sections
Ref No. Part No. Description Quantity
1
2
3
4
5
6
7
8
9
10
11
16102001
08364XXX
21430001
21427001
21568001
12741001
16092001
20972003
22092002
00458001
00459001
00462001
12786001
07385001
07397001
08392001
K-6272 V20 Work Section Service Kit - Standard Buna-N O-Rings
V20PC Work Section Housing (Not Serviceable)
3-Way ‘V20PC’ 15 GPM Spool (Not Serviceable)
4-Way ‘V20PC’ 15 GPM Spool (Not Serviceable)
4-Way Free Flow ‘V20PC’ 15 GPM Spool (Not Serviceable)
K-6125 Spool Positioner Kit (See Figures 6 thru 13 for Positioner Options)
K-6215 Compensator Plug Assembly (See Figures 24 thru 25 for Options)
Compensator Piston (Not Serviceable)
Compensator Spring
Shim (.040 inch [1,0 mm] thick)
Shim (.020 inch [0,5 mm] thick)
Shim (.010 inch [0,25 mm] thick)
K-6033 Seal Retainer Kit (See Figures 26 thru 29 for Handle End Options)
K-6035 Spool Seal Assembly (Serviced in Spool Seal Kits - See Figure 2)
Load Sense Check Ball (Not Serviceable)
Spring Pin (Not Serviceable)
1
1
1
1
1
2
1
1
A/R
A/R
A/R
1
2
1
1
Buna-N seals are standard for all Gresen valve assemblies.
Work Section Service Kits include all the seals and back-up rings required to service one V20 work section.
SAE porting standard. Contact the Gresen factory in Minneapolis for optional porting.
The work section housing and spool are matched and are not sold separately.
Contact the Gresen factory in Minneapolis for spool flow sizes.
Warning: If you are using the free flow (F4) spool configuration in a cylinder lift application, it must be used in conjunction with a
load holding device. A load holding device will prevent the load from free falling when the spool is in the neutral position. A free
falling load could cause serious bodily injury or property damage if the holding device is not installed.
Manual Positioners and Actuators will NOT work on Solenoid Work Section housings.
The amount of ‘preload’ on the compensator piston is preset at the factory. Do NOT change the shim quantity without first
contacting the factory.

Model V20 Service and Parts Manual (Catalog No. SC-1102) Rev: 08-26-2002 39
V20PC ‘Pressure Compensated’ Solenoid Work Sections
[EPC] Schematic
P
LS
T
B A
DANA / GRESEN
MODEL HT20108-02
VOLT 12 DATE 9624
AMP 1.6 DUTY 100%
OHM 7.5
DANA / GRESEN
MODEL HT20108-02
VOLT 12 DATE 9624
AMP 1.6 DUTY 100%
OHM 7.5
1
3
456
3
2
8
The Spring Pin And Load Sense Ball Are Not Serviceable
Items. Do NOT Remove Them From The Valve Housing.
[SOL] Schematic
P
LS
T
B A
9
7
9
Figure 36. Model V20 [SOL] and [EPC] Solenoid Work Sections
Ref No. Part No. Description Quantity
1
2
3
4
5
6
7
8
16102001
08364XXX
21433001
21295001
21484001
21477XXX
21475XXX
21478XXX
21476XXX
21345002
20972003
22092002
00458001
00459001
00462001
K-6272 V20 Work Section Service Kit - Standard Buna-N O-Rings
V20PC Solenoid Work Section Housing (Not Serviceable)
3-Way ‘V20PC’ 15 GPM Spool (Not Serviceable)
4-Way ‘V20PC’ 15 GPM Spool (Not Serviceable)
4-Way Free Flow ‘V20PC’ 15 GPM Spool (Not Serviceable)
On/Off [SOL] Solenoid Actuator Assembly - ‘A’ End (See Figure 14)
Proportional [EPC] Solenoid Actuator Assembly - ‘A’ End (See Figure 15)
On/Off [SOL] Solenoid Actuator Assembly - ‘B’ End (See Figure 14)
Proportional [EPC] Solenoid Actuator Assembly - ‘B’ End (See Figure 15)
Compensator Plug Assembly (See Figures 24 thru 25 for Options)
Compensator Piston (Not Serviceable)
Compensator Spring
Shim (.040 inch [1,0 mm] thick)
Shim (.020 inch [0,5 mm] thick)
Shim (.010 inch [0,25 mm] thick)
1
1
1
1
1
1
2
1
1
A/R
A/R
A/R
1
1
Buna-N seals are standard for all Gresen valve assemblies.
Work Section Service Kits include all the seals and back-up rings required to service one V20 work section. Do NOT install spool
seals into V20 Solenoid Work Sections.
SAE porting standard. Contact the Gresen factory in Minneapolis for optional porting.
The work section housing and spool are matched and are not sold separately.
Contact the Gresen factory in Minneapolis for spool flow sizes.
Warning: If you are using the free flow (F4) spool configuration in a cylinder lift application, it must be used in conjunction with a
load holding device. A load holding device will prevent the load from free falling when the spool is in the neutral position. A free
falling load could cause serious bodily injury or property damage if the holding device is not installed.
Solenoid Actuators will NOT work on Manual Work Section housings.
The amount of ‘preload’ on the compensator piston is preset at the factory. Do NOT change the shim quantity without first
contacting the factory.

Model V20 Service and Parts Manual (Catalog No. SC-1102) Rev: 08-26-2002 40
Model V20 Split and Combined Flow Mid-Inlet Sections
2
1
Secondary Pump
Flow - Top Inlet Port
Combined Flow Mid- Inlet
Primary Pump Flow -
Up Stream Open Center
Secondary Pump
Flow - Top Inlet Port
Primary Pump Flow -
Up Stream Open Center
Split Flow Mid- Inlet
3
4
NPTF Plug Installed From Downstream
Side - Split Flow Mid-Inlets Only
(Optional) Pilot Thru Holes - Allows Solenoid Pilot
And/Or Load Sense To Pass Thru Mid-Inlet
Figure 37. Model V20 Split and Combined Flow Mid-Inlet Sections
Ref No. Part No. Description Quantity
1
2
3
4
06825xxx
06532xxx
08853xxx
11387xxx
08950xxx
08950xxx
27005xxx
12797001
00017001
09435105
Mid-Inlet Section Housing
WH Relief Cartridge (See Figure 6)
WHA Relief Cartridge (See Figure 7)
WH Dual Pressure Relief Cartridge (See Figure 7)
RP51A Relief Cartridge (See Figure 8)
RP51N Relief Cartridge (See Figure 8)
RP51 Dual Pressure Relief Cartridge (See Figure 8)
CK-6132 No Relief Cavity Plug (See Figure 9)
1/4 - 18 NPTF Plug (Split Flow Versions Only)
SAE 5 Socket Head Plug (Split Flow Versions Only)
1
1
1
1
1
1
1
1
1
1
Contact the Gresen factory in Minneapolis for Combined Flow and Split Flow housing options.

Model V20 Service and Parts Manual (Catalog No. SC-1102) Rev: 08-26-2002 41
Open Center Utility Sections
2
14
5
7
3
6
8
Torque to: 29 - 33 Ft Lbs
(38 - 44 Nm)
Torque to: 16 - 18 Ft Lbs
(21 - 24 Nm)
Torque to: 3 - 4 Ft Lbs
(4 - 6 Nm) Torque to: 16 - 18 Ft Lbs
(21 - 24 Nm)
T
300 PSI
O/C P/C
Pilot
Mechanical Utility Section
T
300 PSI
O/C P/C
Pilot
Electric Utility Sections
Figure 38. Open Center Utility Section with Solenoid-Operated Build Up Valve Cartridge
(V20T) tandem work sections must not be used in solenoid valve applications where a Utility Section is required
because the blocked power core in the tandem work section interrupts oil flow to the solenoid actuators. Tandem
sections may only be used with the Unloading Utility Section (Page 19) or where an external pilot source is available.
Ref No. Part No. Description Quantity
1
2
3
4
5
6
7
8
07820XXX
12968001
12969001
12970001
12880001
12879001
06879001
08103001
12956001
21733001
21866001
21857001
Utility Section Housing (Not Serviceable)
CK-6177 12 Volt Build-Up Cartridge (See Figure 20)
CK-6178 24 Volt Build-Up Cartridge (See Figure 20)
CK-6179 Mechanical (Continuous On) Build-Up Cartridge (See Figure 21)
CK-6097 SAE 12 Power Beyond Sleeve (See Figure 22)
CK-6098 ¾” NPT Power Beyond Sleeve (See Figure 22)
SAE 8 Plug
SAE 4 Plug
CK-28096 Pressure Reducing Valve Cartridge (See Figure 24)
O-Ring Seal (Exhaust) (Serviced in K-6156 Section Seal Kit)
O-Ring Seal (Pilot) (Serviced in K-6156 Section Seal Kit)
O-Ring Seal (Open Center and Power Core) (Serviced in K-6156 Section Seal Kit)
1
1
1
1
1
1
1
1
2
2
2
Buna-N seals are standard for all Gresen valve assemblies. Contact the Gresen factory in Minneapolis for optional seals.

Model V20 Service and Parts Manual (Catalog No. SC-1102) Rev: 08-26-2002 42
Closed Center (Load Sensing) Utility Section
2
3
Internal NPTF Plug
1 5
6
7
8
9
4
Torque to: 29 - 33 Ft Lbs
(38 - 44 Nm)
Torque to: 16 - 18 Ft Lbs
(21 - 24 Nm)
Torque to: 3 - 4 Ft Lbs
(4 - 6 Nm) Torque to: 16 - 18 Ft Lbs
(21 - 24 Nm)
T
300 PSI
P/C
Pilot
Load Sensing Utility Section
LS
Figure 39. Closed Center (Load Sensing) Utility Section
Ref No. Part No. Description Quantity
1
2
3
4
5
6
7
8
9
07820XXX
11543001
06879001
00017001
08103001
12956001
21733001
21866001
21857001
Utility Section Housing (Not Serviceable)
CK-6103 Closed Center Plug (See Figure 23)
SAE 8 Plug
1/4 - 18 NPTF Plug
SAE 4 Plug
CK-28096 Pressure Reducing Valve Cartridge (See Figure 24)
O-Ring Seal (Exhaust) (Serviced in K-6156 Section Seal Kit)
O-Ring Seal (Solenoid Pilot and Load Sense) (Serviced in K-6156 Section Seal Kit)
O-Ring Seal (Open Center and Power Core) (Serviced in K-6156 Section Seal Kit)
1
1
1
1
1
1
2
3
2
Buna-N seals are standard for all Gresen valve assemblies. Contact the Gresen factory in Minneapolis for optional seals.

Model V20 Service and Parts Manual (Catalog No. SC-1102) Rev: 08-26-2002 43
Unloading Utility Section
1
2
3
4
5
6
7
Torque To: 25 - 30 Ft Lbs
(33 - 40 Nm)
Torque To: 15 - 20 Ft Lbs
(20 - 27 Nm)
Torque To: 30 - 35 Ft Lbs
(40 - 47 Nm)
Torque To:
30 - 35 Ft Lbs
(40 - 47 Nm)
Torque To:
15 - 20 Ft Lbs
(20 - 27 Nm)
Torque To: 20 - 25 Ft Lbs
(27 - 33 Nm)
Solenoid Pilot Passage
(See Note 2)
Load Sense Signal Passage
(See Note 3)
Solenoid Pilot Passage
(See Note 2)
Internal Power Beyond
Conversion Plug (See Note 1)
External Pilot Port
Power Beyond Or
Outlet Port
8Expansion Plugs
(See Notes 2 and 3)
Figure 40. Unloading Utility Section
IMPORTANT
O-Ring Seals and Plugs furnished with these sections makes it easily adapted to many valve
applications. Refer to Page 20 for circuit applications using the V20 Unloading Section.
Refer to Pages 21 and 22 for procedures on how to select power beyond or outlet options.
Ref No. Part No. Description Quantity
1
2
3
4
5
6
7
8
22952XXX
09435106
06089001
00017001
16134001
16133001
12956001
22273001
22962002
Unloading Section Housing (Not Serviceable)
SAE 6 Plug
SAE 12 Plug
1/4 - 18 NPTF Plug
K-6237 Unloading Valve Cartridge (See Figure 51)
K-6236 Bleed-Down Plug (See Figure 50)
CK-28096 Pressure Reducing Valve Cartridge - For Solenoid Valves (See Figure 24)
No Pressure Reducing Valve Plug - For Manual Valves (See Figure 25)
6mm Expansion Plug (Not Serviceable)
1
1
1
1
1
1
1
1
3

Model V20 Service and Parts Manual (Catalog No. SC-1102) Rev: 08-26-2002 44
Unloading Section Applications
Inlet Cover
Unloading Section
V20PC or LS Work Sections
Outlet Cover
Optional Outlet
Inlet Cover
Unloading Section
V20PC or LS Work Sections
Outlet Cover
Optional Outlet
V20T Work Section
V20P Work Sections
Inlet Cover
Unloading Section
V20PC or LS Work Sections
Outlet Cover
Open Center Valve
Power Beyond
Valve No. 1
Valve No. 2
All V20LS or V20PC Load
Sensing Work Sections
(Priority Type Circuit)
V20LS or V20PC Load Sensing
Work Sections Upstream and
Open Center Sections Downstream
Priority is given to the work sections
upstream of the unloading section.
(Priority Type Circuit)
V20LS or V20PC Load Sensing
Valve feeding an Open Center
Valve thru External Power Beyond
Port.
Priority is given to valve No. 1.
Only excess flow will be available
to valve No. 2.
Figure 41. Unloading Section Applications
Note: When mixing Closed Center and Open Center work sections in the same stack, the open center
sections must be downstream from the unloading section. A tandem (V20T) section must be installed
between the unloading section and parallel (V20P) work sections. Refer to Pages 21 and 22 for
information on when and where to install the conversion plugs supplied with the unloading section.

Model V20 Service and Parts Manual (Catalog No. SC-1102) Rev: 08-26-2002 45
Standard Unloading Utility Section - No Power Beyond Option
Torque Plug To: 30 - 35 Ft Lbs
(40 - 47 Nm)
Solenoid Pilot Passage
(See Note 2)
Load Sense Signal Passage
(See Note 3)
Solenoid Pilot Passage
(See Note 2)
Internal conversion plug must
be removed to select standard
return option.
External return oil port. Install SAE
Plug to return oil thru right end cover.
Expansion Plugs
(See Notes 2 and 3)
T
300 PSI
LS
P/C
Pilot
Int.
P/B
Aux.
Pilot
P/B or
Return
Figure 42. Unloading Utility Section (Selecting the Standard Return Option)
Procedures for Selecting the Standard Return Option
The internal (1/4” NPTF) conversion plug must be removed to select the standard return option. Return oil will exit
thru the top SAE 12 port or may be directed thru the outlet port located in the inlet or outlet cover.
Install expansion plugs in the outer solenoid pilot passages on the downstream side of the unloading section when
downstream work section(s) do not have pilot holes (i.e. manual work sections). Refer to Note 3 for information on
when to install the expansion plug in the center load sense signal passage.
Install expansion plug in the center load sensing passage on the downstream side of the unloading section when
the downstream section(s) are not load sensing work sections. Refer to Note 2 for information on when to install
the expansion plugs in the outer solenoid pilot passages.

Model V20 Service and Parts Manual (Catalog No. SC-1102) Rev: 08-26-2002 46
Unloading Utility Section with Power Beyond Option
Torque Plug To: 30 - 35 Ft Lbs
(40 - 47 Nm)
Solenoid Pilot Passage
(See Note 2)
Load Sense Signal Passage
(See Note 3)
Solenoid Pilot Passage
(See Note 2)
External power beyond port. Install
SAE Plug to select the internal power
beyond option.
Expansion Plugs
(See Notes 2 and 3)
T
300 PSI
LS
P/C
Pilot
Int.
P/B
Aux.
Pilot
Ext.
P/B
Internal conversion plug must be
installed to select both the internal
and external power beyond options.
Figure 43. Unloading Utility Section (Selecting the Power Beyond Option)
Procedures for Selecting the Internal or External Power Beyond Option
The internal (1/4” NPTF) power beyond conversion plug must be installed to select the power beyond option.
Power beyond oil will exit thru the top SAE 12 port or may be directed internally to downstream work sections.
IMPORTANT: If selecting the internal power beyond option, a V20 Tandem work section must be installed
immediately downstream from the unloading section.
Install expansion plugs in the outer solenoid pilot passages on the downstream side of the unloading section when
downstream work section(s) do not have pilot holes (i.e. manual work sections). Refer to Note 3 for information on
when to install the expansion plug in the center load sense signal passage.
Install expansion plug in the center load sensing passage on the downstream side of the unloading section when
the downstream section(s) are not load sensing work sections. Refer to Note 2 for information on when to install
the expansion plugs in the outer solenoid pilot passages.

Model V20 Service and Parts Manual (Catalog No. SC-1102) Rev: 08-26-2002 47
Solenoid-Operated Pressure Build-Up Valve Cartridges
Torque Build-Up Cartridge To:
29 - 33 Ft Lbs (38 - 44 Nm)
12
3
Torque To: 3 - 4 Ft Lbs
(4 - 5,5 Nm)
T
300 PSI
O/C P/C
Pilot
Electric Pressure Build-Up Valve
Figure 44. Solenoid-Operated Pressure Build-Up Valve Cartridges
Ref No. Part No. Description Quantity
1
2
3
12968001
12969001
12052001
08512001
08511001
09002018
06277001
CK-6177 12 VDC Build-Up Cartridge, Complete
CK-6178 24 VDC Build-Up Cartridge, Complete
K-6184 Cartridge Seal Kit
12 VDC Replacement Coil
24 VDC Replacement Coil
O-Ring Seal (Serviced in K-6184 Cartridge Seal Kit)
O-Ring Seal (Serviced in K-6184 Cartridge Seal Kit)
1
1
1
1
Buna-N seals are standard for all Gresen valve assemblies. Contact the Gresen factory in Minneapolis for optional seals.

Model V20 Service and Parts Manual (Catalog No. SC-1102) Rev: 08-26-2002 48
Mechanical Pressure Build-Up Valve Cartridge
Torque Build-Up Cartridge To:
29 - 33 Ft Lbs (38 - 44 Nm)
1
2
Torque Jam Nut To:
3 - 4 Ft Lbs (4 - 5,5 Nm)
Tamper Resistant Cap
(Used on Non-Adjustable Model Only)
Pressure Adjustment Screw
(Turn 'In' to Increase Standby Pressure)
T
300 PSI
O/C P/C
Pilot
Mechanical Build-Up Cartridge
Figure 45. Mechanical Pressure Build-Up Valve Cartridge
Ref No. Part No. Description Quantity
1
2
12970001
12690001
06277001
09002018
CK-6179 Mechanical (Continuous On) Build-Up Cartridge, Complete
K-6188 Cartridge Seal Kit
O-Ring Seal (Serviced in K-6184 Cartridge Seal Kit)
O-Ring Seal (Serviced in K-6184 Cartridge Seal Kit)
1
1
Buna-N seals are standard for all Gresen valve assemblies. Contact the Gresen factory in Minneapolis for optional seals.

Model V20 Service and Parts Manual (Catalog No. SC-1102) Rev: 08-26-2002 49
Power Beyond Sleeves for use in Utility Sections
Torque Power Beyond Sleeve To:
29 - 33 Ft Lbs (38 - 44 Nm)
T
300 PSI
O/C P/C
Pilot
PB
3
1
2
Power Beyond Sleeve
Figure 46. Power Beyond Sleeve for use in Utility Sections
In V20 Solenoid Valves, the power beyond conversion is made in the utility section. Since the power
beyond sleeve is installed where the pressure build-up valve is normally located, there will be no pressure
build-up valve in the valve assembly. The pressure build-up valve must be located in the downstream valve
circuit.
Ref No. Part No. Description Quantity
1
2
3
12880001
12879001
16097001
08193001
08194001
02709001
01910001
CK-6097 SAE 12 Power Beyond Sleeve Kit, Complete
CK-6098 3/4” NPT Power Beyond Sleeve Kit, Complete
K-6234 Plug Seal Kit
3/4” NPT Power Beyond Sleeve (Serviced in CK-6098 Power Beyond Sleeve Kit)
SAE 12 Sleeve (Serviced in CK-6097 Power Beyond Sleeve Kit)
O-Ring Seal (Serviced in K-6234 Cartridge Seal Kit)
O-Ring Seal (Serviced in K-6234 Cartridge Seal Kit)
1
1
1
1
Buna-N seals are standard for all Gresen valve assemblies. Contact the Gresen factory in Minneapolis for optional seals.

Model V20 Service and Parts Manual (Catalog No. SC-1102) Rev: 08-26-2002 50
Closed Center Plug for use in Utility Sections
Torque Closed Center Plug To:
29 - 33 Ft Lbs (38 - 44 Nm)
T
300 PSI
O/C P/C
Pilot
CC
3
1
2
Closed Center Plug
Figure 47. Closed Center Plug for use in Utility Sections
Ref No. Part No. Description Quantity
1
2
3
11543001
16097001
08195001
02709001
01910001
CK-6103 Closed Center Plug Kit, Complete
K-6234 Plug Seal Kit
Plug (Serviced in CK-6103 Closed Center Plug Kit)
O-Ring Seal (Serviced in K-6234 Plug Seal Kit)
O-Ring Seal (Serviced in K-6234 Plug Seal Kit)
1
1
1
Buna-N seals are standard for all Gresen valve assemblies. Contact the Gresen factory in Minneapolis for optional seals.

Model V20 Service and Parts Manual (Catalog No. SC-1102) Rev: 08-26-2002 51
Pressure Reducing Valve Cartridge
Torque PRV Cartridge To:
25 - 30 Ft Lbs ([33 - 40 Nm)
13
25
4
Pressure Reducing Valve
T
300 PSI
O/C P/C
Pilot
CC
Figure 48. Pressure Reducing Valve Cartridge
Ref No. Part No. Description Quantity
1
2
3
4
5
12956001
08569001
02707001
03092001
07829001
00682001
01091001
CK-28096 Pressure Reducing Valve Cartridge Kit (300 PSI Cartridge), Complete
K-28078 PRV Cartridge Seal Kit (Includes Items Listed Below, Plus Plug Seals)
O-Ring Seal (Serviced in K-28078 Cartridge Seal Kit)
Back-Up Ring (Serviced in K-28078 Cartridge Seal Kit)
O-Ring Seal (Serviced in K-28078 Cartridge Seal Kit)
Back-Up Ring (Serviced in K-28078 Cartridge Seal Kit)
O-Ring Seal (Serviced in K-28078 Cartridge Seal Kit)
1
1
1
1
1
Buna-N seals are standard for all Gresen valve assemblies. Contact the Gresen factory in Minneapolis for optional seals.
Continuous Back-Up Rings are installed at the factory using special sizing tools. It is Not necessary to replace the original
Back-Up Rings unless they have been damaged. See Page 9 for Back-Up Ring Preparation and Installation procedures.

Model V20 Service and Parts Manual (Catalog No. SC-1102) Rev: 08-26-2002 52
No Pressure Reducing Valve Plug
Torque No PRV Plug To:
25 - 30 Ft Lbs (33 - 40 Nm)
246
35
1
No Pressure Reducing Valve Plug
TLS
P/C
Pilot
Int.
P/B
P/B or
Return
Figure 49. No Pressure Reducing Valve Plug
Ref No. Part No. Description Quantity
1
2
3
4
5
6
16123001
08569001
21204001
02707001
03092001
07829001
00682001
01091001
K-6297 No Pressure Reducing Valve Plug, Complete
K-28078 PRV Cartridge Seal Kit (Includes Items Listed Below, Plus Plug Seals)
Plug (Serviced in K-6297 No Pressure Reducing Valve Plug Kit)
O-Ring Seal (Serviced in K-28078 Cartridge Seal Kit)
Back-Up Ring (Serviced in K-28078 Cartridge Seal Kit)
O-Ring Seal (Serviced in K-28078 Cartridge Seal Kit)
Back-Up Ring (Serviced in K-28078 Cartridge Seal Kit)
O-Ring Seal (Serviced in K-28078 Cartridge Seal Kit)
1
1
1
1
1
1
Buna-N seals are standard for all Gresen valve assemblies. Contact the Gresen factory in Minneapolis for optional seals.
Continuous Back-Up Rings are installed at the factory using special sizing tools. It is Not necessary to replace the original
Back-Up Rings unless they have been damaged. See Page 9 for Back-Up Ring Preparation and Installation procedures.

Model V20 Service and Parts Manual (Catalog No. SC-1102) Rev: 08-26-2002 53
Bleed-Down Plug for use in Unloading Utility Sections
Torque Bleed-Down Plug To:
15 - 20 Ft Lbs (20 - 27 Nm)
1
2
3
4
6
5
Bleed-Down Plug
T
300 PSI
LS
P/C
Pilot
Int.
P/B
Aux.
Pilot
P/B or
Return
Figure 50. Bleed-Down Plug for use in Unloading Utility Sections
Ref No. Part No. Description Quantity
1
2
3
4
5
6
16133001
16082001
23336001
02705001
23445001
23444001
11840001
11839001
K-6236 Bleed-Down Plug, Complete
K-6268 Bleed-Down Plug Seal Kit
Bleed Plug (Serviced in K-6236 Bleed-Down Plug Kit)
O-Ring Seal (Serviced in K-6268 Plug Seal Kit)
O-Ring Seal, Urethane (Serviced in K-6268 Plug Seal Kit)
O-Ring Seal, Urethane (Serviced in K-6268 Plug Seal Kit)
Retaining Ring (Serviced in K-6236 Bleed-Down Plug Kit)
Filter Screen (Serviced in K-6236 Bleed-Down Plug Kit)
1
1
1
1
1
1
Buna-N seals are standard for all Gresen valve assemblies. Contact the Gresen factory in Minneapolis for optional seals.

Model V20 Service and Parts Manual (Catalog No. SC-1102) Rev: 08-26-2002 54
Unloading Valve Cartridge for use in Unloading Utility Sections
Torque Unloading Valve Cartridge To:
30 - 35 Ft Lbs [40 - 47 Nm]
124
35
T
300 PSI
LS
P/CPilot
Int.
P/B
Aux.
Pilot
P/B or
Return
Unloading Valve Cartridge
Figure 51. Unloading Valve Cartridge for use in Unloading Utility Sections
Ref No. Part No. Description Quantity
1
2
3
4
5
16134001
16094001
02708001
01910001
09021018
09000017
09021017
K-6237 Unloading Valve Cartridge, Complete
K-6267 Unloading Cartridge Seal Kit
O-Ring Seal (Serviced in K-6267 Plug Seal Kit)
O-Ring Seal (Serviced in K-6267 Plug Seal Kit)
Back-Up Ring (Serviced in K-6267 Plug Seal Kit)
O-Ring Seal (Serviced in K-6267 Plug Seal Kit)
Back-Up Ring (Serviced in K-6267 Plug Seal Kit)
2
1
2
1
1
Buna-N seals are standard for all Gresen valve assemblies. Contact the Gresen factory in Minneapolis for optional seals.
Continuous Back-Up Rings are installed at the factory using special sizing tools. It is Not necessary to replace the original
Back-Up Rings unless they have been damaged. See Page 9 for Back-Up Ring Preparation and Installation procedures.

Model V20 Service and Parts Manual (Catalog No. SC-1102) Rev: 08-26-2002 55
Spring-Return and Manual Spool Positioner Kits
5
4
3
121
Torque to: 4 - 6 Ft Lbs
(6 - 8 Nm)
Torque to: 10 - 12 Ft Lbs
(13 - 16 Nm)
Clean Threads and Apply 08006001 Blue Thread
Locking Compound to Ref No. 3 prior to installation
Spring Return Positioner Manual Spool Positioner
Figure 52. Spring-Return and Manual Spool Positioners
Ref No. Part No. Description Quantity
1
2
3
4
5
12741001
12933001
12740001
01809001
07433001
10956001
22633001
10892001
01811003
09161407
08006001
K-6125 Spring-Return Positioner Kit (For use in V20P, V20C, V20LS & V20PC)
K-6207 Spring-Return Positioner Kit (For use in V20S, V20RP and V20RT Sections)
K-6020 Heavy Duty Spring-Return Kit (May be used in all V20 Sections)
Spring Collar
Standard (Red) Centering Spring (Serviced in K-6125 Kit)
Standard (Silver) Centering Spring (Serviced in K-6207 Kit)
Heavy Duty (Blue) Centering Spring (Serviced in K-6020 Kit )
Spool Screw
Bonnet
Bonnet Screw (1/4 - 20 X .875)
Blue Thread Adhesive (Ref. Loctite No. 242)
2
1
1
1
1
1
2
1
07433001 Centering Spring is standard. An Optional Heavy Duty Centering Spring (22633001) is available. Refer to the
Table below for spool force comparisons. Note: These measurements are taken at the spool clevis.
Remove the Centering Spring from the above Spring-Return Assembly to make a Manual Spool Positioner. Manual spool
positioners are typically used with external linkage devices having their own spring-centering mechanisms.
Part No. Spring Color Force Required to Begin Spool Movement Force Required for Full Spool Shift
07433001 Red 30 Lbs. (13,6 Kg) 70 Lbs. (31,7 Kg)
10956001 Silver 45 Lbs. (20,4 Kg)
22633001 Blue 55 Lbs. (24,9 Kg) 130 Lbs. ( 58,9 Kg)

Model V20 Service and Parts Manual (Catalog No. SC-1102) Rev: 08-26-2002 56
‘D’ Detented Spool Positioner Kits
1
Torque to:
4 - 6 Ft Lbs
(6 - 8 Nm)
Torque to:
10 - 12 Ft Lbs
(13 - 16 Nm)
Clean Threads and Apply 08006001
Blue Thread Locking Compound to
Ref No. 3 prior to installation
23
6
7
5
4
8
2-Position 'D' Detent -
Neutral and Spool Out
2-Position 'D' Detent -
Neutral and Spool In 3-Position 'D' Detent
8
Locate Detent Stop (Item No. 8)
Here For 2-Position Detent -
Neutral and Spool In.
Locate Detent Stop (Item No. 8)
Here For 2-Position Detent -
Neutral and Spool Out
Figure 53. ‘D’ Detented Spool Positioner Kits
Ref No. Part No. Description Quantity
1
2
3
4
5
6
7
8
12739001
09161407
01811003
01840001
00023001
01838001
01837001
06812001
01889001
08006001
CK-6012 ‘D’ Detent Spool Positioner Kit (Kit Includes all Items Listed Below)
Bonnet Screw (1/4 - 20 X .875)
Bonnet
Detent Ball Holder
.250 Diameter Detent Ball
Detent Spring
Lock Washer
3-Position Detent Sleeve
2-Position Detent Stop (Optional - Not Included in Kit – Refer to the above drawing
to insert the Detent Stop in the correct location to block out the desired spool
position.
Blue Thread Adhesive (Ref. Loctite No. 242)
2
1
1
2
1
1
1
1
1

Model V20 Service and Parts Manual (Catalog No. SC-1102) Rev: 08-26-2002 57
‘R’ Detent - Spring Return Spool Positioner Kits
Apply 08006001 Thread Locking Compound (Ref. 'Blue' Loctite No. 242) to Ref No. 10
after completing the Installation and Adjustment Procedures on Page 58.
Clean threads and Apply 08006001 Thread Locking Compound (Ref. 'Blue' Loctite No. 242)
to Ref No. 3 prior to installation.
'RIO'
'RI'
'RO'
1
2
1
4
5
6
7
8
9
10
Torque to: 4 - 6 Ft Lbs
(6 - 8 Nm)
Torque to: 10 - 12 Ft Lbs
(13 - 16 Nm)
'RIO'
'RO'
'RI'
3
Refer to Page 58 for Installation Instructions
Figure 54. ‘R’ Detent - Spring Return Spool Positioners
Ref No. Part No. Description Quantity
1
2
3
4
5
6
7
8
9
10
12904001
12903001
12905001
01809001
03250001
08573001
08572001
08574001
03731099
08325004
20722001
01700001
21990002
03252001
20723001
08006001
CK-6152 ‘RI’ Detent ‘In’ Kit (Kit Includes all Items Listed Below)
K-6151 ‘RO’ Detent ‘Out’ Kit (Kit Includes all Items Listed Below)
K-6153 ‘RIO’ Detent ‘In’ and ‘Out’ Kit (Kit Includes all Items Listed Below)
Spring Collar
Centering Spring
‘RI’ Detent Spud (Detent in Spool ‘IN’ Position Only – Included in CK-6152)
‘RO’ Detent Spud (Detent in Spool ‘OUT’ Position Only – Included in K-6151)
‘RIO’ Detent Spud (Detents in both Spool ‘IN’ and ‘OUT’ Positions – Included in K-6153)
Bonnet Screw (1/4 - 20 X .625)
Bonnet
Thrust Plate
.219 Diameter Detent Ball
Ball Race
Detent Spring
Adjusting Cap
Blue Thread Adhesive (Ref. Loctite No. 242)
2
1
1
1
1
2
1
1
12
1
1
1
1
The amount of force required to release the spool from the detented position(s) is adjustable by the tension applied by the
detent spring (No. 9). Turning the Adjusting Cap (No. 10) Clockwise will increase the spring tension, while turning it Counter-
Clockwise will reduce the tension. Once the desired detent force is obtained, apply 08006001 Locking Compound (Ref. ‘Blue’
Loctite No. 242) to the threads of the Adjusting Cap.

Model V20 Service and Parts Manual (Catalog No. SC-1102) Rev: 08-26-2002 58
Installation and Adjustment Procedures for ‘R’ Detent Positioners
The Reference Numbers referred to in the following procedures may be found in the ‘R’
Detent - Spring Return Spool Positioner Drawing on Page 57 .
‘R’ Detent Installation and Adjustment Procedures
1. Remove the existing positioner from the control valve. Do not remove the spool seal, back-up washer or seal retainer
plate. Remove any oil film from the internal threads of the valve spool.
2. Insert the detent spud (No. 3) thru the outer spring collar (No. 1), centering spring (No. 2), and inner spring collar (No. 1).
3. Remove any oil film from the threads of the detent spud (No. 3) and apply 08006001 thread locking adhesive (Loctite
242, supplied in the kit). Install in the detent spud into the valve spool and tighten to 10 - 12 Ft Lbs (13 - 16 Nm) torque.
4. Mount the bonnet (No. 5) using the provided screws (No. 4). Tighten to 4 - 6 Ft Lbs (6 - 8 Nm) torque.
5. Insert the thrust plate (No. 6) into the bonnet and into place over the detent spud.
6. Insert the 12 detent balls (No. 7) around the detent spud next to the thrust plate. Applying a small amount of grease to the
thrust plate surface may help hold the detent balls in place.
7. Position the ball race (No. 8) over the detent balls with the beveled side facing in.
8. Slide the detent spring (No. 9) inside the bonnet.
9. Thread the adjusting cap (No. 10) into the bonnet. The amount of force required to release the spool from the detented
position(s) is set by the tension applied to the detent spring (No. 9). Turning the adjusting cap clockwise will increase the
spring tension, while turning it counter-clockwise will reduce the tension.
10. Test the detent force by shifting the valve spool into and out of the detented position(s).
11. Once the desired detent force is obtained, apply 08006001 Thread Locking Compound (Ref. ‘Blue’ Loctite No. 242) to the
thread surface of the adjusting cap.

Model V20 Service and Parts Manual (Catalog No. SC-1102) Rev: 08-26-2002 59
Spring Extended (Spool Out) Positioner Kits
7
6
32
Torque to: 4 - 6 Ft Lbs
(6 - 8 Nm)
Torque to: 6 - 8 Ft Lbs
(8 - 10 Nm)
Clean Threads and Apply 08006001 Blue Thread
Locking Compound to Ref No. 3 prior to installation
B A
OC P
T
1
54
Schematic Shown
With 4-Way Spool
Figure 55. Spring Exended (Spool Out) Positioner Kits
Ref No. Part No. Description Quantity
1
2
3
4
5
6
7
08667001
06756001
01860001
01813001
01812001
08666001
01824001
09161407
K-6150 Spring Extended Spool Positioner Kit (Kit Includes all Items Listed Below)
Bonnet Sleeve
Stop Collar
Lock Washer
Cap Screw
Spring
Bonnet
Screw
1
1
1
1
1
1
2

Model V20 Service and Parts Manual (Catalog No. SC-1102) Rev: 08-26-2002 60
Electro-Magnetic Detent Positioner Kits
ACB1
2
3
2
4
9
8
10
7
6 5
11
15
13
14 1216
12
17 Torque to: 10 - 12 Ft Lbs
(13 - 16 Nm)
Torque to: 10 - 12 Ft Lbs
(13 - 16 Nm)
Torque to: 22 - 30 In Lbs
(2,5 - 3,4 Nm)
Torque to: 10 - 12 Ft Lbs
(13 - 16 Nm)
A
C
B
Figure 56. Electro-Magnetic Detent Positioner Kits
Installation Procedures for Electro-Magnetic Detent Positioners Are Found On Next Page
Ref No. Part No. Description Quantity
1
2
3
4
5
6
7
8
9
10
11
12
13
14
15
16
17
12877001
07989001
07572001
07573001
03250001
07589001
00563001
03731103
07954001
07583004
07955001
07593001
07956001
22993001
07958001
08555001
07755001
07756001
07957001
CK-6140 Electro-Magnetic Detent Positioner Kit (Kit Includes all Items Listed Below)
K-6064 Electro-Mag Positioner Rebuild Kit (Kit Includes 7, 12, 14, 15 & 16)
Spool Seal Retainer
Spring Collar
Centering Spring
Seal Cap
Lock Washer
Housing Screw
Positioner Spud
Electric Detent Bonnet
Electrical Connector
Thread Cutting Screw
Thread Cutting Screw
Electro-Magnet
Spacer
Armature
Alignment Washer
Shoulder Screw
Bonnet Plug
1
2
1
1
2
2
1
1
1
4
1
2
1
1
1
1
1

Model V20 Service and Parts Manual (Catalog No. SC-1102) Rev: 08-26-2002 61
Installation Procedures for Electro-Magnetic Detent Positioners
21
4
A C B
Required Tools and Supplies for
EMD Positioner Installation
1.
2.
3.
4.
1. Slide Spool Seal Retainer (1) over spool end and into place
in into counterbore in valve housing.
2. Clean threads of Positioner Spud (4) and apply Blue Thread
Locking Compound (Ref Loctite No. 242) to the threads.
Carefully insert Positioner Spud thru the two Spring Collars
(2) and Spring (3).
While compressing Spring, screw the Positioner Spud into the
valve spool. Tighten and torque to specification.
3. Locate the two Mounting Screws (5) and Lock Washers (6).
Slide the EMD Bonnet (7) into position and fasten to housing
with screws. Tighten and torque to specifications.
4. Carefully slide one of the Detent Magnets (8) into the
EMD Bonnet with the wires to the top. Run the wires
up thru the hole in the top of the Bonnet.
5. Slide the Spacer (9) into the Bonnet and next to the Detent
Magnet. Clean threads of Shoulder Screw (11) and apply Blue
Thread Locking Compound (Ref Loctite No. 242) to the threads.
Carefully insert Shoulder Screw thru the Armature (10)
and install onto rod end of the Positioner Spud.
6. Take the remaining Detent Magnet (8) and slide into
place next to spacer and run the wires out the hole in
the top of the Bonnet.
7. Install the long Thread Cutting Screw into the hole in the top
of the Bonnet. This screw should enter the bore of the Bonnet
and hold the Detent Magnet in place while installing the
Bonnet Plug (13).
8. Clean threads of Bonnet Plug (13) and apply Blue Thread
Locking Compound (Ref Loctite No. 242) to the threads.
Tighten and Torque to specification.
9. Solder one of the wire leads from the innet Detent Magnet to the
'B' terminal of the Electrical Connector (14). Take the remaining
wire lead from this Detent Magnet and one of the wire leads from
the outer Detent Magnet and Solder to the 'C' terminal of the
Electical Connector. Solder the remaining wire lead from the
outer Detent Magnet to the 'A' terminal of the Electrical Connector.
10 Push wire leads back down into Bonnet and position Electrical
Connector into place in Bonnet. Install the four short Thread
Cutting Screws (15) into the Connector.
3
2
6
5
7
8
9
10
11
8
12
13
15
14
Figure 57. Installation Procedures for Electro-Magnetic Detent Positioners

Model V20 Service and Parts Manual (Catalog No. SC-1102) Rev: 08-26-2002 62
Pressure Detent Release (KO) Positioner Kits
'KO' Pressure
Sensing Hole
'KO' Spool
Work Section Housing
1
2
34
56
7
810
9
11
12 13
14 15
16
17
18 19
20 21
22
Torque to: 32 in. lbs.
(3,6 Nm Torque to: 10 - 12 Ft Lbs
(13 - 16 Nm)
Apply Purple Thread Locking Compound
(Ref. Loctite 222) Ref No.s 6 & 19 and
Torque to 5 Ft Lbs (7 Nm)
Parallel
OC P
T
Figure 58. Pressure Detent Release (KO) Positioner Kits
Ref No. Part No. Description Quantity
1
2
3
4
5
6
7
8
9
10
11
12
13
14
15
16
17
18
19
20
21
22
08542001
08542002
08542003
07934001
07902001
01824002
09161407
07904001
08536001
08535001
08014001
06229001
07433001
07899001
07898001
07897001
08007001
08341001
01700001
08047001
08010001
08538001
03265001
07700001
07896001
07906001
03328001
07907001
07908001
‘KO’ Positioner , Complete, (1200 – 1600 PSI [83 – 110 bar])
‘KO’ Positioner , Complete, (1601 – 2400 PSI [111 – 165 bar])
‘KO’ Positioner , Complete, (2401 – 3000 PSI [166 – 207 bar])
K-6061 Pressure Detent Release Positioner Seal Kit (Kit Includes 16, 17, 20 & 21)
Flush Head Button Plug
Bonnet
Screw
Bearing Plate
Spring Collar
Spool Collar
Screw
Locknut
Centering Spring
Spring Guide
Spring
Ball Follower
Detent Sleeve (Standard 2-Position Detent)
Detent Sleeve (Optional 1-Position Detent - Spool In Only – Must be ordered separately)
Steel Ball
Spring, 1200 – 1600 PSI [83-110 bar] - Used in 08542001 ‘KO’ Positioner
Spring, 1601 – 2400 PSI [111-165 bar] - Used in 08542002 ‘KO’ Positioner
Spring, 2401 – 3000 PSI [166-207 bar] - Used in 08542003 ‘KO’ Positioner
Back-Up Ring
O-Ring Seal
Knockout Plunger
Piston Guide
O-Ring Seal
Back-Up Ring
Needle Roller
1
1
2
2
2
1
1
1
1
1
1
1
1
1
4
1
1
1
2
1
1
1
1
1
1
Buna-N seals are standard for all Gresen valve assemblies. For Viton seals, contact the Gresen factory in Minneapolis.
Continuous Back-Up Rings are installed at the factory using special sizing tools. It is Not necessary to replace the original
Back-Up Rings unless they have been damaged. See Page 9 for Back-Up Ring Preparation and Installation procedures.

Model V20 Service and Parts Manual (Catalog No. SC-1102) Rev: 08-26-2002 63
Pressure Detent Release (KO) Adjustment Procedures
The Reference Numbers referred to in the following procedures may be found in the ‘KO’
Spool Positioner Drawing on Page 62 .
Pressure Detent Release (KO) Adjustment Procedures
1.
Figure 59. Pressure Detent Release (KO) Adjustment Procedures

Model V20 Service and Parts Manual (Catalog No. SC-1102) Rev: 08-26-2002 64
Rotary ‘W’ Spool Positioner Kits
6
5
4
31
Torque to: 4 - 6 Ft Lbs
(6 - 8 Nm)
Torque to: 10 - 12 Ft Lbs
(13 - 16 Nm)
Clean Threads and Apply Type II, Grade N, Blue Thread Locking
Compound (Ref. Loctite No. 242) to Ref No. 3 prior to installation
View Of Dowel Pin Hole
In Back Of Spool
7
8
9
10
2
View Of Dowel Pin Holes
In Rotary Cam Body
Figure 60. Rotary ‘W’ Spool Positioners
Note: Apply heavy duty general purpose grease to the helical groove of Cam Body (Item 2) and Pin (Item 8).
For Standard assembly, dowel pin hole in spool clevis must be horizontal with valve spool in neutral.
Ref No. Part No. Description Quantity
1
2
3
4
5
6
7
8
9
10
12913001
00888001
08746001
03731150
06552001
01824006
09161407
08743001
02676001
08808001
08744004
K-6141 Rotary Spool Positioner Kit (Includes all items listed below)
Dowel Pin
Rotary Cam Body
HSHC Screw 5/16-18 by 1 inch long
Seal Retainer Plate
Rotary Bonnet
HSHC Screw 1/4-20 by 7/8 inch long
Detent Cap Washer
Detent Pin
Detent Spring
Rotary Detent Cap
1
1
1
1
1
2
1
1
1
1

Model V20 Service and Parts Manual (Catalog No. SC-1102) Rev: 08-26-2002 65
4-Position Float Spool Positioner Kits For Non-Series Sections
Valve
Housing
Float Spool
12
3
5
4
7
9
8
8
13
11
Torque to
10 Ft Lbs. [13,6 Nm]
6
10
12
Figure 61. 4-Position Float Spool Positioners For Non-Series Sections
Ref No. Part No. Description Quantity
1
2
3
4
5
6
7
8
9
10
11
12
13
12888001
08079001
01853001
01700001
08098001
01828001
21047001
08077001
01826001
08099001
01852001
08082001
00563001
03731101
K-6127 Float Positioner Kit (Includes all items listed below)
Retainer Sleeve
O-Ring Seal (Spool Seal)
Detent Ball
Detent Spring
Detent Ball Follower
O-Ring Seal
Detent Sleeve
Stop Collar
Centering Spring
Retaining Ring
Float Bonnet
Lock Washer
HSHC Screw ¼-20 x 7/8 inch long
1
1
4
1
1
1
1
2
1
1
1
1
2
08099001 Centering Spring and 08098001 Detent Springs are standard. Optional Heavy Duty Centering Spring (03091001)
and Detent Spring (01829001) are available. Refer to the Table below for spool force comparisons. Note: These
measurements are taken at the spool clevis.
Buna-N seals are standard for all Gresen valve assemblies. For Viton seals, contact the Gresen factory in Minneapolis.
Part No. Spring Color Force Required to Begin Spool Movement Force Required for Full Spool Shift
08099001
03091001 Gray 64 Lbs. (29,0 Kg) 90 Lbs. (40,7 Kg)

Model V20 Service and Parts Manual (Catalog No. SC-1102) Rev: 08-26-2002 66
4-Position Float Spool Positioner Kits For V20S Series Sections
Valve
Housing
Float Spool
Torque to
10 Ft Lbs. [13,6 Nm]
1
3
2
4
5
6
8
9
7
11
12
14
10
12
13
15
16
17
Figure 62. 4-Position Float Spool Positioners For V20S Series Sections
Ref No. Part No. Description Quantity
1
2
3
4
5
6
7
8
9
10
11
12
13
14
15
16
17
12701001
08079001
21047001
01853001
11372001
00449001
01700001
11373001
01828001
01829001
11371001
09320016
01826001
01807001
01852001
07905001
09161412
08282001
K-6208 V20S Series Float Spool Positioner Kit (Includes all items listed below)
Retainer Sleeve
O-Ring Seal
4-Lobed Seal
Detent Sleeve
O-Ring Seal
Detent Ball
Spool Collar
Ball Follower
Detent Spring
Shim
Retaining Ring
Spring Collar
Centering Spring
Retaining Ring
Bonnet Spacer
HSHC Screw ¼ - 20 x 1-1/2 inch long
V20S Float Bonnet
1
1
1
1
1
4
1
1
1
1
1
2
1
1
1
2
1
Buna-N seals are standard for all Gresen valve assemblies. For Viton seals, contact the Gresen factory in Minneapolis.

Model V20 Service and Parts Manual (Catalog No. SC-1102) Rev: 08-26-2002 67
‘PA’ Pneumatic Spool Actuator Kit
Refer to Page No. 14 for
Installation Instructions
Torque to:
50 - 60 In Lbs (6 - 7 Nm)
1
3
4
6
9
10
11
14
15
14
18
Torque to:
38 - 46 In Lbs (4 - 5 Nm)
Clean threads and Apply 08006001 Blue Thread Locking Compound
(Ref. Loctite No. 242) to Ref No's. 5 & 15 prior to installation.
Torque to:
38 - 46 In Lbs (4 - 5 Nm)
2
5
7
8
12
13
16
17
See Note 2
Figure 63. ‘PA’ Pneumatic Spool Actuator
Ref No. Part No. Description Quantity
1
2
3
4
5
6
7
8
9
10
11
12
13
14
15
16
17
18
11732001
11734001
24143001
11724001
10956001
11725001
24144001
24145001
24151001
08316001
24159001
12196001
24146001
24147001
00006001
11652001
11651001
24016001
11719001
03731120
08006001
CK-6173 ‘PA’ Pneumatic Spool Actuator Kit (Kit Includes all items listed below)
K-6174 Actuator Seal Kit (Kit Includes Items 8, 10 and 13 Only)
Seal Retainer Plate
Spring Collar (Short)
Centering Spring
Spring Collar (Long)
Spool Collar
Spring Tube
Spacer
O-Ring Rod Seal (Serviced in K-6174 Actuator Seal Kit)
Inner End Cap
O-Ring End Cap Seal (Serviced in K-6174 Actuator Seal Kit)
Piston Rod
Actuator Piston
O-Ring Piston Seal (Serviced in K-6174 Actuator Seal Kit)
Washer
Lock Nut
Cylinder Shell
Outer End Cap
Bonnet Screw (1/4 - 20 X 6.00)
Blue Thread Adhesive (Ref. Loctite No. 242)
1
1
1
1
1
1
1
1
1
2
1
1
1
5
1
1
1
4
1
Buna-N seals are standard for all Gresen valve assemblies. For Viton seals, contact the Gresen factory in Minneapolis.
Remove the standard spool seal retainer plate (06752001) prior to installing the ‘PA’ kits. Refer to Figure 2 for part identification.

Model V20 Service and Parts Manual (Catalog No. SC-1102) Rev: 08-26-2002 68
Installation Instructions for ‘PA’ Pneumatic Actuators
The pneumatic actuator is installed on one end of the valve spool in place of the standard positioner. A manual lever
can be used on the opposite end as an override to the actuator if required. The pneumatic actuator must be
controlled by a four-way, three-position pneumatic directional control valve.
The Reference Numbers referred to in the following procedures may be found in the ‘PA’ Pneumatic
Spool Actuator Assembly Drawing on Page 13 .
Actuator Installation
1. Remove the existing positioner and seal retainer plate from the control valve. Do not remove the spool seal or back-up
washer. Remove any oil film from the internal threads of the valve spool.
2. Insert the seal retainer plate (No. 1) over the end of the spool ensuring that it locates in the counter bore correctly.
3. Insert the spool collar (No. 5) thru the outer spring collar (No. 4), centering spring (No. 3), and inner spring collar (No. 2).
Note: The shorter of the two spring collars goes next to the spool.
4. Remove any oil film from the threads of the spool collar (No. 5) and apply 08006001 thread locking adhesive (Loctite
242, supplied in the kit). Install in the spool and tighten to 38 - 46 in lb (4 - 5 Nm) torque.
Caution: Over tightening the spool collar may cause spool binding.
5. Slide the spring tube (No. 6) into place over the spring assembly.
6. Insert spacer (No. 7) into spring tube (No. 6).
7. Lubricate the piston rod (No. 11) with the supplied grease (high temperature silicon based bearing grease with a NLGI #2
consistency). Avoid getting lubricant on the threads.
8. Carefully insert the threaded end of the piston rod thru the inner end cap assembly (No. 9).
9. Install the piston assembly (No. 12) and washer (No. 14) on the piston rod (No. 11) as shown.
10. Remove any oil film from the threads of the piston rod and apply 08006001 thread locking adhesive (Loctite 242
supplied in the kit). Install lock nut (No. 15) and tighten to 38 - 46 in lb (4 - 5 Nm) torque.
11. Insert the end of the piston rod (No. 11) into the spool collar (No. 5). Also position the inner end cap assembly (No. 9) onto
the spring tube (No. 6).
12. Using the above mention grease, lubricate the inner surface of the cylinder shell (No. 16) and install over the piston
assembly (No. 12).
13. Mount the outer end cap assembly (No. 17) using the provided screws (No. 18) and washers (No. 14) and tighten to 50 -
60 in lb (6 - 7 Nm) torque.
Lubrication
The pneumatic actuator comes pre-lubed. In the event the lubrication is wiped off, liberally apply a high temperature silicon-
based bearing grease with a NLGI #2 consistency to the piston seal (No. 13), rod seal (No. 8), and all seal travel surfaces.
Testing the CK-6173 Pneumatic Actuator after Installation
1. Apply a soap solution to all of the actuator joints, ports, and connectors. Actuate the control device to move the spool in
one direction. Allowable leakage would be defined as enough to cause a one inch bubble in 3 seconds.
2. Reapply soap solution and repeat test while spool is being moved in the other direction.
3. If leakage is excessive, ensure that the joints are tight and that the installation is correct.
4. Verify that the spool moves easily thru its entire travel range and that there is no evidence of sticking or binding. If
binding is detected, the installation should be checked immediately. Failure to do so could result in
improper actuation in the future and should be corrected.

Model V20 Service and Parts Manual (Catalog No. SC-1102) Rev: 08-26-2002 69
‘HR’ Hydraulic Remote Spool Actuator Kit (Positioner End)
7
1
Torque to: 4 - 6 Ft Lbs
(6 - 8 Nm)
Torque to: 10 - 12 Ft Lbs
(13 - 16 Nm)
2
3
4
5
6
10 98
11
See Note 2
Clean Threads and Apply Type II, Grade 0, Red Thread Locking
Compound (Ref. Loctite No. 262) to Ref No. 6 prior to installation
Figure 64. ‘HR’ Hydraulic Remote Spool Actuator (Positioner End)
Note: K-6128 HR Actuator is also used on the positioner end of Model HRH Actuator.
Ref No. Part No. Description Quantity
1
2
3
4
5
6
7
8
9
10
11
12940001
11127001
11117001
11116001
11113001
11114001
11115001
11126001
08338001
07904001
00563001
03731110
08006001
K-6128 ‘HR’ Spool Actuator Kit (Kit Includes all Items Listed Below)
Stop Collar
Spring (Inner)
Spring (Outer)
Stop Sleeve
Washer
Positioner Spud
Square-Cut Seal
‘HR’ Bonnet
Bearing Plate
Lock Washer
Screw (1/4 - 20 X 3.00)
Blue Thread Adhesive (Ref. Loctite No. 242)
1
1
1
1
1
1
1
1
4
4
4
1
K-6128 Actuator Kit is for installation on the positioner end of the work section (opposite the spool clevis).
Remove all Spool Seal Components from the work section prior to installing ‘HR’ Actuator Kits.

Model V20 Service and Parts Manual (Catalog No. SC-1102) Rev: 08-26-2002 70
‘HR’ Hydraulic Remote Spool Actuator Kit (Spool Clevis End)
Torque to: 4 - 6 Ft Lbs
(6 - 8 Nm)
See Note 2
5
4
2
1
3
Figure 65. ‘HR’ Hydraulic Remote Spool Actuator (Spool Clevis End)
Ref No. Part No. Description Quantity
1
2
3
4
5
12942001
11126001
08338001
07904001
00563001
03731110
K-6129 ‘HR’ Spool Actuator Kit (Kit Includes all Items Listed Below)
Square-Cut Seal
‘HR’ Bonnet
Bearing Plate
Lock Washer
Screw (1/4 - 20 X 3.00)
1
1
4
4
4
K-6129 Actuator Kit is for installation on the spool clevis end of the work section.
Remove all Spool Seal Components from the work section prior to installing ‘HR’ Actuator Kits.

Model V20 Service and Parts Manual (Catalog No. SC-1102) Rev: 08-26-2002 71
‘HRO’ Hydraulic Remote Spool Actuator Kit (Positioner End)
7
Torque to: 4 - 6 Ft Lbs
(6 - 8 Nm)
98
10
11
12
13
14
15
16
17
See Note 2
1
Torque to: 10 - 12 Ft Lbs
(13 - 16 Nm)
2
3
4
5
6
Clean Threads and Apply Type II, Grade 0, Red Thread Locking Compound
(Ref. Loctite No. 262) to Ref No's. 6 and 8 prior to installation
Torque to: 22 - 30 In Lbs
(2,5 - 3,4 Nm)
Figure 66. ‘HRO’ Hydraulic Remote Spool Actuator (Positioner End)
Ref No. Part No. Description Quantity
1
2
3
4
5
6
7
8
9
10
11
12
13
14
15
16
17
12944001
11127001
11117001
11116001
11113001
11114001
11115001
11126001
08319001
08318001
08320001
08317001
08316001
08315001
07826001
07904001
00563001
03731110
08006001
K-6130 ‘HRO’ Spool Actuator Kit (Kit Includes all Items Listed Below)
Stop Collar
Spring (Inner)
Spring (Outer)
Stop Sleeve
Washer
Positioner Spud
Square-Cut Seal
Screw (Countersunk Head)
Travel Stop
‘HRO’ Bonnet
Spool Override Screw
O-Ring Seal
Back-Up Ring
Boot
Bearing Plate
Lock Washer
Bonnet Screw (1/4 - 20 X 3.00)
Blue Thread Adhesive (Ref. Loctite No. 242)
1
1
1
1
1
1
1
1
1
1
1
1
1
1
4
4
4
1
K-6130 Actuator Kit is for installation on the positioner end of the work section (opposite the spool clevis).
Remove all Spool Seal Components from the work section prior to installing ‘HRO’ Actuator Kits.
Turning the Spool Override Screw (No. 11) Clockwise will move the Travel Stop (No. 9) in, making contact with the valve
spool. Continued Clockwise rotation will force the spool from the center position. The Override may also be used as a Spool
Travel Limiter. The farther in the Spool Override Screw is adjusted (without actually making contact with the valve spool), the
less distance from center the valve spool can travel.
Continuous Back-Up Rings are installed at the factory using special sizing tools. It is Not necessary to replace the original
Back-Up Rings unless they have been damaged. See Page 9 for Back-Up Ring Preparation and Installation procedures.

Model V20 Service and Parts Manual (Catalog No. SC-1102) Rev: 08-26-2002 72
‘HRO’ Hydraulic Remote Spool Actuator Kit (Spool Clevis End)
1Torque to: 4 - 6 Ft Lbs
(6 - 8 Nm)
5
6
2
11
3
4
7
8
10
9
Clean Threads and Apply 08006001 Blue Thread Locking
Compound to Ref No. 2 prior to installation.
Torque to: 22 - 30 In Lbs
(2,5 - 3,4 Nm)
See Note 2
Figure 67. ‘HRO’ Hydraulic Remote Spool Actuator (Spool Clevis End)
Ref No. Part No. Description Quantity
1
2
3
4
5
6
7
8
9
10
11
12945001
11126001
08319001
08318001
08320001
08317001
08316001
08315001
07826001
07904001
00563001
03731110
08006001
K-6131 ‘HRO’ Spool Actuator Kit (Kit Includes all Items Listed Below)
Square-Cut Seal
Screw (Countersunk Head)
Travel Stop
‘HRO’ Bonnet
Spool Override Screw
O-Ring Seal
Back-Up Ring
Boot
Bearing Plate
Lock Washer
Bonnet Screw (1/4 - 20 X 3.00)
Blue Thread Adhesive (Ref. Loctite No. 242)
1
1
1
1
1
1
1
1
4
4
4
1
K-6131 Actuator Kit is for installation on the spool clevis end of the work section.
Remove all Spool Seal Components from the work section prior to installing ‘HRO’ Actuator Kits.
Turning the Spool Override Screw (No. 5) Clockwise will move the Travel Stop (No. 3) in, making contact with the valve
spool. Continued Clockwise rotation will force the spool from the center position. The Override may also be used as a Spool
Travel Limiter. The farther in the Spool Override Screw is adjusted (without actually making contact with the valve spool), the
less distance from center the valve spool can travel.
Continuous Back-Up Rings are installed at the factory using special sizing tools. It is Not necessary to replace the original
Back-Up Rings unless they have been damaged. See Page 9 for Back-Up Ring Preparation and Installation procedures.

Model V20 Service and Parts Manual (Catalog No. SC-1102) Rev: 08-26-2002 73
‘HRH’ Hydraulic Remote Spool Actuator Kits
9
8
7
6
15
18
Torque (4) Screws
to: 15 - 20 In Lbs
(2 - 3 Nm)
14
16
4
32
1
11
12
13
17
5
10
Torque (4) Screws to:
4 - 6 Ft Lbs (5,4 - 8,2 Nm)
11
10
9
Vertical Handle
Horizontal Handle
9
Model HRH Actuators require a special spool with a
longer clevis and cannot be field installed on sections
with standard spools.
Figure 68. ‘HRH’ Hydraulic Remote Spool Actuators
Ref No. Part No. Description Quantity
1
2
3
4
5
6
7
8
9
10
11
12
13
14
15
16
17
18
12900001
10357001
12347001
11126001
11685001
00563001
03731100
10073003
09350310
08587001
07622001
09302106
08815001
08962002
08962001
03731003
09285002
08589001
08961001
09000027
08963001
07028002
08959001
K-6142 Vertical Handle HRH Actuator Kit (Includes all Items Listed Below)
K-6149 Horizontal Handle HRH Actuator Kit (Includes all Items Listed Below)
K-6187 Actuator Seal Kit (Includes Items 1, 15, 17 & 18 Only)
O-Ring Seal (Serviced in K-6187 Actuator Seal Kit)
Bonnet Guide
Lock Washer
Screw
HRH Bonnet
Dowel Pin
Boot Retainer
Boot
Jam Nut
Knob
Vertical Handle Rod (Included in K-6142 Vertical Handle HRH Kit)
Horizontal Handle Rod (Included in K-6149 Horizontal Handle HRH Kit)
Screw
Lock Washer
Vertical Adapter (Included in K-6142 Vertical Handle HRH Kit)
Horizontal Adapter (Included in K-6149 Horizontal Handle HRH Kit)
O-Ring Seal (Serviced in K-6187 Actuator Seal Kit)
Seal Retainer
O-Ring Seal (Serviced in K-6187 Actuator Seal Kit)
Special Seal (Serviced in K-6187 Actuator Seal Kit)
1
1
4
4
1
1
1
1
A/R
1
1
1
4
4
1
1
1
1
1
1
Buna-N seals are standard for all Gresen valve assemblies. For Viton seals, contact the Gresen factory in Minneapolis.
Horizontal Handle requires 2 jam nuts.

Model V20 Service and Parts Manual (Catalog No. SC-1102) Rev: 08-26-2002 74
Model V20 SOL-E Solenoid Actuator Kits
12 3
4
5
7
6
8
911 12 13 14
15 16 17 18 19 20
21
7
10
Figure 69. Model V20 SOL-E Solenoid Actuator Assembly
Ref No. Part No. Description Quantity
1
2
3
4
5
6
7
8
9
10
11
12
13
14
15
16
17
18
19
20
21
07978001
07983001
07979001
03731111
00563001
07904001
03637001
07850001
12893001
12895001
12518001
07855001
07856001
07700001
03191001
07857001
07854001
07028002
07858001
07851001
10815001
11640001
11639001
07853001
10816001
07572001
08006001
CK-6080 Actuator Kit (Contains Items 1 thru 5, plus 7 thru 22)
K-6074 Actuator Seal Kit (Contains Items 9, 10, 12 & 13)
K-6079 Piston Kit (Contains Items 7 thru 11)
Screw, ¼-20 x 3.25”
Lock Washer
Bearing Plate
SAE 6 Plug
Actuator Housing
CK-6083 12VDC Solenoid Cartridge Kit – See Figure 73
CK-6093 24VDC Solenoid Cartridge Kit – See Figure 73
CK-6169 120VAC Solenoid Cartridge Kit – See Figure 73
Retaining Ring
Piston
O-Ring Seal
O-Ring Seal
Piston Rod
O-Ring Seal
O-Ring Seal
Piston Rod Guide
Sleeve, 1.43 x 1.49 inches [36,3 x 37,8]
Spool Centering Collar
Spool Screw
Spacer
Spring, Centering 1.250 x .156 [31,8 x 4,0 mm]
Stop Collar
Seal Plate
Loctite Tube, Grade 262
4
4
4
1
1
2
2
2
2
1
1
1
1
1
1
1
1
1
1
1
1
1
1
1
Buna-N seals are standard for all Gresen valve assemblies. For Viton seals, contact the Gresen factory in Minneapolis.
Continuous Back-Up Rings are installed at the factory using special sizing tools. It is Not necessary to replace the original
Back-Up Rings unless they have been damaged. See Page 9 for Back-Up Ring Preparation and Installation procedures.

Model V20 Service and Parts Manual (Catalog No. SC-1102) Rev: 08-26-2002 75
Model V20 SOL-E Solenoid Actuator Installation Procedures
10815001 Outer Spring Collar
11639001 Small Spacer
11640001 Spool Adapter
7572001 Seal Plate
7853001 Centering Spring
10816001 Inner Spring Collar
Required Tools and Supplies for Actuator
Installation
1. 9/16" Flat Wrench
2. Model V20 Handle Kit
3. 5/16" Allen Wrench
4. Medium Grade Loctite
5. Oil Lubricant
7851001 Large (Sleeve) Spacer
4189005 Piston & Rod Assembly
7850001 Actuator Housing
7904001 Bearing Plate
563001 Lock Washer
3731111 Bonnet Screw
Rod End Slides into
slot in Spool Adapter.
1. Install Model V20 Handle Kit.
2. Clean threads and apply a small amount of medium grade thread
locking compound to the threads of the Spool Adapter. Insert Spool
Adapter thru Spacer, Spring Collars, Centering Spring and Seal
Plate in order shown here.
3. While compressing the spring, screw the Spool Adapter into the valve
spool approximately two or three turns. Do not tighten at this time.
4. Slide the large (sleeve) Spacer over the assembled spring componets.
5. Slide the rod of the Piston & Rod Assembly thru the into the slot in the
Spool Adapter.
6. The Spool Adapter may now be tightened using a 9/16" open end
wrench. Verify that the small Spacer is positioned properly
between the two Spring Collars.
7. Apply a film of oil on the inside surface of the Actuator
Housing and the O-Ring seals on the
Piston & Rod Assembly.
8. Carefully slide the Actuator Housing over
the Piston & Rod Assembly and into
position next to the valve housing.
9. Slide the Bonnet Screws thru the Lock
Washer and Bearing Plate and attach
the Actuator Housing to the valve
housing.
10. Using the valve Handle Kit, shift the valve spool back
and forth to verify that the valve spool moves freely inside
the Actuator Housing. If it does not, remove actuator
assembly and repeat assembly procedures
11. Install SAE 6 Plug, Solenoid Cartridges, Fittings and Tubing Kits.
Figure 70. Model V20 SOL-E Solenoid Actuator Installation Procedures

Model V20 Service and Parts Manual (Catalog No. SC-1102) Rev: 08-26-2002 76
Model V20 SOL-E Solenoid Actuator Installation Procedures
Pilot Return Check Valve Pilot Return Tube
Pilot Return Fitting - With Adjustable
or Non-Adjustable Speed Control
Pilot Supply Inlet Port - This
port may also be used to bring
in an external pilot supply.
Pilot Exhaust Port - This port may also be
used to exhaust an external pilot supply.
Pilot Supply Fitting
Pilot Supply Tube
Figure 71. Model V20 SOL-E Solenoid Actuator Plumbing Diagram
Adjustable Speed Control
Turn Adjustment Screw 'In' to
slow spool shift or 'Out' to
increase spool shift speed.
Figure 72. Actuator Pilot Return Fitting with Adjustable Speed Control

Model V20 Service and Parts Manual (Catalog No. SC-1102) Rev: 08-26-2002 77
SOL-E Solenoid Cartridges
5
6
81
2
3
Matched Set Parts, Internal Cartridge
Components Are Not Sold Separately
Top View
Torque To:
3 - 4 Ft Lbs
(4,5 - 5 Nm)
Torque To:
15 - 20 Ft Lbs
(20 - 27 Nm)
7
4
Figure 73. SOL-E Solenoid Cartridges
Ref No. Part No. Description Quantity
1
2
3
4
5
6
7
8
12893001
12895001
11518001
07980001
08607001
08607002
08607003
07836001
07837001
08512001
08512002
08511001
08511002
11430001
21007001
02708001
06839001
01910001
07829001
CK-6083 12VDC Solenoid Cartridge Kit, Complete
CK-6093 24VDC Solenoid Cartridge Kit, Complete
CK-6169 120VAC Solenoid Cartridge Kit, Complete
K-6077 Cartridge Seal Kit (Contains Items 5 thru 8)
K-6143 Replacement Coil Kit, 12 VDC (Contains Items 1 thru 3 Only)
K-6144 Replacement Coil Kit, 24 VDC (Contains Items 1 thru 3 Only)
K-6241 Replacement Coil Kit, 120 VAC (Contains Items 1 thru 3 Only)
Pan Head Screw, No. 10-24 x .31”
Lock Washer
12 VDC Solenoid Coil with Spade Terminals – Serviced in K-6143 Coil Kit
12 VDC Solenoid Coil with Flying Leads – Sold as Piece Part Only
24 VDC Solenoid Coil with Spade Terminals - Serviced in K-6144 Coil Kit
24 VDC Solenoid Coil with Flying Leads - Sold as Piece Part Only
120 VAC Solenoid Coil with Spade Terminals - Serviced in K-6241 Coil Kit
Cartridge Tube Assembly – Matched Components –Not Sold Separately
O-Ring Seal – Serviced in K-6077 Cartridge Tube Seal Kit
O-Ring Seal – Serviced in K-6077 Cartridge Tube Seal Kit
O-Ring Seal – Serviced in K-6077 Cartridge Tube Seal Kit
O-Ring Seal – Serviced in K-6077 Cartridge Tube Seal Kit
Buna-N seals are standard for all Gresen valve assemblies. Contact the Gresen factory in Minneapolis for optional seals.
These Cartridges and Replacement Coil Kits are NOT for use in the newer internal piloted solenoid versions.
Cartridge Tube Assembly 21007001 includes O-Ring Seals 5 thru 8.

Model V20 Service and Parts Manual (Catalog No. SC-1102) Rev: 08-26-2002 78
[SOL] and [EPC] Solenoid Actuators
Bonnet Seals
(Located in Work Section Body)
Clean internal spool threads and external
threads of Hex Head Bolt (Ref. No. 8) and
apply Blue Thread Locking Compound
(Ref. Loctite 242 ) prior to installation.
R
Torque to:
10 - 12 Ft Lbs
(14 - 16 Nm)
Torque to:
9 - 11 Ft Lbs (3 Places)
(12 - 15 Nm)
1
2
3
4
5
8
9
10
11
12
10
7
6
(Optional) SAE 4 External
Pilot Port Location
(See Note 3)
Figure 74. [SOL] and [EPC] Solenoid Actuators
Ref No. Part No. Description Quantity
1
2
3
4
5
6
7
8
9
10
11
12
16081001
21472002
21472004
03731101
09435106
03731110
21801001
07773001
09140062
21451001
21453001
06855001
10742001
21558001
21452001
K-CRT-SXXX [SOL] Solenoid Cartridge Kits (See Page 11 for Options)
K-CRT-EXXX [EPC] Solenoid Cartridge Kits (See Page 12 for Options)
K-6266 Bonnet Seal Kit (Kit Includes Items 6 and 7 Only)
Solenoid Actuator Bonnet
Solenoid Actuator Bonnet with (Optional) External SAE 4 Pilot Port
Bonnet Screw (1/4 - 20 X .875)
SAE 6 Plug (See Figure 12 for Optional Spool Override Kits)
Bonnet Screw (1/4 - 20 X 3.00)
O-Ring Seal (Serviced in K-6266 Solenoid Bonnet Seal Kit)
O-Ring Seal (Serviced in K-6266 Solenoid Bonnet Seal Kit)
Hex Head Bolt (5/16 - 18 X 1.75)
Spool Collar
Spring Collar
Centering Spring (Used on the ‘A’ Port [SOL] Actuators)
Centering Spring (Used on the ‘A’ Port [EPC] Actuators)
Centering Spring (Used on the ‘B’ Port of both [SOL] and [EPC] Actuators)
Spacer (Used in the ‘A’ Port of both [SOL] and [EPC] Solenoid Actuators)
1
1
1
2
1
1
1
2
1
1
2
1
1
1
1
Buna-N seals are standard for all Gresen valve assemblies. Contact the Gresen factory in Minneapolis for optional seals.
To achieve maximum metering performance when converting an On/Off [SOL] Solenoid Actuator to a Proportional [EPC]
Solenoid Actuator, replace Spring No. 06855001 with Spring No. 10742001 on the ‘A’ port end actuators.
The Solenoid Actuator Bonnet with external SAE 4 pilot port is used in applications where an external pilot source is available.
Since the pilot passages are isolated within the valve when no Utility Section is used, one of the bonnets must be used on both
the ‘A’ and ‘B’ port end of the valve assembly.

Model V20 Service and Parts Manual (Catalog No. SC-1102) Rev: 08-26-2002 79
[SOL-IH] and [EPC-IH] Solenoid Actuators (with Handle)
1
4
2
6
5
3
Torque To: 9 - 11 Ft lbs.
(12 - 15 Nm) 3 Places
Figure 75. [SOL-IH] and [EPC-IH] Solenoid Actuators (with Handle)
Ref No. Part No. Description Quantity
1
2
3
4
5
6
21560002
03731101
16103003
04220004
04220002
K-CRT-SXXX [SOL] Solenoid Cartridge Kits (See Page 11 for Options)
K-CRT-EXXX [EPC] Solenoid Cartridge Kits (See Page 12 for Options)
Solenoid Bonnet
Bonnet Screw (1/4 - 20 X .875)
K-6276 Spool Travel Limiter Kit - (See Figure 13)
Handle Actuator Assembly (See Figure 6)
Handle Rod Assembly (See Figure 6)
1
1
3
1
1
1
Buna-N seals are standard for all Gresen valve assemblies. Contact the Gresen factory in Minneapolis for optional seals.

Model V20 Service and Parts Manual (Catalog No. SC-1102) Rev: 08-26-2002 80
[SOL-IH] and [EPC-IH] Handle Assembly
1
3
6
7
2
4
5
8
11
12
Torque (4) Screws to:
15 - 20 In Lbs (2 - 3 Nm)
13
10
Position Handle Adapter into
Handle Pilot Retainer so that the
holes line up. Insert the Dowel Pin.
Position Handle Adapter fork
into Spool Clevis when inserting
Handle Assembly into bonnet.
Handle Adapter Fork
Spool Clevis
Clevis Pin
Torque Jam Nut to:
15 - 20 Ft Lbs (20 - 27 Nm)
Apply Blue Thread Locking Compound
(Ref Loctite No. 242) to knob and hand
tighten only.
9
Figure 75. [SOL-IH] and [EPC-IH] Handle Assembly
Ref No. Part No. Description Quantity
1
2
3
4
5
6
7
8
9
10
11
12
13
16104001
04220002
04220004
08815001
08962002
09302106
03731003
09285002
07622001
08587001
09350310
07028002
08963001
09000027
08959001
08589001
K-6277 Actuator Service Kit (Items 6, 7, 9 thru 12, plus K-6266 Seals)
Handle Rod Assembly (Assembly Includes Items 1 thru 3 Only)
Handle Actuator Assembly (Assembly Includes Items 4 thru 13 Only)
Handle Knob
Handle Rod
Jam Nut
Screw (#8 - 32 X .625)
Lock Washer
Protective Boot (Serviced in K-6277 Actuator Service Kit)
Boot Retainer (Serviced in K-6277 Actuator Service Kit)
Dowel Pin
O-Ring Seal (Serviced in K-6277 Actuator Service Kit)
Handle Pivot Retainer (Serviced in K-6277 Actuator Service Kit)
O-Ring Seal (Serviced in K-6277 Actuator Service Kit)
Seal (Serviced in K-6277 Actuator Service Kit)
Handle Adapter
1
1
1
4
4
1
1
1
1
1
1
1
1
Buna-N seals are standard for all Gresen valve assemblies. Contact the Gresen factory in Minneapolis for optional seals.

Model V20 Service and Parts Manual (Catalog No. SC-1102) Rev: 08-26-2002 81
[SOL-IH] and [EPC-IH] Solenoid Bonnet Assembly
Torque to: 10 - 12 Ft Lbs
(14 - 16 Nm)
Clean internal spool threads and external threads
of Clevis Bolt (Ref. No. 2) and apply Blue Thread
Locking Compound (Ref. Loctite 242 ) prior to
installation.
R
Bonnet Seals
(Located in Work Section Body)
4654321
7
8
Figure 76. [SOL-IH] and [EPC-IH] Solenoid Bonnet Assembly
Ref No. Part No. Description Quantity
1
2
3
4
5
6
7
8
16081001
09350405
21544001
21451001
21453001
06855001
10742001
21452001
21801001
07773001
K-6266 Solenoid Bonnet Seal Kit (Includes Items 8 and 9 Only)
Dowel Pin
(Extended) Spool Clevis
Spool Collar
Spring Collar
Centering Spring (Used in On/Off [SOL-IH] Actuators)
Centering Spring (Used in Proportional [EPC-IH] Actuators)
Spacer
O-Ring Seal (Serviced in K-6277 Actuator Service Kit)
O-Ring Seal (Serviced in K-6277 Actuator Service Kit)
1
1
1
2
1
1
1
1
2
Buna-N seals are standard for all Gresen valve assemblies. Contact the Gresen factory in Minneapolis for optional seals.
To achieve maximum metering performance when converting an On/Off [SOL-IH] Solenoid Actuator to a Proportional [EPC-IH]
Solenoid Actuator, replace Spring No. 06855001 with Spring No. 10742001.

Model V20 Service and Parts Manual (Catalog No. SC-1102) Rev: 08-26-2002 82
Solenoid Coil Connector Type Identification
Coil Connector Type
And Order Code Letter
Mating Connector Part No.
(Sold Separately)
Code Letter ‘D’
GRESEN
MODEL HT20108-02
VOLT 12 DATE 9624
AMP 1.6 DUTY 100%
OHM 7.5
[E] Proportional [S] On/Off
43650 DIN (Hirschmann)
A
24790001 Hirschmann
Connector Assembly
Code Letter ‘S’
GRESEN
MODEL HT20108-02
VOLT 12 DATE 9624
AMP 1.6 DUTY 100%
OHM 7.5
[E] Proportional [S] On/Off
1/4” Male Spade Terminals
24473002 Female
Spade Terminal
(2 Req.)
Code Letter ‘W’
GRESEN
MODEL HT20108-02
VOLT 12 DATE 9624
AMP 1.6 DUTY 100%
OHM 7.5
[E] Proportional [S] On/Off
Weather Pack
22247001 Weather Pack
Connector Assembly
Code Letter ‘H’
[E] Proportional [S] On/Off
D E U T SC H
IPD U S A
D T0 4 - 2 P
GRESEN
MODEL HT20108-02
VOLT 12 DATE 9624
AMP 1.6 DUTY 100%
OHM 7.5
Deutsch DT04 - 2P
Deutsch DT06 - 2S
(Not Supplied by Gresen)
Figure 77. Solenoid Coil Connectors

Model V20 Service and Parts Manual (Catalog No. SC-1102) Rev: 08-26-2002 83
On/Off [SOL] Solenoid Cartridge and Replacement Coil Kits
Installation Instructions for [SOL] Cartridges
(Excluding Coil)
1
Torque to:
15 - 30 In Lbs
(2 - 4 Nm)
TorqueCartridge to:
15 - 20 Ft Lbs
(20 - 27 Nm)
2
3
5
4
Step 1. Cartridge cavities MUST be clean prior to installing the
Solenoid Cartridge. Flush cavity if necessary.
Step 2. Install O-Rings (No’s. 3, 4, and 5) on Solenoid Tube
Assembly (Ref No. 2).
Step 3. Remove the Coil from the Solenoid Tube Assembly (No.
1). Lightly oil and screw the Solenoid Tube Assembly into
the cavity. Torque to 15 - 20 Ft Lbs (20 - 27 Nm).
Step 4. Slide Solenoid Coil into place on the Solenoid Cartridge
Tube and Torque to Coil Nut to 15 - 30 In Lbs (2 - 4 Nm).
Figure 78. On/Off [SOL] Solenoid Cartridge
Ref No. Part No. Description Quantity
1
2
3
4
5
16044007
16059001
24097001
02706001
01091001
07828001
K-6263 Cartridge Tube Kit (Includes Ref No’s. 2 thru 5 Only - Coil NOT included)
K-6265 Cartridge Seal Kit (Includes Ref No’s. 3 thru 5 Only)
Complete Solenoid Cartridge Kit or Replacement Coil Kit – Refer to the Table Below
Solenoid Cartridge Tube (Serviced in K-6263 Cartridge Tube Kit)
O-Ring Seal (Serviced in K-6265 Cartridge Seal Kit)
O-Ring Seal (Serviced in K-6265 Cartridge Seal Kit)
O-Ring Seal (Serviced in K-6265 Cartridge Seal Kit)
1
1
1
1
1
Buna-N seals are standard for all Gresen valve assemblies. Contact the Gresen factory in Minneapolis for optional seals.
K-6263 Cartridge Tube Kit includes the Cartridge Tube, Washer, Coil Nut and O-Ring Seals. These parts not sold separately.
All Coil Kits and Cartridge Kits include the connector type indicated. Refer to Figure 77 for coil connector identification.
On/Off [SOL] Complete Solenoid Cartridge Kits and Replacement Coil Kits
Complete K-CRT-S
Cartridge Kits
Cartridge
Kit Part
Number
Replace-
ment
Coil Kit
Coil Kit
Part
Number
Coil
Voltage
[12] [24]
Flying
Leads
[F]
43650
DIN
[D]
¼” Male
Spade
[S]
Weather
Pack
[W]
Deutsch
DT04-2P
[H]
K-CRT-S12F 21246001 K-6260 16044004 12 •
K-CRT-S24F 21246002 K-6261 16044005 24 •
K-CRT-S12D 23535001 K-6230 16089001 12 •
K-CRT-S24D 23535002 K-6231 16089002 24 •
K-CRT-S12W 22969001 K-6278 16108001 12 •
K-CRT-S24W 22969002 K-6279 16108002 24 •
K-CRT-S12S 24102001 K-6280 16108003 12 •
K-CRT-S24S 24102002 K-6264 16050001 24 •
K-CRT-S12H 25479001 K-6292 16044008 12 •
K-CRT-S24H 25479002 K-6293 16044009 24 •

Model V20 Service and Parts Manual (Catalog No. SC-1102) Rev: 08-26-2002 84
Proportional [EPC] Solenoid Cartridge and Replacement Coil Kits
Installation Instructions for [EPC] Cartridges
1
3
5
Torque to: 15 - 30 In Lbs
(2 - 4 Nm)
Torque Cartridge to:
15 - 20 Ft Lbs
(20 - 27 Nm)
DANA / GRESEN
MODEL HT20108-02
VOLT 12 DATE 9624
AMP 1.6 DUTY 100%
OHM 7.5
4
2
Step 1. Cartridge cavities MUST be clean prior to installing the
Solenoid Cartridge. Flush Cavity if necessary.
Step 2. Install O-Rings (No’s. 4 and 5) on Sleeve (No. 2).
Carefully insert Spring and Spool into Sleeve as shown.
Verify that the spool moves freely inside the sleeve. If
not, remove and inspect spool and sleeve for burrs or
contamination. Once problem is located, fix and return
the spool and spring to the sleeve and repeat.
Step 3. Lightly oil Sleeve Assembly (No. 2) and insert into
cavity. Carefully push into place.
Step 4. Remove the Solenoid Coil from the Solenoid Tube (Ref
No. 1). Install O-Ring (No. 3) on the Solenoid Tube
and screw into the bonnet cavity. Torque the Solenoid
Tube to 15 - 20 Ft Lbs (20 - 27 Nm).
Step 5. Slide Solenoid Coil and Bumper Seals into place on
Solenoid Tube and Torque to Coil Nut to 15 - 30 In Lbs
(2 - 4 Nm).
Figure 79. Proportional [EPC] Solenoid Cartridge
Ref No. Part No. Description Quantity
1
2
3
4
5
16044007
16059001
21226000
02706001
01091001
07828001
CK-6198 PRV Cartridge Kit (Includes Ref No’s. 2 thru 5 Only - Coil NOT included)
K-6265 Cartridge Seal Kit (Includes Ref No’s. 3 thru 5 Only)
Complete Solenoid Cartridge Kit or Replacement Coil Kit – Refer to the Table Below
PRV Cartridge (Serviced in CK-6198 PRV Cartridge Kit – Parts Not Sold Separately)
O-Ring Seal (Serviced in K-6265 Cartridge Seal Kit)
O-Ring Seal (Serviced in K-6265 Cartridge Seal Kit)
O-Ring Seal (Serviced in K-6265 Cartridge Seal Kit)
1
1
1
1
1
Buna-N seals are standard for all Gresen valve assemblies. Contact the Gresen factory in Minneapolis for optional seals.
CK-6198 PRV Valve Kit includes the Insert Sleeve, Spool, Spring, and O-Ring Seals. These parts are not sold separately.
All Coil Kits and Cartridge Kits include the connector type indicated. Refer to Figure 77 for coil connector identification.
Proportional [EPC] Solenoid Cartridge and Coil Kits
Complete K-CRT-E
Cartridge Kits
Cartridge
Kit Part
Number
Replace-
ment
Coil Kit
Coil Kit
Part
Number
Coil
Voltage
[12] [24]
Flying
Leads
[F]
43650
DIN
[D]
¼” Male
Spade
[S]
Weather
Pack
[W]
Deutsch
DT04-2P
[H]
K-CRT-E12F 21226001 K-6270 16096001 12 •
K-CRT-E24F 21226002 K-6271 16096002 24 •
K-CRT-E12D 21226006 K-6232 16091001 12 •
K-CRT-E24D 21226007 K-6233 16091002 24 •
K-CRT-E12S 21226004 K-6283 16109001 12 •
K-CRT-E24S 21226005 K-6284 16109002 24 •
K-CRT-E12W 21226008 K-6252 16011003 12 •
K-CRT-E24W 21226009 K-6253 16011004 24 •
K-CRT-E12H 21226015 K-6294 16108008 12 •
K-CRT-E24H 21226016 K-6295 16108009 24 •

Model V20 Service and Parts Manual (Catalog No. SC-1102) Rev: 08-26-2002 85
Bonnet Conversion for 2-Way, 2-Position Operation
Torque SAE Plug to:
15 - 20 Ft Lbs (20 - 27 Nm)
5
3
Install Hex Set Screw
Here - Apply Blue Thread
Adhesive (Loctite No. 242)
and Insert Below Surface
2
Pilot Port
Exhaust Port
1
4
Torque (3) Screws to:
9 - 11 Ft Lbs (12 - 15 Nm)
2-Way, 2-Position Schematic
Figure 80. Solenoid Bonnet Conversion
Solenoid Bonnet Conversion Procedures
1. Remove the solenoid and cartridge insert from the
solenoid bonnet.
2. Remove the solenoid bonnet from the work section.
Flush and dry.
3. Apply Blue thread adhesive (Ref. Loctite No. 242) and
install hex set screw into the pilot port in the solenoid
bonnet as shown in the above illustration.
4. Re-attach the solenoid bonnet to the work section.
5. Install an SAE 8 Plug into the solenoid cartridge cavity.
Ref No. Part No. Description Quantity
1
2
3
4
21473002
21472002
09276408
06879001
2-Way Bonnet Assembly (Item No. 2 with installed Item No. 3)
K-CRT-XXXX Solenoid Cartridge
Solenoid Bonnet
Hex Set Screw (1/4 - 20 X .500)
SAE 8 Plug (with O-Ring Seal)
1
1
1
1
The Hex Set Screw MUST be installed in the pilot port (not the exhaust port), and inserted below the surface, for proper
operation. Refer to the above illustration for pilot port identification.

Model V20 Service and Parts Manual (Catalog No. SC-1102) Rev: 08-26-2002 86
Solenoid Bonnet Spool Travel Limiter/Override Kits
1234
5
Override Spool by Adjusting This (Spool Override Rod)
Limit Spool Travel by Adjusting This (Spool Override Assembly)
Torque to: 10 - 12 Ft Lbs
(12 - 14 Nm)
Torque to: 4 - 6 Ft Lbs
(6 - 8 Nm)
Since the Override Kit is
installed from the inside,
the bonnet must be
removed.
Figure 81. Solenoid Bonnet Spool Travel Limiter and Spool Overrides
Travel Limiter Adjustment Procedures Using the Spool Override Function
1. Remove the cap nut .
2. Make sure that the spool override rod (shown above)
is out as far as it goes.
3. Loosen lock nut .
4. Using a flat wrench, turn the spool override assembly
in or out as necessary to limit spool travel.
5. Once spool travel limiter is set, torque lock nut to
10 - 12 Ft Lbs (12 - 14 Nm).
6. Install cap nut and torque to 4 - 6 Ft Lbs (6 - 8 Nm).
1. Remove the cap nut . It is NOT necessary to loosen
the lock nut .
2. Screw Type Overrides - Turn the spool override rod
clockwise to force the valve spool from the neutral
position.
Push Pin Overrides - Push the spool override rod in to
force the valve spool from the neutral position.
3. When the override function is complete, return the
spool override rod to the full out position, install cap
nut and torque to 4 - 6 Ft Lbs (6 - 8 Nm).
Ref No. Part No. Description Quantity
1
2
3
4
5
16103001
16103002
04295001
04295003
02705001
21361001
21359001
21523001
K-6274 Screw Type Travel Limiter/Override Kit (Kit Includes all Items Listed Below)
K-6275 Push Pin Type Travel Limiter/Override Kit (Kit Includes all Items Listed Below)
Override Assembly (Used in K-6274 Screw Type Override Only)
Override Assembly (Used in K-6275 Push Pin Type Override Only)
O-Ring Seal
Back-Up Washer
Lock Nut
Cap Nut
1
1
1
1
1
1
Buna-N seals are standard for all Gresen valve assemblies. Contact the Gresen factory in Minneapolis for optional seals.

Model V20 Service and Parts Manual (Catalog No. SC-1102) Rev: 08-26-2002 87
Solenoid Bonnet (with Handle) Spool Travel Limiter Kit
123
Torque to: 10 - 12 Ft Lbs
(12 - 14 Nm)
Limit Spool Travel by Adjusting This (Travel Limiter Rod)
Since the Override Kit is
installed from the inside,
the handle assembly and
bonnet must be removed.
Figure 82. Solenoid Bonnet (with Handle) Spool Travel Limiter
Spool Travel Limiter Adjustment Procedures
1. Loosen lock nut (No. 3).
2. Using a flat wrench, turn the travel limiter rod (No. 1) in
or out as necessary to limit spool travel.
3. Once travel limiter is set, torque lock nut (No. 3) to 10 -
12 Ft Lbs (12 - 14 Nm).
Ref No. Part No. Description Quantity
1
2
3
16103003
21628001
03119001
21627001
K-6276 Screw Type Travel Limiter Kit (Kit Includes all Items Listed Below)
Travel Limiter Rod
O-Ring Seal
Lock Nut
1
1
1
Buna-N seals are standard for all Gresen valve assemblies. Contact the Gresen factory in Minneapolis for optional seals.

Model V20 Service and Parts Manual (Catalog No. SC-1102) Rev: 08-26-2002 88
K-6030 and K-6203 Load Check Plug Kits
Torque Load Check Plug
to: 15 - 20 Ft Lbs (20 - 27 Nm)
356
49
18
7410
35
8
2
K-6030 Load Check Plug Kit - For
Use In V20P, V20RP, V20T, V20RT,
V20C & V20LS Sections
K-6203 Load Check Plug Kit - For
Use In V20S 'Series' Sections
Figure 83. K-6030 and K-6203 Load Check Plug Kits
Ref No. Part No. Description Quantity
1
2
3
4
5
6
7
8
9
10
12742001
12953001
07382001
11497001
03411001
11241001
02707001
01821001
01819001
01818001
01820001
01868001
02781001
07791001
K-6030 Load Check Plug Kit For All Non-V20S Sections (Contains all Items Listed Here)
K-6203 Load Check Plug Kit For All V20S Sections (Contains all Items Listed Here)
K-6032 Plug Seal Kit For K-6030 Load Check Plugs (Contains Items 3 thru 7 Only)
K-6204 Plug Seal Kit For K-6203 Load Check Plugs (Contains Items 3 thru 5 Only)
Load Check Plug (Serviced in K-6030 Load Check Plug Kit)
Load Check Plug – V20S (Serviced in K-6203 Load Check Plug Kit)
O-Ring Seal (Serviced in both K-6032 and K-6203 Plug Seal Kits)
Back-Up Ring (Serviced in both K-6032 and K-6203 Plug Seal Kits)
O-Ring Seal (Serviced in both K-6032 and K-6203 Plug Seal Kits)
O-Ring Seal (Serviced in K-6032 and Plug Seal Kit Only)
Back-Up Ring (Serviced in K-6032 and Plug Seal Kit Only)
Spring (Serviced in K-6030 and K-6203 Load Check Plug Kits)
Check Poppet (Serviced in K-6030 Load Check Plug Kit)
Check Poppet – V20S (Serviced in K-6203 Load Check Plug Kit)
1
1
1
1
1
1
2
1
1
1
Buna-N seals are standard for all Gresen valve assemblies. For Viton seals, contact the Gresen factory in Minneapolis.
Continuous Back-Up Rings are installed at the factory using special sizing tools. It is Not necessary to replace the original
Back-Up Rings unless they have been damaged. See Page 9 for Back-Up Ring Preparation and Installation procedures.

Model V20 Service and Parts Manual (Catalog No. SC-1102) Rev: 08-26-2002 89
3-Way Conversion Check Plug
Torque Load Check Plug
to: 15 - 20 Ft Lbs (20 - 27 Nm)
245
3
1
6
06140006 Three-Way Conversion Plug Assy
For Use In The Non-Active Work Port Of
V20P, V20RP, V20T, V20RT 3-Way Sections
7
Figure 84. 3-Way Conversion Check Plug
Ref No. Part No. Description Quantity
1
2
3
4
5
6
7
06140006
07382001
03411001
02707001
01821001
01819001
01818001
01820001
06754001
3-Way Conversion Plug Assy (Contains all Items Listed Here)
K-6032 Plug Seal Kit For K-6030 Load Check Plugs (Contains Items 2 thru 6 Only)
Load Check Plug (Serviced in 06140006 Conversion 3-Way Check Plug Assy)
O-Ring Seal (Serviced in K-6032 Plug Seal Kits)
Back-Up Ring (Serviced in both K-6032 Plug Seal Kit)
O-Ring Seal (Serviced in both K-6032 Plug Seal Kit)
O-Ring Seal (Serviced in K-6032 Plug Seal Kit)
Back-Up Ring (Serviced in K-6032 Plug Seal Kit)
3-Way Conversion Plug (Included in 06140006 Conversion Plug Assy)
1
2
1
1
1
1
1
Buna-N seals are standard for all Gresen valve assemblies. For Viton seals, contact the Gresen factory in Minneapolis.
Continuous Back-Up Rings are installed at the factory using special sizing tools. It is Not necessary to replace the original
Back-Up Rings unless they have been damaged. See Page 9 for Back-Up Ring Preparation and Installation procedures.

Model V20 Service and Parts Manual (Catalog No. SC-1102) Rev: 08-26-2002 90
K-6215 Compensator Plug Kit
Torque Compensator Plug
to: 15 - 20 Ft Lbs (20 - 27 Nm)
1
2
3
4
5
6
Figure 85. K-6215 Compensator Plug Kit – For Use In V20PC Work Sections
Ref No. Part No. Description Quantity
1
2
3
4
5
6
16092001
16095001
02707001
09023017
01721001
01821001
01819001
20971002
K-6215 Compensator Plug Kit (Contains all Items Listed Here)
K-6216 Compensator Plug Seal Kit (Contains Items 1 thru 5 Only)
O-Ring Seal (Serviced in K-6216 Plug Seal Kit)
Back-Up Ring (Serviced in K-6216 Plug Seal Kit)
O-Ring Seal (Serviced in K-6216 Plug Seal Kit)
Back-Up Ring (Serviced in K-6216 Plug Seal Kit)
O-Ring Seal (Serviced in K-6216 Plug Seal Kit)
Compensator Plug (Serviced in K-6215 Compensator Plug Kit)
1
1
1
2
1
1
Buna-N seals are standard for all Gresen valve assemblies. For Viton seals, contact the Gresen factory in Minneapolis.
Continuous Back-Up Rings are installed at the factory using special sizing tools. It is Not necessary to replace the original
Back-Up Rings unless they have been damaged. See Page 9 for Back-Up Ring Preparation and Installation procedures.

Model V20 Service and Parts Manual (Catalog No. SC-1102) Rev: 08-26-2002 91
Model ‘RC’ Work Port Relief Cartridges
Torque Relief Valve Cartridge
to: 15 - 20 Ft Lbs (20 - 27 Nm)
29
8
2
1
36
5
7
11
12 13
4
10
Figure 86. Model ‘RC’ Work Port Relief Cartridges
Ref No. Part No. Description Quantity
1
2
3
4
5
6
7
8
9
10
11
12
13
03838xxx
06419001
12727001
01880001
02707001
20949001
01869001
07638001
07078001
01870001
07497001
11912001
07874001
00458001
00459001
00462001
03936001
01884001
01821001
01819001
01818001
01820001
01868001
02781001
RC Relief Cartridge - With Check (Specify Pressure Setting When Ordering)
K-6005 Relief Seal Kit (Contains Items 2 thru 6 Only
K-19002 Relief Poppet Service Kit (Contains Item 5 - Poppet and Seal Assembly)
Relief Cap
O-Ring Seal (Serviced in K-6005 Relief Seal Kit)
Spring (200 - 499 PSI [13 - 33 bar] Pressure Range)
Spring (500 - 1249 PSI [34 - 86 bar] Pressure Range)
Spring (1250 - 1749 PSI [87 - 121 bar] Pressure Range)
Spring (1750 – 1999 PSI [122 - 138 bar] Pressure Range)
Spring (2000 – 2599 PSI [139 - 179 bar] Pressure Range)
Spring (2600 - 2999 PSI [180 - 207 bar] Pressure Range)
Spring (3000 - 3500 PSI [208 - 242 bar] Pressure Range)
Dampening Sleeve
Shim (.040 inch [1,0 mm] thick)
Shim (.020 inch [0,5 mm] thick)
Shim (.010 inch [0,25 mm] thick)
Poppet Assembly (Not Serviceable)
RC Relief Body
Back-Up Ring (Serviced in K-6005 Relief Seal Kit)
O-Ring Seal (Serviced in K-6005 Relief Seal Kit)
O-Ring Seal (Serviced in K-6005 Relief Seal Kit)
Back-Up Ring (Serviced in K-6005 Relief Seal Kit)
Check Spring (Omit This Part In Free Flow Sections)
Check Poppet (Omit This Part In Free Flow Sections)
1
2
1
1
1
1
1
1
1
1
A/R
A/R
A/R
1
1
1
1
1
2
1
1
Buna-N seals are standard for all Gresen valve assemblies. For Viton seals, contact the Gresen factory in Minneapolis.
Do not attempt to adjust/shim these reliefs unless you have the capability to test the reliefs for proper pressure setting. Without
the capability to test you may exceed the maximum pressure rating of the product or draw the relief spring solid, which in turn
means there is no relief (NR).
Continuous Back-Up Rings are installed at the factory using special sizing tools. It is Not necessary to replace the original
Back-Up Rings unless they have been damaged. See Page 9 for Back-Up Ring Preparation and Installation procedures.

Model V20 Service and Parts Manual (Catalog No. SC-1102) Rev: 08-26-2002 92
Model ‘RCS’ Work Port Relief Cartridge
Torque Relief Valve Cartridge
to: 15 - 20 Ft Lbs (20 - 27 Nm)
27
2
1
35
4
6
89
Figure 87. Model ‘RCS’ Work Port Relief Cartridge For V20S ‘Series’ Work Sections
Ref No. Part No. Description Quantity
1
2
3
4
5
6
7
8
9
11472xxx
11498001
12727001
01880001
02707001
20949001
01869001
07638001
07078001
01870001
07497001
11912001
00458001
00459001
00462001
03936001
11471001
01819001
11470001
11469001
Model RCS Relief Cartridge - With Check (Specify Pressure When Ordering)
K-6206 Relief Seal Kit (Contains Items 2 and 7 Only
K-19002 Relief Poppet Service Kit (Contains Item 5 - Poppet and Seal Assembly)
Relief Cap
O-Ring Seal (Serviced in K-6206 Relief Seal Kit)
Spring (200 - 499 PSI [13 - 33 bar] Pressure Range)
Spring (500 - 1249 PSI [34 - 86 bar] Pressure Range)
Spring (1250 - 1749 PSI [87 - 121 bar] Pressure Range)
Spring (1750 – 1999 PSI [122 - 138 bar] Pressure Range)
Spring (2000 – 2599 PSI [139 - 179 bar] Pressure Range)
Spring (2600 - 2999 PSI [180 - 207 bar] Pressure Range)
Spring (3000 - 3500 PSI [208 - 242 bar] Pressure Range)
Shim (.040 inch [1,0 mm] thick)
Shim (.020 inch [0,5 mm] thick)
Shim (.010 inch [0,25 mm] thick)
Poppet Assembly (Not Serviceable)
RCS Relief Body
O-Ring Seal (Serviced in K-6206 Relief Seal Kit)
Check Spring (Omit This Part In Free Flow Sections)
Check Poppet (Omit This Part In Free Flow Sections)
1
2
1
1
1
1
1
1
1
A/R
A/R
A/R
1
1
1
1
1
Buna-N seals are standard for all Gresen valve assemblies. For Viton seals, contact the Gresen factory in Minneapolis.
Do not attempt to adjust/shim these reliefs unless you have the capability to test the reliefs for proper pressure setting. Without
the capability to test you may exceed the maximum pressure rating of the product or draw the relief spring solid, which in turn
means there is no relief (NR).

Model V20 Service and Parts Manual (Catalog No. SC-1102) Rev: 08-26-2002 93
Anti-Cavitation Check Cartridges
Torque Anti-Cavitation Check Cartridge
to: 15 - 20 Ft Lbs (20 - 27 Nm)
9
7
3
5
4 8
1612
Exhaust Core
Work Port
3
5
6
CK-6021 Anti-Cavitation Check Plug Kit
- For Use In V20P, V20RP, V20T, V20RT,
V20C & V20LS Sections
K-6205 Anti-Cavitation Check Plug Kit
- For Use In V20S 'Series' Sections
2
10
11
13
Figure 88. Anti-Cavitation Check Cartridges
Ref No. Part No. Description Quantity
1
2
3
4
5
6
7
8
9
10
11
12
13
12751001
12955001
07382001
11498001
01822001
11340001
02707001
01820001
01819001
00071001
01823001
01820001
01818001
01868001
11343001
02781001
07791002
CK-6021 Anti-Cav Check Plug Kit, Excluding V20S (Contains All Items Listed Below)
K-6205 Anti-Cav Check Plug Kit For V20S ‘Series’ (Contains All Items Listed Below)
K-6032 Plug Seal Kit – Services CK-6021 Cartridge (Contains Items 3, 4, 5, 8 & 9)
K-6206 Plug Seal Kit – Services K-6205 Cartridge (Contains Items 3 thru 5 Only
Anti-Cavitation Check Body – (Serviced In CK-6021 A/C Check Plug Kit)
Anti-Cavitation Check Body – (Serviced In K-6205 Series A/C Check Plug Kit)
O-Ring Seal (Serviced in both K-6032 and K-6026 Plug Seal Kits)
Back-Up Ring (Serviced in K-6032 Plug Seal Kit)
O-Ring Seal (Serviced in both K-6032 and K-6026 Plug Seal Kits)
7/16” Steel Ball
Check Ball Retainer – (Serviced In CK-6021 A/C Check Plug Kit)
Back-Up Ring (Serviced in K-6032 Plug Seal Kit)
O-Ring Seal (Serviced in K-6032 Plug Seal Kit)
Check Spring (Serviced In CK-6021 A/C Check Plug Kit)
Check Spring (Serviced In K-6205 Series A/C Check Plug Kit)
Check Poppet (Serviced In CK-6021 A/C Check Plug Kit)
Check Poppet (Serviced In K-6205 Series A/C Check Plug Kit)
1
1
1
1
1
1
1
2
1
1
1
1
Buna-N seals are standard for all Gresen valve assemblies. For Viton seals, contact the Gresen factory in Minneapolis.
Continuous Back-Up Rings are installed at the factory using special sizing tools. It is Not necessary to replace the original
Back-Up Rings unless they have been damaged. See Page 9 for Back-Up Ring Preparation and Installation procedures.
Omit This Part In Free Flow Sections

Model V20 Service and Parts Manual (Catalog No. SC-1102) Rev: 08-26-2002 94
Model ‘CRA’ Work Port Relief/Anti-Cav Cartridges
29
8
2
13
6
5
7
11
13
15
4
12
14
16
10
Torque Relief Valve Cartridge
to: 15 - 20 Ft Lbs (20 - 27 Nm)
Figure 89. Model ‘CRA’ Work Port Relief/Anti-Cavitation Check Cartridges
Ref No. Part No. Description Quantity
1
2
3
4
5
6
7
8
9
10
11
12
13
14
15
16
07745xxx
06419001
12727001
01880001
02707001
20949001
01869001
07638001
07078001
01870001
07497001
11912001
07874001
00458001
00459001
00462001
03936001
07741001
01821001
01819001
07743001
07744001
07742001
01818001
01820001
06016001
06015001
CRA Relief/Anti-Cav Check Cartridge (Specify Pressure Setting When Ordering)
K-6005 Relief Seal Kit (Contains Items 2 and 7 Only
K-19002 Relief Poppet Service Kit (Contains Item 5 - Poppet and Seal Assembly)
Relief Cap
O-Ring Seal (Serviced in K-6005 Relief Seal Kit)
Spring (200 - 499 PSI [13 - 33 bar] Pressure Range)
Spring (500 - 1249 PSI [34 - 86 bar] Pressure Range)
Spring (1250 - 1749 PSI [87 - 121 bar] Pressure Range)
Spring (1750 – 1999 PSI [122 - 138 bar] Pressure Range)
Spring (2000 – 2599 PSI [139 - 179 bar] Pressure Range)
Spring (2600 - 2999 PSI [180 - 207 bar] Pressure Range)
Spring (3000 - 3500 PSI [208 - 242 bar] Pressure Range)
Dampening Sleeve
Shim (.040 inch [1,0 mm] thick)
Shim (.020 inch [0,5 mm] thick)
Shim (.010 inch [0,25 mm] thick)
Poppet Assembly (Not Serviceable)
CRA Relief Body
Back-Up Ring
O-Ring Seal (Serviced in K-6005 Relief Seal Kit)
Anti-Cavitation Check Poppet
Anti-Cavitation Spring
Poppet Retainer
O-Ring Seal (Serviced in K-6005 Relief Seal Kit)
Back-Up Ring (Serviced in K-6005 Relief Seal Kit)
Check Spring (Omit This Part In Free Flow Sections)
Check Poppet (Omit This Part In Free Flow Sections)
1
2
1
1
A/R
A/R
A/R
1
1
1
1
1
1
1
1
1
1
1
Buna-N seals are standard for all Gresen valve assemblies. For Viton seals, contact the Gresen factory in Minneapolis.
Do not attempt to adjust/shim these reliefs unless you have the capability to test the reliefs for proper pressure setting. Without
the capability to test you may exceed the maximum pressure rating of the product or draw the relief spring solid, which in turn
means there is no relief (NR).
Continuous Back-Up Rings are installed at the factory using special sizing tools. It is Not necessary to replace the original
Back-Up Rings unless they have been damaged. See Page 9 for Back-Up Ring Preparation and Installation procedures.

Model V20 Service and Parts Manual (Catalog No. SC-1102) Rev: 08-26-2002 95
Model ‘CRA’ Work Port Relief Installation Procedures
123
4
5
4
5
5
Installation Tools Required
Needle Nose Pliers
General Purpose Grease
1. Apply a liberal amount of grease to the I.D.'s on
both ends of the Poppet Retainer assembly (1).
Insert the Load Check Spring (2) and Load Check
Poppet (3) into the larger greased I.D. end of the
Poppet Retainer (1).
2. Using a suitable tool with a hollow end, install the
assembly created in Step 1, into work port option
cavity and push until poppet retainer seats into the
bore as shown.
3. Using a needle nose pliers, insert the Anti-Cavitation
Spring (4) into the Poppet Retainer as shown.
4. Apply a liberal amount of grease to the open end of the
Relief Cartridge.
Insert the Anti-Cavitation Check Poppet (5) into the greased
end of the cartridge with the open end of the poppet facing
out as shown.
5. Carefully insert the CRA Relief Cartridge into the cavity so that
the bore end of the Anti-Cavitatin Poppet slides over the spring
protruding out of the Poppet Retainer.
If the hex head of the CRA Relief Cartridge will not screw into
the seat the O-Ring, the Anti-Cavitation Poppet did not slide
over the spring ant the stem of the Poppet Retainer.
Realign the Anti-Cavitation Check Poppet and re-install. Once
alignment is obtained, the CRA Relief Cartridge can be torqued
to specifications.
Figure 90. Model ‘CRA’ Work Port Relief Installation Procedures

Model V20 Service and Parts Manual (Catalog No. SC-1102) Rev: 08-26-2002 96
Model ‘RCPC’ Work Port Relief Cartridges
Torque Relief Valve Cartridge
to: 15 - 20 Ft Lbs (20 - 27 Nm)
28
7
2
1
35
4
6
10
9
Figure 91. Model ‘RCPC’ Work Port Relief Cartridges – For Use In V20PC Work Sections
Ref No. Part No. Description Quantity
1
2
3
4
5
6
7
8
9
10
22252xxx
06419001
12727001
01880001
02707001
20949001
01869001
07638001
07078001
01870001
07497001
11912001
00458001
00459001
00462001
03936001
22002001
09023017
01721001
01819001
01821001
RCPC Relief Cartridge (Specify Pressure Setting When Ordering)
K-6214 RCPC Relief Seal Kit (Contains Items 2 thru 6 Only
K-19002 Relief Poppet Service Kit (Contains Item 5 - Poppet and Seal Assembly)
Relief Cap
O-Ring Seal (Serviced in K-6214 Relief Seal Kit)
Spring (200 - 499 PSI [13 - 33 bar] Pressure Range)
Spring (500 - 1249 PSI [34 - 86 bar] Pressure Range)
Spring (1250 - 1749 PSI [87 - 121 bar] Pressure Range)
Spring (1750 – 1999 PSI [122 - 138 bar] Pressure Range)
Spring (2000 – 2599 PSI [139 - 179 bar] Pressure Range)
Spring (2600 - 2999 PSI [180 - 207 bar] Pressure Range)
Spring (3000 - 3500 PSI [208 - 242 bar] Pressure Range)
Shim (.040 inch [1,0 mm] thick)
Shim (.020 inch [0,5 mm] thick)
Shim (.010 inch [0,25 mm] thick)
Poppet Assembly (Not Serviceable)
RCPC Relief Body
Back-Up Ring (Serviced in K-6214 Relief Seal Kit)
O-Ring Seal (Serviced in K-6214 Relief Seal Kit)
O-Ring Seal (Serviced in K-6214 Relief Seal Kit)
Back-Up Ring (Serviced in K-6214 Relief Seal Kit)
1
2
1
1
1
1
1
1
1
A/R
A/R
A/R
1
1
1
1
1
2
Buna-N seals are standard for all Gresen valve assemblies. For Viton seals, contact the Gresen factory in Minneapolis.
Do not attempt to adjust/shim these reliefs unless you have the capability to test the reliefs for proper pressure setting.
Without the capability to test you may exceed the maximum pressure rating of the product or draw the relief spring solid, which
in turn means there is no relief (NR).
Continuous Back-Up Rings are installed at the factory using special sizing tools. It is Not necessary to replace the original
Back-Up Rings unless they have been damaged. See Page 9 for Back-Up Ring Preparation and Installation procedures.

Model V20 Service and Parts Manual (Catalog No. SC-1102) Rev: 08-26-2002 97
Anti-Drift Cartridges For V20LS and V20PC Sections
Torque Anti-Drift Cartridge
to: 15 - 20 Ft Lbs (20 - 27 Nm)
Exhaust Core
Work Port
K-6164 Anti-Drift Cartridge Kit - For Use In
The 'A' Port End Of V20C and V20LS Sections
1
35810
246798
11
K-6239 Anti-Drift Cartridge Kit - For
Use In Either Port Of V20PC Sections
2
13
14
3
4
15
12
Figure 92. Anti-Drift Cartridges For V20LS and V20PC Sections
Ref No. Part No. Description Quantity
1
2
3
4
5
6
7
8
9
10
11
12
13
14
15
12935001
12935002
07382001
16095001
11052001
02707001
01821001
01819001
01820001
01818001
11053001
12293001
11055001
11012001
11056001
20971009
09023017
01721001
22174018
K-6164 Anti-Drift Cartridge Kit, Complete - for V20C and C20LS Sections
K-6239 Anti-Drift Cartridge Kit, Complete - for V20PC Sections
K-6032 Plug Seal Kit – Services K-6164 Cartridge (Contains Items 3, 4, 5, 8 & 9)
K-6216 Plug Seal Kit – Services K-6239 Cartridge (Contains Items 3 thru 5 Only
Bleed Plug Body – (Serviced In K-6164 Bleed Plug Kit)
O-Ring Seal (Serviced in both K-6032 and K-6216 Plug Seal Kits)
Back-Up Ring (Serviced in K-6032 and K-6216 Plug Seal Kit)
O-Ring Seal (Serviced in both K-6032 and K-6216 Plug Seal Kits)
Back-Up Ring (Serviced in K-6032 Plug Seal Kit)
O-Ring Seal (Serviced in K-6032 Plug Seal Kit)
Bleed Washer
Spacer
Spacer
Spring
Locking Screw
Bleed Plug Body – (Serviced In K-6239 A/C Check Plug Kit)
Back-Up Ring (Serviced in K-6216 Plug Seal Kit)
O-Ring Seal (Serviced in K-6216 Plug Seal Kit)
.018 Orifice Plug
1
1
1
1
2
1
1
2
1
1
1
1
1
1
1
Buna-N seals are standard for all Gresen valve assemblies. For Viton seals, contact the Gresen factory in Minneapolis.
Continuous Back-Up Rings are installed at the factory using special sizing tools. It is Not necessary to replace the original
Back-Up Rings unless they have been damaged. See Page 9 for Back-Up Ring Preparation and Installation procedures.

Model V20 Service and Parts Manual (Catalog No. SC-1102) Rev: 08-26-2002 98
K-6024 Lockout Cartridges For V20LO Sections
Torque Lockout Cartridge to:
15 - 20 Ft Lbs (20 - 27 Nm)
Pilot
Work Port
1
5
34
2
68
7
Figure 93. K-6024 Lockout Cartridges For V20LO Sections
Ref No. Part No. Description Quantity
1
2
3
4
5
6
7
8
06638001
07474001
00216001
00449001
01571001
00071001
11466001
02707001
01818001
03092001
K-6024 Lockout Cartridge Kit, Complete - for V20LO Sections
K-6039 Plug Seal Kit – Services K-6164 Cartridge (Contains Items 3, 4, 5, 8 & 9)
Check Plug Cap – (Serviced In K-6024 Lockout Check Plug Kit)
O-Ring Seal (Serviced in both K-6039 Plug Seal Kit)
Spring (Serviced In K-6024 Lockout Check Plug Kit)
Steel Ball (Serviced In K-6024 Lockout Check Plug Kit)
Lockout Check Body (Serviced In K-6024 Lockout Check Plug Kit)
O-Ring Seal (Serviced in both K-6039 Plug Seal Kit)
O-Ring Seal (Serviced in K-6039 Plug Seal Kit)
Back-Up Ring (Serviced in K-6039 Plug Seal Kit)
1
1
1
1
1
1
1
1
Buna-N seals are standard for all Gresen valve assemblies. For Viton seals, contact the Gresen factory in Minneapolis.
Continuous Back-Up Rings are installed at the factory using special sizing tools. It is Not necessary to replace the original
Back-Up Rings unless they have been damaged. See Page 9 for Back-Up Ring Preparation and Installation procedures.

Model V20 Service and Parts Manual (Catalog No. SC-1102) Rev: 08-26-2002 99
RP20 Pilot - Operated Relief Cartridges
Torque Relief Cartridge to:
15 - 20 Ft Lbs (20 - 27 Nm)
Tamper Resistant Cover
RP20-A RP20-N
Tank Pressure Tank Pressure
13
2456
78
Figure 94. RP20 Pilot - Operated Relief Cartridges
NOTE
Due to close tolerances on working parts, the RP20
Pilot-Operated Relief Valve is not field serviceable. If
service other than external seal replacement is
required, replace the complete cartridge.
Ref No. Part No. Description Quantity
1
2
3
4
5
6
7
8
20498xxx
20498xxx
20498xxx
20498xxx
07474001
01820001
01818001
01819001
01821001
02707001
10034001
02781001
01868001
RP20-A Relief Cartridge (Adjustable)
RP20-N Relief Cartridge (Tamper Resistant)
RP20-A-LP Relief Cartridge (Adjustable)
RP20-N-LP Relief Cartridge (Tamper Resistant)
K-6032 Plug Seal Kit – Services K-6164 Cartridge (Contains Items 1 thru 5)
Back-Up Ring (Serviced in K-6032 Plug Seal Kit)
O-Ring Seal (Serviced in both K-6032 Plug Seal Kit)
O-Ring Seal (Serviced in both K-6032 Plug Seal Kit)
Back-Up Ring (Serviced in K-6032 Plug Seal Kit)
O-Ring Seal (Serviced in both K-6032 Plug Seal Kit)
Tamper Resistant Cap (Installed at the factory on RP20-N Versions Only)
Load Check Poppet
Spring
2
1
1
1
1
1
1
1
Buna-N seals are standard for all Gresen valve assemblies. For Viton seals, contact the Gresen factory in Minneapolis.
Do not attempt to adjust/shim these reliefs unless you have the capability to test the reliefs for proper pressure setting. Without
the capability to test you may exceed the maximum pressure rating of the product or draw the relief spring solid, which in turn
means there is no relief (NR).
Continuous Back-Up Rings are installed at the factory using special sizing tools. It is Not necessary to replace the original
Back-Up Rings unless they have been damaged. See Page 9 for Back-Up Ring Preparation and Installation procedures.
Omit this part when installing RP20 Relief Cartridge into Free Flow Sections.

Model V20 Service and Parts Manual (Catalog No. SC-1102) Rev: 08-26-2002 100
Work Port Flow Controls For V20C and V20LS Sections
Torque Flow Control Cartridge to:
15 - 20 Ft Lbs (20 - 27 Nm)
1
313
256
16
478
10 11
12
17 18 19
14 15
9
Power
Core
Feeder
Core
Figure 95. Work Port Flow Controls For V20C and V20LS Sections
Ref No. Part No. Description Quantity
1
2
3
4
5
6
7
8
9
10
11
12
13
14
15
16
17
18
19
10981001
10981002
11565001
10973001
10974001
26294001
10972001
10972002
07773001
09020010
09020110
10980001
10975001
10979001
10977001
10976001
02707001
10978001
03158001
01819001
10983001
10982001
11006001
11006003
10984001
Flow Control Assembly for V20LO Sections (Contains Items 1 thru 16)
Flow Control W/Short Stem Assembly for V20LO Sections (Contains Items 1 thru 16)
K-6171 Flow Control Seal Kit (Contains Items 3, 5, 6, 7, 13, 14, 15 & 16)
Retaining Ring
Flow Control Plug
O-Ring Seal (Serviced in both K-6171 Flow Control Seal Kit)
Flow Control Adjustment Drive Stem (Standard)
Flow Control Adjustment Drive Stem (Short)
O-Ring Seal (Serviced in both K-6171 Flow Control Seal Kit)
Back-Up Ring (Serviced in K-6171 Flow Control Seal Kit)
Back-Up Ring (Serviced in K-6171 Flow Control Kit)
Thrust Washer
Spring
Adjustment Collar
Spring Retainer
Flow Control Body
O-Ring Seal (Serviced in K-6171 Flow Control Seal Kit)
Back-Up Ring (Serviced in K-6171 Flow Control Seal Kit)
O-Ring Seal (Serviced in K-6171 Flow Control Seal Kit)
O-Ring Seal (Serviced in K-6171 Flow Control Seal Kit)
Flow Control Spring (Not Included In FC Assembly – Purchase Separately)
5-25 GPM Flow Control Piston (Not Included In FC Assembly – Purchase Separately)
1-5 GPM Flow Control Piston (Not Included In FC Assembly – Purchase Separately)
3-15 GPM Flow Control Piston (Not Included In FC Assembly – Purchase Separately)
Flow Control Stop (Not a Serviceable Item – Refer To Work Section View)
1
1
1
1
1
1
3
1
1
1
1
1
1
1
1
1
1
1
1
1
1
1
Buna-N seals are standard for all Gresen valve assemblies. For Viton seals, contact the Gresen factory in Minneapolis.
Continuous Back-Up Rings are installed at the factory using special sizing tools. It is Not necessary to replace the original
Back-Up Rings unless they have been damaged. See Page 9 for Back-Up Ring Preparation and Installation procedures.
Additional flow range piston are available from the Gresen factory in Minneapolis

Model V20 Service and Parts Manual (Catalog No. SC-1102) Rev: 08-26-2002 101
Work Port Dump Valve Cartridges
Torque Dump Valve Cartridge to:
15 - 20 Ft Lbs (20 - 27 Nm)
SAE 4 Pilot Port For
External Pilot Source
Tank Work Port
External Pilot
Source
13
2456
13 12
78910
11
89
Figure 96. Work Port Dump Valve Cartridges
Ref No. Part No. Description Quantity
1
2
3
4
5
6
7
8
9
10
11
12
13
27158001
12194003
01818001
01820001
01819001
01821001
02707001
27139001
26932001
00682001
01091001
27187001
27140001
01868001
02781001
Work Port Dump Valve Cartridge, Complete
K-19017 Dump Valve Seal Kit (Contains Items 1 thru 5, 8 & 9)
O-Ring Seal (Serviced in K-19017 Dump Valve Seal Kit)
Back-Up Ring (Serviced in K-19017 Dump Valve Seal Kit)
O-Ring Seal (Serviced in K-19017 Dump Valve Seal Kit)
Back-Up Ring (Serviced in K-19017 Dump Valve Seal Kit)
O-Ring Seal (Serviced in K-19017 Dump Valve Seal Kit)
Unloading Valve Body
Poppet
Back-Up Ring (Serviced in K-19017 Dump Valve Seal Kit)
O-Ring Seal (Serviced in K-19017 Dump Valve Seal Kit)
Spring
Pilot Head Sub Assembly (Internal Components Not Sold Separately)
Spring
Load Check Poppet
1
2
1
1
1
1
1
2
2
1
1
1
1
Buna-N seals are standard for all Gresen valve assemblies. For Viton seals, contact the Gresen factory in Minneapolis.
Continuous Back-Up Rings are installed at the factory using special sizing tools. It is Not necessary to replace the original
Back-Up Rings unless they have been damaged. See Page 9 for Back-Up Ring Preparation and Installation procedures.
Do Not install the Load Check Poppet and Spring into F4 (Free Flow) work sections.

Model V20 Service and Parts Manual (Catalog No. SC-1102) Rev: 08-26-2002 102
Seal Retainer and Spool Wiper Kits
4
Torque To: 10 Ft Lbs
(13,6 Nm)
2
1
3
Torque To: 10 Ft Lbs
(13,6 Nm)
2
1
K-6033 (Standard)
Seal Retainer Kit
CK-6029 (Optional)Heavy
Duty Seal Retainer Kit
Torque To: 10 Ft Lbs
(13,6 Nm)
1
K-6057 (Optional) Extra
Heavy Duty Seal Retainer Kit
7
1
6
5
2
Figure 97. Seal Retainer and Spool Wiper Kits
Ref No. Part No. Description Quantity
1
2
3
4
5
6
7
12786001
12806001
12860001
16105001
06552001
03731098
06802001
01800001
01857001
00018001
07565001
K-6033 Standard Seal Retainer Kit (Includes Items 1 and 2 Only)
CK-6029 Heavy Duty Seal Retainer With Wiper Kit (Includes Items 1 thru 4 Only)
K-6057 Extra Heavy Duty Seal Retainer Kit (Includes Items 1, 2, 5, 6 & 7)
K-6223 Spool Wiper Kit (Includes Item No. 4 Only)
Seal Retainer Plate (Serviced in all three Retainer Kits)
Screw (1/4 - 20 by 1/2” Long - Serviced in all three Retainer Kits)
Spool Wiper Retainer Plate (Serviced in CK-6029 Retainer Kit)
Wiper (Serviced in CK-6029 Seal Retainer Kit and K-6223 Spool Wiper Kit)
Clevis Pin (Serviced in K-6057 Seal Retainer Kit)
Cotter Pin (Serviced in K-6057 Seal Retainer Kit)
Spacer Washer (Serviced in K-6057 Seal Retainer Kit)
A/R
2
1
1
1
1
1
Used when handle bracket is not furnished and return line pressures are below 200 PSI [14 bar].
Used when handle bracket is not furnished and return line pressures are below 1000 PSI [69 bar], and when wiper seal is
desired.
Used when handle bracket is not furnished and return line pressures are subject to occasional peak pressures exceeding 1000
PSI [69 bar].

Model V20 Service and Parts Manual (Catalog No. SC-1102) Rev: 08-26-2002 103
Handle Bracket Kits
1
2
34
5
6
01801001 and
07355001 Brackets
01801002 Bracket For Use When 180 Degree Handle Bracket
Is Used In Conjunction With The Model CRA Relief Cartridges
On The Handle End Of The Work Section.
7
Torque To: 10 Ft Lbs
(13,6 Nm)
Figure 98. Handle Bracket Kits
Ref No. Part No. Description Quantity
1
2
3
4
5
6
7
12753001
08764001
12732001
16105001
01801001
07355001
01801002
09161407
01857001
00086001
00928001
01800001
K-6031 Standard Bracket and Pin Kit (Contains Items 1, 3, 4 & 5 Only)
K-6037 (Optional) Heavy Duty Cast Iron Bracket Kit (Contains Items 1 & 3 Only)
K-6158 Link & Pin Kit (Includes Items 4 thru 6)
K-6223 Spool Wiper Kit (Contains Item No. 7 Only)
Die Cast Bracket (Standard - Serviced in K-6031 Bracket Kit)
Cast Iron Bracket (Heavy Duty - Serviced in K-6037 Bracket Kit)
Die Cast Bracket (Optional – For Use when CRA Relief is used with 180 Degree Handle)
Screw (1/4 - 20 X 7/8 Inch long - Serviced in K-6031 & K-6037 Bracket Kits)
Clevis Pin (.250 X .91 - Serviced in K-6158 Link & Pin Kit)
Cotter Pin (.078 X .5 - Serviced in K-6158 Link & Pin Kit)
Link and Pin Sub Assembly (Includes Link, Plate and 2 Cotter Pins)
(Optional) Spool Wiper (Serviced in K-6223 Spool Wiper Kit)
1
1
1
1
1
2
1
1
1
1

Model V20 Service and Parts Manual (Catalog No. SC-1102) Rev: 08-26-2002 104
Protective Spool Boot Kits
1
2
3
Torque To: 10 Ft Lbs
(13,6 Nm)
Note: Spool Boots will not work with Handle Kits
or Spool Wipers
Figure 99. K-6056 Spool Boot Kit
Ref No. Part No. Description Quantity
1
2
3
12859001
07623001
07622001
03731098
K-6056 Spool Boot Kit (Contains all Items Listed Here)
Boot Retainer
Spool Protective Boot
Screw (1/4 - 20 by 1/2” Long)
1
1
2

Model V20 Service and Parts Manual (Catalog No. SC-1102) Rev: 08-26-2002 105
Vertical and Horizontal Handle Kits
4
3
3
2
1
3
5
Torque To: 10 Ft Lbs
(13,6 Nm)
Figure 100. Vertical and Horizontal Handle Kits
Ref No. Part No. Description Quantity
1
2
3
4
5
12752001
12755001
16106001
16106002
08377001
13001001
16106003
16106004
12732001
09161407
01801001
04238001
01802001
01802003
03249001
03249003
K-6004 Complete Vertical Handle & Bracket Kit (Black Plastic Coated Handle)
K-6137 Complete Vertical Handle & Bracket Kit (Optional Plain Handle)
K-6219 Vertical Handle & Linkage Kit (Black Plastic Coated Handle - No Bracket)
K-6220 Vertical Handle & Linkage Kit (Optional Plain Handle - No Bracket)
K-6007 Complete Horizontal Handle & Bracket Kit (Black Plastic Coated Handle)
K-6139 Complete Horizontal Handle & Bracket Kit (Optional Plain Handle)
K-6221 Horizontal Handle & Linkage Kit (Black Plastic Coated Handle - No Bracket)
K-6222 Horizontal Handle & Linkage Kit (Optional Plain Handle - No Bracket)
K-6158 Link and Pin Kit (Contains Item No. 3 Only)
Screw (1/4 - 20 by 7/8 Inch long)
Handle Bracket
Link, Plate and Cotter Pin Assembly
Standard Vertical Handle (Black Plastic Coated Handle)
Optional Vertical Handle (Plain Handle)
Standard Horizontal Handle (Black Plastic Coated Handle)
Optional Horizontal Handle (Plain Handle)
2
1
1
1
1
1
1
All of the Handle and Bracket Kits listed above include the Standard Die Cast Handle Bracket (No. 01801001). The Optional
Heavy Duty Cast Iron Handle Bracket (No. 07355001) is supplied in K-6037 Bracket Kit.

Model V20 Service and Parts Manual (Catalog No. SC-1102) Rev: 08-26-2002 106
Work Port Restrictors
With the restrictor Spring and Orifice
plate installed as shown, oil flow is
restricted into the work port (Meter 'IN').
Oil Flow
Metered
Oil Flow
Metered
V20 Work Port Restrictor Installation
Meter 'IN' Meter 'OUT'
With the restrictor Spring and Orifice
plate installed as shown, oil flow is restricted
out of the work port (Meter 'OUT').
2
1
Figure 101. Work Port Restrictors
Ref No. Part No. Description Quantity
1
2
11031xxx
10098xxx
10821001
10064001
10817xxx
10063xxx
SAE 8 Port Restrictor Assembly (Contains Items 1 and 2)
SAE 10 Port Restrictor Assembly (Contains Items 1 and 2)
Conical Spring (For Use In SAE 8 Restrictor Assembly)
Conical Spring (For Use In SAE 10 Restrictor Assembly)
SAE 8 Orifice Plate (Choose Orifice Hole Size From Table Below)
SAE 10 Orifice Plate (Choose Orifice Hole Size From Table Below)
1
1
1
1
The last three digits of the Restrictor Assembly and Orifice Plate are the same as the orifice hole size. Example: An SAE 8
Restrictor Plate with a .062 hole diameter is Restrictor Assembly part number 11031062. The table below indentifies the
available hole sizes for both SAE 8 and SAE 10 Orifice Plates.
Orifice Holes Sizes Available
10817xxx SAE 8 Orifice Plates 10063xxx SAE 10 Orifice Plates
015, 032, 040, 046, 055, 062, 074, 082, 095, 109, 125, 141,
156, 172, 189, 220
015, 032, 037, 042, 047, 053, 062, 070, 076, 082, 086, 095,
109, 125, 141, 156, 189, 203, 220, 281

Model V20 Service and Parts Manual (Catalog No. SC-1102) Rev: 08-26-2002 107
Port Plugs
Socket Head Port Plug
Hex Head Port Plug Hex Head Port Plug
With Gauge Port Plug
Figure 102. Port Plugs
Port Plug Identification Chart
Plug Part
Number
Viton
Seal
SAE
4
SAE
6
SAE
8
SAE
10
SAE
12
¼”
NPT
3/8”
NPT
½”
NPT
¾”
NPT
S.H.
H.H.
Notes
00017001 NA
00073001 NA
00947001 NA
01282001 NA
20527001 NA With ¼” Gauge Port
09435104
08103001
08103002 Yes
09435106
03637001
09435108
06879001
06879002
09435110
07054001
07054002 Yes
09435112
06089001
06089002 Yes
06089003 With ¼” Port Plug
06089004 W/SAE 4 Port Plug
06089005 Yes With ¼” Port Plug
06089006 W/SAE 6 Port Plug
06089007 Open SAE 4 Port
06089008 Open ¼” NPT Port
S.H. (Socket Head) Port Plug
H.H. (Hex Head) Port Plug
Plug is drilled and tapped for gauge port size indicated.

Model V20 Service and Parts Manual (Catalog No. SC-1102) Rev: 08-26-2002 108
Buna-N and Viton O-Ring Cross Reference
All standard Gresen products utilize Buna-N seals which are
compatible with petroleum base, water-in-oil emulsions, and
water-glycol fluids. Phosphate ester type fire-resistant fluids
will cause Buna-N seals to swell. This swelling is not
normally detrimental to static seals, but will be a problem for
dynamic seals such as valve spool seals. Swelling of these
seals can result in binding. The temperature range of Buna-
N seals is -40°F to +200°F [-40°C to +93°C].
Viton seals are recommeded for most applications that use
phosphate-ester type fluids. Viton seals are also
recommeded for applications that have a continuous
operating temperature of +200°F [+93°C] or more.
Cross Reference For O-Ring Seals, Buna-N to Viton
Buna-N Part
Number
Viton Part
Number
Common
Application
Buna-N Part
Number
Viton Part
Number
Common
Application
00006001 09002214 Pneumatic Actuator 06814002 07450001 Section Seal, Old
00449001 07611001 Lockout Cartridge + Others 06815002 07451001 Section Seal, Old
01091001 09002014 Solenoid Cartridge + Others 06839001 09002016 Dual Pressure Relief Head
01615001 07447001 Main Relief Cartridge, NR 07028002 09002022 HRH, EPC-IH Actuators
01718001 07446001 Main Relief Cartridge, NR 07700001 07449001 Spool Seal
01721001 07612001 P/B Sleeve + Others 07773001 09002010 Solenoid Bonnet + Others
01818001 07444001 Load Check Plug + Others 07828001 09002013 EPC Cartridge
01819001 07445001 Load Check Plug + Others 07829001 09002015 PRV Cartridge
01853001 07613001 Quad Seal – Float 08316001 09002011 LS Section Seal, Old
01910001 09002018 P/B Sleeve + Others 09000017 07612001 Unloading Valve Cartridge
02705001 07951001 Bleed Down Plug + Others 09000027 09002027 HRH Actuator
02706001 09003908 Solenoid Cartridge + Others 09000113 09002113 Dual Pressure Relief Head
02707001 07448001 Load Check Plug + Others 09001012 07877001 PC Flow Control
02708001 07452001 Bleed Plug + Others 12196001 09002024 Pneumatic Actuator
02709001 06277001 P/B Sleeve + Others 21047001 09002023 Float Positioners
03119001 09002903 EPC-IH Bonnet 21733001 09002119 Section Seal, New
03158001 09002018 PC Flow Control 21801001 09002121 EPC Bonnet + Others
03328001 07952001 KO Positioner 21857001 09003117 Section Seal, New
03911001 09002028 PC Flow Control 21866001 09002108 LS Section Seal, New