VS4000_ Vs4000
2017-08-18
: Vs4000 vs4000_ images 677 p4dbimg
Open the PDF directly: View PDF
.
Page Count: 4

1
Installation Instructions for
Colby 1, 2, 3, and 4 Light Vanity Strip
1.1
VS4000_
Wall
VS4000_
GP I :ENERAL RODUCT NFORMATION
These fixtures are intended to be installed utilizing NEC compliant
junction boxes.
This product is safety listed for damp locations.
This product may be dimmed with a standard incandescent dimmer.
This instruction shows a typical installation.
Follow enclosed supplement installation instructions for electrical and fixture installation onto house outlet box.
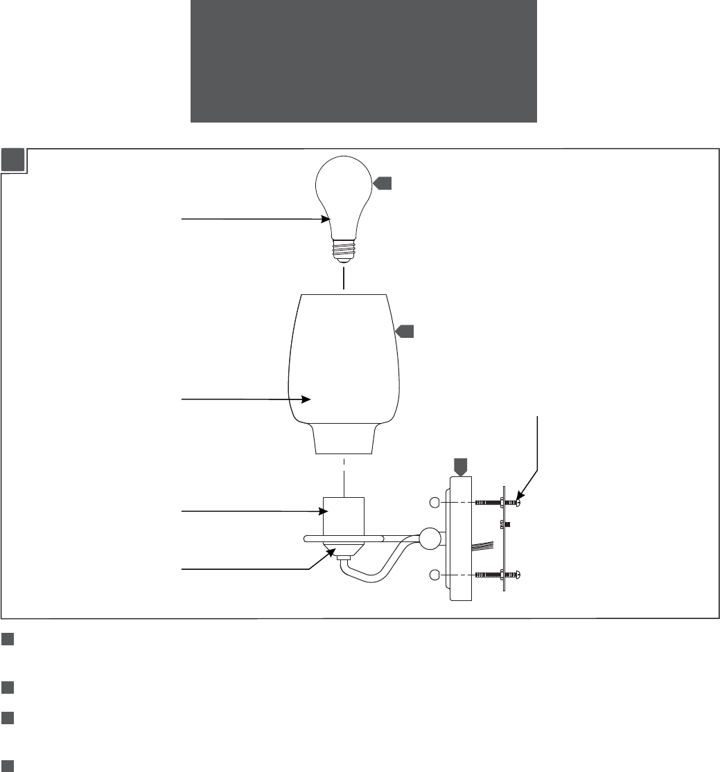
Note: For single light fixture, mounting plate studs must face horizontally.
Install the shade by placing it over the socket and onto the shade base.
Screw the lamp into the socket. Refer to the label on the lamp socket for Max Wattage information.
If necessary, repeat steps 2 and 3 for remaining shades.
1
2
1A
LAMP
3
3
SHADE
SOCKET
1
2
4
CAUTION - RISK OF FIRE
This product must be installed in accordance with
the applicable installation code by a person familiar
with the construction and operation of the product
and the hazards involved.
Use minimum 90°c supply conductors.
SHADE BASE
MOUNTING
PLATE STUD

2
Suivez supplément ci-joint des instructions électriques et installation d'accessoires dans la boîte de prise de maison.
Remarque : Pour le luminaire unique, goujons de montage doivent faire face horizontalement.
Installer l'abat-jour en le plaçant au-dessus de la douille et sur la base de l'abat-jour.
Vissez l'ampoule dans la douille. Consulter l'étiquette sur la douille de lampe pour information Max Wattage.
Si nécessaire, répétez les étapes 2 et 3 pour les abat-jours restants.
1
2
3
ABAT-JOUR
4
ATTENTION : RISQUE D'INCENDIE
Ce produit doit être installé conformément au code
d'installation en vigueur par une personne familière avec
la construction et l'exploitation du produit et les risques
qu'il entraîne.
Utiliser les conducteurs d'alimentation
supérieure à 90° c.
1A
AMPOULE
BASE DE ABAT-JOUR
GOUJON DE
MONTAGE
DOUILLE
3
1
2

3
Siga las instrucciones de instalación incluido suplemento para eléctricos e instalación del luminario en caja de salida de la
casa. Para una sola lámpara, los esparragos de montaje deben ser horizontal.Nota:
Instale la pantalla colocándolo sobre el enchufe y en el base de la pantalla.
Enrosque la lámpara en el enchufe. Consulte la etiqueta en el enchufe de la lámpara para información sobre la Max
Wattage.
Si es necesario, repita los pasos 2 y 3 para las pantallas restantes.
1
2
3
BOMBILLA
ENCHUFE
4
PRECAUCIÓN: RIESGO DE INCENDIO
Este producto debe instalarse de acuerdo con el
código de instalación aplicable por una persona
familiarizada con la construcción y operación del
producto y los riesgos que conllevan.
Utilizar conductores de suministro
mínimo 90° c.
1A
PANTALLA
BASE DE LA
PANTALLA
ESPARRAGO
DE MONTAGE
3
1
2

4
SAVETHESE INSTRUCTIONS!
7400 Linder Ave, Skokie, IL 60077
800.969.3347
www.Feiss.com
© 2015 Feiss.All rights reserved.The "Feiss" graphic is a
registered trademark of Feiss. Feiss reserves the right to
change specifications for product improvements without notification.
A Generation Brands Company