A305 WARREN_PERMIT SET WARREN PERMIT
User Manual: WARREN_PERMIT-SET of /wp-content/uploads
Open the PDF directly: View PDF
.
Page Count: 19

www.syndicatesmith.com
819 FRONT STREET, STE 2A
LEAVENWORTH, WA 98826
509-670-3130
WARREN RESIDENCE
LEAVENWORTH, WA
PERMIT SET: 01-26-2017

PROJECT
DATA
REGISTERED
ARCHITECT
10699
TODD A. SMITH
State of Washington
WARREN
RESIDENCE
NEW SINGLE FAMILY RESIDENCE
8815 EAGLE CREEK RD
LEAVENWORTH, WA 98826
DATE
www.syndicatesmith.com
819 FRONT STREET, STE 2A
LEAVENWORTH, WA 98826
509-670-3130
SET ISSUE:
SET DATE:
DRAWN BY:
CHECKED BY:
REVISIONS
DRAWING INFO
PROJECT
X
DESCRIPTIONNO.
PERMIT SET
01-26-17
SAMANTHA STANFIELD
TODD SMITH
SHEET TITLE
SHEET NUMBER
CLIENT:
MICHAEL & CHERIE WARREN
ARCHITECT:
TODD SMITH
SYNDICATE SMITH LLC
STRUCTURAL ENGINEER:
ERIC DANN
BTL ENGINEERING
GENERAL CONTRACTOR:
HARLAN HOPER
HOPER CONSTRUCTION
PROJECT MANAGER:
SAMANTHA STANFIELD
SYNDICATE SMITH LLC
A000
GENERAL NOTES
1. THESE DRAWINGS ARE THE EXCLUSIVE PROPERTY OF
SYNDICATE SMITH, LLC AND MAY ONLY BE
REPRODUCED WITH THE WRITTEN PERMISSION OF
SYNDICATE SMITH, LLC.
2. CONTRACTOR SHALL BE RESPONSIBLE FOR
PROVIDING ALL WORK AND MATERIALS IN
ACCORDANCE WITH ALL APPLICABLE NATIONAL,
STATE, COUNTY AND CITY CODES. (BUILDING, FIRE,
HEALTH, ENERGY, ADA, MECH AND ELECTRICAL).
3. CONTRACTOR SHALL VERIFY ALL DIMENSIONS,
DATUMS, AND LEVELS PRIOR TO COMMENCING THE
WORK. CONTRACTOR SHALL REPORT ANY
DISCREPANCIES AND/OR OMISSIONS TO THE
ARCHITECT PRIOR TO COMMENCING THE WORK.
4. ALL WORK SHALL BE ACCOMPLISHED BY QUALIFIED
TRADE PEOPLE IN THE SPECIFIC FIELD WITH
REQUIRED CERTIFICATION WHERE REQUIRED.
5. ALL WORK SHALL BE PERFORMED TO THE HIGHEST
ESTABLISHED TRADE STANDARDS USING
CONVENTIONAL CONSTRUCTION METHODS IN SUCH
TRADE. AFOREMENTIONED CONSTRUCTION TO
INCLUDE THE USE OF ALL APPLICABLE STANDARD
COMPONENTS, CONNECTORS, SUPPORTS, TRIM
BACKING, BLOCKING AND/OR OTHER
APPURTENANCES.
6. THESE DRAWINGS INDICATE GENERAL AND TYPICAL
DETAILS OF CONSTRUCTION. WHERE CONDITIONS
ARE NOT SPECIFICALLY INDICATED BUT ARE OF A
SIMILAR CHARACTER TO THE DETAILS SHOWN,
SIMILAR DETAILS OF CONSTRUCTION SHALL BE USED.
7. DO NOT SCALE DRAWINGS. ALL DIMENSIONS ARE
FROM FACE OF ROUGH FRAMING OR FACE OF
CONCRETE UNLESS NOTED OTHERWISE. NOTE:
CLEAR DIMENSIONS ARE FROM F.0. GWB TYP.
8. ALL WOOD PLATES IN DIRECT CONTACT WITH
CONCRETE OR MASONRY TO BE PRESSURE TREATED.
9. ELECTRICAL & MECHANICAL SYSTEMS ARE TO BE
BIDDER DESIGNED BASED ON SCHEMATIC
INFORMATION PROVIDED FROM THE ARCHITECT.
CONTRACTORS WILL BE RESPONSIBLE TO PRODUCE
DRAWINGS FOR SYNDICATE SMITH, LLC AND OWNER
TO REVIEW AND APPROVE, AND TO OBTAIN ALL
NECESSARY PERMITS IN CONNECTION WITH THE
WORK.
10. ALL ROUGH OPENING MEASUREMENTS SHALL BE
VERIFIED BY THE CONTRACTOR
11. IT SHALL BE THE RESPONSIBILITY OF THE
CONTRACTOR TO LOCATE ALL EXISTING UTILITIES
WHETHER SHOWN HEREIN OR NOT AND TO PROTECT
THEM FROM DAMAGE. THE CONTRACTOR SHALL BEAR
ALL EXPENSE OF REPAIRS OR REPLACEMENT OF
UTILITIES OR OTHER PROPERTY DAMAGED BY
OPERATIONS IN CONJUNCTION WITH THE EXECUTION
OF THE WORK
12. PROVIDE DAMP PROOFING ON ALL NEW BELOW GRADE
FOUNDATION WALLS. PROVIDE ALL ACCESSORIES
REQUIRED FOR A COMPLETELY WATERTIGHT
INSTALLATION INCLUDING BUT NOT NECESSARILY
LIMITED TO: FLASHING, COUNTERFLASHING, SEALANT,
AND CAULKING AT ALL ROOF AND FLOOR
PENETRATIONS: INTERLOCKING WEATHERSTRIPPING
AT ALL DOORS AND WINDOWS, WATERSTOPS AND
OTHER CONCRETE INSETS AT BELOW GRADE COLD
JOINTS.
13. ALL CONSTRUCTED ITEMS PERFORMED OUTSIDE THE
SCOPE OF THESE DRAWINGS ARE THE
RESPONSIBILITY OF THE CONTRACTOR. THE
ARCHITECT WILL BE HELD HARMLESS FOR ALL
CONSTRUCTED ITEMS OR INFORMATION BEYOND
WHAT IS PRESENTED IN THIS PACKAGE THAT RESULT
IN CLAIMS AGAINST THEM. THE ARCHITECT WILL NOT
BE HELD RESPONSIBLE FOR SUCH ITEMS AND WILL BE
INDEMNIFIED AGAINST ANY AND ALL CLAIMS.
14. DOCUMENTS FOR DEFERRED SUBMITTAL ITEMS SHALL
BE SUBMITTED TO THE ARCHITECT WHO SHALL
REVIEW THEM AND FORWARD THEM TO THE BUILDING
OFFICIAL WITH A NOTATION THAT THE DOCUMENTS
HAVE BEEN REVIEWED AND FOUND TO BE IN GENERAL
CONFORMANCE TO THE DESIGN OF THE BUILDING.
THE DEFERRED SUBMITTAL ITEMS SHALL NOT BE
INSTALLED UNTIL THE DEFERRED SUBMITTAL
DOCUMENTS HAVE BEEN SUBMITTED ALONG WITH THE
APPLICATION FOR REVIEW AND APPROVED BY THE
BUILDING OFFICIAL.
ENERGY
ABBREVIATIONS
NEW
NOT IN CONTRACT
NOT TO SCALE
OVER
ON CENTER
OPPOSITE HAND
OPENING
OPPOSITE
OWNER SUPPLIED
CONTRACTOR
INSTALLED
OWNER SUPPLIED
OWNER INSTALLED
PROPOSED
PERFERATED
POURED IN PLACE
PLATE
PLYWOOD
PRESSURE TREATED
PAINTED
RISER
REQUIRED
ROOM
ROUGH OPENING
SAFETY GLAZING
SHEET
SIMILAR
SLAB ON GRADE
SPLASH BLOCK
SQUARE
SELECT STRUCTURAL
STAINLESS STEEL
STEEL
STAINED
STORAGE
STRUCTURAL
TREAD
TONGUE & GROOVE
TOP OF
TOP OF PLATE
TOP OF SLAB
TOP OF WALL
TYPICAL
UNLESS NOTED
OTHERWISE
VAPOR BARRIER
VERIFY IN FIELD
VERTICAL
WITH
WATER CLOSET
WINDOW
WOOD
WITHOUT
ANCHOR BOLT
ADJACENT
ABOVE FINISH FLOOR
ABOVE FINISH GRADE
AT
BLOCKING
BEAM
BOTTOM
CAST IN PLACE
CEILING
CLOSET
CLEAR
CONCRETE MASONRY
UNIT
COLUMN
CONCRETE
CONTINUOUS
DIMENSION
DIRECTION
DOWN
DOWNSPOUT
DRAWING
EXISTING
EACH
ELEVATION
ELECTRICAL
EXTERIOR
EQUAL
FINISH
SEMI-RECESSED
FIRE EXTINGUISHER
FINISH FLOOR
FINISH GRADE
FIRE PLACE
FOOT/FEET
FOOTING
GAUGE
GALVANIZED
GENERAL CONTRACTOR
GAS OUTLET
GYPSUM WALLBOARD
HOSE BIB
HEADER
HOUR
HEIGHT
HOT WATER HEATER
INCLUDE(ING)
ISULATION
INTERIOR
JOINT
LAMINATE
LIGHT
MATERIAL
MAXIMUM
MECHANICAL
MEMBRANE
MINIMUM
METAL
(N)
NIC
NTS
O/
OC
OH
OPG
OPP
OSCI
OSOI
(P)
PERF
PIP
PL
PLYWD
PT
PTD
R
REQ'D
RM
RO
SG
SHT
SIM
SOG
SP
SQ
SS
SSTL
STL
STN
STO
STRUCT
T
T&G
TO
TOP
TOS
TOW
TYP
UNO
VB
VIF
VERT
W/
WC
WIN
WD
W/O
AB
ADJ
AFF
AFG
@
BLKG
BM
BOT
CIP
CLG
CLO
CLR
CMU
COL
CONC
CONT
DIM
DIR
DN
DS
DWG
(E)
EA
EL
ELEC
EXT
EQ
FIN
FE
FF
FG
FP
FT
FTG
GA
GALV
GC
GO
GWB
HB
HDR
HR
HT
HWH
INCL
ISUL
INT
JT
LAM
LT
MATL
MAX
MECH
MEMB
MIN
MTL
CODE: 2015 WASHINGTON STATE RESIDENTIAL ENERGY CODE COMPLIANCE ZONE 5
PATH: PRESCRIPTIVE
COMPONENT R VALUE/
U VALUE SHEET
FENESTRATION
CEILING*
WALL BELOW GRADE
SLAB ON GRADE
REQ. PROPOSED
FLOOR
R VALUE/
U VALUE
U 0.30
U 0.50
R-49/38
R-10/15/21+TB
R-10, 2'
R-30
SKYLIGHT
WOOD FRAME WALL R-21
MASS WALL R-21
*R-38 FOR JOIST VAULTED OR SINGLE RAFTER CEILINGS
SAMANTHA STANFIELD,
C/O SYNDICATE SMITH, LLC
819 FRONT STREET, #2A
LEAVENWORTH, WA 98826
PHONE: (509) 670-1005
EMAIL: s.stanfield@syndicatesmith.com
SYMBOLS
1
1
1
1
A
0'-0"
B.O. BEAM
1
0' 4' 8'2'
FIRST FLOOR PLAN
1
WT01
XX
ZONING
GRIDLINE & DESIGNATION
BUILDING SECTION CALLOUT
EXTERIOR ELEVATION CALLOUT
DETAIL CALLOUT
BLOWUP CALLOUT
VERTICAL ELEVATION CALLOUT
WALL, FLOOR, & ROOF TYPE CALLOUT
XX WINDOW TYPE CALLOUT
DOOR TYPE CALLOUT
N
DRAWING NUMBER
DRAWING TITLE
GRAPHIC SCALE
NORTH ARROW
CHELAN COUNTY CODE:
LEGAL DESCRIPTION: T 25N R 18EWM S 23 LOT A BA#2001-097, LOT 1 SS# 3582 5.6900 ACRES
TAX PARCEL ID: #251823230060
ZONE
HEIGHT LIMIT PROPOSED
35'-0" 18'-6"
RURAL RESIDENTIAL 5 (RR5)
LOT SIZE
LOT COVERAGE EXISTING
.5% (1,040 SF)
5.69 ACRES (247,856.40 SF)
PROPOSED
1.4% (3,547 SF)
MAX
35% (86,749 SF)
SETBACKS
FRONT: 25'-0"
SIDE: 5'-0"
REAR: 20'-0"
EXISTING
BASEMENT (GSF)
BUILT AREA (GSF)
COMMENTSPROPOSED
FIRST FLOOR (GSF)
SECOND FLOOR (GSF)
THIRD FLOOR (GSF)
DECK (GSF)
COVERED PORCH/ PATIO (GSF)
CARPORT (GSF)
GARAGE (GSF)
- -
- 2,091
- -
- -
- -
-416
- -
1,040 -
SEE SITE PLAN FOR EXISTING
& PROPOSED SETBACKS
EXISTING
NON-POLUTANT-GENERATING
IMPERVIOUS SURFACE
(ROOF& DECK)
IMPERVIOUS SURFACE
COMMENTS
NEW
1,680 3,243
POLUTANT-GENERATING
IMPERVIOUS SURFACE
(DRIVEWAY & PATIO)
2,758 -
TOTAL 4,438 3,243
PROJECT LOCATION
PROJECT NARRATIVE
PROJECT TEAM
DEVELOPER
& OWNER
ARCHITECT
STRUCTURAL
ENGINEER
SURVEY
GENERAL
CONTRACTOR
PROJECT
MANAGER
MICHAEL & CHERIE WARREN
7721 11TH AVE W
SEATTLE, WA 98117
PHONE: (206)-200-7388
EMAIL: mwarren@pivotallawgroup.com
TODD SMITH, C/O SYNDICATE SMITH, LLC
819 FRONT ST. SUITE 2A
LEAVENWORTH, WA 98826
PHONE: (509)-670-3130
EMAIL: toddsmith@syndicatesmith.com
ERIC DANN, C/O BTL ENGINEERING, P.S.
17924 140TH AVE NE, STE 220
WOODINVILLE, WA 98072
PHONE: (425) 814-8448
EMAIL: eric.dann@btleng.net
PROJECT
ADDRESS
PROJECT
SCOPE
BUILDING
DATA
SEE SITE PLAN
NEW SINGLE FAMILY RESIDENCE
8815 EAGLE CREEK RD
LEAVENWORTH, WA 98826
N/A
HARLAN HOPER
HOPER CONSTRUCTION
12800 RANGER RD
LEAVENWORTH, WA 98826
PHONE: (509) 548-5056
EMAIL: hchoper@nwi.net
U 0.30
R-49/38
R-10/15/21+TB
R-10, 2'
R-21
R-21
N/A
N/A
A005
A004
A003
A003
A003
A004
LEAVENWORTH, WA
DRAWING INDEX
SHEET NO. DISCIPLINE SHEET TITLE
COVER ARCHITECTURAL COVER
A000 PROJECT INFO
A001 EXISTING SITE PLAN
A002 PROPOSED SITE PLAN
A002.1 ENLARGED - PROPOSED SITE PLAN
FOUNDATION PLAN
GROUND FLOOR PLAN
BUILDING SECTION
A100
A101
A300
A301
A302
A303
A003 WALL TYPES
A004 ROOF AND FLOOR TYPES
A005 WINDOW & DOOR SCHEDULE
ROOF PLANA102
A304
A305
EXTERIOR ELEVATION
A200
A201 EXTERIOR ELEVATION
BUILDING SECTION
BUILDING SECTION
BUILDING SECTION
BUILDING SECTION
BUILDING SECTION
EXTERIOR ELEVATION
A202
A203 EXTERIOR ELEVATION
FOUNDATION PLAN
ROOF FRAMING PLAN
S000
S101
FOUNDATION DETAILS
S102
FRAMING DETAILS
S800
S801
LATERAL DETAILS
GENERAL STRUCTURAL NOTES
S900
STRUCTURAL

EXISTING
SITE PLAN
REGISTERED
ARCHITECT
10699
TODD A. SMITH
State of Washington
WARREN
RESIDENCE
NEW SINGLE FAMILY RESIDENCE
8815 EAGLE CREEK RD
LEAVENWORTH, WA 98826
DATE
www.syndicatesmith.com
819 FRONT STREET, STE 2A
LEAVENWORTH, WA 98826
509-670-3130
SET ISSUE:
SET DATE:
DRAWN BY:
CHECKED BY:
REVISIONS
DRAWING INFO
PROJECT
X
DESCRIPTIONNO.
PERMIT SET
01-26-17
SAMANTHA STANFIELD
TODD SMITH
SHEET TITLE
SHEET NUMBER
CLIENT:
MICHAEL & CHERIE WARREN
ARCHITECT:
TODD SMITH
SYNDICATE SMITH LLC
STRUCTURAL ENGINEER:
ERIC DANN
BTL ENGINEERING
GENERAL CONTRACTOR:
HARLAN HOPER
HOPER CONSTRUCTION
PROJECT MANAGER:
SAMANTHA STANFIELD
SYNDICATE SMITH LLC
A001
N
0' 40' 80'20'
EXISTING SITE PLAN
1

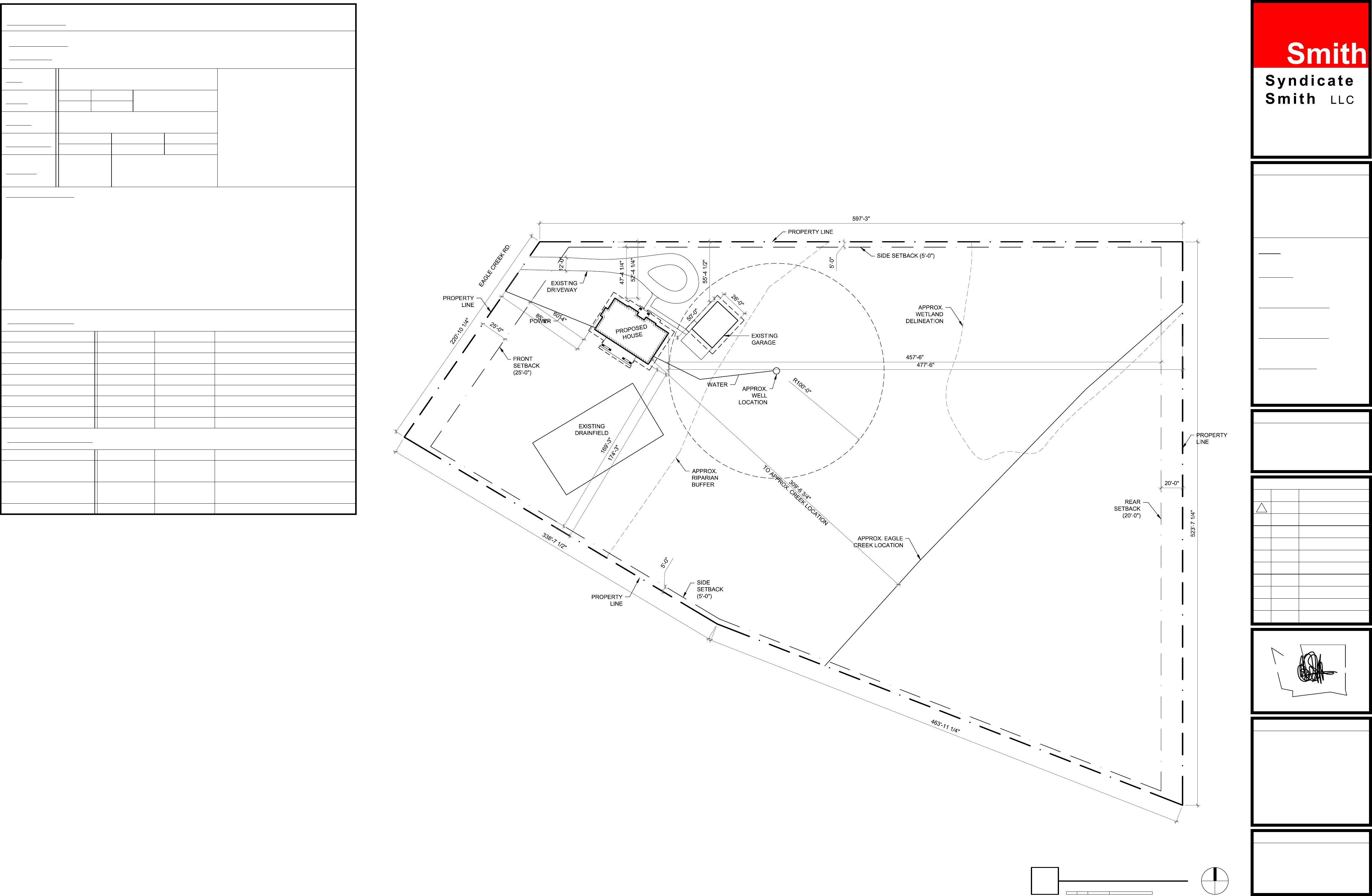
PROPOSED
SITE PLAN
REGISTERED
ARCHITECT
10699
TODD A. SMITH
State of Washington
WARREN
RESIDENCE
NEW SINGLE FAMILY RESIDENCE
8815 EAGLE CREEK RD
LEAVENWORTH, WA 98826
DATE
www.syndicatesmith.com
819 FRONT STREET, STE 2A
LEAVENWORTH, WA 98826
509-670-3130
SET ISSUE:
SET DATE:
DRAWN BY:
CHECKED BY:
REVISIONS
DRAWING INFO
PROJECT
X
DESCRIPTIONNO.
PERMIT SET
01-26-17
SAMANTHA STANFIELD
TODD SMITH
SHEET TITLE
SHEET NUMBER
CLIENT:
MICHAEL & CHERIE WARREN
ARCHITECT:
TODD SMITH
SYNDICATE SMITH LLC
STRUCTURAL ENGINEER:
ERIC DANN
BTL ENGINEERING
GENERAL CONTRACTOR:
HARLAN HOPER
HOPER CONSTRUCTION
PROJECT MANAGER:
SAMANTHA STANFIELD
SYNDICATE SMITH LLC
A002
ZONING
CHELAN COUNTY CODE:
LEGAL DESCRIPTION: T 25N R 18EWM S 23 LOT A BA#2001-097, LOT 1 SS# 3582 5.6900 ACRES
TAX PARCEL ID: #251823230060
ZONE
HEIGHT LIMIT PROPOSED
35'-0" 18'-6"
RURAL RESIDENTIAL 5 (RR5)
LOT SIZE
LOT COVERAGE EXISTING
.5% (1,040 SF)
5.69 ACRES (247,856.40 SF)
PROPOSED
1.4% (3,547 SF)
MAX
35% (86,749 SF)
SETBACKS
FRONT: 25'-0"
SIDE: 5'-0"
REAR: 20'-0"
EXISTING
BASEMENT (GSF)
BUILT AREA (GSF)
COMMENTSPROPOSED
FIRST FLOOR (GSF)
SECOND FLOOR (GSF)
THIRD FLOOR (GSF)
DECK (GSF)
COVERED PORCH/ PATIO (GSF)
CARPORT (GSF)
GARAGE (GSF)
- -
-2,091
- -
- -
- -
-416
- -
1,040 -
SEE SITE PLAN FOR EXISTING
& PROPOSED SETBACKS
EXISTING
NON-POLUTANT-GENERATING
IMPERVIOUS SURFACE
(ROOF& DECK)
IMPERVIOUS SURFACE
COMMENTS
NEW
1,680 3,243
POLUTANT-GENERATING
IMPERVIOUS SURFACE
(DRIVEWAY & PATIO)
2,758 -
TOTAL 4,438 3,243
N
0' 40' 80'20'
PROPOSED SITE PLAN
1

ENLARGED
PROPOSED
SITE PLAN
REGISTERED
ARCHITECT
10699
TODD A. SMITH
State of Washington
WARREN
RESIDENCE
NEW SINGLE FAMILY RESIDENCE
8815 EAGLE CREEK RD
LEAVENWORTH, WA 98826
DATE
www.syndicatesmith.com
819 FRONT STREET, STE 2A
LEAVENWORTH, WA 98826
509-670-3130
SET ISSUE:
SET DATE:
DRAWN BY:
CHECKED BY:
REVISIONS
DRAWING INFO
PROJECT
X
DESCRIPTIONNO.
PERMIT SET
01-26-17
SAMANTHA STANFIELD
TODD SMITH
SHEET TITLE
SHEET NUMBER
CLIENT:
MICHAEL & CHERIE WARREN
ARCHITECT:
TODD SMITH
SYNDICATE SMITH LLC
STRUCTURAL ENGINEER:
ERIC DANN
BTL ENGINEERING
GENERAL CONTRACTOR:
HARLAN HOPER
HOPER CONSTRUCTION
PROJECT MANAGER:
SAMANTHA STANFIELD
SYNDICATE SMITH LLC
A002.1
ZONING
CHELAN COUNTY CODE:
LEGAL DESCRIPTION: T 25N R 18EWM S 23 LOT A BA#2001-097, LOT 1 SS# 3582 5.6900 ACRES
TAX PARCEL ID: #251823230060
ZONE
HEIGHT LIMIT PROPOSED
35'-0" 18'-6"
RURAL RESIDENTIAL 5 (RR5)
LOT SIZE
LOT COVERAGE EXISTING
.5% (1,040 SF)
5.69 ACRES (247,856.40 SF)
PROPOSED
1.4% (3,547 SF)
MAX
35% (86,749 SF)
SETBACKS
FRONT: 25'-0"
SIDE: 5'-0"
REAR: 20'-0"
EXISTING
BASEMENT (GSF)
BUILT AREA (GSF)
COMMENTSPROPOSED
FIRST FLOOR (GSF)
SECOND FLOOR (GSF)
THIRD FLOOR (GSF)
DECK (GSF)
COVERED PORCH/ PATIO (GSF)
CARPORT (GSF)
GARAGE (GSF)
- -
-2,091
- -
- -
- -
-416
- -
1,040 -
SEE SITE PLAN FOR EXISTING
& PROPOSED SETBACKS
EXISTING
NON-POLUTANT-GENERATING
IMPERVIOUS SURFACE
(ROOF& DECK)
IMPERVIOUS SURFACE
COMMENTS
NEW
1,680 3,243
POLUTANT-GENERATING
IMPERVIOUS SURFACE
(DRIVEWAY & PATIO)
2,758 -
TOTAL 4,438 3,243
N
0' 20' 40'10'
PROPOSED SITE PLAN
1

WALL TYPES
REGISTERED
ARCHITECT
10699
TODD A. SMITH
State of Washington
WARREN
RESIDENCE
NEW SINGLE FAMILY RESIDENCE
8815 EAGLE CREEK RD
LEAVENWORTH, WA 98826
DATE
www.syndicatesmith.com
819 FRONT STREET, STE 2A
LEAVENWORTH, WA 98826
509-670-3130
SET ISSUE:
SET DATE:
DRAWN BY:
CHECKED BY:
REVISIONS
DRAWING INFO
PROJECT
X
DESCRIPTIONNO.
PERMIT SET
01-26-17
SAMANTHA STANFIELD
TODD SMITH
SHEET TITLE
SHEET NUMBER
CLIENT:
MICHAEL & CHERIE WARREN
ARCHITECT:
TODD SMITH
SYNDICATE SMITH LLC
STRUCTURAL ENGINEER:
ERIC DANN
BTL ENGINEERING
GENERAL CONTRACTOR:
HARLAN HOPER
HOPER CONSTRUCTION
PROJECT MANAGER:
SAMANTHA STANFIELD
SYNDICATE SMITH LLC
A003
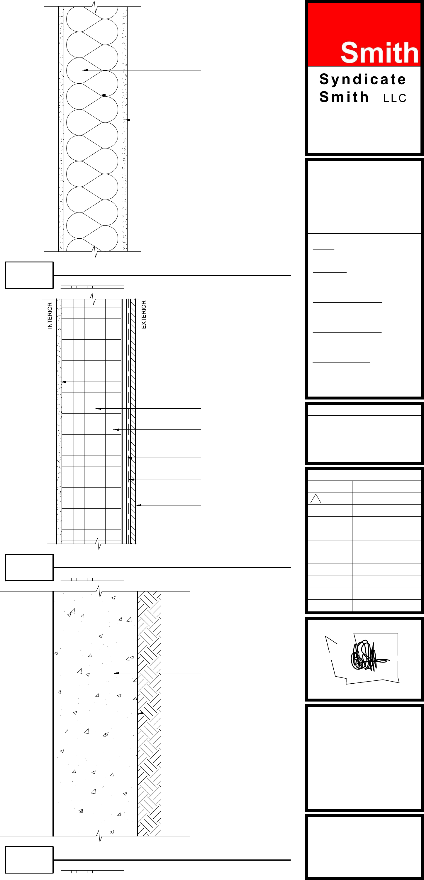
1/2" GWB BOTH SIDES (WET
RATED @ BATH LOCATIONS)
BATT INSULATION FOR SOUND
ATTENUATION AS NEEDED
2X STUD PER REQUIREMENT
(2X6 PLUMBING OR 2X4 TYP.)
CONC. WALL PER
STRUCTURAL
FLUID APPLIED
MEMBRANE TO 6"
ABOVE FINISHED
GRADE
0' 6"3"
FOUNDATION WALL
SECT
WT01
0' 6"3"
TYP. INTERIOR WALL
SECT
WT03
0' 6"3"
(R-33) TYP. EXTERIOR WALL
SECT
WT02
SHEATHING PER STRUCTURAL
2X6 STUD PER STRUCTURAL
AIR/ MOISTURE BARRIER
EXTERIOR SIDING PER
ELEVATIONS
R-33 CLOSED CELL SPRAY
FOAM INSULATION
INTERIOR FINISH PER SCHEDULE.
1/2" TYPE 'X' GWB MIN

FLOOR &
ROOF TYPES
REGISTERED
ARCHITECT
10699
TODD A. SMITH
State of Washington
WARREN
RESIDENCE
NEW SINGLE FAMILY RESIDENCE
8815 EAGLE CREEK RD
LEAVENWORTH, WA 98826
DATE
www.syndicatesmith.com
819 FRONT STREET, STE 2A
LEAVENWORTH, WA 98826
509-670-3130
SET ISSUE:
SET DATE:
DRAWN BY:
CHECKED BY:
REVISIONS
DRAWING INFO
PROJECT
X
DESCRIPTIONNO.
PERMIT SET
01-26-17
SAMANTHA STANFIELD
TODD SMITH
SHEET TITLE
SHEET NUMBER
CLIENT:
MICHAEL & CHERIE WARREN
ARCHITECT:
TODD SMITH
SYNDICATE SMITH LLC
STRUCTURAL ENGINEER:
ERIC DANN
BTL ENGINEERING
GENERAL CONTRACTOR:
HARLAN HOPER
HOPER CONSTRUCTION
PROJECT MANAGER:
SAMANTHA STANFIELD
SYNDICATE SMITH LLC
A004
R-25 CLOSED CELL SPRAY
FOAM INSULATION
FRAMING PER STRUCTURAL
ROOF SHEATHING PER
STRUCTURAL
CEILING FINISH PER
SCHEDULE
MTL ROOF
SA ICE & WATER SHIELD
0' 6"3"
(R-43) TYP. FRAMED ROOF
SECT
RT02
GRAVEL (FREE DRAINING FILL
PER STRUCTURAL)
2" RIGID (R-10) INSULATION
UNDER SLAB (THROUGHOUT @
CONDITIONED SPACES, 2'
PERIMETER @ UNCONDITIONED
SPACES)
CONCRETE SLAB PER
STRUCTURAL W/ RADIANT HEAT
COMPACTED NATIVE GRADE
FLOOR FINISH PER SCHEDULE
6 MIL. VAPOR RETARDER
0' 6"3"
TYP. SLAB ON GRADE
SECT
FT01
MTL ROOF
SHEATHING PER STRUCTURAL
TRUSS PER STRUCTURAL
14" BLOWN-IN INSULATION (R-50)
SA ICE & WATER SHIELD
THROUGHOUT ROOF
0' 6"3"
(R-50) TYP. TRUSS ROOF
SECT
RT01
R-18 BATT INSULATION
GRAVEL (FREE DRAINING FILL
PER STRUCTURAL)
2" RIGID (R-10) INSULATION
UNDER SLAB (THROUGHOUT @
CONDITIONED SPACES, 2'
PERIMETER @ UNCONDITIONED
SPACES)
CONCRETE SLAB PER
STRUCTURAL
COMPACTED NATIVE GRADE
FLOOR FINISH PER SCHEDULE
6 MIL. VAPOR RETARDER
0' 6"3"
TYP. EXTERIOR SLAB ON GRADE
SECT
FT02

WINDOW
& DOOR
SCHEDULE
REGISTERED
ARCHITECT
10699
TODD A. SMITH
State of Washington
WARREN
RESIDENCE
NEW SINGLE FAMILY RESIDENCE
8815 EAGLE CREEK RD
LEAVENWORTH, WA 98826
DATE
www.syndicatesmith.com
819 FRONT STREET, STE 2A
LEAVENWORTH, WA 98826
509-670-3130
SET ISSUE:
SET DATE:
DRAWN BY:
CHECKED BY:
REVISIONS
DRAWING INFO
PROJECT
X
DESCRIPTIONNO.
PERMIT SET
01-26-17
SAMANTHA STANFIELD
TODD SMITH
SHEET TITLE
SHEET NUMBER
CLIENT:
MICHAEL & CHERIE WARREN
ARCHITECT:
TODD SMITH
SYNDICATE SMITH LLC
STRUCTURAL ENGINEER:
ERIC DANN
BTL ENGINEERING
GENERAL CONTRACTOR:
HARLAN HOPER
HOPER CONSTRUCTION
PROJECT MANAGER:
SAMANTHA STANFIELD
SYNDICATE SMITH LLC
A005
GENERAL WINDOW NOTES:
1. ALL GLASS WITHIN 24" OF DOORS OR 18" OF WALKING SURFACE TO BE TEMPERED/SAFETY GLASS.
2. CONTRACTOR TO VERIFY ALL QUANTITIES OF WINDOWS AND DOORS PRIOR TO BIDDING.
3. CONTRACTOR TO VERIFY ALL ROUGH OPENING DIMENSIONS W/ MANUFACTURER PRIOR TO FRAMING.
4. ALL EXTERIOR WINDOWS & GLAZED DOORS TO HAVE MIN U VALUE OF 0.30
5. INSURE ALIGNMENT OF FINISH WINDOW HEADS
6. PROVIDE SCREENS FOR ALL OPERABLE WINDOWS
7. CONTRACTOR TO VERIFY THERMAL PERFORMANCE CRITERIA WITH MANUFACTURER PRIOR TO ORDER
8. ALL MEASUREMENTS ARE ROUGH OPENING MEASUREMENTS
WINDOW SCHEDULE
TYPE MANUF U-VAL / SHGC
R.O. (WxH) NOTES
MARK
EXTERIOR
EXT COLOR INTERIOR FINISH &
FRAME EXTENSIONS
STOPS
SF
EAGLE OR EQUIVALENT(1) SLIDER, (3) FIXED
F.F.
6'-0" X 10'-0" 60.00 .30/.35 (MIN) TBD TBD FIR
F.F.
1
MANUFACTURER
AENTRY
TYPE COMMENTFINISH
1. VERIFY KEYING REQUIREMENTS WITH OWNER.
2. VERIFY ROUGH OPENING SIZES W/ MANUFACTURER, TYP
3. FOR STYLE, SEE DOOR TYPES BELOW
4. VERIFY HARDWARE REQUIREMENTS WITH HARDWARE CONSULTANT OR DISTRIBUTOR
5. INSURE ALIGNMENT OF FINISH WINDOW HEADS WITH FINISH DOOR HEADS
6. CONTRACTOR TO VERIFY THERMAL PERFORMANCE REQUIREMENTS WITH MANUFACTURER PRIOR TO ORDER
NOTES:
B
D
MODEL
C
PRIVACY
PULL/LEVER/TRIM
PASSAGE DOOR
BI-FOLD
DOORS
F
BARN DOOR
E
SUGGESTED:
DOOR SCHEDULE
MARK TYPE DOOR MATERIAL U-VAL
/SHGC FINISH LEAF SIZE (W X H) H'WARE MANUFACTURER NOTES
#
DOOR HARDWARE
F.F.
2
6'-0" X 8'-0" 48.00
2
6'-0" X 4'-0" 24.00
3
420.00
516.00
1
1
F.F.
WOOD TBD 2'-8" X 6'-8" BTBD TBD
PRIVACY DOOR
BYPASS
123 5
(2) FIXED, (2) AWNING
(2) CASEMENT
2
ENTRY DOOR WOOD TBD 6'-0" X 7'-0" ATBD TBD
6 7
612.006'-0" X 2'-0"
77.50
(1) FIXED 1'-6" X 5'-0"
(2) CASEMENT
5'-0" X 4'-0"
4'-0" X 4'-0"
6'-0" R.O.
E.Q. E.Q. 6'-0" R.O.
E.Q. E.Q.
6'-0" R.O.
E.Q. E.Q.
4'-0" R.O.
E.Q. E.Q.
6'-0" R.O.
8
4'-0" R.O.
8(1) FIXED 8.004'-0" X 2'-0"
5 6 7
8 9
4
3
WOOD TBD 3'-4" X 7'-0" ETBD TBD
BARN DOOR
PASSAGE DOOR WOOD TBD FTBD TBD
6
5
WOOD TBD 5'-0" X 6'-8" C
TBD TBD
BI-FOLD DOOR
BYPASS DOOR WOOD TBD 7'-0" X 6'-8" DTBD TBD
8
7
WOOD TBD 3'-0" X 6'-8" C
TBD TBD
BI-FOLD DOOR
BI-FOLD DOOR WOOD TBD 4'-0" X 6'-8" C
TBD TBD
4
5'-0" R.O.
E.Q. E.Q.
1'-6" R.O.
(2) CASEMENT
(1) FIXED
3 4
2'-8" X 6'-8"
9
WOOD TBD 3'-0" X 6'-8" BTBD TBD
PRIVACY DOOR
9
9'-0" R.O.
3'-0" 3'-0" 3'-0"
9(2) SLIDER, (1) FIXED 36.009'-0" X 4'-0"

REGISTERED
ARCHITECT
10699
TODD A. SMITH
State of Washington
WARREN
RESIDENCE
NEW SINGLE FAMILY RESIDENCE
8815 EAGLE CREEK RD
LEAVENWORTH, WA 98826
DATE
www.syndicatesmith.com
819 FRONT STREET, STE 2A
LEAVENWORTH, WA 98826
509-670-3130
SET ISSUE:
SET DATE:
DRAWN BY:
CHECKED BY:
REVISIONS
DRAWING INFO
PROJECT
X
DESCRIPTIONNO.
PERMIT SET
01-26-17
SAMANTHA STANFIELD
TODD SMITH
SHEET TITLE
SHEET NUMBER
CLIENT:
MICHAEL & CHERIE WARREN
ARCHITECT:
TODD SMITH
SYNDICATE SMITH LLC
STRUCTURAL ENGINEER:
ERIC DANN
BTL ENGINEERING
GENERAL CONTRACTOR:
HARLAN HOPER
HOPER CONSTRUCTION
PROJECT MANAGER:
SAMANTHA STANFIELD
SYNDICATE SMITH LLC
FOUNDATION
PLAN
A100
N
0' 4' 8'2'
FOUNDATION PLAN
1

REGISTERED
ARCHITECT
10699
TODD A. SMITH
State of Washington
WARREN
RESIDENCE
NEW SINGLE FAMILY RESIDENCE
8815 EAGLE CREEK RD
LEAVENWORTH, WA 98826
DATE
www.syndicatesmith.com
819 FRONT STREET, STE 2A
LEAVENWORTH, WA 98826
509-670-3130
SET ISSUE:
SET DATE:
DRAWN BY:
CHECKED BY:
REVISIONS
DRAWING INFO
PROJECT
X
DESCRIPTIONNO.
PERMIT SET
01-26-17
SAMANTHA STANFIELD
TODD SMITH
SHEET TITLE
SHEET NUMBER
CLIENT:
MICHAEL & CHERIE WARREN
ARCHITECT:
TODD SMITH
SYNDICATE SMITH LLC
STRUCTURAL ENGINEER:
ERIC DANN
BTL ENGINEERING
GENERAL CONTRACTOR:
HARLAN HOPER
HOPER CONSTRUCTION
PROJECT MANAGER:
SAMANTHA STANFIELD
SYNDICATE SMITH LLC
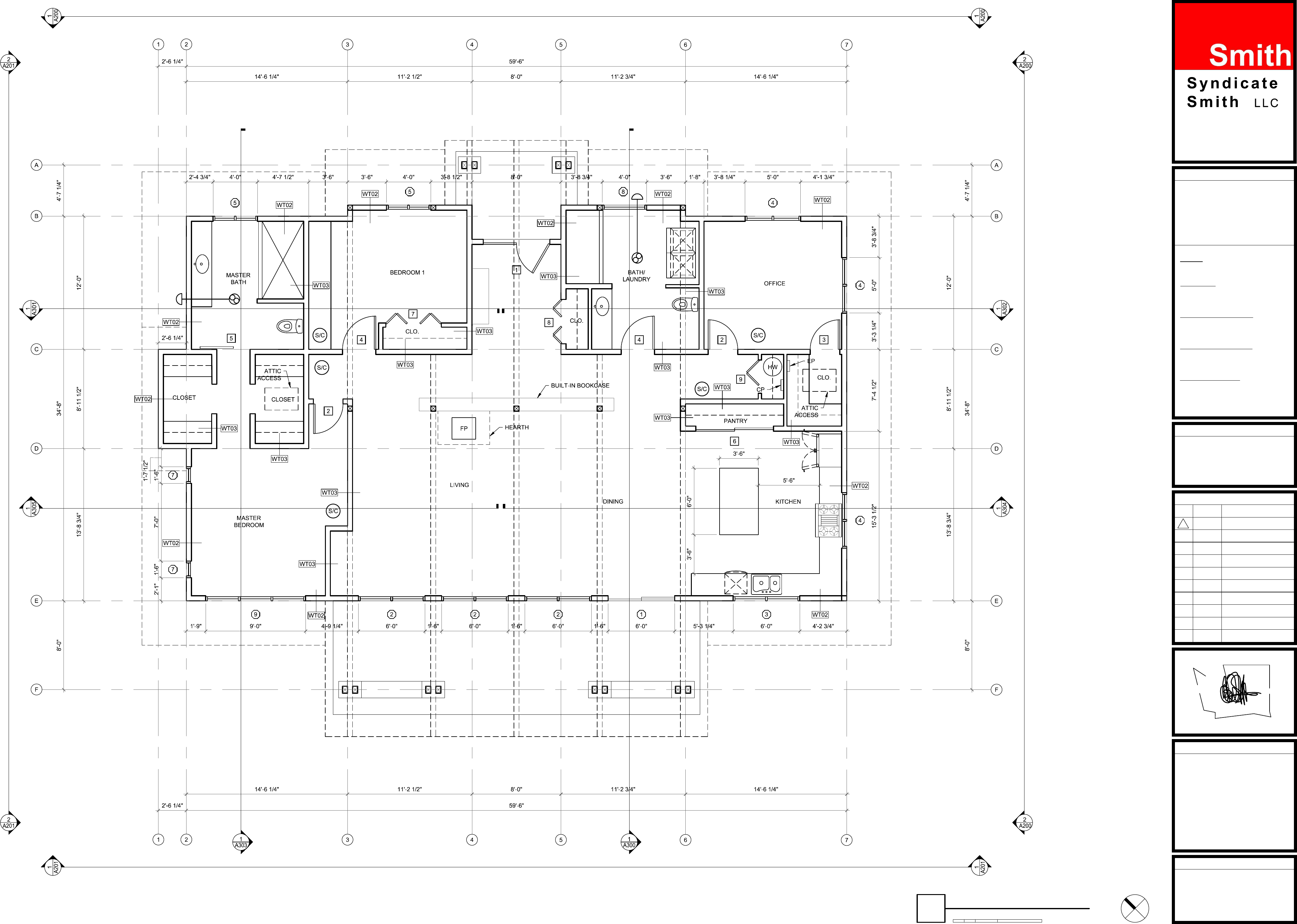
GROUND
FLOOR PLAN
A101
N
0' 4' 8'2'
GROUND FLOOR PLAN
1

REGISTERED
ARCHITECT
10699
TODD A. SMITH
State of Washington
WARREN
RESIDENCE
NEW SINGLE FAMILY RESIDENCE
8815 EAGLE CREEK RD
LEAVENWORTH, WA 98826
DATE
www.syndicatesmith.com
819 FRONT STREET, STE 2A
LEAVENWORTH, WA 98826
509-670-3130
SET ISSUE:
SET DATE:
DRAWN BY:
CHECKED BY:
REVISIONS
DRAWING INFO
PROJECT
X
DESCRIPTIONNO.
PERMIT SET
01-26-17
SAMANTHA STANFIELD
TODD SMITH
SHEET TITLE
SHEET NUMBER
CLIENT:
MICHAEL & CHERIE WARREN
ARCHITECT:
TODD SMITH
SYNDICATE SMITH LLC
STRUCTURAL ENGINEER:
ERIC DANN
BTL ENGINEERING
GENERAL CONTRACTOR:
HARLAN HOPER
HOPER CONSTRUCTION
PROJECT MANAGER:
SAMANTHA STANFIELD
SYNDICATE SMITH LLC
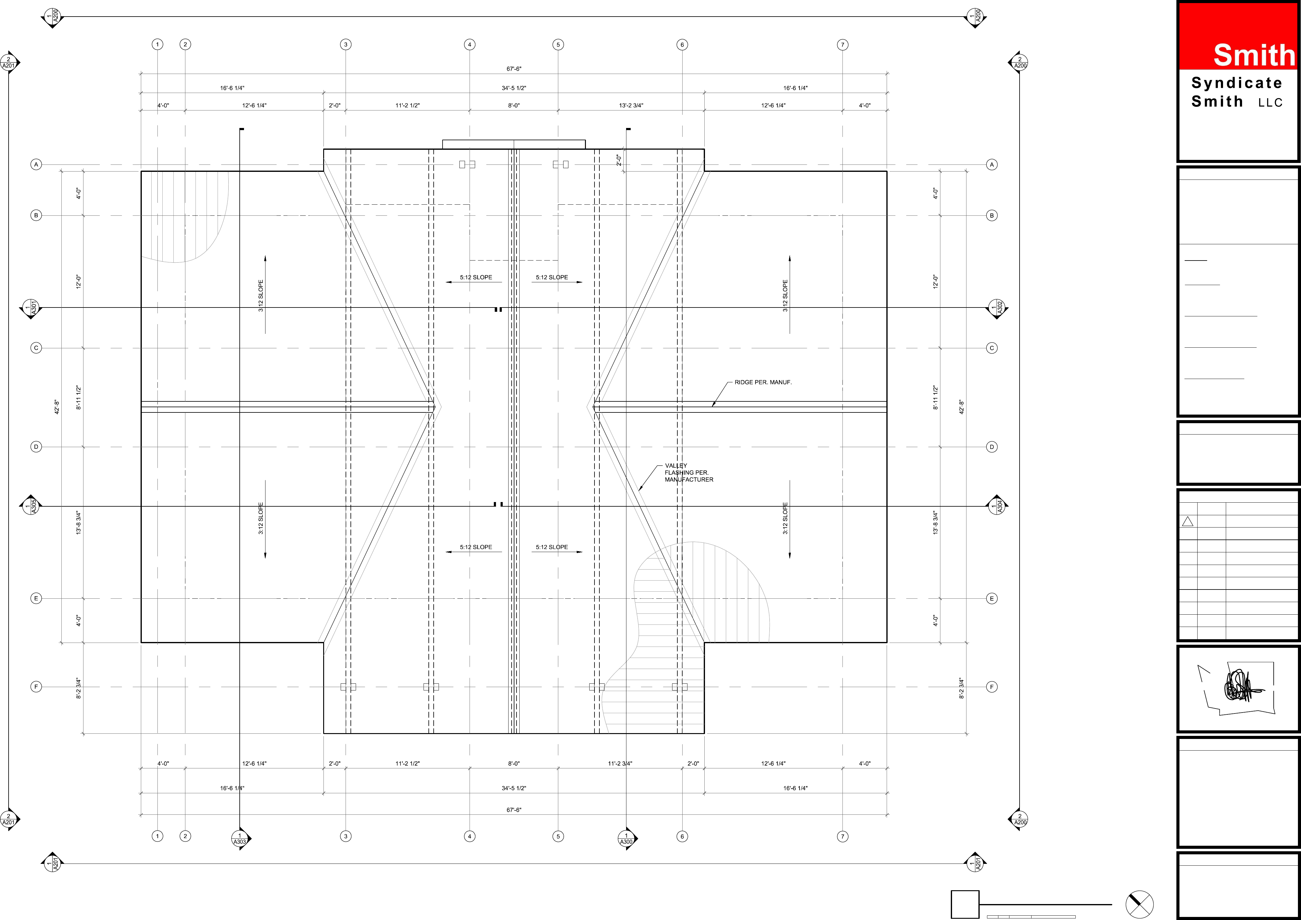
ROOF PLAN
A102
N
0' 4' 8'2'
ROOF PLAN - OPTION 3
1

REGISTERED
ARCHITECT
10699
TODD A. SMITH
State of Washington
WARREN
RESIDENCE
NEW SINGLE FAMILY RESIDENCE
8815 EAGLE CREEK RD
LEAVENWORTH, WA 98826
DATE
www.syndicatesmith.com
819 FRONT STREET, STE 2A
LEAVENWORTH, WA 98826
509-670-3130
SET ISSUE:
SET DATE:
DRAWN BY:
CHECKED BY:
REVISIONS
DRAWING INFO
PROJECT
X
DESCRIPTIONNO.
PERMIT SET
01-26-17
SAMANTHA STANFIELD
TODD SMITH
SHEET TITLE
SHEET NUMBER
CLIENT:
MICHAEL & CHERIE WARREN
ARCHITECT:
TODD SMITH
SYNDICATE SMITH LLC
STRUCTURAL ENGINEER:
ERIC DANN
BTL ENGINEERING
GENERAL CONTRACTOR:
HARLAN HOPER
HOPER CONSTRUCTION
PROJECT MANAGER:
SAMANTHA STANFIELD
SYNDICATE SMITH LLC
EXTERIOR
ELEVATIONS
OPTION 1
A200
0' 4' 8'2'
NORTH ELEVATION - OPTION 1
1
0' 4' 8'2'
EAST ELEVATION - OPTION 1
2

REGISTERED
ARCHITECT
10699
TODD A. SMITH
State of Washington
WARREN
RESIDENCE
NEW SINGLE FAMILY RESIDENCE
8815 EAGLE CREEK RD
LEAVENWORTH, WA 98826
DATE
www.syndicatesmith.com
819 FRONT STREET, STE 2A
LEAVENWORTH, WA 98826
509-670-3130
SET ISSUE:
SET DATE:
DRAWN BY:
CHECKED BY:
REVISIONS
DRAWING INFO
PROJECT
X
DESCRIPTIONNO.
PERMIT SET
01-26-17
SAMANTHA STANFIELD
TODD SMITH
SHEET TITLE
SHEET NUMBER
CLIENT:
MICHAEL & CHERIE WARREN
ARCHITECT:
TODD SMITH
SYNDICATE SMITH LLC
STRUCTURAL ENGINEER:
ERIC DANN
BTL ENGINEERING
GENERAL CONTRACTOR:
HARLAN HOPER
HOPER CONSTRUCTION
PROJECT MANAGER:
SAMANTHA STANFIELD
SYNDICATE SMITH LLC
EXTERIOR
ELEVATIONS
OPTION 1
A201
0' 4' 8'2'
SOUTH ELEVATION - OPTION 1
1
0' 4' 8'2'
WEST ELEVATION - OPTION 1
2

REGISTERED
ARCHITECT
10699
TODD A. SMITH
State of Washington
WARREN
RESIDENCE
NEW SINGLE FAMILY RESIDENCE
8815 EAGLE CREEK RD
LEAVENWORTH, WA 98826
DATE
www.syndicatesmith.com
819 FRONT STREET, STE 2A
LEAVENWORTH, WA 98826
509-670-3130
SET ISSUE:
SET DATE:
DRAWN BY:
CHECKED BY:
REVISIONS
DRAWING INFO
PROJECT
X
DESCRIPTIONNO.
PERMIT SET
01-26-17
SAMANTHA STANFIELD
TODD SMITH
SHEET TITLE
SHEET NUMBER
CLIENT:
MICHAEL & CHERIE WARREN
ARCHITECT:
TODD SMITH
SYNDICATE SMITH LLC
STRUCTURAL ENGINEER:
ERIC DANN
BTL ENGINEERING
GENERAL CONTRACTOR:
HARLAN HOPER
HOPER CONSTRUCTION
PROJECT MANAGER:
SAMANTHA STANFIELD
SYNDICATE SMITH LLC
BUILDING
SECTION
A300
0' 2' 4'1'
BUILDING SECTION
1

REGISTERED
ARCHITECT
10699
TODD A. SMITH
State of Washington
WARREN
RESIDENCE
NEW SINGLE FAMILY RESIDENCE
8815 EAGLE CREEK RD
LEAVENWORTH, WA 98826
DATE
www.syndicatesmith.com
819 FRONT STREET, STE 2A
LEAVENWORTH, WA 98826
509-670-3130
SET ISSUE:
SET DATE:
DRAWN BY:
CHECKED BY:
REVISIONS
DRAWING INFO
PROJECT
X
DESCRIPTIONNO.
PERMIT SET
01-26-17
SAMANTHA STANFIELD
TODD SMITH
SHEET TITLE
SHEET NUMBER
CLIENT:
MICHAEL & CHERIE WARREN
ARCHITECT:
TODD SMITH
SYNDICATE SMITH LLC
STRUCTURAL ENGINEER:
ERIC DANN
BTL ENGINEERING
GENERAL CONTRACTOR:
HARLAN HOPER
HOPER CONSTRUCTION
PROJECT MANAGER:
SAMANTHA STANFIELD
SYNDICATE SMITH LLC
BUILDING
SECTION
A301
0' 2' 4'1'
BUILDING SECTION
1

REGISTERED
ARCHITECT
10699
TODD A. SMITH
State of Washington
WARREN
RESIDENCE
NEW SINGLE FAMILY RESIDENCE
8815 EAGLE CREEK RD
LEAVENWORTH, WA 98826
DATE
www.syndicatesmith.com
819 FRONT STREET, STE 2A
LEAVENWORTH, WA 98826
509-670-3130
SET ISSUE:
SET DATE:
DRAWN BY:
CHECKED BY:
REVISIONS
DRAWING INFO
PROJECT
X
DESCRIPTIONNO.
PERMIT SET
01-26-17
SAMANTHA STANFIELD
TODD SMITH
SHEET TITLE
SHEET NUMBER
CLIENT:
MICHAEL & CHERIE WARREN
ARCHITECT:
TODD SMITH
SYNDICATE SMITH LLC
STRUCTURAL ENGINEER:
ERIC DANN
BTL ENGINEERING
GENERAL CONTRACTOR:
HARLAN HOPER
HOPER CONSTRUCTION
PROJECT MANAGER:
SAMANTHA STANFIELD
SYNDICATE SMITH LLC
BUILDING
SECTION
A302
0' 2' 4'1'
BUILDING SECTION
1

REGISTERED
ARCHITECT
10699
TODD A. SMITH
State of Washington
WARREN
RESIDENCE
NEW SINGLE FAMILY RESIDENCE
8815 EAGLE CREEK RD
LEAVENWORTH, WA 98826
DATE
www.syndicatesmith.com
819 FRONT STREET, STE 2A
LEAVENWORTH, WA 98826
509-670-3130
SET ISSUE:
SET DATE:
DRAWN BY:
CHECKED BY:
REVISIONS
DRAWING INFO
PROJECT
X
DESCRIPTIONNO.
PERMIT SET
01-26-17
SAMANTHA STANFIELD
TODD SMITH
SHEET TITLE
SHEET NUMBER
CLIENT:
MICHAEL & CHERIE WARREN
ARCHITECT:
TODD SMITH
SYNDICATE SMITH LLC
STRUCTURAL ENGINEER:
ERIC DANN
BTL ENGINEERING
GENERAL CONTRACTOR:
HARLAN HOPER
HOPER CONSTRUCTION
PROJECT MANAGER:
SAMANTHA STANFIELD
SYNDICATE SMITH LLC
BUILDING
SECTION
A303
0' 2' 4'1'
BUILDING SECTION
1

REGISTERED
ARCHITECT
10699
TODD A. SMITH
State of Washington
WARREN
RESIDENCE
NEW SINGLE FAMILY RESIDENCE
8815 EAGLE CREEK RD
LEAVENWORTH, WA 98826
DATE
www.syndicatesmith.com
819 FRONT STREET, STE 2A
LEAVENWORTH, WA 98826
509-670-3130
SET ISSUE:
SET DATE:
DRAWN BY:
CHECKED BY:
REVISIONS
DRAWING INFO
PROJECT
X
DESCRIPTIONNO.
PERMIT SET
01-26-17
SAMANTHA STANFIELD
TODD SMITH
SHEET TITLE
SHEET NUMBER
CLIENT:
MICHAEL & CHERIE WARREN
ARCHITECT:
TODD SMITH
SYNDICATE SMITH LLC
STRUCTURAL ENGINEER:
ERIC DANN
BTL ENGINEERING
GENERAL CONTRACTOR:
HARLAN HOPER
HOPER CONSTRUCTION
PROJECT MANAGER:
SAMANTHA STANFIELD
SYNDICATE SMITH LLC
BUILDING
SECTION
A304
0' 2' 4'1'
BUILDING SECTION
1

REGISTERED
ARCHITECT
10699
TODD A. SMITH
State of Washington
WARREN
RESIDENCE
NEW SINGLE FAMILY RESIDENCE
8815 EAGLE CREEK RD
LEAVENWORTH, WA 98826
DATE
www.syndicatesmith.com
819 FRONT STREET, STE 2A
LEAVENWORTH, WA 98826
509-670-3130
SET ISSUE:
SET DATE:
DRAWN BY:
CHECKED BY:
REVISIONS
DRAWING INFO
PROJECT
X
DESCRIPTIONNO.
PERMIT SET
01-26-17
SAMANTHA STANFIELD
TODD SMITH
SHEET TITLE
SHEET NUMBER
CLIENT:
MICHAEL & CHERIE WARREN
ARCHITECT:
TODD SMITH
SYNDICATE SMITH LLC
STRUCTURAL ENGINEER:
ERIC DANN
BTL ENGINEERING
GENERAL CONTRACTOR:
HARLAN HOPER
HOPER CONSTRUCTION
PROJECT MANAGER:
SAMANTHA STANFIELD
SYNDICATE SMITH LLC
BUILDING
SECTION
A305
0' 2' 4'1'
BUILDING SECTION
1