BARTON 247C DP Indicator IOM Indicators
User Manual: BARTON 247C DP Indicator IOM Resource Library
Open the PDF directly: View PDF
.
Page Count: 32

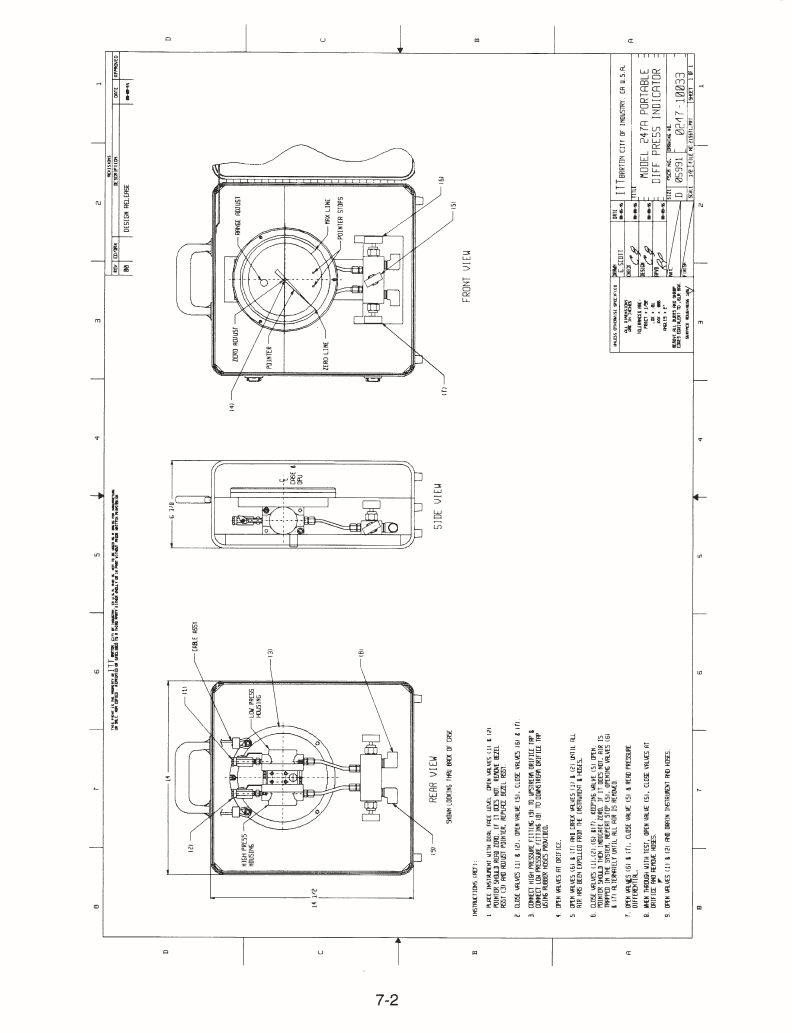
MODEL 247C
PORTABLE DIFFERENTIAL PRESSURE INDICATOR
(For use with 224C DPU)
Installation Manual
Part No. 10150, Rev. 01
July 2007
[This manual is for indicator only - see separate 224/224C DPU manual.]


01 7/07 Revised corporate name/logo/contact
information to reect Cameron
ownership.
K. Metzer





























Formerly: NuFlo Measurement Systems • Barton Instrument Systems • Caldon, Inc.
MEASUREMENT SYSTEMS
USA • CANADA • UK • SCOTLAND • CHINA • UAE
ALGERIA • MALAYSIA • SINGAPORE • www.c-a-m.com/flo
44.1243.826741
ms-uk@c-a-m.com
EUROPE,
MIDDLE EAST
& AFRICA
603.2287.1039
ms-asiapacific@c-a-m.com
ASIA
PACIFIC
1.800.654.3760
ms-us@c-a-m.com
NORTH
AMERICA
281.582.9500
HOUSTON
HEAD OFFICE
Product Warranty
A. Warranty
Cameron International Corporation ("Cameron") warrants that at the time of shipment, the
products manufactured by Cameron and sold hereunder will be free from defects in mate-
rial and workmanship, and will conform to the specications furnished by or approved by
Cameron.
B. Warranty Adjustment
(1) If any defect within this warranty appears, Buyer shall notify Cameron immediately.
(2) Cameron agrees to repair or furnish a replacement for, but not install, any product
which within one (1) year from the date of shipment by Cameron shall, upon test and
examination by Cameron, prove defective within the above warranty.
(3) No product will be accepted for return or replacement without the written authoriza-
tion of Cameron. Upon such authorization, and in accordance with instructions by
Cameron, the product will be returned shipping charges prepaid by Buyer. Replace-
ments made under this warranty will be shipped prepaid.
C. Exclusions from Warranty
(1) THE FOREGOING WARRANTY IS IN LIEU OF AND EXCLUDES ALL OTHER EX-
PRESSED OR IMPLIED WARRANTIES OF MERCHANTABILITY, OR FITNESS FOR
A PARTICULAR PURPOSE, OR OTHERWISE.
(2) Components manufactured by any supplier other than Cameron shall bear only the war-
ranty made by the manufacturer of that product, and Cameron assumes no responsibility
for the performance or reliability of the unit as a whole.
(3) "In no event shall Cameron be liable for indirect, incidental, or consequential damages
nor shall the liability of Cameron arising in connection with any products sold hereunder
(whether such liability arises from a claim based on contract, warranty, tort, or otherwise)
exceed the actual amount paid by Buyer to Cameron for the products delivered hereunder."
(4) The warranty does not extend to any product manufactured by Cameron which has been
subjected to misuse, neglect, accident, improper installation or to use in violation of instruc-
tions furnished by Cameron.
(5) The warranty does not extend to or apply to any unit which has been repaired or altered
at any place other than at Cameron's factory or service locations by persons not expressly
approved by Cameron.
Product Brand
Barton® is a registered trademark of Cameron International Corporation ("Cameron").