0368 002 Booster
User Manual: booster
Open the PDF directly: View PDF
.
Page Count: 14

Aerzener Maschinenfabrik GmbH
Reherweg 28 / D-31855 Aerzen, Postfach 11 63 / D-31849 Aerzen, Tel.: 05154/810, Fax: 05154/81191
0368-002
4PG-401 EN page 1 of 14
07.98
Instructions for the transportation,
storage, installation, commissioning,
maintenance and cleaning
Operating Instructions
for
High-Vacuum Rotary Piston Blower HV
with sizes: GMa/GLa 10.0, 10.1, 10.2, 11.3, 11.4,
12.5, 12.6, 13.f7, 13.8
GMb/GLb 14.9, 15.10, 15.11, 16.12, 16.f13,
16.13, 17.15, 18.17, 19.19, 20.21
Roots Principle EN

Aerzener Maschinenfabrik GmbH
Reherweg 28 / D-31855 Aerzen, Postfach 11 63 / D-31849 Aerzen, Tel.: 05154/810, Fax: 05154/81191
0368-002
4PG-401 EN page 2 of 14
LIST OF CONTENTS
1. Safety instructions
1.1 General
1.2 Points of safety
1.3 Spare parts and accessories
2. General
3. Notes on transportation
4. Storage
5. Installation
5.1 Preparation
5.2 Type of foundation
5.3 Preparing the foundation
5.4 Alignment
5.5 Anchoring bolts
5.6 Coupling and pulleys
5.7 V-belts
5.8 Final adjustment
5.9 Pipelines
6. Initial start-up
6.1 Test run of drive motor
6.2 Test run of blower
7. Maintenance
7.1 General
7.2 Standard seals
7.3 Heatable vacuum blowers wHV
8. Lubrication
8.1 General
8.2 Qil lubrication qualities
8.3 Oil filling - transparent reservoir
8.4 Oil fillings
8.5 Oil change
9. Blower - cleaning
10. Change of flow direction
11. Watercooled seal ring housing
12. Spare parts list
13. Mechanical load limits of the
Rough Vacuum blowers
13.1 Direct coupled speeds
13.2 V-belt-drive

Aerzener Maschinenfabrik GmbH
Reherweg 28 / D-31855 Aerzen, Postfach 11 63 / D-31849 Aerzen, Tel.: 05154/810, Fax: 05154/81191
0368-002
4PG-401 EN page 3 of 14
1. Safety information
1.1 General
The Positive Displacement Blowers are constructed according to the latest technical standards;
the requirements of the German regulations for accident prevention VBG 16 are fulfilled.
Nevertheless, operating risks resulting from improper handling, inappropriate use or operation by untrained
personnel cannot be excluded.
These may result in injuries, as well as damage to the machines and production work.
In the user’s plant, anyone involved in the operation, maintenance and repair of the machines must have read and
understood the operating/maintenance manual, and in particular this safety information.
The machines must only be handled and operated by trained and authorized personnel.
Responsibility for the operation of the machines must be clearly defined in order to avoid uncertainties of
competence.
All work performed on the machines, including repairs, oil changes, maintenance etc. are to be carried out during
machine shutdown, with the electrical power supply to the compressor shut-off and locked out.
1.2 Recommendations - operator safety
- Working methods reducing the safe operation of the machine must be avoided.
- The user is responsible for ensuring that no unauthorized persons are in any way involved with the machine.
- Operating personnel have the obligation of advising their superior of any changes occurring to the machine and
which reduce the safety of its operation.
- The user is responsible for ensuring that the machines are operated when in proper working condition only.
- Management must inform operating personnel of the need to wear safety clothing, safety glasses, and hearing
protection.
- By means of appropriate procedures and controls, the user must guarantee cleanliness in the work
place and ease of access to and around the machines.
- Under absolutely no circumstances may safety devices be removed or disabled.
- Work on electrical components must be carried out by authorized persons only.
- While carrying out machine verification tasks, and in particular when opening the acoustic hood, the use of
hearing protection is compulsory.
- The discharge piping may reach a temperature of up to 150 °C and must not be touched.
- Piping must not be disassembled prior to having been depressurized and purged with a neutral gas.
- Pressurized lube and instrumentation lines must not be opened, i.e. connections must not be tightened. There is
risk of injury, for example resulting from escaping oil.
- Machines conveying oxygen must remain free of grease and oil in the vicinity of the conveyed medium. There is
risk of fire and explosion.
- Extreme caution must be exercised in the case of internal combustion engine driven machines, given
the risk of poisening resulting from exhaust gases. The machine rooms must be sufficiently ventilated.
- In the case of machines operating in nuclear power plants, specific instructions apply. There is risk of radiation.
- Cleaning operations involving the use of sprays or cleansing agents must be carried out in accordance with the
relevant guidelines. There is risk of poisoning resulting from inhalation, and burns resulting from contact with
caustic substances.
- Safety devices, for example safety relief valves, coupling guards, belt guards, contact thermometers, and contact
switches, must not be removed or modified.
- Conversions and modifications not authorized by the manufacturer are not allowed for reasons of safety.
1.3 Spare parts and accessories
We expressly draw your attention to the fact that replacement parts and accessories not supplied by us are neither
tested nor approved by us. The integration or installation, as well as the use of such products can, under certain
circumstances, alter the original design characteristics of the equipment. We exempt ourselves from any liability
for damages resulting from the use of parts and accessories not supplied by us.

Aerzener Maschinenfabrik GmbH
Reherweg 28 / D-31855 Aerzen, Postfach 11 63 / D-31849 Aerzen, Tel.: 05154/810, Fax: 05154/81191
0368-002
4PG-401 EN page 4 of 14
2. General
These rotary piston blowers (Roots principle), used in vacuum operation, are distinguished by the
letter "G". The subsequent letters "L" or "M" indicate the direction of flow.
The numbers, e.g. "14.9", indicate the model size. The letters "HV" following mean "high vacuum"
and the letter "m" following means "with auxiliary inlet".
The radial sealing rings run on a hardened and ground shaft protection sleeve. The oil chamber
ensures that the radial sealing rings are vacuum-tight and have a long service life.
The level of sealing oil can be checked visually through the transparent oil tank. Oil must be always
be present. (see: Lubrication)
Concerning the blower types HV 18.17 to 20.21 the sealing ring casings at the driving shaft are to be
provided with cooling water. The connections are designed in G 1/4". All other blowers do not need
a water cooling.
External machined parts are coated with rust preventing varnish, and the inlet and outlet flanges
are fitted with plastic caps to prevent the entry of dirt and water spray.
coolant channel
water cooling at blower size
18.17 and above.

Aerzener Maschinenfabrik GmbH
Reherweg 28 / D-31855 Aerzen, Postfach 11 63 / D-31849 Aerzen, Tel.: 05154/810, Fax: 05154/81191
0368-002
4PG-401 EN page 5 of 14
3. Notes on transportation
3.1 The unit must be protected against jolts and impact during transportation.
3.2 When lifting the unit by crane, do not use the free ends of the shaft nor the cast eyes on the side
plates or the top of the housing: use instead a suitable hemp or wire rope sling placed around the
side plates.
3.3 When the unit arrives at its destination, check that it is undamaged and that the delivery is complete.
4. Storage
If the units have to be stored before use, a dry, well protected space should be provided. If
necessary, the rust preventing varnish coating on the machined surfaces should be renewed, using a
rust preventing oil. If the unit has to be stored for a longer period and there is insufficient protection
from dampness, the smooth faces of the flanges and the interior chambers of the blower must be
coated with a conservation oil to prevent corrosion.
Protective oils:
External Oil chambers Conveying chamber
TECREX 39 (MOBIL OIL) ESSO LUB MZ 20 W/20 Ballistol-oil
RUST BAN 324 (ESSO) SHELL Ensis Motor Del 20 (biodegradable, no ground
V-Produkt 9703 (SHELL) MOBIL Mobilarma 523 or 524 water contamination)
AVIA Avilub MK 2000
or other equivalent products offered by mineral oil manufacturers.
Cleaning agent: e.g. Certrex 62 from Mobil or Varsol from Esso.
5. Installation
oil filter screw main inlet oil filler screw oil tank
cooling-
water
connection
water drain plug
oil drain plug
oil level indicator
discharge side

Aerzener Maschinenfabrik GmbH
Reherweg 28 / D-31855 Aerzen, Postfach 11 63 / D-31849 Aerzen, Tel.: 05154/810, Fax: 05154/81191
0368-002
4PG-401 EN page 6 of 14
5.1 Preparation
Before transporting the unit to the prepared base, all surfaces which will come into contact with the
base should be cleaned of oil and grease to ensure proper contact.
Leave the plastic caps on the flange until the pipework is ready to be finally connected.
5.2 Type of foundation
Rotary piston blowers should be mounted on a flat, vibration-free foundation. The dimensions for the
foundations should be taken from our drawings. If the unit is to be located on a steel structure or a
deck which is capable of vibrating, then we recommend that it be mounted on elastic machine feet
which absorb transmitted noise; in this case, the blower and its drive motor are mounted on a single
common steel base frame, a cast concrete bed slab, laid on rubber blocks, is also suitable.
Mounting on flexible elements
a) steel base frame and b) concrete bed slab c) steel tubes cast into the base make
elastic machine feet on rubber blocks handling and transport easier
5.3 Preparing the foundation
The surface of the foundation should be roughened and then cleaned. Blow out the anchoring holes.
5.4 Alignment
Place the blower unit onto the foundation, and adjust it until it is accurately
level, using steel shim plates (no wedges !). Use a machinist‘s level on
machined surfaces or on the drive shaft.
The maximum permitted deviation from true horizontal is 0,2 mm per meter
length. The steel shim plates should be pushed in under the base frame so
that it completely covers them; they are then also grouted in, with the anchoring bolts. If the blower
and the drive motor are not mounted on the same base, then the blower should be mounted higher, to
enable the subsequent alignment to be carried out properly.
5.5 Anchoring bolts After levelling has been completed, the anchoring bolts should be grouted in, and
once the grout has set and hardened, tightened. It should be possible to turn the
blower easily by hand: If, there is any resistance then this indicates either that the
base plate or the housing is distorted, or there is dirt in the cylinder. In cases
where the blower will be subject t wide temperature variations, only the feet on the
drive side should be rigidly fixed to the foundation: the rear feet should be held by
means of spacer bushes in such a way that a slight movement parallel to the shaft
is possible, to allow for thermal expansion of the housing.
Sheet steel washer
plate

Aerzener Maschinenfabrik GmbH
Reherweg 28 / D-31855 Aerzen, Postfach 11 63 / D-31849 Aerzen, Tel.: 05154/810, Fax: 05154/81191
0368-002
4PG-401 EN page 7 of 14
5.6 Couplings and pulleys
The shaft journals should be thoroughly cleaned of rust-preventing varnish or oil before fitting the
pulleys or the couplings. A suitable jig must be used for fitting the pulleys or couplings; the jig is
centred in the centering hole on the end of the shaft. Fitting (and later removal if necessary) are made
easier by first coating the end of the shaft with molybdenum
disulphide (e.g. Molykote).
Only couplings that have been machined on all sides and balanced according to VDI 2060 quality
grade Q 6.3.
5.7 Keilriemen
1. Consult the table to find the test force "f" appropriate to the type of belt used.
2. Find the smallest-diameter pulley in the system, and use this to find the deflection "E" from the
table.
3. Calculate the deflection "Ea" from the actual shaft centre distance "e" using formula (1).
4. Apply the test force "f" to the belt exactly midway between the two shafts (whose centre distance
is "e") and exactly at right angles to its original (undeflected) path.
Then tighten the belt until the deflection equals the correct calculated deflection "Ea".
Belt tension example: belt profile SPZ; dk = 100 mm; e = 380 mm; f = 2.5 daN; Ea = 5.5 mm
The belts should be retightened after they have run for about 30 minutes.
5.8 Final adjustment
For the final adjustment, the shaft of the blower should be taken as the fixed reference point. The drive
motor, which was deliberately mounted slightly lower than the blower, should now be raised by means
of steel shims, until the shafts marry up. Each shim must be of at least the same area as the foot which
it supports.
The gap between the two halves of the coupling must be precisely as stated in the specification.
If special couplings are used, follow the fitting instructions accurately.
The coupling must be tested for true running using dial gauges. If the two halves of the coupling have
identical flange diameters, this check can also be carried out using a straight edge and a feeler gauge.
When using dial gauges for the alignment, proceed as shown in
the diagram.
A jig is fixed to one half of the coupling, and is used to hold two
dial gauges which bear onto the other half of the coupling, as
shown.
Then turn both shafts simultaneously and note the maximum
deflections from true running.

Aerzener Maschinenfabrik GmbH
Reherweg 28 / D-31855 Aerzen, Postfach 11 63 / D-31849 Aerzen, Tel.: 05154/810, Fax: 05154/81191
0368-002
4PG-401 EN page 8 of 14
Tolerances for rotation of couplings
Radial: max. 0.05 mm shaft misalignment (i.e. 0.1 mm total on a full revolution)
Axial: max. 0.05 mm shaft misalignment over a complete revolution; if possible the misalignment
should be kept lower than 0.03 mm at a distance r = 100 mm from the middle of the shaft
(for distances other than this, calculate the corresponding tolerance in linear proportion).
5.9 Pipelines
When installing the vacuum pipes, take particular care that the pairs of flanges are accurately parallel
to one another (if necessary, use a feeler gauge to check), as otherwise they will be under strain and
may disort when connected.
The seal rings should be lightly greased with vacuum grease before being inserted. The weight of the
piping and of any silencers etc. must be supported on separate brackets, and not carried by the flange.
Once the flange bolts have been tightened, turn the blower over by hand and check that it turns easily.
If any resistance is felt, then check that the blower has been mounted correctly without any
mechanical strain or distortion. To do this, undo the flange connections and if necessary also the
foundation anchoring bolts. Check the inside chambers of the blower for dirt.
Note:
Experience has shown, that, when starting up the blower for the first time, it is advisable to fit a strainer
of 0.3 mm mesh size to the inlet side of the blower for the initial running-in period. The strainer should
be of conical form, with the tip of the cone pointing AGAINST the direction of flow. The fine-mesh
strainer should be supported on a perforated metal sheet.
If the strainer is still clean after the first 200 hours operation, it can be removed.
6. Initial start-up
6.1 Test run of drive motor
Uncouple the blower, and check that the motor alone runs smoothly and in the correct direction. If any
electrically-operated instruments are provided (e.g. thermometer, manometer with electrical contacts),
these must be checked for correct functioning.
6.2 Test run of blower
On the test run, watch for the following points: smooth running of blower and coupling, temperature of
housing, shaft seals, long run-down when switched off, still turns easily by hand after test run,
maximum pressure difference not exceeded.
Important: Guards for the coupling or for the belts must be fitted. Danger of accidents.

Aerzener Maschinenfabrik GmbH
Reherweg 28 / D-31855 Aerzen, Postfach 11 63 / D-31849 Aerzen, Tel.: 05154/810, Fax: 05154/81191
0368-002
4PG-401 EN page 9 of 14
7. Maintenance
7.1 General
If run under normal operating conditions, a rotary piston blower needs scarely any maintenance. The
rotary pistons do not touch metal at any point and thus do not need any lubricant.
Maintenance is restricted to the oil system and the instrumentation.
7.2 Standard seals
The compression chamber is sealed from the bearing housings with a piston ring labyrinth seal.
The drive shaft is sealed with two radial lip seals.
7.3 Heatable vacuum blowers wHV
To prevent deposits in the compression chamber, blowers of model GMa 12.5 to 13f7 have double
walled cylinders and model GMb 14.9 to 17.15 double walled side plates to allow the injection of a
heating medium.
Allowable heating mediums are oil, sream or water. However to prevent damage to the bearings
maximum temperature of 110 °C must not be exceeded.
Max. pressure of heating medium: 2.0 bar (g).
8. Lubrication
8.1 General
Vacuum blowers are normally splash lubricated. In case of increased speed operation of vakuum
blowers is admissible with an installed oil guiding device (wheel side) only. For reasens of space the
installation of such an oil guiding device is possible in blowers sizes 14...20 only. Admissible
application limits can be taken from the sheets 4TG-3381 and 4TG-3382. The correct oil level has to be
checked at regular intervals. For this purpose th blower has to be switched off. Wait a few minutes
until the oil has run down from the walls and the oil level is static.
The oil has to be filled up as follows:
GMa 10 - 13 centre of sight glasses
GLa 10 - 13 upper edge of reflector
GLb 14 - 17 upper edge of hole
GLb 14 - 16 (with oil feed device) 2 mm below upper edge of sight glasses
GMb 14 - 17 (without oil feed device) centre of sight glasses
GMb 14 - 17 (with oil feed device) drive side - centre of sight glasses
gear side - upper edge of hole
GMb 18 - 20 centre of sight glasses
upper edge - reflector
upper edge - sight glasses
upper edge - hole
centre of sight glasses

Aerzener Maschinenfabrik GmbH
Reherweg 28 / D-31855 Aerzen, Postfach 11 63 / D-31849 Aerzen, Tel.: 05154/810, Fax: 05154/81191
0368-002
4PG-401 EN page 10 of 14
Note: Through the oil filling opening it can be checked whether an oil feed device is installed.
8.2 Oil lubrication qualities
Instructions for lube oils upon operating of standard positivedisplacement machines
Commercial full-synthetic high-performance light motor oil
API oil specification SH / CF or higher.
Viscosity classes DIN 51 511 0W - 40 / 5W - 40 / 10W - 40
Kinematic viscosity of at least 13mm²/s at 100°C.
Special requirements:
Oxidation stability at oil temperatures up to 110°C.
Special recommendations:
In case of change-over from mineral to synthetic oil, an oil exchange is to be effected within an
operation period of 24 h.
It is not necessary to clean the oil chambers separately.
Concerning the following oil brands, good practical experiences are available:
Oil brand Name SAE - viscosity class Pour-point
Aral Aral High Tronic 5W - 40 - 60°C
Esso Ultron 5W - 40 - 54°C
Mobil Mobil 1 0W - 40 - 55°C
Shell Helix Diesel Ultra 5W - 30 - 55°C
Other oils brands may also be applied, provided the specification is observed.
Before the test run the bearing and gear covers are be filled with the conservation oil
ESSOLUB MZ 20W-20.
After the mechanical test run the lube- and conservation oil is to be drained.
The blower is delivered without lubricant filling.
Prior to commissioning fill up oil
8.3 Oil filling - transparent reservoir
In order to avoid a dry-running of the seal rings of the driving shaft during commissioning on delivery
of the blower stage the seal ring housing is filled with ARAL Motanol HV100.
Adjust oil level to center of transparent reservoir
For supplies of blowers with transparent reservoirs (oiler) of code No. 117502 (applicable until May
1998) a deventilation of the sealing chamber can be achieved as follows: a hose, Ø 4 mm, is lead into
the sealing chamber through the transparent reservoir. By means of oil feeder pump in oil, until the
reservoir is approx. half-full. It must be guaranteed, that the sealing chamber is deventilated.

Aerzener Maschinenfabrik GmbH
Reherweg 28 / D-31855 Aerzen, Postfach 11 63 / D-31849 Aerzen, Tel.: 05154/810, Fax: 05154/81191
0368-002
4PG-401 EN page 11 of 14
8.4 Oil fillings (total, for drive and gear side together)
Type approx. litres
—————————————————————
GLa 10.0 10.1 10.2 0,7
GMa 10.1 10.1 10.2 0,9
GLa 11.3 11.4 0,8
GMa 11.3 11.4 1,1
GLa 12.5 12.6 1,1
GMa 12.5 12.6 1,5
GLa 13.f7 13.8 2,1
GMa 13.f7 13.8 2,5
GLb 14.9 3,5
GMb 14.9 7,0
GLb 15.10 15.11 5,4
GMb 15.10 15.11 12,0
GLb 16.12 16.f13 16.13 7,6
GMb 16.12 16.f13 16.13 11,0
GMb 17.15 18,5
GMb 18.17 22,0
GMb 19.19 35,0
GMb 20.21 140,0
8.5 Oil change
Machine part Type of
lubrication
Lubrica-ting
point
Lubricant
symbol acc.
DIN 51502
Lubricanting qty. Change of lubri-
cant acc. to
oil
litres first further*
splash
lubrication
splash
lubrication
Motor oil
5W-40
Motor oil
5W-40
see
list
see
list
-
-
driving side
wheel side
1
2
200
200
4000
4000
* all year at the latest

Aerzener Maschinenfabrik GmbH
Reherweg 28 / D-31855 Aerzen, Postfach 11 63 / D-31849 Aerzen, Tel.: 05154/810, Fax: 05154/81191
0368-002
4PG-401 EN page 12 of 14
9. Cleaning of the blower
As the rotors operate without contact with one another, the clearances between rotors and housing
allow the conveyance of dust laden media to a limited extent. Thus deposits in the blower can occur.
When removing the piping the conveying chamber can be checked and cleaned.
Adhesive and sticking deposits can be removed either with a scraper or an appropriate solvent on
their nature.
After every thorough cleaning the lubricating oil is to be changed.
10. Change of flow direction (GMa 10.0 - GMb 16.13)
In case it is necessary to change an already dispatched machine from GM to GL the following steps
have to be carried out:
1) Extract oil
2) Relocate feet, drive shaft is now at the bottom
3) Exchange oil sight glasses and filler/drain
4) Remove seal ring housing
5) Lengthen pipe between seal ring housing and oil reservoir
6) Mount seal ring housing with oil reservoir vertical
7) Fill up oil in accordance with the operating instruction
11. Watercooled seal ring housing
The max. admissible water pressure amounts to 1 bar (g).
Aerzener Maschinenfabrik
GmbH
Reherweg 28 Postfach 11 63
D-31855 Aerzen D-31849 Aerzen
Tel.: 05154/810, Telex: 92847 am d, Fax: 05154/81191
water quantity
blower type
Water quantities at 1 bar (g) and ∆t = 10 °C
GMb / GLb 17
18
19
20
40 l/h
40 l/h
50 l/h
50 l/h

Aerzener Maschinenfabrik GmbH
Reherweg 28 / D-31855 Aerzen, Postfach 11 63 / D-31849 Aerzen, Tel.: 05154/810, Fax: 05154/81191
0368-002
4PG-401 EN page 13 of 14
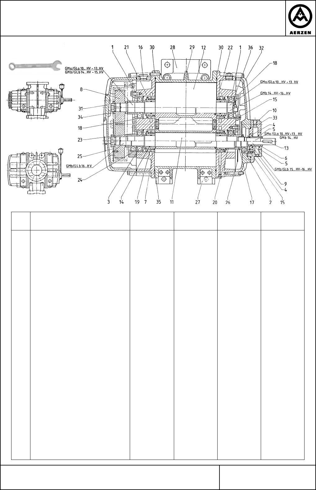
item denomination
1 single-row ball bearing
2 single-row ball bearing
3 single-row ball bearing
4 radial shaft seal ring
5 radial shaft seal ring
6 shaft sleeve
7 piston ring
8 pair of gear wheels
9 O-ring
10 O-ring
11 rotary piston with driving shaft
12 rotary piston with secondary shaft
13 fitting key
14 O-ring
15 adjusting key
16 oil level indicator
17 shaft nut
18 bearing cover
19 ring retainer
20 ring retainer
21 ring retainer
22 sealing bush
23 oil splasher
24 bearing cover
25 oil thrower
26 oil thrower
27 foot
28 foot
29 cylinder
30 side plate
31 gear case
32 housing cover
33 seal ring housing
34 shaft nut
35 O-ring
36 bearing fixing washer
GMb / GLb
15...HV
3
1
-
1
1
1
16
1
1
1
1
1
1
4
8
4
1
3
-
1
3
4
4
-
1
1
-
2
1
2
1
1
1
2
4
-
GMb / GLb
14...HV
GMb 17...HV
4
-
-
1
1
1
16
1
1
1
1
1
1
4
6
4
-
4
-
-
4
4
4
-
1
1
-
2
1
2
1
1
1
4
4
-
GMa / GLa
10...-13... HV
4
-
-
1
1
1
16
1
1
1
1
1
1
4
-
4
-
4
-
-
4
4
4
-
1
1
-
2
1
2
1
1
1
2
4
2
GMb / GLb
16...HV
-
1
5
1
1
1
16
1
1
1
1
1
1
5
16
4
1
1
3
1
-
4
4
2
1
1
4
-
1
2
1
1
1
2
4
-
12. Spare parts list
GMa / GMb
GLa / GLb

Aerzener Maschinenfabrik GmbH
Reherweg 28 / D-31855 Aerzen, Postfach 11 63 / D-31849 Aerzen, Tel.: 05154/810, Fax: 05154/81191
0368-002
4PG-401 EN page 14 of 14
blower pressure
differ. theor. intake
speed motor pressure
differ.
press.diff. press.diff.
speed
speed
speed motor motor
motor theor. intake
theor. intake theor. intake
blower
pulley d
blower
pulley d
higher speed with oil feed device
higher speed with oil feed device
4 ) (a) *GMa/b 15.10 and *GMa/b 15.11 at speed greater than 3000 1/min P max = 15 kW res. 18,5 kW.
5 ) Types with *): GMa - type only spare blowers.
6 ) Types with *): GMa - type only spare blowers.
normal speed 4TG - 3382
normal speed 4TG - 3381
Mechanical load limits of the Rough HV - blowers