Instructions –Data Sheet PDH 12 350 X S Ilsco Reference Power Distribution Block Product Data Sheets
User Manual: PDH-12-350-X Technical Resources – ILSCO
Open the PDF directly: View PDF
.
Page Count: 3

Product Data Sheet
Wire Range:
Line side: (1) 350kcmil - #6 AWG
Load Side: (2) 2/0 - #14 AWG
Electrical Ratings:
• 310A Copper wire, 250A Aluminum wire (Based on NEC Table 310-16, 75°C columns)
• CE Rated Voltage (Ui): 1,000 V AC/DC per IEC 60947-7-1
• Material Group: IIIa
• Pollution Degree: 3
• 600 Volts AC/DC (UL 1059 Class C, User Group - General Industrial)
• Factory and Field Wiring
Short Circuit Current Ratings (Copper wire only):
Wire SCCR, RMS Volts
Class SYM Amps Max
Line Load J T RK1 RK5 GCC
B, C 350 - 3/0 2/0 - 1 500 500 400 200 60 30 100,000 600
B, C 350 - 6 2/0 - 10 200 200 200 100 60 30 100,000 600
G, H, I 250 - 1/0 1 - 10 150 150 100 30 60 30 100,000 600
Suitable Conductors
Overcurrent Protection Fuse Required
(kcmil/AWG)
Class/Max Amp Rating
• Short Circuit Current Rating investigated in 16 x 12 x 6 enclosure. Use in smaller enclosure is
subject to end-use evaluation.
Mechanical Ratings:
• Maximum insulator base and cover temperature: 125°C (257°F) UL RTI
• Flammability rating of insulator base and cover: UL 94 V-0
* Use outside these ratings needs to be judged in the end-use application.
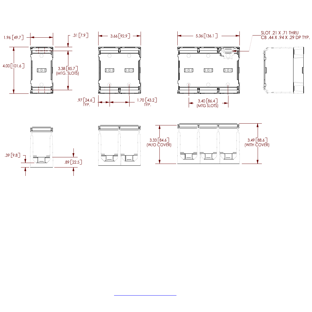
PDH-12-350-X
Replace “X” with 1, 2 or 3 for number of poles
Power Distribution Block
310 Amps, 600 Volts (AC/DC)
1,000V AC/DC CE (IEC 60947-7-1)

Materials:
• Connector: High conductivity aluminum, tin plated
• Insulator base: Glass filled polycarbonate (thermoplastic)
• Terminal set screws: Aluminum, tin plated
• Connector mounting screws: Steel, zinc plated
• Hinged Cover: Glass filled polycarbonate (thermoplastic)
Agency Approvals:
• UL Recognized, UL 1059 Terminal Block Standard, File No. E84782
• CSA Certified, CSA C22.2 No. 158, File No. MC 249467 (Wire Classes B & C only)
• CE compliant to IEC 60947-7-1
• RoHS Compliant
Wire Approvals:
Line Side Wire Approvals:
Copper Wire Stranding Classes - Number of Strands
Wire Size Torque Solid Class B Class C Class G Class H Class I Class K
350 kcmil 275 in. lbs 37 61
300 275 in. lbs 37 61
250 275 in. lbs 37 61 ~ 259 ~ 427 ~ 637 ~ 2499
4/0 275 in. lbs 19 37 ~ 133 ~ 259 ~ 532 ~ 2107
3/0 275 in. lbs 19 37 ~ 133 ~ 259 ~ 418 ~ 1666
2/0 275 in. lbs 19 37 ~ 133 ~ 259 ~ 342 ~ 1323
1/0 275 in. lbs 19 37 ~ 133 ~ 259 ~ 266 ~ 1064
1275 in. lbs 19 37 ~ 133 ~ 259 ~ 210 ~ 836
2275 in. lbs 719 ~ 49 ~ 133 ~ 161 ~ 665
4275 in. lbs 719
6275 in. lbs 719
~Quantity of strands for Classes G, H, I, K may vary by manufacturer.
Aluminum Wire Range: 350kcmil – #6
Load Side Wire Approvals:
Copper Wire Stranding Classes - Number of Strands
Wire Size Torque Solid Class B Class C Class G Class H Class I Class K
2/0 AWG 120 in. lbs 19 37
1/0 120 in. lbs 19 37
1120 in. lbs 19 37 ~ 133 ~ 259 ~ 210 ~ 836
2120 in. lbs 719 ~ 49 ~ 133 ~ 161 ~ 665
4120 in. lbs 719 ~ 49 ~ 133 ~ 105 ~ 420
6120 in. lbs (1-2)* 7 (1-2)* 19 ~ 49 ~ 133 ~ 63 ~ 266
840 in. lbs (1-2)* 7 (1-2)* 19 ~ 49 ~ 133 ~ 41 ~ 168
10 35 in. lbs 1(1-2)* 7 (1-2)* 19 ~ 27 ~ 104
12 35 in. lbs 1(1-2)* 7 (1-2)* 19 ~ 19 ~ 65
14 35 in. lbs 1(1-2)* 7 (1-2)* 19 ~ 19 ~ 41
~Quantity of strands for Classes G, H, I, K may vary by manufacturer.

IL 0105 REV E 11/1/13
WWW.ILSCO.COM
1-800-776-9775
*Multiple conductor approvals for LOAD side only. (copper wire only)
Aluminum Wire Range: 2/0 – #8
• Wire strip length, line side tap – 1.0”
• Wire strip length, load side – 1.0 “
• Hex key required : 5/16”
• Panel mountable: #10 fastener, torque to 25-30 in. lbs.
Accessories:
• Marker Strips. MS-X-L (Replace X with 1, 2, or 3 for no. of poles)
3 Pole
2 Pole
1 Pole