5HP Cyclone G0442 M
User Manual: 5HP Cyclone G0442
Open the PDF directly: View PDF 
.
Page Count: 60

COPYRIGHT © APRIL, 2010 BY GRIZZLY INDUSTRIAL, INC., REVISED NOVEMBER, 2017 (HE)
WARNING: NO PORTION OF THIS MANUAL MAY BE REPRODUCED IN ANY SHAPE
 OR FORM WITHOUT THE WRITTEN APPROVAL OF GRIZZLY INDUSTRIAL, INC.
#TS12622 PRINTED IN TAIWAN
MODEL G0442/G0601
5 HP CYCLONE DUST 
COLLECTOR
OWNER'S MANUAL
(For models manufactured since 03/12)
V3.11.17

This manual provides critical safety instructions on the proper setup, 
operation, maintenance, and service of this machine/tool. Save this 
document, refer to it often, and use it to instruct other operators. 
Failure to read, understand and follow the instructions in this manual 
may result in fire or serious personal injury—including amputation, 
electrocution, or death.
The owner of this machine/tool is solely responsible for its safe use. 
This responsibility includes but is not limited to proper installation in 
a safe environment, personnel training and usage authorization, 
proper inspection and maintenance, manual availability and compre-
hension, application of safety devices, cutting/sanding/grinding tool 
integrity, and the usage of personal protective equipment.
The manufacturer will not be held liable for injury or property damage 
from negligence, improper training, machine modifications or misuse.
Some dust created by power sanding, sawing, grinding, drilling, and 
other construction activities contains chemicals known to the State 
of California to cause cancer, birth defects or other reproductive 
harm. Some examples of these chemicals are:
•  Lead from lead-based paints.
•  Crystalline silica from bricks, cement and other masonry products.
•  Arsenic and chromium from chemically-treated lumber.
Your risk from these exposures varies, depending on how often you 
do this type of work. To reduce your exposure to these chemicals: 
Work in a well ventilated area, and work with approved safety equip-
ment, such as those dust masks that are specially designed to filter 
out microscopic particles.
Table of Contents
INTRODUCTION ............................................... 2
Manual Accuracy ........................................... 2
Contact Info.................................................... 2
Machine Description ...................................... 2
Identification ................................................... 3
G0442 Machine Data Sheet .......................... 4
G0601 Machine Data Sheet .......................... 6
SECTION 1: SAFETY ....................................... 8
Safety Instructions for Machinery .................. 8
Additional Safety for Dust Collectors ........... 10
SECTION 2: POWER SUPPLY ...................... 11
Availability .................................................. 11
Full-Load Current Rating ........................... 11
Circuit Requirements ................................. 11
G0442 Circuit Requirements for 220V ...... 11
G0601 Circuit Requirements for 220V ...... 12
G0601 Circuit Requirements for 440V ...... 12
Connection Type ....................................... 12
Grounding Instructions .............................. 12
Extension Cords ........................................ 12
G0601 440V Conversion ........................... 13
Correcting Phase Polarity (G0601 Only) ... 14
SECTION 3: SETUP ....................................... 15
Needed for Setup ......................................... 15
Unpacking .................................................... 15
Inventory ...................................................... 16
Site Considerations ...................................... 18
Mounting to Shop Floor ............................... 19
Bolting to Concrete Floors ......................... 19
Assembly ..................................................... 20
Power Connection........................................ 28
G0442 Power Connection ......................... 28
G0601 Power Connection ......................... 28
Test Run ...................................................... 29
For Model G0601 Only .............................. 29
SECTION 4: DESIGNING THE SYSTEM ....... 30
General ........................................................ 30
Duct Material ................................................ 30
Metal Duct ................................................. 31
Flexible Duct .............................................. 31
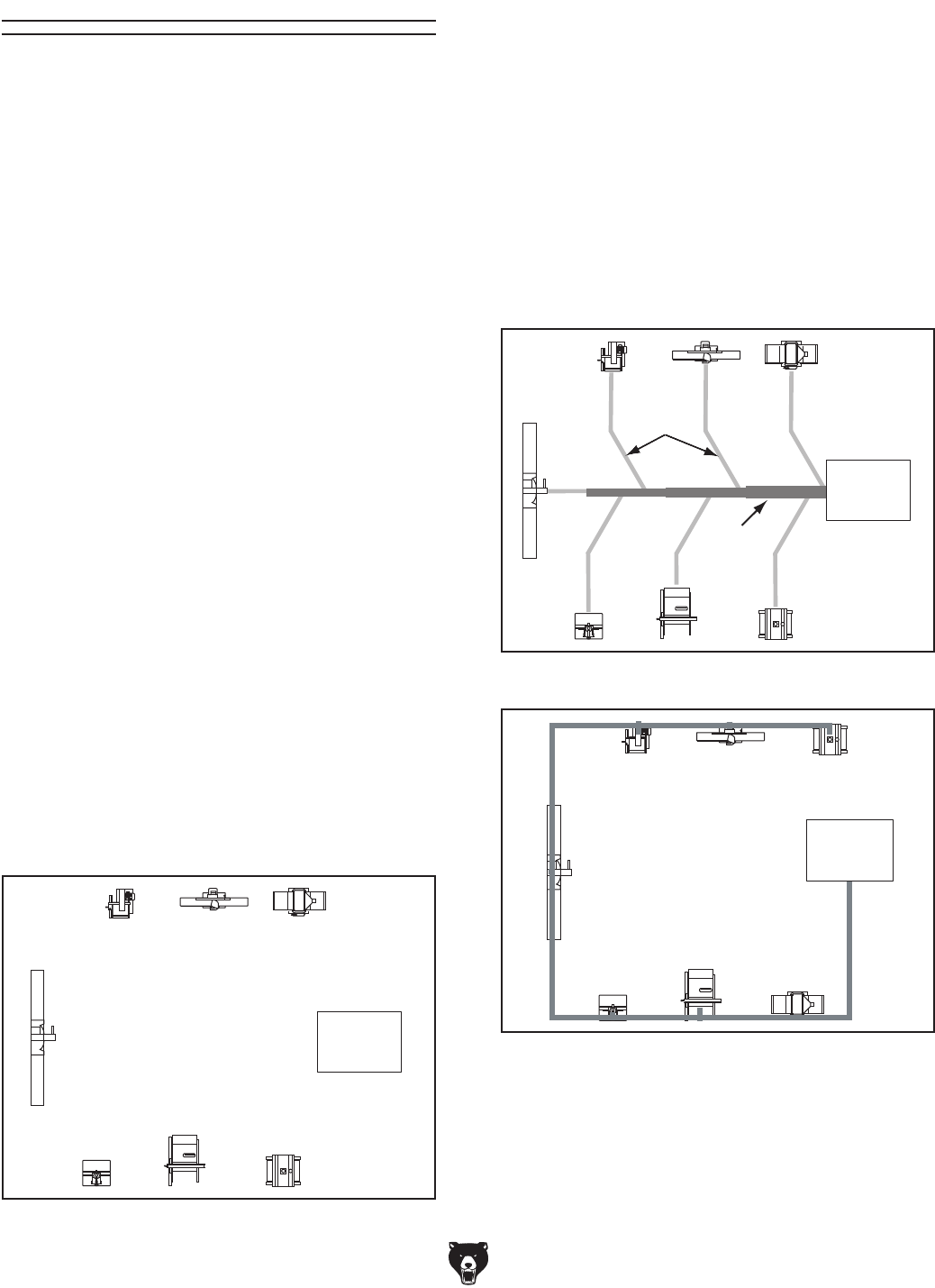
System Design ............................................. 32
Decide Who Will Design ............................ 32
Sketch Your Shop Layout .......................... 32
Sketch a Basic Duct Layout ...................... 32
Determine Required CFMs ........................ 33
Determining Main Line Duct Size .............. 34
Determining Branch Line Duct Size .......... 34
Planning Drop Downs ................................ 35
Calculating Duct Resistance ..................... 35
Example Materials List .............................. 37
System Grounding ....................................... 38
SECTION 5: OPERATIONS ........................... 39
General ........................................................ 39
Remote Control ............................................ 39
Control Box Panel ........................................ 40
SECTION 6: ACCESSORIES ......................... 41
SECTION 7: MAINTENANCE ......................... 43
Schedule ...................................................... 43
Emptying Drum ............................................ 43
Cleaning Filters ............................................ 43
Rinsing Filter ................................................ 44
Removing/Replacing Filter ........................... 44
SECTION 8: SERVICE ................................... 46
Troubleshooting ........................................... 46
SECTION 9: WIRING ...................................... 48
Wiring Safety Instructions ............................ 48
G0442 Wiring Diagram ................................ 49
G0601 220V Wiring Diagram ....................... 50
G0601 440V Wiring Diagram ....................... 51
SECTION 10: PARTS ..................................... 52
Main ............................................................. 52
WARRANTY AND RETURNS ........................ 57

-2- Model G0442/G0601 (Mfg Since 3/12)
INTRODUCTION
Machine Description
We stand behind our machines! If you have ques-
tions or need help, contact us with the information 
below. Before contacting, make sure you get the 
serial number
  and  manufacture date
  from  the 
machine ID label. This will help us help you faster.
Grizzly Technical Support
1815 W. Battlefield
Springfield, MO  65807
Phone: (570) 546-9663
Email: techsupport@grizzly.com
We want your feedback on this manual. What did 
you  like  about  it?  Where  could  it  be  improved? 
Please take a few minutes to give us feedback.
Grizzly Documentation Manager
P.O. Box 2069
Bellingham, WA  98227-2069
Email: manuals@grizzly.com
Contact Info
We  are  proud  to  provide  a  high-quality  owner’s 
manual with your new machine!
We
 made every effort to be exact with the
 instruc-
tions,  specifications,  drawings,  and  photographs 
in this manual. Sometimes we make mistakes, but 
our policy of continuous improvement also means 
that 
sometimes the machine 
you receive is 
slightly different than shown in the manual
.
If you find this to be the case, and the difference 
between  the  manual  and  machine  leaves  you 
confused  or  unsure  about something
, 
check  our 
website for an updated version. W
e post 
current 
manuals and 
manual updates for free 
on our web-
site at 
www.grizzly.com.
Alternatively, you can call our Technical Support 
for help. Before calling, make sure you write down 
the 
Manufacture Date and Serial Number
 from 
the machine ID label (see below). This information 
is required for us to provide proper tech support, 
and it helps us determine if updated documenta-
tion is available for your machine.
Manufacture Date
Serial Number
Manual Accuracy
The  Model  G0442/G0601  is  a  2-stage  cyclone 
wood  dust  collector  capable  of  collecting  dust 
from multiple machines running simultaneously.
Cyclonic  action  separates  the  heavy  dust  and 
chips from the fine particles and drops them into 
the steel collection drum. Any remaining fine dust 
travels  past  the  impeller  and  is  trapped  by  the 
pleated cartridge filter made of spun-bond polyes-
ter. With the use of the cable and pulley system on 
the outside of the filter assembly, the caked dust 
is forced down into the collection bag.
The machine is controlled directly by the remote 
magnetic switch mounted to it or by the IR remote 
controller—each control includes timer options.

Model G0442/G0601 (Mfg Since 3/12) -3-
Identification
To reduce the risk of 
serious injury when using 
this machine, read and 
understand this entire 
manual before beginning 
any operations.
Figure 1. Identification (Model G0442 shown).
Blower
Assembly
Motor
Outlet
Hose
Noise
Muffler
Canister
Filter Assembly
Canister
Collection Bag
Vacuum Hose
Collection Drum w/Casters
Control Box
Cyclone
Assembly
Inlet
Port
Junction Box

-4- Model G0442/G0601 (Mfg Since 3/12)
The information contained herein is deemed accurate as of 11/19/2017 and represents our most recent product specifications.
Due to our ongoing improvement efforts, this information may not accurately describe items previously purchased. PAGE 1 OF 3
Model G0442
MACHINE DATA
SHEET
Customer Service #: (570) 546-9663 · To Order Call: (800) 523-4777 · Fax #: (800) 438-5901
MODEL G0442 5 HP CYCLONE DUST COLLECTOR
Product Dimensions:
Weight.............................................................................................................................................................. 517 lbs.
Width (side-to-side) x Depth (front-to-back) x Height............................................................. 63 x 56-7/8 x 111-1/2 in.
Footprint (Length x Width)..................................................................................................................... 63 x 56-7/8 in.
Shipping Dimensions:
Carton #1
Type........................................................................................................................................... Cardboard Box
Content................................................................................................................................................. Machine
Weight.................................................................................................................................................... 456 lbs.
Length x Width x Height............................................................................................................. 61 x 30 x 37 in.
Must Ship Upright......................................................................................................................................... Yes
Carton #2
Type........................................................................................................................................... Cardboard Box
Content......................................................................................................................................... Canister Filter
Weight...................................................................................................................................................... 44 lbs.
Length x Width x Height............................................................................................................. 49 x 22 x 22 in.
Must Ship Upright.......................................................................................................................................... No
Carton #3
Type........................................................................................................................................... Cardboard Box
Content......................................................................................................................................... Canister Filter
Weight...................................................................................................................................................... 44 lbs.
Length x Width x Height............................................................................................................. 22 x 49 x 22 in.
Must Ship Upright.......................................................................................................................................... No
Carton #4
Type........................................................................................................................................... Cardboard Box
Content...................................................................................................................................................... Stand
Weight...................................................................................................................................................... 88 lbs.
Length x Width x Height............................................................................................................... 41 x 15 x 8 in.
Must Ship Upright.......................................................................................................................................... No
Electrical:
Power Requirement........................................................................................................... 220V, Single-Phase, 60 Hz
Prewired Voltage.................................................................................................................................................. 220V
Full-Load Current Rating..................................................................................................................................... 22.4A
Minimum Circuit Size.............................................................................................................................................. 40A
Connection Type........................................................................................... Permanent (Hardwire to Shutoff Switch)
Switch Type......................................................................... Remote Control Magnetic Switch w/Overload Protection
Motors:
Main
Horsepower................................................................................................................................................ 5 HP
Phase............................................................................................................................................ Single-Phase
Amps......................................................................................................................................................... 22.4A
Speed................................................................................................................................................ 3450 RPM
Type.................................................................................................. TEFC Capacitor-Start Induction (Class F)
Power Transfer ............................................................................................................................... Direct Drive
Bearings..................................................................................................... Shielded & Permanently Lubricated
G0442 Machine Data Sheet

Model G0442/G0601 (Mfg Since 3/12) -5-
The information contained herein is deemed accurate as of 11/19/2017 and represents our most recent product specifications.
Due to our ongoing improvement efforts, this information may not accurately describe items previously purchased. PAGE 2 OF 3
Model G0442
Main Specifications:
Operation
Dust Collector Type.......................................................................................................... Two-Stage (Cyclone)
Approved Dust Types................................................................................................................................ Wood
Filter Type............................................................................................................................... Pleated Cartridge
Airflow Performance..................................................................................................... 2184 CFM @ 1.9 in. SP
Max Static Pressure (at 0 CFM)................................................................................................................ 14 in.
Main Inlet Size........................................................................................................................................... 10 in.
Inlet Adapter Included.................................................................................................................................... No
Machine Collection Capacity At One Time....................................................................................................... 4
Maximum Material Collection Capacity................................................................................................ 7.4 cu. ft.
Filtration Rating............................................................................................................................ 0.2 – 2 Micron
Filter Surface Area............................................................................................................................. 226  sq. ft.
Bag Information
Number of Lower Bags..................................................................................................................................... 2
Lower Bag Diameter............................................................................................................................ 19-3/4 in.
Canister Information
Number of Canister Filters................................................................................................................................ 2
Canister Filter Diameter................................................................................................................... 19-11/16 in.
Canister Filter Length.......................................................................................................................... 39-3/8 in.
Collection Drum Size......................................................................................................................... 55 Gallons
Impeller Information
Impeller Type...................................................................................................................................... Radial Fin
Impeller Size.............................................................................................................................................. 16 in.
Construction
Lower Bag...................................................................................................................................... Clear Plastic
Canister............................................................................................................................ Spun Bond Polyester
Frame....................................................................................................................... Steel Sheet Metal (14 ga.)
Impeller....................................................................................................................................................... Steel
Paint Type/Finish....................................................................................................................... Powder Coated
Blower Housing......................................................................................................................... 11 Gauge Steel
Body.......................................................................................................................................... 14 Gauge Steel
Collection Drum..................................................................................................................................... Steel
Other Specifications:
Country of Origin .............................................................................................................................................. Taiwan
Warranty ........................................................................................................................................................... 1 Year
Approximate Assembly & Setup Time ............................................................................................................. 4 Hours
Serial Number Location .................................................................................................................................. ID Label
Sound Rating ............................................................................................................................................. 83 – 86 dB
ISO 9001 Factory .................................................................................................................................................... No
Certified by a Nationally Recognized Testing Laboratory (NRTL) ......................................................................... Yes

-6- Model G0442/G0601 (Mfg Since 3/12)
The information contained herein is deemed accurate as of 11/19/2017 and represents our most recent product specifications.
Due to our ongoing improvement efforts, this information may not accurately describe items previously purchased. PAGE 1 OF 3
Model G0601
MACHINE DATA
SHEET
Customer Service #: (570) 546-9663 · To Order Call: (800) 523-4777 · Fax #: (800) 438-5901
MODEL G0601 5 HP 3‐PHASE CYCLONE DUST COLLECTOR
Product Dimensions:
Weight.............................................................................................................................................................. 517 lbs.
Width (side-to-side) x Depth (front-to-back) x Height............................................................. 63 x 56-7/8 x 111-1/2 in.
Footprint (Length x Width)..................................................................................................................... 63 x 56-7/8 in.
Shipping Dimensions:
Carton #1
Type........................................................................................................................................... Cardboard Box
Content................................................................................................................................................. Machine
Weight.................................................................................................................................................... 443 lbs.
Length x Width x Height............................................................................................................. 61 x 30 x 37 in.
Must Ship Upright......................................................................................................................................... Yes
Carton #2
Type........................................................................................................................................... Cardboard Box
Content......................................................................................................................................... Canister Filter
Weight...................................................................................................................................................... 46 lbs.
Length x Width x Height............................................................................................................. 49 x 22 x 22 in.
Must Ship Upright.......................................................................................................................................... No
Carton #3
Type........................................................................................................................................... Cardboard Box
Content......................................................................................................................................... Canister Filter
Weight...................................................................................................................................................... 46 lbs.
Length x Width x Height............................................................................................................. 49 x 22 x 22 in.
Must Ship Upright.......................................................................................................................................... No
Carton #4
Type........................................................................................................................................... Cardboard Box
Content...................................................................................................................................................... Stand
Weight...................................................................................................................................................... 90 lbs.
Length x Width x Height............................................................................................................... 41 x 15 x 7 in.
Must Ship Upright.......................................................................................................................................... No
Electrical:
Power Requirement..................................................................................................... 220V or 440V, 3-Phase, 60 Hz
Prewired Voltage.................................................................................................................................................. 220V
Full-Load Current Rating................................................................................................ 13.7A at 220V, 6.9A at 440V 
Minimum Circuit Size.......................................................................................................... 30A at 220V, 15A at 440V
Connection Type........................................................................................... Permanent (Hardwire to Shutoff Switch)
Switch Type......................................................................... Remote Control Magnetic Switch w/Overload Protection
Voltage Conversion Kit............................................................................................................... G440V0601 for 440V
Recommended Phase Converter...................................................................... Rotary Only (Not Approved for Static)
G0601 Machine Data Sheet

Model G0442/G0601 (Mfg Since 3/12) -7-
The information contained herein is deemed accurate as of 11/19/2017 and represents our most recent product specifications.
Due to our ongoing improvement efforts, this information may not accurately describe items previously purchased. PAGE 2 OF 3
Model G0601
Motors:
Main
Horsepower................................................................................................................................................ 5 HP
Phase.................................................................................................................................................... 3-Phase
Amps................................................................................................................................................. 13.7A/6.9A
Speed................................................................................................................................................ 3450 RPM
Type........................................................................................................................... TEFC Induction (Class F)
Power Transfer ............................................................................................................................... Direct Drive
Bearings..................................................................................................... Shielded & Permanently Lubricated
Main Specifications:
Operation
Dust Collector Type.......................................................................................................... Two-Stage (Cyclone)
Approved Dust Types................................................................................................................................ Wood
Filter Type............................................................................................................................... Pleated Cartridge
Airflow Performance..................................................................................................... 2184 CFM @ 1.9 in. SP
Max Static Pressure (at 0 CFM)................................................................................................................ 14 in.
Main Inlet Size........................................................................................................................................... 10 in.
Inlet Adapter Included.................................................................................................................................... No
Machine Collection Capacity At One Time....................................................................................................... 4
Maximum Material Collection Capacity................................................................................................ 7.4 cu. ft.
Filtration Rating............................................................................................................................ 0.2 – 2 Micron
Filter Surface Area.............................................................................................................................. 226 sq. ft.
Bag Information
Number of Lower Bags..................................................................................................................................... 2
Lower Bag Diameter............................................................................................................................ 19-3/4 in.
Canister Information
Number of Canister Filters................................................................................................................................ 2
Canister Filter Diameter................................................................................................................... 19-11/16 in.
Canister Filter Length.......................................................................................................................... 39-3/8 in.
Collection Drum Size......................................................................................................................... 55 Gallons
Impeller Information
Impeller Type...................................................................................................................................... Radial Fin
Impeller Size.............................................................................................................................................. 16 in.
Construction
Lower Bag...................................................................................................................................... Clear Plastic
Canister............................................................................................................................ Spun Bond Polyester
Frame....................................................................................................................... Steel Sheet Metal (14 ga.)
Impeller....................................................................................................................................................... Steel
Paint Type/Finish....................................................................................................................... Powder Coated
Blower Housing......................................................................................................................... 11 Gauge Steel
Body.......................................................................................................................................... 14 Gauge Steel
Collection Drum..................................................................................................................................... Steel
Other Specifications:
Country of Origin .............................................................................................................................................. Taiwan
Warranty ........................................................................................................................................................... 1 Year
Approximate Assembly & Setup Time ............................................................................................................. 3 Hours
Serial Number Location .................................................................................................................................. ID Label
Sound Rating ............................................................................................................................................. 83 – 86 dB
ISO 9001 Factory .................................................................................................................................................... No
Certified by a Nationally Recognized Testing Laboratory (NRTL) ......................................................................... Yes

-8- Model G0442/G0601 (Mfg Since 3/12)
ELECTRICAL EQUIPMENT INJURY RISKS. You 
can be shocked, burned, or killed by touching live 
electrical  components  or  improperly  grounded 
machinery. To reduce this risk, only allow qualified 
service  personnel  to  do  electrical  installation  or 
repair work, and always disconnect power before 
accessing or exposing electrical equipment.
DISCONNECT POWER FIRST. 
Always  discon-
nect machine from power supply BEFORE making 
adjustments, changing tooling, or servicing machine. 
This prevents an injury risk from unintended startup 
or contact with live electrical components.
EYE PROTECTION. Always wear ANSI-approved 
safety glasses or a face shield when operating or 
observing  machinery  to  reduce  the  risk  of  eye 
injury or blindness from flying particles. Everyday 
eyeglasses are NOT approved safety glasses.
OWNER’S MANUAL. Read and  understand this 
owner’s manual BEFORE using machine. 
TRAINED OPERATORS ONLY. Untrained oper-
ators  have  a  higher  risk  of  being  hurt  or  killed. 
Only  allow trained/supervised  people  to use  this 
machine.  When  machine is  not  being  used,  dis-
connect  power,  remove  switch  keys,  or  lock-out 
machine to prevent unauthorized use—especially 
around children. Make your workshop kid proof!
DANGEROUS ENVIRONMENTS. Do  not  use 
machinery in areas that are wet, cluttered, or have 
poor lighting. Operating machinery in these areas 
greatly increases the risk of accidents and injury.
MENTAL ALERTNESS REQUIRED. Full mental 
alertness is required for safe operation of machin-
ery. Never operate under the influence of drugs or 
alcohol, when tired, or when distracted.
For Your Own Safety, Read Instruction 
Manual Before Operating This Machine
The purpose of safety symbols is to attract your attention to possible hazardous conditions. 
This manual uses a series of symbols and signal words intended to convey the level of impor-
tance of the safety messages. The progression of symbols is described below. Remember that 
safety messages by themselves do not eliminate danger and are not a substitute for proper 
accident prevention measures. Always use common sense and good judgment.
Indicates a potentially hazardous situation which, if not avoided, 
MAY result in minor or moderate injury. It may also be used to alert 
against unsafe practices.
Indicates a potentially hazardous situation which, if not avoided, 
COULD result in death or serious injury.
Indicates an imminently hazardous situation which, if not avoided, 
WILL result in death or serious injury.
This symbol is used to alert the user to useful information about 
proper operation of the machine.
NOTICE
Safety Instructions for Machinery
SECTION 1: SAFETY

Model G0442/G0601 (Mfg Since 3/12) -9-
WEARING PROPER APPAREL.  Do  not  wear 
clothing,  apparel  or  jewelry  that  can  become 
entangled  in  moving  parts.  Always  tie  back  or 
cover long hair. Wear non-slip footwear to reduce 
risk of  slipping and  losing control  or accidentally 
contacting cutting tool or moving parts.
HAZARDOUS DUST. Dust created by machinery 
operations  may  cause  cancer,  birth  defects,  or 
long-term  respiratory damage.  Be  aware of  dust 
hazards  associated  with  each  workpiece  mate-
rial. Always wear a NIOSH-approved respirator to 
reduce your risk.
HEARING PROTECTION.  Always  wear  hear-
ing  protection  when  operating  or  observing  loud 
machinery.  Extended  exposure  to  this  noise 
without hearing  protection can  cause permanent 
hearing loss.
REMOVE ADJUSTING TOOLS.  Tools  left  on 
machinery  can  become  dangerous  projectiles 
upon startup. Never leave chuck keys, wrenches, 
or  any  other  tools  on  machine.  Always  verify 
removal before starting!
USE CORRECT TOOL FOR THE JOB. Only use 
this  tool  for  its  intended  purpose—do  not  force 
it  or an  attachment  to do a  job  for which  it  was 
not designed. Never make unapproved modifica-
tions—modifying  tool  or  using  it  differently  than 
intended may result in malfunction or mechanical 
failure that can lead to personal injury or death!
AWKWARD POSITIONS.  Keep  proper  footing 
and balance at all times when operating machine. 
Do not overreach! Avoid awkward hand positions 
that  make  workpiece  control  difficult  or  increase 
the risk of accidental injury.
CHILDREN & BYSTANDERS. Keep children and 
bystanders at a safe distance from the work area.
Stop using machine if they become a distraction.
GUARDS & COVERS. Guards and covers reduce 
accidental  contact  with  moving  parts  or  flying 
debris.  Make  sure  they  are  properly  installed, 
undamaged,  and  working  correctly  BEFORE 
operating machine.
FORCING MACHINERY. Do not force machine. 
It will do  the job  safer and better  at the  rate for 
which it was designed.
NEVER STAND ON MACHINE.  Serious  injury 
may  occur  if  machine  is  tipped  or  if  the  cutting 
tool is unintentionally contacted. 
STABLE MACHINE. Unexpected movement dur-
ing  operation  greatly  increases  risk  of  injury  or 
loss of control. Before starting, verify machine is 
stable and mobile base (if used) is locked.
USE RECOMMENDED ACCESSORIES. Consult 
this owner’s manual or the manufacturer for rec-
ommended  accessories.  Using  improper  acces-
sories will increase the risk of serious injury.
UNATTENDED OPERATION. To  reduce  the 
risk  of  accidental  injury,  turn  machine  OFF  and 
ensure  all  moving  parts  completely  stop  before 
walking  away.  Never  leave  machine  running 
while unattended. 
MAINTAIN WITH CARE. Follow all maintenance 
instructions  and  lubrication  schedules  to  keep 
machine  in  good  working  condition.  A  machine 
that  is  improperly  maintained  could  malfunction,  
leading to serious personal injury or death. 
DAMAGED PARTS.  Regularly  inspect  machine 
for  damaged,  loose,  or  mis-adjusted  parts—or 
any  condition  that  could  affect  safe  operation. 
Immediately  repair/replace  BEFORE  operating 
machine. For your own safety, DO NOT operate 
machine with damaged parts!
MAINTAIN POWER CORDS. When  disconnect-
ing  cord-connected  machines  from  power,  grab 
and pull the plug—NOT the cord. Pulling the cord 
may  damage  the  wires  inside.  Do  not  handle  
cord/plug with wet hands. Avoid cord damage by 
keeping it away from heated surfaces, high traffic 
areas, harsh chemicals, and wet/damp locations.
EXPERIENCING DIFFICULTIES. If  at  any  time 
you experience difficulties performing the intend-
ed operation, stop using the machine! Contact our 
Technical Support at (570) 546-9663.

-10- Model G0442/G0601 (Mfg Since 3/12)
INTENDED USE.Thisdustcollectorisonly
intendedforcollectingwooddustandchipsfrom
woodworking machines. DONOTusethisdust
collectortocollectmetal,dirt,pebbles,drywall,
asbestos, leadpaint,silica,liquids,aerosols,or
anyflammable,combustible,orhazardousmateri-
als.
hazarDoUS DUST. Dust created while using
machinery may cause cancer, birth defects, or
long-termrespiratorydamage. Beawareof dust
hazardsassociatedwitheachworkpiecematerial,
andalwayswearaNIOSH-approvedrespiratorto
reduceyourrisk.
DUST  aLLErGIES.Dustfromcertainwoods
maycauseanallergicreactioninpeopleandani-
mals.Makesureyouknowwhattypeofwooddust
youwillbeexposedtoincasethereisapossibility
ofanallergicreaction.
WEar  rESPIraTor.Finedustthatistoo
smalltobecaughtin thefilterwillbeblowninto
the ambientairduringoperation.Alwayswear a
NIOSHapprovedrespiratorduringoperationand
forashorttimeaftertoreduceyourriskofperma-
nentrespiratorydamage.
EMPTYING DUST.Whenemptyingdustfromthe
collectioncontainer,weararespiratorandsafety
glasses. Emptydustawayfromignition sources
andintoanapprovedcontainer.
DISCoNNECTING PoWEr SUPPLY.Turn the
switchOFF, disconnect the dustcollectorfrom
thepowersupply,andallowtheimpellertocome
to a completestopbeforeleaving the machine
unattendedordoinganyservice,cleaning,main-
tenance,oradjustments.
rEGULar CLEaNING.Regularly check/empty
the collectionbagsordrumtoavoid the buildup
offinedustthatcanincreasetheriskoffire.Make
suretoregularlycleanthesurroundingareawhere
themachineisoperated—excessivedustbuildup
onoverheadlights,heaters,electrical panels, or
otherheatsourceswillincreasetheriskoffire.
SUSPENDED DUST ParTICLES aND IGNITIoN 
SoUrCES.DONOToperatethedustcollectorin
areaswereexplosionrisksarehigh.Areasofhigh
riskinclude,butarenotlimitedto,areasnearpilot
lights,openflames,orotherignitionsources.
FIrE SUPPrESSIoN.Onlyoperatethedustcol-
lectorinlocationsthatcontainafiresuppression
systemorhaveafireextinguishernearby.
IMPELLEr  hazarDS.DONOTplaceyour
handsortoolsneartheopeninletduringoperation
foranyreason.Thepowerfulsuctioncouldeasily
causeaccidentalcontactwiththeimpellerwhich
willcauseseriouspersonalinjuryordamageto
themachine.Alwayskeepsmallanimalsandchil-
drenawayfromopendustcollectioninlets.
aVoIDING SParKS.DONOTallowsteelor
rockstostrike the impeller—this mayproduce
sparks.Sparkscansmolderinwooddustfor a
longtimebeforeafireisdetected.Ifyouacciden-
tallycutintowoodcontainingtrampmetal(nails,
staples,spikes,etc.), immediately turnOFF the
dustcollector,disconnectitfrompower,andwait
for the impeller to stop—then empty the collec-
tioncontainerintoanapprovedairtightmetal
container.
oPEraTING LoCaTIoN.Toreduce respira-
toryexposuretofinedust,locatepermanently
installeddustcollectorsawayfrom the working
area,orinanotherroomthatisequippedwitha
smokedetector.DONOToperatethedustcollec-
torinrainyorwetlocations—exposuretowater
maycreateanshockhazardordecreasethelife
ofthemachine.
STaTIC ELECTrICITY.Plasticdustlinesgener-
atehighamountsofstaticelectricityasdustchips
passthroughthem.Althoughrare,sparkscaused
bystaticelectricitycancauseexplosionsorfire.
Toreducethisrisk,makesurealldust lines are
thoroughlygroundedbyusingagroundingwire.
Additional Safety for Dust Collectors

Model G0442/G0601 (Mfg Since 3/12) -11-
SECTION 2: POWER SUPPLY
Availability Circuit Requirements
Before installing the machine, consider the avail-
ability and proximity of the required power supply 
circuit.  If  an  existing  circuit  does  not  meet  the 
requirements for this machine, a new circuit must 
be installed. To minimize the risk of electrocution, 
fire,  or equipment damage, installation work and 
electrical wiring must be done by an electrician or  
qualified service personnel in accordance with all 
applicable codes and standards.
Serious injury could occur if you connect 
machine to power before completing setup 
process. DO NOT connect to power until 
instructed later in this manual.
Full-Load Current Rating
The  full-load  current  rating  is  the  amperage  a 
machine draws at 100% of the rated output power. 
On  machines  with  multiple  motors,  this  is  the 
amperage drawn by the largest motor or sum of all 
motors and  electrical  devices that  might operate 
at one time during normal operations.
The full-load current is not the maximum amount 
of amps that the machine will draw. If the machine 
is overloaded, it will draw additional amps beyond 
the full-load rating.
If the machine is overloaded for a sufficient length 
of time, damage, overheating, or fire may result—
especially  if  connected  to  an  undersized  circuit. 
To reduce the  risk of  these hazards, avoid over-
loading  the  machine  during  operation  and  make 
sure it is connected to a power supply circuit that 
meets the specified circuit requirements.
G0442 Current Rating ..................... 22.4 Amps
G0601 Current Rating at 220V ....... 13.7 Amps
G0601 Current Rating at 440V ......... 6.9 Amps
A  power  supply  circuit  includes  all  electrical 
equipment between the breaker box or fuse panel 
in the building and the machine. The power sup-
ply circuit used for this machine must be sized to 
safely handle the full-load current drawn from the 
machine  for  an  extended  period  of  time.  (If  this 
machine  is  connected  to  a  circuit  protected  by 
fuses, use a time delay fuse marked D.)
For your own safety and protection of 
property, consult an electrician if you are 
unsure about wiring practices or electrical 
codes in your area.
Note: Circuit requirements in this manual apply to 
a dedicated circuit—where only one machine will 
be running on the circuit at a time. If machine will 
be connected to a shared circuit where multiple 
machines may be running at the same time, con-
sult an electrician or qualified service personnel to 
ensure circuit is properly sized for safe operation.
G0442 Circuit Requirements for 
220V
The  Model  G0442  is  prewired  to  operate  on  a 
220V  power  supply  circuit  that  has  a  verified 
ground and meets the following requirements:
Nominal Voltage ........................................220V
Cycle ..........................................................60 Hz
Phase ........................................... Single-Phase
Circuit Rating ...................................... 40 Amps
Connection ......Hardwire with Locking Switch

-12- Model G0442/G0601 (Mfg Since 3/12)
G0601 Circuit Requirements for 
220V
The  Model  G0601  is  prewired  to  operate  on  a 
220V  power  supply  circuit  that  has  a  verified 
ground and meets the following requirements:
Nominal Voltage ........................................220V
Cycle ..........................................................60 Hz
Phase .................................................... 3-Phase
Circuit Rating ................. Time Delay 30 Amps
Connection ......Hardwire with Locking Switch
G0601 Circuit Requirements for 
440V
The Model G0601 can be converted to operate on 
a 440V power supply.  G0601 440V Conversion 
instructions are provided on Page 13. The intend-
ed  440  circuit  must  have  a  verified  ground  and 
meet the requirements that follow:
Nominal Voltage ........................................440V
Cycle ..........................................................60 Hz
Phase .................................................... 3-Phase
Rated Size .......................Time Delay 20 Amps
Connection ......Hardwire with Locking Switch
Connection Type
Figure 2. Typical setup of a permanently 
connected machine.
Power
Source
Locking
Disconnect Switch
Machine
Ground Ground
ConduitConduit
A permanently connected (hardwired) power sup-
ply is typically installed with wires running through 
mounted  and  secured  conduit.  A  disconnecting 
means,  such  as  a  locking  switch  (see  following 
figure),  must  be  provided  to  allow  the  machine 
to  be  disconnected  (isolated)  from  the  power 
supply  when  required.  This  installation  must  be 
performed by an electrician in accordance with all 
applicable electrical codes and ordinances.
Extension Cords
Since  this  machine  must  be  permanently  con-
nected  to  the  power  supply,  an  extension  cord 
cannot be used.
Serious injury could occur if you connect 
machine to power before completing setup 
process. DO NOT connect to power until 
instructed later in this manual.
Grounding Instructions
In  the  event  of  a  malfunction  or  breakdown, 
grounding  provides  a  path  of  least  resistance 
for electrical current to reduce the risk of electric 
shock.  A  permanently  connected  machine  must 
be connected to a grounded metal permanent wir-
ing system; or to a system having an equipment-
grounding conductor. All grounds must be verified 
and  rated  for  the  electrical  requirements  of  the 
machine.  Improper  grounding  can  increase  the 
risk of electric shock!

Model G0442/G0601 (Mfg Since 3/12) -13-
G0601 440V Conversion
The  Model  G0601  can  be  converted  for  440V 
operation.  This  conversion  job  consists  of  dis-
connecting  the  machine  from  the  power  source, 
replacing the control box assembly and the motor 
cord, and rewiring the motor for 440V operation. 
The necessary conversion kit (Part P0601003-1V2) 
for  this  procedure  can  be  purchased  by  calling 
Grizzly Customer Service at (800) 523-4777.
All wiring changes must be inspected by a quali-
fied  electrician  before the  machine  is  connected 
to the power source. If you need help at any time 
during this procedure, call Grizzly Tech Support at 
(570) 546-9663.
To rewire the Model G0601 for 440V opera-
tion:
1.  DISCONNECT MACHINE FROM POWER!
2.  Record  the  wire  colors  and  connections  of 
the  four  incoming  power  wires  and  the  four 
outgoing  motor  wires  inside  the  220V  con-
trol  box  (see  illustration  in  Figure  3  for  a 
reference).  You can  also  refer to the G0601 
Wiring Diagrams on Pages 50–51 for  more 
complete wiring illustrations.
3.  Disconnect  these  eight  wires,  then  replace 
the  220V  control  box  with  the  440V  control 
box.
4.  Replace the old motor cord with the new, and 
reconnect the wires as recorded in Step 2.
5.  Remove the old motor cord from the motor.
6.  Rewire the motor as shown inside the motor 
junction cover and attach the new motor cord.
 Note: The reference wiring diagram on 
Pages  50–51 were current at the time of 
printing, but always use the wiring diagram 
provided inside the motor junction box, as it 
will reflect any changes to the motor shipped 
with the machine.
A1
Ground
30VA
Transformer
2T1 6T3 14NO
4T2
1L1 5L3 13NO
3L2
NHD C-09D
2T1 4T2 6T3
98 97
A2
96
O R
95
6
8
 NTH-8
ON/OFF
Switch
A2
OL_NO AC 
OUT
AC
IN
440V  
Circuit Board
0
0
E
440
460
220
230
Figure 3. G0601 440V control box wiring.
4 Incoming
Power Wires 
4 Outgoing
Motor Wires

-14- Model G0442/G0601 (Mfg Since 3/12)
Correcting Phase Polarity (G0601 
Only)
This subsection is only provided for troubleshoot-
ing.  If  you  discover  during  the  test  run  that  the 
machine will not operate, or that the impeller spins 
backward,  the  power  connections  may  be  wired 
out-of-phase.  Without  the  proper  test  equipment 
to determine the polarity of the power source legs, 
wiring  machinery  to  3-phase  power  may  require 
trial-and-error. Correcting phase polarity is simply 
a matter of reversing the  positions where two of 
the  incoming  power source  wires are  connected 
inside the control box.
NOTICE
If this machine is wired out-of-phase, the 
motor and impeller will spin in the wrong 
direction. The efficiency of the dust col-
lector will be greatly reduced and will not 
provide the rated CFM. You must make 
sure the motor is spinning in the correct 
direction before placing the machine into 
full operation. Perform Step 10 of the test 
run on Page  29 to make sure the machine 
is correctly wired.
To correct phase polarity:
1.  DISCONNECT MACHINE FROM POWER!
2.  Open the control box and swap the connec-
tions of any two incoming hot wires from the 
power source (see Figure 4).
A1
Ground
2T1 6T3 14NO
4T2
1L1 5L3 13NO
3L2
NHD C-18D
2T1 4T2 6T3
98 97
A2
96
O R
95
11
12
13
14
NHD NTH-14
A2
Figure 4. Wire connections to swap to correct 
phase polarity.
Swap Any 
Two
of These 
Wires
3.  Secure the control box cover, then re-connect 
the machine to power.
4.  Perform Step 10 of the test run on Page 29 
to  confirm  that  the  power  connections  are 
correct.
— If  the  motor  and  impeller  are  still  rotating 
in  the  wrong  direction,  contact  our  Tech 
Support at (570) 546-9663 for assistance.

Model G0442/G0601 (Mfg Since 3/12) -15-
Wear safety glasses dur-
ing the entire setup pro-
cess!
This machine presents 
serious injury hazards 
to untrained users. Read 
through this entire manu-
al to become familiar with 
the controls and opera-
tions before starting the 
machine!
SECTION 3: SETUP
Needed for Setup
Your  machine  was  carefully  packaged  for  safe 
transportation.  Remove  the  packaging  materials 
from  around  your  machine  and  inspect  it.  If  you 
discover the machine is damaged, please imme-
diately call Customer Service at (570) 546-9663 
for advice. 
Save the containers and all packing materials for 
possible  inspection  by  the  carrier  or  its  agent. 
Otherwise, filing a freight claim can be difficult.
When you are completely satisfied with the condi-
tion of your shipment, inventory the contents.
Unpacking
This machine and its com-
ponents are very heavy. 
Get lifting help or use 
power lifting equipment 
such as a forklift to move 
heavy items.
SUFFOCATION HAZARD!
Keep children and pets away 
from plastic bags or packing 
materials shipped with this 
machine. Discard immediately.
The  following are  needed  to complete  the setup 
process, but are not included with the machine.
Description Qty
•  Safety Glasses ........................................... 1
•  Forklift ......................................................... 1
•  Additional People ....................................... 1
•  Wrench/Socket 1⁄2" ...................................... 2
•  Wrench/Socket 9⁄16" ..................................... 2
•  Square ........................................................ 1

-16- Model G0442/G0601 (Mfg Since 3/12)
Inventory
The following is a description of the main compo-
nents shipped with the machine. Lay the compo-
nents out to inventory them. 
Collector Box Contents (Figure 5):  Qty
A.  Intake Cylinder ........................................... 1
B.  Cyclone Funnel .......................................... 1
C.  Intake Barrel ............................................... 1
D.  Collection Bags
—  Canister Filter ....................................... 2
—  Collection Drum ................................... 1
E.  Gray Flexible Hoses 8" x 25" ..................... 2
F.  Motor/Blower Housing Assembly ............... 1
G.  Upper Collection Drum & Clamp Assy ....... 1
H.  Noise Mufflers ............................................ 2
I.  Gray Flexible Hoses 8" x 5" ....................... 2
J.  Lower Collection Drum ............................... 1
K.  Clear Flexible Hose 9" x 10" ...................... 1
L.  Hose Clamps 9" ......................................... 2
M.  Collection Drum Lid .................................... 1
N.  Filter Cross Braces ..................................... 2
O.  Outlet Port .................................................. 1
P.  Filter L-Braces ............................................ 2
Q.  Foam Tape 3 x 6 x 1800mm  ..................... 2
R.  Hose Clamps 8" ......................................... 8
S.  Reducer ...................................................... 1
T.  Hardware Box
—Phillips Head Screws #10-24 x 3⁄8" ........ 12
—Hex Nuts #10-24 ................................... 12
—Drum Latches ......................................... 3
—Foam Tape 3 x 15 x 700mm ................... 8
U.  Hardware Box
—Hex Bolts 5⁄16"-18 x 1" ............................ 22
—Hex Bolts 5⁄16"-18 x 3⁄4" ........................... 28
—Hex Bolts 3⁄8"-16 x 3⁄4" .............................. 7
—Flat Washers 3⁄8" ................................... 14
—Flat Washers 5⁄16" .................................. 64
—Fender Washers 5⁄16" ............................... 8
—Hex Nuts 5⁄16"-18 .................................... 22
—Hex Nuts 3⁄8"-16 ....................................... 7
—Sheet Metal Screws M4 x 12 .................. 3
V.  Hardware Box
—Casters ................................................... 4
—Hex Nuts 3⁄8"-16 ....................................... 4
—Lock Washers 3⁄8" .................................... 4
—Flat Washers 3⁄8" ..................................... 8
W.  Barrel Gaskets ............................................ 2
X.  Outlet Gasket ............................................. 1
Y.  Brace Gaskets ............................................ 4
Z.  Drum Lid PVC Rubber Seal 2M ................. 1
AA. Remote Control (not shown) ...................... 1
Figure 5. Contents of collector box.
F
C
B
A
D
E
K
G
I
H
J
N
M
L
P
O
QR
ST
U
V
W
X
Y
Z
AB AC
AD AE
AF
AB. Vacuum Hose Clamps 1 
1⁄4" ........................ 2
AC. Vacuum Hose Clips .................................... 2
AD. Vacuum Hose 1 
1⁄4" x 98" ............................ 1
AE. Collection Drum Vacuum Ring ................... 1
AF.  Cyclone Vacuum Port ................................. 1

Model G0442/G0601 (Mfg Since 3/12) -17-
SUFFOCATION HAZARD!
Immediately discard all plas-
tic bags and packing materi-
als to eliminate choking/suf-
focation hazards for children 
and animals.
Stand Box Contents (Figure 6):  Qty
A.  Lower Stand Legs ...................................... 4
B.  Upper Stand Legs ...................................... 4
C.  Upper Stand Braces ................................... 4
D.  Lower Stand Braces ................................... 4
E.  Collector Mounting Brackets ...................... 4
F.  Hardware Bags
—Hex Bolts 3⁄8"-16 x 3⁄4" ............................ 64 
—Lock Nuts 3⁄8"-16 .................................... 64 
—Flat Washers 3⁄8" ................................. 128 
—Hex Bolts 5⁄16"-18 x 1" .............................. 8
—Lock Nuts 5⁄16"-18 ..................................... 8
—Flat Washers 5⁄16" .................................. 16
Contents of Filter Boxes (Figure 7): Qty
G.  Canister Filter Assemblies .......................... 2
If  any  nonproprietary  parts  are  missing  (e.g.  a 
nut or a washer), we will gladly replace them; or 
for the sake of expediency, replacements can be 
obtained at your local hardware store.
Figure 6. Contents of stand box.
ABC
D
E
F
Figure 7. Contents of filter boxes.
G

-18- Model G0442/G0601 (Mfg Since 3/12)
Site Considerations
Weight Load
Refer to the 
Machine Data Sheet for the weight 
of your machine. Make sure that the surface upon 
which the machine is placed will bear the weight 
of the machine, additional equipment that may be 
installed on the machine, and the heaviest work-
piece that will be used. Additionally, consider the 
weight  of the operator  and any  dynamic  loading 
that may occur when operating the machine.
Space Allocation
Consider  the  largest  size  of  workpiece  that  will 
be  processed  through  this  machine  and  provide 
enough space around the machine for adequate 
operator  material  handling  or  the  installation  of 
auxiliary equipment. With permanent installations, 
leave enough space around the machine to open 
or remove doors/covers as required by the main-
tenance  and  service  described  in  this  manual. 
See below for required space allocation.
Physical Environment
The  physical  environment  where  the  machine  is 
operated is important for safe operation and lon-
gevity  of machine  components. For best  results, 
operate this machine in a dry environment that is 
free  from  excessive  moisture,  hazardous  chemi-
cals,  airborne  abrasives,  or  extreme  conditions. 
Extreme conditions for this type of machinery are 
generally  those  where  the  ambient  temperature 
range  exceeds  41°–104°F;  the  relative  humidity 
range  exceeds  20%–95%  (non-condensing);  or 
the  environment  is  subject  to  vibration,  shocks, 
or bumps.
Electrical Installation
Place this machine near an existing power source. 
Make  sure  all  power  cords  are  protected  from 
traffic, material handling, moisture,  chemicals, or 
other hazards. Make sure to leave enough space 
around  machine  to  disconnect  power  supply  or 
apply a lockout/tagout device, if required.
Lighting
Lighting  around  the  machine  must  be  adequate 
enough that operations can be performed safely. 
Shadows, glare, or strobe effects that may distract 
or impede the operator must be eliminated.
Children or untrained people 
may be seriously injured by 
this machine. Only install in an 
access restricted location.
327⁄8"
567⁄8"
651⁄4"
327⁄8"
1111⁄2"
63"
Figure 8. Machine dimensions.

Model G0442/G0601 (Mfg Since 3/12) -19-
Since your dust collector will be hardwired to the 
power  source,  we  strongly  recommend  secur-
ing  your  machine  to  the  floor.  Consult  with  your 
electrician  to  ensure  compliance  with  applicable 
codes.  Because  floor  materials  may  vary,  floor 
mounting hardware is not included.
Bolting to Concrete Floors
Lag  shield  anchors  with  lag  bolts  and  anchor 
studs  (Figure 9)  are  two  popular  methods  for 
anchoring an object to a concrete floor. We sug-
gest you research the many options for mounting 
your  machine  and  choose  the  one  that  best  fits 
your specific application.
Mounting to Shop 
Floor
Figure 9. Typical fasteners for mounting to 
concrete floors.
NOTICE
Anchor studs (see Figure 9) are stronger 
and more permanent alternatives to lag 
shield anchors; however, they will stick out 
of the floor, presenting a tripping hazard if 
you decide to move your machine.
Anchor Stud
Lag Shield and Lag Screw

-20- Model G0442/G0601 (Mfg Since 3/12)
Assembly
The Model G0442/G0601 
is a heavy machine. 
Serious personal injury 
may occur if safe moving 
methods are not used. To 
be safe, get assistance 
and use power equip-
ment to move the ship-
ping crate and remove 
the machine from the 
crate. 
To assemble the dust collector:
1.  Connect the upper stand legs with the lower 
stand braces, using (16) 3⁄8"-16 x 3⁄4" hex bolts, 
(32) 3⁄8" flat washers, and (16) 3⁄8"-16 lock nuts 
(see Figure 10).
 Note:  Do not fully tighten the fasteners for 
now.
Figure 10. Initial assembly of upper stand legs 
connected to lower stand braces.
x 16
2.  Attach  the  upper  stand  braces  to  the top  of 
the assembly from Step 1, using (16) 3⁄8"-16 
x 3⁄4" hex bolts, (32) 3⁄8" flat washers, and (16) 
3⁄8"-16 lock nuts, as shown in Figure 11.
 Note:  Do not fully tighten the fasteners for 
now.
Figure 11. Upper braces attached to stand 
assembly.
x 16
3.  Square up the stand, as shown in Figure 12, 
then tighten all the bolts.
Figure 12. Squaring stand assembly before 
tightening stand hardware.

Model G0442/G0601 (Mfg Since 3/12) -21-
4.  Attach the cyclone funnel to the intake barrel 
with a barrel gasket between them, as shown 
in Figure 13, with (12) 5⁄16"-18 x 1" hex bolts, 
(24)  5⁄16"  flat  washers,  and  (12)  5⁄16"-18  hex 
nuts. 
 Note:  At the places where you see three 
holes close together as shown in Figure 14, 
only use the center hole for this step. The two 
outside holes will be used in the next step.
5.  Attach  the  collector  mounting  brackets  to 
the intake assembly, as shown in Figure 14, 
using (8) 5⁄16"-18 x 1" hex bolts, (16) 5⁄16" flat 
washers, and (8) 5⁄16"-18 lock nuts.
Figure 13. Cyclone funnel attached to intake 
barrel.
Barrel Gasket 
Here
x 12
6.  Place  a  large  piece  of  cardboard  on  the 
ground to prevent  scraping the  parts on  the 
bare floor during the next steps.
7.  With the help of another person, lay the stand 
assembly  on  its  side  on  the  cardboard  and 
slide  the  collector  assembly  into  the  stand 
assembly, as shown in Figure 15.
8.  Fasten  the  collector  assembly  to  the  stand 
with  (8)  3⁄8"-16  x  3⁄4"  hex  bolts,  (16)  3⁄8"  flat 
washers, and (8) 3⁄8"-16 lock nuts, as shown 
in Figure 15.
9.  Attach the 3 x 6mm foam tape on the intake 
cylinder, as shown in Figure 16.
Figure 15. Collector assembly fastened to the 
stand.
x 8
Figure 16. Foam tape attached to the intake 
cylinder.
Figure 14. Collector mounting brackets attached 
to intake assembly (collector shown upside down 
in this photo).
x 8

-22- Model G0442/G0601 (Mfg Since 3/12)
10.  Lift the assembly upright and rotate it so the 
inlet/outlet  directions  are  suitable  for  your 
shop.
11.  Lift  the motor/blower  housing assembly with 
a forklift and attach the intake cylinder to the 
bottom of the housing, as shown Figure 17, 
using  (4) 5⁄16"-18  x  3⁄4" hex  bolts  and (4)  5⁄16" 
flat washers.
 Note:  Because this part of the dust collec-
tor is not accessible after the  assembly is 
complete, consider using Medium Strength 
Blue Thread Locker (Grizzly Model T21854) 
on the bolts that secure the intake cylinder 
to the motor/blower housing assembly to 
ensure that the fasteners won't come loose 
with vibration.
Figure 17. Intake cylinder attached to the bottom 
of motor/blower housing.
x 4
13.  Using  two  punches  or  Phillips  screwdriv-
ers,  align  the  mounting  holes,  as  shown  in 
Figure 18, and lower the assembly onto the 
intake barrel.
Figure 18. Aligning the mounting holes.
Barrel Gasket 
Here
 Note: In the next step, when installing the two 
bolts above the intake port, use duct tape on 
the bottom of your wrench to hold the bolts 
in place, as shown in Figure  19.  This will 
enable you to start the bolts easier.
12.  Place  the  remaining  barrel gasket  on  top  of 
the  intake  barrel,  then  carefully  lower  the 
motor/blower  housing  assembly  on  top  of  it 
approximately 1" away from the intake barrel.
Figure 19. Using tape on wrench in tight spot.
Tape

Model G0442/G0601 (Mfg Since 3/12) -23-
14.  Attach  the assembly to the intake  barrel, as 
shown  in  Figure  20,  with  (12)  5⁄16"-18  x  3⁄4" 
hex bolts and (12) 5⁄16" flat washers.
Figure 20. Securing blower on intake barrel.
x 12
15.  Place  the  outlet  gasket  between  the  motor/
blower  housing  and  outlet  port,  then  attach 
the outlet port and filter L-braces to the hous-
ing, as shown in Figure 21, using (10) 5⁄16"-18 
x 1" hex bolts, (20) 5⁄16" flat washers, and (10) 
5⁄16"-18 hex nuts.
Figure 21. Attaching the outlet ports and filter 
L-braces to the blower housing.
x 10
Outlet 
Gasket 
Here
Foam Tape
Here
16.  Attach  one  roll  of  3  x  15  x  700mm  foam 
tape to the outside lip of each outlet port, as 
shown in Figure 21.
17.  Attach  the  two  filter  cross  braces  to  the 
L-braces,  as  shown  in  Figure  22,  using  (4) 
3⁄8"-16 x 3⁄4" hex bolts, (8) 3⁄8" flat washers, and 
(4) 3⁄8"-16 hex nuts.
Figure 22. Attaching filter cross braces to 
L-braces.
x 4
Figure 23. Cyclone vacuum tube and hose 
attachment.
Vacuum Port
18.  Apply  the  3  x  6  x  300mm  foam  tape  to  the 
mating  surface  of  the  cyclone  vacuum  port, 
then  attach  it  to  the  cyclone  funnel  with  (4) 
5⁄16"-18 x 3⁄4" hex bolts and (4) 5⁄16" flat washers 
(see Figure 23).

-24- Model G0442/G0601 (Mfg Since 3/12)
19.  Using  the  forklift,  lift  the  entire  assembly 
approximately 2" off the ground to gain clear-
ance for filter installation.
20.  Mount  the  two  filters  to  the  braces  with 
brace  gaskets  between  them,  as  shown  in 
Figure  24,  using  (8)  5⁄16"-18  x  3⁄4"  hex  bolts 
and (8) 5⁄16" fender washers.
Figure 24. Canister filters mounted to the long 
support braces.
Rubber 
Gaskets 
Here
x 8
21.  Attach one roll of 3 x 15 x 700mm foam tape 
to  both  ends  of  each  noise  muffler,  then 
connect  them  between  the  outlet  ports  and 
the  canisters  with  the  8"  flexible  hoses  and 
clamps, as shown in Figure 25.
Figure 25. Noise mufflers connected between 
the outlet ports and the canisters.
Noise
Muffler
22.  Using the forklift, raise the assembly up and 
attach the lower stand legs to the upper stand 
legs, as shown in Figure 26, using (24) 3⁄8"-16 
x 3⁄4" hex bolts, (48) 3⁄8" flat washers, and (24) 
3⁄8"-16 lock nuts.
Figure 26. Attaching lower legs to the initial 
stand assembly.
x 24
23.  Attach the casters to the bottom of the lower 
collection drum, as shown in Figure 27, using 
the  (4) 3⁄8"-16  hex  nuts, (8)  3⁄8"  flat washers, 
and (4) 3⁄8" lock washers included in the box 
with the casters.
Figure 27. Casters attached to the lower 
collection drum.
x 4

Model G0442/G0601 (Mfg Since 3/12) -25-
24.  Connect the upper and lower collection drums 
together  with  the  included  metal  clamp  and 
the  provided  hex  bolt  and  nut,  as  shown  in 
Figure 28.
Figure 28. Installing metal clamp around 
collection drum.
25.  Place the collection drum vacuum ring on the 
bottom of the collection drum (see Figure 29).
 Note:  During operation, this ring and the 
vacuum connection to the cyclone funnel will 
prevent the collection bag from collapsing.
Figure 29. Inserting collection drum vacuum 
ring.
26.  Install  the  three  drum  latches,  as  shown  in 
Figure  30,  with  the  (6)  10-24  x  3⁄8"  Phillips 
head screws and (6) 10-24 hex nuts included 
in the box with the drum latches.
 Use  the  remaining  (6)  10-24  x  3⁄8"  Phillips 
head screws and (6) 10-24 hex nuts to plug 
the lower latch mounting holes.
 Note:  To avoid bag snags, face the screw 
heads inside of the drum with the shanks fac-
ing outward.
Figure 30. Installing the latches onto the 
collector drum.
x 6
27.  Slide  the  rubber  seal  over the  top  lip  of  the 
collection  drum  rim.  Pay  special  attention 
to the  direction of the seal, as  shown in the 
Figure 31.
  Tip: Use an adhesive to keep the seal in 
place.
Figure 31. Installing drum lid seal.
Seal

-26- Model G0442/G0601 (Mfg Since 3/12)
28.  Install the larger plastic collection bag into the 
drum,  place  the lid  on  it  and  hook the latch 
over  the  lid,  as  shown  in  Figure  32,  then 
clamp it in place.
Figure 32. Latch hooked over the lid for 
clamping.
29.  Move  the  collector  drum  under  the  cyclone 
assembly  and connect it  with  the  clear flex-
ible  hose  and  the  two  9"  hose  clamps,  as 
shown in Figure 33.
Figure 33. Drum attached to cyclone funnel with 
clear 9" hose.
30.  Fit the plastic collection bags over the bottom 
of the filters and clamp them in place with the 
metal bag clamps, as shown in Figure 34.
Figure 34. Canister filter collection bag installed.
Bag Clamp
31.  Connect the vacuum hose to the cyclone fun-
nel and collection drum vacuum ports with (2) 
1 
1⁄4" hose clamps (see Figure 35).
Figure 35. Connecting the vacuum hose.

Model G0442/G0601 (Mfg Since 3/12) -27-
32.  Slide  the  reducer  over  the  inlet  port  on  the 
barrel  (Figure  36),  line  up  the  mounting 
holes, and secure it in place with the (3) M4 x 
12 sheet metal screws.
Figure 36. Reducer installed.
x 3
Reducer
 Note: The hand-held remote control uses IR 
(infrared) to communicate with the control 
box receiver port, and must have direct line-
of-sight to the control box face. Locate the 
control box with this in mind.
Figure 38. Switch mounted to stand.
34.  Mount  the switch on the stand, as  shown in 
Figure 38, with (3) 3⁄8"-16 x 3⁄4" hex bolts, (6) 
3⁄8" flat washers, and (3) 3⁄8"-16 hex nuts.
33.  Secure  the  vacuum  hose  inside  the  upper 
and  lower  stand  legs  with  the  (2) U-shaped 
clips (see Figure 37).
Figure 37. Securing the vacuum hose to the 
stand legs.

-28- Model G0442/G0601 (Mfg Since 3/12)
Power Connection
Due  to  the  complexity  required  for  planning, 
bending,  and  installing  the  conduit  necessary 
for  a  code-compliant  hardwire  setup,  an  electri-
cian  or  other  qualified  person  MUST  perform 
this type of installation. Hardwire setups typically 
require power supply wires to be enclosed inside 
of  a  solid  or  flexible  conduit,  which  is  securely 
mounted  at  both  ends  with  the  appropriate  con-
duit fittings. All work must adhere to the required 
electrical codes.
The hardwire setup for this machine must include 
a  locking  disconnect  switch  (see  Figure  39) 
between the power source and the machine. This 
switch serves as the means to completely discon-
nect  the  machine  from  power  to  prevent  elec-
trocution  accidental  startup  during  adjustments, 
maintenance, or service to the machine.
G0442 Power Connection
The incoming power wires must be connected to 
the  two  terminals  on  the  contactor  marked  1L1 
and 5L3, and the incoming ground wire must be 
connected  the  ground  terminal,  as  illustrated  in 
Figure  40.  All  wires  must  have  adequate  slack 
and be clear of sharp objects.
Figure 40. G0442 mag switch to power supply 
connection.
A1
Ground
2T1 6T3 14NO
4T2
1L1 5L3 13NO
3L2
NHD C-18D
2T1 4T2 6T3
98 97 96
O R
95
11
12
13
14
NHD NTH-14
A2
To Power 
Supply
To Power 
Supply
G0601 Power Connection
The incoming power wires must be connected to 
the  three  terminals  on  the  master  power  switch 
marked  1L1,  3L2,  and  5L3,  and  the  incoming 
ground  wire  must  be  connected  the  ground  ter-
minal  shown  in  Figure  41.  All  wires  must  have 
adequate slack and be clear of sharp objects.
Figure 41. G0601 mag switch to power supply 
connection.
A1
Ground
2T1 6T3 14NO
4T2
1L1 5L3 13NO
3L2
NHD C-18D
2T1 4T2 6T3
98 97
A2
96
O R
95
11
12
13
14
NHD NTH-14
A2
Figure 39. Typical hardwire setup with a locking 
disconnect switch.
Power
Source
Locking
Disconnect Switch
Machine
Ground Ground
ConduitConduit

Model G0442/G0601 (Mfg Since 3/12) -29-
Test Run
When the assembly is complete, test run the dust 
collection system to make sure it operates prop-
erly. 
If,  during  the  test  run,  you  cannot  easily  locate 
the source of an unusual noise or vibration, stop 
using  the  machine  immediately,  then  review  the 
Troubleshooting on Page 46. 
If you still cannot remedy a problem, contact our 
Tech Support at (570) 546-9663 for assistance.
To test run the dust collection system:
1.  Make sure you have read the safety instruc-
tions at the beginning of the manual and that 
the machine is set up properly.
2.  Make  sure all tools and  objects used during 
setup are cleared away from the machine.
3.  Review  the  Circuit Requirements section 
beginning  on Page  11  and  connect  the 
machine to the power source.
4.  Flip  the  main  power  switch  at  the  lower  left 
hand corner of the control box to the ON ("l") 
position to enable power to the switch.
5.  Press the ON/OFF button to turn the machine 
ON. Make sure your hand stays poised over 
the  switch  in  case  you  need  to  quickly  turn 
the machine OFF.
6.  Listen  and  watch  for  abnormal  noises  or 
actions.  The  machine  should  run  smoothly 
with little or no vibration or rubbing noises. 
— If  you  suspect  any  problems,  immedi-
ately  turn  the  machine  OFF,  then  discon-
nect  the  machine  from  power.  Refer  to 
Troubleshooting  on  Page  46  to  identify 
and fix any problems.
—If  you  cannot  solve  the  problem  with  the 
use of the Troubleshooting guide, contact 
our  Tech  Support  at  (570)  546-9663  for 
assistance.
7.  Press  the  TIMER  button  on  the  control  box 
and cycle through each of the times to make 
sure the indicators light.
8.  Press the TIMER button on the remote con-
trol and cycle through the times in the same 
manner as Step 7.
9.  Toggle the ON/OFF button on both the con-
trol box and the remote control to make sure 
they are working properly.
For Model G0601 Only
The  Model  G0601  uses  a  3-phase  motor.  For 
proper  operation,  the  impeller  inside  the  blow-
er  housing  must  rotate counterclockwise  when 
viewed from above. Since the motor and impeller 
are  directly  connected,  you  must  verify  that  the 
motor rotates in the correct direction.
10.  Use a ladder to safely observe the motor fan 
through the top motor cover as another per-
son turns the machine ON and OFF.
— If  the  motor  fan  rotates  counterclockwise 
when  viewed  from  above,  the  rotation 
direction is correct.
— If  the  motor  fan  rotates  clockwise  when 
viewed  from  above,  the  rotation  direction 
is incorrect and  the motor  is wired out-of-
phase.  Perform  the  Correcting Phase 
Polarity procedure on Page 14 to correctly 
wire  the  machine  to  the  power  source  so 
that  the  motor  and  impeller  spin  counter-
clockwise when viewed from above.
If any part of your body contacts the spin-
ning impeller, severe cutting or amputation 
injuries  will occur. Always keep yourself 
and tools away from the impeller when the 
machine is connected to power.

-30- Model G0442/G0601 (Mfg Since 3/12)
The  Model  G0442/G0601  is  designed  to  be  a 
central  dust  collector  system.  The  large  suction 
capacity of the Model G0442/G0601 allows great 
flexibility in planning and designing of the dust col-
lection duct layout.
Note:  Check local codes concerning the use 
of dust collecting machines before deciding the 
placement of the machine.
Grizzly  offers  a  complete  line  of  dust  collection 
accessories  for  setting  up  a  stationary  system. 
Additionally, Grizzly offers a complete guide book 
titled Dust Collection Basics.
Whatever  system  design  you  choose,  always 
make  sure  there  are  no  open  flames  (including 
pilot  lights)  in  the  same  room  as  the  dust  col-
lector;  otherwise  you  risk  an  explosion if dust  is 
dispersed into the air.
SECTION 4: DESIGNING THE 
SYSTEM
General Duct Material
You have many choices regarding main line and 
branch  line  duct  material.  For  best  results,  use 
metal duct for the main line and branch lines, then 
use short lengths of flexible hose to connect each 
machine to the branch lines.
Plastic  duct  is  also  a  popular  material  for  home 
shops.  However,  be aware that there  is a  fire or 
explosion  hazard  if  plastic  duct  material  is  used 
for dust collection without being grounded against 
static electrical charge build-up. This topic will be 
discussed  later  in  this  section.  Another  problem 
with using plastic is that it is less efficient per foot 
than metal.
Plastic duct generates static 
electrical buildup that can 
cause fire or shock. Properly 
ground it to reduce this risk.
Plastic Duct
Figure 42. Examples of plastic ducting 
components.
The  popularity  of  plastic  duct  is  due  to  the  fact 
that  it  is  an  economical  and  readily  available 
product. It is also simple to assemble and easily 
sealed against air loss. The primary disadvantage 
of  plastic  duct  for  dust  collection  is  the  inherent 
danger of static electrical build-up.
Always guard against stat-
ic electrical build up by 
grounding all dust collec-
tion lines.

Model G0442/G0601 (Mfg Since 3/12) -31-
There are a number of options when it comes to 
metal duct, but metal duct that is specially manu-
factured  for  dust  collection  is  the  best  choice. 
When  selecting  your  metal  duct,  choose  high 
quality  metal  duct  with  smooth  welded  internal 
seams that will  minimize airflow resistance.  This 
type  of  duct  usually  connects  to  other  ducts 
or  elbows  with  a  simple,  self-sealing  clamp,  is 
very  quick  and  easy  to  assemble,  and  can  be 
readily dismantled and re-installed. This is espe-
cially important if you ever need to change things 
around in your shop or add more tools.
Avoid inferior metal duct that requires you to cut it 
to length and snap it together. This type of duct is 
time consuming to install because it requires you 
to seal all the seams with silicone and screw the 
components on the ends with sheet metal screws. 
Another disadvantage is the rough internal seams 
and crimped ends that unavoidably increase static 
pressure loss.
There are also many kinds of pure plastic flexible 
hose, such as non-perforated drainage type hose 
and  dryer  vent  hose.  Drainage  type  hose,  while 
being  economical,  does  not  quite  have  the  flex-
ibility required for dust collection. The inside of the 
duct is also deeply corrugated and can increase 
the static pressure loss by as much as 50% over 
smooth  wall  duct.  Dryer  vent  hose,  while  being 
completely  flexible,  is  non-resistant  to  abrasion 
and  has  a  tendency  to  collapse  in  a  negative 
pressure system. We DO NOT recommend using 
dryer vent hose in your dust collection system.
If using flex-hose, you should choose one of the 
many types that are designed specifically for the 
movement  of  solid  particles,  i.e.  dust,  grains, 
and  plastics.  However,  the  cost  of  specifically 
designed  flexible  duct  can  vary  greatly.  Grizzly 
offers polyethylene hose, which is well suited for 
the removal of particulate matter, especially saw-
dust,  since  it  is  durable  and  completely  flexible. 
Polyethylene  is  also  very  economical  and  avail-
able in a wide variety of diameters and lengths for 
most applications.
Figure 44. Example of flexible metal duct.
Flexible Duct
Flexible  hose  is  generally  used  for  short  runs, 
small shops and at rigid duct-to-tool connections. 
There  are  many  different  types  of  flex  hose  on 
the  market  today.  These  are  manufactured  from 
materials such as polyethylene, PVC, cloth hose 
dipped in rubber and even metal, including steel 
and aluminum.
The superior choice here is metal flex hose that is 
designed to be flexible, yet be as smooth as pos-
sible to reduce static pressure loss.
Metal Duct
Advantages of metal  duct  is its conductivity and 
that  it  does  not  contribute  to  static  electrical 
charge build-up. However, static charges are still 
produced  when  dust  particles  strike  other  dust 
particles  as  they  move  through  the  duct.  Since 
metal duct is a conductor, it can be grounded quite 
easily to dissipate any static electrical charges. 
Figure 43. Examples of metal pipe and 
components.

-32- Model G0442/G0601 (Mfg Since 3/12)
System Design
Decide Who Will Design
For most  small-to-medium sized  shops, you  can 
design and build the dust collection system your-
self  without  hiring  engineers  or  consultants.  We 
have included some basic information here to get 
you started on a basic design.
If you have a large shop or plan to design a com-
plicated system, we recommend doing additional 
research beyond this manual or seeking the help 
of an expert.
Dust 
Collector
Figure 45. Basic sketch of shop layout.
Sketch Your Shop Layout
When designing a successful dust collection sys-
tem,  planning is  the most  important  step. In  this 
step, sketch a basic layout of your shop, including 
space requirements of different machines.
Before you get out your pencil and paper, we rec-
ommend you  visit our  FREE 
Workshop Planner
, 
at 
http://www.grizzly.com/workshopplanner. 
Our 
Workshop Planner  will  allow  you  to  quickly 
and easily  design and  print a  basic shop layout. 
Don't worry, non-Grizzly brand machines  can be 
substituted with  Grizzly machines  for layout  pur-
poses. 
Note: 
After you're finished, make sure to 
save your layout for later modification.
Your  sketch  only  needs  the  basic  details  of  the 
shop  layout,  similar  to
  the  figure  below,  includ-
ing  all  your  current/planned  machines  and  your 
planned placement of the dust collector
.
Figure 47. Inefficient duct layout.
BAD 
Dust 
Collector
Figure 46. Efficient duct layout.
Main 
Line Duct
Branch
Line 
Ducts
GOOD
Dust 
Collector
Sketch a Basic Duct Layout
For  the  next  step,  sketch  how  you  will  connect 
your  machines  to  the  dust  collector.  Consider 
these general guidelines for an efficient system:
1.
 Machines  that  produce  the  most  saw  dust 
should be placed nearest to the dust collector 
(i.e. planers and sanders).
2.
Ideally, you should design the duct system to 
have the shortest possible main line and  sec-
ondary  branch ducts.  See the  figures 
below 
for  ideas  of  efficient  versus  inefficient  duct 
layouts.

Model G0442/G0601 (Mfg Since 3/12) -33-
3.  Directional changes should be kept to a mini-
mum.  The  more  directional  change  fittings 
you  use  directly  increases  the  overall  resis-
tance to airflow.
4.
  Gradual  directional  changes  are  more  effi-
cient  than  sudden  directional  changes  (i.e. 
use the  largest corner  radius possible when 
changing hose or pipe direction).
5.
  Each  individual  branch  line  should  have  a 
blast  gate  immediately  after  the  branch  to 
control suction from one machine to another.
6.
  The  simpler  the  system,  the  more  efficient 
and less costly it will be. 
Determine Required CFMs
Since each machine produces a different amount 
of  sawdust,  the  requirements  for  the  minimum 
amount  of  CFM  to  move  that  sawdust  is  unique 
to  the  machine  (for  example,  a  planer  produces 
more  sawdust  than  a  table  saw).  Knowing  this 
required CFM is important to gauging which size 
of duct to use.
Refer to the 
figure
 below for a close estimation of 
the airflow each machine requires. Keep in mind 
that  machines  that  generate  the  most  sawdust 
should  be  placed  closest  to  the  dust  collector. 
If  the  machine  has  multiple  dust  ports,  the  total 
CFM required is the sum of all ports.
Figure 48. Approximate required airflow for 
machines, based on dust port size.
Machine 
Dust Port Size
Approximate 
Required CFM
2" 98
2.5" 150
3" 220
4" 395
5" 614
6" 884
7" 1203
8" 1570
9" 1990
10" 2456
If the machine does not have a built-in dust port, 
use
 the following table
 to determine which size of 
dust port to install.
Figure 49. Dust port size and quantity per 
average machine.
Machine  Average Dust Port Size
Table Saw ......................................................4"
Miter/Radial-Arm Saw ....................................2"
Jointer (6" and smaller) .................................4"
Jointer (8"-12") ...............................................5"
Thickness Planer (13" and smaller) ...............4"
Thickness Planer (14"-20") ............................6"
Shaper ...........................................................4"
Router (mounted to table) ..............................2"
Bandsaw ........................................................4"
Lathe ..............................................................4"
Disc Sander (12" and smaller) .......................2"
Disc Sander (13-18") ......................................4"
Belt Sander (6" and smaller) .........................2"
Belt Sander (7"-9") ........................................3"
Edge Sander (6" x 80" and smaller) ..............4"
Edge Sander (6" x 80" and larger) ................ 5"
Drum Sander (24" and smaller) ...............2 x 4"
Drum Sander (24" and larger) .................4 x 4"
Widebelt Sander (18" and smaller) ................5"
Widebelt Sander (24"-37" single head) ...2 x 6"
Widebelt Sander (24"-51" double head) ..5 x 4"
Figure 50. CFM requirements labeled for each 
machine.
395
395
614
790395
220
98
Table Saw
Planer/
Moulder
Miter
Saw
Jointer Sander
PlanerShaper
Dust 
Collector
Write the required CFM for each machine on your 
sketch, as shown in the figure below.

-34- Model G0442/G0601 (Mfg Since 3/12)
Figure 52. Branch line duct sizes labeled.
395
395
614
790
395
220
98
4"
4"
4" 6"
4" 4" 5"
5" 6" 7"
Table Saw
Miter
Saw
Jointer Sander
PlanerShaper
Planer/
Moulder
Dust 
Collector
Figure 51. Main line size labeled on sketch.
395
395
614
790395
220
98
Dust 
Collector
5" 6" 7"
Table Saw
Planer/
Moulder
Miter
Saw
Jointer Sander
PlanerShaper
Determining Main Line Duct Size
The general rule of thumb for a main line duct is 
that the velocity of the airflow must not fall below 
3500 FPM.
For small/medium sized shops, using the inlet size 
of  the  dust  collector  as  the  main  line  duct  size 
will usually keep the air velocity above 3500 FPM 
and, depending on your system, will allow you to 
keep multiple branches open at one time.
Mark your drawing, as shown in the 
figure
 below, 
but using the inlet size for your dust collector as 
the main line.
The general rule of thumb for a branch line duct is 
that the velocity of the airflow must not fall below 
4000 FPM.
For  small/medium  sized  shops,  using  the  dust 
port size from the machine as the branch line duct 
size will achieve the correct velocity in most appli-
cations. However, if the dust port on the machine 
is  smaller  than  4",  make  the  branch  line  4"  and 
neck the line down right before the dust port.
Note: Systems with powerful dust collectors work 
better if multiple blast gates are left open. This 
also allows you to run two machines at once. 
Experiment with different combinations of blast 
gates open/closed to find the best results for your 
system.
Write your determined branch  line sizes on your 
drawing, as shown in the following figure.
Determining Branch Line Duct Size
Total CFM Branch Line Size
400 4"
500 4"
600 5"
700 5"
800 6"
900 6"
1000 6"
If two machines will connect to the same branch 
line and both will operate at the same time, then 
add the required CFM for each machine together 
and
 find the closest total CFM in the table below
to determine the correct branch size
.
If both machines will never run at the same time, 
reference the machine with the biggest dust port 
in  the  table
 below and  add  blast  gates  after  the 
Y-branch to open/close the line to each machine.
Figure 53. Sizing chart for multiple machines on 
the same branch line.

Model G0442/G0601 (Mfg Since 3/12) -35-
Figure 55. Static pressure loss charts.
Duct 
Dia.
Approximate 
Static Pressure 
Loss Per Foot of 
Rigid Pipe
Approximate 
Static Pressure 
Loss Per Foot 
of Flex Pipe
Main 
Lines 
at 3500 
FPM
Branch 
Lines 
at 4000 
FPM
Main 
Lines 
at 3500 
FPM
Branch 
Lines 
at 4000 
FPM
2" 0.091 0.122 0.35 0.453
2.5" 0.08 0.107 0.306 0.397
3" 0.071 0.094 0.271 0.352
4" 0.057 0.075 0.215 0.28
5" 0.046 0.059 0.172 0.225
6" 0.037 0.047 0.136 0.18
7" 0.029 0.036 0.106 0.141
8" 0.023 0.027 0.08 0.108
9" 0.017 0.019 0.057 0.079
Fitting 
Dia.
90˚ 
Elbow
45˚ 
Elbow
45˚  
Wye(Y)
90˚ 
Wye(Y)
3" 0.47 0.235 0.282 0.188
4" 0.45 0.225 0.375 0.225
5" 0.531 0.266 0.354 0.236
6" 0.564 0.282 0.329 0.235
7" 0.468 0.234 0.324 0.216
8" 0.405 0.203 0.297 0.189
In most small/medium shops it is only necessary 
to calculate the line with the longest duct length or 
the most fittings (operating under the assumption 
that if the line with the highest resistance works, 
the others will be fine).
To calculate the static pressure of any given 
line in the system, follow these steps:
1.
  Make  a  list  of  each  size  duct  in  the  line, 
including the length, and multiply those num-
bers by the static pressure value given in
 the 
previous table.
2.
  List each type of elbow or branch and multiply 
the  quantity (if  more  than one) by  the  static 
pressure loss given in the previous table.
Adding  duct  work,  elbows,  branches  and  any 
other components to a duct line increases airflow 
resistance  (static  pressure  loss).  This  resistance 
can be minimized by using rigid (smooth) pipe and 
gradual  curves,  as  opposed  to  flexible  pipe  and 
90˚ elbows. 
To  help  you  think  about  this  resistance, imagine 
riding a bicycle in a tunnel that is an exact replica 
of your duct work. If the inside of the tunnel is very 
bumpy (flexible pipe) and has a lot of sharp turns 
(90˚ elbows), it will take a lot more effort to travel 
from one end to the other.
The  purpose  of  calculating  the  resistance  is  to 
determine if it is low enough from the machine to 
the dust collector to meet the given CFM require-
ment for the machine. Use the 
following tables 
to 
calculate the resistance of duct work.
Calculating Duct Resistance
To Planer
Blast Gate
Flex Pipe
Rigid Pipe
 Rigid Pipe 
(Main Line)
Elbow
Clamp
Y Branch
Figure 54. Drop down setup.
Planning Drop Downs
Plan  the  drop  downs  for  each  machine,  using 
blast gates wherever possible to control airflow.

-36- Model G0442/G0601 (Mfg Since 3/12)
Figure 56. Additional factors affecting static 
pressure.
Additional Factors Static Pressure
Seasoned (well used) 
Dust Collection Filter 1"
Entry Loss at Large 
Machine Hood 2"
Figure 57. Totaling static pressure numbers.
Main Line
6" Rigid Pipe (0.037) at 20' ................ 0.740
Branch Line
4" Rigid Pipe (0.075) at 10' ................ 0.750
4" Flex Pipe (0.28) at 5' ........................ 1.400
Elbows/Branches
6" 45˚ Y-Branch ................................ 0.329
4" 45˚ Elbow ........................................ 0.225
Additional Factors
Seasoned Filter ................................ 1.000
Total Static Pressure Loss ................ 4.444
4.  Total your list as shown in the example below 
to come up  with your overall static  pressure 
loss number for that line.
Note: 
Always account for a seasoned filter, 
so you don't end up with a system that only 
works right when the filter is clean.
  Note:  When calculating static pressure loss 
to determine if multiple lines can be left open 
at the same time, only include the main line 
numbers once.
3.  Add the additional factors from the following-
table to your list.
5.  Compare the total static pressure loss for that 
line to the closest CFM given in Figure 58.
 Example:  The  G0442/G0601  Data Sheet 
Performance Curve  is  illustrated  in Figure 
58. Find 4.6 on the Static Pressure axis (the 
amount  of  total  static  pressure  loss  calcu-
lated in Figure 57), then refer to the closest 
value on the CFM axis—approximately 1953 
CFM.
  The 1953 CFM for the static pressure loss of 
the line connected to the router is well above 
the 220 CFM requirement of that machine.
— If  the  CFM  for  your  static  pressure  loss 
is  above  the  requirement  of  the  machine 
connected  to  the  end  of  that  branch  line, 
then  dust  collection  will  most  likely  be 
successful.  Congratulations!  You've  just 
designed  your  own  dust  system.  Refer  to 
the  Accessories  section  on  Page 41  to 
start buying the components necessary to 
make your system a reality.
Figure 58. G0442/G0601 performance curve 
chart and data.
Performance Curve
2500
2250
2000
1750
1500
1250
1000
750
500
250
0
0.0 1.0 2.0 3.0 4.0 5.0 6.0 7.0 8.0 9.0 10.0 11.0 12.0 13.0
2184 
CFM STATIC PRESSURE (Inch/H2O)
5 HP GRIZZLY DUST COLLECTOR PERFORMANCE RESULTS
Max CFM Max SP  HP Volts Inlet  Impeller
2184 14.0 5 HP 220V 10" 16"
Restrictor plate 
(inch)
Dia 
10"
Dia 
9"
Dia. 
8"
Dia. 
7"
Dia. 
6"
Dia. 
5"
Dia. 
4"
Dia. 
3"
Dia. 
2"
Static pressure 
(Inch/H2O)
1.9 2.1 3.0 4.6 7.0 9.8 12.1 13.2 13.7
CFM 2184 2129 2072 1953 1692 1381 977 691 488
The airflow test probe is located 1.5x duct diameter upstream from 
the air inlet. Test pipe length is a minimum of 10x duct diameter.

Model G0442/G0601 (Mfg Since 3/12) -37-
Description Model Quantity
6" Rigid Pipe at 20' G7364 4
4" Rigid Pipe at 10' G6162 2
4" Flex Hose at 5' H7215 6
6" 45° Y-Branch G7353 6
4" 45° Elbow G6167 6
Example Materials List
After  the  system is  designed, create a  materials 
list of all the items you will need to build your dust 
collection system. This  will make it easy when it 
comes time to purchase the materials.
Below is an example of some items that might be 
needed. Refer to 
Accessories 
for dust collection 
components available through grizzly.com.
—If the CFM for your static pressure loss is 
below the requirement of the machine, then 
that line will not effectively collect the dust. 
You must then modify some of the factors 
in  that  line  to  reduce  the  static  pressure 
loss. Some of the ways to do this include 1) 
installing larger duct, 2) reducing amount of 
flexible  duct  used,  3)  increasing  machine 
dust port size, 4) moving machine closer to 
dust collector to eliminate duct length, and 
5)  reducing  90˚  elbows  or  replacing  them 
with 45˚ elbows.
Figure 59. Example of dust collection system 
material list.

-38- Model G0442/G0601 (Mfg Since 3/12)
System Grounding
Since  plastic  hose  is  abundant,  relatively  inex-
pensive,  easily  assembled  and  air  tight,  it  is  a 
very  popular  material  for  conveying  dust  from 
woodworking machines to the dust collector. We 
recommend  using  flexible  hose  (flex-hose)  to 
connect  the  woodworking  machine  to  the  dust 
collector.  However,  plastic  flex-hose  and  plastic 
duct  are  an  insulator,  and  dust  particles  moving 
against the walls of the plastic duct create a static 
electrical  build  up.  This  charge  will  build  until  it 
discharges  to  a  ground.  If  a  grounding  medium 
is  not  available  to  prevent  static  electrical  build 
up,  the  electrical  charge  will  arc  to  the  nearest 
grounded  source.  This  electrical  discharge  may 
cause  an  explosion  and  subsequent  fire  inside 
the system.
To protect against static electrical build up inside 
a non-conducting duct, a bare copper wire should 
be  placed  inside  the  duct  along  its  length  and 
grounded  to  the  dust  collector.  You  must  also 
confirm  that  the  dust  collector  is  continuously 
grounded through the electrical circuit to the elec-
tric service panel.  
If you connect the dust collector to more than one 
machine  by  way  of  a  non-conducting  branching 
duct system and blast gates, the system must still 
be  grounded  as  mentioned  above.  We  recom-
mend inserting a continuous bare copper ground 
wire  inside the  entire duct system  and attaching 
the wire to each grounded woodworking machine 
and dust collector.
Be  sure  that  you  extend  the  bare  copper  wire 
down  all  branches  of  the  system.  Do  not  forget 
to connect the wires to each other with wire nuts 
when two branches meet at a “Y” or “T” connec-
tion. 
Ensure that the entire system is grounded. If using 
plastic  blast  gates  to  direct air flow,  the  ground-
ing  wire  must  be  jumped  (see  the  figure
below) 
around  the  blast  gate  without  interruption  to  the 
grounding system.
We also recommend  wrapping the  outside of all 
plastic ducts with bare copper wire to ground the 
outside of the system against static electrical build 
up.  Wire  connections  at  Y’s  and  T’s  should  be 
made with wire nuts.
Attach  the  bare  ground  wire  to  each  stationary 
woodworking  machine  and  attach  to  the  dust 
collector  frame  with  a  ground  screw  as  shown 
in the figure below. Ensure that each machine is 
continuously grounded to the grounding terminal 
in your electric service panel.
External 
Ground Wire
Internal 
Ground Wire
Flex-Hose
Ground 
Screw
Figure 61. Flex-hose grounded to machine.
Plastic Blast
Gate 
Copper
Ground Wire
Metal Duct
Figure 60. Ground jumper wire when using 
plastic blast gates and metal duct.
Always guard against stat-
ic electrical build up by 
grounding all dust collec-
tion lines.

Model G0442/G0601 (Mfg Since 3/12) -39-
SECTION 5: OPERATIONS
Do NOT put hands or 
small objects near inlet 
openings during opera-
tion. Objects sucked 
into the inlet will meet 
with the impeller blade. 
Failure to heed this 
warning could result in 
property damage or per-
sonal injury.
General
Operating the Model G0442/G0601 is simple and 
straightforward. Blast gates located at each of the 
machines controls the air flow from the woodwork-
ing  machine  to  the  dust  collector.  If  a  machine 
is  not being  used, keep  the blast  gate closed to 
maintain higher levels of efficiency throughout the 
system. 
Damage to your eyes, lungs, and ears could 
result from using this machine without 
proper protective gear. Always wear safety 
glasses, a respirator, and hearing protection 
when operating this machine.
DO NOT use the dust collector for any 
other purpose besides collecting dust from 
connected woodworking machines. A dust 
collector should NEVER be used as a shop 
vacuum and IS NOT a substitute for an air 
filter system. For safest use, wear a respira-
tor and use an air cleaner in addition to the 
dust collector.
Remote Control
The  remote  control  for  the  Model  G0442/G0601 
is IR (infrared) rather than RF (radio frequency) to 
prevent accidental startups by other common RF 
items such as garage door openers.
Because  this  remote  system  is  IR,  the  remote 
control must be pointing directly at the control box 
with an unobstructed line-of-sight view.
If you place the dust collector in a different room or 
outside of your shop, you must mount the switch 
in the shop and wire it through the wall to the dust 
collector to make use of the remote control.
Note: The remote control requires two "AA" batter-
ies for operation.
NOTICE
If you have never used this type of machine 
or equipment before, WE STRONGLY REC-
OMMEND that you read books, trade maga-
zines, or get formal training before begin-
ning any projects. Regardless of the con-
tent in this section, Grizzly Industrial will 
not be held liable for accidents caused by 
lack of training. 

-40- Model G0442/G0601 (Mfg Since 3/12)
Control Box Panel
Use  the  illustration  of  the  control  box  panel  in 
Figure  62  and  the  descriptions  that  follow  to 
become familiar with the functions of the buttons 
on the control box.
A.  Timer Indicator Lights:  Turns  ON  when  a 
timer setting is selected.
B.  Infrared Port: Receives infrared communica-
tion from the remote control.
C.  ON/OFF Button: Starts/stops the dust collec-
tor motor.
D.  Timer Button: Cycles  through the  available 
timer settings.
E.  Power Light: Indicates when there is power 
to the control box.
F.  Run Light: Illuminates when the dust collec-
tor motor is operating.
G.  Main Switch:  Enables/disables  the  power 
flow  to  the  control  box  and  must  be  turned 
ON before using ON/OFF button.
H.  Overload Light:  Turns  ON  when  the  dust 
collector  is  overloaded  and  the  motor  has 
stopped.
 Note: If the overload light illuminates and the 
motor stops, you must turn the machine OFF 
and  allow  the  motor  to  cool.  The  overload 
relay should reset automatically and the light 
will go out.
  If  this  is  a  persistent  problem,  refer  to  the 
Troubleshooting  section  on  Page  46  for 
additional help.
ON/OFF
TIMER
2H 4H 8H
RUN POWEROVER
REMOTE CONTROL
SWITCH
220 VOLT
MAIN
SWITCH
Figure 62. Control box panel.
A
B
C
D
E
F
H
G

Model G0442/G0601 (Mfg Since 3/12) -41-
SECTION 6: ACCESSORIES
ACCESSORIES
Figure 66. Rigid Metal Flex Hose.
H7216—5" x 5' Rigid Metal Flex Hose
H7217—6" x 5' Rigid Metal Flex Hose
H7218—7" x 5' Rigid Metal Flex Hose
H7219—8" x 5' Rigid Metal Flex Hose
H7220—9" x 5' Rigid Metal Flex Hose
This flex hose provides just enough flexibility 
to make difficult connections while still keep-
ing the inside wall as smooth as possible to 
minimize static pressure loss.
H5293—4" Metal Duct Starter Kit
H5295—5" Metal Duct Starter Kit
H5297—6" Metal Duct Starter Kit
Save  over  20%  with  this  great  starter  kit. 
Includes:  (2)  machine  adapters,  (10)  pipe 
clamps,  (3)  5'  straight  pipes,  (1)  branch,  (3) 
pipe  hangers,  (1)  end  cap,  (3)  adjustable 
nipples, (1) 90˚ elbow, and (1) 60˚ elbow.
H5294—4" Metal Duct Machine Addition Kit
H5296—5" Metal Duct Machine Addition Kit
H5298—6" Metal Duct Machine Addition Kit
Save over 20% with this great machine addi-
tion kit. Includes: (2) blast gates, (1) machine 
adapter,  (10)  pipe clamps, (2)  pipe  hangers, 
(2) 5' straight pipes, (2) adjustable nipples, (1) 
branch, and (1) 60˚ elbow.
Figure 64. Metal Duct Machine Addition Kit.
G6162—4" x 5' Straight Metal Pipe
G7346—5" x 5' Straight Metal Pipe
G7364—6" x 5' Straight Metal Pipe
H5227—7" x 5' Straight Metal Pipe
H5237—8" x 5' Straight Metal Pipe
H5252—9" x 5' Straight Metal Pipe
These  laser  welded  straight  pipes  ensure 
a  super  smooth  internal  seam.  Ends  easily 
clamp together for a sealed fit without screws 
or silicone.
Figure 63. Metal Duct Starter Kit. Figure 65. Straight Metal Pipe.

-42- Model G0442/G0601 (Mfg Since 3/12)
Metal Elbows
These  industrial  metal  elbows  are  available 
from  4"–8"  with  90˚,  60˚,  45˚,  or  30˚  curves. 
Also, available  with a  90˚ long radius curve. 
Call  (800)  523-4777  or  visit  www.grizzly.
com for more information and pricing.
Figure 67. Metal elbow examples.
45° 60°
30°
90° Long Radius
90°
G6177—4" Metal Blast Gate
G7340—5" Metal Blast Gate
G7358—6" Metal Blast Gate
H5234—7" Metal Blast Gate
H5249—8" Metal Blast Gate
H5259—9" Metal Blast Gate
Figure 68. Metal Blast Gate.
Metal Branches
We  carry  many  different  branches,  all 
designed to minimize airflow resistance.
Figure 69. Metal Branches.
Reducers & Adapters
We carry a multitude of reducers and elbows 
to cover most applications from 4" through 9".
Figure 70. Metal Reducers & Adapters.
G6252—4" Floor Sweep
G7341—5" Floor Sweep
G7342—6" Floor Sweep
Great for cleaning up around the shop, these 
metal floor sweeps close tight when not in use.
Figure 71. Industrial Floor Sweep.

Model G0442/G0601 (Mfg Since 3/12) -43-
SECTION 7: MAINTENANCE
Always disconnect power 
to the machine before 
performing maintenance. 
Failure to do this may 
result in serious person-
al injury.
Schedule
For  optimum  performance  from  your  machine, 
check the following items during operation. If you 
notice  a  problem,  resolve  it  before  continuing 
operation.  At  the  end  of the  day,  make sure  the 
machine  is  turned  OFF  and  disconnected  from 
power.
During Operations:
•  Dust collection drums and bags.
•  Check/repair loose mounting bolts.
• Pressure leaks.
• Worn or damaged wires.
• Any  other  condition  that  would  hamper  the 
safe and efficient operation of this machine.
Emptying Drum
Empty the collection drum when it is no more than 
3⁄4 full.  If the  drum  becomes  overfilled,  the  chips 
will  be  sucked  back  into  the  intake  barrel  and 
passed through to the canister filters.
How quickly the drum  will fill up is based on the 
type of work being done at the time.
When  first  using  the  machine,  check  the  drum 
regularly to get an idea of how often it needs to 
be emptied.
The  Model  G0442/G0601  dust  collector  has 
a  gentle  brush  system  inside  the  canisters  for 
removing any built-up dust from the filter pleats.
Cleaning Filters
To clean the filters, pull the red handles down all 
the  way,  then  pull  the  black  handles  down  and 
hook them in place.
Note: Always make sure to leave the red handles 
in the up position to ensure that the brushes return 
to their proper position and do not restrict the fil-
ter.
To avoid injury to your 
eyes and lungs from fine 
airborne particles, always 
wear safety glasses and 
a respirator when working 
with the dust collection 
bags.
Figure 72. Brush handles for cleaning canister 
filters.
Black
Handle
Hook
Red
Handle

-44- Model G0442/G0601 (Mfg Since 3/12)
Rinsing Filter
For a thorough cleaning, the filter can be removed 
and rinsed  off. However, make sure to clean the 
filter with the brush system first. Allow the filter to 
air dry. Do not use compressed air on the pleated 
filter or leave it in the sun to dry—this could dam-
age it.
Removing/Replacing 
Filter
The  filter  for  the  Model  G0442/G0601  manufac-
tured  since  November,  2009,  can  be  removed 
from the assembly for replacement or rinsing.
Removing/installing  the  filter  requires  discon-
necting the canister filter assembly from the dust 
collector and disassembling it. Follow the instruc-
tions below to perform this procedure.
Refer  to the  parts  breakdown  diagrams and list-
ings  beginning  on  Page  52 to  order  the  correct 
filter from Grizzly at 800-523-4777.
Tools Needed  Qty
Open-End Wrench 10mm .................................. 1
Wrench or Socket 12mm ................................... 2
To replace the canister filter:
1.  DISCONNECT MACHINE FROM POWER!
2.  Use  the brush handles to knock the  built-up 
dust  from  the  filter  pleats,  then  remove  the 
bag clamp and collection bag from the canis-
ter assembly.
3.  Pull  the  black  handle  all  the  way  down  and 
secure the cable into the handle hook at the 
bottom of the canister assembly, as shown in 
Figure 73, to hold it  in place  during the  fol-
lowing steps.
4.  Remove  the  canister  assembly  from  the 
dust collector and place it right-side up on a 
stable, flat surface.
5.  Remove the six hex bolts, hex nuts, and flat 
washers from the rim of the canister base, as 
shown in Figure 74.
Figure 74. Removing the hex nuts and flat 
washers from the rim of the canister base.
Canister
Base
Figure 73. Brush handles in correct position for 
filter removal.
Black
Handle
Hook
Red
Handle

Model G0442/G0601 (Mfg Since 3/12) -45-
6.  With help from another person to steady the 
canister  assembly,  turn  it  upside  down  and 
remove the two hex bolts, hex nuts, and flat 
washers from the cross support (see Figure 
75), then remove the canister base from the 
assembly.
Figure 75. Cross support fasteners.
Remove These
7.  Carefully lift the filter from the canister assem-
bly, as shown in Figure 76.
Figure 76. Removing the filter from the canister 
assembly.
8.  Before  re-inserting  the  filter  into  the assem-
bly,  make  sure  that  the  filter  brush  base  is 
aligned with two of the fastener holes around 
the  base  of  the  assembly  (see  Figure  77). 
This will allow the canister base to align with 
the fastener holes around the brush base.
9.  Re-insert  the  filter  into  the  canister  assem-
bly.
 Note: Make sure the bristles of the brush are 
pointed straight into the pleats to ensure effi-
cient cleaning of the filter when needed.
10.  Attach the canister base in the reverse order 
from which you removed it in Step 6.
11.  Attach the canister assembly to the dust col-
lector, then secure a new collection bag to it 
with the bag clamp.
Figure 77. Filter brush base aligned with 
assembly fastener holes.
Brush Base

-46- Model G0442/G0601 (Mfg Since 3/12)
Review the troubleshooting and procedures in this section to fix or adjust the machine if a problem devel-
ops. If you need replacement parts or you are unsure of your repair skills, then feel free to call our Technical 
Support at (570) 546-9663. 
SECTION 8: SERVICE
Troubleshooting
Symptom Possible Cause Possible Solution
Machine does 
not start or a 
breaker trips.
1.  Wall fuse/circuit breaker is blown/tripped.
2.  Power supply switched OFF or is at fault.
3.  Fuse has blown.
4.  Hand-held remote controller is at fault.
5.  (G0442) Start capacitor at fault.
6.  Receiver is at fault.
7.  Motor connection wired incorrectly.
8.  Thermal overload relay has tripped.
9.  Contactor  not  getting  energized/has 
burnt contacts.
10. Wiring is open/has high resistance.
11. Motor start switch or ON/OFF button is 
at fault.
12. Circuit board is at fault.
13. Motor is at fault.
1.  Ensure circuit size is suitable for this machine; 
replace weak breaker.
2.  Ensure  power  supply  is  switched  on;  ensure 
power supply has the correct voltage.
3.  Correct short/replace fuse in control box.
4.  Replace  batteries  in  hand-held  remote 
controller; stay in line-of-sight  view and signal 
range.
5.  Replace start capacitor.
6.  Inspect receiver computer board; replace if faulty.
7.  Correct motor wiring connections (Pages 49 & 50).
8.  Turn cut-out dial to increase working amps and 
push the  reset pin. Replace if tripped multiple 
times (weak relay).
9.  Test  for  power  on  all  legs  and  contactor 
operation. Replace unit if faulty.
10. Check  for  broken  wires  or  disconnected/
corroded  connections,  and  repair/replace  as 
necessary. 
11. Replace faulty ON button or ON/OFF switch.
12. Inspect circuit board; replace if faulty.
13. Test/repair/replace.
Machine has 
vibration or 
noisy operation.
1.  Motor or component is loose.
2.  Machine is incorrectly mounted or sits 
unevenly.
3.  Motor fan is rubbing on fan cover.
4.  Motor bearings are at fault.
1.  Inspect/replace  stripped  or  damaged  bolts/
nuts, and re-tighten with thread locking fluid.
2.  Tighten/replace anchor studs in floor; relocate/
shim machine.
3.  Replace  dented  fan  cover;  replace  loose/
damaged fan.
4.  Test by rotating shaft; rotational grinding/loose 
shaft requires bearing replacement.

Model G0442/G0601 (Mfg Since 3/12) -47-
Symptom Possible Cause Possible Solution
Loud, repetitious 
noise, or excessive 
vibration coming 
from dust collector.
1.  Dust collector is not on a flat surface and 
wobbles.
2.  Impeller is loose or damaged and 
unbalanced.
3.  The motor mounting or housing 
connections are loose.
4.  Impeller is loose on the motor shaft.
5.  Motor fan cover is dented, causing the 
motor fan to hit the cover while spinning.
1.  Stabilize the dust collector.
2.  Disconnect dust collector from power, and inspect 
the impeller for dents, bends, loose fins. Replace 
impeller if any damage is found.
3.  Make sure all fasteners on the dust collector are 
tight.
4.  Replace the motor and impeller as a set if the 
motor shaft and the impeller hub are damaged.
5.  Replace motor fan cover.
Dust collector does 
not adequately 
collect dust 
or chips; poor 
performance.
1.  Dust collection bags are full.
2.  Filters are dirty.
3.  (G0601)  Motor  is  wired  out  of  phase 
and  the  impeller  is  rotating  in  the 
wrong direction (clockwise).
4.  There is a restriction in the duct line.
5.  The dust collector is too far away from 
the point of suction, or there are too many 
sharp bends in the ducting.
6.  The lumber is wet and dust is not flowing 
through the ducting smoothly.
7.  There is a leak in the ducting, or a series 
of small leaks, or too many open ports.
8.  There are not enough open branch lines at 
one time, thereby causing a velocity drop 
in the main line.
9.  The ducting and ports are incorrectly 
sized.
10. The machine dust collection design is 
inadequate.
11. The dust collector is too small for the dust 
collection system.
1.  Empty collection bags.
2.  Clean filters.
3.  (G0601) Motor is receiving power out-of-phase. 
Disconnect  the  machine  from  power,  then 
swap any two of the incoming hot power leads 
terminated inside the control box (see Step 10 
on Page 29).
4.  Remove dust line from dust collector inlet and 
unblock the restriction in the duct line. A plumbing 
snake may be necessary.
5.  Relocate the dust collector closer to the point of 
suction, and rework ducting without sharp bends. 
Refer to Designing Ducting System, beginning 
on Page 32.
6.  Process lumber with less than 20% moisture 
content.
7.  Rework the ducting to eliminate all leaks. Close 
dust ports for lines not being used. Refer to 
Designing Ducting System beginning on Page 
32 for more solutions.
8.  Open 1 or 2 more blast gates to different branch 
lines to allow the velocity in the main line to 
increase.
9.  Reinstall correctly sized ducts and fittings. Refer 
to Designing Ducting System beginning on Page 
32 for more solutions.
10. Use a dust collection nozzle on a stand.
11. Install a larger dust collector to power your dust 
collection system.
Sawdust being 
blown into the 
air from the dust 
collector.
1.  Duct clamps or dust collection bags are 
not properly clamped and secured.
2.  Cylinder or funnel seals are loose or 
damaged. 
1.  Re-secure ducts and dust collection bag, making 
sure duct and bag clamps are tight and completely 
over the ducts and bags.
2.  Retighten all mounting and sealing points, replace 
damaged gaskets.

-48- Model G0442/G0601 (Mfg Since 3/12)
These pages are current at the time of printing. However, in the spirit of improvement, we may make chang-
es to the electrical systems of future machines. Study this section carefully. If there are differences between 
your machine and what is shown in this section, call Technical Support at (570) 546-9663 for assistance 
BEFORE making any changes to the wiring on your machine.
SECTION 9: WIRING
SHOCK HAZARD. Working on wiring that is con-
nected to a power source is extremely dangerous. 
Touching  electrified  parts  will  result  in  personal 
injury  including  but  not  limited  to  severe  burns, 
electrocution,  or  death.  Disconnect  the  power 
from the machine before servicing electrical com-
ponents!
MODIFICATIONS.  Modifying  the  wiring  beyond 
what is shown in the diagram may lead to unpre-
dictable  results,  including  serious  injury  or  fire. 
This includes the installation of unapproved after-
market parts.
WIRE CONNECTIONS.  All  connections  must 
be  tight  to  prevent  wires  from  loosening  during 
machine  operation.  Double-check  all  wires  dis-
connected or connected during any wiring task to 
ensure tight connections.
CIRCUIT REQUIREMENTS.  You  MUST  follow 
the requirements at the beginning of this manual
when connecting your machine to a power source. 
WIRE/COMPONENT DAMAGE. Damaged wires 
or  components  increase  the  risk  of  serious  per-
sonal injury, fire, or machine damage. If you notice 
that any wires or components are damaged while 
performing  a  wiring  task,  replace  those  wires  or 
components.
MOTOR WIRING. The motor wiring shown in
these diagrams is current at the time of printing
but may not match your machine. If you find this
to be the case, use the wiring diagram inside the 
motor junction box.
CAPACITORS/INVERTERS. Some capacitors
and power inverters store an electrical charge for 
up  to  10  minutes  after  being  disconnected  from 
the  power  source.  To  reduce  the  risk  of  being 
shocked, wait at least this long before working on 
capacitors.
EXPERIENCING DIFFICULTIES. If you are expe-
riencing difficulties understanding the information 
included  in  this  section,  contact  our  Technical 
Support at (570) 546-9663.
Wiring Safety Instructions
The photos and diagrams 
included in this section are 
best viewed in color. You 
can view these pages in 
color at www.grizzly.com.

Model G0442/G0601 (Mfg Since 3/12) -49-
READ ELECTRICAL SAFETY 
ON PAGE 48!
G0442 Wiring Diagram
Figure 78. Model G0442 motor 
wiring. Figure 79. Model G0442 control box wiring.
Start
Capacitor
Run
Capacitor
g0442 wiring
A1
Ground
2T1 6T3 14NO
4T2
1L1 5L3 13NO
3L2
NHD C-18D
2T1 4T2 6T3
98 97
A2
96
O R
95
21
22
23
25
ON/OFF
Switch
A2
Start
Capacitor
400MFD
250VAC
Run
Capacitor
40µF
450VAC
220V Motor 
220V Magnetic Contactor 
Switch and Overload Relay 
Ground
Hot
Hot
DISCONNECT
SWITCH
(as recommended)
1-PHASE
220 VAC
NTH-25
OL_NO AC 
OUT
AC
IN
Circuit Board 
Contactor
Overload 
Relay
Circuit Board
Magnetic Switch
Junction Box
65
1 2
~
CW
D.E.
CONNECTION

-50- Model G0442/G0601 (Mfg Since 3/12)
READ ELECTRICAL SAFETY 
ON PAGE 48!
A1
Ground
2T1 6T3 14NO
4T2
1L1 5L3 13NO
3L2
NHD C-18D
2T1 4T2 6T3
98 97
A2
96
O R
95
10
11
13
15
 NTH-1 5 ON/OFF
Switch
A2
220V Motor 
220V Magnetic Contactor 
Switch and Overload Relay 
Ground
Hot
Hot
Hot
DISCONNECT
SWITCH
(as recommended
)
3-PHASE
220 VAC
Circuit Board 
OL_NO AC 
OUT
AC IN
G0601 220V Wiring Diagram
g0601 wiring
Figure 81. Model G0601 220V control box.
Contactor
Overload 
Relay
Circuit Board
Magnetic Switch
Junction Box
Figure 80. Model G0601 motor 
wiring.
4 5 6
7 8 9
1 2 3
440V
VOLTAGE
HIGH
4 5 6
7 8 9
1 2 3
220V
VOLTAGE
LOW
Control Box Wiring Motor Wiring
1L1 3L2 5L3 NO13
2T1 4T2 6T3 NO14
98 97 96 95
ON
OFF
IC(220V)
AC2 S
AC1 COM
GROUND
Overload Relay Contactor
A1
A2
220 VOLT POWER SOURCE
THREE-PHASE
Circuit Board

Model G0442/G0601 (Mfg Since 3/12) -51-
G0601 440V Wiring Diagram
A1
Ground
30VA
Transformer
2T1 6T3 14NO
4T2
1L1 5L3 13NO
3L2
NHD C-09D
2T1 4T2 6T3
98 97
A2
96
O R
95
 NTH-8 ON/OFF
Switch
A2
440V Magnetic Contactor 
Switch and Overload Relay 
Ground
Hot
Hot
Hot DISCONNECT
SWITCH
(as recommended)
3-PHASE
440 VAC
440V
Motor
OL_NO AC 
OUT
AC
IN
0
0
440
460
220
230
E
6
8
Circuit Board 
Figure 82. G0601 440V control box.
4 5 6
7 8 9
1 2 3
440V
VOLTAGE
HIGH
4 5 6
7 8 9
1 2 3
220V
VOLTAGE
LOW
Control Box Wiring Motor Wiring
1L1 3L2 5L3 NO13
2T1 4T2 6T3 NO14
98 97 96 95
ON
OFF
IC(220V)
AC2 S
AC1 COM
GROUND
Overload Relay Contactor
A1
A2
220 VOLT POWER SOURCE
THREE-PHASE
Circuit Board

-52- Model G0442/G0601 (Mfg Since 3/12)
92
93
94
95
96
97
98
99V2
101
102
DUTY
Grizzly Cyclone Induction Motor
Connections:
Manufactured for Grizzly in Taiwan
HEAT
WEIGHT
CLASS
DATE
HZ
SER. NO.
VOLT
OUTPUT
AMP
RPM
PHASE
G0601 440V
Conversion Kit
3-1V2
2
4
5
6
7
8
9
10
11
12
13
14
15
16
17
18
19
20
21
22
23
24
25 27V3
27-1V3
28
29
30
30-1
31
32
33
34
35
36AV2
36V2
36-1V2
36-4V2
37V2
38V2
39
40
41
42
43
44
45
46
47V2
48
49
50
51
52
53
54
54-1
54-2
55V2
56
57V2
58
59
60
61
62
63
64
65
66
67
68
69
70
71
72
73
74
75
76
77
78V2
79
80 81
82
83
84
85
86V2
87
88
89
90
91
104
105
106
107
108
109 110 111
112
113
114
115116
117
118
119
120
121 122
123
19
6
26
26
105
26
30
32
100V2
126
125
24
105
107
69
57AV2
52
50
72
74
75
75
67
75
88
1-2
1-1 1-4
1-6
1-5
1-2
1-1
1-3
G0442
G0601
1
1-7 1-8 1-9 1-10
1-4 1-5
3V2
3V2-1
3V2-2
3V2-3
3V2-4
3-1V2-2
3-1V2-3
3-1V2-4
3-1V2-1
3-1V2-5 3-1V2-6
SECTION 10: PARTS
Main
Parts Breakdown

Model G0442/G0601 (Mfg Since 3/12) -53-
G0442 Only Parts List
REF PART # DESCRIPTION REF PART # DESCRIPTION
1 P0442001 MOTOR 5HP 220V 1-PH 3V2 P0442003V2 CONT BOX ASSY 220V 1-PH  V2.4.12
1-1 P0442001-1 MOTOR FAN COVER 3V2-1 P0442003V2-1 CONTACTOR NHD C-18D 220V V2.04.12
1-2 P0442001-2 MOTOR FAN 3V2-2 P0442003V2-2 OL RELAY NHD NTH-25 21-25A
1-4 P0442001-4 S CAPACITOR 400M 250V 1-3/4 X 3-3/4 3V2-3 P0442003V2-3 CIRCUIT BOARD
1-5 P0442001-5 R CAPACITOR 40M 450V 3V2-4 P0442003V2-4 ON/OFF SWITCH 220V
1-6 P0442001-6 JUNCTION BOX 99V2 P0442099V2 MACHINE ID LABEL CSA V2.01.12
1-7 P0442001-7 BALL BEARING 6207ZZ 100V2 P0442100V2 SWITCH BRACKET CSA V2.03.12
1-8 P0442001-8 BALL BEARING 6205ZZ 101 P0442101 MODEL NUMBER LABEL
1-9 P0442001-9 CONTACT PLATE 125 P0442125 GREEN GROUNDING WIRE 12G 6" 
1-10 P0442001-10 CENTRIFUGAL SWITCH 3450 RPM 126 P0442126 JUNCTION BOX
2 P0442002 MOTOR CORD 12G 3W
G0601 Only Parts List
REF PART # DESCRIPTION REF PART # DESCRIPTION
1 P0601001 MOTOR 5HP 220/440V 3-PH 3-1V2 P0601003-1V2 CONT BOX ASSY 440V V2.04.12
1-1 P0601001-1 MOTOR FAN COVER 3-1V2-1 P0601003-1V2-1 CONTACTOR NHD C-09D 440V
1-2 P0601001-2 MOTOR FAN 3-1V2-2 P0601003-1V2-2 OL RELAY NHD NTH-08 6–8A
1-3 P0601001-3 JUNCTION BOX 3-1V2-3 P0601003-1V2-3 CIRCUIT BOARD
1-4 P0601001-4 FRONT MOTOR BEARING 3-1V2-4 P0601003-1V2-4 ON/OFF SWITCH 440V
1-5 P0601001-5 REAR MOTOR BEARING 3-1V2-5 P0601003-1V2-5 MOTOR CORD 12G 4W 600V
2 P0601002 MOTOR CORD 12G 4W 300V 3-1V2-6 P0601003-1V2-6 SWITCH TRANSFORMER 30VA 
3V2 P0601003V2 CONT BOX ASSY 220V 3-PH V2.04.12 99V2 P0601099V2 MACHINE ID LABEL CSA V2.01.12
3V2-1 P0601003V2-1 CONTACTOR NHD C-18D 220V 100V2 P0601100V2 SWITCH BRACKET CSA V2.03.12
3V2-2 P0601003V2-2 OL RELAY NHD NTH-15 10–15A 101 P0601101 MODEL NUMBER LABEL
3V2-3 P0601003V2-3 CIRCUIT BOARD 125 P0601125 GREEN GROUNDING WIRE 12G 6" 
3V2-4 P0601003V2-4 ON/OFF SWITCH 220V 126 P0601126 JUNCTION BOX
G0442/G0601 Common Parts List
REF PART # DESCRIPTION REF PART # DESCRIPTION
4 P0442004 REMOTE CONTROLLER 20 P0442020 HEX BOLT 5/16-18 X 3/4
5 P0442005 HEX BOLT 3/8-16 X 1-1/2 21 P0442021 OUTLET GASKET 456 X 226MM
6 P0442006 FLAT WASHER 3/8 22 P0442022 OUTLET PORT
7 P0442007 LOCK WASHER 3/8 23 P0442023 HEX BOLT 5/16-18 X 1
8 P0442008 HEX NUT 3/8-16 24 P0442024 FLAT WASHER 5/16
9 P0442009 BLOWER COVER 25 P0442025 HEX NUT 5/16-18
10 P0442010 HEX BOLT 1/2-13 X 1-1/2 26 P0442026 HOSE CLAMP 8"
11 P0442011 FENDER WASHER 1/2" 27V3 P0442027V3 FLEXIBLE HOSE 8" X 23-1/2" V3.11.09
12 P0442012 LOCK WASHER 1/2 27-1V3 P0442027-1V3 FLEXIBLE HOSE 8" X 4-3/4" V3.11.09
13 P0442013 HEX NUT 1/2-13 28 P0442028 LEFT FILTER L-BRACE
14 P0442014 IMPELLER 16" 29 P0442029 RIGHT FILTER L-BRACE
15 P0442015 FLAT WASHER 3/4 30 P0442030 FILTER CROSS BRACE
16 P0442016 HEX NUT 3/4-16 LH 30-1 P0442030-1 BRACE GASKET 240 X 32MM
17 P0442017 FOAM TAPE 3 X 6 X 1800MM 31 P0442031 HEX BOLT 3/8-16 X 3/4
18 P0442018 IMPELLER HOUSING 32 P0442032 FLAT WASHER 3/8
19 P0442019 FLAT WASHER 5/16 33 P0442033 HEX NUT 3/8-16

-54- Model G0442/G0601 (Mfg Since 3/12)
G0442/G0601 Common Parts List
REF PART # DESCRIPTION REF PART # DESCRIPTION
34 P0442034 HEX BOLT 5/16-18 X 3/4 74 P0442074 HEX BOLT 3/8-16 X 3/4
35 P0442035 FLAT WASHER 5/16 75 P0442075 FLAT WASHER 3/8
36AV2 P0442036AV2 CANISTER ASSEMBLY, GREEN V2.11.09 76 P0442076 LOCK NUT 3/8-16
36V2 P0442036V2 CANISTER OUTER CAGE V2.11.09 77 P0442077 UPPER STAND BRACE
36-1V2 P0442036-1V2 GASKET 3 X 25 X 1700MM V2.11.09 78V2 P0442078V2 UPPER STAND LEG V2.08.10
36-4V2 P0442036-4V2 CANISTER FILTER 486 X 995MM W/TAPE V2.11.09 79 P0442079 HEX BOLT 3/8-16 X 3/4
37V2 P0442037V2 FILTER BAG CLAMP 545MM V2.11.09 80 P0442080 FLAT WASHER 3/8
38V2 P0442038V2 PLASTIC BAG 570 X 600MM V2.11.09 81 P0442081 LOCK NUT 3/8-16
39 P0442039 FOAM TAPE 3 X 6 X 1800MM 82 P0442082 LOWER STAND BRACE
40 P0442040 INTAKE CYLINDER 12" 83 P0442083 HEX BOLT 3/8-16 X 3/4
41 P0442041 FLAT WASHER 5/16 84 P0442084 FLAT WASHER 3/8
42 P0442042 HEX BOLT 5/16-18 X 3/4 85 P0442085 LOCK NUT 3/8-16
43 P0442043 BARREL GASKET 686MM DIA. 86V2 P0442086V2 LOWER STAND LEG V2.08.10
44 P0442044 HEX BOLT 5/16-18 X 3/4 87 P0442087 HEX BOLT 3/8-16 X 3/4
45 P0442045 FLAT WASHER 5/16 88 P0442088 FLAT WASHER 3/8
46 P0442046 BARREL GASKET 686MM DIA. 89 P0442089 LOCK NUT 3/8-16
47V2 P0442047V2 CYCLONE FUNNEL V2.08.10 90 P0442090 REDUCER 10" TO 8"
48 P0442048 HEX BOLT 5/16-18 X 1 91 P0442091 TAP SCREW M4 X 12
49 P0442049 INTAKE BARREL 92 P0442092 MOTOR SPEC LABEL
50 P0442050 FLAT WASHER 5/16 93 P0442093 MOTOR WARNING LABEL
51 P0442051 HEX NUT 5/16-18 94 P0442094 GLASSES/RESPIRATOR DC LABEL
52 P0442052 HOSE CLAMP 9" 95 P0442095 READ MANUAL 2W X 3.3H
53 P0442053 CLEAR FLEXIBLE PIPE 9" X 10" 96 P0442096 HANDS/INLET LABEL
54 P0442054 COLLECTION DRUM LID V2.08.06 97 P0442097 RETURN RED HANDLE LABEL
54-1 P0442054-1 DRUM LID HOOK 98 P0442098 ELECTRICITY 1.4W X 1.2H
54-2 P0442054-2 HOOK RIVET 102 P0442102 HORSEPOWER LABEL
55V2 P0442055V2 DRUM SEAL TYPE-R 2M V2.11.09 104 P0442104 EXT TOOTH WASHER 1/2
56 P0442056 UPPER DRUM 25GAL 105 P0442105 FOAM TAPE 3 X 15 X 700MM
57AV2 P0442057AV2 COLLECTION DRUM ASSY 55GAL V2.11.09 106 P0442106 NOISE MUFFLER 8"
57V2 P0442057V2 COLLECTION DRUM 35GAL V2.08.10 107 P0442107 GASKET 35 X 38 X 1570MM V2.11.09
58 P0442058 DRUM CLAMP 108 P0442108 MOTOR GASKET
59 P0442059 HEX BOLT 5/16-18 X 3 109 P0442109 CYCLONE VACUUM PORT
60 P0442060 HEX NUT 5/16-18 110 P0442110 FLAT WASHER 5/16
61 P0442061 DRUM LID LATCH 111 P0442111 HEX BOLT 5/16-18 X 3/4
62 P0442062 PHLP HD SCR 10-24 X 3/8 112 P0442112 PORT PLUG 1-1/4"
63 P0442063 HEX NUT 10-24 113 P0442113 FOAM TAPE 3 X 6 X 300MM
64 P0442064 PHLP HD SCR 10-24 X 3/8 114 P0442114 VACUUM HOSE 1-1/4" X 98"
65 P0442065 HEX NUT 10-24 115 P0442115 COLLECTION DRUM VACUUM PORT
66 P0442066 CASTER 2" 116 P0442116 FLAT WASHER 5/16
67 P0442067 HEX NUT 3/8-16 117 P0442117 HEX BOLT 5/16-18 X 3/4
68 P0442068 LOCK WASHER 3/8 118 P0442118 HOSE CLAMP 1-1/4"
69 P0442069 FLAT WASHER 3/8 119 P0442119 PORT PLUG 1-1/4"
70 P0442070 COLLECTOR MOUNTING BRACKET 120 P0442120 FOAM TAPE 3 X 6 X 300MM
71 P0442071 HEX BOLT 5/16-18 X 1 121 P0442121 VACUUM HOSE CLIP 2-1/2"
72 P0442072 FLAT WASHER 5/16 122 P0442122 COLLECTION DRUM VACUUM RING
73 P0442073 LOCK NUT 5/16-18 123 P0442123 DRUM COLLECTION BAG 640 X 1200MM

CUT ALONG DOTTED LINE
Name _____________________________________________________________________________  
Street _____________________________________________________________________________
City  _______________________ State _________________________ Zip  _____________________
Phone # ____________________ Email  _________________________________________________
Model # ____________________ Order # _______________________ Serial # __________________
WARRANTY CARD
The following information is given on a voluntary basis. It will be used for marketing purposes to help us develop 
better products and services. Of course, all information is strictly confidential.
1.  How did you learn about us?
   ____ Advertisement    ____ Friend   ____ Catalog
   ____ Card Deck    ____ Website   ____ Other:
2.  Which of the following magazines do you subscribe to?
3.  What is your annual household income?
   ____ $20,000-$29,000    ____ $30,000-$39,000   ____ $40,000-$49,000
   ____ $50,000-$59,000    ____ $60,000-$69,000   ____ $70,000+
4.  What is your age group?
   ____ 20-29    ____ 30-39   ____ 40-49
   ____ 50-59    ____ 60-69   ____ 70+
5.  How long have you been a woodworker/metalworker?
   ____ 0-2 Years   ____ 2-8 Years   ____ 8-20 Years     ____20+ Years
6.  How many of your machines or tools are Grizzly?
   ____ 0-2   ____ 3-5   ____ 6-9    ____ 10+
7.  Do you think your machine represents a good value?   _____Yes   _____No
8.  Would you recommend Grizzly Industrial to a friend?   _____Yes   _____No
9.  Would you allow us to use your name as a reference for Grizzly customers in your area?
 Note: We never use names more than 3 times.   _____Yes   _____No
10.  Comments: _____________________________________________________________________
  _________________________________________________________________________________  
  _________________________________________________________________________________  
  _________________________________________________________________________________  
____ Cabinetmaker & FDM
____ Family Handyman
____ Hand Loader
____ Handy
____ Home Shop Machinist
____ Journal of Light Cont.
____ Live Steam
____ Model Airplane News
____ Old House Journal
____ Popular Mechanics
____ Popular Science
____ Popular Woodworking
____ Precision Shooter
____ Projects in Metal
____ RC Modeler
____ Rie
____ Shop Notes
____ Shotgun News
____ Today’s Homeowner
____ Wood
____ Wooden Boat
____ Woodshop News
____ Woodsmith
____ Woodwork
____ Woodworker West
____ Woodworker’s Journal
____ Other:

TAPE ALONG EDGES--PLEASE DO NOT STAPLE
FOLD ALONG DOTTED LINE
FOLD ALONG DOTTED LINE
GRIZZLY INDUSTRIAL, INC.
P.O. BOX 2069
BELLINGHAM, WA  98227-2069
Place
Stamp
Here
Name_______________________________
Street_______________________________
City______________State______Zip______
Send a Grizzly Catalog to a friend:

WARRANTY AND RETURNS
Grizzly Industrial, Inc. warrants every product it sells for a period of 1 year to the original purchaser from 
the date of purchase. This warranty does not apply to defects due directly or indirectly to misuse, abuse, 
negligence, accidents, repairs or alterations or lack of maintenance. This is Grizzly’s sole written warranty 
and any and all warranties that may be implied by law, including any merchantability or fitness, for any par-
ticular purpose, are hereby limited to the duration of this written warranty. We do not warrant or represent 
that the merchandise complies with the provisions of any law or acts unless the manufacturer so warrants. 
In no event shall Grizzly’s liability under this warranty exceed the purchase price paid for the product and 
any legal actions brought against Grizzly shall be tried in the State of Washington, County of Whatcom.
We shall in no event be liable for death, injuries to persons or property or for incidental, contingent, special, 
or consequential damages arising from the use of our products.
To take advantage of this warranty, contact us by mail or phone and give us all the details. We will then 
issue you a  “Return Number,’’  which must be clearly posted on the outside as well as the inside of the 
carton. We  will  not  accept  any  item  back  without  this  number.  Proof  of  purchase  must  accompany  the 
merchandise. 
The manufacturers reserve the right to change specifications at any time because they constantly strive to 
achieve better quality equipment. We make every effort to ensure that our products meet high quality and 
durability standards and we hope you never need to use this warranty.
Please feel free to write or call us if you have any questions about the machine or the manual. 
Thank you again for your business and continued support. We hope to serve you again soon.
WARRANTY AND RETURNS
