G24AW 1
User Manual: G24AW
Open the PDF directly:
View PDF
.
Page Count: 3
30295
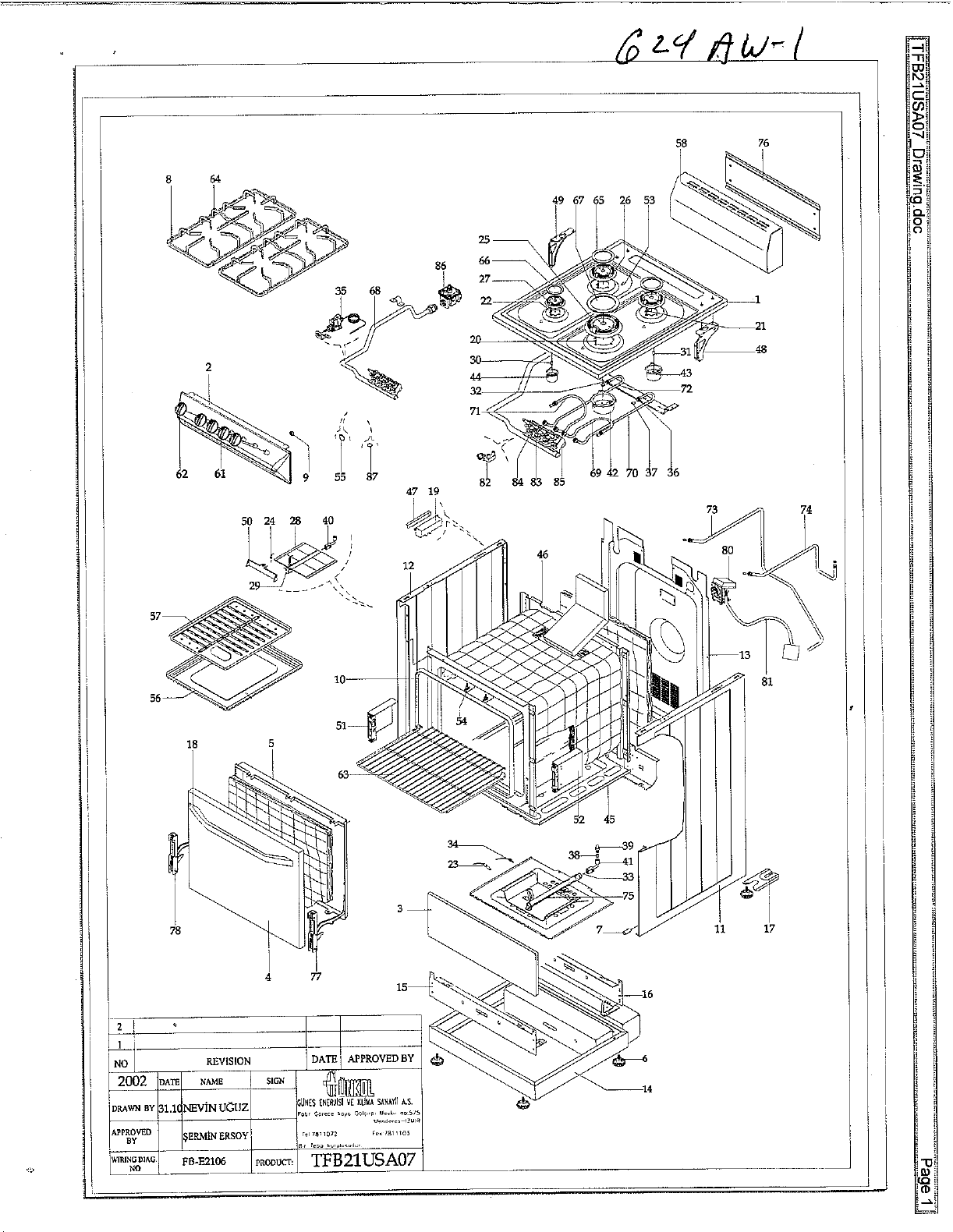
G24AW-1 Explosion Diagram
G24AW-1 Parts List