2220A_01.iso 2240 Cross/Cut Ideal A Crosscut 3x25 Shredder Parts
User Manual: 2240-Cross/Cut
Open the PDF directly: View PDF
.
Page Count: 4

9003 514
Mod.2240 A
01.12.2005
9003 215
2000 054
8230 002
9003 514
2202 041
CROSS / CUT 3x25mm
2230 230/230V
2250 060/220-240V
2250 077/115V
9001 569
9001 412
9003 822/220-240V
9003 215
2250 080
9003 156/115V
Keine Bedienung durch Kinder
Children must not operate the maschine
Pas d' utilisation par un enfant!
No dejar Que la utilicen las ninos!
Niet door kinderen
Non lasciare untilizzare il tagliacarte a bambini
Installera maskinen utom räckhall for barn!
2250 113
9005 540
2240 230/230V
Keine Bedienung durch Kinder
Children must not operate the maschine
Pas d' utilisation par un enfant!
No dejar Que la utilicen las ninos!
Niet door kinderen
Non lasciare untilizzare il tagliacarte a bambini
Installera maskinen utom räckhall for barn!
9005 497
2240 115/115V
9001 915
9005 498/115V
2220 001
2240 001
2220 005
8230 513
2250 055
2240
CROSS/CUT
1

Mod.2240 A
01.12.2005
CROSS / CUT 3x25mm
2
8230 505
8230 505
8230 505
8230 505
8230 505
8230 505
9001 516
9001 516
8230 530
8230 530
2220 003
2220 002
2240 002

Mod.2240 A
01.12.2005
CROSS / CUT 3x25mm
3
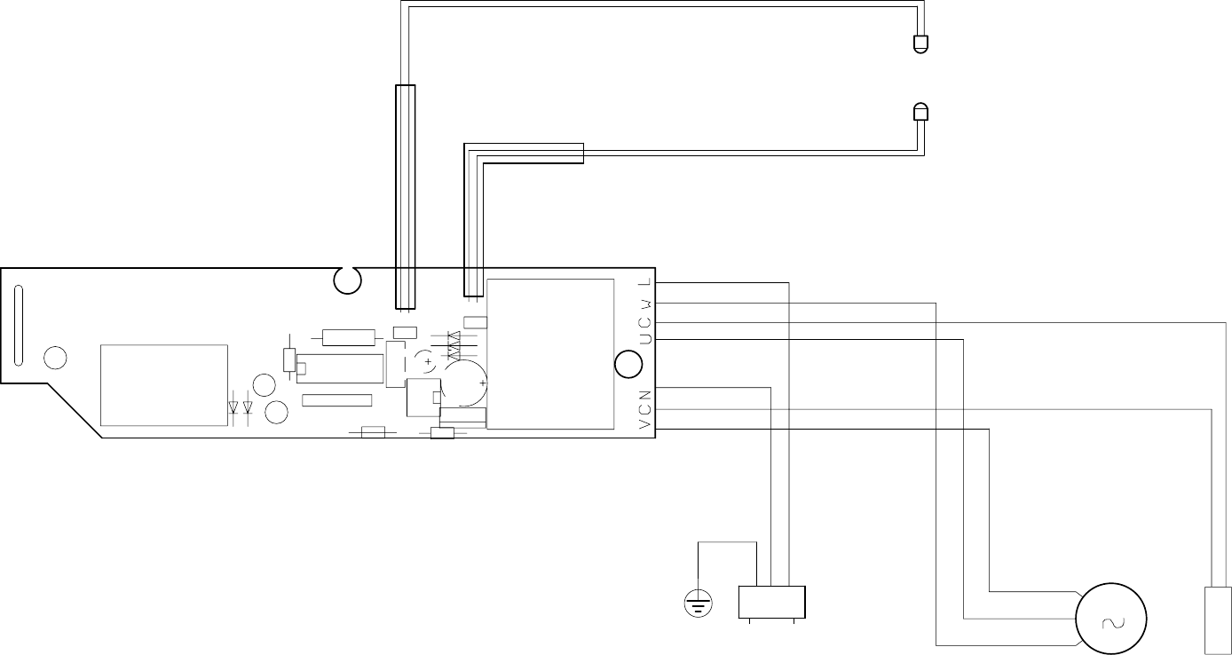
Anschlußplan 2240 A Cross/Cut
Diagramme de branchement 2240 A Cross/Cut
Conecting diagram 2240 A Cross/Cut
2240 232
F1
R4
S2
S1
R3
V8 V9 V4
R2 R1
9005 447
V3
R7
D2R5
R6
V9
V6
V2
C2 C1
V1
V5
Schlauch 5x70 Schlauch 5x205 Sender
Photo Cell
Cellule
Empfänger
Lichtschranke
Moteur
au Secteur
Branchement
Power Supply
Netz
Motor
Motor
blau blue bleu
Capacitor
Condensateur
Kondensator
1
braun brown brun
schwarz black noir

Mod.2240 A
01.12.2005
CROSS / CUT 3x25mm
4
&&
&
&
Reed
L
N
CC VW
U
R1
V1
T1
C1
220µF
V2
S1
S2
V4
R4
560
V5
R3
560
R7
250
V6
12/13 11 8/9 10 V3
C2
10µF R2
220K
1
2
3
5/6
4
V7
V8
R5
560
D2
R6
F1
V9
560
1
M
Stromlaufplan 2240 A Cross/Cut
schema de
circuit électrique 2240 A Cross/Cut
wiring diagram 2240 A Cross/Cut
2240 231