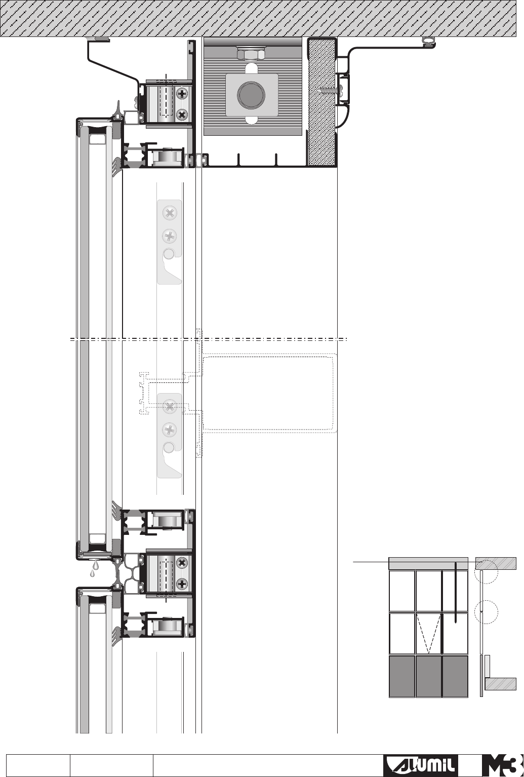
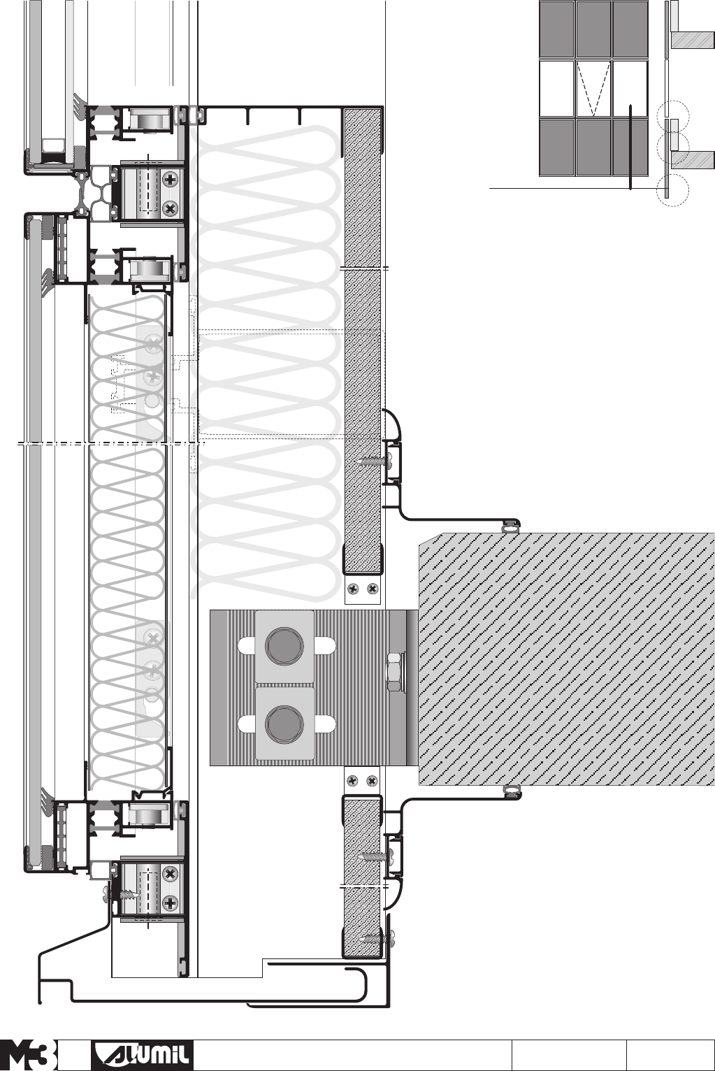
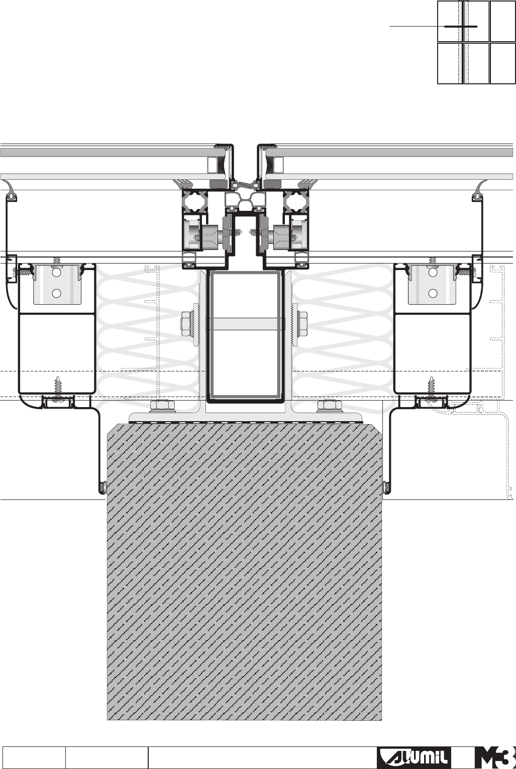
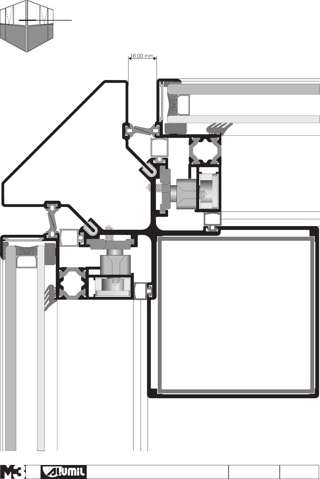
ALUMIL S.A. M3 SOLAR SEMI STRUCTURAL CURTAIN WALL Series 231GR M M3solarsemistructural
User Manual: 231GR-M
Open the PDF directly: View PDF
.
Page Count: 145 [warning: Documents this large are best viewed by clicking the View PDF Link!]


SOLAR SEMI STRUCTURAL
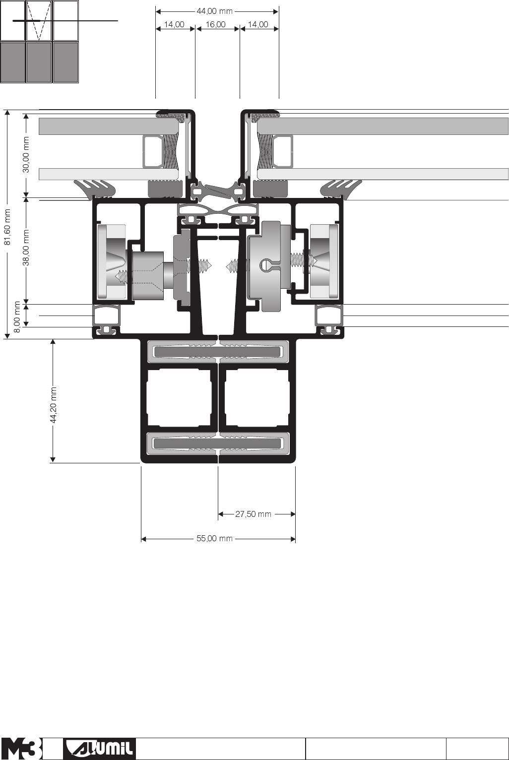
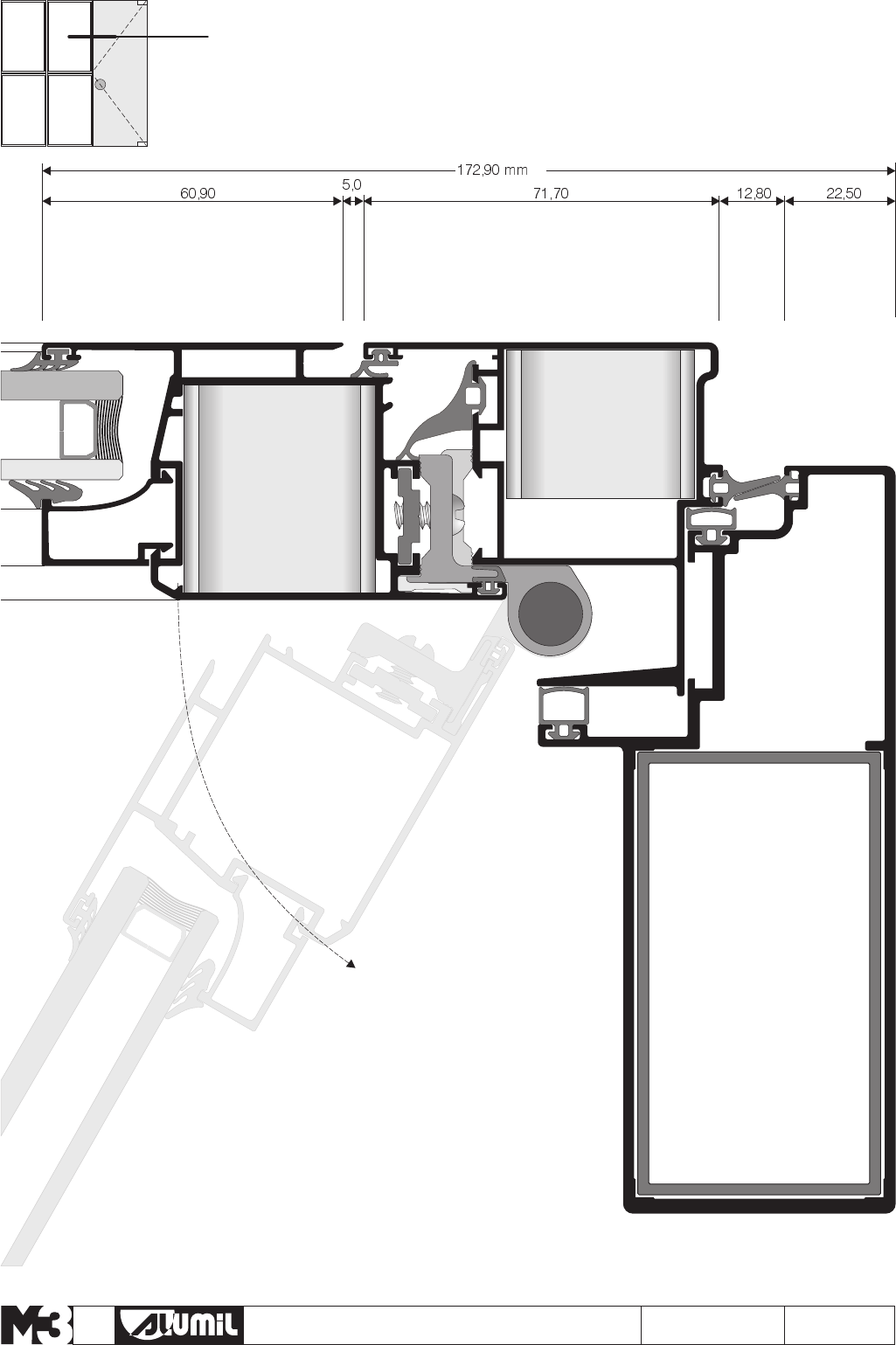
2
R=1:4
Profiles
M 9956
M 9959
M 9951
M3-
M3-
M3-
M3-
M3-
M3-
M 9952
M 9954
M 109954
3692
3823
2850
2255
2711
2117
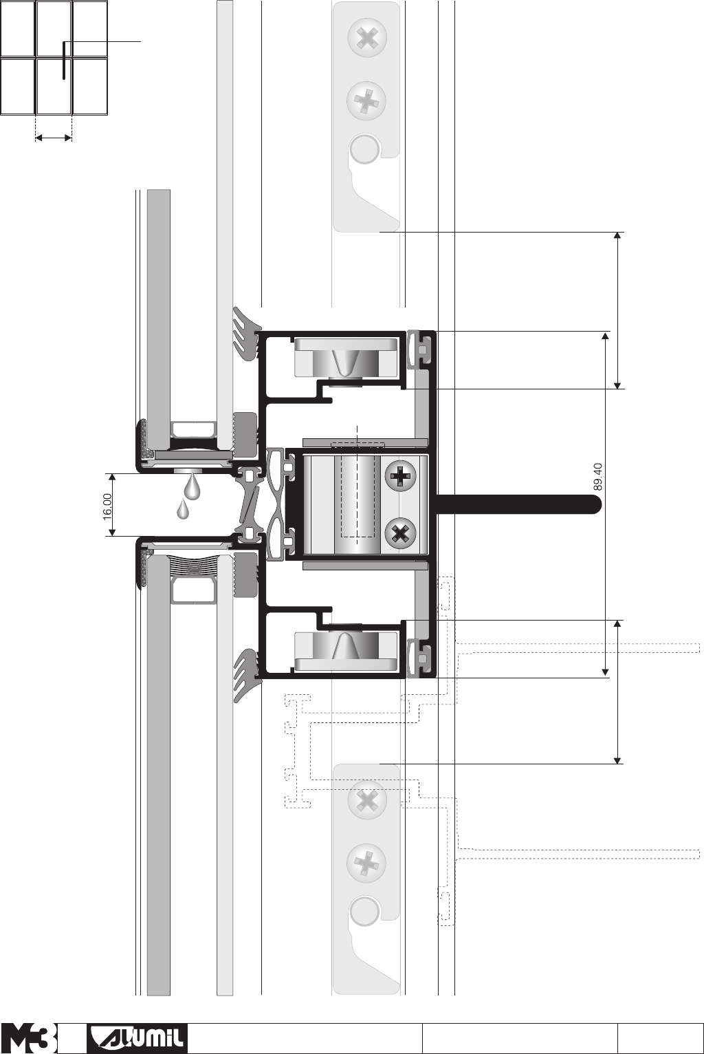
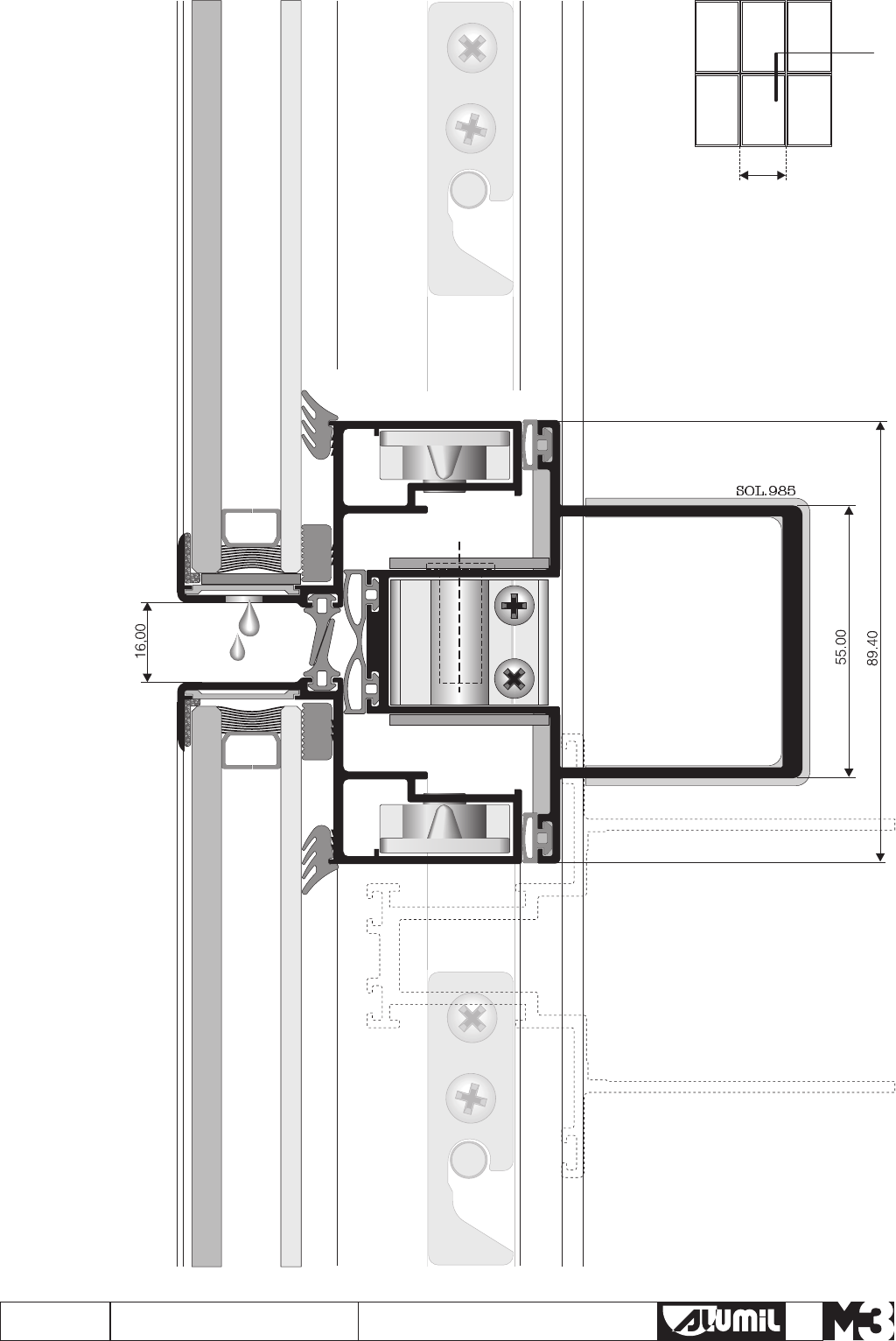
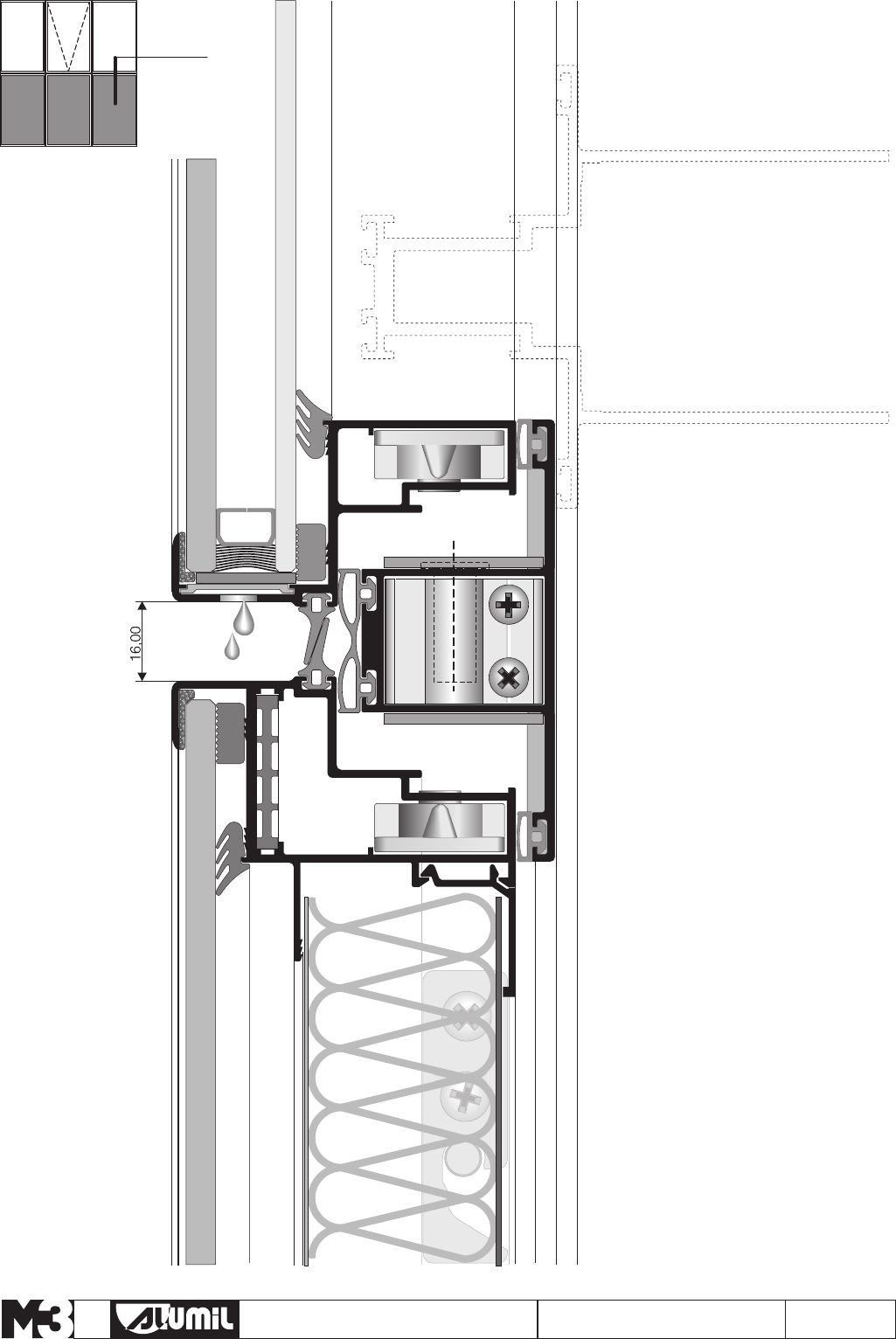
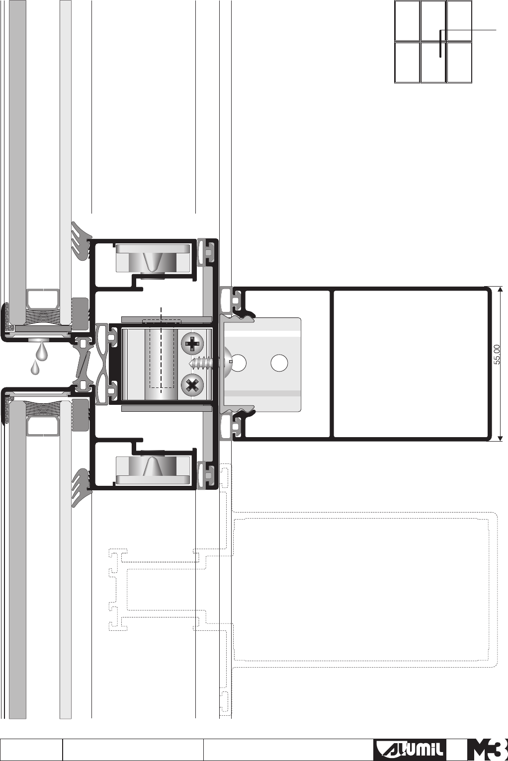
89,40-177,90
89,40-143,40
89,40-137,90
89,40-87,90
72,20-150,90
72,20-100,90
64,00
57,10
49,81
34,30
50,63
34,01
493,37
383,95
222,41
66,82
248,38
87,07

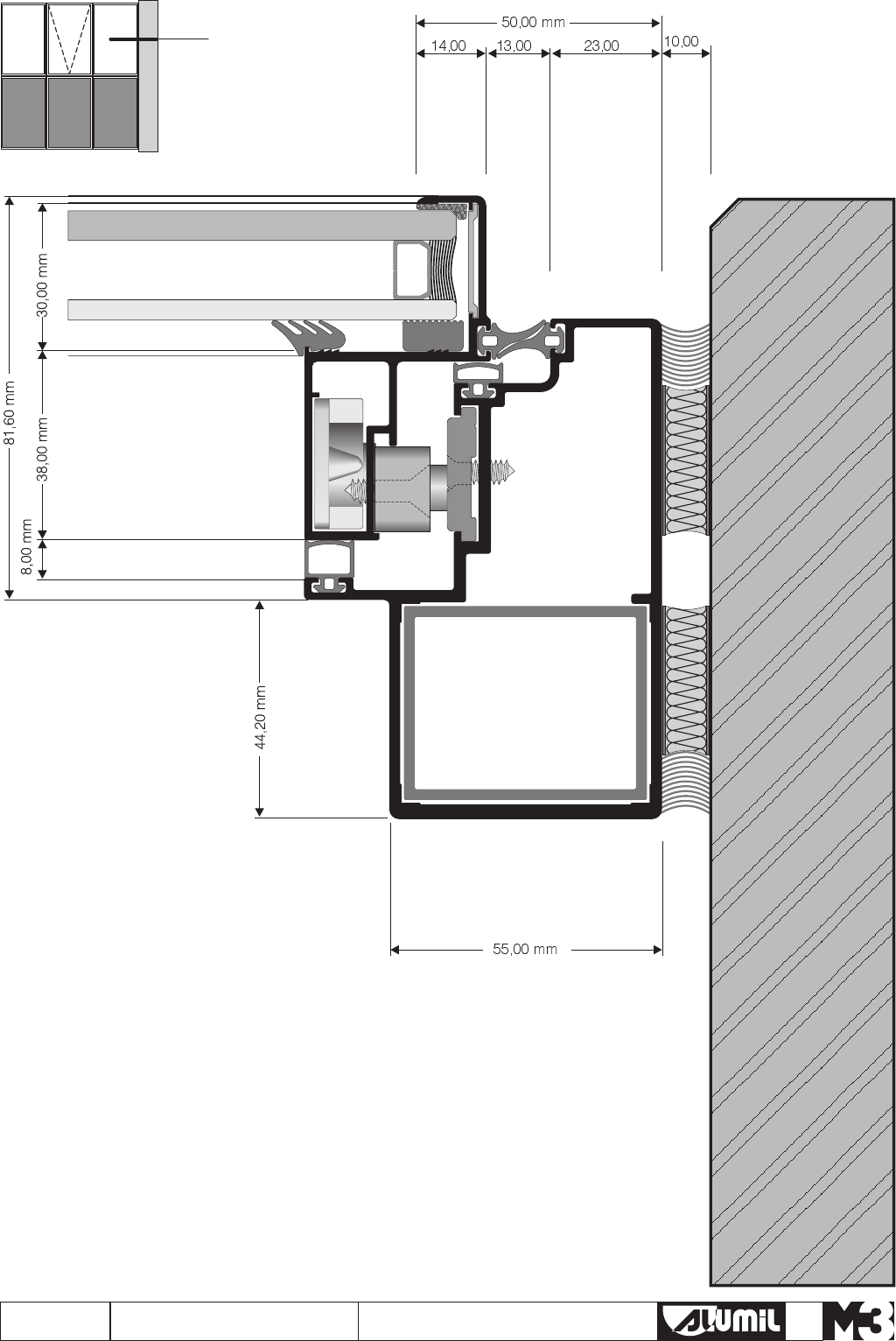
SOLAR SEMI STRUCTURAL
3
R=1:4 Profiles
M3-
M3-
M3-
M3-
M3-
M 9958
M 9901
M 9953
M 109953
M 9945
652
2392
2304
1710
2363
40,20-49,80
55,00-120,50
44,70-137,90
44,70-87,90
55,00-118,40
1,43
37,68
10,29
6,83
38,18
8,28
145,68
147,55
39,78
154,19
M 9964 3116 71,60-146,70 M3-
267,40 45,72

SOLAR SEMI STRUCTURAL
4
R=1:4
Profiles
M 9967
M 9966
M 9963
M3-
M3-
M3-
M3-
M3-
M3-
M 9965
M 9977
M 9957
2918
3581
3552
1925
1779
2118
153,30-109,30
133,30-133,30
137,90-137,90
76,10-97,85
128,00-48,35
159,00-46,20
209,13
188,60
231,51
18,79
11,42
132,66
134,97
188,60
231,51
65,61
62,12
13,70

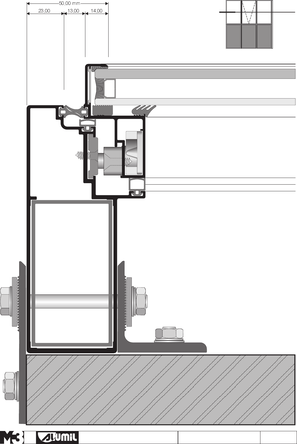
SOLAR SEMI STRUCTURAL
5
R=1:4 Profiles
M3-
M3-
M3-
M3-
M 9955
M 9975
M 9976
M109975
1056
1626
1666
1556
89,40-39,00
89,40-81,50
109,50-47,20
102,80-47,20
16,60
16,64
11,41
11,75
9,35
29,76
37,31
30,57
M3-
M3-
M 10980
M 10981
1536
739
103,90-43,30
44,25-41,25
62,63
6,01
9,83
3,24

SOLAR SEMI STRUCTURAL
6
R=1:4
Profiles
M3-
M3-
M 9971
M 9972
616
940
93,95-26,50
132,00-26,50
22,69
62,73
0,91
1,05
M3-
M3-
M3-
M 9950
M 109955
M 9974
2013
876
1316
89,40-87,90
59,20-39,00
55,00-92,00
35,09
11,47
25,50
67,15
4,86
46,22
M 9973 1373 70,00-92,00 M3-
50,75 27,54

SOLAR SEMI STRUCTURAL
7
R=1:4 Profiles
M 9968
M 9969
M 9888
M3-
M3-
M3-
M3-
M3-
M3-
M 9948
M 9960
M 109969
195
780
1257
221
358
780
21,00-16,50
84,70-29,50
72,60-71,50
27,50-16,50
79,90-8,00
29,50-34,70
0,50
29,33
17,40
0,95
7,64
1,39
0,18
1,83
28,43
0,20
0,11
3,64

SOLAR SEMI STRUCTURAL
8
R=1:4
Profiles
M 9970 M3-
M3-
M3-
M3-
M 9961
M 9962
M 9998
313
1178
783
1201
36,60-51,70
186,50-61,50
72,60-48,00
101,80-97,80
0,30
172,44
15,44
43,01
4,27
8,16
4,05
32,81
M3-
M3-
M 9979
M 9978
358
301
20,55-37,80
19,50-29,30
0,48
0,30
1,60
0,93

SOLAR SEMI STRUCTURAL
9
R=1:4 Profiles
M 9949
M 9920
M3-
M3-
M3-
M3-
M3-
M3-
M 9997
M 9913
M 9914
M 9999
851
2065
793
585
699
1060
21,50-69,40
89,10-89,10
36,50-65,50
70,00-60,00
100,00-60,00
101,80-58,00
2,60
96,31
2,99
14,64
31,46
39,82
17,55
96,31
10,45
3,03
4,23
12,42

SOLAR SEMI STRUCTURAL
10
R=1:4
Profiles
M3-
M3-
M 9926
M 9925
994
1588
49,00-39,10
49,00-89,10
12,68
24,73
8,88
62,99
M 9941
M 9501
M 9503
M 9312
2050
965
1319
242
48,60-128,40
52,00-69,60
52,00-93,90
19,35-26,60
M3-
M3-
M3-
M3-
155,06
7,36
24,31
0,65
33,60
12,63
19,31
0,33

SOLAR SEMI STRUCTURAL
11
R=1:4 Profiles
M 9988
M 9990
1157
1174
37,60-75,60
37,60-75,60
M3-
M3-
-
-
-
-
M3-
M3-
M3-
M3-
M 9987
M 10993
M 10994
M 10995
1476
1268
1328
1570
57,50-75,60
37,60-79,40
37,60-79,40
56,60-79,40
-
-
-
-
-
-
-
-
Semi-Structural Alutherm

SOLAR SEMI STRUCTURAL
12
R=1:4
Profiles
Semi-Structural
M3-
M3-
M3-
M3-
M 9982
M 9980
M 9981
M 9983
783
873
1118
989
37,60-69,50
37,60-69,50
57,50-69,50
37,60-69,50
5,44
5,03
8,75
6,18
10,46
12,60
15,92
16,07

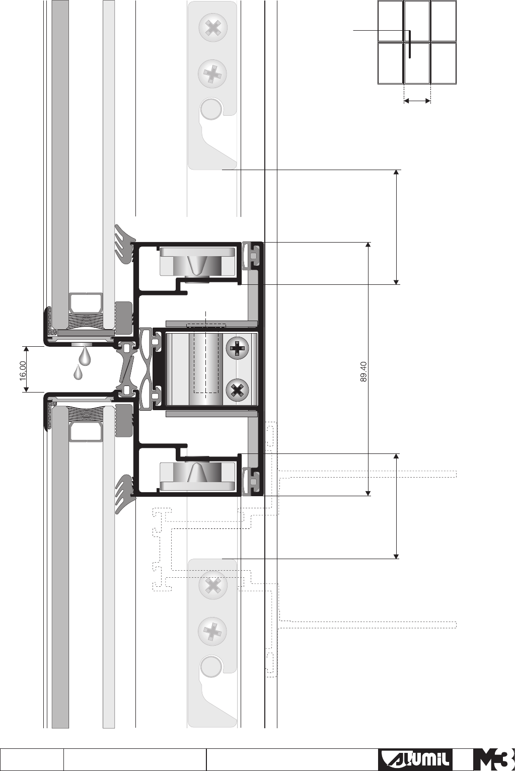
SOLAR SEMI STRUCTURAL
13
R=1:1 Profiles
Y
Y
W = 2850 gr/m
Ix = 222,41 cm4
Jy = 49,81cm4
XX
M 9951
M 9925
55,00
89,40
27,50
29,00
137,90
70,28
98,70

SOLAR SEMI STRUCTURAL
14
R=1:1
Profiles
Y
Y
W = 3823 gr/m
Ix = 383,95 cm4
Jy = 57,10 cm4
XX
M 9925
M 9959
55,00
89,40
27,50
29,00
143,40
64,83
104,20

SOLAR SEMI STRUCTURAL
15
R=1:1 Profiles
Y
Y
W = 3692 gr/m
Ix = 493,37 cm4
Jy = 64,00 cm4
XX
M 9956
M 9941
55,00
89,40
27,50
29,00
177,90
89,34
138,70

SOLAR SEMI STRUCTURAL
16
R=1:1
Profiles
Y
Y
Y
Y
W = 2255 gr/m
W = 2117 gr/m
Ix = 66,82 cm4
Ix = 85,16 cm4
Jy = 34,30 cm4
Jy = 35,91 cm4
X
X
X
X
M 9952
M 9926
M 9926
M 109954
55,00
55,00
26,78
89,40
72,20
27,50
29,00
87,90
100,90
41,77
48,70
44,35

SOLAR SEMI STRUCTURAL
17
R=1:1 Profiles
Y
Y
W = 2711 gr/m
Ix = 248,38 cm4
Jy = 50,63 cm4
XX
M 9954
M 9925
55,00
72,20
26,93
150,90
71,45

SOLAR SEMI STRUCTURAL
18
R=1:1
Profiles
Y
Y
Y
Y
W = 1710 gr/m
W =2304 gr/m
Ix = 147,55 cm4
Ix = 39,78 cm4
Jy = 10,29 cm4
Jy = 6,83 cm4
X
X
X
X
M 9953
M 9949
M 109953
44,70
14,37
27,50
44,70
14,21
137,90 87,90
63,98 37,55

SOLAR SEMI STRUCTURAL
19
R=1:1 Profiles
Y
Y
Y
Y
W = 652 gr/m
W = 2363 gr/m
Ix = 8,28 cm4
90 0- 175 0
90 0- 175 0
Ix = 154,19 cm4
Jy = 1,43 cm4
Jy = 38,18 cm4
X
X
X
X
M 9958
M 9945
M 9958
M 9925
55,00
40,20
27,50
14,02
118,40 49,80
19,06
48,03

SOLAR SEMI STRUCTURAL
20
R=1:1
Profiles
Y
Y
W = 2392 gr/m
Ix = 145,68 cm4
Jy = 37,68 cm4
XX
M 9901
M 9925
55,00
27,50
120,50
58,25
100,00

SOLAR SEMI STRUCTURAL
21
R=1:1 Profiles
Y
Y
W = 3116 gr/m
Ix = 267,40 cm4
135 0
Jy = 45,72 cm4
XX
M 9964
M 9925
55,00
71,60
27,50
146,70
76,55

SOLAR SEMI STRUCTURAL
22
R=1:1
Profiles
Y
Y
W = 3552 gr/m
90 0
Ix = 231,51 cm4
Jy = 231,51 cm4
XX
M 9963
M 9920
137,90
70,95
137,90
66,95

SOLAR SEMI STRUCTURAL
23
R=1:1 Profiles
Y
Y
W = 3581 gr/m
Ix = 188,60 cm4
90 0
Jy =188,60 cm4
XX
M 9966
133,30
71,18
133,30
62,12

SOLAR SEMI STRUCTURAL
24
R=1:1
Profiles
Y
Y
W = 2918 gr/m
135 0
Ix = 134,97 cm4
Jy = 209,13 cm4
XX
M 9967
M 9926
M 9926
153,30
77,96
109,30
52,37

SOLAR SEMI STRUCTURAL
25
R=1:1 Profiles
Y
Y
W = 1925 gr/m
Ix = 65,61 cm4
135 0
Jy = 18,79 cm4
XX
M 9965
M 9901
76,10
38,05
97,85
40,30

SOLAR SEMI STRUCTURAL
26
R=1:1
Profiles
Y
Y
Y
Y
W = 2118 gr/m
W = 1779 gr/m
Ix = 13,70 cm4
Ix = 11,42 cm4
Jy = 132,66 cm4
Jy = 62,12 cm4
120 0
150 0
X
X
X
X
M 9957
M 9977
159,00
128,00
79,50
64,00
46,20
48,35
22,91
22,85
M 9901
M9901

SOLAR SEMI STRUCTURAL
27
R=1:1 Profiles
Y
Y
Y
Y
W = 1666 gr/m
W = 1556 gr/m
Ix = 11,41 cm4
Ix = 11,75 cm4
165 0
175 0
Jy = 37,31 cm4
Jy = 30,57 cm4
X
X
X
X
M 9976
M 109975
109,50
102,80
54,75
51,40
47,20
47,20
22,10
21,50
M 9901
M9901

SOLAR SEMI STRUCTURAL
28
R=1:1
Profiles
Y
Y
Y
Y
W = 739 gr/m
W = 1536 gr/m
Ix =3,24 cm4
Ix = 9,82 cm4
Jy =6,01 cm4
Jy = 62,63 cm4
95 0120 0
-
95 0120 0
-
X
X
X
X
M 10981
M 10980
44,25
103,90
28,10
51,95
41,25
30,35
43,30
20,75
M 9901
M10981

SOL.961
SOL.961
SOLAR SEMI STRUCTURAL
29
R=1:1 Profiles
Y
Y
Y
Y
W = 1316 gr/m
W = 1373 gr/m
Ix = 46,22 cm4
Ix = 50,75 cm4
Jy = 25,50 cm4
Jy = 27,54 cm4
X
X
X
X
M 9974
M 9973
55,00
70,00
27,50
28,92
92,00
92,00
45,57
43,75

SOLAR SEMI STRUCTURAL
30
R=1:1
Profiles
Y
Y
Y
Y
W = 1056 gr/m
W = 1626 gr/m
Ix =9,35 cm4
Ix = 29,76 cm4
Jy =16,60 cm4
Jy = 16,64 cm4
X
XX
X
M 9955
M 9975
SOL.932
SOL.932
89,40
89,40
44,70
44,70
39,00
24,48
29,00
29,00
81,50
44,71

SOL.932
SOLAR SEMI STRUCTURAL
31
R=1:1 Profiles
Y
Y
Y
Y
W = 876 gr/m
W = 2013 gr/m
Ix = 7,90 cm4
Ix = 67,15 cm4
Jy =8,43 cm4
Jy = 35,09 cm4
X
X
X
X
M 109955
M 9950
59,20
89,40
38,33
44,70
29,00
29,00
39,00
87,90
16,87
37,05
SOL.932

SOLAR SEMI STRUCTURAL
32
R=1:1
Profiles
Y
Y
Y
Y
Y
Y
W = 616 gr/m
W = 940 gr/m
W = 1257 gr/m
Ix =0,91 cm4
Ix = 1,05 cm4
Ix = 28,43 cm4
Jy =22,69 cm4
Jy = 62,73 cm4
Jy =17,40 cm4
X
X
X
X
X
X
M 9971
M 9972
M 9888
93,95
132,00
72,60
40,40
59,59
16,00
27,15
26,50
21,55
26,50
71,50
22,53
40,50

SOLAR SEMI STRUCTURAL
33
R=1:1 Profiles
Y
Y
Y
Y
Y
Y
W = 780 gr/m
W = 358 gr/m
W = 780 gr/m
Ix = 1,83 cm4
Ix = 0,11 cm4
Ix = 3,64 cm4
Jy = 29,33 cm4
Jy = 7,64 cm4
Jy = 6,66 cm4
X
X
X
X
X
X
M 9969
M 9960
M 9351
M 109969
84,70
79,90
34,70
42,35
38,95
17,35
29,50
8,00
29,50
22,60
4,95
10,61

SOLAR SEMI STRUCTURAL
34
R=1:1
Profiles
W = 195 gr/m
W = 301 gr/m
W = 783 gr/m
W = 221 gr/m
W = 358 gr/m
W = 313 gr/m
M 9968
M 9978
M 9962
M 9948
M 9979
M 9970
21,00
19,50
72,60
27,50
20,55
36,60
16,5029,30
48,00
16,5037,80
51,70
Ix =0,93 cm4
Ix =1,60 cm4
Jy=0,30 cm4
Jy=0,48 cm4

SOLAR SEMI STRUCTURAL
35
R=1:1 Profiles
Y
Y
W = 1178 gr/m
Ix = 172,44 cm4
Jy = 8,16 cm4
XX
M 9961
M 9962
61,50
17,90
51,49
186,50
78,56

SOLAR SEMI STRUCTURAL
36
R=1:1
Profiles
Y
Y
Y
Y
W = 1201 gr/m
W = 1060 gr/m
Ix =32,81 cm4
Ix =12,42 cm4
Jy =43,01 cm4
Jy =39,82 cm4
X
X
X
X
M 9998
M 9999
101,80
101,80
50,90
50,90
97,80
58,00
49,93
39,34

SOLAR SEMI STRUCTURAL
37
R=1:1 Profiles
Y
Y
Y
Y
Y
Y
W = 699 gr/mW = 585 gr/m
W = 793 gr/m
Ix = 31,46 cm4
Ix = 14,64 cm4
Ix = 10,45 cm4
Jy = 4,23 cm4
Jy = 3,03 cm4
Jy = 2,99 cm4
X
X
X
X
X
X
M 9914M 9913
M 9010
M9010
M 9997
60,00
60,00
36,50
19,46
13,82
18,25
70,00
100,00
65,50
21,10
32,45
35,75

SOLAR SEMI STRUCTURAL
38
R=1:1
Profiles
Y
Y
Y
Y
Y
Y
XX
XX
XX
W = 994 gr/m
M 9926
49,00
39,10
24.50
19.55
Ix = 8,88 cm 4
W = 2050 gr/m W = 851 gr/m
M 9941 M 9949
48,60
21,50
128,40
69,40
34,70
24.30
64,20
Ix = 155,06 cm 4Ix = 17,55 cm 4
Jy = 33,60 cm 4Jy = 2,60 cm 4
Jy = 12,68 cm 4

SOLAR SEMI STRUCTURAL
39
R=1:1 Profiles
Y
Y
Y
Y
X
XX
X
W = 1588 gr/m
W = 2065 gr/m
M 9925
M 9920
49,00
89,10
24.50
44.55
89,10
44,55
44.55
89,10
Ix = 62,99 cm 4
Ix = 96,31 cm 4
Jy = 24,73 cm 4
Jy = 96,31 cm 4

MO.20
SOLAR SEMI STRUCTURAL
40
R=1:1
Profiles
W = 965 gr/m
W = 1319 gr/m
W = 242 gr/m
M 9501
M 9503
M 9312
13,50
19,35
52,00
52,00
MO.42.01
MO.20
21,70
22,00 22,00
26,60
69,60 93,90
Ix = 24,31 cm 4
Ix = 0,65 cm 4
Ix = 7,36 cm 4
Jy = 19,31 cm 4
Jy = 0,33 cm 4
Jy =12,63 cm 4
11.38.40

MS.04
SOLAR SEMI STRUCTURAL
41
R=1:1 Profiles
W = 873 gr/m
W = 783 gr/m
W = 989 gr/m
W = 1118 gr/m
M 9980
M 9982
M 9983
M 9981
M 9313
37,60
37,60
37,60
57,50
69,50 69,50
69,50 69,50
MS.04
MS.04
MS.04
SOL.948
SOL.948
14,00
14,00
14,00
14,00
30,00 30,00
13,50
13,50
SOL.949
SOL.949
Ix = 10,46 cm 4Ix = 15,92 cm 4
Ix = 12,60 cm 4Ix = 16,07 cm 4
Jy = 5,44 cm 4Jy = 8,75 cm 4
Jy = 5,03 cm 4Jy = 6,18 cm 4

SOLAR SEMI STRUCTURAL
42
R=1:1
Profiles
W = 1476 gr/m
M 9987
M 9313
57,50
75,60
W = 1174 gr/m W = 1157 gr/m
M 9990
MO.41
MO.41
MO.41
M 9988
37,60 37,60
75,60
75,60
14,00 14,00
14,00
30,00
30,00
13,50
SOL.948 SOL.948
SOL.949
Ix = 14,77 cm 4Ix = 16,49 cm 4
Ix = 20,76cm 4
Jy = 6,13 cm 4Jy = 6,14 cm 4
Jy = 9,44 cm 4

SOLAR SEMI STRUCTURAL
43
R=1:1 Profiles
W = 1570 gr/m
M 9313
M 10995
56,60
79,40
W = 1268 gr/m W = 1328 gr/m
MO.41
MO.41 MO.41
M 10993 M 10994
37,60 37,60
79,40
79,40
14,00
14,00 14,00
13,50
13,50
13,50
11.33-06
11.15-06 11.15-06
Ix = 19,93cm 4Ix = 22,65cm 4
Ix = 24,51cm 4
Jy = 6,42 cm 4Jy = 6,66 cm 4
Jy = 12,47 cm 4

SOLAR SEMI STRUCTURAL
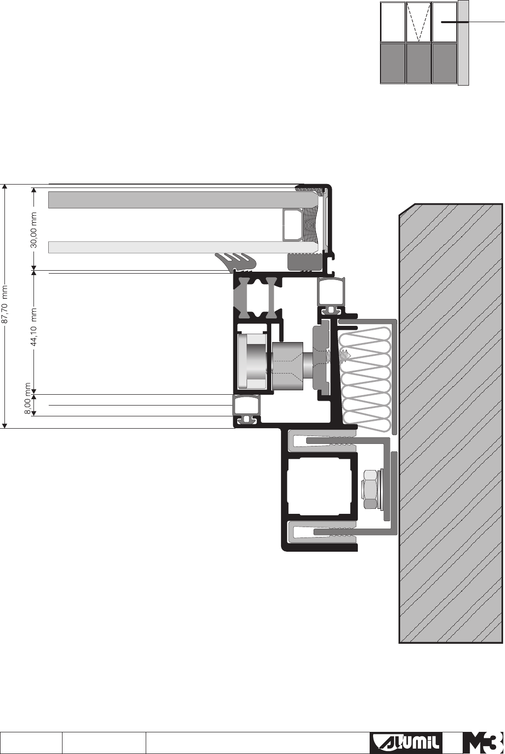
44
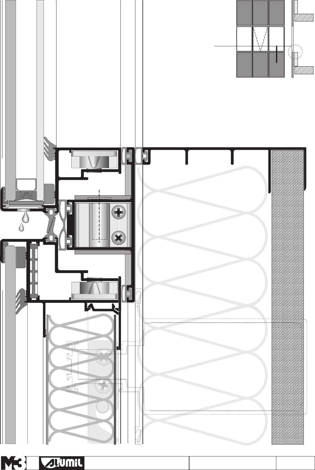
R=1:1
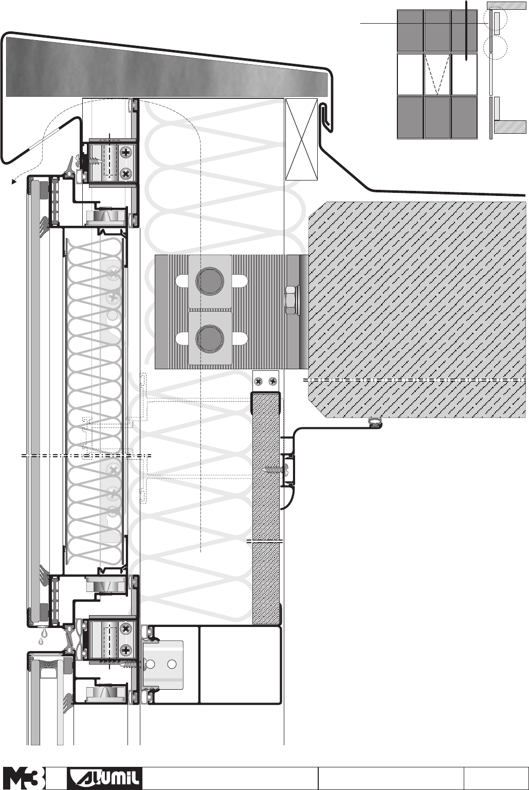
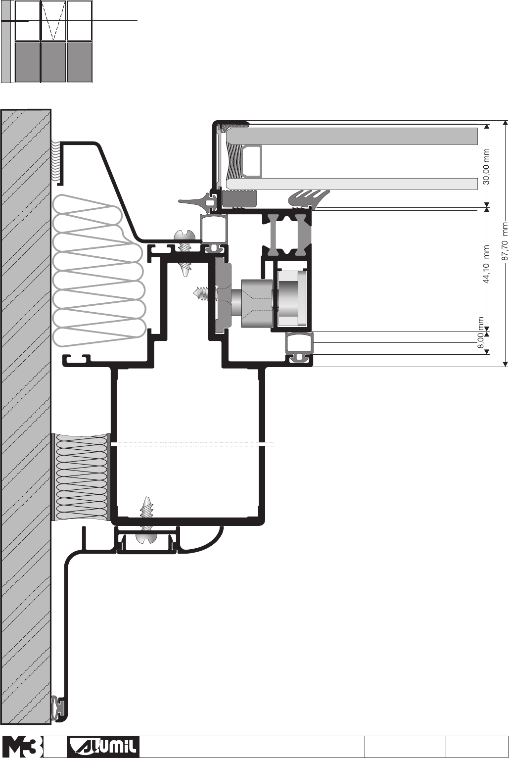
Section 1.
SOL.944.08
SOL.944.08
SOL.945.08
M 9982
SOL.942
MS.04
SOL.948
6-12-4
SOL.946 SOL.946
SOL.930
SOL.931
SOL.941 SOL.941
6-12-4
SOL.920.0+
M 9980
M 9952
M 9951
M 9959
M 9956
M 9926
M 9925
M 9941
1.
MS.04
SOL.945.08
SOL.943.05
SOL.948

SOLAR SEMI STRUCTURAL
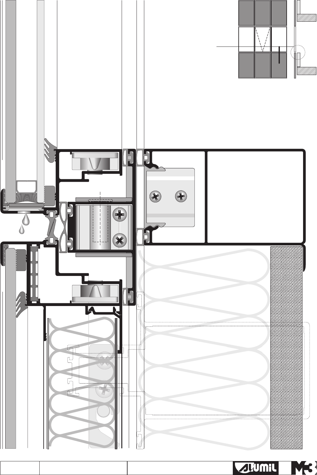
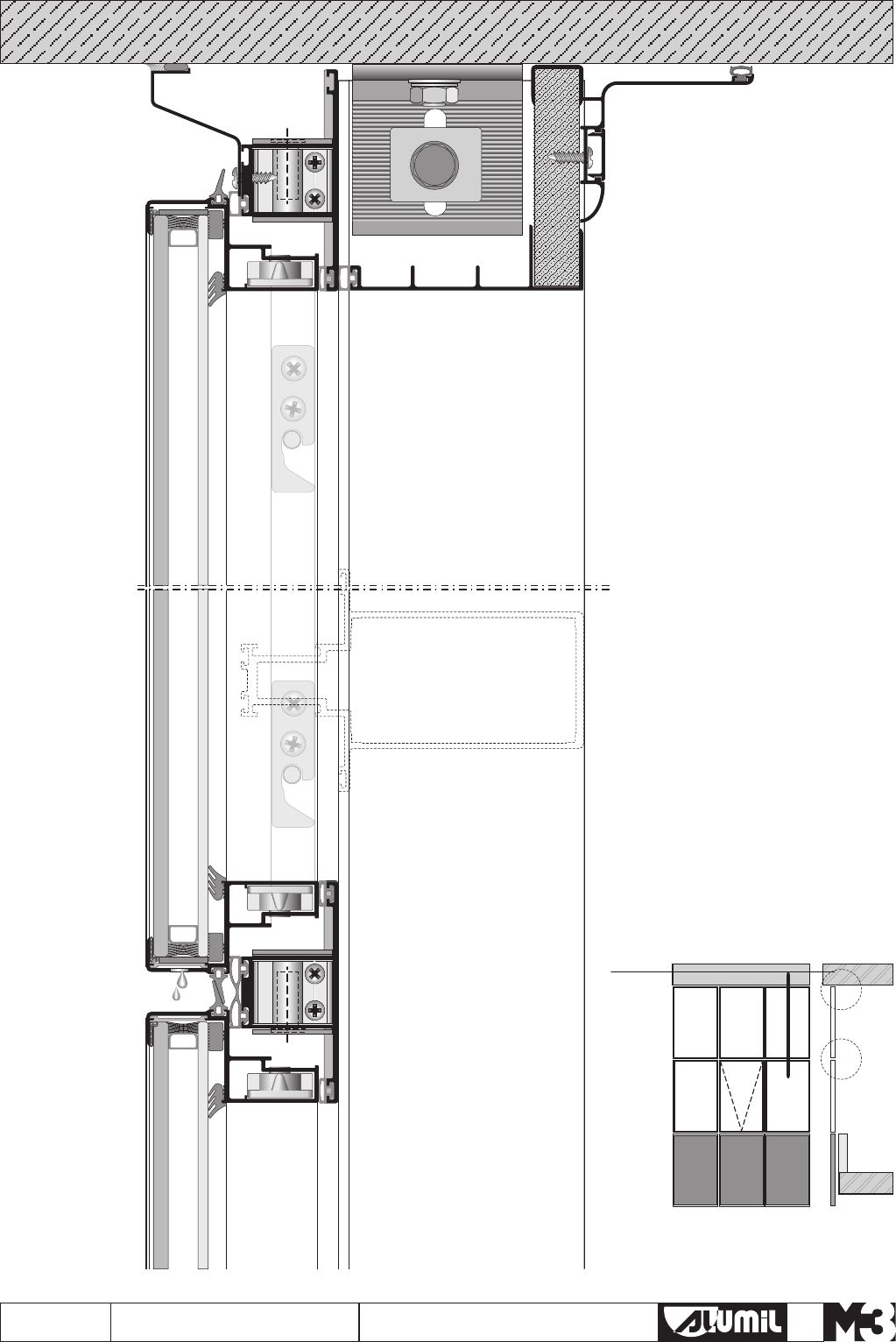
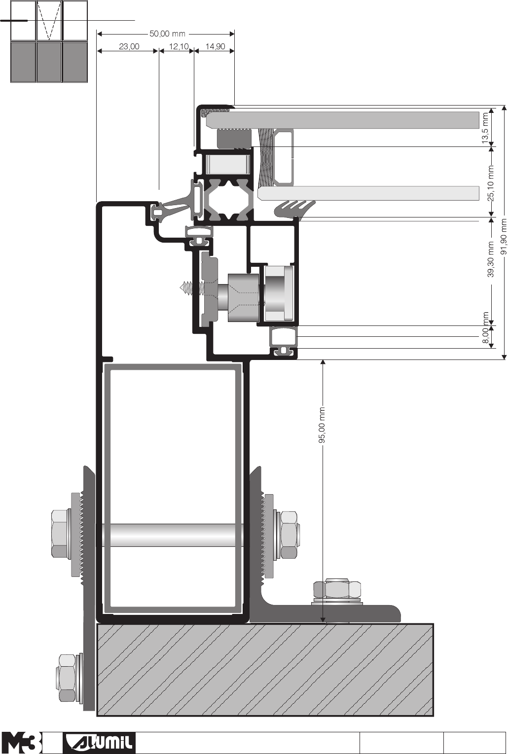
45
R=1:1 Section 2.
SOL.944.08
SOL.944.08
SOL.945.08
SOL.942
MS.04
SOL.946 SOL.946
SOL.930
SOL.931
SOL.941 SOL.941
M 9952
M 9951
M 9959
M 9956
M 9926
M 9925
M 9941
2.
M 9983 SOL.949 SOL.949 M 9981
M 9313
SOL.943.05
SOL.945.08
MS.04
SOL.931
SOL.930

SOLAR SEMI STRUCTURAL
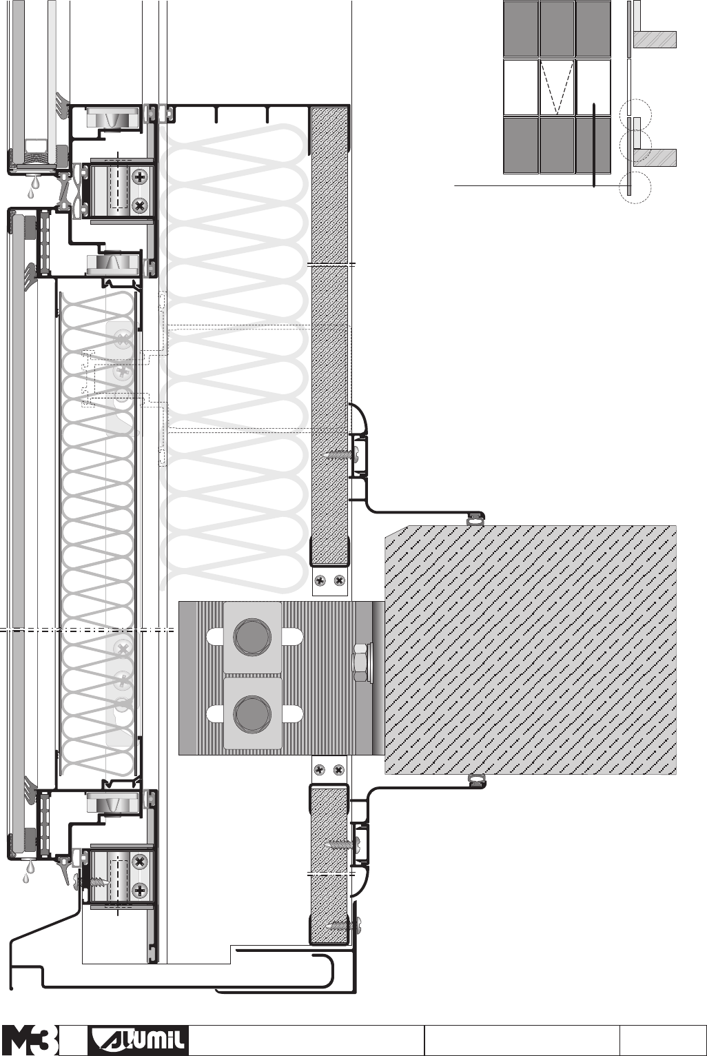
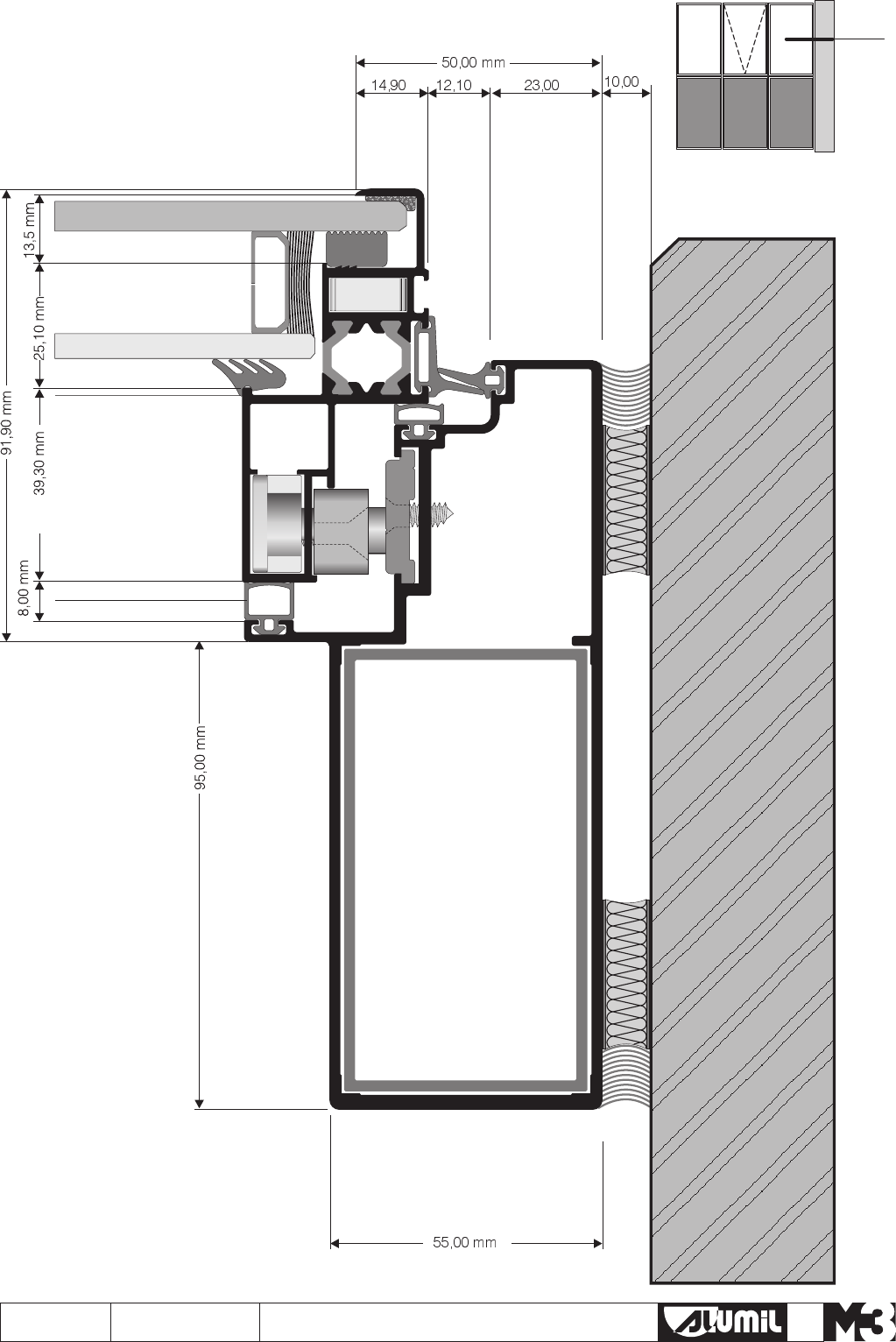
46
R=1:1
Section 3.
SOL.944.08 SOL.944.08
SOL.945.08
M 9982
SOL.942
MS.04
SOL.948
6-12-4
SOL.946 SOL.946
SOL.930
SOL.931
SOL.941 SOL.941
SOL.943.05
6-12-4
SOL.920.0+
M 9980
M 9953
M 9953
M 9949
M 9949
3.
48X3mm
48X3mm
SOL.959
SOL.959
MS.04
SOL.945.08
SOL.948

SOLAR SEMI STRUCTURAL
47
R=1:1 Section 4.
SOL.944.08 SOL.945.08
M 9982
SOL.942
SOL.004
SOL.004
Silicone
Silicone
MS.04
SOL.948
6-12-4
SOL.946
SOL.930
SOL.931
SOL.941
SOL.940
M 9954
M 9925
4.

SOLAR SEMI STRUCTURAL
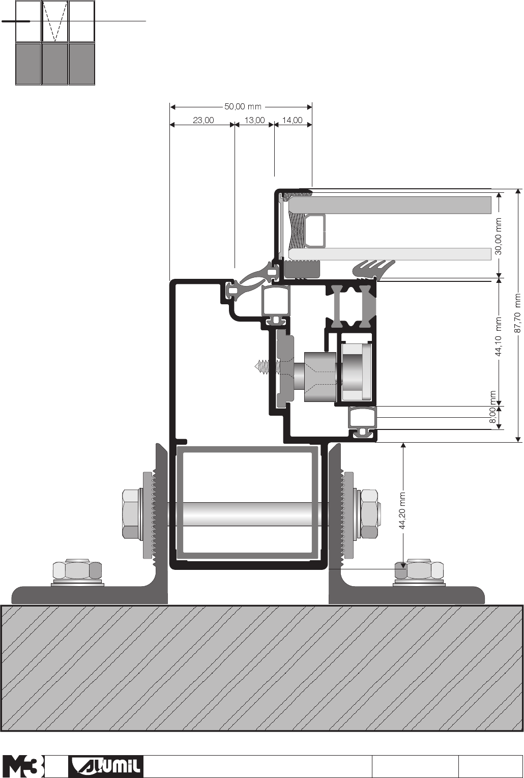
48
R=1:1
Section 3a.
SOL.944.08 SOL.944.08
SOL.945.08
M 9982
SOL.942
MS.04
SOL.948
6-12-4
SOL.946 SOL.946
SOL.930
SOL.931
SOL.941 SOL.941
SOL.943.05
6-12-4
SOL.920.0+
M 9980
M 109953
M 109953
3a.
48X3mm
48X3mm
SOL.959
SOL.959
MS.04
SOL.945.08
SOL.948

SOLAR SEMI STRUCTURAL
49
R=1:1 Section 4a.
SOL.944.08 SOL.945.08
M 9982
SOL.942
SOL.004
SOL.004
Silicone
Silicone
MS.04
SOL.948
6-12-4
SOL.946
SOL.930
SOL.931
SOL.941
SOL.940
M 109954
M 9926
4a.

SOLAR SEMI STRUCTURAL
50
R=1:1
Section 4b.
M 9954
M 9925
SOL.944.08
SOL.945.08
M 9982
SOL.942
MS.04
SOL.948
6-12-4
SOL.946
SOL.930
SOL.931
SOL.941
SOL.921
SOL.940
4b.
SOL.924

SOLAR SEMI STRUCTURAL
51
R=1:1 Section 4c.
SOL.944.08 SOL.945.08
M 9982
M 9953
M 9949
M 9969
SOL.942
MS.04
SOL.948
6-12-4
SOL.946
SOL.930
SOL.931
SOL.941
SOL.940
4c.
SOL.959
SOL.959
L20X40mm

SOLAR SEMI STRUCTURAL
52
R=1:1
Section 4d.
SOL.944.08
SOL.945.08
M 9982
SOL.942
MS.04
SOL.948
6-12-4
SOL.946
SOL.930
SOL.931
SOL.941
SOL.921SOL.921
SOL.940
4d.
SOL.924SOL.924
M 109954
M 9926

SOLAR SEMI STRUCTURAL
53
R=1:1 Section 4e.
SOL.944.08 SOL.945.08
M 9982
M 109953
SOL.942
MS.04
SOL.948
6-12-4
SOL.946
SOL.930
SOL.931
SOL.941
SOL.940
4e.
SOL.959
SOL.959
L20X40mm
L30X30mm
L30X30mm

SOLAR SEMI STRUCTURAL
54
R=1:1
Section 4f.
M 9951
M 9952
M 9956
M 9959
SOL.944.08
SOL.945.08
M 9982
M 9970
M 9913
M 9010
SOL.942
Silicone
MS.04
SOL.948
6-12-4
SOL.946
SOL.930
SOL.931
SOL.941
SOL.940
4f.
MO.60
SOL.004

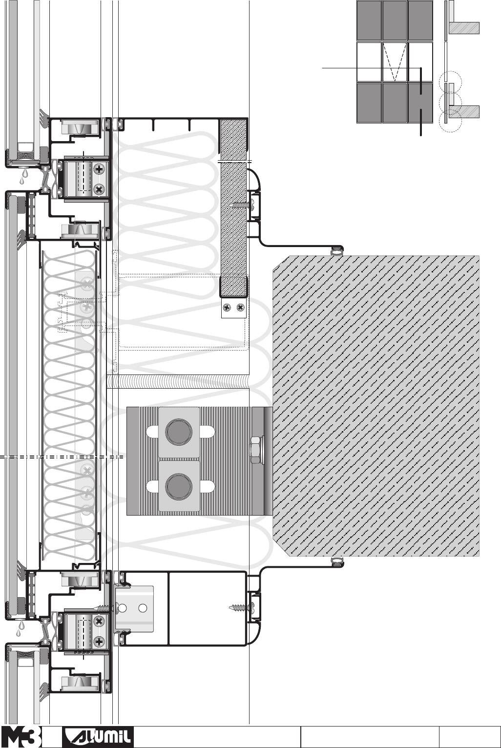
SOLAR SEMI STRUCTURAL
55
R=1:1 Section 5.
5.
min 10 cm
max 20 cm
min 10 cm
max 20 cm
M 9982
M 9982
SOL.945.08
SOL.945.08
SOL.944.08
SOL.944.08
SOL.940
SOL.940
SOL.932
SOL.942
SOL.933
MS.04
MS.04
M 9955
SOL.948
SOL.946
SOL.946
Pad2mm
a
a=
<120cm
SOL.931
SOL.943.05
Hole 5X20 mm
SOL.931
SOL.930
SOL.930

SOLAR SEMI STRUCTURAL
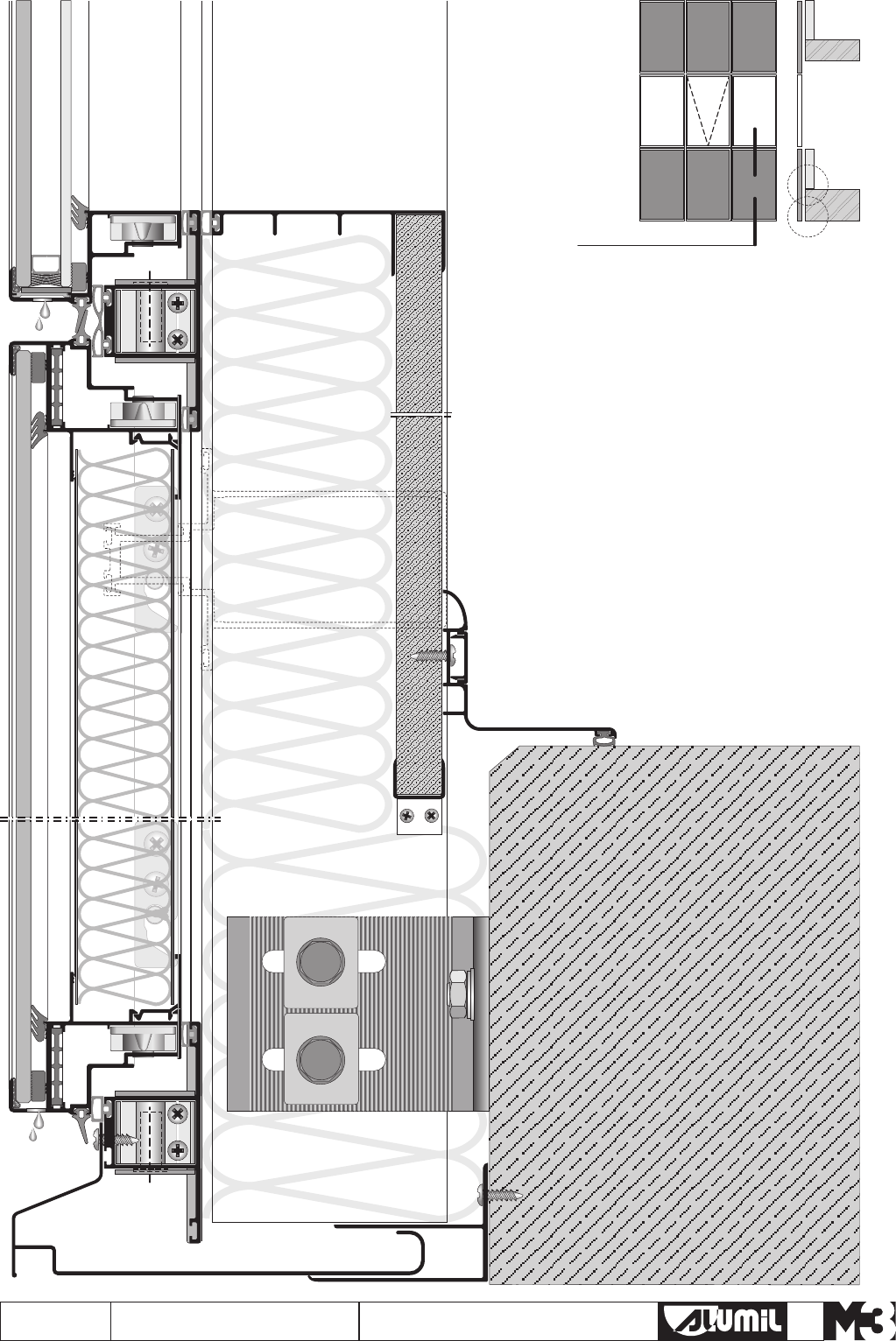
56
R=1:1
Section 5a.
5a.
min 10 cm
max 20 cm
min 10 cm
max 20 cm
M 9982
M 9982
SOL.945.08
SOL.945.08
SOL.944.08
SOL.944.08
SOL.940
SOL.940
SOL.943.05
SOL.932
SOL.942
SOL.933
MS.04
MS.04
M 9975
SOL.948
SOL.946
SOL.946
Pad2mm
a
a=100-150cm
SOL.931
SOL.931
SOL.930
Hole 5X20 mm
SOL.930

SOLAR SEMI STRUCTURAL
57
R=1:1 Section 5b.
5b.
M 9982
M 9982
SOL.945.08
SOL.945.08
SOL.944.08
SOL.944.08
SOL.940
SOL.940
SOL.943.05
SOL.932
SOL.942
SOL.933
MS.04
MS.04
M 9950
SOL.948
SOL.946
SOL.946
Pad2mm
a
a=
>140cm
SOL.931
SOL.930
SOL.931
SOL.930
Hole 5X20 mm

SOLAR SEMI STRUCTURAL
58
R=1:1
Section 5c.
M 9981
M 9313
M 9982
SOL.945.08
SOL.945.08
SOL.944.08
SOL.944.08
SOL.940
SOL.940
SOL.943.05
SOL.932
SOL.942
SOL.933
MS.04
MS.04
M 9955
SOL.946
SOL.946
Pad2mm
SOL.931
SOL.930
5c.
Hole 5X20 mm
SOL.948
SOL.949

SOLAR SEMI STRUCTURAL
59
R=1:1 Section 5d.
SOL.944.08
SOL.940
SOL.940
SOL.933
M 9974
5d.
M 9982
M 9982
SOL.940
SOL.940
MS.04
MS.04 M 9955
SOL.961
Hole 5X20 mm
SOL.948
SOL.944.08
SOL.946
SOL.946
Pad2mm
SOL.945.08SOL.945.08
SOL.942
SOL.943.05
SOL.932

SOLAR SEMI STRUCTURAL
60
R=1:1
Section 5e.
M 9981
M 9313
M 9982 SOL.940
SOL.940
SOL.932
SOL.933
SOL.946
SOL.942
SOL.949
SOL.945.08
SOL.945.08
SOL.944.08
SOL.944.08
SOL.946
MS.04
MS.04
M 9955
M 9971
SOL.931
SOL.930
5e.
Pad2mm
Hole 6X20mm

SOLAR SEMI STRUCTURAL
61
R=1:1 Section 5f.
SOL.933
SOL.942
SOL.949
SOL.945.08
SOL.946
M 9981
M 9313
M 9982
SOL.940
SOL.961
MS.04
M 9955
M 9973
SOL.931
SOL.930
5f.
Pad2mm
MS.04
SOL.944.08
SOL.946
SOL.945.08
SOL.932
SOL.940
SOL.944.08
Hole 6X20mm

SOLAR SEMI STRUCTURAL
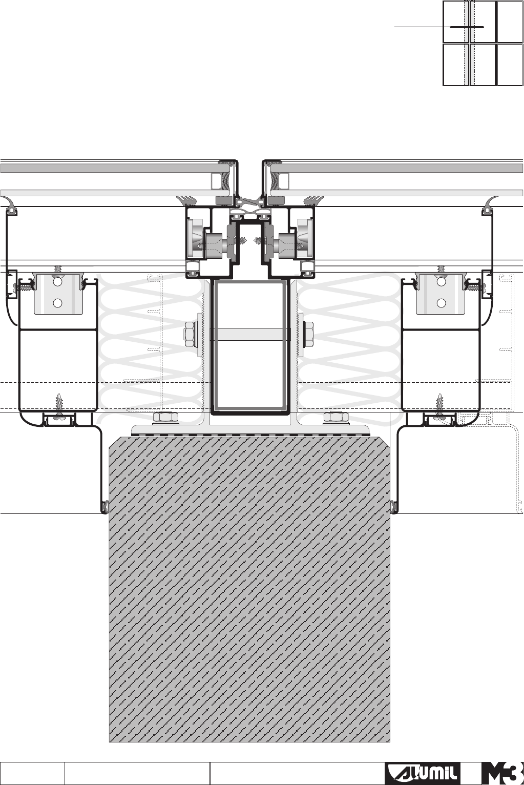
62
R=1:2
Section 6.
M 9313
M 9010
M 9010
M 9313
M 9982
M 9982
M 9971
M 9968
M 9913
M 9913
M 9955
M 9955
M 9974
6.
M 9981
M 9981

SOLAR SEMI STRUCTURAL
63
R=1:2 Section 7.
M 9313
M 9010
M 9313
M 9982 M 9971
M 9968
M 9913
M 9955
M 9961
M 9962
7.
M 9981
M 9981
M 9955

SOLAR SEMI STRUCTURAL
64
R=1:2
Section 7a.
M 9313
M 9010
M 9313
M 9982 M 9971
M 9913
M 9955
M 9970
7a.
M 9981
M 9981

SOLAR SEMI STRUCTURAL
65
R=1:2 Section 7b.
M 9982
M 9982
M 9982
M 9955
M 9970
7b.
M 9971
M 9968
M 9010
M 9913

SOLAR SEMI STRUCTURAL
66
R=1:2
Section 7c.
M 9313
M 9010
M 9313
M 9982 M 9971
M 9913
M 9955
7c.
M 9981
M 9981
M 109955

SOLAR SEMI STRUCTURAL
67
R=1:2 Section 8.
M 9913
M 9313
M 9010
M 9313
M 9982
M 9913
M 109955
M 9955
M 9973
8.
M 9968
M 9981
M 9981
M 9010

SOLAR SEMI STRUCTURAL
68
R=1:2
Section 8a.
M 9313
M 9010
M 9313
M 9982
M 9913
M 9955
M 9955
M 9973
8a.
M 9968
INOX-AL. LIM
INFILTRATION
M 9981
M 9981

SOLAR SEMI STRUCTURAL
69
R=1:2 Section 8b,
M 9982
M 9982
M 9982
M 9955
M 9970
8b.
M 9971
M 9968
M 9010
M 9913

SOLAR SEMI STRUCTURAL
70
R=1:2
Section 9.
M 9313
M 9010
M 9010
M 9313
M 9982 M 9971
M 9968
M 9968
M 9968
M 9913
M 9913
M 9955
M 9961 M 9962
9.
M 9955
M 9981
M 9981

SOLAR SEMI STRUCTURAL
71
R=1:2 Section 10.
M 9982
M 9982
M 9951
M 9974
M 9974
M 9960 M 9960
10.
M 9010
M 9351
M 9351
M9971
M 9913

SOLAR SEMI STRUCTURAL
72
R=1:2
Section 11.
M 9982
M 9974
M 9974
M 9960 M 9960
11.
M 9010
M 9351
M 9351
M9971
M9913

SOLAR SEMI STRUCTURAL
73
R=1:1 Section 12.
SOL.944.08
SOL.944.08
SOL.945.08
SOL.945.08
M 9982
M 9958
M 9958
M 9945
M 9925
M 9982
MS.04
MS.04
SOL.948
SOL.948
SOL.946 SOL.946
SOL.930 SOL.930
SOL.931 SOL.931
SOL.941 SOL.941
SOL.980
12.
90 -175
oo

SOLAR SEMI STRUCTURAL
74
R=1:1
Section 13.
SOL.944.08 SOL.945.08
M 9982
M 9966
SOL.942
SOL.942
MS.04
SOL.948
SOL.946
SOL.946
SOL.930
SOL.931
SOL.941
SOL.941
SOL.940
SOL.940
M 9982
13. 90o
SOL.948
MS.04
SOL.931
SOL.930
SOL.946
SOL.945.08
SOL.944.08

SOLAR SEMI STRUCTURAL
75
R=1:1 Section 13a.
SOL.944.08 SOL.945.08
M 9982
M 9963
M 9920
M 9999
SOL.942
MS.04
SOL.948
SOL.946
SOL.930
SOL.931
SOL.960
SOL.941
SOL.940
SOL.940
M 9982
13a.
90o
SOL.930
SOL.931
SOL.941
MS.04
SOL.944.08
SOL.945.08
SOL.960
SOL.942
SOL.948
SOL.946

SOLAR SEMI STRUCTURAL
76
R=1:1
Section 14.
135o
SOL.944.08 SOL.944.08
SOL.945.08 SOL.945.08
M 9982 M 9982
M 9964
MS.04
MS.04
SOL.948 SOL.948
SOL.946 SOL.946
SOL.930 SOL.930
SOL.931 SOL.931
SOL.941 SOL.941
M 9925
14.
SOL.980

SOLAR SEMI STRUCTURAL
77
R=1:1 Section 14a.
135o
SOL.944.08 SOL.944.08
SOL.945.08 SOL.945.08
M 9982 M 9982
M 9965
M 9901
SOL.942 SOL.942
MS.04 MS.04
SOL.948 SOL.948
SOL.946 SOL.946
SOL.940
SOL.930 SOL.930
SOL.931 SOL.931
SOL.941 SOL.941
M 9925
14a.

SOLAR SEMI STRUCTURAL
78
R=1:1
Section 15.
135o
M 9982
M 9982
M 9967
M 9926
M 9926
15.
SOL.944.08
SOL.944.08
SOL.945.08
SOL.945.08
SOL.942
SOL.942
MS.04
MS.04
SOL.948
SOL.948
SOL.946
SOL.946
SOL.930
SOL.940 SOL.930
SOL.931
SOL.931
SOL.941
SOL.941

SOLAR SEMI STRUCTURAL
79
R=1:1 Section 16.
SOL.930 SOL.930
SOL.941 SOL.941
120o
M 9982 M 9982
16.
SOL.944.08 SOL.944.08
SOL.945.08 SOL.945.08
SOL.942 SOL.942
SOL.948
SOL.948
SOL.946 SOL.946
M 9901
M 9957
M 9925
SOL.931 SOL.931
MS.04 MS.04
SOL.940 SOL.940

SOLAR SEMI STRUCTURAL
80
R=1:1
Section 17.
150o
M 9982 M 9982
17.
SOL.944.08 SOL.944.08
SOL.941 SOL.941
MS.04 MS.04
SOL.931 SOL.931
SOL.930 SOL.930
SOL.945.08
SOL.945.08
SOL.980
SOL.948
SOL.948
SOL.946 SOL.946
M 9901
M 9977
M 9925

SOLAR SEMI STRUCTURAL
81
R=1:1 Section 18.
165o

SOLAR SEMI STRUCTURAL
82
R=1:1
Section 19.
175o
M 9982
M 9982
19.
SOL.944.08
SOL.944.08
SOL.941
SOL.941
MS.04
MS.04
SOL.931
SOL.931
SOL.945.08
SOL.945.08
SOL.980
SOL.948
SOL.948
SOL.946
SOL.946
M 9901
M 109975
M 9925
SOL.942
SOL.930
SOL.930

SOLAR SEMI STRUCTURAL
83
R=1:1 Section 20.
M 9982
M 10981 M 10981
M 10980
M 9982
SOL.946 SOL.946
SOL.945.08 SOL.945.08
SOL.931 SOL.931
SOL.930 SOL.930
SOL.941 SOL.941
MS.04 MS.04
95o- 120o20.
M 9901
M 9925
SOL.980.05
SOL.944.08 SOL.944.08

SOLAR SEMI STRUCTURAL
84
R=1:1
Section 21.
SOL.941
SOL.940
SOL.942
MO.68.3
11.38.30
M 9888M 9503
M 9312
MO.74
MO.69
MO.93
MO.50.00
M0.20 MO.63
M 9954
M 9925
21.
11.38.40

SOLAR SEMI STRUCTURAL
85
R=1:1 Section 22.
SOL.941
SOL.940
SOL.944.08
SOL.945.08
M 9982
SOL.942
SOL.948
SOL.946
M 9954
M 9925
22.
MS.04
SOL.930
SOL.931

SOLAR SEMI STRUCTURAL
86
R=1:1
Section 23.
SOL.941 SOL.941
MS.04
SOL.944.08
SOL.945.08
M 9982
SOL.942
SOL.948
SOL.946
SOL.943.05
MO.68.3
MO.42.01
M 9888M 9501
M 9312
M 9951
M 9925
23.
MO.74
MO.69
MO.93
MO.50.00
M0.20 MO.63
SOL.931
SOL.930
11.38.30

SOL.945.08
SOL.945.07
SOL.945.05
SOL.944.08
SOL.944.07
SOL.944.05
SOLAR SEMI STRUCTURAL
87
R=1:1

M3 SOLAR SEMI STRUCTURAL
ALUTHERM

SOLAR SEMI STRUCTURAL ALUTHERM
90
R=1:1
Section 1.
M 9990
SOL.942
SOL.930
SOL.931
SOL.941 SOL.941
SOL.920.0+
M 9988
M 9952
M 9951
M 9959
M 9956
M 9926
M 9925
M 9941
1.
MO.41
MO.41
SOL.944.08
SOL.946
6-12-4
SOL.945.08
SOL.948
SOL.944.08 SOL.945.08
SOL.948
6-12-4
SOL.946
SOL.943.10

SOLAR SEMI STRUCTURAL ALUTHERM
91
R=1:1 Section 2.
SOL.944.08SOL.944.08
SOL.942
SOL.946SOL.946
SOL.941SOL.941
M 9952
M 9951
M 9959
M 9956
M 9926
M 9925
M 9941
2.
M 9987M 9987
M 9313M 9313
SOL.945.08SOL.945.08
SOL.931SOL.931
SOL.930
SOL.930
MO.41MO.41
SOL.943.10
SOL.949SOL.949

M 10993
SOL.930
SOL.931
SOL.941 SOL.941
SOL.920.0+
M 10994
M 9952
M 9951
M 9959
M 9956
M 9926
M 9925
M 9941
1a.
SOL.944.08
SOL.946
6-18-5
SOL.945.06
SOL.944.08
SOL.945.06
6-18-5
SOL.946
MO.41
11.15-06
MO.41
11.15-06
SOL.943.05
SOLAR SEMI STRUCTURAL ALUTHERM
92
R=1:1
Section 1a.
SOL.990

SOL.944.06
SOL.944.06
SOL.946
SOL.946
SOL.941SOL.941
M 9952
M 9951
M 9959
M 9956
M 9926
M 9925
M 9941
2a.
M 10995
M 10995
M 9313M 9313
SOL.945.06
SOL.945.06
SOL.931SOL.931
SOL.930
SOL.930
MO.41MO.41
6mm 6mm
SOL.943.05
SOLAR SEMI STRUCTURAL ALUTHERM
93
R=1:1 Section 2a.
11.33-06 11.33-06
SOL.990

M 10993
SOL.930
SOL.931
SOL.941 SOL.941
SOL.920.0+
M 10994
3.
SOL.944.08
SOL.946
6-18-5
SOL.945.06
SOL.944.08
SOL.945.06
6-18-5
SOL.946
MO.41
11.15-06
MO.41
11.15-06
SOL.943.05
SOLAR SEMI STRUCTURAL ALUTHERM
94
R=1:1
Section 3.
M 9953
M 9953
M 9949
M 9949
48X3mm
48X3mm
SOL.959
SOL.959
SOL.990

M 10993
SOL.930
SOL.941
SOL.944.08
SOL.945.06
6-18-5
MO.41
11.15-06
SOLAR SEMI STRUCTURAL ALUTHERM
95
R=1:1 Section 4.
SILICON
SOL.940
4.
M 9953
M 9949
M 9969
SOL.931
SOL.959
SOL.959
L20X40mm

3a.
SOLAR SEMI STRUCTURAL ALUTHERM
96
R=1:1
Section 3a.
M 109953
M 109953
48X3mm
48X3mm
SOL.959
SOL.959
M 9990
SOL.942
SOL.930
SOL.931
SOL.941 SOL.941
SOL.920.0+
M 9988
MO.41
MO.41
SOL.944.08
SOL.946
6-12-4
SOL.945.08
SOL.948
SOL.944.08 SOL.945.08
SOL.948
6-12-4
SOL.946
SOL.943.10

SOLAR SEMI STRUCTURAL ALUTHERM
97
R=1:1 Section 4a.
4a.
M 9990
SOL.930
SOL.931
SOL.941
MO.41
SOL.944.08 SOL.945.08
SOL.948
6-12-4
SOL.946
M 109953
SOL.959
SOL.959
L20X40mm
L30X30mm
L30X30mm
SOL.941.10

M 9925
SOL.921
SOL.924
M 10993
SOL.930
SOL.931
SOL.941
SOL.944.08
SOL.945.06
6-18-5
MO.41
11.15-06
SOLAR SEMI STRUCTURAL ALUTHERM
98
R=1:1
Section 4b.
SOL.990
M 9954
4b.
SOL.940

M 10993
SOL.930
SOL.931
SOL.941
SOL.944.08
SOL.945.06
6-18-5
MO.41
11.15-06
SOLAR SEMI STRUCTURAL ALUTHERM
99
R=1:1 Section 4c.
SOL.990
SOL.942
SOL.004
SOL.004
Silicone
Silicone
M 9954
M 9925
4c.
SOL.940

SOL.921SOL.921
SOL.924SOL.924
M 109954
M 9926
M 9990
SOL.930
SOL.931
SOL.941
MO.41
SOL.944.08
SOL.945.08
SOL.948
6-12-4
SOL.946
SOLAR SEMI STRUCTURAL ALUTHERM
100
R=1:1
Section 4d.
4d.
SOL.942
SOL.930
SOL.941.10

M 9990
SOL.930
SOL.931
SOL.941
MO.41
SOL.944.08 SOL.945.08
SOL.948
6-12-4
SOL.946
SOLAR SEMI STRUCTURAL ALUTHERM
101
R=1:1 Section 4e.
4e.
SOL.942
SOL.004
SOL.004
Silicone
Silicone
SOL.930
M 109954
M 9926
SOL.941.10

M 9990
SOL.930
MO.41
SOL.944.08
SOL.945.08
SOL.948
6-12-4
SOL.946
SOLAR SEMI STRUCTURAL ALUTHERM
102
R=1:1
Section 4f.
SOL.942
SOL.941.10
M 9951
M 9952
M 9956
M 9959
M 9970
M 9913
M 9010
Silicone
SOL.931
SOL.941
4f.
MO.60
SOL.004

MO.41
MO.41
SOLAR SEMI STRUCTURAL ALUTHERM
103
R=1:1 Section 5.
5.
min 10 cm
max 20 cm
min 10 cm
max 20 cm
M 9990
M 9990
SOL.944.08
SOL.944.08
SOL.940
SOL.940
SOL.932
SOL.942
SOL.933
M 9955
SOL.948
SOL.946
SOL.946
Pad2mm
a
a=
<120cm
SOL.931
SOL.931
SOL.930
SOL.930
SOL.943.10
SOL.945.08
Hole 5X20 mm
SOL.945.08
SOL.948

SOLAR SEMI STRUCTURAL ALUTHERM
104
R=1:1
Section 5a.
min 10 cm
max 20 cm
min 10 cm
max 20 cm
M 10993
M 10993
SOL.944.08
SOL.944.08
SOL.940
SOL.940
SOL.932
SOL.933
M 9975
SOL.931
SOL.931
SOL.930
SOL.930
5a.
a
a=100-150cm
11.15-06 11.15-06
MO.41
MO.41
SOL.945.06
SOL.945.06
6-18-5
6-18-5
SOL.946
SOL.943.05
SOL.990
Hole 5X20 mm
Pad2mm
SOL.946

M 9950
SOLAR SEMI STRUCTURAL ALUTHERM
105
R=1:1 Section 5b.
min 10 cm
max 20 cm
min 10 cm
max 20 cm
M 10993
M 10993
SOL.944.08
SOL.944.08
SOL.940
SOL.940
SOL.932
SOL.933
SOL.931
SOL.931
SOL.930
SOL.930
5b.
a
a=
>140cm
11.15-06 11.15-06
MO.41
MO.41
SOL.945.06
SOL.945.06
6-18-5
6-18-5
SOL.946
SOL.943.05
SOL.990
Hole 5X20 mm
Pad2mm
SOL.946

MO.41
SOLAR SEMI STRUCTURAL ALUTHERM
106
R=1:1
Section 5c.
M 9990
SOL.944.08
SOL.942
SOL.946
Pad2mm
SOL.931
SOL.930
SOL.943.10
SOL.945.08
SOL.948
M 9987
M 9313
SOL.945.08
SOL.944.08
SOL.940
MO.41
SOL.940
SOL.932
SOL.933
M 9955
SOL.946
SOL.931
SOL.930
5c.
SOL.949
Hole 5X20 mm

MO.41
MO.41
SOLAR SEMI STRUCTURAL ALUTHERM
107
R=1:1 Section 5d.
M 9990
M 9990
SOL.944.08
SOL.944.08
SOL.942
SOL.948
SOL.946
SOL.946
Pad2mm
SOL.931
SOL.931
SOL.930
SOL.930
SOL.943.10
SOL.945.08
SOL.945.08
SOL.948
SOL.940
SOL.940
SOL.933
M 9974
5d.
SOL.940
SOL.940 M 9955
SOL.961
SOL.932
Hole 5X20 mm

MO.41
SOLAR SEMI STRUCTURAL ALUTHERM
108
R=1:1
Section 5e.
M 9990
SOL.944.08
SOL.942
SOL.946
Pad2mm
SOL.931
SOL.930
SOL.943.10
SOL.945.08
SOL.948
M 9987
SOL.945.08
SOL.944.08
MO.41
SOL.940
SOL.946
SOL.931
SOL.930
SOL.949
Hole 5X20 mm
SOL.932
SOL.933
M 9955
M 9971
5e.
SOL.940
M 9313

MO.41
SOLAR SEMI STRUCTURAL ALUTHERM
109
R=1:1 Section 5f.
M 9990
SOL.944.08
SOL.942
SOL.946
Pad2mm
SOL.931
SOL.930
SOL.943.10
SOL.945.08
SOL.948
M 9987
SOL.945.08
SOL.944.08
MO.41
SOL.940
SOL.946
SOL.931
SOL.930
SOL.949
Hole 5X20 mm
SOL.932
SOL.933 SOL.961
M 9973
5f.
SOL.940
M 9313
M 9955

SOLAR SEMI STRUCTURAL ALUTHERM
110
R=1:1
Section 6.
M 9990
M 9990
M 9313
M 9987 M 9010
M 9010
M 9313
M 9971
M 9968
M 9913
M 9913
M 9955
M 9955M 9974
6.
M 9987

SOLAR SEMI STRUCTURAL ALUTHERM
111
R=1:1 Section 7.
M 9313
M 9010
M 9313
M 9971
M 9968
M 9913
M 9955
M 9961
M 9962
7.
M 9987
M 9987
M 9990
M 9955

M 9010
M 9913
M 9970
SOLAR SEMI STRUCTURAL ALUTHERM
112
R=1:1
Section 7a.
M 9313
M 9313
M 9971
M 9955
M 9987
M 9987
M 9990
M 9955
7a.

M 9970
SOLAR SEMI STRUCTURAL ALUTHERM
113
R=1:1 Section 7b.
M 9955
M 9990
M 9990
M 9990
M 9955
7b.
M 9971
M 9968
M 9010
M 9913

M 9010
M 9913
SOLAR SEMI STRUCTURAL ALUTHERM
114
R=1:1
Section 7c.
M 9313
M 9313
M 9971
M 9955
M 9987
M 9987
M 9990 7c.
M 109955

SOLAR SEMI STRUCTURAL ALUTHERM
115
R=1:1 Section 8.
M 9990
M 9913
M 9313
M 9010
M 9313
M 9913
M 109955
M 9955
M 9973
8.
M 9968
M 9987
M 9010
M 9987

SOLAR SEMI STRUCTURAL ALUTHERM
116
R=1:1
Section 8a.
M 9990
M 9313
M 9010
M 9313
M 9913
M 9955
M 9955
M 9973
8a.
M 9968
INOX-AL. LIM
INFILTRATION
M 9987
M 9987

SOLAR SEMI STRUCTURAL ALUTHERM
117
R=1:1 Section 8b.
M 9990
M 9955
M 9970
8b.
M 9971
M 9968
M 9010
M 9913
M 9990
M 9990

SOLAR SEMI STRUCTURAL ALUTHERM
118
R=1:1
Section 9.
M 9313
M 9010
M 9010
M 9313
M 9971
M 9968
M 9968
M 9968
M 9913
M 9913
M 9955
M 9961 M 9962
9.
M 9955
M 9990
M 9987
M 9987

SOLAR SEMI STRUCTURAL ALUTHERM
119
R=1:1 Section 10.
10.
M 9351
M 9960 M 9990
M 9974
M 9951
M 9990 M 9960
M 9351
M 9974
M9971
M9010
M9913

SOLAR SEMI STRUCTURAL ALUTHERM
120
R=1:1
Section 11.
M 9990
M 9974
M 9974
M 9960 M 9960
11.
M 9010
M 9351
M 9351
M9971
M9913

SOLAR SEMI STRUCTURAL ALUTHERM
121
R=1:1 Section 12.
SOL.944.08 SOL.944.08
SOL.945.08 SOL.945.08
M 9990 M 9990
M 9958
M 9958
M 9945
M 9925
MS.04 MS.04
SOL.948 SOL.948
SOL.946 SOL.946
SOL.930 SOL.930
SOL.931 SOL.931
SOL.941 SOL.941
SOL.98010
12.
90 -175
oo

SOLAR SEMI STRUCTURAL ALUTHERM
122
R=1:1
Section 13.
M 9999
13.
SOL.960
SOL.960
90o
SOL.945.08
SOL.945.08
SOL.941.10
SOL.941.10
SOL.942
SOL.942
SOL.948
SOL.946
SOL.946
M 9990
MO.41
MO.41
SOL.931
SOL.931
SOL.930
SOL.930
SOL.941
SOL.941
M 9990
M 9963
M 9920
SOL.948
SOL.944.08
SOL.944.08

SOLAR SEMI STRUCTURAL ALUTHERM
123
R=1:1 Section 13a.
13a.
90o
M 9990
M 9998 SOL.946
SOL.960
SOL.960
SOL.945.08
SOL.942
SOL.948
SOL.931
SOL.930
SOL.941
SOL.946
SOL.942
SOL.945.08
M 9990
SOL.941
SOL.931
SOL.941.10
SOL.930
M 9920
M 9963
MO.41
MO.41
SOL.948
SOL.941.10
SOL.944.08
SOL.944.08

SOLAR SEMI STRUCTURAL ALUTHERM
124
R=1:1
Section 14.
SOL.98010
135o
M 9964
SOL.948 SOL.948
M 9925
14.
SOL.941 SOL.941
SOL.931 SOL.931
SOL.930 SOL.930
SOL.944.08 SOL.944.08
SOL.945.08 SOL.945.08
SOL.946 SOL.946
MS.04
MS.04
M 9990 M 9990

SOLAR SEMI STRUCTURAL ALUTHERM
125
R=1:1 Section 14a.
135o
M 9965
M 9901
SOL.941.10
SOL.941.10
SOL.941 SOL.941
M 9925
14a.
SOL.948 SOL.948
SOL.931 SOL.931
SOL.930 SOL.930
SOL.944.08 SOL.944.08
SOL.945.08 SOL.945.08
SOL.946 SOL.946
MS.04
MS.04
M 9990 M 9990
SOL.942
SOL.942

SOLAR SEMI STRUCTURAL ALUTHERM
126
R=1:1
Section 15.
135o
M 9967
M 9926
M 9926
15.
SOL.942
SOL.942
M 9990
M 9990
SOL.930
SOL.930
SOL.931
SOL.931
SOL.941
SOL.941
MO.41
MO.41
SOL.944.08
SOL.944.08
SOL.945.08
SOL.945.08
SOL.948
SOL.948
6-12-4
6-12-4
SOL.946
SOL.946
SOL.941.10
SOL.941.10

SOLAR SEMI STRUCTURAL ALUTHERM
127
R=1:1 Section 16.
SOL.942
SOL.942
120o
16.
M 9901
M 9957
M 9925
M 9990
M 9990
SOL.930 SOL.930
SOL.931 SOL.931
SOL.941
SOL.941
MO.41 MO.41
SOL.944.08
SOL.944.08
SOL.945.08 SOL.945.08
SOL.948
SOL.948
6-12-4
6-12-4
SOL.946 SOL.946
SOL.941.10 SOL.941.10

SOLAR SEMI STRUCTURAL ALUTHERM
128
R=1:1
Section 17.
M 9990 M 9990
SOL.930 SOL.930
SOL.931 SOL.931
SOL.941 SOL.941
MO.41 MO.41
SOL.944.08 SOL.944.08
SOL.945.08 SOL.945.08
SOL.948
SOL.948
6-12-4 6-12-4
SOL.946 SOL.946
SOL.941.10
SOL.941.10
150o
17.
M 9901
M 9977
M 9925

SOLAR SEMI STRUCTURAL ALUTHERM
129
R=1:1 Section 18.
165o18.
M 9901
M 9976
M 9925
SOL.942
M 9990
M 9990
SOL.930 SOL.930
SOL.931 SOL.931
SOL.941 SOL.941
MO.41 MO.41
SOL.944.08 SOL.944.08
SOL.945.08 SOL.945.08
SOL.948
SOL.948
6-12-4 6-12-4
SOL.946 SOL.946
SOL.941.10 SOL.941.10

M 9990
M 9990
SOL.946
SOL.946
SOL.945.08
SOL.945.08
SOL.931
SOL.931
SOL.930
SOL.930
SOL.941
SOL.941
MO.41
MO.41
SOLAR SEMI STRUCTURAL ALUTHERM
130
R=1:1
Section 19.
175o
19.
M 9901
M 109975
M 9925
SOL.942
SOL.98010
SOL.944.08 SOL.944.08

M 9990
M10980
M10981 M10981
M 9990
SOL.946 SOL.946
SOL.945.08 SOL.945.08
SOL.931 SOL.931
SOL.930 SOL.930
SOL.941
SOL.941
MO.41
MO.41
SOLAR SEMI STRUCTURAL ALUTHERM
131
R=1:1 Section 20.
95o- 120o20.
M 9901
M 9925
SOL.98010
SOL.944.08 SOL.944.08

SOLAR SEMI STRUCTURAL ALUTHERM
132
R=1:1
Section 21.
SOL.941
SOL.940
SOL.942
MO.68.3
11.38.30
M 9888M 9503
M 9312
MO.74
MO.69
MO.93
MO.50.00
M0.20 MO.63
M 9954
M 9925
21.
11.38.40

SOL.946
SOL.945.08
SOL.931
SOL.930
SOL.941
MO.41
SOLAR SEMI STRUCTURAL ALUTHERM
133
R=1:1 Section 22.
SOL.942
M 9954
M 9925
22.
SOL.941.10
M 9990
SOL.948
SOL.944.08

SOLAR SEMI STRUCTURAL ALUTHERM
134
R=1:1
Detail A
SOL.935
SOL.934
SOL.932
SOL.933 SOL.933
SOL.943 SOL.943
SOL.940SOL.940SOL.941
SOL.935
SOL.933
SOL.932
SOL.934
SOL.941
M 9955
M 9951
M 9951
M 9955
M 9952
M 9956
M 9959

SOLAR SEMI STRUCTURAL ALUTHERM
135
R=1:2 Detail B
SOL.935
SOL.933
SOL.932
SOL.934
M 9951
M 9955=P-33mm
M9955
M 9951
M 9955
M 9952
M 9956
M 9959
26,00
22,00
P

SOLAR SEMI STRUCTURAL ALUTHERM
136
R = free
SOL.930
SOL.931
M 9955
M 9951
Y
Y
150
150-200
200
cm SOL.930, SOL.931

SOLAR SEMI STRUCTURAL ALUTHERM
137
R = free
SOL.930
SOL.931
Min. 2
M 9955
M 9951
M 9925M9925
SOL.923
(SOL.922)

SOLAR SEMI STRUCTURAL ALUTHERM
138
R=1:2
Detail C
SOL.931
SOL.930
M9951
M9952
M9956
M9959
M9955
P
W
X=P-14mm
X=W+41mm
C
XXX

SOLAR SEMI STRUCTURAL ALUTHERM
139
R=1:2 Detail D
SOL.931
SOL.930
M9951
M9952
M9956
M9959
D
M 9955
M 9955
min. 10 cm
max. 20 cm
17,50
min. 10 cm
max. 20 cm
A+7mm B+25,5mm
A= B=
H
L
Y=H-14mm
Y=L+16mm
Y
Y
Y
Y
Y
Y
150
150-200
200
cm SOL.930, SOL.931
34,00mm

EÎÁÑÔÇÌÁÔÁ-ACCESSORIES
M3 SOLAR SEMI STRUCTURAL
ÐÅÑÉÃÑÁÖÇ:
ÐÅÑÉÃÑÁÖÇ:
ÐÅÑÉÃÑÁÖÇ:
ÐÅÑÉÃÑÁÖÇ:
ÐÅÑÉÃÑÁÖÇ:
ÐÅÑÉÃÑÁÖÇ:
ÐÏÕÊÁÌÉÓÏ ÓÕÍÄÅÓÌÏÕ SOL.932.00
(ÓÕÍÄÅÓÌÏÓ ÊÏËÙÍÁÓ - ÔÑÁÂÅÑÓÁÓ)
ÐÕÑÏÓ ÓÕÍÄÅÓÌÏÕ SOL.932.00
(ÓÕÍÄÅÓÌÏÓ ÊÏËÙÍÁÓ-ÔÑÁÂÅÑÓÁÓ)
ÔÁÐÁ ÄÉÁÊÏÓÌÇÔÉÊÇ ÃÉÁ SOL.932.00
(ÓÕÍÄÅÓÌÏÓ ÊÏËÙÍÁÓ-ÔÑÁÂÅÑÓÁÓ)
ÐÏËÕÁÌÉÄÉÏ 6.6
ÐÏËÕÁÌÉÄÉÏ 6.6ÐÏËÕÁÌÉÄÉÏ 6.6
ÕËÉÊÏ:
ÕËÉÊÏ:
ÕËÉÊÏ:
ÕËÉÊÏ:
ÕËÉÊÏ:
ÕËÉÊÏ:
×ÑÙÌÁ:
×ÑÙÌÁ:
×ÑÙÌÁ:
×ÑÙÌÁ:
×ÑÙÌÁ:
×ÑÙÌÁ:
ÓÕÓÊÅÕÁÓÉÁ:
ÓÕÓÊÅÕÁÓÉÁ:
ÓÕÓÊÅÕÁÓÉÁ:
ÓÕÓÊÅÕÁÓÉÁ:
ÓÕÓÊÅÕÁÓÉÁ:
ÓÕÓÊÅÕÁÓÉÁ:
PLASTIC PIN RECEIVER
PIN CONNECTOR
UNDER COVER RECEIVER FOR SOL.932.00
SOL.934.00
SOL.935.00SOL.933.00
ÐÕÑÏÓ ÓÔÇÑÉÎÇÓ ÖÕËËÏÕ
ÓÕÍÄÅÓÌÏÓ ÊÏËÙÍÁÓ - ÔÑÁÂÅÑÓÁÓ
ÃÁÍÔÆÏÓ ÖÕËËÏÕ
ALOYMINIO
ALOYMINIO
ÁËÏÕÌÉÍÉÏ
PIN SUPPORT FOR CURTAIN-WALL PANELS
COLUMN MULLION CONNECTOR
HOOKE CONNECTOR FOR SOL.930.00
SOL.932.00
SOL.930.00 SOL.931.00

EÎÁÑÔÇÌÁÔÁ-ACCESSORIES
M3 SOLAR SEMI STRUCTURAL
ÐÅÑÉÃÑÁÖÇ:
ÐÅÑÉÃÑÁÖÇ:
ÐÅÑÉÃÑÁÖÇ:
ÐÅÑÉÃÑÁÖÇ:
ÐÅÑÉÃÑÁÖÇ:
ÐÅÑÉÃÑÁÖÇ:
“Д ÁÃÊÉÓÔÑÙÓÇÓ ÊÏËÙÍÁÓ ÌÉÊÑÏ ØÁËÉÄÉ ÌÉÊÑÏ
ØÁËÉÄÉ ÌÅÃÁËϓД ÁÃÊÉÓÔÑÙÓÇÓ ÊÏËÙÍÁÓ ÌÅÃÁËÏ
“Ô ÁÃÊÉÓÔÑÙÓÇÓ ÊÏËÙÍÁÓ ÌÅÃÁËÏ
ÌÅÍÔÅÓÅÓ ÄÉÐËÏÓ ÅËËÇÍÉÊÏÓ
ÕËÉÊÏ:
ÕËÉÊÏ:
ÕËÉÊÏ:
ÕËÉÊÏ:
ÕËÉÊÏ:
ÕËÉÊÏ:
×ÑÙÌÁ:
×ÑÙÌÁ:
×ÑÙÌÁ:
×ÑÙÌÁ:
×ÑÙÌÁ:
×ÑÙÌÁ:
ÓÕÓÊÅÕÁÓÉÁ:
ÓÕÓÊÅÕÁÓÉÁ:
ÓÕÓÊÅÕÁÓÉÁ:
ÓÕÓÊÅÕÁÓÉÁ:
ÓÕÓÊÅÕÁÓÉÁ:
ÓÕÓÊÅÕÁÓÉÁ:
SMALL STRUCTURAL BRACKET SCISSOR HINGE 70 KG.- PAIR
SCISSOR HINGE 120 KG. - PAIRLARGE STRUCTURAL BRACKET
“Ô STRUCTURAL BRACKET
ÁËÏÕÌÉÍÉÏ
ÁËÏÕÌÉÍÉÏ
ÁËÏÕÌÉÍÉÏ
DOUBLE WING-HINGE
ALOYMINIO
ËÅÕÊÏÓ - ÌÁÕÑÏÓ - ÊÁÖÅ
SOL.922.00
SOL.923.00
SOL.924.00
SOL.920.01
SOL.920.02
M0.50.00

EÎÁÑÔÇÌÁÔÁ-ACCESSORIES
M3 SOLAR SEMI STRUCTURAL
ÐÅÑÉÃÑÁÖÇ:
ÐÅÑÉÃÑÁÖÇ:
ÐÅÑÉÃÑÁÖÇ:
ÐÅÑÉÃÑÁÖÇ:
ÐÅÑÉÃÑÁÖÇ:
ÐÅÑÉÃÑÁÖÇ:
ÃÙÍÉÁ ÓÕÍÄÅÓÇÓ
ÃÙÍÉÁ ÓÕÍÄÅÓÇÓ ÁÍÏÉÃÏÌÅÍÏÕ “OLYMPOS”ÃÙÍÉÁ ÓÕÍÄÅÓÇÓ
ALOYMINIO
ALOYMINIOALOYMINIO
ÕËÉÊÏ:
ÕËÉÊÏ:
ÕËÉÊÏ:
ÕËÉÊÏ:
ÕËÉÊÏ:
ÕËÉÊÏ:
×ÑÙÌÁ:
×ÑÙÌÁ:
×ÑÙÌÁ:
×ÑÙÌÁ:
×ÑÙÌÁ:
×ÑÙÌÁ:
ÓÕÓÊÅÕÁÓÉÁ:
ÓÕÓÊÅÕÁÓÉÁ:
ÓÕÓÊÅÕÁÓÉÁ:
ÓÕÓÊÅÕÁÓÉÁ:
ÓÕÓÊÅÕÁÓÉÁ:
ÓÕÓÊÅÕÁÓÉÁ:
EXTRUDED ALUMINIUM JOINT CORNER
DIE-CAST ALUMINIUM JOINT CORNER
EXTRUDED ALUMINIUM JOINT CORNER
11.33-06
MO.42.0111.38-40
ÃÙÍÉÁ ÓÕÍÄÅÓÇÓ MONTICELLI
ÃÙÍÉÁ ÓÕÍÄÅÓÇÓ
ÃÙÍÉÁ ÓÕÍÄÅÓÇÓ
ALOYMINIO
ALOYMINIO
ÁËÏÕÌÉÍÉÏ
DIE-CAST ALUMINIUM JOINT CORNER
EXTRUDED ALUMINIUM JOINT CORNER
DIE-CAST ALUMINIUM JOINT CORNER
11.15-06
MS.04.00 MO.41.00

EÎÁÑÔÇÌÁÔÁ-ACCESSORIES
M3 SOLAR SEMI STRUCTURAL
ÐÅÑÉÃÑÁÖÇ:
ÐÅÑÉÃÑÁÖÇ:
ÐÅÑÉÃÑÁÖÇ:
ÐÅÑÉÃÑÁÖÇ:
ÐÅÑÉÃÑÁÖÇ:
ÐÅÑÉÃÑÁÖÇ:
ÃÙÍÉÁ ÅÐÉÐÅÄÏÔÇÔÁÓ ÖÕËËÏÕ ÃÙÍÉÁ ÅÐÉÐÅÄÏÔÇÔÁÓ ÖÕËËÏÕ
ÔÁÉÍÉÁ ÂUTYL ÁËÏÕÌÉÍÉÏÕÃÙÍÉÁ ÅÐÉÐÅÄÏÔÇÔÁÓ ÁÍÏÉÃÏÌÅÍÏÕ
ÁÍÔÉÊÑÉÓÌÁ ËÅÂÉÅ “VECALU”
ËÅÂÉÅÓ ÐÑÏÂÁËËÏÌÅÍÏÕ “VECALU”
ÕËÉÊÏ:
ÕËÉÊÏ:
ÕËÉÊÏ:
ÕËÉÊÏ:
ÕËÉÊÏ:
ÕËÉÊÏ:
×ÑÙÌÁ:
×ÑÙÌÁ:
×ÑÙÌÁ:
×ÑÙÌÁ:
×ÑÙÌÁ:
×ÑÙÌÁ:
ÓÕÓÊÅÕÁÓÉÁ:
ÓÕÓÊÅÕÁÓÉÁ:
ÓÕÓÊÅÕÁÓÉÁ:
ÓÕÓÊÅÕÁÓÉÁ:
ÓÕÓÊÅÕÁÓÉÁ:
ÓÕÓÊÅÕÁÓÉÁ:
ALIGNMENT SQUARE ALIGNMENT SQUARE
POLYAMIDE 6,6
HOT MELT BUTIL FOR ROOFSALIGNMENT SQUARE
CATCHE FOR THE ART.SOL.930.02
POLYAMIDE 6,6
POLYAMIDE 6,6
ÁËÏÕÌÉÍÉÏ
LEVER CLOSER FOR STUCK.
OUTSIDE GLAZING
ALOYMINIO
ÌÁÕÑÏ
SOL.948.00
MO.20.00
SOL.930.03
SOL.949.00
SOL.907.45
SOL.930.02

M3 SOLAR SEMI STRUCTURAL
ÐÅÑÉÃÑÁÖÇ: ËÁÓÔÉ×ÏÔÆÁÌÉÏÍ
ÐÅÑÉÃÑÁÖÇ: ËÁÓÔÉ×ÏÊÏËÙÍÁÓ-ÔÑÁÂÅÑÓÁÓ
ÐÅÑÉÃÑÁÖÇ: ËÁÓÔÉ×ÏÔÆÁÌÉÏÍ
ÐÅÑÉÃÑÁÖÇ: ËÁÓÔÉ×ÏÊÏËÙÍÁÓ-ÔÑÁÂÅÑÓÁÓ
ÐÅÑÉÃÑÁÖÇ: ËÁÓÔÉ×ÏÊÏËÙÍÁÓÌÅÔÁÂËÇÔÇÓ
ÃÙÍÉÁÓ
ÐÅÑÉÃÑÁÖÇ: ËÁÓÔÉ×ÏÔÆÁÌÉÏÍ
ÐÅÑÉÃÑÁÖÇ: ËÁÓÔÉ×ÏÊÏËÙÍÁÓÌÅÔÁÂËÇÔÇÓ
ÃÙÍÉÁÓ
ÐÅÑÉÃÑÁÖÇ: ËÁÓÔÉ×ÏÊÅÍÔÑÉÊÇÓÓÔÅÃÁÍÙÓÇÓ
ÕËÉÊÏ:
ÕËÉÊÏ:
ÕËÉÊÏ:
ÕËÉÊÏ:
ÕËÉÊÏ:
ÕËÉÊÏ:
ÕËÉÊÏ:
ÕËÉÊÏ:
ÂÁÑÏÓ:
ÂÁÑÏÓ:
ÂÁÑÏÓ:
ÂÁÑÏÓ:
ÂÁÑÏÓ:
ÂÁÑÏÓ:
ÂÁÑÏÓ:
ÂÁÑÏÓ:
ÌÅÔÑÁ:
ÌÅÔÑÁ:
ÌÅÔÑÁ:
ÌÅÔÑÁ:
ÌÅÔÑÁ:
ÌÅÔÑÁ:
ÌÅÔÑÁ:
ÌÅÔÑÁ:
SOL.944.08
SOL.943.05
SOL.945.08
SOL.943.10
SOL.980.05
SOL.980.10
SOL.942
SOL.946.00

M3 SOLAR SEMI STRUCTURAL
ÐÅÑÉÃÑÁÖÇ:
ÐÅÑÉÃÑÁÖÇ: ËÁÓÔÉ×ÏÓÔÅÃÁÍÙÓÇÓ
ÐÅÑÉÃÑÁÖÇ: ËÁÓÔÉ×ÏÓÔÅÃÁÍÙÓÇÓ
ÐÅÑÉÃÑÁÖÇ: ËÁÓÔÉ×ÏÓÔÅÃÁÍÙÓÇÓ “ALUSEAL”
ÐÅÑÉÃÑÁÖÇ: ËÁÓÔÉ×ÏTZAMIOY
ÐÅÑÉÃÑÁÖÇ: ËÁÓÔÉ×ÏÓÔÅÃÁÍÙÓÇÓ
ÐÅÑÉÃÑÁÖÇ: ËÁÓÔÉ×ÏTZAMIOY
ÐÅÑÉÃÑÁÖÇ:
ËÁÓÔÉ×ÏÊÅÍÔÑÉÊÇÓÓÔÅÃÁÍÙÓÇÓ
ËÁÓÔÉ×ÏNYXAKI
ÕËÉÊÏ:
ÕËÉÊÏ:
ÕËÉÊÏ:
ÕËÉÊÏ:
ÕËÉÊÏ:
ÕËÉÊÏ:
ÕËÉÊÏ:
ÕËÉÊÏ:
ÂÁÑÏÓ:
ÂÁÑÏÓ:
ÂÁÑÏÓ:
ÂÁÑÏÓ:
ÂÁÑÏÓ:
ÂÁÑÏÓ:
ÂÁÑÏÓ:
ÂÁÑÏÓ:
ÌÅÔÑÁ:
ÌÅÔÑÁ:
ÌÅÔÑÁ:
ÌÅÔÑÁ:
ÌÅÔÑÁ:
ÌÅÔÑÁ:
ÌÅÔÑÁ:
ÌÅÔÑÁ:
SOL.990
SOL.942
SOL.940
ÌÏ.74
ÌÏ.69
ÌÏ.68
ÌÏ.63 ÌÏ.93
SOL.941