Automatic Water Conditioner Medallist Series Owners Guide
User Manual: Automatic Water Conditioner
Open the PDF directly: View PDF
.
Page Count: 58

Culligan
Medallist Series®
Automatic Water
Conditioner
Owners Guide

Thank You
And Welcome To Your New World Of Better Living With
Culligan Water.
The Culligan Medallist Series® 8 Water Softeners are tested and certified by
WQA against NSF/ANSI Standard 44 for the effective reduction of hardness
(calcium and magnisium) and barium/radium as verified and substantiated by
test data.
The Culligan Medallist Plus Series® 30, 45 and 60 Water Softeners are tested
and certified by WQA against NSF/ANSI Standard 44 for the effective
reduction of hardness (calcium and magnesium) and barium/radium as verified
and substantiated by test data.
The Culligan Medallist Plus Series® 30, 45 and 60 Water Softeners are tested and certified by WQA
against NSF/ANSI Standard 61 for material requirements.
For installations in Massachusetts, Massachusetts Plumbing Code 248 CMR shall be
adhered to. Consult your licensed plumber for installation of this system. This system
and its installation must comply with state and local regulations. The use of saddle
valves are not permitted.
Hardness sample kits are available through your local Culligan Dealer.
If this is your first experience having soft, conditioned water in your home, you’ll be amazed at the
marvelous difference it makes. We promise that you’ll never want to be without it again.
Congratulations, too, on selecting one of the “first family” of water conditioners in the prestigious
Culligan Medallist Series. With Culligan’s many years of knowledge and experience in water
treatment, you can be confident that the model you selected has been designed and engineered to
provide years of service with a minimum of care and attention.
Some localities have corrosive water. A water softener cannot correct this problem and so its printed
warranty disclaims liability for corrosion of plumbing lines, fixtures or appliances. If you suspect
corrosion, your Culligan Dealer has equipment to control the problem.
SODIUM INFORMATION: Water softeners using sodium chloride for regeneration add sodium to the
water. Persons who are on sodium restricted diets should consider the added sodium as part of their
overall sodium intake.
Attention Culligan Customer:
The installation, service and maintenance of this equipment should be rendered by a qualified and
trained service technician. Your local independently operated Culligan dealer employs trained
service and maintenance personnel who are experienced in the installation, function and repair of
Culligan equipment. This publication is written specifically for these individuals and is intended for
their use.
We encourage Culligan users to learn about Culligan products, but we believe that product
knowledge is best obtained by consulting with your Culligan dealer. Untrained individuals who use
this manual assume the risk of any resulting property damage or personal injury.
ii

Table of
Contents
Performance Data Sheets are included in this manual for various Culligan Medallist Series® Softener
models. Refer to the Performance Data Sheet for your specific softener, as there are slight differences
between the models. The softener warranty is located on page 49 of this Owner’s Guide.
Specifications .......................................................1
Introduction.........................................................2
Preparation.........................................................7
Installation .........................................................9
Programming ......................................................17
Final Start-Up ......................................................21
Salt, Supply, Usage and Service .........................................23
Care and Cleaning of your Water Conditioner . . . . . . . . . . . . . . . . . . . . . . . . . . . . . . . 24
Recommended Preventative Maintenance . . . . . . . . . . . . . . . . . . . . . . . . . . . . . . . . . . . 24
Sanitizing Procedure .................................................26
To Clean Out the Salt Storage Tank.......................................27
Error Codes .......................................................27
Things to Check Before You Call for Service . . . . . . . . . . . . . . . . . . . . . . . . . . . . . . . . . 28
When and How to Bypass your Water Conditioner . . . . . . . . . . . . . . . . . . . . . . . . . . . . 29
Culligan Medallist Series® 8” Water Softener PDS.............................30
Culligan Medallist Series® 8” Water Softener with Soft-Minder® Meter PDS . . . . . . . . . . . 31
Culligan Medallist Plus Series® 30 Water Softener PDS . . . . . . . . . . . . . . . . . . . . . . . . . 32
Culligan Medallist Plus Series® 30 Water Softener with Soft-Minder® Meter PDS. . . . . . . . 33
Culligan Medallist Plus Series® 45 Water Softener PDS . . . . . . . . . . . . . . . . . . . . . . . . . 34
Culligan Medallist Plus Series® 45 Water Softener with Soft-Minder® Meter PDS. . . . . . . . 35
Culligan Medallist Plus Series® 60 Water Softener PDS . . . . . . . . . . . . . . . . . . . . . . . . . 36
Culligan Medallist Plus Series® 60 Water Softener with Soft-Minder® Meter PDS. . . . . . . . 37
California Certificates ................................................38
Parts List..........................................................42
Records and Data ...................................................53
Warranty.........................................................54
iii

Specifications Culligan Medallist Series® Water Conditioners
with Timeclock or Soft-Minder® Meter
Medallist Medallist Plus
8” Model 30 Model 45 Model 60 Model
Control Valve Type 3/4” 5-cycle
Reinforced
Thermoplastic
1” 5-cycle Reinforced
Thermoplastic
1” 5-cycle Reinforced
Thermoplastic
1” 5-cycle Reinforced
Thermoplastic
Overall Conditioner Height 51 in., 1,295 mm 49 in., 1,245 mm 63 in., 1,600 mm 61 in., 1549 mm
Media Tank Dimensions
(Dia. x Ht.)
8 x 44 in.
203 x 1,118 mm
10 x 40 in.
254 x 1,016 mm
10 x 54 in.
254 x 1,372 mm
12 x 52 in.
305 x 1,321 mm
Salt Storage Tank Dimensions
(Dia. x Ht.)
18 x 43 in.
457 x 1,092 mm
18 x 43 in.
457 x 1,092 mm
18 x 43 in.
457 x 1,092 mm
18 x 43 in.
457 x 1,092 mm
Exchange Media, Type & Qty Cullex® Media, 0.7 ft3Cullex Media, 1.0 ft3Cullex Media, 1.5 ft3Cullex Media, 2.0 ft3
Underbedding, Type &
Quantity
Cullsan®
Underbedding, 6 lb.
Cullsan
Underbedding,
15 lb.
Cullsan
Underbedding,
15 lb.
Cullsan
Underbedding,
16 lb.
Exchange Capacity @ Salt
Dosage Per Recharge1
17,004 gr @ 4 lb. 17,172 gr @ 4 lb. 26,700 gr @ 6 lb. 35,614 gr @ 8 lb.
22,947 gr @ 9 lb. 23,664 gr @ 8 lb. 38,830 gr @ 12 lb. 51,659 gr @ 16 lb.
24,853 gr @ 12 lb. 27,700 gr @ 12 lb. 45,493 gr @ 18 lb. 60,523 gr @ 24 lb.
Efficiency at Rated Salt
Dosage5
4251 gr./lb. @
4.0 lb. salt dosage
4293 gr./lb. @
4.0 lb. salt dosage
4461 gr./lb. @
6.0 lb. salt dosage
4451 gr./lb.@
8.0 lb. salt dosage
Freeboard to Media220.5 - 21.5 in. 13 in. 15 in. 16 in.
Freeboard to Underbedding342.0 - 42.5 in. 35 in. 48 in. 46 in.
Salt Storage Capacity 250 lb. or 375 lb. 250 lb. or 375 lb. 375 lb. 375 lb.
Rated Service Flow @ Press. Drop 5.9 gpm @ 12 psi 10 gpm @ 15 psi 9.4 gpm @ 15 psi 10.2 gpm @ 15 psi
Total Hardness, Maximum 75 gpg 75 gpg 99 gpg 99 gpg
Total Iron, Max. (dissolved) 5 ppm 5 ppm 5 ppm 5 ppm
Hardness to Iron Ratio,
Minimum
8 gpg to 1 ppm
140 mg/L to 1 mg/L
8 gpg to 1 ppm
140 mg/L to 1 mg/L
8 gpg to 1 ppm
140 mg/L to 1 mg/L
8 gpg to 1 ppm
140 mg/L to 1 mg/L
Operating Pressure 20 - 125 psi /
140 - 860 kPa
20 - 125 psi /
140 - 860 kPa
20 - 125 psi /
140 - 860 kPa
20 - 125 psi /
140 - 860 kPa
Operating Pressure (Canada) 20 - 90 psi /
140 - 620 kPa
20 - 90 psi /
140 - 620 kPa
20 - 90 psi /
140 - 620 kPa
20 - 90 psi /
140 - 620 kPa
Operating Temperature 33 - 120°F ,
1 - 50°C
33 - 120°F ,
1 - 50°C
33 - 120°F ,
1 - 50°C
33 - 120°F ,
1 - 50°C
Electrical Requirements 24V/60 Hz 24V/60 Hz 24V/60 Hz 24V/60 Hz
Electrical Power Consumption,
Min./Max.
3 Watts/35 Watts 3 Watts/35 Watts 3 Watts/35 Watts 3 Watts/35 Watts
Drain Flow, Maximum41.1 gpm 1.7 gpm 1.6 gpm 2.6 gpm
Recharge Time, Average 85 min. 64 min. 64 min. 52 min.
Recharge Water Consumption 23.3 gal. 36 gal. 46 gal. 51 gal.
1 Capacities and corresponding salt dosages pertain to low hardness waters. Capacities given per recharge.
2 Measured from top of media to top of inlet fitting (backwashed and drained) for 8” tanks. Measured from top
of media to top surface of tank threads for 10” and 12” tanks.
3 Measured from top of underbedding to top of inlet fitting for 8” tanks. Measured from top of media to top
surface of tank threads for 10” and 12” tanks.
4 Backwash at 120 psi (830 kPa)
5 Efficiency rating only valid at stated salt dosage on softminder models and is efficiency rated according to
NSF/ANSI Standard 44.
1

Introduction
Read this Manual First
Before you operate the Medallist Series Water Softening System, read this manual to become familiar
with the device and its capabilities.
Watch for Special Paragraphs
Please read the special paragraphs in this manual. Examples are shown below.
Safe Practices
Throughout this manual there are paragraphs set off by special headings.
Note: Note is used to emphasize installation, operation or maintenance information which is
important, but does not present any hazard. Example:
Caution: Caution is used when failure to follow directions could result in damage to equipment or
property. Example:
Warning: Warning is used to indicate a hazard which could cause injury or death if ignored. Example:
Serial Numbers
The control valve serial number is located on the back of the timer case.
The media tank serial number is located on the top surface of the tank.
This publication is based on information available when approved for printing. Continuing design
refinement could cause changes that may not be included in this publication.
Products manufactured and marked by Culligan International Company (Culligan) and its affiliates
are protected by patents issued or pending in the United States and other countries. Culligan reserves
the right to change the specifications referred to in this literature at any time, without prior notice.
Culligan, Aqua-Sensor, Tripl-Hull, Flo-Pak and Soft-Minder are trademarks of Culligan International
Company or its affiliates. 2
Note: The nipple must extend no more than 1 inch above the cover plate.
Warning! Electrical shock hazard! Unplug the unit before removing the
cover or accessing any internal control parts.
Caution! Disassembly while under water pressure can result in flooding.
Note: Check and comply with your state and local codes. You must follow these guidelines.
For installations in Massachusetts, Massachusetts Plumbing Code 248 CMR shall
be adhered to. Consult your licensed plumber for installation of this system. This
system and its installation must comply with state and local regulations. The use
of saddle valves are not permitted.
Note: Do not remove or destroy the serial number. It must be referenced on request for
warranty repair or replacement.

Introduction
(cont.)
It’s All So Easy, So Economical, So Efficient, So Enjoyable!
Kind To Skin And Complexion
Soft water will help prevent red, itchy or dry skin because there are no hardness impurities to cause
soreness, no soap curd to coat the skin. Shaving is easier, smoother - either with blade or electric
shaver.
Bathing And Showering
You’ll use far less soap with conditioned water. Use your soap very sparingly - not as you did before
soft water. Just a quick rinse removes all lather, leaving your skin pleasantly smooth and silky - because
now it’s free of sticky soap curd and film.
Saves Washing Costs. Helps Control Environmental Pollution
Soft water washes whiter and cleaner with less soap or detergent. Because the hardness impurities are
removed, your soap can concentrate solely on washing. People usually find that they can reduce the
amount of soap they use substantially. If you normally used a cup per wash load with hard water, try
using only 1/3 cup depending on the size of your wash load and the degree of soil. Different amounts
are required, but you can use less with softened water. An added bonus is the fact that your washable
fabrics will last longer.
Super Hair Conditioning
Soft water is great for scalp and hair care. No insoluble deposits are formed. Hair is shinier, softer,
more manageable. Reduce the amount of shampoo you have normally used.
Dishes Are A Delight
Washed by hand or in a dishwasher, glassware, dishes and silver wash cleaner, easier. Follow your
dishwasher manufacturer’s instructions. Soft water promotes sanitation because no greasy hard water
film can form to collect or harbor bacteria.
Easier Housekeeping, Gleaming Fixtures
You’ll be amazed at the marvelous difference. Just a swish of the cloth, and the bathtub or shower and
fixtures are clean and sparkling. Imagine, no scouring! No hard water scum to cause rings, streaks,
spots and stains. To keep their gleaming luster, simply wipe fixtures with a towel after use. Formica,
tile, walls, floors, woodwork surfaces clean easier, stay clean longer. You’ll save on cleaning aids and
save on time.
3

Introduction
(cont.)
Saves Water-Heating Energy, Helps Water-Using Appliances
Soft water reduces the formation of rock-like hard water scale which encrusts water heaters, hot water
pipes, shower heads, and water-using appliances. This scale can cause premature maintenance and
failure.
Elimination of hard water also provides substantial energy savings because scale acts as an insulator,
wasting electricity or gas used to heat water.
Savings Galore
A water conditioner is frequently referred to as “the appliance that pays for itself”. You’ll find that
your savings on soaps, detergents, cleaning aids, and personal care products will help your family’s
household budget. And if you place a price on your time, you’ll be most happy with the time saved by
your new family servant.
Water For Lawns And Household Plants
If possible, lawn sprinkling faucets should be supplied with hard water primarily because it is
uneconomical to soften so much water.
Household plants are much more sensitive than lawns with respect to the kind of water which is best.
First, because they receive no rainfall and, second, there is little or no drainage of the soil. Preferably
they should be watered with rainwater or water which is low in mineral content such as distilled or
demineralized water. Softened water is not recommended for house plants because a build-up of
sodium in the soil may interfere with efficient absorption of water by the plant root system. Additional
information may be obtained from your independently operated Culligan dealer.
Why Water Gets Hard And How It’s Softened
All of the fresh water in the world originally falls as rain, snow, or sleet. Surface water is drawn
upward by the sun, forming clouds. Then, nearly pure and soft as it starts to fall, it begins to collect
impurities as it passes through smog and dust-laden atmosphere. And as it seeps through soil and
rocks it gathers hardness, rust, acid, unpleasant tastes and odors.
Water hardness is caused primarily by limestone dissolved from the earth by rainwater. Because of
this, in earlier times people who wanted soft water collected rainwater from roofs in rain barrels and
cisterns before it picked up hardness from the earth.
Some localities have corrosive water. A softener cannot correct this problem and so its printed
warranty disclaims liability for corrosion of plumbing lines, fixtures or appliances. If you suspect
corrosion, your Culligan Man has equipment to control the problem.
4

Introduction
(cont.)
Iron is a common water problem. The chemical/physical nature of iron found in natural water supplies
is exhibited in four general types:
1. Dissolved Iron - Also called ferrous or “clear water” iron. This type of iron can be removed
from the water by the same ion exchange principle that removes the hardness elements, calcium
and magnesium. Dissolved iron is soluble in water and is detected by taking a sample of the
water to be treated in a clear glass. The water in the glass is initially clear, but on standing
exposed to the air, it may gradually turn cloudy or colored as it oxidizes.
2. Particulate Iron - Also called ferric or colloidal iron. This type of iron is an undissolved particle
of iron. A softener will remove larger particles, but they may not be washed out in regeneration
effectively and will eventually foul the ion exchange resin. A filtering treatment will be required to
remove this type of iron.
3. Organic Bound Iron - This type of iron is strongly attached to an organic compound in the
water. The ion exchange process alone cannot break this attachment and the softener will not
remove this type of iron.
4. Bacterial Iron - This type of iron is protected inside a bacteria cell. Like the organic bound iron,
it is not removed by a water softener.
When using a softener to remove both hardness and dissolved iron it is important that it regenerates
more frequently than ordinarily would be calculated for hardness removal alone. Although many
factors and formulas have been used to determine this frequency, it is recommended that the softener
be regenerated when it has reached 50 - 75% of the calculated hardness alone capacity. This will
minimize the potential for bed fouling. (Iron removal claims have not been verified by the Water
Quality Association or Underwriters Laboratories.)
If you are operating a water softener on clear water iron, regular resin bed cleaning is needed to keep
the bed from coating with iron. Even when operating a softener on water with less than the maximum
of dissolved iron, regular cleanings should be performed. Clean every six months or more often if iron
appears in your conditioned water supply. Use resin bed cleaning compounds carefully following the
directions on the container.
5
Caution! Do not use where the water is microbiologically unsafe or with water of
unknown quality without adequate disinfection before or after the unit.

Introduction
(cont.)
The Culligan Process
Your Culligan water conditioner consists of three basic components, (A) the Control Valve, (B) the
Mineral Tank, and (C) the Brine System.
A. The exclusive Culligan control valve automatically performs a variety of tasks that are necessary
for the proper operation of your water conditioner. These tasks, commonly referred to as cycles or
operating positions, are Service, Regeneration, and Brine Refill.
1. Service: While the control valve is in the “Service cycle”, hard water is directed down
through the column of Cullex® resin where hardness minerals are removed from the water.
The softened water is then directed into your household plumbing lines. The ability of the
Cullex resin to remove hardness minerals needs to be periodically replenished; this is
referred to as . . .
2. Regeneration: While the control valve is in the “Regeneration cycle”, water is first directed
up through the column of Cullex resin to flush accumulated sediment out of the resin and
down the drain. Then, the regenerant brine solution is slowly drawn from the bottom of the
salt storage tank of the Brine System and is directed down through the column of Cullex
resin, restoring the ability of the resin to remove hardness minerals from your water supply.
Once completed, the regeneration cycle is followed by . . .
3. Brine Refill: While the control valve is in the “Brine Refill cycle”, a predetermined amount
of water is directed to the salt storage tank of the Brine System so that additional salt can be
dissolved to provide the brine solution that will be needed for the next regeneration cycle.
B. The Mineral Tank contains the Cullex resin column, Cullsan® underbedding, and an outlet
manifold. The number of gallons of hard water that can be softened by the Cullex resin column
before it needs regeneration is called the “capacity” of the resin column, and depends upon the
amount of hardness minerals in each gallon of water (expressed as grains per gallon) and upon
the amount of regenerant brine solution (expressed as pounds of salt) passed through the resin
column during regeneration.
Your Culligan service person, taking into account the hardness of your water and the amount of
softened water your household may reasonably expect to use each day, has carefully established
how often the softener will regenerate and how much salt will be used for each regeneration. This
will ensure that all of your soft water needs will be fulfilled without using an excessive amount of
salt.
C. The Brine System consists of
a salt storage container and
hydraulic Dubl-Safe™ valve.
The salt storage container holds
the salt that is used to make
the regenerant brine solution.
The hydraulic Dubl-Safe valve
limits the amount of water that is
returned to the salt storage tank
during the brine refill cycle.
Since a predetermined amount
of salt is dissolved with each
brine refill cycle, the salt must be
periodically replenished in order
to maintain efficient operation.
Your Culligan service person will
be able to tell you about how
often salt must be added to the
salt storage container. 6

Preparation Component Description
The water conditioner is shipped from the factory in a minimum of three cartons. Remove all
components from their cartons and inspect them before starting installation.
Control Valve Assembly - Includes the 5-cycle regeneration control valve and the Accusoft®
Microprocessor. A small parts pack will contain additional installation hardware. An Owner’s Guide
is included.
Media Tank - 8” and 10” media tanks are shipped filled with Cullex® ion exchange resin,
underbedding and outlet manifold. For 12” tanks, the Cullex® ion exchange resin and underbedding
are loaded at the installation site.
Salt Storage Tank Assembly - Includes salt storage container with support plate and Dubl-Safe™
brine refill valve and chamber.
Bypass Valve - Includes the Cul-Flo-Valv®, interconnecting couplings, and the screws necessary for
assembly (Bypass Valve included with Control for Medallist Plus).
Tools and Materials
The following tools and supplies will be needed, depending on installation method.
All Installations
For installation in Massachusetts, Massachusetts Plumbing Code 248 CMR shall be
adhered to. Consult your licensed plumber for installation of this system. This system
and its installation must comply with state and local regulations. The use of saddle
valves are not permitted.
• Safety glasses
• Phillips screwdrivers, small and medium tip.
• Gauge assembly (PN 00304450 or equivalent)
• Silicone lubricant (PN 00471507 or equivalent) - Do Not Use Petroleum-Based Lubricants
• A bucket, preferably light-colored
• Towels
Special Tools
• Torch, solder and flux for sweat copper connections
• Use only lead-free solder and flux for all sweat-solder connections, as required by state and
federal codes.
• Threading tools, pipe wrenches and thread sealer for threaded connections.
• Saw, solvent and cement for plastic pipe connections.
Materials
• Brine line, 3/8” (PN 01009819 or equivalent) for 8” and 10” tanks or 1/2” (PN00901800 or
equivalent) for 12” tanks
• Drain line, 1/2” (PN 00303082, gray, semi-flexible; or PN 00-3319-46, black, semi-rigid; or
equivalent)
• Thread sealing tape
• Pressure reducing valve (if pressure exceeds 125 psi [860 kPa], PN 00490900 or equivalent)
• Pipe and fittings suited to the type of installation
• Water softener salt (rock, solar or pellet salt formulated specifically for water softeners)
7
Note: Check and comply with your state and local codes. You must follow these guidelines.

Preparation
(cont.)
Application
Water quality - Verify that raw water hardness and iron are within limits. Note the hardness for
setting the salt dosage and recharge frequency.
Pressure - If pressure exceeds 125 psi (860 kPa), install a pressure reducing valve (see materials
checklist). On private water systems, make sure the minimum pressure (the pressure at which the pump
starts) is greater than 20 psi (140 kPa). Adjust the pressure switch if necessary.
Temperature - Do not install the unit where it might freeze, or next to a water heater or furnace
or in direct sunlight. Outdoor installation is not recommended, and voids the warranty. Use the
Culligan Outdoor Medallist Series Softener for outdoor installations. The Culligan Outdoor Medallist
Series Softener has been certified by Underwriter’s Laboratories for outdoor installation. If installing
in an outside location, you must take the steps necessary to assure the softener installation plumbing,
wiring, etc. areas well protected from the elements (sunlight, rain, wind, heat, cold), contamination,
vandalism, etc. as when installed indoors.
Location
Space requirements - Allow 6-12 inches (15-30 cm) behind the unit for plumbing and drain lines
and 4 feet (1.3 meters) above for service access and filling the salt container.
Floor surface - Choose an area with solid, level floor free of bumps or irregularities. Bumps, cracks,
stones and other irregularities can cause the salt storage tank bottom to crack when filled with salt and
water.
Drain facilities - Choose a nearby drain that can handle the rated drain flow (floor drain, sink or
stand pipe). Refer to the Drain Line Chart, Table 3 (page 16), for maximum drain line length.
Electrical facilities - A 10-foot cord and wall mount plug-in transformer are provided. The customer
should provide a receptacle, preferably one not controlled by a switch that can be turned off
accidentally. Observe local electrical codes.
8
Note: Most codes require an anti-siphon device or air gap. Observe all local plumbing codes
and drain restrictions. The system and installation must comply with all state and local laws and
regulations.
Caution! Do not use where the water is microbiologically unsafe or with water of
unknown quality adequate disinfection before or after the unit.
Caution! The use of a pressure reducing valve may limit the flow of water in the
household.
Note: The softener works on 24 volt - 60 Hz electrical power only. Be sure to use the included
transformer. Be sure the electrical outlet and transformer are in an inside location to protect from
moisture. Properly ground to conform with all governing codes and ordinances.
Note: P.N. 01012956 plug-in transformer is rated for indoor installations only.
P.N. 01015972 plug-in transformer is rated for indoor/outdoor installations.

Installation
9
Placement
Refer to Figure 9 for system placement.
• Set the media tank on a solid, level surface near water, drain and electrical facilities. Place the
outlet (black coupling) of the tank on the left.
• Setthebrinesystemonaat,smooth,solidsurfaceasnearthemediatankaspossible.
Mount The Control Valve - 3/4” Control
Seegure10foravisualonmountingthecontrolvalvetothetank.
As shipped from the factory the Culligan Medallist Series® 3/4” control is equipped as a 8” unit.
1. RemovethetwoplasticcapsfromthetankcouplingsandlubricatethecouplingO-ringswith
silicone lubricant.
2. Thecontrolvalveismarkedalsowith“IN”and“OUT”.Placethecontrolontothetankwiththe
inletandoutletofthecontrolcorrespondingwiththeinletandoutletofthetank.Pressrmlyonto
the couplings.
Figure 9
Note: Do not use a petroleum base lubricant, for this will cause swelling of the rubber parts.
Note: The black molded tank adapter is marked with “IN” and “OUT”, corresponding to
the inlet and outlet of the tank. Position the tank with the inlet coupling on the right and the
outlet coupling on the left as you face the front of the tank.

3. Removethetwou-clampsandscrewsfromtheparts
pack. Install the clamps on both sides of the control
asindicatedinFigure10andsecurethemwiththe
screws.
4. Peelofftheprotectivelmoffthecircuitboardlabel.
5. Attach the appropriate Culligan Medallist Series data
plate that’s included in the small parts pack onto
the back of the control (over the holes used for the
solenoid valve).
Mount The Control Valve - 1” Control
SeeFigure11foravisualonmountingthecontrolvalve
to the tank.
• Assembletheo-rings,locatedinthepartspack,to
the tank adapter.
• Thevalveadaptero-ringsitsontherst
stepontheadapter.SeeFigure12.
Note: Do not push the top o-ring down to
the ange surface on the adapter.
Note: The larger of the two o-rings in the
parts part goes between the adapter and
the valve, do not stretch the smaller o-ring
onto the top of the tank adapter.
• Lubricateonlythetopo-ringonthetank
adapter,andtheoutletmanifoldo-ringwith
silicone lubricant.
• Screw the adapter into the tank until the
adapterbottomsoutonthetankange.
Note: The adapter only needs to be
tightened hand-tight to the tank flange.
• Align the manifold with the center opening
in the valve, and press the valve onto the
adapterrmly.
Note: Make sure to push the valve straight
down onto the manifold. If the valve is
cocked, it may cause the o-ring to slip off
the manifold.
• Assemble the tank clamp to the control,
and tighten the clamp screw.
Note: The clamp and valve will be able to
rotate on the tank until pressure is applied.
Do not try to rotate control valve if the
clamp is tightened - you may cut the o-ring.
Installation
(cont.)
10
Figure10
Figure12
Figure11

Installation
(cont.)
11
Unit Backwash Flow Nozzle Throat Brine Refill Flow
8” #1,Black* Blue* LightBrown* 0.45gpm
Medallist30 #2,Brown* Blue* LightBrown* 0.45gpm
Medallist 45 #2,Brown
@6lbs-Blue
Greater than
6lbs-Beige
LightBrown 0.45gpm
Medallist60 #3, Green Beige LightBrown 0.8gpm
*Standardfromfactory.
Refertogure13foravisualonchangingthe
eductornozzleandthebackwashowcontrol.
Eductor Nozzle Replacement:
• Remove the three screws on the eductor cap
and remove the cap.
• Remove the eductor assembly.
• Remove the eductor screen from the assembly
• Remove the blue nozzle and replace it with the
beigenozzle.Makesuretoputtheo-ringon
the beige nozzle.
• Reverse the procedure to reassemble. To
prevent leaks, ensure that the gasket is in the
proper position.
Backwash Flow Control
Replacement:
• Remove the drain clip and pull the drain elbow straight off.
• Removethebackwashowcontrollocatedbehindtheelbow.
Note: The number on the flow control should face into the valve body.
• Reverse the procedure to reassemble.
Plumbing Connections
General Instructions
• Follow local plumbing & electrical codes. Failure to do so may result in your having to redo the
installation at your expense.
• Takethetimetomakeaclean,professionallookinginstallation.Useuxandsoldersparingly
when making sweat connections, and avoid excessive use of pipe compound. When using
galvanized pipe, clean out excess cutting oil and metal chips before assembly. Foreign objects,
if allowed to enter the control valve, can cause operating problems.
• The main water supply line may then be reopened so that hard water will be available to the
householdthroughouttheremainderoftheinstallationprocess.SettheCul-Flo-ValveBypassin
the bypass position by screwing the stem all the way in against the body.
Caution! Close the inlet supply line and relieve system pressure before cutting into the
plumbing! Flooding could result if not done!
Figure13

Installation
(cont.)
12
Bypass Connections
Shipped with each softener is a Culligan bypass valve, which is used to connect the softener to
the plumbing system. The bypass allows the softener to be isolated from the water service line
if service is necessary while still providing water to the home. The bypass valve can be directly
plumbed into the system, or can be connected with the following optional sweat connection kits.
3/4” Medallist Control Medallist Plus
PN Description PN Description
P1019783 3/4” Sweat Copper Adapter Kit 01010783 1”SweatCopperAdapterKit
P1019782 3/4” Elbow Sweat Copper
Adapter Kit
01016564 3/4” Sweat Copper Adapter Kit
01016565 3/4” Elbow Sweat Copper Adapter Kit
For installations in Massachusetts, Massachusetts Plumbing Code 248 CMR shall be adhered
to. Consult your licensed plumber for installation of this system. This system and it’s
installation must comply with state and local regulations.
Caution! Close the inlet supply line and relieve system pressure before cutting into the
plumbing! Flooding could result if not done!
Caution! When making sweat connections, remove all plastic and rubber components
which contact brass or copper. Damage to these components may result otherwise.
Bypass Valve Installation - 3/4”
Medallist Time Clock
Units Only
The bypass valve connects directly to the backplate of
the valve with a pair of couplings and screws (Figure
14).Tofacilitatethisconnection,removetheplateby
pullingupontheu-cliponthebackofthevalve,and
removingthetwomountingscrews.Lubricateallo-rings
with silicone lubricant.
Bypass Valve Installation - 3/4”
Medallist Soft-Minder® Meter Only
TheSoft-Mindermeterisplacedbetweenthebypass
valve and the control in place of the couplings shipped
withtheCul-Flo-Valv®(Figure15).Makesurethemeter
is on the outlet port of the control and that it is installed
withthearrowpointinginthedirectionofwaterow.
Four elongated bolts are packaged with the meter to
hold the bypass valve to the back plate of the control.
Lubricateallo-ringswithsiliconelubricant.
Caution! When reinstalling back plate
tocontrolvalve,makesuretheu-clip
fully engages the two bottom holes of the
bracket. Secure bracket from the top with
the two mounting screws provided.
Figure14
Figure15

Installation
(cont.)
13
Bypass Valve
Installation - 1”
Medallist
Plus Units
The bypass valve connects directly
to the control valve with a pair of
couplings and two assembly pins
(Figure16).Lubricateallo-rings
on the couplings with silicone
lubricant.OnSoft-Minder® meter
controls, the meter replaces the
coupling on the outlet side of the
control.Themeterbodytsin
the same space as the coupling
between the control valve and the
bypass. Make sure that the arrow
ontheowmeterispointinginthe
directionofow(Figure16).
Note: If the ground from the electrical panel or breaker box to the water meter or underground
copper pipe is tied to the copper water lines and these lines are cut during installation of the
bypass valve, an approved grounding strap must be used between the two lines that have been
cut in order to maintain continuity. The length of the grounding strap will depend upon the number
of units being installed. In all cases where metal pipe was originally used and is later interrupted
by the bypass valve to maintain proper metallic pipe bonding, an approved ground clamp c/w not
less than #6 copper conductor must be used for continuity. Check your local electrical code for the
correct clamp and cable size.
To bypass, turn the blue knob clockwise (see directional arrow on end of knob) until the knob
stopsasshown.DONOT
OVERTIGHTEN!(Figure17a).
To return to service, turn the
blueknobcounter-clockwise
(see directional arrow on the
end of knob) until the knob
stopsasshown.DONOT
OVERTIGHTEN!(Figure17b)
Drain Line Connection
Refertopage16fordrainline
length and height limitations.
• Remove1/2”pipeclampfrom
the small parts pack included
with the control.
• Routealengthof1/2”drain
line from the drain elbow to
the drain.
• Fasten the drain line to the
elbow with the clamp.
• Secure the drain line to
prevent its movement
during regeneration. When
discharging into a sink,
About 1-1/4”
A screwdriver shank may be
used in the slot as a lever for
extra turning force if needed.
Figure17b
Figure17a
Bypass
Assembly Pin
Coupling
or Meter Body
Coupling
Assembly
Pin
Brine
Connection
Figure16

Installation
(cont.)
14
oropenoordrain,aloopintheendofthetubewillkeepitlledwithwaterandwillreduce
splashing at the beginning of each regeneration.
Note: Waste connections or drain outlets shall be designed and constructed to provide for
connection to the sanitary waste system through an air gap of 2 pipe diameters or 1 inch,
whichever is larger.
Note: Observe all plumbing codes. Most codes require an anti-siphon device or air gap at
the discharge point. The system and installation must comply with state and local laws and
regulations.
Connect the Brine Line
RefertoFigures18&19.
• Measurealengthofbrinelinesufcienttoreach
fromthebrinetanktothebrinetting,withno
sharpbends.Foreasieraccesstotheoatit
isrecommendedtoaddanextrafourfeet(1.3
meters) of length to the brine line. Cut both ends
of the brine line squarely and cleanly.
• Remove the brine valve from the brine tank and
then remove the white nut and insert from the
oatrod.Returnoatrodtoitsoriginalposition.
• Slip the white nut over one end of the tubing and
press the plastic insert into the end of the tubing
(Figure19).Connecttothebrinevalveand
tighten nut.
• Remove white nut and the plastic insert from the
small parts pack.
• Slip the white nut over one end of the tubing and
press the plastic insert into the end of the tubing
(Figure19).Connecttothebrineconnectionon
thevalveandtightennut(Figure18).
Figure18
Figure19

Installation
(cont.)
15
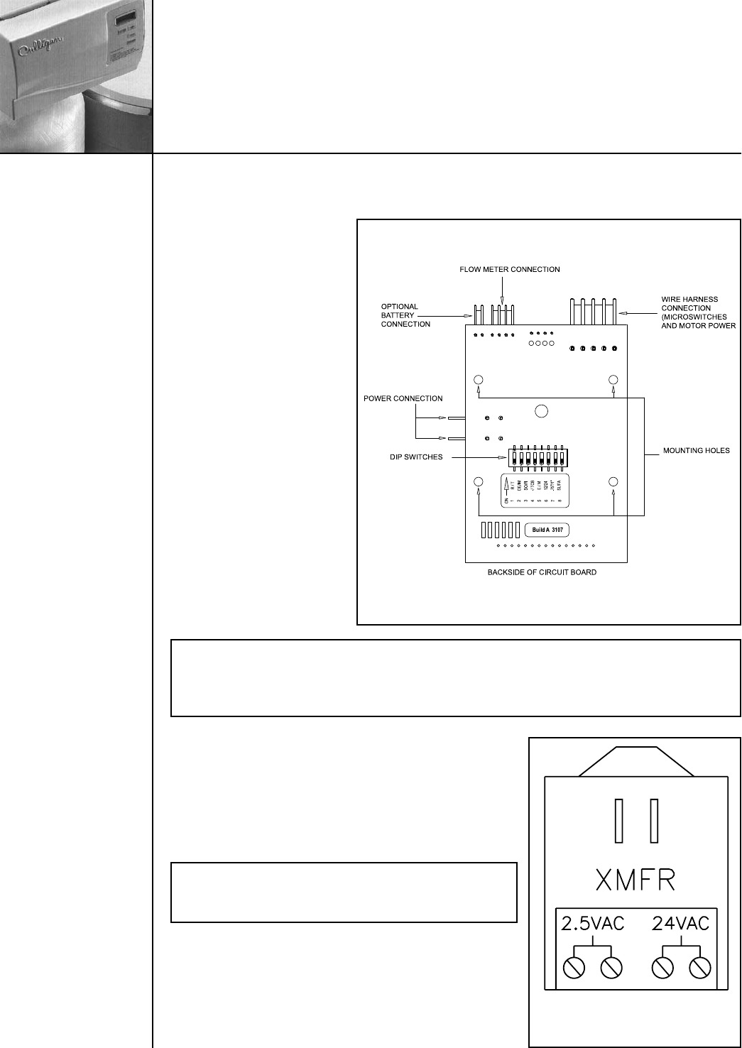
Soft-Minder® Meter Connection
ToconnectthemeterleadsrefertoFigure20andproceedasfollows:
• Lift up the timer case from
the back plate.
• Remove the small plastic
plug from the backplate.
• Slip the meter harness
through the hole and
toward the circuit board.
• Connect the harness to
the circuit board. The
Soft-Minder® meter
terminal is labeled
“FLOWMETER”.
• Pull any excess cable
wire back out of the
enclosure, and route
the wiring inside the
enclosure to avoid any
interference with moving
parts.
• Locate the strain relief
bushing in the parts pack.
Place it on the cable at
the point of entry to the
rear of the timer plate and
push it into the hole.
Electrical Connections
Thepowercordneedstobeconnectedtotheplug-in
transformer,wireorientationisnotcritical.Figure21shows
the cord attachment to the transformer. Connect wire
harnessto24VACterminalsontransformer.
Note: Observe all state and local electrical codes.
Note: The plug-in transformer is rated for indoor
installations only.
Note: The wire connectors must be connected to the circuit board properly. The wires must exit
the plug-in connector opposite of the raised white base of the circuit board connector. Failure to
properly connect any of the connectors will result in a malfunction of the circuit board operation.
Figure20

Table3-MaximumAllowableDrainLineLength
Height of Discharge Above Floor Level Operating
Operating
Pressure 0 ft (0 m) 2 ft (0.6 m) 4 ft (1.2 m) 6 ft (1.8 m) 8 ft (2.4 m) 10 ft (3 m)
30 psi
(210 kPa) 60ft(18m) 50ft(15m) 30ft(9m) 15ft(5m) Not allowable Not allowable
40 psi
(279 kPa) 100ft(30m) 90ft(27m) 70ft(21m) 50ft(15m) 30ft(9m) 12ft(4m)
50 psi
(349 kPa) 145ft(41m) 115ft(35m) 80ft(24m) 80ft(24m) 60ft(18m) 40ft(12m)
60 psi
(419 kPa) Normal installation 100ft(30m) 100ft(30m) 85 ft (26 m) 60ft(18m)
80 psi
(559 kPa) Should not require more than 140ft(43m) 120ft(37m)
100 psi
(699 kPa) 100ft(30m)ofdrainline 150ft(46m)
Themicroprocessorcanbesetintwodistinctoperationmodes,Soft-Minder® meter or Timeclock.
As shipped from the factory, the control is set for 8” Timeclock operation.
Soft-Minder® Operation
TheSoft-Mindermeterutilizesaturbineimpellertoaccuratelymonitorthecustomerswaterusage.
After a predetermined amount of water has passed through the system, the microprocessor will
signal a regeneration. The “REG” enunciator will light at this point. The unit will perform a standard
regeneration cycle at the preset time, unless the programming option “dip 2” is changed from “DEL”
to “Id”. When programming option “dip 2” is changed from “DEL” to “Id”, a regeneration will begin
immediately.
TheprogrammingoftheSoft-Minderprovidesseveralsettablevariables,theTime-of-Day,Time-of-
Regeneration,SaltDosage,BackwashTime,Brine/RinseTime,GallonstoSignalandTimeclock
Backup,ifactive.Refertotheprogrammingsectionforfurtherinformationonprogrammingthe
microprocessor.
Time Clock Operation
Whenthemicroprocessorisset-upasatimeclockunit,theCulliganMedallistSeries™ control will
regenerateatxedintervals.Theregenerationintervalcanbesetanywherefrom1to99days.
TheprogrammingforthetimeclockmodelsislimitedtoTime-of-Day,Time-of-Regeneration,Salt
dosage,BackwashTime,Brine/RinseTime,andtheRegenerationInterval.Refertotheprogram-
ming section for further information on programming the microprocessor.
16
Installation
(cont.)

17
Programming Thetimerusesfourbuttons:
Button Description
Set-up/EnterKey(Status) Advance timer through display options
Regeneration Key (REGEN) Initiate a regeneration
ToggleDownKey(“-”) Decrease the setting
ToggleUpKey(“+”) Increase the setting
Time of Day
This setting is used to program the current time
ofday.Wheninthisstepthedisplaywillrst
show “tod” for two seconds.
After“tod”isdisplayed,“12:00PM”willdisplay
(or the current set time if already programmed)
andtheminuteswillash.
• The minutes are adjusted with the
“+”or“-”keyuntilthecorrectvalueis
displayed.
•Pressthe“Regen”keytoashthe
hours.Adjustwiththe“+”or“-”key
until the correct time is displayed.
Pressing the “Status” key will move to the next
programming step. Pressing “Regen” will move
back to the minutes adjust.
Time of Regeneration
This setting is used to program the time at
which a regeneration is to occur in the delay
mode, or in immediate mode with time clock
backupon.Thedisplaywillrstshow“tor”for
two seconds.
After “tor” is shown the display will then
showthedefaultof2:00AM(orthecurrent
programmed time of regeneration if already
set).Thetimecanbeadjustedin30minute
incrementsbypressingthe“+”or“-”keys.
Pressing the “Status” key will save the setting
and move to the next programming step.

Inside Text
18
Regeneration Interval (Time
Clock Mode)
This setting is used to set the days between
regeneration in time clock mode. The display
will show “REG” icon and “dAY” for two
seconds and then display the numbers to
change.Adjustthevaluewiththe“+”or“-”
keys.
Pressing the “Status” key will save the setting
and move to the next programming step.
Regeneration Interval (Time
Clock Back-up)
This setting is used to set the days between
regenerationwhentimeclockback-upis
activated in a meter mode. It is activated in
meter mode if the time clock backup DIP
switch #4 is set to on. The display will show
the REG icon and tcb” for two seconds and
then the number of days. Adjust the value
withthe“+”or“-”keys.Pressingthe“Status”
key will save the setting and move to the next
programming step.
Salt Dosage
This settings used to set the salt dosage.
Thedisplaywillrstshow“SLtP”(SLtGfor
metric according to DIP switch #5 setting) for
two seconds and then display the default (or
previously programmed value). Adjust the salt
dosagewiththe“+”or“-”keys.
Pressingthe“STATUS”keywillsavethe
setting and move to the next programming
step.
Backwash Time
Thissettingisusedtoprogramthecycle1time
that is usually backwash. The time of the cycle
is kept in minutes. The display will show “buu”
in the display for two seconds and then the
cycle time in the right most digits. Adjust the
valuewiththe“+”or“-”keys.
Pressing the “Status” key will save the setting
and move to the next programming step.
Programming
(cont.)

Brine Draw / Slow Rinse Time
This setting is used to set the time in minutes
for cycle 2. This cycle is usually brine draw /
slow rinse for softeners and a settling time for
lters.Thedisplaywillshow“br”intheleftmost
digits and the cycle time in the right most digits.
Adjustthevaluewiththe“+”or“-”keys.
Pressing the “Status” key will save the setting and move to the next programming step.
Batch Set Point
This setting is used to set the trip point for regeneration
wheninowmeteroperation.Itwillonlyappearifaow
meter is connected. The programmed setting displays
the actual set point to trigger regeneration. The display
will show the REG icon and “CAPG” (or “CAPL for
metric) for two seconds and then display the “REG” and
the setting numbers to adjust. Adjust the value with the
“+”or“-”keys.
Pressing the “Status” key will save the setting and move
to the next programming step.
Blank Display
After the last programming menu is displayed (menu will vary depending on mode of
operation), pressing status will move to a blank display screen.
Fromthe‘blankdisplay’,pressingthe“+”keyfromtheblankdisplaywillenterthediagnosticsmenu.
Fromthe‘blankdisplay’,pressingthe“-”keywillenterthestatisticsmenu.
From the ‘blank display’, pressing the “Status” key will exit programming mode and return to the
service mode time display.
• Pressing and holding the “REGEN” key while in the ‘blank display’ will put the control into “Auto
Test Mode” (must be in service position to start).
Programming
(cont.)
19

Theservicemodeallowsonetoviewtheinstantaneousowrate,thegallonsremainingbeforethe
softenersignalsforregeneration,thenumberofregenerationsinthepast14days,thetotalnumber
of regenerations the control has cycled through and the number of days since the last regeneration.
The statistical functions are reached by pressing the “Status” key until the screen blanks and then
pressingthe“-”key.Repetitivepressesofthe“-”keywillcyclethroughthestatisticsmode.Pressing
the “Status” key will exit statistics and move to the time display. The following table outlines the
statisticfunctiondisplay,rangelimitsanddefaultsetting:
Display Range Limits Comments
Flow Rate 0to999.0 Basedon“K”factorsetting,updatedaminimum
of every 6 seconds (Only active with Flow Meter
attached).
•Capacity Remaining
(gal / L) (Meter Mode)
0-9,999 Remaining gallons (liters) until batch capacity is
reached.Updatedisplayaminimumofevery6
seconds (Only active with Flow Meter attached).
• Number of
Regenerations-Last14
days
0to99 -Dayscounteristobeupdatedat12:00AMONLY
when dip #2 is on ANDdip#4isoff;Otherwise
updateatwhateverTORissetfor
-NumberofRegenerationistobeupdatedaftera
valid regeneration is complete (cycle 3 times out
automatically)
• Number of days since
last Regeneration
0to99 -Dayscounteristobeupdatedat12:00AMONLY
when dip #2 is on ANDdip#4isoff;Otherwise,
updateatwhateverTORissetfor
-Afteravalidregenerationiscomplete(cycle3times
outautomatically),thecounteristoberesetto0
• Number of
Regenerations-Lifeof
theUnit
0to9,999 Counter is to be updated after completion of valid
regeneration cycle (cycle 3 times out automatically)
•TobesavedinEEPROMbeforethecontrolispowereddownduringapoweroutage.
Oncethestatisticsmenuisenteredtheinformationshownforeachdisplayisoutlinedbelow:
“Regen” key is always ignored in statistics mode;
Canenterdirectlyintodiagnosticsmodebypressingthe“+”key;
Whenreturningtostatisticsmodedirectlyfromdiagnosticsmode,alwaysdisplaytherst
statisticinthelistasifstatisticsmodewasenteredforthersttime(don’thavetoremember
where it left off in the list);
Can exit back to service mode by pressing the “status” key;
Automaticallytimesoutbacktoservicemodeafter10minutesofnokeypressactivity-
EXCEPTfor“owrate”and“capacityremaining”;whendisplaying“owrate”and“capacity
remaining”thecontrolcanstayinstatisticsmodeindenitely;
Drop all leading zeros;
•
•
•
•
•
•
Service Check
20

Flow Rate
Thisdisplaywillonlyshowiftheowmeterisattached
tothecontrol.Thedisplayshallshowthecurrentow
rate of the water passing through the control. The
displaywillshow“FLO”fortwosecondsandthenthe
currentowratepassingthroughtheowmeteruntila
key is pressed.
This display shall never time out, as opposed to the
rest of standard statistics
(10minutes).
Capacity Remaining (gal/ L)
Thisdisplaywillonlyshowiftheowmeterisattached
to the control. The display shows the gallons or liters
of capacity remaining in the batch before regeneration
will be triggered. The display will show “GALr” (“Litr” for
metric) for two seconds and then display the remaining
capacity.Whenreaching“0”thedisplaywillremainat
“0”andnotshownegativevalues.
This display shall never time out, as opposed to the rest
of standard statistic
(10minutes).
Number of Regenerations in Last 14
Days
This display will show the number of regenerations
thathaveoccurredinthelast14days.Thedisplaywill
rstshow“14dY”fortwosecondsandthendisplaythe
number of valid regenerations that have occurred.
Number of Days since Last
Regeneration
This display shows the number of days that have
elapsed since the last regeneration. The display will
show “dAYS” for two seconds and then the number of
days that have elapsed since the unit completed its
last valid regeneration.
Service Check
(cont.)
21

Total Number of Regenerations for
Life of Unit
This display will show the total number of
regenerations that have occurred since installation.
The display will show “totL” for two seconds and then
display the total number of valid regenerations for the
life of the unit.
Statistical Function Timeout
Ifnokeyactivityoccursforaperiodof600seconds
(10minutes)whileinstatisticsfunctionsmode,the
mode will time out and return to the time of day
display.Anexceptionisthattheowrateandcapacityremainingwillnottimeoutbutwillremain
displayed until a key is pressed. Pressing the “Status” key at any time will return he unit back to the
time display.
Service Check
(cont.)
22

Chapter
Heading
Inside Text
23
Note: The nipple must extend no more than 1 inch above the cover plate.
Warning! Electrical shock hazard! Unplug the unit before removing the
cover or accessing any internal control parts.
Caution! Disassembly while under water pressure can result in flooding.
Final Start-up Regeneration
There are several conditions that will cause the control to trip a regeneration. The “REG” enunciator
will light when the control has signaled for a regeneration. The “REG” enunciator will flash while the
control is in regeneration. The following are conditions that will call for regeneration:
1. When the Soft-Minder® meter has recorded the passage of a predetermined number of gallons.
2. When the time clock has counted past the set number of days.
3. At the preset time, when the number of days without a regeneration is equal to the Timeclock
Backup setting.
4. At the preset time, when the “REGEN” button is depressed once. “REG” will light.
5. Immediately, when the “REGEN” button is depressed for five seconds. “REG” will light and blink.
6. Immediately, if power to the unit has been off for more than 3 hours and time of day has been
restored.
If “dIP 2” is set to “Id”, the unit will begin a regeneration immediately for instances 1 and 2. With
“dIP 2” set to “del”, the regeneration will not begin until the preset regeneration time.
Start-Up
• Close the main water supply valve.
• Set the Cul-Flo-Valv® to the bypass position.
• Ensure that all faucets at the installation site are closed.
• Direct the drain line discharge into a bucket where flow can be observed.
• Plug the transformer into a 120 Volt, 60 Hz, single-phase receptacle.
• Wait for the control to energize the motor and home itself.
• Set the timer to the correct time of day.
• Open the main supply valve.
• Initiate an immediate regeneration to move the control into the backwash position.
• Refer to the section on manual cycling for information on cycling the control through its positions.
• When in the backwash position, slowly shift the bypass to the soft water position until water flows.
• Allow the tank to fill slowly until water flows from the drain line.
• When flow to drain is established, open the bypass fully. Watch the drain line discharge for signs
of resin. If signs of resin particles appear, reduce the flow. Increase the flow again when resin no
longer appears in the discharge.
• When the unit is filled with water, return the timer to the service position and proceed with setting
the microprocessor. Refer to the programming section.
• Sanitize the water softener (see sanitizing procedure on page 26).
23
Note: If set to immediate mode as timeclock or timeclock backup, the unit will initiate
regeneration at 12:00 AM. In the delay mode, “REG” indicator will light at 12:00 AM and
regeneration will occur at delayed time.
Note: Unplugging the Culligan® Medallist Series water softener will not affect any of the control
settings. Once programmed in, the settings will be stored indefinitely. In the event of a power failure
the time-of-day setting will be stored for 1-2 days. If longer time storage is necessary, a battery backup
is available. Refer to the Service Manual for additional information.

Chapter
Heading
Inside Text
24
Salt Supply,
Usage and
Service
Salt is the mineral used to “recharge” your water conditioner. A brine solution is automatically made
up in the bottom of the salt storage container, the Cullex® resin beads in the tall, thin tank are flushed
with brine solution as a step in the recharging process.
Your Culligan Water Conditioner has been carefully designed to get the greatest amount of softening
capacity from the salt it uses. Here is some pertinent information about salt usage, types and service.
Salt Economizer
This control is set at the time of installation, and determines salt usage according to the water
hardness, number of persons in the household, and water usage.
What Kind of Salt is Best
All Culligan Water Conditioners are designed to use any water conditioner salt of good quality,
including “rock”, “pellet”, “solar”, or “evaporated” types.
All rock salt, regardless of source, contains insoluble material which collects at the bottom of the salt
storage tank and requires periodic clean-out.
Regardless of what type of salt is used, we recommend Culligan Brand Salt as suggested by your
Culligan Dealer. He is the expert and can provide you with the best product for your Culligan Water
Conditioner.
Automatic Salt Delivery Service
Ask your Culligan Dealer for details about salt delivery service. You can have your salt supply
replenished on a regular basis. Whether you have automatic delivery service or pick up salt from your
Culligan Dealer, you will be getting quality salt packaged according to rigid Culligan specifications.
Using Culligan Brand Salt will help assure continued efficiency and trouble-free operation of your
water conditioner.
Care and Cleaning of Your Culligan Water Conditioner
Following these simple precautions will help assure continued trouble-free service and keep your
Culligan Water Conditioner looking like new for years.
1 Do not place heavy objects on top of the salt storage tank or timer cover.
2 Use only mild soap and warm water when cleaning the exterior of the conditioner. Never use
harsh, abrasive cleaning compounds or those which contain acid, such as vinegar, bleach and
similar products.
3 Important: Protect your water conditioner and the entire drainline from freezing
temperatures.
DANGER! If your unit should freeze, do not attempt to disassemble it. Call your
Culligan Dealer.
4 Important: Culligan water softeners are sold for use on potable water, only. If
at any time the water becomes contaminated, such as during a “boil water”
situation, the operation of the water softener should be discontinued until it
is verified that the water is again potable. To do this, rotate the blue knob
clockwise until it contaqcts the bypass body - Do not overtighten. Then, call
your Culligan dealer to have your system sanitized before it is placed back into
service. 24

Salt Supply,
Usage and
Service (cont.)
5 Should service, adjustment or trouble-shooting information be needed which is not covered in the
Use and Care Guide, call your Culligan Dealer.
Note: Following the manufacturer’s instructions regarding operation, maintenance and replacement
requirements, including replacement of filters if applicable, is essential for Culligan’s products to
perform as advertised.
If you have further questions, please call your local independently operated Culligan dealer. He or she
will be glad to be of assistance to you.
Recommended Preventative Maintenance Inspection Schedule
The Culligan Medallist Series commercial water softener has been designed to provide a good,
consistent service life. Routinely inspecting the system may help avoid potentially costly breakdowns
related to circumstances outside of the control of the dealer and/or user.
Component Suggested Inspection
Frequency
Reason for Maintenance
Entire System At Start-up, after infrequent use
(idle for one week or more) or
every 3 - 6 months
On private supplies, the appearance of
off-tastes and odors, particularly if musty or
“rotten egg” (caused by harmless sulfate-
reducing bacteria) may indicate a need for
the system to be sanitized. See page 26.
Backwash Flow
Controller
Every 12 months or every time
service is performed on the
system.
Build up of sediment, iron and/or other
foreign materials (found in some water
supplies but not necessarily all) could
negatively affect system performance. Monitor
item for normal or unexpected wear.
Brine eductor
nozzle and
throat
Every 12 months or every time
service is performed on the
system.
Build up of sediment, iron and/or other
foreign materials (found in some water
supplies but not necessarily all) could
negatively affect system performance. Monitor
item for normal or unexpected wear.
Softening Media
(Cullex)
Every 2 - 3 years Chlorinated water supplies can breakdown
and destroy resin material. Resin material
may also perform poorly if subjected to other
materials (sediment, iron, alum, etc.) found in
some water supplies (but not necessarily all).
25

Sanitizing
Procedure
A water softener in daily use on a potable water supply generally requires no special attention other
than keeping the salt tank filled. Occasionally, however, a unit may require sanitization under one of
the following conditions:
• At start-up time.
• After standing idle for a week or more.
• On private supplies, the appearance of off-tastes and odors, particularly if musty or “rotten egg”
(caused by harmless sulfate-reducing bacteria).
1. Remove the brine tank cover.
2. Pour directly into the brine chamber 1/3 to 1/2 cup of common household bleach (5.25%
sodium hypochlorite) for each cubic foot of resin in the tank.
3. Manually start recharge. Allow the unit to complete the recharge cycle automatically.
If tastes and odors return frequently, even after sanitization, a continuous chlorination system may be
needed. Send a water sample to a qualified laboratory for bacterial analysis.
26
Note: If the water supply contains iron, regenerate the softener before sanitizing to remove
iron from the resin.
Note: Do not use lemon scented bleach or similar bleaches that contain perfumes.
Caution! HAZARD FROM TOXIC FUMES! Chlorine bleach and common iron
control chemicals may generate toxic fumes when mixed.
• If the unit Culligan Sofner-Gard® or other compounds containing sodium
hydrosulfate, sodium bisulfate, or any other reducing agent, disconnect the device
feeding the chemical(s) and manually regenerate the unit before sanitizing.
• Do not use this procedure if the softener salt contains iron control additives.

To Clean
Out the Salt
Storage Tank
A periodic clean-out of the Salt Storage Tank is necessary to keep your Culligan Water Conditioner at
peak operating efficiency. Do it at least every 2 years when the salt supply is low. Follow these step-
by-step procedures:
Tools needed:
• Scoop
• Clean, bucket-size container
• Phillips-head screwdriver
• Garden hose, Household scrub brush or sponge
1. Remove the salt storage tank cover and the cap from the brine valve chamber.
2. Lift the brine valve out of the brine valve chamber and set aside in an upright position.
3. If you’d like to save any clean, dry salt remaining in the tank, remove it and place it in a clean
container.
4. Using the scoop, dig out and discard as much remaining salt, water and debris as possible.
5. Remove the brine valve chamber by removing the chamber retaining screw and nut.
6. Remove the salt plate at the bottom of the tank.
7. Lay the salt tank on its side and direct a brisk stream of water from your garden hose to its inside
to rinse out all residue.
8. Using a household scrub brush and a mild soapy solution, clean the salt plate. This will complete
the tank cleaning.
9. Stand salt tank upright. Make sure to place the tank on a flat, smooth, solid surface.
10. Replace the salt plate. Place brine valve chamber in position and affix with screw and nut.
11. Insert the brine valve into the chamber and replace brine valve chamber cap.
12. Fill the salt storage tank with 4 to 6 inches of water.
13. Fill the tank with salt to within a few inches of the top.
14. Replace salt storage tank cover.
Troubleshooting
The Culligan Medallist Series Softener is equipped with an advanced error detection system. During
all operating modes the softener’s electronics are performing self-diagnostics to ensure that the unit is
operating correctly. There may be times, however, when something may occur that could cause the
unit to improperly operate. In those instances the microprocessor will identify the exact problem and
alert the user with a telephone handset symbol in the upper left corner of the display and the error
code will be shown. Shown below is codes that would appear if an error is detected.
Display Error Description Response
E1 Motor will not stop turning Call Culligan service technician
E2 Motor stuck Call Culligan service technician
E3 Wrong position Call Culligan service technician
If an error code appears that requires an authorized service technician please contact your local
Culligan Dealer.
For any additional troubleshooting or service needs please contact your local Culligan Dealer.
27

Things to
Check Before
Calling for
Service
If you unexpectedly experience hard water, make these simple checks before calling your Culligan dealer.
One of the following conditions may be the reason for your interruption of service.
Important
If any of the following conditions is found, the water conditioner should be manually recharged according
to instructions on page 23 after you have corrected the problem.
Power Supply
Check your power supply cord. Is it plugged fully into the electric outlet? Be certain that the outlet is not
controlled by a wall switch which has been turned off. Reset conditioner to proper time of day and then
plug in.
Blown Fuse
Check the house fuse or circuit breaker panel. Replace a blown-out fuse or reset an open circuit breaker.
Power Failure
Any interruption in your power supply or time changes - such as daylight savings - will disrupt your
conditioner’s recharge schedule by causing the timer to run off-schedule. Reset timer to proper time of day.
Bypass Valves
Check to see if they are in the proper position. Cul-Flo-Valv® Bypass, if used, should be in the “Service”
position (handle screwed out). If hand valves are used, see that inlet and outlet valve are opened and that
the bypass valve is closed.
No Water
If you aren’t getting any water flow at all, make sure your water supply is working. Open a tap ahead of
the conditioner (outside tap) to see if you have any water pressure. If you have water pressure, check the
bypass valve. If it is in the Service position, put it into the bypass and call your Culligan dealer for service.
Increased Usage
Guests, family additions, new water-using appliances, etc., all will result in more water usage and will
require more capacity from your conditioner. You can reprogram your recharging schedule by following
the directions on pages 18 and 19. Call your Culligan dealer for advice and save a service call.
Salt Supply
Check it. Refill if necessary and wait approximately 4 hours for salt to dissolve before initiating a recharge
cycle.
Salt Bridging
Salt bridging occurs when a space is formed between the salt and the water underneath, preventing the
salt from dissolving to make brine. No brine, no soft conditioned water!
High humidity and/or use of some brands of purified salt products may cause a salt bridge to form.
The best way to check and eliminate a salt bridging problem is to take a broom handle or similar
instrument and make a mark 34 inches from the end. Then carefully begin to probe down through the salt
with the instrument. Should an obstruction be found before the mark on your instrument reaches the rim of
the salt storage tank, a salt bridge is likely to have formed. Continue to probe and break the salt bridge
completely.
28
Caution! Do not force the implement past the mark as damage to the horizontal salt plate
may occur.

Normally, all water except outside lines passes through the water conditioner. There are times when
the water conditioner should be bypassed, using the Cul-Flo-Valv® Bypass, or a 3-way bypass valve.
You should bypass:
1. If lines to outside faucets do not bypass the water conditioner, and you do not want to waste soft
water on lawn sprinkling or other outside uses.
2. If you are going away on vacation and want to save salt by not having the unit recharge while
you’re away.
Medallist Series Bypass Valve
In the back of Culligan water conditioners is a Cul-Flo-Valv Bypass. NOTE: The 3/4” Medallist bypass
valve will look different on the valve connections but function the same. To bypass unit, simply turn the
blue knob clockwise. To return to soft water service, reverse the procedure - turn the blue knob counter-
clockwise.
When and
How to Bypass
Your Water
Conditioner
29
Bypassed – Figure 14a
To BYPASS, turn the blue knob clockwise (see directional
arrow on end of knob) until the knob stops as shown.
DO NOT OVERTIGHTEN!
About 1-1/4”
Soft Water – Figure 14b
To return to SERVICE, turn the blue knob counter-clockwise (see
directional arrow on end of knob) until the knob stops as shown.
DO NOT OVERTIGHTEN!
A screwdriver shank
may be used in the slot
(arrow) as a lever for
extra turning force if
needed.

Performance
Data Sheet
Culligan knows the more informed you are about your water treatment systems, the more confident
you will be about its performance. It’s because of this and more than seventy years of commitment to
customer satisfaction that Culligan is providing this Performance Data Sheet to its customers.
IMPORTANT NOTICE: Read this Performance Data Sheet and compare the capabilities of this unit
with your actual water treatment needs. It is recommended that before purchasing a water treatment
unit, you have your water supply tested to determine your actual water treatment needs.
MANUFACTURER: Culligan International Company,
9399 W. Higgins Rd., Suite 1100, Rosemont, IL 60018 USA
1-800-CULLIGAN or 1-847-430-2800
PRODUCT: Culligan Medallist Series® 8” Water Softener
TESTING CONDITIONS & RESULTS:
Flow Rate: 5.9 gpm @12 psi Capacity: 17,004 grains @ 4.0 lb. salt
Pressure: 30 - 40 psi 22,947 grains @ 9.0 lb. salt
Acidity: Non-Corrosive 24,853 grains @ 12.0 lb. salt
Temperature: 68˚ (20˚C) pH: 7.6
SOFTENER SPECIFICATIONS:
Maximum Flow Rate: 5.9 gpm (22 Lpm)
Pressure Drop at Maximum Flow Rate: 12 psi (83 kPa)
Operating Temperature Range: 33 - 120˚F (1 - 50˚C)
Maximum Drain Flow Rate: 1.1 gpm (8 Lpm)
Operating Pressure Range: 20 - 125 psi (140 - 860 kPa)
Operating Pressure Range (Canada): 20 - 90 psi (140 - 620 kPa)
Name of
Substance
USEPA Maximum
Contaminant Level
pH Flow Rate Pressure
Barium 2.0 mg/L 7.5 ± 0.5 5.9 gpm 12 (psig)
Radium 226/228 5 pCi/L 7.5 ± 0.5 5.9 gpm 12 (psig)
This system is certified for barium and radium 226/228 reduction based on harness reduction. It is
recommended you test your water every 6 months to ensure the system is performing properly and that
hardness, and therefore barium and radium 226/228, are being reduced. Hardness test strips have
been included. Additional strips are available from you local Culligan dealer.
The Culligan Medallist Series® 8 Water Softeners are tested and certified by WQA against NSF/
ANSI Standard 44 for the effective reduction of hardness (calcium and magnisium) and barium/
radium as verified and substantiated by test data.
Refer to the Specifications, Familiarization and Warranty section of this Owner’s Guide for more
specific product information. To avoid contamination from improper handling and installation, your
system should only be installed and serviced by your Culligan Man. Performance will vary based on
local water conditions. The substances reduced by this system are not necessarily in your water.
Culligan water softeners are designed to work with any salt of good quality, although it is
recommended that you ask your local Culligan Man for his suggestion on the best type and grade of
salt to use in this softener.
NOTICE: This softener is not intended to be used for treating water that is microbiologically unsafe or
of unknown quality without adequate disinfection before or after the system.
Buyer Signature _________________________________________________ Date ________________
Seller Signature _________________________________________________ Date ________________ 30

Performance
Data Sheet
31
Culligan knows the more informed you are about your water treatment systems, the more confident
you will be about its performance. It’s because of this and more than seventy years of commitment to
customer satisfaction that Culligan is providing this Performance Data Sheet to its customers.
IMPORTANT NOTICE: Read this Performance Data Sheet and compare the capabilities of this unit with your
actual water treatment needs. It is recommended that before purchasing a water treatment unit, you have your
water supply tested to determine your actual water treatment needs.
MANUFACTURER: Culligan International Company,
9399 W. Higgins Rd., Suite 1100, Rosemont, IL 60018 USA
1-800-CULLIGAN or 1-847-430-2800
PRODUCT: Culligan Medallist Series® 8” Water Softener with Soft-Minder® Meter
TESTING CONDITIONS & RESULTS:
Flow Rate: 5.9 gpm @12 psi Capacity: 17,004 grains @ 4.0 lb. salt
Pressure: 30 - 40 psi 22,947 grains @ 9.0 lb. salt
Acidity: Non-Corrosive 24,853 grains @ 12.0 lb. salt
Temperature: 68° (20°C) Efficiency Rated Dosage**: 4,251 gr./lb.
pH: 7.6
SOFTENER SPECIFICATIONS:
Maximum Flow Rate: 5.9 gpm (22 Lpm) Pressure Drop at Maximum Flow Rate: 12 psi (83 kPa)
Operating Temperature Range: 33 - 120°F (1 - 50°C) Maximum Drain Flow Rate: 1.1 gpm (8 Lpm)
Oper. Press. Range: 20-125 psi (140 - 860 kPa) Oper. Press. Range (Canada): 20-90 psi (140-620 kPa)
Name of Substance USEPA Maximum
Contaminant Level
pH Flow Rate Pressure
Barium 2.0 mg/L 7.5 ± 0.5 5.9 gpm 12 (psig)
Radium 226/228 5 pCi/L 7.5 ± 0.5 5.9 gpm 12 (psig)
This system is certified for barium and radium 226/228 reduction based on harness reduction. It is recommended
you test your water every 6 months to ensure the system is performing properly and that hardness, and therefore
barium and radium 226/228, are being reduced. Hardness test strips have been included. Additional strips are
available from you local Culligan dealer.
The Culligan Medallist Series® 8 Water Softeners are tested and certified by WQA against NSF/ANSI Standard
44 for the effective reduction of hardness (calcium and magnisium) and barium/radium as verified and
substantiated by test data.
This softener is efficiency rated, it has a Demand Initiated Regeneration (D.I.R.) feature which complies with specific
performance specifications intended to minimize the amount of regenerant brine and water used in their operation.
The softener has a rated salt efficiency of not less than 3350 grains of total hardness exchange per pound of salt
used (based on NaCl equivalency), and shall not deliver more salt than its listed rating. The efficiency is measured
by a laboratory test described in NSF/ANSI Standard 44. This test represents the maximum possible efficiency that
the system can achieve. Operational efficiency is the actual efficiency achieved after the system has been installed.
Operational efficiency is typically less than the efficiency due to individual application factors including water
hardness, water usage, and other contaminants that reduce the softener’s capacity.
Refer to the Specifications, Familiarization and Warranty section of this Owner’s Guide for more specific product
information. To avoid contamination from improper handling and installation, your system should only be installed
and serviced by your Culligan Man. Performance will vary based on local water conditions. The substances
reduced by this system are not necessarily in your water.
Culligan water softeners are designed to work with any salt of good quality, although it is recommended that you
ask your local Culligan Man for his suggestion on the best type and grade of salt to use in this softener.
NOTICE: This softener is not intended to be used for treating water that is microbiologically unsafe or of unknown
quality without adequate disinfection before or after the system.
** The efficiency rated dosage is only valid at the 4.0 lb. salt dosage.
Buyer Signature _________________________________________________________ Date ___________________
Seller Signature _________________________________________________________ Date ___________________

Performance
Data Sheet
32
Culligan knows the more informed you are about your water treatment systems, the more confident
you will be about its performance. It’s because of this and more than seventy years of commitment to
customer satisfaction that Culligan is providing this Performance Data Sheet to its customers.
IMPORTANT NOTICE: Read this Performance Data Sheet and compare the capabilities of this unit
with your actual water treatment needs. It is recommended that before purchasing a water treatment
unit, you have your water supply tested to determine your actual water treatment needs.
MANUFACTURER: Culligan International Company,
9399 W. Higgins Rd., Suite 1100, Rosemont, IL 60018 USA
1-800-CULLIGAN or 1-847-430-2800
PRODUCT: Culligan Medallist Plus Series® 30 Water Softener with Time Clock
TESTING CONDITIONS & RESULTS:
Flow Rate: 10 gpm @ 15 psi Capacity: 17,172 grains @ 4.0 lb. salt
Pressure: 30 - 40 psi 23,664 grains @ 8.0 lb. salt
Acidity: Non-Corrosive 27,700 grains @ 12.0 lb. salt
Temperature: 68° (20°C) pH: 7.6
SOFTENER SPECIFICATIONS:
Maximum Flow Rate: 10 gpm (34 Lpm) Pressure Drop at Maximum Flow Rate: 15 psi (109 kPa)
Operating Temperature Range: 33 - 120° F (1 - 50°C) Maximum Drain Flow Rate: 1.7 gpm (6.4 Lpm)
Operating Pressure Range: 20-125 psi (140-860 kPa) Oper. Press. Range(Canada): 20-90 psi (140-620 kPa)
Name of
Substance
USEPA Maximum
Contaminant
Level
pH Flow Rate Pressure
Barium 2.0 mg/L 7.5 + 0.5 10.0 gpm 15 (psig)
Radium 226/228 5 pCi/L 7.5 + 0.5 10.0 gpm 15 (psig)
This system is certified for barium and radium 226/228 reduction based on hardness reduction. It is
recommended you test your water every 6 months to ensure the system is performing properly and that hardness,
and therefore barium and radium 226/228, are being reduced. Hardness test strips have been included.
Additional strips are available from your local Culligan dealer.
The Culligan Medallist Plus Series® 30 Water Softeners are tested and certified by WQA against NSF/ANSI
Standard 44 for the effective reduction of hardness (calcium and magnesium) and barium/radium as verified and
substantiated by test data.
The Culligan Medallist Plus Series® 30 Water Softeners are tested and certified by WQA against NSF/ANSI
Standard 61 for material requirements.
Refer to the Specifications, Familiarization and Warranty section of this Owner’s Guide for more specific product
information. To avoid contamination from improper handling and installation, your system should only be installed
and serviced by your Culligan Man. Performance will vary based on local water conditions. The substances
reduced by this system are not necessarily in your water.
Culligan water softeners are designed to work with any salt of good quality, although it is recommended that you
ask your local Culligan Man for his suggestion on the best type and grade of salt to use in this softener.
NOTICE: This softener is not intended to be used for treating water that is microbiologically unsafe or of unknown
quality without adequate disinfection before or after the system.
Buyer Signature _________________________________________________ Date ________________
Seller Signature _________________________________________________ Date ________________

Culligan knows the more informed you are about your water treatment systems, the more confident you will be
about its performance. It’s because of this and more than seventy years of commitment to customer satisfaction that
Culligan is providing this Performance Data Sheet to its customers.
IMPORTANT NOTICE: Read this Performance Data Sheet and compare the capabilities of this unit with your
actual water treatment needs. It is recommended that before purchasing a water treatment unit, you have your
water supply tested to determine your actual water treatment needs.
MANUFACTURER: Culligan International Company,
9399 W. Higgins Rd., Suite 1100, Rosemont, IL 60018 USA
1-800-CULLIGAN or 1-847-430-2800
PRODUCT: Culligan Medallist Plus Series® 30 Water Softener with Soft-Minder® Meter
TESTING CONDITIONS & RESULTS:
Flow Rate: 10 gpm @ 15 psi Capacity: 17,172 grains @ 4.0 lb. salt
Pressure: 30 - 40 psi 23,664 grains @ 8.0 lb. salt
Acidity: Non-Corrosive 27,700 grains @ 12.0 lb. salt
Temperature: 68° F (20°C) Efficiency Rated Dosage**: 4,293 gr./lb.
pH: 7.6
SOFTENER SPECIFICATIONS:
Maximum Flow Rate: 10 gpm (34 Lpm) Pressure Drop at Maximum Flow Rate: 15 psi (109 kPa)
Operating Temperature Range: 33 - 120° F (1 - 50°C) Maximum Drain Flow Rate: 1.7 gpm (6.4 Lpm)
Oper. Press. Range: 20-125 psi (140-860 kPa) Oper. Press. Range (Canada): 20-90 psi (140-620 kPa)
Name of
Substance
USEPA Maximum
Contaminant Level pH Flow Rate Pressure
Barium 2.0 mg/L 7.5 + 0.5 10.0 gpm 15 (psig)
Radium 226/228 5 pCi/L 7.5 + 0.5 10.0 gpm 15 (psig)
This system is certified for barium and radium 226/228 reduction based on hardness reduction. It is recommended you test your
water every 6 months to ensure the system is performing properly and that hardness, and therefore barium and radium 226/228,
are being reduced. Hardness test strips have been included. Additional strips are available from your local Culligan dealer.
The Culligan Medallist Plus Series® 30 Water Softeners are tested and certified by WQA against NSF/ANSI Standard 44 for the
effective reduction of hardness (calcium and magnesium) and barium/radium as verified and substantiated by test data.
The Culligan Medallist Plus Series® 30 Water Softeners are tested and certified by WQA against NSF/ANSI Standard 61 for
material requirements.
This softener is efficiency rated, it has a Demand Initiated Regeneration (D.I.R.) feature which complies with specific performance
specifications intended to minimize the amount of regenerant brine and water used in their operation. The softener has a rated salt
efficiency of not less than 3350 grains of total hardness exchange per pound of salt used (based on NaCl equivalency), and shall
not deliver more salt than its listed rating. The efficiency is measured by a laboratory test described in NSF/ANSI Standard 44. This
test represents the maximum possible efficiency that the system can achieve. Operational efficiency is the actual efficiency achieved
after the system has been installed. Operational efficiency is typically less than the efficiency due to individual application factors
including water hardness, water usage, and other contaminants that reduce the softener’s capacity.
Refer to the Specifications, Familiarization and Warranty section of this Owner’s Guide for more specific product information. To
avoid contamination from improper handling and installation, your system should only be installed and serviced by your Culligan
Man. Performance will vary based on local water conditions. The substances reduced by this system are not necessarily in your
water.
Culligan water softeners are designed to work with any salt of good quality, although it is recommended that you ask your local
Culligan Man for his suggestion on the best type and grade of salt to use in this softener.
NOTICE: This softener is not intended to be used for treating water that is microbiologically unsafe or of unknown quality without
adequate disinfection before or after the system.
**The efficiency rated dosage is only valid at the 4.0 lb. salt dosage.
Buyer Signature _________________________________________________ Date ________________
Seller Signature _________________________________________________ Date ________________
Performance
Data Sheet
33

Performance
Data Sheet
34
Culligan knows the more informed you are about your water treatment systems, the more confident you will be
about its performance. It’s because of this and more than seventy years of commitment to customer satisfaction that
Culligan is providing this Performance Data Sheet to its customers.
IMPORTANT NOTICE: Read this Performance Data Sheet and compare the capabilities of this unit with your
actual water treatment needs. It is recommended that before purchasing a water treatment unit, you have your
water supply tested to determine your actual water treatment needs.
MANUFACTURER: Culligan International Company,
9399 W. Higgins Rd., Suite 1100, Rosemont, IL 60018 USA
1-800-CULLIGAN or 1-847-430-2800
PRODUCT: Culligan Medallist Plus Series® 45 Water Softener with Time Clock
TESTING CONDITIONS & RESULTS:
Flow Rate: 9.4 gpm @ 15 psi Capacity: 26,770 grains @ 6.0 lb. salt
Pressure: 30 - 40 psi 38,830 grains @ 12.0 lb. salt
Acidity: Non-Corrosive 45,493 grains @ 18.0 lb. salt
Temperature: 68° (20°C) pH: 7.6
SOFTENER SPECIFICATIONS:
Maximum Flow Rate: 9.4 gpm (35.5 Lpm) Pressure Drop at Maximum Flow Rate: 15 psi (109 kPa)
Operating Temperature Range: 33 - 120°F (1 - 50°C) Maximum Drain Flow Rate: 1.6 gpm (6.1 Lpm)
Oper. Press. Range: 20 - 125 psi (140 - 860 kPa) Oper. Press. Range (Canada): 20 - 90 psi (140 - 620 kPa)
Name of
Substance
USEPA Maximum
Contaminant
Level
pH Flow Rate Pressure
Barium 2.0 mg/L 7.5 + 0.5 9.4 gpm 15 (psig)
Radium 226/228 5 pCi/L 7.5 + 0.5 9.4 gpm 15 (psig)
This system is certified for barium and radium 226/228 reduction based on hardness reduction. It is
recommended you test your water every 6 months to ensure the system is performing properly and that hardness,
and therefore barium and radium 226/228, are being reduced. Hardness test strips have been included.
Additional strips are available from your local Culligan dealer.
The Culligan Medallist Plus Series® 45 Water Softeners are tested and certified by WQA against NSF/ANSI
Standard 44 for the effective reduction of hardness (calcium and magnesium) and barium/radium as verified and
substantiated by test data.
The Culligan Medallist Plus Series® 45 Water Softeners are tested and certified by WQA against NSF/ANSI
Standard 61 for material requirements.
Refer to the Specifications, Familiarization and Warranty section of this Owner’s Guide for more specific product
information. To avoid contamination from improper handling and installation, your system should only be installed
and serviced by your Culligan Man. Performance will vary based on local water conditions. The substances
reduced by this system are not necessarily in your water.
Culligan water softeners are designed to work with any salt of good quality, although it is recommended that you
ask your local Culligan Man for his suggestion on the best type and grade of salt to use in this softener.
NOTICE: This softener is not intended to be used for treating water that is microbiologically unsafe or of unknown
quality without adequate disinfection before or after the system.
Buyer Signature _________________________________________________ Date ________________
Seller Signature _________________________________________________ Date ________________

Culligan knows the more informed you are about your water treatment systems, the more confident you will be
about its performance. It’s because of this and more than seventy years of commitment to customer satisfaction that
Culligan is providing this Performance Data Sheet to its customers.
IMPORTANT NOTICE: Read this Performance Data Sheet and compare the capabilities of this unit with your
actual water treatment needs. It is recommended that before purchasing a water treatment unit, you have your
water supply tested to determine your actual water treatment needs.
MANUFACTURER: Culligan International Company,
9399 W. Higgins Rd., Suite 1100, Rosemont, IL 60018 USA
1-800-CULLIGAN or 1-847-430-2800
PRODUCT: Culligan Medallist Plus Series® 45 Water Softener
with Soft-Minder® Meter
TESTING CONDITIONS & RESULTS:
Flow Rate: 9.4 gpm @ 15 psi Capacity: 26,770 grains @ 6.0 lb. salt
Pressure: 30 - 40 psi 38,830 grains @ 12.0 lb. salt
Acidity: Non-Corrosive 45,943 grains @ 18.0 lb. salt
Temperature: 68°F (20°C) Efficiency Rated Dosage**: 4,461 gr./lb.
pH: 7.6
SOFTENER SPECIFICATIONS:
Maximum Flow Rate: 9.4 gpm (35.5 Lpm) Pressure Drop at Maximum Flow Rate: 15 psi (109 kPa)
Operating Temperature Range: 33 - 120°F (1 - 50°C) Maximum Drain Flow Rate: 1.6 gpm (6.1 Lpm)
Oper. Press. Range: 20-125 psi (140-860 kPa) Oper. Press. Range (Canada): 20-90 psi (140-620 kPa)
Name of
Substance
USEPA Maximum
Contaminant Level
pH Flow Rate Pressure
Barium 2.0 mg/L 7.5 + 0.5 9.4 gpm 15 (psig)
Radium 226/228 5 pCi/L 7.5 + 0.5 9.4 gpm 15 (psig)
This system is certified for barium and radium 226/228 reduction based on hardness reduction. It is recommended you test your
water every 6 months to ensure the system is performing properly and that hardness, and therefore barium and radium 226/228,
are being reduced. Hardness test strips have been included. Additional strips are available from your local Culligan dealer.
The Culligan Medallist Plus Series® 45 Water Softeners are tested and certified by WQA against NSF/ANSI Standard 44 for the
effective reduction of hardness (calcium and magnesium) and barium/radium as verified and substantiated by test data.
The Culligan Medallist Plus Series® 45 Water Softeners are tested and certified by WQA against NSF/ANSI Standard 61 for
material requirements.
This softener is efficiency rated, it has a Demand Initiated Regeneration (D.I.R.) feature which complies with specific performance
specifications intended to minimize the amount of regenerant brine and water used in their operation. The softener has a rated salt
efficiency of not less than 3350 grains of total hardness exchange per pound of salt used (based on NaCl equivalency), and shall
not deliver more salt than its listed rating. The efficiency is measured by a laboratory test described in NSF/ANSI Standard 44. This
test represents the maximum possible efficiency that the system can achieve. Operational efficiency is the actual efficiency achieved
after the system has been installed. Operational efficiency is typically less than the efficiency due to individual application factors
including water hardness, water usage, and other contaminants that reduce the softener’s capacity.
Refer to the Specifications, Familiarization and Warranty section of this Owner’s Guide for more specific product information. To
avoid contamination from improper handling and installation, your system should only be installed and serviced by your Culligan
Man. Performance will vary based on local water conditions. The substances reduced by this system are not necessarily in your
water.
Culligan water softeners are designed to work with any salt of good quality, although it is recommended that you ask your local
Culligan Man for his suggestion on the best type and grade of salt to use in this softener.
NOTICE: This softener is not intended to be used for treating water that is microbiologically unsafe or of unknown quality without
adequate disinfection before or after the system.
**The efficiency rated dosage is only valid at the 6.0 lb. salt dosage.
Buyer Signature _________________________________________________ Date ________________
Seller Signature _________________________________________________ Date ________________
Performance
Data Sheet
35

Performance
Data Sheet
36
Culligan knows the more informed you are about your water treatment systems, the more confident you will be
about its performance. It’s because of this and more than seventy years of commitment to customer satisfaction that
Culligan is providing this Performance Data Sheet to its customers.
IMPORTANT NOTICE: Read this Performance Data Sheet and compare the capabilities of this unit with your
actual water treatment needs. It is recommended that before purchasing a water treatment unit, you have your
water supply tested to determine your actual water treatment needs.
MANUFACTURER: Culligan International Company,
9399 W. Higgins Rd., Suite 1100, Rosemont, IL 60018 USA
1-800-CULLIGAN or 1-847-430-2800
PRODUCT: Culligan Medallist Plus Series® 60 Water Softener with Time Clock
TESTING CONDITIONS & RESULTS:
Flow Rate: 10.2 gpm @ 15 psi Capacity: 35,614 grains @ 8.0 lb. salt
Pressure: 30 - 40 psi 51,659 grains @ 16.0 lb. salt
Acidity: Non-Corrosive 60,523 grains @ 24.0 lb. salt
Temperature: 68° (20°C) pH: 7.6
SOFTENER SPECIFICATIONS:
Maximum Flow Rate: 10.2 gpm (38 Lpm) Pressure Drop at Maximum Flow Rate: 15 psi (109 kPa)
Operating Temperature Range: 33 - 120°F (1 - 50°C) Maximum Drain Flow Rate: 2.6 gpm (9.8 Lpm)
Oper. Press. Range: 20 - 125 psi (140 - 860 kPa) Oper. Press. Range (Canada): 20 - 90 psi (140 - 620 kPa)
Name of
Substance
USEPA Maximum
Contaminant
Level
pH Flow Rate Pressure
Barium 2.0 mg/L 7.5 + 0.5 10.2 gpm 15 (psig)
Radium 226/228 5 pCi/L 7.5 + 0.5 10.2 gpm 15 (psig)
This system is certified for barium and radium 226/228 reduction based on hardness reduction. It is
recommended you test your water every 6 months to ensure the system is performing properly and that hardness,
and therefore barium and radium 226/228, are being reduced. Hardness test strips have been included.
Additional strips are available from your local Culligan dealer.
The Culligan Medallist Plus Series® 60 Water Softeners are tested and certified by WQA against NSF/ANSI
Standard 44 for the effective reduction of hardness (calcium and magnesium) and barium/radium as verified and
substantiated by test data.
The Culligan Medallist Plus Series® 60 Water Softeners are tested and certified by WQA against NSF/ANSI
Standard 61 for material requirements.
Refer to the Specifications, Familiarization and Warranty section of this Owner’s Guide for more specific product
information. To avoid contamination from improper handling and installation, your system should only be installed
and serviced by your Culligan Man. Performance will vary based on local water conditions. The substances
reduced by this system are not necessarily in your water.
Culligan water softeners are designed to work with any salt of good quality, although it is recommended that you
ask your local Culligan Man for his suggestion on the best type and grade of salt to use in this softener.
NOTICE: This softener is not intended to be used for treating water that is microbiologically unsafe or of unknown
quality without adequate disinfection before or after the system.
Buyer Signature _________________________________________________ Date ________________
Seller Signature _________________________________________________ Date ________________

Culligan knows the more informed you are about your water treatment systems, the more confident you will be
about its performance. It’s because of this and more than seventy years of commitment to customer satisfaction that
Culligan is providing this Performance Data Sheet to its customers.
IMPORTANT NOTICE: Read this Performance Data Sheet and compare the capabilities of this unit with your
actual water treatment needs. It is recommended that before purchasing a water treatment unit, you have your
water supply tested to determine your actual water treatment needs.
MANUFACTURER: Culligan International Company,
9399 W. Higgins Rd., Suite 1100, Rosemont, IL 60018 USA
1-800-CULLIGAN or 1-847-430-2800
PRODUCT: Culligan Medallist Plus Series® 60 Water Softener
with Soft-Minder® Meter
TESTING CONDITIONS & RESULTS:
Flow Rate: 10.2 gpm @ 15 psi Capacity: 35,614 grains @ 8.0 lb. salt
Pressure: 30 - 40 psi 51,659 grains @ 16.0 lb. salt
Acidity: Non-Corrosive 60,523 grains @ 24.0 lb. salt
Temperature: 68°F (20°C) Efficiency Rated Dosage**: 4,451 gr./lb.
pH: 7.6
SOFTENER SPECIFICATIONS:
Max. Flow Rate: 10.2 gpm (38 Lpm) Pressure Drop at Maximum Flow Rate: 15 psi (109 kPa)
Operating Temperature Range: 33-120°F (1-50°C) Maximum Drain Flow Rate: 2.6 gpm (9.8 Lpm)
Oper. Press. Range: 20-125 psi (140-860 kPa) Oper. Press. Range (Canada): 20-90 psi (140-620 kPa)
Name of
Substance
USEPA Maximum
Contaminant Level
pH Flow Rate Pressure
Barium 2.0 mg/L 7.5 + 0.5 10.2 gpm 15 (psig)
Radium 226/228 5 pCi/L 7.5 + 0.5 10.2 gpm 15 (psig)
This system is certified for barium and radium 226/228 reduction based on hardness reduction. It is recommended you test your
water every 6 months to ensure the system is performing properly and that hardness, and therefore barium and radium 226/228,
are being reduced. Hardness test strips have been included. Additional strips are available from your local Culligan dealer.
The Culligan Medallist Plus Series® 60 Water Softeners are tested and certified by WQA against NSF/ANSI Standard 44 for the
effective reduction of hardness (calcium and magnesium) and barium/radium as verified and substantiated by test data.
The Culligan Medallist Plus Series® 60 Water Softeners are tested and certified by WQA against NSF/ANSI Standard 61 for
material requirements.
This softener is efficiency rated, it has a Demand Initiated Regeneration (D.I.R.) feature which complies with specific performance
specifications intended to minimize the amount of regenerant brine and water used in their operation. The softener has a rated salt
efficiency of not less than 3350 grains of total hardness exchange per pound of salt used (based on NaCl equivalency), and shall
not deliver more salt than its listed rating. The efficiency is measured by a laboratory test described in NSF/ANSI Standard 44. This
test represents the maximum possible efficiency that the system can achieve. Operational efficiency is the actual efficiency achieved
after the system has been installed. Operational efficiency is typically less than the efficiency due to individual application factors
including water hardness, water usage, and other contaminants that reduce the softener’s capacity.
Refer to the Specifications, Familiarization and Warranty section of this Owner’s Guide for more specific product information. To
avoid contamination from improper handling and installation, your system should only be installed and serviced by your Culligan
Man. Performance will vary based on local water conditions. The substances reduced by this system are not necessarily in your
water.
Culligan water softeners are designed to work with any salt of good quality, although it is recommended that you ask your local
Culligan Man for his suggestion on the best type and grade of salt to use in this softener.
NOTICE: This softener is not intended to be used for treating water that is microbiologically unsafe or of unknown quality without
adequate disinfection before or after the system.
**The efficiency rated dosage is only valid at the 7.0 lb. salt dosage.
Buyer Signature _________________________________________________ Date ________________
Seller Signature _________________________________________________ Date ________________
Performance
Data Sheet
37

California
Certifications
38

State of California
Department of Health Services
Water Treatment Device
Certificate Number
Date Issued: July 21, 2004
Tr ademar k/Model Designation Replacement Elements
161804 -
Culligan Medallist Plus 30 Time Clock None
Culligan Medallist Plus 30 Soft Minder None
Manufactur er: Culligan International
The water tr eatment device(s) listed on this cer tificate have met the testing r equir ements pur suant to Section
116830 of the Health and Safety Code for the following health r elated contaminants:
None Barium
Radium 226/228
None
Micr obiological Contaminants and Tur bidity Inor ganic/Radiological Contaminants
Or ganic Contaminants
Do not use with water that is microbiologically unsafe or of unknown quality, without adequate disinfection before or
after the system.
N/ARated Ser vice Capacity: 9.0 gpm
Rated Ser vice Flow:
Conditions of Cer tification:
California
Certifications
(cont.)
39

California
Certifications
(cont.)
40
State of California
Department of Health Services
Water Treatment Device
Certificate Number
Date Issued: July 21, 2004
Trademark/Model Designation Replacement Elements
161904 -
Culligan Medallist Plus 45 Soft Minder None
Culligan Medallist Plus 45 Time Clock None
Manufactur er: Culligan International
The water treatment device(s) listed on this certificate have met the testing requirements pursuant to Section
116830 of the Health and Safety Code for the following health related contaminants:
None Barium
Radium 226/228
None
Microbiological Contaminants and Turbidity Inorganic/Radiological Contaminants
Organic Contaminants
Do not use with water that is microbiologically unsafe or of unknown quality, without adequate disinfection before or
after the system.
N/ARated Service Capacity: 9.6 gpm
Rated Service Flow:
Conditions of Certification:

State of California
Department of Health Services
Water Treatment Device
Certificate Number
Date Issued: July 21, 2004
Tr ademar k/Model Designation Replacement Elements
157504 -
Medallist Plus 60 Softminder None
Medallist Plus 60 Time Clock None
Manufactur er : Culligan International
The water tr eatment device(s) listed on this cer tificate have met the testing requir ements pur suant to Section
116830 of the Health and Safety Code for the following health related contaminants:
None Barium
Radium 226/228
None
Micr obiological Contaminants and Tur bidity Inor ganic/Radiological Contaminants
Or ganic Contaminants
Do not use with water that is microbiologically unsafe or of unknown quality, without adequate disinfection before or
after the system.
N/ARated Ser vice Capacity: 10 gpm
Rated Ser vice Flow:
Conditions of Cer tification:
California
Certifications
(cont.)
41

Parts List
42
1” Softener Valve
FOLLOWER ONLY
8
6
3
10
9
3
12
563
63 4
7363
63
3
63
11 63
348 49
10
9
8
6
3
312
63 4
563
7363
63
63
11 63
FOLLOWER ONLY

Parts List
(cont.)
43
FOLLOWER ONLY
8
6
3
10
9
3
12
563
63 4
7363
63
3
63
11 63
348 49
10
9
8
6
3
312
63 4
563
7363
63
63
11 63
FOLLOWER ONLY
3/4” Softener Valve

Parts List
(cont.)
44
1" SOFTENER BODY
25
15
14
16
19
55
47
18
1
25
15
14
16
18
13
1
20 61
38 39
37
26 61
36
17 61
34 61
32 33 61
28 30 31 61
13 18
63 24 23 22 21
64 63 35
263
62 63 24 23
22
21
62 64 63 35
263 62
39 38
37
36
28 30 31
32 33
34 61
61 26
20 61
17 61
19
61
61
3/4" SOFTENER BODY
3/4” Softener Valve
1” Softener Valve

Parts List
(cont.)
45
82
83
71
84
72
70
50
58
59
52
57
60
59
43
57
51
55
53
54
56
83
85 72
84
82
72

Parts List
(cont.)
46
Power Valve Service Parts List
Item # Part # DESCRIPTION Quantity/Pack Valve Size
3/4” Valve 1” Valve
1 01013976 ControlValveBody1” 1Each X
1 00449865 ControlValveBody3/4” 1Each X
201013083 Seal Pack Assembly 1Each X X
301014179 DriveMotorKit24V 1Each X X
4P1013031 Drive Cam 10Each/Pack X X
5P1013043 RetainingE-ring 10Each/Pack X X
600445246 Pin 1Each X X
7 P1013677 BellCrank/FollowerKit 10Each/Pack X X
8P1001784 Screw, motor retaining, top 25 Each/Pack X X
9P1003244 Microswitch 24v 10Each/Pack X X
10 P0448686 Screw, Microswitch retaining 25 Each/Pack X X
11 P0318452 Screw, Motor retaining,
bottom
25 Each/Pack X X
12 P0318455 Screw, Microswitch Plate 25 Each/Pack X X
13 P0444914 O-ring,RearSeal 10Each/Pack X X
14 P0448687 Screw, Eductor Cover 25 Each/Pack X X
15 P0447387 Clip, Drain Elbow 25 Each/Pack X X
16 P0401022 Eductor Cover 10Each/Pack X X
17 P0445797 Seal, Eductor Port 10Each/Pack X X
18 00448126 Plug,Body,Rear 1Each X X
19 00448128 Clip,Body,Rear 1Each X X
20 01017758 Drain Elbow Assembly 1Each X X
21 P0448853 Repl Eductor Sleeve
(Softener)
10Each/Pack X X
22 P0447986 O-ring,EductorSleeve,Small 25 Each/Pack X X
23 P0308407 O-ring,EductorSleeve,Large 25 Each/Pack X X
24 P0448750 Screen, Eductor Sleeve 10Each/Pack X X
25 P0451701 HoseClamp,Drain 25 Each/Pack X X
26 P0331634 FCWasher,1.2GPMBlack 10Each/Pack X X
26 P0331635 FCWasher,2.0GPMBrown 10Each/Pack X X
26 P0331636 FC Washer, 3.5 GPM Green 10Each/Pack X X
28 P0401248 EductorThroat,Brown
(9”10”12”)w/O-rings
10Each/Pack X X
30 P0308437 O-Ring,EductorThroat/Plug,
Large
25 Each/Pack X X
31 P0308438 O-Ring,EductorThroat,Small 10Each/Pack X X
32 P1013894 EductorNozzle,Blue(9”,10”)
w/O-ring
10Each/Pack X X
33 P0308438 O-ring,EductorNozzle 10Each/Pack X X
34 P0445269 Eductor Screen 10Each/Pack X X
35 P0447987 O-ring,brinepiston 10Each/Pack X X
36 Connector,BrineLine,3/8” 1Each X

Item # Part # DESCRIPTION Quantity/Pack Valve Size
3/4” Valve 1” Valve
36 00447915 Connector,BrineLine,1/2” 1Each X
37 P1018871 Insert,BrineLineConnector,
3/8”
25 Each/Pack X X
37 00440516 Insert,BrineLineConnector,
1/2”
1Each X
38 P1002205 Nut,BrineLineConnector,
3/8”
25 Each/Pack X X
39 00440402 Nut,BrineLineConnector,
1/2”
1Each X
40B 01020368 CircuitBoardKit-Medallist 1Each X X
43B 01019708 EnclosureKit-Medallist 1Each X X
44A P1014734 WireHarness-CBGold/
Medallist
5 Each/Pack X X
45B P1014787 PowerCord-Medallist 5 Each/Pack X X
46 P1000372 Cord Grip (Power Cord) 25 Each/Pack X X
47 01004689 Bracket-3/4”MedallistRear 1Each X
48 01005130 U-clamp-3/4”Medallist 1Each X
49 P0448687 Screw,U-clamp,3/4”Medallist 25 Each/Pack X
50 01013971 Tank Adapter Kit, ACME,
Medallist
1Each X
50 01013970 Tank Adapter Kit, NPSM,
Medallist
1Each X
51 01014153 AdapterAssy,1”valvetotank
w/oO-ring
1Each X
52 01013958 TankAdapter,1”Valve 1Each X
52 00444808 TankAdapter,3/4”Valve,
ACME threads
1Each X
52C 00403523 TankAdapter,3/4”Valve,
NPSM threads
1Each X
53 P1013959 TankClamp,1”Valve 10Each/Pack X
54 P1013669 TankClampPin,1”Valve 10Each/Pack X
55 P0318383 TankClampScrew,1”
Valve/3/4”bkt
10Each/Pack X
56 P1014848 O-ring,Large,1”Valveto
Tank Adapter
25 Each/Pack X
57 P0440052 O-ring,3/4”/1”ValveAdapter
to ACME Tank
25 Each/Pack X X
57 P0308447 O-ring,3/4”ValveAdapterto
NPSM Tank
10Each/Pack X
60 P0308427 O-ring,Manifold,3/4”Valve 50Each/Pack X
61 01016266 Eductor Rebuild Kit
(Softeners)
1Each X X
62 01016267 RebuildKit-BrinePiston/Seal
Pack
1Each X X
63 01016269 SealPack/BellCrankKit 1Each X X
47
Parts List
(cont.)

Item # Part # DESCRIPTION Quantity/Pack Valve Size
3/4” Valve 1” Valve
67 01018425 BypassValve-1”Rotary 1Each X
67 01018760 BypassValve-1”/1-1/4”
Rotary
1Each X
67 01018248 1”StraightThroughAdapter 1Each X
67 01018249 11/4”StraightThrough
Adapter
1Each X
68 01018755 RebuildKit-1”/1-1/4”Rotary
Bypass
1Each X
70 P1009075 RetainingClip,1”Bypass
valve
10Each/Pack X
71 01013985 CouplingKit-3/4”Bypass 1Kit X
71 01014033 CouplingKit-1”Bypass 1Kit X
72 P0308427 O-ring,3/4”Couplings/Meters 50Each/Pack X
72 P1009099 O-ring,1”Couplings/Meters 50Each/Pack X
74 P0318546 Screw, 3/4” Couplings 25 Each/Pack X
75 01010783 1”CopperAdapterKit,(1”
Bypass)
1Each X
75 01016564 3/4”CopperAdapterKit(1”
Bypass)
1Each X
75 P1019783 3/4” Elbow Copper Adabpter
Kit
10Pairs/Pack X
76 01016565 3/4” Elbow Copper Adapter Kit
(1”Bypass)
1Each X
76 P1019782 3/4” Copper Adapter Kit 10Pairs/Pack X
77 01018757 1”NPTFemaleElbowKit(1”
RotaryBypass)
5 Pair/Pack X
78 01018758 1”NPTKit(1”RotaryBypass) 5 Pair/Pack X
79 P1009856 Gasket, Copper Plumbing
Adapters
25 Each/Pack X
81 01018248 PlumbingAdapterKit-1”NPT 1Each X
81 01018249 PlumbingAdapterKit-1-1/4”
NPT
1Each X
82 01012905 MeterKit-3/4”w/wireharnes 1Each X
82 01011188 MeterKit-1”w/wireharness 1Each X
83 01008070 WireHarness,3/4”/1”Meters 1Each X X
84 P1012820 Screw, 3/4” meter kit 25 Each/Pack X
86 01018133 Transformer,DualOutput 1Each X X
87 01015972 Transformer,OutdoorModels,
120/24
1Each X X
89 01013839 BackupBattery,Gold 1Each X X
48
Parts List
(cont.)

Service Parts Kits
Part No. Description
01-0162-67 PowerValveSealRebuildKit
(#62)
Seal Pack
EductorSleevew/O-Rings
BrinePistonw/O-Rings
01-0162-66 PVEductorRebuildKit(#61)
LightBrownEductorw/
O-Ring
BlueRestrictorw/O-Ring
BeigeRestrictorw/O-Ring
Eductor Screen
Eductor Port Gasket
BlackFlowControl(1.2gpm)
BrownFlowControl(2.0
gpm)
Green Flow Control (3.5 gpm)
Drain Elbow Assembly w/
O-Ring
01-0162-69 PowerValveDrive&Seal
Rebuild Kit (#63)
Seal Pack
EductorSleevew/O-Rings
BrinePistonw/O-Rings
ScotchYokeBracket
Scotch Yoke
BellCrank&Follower
Assembly
Screw (2 each)
E-Ring
Cam
01-0141-79 Drive Motor Kit (#3)
Motor
BellCrank
Nut
Follower
Roll Pin
Roll Pin
SwitchBracket
Screw (2 each)
49
Parts List
(cont.)
Conditioner Tank
Part No. Description
00440821 Tank Assembly, 8”, Complete
01016389 TankAssembly,10”x40”,
Complete
01016390 TankAssembly,10”x54”,
Complete
00441897 Replacement Tank, 8”,
Empty
01014891 ReplacementTank,10”x40”,
Empty
01014572 ReplacementTank,10”x54”,
Empty
01014573 ReplacementTank,12”x52”,
Empty
01000819 Outletmanifold,8”
01014482 Outletmanifold,10”x40”
01014540 Outletmanifold,10”x54”
01014570 Outletmanifold,12”x52”
P0308427 O-ring(outletmanifoldfor
3/4” control)
P1009099 O-ring(outletmanifoldfor1”
control)
01009847 Top Strainer, Fine Slot,
Medallist Plus Softeners
01011195 Top Strainer, Wide Slot,
Medallist Plus Softeners
01014508 Top Strainer, Fine Slot,
Medallist 8” Softeners
01014507 Top Strainer, Wide Slot,
Medallist 8” Softeners
01018390 8” Tank Jacket
01018391 10”x40”TankJacket
01018392 10”x54”TankJacket
01017725 8”TankBase
01017724 10”TankBase
01017752 ScrewforTankBase(2
required per tank)

1
5
4
3
2
16” and 18” Brine Systems
Item No. Part No. Description
- 01-0187-05 BrineSystem,250lb
- 01-0187-15 BrineSystem,375lb
1 01-0187-09 ReplacementTank,250lb
01-0187-16 ReplacementTank,375lb
201-0187-04 Cover,250lb
01-0187-17 Cover,375lb
301-0187-07 SaltPlate,250lb
01-0187-13 SaltPlate,375lb
401-0187-07 BrineChamber,250lb&375lb
501-0187-06 BrineValve
50
Parts List
(cont.)

51
Parts List
(cont.)
Brine Valve
Item No. Part No. Description
- 01018706 BrineValve
1 01018710 BLFCElbow
-0.45gpm
01018711 BLFCElbow-0.8
gpm
2P1020194 BrineWellCap
-24Pack
3P1020196 3/8” Compression
Nut-24Pack
4P1018871 3/8”Insert-25
Pack
5P1012091 Retaining Clip
-24Pack
6P1020192 Pin-24Pack
7 P1020193 5/16”Nut-24
Pack
8P1020190 OverowFitting
w/Nut-24Pack
9P1020195 3/8”Nut-24Pack
10 P1020198
Air check
Assembly-24
Pack
11 P1020197 Float-24Pack

52
Parts List
(cont.)
5
4
1
3
2
11” Brine System
Item No. Part No. Description
- 01-0187-70 BrineSystem,156lb
1 01-0187-69 ReplacementTank,156lb
201-0189-10 Cover,156lb
301-0187-64 SaltPlate,156lb
401-0187-68 BrineChamber,156lb
501-0187-06 BrineValve

53
Records and
Data
Important Data on Your Water Conditioner
It is advisable to have the salesperson or installer fill in the information below for your future reference.
If this has not been done, please ask for it, as it is necessary if you contact your dealer.
Identification
Model Name _____________________________ Catalog No. _______________________________
Control Model No. ________________________ Control Serial No. __________________________
Date of Installation _________________________ Tank Serial No. ____________________________
Settings
Salt Setting ___________________ lbs.
Time of Recharge: _____________ a.m. ________________ p.m.
Regeneration Interval ________________ days (Time clock models)
Gallons to signal ________________ gallons (Soft-Minder® models)
Number of people in household ___________________________________________________________
___
Water Analysis
Total Hardness __________ (gpg) Total Iron __________ (ppm) pH (acidity)_______________
Other _________________________________________________________________________________
________________________________________________________________________________________
________________________________________________________________________________________
________________________________________________________________________________________
53

54
Culligan
Limited
Warranty
Culligan Medallist Series® Automatic Water Conditioners
You have just purchased one of the finest water conditioners made. As an expression of our confidence
in Culligan International Company products, your water conditioner is warranted to the original
end-user, when installed in accordance with Culligan specifications, against defects in material and
workmanship from the date of original installation, as follows:
For a period of ONE YEAR The entire conditioner
For a period of FIVE YEARS The AccuSoft® circuit board, or Soft-Minder® meter,
if so equipped
For a period of TEN YEARS The control valve body, excluding internal parts
The conditioner tank
The salt storage container, brine valve and all its
component parts
For the LIFETIME of the The Cullex® resin
original consumer purchaser
If a part described above is found defective within the specified period, you should notify your independently
operated Culligan dealer and arrange a time during normal business hours for the dealer to inspect the
water conditioner on your premises. Any part found defective within the terms of this warranty will be
repaired or replaced by the dealer. You pay only freight from our factory and local dealer charges.
We are not responsible for damage caused by accident, fire, flood, freezing, Act of God, misuse,
misapplication, neglect, oxidizing agents (such as chlorine, ozone, chloramines and other related
components), alteration, installation or operation contrary to our printed instructions, or by the use of
accessories or components which do not meet Culligan specifications, is not covered by this warranty. Refer
to the specifications section in the Installation and Operating manual for application parameters.
Our product performance specifications are furnished with each water conditioning unit. To the extent
permitted by law, culligan disclaims all implied warranties, including without limitation
warranties of merchantability and fitness for particular purpose; to the extent required
by law, any such implied warranties are limited in duration to the one-year period
specified above for the entire conditioner. As a manufacturer, we do not know the characteristics
of your water supply or the purpose for which you are purchasing a water conditioner. The quality of
water supplies may vary seasonally or over a period of time, and your water usage rate may vary as well.
Water characteristics can also differ considerably if your water conditioner is moved to a new location. For
these reasons, we assume no liability for the determination of the proper equipment necessary to meet your
requirements, and we do not authorize others to assume such obligations for us. Further, we assume no
liability and extend no warranties, express or implied, for the use of this product with a non-potable water
source. Our obligations under this warranty are limited to the repair or replacement of the
failed parts of the water conditioner, and we assume no liability whatsoever for direct,
indirect, incidental, consequential, special, general, or other damages.
Some states do not allow the exclusion of implied warranties or limitations on how long an implied warranty
lasts, so the above limitation may not apply to you. Similarly, some states do not allow the exclusion of
incidental or consequential damages, so the above limitation or exclusion may not apply to you. This
warranty gives you specific legal rights, and you may also have other rights which vary from state to state.
Consult your telephone directory for your local independently operated Culligan dealer, or write Culligan
International Company for warranty and service information.
Culligan International Company
9399 W. Higgins Road, Suite 1100
Rosemont, Illinois 60018
1-800-CULLIGAN or (847) 430-2800
www.culligan.com 54

With Culligan
You Get More
Than A Quality
Product
You Get Your Water Expert, The Culligan Man
We’re here to provide you with fast, dependable service, making sure any problems you have are
taken care of. The Culligan Man has been around for over seventy years, delivering dependable
service all along. That’s why people say “Hey, Culligan Man!®” Because we’re the water experts.
And that’s who you want taking care of your water.
The Culligan Promise
At Culligan, we understand that a water quality improvement system is an investment in your
family’s well-being. That’s why our 1,350 independently operated dealers worldwide don’t just sell
products; they sell water quality you can count on. We stand behind our products with written limited
warranties and our unequaled Culligan service. No matter where you live, you can depend on
Culligan expertise to work for you — today and tomorrow.
©2007 Culligan International Company P/N 01020482
55