Make Up Air Heaters Direct Fired Indoor/Modular DFIA PDF Catalog MUA PRC002 EN AJ 2200 Muaprc002en
User Manual: AJ-2200
Open the PDF directly: View PDF
.
Page Count: 42

Make-Up
Air Heaters
Direct Fired Indoor/Modular
Model DFIA
MUA-PRC002-EN
September 2000

©American Standard Inc. 2000 MUA-PRC002-EN
Introduction
Why Use Trane Make-Up Air Units?
The direct fired modular units provide
the flexibility to “mix and match” various
modules for almost any indoor
application, for indoor suspension or
floor mounting.
• 14 standard model sizes
• 1,600 to 64,000 cfm
• 82 to 9,016 MBh.
Single blower units provide
• 1,600 to 30,000 cfm
• double blower units 9,000 to
64,000 cfm.
Larger jobs can usually be handled with
multiple units without sacrificing either
economy or performance.
What Is Make-Up Air?
Make-up air is an outside air supply that
is brought in to relieve “air starvation.”
Without make-up air, a building is under
a “negative” condition and the following
will occur:
• Backdrafts in natural flues, ventilators
and stacks.
• Reduced air volume handled by the
exhaust fans and subsequently
inadequate removal of contaminants.
• Dispersal of contaminants throughout
the work area by high velocity cross-
currents from uncontrolled outside air
sources.
• Uncomfortable and unhealthy working
conditions.
• Pilot outages.
When Is It Required?
Make-up air is required whenever
exhaust fans are used. This need for a
building “air change” arises when there
are:
• Processes which generate
contaminants in the form of noxious
fumes or dust.
• Activities which create excessive heat
or undesirable odors.
• Hazardous material storage areas.
• Ventilation requirements for a
building’s inhabitants.
• State and local code requirements.
Why Use Make-Up Air Units?
Outside air should not be allowed to drift
in through windows, door cracks and
other openings – creating a strain on the
heating system. Outside air should be
controlled, tempered and coordinated
with the exhaust by a make-up air unit.
The latter is reliable, efficient and does
not disrupt building activities.
Why Use Direct Gas-Firing?
Maximum economy is realized with
direct gas-firing because the incoming
air is heated directly in the burner
chamber. This provides 10 0 percent
efficiency (92 percent sensible,
8 percent latent) while eliminating a heat
exchanger or combustion chamber that
could burn out or corrode.
Trane direct-fired units are factory tested,
include the necessary controls for
operating the system and generally cost
less than alternate systems.
Installation is simple since the unit,
(when shipping permits), is shipped as a
complete package.
The burner is fully modulating, with a
minimum firing rate of four percent of
full input. This characteristic results in just
the right amount of heat under all
operating conditions.

MUA-PRC002-EN4
Features and
Benefits
Discharge of fan section
Gas manifold and control cabinet
V-bank filter with hinged access door
Gas burner section
Feature:
Basic unit is factory assembled and
wired
Benefit:
Reduces field installation cost
Feature:
Factory tested
Benefit:
Eliminates majority of field start-up
problem caused by defective controls
Feature:
Adjustable motor mount
Benefit:
Belt tension can be field adjusted for
maximum belt life
Feature:
All fuses factory furnished
Benefit:
Delay at start-up eliminated
Feature:
Maxitrol System 14 and System 44
Benefit:
Fast acting temperature control systems
available
Feature:
Return air cycle capability
Benefit:
Return air cycle results in fuel economy
for pressurized heating systems and
eliminates need for two-speed fan
operation
Minimizes heating cost

5MUA-PRC002-EN
Features and
Benefits
Reliable Operation
The standard unit includes all of the
controls needed for trouble-free
operation.
If the designer does not utilize a master
panel for consolidating mechanical
equipment, an optional remote control
station should be ordered. This device
includes switches and signal lights for
operating the make-up air unit and
monitoring its performance from any
convenient location.
While rare, malfunctions can occur
because a belt breaks, local power is
interrupted or a component fails. If this
should happen, the unit’s control system
is designed to take over. Its overlapping
fail-safe protective devices will turn on an
alarm light and prevent burner operation
until the problem has been corrected.
Because of this attention to detail,
combustion will be clean and odorless
under the most adverse conditions. The
incoming “make-up air” will be at least
five times purer than the requirements
set down by the U.S. Bureau of
Standards.
Equipment Approval Options
Owners and specifiers have three very
important reasons for wanting
equipment approvals. One reason is to
establish a manufacturer’s reliability.
A second looks for conformance with
equipment standards if any have been
established for the particular product.
And finally, there may be requirements
set down by an industrial user’s
insurance carrier.
Trane has gone to great lengths to satisfy
these needs. In the first case, reliability is
established for our standard unit through
conservative design and the use of U.L.
listed components.
For industrial applications, the unit can
also be furnished with special gas
controls to comply with FM or IRI. The
latter is available for applications where
the exact insurance approval agency has
not been established.
Special Construction Features
• External bearings for easy service and
lubrication.
• External motor for ease of service and
belt maintenance.
• External bearings and motor allow the
unit to operate up to 170 F without any
modifications and up to 300 F with
minor alterations making it perfect for
many process applications.
• Hollow fan shaft on double blower
models eliminate the need for a center
bearing which is difficult to service.
• Enlarged filter sections increasing filter
life and reducing service time.
• Hinged filter access door.
• Service platform available as an option
for easy maintenance on suspended
units.

MUA-PRC002-EN6
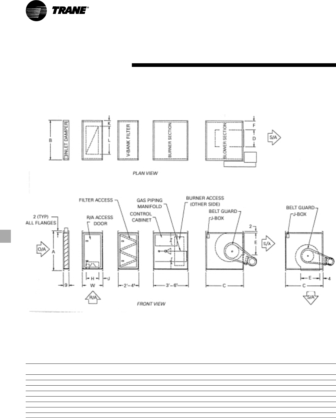
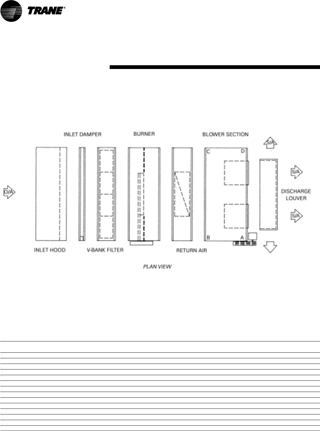
Unit
Configurations
Horizontal Configurations
For all arrangements shown, controls, gas piping and fan motor are on the near side.
Selected horizontal units are available with special options — cooling coils (DX, chilled
water), steam and electric coils, no burner section. Contact your Trane representative
for availability and pricing.

7MUA-PRC002-EN
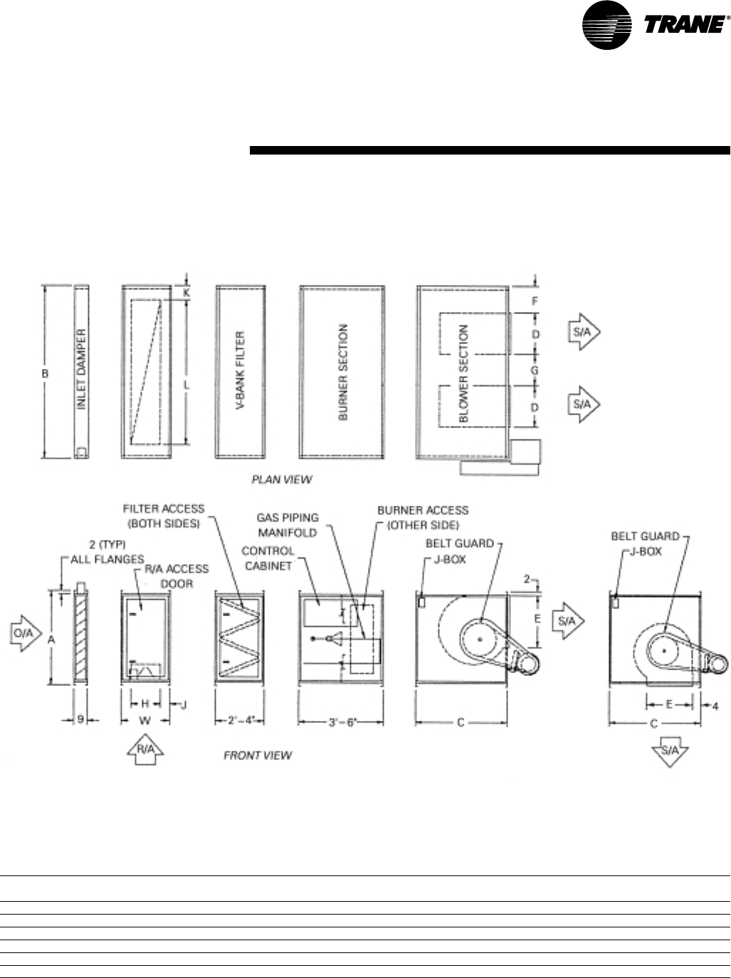
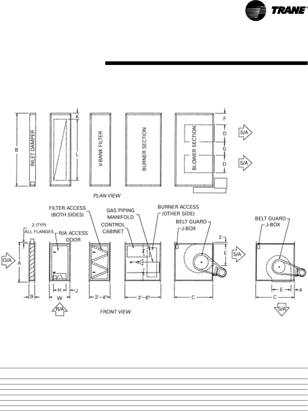
Vertical Configurations
For all arrangements shown, the gas piping is on the near side. The electric control
cabinet (EC) and disconnect are on the side opposite the air entering side. Selected
vertical units are available with special options – steam and electric coils, no burner
section. Contact your Trane representative for availability.
Unit
Configurations

MUA-PRC002-EN8
Application
Considerations
Application and Various Modular Arrangements
1
Make-up air units are typically used to
compensate for air being exhausted
from a building or other structure.
2
Application for closed systems such as
ovens or paint booths (consult home
office).
3
For use as a door heater where outside
air is heated and not prevented from
infiltrating.
4
The DFI can be used as an air handler, no
burner section. Can also be used with
DX, electric, indirect fired section, CW,
HW and steam coils. Contact your Trane
representative.

9MUA-PRC002-EN
Selection
Procedure
Selection Procedure
Calculating Total External Static Pressure to Determine Fan Motor Horsepower
To determine the fan motor horsepower, use the following steps:
1. Select Unit
Determine cabinet size and cfm
2. Determine Static Pressure of Optional Accessories
Add the static pressures of the optional accessories.
3. Determine External Static Pressure
Calculate external static pressure of system due to ductwork, grilles, etc. This is the
static pressure external to the DFIA unit and is up to the system designer to
determine.
4. Calculate Total External Static Pressure
Add the static pressures of the optional accessories to the external static pressure to
determine total external static pressure.
5. Use Tables PD-1 and PD-2 to determine the fan motor horsepower.
Example:
1. Specification calls for a 40,000 cfm unit. Select a size 225.
2. Unit will require an inlet hood, inlet damper and a v-bank filter. Therefore,the static
pressure of the optional accessories is 0.51”WC
Fresh Air Inlet Hood and Birdscreen 0.13” WC
Motor Operated Inlet Damper 0.13” WC
V-bank Filter Section 0.25” WC
Static Pressure of Optional Accessories 0.51” WC
3. Engineer has determined that the external static pressure due to the ductwork is
0.75”WC.
4. Static Pressure of optional accessories 0.51” WC
External static pressure 0.75” WC
Total External Static Pressure 1.26” WC
5. For a size 225 unit at 40,000 cfm and 1.26” total external static pressure, a
30 hp fan motor will be required

MUA-PRC002-EN10
Model
Number
Description
Digits 1,2,3 — Unit Description
DFI = Direct Fired Indoor Unit
Digit 4 — Development Sequence
A = First Generation
Digits 5,6,7 — Fan Section
109 = Unit Size 109
112 = Unit Size 112
115 = Unit Size 115
118 = Unit Size 118
120 = Unit Size 120
122 = Unit Size 122
125 = Unit Size 125
130 = Unit Size 130
215 = Unit Size 215
218 = Unit Size 218
220 = Unit Size 220
222 = Unit Size 222
225 = Unit Size 225
230 = Unit Size 230
SSS = Special Unit Size
Digit 8 — Burner Section
0 = Without Burner Section
1 = With Burner Section
Digit 9 — Main Power Supply
0 = No Selection
A = 115/60/1
B = 230/60/1
C = 208/60/1
D = 208/60/3
E = 230/60/3
F = 460/60/3
S = Special
Digit 10 — Design Sequence
D = Design Sequence
Digit 11 — Fuel
0 = No Selection
N = Natural Gas
P = LP Gas (Propane)
S = Special
DFI A 109 1 A D N A 1 AA B12000AH
1,2,3 4 5,6,7 8 9 10 11 12 13 14,15 16 17 18 19 20 21 22
Digit 12 — Gas Control Option
A = Series 14 Constant Discharge Temp
B = Series 44 Space Temp Control
S = Special
Digit 13 — Gas Train Approvals
1 = Standard
3 = IRI
4=FM
S = Special
Digit 14,15 — Burner Input Rating (MBH)
00= No Selection
AA = 275 MBH Input
AB = 550 MBH Input
AC = 825 MBH Input
AD = 990 MBH Input
AE = 1100 MBH Input
AF = 1375 MBH Input
AG = 1650 MBH Input
AH = 1925 MBH Input
AJ = 2200 MBH Input
AK = 2475 MBH Input
AL = 2750 MBH Input
AN = 3025 MBH Input
AP = 3300 MBH Input
AQ = 3575 MBH Input
AR = 3850 MBH Input
AT = 4125 MBH Input
AV = 4400 MBH Input
AW = 4675 MBH Input
AX = 4950 MBH Input
AY = 5225 MBH Input
AZ = 5500 MBH Input
A1 = 5775 MBH Input
A2 = 6050 MBH Input
A3 = 6325 MBH Input
A4 = 6600 MBH Input
A5 = 6875 MBH Input
A6 = 7150 MBH Input
A7 = 7425 MBH Input
A8 = 7700 MBH Input
A9 = 7975 MBH Input
BA = 8250 MBH Input
BB = 8525 MBH Input
BC = 8800 MBH Input
BD = 9075 MBH Input
SS = Special

11MUA-PRC002-EN
Model
Number
Description
DFI A 109 1 A D N A 1 AA B12000AH
1,2,3 4 5,6,7 8 9 10 11 12 13 14,15 16 17 18 19 20 21 22
Digit 16 — Blower Motor HP
0 = No Selection
B = ¾ HP Motor
C = 1 HP Motor
D = 1 ½ HP
E = 2 HP Motor
F = 3 HP Motor
G = 5 HP Motor
H = 7 ½ HP Motor
J = 10 HP Motor
K = 15 HP Motor
L = 20 HP Motor
M = 25 HP Motor
P = 30 HP Motor
Q = 40 HP Motor
R = 50 HP Motor
T = 60 HP Motor
S = Special
Digit 17 — Motor Speed and Starter
0 = No Selection
1 = Single Speed ODP 1800 RPM
2 = Single Speed TEFC 1800 RPM
3 = Single Speed Energy Effic ODP 1800 RPM
4 = Single Speed Energy Effic TEFC 1800 RPM
5 = 2S1W ODP 1800/900 RPM
6 = 2S2W ODP 1800/1200 RPM
S = Special
Digit 18 — Fan Discharge*
Horizontal Arrangement
1 = Arrangement 1, Top
2 = Arrangement 2, Side
3 = Arrangement 3, Bottom
Vertical Arrangement
4 = Arrangement 4, Side
5 = Arrangement 5, Side
6 = Arrangement 6, Top
7 = Arrangement 7, Top
8 = Arrangement 8, Side
9 = Arrangement 9, Side
*Select arrangements from pages 6 and 7.
Digit 19 — Inlet Hood and Birdscreen
0 = None
A = Inlet Hood and Birdscreen with
Permanent Filters
B = Inlet Hood and Birdscreen without Filters
Digit 20 — V-Bank Filter Section
0 = No Selection
A = V-Bank Filter Section with Permanent
Filters
B = V-Bank Filter Section without Filters
C = V-Bank Filter Section with Throwaway
Filters
Digit 21 — Dampers/Mixing Box
0 = No Selection
A = Motorized RA Damper
B = Motorized 75/25 Damper
C = Mixing Box – Temperature Control
D = Mixing Box – Building Pressure Control
E = Mixing Box – Manual Control
Digit 22 — Miscellaneous Options
AA = Controls opposite from standard
AB = Motorized Inlet Damper
AC = Insulation on Blower Section
AD = Insulation on Burner Section
AE = Insulation on Return Air Section
AF = Insulation on Filter Section
AG = Inlet On-Off Duct Stat
AJ = 115V Duplex Service Receptacle
with Power Transformer
AK = Circuit Analyzer
AL = UV Flame Sensor
AN = Clogged Filter Switch with Light
AP = Exhaust Interlock
AQ = Interlocking Relay
AR = City of Chicago Controls
AT = Omit Disconnect Switch
AV = High Gas Pressure Regulator 1-5 PSIG
AW = High Gas Pressure Regulator 5-10 PSIG
AX = Adjustable Drive
AY = Discharge Louver
AZ = Painted Blower Cabinet
A1 = Painted Burner Section
A2 = Painted Return Air Section
A3 = Painted Filter Section
A4 = Painted Discharge Louver
BJ = Low Gas Pressure Burner
SS = Special

MUA-PRC002-EN12
Performance
Data
Table PD-1 — Direct Fired Indoor Unit Performance Data
CFM FPM Total External Static Pressure (WC)
Models Blower Std Air Outlet ¼” 3/8” ½” ¾” 1” 1 ¼” 1 ½” 2”
DFI Size @ 70 Velocity HP
16001914 ¾ 1 1 1————
109 1-9” 1900 2273 1 1 1 ½ 1 ½ 1 ½ 1 ½ 2 —
2200 2632 1 ½ 1 ½ 1 ½ 1 ½ 2 2 2 3
2600 3110 2 2 2 2 3 3 3 3
3000 3589 3 3 3 3 3 3 5 5
3250 2257 1 ½ 2 2 2 3 3 3 3
3500 2431 2 2 2 3 3 3 3 5
112 1-12” 3750 2604 2 2 3 3 3 3 3 5
4000 2778 3 3 3 3 3 3 5 5
4250 2951 3 3 3 3 3 5 5 5
4500 2239 2 2 3 3 3 3 5 —
115 1-15” 5000 2488 3 3 3 3 3 5 5 5
5500 2736 3 3 3 5 5 5 5 5
6000 2985 5 5 5 5 5 5 5 7 ½
6500 2265 3 5 5 5 5 5 5 7 ½
7000 2439 5 5 5 5 5 5 7 ½ 7 ½
118 1-18” 7500 2613 5 5 5 5 5 7 ½ 7 ½ 7 ½
8000 2787 5 5 5 7 ½ 7 ½ 7 ½ 7 ½ 7 ½
8500 2962 5 5 7 ½ 7 ½ 7 ½ 7 ½ 7 ½ 10
9000 2143 5 5 5 5 7 ½ 7 ½ 7 ½ —
9500 2262 5 5 5 7 ½ 7 ½ 7 ½ 7 ½ —
120 1-20” 10000 2381 5 5 5 7 ½ 7 ½ 7 ½ 7 ½ 10
10500 2500 5 7 ½ 7 ½ 7 ½ 7 ½ 7 ½ 10 10
11000 2619 7 ½ 7 ½ 7 ½ 7 ½ 7 ½ 10 10 10
110002157 5 5 7 ½7 ½7 ½7 ½ 10—
12000 2353 7 ½ 7 ½ 7 ½ 7 ½ 7 ½ 10 10 15
122 1-22” 13000 2549 7 ½ 7 ½ 7 ½ 10 10 10 10 15
14000 2745 7 ½ 10 10 10 10 15 15 15
15000 2941 — 10 10 10 15 15 15 15
14000 2086 7 ½ 7 ½ 7 ½ 7 ½ 10 — — —
15000 2235 7 ½ 7 ½ 7 ½ 10 10 10 15 —
125 1-25” 16000 2385 7 ½ 7 ½ 7 ½ 10 10 15 15 —
18000 2683 10 10 10 10 15 15 15 15
20000 2981 10 15 15 15 15 15 15 20
22000 2486 10 10 10 15 15 15 15 —
24000 2581 10 15 15 15 15 15 20 20
130 1-30” 26000 2796 15 15 15 15 20 20 20 25
28000 3011 15 15 15 20 20 20 20 25
30000 3226 20 20 20 20 20 25 25 30
9000 2239 5 5 5 5 7 ½ — — —
9500 2363 5 5 5 5 7 ½ 7 ½ — —
10000 2488 5 5 5 7 ½ 7 ½ 7 ½ — —
215 2-15” 10500 2612 5 5 7 ½ 7 ½ 7 ½ 7 ½ 7 ½ —
11000 2736 7 ½ 7 ½ 7 ½ 7 ½ 7 ½ 7 ½ 10 10
11500 2861 7 ½ 7 ½ 7 ½ 7 ½ 7 ½ 10 10 10
12000 2985 7 ½ 7 ½ 7 ½ 7 ½ 10 10 10 15
12500 2178 7 ½ 7 ½ 7 ½ 7 ½ 7 ½ — — —
13000 2265 7 ½ 7 ½ 7 ½ 7 ½ 10 10 7 ½ —
218 2-18” 14000 2439 7 ½ 7 ½ 7 ½ 10 10 10 15 —
15000 2613 7 ½ 10 10 10 10 15 15 15
16000 2787 10 10 10 10 15 15 15 15
17000 2962 10 10 10 15 15 15 15 20
1800021437 ½10 1010151515—
19000 2262 10 10 10 10 15 15 15 —
20000 2381 10 10 10 15 15 15 15 20
2100025001015 151515152020
220 2-20” 22000 2619 15 15 15 15 15 20 20 20
23000 2738 15 15 15 15 15 20 20 20
24000 2857 15 15 15 15 20 20 20 25
25000 2976 15 15 15 20 20 20 20 25
26000 3095 15 20 20 20 20 20 25 25

13MUA-PRC002-EN
Performance
Data
Table PD-2 — Direct Fired Indoor Unit Performance Data
CFM FPM Total External Static Pressure (WC)
Models Blower Std Air Outlet ¼” 3/8” ½” ¾” 1” 1 ½” 1 ½” 2”
DFI Size @ 70 Velocity HP
25000 2451 15 15 15 15 20 20 20 25
26000 2549 15 15 15 20 20 20 20 25
27000 2647 15 15 15 20 20 20 25 25
222 2-22” 28000 2745 15 20 20 20 20 25 25 30
29000 2843 20 20 20 20 25 25 25 30
30000 2941 20 20 20 20 25 25 25 30
31000 3039 20 20 20 25 25 25 30 30
30000 2235 15 15 15 15 20 20 — —
32000 2385 15 15 15 20 20 20 25 —
34000 2534 15 20 20 20 20 25 25 30
36000 2683 20 20 20 20 25 25 25 30
225 2-25” 38000 2832 20 20 20 25 25 25 30 40
40000 2981 20 25 25 25 30 30 30 40
42000 3130 25 25 25 30 30 30 40 40
44000 3279 25 30 30 30 30 40 40 40
46000 3428 30 30 30 40 40 40 40 50
44000 2366 20 20 20 25 25 30 — —
48000 2581 20 25 25 25 30 30 40 —
52000 2796 25 25 25 30 30 40 40 50
230 2-30” 56000 3011 30 30 30 40 40 40 40 50
60000 3226 30 40 40 40 40 50 50 50
64000 3441 40 40 40 40 50 50 50 60
Notes:
1. Use the following static pressures for the optional accessories:
Fresh Air Inlet Hood and Birdscreen 0.13” WC
Fresh Air Inlet Hood with Filters 0.25” WC
Motor Operated Inlet Damper 0.13” WC
V-Bank Filter Section 0.25” WC
Mixing Box 0.40” WC
Discharge Louver 0.13” WC

MUA-PRC002-EN14
Performance
Data
Table PD-3 — Direct Fired Indoor Unit — Burner Selection Table (MBH Input)
DFI CFM Std. Air 70° 80° 90° 100° 110° 120°
Model 70° Rise Rise Rise Rise Rise Rise
1600 131 150 169 188 207 225
1900 156 178 201 223 245 268
109 2200 181 207 232 258 284 310
2600 214 244 275 305 336 366
3000 247 282 317 352 387 423
3250 267 305 343 382 420 458
3500 288 329 370 411 452 493
112 3750 308 352 396 440 484 528
4000 329 376 423 470 517 563
4250 349 399 449 499 549 599
4500 370 423 475 528 581 634
5000 411 470 528 587 646 704
115 5500 452 517 581 646 710 775
6000 493 563 634 704 775 845
6500 534 610 687 763 839 916
7000 575 657 740 822 904 986
118 7500 616 704 792 880 968 1057
8000 657 751 845 939 1033 1127
8500 698 798 898 998 1098 1197
9000 740 845 951 1057 1162 1268
9500 781 892 1004 1115 1227 1338
120 10000 822 939 1057 1174 1291 1409
10500 863 986 1109 1233 1356 1479
11000 904 1033 1162 1291 1420 1550
11000 904 1033 1162 1291 1420 1550
12000 986 1127 1268 1409 1550 1690
122 13000 1068 1221 1373 1526 1679 1831
14000 1150 1315 1479 1643 1808 1972
15000 1233 1409 1585 1761 1937 2113
14000 1150 1315 1479 1643 1808 1972
15000 1233 1409 1585 1761 1937 2113
16000 1315 1503 1690 1878 2066 2254
125 17000 1397 1597 1796 1996 2195 2395
18000 1479 1690 1902 2113 2324 2536
20000 1643 1878 2113 2348 2583 2817
22000 1808 2066 2324 2583 2841 3099
24000 1972 2254 2536 2817 3099 3381
130 26000 2137 2442 2747 3052 3357 3663
28000 2301 2630 2958 3287 3616 3944
30000 2465 2817 3170 3522 3874 4226
9000 740 845 951 1057 1162 1268
9500 781 892 1004 1115 1227 1338
10000 822 939 1057 1174 1291 1409
215 10500 863 986 1109 1233 1356 1479
11000 904 1033 1162 1291 1420 1550
11500 945 1080 1215 1350 1485 1620
12000 986 1127 1268 1409 1550 1690

15MUA-PRC002-EN
Performance
Data
Table PD-4 — Direct Fired Indoor Unit — Burner Selection Table (MBH Input)
DFI CFM Std. Air 70° 80° 90° 100° 110° 120°
Model 70° Rise Rise Rise Rise Rise Rise
13000 1068 1221 1373 1526 1679 1831
14000 1150 1315 1479 1643 1808 1972
218 15000 1233 1409 1585 1761 1937 2113
16000 1315 1503 1690 1878 2066 2254
17000 1397 1597 1796 1996 2195 2395
18000 1479 1690 1902 2113 2324 2536
18000 1479 1690 1902 2113 2324 2536
19000 1561 1784 2007 2230 2453 2677
20000 1643 1876 2113 2348 2583 2817
21000 1726 1972 2219 2465 2712 2958
220 22000 1808 2066 2324 2583 2841 3099
23000 1890 2160 2430 2700 2970 3240
24000 1972 2254 2536 2817 3099 3381
25000 2054 2348 2641 2935 3228 3522
26000 2137 2442 2747 3052 3357 3663
25000 2054 2348 2641 2935 3228 3522
26000 2137 2442 2747 3052 3357 3663
27000 2219 2536 2853 3170 3487 3803
28000 2301 2630 2958 3287 3616 3944
222 29000 2383 2723 3064 3404 3745 4085
30000 2465 2817 3170 3522 3874 4226
31000 2547 2911 3275 3639 4003 4367
30000 2465 2817 3170 3522 3874 4226
32000 2630 3005 3381 3757 4132 4508
34000 2794 3193 3592 3991 4390 4790
36000 2958 3381 3803 4226 4649 5071
38000 3123 3569 4015 4461 4907 5353
225 40000 3287 3757 4226 4696 5165 5635
42000 3451 3944 4437 4930 5423 5917
44000 3616 4132 4649 5165 5682 6198
46000 3780 4320 4860 5400 5940 6480
44000 3616 4132 4649 5165 5682 6198
48000 3944 4508 5071 5635 6198 6762
52000 4273 4883 5494 6104 6715 7325
230 56000 4602 5259 5917 6574 7231 7889
60000 4930 5635 6339 7043 7748 8452
64000 5259 6010 6762 7513 8264 9016
Notes:
1. Determine the temperature rise required through the heater by subtracting winter design temperature from the desired
indoor temperature.
2. Select burner required: BTUH = CFM x T x 1.08
.92
Formula includes 1.08 constant for heat content of air and .92 factor, which is an average ratio of net and gross heating
values of common fuel gases (92% sensible, 8% Latent)
3. Contact your Trane representative on temperature rise requirements greater than 120 F.

MUA-PRC002-EN16
Gas
Piping
Component Identification
GP-09 Pilot Gas Pressure Regulator
GP-11 Main Gas Shutoff Valve
GP-13 Pilot Gas Shutoff Valve
GP-17 Auxiliary Gas Shutoff Valve
GP-18 Auxiliary Gas Shutoff Valve
GP-27 Orificed Needle Valve
VG-01 Pilot Gas Valve
VG-02 Main Gas Valve
VG-03 Auxiliary Gas Valve
VG-04 N/O Vent Valve
VG-07 Maxitrol Modulating Valve
PS-04 Low Gas Pressure Switch
PS-07 High Gas Pressure Switch
Notes:
1
Vents to outside by others.
2
Under 825 MBh will require an additional
gas pressure regulator if inlet pressure
exceeds 1 psig.
3
4400 MBh and above will require a
minimum inlet pressure of 1 psig.
For inlet pressure under 1 psig, contact
factory.
4
Contact factory for manifold required for
CGA.
*Items PS-04, PS-07, VG-04 and GP-18 are not required to
meet IRI requirements if the unit is ETL approved.

17MUA-PRC002-EN
Gas
Piping
Table GP-1 — Gas Pressure Regulator Selection
If Burner Size (BS) Is: And Gas Pressure (GP) Is: Then:
BS < 825 GP< 7” WC Call factory to verify availability and pricing
7” WC < GP < 10” WC Use low gas pressure burner
10” WC < GP < 1 PSI No low gas pressure burner or high gas pressure regulator required
1 PSI < GP < 5 PSI Use high gas pressure regulator 1-5 PSI
5 PSI < GP < 10 PSI Use high gas pressure regulator 5-10 PSI
10 PSI < GP < 50 PSI Use high gas pressure regulator over 10 PSI
50 PSI < GP Call factory to verify availability and pricing
990 < BS < 4125 GP < 7” WC Call factory to verify availability and pricing
7” WC < GP < 10” WC Use low gas pressure burner
10” WC < GP < 5 PSI No low gas pressure burner or high gas pressure regulator required
5 PSI < GP < 10 PSI Use high gas pressure regulator 5-10 PSI
10 PSI < GP < 50 PSI Use high gas pressure regulator over 10 PSI
50 PSI < GP Call factory to verify availability and pricing
4400 < BS < 9075 GP < 1 PSI Call factory to verify availability and pricing
1 PSI < GP < 5 PSI No low gas pressure burner or high gas pressure regulator required
5 PSI < GP < 10 PSI Use high gas pressure regulator 5-10 PSI
10 PSI < GP < 50 PSI Use high gas pressure regulator over 10 PSI
50 PSI < GP Call factory to verify availability and pricing

MUA-PRC002-EN18
Gas
Piping
Table GP-2 — Gas Pipe Connection Size — Direct-Fired Units — IRI Gas Train — R/A Meeting ETL
Inlet Gas Pressure (inches of water column)
MBH 6-7" 8-11" 12-14" 15-20" 21-27" 1 psi 2 psi 3 psi 4 psi 5 psi
275 1" ¾" ¾" ¾" ¾" ¾" ¾" ¾" ¾" ¾"
550 1 ¼" 1" ¾" ¾" ¾" ¾" ¾" ¾" ¾" ¾"
825 2" 1 ¼" 1 ¼" 1 ¼" 1 ¼" 1 ¼" 1 ¼" 1 ¼" 1 ¼" 1 ¼"
1,100 2" 1 ¼" 1 ¼" 1 ¼" 1 ¼" 1 ¼" 1 ¼" 1 ¼" 1 ¼" 1 ¼"
1,375 2" 1 ½" 1 ¼" 1 ¼" 1 ¼" 1 ¼" 1 ¼" 1 ¼" 1 ¼" 1 ¼"
1,650 N/A 1 ½" 1 ¼" 1 ¼" 1 ¼" 1 ¼" 1 ¼" 1 ¼" 1 ¼" 1 ¼"
1,925 N/A 2" 1 ½" 1 ¼" 1 ¼" 1 ¼" 1 ¼" 1 ¼" 1 ¼" 1 ¼"
2,200 N/A 2" 1 ½" 1 ¼" 1 ¼" 1 ¼" 1 ¼" 1 ¼" 1 ¼" 1 ¼"
2,475 2 1/2" 2" 2" 1 ½" 1 ¼" 1 ¼" 1 ¼" 1 ¼" 1 ¼" 1 ¼"
2,750 3" 2" 2" 1 ½" 1 ¼" 1 ¼" 1 ¼" 1 ¼" 1 ¼" 1 ¼"
3,025 3" 2 ½" 2" 2" 1 ½" 1 ¼" 1 ¼" 1 ¼" 1 ¼" 1 ¼"
3,300 N/A 2 ½" 2" 2" 2" 2" 2" 2" 2" 2"
3,575 N/A 2 ½" 2" 2" 2" 2" 2" 2" 2" 2"
3,850 N/A 2 ½" 2" 2" 2" 2" 2" 2" 2" 2"
4,125 N/A 2 ½" 2" 2" 2" 2" 2" 2" 2" 2"
4,400 N/A 2 ½" 2" 2" 2" 2" 2" 2" 2" 2"
4,675 N/A 3" 2 ½" 2" 2" 2" 2" 2" 2" 2"
4,950 N/A 3" 2 ½" 2" 2" 2" 2" 2" 2" 2"
5,225 N/A 3" 2 ½" 2" 2" 2" 2" 2" 2" 2"
5,500 N/A 3" 2 ½" 2 ½" 2" 2 ½" 2 ½" 2 ½" 2 ½" 2 ½"
5,775 N/A N/A 2 ½" 2 ½" 2 ½" 2 ½" 2 ½" 2 ½" 2 ½" 2 ½
6,050 N/A N/A 2 ½" 2 ½" 2 ½" 2 ½" 2 ½" 2 ½" 2 ½" 2 ½
6,325 N/A N/A 2 ½" 2 ½" 2 ½" 2 ½" 2 ½" 2 ½" 2 ½" 2 ½
6,600 N/A N/A 2 ½" 2 ½" 2 ½" 2 ½" 2 ½" 2 ½" 2 ½" 2 ½
6,875 N/A N/A 2 ½" 2 ½" 2 ½" 2 ½" 2 ½" 2 ½" 2 ½" 2 ½
7,150 N/A N/A 3" 2 ½" 2 ½" 2 ½" 2 ½" 2 ½" 2 ½" 2 ½
7,700 N/A N/A 3" 2 ½" 2 ½" 3" 3" 3" 3" 3"
8,250 N/A N/A 3" 3" 2 ½" 3" 3" 3" 3" 3"
8,800 N/A N/A N/A 3" 3" 3" 3" 3" 3" 3"
9,350 N/A N/A N/A 3" 3" 3" 3" 3" 3" 3"
9,900 N/A N/A N/A 3" 3" 3" 3" 3" 3" 3"
10,450 N/A N/A N/A N/A N/A N/A N/A N/A N/A N/A
11,000 N/A N/A N/A N/A N/A N/A N/A N/A N/A N/A
11,550 N/A N/A N/A N/A N/A N/A N/A N/A N/A N/A

19MUA-PRC002-EN
Gas
Piping
Table GP-3 — Gas Pipe Connection Size — Direct-Fired Units — FM Gas Train — R/A Meeting ETL
Inlet Gas Pressure (inches of water column)
MBH 6-7" 8-11" 12-14" 15-20" 21-27" 1 psi 2 psi 3 psi 4 psi 5 psi
275 1" ¾" ¾" ¾" ¾" ¾" ¾" ¾" ¾" ¾"
550 1 ¼" 1" ¾" ¾" ¾" ¾" ¾" ¾" ¾" ¾"
825 1 ½" 1 ¼" 1 ¼" 1 ¼" 1 ¼" 1 ¼" 1 ¼" 1 ¼" 1 ¼" 1 ¼"
1,100 2" 1 ¼" 1 ¼" 1 ¼" 1 ¼" 1 ¼" 1 ¼" 1 ¼" 1 ¼" 1 ¼"
1,375 2" 1 ½" 1 ½" 1 ½" 1 ½" 1 ¼" 1 ¼" 1 ¼" 1 ¼" 1 ¼"
1,650 2" 1 ½" 1 ¼" 1 ¼" 1 ¼" 1 ¼" 1 ¼" 1 ¼" 1 ¼" 1 ¼"
1,925 2" 2" 1 ¼" 1 ¼" 1 ¼" 1 ¼" 1 ¼" 1 ¼" 1 ¼" 1 ¼"
2,200 N/A 2" 1 ½" 1 ¼" 1 ¼" 1 ¼" 1 ¼" 1 ¼" 1 ¼" 1 ¼"
2,475 N/A 2" 1 ½" 1 ¼" 1 ¼" 1 ¼" 1 ¼" 1 ¼" 1 ¼" 1 ¼"
2,750 N/A 2" 2" 1 ½" 1 ¼" 1 ¼" 1 ¼" 1 ¼" 1 ¼" 1 ¼"
3,025 N/A 2" 2" 1 ½" 1 ¼" 1 ¼" 1 ¼" 1 ¼" 1 ¼" 1 ¼"
3,300 N/A 2 ½" 2" 2" 2" 2" 2" 2" 2" 2"
3,575 N/A 3" 2" 2" 2" 2" 2" 2" 2" 2"
3,850 N/A 3" 2" 2" 2" 2" 2" 2" 2" 2"
4,125 N/A 3" 2" 2" 2" 2" 2" 2" 2" 2"
4,400 N/A 3" 2" 2" 2" 2" 2" 2" 2" 2"
4,675 N/A 3" 2" 2" 2" 2" 2" 2" 2" 2"
4,950 N/A 3" 2 ½" 2 ½" 2 ½" 2 ½" 2 ½" 2 ½" 2 ½" 2 ½"
5,225 N/A 3" 2 ½" 2 ½" 2 ½" 2 ½" 2 ½" 2 ½" 2 ½" 2 ½"
5,500 N/A 3" 2 ½" 2 ½" 2 ½" 2 ½" 2 ½" 2 ½" 2 ½" 2 ½"
5,775 N/A N/A 2 ½" 2 ½" 2 ½" 2 ½" 2 ½" 2 ½" 2 ½" 2 ½"
6,050 N/A N/A 2 ½" 2 ½" 2 ½" 2 ½" 2 ½" 2 ½" 2 ½" 2 ½"
6,325 N/A N/A 2 ½" 2 ½" 2 ½" 2 ½" 2 ½" 2 ½" 2 ½" 2 ½"
6,600 N/A N/A 2 ½" 2 ½" 2 ½" 2 ½" 2 ½" 2 ½" 2 ½" 2 ½"
6,875 N/A N/A 3" 2 ½" 2 ½" 2 ½" 2 ½" 2 ½" 2 ½" 2 ½"
7,150 N/A N/A 3" 2 ½" 2 ½" 2 ½" 2 ½" 2 ½" 2 ½" 2 ½"
7,700 N/A N/A 3" 3" 2 ½" 2 ½" 2 ½" 2 ½" 2 ½" 2 ½"
8,250 N/A N/A 3" 3" 3" 3" 3" 3" 3" 3"
8,800 N/A N/A N/A 3" 3" 3" 3" 3" 3" 3"
9,350 N/A N/A N/A 3" 3" 3" 3" 3" 3" 3"
9,900 N/A N/A N/A 3" 3" 3" 3" 3" 3" 3"
10,450 N/A N/A N/A N/A N/A N/A N/A N/A N/A N/A
11,000 N/A N/A N/A N/A N/A N/A N/A N/A N/A N/A
11,550 N/A N/A N/A N/A N/A N/A N/A N/A N/A N/A

MUA-PRC002-EN20
Gas
Piping
Table GP-4 — Gas Pipe Connection Size — Direct-Fired Units — Standard Gas Train — R/A Meeting ETL
Inlet Gas Pressure (inches of water column)
MBH 6-7" 8-11" 12-14" 15-20" 21-27" 1 psi 2 psi 3 psi 4 psi 5 psi
275 1" ¾" ¾" ¾" ¾" ¾" ¾" ¾" ¾" ¾"
550 1 ¼" 1" ¾" ¾" ¾" ¾" ¾" ¾" ¾" ¾"
825 1 ½" 1 ¼" 1 ¼" 1 ¼" 1 ¼" 1 ¼" 1 ¼" 1 ¼" 1 ¼" 1 ¼"
1,100 2" 1 ¼" 1 ¼" 1 ¼" 1 ¼" 1 ¼" 1 ¼" 1 ¼" 1 ¼" 1 ¼"
1,375 2" 1 ½" 1 ¼" 1 ¼" 1 ¼" 1 ¼" 1 ¼" 1 ¼" 1 ¼" 1 ¼"
1,650 2" 1 ½" 1 ¼" 1 ¼" 1 ¼" 1 ¼" 1 ¼" 1 ¼" 1 ¼" 1 ¼"
1,925 2 ½" 2" 1 ¼" 1 ¼" 1 ¼" 1 ¼" 1 ¼" 1 ¼" 1 ¼" 1 ¼"
2,200 2 ½" 2" 1 ½" 1 ¼" 1 ¼" 1 ¼" 1 ¼" 1 ¼" 1 ¼" 1 ¼"
2,475 2 ½" 2" 1 ½" 1 ¼" 1 ¼" 1 ¼" 1 ¼" 1 ¼" 1 ¼" 1 ¼"
2,750 2 ½" 2" 2" 1 ½" 1 ¼" 1 ¼" 1 ¼" 1 ¼" 1 ¼" 1 ¼"
3,025 2 ½" 2" 2" 1 ½" 1 ¼" 1 ¼" 1 ¼" 1 ¼" 1 ¼" 1 ¼"
3,300 2 ½" 2" 2" 2" 2" 2" 2" 2" 2" 2"
3,575 3" 2 ½" 2" 2" 2" 2" 2" 2" 2" 2"
3,850 3" 2 ½" 2" 2" 2" 2" 2" 2" 2" 2"
4,125 N/A 2 ½" 2" 2" 2" 2" 2" 2" 2" 2"
4,400 N/A 2 ½" 2" 2" 2" 2" 2" 2" 2" 2"
4,675 N/A 2 ½" 2" 2" 2" 2" 2" 2" 2" 2"
4,950 N/A 2 ½" 2" 2" 2" 2" 2" 2" 2" 2"
5,225 N/A 2 ½" 2 ½" 2" 2" 2" 2" 2" 2" 2"
5,500 N/A 2 ½" 2 ½" 2" 2" 2" 2" 2" 2" 2"
5,775 N/A 2 ½" 2 ½" 2 ½" 2 ½" 2 ½" 2 ½" 2 ½" 2 ½" 2 ½"
6,050 N/A 3 2 ½" 2 ½" 2 ½" 2 ½" 2 ½" 2 ½" 2 ½" 2 ½"
6,325 N/A 3 2 ½" 2 ½" 2 ½" 2 ½" 2 ½" 2 ½" 2 ½" 2 ½"
6,600 N/A 3 2 ½" 2 ½" 2 ½" 2 ½" 2 ½" 2 ½" 2 ½" 2 ½"
6,875 N/A 3 2 ½" 2 ½" 2 ½" 2 ½" 2 ½" 2 ½" 2 ½" 2 ½"
7,150 N/A N/A 2 ½" 2 ½" 2 ½" 2 ½" 2 ½" 2 ½" 2 ½" 2 ½"
7,700 N/A N/A 2 ½" 2 ½" 2 ½" 2 ½" 2 ½" 2 ½" 2 ½" 2 ½"
8,250 N/A N/A 2 ½" 2 ½" 2 ½" 2 ½" 2 ½" 2 ½" 2 ½" 2 ½"
8,800 N/A N/A 3 3 3 3 3 3 3 3
9,350 N/A N/A 3 3 3 3 3 3 3 3
9,900 N/A N/A 3 3 3 3 3 3 3 3
10,450 N/A N/A N/A N/A N/A N/A N/A N/A N/A N/A
11,000 N/A N/A N/A N/A N/A N/A N/A N/A N/A N/A
11,550 N/A N/A N/A N/A N/A N/A N/A N/A N/A N/A

21MUA-PRC002-EN
Gas
Piping
Table GP-5 — Gas Pipe Connection Size — Direct-Fired Units — IRI Gas Train — 100% OA or R/A Not ETL
Inlet Gas Pressure (inches of water column)
MBH 6-7" 8-11" 12-14" 15-20" 21-27" 1 psi 2 psi 3 psi 4 psi 5 psi
275 1 ¼" ¾" ¾" ¾" ¾" ¾" ¾" ¾" ¾" ¾"
550 N/A 1" ¾" ¾" ¾" ¾" ¾" ¾" ¾" ¾"
825 N/A N/A 1" ¾" ¾" ¾" ¾" ¾" ¾" ¾"
1,100 N/A 1 ½" 1 ¼" 1 ¼" 1 ¼" 1 ¼" 1 ¼" 1 ¼" 1 ¼" 1 ¼"
1,375 N/A 2" 1 ¼" 1 ¼" 1 ¼" 1 ¼" 1 ¼" 1 ¼" 1 ¼" 1 ¼"
1,650 N/A N/A 1 ½" 1 ¼" 1 ¼" 1 ¼" 1 ¼" 1 ¼" 1 ¼" 1 ¼"
1,925 N/A N/A 2" 1 ½" 1 ¼" 1 ¼" 1 ¼" 1 ¼" 1 ¼" 1 ¼"
2,200 N/A N/A 2" 1 ½" 1 ¼" 1 ¼" 1 ¼" 1 ¼" 1 ¼" 1 ¼"
2,475 N/A N/A 2" 2" 1 ½" 1 ¼" 1 ¼" 1 ¼" 1 ¼" 1 ¼"
2,750 N/A N/A 2" 2" 1 ½" 1 ¼" 1 ¼" 1 ¼" 1 ¼" 1 ¼"
3,025 N/A N/A 2" 2" 2" 2" 2" 2" 2" 2"
3,300 N/A N/A 2" 2" 2" 2" 2" 2" 2" 2"
3,575 N/A N/A 2 ½" 2" 2" 2" 2" 2" 2" 2"
3,850 N/A N/A 2 ½" 2" 2" 2" 2" 2" 2" 2"
4,125 N/A N/A 2 ½" 2" 2" 2" 2" 2" 2" 2"
4,400 N/A N/A 2 ½" 2 ½" 2" 2" 2" 2" 2" 2"
4,675 N/A N/A 2 ½" 2 ½" 2" 2" 2" 2" 2" 2"
4,950 N/A N/A 2 ½" 2 ½" 2" 2" 2" 2" 2" 2"
5,225 N/A N/A 3" 2 ½" 2" 2" 2" 2" 2" 2"
5,500 N/A N/A 3" 2 ½" 2 ½" 2" 2" 2" 2" 2"
5,775 N/A N/A 3" 2 ½" 2 ½" 2" 2" 2" 2" 2"
6,050 N/A N/A 3" 2 ½" 2 ½" 2 ½" 2 ½" 2 ½" 2 ½" 2 ½"
6,325 N/A N/A N/A 2 ½" 2 ½" 2 ½" 2 ½" 2 ½" 2 ½" 2 ½"
6,600 N/A N/A N/A 3" 2 ½" 2 ½" 2 ½" 2 ½" 2 ½" 2 ½"
6,875 N/A N/A N/A 3" 2 ½" 2 ½" 2 ½" 2 ½" 2 ½" 2 ½"
7,150 N/A N/A N/A 3" 2 ½" 2 ½" 2 ½" 2 ½" 2 ½" 2 ½"
7,700 N/A N/A N/A 3" 2 ½" 2 ½" 2 ½" 2 ½" 2 ½" 2 ½"
8,250 N/A N/A N/A N/A 2 ½" 2 ½" 2 ½" 2 ½" 2 ½" 2 ½"
8,800 N/A N/A N/A N/A 3" 2 ½" 2 ½" 2 ½" 2 ½" 2 ½"
9,350 N/A N/A N/A N/A 3" 3" 3" 3" 3" 3"
9,900 N/A N/A N/A N/A 3" 3" 3" 3" 3" 3"
10,450 N/A N/A N/A N/A N/A N/A N/A N/A N/A N/A
11,000 N/A N/A N/A N/A N/A N/A N/A N/A N/A N/A
11,550 N/A N/A N/A N/A N/A N/A N/A N/A N/A N/A
12,100 N/A N/A N/A N/A N/A N/A N/A N/A N/A N/A

MUA-PRC002-EN22
Gas
Piping
Table GP-6 — Gas Pipe Connection Size — Direct-Fired Units — FM Gas Train — 100% OA or R/A Not ETL
Inlet Gas Pressure (inches of water column)
MBH 6-7" 8-11" 12-14" 15-20" 21-27" 1 psi 2 psi 3 psi 4 psi 5 psi
275 1 ¼" ¾" ¾" ¾" ¾" ¾" ¾" ¾" ¾" ¾"
550 N/A 1" ¾" ¾" ¾" ¾" ¾" ¾" ¾" ¾"
825 N/A 1 ¼" 1" 1" ¾" ¾" ¾" ¾" ¾" ¾"
1,100 N/A 2" 1 ¼" 1 ¼" 1 ¼" 1 ¼" 1 ¼" 1 ¼" 1 ¼" 1 ¼"
1,375 N/A 2" 1 ¼" 1 ¼" 1 ¼" 1 ¼" 1 ¼" 1 ¼" 1 ¼" 1 ¼"
1,650 N/A 2" 1 ¼" 1 ¼" 1 ¼" 1 ¼" 1 ¼" 1 ¼" 1 ¼" 1 ¼"
1,925 N/A 2" 1 ½" 1 ¼" 1 ¼" 1 ¼" 1 ¼" 1 ¼" 1 ¼" 1 ¼"
2,200 N/A N/A 2" 1 ½" 1 ¼" 1 ¼" 1 ¼" 1 ¼" 1 ¼" 1 ¼"
2,475 N/A N/A 2" 1 ½" 1 ¼" 1 ¼" 1 ¼" 1 ¼" 1 ¼" 1 ¼"
2,750 N/A N/A 2" 2" 2" 1 ½" 1 ½" 1 ½" 1 ½" 1 ½"
3,025 N/A N/A 2" 2" 2" 2" 2" 2" 2" 2"
3,300 N/A N/A 2" 2" 2" 2" 2" 2" 2" 2"
3,575 N/A N/A 2" 2" 2" 2" 2" 2" 2" 2"
3,850 N/A N/A 2" 2" 2" 2" 2" 2" 2" 2"
4,125 N/A N/A 2" 2 ½" 2" 2" 2" 2" 2" 2"
4,400 N/A N/A 3" 2" 2" 2" 2" 2" 2" 2"
4,675 N/A N/A 3" 2 ½" 2" 2" 2" 2" 2" 2"
4,950 N/A N/A 3" 2 ½" 2" 2" 2" 2" 2" 2"
5,225 N/A N/A 3" 2 ½" 2 ½" 2 ½" 2 ½" 2 ½" 2 ½" 2 ½"
5,500 N/A N/A 3" 2 ½" 2 ½" 2 ½" 2 ½" 2 ½" 2 ½" 2 ½"
5,775 N/A N/A 3" 2 ½" 2 ½" 2 ½" 2 ½" 2 ½" 2 ½" 2 ½"
6,050 N/A N/A 3" 2 ½" 2 ½" 2 ½" 2 ½" 2 ½" 2 ½" 2 ½"
6,325 N/A N/A N/A 2 ½" 2 ½" 2 ½" 2 ½" 2 ½" 2 ½" 2 ½"
6,600 N/A N/A N/A 3" 2 ½" 2 ½" 2 ½" 2 ½" 2 ½" 2 ½"
6,875 N/A N/A N/A 3" 2 ½" 2 ½" 2 ½" 2 ½" 2 ½" 2 ½"
7,150 N/A N/A N/A 3" 2 ½" 2 ½" 2 ½" 2 ½" 2 ½" 2 ½"
7,700 N/A N/A N/A 3" 2 ½" 2 ½" 2 ½" 2 ½" 2 ½" 2 ½"
8,250 N/A N/A N/A N/A 2 ½" 2 ½" 2 ½" 2 ½" 2 ½" 2 ½"
8,800 N/A N/A N/A N/A 3" 2 ½" 2 ½" 2 ½" 2 ½" 2 ½"
9,350 N/A N/A N/A N/A 3" 3" 3" 3" 3" 3"
9,900 N/A N/A N/A N/A 3" 3" 3" 3" 3" 3"
10,450 N/A N/A N/A N/A 3" 3" 3" 3" 3" 3"
11,000 N/A N/A N/A N/A N/A 3" 3" 3" 3" 3"
11,550 N/A N/A N/A N/A N/A CF CF CF CF CF
12,100 N/A N/A N/A N/A N/A CF CF CF CF CF
Note:
CF = Contact Factory

23MUA-PRC002-EN
Gas
Piping
Table GP-7 — Gas Pipe Connection Size — Direct-Fired Units — Standard Gas Train — 100% OA or R/A Not ETL
Inlet Gas Pressure (inches of water column)
MBH 6-7" 8-11" 12-14" 15-20" 21-27" 1 psi 2 psi 3 psi 4 psi 5 psi
275 1 ¼" ¾" ¾" ¾" ¾" ¾" ¾" ¾" ¾" ¾"
550 1 ¼" 1" ¾" ¾" ¾" ¾" ¾" ¾" ¾" ¾"
825 N/A N/A 1" 1" ¾" ¾" ¾" ¾" ¾" ¾"
1,100 N/A 2" 1 ¼" 1 ¼" 1 ¼" 1 ¼" 1 ¼" 1 ¼" 1 ¼" 1 ¼"
1,375 N/A 2" 1 ¼" 1 ¼" 1 ¼" 1 ¼" 1 ¼" 1 ¼" 1 ¼" 1 ¼"
1,650 N/A 2" 1 ¼" 1 ¼" 1 ¼" 1 ¼" 1 ¼" 1 ¼" 1 ¼" 1 ¼"
1,925 N/A N/A 1 ½" 1 ¼" 1 ¼" 1 ¼" 1 ¼" 1 ¼" 1 ¼" 1 ¼"
2,200 N/A 2 ½" 2" 1 ½" 1 ¼" 1 ¼" 1 ¼" 1 ¼" 1 ¼" 1 ¼"
2,475 N/A 2 ½" 2" 1 ½" 1 ¼" 1 ¼" 1 ¼" 1 ¼" 1 ¼" 1 ¼"
2,750 N/A 2 ½" 2" 1 ½ 1 ¼" 1 ¼" 1 ¼" 1 ¼" 1 ¼" 1 ¼"
3,025 N/A 2 ½" 2" 2" 2" 2" 2" 2" 2" 2"
3,300 N/A 3" 2" 2" 2" 2" 2" 2" 2" 2"
3,575 N/A 3" 2" 2" 2" 2" 2" 2" 2" 2"
3,850 N/A N/A 2" 2" 2" 2" 2" 2" 2" 2"
4,125 N/A N/A 2 ½" 2" 2" 2" 2" 2" 2" 2"
4,400 N/A N/A 2 ½" 2" 2" 2" 2" 2" 2" 2"
4,675 N/A N/A 2 ½" 2" 2" 2" 2" 2" 2" 2"
4,950 N/A N/A 2 ½" 2 ½" 2" 2" 2" 2" 2" 2"
5,225 N/A N/A 2 ½" 2 ½" 2" 2" 2" 2" 2" 2"
5,500 N/A N/A 2 ½" 2 ½" 2" 2" 2" 2" 2" 2"
5,775 N/A N/A 2 ½" 2 ½" 2" 2" 2" 2" 2" 2"
6,050 N/A N/A 2 ½" 2 ½" 2 ½" 2 ½" 2 ½" 2 ½" 2 ½" 2 ½"
6,325 N/A N/A 2 ½" 2 ½" 2 ½" 2 ½" 2 ½" 2 ½" 2 ½" 2 ½"
6,600 N/A N/A 2 ½" 2 ½" 2 ½" 2 ½" 2 ½" 2 ½" 2 ½" 2 ½"
6,875 N/A N/A 3" 2 ½" 2 ½" 2 ½" 2 ½" 2 ½" 2 ½" 2 ½"
7,150 N/A N/A 3" 2 ½" 2 ½" 2 ½" 2 ½" 2 ½" 2 ½" 2 ½"
7,700 N/A N/A 3" 2 ½" 2 ½" 2 ½" 2 ½" 2 ½" 2 ½" 2 ½"
8,250 N/A N/A N/A 3" 2 ½" 2 ½" 2 ½" 2 ½" 2 ½" 2 ½"
8,800 N/A N/A N/A 3" 2 ½" 2 ½" 2 ½" 2 ½" 2 ½" 2 ½"
9,350 N/A N/A N/A 3" 3" 3" 3" 3" 3" 3"
9,900 N/A N/A N/A N/A 3" 3" 3" 3" 3" 3"
10,450 N/A N/A N/A N/A 3" 3" 3" 3" 3" 3"
11,000 N/A N/A N/A N/A 3" 3" 3" 3" 3" 3"
11,550 N/A N/A N/A N/A N/A CF CF CF CF CF
12,100 N/A N/A N/A N/A N/A CF CF CF CF CF
Note:
CF = Contact Factory

MUA-PRC002-EN24
Approvals
These requirements were current when this catalog was
printed.
Please contact your Trane representative for the most
current data available.
Model Static Max. Max. Input.
No. (in W.C.) SCFM (BTUH)
DFIA 109 0-4.0 3,000 325,500
DFIA 112 0-4.0 4,250 461,125
DFIA 115 0-4.0 6,000 651,000
DFIA 118 0-4.0 8,500 922,250
DFIA 120 0-4.0 11,000 1,193,500
DFIA 122 0-4.0 15,000 1,627,500
DFIA 125 0-4.0 20,000 2,170,000
DFIA 130 0-3.5 30,000 3,255,000
DFIA 215 0-4.0 12,000 1,302,000
DFIA 218 0-4.0 17,000 1,844,500
DFIA 220 0-4.0 26,000 2,821,000
DFIA 222 0-4.0 31,000 3,363,500
DFIA 225 0-4.0 46,000 4,991,000
DFIA 230 0-3.5 64,000 6,944,000
ETL Labeling Requirements
A DFIA unit can bear the ETL label if:
1
The unit SCFM is less than the
Maximum SCFM given below.
2
The unit input is less than the Maximum
BTUH rating given below.
3
The unit temperature rise is less than the
Maximum Temperature Rise given
below.
4
The fuel is natural gas.
5
The motor is a single speed motor.
6
Unit components are standard (there are
exceptions to this).
Model Max. Max. Max. Temp.
No. SCFM BTUH Rise
DFIA 109 3,000 291,262 100 F
DFIA 112 4,250 412,621 100 F
DFIA 115 6,000 582,524 100 F
DFIA 118 8,500 680,000 100 F
DFIA 120 11,000 1,061,413 100 F
DFIA 122 15,000 1,200,000 100 F
DFIA 125 20,000 1,941,748 100 F
DFIA 130 30,000 2,400,000 100 F
DFIA 215 12,000 1,349,831 100 F
DFIA 218 18,000 1,800,000 100 F
DFIA 220 26,000 2,924,634 100 F
DFIA 222 31,000 3,100,000 100 F
DFIA 225 46,000 5,174,353 100 F
DFIA 230 64,000 6,400,000 100 F
CGA Approval Requirements
A DFIA unit with no mixing box,
motorized RA damper, or motorized 75/
25 damper can bear the CGA label if:
1
The unit SCFM is less than the
Maximum SCFM given below.
2
The unit input is less than the Maximum
Input BTUH given below.
3
The static pressure is in the range given
below.
4
Unit discharge temperature is 75 F
maximum.
5
The unit has a maximum temperature
rise of 90 F for single blower units and
100 F for double blower units.
6
The unit minimum input rating is 1/25 of
the Max. Input BTUH given below.
7
The fuel is natural gas.
8
The motor is a single speed motor.
9
Unit components are standard (there are
exceptions to this).

25MUA-PRC002-EN
Controls
System 14 — Constant Discharge Air Temperatures
Component Description
1
Remote Temperature Selector
Not temperature sensitive. Mounted on
remote control station.
2
Air Sensor
Installed in blower discharge.
3
Amplifier
Installed in electrical control panel.
Contains wiring terminals, sensitivity
adjustments and one calibrating
potentiometer.
4
Modulator/Regulator Valve
Mounted in gas piping manifold.
Receives electrical signal from amplifier
and adjusts gas pressure to maintain
desired temperature.
5
Remote Control Station
Optional
System 14 Applications
Controls discharge air temperature with
instantaneous response and is ideal for
industrial areas and commercial spaces
such as kitchens, hotels, restaurants and
boiler rooms.
Control Operation
Desired temperature at is set at
the remote temperature selector .
The air sensor senses leaving air
temperature and sends an electrical
signal to the amplifier . The amplifier
then sends an electrical signal to the
modulator/regulator valve , which
adjusts gas pressure to the burner,
maintaining the desired temperature
at .
Control Sequence with Fan and
Heat Switches
Fan and heat switches are included when
a remote control station is ordered as an
option.
Fan Switch On
Optional damper opens, damper end
switch closes, fan motor starter is
energized, fan runs.
The freeze-stat will stop the fan if the
discharge leaving air temperature is
below 45 F, three minutes after the fan is
turned on.
Fan Switch Off
Optional damper closes, damper end
switch opens, fan motor starter is de-
energized, fan is off.
Heat Switch On
If the fan switch is on, and the air flow
switch closes, power is applied to the
flame failure safeguard relay to begin
predetermined ignition sequence.
Note: The fan switch must be on, or the
burner will not light, even if the heat
switch is on.
Heat Switch Off
Heat is off.
Optional

MUA-PRC002-EN26
Controls
System 44 — Space Temperature Control
Component Description
1
Selectrastat™
Mounted on remote control station in
heated area where temperature is
sensed. Temperature range 55 F to 90 F.
2
Air Monitor
Installed in blower discharge. Senses
temperature.
3
Amplifier
Installed in electrical control panel.
Contains adjustments for maximum and
minimum discharge air temperature,
three calibrating potentiometers and a
sensitivity adjustment.
4
Modulator/Regulator Valve
Mounts in gas piping manifold. Receives
electrical signal from amplifier and
adjusts gas pressure to maintain desired
temperature.
5
Remote Control Station
Optional
System 44 Applications
Provides space temperature control
electronically and is ideal for commercial
and industrial buildings.
Temperature Control Operation
Desired temperature at (1) is set at the
Selectrastat on the remote control
station. The Selectrastat controls the
discharge air temperature as long as this
temperature remains within preset
maximum and minimum limits. If the
discharge air temperature approaches
either of the set limits, the discharge air
monitor (2) will signal the amplifier (3),
which will adjust the discharge air
temperature to a higher or lower level
via the modulator/regulator valve (4).
When the space temperature
approaches the assigned setting,
the Selectrastat resumes control.
Control Sequence with Fan and
Heat Switches
Fan and heat switches are included
when the remote control station is
ordered as an option.
Fan Switch On
Optional damper opens, damper end
switch closes, fan motor starter is
energized, fan runs.
The freeze-stat will stop the fan if the
discharge leaving air temperature is
below 45 F, three minutes after the fan is
turned on.
Fan Switch Off
Optional damper closes, damper end
switch opens, fan motor starter is de-
energized, fan is off.
Heat Switch On
If the fan switch is on, and the air flow
switch closes, power is applied to the
flame failure safeguard relay to begin
predetermined ignition sequence.
Note: The fan switch must be on, or the
burner will not light, even if the heat
switch is on.
Heat Switch Off — Heat is off.
Optional (5)
(4)(3)(2)
(1)

27MUA-PRC002-EN
Electric
Power
Table EP-1 — Motor Electrical Data — Single-Speed Motor
Energy-Effic. ODP TEFC Energy-Effic. TEFC
ODP — 1800 RPM 1800 RPM 1800 RPM 1800 RPM
Single Phase 3-Phase 3-Phase 3-Phase 3-Phase
HP 115 208 230 208 230 460 208 230 460 208 230 460 208 230 460
¾ 11.0 5.4 5.5 2.5 2.6 1.3 NA NA NA 3.2 3.0 1.5 NA NA NA
1 12.6 6.2 6.3 3.5 2.8 1.4 3.1 2.7 1.4 3.6 2.8 1.4 3.1 2.7 1.35
1½ 20.0 10.5 10.0 5.0 4.2 2.1 4.5 3.9 2.0 5.0 4.2 2.1 4.5 3.9 1.95
2 21.0 12.6 10.5 6.3 5.6 2.8 6.0 5.2 2.6 6.5 5.6 2.8 6.1 5.3 2.65
3 32.0 16.8 16.0 9.5 8.0 4.0 8.7 7.8 3.9 8.5 8.2 4.1 8.8 7.6 3.8
5 NA 25.0 23.0 15.4 13.2 6.6 13.8 12.0 6.0 15.0 13.4 6.7 14.2 12.4 6.2
7 ½ NA 33.0 31.0 22.0 20.0 10.0 22.5 19.6 9.8 21.5 19.2 9.6 21.4 18.6 9.3
10 NA NA 42.0 26.4 25.2 12.6 28.0 24.4 12.2 28.0 25.2 12.6 29.0 25.0 12.5
15 NA NA NA 42.0 40.6 20.3 42.1 36.6 18.3 NA 38.8 19.4 41.2 36.6 18.3
20 NA NA NA 53.0 50.0 25.0 55.2 48.0 24.0 NA 48.0 24.0 53.8 49.0 24.5
25 NA NA NA 72.0 59.0 29.5 67.3 57.0 28.5 NA 60.0 30.0 63.5 57.0 28.5
30 NA NA NA 78.0 71.0 35.5 81.0 69.0 34.5 NA 76.0 38.0 79.8 69.0 34.5
40 NA NA NA 108.0 95.6 47.8 NA 92.0 46.0 NA 94.0 47.0 NA 92.0 46.0
50 NA NA NA 140.0 120.0 60.0 NA 116.0 58.0 NA 120.0 60.0 NA 116.0 58.0
60 NA NA NA NA 145.0 72.5 NA 144.0 72.0 NA 140.0 70.0 NA 142.0 71.0
Notes:
NA = Not Available
FLA based on NEC ratings
Table EP-2— Motor Electrical Data — Two-Speed Motor
2-Speed/1-Winding 2-Speed/2-Winding
1800/900 RPM 1800/1200 RPM
3-Phase 3-Phase
HP 208 230 460 208 230 460
¾ NANA NANANA NA
1 3.5/1.5 3.4/1.6 1.8/.75 3.2/1.8 3.4/2.2 1.7/1.1
1½ 5.0/2.1 4.8/2.1 2.25/.95 5.0/2.9 4.9/2.8 2.4/1.4
2 6.2/2.6 6.4/2.7 3.0/1.3 6.1/3.5 5.9/3.8 3.4/2.1
3 9.1/3.3 8.3/3.3 4.9/1.9 9.0/4.8 8.4/4.8 4.6/2.6
5 14.7/5.2 13.4/5.1 7.0/2.7 16.9/9.7 15.5/10.2 7.1/4.8
7½ 24.0/10.0 24.5/11.0 10.5/4.2 22.0/12.3 19.5/12.3 10.0/6.0
10 29.5/11.3 30.0/12.4 13.0/5.5 30.0/17.0 28.0/17.5 13.5/7.5
15 43.0/15.2 40.0/14.0 19.4/7.2 47.0/22.0 54.0/21.0 19.0/11.0
20 56.0/20.0 54.0/21.0 26.0/10.0 56.0/29.0 51.0/27.0 24.0/12.0
25 NA NA 31.0/10.0 NA NA 30.0/17.0
30 NA NA 36.6/12.4 NA NA 38.0/18.0
40 NA NA 50.0/16.5 NA NA 48.0/24.0
50 NA NA 59.0/21.0 NA NA 59.0/30.0
60 NA NA NA NA NA NA
Notes:
NA = Not Available
FLA based on NEC ratings

MUA-PRC002-EN28
Dimension
and Weights
Horizontal Arrangement — Single Blower
109 112 115 118 120 122 125 130
Table DW-1
Access Door
Model A B C D E F H J K L Dimensions
109 2' 5" 3' 9" 2' 9" 1113/16" 10¼" 1' 49/16" 8 ¼" 9 7/8" 7 ½" 2' 6" 1' 8 ½" x 1' 8 ¾"
112 2' 5" 3' 9" 2' 9" 1' 1313/16" 1' 17/16" 1' 29/16" 8 ¼" 9 7/8" 7 ½" 2' 6" 1' 8 ½" x 1' 8 ¾"
115 3' 1¼" 4' 3" 3' 7" 1' 613/16" 1' 47/8" 1' 41/16" 1' 2¼" 6 7/8" 10 ½" 2' 6" 2' 4 ¾" x 1 '8 ¾"
118 3' 1¼" 4' 3" 3' 7" 1' 915/16" 1' 67/8" 1' 2½" 1' 2¼" 6 7/8" 10 ½" 2' 6" 2' 4 ¾" x 1 '8 ¾"
120 4' 6" 5' 0" 4' 4" 2' 15/16" 2' ¾" 1' 5½" 1' 2¼" 6 7/8" 6" 4' 3' 10 ¼" x 1 '8 ¾"
122 4' 6" 5' 0" 4' 4" 2' 37/16" 2' 3¼" 1' 4¼" 1' 2¼" 6 7/8" 6" 4' 3' 10 ¼" x 1 '8 ¾"
125 5' 6" 6' 0" 5' 0" 2' 73/8" 2' 7¼" 1' 85/8" 1' 8¼" 3 7/8" 6" 5' 4' 9 ½" x 1 '8 ¾"
130 5' 6" 6' 0" 5' 0" 3' 7/8" 3' ¾" 1' 59/16" 1' 8¼" 3 7/8" 6" 5' 4' 9 ½" x 1 '8 ¾"
Notes:
1. To permit blower shaft replacement, the side opposite the controls should have clearance equal to the unit width.
2. Minimum of 3’ for serviceability clearance.

29MUA-PRC002-EN
Dimension
and Weights
Horizontal Arrangement — Double Blower
215 218 220 222 225 230
Table DW-2
Access Door
Model A B C D E F G H J K L Dimensions
215 3' 1¼" 7' 9" 3' 7" 1' 613/16"1'
37/8" 1' 4½" 1' 10½" 1' 2¼" 6 7/8" 1' 4½" 5' 2' 4 ¾" x 1 '8 ¾"
218 3' 1¼" 7' 9" 3' 7" 1' 915/16" 1' 67/8" 1' 1¼" 1' 10½" 1' 2¼" 6 7/8" 1' 4½" 5' 2' 4 ¾" x 1 '8 ¾"
220 4' 6" 10' 0" 4' 4" 2' 15/16" 2' ¾" 1' 85/16" 2' 55/8" 1' 2¼" 6 7/8" 1' 3" 7' 6" 3' 10 ¼" x 1 '8 ¾"
222 4' 6" 10' 0" 4' 4" 2' 37/16" 2' 3¼" 1' 513/16" 2' 55/8" 1' 2¼" 6 7/8" 1' 3" 7' 6" 3' 10 ¼" x 1 '8 ¾"
225 5' 6" 12' 0" 5' 0" 2' 73/8" 2' 7¼" 1' 913/16" 3' 15/8" 1' 8¼" 37/8" 1' 10' 4' 9 ½" x 1 '8 ¾"
230 5' 6" 12' 0" 5' 0" 3' 7/8" 3¾" 1' 65/8" 2' 9" 1' 8¼" 37/8" 1' 10' 4' 9 ½" x 1 '8 ¾"
Notes:
1. To permit blower shaft replacement, the side opposite the controls should have clearance equal to the unit width.
2. Minimum of 3’ for serviceability clearance.

MUA-PRC002-EN30
Dimension
and Weights
Horizontal Arrangement — Single Blower
With Mixing Box
109 112 115 118 120 122 125 130
Table DW-3
Access Door
Model A B C D E F H J K L W Dimensions
109 2' 5" 3' 9" 2' 9" 1113/16" 10¼" 1' 49/16" 2' ¾" 1 5/8" 5 ½" 2' 10" 2' 4" 1' 8 ½" x 1' 8 ¾"
112 2' 5" 3' 9" 2' 9" 1' 313/16" 1' 17/16" 1' 29/16" 2' ¾" 1 5/8" 5 ½" 2' 10" 2' 4" 1' 8 ½" x 1' 8 ¾"
115 3' 1¼" 4' 3" 3' 7" 1' 613/16" 1' 47/8" 1' 41/16" 3' 3¾" 1 5/8" 5 ½" 3' 4" 3' 7" 2' 4 ¾" x 1 '8 ¾"
118 3' 1¼" 4' 3" 3' 7" 1' 915/16" 1' 67/8" 1' 2½" 3' 3¾" 1 5/8" 5 ½" 3' 4" 3' 7" 2' 4 ¾" x 1 '8 ¾"
120 4' 6" 5' 0" 4' 4" 2' 15/16" 2' ¾" 1' 5½" 4' ¾" 1 5/8" 5 ½" 4' 1" 4' 4" 3' 10 ¼" x 1 '8 ¾"
122 4' 6" 5' 0" 4' 4" 2' 37/16" 2' 3¼" 1' 4¼" 4' ¾" 1 5/8" 5 ½" 4' 1" 4' 4" 3' 10 ¼" x 1 '8 ¾"
125 5' 6" 6' 0" 5' 0" 2' 73/8" 2' 7¼" 1' 85/8" 4' ¾" 1 5/8" 5 ½" 5' 1" 4' 4" 4' 9 ½" x 1 '8 ¾"
130 5' 6" 6' 0" 5' 0" 3' 7/8" 3' ¾" 1' 59/16" 4' ¾" 1 5/8" 5 ½" 5' 1" 4' 4" 4' 9 ½" x 1 '8 ¾"
Notes:
1. To permit blower shaft replacement, the side opposite the controls should have clearance equal to the unit width.
2. Minimum of 3’ for serviceability clearance.

31MUA-PRC002-EN
Dimension
and Weights
Horizontal Arrangement — Double Blower
With Mixing Box
215 218 220 222 225 230
Table DW-4
Access Door
Model A B C D E F G H J K L W Dimensions
215 3' 1¼" 7' 9" 3' 7" 1' 613/16"1'
37/8" 1' 4½" 1' 10½" 3' 3¾" 1 5/8" 5 ½" 6' 10" 3' 7" 2' 4 ¾" x 1 '8 ¾"
218 3' 1¼" 7' 9" 3' 7" 1' 915/16" 1' 67/8" 1' 1¼" 1' 10½" 3' 3¾" 1 5/8" 5 ½" 6' 10" 3' 7" 2' 4 ¾" x 1 '8 ¾"
220 4' 6" 10' 0" 4' 4" 2' 15/16" 2' ¾" 1' 85/16" 2' 55/8" 4' ¾" 1 5/8" 5 ½" 9' 1" 4' 4" 3' 10 ¼" x 1 '8 ¾"
222 4' 6" 10' 0" 4' 4" 2' 37/16" 2' 3¼" 1' 513/16" 2' 55/8" 4' ¾" 1 5/8" 5 ½" 9' 1" 4' 4" 3' 10 ¼" x 1 '8 ¾"
225 5' 6" 12' 0" 5' 0" 2' 73/8" 2' 7¼" 1' 913/16" 3' 15/8" 4' ¾" 1 5/8" 5 ½" 11' 1" 4' 4" 4' 9 ½" x 1 '8 ¾"
230 5' 6" 12' 0" 5' 0" 3' 7/8" 3¾" 1' 65/8" 2' 9" 4' ¾" 1 5/8" 5 ½" 11' 1" 4' 4" 4' 9 ½" x 1 '8 ¾"
Notes:
1. To permit blower shaft replacement, the side opposite the controls should have clearance equal to the unit width.
2. Minimum of 3’ for serviceability clearance.

MUA-PRC002-EN32
Dimension
and Weights
Table DW-5
Model A B C D E F
109 3' 9" 2' 5" 11' 7" 2' 9" 3' 2' 8"
112 3' 9" 2' 5" 11' 7" 2' 9" 3' 2' 8"
115 4' 3" 3' 1¼" 12' 5" 3' 7" 3' 2' 8"
118 4' 3" 3' 1¼" 12' 5" 3' 7" 3' 2' 8"
120 5' 4' 6" 14' 2" 4' 4" 4' 3' 8"
122 5' 4' 6" 14' 2" 4' 4" 4' 3' 8"
125 6' 5' 6" 14' 10" 5' 4' 3' 8"
130 6' 5' 6" 14' 10" 5' 4' 3' 8"
215 7' 9" 3' 1¼" 12' 5" 3' 7" 3' 2' 8"
218 7' 9" 3' 1¼" 12' 5" 3' 7" 3' 2' 8"
220 10' 4' 6" 14' 2" 4' 4" 4' 3' 8"
222 10' 4' 6" 14' 2" 4' 4" 4' 3' 8"
225 12' 5' 6" 14' 10" 5' 4' 3' 8"
230 12' 5' 6" 14' 10" 5' 4' 3' 8"
Notes:
1. Unit suitable for indoor application.
2. Factory furnished support stand shipped separate for field mounting by others.
3. Unit to have v-bank shipped mounted to burner.
4. Unit to have inlet damper mounted in support stand.
5. Refer to DFIA catalog for supply duct dimensions and unit weights.
6. Unit shown is a two blower unit. Single blower unit is similar.
7. V-bank and inlet damper shown are optional components.
8. Unit to have burner section shipped separate for field mounting by others.

33MUA-PRC002-EN
Accessories Dimensional Data
Dimension
and Weights
Table DW-6
Model A B C D E Filters — Qty/Size
109-112 2' 5" 3' 9" 1' 5¼" 1' 23/8" 2' 5" (4) 20" x 20" x 2"
115-118 3' 1¼" 4' 3" 1' 11" 1' 83/8" 3' 7" (9) 20" x 16" x 2"
120-122 4' 6" 5' 0" 2' 4½" 1' 83/8" 4' 4" (10) 20" x 25" x 2"
125-130 5' 6" 6' 0" 3' 41/8" 3' 3¼" 4' 4" (24) 20" x 16" x 2"
215-218 3' 1¼" 7' 9" 5' 7¾" 1' 83/8" 3' 7" (18) 20" x 15" x 2"
220-222 4' 6" 10' 0" 7' 1¾" 3' 3¼" 4' 4" (35) 20" x 16" x 2"
225-230 5' 6" 12' 0" 9' 1/8" 3' 3¼" 4' 4" (42) 20" x 20" x 2"

MUA-PRC002-EN34
Weights
Approximate Weights
Table W-1
Unit Blower Vertical Support Inlet Inlet1V-Bank1Burner Return1Discharge
Size Section Stand Hood Damper Filter Section Air Louver A B C D
109 350 180 140 55 165 260 104 70 149 67 67 67
112 350 180 140 55 165 260 104 70 149 67 67 67
115 535 210 150 70 185 375 116 80 253 94 94 94
118 535 210 150 70 185 375 116 80 253 94 94 94
120 916 420 183 120 275 550 151 110 439 159 159 159
122 916 420 183 120 275 550 151 110 439 159 159 159
125 1262 570 216 155 310 700 208 125 590 224 224 224
130 1262 570 216 155 310 700 208 125 590 224 224 224
215 912 500 224 125 275 510 141 150 438 158 158 158
218 912 500 224 125 275 510 141 150 438 158 158 158
220 1501 625 290 233 410 735 226 215 697 268 268 268
222 1501 625 290 233 410 735 226 215 697 268 268 268
225 2117 845 350 340 500 1010 302 230 953 388 388 388
230 2117 845 350 340 500 1010 302 230 953 388 388 388
Notes:
1. When a mixing box option is ordered — these three accessory weights need to be totaled.
*Contact factory for shipping weights on models exceeding 50,000 cfm.

35MUA-PRC002-EN
General
BASIC unit is factory assembled, wired,
and test fired. DEPENDING UPON
OPTIONS, UNIT MAY SHIP IN
SECTIONS DUE TO PHYSICAL SIZE
OF EQUIPMENT. Designed for indoor
mounting only. Units are available for
operation on either natural or LP
(Propane) gas.
Casing
Blower section casings are fabricated of
die formed 16-gauge, galvanized steel.
Includes cabinet designed for indoor
application, shaft and fan(s). Basic air
handler also requires motor, starter and
drive selection.
All casings shall be air tight. Complete
access shall be provided to all
components through gasketed access
panels and doors. This includes the
blower, burner and electrical
components.
Fans
Supply fans shall be double width,
double inlet centrifugal type with FC fan
wheels. Fans are tested in accordance
with AMCA 210. The fan or fans shall be
mounted on a solid shaft for single
blowers and a hollow shaft for double
blowers. The shaft shall be designed for
a maximum operating speed not to
exceed 75 percent of its first critical
speed. Bearings are to be external heavy
duty industrial prelubricated type.
100,000 hour life of the bearings.
Blowers to be driven by a V-belt package
sized with a capacity of 25 percent
greater than the motor horsepower.
Multiple belt applications will be
matched sets. Drives are adjustable
pitched diameter type up through 7 ½
hp, fixed on motors over 7 ½ hp. Motors
to be externally mounted on an
adjustable slide base. Belt guard shall be
provided.
Burner Section
Burner section shall be constructed of
16-gauge galvanized steel. Includes a
cabinet only to house a line burner.
Line Burner
Line burner section shall contain a
Maxon NP burner constructed of rust
resistant cast iron bodies (which serve as
the gas manifold) drilled to discharge the
fuel between diverging stainless steel
mixing plates. The entire burner
assembly is mounted directly in the air
stream being heated. The fresh air
stream passes through the mixing plates
and mixes with the fuel as combustion
air: thus all available heat from the
gaseous fuel is released directly into the
air stream. Air velocities across the
burner assemblies are established by the
use of profile plates.
Manifold is located outside of air stream.
An observation port shall be located to
provide view of pilot and main flame.
Units shall be supplied with a wide
range burner with a modulating
turndown ratio of 25 to 1. Adjustable
profile plates shall be provided and sized
to maintain the required velocity across
the line burner. The operation of the
burner shall be programmed through
the flame safeguard with timed prepurge
and flame sensing.
Control Enclosure
Units shall be provided with a control
compartment. All controls mounted
within this compartment are to be wired
to a numbered terminal strip. All wiring
is to be color coded and in accordance
with NEC. A circuit diagram of the
approved electrical drawing shall be
provided with the unit. All electrical
components shall bear the UL label.
Controls
Unit controls shall consist of a spark
ignition system with flame rod sensing
of flame, high temperature limit switch
set at 185 degrees, timed freeze
protection (factory set at 45 with a three-
minute time delay) flame safeguard with
alarm contacts, ignition transformer, air
proving differential switch and a series 14
or 44 modulating control system.
Unit shall also contain main fan starter,
overloads and control circuit fuses.
Gas Train Approvals
The standard gas train consists of a main
manual gas shutoff valve, a motorized
electric main gas valve, the Maxitrol
modulating gas valve, a manual pilot gas
shutoff valve, a manual pilot gas
pressure regulator, a pilot gas valve, an
orificed needle valve and auxiliary gas
valve.
The Factory Mutual (FM) gas train
consists of a manual main gas shutoff
valve, a motorized electric main gas
valve, the Maxitrol modulating gas valve,
a manual pilot gas shut-off valve, a
manual pilot gas pressure regulator, a
pilot gas valve, an orificed needle valve,
a high/low gas pressure switch, a manual
auxiliary gas shutoff valve, and an
auxiliary gas valve. (Optional)
The Industrial Risk Insurers (IRI) gas train
consists of a manual main gas shutoff
valve, a motorized electric main gas
valve, the Maxitrol modulating gas valve,
a manual pilot gas shutoff valve, a
manual pilot gas pressure regulator, a
pilot gas valve, an orificed needle valve,
a high/low gas pressure switch, a manual
auxiliary gas shutoff valve, a normally
open vent valve, and an auxiliary gas
valve. (Optional)
Timed Freeze Protection
Consists of an on-off discharge duct stat
and timer. Prevents continued discharge
of cold air if burner is not functioning.
Factory set at 45 degrees. If the discharge
air temperature is below 45 deg., 3
minutes after burner is first called to
come on, the unit is shut off. The timers
purpose is to keep the thermostat from
shutting off during the purge cycle.
Mechanical
Specifications

MUA-PRC002-EN36
Options
Motorized Return Air Damper
Purpose
To provide a way for recirculating return
air.
Operation
A two position switch controls the return
air damper.
When the two position switch is in the
“RA” position, the RA damper opens.
Fifty percent of supply air is RA,
50 percent of supply air is OA.
RA damper can be set to allow from
0 percent to 50 percent return air by field
adjustment of the linkage rods. The gas
valve opening is restricted when the RA
damper is open.
Code requires that outside ventilation air
be provided to the space in the amount
of 4 cfm per 1 MBh of burner rated input.
All units are provided with a means that
will allow the customer to interlock OA
fans when the amount of OA provided
by the unit is not sufficient to meet the
4 cfm per 1 MBh requirement.
When the two position switch is in the
“OA” position, the RA damper is closed,
and 100 percent of supply air
is OA.
Note: This option cannot be used with a
two speed fan motor.
Note: This option can be used with either
the Motorized Inlet Damper option or the
Motorized Outlet Damper option.
Option Includes:
• Return air damper
• Two position damper motor
• Damper switch
Motorized 75/25 Damper
Purpose
To provide a way for recirculating return
air and letting building pressure control
the amount of air which is recirculated.
Operation
If building pressure is less than desired,
the RA damper modulates to a more
closed position and the interlocked
burner profile damper modulates to a
more open position. More OA is brought
into building.
If building pressure is greater than
desired, the RA damper modulates to a
more open position and the interlocked
burner profile damper modulates to a
more closed position. Less OA is brought
into building.
At no time will the unit provide less than
25 percent OA to the building.
In general terms, the minimum OA is
25 percent; however, there are
cases where it can be as high as
40-50 percent, depending upon unit size,
burner size, gas train type and
gas pressure.
Code requires that outside ventilation air
be provided to the space in the amount
of 4 cfm per 1 MBh of burner rated input.
All units are provided with a means that
will allow the customer to interlock OA
fans when the amount of OA provided
by the unit is not sufficient to meet the 4
cfm per 1 MBh requirement.
Note: This option cannot be used with a
two speed fan motor.
Note: This option can be used with
either the Motorized Inlet Damper
option or the Motorized Outlet Damper
option.
Option Includes:
• Return air section with damper
• Burner profile damper
• Linkage
• Modulating damper motor(s)
• Photohelic differential pressure gauge

37MUA-PRC002-EN
Options
Mixing Box —
Temperature Control
Purpose
To provide a way for recirculating return
air and letting mixed air temperature
determine the amount of OA/RA.
Operation
A temperature sensor located after the V-
bank filter modulates the OA and RA
dampers to maintain a set temperature.
If temperature at sensor is cooler than
setting, OA damper modulates to a more
closed position, and RA damper
modulates to a more open position.
If temperature at sensor is warmer than
setting, OA damper modulates to a more
open position, and RA damper
modulates to a more closed position.
The minimum OA damper position is
factory set with a potentiometer. The
minimum OA damper position is set at 4
cfm per 1 MBh of burner rated input, or
25 percent supply air, whichever
is larger.
The desired temperature at the
temperature sensor is set at the control
cabinet at the unit.
Option Includes:
• Inlet damper
• Return air section with damper
• Modulating damper motor(s)
• V-bank filter with throwaway filters
• Temperature sensor
Mixing Box —
Manual Control
Purpose
To provide a way for recirculating return
air and using manual control to
determine the amount of OA/RA.
Operation
A manual potentiometer located at the
remote control station determines the
OA/RA setting. The minimum OA
damper position is factory set with a
potentiometer. The minimum OA
damper opening is set at 4 cfm per
1 MBh of burner rated input, or
25 percent supply air, whichever
is larger.
Option Includes:
• Inlet damper
• Return air section with damper
• Modulating damper motor(s)
• V-bank filter with throwaway filters
• Manual potentiometer (Note: Remote
control station not included)
Mixing Box —
Building Pressure Control
Purpose
To provide a way for recirculating return
air and letting building pressure control
the amount of air which is recirculated.
Operation
If building pressure is less than desired,
the RA damper modulates to a more
closed position and the OA damper
modulates to a more open position.
More OA is brought into building.
If building pressure is greater than
desired, the RA damper modulates to a
more open position and the OA damper
modulates to a more closed position.
Less OA is brought into building.
The minimum OA damper position is
factory set with a potentiometer. The
minimum OA damper position is set at 4
cfm per 1 MBh of burner rated input, or
25 percent supply air, whichever is
larger.
The desired pressure differential is set at
the photohelic.
Option Includes:
• Inlet damper
• Return air section with damper
• V-bank filter with throwaway filters
• Modulating damper motor(s)
• Photohelic differential pressure gauge
Motorized Inlet Damper
Purpose
To provide a shut-off damper.
Operation
When the fan switch is on, the inlet
damper begins to open. As the inlet
damper approaches the full open
position, a built-in end switch located
inside the damper motor closes. The
closed end switch starts the fan motor.
When the fan switch is turned to the
“off” position, or if there is a power
failure, the inlet damper closes.
Option Includes:
• Damper
• Two position damper motor(s) with
built-in end switch and spring return
• Linkage

MUA-PRC002-EN38
Exhaust Interlock
The exhaust interlock is a pair of contacts
on the unit that will close when the unit
is “on.” The customer can wire the
exhaust fan to the contacts so that when
the heating unit is “on,” the exhaust fan
will also be “on.” Note the heating unit
turns on the exhaust fan.
The auxiliary contacts on the fan motor
starter are the contacts which are used
as the exhaust interlock. The auxiliary
contacts are wired to the numbered
terminal strip. The customer can wire the
indicated terminals into the control
circuit of the exhaust fan.
Note: If the customer wants the exhaust
fan to turn the heating unit “on,” he/she
has to provide a pair of contacts that will
close when the exhaust fan is “on.”
Interlocking Relay
The interlocking relay is two pair of
contacts, one normally open and the
other normally closed. The contacts
switch positions when the unit is “on.”
The contacts are wired to the numbered
terminal strip. The customer can wire a
wide range of devices to the interlocking
relay by wiring to the indicated
terminals.
Seven-Day Timeclock/
Night Setback Thermostat
The seven-day timeclock is used
primarily for either one of the following:
1
Start and stop the unit at preset times
Example: A building is occupied at
8:00 AM. At 4:30 PM, people leave the
building. The timeclock could be set to
turn the unit on at 7:30 AM and off at
5:00 PM.
2
The timeclock can be used with an on-off
night setback thermostat (NSB
thermostat). The timeclock and NSB
thermostat would be wired so that
during the night, the NSB thermostat
would turn the unit on and off.
Options
Example: Same as example above, only
at 5:00 PM the NSB thermostat would
turn the unit on and off. If the
temperature in the space fell below the
setting of the NSB thermostat, the unit
would come “on.” If the temperature
rose above the setting, the unit would go
“off.”
Inlet On-Off Duct Stat
Automatically turns burner off when inlet
air temperature equals setting of control.
Works as a lockout for the burner.
Example: If we want the burner to be
“off” if the entering air temperature is
65 degrees, the inlet on-off duct stat
would be set at 65 degrees.
Without the inlet on-off duct stat, if the
fan switch and heat switch are both “on,”
no matter how warm the incoming air,
the burner will go as low as low fire, but
will not go “off.”
UV Flame Sensor (UV Mini-
Peeper)
Flame sensor checks to make sure the
pilot flame has ignited before gas is sent
to the main burner. Operates by sensing
the light of the pilot flame.
If the flame sensor does not sense the
pilot flame, the unit shuts down (fan and
burner go off) and the flame failure light
on the optional remote panel
goes on.
The unit has to be reset by pushing the
reset button on the burner relay.
Differences between UV Flame Sensor
and Flame Rod:
Both are used for the same purpose —
to check if the pilot flame is on. The
flame rod is “standard.” The UV sensor
needs to be ordered as an option.
If condensation forms on the flame rod
while the unit is off, it may give a false
signal and prevent the unit from coming
on. The wet flame rod does not sense
the pilot flame and shuts the unit down.
This nuisance tripping can be avoided
with the UV flame sensor.
Optional Gas Controls
Series 14 — Constant Discharge
Temperature
The constant discharge temperature, gas
modulating control system consists of
the Maxitrol electronic gas modulating
system (55 to 90 F range), which includes
a discharge air sensor located in the
blower discharge, a modulator/regulator
valve mounted in the gas piping
manifold, an amplifier installed in the
electrical control panel, a 115 to 24 volt
transformer, and a remote temperature
selector.
Series 44 — Space Temperature Control
The space temperature control, gas
modulating control system consists of
the Maxitrol electronic gas modulating
system, which includes a Series 44
discharge air sensor (55 to 90 F range)
mounted in the blower discharge, a
modulator regulator valve mounted in
the gas piping manifold, an amplifier
installed in the electric control panel, a
115 to 24 volt transformer, and a
Selectrastat mounted in the area where
the temperature is to be sensed.

39MUA-PRC002-EN
Options
Factory Installed Options
Motors — General
All motors are provided as standard,
with a starter for external overload
protection, a control transformer, and a
fusible disconnect switch.
Open Drip-Proof Motor
60 Hz/1800 Rpm
Single Phase
Optional 115V motors are available in
¾ to 3 hp models. Optional 208V motors
are available in ¾ to 7 ½ hp models.
Optional 230V motors are available in ¾
to 10 hp models. All motors have rigid
base construction and ball bearings.
Class A insulation is on all motors up to
and including 3 hp models. Class B
insulation is on 5 hp and above models.
Three-Phase
Optional 208, 230, 460V available in 1 to
60 hp models. All models have rigid
base construction and ball bearings.
Class B insulation is on all three-phase
motors.
Energy Efficient ODP 60 Hz/1800 Rp
Three-Phase Only
Optional 208V motors are available in
1 to 30 hp models. 230 and 460V motors
are available in 1 to 60 hp models. All
motors have rigid base construction and
ball bearings. Class B insulation is on all
motors.
Totally Enclosed Motor
60 Hz/1800 Rpm
Three-Phase Only
Optional 208V motors are available in
¾ to 20 hp models. Optional 230 and
460V motors are available in ¾ to 60 hp
models. All motors have rigid base
construction and ball bearings.
Energy Efficient TEFC
60 Hz/1800 Rpm
Three-Phase Only
Optional 208V motors are available in
1 to 30 hp models. 230 and 460V motors
are available in 1 to 60 hp models. All
motors have rigid base construction and
ball bearings. Class B insulation is on all
motors.
Two-Speed/One Winding Motors
60 Hz/1800/900 Rpm
Three-Phase Only
Optional 208 and 230V motors available
on 1 to 20 hp models. Optional 460V
motors are available on 1 to 50 hp
models. All motors have rigid base
construction and ball bearings. Class B
insulation is on all motors.
Two-Speed/Two Winding Motors
60 Hz/1800/1200 Rpm
Three-Phase Only
Optional 208 and 230V motors available
on 1 to 20 hp models. Optional 460V
motors are available on 1 to 50 hp
models. All motors have rigid base
construction and ball bearings. Class B
insulation is on all motors.
Additional Options*
Inlet Hood and Birdscreen
Hood constructed of 18-gauge
galvanized steel. Birdscreen is
18-gauge galvanized steel with
one-inch square openings.
V-Bank Filter Section
Not required when a mixing box is
specified. Constructed of 18-gauge
galvanized steel.
Dampers and Mixing Box
Motorized Return Air Damper
This option provides a way to recirculate
air, with the return air opening
downstream of the burner. This option
includes return air damper, a two-
position damper motor, linkage and
damper switch. It is not available with
two-speed motors.
Motorized 75/25 Damper
This option provides a way for
recirculating return air and allows
building pressure to control the amount
of air that is recirculated. This option
includes a return air damper, burner
profile plate damper, damper linkage,
and modulating pressure controller. It is
not available with two-speed motors.
Mixing Box — Temperature Control
This option provides a way for
recirculating return air and allows mixed
air temperature to determine the amount
of OA/RA. This option includes mixing
box with filter section, dampers, damper
actuator(s), and damper controls.
Mixing Box — Building Pressure Control
This option provides a way for
recirculating return air and allows
building pressure to control the amount
of air which is recirculated. This option
includes a mixing box with filter section,
dampers, damper actuator(s), and
damper controls (including a photohelic
differential pressure gauge).
Mixing Box — Manual Control
This option provides a way for
recirculating return air and using manual
control to determine the amount of OA/
RA. This option includes a mixing box
with filter section, dampers, damper
actuator(s), and a manual
potentiometer.
Motorized Inlet Damper
This option provides a shutoff damper.
This option includes an outside air
damper, damper motor with built-in end
switch, and linkage. It is not available
with a mixing box.
*Based on unit design, some options
can ship factory installed or field
installed. Contact the factory for
verification.

MUA-PRC002-EN40
Additional Factory Installed
Options
High Gas Pressure Regulator
1-5 Psig
Units 825 MBh and less require an
additional gas pressure regulator if inlet
pressure exceeds 1 psig. Inlet pressure at
the job must be specified.
5-10 Psig
An additional regulator is furnished. Inlet
pressure at the job must be specified.
Insulation
One-inch, 1½ lb. fiberglass insulation pin
spotted to casing.
Insulation on Blower Section
Insulation on Burner Section
Insulation on Return Air Section
Insulation on Filter Section
Controls Opposite from Standard
Applicable only to horizontal
configurations. Locates controls, gas
piping and fan motor on fan side of the
unit.
Inlet On-Off Duct Stat
This automatically turns the burner off
when inlet air temperature equals
desired discharge air temperature. It
works as a lockout for the burner.
Temperature range of 25 to 225 SPDT.
115V Duplex Receptacle
This option includes a transformer and
disconnect switch for the receptacle.
Components are mounted in the gas
piping manifold.
Options
Circuit Analyzer
Provides indicator lights for
maintenance troubleshooting. If the unit
is not functioning properly, the service
person will want to know which circuits
are open and which are closed. The
circuit analyzer will tell the service
person, at a glance, the status (open or
closed) of the different circuits. If an
indicating light is lit, the circuit is in its
correct operating mode. It mounts on
the control panel of the unit. The number
of lights and functions depends on the
control options of the unit.
UV Flame Sensor
The flame sensor checks to make sure
the pilot flame has ignited before gas is
sent to the main burner. It operates by
sensing the light of the pilot flame.
Clogged Filter Switch
This option includes a pressure sensing
switch which senses the pressure drop
across the filters. When the pressure
drop reaches the setpoint, the switch
trips and lights the clogged filter light. It
is not required when City of Chicago
controls are ordered.
Exhaust Fan Interlock
This option includes a pilot duty rated
normally open contact on the main
supply fan motor starter that will
close simultaneously with the starter (10
amp contacts).
Interlocking Relay
This option is energized by an auxiliary
contact on the supply fan motor starter
that can be used for additional
equipment that may need to run when
the supply fan is running (12 amp
contacts).
City of Chicago Controls
This option includes an access door
interlock switch, an alarm horn with
silence switch, low temperature limit,
and a clogged filter switch.
Painted Blower Section
Painted Burner Section
Painted Return Air Section
Painted Filter Section
Field Installed Accessories
Vibration Feet
Rubber-in-shear vibration isolators
cannot be ordered with a roof curb –
they ship unmounted.
Vibration Feet — Blower Section
Vibration Feet — Burner Section
Vibration Feet — Return Air Section
Vibration Feet — Filter Section
Vibration Hangers
Option includes rubber-in-shear vibration
isolators, shipped unmounted.
Vibration Hangers — Blower Section
Vibration Hangers — Burner Section
Vibration Hangers — Return Air Section
Vibration Hangers — Filter Section
Seven-Day Time Clock
This option includes a Paragon seven-
day general purpose time control with a
four-pole switch.
100 DBL Alarm Horn and Silencing
Switch
The alarm horn and silencing switch are
field-wired so that if the pilot flame does
not ignite, the alarm sounds.
To silence the alarm, the push button
silencing switch is pushed.
Remote Control Station
Option includes fan and heat switches,
burner on light, alarm light, and Maxitrol
Selector or Selectrastat.
On-Off Night Setback Thermostat
This option will shut unit off when space
temperature is above setpoint. This is a
115 V thermostat with a temperature
range of 50 to 80 F. Option is normally
used together with the seven-day
timeclock option.
High Gas Pressure Regulator Over 10
Psig
Specify inlet pressure at the jobsite. This
is required for selection of the regulator.
Discharge Louver — Horizontal Vanes
Adjustable
Painted Discharge Louver

41MUA-PRC002-EN

Literature Order Number
File Number
Supersedes
Stocking Location
The Trane Company
An American Standard Company
www.trane.com
For more information contact your local
district office, or e-mail us at
comfort@trane.com
Since The Trane Company has a policy of continuous product and product data improvement, it reserves the
right to change design and specifications without notice.
MUA-PRC002-EN
PL-UN-MUA-000-PRC002-09-00
MUA-D-1 1/95
Inland - LaCrosse
