RayPak RP2100 Heater Owner's Manual RoyalSwimmingPools.com RP2100, P R185A, R405A, C R405A
User Manual: RP2100, P-R185A, P-R405A, C-R185A, P-R405A
Open the PDF directly: View PDF
.
Page Count: 43

Part No. 240612
CATALOG NO. 6000.52-Z
Effective: 11-01-01
Replaces: 08-01-01
®
INSTALLATION
AND OPERATING
INSTRUCTIONS
Models
P-R185A to P-R405A
C-R185A to P-R405A
Low NOx
P-R185AL to P-R405AL
C-R185AL to C-R405AL
RP2100
SWIMMING POOL
and
SPA HEATER
This manual should be maintained in legible condition and kept adjacent to the
heater or kept in a safe place for future reference.
WARNING: If the information in these instructions are not followed exactly, a fire or
explosion may result causing property damage, personal injury or death.
—WHAT TO DO IF YOU SMELL GAS
• Do not try to light any appliance.
• Do not touch any electrical switch; do not use any phone in your building.
• Immediately call your gas supplier from a neighbor's phone. Follow the gas
supplier's instructions.
• If you cannot reach your gas supplier, call the fire department.
—Installation and service must be performed by a qualified installer, service agency or
the gas supplier.
—Do not store or use gasoline or other flammable vapors and liquids in the vicinity of
this or any other appliance.

TO WHOM IT MAY CONCERN:
The new Raypak series RP2100 pool heaters have been designed to eliminate
the need for conventional heat sinks (high temperature piping). The initial
connection to the heater is made with a 2" PVC union adapter to which PVC
may then be connected with appropriate cement.
This newly authorized piping arrangement is described in the installation
manual provided by Raypak, and has been successfully tested by Raypak to
assure its acceptability.
Larry J. Ashton, P.E.
Vice President of Engineering
and Technical Services

CONTENTS
3
4 PART ONE
OWNER'S OPERATING INSTRUCTIONS
4 SECTION 1
START-UP PROCEDURES
4 Before Start-Up
5 Lighting Instructions & Shut-Off Procedure
(Manually Lighted Pilot MV)
6 Operating Instruction & Shut-Off Procedures
(Automatically Lighted Pilot IID)
7 After Start-Up
7 SECTION 2
CAUTION
7 SECTION 3
MAINTENANCE & CARE PROCEDURE
8 Pool & Spa Water Chemistry
8 Cold Weather Operation
9 Winterizing the Pool & Spa Heater
9 PART TWO
INSTALLATION/SERVICE INSTRUCTIONS
9SECTION 1
RECEIVING EQUIPMENT
9 SECTION 2
GENERAL SPECIFICATIONS
10 SECTION 3
INSTALLATION INSTRUCTIONS
12 Indoor Heater
13 Combustion Air
14 Vent Piping
14 Gas Supply Connections
15 Plumbing For Water Connections
18 RP2100 Heat Exchanger Reversal Procedure
20 Electrical Wiring
21 Wiring Diagram-Millivolt
22 Wiring Diagram-Electronic Ignition
23 Wiring Diagram- Low NOx
24 SECTION 4
SERVICING INSTRUCTIONS
24 General Location of Controls
24 Control Adjustments/Replacements
25 Electronic Controls
26 Remote Control Installation
27 Pressure Switch Adjustment
27 Flame Roll-Out Safety Switch
27 High Limit Removal
27 Pilot Safety Millivolt and IID
28 Burner Drawer Removal
27 Gas Valve Removal
27 Main Burner and Orifice Removal
27 Pilot Removal and Cleaning
28 Heat Exchanger Removal
29 Tube Cleaning Procedure
29 Desooting Procedure
29 Control Immersion Well replacement
29 Unitherm Governor (U.G.) Replacement
30 Low Nox Addenda
32 SECTION 5
TROUBLE SHOOTING GUIDE
32 Mechanical
33 Electrical MV Units
34 Electrical IID Units
35 Digital Diagnostics
36 SECTION 6
REPLACEMENT PARTS
42 Warranty

PART ONE - OWNER'S OPERATING INSTRUCTIONS
FOR YOUR SAFETY - READ BEFORE OPERATING
WARNING: IF YOU DO NOT FOLLOW THESE
INSTRUCTIONS EXACTLY, A FIRE OR
EXPLOSION MAY RESULT, CAUSING
PROPERTY DAMAGE, PERSONAL INJURY OR
LOSS OF LIFE.
SECTION 1 / START-UP PROCEDURES
Your Raypak Pool/Spa heater has been designed for years of safe and reliable pool/spa water heating. It is
available in millivolt or electronic control options. ASME certified units, typical used in commercial applications,
are also available. This manual provides operation, installation, maintenance, and service information for these
heaters.
If your heater has been installed correctly, operating the heater is an easy task. The upper front panel of the
heater contains the control center that allows you to turn the heater on or off and adjust the temperature settings
for the pool or spa. The temperature range is 65°F (18°C) to 104°F (40°C). The heater with the electronic control
option also has a manual switch located on the right cabinet side to allow you to turn the heater off. Section 4
contains more details about the use of the controls in the Controls Adjustments/Replacements sub-section.
BEFORE START-UP
BURNERS
4
Clean main burners, combustion fan and air louvers
of dust, lint and debris. Keep heater area clear and free
from combustibles, flammable liquids and chemicals. Do
not obstruct the flow of combustion and ventilating air.
WATER
Water must be flowing through the heater during
operation. Insure that system is filled with water and have
pump operating.
RP2100 DIGITAL IID CAPRON RP2100 DIGITAL IID ASME

4. Push the gas control knob slightly and turn
clockwise to "Off". Do not force.
5. Replace heater door panel.
1. Set the thermostat to the lowest setting.
2. Turn On/Off switch to the "Off" position.
3. Remove heater door panel.
TO TURN OFF GAS TO APPLIANCE
A. This appliance has a pilot that must be lighted
by hand. When lighting the pilot, follow these
instructions exactly.
B. BEFORE LIGHTING smell all around the
appliance area for gas. Be sure to smell next
to the floor because some gas is heavier than
air and will settle on the floor.
WHAT TO DO IF YOU SMELL GAS:
*Do not try to light any appliance.
*Do not touch any electric switch; do not use
any phone in your building.
*Immediately call your gas supplier from a
neighbor's phone. Follow the gas supplier's
instructions.
*If you cannot reach your gas supplier, call
the fire department.
C. Use only your hand to push in or turn the gas
control knob. Never use tools. If the knob will
not push in or turn by hand, do not try to repair
it. Call a qualified service technician. Force or
attempted repair may result in a fire or explo-
sion.
D. Do not use this appliance if any part has been
underwater. Immediately call a qualified serv-
ice technician to inspect the appliance and to
replace any part of the control system and any
gas control which has been underwater.
LIGHTING INSTRUCTIONS AND SHUT-OFF PROCEDURES
MANUALLY LIGHTED PILOTS
MILLIVOLT SYSTEM
LIGHTING INSTRUCTIONS
1. STOP! Read the safety information above.
2. Set the thermostat on the lowest setting.
3. Turn On/Off switch to the "Off" position.
4. Remove heater door panel.
5. Push in gas control knob slightly and turn
clockwise to "Off".
NOTE:Knob cannot be turned from "Pilot" to Off"
unless knob is pushed in slightly. Do not
force.
6. Wait 5 minutes to clear out any gas. If you then
smell gas, STOP! Follow "B" in the safety
information above. If you don't smell gas, go
to the next step.
7. Locate pilot mounted on the right side panel of
the burner drawer. For burner drawer location,
see location of control section, page 20.
HONEYWELL PILOT ROBERTSHAW PILOT
CAUTION: Propane gas is heavier than air and will settle on the ground. Since propane can accumulate in
confined areas, extra care should be exercised when lighting propane heaters.
8. Turn knob on gas control counter-clockwise
to "Pilot"
9. Place flame to end of pilot tube. Push in
control knob all the way and hold to light pilot.
Continue to hold control knob in for about one
minute after the pilot is lighted, release knob
and it will pop back up. Pilot should remain
lighted. If it goes out, repeat steps 5 through 9.
*If knob does not pop up when released, stop
and immediately call your service technician
or gas supplier.
10. Stand to the side of the heater and turn the gas
control knob counter clockwise to "On".
11. Replace heater door panel.
12. Turn On/Off switch to the "On" position.
13. Set thermostat to the desired setting.
Fig. # 8083.0 Fig. # 8084.1
GAS CONTROL KNOB SHOWN IN OFF POSITION
HONEYWELL
GAS VALVE
MILLIVOLT
ROBERTSHAW
GAS VALVE
MILLIVOLT
Fig. # 8081.0
Fig. # 8079.0
5

A. This appliance is equipped with an ignition
device which automatically lights the pilot. Do
not try to light the pilot by hand.
B. BEFORE OPERATING, smell all around the
appliance area for gas. Be sure to smell next
to the floor because some gas is heavier than
air and will settle on the floor.
WHAT TO DO IF YOU SMELL GAS:
*Do not try to light any appliance.
*Do not touch any electric switch; do not use
any phone in your building
*Immediately call your gas supplier from a
neighbor's phone. Follow the gas supplier's
instructions.
OPERATING INSTRUCTIONS AND SHUT-OFF PROCEDURES
AUTOMATICALLY LIGHTED PILOTS
ELECTRONIC IGNITIONS SYSTEMS
to "Off". Make sure knob rest against stop.
For Robertshaw 7200 gas valve.
Push in and move gas control lever counter-
clockwise to "Off" position.
5. Replace heater door panel.
CAUTION: Propane gas is heavier than air and will settle on the ground. Since propane can accumulate in
confined areas, extra care should be exercised when lighting propane heaters.
*If you cannot reach your gas supplier, call the fire
department.
C. Use only your hand to push in or turn the gas
control knob. Never use tools. If the knob will
not push in or turn by hand, don't try to repair
it; call a qualified service technician. Force or
attempted repair may result in fire or explo-
sion.
D. Do not use this appliance if any part has been
underwater. Immediately call a qualified serv-
ice technician to inspect the appliance and to
replace any part of the control system and any
gas control which has been underwater.
OPERATING INSTRUCTIONS
1.STOP! Read the safety information above.
2. Set the thermostat to the lowest setting.
3. Turn off all electric power to the appliance.
4. This appliance is equipped with an ignition
device which automatically lights the pilot.
Do not try to light the pilot by hand.
5. Remove heater door panel.
6. For Honeywell Valve: Turn gas control
knob clockwise to "Off".
For Robertshaw valve: Turn gas control
knob clockwise to "Off".(Models
265-405) Push in and move gas control
lever counter-clockwise to "Off"
position. (Model 185)
7. Wait 5 minutes to clear out any gas. If you
then smell gas STOP! Follow "B" in the
safety information previously stated. If you
don't smell gas, go to the next step.
8. Turn gas control knob counter-clockwise
to "On". (Honeywell VR 8300 and
Robertshaw 7000)
9. Replace heater door panel.
10. Turn on all electric power to the appliance.
11. Set thermostat to desired setting.
12. If the appliance will not operate, follow the
instructions "To Turn Off Gas To Appliance"
and call your service technician or gas
supplier. TO TURN OFF GAS TO APPLIANCE
1. Set the thermostat at the lowest setting.
2. Turn off all the electric power to the appliance
if service is to be performed.
3. Remove heater door panel.
4. For Honeywell VR 8300 and Robertshaw
7000 gas valve.
Turn gas control knob clockwise
GAS CONTROL KNOB SHOWN IN "ON" POSITION
GAS
INLET
HONEYWELL
VR 8300 GAS
VALVE IID
ROBERTSHAW
7200 GAS VALVE
IID MODEL 185
GAS CONTROL
LEVER SHOWN
IN "OFF"
POSITION
GAS
INLET
ROBERTSHAW 7000
GAS VALVE IID
MODEL 265-405
Fig. # 8080.0
6
Fig. # 8934.1

AFTER START-UP
Feel the inlet and outlet pipes. Outlet pipe should be
only slightly warmer than the inlet. It should not be hot.
WARNING: Should overheating occur or the gas
supply fail to shut off, turn off the manual gas control to
the appliance.
VISUAL INSPECTION
With the heater on, remove the door and make a
visual check of the pilot and burner.
The flame should be blue with a well-defined
pattern.
4" MAX
Fig. # 8205.2
MAIN BURNER FLAME
Fig. # 8964.1
PILOT BURNER FLAME
A yellow or "floating" flame indicates restricted air
openings or incorrect orifice size. Should this occur,
shut the heater off and contact your installer or gas
supplier.
WATER PRESSURE SWITCH
A water pressure switch is provided in the heater to
shut off the burners in the event that water supply to the
heater is interrupted. It is very important to verify that
the switch electrically opens and shuts off the gas valve
when water flow to the heater is interrupted. Otherwise,
rapid and severe damage will likely occur to the heater.
(The water pressure switch should be checked and
adjusted for proper operation by a qualified service
person at the time of installation and periodically
checked thereafter. Refer to pressure switch servicing
instruction in Section 4 of this manual).
WARNING: Operation of the heater without water circu-
lation will cause rapid and severe damage to the heater.
SECTION 2/CAUTION
Elevated water temperature can be hazardous, and
the U. S. Consumer Product Safety Commission rec-
ommends the following guidelines:
1. Spa or hot tub water temperatures should never
exceed 104°F (40°C). A temperature of 100°F (38°C)
is considered safe for a healthy adult. Special
caution is suggested for young children.
2. Drinking of alcoholic beverages before or during spa
or hot tub use can cause drowsiness which could
lead to unconsciousness and subsequently result in
drowning.
3. Pregnant Women Beware! Soaking in water over
102°F (39°C) can cause fetal damage during the first
three months of pregnancy resulting in the birth of a
brain-damaged or deformed child. Pregnant women
should stick to the 100°F (38°C) maximum rule.
4. Before entering the spa or hot tub, users should
check the water temperature with an accurate ther-
mometer; spa or hot tub thermostats may err in
regulating water temperatures by as much as 4°F
(2.2°C).
5. Persons with a medical history of heart disease,
circulatory problems, diabetes, or blood pressure
problems should obtain a physician's advice before
using pools or hot tubs.
6. Persons taking medications which induce drowsi-
ness, such as tranquilizers, antihistamines, or anti-
coagulant, should not use spas or hot tubs.
SECTION 3/MAINTENANCE AND
CARE PROCEDURES
To be followed one month after start-up and then
semi-annually.
1. Inspect top of heater and drafthood for soot, a sticky
black substance around finned tubes and "V"
baffles), and open flue gas passage ways. Any visible
soot should be cleaned for proper operation.
CAUTION: Soot may be combustible. Wet sooted
surfaces completely prior to cleaning. Do not use steel
wire brush.
2. Clean main burners and pilot burner of dust and lint.
3. Inspect and operate all controls, gas valve and
pressure relief valve.
7

4. Make visual check of the burner and pilot flame.
Flame pattern on the main burner and pilot is indi-
cated in the previous illustration. Yellow flame
means restriction of the air openings. Lifting or
blowing flame indicates high gas pressure. Low
flame means low gas pressure. Should this occur,
shut the heater off and contact your gas supplier or
qualified service agency.
5. On indoor heaters, clean room intake openings to
assure adequate flow of combustion and ventilation
air.
CAUTION: Combustion air must not be contaminated by
corrosive chemical fumes which can damage the heater
and void the warranty.
6. Keep area around heater clear and free from combus-
tible materials, gasoline and other flammable and
corrosive vapors and liquids.
BASIC TIPS IF HEATER WILL NOT FIRE:
1. If you have no electrical power; it may be your "circuit
breakers" have tripped. Try re-setting them.
2 If you have electrical power but the heater will not fire
check the following:
3. The time clock must be moved to the "ON" position.
4. Your pump strainer basket may be full. If so remove
debris.
5. Your filter may be dirty. If so, backwash or clean
filter. (To tell if your filter is dirty, look to see if the
filter pressure will be higher than usual).
6. The pump may have lost it's prime. It may be run-
ning dry, check the pressure on the filter. If there is
no pressure; then you are not moving water (or your
gauge is broken). Try to get the pump to run at it's
normal flow rate.
POOL & SPA WATER CHEMISTRY
Chemical imbalance can cause severe damage to
your heater and associated equipment. Maintain your
water pH between 7.4 and 7.8 and total alkalinity between
100 and 150 p.p.m. If the mineral content and dissolved
solids in the water become too high, scale forms inside
the heat exchanger tubes, reducing heater efficiency and
also damaging the heater. If the pH drops below 7.2, the
heater will be severely damaged. This will result in
corrosion of the heat exchanger. Heat exchanger
damage resulting from chemical imbalance is not
covered by the warranty.
AUTOMATIC CHLORINATORS AND CHEMICAL FEED-
ERS
All chemicals must be introduced and completely
diluted into the pool or spa water before being circulated
through the heater. Do not place chlorine tablets or
bromine sticks in the skimmer. High chemical concen-
trations will result when the pump is not running (i.e.
overnight).
Chlorinators must feed downstream of the heater and
have an anti-siphoning device to prevent chemical back-
up into the heater when the pump is shut off.
NOTE: High chemical concentrates from feeders and
chlorinators that are out of adjustment will cause very
rapid corrosion to the heat exchanger. Such damage is
not covered under the warranty.
COLD WEATHER OPERATION
MODERATE CLIMATE: Heater operation can continue
during short term cold spells. When temperatures are
below freezing, flow (continuous pump operation) must
be maintained.
CAUTION: Do not use the heater to maintain water
temperatures just above freezing or for freeze protection.
When heater is used during freezing weather, care must
be taken to avoid freeze ups. Continuous pump opera-
tion is a must. Additional protection may be required.
The heater is not warranted against freeze ups.
COLD CLIMATE: Prolonged operation with water tem-
peratures below 50°F is not recommended. When
starting the heater with pool temperatures below 50°F
operate the heater continuously until higher tempera-
tures are reached. Operating the heater for prolonged
periods with pool water below 50°F can seriously damage
the heater, and is not covered by the warranty.
For cold climate areas, please follow the winterizing
procedures listed.
8

WINTERIZING THE POOL & SPA HEATER
When heaters installed outdoors in freezing climate
areas are to be shut down for the winter, observe the
following step-by-step procedure:
1. Turn off gas valve, manual gas valve, and
electrical supply to the heater.
2. Open drain plug located on the inlet/outlet
header, (under water pipes). Remove the heat
exchanger inspection panel on the side op-
posite water piping to gain access to the drain
plug on the return header. Open drain plug on
return header.
Return Header
Drain Plug
Fig. #2001
Disconnect compression fittings from the pressure
switch and return header that connects to the 1/4"
copper tube and allow the tube to drain. For ASME
Heaters only.
PART 2 - INSTALLATION/SERVICE INSTRUCTION
SECTION 1 / RECEIVING EQUIPMENT
On receipt of your equipment it is suggested that you visually check for external damage to the carton. If the
carton is damaged, a note should be made on the Bill of Lading when signing for equipment. Remove the heater
from the carton and if it is damaged, report the damage to the carrier immediately. Save the carton.
These items are shipped loose inside the carton with the heater:
STANDARD UNIT ASME UNIT
1. "Pagoda" Top 1. "Pagoda" Top
2. 2" PVC Union with "O" rings (2) 2. In/Out Flanges (2)
3. Plastic pipe finish flange for gas line 3. 1-1/2" Flange Gaskets (2)
4. Bonding lug with mounting screw 4. 2" Flange Gaskets (2)
(IID units only) 5. Flange Bolts (4)
6. Pressure Relief Valve
7. 2" CPVC Adapters (2)
8. Plastic pipe finish flange for gas line.
9. Bonding lug with mounting screw. (IID units only).
Be sure that you receive the number of packages indicated on the Bill of Lading.
When ordering parts, you must specify model and serial number of heater. When ordering under warranty
conditions, you must also specify date of installation.
Raypak recommends that this manual be reviewed thoroughly before installing your Raypak pool/spa heater. If
there are any questions that this manual does not answer, please contact the factory or your local Raypak
representative.
SECTION 2 / GENERAL SPECIFICATIONS
These heaters are design certified and tested under the requirements of ANSI Z21.56 / CSA 4.7 American
National Standard / CSA Standard for Gas-Fired Pool Heaters. All heaters are inter-changeable and can be used
either indoor or outdoors. The appropriate top designated for that type of use is required. If desired, the top can
be changed at a later date to change from outdoor to indoor or vice versa. Millivolt heater contains a self-generating
electrical system operating between .25 and .75 volts.
Ambient Temperature Rating of Heater Components
Millivolt Heater with Honeywell Gas Valve +32°F to +175°F
Millivolt Heater with Robertshaw Gas Valve 0°F to +175°F
Electronic Ignition Heaters* -32°F to + 175°F
*Requires 120V or 240V Power Supply
Rated inputs suitable for up to 2000 feet elevation. For elevations above 2000 feet, reduce input 4% for each
1000 feet above sea level, as high elevation reduces combustion performance.
9

12"
Minimu
m
12"
M
inimum
4"
Minimum
HEATER
Sheet Metal
24 Gauge
SECTION 3 / INSTALLATION INSTRUCTIONS
10
IMPORTANT NOTICE
These instructions are intended for the use of quali-
fied personnel only, specifically trained and experienced
in the installation of this type of heating equipment and
related system components. Installation and service
personnel may be required by some states to be licensed.
If your state is such, be sure your contractor bears the
appropriate license. Persons not qualified shall not
attempt to fix this equipment nor attempt repairs accord-
ing to these instructions.
WARNING:
Improper installation, adjustment, alteration, ser-
vice or maintenance may damage the equipment,
create a hazard resulting in asphyxiation, explosion or
fire, and will void the warranty.
CODE REQUIREMENTS
NOTE: The heater should not be located in an area
where possible water leakage will result in damage to
the area adjacent to the appliance or to the structure.
When such locations cannot be avoided, it is recom-
mended that a suitable drain pan, adequately drained,
be installed under the appliance. The pan must not
restrict combustion air flow.
Installation must be in accordance with local codes,
or, in the absence of local codes, with the latest edition
of the National Fuel Gas Code, ANSI Z223.1 and National
Electrical Code, ANSI/NFPA 70, and for Canada, the
latest edition of CAN/CGA-B149.1 and B149.2, and
Canadian Electrical Code, CSA C22.1 Part 1 and Part
2.
BASE INSTALLATION
Heater must be mounted on a level base, such as
cement slab, cement blocks or other non-combustible
surface. An optional non-combustible base is available
for all models. An alternative method for providing a base
for combustible floors is illustrated below. Heaters must
not be installed on carpeting.
Fig. # 8148.1
Utilize hollow concrete cinder blocks, align holes and
leave ends open.
CLEARANCES
ALL HEATERS
For clearances from combustible surfaces, see the
chart below.
CLEARANCE FROM COMBUSTIBLE CONSTRUCTION
INDOOR INSTALLATIONS:
Top*(Drafthood) - 30" Back - 6"
Front - Alcove Right Side-(Water Side) 12"
Vent - 6" Left Side-(Opposite Water
side) 6"
OUTDOOR INSTALLATION:
Top* (Stackless top or outdoor stack) - Unobstructed
Back - 6"
Side - 6"
*Clearance from top of vent terminal.
When installed according to the listed minimum
clearances from combustible construction materials, the
Raypak pool heaters can still be serviced without remov-
ing permanent structural construction around the heater.
However for ease of servicing, we recommend a
clearance of at least 24" in the front, and at least 18" on
the water connection side. This will enable the heater to
be serviced in its installed location, that is, without
movement or removal of the heater.
Clearances less than these (6" minimum), may
require removal of the heater to service either the heat
exchanger or the burner tray. In either case, the heater
must be installed in a manner that will enable the heater
to be serviced without removing any structure around the
heater.
OUTDOOR HEATERS
These heaters are design certified for outdoor
installation, when equipped with the approved tops des-
ignated for outdoor use.
WARNING: The heater shall not be located in an area
where water sprinklers, or other devices, may cause
water to spray through the cabinet louvers and into the
heater. This could cause internal rusting or damage
some electrical components, and this would void the
warranty.
WARNING: Do not install within 3 feet of a heat pump or
an outdoor condensing unit. Strong air intake from these
equipment can disturb the combustion process and
cause damage or personal injury.

Heaters must not be installed under an overhang of less than three (3) feet from the top of the heater. Three
(3) sides must be open in the area under the overhang. Roof water drainage must be diverted away from the
heaters installed under overhangs with the use of gutters.
For U.S. installations,the point from where the flue products exit the heater must be a minimum of four (4) feet
below, four (4) feet horizontally from, or one (1) foot above any door, window or gravity inlet into any building. The
top surface of the heater shall be at least three (3) feet above any forced air inlet, or intake ducts located within ten
(10) feet horizontally.
For installations in Canada, pool heaters shall not be installed with the top of the vent assembly within 10 feet
below, or to either side, of any opening into the building. Refer to the latest revisions of CAN/CGA-B149.1 and B149.2.
VENT TERMINAL (Outdoor) Stackless Top Installation
1. Insert tabs into keyhole (4 places).
Pagoda Top
(Shipped
Loose with
Heater)
2. Snap tabs into keyholes so as not to pull out.
Fig. #RP8280.1
11
Fig. # 8278.1
HEATER WITH OUTDOOR STACKLESS TOP
O
utdoor Top
4
foot
Minimum
4
foot
Minimum
1
foot
Minimum
4
foot
Minimum
3
foot
Minimum
10
foot
Minimum
Forced Air Inlet
Fig# 8245.1
U.S. Installations only

INDOOR HEATER
The design is also certified for indoor installation when equipped with the approved draft hood.
For Canada, indoor installation is restricted to an enclosure that is not occupied and does not directly
communicate with occupied area. Refer to the latest edition of CAN/CGA-B149.1 and B149.2 for specific
requirements.
Locate heater as close as practical to a chimney or gas vent. Heater must always be vented to the outside. See
Vent Piping Section for venting details. Minimum allowable space is shown on the nameplate.
Fig. #8246.5
12
6. Attach the three (3) mounting brackets to the
stack using the screws provided and the holes
that are pre-drilled in the stack. Make sure the
brackets are positioned with the flange near the
top side of the stack (see illustration).
Caution must be taken not to over tighten and
strip the screw threads.
7. Turn the assembled stack and jacket top, right side
up. The jacket top will be trapped between the
brackets and the top of the stack. Place the stack
over the inner adapter panel flanged hole and lower
the louvered jacket top panel back into its original
position. Reinstall the four (4) green #10 flat head
screws removed in step 1 above.
VENT TERMINAL/INDOOR STACK INSTALLATION
WARNING:
Indoor boilers require a drafthood that must be connected to a vent pipe and properly vented to the outside. Failure
to follow this procedure can cause fire or fatal carbon monoxide poisioning.
1. Remove the louvered jacket top by removing
four (4) #10 flat head screws.
2. If originally installed, remove "Pagoda" top
from the louvered jacket top.
3. Place the inner stack adapter panel over the
flue collector inside the heater. Make sure
the flanged side of the flue opening is up.
4. Turn the stack (draft hood) up side
down and set it down bottom side up.
5. Turn the jacket top panel (removed in step 1) up
side down and place it through the stack.
DRAFTHOOD
JACKET TOP PANEL
(part of the heater)
#10 SHEET METAL SCREW (3)
MOUNTING BRACKET (3)
FLUE COLLECTOR
(part of heater)
S
CREW HOLE
L
OCATION
3-1/4"
INNER STACK ADAPTER PANE
L

13
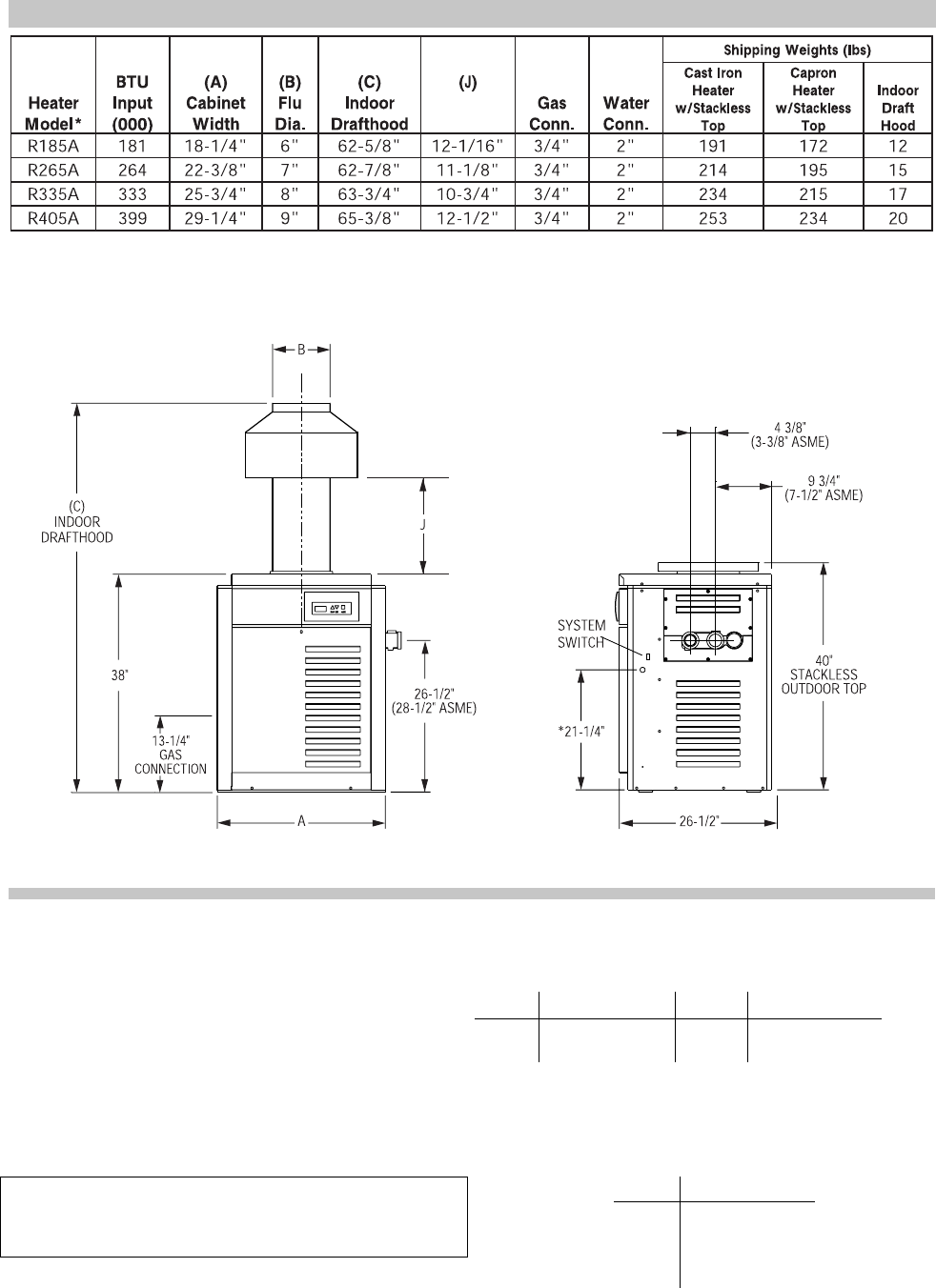
SPECIFICATIONS AND DIMENSIONS
*Electrical Connection On Left Side is 19-1/8".
a. All Air From Inside The Building:
Each opening shall have a minimum net free square
inches as noted:
Model Square Inches Model Square Inches
185 181 335 333
265 264 405 399
b. All Air From Outdoors:
When air is supplied directly from outside of building,
each opening shall have a minimum net free square
inches as noted:
Model Square Inches
185 46
265 66
335 84
405 100
COMBUSTION AIR (Indoor Units Only)
Air For Combustion And Ventilation
(Indoor Units Only)
The heater must have both combustion and ventila-
tion air. Minimum requirements for net free air supply
openings, one 12 inches from ceiling for ventilation and
one 12 inches from the floor for combustion air as
outlined in the latest edition of the National Fuel Gas
Code, ANSI Z2231(Canada-CAN/CGA-B149.1 and
B149.2) and any local codes that may have jurisdiction.
CAUTION: Combustion air must not be contaminated
by corrosive chemical fumes which can damage the
heater and void the warranty.
*Designation for Propane is "EP", Natural gas is "EN". Prefix "C" is for Cast Iron (ASME) Headers; "P" is for Plastic (Capron)
Headers. Above input ratings are per A.G.A. specifications. Reduce input 4% for each 1000 ft. above sea level when installed above
2000 ft. elevation. For Canada, no de-rate is required for elevations up to 4500 feet. Manufactured under Patent No. 3,623,458.
Note: Plastic (Capron) Headers cannot be used for ASME installations.

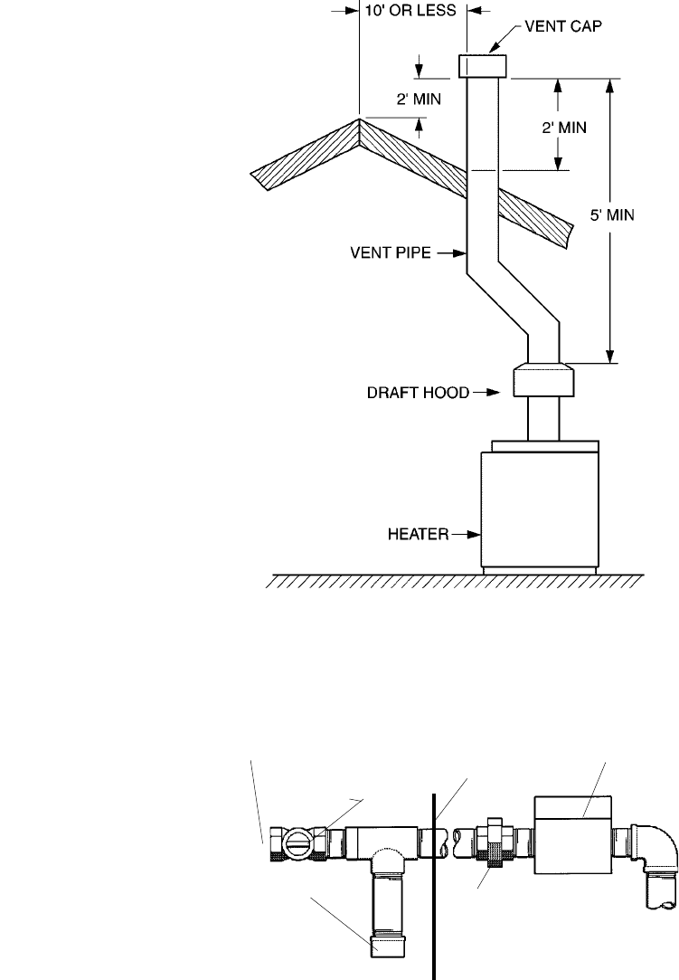
VENT PIPING
WARNING:
Indoor boilers require a drafthood that must be
connected to a vent pipe and properly vented to the
outside. Failure to follow this procedure can cause fire
or fatal carbon monoxide poisoning.
Vent piping the same size as the draft hood outlet is
recommended, however, when the total vent height is at
least ten (10) feet (draft hood relief opening to vent
terminal), the vent pipe size may be reduced as speci-
fied in Chapter 10 of the National Fuel Gas Code, ANSI
Z 223.1. (Canada-CAN/CGA-B149.1 and B149.2) As
much as possible avoid long horizontal runs of vent pipe
and too many elbows. If installation requires horizontal
non-vertical runs, the vent pipe must have a minimum of
1/4 inch per foot rise and should be supported at not less
than five foot intervals. Plumbers tape, criss-crossed, will
serve to space both horizontal and vertical piping. Gas
vents supported only by the flashing and extending above
the roof more than five feet should be securely guyed or
braced to withstand snow and wind loads. We recom-
mend use of insulated vent pipe spacer through the roofs
and walls. Another option for installation that requires
horizontal runs is using the D-2 powervent kit option. The
powervent is certified for catagory III venting up to 40 ft.
equivalent 4" diameter venting.
For protection against rain or blockage by snow, the
vent pipe must terminate with a vent cap which complies
with the local codes or, in the absence of such codes, to
the latest edition of the National Fuel Gas Code, ANSI
Z223.1. (Canada-CAN/CGA-B149.1 and B149.2)
The discharge opening must be a minimum of two feet
vertically from the roof surface and at least two feet
higher than any part of the building within ten feet. Vent
stack shall be at least five feet in vertical height above
the drafthood outlet. The vent cap location shall have a
minimum clearance of 4 feet horizontally from, and in no
case below, unless a 4-foot horizontal distance is main-
tained, from electric meters, gas meters regulators and
relief equipment.
The weight of the vent stack or chimney must not
rest on heater draft hood. Support must be provided in
compliance with applicable codes. The heater top and
draft hood must be readily removable for maintenance
and inspection. Vent pipe should be adequately sup-
ported to maintain proper clearances from combustible
construction.
Type "B" double wall or equivalent vent pipe is
recommended. However single wall metal vent pipe
may be used as specified in the latest edition of the
National Flue Gas Code ANSI Z 223.1. (Canada-CAN/
CGA-B149.1 and B149.2)
Fig. #RP 8119.2
GAS SUPPLY CONNECTIONS
Gas piping must have a sediment trap ahead of the
heater gas controls, and a manual shut-off valve located
outside the heater jacket. All gas piping should be
tested after installation in accordance with local codes.
Gas Inlet Gas Valve
Manual Shut-Off Heater Jacket
Valve
Sediment Trap
Union
Fig. #8090.0
CAUTION: The heater and its manual shut off valve
must be disconnected from the gas supply during any
pressure testing of that system at test pressures in
excess of 1/2 psig (3.45 KPA). Dissipate test pressure
in the gas supply line before reconnecting the heater
and its manual shut off valve to gas supply line. FAIL-
URE TO FOLLOW THIS PROCEDURE MAY DAMAGE
THE GAS VALVE. OVER PRESSURED GAS VALVES
ARE NOT COVERED BY WARRANTY. The heater and
its gas connections shall be leak tested before placing
the appliance in operation. Use soapy water for leak
test. DO NOT use open flame.
14

Fig. # 8149
NOTE: Do not use teflon tape on gas line pipe thread. A
flexible sealant is recommended.
A minimum of 7" W.C. and a maximum of 14" W.C.
upstream pressure under load, and no load conditions
must be provided for natural gas or a minimum of 12"
W.C. and a maximum of 14" for propane gas.
GAS PRESSURE REGULATOR
The gas pressure regulator is preset at 4" W. C. for
natural gas, and 11" W. C. for propane gas. The pressure
at the gas valve, taken with a manometer, should be about
3.7" W. C. natural gas (3.9" W.C. for Low NOx) and 10.5"
W. C. propane gas. If an adjustment is needed, remove
seal and turn adjustment screw clockwise to
increase pressure or counter-clockwise to
decrease pressure.
PIPE SIZING FOR GAS CONNECTIONS
Low NOx units are not available in propane.
PLUMBING FOR WATER CONNECTIONS
LOCATION
The RP 2100 heater requires water flow and positive
pressure to fire and operate properly. It must therefore
be installed downstream of the discharge side of the filter
pump. A typical installation is plumbed as follows:
1. The inlet side of the filter is plumbed directly to the
discharge side of the filter pump;
2. The outlet side of the filter is then plumbed to the inlet
of the heater; and
3. The outlet of the heater is plumbed to the return line
to the pool or spa. The pump, filter and heater are
thus plumbed in series.
15
Gas
Pressure
Adjustment
GAS PRESSURE ADJUSTMENT LOCATIONS
MILLIVOLT GAS VALVES
ELECTRONIC IGNITION GAS VALVES
Robertshaw 7000
Models 185 thru 405
Gas
Pressure
Adjustment
Honeywell VR8304
Models 185 thru 405
Robertshaw 7200
Model 185
ELECTRONIC IGNITION GAS VALVES-CONTINUED
Robertshaw 7000 BDER
Model 265-335
Robertshaw 7000 DERHC
Model 405
Gas
Pressure
Adjustment
Gas
Pressure
Adjustment
Fig # 9263
Fig # 9264
Fig # 9328
Fig # 9327
Fig # 9329
Fig. # 9365
ATMOSHPERIC LOW NOx

Heater must be located so that any water leaks will not
damage the structure of adjacent area. PVC pipe may
be glued directly into header unions.
FLOW RATES
MODEL PIPE SIZE MIN.GPM *MAX.GPM
185 1-1/4"-1-1/2" - 2 20 125
265 1-1/4"-1-1/2" - 2 25 125
335 1-1/4"-1-1/2" - 2 35 125
405 1-1/4"-1-1/2" - 2 40 125
*When flow rates exceed maximum GPM an external
auxiliary bypass valve is required. See external bypass
valve section for details.
CONNECTIONS
Before attaching the 2-inch unions to the inlet/outlet
header, make sure the o-rings are properly seated in the
grooves. Use AquaLube or equivalent non-petroleum
based lubricant on the o-ring. Tighten the unions hand
tight. Glue PVC piping directly to the unions.
INLET/OUTLET HEADER
Flange Gasket
Fig. #2002.1
UNITHERM GOVERNOR OPERATION
The patented Unitherm Governor is a thermostatic
mixing valve specifically designed to maintain constant
heater internal temperature between 105° to 115°F
despite continually changing flow rates from the filter
and changing pool temperatures. This narrow range is
needed to prevent damaging condensation on the burn-
ers which will occur if the heater runs for any length of
time below 100°F. It is also needed to inhibit scale
formation in the tubes by maintaining temperatures
well below accelerated scaling temperatures.
16
INTERNAL AUTOMATIC BY-PASS VALVE
In addition to the Unitherm Governor, a built-in
automatic by-pass valve is provided in the in/out
header. While the Unitherm Governor responds to the
changes in water temperature in the heater, the internal
by-pass valve automatically responds to changes in
water pressure in the piping system. Proper amount of
water flow is maintained through the heater under
varying pressures dictated by the conditions of the
pump and filter.
Fig.#2003
EXTERNAL AUXILIARY BYPASS VALVE
(Where Required)
An auxiliary bypass valve should be used when flow
rates exceed 125 GPM (usually a high performance
pump size larger than two horsepower will exceed this
flow rate). This valve is required to complement the
function of the automatic bypass valve, particularly
when starting the heater in winter or early spring when
the spa or pool temperature is down below 50°F. It also
serves to eliminate needless pressure drop through the
heater and accompanying reduction in the flow rate to
the spa jets, etc.
From Heater To Heater
To Pool From Pool
AUXILLARY BYPASS VALVE
(DO NOT USE GATE VALVE)
Fig. # 8150.0s
AUXILIARY BYPASS VALVE ADJUSTMENT
To set bypass: With clean filter, adjustment is made
by feeling the inlet and outlet pipes at the heater. Outlet
pipes should be slightly warmer than inlet and comfort-
able to the touch. If pipe is hot, close bypass; if cold,
open bypass.
Plumbing from the heater back to the pool must not have
any valves or restriction that could prevent flow when the
pump is operating.
CAUTION: A source of additional heated water, i.e. solar
systems, must be connected to the heater outlet pipe. If
this is connected to the heater inlet, incorrect pool water
temperature readings will be displayed on the heater
control panel.
Header Flange
Inlet

17
PRESSURE RELIEF VALVE INSTALLATION
To conform to local building codes, it may be
necessary to install a pressure relief valve. A 3/4"
pressure relief valve having a capacity equal to BTU/HR
output of the model to be installed is recommended for
this appliance. The maximum acceptable pressure re-
lief valve setting is 125 psi.
A 3/4" NPT connection is provided in the inlet/outlet
header for installation of a pressure relief valve. The
valve shall be installed in a vertical position. Do not over
tighten. Install pressure relief valve hand tight plus 1/2
turn.
Pressure Relief Valve
PRV Discharge
Connection
Inlet/Outlet Header
Fig. #2004
NOTE: To avoid water damage or scalding due to valve
operation, drain pipe must be connected to valve outlet
and run to a safe place of discharge. Drain pipe must be
the same size as the valve discharge connection
throughout its entire length and must pitch downward
from the valve. No shutoff valve shall be installed
between the relief valve and the drain line. Valve lever
should be tripped at least once a year to ensure that
waterways are clear.

RP2100+ Heat Exchanger Reversal Procedure
(Capron Resin Header Models)
1. Remove right and left side access panels (Figure 1).
2. Disconnect wires at high limit, AGS (automatic gas shutoff), and pressure switch on the inlet/outlet header
(Figure 2).
3. Electronic Ignition Heaters: Remove the thermostat temperature sensor by loosening the compression-
fitting nut (Figure 3). Reroute the sensor to the left side of the heater.
4. Millivolt Heaters: Remove the temperature sensor bulb and retainer clip from the sensor well (Figure 4).
Reroute the sensor bulb to the left side of the heater.
5. Remove (12) bolts holding the inlet/outlet and return headers to the tube sheets. Clean off tube sheet area
where the gasket seats. Also clean off the header and its gasket. Apply a non-petroleum based lubricant
to the gasket such as Aqua Lube. Reattach the headers to the opposite sides, making sure they are installed
in an upright position (Figure 5). Do not over tighten. Torque should not exceed 7 ft/lbs.
6. Reconnect high limit, AGS, and pressure switch wires.
7. Electronic Ignition Heaters: Insert the temperature sensor in the compression fitting and tighten 1/2 turn
past hand tight.
8. Millivolt Heaters: Insert sensor bulb and retainer clip into sensor well.
9. Allow for water flow through the heater and check for leaks.
10. Reattach access panels to the opposite sides.
For ASME Models call your factory representative.
18
ACCESS PANEL Fig. #1
Fig. #2
PRESS SWITCH AGS HI-LIMIT

Fig. #4
Fig. #5
Fig. #3
JACO FITTING
BULB & CLIP
RE-INSTALLED IN/OUT HEADER ON OPPOSITE SIDE.
19

ELECTRICAL WIRING
NOTE: If it is necessary to replace any of the original
wiring, it must be replaced with 105° C wire or its
equivalent, and /or 150° C wire or its equivalent as
originally built.
MILLIVOLT SYSTEM
The Millivolt System residential heater is equipped
with a self-generating electrical system in which the
electric current is provided by means of a pilot genera-
tor. No external electrical connections are required.
ELECTRONIC INTERMITTENT IGNITION DEVICE
SYSTEM (IID)
NOTE: Heaters are factory wired for 240V power sup-
ply.
The standard field wiring connection is on the right side
of the heater.
To wire the heater from the left side, follow the steps
below:
1. Remove the two (2) screws that hold down the
junction box to the sway brace. Untie excess yellow
wires located behind the junction box.
2. Move the junction box to the left side of unit and
attach the box to the sway brace.
3. Secure 24V yellow wires to sway brace panel with
existing wire retainers.
4. Connect the wires inside the junction box, either
120V or 240V depending on the field wiring.
NOTE: 7/8" Dia. holes not utilized on jacket and control
box can be used for fireman switch or auxiliary control
interface wiring.
NOTE: Heater must be electrically grounded and
bonded. Bonding lug is provided loose with the unit.
Install bonding lug on lower right or left side of jacket as
necessary for bonding the unit. Mounting hole is
provided on the jacket.
20
Option Location For Left
Side Field Wiring
Sway
Brace
Bonding Lug
(Standard Location)
Bonding Lug
(Optional Location)
Fig. # 9030.1
Control Box
(Factory Mounted Location)
The Electronic Intermittent Ignition Device automati-
cally lights the pilot and main burners upon a call for the
heat. The heater is supplied with a dual voltage trans-
former for 120V or 240V input power hookup.
NOTE: IID Propane Units and IID Low NOx natural gas
units only
Heater is equipped with an electronic ignition device with
a 100% safety lockout feature. If the heater fails to start
or lockout, reset the ignition device by interrupting the
power to the heater for 60 seconds.
Caution: If service replacement of the electronic igni-
tion device is required, replace only with a 100% safety
lockout device with 90 second trial for pilot ignition.
HONEYWELL
IGNITION
CONTROL
Fig. # 8929.1
LOW NOx
ATMOSPHERIC

21
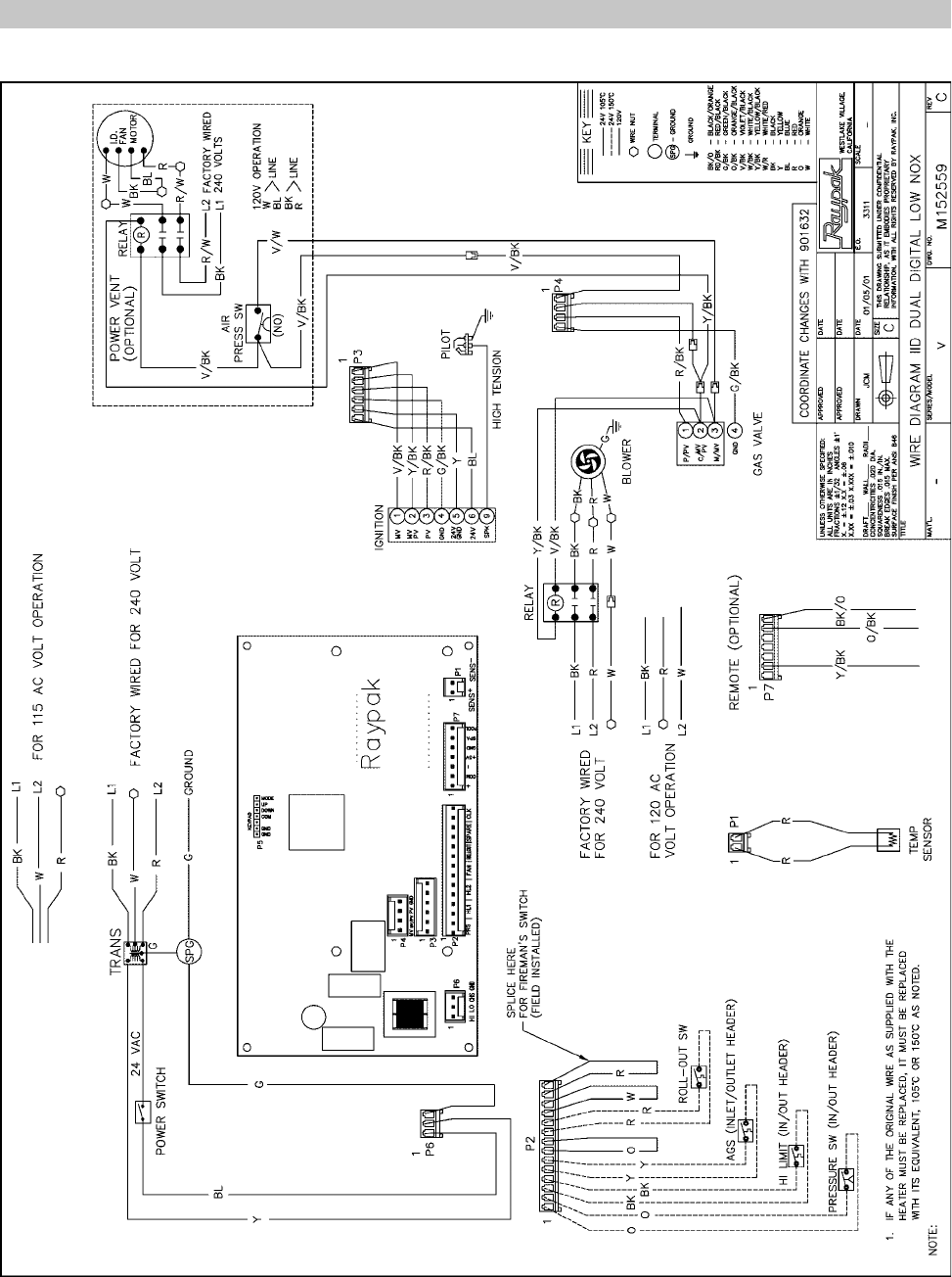
WIRING DIAGRAM KEY
PINK CONNECTOR BLUE CONNECTOR
Fig. # RP8096
*If required by Local Code, install at this location.
Fig. #2353
For 120 V input power to the unit, connect the black
wire to the “L1” or hot leg of the power supply. Connect
the white wire to the “L2” or neutral leg of the power
supply. Attach the wire nut to the red wire. There should
be no connection to the red wire for 120V operation. For
Low NOx pool heaters wire nut each red wire indepen-
dently.
Fig. #9240
For 240 V input power to the unit, connect the black
wire to the “L1” or hot leg of the power supply. Connect
the red wire to the “L2” or second hot leg of the power
supply. Attach the wire nut to the white wire. There should
be no connection to the white wire for 240V operation.
for Low NOx pool heaters wire nut each white wire inde-
pendently.
Fig. # 9241
Heater must be electrically grounded and bonded in
accordance with local codes, or, in the absence of local
codes, with the latest edition of the National Electrical
code, ANSI/NFPA 70. (Canada- Canadian Electrical
Code, CSA C22.1, Part 1 and Part 2.)
*
NOTE: Input power to the heater (120/240V) can be
supplied from the load (Pump) side of time clock or
directly from the switch/GFCI power source. If a remote
device (supplied by others) is to be used, the direct from
switch/GFCI power source method is preferred. When
a remote device is utilized, the direct power source will
allow the Safety Faults to be displayed including the
"REM", if the remote device is not in a "CALL FOR HEAT"
mode.
WIRING DIAGRAM MILLIVOLT UNITS
WITH MECHANICAL THERMOSTAT

WIRING DIAGRAM - IID UNITS (atmospheric)
22

WIRING DIAGRAM - IID UNITS (Low NOx)
23

Control Panel
Mounting Screws (4)
Fig. #RP 8267
CONTROLS/ADJUSTMENTS/REPLACEMENTS
Temperature
Adjust Buttons
Mode Button
LCD Display
Fig. #2000
MILLIVOLT CONTROLS
The pool or spa water temperature is controlled by
the pool heater thermostat on the upper front panel of
the heater. The control center contains an On/Off
switch and one or two thermostats.
Thermostats are fitted with a means of limiting the
upper temperature limit below the maximum level. The
knob stop adjustment ring illustrated below is adjustable
by loosening the set screw, rotating the knobstop ring to
the desired location and retightening the set screw.
SPA TEMPERATURE RANGE POOL TEMPERATURE RANGE
STAND-BY
TEMPRATURE
SET SCREW
KNOB STOP RING
Fig. #8103.2
KNOB STOP SHOWN ABOVE IS
IN THE SPA TEMPERATURE RANGE
24
Bypass
Hi Limit
(Located
in Return
Header)
AGS Hi-
Limit
(Located
in Inlet/
Oulet
Header)
Unitherm
Governor
Drain Plug
Fig #2005
SECTION 4 / SERVICING INSTRUCTIONS
GENERAL LOCATION OF CONTROLS
Drain Plug
(Located in
Return
Header)
Ignition
Control (IID)
Digital
Thermostat
Module
Roll-Out
Switch
Gas Valve
Pilot
CONTROL PANEL REMOVAL
1. Remove (4) screws from sides of control panel.
2. Rotate control panel down until panel stops. Do
not force.
NOTE: Caution must be taken not to damage controls
or wiring.
On-Off Switch
Transformer

To adjust the desired pool or spa temperature
setting, make sure the control is in the appropriate mode
(POOL or SPA) and push the UP or DOWN buttons to
get the desired set point temperature.
If there is a safety fault, a fault code will be displayed
along with a service indication. If the PRS fault code is
displayed, it indicates that there is insufficient flow
through the heater. Make sure the pool filter and pump
strainer are clean before calling a service representa-
tive.
Remote control operation is possible by connection
to the remote terminals on the control board. (P7) When
the remote control is operating the heater, the display will
alternatively indicate REM and the actual water tempera-
ture.
A list of the status and service codes are shown
below:
DISPLAY STATUS
CFH – CALL FOR HEAT
SPK – SPARK
SERVICE – CALL YOUR LOCAL INSTALLER/SERVICE
CONTRACTOR/ FACTORY FOR SERVICE
HEAT – HEATING
REM – REMOTE CONTROL
CLK – HEATER IN COOL DOWN CYCLE
OR FIREMAN SWITCH OPEN
DISPLAY FAULTS
BRD – BOARD FAILURE
SNS – 1) SENSOR IS FAULTY
2) TEMPERATURE IS ABOVE 110°F
3) TEMPERATURE IS BELOW 36°F
PRS – PRESSURE SWITCH OPEN
HL 1 – HI LIMIT–1 SWITCH OPEN
HL 2 – HI LIMIT–2 SWITCH OPEN
ROL – HEAT ROLL-OUT SAFETY SWITCH OPEN
IGN – IGNITION CONTROL FAILURE
PLT – PILOT FAILURE
LOW – WATER TEMP BETWEEN 36°F AND 44°F
ELECTRONIC CONTROLS
The pool heater thermostat on the upper front panel
of the heater controls the pool/spa water temperature.
This control center contains a mode button, up and
down temperature adjustment buttons, and a LCD
display. The MODE button functions as a means to turn
the heater off or on in either the pool or spa temperature
setting. The LCD display indicates the mode the heater
is in and the actual water temperature. If the mode is in
POOL or SPA, the desired pool or spa temperature will
also be displayed and may be changed using the UP or
DOWN buttons. A manual switch is also provided on the
right side heater cabinet to allow the heater to be turned
off. If there is a problem in operating the heater, the fault
will be displayed and a service indicator will flash.
The electronic thermostat cannot be set above
selected maximum set points. The maximum set points
are factory selected at 104°F for spa and 90°F for pool.
These can be changed to a higher or lower value to suit
your needs, but can never be set above 107°F. In order
to change the maximum set point, push the MODE
button to the OFF mode. Open the front panel as shown
in the previous section. Find the SETMAX button on the
back of the circuit board. Push the SETMAX button until
the display indicates SET. Either POOL or SPA will be
displayed with the upper temperature limit. If the
desired mode is not being displayed, press the MODE
button to switch to the desired mode. Using the UP or
DOWN arrow buttons, adjust the upper temperature to
the desired maximum setting. If a button is not pushed
for 5 seconds, the control will return to the OFF mode.
Fig #2007
The RP2100 Spa/Pool Digital Control Panel fea-
tures an LCD display that provides status and service
information. During normal operation, the heater can be
in the POOL, SPA, or OFF modes.
In the OFF mode, the actual water temperature is
displayed.
In the POOL or SPA modes, the actual water
temperature is displayed along with the desired pool or
spa temperature. If the heater is firing, a flame icon will
be visible.
25
TEMPERATURE DISPLAY-Fahrenheit vs. Centigrade
The RP2100 digital heaters will display metric (Cen-
tigrade) units. The factory default setting is Farenheit. If
you open up the front panel so you are looking at the front
of the digital board, you will find two small round buttons,
labled S1 and S2. S1 is labeled "C of F". Hold down the
S1 button for several seconds, until the board displays
"CCC", this will set the board to display in Centigrade.
Repeating the process will return the board to "FFF"
which is Fahrenheit.

RP2100 REMOTE CONTROL INSTALLATION
CAUTION: Before installing remote controls to the
RP2100 Digital Heater, read the following:
The Raypak RP 2100 Digital Heater is remote ready in
most cases. The digital liquid crystal (LCD) display
shows the actual pool temperature, operating status,
and service codes (See examples below). The touch
pad on the control panel allows you to select the desired
pool or spa temperature. It also indicates when a remote
system is controlling the heater by displaying REM in
the display. When connecting the RP2100 Digital to a
remote system, identify whether it is a two or three wire
remote system. Select the appropriate instruction listed
below to properly install the remote to the heater.
Important Installation Notes for
Remote or external wiring configuration
• Remote wiring must be run in separate conduit.
• Remote wiring must not be run parallel to High Voltage
lines.
• For runs of under 30 feet, remote wiring should have
stranded conductors with a minimum of 22 AWG,
600V, cable twisting 1.5 to 2.5 and jacketed.
• For runs over 30 feet, the conductors should be a
minimum of 20 AWG, 600V, cable twisting 1.5 to 2.5
inch lay that is shielded and jacketed.
• Maximum cable length of 200 feet.
• For both Two and Three wire remote systems, the
provided P-7 wiring connector must be utilized. Please
refer to the wiring instructions.
Two-Wire Remote Systems:
To remotely select either pool or spa operation (3-wire/2-
function) requires 3 wires to be connected to the heater.
A switch mechanism that will provide contact closure
between HIGH/SPA or LOW/POOL and common, needs
to be supplied. This mechanism can be a 3-way switch
or any other remote control system that provides dry
contact closure for either setting. See remote wiring
instructions on this page.
Two or Three-Wire Remote Operation:
To remotely select a single operating ON/OFF mode (2
wire/single function) requires two wires to be connected
to the heater. This requires a switching mechanism that
can be a 2-way switch or a remote control system with a
single dry contact closure. See remote wiring instruc-
tions on this page.
NOTE: Do Not connect wiring to fireman switch
location.
OFF Mode Heating in the
POOL Mode
Heating in the
SPA Mode
Remote Mode
26
Remote Wiring Instructions
1.Turn off power to the heater.
2.Turn off gas to the heater.
3.Remove the four screws on the side of the heater
holding the control panel (see figure # 9375)
4.Lay control panel forward towards you. This will provide
access to the back of the temperature control board.
5.Install the remote wire harness on the P7 terminal (see
figure # 9373).
6.For a 3-wire/2 function configuration, connect the
HIGH/SPA wire to the orange wire with the black stripe;
the LOW/POOL wire to the black wire with the orange
stripe; and the common wire to the yellow wire with the
black stripe (see figure # 9373).
7.For the 2-wire/1 function configuration, connect the
orange/black and black/orange wires to one contact
and the yellow/black wire to the other contact (see
figure # 9374).
8.Verify the mode button is in the "OFF" position.
Fig # 9375
Fig # 9373
Fig # 9374
THREE WIRE TWO FUNCTION
TWO WIRE ONE FUNCTION ON/OFF ONLY

PRESSURE SWITCH
The pressure switch, or heater actuator, insures
that the heater operates only when the filter pump is in
operation. It is located on the inlet/outlet header. It is
factory set at 1.75 PSI for deck level installations.
When the heater is located below the level of the spa or
pool, it may be necessary to reset the pressure switch
to compensate for the no-flow static head. If it is
necessary to reset the pressure switch, utilize the
following procedure:
PRESSURE SWITCH ADJUSTMENT:
1. With pump and heater on, turn adjustment
knob (clockwise) until a click is heard from
the gas valve.
2. Turn adjustment knob (counter clockwise)
1/4 turn.
3. Turn pump off and on several times. Heater
should shut off immediately. If it does not,
repeat steps above until proper adjustments
made.
Adjustment
Knob
Fig. #2008
PRESSURE SWITCH ADJUSTMENT RANGE
HEAT EXCHANGER HEIGHT
Fig. # 8152.0s
NOTE: If heater is installed outside of the limits shown,
a flow switch mounted and wired adjacent to the heater
must be used in place of the pressure switch.
TWO SPEED PUMPS
In some cases, the flow on the low speed is
insufficient to operate the heater. This is apparent when
the pressure switch cannot be further adjusted or if the
heater makes banging noises or goes off on high limit.
In these cases, the pump must be run at high speed
when heating the water.
CAUTION: Do not operate the heater without the func-
tion of a properly adjusted pressure switch or flow
switch.
5' Max
5' Max
FLAME ROLL-OUT SAFETY SWITCH
The heater is equipped with a thermal cutoff device
to prevent flame roll-out in the event the heat exchanger
becomes blocked. This is a "Single-use" type fusible
link or thermal fuse, that must be replaced when dis-
abled by an over temperature condition, caused by
excessive restriction in the heat exchanger flue pas-
sage.
Fig. #9177
HIGH LIMITS
The heater is equipped with two automatic high
limits. Both are located in the inlet/outlet header. Both
are set to open at 135°F.
NOTE: An erratic high limit is often characteristic of
internal heat exchanger problem, i.e. scale buildup,
defective bypass. Refer to troubleshooting sections.
Fig. # 2009
HIGH LIMIT REMOVAL
1. Shut off main electrical power switch to heater.
2. Remove inlet/outlet inspection panel.
3. Remove defective high limit and replace with a new
high limit.
4. Replace inspection panel.
PILOT SAFETY (Millivolt)
The heaters equipped with the standing pilot (milli-
volt system), have pilot generators which act as a safety
device to shut off the flow of gas to the main burners and
the pilot burner in case the pilot flame is extinguished.
The pilot burner must be manually relighted to place the
heater in operation again. Refer to the lighting instruc-
tions provided on the heater label.
PILOT SAFETY (Electronic)
The heater employs a pilot safety which closes the
main gas valve within 8/10ths of a second whenever the
pilot flame is interrupted. Pilot flame is automatically lit
when the device is powered. Unit performs its own
safety check and opens the main valve only after the
pilot is proven to be lit.
27

BURNER DRAWER REMOVAL
1. Shut off main electrical power switch to heater.
2. Shut off gas upstream of heater.
3. Remove front door.
4. Disconnect gas line from gas valve.
5. Remove (2) screws that mount burner tray to unit,
and (2) screws that secure gas valve to jacket.
6. Disconnect wires that terminate at gas valve.
7. Slide out burner tray.
8. Reverse above procedure to reinstall.
GAS VALVE REMOVAL
1. Shut off gas supply to the heater. Remove gas piping
to gas valve inlet.
2. Disconnect wires, pilot tubing and bleed line, if
required.
3. Turn vertical gas pipe from manifold slightly and
unscrew gas valve.
4. Reverse above procedure to re-install.
MAIN BURNER AND ORIFICE REMOVAL
1. Remove burner drawer. See burner drawer removal
procedure.
2. Remove screws and burner hold down bracket.
NOTE: If the heat exchanger is sooted badly, the
burner hold down bracket and spacer can become
distorted from direct flame impingement and this usually
necessitates replacement of these parts.
3. Lift burners from slotted spacers and slide from
orifices. Clean with a wire brush.
4. Orifices usually do not need to be replaced. To clean,
run either copper wire or wood toothpick through
orifice. Do not enlarge hole. To remove orifice, use
a socket wrench and remove from manifold. DO NOT
overtighten when reinstalling.
Burner Hold Down Bracket
Burner
8057.0
PILOT REMOVAL AND CLEANING
1. Disconnect pilot tubing, and wires from gas valve.
2. Remove pilot assembly from burner tray.
3. Remove pilot from bracket.
4. Remove pilot orifice and air opening (Honeywell MV
unit only), and clean with wire or small brush.
CAUTION! Do not enlarge hole in pilot orifice.
5. Reverse above procedure to re-install.
HONEYWELL PILOT ROBERTSHAW PILOT
Pilot Pilot
Air
Opening
Orifice
Orifice
Fig. # 8045.1 Fig. # 8102.0
HEAT EXCHANGER REMOVAL
1. Shut water, gas and electricity off, close valves and
relieve pressure, remove relief valve. Remove side
inspection panels.
2. Remove top holding screws.
3. Remove draft diverter, lift and remove top and flue
collector. Remove inspection panels.
4. Disconnect wires from high limits and pressure
switch. Remove temperature sensor.
5. Disconnect flange nuts on inlet-outlet header, loosen
union(s) at gas pipe and slide boiler away from piping.
6. Lift heat exchanger straight up using caution not to
damage refractory.
7. Reverse above procedure to reinstall. Make sure the
insulation strips are properly replaced on top of the
refractory retainer.
28

TUBE CLEANING PROCEDURE
Establish a regular inspection schedule, frequency
depending on local water condition and severity of
service. Do not let the tubes clog up solidly. Clean out
deposits over 1/16" in thickness.
The heater may be cleaned from the return header
side, without breaking pipe connections. It is prefer-
able, however, to remove both headers for better visibil-
ity through the tubes and to be sure the ground-up lime
dust does not get into the system.
Note that you do not remove the top panel or the
heater exchanger, generally.
After reaming, mount the wire brush in place of the
auger and clean out debris remaining in the tubes.
Another method is to remove the heat exchanger,
ream tubes and immerse heat exchanger in non-inhib-
ited de-scale solvent for severe scale build-up.
DESOOTING PROCEDURE
CAUTION: SOOT IS COMBUSTIBLE. EXERCISE
EXTREME CARE:
Soot will clog areas between fins and cause even-
tual tube failure. Any sign of soot at the base of the
burners or around the outer jacket indicates a need for
cleaning.
1. Remove top and flue collector from cabinet.
2. Remove "V" baffles from heat exchanger.
3. Remove burner drawer. (See burner tray removal).
4. Remove heat exchanger from the heater and wash
with a garden hose, making sure soot is removed
from spaces between fins.
5. Reverse above procedure to re-install.
NOTE: In extreme cases it may be necessary to do
steam cleaning at the local car wash. DO NOT
WIREBRUSH.
COMBUSTION CHAMBER REMOVAL
To remove combustion chamber, you must first
have removed the heat exchanger. Unbolt metal com-
bustion chamber retainer from top and remove combus-
tion chamber panels individually.
REFRACTORY PANELS TOP VIEW
Fig. #RP 8155.0
Extension Pieces (2) Auger with Carbide Tip Wire Brush Fig. # 8154.0
29
CONTROL IMMERSION WELL REPLACEMENT
(Millivolt and ASME)
1. Shut water off to heater and drain heat exchanger.
2. Remove access panel on water connection side of
heater.
3. Remove old control well with bushing and sleeve.
4. Install in header.
NOTE: Installation in plastic should be hand tight plus
1/2 turn.
Well Assembly
Fig. #2010
UNITHERM GOVERNOR (U.G.) REPLACEMENT
1. Shut water, gas and electricity off, close valves and
relieve pressure.
2. Drain heat exchanger.
3. Remove retainer plug located next to the outlet pipe
connection.
4. Remove old U.G. from retainer plug. It is snapped in
place. Snap in new U.G.
5. Reinstall retainer plug, taking care to lubricate gas-
ket with a non-petroleum based grease such as
AquaLube.
Retainer Plug
U.G.
Spring
Gasket
Fig. #2011
To test the operation of the Unitherm Governor, place in
hot water (over 100°F) and watch for movement against
spring. If there is no movement, replace unit.

The Raypak Low Nox Pool Heaters are certified and
tested under the ANSI Z21.56.CSA 4.7 Standards for gas
fired pool heaters.
The heater should be installed to meet all local codes, the
latest editions of the National Fuel Gas Code Z223.1 and
the National Electrical Code, ANSI/NFPA 70.
OPERATION
On call for heat, the ignition system, consisting of an
electronic spark module, gas pilot system is energized.
Providing pilot is proven blower will start running, the
main gas valve will open and the heater will operate.
When the operating control is satisfied the heater will
shut down.
START-UP PROCEDURES (S8610B)
1.Turn on power to the heater with gas supply off.
2.Check ignition module as follows:
a. Set the thermostat or controller to call for heat.
b. Watch for continuous spark at the pilot burner.
c. Check the ignition spark operation. Time must be
within the lockout timing period (15 or 90 seconds).
d. Turn control down to end call for heat and wait 60
seconds on lockout models before beginning step
3.
3.Turn on gas supply.
4.Set controller to call for heat.
5.System should start as follows:
a. Spark will turn on and pilot gas valve will open and
the blower will begin running.
b. Heater will operate until call for heat is satisfied.
ADDENDA: LOW NOx POOL HEATERS
Fig # 9361
FLAME ROLL-OUT SAFETY SWITCH
The heater is equipped with a cutoff device to prevent
flame roll-out in the event the heat exchanger becomes
blocked. This is a "manual reset" type roll-out switch that
must be reset by a service technician after any over
temperature conditions have been fixed. Excessive
restriction in the heat exchanger flue passage may cause
the switch to disable the heater.
BURNER ADJUSTMENT
This burner assembly does not require any primary air
adjustments.
VISUAL INSPECTION
Flame can be observed through the slot opening above
the plenum. Flame color is blue and evenly spread on the
top surface of the burner. At least every three months a
visual inspection should be made of the burners. In case
flame lifting is observed on the burner, check gas pres-
sure on manifold. Gas pressure in manifold should be
3.9" W.C.
ELECTRICAL
Be sure that electrical service to the boiler has proper
overload fuse or circuit breaker protection, wire size and
connections which comply with all applicable codes.
30

31
BURNER DRAWER REMOVAL
1. Shut off main electrical power switch to heater.
2. Shut off gas upstream of heater.
3. Remove front door.
4. Disconnect gas line from gas valve.
5. Remove (2) screws that mount burner tray to the
base of the unit, and (2) screws that secure gas
valve to jacket.
6. Disconnect wires that terminate at gas valve.
7. Unscrew (4) screws that secure the control box.
8. Disconnect pilot wire from the ignition module.
9. Disconnect wire harness from the combustion blower.
10. Carefully slide out the burner tray assembly.
11. Reverse above procedure to reinstall.
GAS VALVE REMOVAL
1. Remove burner drawer. See burner removal
procedure.
2. Disconnect, pilot tubing from gas valve.
3. Turn vertical gas pipe from manifold slightly and
unscrew gas valve.
4. Reverse above procedure to re-install.
MAIN BURNER AND ORIFICE REMOVAL
1. Remove burner drawer. See burner drawer removal
procedure.
2. Remove pilot. See pilot removal procedure.
3. Remove (8) total screws from the hold down brack-
ets, front and rear of tray.
4. Remove (8) total screws from the left and right sides
of the Manifold assembly. Detach the manifold as-
sembly from the burner tray assembly.
5. Remove burners by raising the bracket on the back
end of the burners up and out of their slots.
ADDENDA: LOW NOX HEATERS (CONTINUED)
Fig # 9362
PILOT REMOVAL
1. Disconnect pilot tubing from gas valve.
2. Remove (4) screws from control box. Open the
control box.
3. Remove the pilot wire from the ignition wire.
4. Remove (2) screws that mount the pilot bracket
to the air manifold assembly.
5. Pull the pilot bracket slightly, then drop and pull
downwards and outwards.
6. Reverse above procedure to re-install. Make sure
the pilot bracket is all the way up on the pilot side,
see drawing below.
Fig # 9363
IID PILOT
LOW NOx BURNER TRAY ASSEMBLY
COMBUSTION FAN REMOVAL
1. Remove burner drawer. See burner drawer
removal procedure.
2. Remove (4) screws the mount the combustion
blower to the manifold assembly.
3. Reverse above procedure to re-install.
6. Use a long 9/16” socket wrench to remove orifices
from the gas manifold.
7. Reverse above procedure to re-install.
Fig# 9368

MECHANICAL (FOR QUALIFIED SERVICE PERSONNEL ONLY)
IMPORTANT NOTICE These instructions are primarily intended for the use of qualified personnel specifically trained and experienced in
the installation of this type of heating equipment and related system components. Installation and service personnel may be required by
some states to be licensed. Persons not qualified shall not attempt to install this equipment nor attempt repairs according to these instructions.
PROBLEM CAUSE SOLUTION
Harmonics, or whining noise U.G. inoperative.................................... Check movement by putting in hot water (110°F or hig
higher). If no movement, replace.
*Debris or restriction in system............ Locate the restriction and remove. Flush system
and clean.
*Debris in gas line................................. Remove debris or blow out gas line.
Low flow.............................................. Scale forming in heat exchanger - clean heat
exchanger and check pool pH and total alkalinity.
Heater going on and off Dirty filter.............................................. Backwash filter.
continously Low water level in pool........................ Raise water level.
External bypass setting out of
adjustment............................................ Adjust bypass
*Pressure switch out of
adjustment............................................. Adjust pressure switch
Liming or scale forming on Pool water............................................. Recommended pH should be between 7.4 and 7.8
heat exchanger Total alkalinity 100-150 PPM maximum.
Hardness 150-400 PPM maximum.
Sooting High flow rates..................................... Reduce by adding manual bypass valve. Adjust
manual bypass valve until heater outlet water
temperature is between 105° and 110°F.
U.G. Inoperative.................................... Check movement by putting in hot water (110°F
or higher). If no movement, replace.
*Air starvation....................................... Refer to installation instructions.
*Improper venting.................................. Follow recommended installation instructions.
*Insects or debris clogging
burner intake ports............................... Clean burners.
Pilot outage Low gas pressure................................ Adjust gas pressure.
Restricted pilot...................................... Clean pilot.
Weak pilot generator............................. Replace pilot.
Yellow lazy flame Low gas pressure................................ Adjust gas pressure.
*Insects or debris clogging
burner intake ports............................... Clean burners.
Outer jacket very hot *Broken refractory caused by
(paint blistered) shipping damage or improper
combustion.......................................... Replace refractory panels.
Excessive sooting of heat
exchanger........................................... Determine cause of sooting & correct.
Takes long time to heat Calculate temperature in °/hr................ Heat rise (°/hr.)= Htr. output_____
pool or spa. Pool gallonage x 8.33
or refer to heater sizing chart. This does not take into
account heat loss due to weather.
Filter not running long enough............... Reset time clock.
Dirty filter............................................... Clean filter.
Gas line or meter undersized................ Refer to installation instructions.
Liming Bypassing too much water................... Inspect bypass for movement, if no movement,
replace.
U.G. not functioning.............................. Replace if no movement when heated.
Leaking at well. Overacid............................................... Replace well and maintain water chemistry properly.
Leaking at heat exchanger. Overacid............................................... Replace heat exchanger and maintain chemistry
properly.
Gasket brittle and leaking - Heater running after pump
(overheated). shuts off............................................... See pressure switch adjustment.
Refractory damage............................... Replace refractory.
Sooted heater....................................... Determine cause of sooting and correct.
Combustion fan not running Fan relay............................................... Replace fan relay
Fan........................................................ Loose connection or failed motor
Burned motor ....................................... Incorrect wiring, replace blower
32
SECTION 5 / TROUBLE SHOOTING GUIDE
(* Indicates symptom usually occurs on initial start-up.)

If pilot burner remains lit.
Jump across pressure
switch terminals
If main burner does not
fire, remove jumper
Check for adequate water
flow from filter
Replace pressure switch
Jump across thermostat
If main burner fires,
remove jumper
If main burner does
NOT fire...
Jump across each high
limit and remove jumper
Replace thermostat
Replace high limit that
caused heater to fire
Jump across both "TH"
wires on gas valves
Check gas supply, gas
line size, gas pressure.
Also check for insects
or debris in pilot output.
If pilot burner
does not light
Light pilot
If pilot burner goes out
when main burner lights
or when gas valve knob
is released
If burner does not remain
lit, attach millivolt meter
and read pilot output.
If below 500mV, check
gas pressure. Also check
for insects or debris in
the pilot burner
If main burner fires,
remove jumper
Replace
gas
valve
If main burner does not
fire, remove jumper
Remove both "TH"
wires from gas valve.
Relight pilot
If pilot burner stays on
Problem is a wire or
component short to
cabinet or low gas
pressure
If above 500mV,
replace gas valve
Clean filter
If main burner fires,
remove jumper
ELECTRICAL ( STANDING PILOT MILLIVOLT)
If output is still low,
replace pilot generator.
CAUTION: For qualified service personnel only.
1. Filter must be on with adequate water flow through heater.
2. Gas valve must be "ON" position. Thermostat set higher
than pool water temperature.
3. Jumpers are for temporary check only. If left in place,
they could cause the heater to burn up.
RAYPAK POOL OR SPA HEATER
ELECTRICAL CHECK WITH MV GAS VALVE
33

WARNING HIGH VOLTAGE
For qualified Technicians ONLY
NOTE: Some heaters may be equipped with an ignition module that shuts off pilot gas
if pilot fails to light. To reset, interrupt power to heater.
Intermittent Pilot System
TROUBLESHOOTING HONEYWELL S8600
NOTE:Before troubleshooting, familiarize yourself with the startup and checkout
procedure.
Check line voltage power, low voltage transformer, limit controller, thermostat
(controller) and wiring.
Pull ignition lead and check spark at module.
Spark Okay?
YES
• Check ignition cable, ground wiring, ceramic insulator and gap, and correct.
• Check boot of the ignition cable for signs of melting or buckling. Take protective
action to shield cable and boot from excessive temperatures.
• Check that all manual gas valves are open, supply tubing and pressures are good,
and pilot burner orifice is not blocked.
• Check electrical connections between module and pilot operator on gas control.
• Check for 24 Vac across PV-MV/PV terminals on module. If voltage is okay,
replace gas control; if not, replace module.
NOTE:If S8600H goes into lockout, reset system. Lockout is used on L.P.G. models.
• Check continuity of ignition cable and ground wire.
• Clean flame rod.
• Check electrical connections between flame rod and module.
• Check for cracked ceramic flame rod insulator.
• Check that pilot flame covers flame rod and is steady and blue.
• Adjust pilot flame.
• If problem persists, replace module.
• Check for 24 Vac across MV-MV/PV terminals. If no voltage, replace module.
• Check electrical connections between module and gas control. If okay, replace
gas valve or gas control operator, i.e. pilot gas valve, flow switch etc.
NOTE: IF S8600H goes into lockout, reset system.
• Check continuity of ignition cable and ground wire.
NOTE: If ground is poor or erratic, shutdowns may occur occasionally even though
operation is normal at the time of checkout.
• Check that pilot flame covers flame rod and is steady and blue.
• If checks are okay, replace module.
• Check for proper thermostat (controller) operation.
• Remove MV lead at module; if valve closes, recheck temperature controller and
wiring; if not, replace gas valve.
START
TURN GAS SUPPLY OFF.
TURN THERMOSTAT
(CONTROLLER) TO CALL
FOR HEAT
POWER TO MODULE
(24 V NOMINAL)
YES
SPARK ACROSS
IGNITER/SENSOR GAP
YES
TURN GAS SUPPLY ON
PILOT BURNER LIGHTS?
YES
SPARK STOPS WHEN
PILOT IS LIT?
YES
MAIN BURNER LIGHTS?
YES
SYSTEM RUNS UNTIL
CALL FOR HEAT ENDS?
YES
CALL FOR HEAT ENDS
SYSTEM SHUTS OFF?
YES
TROUBLESHOOTING
ENDS
NO
NO
NO
NO
NO
NO
NO
Repeat procedure until troublefree operation is obtained.
ELECTRICAL
(ELECTRONIC IGNITION IID)
34

35

SECTION 6/REPLACEMENT PARTS LIST
NOTE: To supply the correct part it is important that
you state the model number, serial number
and type of gas when applicable.
Any part returned for replacement under standard
company warranties must be properly tagged with
RAYPAK return parts tag, completely filled in with the
heater serial number, model number, etc., and shipped
to the Company freight prepaid.
If determined defective by the Company and within
warranty, the part will be returned in kind or equal
substitution, freight collect. Credit will not be issued.
RAYPAK, INC
2151 Eastman Avenue
Oxnard, CA 93030
For Canada:
RAYPAK CANADA LTD.
2805 SLOUGH STREET
MISSISSAUGA, ONTARIO
L4T 1G2
36

37

38
Fig. #8124
Honeywell MV Fig. #8107
Fig. #9369
13-P
5-P
16-P
15-P
1-P
9-P
3-P
Low NOx BURNER TRAY
PILOT ASSEMBLIES
14-P 16-P
3-P
7-P
16-P
3-P
17-P
Honeywell IID Atmospheric units
for units produced prior to 06/01/2000
Honeywell IID Low NOx and Atmospheric units
for units produced after to 06/01/2000
Use KIT Number 008155F for Low NOx units
Use KIT Number 002003F for Atmospheric units

39

40

41

LIMITED WARRANTY
RAYPAK RESIDENTIAL SWIMMING POOL AND SPA HEATERS
GAS MODELS 185, 265, 335 & 405 MILLIVOLT
185, 265, 335 & 405 ELECTRONIC
GENERAL
Raypak, Inc. warrants that the cabinet, burner tray (minus controls) and refractory will be free from defects in materials and workmanship
under normal use and service for a period of FIVE YEARS FROM THE DATE OF ORIGINAL PURCHASE FOR A SINGLE FAMILY RESIDENCE
(ONE YEAR IF OTHER THAN FOR SINGLE FAMILY RESIDENCE USE). All other parts of this product are warranted by Raypak to be free
from defects in materials and workmanship under normal use and service for a period of TWO YEARS FROM THE DATE OF ORIGINAL
PURCHASE FOR A SINGLE FAMILY RESIDENCE (ONE YEAR IF OTHER THAN FOR SINGLE FAMILY RESIDENCE USE). In accordance
with the terms of this warranty, we will furnish a Raypak replacement for any defective part or repair the part at our option. The replacement
or repair will be warranted for only the unexpired portion of the original warranty. Labor costs for removal or reinstallation of parts are
not covered by this warranty, nor are shipping charges to or from Raypak's designated repair center. This warranty does not cover rusting
or corrosion on cabinet or burners that does not affect heater's operation.
WARRANTY CONDITIONS
This warranty applies only to the heater at its original place of installation. This warranty will be void if the heater is installed in violation
of applicable local codes and ordinances or if the rating plate or serial number is altered or removed.
WARRANTY EXCLUSION
This warranty does not cover defects or malfunctions resulting from:
1. Failure to properly install, operate or maintain the heater in accordance with our printed instructions;
2. Abuse, alteration, accident, fire, flood, freeze and the like:
3. Misuse or neglect, including but not limited to, freeze-ups, operating the heater with the cabinet door off, having
flow restrictions or obstructions between the heater outlet and the pool/spa, or not maintaining a proper chemical
balance (PH level must be between 7.4 and 7.8 and total alkalinity between 100 and 150 PPM. Total dissolved solids
(TDS) must be no greater than 3000 PPM);
4. Use of non-factory authorized accessories or other components in conjunction with the heater.
HOW TO MAKE A CLAIM
Immediately notify the dealer from whom the heater was purchased, supplying model and serial numbers of the unit, date of purchase, and
a description of the problem. The dealer should then promptly contact Raypak about the warranty claim, and for the location of Raypak's
nearest designated repair center. (If the dealer for any reason is not available, call or write Raypak directly at the address shown below,
Attention: Warranty Service). After such notification has been given and Raypak has advised the location of its designated repair center
(which may be the dealer), bring or ship, transportation prepaid, the defective part for replacement or repair to the designated repair center.
However, Raypak reserves the right at all times to inspect the claimed defect and verify warranty coverage at its factory.
MISCELLANEOUS
No one is authorized to make any other warranties on our behalf, ANY IMPLIED WARRANTIES, INCLUDING MERCHANTABILITY OR FITNESS
FOR A PARTICULAR PURPOSE, SHALL NOT EXTEND BEYOND THE APPLICABLE WARRANTY PERIODS SPECIFIED ABOVE. RAYPAK'S
SOLE LIABILITY WITH RESPECT TO ANY DEFECT SHALL BE AS SET FORTH IN THIS WARRANTY AND ANY CLAIMS FOR INCIDENTAL OR
CONSEQUENTIAL DAMAGES (INCLUDING DAMAGE FROM WATER LEAKAGE) ARE EXCLUDED. Some states do not allow limitations on
how long an implied warranty lasts, or for the exclusion of incidental or consequential damages, so the above limitation or exclusion may
not apply to you.
We suggest you immediately complete the information below and retain this Warranty Certificate in the event warranty service is needed.
Reasonable proof of the effective date of the warranty must be presented; otherwise, the effective date will be based upon the date of
manufacture plus THIRTY (30) Days.
This Warranty gives you specific legal rights, and you may also have other rights which vary from state to state.
________________________________________________ ________________________________________________
Name of Owner Name of Dealer
________________________________________________ ________________________________________________
Address Address
________________________________________________ ________________________________________________
Model No. Serial No.
Date of Purchase____________________________________________________________________________________
RAYPAK, INC., 2151 Eastman Avenue, Oxnard, CA 93030 • (805) 278-5300 FAX (800) 872-9725
RAYPAK CANADA LTD., 2805 Slough Street, Mississauga, Ontario L4T 1G2 (905) 677-7999 FAX (905) 677-8036
42

Raypak, Inc., 2151 Eastman Avenue, Oxnard, CA 93030 (805) 278-5300 FAX (800) 872-9725
Raypak Canada LTD, 2805 Slough Street, Mississauga, Ontario, Canada L4T 1G2 (905) 677-7999 FAX (905) 677-8036
Raypak Australia Pty. Ltd, 7 Geddes St., Mulgrave, Victoria, Australia 3170 (6139) 560 4944 FAX (6139) 560 4974
Litho in U.S.A.
www.raypak.com