K0376 Vista 128fbp V1 Installation Manual
Vista-128FBP v1 Installation Manual Vista-128FBP v1 Installation Manual AlarmHow.net Library
User Manual: vista-128fbp-v1-installation-manual
Open the PDF directly: View PDF
.
Page Count: 144 [warning: Documents this large are best viewed by clicking the View PDF Link!]

K0376 8/02 edited by Tech Support
9
9,
,6
67
7$
$
)
)%
%3
3
9
9,
,6
67
7$
$
)
)%
%3
3
&RPPHUFLDO)LUHDQG%XUJODU\
3DUWLWLRQHG6HFXULW\6\VWHP
ZLWK6FKHGXOLQJ
,QVWDOODWLRQDQG6HWXS*XLGH
ON OFF
1
OFF
4
MAX
7
INSTANT
READY
2
AWAY
5
TEST
8
CODE
0
3
STAY
6
BYPASS
9
CHIME
#
ARMED
READY
1
OFF
4
MAX
7
INSTANT
READY
2
AWAY
5
TEST
8
CODE
0
3
STAY
6
BYPASS
9
CHIME
#
ARMED
READY
®
.

.

iii
Table of Contents
•••••••••••••••••••••••••••••••••••••••••••••••••
List of Figures...................................................................................................................................vi
Conventions Used in This Manual.............................................................................................. vii
SECTION 1: General Description ...............................................................................................1-1
About the VISTA-128FBP/VISTA-250FBP ...................................................................................................1-1
Features...........................................................................................................................................................1-1
SECTION 2: Partitioning and Panel Linking...........................................................................2-1
Theory of Partitioning.....................................................................................................................................2-1
Setting-Up a Partitioned System ...................................................................................................................2-1
Common Lobby Logic......................................................................................................................................2-1
Master Keypad Setup and Operation ............................................................................................................2-3
Panel Linking ..................................................................................................................................................2-4
How to Use Panel Linking..............................................................................................................................2-5
SECTION 3: Installing The Control............................................................................................3-1
Mounting the Control Cabinet .......................................................................................................................3-1
Installing the Cabinet Lock............................................................................................................................3-1
Grade A Mercantile Premises Listing Guidelines.........................................................................................3-1
Grade A Mercantile Safe and Vault Listing Guidelines...............................................................................3-2
Installing the Control's Circuit Board ...........................................................................................................3-2
Installing the Keypads....................................................................................................................................3-3
Installing External Sounders .........................................................................................................................3-4
Auxiliary Relay Connections ..........................................................................................................................3-5
Telephone Line Connections...........................................................................................................................3-7
Wiring Burglary and Panic Devices to Zones 1-8..........................................................................................3-8
Installing RPM Devices ................................................................................................................................3-12
Wireless Zone Expansion..............................................................................................................................3-14
Installing Output Devices.............................................................................................................................3-17
Installing a Remote Keyswitch.....................................................................................................................3-19
Installing a 5140LED Indicator Module......................................................................................................3-19
Installing a Remote Keypad Sounder..........................................................................................................3-20
Installing the VA8200 Panel Link Module..................................................................................................3-20
Long Range Radio Connected to the ECP....................................................................................................3-21
Long Range Radio Connected to the J2 Triggers........................................................................................3-23
Installing the Alpha Pager Module..............................................................................................................3-23
Access Control Using VistaKey....................................................................................................................3-25
Access Control Using the PassPoint Access Control System .....................................................................3-26
Event Log Connections .................................................................................................................................3-27
Installing the 4285/4286 VIP Module..........................................................................................................3-27
Installing the Audio Alarm Verification Module.........................................................................................3-27
Connecting the Transformer ........................................................................................................................3-30
Earth Ground Connections...........................................................................................................................3-31
Determining the Control’s Power Supply Load...........................................................................................3-31
Determining the Size of the Standby Battery.............................................................................................3-33

Table of Contents
iv
SECTION 4: Programming...........................................................................................................4-1
Program Modes................................................................................................................................................4-1
Entering and Exiting Programming Mode....................................................................................................4-1
Data Field Programming Mode......................................................................................................................4-1
#93 Menu Mode Programming.......................................................................................................................4-2
Zone Number Designations ............................................................................................................................4-4
Zone Response Type Definitions.....................................................................................................................4-6
Zone Input Type Definitions...........................................................................................................................4-7
Programming for Panel Linking.....................................................................................................................4-8
Programming for the Alpha Pager Module....................................................................................................4-8
Programming for Access Control....................................................................................................................4-9
Programming for ECP Long Range Radio...................................................................................................4-10
Programming for the Event Log...................................................................................................................4-10
SECTION 5: Data Field Descriptions.........................................................................................5-1
About Data Field Programming.....................................................................................................................5-1
Programming Data Fields ..............................................................................................................................5-1
SECTION 6: Scheduling Options.................................................................................................6-1
Time Window Definitions ...............................................................................................................................6-2
Open/Close Schedules Definitions..................................................................................................................6-3
Scheduling Menu Mode...................................................................................................................................6-4
Time Windows .................................................................................................................................................6-5
Daily Open/Close Schedules...........................................................................................................................6-5
Holiday Schedules...........................................................................................................................................6-6
Time-Driven Events........................................................................................................................................6-7
Limitation of Access Schedules ....................................................................................................................6-11
Temporary Schedules....................................................................................................................................6-12
User Scheduling Menu Mode........................................................................................................................6-13
SECTION 7: Downloading Primer..............................................................................................7-1
General Information........................................................................................................................................7-1
Unattended Download ....................................................................................................................................7-1
Getting On-Line with a Control Panel...........................................................................................................7-2
Scheduled Download.......................................................................................................................................7-3
Direct-Wire Downloading ...............................................................................................................................7-4
Telco Handoff...................................................................................................................................................7-4
SECTION 8: Setting the Real-Time Clock.................................................................................8-1
General Information........................................................................................................................................8-1
Setting the Time and Date .............................................................................................................................8-1
SECTION 9: User Access Codes...................................................................................................9-1
General Information........................................................................................................................................9-1
User Codes & Levels of Authority..................................................................................................................9-1
Multiple Partition Access................................................................................................................................9-2
Adding a Master, Manager, or Operator Code..............................................................................................9-3
Changing a Master, Manager, or Operator Code..........................................................................................9-4
Adding an RF Key to an Existing User..........................................................................................................9-4
Deleting a Master, Manager, or Operator Code............................................................................................9-5
Exiting the User Edit Mode............................................................................................................................9-5

Table of Contents
v
SECTION 10: Testing the System..............................................................................................10-1
Battery Test...................................................................................................................................................10-1
Dialer Test .....................................................................................................................................................10-1
Fire Drill Test (Code + [#] + 69) ...................................................................................................................10-1
One-Man Fire Walk-Test (Code + [#] + 68) .................................................................................................10-1
Burglary Walk-Test (Code + [5] TEST)........................................................................................................10-2
Armed Burglary System Test.......................................................................................................................10-1
Testing Wireless Transmitters.....................................................................................................................10-1
Trouble Conditions........................................................................................................................................10-4
To the Installer..............................................................................................................................................10-5
APPENDIX A: Regulatory Agency Statements ....................................................................... A-1
UL Installation Requirements.......................................................................................................................A-1
UL864/NFPA Local Fire ................................................................................................................................A-1
UL864/NFPA Central Station and Remote Station Fire.............................................................................A-1
UL609 Grade A Local Mercantile Premises/Local Mercantile Safe & Vault .............................................A-1
UL365 Police Station Connected Burglar Alarm.........................................................................................A-2
UL611/UL1610 Central Station Burglary Alarm ........................................................................................A-2
California State Fire Marshal (CSFM) Requirements. ...............................................................................A-2
APPENDIX B: Summary of System Commands...................................................................... B-1
APPENDIX C: Specifications......................................................................................................C-1
APPENDIX D: Contact ID and Pager Event Codes................................................................D-1
TABLE OF CONTACT ID EVENT CODES.................................................................................................D-1
Event Log and Pager Alpha Descriptors.......................................................................................................D-2
Index........................................................................................................................................ Index-1
THE LIMITATIONS OF THIS ALARM SYSTEM
ADEMCO LIMITED WARRANTY

vi
List of Figures
•••••••••••••••••••••••••••••••••••••••••••••••••
Figure 3-1: Installing the Lock...............................................................................................................................................3-1
Figure 3-2: Cabinet Attack Resistance Considerations ........................................................................................................3-2
Figure 3-3: Mounting the PC Board.......................................................................................................................................3-2
Figure 3-4: Keypad Connections to Control Panel................................................................................................................3-3
Figure 3-5: Using A Supplementary Power Supply ..............................................................................................................3-3
Figure 3-6: External Sounder Connections............................................................................................................................3-5
Figure 3-7: Wiring Auxiliary Relay for Alarm Activation.....................................................................................................3-6
Figure 3-8: Wiring Auxiliary Relay for Smoke Detector Reset.............................................................................................3-6
Figure 3-9: 2-Wire Smoke Detector on Zone 1 (for zone 2 use terminals 17 & 18)..............................................................3-8
Figure 3-10: 4-Wire Smoke Detectors....................................................................................................................................3-9
Figure 3-11: Wiring a 333PRM to the Control ....................................................................................................................3-10
Figure 3-12: Wiring a 333PRM using a Power Supply........................................................................................................3-10
Figure 3-13: Wiring Latching Glassbreaks to Zone 8...........................................................................................................3-11
Figure 3-14: Wiring a Normally Closed Sensor Loop for Tamper Supervision..................................................................3-11
Figure 3-15: Wiring a Normally Open Sensor Loop for Tamper Supervision....................................................................3-11
Figure 3-16: Polling Loop Connections to the Control Panel..............................................................................................3-13
Figure 3-17: Polling Loop Connections Using One 4297 Extender Module.......................................................................3-13
Figure 3-18: Polling Loop Connections Using Multiple Extender Modules.......................................................................3-14
Figure 3-19: Installing the 5881ENHC with Tamper Protection........................................................................................3-15
Figure 3-20: 5881 RF Receiver (cover removed)..................................................................................................................3-15
Figure 3-21: 4204 Relay Module...........................................................................................................................................3-18
Figure 3-22: 4204CF Relay Module......................................................................................................................................3-18
Figure 3-23: Wiring the FSA Module...................................................................................................................................3-18
Figure 3-24: Remote Keyswitch Wiring...............................................................................................................................3-19
Figure 3-25: Wiring the 5140LED Indicator Module..........................................................................................................3-20
Figure 3-26: Remote Keypad Sounder Wiring.....................................................................................................................3-20
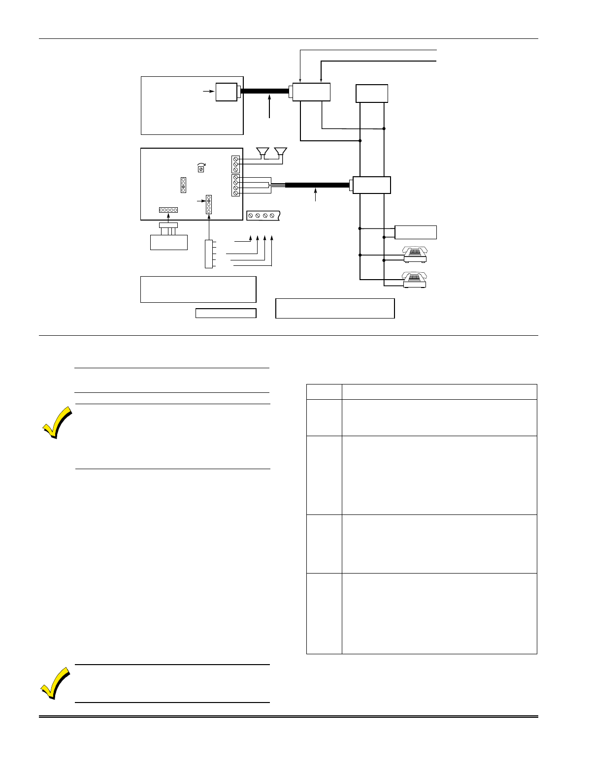
Figure 3-27: Panel Linking Block Diagram.........................................................................................................................3-20
Figure 3-29: Wiring Long Range Radio to Keypad Terminals............................................................................................3-22
Figure 3-30: Wiring the Alpha Pager Module......................................................................................................................3-24
Figure 3-31: Wiring the VistaKey.........................................................................................................................................3-26
Figure 3-32: Wiring the VISTA Gateway Module...............................................................................................................3-26
Figure 3-33: Printer Connections to the 4100SM................................................................................................................3-27
Figure 3-34: 4285/4286 VIP Module Connections...............................................................................................................3-27
Figure 3-35: AAV Connections.............................................................................................................................................3-30
Figure 3-36: Connecting the Backup Batteries....................................................................................................................3-34
Figure 7-1: Direct-Wire Downloading Connections...............................................................................................................7-4
VISTA-128FBP Summary of Connections Diagram.................................................................................. Second to Last Page
VISTA-250FBP Summary of Connections Diagram......................................................................................Inside Back Cover

vii
Conventions Used in This Manual
•••••••••••••••••••••••••••••••••••••••••••••••••
Before you begin using this manual, it is important that you understand the meaning of the following
symbols (icons).
ULThese notes include specific information that must be followed if you are installing this system for
a UL Listed application.
These notes include information that you should be aware of before continuing with the
installation, and that, if not observed, could result in operational difficulties.
This symbol indicates a critical note that could seriously affect the operation of the system, or
could cause damage to the system. Please read each warning carefully. This symbol also
denotes warnings about physical harm to the user
.
ZONE PROG?
1 = YES 0 = NO 0
Many system options are programmed in an interactive mode by responding to
alpha keypad display prompts. These prompts are shown in a single-line box.
✴00 Additional system options are programmed via data fields, which are indicated by a “star” (T)
followed by the data field number.
PRODUCT MODEL NUMBERS:
Unless noted otherwise, references to specific model numbers represent ADEMCO products.

viii

1-1
SECTION 1
General Description
•••••••••••••••••••••••••••••••••••••••••••••••••
About the VISTA-128FBP/VISTA-250FBP
The VISTA-128FBP/VISTA-250FBP is an 8-partition, UL Listed commercial fire and burglary control panel with the
following features:
• Up to 128 zones for VISTA-128FBP; 250 zones for VISTA-250FBP (hardwired, polling loop, and wireless zones)
• Up to 150 user codes for VISTA-128FBP; 250 user codes for VISTA-250FBP
• Supervision of Notification Appliance Circuits, phone lines, keypads, RF receivers, and output devices
• Scheduling capabilities (allows certain operations to be automated)
• The capability to link up to 8 control panels using Panel Linking Modules
The VISTA-128FBP/VISTA-250FBP can interface with the following devices:
• Symphony (AUI)
• An alpha numeric paging device (VA8201)
• Panel Link Module (VA8200)
• An ECP Long Range Radio that can send Contact ID messages
• An access control system by using either the ADEMCO PassPoint system (via the VISTA Gateway Module) or a
VistaKey module (via the polling loop)
ULThe access control function is not Listed for use with the VISTA-128FBP/VISTA-250FBP Control Panel in a UL
installation.
The system supports either the VistaKey or the VISTA Gateway Module, not both.
NOTE: All references in this manual for number of zones, number of user codes, number of access cards,
and the event log capacity, use the VISTA-250FBP’s features. The following table lists the differences
between the VISTA-128FBP and the VISTA-250FBP control panels. All other features are identical.
Feature VISTA-128FBP VISTA-250FBP
Number of Zones 128 250
Number of User Codes 150 250
Number of Access Cards 250 500
Event Log Capacity 512 1000
VistaKey Modules 8 15
Features
Hardwire and Optional Expansion Zones
• Provides 8 hardwire zones.
• Supports up to 16 2-wire smoke detectors each on zone 1 and zone 2 (32 total).
• Automatically resets 4-wire smoke detectors using the J2 output when a code + off is entered.
• Triggers the built-in sounders on other hardwired smoke detectors if one smoke detector annunciates an alarm. This
feature requires a 4204 Relay Module and/or the 333PRM.
• Provides tamper supervision on the hardwire zones.
• Supports up to 50 2-wire latching glassbreak detectors on zone 8.
• Supports up to 242 additional expansion zones (120 for the VISTA-128FBP) using a built-in polling (multiplex) loop.
• Supports up to 250 wireless zones (128 for the VISTA-128FBP) fewer if using hardwire and/or polling loop zones.

VISTA-128FBP/VISTA-250FBP Installation and Setup Guide
1-2
ULThe 5881ENHC RF Receiver and the 5869 Holdup Switch Transmitter are listed for UL Commercial Burglary
applications. All other RF receivers and transmitters are not listed for UL Commercial Burglary applications.
• Can program burglary zones as silent in the alarm condition (alarm output is silent and the keypad does not display
or sound the alarm).
• Provides three keypad panic keys: 1 + ✴ (A), ✴ + # (B), and 3 + # (C).
Peripherals Devices
• Supports up to 31 addressable devices, (keypads, RF receivers, relay modules, etc.).
• Supervises devices (keypads, RF receivers, and relay modules) and individual relays (up to 32), as well as system
zones (RF receivers and keypad panics).
• Provides 96 outputs using 4204 and 4204CF Relay Modules, Fire System Annunciators (FSA-8, FSA-24), and V-Plex
Relay Modules can activate outputs in response to system events (alarm condition), at a specific time of day, at
random times, and manually using the #70 Relay Command Mode.
• Supports additional style-Y supervised Notification Appliance Circuits using a 4204CF.
• Supports the ADEMCO 4285/4286 VIP Module, which allows access to the system from either a remote location or
on the premises
ULThe 4285/4286 VIP Module is not Listed for use with the VISTA-128FBP/VISTA-250FBP Control Panel in a UL
installation.
• Supports the ADEMCO 4146 Keyswitch on any one of the system's 8 partitions.
• Supports the PS24 Power Supply Module, which supplies two 24VFW, 1.7A full-wave rectified, unfiltered outputs.
Arming/Disarming and Bypassing
• Can arm the system with zones faulted (Vent Zone). These zones are automatically bypassed and can be
programmed to automatically unbypass when the zone restores.
• Can arm with entry/exit and interior type zones faulted (Arm w/Fault). These zones must be restored before the exit
delay expires, otherwise an alarm is generated.
UL• Vent zones cannot be used in UL installations.
• You must disable the Force Arm option (used in conjunction with the Arm w/Fault option), in UL installations.
• Provides global arming capability (ability to arm all partitions the user code has access to in one command).
• Can Quick Exit an armed premises without having to disarm and then rearm the system.
• Can be armed in one of three STAY modes or Instant modes, automatically bypassing specific burglary zones
regardless of the zone response type.
• Can automatically bypass specific zones if no one exits the premises after arming (Auto-STAY). Auto-STAY will not
occur if the system is armed via an RF transmitter, VIP module, scheduling, access control, keyswitch, or
downloading.
• Can bypass a group of zones with one set of keystrokes.
• Supports Exit Error Logic, whereby the system can tell the difference between a regular alarm and an alarm caused
by leaving an entry/exit door open. If the system is not subsequently disarmed, faulted entry/exit zone(s) and/or
interior zones are bypassed and the system arms.
• Supports Recent Close report, which is designed to notify the central station that an alarm has occurred within 2
minutes after the exit delay has expired.
Partitioning and Panel Linking
• Can control 8 separate areas (partitions) independently, each functioning as if it had its own separate control. All
fire zones must be assigned to partition 1.
• Provides a Common Lobby partition, which can be programmed to arm automatically when the last partition is
armed, and to disarm when the first partition is disarmed.
• Provides a Master partition (9), used for the purpose of viewing the status of all partitions at the same time.
• Can display fire, burglary, panic, and trouble conditions at all other partitions’ keypads (selectable option).
• Can “link” together up to 8 control panels. This allows users to access and control from a keypad another control
panel.

Section 1 - General Description
1-3
Scheduling
• Can automate system functions, such as arming, disarming, and activation of outputs (e.g., lights).
• Provides access schedules (for limiting system access to users by time).
• Provides an End User Output Programming Mode, allowing the user to control outputs.
Access Control
• Supports up to 15 VistaKey modules (15 access points) (VISTA-128FBP supports 8 modules), which are used for
access control. It is a single-door access control module.
• Support up to 500 access cards (250 for the VISTA-128FBP).
• Supports ADEMCO PassPoint system via one VISTA Gateway Module (VGM), for a fully integrated access control
system.
• Can store access control events in the event log.
System Communication
• Provides supervision of the phone lines (main and backup)
• Supports the 5140DLM optional backup dialer for the second phone line.
• Supports ADEMCO Contact ID; ADEMCO High Speed; ADEMCO Express; and 3+1, 4+1, and 4+2 ADEMCO and
Sescoa/Radionics Low-Speed formats.
The system is shipped defaulted for Contact ID communication. It is the only format capable of uniquely reporting all
250 zones, as well as openings and closings for all 250 users. This requires central stations to be equipped with the
ADEMCO 685 receiver using software level 4.10 or higher to fully support all new VISTA-128FBP/VISTA-250FBP
report codes. If you need to update your 685 receiver, contact your distributor.
• Can send messages such as alarms, opens/closes, etc. to up to 8 paging services.
• Provides two paging formats (alphanumeric – requires the VA8201 Alpha Pager Module; and numeric – sent directly
by the control)
• Supports Dynamic Signaling feature, which prevents redundant signals being sent to the central station when both
the built-in dialer and Long Range Radio are used.
• Provides an Audio Alarm Verification (AAV) option that permits voice dialog between an operator at the central
station and a person at the premises. An AAV unit, such as Eagle model 1250, is required.
ULThe Eagle Model 1250 AAV unit is not UL Listed.
Downloading
• Supports upload and download capability.
• Can perform unattended downloading (no one at the downloading computer).
• Provides an Installer Unattended Program Mode. This allows the installer to program the download phone number,
subscriber number, and primary central station receiver phone number without entering the normal program mode.
• Can periodically and automatically perform a scheduled download.
ULUnattended and Scheduled Downloading are not UL Listed features.
• Can download access control cardholder information.
Event Log
• Provides an event log (history log) that can store up to 1000 events (512 for the VISTA-128FBP).
• Can print the event log on a serial printer or parallel printer using the VA8201 Alpha Pager Module.
• Can view the event log on an alpha keypad or AUI.

VISTA-128FBP/VISTA-250FBP Installation and Setup Guide
1-4
Fire Walk-Test Mode
• Provides an automatic test of integrated V-Plex devices that have the automatic test feature.
• Can display all fire zones that remain untested.
• Can log test results in the event log.
• Can report the test results to the central station.
Additional Features
• Provides two style-Y supervised Notification Appliance Circuits.
• Provides an auxiliary relay (form C) that can activate alarms troubles/supervisories, reset 4-wire smoke detectors, or
as a battery saver (removes power form non-critical loads 4 hours after AC power loss).
• Provides up to 60 installer-defined, custom words that can be used for zone descriptors.
• Provides 35 keypad macro commands (each macro is a series of keypad commands of up to 32 keystrokes) using the
A, B, C, and D keys by partition.
• Provides cross-zone capability, which helps prevent false alarms by preventing a zone from going into alarm unless
its cross-zone is also faulted within a 5-minute period.
• Contains a built-in User’s Manual, which provides the end user with a brief explanation of the function of a key
when the user presses any of the function keys on the keypad for 5 seconds.
• Provides trigger outputs, which may interface with Long Range Radio equipment or other devices such as keyswitch
LEDs, or printer.
• Provides an option to have trouble and supervisory conditions to automatically clear from the display when the zone
returns to the ready/normal state (entry of Code + OFF is not required).
• Provides Maintenance Signal support for certain smoke detectors (5808, 4192CPM, 4192SDM, 4192SDTM, 5192).
At least one 2-line alpha keypad (6139/6160) must be connected to the system for programming (if you are using
keypad programming), and must remain connected to the system in order to allow the primary user to program
additional user codes into the system at a later time.

2-1
SECTION 2
Partitioning and Panel Linking
•••••••••••••••••••••••••••••••••••••••••••••••••
Theory of Partitioning
This system provides the ability to arm and disarm up to 8 different areas, as if each had its own control. These areas
are called partitions. A Partitioned system allows the user to disarm certain areas while leaving other areas armed, or
to limit access to certain areas to specific individuals. Each system user can be assigned to operate any or all partitions,
and can be given a different authority level in each.
Before anything can be assigned to those partitions, you must first determine how many partitions (1-8) are required.
Following are some facts you need to know about partitioning.
Keypads
Each keypad must be given a unique "address" and be assigned to one partition. It can also be assigned to Partition 9 if
Master keypad operation is desired. (See “Master Keypad Setup and Operation” later in this section.)
Zones
Each zone must be assigned to one partition. The zones assigned to a partition will be displayed on that partition's
keypad(s).
All fire zones must be assigned to partition 1to ensure that all Fire Test modes operate correctly.
Users
Each user may be given access to one or more partitions. If a user is to operate more than one partition and would like
to arm/disarm all or some of those partitions with a single command, the user must be enabled for Global Arming for
those partitions (when entering user codes).
A user with access to more than one partition (multiple access) can "log on" to one partition from another partition's
keypad, provided that program field 2*18: Enable GOTO is enabled for each partition he/she wants to log on to from
another.
A partition can be selected as a "common lobby" partition, and other partitions can affect this partition by causing
arming/disarming of this partition to be automated (see “Common Lobby Logic” later in this section).
Setting-Up a Partitioned System
The basic steps to setting up a partitioned system are described below. If you need more information on how to program
the options, see SECTION 4: Programming.
1. Determine how many partitions the system will consist of (programmed in field 2*00).
2. Assign keypads to partitions (Device Programming in the #93 Menu Mode).
3. Assign zones to partitions (Zone Programming in the #93 Menu Mode).
4. Confirm zones are displayed at the keypad(s) assigned to those partitions.
5. Assign users to partitions.
6. Enable the GOTO feature (program field 2*18) for each partition a multiple-access user can log on to (alpha keypad
only).
7. Program partition-specific fields (see the SECTION 5: Data Field Descriptions).
Common Lobby Logic
When an installation consists of a partition shared by users of other partitions in a building, that shared partition may
be assigned as the "common lobby" partition for the system (program field 1*17). An example of this might be in a
medical building where there are two doctors’ offices and a common entrance area (see example that follows
explanation).
The Common Lobby feature employs logic for automatic arming and disarming of the common lobby. Two programming
fields determine the way the common lobby will react relative to the status of other partitions. They are: 1*18 Affects
Lobby and 1*19 Arms Lobby.

VISTA-128FBP/VISTA-250FBP Installation and Setup Guide
2-2
1*18 Affects Lobby (must be programmed by partition)
Setting this field to 1 for a specific partition causes that partition to affect the operation of the common lobby as follows:
a. When the first partition that affects the lobby is disarmed, the lobby is automatically disarmed.
b. The common lobby cannot be armed unless every partition selected to affect the lobby is armed.
1*19 Arms Lobby (must be programmed by partition)
Setting this field to 1 for a specific partition causes that partition to affect the operation of the common lobby as follows:
a. The common lobby cannot be armed unless every partition selected to affect the lobby is armed.
b. Arming a partition that is programmed to arm the lobby causes the system to automatically attempt to arm the
lobby. If any faults exist in the lobby partition, or if another partition that affects the lobby is disarmed, the lobby
cannot be armed, and the message "UNABLE TO ARM LOBBY PARTITION" is displayed.
You cannot select a partition to "arm" the lobby unless it has first been selected to "affect" the lobby. Do not enable
field 1*19 without enabling field 1*18.
The following chart sums up how the common lobby partition will operate.
1*18
Affects Lobby
1*19
Arms Lobby
Disarms when
partition disarms? Attempts to arm
when partition
arms?
Can be armed if
other partitions
disarmed?
0 0 NO NO YES
1 0 YES NO NO
1 1 YES YES NO
0 1 ---ENTRY NOT ALLOWED---
Example
Here is an example of how the lobby would react in a typical setup.
OFFICE 1 OFFICE 2
MAIN ENTRANCE
COMMON LOBBY
V128BP-001-V0
User #1 has access to Office #1 and the Common Lobby.
User #2 has access to Office #2 and the Common Lobby.
Office #1 is set up to affect the Common Lobby, but not arm it.
Office #2 is set up to affect and arm the Common Lobby.
NOTE: In the tables below, the notations in parentheses ( )
indicate the current status of the other partition when the user
takes action.
Sequence #1:
Office 1 Office 2 Lobby Action
User #1: Disarms (Armed) Disarms
User #2: (Disarmed) Disarms No Change
User #1: Arms (Disarmed) No change
User #2: (Armed) Arms Arms

Section 2 – Partitioning and Panel Linking
2-3
Sequence #2:
Office 1 Office 2 Lobby Action
User #2: (Armed) Disarms Disarms
User #1: Disarms (Disarmed) (No change)
User #2: (Disarmed) Arms No Change
User #1: Arms (Armed) No Change
Notice that in sequence #1, because Office #2 was the last to arm, the lobby also armed (Office #2 is programmed to
affect and arm the lobby). In sequence #2, the lobby could not arm when Office #2 armed, because Office #1, which
affects the lobby, was still disarmed.
When Office #1 armed, the lobby still did not arm because Office #1 was not programmed to arm the lobby. User #1
would have to arm the lobby manually. Therefore, you would want to program a partition to affect and arm the lobby if
the users of that partition are expected to be the last to leave the building.
Do not assign partition 1 as the common lobby if fire zones are being used in the system. All fire zones must be
assigned to partition 1 to ensure all Fire Test modes operate correctly.
How User Access Codes Affect the Common Lobby
Codes with Global Arming
If a code is given "global arming" when it is defined (see the SECTION 9: User Access Codes), the keypad prompts the
user to select the partitions they want to arm. Only the partitions the user has access to are displayed. This allows the
user to choose the partitions to be armed or disarmed, and so eliminates the "automatic" operation of the lobby. Keep in
mind, however, that if a user attempts to arm all, and another "affecting" partition is disarmed, the user cannot arm the
lobby, and the message "UNABLE TO ARM LOBBY PARTITION" is displayed.
Codes with Non-Global Arming
If a user arms with a non-global code, the lobby partition operation is automatic, as described by fields 1*18 and 1*19.
Other Methods of Arming/Disarming
Common Lobby logic remains active when arming or disarming a partition that affects and/or arms the common lobby in
one of the following manners:
• Quick-Arm
• Keyswitch
• Wireless Button
• Wireless Keypad
Arming/Disarming Remotely
If a user arms or disarms remotely (through Compass downloading software), the lobby does not automatically follow
another partition that is programmed to arm or disarm the lobby. The lobby must be armed separately, after arming all
affecting partitions first.
Auto-Arming/Disarming
If scheduling is used to automatically arm and/or disarm partitions, the common lobby partition does not automatically
follow another partition that is programmed to arm or disarm the lobby. The lobby partition must be scheduled to
arm/disarm and must be scheduled as the last partition to arm.
If you are using auto-arming, make sure that the Auto-Arm Delay and Auto-Arm Warning periods, for the lobby
partition, (fields 2*05 and 2*06) combined are longer than that of any other partition that affects the lobby. This
causes the lobby to arm last.
Master Keypad Setup and Operation
Although this system has eight actual partitions, it provides an extra partition strictly for the purpose of assigning
keypads as Master keypads for the system.
Assigning any keypad to Partition 9 in Device Programming in the #93 Menu Mode makes that keypad a Master keypad.
A Master keypad reflects the status of the entire system (Partitions 1-8) on its display at one time. This is useful
because it eliminates the need for a building security officer to have to log on to various partitions from one partition's
keypad to find out where an alarm has occurred.

VISTA-128FBP/VISTA-250FBP Installation and Setup Guide
2-4
The following is a typical display:
S Y S T E M 1 2 3 4 5 6 7 8
S T A T U S R R N N A ✴B
Possible status indications include:
A = Armed Away S = Armed Stay M = Armed Maximum C = Comm Fail
I = Armed Instant R = Ready N = Not Ready
B = Bypassed/Ready ✴ = Alarm T = Trouble
F = Fire Alarm P = AC Power Failure L = Low System Battery
To obtain more information regarding a particular partition, enter [✴] + Partition No. (e.g., [✴] + [4]). This allows
viewing only of that partition. In order to affect that partition, the user must use a code that has access to that
partition. Also, in order for a user of any partition to log on to Partition 9 to view the status of all partitions, that user
must have access to all partitions. Otherwise, access is denied.
The following is displayed for a fault condition on Zone 2 (Loading Dock Window) on Partition 1 (Warehouse) when a
user logs on from a keypad on Partition 9:
WHSE DISARMED
HIT ✴ FOR FAULTS
Pressing [✴] causes the following display to appear at Partition 1's keypad(s):
FAULT 002 LOADING
DOCK WINDOW
Additional zone faults are displayed one at a time. To display a new partition's status, press [✴] + Partition No.
The Armed LED on a Master keypad is lit only if all partitions have been armed successfully. The Ready LED is lit only
if all partitions are "ready to arm." Neither LED is lit if only some partitions are armed and/or only some partitions are
ready.
Press [✴] + [0] or [✴] + [9] to return to the master partition. Otherwise, if no keys are pressed for 2 minutes, the system
automatically returns to the master partition
The sounder on a Master keypad reflects the sound of the most critical condition on all of the partitions. The priority of
the sounds, from most to least critical, is as follows:
1. Pulsing fire alarm sounds
2. Steady burglar alarm sounds
3. Trouble sounds (rapid beeping)
Silence the sounder by pressing any key on the Master keypad or a keypad on the partition where the condition exists.
A Master keypad uses the same panics as Partition 1. Master keypad panics are sent to Partition 1, and will activate
on Partition 1. Therefore, panics must be programmed for Partition 1.
Panel Linking
Up to eight VISTA-128FBP/VISTA-250FBP control panels may be networked, enabling a user to control the features of
all control panels from a single location. The panel linking bus supports an end-to-end network length of up to 4,000 feet,
making it ideal for multi-building environments (e.g., a shopping mall, college campus, etc.).
ULPanel Linking is not permitted in UL installations.
Panel linking requires a VA8200 Panel Link Module (PLM) on each VISTA-128FBP/VISTA-250FBP. Users can link
(access other control panels) in any of three different modes: Single-Partition, Single-Panel Mode, Multi-Partition, Multi-
Panel Mode, Multi-Panel View Mode. These modes are described later in this section.
Each PLM connects to the ECP bus on the control panel and communicates to each PLM via an RS-485 bus (3-wire
twisted cable run) with a maximum wire-run of 4000 feet end-to-end.

Section 2 – Partitioning and Panel Linking
2-5
• Users 001-050 are the only users that can perform panel linking and are automatically assigned panel
linking access when added to the system.
• An alpha keypad must be used for panel linking.
• The system may take up to 7 seconds to respond to a command when in a panel linking mode
NOTE: A user cannot access partitions or panels that they have not been assigned to.
Panel Link Module Supervision
The Panel Link Module can be supervised for its connection to the control panel. This module’s supervisory zone is 8xx,
where “xx” = the ECP address of the PLM. You must program that zone with response type 05 (Day/Night) in Zone
Programming in the #93 Menu Mode (refer to the Programming Guide for detailed programming instructions). If you
want to report the supervisory failure to the central station and/or to a paging service, the appropriate reporting
parameters for that zone must be programmed.
If you want the supervisory failure of other PLM(s) on other linked control panels to display on this control panel, they
must be programmed into Zone Programming in the #93 Menu Mode with response type 14 in this control panel (refer to
the Programming Guide for detailed programming instructions). The panel ID number for each module must match the
panel ID number programmed in Device Programming of its “host” VISTA-128FBP/VISTA-250FBP.
How to Use Panel Linking
Panel Linking can be used in any of three different modes:
• Single-Partition, Single-Panel − displays status of a partition on a remote control panel and allows control of that
remote control panel.
• Multi-Partition, Multi-Panel Mode − displays status and allows arming/disarming of multiple partitions at once on a
remote control panel.
• Multi-Panel View Mode − displays status and allows arming/disarming of multiple remote control panels at a time.
NOTE: A user will not be able to access or view partitions or panels that they have not been assigned to.
Single-Partition Single-Panel Mode
To access the Single-Partition, Single Panel mode, perform the following steps:
Step Action
1 Enter
User Code (for users 001-050) + [#] + [86].
2 Enter the panel ID number (01-08) of the panel you want to link to.
3 Enter the partition number of the panel. The keypad displays “AWAITING PANEL LINK.” After a few
seconds, the keypad displays the status of the partition along with the panel ID number and partition
number flashing in the upper right-hand corner. The user now has full control of the remote control panel.
All functions can be performed except the following:
• Those limited by the user’s authority level.
• The user cannot enter Installer Program mode
• The user cannot execute another panel linking mode.
NOTE: To execute another panel linking mode or to access a different remote panel, the user must first exit
this mode (return to the original control panel).
4 To exit, enter the User Code (for users 001-050) + [#] + [85]. After a few seconds, the keypad displays the
status of the original partition for the keypad.

VISTA-128FBP/VISTA-250FBP Installation and Setup Guide
2-6
Multi-Partition Multi-Panel Mode
To perform a function in the Multi-Partition, Multi Panel mode, follow the steps below:
Step Action
1 Enter
User Code (for users 001-050) + [#] + [88].
The keypad displays the following:
PANELnn 1 2 3 4 5 6 7 8
STATUS x x x x x x x x
where “nn” = panel ID number (01-08), “12345678” are the partition numbers and “xxxxxxxx” is the status of
each partition of that panel. Status indications include:
A = Armed Away S = Armed Stay M = Armed Maximum
I = Armed Instant R = Ready N = Not Ready
B = Bypassed/Ready ✴ = Alarm T = Trouble
F = Fire Alarm P = AC Power Failure L = Low System Battery
C = Comm Fail
NOTES: See table later in this section for priority of displays.
A “•” under a partition number indicates the user does NOT have access to that partition.
2 The following functions can be performed:
Press [1] to attempt to disarm all partitions.
Press [2] to attempt to arm AWAY all partitions.
Press [3] to attempt to arm STAY all partitions.
Press [4] to attempt to arm MAXIMUM all partitions.
Press [7] to attempt to arm INSTANT all partitions.
Press [✴] to read the status of the next panel.
Press [#] key to read the status of the previous panel.
Press [0] to exit mode. After a few seconds, the keypad displays the status of the original partition of the
original panel for the keypad. Also, this mode will end in approximately 120 seconds if no keys are pressed.
NOTES:
When performing any of the arming commands, if there are faults in any of the partitions, none of the
partitions will arm. These faults must be corrected or bypassed before attempting to arm.
When performing either a STAY or INSTANT arm command, the system always arms in mode 1 (see the
VISTA-128FBP/VISTA-250FBP User Guide for a detailed explanation of the STAY and INSTANT arming
modes).
The user cannot execute another panel linking mode. To execute another panel linking mode or to access a
different remote panel, the user must first exit this mode (return to the original control panel).

Section 2 – Partitioning and Panel Linking
2-7
Multi-Panel View Mode
To perform a function in the Multi-Panel View mode, follow the steps below:
Step Action
1 Enter
User Code (for users 001-050) + [#] + [87].
The keypad displays the following typical display:
ALLPANEL 1 2 3 4 5 6 7 8
STATUS x x x x x x x x
where “12345678” are the panel ID numbers and “xxxxxxxx” is the overall status of each panel. Status
indications include:
A = Armed Away S = Armed Stay M = Armed Maximum
I = Armed Instant R = Ready N = Not Ready
B = Bypassed/Ready ✴ = Alarm T = Trouble
F = Fire Alarm P = AC Power Failure L = Low System Battery
C = Comm Fail
NOTE: See table later in this section for priority of displays.
2 The following functions can be performed::
Press [1] to attempt to disarm all partitions on all panels.
Press [2] to attempt to arm AWAY all partitions on all panels.
Press [3] to attempt to arm STAY all partitions on all panels.
Press [4] to attempt to arm MAXIMUM all partitions.
Press [7] to attempt to arm INSTANT all partitions.
Press [0] to exit mode. After a few seconds, the keypad displays the status of the original partition of the
original panel for the keypad. Also, this mode will end in approximately 120 seconds if no keys are pressed.
NOTES:
When performing any of the arming commands, if there are faults in any of the partitions of a panel, the
system will not arm that panel, but will arm all the other partitions of the other panels.
When performing either a STAY or INSTANT arm command the system always arms in mode 1.
The user cannot execute another panel linking mode. In order to perform another panel linking mode or to
access a different remote panel, the user must first exit this mode (return to the original control panel).
Priority of Displays for Multi-Partition and Multi-Panel Modes
This table shows the priority of displays if more than one of these conditions exists at the same time.
Priority Description Display Priority Description Display
1 Fire Alarm F 8 Not Ready N
2 All Other Alarms ✴
9 Ready R
3 AC Loss P 10 Armed STAY S
4 Comm Fail C 11 Armed AWAY A
5 System Low Battery L 12 Armed INSTANT I
6 Trouble T 13 Armed MAXIMUM M
7 Bypass B

VISTA-128FBP/VISTA-250FBP Installation and Setup Guide
2-8

3-1
SECTION 3
Installing The Control
•••••••••••••••••••••••••••••••••••••••••••••••••
This section describes the procedures for mounting and wiring the control panel and all the peripheral devices.
NOTE: All references in this manual for number of zones, number of user codes, number of access cards,
and the event log capacity, use the VISTA-250FBP’s features. See SECTION 1: General Description for the
table listing the differences between the VISTA-128FBP and the VISTA-250FBP control panels.
Mounting the Control Cabinet
To mount the control cabinet, perform the following steps:
Step Action
1 Before mounting the circuit board, remove the metal knockouts for the wiring entry that you will be using.
DO NOT ATTEMPT TO REMOVE THE KNOCKOUTS AFTER THE CIRCUIT BOARD HAS BEEN
INSTALLED.
2 Using fasteners or anchors (not supplied), mount the control cabinet to a sturdy wall in a clean, dry area
that is not readily accessible to the general public. The back of the cabinet has 4 holes for this purpose.
ULTo provide certificated burglary service for UL installations, refer to the special requirements and
Figure 3-2
Cabinet Attack Resistance Considerations
to follow.
Installing the Cabinet Lock
To install the lock, perform the following steps:
Step Action
1 Remove cabinet door, then remove the lock
knockout from the door. Insert the key into the
lock.
2 Position the lock in the hole, making certain
that the latch will make contact with the latch
bracket when the door is closed.
3 When correctly positioned, push the lock until
it is held securely by its snap tabs.
Use an Ademco No. K4445 Lock (supplied).
CABINET DOOR
BOTTOM
LOCKED
UNLOCKED
cab_lock_snap-001-V0
ADEMCO
ADEMCO
PUSH
SNAP
TAB
SNAP
TAB
PUSH
ON LOCK
UNTIL IT
IS SEATED
SECURELY
STEP 2STEP 1
CHECK
POSITION
Figure 3-1: Installing the Lock
Grade A Mercantile Premises Listing Guidelines
• The panel door must be supervised. Mount the
clip-on tamper switch (supplied) to the cabinet's
right side wall as shown in the diagram below, and
wire it to zone 6.
• Use a bell with a tamper-protected housing such as
the ADEMCO AB12. The bell housing's tamper
switch and inner tamper linings must also be wired
to zone 6.
• Assign zone 6 to a burglary partition. Program it
for day trouble/night alarm (zone type 5) when only
one burglary partition is used. Program it for 24-
hr. audible alarm (zone type 7) when more than one
burglary partition is used.
• All wiring between the bell and panel must be run
in conduit. Remaining wires do not need to be run
in conduit.
• All wiring that is not run in conduit must exit from
the knockout openings on the bottom or back of the
cabinet.
• All unused knockouts must be plugged using the
disc plugs and carriage bolts (supplied), as
indicated in the diagram below.
• Fasten the cabinet door to the cabinet backbox
using the 18 one-inch-long Phillips-head screws
(supplied) after all wiring, programming, and
checkout procedures have been completed.

VISTA-128FBP/VISTA-250FBP Installation and Setup Guide
3-2
PC
BOARD
(Shows typical local Grade A listing installation)
RUN BELL WIRES
IN CONDUIT
PLUG THIS
KNOCKOUT
PLUG THIS
KNOCKOUT
PLUG THIS
KNOCKOUT
PLUG THIS
KNOCKOUT
RUN ALL REMAINING
WIRE THROUGH HERE
CLIP-ON DOOR
TAMPER SWITCH
CABINET
MOUNTING
HOLE
(4 PLACES)
TO PLUG AN UNUSED KNOCKOUT OPENING,
REMOVE KNOCKOUT AND INSTALL A PAIR OF
DISC PLUGS AND A CARRIAGE BOLT AS SHOWN.
KNOCKOUT
OPENING
HEX NUT AND
WASHER
DISC PLUGS (DIMPLES IN DISC
PLUG SHOULD REGISTER INSIDE
KNOCKOUT OPENING)
CARRIAGE BOLT
CABINET SIDE WALL
(OUTSIDE)
cabattack-001-V0
Figure 3-2: Cabinet Attack Resistance Considerations
Grade A Mercantile Safe and Vault Listing Guidelines
• Follow the guidelines given above for Grade A
Mercantile Premises listing.
• Mount a shock sensor such as Sentrol No. 5402 to
the control's backbox. Follow the manufacturer's
instructions for proper sensor mounting. This
sensor also must be wired to zone 6.
• For safe and vault applications, a UL Listed
contact must be used inside the cabinet through
one of the knockouts for pry-off tamper purposes.
This sensor also must be wired to zone 6.
Installing the Control's Circuit Board
To install the circuit board in the cabinet, perform the
following steps:
Step Action
1Hang the three mounting clips on the raised
cabinet tabs. Refer to Figure 3-3 (Detail B).
Make sure the clip orientation is exactly as
shown in the diagram to avoid damage. This
will also avoid problems with insertion and
removal of the PC board.
2Insert the top of the circuit board into the slots
at the top of the cabinet. Make certain that the
board rests in the slots as indicated (Detail A).
3Swing the base of the board into the mounting
clips and secure the board to the cabinet with
the accompanying screws.
Notes:
• Make certain that the mounting screws are tight.
This ensures that there is a good ground connection
between the PC board and the cabinet.
• Dress field wiring away from the microprocessor
(center) section of the PC board. Use the loops on
the left and right sidewalls of the cabinet for
anchoring field wiring using tie wraps (Detail C).
These steps are important to minimize the risk of
panel RF interference with television reception.
+
+
+
DETAIL C
SIDE VIEW
OF SLOTS
DETAIL A
SIDE VIEW OF
BOARD INSERTED
INTO SLOTS
DETAIL B
SIDE VIEW OF SHORT
MOUNTING CLIPS
(TYP.)
hi_end_mnt-PCB
Figure 3-3: Mounting the PC Board

Section 3 - Installing the Control
3-3
Installing the Keypads
• Up to 31 addressable keypads (addresses 00-30)
may be used (you may need to use an auxiliary
power supply if the 1A aux. output is exceeded).
• Use a 2-line alpha display, 6139/6160 (gray or red)
(check with local AHJ for approval of keypad color).
To wire the keypads, perform the following steps:
Step Action
Determine wire gauge by referring to the
Wire Run Length/Gauge table below.
Wire Run Length/Gauge Table
Wire Gauge Length
#22 gauge 450 feet
#20 gauge 700 feet
#18 gauge 1100 feet
#16 gauge 1750 feet
1
2 Wire keypads to a single wire run or connect
individual keypads to separate wire runs.
The maximum wire run length from the
control to a keypad, which is homerun back
to the control, must not exceed the lengths
listed in the table.
3 Run field wiring from the control to the
keypads (using standard 4-conductor cable
of the wire gauge determined in step 1).
4 Connect keypad(s) to terminals 11, 12, 13,
and 14 on the control board, see Figure 3-4.
NOTE: If using only one keypad, it may be
connected to either Keypad Port 1 or 2, and
must be mounted on, or within three feet of
the cabinet. The keypad on Port 2 is
electrically isolated from those on Port 1 and
will continue to function even if wiring
problems prevent the other keypads from
working properly.
• The length of all wire runs combined,
regardless of the wire gauge, must not
exceed 2000 feet when unshielded quad
conductor cable is used (1000 feet if
unshielded cable is run in conduit, which
acts a shield, or if shielded cable is used).
• If more than one keypad is wired to one run,
then the above maximum lengths must be
divided by the number of keypads on the run
(e.g., the maximum length is 225 feet if two
keypads are wired on a #22 gauge run).
RED
KEYPADS
BLACK
GREEN
YELLOW
CONTROL
TERMINALS
12
13
14
11
kypd_conn-001-V0
Figure 3-4: Keypad Connections to Control Panel
Addressing the Keypads
The keypads will not operate until they are
physically addressed and enabled in the
system's
Device Programming
in the
#93 Menu
Mode
.
Set each keypad for an individual address (00-30)
according to the keypad's instructions. Set an alpha
keypad for address 00 and other keypads for higher
addresses (00 and 01 are enabled in the system's
default program). Any keypads set for address 02 and
above will appear blank until they are enabled in the
system's program. Each keypad must be set for a
different address.
• Do not set any keypads to address 31
(nonaddressable mode). They will interfere
with other keypads (as well as other devices)
connected to the keypad terminals.
• If an “OC” or “OPEN CIRCUIT” message is
present on a keypad, data from the control is
not reaching the keypad. Please check your
wiring.
Supplementary Power Supply for Additional Keypads
When the control’s auxiliary power load for all devices
exceeds 1A, you can power additional keypads from a
regulated 12VDC power supply (e.g., ADEMCO
AD12612 (1.2A)). Use a UL Listed, battery-backed
supply for UL installations.
Connect the additional keypads as shown in Figure 3-5,
using the keypad wire colors shown. Be sure to observe
the current ratings for the power supply used.
• Make connections directly to the screw
terminals as shown in
Figure 3-5
. Make no
connection to the keypad blue wire (if
present).
• Be sure to connect the negative (–) terminal
on the power supply unit to terminal 7 (–) on
the control.
+–
+
11 12 13 14
SUPPLEMENTARY
POWER SUPPLY
–
CONTROL TERMINAL STRIP
AUX. AUX. DATA
IN DATA
OUT
IMPORTANT:
MAKE CONNECTIONS
DIRECTLY TO SCREW
TERMINALS AS SHOWN.
MAKE NO CONNECTION
TO THE KEYPAD BLUE
WIRE (IF PRESENT).
TO KEYPAD RED WIRE
TO KEYPAD BLK WIRE
TO KEYPAD YEL WIRE
TO KEYPAD GRN WIRE
TO KEYPAD BLK WIRE
TO KEYPAD RED WIRE
TO KEYPAD GRN WIRE
TO KEYPAD YEL WIRE
pwr_sup-002-V0
Figure 3-5: Using A Supplementary Power Supply

VISTA-128FBP/VISTA-250FBP Installation and Setup Guide
3-4
Installing External Sounders
The VISTA-128FBP/VISTA-250FBP provides two
Notification Appliance Circuits for operating fire and
burglary alarm notification appliances. Each circuit is
rated as follows: 10VDC – 14VDC, 1.7A max., power-
limited. NOTE: The total alarm current drawn from
Auxiliary Power 1, Auxiliary Power 2, polling loop, Bell
1, and Bell 2 cannot exceed 2.3 amps for battery-
independent operation.
The outputs has the following options:
• Selectable for supervision.
• Selectable to activate by individual zone
assignments
• Selectable for confirmation of arming ding.
• Selectable to chime when entry/exit or perimeter
zones are faulted.
• Selectable for steady or pulsing
• Selectable for no timeout or timeout of 2-30
minutes.
If you purchased a kit containing the PS24
Power Supply Module, you may use this
module to convert one or both VISTA-
128FBP/VISTA-250FBP 12VDC, 1.7A style-Y
supervised Notification Appliance Circuits to
24VFW, 1.7A style-Y supervised Notification
Appliance Circuits.
UL• Burglary Notification Appliance Circuits
must be programmed for a timeout of 16
minutes or longer.
• Commercial fire alarm systems require
Notification Appliance Circuits to be
supervised.
ULThis control complies with National Fire
Protection Association (NFPA) requirements for
temporal pulse sounding of fire notification
appliances.
Notification Appliance Circuit Supervision
When supervision is enabled, the VISTA-
128FBP/VISTA-250FBP monitors the Notification
Appliance Circuits wiring for open and short circuit
faults while the output is inactive. The system provides
a trouble indication (Zone 970 Bell 1; 971 Bell 2) when
an open occurs; or when a short occurs between the Bell
(+) and Bell (-) terminal wiring, or between the Bell (+)
terminal wiring and earth ground.
The VISTA-128FBP/VISTA-250FBP indicates the
trouble condition regardless of whether the system is
armed or disarmed. The zone displays on the keypads,
reports to the event log, and transmits to the central
station (if programmed) on Partition 1. The trouble is
cleared from the display by entering the user code +
OFF.
Wiring the Alarm Output
The wiring of the Notification Appliance Circuits
depends upon whether you are going to supervise the
circuit or not. Use the appropriate procedure below for
your application.
ULUse only UL Listed sounding devices for UL
installations.
Compatible Alarm Indicating Devices
Model Device Type
ADEMCO AB12 Grade A Bell
System Sensor PA400B
(beige/PA400R (red) Indoor piezo sounder
rated at 90dB @ 10 feet.
System Sensor MA-12/24 Horn
System Sensor SS1215 ADA Strobe
System Sensor SS121575 ADA Strobe
System Sensor MASS1215 ADA Horn/Strobe
System Sensor MASS121575 ADA Horn/Strobe
System Sensor MA/SS-12 Horn/Strobe
Wheelock LS1-12-VFR Strobe
Wheelock MS1-12-VFR Strobe
Wheelock MT-12-LS-VFR Horn/Strobe
Wheelock MT4-12-LS-VFR Horn/Strobe
Wheelock MT-12-MS-VFR Horn/Strobe
WheelockMT4-12-MS-VFR Horn/Strobe
Gentex GXS-2-15 Strobe
Gentex GXS-2-1575 Strobe
Gentex SHG-12-15 Horn/Strobe
Gentex SHG-12-1575 Horn/Strobe
Faraday 5336L-U-14-12-DC Horn/Strobe
Faraday 5337-L-U-14-12-DC Horn/Strobe

Section 3 - Installing the Control
3-5
BELL 2 FACTORY DEFAULTS
BELL 2 IS CONFIGURED AS A FIRE BELL CIRCUIT
USE POLARIZED INDICATING DEVICES.
CLASS B OPEN/SHORT SUPERVISION.
24-HR TROUBLE RESPONSE TO FAULTS.
ACTIVATES FOR ZONE 1-2 ALARMS (BY DEFAULT,
ZONES 1-2 ARE ASSIGNED TO FIRE PARTITION 1)
PULSED ALARM OUTPUT.
NO TIMEOUT AB12 WIRING NOTES:
DISCONNECT THE AB12'S FACTORY-WIRED CONNECTION
FROM ITS TERMINAL #4 TO ITS OUTER BOX.
SET FIELD 3* 17 TO "1" TO ENABLE ZONE 6 TAMPER FUNCTION.
ASSIGN ZONE 6 TO A BURGLARY PARTITION. PROGRAM
IT FOR DAY TROUBLE/NIGHT ALARM RESPONSE (TYPE 05)
WHEN THIS BELL IS USED BY ONLY ONE BURGLARY
PARTITION. PROGRAM IT FOR 24-HR. AUDIBLE ALARM
RESPONSE (TYPE 07) WHEN THIS BELL IS USED BY
MORE THAN ONE BURGLARY PARTITION.
ALL WIRING FROM AB12 TO PANEL MUST BE RUN IN
CONDUIT.
AB12 BELL/BOX WIRING
TO PANEL'S BELL +
TO PANEL'S BELL –
(e.g., BELL 1; TB3)
(e.g., BELL 1; TB4)
TO ZONE 6 - (TB24)
TO ZONE 6 - (TB23)
BELL
TAMPER
SWITCHES
1234 5 6
2k EOLR
AB12 OUTER BOX
INNER LINER
6
belloutput-003-V0
543
BELL 1 FACTORY DEFAULTS
BELL 1 IS CONFIGURED AS A BURGLARY BELL CIRCUIT
USE NONPOLARIZED GRADE A INDICATING DEVICES
(e.g., ADEMCO NO AB12 - SEE WIRING NOTES BELOW)
WIRING IS NOT SUPERVISED; CUT WHITE JUMPER, W1,
ON MAIN PCB.
ACTIVATES FOR ZONES 3-8 ALARMS (BY DEFAULT,
ZONES 3-8 ARE ASSIGNED TO BURGLARY PARTITION 1)
STEADY ALARM OUTPUT
16-MINUTE TIMEOUT.
BELL 2BELL 1 ++
2k EOLR
(MODEL 610-7)
TO PANEL'S EARTH
GROUND (TB30)
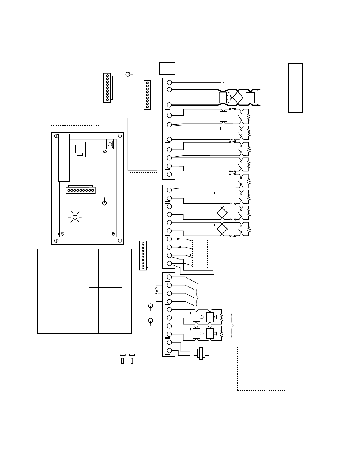
Figure 3-6: External Sounder Connections
Supervising the Notification Appliance Circuits
To wire the NAC using the supervision feature, perform
the following steps:
Step Action
1 Install a 2K EOL resistor (Model 610-7,
supplied) across the last notification
appliance on each Notification Appliance
Circuit to be supervised.
2 Program Zone 970 (Bell 1) and zone 971 (Bell
2) with a response type of 19 (24-Hour
Trouble).
Disabling the Supervision of the Notification
Appliance Circuits
To install the NAC and disable the supervision feature,
perform the following steps:
Step Action
1 Cut the white jumpers W1 (for Bell 1) and W2
(for Bell 2) on the main PC board.
2 Program Zone 970 (Bell 1) and zone 971 (Bell
2) with a response type of 00.
The Notification Appliance Circuits will not
respond unless the zones are assigned to them.
For fire alarms, the system displays “FIRE ALARM
SILENCED.” This message also displays if the
Notification Appliance Circuit is not supervised.
Auxiliary Relay Connections
The VISTA-128FBP/VISTA-250FBP provides a built-in
Form C relay with contacts rated at 28VAC/VDC, 2.8A.
The relay may be programmed (field 3✳61) for one of
the following functions:
• Alarm Activation
• Trouble/Supervisory Activation
• 4-Wire Smoke Detector Reset
• Battery Saver
Alarm Activation
(3✳61 = 1 or 4) Steady activation in response to an
alarm.
If field 3✳61 = 1, the auxiliary relay remains active
until Aux. Relay Timeout expires or until User Code +
OFF is entered. This option can be used to provide an
unsupervised Notification Appliance Circuit for
supplementary strobes, sounders, etc. when wired to
the Aux Power 1 or a separate power supply, see Figure
3-7.

VISTA-128FBP/VISTA-250FBP Installation and Setup Guide
3-6
If field 3✳61 = 4, the auxiliary relay remains activated
until User Code + # + 67 is entered. This option can be
used for elevator recall or ventilator shutdown on fire
alarms. By default, the relay is set to activate on alarm
zones 1-8 with no timeout (field 3✳61 = 1).
When field 3✳61 = 1, the auxiliary relay can be
programmed to give a brief activation for confirmation
of arming ding (field 3✳57) or Chime Mode (field 3✳59).
NOTES:
USE NON-POLARIZED INDICATING DEVICES.
WIRING IS NOT SUPERVISED.
DO NOT EXCEED RATINGS OF THE SUPPLY USED.
IF AUX. PWR. 1 OUTPUT IS USED, THE COMBINED
ALARM CURRENT DRAIN FROM AUX. PWR. 2,
BELL 1, AND BELL 2 CANNOT EXCEED 2.3A MAX.
belloutput-005-V0
812117
AUX RELAY FACTORY DEFAULTS
ACTIVATES FOR ZONES 1-8 ALARMS
(STEADY ALARM OUTPUT).
NO TIMEOUT.
109
+
AUX PWR #1
GROUND
POLE
N.O.
N.C.
CAN DRAW POWER FROM
AUX. PWR. 1 OUTPUT OR
FROM SEPARATE SUPPLY.
ALARM
Figure 3-7: Wiring Auxiliary Relay for Alarm Activation
Trouble/Supervisory Activation
(3✳61 = 0) Steady activation in response to any zone or
system related trouble condition or to any fire
supervisory condition. The auxiliary relay remains
activated until all fault conditions have been corrected
and a User Code + OFF is entered.
4-Wire Smoke Detector Reset
(3✳61 = 2) Momentary (6-second) activation in response
to a second entry of a User Code + OFF sequence
following a fire alarm condition. This interrupts power
to 4-wire smoke detectors connected to hardwired zones
1-8 and polling loop zones, allowing the detectors to be
reset. Power to the detectors should be wired to the
auxiliary relay and to Aux. Power 1 output, see Figure
3-8.
Battery Saver
(3✳61 = 3) When this option is selected, the auxiliary
relay is normally activated (e.g., N.O. and pole contacts
are connected) and de-activates 4 hours after the start
of AC Loss. Using this feature, non-critical loads, such
as supplementary keypads, can be disconnected from
the auxiliary power outputs, allowing a smaller
capacity battery to be used. The relay re-activates
within a few seconds after the AC power restores.
+
-
-
+-
+
•EOL
POWER
SUPERVISION
RELAY
MODULE
A77-716B
4-WIRE SMOKE
DETECTORS
2000
OHM
EOLR
HEAT
DETECTOR
+
–
BLK
+
-
ZONE
TERMINALS
(15-27)
12
11
10
9
N.O.
POLE
N.C.
Aux. Pwr 1
CONTROL
PANEL
•
SHOWN POWERED.
RELAY OPENS WHEN
POWER IS LOST
AUXILIARY RELAY
8
7
+
Keypad Prt 1
4_wiresmk-005-V0
Figure 3-8: Wiring Auxiliary Relay for Smoke Detector Reset

Section 3 - Installing the Control
3-7
Telephone Line Connections
The VISTA-128FBP/VISTA-250FBP provides one main
built-in dialer for communication to the central station
and one optional 5140DLM Backup Dialer, both
supervised for voltage and current on the phone lines.
Do not connect the system to telephone lines
that require ground start service.
ULFor Listed fire central station (UL864/NFPA 72)
applications, use either a Long Range Radio
(LRR) alone, the main dialer with the LRR, or
use the main dialer with the 5140DLM.
For listed fire remote station (UL864/NFPA 72)
applications, use the main dialer with the
5140DLM.
Telephone line supervision is required for UL
commercial fire alarm systems when dual line
dialer is used for fire signal transmission.
Main Dialer Connections
To connect the main dialer, refer to the Summary of
Connections diagram and perform the following steps:
Step Action
1 Connect the main dialer to the telephone
company lines using the RJ31X cable
supplied.
2 If the dialer output is connected to telephone
lines that have a telephone company MTU
installed, cut the blue jumper (W6).
Installing the 5140DLM Backup Dialer
Do not connect the main dialer and the backup
dialer to the same telephone company line.
To install the 5140DLM, refer to the Summary of
Connections diagram and perform the following steps:
Step Action
1 Mount the 5140DLM to the main PC board
shield.
2 Connect the backup dialer to the telephone
company lines using the RJ31X cable
supplied.
3 Connect the backup dialer to the J3 connector
on the main PC board using the ribbon cable
(supplied with the module).
4 Connect the earth ground screw on the
5140DLM to the earth ground terminal (30)
on the main PC board using 16AWG wire.
5 If the dialer output is connected to telephone
lines that have a telephone company MTU
installed, cut the blue jumper on the
5140DLM PC board.
Telephone Line Supervision
If the tip/ring voltage falls below approximately 25 volts
(13 volts if the blue jumper is cut) or the handset
current is less than approximately 10mA, the
supervision circuits for the dialer output will indicate a
fault condition. Faults on the phone lines are displayed
as zones 97 (main dialer) and 975 (backup dialer).
• To prevent risk of shock, disconnect the
phone lines at the telco jack before servicing
the panel.
• If the communicator is connected to a
telephone line inside a PABX, be sure the
PABX has backup power supply that can
support the PABX for 24 hours (central
station usage) or 60 hours (remote station
usage). Many PABXs are not power-backed
up, and connection to such a PABX results
in a communication failure if power is lost.
ULThe telephone line inputs have overvoltage
protection in accordance with UL1459, as
specified in UL985/UL1023.
Reporting Formats
The system is shipped defaulted for Contact
ID format. It is the only format capable of
uniquely reporting all 250 zones, as well as
openings and closings for all 250 users. This
requires central stations to be equipped with
the ADEMCO 685 receiver using software
level 4.10 or higher. If you need to update
your 685 Receiver, contact your distributor.
The system supports ADEMCO Low Speed 3+1; 4+1;
4+2; Sescoa/Radionics 3+1; 4+1; 4+2; ADEMCO 4+2
Express; ADEMCO High Speed; ADEMCO Contact
ID.formats
Dialer Operation
When only the main dialer is enabled (field 3✳30 = 1,0),
the system attempts to route all messages over the
main dialer output. When both the main and backup
dialers are enabled (field 3✳30 = 1,1), the system
attempts to route all calls over the main dialer output
until a fault condition is detected on the main dialer, at
which time it attempts to use the backup dialer.
The communicator makes up to 8 attempts to transmit
the messages to one or both telephone numbers
(primary and secondary), depending on the report
routing options programmed. After the 8th attempt, the
communicator hangs up and the system displays
“COMM FAIL” on the keypad. The number of dialer
attempts are programmed in field 3✳21 (default = 8;
must be restricted to 3, 4, or 5 if a secondary phone
number is programmed).
The system does not switch to the backup
dialer unless a fault condition is detected on
the main dialer. The backup dialer will not be
activated because of a programming error.

VISTA-128FBP/VISTA-250FBP Installation and Setup Guide
3-8
Wiring Burglary and Panic Devices to Zones 1-8
The maximum zone resistance is 100 ohms for
zones 1, 2 and 8, and 300 ohms for all other
zones (excluding the 2K EOL resistor).
To wire burglary and panic devices to zones 1-8, connect
sensors/contacts to the hardwire zone terminals (15
through 27). Connect N.C. and N.O. devices as follows:
• Connect N.C. devices in series with the high (+)
side of the loop. The 2K EOL resistor must be
connected in series with the devices, following the
last device.
• Connect N.O. devices in parallel (across) the
loop. The 2K EOL resistor must be connected
across the loop wires at the last device.
Using 2-Wire Smoke Detectors on Zones 1 and 2
Zone 1 and 2 can support up to 16 2-wire smoke
detectors each (32 total).
The alarm current on zones 1 and 2 supports
only one smoke detector in the alarmed state.
When assigned zone type 9 or 16, the second entry of a
User Code + off at a keypad interrupts power to these
zones to allow detectors to be reset following an alarm.
Compatible 2-Wire Smoke Detectors
DETECTOR TYPE DEVICE MODEL #
Photoelectric, direct-wire System Sensor 2400
Photoelectric w/heat sensor, direct-wire System Sensor 2400TH
Photoelectric w/B401B base System Sensor 2451
Photoelectric w/heat sensor & B401B System Sensor 2451TH
Ionization, direct-wire System Sensor 1400
Ionization w/B401B base System Sensor 1451
Photoelectric duct detect (DH400 base) System Sensor 2451
Photoelectric duct detect (DH400 base) System Sensor 2451
Ionization duct detector (DH400 base) System Sensor 1451DH
Ionization, direct-wire System Sensor 1100
Ionization w/B110LP base System Sensor 1151
Photoelectric, direct-wire System Sensor 2100
Photoelectric w/heat sensor, direct-wire System Sensor 2100T
Photoelectric w/B110LP base System Sensor 2151
ULThese smoke detectors are UL Listed for use
with the VISTA-128FBP/VISTA-250FBP and
are the only 2-wire smoke detectors that may
be used.
Wiring 2-Wire Smoke Detectors to Zones 1 and 2
2K EOL resistors must be used on fire zones
and must be connected across the loop wires
of each zone at the last detector.
To wire 2-wire smoke detectors to zone 1 and/or zone 2,
perform the following steps:
Step Action
1 Select 2-wire smoke detectors from the list of
compatible detectors.
2 Connect 2-wire smoke detectors across zone 1
(terminals 15 and 16), and/or zone 2
(terminals 17 and 18) as shown in Figure 3-9.
Observe proper polarity when connecting the
detectors.
3 Connect the EOL resistor at the last detector
in the loop across the zone 1 terminals. The
EOL resistor must be connected across
the loop wires at the last detector.
ZONE 1
2-WIRE SMOKE
DETECTOR
SMOKE
2000 OHMS
EOLR
15
16
2_wiresmk-001-V0
Figure 3-9: 2-Wire Smoke Detector on Zone 1 (for
zone 2 use terminals 17 & 18)
Using 4-Wire Smoke Detectors on Zones 1-8
You may use as many 4-wire smoke detectors as can be
powered from the panel's Auxiliary Power output
without exceeding the output's rating (1A).
Auxiliary power to 4-wire smoke detectors is
not automatically reset after an alarm, and
therefore must be momentarily interrupted
using either the J2 smoke detector reset output
trigger, the auxiliary relay or a 4204 Relay
Module.
Compatible 4-Wire Smoke Detectors
Use any UL Listed 4-wire smoke detector that is rated
for 10-14VDC operation and that has alarm reset time
not exceeding 6 seconds. Some compatible 4-wire
smoke detectors are listed below.
Detector Type Detector Model #
Photoelectric, direct wire System Sensor 2412
Photoelectric w/heat
sensor, direct wire System Sensor 2412TH
Ionization, direct wire System Sensor 1412

Section 3 - Installing the Control
3-9
Wiring 4-Wire Smoke Detectors
ULPower to 4-wire smoke detectors must be
supervised with an EOL device (use a System
Sensor A77-716B EOL relay module connected
as shown in
Figure 3-10
).
To wire 4-wire smoke detectors to zones 1-8, perform
the following steps:
Step Action
1 Select 4-wire smoke detectors (see list of
compatible detectors shown previously in
this section).
2 Connect detectors (including heat detectors,
if used) across terminals of the zone
selected. All detectors must be wired in
parallel. See Figure 3-10.
NOTE: If you are using the J2 output
trigger to reset the smoke detectors, refer to
Smoke Detector Reset later in this section for
the wiring instructions. If you are using the
auxiliary relay to reset the smoke detectors,
refer to Installing the Auxiliary Relay
previously in this section for wiring
instructions.
3 Connect the EOLR at the last detector in the
loop across the zone’s terminals. You must
connect the EOLR across the loop wires
at the last detector.
+
-
-
+
-
+
•
EOL
POWER
SUPERVISION
RELAY
MODULE
A77-716B
4-WIRE SMOKE
DETECTORS
2000
OHM
EOLR
HEAT
DETECTOR
+
–
BLK
+
-
ZONE
TERMINALS
(15-27)
12
11
10
9
N.O.
POLE
N.C.
Aux. Pwr 1
CONTROL
PANEL
•
SHOWN POWERED.
RELAY OPENS WHEN
POWER IS LOST
AUXILIARY RELAY
8
7
+
Keypad Prt 1
4_wiresmk-005-V0
Figure 3-10: 4-Wire Smoke Detectors
Using Smoke Power Reversal Module
The 333 PRM Polarity Reversing Module is used to
reverse the polarity of the positive and negative
voltages powering smoke detectors. The module is for
use with 4-wire smoke detectors that employ a sounder
and voltage-reversing feature. The module is triggered
by a pulsing Notification Appliance Circuit.
Smoke Detectors Compatible with the 333PRM
The 333PRM may be used with the System Sensor
2112/24AT and similar models with the required
operating features previously stated.
The 333PRM reverses polarity to smoke
detectors with Integral Temp-3 Sounders.
Typically, in alarm, each draws 49-60mA of
current. The control panel supplies only enough
current for one smoke detector. In order to
attach more than one, an external power
supply and an external relay may be required.
Installing the 333 PRM
Mount the 333 PRM inside the control panel’s cabinet
or in a separate cabinet using the double-sided tape
provided. Wire the 333PRM as shown in Figure 3-11 or
Figure 3-12. Refer to the 333PRM Installation
Instructions for detailed information on the installation
of the module.

VISTA-128FBP/VISTA-250FBP Installation and Setup Guide
3-10
333PRM-004-V0
333 PRM
9 5 812
7
6
5
4
3
-2
+1
8
JUMPER
P1
JUMPER P1 ON
333 MODULE
MUST BE IN
"B" POSITION
CONTROL PANEL
10
-
+
-
+
-
+
EOL POWER
SUPERVISION
RELAY MODULE
A77-761B
4-WIRE SMOKE
DETECTORS
2000
OHM
EOLR
TO FIRE ZONE
TERMINALS
HEAT
DETECTOR
+
–
SHOWN POWERED.
RELAY OPENS WHEN
POWER IS LOST
FOUR-WIRE DETECTOR CIRCUIT
Figure 3-11: Wiring a 333PRM to the Control
-
+
-
+
-
+
EOL POWER
SUPERVISION
RELAY MODULE
A77-761B
4-WIRE SMOKE
DETECTORS
2000
OHM
EOLR
TO FIRE ZONE
TERMINALS
HEAT
DETECTOR
+
–
SHOWN POWERED.
RELAY OPENS WHEN
POWER IS LOST
333PRM-005-V0
POWER
SUPPLY 333 PRM
7
6
5
4
3
+
-2
+1
8
JUMPER
P1
USE A 12VDC,
BATTERY-BACKED,
UL LISTED POWER
SUPPLY.
JUMPER P1 ON
333 MODULE
MUST BE IN
"B" POSITION
FOUR-WIRE DETECTOR CIRCUIT
CONTROL PANEL
89 5
12 10
Figure 3-12: Wiring a 333PRM using a Power Supply
Zone 6 Tamper Configuration
Zone 6 may be used as a tamper loop for the VISTA-
128FBP/VISTA-250FBP Cabinet Door Tamper Switch
and for the ADEMCO AB12 Grade A Burglary Bell Box
Tamper Switches and Tamper Liner. The bell Housing’s
tamper switch and inner tamper linings must also be
wired to zone 6.
Assign zone 6 to a burglary partition. Program it for
day trouble/night alarm (zone type 5) when only one
burglary partition is used. Program it for 24-hr.
audible alarm (zone type 7) when more than one
burglary partition is used. Enable the Zone 6 Alternate
Tamper Function (program field 3✳17.
When set in this manner, and the zone senses an open
or short, or an earth ground fault occurs by drilling
through the AB12 housing, the system triggers a
trouble when the system is disarmed and an alarm
when it is armed. (See the Installing the External
Sounders for wiring the ADEMCO AB12.)

Section 3 - Installing the Control
3-11
Using 2-Wire Latching Glassbreaks on Zone 8
Zone 8 can support 2-wire glassbreak detectors. The
zone provides enough standby current to power up to 50
2-wire glassbreak detectors meeting the requirements
listed below.
Compatible Glassbreak Detectors
Use detectors that meet the following ratings:
Standby Voltage: 5VDC–13.8VDC
Standby Resistance: Greater than 20k ohms (equivalent
resistance of all detectors in parallel)
Alarm Resistance: Less than 1.1k ohms (see note below)
Alarm Current: 2mA–10mA
Reset Time: Less than 6 seconds
NOTES:
• You can use detectors that exceed 1.1k ohms in
alarm, provided they maintain a voltage drop of
less than 3.8 volts in alarm.
• The IEI 735L Series detectors have been tested and
found to be compatible with these ratings.
GLASSBREAK
DETECTOR ZONE 8 (+)
(-)
LATCHING TYPE GLASS
BREAK DETECTOR LOOP
2000
OHMS
EOLR
27
26
glass_conn-001-V0
Figure 3-13: Wiring Latching Glassbreaks to Zone 8
• The alarm current provided by zone 8
supports only one glassbreak detector in
the alarmed state.
• Do not use other N.O. or N.C. contacts
when using glassbreak detectors on zone
8. Other contacts may prevent proper
glassbreak detector operation.
To wire 2-wire latching glassbreak detectors to zone 8,
perform the following steps:
Step Action
1 Select compatible 2-wire glassbreak
detectors that meet the requirements stated
previously.
2 Connect detectors across zone 8 (terminals
27 and 28). See Figure 3-13.
3 Connect the EOL resistor at the last
detector in the loop across the zone’s
terminals. You must connect the EOL
resistor across the loop wires at the last
detector.
Tamper Supervision for the Hardwired Zones
The system can be programmed to monitor for either an
open condition or a short condition of a tamper switch
on zones 1-8. End-of-line supervision is required for this
option.
Wiring a Tamper Switch to Zones 1-8
The wiring of the tamper switch depends on whether
the tamper switch and the sensor are normally open or
normally closed.
• If you are using a normally closed sensor, the
tamper switch must be normally open. Refer to
Figure 3-14 for the wiring configuration.
• If you are using a normally open sensor, the
tamper switch must be normally closed. Refer to
Figure 3-15 for the wiring configuration.
To wire a tamper switch on a hardwired zone, connect
the EOL resistor at the last detector in the loop across
the zone’s terminals. You must connect the EOL
resistor at the last detector for proper operation
of the tamper supervision.
NOTE: For the normally closed sensor, program
the zone for trouble on short. For the normally open
sensor, program the zone for trouble on open.
NOTE: For zones with a response type of 9 or 16 (Fire),
the tamper selection must be “0” none.
2k EOLR
+
TAMPER
SWITCH
SENSOR
Figure 3-14: Wiring a Normally Closed Sensor Loop
for Tamper Supervision
2k EOLR
+
TAMPER
SWITCH
SENSOR
Figure 3-15: Wiring a Normally Open Sensor Loop
for Tamper Supervision

VISTA-128FBP/VISTA-250FBP Installation and Setup Guide
3-12
Installing RPM Devices
The polling loop provides both power and data to the
RPM devices, and is constantly monitoring the status of
all zones enabled on the loop. The maximum current
draw of all devices on the polling loop cannot total more
than 128mA (unless the system uses a 4297 Polling
Loop Extender Module).
Devices that can be programmed via either DIP
switches or the built-in unique serial number
must be set for serial number mode operation.
All devices on the polling loop must be wired in parallel
to the [+] and [-] polling loop terminals of the control
panel (28 and 29). You can wire from device to device,
or have multiple branches connected directly to the
control panel in a star configuration.
Do not run polling loop wires within 6” of AC
power, telephone, or intercom wiring. The
polling loop is carrying data between the control
panel and the devices, interference on this loop
can cause an interruption of this communication.
The polling loop can also cause outgoing
interference on the intercom or phone lines. If
this spacing cannot be achieved, shielded wire
must be used. (Note that the maximum total
wire length supported is cut in half when
shielded wire is used.)
The Quest 2260SN can be programmed as a
“Smart Contact” in
Zone Progamming
. This
prevents those PIRs from displaying faults
during the disarmed state. You cannot mix
Quest 2260SN “Smart Contacts” with non-
“Smart Contacts” in the system.
UL• The 4208 must be mounted either inside the
VISTA-128FBP/VISTA-250FBP cabinet or in a
separate enclosure that has a tamper-
supervised cover.
• The 4190WH right loop must not be used, and
the left loop must be EOLR-supervised.
• The 4278 right loop cannot be used.
• The 4194 is not UL Listed.
• The 4297 must be powered from the VISTA-
128FBP/VISTA-250FBP Auxiliary Power Output
or from a UL Listed supplementary power
supply.
• The 7500 and 9500 detectors are not UL Listed.
• Twisted-pair is recommended for all wire runs.
• No more than 64mA may be drawn on any
individual wire run.
• When a star configuration is used, the total
length of all wire runs combined cannot exceed
4000 ft (2000 ft. if you are using unshielded wire
in conduit or shielded wire).
Compatible Polling Loop Devices
Model
Number Type
4208 8-Zone Expander
4190WH 2-Zone Expander
4278 Quad PIR
4275 Dual PIR
4194 Surface-Mount Reed Contact (Wide Gap)
4297 Extender Module
4192SD Photoelectric Smoke Detector Devices
4192SDT Photoelectric Smoke Detector w/Heat Detector
4192SDTM Same as above and provides maintenance
signals
5192 Same as above and provides maintenance
signals
4192CP Ionization Smoke Detector
4192CPM Same as above and provides maintenance
signals
4101SN Serial Number Single-Output Relay Module
4208U Universal 8-Zone Expander
4939SN-BR
4939SN-GY
Serial Number Surface-Mount Reed Contacts
4191SN-
WH Serial Number Recessed Reed Contact
4959SN Aluminum Overhead Door Contact
7500 Single Technology Glassbreak Detector
9500 Dual Technology Glassbreak Detector
4209U Universal Group Zoning Module
4193SN Serialized 2-Zone Expander
4293SN Serialized 1-Zone Expander
4190SN Serialized 2-Zone Expander
998MX Serialized PIR
To install polling loop devices, perform the following steps:
Step Action
1 Select devices from the list of compatible
devices shown previously.
2 Set the DIP switches in the device (if
required). Refer to the device’s instructions
for the DIP Switch Tables.
3 Mount each device in the desired location.
Refer to the device’s instructions.
Run wires from the control panel to each
device on the polling loop (see Figure 3-16).
No individual wire run may exceed the
lengths shown in the following table.
Maximum Polling Loop Wire Runs
Wire Gauge Max. Length
#22 gauge 650 feet
#20 gauge 950 feet
#18 gauge 1500 feet
#16 gauge 2400 feet
4

Section 3 - Installing the Control
3-13
Step Action
5 Wire each device to the polling loop, making
sure of the correct polarity (refer to the
device’s instructions).
NOTE: If you are using serial number
devices, and intend to enroll each device
through the keypad automatically, wire no
more than 25 of these devices to the
control at a time. Then power up and
program them before connecting the next 25.
Leave previously enrolled devices connected.
If you intend to manually enter the serial
numbers through the keypad or through
Compass downloading software, all the
devices may be connected before powering
up to program.
4192SD
SMOKE
4190
RPM
4278
PIR
27
25 26
+-
POLLING LOOP
29
28
TO RIGHT LOOP
polling_loop-002-V0
Figure 3-16: Polling Loop Connections to the
Control Panel
Polling Loop Supervision
A short on the polling loop is indicated by a trouble on
zone 997 and reports as a trouble condition only. If
annunciation is desired, program the zone as type 05 or
type 19.
If a device on the polling loop fails (the panel cannot
"see" that device), the system displays a trouble
condition for all zones on that device. If the panel is
armed when a device fails, and the zone is a burglary
zone, the will go into alarm
A trouble on zone 997 prevents a partition from
being armed, unless all polling loop zones on
that partition are bypassed.
Using the 4297 Polling Loop Extender
The 4297 Polling Loop Extender may be used to provide
additional polling loop current, to extend the polling
loop wire run length, and/or to provide individual
electrically isolated polling loops. Refer to Figures 3-17
and 3-18, to follow.
DO NOT use the 4197 Polling Loop Extender
module with the VISTA-128FBP/VISTA-
250FBP
.
Be sure to include the total current drawn on
the polling loop when figuring the total auxiliary
load on the panel’s power supply.
CONTROL PANEL
RPM
INPUT POLLING LOOP EXTENSION POLLING LOOP
RPM 4297 RPM RPM
TO
OTHER
RPMS
INPUT LOOP LIMITS: EXTENSION POLLING LOOP LIMITS = SAME AS INPUT LOOP
• 128 mA MAX. LIMIT CURRENT TO 64mA ON ANY
INDIVIDUAL WIRE RUN.
• NO MORE THAN 64 DEVICES MAY BE USED.
NO INDIVIDUAL WIRE RUN CAN EXCEED:
•
•TOTAL LENGTH OF ALL WIRE RUNS COMBINED CANNOT
EXCEED 4000FT. (2000FT. IF USING SHIELDED WIRE)
GAUGE LENGTH
#22 650 FT
#20 950 FT
#18 1500 FT
#16 2400 FT
• NO MORE THAN119 DEVICES COMBINED.
• TOTAL LENGTH OF ALL WIRE RUNS ON BOTH
LOOPS COMBINED CANNOT EXCEED 6400 FT.
(3200 FT. IF USING UNSHIELDED ). WIRE IN
CONDUIT, OR IF USING SHIELDED WIRE
polling_loop_003-V1
COMBINED INPUT AND EXTENSION LOOP LIMITS:
Figure 3-17: Polling Loop Connections Using One 4297 Extender Module

VISTA-128FBP/VISTA-250FBP Installation and Setup Guide
3-14
CONTROL PANEL
EXTENSION POLLING LOOP #1
4297
RPM
COMBINED INPUT AND EXTENSION LOOP LIMITS:
•NO MORE THAN 119 DEVICES COMBINED ON THE INPUT LOOP AND EXTENSION
LOOP #1. NO MORE THAN 119 DEVICES COMBINED ON THE INPUT LOOP AND
EXTENSION LOOP #2.
• TOTAL LENGTH OF ALL WIRE RUNS ON THE INPUT LOOP AND EXTENSION LOOP #1
COMBINED CANNOT EXCEED 6400 FT. (3200 FT. IF USING UNSHIELDED WIRE IN
CONDUIT, OR SHIELDED WIRE). TOTAL LENGTH OF ALL WIRE RUNS ON THE INPUT
LOOP AND EXTENSION LOOP #2 COMBINED CANNOT EXCEED 6400 FT. (3200 FT. IF
USING UNSHIELDED WIRE IN CONDUIT, OR SHIELDED WIRE).
4297
RPM
INPUT POLLING LOOP
•DO NOT CONNECT 4297 MODULES IN
SERIES (i.e., DO NOT CONNECT ONE
MODULE'S EXTENSION LOOP TO
ANOTHER MODULE'S INPUT LOOP.)
polling_loop-004-V1
EXTENSION POLLING LOOP #2
Figure 3-18: Polling Loop Connections Using Multiple Extender Modules
NOTE: The input loop limits stated in Figure 3-17 apply to Figure 3-18 as well.
Wireless Zone Expansion
ULThe 5881ENHC RF Receiver and the 5869 Holdup
Switch Transmitter are listed for UL Commercial
Burglary applications. All other RF receivers and
transmitters are not listed for UL Commercial
Burglary applications.
The following table lists the receivers that may be used
and the number of zones they support.
5800 Series Receivers
Receiver Zones
5881L up to 8
5881M up to 16
5881H up to 250
5881ENHC up to 250 (use with UL864 installations
In Canada, 5800 systems must use 5882
Series receivers. Information about the 5881
Receivers applies as well to the 5882
Receivers. Both receivers use the same
transmitters.
RF System Operation and Supervision
The 5800 RF system operation has the following
characteristics:
• The receiver responds to a frequency of 345MHz.
• The receiver has a nominal range of 200 feet.
• Supervised transmitters send a supervisory signal
every 70-90 minutes.
• Zones 988 and 990 are used to supervise the RF
reception of receivers 2 and 1, respectively. The
reception is supervised for the following two
conditions:
1. The receiver goes “deaf” (doesn’t hear from any
transmitter) within a programmed interval of time
(defined by program field 1*30).
2. Proper RF reception is impeded (i.e., jamming or
other RF interference). The control checks for this
condition every 45 seconds.
ULA response type (05 Day/Night) must be
programmed for zones 990 (1st receiver) and
988 (2nd receiver) for UL installations.
• The 5881ENHC receiver contains front and back
tampers that permit its use in commercial burglary
installations.
• You may only mount the 5881ENHC its own plastic
housing. Otherwise, the receiver constantly reports
a tamper condition.
• The control checks the receiver connections about
every 45 seconds. The receiver supervisory zone is 8
+ 2-digit receiver device address (for example,
Device address 05 = supervisory zone 805).
NOTE: This zone must be programmed with a
response type (e.g., type 05 Day/Night Trouble)
before it supervises the connection to the receiver.
• Use two identical receivers to provide either a
greater area of coverage or redundant protection.
They must be set for different addresses.
• Any zone from 1 to 250 can be used as a 5800
Series wireless zone, with the exception of zone 64
(reserved for a wireless keypad).

Section 3 - Installing the Control
3-15
RF System Installation Advisories
• Place the receiver in a high, centrally located area.
Do not place it on or near metal objects. This will
decrease the range and/or block transmissions.
• Install the RF receiver at least 10 feet from the
control panel or any keypads, to avoid interference
from the microprocessors in these units.
• If dual receivers are used:
a. Both must be at least 10 feet from each other,
as well as from the control panel and remote
keypads.
b. Each receiver must be set to a different device
address. The receiver set to the lower address
is considered the 1st RF receiver for
supervisory purposes.
c. The House IDs must be the same.
d. Using two receivers does not increase the
number of transmitters the system can support
(249 zones using the 5881H, plus a wireless
keypad).
5881ENHC-001-V0
SCREW
Figure 3-19: Installing the 5881ENHC with Tamper
Protection
Installation and Setup of the 5881 RF Receivers
Take note of the address you select for the RF
receiver, as this address must be enabled in
the system’s
Device Programming
in the
#93
Menu Mode
.
To install the 5881 RF receiver, perform the following
steps:
Step Action
1 Mount the receiver, following the advisories
stated previously.
2 Set the DIP switches in the receiver for the
address (01-07). See Figure 3-20.
Make sure the address setting is not
being used by another device (keypad,
relay module, etc.).
3If installing a 5881ENHC, install a flat-
head screw (supplied) in the case tamper tab
as shown in Figure 3-19. When the receiver is
pried from the wall, the tamper tab will break
off and remain on the wall. This will activate
a tamper switch in the receiver and cause
generation of a tamper signal. Note that this
signal will also be generated when the
receiver’s front cover is removed.
4 Connect the receiver’s wire harness to the
keypad terminals (11, 12, 13 and 14). Plug
the connector at the other end of the harness
into the receiver.
5 Refer to the Installation Instructions
provided with the receiver for installations
regarding antenna mounting, etc.
TO CONTROL'S REMOTE KEYPAD
CONNECTION POINTS. EACH RECEIVER
MUST BE ON INDIVIDUAL HOME RUN.
USE MAX. of 220 ft. [67m of #22 (0.64mm)
WIRE or 550 ft. (168m) of #18 (1mm) WIRE
FOR EACH RUN. OBSERVE 20 ft. MAX.
FOR COMMERCIAL FIRE INSTALLATIONS.
(SEE RECEIVER'S INSTRUCTIONS.)
DIP SWITCH WHITE AREAS = SWITCH
HANDLES. POSITION 2-4 DETERMINE
RECEIVER'S ADDRESS. CONSULT
CONTROL'S INSTRUCTIONS FOR
ADDRESS TO USE. DIP SWITCH BELOW
SHOWN SET FOR ADDRESS "0."
SWITCH
POSITION RECEIVER ADDRESS SETTINGS
(" - " MEANS OFF)
0 1 2 3 4 5 6 7
4
3
2
1
5
PRESENT ONLY ON 5881EH (SEE TEXT AT LEFT)
ON ON ON
ONON
ONON ONON
ONON
ON
FOR FUTURE USE
DIP SWITCH #5 (PRESET ONLY ON 5881EH)
ON: SETS 5881EH FOR USE IN COMMERCIAL
FIRE APPLICATIONS (SEE THE RECEIVER'S
INSTRUCTIONS)*.
OFF: USE IN NON-COMMERCIAL FIRE
INSTALLATIONS.
* FOR COMMERCIAL FIRE APPLICATIONS
THE 5881EH PC BOARD MUST BE MOUNTED
IN A SEPARATE CABINET (SEE RECEIVER'S
INSTRUCTIONS FOR DETAILS).
MOUNTING
HOLES
INSERT IN
RIGHT-HAND
TERMINALS
CIRCUIT
BOARD
DIP SWITCH
YELLOW
RED
BLACK
GREEN
INTERFERENCE
INDICATOR LED
WIRING
OPENING
PLUG & SOCKET
ANTENNAS
5881-001-V0
Figure 3-20: 5881 RF Receiver (cover removed)

VISTA-128FBP/VISTA-250FBP Installation and Setup Guide
3-16
Installing the 5800TM Module
Installation of this module is necessary only if you are
using a 5827BD or 5804BD Bi-directional device.
This address for the 5800TM must be enabled
in the control’s
Device Programming
in the
#93
Menu Mode
as a keypad and then assigned to
a partition.
To install the 5800TM, perform the following steps:
Step Action
1 Mount the unit using its accompanying
mounting bracket near the RF receiver.
The 5800TM must not be installed within
the control cabinet. It must be between
one and two feet from the receiver’s
antennas.
2 Set the module for the appropriate address.
For Address Setting 28 cut the red jumper;
for Address 29 cut the white jumper; for
Address 30 cut both jumpers.
Make sure the address setting is not
being used by another device (keypad,
relay module, etc.).
3 Connect the module’s wire harness to the
keypad terminals (11, 12, 13 and 14). Plug
the connector at the other end of the harness
into the module.
House ID Sniffer Mode
This mode applies only if you are using a wireless
keypad (5827/5827BD). Use the House ID Sniffer mode
to make sure you do not choose a House ID that is in
use in a nearby system. The House ID must be
programmed for the receiver in Device Programming in
the #93 Menu Mode.
To enter House ID Sniffer mode, enter your Installer
Code + [#] + [2].
The receiver now “sniffs” out any House IDs in the area
and displays them. Keep the receiver in this mode for
about 2 hours. Use a House ID that is not displayed.
Exit the Sniffer mode by entering your Installer Code
+ OFF.
As Sniffer mode effectively disables RF point
reception, Sniffer mode cannot be entered
while any partition is armed.
5800 Series Transmitter Setup
• Transmitters have built-in serial numbers that
must be enrolled in the system using the #93 Menu
Mode Programming, or via the downloader.
• Transmitters do not have DIP switches (except
5827, described separately).
• Some transmitters can support more than one
“zone” (loops or inputs) (e.g., 5816, 5817). Each loop
must be assigned a different zone number.
• For button-type transmitters (wireless keys), such
as the 5804 and 5804BD, you must assign a unique
zone number to each individual button used on the
transmitter.
The 5808 smoke detector can be programmed
as a “Smart Contact” in
Zone Progamming
.
This enables the detector to monitor
maintenance signals and may prevent false
alarms from a “dirty” detector.
Transmitter Supervision
Supervised RF transmitters send a check-in signal to
the receiver at 70–90 minute intervals. If at least one
check-in is not received from each supervised
transmitter within a programmed period (field 1∗31),
the “missing” transmitter number(s) and “CHECK” or
“TRBL” are displayed. Unsupervised RF transmitters
(5802MN, 5804) may be carried off the premises.
Some transmitters have built-in tamper protection, and
annunciate a “CHECK” or “TRBL” condition if covers
are removed.
If a loss of supervision occurs on a transmitter
programmed for Fire, it reports in Contact ID as
a Fire Trouble (373), not Loss of Supervision
(381), to the central station.
Transmitter Input Types
All transmitters have one or more unique factory-
assigned input (loop) codes. Transmitters can be
programmed as one of the following types:
Type Description
RM
(RF Motion) Sends periodic check-in signals, fault and low-
battery signals. The control panel
automatically restores the zone to “ready” after
a few seconds. It is intended for facilities with
multiple motion detectors that may fault and
restore simultaneously. The transmitter must
remain within the receiver’s range.
NOTE: RF Motion may only be used on
loop 1 of a door/window type transmitter.
RF
(Supervised
RF)
Sends periodic check-in signals, fault,
restore, and low-battery signals. The
transmitter must remain within the receiver’s
range.
UR
(Unsupervised
RF)
Sends all the signals that the RF type does,
but the control does not supervise the
check-in signals. The transmitter may be
carried off-premises.
BR
(Unsupervised
Button RF)
These send only fault signals. They do not
send low-battery signals until they are
activated. The transmitter may be carried
off-premises.

Section 3 - Installing the Control
3-17
Transmitter Battery Life
Batteries in the wireless transmitters may last from 4
to 7 years, depending on the environment, usage, and
the specific wireless device being used. Factors such as
humidity, high or low temperatures, as well as large
swings in temperature may all reduce the actual
battery life in a given installation.
The wireless system can identify a true low battery
situation, thus allowing the dealer or user of the system
time to arrange a change of battery and maintain
protection for that point within the system.
Some transmitters (e.g., 5802, 5802CP, and 5803)
contain long-life but nonreplaceable batteries. At the
end of their life, the complete unit must be replaced
(and a new serial number enrolled at the control).
Button-type transmitters (e.g., 5801, 5802, 5802CP and
5803) should be periodically tested, as these
transmitters do not send supervisory check-in signals.
To test the transmitters using the Transmitter
ID Sniffer mode and the Go/NoGo Test Mode,
see the
SECTION 10: Testing the System
for
the procedures.
Compatible 5800 Series Transmitters
Model Product Input Type
5801 Panic Transmitter UR or RF
5802
5802CP
Pendant (Personal Emerg. Xmitter)
Belt Clip (Personal Emerg. Xmitter)
BR Only
5802MN Miniature (Personal Emerg. Xmitter) UR or RF
5802MN2 Miniature (Personal Emerg. Xmitter) UR or RF
5804 Wireless Key Transmitter BR Only
5804BD Wireless Key Bi-directional
Transmitter BR Only
5804BDV Wireless Key Bi-directional
Transmitter with Voice BR Only
5806/5807/
5808 Photoelectric Smoke Detectors.
5808 is UL Listed for Fire RF
Model Product Input Type
5816 Door/Window Transmitter RF
5816MN Miniature Door/Window Transmitter
5816TEMP Temperature Sensor Transmitter
5817 Multi-Point Universal Transmitter RF
5818 Recessed Transmitter RF
5827 Wireless Keypad House ID
5827BD Wireless Bi-directional Keypad House ID
5849 Glassbreak Detector RF
5850 Glassbreak Detector RF
5890 PIR Detector RF
5890PI PIR Detector with Pet Immunity RF
Installing Output Devices
The VISTA-128FBP/VISTA-250FBP supports up to 96
outputs. Each device must be programmed as to how to
act (ACTION), when to activate (START), and when to
deactivate (STOP). The 4204, 4204CF, FSA-8, FSA-24,
and/or 4140SN may be used as output devices.
NOTE: The first 32 of the 96 Output Devices may
be supervised (zones 601-632). Only the relays on
4204CF modules may be supervised. If
supervision is programmed for other types of
Output Devices, unpredictable results may occur.
Installing the 4204 and 4204CF Relay Modules
Each 4204 module provides 4 relays with Form C
(normally open and normally closed) contacts. Each
4204CF module adds two style Y supervised
Notification Appliance Circuits to the system. For
4204CF modules, only relays 1 and 3 on each module
can be programmed.
The relay module will not operate until the
device address you have set the DIP switches
for is enabled in the control’s
Device
Programming
in the
#93 Menu Mode
.
To install the relay modules, see Figures 3-21 and 3-22
and perform the following steps:
Step Action
1 Set the 4204 or 4204CF’s DIP switches for a
device address 01-15.
Do not use an address being used by another
device (keypads, RF receivers, etc.).
2 Mount the 4204 and 4204CF modules per the
instructions provided with them.
Connect the module’s wire harness to the
control (11, 12, 13 and 14). Plug the connector
on the harness to the module.
When mounting remotely, homerun each
module to the control. The table below shows
the maximum wire run lengths. Refer to the
instructions provided with the 4204CF for its
maximum permissible wire lengths.
Wire Gauge Maximum Length
#22 125 feet
#20 200 feet
#18 300 feet
#16 500 feet
3

VISTA-128FBP/VISTA-250FBP Installation and Setup Guide
3-18
SWITCH 4204 ADDRESS SETTINGS
POSITION ("—" means "OFF")
0 1 2 3 4 5 6 7 8 9 10 11 12 13 14 15
2
ON — ON — ON — ON — ON — ON — ON — ON —
3
ON ON — — ON ON — — ON ON — — ON ON — —
4
ON ON ON ON — — — — ON ON ON ON — — — —
5
ON ON ON ON ON ON ON ON — — — — — — — —
ON
12345
➞
➞
➞
➞
➞
13 14 15 16
C
NC
NO
OFF
➞
ON
➞
DIP SWITCH
FOR SETTING DEVICE ADDRESS
AND ENABLING/DISABLING TAMPER
➞
COVER TAMPER (REED) SWITCH
➞
TB1
4204
TB2
4-PIN CONSOLE PLUG
➞
121110987654321
C
NC
NO
C
NC
NO
C
NC
NO
▲
RELAY
3
RELAY
2
RELAY
1
RELAY
4
TYPICAL
(SHOWN "OFF")
EITHER OR BOTH
CAN BE USED
➞
➞
DATA IN
FROM CONTROL
(–) GROUND
DATA OUT
TO CONTROL
(+) 12V
YEL
BLK
GRN
RED
Figure 3-21: 4204 Relay Module
SWITCH 4204CF ADDRESS SETTINGS
POSITION ("—" means "OFF")
0 1 2 3 4 5 6 7 8 9 10 11 12 13 14 15
2
ON — ON — ON — ON — ON — ON — ON — ON —
3
ON ON — — ON ON — — ON ON — — ON ON — —
4
ON ON ON ON — — — — ON ON ON ON — — — —
5
ON ON ON ON ON ON ON ON — — — — — — — —
ON
12345
➞
➞
➞
➞
➞
OFF
➞
ON
➞
13 14 15 16
NC
NC
DIP SWITCH
FOR SETTING DEVICE
ADDRESS AND
ENABLING/DISABLING
TAMPER
➞
COVER TAMPER (REED) SWITCH
➞
TB1
TB2
4-PIN CONSOLE PLUG
➞
121110987654321
NC
NC
NC
NC
▲
EITHER OR BOTH
CAN BE USED
➞
➞
DATA IN
FROM CONTROL
(–) GROUND
DATA OUT
TO CONTROL
YEL
BLK
GRN
RED (+) 12V; SUPPLIES POWER TO MODULE
CIRCUITRY (INCLUDING NOTIFICATION
APPLIANCE RELAY COILS). CURRENT
DRAIN AT 12V IS: 25 mA + (80 mA PER
ACTIVE OUTPUT)
NOTIFICATION APPLIANCE AND
CONSOLE DATA OUTPUTS ARE
POWER LIMITED
–
+
NOTIFICATION
APPLIANCE B
2K EOLR
#610-7
POLARIZED
NOTIFICATION
APPLIANCE
–
+
NOTIFICATION
APPLIANCE A
2K EOLR
#610-7
}
–
+
POWER FOR
NOTIFICATION APPLIANCE A,
NOTIFICATION APPLIANCE B
8-28VDC OR VFW. UP TO 2.4A
DEPENDING ON BELL CURRENT
- ALARM POLARITY
SHOWN
- EACH OUTPUT
PROVIDES
STYLE Y
SUPERVISION
- EACH OUTPUT
RATED 1.2A MAX
- USE
NOTIFICATION
APPLIANCES
COMPATIBLE
WITH
NOTIFICATION
APPLIANCE
POWER SUPPLY
VOLTAGE
RATING
Figure 3-22: 4204CF Relay Module
Installing the FSA Modules
The 8-zone LED Fire System Annunciator FSA-8 and
24-zone LED Fire System Annunciator FSA-24 enable a
fire response unit to identify quickly the point/zone of a
fire. These indicators may be used for other functions as
well, such as status indication. A maximum of 4 FSA
modules, in any combination, can be supported.
To install the FSA module, refer to Figure 3-23 and
perform the following steps:
Step Action
1 Set the FSA’s DIP switches for a device
address from 08 to 23. See the module’s
instructions for the DIP switch table.
Do not use an address being used by another
device (keypads, RF receivers, etc.).
2 Mount the FSA module horizontally to a
duplex box (quad box for FSA-24).
3 Connect the module to the control’s keypad
terminals (11, 12, 13 and 14).
00000
ECP Bus
Dip Switch
Optional
Keyswitch
Connection
SIDE
VIEW
All Switches shown
in Up position.
(ECP Address 23)
Terminal
Block
Connect to
Keypad
Terminals
Figure 3-23: Wiring the FSA Module
The FSA module will not operate until the device
address you have set the DIP switches for is
enabled in the control’s
Device Programming
in
the
#93 Menu Mode
.
Installing 4101SN Relay Modules
The 4101SN V-Plex Single Output Relay Module is a
serial number polling loop output device. The 4101SN
features the following:
The position of the relay is supervised, but not
the actual external contact wiring.
• Form C relay contacts rated at 2A, 28VAC/VDC
with contact supervision.
• One class B/style B EOLR-supervised auxiliary
input zone.
• Operating power and communication with control
panels via the V-Plex polling loop.
• Electronics mounted in a small plastic case with
tamper-protected cover.
• If are using ZONE # for the START of a
polling loop output, and want the output to
stop when the same zone restores, the
STOP programming must be blank.
• No more than 20 polling loop outputs may
be programmed for the same START or
STOP condition in
Output Programming
.
Connect the device to the polling loop, terminals 28 (+)
and 29 (-). Be sure to observe polarity

Section 3 - Installing the Control
3-19
Installing a Remote Keyswitch
A UL-Listed remote keyswitch, such as the ADEMCO
4146, can be used for remote arming/disarming of the
burglary part of the system and for silencing alarms.
The keyswitch operates in only one particular partition.
The keyswitch is wired across zone 7. This zone is no
longer available as a protection zone. Be sure to
program Zone 7 with a response type (e.g., type 10).
Operation
• A momentary short arms the partition in the
AWAY mode, and a short held for more than 10
seconds arms the partition in STAY mode 1. A
subsequent short disarms the partition.
• The keyswitch LEDs indicate the partition’s status
(see table that follows).
• A momentary short silences Notification Appliance
Circuits and keypad sounds, and disarms the
system if it was armed. A subsequent short clears
the alarm memory indication and resets 2-wire
smoke and glassbreak detectors (if used).
• The keyswitch can be used to silence fire alarms
without disarming the burglary portion (program a
“9” in field ✳15). A momentary short silences alarm
outputs only if a fire alarm is present.
ULIn UL commercial fire installations, mount the
keyswitch next to the keypad. The keypad
displays the UL-required “FIRE BELL
SILENCED” when the keyswitch is used to
silence a fire alarm.
LED Indications
Green Red Indication
On Off Disarmed & Ready
Off Off Disarmed & Not Ready
Off On Steady Armed Away
Off Slow Flash Armed Stay
Off Rapid Flash Alarm Memory
The keyswitch reports as user 0, if Open/Close
reporting is enabled in field ✳40.
Keyswitch Tamper Operation
The tamper switch need not be used for fire or UL
Household Burglary installations. For UL Commercial
Burglary installations, the tamper switch must be
wired to zone 6, see Figure 3-24).
Program zone 6 for Day Trouble/Night Alarm (response
type 5). When the keyswitch is removed from the wall,
the tamper switch opens, causing an alarm or trouble
on the zone. This also causes the control to disable
keyswitch operation until the tamper is restored and
the associated partition is disarmed.
Wiring for the Remote Keyswitch
To install the ADEMCO 4146 keyswitch, perform the
following steps:
Step Action
1 Connect the ADEMCO 4146 to the panel as
shown in Figure 3-24.
2 If you are using the tamper, make sure it is
connected to a zone.
4146 KEYSWITCH
(READY)
GREEN
(ARMED)
RED
TO ZONE 8 + (TERM 27)
TO OUT 5 (J2 PIN 6)
TO ZONE 7 + (TERM 25)
TO ZONE 7/ZONE 8 - (TERM 26)
TO GND (J2 PIN 8)
TO OUT 1 (J2 PIN 7)
4146_keyswitch-001-V0
2000
OHMS
EOLR
2000
OHMS
820
OHMS
820
OHMS
TAMPER
SWITCH
(N.C.)
LOCK
SWITCH (N.O.)
Figure 3-24: Remote Keyswitch Wiring
Installing a 5140LED Indicator Module
An optional 5140LED Indicator Module can be installed
in municipalities, which require dedicated indicators for
communicator fault status. The 5140LED provides the
following indicators:
• AC POWER:
• ON if AC Power is present.
• OFF if AC Power is not present.
• COMM FAILURE:
• ON if maximum number of attempts were made
(field 3✳21) to transmit a message to the central
station. Enter User Code + OFF following a
successful transmission to turn off.
• OFF is normal.
• DIALER 1 FAULT:
• ON if main dialer line is faulted. Correct problem
and then enter User Code + OFF to turn off.
• OFF if normal.
• DIALER 2 FAULT
• ON if backup dialer line is faulted. Correct
problem, and then enter User Code + OFF to
turn off.
• OFF if normal.

VISTA-128FBP/VISTA-250FBP Installation and Setup Guide
3-20
Wiring for the 5140LED Indicator Module
Program “2” field 3✳20 and connect the 5140LED
Module to the J2 connector as shown in Figure 3-25. It
is designed for mounting into a standard single-gang
electrical box.
To install the 5140LED Indicator Module, perform the
following steps:
Step Action
1 Pull wires from the control panel’s J2
connector through an opening ion the single-
gang box and splice these wires to the modules
flying leads. Solderless splices may be used.
2 Mount the module’s PC board onto one side of
the PC board retainer bracket (supplied).
3 Slide the PC board retainer bracket into the
box and fasten with screws (supplied).
4 Mount the stainless steel decorative cover
(supplied) onto the box.
5140LED MODULE
AC POWER
4142 TR CABLE
4142 TR CABLE WIRE COLORS
AC POWER BROWN
DIALER 2 FAULT GREEN
COMM FAILURE ORANGE
DIALER 1 FAULT YELLOW
COMM FAILURE
DIALER 1 FAULT
DIALER 2 FAULT
FUTURE USE
BLUE
RED
RED
BLACK
BLACK
5140LED MODULE
WIRE COLORS
TO AUX
PWR 1
OUTPUT
+
–
(TO TERM 11)
(TO TERM 12)
123456789
INPUT 1
GROUND
OUT 1
OUT 4
OUT 7
OUT 3
OUT 6
OUT 2
OUT 5
J2 CONNECTOR
VIOLET
GRAY
YELLOW
WHITE
RED
GREEN
BROWN
BLUE
BLACK
J2_trigcon-003-V0
Figure 3-25: Wiring the 5140LED Indicator Module
Installing a Remote Keypad Sounder
An optional Amseco PAL 328N Piezo Sounder can be
used to duplicate the sounds produced by the keypad’s
built-in sounder. The remote sounder will duplicate all
sounds (such as alarms, trouble beeps, etc.) except for
the short beeps associated with keypad key depression.
One application of this feature would be to produce
chime beeps at a distant location from the keypads.
If used, program field 3✳20 must be set to “0” and field
✳15 must be set to the desired partition number.
The remote sounder must be connected to the Output 5
on the J2 connector as shown in Figure 3-26.
123456 78 9
(GRAY)
(YELLOW)
(WHITE)
(RED)
(VIOLET)
(GREEN)
(BROWN)
BLUE
BLACK
J2 CONNECTOR
AMSECO PAL-328N
PIEZO SOUNDER
(10MA)
4142TR CABLE
J2_trigcon-006-V0
GROUND
OUT 1
OUT 5
OUT 2
INPUT 1
OUT 6
OUT 3
OUT 7
OUT 4
BLACK
RED
_
+
Figure 3-26: Remote Keypad Sounder Wiring
Installing the VA8200 Panel Link Module
The VA8200 Panel Link Module (PLM) connects to the
keypad (ECP) terminals on the VISTA-128FBP/VISTA-
250FBP and also connects to other PLMs via the RS-
485 bus (3-wire twisted cable run). Figure 3-27 is a
block diagram of a panel linking setup using three
control panels.
ULPanel Linking is not permitted in UL
installations.
CONTROL
PANEL
CONSOLE
PLM
CONTROL
PANEL
CONSOLE
PLM
CONTROL
PANEL
CONSOLE PLM
ECP
ECP
ECP
RS-485
PLG-001-V0
Figure 3-27: Panel Linking Block Diagram
ECP Wire Run Limitations
Determine wire gauge by referring to the table below.
Wire Run Length Table
Wire Gauge Length
#22 gauge 450 feet
#20 gauge 700 feet
#18 gauge 1100 feet
#16 gauge 1750 feet
• The length of the ECP wire runs combined
must not exceed 2000 feet when unshielded
cable is used (1000 feet if unshielded cable is
run in conduit or if shielded cable is used).
• If more than one ECP device is wired to a
single run, then the above maximum lengths
must be divided by the number of devices on
the run (e.g., the maximum length is 225 feet
if two keypads are wired on a #22 gauge run).

Section 3 - Installing the Control
3-21
RS-485 Bus Wire Run Limitations
The RS-485 bus from the first PLM to the last PLM
cannot exceed 4000 feet, using 16-AWG twisted cable.
The recommended form of wiring is to daisy chain the
connection from one unit to another. If several buildings
are to be connected, the RS-485 bus should form a
continuous path from one building to the next.
Avoid wiring units in a star configuration, where
multiple branches are formed. Star configurations
create loading and capacitance problems that are
complex, and become difficult to troubleshoot.
Mounting and Wiring the Panel Link Module
The PLM will not operate until the device is
enabled in the control’s
Device Programming
in
#93 Menu Mode
.
To mount and wire the Panel Link Module, refer to
Figure 3-28 and perform the following steps:
Step Action
1 Remove all power from the control panel
before making any wiring connections.
2 Mount the module in the control cabinet if
space is available or, adjacent to the cabinet,
using 2-faced adhesive tape.
3 Set the PLM’s DIP switches for a device
address between 01 and 30. See the module’s
instructions for the DIP switch table.
Do not use an address being used by another
device (keypads, RF receivers, etc.).
Step Action
4 Connect the 12V (+) and (–) and data-out and
data-in connections from the PLM to the
control’s keypads terminals (11, 12, 13 and
14), respectively.
5 Connect the 3-wire RS-485 cable between
each PLM. Recommended wiring is to bring
the wires “in” from one module (or control
panel) to terminals 5 (+), 6 (-), and 7 (G) and
“out” to the next module from terminals TB1-
8 (+), 9 (-), and 10 (G).
+
_
G
+
_
G
+
_
1 2 3 4 5 6 7 8
PLG-002-V0
RS-485
RS-485
EOL
JUMPER
PINS
PIEZO
SOUNDER
TAMPER
REED
SWITCH
DIP
SWITCH
ECP IN
ECP OUT
Figure 3-28: VA8200 Panel Link Module Wiring
Long Range Radio Connected to the ECP
The control can support an ECP Long Range Radio
(LRR) (7820, 7835C, and 7845C are supported) that
connects to control panel’s keypad terminals. All
messages programmed for transmission via the phone
lines may also be sent via the LRR. These messages
are transmitted in Contact ID format regardless of the
format programmed for the control in fields 45 and 47.
We recommend that, if possible, you use
Contact ID for the main dialer. If Contact ID is
not used, certain types of reports are not sent.
Supervision
The data lines between the control and the LRR, as well
as certain functions in the radio, can be supervised.
If communication is lost or a trouble condition occurs,
both the LRR and the control’s dialer can be
programmed to send a Trouble message to the central
station.
NOTE: For complete information, see the Installation
Instructions that accompany the radio.
Operation
The VISTA-128FBP/VISTA-250FBP features Dynamic
Signaling Delay and Dynamic Signaling Priority
message reporting when Long Range Radio is used.
These message outputs are accessed through data fields
✱56 and ✱57, respectively. The Dynamic Signaling
feature is designed to reduce the number of redundant
reports sent to the central station.
The feature is described as follows:
Dynamic Signaling Delay (Field ✱56)
Select the time the panel should wait for
acknowledgment from the first reporting destination
before it attempts to send a message to the second
destination. Delays can be selected from 0 to 225
seconds, in 15-second increments.
Dynamic Signaling Priority (Field ✱57)
Select the initial reporting destination for messages,
Primary Dialer (0) or Long Range Radio (1).

VISTA-128FBP/VISTA-250FBP Installation and Setup Guide
3-22
The chart below provides an explanation of how the
Dynamic Signaling feature functions.
If Priority
(✱57) is… And message is… Then…
Acknowledged
before delay
expires
Message is removed
from queue and no
message is sent to
LRR.
Primary
Phone No.
("0")
Not acknowledged
before delay
expires
Message is sent to
both the Primary
Phone No. and LRR.
Acknowledged
before delay
expires
Message is removed
from queue and no
message is sent to
Primary Phone No.
Long
Range
Radio ("1")
Not acknowledged
before delay
expires
Message is sent to
both the Primary
Phone No. and LRR.
Additional LRR reporting options are defined by
selecting the events for each subscriber ID in fields 58
and 59. The reporting events are Alarms, Troubles,
Bypasses, Openings/Closing, System Events, and Test.
Also, within an enabled category, the specific event
must be enabled for dialer reporting. If, for instance,
zone 10 is enabled to report, but zone 11 is not, zone 10
will report via the LRR, but Zone 11 will not.
Messages arec transmitted from the VISTA-
128FBP/VISTA-250FBP to the LRR on a “first in/first
out” basis. If events occur at the same time, they are
transmitted in order of priority. The priority from most
to least important is : Fire Alarms, Panic Alarms,
Burglary Alarms, Fire Troubles, Non-Fire Troubles,
Bypasses, Openings/Closings, Test messages, and all
other types of reports.
There are two subscriber ID’s programmed into the
LRR: primary and secondary. These correspond to the
two subscriber ID’s programmed into the control for
each partition. If a subscriber ID for a partition is not
programmed (disabling reports to that central station),
the events enabled for the corresponding subscriber ID
in the LRR will not be transmitted.
If the event is to be reported to both phone numbers
(dual reporting), then reporting through the LRR will
be done in an alternating sequence. The first event in
the queue is transmitted to both the primary and the
secondary radio central stations before transmitting the
second event.
If split reporting is selected for the VISTA-
128FBP/VISTA-250FBP, then the LRR will send the
appropriate reports to the primary and secondary
central stations.
Installing the ECP Long Range Radio
To install the LRR, perform the following steps:
Step Action
1 Mount the radio according to the
instructions that accompany the radio.
2 Connect the data in/out terminals and
voltage input terminals of the radio to the
control’s keypad connection points,
terminals 11, 12, 13 and 14. See Figure 3-29.
RED
LONG
RANGE
RADIO
BLACK
GREEN
YELLOW
CONTROL
TERMINALS
12
13
14
11
LRR-001-V0
Figure 3-29: Wiring Long Range Radio to Keypad
Terminals
Trouble Messages
The following messages are displayed on the 6139/6160
when a problem exists on the Long Range Radio:
1. “LRR Battery”: The battery connected to the radio
is low.
2. “PLL out of Lock”: The radio has an internal fault
and cannot transmit any messages.
3. “Early Power Detect”: RF power is detected without
a valid transmission.
4. “Power Unattained”: Full RF power was never
attained.
5. “Frwd. Power Loss”: RF power was not sustained
throughout the transmission.
6. “Antenna Fault”: A problem with the antenna has
been detected.
7. “LRR CRC is bad”: The radio’s EEPROM is corrupt
(the internal CRC is bad).
NOTES:
Items 2 and 3 require factory service.
Items 4 and 5 could be the result of a bad or low
battery.
If the item 6 message appears, check the antenna,
connection and cable; if they are secure, factory service
is required.
All these messages are displayed in conjunction with
the “CHECK 8xx” message, which indicates a trouble
on the address to which the LRR unit is programmed in
the control.
All of these events except Antenna Fault are sent to the
event log and reported to the central station using
Contact ID Event Code 333 (expansion device trouble).
Antenna Fault uses Event Code 357. If the tamper is
tripped on the LRR, it uses Event Code 341 (expansion
device tamper).

Section 3 - Installing the Control
3-23
Long Range Radio Connected to the J2 Triggers
These triggers may be used to trip auxiliary alarm
signaling equipment such as ADEMCO’s 7720,
7720ULF, and 7920SE Long Range Radios.
The triggers are common to all partitions and must be
enabled for each partition (field 2✳20).
If using the Alpha Pager Module, you cannot
use a Long Range Radio connected to the J2
triggers.
The fire and burglary/audible panic alarm triggers are
normally LOW and go HIGH until a User Code + OFF
is entered in all enabled partition(s) that display these
conditions.
The silent panic/duress trigger latches HIGH, except for
duress, which is momentary.
Refer to the installation instructions that accompany
your radio for the connections to the control panel.
Installing the Alpha Pager Module
The VA8201 Alpha Pager Module (APM) is used for the
transmission of alphanumeric messages to a user-
subscribed Paging Service. The APM will dial and can
be programmed to send the information to up to 8
different paging services. In addition, the module can
direct the reports to a parallel or serial printer.
NOTE: The APM is only required for alphanumeric
format. The system sends numeric format messages
directly.
ULThe Alpha Pager Module is not permitted in UL
installations.
The types of events (messages) the pager can transmit
are divided into 6 categories: alarms, troubles,
bypasses, openings/closings, system, and test.
The options for each paging service are:
• Paging service phone number
• Format (numeric, alphanumeric)
• Two Delay Times (numeric format only): the time
between dialing and transmitting of pager ID and
the time between pager ID and event information
• Pager ID number (if necessary)
• Partition(s) (which partitions the events are
transmitted for)
• Types of messages (events) sent). Must be
programmed for the pager to work.
The APM hangs up between each message. Multiple
messages are sent in the order received. If the APM
cannot make contact with the paging service, it retries
up to 10 times.
• When using the APM, field ✳14 must be
programmed for RS232 input (1).
• The APM transmits alphanumeric messages
using the TAP protocol. The installer must
check with the paging service to ensure that
they are using the TAP protocol Rev. 1.8 or
higher.
Paging Service Advisory
If you are setting up the software for the first time,
contact your paging service provider for the following
two pieces of information:
• The exact access number to be used with each
receiving device
• The correct PIN number for each receiving device.
Pager Formats
The system supports pager formats alphanumeric and
numeric.
Alphanumeric
PP Date Time EA ZZZ SSSS AD
Where:
PP Partition number (e.g., P1)
Date Date the event occurred (e.g., 03/15/00)
Time Time the event occurred (e.g., 01:16AM)
EA Event alpha descriptor (see APPENDIX D)
ZZZ Zone or user number ✳
SSSS The partition’s 4-digit subscriber number
(in field ✳32)
AD The zone’s programmable alpha descriptor
✳
✳ If the event is an arming or disarming, a 6-
character descriptor can be sent for the user, if
programmed, instead of the user number. The
descriptor can be programmed only via the
Compass Downloader.
The installer code has a default of INSTLR and
user number 002 has a default of MASTER for
the 6-character descriptor.
Numeric Format
SSSS P EEE ZZ, where:
SSSS The partition’s 4-digit subscriber number (field
✳32)
P Partition number
EEE 3-digit event code
ZZZ 3-digit zone or user number
NOTE: If any of the digits for the subscriber number
are hex digits (B, C, D, E, F), they will be replaced with
1, 2, 3, 4, 5, respectively, on the pager display.

VISTA-128FBP/VISTA-250FBP Installation and Setup Guide
3-24
Numeric Format Event Codes
Event Code
Alarm 333
Trouble 555
Open 444
Close 777
Other 000
Mounting the Alpha Pager Module
The Alpha Pager Module (APM) may be mounted in the
control cabinet if space is available or, if this is not
possible, on the side of the cabinet or adjacent to it.
Do not mount the Alpha Pager Module on the
cabinet door or attempt to attach it to the PC
board.
To mount the Alpha Pager Module, perform the
following steps:
Step Action
1If you are mounting the Alpha Pager Module
inside the control cabinet, attach it to the
cabinet’s interior surface with 2-faced
adhesive tape.
2If you are mounting the Alpha Pager Module
outside the cabinet, use the bracket
interface (Ademco Part Number K5350).
Wiring the Alpha Pager Module
The Alpha Pager Module connects via the 4142TR cable
to the J2 connector on the VISTA-128FBP/VISTA-
250FBP.
• If using a serial printer, it must be configured
for a baud rate of 1200, seven data bits, even
parity, and one stop bit. (7/E/1).
• Automation software cannot be used if a serial
printer is used on the system.
To wire the Alpha Pager Module, refer to Figure 3-30
and perform the following steps:
Step Action
1Connect the 4142TR to J2 on the control.
2Connect the Red wire of 4142TR to the
Orange wire of the APM, and the Black wire
of the 4142TR to the Green wire of the APM.
4Connect the Red and Black wires of the APM
to terminals 11 and 12 (auxiliary power (+)
and (-), respectively) of the control.
5Connect the APM RJ11 connectors labeled
LINE and PHONE to RJ31X jacks as shown
in Figure 3-30.
6Connect the premises phones and the control
panel phone cord as shown in Figure 3-30.
7If you are using a parallel or serial printer,
connect the printer according to the
instructions accompanying the APM.
VA8201 ALPHA PAGER MODULE
PARALLEL PRINTER
PARALLEL
OUTPUT
SERIAL
OUTPUT
DATA/
POWER
TO PHONE
RJ11
HOME AUTOMATION COMPUTER
BROWN
GRAY
GREEN
BLACK
GREEN
620
PHONE CORD
APM-001-V0
TO LINE
RJ11
RJ31X
12 3
4
5
67
8
RING
TIP
INCOMING
PHONE LINE
TO
PREMISES
PHONES
RING
TIP
RJ31X
123
4
5
67
8
ORANGE
RED
11 12
1 2 3 4 5 6 7 8 9
J2
COMMERCIAL FIRE/BURGLARY CONTROL PANEL
RED
BLACK
ORANGE
GREEN
RED
BLACK
ORANGE
RED
RED
GREEN
GREEN
GREEN
SPLICE
SPLICE
RED
VIOLET
GRAY
BROWN
GRAY
BROWN
GREEN
RED
4142TR
Figure 3-30: Wiring the Alpha Pager Module

Section 3 - Installing the Control
3-25
Access Control Using VistaKey
The VistaKey is a single-door access control module.
When connected to the alarm system, it provides access
control to the protected premises. The VISTA-128FBP
supports up to 8 VistaKey modules, the VISTA-250FBP
supports up to 15 modules (15 access points).
DO NOT USE BOTH the VistaKey and a
PassPoint Access Control System on the same
alarm panel.
ULThe VistaKey module contains three zones.
These zones should ONLY be used for access
control functions in UL installations. THESE
INPUT ZONES ARE NOT TO BE USED FOR
FIRE AND BURGLARY APPLICATIONS IN UL
INSTALLATIONS.
VistaKey Features
• Each VistaKey communicates with the VISTA-
128FBP/VISTA-250FBP via the V-Plex polling loop.
• If local power to the VistaKey is lost, the module
provides backup monitoring of the access point door
via a built-in V-Plex device that is powered solely
from the polling loop. The V-Plex device is
programmed in the control’s Zone Programming. A
serial number label is affixed to the VistaKey
module for manual entry of its serial number.
• The VistaKey supports up to 500 cardholders.
• All configurable options for each VistaKey are
accomplished via software, firmware, and
nonvolatile memory, except the access point zone
number (1-15), which is set via a user-friendly, 16-
position rotary switch.
• The addition and removal of VistaKey modules
from the system is easily accomplished via the
VISTA-128FBP/VISTA-250FBP keypad.
• Each VistaKey provides one open-collector output
trigger (sink 12mA @ 12VDC).
Mounting and Wiring the VistaKey
For detailed instructions on how to install and
program the VistaKey, refer the
Installation and
Setup Guide
that accompanies the VistaKey-SK.
To mount and wire the VistaKey module, perform the
following steps:
Step Action
1 Mount the VistaKey, door strike or mag lock,
and card reader.
2 Mount the door status monitor (DSM) and/or
request-to-exit (RTE) devices.
3 Using
Figure 3-31 as a reference, connect the
card reader interface cable to TB3, making the
+5V or +12V connection last.
4 Connect the leads to TB1 in the following
order:
a. All ground leads to terminals 2, 5, and 9.
b. The DSM, (optional) RTE, and General
Purpose leads to terminals 6, 7, and 8,
respectively.
c. Door strike (or mag lock) lead to terminal
10.
d. Local +12V or +24V supply lead to terminal
1.
e. Local +12V or +24V supply lead to the N/C
relay terminal 11 (if a mag lock is being
used), OR to the N/O relay terminal 10 (if a
door strike is being used).
5 Connect the (–) polling loop and (+) polling
loop leads (from the VISTA-128FBP/VISTA-
250FBP) to terminals 4 and 3, respectively.
6 Set the Address Select switch to the desired
access door number (1-15).
7 Repeat steps 1 through 6 for each VistaKey
being installed.
Connecting the Card Reader
Lead from Reader Lead Color To VistaKey TB3
Terminal #
Green LED Orange 1
Ground* Black 2
DATA 1 (Clock) White 3
DATA 0 (Data) Green 4
+5VDC† Red† 6
+12VDC† Red† 7
*TB-3 Terminal 5 is also a ground and may be used instead of
terminal 2. Terminals 2 and 5 are a common ground.
†Connect to +5VDC OR +12VDC per reader manufacturer’s
specification.

VISTA-128FBP/VISTA-250FBP Installation and Setup Guide
3-26
+
WEEKLY TESTING IS REQUIRED
TO ENSURE PROPER OPERATION
OF THIS SYSTEM.
POLE Door Strike/Mag Coil
DATA 1 (WHITE)
DATA 0 (GREEN)
NOTE 1: USE UL LISTED ENERGY CABLE FOR ALL CONNECTIONS.
NOTE 2: VISTAKEY TB3 TERMINAL 5 IS A GROUND AND MAY BE
USED INSTEAD OF TB3 TERMINAL 2. TB3 TERMINALS 2 AND 5 ARE
A COMMON GROUND.
NOTE 3: WHEN USING TRIGGER TO TURN ON AN LED OR BUZZER,
RETURN HIGH SIDE OF LED OR BUZZER TO TB3 TERMINAL 7.
TRIGGER RATING IS 15mA AT 12VDC.
+5V
GND
TRIGGER (SEE NOTE 3)
+12V (RED)
ZONE C (General)
ZONE A (DSM)
ZONE B (RTE)
POLLING LOOP -
14V MAX (12V @ 85-160mA Nominal)
POLLING LOOP +
GND
GND
GND
N/O DOOR STRIKE POWER
N/C MAG COIL POWER
2
3
4
5
6
7
8
111223456789101RELAY CONTACT RATINGS:
3A @ 28VDC MAX. (RESISTIVE LOAD)
TB 1
TB 3
1
READER INTERFACE CABLE
GND (BLACK)
RDR LED (ORANGE)
TO ALARM SYSTEM
CONTROL PANEL
POLLING LOOP TERMINALS.
NO
CONNECTION
VISTAKEY
THIS DEVICE COMPLIES WITH PART 15 CLASS A
LIMITS OF FCC RULES. OPERATION IS SUBJECT
TO THE FOLLOWING TWO CONDITIONS:
(1) IT MAY NOT CAUSE HARMFUL INTERFERENCE.
(2) IT MUST ACCEPT ANY INTERFERENCE THAT
MAY CAUSE UNDESIRED OPERATION.
K1
DOOR
CONTROL
RELAY
FOR ADDITIONAL RATINGS AND
SPECIFICATIONS, REFER TO
INSTALLATION INSTRUCTION
FOR THE VISTAKEY-SK.
THIS EQUIPMENT SHOULD BE INSTALLED IN
ACCORDANCE WITH THE NATIONAL FIRE
PROTECTION ASSOCIATION'S STANDARDS 70 &
74 (NATIONAL FIRE PROTECTION ASSOC.,
BATTERYMARCH PARK, QUINCY, MA. 02269).
PRINTED INFORMATION DESCRIBING PROPER
MAINTENANCE, EVACUATION PLANNING AND
REPAIR SERVICE IS TO BE PROVIDED WITH
THIS EQUIPMENT.
TO TB1, 11 OR 12
+ 12 VDC TO ONLY
ONE OF THESE INPUTS.
(FROM TB1-1)
Figure 3-31: Wiring the VistaKey
Access Control Using the PassPoint Access Control System
The VISTA-128FBP/VISTA-250FBP interfaces with the
PassPoint ACS via the VISTA Gateway Module (VGM).
The VGM is connected between the ECP bus (keypad
terminals) of the control and the network bus of the
PassPoint ACS.
The control sends the VGM its status information,
event log entries, and entry/exit requests (inputs
programmed with response type Access Point) from
keypads, hardwired zones, and RF transmitters. The
VGM then reformats and retransmits this information
to the Main Logic Board, (MLB) on the PassPoint ACS
network bus.
ULInterfacing the VISTA-128FBP/VISTA-250FBP
with the PassPoint Access Control System via
the VISTA Gateway Module is not permissible
for UL installations.
Wiring the VISTA Gateway Module
The VISTA Gateway Module is connected between the
ECP bus (VISTA-128FBP/VISTA-250FBP keypad
terminals) and the network bus of the PassPoint Access
Control System. See Figure 3-32 for the proper wiring
connections.
}
ECHELON NETWORK
(PASSPOINT ACS)
YELLOW
RED
BLACK
PROM C
TRANSFORMER
4-PIN
KEYPAD
PLUG
}
TO
CONTROL’S
KEYPAD
TERMINALS
GREEN
Figure 3-32: Wiring the VISTA Gateway Module

Section 3 - Installing the Control
3-27
Event Log Connections
This system has the ability to record up to 1000 events
of various categories in the Event Log (history log).
Each event is recorded with the time and date of its
occurrence (if real-time clock is set).
The categories are Alarm, Supervisory/Check, Bypass,
Open/Close, System and Test conditions. The log may
be viewed on an alpha keypad, the AUI or printed on a
serial printer.
• When using a printer, field 3*19 must be
programmed for RS232 input (1).
• If you are using a serial printer, J2 pins 5 &
9 on the control panel cannot be used to
interface with Automation software
.
Using the Alpha Pager Module (APM)
To connect a printer using the Alpha Pager Module,
perform the following steps:
Step Action
1 Connect the APM to the control (see
Installing the Alpha Pager Module previously
in this section).
2 Connect the printer according to the
instructions that accompany the APM.
Using the 4100SM
To connect a serial printer using the 4100SM, refer to
Figure 3-33 and perform the following steps:
Step Action
1Connect the 4142TR cable to J2 on the
control.
2Connect the Violet and Red wires of the
4142TR to terminal 1 and 6 on the 4100SM,
respectively.
3Connect terminals 8 and 7 of the 4100SM to
terminals 11 and 12 (aux. power (+) and (-)),
respectively of the control.
4Connect the serial printer to the 4100SM.
NOTE: The 4100SM Module is supplied with
a 10-foot RS232 cable. A longer cable can be
used if the VISTA-128FBP/VISTA-250FBP is
separated from the serial printer by more
than 10 feet, but the total cable length should
be less than 50 feet.
NOTES:
If you are using printer, field 3✳19 must = 1.
If you are using a serial printer, it must configured with
7 data bits, even parity, 1 stop bit, 1200 baud
123456789
J2 CONNECTOR
VIOLET
GREY
YELLOW
WHITE
RED
GREEN
BROWN
BLUE
BLACK
4142TR CABLE (SUPPLIED WITH 4100SM)
6
5
4
3
2
1
4100SM SERIAL MODULE
+ PWR
- (GND)
RXD
not used
not used
TXD
not used
DTR
BLUE WHITE
To TB11 Aux. Power (+)
(25mA current draw)
To TB12 Aux. Power (-)
USE GENDER CHANGER
SUPPLIED WITH 4100SM
IF PRINTER HAS DB25
MALE CONNECTOR
3M
Cable
Supplied with
4100SM
SERIAL PRINTER
SET FOR: 8 DATA BITS
EVEN PARITY
STOP BIT
300/1200 BAUD
4100SM JUMPERS
(CUT TO SET RESPECTIVE SIGNAL FLOATING)
COLOR FUNCTION PIN #
RED
BLUE
WHITE
CD
CTS
DSR
8
5
6
RED
4100SM-012-V0
8
7
Figure 3-33: Printer Connections to the 4100SM
NOTE: See the 4100SM Installation Instructions for
details concerning the serial printer operation.
Installing the 4285/4286 VIP Module
The 4285/4286 VIP Module is an add-on accessory that
permits the user to access the security system (and
relays) via a TouchTone telephone. This may be done
either from the premises or by calling the premises
from a remote location. Only one VIP Module can be
used in a security system. This module must be
enabled as Device Address 4 in the Device
Programming in #93 Menu Mode, and must be assigned
to a partition.
ULThe 4285/4286 VIP Module is not permitted in
UL installations.
Detailed operating instructions for phone access
to the security system are provided with the VIP
Module.
The 4285/4286 VIP Module features:
• Allows the user to receive synthesized voice
messages over the phone regarding the status of
the security system.
• Allows the user to arm and disarm the security
system and perform most other commands using
the telephone keypad.
• Allows the user to control relays using the
telephone keypad.

VISTA-128FBP/VISTA-250FBP Installation and Setup Guide
3-28
• Provides voice annunciation over the phone to
confirm any command that is entered.
• Announces many of the same words that would
normally be displayed on an alpha keypad under
the same system conditions. Refer to the words in
bold on the Alpha Vocabulary list found in the #93
Menu Mode Programming in the Programming
Guide.
• Can be supervised for connection to control panel
(annunciated and reported as Zone 804).
The 4285/4286 is wired between the control panel and
the premises’ handset(s) (see Figure 3-34). It listens for
TouchTones on the phone line and reports them to the
control panel. During on-premises phone access, it
powers the premises phones; during off-premises phone
access, it seizes the line from the premises phones and
any answering machines.
• The VIP module will not operate until the
device address (04) is enabled in the control’s
Device Programming
in
#93 Menu Mode
.
• Do not mount the VIP Module on the cabinet
door or attempt to attach it to the PC board.
To install the VIP module, perform the following steps:
Step Action
1 Mount the module in the control cabinet if
space is available or, if this is not possible, on
the side of the cabinet or adjacent to it.
If you mount the VIP Module inside the
control cabinet, attach it to the cabinet’s
interior surface with 2-faced adhesive tape.
You may leave the module’s cover off if it is
mounted within the cabinet.
If you mount the module outside the
cabinet, use the screw holes at the rear to
mount horizontally or vertically (2-faced
adhesive tape may be used, if preferred).
2 Affix the 4285/4286 connections label
(supplied separately) to the inside of the VIP
Module’s cover, if the cover is used.
Otherwise, affix the label to the inside of the
control cabinet’s door.
3 Make 12V (+) and (–) and data-in and data-
out connections from the VIP Module to the
control, using the connector cable supplied
with the VIP Module. These are the same
connections as for remote keypads.
Step Action
Connect the module to the phone line as
shown below. See Figure 3-34.
4285/4286 Terminal Connects to:
1. Phone In (Tip) green wire of direct-
connect cord
2. Phone In (Ring) red wire of direct-
connect cord
3. Phone Out (Tip) brown wire of direct-
connect cord
4. Phone Out (Ring) gray wire of direct-
connect cord
5. No Connection
6. Audio Out 1∗Speaker
7. Audio Out 1∗Speaker
∗Supported by the 4286 only
4
Use an RJ31X Jack with the phone cable
supplied with the control to make connections
to the VIP module. Make connections exactly
as shown in Figure 3-34.This is essential,
even if the system is not connected to a
central station. The 4285/4286 will not
function if this is not done.
• If touch-tones are not present following phone
access to the security system
via an on-
premises phone
, try reversing the pair of
wires connected to terminals 3 and 4 on the
4285/4286.
• If the phone plug is disconnected from the
control, the premise’s phones will not operate.

Section 3 - Installing the Control
3-27
ANSWERING
MACHINE
4286 VIP MODULE
1234 56 7
PREMISES
ANSWERING
MACHINE AND
PHONES
RJ31X
JACK
INCOMING TELCO LINE
GRAY
GRAY
BROWN
BROWN
GREEN
GREEN
RED
RED
CONTROL PANEL
JACK
RED
MAIN
DIALER
JACK
RJ31X
JACK
CALLER
ID UNIT
DIRECT
CONNECT
CORD
8-CONDUCTOR
DOUBLE PLUG CORD
(SUPPLIED)
GRAY
BROWN
GREEN
4286_wiring-003-V0
YELLOW
NO CONNECTION
RED
BLACK
GREEN
TO CONTROL PANEL
KEYPAD CONNECTIONS
KEYED
HEADER
NO CONNECTION
IMPORTANT NOTE FOR EXISTING INSTALLATIONS:
EXISTING WIRES CONNECTED TO THE "HANDSET"
TERMINALS ON CONTROL MUST BE MOVED FROM
THERE TO TERMINALS 3 AND 4 ON THE 4286.
U.S. PATENT NO. 4791658
THIS DEVICE COMPLIES WITH FCC RULES, PART 68
FCC REGISTRATION NO. AC3USA-74659-KX-N
RINGER EQUIVALENCE: 1.0B
4500
THERMOSTAT
GREEN
YELLOW
NOTE:
4286 DEVICE
ADDRESS IS
SET TO "4".
SEE SPEAKER NOTE
SPEAKER NOTE:
SPEAKER
VOLUME
CONTROL
IF CONNECTING SINGLE SPEAKER, USE 8-ohm
SPEAKER ONLY.
IF CONNECTING 2 SPEAKERS, USE 4-ohm OR
8-ohm SPEAKERS AND CONNECT IN SERIES.
Figure 3-34: 4285/4286 VIP Module Connections
Installing the Audio Alarm Verification Module
ULAudio Alarm Verification (AAV) is not permitted
in UL installations.
• 685 Receiver software must be rev. 4.6 or
higher. Earlier versions will not hold the
phone line connection.
• Contact ID code for “Listen-in to Follow” is
606. Contact ID is the only reporting format
that will send a “Listen-in to Follow.”
NOTES:
• When the AAV indicates that the audio alarm
verification session is completed, all keypad sounds
are restored. Sirens are restored if the alarm
timeout period has not expired.
• As part of its fail-safe software, the control limits
all audio alarm verification sessions to 15 minutes.
This is because once the session begins, the AAV
Module controls the duration.
• If a new Fire alarm should occur during a session,
the control breaks the phone connection and sends
the new Fire Alarm report, then re-triggers the
AAV Mode. All other dialer messages triggered
during ongoing conversation are held until either
the AAV Module signals that it is inactive, or the
15-minute timeout occurs.
If the phone plug is disconnected from the
control, the premise’s phones will not operate.
To install the Eagle 1250 AAV module to the control,
perform the following steps:
Step Action
1 Mount the module in the control cabinet if
space is available or, if this is not possible,
on the side of the cabinet or adjacent to it.
2 Connect the Eagle 1250 Module terminals 7
and 8 to the control’s zone 5 terminals 22
and 23.
The purpose of this connection is to silence
and restore the sounders at the premises. It
is also used to postpone noncritical dialer
reports while the AAV session is in progress.
3Program zone 5 with a response type (e.g.,
10 Interior w/Delay). Field 1✴60 must be
enabled to silence sounders on the premises.
Zone 5 is no longer available as a protection
zone.
4 Connect the AAV module’s falling-edge
trigger input (terminal 5 on Eagle model
1250) to a 4204 relay module, as shown in
Figure 3-35.
Program the start and stop system operation
as 60 for the 4204 relay, in Output
Programming in the #93 Menu Mode.

Section 3 - Installing the Control
3-30
1 2 3 4 5 6 7 8 9 10 11 12 13 14 15 16
▲
ON
MODEL EAGLE SECURITY
1241
REFER TO
AAV MODULE
INSTRUCTIONS
FOR CONNECTIONS
TO AUDIO SPEAKERS
AND MICROPHONE
PREMISES ANSWERING
MACHINE AND PHONES
INCOMING TELCO LINE
V+
GND
1 2 3
RELAY 1
(SHOWN OFF)
NO NC C
4204 RELAY MODULE
13
14
15
16
RED
GREEN
GRAY
BROWN
ZONE 5+
ZONE 5-
22
23
TO
CONTROL
GND
8-CONDUCTOR
DOUBLE PLUG
CORD
(SUPPLIED)
RJ31X
JACK
JACK
BROWN
GRAY
CALLER
ID UNIT
ANSWERING
MACHINE
CONTROL
PANEL
ALL SWITCHES OFF
EXCEPT SWITCH 5
(WHICH SHOULD BE ON)
NOTE
REMOVE ANY EOL RESISTOR
FROM CONTROL PANEL
TERMINALS 22 AND 23.
aav_conn-005-V0
Figure 3-35: AAV Connections
Connecting the Transformer
Use the 1451 Transformer with enclosure (supplied)
with the VISTA-128FBP/VISTA-250FBP control when
the PS24 Power Supply will not be used. This
transformer provides 18VAC/72VA secondary winding
for powering the control.
Use the 1451-24 Transformer when using both the
VISTA-128FBP/VISTA-250FBP and the PS24 Power
Supply. This transformer provides 18VAC/72VA
secondary winding to power the control and
30VAC/188VA secondary winding to power the PS24
Power Supply.
The control panel kit you purchased comes with the
appropriate transformer. Both transformers have a
manually resettable circuit breaker mounted inside a
protective metal enclosure.
Use the following instructions for mounting and wiring
the 18VAC secondary winding of either transformer.
Use the instructions provided with the PS24 Power
Supply Module to wire the 30VAC winding of the 1451-
24 Transformer.
To connect the 1451transformer to the control, perform
the following steps:
Step Action
1 Remove the front cover of the enclosure.
2 Mount the enclosure to the wall near the
VISTA-128FBP/VISTA-250FBP control
panel. The enclosure has 4 mounting holes
on its back surface for this purpose.
3 Run 120VAC wiring to the enclosure in
conduit. A dedicated circuit must be
used.
Step Action
4 Use wire nuts to splice the 120VAC wires to
the transformer’s white and black primary
leads.
5 Connect the earth ground post on the back of
the enclosure to a good earth ground.
6 Run 16AWG wire in conduit from the
enclosure to the control panel.
7 Use wire nuts to splice the transformer blue
18VAC secondary leads to the 16AWG wire.
Connect the 16AWG wire at the control
panel to terminals 1 and 2.
8 Replace the front cover of the enclosure and
fasten it with the screws supplied
• Use wires having insulation rated for at least
90°C operation and suitable for non-power
limited applications.
• Use care to keep 18VAC wiring separated
from all other wiring inside the control panel’s
enclosure. This must be done by running
non-power-limited 18VAC wiring into the
control panel’s enclosure via one of the
knockouts on the left-hand side, and then tie-
wrapping these wires to the tie-wrap loops
located near the knockout.

Section 3 - Installing the Control
3-31
Earth Ground Connections
In order for the lightning transient protective devices in
this product to be effective, the designated earth ground
terminal (terminal 30) must be terminated in a good
earth ground. Recommended wire gauge for the ground
connection is #16 AWG, run no farther than 30 feet.
The panel requires the earth ground connection
for its lightning transient protection devices.
To connect the earth ground, perform the following
steps:
Step Action
1 Connect the earth ground post inside the
1451 enclosure to a good earth ground (use
grounding methods specified in the National
Electric Code).
2 Use a green nut (supplied) to secure the wire
to the ground post. The ground wire should
be the only wire under this nut.
3 Run a 16AWG wire from the ground post to
the panel’s earth ground terminal (30). Use
a second green nut (supplied) to secure this
wire to the ground post.
This connection avoids ground loops that
may occur when the 1451 and panel are
connected to different earth ground systems.
Determining the Control’s Power Supply Load
In the event of an AC power loss the VISTA-
128FBP/VISTA-250FBP and the PS24 Power Supply
Module must be supported by backup, rechargeable
batteries. When the system is used without the PS24,
a 12VDC, 12AH to 34.4AH battery must be connected
the control panel. When the system is used with a
PS24, two 12VDC, 7AH to 17.2AH batteries must be
connected to the PS24.
The PS24 configures these batteries to provide 24V
backup power to its outputs and 12V backup power to
the control panel.
The battery’s capacity must be sized to provide 24 hours
(UL central station fire) or 60 hours (UL remote station
fire) of standby time followed by 5 minutes (fire only) or
15 minutes (fire and burglary) alarm time.
Use the worksheets that follow to calculate the total
current for Auxiliary Power 1, Auxiliary Power 2, Bell
1, Bell 2, Polling Loop and the total current load of the
control panel. In each worksheet, multiply each device’s
standby and/or alarm current by the number of units
used.
Then, if you are using the PS24, fill out the Total
PS24 Module Load Worksheet, found in the PS24’s
instructions, to determine the required capacity of the
backup batteries that must be connected to the PS24.
Select two batteries from the Battery Selection Table in
the PS24’s instructions that have a capacity greater
than or equal to the calculated capacity.
If you are NOT using the PS24, fill out the Battery
Capacity Calculation Worksheet, following the other
worksheets below, to determine the required capacity
for the backup battery. Select a battery from the
Battery Selection Table (found later in this section) that
have a capacity greater than or equal to the calculated
capacity.

VISTA-128FBP/VISTA-250FBP Installation and Setup Guide
3-32
1. In Worksheet 1, enter devices used on the polling
loop. Calculate total current draw on the polling
loop.
Worksheet 1: Total Polling Loop Current Draw
Polling Loop Device Current # of Units Total
Polling Loop Subtotal
(terminals 28 & 29 – 128mA) ✳
✳The total current cannot exceed 128mA. If total load exceeds
128mA, then a 4297 Loop Extender Module can be used. This
module is powered from the panel’s auxiliary power, and
provides a separate polling loop output, which can support an
additional 128mA load. Note that the total number of points
connected to the panel cannot exceed 119.
2. In Worksheet 2, enter devices used on Auxiliary
Power 1. Calculate standby and alarm currents,
then add to get Auxiliary Power 1 current subtotal.
Worksheet 2: Auxiliary Power 1 Current Load
Total Current
Device
Model # Device Current X
# of Units Standby Alarm
Auxiliary Power 1 Subtotal
(terminals 10 & 11) 1A max.1.7A max.
3. In Worksheet 3, enter devices used on Auxiliary
Power 2. Calculate standby and alarm currents,
then add to get Auxiliary Power 2 current subtotal.
Worksheet 3: Auxiliary Power 2 Current Load
Total Current
Device
Model # Device Current X
# of Units Standby Alarm
Auxiliary Power 2 Subtotal
(pin 5 on keypad port 2) 400mA max.1.7A max.
4. In Worksheet 4, enter devices connected to the Bell
1 Output. Calculate alarm currents, then add to get
the Bell 1 Output current subtotal.
Worksheet 4: Bell 1 Output Current Load
Total Current
Device
Model # Device Current X
# of Units Standby Alarm
XXXXXX
XXXXXX
XXXXXX
XXXXXX
XXXXXX
XXXXXX
XXXXXX
Bell 1 Output Subtotal
(terminals 3 & 4 – 1.7A max.)

Section 3 - Installing the Control
3-33
5. In Worksheet 5, enter devices connected to the Bell
2 Output. Calculate alarm currents, then add to get
the Bell 2 Output current subtotal.
Worksheet 5: Bell 2 Output Current Load
Total Current
Device
Model # Device Current X
# of Units Standby Alarm
XXXXXX
XXXXXX
XXXXXX
XXXXXX
XXXXXX
XXXXXX
Bell 2 Output Subtotal
(terminals 5 & 6 – 1.7A max.)
6. In Worksheet 6, enter the total calculated subtotals
of all listed outputs from Worksheets 1 through 5,
then add to get the combined current.
Worksheet 6: Total VISTA-128FBP/VISTA-250FBP
Current Load
Total Current
Standby Alarm
Polling Loop Subtotal
Auxiliary Power 1 Subtotal
Auxiliary Power 2 Subtotal
Bell 1 Output Subtotal
Bell 2 Output Subtotal
VISTA-128FBP/VISTA-250FBP
PCB Current (Incl. 2-wire smoke
detector loading on zones 1 & 2) 300mA 470mA
5140DLM Backup Dialer Module 5mA
(inactive) 15mA
(active)
Total Current Load
(1A max. standby; 2.3A max. alarm)
NOTE: The 5140DLM actually draws 55mA when active.
However, since the control panel PCB current includes the
main dialer current, and since the main dialer is inactive when
the 5140DLM is active, the 5140DLM imposes only a 15mA
added load on the current supply.
• If you are not using the PS24, the total control standby load must be limited to 1.27A for 24-hour standby
time, or to 510mA for 60-hour standby time using a 12V, 34.4AH battery connected to the control.
• If you are using the PS24, skip the Battery Capacity Calculation Worksheet that follows and fill out the
worksheets found the PS24”s instructions instead. The total control panel standby load must be limited to
919mA for 24-hour standby time or 345mA for 60-hour standby time using two 12V, 17.2AH batteries
connected the PS24.
Determining the Size of the Standby Battery
For burglary installations requiring 4-hour standby
time followed by 15-minutes alarm time, use a 12AH
battery to support all loads up to and including the
maximum system load (e.g., 1.3A standby/2.8A alarm
total control panel load). For fire installations requiring
24-hour or 60-hour standby time, use the worksheet
below to calculate the required battery capacity.
DO NOT use Gates batteries (sealed lead-acid
type). These batteries require a different
charging voltage than is supplied by the panel.
Use Worksheet 7 to determine the required backup
battery capacity and use The Battery Selection Table to
determine the battery model number. A dual battery
harness is supplied that allows two batteries to be
wired in parallel for increased capacity.

VISTA-128FBP/VISTA-250FBP Installation and Setup Guide
3-34
7. Using the total calculated from Worksheet 6,
calculate the battery capacity required for the
installation.
Worksheet 7: Battery Capacity Calculation Worksheet
Capacity Formula Calculated
Value
Standby
Capacity
Total standby current X 24 or 60
hours X 1.1 contingency factor.
Alarm
Capacity Total alarm curr. X 0.083 (5 min)
or X 0.250 (15 min)
Total
Capacity Add standby and alarm
capacities
8. Use the Battery Selection Table to select the
appropriate battery for the installation.
Battery Selection Table
Capacity Recommended Battery Comment
4AH Yuasa NP4-12
7AH Yuasa NP7-12
12AH Yuasa NP12-12 Fits in large
mercantile
cabinet only.
14AH Yuasa NP7-12 Connect two
in parallel.
17.2AH Yuasa NPG18-12 Fits in large
mercantile
cabinet only.
9. Connect the battery, referring to Figure 3-36.
The standby battery is automatically tested for
10 minutes every 4 hours, beginning 4 hours
after exiting Programming mode. In addition,
entry into the Test mode initiates a battery test.
The VISTA-128FBP/VISTA-250FBP also runs
a 5-second battery test every 60 seconds to
check if the battery is connected.
BLACK
RED
BLACK
RED
12V
BATTERY
12V
BATTERY
(IF REQUIRED)
++
BATTERY TABS
MAIN PCB
DUAL
BATTERY
HARNESS
(2 PAIRS
SUPPLIED)
OBSERVE POPARITY!
+ RED
BLK
USE THE 2nd PAIR OF BATTERY
TABS AND THE 2nd PAIR OF
BATTERY HARNESSES (NOT
SUPPLIED) TO CONNECT ONE
OR TWO ADDITIONAL BATTERIES
IN PARALLEL.
NOTE: WHEN CONNECTING BATTERIES IN PARALLEL:
- USE BATTERIES FROM THE SAME MANUFACTURER AND
WITH THE SAME VOLTAGE AND CAPACITY RATING.
- USE BATTERIES WITH APPROXIMATELY SAME AGE AND
STATE OF CHARGE.
- USE CABLES PROVIDED AND OBSERVE POLARITY!
- IT IS RECOMMENDED THAT ALL BATTERIES BE REPLACED
AT SAME TIME, EVEN IF ONLY ONE BATTERY HAS BECOME
WEAK.
- AS LONG AS ONE GOOD BATTERY REMAINS CONNECTED,
THE ONCE PER 60 SECOND BATTERY TEST WILL NOT
DETECT THE DISCONNECTION OF REMAINING BATTERIES.
batt_conn-001-V0
Figure 3-36: Connecting the Backup Batteries

4-1
SECTION 4
Programming
•••••••••••••••••••••••••••••••••••••••••••••••••
NOTE: All references in this manual for number of zones, number of user codes, number of access cards,
and the event log capacity, use the VISTA-250FBP’s features. See SECTION 1: General Description for the
table listing the differences between the VISTA-128FBP and the VISTA-250FBP control panels.
Program Modes
There are two programming modes for the VISTA-
128FBP/VISTA-250FBP. These are the Data Field
Program Mode and the #93 Menu Mode. The Data Field
Program Mode is where many system options are
programmed. The #93 Menu Mode is an interactive
mode that require a 2-line alpha keypad (6139/6160).
The factory-loaded defaults (✳97) enable
keypad addresses 00-01 only. A keypad set to
one of these addresses must be used to
program the system initially.
Local keypad programming can be disabled
through Compass downloading software. If this
is done, Program mode can only be accessed
via the downloading software.
Entering and Exiting Programming Mode
Enter Programming mode using either method a or b:
a. Press both the [✳] and [#] keys at the same time
within 30 seconds after power is applied to the
control.
b. Enter the
Installer Code + [8] + [0] + [0] + [0]
keys. The factory installer code can be changed
once in the Program mode (field ✳00).
NOTE: The default for the Installer Code is 5140.
Exit the Programming mode by either method a or b:
a. Press [✳] + [9] + [8]. Exiting by this method
prevents the installer code from being used to re-
enter Programming mode. Only method “a” can be
used to re-enter Programming mode.
b. Press [✳] + [9] + [9]. Exiting by this method
permits the installer code to be being used to re-
enter Programming mode.
Data Field Programming Mode
In the Data Field Program Mode you may access any
field simply by entering either [✳] or [#] + the field
number:
• To write or change information in a field press [✳]
+ the field number (✳03).
• To read the information in a field press [#] + the
field number (#03).
When the entries for a field are completed, the keypad
beeps three times and advances to the next field.
SUMMARY OF DATA FIELD PROGRAMMING
COMMANDS
✳91 Select partition for programming partition-specific fields
✳92 Display the software revision level of the control panel
✳93 Enter Menu mode programming
✳94 Go to next page of fields
✳99 Go back to previous page of fields or exit Programming
Mode with no installer code lockout
✳98 Exit Programming Mode with Installer Code lockout
Moving from One Page of Programming to Another
The data fields are grouped into three levels (referred to
as “pages”). The first page is accessed as soon as
Programming Mode is entered.
The second and third pages of data fields are indicated
at the keypad by a 1 and 2, respectively, in front of the
2-digit field address. “ALT PROGRAM MODE” is
displayed along with a “100”, “200” or “300,” indicating
which page of program fields is accessed.
To access the next level of programming fields:
1 Press
✳94.
2 Press [✳] + [XX], where XX = the last two digits of
the program field, and make the desired entry.
NOTES:
Press ✳94 to move to 2nd page, (fields 1✳01 - 1✳76);
press ✳99 to move back to 1st page.
Press ✳94 to move to 3rd page (fields 2✳00 - 2✳88);
press ✳99 to move back to 2nd page.
Press ✳94 to move to 4th page, (fields 3✳00 - 3✳85);
press ✳99 to move back to 3rd page.

VISTA-128FBP/VISTA-250FBP Installation and Setup Guide
4-2
Entry Errors
• If an address is improperly entered, the keypad
displays “FC.”
• If a program entry is improperly entered (for
example, a larger number than is permitted), the
keypad display will go blank.
In either of the above cases, simply re-enter [✳] + the
correct field number and then enter the correct data.
Programming System-Wide Data Fields
Values for some programming fields are system-wide
(global), and some can be different for each partition
(partition-specific).
The partition-specific programming fields are
automatically skipped when programming the
global fields. If the system has only 1 partition,
the partition-specific fields
are not
automatically
skipped.
To program system-wide data fields, perform the
following steps:
Step Action
1 Enter Program Mode: Installer Code + 8 0 0 0.
The following display appears:
Program Mode
✳Fill # View – 00
2 If the control has not been programmed before,
enter ✳97 to load factory defaults.
3Press [✳] and enter the first field number to be
programmed (for example, ✳00, Installers
Code). Make the desired entry. When the field
is complete, the keypad beeps three times and
advances to the next field. If you do not want to
change the next field, press [✳] and enter the
next field number to be programmed.
First Page of fields
(✳00 - ✳90)
To move to the next page of fields, press ✳94.
To return to the previous page, press ✳99.
4Press ✳99 or ✳98 to exit Program Mode.
NOTE: If the number of digits that you enter in a data
field is fewer than the maximum permitted (for
example, a phone number), the keypad displays the last
entry and waits. To proceed, enter [✳] + the next data
field you wish to program.
Programming Partition-Specific Data Fields
To program partition-specific data fields once in
Program Mode, do the following:
Step Action
1 Enter Program Mode: Installer Code + 8 0 0
0.
2Press ✳91, which will prompt you for the
partition number desired.
3 Enter a partition-specific field number (e.g.,
✳09) to begin programming.
When the first field’s entry is completed, the
next partition-specific field is automatically
displayed. When all partition-specific fields
are programmed, the system returns to the
global programming fields (page 1 fields).
4 Repeat this procedure for each partition in
the installation.
NOTE: To return to the global program fields before
finishing all fields, enter any global field number.
Programming Partition-Specific Fields
Press ✳91 to select a partition.
↓
Enter the partition to be programmed.
↓
Enter a partition-specific field number and make entry.
↓
After partition-specific fields are programmed,
press ✳91 to select next partition.
Enter any global field number to return to the global
fields at any time.
#93 Menu Mode Programming
The #93 Menu Mode is an interactive mode through
which much of the system’s programming is done. In
this mode, there are “question and answer” prompts
that can be accessed once Data Field Program Mode has
been entered. These prompts require a 2-line alpha
keypad (6139/6160).
After programming all system-related programming
fields in the usual way, press #93 while still in
programming mode to display the first choice of the
menu-driven programming functions. Press 0 (NO) or 1
(YES) in response to the displayed menu selection.
Pressing 0 will display the next choice in sequence.

Section 4 – Programming
4-3
Below are the main menu selections. For details refer to the VISTA-128FBP/VISTA-250FBP Programming Guide.
MAIN MENU OPTIONS
ZONE PROG?
1 = YES 0 = NO 0
For programming the following:
• Zone Number
• Zone Response Type
• Partition Number for Zone
• Dialer report code for zone
• Input Device Type for zone (whether RF, polling loop, etc.)
• Enrolling serial numbers of 5800 Series transmitters & serial polling loop devices into the system.
• Zone Attributes (e.g., Arm w/Fault, Silent, etc.).
EXPERT MODE?
1 = YES 0 = NO 0
Same as Zone Programming except:
• Done with a minimum number of keystrokes.
• Can program wireless keys using pre-defined templates.
NOTE: All the zone attributes cannot be programmed using the Expert Mode.
REPORT CODE PROG?
1 = YES 0 = NO 0
For programming the following:
• Alarm report codes for zones
• Restore and supervisory codes
• All other system report codes
ALPHA PROG?
1 = YES 0 = NO 0
For entering alpha descriptors for the following:
• Zone Descriptors
• Installer’s Message
• Custom Words
• Partition Descriptors
• Relay Descriptors
DEVICE PROG?
1 = YES 0 = NO 0
For defining the following device characteristics for addressable devices, including keypads, RF receivers
(5881), output relay modules (4204/4204CF), FSA (FSA-8/FSA-24), 4285/4286 VIP Module, Panel Link
Module (VA8201), ECP long range radio (7845C), and VISTA Gateway Module:
• Device Address
• Device Type
• Keypad Options (including Partition assignment)
• RF House ID
• LRR Options (including Programming radio)
OUTPUT PGM?
1 = YES 0 = NO 0
For defining output device functions.
RLY VOICE DESCR?
1 = YES 0 = NO 0
For entering voice descriptors for relays to be used with the 4285/4286 VIP Module.
CUSTOM INDEX ?
1 = YES 0 = NO 0
For creating custom word substitutes for VIP Module annunciation.
ACCESS POINT PGM
1 = YES 0 = NO 0
For defining the parameters for each of the VistaKey zones, including which group(s) have access through
an access point (door). See the
VistaKey-SK Installation and Setup Guide
for detailed programming
instructions.
ACCESS GRP PGM
1 = YES 0 = NO 0
For defining the capabilities (privileges) for each group of users. See the
VistaKey-SK Installation and Setup
Guide
for detailed programming instructions.
EVENT/ACTION PGM
1 = YES 0 = NO 0
For defining events and time windows for an access group. See the
VistaKey-SK Installation and Setup
Guide
for detailed programming instructions.

VISTA-128FBP/VISTA-250FBP Installation and Setup Guide
4-4
MAIN MENU OPTIONS
SCHEDULED CHK-IN
1 = YES 0 = NO 0
For defining the schedule for the system to automatically call the downloader.
Following is a list of commands used while in the Menu Mode:
#93 Menu Mode Programming Commands
#93 Enters Menu Mode.
[✳]Serves as [ENTER] key. Press to have keypad accept entry.
[#] Backs up to previous screen.
0Press to answer NO.
1Press to answer YES.
00, or 000+[✳]Quits Menu Mode and goes back to Data Field Programming Mode, if entered at first prompt of each main menu option.
Zone Number Designations
The VISTA-128FBP supports up to 128 zones, the
VISTA-250FBP supports up to 250 zones, of hardwire,
polling loop and/or wireless protection, distributed
among up to 8 partitions. The following table lists the
zone numbers and the types of sensors that can be used
with each, and some alternate functions of the zones.
Zone Function
1 & 2 2-wire Smoke Detectors (if used)
5 Audio Alarm Verification (if used)
6 Cabinet Tamper/Ground Fault (if used)
7 Keyswitch (if used)
8 Latching-Type Glassbreak Detectors (if used)
1-8 Traditional Hardwired Zones
1-250 5800 Series Wireless Devices
9-250 Polling Loop Devices
995 ✳ + 1 Panic
996 # + 3 Panic
999 ✳ + # Panic
Zone Defaults
Zone # Zone Type Zone # Zone Type
001 09 800-830 00
002 03 970 00
003 03 971-974 19
004** 04 975 00
005 03 988 & 990 00
006 03 992* N/A
007 03 995 00
008 03 996 00
010–250 00 997 19
601-632 00 999 06
NOTES:
*Zone 992 is the Duress zone. Programming of the zone
response type is not applicable. This zone requires only the
report code programming.
** Zone 004 is also defaulted with Auto-STAY enabled.
Zone Index
The zones are designated as follows:
ZONE #
RANGE ZONE
FUNCTION ACTUAL ZONE
001 – 250 Protection
zones As indicated
601 – 632 Relay
Supervisory
Zones
6 + 2-digit Relay Number; e.g.,
Relay Number 03, if supervised,
is zone 603.
NOTE: Relay supervision
should be used only for
relays on 4204CF modules.
800 – 830 ECP Device
Supervisory
Zones
8 + 2-digit Device Address;
e.g., Device Address 01, if
supervised, is zone 801.
4285/4286 VIP Module is zone
804 (because its Device
Address must be set to 4).
970-977,
988, 990, &
997
System
Supervisory
Zones
970: Bell 1Output
971 Bell 2 Output
972 Earth Ground
973 J2 Input 1 (LRR)
974 Dialer 1
975 Dialer 2
976 Auxiliary Relay
977 J2 LRR Trigger Outputs
988: 2nd Wireless Receiver –
not receiving signals
990: 1st Wireless Receiver –
not receiving signals
997: Polling Loop (short
circuit)
992, 995 –
999 Duress and
Keypad Panics 992: Duress
995: 1 + ✳ panic (A key)
996: 3 + # panic (C key)
999: ✳ + # panic (B key)
Supervisory zones should be given a response type of either 05
(Trouble by Day, Alarm by Night) or 19 (24-Hour Trouble).

Section 4 – Programming
4-5
Communication Defaults
*45 PRIMARY FORMAT [1] ADEMCO Contact ID
*46 LOW SPEED FORMAT (Prim) [0] ADEMCO Low Speed
*47 SECONDARY FORMAT [1] ADEMCO Contact ID
*48 LOW SPEED FORMAT (Sec.) [0] ADEMCO Low Speed
*49 CHECKSUM VERIFICATION [0] [0]
No checksum Primary Secondary
*50 SESCOA/RADIONICS SEL. [0] Radionics
*51 DUAL REPORTING [0] no
*52 STANDARD/EXPANDED REPORT FOR PRIMARY
[0] [0] [0] [0] [0] [0] standard
Alarm Rstr Bypass Trbl Opn/Cls Low Bat
*53 STANDARD/EXPANDED REPORT FOR SECONDARY
[0] [0] [0] [0] [0] [0] standard
Alarm Rstr Bypass Trbl Opn/Cls Low Bat
Communication Defaults for Zones
ZONE # 1st 2nd ZONE # 1st 2nd ZONE # 1st 2nd ZONE # 1st 2nd
101 00 54 09 00 107 02 00 160 10 00
202 00 55 10 00 108 03 00 161 11 00
303 00 56 11 00 109 04 00 162 12 00
404 00 57 12 00 110 05 00 163 13 00
505 00 58 13 00 111 06 00 164 14 00
606 00 59 14 00 112 07 00 165 15 00
707 00 60 15 00 113 08 00 166 01 00
808 00 61 01 00 114 09 00 167 02 00
909 00 62 02 00 115 10 00 168 03 00
10 10 00 63 03 00 116 11 00 169 04 00
11 11 00 64 04 00 117 12 00 170 05 00
12 12 00 65 05 00 118 13 00 171 06 00
13 13 00 66 06 00 119 14 00 172 07 00
14 14 00 67 07 00 120 15 00 173 08 00
15 15 00 68 08 00 121 01 00 174 09 00
16 01 00 69 09 00 122 02 00 175 10 00
17 02 00 70 10 00 123 03 00 176 11 00
18 03 00 71 11 00 124 04 00 177 12 00
19 04 00 72 12 00 125 05 00 178 13 00
20 05 00 73 13 00 126 06 00 179 14 00
21 06 00 74 14 00 127 07 00 180 15 00
22 07 00 75 15 00 128 08 00 181 01 00
23 08 00 76 01 00 129 09 00 182 02 00
24 09 00 77 02 00 130 10 00 183 03 00
25 10 00 78 03 00 131 11 00 184 04 00
26 11 00 79 04 00 132 12 00 185 05 00
27 12 00 80 05 00 133 13 00 186 06 00
28 13 00 81 06 00 134 14 00 187 07 00
29 14 00 82 07 00 135 15 00 188 08 00
30 15 00 83 08 00 136 01 00 189 09 00
31 01 00 84 09 00 137 02 00 190 10 00
32 02 00 85 10 00 138 03 00 191 11 00
33 03 00 86 11 00 139 04 00 192 12 00
34 04 00 87 12 00 140 05 00 193 13 00
35 05 00 88 13 00 141 06 00 194 14 00
36 06 00 89 14 00 142 07 00 195 15 00
37 07 00 90 15 00 143 08 00 196 01 00
38 08 00 91 01 00 144 09 00 197 02 00
39 09 00 92 02 00 145 10 00 198 03 00
40 10 00 93 03 00 146 11 00 199 04 00
41 11 00 94 04 00 147 12 00 200 05 00
42 12 00 95 05 00 148 13 00 201 06 00
43 13 00 96 06 00 149 14 00 202 07 00
44 14 00 97 07 00 150 15 00 203 08 00
45 15 00 98 08 00 151 01 00 204 09 00
46 01 00 99 09 00 152 02 00 205 10 00
47 02 00 100 10 00 153 03 00 206 11 00
48 03 00 101 11 00 154 04 00 207 12 00
49 04 00 102 12 00 155 05 00 208 13 00
50 05 00 103 13 00 156 06 00 209 14 00
51 06 00 104 14 00 157 07 00 210 15 00
52 07 00 105 15 00 158 08 00 211 01 00
53 08 00 106 01 00 159 09 00 212 02 00

VISTA-128FBP/VISTA-250FBP Installation and Setup Guide
4-6
Communication Defaults for Zones (continued)
ZONE # 1st 2nd ZONE # 1st 2nd ZONE # 1st 2nd ZONE # 1st 2nd
213 03 00 227 02 00 240 15 00 970 00 00
214 04 00 228 03 00 241 01 00 988 00 00
215 05 00 229 04 00 242 02 00 990 00 00
216 06 00 230 05 00 243 03 00 992 (DURESS) 11 00
217 07 00 231 06 00 244 04 00 995 00 00
218 08 00 232 07 00 245 05 00 996 00 00
219 09 00 233 08 00 246 06 00 997 06 00
220 10 00 234 09 00 247 07 00 999 60 00
221 11 00 235 10 00 248 08 00 ALARM RST. 01 00
222 12 00 236 11 00 249 09 00 TROUBLE 01 00
223 13 00 237 12 00 250 10 00 TRBLE. RST 01 00
224 14 00 238 13 00 601-632 00 00 BYPASS 00 00
225 15 00 239 14 00 800-830 00 00 BYP. RST. 00 00
226 01 00
Zone Response Type Definitions
Each zone must be assigned a zone type, which defines
the way in which the system responds to faults in that
zone. There are three keypad-activated zones (panic
keys; see note) for each partition, a polling loop
supervision zone, and four RF supervisory zones, two
for each RF receiver installed. Zone types are defined
below.
Type 00: Zone Not Used
Program with this zone type if the zone is not used.
Type 01: Entry/Exit #1 Burglary
Provides entry delay whenever the zone is faulted and
the system is armed in the AWAY or STAY mode. When
the panel is armed in the INSTANT or MAXIMUM
mode, no entry delay is provided. Exit delay begins
whenever the control is armed, regardless of the arming
mode selected. These delays are programmable.
Assign this zone type to zones that are used for primary
entry to and exit from the facility.
Type 02: Entry/Exit #2 Burglary
Provides a secondary entry delay, if the system is
armed in the AWAY or STAY modes and the zone is
faulted. When the panel is armed in the INSTANT or
MAXIMUM mode, no entry delay is provided.
Secondary exit delay begins whenever the control is
armed, regardless of the arming mode selected. These
delays are programmable.
Assign this zone type to zones that are used for entry
and exit of the facility and require more time than the
primary entry and exit point. Delay times for this zone
type must be greater than those for zone type 01 (e.g., a
garage, loading dock, or basement door).
Type 03: Perimeter Burglary
Provides an instant alarm if the zone is faulted and the
system is armed in the AWAY, STAY, INSTANT, or
MAXIMUM mode.
Assign this zone type to all exterior doors and windows.
Type 04: Interior, Follower
Provides a delayed alarm (using the programmed entry
delay time) if an entry/exit zone is faulted first.
Otherwise it produces an instant alarm. It is active
when the system is armed in the AWAY or MAXIMUM
mode, but the MAXIMUM mode eliminates the entry
delay.
If the Interior Follower zone is programmed for one of
the STAY modes (default is STAY mode 1), it is
automatically bypassed when the panel is armed in the
STAY or INSTANT mode.
Assign this zone type to a zone covering an area such as
a foyer, lobby, or hallway through which one must pass
upon entry or exit (to and from the keypad).
Type 05: Trouble by Day/Alarm by Night
Provides an instant alarm if the zone is faulted and the
system is armed in the AWAY, STAY, INSTANT, or
MAXIMUM mode. During the disarmed state (day), the
system annunciates a latched trouble sounding from
the keypad (and a central station report, if desired).
Assign this zone type to a zone that contains a foil-
protected door or window (such as in a store), or to a
zone covering a sensitive area such as a stock room or
drug supply room. It can also be used on a zone in an
area where immediate notification of an entry is
desired.
Type 06: 24-Hour Silent Alarm
Sends a report to the central station but provides no
keypad display or sounding. Assign this zone type to a
zone containing an Emergency button.
Type 07: 24-Hour Audible Alarm
Sends a report to the central station and provides an
alarm sound at the keypad and an audible external
alarm. Assign this zone type to a zone containing an
Emergency button.
Type 08: 24-Hour Auxiliary Alarm
Sends a report to central station and provides an alarm
sound at the keypad only. (No other Notification
Appliance Circuit is activated.) Assign this zone
type to a zone an Emergency button or one containing
monitoring devices such as water sensors or
temperature sensors.

Section 4 – Programming
4-7
Type 09: Supervised Fire (Without Verification)
Provides a fire alarm on a short circuit and a trouble
condition on open circuit. A fire alarm produces a
pulsing of the Notification Appliance Circuit. A zone of
this type is always active and cannot be bypassed.
Type 10: Interior with Delay
Provides entry and exit delays (using the programmed
entry and exit delay times) when armed in the AWAY
mode. Provides only exit delay when armed in the
MAXIMUM mode (no entry delay).
If the Interior with Delay zone is programmed for one of
the STAY modes (default is STAY mode 1), it is
automatically bypassed when the panel is armed in the
STAY or INSTANT mode. Delay begins whenever
sensors in this zone are violated, regardless of whether
or not an entry/exit delay zone was tripped first.
Assign this zone type to a zone covering an area such as
a foyer, lobby, or hallway through which one must pass
upon entry or exit (to and from the keypad).
Type 14: PLM Supervision
Provides supervision of remote Panel Link Modules. If
the communication between the local PLM and a
remote PLM fails, a trouble message is produced for the
PLM zone.
Type 16: Fire With Verification
Provides a fire alarm on short circuit and a trouble
condition on open circuit. An initial short causes 7-
second smoke detector power reset. Any subsequent
short within 90 seconds causes a fire alarm. A fire
alarm produces a pulsing of the Notification Appliance
Circuit. A zone of this type is always active and cannot
be bypassed.
Type 17: Fire Waterflow
Provides a trouble condition on open circuit and an
alarm on a short circuit that remains longer than the
programmed time delay (fields 3✳16 and 3✳18). The
alarm can be silenced by either an entry of User Code
+ OFF or when the zone restores (field 3✳14). This type
is always active and can only be bypassed by the
Installer code or the Master code, (field 3✳85).
Type 18: Fire Supervisory
Provides a supervisory response on a short circuit. Open
circuit can be programmed for either a trouble or
supervisory response (field 3✳13). This type is always
active and can only be bypassed by the Installer code or
the Master code, (field 3✳85).
Type 19: 24-Hour Trouble
Provides a trouble response on a short or open circuit.
No alarm sounders are activated.
Type 20: Arm-STAY (5800 Series devices only)
Causes the system to arm in the STAY mode when the
zone is activated.
Type 21: Arm-AWAY (5800 Series devices only)
Causes the system to arm in the AWAY mode when the
zone is activated.
Type 22: Disarm (5800 Series devices only)
Causes the system to disarm when the zone is
activated.
Type 23: No Alarm Response
Used on a zone when an output relay action is desired,
but with no accompanying alarm (e.g., for lobby door
access).
Type 27: Access Point
Assign this zone type to an input device (hardwired
zone, wireless zone, keypad, access control relay, etc.)
that controls an access entry point (e.g., a door). The
access point entry relay can be assigned to an access
control relay (controlled by the VISTA-128FBP/VISTA-
250FBP), ECP relay (4204), or to the access control
system independent of the VISTA-128FBP/VISTA-
250FBP.
Type 28: Main Logic Board (MLB) Supervision
Used to supervise the MLB. If communication between
the MLB and the VISTA Gateway Module (VGM) fails,
a trouble condition is annunciated for the zone. Also, if
the communication fails, all access control system
(ACS) input zones also display a “CHECK.”
Type 29: Momentary Exit
Used to cause an access point programmed for entry to
revert to an exit point for 15 seconds. After the 15
seconds, it automatically reverts back to an entry point.
Use this zone type only with VistaKey modules.
NOTE FOR PANIC KEYS: Keypad panic zones share the same
zone response type for all 8 partitions, but panics may be
individually enabled for each partition.
IMPORTANT! FAULT ANNUNCIATION
Polling loop and RF troubles (zones 988, 990, and 997) report as
trouble conditions only, and as such, should be assigned zone
type 19 if annunciation is desired. See
Polling Loop Supervision
and
RF System Operation and Supervision
in
SECTION 3:
Installing the Control
for more information.
Zone Input Type Definitions
Each zone must be assigned an input type, which
defines the where the system will “look” for status of
the zone (RF receiver, polling loop, etc.). Zone input
types are defined below.
Type 01 Hardwired (HW)
Reserved for the built-in hardwired zones 1-9.
Type 02 RF Motion (RM)
Select for 5800 Series transmitters. Sends periodic
check-in signals, fault and low-battery signals. The
control panel automatically restores the zone to “ready”
after a few seconds. This type is designed for facilities
with multiple motion detectors that may fault and
restore simultaneously. The transmitter must remain
within the receiver’s range.
NOTE: If using RF Motion with a door/window type
transmitter, only loop 1 may be used.

VISTA-128FBP/VISTA-250FBP Installation and Setup Guide
4-8
Type 03 Supervised RF (RF)
Select for 5800 Series transmitters that will be
supervised for check-in signals. The transmitter must
remain within the receiver’s range.
Type 04 Unsupervised RF (UR)
Select for 5800 Series transmitters that will not be
supervised for check-in signals. The transmitter may
therefore be carried off-premises.
Type 05 Unsupervised Button RF (BR)
Select for 5800 Series transmitters specifically designed
for this input type. These transmitters send only fault
signals. They do not send low-battery signals until they
are activated. The transmitter may be carried off-
premises.
Type 06 Serial Number Polling Loop (SL)
Use for V-Plex devices with a built-in serial number.
For VistaKey, select this type for Door Status Monitor
Backup DSMB. If local power to the VistaKey is lost, a
V-Plex SIM, located on the VistaKey board, is powered
directly from the polling loop and reports the state of
the DSM via the standard V-Plex polling system.
NOTE: To obtain the DSMB function, the Input Type
must be defined as 06 and the next prompt in Zone
Programming (Access Point) must contain the Access
Point number (01-15) (address of the VistaKey module).
Type 07 DIP Switch Loop (DP)
Select for polling loop devices that use DIP switches for
programming the zone number of the device.
Type 08 Dip Switch Polling Loop Right Loop (PS)
Select for the second loop of two-zone polling loop
devices (e.g., 4190WH; 4278).
Type 09 Console Input (CS)
Select when this zone is to be controlled by a keypad
input (user code + [#] + [7] + [3]) for access control.
Type 10 PassPoint Access Control (ACS)
Select when this zone is mapped to a zone on the
PassPoint Access Control System.
Type11 VistaKey Door Status Monitor (DSM)
Select this input type when using a VistaKey module
connected to a door. This must be programmed for each
VistaKey module to provide the DSM zone mapping a
panel zone. If this is not programmed the panel will not
“see” the VistaKey module.
It is also used to determine the door is opened after a
card swipe or if the door is being held open. The device
is normally a magnetic switch mounted on the door.
The status of the switch is different when the door is in
an open position.
Type 12 VistaKey Request to Exit (RTE)
Use this input type to map an uncommitted RTE zone
to an alarm panel zone. This input type is not normally
used if the zone is used for a request-to-exit function.
Type 13 VistaKey General Purpose (GP)
This input type operates in the same manner as other
alarm panel zones and is provided so that a zone in the
proximity of the VistaKey can be wired without having
to run additional wiring from the control panel.
Programming for Panel Linking
Step Action
1 Program the Panel Link Module (PLM) into
the system in Device Programming in the #93
Menu Mode with Device Type 10.
2If you want to supervise the PLM, program
zone 8xx with response type 05, where “xx” =
the module’s address. If you want the zone to
report to the central station, make sure the
report code for the zone is set with a non-zero
value.
Step Action
3To supervise the PLMs connected to
other controls, program those modules in
Zone Programming with response type 14.
Also, program the panel ID number. The ID
number must match the ID number
programmed in Device Programming of the
control panel the PLM is connected. To report
to the central station, program the report code
for the zone is set with a non-zero value. Be
sure to program the input type with 00.
See Device Programming and Zone Programming in #93
Menu Mode in the Programming Guide for a detailed
explanation of the programming procedures.
Programming for the Alpha Pager Module
• In field 2*30, enter 1 to enable the Alpha Pager
Module.
• Program fields 2*31 – 2*88 for the paging service
parameters (see the Programming Guide). The
events (e.g., field 2*39) must be programmed
for the pager to work.
• In field *14, enter 1 to enable the RS232 input (J2
Pin 5).
• In field 3*19, enter 1 to enable the RS232 input (J2
Pin 5).
• If you have a printer connected to the module,
program field 1*69 with a 0 for a parallel printer or
a1 for a serial printer.
• Additionally, field 05 may be programmed when
using the Alpha Pager Module.
Fields for programming the delay times (e.g.
2*36 and 2*37 for pager 1) are relevant only
when using numeric format for the pager.

Section 4 – Programming
4-9
Programming for Access Control
VistaKey
See the VistaKey-SK Installation and Setup Guide for
the detailed programming instructions.
VistaKey Dialer Enables
When the VistaKey is installed with an alarm system,
the system defaults are set so that the system does not
send reports to the central station. The programming is
accomplished in field 1∗35 for the following events:
• ACS Troubles - To enable or disable ACS trouble
reporting.
• ACS Bypasses - To enable or disable ACS bypass
reporting.
• ACS System - To enable or disable ACS system
reporting, (i.e., ACS module reset).
• ACS Alarms - To enable or disable ACS alarm
reporting.
• Dialer (Trace) - To enable or disable access
grant/denial events sent to the central station.
The PassPoint ACS can dedicate some of its inputs for
use as regular control panel hardwired zones (the zone
response type is ACS). The PassPoint ACS can also
utilize the control panel dialer for reports to the central
station.
Using ACS Zone Inputs
If the PassPoint ACS has uncommitted zones, these
may be used by the VISTA-128FBP/VISTA-250FBP as
hardwired zones. To program for ACS zone inputs,
perform the following steps:
Step Action
1 Enter Zone Programming in the #93 Menu
Mode.
2 Program this zone as any other zone. Indicate
the input type as ACS (10).
3 Enter the PassPoint ACS’s zone ID (00-31)
See Zone Programming in the Programming Guide for a
detailed explanation.
PassPoint Dialer Events
All PassPoint ACS events can be sent to the VISTA-
128FBP/VISTA-250FBP dialer via the VGM. These
events will also be logged into the control’s event log.
This is enabled in the PassPoint ACS. See the PassPoint
ACS documentation for a detailed explanation.
Programming the VISTA Gateway Module
See the PassPoint ACS instructions to program the
VISTA Gateway Module.
Access Control of an Entry/Exit Point Using VistaKey
or PassPoint
The control can send entry and exit requests to the
VistaKey or PassPoint ACS utilizing keypads and
button-type (BR) RF transmitters. A zone is
programmed with a response type 27 (Access Point) and
an appropriate input type (console, RF).
Using the Alpha Keypad
Step Action
1 Enter Zone Programming in the #93 Menu
Mode.
2 Program the zone with a response type 27
(Access Point).
3 Enter the access point number (00-31) of the
door.
4 Program whether this is an entry or exit point.
5 Enter the partition number.
6 Enter the input type as CS (09).
7 Enter the keypad ECP address.
See Zone Programming in the Programming Guide for a
detailed explanation.
Using an RF Transmitter Zone
A button type RF transmitter (5804) can be used to
provide access or egress for up to 4 doors. One button
will control one door. Also, a button can be used to
provide access or egress due to a panic or duress
condition.
An RF transmitter (5816) can be used with a remote
switch to provide exit in case of a fire alarm using a
PassPoint event action.
To program the RF transmitter for access control,
perform the following steps:
Step Action
1 Enter Zone Programming in the #93 Menu
Mode.
2 Program the zone with a response type 27
(Access Point).
3 Enter the access point number (00-31) of the
door.
4 Indicate whether RF device is for entry or exit.
5 Enter the partition number
6 Enter the input type: button RF (05).
7 Enter the loop number.
8 Enroll the serial number
See Zone Programming in the Programming Guide for a
detailed explanation.
• RF buttons and pendants must be assigned
to a user number in order to function. See
the
SECTION 9: User Access Codes
for the
procedure.
• An RF transmitter will not provide access or
grant if the system is in any test mode.

VISTA-128FBP/VISTA-250FBP Installation and Setup Guide
4-10
Using Wireless Keypads
Wireless keypads (5827 & 5827BD) can provide another
way of entering or exiting the premises. They function
the same as alpha keypads, except when the code + # 73
is entered. This entry will allow momentary access to
ALL access points in the partition to which the keypad
is assigned To program the wireless keypad, enter the
partition the keypad is assigned to in field 1*48.
Control of Lighting and Appliances
Lighting and appliances can be controlled when an
access or exit event occurs. Lights or appliances can be
automatically turned on or off when a valid entry or
egress request is presented at an access point. To
control these devices, the VISTA-128FBP/VISTA-
250FBP relays or the ACS relays or triggers are used
with keypads and/or RF transmitters whose response
type is Access Point (27).
To program the control of lighting and appliances,
perform the following steps:
Step Action
1 Enter Output Programming in the #93 Menu
Mode.
2 Program all the information for the relay.
3 Select the output type: ECP (1) (4204/4204CF).
See Output Programming in the Programming Guide
for a detailed explanation.
Using the VISTA-128FBP/VISTA-250FBP for Stand-
Alone Access Control
The VISTA-128FBP/VISTA-250FBP can be used for
access control without interfacing to PassPoint ACS or
VistaKey. A user can trigger an access point (i.e., door
strike) for 2 seconds by entering User Code + [0].
To program the VISTA-128FBP/VISTA-250FBP for
Stand-Alone access control, perform the following steps:
Step Action
1 Enter Output Programming in the #93 Menu
Mode.
2 Program the output type as 1, or 2.
3 For type 1, program the ECP address and
relay number.
4 For type 2, program the house and unit codes.
5Program the relay number in field 1∗76
(partition-specific).
See Output Programming in the Programming Guide
for a detailed explanation.
Programming for ECP Long Range Radio
• Program the LRR in Device Programming in the
#93 Menu Mode Programming.
• Program field ✳56: Selects the time the panel
should wait before it attempts to send a message to
the second destination..
• Program field ✳57: Selects the initial reporting
destination for messages.
• Program field ✳58: Selects events for the primary
sub’s ID
• Program field ✳59: Selects events for the secondary
sub’s ID.
Programming for the Event Log
• Program field 1✳70 Event Log Types (1=enable;
0=disable for each type)
• Program field 1✳71 12/24-Hour Time Stamp
Format (0=12 hr; 1=24 hr)
• Program field 1✳72 Event Log Printer On-line
(0=disable; 1=enable)
• Program field 1✳73 Printer Baud Rate (1=300;
0=1200)
• Program Event Log Report Codes System Group
#2 in the #93 Menu Mode.

5-1
SECTION 5
Data Field Descriptions
•••••••••••••••••••••••••••••••••••••••••••••••••
About Data Field Programming
The following pages list this control’s data fields in numerical order. Field numbers are listed in the left column, followed
by a “Title and Data Entries column, which lists the valid entries for each field. Experienced installers can simply follow
this column when programming the data fields. The “Explanation” column provides explanatory information and special
notes where applicable.
NOTE: Refer to the Programming Guide for the default values. They are not listed in this section.
Use the
Programming Guide
to record the data for this installation.
NOTE: All references in this manual for number of zones, number of user codes, number of access cards,
and the event log capacity, use the VISTA-250FBP’s features. See SECTION 1: General Description for the
table listing the differences between the VISTA-128FBP and the VISTA-250FBP control panels.
Programming Data Fields
Data field programming involves making the appropriate entries for each of the data fields. Start Data Field
programming by entering the installer code + 8 + 0 + 0 + 0.
FIELD TITLE and DATA ENTRIES EXPLANATION
*00 Installer Code
Enter 4 digits, 0-9
The Installer Code is a 4-digit code reserved for installation company use.
This is the only code that can be used to enter the Program Mode from the
keypad. This code cannot be used to disarm the system if it isn’t used to arm
the system. This code cannot be used to re-enter Program Mode if Program
Mode is exited by the *98 command.
*04 Enable Random Timers For
Partitions 1-8
0 = disable
1 = enable
If enabled, the activation time of the window is randomized up to 30 minutes
and is initialized by either of two methods:
User Code + [#] + [41] Initiates the random schedule for all devices in the
partition.
User Code + [#] + [42]
Initiates the random schedule for all devices in the
partition with a time window within 6 PM and 5 AM.
*05 System Events Notify
0 = disable
1 = enable
If enabled the system sends notification messages via the RS232 port on the
J2 triggers to interface with Home Control type software. Field 3*19 must be
set for RS232 (1).
NOTE: If enabled, the system also sends fault and restore messages via the
RS232 port.
*06 Quick Exit (partition-specific)
0 = disable
1 = enable
If enabled, allows users to exit the armed partition without disarming and then
rearming the partition.
Quick Exit is initiated by entering [#] + [9]. This restarts the exit delay. All rules
of exit apply, including exit error logic.
*08 Temporal Siren Pulse
0 = disable
1 = enable
If enabled, the pulse rate for an output programmed for pulsing (field 3✳15)
will be three dings and a pause, repeated. If disabled, the pulse rate will be
one second on, one second off.

VISTA-128FBP/VISTA-250FBP Installation and Setup Guide
5-2
FIELD TITLE and DATA ENTRIES EXPLANATION
*09 Entry Delay #1 (partition-specific)
Enter 02-15 multiplied by 15 seconds.
00 = no delay.
Entry delay defines the delay time that allows users to re-enter the premises
through a door that has been programmed as an entry delay door and disarm
the system without sounding an alarm. The system must be disarmed within
this period or an alarm will occur.
NOTE: The delay may not exceed 45 seconds for UL installations. The entry
delay time and Burg Alarm Comm Delay (field *88) combined cannot exceed 1
minute for SIA installations.
*10 Exit Delay #1 (partition-specific)
Enter 03-15 multiplied by 15 seconds.
00 = no delay.
Exit delay defines the delay period that allows users to leave the premises
through a door that has been programmed as an entry/exit delay door after
arming the system without setting off the alarm.
NOTE: The delay must be set for a minimum 45 seconds for SIA installations.
*11 Entry Delay #2 (partition-specific)
Enter 02-15 multiplied by 15 seconds.
00 = no delay.
Entry Delay #2 is used for a secondary door requiring a longer delay than
those assigned to Entry Delay #1.
NOTE: The delay may not exceed 45 seconds for UL installations. The entry
delay time and Burg Alarm Comm Delay (field *88) combined cannot exceed 1
minute for SIA installations.
*12 Exit Delay #2 (partition-specific)
Enter 03-15 multiplied by 15 seconds.
00 = no delay.
Exit Delay #2 is used for a secondary door requiring a longer delay than those
assigned to Exit Delay #1.
NOTE: The delay may not exceed 60 seconds for UL installations. The delay
must be set for a minimum 45 seconds for SIA installations.
*13 Bell 1 Timeout
Enter 01-15 multiplied by 2 minutes.
00 = no timeout.
Defines the length of time the Bell 1 Output and the keypad’s sounder will
sound for all audible alarms.
Must be minimum 16 minutes for UL Commercial Burglary installations. Must
be minimum 6 minutes for UL Commercial Fire and SIA installations.
Trigger or RS232 Input
0 = trigger
1 = RS232 input
Select if J2 Pin 5 should be set Fire Alarm trigger output or as an RS232
input. If set for RS232, this enables the system to receive serial data (75
baud).
UL Using the RS232 input for automation is not permitted in UL installations.
*14
*15 Keyswitch Assignment
Enter 1-8 partition keyswitch is being used.
Enter 9 if the keyswitch is being used to
silence fire Notification Appliance Circuits in
the event of a fire alarm.
Enter 0 if the keyswitch is not used.
The keyswitch requires the use of zone 7 wired loop (zone 7 is no longer
available as protection zone). The fire and panic alarm voltage triggers (J2)
automatically become ARMING and READY status outputs for the Keyswitch
LEDs.
Openings/closing report as user “0” if enabled in field *40.
*16 Bell 1 Confirmation of Arming
Ding (partition-specific)
0 = disable
1 = enable
If enabled, produces ½-second external alarm sounding (“ding”) at the end of
exit delay (or after kissoff from the central station, if sending closing reports).
Must be 1 for UL commercial burglary installations.
*17 AC Loss Keypad Sounding
0 = disable
1 = enable
If enabled, sounding at the keypad (rapid beeping) occurs when AC power is
lost (sounding occurs about 2 minutes after actual AC loss).
*19 Randomize AC Loss Report
0 = disable
1 = randomize for 10-40 min. after AC Loss
2 = randomize for 6-12 hours after AC Loss
If disabled, AC loss reporting about 2 minutes after actual AC loss.
Selecting this option helps prevent an overload of AC loss messages at the
central station during a community blackout.
*20 VIP Module Phone Code
1-9 = first digit of access code
∗ or # = second digit of access code (enter #
+11 for “∗”, or # +12 for “#”)
To disable enter 00 for the 1st digit
If a 4285/4286 Voice Module is being used, enter the 2-digit phone code used
to access the system.
Must be disabled for UL installations.

Section 5 – Data Field Descriptions
5-3
FIELD TITLE and DATA ENTRIES EXPLANATION
*22 Keypad Panic Enables (partition-
specific)
0 = disable
1 = enable
If enabled, the keypad panics (zones 995, 996, and 999) may be used in this
partition. There are 3 entries in this field, one for each panic.
*23 Multiple Alarms (partition-
specific)
0 = disable
1 = enable
If enabled, allows more than one alarm sounding for a given zone during an
armed period.
NOTE: that multiple alarm soundings will not occur more frequently than
allowed by the programmed alarm sounder duration. This has no impact on
the number of communication messages transmitted.
Must be 1 for UL installations.
*24 Ignore Expansion Zone Tamper
0 = disable (tamper detection)
1 = enable (no tamper detection)
If disabled, the system monitors the tampers on expansion zones.
NOTE: Only applicable to certain polling loop sensors with tamper switches or
5800 Series transmitters.
Must be 0 for UL installations.
*25 Burglary Trigger for Response
Type 8
0 = disable
1 = enable
If enabled, allows triggering of the voltage output 3 on Pin 3 of the J2 header
to include zone response type 8 (24-hr. auxiliary).
*26 Intelligent Test Report
0 = disable
1 = enable
If enabled, no test report is sent if any other type of report was sent since the
last test report.
If disabled, test reports are sent at the set intervals, regardless of whether or
not any other report has been sent.
Must be 0 for UL applications.
*27 Test Report Interval
Enter 0001-9999 for the test report interval in
hours.
Enter 0000 for test reporting.
If a test report is desired, enter a test code in
Report Code Programming
in
#93 Menu Mode
. Set first test report time in field *83.
Maximum Test report interval is 0024 for UL commercial installations.
*28 Power-Up in Previous State
0 = disable
1 = enable
If enabled, the system, upon power-up, reverts to its status prior to a complete
power loss.
If disabled, the system always powers up in a disarmed state.
NOTE: Neither authority level 0 nor 5 can be used to disarm the system if the
control powers up armed.
Must be 1for UL applications.
*29 Quick Arm (partition-specific)
0 = disable
1 = enable
If enabled, allows arming of the burglary system in AWAY, STAY, INSTANT,
or MAXIMUM mode by using the [#] key instead of the user code.
NOTES:
When armed, the system reports closing as User 0 if Open/Close reporting for
User #2 (typically a Master level user) was enabled for a given partition.
If Quick Arm is used, the Installer Code and Authority Level 5 codes cannot
disarm the system.
Main Dialer TouchTone or Rotary
Dial
0 = rotary
1 = touchtone
Select the dialing method for the main dialer.
If you select TouchTone, make sure the subscriber has requested and is paying for TouchTone service. Note that
whether or not TouchTone dialing for call placement is permitted, communication by the use of DTMF signaling
(ADEMCO High Speed) will still take place. See field 1*33 for TouchTone w/Rotary backup
*30
*31 PABX Access Code
Enter 00-09; B-F (11-15)
This field is used to enter up to four 2-digit numbers representing the prefix
needed to obtain an outside telco line. If not required, enter nothing and
proceed to next field.
*32 Primary Subscriber’s Account
Number (partition-specific)
Enter 00-09; B-F (11-15)
Enter a 3- or 4-digit (depending on report format) primary subscriber account
number. Each number requires a 2-digit entry so as to allow entry of
hexadecimal digits (B-F). If a 3-digit account number is to be used, enter data
only in the first 3 locations, and enter * in the fourth location.

VISTA-128FBP/VISTA-250FBP Installation and Setup Guide
5-4
FIELD TITLE and DATA ENTRIES EXPLANATION
*33 Primary Phone Number
Enter 0-9; #11 for *, #12 for #, #13 for a 2-
second pause.
Enter the primary central station phone number, up to 17 digits. This is the
phone number the control will use to transmit Alarm and status messages to
the central station. Do not fill unused spaces.
NOTE: Backup reporting is automatic only if a secondary phone number is
entered.
*34 Secondary Phone Number
Enter 0-9; #11 for *, #12 for #, #13 for a 2-
second pause.
Enter the secondary phone number, up to 17 digits. The secondary phone
number is used if communication on the primary number is unsuccessful, or if
split/dual reporting is desired. Do not fill unused spaces.
NOTE: If this field is programmed, a secondary subscriber account number
(field *90)
must
also be programmed.
*35 Download Phone Number
Enter 0-9; #11 for *, #12 for #, #13 for a 2-
second pause.
Enter the downloading phone number, up to 17 digits. Do not fill unused
spaces.
NOTE: This field is applicable only if downloading is utilized.
*36 Download ID Number
Make entries as 2-digit numbers as follows:
00=0 01=1 02=2 03=3 04=4 05=5
06=6 07=7 08=8 09=9 10=A 11=B
12=C 13=D 14=E 15=F
Enter eight digits.
NOTE: This field is applicable only if downloading is utilized.
*37 Download Command Enables
0 = disable
1 = enable
Enabling a function means that you are able to perform that function via the
ADEMCO Compass Downloading software.
Functions are as follows: Dialer Shutdown; System Shutdown; Not Used;
Remote Bypass; Remote Disarm; Remote Arm; Upload Program; Download
Program.
For UL commercial burglary and fire installations, all entries must be 0.
*38 Prevent Zone XXX Bypass
(partition-specific)
Enter a zone number (001-250).
Enter 000 if all zones can be bypassed.
Enter three digits for zone that cannot be bypassed by the user.
NOTES:
The actions manual bypass, group bypass, auto-stay, and STAY/INSTANT
arming modes cannot bypass any zone programmed in this field.
The system will not arm if the zone is programmed with the vent zone or force
arm fault attributes.
*39 Enable Open/Close Report for
Installer Code (partition-specific)
0 = disable
1 = enable
If enabled, whenever the Installer Code is used to arm or disarm the partition,
an open/close report is sent to the central station.
*40 Enable Open/Close report for
Keyswitch
0 = disable
1 = enable
If enabled, whenever the keyswitch is used to arm or disarm the partition, an
open/close report is sent to the central station.
*41 Normally Closed or EOLR (Zones
3-8)
0 = disable
1 = enable
If disabled, end-of-line resistors must be used on zones 3-8.
If enabled end-of-line resistors cannot be used and only normally closed
devices must be used.
Must be 0for UL commercial fire and burglary installations.
*42 Dial Tone Pause
Enter the wait time for dial tone detection:
0 = 5 seconds; 1 = 11 seconds; 2= 30
seconds.
Enter the time the system waits for dial tone before dialing. Applies if true dial
tone is not selected in field *43.
Must be 0for UL installations.
*43 Dial Tone Detection
0 = disable
1 = enable
If enabled, the system waits for true dial tone. If no dial tone is detected,
control dials at end of pause programmed in field *42.
If disabled, the system pauses for seconds entered in field *42, then dials.
NOTE: Disabling may be necessary in high-noise environment telco networks
where noise can be confused with dial tone, resulting in premature dialing.

Section 5 – Data Field Descriptions
5-5
FIELD TITLE and DATA ENTRIES EXPLANATION
*44 Ring Detection Count
Enter 00 to disable ring detection.
Enter 01-14 for ring counts of 1-14.
Enter 15 to select Answering Machine Defeat
Mode
Only applicable if using a 4285/4286 VIP Module and/or if station-initiated
downloading will be used.
NOTES:
Do not enter 00 if a 4285/4286 is installed.
In the Answering Machine Mode, the caller should let the phone ring once,
then hang up, and call again within 30 seconds. The system, upon hearing
one ring followed by nothing, does not answer the first call, but readies itself to
pick up on the first ring of the next incoming call that is received within 30
seconds (i.e., the downloader calling again).
Must be 00 for UL commercial fire and burglary installations.
*45 Primary Format
0=Low Speed; 1=Contact ID; 2=ADEMCO
High Speed; 3=ADEMCO Express
Enter the reporting format for the primary telephone number.
*46 Low Speed Format (Primary)
0 = ADEMCO Low Speed
1 = Sescoa/Radionics
Enter the low speed format for the primary telephone number.
*47 Secondary Format
0=Low Speed; 1=Contact ID; 2=ADEMCO
High Speed; 3=ADEMCO Express
Enter the reporting format for the secondary telephone number.
*48 Low Speed Format (Secondary)
0 = ADEMCO Low Speed
1 = Sescoa/Radionics
Enter the low speed format for the secondary telephone number.
*49 Checksum Verification
Enter 2 digits, one for the primary and one
for the secondary.
0 = disable
1 = enable
If enabled, the system for either or both primary/secondary formats sends a
verification digit to validate the message at the receiver without having to send
two message rounds. Selection is valid for 3+1, 4+1, and 4+2 reports.
*50 Sescoa/Radionics Select
0 = disable
1 = enable
If disabled, selects Radionics, which uses hexadecimal 0-9, B-F reporting.
If enabled, selects Sescoa, which uses only numeric reporting (0-9).
NOTE: The selection applies to both primary and secondary phone numbers.
*51 Dual Reporting
0 = disable
1 = enable
If enabled, all reports are to be sent to both primary and secondary phone
numbers.
NOTE: If used with Split Reporting option 1 (1*34), alarms go to both primary
and secondary numbers, while all other reports go to secondary only. If used
with Split Reporting option 2, alarms go to both, open/close and test
messages go to secondary only, while all other reports go to primary. If used
with Split Reporting option 3, fire alarms and supervisory reports go to
primary, all other reports go to secondary.
*52 Standard/Expanded Reporting
Primary
0 = disable
1 = enable
This field has six entries as follows: Alarm, Restore, Bypass, Trouble,
Open/Close, Low Battery. If enabled, expanded reports are sent to the
primary phone number if low speed format is selected in field *45.
NOTE: Expanded overrides 4+2 format.
*53 Standard/Expanded Reporting
Secondary
0 = disable
1 = enable
This field has six entries as follows: Alarm, Restore, Bypass, Trouble,
Open/Close, Low Battery. If enabled, expanded reports are sent to the
secondary phone number if low speed format is selected in field *47.
NOTE: Expanded overrides 4+2 format.
*54 Unattended Mode
0 = disable
1 = enable
If enabled, the system automatically calls the downloader at programmed
intervals.
NOTE: The following fields must be programmed first: primary subscriber
account number – field *32; primary phone number – field *33; downloader
phone number – field *35. Or you can go into the Unattended Program Mode,
from normal operating mode, by entering Installer Code + [#] + [8] + [9].

VISTA-128FBP/VISTA-250FBP Installation and Setup Guide
5-6
FIELD TITLE and DATA ENTRIES EXPLANATION
*56 Dynamic Signaling Delay
Enter 00-15 times 15 seconds.
Select the time the panel should wait for acknowledgment from the first
reporting destination before it attempts to send a message to the second
destination (first and second destinations are determined in field ✳57).
NOTE: If the acknowledgment is received before the delay time expires, no
message is sent to the second destination.
*57 Dynamic Signaling Priority
0 = Primary Dialer
1 = Long Range Radio
Select the initial reporting path for central station messages.
*58 Long Range Radio Central
Station #1 Category Enable
0 = disable
1 = enable
This field has six entries as follows: Alarm, Trouble, Bypass, Open/Close,
System, Test. If enabled, the reports are sent to the primary subscriber ID of
the Long Range Radio.
*59 Long Range Radio Central
Station #2 Category Enable
0 = disable
1 = enable
This field has six entries as follows: Alarm, Trouble, Bypass, Open/Close,
System, Test. If enabled, the reports are sent to the secondary subscriber ID
of the Long Range Radio.
*77 Auto Trouble Restore
0 = disable
1 = enable
If enabled, each trouble and supervisory condition automatically clears the
keypad display and stops the keypad beeping when the zone returns to a
“ready/normal” state. This applies to ALL trouble and supervisory types. The
system also sends the Trouble/Supervisory Restore report to the central
station, if programmed.
If a partition has more than one trouble/supervisory condition present at the
same time, the system automatically clears the keypad display of each zone
as it restores, but the keypad continues to beep until all the zones restore.
*79 Zone Type Restores for Zone
Types 1-8
0 = disable
1 = enable
This field has eight entries, one for each zone type. Select the zone types that
will send Restore reports.
*80 Zone Type Restores for Zone
Types 9 & 10
0 = disable
1 = enable
This field has two entries, one for each zone type. Select the zone types that
will send Restore reports.
*83 First Test Report Time
Enter 00-07the for day (01 = Monday)
Enter 00-23 for the hour
Enter 00-59 for the minutes
Enter the day and time that the first Test report shall be transmitted. Enter 00
in all locations if the Test report is to be sent immediately upon exiting. Enter
00 in the day location if the report is to be sent at the next occurrence of the
time that is set.
*84 Swinger Suppression (partition-
specific)
Enter 01-15.
Enter 00 for unlimited reports
This option limits the number of messages (alarms or troubles) sent for a
specific zone in an armed period. The system automatically resets the
shutdown for a zone after 48 hours if there are no trips on any zone.
Must be 00 for UL commercial fire and burglary installations.
*85 Enable Dialer Reports for Panics
& Duress (partition-specific)
0 = disable
1 = enable
This field has four entries as follows: Zone 995, 996, 999, Duress Enable for
each partition that the panics and duress reporting is desired.
NOTE: Non-zero report code must be assigned to zone 992 (duress) to
enable Duress reporting.
*87 Entry Warning (partition-specific)
0 = 3 short beeps
1 = slow continuous beeps
Select the type of warning for the entry delay period.

Section 5 – Data Field Descriptions
5-7
FIELD TITLE and DATA ENTRIES EXPLANATION
*88 Burglary Alarm Communicator
Delay (partition-specific)
0 = no delay
1 = 30-second delay
Select the delay, if any, for burglary alarm communications.
Must be 0for UL installations.
Must be 1 for SIA installations.
*89 Restore Report Timing
0 = instant
1 = after bell timeout
2 = when system is disarmed
Select the time when restore reports are sent after an alarm.
Must be 2 for UL commercial fire and burglary installations.
*90 Secondary Subscriber Account
Number (partition-specific)
Enter 00-09; B-F (11-15)
Enter a 3- or 4-digit (depending on report format) primary subscriber account
number. Each number requires a 2-digit entry so as to allow entry of
hexadecimal digits (B-F). If a 3-digit account number is to be used, enter data
only in the first 3 locations, and enter * in the fourth location.
NOTE: This field
must
be programmed if a secondary phone number is used
(field *34). This account number can be the same as the primary account
number.
1*15 Cancel Verify
0 = disable
1 = enable
If enabled, the system pulses the alarm output three times and displays
“Cancel Sent to Central Station” when it receives a kissoff of a Cancel report.
This message can only be cleared by entering the code + off. Enter 0 to
disable.
NOTE: Field 1✳52 determines when a Cancel report is sent to the central
station.
1*17 Lobby Partition
0 = none
1-8 = partition number
Select the Common Lobby Partition.
1*18 Affects Lobby (partition-specific)
0 = disable
1 = enable
If enabled, causes lobby partition to disarm when this partition disarms.
NOTE: This partition must be armed before lobby can be armed.
1*19 Arms Lobby (partition-specific)
0 = disable
1 = enable
If enabled, arming this partition causes the system to attempt to arm the lobby
partition. Field, field 1*18 must also be enabled (partition-specific).
NOTES:
The lobby cannot be armed unless all partitions programmed for “affect” (field
1*18) is already armed.
If this field is enabled, Field 1*18 for this partition must also be enabled.
Exit Error Logic Enable
0 = disable
1 = enable
If enabled, the system at the end of exit delay, if an entry door or an interior
zone is left open, starts the entry delay period, and activates the Notification
Appliance Circuit(s), and keypad sounders for the duration of entry delay.
This gives the user time to re-enter the premises and disarm the system
before exit error occurs.
If the user does not re-enter the premises and disarm the system, the system
bypasses the faulted entry/exit and/or interior zone(s). The rest of the system
is armed. Also, the following dialer reports are sent to the central station if
programmed:
Exit Error by User (not sent when is using ADEMCO High Speed format);
Entry/Exit or Interior Alarm with the zone number;
Bypass reports.
NOTE: This field must be enabled for SIA installations
UL Exit Error Logic is not suitable for use in a UL installation (must be 0).
1*20

VISTA-128FBP/VISTA-250FBP Installation and Setup Guide
5-8
FIELD TITLE and DATA ENTRIES EXPLANATION
Exit Delay Reset
0 = disable
1 = enable
If enabled, when the panel is armed, the normal exit delay begins. After the
user exits, closes the door and then re-enters the premises, the exit delay
time is reset to the programmed value.
NOTES:
Exit Delay Reset is designed to allow an operator to re-enter the premises to
retrieve a forgotten item without triggering an alarm.
This feature may only be activated once after arming. The Exit Delay must be
enabled for SIA installations.
UL Exit Delay Reset is not suitable for use in a UL installation (must be 0).
1*21
Cross-Zoning
UL Cross Zoning is not suitable for use in a UL installation.
Cross Zoning is designed so that a combination of two zones must be faulted within a 5-minute period of each other to cause
an alarm on either zone. This prevents momentary faults from one of the zones from causing an alarm condition. You can
select four "sets" of cross-zones (programmed in data fields 1*22, 1*23, 1*24, and 1*25), keeping in mind the following:
• Both zones in each set must protect the same area.
• Both zones in each set must be in the same partition.
• A fire zone must only be crossed to another fire zone protecting the same physical area (see warning below).
DO NOT cross-zone a fire zone with a burglary zone under any circumstance. Cross a fire zone with another fire
zone only, and BOTH must be protecting the same physical area (no walls or partitions separating them). Consult
NFPA 72 standard for exact spacing requirements. We recommend that spacing between fire cross-zones be no
farther than 30 ft
.
Conditions That Affect Cross-Zone Operation
• In the event of a continuous fault (lasting at least 5 minutes) on one of the paired zones, a fault on the second zone
causes an alarm immediately.
• If one of the zones in a pair is bypassed or has a zone response type set to 0, the cross-zoning feature does not apply.
• If an entry/exit zone is paired with an interior follower zone, be sure to enter the entry/exit zone as the first zone of the
pair. This ensures that the entry delay time is started before the follower zone is processed.
• If a relay is programmed to activate on a fault of one of the zones, the relay activates without the other zone being faulted.
• If a relay is programmed to activate on an alarm or trouble, both zones must trip before the relay activates, and both
zones must restore for the relay to deactivate (if relay is programmed to deactivate on a Zone List Restore).
If the one of the zones trips and the second zone does not trip within the 5-minute period, an “error” message is
reported to the central station. The Contact ID event code is 378.
FIELD TITLE and DATA ENTRIES EXPLANATION
1*22 Cross Zoning Pair One
Enter 001-250
Enter 000,000 to disable
Select the first pair of cross zones, which must both be faulted within a five-
minute period to cause an alarm.
Must be 000,000 for UL commercial burglary installations.
1*23 Cross Zoning Pair Two
Enter 001-250
Enter 000,000 to disable
Select the second pair of cross zones, which must both be faulted within a
five-minute period to cause an alarm.
Must be 000,000 for UL commercial burglary installations.
1*24 Cross Zoning Pair Three
Enter 001-250
Enter 000,000 to disable
Select the third pair of cross zones, which must both be faulted within a five-
minute period to cause an alarm.
Must be 000,000 for UL commercial burglary installations.
1*25 Cross Zoning Pair Four
Enter 001-250
Enter 000,000 to disable
Select the fourth pair of cross zones, which must both be faulted within a five-
minute period to cause an alarm.
Must be 000,000 for UL commercial burglary installations.

Section 5 – Data Field Descriptions
5-9
FIELD TITLE and DATA ENTRIES EXPLANATION
1*26 Panic Button or Speedkey
For A, B, C keys:
00 = panic function
01-35 = macro number
For D key:
00 = to select a macro to execute when key
is pressed
01-35 = macro number
Select for the A, B, and C keys whether the system performs a panic or a
speedkey function when the key is pressed.
Select for the D key whether the system performs a specific macro or if the
user will select a macro when the key is pressed.
Instead of the 32 programmable speedkey functions the keys can be
programmed for 3 other functions as follows:
33 = fire sounder silence. The key, when pressed, silences fire alarms.
34 = display next fire alarm. The key, when pressed, causes the keypad to
display the next fire alarm in the system.
35 = display previous fire alarm. The key, when pressed, causes the keypad
to display the previous fire alarm in the system.
NOTE: Selection 33 functions when field 3✳15 is enabled for pulsing.
Selections 34 and 35 should be used in conjunction with Fire Display Lock
(field 3✳01).
NOTE: If a user code with global arm/disarm is used to execute the macro,
the user’s global capabilities will override any arm/disarm commands in the
macro sequence.
1*28 RF Transmitter Low Battery
Sound
0 = disarmed state only
1 = both armed and disarmed states
Select when the RF transmitter low-battery condition should display and
audible beep annunciate on the keypad.
Must be 1 for UL installations.
1*29 RF Transmitter Low Battery
Reporting
0 = disable
1 = enable
If enabled, the system sends a Trouble message for RF transmitter low-
battery condition to the central station.
NOTE: The Trouble message will be sent for a transmitter supervision failure,
independent of this selection.
Must be 1 for UL installations.
1*30 RF Receiver Supervision Check-
in Interval
Enter 02-15 times 2 hours (4-30 hours).
00 = disable receiver supervision.
Select the check-in monitoring interval for the RF receiver(s).
Failure of a receiver to receive any RF signal within the time entered results in
the activation of the response type programmed for zone 990 for the first
receiver and zone 988 for the second receiver and their related
communication reports.
Maximum is 2 (4 hr) for UL installations.
1*31 RF Transmitter Check-in Interval
Enter 02-15 times 2 hours (4-30 hours).
00 = disable transmitter supervision.
Select the check-in monitoring interval for the RF transmitters.
Failure of an individual transmitter to send a supervision signal within the time
entered will result in a trouble response and related communication report.
Maximum is 2 (4 hr) for UL installations.
1*33 TouchTone with Rotary Backup
0 = disable
1 = enable
If enabled, the system reverts to rotary dialing if communicator is not
successful in dialing using TouchTone DTMF on first attempt.
1*34 Communicator Split Reporting
0 = Split Reporting disabled
1 = Alarm, Alarm Restore, and Cancel
reports to primary, all others to secondary
2 = Open/Close and Test reports to
secondary, all other reports to primary
3 = Fire Alarms and Fire Restores to
primary, all others to secondary
Select the type of split reporting for system communication.
NOTE: See *51 for split/dual reporting combinations.
1*35 Access Control Dialer Enables
0 = disable
1 = enable
There are six entries for this field as follows: Trace, Trouble, Not Used,
Bypass, System, Alarm.
If Trace is enabled, access grant/denial events sent to the central station.
For the other events, if enabled, a report is sent to the central station.

VISTA-128FBP/VISTA-250FBP Installation and Setup Guide
5-10
FIELD TITLE and DATA ENTRIES EXPLANATION
1*42 Call Waiting Defeat
0 = disable
1 = enable
If enabled, the system defeats Call Waiting on the first outgoing call attempt to
both the primary and secondary numbers.
NOTES:
After the panel's initial call to report the alarm, the panel may attempt to make
an additional call, perhaps for a cancel or a zone restoral. If Call Waiting is
not defeated, an operator at the central station attempting to contact the
premises (to verify whether the alarm is valid) hears the phone ringing
indefinitely and must to dispatch on the call.
DO NOT enable this feature unless Call Waiting is being used.
1*43 Permanent Keypad Display
Backlighting (partition-specific)
0 = disable
1 = enable
If enabled, backlighting for the keypad display remains on at all times.
Otherwise the backlighting comes on when a key is pressed.
NOTE: When a key is pressed, display backlighting turns on for all keypads in
that partition.
1*44 Wireless Keypad Tamper Detect
0 = disable
1 = enable
If enabled, when more than 40 key depressions are received without a valid
sequence (arm, disarm, etc.), the control panel disables the wireless keypad.
The inhibit is removed once a valid key sequence is received from a wired
keypad.
1*45 Exit Delay Sounding (partition-
specific)
0 = disable
1 = enable
If enabled, the system produces slow beeping from the keypads during exit
delay and reverts to rapid beeping during the last 10 seconds of the exit delay.
NOTES:
The duration of the beeping is the programmed value of field *10 regardless of
which entry/exit zone is used to exit the premises. Exit Delay Sounding must
be enabled for SIA installations.
See page 32 in the
Programming Guide
, “SOUND OPTION”, prompt for
disabling the entry/exit beeps on individual keypads.
1*47 Chime on Bell 1 (partition-
specific)
0 = disable
1 = enable
If enabled, the system produces chime annunciation on the Bell 1 output.
1*48 Wireless Keypad Assignment
0 = none
1-8 = partition number
Select the partition in which RF keypad is used.
1*49 Suppress Transmitter
Supervision Sound
0 = disable
1 = enable
If enabled, no trouble soundings occur on the keypad for transmitter check-in
failures.
Must be 0 for UL installations.
1*52 Send Cancel If Alarm + Off
(partition-specific)
0 = disable
1 = enable
If enabled, Cancel reports are sent when the system is disarmed after an
alarm, regardless of how much time has gone by.
If disabled, Cancel reports are sent within Bell Timeout period only.
NOTES:
This option must be enabled so Cancel reports are always sent.
This field must be enabled for SIA installations.
1*53 Disable Download Callback
0 = callback required
1 = no callback required
Select whether a callback from the control panel is required for downloading.
Must be 0 for UL commercial fire and burglary installations.
1*55 European Date Format
0 = disable (mm/dd/yy)
1=
enable (dd/mm/yy)
Select the date format for display in the event log.
1*56 AC 60Hz or 50Hz
0 = 60Hz
1 = 50Hz
Select the frequency for the AC.
Must be set to 0 for U.S. and Canadian installations.

Section 5 – Data Field Descriptions
5-11
FIELD TITLE and DATA ENTRIES EXPLANATION
1*57 Enable 5800 RF Button Global
Arm
0 = disable
1 = enable
If enabled, the system arms/disarms in accordance with the button’s user’s
global arming settings.
1*58 Enable 5800 RF Button Force
Arm
0 = disable
1 = enable
If enabled, allows the RF button user to force a bypass of all faulted zones
when arming the system.
NOTE: When attempting to arm the system, the keypad beeps once after the
button is pressed if any faulted zones are present. The user should then
press the button again within 4 seconds to force-bypass those zones and arm
the system.
1*60 Zone 5 Audio Alarm Verification
0 = disable
1 = enable
If enabled, zone 5 is used for 2-way audio (AAV).
Must be 0 for UL commercial fire and burglary installations.
NOTE: Zone 5 cannot be used as protection zone.
1*69 Printer Type
0 = parallel printer
1 = serial printer
Select the printer type for the event log printout.
NOTE: if you are using a parallel printer connected to the VA8201 Alpha
Pager Module.
1*70 Event Log Types
0 = disable
1 = enable
This field has five entries as follows: Alarm, Check, Bypass, Open/Close,
System. If enabled, the system logs those events into the event log.
NOTE: Events are also logged into the PassPoint system, if installed.
1*71 12/24 Hour Type Stamp Format
0 = 12-hour
1 = 24-hour
Select the type of time stamping for the event log.
1*72 Event Log Printer On-Line Mode
0 = disable
1 = enable
If enabled, the system prints the events as they occur.
If disabled, the system prints the log only upon request.
1*73 Printer Baud Rate
0 = 1200
1 = 300
Select the baud rate for the serial printer.
NOTE: Must be 1 if using the alphanumeric pager interface.
1*74 Relay Timeout XXX Minutes
Enter 000-127 times 2 minutes (000-254).
This is used for #80 Menu Mode Time-Driven event relay command numbers
“04/09” and
Output Programming
in the
#93 Menu Mode Programming
output
command “56.”
1*75 Relay Timeout YYY Seconds
Enter 000-127 seconds.
This is used for #80 Menu Mode Time-Driven event relay command numbers
“05/10” and
Output Programming
in the
#93 Menu Mode Programming
command “57.”
1*76 Access Control Relay (partition-
specific)
01-96 = relay number
00 = relay not used.
If enabled, the assigned relay closes for 2 seconds when the user enters his
code and presses 0.
Must be 00 for UL commercial fire and burglary installations.
NOTE: See
SECTION 3: Installing the Control
for enhanced access control
capabilities.
1*77 Log First Maintenance Signal
0 = disable
1 = enable
If enabled, the system logs the first maintenance signal from each smoke
detector. If disabled, no logging occurs.
2*00 Number of Partitions
Enter 1-8.
Enter the number of partitions used in the system.
2*01 Daylight Saving Time Start/End
Month
0 = disable
1 = enable
Enter the months (00-12) in which daylight saving time starts and ends.
Enter 00, 00 if daylight saving time does not apply to the user’s region.
Standard setting for U.S. is 04,10.

VISTA-128FBP/VISTA-250FBP Installation and Setup Guide
5-12
FIELD TITLE and DATA ENTRIES EXPLANATION
2*02 Daylight Saving Time Start/End
Weekend
0 = disable
1 = enable
Enter the start and end weekends for daylight saving time as follows: 1=first;
2=second; 3=third; 4=fourth; 5=last; 6=next to last; 7=third from last.
Standard setting for U.S. is 1,5.
UL Fields 2*05 – 2*08 must be set to 0 for UL installations.
2*05 Auto-Arm Delay (partition-
specific)
00 = no delay.
01-14 times 4 minutes (04-56) delay.
15 = no auto arming.
This is the time between the end of the arming window and the start of auto-
arm warning time (field 2*06).
2*06 Auto-Arm Warning Period
(partition-specific)
01-15 times 1-minute warning.
00 = no warning period.
This is the time that the user is warned by a keypad sounding and display to
exit the premises prior to auto arming of the system.
2*07 Auto-Disarm Delay (partition-
specific)
00 = no delay.
01-14 times 4 minutes (04-56) delay.
15 = no auto disarming.
This is the time between the end of the disarming window and the start of auto
disarming of the system.
2*08 Force Arm Enable for Auto-Arm
(partition-specific)
0 = disable
1 = enable
If enabled, the system automatically bypasses any faulted zones when it
attempts to auto-arm.
If disabled, the system will not auto-arm.
2*09 Open/Close Reports by
Exception (partition-specific)
0 = disable
1 = enable
If enabled, Open/Close reports are sent only if the openings/closings occur
outside the arm and disarm windows.
NOTES:
Open reports are also suppressed during the closing window in order to
prevent false alarms if the user arms the system, then re-enters the premises,
for example to retrieve a forgotten item.
Openings and closings are still recorded in the event log.
This field must be set to 1 if No Opening and No Closing reports are to be
sent.
2*10 Allow Disarming Only During
Arm/Disarm Windows (partition-
specific)
0 = disable
1 = enable
If enabled, disarming of the system is allowed only during the
arming/disarming windows, or if the system is in alarm (if 2*11 is set to 1).
NOTE: This applies only to Operator-level users. Installer, Master, and
Manager-level users can disarm the system at any time.
2*11 Allow Disarm Outside Window if
Alarm Occurs
0 = disable
1 = enable
If enabled, allows the system to be disarmed outside the programmed disarm
(opening) window if an alarm has occurred. Otherwise disarming is allowed
only during the disarm window.
NOTE: Used only if field 2*10 is enabled.
2*18 Enable GOTO for this Partition
(partition-specific)
0 = disable
1 = enable
If enabled, this partition can be accessed from another partition’s keypad
using the GOTO command.
2*19 Use Partition Descriptor
0 = disable
1 = enable
If enabled, the normal keypad display will include a partition number and four-
digit descriptor.

Section 5 – Data Field Descriptions
5-13
FIELD TITLE and DATA ENTRIES EXPLANATION
2*20 Enable J2 Triggers for Partition
(partition-specific)
0 = disable
1 = enable
If enabled, the J2 triggers function for this partition.
2*21 Supervision Pulses for LRR
0 = disable
1 = enable
There are three entries in this field as follows: Fire, Burglary/Audible Panic,
Silent Panic/Duress.
If enabled, causes the control to send periodic short pulses on the J2 radio
triggers to the LRR. The LRR uses these pulses to determine that its
connection to the control is still intact.
Must be 1 for UL commercial fire and burglary installations.
2*22 Display Fire Alarms of Other
Partitions (partition-specific)
0 = disable
1 = enable
If enabled, allows fire alarms that occur on other partitions to be displayed at
this partition’s keypad(s).
2*23 Display Burglary & Panic Alarms
for Other Partitions (partition-
specific)
0 = disable
1 = enable
If enabled, allows burglary and panic alarms that occur on other partitions to
be displayed at this partition’s keypad(s).
2*24 Display Troubles of Other
Partitions (partition-specific)
0 = disable
1 = enable
If enabled, allows troubles that occur on other partitions to be displayed at this
partition’s keypad(s).
2*30 Pager Installed
0 = disable
1 = enable
Enable if the Alphanumeric Pager Module (VA8201) interface is installed.
NOTE: The APM is needed for alphanumeric type paging and/or printing to a
parallel printer.
2*31 Delay Paging
0 = disable
1 = enable
This field has eight locations, one for each pager. If enabled, the system waits
the delay time specified in field 2*32 before transmitting the message after the
dialer completes sending the message.
2*32 Time to Delay Pager After Dialer
000-024 times 10 seconds (010-240).
This delay should be set to allow enough time for the central station to call
back the premises in order to verify an alarm condition. Field 2*31 must be
enabled.
2*33 Pager 1 Phone Number
Enter 0-9; #11 for *, #12 for #, #13 for a 2-
second pause.
Enter the paging service phone number for Pager 1. Enter up to 17 digits. Do
not fill unused spaces.
2*34 Pager 1 ID Number
Enter 0-9
Enter the Pager ID number for Pager 1. Enter up to 10 digits.
2*35 Pager 1 Format
0 = numeric
1 = ID
2 = alphanumeric
Enter the pager format for Pager 1.
2*36 Pager 1 Delay 1
000-060 seconds.
This delay occurs after the phone number is dialed and before the pager ID is
sent, giving the pager system time to answer the phone call.
NOTE: Program only if using numeric format.
2*37 Pager 1 Delay 2
000-060 seconds.
This delay occurs after the pager ID is sent and before the event information
is sent.
NOTE: Program only if using numeric format.

VISTA-128FBP/VISTA-250FBP Installation and Setup Guide
5-14
FIELD TITLE and DATA ENTRIES EXPLANATION
2*38 Pager 1 Partition Enable
0 = disable
1 = enable
This field has eight entries, one for each partition. If enabled, the system
sends messages to Pager 1 for the partition(s).
2*39 Pager 1 Trigger Event Enables
0 = disable
1 = enable
This field has six entries as follows: Alarm, Trouble, Bypass, Open/Close,
System, Test.
If enabled, the system sends a signal to the pager.
2*40 Pager 2 Phone Number
Enter 0-9; #11 for *, #12 for #, #13 for a 2-
second pause.
Enter the paging service phone number for Pager 2. Enter up to 17 digits. Do
not fill unused spaces.
2*41 Pager 2 ID Number
Enter 0-9
Enter the Pager ID number for Pager 2. Enter up to 10 digits.
2*42 Pager 2 Format
0 = numeric
1 = ID
2 = alphanumeric
Enter the pager format for Pager 2.
2*43 Pager 2 Delay 1
000-060 seconds.
This delay occurs after the phone number is dialed and before the pager ID is
sent, giving the pager system time to answer the phone call.
NOTE: Program only if using numeric format.
2*44 Pager 2 Delay 2
000-060 seconds.
This delay occurs after the pager ID is sent and before the event information
is sent.
NOTE: Program only if using numeric format.
2*45 Pager 2 Partition Enable
0 = disable
1 = enable
This field has eight entries, one for each partition. If enabled, the system
sends messages to Pager 2 for the partition(s).
2*46 Pager 2 Trigger Event Enables
0 = disable
1 = enable
This field has six entries as follows: Alarm, Trouble, Bypass, Open/Close,
System, Test.
If enabled, the system sends a signal to the pager.
2*47 Pager 3 Phone Number
Enter 0-9; #11 for *, #12 for #, #13 for a 2-
second pause.
Enter the paging service phone number for Pager 3. Enter up to 17 digits. Do
not fill unused spaces.
2*48 Pager 3 ID Number
Enter 0-9
Enter the Pager ID number for Pager 3. Enter up to 10 digits.
2*49 Pager 3 Format
0 = numeric
1 = ID
2 = alphanumeric
Enter the pager format for Pager 3.
2*50 Pager 3 Delay 1
000-060 seconds.
This delay occurs after the phone number is dialed and before the pager ID is
sent, giving the pager system time to answer the phone call.
NOTE: Program only if using numeric format.
2*51 Pager 3 Delay 2
000-060 seconds.
This delay occurs after the pager ID is sent and before the event information
is sent.
NOTE: Program only if using numeric format.
2*52 Pager 3 Partition Enable
0 = disable
1 = enable
This field has eight entries, one for each partition. If enabled, the system
sends messages to Pager 3 for the partition(s).

Section 5 – Data Field Descriptions
5-15
FIELD TITLE and DATA ENTRIES EXPLANATION
2*53 Pager 3 Trigger Event Enables
0 = disable
1 = enable
This field has six entries as follows: Alarm, Trouble, Bypass, Open/Close,
System, Test.
If enabled, the system sends a signal to the pager.
2*54 Pager 4 Phone Number
Enter 0-9; #11 for *, #12 for #, #13 for a 2-
second pause.
Enter the paging service phone number for Pager 4. Enter up to 17 digits. Do
not fill unused spaces.
2*55 Pager 4 ID Number
Enter 0-9
Enter the Pager ID number for Pager 4. Enter up to 10 digits.
2*56 Pager 4 Format
0 = numeric
1 = ID
2 = alphanumeric
Enter the pager format for Pager 4.
2*57 Pager 4 Delay 1
000-060 seconds.
This delay occurs after the phone number is dialed and before the pager ID is
sent, giving the pager system time to answer the phone call.
NOTE: Program only if using numeric format.
2*58 Pager 4 Delay 2
000-060 seconds.
This delay occurs after the pager ID is sent and before the event information
is sent.
NOTE: Program only if using numeric format.
2*59 Pager 4 Partition Enable
0 = disable
1 = enable
This field has eight entries, one for each partition. If enabled, the system
sends messages to Pager 4 for the partition(s).
2*60 Pager 4 Trigger Event Enables
0 = disable
1 = enable
This field has six entries as follows: Alarm, Trouble, Bypass, Open/Close,
System, Test.
If enabled, the system sends a signal to the pager.
2*61 Pager 5 Phone Number
Enter 0-9; #11 for *, #12 for #, #13 for a 2-
second pause.
Enter the paging service phone number for Pager 5. Enter up to 17 digits. Do
not fill unused spaces.
2*62 Pager 5 ID Number
Enter 0-9
Enter the Pager ID number for Pager 5. Enter up to 10 digits.
2*63 Pager 5 Format
0 = numeric
1 = ID
2 = alphanumeric
Enter the pager format for Pager 5.
2*64 Pager 5 Delay 1
000-060 seconds.
This delay occurs after the phone number is dialed and before the pager ID is
sent, giving the pager system time to answer the phone call.
NOTE: Program only if using numeric format.
2*65 Pager 5 Delay 2
000-060 seconds.
This delay occurs after the pager ID is sent and before the event information
is sent.
NOTE: Program only if using numeric format.
2*66 Pager 5 Partition Enable
0 = disable
1 = enable
This field has eight entries, one for each partition. If enabled, the system
sends messages to Pager 5 for the partition(s).
2*67 Pager 5 Trigger Event Enables
0 = disable
1 = enable
This field has six entries as follows: Alarm, Trouble, Bypass, Open/Close,
System, Test.
If enabled, the system sends a signal to the pager.

VISTA-128FBP/VISTA-250FBP Installation and Setup Guide
5-16
FIELD TITLE and DATA ENTRIES EXPLANATION
2*68 Pager 6 Phone Number
Enter 0-9; #11 for *, #12 for #, #13 for a 2-
second pause.
Enter the paging service phone number for Pager 6. Enter up to 17 digits. Do
not fill unused spaces.
2*69 Pager 6 ID Number
Enter 0-9
Enter the Pager ID number for Pager 6. Enter up to 10 digits.
2*70 Pager 6 Format
0 = numeric
1 = ID
2 = alphanumeric
Enter the pager format for Pager 6.
2*71 Pager 6 Delay 1
000-060 seconds.
This delay occurs after the phone number is dialed and before the pager ID is
sent, giving the pager system time to answer the phone call.
NOTE: Program only if using numeric format.
2*72 Pager 6 Delay 2
000-060 seconds.
This delay occurs after the pager ID is sent and before the event information
is sent.
NOTE: Program only if using numeric format.
2*73 Pager 6 Partition Enable
0 = disable
1 = enable
This field has eight entries, one for each partition. If enabled, the system
sends messages to Pager 6 for the partition(s).
2*74 Pager 6 Trigger Event Enables
0 = disable
1 = enable
This field has six entries as follows: Alarm, Trouble, Bypass, Open/Close,
System, Test.
If enabled, the system sends a signal to the pager.
2*75 Pager 7 Phone Number
Enter 0-9; #11 for *, #12 for #, #13 for a 2-
second pause.
Enter the paging service phone number for Pager 7. Enter up to 17 digits. Do
not fill unused spaces.
2*76 Pager 7 ID Number
Enter 0-9
Enter the Pager ID number for Pager 7. Enter up to 10 digits.
2*77 Pager 7 Format
0 = numeric
1 = ID
2 = alphanumeric
Enter the pager format for Pager 7.
2*78 Pager 7 Delay 1
000-060 seconds.
This delay occurs after the phone number is dialed and before the pager ID is
sent, giving the pager system time to answer the phone call.
NOTE: Program only if using numeric format.
2*79 Pager 7 Delay 2
000-060 seconds.
This delay occurs after the pager ID is sent and before the event information
is sent.
NOTE: Program only if using numeric format.
2*80 Pager 7 Partition Enable
0 = disable
1 = enable
This field has eight entries, one for each partition. If enabled, the system
sends messages to Pager 7 for the partition(s).
2*81 Pager 7 Trigger Event Enables
0 = disable
1 = enable
This field has six entries as follows: Alarm, Trouble, Bypass, Open/Close,
System, Test.
If enabled, the system sends a signal to the pager.
2*82 Pager 8 Phone Number
Enter 0-9; #11 for *, #12 for #, #13 for a 2-
second pause.
Enter the paging service phone number for Pager 8. Enter up to 17 digits. Do
not fill unused spaces.
2*83 Pager 8 ID Number
Enter 0-9
Enter the Pager ID number for Pager 8. Enter up to 10 digits.

Section 5 – Data Field Descriptions
5-17
FIELD TITLE and DATA ENTRIES EXPLANATION
2*84 Pager 8 Format
0 = numeric
1 = ID
2 = alphanumeric
Enter the pager format for Pager 8.
2*85 Pager 8 Delay 1
000-060 seconds.
This delay occurs after the phone number is dialed and before the pager ID is
sent, giving the pager system time to answer the phone call.
NOTE: Program only if using numeric format.
2*86 Pager 8 Delay 2
000-060 seconds.
This delay occurs after the pager ID is sent and before the event information
is sent.
NOTE: Program only if using numeric format.
2*87 Pager 8 Partition Enable
0 = disable
1 = enable
This field has eight entries, one for each partition. If enabled, the system
sends messages to Pager 8 for the partition(s).
2*88 Pager 8 Trigger Event Enables
0 = disable
1 = enable
This field has six entries as follows: Alarm, Trouble, Bypass, Open/Close,
System, Test.
If enabled, the system sends a signal to the pager.
3*00 Check or TRBL Display
0 = CHECK
1 = TRBL
Select whether the system should display CHECK or TRBL when a trouble
condition occurs.
3*01 Fire Display Lock
0 = disable
1 = enable
If enabled, the system locks the display on the first fire alarm. Press ✳ to
display the next fire alarm in the system. If disabled, the system scrolls all
alarms automatically.
3*12 Zone Type 18 Delay Use
0 = disable
1 = enable
If enabled, use the delay time programmed in field 3✳16.
3*13 Supervisory on Open and Short
0 = disable
1 = enable
If enabled, the system produces a supervisory response on an open or short
circuit. If disabled, a short circuit produces a supervisory response and an
open produces a trouble response.
3*14 Waterflow Alarm Silence Option
0 = silenced by User Code + OFF
1 = silenced when zone restores
Select how the Waterflow zone type will be silenced.
NOTE: This feature may be set to 1 only by permission of the local authority.
3*15 Alarm Sounds Bell 1 & 2
0 = pulsing
1 = steady
This field has two entries, one for each Notification Appliance Circuits. If set
for pulsing, field ✳08 applies.
3*16 Zone Types 17 & 18 Delay
Enter 01-15 times 2 seconds
Enter 00 for no delay
Select the delay time for zone types 17 and 18. The zone must be faulted for
entire delay time before an alarm or supervisory condition occurs. This may
prevent alarms due to minor fluctuations in waterflow.
3*17 Zone 6 Alternate Function Enable
0 = disable
1 = enable
If enabled, zone 6 may be used as a tamper zone (bell and cabinet tampers).
3*18 Extended Delay for Zone Types
17 & 18
0 = no extended delay
1 = multiply delay by 4
This option allows the delay programmed in field 3✳16 for Waterflow and
Supervisory zones to be extended by 4 times.
UL For Waterflow alarms, total maximum allowable time delay (device and panel) is 90 seconds.
For Fire Supervisory signals, total maximum allowable time delay (device and panel) is 200 seconds.

VISTA-128FBP/VISTA-250FBP Installation and Setup Guide
5-18
FIELD TITLE and DATA ENTRIES EXPLANATION
3*19 Auxiliary Input Alternate
Function Enable
0 = disable
1 = enable
If enabled, pins 5 and 9 on the J2 connector function as RS232 output and
input, respectively. If disabled, they function as fire alarm trigger and LRR
Xmit Okay. See the chart at field 3*20 for the J2 trigger configurations.
NOTE: If field 3*19 is enabled, you cannot use a LRR connected to the J2 trigger.
3*20 Trigger Outputs Function
Selection
0 = remote keypad sounder
1 = keyswitch LEDs
2 = 5140LED connection
Select the function of the J2 trigger outputs. See chart below.
J2 Pin Field 3*19 = 0
Field3*20 = 0 Field 3*19 = 0
Field3*20 = 1 Field 3*19 = 0
Field3*20 = 2 Field 3*19 = 1
1 Panic Alarm Panic Alarm 5140LED Dialer 1 Fail
LED As selected in field 3*20
2 Trouble Trouble Trouble As selected in field 3*20
3 Burglary Alarm Burglary Alarm 5140LED COMM Fail
LED As selected in field 3*20
4 Fire Supervisory Fire Supervisory Fire Supervisory As selected in field 3*20
5 Fire Alarm Fire Alarm Fire Alarm RS232 Output
6Remote Console
Sounder Keyswitch Ready LED 5140LED Dialer 2 Fail
LED As selected in field 3*20
7 Open/Close Keyswitch Armed LED 5140LED AC Fail LED As selected in field 3*20
8 Ground Ground Ground Ground
9 LRR Xmit Okay LRR Xmit Okay LRR Xmit Okay RS232 Input
3*21 Maximum Number of Dialer
Attempts
Enter the number of dialing attempts 1-8.
Select the maximum number of dialer attempts for the system.
NOTE: Must be 3, 4, or 5 for NFPA 72 compliant systems if a secondary
phone number is programmed.
3*30 Dialer Selection
0 = disable
1 = enable
This field has two entries, one for each dialer (main and backup). Enter 1 if the
dialer is being used.
3*31 Backup Dialer TouchTone or
Rotary
0 = rotary
1 = touchtone
Select the dialing method for the backup dialer.
3*50 Zone Type Restore Enables for
Types 16-18
0 = disable
1 = enable
This field has three entries, one for each zone type. Select the zone types that
will send Restore reports.
Must be 1 for UL commercial fire and burglary installations.
3*55 Reset on Second OFF for Bell 1
0 = disable
1 = enable
If enabled, the system resets bell 1 output when the second User Code +
OFF Code is entered after a fire alarm. If disabled, the system resets bell 1
output after the first User Code + OFF.
3*56 Reset on Second OFF for Bell 2
0 = disable
1 = enable
If enabled, the system resets bell 2 output when the second User Code +
OFF Code is entered after a fire alarm. If disabled, the system resets bell 2
output after the first User Code + OFF.
3*57 Confirmation of Arming Ding Bell
2 & Auxiliary Relay
0 = disable
1 = enable
This field has two entries, one for bell 2 and one for the auxiliary relay. If
enabled, produces ½-second external alarm sounding (“ding”) at the end of
exit delay (or after kissoff from the central station, if sending closing reports).
Must be 1 for UL commercial burglary installations.

Section 5 – Data Field Descriptions
5-19
FIELD TITLE and DATA ENTRIES EXPLANATION
3*59 Enable Bell 2 & Auxiliary Relay
Chime Annunciation
0 = disable
1 = enable
This field has two entries, one for bell 2 and one for the auxiliary relay. If
enabled, the system produces chime annunciation on the output.
3*60 Bell 2 & Auxiliary Relay Timeout
Enter 01-15 multiplied by 2 minutes.
00 = no timeout.
This field has two entries, one for bell 2 and one for the auxiliary relay.
Defines the length of time the output and the keypad’s sounder will sound for
all audible alarms.
Must be a minimum of 16 minutes for UL commercial burglary installations
and a minimum 6 minutes for UL commercial fire installations.
3*61 Auxiliary Relay Function
Selection
0 = trouble/supervisory
1 = alarm, silenced by User Code + OFF
2 = smoke detector reset
3 = battery save
4 = alarm, silenced by User Code + # + 67
Select the condition that will trigger the auxiliary relay.
NOTES:
Smoke detector reset triggers the relay momentarily (approximately 6
seconds) on the second User Code + OFF entry.
Battery save is used to disconnect power from non-critical loads 4 hours after
AC loss.
3*82 Burglary Features on Partition 1
Enable
0 = disable
1 = enable
If enabled, arming, test and chime modes can be used on partition 1.
NOTE: These features are automatically enabled on all other partitions.
3*85 System Zone Bypass Inhibit
0 = prevent bypass
1 = allow only installer to bypass
2 = allow only installer and master codes to
bypass
Select which codes, if any, can bypass fire zones and systems zones.
NOTES:
This applies to fire zones programmed with zone types 9, 16, 17, and 18 and
system zones 970-977.
The bypassing can only be done from partition 1.

VISTA-128FBP/VISTA-250FBP Installation and Setup Guide
5-20

6-1
SECTION 6
Scheduling Options
•••••••••••••••••••••••••••••••••••••••••••••••••
UL• You must program Bypass and Auto-Arm Fail reports for UL installations.
• Auto-disarming is not permitted in UL installations.
• You must not program Random Scheduling of Time Driven Events for UL installations.
General
The scheduling features allow certain operations to be
automated, such as arming, disarming, bypassing of
zones, and activating relay outputs.
The system uses time windows (a programmed period of
time with a start and stop time) for defining open/close
schedules, holiday schedules, user-defined temporary
schedules, and access schedules for users.
Scheduled events are programmed by user-friendly
menu modes of programming (#80, #81, #83, and #93
modes), explained in detail in this section. These menus
take you step by step through the options.
Auto Arming
The system can automatically arm (AWAY Mode) a
partition at the end of a pre-determined closing
(arming) time window.
Auto Arming can be delayed three ways: by use of the
Auto-Arm Delay, the Auto-Arm Warning, or by
manually extending the closing (arming) time window
with a keypad command.
The system can also automatically bypass any open
zones when auto arming.
Auto-Arm Delay
Auto-Arm Delay provides a delay (grace period) before
auto arming. It starts at the end of the closing time
window.
The delay is set in 4-minute increments, up to 56
minutes in partition-specific program field 2*05. At the
expiration of this delay, the Auto-Arm Warning will
start.
Auto-Arm Warning
The Auto-Arm Warning causes the keypad sounder to
warn the user of an impending Auto-Arm.
The warning can be set from 1 to 15 minutes prior to
the arming in partition-specific program field 2*06.
During this period the keypad beeps every 15 seconds
and displays “AUTO ARM ALERT.” During the last 60
seconds, the keypads beep every 5 seconds.
The panel arms at the conclusion of the Auto-Arm
Warning period.
Extend Closing Window
A user can manually delay the arm (closing) time
window by 1 or 2 hours. This is done by entering a
keypad command (User Code + #82), which then
prompts the user to enter the desired extension time of
1 or 2.
This feature is useful if a user must stay on the
premises later than usual.
The Auto-Arm delay and warning periods begin at the
end of the extension.
Force Arm
The Force Arm option causes the panel to attempt to
bypass any faulted zones prior to auto arming (panel
performs a force-arm).
This option is set in partition-specific program field
2*08.
Auto Disarming
The system can automatically disarm a partition at the
end of a pre-determined opening (disarm) time window.
The disarming time can be delayed by using the Auto-
Disarm Delay feature.
Disarm Delay
Auto-Disarm Delay provides a delay before auto
disarming. This delay is added to the end of the disarm
time window.
The delay is set in 4-minute increments, up to 56
minutes, in partition-specific program field 2*07.
Restrict Disarming
This option allows disarming by users only during the
disarm time window and during the arming time
window (in case user needs to re-enter premises after
manually arming the partition).
This option is set in partition-specific field 2*10. If field
2*10 is set, we highly recommend setting field 2*11, as
well. This field allows the partition to be disarmed
outside the arm/disarm time windows only if the
partition is in alarm.

VISTA-128FBP/VISTA-250FBP Installation and Setup Guide
6-2
Exception Reports
This option allows the reporting of openings and
closings to the central station only if the arming and
disarming occurs outside of the predetermined opening
and closing time windows. It is set in partition-specific
field 2*09.
The system can be programmed to send Failed to Open
and Failed to Close reports if the partition is not armed
or disarmed by the end of the corresponding time
window.
Limitation of Access of Users by Time
A user’s access to the system can be limited to a certain
time period. Outside this time, that user’s code is
inactive. The system provides up to 8 access schedules,
each consisting of two time windows (typically one for
opening, one for closing) for each day of the week and
two time windows for holidays.
The access schedules are programmed in the #80 Menu
Mode, and enabled when a user’s access code is added
to the system.
If a user tries to operate the system outside the
schedule, the alpha keypad displays “Access Denied.”
Time-Driven Events
The system can automatically activate and de-activate
relays at predetermined times to turn lights or other
devices on and off. The Time-Driven events can be
activated at different times in relation to a time
window:
• At the beginning of a time window
• At the end of a time window
• During a time window (on at beginning of window,
off at end)
• At both the beginning and end of the time window
(e.g., to sound a buzzer at the beginning and end of a
coffee break)
• Random time at the start of the time window (occurs
within 30 minutes after the start of the time
window)
• Random time at the end of the time window (occurs
within 30 minutes after the end of the time window)
• Random during the time window (begins within 30
minutes after the start of the time window and ends
within 30 minutes after the end of the time window)
The system can perform the same actions on a daily
basis, or can perform an action only once (e.g., turn on
the porch light this Wednesday at 8:00 PM).
The system also provides up to 20 programmable
“timers” available to the end user for the purpose of
activating output devices at preset times and days.
Time Window Definitions
Scheduled events are based on time windows, (periods
of time) during which an event may take place. The
system supports up to 20 time windows, each defined by
a “Start” time and a “Stop” time.
The windows are shared by all 8 partitions, and are
used when programming the various schedules
(open/close, limitation of access), as well as for Time-
Driven event control.
Scheduling Example
A store that has the following hours:
Monday to Friday 9am to 6pm
Saturday 10am to 4pm
Sunday Closed
Holidays Closed
The owner desires the following time windows to allow
time for employees to arm or disarm the system:
Monday to Friday Open (disarm) 8am to 9am
Close (arm) 6pm to 6:30pm
Saturday Open (disarm) 9am to 10am
Close (arm) 4pm to 4:30pm
Sunday & Holidays Closed
For this schedule, the four time windows need to be
programmed:
Window Start Stop Purpose
1 8am 9am Monday-Friday open window
2 9am 10am Saturday open window
3 4pm 4:30pm Saturday close window
4 6pm 6:30pm Monday-Fri. close window
Using the #80 Menu Mode, the installer can program
open/close schedules by assigning a time window to a
day of the week (windows are entered as 2-digit entries)
Mon Tue Wed Thu Fri Sat Sun Hol
Op/Cl Op/Cl Op/Cl Op/Cl Op/Cl Op/Cl Op/Cl Op/Cl
01/04 01/04 01/04 01/04 01/05 02/03 00/00 00/00
NOTE: 00 is entered for those days on which the store
is closed.
Employees can arm and disarm the system, when
programmed, within the open and close time windows
without causing a report to be sent to the central
station (reporting by exception, field 2*09). The system
can be programmed to automatically arm/disarm in
case an employee fails to arm/disarm manually (auto-
arm/auto-disarm).

Section 6 – Scheduling Options
6-3
Open/Close Schedules Definitions
General
The open/close scheduling is controlled by one of three
schedules. Each schedule consists of one time window
for openings and one time window for closings.
There are three types of schedules available: Daily,
Holiday, and Temporary.
Daily Schedule
Each partition can have one daily schedule consisting of
one opening window and one closing window per day.
Holiday Schedule
A holiday schedule overrides the regular daily schedule
on selected holidays throughout the year.
The opening and closing windows are programmed in
the daily schedule, but the holidays themselves are
defined in Holiday Schedule Programming in the #80
Menu Mode.
Temporary Schedule
The temporary schedule provides a method for the end
user to override the daily and holiday schedules. It
consists of one opening window and one closing window
for each day of the week. The schedule takes effect for
up to one week, after which it is automatically
deactivated.
This schedule is programmed using the #81 Temporary
Schedule Menu Mode.
Additional Schedules
Additional opening and closing schedules can be
programmed using the Time-Driven Event
Programming. For example, a schedule for normal
store openings/closings can be programmed with a daily
open/close schedule, and another open/close schedule for
a lunch hour can be programmed using the Time-
Driven event schedule programming.
Refer to “Time-Driven Events” later in this section for
detailed information.
Open/Close Reports by Exception
The system can help reduce communication traffic to
the central station by using the Open/Close Reports by
Exception feature. The Open/Close by Exception option
suppresses these reports from being sent to the central
station if an arm or disarm is done within the expected
time window. Reports are only sent if the arm or
disarm occurs outside the assigned time window.
The system keeps a record of all openings/closings in
its event log.
If a disarming occurs during a closing window (for
example, a person who arms the system forgets
something and has to re-enter), the Opening report
(although outside of the opening window) will not be
sent (as long as that disarming occurs within the
closing window).
This option is programmed in partition-specific program
field 2*09.
Example of Open/Close Exception Reporting & Scheduling
The following chart gives an example of how the Open/Close by Exception reporting works.
6:01PM 5:59AM 6AM 9AM 9:01AM 3:59PM 4PM 6PM 6:01PM 5:59AM
Early Opening reports are
sent if system is manually
disarmed before opening
window begins.
Early and Late Opening
and Closing reports are
programmable options
in Report Code
Programming in the
Programming Guide
.
They are not dependent
on the programming of
the Exception
Reporting option.
Opening Window
No reports are sent if
system is disarmed
during this time
window.
If an arming occurs,
a Closing report is
sent to the central
station regardless of
how the Exception
Reporting option is
set.
Auto-disarm delay begins.
Auto-disarm occurs after delay (if
auto-disarm is enabled).
Missed Opening reports are sent
if manual disarming has not
occurred at expiration of opening
window.
Late Opening reports are sent if
disarm occurs after the opening
window expires.
Early Closing reports are sent if
manual arming occurs before the
closing window begins.
Missed Opening/Closing type
reports are programmed in
Report Code Programming in
the
Programming Guide
. The
Exception Reporting option
must be set for these to be
sent.
Closing Window
No reports are sent
if system is armed*
during this time
window.
* or disarmed if
user needs to re-
enter premises.
Auto-arm delay begins.
Auto-arm warning begins.
Auto-arm occurs after
warning expires (if auto-
arm is enabled).
Missed Closing reports are
sent if manual arming has
not occurred at expiration
of closing window.
Late Closing reports are
sent if system is manually
armed after the closing
window expires.

VISTA-128FBP/VISTA-250FBP Installation and Setup Guide
6-4
Scheduling Menu Mode
The #80 Scheduling Menu Mode is used to program
most of the scheduling and timed-event options. Enter
Installer Code + [#] + [8] + [0] from the normal
operating mode. NOTE: Only users with an Installer or
Master level user code may enter the #80 mode.
The following can be programmed while in this mode:
• time windows
• open/close schedules to each partition
• holiday schedules
• Time-Driven events (for system functions and relay
activation)
• limitation of access schedules
Some scheduling features are programmed in Data
Field Programming Mode (Installer Code + 8 0 0 0).
Some features are programmed in the #93 Menu Mode.
The programming scheduling fields are listed below.
System-Wide Fields:
*04 Enable Random Timers
1*74 –1*75 Relay timeout values
2*01-2*02 Daylight saving time options
2*11 Allow disarming outside window if alarm
occurs
Partition-Specific fields:
1*76 Access control relay for this partition
2*05 Auto-arm delay value
2*06 Auto-arm warning time
2*07 Auto-disarm delay value
2*08 Force-arm enable
2*09 Open/Close Reporting by Exception
2*10 Restrict disarm only during windows
#93 Menu Mode (System Group #3)
Scheduling related report codes
Event-driven options are programmed using Output
Programming in #93 Menu Mode. Relay activation can
also be Time-Driven and that those are programmed
using the #80 Menu Mode. Refer to the Time-Driven
Event Programming later in this section for the
procedure.
Steps to Program Scheduling Options
This section contains examples of the
worksheets only. For complete worksheets,
see the
Programming Guide
accompanying this
Installation and Setup Guide.
In order to use #80 Scheduling Menu Mode, use the
worksheets to do the following:
1. Define time windows (up to 20)
2. Define the daily open/close schedules (one schedule
per day, per partition)
3. Define the holidays to be used by the system (up to
16)
4. Define limitation of access times (up to 8 schedules)
5. Define the Time-Driven events (up to 20)
NOTE: Temporary schedules are programmed using
#81 Menu Mode.
Use #80 Scheduling Menu Mode to perform the
following functions:
6. Program the time windows
7. Program the open/close schedules
8. Program the Time-Driven events
9. Program the access schedules
Scheduling Menu Structure
To program schedules, enter Scheduling Program Mode:
Installer Code + [#] + [80]. (Installer or Master level
user code.)
Scheduling Program Mode can be entered only
when all partitions are disarmed.
There are 6 procedures of scheduling menus accessed via #80, as shown below. Entering 1 at a displayed main menu
prompt selects that menu procedure. Prompts for programming that scheduling feature then appear. Enter 0 to skip a
procedure and display the next menu option.
PROMPT EXPLANATION
Time Window ?
1 = YES 0 = NO 0
Upon entering Schedule Menu Mode, this prompt appears. Enter 1 to program time windows. Refer to
Time
Windows Programming
later in this section for detailed procedures.
Enter 0 to move to the “O/C Schedules?” prompt.
O/C Schedules ?
1 = YES 0 = NO 0
Enter 1 to program opening and closing schedules. Refer to
Open/Close Schedules Programming
later in
this section for detailed procedures.
Enter 0to move to the “Holidays?” prompt.
Holidays ?
1 = YES 0 = NO 0
Enter 1 to program holiday schedules. Refer to
Holiday Schedule Programming
later in this section for
detailed procedures.
Enter 0 to move to the “Timed Events?” prompt.
Timed Events ?
1 = YES 0 = NO 0
Enter 1 to program timed events for relay outputs, additional schedules, and other system functions. Refer
to
Time-Driven Event Programming
later in this section for detailed procedures.
Enter 0 to move to the “Access Sched?” prompt.

Section 6 – Scheduling Options
6-5
PROMPT EXPLANATION
Access Sched. ?
1 = YES 0 = NO 0
Enter 1 to program access schedules. Refer to
Limitation of Access Schedules Programming
later in this
section for detailed procedures.
Enter 0 to move to the “Quit?” prompt.
Quit ?
1 = YES 0 = NO 0
Enter 1 to quit
#80 Scheduling Menu Mode
and return to normal operating mode.
Enter 0 to make any changes or review the scheduling programming options. If you press 0, the “Time
Window?” prompt is displayed.
Time Windows
The system provides 20 time windows that are defined
with start and stop times. These windows are used for
various open/close and access schedules, as well as for
output controls, and are the basis of the scheduling
system. These windows are shared among all 8
partitions.
Time Windows Worksheet
The following worksheet is an example of the worksheet
found in the Programming Guide. This worksheet will
help you define time windows and scheduling aspects of
this system before you program them. Note that time
windows can span midnight; for example, from 11 PM
to 1 AM.
Time Window
Number Start Time
(HH:MM) Stop Time
(HH:MM)
1
2
3…..20
A time window must have a start and a stop time.
Time Windows Programming
Enter Scheduling Mode by entering Installer Code +
[#] + [80]. The keypad displays the Time Window
Programming prompt.
PROMPT EXPLANATION
Time Window ?
1 = YES 0 = NO 0
Enter 1 at this main menu prompt to program time windows.
Time Window # ?
01-20, 00 = Quit 01
Enter the 2-digit time window number (01-20) to be programmed.
Press [✳] to accept the entry. Enter 00 + [✳] at the “Time Window #?” prompt to quit time window
programming and display the “Quit ?” prompt.
01 TIME WINDOW
00:00AM 00:00AM
If you entered a time window number, the cursor is now positioned on the tens of hours digit of the start of
window entry.
Enter the desired start of window hour and press [✳]. The cursor moves to the minutes position. Enter the
desired minutes and press [✳]. Toggle the AM/PM indication by pressing any key 0-9 while the cursor is
under the A/P position and then press [✳]. Repeat this to program the stop of window entry.
When the entry is completed, the “Time Window #?” prompt is displayed again.
Enter the next time window number to be programmed and repeat the procedure.
Quit ?
1 = YES 0 = NO 0
Enter 0 at the Quit ? prompt to return to the main menu choices and continue programming.
Enter 1 to quit Scheduling Menu Mode.
Because the time windows are shared among all partitions, it is important to make sure that changing a
time window does not adversely affect desired actions in other partitions.
Daily Open/Close Schedules
Each partition can be assigned one daily open/close
schedule, plus a holiday schedule. Temporary
schedules are programmed separately, using the #81
Temporary Schedule Menu Mode. To program
additional open/close schedules, see Time-Driven Events
Programming later in this section for the procedure.
Open/Close Schedule Worksheet
The following worksheet is an example of the worksheet
found in the Programming Guide. Write the previously
defined time window numbers for open and close for
each partition.

VISTA-128FBP/VISTA-250FBP Installation and Setup Guide
6-6
Part Mon Tues Wed Thur Fri Sat Sun Hol
Op Cl Op Cl Op Cl Op Cl Op Cl Op Cl Op Cl Op Cl
1
2
3…8
Open/Close Schedule Programming
After entering Scheduling Menu Mode, press [0] until the “O/C Schedules?” prompt appears.
PROMPT EXPLANATION
O/C Schedules ?
1 = YES 0 = NO 0
Enter 1 to program opening and closing schedules.
Partition # ?
01-08, 00 = Quit 01
Enter the appropriate partition number for which the following open/close schedules will apply.
Enter 00 + [✳] at the “Partition #?” prompt to quit open/close schedules programming and display the “Quit
?” prompt.
Mon P1 OP WIND.?
00:00 00:00 00
Enter the time window number 01-20 for the displayed day’s opening schedule beginning with Monday.
Enter 00 if no schedule is desired for a particular day. As the number is keyed in, the actual time that has
been stored for that window number is displayed as a programming aid.
Press [✳] to accept the entry.
Mon P1 CL WIND.?
00:00 00:00 00
Enter the time window number for the displayed day’s closing schedule. As the number is keyed in, the
actual time that has been stored for the window number is displayed.
Press the [✳] key to accept the entry.
Tue P1 OP WIND.?
00:00 00:00 00
The keypad now prompts for Tuesday’s open/close schedule. Follow the procedure for Monday’s prompts.
When the last day of the week has been programmed, the holiday opening and closing window prompts are
displayed.
Hol P1 OP WIND.?
00:00 00:00 00
Repeat the procedure for the holiday opening and closing time windows.
Press the [✳] key to accept the entry.
When the entries are completed, the “Partition #?” prompt is displayed again. Repeat this procedure for
each partition in the system.
Quit ?
1 = YES 0 = NO 0
Enter 0 at the “Quit ?” prompt to return to the main menu choices and continue programming.
Enter 1 to quit Scheduling Menu Mode.
Holiday Schedules
A holiday schedule overrides the regular daily open/close schedule on the programmed holidays throughout the year.
The system provides up to 16 holidays that can be assigned for the system. Each holiday can be assigned to any
combination of partitions. List the desired holidays in a Month/Day format on the worksheet. Check the partitions for
which these holidays apply.
Holiday Schedule Worksheet
The following worksheet is an example of the worksheet found in the Programming Guide.
HOL Partition
Month/Day 12345678
1/
2/
3…16

Section 6 – Scheduling Options
6-7
Holiday Schedule Programming
After entering Scheduling Menu Mode, press [0] until the “Holidays ?” prompt appears.
PROMPT EXPLANATION
Holidays ?
1 = YES 0 = NO 0
Enter 1 to program holiday schedules.
HOLIDAY NUMBER ?
01-16,00=Quit 01
Enter the 2-digit holiday number (01-16) to be programmed and press [✳] to accept entry.
Enter 00 + [✳] at the “Holiday Number?” prompt to quit the holiday menus and display the “Quit ?” prompt.
01 ENTER DATE
00/00
The cursor is now positioned on the tens of months digit. Enter the appropriate month, then press [✳] to
proceed to the day field.
Enter the appropriate day for the holiday.
Press [✳] to accept the entry.
Part ? 12345678
Hit 0-8 x x
Holidays can be set for any partition, as follows. Press [0] to turn all partitions on or off, or use keys 1-8 to
toggle the letter “x” under the partition to which this holiday will apply.
Press the [✳] key when all desired partitions have been assigned.
The “Holiday Number?” prompt is displayed again. Repeat the procedure for each holiday to be
programmed.
Quit ?
1 = YES 0 = NO 0
Enter 0 at the “Quit ?” prompt to return to the main menu choices and continue programming.
Enter 1 to quit Scheduling Menu Mode.
Time-Driven Events
These schedules are used to activate outputs, bypass
zones, etc. based on time. There are 20 of these
schedules that may be programmed for the system,
each governed by the previously defined time windows.
The actions that can be programmed to automatically
activate at set times are: relay commands, arm/disarm
commands, zone bypassing commands, and open/close
access conditions.
Time-Driven Events Worksheet
The following worksheet is an example of the worksheet
found in the Programming Guide. Fill out the
worksheet using the steps outlined below.
Automatic Refresh Feature
The system automatically updates the status of all
Time-Driven Events upon any of the following
occurrences:
• Changing of the time or date via #63 mode
• Exiting #80 Scheduling Menu mode
• Exiting Program mode
• After a disconnect from the downloader
• On a power-up
• At Daylight Saving Time adjustment.
Sched Time Days Action Action Activation
Num. Window M T W T F S S H Desired Specifier Time
1
2
3…20
1. Enter the schedule number (01-20) and time
window number (01-20), and note the day of the
week the action is desired.
2. Enter the code for the desired action and
action specifier. The action codes represent the
events that are to take place when the scheduled
time is reached. Each action also requires an
action specifier, which defines what the action will
affect (relay, relay group, partition, zone list, user
group). The action specifier varies, depending on
the type of action selected.
The following is a list of the Action Codes (desired
actions) used when programming Time-Driven events.
Note that these codes are independent of the relay
codes programmed during Output Programming in the
#93 Menu Mode.

VISTA-128FBP/VISTA-250FBP Installation and Setup Guide
6-8
Relay Commands
Action Code Action Action Specifier
01 Relay On Relay #
02 Relay Off Relay #
03 Relay Close for 2 seconds Relay #
04 Relay Close XX minutes (set
in field 1*74) Relay #
05 Relay Close YY seconds (set
in field 1*75) Relay #
06 Relay Group On Relay Group #
07 Relay Group Off Relay Group #
08 Relay Group Close for 2
seconds Relay Group #
09 Relay Group Close XX
minutes (set in field 1*74) Relay Group #
10 Relay Group Close YY
seconds (set in field 1*75) Relay Group #
Arm/Disarm Commands
Action Code Action Action Specifier
20 Arm-STAY Partition(s)
21 Arm AWAY Partition(s)
22 Disarm Partition(s)
23 Force Arm STAY (Auto-
bypass faulted zns) Partition(s)
24 Force Arm AWAY (Auto-
bypass faulted zns) Partition(s)
25 Arm INSTANT Partition(s)
26 Arm MAXIMUM Partition(s)
• The auto-arm warning (field 2*06) applies
when using Time-Driven events to auto-arm.
• Temporary schedules do not override an
auto-arming or auto-disarming programmed
in Time-Driven events.
• The auto-arming window cannot be extended
using the Installer Code + #82 Mode.
Bypass Commands
Action Code Action Action Specifier
30 Auto bypass – Zone list Zone list #
31 Auto unbypass – Zone list Zone list #
Open/Close Windows
Action Code Action Action Specifier
40 Enable Opening Window by
partition Partition(s)
41 Enable Closing Window by
partition Partition(s)
42 Enable Access Window for
access group Access Group
50 Off-Normal Reminder
(starts local keypad beeping if
fire or system trouble
condition exists)
None
Access Control Commands
Action Code Action Action Specifier
55 Access Point Grant Access Point #
56 Access Point Grant with
Override Access Point #
Action Code Action Action Specifier
57 Access Point Protect Access Point #
58 Access Point Bypass Access Point #
59 Access Point Lock Access Point #
60 Access Point Exit Access Point #
61 Access Point Group Grant Group #
62 Access Point Group Grant
with Override Group #
63 Access Point Group Protect Group #
64 Access Point Group Bypass Group #
65 Access Point Group Lock Group #
66 Access Point Group Exit Group #
67 Access Point Partition Grant Partition #
68 Access Point Partition Grant
with Override Partition #
69 Access Point Protect by
Partition Partition #
70 Access Point Bypass by
Partition Partition #
71 Access Point Lock by
Partition Partition #
72 Access Point Exit by Partition Partition #
73 Access Point Trigger On Trigger #
74 Access Point Trigger Off Trigger #
77 Access Point Group Enable Group #
78 Access Point Group Disable Group #
3. Enter the desired activation time (when the
action is to take place). Select from:
Activation
Time Description
1 Beginning of time window.
2 End of time window.
3During time window active period only (on at
beginning of window, off at end).
For example, if bypass is selected to activate during
the window, zones in a zone list are bypassed at the
beginning of the window and unbypassed at the end
of the window.
4Beginning and end of time window (e.g., a coffee
break buzzer). In this example, if relay pulse is
selected, the relay pulses for 2 seconds at the
beginning of the window, signaling the beginning of
the coffee break. At the end of the window it pulses
again, signaling the end of coffee break.
5Random time at the start of the time window (occurs
within 30 minutes after the start of the time window).
NOTE: Since the randomization for choice “5”
occurs within 30 minutes after the start of the
window, the time window must be of a duration of at
least 30 minutes.
6Random time at the end of the time window (occurs
within 30 minutes after the end of the time window).
7Random during the time window (begins within 30
minutes after the start of the time window and ends
within 30 minutes after the end of the time window).
NOTE: Since the randomization for choice “7”
occurs within 30 minutes after the start of the
window, the time window must be of a duration of at
least 30 minutes.

Section 6 – Scheduling Options
6-9
Field *04 must be enabled for randomization. A user
must initiate a random schedule by entering one of the
following sequences:
• [User Code] + [#] + [41]. This will randomize, up
to 30 minutes, the activation time of all devices,
programmed for randomization, assigned to the
partition the sequence is entered in. Enter the
sequence again to turn off the random schedule.
• [User Code] + [#] + [42]. This is the same as the
method above, except the randomization occurs
only on devices with activation times within 6 PM
and 5 AM. Enter the same sequence again to turn
off the random schedule.
ULYou must not program Random Scheduling of
Time Driven Events for UL installations.
Time-Driven Event Programming
The following menu items must first be programmed in
Output Programming in the #93 Menu Mode:
Enter Relay No. (reference identification number)
Output Group (if applicable)
Restriction
Output Type (V-Plex, 4204/4204CF, or FSA)
Zone No. (V-Plex)
ECP Address (4204/4204CF or FSA)
Relay No. (4204/4204CF)
LED No. (FSA)
After entering Scheduling Menu Mode, press [0] until
the “Timed Events ?” prompt appears.
PROMPT EXPLANATION
Timed Events ?
1 = YES 0 = NO 0
Enter 1 to program timed events.
TIMED EVENT # ?
01-20, 00=Quit 01
Enter the timed event number to be programmed (01-20).
Press [✳].
The system then prompts the user to enter the desired action to be taken.
Enter 00 at the “TIMED EVENT #?” prompt to quit the timed event menus and display the “Quit ?” prompt.
01 ACTION ?
none 00
Enter the action code for this timed-event number from the list at the left. This could be an output command,
an arming command, or any other Time-Driven event.
Press [✳] to accept the entry. The prompt for the action specifier appears.
ACTION CODES EXPLANATION ACTION SPECIFIER
01=Relay On
02=Relay Off
03=Relay Close for 2 seconds
04=Relay Close XX minutes
05=Relay Close YY seconds
Actions 01-05
If you selected actions 01-05, the prompt at the right appears. Enter the relay
number.
Press [✳] to accept entry. The “Time Window ?” prompt appears.
01 RELAY # ?
00
06=Relay Group On
07=Relay Group Off
08=Relay Group Close for 2
seconds
09=Relay Group Close XX
minutes
10=Relay Group Close YY
seconds
Actions 06-10
If you selected actions 06-10, the prompt at the right appears. Enter the relay
group number.
Press [✳] to accept entry. The “Time Window ?” prompt appears.
01 RELAY GRP # ?
00
20=Arm-STAY
21=Arm AWAY
22=Disarm
23=Force Arm STAY
24=Force Arm AWAY
25=Arm INSTANT
26=Arm MAXIMUM
40=Enable Open Window by
Part.
41=Enable Close Window by
Part.
Actions 21-26 and 40-41
If you selected actions 21-26 or 40-41, the prompt at the right appears. Enter
the partition to which the action applies. Enter 0 to select all partitions. Enter
a partition number again to deselect it.
Press [✳] to accept entry. The “Time Window ?” prompt appears.
PART? 12345678
HIT 0-8 X X

VISTA-128FBP/VISTA-250FBP Installation and Setup Guide
6-10
ACTION CODES EXPLANATION ACTION SPECIFIER
30=Auto bypass – Zone list
31=Auto unbypass – Zone list
Actions 30-31
If you selected actions 30-31, the prompt at the right appears. Enter the zone
list number that contains the zones to be bypassed or unbypassed.
Press [✳] to accept entry. The “Time Window ?” prompt appears.
01 ZONE LIST ?
ENTER 01-15 01
42=Enable Access Window for
Access group(s) Action 42
If you selected action 42, the prompt at the right appears. Enter the group
number to which the time window will apply.
Press [✳] to accept entry. The “Time Window ?” prompt appears.
GROUP ? 12345678
HIT 0-8 X
50=Off-Normal Reminder Action 50
No action specifier is required for this action since the condition that this
occurs for are system-wide.
55=Access Point Grant
56=Access Point Grant
w/Override
57=Access Point Protect
58=Access Point Bypass
59=Access Point Lock
60=Access Point Exit
Actions 55-60
If you selected actions 55-60, the prompt at the right appears. Enter the
access point number.
Press [✳] to accept entry. The “Time Window ?” prompt appears.
01 ACCESS POINT #
000
61=Access Point Group Grant
62=Access Point Group Grant
w/Override
63=Access Point Group
Protect
64=Access Point Group
Bypass
65=Access Point Group Lock
66=Access Point Group Exit
77=Access Point Group
Enable
78=Access Point Group
Disable
Actions 61-66 and 77-78
If you selected actions 61-66, the prompt at the right appears. Enter the
group number.
Press [✳] to accept entry. The “Time Window ?” prompt appears.
01 GROUP #
00
67=Access Point Partition
Grant
68=Access Point Partition
Grant w/Override
69=Access Point Protect by
Partition
70=Access Point Bypass by
Partition
71=Access Point Lock by
Partition
72=Access Point Exit by
Partition
Actions 67-72
If you selected actions 67-72, the prompt at the right appears. Enter the
partition to which the action applies. Enter 0 to select all partitions. Enter a
partition number again to deselect it.
Press [✳] to accept entry. The “Time Window ?” prompt appears.
PART? 12345678
HIT 0-8 X X
73=Access Point Trigger On
74=Access Point Trigger Off
Actions 73-74
If actions 73-74 were selected, the prompt at the right will be displayed. Enter
the trigger number.
Press [✳] to accept entry. The “Time Window ?” prompt appears.
01 TRIGGER #
00
PROMPT EXPLANATION
01 Time Window ?
00:00 00:00 01
Enter the time window number (01-20) for which this timed event is to occur. As the number is keyed in, the
actual time that has been stored for the time window number is displayed.
Press [✳] to accept entry.

Section 6 – Scheduling Options
6-11
PROMPT EXPLANATION
01 Active time ?
0
Enter the activation time from 1-10 (listed below). As the number is keyed in, the activation time is
displayed. The choices are:
1: Trigger at the start of the window.
2: Trigger at the end of the window.
3: Take effect only for the duration of the window.
4: Trigger at both the start and the end of the window. Example: coffee break buzzer.
5: Random trigger, up to 30 minutes, after the start of the window.
6: Random trigger, up to 30 minutes, after the end of the window.
7: Take effect only for the duration of the window, but random start and end the window up to 30 minutes.
Press [✳] to accept entry.
Days ? MTWTFSSH
Hit 0-8 x x
The system then asks for which days the event is to be activated.
Press 0 to toggle all days on or off; or press keys 1-8 to toggle the letter “x” under the day on or off (Monday
= 1, Holiday = H = 8).
When all entries have been made, the “TIMED EVENT #?” prompt is displayed again.
Repeat the procedure for each timed event for the installation.
Quit ?
1 = YES 0 = NO 0
Enter 0 at the “Quit ?” prompt to return to the main menu choices and continue programming. Enter 1 to quit
Scheduling Menu Mode.
Limitation of Access Schedules
Limitation of Access is a means by which a user’s access
code is limited to working during a certain period of
time. The system provides 8 Access Schedules, each of
which consists of two time windows for each day of the
week and two time windows for holidays (typically, one
for an opening time window and the second for a closing
time window). A user, required to follow a schedule,
would be assigned to an access group of the same
number (e.g., schedule 1= group 1).
The user’s access code is assigned to a group when that
user is added to the system. If no limitations apply,
enter 0.
Limitation of Access Schedule Worksheet
Enter the appropriate time window numbers for each access schedule.
Acc Mon Tues Wed Thurs Fri Sat Sun Hol
SchW1W2W1W2W1W2W1W2W1W2W1W2W1W2W1W2
1
2
3…8
NOTE: The holidays used for the access groups are the same as those defined in the holiday schedule.
Limitation of Access Schedules Programming
To program access schedules enter Scheduling Menu Mode Installer Code + # 80. After entering Scheduling Menu
Mode, press [0] until the “Access Sched. ?” prompt appears.
PROMPT EXPLANATION
Access Sched. ?
1 = YES 0 = NO 0
Enter 1 to program access schedules.
ACCESS SCHED # ?
01-08, 00 = Quit 01
Enter the access control schedule number between 01 and 08.
Press [✳] to accept entry.
Enter 00 at the “Access Sched #?” prompt to quit the access control menus and display the Quit ? prompt.

VISTA-128FBP/VISTA-250FBP Installation and Setup Guide
6-12
PROMPT EXPLANATION
MON A1 Window 1?
00:00 00:00 00
Enter the first time-window number (01-20) for this access schedule for the displayed day. As the number is
keyed in, the actual time that has been stored for the window is displayed.
Press [✳] to continue.
MON A1 Window 2 ?
00:00 00:00 00
Enter the second time-window number from 01-20 for this access schedule for the displayed day. As the
number is keyed in, the actual time that has been stored for the window is displayed.
Press [✳] to continue.
TUE A1 Window 1?
00:00 00:00 00
Repeat the procedure for the other days of the week. When the last day of the week has been programmed,
the windows for holidays may be entered.
Hol A1 Window 1 ?
00:00 00:00 00
Enter the first time-window number for holidays for this access schedule. As the number is keyed in, the
actual time that has been stored for the window is displayed.
Press [✳] to continue.
Hol A1 Window 2 ?
00:00 00:00 00
Enter the second time-window number for holidays for this access schedule. As the number is keyed in, the
actual time that has been stored for the window is displayed.
Press [✳] to continue.
Quit ?
1 = YES 0 = NO 0
Enter 0 at the “Quit ?” prompt to return to the main menu choices and continue programming.
Enter 1 to quit Scheduling Menu Mode.
Temporary Schedules
Each partition can be assigned a temporary schedule,
which overrides the regular open/close schedule (and
the holiday schedule). This schedule takes effect as
soon as it is programmed, and remains active for up to
one week.
Only users with the authority level of manager or
higher can program temporary schedules.
A temporary schedule affects only the partition from
which it is entered. Temporary schedules can also be
reused at later dates simply by scrolling (pressing [#])
to the “DAYS?” prompt and activating the appropriate
days. This should be considered when defining daily
time windows.
Temporary Schedule Worksheet
Partition/Windows Mon Tue Wed Thu Fri Sat Sun
1Disarm Window
Start Time HH:MM
Stop Time HH:MM
Arm Window
Start Time HH:MM
Stop Time HH:MM
2…8 Disarm Window
Start Time HH:MM
Stop Time HH:MM
Arm Window
Start Time HH:MM
Stop Time HH:MM

Section 6 – Scheduling Options
6-13
Temporary Schedules Programming
Enter User Code + [#] + 81 to enter this mode.
PROMPT EXPLANATION
Mon DISARM WIND.
00:00AM 00:00AM
This prompt is for entering the start and end times of the disarm (opening) window for Monday.
Upon entry of this mode, the cursor is positioned on the tens of hours digit of the start time of the disarm
window. Enter the desired hour.
Press [✳] to move to the minutes field. The minutes are entered in the same manner.
Press [✳] to move to the AM/PM position. Pressing any key in the 0-9 range toggles the AM/PM indication.
Repeat the procedure for the stop time entry.
Press [✳] to store the entries and move to the arming (closing) window for Monday.
Pressing [#] scrolls you through the prompts without making any changes.
Mon ARM WINDOW
00:00AM 00:00AM
This prompt is for entering the start and end times of the arm (closing) window for Monday.
The cursor is positioned on the tens of hours digit of the start time of the arm window. Enter the hour.
Press [✳] to move to the minutes field. The minutes are entered in the same manner.
Press [✳] to move to the AM/PM position. Pressing any key in the 0-9 range toggles the AM/PM indication.
Repeat the procedure for the stop time entry.
After the windows for that day have been completed, the system prompts for disarm and arm time windows
for the next day.
Press [#] if no changes are desired.
Tue DISARM WIND.
00:00AM 00:00AM
Repeat the procedure described above for all days of the week.
When all the windows for all the days have been completed, the system prompts for which days of the
schedule are to be activated.
Days ? MTWTFSS
Hit 0-7 x x
This is the prompt that actually activates the temporary schedule.
To select the days to be activated, enter 1-7 (Monday = 1). An “X” appears under that day, indicating the
temporary schedule for that day is active. Entering a day’s number again deactivates that day. Pressing 0
toggles all days on/off.
The temporary schedule is in effect only for the days highlighted with the letter “x” under them. As the week
progresses, the selected days are reset to the inactive state, but all other entries for the temporary schedule
remain programmed.
Press [✳] to store the entries or press [#] to exit the Temporary Schedule Entry Mode without making any
changes.
User Scheduling Menu Mode
The system provides up to 20 “timers” available to the end user to control output devices. The output devices themselves
are programmed into the system by the installer during Output Programming in the #93 Menu Mode. The end user
needs only to know the output device number and its alpha descriptor.
The installer may set certain outputs to be “restricted” during Output Programming (this prevents the end user from
controlling doors, pumps, Notification Appliance Circuits, etc.)
To enter this mode, the user enters User Code + [#] + 83.
PROMPT EXPLANATION
Output Timer # ?
01-20, 00=Quit 01
Enter the output timer number to be programmed (01-20). Press [✳] to accept entry and move to the next
prompt.
Enter 00 to quit and return to normal operating mode.
06 07:00P 11:45P
PORCH LITE 04
If that timer number has already been programmed, a summary screen appears. In this example:
06 = Timer #
07:00PM = Start Time
11:45PM = Stop Time
PORCH LITE = Descriptor for Output Device # 4
04 = Output Device # affected by this timer
Press [✳] to continue.

VISTA-128FBP/VISTA-250FBP Installation and Setup Guide
6-14
PROMPT EXPLANATION
06 ENTER OUTPUT#
PORCH LITE 04
Enter the desired output number (01-96). As the number is entered, the descriptor for that output device is
displayed.
Press [✳] to continue.
Entering 00 as the output number deletes the timer (Timer 06, in this example) and displays an output
descriptor of “None.” Output devices are programmed via #93 Menu Mode.
PROMPT EXPLANATION
06 ON TIME ?
07:00 PM
The cursor is positioned on the tens of hours digit of the ON time. Enter the desired hour. Press [✳] to move
to the minutes field. The minutes are entered in the same manner. The AM/PM indication is toggled by
hitting any key from 0-9 while the cursor is under the AM/PM position.
Press [✳] to continue.
06 OFF TIME ?
11:45 PM
The cursor positioned on the tens of hours digit of the OFF time. Enter the desired hour. Press [✳] to move
to the minutes field. The minutes are entered in the same manner. The AM/PM indication is toggled by
hitting any key in the 0-9 range while the cursor is under the AM/PM position.
Press [✳] to continue.
06 DAYS? MTWTFSS
HIT 0-7 x x
To select the days to be activated, enter 1-7 (Monday = 1). An “x” appears under that day, indicating the
output for that day is active. Entering a day’s number again deactivates that day. Pressing 0 toggles all
days on/off.
The outputs are in effect only for the days highlighted with the letter “x” under them. As the week progresses,
the selected days are reset to the inactive state, unless the permanent option is selected (next screen
prompt).
When completed, press [✳] to continue.
06 Permanent ?
0 = NO,1 = YES 0
Selecting “Permanent” (1) means that this schedule will be in effect on a continuous basis. Selecting 0
means that this schedule will be in effect for one week only. The letter “x” under the day is then cleared, but
all other entries for the output device remain programmed.
Press [✳] to accept entry.
The system quits User Scheduling Mode and returns to normal operating mode.

7-1
SECTION 7
Downloading Primer
(Remote Downloading is not a UL Listed feature)
•••••••••••••••••••••••••••••••••••••••••••••••••
General Information
Downloading allows the operator to remotely access,
program, and control the security system over normal
telephone lines. Anything that can be done directly
from the keypad can be done remotely, using
ADEMCO’s COMPASS downloading software. To
communicate with the control panel, the following is
required:
1. IBM PC-compatible 486 33MHz PC or better with
100 MB of available hard disk space and at least
8MB of RAM (12MB is preferred). Windows 3.X,
Windows 95, 98, or Windows NT.
2. One of the following modems:
• ADEMCO CIA
• Hayes Smartmodem 1200 (external: level 1.2
or higher; internal: level 1.1 or higher)
• Hayes Optima 24 + Fax 96 external
• Hayes Optima 336
• BizComp Intellimodem 1200 w/volume
• BizComp Intellimodem 2400
Other brands are not compatible, even if claimed to
be 100% compatible.
3. COMPASS DOWNLOADING software available on
CD ROM with a complete User’s Manual. It may
also be downloaded from the ADEMCO web page.
The web address is http://www.ademco.com.
Internal modems must have a 4-position DIP
switch. Modems with a 6-position DIP switch
will not work.
Access Security
The following four levels of protection guard the control
against compromise while it is being accessed from a
remote location:
1. Security code handshake: The subscriber’s account
number as well as an 8-digit ID number (known
only to the office) must be matched between the
control and computer.
2. Hang-up and callback: The control panel “hangs
up” and calls the computer back at the pre-
programmed number only if the security codes
match.
3. Data encryption: All data that is exchanged
between the computer and control is encrypted to
reduce the possibility of anyone “tapping” the line
and corrupting data.
4. Operator access levels: Operators may be assigned
various levels of access to the downloader, each
having its own log-on code. The access levels allow
the operators read/write capabilities of the
customers’ account information. For a detailed
explanation of the access levels, see the
downloading software User Manual.
NOTES:
• Each time the control panel is accessed
successfully, a Callback Requested report is sent to
the central station, if Opening reports are
programmed.
• When the system is downloading, the keypad
displays “MODEM COMM.”
• After each download or save, an automatic time
stamp is done, to indicate the last download (or
save) and the operator ID number.
• A complete hard copy of each individual account
can be obtained by connecting a printer to the
computer. Refer to your computer Owner’s Manual
or contact your dealer for printer recommendations.
Unattended Download
Unattended download allows the control panel to
communicate with the download computer without an
operator at the computer. This feature is useful on new
installations.
The installer can mount the control, attach a keypad
and phone line, and continue to wire the rest of the
installation while the system is automatically
downloaded.
The following items must be programmed for
unattended download:
• The account number (field ✳32)
• Primary central station telephone number (field
✳33)
• The download telephone number (field ✳35)
• Unattended Mode (enable in field ✳54.)
NOTE: The default for field ✳54 is enabled (1).

VISTA-128FBP/VISTA-250FBP Installation and Setup Guide
7-2
Installer Unattended Program Mode
The Installer Unattended Program Mode allows the
installer to program fields ✳32, ✳33, and ✳35 without
entering the normal program mode.
Press 0 (NO) or 1 (YES) in response to the displayed
menu selection. Pressing 0 displays the next choice in
sequence.
To access this mode, enter Installer Code +[#] + [89]. The following prompt appears:
PROMPT EXPLANATION
Unattend. Phone
1 = YES 0 = NO 0
Press 1 to enter the unattended phone number.
Unattend. Phone 1 Enter the telephone number of the download software modem.
Enter up to 17 digits, 0-9;A key = ✳, B key = #, C key = 2-Sec. Pause. Do not fill unused spaces. Press the
✳ key to accept the phone number and exit.
Press the # key to exit without changing any data.
The system displays the Quit menu prompt. Press 1 to exit the Installer Unattended Program Mode, or 0 to
continue to the next prompt.
Unattended Acct#
1 = YES 0 = NO 0
Press 1 to enter the unattended account number.
Unattended Acct#
15-15-15-15
Enter a 3-or 4-digit (depending on report format) account number 00-09; B-F (11-15). Each number requires
a 2-digit entry so as to allow entry of hexadecimal digits (B-F). If a 3-digit account number is to be used,
enter digits in the first 3 locations, and enter 00 in the last location.
Press the ✳ to exit without changing any data.
The system displays the Quit menu prompt. Press 1 to exit, or 0 to continue.
Primary Phone
1 = YES 0 = NO 0
Press 1 to enter the primary phone number.
Primary Phone 0 Enter the primary central station telephone number.
Enter up to 17 digits, 0-9;A key = ✳, B key = #, C key = 2-Sec. Pause. Do not fill unused spaces. Press the
D key accept the phone number and exit.
Press the ✳ to exit without changing any data.
The system displays the Quit menu prompt. Press 1 to exit, or 0 to continue.
Quit ?
1 = YES 0 = NO 0
Enter 1 to quit the Installer Unattended Program Mode. Enter 0 at the “Quit ?” prompt to return to the first
menu prompt, “UNATTEND. PHONE”.
Trig. Unattended
1 = YES 0 = NO 0
Enter 1 to initiate the unattended download at this time. Otherwise enter 0.
NOTE: The ADEMCO Compass Downloader must be in Unattended Mode.
An unattended download may be initiated by the installer or end user at any time by entering User Code +[#] + [1].
Getting On-Line with a Control Panel
At the protected premises, the control panel must be
connected to the existing telephone line (refer to the
SECTION 3: Installing the Control). No programming
of the panel is required before downloading to an initial
installation unless you are performing an unattended
download.
When establishing a connection between the computer
and the control panel, the following occurs:
Stage What Happens
1 The computer calls up the control panel.
(The phone number for each customer must
be entered into the customer’s account file
on the computer.)
2 The control panel answers the phone call at
the pre-programmed ring count and executes
a handshake with the computer.

Section 7 – Downloading
7-3
Stage What Happens
3 The computer sends a request for callback to
the control, unless callback is not required.
4 The panel acknowledges the request and
hangs up. During the next few seconds, the
control processes the request, making sure
certain encrypted information received from
the computer matches its own memory.
5 Upon a successful match, the control panel
seizes the phone line and calls the computer
back, unless callback is not required. (The
phone number to which the computer’s
modem is connected must be programmed
into the control field ✳35.)
6 The computer answers, usually by the
second ring, and executes a handshake with
the panel.
7 The panel then sends other default
information to the computer. If this
information matches the computer’s
information, a successful link is established.
The system is now “on-line” with the
computer.
• Alarms and Trouble responses and reports
are disabled during actual uploading or
downloading sessions. If you are on-line,
but not actively uploading or downloading,
all alarms report immediately. All other
reports are delayed until you complete the
session.
• The keypads remain active when on-line
with a control, but are inactive during
actual uploading or downloading sessions.
To download a control without programming any
information, perform the following steps:
Step Action
1 Enter the
Installer Code + [#] + [5]. The
panel temporarily enables a ring count of 5
and sets the Download Callback option to “1”
(callback not required).
2 From the computer, call the panel using the
downloader software set to “First
Communication” Mode.
The downloader establishes a session with no
callback. The panel information can then be
downloaded.
On-Line Control Functions
The following functions can be performed while on-line
with a control panel (see field *37):
• Arm the system in the AWAY Mode; disarm the
system
• Bypass a zone
• Force the system to accept a new program
download
• Shut down communication (dialer) functions (for
nonpayment of monitoring fees in an owned
system)
• Shut down all security system functions (for
nonpayment for a leased system)
• Inhibit local keypad programming (prevents
takeover of your accounts)
• Leave a message for customer
NOTE: Messages sent to the control panel from the
downloader will be viewable at ALL partitions.
• Command the system to upload a copy of its
resident program to the office
• Read: arming status, AC power status, list of
faulted zones, list of bypassed zones, 1024 event
log, list of zones currently in alarm, list of zones
currently in trouble, and ECP equipment list
• Set the real-time clock
Scheduled Download
The VISTA-128FBP/VISTA-250FBP can be
programmed to periodically and automatically call the
downloader. When this option is set up, the system will
call the downloader at a scheduled time. Once the
connection is established with the modem, the
downloader controls which functions are performed
(download, arm, upload event log, etc.).
The programmable options for the scheduled download
are located in the #93 Menu Mode in the Programming
Guide under the main menu prompt Scheduled Check-
in.
The options are as follows:
• Check-in interval (weekly, monthly quarterly,
yearly)
• Quarter of the year (if quarterly is selected)
• Month of the year (if monthly, quarterly, or yearly
is selected)
• Day of the month (if monthly, quarterly, or yearly
is selected)
• Day of the week (if weekly is selected)
• Time of day
Refer to the #93 Menu Mode in the Programming Guide
for sequence of the prompts.

VISTA-128FBP/VISTA-250FBP Installation and Setup Guide
7-4
Direct-Wire Downloading
The VISTA-128FBP/VISTA-250FBP can be downloaded
without using a modem or telephone line by using a
4100SM Serial Module and Compass Downloading
Software. The direct-wire downloading connection is to
be temporary, and is not part of the permanent
installation. Direct-wire downloading is meant as a tool
for the installer during the installation process.
The connections between the control and
the 4100SM are different than those shown
in the 4100SM Installation Instructions. See
Figure 7-1
for the correct connections. In
addition, in place of the green wire, referred to
in step 2 of the “IN CASE OF DIFFICULTY”
section of the 4100SM Instructions, use the
violet wire instead.
Connector J2 on the main PC board (see the Summary
of Connections diagram on the inside back cover of this
manual) is intended to be interfaced to either a local
serial printer (see Event Log Connections in SECTION
3 Installing the Control) or a computer. Make
connections to a computer as shown below. Note that
the violet wire connection for a computer differs
from that used when connecting a serial printer.
Remove the VA8201 Alpha Pager Module, if it
is installed, before performing the direct-wire
download. It may be reconnected once the
direct-wire download is completed.
123456789
INPUT 1
GROUND
OUT 1
OUT 4
OUT 7
OUT 3
OUT 6
OUT 2
OUT 5
J2 CONNECTOR
(VIOLET)
(GRAY)
(YELLOW)
(WHITE)
(RED)
(GREEN)
(BROWN)
BLUE
BLACK
4142TR CABLE
8
7
6
5
4
3
2
1
+ PWR
– (GND)
RXD
not used
not used
TXD
not used
not used
BLUERED WHITE
10 FT.
CABLE
SUPPLIED
WITH 4100SM
DOWNLOADING
PC
+
(TO TERM 11)
–
(TO TERM 12)
▲▲
TO
AUX PWR 1
OUTPUT
NOTE: ENTER THE INSTALLER
CODE + [#] + [5] TO INITIATE
DOWNLOADING BEFORE MAKING
THE ABOVE CONNECTIONS TO
AVOID TRIGGERING A FAULT ON
INPUT 1.
4100SM
Figure 7-1: Direct-Wire Downloading Connections
Telco Handoff
Telco handoff is another method of getting on-line with the downloader. The installer or customer enters the User Code
+ [#] + [1], while on the phone line with the computer’s modem phone line. The customer will get cut-off and the panel
and download computer will establish a connection.

8-1
SECTION 8
Setting the Real-Time Clock
•••••••••••••••••••••••••••••••••••••••••••••••••
General Information
This system provides a real-time clock, which must be
set in order for the system’s event log to keep track of
events by time and date. It must also be set in order to
execute scheduling programs (Time-Driven events). If
you are using Panel Linking, you can set the Real-Time
clock at one panel and have the system automatically
update the time and date at the other control panels.
Use a 6139/6160 alpha keypad to set the real-
time clock, or set the clock via the downloader
software. Only users with Installer or Master
authority level can set the clock.
Setting the Time and Date
To set the real time clock, perform the following steps:
Step Action
1 Enter Installer or Master Code + [#] 63.
Typical display shows:
TIME/DATE –– THU
12:01 AM 01/01/90
The day of the week is automatically
calculated based on the date entered. Time
and date entries are made by simply entering
the appropriate hour, minute, month, day
and year.
Press [✳] to move the cursor to the right of
the display, to the next position.
Press [#] to move the cursor to the left of the
display, to the previous position.
2Enter the correct hour. Then press [✳] to
move to the “minutes” field.
3Enter the correct minutes. Press [✳] to move
to the AM/PM position.
Step Action
4 Press any key 0-9 to change AM to PM, or PM
to AM. Press [✳] to move cursor to the
“month” field position.
5 Enter the correct month using a 2-digit entry.
Press [✳] to move cursor to the “day” field
position.
6 Enter the correct day using a 2-digit entry.
Press [✳] to move cursor to the “year” field
position.
7 Enter the correct year.
Press [✳] to continue.
8 The following display appears:
Broadcast Time?
1=YES 0=NO 0
If panel linking is being used, enter 1 (YES)
to send this time and date setting to all the
other panels. Otherwise enter 0.
Press [✳] to exit the real-time clock edit
mode.

VISTA-128FBP/VISTA-250FBP Installation and Setup Guide
8-2

9-1
SECTION 9
User Access Codes
•••••••••••••••••••••••••••••••••••••••••••••••••
General Information
The VISTA-128FBP system allows a total of 150
security access codes to be allocated. The VISTA-
250FBP allows a total of 250 security access codes to be
allocated. Each security access code is identified by a
user ID number. Regardless of the number of
partitions each code has access to, it occupies
only one user slot in the system. If a particular
code is not used in all partitions, that user ID
number cannot be used again.
The Quick Arm feature can also be programmed
(partition-specific program field *29). The Quick Arm
feature allows the user to arm the system by pressing
the [#] key instead of the security code. The security
code must always be entered to disarm the system.
• A user code other than the installer code
must be programmed in order for the Quick
Arm feature to function.
• Users 001-050 are the only users that can
perform panel linking and are automatically
assigned panel linking access.
The system is shipped with the following defaults
for the user codes:
User 4-Digit Code Alpha Descriptor
User 1 (Installer) 5140 INSTLR
User 2 1234 MASTER
User Codes & Levels of Authority
Each user of the system can be assigned a level of
authority, which authorizes the user for certain system
functions. A user can have different levels of authority
within different partitions
Use the “View Capabilities” keypad function (User
Code + [✳] + [✳]) to view the partitions and authority
levels for which a particular user is authorized. These
levels are described below.
Level 0: Installer (User 1) Code
• Programmed in field *00 (default = 5-1-4-0).
Installer Open/Close reporting selected in field *39.
• Can perform all system functions (arm, disarm,
bypass, etc.), but cannot disarm if armed by
another code (or by Quick Arm).
• Can add, delete, or change all other codes, and can
select Open/Close reports for any user.
• Is the only code that can be used to enter program
mode. The Installer Code can be prevented from re-
entering the Program Mode by exiting using ∗98.
• Must program at least one Master Code during
initial installation. Master Codes are codes
intended for use by the primary user(s) of the
system.
Level 1: Master Codes
• Can perform all normal system functions.
• Can be used to assign up to 148 lower-level codes,
which can be used by other users of the system.
• Cannot assign anybody a level of 0 or 1.
• May change his own code.
• Can add, delete, or change Manager or Operator
Codes. Each user’s code can be individually
eliminated or changed at any time.
• Open/Close reporting is automatically the same as
that of the Master who is adding the new user.
Level 2: Manager Codes
• Can perform all system functions (arm, disarm,
bypass, etc.) programmed by Master.
• May add, delete, or change other users of the
system below this level (Manager cannot assign
anybody a level of 0, 1, or 2).
• May change his own code.
• Open/Close reporting is automatically the same as
that of the Manager who is adding the new user.
Levels 3-5: Operator Codes
• Can operate a partition, but cannot add or modify
any user code (see table below).
Level Title Functions Permitted
3 Operator A Arm, Disarm, Bypass
4 Operator B Arm, Disarm
5 Operator C Arm, Disarm only if armed with
same code
• Operator C (sometimes known as the Babysitter
Code) cannot disarm the system unless the system
was armed with that code. This code is usually
assigned to persons who may need to arm and
disarm the system at specific times only (e.g., a
babysitter needs to control the system only when
babysitting).

VISTA-128FBP/VISTA-250FBP Installation and Setup Guide
9-2
Level 6: Duress Codes
• Sends a silent alarm to a central monitoring station
if the user is being forced to disarm (or arm) the
system under threat (system must be connected to
a central station).
• When the system’s Auxiliary Voltage Triggers are
connected to another communication’s media
(Derived Channel/Long Range Radio), note that
duress is signaled on the same trigger that signals
silent panic (whereas duress has its own unique
report when digitally communicated).
• Assigned on a partition-by-partition basis, and can
be any code or codes desired.
Duress Reporting NOTE: A non-zero report
code for zone 992 (duress) must be
programmed, and partition-specific field *85
duress location enabled, to enable Duress
reporting.
• The Duress report-triggering logic activates on the
5th key depression (such as OFF), not the 4th key
depression (last digit of code). Duress reports are
not triggered if the 5th key is a [*], such as when
you perform a GOTO or view the capabilities of a
user.
General Rules on Authority Levels and Changes
The following rules apply to users when making modifications
within the system based on the user code authority levels:
• Master Codes and all lower-level codes can be used
interchangeably when performing system functions within a
partition (a system armed with a user’s temporary code can
be disarmed with the Master Code or another user’s
temporary code), except the Operator Level C Code
described above.
• A user may not delete or change the user code of the SAME
or HIGHER authority than that which he is assigned.
• A user (levels 0, 1 and 2 only) may only ADD users to a
LOWER authority level.
• A user may assign other users access to only those
partitions to which he himself has access.
• A user code can be DELETED or CHANGED only from
within the partition it was created in.
• User numbers must be entered in 3 digits. Single-digit user
numbers must, therefore, always be preceded by a “00”
(e.g., 003, 004, 005, etc.). Make sure the end user
understands this requirement. Temporary codes are entered
as 4-digit numbers.
Open/Close Reporting Note: When a user is added,
the system prompts for Open/Close reporting capability
only if the installer is adding the new user. When a
Master or Manager adds a new user, the new user’s
Open/Close reporting is the same as that of the Master
or Manager who is adding the user. If Open/Close
reports are required to be selectable by the Master or
Manager, the Installer should assign two Master or
Manager user codes: one with Open/Close reporting
enabled, and one without.
Note that Open/Close reporting of Quick Arm is enabled
if User 002 is enabled for Open/Close reporting, and
that Quick Arm reports as User 000. In order for Quick
Arm reports to be sent for all partitions, User 002 must
have authority and Open/Close must be enabled for all
partitions. If a code with access to all partitions is not
desired, it is suggested that user 002 be assigned
authority level 5 in all partitions, and that the code be
kept secret. Authority level 5 cannot disarm the system
unless armed by that user.
ADEMCO Contact ID format is capable of
reporting Users 001-150 uniquely. If any other
report format is used, only user numbers 001 –
015 can uniquely report to the central station.
Users 016 – 150 will report as User 015.
Multiple Partition Access
Each user is programmed for a primary (home)
partition. A user can also be given access to operate
one or more additional partitions. Within each
partition, each user may be programmed to have
different levels of authority. For example, User 003,
the VP of Engineering, could be assigned to work within
the Engineering Department (Partition 1) of ABC
Manufacturing. Because he needs the full capabilities
in his area, he is assigned as a MASTER with Level 1
authority.
He must also be able to gain access to the
manufacturing area (Partition 2) on an emergency
basis. You can set this up easily by requesting that he
also be assigned to Partition 2, with a level of authority
set lower, such as Level 4 (OPERATOR Level B).
The control automatically assigns him the same user
number within Partition 2.
EXAMPLE OF MULTIPLE PARTITION ACCESS
Part 1 Part 2 Part 3 Part 4 Part 5 Part 6 Part 7 Part 8
User 3 User 3
Level 1 Level 4
Master Oper B
In the above example, User 3 has MASTER authority in
Partition 1 and OPERATOR B authority in Partition 2.
His user number is the same for both partitions. Note
that if a user number is already being used in a
partition, the system will automatically assign a new
user an unused number. Also notice that no access is
allowed for this user into Partitions 3 – 8. Attempts to
access these partitions would be denied automatically.

Section 9 – User Access Codes
9-3
Adding a Master, Manager, or Operator Code
During user code entry, normal key
depressions at other keypads in a partition are
ignored. However, panic key depression
causes an alarm and terminates user entry.
When entering panel link users (001-050) on the
local panel, the other remote panels will be
prevented from entering panel link user data until
the local panel exits User Edit Mode.
Enter Installer Code†+ [8] + new user no. (002-150)
+ new user’s code
†Or Master or Manager Code, but the code must be a
higher level of authority than the code being changed
(e.g., a Manager Code can add an Operator-level Code,
but cannot add a Master or another Manager Code).
Keypad prompts for the authority level for this user.
NOTE: All references to the number of user codes
pertain to the VISTA-250FBP. The VISTA-128FBP
allows only 150 user codes.
PROMPT EXPLANATION
User Number = 003
Enter Auth. Level
Enter the level number as follows:
1 = Master
2 = Manager
3 = Operator Level A
4 = Operator Level B
5 = Operator Level C
6 = Duress
Keypad then prompts for Open/Close reporting option for this user.
Open/Close Rep.?
0 = NO , 1 = YES
Press 0 (NO) or 1 (YES), depending on whether or not arming/disarming by this user will trigger
Opening and Closing reports. This prompt appears only if the Installer Code is used to add a
user.
Group Bypassing?
0 = NO , 1 = YES
Enter 1 (YES) to allow this user to perform group bypasses. Enter 0 (NO) this user will not be
able to perform group bypasses.
NOTE: In addition to enabling the user for group bypassing, the user must also have access to
the partition(s) containing the zones being bypassed and have global arming capability.
Access Group?
Enter 0-8
If access schedules have been programmed, this prompt appears. Enter the user’s access
group number (1-8) if this user should have limited access to the system. Enter 0 if no access
group should be assigned.
RF Button ?
0=NO , 1=YES
If a 5800 Series button transmitter has been enabled for arming/disarming functions, and is not
assigned to a user, this prompt appears. Press 0 (NO) or 1 (YES).
Enter Button ZN #
(001-087)
If you answered “yes” to the RF button question, the zone number for the button is requested.
Enter any one of the zone numbers assigned to the button transmitter as AWAY, STAY, or
DISARM. The system then assigns all buttons of the transmitter to this user number.
Multi-Access ?
0 = NO , 1 = YES
Press 0 (NO) if the user is to have access to this partition only. Press 1 (YES) if the user is to
have access to more than one partition. If NO, the program exits this mode. If YES, the keypad
prompts for the Global Arm option for this user.
Global Arm ?
0 = NO , 1 = YES
Press 0 (NO) or 1 (YES), depending on whether this user will be allowed to arm more than one
partition via Global Arm prompts (described in the
VISTA-128FBP/VISTA-250FBP User Guide
).
The keypad now prompts for the user’s access to the next partition.

VISTA-128FBP/VISTA-250FBP Installation and Setup Guide
9-4
PROMPT EXPLANATION
Part. 2 – SHOP ?
0 = NO , 1 = YES
Press 0 (NO) or 1 (YES), depending on whether this user will have access to the displayed
partition number. If NO, the keypad displays this prompt for the next partition number in
sequence.
If YES, the keypad prompts for the following:
• User’s authority level in the displayed partition (see Authority Level prompt above).
• Open/Close option for this user in the displayed partition (see Open/Close prompt above).
• Global Arm option for this user in the displayed partition.
When all partitions have been displayed, the keypad will scroll through all partitions to which
access has been assigned, and will display the user number, authority level, open/close and
global arm options that were programmed for each partition to which the user was granted
access. For example:
XMT USER DATA
1 = YES 0 = NO
If the user number is from 001-050 this appears. Answer YES (1) to have the system send the
user’s attributes to all the other control panels that are “linked” to this control. If you answer NO
(0), the system displays the following prompt on the next page.
INDV USER PGM
1 = YES 0 = NO
Answer YES (1) to link to another control panel and manually enter the user into partition(s) in
that control panel. If you answer NO (0), the system scrolls through each partition displaying a
summary of the user’s attributes in each partition (see next prompt).
Part. 1 A0* WHSE
User 003 Auth=3G.
Note that the “G” following the authority level indicates that the global arm feature is enabled for
this user in the displayed partition, and that the period at the end of the second line indicates
Open/Close reporting is enabled for this user in the displayed partition. The “T” indicates the
partition from which the user may be changed or deleted.
Changing a Master, Manager, or Operator Code
Enter Installer Code*+ [8] + new user no. (002-150) + new user’s code
*Or Master or Manager Code, but the code must be a higher level of authority than the code being changed (e.g. a
Manager Code can add an Operator-level Code, but cannot add a Master or another Manager Code).
NOTE: The VISTA-128FBP allows only 150 user codes.
PROMPT EXPLANATION
User Number = 003
NEW USER?
The system detects that the user number is already assigned, and prompts if this is a new user.
Press 0 (NO).
The system then confirms that the change is allowed based on authorization level.
Adding an RF Key to an Existing User
To add an RF key to an existing user, or to change a user’s global arm option, first delete that user’s code, then re-add
the user code as described in the “Adding a Master, Manager, or Operator Code” paragraph.

Section 9 - User Access Codes
9-5
Deleting a Master, Manager, or Operator Code
Enter your code*+ [8] + new user no. (002-150) + your code again
*Or Master or Manager Code, but the code must be a higher level of authority than the code being changed (e.g. a
Manager Code can add an Operator-level Code, but cannot add a Master or another Manager Code).
NOTE: The VISTA-128FBP allows only 150 user codes.
PROMPT EXPLANATION
OK TO DELETE 003?
0=NO 1=YES
The system prompts to confirm that you want to delete this user. Press 0 (NO) or 1 (YES).
If you answered “yes,” that user’s code is removed from all partitions to which it was assigned,
and all authorization levels and other information about that user are deleted. Note that a user
can be deleted only by a user with a higher authority level. A user cannot delete himself.
A user code can be deleted only from the partition through which it was entered. If an attempt is made to
delete from another partition, the message “User [XXX] Not Deleted” is displayed.
Exiting the User Edit Mode
Press either [✴] or [#], or don’t press any key for 10 seconds.

VISTA-128FBP/VISTA-250FBP Installation and Setup Guide
9-6

10-1
SECTION 10
Testing the System
•••••••••••••••••••••••••••••••••••••••••••••••••
Battery Test
When AC power is present, the VISTA-128FBP/VISTA-
250FBP runs a brief battery test every 60 seconds to
determine if there is a battery connected, and runs an
extended battery test every 4 hours to check on the
battery’s condition.
If the VISTA-128FBP/VISTA-250FBP finds that the
battery voltage is low (less than approximately 11.5V),
it initiates a keypad “SYSTEM LOBAT” display and a
rapid keypad beeping sound. It also sends a Low
Battery report to the central station (if programmed).
The keypad is cleared by entering any security code +
OFF, and a Restore report is sent to the central station
if the situation has been corrected.
Dialer Test
The VISTA-128FBP/VISTA-250FBP may be
programmed to automatically transmit test reports to a
central station at intervals ranging from once per hour
to once per 9999 hours (field ✳27).
UL requires the test report to be transmitted at least
once every 24 hours. The system can be programmed to
send the first report at any time of the day, or on any
day of the week (field ✳83).
Fire Drill Test (Code + [#] + 69)
This test causes fire Notification Appliance Circuits (or
any NAC having a non-zero response type programmed)
to be activated (in either steady or pulsing manner, as
programmed in field 3✳15, for the purpose of
conducting a fire drill or bell test. This test can only be
activated by the installer or master users from partition
1 keypads by entering the corresponding security code +
[#] + 69. The burglary portion of the system must be
disarmed.
Keypads display “FIRE DRILL ACTIVE” while the test
is active. The test is stopped by entering any user code
+ OFF.
The system continues to monitor all 24-hour type zones
(fire, panic, etc.) and ends the test if any of these zone
types produce an alarm condition.
This test should be conducted at periodic intervals, as
determined by the local authority having jurisdiction.
One-Man Fire Walk-Test (Code + [#] + 68)
This test causes the system to sound console beeps and
Notification Appliance Circuit dings in response to fire
zone faults (zone type 9, 16 & 17) for the purpose of
allowing proper zone operation to be checked without
triggering alarms. Note that the system will not be
operational as an alarm system (i.e., cannot sense
alarms) while this test is active. The test can only be
activated by the installer by entering the Installer’s
Code and pressing [#] + 68 while the burglary portion of
the system is disarmed.
This test should be conducted at periodic intervals, as
determined by the local authority having jurisdiction.
When testing non-latching devices, such as heat
detectors, be sure to keep the device faulted
until the system responds with the keypad beep
or siren sound. If the device is faulted only
momentarily, the system may not respond to the
fault.
When this test is first activated, the system will display:
PROMPT EXPLANATION
USE BELL DING?
0=NO 1=YES
Enter 1 (YES) to have the fire Notification Appliance Circuits associated with each point sound for 3 seconds
when a point is faulted.
Enter 0 (NO) if only keypad sounders are desired.
The next prompt will be displayed.

VISTA-128FBP/VISTA-250FBP Installation and Setup Guide
10-2
PROMPT EXPLANATION
AUTO-TEST DET?
0=NO 1=YES
Enter 1(YES) to have the system automatically test all polling loop points with a fire response type 9 or 16.
Other fire zones will have to be tested manually.
Enter 0(NO) to test every point manually.
The next prompt will be displayed.
For true detector sensitivity tests, and for compliance with fire codes, you must enter 0 (NO) to this question.
LOG RESULTS?
0=NO 1=YES
Enter 1 (YES) to have the system log each point as it is tested. A list of untested points will also be logged.
Enter 0 (NO) if you do not want to log the results.
The next prompt will only be displayed if Contact ID report format has been selected.
C.S. TRANSMIT?
0=NO 1=YES
Enter 1 (YES) to have the results of the test sent to the central station. This report will consist of a list of
points that have been tested followed by a list of points that have not been tested.
Enter 0 (NO) if you do not want to report the results. A Walk-Test Start and Walk-Test End report will be
sent in either case (if programmed).
When the Test Mode is activated, the system will sound
fire Notification Appliance Circuits (or any NAC having
a non-zero response type programmed in the #93 Menu
Mode) for 3 seconds. The system will also send a Start
of Walk-Test message to the central station, and will
light all keypad indicators (except the ARMED LED)
and display window segments to verify that they are
working properly. The keypads will then display Fire
Walk-Test in Progress and will sound a single beep
every 15 seconds while this test is active.
The system will build a list of all the fire zones
(response types 9, 16, 17, 18) that need to be tested.
These points will be scrolled on the display. For each
point, the keypad will display "UNTST XXX," where
XXX is the point number, followed by an alpha
descriptor for the point.
If the auto-test option has been selected, the control
panel will attempt to automatically test all of the
polling loop points that have a zone response type of 9
or 16. For points that must be manually tested, fault
and reset each fire alarm sensor in turn.
Each action should cause keypads to beep and fire
Notification Appliance Circuits to ding. The keypads
will display the zone number and the associated alpha
descriptor while the zone remains faulted. The system
automatically issues a smoke detector power reset
about 10 seconds after it finds a fault on one of these
zones, to allow faulted detectors to be reset.
The system will automatically perform the
smoke detector reset on zones 1 & 2, if
programmed for fire, and on the auxiliary relay
and any other output device (relay) that is
programmed for smoke detector reset.
To end the test, enter any security code and press OFF.
An End of Walk-Test message will be sent to the central
station (if programmed). Note that the test will
automatically end if no faults are detected within a 60-
minute time period.
Burglary Walk-Test (Code + [5] TEST)
This test causes the system to sound keypad beeps in
response to faults on zones for the purpose of allowing
proper zone operation to be checked without triggering
alarms. This test can be activated by any user by
entering the corresponding security code and pressing
TEST while the burglary portion of the system is
disarmed. UL requires that this test be conducted on a
weekly basis.
When this test is first entered, the system activates the
alarm output for 3 seconds. The system sends a Start of
Walk-Test message to the central station. The keypad
displays “Burg Walk Test in Progress” and sounds a
single beep every 15 seconds while the test remains
active.
Open and close each protected door and window in turn.
Each action should produce 3 beeps from the keypad.
Walk in front of any motion detectors. Listen for three
beeps when the detector senses movement. The keypad
displays the zone number and alpha descriptor while a
door or window remains open or while a detector
remains activated. The system automatically issues a
Zone 8 Glassbreak Detector Power Reset about 10
seconds after it finds a fault on this zone, to allow
faulted detectors to be reset.
To end this test, enter any security code and press OFF.
An End of Walk-Test message is sent to the central
station.

Section 10 – Testing the System
10-1
The system automatically exits the Test mode if there is no activity (no doors or windows are opened and
closed, no motion detectors are activated, etc.) for 30 minutes on the VISTA-128FBP, 60 minutes on the
VISTA-250FBP. The system beeps the keypad(s) twice every 5 seconds during the last 5 minutes as a
warning that it is about to exit the Test mode and return to normal operation.
Armed Burglary System Test
• Alarm messages are sent to the central
station during the armed tests. Notify the
central station that a test will be in progress.
• A display of “COMM FAILURE” indicates a
failure to communicate (no kissoff by the
receiver at the central station). If this occurs,
verify that the phone line is connected, the
correct report format is programmed, etc.
To perform an armed burglary test, proceed as follows:
Step Action
1 Notify the central station that a test of the
system is being performed.
2 Arm the system.
3 Fault one or more zones.
4 Silence alarm sounder(s) each time by
entering the code and pressing OFF.
NOTE: The system must be rearmed after
each code + off sequence.
5 Check that entry/exit delay zones provide the
assigned delay times.
Step Action
6 Check the keypad-initiated alarms, if
programmed, by pressing the panic key pairs
(✳ and #, 1 and ✳, and/or 3 and #).
The word ALARM and a descriptor “999” are
displayed for ✳ and #. If [1] and [✳] are
pressed, “995” is displayed; if [3] and [#] are
pressed, “996” is displayed.
7 If the system has been programmed for
audible emergency, the keypad emits a loud,
steady alarm sound. Silence the alarm by
entering the security code and pressing OFF.
If the system has been programmed for silent
panic, there are no audible alarms or
displays. A report is sent to the central
station, however.
8 Notify the central station that all tests are
finished, and verify results with them.
Testing Wireless Transmitters
Transmitter ID Sniffer Mode
Use the Transmitter Sniffer Mode to test that
transmitters have all been properly programmed.
If a transmitter does not have its serial number
“enrolled,” it will not turn off its zone number.
To enter the Transmitter ID Sniffer Mode, proceed as
follows:
Step Action
1 Enter
Installer Code + [#] + [3]. The
keypad displays all zone numbers of wireless
units programmed into the system.
2 Fault each wireless zone, causing each device
to transmit.
As the system receives a signal from each of
the transmitters, the zone number of that
transmitter disappears from the display.
3 Enter
Installer Code + OFF to exit the
Sniffer Mode.
Go/No Go Test Mode
This mode assists in determining good mounting
locations, and that the RF transmission has sufficient
signal amplitude margin for the installed system.
• All partitions with wireless transmitters must
be placed in the test mode for RF receiver
sensitivity reduction (50%). Otherwise, the
RF receiver remains at full strength.
• Make sure that all partitions are disarmed
for this test.
To enter the Go/No Go Test Mode, proceed as follows:
Step Action
1 Enter
Installer Code + [5].
2 Fault each wireless transmitter, causing each
device to transmit.
The keypad will beep three times if the signal
is received.
3 If the keypad does not beep, reorient or move
the transmitter to another location. Usually
a few inches in either direction is all that is
required.
4 Enter
Installer Code + OFF to exit the
Go/No Go Test Mode.

VISTA-128FBP/VISTA-250FBP Installation and Setup Guide
10-4
Trouble Conditions
Supervisory Messages
Display Description
SUPV +
Zone
Number
This indicates that a fire supervisory
condition exists on the zone number
displayed. This means that the operation
of the fire alarm system may be
compromised.
Check or Trouble Messages
Display Description
CHECK or
TRBL
(as per field
1✳07)
This indicates that a problem exists on
the zone number displayed. Zone trouble
may be caused by one of the following
conditions:
• A hardwired fire zone is open
(broken wire).
• A Day/Night zone (zone type 5) is
faulted.
• A polling loop zone is not seen by
the control panel.
• A polling loop zone has been
tampered (cover removed on a
4190).
• A wireless zone has not checked in
during the time programmed in field
1✳31.
• A 5800 Series transmitter has been
tampered (cover removed).
CHECK 6XX
XX = 01-32 This indicates a trouble on a 4204CF
Supervised Notification Appliance Circuit
(corresponding relay number 01-32).
CHECK 8XX
XX = 00-30 This indicates a trouble on a peripheral
device (connected to the panel’s keypad
terminals) of the corresponding device
address (00-30).
CHECK 9XX
XX = 00-99 This indicates that a system trouble
exists (RF receiver, Notification
Appliance Circuit, etc.).
If the problem has been corrected, enter an
OFF sequence (Security Code + OFF) twice
to clear the display.
Power Failure
Display Description
AC LOSS
POWER
LED is off
This indicates that the system is
operating on battery power only. Check
to see that the circuit breaker for the
branch circuit that your system’s
transformer is wired to has not been
accidentally turned off. Instruct the
user to call a service representative
immediately if AC power cannot be
restored.
Other System Messages
Display Description
COMM
FAILURE Indicates a failure occurred in the
telephone communication portion of your
system.
LO BAT Indicates a low-battery condition exists in
the wireless transmitter displayed.
Pressing any key silences the audible
warning sound.
SYSTEM
LO BAT This indicates that a low-battery condition
exists with the system’s backup battery.
HSENS Indicates a smoke detector with a high
sensitivity level, which may cause a false
alarm. The detector should be cleaned or
replaced.
LSENS Indicates a smoke detector with a low
sensitivity level. The detector may not
detect a smoke condition. The detector
should be cleaned or replaced.
RCVR
SETUP
ERROR
Indicates the system has more wireless
zones programmed than the RF receiver
can support. If this is not corrected, none
of the zones in the system will be
protected. If additional wireless zones are
desired, use an appropriate receiver.
MODEM
COMM This indicates that the control is on-line
with a remote computer.
System Off-Normal Report
If programmed, an Off-Normal report is generated
instead of the periodic test report if any of the following
conditions are present at the time of the report:
• Fire trouble on any zone (zone types 9, 16, 17, 18)
• Fire supervisory present (zone type 18)
• Unrestored fire alarm on any zone
• Bypass of any fire zone
• A fault for any supervised fire Notification
Appliance Circuit
• Bypass/disable of any supervised fire Notification
Appliance Circuit
• Telco fault of either dialer line
• Bypass/disable of either dialer line
• Earth ground fault
• Bypass of earth ground supervisory zone
• Fault on LORRA “XMIT OK” signal (if enabled)
• LORRA trigger bypassed
• AC failure
• Low system battery
• Keypad supervision fault
The Off-Normal report is sent as follows:
• Contact ID: Code 608
• High Speed: Channel 3 of system report used
(channel 9=6)
• Low Speed: Digits programmed in System Group
#4 report codes

Section 10 – Testing The System
10-5
To the Installer
Regular maintenance and inspection (at least annually)
by the installer and frequent testing by the user are
vital to continuous satisfactory operation of any alarm
system.
The installer should assume the responsibility of
developing and offering a regular maintenance program
to the user as well as acquainting the user with the
proper operation and limitations of the alarm system
and its component parts. Recommendations must be
included for a specific program of frequent testing (at
least weekly) to ensure the system’s proper operation at
all times.
Turning the System over to the User
Fully explain the operation of the system to the user by
going over each of its functions, as well as the User’s
Manual supplied.
In particular, explain the operation of each zone
(entry/exit, perimeter, interior, fire, etc.). Be sure the
user understands how to operate any emergency
feature(s) programmed into the system.
Contacting Technical Support
PLEASE, before you call Technical Support, be sure
you:
• READ THE INSTRUCTIONS!
• Check all wiring connections.
• Determine that the power supply and/or backup
battery are supplying proper voltages.
• Verify your programming information where
applicable.
• Verify that all keypads and devices are addressed
properly.
• Note the proper model number of this product, and
the version level (if known) along with any
documentation that came with the product.
• Note your ADEMCO customer number and/or
company name.
Having this information handy will make it easier for
us to serve you quickly and effectively.
You may contact Technical Support via Toll-Free Fax.
Please include your return fax number. You will receive
a reply within 24 hours. You may also contact Technical
Support via modem to ATLIS-BBS, Tech Support’s
Electronic Bulletin Board System. Replies are posted
within 24 hours.
Technical Support:.....................................................1-800-645-7492 (8 a.m.-8 p.m. EST)
ATLIS-FAX FAXBACK Automated Fax Retrieval System:.....................1-800-573-0153 or
................................................................................................. 1-516-921-6704 / ext. 1667
World Wide Web Address: .................................................HTTP://WWW.ADEMCO.COM

VISTA-128FBP/VISTA-250FBP Installation and Setup Guide
10-6

A-1
APPENDIX A
Regulatory Agency Statements
•••••••••••••••••••••••••••••••••••••••••••••••••
UL Installation Requirements
The following requirements apply to both UL residential and UL commercial burglary installations:
1. All partitions must be owned and managed by the same person(s).
2. All partitions must be part of one building at one street address.
3. The audible alarm device(s) must be placed where it/they can be heard by all partitions.
4. The control cabinet must be protected from unauthorized access. This can be done by installing a
tamper switch on the cabinet door (supplied with VISTA-128FBP/VISTA-250FBP) or by installing a UL
Listed passive infrared detector positioned to detect cabinet access. Wire the selected device to any
EOLR-supervised zone (Zone 1-8). Program this zone for day trouble/night alarm (type 05) or 24-hour
audible alarm (type 07) response. The 24-hour alarm response must be used for multiple partitioned
systems.
5. Remote downloading and auto-disarming are not UL Listed features.
UL864/NFPA Local Fire
Configure at least one Notification Appliance Circuit for supervision and wire polarized fire alarm indicators
to it. Program this circuit for temporal sounding.
UL864/NFPA Central Station and Remote Station Fire
1. Size the backup battery for 24-hour standby (central station) or 60-hour standby (remote station) time.
2. For central station service, you may use the 7720ULF or 7920SE LORRAs alone, the main dialer with a
LORRA, or the main dialer with the 5140DLM Backup Dialer Module. For remote station service, you
must use the main dialer with the 5140DLM Backup Dialer Module.
3. When using the LORRA, connect its channel inputs to the VISTA-128FBP/VISTA-250FBP's fire alarm,
fire supervisory (if used), and trouble triggers. Also connect its XMIT OKAY output to Input 1 on the
VISTA-128FBP/VISTA-250FBP's J2 header. Program J2 Input 1 system Zone 973 for 24-hour trouble
response (type 19) to send radio faults.
4. When the main dialer is used, enable it (field 3*30) and connect it to a telephone line. Assign a 24-hour
trouble response (type 19) to system Zone 974 to enable main dialer supervision. The VISTA-
128FBP/VISTA-250FBP will activate the trouble trigger when it detects a main dialer supervision fault.
5. When the backup dialer is used, install it on the VISTA-128FBP/VISTA-250FBP's PCB shield. Enable it
(field 3*30) and connect it to a separate telephone line. Assign a 24-hour trouble response (type 19) to
system Zone 975 to enable backup dialer supervision.
6. When the dialer is used, program it to send fire alarm, fire supervisory (if used), trouble, AC loss, low
battery, normal dialer test, and off-normal dialer test reports. Field *27 must be set to "024" maximum
so that test reports are sent at least once every 24 hours.
7. If a secondary number is programmed, set the maximum number of dialer re-tries to 3, 4, or 5 in field
3*21.
UL609 Grade A Local Mercantile Premises/Local Mercantile Safe & Vault
1. Use the VISTA-128FBP/VISTA-250FBP.
2. All zones must be configured for EOLR supervision (*41=0). Wireless sensors may not be used. If
4190WH RPMs are used, set field *24 to "0" to enable tamper detection.
3. Attach a door tamper switch (supplied) to the VISTA-128FBP/VISTA-250FBP cabinet backbox. For safe
and vault installations, a shock sensor (not supplied) must also be attached to the backbox. (Also see
Mounting the Cabinet in SECTION 3: Installing the Control)

VISTA-128FBP/VISTA-250FBP Installation and Setup Guide
A-2
4. Wire an ADEMCO AB12 Grade A Bell/Box to the Notification Appliance Circuit. Bell wires must be run
in conduit. Program the Notification Appliance Circuit for 16 minutes or longer timeout and for
confirmation of arming ding. (Also see SECTION 3: Installing the Control)
5. Wire the VISTA-128FBP/VISTA-250FBP tamper switch and AB12 Bell/Box tamper switches to any
EOLR supervised zone (zones 1-8). Program this zone for day trouble/night alarm (type 05) or 24-hour
audible alarm (type 07) response. The 24-hour alarm response must be used for multiple partitioned
systems.
6. Entry delays must not exceed 45 seconds, and exit delays must not exceed 60 seconds.
UL365 Police Station Connected Burglar Alarm
Follow the instructions for UL609 local installations given above.
For Grade A Service:
• You may use the VISTA-128FBP/VISTA-250FBP dialer alone, or the 7720 Long Range Radio alone.
• When using the dialer, program it to send Burglary Alarm, Low Battery and Communicator Test
reports. Field *27 must be set to "024" (or less) so that test reports are sent at least once every 24 hours.
• If using the 7720, connect it to the VISTA-128FBP/VISTA-250FBP burglary/audible panic alarm trigger.
For Grade AA Service:
• You must use a 7920SE Long Range Radio.
• Connect the 7920SE to the VISTA-128FBP/VISTA-250FBP burglary/audible panic alarm trigger.
UL611/UL1610 Central Station Burglary Alarm
Follow the instructions for UL609 local installations given above.
For Grade A Service:
• You must use the VISTA-128FBP/VISTA-250FBP's dialer with a 7720 Long Range Radio.
• Connect the control's burglary/audible panic alarm trigger (on J2 header) to the 7720. Program a 24-
hour trouble response for Zone 974 to enable main dialer supervision. The VISTA-128FBP/VISTA-
250FBP will activate the burglary/audible panic trigger when a corresponding alarm is detected, and
will activate the trouble trigger when a main dialer fault is detected.
• Also connect the 7720's radio fault output to one of the VISTA-128FBP/VISTA-250FBP's EOLR-
supervised zones (i.e., 1-8). Program this zone for a trouble by day/alarm by night (type 05) or a 24-hour
alarm (type 07, 08) response to radio faults.
• Program the control's dialer to send Burglary Alarm, Trouble, Opening/Closing, and Low Battery
reports.
For Grade AA Service:
Follow the instructions for Grade A service, except use the 7920SE in place of the 7720.
California State Fire Marshal (CSFM) Requirements.
24-hour backup: The California State Fire Marshal has published new regulations which require that all
residential fire alarm control panels installed after June 30, 1993 must be provided with a backup battery
which has sufficient capacity to operate the panel and its attached peripheral devices for 24 hours in the
intended standby condition, followed by at least 4 minutes in the intended fire alarm signaling condition. Be
sure to size the battery to meet this requirement.

Appendix A – Regulatory Agency Statements
A-3
FEDERAL COMMUNICATIONS COMMISSION (FCC) PART 15 STATEMENT
NOTE: This equipment has been tested and found to comply with the limits for a Class B digital device,
pursuant to part 15 of the FCC Rules. These limits are designed to provide reasonable protection against
harmful interference in a residential installation. This equipment generates, uses, and can radiate radio
frequency energy and, if not installed and used in accordance with the instructions, may cause harmful
interference to radio communications. However, there is no guarantee that interference will not occur in a
particular installation. If this equipment does cause harmful interference to radio or television reception,
which can be determined by turning the equipment off and on, the user is encouraged to try to correct the
interference by one or more of the following measures:
• Reorient or relocate the receiving antenna.
• Increase the separation between the equipment and receiver.
• Connect the equipment into an outlet on a circuit different from that to which the receiver is connected.
• Consult the dealer or an experienced radio/TV technician for help.
IN THE EVENT OF TELEPHONE OPERATIONAL PROBLEMS
In the event of telephone operational problems, disconnect the control panel by removing the plug from the
RJ31X (CA38A in Canada) wall jack. We recommend that you demonstrate disconnecting the phones on
installation of the system. Do not disconnect the phone connection inside the control panel. Doing so will
result in the loss of your phone lines. If the regular phone works correctly after the control panel has been
disconnected from the phone lines, the control panel has a problem and should be returned for repair. If
upon disconnection of the control panel, there is still a problem on the line, notify the telephone company
that it has a problem and request prompt repair service. The user may not under any circumstances (in or
out of warranty) attempt any service or repairs to the system. It must be returned to the factory or an
authorized service agency for all repairs. FCC PART 68 NOTICE
This equipment complies with Part 68 of the FCC rules. On the front cover of this equipment is a label that
contains, among other information, the FCC registration number and ringer equivalence number (REN) for
this equipment. If requested, this information must be provided to the telephone company.
This equipment uses the following jacks:
An RJ31X is used to connect this equipment to the telephone network.
The REN is used to determine the quantity of devices that may be connected to the telephone line. Excessive
RENs on the telephone line may result in the devices not ringing in response to an incoming call. In most,
but not all areas, the sum of the RENs should not exceed five (5.0). To be certain of the number of devices
that may be connected to the line, as determined by the total RENs, contact the telephone company to
determine the maximum REN for the calling area.
If this equipment causes harm to the telephone network, the telephone company will notify you in advance
that temporary discontinuance of service may be required. If advance notice is not practical, the telephone
company will notify the customer as soon as possible. Also, you will be advised of your right to file a
complaint with the FCC if you believe necessary.
The telephone company may make changes in its facilities, equipment, operations, or procedures that could
affect the operation of the equipment. If this happens, the telephone company will provide advance notice in
order for you to make the necessary modifications in order to maintain uninterrupted service.
If trouble is experienced with this equipment, please contact the manufacturer for repair and warranty
information. If the trouble is causing harm to the telephone network, the telephone company may request
that you remove the equipment from the network until the problem is resolved.
There are no user serviceable components in this product, and all necessary repairs must be made by the
manufacturer. Other repair methods may invalidate the FCC registration on this product.
This equipment cannot be used on telephone company-provided coin service. Connection to Party Line
Service is subject to state tariffs.
This equipment is hearing-aid compatible.
When programming or making test calls to an emergency number, briefly explain to the dispatcher the
reason for the call. Perform such activities in the off-peak hours, such as early morning or late evening.

VISTA-128FBP/VISTA-250FBP Installation and Setup Guide
A-4
CANADIAN EMISSIONS STATEMENTS
This Class B digital apparatus complies with Canadian ICES-003
NOTICE
The Industry Canada Label identifies certified
equipment. This certification means that the
equipment meets telecommunications network
protective, operational and safety requirements as
prescribed in the appropriate Terminal
Equipment Technical Requirements document(s).
The Department does not guarantee the
equipment will operate to the user’s satisfaction.
Before installing this equipment, users should
ensure that it is permissible to be connected to the
facilities of the local telecommunications
company. The equipment must also be installed
using an acceptable method of connection. The
customer should be aware that compliance with
the above conditions may not prevent degradation
of service in some situations.
Repairs to certified equipment should be
coordinated by a representative designated by the
supplier. Any repairs or alterations made by the
user to this equipment, or equipment
malfunctions, may cause the telecommunications
company to request the user to disconnect the
equipment.
Users should ensure for their own protection that
the electrical ground connections of the power
utility, telephone lines, and internal metallic
water pipe system, if present, are connected
together. This precaution may be particularly
important in rural areas.
Caution: Users should not attempt to make such
connections themselves, but should contact an
appropriate electric inspection authority, or
electrician, as appropriate.
NOTICE: The Ringer Equivalence Number
(REN) assigned to each terminal device provides
an indication of the maximum number of
terminals allowed to be connected to a telephone
interface. The termination on an interface may
consist of any combination of devices subject only
to the requirement that the sum of the Ringer
Equivalence Numbers of all the devices does not
exceed 5.
AVIS
L’étiquette d’Industrie Canada identifie le
matériel homologué. Cette étiquette certifie que le
matériel est conforme aux normes de protection,
d’exploitation et de sécurité des réseaux de
télécommunications, comme le prescrivent les
documents concernant les exigences techniques
relatives au matériel terminal. Le Ministère
n’assure toutefois pas que le matériel fonctionnera
à la satisfaction de l’utilisateur. Avant d’installer
ce matériel, l’utilisateur doit s’assurer qu’il est
permis de le raccorder aux installations de
l’enterprise locale de télécommunication. Le
matériel doit également être installé en suivant
une méthode acceptée da raccordement. L’abonné
ne doit pas oublier qu’il est possible que la
conformité aux conditions énoncées ci-dessus
n’empêche pas la dégradation du service dans
certaines situations.
Les réparations de matériel nomologué doivent
être coordonnées par un représentant désigné par
le fournisseur. L’entreprise de
télécommunications peut demander à l’utilisateur
da débrancher un appareil à la suite de
réparations ou de modifications effectuées par
l’utilisateur ou à cause de mauvais
fonctionnement.
Pour sa propre protection, l’utilisateur doit
s’assurer que tous les fils de mise à la terre de la
source d’energie électrique, de lignes
téléphoniques et des canalisations d’eau
métalliques, s’il y en a, sont raccordés ensemble.
Cette précaution est particulièrement importante
dans les régions rurales.
Avertissement : L’utilisateur ne doit pas tenter
de faire ces raccordements lui-même; il doit avoir
racours à un service d’inspection des installations
électriques, ou à un électricien, selon le cas.
AVIS : L’indice d’équivalence de la sonnerie
(IES) assigné à chaque dispositif terminal indique
le nombre maximal de terminaux qui peuvent être
raccordés à une interface. La terminaison d’une
interface téléphonique peut consister en une
combinaison de quelques dispositifs, à la seule
condition que la somme d’indices d’équivalence de
la sonnerie de tous les dispositifs n’excède pas 5.

B-1
APPENDIX B
Summary of System Commands
••••••••••••••••••••••••••••••••••••••••••••••••••
User Code
Commands Add A User Code = User Code + 8 + New User Number + New User’s Code
Change a Code = User Code + 8 + User Number + New User’s Code
Delete a User’s Code = Your User Code + 8 + User Number to Be Deleted + Your Code
Again
View User Capability = User’s Code + [✳] + [✳]
Set Real-Time Clock (Installer, Master Only) = Code + [#] + 63
Programming
Commands Site Initiated Download = User Code + [#] + 1.
Direct-Wire Download Enable = User Code + [#] + 5.
Enter Program Mode = Installer Code + 8000.
Enter Interactive Program Mode = Installer Code + 8000 + [#] + 93
Exit Program Mode = ✳99 or ✳98.
Event Logging
Commands Event Log Display = Code + [#] + 60 (Installer or Master Only)
Event Log Print = Code + [#] + 61 (Installer or Master Only)
Clear Event Log = Code + [#] + 62 (Installer or Master Only)
Wireless System
Commands House ID Sniffer Mode = Code + [#] + 2 (Installer Only)
Transmitter ID Test = Code + [#] + 3 (Installer Only)
Go/No Go Test = Code + 5 (Test Key)
Partition GOTO User Code + [✳] + Partition Number 0-8.
GOTO Home Partition User Code + [✳] + 0.
Panics [✳] + 1 or A Key (Zone 995).
[✳] + [#] or B Key (Zone 999).
[#] + 3 or C Key (Zone 996).
View Downloaded Messages Press 0 for 5 Seconds.
Display All Zone Descriptors Press [✳] for 5 Seconds.
Additional
Commands
Display User Self Help Hold Any Key for 5 Seconds.
Output Device
Control Commands Activate Output Device as Programmed = User Code + [#] + 71.
Activate Output Device as Programmed = User Code + [#] + 72.
Activate Output Device Manually = User Code + [#] + 70.
Activate Output Device or System Event Instantly = User Code + [#] + 77.
Randomize Output Devices = User Code + [#] + 41
Randomize Output Devices Programmed with Activation Times Between 6 PM and 5
AM = User Code + [#] + 42.
De-activate Randomization = Enter the sequence used to activate randomization.
Test Mode
Commands Burglary Walk-Test = User Code + 5.
Fire Drill Test = User Code + [#] + 69 (Installer or Master Only).
One-Man Fire Walk-Test = User Code + [#] + 68 (Installer Only)

VISTA-128FBP/VISTA-250FBP Installation and Setup Guide
B-2
Scheduling
Commands Installer-Programmed Schedule Events = Installer Code + [#] + 80 (Installer or Master
Only).
Temporary Schedule Editing = User Code + [#] + 81 (Installer, Master, Manager Only).
Extend Closing Window = User Code + [#] + 82 (Installer, Master, Manager Only).
End User Output Device Programming = User Code + [#] + 83.
Access Control
Commands Activate Access Relay for Current Partition = User Code + 0.
Request to Enter/Exit = User Code + [#] + 73.
Request to Enter/Exit at Access Point = User Code + [#] + 74 + Access Point Number.
Change Access Point State = User Code + [#] + 75 + Access Point + State.
Perform a Test of the VistaKey Module = Installer Code + [#] + 78.
Perform an Access Control Card Function = User Code + [#] + 79.
Panel Linking
Commands Only user 001 – 050 can perform panel linking.
Activate Single-Partition, Single-Panel Mode = User Code + [#] + 86.
Exit Single-Partition, Single-Panel Mode = User Code + [#] + 85.
Activate Multi-Partition, Multi-Panel Mode = User Code + [#] + 87.
Exit Multi-Partition, Multi-Panel Mode = Enter [0].
Activate Multi-Panel View Mode = User Code + [#] + 88.
Exit Multi-Panel View Mode = Enter [0].

C-1
APPENDIX C
Specifications
••••••••••••••••••••••••••••••••••••••••••••••••••
VISTA-128FBP/VISTA-250FBP CONTROL
Physical: 18"H X 14-1/2"W X 4.3"D
Electrical:
Primary Power: From ADEMCO No. 1451 Transformer with enclosure; rated 18VAC, 72VA.
Backup Battery: 12VDC, 12AH min to 34.4AH max lead acid battery (gel type).
Alarm Power: 12VDC, 1.7 amps max for each Notification Appliance Circuit.
Aux. Standby Pwr 12VDC, 1 amp max.
Total Power Combined auxiliary standby and alarm currents must not exceed 2.3 amps.
Standby Time: 24 hours with 1 amp aux standby load or 60 hours with 205ma aux. Standby load
using 34.4AH battery.
Fusing: Battery input, auxiliary and Notification Appliance Circuits are protected using PTC
circuit protectors. All outputs are power limited.
Main Dialer
Line Seize: Double Pole
Ringer Equivalence: 0.7B
FCC Registration No.: AC3-USA-68192-AL-E
TLM Threshold Good line when tip-to-ring voltage greater than approximately 25V (13 when blue
jumper cut) or when handset current greater than approximately 10ma. Bad line
when both voltage and current below these levels.
Formats: ADEMCO High Speed, ADEMCO 4 + 2 Express, ADEMCO Low Speed, ADEMCO
Contact ID, Sescoa and Radionics Low Speed
Agency Listings:
Burglary: UL609 Grade A Local Mercantile Premises and Mercantile Safe and Vault.
UL611/UL1610 Grades A, AA Central Station.
UL365 Grades A, AA Police Connect.
Fire: UL864-NFPA 72 Local, Central Station, and Remote Station
5140DLM BACKUP DIALER MODULE
Physical: 2.75”H X 4”W X 1”D
Mounts on VISTA-128FB main PC board shield using standoffs supplied.
Connects to VISTA-128FB main PC board J3 header using ribbon cable supplied.
FCC Registration: AC3-USA-62628-MO-N
5140LED ANNUNCIATOR MODULE
Physical: 4.5”H X 2.75”W X 1.5”D
Mounts to single-gang electrical box.
Indicators: AC Power, Comm Failure, Dialer 1 Fault and Dialer 2 Fault.
Connect indicator inputs to VISTA-128FB trigger outputs (J2 header).

VISTA-128FBP/VISTA-250FBP Installation and Setup Guide
C-2
Remote Keypads
6139(R)
Physical:
Width: 6.25 inches
Height: 4.75 inches
Depth: 1.25 inches
Electrical:
Voltage Input: 12VDC
Current Drain: 100mA
Interface Wiring:
RED: 12VDC input (+) auxiliary
power
BLUE: Not Used
GREEN: Data to control panel
YELLOW: Data from control panel
BLACK: Ground and (-) connection from
supplemental power supply
6160CR
Physical:
Width: 7.437 inches
Height: 5.25 inches
Depth: 1.312 inches
Electrical:
Voltage Input: 12VDC
Current Drain: 150mA
Interface Wiring:
RED: 12VDC input (+) auxiliary
power
BLUE: Not Used
GREEN: Data to control panel
YELLOW: Data from control panel
BLACK: Ground and (-) connection from
supplemental power supply

D-1
APPENDIX D
Contact ID and Pager Event Codes
••••••••••••••••••••••••••••••••••••••••••••••••••
TABLE OF CONTACT ID EVENT CODES
Code Definition
110 Fire Alarm
111 Smoke Alarm
121 Duress
122 Silent Panic
123 Audible Panic
124 Duress Access Grant
125 Duress Egress Grant
131 Perimeter Burglary
132 Interior Burglary
133 24-Hour Burglary
134 Entry/Exit Burglary
135 Day/Night Burglary
140 ACS Zone Alarm
142 Polling Loop Short Alarm
150 24-Hour Auxiliary
200 Fire Supervisory
301 AC Loss
302 Low System Battery
305 System Reset
306 Program Tamper
308 System Shutdown
309 Battery Test Fail
310 Ground Fault
313 System Engineer Reset
320 ACS Relay Supervision
321 Bell 1 Trouble
322 Bell 2 Trouble
332 Poll Loop Short-Trouble
333 Expansion Module Failure
338 ACS Module Low Battery
339 ACS Module Reset
342 ACS Module AC Loss
343 ACS Module Self-Test Fail
351 Main Dialer Trouble
352 Backup Dialer Trouble
354 ACS RS232 Fail
373 Fire Loop Trouble
378 Cross Zone Trouble
380 Trouble (global)
381 Loss of Supervision (RF)
382 Loss of RPM Supervision
383 RPM Sensor Tamper
384 RF Transmitter Low Battery
Code Definition
385 High Sensitivity Maintenance Signal
386 Low Sensitivity Maintenance Signal
389 Detector Self-Test Failed
401 O/C by User
403 Power-Up Armed/Auto-Arm
406 Cancel by User
407 Remote Arm/Disarm (Download)
408 Quick Arm
409 Keyswitch O/C
411 Callback Requested
421 Access Denied
422 Access Granted
423 Door Force Open
424 Egress Denied
425 Egress Granted
426 Door Prop Open
427 Access Point DSM Trouble
428 Access Point RTE Trouble
429 ACS Program Entry
430 ACS Program Exit
431 ACS Threat Change
432 Access Point Relay/Trigger Fail
433 Access Point RTE Shunt
434 Access Point DSM Shunt/Unshunt
441 Armed STAY
451 Early Open/Close
452 Late Open/Close
453 Fail to Open
454 Fail to Close
455 Auto-Arm Fail
457 Exit Error by User
459 Recent Close
501 ACS Reader Disable
520 ACS Relay Disable
521 Bell 1 Bypass
522 Bell 2 Bypass
524 Auxiliary Relay Bypass
551 Main/Backup Dialer Bypass
570 Bypass
576 ACS Zone Shunt
577 ACS Point Bypass
579 Vent Zone Bypass
602 Communicator Test

VISTA-128FBP/VISTA-250FBP Installation and Setup Guide
D-2
Code Definition
604 Fire Test
606 Listen-In to Follow
607 Burglary Walk-Test
608 Off-Normal
611 Fire Walk-Test – Point Tested
612 Fire Walk-Test – Point Not Tested
621 Event Log Reset
Code Definition
622 Event Log 50% Full
623 Event Log 90% Full
624 Event Log Overflow
625 Time/Date Reset
631 Exception Schedule Change
632 Access Schedule Change
Event Log and Pager Alpha Descriptors
Alpha Event Description
FIRE Fire Alarm
DURESS Duress Alarm
PANIC Silent or Audible Panic Alarm
BURGLARY Burglary Alarm
EXP SHRT Polling Loop Short
RF EXPND Expander Module Failure
AUXILIARY Non-burglary Alarm
TROUBLE Trouble
AC LOSS AC Loss
LOW BATTERY System Low Battery
SYSTEM RESET System Reset
PROG CHANGE Program Change
BATTERY FAIL System Battery Failure
RF SUPR RF Supervision
RPM SUPR RPM Supervision
RF LBAT RF Low Battery
EXP TRBL Expander Module Trouble
RF TRBL RF Trouble
TAMPER Tamper
FIRE TRB Fire Trouble
FAIL TO COMM Failure to Communicate
BELL TROUBLE Bell Trouble
DISARMED Disarmed
DISARMED-REM Disarmed Remotely
DISARMED-KEY Disarmed Via RF Key
DISARM-AUTO Auto-Disarm
CALL BACK Callback Requested
CANCEL Cancel
DISRMD-EARLY Disarmed Early
DISRMD-LATE Disarmed Late
MISSED DISRM Missed Disarm
SKED CHANGE Schedule Change
ACC SKED CHG Access Control Schedule Change
ARM FAILED Failed to Arm
DIALER SHUT Dialer Shutdown
SYSTEM SHUT System Shutdown
Alpha Event Description
BYPASS Bypass
SELF TEST Self-test
TEST ENTRY Manual Test Entry
TEST EXIT Manual Test Exit
LOG 50% FULL Event Log 50% Full
LOG 90% FULL Event Log 90% Full
LOG OVERFLOW Event Log Overflow
LOG CLEARED Event Log Cleared
TIME SET Time Set
TIME ERROR Time Error
PROGRM ENTRY Program Entry
PROGRAM EXIT Program Exit
Uxxx ADD BY User XXX Added BY
Uxxx DEL BY User XXX Deleted BY
Uxxx CHG BY User XXX Changed BY
PRINTER FAIL Event Log Printer Failure
PAGER FAILED Pager Failure
TESTED Zone Tested
UNTESTED Zone Untested
FAILED Zone Test Failed
RLY TRBL Relay Trouble
EXP TMPR Expansion Module Tamper
VENT BYPASS Vent Zone Bypass
RF JAM RF Jam Detected
JAM RSTR RF Jam Restore
FIRE RST Fire Alarm Restore
DURE RST Duress Alarm Restore
PNC RST Panic Alarm Restore
BURG RST Burglary Alarm Restore
EXP RST Expansion Module Restore
RF RST RF Restore
AUX RST Auxiliary Restore
MED RST Medical Restore
TRBL RST Trouble Restore
AC RESTORE AC Restore
LOW BATT RST System Low Battery Restore

Appendix D – Contact ID and Pager Event Codes
D-3
Alpha Event Description
RESET
PROG CHANGE Program Change
BAT TST FAIL Battery Test Failure
RPM RST RPM Restore
RFLB RST RF Low Battery Restore
EXP RST Expansion Module Failure Restore
TMPR RST Tamper Restore
FRTR RST Fire Trouble Restore
COMM RESTORE Communication Restore
RLY RST ECP Relay Trouble Restore
ARMED Armed
ARMED-STAY Armed Stay
ARMED-REM Armed Remotely
ARMED-QUICK Quick Armed
ARMED-KEY Armed Via RF Key
ARMED-AUTO Auto-Armed
PARTIAL ARM Partial Armed
ARMED-EARLY Armed Early
ARMED-LATE Armed Late
MISSED ARM Missed Arm
DIALER RST Dialer Restore (Shutdown)
SYSTEM RST System Restore (Shutdown)
BYP RST Bypass Restore
TEST EXIT Test Mode Exit
PRINTER RSTR Printer Restore
PAGER RSTR Pager Restore
BELL RESTORE Bell Restore
EXIT ERR Exit Error
RECENT ARM Recent Arm
VENT BYP RST Vent Zone Bypass Restore
Access Control Events
ACS MOD VGM/Access Control Module Failure
ACS PNT Access Point Failure
DSM SHNT Door Status Monitor Shunt
DUR ACCS Duress Access Grant
NO ENTRY Access Denied
DR OPEN Door Propped Open
DR FORCE Door Forced Open
ENTERED Access Granted
NO EXIT Egress Denied
ACPT BYP Access Point Bypass
RTE SHNT Request to Exit Shunt
Alpha Event Description
EXITED Egress Granted
ACLO MOD AC Loss at Module
LBAT MOD Low Battery at Module
COMM MOD Comm Failure from MLB to Module
RES MOD Access Control Module Reset
ACPT RLY Access Point Relay Supervision Fail
SELF MOD Module Self-Test Failure
ACZN CHG Access Control Zone Change
ACS PROG Access Control Program Entry
ACS PRGX Access Control Program Exit
THRT CHG Access Control Threat Change
SYS SHUT System Shutdown
SYS RST System Engineer Reset
ZN SHUNT Access Control Zone Shunt
ZN ALARM Access Control Zone Alarm
RDR DISA Access Control Reader Disable
RLY DISA Access Control Relay/Trigger Disable
RTE TRBL Request to Exit Point Trouble
DSM TRBL Door Status Monitor Point Trouble
DUR EXIT Duress Egress Grant
BGN ACS TEST Access Control Test Mode Start
MOD RST VGM/Access Control Module Restore
ACPT RST Access Point Restore
ACRST MOD AC Loss at Module Restore
LBAT RST Low Battery at Module Restore
COMM RST Comm Fail MLB to Module Restore
RLY RST Access Point Relay Supervision Rest
SELF RST Self-Test at Module Restore
ACPT UNB Access Point Unbypass
DSM UNSH Door Status Monitor Unshunt
RTE UNSH Request to Exit Point Unshunt
DRFO RST Door Forced Open Restore
DRPO RST Door Propped Open Restore
DSM RST Door Status Monitor Trouble Restore
RTE RST Request to Exit Point Trouble Rest
RLY ENAB Access Control Relay/Trigger Enable
RDR ENAB Access Control Reader Enable
ZNAL RST Access Control Zone Restore
ZN UNSHT Access Control Zone Unshunt
SYSHTRST System Shutdown Restore
END ACS TEST Access Control Test Mode End

VISTA-128FBP/VISTA-250FBP Installation and Setup Guide
D-4

Index-1
Index
••••••••••••••••••••••••••••••••••••••••••••••••••
#93 Menu Mode Programming...................................... 4-2
#93 Menu Mode Programming Commands................... 4-4
12/24 Hour Type Stamp Format.................................. 5-11
1361 ............................................................................ 3-30
1451 Transformer..........................................................C-1
24-hour Audible Alarm Type 07..................................... 4-6
24-hour Auxiliary Alarm Type 08 ................................... 4-6
24-hour Silent Alarm Type 06........................................ 4-6
2-Wire Latching Glassbreak Detectors............... 3-10, 3-11
2-Wire Smoke Detectors ............................................... 3-8
333 PRM ....................................................................... 3-9
4100SM Serial Module .................................................. 7-4
4101SN Relay Modules............................................... 3-18
4197 Polling Loop Extender ........................................ 3-13
4204 and 4204CF Relay Modules............................... 3-17
4285/4286 VIP Module................................................ 3-27
4297 Polling Loop Extender ........................................ 3-13
4-Wire Smoke Detector Reset....................................... 3-6
4-Wire Smoke Detectors ............................................... 3-8
5140DLM BACKUP DIALER MODULE.........................C-1
5140LED ANNUNCIATOR MODULE............................C-1
5800 Series Transmitters ............................................ 3-16
5800TM Module .......................................................... 3-16
5869 ..................................................................... 1-2, 3-14
5881ENHC ........................................................... 1-2, 3-14
6139 ..............................................................................C-2
7720 ............................................................................ 3-23
7720ULF...................................................................... 3-23
7920SE........................................................................ 3-23
A
AAV ............................................................................. 3-27
ABB1031 ....................................................................... 3-4
AC 60Hz or 50Hz ........................................................ 5-10
AC Loss Keypad Sounding............................................ 5-2
Access Group............................................................... 9-3
Access Control ............................................3-25, 3-26, 4-9
Access Control Commands....................................6-8, B-2
Access Control Dialer Enables...................................... 5-9
Access Control of an Entry/Exit Point............................ 4-9
Access Control of Lighting and Appliances ................. 4-10
Access Control Using RF Transmitter ........................... 4-9
ACCESS GRP PGM...................................................... 4-3
ACCESS POINT PGM................................................... 4-3
Access Point Type 27.................................................... 4-7
Access Relay Number................................................. 5-11
Access Schedules......................................................... 6-5
Action Code................................................................... 6-8
Action Specifier ............................................................. 6-8
Activation Time.............................................................. 6-8
Adding a User Code...................................................... 9-3
Adding an RF Key to a User Code ................................ 9-4
Addressing the Keypads................................................ 3-3
ADEMCO 4+2 Express.................................................. 3-7
ADEMCO 4+2 EXPRESS..............................................C-1
ADEMCO 4146............................................................ 3-19
ADEMCO 685 receiver.................................................. 3-7
ADEMCO 685 Receiver............................................... 3-27
Ademco AB12. .............................................................. 3-1
ADEMCO Contact ID.............................................. 3-6, 3-7
ADEMCO CONTACT ID................................................C-1
ADEMCO HIGH SPEED ...............................................C-1
ADEMCO Low Speed.................................................... 3-7
ADEMCO LOW SPEED ................................................C-1
Affects Lobby ......................................................... 2-2, 5-7
Agency Listings.............................................................C-1
Agency Statements ....................................................... A-1
Alarm Activation ............................................................ 3-5
Alarm Output Current Load ................................ 3-32, 3-33
Alarm Output Supervision ............................................. 3-4
Alarm Power..................................................................C-1
Allow Disarm Outside Window if Alarm Occurs........... 5-12
Allow Disarming Only During Arm/Disarm Windows ... 5-12
Alpha Pager Module............................................. 3-23, 4-8
ALPHA PROG............................................................... 4-3
Antenna Fault.............................................................. 3-22
Arm/Disarm Commands................................................ 6-8
Arm-Away Type 21........................................................ 4-7
Arms Lobby............................................................ 2-2, 5-7
Arm-STAY Type 20....................................................... 4-7
Audio Alarm Verification Module ................................. 3-27
Auto Arming .................................................................. 6-1
Auto Disarming.............................................................. 6-1
Auto-Arm Delay.................................................... 5-12, 6-1
Auto-Arm Warning......................................................... 6-1
Auto-Arm Warning Period ........................................... 5-12
Auto-Disarm Delay...................................................... 5-12
Aux. Standby Pwr..........................................................C-1
Auxiliary Power Current Load...................................... 3-32
Auxiliary Relay Connections.......................................... 3-5
B
Backup Battery..............................................................C-1
Battery Capacity Worksheet........................................ 3-34
Battery Selection Table............................................... 3-34
Battery Test................................................................. 10-1
Burglary Alarm Communicator Delay............................ 5-7
Burglary or RS232 Input................................................ 5-2
Burglary Trigger for Response Type 8 .......................... 5-3
Burglary Walk Test...................................................... 10-2
Button RF.................................................................... 3-16
Button RF (BR) Type 05................................................ 4-8
Bypass Commands ....................................................... 6-8
C
California State Fire Marshal......................................... A-2
Call Waiting Defeat...................................................... 5-10
Callback ........................................................................ 7-3
Callback Requested...................................................... 7-1
CANADIAN EMISSIONS STATEMENTS......................A-4
Cancel Verify................................................................. 5-7
Changing a User Code.................................................. 9-4
Check Messages......................................................... 10-4
Checksum Verification................................................... 5-5
Code + TEST [5] ................................................ 10-1, 10-2
COMM FAILURE......................................................... 10-4

VISTA-128FBP/VISTA-250FBP Installation and Setup Guide
Index-2
Common Lobby............................................................. 2-1
Communication Defaults ............................................... 4-5
Communicator Split Reporting Selection....................... 5-9
Compass Downloading Software .................................. 7-4
COMPASS downloading software................................. 7-1
Compatible 2-Wire Smoke Detectors ............................ 3-8
Compatible 4-Wire Smoke Detectors ..................... 3-8, 3-9
Compatible 5800 Series Transmitters ......................... 3-17
Compatible Alarm Indicating Devices............................ 3-4
Compatible Glass Break Detectors ............................. 3-11
Confirmation of Arming Ding ......................................... 5-2
Console Input (CS) Type 09.......................................... 4-8
Contact ID ..................................................................... 1-3
CONTACT ID EVENT CODES......................................D-1
Contacting Technical Support ..................................... 10-5
Control Unit Power Supply Load ................................. 3-31
Conventions Used in This Manual................................... vii
Cross Zoning Pair Four ................................................. 5-8
Cross Zoning Pair One.................................................. 5-8
Cross Zoning Pair Three ............................................... 5-8
Cross Zoning Pair Two.................................................. 5-8
Cross-Zoning................................................................. 5-8
CUSTOM INDEX........................................................... 4-3
D
Data Encryption............................................................. 7-1
Data Field Descriptions ................................................. 5-1
Data Field Programming Mode...................................... 4-1
Daylight Saving Time Start/End Month........................ 5-11
Daylight Saving Time Start/End Weekend.......... 5-12, 5-17
Deleting a User Code.................................................... 9-5
DEVICE PROG ............................................................. 4-3
Dial Tone Detection....................................................... 5-4
Dial Tone Pause............................................................ 5-4
Dialer Test................................................................... 10-1
DIGITAL COMMUNICATOR .........................................C-1
DIP Switch Loop (DP) Type 07...................................... 4-8
Direct-Wire Downloading............................................... 7-4
Disable Download Callback......................................... 5-10
Disarm Delay................................................................. 6-1
Disarm Type 22............................................................. 4-7
Display Burglary & Panic Alarms for Other Partitions.. 5-13
Display Fire Alarms of Other Partitions ....................... 5-13
Display Troubles of Other Partitions............................ 5-13
Door Status Monitor (DSM) Type 11 ............................. 4-8
Download Command Enables....................................... 5-4
Download ID Number.................................................... 5-4
Download Phone Number ............................................. 5-4
Downloading.................................................................. 7-1
Downloading Access Security....................................... 7-1
Downloading Requirements .......................................... 7-1
Dual Reporting .............................................................. 5-5
Duress Codes Level 6................................................... 9-2
Duress Reporting .......................................................... 9-2
Dynamic Signaling Delay...................................... 3-21, 5-6
Dynamic Signaling Priority.................................... 3-21, 5-6
E
Early Power Detect...................................................... 3-22
Earth Ground............................................................... 3-31
ECP Wire Run............................................................. 3-20
Enable 5800 RF Button Force Arm ............................. 5-11
Enable 5800 RF Button Global Arm ............................ 5-11
Enable Dialer Reports for Panics & Duress................... 5-6
Enable GOTO for this Partition.................................... 5-12
Enable J7 Triggers for Partition................................... 5-13
Enable Open/Close Report for Installer Code............... 5-4
Enable Open/Close report for Keyswitch....................... 5-4
Enable Random Timers For Partitions 1-8 .................... 5-1
Entering Programming Mode ........................................ 4-1
Entry Delay #1............................................................... 5-2
Entry Delay #2............................................................... 5-2
Entry Warning ............................................................... 5-6
Entry/Exit #1 Type 01.................................................... 4-6
Entry/Exit #2 Type 02.................................................... 4-6
Event Log........................................................... 3-27, 4-10
Event Log and Pager Alpha Descriptors .......................D-2
Event Log Printer On-Line Mode................................. 5-11
Event Log Types ......................................................... 5-11
Event Logging Commands............................................ B-1
EVENT/ACTION PGM............................................ 4-3, 4-4
Exception Reports......................................................... 6-2
Exit Delay #1................................................................. 5-2
Exit Delay #2................................................................. 5-2
Exit Delay Sounding.................................................... 5-10
Exit Error ....................................................................... 1-2
Exit Error Logic Enable.................................................. 5-7
Exiting the User Edit Mode............................................ 9-5
EXPERT MODE ............................................................ 4-3
Extend Closing Window ................................................ 6-1
External Sounders......................................................... 3-4
F
FCC Part 15 STATEMENT............................................A-3
FCC PART 68 NOTICE.................................................A-3
FCC REGISTRATION NO.............................................C-1
Fire With Verification Type 16 ....................................... 4-7
First Communication ..................................................... 7-3
First Test Report Time................................................... 5-6
Force Arm ..................................................................... 6-1
Force Arm Enable for Auto-Arm.................................. 5-12
Frwd. Power Loss........................................................ 3-22
FSA Modules............................................................... 3-18
Fusing ...........................................................................C-1
G
General Description....................................................... 1-1
General Purpose (GP) Type 13..................................... 4-8
Getting On-Line with a Control Panel............................ 7-2
Global Arm ? ................................................................. 9-3
Go/No Go Test Mode .................................................. 10-1
Grade A Mercantile Premises Listing ............................ 3-1
Grade A Mercantile Safe and Vault Listing.................... 3-2
Grade A Service............................................................A-2
Grade AA Service.......................................................... A-2
H
Hardwire and Optional Expansion Zones...................... 1-1
Hardwired (HW) Type 01............................................... 4-7
Holiday Schedule Programming.................................... 6-7
Holiday Schedules...........................................6-3, 6-4, 6-6
House ID Sniffer Mode................................................ 3-16
How to Use Panel Linking ............................................. B-2

Index
Index-3
I
Ignore Expansion Zone Tamper.................................... 5-3
Installer (User 1) Code Level 0...................................... 9-1
Installer Code................................................................ 5-1
Installer Unattended Program Mode.............................. 7-2
Installing RPM Devices................................................ 3-12
Installing The Control .................................................... 3-1
Installing the Control's Circuit Board.............................. 3-2
Intelligent Test Report ................................................... 5-3
Interior w/Delay Type 10................................................ 4-7
Interior, Follower Type 04.............................................. 4-6
K
Keypad Panic Enables .................................................. 5-3
Keypads ........................................................................ 2-1
Keyswitch.................................................................... 3-19
Keyswitch Assignment................................................... 5-2
Keyswitch Tamper....................................................... 3-19
L
Limitation of Access Schedules............................ 6-2, 6-11
Limitation Of Access Schedules Programming............ 6-11
LINE SEIZE...................................................................C-1
List of Figures...................................................................vi
LO BAT........................................................................ 10-4
Lobby Partition .............................................................. 5-7
Long Range Radio Central Station #1 Category
Enable ....................................................................... 5-6
Long Range Radio Central Station #2 Category
Enable ....................................................................... 5-6
Long Range Radio ECP..................................... 3-21, 4-10
Long Range Radio to J7 Triggers................................ 3-23
Low Speed Format (Primary) ........................................ 5-5
Low Speed Format (Secondary).................................... 5-5
LRR Battery................................................................. 3-22
LRR CRC is bad.......................................................... 3-22
LRR reporting options ................................................. 3-22
LRR Trouble Messages............................................... 3-22
M
Main Logic Board ........................................................ 3-26
Main Logic Board Supervision Type 28......................... 4-7
Manager Codes Level 2 ................................................ 9-1
Master Codes Level 1 ................................................... 9-1
Master Keypad .............................................................. 2-3
MODEM COMM ................................................... 7-1, 10-4
Modems......................................................................... 7-1
Momentary Exit Type 29................................................ 4-7
Mounting The Control Cabinet....................................... 3-1
Multi-Access ?............................................................... 9-3
Multi-Panel View Mode.................................................. 2-7
Multi-Partition Multi-Panel Mode.................................... 2-6
Multiple Alarms.............................................................. 5-3
Multiple Partition Access ............................................... 9-2
N
No Alarm Response Type 23 ........................................ 4-7
Normally Closed or EOLR (Zones 2-8).......................... 5-4
Number of Partitions.................................................... 5-11
O
OC or OPEN CIRCUIT.................................................. 3-3
Off-Normal Report....................................................... 10-4
On-Line Control Functions ............................................ 7-3
Open/Close Reporting................................................... 9-2
Open/Close Reports by Exception ....................... 5-12, 6-3
Open/Close Schedule ................................................... 6-3
Open/Close Schedule Programming............................. 6-6
Open/Close Schedules........................................... 6-4, 6-5
Open/Close Windows.................................................... 6-8
Operator Access Levels ................................................ 7-1
Operator Codes Levels 3-5 ........................................... 9-1
Output Device Control Commands................................B-1
Output Devices............................................................ 3-17
OUTPUT PGM .............................................................. 4-3
Overvoltage Protection.................................................. 3-7
P
PABX Access Code....................................................... 5-3
Pager 1 Delay 1 .......................................................... 5-13
Pager 1 Delay 2 .......................................................... 5-13
Pager 1 Format ........................................................... 5-13
Pager 1 ID Number ..................................................... 5-13
Pager 1 Partition Enable ............................................. 5-14
Pager 1 Phone Number............................................... 5-13
Pager 1 Trigger Event Enables .......................... 5-14, 5-17
Pager 2 Delay 1 .......................................................... 5-14
Pager 2 Delay 2 .......................................................... 5-14
Pager 2 Format ........................................................... 5-14
Pager 2 ID Number ..................................................... 5-14
Pager 2 Partition Enable ............................................. 5-14
Pager 2 Phone Number............................................... 5-14
Pager 2 Trigger Event Enables ................................... 5-14
Pager 3 Delay 1 .......................................................... 5-14
Pager 3 Delay 2 .......................................................... 5-14
Pager 3 Format ........................................................... 5-14
Pager 3 ID Number ..................................................... 5-14
Pager 3 Partition Enable ............................................. 5-14
Pager 3 Phone Number............................................... 5-14
Pager 3 Trigger Event Enables ................................... 5-15
Pager 4 Delay 1 .......................................................... 5-15
Pager 4 Delay 2 .......................................................... 5-15
Pager 4 Format ........................................................... 5-15
Pager 4 ID Number ..................................................... 5-15
Pager 4 Partition Enable ............................................. 5-15
Pager 4 Phone Number............................................... 5-15
Pager 4 Trigger Event Enables ................................... 5-15
Pager 5 Delay 1 .......................................................... 5-15
Pager 5 Delay 2 .......................................................... 5-15
Pager 5 Format ........................................................... 5-15
Pager 5 ID Number ..................................................... 5-15
Pager 5 Partition Enable ............................................. 5-15
Pager 5 Phone Number............................................... 5-15
Pager 5 Trigger Event Enables ................................... 5-15
Pager 6 Delay 1 .......................................................... 5-16
Pager 6 Delay 2 .......................................................... 5-16

VISTA-128FBP/VISTA-250FBP Installation and Setup Guide
Index-4
Pager 6 Format ........................................................... 5-16
Pager 6 ID Number ..................................................... 5-16
Pager 6 Partition Enable.............................................. 5-16
Pager 6 Phone Number............................................... 5-16
Pager 6 Trigger Event Enables ................................... 5-16
Pager 7 Delay 1.........................................5-16, 5-17, 5-18
Pager 7 Delay 2.........................................5-16, 5-17, 5-19
Pager 7 Format .........................................5-16, 5-17, 5-18
Pager 7 ID Number ...................................5-16, 5-17, 5-18
Pager 7 Partition Enable............................5-16, 5-17, 5-19
Pager 7 Phone Number.............................5-16, 5-17, 5-18
Pager 7 Trigger Event Enables .................5-16, 5-17, 5-19
Pager 8 Delay 1.................................................. 5-17, 5-18
Pager 8 Delay 2.................................................. 5-17, 5-18
Pager 8 Format .................................................. 5-17, 5-18
Pager 8 ID Number ............................................ 5-16, 5-18
Pager 8 Partition Enable..................................... 5-17, 5-18
Pager 8 Phone Number.............................5-16, 5-17, 5-19
Pager Format .............................................................. 3-23
Pager Installed ............................................................ 5-13
Paging Service ............................................................ 3-23
Panel Link Module................................................ 2-4, 3-20
Panel Link Module Supervision ..................................... 2-5
Panel Linking.......................................................... 2-4, 4-8
Panel Linking Commands..............................................B-2
panel linking users.................................................. 2-5, 9-1
Panic Button or Speedkey............................................. 5-9
Partitioned System ........................................................ 2-1
Partitioning ............................................................. 1-2, 2-1
PassPoint Access Control (ACS) Type 10..................... 4-8
PassPoint Access Control System .............................. 3-26
PassPoint Dialer Events................................................ 4-9
Perimeter Type 03......................................................... 4-6
Peripherals Devices ...................................................... 1-2
Permanent Keypad Display Backlighting..................... 5-10
Phone Module Access Code......................................... 5-2
PLL out of Lock ........................................................... 3-22
PLM............................................................................... 2-4
polling loop.................................................................. 3-12
Polling Loop Current Draw .......................................... 3-32
Polling Loop Supervision............................................. 3-13
Power Failure .............................................................. 10-4
Power Unattained........................................................ 3-22
Power-Up in Previous State .......................................... 5-3
Prevent Zone XXX Bypass............................................ 5-4
Primary Format.............................................................. 5-5
Primary Phone Number................................................. 5-4
Primary Subscriber’s Account Number.......................... 5-3
Printer Baud Rate........................................................ 5-11
Printer Configurations.................................................. 3-27
Printer Type................................................................. 5-11
Priority of Displays for Panel Linking............................. 2-7
Program Modes............................................................. 4-1
Programming Commands..............................................B-1
PROGRAMMING COMMANDS .................................... 4-1
Programming Entry Errors............................................. 4-2
Programming Overview................................................. 4-1
Programming Partition-Specific Data Fields.................. 4-2
Programming Scheduling Options................................. 6-4
Programming System-Wide Data Fields........................ 4-2
Q
Quick Arm...............................................................5-3, 9-1
Quick Exit...................................................................... 5-1
R
Random time................................................................. 6-8
Randomize AC Loss Report.......................................... 5-2
RCVR SETUP ERROR ............................................... 10-4
Real-Time Clock............................................................ 8-1
Recent Close................................................................. 1-2
Refresh Feature ............................................................ 6-7
Regulatory Agency Statements..................................... A-1
Relay commands........................................................... 6-8
Relay Timeout XXX Minutes ....................................... 5-11
Relay Timeout YYY Seconds...................................... 5-11
REPORT CODE PROG ................................................ 4-3
Reporting Formats......................................................... 3-7
Request to Exit (RTE) Type 12 ..................................... 4-8
Restore Report Timing .................................................. 5-7
Restrict Disarming......................................................... 6-1
RF Motion.................................................................... 3-16
RF Motion (RM) Type 02............................................... 4-7
RF Receiver Supervision Check-in Interval................... 5-9
RF System Installation Advisories............................... 3-15
RF System Operation and Supervision....................... 3-14
RF Transmitter Check-in Interval .................................. 5-9
RF Transmitter Low Battery Reporting.......................... 5-9
RF Transmitter Low Battery Sound............................... 5-9
Ring Count .................................................................... 7-2
Ring Detection Count .................................................... 5-5
RINGER EQUIVALENCE..............................................C-1
RJ31X ........................................................................... 3-7
RJ31X jack.................................................................. 3-28
RLY VOICE DESCR...................................................... 4-3
RS-485.......................................................................... 2-4
RS-485 Bus................................................................. 3-21
RTE............................................................................... 4-8
S
Scheduled Check-in...................................................... 7-3
Scheduled Download .................................................... 7-3
Scheduling .................................................................... 6-1
Scheduling Commands .................................................B-2
Scheduling Menu Mode................................................. 6-4
Scheduling Menu Structure........................................... 6-4
Secondary Format......................................................... 5-5
Secondary Phone Number............................................ 5-4
Secondary Subscriber Account Number ....................... 5-7
Send Cancel If Alarm + Off.......................................... 5-10
Send Message to Pager After Dialer........................... 5-13
serial number devices ................................................. 3-13
Serial Number Polling Loop (DS) Type 08 .................... 4-8
Serial Number Polling Loop (SL) Type 06..................... 4-8
SESCOA .......................................................................C-1
Sescoa/Radionics.......................................................... 3-7
Sescoa/Radionics Select............................................... 5-5
Single-Partition Single-Panel Mode............................... 2-5
Smoke Detector Reset ................................................ 3-20
Specifications................................................................C-1
Standard/Expanded Reporting Primary......................... 5-5
Standard/Expanded Reporting Secondary.................... 5-5
Standby Battery Size................................................... 3-33
Supervised Fire (Without Verification) Type 09............. 4-7
Supervised RF ............................................................ 3-16
Supervised RF (RF) Type 03 ........................................ 4-8
Supervision Pulses for LRR ........................................ 5-13

Index
Index-5
Supervisory Messages ................................................ 10-4
Supplementary Power Supply....................................... 3-3
Suppress Transmitter Supervision Sound ................... 5-10
Swinger Suppression .................................................... 5-6
System Commands.......................................................B-1
System Communication................................................. 1-3
System Events Notify .................................................... 5-1
SYSTEM LO BAT........................................................ 10-4
System LoBat”............................................................. 10-1
System Messages....................................................... 10-4
System Sensor A77-716B EOL Relay Module .............. 3-9
System Sensor MA 12/24D ........................................... 3-4
System Sensor P12575................................................. 3-4
T
Tamper Supervision .................................................... 3-11
TAP protocol................................................................ 3-23
Telephone Line Connections......................................... 3-7
TELEPHONE OPERATIONAL PROBLEMS .................A-3
TeleSmart...................................................................... 4-8
Temporary Schedule..................................................... 6-3
Temporary Schedules ................................................. 6-12
Temporary Schedules Programming........................... 6-13
Test Report Interval....................................................... 5-3
Testing The System .................................................... 10-1
Time Driven Events....................................................... 6-2
Time Driven Events Worksheet..................................... 6-7
Time to Delay Pager After Dialer................................. 5-13
Time Window Definitions............................................... 6-2
Time Windows........................................................ 6-4, 6-5
Time Windows Programming ........................................ 6-5
Timed Events ................................................................ 6-4
Time-Driven Event Programming .................................. 6-9
Time-Driven Events....................................................... 6-7
Time-Driven Events Programming ................................ 6-7
TouchTone or Rotary Dial ............................................. 5-3
TouchTone with Rotary Backup .................................... 5-9
Transformer Connections............................................ 3-30
Transmitter Battery Life ............................................... 3-17
Transmitter ID Sniffer Mode ........................................ 10-1
Transmitter Input Types............................................... 3-16
Transmitter Supervision............................................... 3-16
Trouble by Day/Alarm by Night Type 05........................ 4-6
Trouble Conditions ...................................................... 10-4
Trouble Messages....................................................... 10-4
Trouble/Supervisory Activation...................................... 3-6
Turning the System Over to the User .......................... 10-5
U
UL Installation Requirements ........................................A-1
UL365 Police Station Connected Burglar Alarm............A-2
UL609 Grade A Local Mercantile Premises/Local
Mercantile Safe & Vault.............................................A-1
UL611/UL1610 Central Station Burglary Alarm.............A-2
UL864/NFPA Central Station and Remote Station Fire.A-1
UL864/NFPA Local Fire.................................................A-1
UNABLE TO ARM LOBBY PARTITION........................ 2-2
Unattended Download................................................... 7-1
Unattended Mode.......................................................... 5-5
Unsupervised RF......................................................... 3-16
Unsupervised RF (UR) Type 04.................................... 4-8
Use Partition Descriptor .............................................. 5-12
User Access Codes....................................................... 9-1
User Code Authority Levels........................................... 9-1
User Code Commands..................................................B-1
user code defaults......................................................... 9-1
User Code Rules........................................................... 9-2
User Scheduling Menu Mode ...................................... 6-13
Users............................................................................. 2-1
Using ACS Zone Inputs................................................. 4-9
V
VA8200 ................................................................ 2-4, 3-20
VA8201 ....................................................................... 3-23
View Capabilities........................................................... 9-1
VIP Module.................................................................. 3-27
VIP Module Phone Code............................................... 5-2
Vista Gateway Module ................................................ 3-26
VISTA Gateway Module................................................ 4-9
VISTA-128B Plus as Stand-Alone Access Control...... 4-10
VISTA-128B PLUS Current Load ................................ 3-33
VistaKey............................................................... 3-25, 4-9
VistaKey Dialer Enables................................................ 4-9
W
Wire Run Length ......................................................... 3-20
Wire Run Length/Gauge................................................ 3-3
Wireless Keypad Assignment...................................... 5-10
Wireless Keypad Tamper Detect................................. 5-10
Wireless System Commands ........................................ B-1
Wireless Zone Expansion............................................ 3-14
Wiring Devices to Zones 1-9 ......................................... 3-8
Wiring the Alarm Output................................................ 3-4
Wiring the Keypads ....................................................... 3-3
Worksheets to calculate the total current .................... 3-31
World Wide Web Address ........................................... 10-5
Y
Yuasa.......................................................................... 3-34
Z
Zone 5 Audio Alarm Verification.................................. 5-11
Zone 804..................................................................... 3-28
Zone Defaults................................................................ 4-4
Zone Index .................................................................... 4-4
Zone Input Type Definitions .......................................... 4-7
Zone Number Designations........................................... 4-4
ZONE PROG............................................................vii, 4-3
Zone Response Type Definitions .................................. 4-6
Zone Type Restores for Zone Types 1-8....................... 5-6
Zone Type Restores for Zone Types 9, 10 and 16........ 5-6
Zones ............................................................................ 2-1

VISTA-128FBP/VISTA-250FBP Installation and Setup Guide
Index-6

WARNING!
THE LIMITATIONS OF THIS ALARM SYSTEM
While this System is an advanced wireless security system, it does not offer guaranteed protection against burglary, fire or
other emergency. Any alarm system, whether commercial or residential, is subject to compromise or failure to warn for a vari-
ety of reasons. For example:
• Intruders may gain access through unprotected openings or have the technical sophistication to bypass an alarm sensor or
disconnect an alarm warning device.
• Intrusion detectors (e.g., passive infrared detectors), smoke detectors, and many other sensing devices will not work with-
out power. Battery-operated devices will not work without batteries, with dead batteries, or if the batteries are not put in
properly. Devices powered solely by AC will not work if their AC power supply is cut off for any reason, however briefly.
• Signals sent by wireless transmitters may be blocked or reflected by metal before they reach the alarm receiver. Even if
the signal path has been recently checked during a weekly test, blockage can occur if a metal object is moved into the path.
• A user may not be able to reach a panic or emergency button quickly enough.
• While smoke detectors have played a key role in reducing residential fire deaths in the United States, they may not acti-
vate or provide early warning for a variety of reasons in as many as 35% of all fires, according to data published by the
Federal Emergency Management Agency. Some of the reasons smoke detectors used in conjunction with this System may
not work are as follows. Smoke detectors may have been improperly installed and positioned. Smoke detectors may not
sense fires that start where smoke cannot reach the detectors, such as in chimneys, in walls, or roofs, or on the other side
of closed doors. Smoke detectors also may not sense a fire on another level of a residence or building. A second floor de-
tector, for example, may not sense a first floor or basement fire. Finally, smoke detectors have sensing limitations. No
smoke detector can sense every kind of fire every time. In general, detectors may not always warn about fires caused by
carelessness and safety hazards like smoking in bed, violent explosions, escaping gas, improper storage of flammable
materials, overloaded electrical circuits, children playing with matches, or arson. Depending on the nature of the fire
and/or location of the smoke detectors, the detector, even if it operates as anticipated, may not provide sufficient warning
to allow all occupants to escape in time to prevent injury or death.
• Passive Infrared Motion Detectors can only detect intrusion within the designed ranges as diagrammed in their
installation manual. Passive Infrared Detectors do not provide volumetric area protection. They do create multiple beams
of protection, and intrusion can only be detected in unobstructed areas covered by those beams. They cannot detect motion
or intrusion that takes place behind walls, ceilings, floors, closed doors, glass partitions, glass doors, or windows.
Mechanical tampering, masking, painting or spraying of any material on the mirrors, windows or any part of the optical
system can reduce their detection ability. Passive Infrared Detectors sense changes in temperature; however, as the
ambient temperature of the protected area approaches the temperature range of 90° to 105°F (32° to 40°C), the detection
performance can decrease.
• Alarm warning devices such as sirens, bells or horns may not alert people or wake up sleepers if they are located on the
other side of closed or partly open doors. If warning devices are located on a different level of the residence from the bed-
rooms, then they are less likely to waken or alert people inside the bedrooms. Even persons who are awake may not hear
the warning if the alarm is muffled by noise from a stereo, radio, air conditioner or other appliance, or by passing traffic.
Finally, alarm warning devices, however loud, may not warn hearing-impaired people.
• Telephone lines needed to transmit alarm signals from a premises to a central monitoring station may be out of service or
temporarily out of service. Telephone lines are also subject to compromise by sophisticated intruders.
• Even if the system responds to the emergency as intended, however, occupants may have insufficient time to protect them-
selves from the emergency situation. In the case of a monitored alarm system, authorities may not respond appropriately.
• This equipment, like other electrical devices, is subject to component failure. Even though this equipment is designed to
last as long as 20 years, the electronic components could fail at any time.
The most common cause of an alarm system not functioning when an intrusion or fire occurs is inadequate maintenance. This
alarm system should be tested weekly to make sure all sensors and transmitters are working properly. The security keypad
(and remote keypad) should be tested as well.
Wireless transmitters (used in some systems) are designed to provide long battery life under normal operating conditions.
Longevity of batteries may be as much as 4 to 7 years, depending on the environment, usage, and the specific wireless device
being used. External factors such as humidity, high or low temperatures, as well as large swings in temperature, may all
reduce the actual battery life in a given installation. This wireless system, however, can identify a true low battery situation,
thus allowing time to arrange a change of battery to maintain protection for that given point within the system.
Installing an alarm system may make the owner eligible for a lower insurance rate, but an alarm system is not a substitute
for insurance. Homeowners, property owners and renters should continue to act prudently in protecting themselves and
continue to insure their lives and property. We continue to develop new and improved protection devices. Users of alarm
systems owe it to themselves and their loved ones to learn about these developments.

ADEMCO LIMITED WARRANTY
Alarm Device Manufacturing Company, a Division of Pittway Corporation, and its divisions, subsidiaries
and affiliates ("Seller"), 165 Eileen Way, Syosset, New York 11791, warrants its products to be in
conformance with its own plans and specifications and to be free from defects in materials and workmanship
under normal use and service for 24 months from the date stamp control on the product or, for products not
having an ADEMCO date stamp, for 12 months from date of original purchase unless the installation
instructions or catalog sets forth a shorter period, in which case the shorter period shall apply. Seller's
obligation shall be limited to repairing or replacing, at its option, free of charge for materials or labor, any
product which is proved not in compliance with Seller's specifications or proves defective in materials or
workmanship under normal use and service. Seller shall have no obligation under this Limited Warranty or
otherwise if the product is altered or improperly repaired or serviced by anyone other than ADEMCO factory
service. For warranty service, return product transportation prepaid, to ADEMCO Factory Service, 170
Michael Drive, Syosset, New York 11791.
THERE ARE NO WARRANTIES, EXPRESS OR IMPLIED, OF MERCHANTABILITY, OR FITNESS FOR
A PARTICULAR PURPOSE OR OTHERWISE, WHICH EXTEND BEYOND THE DESCRIPTION ON THE
FACE HEREOF. IN NO CASE SHALL SELLER BE LIABLE TO ANYONE FOR ANY CONSEQUENTIAL
OR INCIDENTAL DAMAGES FOR BREACH OF THIS OR ANY OTHER WARRANTY, EXPRESS OR
IMPLIED, OR UPON ANY OTHER BASIS OF LIABILITY WHATSOEVER, EVEN IF THE LOSS OR
DAMAGE IS CAUSED BY THE SELLER'S OWN NEGLIGENCE OR FAULT.
Seller does not represent that the products it sells may not be compromised or circumvented; that the
products will prevent any personal injury or property loss by burglary, robbery, fire or otherwise; or that the
products will in all cases provide adequate warning or protection. Customer understands that a properly
installed and maintained alarm may only reduce the risk of a burglary, robbery, fire or other events
occurring without providing an alarm, but it is not insurance or a guarantee that such will not occur or that
there will be no personal injury or property loss as a result. CONSEQUENTLY, SELLER SHALL HAVE NO
LIABILITY FOR ANY PERSONAL INJURY, PROPERTY DAMAGE OR OTHER LOSS BASED ON A
CLAIM THE PRODUCT FAILED TO GIVE WARNING. HOWEVER, IF SELLER IS HELD LIABLE,
WHETHER DIRECTLY OR INDIRECTLY, FOR ANY LOSS OR DAMAGE ARISING UNDER THIS
LIMITED WARRANTY OR OTHERWISE, REGARDLESS OF CAUSE OR ORIGIN, SELLER'S MAXIMUM
LIABILITY SHALL NOT IN ANY CASE EXCEED THE PURCHASE PRICE OF THE PRODUCT, WHICH
SHALL BE THE COMPLETE AND EXCLUSIVE REMEDY AGAINST SELLER. This warranty replaces
any previous warranties and is the only warranty made by Seller on this product. No increase or alteration,
written or verbal, of the obligations of this Limited Warranty is authorized.

NOTES

NOTES

NOTES

NOTES

NOTES

TRANSFORMER
W/ENCLOSURE
ADEMCO No.1451
(supplied)
INPUT: 120VAC,
60HZ,
1.0A max. Connect to a
dedicated circuit.
See instructions for
proper earth ground
connections
ZONE 2
1 2 3 4 5 6 7 8 9 10 11121314151617181920 21222324 25 26 27 30
+
SMOKE
PROGRAMMABLE
AS KEYSWITCH LOOP
PROGRAMMABLE
AS TAMPER LOOP
2-WIRE GLASS BREAK
DETECTOR LOOP
2-WIRE SMOKE
DETECTOR LOOP
2-WIRE SMOKE
DETECTOR LOOP
N.C.
N.O.
2k (note 2)
+
+
N.C.
2k
N.O.
GLASS
BREAK
REMOTE KEYPADS:
6139, 6139R
6160, 6160R
SEE NOTE 3
Red Blk Grn Yel
Data in
Data out
+
BACK-UP LINE SEIZE
LED (GREEN)
Connect to main PCB
header J3 using ribbon
cable (supplied)
BACK-UP TLM ON HOOK
VOLTAGE THRESHOLD (BLUE)
INTACT: 25V
CUT: 13V
OPTIONAL 5140DLM BACK-UP DIALER MODULE
MAIN PCB SHIELD
BACK-UP PHONE JACK
SEE TELCO
JACK SHOCK
WARNING
BELOW
J2
Make connections using
4142TR cable (not supplied)
VOLTAGE
TRIGGERS
(not supervised)
J3
1 2 3 4 5 6 7 8 9
J4
Make connections using
4142TR cable (supplied)
(not supervised)
KEYPAD PORT #2
BELL 1
W1
(WHITE)
BELL 2
W4
(WHITE)
BELL CIRCUIT SUPERVISION JUMPERS
INTACT: Supervised using 2k EOLR
CUT: Not supervised (no EOLR used)
BLK + RED
OPTIONAL REMOVABLE
TERMINAL BLOCK KIT:
ADEMCO NO. 4142BLK
BELL
HORN
BELL
HORN
+
SMOKE
N.C.
N.O.
2k
+
N.C.
N.O.
+
N.C.
N.O.
+
N.C.
N.O.
+
N.C.
N.O.
+
N.C.
N.O.
TO OTHER DEVICES
2k 2k 2k 2k 2k
ZONE 1 ZONE 3
ZONE 4
ZONE 5 ZONE 6 ZONE 7 ZONE 8
NOTE 3:
See instructions on setting
addresses & for max # of keypads
and wire run length restrictions.
Keypad color subject to approval
of local authority.
+
2k (note 2) 2k
AC WIRING IS
SUPERVISED
BELL 1 BELL 2
+
+
ALARM POLARITY SHOWN
Each output may be selected for
Style Y supervision or no supervision
(See main PCB jumpers W1, W4 and
#93 Menu Mode.
FIRE CKTS: Supervise using 2k EOLR.
Use polarized sounding devices.
BURG CKTS: Supervision not req'd.
EOLRs not req'd. May use non
polarized devices.
Ratings: 10 - 14VDC, 1.7A max.
See note 1, see instructions
for compatible devices.
N.O.
POLE
N.C.
AUX RELAY (FORM C)
programmable response
(not supervised)
Contact Rating:
28V, 2.8A
resistive loads
SPARE AUX
POWR #1
AUXILIARY POWER #1
Rating: 10 - 14VDC
1.0A MAX (STANDBY)
1.7A MAX (ALARM)
See note 1.
(not supervised)
NOTE 1:
The combined standby current
drawn from aux pwr #1, aux pwr #2
and polling loop cannot exceed
1.0A.The combined alarm current
drawn from aux pwr #1, aux
pwr #2, polling loop, bell 1 and
bell 2 cannot exceed 2.3A. ZONE 1-8 NOTES
• All zones provide Style B supervision
• Zone resistance (excluding EOLR):
- Zones 1, 2, 8: 100 ohms max
- Other zones: 300 ohms max
• Zone response: 350 - 500mS (all zones)
Connect to 12V, 12AH min/34.4AH max
lead acid batteries using cables supplied.
See instructions for required capacity.
Float charging voltage: 13.7VDC. Battery
normally need not be replaced for
at least 3 yrs.
J4 KEYPAD PORT #2
See instr. regarding port #2 use
1. GROUND (to keypad black wire)
4. DATA IN 2 (to keypad green wire)
5. AUX PWR #2 (to keypad red wire)
Rating: 10 - 14 VDC,
400mA max. See note 1
7. DATA OUT 2 (to keypad yellow wire)
W6
(BLUE)
INTERFACE TO 5140DLM
MAIN TLM ON HOOK
VOLTAGE THRESHOLD
INTACT:25V
CUT: 13V
BACK-UP DIALER EARTH
GROUND SCREW
(wire to main PCB
terminal #30)
J2 VOLTAGE TRIGGERS
See instructions for trigger use and programming
(default functions shown)
1. OUT 4 (SILENT PANIC/DURESS)
2. OUT 7 (TROUBLE)
3. OUT 3 (BURGLARY/AUDIBLE PANIC)
4. OUT 6 (SUPERVISORY)
5. OUT 2 (FIRE)
6. OUT 5 (REMOTE KEYPAD SOUNDER)
7. OUT 1 (OPEN/CLOSE)
8. GROUND
9. IN 1 (N.O. LOOP)
RATINGS: OUT 1, 5, 7:
LOW: 2K TO GROUND
HIGH: 10 - 14VDC, 20mA MAX
OTHER OUTS: LOW: 1K TO GROUND
HIGH: 10 - 14VDC THRU 5K
Attach 5140DLM module to main PCB shield using
4 standoffs (supplied)
1 2 3 4 5 6 7 8 9
BATTERY TABS
PINS 2, 3, 6, 8 & 9 NOT USED
RJ31X
MAIN
PHONE JACK
BELL OUTPUTS AUX. RELAY KEYPAD PORT #1
INPUT
OUTPUT
NOTE 2:
2k EOLR is Ademco model 610-7
CONNECTION OF THE FIRE ALARM
SIGNAL TO A FIRE ALARM HEAD-
QUARTERS OR A CENTRAL STATION
SHALL BE PERMITTED ONLY WITH
THE APPROVAL OF THE LOCAL
AUTHORITY HAVING JURISDICTION.
THE BURGLARY ALARM SIGNAL
SHALL NOT BE CONNECTED TO A
POLICE EMERGENCY NUMBER.
POLLING
LOOP
WARNING:
TO PREVENT
RISK OF
ELECTRICAL
SHOCK,
DISCONNECT
TELCO JACK
BEFORE
SERVICING
THIS PANEL
Connect
RJ31X using
cable supplied.
Supervision is
programmable
TYPES OF FIRE SIGNALLING SERVICE:
Manual fire alarm, automatic fire alarm, sprinkler supervisory and waterflow alarm. UL Listed local control (non-coded).
UL Listed central station and remote station protected premises unit when used with 5140DLM back-up dialer module.
Installation limits under jurisdiction of local authority.
CIRCUIT
(ZONE) CONTROL UNIT
DELAY-SEC SMOKE DETECTOR
MODEL DELAY-SEC
THE DELAY TIME MARKED ON THE INSTALLED
DETECTOR(S) IS TO BE USED
Polling Loop
Ratings:
(supervised)
128mA max. See note 1.
See instructions for
compatible devices
and for max wire
run length
OUTPUT: 18VAC
72VA
BL
BL
BLACKWH
RJ31X
(connect using supplied cable)
Supervision is programmable
EARTH GROUND
• Ratings for zones 1,2:
- 10 - 14VDC
- 2mA max for smoke det. (up to 16 detectors
of the type specified in the instructions
can be used)
• UL compatibility ID: A
Do not mix fire and burg. sensors on one loop.
N.C. contacts for burg. usage only.
NOTES
TRNSFMR
ALL CIRCUITS ARE POWER LIMITED EXCEPT
THE OUTPUT OF THE 1451 TRANSFORMER
TEST BURGLARY SYSTEM WEEKLY
The 5140DLM Dialer
Complies with FCC Rules, Part 68
FCC Reg. No.: AC398U-68628-MO-N
Ringer Equivalence: 0.7B
WARNING:
THIS UNIT MAY BE PROGRAMMED TO
INCLUDE AN ALARM VERIFICATION
FEATURE THAT WILL RESULT IN A DELAY
OF THE SYSTEM ALARM SIGNAL FROM
THE INDICATED FIRE CIRCUITS. THE
TOTAL DELAY (CONTROL UNIT PLUS
SMOKE DETECTORS) SHALL NOT EXCEED
60 SECONDS. NO OTHER INITIATING
DEVICES SHALL BE CONNECTED TO
THESE CIRCUITS UNLESS APPROVED BY
THE LOCAL AUTHORITY HAVING
JURISDICTION.
This equipment should be
installed in accordance
with the National Fire
Protection Association's
Standard 72 (National
Fire Protection Assoc.,
Batterymarch Park,
Quincy, MA. 02269). Printed
information describing proper
installation, operation,
testing, maintenance and
repair service is to be
provided with this equipment.
For commercial fire, bell timeout
must be a minimum of 6 minutes.
V128FBP-SOC-V0
VISTA-128FBP
SUMMARY OF CONNECTIONS
4192SD
SMOKE
4209U
28 29
4208U
The VISTA-250 Main Dialer
Complies with FCC Rules, Part 68
FCC Reg. No.: AC3-USA-68192-AL-E
Ringer Equivalence: 0.7B
VISTA-128FBP Summary of Connections Diagram

TRANSFORMER
W/ENCLOSURE
ADEMCO No.1451
(supplied)
INPUT: 120VAC,
60HZ,
1.0A max. Connect to a
dedicated circuit.
See instructions for
proper earth ground
connections
ZONE 2
1 2 3 4 5 6 7 8 9 10 11121314151617181920 21222324 25 26 27 30
+
SMOKE
PROGRAMMABLE
AS KEYSWITCH LOOP
PROGRAMMABLE
AS TAMPER LOOP
2-WIRE GLASS BREAK
DETECTOR LOOP
2-WIRE SMOKE
DETECTOR LOOP
2-WIRE SMOKE
DETECTOR LOOP
N.C.
N.O.
2k (note 2)
+
+
N.C.
2k
N.O.
GLASS
BREAK
REMOTE KEYPADS:
6139, 6139R
6160, 6160R
SEE NOTE 3
Red Blk Grn Yel
Data in
Data out
+
BACK-UP LINE SEIZE
LED (GREEN)
Connect to main PCB
header J3 using ribbon
cable (supplied)
BACK-UP TLM ON HOOK
VOLTAGE THRESHOLD (BLUE)
INTACT: 25V
CUT: 13V
OPTIONAL 5140DLM BACK-UP DIALER MODULE
MAIN PCB SHIELD
BACK-UP PHONE JACK
SEE TELCO
JACK SHOCK
WARNING
BELOW
J2
Make connections using
4142TR cable (not supplied)
VOLTAGE
TRIGGERS
(not supervised)
J3
1 2 3 4 5 6 7 8 9
J4
Make connections using
4142TR cable (supplied)
(not supervised)
KEYPAD PORT #2
BELL 1
W1
(WHITE)
BELL 2
W4
(WHITE)
BELL CIRCUIT SUPERVISION JUMPERS
INTACT: Supervised using 2k EOLR
CUT: Not supervised (no EOLR used)
BLK + RED
OPTIONAL REMOVABLE
TERMINAL BLOCK KIT:
ADEMCO NO. 4142BLK
BELL
HORN
BELL
HORN
+
SMOKE
N.C.
N.O.
2k
+
N.C.
N.O.
+
N.C.
N.O.
+
N.C.
N.O.
+
N.C.
N.O.
+
N.C.
N.O.
TO OTHER DEVICES
2k 2k 2k 2k 2k
ZONE 1 ZONE 3
ZONE 4
ZONE 5 ZONE 6 ZONE 7 ZONE 8
NOTE 3:
See instructions on setting
addresses & for max # of keypads
and wire run length restrictions.
Keypad color subject to approval
of local authority.
+
2k (note 2) 2k
AC WIRING IS
SUPERVISED
BELL 1 BELL 2
+
+
ALARM POLARITY SHOWN
Each output may be selected for
Style Y supervision or no supervision
(See main PCB jumpers W1, W4 and
#93 Menu Mode.
FIRE CKTS: Supervise using 2k EOLR.
Use polarized sounding devices.
BURG CKTS: Supervision not req'd.
EOLRs not req'd. May use non
polarized devices.
Ratings: 10 - 14VDC, 1.7A max.
See note 1, see instructions
for compatible devices.
N.O.
POLE
N.C.
AUX RELAY (FORM C)
programmable response
(not supervised)
Contact Rating:
28V, 2.8A
resistive loads
SPARE AUX
POWR #1
AUXILIARY POWER #1
Rating: 10 - 14VDC
1.0A MAX (STANDBY)
1.7A MAX (ALARM)
See note 1.
(not supervised)
NOTE 1:
The combined standby current
drawn from aux pwr #1, aux pwr #2
and polling loop cannot exceed
1.0A.The combined alarm current
drawn from aux pwr #1, aux
pwr #2, polling loop, bell 1 and
bell 2 cannot exceed 2.3A. ZONE 1-8 NOTES
• All zones provide Style B supervision
• Zone resistance (excluding EOLR):
- Zones 1, 2, 8: 100 ohms max
- Other zones: 300 ohms max
• Zone response: 350 - 500mS (all zones)
Connect to 12V, 12AH min/34.4AH max
lead acid batteries using cables supplied.
See instructions for required capacity.
Float charging voltage: 13.7VDC. Battery
normally need not be replaced for
at least 3 yrs.
J4 KEYPAD PORT #2
See instr. regarding port #2 use
1. GROUND (to keypad black wire)
4. DATA IN 2 (to keypad green wire)
5. AUX PWR #2 (to keypad red wire)
Rating: 10 - 14 VDC,
400mA max. See note 1
7. DATA OUT 2 (to keypad yellow wire)
W6
(BLUE)
INTERFACE TO 5140DLM
MAIN TLM ON HOOK
VOLTAGE THRESHOLD
INTACT:25V
CUT: 13V
BACK-UP DIALER EARTH
GROUND SCREW
(wire to main PCB
terminal #30)
J2 VOLTAGE TRIGGERS
See instructions for trigger use and programming
(default functions shown)
1. OUT 4 (SILENT PANIC/DURESS)
2. OUT 7 (TROUBLE)
3. OUT 3 (BURGLARY/AUDIBLE PANIC)
4. OUT 6 (SUPERVISORY)
5. OUT 2 (FIRE)
6. OUT 5 (REMOTE KEYPAD SOUNDER)
7. OUT 1 (OPEN/CLOSE)
8. GROUND
9. IN 1 (N.O. LOOP)
RATINGS: OUT 1, 5, 7:
LOW: 2K TO GROUND
HIGH: 10 - 14VDC, 20mA MAX
OTHER OUTS: LOW: 1K TO GROUND
HIGH: 10 - 14VDC THRU 5K
Attach 5140DLM module to main PCB shield using
4 standoffs (supplied)
1 2 3 4 5 6 7 8 9
BATTERY TABS
PINS 2, 3, 6, 8 & 9 NOT USED
RJ31X
MAIN
PHONE JACK
BELL OUTPUTS AUX. RELAY KEYPAD PORT #1
INPUT
OUTPUT
NOTE 2:
2k EOLR is Ademco model 610-7
CONNECTION OF THE FIRE ALARM
SIGNAL TO A FIRE ALARM HEAD-
QUARTERS OR A CENTRAL STATION
SHALL BE PERMITTED ONLY WITH
THE APPROVAL OF THE LOCAL
AUTHORITY HAVING JURISDICTION.
THE BURGLARY ALARM SIGNAL
SHALL NOT BE CONNECTED TO A
POLICE EMERGENCY NUMBER.
POLLING
LOOP
WARNING:
TO PREVENT
RISK OF
ELECTRICAL
SHOCK,
DISCONNECT
TELCO JACK
BEFORE
SERVICING
THIS PANEL
Connect
RJ31X using
cable supplied.
Supervision is
programmable
TYPES OF FIRE SIGNALLING SERVICE:
Manual fire alarm, automatic fire alarm, sprinkler supervisory and waterflow alarm. UL Listed local control (non-coded).
UL Listed central station and remote station protected premises unit when used with 5140DLM back-up dialer module.
Installation limits under jurisdiction of local authority.
CIRCUIT
(ZONE) CONTROL UNIT
DELAY-SEC SMOKE DETECTOR
MODEL DELAY-SEC
THE DELAY TIME MARKED ON THE INSTALLED
DETECTOR(S) IS TO BE USED
Polling Loop
Ratings:
(supervised)
128mA max. See note 1.
See instructions for
compatible devices
and for max wire
run length
OUTPUT: 18VAC
72VA
BL
BL
BLACKWH
RJ31X
(connect using supplied cable)
Supervision is programmable
EARTH GROUND
• Ratings for zones 1,2:
- 10 - 14VDC
- 2mA max for smoke det. (up to 16 detectors
of the type specified in the instructions
can be used)
• UL compatibility ID: A
Do not mix fire and burg. sensors on one loop.
N.C. contacts for burg. usage only.
NOTES
TRNSFMR
ALL CIRCUITS ARE POWER LIMITED EXCEPT
THE OUTPUT OF THE 1451 TRANSFORMER
TEST BURGLARY SYSTEM WEEKLY
The 5140DLM Dialer
Complies with FCC Rules, Part 68
FCC Reg. No.: AC398U-68628-MO-N
Ringer Equivalence: 0.7B
WARNING:
THIS UNIT MAY BE PROGRAMMED TO
INCLUDE AN ALARM VERIFICATION
FEATURE THAT WILL RESULT IN A DELAY
OF THE SYSTEM ALARM SIGNAL FROM
THE INDICATED FIRE CIRCUITS. THE
TOTAL DELAY (CONTROL UNIT PLUS
SMOKE DETECTORS) SHALL NOT EXCEED
60 SECONDS. NO OTHER INITIATING
DEVICES SHALL BE CONNECTED TO
THESE CIRCUITS UNLESS APPROVED BY
THE LOCAL AUTHORITY HAVING
JURISDICTION.
This equipment should be
installed in accordance
with the National Fire
Protection Association's
Standard 72 (National
Fire Protection Assoc.,
Batterymarch Park,
Quincy, MA. 02269). Printed
information describing proper
installation, operation,
testing, maintenance and
repair service is to be
provided with this equipment.
For commercial fire, bell timeout
must be a minimum of 6 minutes.
V250FBP-SOC-V0
VISTA-250FBP
SUMMARY OF CONNECTIONS
4192SD
SMOKE
4209U
28 29
4208U
The VISTA-250 Main Dialer
Complies with FCC Rules, Part 68
FCC Reg. No.: AC3-USA-68192-AL-E
Ringer Equivalence: 0.7B
VISTA-250FBP Summary of Connections Diagram

¬.l
K0376 8/02
165 Eileen Way, Syosset, New York 11791
Copyright © 2002 PITTWAY CORPORATION