ELPRO Technologies ELPS01 Spread spectrum transmitter with input / output de User Manual man 905 2 0
ELPRO Technologies Pty Ltd Spread spectrum transmitter with input / output de man 905 2 0
Contents
- 1. Users manual
- 2. User manual
- 3. Revised 905U User Manual
- 4. New users manual
Users manual

Radio/Serial Telemetry Module User Manual
Page 2© March 2000
Thank you for your selection of the 905 module for your telemetry
needs. We trust it will give you many years of valuable service.
ATTENTION!
Incorrect termination of supply wires may
cause internal damage and will void warranty.
To ensure your 905 enjoys a long life,
double check ALL your connections with
the user’s manual
before turning the power on.

Contents
man_905_2.0.doc Page 3
FCC Notice:
This user’s manual is for the ELPRO 905 series radio telemetry module. This device complies with
Part 15.247 of the FCC Rules.
Operation is subject to the following two conditions:
1) This device may not cause harmful interference and
2) This device must accept any interference received, including interference that may cause
undesired operation.
This device must be operated as supplied by ELPRO Technologies Pty Ltd. Any changes or
modifications made to the device without the written consent of ELPRO Technologies Pty. Ltd.
May void the user’s authority to operate the device.
End user products that have this device embedded must be supplied with non-standard antenna
connectors, and antennas available from vendors specified by ELPRO Technologies. Please contact
ELPRO Technologies for end user antenna and connector recommendations.
Notices:
Safety:
Exposure to RF energy is an important safety consideration. The FCC has adopted a safety
standard for human exposure to radio frequency electromagnetic energy emitted by FCC regulated
equipment as a result of its actions in General Docket 79-144 on March 13, 1996.
CAUTION:
To comply with FCC RF Exposure requirements in section 1.1310 of the FCC Rules, antennas
used with this device must be installed to provide a separation distance of at least 20 cm from all
persons to satisfy RF exposure compliance.
DO NOT:
• operate the transmitter when someone is within 20 cm of the antenna
• operate the transmitter unless all RF connectors are secure and any open connectors are
properly terminated.
• operate the equipment near electical blasting caps or in an explosive atmosphere
All equipment must be properly grounded for safe operations. All equipment should be serviced only
by a qualified technician.

Radio/Serial Telemetry Module User Manual
Page 4© March 2000
How to Use This Manual
To receive the maximum benefit from your 905 product, please read the Introduction, Installation
and Operation chapters of this manual thoroughly before putting the 905 to work.
Chapter Four Configuration explains how to configure the modules using the Configuration
Software available. For configuration using the on-board switches, refer to the separate 905 Switch
Configuration Manual.
Chapter Five Specifications details the features of the product and lists the standards to which the
product is approved.
Chapter Six Troubleshooting will help if your system has problems and Chapter Seven specifies
the Warranty and Service conditions.
The foldout sheet 905 Installation Guide is an installation drawing appropriate for most
applications.
Warning !
1. For 905U modules, a radio licence is not required in most countries, provided the module is
installed using the aerial and equipment configuration described in the 905 Installation
Guide. Check with your local 905 distributor for further information on regulations.
2. For 905U modules, operation is authorised by the radio frequency regulatory authority in
your country on a non-protection basis. Although all care is taken in the design of these
units, there is no responsibility taken for sources of external interference. The 905 intelligent
communications protocol aims to correct communication errors due to interference and to
retransmit the required output conditions regularly. However some delay in the operation of
outputs may occur during periods of interference. Systems should be designed to be
tolerant of these delays.
3. To avoid the risk of electrocution, the aerial, aerial cable, serial cables and all terminals of
the 905 module should be electrically protected. To provide maximum surge and lightning
protection, the module should be connected to a suitable earth and the aerial, aerial cable,
serial cables and the module should be installed as recommended in the Installation Guide.
4. To avoid accidents during maintenance or adjustment of remotely controlled equipment, all
equipment should be first disconnected from the 905 module during these adjustments.
Equipment should carry clear markings to indicate remote or automatic operation. E.g.
"This equipment is remotely controlled and may start without warning. Isolate at the
switchboard before attempting adjustments."
5. The 905 module is not suitable for use in explosive environments without additional
protection.

Contents
man_905_2.0.doc Page 5
CONTENTS
CHAPTER ONE INTRODUCTION.....................................................................................................................................7
1.1 GENERAL ....................................................................................................................................................................7
CHAPTER TWO INSTALLATION...................................................................................................................................10
2.1 GENERAL ..................................................................................................................................................................10
2.2 AERIAL INSTALLATION (ERROR! BOOKMARK NOT DEFINED.U UNITS ONLY)...............................................10
2.2.1 Dipole aerial................................................................................................................................................ 11
2.2.2 Three element Yagi aerial......................................................................................................................... 12
2.2.3 Collinear (3dB) aerial............................................................................................................................... 13
2.3 POWER SUPPLY.......................................................................................................................................................13
2.3.1 AC Supply..................................................................................................................................................... 14
2.3.2 DC Supply .................................................................................................................................................... 14
2.3.3 Solar Supply ................................................................................................................................................ 15
2.3.4 Multiple Modules........................................................................................................................................ 15
2.3.5 24V Regulated Supply ............................................................................................................................... 16
2.4 INPUT / OUTPUT.....................................................................................................................................................16
2.4.1 Digital Inputs (Error! Bookmark not defined.-1 and Error! Bookmark not defined.-2)............... 16
2.4.2 Digital Outputs (Error! Bookmark not defined.-1).............................................................................. 17
2.4.3 Digital Outputs (Error! Bookmark not defined.-2 and Error! Bookmark not defined.-3)............ 19
2.4.4 Analogue Inputs (Error! Bookmark not defined.-1 and Error! Bookmark not defined.-2).......... 19
2.4.5 Analogue Outputs (Error! Bookmark not defined.-1 and Error! Bookmark not defined.-3)....... 20
2.4.6 Pulse Input (Error! Bookmark not defined.-1)..................................................................................... 20
2.4.7 Pulse Inputs (Error! Bookmark not defined.-2)................................................................................... 20
2.4.8 Pulse Output (Error! Bookmark not defined.-1)................................................................................... 21
2.4.9 Pulse Output (Error! Bookmark not defined.-3)................................................................................... 21
2.4.10 RS232 Serial Port....................................................................................................................................... 21
2.4.11 RS485 Serial Port....................................................................................................................................... 22
CHAPTER THREE.............................................................................................................................................OPERATION
25
3.1 POWER-UP AND NORMAL OPERATION...............................................................................................................25
3.1.1 Communications......................................................................................................................................... 25
3.1.2 Change of state conditions....................................................................................................................... 27
3.1.3 Analogue Set-points................................................................................................................................... 29
3.1.4 Start-up Poll ................................................................................................................................................ 30
3.1.5 Communications Failure (CF)................................................................................................................. 30
3.1.6 Resetting Outputs........................................................................................................................................ 30
3.2 SYSTEM DESIGN TIPS.............................................................................................................................................30
3.2.1 System Dynamics......................................................................................................................................... 30
3.2.2 Radio Channel Capacity........................................................................................................................... 31
3.2.3 Radio Path Reliability............................................................................................................................... 31
3.2.4 Design for Failures..................................................................................................................................... 32
CHAPTER FOUR.....................................................................................................................................CONFIGURATION
33
4.1 INTRODUCTION.......................................................................................................................................................33
4.2 EASY CONFIGURATION USING DEFAULT SETTINGS.........................................................................................34
4.3 ERROR! BOOKMARK NOT DEFINED. CONFIGURATION SOFTWARE ...............................................................36
4.3.1 Hardware Requirements............................................................................................................................ 36
4.3.2 Installation................................................................................................................................................... 37
4.3.3 Software Operation .................................................................................................................................... 37
4.3.4 Changing User Options.................................................................................................................................. 41
4.3.5 Programming / Downloading Configuration........................................................................................ 43

Radio/Serial Telemetry Module User Manual
Page 6© March 2000
CHAPTER FIVE SPECIFICATIONS................................................................................................................................45
CHAPTER SIX..................................................................................................................................TROUBLESHOOTING
49
6.1 DIAGNOSTICS CHART .............................................................................................................................................49
6.2 SELF TEST FUNCTIONS..........................................................................................................................................49
6.2.1 Input to Output Reflection (105-1 only)................................................................................................ 49
6.2.2 Radio Testing using Tone Reversals ....................................................................................................... 50
6.2.3 Diagnostics menu........................................................................................................................................ 50
CHAPTER SEVEN......................................................................................................................WARRANTY & SERVICE
56
APPENDIX A SYSTEM EXAMPLE...................................................................................................................................57

Chapter One Introduction
man_905_2.0.doc Page 7
Chapter One INTRODUCTION
1.1 General
The 905 range of telemetry modules has been designed to provide standard “off-the-shelf”
telemetry functions, for an economical price. Telemetry is the transmission of signals over a long
distance via a medium such as radio or twisted-pair wire. Although the 905 is intended to be simple
in its application, it also provides many sophisticated features. This manual should be read carefully
to ensure that the modules are configured and installed to give reliable performance.
The unit can monitor and control the following types of signals:
Digital on/off signals
Example outputs - motor run, siren on
Example inputs - motor fault, tank overflow, intruder alarm
Analogue continuously variable signals (0-20mA)
Example outputs - tank level indication, required motor speed
Example inputs - measured tank level, actual motor speed
Pulse frequency signals
Examples - electricity metering, fluid flow
Internal Status signals
Examples - analogue battery voltage, power status, solar panel status and low
battery status.
The unit will monitor the input signals and transmit the signal information by radio or RS485 twisted
pair to another 905 module. At the remote unit, the signals will be reproduced as digital, analogue
or pulse output signals. The 905 also provides analogue set points, so that a digital output may be
configured to turn on and off depending on the value of an analogue input. The pulse I/O transmits
an accumulated value and the pulses are reliably recreated at the remote unit regardless of ‘missed’
transmissions. The actual pulse rate is also calculated and is available as a remote analogue output.
This manual covers the 905U and 105S modules. We have provided a summary on all products
available in the 905 telemetry range, below.
• 905U-1, 905U-2 and 905U-3 modules have UHF radio and serial communications. The
modules differ only in their input/output (I/O) design, and are compatible, i.e. they can be used to
communicate signals to each other in the same network.
• 105S-1, 105S-2 and 105S-3 modules have only serial communications. All other specifications
are as per the 905U-1, 2 & 3 modules. The 105S modules are compatible with 905U modules.
• 105M-1, 105M-2 and 105M-3 modules are for interfacing to MAP27 trunked radio systems.

Radio/Serial Telemetry Module User Manual
Page 8© March 2000
These modules can transmit I/O messages hundreds of kilometres via the trunked radio system.
105M-1, 2 and 3 modules differ only in their input/output (I/O) design, and can interface to
105U and 105S modules. For more information, refer to the 105M User Manual.
• The 905U-C module provides an interface between host devices such as PLC’s or SCADA
computers, and a radio telemetry system comprising 905U and 105S radio telemetry modules.
The 905U-C allows 905U/105S modules to act as remote wireless I/O for the host devices.
For more information, refer to the 905U-C User Manual.
Product naming convention:
1 0 5 a - x
where a is:
U = UHF radio + RS232/RS485 serial S = RS232/RS485 serial only
M = MAP27 trunked radio interface
and x is:
1 = Input / Output module 2 = Input module ( includes one output)
3 = Output module C= Interface module
905U-1 105S-1 905U-2 105S-2 905U-3 105S-3
Radio ü ü ü
Serial ü ü ü ü ü ü
Digital Inputs (DI) 4 4
Digital Outputs (DO) 4 (relay) 1 (FET) 8 (FET)
Analogue Inputs (AI) 2 (4-20mA) 6 (0-20mA)
Analogue Outputs (AO) 2 (4-20mA) 8 (0-20mA)
Pulse Inputs (PI) 1 (100Hz) 4 (1x1KHz, 3x100Hz)
Pulse Outputs (PO) 1 (100Hz) 4 (100 Hz)
Comments PI is DI 1. PO is
separate to DO.
PI’s are the same as
DI’s.
PO’s are the same as
DO’s (DO 1-4).
The module includes power supply, microprocessor controller, input/output circuits, RS485/232
serial port, and a UHF radio transceiver - no external electronics are required. The 905U version
has both radio and serial port communications. The 105S version does not have a radio and has
only serial communications. The 905U radio frequency has been selected to meet the requirements

Chapter One Introduction
man_905_2.0.doc Page 9
of unlicensed operation for remote monitoring and control of equipment. That is, a radio licence is
not required for the 905 modules in many countries. See Chapter Five Specifications for details.
Input signals connected to a 905 module are transmitted to another 905 module and appear as
output signals. These input signals may also be configured to appear as “inverted” signals on the
output. A transmission occurs whenever a "change-of-state" occurs on an input signal. A "change-
of-state" of a digital or digital internal input is a change from "off" to "on" or vice-versa. A "change-
of-state" for an analogue input, internal analogue input or pulse input rate is a change in value of the
signal of 3% (configurable from 0.8 to 50 %).
In addition to change-of-state messages, update messages are automatically transmitted on a regular
basis. The time period may be configured by the user for each input. This update ensures the
integrity of the system.
Pulse inputs are accumulated as a pulse count and the accumulated pulse count is transmitted
regularly according to the configured update time.
The 905 modules transmit the input/output data as a data frame using radio or serial RS485 as the
communications medium. The data frame includes the "address" of the transmitting 905 module and
the receiving 905 module, so that each transmitted message is acted on only by the correct receiving
unit. Each transmitted message also includes error checking to ensure that no corruption of the data
frame has occurred due to noise or interference. The 905 module with the correct receiving
"address" will acknowledge the message with a return transmission. If the original module does not
receive a correct acknowledgement to a transmission, it will retry up to five times before setting the
communications fail status of that path. In critical paths, this status can be reflected on an output on
the module for alert purposes. The module will continue to try to establish communications and
retry, if required, each time an update or change-of-state occurs.
A 905 telemetry system may be a complex network or a simple pair of modules. An easy-to-use
configuration procedure allows the user to specify any output destination for each input.
The maximum number of modules in one system is 95 modules communicating by radio. Each of
these modules may have up to 31 other modules connected by RS485 twisted pair. Modules may
communicate by radio only, by RS485 only or by both RS485 and radio. Any input signal at any
module may be configured to appear at any output on any module in the entire system.
Modules can be used as repeaters to re-transmit messages on to the destination module. Repeaters
can repeat messages on the radio channel, or from the radio channel to the serial channel (and serial
to radio). Up to five repeater addresses may be configured for each input-to-output link.
The units may be configured using switches under the plastic cover on the front of the unit or by
using a PC connected to the RS232 port. The default configuration is defined in Section 4.2 Easy
Configuration Using Default Settings, and software configuration is defined in Section 4.2 905
Configuration Software. Several standard configurations are also available. These are described
in the separate 905 Switch Configuration Manual, available from your 905 distributor.

Radio/Serial Telemetry Module User Manual
Page 10 © March 2000
Chapter Two INSTALLATION
2.1 General
The 905 module is housed in a rugged aluminium case, suitable for DIN-rail mounting. Terminals are
suitable for cables up to 2.5 sqmm in size.
Normal 110/220/240V mains supply should not be connected to any input terminal of the
905 module. Refer to Section 2.3 Power Supply.
Before installing a new system, it is preferable to bench test the complete system. Configuration
problems are easier to recognise when the system units are adjacent. Following installation, the
most common problem is poor communications on the radio channel or the serial channel. For radio
modules, problems are caused by incorrectly installed aerials, or radio interference on the same
channel, or the radio path being inadequate. If the radio path is a problem (i.e. path too long, or
obstructions in the way), then higher performance aerials or a higher mounting point for the aerial
may fix the problem. Alternately, use an intermediate 905 module as a repeater.
For serial modules, poorly installed serial cable, or interference on the serial cable is a common
problem.
The foldout sheet 905 Installation Guide provides an installation drawing appropriate to most
applications. Further information is detailed below.
Each 905 module should be effectively earthed via a "GND" terminal on the 905 module - this is to
ensure that the surge protection circuits inside the 905 module are effective.
2.2 Aerial Installation (905U units only)
The 905 module will operate reliably over large distances. The distance which may be reliably
achieved will vary with each application - depending on the type and location of aerials, the degree
of radio interference, and obstructions (such as hills or trees) to the radio path. See the 905
Installation Guide for expected ranges in your country. Where it is not possible to achieve reliable
communications between two 905 modules, then a third 905 module may be used to receive the
message and re-transmit it. This module is referred to as a repeater. This module may also have
input/output (I/O) signals connected to it and form part of the I/O network - refer to Chapter 4
Configuration of this manual.
An aerial must be connected to each 905 module using the BNC female connector which protrudes
though one of the end plates.
To achieve the maximum transmission distance, the aerials should be raised above intermediate
obstructions so the radio path is true “line of sight”. Because of the curvature of the earth, the
aerials will need to be elevated at least 5 metres above ground for paths greater than 5 km (3 miles).
For short distances, the modules will operate reliably with some obstruction of the radio path.

Chapter Two Installation
man_905_2.0.doc Page 11
Obstructions which are close to either aerial will have more of a blocking affect than obstructions in
the middle of the radio path. For example, a group of trees around the aerial is a large obstruction,
and the aerial should be raised above the trees. However if there is at least 100 metres of clear path
before a group of trees, the trees will have little affect on the radio path.
An aerial should be connected to the module via 50 ohm coaxial cable (eg RG58 or RG213)
terminated with a male BNC connector. The higher the aerial is mounted, the greater the
transmission range will be, however as the length of coaxial cable increases so do cable losses. For
use on unlicensed frequency channels, there are several types of aerials suitable for use. It is
important aerial are chosen carefully to avoid contravening the maximum power limit on the
unlicensed channel - if in doubt refer to an authorised service provider.
Connections between the aerial and coaxial cable should be carefully taped to prevent ingress of
moisture. Moisture ingress in the coaxial cable is a common cause for problems with radio systems,
as it greatly increases the radio losses. We recommend that the connection be taped, firstly with a
layer of PVC Tape, then with a vulcanising tape such as “3M 23 tape”, and finally with another
layer of PVC UV Stabilised insulating tape. The first layer of tape allows the joint to be easily
inspected when trouble shooting as the vulcanising seal can be easily removed.
Where aerials are mounted on elevated masts, the masts should be effectively earthed to avoid
lightning surges. Although the 905 module is fitted with surge protection, additional surge
suppression devices are recommended if lightning surge problems are experienced. If the aerial is
not already shielded from lightning strike by an adjacent earthed structure, a lightning rod may be
installed above the aerial to provide shielding.
2.2.1 Dipole aerial.
A unity gain dipole is the normal aerial for use on unlicensed channels. As it does not provide any
gain, then the power transmitted from the aerial will be the same as the power out of the module,
and hence will not exceed the permitted power of the unlicensed channel.
For marginal radio paths, the following lengths are the recommended maximum for the coaxial
cable to the dipole aerial. RG58 -10 metres RG213 - 20 metres. Note that this applies to
marginal paths only - if the radio path has a strong radio signal, then longer lengths of cable ( and
hence more cable loss) can be tolerated. If more than 20 metres of cable is required for a marginal
path installation, then a low loss cable such as 10D-FB, or a higher gain aerial should be used.
Dipole aerials should be mounted vertically, at least 1 metre away from a wall or mast.

Radio/Serial Telemetry Module User Manual
Page 12 © March 2000
2.2.2 Three element Yagi aerial.
A 3 element Yagi aerial provides approx 4 dB of gain. This may be used to compensate for coaxial
cable loss for installations with marginal radio path. Note that these aerials should not be used if the
coaxial cable lengths are less than the following minimum lengths, otherwise the power transmitted
from the aerial will exceed the power permitted for the unlicensed channel.
RG58 10 metres
RG213 20 metres.
Yagi aerials are directional. That is, they have positive gain to the front of the aerial, but negative
gain in other directions. Hence Yagi aerials should be installed with the central beam horizontal and
must be pointed exactly in the direction of transmission to benefit from the gain of the aerial. Also
note that Yagi aerials normally have a drain hole on the folded element - the drain hole should be
located on the bottom of the installed aerial.
The Yagi aerials may be installed with the elements in a vertical plane (vertically polarised) or in a
horizontal plane (horizontally polarised). For a two station installation, with both modules using
Yagi aerials, horizontal polarisation is recommended. If there are more than two stations
transmitting to a common station, then the Yagi aerials should have vertical polarisation, and the
common (or “central” station should have a dipole or collinear (non-directional) aerial.

Chapter Two Installation
man_905_2.0.doc Page 13
2.2.3 Collinear (3dB) aerial.
A 3dB collinear aerial may be used in the same way as a 3 element Yagi to compensate for the
losses in long lengths of coaxial cable. This type of aerial is generally used at a central site with more
than one remote site or at a repeater site. The collinear aerial looks similar to the dipole, except
that it is longer.
2.3 Power Supply
The 905 power supply is a switch-mode design which will accept either AC or DC supply. The 905
module may also be powered from a solar panel without an external solar regulator.
The 905 module accepts supply voltages in the following ranges :
12 - 24 volts AC RMS or 15 - 30 volts DC at the “supply” terminals, or
10.8 -15 volts DC at the “battery” terminals.

Radio/Serial Telemetry Module User Manual
Page 14 © March 2000
2.3.1 AC Supply
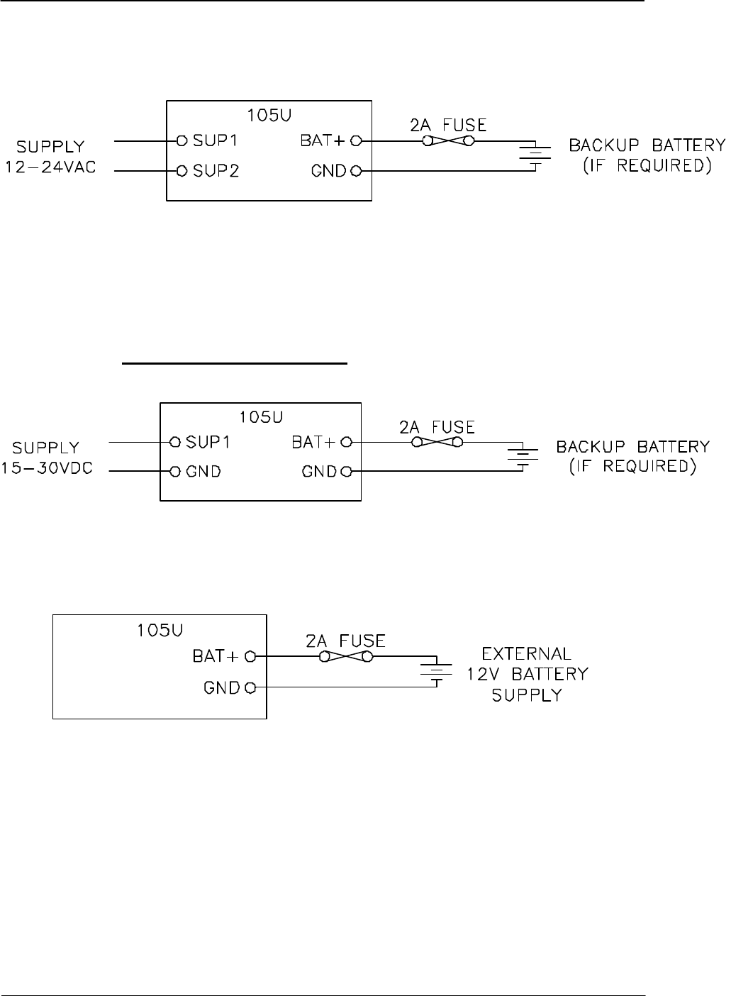
The AC supply is connected to the "SUP1" and "SUP2" terminals as shown below.
+
-
The AC supply should be "floating" relative to earth. A 220-240/16 VAC mains "plug-pack" is
available for mains applications.
2.3.2 DC Supply
For DC supplies, the positive lead is connected to "SUP1" and the negative to "GND". The positive
side of the supply must not be connected to earth. The DC supply may be a floating supply or
negatively grounded.
+
-
The 905 module may also be powered from an external 11 - 15 VDC battery supply without the
need for a "normal" supply connected to "SUP1". This external battery supply is connected to
"BAT+" and "GND" terminals. The positive lead of the external supply should be protected by a 2A
fuse.
Upon failure of the normal supply, the 905 module may continue to operate for several hours from a
backup battery. The 905 module includes battery charging circuits for charging up to a 12 AHr
sealed lead acid battery. The battery is connected to the "BAT+" (positive) and "GND" (negative)
terminals. The positive lead from the battery should be protected with a 2A fuse, installed as near to
the battery terminal as possible. On return of main supply, the unit will switch back to mains
operation, and recharge the battery. To provide adequate current to recharge the backup battery,
an AC supply of 15V minimum or a DC supply of 17V minimum must be used. Typically, a 6 AHr
battery will supply the 905 for 1 - 3 days, depending on I/O loads.

Chapter Two Installation
man_905_2.0.doc Page 15
2.3.3 Solar Supply
The 905 power supply also includes a 12 V solar regulator for connecting 12V solar panels of up to
30W, and solar batteries of up to 100AHr. The unit may not be powered from a solar panel without
a battery. An 18W solar panel is sufficient for most solar applications. The size of the solar battery
required depends on the I/O used. Batteries are sized for a number of sunless days with 50%
battery capacity remaining as follows:
No. of sunless days = Battery capacity (AHr) x 0.5
Module load (A) x 1.2 x 24
The Module load depends on the I/O connected and can be calculated as follows:
Module Load(A) = 0.07 + (0.01 x No. of DI’s) + (0.025 x No. of DO’s)
+ (2 x Analogue loop load).
The analogue loop load is the total signal current for the AI’s and AO’s which are powered from the
internal 24V supply. Externally powered loops are not included in this.
The solar panel is connected to the "SOL" (positive) and "GND" (negative) terminals and the battery
connected to the "BAT+" (positive) and "GND" (negative) terminals. Solar panels must be installed
and connected as per the panel manufacturer's instructions. The positive lead of the battery should
be protected by a 2A fuse installed as near as possible to the battery terminal.
Where a solar panel larger than 30W is required, an external solar regulator should be
used.
2.3.4 Multiple Modules
Where more than one module is installed at the one location, a shared power supply and battery
may be used, provided the total load does not exceed the power supply.

Radio/Serial Telemetry Module User Manual
Page 16 © March 2000
The internal power supply of the 905 module can supply a maximum 12V load of 700mA. In order
to achieve this, the input power supply must be above 15VAC or 17VDC. Using these figures, it
can be determined whether there is enough supply for more than one module - allow 100mA for
recharging a battery.
For example, assume there is a 905U-01 module and a 105S-01 module at the same location. The
total I/O at the location is 3 analogue inputs, 6 digital inputs and 4 digital outputs. The total load will
be :-
TYPE OF LOAD LOAD mA
905U-01 quiescent 70
105S-01 quiescent 45
6 DI @ 10 mA 60
3 AI @ 20mA x 2 120
4 DO @ 25mA 100
Battery charging 100
TOTAL 495
So both modules could be powered from one power supply and one battery, provided the external
supply voltage is more than 15VAC or 17VDC.
2.3.5 24V Regulated Supply
Each 905 module provides a 24V DC regulated supply for analogue loop power. The supply is
rated at 150mA, and should only be used for analogue loops.
2.4 Input / Output
2.4.1 Digital Inputs (905-1 and 905-2)
The 905-1 and 905-2 modules each provide four digital inputs with 5000 volt opto-isolation,

Chapter Two Installation
man_905_2.0.doc Page 17
suitable for voltage free contacts (such as mechanical switches) or NPN transistor devices (such as
electronic proximity switches). Contact wetting current of approximately 5mA is provided to
maintain reliable operation of driving relays.
Each digital input is connected between the appropriate "DI" terminal and common "COM". Each
digital input circuit includes a LED indicator which is lit when the digital input is active, that is, when
the input circuit is closed. Provided the resistance of the switching device is less than 200 ohms, the
device will be able to activate the digital input.
For pulse inputs, refer to Section 2.4.6.
2.4.2 Digital Outputs (905-1)
The 905-1 module provides four normally open voltage-free relay contacts, rated at AC3
250V/2A, 120V/5A ; AC1 - 250V/5A ; DC - 30V/2A, 20V/5A. These outputs may be used to
directly control low-powered equipment, or to power larger relays for higher powered equipment.
When driving inductive loads such as AC relays, good installation should include capacitors (e.g.
10nf 250V) across the external circuit to prevent arcing across the relay contacts. For DC inductive
loads, flyback diodes should be used to drive DC relays.
Digital outputs may be configured to individually turn off if no command message is received to that

Radio/Serial Telemetry Module User Manual
Page 18 © March 2000
output for a certain period. This feature provides an intelligent watch dog for each output, so that a
communications failure at a transmitting site causes the output to revert to a known state. See
section 4.4 Changing User Options for further details.
The output circuit is connected to the appropriate pair of "DO" terminals. Each digital output circuit
includes a LED indicator which is lit when the digital output is active.

Chapter Two Installation
man_905_2.0.doc Page 19
2.4.3 Digital Outputs (905-2 and 905-3)
The digital outputs on the 905-2 and 905-3 modules are transistor switched DC signals, FET
output to common rated at 30VDC 500 mA. The 905-2 provides one digital output and the 905-
3 provides eight digital outputs. The first four DO’s on the 905-3 module are also the pulse outputs
- that is, the first four DO's can be either digital outputs or pulse outputs. The function of each of
these outputs may be configured individually. For a description of pulse outputs, refer to Section
2.4.7.
Digital outputs may be configured to individually turn off if no command message is received to that
output for a certain period. This feature provides an intelligent watch dog for each output, so that a
communications failure at a transmitting site causes the output to revert to a known state. See
Chapter 4 Configuration for further details.
The output circuit is connected to the appropriate pair of "DO" terminals. Each digital output circuit
includes a LED indicator which is lit when the digital output is active.
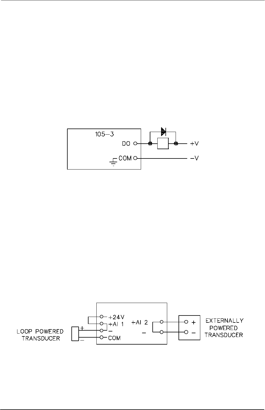
2.4.4 Analogue Inputs (905-1 and 905-2)
The 905-1 module provides two 4 - 20 mA DC analogue inputs for connecting to instrument
transducers such as level, moisture, pressure transducers, etc. The 905-2 module provides six 0 -
20 mA DC analogue inputs. Note that the inputs on the 905-2 module will measure down to 0mA,
so they can also be used for zero based signals such as 0 - 10 mA.
Each analogue input has a positive and negative terminal, and may be placed at any point in the
current loop, as long as neither input rises above the 24 volt supply level. Each input has a loop
resistance of less than 250 ohms and zener diode protection is provided against over-voltage and
reverse voltage, however additional protection may be required in high voltage or noisy
environments.
A 24VDC supply is available on the 905 module for powering the analogue transducer loops. In
this case, the analogue loop should be connected between a "AI 1-" terminal and "COM" ( for the
first analogue input) or "AI 2-" ( for the second analogue input), and so on for other inputs. The
positive terminal ("AI 1+" or "AI 2+", etc) should be connected to "+24V".

Radio/Serial Telemetry Module User Manual
Page 20 © March 2000
Externally powered loops may be connected by connecting the input between "AI 1+" and “AI 1-”
for analogue input 1 or "AI 2+" and “AI 2-” for analogue input 2, and so on for other inputs.
Analogue Input 1 "AI 1+" may also be configured to control a high/low analogue set-point. See
Chapter 4 Configuration for further details.
Common mode voltage may be -0.5V to 27V. Shielded cable is recommended for analogue I/O
loops to minimise induced noise and Radio Frequency Interference (RFI). The shield of the cable
should be connected to earth at one of the cable only. The use of shielded wiring inside an
enclosure containing a 905 module is also recommended.
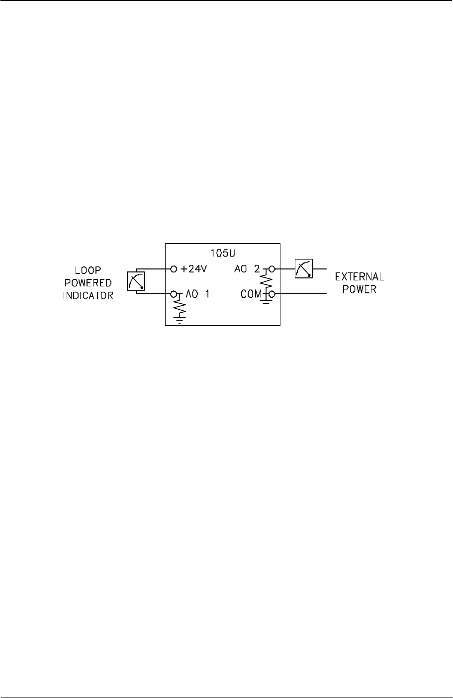
2.4.5 Analogue Outputs (905-1 and 905-3)
The 905-1 module provides two 4 - 20 mA DC analogue outputs for connecting to instrument
indicators for the display of remote analogue measurements. The 905-3 module provides eight 0 -
20 mA DC analogue outputs. Each analogue output is a "sink" to common.
+
-
A 24VDC supply is available on the 905 module for powering the analogue output loop (max
external loop resistance 1000 ohms). In this case, the analogue loop is connected between a "+24V"
terminal and "AO 1" ( for the first analogue output) or "AO 2" (for the second analogue output),
and so on for the other output signals.
Externally powered loops to 27 VDC may be connected by connecting the output between the
"AO” terminal (positive) and the "COM" terminal (negative). Zener protection of analogue outputs
provides protection against short periods of over-voltage but longer periods may result in module
damage. Note that the 905 common is connected internally to ground and no other point in the
analogue loop should be grounded.
Analogue outputs may also be configured to individually turn off (0 mA) if no command message is
received to that output for a certain period. . See Chapter 4 Configuration for further details.
2.4.6 Pulse Input (905-1)
For the 905-1 module, digital input 1 may be configured as a pulse input (max rate 100 Hz, min. off
time 5 ms). In this mode, both the pulse rate and the pulse count are available for mapping to a
remote output. The pulse rate may appear at any analogue output on the remote unit, while the
pulse count can appear at a Pulse Output on another 905-1 or Digital Output on a 905-3 unit. The
pulse input should be connected in the same way as a digital input.
2.4.7 Pulse Inputs (905-2)

Chapter Two Installation
man_905_2.0.doc Page 21
For the 905-2 module, the four digital inputs (DI 1-4) may be configured as pulse inputs. The first
digital/pulse input DI 1 has a maximum rate of 1000 Hz (min. off time 0.5 ms), while DI 2-4 have a
maximum rate of 100 Hz (min. off time 5 ms). When using DI 1 at high pulse rates (more than 100
Hz), a divide by 10 function may be configured to reduce the pulse count at the output, as Pulse
Outputs have a maximum rate of 100 Hz.
For each pulse input, both the pulse rate and the pulse count are available for mapping to a remote
output. The pulse rate may appear at any analogue output on the remote unit, while the pulse count
can appear at a Pulse Output. The default update time for pulse counts is 1 minute. This can be
changed by changing the update time configuration - refer Chapter 4 Configuration for further
details. The pulse count is a 16 bit value - “roll over” of the count when it exceeds the maximum
value is automatically handled by the 905 modules.
Pulse inputs should be wired in the same way as digital inputs (see Section 2.4.1).
2.4.8 Pulse Output (905-1)
A single FET output to common rated at 30VDC, 500 mA is provide for the pulse output "PO".
This output accurately recreates the pulses counted at a pulse input at a 905-1 or 905-2 module.
Although the count is accurately re-created, the rate of output pulses may not accurately reflect the
input rate. The actual input pulse rate may be configured to appear at an analogue output if
required. Note that the pulse rate and accumulated value will remain accurate even if a period of
communications failure has occurred. The maximum output rate is 100 Hz. If a high speed pulse
input is used (more than 100 Hz) on PI1 of a 905-2 module, the pulse input count should not be
transmitted to a PO on the 905-1 or DO on the 905-3 without configuring the divide-by-10 function
(on the 905-2 module)
2.4.9 Pulse Output (905-3)
The first four digital outputs on the 905-3 module may also be used as pulse outputs. The outputs
are FET output to common rated at 30VDC, 500 mA. The outputs will provide a pulse signal of
up to 100 Hz. The outputs accurately recreate the pulses counted at pulse inputs at a 905-1 or
905-2 module.
Although the count is accurately re-created, the rate of output pulses may not accurately reflect the
input rate. The actual input pulse rate may be configured to appear at an analogue output if
required. Note that the pulse rate and accumulated value will remain accurate even if a period of
communications failure has occurred.
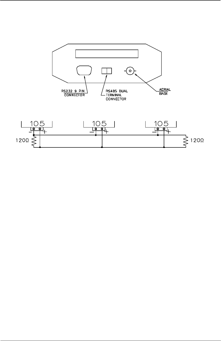
2.4.10 RS232 Serial Port

Radio/Serial Telemetry Module User Manual
Page 22 © March 2000
The serial port is a 9 pin DB9 female and provides for connection to a terminal or to a PC for
configuration, field testing and for factory testing. This port is internally shared with the RS485 -
ensure that the RS485 is disconnected before attempting to use the RS232 port. Communication is
via standard RS-232 signals. The 905 is configured as DCE equipment with the pin-out detailed
below. The serial port communicates at a baud rate of 9600 baud, 8 bits, no parity, one stop bit.
Pin Name Dirn Function
1DCD Out Data carrier detect - not used
2RD Out Transmit Data - Serial Data Input (High = 0, Low = 1)
3TD In Receive Data - Serial Data Output (High = 0, Low = 1)
4DTR In Data Terminal Ready - not used
5SG - Signal Ground
6DSR Out Data Set Ready - not used
7RTS In Request to Send - not used
8CTS Out Clear to send - not used
9RI - Ring indicator - not used.
An example cable drawing for connection to a laptop is detailed below:
MALE FEMALE
2.4.11 RS485 Serial Port
The RS485 port provides for communication between multiple 905 units using a multi-drop cable.
Up to 32 units may be connected in each multi-drop network. Each multi-drop network may have
one unit providing radio communications with other units in the system. The RS485 feature allows
local hubs of control to operate without occupying radio bandwidth required for communication
between remotely sited units.

Chapter Two Installation
man_905_2.0.doc Page 23
The RS485 Communications format is 9600 baud, 8 data bits, one stop bit, no parity. Note that
the RS485 port is shared internally with the RS232 port - disconnect the RS232 cable after
configuration is complete.

Radio/Serial Telemetry Module User Manual
Page 24 © March 2000
RS485 is a balanced, differential standard but it is recommended that shielded, twisted pair cable be
used to interconnect modules to reduce potential Radio Frequency Interference (RFI). An RS485
network should be wired as indicated in the diagram below and terminated at each end of the
network with a 120 ohm resistor.
- +

Chapter Two Installation
man_905_2.0.doc Page 25
Chapter Three OPERATION
3.1 Power-up and Normal Operation
When power is initially connected to the 905 module, the module will perform internal diagnostics to
check its functions. The following table details the status of the indicating LED’s on the front panel
under normal operating conditions.
LED Indicator Condition Meaning
OK On Normal Operation
RX Occasional flash Radio Receiving, or
Activity on serial ports
RX Flashes continuously Configuration Mode
RX On Button press when entering
Configuration Mode
TX
(only on 905U units)
Occasional flash Radio Transmitting
PWR On Supply voltage available
from Solar Panel or
SUP1/SUP2
OK Flashes every 5 seconds +24V Supply
overloaded
Additional LED’s provide indication of the status of digital inputs and outputs. LED’s display the
status of each digital input (lit for active), and LED’s display the status of each digital output (lit for
active). Other conditions indicating a fault are described in Chapter Six Troubleshooting.
The 905 module monitors the power supply and provides status of supply failure and battery low
voltage for "mapping" to one of the module's own outputs or transmitting to a remote output.
When the 905 module is powered from a normal supply (i.e. via either of the “SUP” terminals), the
PWR LED indicator is lit. When the 905 modules is powered from a solar panel and battery, the
PWR LED indicator is lit only when the charge current is available (i.e. when the solar panel is
receiving light). In the event of excessively low battery voltage (10.8V), the OK LED will go off, the
unit will automatically set all outputs off, and disable the +24V analogue loop supply. the OK LED
will turn on again after the battery voltage exceeds 11.3V. This enables installations to be
configured so that the battery current drain is minimised in the event of extended mains failure,
reducing the possibility of deep discharge of batteries.
3.1.1 Communications
If transmissions are not successful, then the 905 module will re-try up to four times at random
intervals to transmit the message. If communications is still not successful, the “Comms Fail” internal
status will be set. In the default configuration, this will have no consequence and the 905 module will

Radio/Serial Telemetry Module User Manual
Page 26 © March 2000
continue to attempt to transmit to the remote module every ten minutes. For critical applications, this
status can be configured to be reflected to an output on the module for alert purposes. The outputs
on the module may also be configured to reset after a specified timeout (digital outputs reset to
“off”, analogue outputs reset to 0 mA) allowing the system to turn off in a controlled manner e.g. a
pump will never be left running because of a system failure.
Example of Successful Communications
Local Unit
• Listen to ensure channel is clear
Remote Unit
• If clear, transmit message
TX LED flashes if radio
RX LED flashes if RS485
• Receive message
RX LED flashes
Check message for integrity
• RX LED flashes
• Acknowledgement
received okay -
communication complete
• If message okay, transmit it back
as acknowledgement
TX LED flashes if radio
RX LED flashes if RS485
Outputs updated as per
message received.
Example of unsuccessful communications
Local Unit
• Listen to ensure channel is clear
Remote Unit
• If clear, transmit message
TX LED flashes if radio
RX LED flashes if RS485
• Receive message
RX LED flashes
Check message for integrity
Message corrupted - do
nothing
• No acknowledgement received
• Retry up to four times
• Still no acknowledgement
“Comms fail” status to remote unit
set
If status is mapped to an output,
set output
• If no update received for an
output within watchdog timeout,
check to see if the output is
configured to reset
• Reset outputs if configured
(4)

Chapter Three Operation
man_905_2.0.doc Page 27
Repeaters can be used in a system to increase range. Each 905U unit can be configured to act as
a repeater. When configuring an input to be mapped to an output, the communications path to the
output unit, including the repeater addresses is specified. The 905U acts as a digital repeater, that
is, the signal is decoded and then retransmitted “as new”.
Example Repeater Communications
Unit A DI 1 mapped to Unit D DO1 via Units B & C
Unit A Unit B
Repeater Unit C
Repeater Unit D
• DI 1 is turned
on
• Transmit
• Receive
Acknowledge
• Receive
• Transmit on with
Acknowledge
• Receive
Acknowledge
• Receive
• Transmit on with
Acknowledge
• Receive
Acknowledge
• Receive
• Transmit
acknowledge
• DO 1 is
turned on
3.1.2 Change of state conditions
The 905 module transmits a data message whenever it detects a "change-of-state" on one of its input
signals. A "change-of-state" of a digital or digital internal input is a change from "off" to "on" or vice-
versa provided the change is sustained for 0.5 second (i.e. 0.5 second debounce).
In addition to "change-of-state" transmissions, each module will transmit the status of each input to
its corresponding output every ten minutes (configurable). These updates mean that the outputs are
set to the current input values regularly, even where no “change-of-state” has occurred. These
update transmissions increase the accuracy of the output and give extra system reliability.
Analogue Change-of-state
A "change-of-state" for an analogue input, battery voltage or pulse input rate is a change in value of
the signal of 3% (configurable) since the last transmission. Note that the sensitivity of 3% refers to
3% of the analogue range, not 3% of the instantaneous analogue value. That is, if an analogue input
changes from 64% (14.24 mA) to 67% (14.72 mA), a "change-of-state" will be detected. This
“change-of-state” sensitivity is configurable between 0.8% and 50%.
Analogue inputs are digitally filtered to prevent multiple transmissions on continually varying or
"noisy" signals. The input is filtered with a 1 second time constant and a 1 second debounce. The
analogue outputs are filtered with a 1 second time constant. An example explaining the interaction of
these figures is shown below. In general, the following may be used as a rule of thumb for

Radio/Serial Telemetry Module User Manual
Page 28 © March 2000
calculating the appropriate sensitivity required for a given application:
Instantaneous change of 2 x sensitivity on input → 3 second output response
Instantaneous change of 10 x sensitivity on input → 5 second output response
The analogue inputs have 15 bit resolution and 0.016mA accuracy.
An example of an analogue input and how the output follows it is shown below:
Pulse input change of state
Pulse input counts do not use “change-of-state” transmissions. Instead, accumulated pulse input
counts are transmitted at set intervals. The default period is 1 minute and is configurable. Note that
the pulse outputs are re-created from the accumulated pulse count. If a transmission is missed, the
pulse output will still be re-created when the next accumulated value is transmitted. This ensures that
no pulses are lost due to communications failures.
The following diagram shows how pulse inputs are re-created as pulse outputs. For pulse outputs,
the 905 module keeps two counters in memory - the pulse input count received from the remote
905 module, and the count of output pulses. When the 905 receives an update of the input pulse
count, it will output pulses until the output pulse count is the same as the input pulse count. The

Chapter Three Operation
man_905_2.0.doc Page 29
output pulse will be output evenly over the pulse output update time which is configured in the
module. For example, assume that 905 module receives a pulse input update message from the
remote 905 module, and the difference between the pulse input count and the pulse output count is
12 pulses. The 905 will then output the 12 pulses evenly over the next minute (if the pulse output
update time is 1 minute).
The default values for the pulse input update time and pulse output update time is 1 minute. In this
case, the output pulses are effectively 1 minute behind the input pulses. These update times may be
changed by the user. The pulse output update time should not be set to be more than the pulse input
update time. Note that the maximum pulse rate for both inputs and outputs is 100Hz.
Input
Pulses
Time
Output
Pulses
PI update time
PO update time
Time
As well as accumulating the pulse input, the 905 module will also calculate the rate of
pulses. Pulse rates are treated as an “internal” analogue input and are configured with analogue
sensitivities for change-of-state transmissions. The maximum pulse rate corresponding to 20mA
output may be configured by the user.
3.1.3 Analogue Set-points
On 905-1 modules, the “AI 1” input may be used to trigger the analogue set-point status. High set
point and low set point levels are configurable. This set-point status turns ON when the analogue
input moves below the low level, and turns OFF when it moves above the high level. The high level
must always be greater than, or equal to, the low level set point. This set-point status may be
mapped (inverted, if required) to any output in the network. The set-point status is effectively an
internal digital input.
On 905-2 modules, each analogue input has set-point values for controlling digital outputs. The

Radio/Serial Telemetry Module User Manual
Page 30 © March 2000
set-point operation works as for the 905-1 module.
3.1.4 Start-up Poll
After a 905 module has completed its initial diagnostics following power up, it will transmit update
messages to remote modules based on the values of the module’s inputs. The module’s outputs will
remain in the reset/off/zero condition until it receives update or “change-of-state” messages from the
remote modules.
The 905 module can transmit a special “start-up poll” message to another module. The remote
module will then immediately send update messages to this module such that its outputs can be set to
the correct value. Start-up polls will only occur if they are configured. It is necessary to configure a
start-up poll to each remote module which controls the module’s outputs. For further information,
refer to Chapter 4 Configuration.
3.1.5 Communications Failure (CF)
The internal communications failure (CF) status is set if a module does not receive an
acknowledgement message after five attempts at transmitting a message. The CF status may be
configured to set a local digital output for an external alarm.
Although the CF status can set an output, it will not reset the output. That is, once communications
is re-established (and the CF status is reset), the output will stay “on”. The Reset Output feature
(see below) is used to reset the output.
The output will reset only when no communications failures occur within the configured “Reset
Output Time” for the output that CF status is mapped to. Note that if the reset output time is not
enabled, the CF status will remain set forever, once an unsuccessful transmission occurs. See
Chapter 4 Configuration for further details.
3.1.6 Resetting Outputs
Each digital and analogue output may be individually configured to reset if that output has not
received a change-of-state or an update message within a certain time period. Generally this time is
set to twice the update period, so at least one update can be missed before an output is reset.
In most cases it is desirable to reset outputs which are controlling equipment if there is a system
failure, however alarm or indication outputs are not reset so the last valid indication remains shown.
See Chapter 4 Configuration for further details.
3.2 System Design Tips
The following tips will help to ensure that your system operates reliably.
3.2.1 System Dynamics
It is important to be aware of the dynamics of the 905 system. Digital inputs have a minimum
“debounce” delay of 0.5 sec - that is, a change message will not be sent for 0.5 sec after a change

Chapter Three Operation
man_905_2.0.doc Page 31
has occurred. Analogue inputs and outputs have time delays of 1 to 2 seconds.
Messages transmitted via serial link are received in less than 20 mSec, however a message sent by
radio takes approx 100 mSec.
These delays are not significant is most applications, however if your application requires faster
responses, then the above delays need to be considered.
3.2.2 Radio Channel Capacity
Messages sent on a cable link are much faster than on a radio channel, and the capacity of the radio
channel must be considered when designing a system. This becomes more important as the I/O size
of a system increases.
The 905 modules are designed to provide “real-time” operation. When an input signal changes, a
change message is sent to change the output. The system does not require continuous messages to
provide fast operation (as in a polling system). Update messages are intended to check the integrity
of the system, not to provide fast operation. Update times should be selected based on this
principle. The default update time is 10 minutes - we recommend that you leave these times as 10
minutes unless particular inputs are very important and deserve a smaller update time.
It is important that radio paths be reliable. For large systems, we recommend a maximum radio
channel density of 100 messages per minute, including change messages and update messages. We
suggest that you do not design for an average transmission rate of greater than 50 per minute - this
will give a peak rate of approx 100 per minute. Note that this peak rate assumes that all radio paths
are reliable - poor radio paths will require re-try transmissions and will reduce the peak channel
density. If there are other users on the radio channel, then this peak figure will also decrease.
The 905 modules will only transmit one message at a time. If re-tries are necessary, another
message cannot start. The time between re-tries is a random time between 1 and 5 seconds. The
time for five tries is between 5 and 21 seconds. Another message cannot be sent until the last one
has finished. This delay will obviously have an affect on a busy system.
3.2.3 Radio Path Reliability
Radio paths over short distances can operate reliably with a large amount of obstruction in the path.
As the path distance increases, the amount of obstruction which can be tolerated decreases. At the
maximum reliable distance, “line-of-sight” is required for reliable operation. If the path is over
several kilometres (or miles), then the curvature of the earth is also an obstacle and must be allowed
for. For example, the earth curvature over 10 km is approx 3m, requiring aerials to be elevated at
least 4m to achieve “line-of-sight” even if the path is flat.
A radio path may act reliably in good weather, but poorly in bad weather - this is called a
“marginal” radio path. If the radio path is more than 20% of the maximum reliable distance (see
Specification section for these distances), we recommend that you test the radio path before
installation. Each 905U module has a radio path testing feature - refer to section 6.2 of this
manual.

Radio/Serial Telemetry Module User Manual
Page 32 © March 2000
There are several ways of improving a marginal path :-
• Relocate the aerial to a better position. If there is an obvious obstruction causing the problem,
then locating the aerial to the side or higher will improve the path. If the radio path has a large
distance, then increasing the height of the aerial will improve the path.
• Use an aerial with a higher gain. Before you do this, make sure that the radiated power from the
new aerial is still within the regulations of your country. If you have a long length of coaxial cable,
you can use a higher gain aerial to cancel the losses in the coaxial cable.
• If it is not practical to improve a marginal path, then the last method is to use another module as
a repeater. A repeater does not have to be between the two modules (although often it is). If
possible, use an existing module in the system which has good radio path to both modules. The
repeater module can be to the side of the two modules, or even behind one of the modules, if
the repeater module is installed at a high location (for example, a tower or mast). Repeater
modules can have their own I/O and act as a “normal” 905U module in the system.
3.2.4 Design for Failures
All well designed systems consider system failure. I/O systems operating on a wire link will fail
eventually, and a radio system is the same. Failures could be short-term (interference on the radio
channel or power supply failure) or long-term (equipment failure).
The 905 modules provide the following features for system failure :-
• Outputs can reset if they do not receive a message within a configured time. If an output should
receive an update or change message every 10 minutes, and it has not received a message within
this time, then some form of failure is likely. If the output is controlling some machinery, then it
is good design to switch off this equipment until communications has been re-established.
The 905 modules provide a “drop outputs on comms fail” time. This is a configurable time value
for each output. If a message has not been received for this output within this time, then the
output will reset (off, in-active, “0”). We suggest that this reset time be a little more than twice
the update time of the input. It is possible to miss one update message because of short-term
radio interference, however if two successive update messages are missed, then long term
failure is likely and the output should be reset. For example, if the input update time is 3 minutes,
set the output reset time to 7 minutes.
• A 905 module can provide an output which activates on communication failure to another
module. This can be used to provide an external alarm that there is a system fault.

Chapter Four Configuration
man_905_2.0.doc Page 33
Chapter Four CONFIGURATION
4.1 Introduction
The 905 modules may be configured by connecting a computer (PC) using the 905 Configuration
Software programme. Alternatively, the module may be configured by the on-board miniature
switches located under the blue cover on the front of the module. This chapter describes the default
configuration of the module and using the Configuration Software Programme. For details on switch
configuration, please refer to the separate 905 Switch Configuration Manual, available from 905
distributors.
Each 905 module is configured with a system address and a unit address. The system address is
common to every module in the same system, and is used to prevent "cross-talk" between modules
in different systems. Separate networks with different system addresses may operate independently
in the same area without affecting each other. The system address may be any number between 1
and 32 767. The actual value of the system address is not important, provided all modules in the
same system have the same system address value. A system address of zero should not be
used.
Each unit must have a unique unit address within the one system. A valid unit address is 1 to 127.
A network may have up to 95 individual modules communicating via radio (unit addresses 1 to 95),
each with up to 31 modules communicating via RS485 (unit addresses 96 to 127). In the network,
any individual input signal may be "mapped" to one or more outputs anywhere in the system. The
unit address determines the method of communication to a module. Any module with a unit address
between 96 and 127 will communicate by RS485 only. Other units with a unit address below 95
may communicate by radio or RS485 - the unit will determine which way to communicate
depending upon the unit address of the destination module. For example, Unit 31 will talk to Unit
97 by RS485 only, but will talk to unit 59 by radio only. 105S units must always have a unit
address between 96 and 127 as serial communication is the only method of communication
available. A unit address of zero should not be used.
The three different products in the range can be used together in the same system. Inputs to one
product type can be transmitted to outputs of another product type. For example, an analogue
input to a 905-2 may be transmitted to an analogue output of a 905-1 or 905-3. Repeaters may be
any product type.
The 905-1 and 905-2 modules require only one unit address. The 905-3 module uses two
addresses, however only one unit address has to be entered. The 905-3 module requires two
addresses because of the large number of output channels. If the “entered" unit address is an even
number, then the second address is the next number. If the "entered" address is an odd number,
then the second address is the previous number. So the two addresses are two subsequent
numbers, starting with an even number. If a 905-3 module is given a unit address of 10, then it will
also take up the unit address 11 and will accept messages addressed to either 10 or 11. It is
important to remember this when allocating unit addresses to other modules in the system.

Radio/Serial Telemetry Module User Manual
Page 34 © March 2000
Warning - do not allocate the address number 1 to a 905-3 module.
In addition to these network configurations, operational parameters called User Options may be
configured to change the features of the 905 operation. These parameters may be configured using
the Configuration Software of configuration switches (see 905 Switch Configuration Manual)
4.2 Easy Configuration Using Default Settings
If your application requires only a single pair of 905 modules, communicating via radio or serial link,
default settings may satisfy your needs. If so, no configuration is required. Essentially, all inputs at
Module A are reflected at the corresponding outputs at Module B. All inputs at Module B are
reflected at the corresponding outputs at Module A.
For 905-1 modules, the default configuration is as follows :-
In this configuration, the “PO” Pulse output is inactive and no special action is taken on “Comms
fail”, “Mains fail” or “Battery Low”. “DI 1” is configured as a digital and not a pulse input.

Chapter Four Configuration
man_905_2.0.doc Page 35
For 905-2 and 905-3 modules, the default configuration is as follows :-
The following table details the default values for User Options:
Option Factory Set Value
Update transmissions Every 10 minutes
Analogue Change-of-state sensitivity 3%
Reset outputs on Comms fail No
Analogue Setpoints (if mapped) Low Set point = 30%
High Set point = 75%
Pulse Output Rate Scaling
(if Pulse Rate is mapped)
100 Hz
Digital Input Debounce Time 0.5 seconds
If any of the above values are not appropriate to your system, Section 4.4 below will detail how to
change one or all of the above variables.

Radio/Serial Telemetry Module User Manual
Page 36 © March 2000
4.3 905 Configuration Software
This chapter describes installation and operation of configuration software for the 905 radio and
serial telemetry modules.
Configuration software eliminates the need for configuration of the unit via the 16 DIL switches
under the blue plastic plug.. This software provides all of the functions available through the switch
configuration as well as additional configuration options not available through switch configuration.
The configuration software runs on a conventional PC as a “DOS” programme. The software
creates a configuration file that can be loaded into a 905 module via RS232. The configuration
software also allows the configuration of a 905 module to be downloaded for display and
modification. Configuration files can be saved to “disk” for later retrieval.
Configuration of 905 modules consists of entering I/O mappings, and selecting User Options. An
I/O mapping is a link between an input on the module being configured and an output on another
module. A mapping has the form :-
DI3 → Out2 at 4 via 3, 11
This mapping links DI3 on this module to output channel 2 on the module with address 4, and
modules 3 and 11 are repeaters. Up to 32 mappings may be entered for each module.
User Options may be selected to change the configuration of specific features.
4.3.1 Hardware Requirements
• IBM or compatible PC (386 or higher) with MS-DOS, MS-Windows 3.1, Windows-95/98
• 3.5" 1.44M floppy drive (for software installation)
• At least one serial port (preferably two serial ports to allow mouse operation).
• RS-232 serial cable as shown below.
905 End PC End
DB9 Male DB9 female
1 1
2 2
3 3
4 4
5 5
6 6
7 7
8 8
9 9
Required
Optional

Chapter Four Configuration
man_905_2.0.doc Page 37
4.3.2 Installation
Running from floppy disk
The software may be run directly from the distribution disk. If the software is to be used in this
manner, a copy of the distribution disk should be made, and the copy used to run the software.
Installing to a hard disk
Most users will want to install the configuration software to the hard disk of their computer. This
may be simply achieved by creating a directory on the destination hard disk and copying the
contents of the distribution disk to the hard disk.
For example, if the destination hard disk is drive C: and the distribution floppy is in drive A: the
following sequence of instructions may be used.
C:> MKDIR CFG105
C:> COPY A:\*.EXE CFG105
Hints for Windows Users
For slower machines, the software should be run in “Full Screen” and “Exclusive” mode under
Windows. If problems are experienced, exit windows and run the program from DOS.
4.3.3 Software Operation
Running from MS-DOS
Start the software by entering the directory where the configuration program is stored, and entering
the executable file name. For example, if the executable is stored in C:\CFG105 type the following
C:\> CD CFG105
C:\CFG105> CFG105-1 To configure a 905-1 module
C:\CFG105> CFG105-2 To configure a 905-2 module
C:\CFG105> CFG105-3 To configure a 905-3 module
and press the <ENTER> key.
Running from MS-Windows
Select the “Run...” option from the Start menu. In the Command Line Box type:
C:\CFG105\CFG105-1 To configure a 905-1 module,
C:\CFG105\CFG105-2 To configure a 905-2 module,
C:\CFG105\CFG105-3 To configure a 905-3 module,
and press the <ENTER> key.
The Initial screen will appear as below.

Radio/Serial Telemetry Module User Manual
Page 38 © March 2000
This screen shows the system address, unit address, a summary of all of the mappings configured,
and the current file (if any) being used. To move between editing the system address, unit address,
and configuration mappings, use the <TAB> key, or use the <ALT> key in conjunction with the
highlighted letter. Alternatively, simply click on the appropriate section with the mouse.
Changing the system address and unit address
To change the system address and unit address, simply move to the appropriate box using the
<TAB> key or the <ALT> + letter keys, or mouse click, and type in a new number or use the
arrow keys to edit the old number.
Entering a new mapping
To enter a new mapping, move to the Mappings section of the screen using the <TAB>, <ALT> +
M keys or the mouse. Hit the <INS> key or double click the left mouse button to bring up a
dialogue box as shown below.
Select the desired mapping type and hit the <ENTER> key or select OK to continue.
Input/Output Standard mapping of an input to an output at another unit.
Poll Start-up poll of a remote unit to ensure data is up to date
Comms Fail Set a local output on comms fail to a remote site

Chapter Four Configuration
man_905_2.0.doc Page 39
Changing an existing mapping
Select the mapping to change using the mouse or arrow keys, and either press the <ENTER> key,
or click the right mouse button.
Deleting an existing mapping
Select the mapping to delete using the mouse or arrow keys, and press the <DEL> key to delete the
mapping. A message asks for confirmation to ensure mappings are not deleted accidentally.
Configuring Input/Output mapping types
On selecting an Input/Output type mapping, a dialogue box allows entry of the desired mapping.
Depending on the type of unit being configured (905-1, 905-2, or 905-3), the dialogue box will
vary.
The following is the display for configuration of Input/Output mappings on a 905-1 module. The
905-2 module has 32 different “inputs”, and the 10GenericName-3 module has only 4 “inputs”.
Item Meaning
Input The input to be mapped.
Output The output (usually at a remote site) at which the signal is to appear.
Destination Address The address of the site where the output is to appear.
Store And Forward The addresses of any intermediate repeater units needed to reach the
destination address (entered in order of nearest to furthermost repeater).
Invert Optional inversion of the signal (905-1 and 905-3 only).

Radio/Serial Telemetry Module User Manual
Page 40 © March 2000
Select the desired mapping configuration, then press <ENTER> or select the OK button on the
dialogue box to return to the main screen.
Outputs are identified by the corresponding output name for each type of destination module. These
correspond to the outputs of the various 905 modules as follows:
905-1 Output 905-2 Output 905-3 First
address (Even) 905-3 Second
address (Odd)
Output 1 DOT 1 DOT 1 DOT/PULSE 1 AOT 1
Output 2 DOT 2 None DOT/PULSE 2 AOT 2
Output 3 DOT 3 None DOT/PULSE 3 AOT 3
Output 4 DOT 4 None DOT/PULSE 4 AOT 4
Output 5 AOT 1 None DOT 5 AOT 5
Output 6 AOT 2 None DOT 6 AOT 6
Output 7 PULSE OUT None DOT 7 AOT 7
Output 8 None None DOT 8 AOT 8
Configuring Start-Up Polls
When a unit is first turned on, its outputs will not be set until it receives update messages from any
other units in the system which have inputs configured to appear at those outputs. To ensure that
outputs are set as soon as possible after start-up the unit may be configured to “Poll” any other units
with mappings to its outputs. This is achieved by selecting “Poll” from the “Mapping Type” dialogue
box. If “Poll” is selected from the mapping type dialogue box, then the following dialogue box is
displayed.
Enter the address of the unit to poll in the “Destination address” section, and the addresses of any
intermediate units required to reach this unit in the “Store and Forward” section (starting with the
nearest repeater address).
Configuring Comms Fail Mappings
In situations where an indication of unsuccessful communication (comms) to a remote module is
required, an output at the local module may be turned on in the event of unsuccessful comms.

Chapter Four Configuration
man_905_2.0.doc Page 41
Successful comms does not turn off the output, so the “Drop outputs on comms fail” (Refer below)
time should be set to a period similar to the update time for the remote. This allows comms fail
indication to multiple remotes to be configured to appear at the same output, which acts as a general
comms fail indication. Configuring a “Comms Fail Address” of zero causes communication failure to
any destination module to be indicated on the selected output.
For example, if “Comms fail to unit 12” is configured to DO1, then the 905 module will set (or
activate) DO1 each time communications to unit 12 is not successful. If DO1 has a “Drop outputs
on comms fail” time configured of 10 minutes, then DO1 will reset (de-activate) 10 minutes after
the last comms fail to unit 12.
Enter the output at which the comms fail indication is to appear, and the address for which the
comms fail should be indicated.
Saving and Loading Configurations to / from Disk
It is strongly recommended that the configuration for each unit in the system is saved to a backup
file. In the unlikely event of unit failure, a replacement unit may be quickly configured from the saved
file.
When editing a configuration is complete, it may be saved to a disk file for future use, or for further
editing. The “File” menu on the top menu bar provides access to saving and restoring configuration
files. Files are stored with the default extension “.905” for 905-1 configurations, extension “.205”
for 905-2 configurations and “.305” for 905-3 configurations. Standard file dialogue boxes for
“Load”, “Save”, and “Save As” commands provide simple file management. When a file is loaded
or saved the status line at the bottom of the screen “Current File” changes to indicate the name of
the current file.
4.3.4 Changing User Options
User options allow a variety of parameters of the 905 module to be modified to suit a particular
application. User Options are available through the “User Options” menu on the top menu bar. User
options are

Radio/Serial Telemetry Module User Manual
Page 42 © March 2000
• Update Times
• Analogue Sensitivity
• Reset Output on Comms Fail
• Digital/Analogue Debounce (905-1 and 905-2 only)
• Analogue Debounce (905-2 only)
• Set-points (905-1 and 905-2 only)
• Pulse Rate Scale (905-1 and 905-2 only)
• Pulse Output Update (905-1 and 905-3 only)
Update Times allows configuration of how frequently each configured mapping is updated
(Integrity Update).
The period of update (check) transmissions may be configured individually for each input. The
default period is 10 minutes for all inputs, except for pulse inputs (1 minute). Note that this is the
check transmission time - updates will also be sent on any change-of-state on each input. It is
important here to keep in mind the principle - “Less radio traffic means better communications”.
Short update times should only be used in special circumstances, or when an RS-485 network is
used, and the message is not transmitted over a radio link. Frequent updates from multiple units
causes congestion of the radio channel, which results in increased communication failures and
general performance degradation of the system.
Analogue Sensitivity allows configuration of the change required in an analogue input before a
“Change Of State” is detected, and the new analogue value is transmitted. For input signals which
vary widely over a short period of time or have a normal oscillation, the analogue sensitivity should
be set to an appropriately large value. This ensures that many change messages are not transmitted
in too short a time. This will result in channel congestion, as described in the preceding section.
Reset Output on Comms Fail allows the Comms Fail Time to be selected - this is the time for
an output to reset if it has not received an update or change message.
Each output on the unit, either analogue or digital, may be configured to reset (off or 0mA) when no
update transmission has been received for a certain time. The default condition is zero (no reset).
This option can be used to ensure that communications failure will not result in loss of control. For
example, outputs connected to pumps should be configured to reset on communications failure so
that the pump will turn off.
If the reset time is less than the update time, then the output will reset when the reset time expires,
and then set again when the update message is received. We recommend that the reset time be a
little more than twice the update time.
Debounce is the time which an input must stay stable before the 905 module decides that a change
of state has occurred. If the input changes (say 0 → 1) and changes again (1 → 0) in less than the
debounce time, then the 905 module will ignore both changes. Debounce may be configured for
digital inputs on the 905-1 and 905-2 modules (0.5 - 8 seconds) and the analogue inputs on the

Chapter Four Configuration
man_905_2.0.doc Page 43
905-2 module (0.5 - 8 seconds). The default value of 0.5 seconds is suitable for most applications.
In applications where a digital input may turn on and off several times slowly (for example, security
switches or float switches) a debounce time of up to 8 seconds may be configured. The configured
debounce time has no affect on pulse inputs.
Note that the analogue debounce is not configurable for the 905-1, but is configurable in the 905-2.
Set-points allow a remote digital output to be turned on and off depending on the value of an
analogue input. The “set-point status” internal input must be mapped to an output for this option to
have effect. When the AI is less than the Low Set-point (LSP), the set-point status will be active
(on, “1”) - when the AI is more than the High Set Point (HSP), the set-point status will be reset
(off, “0”). Note that the High Set Point (HSP) must always be higher than the Low Set Point
(LSP). For the 905-1 module, only AI1 has set-point values. For 905-2 modules, all six analogue
inputs have set-points.
Debounce time operates on the set-point status in the same way as digital inputs.
Pulse Rate Scale is used when pulse rate is mapped to an analogue output. The pulse rate scale
configures the maximum expected pulse input frequency. This is the frequency for which the pulse
rate input indicates the maximum value (20 mA if mapped to an analogue output). On the 905-1, the
maximum value is 100 Hz. On the 105-2, the maximum value is 1000 Hz for input 1, and 100 Hz
for inputs 2-4.
Pulse input 1 on the 905-2 module can measure pulse signals up to 1000 Hz, however all pulse
outputs have a maximum rate of only 100 Hz. For pulse inputs greater than 100 Hz, a Divide-by-
10 function should be configured. The input count is then divided by 10 before transmitting. The
default is 100Hz (no divide-by-10). Where the 1000Hz option is configured, then each output
pulse means 10 pulses (or 10 counts).
Pulse Output Update is the time which pulses are output after a PI update is received. It should
be configured to correspond to the pulse input update time for the corresponding pulse input. This
ensures that the pulse output rate matches as closely as possible the pulse input rate which it is
reflecting.
For example, if the PI update time is 1 minute, then the PO update time should also be 1 minute. If
the PI update time is changed, then the PO update time at the remote module should be also
changed. The PO will still operate if the time is not changed, however pulses may be output faster
or slower than the input pulses.
4.3.5 Programming / Downloading Configuration
Transferring configuration to the 905 Module
Once editing of the configuration is complete, the configuration must be loaded into the 905 before
the new configuration takes effect. Before proceeding, close any other programmes on the PC that
is using the communications port.
• Connect the cable from the PC’s serial port to the 905 serial port.
• From the Communication menu, select “Select Comms Port”

Radio/Serial Telemetry Module User Manual
Page 44 © March 2000
• Select the appropriate serial port from the list provided (COM1 - COM4)
• From the Communication menu, select “Program The 105”
The configuration program will now attempt to download the configuration data to the 905 module.
If all goes well, a “Programming” prompt will appear. This prompt will remain until programming of
the 905 is complete. If the 905 is not correctly connected, or is not turned on, it may take up to a
minute for the configuration program to stop trying to connect to the 905.
Loading existing Configuration from the 905
To download the configuration from a 905 for editing or simply for checking, follow the following
steps:
• Connect the cable from the PC’s serial port to the 905 serial port.
• From the Communication menu, select “Select Comms Port”
• Select the appropriate serial port from the list provided (COM1 - COM4)
• From the Communication menu, select “Load Config from 105”
The configuration program will now attempt to upload the configuration data from the 905. If all
goes well, a “Loading” prompt will appear. This prompt will remain until loading of data from the
905 is complete. If the 905 is not correctly connected, or is not turned on, it may take up to a
minute for the configuration program to stop trying to connect to the 905.

Chapter Five Specifications
man_905_2.0.doc Page 45
Chapter Five SPECIFICATIONS
General
EMC approval EN55022 (CISPR 22)
- CLASS B
EN 50082-1
I-ETS 300 683
AS 3548
89/336/EEC
Radio standards – 105U MPT 1329 UK
I-ETS-300-220
AS 4268.2 AUST
RFS29 NZ
458 MHz, 500 mW EIRP
430 - 450 Mhz, 10 - 500 mW
472 MHz, 100 mW EIRP
458 MHz, 500 mW EIRP
Radio standards – 905U FCC Part 15.247 902 – 928 MHz, 1W
Housing 130 x 185 x 60mm
DIN rail mount
Powder-coated, extruded aluminium
Terminal blocks Removable Suitable for 2.5 mm2 conductors
LED indication Power supply,
OK operation, digital I/O,
RX and TX
Operating Temperature -20 to 60 degrees C
Power Supply
Battery supply 11.3 - 15.0 VDC
AC supply 12 - 24 VAC, 50/60 Hz Overvoltage protected
DC supply 15 - 30 VDC Overvoltage and reverse voltage
protected
Mains supply 110-250 VAC via plug-pack transformer
Battery Charging circuit Included for 1.2-12 ahr sealed lead acid
battery
Solar regulator Included Direct connection of solar panel (up
to 30W) and solar battery (100 Ahr)
Current Drain 70 mA quiescent for ‘U’
45 mA quiescent for ‘S’
+ 10 mA/active digital input
+ 25 mA/active digital output
+ 2 x analogue I/O loop (mA)
Analogue loop supply Included 24V DC 150 mA
Mains fail status Monitored Can be transmitted to remote
modules
Battery voltage Monitored As above
Radio Transceiver (105U)

105 Radio/Serial Telemetry Module User Manual
Page 46 © March 2000
Single channel synthesised Direct frequency modulation
Frequency 405 - 490 Mhz 12.5 kHz channel spacing
Transmit power Adjustable 10 - 500 mW
Spurious emissions RX - <-57 dBm
TX - <-37 dBm
Frequency Stability +/- 1.0 kHz
Receiver Sensitivity 0.4uV at 12dB SINAD
Signal detect / RSSI -120 to -80 dBm
Expected line-of-sight range 2 km @ 10mW EIRP
5 km @ 100mW EIRP
10 km @ 500 mW EIRP
Range may be extended by up to 5
intermediate modules as repeaters
Aerial Connector Female BNC coaxial Protected by gas discharge surge
arrester
Radio Transceiver (905U)
Type Spread Spectrum Frequency Hopping
Frequency 902 - 928 Mhz 250 kHz channel spacing
Transmit power Adjustable 100 mW – 1 W
Spurious emissions RX - <-57 dBm
TX - <-37 dBm
Frequency Stability +/- 10 kHz
Receiver Sensitivity 0.4uV at 12dB SINAD
Signal detect / RSSI -120 to -80 dBm
Expected line-of-sight range 10 km @ 100mW EIRP
20 km @ 500 mW EIRP
Range may be extended by up to 5
intermediate modules as repeaters
Aerial Connector Female SMA Coaxial
Serial Ports
RS232 Port DB9 female DCE 9600 baud, no parity, 8 data bits, 1
stop bit
RS485 Port 2 pin terminal block 9600 baud, no parity, 8 data bits, 1
stop bit,
Typical distance 1km
Data transmission On change-of-state
+ integrity update
Update time configurable
Protocol - serial
- radio
asynchronous ARQ, with
16 bit CRC
synchronous ARQ
Automatic acknowledgments with up
to 4 retries
Communications fail status May be mapped to local or Resetting of outputs on comms fail

Chapter Five Specifications
man_905_2.0.doc Page 47
remote output configurable
Inputs and Outputs
Digital Inputs 905-1 Four
105-2 Four
105-3 None
Opto-isolated (5000V)inputs, suitable
for voltage free contacts or NPN
transistor, contact wetting current
5mA, input debounce 0.5 second
Digital Outputs 105-1 Four Relay output contacts, normally
open, AC1 5A 250V
AC3 2A 250V, 5A 120V
DC1 5A 30V, 5A 20V
DC3 2A 30V, 5A 20V
Digital Outputs 105-2 One
105-3 Eight
FET output, 30 VDC 500mA max.
Pulse Inputs 105-1 One
105-2 Four
105-3 None
Uses DI1. Max rate 100Hz, min.
off-time 5msec.
Uses DI1-4. Max rate of DI1 is
1000Hz, min. off-time 0.5msec
Max rate of DI2-4 is 100Hz, min.
off-time 5msec.
Pulse Output 105-1 One
105-2 None
105-3 Four
FET output, 30 VDC 500mA max
Max rate for 105-1 is100 Hz. Max
rate for 105-3 is 1000 Hz. Pulse
signal recreated, pulse rate avail. on
analogue output, (scaling
configurable).
Divide-by-10 available for 1000Hz
inputs.
Analogue Inputs 105-1 Two 4-20 mA
105-2 Six 0-20mA
105-3 None
“floating” differential input, common
mode voltage -0.5V to 27V. 24
VDC for powering external loops
provided, 150 mA max. Resolution
15 bit, Accuracy 10 bit, Digital filter
time constant 1 second (config.)
Analogue Input Setpoints 105-1 AI 1 only
105-2 AI 1-6
Configurable high & low set-points,
allowing set/reset of remote digital
outputs
Analogue Outputs 105-1 Two 4-20mA current sink to common, max loop
voltage 27V,

105 Radio/Serial Telemetry Module User Manual
Page 48 © March 2000
105-2 None
105-3 Eight 0-20mA
Resolution 15 bit
Accuracy 10 bit (0.016mA)
System Parameters
Network Configurations Communications via radio
or RS485 or network of
both
Up to 95 radio units with up to 32
serial units off each radio unit
Mapping Any input to any output in
system
User Configuration Via on-board DIP switches
or RS232 terminal or laptop
Diagnostics
On board diagnostics Automatic check on start-
up
Via RS232 terminal or
laptop
Input status
Output test
Incoming radio signal level
Simple radio path testing

Chapter Six Troubleshooting
man_905_2.0.doc Page 49
Chapter Six TROUBLESHOOTING
6.1 Diagnostics Chart
INDICATOR CONDITION MEANING
OK LED OFF Continuously • Battery Voltage low
• CPU failure
• +24V supply failure/overload
OK LED ON Continuously • Normal Operation
PWR LED ON Continuously • Supply available from SUP1/SUP2
• Supply available from solar panel
TX LED ON Flashes briefly • Radio transmitting
RX LED ON Flashes briefly • Radio Receiving
• Serial port communicating
RX LED ON Flashes continuously • Module in Configuration Mode
RX LED ON Continuously • Test Button press in Configuration
Mode
No transmission on change of
state
• Unit not configured correctly - re-
configure and check operation
The green OK LED on the front panel indicates correct operation of the unit. This LED extinguishes
on failure as described above. When the OK LED extinguishes shutdown state is indicated. In this
state, all digital outputs turn OFF and the +24V supply turns off.
On processor failure, or on failure during start-up diagnostics, the unit shuts down, and remains in
shutdown until the fault is rectified. The unit also shuts down if the battery voltage falls below 10.8
volts. This is a protection feature designed to protect the battery from deep discharge in case of
extended period without supply voltage.
6.2 Self Test Functions
6.2.1 Input to Output Reflection (105-1 only)
The unit will require re-configuration after SELF TEST. Ensure you know the required
operational configuration including system and unit addresses so that the network can be
restored after testing.
Remove the cover in the front panel, and set the DIP switches as shown below. Hold down the red
button for five seconds, or until the Rx LED glows yellow, release the Red button (the Rx LED now
flashes), then press and release the Red button (the flashing Rx LED extinguishes).

105 Radio/Serial Telemetry Module User Manual
Page 50 © March 2000
0 0 0 0 0 0 0 0
1 0 0 0 0 0 0 0
Input signals may now be connected to the input terminals of the module. If the module is operating
correctly, then the input signals will be reflected to the corresponding output on the same module.
For example, if DI 1 is connected to common - i.e. the first digital input is turned "ON" - then DO 1
will activate, if the module is functional. Similarly, if a 12mA signal is connected to AI 2, then a
12mA signal should be able to be measured from AO 2, if the module is functioning correctly.
If a module does not pass its self test function, then it should be returned to an authorised
service agent for attention
6.2.2 Radio Testing using Tone Reversals
This function allows the unit to be configured to continuously transmit a sequence of alternate zeros
and ones on the radio. This function provides the facility to check VSWR of aerials during
installation, as well as checking the fade margin of the path between two units (see below - received
signal strength indication).
The tone reversals function is initiated by setting all of the DIL switches to ON, and holding down
the red button for approximately 5 seconds( until the RX LED lights continuously). On releasing the
button, the RX LED will flash continuously, and the TX LED will light, indicating that the radio
transmitter is on.
6.2.3 Diagnostics menu
To aid in the checking and set-up of the 105 unit, a user friendly menu provides access to diagnostic
functions in the 105. Use of the diagnostics menu does not affect module configuration. To access
these diagnostics, a terminal must be connected to the serial port on the unit. The terminal may be a
standalone terminal, or a personal computer running terminal emulation software.
The terminal or terminal emulation software must be set-up for 9600 baud, 8 data bits, 1 stop bit, no
parity.
The menu is accessed by connecting a terminal to the serial (DB9 RS-232) port on the 105 (ensure
the RS485 port is disconnected), setting all switches to ‘0’, and holding down the red button for
approximately 5 seconds, until the RX LED lights continuously. One of the following menus will be
displayed on the terminal :

Chapter Six Troubleshooting
man_905_2.0.doc Page 51
105 V1.0
a) Ins
b) Tones
c) Comms
d) DO1
e) DO2
f) DO3
g) DO4
h) AO1
i) AO2
j) Switch
k) Signal
>
1052 V1.0
a) Digital Inputs
b) Analogue Inputs
c) Tones
d) Comms
e) DO1
f) Switch
g) Signal
>
1053 V1.0
a) Ins
b) Tones
c) Comms
d) DO1
e) DO2
f) DO3
g) DO4
h) DO5
i) DO6
j) DO7
k) DO8
l) AO1
m) AO2
n) AO3
o) AO4
p) AO5
q) AO6
r) AO7
s) AO8
t) Switch
u) Signal
>
Choose an item from the menu by entering the letter before that item. For example, to select the
"Comms" function from the 105-2 Menu, enter :- d
Inputs
This option provides a dynamic display of the status of all of the inputs in the 105, both internal and
external.
105-1 Modules
1234MLS P CNT AI1 AI2 P RATE VBATT
0101001 00F6 C000 4000 8000 9C00
The first 7 values (1234MLS) each represent a single digital input. A ‘1’ indicates that that input is
ON, and a ‘0’ indicates that the corresponding input is OFF. "1234" represents the four physical
digital inputs, DI1 to DI4. "M" is the mains fail status (‘1’ for mains fail, ‘0’ for mains OK). "L" is the
battery low volts status (‘1’ for low volts ‘0’ for OK). "S" is the set-point status.
P CNT, AI1, AI2, P RATE, and VBATT each represent 16 bit values, displayed as four
hexadecimal digits.
P CNT is the current value of the pulsed input counter. This value should increment each time ‘DI 1’
turns from OFF to ON. P RATE displays the current pulse rate at DI1. This value is scaled
according to the MAXRATE value configured (0 Hertz is displayed as 4000, and the maximum rate
is displayed as C000).

105 Radio/Serial Telemetry Module User Manual
Page 52 © March 2000
AI1 and AI2 represent the value for the two analogue inputs. Full scale input (20 mA) is displayed
as C000, 4mA is displayed as 4000, and 0ma is displayed as 2000. Analogue inputs are filtered
digitally with a time constant of 1 second, so a sudden change in the analogue input current will result
in a slower change in displayed analogue value, finally settling at the new value.
A guide to translate the displayed value to the analogue input current is provided below.
Add together the figures corresponding to each digit in each position to determine
the current (mA)
e.g. displayed value 3456 = 2.000+0.500+0.039+0.003
= 2.542mA
Digit Leftmost position Next position Next position Rightmost
position
0 -0.000 0.000 0.000
1 -0.125 0.008 0.000
2 0.000 0.250 0.016 0.001
3 2.000 0.375 0.023 0.001
4 4.000 0.500 0.031 0.002
5 6.000 0.625 0.039 0.002
6 8.000 0.750 0.047 0.003
7 10.000 0.875 0.055 0.003
8 12.000 1.000 0.063 0.004
9 14.000 1.125 0.070 0.004
A 16.000 1.250 0.078 0.005
B 18.000 1.375 0.086 0.005
C 20 1.500 0.094 0.006
D 22 1.625 0.102 0.006
E -1.750 0.109 0.007
F -1.875 0.117 0.007
VBATT is the current internally derived battery voltage. 4000 corresponds to 8 Volts, C000
represents 16 volts. A quicker method is use the calculation :
Battery voltage (volts) = ½ I + 6, where I is the mA value determined from the above table using
VBATT. For example, a value of VBATT of A000 gives an I value of 16mA from the above
table. The battery voltage corresponding to this is 14V (or ½ x 16 + 6).
105-2 Modules
Digital Inputs
DIN SETPNT PULSED
1234MSL123456 PIN1 PIN2 PIN3 PIN4
0000100111111 0000 0000 0000 0000

Chapter Six Troubleshooting
man_905_2.0.doc Page 53
Analogue Inputs
VBAT PR1 PR2 PR3 PR4 AI1 AI2 AI3 AI4 AI5 AI6
8138 4000 4000 4000 4000 0D3A 0CD2 0CC7 0CC7 0CD4 0CC7
105-3 Modules
ML VBAT VSLR
00 9FA2 0000
Tones
This provides the same function as described above in 6.2.2. Tone Reversals. This function may be
used to check VSWR of aerials, and may be used in conjunction with the Signal option (described
below) to check the path between two 105 units.
Comms
This function allows monitoring of all messages transmitted and received over the radio. Transmitted
messages are displayed starting in the leftmost column of the display. Received messages are
displayed indented by one space. Received messages which have been corrupted are displayed with
a '*' in the first column of the display. The first four hexadecimal digits are the system address
attached to the message, and must match for units to communicate successfully.
Example (105-1):
>c
Comms
01FA8106008005C672D4F1 Command message transmitted by this unit.
*01FA8186C6B5A7 Corrupt Acknowledge received from remote.
01FA8106008005C672D4F1 Message re-transmitted by this unit. (no Ack)
01FA818600B5A7 Valid Acknowledge received from remote.
*01FB86010080010000FEC2 Corrupt message received from remote unit.
01FA86010080010000FEC2 Re-sent message received from remote unit.
01FA868100332F Acknowledge message from this unit to remote.
DO1 to DO8
These options allow the user to set and clear digital outputs. To set an output, select the
corresponding menu item, at the prompt, type the value FFFF to turn the output ON, or 0000 to
turn the output OFF. For example, to set DO1 ON,
>e
DO1
>FFFF

105 Radio/Serial Telemetry Module User Manual
Page 54 © March 2000
AO1 to AO8
These options allow the user to set analogue outputs to any value. To set the output, select the
corresponding menu item. At the prompt type the value required for the analogue output as a four
digit hexadecimal value. Refer to the table above for analogue current/expected value relationship.
To set AO2 on 105-3 to 19 mA :
>m
AO2
>B800
Switch
This option allows testing of the DIL (Dual In Line) switches used for the configuration of the
module. The diagram below indicates the layout of the switches of which there are two sets of eight,
with an “Enter” button located to the right of the pair. the display indicates the current switch
settings with the digit ‘1’ corresponding to ‘On’ and the digit ‘O’ corresponding to ‘Off’. Changing
the switch settings in this mode will change the display. Test each switch and check to ensure the
display changes accordingly.
When the ‘Enter’ button is pressed, regardless of the previous switch setting, switches 1, 5, 9 and
13 will display as a ‘1’
Switches ‘1’ or ‘0’ Button Not Pressed = Pressed =
Switches Displayed
1110001001010101
1110101011011101
1 5 9 13
Signal
This option provides for testing the radio path between two 105-U units for a suitable fade margin.
Although a pair of units may communicate successfully, radio communication may be affected by a
1 1 1 0 0 0 1 0
1 1 1 0 0 0 1 0
0 1 0 1 0 1 0 1
0 1 0 1 0 1 0 1
X
O
X
O

Chapter Six Troubleshooting
man_905_2.0.doc Page 55
range of influences, including atmospheric conditions, changing landscape, degradation of aerials or
co-axial cable, low battery voltage etc. Fade margin is an indication of how far a radio path can
deteriorate before communication becomes unreliable.
When using the Signal feature, a meter is displayed with a mark indicating the current received radio
signal level. To check the radio path between two units, select the signal option at the local unit. The
remote unit may then be set up for tone reversals (refer 1 above) and the signal level read from the
meter.
A simpler method when remote units are not easily accessible is to cause a transmission from the
local unit to the remote unit (by setting a digital input which maps to the remote unit, for example).
The meter will latch the received signal from the remote unit for half a second, allowing the received
level to be read.
Under normal radio conditions, a reading of 0 indicates a very marginal communication path. For
reliable communications, the signal reading should be 3 or above.
>k Minimum signal level for reliable comms
Signal
0123456789----
#
In areas experiencing radio interference or high background noise, reliable communications may not
be achievable even with this signal level. To determine if interference is occurring the signal option
may be selected without any other 105 units active. In a normal radio environment, no reading
should be displayed. If a reading is displayed, then the received signal strength from the remote
should be at least three counts higher than the background noise for reliable communication.
>k Displayed signal level of
Signal background noise/interference
0123456789----
#
>k Minimum signal level for reliable comms
Signal
0123456789----
#
When using directional aerials (i.e. YAGI aerials) this feature may be used to peak the received
signal level. Set-up the remote unit to transmit tone reversals as described above, and observe the
signal indication while adjusting the orientation of the aerial. A peak in signal level indicates optimum
orientation of the aerial.

105 Radio/Serial Telemetry Module User Manual
Page 56 © March 2000
Chapter Seven WARRANTY & SERVICE
We are pleased that you have purchased this product. Your purchase is guaranteed against defects
for a 365 day warranty period, commencing from the date of purchase.
This warranty does not extend to:
-Failures caused by the operation of the equipment outside the particular product's
specification.
-use of the 105 module not in accordance with this User Manual, or
-abuse, misuse, neglect or damage by external causes, or
-repairs, alterations, or modifications undertaken other than by an authorised Service Agent.
Full product specifications and maintenance instructions are available from your Service Agent, your
source of purchase, or from the master distributor in your country upon request and should be
noted if you are in any doubt about the operating environment for your equipment purchase
In the unlikely event of your purchase being faulty, your warranty extends to free repair or
replacement of the faulty unit, after its receipt at the master distributor in your country. Our warranty
does not include transport or insurance charges relating to a warranty claim.
This warranty does not indemnify the purchaser of products for any consequential claim for
damages or loss of operations or profits.
Should you wish to make a warranty claim, or obtain service, please forward the module to the
nearest authorised Service Agent along with proof of purchase. For details of authorised Service
Agents, contact your sales distributor.

Appendix A System Example
man_905_2.0.doc Page 57
Appendix A SYSTEM EXAMPLE
The following example of a system is a comprehensive guide to using some of the features of the
105 range and design of 105 system.
The example application is a pump station which supplies water from a reservoir to a tank station.
Signals are transferred between the pump station and tank station by radio - the distance between
the two stations is 1.5 km (1 mile), and the radio path is heavily obstructed by buildings and trees.
A control station is located near the pump station, and there is an existing signal cable between the
control station and the pump station.
A 105U-1 module is installed at the pump station (with address 1) and a 105U-2 module is installed
at the tank station (with address 2). Because the signal cable to the control station does not have
enough cores for all of the signals required, the signal cable is used as a RS485 cable and a 105S-3
module is installed at the control station (with address 96). As this module has an address greater
than 95, the 105U-1 at the pump station will communicate to it via its serial port.
The following diagram represents the system :-

105 Radio/Serial Telemetry Module User Manual
Page 58 © March 2000
The following design points should be noted :-
• A test of the radio path between the pump station and the tank station indicated that the radio
path would be reliable provided aerials were installed at 6 m above the ground. At each site,
the coaxial cable would be approx 10 m in length, so it was decided to use 3 element Yagi
aerials with RG58 coaxial cable - the Yagi aerials would compensate for the loss in the cable.
The system was installed in a country which permitted the use of 500mW radio power. If this
had not been the case, then an intermediate repeater station would have been required.
• At the tank station, there was an existing light pole with a mains power supply - the light pole
was 10m high. Permission was obtained to mount the aerial from the pole and to use the power
supply for the radio telemetry module.
As there was no existing electrical panel at this station, a small steel enclosure was installed on
the light pole. A 2 Amp-Hour sealed battery was installed to provide power during any mains
failure. The flow and level transducer were powered from the 24VDC loop supply provided by
the 105 module.
• At the pump station, the aerial was mounted on a 3 m J-bracket installed on the roof of the
pump station building. The final height of the aerial was approx 6 m. Care was taken to align the
Yagi aerials so they pointed at each other. The Yagi aerials were installed with horizontal polarity
- that is, with the elements horizontal. These aerials will not "hear" other radio users on the same
radio channel which generally use vertical polarity.
There was an existing electrical enclosure at the pump station, and the 105U module was
installed inside this enclosure. The module was powered from 220VAC mains with a 2 Amp
Hour sealed battery as backup.
• At the control station, the 105S module was installed inside the existing control panel enclosure.
The module was powered from an existing 24VDC power supply.

Appendix A System Example
man_905_2.0.doc Page 59
Tank Station Configuration
The 105U-2 module has the following configuration :-
Note the following points in the configuration :
• The configuration software used was CFG105-2.EXE as the module is a 105U-2.
• The system address is 10587 (a random selection) and unit address is 2.
• PIN1 (the flow meter) is mapped to Out3 (D/P output 3) at #96 which is the control station -
#1 is a repeater.
• The pulse rate for this PIN (PLSR1) is mapped to Out2 at #97 via #1. This is AO2 of the
105S-3 at the control station. Remember that the 105S-3 has two addresses - the lower
address is used for the digital outputs, and the higher address is used for the analogue outputs.

105 Radio/Serial Telemetry Module User Manual
Page 60 © March 2000
• The pulse rate scaling for PIN1 has been set to 5 Hz to match the maximum flow rate of the flow
meter. Note that PIN1 has not been configured for "divide by 10" (for 1000 Hz pulse signals).
• AIN1 (the level transducer) is mapped to Out1 at #97 via #1. The analogue debounce has been
set to 2 sec. This is to avoid any wave action on the surface of the tank causing un-necessary
change transmissions. This debounce time will also operate on the PLSR1 value, but as the flow
rate changes slowly, this will not affect the performance of this signal.
• SETPT1 (the set-point status for AI1) is mapped to Out2 (DO2) of #1 (pump station). The set-
point values for SETPT1 have been set to 40% and 75%. When the tank level drops to 40%,
DO2 at the pump station will activate to start the pump. When the level rises above 75%, DO2
will reset to stop the pump.
• The update time for SETPT1 has been changed to 5 minute, as required.
• An additional mapping has been entered - LOW VOLT has been mapped to Out7 at #96 via
#1 (DO7 at the control station). This mapping is for future use - it will provide a low battery
voltage alarm for the tank station. The update time for this mapping has been set to the maximum
time of 15 minutes to reduce loading of the radio channel.
• A Start-up poll has been configured for #1, as DO1 at the tank station is controlled from the
pump station. Note that no comms fail reset time has been configured for DO1. As this output
drives an indication only, the indication will show the last correct status even during
communication failures.
Pump Station Configuration
The 105U-1 module has the following configuration :-

Appendix A System Example
man_905_2.0.doc Page 61
Note the following points in the configuration :
• The configuration software used was CFG105-1.EXE as the module is a 105U-1.
• The system address is 10587 (same as before) and unit address is 1.
• DIN1 (pump fault signal) is mapped to Out1 (DO1) at #96 which is the control station. Note
that no repeater address is necessary as there is a direct link between #1 and #96.
• DIN2 (pump running signal) has two mappings - a mapping to DO1 at #2 (tank station) and
DO2 at #96 (control station). When DIN2 changes, there will be two separate change
messages transmitted - one by radio to #2 and one by serial link to #96.
• AIN1 (pump amps) is mapped to Out3 at #97 (AO3 at control station).
• An additional mapping has been entered - LOW VOLT has been mapped to Out8 at #96
(DO8 at the control station). This mapping is for future use - it will provide a low battery
voltage alarm for the pump station.
• A Start-up poll has been configured for #2, as DO2 at the pump station is controlled from the
tank station. Note that a comms fail reset time of 11 minutes has been configured for DO2. This
means that if a message has not been received for DO2 within 11 minutes, DO2 will reset and
switch off the pump. The 11 min time was chosen as it means that two successive update
messages have to be missed before the pump is reset, and there is no problems if the pump runs
for 11 minutes during a system failure (the tank will not overflow during this time).

105 Radio/Serial Telemetry Module User Manual
Page 62 © March 2000
Control Station Configuration
The 105S-3 module has the following configuration :-
Note the following points in the configuration :
• The configuration software used was CFG105-3.EXE as the module is a 105S-3.
• The system address is 10587 (same as before) and unit address is 96. As the module is a 105-3
module, it will automatically assume addresses #96 and #97.
• The only mappings are Start-up polls. Note that there are two separate polls, one for each
remote module.
• D/P Out 3 has been configured as a PO. Its pulse output update time is the same as the PI
update time at the remote module (both have been left at their default value of 1 minute).
• Comms fail reset times have been selected for the analogue outputs (21 minutes) but not the

Appendix A System Example
man_905_2.0.doc Page 63
digital outputs. In the event of a system failure, the digital outputs will stay at their last correct
status, but the analogue outputs will reset to 0 mA.
System Failure Alarm
After the system had been running for some time, the operators wanted a "system failure" output at
the control station, to warn the operators that there was a fault with the system.
The following configuration was added :
At #2 (tank station), NOT DI4 → Out4 at 96 via 1 ; DI4 Update time = 1 minute
At #96 (control station), DO4 Comms fail reset time = 3.5 min
At the control station, DO4 was a "system OK" signal. It was normally active - if the signal reset,
then this represented a system failure. At the tank station, there is no signal wired to DI4. By
mapping NOT DI4 to DO4 at the control station, a message is transmitted every minute to this
output to activate it. The message is transmitted via the radio link to #1, and then by the serial link
to #96. If anything happened to either module #2 or module #1, or the radio link, or the serial link,
then the update messages for DO4 will not be received at the control station module. After 3.5
Minutes, DO4 will reset indicating a problem.
The time of 3.5 minutes was selected as this means that 3 successive update messages have to be
missed before a system alarm occurs. Also note, that if module #96 fails, DO4 will reset and give
an alarm signal.