ENERNET 10200 WIRELESS THERMOSTAT User Manual T9000 manual

ENERNET Corporation WIRELESS THERMOSTAT T9000 manual

users manual

ENERNET Corporation            Copyright ©2005   Model T9000 Wireless Thermostat Installation and User Guide
  Table of Contents INTRODUCTION............................................................................................................................................................................................................................1 MOUNTING ....................................................................................................................................................................................................................................2 INSTALLING/CHANGING BATTERIES....................................................................................................................................................................................2 Figure 1 — Battery Locations ......................................................................................................................................................................................................................... 2 Replacing same type batteries (Alkaline or Lithium).................................................................................................................................................................2 Figure 2 — Opening Thermostat..................................................................................................................................................................................................................... 2 FOUR-BUTTON / HOTEL CONFIGURATION..........................................................................................................................................................................3 Figure 3 — Four-Button Cluster...................................................................................................................................................................................................................... 3 Figure 4 — Four-Button LCD Display............................................................................................................................................................................................................ 3 SEVEN-BUTTON CONFIGURATION.........................................................................................................................................................................................4 Figure 5 — Three-Button Cluster.................................................................................................................................................................................................................... 4 SETTING THE CLOCK ......................................................................................................................................................................................................................4 PROGRAMMING YOUR THERMOSTAT..................................................................................................................................................................................5 RUN BUTTON .................................................................................................................................................................................................................................6 CHANGING TEMPERTATURE WHILE RUNNING A PROGRAM.......................................................................................................................................6 IMPORTANT NOTE ..........................................................................................................................................................................................................................6 INSTALLING AND REMOVING NODES...................................................................................................................................................................................7 The Linking Procedure..............................................................................................................................................................................................................7 Installing Nodes .............................................................................................................................................................................................................................................. 7 Removing Nodes........................................................................................................................................................................................................................7 All Nodes Removal......................................................................................................................................................................................................................................... 7 Setting Min/Max Set Point.........................................................................................................................................................................................................8 Figure 7 — Internal Button ............................................................................................................................................................................................................................. 8 TROUBLESHOOTING FAQ .........................................................................................................................................................................................................9  Figure 1 — PTAC RCN Connection Diagram ..................................................................................................................................................................................... 12  Figure 2 — J-Box RCN Electric Heat Example................................................................................................................................................................................... 13  Figure 3 — J-Box RCN Fan Coil Example.......................................................................................................................................................................................... 14  Figure 4 — Plug RCN Fan Coil Example ............................................................................................................................................................................................ 15
September, 2005 – Operators Manual ENERNET Corporation   ENERNET CORPORATION IS NOT RESPONSIBLE FOR ANY RADIO OR TV INTERFERENCE CAUSED BY UNAUTHORIZED MODIFICATIONS TO THIS EQUIPMENT.  SUCH MODIFICATIONS COULD VOID THE USER’S AUTHORITY TO OPERATE THE EQUIPMENT.  THIS  EQUIPMENT COMPLIES WITH PART 15 OF THE FCC RULES.  OPERATION IS SUBJECT TO THE FOLLOWING TWO CONDITIONS:  (1) THIS DEVICE MAY NOT CAUSE HARMFUL INTERFERENCE, AND (2) THIS DEVICE MUST ACCEPT ANY INTERFERENCE RECEIVED, INCLUDING INTERFERENCE THAT MAY CAUSE UNDESIRED OPERATION.  ENERNET CORPORATION PROVIDES THIS PUBLICATION “AS IS” WITHOUT WARRANTY OF ANY KIND, EITHER EXPRESS OR IMPLIED, INCLUDING, BUT NOT LIMITED TO, THE IMPLIED WARRANTIES OF MERCHANTABILITY OR FITNESS FOR A PARTICULAR PURPOSE.  THIS MANUAL MAY CONTAIN TECHNICAL INACCURACIES AND/OR TYPOGRAPHICAL ERRORS.  CHANGES ARE PERIODICALLY MADE TO THIS MANUAL, WHICH ARE INCORPORATED IN LATER EDITIONS.    ENERNET CORPORATION MAY MAKE CHANGES AND IMPROVEMENTS TO THE PRODUCT(S) AND/OR PROGRAMS DESCRIBED IN THIS PUBLICATION AT ANY TIME WITHOUT NOTICE.   IN NO EVENT WILL ENERNET CORPORATION BE LIABLE FOR DAMAGES, INCLUDING LOST PROFITS, LOST SAVINGS OR OTHER INCIDENTAL OR CONSEQUENTIAL DAMAGES ARISING OUT OF THE USE OF OR INABILITY TO USE SUCH PRODUCT, EVEN IF ENERNET CORPORATION OR AN APPROVED RESELLER HAS BEEN ADVISED OF THE POSSIBILITY OF SUCH DAMAGES, OR FOR ANY CLAIM BY ANY OTHER PARTY.    E  N  E  R  N  E  T     C o r p o r a t i o n   307 Dewittshire Road, Syracuse, New York  13214  Phone:  (315) 449-0839 Fax:  (315) 449-3056
January, 2005 – Operators Manual ENERNET Corporation 1 MODEL T9000 INSTALLATION AND USER GUIDE  INTRODUCTION The T9000 is a two-part wireless thermostat system, designed to provide precision temperature control without the installation headaches and expense of wiring.  Powered by four-AA batteries, the thermostat will operate for approximately  1.5 years, and can be mounted in any suitable location in the space that will ensure good temperature control.  A large LCD display provides the user with current space temperature, set point temperature, time, program interval, and other system status information.  For hotel room applications, programming, clock setup buttons and associated display information are typically not provided.  The second part of The T9000 system is called a Remote Control Node or RCN.  An RCN interfaces with the desired HVAC equipment, and communicates with its thermostat using unlicensed 900MHz  radio frequency energy.  At the time of installation, the T9000 thermostat can be linked to more than one RCN.  A thermostat and RCN that have been linked will not interfere with or be affected by any  other thermostat or RCN in adjacent rooms, apartments, or neighboring homes.  A unique feature of the T9000 is its ability to simultaneously control  completely unrelated heating and cooling equipment. Baseboard heaters and window a/c is a good example.  Available RCN models allow these loads to be controlled by the same thermostat.  This unique capability creates a virtual central heating and cooling control system.  T–9000 Thermostat Window A/C  Hotel PTAC Unit  Baseboard Heat  Other RCNs
January, 2005 – Operators Manual ENERNET Corporation 2 MOUNTING Find a suitable location for mounting your thermostat, preferably an interior wall, centrally located within the conditioned space at about 5' above the floor.  Try not to locate the thermostat in a place where it could be exposed to heat such as a directly above a reading lamp or in a place where it could be exposed to direct sunlight.  Such heat sources can affect temperature readings and performance.  STEP ONE: Remove the base plate from the thermostat housing, using  it to mark locations for mounting holes (Fig. 2).  We recommend you use a small level across the top or one side of the base plate.   STEP TWO: Drill 3/8” holes and insert drywall fasteners and fasten  the base plate to the wall.  After installing batteries (see below) carefully snap the housing onto the base plate.  INSTALLING/CHANGING BATTERIES The “Battery Low” or icon will light on the thermostat display when the thermostat batteries are within a week or two of being exhausted.  The T9000 is designed to accept either alkaline or 1.5 volt lithium batteries such as the Energizer PHOTO L91 Lithium AA.  Standard alkaline batteries such as Duracell AA will perform well.  The Energizer L91 lithium battery cost more but will run the thermostat somewhat longer.    The T9000 operates with either 2 or 4 AA batteries.  Four (4) batteries will obviously double the time between battery changes (approximately 1.5 years can be expected).  Batteries are paired in sets of two - one set is side-by-side, the other end-to-end. NOTE: Battery orientation is critical.    Figure 1 — Battery Locations Replacing same type batteries (Alkaline or Lithium) To open the thermostat, use both hands, press the two push-tabs on the bottom of the thermostat housing with your thumbs while gently pulling the bottom away from the base.  Figure 2 — Opening Thermostat  Set B Set B Set A Set A Thermostat PCB Battery Pair B (Positive terminal points right)  Battery Pair A (Positive terminal points up) Base Plate Front Cover Latches Push-tab
January, 2005 – Operators Manual ENERNET Corporation 3 Do not mix battery types, use either all lithium or all alkaline.  Do not put new batteries in with an old pair.  If you are replacing batteries, replace them all.  When four (4) batteries are currently installed, remove either the top two end-to-end pair or the side-by-side pair and replace them.  Next, remove the other pair and replace.  This keeps power to the thermostat at all times, maintaining your clock and program settings.  If two batteries are currently installed, install two new batteries in the empty battery holders, noting the + and – polarity.  Next, remove the old batteries.  This replacement scheme also allows the thermostat to continue running without losing any programmed information or clock setting.  If replacing batteries with a different type (i.e., replacing Lithium with Alkaline or Alkaline with Lithium) — Remove old batteries and wait for the front display to go blank.  Install new batteries, reset the time and programs.  FOUR-BUTTON / HOTEL CONFIGURATION The T9000 can be ordered in a four or seven button configuration.  Typically in hotel applications, users do not need access to programming or clock functions.  Buttons for those functions are therefore not provided in the hotel model.  The four-button control cluster consists of FAN, HEAT/COOL, UP and DOWN.     Figure 3 — Four-Button Cluster FAN: Switches from FAN AUTO, FAN 1 and FAN 2. HEAT/COOL: Switches between HEAT, COOL and OFF.  UP: Moves the set point temperature UP. DOWN: Moves the set point temperature DOWN.  In the four-button configuration model, the LCD display provides space temperature, set point temperature, fan status, and operating mode, heat, cool or off. Figure 4 — Four-Button LCD Display  FAN HEAT COOL UP DOWN Setpoint FAN AUTO COOL 70 O O Current Temperature Mode of Operation Setpoint Fan Status
January, 2005 – Operators Manual ENERNET Corporation 4 SEVEN-BUTTON CONFIGURATION The seven-button T9000 thermostat provides programmable functions.  The user can set the clock and program the thermostat to automatically set specified temperatures at specified times. Figure 5 — Three-Button Cluster PROGRAM: Places the T9000 into program mode. RUN: Causes the T9000 to run or stop running its program. CLOCK: Places the T9000 into clock setup mode. Figure 6 — Seven-Button LCD Display Setting the Clock As you adjust the clock and program your T9000, notice that the display helps you by continuously blinking the item you are ready to change.  The UP and DOWN buttons change settings,  the HEAT/COOL button is used to ENTER or keep a change.     To set the clock, you will use the buttons marked CLOCK,  UP, DOWN, and HEAT/COOL.  STEP ONE: Press the CLOCK Button.  The hour digits will flash.  Press the UP or DOWN button to change to the proper hour.  Note that AM / PM will  change as you roll the hour past 12.  Be sure to set the hour properly for AM or PM.  Press the HEAT/COOL button to keep the hour you've just set and to move to minutes.  STEP TWO: The Minute digits will now be blinking.  Press the UP or DOWN button to change to the desired minute.  When the correct minute is flashing press HEAT/COOL.  STEP THREE: One of the seven day icons (Mo, Tu, We, Th, Fr, Sa, Su) will now flash. Press UP or DOWN until you see the current day icon flashing. When the correct day is flashing press HEAT/COOL.  STEP FOUR    Press the CLOCK button to keep all clock changes you've made and resume normal operation.   PROGRAM RUN CLOCK Th FAN AUTO COOL 70 O O Current Temperature Mode of Operation Setpoint Fan Status 11:20 AM Day Time & Day Program Period Set Point
January, 2005 – Operators Manual ENERNET Corporation 5 PROGRAMMING YOUR THERMOSTAT Your T9000 provides you with four program periods: Morning, Day, Evening, and Night.  You can set the time and temperature of each period, corresponding to the time you wake-up, leave for the day, return home, and sleep.  For example: PERIOD TIME TEMP. MORNING 6:30 AM 70° DAY 8:30 AM 64° EVENING 4:15 PM 70° NIGHT 11:30 PM 60°  The T9000 does not allow separate heating and cooling programs.  Whatever you program for times and temperatures will apply to heating or cooling.  Check the program when switching over from heating to cooling and back.  What is comfortable in the cooling season may not be in the heating season.  During summer months for example, when air conditioning your home,  an indoor air temperature of 75º, or even warmer feels comfortable.  However, in the winter, 75º will likely feel too warm.  You should check your thermostat program seasonally and adjust as needed.  To program your thermostat, you will use the PROGRAM, HEAT/COOL, UP, and DOWN buttons.  STEP ONE: Press the PROGRAM button to put the thermostat into the programming mode.  The display will blink all of the day of the week icons.  Pressing the UP or DOWN button will toggle between  (weekday)  icons and the (weekend) icons.  Ensure the display is blinking the one you want to program.  Press HEAT/COOL.  STEP TWO: The  Morning period will be blinking.  Use the UP or DOWN button to toggle through Morning,  Day,  Evening, or Night, stopping at the period you want.  Press HEAT/COOL.  STEP THREE: Next, the hour  of the day will blink on the display.  This is the starting hour of the period you have selected.  Use the UP or DOWN button to change the selected hour start time.  Press HEAT/COOL.  STEP FOUR: The minute of the day will blink next.  This is the starting minute in the hour.  Use the UP or DOWN button to change the minute digits to the desired setting.  (Note that minutes change in five-minute increments.)  Press HEAT/COOL.  STEP FIVE: The desired set point will now be blinking.  This is the temperature you want the thermostat to bring the heated or cooled space to at the time of day you have selected.  Press the UP or DOWN button to change the set point temperature to what you want.  Press HEAT/COOL.  This completes the programming of the first period of the day.
January, 2005 – Operators Manual ENERNET Corporation 6 STEP SIX: If you started with the Morning time period, the next period, Day, will now be blinking.  Follow steps two, three, four, and five for each period you wish to program.    NOTE: You can leave the programming mode by pressing the PROGRAM button anytime.  You can skip to any programmable choice you want to change.  For example, you can change the set point temperature for a period of the day by pressing the PROGRAM button, and then HEAT/COOL until the first period of the day “MORNING” is flashing.  Using the UP or DOWN button will move to other periods.  When the period you want is flashing, press the HEAT/COOL button until the “Set Point” temperature is blinking.  Adjust the set  point using the UP or DOWN button until the desired temperature is displayed.  With the change now made, press the PROGRAM button to leave the program setup mode,  storing the change and returning  the thermostat to normal operation.  Run Button The  RUN button toggles the thermostat between manual operating mode and programmed operating mode.  When in the programmed mode, your thermostat responds to the times and temperatures programmed.  You will know if the thermostat is running its program because one of the four periods, Morning, Day,  Evening or  Night will be displayed, telling you which period the thermostat is currently in.  When in the manual mode, there will be no time period icon displayed.  In manual, you can adjust  to  the desired temperature using the UP  and  DOWN buttons, and  the thermostat will maintain the temperature you set until you manually change it again.  CHANGING TEMPERTATURE WHILE RUNNING A PROGRAM Even when your thermostat is running in its program mode, you can change the temperature to what you want just by using the UP or  DOWN buttons.  However, when the program moves to the next period, your thermostat will go to the programmed set point temperature for the next period.  For instance, assume the current program period is Evening, with a programmed temperature of 70°  and the next period, which is Night, is programmed for 65°, scheduled to start at 11pm.  If during the Evening time period you wanted it warmer, you could press the UP button and raise the temperature to something above 70°.  The thermostat will hold that temperature until the next programmed period comes around, at which point the temperature will adjust to whatever temperature is programmed.  In this case the Night period is set for 11pm, at which time the thermostat's program will take over again and set the temperature to 65°. Important Note The T9000 does not communicate with its RCN(s) any more frequently than it must.  Because it runs on batteries, limiting how often the system communicates conserves energy and extends battery life.  Keep this in mind if you experience a delay after making a change before your heater or air conditioner responds.
January, 2005 – Operators Manual ENERNET Corporation 7 INSTALLING AND REMOVING NODES The Linking Procedure Installing a thermostat and RCN so that they will communicate with each other, “links” them together as an operational system.  When an RCN is linked to a thermostat, it will thereafter only respond to that specific thermostat.  In some cases a thermostat and RCN will be pre-linked in pairs by the factory.  If this is not the case or you are replacing a thermostat or RCN, or adding another RCN to an existing system, the following procedure is used:  Installing Nodes Refer to Figure 7 for button location.  Press the SW4 button.  The Install Icon will flash - Press the UP button to toggle through the following two Icon choices: Install  ……… Icon lighted =    Install an RCN Remove ……... Icon lighted =    Remove ALL RCNs Press HEAT/COOL to select.  The node number digit will flash.  Use the UP button to set the node number you wish to install 0-7.  Press the HEAT/COOL button to select the node number.  The HEAT and/or COOL icon will now flash in the upper right hand corner of the display.  Press the UP button to toggle through the following three Icon choices: HEAT ……… Icon lighted =   Install an RCN as heating only COOL ……… Icon lighted =   Install an RCN as cooling only HEAT ……… Icon lighted COOL =   Install an RCN as heating & cooling Press the HEAT/COOL button when you have the icon you want.  At this point all selections have been made and nothing on the display should be blinking.  You are now ready to install a node.  Press the SW9, LINK button on the back of the thermostat printed circuit board and within 5-seconds activate a service request on the RCN you are installing by the following method: Plug Node RCN: Apply power by plugging it in. J-Box RCN: Apply power or press Service Pin Button PB1.* PTAC RCN: Apply power or press Service Pin Button PB1. After a delay of a few seconds, a response of “good," or “bad” is displayed.  If bad, repeat the procedure.  Press the SW4 button to return to normal operation. NOTE: The J-Box RCN is a line-voltage device.  Only a qualified technician should open the enclosure to access PB1.  All others should use the power up method only.  Removing Nodes All Nodes Removal Unlike installing a node(s), the procedure to remove a node removes all nodes installed to the thermostat at once.  You cannot remove a single node.  Press the thermostat SW4 MODE  button.  The Install Icon will flash.  Press the UP button to toggle between Install and Remove.  Stop at Remove and press HEAT/COOL to select. The node number will not blink because all RCN nodes are being removed.  Press PB1 on the back of the thermostat board.
January, 2005 – Operators Manual ENERNET Corporation 8  No response will be displayed in this case.  The thermostat is no longer linked to any node.  You can now install a new RCN, or press the SW4 MODE button to return to the normal thermostat display.  Setting Min/Max Set Point Set point minimums and maximums may be set on the T9000 to limit the maximum heating set point and minimum cooling set point.  To enter the min/max setup mode, you must simultaneously press the PROGRAM and RUN buttons.  Note that on four-button  model thermostats these buttons are located inside, just below the side-by-side "SET A" batteries (see Figure 7).  On seven-button configuration models, these buttons are on the front of your thermostat (see Figure 5).  Simultaneously press the PROGRAM and RUN buttons, the thermostat will display the HEAT icon and set point temperature.  Use the UP or DOWN buttons to set the maximum heating set  point you wish to allow.  Next, press the HEAT/COOL button to set the Max heating temperature and bring up the COOL icon.  With the COOL icon displayed, use the UP or DOWN buttons to set the minimum cooling setpoint temperature you wish to allow. Simultaneously pressing the PROGRAM and RUN buttons will take you out of the Min/Max setup mode and store the changes you've made.                Figure 7 — Internal Button  Thermostat PCB Micro SW1 SW2 SW3 SW4 SW9 PB1 MODE CLK RUN PGM SW1 – SW3 are available inside the thermostat on the four-button hotel model. LINK SET B SET B SET A SET A
January, 2005 – Operators Manual ENERNET Corporation 9 TROUBLESHOOTING FAQ “Where should I locate my thermostat?” For best performance results, the thermostat should be located approximately five feet above the floor on an inside wall in an area with good air circulation.  A thermostat should not be located where air is stagnating such as behind doors, in corners or under cabinets.  Hot or cold drafts from air ducts and windows should be avoided.  Avoid heat from the sun, lighting fixtures, appliances, fireplaces, etc.  “What does the antenna symbol  on the display mean?” The T9000 thermostat will display the antenna  icon  as long as it is able to communicate with its RCN(s).  If after several tries communication is not established, the antenna icon will turn off. This may be caused by control node power being disconnected.  (NOTE: Some T9000 displays use the “RF Link Fail” message in place of the antenna symbol.  In this case, as long as the thermostat is communicating with its RCN(s) there will be no symbols or messages to see.  The “RF Link Fail” message is the equivalent of losing the antenna symbol.)  “What do I do if the antenna symbol  is no longer displayed?” Check power to the equipment (i.e. Window a/c, baseboard heater, fan coil unit).  With power restored, force the thermostat to talk to the RCN(s) by pushing the FAN button or running the set point temperature above or below the room temperature (above in heating, below in cooling).  The thermostat will also automatically try to communicate within a maximum of ten minutes from the last attempt.  If communication is successful the antenna icon will turn     back on.  Coincidental RF interference could be cause for a temporary  loss of communication.  In virtually all such cases, the interference is temporary.  The thermostat will attempt to re-establish communication with its RCN(s) within a maximum of ten minutes. (NOTE: If your T9000 uses the “RF Link Fail” message, it will be displayed whenever the thermostat is unable to communicate with its RCN(s).)  “I just installed the thermostat and the antenna  symbol comes and goes.  What should I do?” A weak RF signal between the thermostat and one or more RCN is the cause of this.  The further away the thermostat and RCN are from each other, the weaker the signal becomes.  The same weak signal effect is caused when something is partially shielding or blocking the T9000’s RF signal energy.  Distance, particularly in residential situations is typically not a problem.  The most common cause for a weak signal is sheet metal shielding the RCN.  When installing, choose a location that is not completely surrounded by sheet metal.  In some cases to overcome a weak signal problem, the RCN has to be relocated or the thermostat moved closer to it.  In rare cases where the RCN can not be repositioned or where it is completely enclosed in a sheet metal control box, a small section of sheet metal may need to be removed and if necessary replaced with plastic.   (NOTE: Always consult with an HVAC contractor or manufacturer before modifying any equipment electrically or structurally.)
January, 2005 – Operators Manual ENERNET Corporation 10 “If I am away for an extended time such as vacation, how do I set the thermostat so my system does not run excessively?” You have a couple of choices.  The first is to press the HEAT/COOL button on the thermostat until the display reads “OFF."  (During the heating season, we do not recommend going to the “OFF” mode.)  The second option is to put your thermostat in manual mode by pressing the RUN button.  You know that you are in the manual mode because none of the period icons, Morning, Day, Evening, or Night will be showing (Refer to Figure 6).  Next, adjust the set point temperature to minimize system operation.  For example, you could adjust to a set point of 88° in cooling or 55° in heating, staying mindful of what your temperature selection could affect such as plants and animals that stay in your home while you are away.  During the cooling season, consider humidity as well as indoor temperature.  When your air conditioner runs it not only cools the air, it also removes moisture, lowering humidity.  High humidity can encourage the growth of mold as well as other undesirable effects.  “How can I save energy with my T9000 thermostat system?” The T9000 was designed to provide precision temperature control.  That  alone  can save energy since your system will be tightly controlled to within a degree or two of your desired set point.  Studies have shown you can save up to 12% just through precision temperature control.  You can maximize savings if you also program your thermostat to automatically turn the temperature up or down while you are away or asleep.  See the PROGRAMMING section of this guide for exact details.  “The display on my thermostat is blank.  What happened?” A blank display indicates that your batteries are depleted.  When the “Low Battery” or icon  is on, there is 1 or 2 weeks of battery life remaining.  See the INSTALLING/CHANGING BATTERIES section of this guide for information on how to change the batteries.  Keep in mind that if your thermostat loses battery power, it no longer controls your heating/cooling system.  We recommend that when you change batteries, always use batteries that you know are fresh.  Use four (4) batteries for longest operation.  If you are using the T9000 to control a heating system, we recommend putting fresh batteries in at the start of the heating season.  “Can I run multiple heating or cooling loads such as electric baseboard heating and a window air conditioner with one T9000 thermostat?” Yes.  In fact one T9000 thermostat can control up to eight (8) different RCNs.    “Can I have a second thermostat controlling another load without interference from my first thermostat?” Yes.  A T9000 thermostat and its RCN(s) will talk between themselves, but will never respond to another thermostat or controller in adjacent rooms, apartments, or neighboring homes.
January, 2005 – Operators Manual ENERNET Corporation 11 “What are the buttons inside my thermostat for?” Referring to Figure 7, the  SW4 INSTALL button located at the bottom center of the printed circuit board is used to put the thermostat in the Install/Remove mode.  The SW9 LINK button located at the bottom far left of the circuit board and PB1 REMOVE button above and to the right of SW9 are also used when installing or removing an RCN from the thermostat.  See the section entitled INSTALLING AND REMOVING NODES.  In many cases your thermostat has come from the factory already linked to the control node or a trained technician performed the linking procedure when the T9000 was firsts installed.  If you accidentally press the SW4 button and put the thermostat into the install mode, simply  press it again to put the thermostat back in normal operation.  SW9 is only used during installation.  Pressing SW9 when not in the installation mode has no effect.  PB1 is only used when removing nodes that have previously been linked to the thermostat.  (NOTE: Refer to the INSTALLING AND REMOVING NODES section of this manual for detailed instructions.  If you need assistance installing or removing an RCN, contact your distributor or call ENERNET Corporation for technical support.)  “I see solar cells on the T9000; does it need light to operate?” When not reading temperature or communicating with an RCN, the T9000 thermostat consumes very little power.  Under some lighting conditions, it will run off of the solar cells, even further extending the lifetime of the batteries.  While it’s a bad idea to let it get direct sunlight, or be too close to a lamp, a well-lighted space is beneficial to battery life.  “When my a/c turns off, I can’t immediately make it run again?” This is normal.  What you are experiencing is called an anti short-cycle delay.  Because of high pressure in the system, it’s not a good idea to start your air conditioner immediately after it has just shut down.  The T9000 automatically prevents this from happening by imposing a delay of approximately 3-minutes.
January, 2005 – Operators Manual ENERNET Corporation 12  Figure 1 — PTAC RCN Connection Diagram
January, 2005 – Operators Manual ENERNET Corporation 13  Figure 2 — J-Box RCN Electric Heat Example
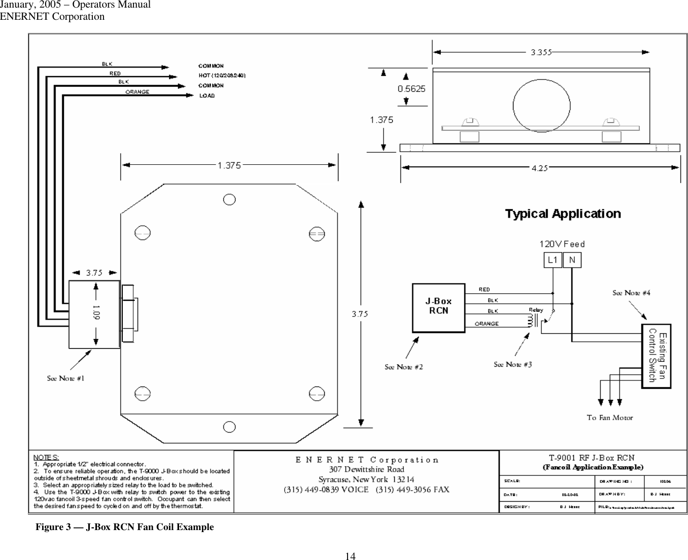
January, 2005 – Operators Manual ENERNET Corporation 14  Figure 3 — J-Box RCN Fan Coil Example
January, 2005 – Operators Manual ENERNET Corporation 15  Figure 4 — Plug RCN Fan Coil Example

Navigation menu