Eaton Safety Switches And Enclosed Circuit Breakers Ca08101001E Users Manual 08_111402
2015-02-06
: Eaton Eaton-Safety-Switches-And-Enclosed-Circuit-Breakers-Ca08101001E-Users-Manual-537180 eaton-safety-switches-and-enclosed-circuit-breakers-ca08101001e-users-manual-537180 eaton pdf
Open the PDF directly: View PDF
.
Page Count: 62

January 2003
CA08101001E For more information visit:
www.cutler-hammer.eaton.com
Contents
Safety Switches & Enclosed Circuit Breakers 8-1
8
0080000
Vol. 1, Ref. No. [0239]
Safety Switches &
Enclosed Circuit Breakers
Description Page
Safety Switches
Product Description . . . . . . . . . . . . . . . . . . . . . . . . . . . . . . . . . . . . . . . . . . .
8-2
Options and Accessories . . . . . . . . . . . . . . . . . . . . . . . . . . . . . . . . . . . . . . .
8-4
Flex-Center Facility. . . . . . . . . . . . . . . . . . . . . . . . . . . . . . . . . . . . . . . . . . . .
8-6
Flex-Center Modifications . . . . . . . . . . . . . . . . . . . . . . . . . . . . . . . . . . . . . .
8-7
Product Specifications . . . . . . . . . . . . . . . . . . . . . . . . . . . . . . . . . . . . . . . . .
8-10
Technical Data and Specifications . . . . . . . . . . . . . . . . . . . . . . . . . . . . . . .
8-11
Product Selection . . . . . . . . . . . . . . . . . . . . . . . . . . . . . . . . . . . . . . . . . . . . .
8-14
General Duty — Fusible . . . . . . . . . . . . . . . . . . . . . . . . . . . . . . . . . . . . . . . .
8-15
Heavy Duty — Fusible . . . . . . . . . . . . . . . . . . . . . . . . . . . . . . . . . . . . . . . . .
8-18
General Duty — Non-Fusible. . . . . . . . . . . . . . . . . . . . . . . . . . . . . . . . . . . .
8-26
Heavy Duty — Non-Fusible . . . . . . . . . . . . . . . . . . . . . . . . . . . . . . . . . . . . .
8-27
Rotary . . . . . . . . . . . . . . . . . . . . . . . . . . . . . . . . . . . . . . . . . . . . . . . . . . . . . .
8-28
EnviroLine . . . . . . . . . . . . . . . . . . . . . . . . . . . . . . . . . . . . . . . . . . . . . . . . . . .
8-29
NEMA 7/9 . . . . . . . . . . . . . . . . . . . . . . . . . . . . . . . . . . . . . . . . . . . . . . . . . . .
8-37
Cable Connector Receptacle Switches . . . . . . . . . . . . . . . . . . . . . . . . . . . .
8-38
Mill Duty Rated . . . . . . . . . . . . . . . . . . . . . . . . . . . . . . . . . . . . . . . . . . . . . . .
8-39
Cross-Reference . . . . . . . . . . . . . . . . . . . . . . . . . . . . . . . . . . . . . . . . . . . . . .
8-41
Enclosed Circuit Breakers
Product Description . . . . . . . . . . . . . . . . . . . . . . . . . . . . . . . . . . . . . . . . . . .
8-47
Application Description . . . . . . . . . . . . . . . . . . . . . . . . . . . . . . . . . . . . . . . .
8-47
Selection Guide . . . . . . . . . . . . . . . . . . . . . . . . . . . . . . . . . . . . . . . . . . . . . .
8-49
Accessories . . . . . . . . . . . . . . . . . . . . . . . . . . . . . . . . . . . . . . . . . . . . . . . . . .
8-50
Service Centers. . . . . . . . . . . . . . . . . . . . . . . . . . . . . . . . . . . . . . . . . . . . . . .
8-52
Technical Data and Specifications . . . . . . . . . . . . . . . . . . . . . . . . . . . . . . .
8-53
Pricing . . . . . . . . . . . . . . . . . . . . . . . . . . . . . . . . . . . . . . . . . . . . . . . . . . . . . .
8-56
Cross-Reference . . . . . . . . . . . . . . . . . . . . . . . . . . . . . . . . . . . . . . . . . . . . . .
8-60
DH362NRK Safety Switch
0080000

January 2003
8-2
For more information visit:
www.cutler-hammer.eaton.com
CA08101001E
Safety Switches & Enclosed Circuit Breakers
8
Safety Switches
Product Description
Vol. 1, Ref. No. [0240]
Product Description
■
Used to open or close a circuit.
■
Non-fusible safety switches provide
a means to manually connect or
disconnect the load from the source.
■
Fusible safety switches provide a
means to manually open and close
a circuit and overcurrent protection
by means of installed fuses.
■
Also commonly referred to as a
disconnect switch or disconnect.
■
Available from 30 – 1200 amperes.
Application Description
For residential and commercial
applications. Suitable for light duty
motor circuits and service entrance.
■
30 – 600 amperes.
■
Suitable for service entrance appli-
cations unless otherwise noted.
■
Fusible and non-fusible switches
are 100% load break and 100%
load make rated.
■
The continuous load current of
fusible switches is not to exceed
80% of the rating of fuses employed
in other than motor circuits.
■
200 – 600 amperes features
K-series design.
■
Horsepower rated.
■
Fusible and non-fusible switches.
One-pole S/N through 4-wire;
120/240, and 240V AC.
■
Ample wire bending space provides
for easier installation.
■
With Class R fuses, switches may be
used on systems capable of delivering
100,000 amperes rms symmetrical.
Heavy Duty Safety Switches
For heavy commercial and industrial
applications where reliable performance
and service continuity are critical.
■
30 – 1200 amperes.
■
600V AC, 600V DC maximum.
■
Horsepower rated.
■
Fusible and non-fusible switches
are 100% load break and 100%
load make rated.
■
The continuous load current of
fusible switches is not to exceed
80% of the rating of fuses employed
in other than motor circuits.
■
Suitable for service entrance
applications unless otherwise noted.
■
Visible double break quick-make,
quick-break rotary blade mechanism.
Two points of contact provide a posi-
tive open and close, easier operation,
and also help prevent contact
burning for longer contact life.
■
Triple padlocking capability.
Personnel safety feature since the
large hasp can accommodate up to
three 3/8-inch (9.5 mm) shank locks.
Cabinet door can be further pad-
locked at the top and bottom.
■
Interlocking mechanism. Door can-
not be opened when the handle is
in the ON position. Built-in defeater
mechanism provides for user access
when necessary.
■
For the toughest heavy commercial
and industrial applications, refer to
Page 8-39
for catalog information on
our new Mill Duty Safety Switch.
6-Pole Motor Circuit
A compact safety switch that’s ideal for
use in heavy industry...when an “in sight”
disconnecting means is required for two-
speed motors that are remote from their
motor control devices.
■
600V AC, 250V DC maximum.
■
30 – 200 amperes.
■
Fusible or non-fusible.
■
Trunk-type latches keep the cover
tightly closed and a neoprene gas-
ket seals out moisture and dust from
the switch assembly.
■
Visible double break quick-make,
quick-break rotary blade mechanism.
Two points of contact provide a posi-
tive open and close, easier operation,
and also help prevent contact burning
for longer contact life.
■
Clear line shield protection.
■
Built-in fuse pullers.
■
Clearly visible handle.
■
Triple padlocking capability. Cabinet
door can be further padlocked at the
top and bottom.
Heavy Duty Double Throw
Used to transfer service from a normal
power source to an alternate source...or
to switch from one load circuit to another.
■
30 – 800 ampere switches are
horsepower rated.
■
600V AC, 250V DC maximum.
■
Fusible or non-fusible.
■
Fusible and non-fusible switches
are 100% load break and 100%
load make rated.
■
Suitable for service entrance
applications unless otherwise noted.
■
The continuous load current of
fusible switches is not to exceed
80% of the rating of fuses employed
in other than motor circuits.
■
Approved for service entrance with
neutral or ground lug kit installed.
■
Wiring configuration from factory
allows a single load to be supplied
by a normal or alternate source.
Can be field modified to allow two
loads to be alternately supplied by
a single power source.
■
Non-fusible double throw switch
can be used to feed a single throw
fusible switch, the normal method
to provide manual transfer from
one power source to another in
800 ampere and larger switches.
■
Ample wire bending space provides
for easier installation.
■
Visible double break quick-make,
quick-break rotary blade mechanism.
Two points of contact provide a posi-
tive open and close, easier operation,
and also help prevent contact
burning for longer contact life.
■
Triple padlocking capability. Person-
nel safety feature since the large
hasp can accommodate up to three
3/8-inch (9.5 mm) shank locks.
■
Clearly visible handle. The position
(ON or OFF) can be clearly seen
from a distance.
Plug Fuse
General Duty
Safety Switch
Cartridge Fuse
General Duty
Safety Switch

January 2003
CA08101001E For more information visit:
www.cutler-hammer.eaton.com
8-3
Safety Switches & Enclosed Circuit Breakers
8
Safety Switches
Application Description
Vol. 1, Ref. No. [0241]
■
Additional locking capability.
Cabinet door can be further pad-
locked at the top and bottom.
■
Clear line shield protects against
accidental contact with energized
parts. Probe holes enable the user
to test if the line side is energized
without removing the shield.
■
Tangential knockouts on sides,
top and bottom. Enables any size
of conduit to be mounted close
to the wall, providing for cable
installation closer to the wall
and a neat appearance.
Enclosed Rotary
Provide users with the ability to lock
directly wired motor loads in the OFF posi-
tion to comply with new OSHA lockout/
tagout regulations. Also for machine
applications that require compact,
economical disconnect switches.
■
Meets NEC
T
Article 430 requirements
for a separate disconnect means
within sight of all motor loads.
■
Padlockable in the OFF position
(up to three padlocks) to meet OSHA
lockout requirements.
■
Available in 16 – 125 ampere ratings.
■
600V AC, 3- and 4-pole non-fusible
device.
■
Rated for making and breaking loads.
■
Accepts auxiliary contacts.
Capability to signal PLC controllers.
■
Ground lug connection provided.
EnviroLine
Eaton offers a line of Cutler-Hammer safety
switches designed for your special
application and/or extreme environmental
conditions.
■
EnviroLine Stainless Steel Switch
—
Primarily for use in the meat pack-
ing and food processing industries
or any application where water is
frequently used to hose down
equipment. In addition to the stain-
less steel NEMA 4X enclosure, the
interior mechanism, back pan, and
springs are stainless steel. Ratings
for these Heavy Duty switches are
30 – 400 amperes, 240 – 600V AC,
available as fusible and non-
fusible switches.
■
Window Switches
— These
switches are available with either
an upper window over the switch
contacts or a lower window over the
fuse block. The upper window pro-
vides visual verification of ON/OFF
status. The lower window switch
allows for visual verification of fuse
status if used in conjunction with
Littelfuse, Inc. fuses with blown
fuse indicator. Ratings are 30 – 800
amperes, 240 – 600V AC, fusible
and non-fusible. Available in NEMA
12/3R, 4X stainless steel enclosures.
■
Receptacle Switches
— These
Heavy Duty switches are pre-wired
and interlocked to polarized recepta-
cles for 3-phase, 3-wire, grounded
type power plugs. These are used
for portable power applications
such as welders, infrared ovens,
batch feeders, conveyors, truck
and marine docks. Receptacles are
interlocked to handle mechanisms
so that power plugs may not be
inserted or removed when the
switch is in the ON position unless
noted otherwise. Ratings are 30 –
100 amperes, 600V AC, NEMA
12, 4X stainless steel enclosures.
■
Non-Metallic Switch
— This switch
has a KRYDON™ enclosure. This is
a compression molded fiberglass
reinforced polyester enclosure,
which is capable of withstanding
almost any corrosive environment.
Ratings are 30 – 200 amperes, 240 –
600V AC, fusible and non-fusible.
Enclosure is NEMA 4X rated.
■
NEMA 7/9 Hazardous Location
Disconnect Switch
—
See
Page 8-37
for information.
Features, Benefits
and Functions
General Duty (Cartridge Fuse)
■
Visible double break quick-make,
quick-break rotary blade mechanism.
■
Side opening door on all enclosures.
■
Mechanically interlocked cover
to prevent easy access when the
switch is in the ON position.
■
With Class R fuses, switches may
be used on systems capable of
delivering 100,000 amperes rms
symmetrical.
■
Clearly visible and accessible
neutral where applicable.
■
Visible ON/OFF indication.
■
Tangential knockouts on 30 – 60
ampere designs.
■
Ample wiring space.
■
Double padlocking capability
on 30 – 100 amperes.
■
Triple padlocking capability
on 200 – 600 amperes.
■
Additional door locking capability.
■
Bilingual English/Spanish
nameplate and door label on
30 – 100 amperes.
Heavy Duty
■
Visible double break quick-make,
quick-break rotary blade mechanism.
■
Mechanically interlocked cover
to prevent easy access when the
switch is in the ON position.
■
Clear line shield with probe holes.
■
Clearly visible palm fitting red
handle.
■
Triple padlocking capability.
■
Tangential knockouts on NEMA 1
and NEMA 3R enclosures through
200 ampere.
■
Built-in fuse pullers on NEMA 4X
and NEMA 12 enclosures through
200 ampere.
■
Additional door locking capability.
■
Complete accessory and renewal
parts data shown on inner door label.
■
30 – 200 ampere NEMA 12 designs
convertible to NEMA 3R by opening
factory installed drain hole.
■
30 – 800 ampere switches are seis-
mic qualified and exceed the require-
ments of the Uniform Building Code
(UBC) and California Code Title 24.
Standards and Certifications
■
UL
T
98.
■
UL 50.
■
NEMA KS-1.

January 2003
8-4
For more information visit:
www.cutler-hammer.eaton.com
CA08101001E
Safety Switches & Enclosed Circuit Breakers
8
Safety Switches
Accessories Vol. 1, Ref. No. [0242]
Options and Accessories
Table 8-1. Safety Switches — Accessories
Note: Accessories are not applicable to NEMA 7/9 switches.
1Ground bar kit is not listed on device publications.
2Order one kit for 3 poles.
3Order one kit for each pole.
4Order one kit per switch.
5Receptacle switches.
6Order one kit for 6 poles.
Description Catalog
Number Price
U.S. $
Neutral Kits/Ground Kits
30A DG
60 – 100A DG
200A DG, DH (NEMA 1, 3R Enclosures)
30-60A DH
100A DH
200A DH (NEMA 4X, 12 Enclosures)
400A DG, DH
600A DG, DH
400 – 600A Fusible DT, 800-1200A DH
30 – 100A DT
200A DT
400A Non-Fusible DT
600 Non-Fusible DT
DG030NB
DG100NB
DG200NK
DH030NK
DH100NK
DH200NK
DS400NK
DS600NK
DS800NK
DT100NK
DT200NK
DT400NK
DT600NK
49.
97.
141.
66.
136.
155.
265.
282.
600.
86.
147.
216.
272.
Ground Lug Kits
30 – 100A DG
30 – 100A DH, DT 1
200A DG, DH, DT
400 – 600A DG, 400 – 1200A DH, 400 – 800A DT
DG030GB
DS100GK
DS200GK
DS468GK
18.
18.
33.
186.
Control Pole Kit
400 – 600A DG, 30 – 1200A DH, 30 – 800A DT DS16CP 170.
Auxiliary Contact Kits
All Switches (except 30 – 100A DG) 1NO/1NC
All Switches (except 30 – 100A DG) 2NO/2NC DS200EK1
DS200EK2 222.
264.
Copper Lug Kits
30A DH, DT 2
60A DH, DT 2
100A DH, DT 2
200A DH 2
400A DH (NEMA 4, 4X, 12 Enclosures) 3
600 – 800A DH (NEMA 4, 4X, 12 Enclosures) 3
DS16CL
DS26CL
DS36CL
DS46CL
DS56CL
DS66CL
32.
40.
66.
220.
271.
317.
Crimp Lug Pad Kit (NEMA 4, 4X, 12 Enclosures)
400 – 600A DH 2
800A DH 3
400 – 800A Neutral DH 4
DS56CK
DS76CK
DS800CNK
362.
163.
470.
Fuse Puller Kits
30 – 60A DH 2
30 – 60A DH 5
100A DH 2
200A DH 2
DS30FP
DS60FP
DS100FP
DS200FP
21.
30.
39.
92.
“J” Fuse Adapter Kits
60A 240V DH 2
60A DT and receptacle switches 2
400A 600V DT 6
600A 240-600V DH only 3
DS22JK
DS26JK
DT400JK
DS600JK
20.
20.
424.
147.
“R” Fuse Adapter Kits 2
30A DG
100A DG
30A 240V DH, DT
30A 600V DH, DT, 60A 240V DH, DT, 60A DG
60A 600V DH, DT
100A 240 – 600V DH, DT
200A 240 – 600V DH, DT, 200A DG
400A 240 – 600V DH, 240V DT, 400A DG
600A 240 – 600V DH, 600A DG
DG030RB
DG100RB
DS12FK
DS16FK
DS26FK
DS36FK
DS46FK
DS56FK
DS66FK
19.
37.
19.
19.
19.
37.
55.
92.
92.
“T” Fuse Adapter Kits
200A 240V DH 2
200A 600V DH 2
400A 240V DG, DH 3
400A 600V DH 3
600A 240V DG, DH 3
600A 600V DH 3
800A 240V DH 3
800A 600V DH 3
DS426TK
DS466TK
DS526TK
DS566TK
DS626TK
DS666TK
DS726TK
DS766TK
208.
230.
72.
105.
115.
119.
123.
144.
Hookstick Handle DH800HSH 141.
Lubricating Grease for Safety Switch Blades
and Contacts (Each kit contains three 30 cc
tubes of lubricating grease.)
DSLUBEKIT 315.
Discount Symbol. . . . . . . . . . . . . . . . . . . . . . . . 22-CD
DS200GKDH030NK
DS16CP DS200EK1
DS36CL DS56CK
DS60FP DS22JK
DS12FK DS426TK

January 2003
CA08101001E For more information visit: www.cutler-hammer.eaton.com
8-5
Safety Switches & Enclosed Circuit Breakers
8
Safety Switches
Accessories
Vol. 1, Ref. No. [0243]
Accessories, Hubs, Lug Data
Table 8-2. Plate Type Hubs
For NEMA 3R Enclosures (Up to 200 Amperes)
Table 8-3. Myers Type Hubs
NEMA 3R (400 Amperes and Above)
NEMA 4, 4X (Stainless Steel), 12
Note: Contact the Flex Center at 1-888-329-9272 for information on
hubs for non-metallic NEMA 4X switches.
DS075H1
Table 8-4. Standard Lug Capacities
1The maximum size aluminum or copper-clad aluminum wire allowable
for applications where the conductor enters or leaves the enclosure
through the wall opposite its terminal is #1 gauge.
Note: Although certain lug capacities are larger than required, only
minimum wire bending space is provided per the requirements
noted in NEC Tables 373-6 (a) and (b) for respective ampere ratings.
Group 1
General Duty, Heavy Duty,
Double Throw Through 100A
Group 2
General Duty, Heavy Duty,
Double Throw — 200A
Conduit Size Catalog
Number Price
U.S. $ Conduit Size Catalog
Number Price
U.S. $
Inches mm Inches mm
3/4
1
1-1/4
1-1/2
2
19.1
25.4
31.8
38.1
50.8
DS075H1
DS100H1
DS125H1
DS150H1
DS200H1
26.75
26.75
26.75
26.75
43.50
2
2-1/2
3
—
—
50.8
63.5
76.2
—
—
DS200H2
DS250H2
DS300H2
—
—
43.50
78.00
90.50
—
—
Catalog Number DS900AK Adapter Kit (Price U.S. $ = 11.80) — Permits
Installation of Group 1 Hubs on 200 Ampere Type General Duty, Heavy
Duty and Double Throw Switches
Conduit Size Catalog
Number Price
U.S. $
Inches mm
1/2
3/4
1
1-1/4
1-1/2
2
2-1/2
3
3-1/2
4
5
12.7
19.1
25.4
31.8
38.1
50.8
63.5
76.2
88.9
101.6
127.0
DS050MH
DS075MH
DS100MH
DS125MH
DS150MH
DS200MH
DS250MH
DS300MH
DS350MH
DS400MH
DS500MH
32.00
33.00
42.00
45.00
65.00
86.00
120.00
160.00
225.00
277.00
610.00
Ampere
Rating Minimum
Wire Size Maximum
Wire Size Wire
Type
30A DP
30A DG
30A DH, DT
#14
#12
#14
#14
#10
#10
#6
#2
Cu OR
Al
Cu/Al
Cu/Al
60A DG
60A DH, DT #14
#14 #1/0
#2 Cu/Al
Cu/Al
100A DG 1
100A DH, DT #14
#14 #1/0
#1/0 Cu/Al
Cu/Al
200A DG, DT
200A DH Type 1 and 3R
200A DH Type 4 and 12
#6
#6
#6
250 kcmil
250 kcmil
300 kcmil
Cu/Al
Cu/Al
Cu/Al
400A DG, DH, DT (2) #1/0
(1) #1/0 (2) 300 kcmil
(1) 750 kcmil Cu/Al OR
Cu/Al
600A DG
600A DH
600A DT (Fusible)
(1) #2
(1) #1/0 (1) 600 kcmil
(1) 750 kcmil Cu/Al AND
Cu/Al
600A DT (Non-Fusible) (2) #250 (2) 500 kcmil Cu/Al
800A DH
800A DT (4) #1/0
(3) #250 (4) 750 kcmil
(3) 500 kcmil Cu/Al
Cu/Al
1200A DH (4) #1/0 (4) 750 kcmil Cu/Al
Copper-Bodied Lugs
30A Cu
60A Cu
100A Cu
#14
#14
#6
#6
#4
#1/0
Cu
Cu
Cu
200A Cu
400A Cu
600A Cu
#6
#1/0
(2) #1/0
250 kcmil
500 kcmil
(2) 500 kcmil
Cu
Cu
Cu
Discount Symbol . . . . . . . . . . . . . . . . . . . . . . . . 22-CD

January 2003
8-6
For more information visit: www.cutler-hammer.eaton.com CA08101001E
Safety Switches & Enclosed Circuit Breakers
8
Safety Switches
Flex Center Facility Vol. 1, Ref. No. [0244]
Flex Center
Introduction
The Safety Switch Flex Center is a spe-
cial facility at the site of our Cleveland,
Tennessee plant that is dedicated to
providing customized safety switches
that meet customer’s challenging
applications.
Eaton’s Cutler-Hammer Flex Center is a
solutions center that provides real
value:
■A dedicated and knowledgeable
engineering/manufacturing/
customer service team to meet
your needs.
■A production facility stocked with
a full arsenal of equipment to get
the job done.
■The industry’s shortest lead time.
■Easy ordering through our
distributors.
Description (Suffix) Item
Phenolic Nameplates (NP) . . . . . . . . 1
Fungus Proofing (FP) . . . . . . . . . . . . 2
Special Paint . . . . . . . . . . . . . . . . . . . 3
Lock-On Provisions on
Heavy Duty Safety Switches for
Most Enclosure Types . . . . . . . . . . . 4
Trapped Key Interlock Systems . . . . 5
Upper Cover Viewing
Window (W) . . . . . . . . . . . . . . . . . . . 6
Lower Cover Viewing
Window (LW). . . . . . . . . . . . . . . . . . . 7
Neutral Assemblies Factory
Installed for Double Throw
Safety Switches (N) . . . . . . . . . . . . . . 8
Class “R” Fuse Clips Factory
Installed for Heavy Duty
Switches (5 or 6) . . . . . . . . . . . . . . . . 9
Class “T” Fuse Clips Factory
Installed for Heavy Duty
Switches (T) . . . . . . . . . . . . . . . . . . 10
Class “J” Fuse Clips Factory
Installed for Heavy Duty and
Double Throw Safety Switches . . . 11
Fuse Pullers Factory Installed . . . . 12
Special Crimp Lug Pads Factory
Installed for General Duty and
Heavy Duty Switches (CK) . . . . . . . 13
Copper Lugs Factory
Installed (CL) . . . . . . . . . . . . . . . . . . 14
Equipment Ground Lugs
Factory Installed (G) . . . . . . . . . . . 15
Custom Lug Configurations. . . . . . 16
Auxiliary Contacts Factory
Installed (2 or 3). . . . . . . . . . . . . . . . 17
Control Pole Factory
Installed (CP) . . . . . . . . . . . . . . . . . . 18
How to Order. . . . . . . . . . . . . . . . . . 19
How to Price . . . . . . . . . . . . . . . . . . 20
1. Phenolic Nameplates
Nameplates are available engraved on
black, red, yellow, or blue background
with white letters. Customer must
specify text when placing order.
Table 8-5. Item 1
2. Fungus Proofing
All non-metallic components of the
switch are coated with a moisture and
fungus-resistant varnish. The inhibitor
used meets military specification:
MIL-V-173C for MOISTURE AND
FUNGUS-RESISTANT TREATMENT.
The treated switch meets military
specification: MIL-T-152E for
MOISTURE AND FUNGUS-RESISTANT
TREATMENT OF COMMUNICATIONS,
ELECTRONICS AND ASSOCIATED
EQUIPMENT. Not UL listed.
Table 8-6. Item 2
To order, add Suffix FP to standard
Safety Switch Catalog Number.
Example:
DH363FGKFP.
3. Special Paint
Special paint colors are available
for order quantities of five or more
switches. Colors available are red,
orange, yellow, green, black and white.
Custom color is applied over the
standard ANSI-61 gray finish.
Minimum quantity of five of the same
color is required. Order by description.
See Table 8-7 for adders.
For quantities less than five, higher
ampere ratings, or other color request,
contact the Safety Switch Flex Center.
Table 8-7. Item 3
4. Lock-on Provisions on Heavy Duty Safety
Switches for Most Enclosure Types
Available on 30 – 800 ampere Heavy
Duty and Double Throw Safety
Switches. Provision will accept a
single lock. Order by description.
Table 8-8. Item 4
5. Trapped Key Interlock Systems
Available only on Heavy Duty and
Double Throw Safety Switches.
Trapped Key Systems are used on
safety switches to prevent unautho-
rized operations or to predetermine
a series of power transfers by an
authorized operator.
Before system construction can begin,
the following information must be
provided to the Flex Center:
1. User — Name, address and
telephone number.
2. Complete coordination (lock
scheme) required with order.
Order by description.
Table 8-9. Item 5
6. Upper Cover Viewing Window
Upper Viewing Window is Centered
over the switching contacts to provide
visual verification of ON/OFF status.
Available on most Heavy Duty and
Double Throw enclosures. Not avail-
able on nonmetallic enclosures. To
order, add Suffix W to the standard
catalog number.
Description Price U.S. $
Adder Per Legend Plate 104.
Safety Switch
Ampere Rating Price U.S. $
Adder Per Switch
30, 60
100, 200
400, 600
800, 1200
370.
500.
625.
782.
Price U.S. $ and Adder Per Switch —
Special Paint
Ampere
Rating Quantity
5 – 10 11 – 20 21 – 40 Over 40
30
60
100
200
400
600
148.
171.
270.
259.
716.
1,770.
116.
157.
215.
223.
538.
1,000.
85.
101.
159.
179.
357.
700.
55.
65.
106.
171.
257.
350.
Description Price U.S. $
Adder Per Lock-on 155.
Safety
Switch
Ampere
Rating
Switch
Type Price U.S. $
Adder Per Lock
(Maximum of
Three Devices
Interlocked)
30 – 1200
30 – 800 Heavy Duty
Double Throw 1,250.
1,310.
Discount Symbol . . . . . . . . . . . . . . . . . . . . . . . . 22-CD

January 2003
CA08101001E For more information visit: www.cutler-hammer.eaton.com
8-7
Safety Switches & Enclosed Circuit Breakers
8
Safety Switches
Flex Center Modifications
Vol. 1, Ref. No. [0245]
7. Lower Cover Viewing Window
Lower Viewing Window is positioned
over fuses and provides visual verifica-
tion of Blown Fuse Indicators for Littel-
fuse, Inc.™ fuses. Available in 30 – 800
ampere, 2- and 3-pole Heavy Duty
NEMA 12, NEMA 3R and NEMA 4X
Stainless Steel Safety Switches. Not
available on nonmetallic enclosures.
To order, add Suffix LW to standard
catalog number.
Table 8-10. Items 6 and 7
Contact the Safety Switch Flex Center
for lead time.
8. Neutral Assemblies Factory Installed
for Double Throw Safety Switches
Table 8-11. Item 8
To order, add Suffix N to the standard
Safety Switch Catalog Number. The
total price is the standard switch price
plus the price adder from the table
above.
Example:
DT361URKN
Double Throw, 3-Pole, 30A Switch
with Factory Installed Neutral Assem-
bly = $280.00 Price U.S. $ Adder.
9. Class “R” Fuse Clips Factory Installed for
Heavy Duty Switches
Table 8-12. Item 9
To order, add Suffix 5 to the standard
catalog number for 240V application.
Add Suffix 6 to standard catalog num-
ber for 600V application. Total price
is the standard catalog number price
plus the price adder from the table
above depending on the number
of safety switch poles.
Example:
DH324FRK5
Heavy Duty, 3-Pole, 200A Switch at
240V with Factory Installed Class “R”
Fuse Clips = $240.00 (3 x $80.00) Price
U.S. $ Adder.
10. Class “T” Fuse Clips Factory Installed
for Heavy Duty Switches
Table 8-13. Item 10
To order, add Suffix T to the standard
catalog number (catalog number
identifies voltage). Total price is the
standard catalog number price plus
the price adder from the table above
depending on the number of safety
switch poles.
Example:
DH364FGKT
Heavy Duty, 3-Pole, 200A Fusible
Switch at 480V with Factory Installed
Class “T” Fuse Clips = $450.00
(3 x $150.00) Price U.S. $ Adder.
11. Class “J” Fuse Clips Factory Installed
for Heavy Duty and Double Throw Safety
Switches
Table 8-14. Item 11
Total price is the standard catalog
number price plus the price adder
from the table above depending on
the number of safety poles. Order by
description. A table of common 30
ampere Heavy Duty switches with “J”
fuse clips factory installed is shown
below (field modification kits are not
available for 30 ampere Heavy Duty
Switches).
Table 8-15. Common 30A Heavy Duty Switches
with “J” Fuse Clips Factory Installed
12. Fuse Pullers Factory Installed
Order by description.
Table 8-16. Item 12
Viewing Window (Upper or Lower)
Safety Switch
Ampere Rating Price U.S. $ Adder
Per Switch
30 – 200
400 – 800 85.
425.
Safety Switch
Ampere Rating Switch Type
2- and 3-Pole Price U.S. $
Adder
Per Switch
30 Fusible and
Non-Fusible 280.
60 Fusible and
Non-Fusible 280.
100 Fusible and
Non-Fusible 280.
200 Fusible and
Non-Fusible 400.
400
600 Non-Fusible
Non-Fusible 550.
650.
400
600
800
Fusible
Fusible
Non-Fusible
800.
800.
900.
Safety Switch
Ampere Rating Voltage Price U.S. $
Adder
Per Pole
30
60
100
240 and 600
240 and 600
240 and 600
60.
60.
80.
200
400
600
240 and 600
240 and 600
240 and 600
80.
100.
100.
Safety Switch
Ampere Rating Voltage Factory Installed
Price U.S. $
Adder Per Pole
200 240
600 140.
150.
400 240
600 230.
300.
600 240
600 300.
370.
800 240
600 400.
470.
1200 240
600 500.
570.
Safety
Switch
Ampere
Rating
Voltage Switch
Type Price U.S. $
Adder Per
Switch
30 240
600
Heavy Duty &
Double Throw
Heavy Duty &
Double Throw
70.
105.
60 240
600
Heavy Duty &
Double Throw
Heavy Duty &
Double Throw
70.
105.
400 600 Double Throw 660.
600 240
600 Heavy Duty
Heavy Duty 270.
270.
Voltage Switch
Type
3-Pole
Catalog
Number Price
U.S. $
240 NEMA 1
NEMA 3R
NEMA 12
NEMA 4X
DH321FGK2JK
DH321FRK2JK
DH321FDK2JK
DH321FWK2JK
311.
486.
495.
1,620.
600 NEMA 1
NEMA 3R
NEMA 12
NEMA 4X
DH361FGK6JK
DH361FRK6JK
DH361FDK6JK
DH361FWK6JK
505.
810.
815.
1,985.
Safety
Switch
Ampere
Rating
Switch
Type Factory Installed
Price U.S. $
Adder
Per Pole
30 – 60
100
200
Heavy Duty
Heavy Duty
General Duty
and Heavy Duty
30.
60.
70.
Discount Symbol . . . . . . . . . . . . . . . . . . . . . . . . 22-CD

January 2003
8-8
For more information visit: www.cutler-hammer.eaton.com CA08101001E
Safety Switches & Enclosed Circuit Breakers
8
Safety Switches
Flex Center Modifications Vol. 1, Ref. No. [0246]
13. Special Crimp Lug Pads Factory Installed
for General Duty and Heavy Duty Switches
(Crimp Lugs are Not Included)
To order add Suffix CK to the standard
Safety Switch Catalog Number.
Table 8-17. Item 13
Heavy Duty Type DH Switches,
30 – 200A are adaptable to crimp lugs,
simply remove the box lugs.
14. Copper Lugs Factory Installed
Table 8-18. Item 14
To order, add Suffix CL to the standard
Safety Switch Catalog Number. The total
price is the standard switch price plus
the price adder from the table above.
Example:
DH221FGKCL
Heavy Duty, 2-Pole, 30A Fusible
Switch at 240V with Copper Lugs
Factory Installed = $80.00 (2 x $40.00)
Price U.S. $ Adder.
15. Equipment Ground Lugs Factory
Installed for General Duty and
Heavy Duty Switches
Table 8-19. Item 15
To order, add Suffix G to the standard
Safety Switch Catalog Number. The total
price is the standard switch price plus
the price adder from the table above.
16. Custom Lug Configurations
Customer-specified lug arrangements
are available on Heavy Duty and Double
Throw Safety Switches. Contact the
Safety Switch Flex Center for price
and lead time.
17. Auxiliary Contacts Factory Installed
Provide Early-Make/Early-Break Operation
Table 8-20. Item 17
To order 1NO/1NC contacts, add
Suffix 2 to the standard Safety Switch
Catalog Number.
To order 2 NO/2 NC contacts, add
Suffix 3 to the standard Safety Switch
Catalog Number.
The total price is the standard switch
price plus the price adder from the
table above.
Example:
DH423FGK2
Heavy Duty, 4-Pole, 100A Fusible
Switch at 240V with Factory Installed
1 NO/1 NC Contacts = $230.00 Price
U.S. $ Adder.
Example:
DT324FGK22
Double Throw, 3-Pole, 200A Fusible
Switch at 240V with two Factory
Installed Contacts (one installed in the
Normal ON position and one installed
in the Auxiliary ON position). = $460.00
(2 x $230.00) Price U.S. $ Adder.
18. Control Pole Factory Installed Provides
Late-Make/Early-Break Operation
The K-Series Control Pole provides
one Normally Open contact, late-
make, early-break operation. It mounts
in the exact location as the neutral
block using the same pre-drilled holes.
This is directly connected to the power
pole operating shaft. Direct connection
and visible blades provide more
secure electrical interlocking than
handle linkage operation of a snap/
switch type interlock. This reliability
meets the requirements of many
specifications for 4-pole switches
when the fourth pole is required
for secure electrical interlocking.
Table 8-21. Item 18
To order, add Suffix CP to the standard
Safety Switch Catalog Number. The total
price is the standard switch price plus
the price adder from the table above.
Example:
DH267FGKCP
Heavy Duty, 2-Pole, 800A Fusible Switch
at 480V with Factory Installed Control
Pole = $300.00 Price U.S. $ Adder.
19. How to Order
Step One:
Contact the Safety Switch
Flex Center for price and delivery on
product being modified. An authorized
negotiation (TSP) number will be
provided to track your order.
Safety Switch Flex Center
Phone: 1-888-329-9272
Fax: 1-423-478-0270
Step Two:
Enter the order on VISTA-
LINE™ by description (with catalog
number if it applies) and reference the
authorized negotiation (TSP) number.
Vista suffix will be “ETS.”
Product code will be “BE90.”
For order entry assistance, contact
CSC at:
Phone: 1-800-356-1243
Fax: 1-800-752-8602
20. How to Price
Step One:
Select catalog number
from Pages 8-14 through 8-39 of this
catalog or Vista of the switch that
needs to be modified.
Step Two:
Use the correct price (from
Vista or the current Price and Availabil-
ity Digest) of the switch that needs to
be modified. If no price exists, Flex
Center will provide one.
Step Three:
Refer to the modification
on Pages 8-6 through 8-8 for price
additions.
Example:
DT363URK = $2,530.00
Options:
Factory Installed
Neutral (N) = 280.00
Copper Lugs (CL) = 360.00
(3 x 120.00)
Total Price U.S. $ = $3,170.00
Step Four:
Contact the Safety Switch
Flex Center for authorized price and
lead time.
Note: Existing DSP, CSP and DOP pricing
does not apply.
For application, availability or pricing
questions, contact the Safety Switch
Flex Center at 1-888-329-9272.
Safety Switch
Ampere Rating Factory Installed
Price U.S. $
Adder Per Pole
400 – 600
800 200.
300.
Safety
Switch
Ampere
Rating
Switch
Type Factory Installed
Price U.S. $
Adder Per Pole
30 Heavy Duty
Double Throw 40.
55.
60 Heavy Duty
Double Throw 50.
65.
100 Heavy Duty
Double Throw 90.
120.
200 Heavy Duty 140.
400 General Duty
and Heavy Duty 300.
600 General Duty
and Heavy Duty 450.
Safety Switch
Ampere Rating Factory Installed
Price U.S. $
Adder Per Switch
30 – 100
200
400 – 1200
100.
130.
225.
General Duty Switches 200 – 600A,
Non-Metallic 30 – 200A, Heavy Duty 30 – 1200A
and Double Throw Switches 30 – 800A
Safety
Switch
Ampere
Rating
Description Factory Installed
Price U.S. $
Adder
Per Switch
30 – 200 1 NO/1 NC
2 NO/2 NC 230.
260.
400 – 1200 1 NO/1 NC
2 NO/2 NC 360.
390.
Safety
Switch
Ampere
Rating
Switch
Type Factory
Installed
Price U.S. $
Adder Per Switch
30 – 1200
30 – 200
400 – 600
Heavy Duty
Double Throw
General Duty
300.
300.
300.
Discount Symbol . . . . . . . . . . . . . . . . . . . . . . . . 22-CD

January 2003
CA08101001E For more information visit: www.cutler-hammer.eaton.com
8-9
Safety Switches & Enclosed Circuit Breakers
8
Safety Switches
Flex Center Modifications
Vol. 1, Ref. No. [0247]
Table 8-22. Standard Lug Capacities
1The maximum size aluminum or copper-clad aluminum wire allowable
for applications where the conductor enters or leaves the enclosure
through the wall opposite its terminal is #1 gauge.
Note: Although certain lug capacities are larger than required,
only minimum wire bending space is provided per the requirements
noted in NEC Tables 373-6 (a) and (b) for respective ampere ratings.
Additional Safety Switch Flex Center Design Offerings
■Left-hand design (30 – 200A).
■Cover-mounted status lights and selector switches.
■Integrated:
❑Transient Voltage Surge Suppression (TVSS)
❑Current transformers
■Double throw receptacle switches.
■200% neutrals.
■1200A NEMA 4X stainless steel.
■Seam-welded stainless steel.
■Gang-operated kits:
❑Mechanically interlocks 2 or 3 separate switches
■Cam lock receptacles.
■Reverse feed.
■Reflective wave trap.
■Integrated wattmeter.
■Custom enclosures.
■Double throw switches with windows.
■316 grade stainless steel.
Literature
The Safety Switch Flex Center’s innovative approach to
flexible engineering, manufacturing and customer service
provides the shortest production, design and delivery cycle
in the industry. Find out more about how the Safety Switch
Flex Center can give you the safety switch solution you
need...when you need them. Order Sales Aid SA.35I.01.S.E
from Eaton’s Cutler-Hammer Literature Fulfillment Center by
calling 1-800-957-7050.
Ampere
Rating Minimum
Wire Size Maximum
Wire Size Wire
Type
30A DP
30A DG
30A DH, DT
#14
#12
#14
#14
#10
#10
#6
#2
Cu OR
Al
Cu/Al
Cu/Al
60A DG
60A DH, DT #14
#14 #1/0
#2 Cu/Al
Cu/Al
100A DG 1
100A DH, DT #14
#14 #1/0
#1/0 Cu/Al
Cu/Al
200A DG, DT
200A DH Type 1 and 3R
200A DH Type 4 and 12
#6
#6
#6
250 kcmil
250 kcmil
300 kcmil
Cu/Al
Cu/Al
Cu/Al
400A DG, DH, DT (2) #1/0
(1) #1/0 (2) 300 kcmil
(1) 750 kcmil Cu/Al OR
Cu/Al
600A DG
600A DH
600A DT (Fusible)
(1) #2
(1) #1/0 (1) 600 kcmil
(1) 750 kcmil Cu/Al AND
Cu/Al
600A DT (Non-Fusible) (2) #250 (2) 500 kcmil Cu/Al
800A DH
800A DT (4) #1/0
(3) #250 (4) 750 kcmil
(3) 500 kcmil Cu/Al
Cu/Al
1200A DH (4) #1/0 (4) 750 kcmil Cu/Al
Copper-Bodied Lugs
30A Cu
60A Cu
100A Cu
#14
#14
#6
#6
#4
#1/0
Cu
Cu
Cu
200A Cu
400A Cu
600A Cu
#6
#1/0
(2) #1/0
250 kcmil
500 kcmil
(2) 500 kcmil
Cu
Cu
Cu

January 2003
8-10
For more information visit: www.cutler-hammer.eaton.com CA08101001E
Safety Switches & Enclosed Circuit Breakers
8
Safety Switches
Product Specifications Vol. 1, Ref. No. [0248]
Product Specifications
Table 8-23. Safety Switch Selection Guide
1NEMA 12 enclosures (30 – 200 amperes) can be field modified to meet NEMA 3R rainproof requirements when a factory provided drain screw is removed.
Table 8-24. EnviroLine Safety Switch Selection Guide
2800A Upper Window switches are not UL listed.
3Lower Window switches are available through 600A.
4NEMA 12 enclosures (30 – 200 amperes) can be field modified to meet NEMA 3R rainproof requirements when a factory provided drain screw is removed.
Safety Switch
Type Fuse
Type Fuse
Class Ampere
Rating Number
of Poles Enclosure Types
NEMA 1 NEMA 3R NEMA 12 NEMA 4
Painted
Steel
NEMA 4X
Stainless
Steel
NEMA 4X
Non-Metallic
General
Duty Single Throw
Max. 240V AC
Horsepower
Rated
Fusible Plug — 30 1 and 2 YES YES — — — —
Cartridge H 30 – 600 2 and 3 YES YES — — — —
Non-Fusible — — 30 – 600 2 and 3 YES YES — — — —
Heavy
Duty Single Throw
Max. 600V AC
Horsepower
Rated
Fusible Cartridge H
L30 – 600
800 –
1200
2, 3 and 4 YES
Up to
1200A
YES
Up to
1200A
YES 1
Up to
800A
YES
400 –
800A
YES
Up to
800A
YES
Up to
200A
Non-Fusible — — 30 – 1200 2, 3 and 4 YES YES YES 1
Up to
800A
YES
400 –
800A
YES
Up to
800A
YES
Up to
200A
6-Pole
Motor
Circuit
Single Throw
Max. 600V AC Fusible Cartridge H 30 – 200 6 — YES YES 1— YES —
Non-Fusible — — 30 – 200 6 — YES YES 1— YES —
Double
Throw Max. 600V AC
Horsepower
Rated
Fusible Cartridge H
T (600V)
T (240V)
30 – 200
400
600
2 and 3 YES
Up to
600A
YES
Up to
200A
————
Non-Fusible — — 30 – 800 2, 3, 4
and 6 YES YES YES
Up to
400A
— YES
Up to
400A
—
Rotary
Switches Max. 600V AC Non-Fusible — — 16 – 125 3, 4 YES YES 1YES 1— YES YES
EnviroLine Fuse
Type Fuse
Class Ampere
Rating Number
of Poles Enclosure Types
NEMA 1 NEMA 3R NEMA 12 NEMA 4
Painted
Steel
NEMA 4X
Stainless
Steel
NEMA 4X
Non-Metallic
Stainless Enclosure
with Stainless
Mechanism
Fusible Cartridge H 30 – 400 2 and 3 — — — — YES —
Non-Fusible — — 30 – 400 3 — — — — YES —
Viewing Window
Upper and Lower
23
Fusible Cartridge H
L30 – 600
800 3 — — YES 4YES YES —
Non-Fusible — — 30 – 800 3 — — YES 4YES YES —
Receptacle Fusible Cartridge H 30 – 100 3 — — YES — YES —
Non-Fusible — — 60 3 — — YES — YES —
Non-Metallic Fusible Cartridge H 30 – 200 3 — — — — — YES
Non-Fusible — — 30 – 200 3 — — — — — YES

CA08101001E For more information visit: www.cutler-hammer.eaton.com
8-11
Safety Switches & Enclosed Circuit Breakers
January 2003
8
Safety Switches
Technical Data and Specifications
Vol. 1, Ref. No. [0249]
Technical Data and Specifications
Dimensions
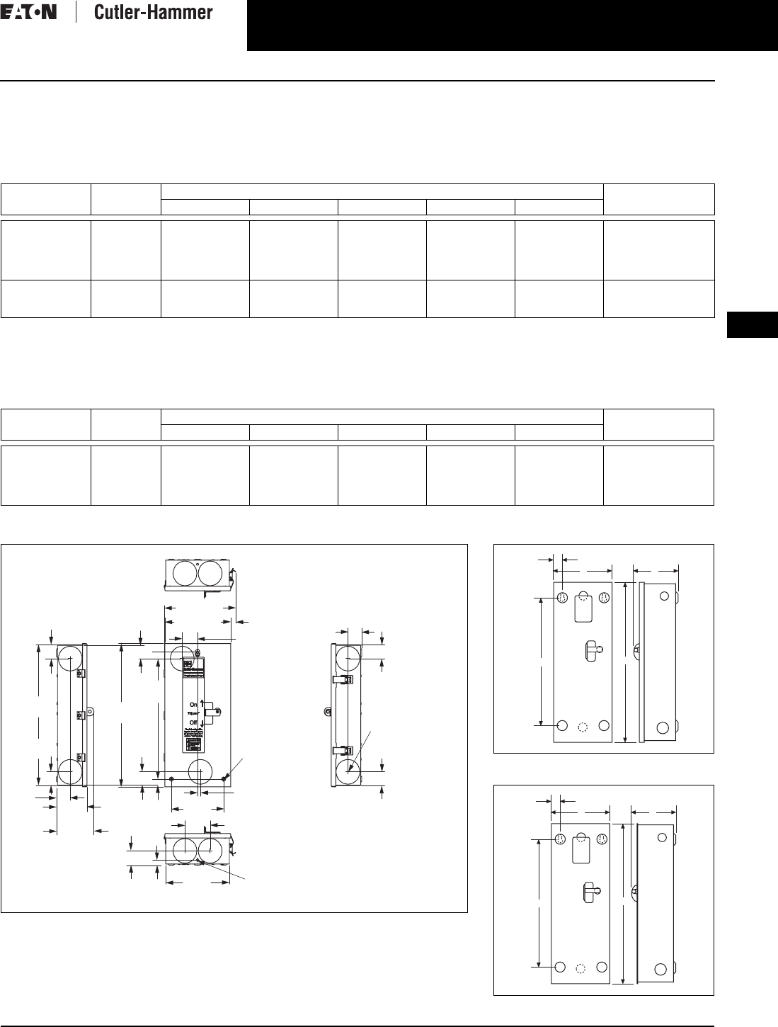
Table 8-25. General Duty, Plug Fuse, 120, 120/240V, 1-, 2-Pole Solid Neutral, Single Throw
Table 8-26. General Duty, Non-Fusible, 240V, 3-Pole, Single Throw
Note: Dimensions are for estimating purposes only.
Table 8-27. General Duty, Fusible, 240V, 3-Pole Solid Neutral, Single Throw
Note: Dimensions are for estimating purposes only. Not applicable to plug fuse.
Table 8-28. General Duty, Non-Fusible, 240V, 2-Pole Solid Neutral, Double Throw, Compact Design
Table 8-29. General Duty, Non-Fusible, 240V, 2-Pole Solid Neutral,
Double Throw, Quick-Make, Quick-Break Design
Ampere
Rating NEMA 1
Dimensions in Inches (mm)
Height Width Depth
30 6-7/8 (175) 4-15/16 (125) 3-7/16 (87)
Ampere
Rating NEMA 1 NEMA 3R
Dimensions in Inches (mm) Dimensions in Inches (mm)
Height Width Depth Height Width Depth
30
60
100
10-11/16 (271)
14-3/16 (361)
18-13/16 (478)
6-3/8 (162)
8-11/16 (221)
9-1/8 (231)
6-7/8 (175)
7-3/8 (187)
7-3/8 (187)
10-13/16 (274)
14-3/8 (365)
19-1/4 (489)
6-3/8 (162)
8-11/16 (221)
9-1/8 (231)
6-7/8 (175)
7-3/8 (187)
7-3/8 (187)
200
400
600
25-1/4 (641)
44-3/4 (1136)
52-1/4 (1327)
16 (406)
23 (584)
24 (610)
11-1/4 (286)
12-5/8 (321)
14-1/4 (362)
25-1/2 (648)
45-3/16 (1148)
52-11/16 (1339)
16 (406)
23 (584)
24 (610)
11-1/4 (286)
12-5/8 (321)
14-1/4 (362)
Ampere
Rating NEMA 1 NEMA 3R
Dimensions in Inches (mm) Dimensions in Inches (mm)
Height Width Depth Height Width Depth
30
60
100
10-11/16 (271)
14-3/16 (361)
18-13/16 (478)
6-3/8 (162)
8-11/16 (221)
9-1/8 (231)
6-7/8 (175)
7-3/8 (187)
7-3/8 (187)
10-13/16 (274)
14-3/8 (365)
19-1/4 (489)
6-3/8 (162)
8-11/16 (221)
9-1/8 (231)
6-7/8 (175)
7-3/8 (187)
7-3/8 (187)
200
400
600
24-3/4 (629)
44-3/4 (1136)
52-1/4 (1327)
16 (406)
23 (584)
24 (610)
11-1/4 (286)
12-5/8 (321)
14-1/4 (362)
25-1/2 (648)
45-3/16 (1148)
52-11/16 (1339)
16 (406)
23 (584)
24 (610)
11-1/4 (286)
12-5/8 (321)
14-1/4 (362)
Ampere
Rating NEMA 3R
Dimensions in Inches (mm)
Height Width Depth
30
60
100
14-11/16 (374)
14-11/16 (374)
14-11/16 (374)
9-5/8 (244)
9-5/8 (244)
9-5/8 (244)
10-13/16 (275)
10-13/16 (275)
10-13/16 (275)
Ampere
Rating NEMA 3R
Dimensions in Inches (mm)
Height Width Depth
30
60
100
24-5/8 (625)
24-5/8 (625)
24-5/8 (625)
11-15/16 (303)
11-15/16 (303)
11-15/16 (303)
9-7/8 (251)
9-7/8 (251)
9-7/8 (251)
200
400 37-3/8 (949)
53-13/16 (1367) 19-9/16 (497)
23-1/8 (587) 11-1/4 (286)
12-1/2 (318)
Figure 8-1. NEMA 1-3R 30 – 100 Amperes
General Duty Non-Fusible
and Fusible Single Throw
Figure 8-2. NEMA 1-3R 200 – 600 Amperes
General Duty Non-Fusible
and Fusible Single Throw
H
WD
D
W
H
C
L

January 2003
8-12
For more information visit: www.cutler-hammer.eaton.com CA08101001E
Safety Switches & Enclosed Circuit Breakers
8
Safety Switches
Technical Data and Specifications Vol. 1, Ref. No. [0250]
Dimensions
Note: Dimensions are for estimating purposes only.
Table 8-30. Heavy Duty, Non-Fusible, 600V, 3-Pole, Single Throw
Note: 600A dimensions become applicable in the second quarter of 2002.
Table 8-31. Heavy Duty, Fusible, 240V and 600V, 3-Pole Solid Neutral, Single Throw
Note: 600A dimensions become applicable in the second quarter of 2002.
Table 8-32. Heavy Duty, Non-Fusible, 240V and 600V, 3-Pole, Double Throw
Table 8-33. Heavy Duty, Fusible, 240V and 600V, 3-Pole, Double Throw
Ampere
Rating NEMA 1, 3R NEMA 12, 4XSS
Dimensions in Inches (mm) Dimensions in Inches (mm)
Height Width Depth Height Width Depth
30
60
100
200
15-7/8 (403)
15-7/8 (403)
21-11/16 (551)
27-5/8 (702)
8-1/8 (206)
8-1/8 (206)
11-1/8 (283)
16 (406)
10 (254)
10 (254)
10 (254)
11-1/4 (286)
12-1/8 (308)
12-1/8 (308)
24 (610)
34-3/8 (873)
8-1/8 (206)
8-1/8 (206)
11-1/8 (283)
16 (406)
10 (254)
10 (254)
10-1/4 (260)
11-1/2 (292)
400
600
800
1200
45-3/16 (1148)
52-11/16 (1339)
56-11/16 (1440)
70-5/16 (1786)
23 (584)
24 (610)
25-3/8 (645)
41-15/32 (1053)
12-5/8 (321)
14-1/4 (362)
14-1/4 (362)
19-15/16 (507)
57-5/8 (1464)
63 (1600)
71-3/4 (1822)
70-5/16 (1786)
23 (584)
24 (610)
25-3/8 (645)
41-15/32 (1053)
12-5/8 (321)
14-1/4 (362)
14-1/4 (362)
19-15/16 (507)
Ampere
Rating NEMA 1, 3R NEMA 12, 4XSS
Dimensions in Inches (mm) Dimensions in Inches (mm)
Height Width Depth Height Width Depth
30
60
100
200
15-7/8 (403)
15-7/8 (403)
21 -11/16 (551)
27-5/8 (702)
8-1/8 (206)
8-1/8 (206)
11-1/8 (283)
16 (406)
10 (254)
10 (254)
10 (254)
11-1/4 (286)
17-7/8 (454)
17-7/8 (454)
24 (610)
34-3/8 (873)
8-1/8 (206)
8-1/8 (206)
11-1/8 (283)
16 (406)
10 (254)
10 (254)
10-1/4 (260)
11-1/2 (292)
400
600
800
1200
45-3/16 (1148)
52-11/16 (1339)
56-11/16 (1440)
70-5/16 (1786)
23 (584)
24 (610)
25-3/8 (645)
41-15/32 (1053)
12-5/8 (321)
14-1/4 (362)
14-1/4 (362)
19-15/16 (507)
57-5/8 (1464)
63 (1600)
71-3/4 (1822)
70-5/16 (1786)
23 (584)
24 (610)
25-3/8 (645)
41-15/32 (1053)
12-5/8 (321)
14-1/4 (362)
14-1/4 (362)
19-15/16 (507)
Ampere
Rating NEMA 1, 3R NEMA 12, 4XSS
Dimensions in Inches (mm) Dimensions in Inches (mm)
Height Width Depth Height Width Depth
30
60
100
200
24-5/8 (625)
24-5/8 (625)
24-5/8 (625)
37-3/8 (949)
11-15/16 (303)
11-15/16 (303)
11-15/16 (303)
19-9/16 (497)
9-7/8 (251)
9-7/8 (251)
9-7/8 (251)
11-1/4 (286)
25-7/8 (657)
25-7/8 (657)
25-7/8 (657)
41 (1041)
12 (305)
12 (305)
12 (305)
19-1/2 (495)
10-1/4 (260)
10-1/4 (260)
10-1/4 (260)
11-5/8 (295)
400
600
800
53-13/16 (1367)
63-5/16 (1608)
63-5/16 (1608)
23-1/8 (587)
24-1/8 (613)
24-1/8 (613)
12-1/2 (318)
14-1/8 (359)
14-1/8 (359)
57-1/2 (1460)
—
—
23 (584)
—
—
12-1/2 (318)
—
—
Ampere
Rating NEMA 1, 3R NEMA 12, 4XSS
Dimensions in Inches (mm) Dimensions in Inches (mm)
Height Width Depth Height Width Depth
30
60
100
36-5/8 (930)
36-5/8 (930)
36-5/8 (930)
11-15/16 (303)
11-15/16 (303)
11-15/16 (303)
9-7/8 (251)
9-7/8 (251)
9-7/8 (251)
39-13/16 (1011)
39-13/16 (1011)
39-13/16 (1011)
12 (305)
12 (305)
12 (305)
10-1/4 (260)
10-1/4 (260)
10-1/4 (260)
200
400
600
50-7/8 (1292)
74-3/4 (1898)
86-1/8 (2188)
19-9/16 (497)
25-3/8 (645)
27-7/16 (697)
11-1/4 (286)
14-1/8 (359)
14-1/8 (359)
55-5/8 (1413)
74-3/4 (1899)
—
19-9/16 (497)
25-3/8 (645)
—
11-5/8 (295)
14-1/8 (359)
—
Figure 8-3. NEMA 1-3R Heavy Duty
30 – 1200 Amperes
Figure 8-4. NEMA 4, 4X and 12 Heavy Duty
30 – 800 Amperes
Figure 8-5. NEMA 1-3R Double Throw
30 – 800 Amperes
Figure 8-6. NEMA 12-4X Double Throw
30 – 400 Amperes
D
W
H
C
L
D
W
C
L
H
W
C
LH
D
W
H
D

CA08101001E For more information visit: www.cutler-hammer.eaton.com
8-13
Safety Switches & Enclosed Circuit Breakers
January 2003
8
Safety Switches
Short Circuit Ratings
Vol. 1, Ref. No. [0251]
General Duty
Table 8-34. Short Circuit Ratings Using Class “R”, “J” or “T” Fusing where Applicable
Note: Class “H” fuse clips supplied as standard for 30 – 600 amperes.
Rated at 10,000 rms symmetrical when using Class “H” fuses.
Heavy Duty
Table 8-35. Short Circuit Ratings Using Class “R”, “J” or “T” Fusing where Applicable
Note: Class “H” fuse clips supplied as standard for 30 – 600 amperes. Rated at 10,000 rms
symmetrical when using Class “H” fuses.
Double Throw
Table 8-36. Short Circuit Ratings Using Class “R”, “J” or “T” Fusing where Applicable
Note: Class “H” fuse clips supplied as standard for 30 – 600 amperes except Class “T” for
400 amperes at 600 volts and 600 amperes at 240 volts. Rated at 10,000 rms symmetrical
when using Class “H” fuses.
Ampere
Rating Voltage Ratings
Type 1 Type 3R
30
60
100
200
400
600
100k at 240
100k at 240
100k at 240
100k at 240
100k at 250
100k at 250
100k at 240
100k at 240
100k at 240
100k at 240
100k at 250
100k at 250
Ampere
Rating Voltage Ratings
Type 1 Type 3R Type 12 Type 4 and 4X
30 200k at 600 200k at 600 200k at 600 200k at 600
60 200k at 600 200k at 600 200k at 600 200k at 600
100 200k at 480
100k at 600 200k at 480
100k at 600 200k at 600 200k at 600
200 200k at 600 200k at 600 200k at 600 200k at 600
400 200k at 480
100k at 600 200k at 480
100k at 600 200k at 480
100k at 600 200k at 480
100k at 600
600 200k at 480
100k at 600 200k at 480
100k at 600 200k at 480
100k at 600 200k at 480
100k at 600
800 200k at 480
100k at 600 200k at 480
100k at 600 200k at 480
100k at 600 200k at 480
100k at 600
1200 200k at 600 200k at 600 — —
Ampere
Rating Voltage Ratings
Type 1 Type 3R Type 12 Type 4 and 4X
30
60
100
200
400
600
800
100k at 600
100k at 600
100k at 600
100k at 600
100k at 600
100k at 600
100k at 600
100k at 600
100k at 600
100k at 600
100k at 600
100k at 600
100k at 600
100k at 600
100k at 600
100k at 600
100k at 600
100k at 600
100k at 600
100k at 600
—
100k at 600
100k at 600
100k at 600
100k at 600
100k at 600
100k at 600
—
Non-Fusible Switches
The UL listed short circuit ratings for
Cutler-Hammer Non-Fusible switches
by Eaton Corporation are based on the
switches being properly protected by
overcurrent protective devices. For
applications that require a UL listed
short circuit rating of 10,000 rms sym-
metrical amperes or less, a Cutler-
Hammer Non-Fusible switch must be
properly protected by any overcurrent
protective device rated no greater than
the ampere rating of the switch. For
applications that require a UL listed
short circuit rating of greater than
10,000 rms symmetrical amperes, a
Cutler-Hammer Non-Fusible switch
must be properly protected by the
appropriate class and size fusing noted
on the switch publication (located on
the inside cover). Otherwise, this Non-
Fusible switch must be replaced
with a Cutler-Hammer Fusible switch
that utilizes the appropriate fusing
required. Molded case circuit breaker
protection of Non-Fusible Cutler-
Hammer switches for applications that
require a short circuit rating of greater
than 10,000 rms symmetrical amperes
has not been evaluated. Refer to the
reference tables for typical Cutler-
Hammer fusible switch UL listed
short circuit ratings.
Note: Safety switch short circuit ratings are
applicable to AC only.
Note: Safety switch l2t and lp values are
identical to UL maximum acceptable l2t and
lp values for the corresponding class fuse.

January 2003
8-14
For more information visit: www.cutler-hammer.eaton.com CA08101001E
Safety Switches & Enclosed Circuit Breakers
8
Safety Switches
Product Selection Vol. 1, Ref. No. [0252]
Product Selection
Table 8-37. Safety Switch Catalog Numbering System
1See Pages 8-6 through 8-9 for additional Flex Center options.
Series
K = Design
All General Duty
Switches Above
200 Ampere and All
Heavy Duty Switches
Incorporate K-Series
Switch Design
Features Listed Below
B = Design General Duty
30 – 100 Amps
H = General Duty Double
Throw Switch
(Compact Design
30 – 100 Amperes)
Fusible/Non-Fusible
or Neutral
F = Fusible without Neutral
U = Non-Fusible
N = Fusible with Neutral
NEMA Enclosure Ratings
G= NEMA 1
R = NEMA 3R
D = NEMA 12
P = NEMA 4
(Painted Steel)
W = NEMA 4X
Corrosion Resistant
(304 Grade Stainless Steel)
C= NEMA 4X
Non-Metallic
(for Type DH)
X= NEMA 7/9
(for Type DS)
X= NEMA 4X
Non-Metallic
(for Type DR)
Switch Type
DP = General Duty/
Plug Fuse
DG = General Duty/
Cartridge Fuse
DH = Heavy Duty
DT = Double Throw
DR = Rotary Switch
DS = Classified
Location with
DS Interior
Poles/Blades
1= 1-Pole
2= 2-Poles
3= 3-Poles
4= 4-Poles
6= 6-Poles
Voltage
1= 120V AC
2= 240V AC
6= 600V AC
Amperes
1= 30 Amps
2= 60 Amps
3= 100 Amps
4= 200 Amps
5= 400 Amps
6= 600 Amps
7= 800 Amps
8= 1200 Amps
DH 3 6 1 N D K LW
Options 1
W = Upper Viewing
Window
LW = Lower Viewing
Window
X = EnviroLine
Stainless
(Enclosure and
Mechanism)
GCL = Mill Duty

January 2003
CA08101001E For more information visit: www.cutler-hammer.eaton.com
8-15
Safety Switches & Enclosed Circuit Breakers
8
Safety Switches
Product Selection
Vol. 1, Ref. No. [0253]
120/240V AC General Duty, Fusible,
Single Throw
Specifications
■30 – 600 amperes.
■Suitable for service entrance appli-
cations unless otherwise noted.
■Horsepower rated.
■Bolt-on hub provision. Provided
for general duty switches in a
NEMA 3R enclosure. See Page 8-5
for selection.
■UL listed File No. E5239. Meets
UL 98 for enclosed switches and
NEMA Std. KS-1.
■200 – 600 ampere switches
incorporate K-Series design.
DP221NGB
(New plug fuse design
available first quarter of 2002)
DG321NRB
Table 8-38. 120/240V AC General Duty, Fusible, Single Throw
1Maximum hp ratings apply only when dual element time delay fuses are used.
2These switches do not have an interlock which prevents door from being opened when switch is in the ON position.
3Use 3-wire catalog numbers below.
4Solid neutral bars are not included in 400A and 600A switches. Order separately from Table 8-1 on Page 8-4.
5Grounded B phase rating, UL listed.
Note: All general duty safety switches are individually packaged.
System Ampere
Rating Fuse
Type
Provision
Maximum Horsepower Ratings 1NEMA 1 Enclosure
Indoor NEMA 3R Enclosure
Rainproof
1-Phase AC 3-Phase AC DC
120V 240V 240V 250V Catalog
Number Price
U.S. $ Catalog
Number Price
U.S. $
Fusible — Plug Type 2
2-Wire (One Blade, One Fuse, S/N) — 120V AC
30 Plug
(Type S, T
or W)
1/2 – 2 — — — DP111NGB 58. ——
3-Wire (Two Blades, Two Fuses, S/N) — 120/240V AC
30 Plug
(Type S, T
or W)
1/2 – 2 1-1/2 – 3 — — DP221NGB 66. Use
cartridge-type
fuse catalog
number
DG221NRB
—
Fusible — Cartridge Type
2-Pole 2-Wire (Two Blades, Two Fuses) — 240V AC
30
60
100
200
400
600
—
—
—
—
H
H
—
—
—
—
—
—
1-1/2 – 3
3 – 10
7-1/2 – 15
15
—
—
3 – 7-1/2
7-1/2 – 15
15 – 30
25 – 60
50 – 125
75 – 200
—
—
—
—
—
—
3
3
3
3
DG225FGK 4
DG226FGK 4
—
—
—
—
1,770.
3,565.
3
3
3
3
DG225FRK 4
DG226FRK 4
—
—
—
—
2,380.
4,565.
3-Wire (Two Blades, Two Fuses, S/N) — 120/240V AC
30
60
100
200
400
600
H
H
H
H
H
H
—
—
—
—
—
—
1-1/2 – 3
3 – 10
7-1/2 – 15
15
—
—
3 – 7-1/2 5
7-1/2 – 15 5
15 – 30 5
25 – 60 5
50 – 125 5
75 – 200 5
—
—
—
—
50
—
DG221NGB
DG222NGB
DG223NGB
DG224NGK
DG225NGK
DG226NGK
91.
146.
304.
650.
2,030.
3,840.
DG221NRB
DG222NRB
DG223NRB
DG224NRK
DG225NRK
DG226NRK
166.
280.
342.
855.
2,640.
4,865.
S/N
S/N
S/N
Discount Symbol . . . . . . . . . . . . . . . . . . . . . . . . 22-CD

January 2003
8-16
For more information visit: www.cutler-hammer.eaton.com CA08101001E
Safety Switches & Enclosed Circuit Breakers
8
Safety Switches
Product Selection Vol. 1, Ref. No. [0254]
120/240V AC General Duty, Fusible, Single Throw
Table 8-39. 120/240V AC General Duty, Fusible, Single Throw
1Maximum hp ratings apply only when dual element time delay fuses are used.
2Use 4-wire catalog numbers below.
3Solid neutral bars are not included in 400A and 600A switches. Order separately from Table 8-1 on Page 8-4.
120/240V AC General Duty, Non-Fusible, Single Throw
DG321NRB
Table 8-40. 120/240V AC General Duty, Non-Fusible, Single Throw
4WARNING! Switch is not approved for service entrance unless a neutral kit is installed.
5Use 3-wire catalog numbers below.
6Drilled to accept field installed neutral kits.
Note: All general duty safety switches are individually packaged.
System Ampere
Rating Fuse
Type
Provision
Maximum Horsepower Ratings 1NEMA 1 Enclosure
Indoor NEMA 3R Enclosure
Rainproof
1-Phase AC 3-Phase AC DC
120V 240V 240V 250V Catalog
Number Price
U.S. $ Catalog
Number Price
U.S. $
3-Pole 3-Wire (Three Blades, Three Fuses) — 240V AC
30
60
100
200
400
600
H
H
H
H
H
H
—
—
—
—
—
—
—
—
—
—
—
—
—
—
—
—
50 – 125
75 – 200
—
—
—
—
—
—
2
2
2
2
DG325FGK 3
DG326FGK 3
—
—
—
—
2,200.
4,005.
2
2
2
2
DG325FRK 3
DG326FRK 3
—
—
—
—
2,695.
5,460.
4-Wire (Three Blades, Three Fuses, S/N) — 120/240V AC
30
60
100
200
400
600
H
H
H
H
H
H
—
—
—
—
—
—
1-1/2 – 3
3 – 10
7-1/2 – 15
15
—
—
3 – 7-1/2
7-1/2 – 15
15 – 30
25 – 60
50 – 125
75 – 200
—
—
—
—
—
—
DG321NGB
DG322NGB
DG323NGB
DG324NGK
DG325NGK
DG326NGK
141.
233.
397.
860.
2,275.
4,160.
DG321NRB
DG322NRB
DG323NRB
DG324NRK
DG325NRK
DG326NRK
210.
318.
580.
1,070.
2,780.
5,780.
S/N
System Ampere
Rating Maximum Horsepower Ratings NEMA 1 Enclosure
Indoor NEMA 3R Enclosure
Rainproof
1-Phase AC 3-Phase AC DC
120V 240V 240V 250V Catalog
Number Price
U.S. $ Catalog
Number Price
U.S. $
Non-Fusible — 2-Pole 2-Wire (Two Blades) — 240V AC
30
60
100
200
2
3
—
—
3
10
15
—
—
—
—
—
—
—
—
—
DG221UGB 4
DG222UGB 4
DG223UGB 4
45
102.
132.
273.
—
DG221URB 4
DG222URB 4
DG223URB 4
45
137.
245.
330.
—
3-Pole 3-Wire (Three Blades) — 240V AC
30
60
100
200
400
600
2
3
—
—
—
—
3
10
15
15
—
—
7-1/2
15
30
60
125
200
—
—
—
—
—
—
DG321UGB 4
DG322UGB 4
DG323UGB 4
DG324UGK 4
DG325UGK 6
DG326UGK 6
115.
145.
342.
615.
1,595.
3,015.
DG321URB 4
DG322URB 4
DG323URB 4
DG324URK 4
DG325URK 6
DG326URK 6
209.
318.
580.
1,040.
2,460.
4,515.
Discount Symbol . . . . . . . . . . . . . . . . . . . . . . . . 22-CD

January 2003
CA08101001E For more information visit: www.cutler-hammer.eaton.com
8-17
Safety Switches & Enclosed Circuit Breakers
8
Safety Switches
Vol. 1, Ref. No. [0255]
This page intentionally left blank.

January 2003
8-18
For more information visit: www.cutler-hammer.eaton.com CA08101001E
Safety Switches & Enclosed Circuit Breakers
8
Safety Switches
Product Selection Vol. 1, Ref. No. [0256]
240V AC Heavy Duty, Fusible, Single Throw
Specifications
■30 – 1200 amperes.
■Horsepower rated through
800 amperes.
■Suitable for service entrance use,
except 4-pole switches.
■UL listed File No. E5239.
■For factory modifications refer to
Pages 8-6 through 8-9.
DH323FGK
Table 8-41. Fusible
1Hp ratings apply only when neutral is field installed and switch is used on a grounded B phase system.
2Use 3-pole catalog numbers below.
3Grounded B phase ratings, UL listed.
4NEMA 12 enclosures (30 – 200 amperes) can be field modified to meet NEMA 3R rainproof requirements when a factory provided drain hole is opened.
5Contact the Safety Switch Flex Center (1-888-329-9272) for availability of this product.
Note: 30A heavy duty switches with Type J fuse provisions are available from the factory only. See Table 8-15 on Page 8-7 for catalog numbers.
System Ampere
Rating Fuse Type
Provision Maximum Horsepower Ratings NEMA 1 Enclosure
Indoor NEMA 3R Enclosure
Rainproof
AC DC
250V
Standard Fuse Time Delay Catalog
Number Price
U.S. $ Catalog
Number Price
U.S. $
1-Phase 3-Phase 1-Phase 3-Phase
2-Pole — 240V AC, 250V DC (Suitable for Service Entrance Use with a Neutral or Ground Lug Kit Installed)
30
60
100
200
400
600
800
H
—
—
—
H
H
L
—
—
—
—
—
—
—
—
—
—
—
50 1
75 1
100 1
—
—
—
—
—
—
—
—
—
—
—
125 1
200 1
250 1
—
—
—
—
50
—
—
DH221FGK
2
2
2
DH225FGK
DH226FGK
DH227FGK
172.
—
—
—
2,195.
4,230.
7,310.
2
2
2
2
DH225FRK
DH226FRK
—
—
—
—
—
2,875.
5,530.
—
3-Wire (Two Blades, Two Fuses, S/N) — 240V AC, 250V DC
30
60
100
200
400
600
800
H
H
H
H
H
H
L
1-1/2
3
7-1/2
15
—
—
—
3 3
7-1/2 3
15 3
25 3
50 3
75 3
100 3
3
10
15
15
—
—
—
7-1/2 3
15 3
30 3
60 3
125 3
200 3
250 3
5
10
20
40
50
—
—
DH221NGK
DH222NGK
DH223NGK
DH224NGK
DH225NGK
DH226NGK
DH227NGK
179.
336.
525.
985.
2,380.
4,375.
7,750.
DH221NRK
DH222NRK
DH223NRK
DH224NRK
DH225NRK
DH226NRK
DH227NRK
346.
615.
805.
1,205.
3,220.
5,880.
9,390.
3-Pole — 240V AC, 250V DC (Suitable for Service Entrance Use with a Neutral or Ground Lug Kit Installed)
30
60
100
200
400
600
800
1200
H
H
H
H
H
H
L
L
1-1/2
3
7-1/2
15
—
—
—
—
3
7-1/2
15
25
50
75
100
—
—
—
—
—
—
—
—
—
7-1/2
15
30
60
125
200
250
—
—
—
20
40
50
—
—
—
DH321FGK
DH322FGK
DH323FGK
DH324FGK
DH325FGK
DH326FGK
DH327FGK
DH328FGK
243.
412.
670.
1,050.
2,540.
4,655.
8,720.
10,390.
DH321FRK
DH322FRK
DH323FRK
DH324FRK
DH325FRK
DH326FRK
DH327FRK
DH328FRK
420.
685.
970.
1,300.
3,115.
6,280.
11,520.
13,600.
4-Wire (Three Blades, Three Fuses, S/N) — 240V AC, 250V DC
30
60
100
200
400
600
800
1200
H
H
H
H
H
H
L
L
—
—
—
—
—
—
—
—
3
7-1/2
15
25
50
75
100
—
—
—
—
—
—
—
—
—
7-1/2
15
30
60
125
200
250
—
—
—
20
—
50
—
—
—
DH321NGK
DH322NGK
DH323NGK
DH324NGK
DH325NGK
DH326NGK
DH327NGK
DH328NGK
223.
384.
615.
1,115.
2,875.
4,930.
9,370.
11,040.
DH321NRK
DH322NRK
DH323NRK
DH324NRK
DH325NRK
DH326NRK
DH327NRK
DH328NRK
443.
695.
1,000.
1,350.
3,290.
6,610.
12,100.
14,360.
4-Pole — 240V AC, 250V DC 2-Phase 3-Phase 2-Phase 3-Phase
30
60
100
200
400
600
H
H
H
H
H
H
3
7-1/2
15
30
50
—
3
7-1/2
15
25
50
75
10
20
30
50
—
—
7-1/2
15
30
60
125
200
5
10
20
40
50
—
DH421FGK
DH422FGK
DH423FGK
DH424FGK
DH425FGK
DH426FGK
449.
615.
960.
1,635.
4,140.
7,130.
4
4
4
4
5
5
—
—
—
—
—
—
Discount Symbol. . . . . . . . . . . . . . . . . . . . . . . . 22-CD
S/N
S/N

January 2003
CA08101001E For more information visit: www.cutler-hammer.eaton.com
8-19
Safety Switches & Enclosed Circuit Breakers
8
Safety Switches
Product Selection
Vol. 1, Ref. No. [0257]
DH322NRK
Table 8-41. Fusible (Continued)
6Use 3-pole catalog numbers below.
7Contact the Safety Switch Flex Center (1-888-329-9272) for availability of this product.
8NEMA 12 enclosures (30 – 200 amperes) can be field modified to meet NEMA 3R rainproof requirements when a factory provided drain hole is opened.
9Use 4-wire catalog numbers below.
jRefer to EnviroLine Non-Metallic Safety Switches on Page 8-35.
Ampere
Rating NEMA 12 Enclosure
Industrial,
Dust-tight
NEMA 4 Enclosure
Watertight,
Painted Steel
NEMA 4X Enclosure
Corrosion Resistant,
Stainless Steel
NEMA 4X Enclosure
Corrosion Resistant,
Non-Metallic
Catalog
Number Price
U.S. $ Catalog
Number Price
U.S. $ Catalog
Number Price
U.S. $ Catalog
Number Price
U.S. $
2-Pole — 240V AC, 250V DC (Suitable for Service Entrance Use with a Neutral or Ground Lug Kit Installed)
30
60
100
200
400
600
800
6
6
6
6
DH225FDK
DH226FDK
DH227FDK
—
—
—
—
3,020.
5,710.
7,530.
—
—
—
—
DH225FPK
DH226FPK
—
—
—
—
—
10,470.
14,990.
—
6
6 or 7
7
7
7
7
7
—
—
—
—
—
—
—
6
6
6
6
—
—
—
—
—
—
—
—
—
—
3-Wire (Two Blades, Two Fuses, S/N) — 240V AC, 250V DC
30
60
100
200
400
600
800
DH221NDK 8
DH222NDK 8
DH223NDK 8
DH224NDK 8
DH225NDK
DH226NDK
DH227NDK
410.
655.
875.
1,335.
3,315.
6,060.
9,650.
—
—
—
—
DH225NPK
DH226NPK
DH227NPK
—
—
—
—
10,480.
15,020.
15,840.
DH221NWK
DH222NWK
DH223NWK
DH224NWK
DH225NWK
DH226NWK
DH227NWK
1,515.
1,845.
3,565.
5,450.
12,150.
15,820.
19,300.
9
9
9
9
—
—
—
—
—
—
—
—
—
—
3-Pole — 240V AC, 250V DC (Suitable for Service Entrance Use with a Neutral or Ground Lug Kit Installed)
30
60
100
200
400
600
800
1200
DH321FDK 8
DH322FDK 8
DH323FDK 8
DH324FDK 8
DH325FDK
DH326FDK
DH327FDK
7
425.
685.
975.
1,445.
3,205.
6,460.
11,880.
—
—
—
—
—
DH325FPK
DH326FPK
DH327FPK
—
—
—
—
—
10,550.
15,050.
18,390.
—
DH321FWK
DH322FWK
7
DH324FWK
DH325FWK
DH326FWK
DH327FWK
7
1,550.
1,915.
—
5,490.
12,240.
17,470.
21,340.
—
j
j
j
j
—
—
—
—
—
—
—
—
—
—
—
—
4-Wire (Three Blades, Three Fuses, S/N) — 240V AC, 250V DC
30
60
100
200
400
600
800
1200
DH321NDK 8
DH322NDK 8
DH323NDK 8
DH324NDK 8
DH325NDK
DH326NDK
7
7
535.
715.
1,165.
1,655.
3,615.
6,800.
—
—
—
—
—
—
DH325NPK
DH326NPK
—
—
—
—
—
—
10,790.
15,460.
—
—
DH321NWK
DH322NWK
DH323NWK
DH324NWK
DH325NWK
DH326NWK
7
7
1,720.
2,095.
4,175.
5,870.
13,270.
17,940.
—
—
j
j
j
j
—
—
—
—
—
—
—
—
—
—
—
—
4-Pole — 240V AC, 250V DC
30
60
100
200
400
600
DH421FDK 8
DH422FDK 8
DH423FDK 8
DH424FDK 8
7
7
655.
795.
1,280.
2,200.
—
—
—
—
—
—
—
—
—
—
—
—
—
—
7
7
7
7
7
7
—
—
—
—
—
—
—
—
—
—
—
—
—
—
—
—
—
—
Discount Symbol . . . . . . . . . . . . . . . . . . . . . . . . 22-CD

January 2003
8-20
For more information visit: www.cutler-hammer.eaton.com CA08101001E
Safety Switches & Enclosed Circuit Breakers
8
Safety Switches
Product Selection Vol. 1, Ref. No. [0258]
600V AC Heavy Duty, Fusible, Single Throw
Specifications
■30 – 1200 amperes.
■Horsepower rated through
800 amperes.
■Suitable for service entrance use,
except 1200 ampere on 480Y/277
or 600Y/347 grounded wye systems,
per NEC 215-10 and 230-95, and
4-pole switches.
■UL listed File No. E5239.
■For factory modifications refer to
Pages 8-6 through 8-9.
DH362NRK
Table 8-42. Fusible 277/480 – 600 Volts
1DC rating for 400 – 800 ampere switches is 250 volts.
2Use 3-pole catalog numbers below.
3Contact the Safety Switch Flex Center (1-888-329-9272) for availability of this product.
4NEMA 12 enclosures (30 – 200 amperes) can be field modified to meet NEMA 3R rainproof requirements when a factory provided drain hole is opened.
Note: 30A heavy duty switches with Type J fuse provisions are available from the factory only. See Table 8-15 on Page 8-7 for catalog numbers.
System Ampere
Rating Fuse Class
Provision Maximum Horsepower Ratings
with Time Delay Fuses NEMA 1 Enclosure
Indoor NEMA 3R Enclosure
Rainproof
1-Phase AC 3-Phase AC DC Catalog
Number Price
U.S. $ Catalog
Number Price
U.S. $
480V 600V 480V 600V 250V 600V
2-Pole — 480V AC — 600V AC or DC 1 (Suitable for Service Entrance Use with a Neutral or Ground Lug Kit Installed)
30
60
100
200
400
600
800
1200
H
H
H
H
H
H
L
L
7-1/2
20
30
50
—
—
—
—
10
25
40
50
—
—
—
—
—
—
—
—
—
—
—
—
—
—
—
—
—
—
—
—
—
—
20
—
50
—
—
—
15
25
—
50
—
—
—
—
DH261FGK
DH262FGK
DH263FGK
DH264FGK
DH265FGK
DH266FGK
DH267FGK
3
380.
453.
855.
1,225.
3,250.
5,140.
8,020.
—
2
2
2
2
2
2
2
2
—
—
—
—
—
—
—
—
3-Pole — 480V AC — 600V AC, 250V DC (Suitable for Service Entrance Use with a Neutral or Ground Lug Kit Installed)
30
60
100
200
400
600
800
1200
H
H
H
H
H
H
L
L
7-1/2
20
30
50
—
—
—
—
10
25
40
50
—
—
—
—
15
30
60
125
250
400
500
—
20
50
75
150
350
500
500
—
—
—
—
—
—
—
—
—
—
—
—
—
—
—
—
—
DH361FGK
DH362FGK
DH363FGK
DH364FGK
DH365FGK
DH366FGK
DH367FGK
DH368FGK
400.
475.
925.
1,290.
3,445.
6,070.
10,170.
12,720.
DH361FRK
DH362FRK
DH363FRK
DH364FRK
DH365FRK
DH366FRK
DH367FRK
DH368FRK
705.
825.
1,215.
1,735.
4,125.
8,170.
12,530.
14,460.
4-Wire (Three Blades, 3-Fuses, S/N) 480V AC — 600V AC, 250V DC
30
60
100
200
400
600
800
1200
H
H
H
H
H
H
L
L
7-1/2
20
30
50
—
—
—
—
10
25
40
50
—
—
—
—
15
30
60
125
250
400
500
—
20
50
75
150
350
500
500
—
—
—
—
—
—
—
—
—
—
—
—
—
—
—
—
—
DH361NGK
DH362NGK
DH363NGK
DH364NGK
DH365NGK
DH366NGK
DH367NGK
DH368NGK
454.
555.
995.
1,435.
3,715.
6,280.
10,770.
13,220.
DH361NRK
DH362NRK
DH363NRK
DH364NRK
DH365NRK
DH366NRK
DH367NRK
DH368NRK
750.
875.
1,325.
1,805.
4,380.
8,470.
13,180.
15,200.
4-Pole — 480V AC — 600V AC, 250V DC 2-Phase AC 3-Phase AC
30
60
100
200
400
600
800
H
H
H
H
H
H
L
20
40
50
—
—
—
—
25
50
50
—
—
—
—
15
30
60
125
250
400
—
20
50
75
150
350
500
—
—
—
—
40
50
—
—
—
—
—
—
—
—
—
DH461FGK
DH462FGK
DH463FGK
DH464FGK
DH465FGK
DH466FGK
3
655.
760.
1,255.
2,070.
5,660.
9,180.
—
4
4
4
4
3
3
3
—
—
—
—
—
—
—
S/N
Discount Symbol . . . . . . . . . . . . . . . . . . . . . . . . 22-CD

January 2003
CA08101001E For more information visit: www.cutler-hammer.eaton.com
8-21
Safety Switches & Enclosed Circuit Breakers
8
Safety Switches
Product Selection
Vol. 1, Ref. No. [0259]
DH361FWK
Table 8-42. Fusible 277/480 – 600 Volts (Continued)
5DC rating for 400 – 800 ampere switches is 250 volts.
6NEMA 12 enclosures (30 – 200 amperes) can be field modified to meet NEMA 3R rainproof requirements when a factory provided drain hole is opened.
7Use 3-pole catalog numbers below.
8Contact the Safety Switch Flex Center (1-888-329-9272) for availability of this product.
9Refer to EnviroLine Non-Metallic Safety Switches on Page 8-35.
Ampere
Rating NEMA 12 Enclosure
Industrial, Dust-tight NEMA 4 Enclosure
Watertight, Painted Steel NEMA 4X Enclosure
Corrosion Resistant, Stainless Steel NEMA 4X Enclosure
Corrosion Resistant, Non-Metallic
Catalog
Number Price
U.S. $ Catalog
Number Price
U.S. $ Catalog
Number Price
U.S. $ Catalog
Number Price
U.S. $
2-Pole — 480V AC — 600V AC or DC 5 (Suitable for Service Entrance Use with a Neutral or Ground Lug Kit Installed)
30
60
100
200
400
600
800
1200
DH261FDK 6
DH262FDK 6
DH263FDK 6
DH264FDK 6
DH265FDK
DH266FDK
DH267FDK
8
685.
700.
1,045.
1,610.
3,845.
5,950.
10,370.
—
—
—
—
—
7
7
7
—
—
—
—
—
—
—
—
—
DH261FWK
7 or 8
7 or 8
DH264FWK
7 or 8
7 or 8
7 or 8
8
1,820.
—
—
5,580.
—
—
—
—
7
7
7
7
—
—
—
—
—
—
—
—
—
—
—
—
3-Pole — 480V AC — 600V AC, 250V DC (Suitable for Service Entrance Use with a Neutral or Ground Lug Kit Installed)
30
60
100
200
400
600
800
1200
DH361FDK 6
DH362FDK 6
DH363FDK 6
DH364FDK 6
DH365FDK
DH366FDK
DH367FDK
8
710.
725.
1,250.
1,775.
4,140.
8,420.
12,900.
—
—
—
—
—
DH365FPK
DH366FPK
DH367FPK
—
—
—
—
—
10,500.
15,930.
18,800.
—
DH361FWK
DH362FWK
DH363FWK
DH364FWK
DH365FWK
DH366FWK
DH367FWK
8
1,880.
1,995.
3,965.
5,590.
12,970.
18,840.
21,920.
—
9
9
9
9
—
—
—
—
—
—
—
—
—
—
—
—
4-Wire (Three Blades, 3-Fuses, S/N) 480V AC — 600V AC, 250V DC
30
60
100
200
400
600
800
1200
DH361NDK 6
DH362NDK 6
DH363NDK 6
DH364NDK 6
DH365NDK
DH366NDK
8
8
775.
900.
1,365.
2,005.
4,510.
8,720.
—
—
—
—
—
—
DH365NPK
DH366NPK
—
—
—
—
—
—
10,780.
16,200.
—
—
DH361NWK
DH362NWK
DH363NWK
DH364NWK
DH365NWK
DH366NWK
8
8
1,905.
2,080.
4,305.
5,980.
13,530.
19,400.
—
—
9
9
9
9
—
—
—
—
—
—
—
—
—
—
—
—
4-Pole — 480V AC — 600V AC, 250V DC
30
60
100
200
400
600
800
68
68
DH463FDK 6
DH464FDK 6
8
8
8
—
—
1,440.
2,440.
—
—
—
—
—
—
—
—
—
—
—
—
—
—
—
—
—
8
8
8
8
8
8
8
—
—
—
—
—
—
—
—
—
—
—
—
—
—
—
—
—
—
—
—
—
Discount Symbol . . . . . . . . . . . . . . . . . . . . . . . . 22-CD

January 2003
8-22
For more information visit: www.cutler-hammer.eaton.com CA08101001E
Safety Switches & Enclosed Circuit Breakers
8
Safety Switches
Product Selection Vol. 1, Ref. No. [0260]
600V AC Heavy Duty, Non-Fusible, Single Throw
Specifications
■30 – 1200 amperes.
■Horsepower rated through
800 amperes.
■Suitable for service entrance use,
except 1200 ampere on 480Y/277 or
600Y/347 grounded wye systems,
per NEC 215-10 and 230-95, and
4-pole switches.
■UL listed File No. E5239.
■For factory modifications refer to
Pages 8-6 through 8-9.
DH362UGK
Table 8-43. Non-Fusible 277/480 – 600 Volts
1DC rating for 400 – 800 ampere switches is 250 volts.
2Use 3-pole catalog numbers below.
3Contact the Safety Switch Flex Center (1-888-329-9272) for availability of this product.
4NEMA 12 enclosures (30 – 200 amperes) can be field modified to meet NEMA 3R rainproof requirements when a factory provided drain hole is opened.
System Ampere
Rating Maximum
Horsepower Ratings NEMA 1 Enclosure
Indoor NEMA 3R Enclosure
Rainproof
1-Phase AC 3-Phase AC DC Catalog
Number Price
U.S. $ Catalog
Number Price
U.S. $
240V 480V 600V 240V 480V 600V 250V 600V
2-Pole — 480V AC — 600V AC or DC 1 (Suitable for Service Entrance Use with a Neutral or Ground Lug Kit Installed)
30
60
100
200
400
600
800
1200
3
10
20
15
—
—
—
—
7-1/2
20
30
50
—
—
—
—
10
25
40
50
—
—
—
—
—
—
—
—
—
—
—
—
—
—
—
—
—
—
—
—
—
—
—
—
—
—
—
—
—
—
20
—
50
—
—
—
15
25
25
50
—
—
—
—
DH261UGK
DH262UGK
DH263UGK
—
DH265UGK
DH266UGK
DH267UGK
3
201.
354.
585.
—
1,950.
3,525.
7,070.
—
2
2
2
2
2
2
2
2
—
—
—
—
—
—
—
—
3-Pole — 480V AC — 600V AC, 250V DC (Suitable for Service Entrance Use with a Neutral or Ground Lug Kit Installed)
30
60
100
200
400
600
800
1200
3
10
20
15
—
—
—
—
7-1/2
20
40
50
—
—
—
—
10
25
50
50
—
—
—
—
10
20
40
60
125
200
—
—
20
50
75
125
250
400
500
—
30
60
100
150
350
500
500
—
5
10
20
40
50
—
—
—
—
—
—
—
—
—
—
—
DH361UGK
DH362UGK
DH363UGK
DH364UGK
DH365UGK
DH366UGK
DH367UGK
DH368UGK
213.
367.
615.
930.
2,160.
3,830.
7,580.
9,750.
DH361URK
DH362URK
DH363URK
DH364URK
DH365URK
DH366URK
DH367URK
DH368URK
367.
670.
960.
1,125.
2,835.
5,860.
10,050.
12,980.
4-Pole — 480V AC — 600V AC, 250V DC 2-Phase AC 3-Phase AC
30
60
100
200
400
600
800
10
20
40
50
50
—
—
20
40
50
50
—
—
—
25
50
50
50
—
—
—
10
20
40
60
125
200
—
20
50
75
125
250
400
—
30
60
100
150
350
500
—
5
10
20
40
—
—
—
—
—
—
—
—
—
—
DH461UGK
DH462UGK
DH463UGK
DH464UGK
DH465UGK
DH466UGK
3
615.
655.
1,205.
1,745.
3,695.
6,450.
—
4
4
4
4
3
3
3
—
—
—
—
—
—
—
Discount Symbol . . . . . . . . . . . . . . . . . . . . . . . . 22-CD

January 2003
CA08101001E For more information visit: www.cutler-hammer.eaton.com
8-23
Safety Switches & Enclosed Circuit Breakers
8
Safety Switches
Product Selection
Vol. 1, Ref. No. [0261]
DH361UWK
Table 8-43. Non-Fusible 277/480 – 600 Volts (Continued)
5DC rating for 400 – 800 ampere switches is 250 volts.
6NEMA 12 enclosures (30 – 200 amperes) can be field modified to meet NEMA 3R rainproof requirements when a factory provided drain hole is opened.
7Use 3-pole catalog numbers below.
8Contact the Safety Switch Flex Center (1-888-329-9272) for availability of this product.
9Refer to EnviroLine Non-Metallic Safety Switches on Page 8-36.
Ampere
Rating NEMA 12 Enclosure
Industrial, Dust-tight NEMA 4 Enclosure
Watertight, Painted Steel NEMA 4X Enclosure
Corrosion Resistant, Stainless Steel NEMA 4X Enclosure
Corrosion Resistant, Non-Metallic
Catalog
Number Price
U.S. $ Catalog
Number Price
U.S. $ Catalog
Number Price
U.S. $ Catalog
Number Price
U.S. $
2-Pole — 480V AC — 600V AC or DC 5 (Suitable for Service Entrance Use with a Neutral or Ground Lug Kit Installed)
30
60
100
200
400
600
800
1200
DH261UDK 6
DH262UDK 6
DH263UDK 6
DH264UDK 6
DH265UDK
DH266UDK
DH267UDK
8
380.
437.
820.
1,070.
2,675.
4,545.
8,530.
—
—
—
—
—
7
7
7
—
—
—
—
—
—
—
—
—
7
7 or 8
7 or 8
7 or 8
7 or 8
7 or 8
7 or 8
8
—
—
—
—
—
—
—
—
7
7
7
7
—
—
—
—
—
—
—
—
—
—
—
—
3-Pole — 480V AC — 600V AC, 250V DC (Suitable for Service Entrance Use with a Neutral or Ground Lug Kit Installed)
30
60
100
200
400
600
800
1200
DH361UDK 6
DH362UDK 6
DH363UDK 6
DH364UDK 6
DH365UDK
DH366UDK
DH367UDK
8
460.
685.
985.
1,165.
2,890.
6,040.
10,360.
—
—
—
—
—
DH365UPK
DH366UPK
DH367UPK
—
—
—
—
—
9,390.
13,090.
18,390.
—
DH361UWK
DH362UWK
DH363UWK
DH364UWK
DH365UWK
DH366UWK
DH367UWK
8
1,470.
1,750.
3,570.
4,855.
10,420.
16,140.
21,330.
—
9
9
9
9
—
—
—
—
—
—
—
—
—
—
—
—
4-Pole — 480V AC — 600V AC, 250V DC
30
60
100
200
400
600
800
DH461UDK 6
DH462UDK 6
DH463UDK 6
DH464UDK 6
8
8
8
680.
795.
1,380.
2,080.
—
—
—
—
—
—
—
—
—
—
—
—
—
—
—
—
—
DH461UWK
8
8
8
8
8
8
2,535.
—
—
—
—
—
—
—
—
—
—
—
—
—
—
—
—
—
—
—
—
Discount Symbol . . . . . . . . . . . . . . . . . . . . . . . . 22-CD

January 2003
8-24
For more information visit: www.cutler-hammer.eaton.com CA08101001E
Safety Switches & Enclosed Circuit Breakers
8
Safety Switches
Product Selection Vol. 1, Ref. No. [0262]
240V AC Heavy Duty, Fusible,
Non-Fusible, Double Throw
Specifications
■30 – 800 amperes.
■Horsepower rated.
■Suitable for service entrance use
with neutral or ground lug kit
installed.
■Suitable for use as a manually
operated switch per 2002 NEC
Article 702.
■Fusible and non-fusible.
■UL listed File No. E5239.
■For factory modifications refer to
Pages 8-6 through 8-9.
DT323FRK
Figure 8-7. Typical Fusible Double Throw
Schematic Diagram
Table 8-44. Fusible
1Only available for use with fast acting fuses. Standard hp rating is shown.
Table 8-45. Non-Fusible
2WARNING! Switch is not approved for service entrance.
3Field installable neutral kit is not available. If a neutral is required, order the catalog number shown in the table with “N” suffix.
4Contact the Safety Switch Flex Center (1-888-329-9272) for availability of this product.
Two Sources
Two Loads
Ampere
Rating
Main and
Standby
Fuse
Class
Provision
Maximum Horsepower Ratings
with Time Delay Fuses NEMA 1 Enclosure
Indoor NEMA 3R Enclosure
Rainproof
1-Phase AC 3-Phase AC DC
250V
240V 480V 600V 240V 480V 600V Catalog Number Price U.S. $ Catalog Number Price U.S. $
2-Pole — 240V AC — 250V DC
200 H 15——— ——40DT224FGK 2,895. DT224FRK 4,020.
3-Pole — 240V AC — 250V DC
30
60
100
200
400
600 1
H
H
H
H
H
T
3
10
15
15
—
—
—
—
—
—
—
—
—
—
—
—
—
—
7-1/2
15
30
60
125
50
—
—
—
—
—
—
—
—
—
—
—
—
5
10
20
40
50
50
DT321FGK
DT322FGK
DT323FGK
DT324FGK
DT325FGK
DT326FGK
840.
1,525.
2,480.
3,755.
9,090.
9,570.
DT321FRK
DT322FRK
DT323FRK
DT324FRK
DT325FRK
DT326FRK
1,100.
2,010.
2,865.
4,885.
10,280.
11,370.
Ampere
Rating
Main and
Standby
Maximum Horsepower Ratings NEMA 1 Enclosure
Indoor NEMA 3R Enclosure
Rainproof
1-Phase AC 3-Phase AC DC
250V
240V 480V 600V 240V 480V 600V Catalog Number Price U.S. $ Catalog Number Price U.S. $
Non-Fusible 2-Pole — 240V AC — 250V DC
30
60
100
200
400
600
3
10
20
15
—
—
—
—
—
—
—
—
—
—
—
—
—
—
—
—
—
—
—
—
—
—
—
—
—
—
—
—
—
—
—
—
5
10
20
40
50
—
DT221UGK
DT222UGK
DT223UGK
DT224UGK
DT225UGK
DT226UGK
458.
735.
1,050.
1,390.
4,015.
6,770.
4
4
4
DT224URK
DT225URK
4
—
—
—
1,815.
6,170.
—
Non-Fusible 3-Pole — 240V AC — 250V DC
30
60
100
200
400
600
800
800
3
10
20
15
—
—
—
—
—
—
—
—
—
—
—
—
—
—
—
—
—
—
—
—
10
20
40
60
125
125
125
125
—
—
—
—
—
—
—
—
—
—
—
—
—
—
—
—
5
10
20
40
50
50
50
50
DT321UGK
DT322UGK
DT323UGK
DT324UGK
DT325UGK
DT326UGK
DT327UGK 23
DT327UGK-N
540.
915.
1,350.
1,995.
5,610.
7,590.
11,550.
12,450.
4
4
DT323URK
DT324URK
4
4
4
4
—
—
1,455.
2,530.
—
—
—
—
Discount Symbol . . . . . . . . . . . . . . . . . . . . . . . . 22-CD

January 2003
CA08101001E For more information visit: www.cutler-hammer.eaton.com
8-25
Safety Switches & Enclosed Circuit Breakers
8
Safety Switches
Product Selection
Vol. 1, Ref. No. [0263]
600V AC Heavy Duty, Fusible, Non-Fusible, Double Throw
Table 8-46. Fusible
1Contact the Safety Switch Flex Center (1-888-329-9272) for availability of this product.
Table 8-47. Non-Fusible
2WARNING! Switch is not approved for service entrance.
3Rated 600V DC, 50 hp in addition to ratings shown in table.
4Contact the Safety Switch Flex Center (1-888-329-9272) for availability of this product.
5NEMA 12 enclosures (30 – 200 amperes) can be field modified to meet NEMA 3R rainproof requirements when a factory provided drain hole is opened.
6Also available in 240V AC catalog number DT325UDK.
7Field installable neutral kit is not available. If a neutral is required, order the catalog number shown in the table with “N” suffix.
Ampere
Rating
Main and
Standby
Fuse
Class
Provision
Maximum Horsepower Ratings
with Time Delay Fuses NEMA 1 Enclosure
Indoor NEMA 3R Enclosure
Rainproof NEMA 12 Enclosure
Industrial, Dust-tight NEMA 4X Enclosure
Corrosion Resistant,
Stainless Steel
1-Phase AC 3-Phase AC DC
480V 600V 480V 600V 250V Catalog
Number Price
U.S. $ Catalog
Number Price
U.S. $ Catalog
Number Price
U.S. $ Catalog
Number Price
U.S. $
3-Pole — 600V AC — 250V DC
30
60
100
200
400
H
H
H
H
T
7-1/2
20
30
50
—
10
25
40
50
—
15
30
60
125
250
20
50
75
150
350
—
—
—
40
50
DT361FGK
DT362FGK
DT363FGK
DT364FGK
DT365FGK
1,585.
1,670.
2,950.
4,390.
9,250.
1
1
DT363FRK
DT364FRK
DT365FRK
—
—
3,530.
5,700.
10,460.
1
1
1
1
1
—
—
—
—
—
DT361FWK
DT362FWK
DT363FWK
DT364FWK
DT365FWK
3,465.
9,150.
10,360.
12,760.
20,730.
Ampere
Rating
Main and
Standby
Maximum Horsepower Ratings NEMA 1 Enclosure
Indoor NEMA 3R Enclosure
Rainproof NEMA 12 Enclosure
Industrial, Dust-tight NEMA 4X Enclosure
Corrosion Resistant,
Stainless Steel
1-Phase AC 3-Phase AC DC
480V 600V 480V 600V 250V Catalog
Number Price
U.S. $ Catalog
Number Price
U.S. $ Catalog
Number Price
U.S. $ Catalog
Number Price
U.S. $
2-Pole — 600V AC — 250V DC
30
60
100
200
400
600
7-1/2
20
40
50
—
—
10
25
50
50
—
—
—
—
—
—
—
—
—
—
—
—
—
—
5
10
20
40
50
50
DT261UGK
DT262UGK
DT263UGK
DT264UGK 3
DT265UGK
DT266UGK
555.
790.
1,180.
1,625.
5,050.
7,490.
4
4
4
DT264URK 3
DT265URK
DT266URK
—
—
—
3,895.
8,760.
10,920.
—
—
—
—
—
—
—
—
—
—
—
—
—
—
—
—
—
—
—
—
—
—
—
—
3-Pole — 600V AC — 250V DC
30
60
100
200
400
600
800
800
7-1/2
20
40
50
—
—
—
—
10
25
50
50
—
—
—
—
30
60
75
125
250
250
250
250
30
60
100
150
350
350
350
350
5
10
20
40
50
50
50
50
DT361UGK
DT362UGK
DT363UGK
DT364UGK
DT365UGK
DT366UGK
DT367UGK 27
DT367UGK-N
590.
895.
1,460.
2,140.
5,730.
8,390.
12,930.
13,830.
DT361URK
DT362URK
DT363URK
DT364URK
DT365URK
DT366URK
DT367URK 27
DT367URK-N
1,085.
1,495.
2,530.
4,615.
9,240.
11,970.
14,280.
15,180.
DT361UDK 5
DT362UDK 5
DT363UDK 5
DT364UDK 5
DT365UDK 6
4
4
4
1,165.
2,460.
2,605.
4,785.
9,480.
—
—
—
DT361UWK
DT362UWK
DT363UWK
DT364UWK
DT365UWK
4
4
4
2,275.
4,180.
6,340.
7,650.
16,640.
—
—
—
4-Pole — 600V AC — 250V DC 2
30
60
100
200
400
600
800
20
40
50
—
—
—
—
25
50
50
50
—
—
—
20
50
75
125
250
250
250
30
60
100
150
350
350
350
5
10
20
40
50
50
50
4
4
4
DT464UGK
DT465UGK
DT466UGK
DT467UGK
—
—
—
3,710.
8,520.
12,300.
31,820.
DT461URK
DT462URK
DT463URK
DT464URK
DT465URK
DT466URK
DT467URK
2,685.
2,870.
4,130.
6,560.
11,530.
14,190.
41,320.
4
4
4
4
4
4
4
—
—
—
—
—
—
—
4
4
4
4
4
4
4
—
—
—
—
—
—
—
6-Pole — 600V AC — 250V DC 2
30
60
100
7-1/2
20
40
10
25
50
15
50
75
30
60
100
5
10
20
4
4
4
—
—
—
DT661URK
DT662URK
DT663URK
4,230.
5,360.
8,040.
4
4
4
—
—
—
4
4
4
—
—
—
Discount Symbol . . . . . . . . . . . . . . . . . . . . . . . . 22-CD

January 2003
8-26
For more information visit: www.cutler-hammer.eaton.com CA08101001E
Safety Switches & Enclosed Circuit Breakers
8
Safety Switches
Product Selection Vol. 1, Ref. No. [0264]
240V AC General Duty, Non-Fusible,
Compact Design, Double Throw
Specifications
■30 – 100 amperes.
■Suitable for service entrance use
with neutral kit installed.
■Suitable for use as a manually
operated switch per 2002 NEC
Article 702.
■Non-fusible.
■UL listed File No. E5239.
DT223URH-N New Compact Design
Table 8-48. Non-Fusible
Ampere
Rating
Main and
Standby
NEMA 3R Enclosure
Rainproof
Catalog
Number Price
U.S. $
Non-Fusible 2-Pole — 240V AC
30
60
100
DT221URH
DT222URH
DT223URH
477.
505.
530.
Non-Fusible 2-Pole, 3-Wire — 240V AC —
Solid Neutral
30
60
100
DT221URH-N
DT222URH-N
DT223URH-N
565.
590.
600.
240V AC General Duty, Non-Fusible,
Double Throw
Specifications
■30 – 400 amperes.
■Horsepower rated.
■Suitable for service entrance use
with neutral kit installed.
■Suitable for use as a manually
operated switch per 2002 NEC
Article 702.
■Non-fusible.
■UL listed File No. E5239.
■Quick-make, quick-break operating
mechanism.
DT223URK-NPS
Table 8-49. Non-Fusible
Figure 8-8. Typical General Duty Double
Throw Schematic Diagram (with factory
installed neutral)
Ampere
Rating
Main and
Standby
Maximum Horsepower Ratings
with Time Delay Fuses NEMA 3R Enclosure
Rainproof
1-Phase AC 3-Phase AC DC
250V
240V 480V 600V 240V 480V 600V Catalog
Number Price
U.S. $
Non-Fusible 2-Pole — 240V AC — 250V DC
30
60
100
200
400
3
10
20
15
—
—
—
—
—
—
—
—
—
—
—
—
—
—
—
—
—
—
—
—
—
—
—
—
—
—
5
10
20
40
50
DT221URKPS
DT222URKPS
DT223URKPS
DT224URKPS
DT225URKPS
560.
590.
620.
1,280.
3,120.
Non-Fusible 2-Pole, 3-Wire — 240V AC — 250V DC, Solid Neutral
30
60
100
200
400
3
10
20
15
—
—
—
—
—
—
—
—
—
—
—
—
—
—
—
—
—
—
—
—
—
—
—
—
—
—
5
10
20
40
50
DT221URK-NPS
DT222URK-NPS
DT223URK-NPS
DT224URK-NPS
DT225URK-NPS
640.
670.
700.
1,360.
3,200.
Two Sources
ON
OFF
ON
ON
OFF
ON
S/N
Discount Symbol . . . . . . . . . . . . . . . . . . . . . . . . 22-CD

January 2003
CA08101001E For more information visit: www.cutler-hammer.eaton.com
8-27
Safety Switches & Enclosed Circuit Breakers
8
Safety Switches
Product Selection
Vol. 1, Ref. No. [0265]
600V AC Heavy Duty , Fusible, Non-
Fusible, Six-Pole, Single Throw
Specifications
■600V AC, 250V DC maximum.
■30 – 800 amperes.
■Fusible or non-fusible.
■UL listed File No. E5239.
■For factory modifications refer to
Pages 8-6 through 8-9.
DH661FDK
Table 8-50. Fusible
1NEMA 12 enclosures (30 – 200 amperes) can be field modified to meet NEMA 3R rainproof requirements when a factory provided drain hole is opened.
2Contact the Safety Switch Flex Center (1-888-329-9272) for availability of this product.
Note: 30A heavy duty switches with Type J fuse provisions are available from the factory only. See Table 8-15 on Page 8-7 for catalog numbers.
Table 8-51. Non-Fusible
3600V DC rating requires that the switch be wired per the wiring diagram on the device publication.
4NEMA 12 enclosures (30 – 200 amperes) can be field modified to meet NEMA 3R rainproof requirements when a factory provided drain hole is opened.
5Contact the Safety Switch Flex Center (1-888-329-9272) for availability of this product.
System Ampere
Rating Maximum Horsepower Ratings, 3-Phase AC
(Higher Rating with Time Delay Fuses) NEMA 12 Enclosure
Industrial, Dust-tight NEMA 4X Enclosure
Corrosion Resistant,
Stainless Steel
240V 480V 600V Catalog
Number Price
U.S. $ Catalog
Number Price
U.S. $
6-Pole — 600V AC with Fuse Clips — 250V DC
30
60
100
200
400
600
800
3 – 7-1/2
7-1/2 – 15
15 – 30
25 – 60
—
—
—
5 – 15
15 – 30
25 – 60
50 – 125
—
—
—
7-1/2 – 20
15 – 50
30 – 75
60 – 150
—
—
—
DH661FDK 1
DH662FDK 1
DH663FDK 1
DH664FDK 1
2
2
2
2,825.
3,360.
4,085.
7,550.
—
—
—
2
2
2
2
2
2
2
—
—
—
—
—
—
—
System Ampere
Rating Maximum Horsepower Ratings NEMA 12 Enclosure
Industrial, Dust-tight NEMA 4X Enclosure
Corrosion Resistant,
Stainless Steel
3-Phase AC DC
240V 480V 600V 250V 600V 3Catalog
Number Price
U.S. $ Catalog
Number Price
U.S. $
6-Pole — 600V AC — 250V DC
30
60
100
200
400
600
800
10
20
40
60
—
—
—
20
50
75
125
—
—
—
30
60
100
150
—
—
—
5
10
20
40
—
—
—
15
25
25
50
—
—
—
DH661UDK 4
DH662UDK 4
DH663UDK 4
DH664UDK 4
5
5
5
2,515.
2,895.
3,565.
6,480.
—
—
—
DH661UWK
DH662UWK
DH663UWK
DH664UWK
5
5
5
8,460.
9,230.
14,000.
17,830.
—
—
—
Discount Symbol . . . . . . . . . . . . . . . . . . . . . . . . 22-CD

January 2003
8-28
For more information visit: www.cutler-hammer.eaton.com CA08101001E
Safety Switches & Enclosed Circuit Breakers
8
Safety Switches
Product Selection Vol. 1, Ref. No. [0266]
Enclosed Rotary
Specifications
■16 – 125 amperes.
■600V, 3-, 4-pole non-fusible device.
■Accepts auxiliary contacts.
■Meets NEC Article 430.
■Ground lug connection provided.
■UL listed under Section 508.
■UL listed File Number E165150.
Enclosed Rotary Switches
Table 8-52. Non-Fusible
1NEMA Type 12 enclosures (16 – 125 amperes) can be field modified to meet NEMA Type 3R rainproof requirements when a factory provided drain
hole is opened.
Note: See Page 8-4 at the bottom for auxiliary contact kits. Contact the Safety Switch Flex Center (1-888-329-9272) for availability of higher
ampere non-fusible ratings. Contact Cutler-Hammer for horsepower ratings not shown.
Table 8-53. Auxiliary Contacts for Rotary Switches
2The mechanism is reversed on these contacts.
Ampere
Rating Maximum Horsepower
Ratings NEMA 1 Enclosure
Indoor NEMA 12 1 Enclosure
Dust-tight/Rainproof NEMA 4X Enclosure
Corrosion Resistant,
Stainless Steel
NEMA 4X Enclosure
Corrosion Resistant,
Non-Metallic
3-Phase AC
200V 208V 240V 480V 600V Catalog
Number Price
U.S. $ Catalog
Number Price
U.S. $ Catalog
Number Price
U.S. $ Catalog
Number Price
U.S. $
Non-Fusible 3-Pole, 600V AC
16
25
30
40
60
80
100
125
—
—
—
10
—
15
—
—
—
—
—
10
—
15
—
—
2
5
7-1/2
10
15
20
25
25
7-1/2
10
15
20
30
40
50
50
7-1/2
15
25
30
40
50
60
60
DR3016UG
DR3025UG
DR3030UG
DR3040UG
DR3060UG
DR3080UG
DR3100UG
DR3125UG
179.00
189.00
200.00
217.00
276.00
289.00
585.00
715.00
DR3016UD
DR3025UD
DR3030UD
DR3040UD
DR3060UD
DR3080UD
DR3100UD
DR3125UD
252.00
263.00
273.00
302.00
359.00
376.00
675.00
800.00
DR3016UW
DR3025UW
DR3030UW
DR3040UW
DR3060UW
DR3080UW
DR3100UW
DR3125UW
580.00
605.00
630.00
695.00
720.00
730.00
1,765.00
1,855.00
DR3016UX
DR3025UX
DR3030UX
DR3040UX
DR3060UX
DR3080UX
DR3100UX
DR3125UX
389.00
410.00
426.00
580.00
545.00
605.00
1,430.00
1,530.00
Non-Fusible 4-Pole, 600V AC
16
25
30
40
—
—
—
—
—
—
—
—
2
5
7-1/2
10
7-1/2
10
15
20
7-1/2
15
25
30
DR4016UG
DR4025UG
DR4030UG
DR4040UG
242.00
252.00
266.00
289.00
DR4016UD
DR4025UD
DR4030UD
DR4040UD
336.00
347.00
368.00
401.00
DR4016UW
DR4025UW
DR4030UW
DR4040UW
675.00
695.00
725.00
800.00
DR4016UX
DR4025UX
DR4030UX
DR4040UX
520.00
550.00
570.00
625.00
Ampere
Rating Description Catalog
Number Price
U.S. $
16 – 25
30 – 40
30 – 40
1 NO/1 NC, for 3-, 4-Pole, Includes Holder and Contact
1 NO, for 3-Pole, Includes Holder and Contact
1 NO, for 4-Pole, Includes Holder and Contact
CMAC
CRAC3 2
CRAC4 2
35.75
32.25
32.25
60 – 125
30 – 125
30 – 125
1 NO, for 3-Pole, Includes Holder and Contact
1 NO, for 3-, 4-Pole, Contact Only
1 NO, for 3-, 4-Pole, Contact Only
CWAC3 2
CRAA 2
CRAB 2
32.25
15.30
15.30
Discount Symbol . . . . . . . . . . . . . . . . . . . . . . . . 22-CD

January 2003
CA08101001E For more information visit: www.cutler-hammer.eaton.com
8-29
Safety Switches & Enclosed Circuit Breakers
8
Safety Switches
Product Selection
Vol. 1, Ref. No. [0267]
EnviroLine/Stainless Steel
240V AC Heavy Duty, Fusible and Non-Fusible, Single Throw
Stainless Steel Enclosure and Operating Mechanism
Specifications
■Stainless steel enclosure
(304 grade).
■Stainless steel mechanism.
■30 – 400 amperes.
■Horsepower rated.
■Suitable for service entrance use.
■UL listed File No. E5239.
■For factory modifications refer to
Pages 8-6 through 8-9.
DH321NWKX
Table 8-54. Fusible 240 Volts
1Contact the Safety Switch Flex Center (1-888-329-9272) for availability of this product.
Note: 30A heavy duty switches with Type J fuse provisions are available from the factory only. See Table 8-15 on Page 8-7 for catalog numbers.
System Ampere
Rating Fuse
Class
Provision
Maximum Horsepower Ratings with Time Delay Fuses NEMA 4X Enclosure
Corrosion Resistant, Stainless Steel
AC DC
250V
Standard Fuse Time Delay Catalog
Number Price
U.S. $
1-Phase 3-Phase 1-Phase 3-Phase
3-Wire (2 Blades, 2 Fuses, S/N), 240V AC — 250V DC
30
60
100
200
400
H
H
H
H
H
1-1/2
3
7-1/2
15
—
3
7-1/2
15
25
50
3
10
15
15
—
7-1/2
15
30
60
125
5
10
20
40
50
DH221NWKX
DH222NWKX
DH223NWKX
DH224NWKX
DH225NWKX
1,930.
2,310.
4,490.
6,860.
13,160.
3-Pole, 240V AC — 250V DC (Suitable for Service Entrance Use with a Neutral or Ground Lug Kit Installed)
30
60
100
200
400
H
H
H
H
H
1-1/2
3
—
15
—
3
7-1/2
—
25
50
—
—
—
—
—
7-1/2
15
—
60
125
—
—
—
40
50
DH321FWKX
DH322FWKX
1
DH324FWKX
DH325FWKX
1,975.
2,400.
—
6,850.
15,520.
4-Wire (3 Blades, 3 Fuses, S/N), 240V AC — 250V DC
30
60
100
200
400
H
H
H
H
H
—
—
—
—
—
3
7-1/2
15
25
50
—
—
—
—
—
7-1/2
15
30
60
125
—
—
20
—
50
DH321NWKX
DH322NWKX
DH323NWKX
DH324NWKX
DH325NWKX
2,175.
2,670.
5,310.
7,470.
16,840.
S/N
S/N
Discount Symbol . . . . . . . . . . . . . . . . . . . . . . . . 22-CD

January 2003
8-30
For more information visit: www.cutler-hammer.eaton.com CA08101001E
Safety Switches & Enclosed Circuit Breakers
8
Safety Switches
Product Selection Vol. 1, Ref. No. [0268]
EnviroLine/Stainless Steel
600V AC Heavy Duty, Fusible and Non-Fusible, Single Throw
Stainless Steel Enclosure and Operating Mechanism
Specifications
■Stainless steel enclosure
(304 grade).
■Stainless steel mechanism.
■30 – 400 amperes.
■Horsepower rated.
■Suitable for service entrance use.
■UL listed File No. E5239.
■For factory modifications refer to
Pages 8-6 through 8-9.
DH361NWKX
Table 8-55. Fusible 277/480 – 600 Volts
1Contact the Safety Switch Flex Center (1-888-329-9272) for availability of this product.
Note: 30A heavy duty switches with Type J fuse provisions are available from the factory only. See Table 8-15 on Page 8-7 for catalog numbers.
Table 8-56. Non-Fusible 277/480 – 600 Volts
System Ampere
Rating Fuse Class
Provision Maximum Horsepower Ratings with Time Delay Fuses NEMA 4X Enclosure
Corrosion Resistant, Stainless Steel
1-Phase AC 3-Phase AC DC
480V 600V 480V 600V 250V 600V Catalog Number Price U.S. $
2-Pole, 480V AC — 600V AC or DC (Suitable for Service Entrance Use with a Neutral or Ground Lug Kit Installed)
30
60
100
200
400
H
H
H
H
H
7-1/2
—
—
50
—
10
—
—
50
—
—
—
—
—
—
—
—
—
—
—
—
—
—
—
—
15
—
—
50
—
DH261FWKX
1
1
DH264FWKX
1
2,310.
—
—
7,090.
—
3-Pole, 480V AC — 600V AC, 250V DC (Suitable for Service Entrance Use with a Neutral or Ground Lug Kit Installed)
30
60
100
200
400
H
H
H
H
H
7-1/2
20
30
50
—
10
25
30
50
—
15
30
60
125
250
20
50
75
150
350
—
—
—
—
—
—
—
—
—
—
DH361FWKX
DH362FWKX
DH363FWKX
DH364FWKX
DH365FWKX
2,390.
2,540.
5,040.
7,100.
16,460.
4-Wire (3 Blades, 3 Fuses, S/N) 480V AC — 600V AC, 250V DC
30
60
100
200
400
H
H
H
H
H
7-1/2
20
40
50
—
10
25
50
50
—
20
50
75
125
250
30
60
100
150
350
—
—
—
—
—
—
—
—
—
—
DH361NWKX
DH362NWKX
DH363NWKX
DH364NWKX
DH365NWKX
2,415.
2,650.
5,480.
7,590.
17,170.
System Ampere
Rating Maximum Horsepower Ratings NEMA 4X Enclosure
Corrosion Resistant, Stainless Steel
1-Phase AC 3-Phase AC DC
480V 600V 480V 600V 250V 600V Catalog Number Price U.S. $
3-Pole, 480V AC — 600V AC, 250V DC (Suitable for Service Entrance Use with a Neutral or Ground Lug Kit Installed)
30
60
100
200
400
7-1/2
20
40
50
—
10
25
50
50
—
20
50
75
125
250
30
60
100
150
350
5
10
20
40
50
—
—
—
—
—
DH361UWKX
DH362UWKX
DH363UWKX
DH364UWKX
DH365UWKX
1,875.
2,190.
4,545.
6,160.
13,220.
S/N
Discount Symbol . . . . . . . . . . . . . . . . . . . . . . . . 22-CD

January 2003
CA08101001E For more information visit: www.cutler-hammer.eaton.com
8-31
Safety Switches & Enclosed Circuit Breakers
8
Safety Switches
Product Selection
Vol. 1, Ref. No. [0269]
EnviroLine/Upper Window
240V AC — 600V AC Heavy Duty, Fusible and Non-Fusible
Single Throw with Upper Viewing Window
Specifications
■30 – 800 amperes.
■Blade visibility when door closed.
■240 and 600V, fusible and non-fusible.
■Suitable for service entrance use.
■NEMA 12, 4 and 4X enclosures.
■UL listed and NEMA approved.
■For factory modifications refer to
Pages 8-6 through 8-9.
DH363NDKW
Table 8-57. Fusible
1For 2-pole applications, use outside poles of 3-pole switch.
2NEMA 12 enclosures (30 – 200 amperes) can be field modified to meet NEMA 3R rainproof requirements when a factory provided drain hole is opened.
Note: Contact the Safety Switch Flex Center (1-888-329-9272) for availability of NEMA 1 and 3R enclosures.
Table 8-58. Fusible
3For 2-pole applications, use outside poles of 3-pole switch.
4NEMA 12 enclosures (30 – 200 amperes) can be field modified to meet NEMA 3R rainproof requirements when a factory provided drain hole is opened.
Note: Contact the Safety Switch Flex Center (1-888-329-9272) for availability of NEMA 1 and 3R enclosures.
Note: 800A fusible window switches are not UL listed.
Note: 30A heavy duty switches with Type J fuse provisions are available from the factory only. See Table 8-15 on Page 8-7 for catalog numbers.
System Ampere
Rating Fuse
Class
Provision
Maximum Horsepower Ratings
with Time Delay Fuses NEMA 12 Enclosure
Industrial, Dust-tight NEMA 4 Enclosure
Watertight,
Painted Steel
NEMA 4X Enclosure
Corrosion Resistant,
Stainless Steel
AC DC
250V
Standard Fuse Time Delay Catalog
Number Price
U.S. $ Catalog
Number Price
U.S. $ Catalog
Number Price
U.S. $
1-Phase 3-Phase 1-Phase 3-Phase
4-Wire (3 Blades, 3 Fuses, S/N), 240V AC — 250V DC 1
30
60
100
200
400
600
800
H
H
H
H
H
H
L
—
—
—
—
—
—
—
3
7-1/2
15
25
50
75
100
—
—
—
—
—
—
—
7-1/ 2
15
30
60
125
200
250
—
—
20
—
50
—
—
DH321NDKW 2
DH322NDKW 2
DH323NDKW 2
DH324NDKW 2
DH325NDKW
DH326NDKW
DH327NDKW
620.
800.
1,250.
1,740.
4,040.
7,225.
13,460.
—
—
—
—
DH325NPKW
DH326NPKW
DH327NPKW
—
—
—
—
11,215.
15,885.
20,570.
DH321NWKW
DH322NWKW
DH323NWKW
DH324NWKW
DH325NWKW
DH326NWKW
DH327NWKW
1,805.
2,180.
4,260.
5,955.
13,695.
18,365.
21,790.
S/N
System Ampere
Rating Fuse
Class
Provision
Maximum Horsepower Ratings
with Time Delay Fuses NEMA 12 Enclosure
Industrial, Dust-tight NEMA 4 Enclosure
Watertight,
Painted Steel
NEMA 4X Enclosure
Corrosion Resistant,
Stainless Steel
1-Phase AC 3-Phase AC DC
250V
600V
Catalog
Number Price
U.S. $ Catalog
Number Price
U.S. $ Catalog
Number Price
U.S. $
480V 600V 480V 600V
4-Wire (3 Blades, 3 Fuses, S/N), 600V AC — 250V DC 3
30
60
100
200
400
600
800
H
H
H
H
H
H
L
7-1/2
20
30
50
—
—
—
10
25
40
50
—
—
—
15
30
60
125
250
400
500
20
50
75
150
350
500
500
—
—
—
—
—
—
—
DH361NDKW 4
DH362NDKW 4
DH363NDKW 4
DH364NDKW 4
DH365NDKW
DH366NDKW
DH367NDKW
860.
985.
1,450.
2,090.
4,935.
9,145.
14,305.
—
—
—
—
DH365NPKW
DH366NPKW
DH367NPKW
—
—
—
—
11,205.
16,625.
21,380.
DH361NWKW
DH362NWKW
DH363NWKW
DH364NWKW
DH365NWKW
DH366NWKW
DH367NWKW
1,990.
2,165.
4,390.
6,065.
13,955.
19,825.
23,280.
S/N
Discount Symbol . . . . . . . . . . . . . . . . . . . . . . . . 22-CD

January 2003
8-32
For more information visit: www.cutler-hammer.eaton.com CA08101001E
Safety Switches & Enclosed Circuit Breakers
8
Safety Switches
Product Selection Vol. 1, Ref. No. [0270]
EnviroLine/Upper Window
240V AC — 600V AC Heavy Duty, Non-Fusible
Single Throw with Upper Viewing Window
Specifications
■30 – 800 amperes.
■Blade visibility when door closed.
■240 and 600V, fusible and non-fusible.
■Suitable for service entrance use.
■NEMA 12, 4 and 4X enclosures.
■UL listed and NEMA approved.
■For factory modifications refer to
Pages 8-6 through 8-9.
Table 8-59. Non-Fusible
1For 2-pole applications, use outside poles of 3-pole switch.
2NEMA 12 enclosures (30 – 200 amperes) can be field modified to meet NEMA 3R rainproof requirements when a factory provided drain hole is opened.
Note: Contact the Safety Switch Flex Center (1-888-329-9272) for availability of NEMA 1 and 3R enclosures.
System Ampere
Rating Maximum Horsepower Ratings NEMA 12 Enclosure
Industrial, Dust-tight NEMA 4 Enclosure
Watertight,
Painted Steel
NEMA 4X Enclosure
Corrosion Resistant,
Stainless Steel
1-Phase AC 3-Phase AC DC
480V 600V 480V 600V 250V 600V Catalog
Number Price
U.S. $ Catalog
Number Price
U.S. $ Catalog
Number Price
U.S. $
3-Pole — 600V AC, 250V DC 1 (Suitable for Service Entrance Use with a Neutral or Ground Lug Kit Installed)
30
60
100
200
400
600
800
7-1/2
20
40
50
—
—
—
10
25
50
50
—
—
—
20
50
75
125
250
400
500
30
60
100
150
350
500
500
5
10
20
40
50
—
—
—
—
—
—
—
—
—
DH361UDKW 2
DH362UDKW 2
DH363UDKW 2
DH364UDKW 2
DH365UDKW
DH366UDKW
DH367UDKW
545.
770.
1,070.
1,250.
3,315.
6,465.
10,785.
—
—
—
—
DH365UPKW
DH366UPKW
DH367UPKW
—
—
—
—
9,815.
13,530.
18,835.
DH361UWKW
DH362UWKW
DH363UWKW
DH364UWKW
DH365UWKW
DH366UWKW
DH367UWKW
1,555.
1,835.
3,655.
4,940.
10,845.
16,565.
21,775.
Discount Symbol . . . . . . . . . . . . . . . . . . . . . . . . 22-CD

January 2003
CA08101001E For more information visit: www.cutler-hammer.eaton.com
8-33
Safety Switches & Enclosed Circuit Breakers
8
Safety Switches
Product Selection
Vol. 1, Ref. No. [0271]
EnviroLine/Lower Window
240V AC — 600V AC Heavy Duty, Fusible,
Single Throw with Lower Viewing Window
Specifications
■30 – 600 amperes.
■Lower viewing window over fuses
to allow visual verification of blown
fuse indicators for Littlefuse, Inc.
fuses.
■240 and 600V, fusible.
■Suitable for service entrance use.
■NEMA 12, 4 and 4X enclosures.
■UL listed and NEMA approved.
■For factory modifications refer to
Pages 8-6 through 8-9.
DH323NDKLW
Table 8-60. Fusible
1For 2-pole applications, use outside poles of 3-pole switch.
2NEMA 12 enclosures (30 – 200 amperes) can be field modified to meet NEMA 3R rainproof requirements when a factory provided
drain hole is opened.
Note: Contact the Safety Switch Flex Center (1-888-329-9272) for availability of NEMA 1 and 3R enclosures.
Table 8-61. Fusible
3For 2-pole applications, use outside poles of 3-pole switch.
4NEMA 12 enclosures (30 – 200 amperes) can be field modified to meet NEMA 3R rainproof requirements when a factory provided drain hole is opened.
Note: Contact the Safety Switch Flex Center (1-888-329-9272) for availability of NEMA 1 and 3R enclosures.
System Ampere
Rating Fuse
Class
Provision
Maximum Horsepower Ratings
with Time Delay Fuses NEMA 12 Enclosure
Industrial, Dust-tight NEMA 4 Enclosure
Watertight,
Painted Steel
NEMA 4X Enclosure
Corrosion Resistant,
Stainless Steel
AC DC
250V
Standard Fuse Time Delay Catalog
Number Price
U.S. $ Catalog
Number Price
U.S. $ Catalog
Number Price
U.S. $
1-Phase 3-Phase 1-Phase 3-Phase
4-Wire (3 Blades, 3 Fuses, S/N), 240V AC — 250V DC 1
30
60
100
200
400
600
H
H
H
H
H
H
—
—
—
—
—
—
3
7-1/2
15
25
50
75
—
—
—
—
—
—
7-1/2
15
30
60
125
200
—
—
20
—
50
—
DH321NDKLW
2
DH322NDKLW
2
DH323NDKLW
2
DH324NDKLW
2
DH325NDKLW
DH326NDKLW
620.
800.
1,250.
1,740.
4,040.
7,225.
—
—
—
—
DH325NPKLW
DH326NPKLW
—
—
—
—
11,215.
15,885.
DH321NWKLW
DH322NWKLW
DH323NWKLW
DH324NWKLW
DH325NWKLW
DH326NWKLW
1,805.
2,180.
4,260.
5,955.
13,695.
18,365.
System Ampere
Rating Fuse
Class
Provision
Maximum Horsepower Ratings
with Time Delay Fuses NEMA 12 Enclosure
Industrial, Dust-tight NEMA 4 Enclosure
Watertight,
Painted Steel
NEMA 4X Enclosure
Corrosion Resistant,
Stainless Steel
1-Phase AC 3-Phase AC DC
250V
480V 600V 480V 600V Catalog
Number Price
U.S. $ Catalog
Number Price
U.S. $ Catalog
Number Price
U.S. $
4-Wire (3 Blades, 3 Fuses, S/N), 600V AC — 250V DC 3
30
60
100
200
400
600
H
H
H
H
H
H
7-1/2
20
30
50
—
—
10
25
40
50
—
—
15
30
60
125
250
400
20
50
75
150
350
500
—
—
—
—
—
—
DH361NDKLW
4
DH362NDKLW
4
DH363NDKLW
4
DH364NDKLW
4
DH365NDKLW
DH366NDKLW
860.
985.
1,450.
2,090.
4,935.
9,145.
—
—
—
—
DH365NPKLW
DH366NPKLW
—
—
—
—
11,205.
16,625.
DH361NWKLW
DH362NWKLW
DH363NWKLW
DH364NWKLW
DH365NWKLW
DH366NWKLW
1,990.
2,165.
4,390.
6,065.
13,955.
19,825.
S/N
S/N
Discount Symbol . . . . . . . . . . . . . . . . . . . . . . . . 22-CD

January 2003
8-34
For more information visit: www.cutler-hammer.eaton.com CA08101001E
Safety Switches & Enclosed Circuit Breakers
8
Safety Switches
Product Selection Vol. 1, Ref. No. [0272]
EnviroLine/Receptacle
600V AC Heavy Duty, Single
Throw with Receptacle, Fusible,
Non-Fusible
Specifications
■30 – 100 amperes.
■Power plugs not supplied with the
receptacle.
■UL listed File No. E5239.
■For factory modifications refer to
Pages 8-6 through 8-9.
DH361FWK2WR
Safety Switch with Receptacle K-Series, 3-Pole, 600V Fuse Clips
Table 8-62. Fusible
1Non-interlocked switch, this Crouse-Hinds receptacle is rated to accept power plug while switch is energized.
2NEMA 12 rating — enclosure is stainless steel.
Note: Contact the Safety Switch Flex Center (1-888-329-9272) for additional options including viewing windows.
Note: Power plugs are not available through Eaton’s Cutler-Hammer.
Table 8-63. Non-Fusible
3NEMA 12 rating — enclosure is stainless steel.
Note: Contact the Safety Switch Flex Center (1-888-329-9272) for additional options including viewing windows.
Note: Power plugs are not available through Eaton’s Cutler-Hammer.
Ampere Rating Power Plug NEMA 12 Enclosure NEMA 4X Enclosure
Switch Receptacle Catalog Number Price U.S. $ Catalog Number Price U.S. $
Crouse-Hinds ARKTITET Receptacle
30
30
60
100
30
30
60
100
Accepts Crouse-Hinds
APJ3485
APJ3485
APJ6485
APJ10487
DH361FDK2WRK
DH361FDK2WR 1
DH362FDK2WR
DH363FDK2WR
1,820.
1,740.
1,775.
2,670.
—
DH361FWK2WR 2
DH362FWK2WR 2
DH363FWK2WR 2
—
5,190.
5,300.
8,740.
M-R-S (Russellstoll) MAX-GARDT Receptacle
30
60
100
30
60
100
Accepts Russellstoll
DS3404MP
DS6404MP
DS1404MP
DH361FD3WRK
DH362FD3WRK
DH363FD3WRK
1,740.
1,775.
2,670.
DH361FW3WRK
DH362FW3WRK
DH363FW3WRK
5,190.
5,300.
7,950.
Appleton POWERTITET Receptacle
30
60
100
30
60
100
Accepts Appleton
ACP3034BC
ACP6034BC
ACP1034CD
DH361FD5WRK
DH362FD5WRK
DH363FD5WRK
1,740.
1,775.
2,670.
DH361FW5WRK
DH362FW5WRK
DH363FW5WRK
5,190.
5,300.
7,950.
Ampere Rating Power Plug NEMA 12 Enclosure NEMA 4X Enclosure
Switch Receptacle Catalog Number Price U.S. $ Catalog Number Price U.S. $
Crouse-Hinds ARKTITET Receptacle
60 60 Accepts Crouse-Hinds
APJ6485 DH362UDK2WR 1,670. DH362UWK2WR 34,990.
Appleton POWERTITET Receptacle
30
60 30
60
Accepts Appleton
ACP3034BC
ACP6034BC DH361UD5WRK
DH362UD5WRK 1,645.
1,670. —
DH362UW5WRK —
4,990.
Discount Symbol . . . . . . . . . . . . . . . . . . . . . . . . 22-CD

January 2003
CA08101001E For more information visit: www.cutler-hammer.eaton.com
8-35
Safety Switches & Enclosed Circuit Breakers
8
Safety Switches
Product Selection
Vol. 1, Ref. No. [0273]
EnviroLine/Non-Metallic
240V AC and 600V AC Heavy Duty
Non-Metallic Fusible, Non-Fusible
Specifications
■30 – 200 amperes.
■Krydon™ high impact strength
fiberglass reinforced polyester
material.
■Horsepower rated.
■Suitable for service entrance use.
■Fusible and non-fusible.
■UL 98.
■UL listed File No. E5239.
■For factory modifications refer to
Pages 8-6 through 8-9.
DH361FCK
Table 8-64. Fusible
Table 8-65. Fusible
Note: 30A heavy duty switches with Type J fuse provisions are available from the factory only. See Table 8-15 on Page 8-7 for catalog numbers.
System Ampere
Rating Fuse
Class
Provision
Maximum Horsepower Ratings NEMA 4X Enclosure
Corrosion Resistant, Non-Metallic
AC DC
250V
Standard Fuse Time Delay Catalog
Number Price
U.S. $
1-Phase 3-Phase 1-Phase 3-Phase
3-Pole, 240V AC — 250V DC (Suitable for Service Entrance Use with a Neutral or Ground Lug Kit Installed)
30
60
100
200
H
H
H
H
1-1/2
3
7-1/2
15
3
7-1/2
15
25
—
—
—
—
7-1/2
15
30
60
—
—
20
40
DH321FCK
DH322FCK
DH323FCK
DH324FCK
2,920.
3,190.
6,050.
8,550.
4-Wire (3 Blades, 3 Fuses, S/N), 240V AC — 250V DC
30
60
100
200
H
H
H
H
—
—
—
—
3
7-1/2
15
25
—
—
—
—
7-1/2
15
30
60
—
—
20
—
DH321NCK
DH322NCK
DH323NCK
DH324NCK
2,985.
3,245.
6,190.
8,700.
S/N
System Ampere
Rating Fuse
Class
Provision
Maximum Horsepower Ratings
with Time Delay Fuses NEMA 4X Enclosure
Corrosion Resistant, Non-Metallic
1-Phase AC 3-Phase AC DC Catalog
Number Price
U.S. $
480V 600V 480V 600V 250V 600V
3-Pole, 480V AC — 600V AC, 250V DC (Suitable for Service Entrance Use with a Neutral or Ground Lug Kit Installed)
30
60
100
200
H
H
H
H
7-1/2
20
30
50
10
25
30
50
15
30
60
125
20
50
75
150
—
—
—
—
—
—
—
—
DH361FCK
DH362FCK
DH363FCK
DH364FCK
3,070.
3,440.
6,360.
8,860.
4-Wire (3 Blades, 3 Fuses, S/N), 480V AC — 600V AC, 250V DC
30
60
100
200
H
H
H
H
7-1/2
20
30
50
10
25
30
50
15
30
60
125
20
50
75
150
—
—
—
—
—
—
—
—
DH361NCK
DH362NCK
DH363NCK
DH364NCK
3,130.
3,500.
6,480.
9,020.
Discount Symbol . . . . . . . . . . . . . . . . . . . . . . . . . . . . 22-CD
S/N

January 2003
8-36
For more information visit: www.cutler-hammer.eaton.com CA08101001E
Safety Switches & Enclosed Circuit Breakers
8
Safety Switches
Product Selection Vol. 1, Ref. No. [0274]
EnviroLine/Non-Metallic
240V AC and 600V AC Heavy Duty Non-Metallic, Non-Fusible
Specifications
■30 – 200 amperes.
■Krydon™ high impact strength
fiberglass reinforced polyester
material.
■Horsepower rated.
■Suitable for service entrance use.
■Fusible and non-fusible.
■UL 98.
■UL listed File No. E5239.
■For factory modifications refer to
Pages 8-6 through 8-9.
Table 8-66. Non-Fusible 277/480 – 600 Volts
System Ampere
Rating Maximum Horsepower Ratings with Time Delay Fuses NEMA 4X Enclosure
Corrosion Resistant, Non-Metallic
1-Phase AC 3-Phase AC DC
240V 480V 600V 240V 480V 600V 250V 600V Catalog Number Price U.S. $
3-Pole, 480V AC — 600V AC, 250V DC (Suitable for Service Entrance Use with a Neutral or Ground Lug Kit Installed)
30
60
100
200
3
10
20
15
7-1/2
20
40
50
10
25
50
50
10
20
40
60
20
50
75
125
30
60
100
150
5
10
20
40
—
—
—
—
DH361UCK
DH362UCK
DH363UCK
DH364UCK
2,940.
3,245.
6,180.
8,630.
Discount Symbol . . . . . . . . . . . . . . . . . . . . . . . 22-CD

January 2003
CA08101001E For more information visit: www.cutler-hammer.eaton.com
8-37
Safety Switches & Enclosed Circuit Breakers
8
Safety Switches
Product Selection
Vol. 1, Ref. No. [0275]
NEMA 7/9 — Hazardous Location Disconnect Switch
DS361UX
The cast aluminum enclosure is ideally
suited for harsh industrial applications
including petrochemical facilities,
mining operations, pharmaceutical
plants and wastewater treatment
facilities. The Cutler-Hammer Type DS
switch by Eaton Corporation is used as
the switching device. Ratings are 30 –
200 amperes, 600V AC, fusible and
non-fusible.
Table 8-67. Compliances
Table 8-68. NEMA 7/9 Enclosure Sizes
Figure 8-9. NEMA 7/9 — 30 – 200 Amperes
1Dual 3 and 4 point mounting available as standard on enclosures 1 and 2.
Table 8-69. NEMA 7/9 — Dimensions in Inches (mm)
Note: Accessories and modifications shown on Page 8-4 through 8-9 are NOT applicable to NEMA 7/9 disconnect switches.
UL Classified —
Standard 886
File No. E84577
CSA Certified —
Standard C22.2
File No. LR 42131-6
Class I, Division 1 & 2,
Groups B, C and D Class I, Division 1 & 2,
Groups B, C and D
Class II, Division 1 & 2,
Groups E, F and G Class II, Division 1 & 2,
Groups E, F and G
Class III, Division 1 & 2 Class III, Division 1 & 2
NEMA 7/9 NEMA 7/9
Zone 1, IIB + H2Zone 1, IIB + H2
Ampere
Rating Maximum Horsepower Ratings Type Fuse
Class
Provision
Poles Voltage Standard Conduit
Size in Inches (mm) Enclosure
Number Catalog
Number Price
U.S. $
3-Phase AC DC
480V 600V 250V
30
60
100
200
15
30
60
125
20
50
75
150
5
10
20
40
Fusible J
J
J
J
3 600V DC
125/250V DC 1.50 (38.1)
2.00 (50.8)
2.50 (63.5)
3.00 (76.2)
1
2
3
4
DS361FX
DS362FX
DS363FX
DS364FX
2,770.
3,040.
3,805.
6,770.
30
60
100
200
15
30
60
125
20
50
75
150
5
10
20
40
Non-Fusible —
—
—
—
3 600V DC
125/250V DC 1.50 (38.1)
1.50 (38.1)
2.00 (50.8)
3.00 (76.2)
1
1
2
4
DS361UX
DS362UX
DS363UX
DS364UX
1,660.
2,010.
2,495.
5,390.
Enclosure
Number Mounting Dimensions Inside Dimensions Outside Dimensions Number
of Outlets K
Dimensions Approximate
Weight
Lbs. (kg)
ABJ CDF GH
1 5.50
(139.7) 13.13
(333.5) 14.13
(358.9) 5.94
(150.9) 10.75
(273.1) 10.63
(270.0) 15.25
(387.4) 8.84
(224.5) 2 2.00
(50.8) 38
(17)
2 6.00
(152.4) 18.00
(457.2) 19.00
(482.6) 6.50
(165.1) 16.00
(406.4) 11.00
(279.4) 20.50
(520.7) 8.97
(227.8) 2 2.31
(58.6) 57
(26)
3 10.25
(260.4) 22.63
(574.8) 11.75
(298.4) 20.00
(508.0) 16.38
(416.1) 25.13
(638.3) 9.59
(243.6) 2 3.50
(88.9) 104
(47)
4 8.50
(215.9) 27.13
(689.1) 10.75
(273.1) 24.13
(612.9) 16.00
(406.4) 29.50
(749.3) 12.28
(311.9) 2 4.00
(101.6) 145
(66)
Discount Symbol . . . . . . . . . . . . . . . . . . . . . . . . 22-CD
(2) 1/2-inch
(12.7 mm)
NPT

January 2003
8-38
For more information visit: www.cutler-hammer.eaton.com CA08101001E
Safety Switches & Enclosed Circuit Breakers
8
Safety Switches
Product Selection Vol. 1, Ref. No. [0276]
Cable Connector Receptacle Switches
240V, 600V AC Heavy Duty, Single Throw with Cam-Lok™ Receptacles, Fusible, Non-Fusible
Specifications
■30 – 600 amperes.
■UL listed File No. E5239.
■UL listed short circuit rating of
10,000 rms symmetrical amperes.
■NEMA 1 or 3R enclosures.
■Provision for 200% neutral.
■Aluminum cam connector
mounting plate.
■Crouse Hinds “J” Power Series
E1015, E1016 or E1017 cam
connectors as applicable.
Connector plugs are not provided.
Ordering Information
Step One
: Cable connector receptacle
switches are available on NEMA 1 or
NEMA 3R enclosures from 30 – 600A.
Cam-Lok™ receptacles can be mounted
on the lower endwall (NEMA 1 or
NEMA 3R), upper endwall (NEMA 1
only), and/or the sidewall (NEMA 1
only). Select the standard safety
switch from the catalog and add Suffix
LC for lower endwall mounting, UC
for upper endwall mounting, or SC
for sidewall mounting. Cam connec-
tors are provided for phases A, B, C,
neutral, and ground as applicable.
Step Two
: Contact the Safety Switch
Flex Center for complete pricing and
delivery information. The Flex Center
will provide a list price and product
description. An authorized negotiation
(TSP) number will be provided to track
your order.
Safety Switch Flex Center
Phone: 1-888-329-9272
Fax: 1-423-478-0270
Step Three
: Enter the order on VISTA-
LINE by description (with catalog num-
ber as applicable) and reference the
authorized negotiation (TSP) number.
Vista suffix will be “ETS.” Product
code will be “BE90.”
For order entry assistance,
contact CSC at:
Phone: 1-800-356-1243
Fax: 1-800-752-8602
DH324NGK-LC

January 2003
CA08101001E For more information visit: www.cutler-hammer.eaton.com
8-39
Safety Switches & Enclosed Circuit Breakers
8
Safety Switches
Product Selection
Vol. 1, Ref. No. [0277]
Mill Duty Rated, Heavy Duty, Fusible, Non-Fusible, Single Throw
240V, 600V AC Heavy Duty, Fusible,
Non-Fusible, Single Throw
Specifications
■30 – 600 amperes.
■Horsepower rated.
■Suitable for service entrance use.
■UL listed File No. E5239.
■Factory installed ground lug.
■Copper terminal lugs.
■Fuse pullers through 200 amperes.
■For factory modifications refer to
Pages 8-6 through 8-9.
DH361FWK-GCL
Table 8-70. Fusible
1NEMA 12 enclosures (30 – 200 amperes) can be field modified to meet NEMA 3R rainproof requirements when a factory provided drain hole is opened.
2Use 3-pole catalog numbers below.
3Contact the Safety Switch Flex Center (1-888-329-9272) for availability of this product.
Table 8-71. Non-Fusible 277/480 – 600 Volts
4For 2-pole applications, use outside poles of 3-pole switch.
5NEMA 12 enclosures (30 – 200 amperes) can be field modified to meet NEMA 3R rainproof requirements when a factory provided drain hole is opened.
System Ampere
Rating Fuse
Class
Provision
Maximum Horsepower Ratings with
Time Delay Fuses NEMA 12 Enclosure
Industrial, Dust-tight NEMA 4X Enclosure
Corrosion Resistant,
Stainless Steel
AC DC
250V DC
600V
Standard Fuse Time Delay Catalog
Number Price
U.S. $ Catalog
Number Price
U.S. $
1-Phase 3-Phase 1-Phase 3-Phase
3-Pole — 240V AC, 250V DC (Suitable for Service Entrance Use with a Neutral or Ground Lug Kit Installed)
30
60
100
200
400
600
H
H
H
H
H
H
1-1/2
3
7-1/2
15
—
—
3
7-1/2
15
25
50
75
—
—
—
—
—
—
7-1/2
15
30
60
125
200
—
—
20
40
50
—
—
—
—
—
—
—
DH321FDK-GCL 1
DH322FDK-GCL 1
DH323FDK-GCL 1
DH324FDK-GCL 1
DH325FDK-GCL
DH326FDK-GCL
645.
935.
1,345.
1,995.
4,330.
8,035.
DH321FWK-GCL
DH322FWK-GCL
3
DH324FWK-GCL
DH325FWK-GCL
DH326FWK-GCL
1,770.
2,165.
—
6,040.
13,365.
19,045.
2-Pole — 480V AC — 600V AC or DC (Suitable for Service Entrance Use with a Neutral or Ground Lug Kit Installed)
30
60
100
200
H
H
H
H
7-1/2
20
30
50
10
25
40
50
—
—
—
—
—
—
—
—
—
—
—
—
15
25
25
50
DH261FDK-GCL 1
DH262FDK-GCL 1
DH263FDK-GCL 1
DH264FDK-GCL 1
865.
900.
1,325.
2,020.
DH261FWK-GCL
2 or 3
2 or 3
DH264FWK-GCL
2,000.
—
—
5,990.
3-Pole — 480V AC — 600V AC, 250V DC (Suitable for Service Entrance Use with a Neutral or Ground Lug Kit Installed)
30
60
100
200
400
600
H
H
H
H
H
H
7-1/2
20
30
50
—
—
10
25
40
50
—
—
15
30
60
125
250
400
20
50
75
150
350
500
—
—
—
—
—
—
—
—
—
—
—
—
DH361FDK-GCL 1
DH362FDK-GCL 1
DH363FDK-GCL 1
DH364FDK-GCL 1
DH365FDK-GCL
DH366FDK-GCL
930.
975.
1,620.
2,325.
5,265.
9,995.
DH361FWK-GCL
DH362FWK-GCL
DH363FWK-GCL
DH364FWK-GCL
DH365FWK-GCL
DH366FWK-GCL
2,100.
2,245.
4,335.
6,140.
14,095.
20,375.
System Ampere
Rating Fuse
Class
Provision
Maximum Horsepower Ratings NEMA 12 Enclosure
Industrial, Dust-tight NEMA 4X Enclosure
Corrosion Resistant,
Stainless Steel
AC DC
250V DC
600V
Standard Fuse Time Delay Catalog
Number Price
U.S. $ Catalog
Number Price
U.S. $
1-Phase 3-Phase 1-Phase 3-Phase
3-Pole — 480V AC — 600V AC, 250V DC 4 (Suitable for Service Entrance use with a Neutral or Ground Lug Kit Installed)
30
60
100
200
400
600
—
—
—
—
—
—
7-1/2
20
40
50
—
—
10
25
50
50
—
—
20
50
75
125
250
400
30
60
100
150
350
500
5
10
20
40
50
—
—
—
—
—
—
—
DH361UDK-GCL 5
DH362UDK-GCL 5
DH363UDK-GCL 5
DH364UDK-GCL 5
DH365UDK-GCL
DH366UDK-GCL
680.
935.
1,355.
1,715.
4,015.
7,615.
DH361UWK-GCL
DH362UWK-GCL
DH363UWK-GCL
DH364UWK-GCL
DH365UWK-GCL
DH366UWK-GCL
1,690.
2,000.
3,940.
5,405.
11,545.
17,715.
Discount Symbol . . . . . . . . . . . . . . . . . . . . . . . . 22-CD

January 2003
8-40
For more information visit: www.cutler-hammer.eaton.com CA08101001E
Safety Switches & Enclosed Circuit Breakers
8
Safety Switches
Product Selection Vol. 1, Ref. No. [0278]
316 Grade Stainless Steel
Enclosures
Ordering Information
Step One
: Select the standard NEMA
4X stainless steel safety switch from
the catalog and add Suffix 316 to the
catalog number.
Step Two
: Add 40% to the current list
price (from Vista or the current
Price
and Availability Digest
) of the basic
NEMA 4X switch catalog number that
needs to be modified. If no list price
exists, the Flex Center will provide one.
Step Three
: Contact the Safety Switch
Flex Center for complete pricing and
delivery information. An authorized
negotiation (TSP) number will be pro-
vided to track your order.
Safety Switch Flex Center
Phone: 1-888-329-9272
Fax: 1-423-478-0270
Step Four
: Enter the order on VISTA-
LINE™ by description (with catalog
number if it applies) and reference the
authorized negotiation (TSP) number.
Vista suffix will be “ETS.” Product
code will be “BE90.”
For order entry assistance,
contact CSC at:
Phone: 1-800-356-1243
Fax: 1-800-752-8602
1200A NEMA 12 or
4X Enclosures
Ordering Information
Select the 1200A NEMA 12 dust-tight
or NEMA 4X stainless steel (304 grade)
safety switch from Table 8-72. Follow
Steps Three
and
Four
above. 1200A
NEMA 12 and 4X switches are not
UL listed.
Table 8-72. Ordering Information
Left-Handed Safety Switch
Left-Handed Safety Switch
Ordering Information
Step One:
Left-handed safety switches
are available from 30 – 200A for appli-
cations requiring an operating handle
on the left side of the enclosure. Select
the standard safety switch from the
catalog and add Suffix LH to the
catalog number.
Step Two
: Contact the Safety Switch
Flex Center for complete pricing and
delivery information. The Flex Center
will provide a list price. An authorized
negotiation (TSP) number will be pro-
vided to track your order
Safety Switch Flex Center
Phone: 1-888-329-9272
Fax: 1-423-478-0270
Step Three:
Enter the order on VISTA-
LINE by description (with catalog num-
ber as applicable) and reference the
authorized negotiation (TSP) number.
Vista suffix will be “ETS.” Product
code will be “BE90.”
For order entry assistance,
contact CSC at:
Phone: 1-800-356-1243
Fax: 1-800-752-8602
Note: Left-handed safety switches are
supplied with a C361H1 handle.
200% Neutral Safety
Switches
Ordering Information
Step One
: Safety switches with 200%
neutrals are available from 30 – 600A.
Select the standard safety switch from
the catalog and add Suffix 8 to the
catalog number.
Step Two
: Contact the Safety Switch
Flex Center for complete pricing and
delivery information. The Flex Center
will provide a list price and specifica-
tions for the 200% neutral. An autho-
rized negotiation (TSP) number will
be provided to track your order.
Safety Switch Flex Center
Phone: 1-888-329-9272
Fax: 1-423-478-0270
Step Three
: Enter the order on VISTA-
LINE by description (with catalog num-
ber as applicable) and reference the
authorized negotiation (TSP) number.
Vista suffix will be “ETS.” Product
code will be “BE90.”
For order entry assistance,
contact CSC at:
Phone: 1-800-356-1243
Fax: 1-800-752-8602
Safety Switches
Voltage Switch
Type
3-Pole
Catalog
Number Price
U.S. $
240 NEMA 12 DH328FDK
DH328NDK 14,575.
15,385.
NEMA 4X DH328FWK
DH328NWK 26,210.
26,935.
600 NEMA 12 DH368FDK
DH368NDK
DH368UDK
14,935.
15,720.
13,190.
NEMA 4X DH368FWK
DH368NWK
DH368UWK
26,925.
27,720.
26,200.
Discount Symbol . . . . . . . . . . . . . . . . . . . . . . . 22-CD

January 2003
CA08101001E For more information visit: www.cutler-hammer.eaton.com
8-41
Safety Switches & Enclosed Circuit Breakers
8
Safety Switches
Cross-Reference
Vol. 1, Ref. No. [0279]
Cross-Reference
General Duty Safety Switches
Table 8-73. General Duty
Note: Always verify the number of poles and wires required since
catalog numbers may appear in multiple tables.
General Duty (Continued)
1Separate neutral kit required.
Note: Always verify the number of poles and wires required since
catalog numbers may appear in multiple tables.
Ampere
Rating Catalog Number
Cutler-Hammer
Business General Electric Siemens Square D
Plug Fuse, 1-Pole, 2-Wire, 120V AC, NEMA 1
30 DP111NGB TPF130 LF111N D211N
Plug Fuse, 2-Pole, 3-Wire, 240V AC, NEMA 1
30 DP221NGB TPF230 LF211N D211N
Fusible, 2-Pole, 3-Wire, 240V AC, NEMA 1
30
60
100
200
400
600
DG221NGB
DG222NGB
DG223NGB
DG224NGK
DG225NGK
DG226NGK
TG3221
TG3222
TG3223
TG3224
TG3225
TG3226
GF221N
GF222N
GF223N
GF224N
GF225N
GF226N
D221N
D222N
D223N
D224N
D225N
D226N
Fusible, 3-Pole, 3-Wire, 240V AC, NEMA 1
30
60
100
200
400
600
DG321NGB
DG322NGB
DG323NGB
DG324NGK
DG325FGK
DG326FGK
TG4321
TG4322
TG4323
TG4324
TG3325
TG3326
GF321N
GF322N
GF323N
GF324N
GF325N
GF326N
D321N
D322N
D323N
D324N
D325N
D326N
Fusible, 3-Pole, 4-Wire, 240V AC, NEMA 1
30
60
100
200
400
600
DG321NGB
DG322NGB
DG323NGB
DG324NGK
DG325NGK
DG326NGK
TG4321
TG4322
TG4323
TG4324
TG4325
TG4326
GF321N
GF322N
GF323N
GF324N
GF325N
GF326N
D321N
D322N
D323N
D324N
D325N
D326N
Non-Fusible, 2-Pole, 2-Wire, 240V AC, NEMA 1
30
60
100
200
400
600
DG221UGB
DG222UGB
DG223UGB
DG324UGK
DG325UGK
DG326UGK
TGN3321
TGN3322
TGN3323
TGN3324
TGN3325
TGN3326
N/A
N/A
N/A
N/A
N/A
N/A
N/A
QO260NATS
QO2000NS
DU324
DU325
DU326
Non-Fusible, 3-Pole, 3-Wire, 240V AC, NEMA 1
30
60
100
200
400
600
DG321UGB
DG322UGB
DG323UGB
DG324UGK
DG325UGK
DG326UGK
TGN3321
TGN3322
TGN3323
TGN3324
TGN3325
TGN3326
GNF321
GNF322
GNF323
GNF324
GNF325
GNF326
DU321
DU322
DU323
DU324
DU325
DU326
Ampere
Rating Catalog Number
Cutler-Hammer
Business General Electric Siemens Square D
Fusible, 2-Pole, 3-Wire, 240V AC, NEMA 3R
30
60
100
200
400
600
DG221NRB
DG222NRB
DG223NRB
DG224NRK
DG225NRK
DG226NRK
TG3221R
TG3222R
TG3223R
TG3224R
TG3225R
TG3226R
GF221NR
GF222NR
GF223NR
GF224NR
GF225NR
GF226NR
D221NRB
D222NRB
D223NRB
D224NRB
D225NR
D226NR
Fusible, 3-Pole, 3-Wire, 240V AC, NEMA 3R
30
60
100
200
400
600
DG321NRB
DG322NRB
DG323NRB
DG324NRK
DG325FRK
DG326FRK
TG4321R
TG4322R
TG4323R
TG4324R
TG3325R
TG3326R
GF321NR
GF322NR
GF323NR
GF324NR
GF325NR
GF326NR
D321NRB
D322NRB
D323NRB
D324NRB
D325NR
D326NR
Fusible, 3-Pole, 4-Wire, 240V AC, NEMA 3R
30
60
100
200
400
600
DG321NRB
DG322NRB
DG323NRB
DG324NRK
DG325NRK
DG326NRK
TG4321R
TG4322R
TG4323R
TG4324R
TG3325R 1
TG3326R 1
GF321NR
GF322NR
GF323NR
GF324NR
GF325NR
GF326NR
D321NRB
D322NRB
D323NRB
D324NRB
D325NR
D326NR
Non-Fusible, 2-Pole, 2-Wire, 240V AC, NEMA 3R
30
60
100
200
DG221URB
DG222URB
DG223URB
DG324URK
TGN3321R
TGN3322R
TGN3323R
TGN3324R
GNF321R
GNF322R
GNF323R
GNF324R
DU221RB
DU222RB
QO2000NRB
DU324RB
Non-Fusible, 3-Pole, 3-Wire, 240V AC, NEMA 3R
30
60
100
200
400
600
DG321URB
DG322URB
DG323URB
DG324URK
DG325URK
DG326URK
TGN3321R
TGN3322R
TGN3323R
TGN3324R
N/A
N/A
GNF321R
GNF322R
GNF323R
GNF324R
N/A
N/A
DU321RB
DU322RB
DU323RB
DU324RB
N/A
N/A

January 2003
8-42
For more information visit: www.cutler-hammer.eaton.com CA08101001E
Safety Switches & Enclosed Circuit Breakers
8
Safety Switches
Cross-Reference Vol. 1, Ref. No. [0280]
Heavy Duty Safety Switches
Table 8-74. Heavy Duty
1Separate neutral kit required.
2600V switch.
Note: Always verify the number of poles and wires required since
catalog numbers may appear in multiple tables.
Heavy Duty (Continued)
3Separate neutral kit required.
Ampere
Rating Catalog Number
Cutler-Hammer
Business General Electric Siemens Square D
Fusible, 2-Pole, 2-Wire, 240V AC, NEMA 1
30
60
100
200
400
600
800
1200
DH221FGK
DH222NGK
DH223NGK
DH224NGK
DH225FGK
DH226FGK
DH227FGK
DH328FGK
TH3221
TH3222
TH3223
TH3224
TH3225
TH3226
TC72267
TC72268
N/A
N/A
N/A
N/A
N/A
N/A
N/A
N/A
H221N
H222N
H223N
H224N
H225
H226
H227
H228
Fusible, 2-Pole, 3-Wire, 240V AC, NEMA 1
30
60
100
200
400
600
800
1200
DH221NGK
DH222NGK
DH223NGK
DH224NGK
DH225NGK
DH226NGK
DH227NGK
DH328NGK
TH3221
TH3222
TH3223
TH3224
TH3225
TH3226
TC72267 1
TC72268 1
HF221N
HF222N
HF223N
HF224N
HF225N
HF226N
HF227N
HF228N
H221N
H222N
H223N
H224N
H225N
H226N
H227N
H228N
Fusible, 3-Pole, 3-Wire, 240V AC, NEMA 1
30
60
100
200
400
600
800
1200
DH321FGK
DH322FGK
DH323FGK
DH324FGK
DH325FGK
DH326FGK
DH327FGK
DH328FGK
TH4321
TH4322
TH4323
TH4324
TH3325
TH3326
TC72367
TC72368
N/A
N/A
N/A
N/A
N/A
N/A
N/A
N/A
H321N
H322N
H323N
H324N
H325
H326
H327
H328
Fusible, 3-Pole, 4-Wire, 240V AC, NEMA 1
30
60
100
200
400
600
800
1200
DH321NGK
DH322NGK
DH323NGK
DH324NGK
DH325NGK
DH326NGK
DH327NGK
DH328NGK
TH4321
TH4322
TH4323
TH4324
TH4325
TH4326
TC72367 1
TC72368 1
HF321N
HF322N
HF323N
HF324N
HF325N
HF326N
HF327N
HF328N
H321N
H322N
H323N
H324N
H325N
H326N
H327N
H328N
Fusible, 4-Pole, 4-Wire, 240V AC, NEMA 1
30
60
100
200
400
600
DH421FGK
DH422FGK
DH423FGK
DH424FGK
DH425FGK
DH426FGK
N/A
N/A
N/A
N/A
N/A
N/A
F421
F422
F423
F424
F425
F426
H461 2
H462 2
H463 2
H464 2
H465 2
H466 2
Non-Fusible, 3-Pole, 3-Wire, 240V/600V AC, NEMA 1
30
60
100
200
400
600
800
1200
DH361UGK
DH362UGK
DH363UGK
DH364UGK
DH365UGK
DH366UGK
DH367UGK
DH368UGK
THN3361
THN3362
THN3363
THN3364
THN3365
THN3366
TC36367
TC36368
HNF361
HNF362
HNF363
HNF364
HNF365
HNF366
HNF367
HNF368
HU361
HU362
HU363
HU364
HU365
HU366
HU367
HU368
Fusible, 2-Pole, 2-Wire, 240V AC, NEMA 3R
30
60
100
200
400
600
800
1200
DH221NRK
DH222NRK
DH223NRK
DH224NRK
DH225FRK
DH226FRK
DH227NRK
DH328FRK
TH3221R
TH3222R
TH3223R
TH3224R
TH3225R
TH3226R
TC72267R
TC72268R
N/A
N/A
N/A
N/A
N/A
N/A
N/A
N/A
H221NRB
H222NRB
H223NRB
H224NRB
H225R
H226R
H227R
H228R
Ampere
Rating Catalog Number
Cutler-Hammer
Business General Electric Siemens Square D
Fusible, 2-Pole, 3-Wire, 240V AC, NEMA 3R
30
60
100
200
400
600
800
1200
DH221NRK
DH222NRK
DH223NRK
DH224NRK
DH225NRK
DH226NRK
DH227NRK
DH328NRK
TH3221R
TH3222R
TH3223R
TH3224R
TH3225R
TH3226R
TC72267R 3
TC72268R 3
HF221NR
HF222NR
HF223NR
HF224NR
HF225NR
HF226NR
HF227NR
HF228NR
H221NRB
H222NRB
H223NRB
H224NRB
H225NR
H226NR
H227NR
H228NR
Fusible, 3-Pole, 3-Wire, 240V AC, NEMA 3R
30
60
100
200
400
600
800
1200
DH321FRK
DH322FRK
DH323FRK
DH324FRK
DH325FRK
DH326FRK
DH327FRK
DH328FRK
TH4321R
TH4322R
TH4323R
TH4324R
TH3325R
TH3326R
TC72367R
TC72368R
N/A
N/A
N/A
N/A
N/A
N/A
N/A
N/A
H321NRB
H322NRB
H323NRB
H324NRB
H325NR
H326NR
H327NR
H328NR
Fusible, 3-Pole, 4-Wire, 240V AC, NEMA 3R
30
60
100
200
400
600
800
1200
DH321NRK
DH322NRK
DH323NRK
DH324NRK
DH325NRK
DH326NRK
DH327NRK
DH328NRK
TH4321R
TH4322R
TH4323R
TH4324R
TH3325R 3
TH3326R 3
TC72367R 3
TC72368R 3
HF321NR
HF322NR
HF323NR
HF324NR
HF325NR
HF326NR
HF327NR
HF328NR
H321NRB
H322NRB
H323NRB
H324NRB
H325R
H326R
H327R
H328R
Non-Fusible, 3-Pole, 3-Wire, 240V/600V AC, NEMA 3R
30
60
100
200
400
600
800
1200
DH361URK
DH362URK
DH363URK
DH364URK
DH365URK
DH366URK
DH367URK
DH368URK
THN3361R
THN3362R
THN3363R
THN3364R
THN3365R
THN3366R
N/A
N/A
HNF361R
HNF362R
HNF363R
HNF364R
HNF365R
HNF366R
HNF367R
HNF368R
HU361RB
HU362RB
HU363RB
HU364RB
HU365R
HU366R
HU367R
HU368R
Fusible, 2-Pole, 2-Wire, 240V AC, NEMA 4/4X
30
60
100
200
400
600
DH221NWK
DH222NWK
DH223NWK
DH224NWK
DH225FWK
DH226FWK
TH2221SS
TH2222SS
TH3223SS
TH3224SS
TH3225SS
TH3226SS
HF221S
HF222S
HF223S
HF224S
HF325S
HF326S
H221DS
H222DS
H223DS
H224DS
H225DS
H226DS
Fusible, 2-Pole, 3-Wire 240V AC, NEMA 4/4X
30
60
100
200
400
600
800
DH221NWK
DH222NWK
DH223NWK
DH224NWK
DH225NWK
DH226NWK
DH227NWK
TH3221SS
TH3222SS
TH3223SS
TH3224SS
TH3225SS
TH3226SS
N/A
HF321S 3
HF322S 3
HF323S 3
HF324S 3
HF325S 3
HF326S 3
HF327S 3
H221DS 3
H222DS 3
H223DS 3
H224DS 3
H225NDS
H226NDS
N/A
Fusible, 3-Pole, 3-Wire, 240V AC, NEMA 4/4X
30
60
100
200
400
600
800
DH321FWK
DH322FWK
DH323NWK
DH324NWK
DH325FWK
DH326FWK
DH327FWK
TH3321SS
TH3322SS
TH4323SS
TH4324SS
TH4325SS
TH4326SS
N/A
HF321S
HF322S
HF323S
HF324S
HF325S
HF326S
HF327S
H321DS
H322DS
H323DS
H324DS
H325DS
H326DS
N/A
Fusible, 3-Pole, 4-Wire, 240V AC, NEMA 4/4X
30
60
100
200
400
600
DH321NWK
DH322NWK
DH323NWK
DH324NWK
DH325NWK
DH326NWK
TH4321SS
TH4322SS
TH4323SS
TH4324SS
TH4325SS
TH4326SS
HF321S 3
HF322S 3
HF323S 3
HF324S 3
HF325S 3
HF326S 3
H321DS 3
H322DS 3
H323DS 3
H324DS 3
H325NDS
H326NDS

January 2003
CA08101001E For more information visit: www.cutler-hammer.eaton.com
8-43
Safety Switches & Enclosed Circuit Breakers
8
Safety Switches
Cross-Reference
Vol. 1, Ref. No. [0281]
Table 8-74. Heavy Duty (Continued)
1Separate neutral kit required.
Note: Always verify the number of poles and wires required since
catalog numbers may appear in multiple tables.
Heavy Duty (Continued)
2Separate neutral kit required.
Note: Always verify the number of poles and wires required since
catalog numbers may appear in multiple tables.
Ampere
Rating Catalog Number
Cutler-Hammer
Business General Electric Siemens Square D
Fusible, 2-Pole, 2-Wire, 240V AC, NEMA 12
30
60
100
200
400
600
800
1200
DH221NDK
DH222NDK
DH223NDK
DH224NDK
DH225FDK
DH226FDK
DH227FDK
N/A
TH2221J
TH2222J
TH3223J
TH3224J
TH3225J
TH3226J
N/A
N/A
HF221J
HF222J
HF223J
HF224J
HF325J
HF326J
HF327J
N/A
H221AWK
H222AWK
H223AWK
H224AWK
H225AWK
H226AWK
H227AWK
H228AWK
Fusible, 2-Pole, 3-Wire, 240V AC, NEMA 12
30
60
100
200
400
600
800
1200
DH221NDK
DH222NDK
DH223NDK
DH224NDK
DH225NDK
DH226NDK
DH227NDK
N/A
TH3221J
TH3222J
TH3223J
TH3224J
TH3225J
TH3226J
N/A
N/A
HF221J 1
HF222J 1
HF223J 1
HF224J 1
HF325J 1
HF326J 1
HF327J 1
N/A
H221AWK
H222AWK
H223AWK
H224AWK
H225NAWK
H226NAWK
H227NAW
H228NAWK
Fusible, 3-Pole, 3-Wire, 240V AC, NEMA 12
30
60
100
200
400
600
800
1200
DH321FDK
DH322FDK
DH323FDK
DH324FDK
DH325FDK
DH326FDK
DH327FDK
N/A
TH3321J
TH3322J
TH4323J
TH4324J
TH4325J
TH4326J
N/A
N/A
HF321J
HF322J
HF323J
HF324J
HF325J
HF326J
HF327J
N/A
H321AWK
H322AWK
H323AWK
H324AWK
H325AWK
H326AWK
H327AWK
H328AWK
Fusible, 3-Pole, 4-Wire, 240V AC, NEMA 12
30
60
100
200
400
600
800
1200
DH321NDK
DH322NDK
DH323NDK
DH324NDK
DH325NDK
DH326NDK
N/A
N/A
TH4321J
TH4322J
TH4323J
TH4324J
TH4325J
TH4326J
N/A
N/A
HF321J 1
HF322J 1
HF323J 1
HF324J 1
HF325J 1
HF326J 1
HF327J 1
N/A
H321AWK 1
H322AWK 1
H323AWK 1
H324AWK 1
H325NAWK
H326NAWK
H327NAWK
H328NAWK
Fusible, 4-Pole, 4-Wire, 240V AC, NEMA 12
30
60
100
200
DH421FDK
DH422FDK
DH423FDK
DH424FDK
N/A
N/A
N/A
N/A
N/A
N/A
N/A
N/A
N/A
N/A
N/A
N/A
Fusible, 2-Pole, 2-Wire, 600V AC, NEMA 1
30
60
100
200
400
600
800
1200
DH261FGK
DH262FGK
DH263FGK
DH264FGK
DH265FGK
DH266FGK
DH267FGK
N/A
TH2261DC
TH2262DC
TH2263DC
N/A
N/A
N/A
N/A
N/A
HF261
HF262
HF263
N/A
HF265
HF266
N/A
N/A
H361
H362
H363
H364
H265
H266
H267
H268
Fusible, 3-Pole, 3-Wire, 600V AC, NEMA 1
30
60
100
200
400
600
800
1200
DH361FGK
DH362FGK
DH363FGK
DH364FGK
DH365FGK
DH366FGK
DH367FGK
DH368FGK
TH3361
TH3362
TH3363
TH3364
TH3365
TH3366
TC72367
TC72368
HF361
HF362
HF363
HF364
HF365
HF366
HF367
HF368
H361
H362
H363
H364
H365
H366
H367
H368
Ampere
Rating Catalog Number
Cutler-Hammer
Business General Electric Siemens Square D
Fusible, 3-Pole, 4-Wire, 600V AC, NEMA 1
30
60
100
200
400
600
800
1200
DH361NGK
DH362NGK
DH363NGK
DH364NGK
DH365NGK
DH366NGK
DH367NGK
DH368NGK
TH3361 2
TH3362 2
TH3363 2
TH3364 2
TH3365 2
TH3366 2
TC72367 2
TC72368 2
HF361N
HF362N
HF363N
HF364N
HF365N
HF366N
HF367N
HF368 2
H361N
H362N
H363N
H364N
H365N
H366N
H367N
H368N
Fusible, 4-Pole, 4-Wire, 600V AC, NEMA 1
30
60
100
200
400
600
DH461FGK
DH462FGK
DH463FGK
DH464FGK
DH465FGK
DH466FGK
TH6661
TH6662
TH6663
TH6664
N/A
N/A
N/A
N/A
N/A
N/A
N/A
N/A
H461
H462
H463
H464
H465
H466
Non-Fusible, 2-Pole, 2-Wire, 600V AC, NEMA 1
30
60
100
200
400
600
800
1200
DH261UGK
DH362UGK
DH263UGK
DH364UGK
DH265UGK
DH266UGK
DH267UGK
N/A
THN2261DC
THN2262DC
THN2263DC
N/A
N/A
N/A
N/A
N/A
HNF261
HNF262
HNF263
N/A
HNF265
HNF266
N/A
N/A
HU361
HU362
HU363
HU364
HU265
HU266
HU267
HU268
Non-Fusible, 4-Pole, 4-Wire, 600V AC, NEMA 1
30
60
100
200
400
600
DH461UGK
DH462UGK
DH463UGK
DH464UGK
DH465UGK
DH466UGK
THN6661
THN6662
THN6663
THN6664
N/A
N/A
N/A
N/A
N/A
N/A
N/A
N/A
HU461
HU462
HU463
HU464
HU465
HU466
Fusible, 2-Pole, 2-Wire, 600V AC, NEMA 3R
30
60
100
200
400
600
800
1200
DH361FRK
DH362FRK
DH363FRK
DH364FRK
DH365FRK
DH366FRK
DH367FRK
DH368FRK
TH2261RDC
TH2262RDC
TH2263RDC
N/A
N/A
N/A
N/A
N/A
HF261R
HF262R
HF263R
N/A
N/A
HF265R
HF266R
N/A
H361RB
H362RB
H363RB
H364RB
H265R
H266R
H267R
H268R
Fusible, 3-Pole, 3-Wire, 600V AC, NEMA 3R
30
60
100
200
400
600
800
1200
DH361FRK
DH362FRK
DH363FRK
DH364FRK
DH365FRK
DH366FRK
DH367FRK
DH368FRK
TH3361R
TH3362R
TH3363R
TH3364R
TH3365R
TH3366R
TC72367R
TC72368R
HF361R
HF362R
HF363R
HF364R
HF365R
HF366R
HF367R
HF368R
H361RB
H362RB
H363RB
H364RB
H365R
H366R
H367R
H368R
Fusible, 3-Pole, 4-Wire, 600V AC, NEMA 3R
30
60
100
200
400
600
800
1200
DH361NRK
DH362NRK
DH363NRK
DH364NRK
DH365NRK
DH366NRK
DH367NRK
DH368NRK
TH3361R 2
TH3362R 2
TH3363R 2
TH3364R 2
TH3365R 2
TH3366R 2
TC72367R 2
TC72368R 2
HF361NR
HF362NR
HF363NR
HF364NR
HF365NR
HF366NR
HF367NR
HF368R
H361NRB
H362NRB
H363NRB
H364NRB
H365NR
H366NR
H367NR
H368NR

January 2003
8-44
For more information visit: www.cutler-hammer.eaton.com CA08101001E
Safety Switches & Enclosed Circuit Breakers
8
Safety Switches
Cross-Reference Vol. 1, Ref. No. [0282]
Table 8-74. Heavy Duty (Continued)
1Separate neutral kit required.
Note: Always verify the number of poles and wires required since
catalog numbers may appear in multiple tables.
Heavy Duty (Continued)
2Separate neutral kit required.
Note: Always verify the number of poles and wires required since
catalog numbers may appear in multiple tables.
Ampere
Rating Catalog Number
Cutler-Hammer
Business General Electric Siemens Square D
Non-Fusible, 2-Pole, 2-Wire, 600V AC, NEMA 3R
30
60
100
200
400
600
800
1200
DH361URK
DH362URK
DH363URK
DH364URK
DH365URK
DH366URK
DH367URK
DH368URK
THN2261RDC
THN2262RDC
THN2263RDC
N/A
N/A
N/A
N/A
N/A
HNF261R
HNF262R
HNF263R
N/A
HNF265R
HNF266R
N/A
N/A
HU361RB
HU362RB
HU363RB
HU364RB
HU265R
HU266R
HU267R
HU268R
Non-Fusible, 4-Pole, 4-Wire, 600V AC, NEMA 3R
30
60
100
200
DH461UDK
DH462UDK
DH463UDK
DH464UDK
THN6661
THN6662
THN6663
THN6664
N/A
N/A
N/A
N/A
N/A
N/A
N/A
N/A
Fusible, 2-Pole, 2-Wire, 600V AC, NEMA 4/4X Stainless Steel
30
60
100
200
400
600
800
DH261FWK
DH362FWK
DH363FWK
DH264FWK
DH365FWK
DH366FWK
DH367FWK
TH2261SSDC
TH2262SSDC
TH2263SSDC
N/A
N/A
N/A
N/A
HF261S
HF262S
HF263S
N/A
HF265S
HF266S
N/A
H361DS
H362DS
H363DS
H364DS
H265DS
H266DS
N/A
Fusible, 3-Pole, 3-Wire, 600V AC, NEMA 4/4X Stainless Steel
30
60
100
200
400
600
800
DH361FWK
DH362FWK
DH363FWK
DH364FWK
DH365FWK
DH366FWK
DH367FWK
TH3361SS
TH3362SS
TH3363SS
TH3364SS
TH3365SS
TH3366SS
N/A
HF361S
HF362S
HF363S
HF364S
HF365S
HF366S
HF367S
H361DS
H362DS
H363DS
H364DS
H365DS
H366DS
N/A
Fusible, 3-Pole, 4-Wire, 600V AC, NEMA 4/4X Stainless Steel
30
60
100
200
400
600
DH361NWK
DH362NWK
DH363NWK
DH364NWK
DH365NWK
DH366NWK
TH3361SS 1
TH3362SS 1
TH3363SS 1
TH3364SS 1
TH3365SS 1
TH3366SS 1
HF361S 1
HF362S 1
HF363S 1
HF364S 1
HF365S 1
HF366S 1
H361DS 1
H362DS 1
H363DS 1
H364NDS
H365NDS
H366NDS
Non-Fusible, 2-Pole, 2-Wire, 600V AC, NEMA 4/4X Stainless Steel
30
60
100
200
400
600
800
DH361UWK
DH362UWK
DH363UWK
DH364UWK
DH365UWK
DH366UWK
DH367UWK
THN2261SSDC
THN2262SSDC
THN2263SSDC
N/A
N/A
N/A
N/A
HNF261S
HNF262S
HNF263S
N/A
HNF265S
HNF266S
N/A
HU361DS
HU362DS
HU363DS
HU364DS
HU265DS
HU266DS
N/A
Non-Fusible, 3-Pole, 3-Wire, 600V AC, NEMA 4/4X Stainless Steel
30
60
100
200
400
600
800
DH361UWK
DH362UWK
DH363UWK
DH364UWK
DH365UWK
DH366UWK
DH367UWK
THN3361SS
THN3362SS
THN3363SS
THN3364SS
THN3365SS
THN3366SS
N/A
HNF361S
HNF362S
HNF363S
HNF364S
HNF365S
HNF366S
HNF367S
HU361DS
HU362DS
HU363DS
HU364DS
HU365DS
HU366DS
N/A
Non-Fusible, 4-Pole, 4-Wire, 600V AC, NEMA 4/4X Stainless Steel
30
60
100
200
DH461UWK
N/A
N/A
N/A
N/A
N/A
N/A
N/A
N/A
N/A
N/A
N/A
HU461DS
HU462DS
HU463DS
HU464DS
Ampere
Rating Catalog Number
Cutler-Hammer
Business General Electric Siemens Square D
Fusible, 2-Pole, 2-Wire, 600V AC, NEMA 12
30
60
100
200
400
600
800
1200
DH261FDK
DH262FDK
DH263FDK
DH264FDK
DH265FDK
DH266FDK
DH267FDK
N/A
TH2261JDC
TH2262JDC
TH2263JDC
N/A
N/A
N/A
N/A
N/A
HF261J
HF262J
HF263J
N/A
HF265J
HF266J
N/A
N/A
H361AWK
H362AWK
H363AWK
H364AWK
H265AWK
H266AWK
H267AWK
H268AWK
Fusible, 3-Pole, 3-Wire, 600V AC, NEMA 12
30
60
100
200
400
600
800
1200
DH361FDK
DH362FDK
DH363FDK
DH364FDK
DH365FDK
DH366FDK
DH367FDK
N/A
TH3361J
TH3362J
TH3363J
TH3364J
TH3365J
TH3366J
N/A
N/A
HF361J
HF362J
HF363J
HF364J
HF365J
HF366J
HF367J
N/A
H361AWK
H362AWK
H363AWK
H364AWK
H365AWK
H366AWK
H367AWK
H368AWK
Fusible, 3-Pole, 4-Wire, 600V AC, NEMA 12
30
60
100
200
400
600
800
1200
DH361NDK
DH362NDK
DH363NDK
DH364NDK
DH365NDK
DH366NDK
DH367NDK
N/A
THN3361J 2
THN3362J 2
THN3363J 2
THN3364J 2
THN3365J 2
THN3366J 2
N/A
N/A
HF361J 2
HF362J 2
HF363J 2
HF364J 2
HF365J 2
HF366J 2
HF367J 2
N/A
H361AWK 2
H362AWK 2
H363AWK 2
H364NAWK
H365NAWK
H366NAWK
H367NAWK
H368NAWK
Fusible, 4-Pole, 4-Wire, 600V AC, NEMA 12
30
60
100
200
400
N/A
N/A
DH463FDK
DH464FDK
N/A
TH6661
TH6662
TH6663
TH6664
N/A
N/A
N/A
N/A
N/A
N/A
H461AWK
H462AWK
H463AWK
H464AWK
H465AWK
Non-Fusible, 2-Pole, 2-Wire, 600V AC, NEMA 12
30
60
100
200
400
600
800
1200
DH261UDK
DH262UDK
DH263UDK
DH264UDK
DH265UDK
DH266UDK
DH267UDK
N/A
THN2261JDC
THN2262JDC
THN2263JDC
N/A
N/A
N/A
N/A
N/A
HNF261J
HNF262J
HNF263J
N/A
HNF265J
HNF266J
N/A
N/A
HU361AWK
HU362AWK
HU363AWK
HU364AWK
HU265AWK
HU266AWK
HU267AWK
HU268AWK
Non-Fusible, 3-Pole, 3-Wire, 600V AC, NEMA 12
30
60
100
200
400
600
800
1200
DH361UDK
DH362UDK
DH363UDK
DH364UDK
DH365UDK
DH366UDK
DH367UDK
N/A
THN3361J
THN3362J
THN3363J
THN3364J
THN3365J
THN3366J
N/A
N/A
HNF361J
HNF362J
HNF363J
HNF364J
HNF365J
HNF366J
HNF367J
N/A
HU361AWK
HU362AWK
HU363AWK
HU364AWK
HU365AWK
HU366AWK
HU367AWK
HU368AWK
Non-Fusible, 4-Pole, 4-Wire, 600V AC, NEMA 12
30
60
100
200
400
DH461UDK
DH462UDK
DH463UDK
DH464UDK
N/A
THN6661
THN6662
THN6663
THN6664
N/A
N/A
N/A
N/A
N/A
N/A
HU461AWK
HU462AWK
HU463AWK
HU464AWK
HU465AWK

January 2003
CA08101001E For more information visit: www.cutler-hammer.eaton.com
8-45
Safety Switches & Enclosed Circuit Breakers
8
Safety Switches
Cross-Reference
Vol. 1, Ref. No. [0283]
Motor Circuit Switches
Table 8-75. Heavy Duty 6-Pole
Note: Always verify the number of poles and wires required since
catalog numbers may appear in multiple tables.
Double Throw Safety Switches
Table 8-76. Double Throw
Ampere
Rating Catalog Number
Cutler-Hammer
Business General Electric Siemens Square D
Fusible, 6-Pole, 6-Wire, 600V AC, NEMA 3R
30
60
100
200
DH661FDK
DH662FDK
DH663FDK
DH664FDK
TH6661
TH6662
TH6663
TH6664
F651H
F652H
F653H
N/A
N/A
N/A
N/A
N/A
Fusible, 6-Pole, 6-Wire, 600V AC, NEMA 12
30
60
100
200
DH661FDK
DH662FDK
DH663FDK
DH664FDK
TH6661
TH6662
TH6663
TH6664
F651H
F652H
F653H
N/A
N/A
N/A
H663AWK
H664RWK
Fusible, 6-Pole, 6-Wire, 600V AC, NEMA 4X
30
60
100
200
N/A
N/A
N/A
N/A
N/A
N/A
N/A
N/A
F651SS
F652SS
F653SS
N/A
N/A
N/A
H663DS
H664DS
Non-Fusible, 6-Pole, 6-Wire, 600V AC, NEMA 3R
30
60
100
200
DH661UDK
DH662UDK
DH663UDK
DH664UDK
THN6661
THN6662
THN6663
THN6664
NF651H
NF652H
NF653H
N/A
N/A
N/A
N/A
N/A
Non-Fusible, 6-Pole, 6-Wire, 600V AC, NEMA 12
30
60
100
200
DH661UDK
DH662UDK
DH663UDK
DH664UDK
THN6661
THN6662
THN6663
THN6664
NF651H
NF652H
NF653H
N/A
HU661AWK
HU662AWK
HU663AWK
HU664RWK
Non-Fusible, 6-Pole, 6-Wire, 600V AC, NEMA 4X
30
60
100
200
DH661UWK
DH662UWK
DH663UWK
DH664UWK
N/A
N/A
N/A
N/A
NF651SS
NF652SS
NF653SS
N/A
HU661DS
HU662DS
HU663DS
HU664DS
Ampere
Rating Catalog Number
Cutler-Hammer
Business General Electric Siemens Square D
Fusible, 2-Pole, 2-Wire, 240V AC, NEMA 1
30
60
100
200
400
600
DT321FGK
DT322FGK
DT323FGK
DT224FGK
DT325FGK
DT326FGK
TDT3321
TDT3322
TDT3323
TDT3324
TDT3325
TDT3326
N/A
N/A
N/A
F224DTK
N/A
N/A
N/A
N/A
DT223
DT224
N/A
N/A
Fusible, 3-Pole, 3-Wire, 240V AC, NEMA 1
30
60
100
200
400
600
DT321FGK
DT322FGK
DT323FGK
DT324FGK
DT325FGK
DT326FGK
TDT3321
TDT3322
TDT3323
TDT3324
TDT3325
TDT3326
F321DTK
F322DTK
F323DTK
F324DTK
F325DTK
F326DTK
DT321
DT322
DT323
DT324
N/A
N/A
Non-Fusible, 2-Pole, 2-Wire, 240V AC, NEMA 1
30
60
100
200
400
600
800
DT221UGK
DT222UGK
DT223UGK
DT224UGK
DT225UGK
DT226UGK
DT327UGK
N/A
N/A
N/A
N/A
N/A
N/A
N/A
NF221DTK
NF222DTK
NF223DTK
NF224DTK
NF225DTK
NF226DTK
N/A
92251
DTU222
DTU223
DTU224
92255
N/A
N/A
Non-Fusible, 3-Pole, 3-Wire, 240V AC, NEMA 1
30
60
100
200
400
600
800
DT321UGK
DT322UGK
DT323UGK
DT324UGK
DT325UGK
DT326UGK
DT327UGK
TC35321
TC35322
TC35323
TC35324
TC35325
TC35326
N/A
NF321DTK
NF322DTK
NF323DTK
NF324DTK
NF325DTK
NF326DTK
NF327DTK
DTU321
DTU322
DTU323
DTU324
92355
92356
N/A
Fusible, 3-Pole, 3-Wire, 600V AC, NEMA 1
30
60
100
200
400
600
DT361FGK
DT362FGK
DT363FGK
DT364FGK
DT365FGK
N/A
TDT3361
TDT3362
TDT3363
TDT3364
TDT3365
N/A
F351DTK
F352DTK
F353DTK
F354DTK
F355DTK
N/A
DT361
DT362
DT363
DT364
N/A
N/A
Non-Fusible, 2-Pole, 2-Wire, 600V AC, NEMA 1
30
60
100
200
400
600
DT261UGK
DT262UGK
DT263UGK
DT264UGK
DT265UGK
DT266UGK
N/A
N/A
N/A
N/A
N/A
N/A
NF251DTK
NF252DTK
NF253DTK
NF254DTK
NF255DTK
NF256DTK
N/A
82342
82343
82344
92345
92346
Non-Fusible, 3-Pole, 3-Wire, 600V AC, NEMA 1
30
60
100
200
400
600
800
1200
DT361UGK
DT362UGK
DT363UGK
DT364UGK
DT365UGK
DT366UGK
DT367UGK
N/A
TC35361
TC35362
TC35363
TC35364
TC35365
TC35366
N/A
N/A
NF351DTK
NF352DTK
NF353DTK
NF354DTK
NF355DTK
NF356DTK
NF357DTK
N/A
DTU361
DTU362
DTU363
DTU364
92345
92346
N/A
N/A
Non-Fusible, 4-Pole, 4-Wire, 600V AC, NEMA 1
30
60
100
200
400
600
800
N/A
N/A
N/A
DT464UGK
DT465UGK
DT466UGK
DT467UGK
N/A
N/A
N/A
N/A
N/A
N/A
N/A
N/A
N/A
N/A
NF454DTK
NF455DTK
NF456DTK
NF457DTK
N/A
DTU462
DTU463
DTU464
92445
92446
N/A
Fusible, 2-Pole, 2-Wire, 240V AC, NEMA 3R
30
60
100
200
DT321FRK
DT322FRK
DT323FRK
DT224FRK
TDT3321R
TDT3322R
TDT3323R
TDT3324R
N/A
N/A
N/A
FR224DTK
N/A
N/A
DT223RB
DT224RB

January 2003
8-46
For more information visit: www.cutler-hammer.eaton.com CA08101001E
Safety Switches & Enclosed Circuit Breakers
8
Safety Switches
Cross-Reference Vol. 1, Ref. No. [0284]
Table 8-76. Double Throw (Continued)
1Cutler-Hammer and Siemens switches shown are 600V switches.
Double Throw (Continued)
Note: Always verify the number of poles and wires required since
catalog numbers may appear in multiple tables.
Ampere
Rating Catalog Number
Cutler-Hammer
Business General Electric Siemens Square D
Fusible, 3-Pole, 3-Wire, 240V AC, NEMA 3R
30
60
100
200
400
600
DT321FRK
DT322FRK
DT323FRK
DT324FRK
DT325FRK
DT326FRK
TDT3321R
TDT3322R
TDT3323R
TDT3324R
N/A
N/A
FR321DTK
FR322DTK
FR323DTK
FR324DTK
FR325DTK
FR326DTK
DT321RB
DT322RB
DT323RB
DT324RB
N/A
N/A
Non-Fusible, 2-Pole, 2-Wire, 240V AC, NEMA 3R
30
60
100
200
400
N/A
N/A
DT323URK
DT224URK
DT225URK
N/A
N/A
N/A
N/A
N/A
N/A
N/A
N/A
NFR224DTK
NFR225DTK
N/A
N/A
DTU223RB
DTU224RB
92255R
Non-Fusible, 3-Pole, 3-Wire, 240V AC, NEMA 3R
30
60
100
200
400
600
N/A
N/A
DT323URK
DT324URK
N/A
N/A
N/A
N/A
N/A
N/A
N/A
N/A
N/A
N/A
NFR323DTK
NFR324DTK
N/A
N/A
N/A
N/A
DTU323RB
DTU324RB
92355R
92356R
Fusible, 3-Pole, 3-Wire, 600V AC, NEMA 3R
30
60
100
200
400
N/A
N/A
DT363FRK
DT364FRK
DT365FRK
N/A
N/A
N/A
N/A
N/A
N/A
N/A
FR353DTK
FR354DTK
FR355DTK
DT361RB
DT362RB
DT363RB
DT364RB
N/A
Non-Fusible, 2-Pole, 2-Wire, 600V AC, NEMA 3R
30
60
100
200
400
600
N/A
N/A
N/A
DT264URK
DT265URK
DT266URK
N/A
N/A
N/A
N/A
N/A
N/A
N/A
N/A
N/A
NFR254DTK
NFR255DTK
NFR256DTK
N/A
82342RB
82343RB
82344RB
92345RB
92346RB
Non-Fusible, 3-Pole, 3-Wire, 600V AC, NEMA 3R
30
60
100
200
400
600
800
DT361URK
DT362URK
DT363URK
DT364URK
DT365URK
DT366URK
DT367URK
N/A
N/A
N/A
N/A
N/A
N/A
N/A
NFR351DTK
NFR352DTK
NFR353DTK
NFR354DTK
NFR355DTK
NFR356DTK
NFR357DTK
DTU361RB
DTU362RB
DTU363RB
DTU364RB
92345RB
92346RB
N/A
Non-Fusible, 4-Pole, 4-Wire, 600V AC, NEMA 3R
30
60
100
200
400
600
800
DT461URK
DT462URK
DT463URK
DT464URK
DT465URK
DT466URK
DT467URK
N/A
N/A
N/A
N/A
N/A
N/A
N/A
NFR451DTK
NFR452DTK
NFR453DTK
NFR454DTK
NFR455DTK
NFR456DTK
NFR457DTK
N/A
92442RB
92443RB
92444RB
92445R
92446R
N/A
Non-Fusible, 6-Pole, 6-Wire, 600V AC, NEMA 3R
30
60
100
DT661URK
DT662URK
DT663URK
N/A
N/A
N/A
NFR651DTK
NFR652DTK
NFR653DTK
N/A
N/A
N/A
Non-Fusible, 2-Pole, 2-Wire, 240V AC, NEMA 12 1
30
60
100
200
400
DT361UDK
DT362UDK
DT363UDK
DT364UDK
DT365UDK
N/A
N/A
N/A
N/A
N/A
NF351HDTK
NF352HDTK
NF353HDTK
NF354HDTK
NF355HDTK
H92251
H82252
H82253
H82254
H92255
Non-Fusible, 3-Pole, 3-Wire, 240V AC, NEMA 12 1
30
60
100
200
400
600
DT361UDK
DT362UDK
DT363UDK
DT364UDK
DT365UDK
N/A
N/A
N/A
N/A
N/A
N/A
N/A
NF351HDTK
NF352HDTK
NF353HDTK
NF354HDTK
NF355HDTK
N/A
H92351
DTU362AWK
DTU363AWK
DTU364AWK
H92355
H92356
Ampere
Rating Catalog Number
Cutler-Hammer
Business General Electric Siemens Square D
Non-Fusible, 4-Pole, 4-Wire, 240V AC, NEMA 12
30
60
100
200
400
600
N/A
N/A
N/A
N/A
N/A
N/A
N/A
N/A
N/A
N/A
N/A
N/A
N/A
N/A
N/A
N/A
N/A
N/A
H92451
DTU462AWK
DTU463AWK
DTU464AWK
H92455
H92456
Non-Fusible, 2-Pole, 2-Wire, 600V AC, NEMA 12
30
60
100
200
400
600
DT361UDK
DT362UDK
DT363UDK
DT364UDK
DT365UDK
N/A
N/A
N/A
N/A
N/A
N/A
N/A
NF351HDTK
NF352HDTK
NF353HDTK
NF354HDTK
NF355HDTK
N/A
N/A
H82342
H82343
H82344
H92345
H92346
Non-Fusible, 3-Pole, 3-Wire, 600V AC, NEMA 12
30
60
100
200
400
600
DT361UDK
DT362UDK
DT363UDK
DT364UDK
DT365UDK
N/A
N/A
N/A
N/A
N/A
N/A
N/A
NF351HDTK
NF352HDTK
NF353HDTK
NF354HDTK
NF355HDTK
N/A
N/A
DTU362AWK
DTU363AWK
DTU364AWK
H92345
H92346
Non-Fusible, 4-Pole, 4-Wire, 600V AC, NEMA 12
30
60
100
200
400
600
N/A
N/A
N/A
N/A
N/A
N/A
N/A
N/A
N/A
N/A
N/A
N/A
N/A
N/A
N/A
N/A
N/A
N/A
N/A
DTU462AWK
DTU463AWK
DTU464AWK
H92445
H92446
Non-Fusible, 2-Pole, 2-Wire, 600V AC, NEMA 4X
30
60
100
200
400
DT361UWK
DT362UWK
DT363UWK
DT364UWK
DT365UWK
N/A
N/A
N/A
N/A
N/A
NF351SSDTK
NF352SSDTK
NF353SSDTK
NF354SSDTK
NF355SSDTK
N/A
82342DS
82343DS
82344DS
N/A
Non-Fusible, 3-Pole, 3-Wire, 600V AC, NEMA 4X
30
60
100
200
400
DT361UWK
DT362UWK
DT363UWK
DT364UWK
DT365UWK
N/A
N/A
N/A
N/A
N/A
NF351SSDTK
NF352SSDTK
NF353SSDTK
NF354SSDTK
NF355SSDTK
N/A
DTU362DS
DTU363DS
DTU364DS
N/A
Non-Fusible, 4-Pole, 4-Wire, 600V AC, NEMA 4X
30
60
100
200
N/A
N/A
N/A
N/A
N/A
N/A
N/A
N/A
N/A
N/A
N/A
N/A
N/A
DTU462DS
DTU463DS
DTU464DS
Fusible, 3-Pole, 3-Wire, 600V AC, NEMA 4X
30
60
100
200
400
DT361FWK
DT362FWK
DT363FWK
DT364FWK
DT365FWK
N/A
N/A
N/A
N/A
N/A
F351SSDTK
F352SSDTK
F353SSDTK
F354SSDTK
F355SSDTK
N/A
N/A
N/A
N/A
N/A

January 2003
CA08101001E For more information visit: www.cutler-hammer.eaton.com
8-47
Safety Switches & Enclosed Circuit Breakers
8
Enclosed Circuit Breakers
Product Description
Vol. 1, Ref. No. [0285]
Eaton’s Cutler-Hammer
Enclosed Circuit Breakers
Product Description
■15 – 1200 ampere range.
■Enclosed device used to open and
close a circuit.
Application Description
NEMA 1 General Purpose
Surface or Flush Mounting 15 – 1200
Ampere Range 600V AC, 500V DC
NEMA 1 enclosed breakers are
designed for indoor use in commercial
buildings, apartment buildings and
other areas where a general purpose
enclosure is applicable. The breaker is
front operable and is capable of being
padlocked in the OFF position. Ratings
through 1200 amperes are listed with
Underwriters Laboratories as suitable
for service entrance application. Both
surface and flush mounted enclosures
are available.
■UL File Number E7819.
■CSA File Number LR84319.
NEMA 1 General Purpose
NEMA 3R Rainproof Surface
Mounting
Interchangeable Hubs (through 400
Amperes) 15 – 1200 Ampere Range
600V AC, 500V DC
This general purpose outdoor service
center employs a circuit breaker inside
a weatherproof sheet steel enclosure
to serve as a main disconnect and pro-
tective device for feeder circuits. The
operating handle can be padlocked in
the OFF position, and is interlocked to
prevent the door from opening when
the breaker is ON. Ratings through
1200 amperes are listed by Underwriters
Laboratories as suitable for service
entrance application.
■UL File Number E7819.
■CSA File Number LR84319.
NEMA 3R Rainproof Surface Mounting
NEMA 4/4X, 5 Water and Dustproof
Stainless Steel — Type 304 Surface
Mounting 15 – 1200 Ampere Range
600V AC, 500V DC
This enclosure meets NEMA 4/4X and
5 requirements for water and dustproof
applications and has no knockouts or
other openings. It is particularly well
suited for use in dairies, borax mines,
breweries, paper mills and other pro-
cess industries. The operating handle
can be padlocked in the OFF position,
and is interlocked to prevent the door
from opening when the breaker is ON.
Ratings through 1200 amperes are
Underwriters Laboratories listed as
suitable for service entrance application.
■UL File Number E7819.
■CSA File Number LR84319.
NEMA 4/4X Water and Dustproof

January 2003
8-48
For more information visit: www.cutler-hammer.eaton.com CA08101001E
Safety Switches & Enclosed Circuit Breakers
8
Enclosed Circuit Breakers
Product Selection Vol. 1, Ref. No. [0286]
NEMA 12 Dustproof Surface
Mounting
No Knockouts or Other Openings
15 – 1200 Ampere Range
600V AC, 500V DC
The Type 12 enclosure is designed
in line with specifications for special
industry application where unusually
severe conditions involving oil, coolant,
dust and other foreign materials exist in
the operating atmosphere. The handle
padlocks in the OFF position and the
cover is interlocked with the handle
mechanism to prevent opening the
cover with the circuit breaker in the
ON position. Ratings through 1200
amperes are listed by Underwriters
Laboratories as suitable for service
entrance application. A NEMA 12 semi-
dust-tight design which includes knock-
outs is available. These units are rated
15 – 400 amperes, 600V AC, 500V DC.
■UL File Number E7819.
■CSA File Number LR84319.
NEMA 12 Dustproof Surface Mounting
NEMA 7/9 Hazardous Location
Cast Aluminum, Explosion-proof
Surface Mounting 15 – 1200 Ampere Range
600V AC, 250V DC
Hazardous location, Type 7: Class I,
Groups B, C, D; Type 9: Class II, Groups
E, F, G. This special service cast alumi-
num enclosure is supplied with a wide,
machined flanged cover to prevent
igniting outside atmospheres by arc-
ing from inside the enclosure. Front
operable, the handle padlocks in the
OFF position. Enclosures rated 600
amperes and above have lift-off
hinges for ease of assembly.
Note: XFDN050B is not Group B compliant.
■UL File Number E84577.
■CSA File Number LR42131-6.
NEMA 7/9 Hazardous Location
Features, Benefits
and Functions
■Side-opening door on NEMA 3R
enclosures.
■Padlockable in the OFF position.
■Surface or flush mounted enclo-
sures available through 400A on
NEMA 1 enclosures.
■Interlocked handle on NEMA 3R,
4/4X, 5 and 12 enclosures to prevent
opening when the breaker is in the
ON position.
■Interchangeable hubs.
■Numerous factory options.
Standards and Certifications
■UL 489.
■CSA 22.2.
■NEMA 250.

January 2003
CA08101001E For more information visit: www.cutler-hammer.eaton.com
8-49
Safety Switches & Enclosed Circuit Breakers
8
Enclosed Circuit Breakers
Product Selection
Vol. 1, Ref. No. [0287]
Table 8-77. Enclosure Only Catalog Numbers Selection Guide
1Suitable for use with one-pole breaker base mounting plate kit.
QCCBP required.
2Maximum wire size: 4/0.
3Discount Symbol 22-CD.
Enclosure Only Catalog Numbers Selection Guide (Continued)
Note: For Current Limit-R and TRI-PACT Breakers, please contact
e-Com customer support.
Breaker
Frame Breaker
Ampere
Range
Enclosure Price
U.S. $
NEMA
Class Catalog
Number
Series C Breakers
GHC, GD
2- and 3-Pole only
GHCGFEP
1-Pole Only
15 – 100 1 Surface
3R
12
12K
4/4X, 5 St. Steel
SGDN100 1
RGDN100
JGDN100
DGDN100
WGDN100
155.
335.
209.
209.
910.
EHD, FD,
FDB, HFD 15 – 100 1 Surface
1 Flush
3R
12
12K
4/4X, 5 St. Steel
SFDN100
FFDN100
RFDN100
JFDN100
DFDN100
WFDN100
168.
168.
352.
220.
220.
955.
EHD, FD, FDB
HFD, FDC 15 – 50
60 – 225 27/9 Cast Alum.
7/9 Cast Alum. XFDN050B 3
XFDN225B 32,400.
2,950.
FD, FDB, HFD,
ED, EDH, EDC,
FDC (15 – 225A)
125 – 225 1 Surface
1 Flush
3R
12
12K
4/4X, 5 St. Steel
SFDN225
FFDN225
RFDN225
JFDN225
DFDN225
WFDN225
184.
184.
482.
252.
252.
1,260.
JD, JDB,
HJD, JDC 125 – 250 1 Surface
1 Flush
3R
12
12K
4/4X, 5 St. Steel
SJDN250
FJDN250
RJDN250
JJDN250
DJDN250
WJDN250
188.
188.
490.
335.
335.
1,950.
JD, JDB,
HJD, JDC 125 – 250 7/9 Cast Alum. XJDN250B 36,590.
KD, KDB, HKD,
KDC, DK 125 – 400 1 Surface
1 Flush
3R
12
12K
4/4X, 5 St. Steel
SKDN400
FKDN400
RKDN400
JKDN400
DKDN400
WKDN400
265.
265.
1,077.
590.
620.
3,700.
KD, KDB, HKD,
KDC, DK 125 – 400 7/9 Cast Alum. XKDN400B 310,780.
LD, LDB, HLD 300 – 600 1 Surface
3R
12
4/4X, 5 St. Steel
SLDN600
RLDN600
JLDN600
WLDN600
406.
1,450.
985.
6,070.
LD, LDB, HLD,
MDL, HMDL 300 – 600
400 – 800 7/9 Cast Alum. XMCN800B 314,520.
MDL, HMDL,
ND, HND 400 – 1200 1 Surface
3R
12
4/4X, 5 St. Steel
SNDN1200
RNDN1200
JNDN1200
WNDN1200
750.
1,730.
1,325.
8,830.
ND, HND — 7/9 Cast Alum. XNDN1200B 326,940.
Breaker
Frame Breaker
Ampere
Range
Enclosure Price
U.S. $
NEMA
Class Catalog
Number
Earth Leakage Breakers
ELFD, ELHFD & ELFDC
(3-Pole Only) 15 – 100 1 Surface
1 Flush
3R
12
12K
4/4X
SFD100E
FFD100E
RFDN100E
JFDN100E
DFDN100E
WFDN100E
184.
184.
482.
252.
252.
1,260.
Discount Symbol . . . . . . . . . . . . . . . . . . . . . . . . CB-2

January 2003
8-50
For more information visit: www.cutler-hammer.eaton.com CA08101001E
Safety Switches & Enclosed Circuit Breakers
8
Enclosed Circuit Breakers
Accessories Vol. 1, Ref. No. [0288]
Options and Accessories
1. Nameplates Applied
Customer must provide nameplate
legend at the time of order.
Table 8-78. Options and Accessories 1
2. Key Interlock Systems
Interlocks are used to prevent an
authorized operation. Before system
construction can begin, the following
information must be known:
1. User — name, address and
telephone number.
2. Complete lock scheme required.
Table 8-79. Options and Accessories 2
1NEMA 3R, 12, 12K and 4/4X only. Contact
Eaton’s Cutler-Hammer satellite for NEMA 1.
3. Neutral Assemblies Installed
Table 8-80. Options and Accessories 3
4. Separate Ground Lug Installed
Table 8-81. Options and Accessories 4
5. Special Paint Finish
Table 8-82. Options and Accessories 5
6. Pilot Light On NEMA 1 Enclosure
Table 8-83. Options and Accessories 6
Description Price U.S. $ Adder
Nameplate (each) 125.
Description Price U.S. $ Adder
Lock (each) 2,500. 1
Ampere Rating Price U.S. $ Adder
100
250
400
600
1200
117.
195.
260.
315.
493.
Ampere Rating Price U.S. $ Adder
100
250
400
600
800
1200
90.
125.
150.
200.
300.
400.
Description
Consult Eaton’s Cutler-Hammer Customer
Support Center
Description Price U.S. $ Adder
Pilot Light 125.
7. Stainless Steel Flush Covers
Table 8-84. Options and Accessories 7
8. Assembled Enclosed Circuit Breakers Modifications and Accessories
Table 8-85. Options and Accessories 8
9. Electronic Trip Options
Table 8-86. Options and Accessories 9
2Ground Fault application not available with NEMA 7/9. Contact Eaton’s Cutler-Hammer Customer
Support Center.
3Add to the appropriate RD RMS 310 adder.
Frame Price U.S. $ Adder
F
J
K
350.
400.
450.
Accessories Modifications Breaker Frame Description Price U.S. $ Adder
Auxiliary
Switches
(Specify
Voltage
and Hz)
G, F, J, K, L, M, N 1A, 1B 200.
G, F, J, K, L, M, N 2A, 2B 400.
K, L, M, N 3A, 3B 600.
R 1A, 1B 215.
Shunt
Trips
(Specify
Voltage
and Hz)
G, F, J, K, L, M, N, R 488.
Alarm
Switches
(Specify
Voltage
and Hz)
G, F, J, K, L, M, N 1 Make, 1 Break 200.
F, K, L, M, N 2 Make, 2 Break 400.
Undervoltage
Release
(Specify
Voltage
and Hz)
G, F, J, K, L, M, N, R 488.
Frame
Type Number
of Poles Description Price U.S.
$ Adder
KD, HKD 3 RMS 310 LS
RMS 310 LSI
RMS 310 LSG 2
RMS 310 LSIG 2
560.
1,065.
1,800.
2,305.
LD, HLD 3 RMS 310 LS
RMS 310 LSI
RMS 310 LSG 2
RMS 310 LSIG 2
430.
1,920.
2,915.
4,020.
MDL, HMDL 3 RMS 310 LS
RMS 310 LSI
RMS 310 LSG 2
RMS 310 LSIG 2
730.
2,180.
3,045.
4,505.
ND 3 RMS 310 LS
RMS 310 LSI
RMS 310 LSG 2
RMS 310 LSIG 2
Standard
1,500.
2,490.
3,980.
RD 3 RMS 310 LS
RMS 310 LSI
RMS 310 LSG
RMS 310 LSIG
RMS 510 LS 3
RMS 610 LS 3
RMS 810 LS 3
RMS 910 LS 3
Standard
425.
1,900.
2,325.
2,300.
4,600.
8,000.
9,000.
a
b
a
ST
Make
Break
ST
Discount Symbol . . . . . . . . . . . . . . . . . . . . . . . . 22-CD

CA08101001E For more information visit: www.cutler-hammer.eaton.com
8-51
Safety Switches & Enclosed Circuit Breakers
January 2003
8
Enclosed Circuit Breakers
Accessories
Vol. 1, Ref. No. [0289]
10. Raintight Hubs
All rainproof enclosures 30A through 400A are shipped with plate over cutout.
Hubs are not supplied with screws on 30A through 400A enclosures. Use screws
from plate.
Raintight Hubs
Table 8-87. Options and Accessories 10
11. Breather and Drain, Hazardous Enclosures
A Universal Breather/Drain Fitting is installed in the top of an enclosure to
provide ventilation to minimize condensation and in the bottom to allow drainage
of accumulated condensation while maintaining explosion-proof integrity.
Table 8-88. Options and Accessories 11
12. Neutral Kits, Insulated and Groundable
Table 8-89. Options and Accessories 12
1Discount Symbol 22-CD.
Hubs Hub Diameter Catalog
Number Price
U.S. $
(Inches) (mm)
Small
For use with RGDN and RFDN 3/4
1
1-1/4
1-1/2
2
19.1
25.4
31.8
38.1
50.8
DS075H1
DS100H1
DS125H1
DS150H1
DS200H1
26.75
26.75
26.75
26.75
43.50
Large
For use with RJDN. RKDN has 2 cutouts 2
2-1/2
3
50.8
63.5
76.2
DS200H2
DS250H2
DS300H2
43.50
78.00
90.50
Required if using small DS hubs on RJDN and RKDN enclosures. DS900AK 12.40
Type Compliance Conduit
Opening Catalog
Number Price
U.S. $
NEMA 7 NEMA 9
BD Class I, Groups C, D;
Class I, Zone 1, Group IIBClass II,
Groups F, G 1/2 XPBD2 98.70
DBB Class I, Groups B, C, D;
Class I, Zone 1, Group IIB + Hydrogen Class II,
Groups E, F, G 1/2 XPDBB50 117.00
Maximum Enclosure
Rating (A) Main Lug Size
Cu/Al Ground Lug Size
Cu/Al Catalog
Number Price
U.S. $
100 SFDN100
RFDN100 (1) 14 – 1/0 (1) 14 – 2 DH100NK 136.00
100 (all others) (1) 14 – 1/0 (1) 14 – 1/0 INK100 1118.00
250 (1) 4 – 350 kcmil (1) 4 – 300 kcmil INK250 1195.00
400 (1) 4 – 600 kcmil or
(2) 1/0 – 250 kcmil (1) 4 – 300 kcmil INK400 1260.00
600 (2) 250 – 500 kcmil (1) 4 – 300 kcmil INK600 1316.00
1200 (4) 1/0 – 750 kcmil (1) #6 – 250 kcmil INK1200 1494.00
Modifications
Allowable accessory combinations
can be reviewed in the Cutler-Hammer
Circuit Breaker Product Guide:
PG.74.A.01.T.E. Verify final application
with Eaton’s Cutler-Hammer Cus-
tomer Support Center.
Flex Center
Introduction
The Safety Switch Flex Center is a spe-
cial facility at the site of our Cleveland,
Tennessee plant that is dedicated
to providing customized enclosed
circuit breakers that meet customer’s
challenging applications.
The Flex Center is a solutions center
that provides real value:
■A dedicated and knowledgeable
engineering/manufacturing/
customer service team to meet
your needs.
■A production facility stocked with
a full arsenal of equipment to get
the job done.
■The industry’s shortest lead time.
■Easy ordering through our
distributors.
■Factory installed modifications
include (but are not limited to)
the following:
❑Special size enclosure
❑Phenolic nameplates
❑Stainless steel flush cover
❑Special paint
❑Lock-on provisions
❑Neutral assemblies —
factory installed
❑Equipment ground lugs —
factory installed
❑Cover control (pilot lights, push-
buttons, selector switches, etc.)
■For application, availability or
pricing questions, contact the
Safety Switch Flex Center at
1-888-329-9272.
Discount Symbol . . . . . . . . . . . . . . . . . . . . . . . . 22-CD

January 2003
8-52
For more information visit: www.cutler-hammer.eaton.com CA08101001E
Safety Switches & Enclosed Circuit Breakers
8
Enclosed Circuit Breakers
Service Locations Vol. 1, Ref. No. [0290]
Satellite Service Locations
Figure 8-10. Satellite Service Locations
Satellite Plants
Atlanta
7990-A 2nd Flag Drive
Austell, GA 30168
Fax (770) 944-2033
Phone (770) 944-1022
Baltimore
6671 Santa Barbara Court
Suite F
Elk Ridge, MD 21227
Fax (410) 796-7755
Phone (410) 796-7777
Chicago
959 AEC Drive
Wood Dale, IL 60191
Fax (630) 860-3569
Phone (630) 860-3500
Cleveland
5565 Venture Drive
Unit B
Parma, OH 44130
Fax (216) 433-0545
Phone (216) 433-0616
Dallas
1100 Avenue T
Grand Prairie, TX 75050
Fax (972) 641-6435
Phone (972) 988-3339
Denver
14101 East 33rd Place
Suite F
Aurora, CO 80011
Fax (303) 371-4175
Phone (303) 371-7844
Detroit
22670 Heslip Drive
Novi, MI 48375-4141
Fax (248) 735-2917
Phone (248) 735-2911
Hartford
625 Day Hill Road
Windsor, CT 06095
Fax (860) 688-4982
Phone (860) 688-7330
Houston
10810 West Little York
Suite 100
Houston, TX 77041
Fax (713) 688-3764
Phone (713) 688-8430
Los Angeles
5590 East Juruda Avenue
Ontario, CA 91761
Fax (909) 390-8854
Phone (909) 390-8853
New Jersey
96 Stemmers Lane
Westampton, NJ 08060
Fax (609) 835-4777
Phone (609) 835-4230
Orlando
3827 St. Valentine Way
Orlando, FL 32811
Fax (407) 841-9135
Phone (407) 843-3863
Phoenix
921 South Park Lane
Tempe, AZ 85281
Fax (480) 449-4223
Phone (480) 449-4222
Raleigh
2933 S. Miami Blvd.
Suite 111
Durham, NC 27703
Fax (919) 572-9751
Phone (919) 544-7074
St. Louis
12947 Gravois Road
St. Louis, MO 63127
Fax (314) 842-2552
Phone (314) 842-7662
San Francisco
20923 Cabot Boulevard
Hayward, CA 94545
Fax (510) 784-8980
Phone (510) 784-8981
Seattle
18657 72nd Avenue S.
Kent, WA 98032
Fax (425) 251-0079
Phone (425) 251-9081
•
•
•
•
•
•
•
•
•
•
•
★
•
•
•
★
SEATTLE
SAN FRANCISCO
LOS ANGELES
DENVER
DALLAS
GRAND PRAIRI
★
G
★
E
HOUSTON
CHICAGO
BA
L
TIMORE
L
T
L
A
TLANT
A
T
A
A
T
A
T
ST. LOUIS
HARTFORD
SUMTER
CLEVELAND
•
RALEIGH
•
PHOENIX
•
DETROIT
R
LANDOO
R
E
W JERSEYN
E

CA08101001E For more information visit: www.cutler-hammer.eaton.com
8-53
Safety Switches & Enclosed Circuit Breakers
January 2003
8
Enclosed Circuit Breakers
Technical Data and Specifications
Vol. 1, Ref. No. [0291]
Technical Data and Specifications
NEMA 1, 12, 12K, 3R
Note: Not to be used for construction purposes unless approved.
Table 8-90. NEMA 1 Surface Mounted (See Figure 8-12)
1SFDN100 Series “B” released 9/15/01.
2Total width, including door clip is 9.95 inches (253 mm).
3Single centered mounting hole provided.
4Maximum wire size: 4/0.
5Maximum wire size: 500 kcmil.
Table 8-91. NEMA 1 Flush Mounted (See Figure 8-13)
6Maximum wire size: 4/0.
7Maximum wire size: 500 kcmil.
Figure 8-11. NEMA 1 Surface Mounted SFDN100 Series “B”
Frame Maximum
Amperes Dimensions in Inches (mm) Approximate Weight
in Lbs. (kg)
ABCDE
G
F 1
Earth Leakage
F 4
J
100
100
100
225
250
17-1/2 (444)
19-1/8 (485)
23-1/4 (591)
23-1/4 (591)
34-45/64 (881)
8-13/32 (214)
9-1/8 (232) 2
8-13/32 (214)
8-13/32 (214)
10-59/64 (277)
6-9/32 (160)
5-13/64 (132)
6-9/32 (160)
6-9/32 (160)
7-13/64 (183)
13-1/32 (331)
17 (432)
18-3/4 (476)
18-3/4 (476)
30 (762)
1-13/64 (31)
N/A 3
1-13/64 (31)
1-13/64 (31)
1-7/8 (48)
12 (5)
13 (6)
15 (7)
15 (7)
31 (14)
K 5
L
M, N
400
600
1200
38-13/16 (986)
45-7/8 (1165)
61-7/32 (1555)
11-1/16 (281)
14-5/16 (364)
21-7/16 (545)
10-15/16 (278)
12-3/8 (314)
15-13/32 (391)
34 (864)
46-9/16 (1183)
61-27/32 (1571)
2-9/32 (58)
1-29/32 (48)
1-31/32 (50)
53 (24)
81 (37)
178 (81)
Frame Maximum
Amperes Dimensions in Inches (mm) Approximate Weight
in Lbs. (kg)
ABCDE
F
Earth Leakage
F 6
J
K 7
100
100
225
250
400
18-13/16 (478)
24-9/16 (624)
24-9/16 (624)
36-1/64 (915)
40-1/8 (1019)
9-23/32 (247)
9-23/32 (247)
9-23/32 (247)
12-15/64 (311)
12-3/8 (314)
6-9/32 (160)
6-9/32 (160)
6-9/32 (160)
7-13/64 (183)
10-15/16 (278)
13-1/32 (331)
18-3/4 (476)
18-3/4 (476)
30 (762)
34 (864)
1-55/64 (47)
1-55/64 (47)
1-55/64 (47)
1-7/8 (48)
2-15/16 (75)
12 (5)
15 (7)
15 (7)
32 (15)
53 (24)
NEED ART
DWG...95-1562
MARK SCHMIDT
FROM
18.81
(478.0)
1.84
(46.7)
1.84
(46.7)
1.91
(48.5)
4.23
(107.4) 5.20
(132.0)
19.12
(485.6)
1.78
(45.2)
1.78
(45.2)
17.00
(431.8)
.81
(20.6)
.38
(9.7)
7.25
(184.1) 3.50
(89.0)
1.91
(48.5).69
(17.5)
8.82
(224.0) .281 (7.1) Diameter
Knockout Quantity: 2
.27 (6.8) Diameter
3 Mounting Holes
9.13 (232.0)
9.95 (252.7) .71
(18.0)
2.13
(54.1)
1.91
(48.5)
1.84
(46.7)
Concentric Knockouts
for 1, 1-1/4, 1-1/2
(25.4, 31.8, 38.1)
2 Conduit
Quantity: 10
1.84
(46.7)
Figure 8-12. NEMA 1 Surface Mounted
Figure 8-13. NEMA 1 Flush Mounted
E
DA
C
B
D
E
BC
A

January 2003
8-54
For more information visit: www.cutler-hammer.eaton.com CA08101001E
Safety Switches & Enclosed Circuit Breakers
8
Enclosed Circuit Breakers
Technical Data and Specifications Vol. 1, Ref. No. [0292]
Table 8-92. NEMA 12, 12K Dustproof (See Figure 8-15)
1Maximum wire size: 4/0.
2Maximum wire size: 500 kcmil.
Table 8-93. NEMA 3R Rainproof (See Figure 8-16)
3RFDN100 Series “B” released 9/15/01.
4Single centered mounting hole provided on RFDN100, Series “B.”
5Maximum wire size: 4/0.
6Maximum wire size: 500 kcmil.
Figure 8-14. NEMA 3R Rainproof RFDN100 Series “B”
Frame Maximum
Amperes Dimensions in Inches (mm) Approximate Weight
in Lbs. (kg)
ABCDE
G, F
Earth Leakage
FBP, FCL
F 1
J
K 2
L
NBP
M, N
100
100
100
225
250
400
600
800
1200
19-29/32 (506)
19-29/32 (506)
25-21/32 (652)
25-21/32 (652)
37-17/32 (953)
41-11/16 (1059)
48-5/16 (1227)
63-19/32 (1615)
63-19/32 (1615)
9-5/32 (232)
9-5/32 (232)
9-5/32 (232)
9-5/32 (232)
11-7/8 (301)
12-5/16 (313)
15-9/16 (395)
22-5/8 (575)
22-5/8 (575)
9-5/16 (237)
9-5/16 (237)
9-5/16 (237)
9-5/16 (237)
10-7/32 (260)
14-1/16 (357)
15-1/2 (394)
17-5/8 (448)
17-5/8 (448)
18-17/32 (471)
18-17/32 (471)
24-9/32 (617)
24-9/32 (617)
35-49/64 (909)
39-15/16 (1014)
46-9/16 (1183)
—
61-27/32 (1571)
1-45/64 (43)
1-45/64 (43)
1-45/64 (43)
1-45/64 (43)
1-15/16 (49)
1-31/32 (50)
1-59/64 (49)
—
1-31/32 (50)
16 (7)
19 (9)
19 (9)
19 (9)
37 (17)
58 (26)
84 (38)
110 (50)
175 (80)
G, F
Earth Leakage
FBP, FCL
F 1
J
K 2
100
100
100
225
250
400
19-29/32 (506)
19-29/32 (506)
25-21/32 (652)
25-21/32 (652)
37-17/32 (953)
41-11/16 (1059)
9-5/32 (232)
9-5/32 (232)
9-5/32 (232)
9-5/32 (232)
11-7/8 (301)
12-5/16 (313)
9-5/16 (237)
9-5/16 (237)
9-5/16 (237)
9-5/16 (237)
10-7/32 (260)
14-1/16 (357)
—
—
—
—
—
—
—
—
—
—
—
—
16 (7)
19 (9)
19 (9)
19 (9)
37 (17)
58 (26)
Frame Maximum
Amperes Dimensions in Inches (mm) Approximate Weight
in Lbs. (kg)
ABCDE
G, F 3
Earth Leakage
FBP, FCL
F 5
J
100
100
100
225
250
19-29/32 (506)
19-29/32 (506)
25-21/32 (652)
25-21/32 (652)
37-1/2 (953)
9-5/32 (232)
9-5/32 (232)
9-5/32 (232)
9-5/32 (232)
11-7/8 (301)
9-5/16 (237)
9-5/16 (237)
9-5/16 (237)
9-5/16 (237)
10-7/32 (260)
18-17/32 (471)
18-17/32 (471)
24-9/32 (617)
24-9/32 (617)
35-49/64 (909)
1-45/64 (43) 4
1-45/64 (43)
1-45/64 (43)
1-45/64 (43)
1-15/16 (49)
16 (7)
19 (9)
19 (9)
19 (9)
37 (17)
K 6
L
M, N
400
600
1200
41-11/16 (1059)
48-5/16 (1227)
63-19/32 (1615)
12-5/16 (313)
15-9/16 (395)
22-5/8 (575)
14-1/16 (357)
15-1/2 (394)
17-5/8 (448)
39-15/16 (1014)
46-9/16 (1183)
61-27/32 (1571)
1-31/32 (50)
1-59/64 (49)
1-31/32 (50)
58 (26)
84 (38)
175 (80)
NEED ART
DWG...95-1562
MARK SCHMIDT
FROM
Concentric Knockouts
for 1, 1-1/4, 1-1/2
(25.4, 31.8, 38.1)
2 Conduit
Quantity: 5
1.84
(46.7)
1.91
(48.5)
7.25
(184.0)
.27 (6.8) Diameter
3 Mounting Holes
.38
(9.7)
3.50
(89.0)
19.12
(485.6)
1.78
(45.2)
17.00
(431.8)
.81
(20.6)
1.91
(48.5)
.69
(17.5)
8.82
(224.0).281 (7.1) Diameter
Knockout Quantity: 2
1.84
(46.7)
1.91
(48.5)
4.23
(107.4) 5.20
(132.0)
19.27
(489.4)
18.81
(478.0)
9.13 (232.0)
9.95 (252.7).71
(18.0)
Figure 8-15. NEMA 12, 12K Dustproof
Figure 8-16. NEMA 3R Rainproof
ON
OFF
EC
AD
B
C
ON
OFF
E
AD
B

CA08101001E For more information visit: www.cutler-hammer.eaton.com
8-55
Safety Switches & Enclosed Circuit Breakers
January 2003
8
Enclosed Circuit Breakers
Technical Data and Specifications
Vol. 1, Ref. No. [0293]
NEMA 4/4X, 5, 7/9
Note: Not to be used for construction purposes unless approved.
Table 8-94. NEMA 4/4X, 5 Stainless Steel
1Maximum wire size: 4/0.
2Maximum wire size: 500 kcmil.
Table 8-95. NEMA 7/9 Cast Aluminum with Weather Resistant Seals — 15– 250 Amperes
3Maximum wire size: 4/0.
Figure 8-17. NEMA 7/9 Cast Aluminum with Weather Resistant Seals —
Dual 3 and 4 Point Mounting Available as Standard on F Frame 100A and Below
Frame Maximum
Amperes Dimensions in Inches (mm) Approximate
Weight in
Lbs. (kg)
ABCDE
G, F 100 19-29/32
(506) 8-27/32
(225) 9-5/16
(237) 18-17/32
(471) 1-45/64
(43) 16 (7)
Earth Leakage 100 19-29/32
(506) 8-27/32
(225) 9-5/16
(237) 18-17/32
(471) 1-45/64
(43) 20 (9)
FBP, FCL 100 25-21/32
(652) 8-27/32
(225) 9-5/16
(237) 24-9/32
(617) 1-45/64
(43) 20 (9)
F 1 225 25-21/32
(652) 8-27/32
(225) 9-5/16
(237) 24-9/32
(617) 1-45/64
(43) 20 (9)
J 250 37-1/2
(953) 11-9/16
(294) 10-7/32
(260) 35-49/64
(909) 1-15/16
(49) 39 (18)
K 2 400 41-11/16
(1059) 11-3/4
(298) 14-1/16
(357) 39-15/16
(1014) 1-31/32
(50) 60 (27)
L 600 48-5/16
(1227) 14-29/32
(379) 15-1/2
(394) 46-9/16
(1183) 1-59/64
(49) 88 (40)
M, N 1200 63-19/32
(1615) 22
(559) 17-5/8
(448) 61-27/32
(1571) 1-31/32
(50) 185 (84)
Breaker
Frame Breaker
Size
Amperes
Number
of
Outlets
Dimensions in Inches (mm) Approximate
Weight in
Lbs. (kg)
Mounting 3Inside 3Outside 3K 3
Dim Standard
Conduit
Size 3
ABJ CDE F GH
F
XFDN050B 15 – 50 4 5-1/2
(140) 13-1/8
(333) 14-1/8
(359) 6-1/8
(156) 10-3/4
(273) 5-1/4
(133) 10-5/8
(270) 15-1/4
(387) 8-7/8
(225) 2
(51) 1.5
(38) 38 (17)
F 3
XFDN100B 60 – 100 4 6
(152) 18
(457) 19
(483) 6-1/2
(165) 16
(406) 5-1/2
(140) 11
(279) 20-1/2
(521) 9
(229) 2-5/16
(59) 2
(51) 57 (26)
F 3
XFDN225B 125 – 225 4 10-1/4
(260) 22-5/8
(575) — 11-3/8
(289) 20
(508) 6-3/8
(162) 16-3/8
(416) 25-1/8
(638) 9-5/8
(244) 3-1/2
(89) 2.5
(64) 104 (47)
J
XJDN225B 70 – 225 4 8-1/2
(216) 27-1/8
(689) — 11-1/4
(286) 29-7/8
(759) 7-3/8
(187) 16
(406) 29-1/2
(749) 12-5/16
(313) 4
(102) 3
(76) 145 (66)
J
XJDN250B 250 4 9-1/2
(241) 27-1/4
(692) — 11-1/4
(286) 29-7/8
(759) 8-1/16
(205) 16-3/8
(416) 35
(889) 12-3/8
(314) 4-3/16
(106) 4
(102) 170 (77)
(2) 1/2-inch
(12.7 mm)
NPT
Figure 8-18. NEMA 4/4X, 5 Stainless Steel
EB
D
AON
OFF
C

January 2003
8-56
For more information visit: www.cutler-hammer.eaton.com CA08101001E
Safety Switches & Enclosed Circuit Breakers
8
Enclosed Circuit Breakers
Technical Data and Specifications Vol. 1, Ref. No. [0294]
Table 8-96. NEMA 7/9 Cast Aluminum with Weather Resistant Seals — 400 – 1200 Amperes
1Maximum wire size: 500 kcmil.
2Power cables must enter and leave from opposite ends (through-feed).
Figure 8-19. NEMA 7/9 Cast Aluminum with Weather Resistant Seals
Conduit Openings
Refer to outline dimensions for size and location of standard
conduit openings. In addition, 1/2-inch (12.7 mm) openings
are drilled and tapped for breather and drain. Unless ordered
with breather and drain, these openings are plugged.
Refer to Eaton’s Cutler-Hammer for price of breather and
drain.
Product Selection
1. Use the data on this page to determine type of
enclosure required.
2. Use the data on Page 8-57 to determine circuit
breaker required.
3. Base pricing for the assembled unit can be determined
from the tables on Pages 8-58 and 8-59.
4. Additional options can be priced from Pages 8-50 and
8-51 added to the base price.
5. Pages 8-53 through 8-56 include rough-in dimensional
information.
Breaker
Frame Breaker
Size
Amperes
Dimensions in Inches (mm) Weight
Lbs. (kg)
Overall
Enclosure Enclosure
Mounting Conduit Hinged
Cover Standard
Conduit
A B C D E F G H I J Size Location
K 1
XKDN400B 400 35
(889) 16-3/8
(416) 12-5/8
(321) 7-1/8
(181) 9-1/2
(241) 27-1/4
(692) 1/2
(13) 3
(76) 4-3/16
(106) 5-1/2
(140) 4
(102) 1, 3 & 6, 8 170 (77)
L
XLDN600B 600 37-7/8
(962) 23-7/8
(606) 14-1/4
(362) 8-1/4
(210) 16
(406) 45-3/8
(1153) 1/2
(13) 4
(102) 5
(127) 6
(152) 4
(102) 1, 3 & 6, 8 419 (190)
M
XKCN800B 800 47-7/8
(1216) 13-5/8
(346) 12-13/16
(325) 6-13/16
(173) 16-1/8
(410) 40-3/4
(1035) 1/2
(13) 4
(102) 4
(102) 6
(152) 4
(102) 1, 3 & 6, 8 228 (104)
N 21200 64
(1626) 26
(660) 21-3/8
(543) 14-3/8
(365) 27-9/16
(700) 38-5/8
(981) 1/2
(13) 6-1/2
(165) 4-3/8
(111) 7
(178) 4
(102) 1, 3 & 6, 8 567 (257)
CONDUIT POSITION NO.
123
G-MTG.
HOLES (4)
F-MTG.
A
8 7 6
I
D
C
JB
HH
E-MT

January 2003
CA08101001E For more information visit: www.cutler-hammer.eaton.com
8-57
Safety Switches & Enclosed Circuit Breakers
8
Enclosed Circuit Breakers
Product Selection
Vol. 1, Ref. No. [0295]
Table 8-97. Industrial Circuit Breaker Selection
1N.I.T.U. is non-interchangeable trip unit and I.T.U. is interchangeable trip unit.
2Two-pole circuit breaker, or two poles of three-pole circuit breaker at 250V DC.
3Not defined in W-C-375b.
4Not suitable for use with 100A enclosures.
Circuit
Breaker
Type
Continuous
Ampere
Rating
at 40°C
No.
of
Poles
Volts Type
of
Trip 1
Federal
Spec.
W-C-375b
UL Listed Interrupting Rating rms Symmetrical Amperes
AC DC AC Ratings Volts DC 2
120 120/240 240 277 480 600 125 250 125/250
G-Frame
GHC
GHC
GHC
GHC
15 – 100
15 – 100
15 – 100
15 – 100
1
2, 3
1
2, 3
120
240
277
277/480
125
125/250
125
215/250
N.I.T.U. 12c, 13a
13b
12c, 13a
13b
65,000
—
—
—
—
—
—
—
—
65,000
—
—
—
—
14,000
14,000
—
—
—
14,000
—
—
—
—
14,000
—
14,000
—
—
—
—
—
—
14,000
—
14,000
GD 15 – 100 3 480 250 N.I.T.U. 13b — — 65,000 — 22,000 — — 10,000 —
F-Frame
ED
EDH
EDC
100 – 225
100 – 225
100 – 225
2, 3
2, 3
2, 3
240
240
240
125
125
125
N.I.T.U. 12b
14b
1
—
—
—
—
—
—
65,000
100,000
200,000
—
—
—
—
—
—
—
—
—
10,000
10,000
10,000
—
—
—
—
—
—
EHD
EHD 15 – 100
15 – 100 1
2, 3 277
480 125
250 N.I.T.U. 13a
13b —
——
——
18,000 14,000
——
14,000 —
—10,000
——
10,000 —
—
FDB
FDB 15 – 150
15 – 150 2, 3
4600
600 250
250 N.I.T.U. 18a
3—
——
— 18,000
18,000 —
— 14,000
14,000 14,000
14,000 —
—10,000
10,000 —
—
FD
FD
FD
15 – 225
15 – 225
15 – 225
1
2, 3
4
277
600
600
125
250
250
N.I.T.U. 13a
22a
3
—
—
—
—
—
—
—
65,000
65,000
25,000
—
—
—
25,000
25,000
—
18,000
18,000
10,000
—
—
—
10,000
10,000
—
—
—
HFD
HFD
HFD
15 – 225
15 – 225
15 – 225
1
2, 3
4
277
600
600
125
250
250
N.I.T.U. 13a
22a
3
—
—
—
—
—
—
—
100,000
100,000
65,000
—
—
—
65,000
65,000
—
25,000
25,000
10,000
—
—
—
20,000
20,000
—
—
—
FDC
FDC 15 – 225 4
15 – 225 2, 3
4600
600 250
250 N.I.T.U. 24a
3—
——
—200,000
200,000 —
—100,000
100,000 35,000
35,000 —
—20,000
20,000 —
—
J-Frame
JDB
JD
HJD
JDC
70 – 250
70 – 250
70 – 250
70 – 250
2, 3
2, 3, 4
2, 3, 4
2, 3, 4
600
600
600
600
250
250
250
250
N.I.T.U.
I.T.U.
I.T.U.
I.T.U.
22a
22a
22a
22a
—
—
—
—
—
—
—
—
65,000
65,000
100,000
200,000
—
—
—
—
35,000
35,000
65,000
100,000
18,000
18,000
25,000
35,000
—
—
—
—
10,000
10,000
22,000
22,000
—
—
—
—
K-Frame
DK
KDB
KD
HKD
KDC
250 – 400
100 – 400
100 – 400
100 – 400
100 – 400
2, 3
2, 3
2, 3, 4
2, 3, 4
2, 3, 4
240
600
600
600
600
250
250
250
250
250
N.I.T.U.
N.I.T.U.
I.T.U.
I.T.U.
I.T.U.
14b
23a
23a
23a
23a
—
—
—
—
—
—
—
—
—
—
65,000
65,000
65,000
100,000
200,000
—
—
—
—
—
—
35,000
35,000
65,000
100,000
—
25,000
25,000
35,000
50,000
—
—
—
—
—
10,000
10,000
10,000
22,000
22,000
—
—
—
—
—
L-Frame
LDB
LD
HLD
300 – 600
300 – 600
300 – 600
2, 3
2, 3, 4
2, 3, 4
600
600
600
250
250
250
N.I.T.U.
I.T.U.
I.T.U.
23a
23a
23a
—
—
—
—
—
—
65,000
65,000
100,000
—
—
—
35,000
35,000
65,000
25,000
25,000
35,000
—
—
—
22,000
22,000
25,000
—
—
—
M-Frame
MDL
HMDL 300 – 800
300 – 800 2, 3
2, 3 600
600 250
250 I.T.U.
I.T.U. 23a
23a —
——
— 65,000
100,000 —
— 50,000
65,000 25,000
35,000 —
—22,000
25,000 —
—
N-Frame
ND
HND 600 – 1200
600 – 1200 3, 4
3, 4 600
600 —
—N.I.T.U.
N.I.T.U. 23a
23a —
——
— 65,000
100,000 —
— 50,000
65,000 25,000
35,000 —
——
——
—
R-Frame
RD 800 – 2500 3, 4 600 — N.I.T.U. 24a — — 125,000 — 65,000 35,000 — — —

January 2003
8-58
For more information visit: www.cutler-hammer.eaton.com CA08101001E
Safety Switches & Enclosed Circuit Breakers
8
Enclosed Circuit Breakers
Product Selection Vol. 1, Ref. No. [0296]
Table 8-98. Prices for Enclosed Circuit Breaker Assemblies
1Price U.S. $ includes enclosure; breaker frame and trip unit or rating plug; standard line and load terminals; assembling and packaging
in single shipping carton.
2Discount Symbol 22-CD.
Note: For all other combination assembled enclosed circuit breakers refer to Eaton’s Cutler-Hammer Customer Support Center.
Circuit Breaker Enclosure Type — Price U.S. $ 1
Frame
Type Number
of Poles Ampere
Rating NEMA 1
Surface NEMA 1
Flush NEMA 3R NEMA 12 NEMA 12K NEMA 4/4X NEMA 7/9 2
GHC 1
1 15 – 60
70 – 100 263.
362. —
——
——
——
——
——
—
GHCGFEP 1 15 – 60 664. — 839. 703. 713. 1412. —
GHC 2
2
3
3
15 – 60
70 – 100
15 – 60
70 – 100
391.
622.
567.
717.
—
—
—
—
567.
797.
742.
892.
431.
661.
606.
756.
440.
671.
615.
765.
1139.
1,370.
1,314.
1,465.
—
—
—
—
EHD 2
2
3
3
15 – 60
70 – 100
15 – 60
70 – 100
558.
673.
673.
770.
558.
673.
673.
770.
742.
856.
856.
954.
599.
714.
714.
812.
610.
724.
724.
822.
1,345.
1,460.
1,460.
1,557.
2,593.
3,211.
2,707.
3,308.
ED 2
3100 – 225
100 – 225 545.
1,070. 545.
1,070. 843.
1,368. 613.
1,138. 613.
1,138. 1,619.
2,144. 3,067.
3,593.
EDH 2
3100 – 225
100 – 225 1,038.
1,468. 1,038.
1,468. 1,336.
1,765. 1,106.
1,536. 1,106.
1,536. 2,113.
2,542. 3,561.
3,990.
EDC 2
3100 – 225
100 – 225 1,388.
1,839. 1,388.
1,839. 1,686.
2,136. 1,456.
1,907. 1,456.
1,907. 2,463.
2,913. 3,911.
4,361.
FDB 2
2
2
3
3
3
15 – 60
70 – 100
125 – 150
15 – 60
70 – 100
125 – 150
607.
736.
1,446.
747.
868.
1,754.
607.
736.
1,446.
747.
868.
1,754.
790.
920.
1,744.
930.
1,052.
2,052.
648.
778.
1,514.
788.
909.
1,822.
658.
788.
1,514.
798.
919.
1,822.
1,394.
1,523.
2,520.
1,534.
1,655.
2,828.
2,641.
3,274.
3,969.
2,781.
3,406.
4,277.
FD 2
2
2
3
3
3
15 – 60
70 – 100
125 – 225
15 – 60
70 – 100
125 – 225
904.
1,028.
2,109.
1,033.
1,144.
2,392.
904.
1,028.
2,109.
1,033.
1,144.
2,392.
1,088.
1,211.
2,407.
1,216.
1,328.
2,689.
946.
1,069.
2,177.
1,074.
1,186.
2,460.
956.
1,079.
2,177.
1,084.
1,196.
2,460.
1,691.
1,815.
3,184.
1,820.
1,931.
3,466.
2,939.
3,566.
4,632.
3,067.
3,682.
4,914.
HFD 2
2
2
3
3
3
15 – 60
70 – 100
125 – 225
15 – 60
70 – 100
125 – 225
1,049.
1,304.
2,905.
1,314.
1,569.
2,392.
1,049.
1,304.
2,905.
1,314.
1,569.
2,392.
1,232.
1,487.
3,202.
1,498.
1,752.
3,611.
1,090.
1,345.
2,973.
1,355.
1,610.
3,381.
1,100.
1,355.
2,973.
1,365.
1,620.
3,381.
1,835.
2,091.
3,979.
2,101.
2,356.
4,388.
3,083.
3,842.
5,427.
3,349.
4,107.
5,836.
JDB 2
2
3
3
70 – 225
250
70 – 225
250
2,348.
2,511.
2,793.
2,989.
2,348.
2,511.
2,793.
2,989.
2,650.
2,828.
3,095.
3,306.
2,496.
2,658.
2,940.
3,136.
2,496.
2,658.
2,940.
3,136.
4,110.
4,271.
4,510.
4,749.
7,384.
8,371.
7,729.
8,849.
HJD 2
2
3
3
70 – 225
250
70 – 225
250
3,387.
4,643.
3,954.
5,100.
3,387.
4,643.
3,954.
5,100.
3,704.
4,960.
4,271.
5,417.
3,534.
4,791.
4,101.
5,247.
3,534.
4,791.
4,101.
5,247.
5,147.
6,404.
5,714.
6,860.
9,246.
10,503.
9,814.
10,959.
DK 2
3250 – 400
250 – 400 2,280.
2,694. 2,280.
2,694. 3,125.
3,539. 2,605.
3,019. 2,605.
3,019. 5,713.
6,127. 11,925.
12,339.
KDB 2
3100 – 400
100 – 400 2,711.
3,245. 2,711.
3,245. 3,556.
4,057. 3,035.
3,570. 3,035.
3,570. 6,144.
6,680. 12,356.
12,890.
HKD 2
3100 – 400
100 – 400 4,806.
5,325. 4,806.
5,325. 5,650.
6,137. 5,130.
5,650. 5,130.
5,650. 8,239.
8,760. 14,451.
14,970.
LDB 2
3300 – 600
300 – 600 4,342.
5,396. —
—5,385.
6,440. 4,918.
5,975. —
—10,005.
11,060. 17,278.
18,340.
HLD 2
3300 – 600
300 – 600 6,294.
7,696. —
—7,337.
8,740. 6,870.
8,275. —
—11,957.
13,360. 19,230.
20,640.
MDL 2
3300 – 800
300 – 800 6,098.
7,395. —
—7,078.
8,375. 6,670.
7,970. —
—14,176.
15,475. 18,690.
19,995.
HMDL 2
3300 – 800
300 – 800 8,420.
9,320. —
—9,400.
10,300. 8,993.
9,895. —
—16,499.
17,400. 21,013.
21,920.
Discount Symbol . . . . . . . . . . . . . . . . . . . . . . . . . CB-2

January 2003
CA08101001E For more information visit: www.cutler-hammer.eaton.com
8-59
Safety Switches & Enclosed Circuit Breakers
8
Enclosed Circuit Breakers
Product Selection
Vol. 1, Ref. No. [0297]
Table 8-98. Prices for Enclosed Circuit Breakers (Continued)
1Price U.S. $ includes enclosure; breaker frame and trip unit or rating plug; standard line and
load terminals; assembling and packaging in single shipping carton.
2Consult Eaton’s Cutler-Hammer Customer Support Center for price and availability.
3(4) 500 – 1000 kcmil per phase, line and load.
4(6) #2 – 600 kcmil per phase, line and load.
5(9) #4 – 500 kcmil per phase, line and load.
6Enclosure is Pow-R-Line C Switchboard assembly.
7See RD Accessories and Modifications table.
8Discount Symbol 22-CD.
Note: For all other combination assembled enclosed circuit breakers refer to Eaton’s Cutler-Hammer
Customer Support Center.
Table 8-99. Special RD Modifications and Accessories
9Consult Eaton’s Cutler-Hammer Customer Support Center.
Circuit Breaker Enclosure Type — Price U.S. $ 1
Frame
Type Number
of Poles Ampere
Rating NEMA 1
Surface NEMA 1
Flush NEMA 3R NEMA 12 NEMA 12K NEMA 4/4X NEMA 7/9 8
ND 2
3 600 – 1200
600 – 1200 10,701.
11,932. —
—11,681.
12,912. 11,273.
12,507. —
—18,779.
20,012. 34,730.
35,962.
HND 2
3 600 – 1200
600 – 1200 11,836.
13,192. —
—12,816.
14,172. 12,407.
13,767. —
—19,914.
21,272. 35,865.
37,222.
ELFD
Earth Leakage 3
3
4
4
15 – 100
110 – 150
15 – 100
110 – 150
1,929.
2
2
2
1,929.
2
2
2
2,227.
2
2
2
1,939.
2
2
2
1,997.
2
2
2
3,003.
2
2
2
—
—
—
—
ELHFD
Earth Leakage 3
3
4
4
15 – 100
110 – 150
15 – 100
110 – 150
2,354.
2
2
2
2,354.
2
2
2
2,651.
2
2
2
2,422.
2
2
2
2,422.
2
2
2
3,428.
2
2
2
—
—
—
—
ELJD
Earth Leakage 3
3
4
4
100 – 225
250
100 – 225
250
—
—
—
—
—
—
—
—
2
2
2
2
2
2
2
2
2
2
2
2
2
2
2
2
—
—
—
—
ELHJD
Earth Leakage 3
3
4
4
100 – 225
250
100 – 225
250
—
—
—
—
—
—
—
—
2
2
2
2
2
2
2
2
2
2
2
2
2
2
2
2
—
—
—
—
ELKD
Earth Leakage 3
4 200 – 400
200 – 400 —
——
—
2
2
2
2
2
2
2
2—
—
ELHKD
Earth Leakage 3
4 200 – 400
200 – 400 —
——
—
2
2
2
2
2
2
2
2—
—
FCL 3 15 – 100 — — 3,065. 2,836. 2,836. 3,842. —
FBP 3 15 – 100 — — 3,065. 2,836. 2,836. 3,842. —
RD 63
3
3
1600 3
2000 4
2500 5
19,780.
21,990.
26,130.
—
—
—
7
7
7
—
—
—
—
—
—
—
—
—
—
—
—
Description Price U.S. $ Adder
1600A Neutral Assembly (Aluminum)
2000A Neutral Assembly (Aluminum)
2500A Neutral Assembly (Aluminum)
410.
410.
540.
1600A Neutral Assembly (Copper)
2000A Neutral Assembly (Copper)
2500A Neutral Assembly (Copper)
1,860.
2,050.
2,460.
Adjustable Rating Plug
Lockoff, Padlockable
Key Interlock
50.
85.
960.
Phase Failure Protection (Includes Shunt Trip)
Zero Sequence GFP (Including Shunt Trip and Test Panel)
NEMA 3R Flat Roof
3,730.
7,610.
1,680.
Heater Package (Includes CPT, Heater, Thermostat and Disconnect)
Special Sized Enclosures
Standard is 90-inch H x 30-inch W x 30-inch D (2286 x 762 x 762 mm)
625.
9
9
IQ Metering 9
Non-Standard Terminations 9
Discount Symbol. . . . . . . . . . . . . . . . . . . . . . . . . CB-2

January 2003
8-60
For more information visit: www.cutler-hammer.eaton.com CA08101001E
Safety Switches & Enclosed Circuit Breakers
8
Enclosed Circuit Breakers
Cross-Reference Vol. 1, Ref. No. [0298]
Cross-Reference
Table 8-100. Enclosed Circuit Breaker Competitive Catalog Numbers
1Maximum wire size 4/0.
2Maximum wire size 500 kcmil.
NEMA
Rating Catalog Number
Cutler-Hammer Business Square D Siemens General Electric
Enclosure Breaker Enclosure Breaker Enclosure Breaker Enclosure Breaker
1 Surface
1 Flush
3R
SGDN100
—
RGDN100
GHC3100
—
GHC3100
EHB125NS
EHB125NF
EHB125NRB
EHB34100
EHB34100
EHB34100
—
—
—
—
—
—
—
—
—
—
—
—
12
12K
4/4X
JGDN100
DGDN100
WGDN100
GHC3100
GHC3100
GHC3100
—
—
—
—
—
—
—
—
—
—
—
—
—
—
—
—
—
—
1 Surface
1 Flush
3R
SFDN100
FFDN100
RFDN100
EHD3100L
EHD3100L
EHD3100L
FA100S
FA100F
FA100RB
FAL34100
FAL34100
FAL34100
E2N1S
E2N1F
E2N3R
ED43B100
ED43B100
ED43B100
TE100S
TE100F
TE100R
TED134100WL
TED134100WL
TED134100WL
12/3R
12
12K
—
JFDN100
DFDN100
—
EHD3100L
EHD3100L
FA100AWK
—
FA100A
FAL34100
—
FAL34100
—
E2N12
E2N12
—
ED43B100
ED43B100
—
TE100J/SE100J
TE100D/ ______
—
TED134100WL
TED134100WL
4/4X
7/9
9
WFDN100
XFDN050
—
EHD3100L
EHD3050L
—
FA100DS
FA060X
FA060Y
FAL34100
FAL34060
FAL34060
ED6SS4
EA
—
ED43B100
ED43B100
—
TE100CS/SE100CS
—
—
TED134100WL
—
—
7/9
9XFDN225B 1
—FD3225L
—FA100X
FA100Y FAL34100
FAL34100 EB
—ED43B100
——
——
—
1 Surface
1 Flush
3R
SFDN225 1
FFDN225 1
RFDN225 1
FDB3150L
FDB3150L
FDB3150L
—
—
—
—
—
—
E2N1S
E2N1F
E2N3R
ED43B125
ED43B125
ED43B125
TE150S
TE150F
TE150R
TED134150WL
TED134150WL
TED134150WL
12
12K
4/4X
JFDN225 1
DFDN225 1
WFDN225 1
FDB3150L
FDB3150L
FDB3150L
—
—
—
—
—
—
E2N12
E2N12
ED6SS4
ED43B125
ED43B125
ED43B125
—
—
—
—
—
—
7/9 XFDN225B 1FDB3150L — — — — — —
1 Surface
1 Flush
3R
SFDN225 1
FFDN225 1
RFDN225 1
FD3225L
FD3225L
FD3225L
—
—
—
—
—
—
—
—
—
—
—
—
—
—
—
—
—
—
12
12K
4/4X
JFDN225 1
DFDN225 1
WFDN225 1
FD3225L
FD3225L
FD3225L
—
—
—
—
—
—
—
—
—
—
—
—
—
—
—
—
—
—
7/9 XFDN225B 1FD3225L — — — — — —
1 Surface
1 Flush
3R
SJDN250
FJDN250
RJDN250
JDB3250
JDB3250
JDB3250
KA225S
KA225F
KA225RB
KAL36250
KAL36250
KAL36250
F6N1S
F6N1F
F6N3R
FXD63B250
FXD63B250
FXD63B250
TF225S
TF225F
TF225R
TFJ236225WL
TFJ236225WL
TFJ236225WL
12/3R
12
12K
—
JJDN250
DJDN250
—
JDB3250
JDB3250
KA225AWK
—
KA225A
KAL36250
—
KAL36250
—
F6N12
F6N12
—
FXD63B250
FXD63B250
—
TF225J/SF250J
______ /SF250D
—
TFJ236225WL
TFJ236225WL
4/4X
7/9
9
WJDN250
XJDN250B
—
JDB3250
—
—
KA225DS
KA225X
KA225Y
KAL36250
KAL36250
KAL36250
FD6SS4
EC2
—
FXD63B250
FXD63B250
—
TF225CS/SF250CS
—
—
TFJ236225WL
—
—
1 Surface
1 Flush
3R
SKDN400 2
FKDN400 2
RKDN400 2
KDB3400
KDB3400
KDB3400
LA400S
LA400F
LA400R
LAL36400
LAL36400
LAL36400
J6N1
—
J6N3R
JXD63B400
—
JXD63B400
TJ400S/SG400S
TJ400F/SG400F
TJ400R/SG400R
TJK436400WL
TJK436400WL
TJK436400WL
12/3R
12
12K
—
JKDN400 2
DKDN400 2
—
KDB3400
KDB3400
LA400AWK
—
—
LAL36400
—
—
—
J6N12
J6N12
—
JXD63B400
JXD63B400
—
TJ400J/SG400J
______ /SG400D
—
TJK436400WL
TJK436400WL
4/4X
7/9 WKDN400 2
XKDN400B 2KDB3400
KDB3400 LA400DS
—LAL36400
——
EE —
JXD63B400 TJ400CS/SG400CS
—TJK436400WL
—

January 2003
CA08101001E For more information visit: www.cutler-hammer.eaton.com
8-61
Safety Switches & Enclosed Circuit Breakers
8
Enclosed Circuit Breakers
Cross-Reference
Vol. 1, Ref. No. [0299]
Table 8-100. Enclosed Circuit Breaker Competitive Catalog Numbers (Continued)
1Through feed only.
The National Electrical Code and NEC
are registered trademarks of the
National Fire Protection Association,
Quincy, Mass.
UL is a registered trademark of the
Underwriters Laboratories Inc.
NEMA
Rating Catalog Number
Cutler-Hammer Business Square D Siemens General Electric
Enclosure Breaker Enclosure Breaker Enclosure Breaker Enclosure Breaker
1 Surface
1 Flush
3R
SLDN600
—
RLDN600
LDB3600
—
LDB3600
MA1000S
MA1000F
—
MAL36600
MAL36600
—
LD6N1
—
LD6N3R
LXD63B600
—
LXD63B600
TJ600S/SG600S
TJ600F/SG600F
TJ600R/SG600R
TJK636600WL
TJK636600WL
TJK636600WL
12/3R
12
4/4X
—
JLDN600
WLDN600
—
LDB3600
LDB3600
MA1000AWK
—
MA1000DS
MAL36600
—
MAL36600
—
LD6N12
LD6SS4
—
LXD63B600
LXD63B600
—
TJ600J/SG600J
TJ600CS
—
TJK636600WL
TJK636600WL
7/9 XMCN800B LDB3600 — — ED6 LXD63B600 — —
1 Surface
1 Flush
3R
SNDN1200
—
RNDN1200
MDL3800
—
MDL3800
MA1000S
MA1000F
—
MAL36800
MAL36800
—
LMD1
—
LMD3R
MXD63B800
—
MXD63B800
TK4V1200S
TK4V1200F
TKV41200R
TKMA836800WL
TKMA836800WL
TKMA836800WL
12/3R
12
4/4X
—
JNDN1200
WNDN1200
—
MDL3800
MDL3800
MA1000AWK
—
MA1000DS
MAL36800
—
MAL36800
—
LMD12
—
—
MXD63B800
—
—
TK4V1200J/SK1200
—
—
TKMA836800WL
—
7/9 XMCN800B MDL3800 — — — — — —
1 Surface
1 Flush
3R
SNDN1200
—
RNDN1200
ND312T33W
—
ND312T33W
MA1000S
MA1000F
—
MAL361000
MAL361000
—
—
—
—
—
—
—
—
—
—
—
—
—
12/3R
12
4/4X
—
JNDN1200
WNDN1200
—
ND312T33W
ND312T33W
MA1000AWK
—
MA1000DS
MAL361000
—
MAL361000
—
—
—
—
—
—
—
—
—
—
—
—
1 Surface
12
3R
SNDN1200
—
RNDN1200
ND312T33W
—
ND312T33W
—
—
—
—
—
—
MND61
—
MND63
NXD63B120
—
NXD63B120
TK4V1200S
TK4V1200F
TKV41200R
TKMA31200WL
TKMA31200WL
TKMA31200WL
1 Surface
12
4/4X
—
JNDN1200
WNDN1200
—
ND312T33W
ND312T33W
NA1200AWK
—
—
NAL361200
—
—
—
MND612
—
—
NXD63B120
—
—
TK4V1200J/SK1200
—
—
TKMA31200WL
—
7/9 XNDN1200B 1ND312T33W — — — — — —

January 2003
8-62
For more information visit: www.cutler-hammer.eaton.com CA08101001E
Safety Switches & Enclosed Circuit Breakers
8
Enclosed Circuit Breakers
Business Card Vol. 1, Ref. No. [0300]
Notes
Field Sales Contact:
Name: _______________________________________________
Address: _______________________________________________
_______________________________________________
_______________________________________________
_______________________________________________
Phone: _______________________________________________
Fax: _______________________________________________
Email: _______________________________________________
Distributor Contact:
Name: _______________________________________________
Address: _______________________________________________
_______________________________________________
_______________________________________________
_______________________________________________
Phone: _______________________________________________
Fax: _______________________________________________
Email: _______________________________________________
Product Catalog Number Price U.S. $
Business Card
Business Card