Electrolux Oven 260701 Fcg101 Users Manual
260701 (FCG101) to the manual 24a95a4a-f4fd-405b-bff2-025367ac6478
2015-01-16
: Electrolux Electrolux-Electrolux-Oven-260701-Fcg101-Users-Manual-248657 electrolux-electrolux-oven-260701-fcg101-users-manual-248657 electrolux pdf
Open the PDF directly: View PDF 
.
Page Count: 4

Crosswise Convection
Gas Convection Oven, 10
GN1/1
ITEM #
MODEL #
NAME #
SIS #
AIA #
Short Form Specification
Item No.
APPROVAL:
Electrolux Professional
www.electrolux.com/foodservice
foodservice@electrolux.com
Crosswise Convection
Gas Convection Oven, 10 GN1/1
Crosswise Convection
Gas Convection Oven, 10 GN1/1
260701 (FCG101)Gas convection oven
10x1/1GN, crosswise
Main structure in stainless steel, with seamless joints in the oven cavity. Double-
glazed door with tempered glass. Cavity lighting. Unique air-flow channel system.
Cooking cycles: air convection, convection with 5 stage humidification. Max.
temperature of 300°C.
Functional level: base, manual.
"Cross-wise" pan rack suitable for 10x1/1GN. The  pan rack, fixed, can be converted
into a roll-in rack by using an optional kit.
Supplied with n. 1 pan rack, 60mm pitch (made up of n. 2 side hangers).
Main Features
•IPX4 water resistance certification.
•Racks can be easily removed without the need for
special tools.
•Unique air-flow system guarantees perfect distribution
of heat throughout the oven cavity.
•Maximum temperature of 300°C.
•Food temperature probe available as accessory.
•Rapid cooling of oven cavity.
•Halogen lighting and “crosswise” pan supports allow
clear and unobstructed view of the products being
cooked.
•5 Stage humidification control, to ensure perfect
pastries and succulent roasts.
•Meets the requirements of CE, VDE and DVGW for
safety.
Construction
•Height adjustable feet.
•Access to all components from the front.
•Stainless steel oven cavity with rounded corners.
•Double-glazed door with tempered glass.
•External access door for electrical connections.
•All connections made on the left side below the oven.
•Integrated drain outlet.
Included Accessories
•1 of 60mm pitch side hangers 10x1/1GN
gas oven (included with the oven)PNC 922122

Crosswise Convection
Gas Convection Oven, 10
GN1/1
Crosswise Convection
Gas Convection Oven, 10 GN1/1
The company reserves the right to make modifications to the products
without prior notice. All information correct at time of printing.
2012.09.28
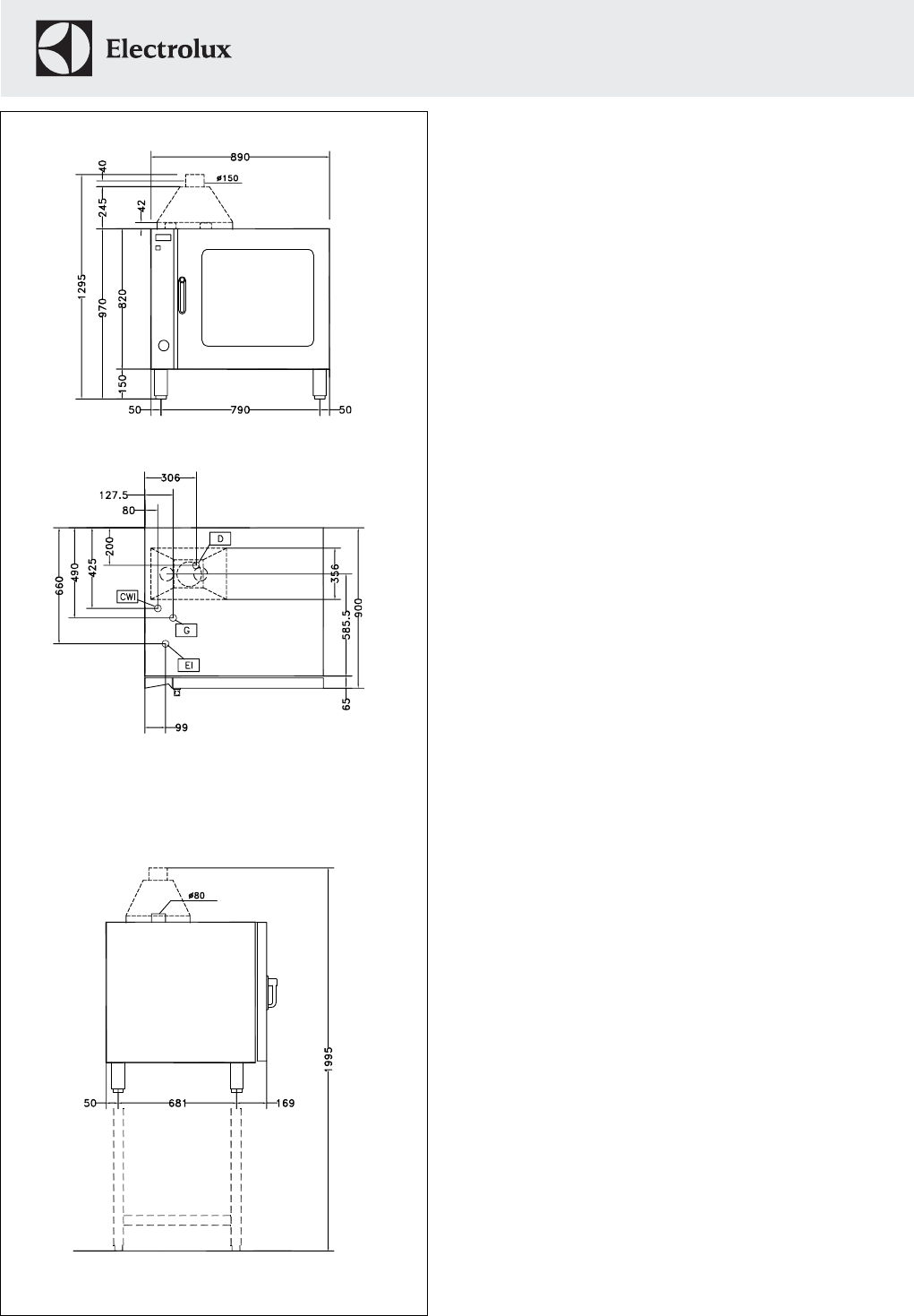
Front
Top
CWI=Cold Water inlet 
D=Drain
EI=Electrical connection
G=Gas connection
Side

Crosswise Convection
Gas Convection Oven, 10
GN1/1
Crosswise Convection
Gas Convection Oven, 10 GN1/1
The company reserves the right to make modifications to the products
without prior notice. All information correct at time of printing.
2012.09.28
Electric
Supply voltage:
260701(FCG101)220/230 V/1N ph/50 Hz 
Auxiliary:0.35 kW 
Connected load:0.35 kW 
Gas
Gas Power:63066.5 Btu/hr (18.5 kW) 
Capacity:
Shelf capacity:10 
Key Information:
External dimensions, Height:970 mm 
External dimensions, Width:890 mm 
External dimensions, Depth:900 mm 
Net weight:136 kg 
Functional level:Basic;Manual 
Type of grids:1/1 Gastronorm 
Runners pitch:60 mm 
Cooking cycles - air-convection:300 °C 
Internal dimensions, width:590 mm 
Internal dimensions, depth:479 mm 
Internal dimensions, height:680 mm 

Crosswise Convection
Gas Convection Oven, 10
GN1/1
Crosswise Convection
Gas Convection Oven, 10 GN1/1
The company reserves the right to make modifications to the products
without prior notice. All information correct at time of printing.
2012.09.28
Optional Accessories
•Pair of 1/1GN AISI 304 stainless steel gridsPNC 921101 ❑
•Support for 1/2GN pan (2pcs)PNC 921106 ❑
•Automatic water softener for ovens PNC 921305 ❑
•Resin sanitizer for water softenerPNC 921306 ❑
•Fat filter for gas 10 and 20 1/1 and 2/1 GN
ovens (2 filters are necessary for 20-grid
ovens)
PNC 921700 ❑
•Flue condenser for gas ovens 10x1/1-2/1PNC 921701 ❑
•Probe for ovens 6 and 10x1/1GNPNC 921702 ❑
•Guide kit for 1/1GN drain panPNC 921713 ❑
•Couple of grids for whole chicken 1/1GN (8
per grid)PNC 922036 ❑
•Base for oven 10x1/1GNPNC 922102 ❑
•Shelf guides for 10x1/1GN, ovens basePNC 922106 ❑
•Cupboard stand for oven 10x1/1GN PNC 922109 ❑
•Hot cupboard stand for convection oven
10x1/1GN PNC 922112 ❑
•Base on castors for 10x1/1GN ovensPNC 922114 ❑
•80mm pitch side hangers 10x1/1GN gas
ovenPNC 922116 ❑
•60mm pitch side hangers 10x1/1GN gas
oven (included with the oven)PNC 922122 ❑
•Feet for ovens 6x1/1GN, 10x1/1 and 2/1GNPNC 922127 ❑
•Trolley for 10x1/1GN roll-in rackPNC 922130 ❑
•Thermal blanket for slide-in rack 10x1/1GNPNC 922150 ❑
•Retractable hose reel spray unitPNC 922170 ❑
•Side external spray unit (needs to be
mounted outside and includes support for
mounting to oven)
PNC 922171 ❑
•Water filter for ovensPNC 922186 ❑
•Frying griddle GN 1/1 PNC 922215 ❑
•2 frying baskets for ovensPNC 922239 ❑
•Grid for whole chicken 1/1GN (8 per grid -
1,2kg each)PNC 922266 ❑