Eljer Hot Tub 2932J048 Users Manual
2015-02-06
: Eljer Eljer-Eljer-Hot-Tub-2932J048-Users-Manual-539700 eljer-eljer-hot-tub-2932j048-users-manual-539700 eljer pdf
Open the PDF directly: View PDF 
.
Page Count: 12

754747-100
1
THANK  YOU...
for selecting an Eljer bathing product. Your new bath is shipped to you after careful inspection. The whirlpool is 
completely assembled with pump and circulatory system piping. All you need to finish the installation are your 
selected fittings and electrical connections.
To ensure maximum performance and pleasure from this product, please follow the instructions and cautions. 
© Eljer 2011
All product names listed herein are trademarks of Eljer unless otherwise noted.
For questions or service issues, please call Technical Support 1-(800)-442-1902.
Please do not contact or return product to the store.
MODEL NUMBERS
2932J048 & 2940J048
           STRATUS   
WHIRLPOOL
INSTALLATION AND 
OPERATION MANUAL
TM

2
754747-100
TABLE OF CONTENTS:
Cover
................................................................................................Page 1
Table of Contents
..............................................................................Page 2
Safety Instructions Notice.................................................................Page 3
Installation, Framing and Post Installation 
Clean-Up Instructions.......................................................................Page 4
Roughing-in References for All Model Series...................................Pages 5 - 6
General Specifications for Whirlpools................................................Page 7 - 8
Electrical Installation Instructions
.....................................................Page 9
Operating Instructions.......................................................................Page 10
Cleaning and Maintenance...............................................................Page 11
Warranty
......................................
.....................................................Page 12

754747-100
3
!
!
!
!
!
!
!
SAVE THESE INSTRUCTIONS
WARNING: Risk of personal injury. Do not permit children to use this unit without adult supervision.
WARNING: Risk of personal injury. Do not operate this unit without the guard over the suction fitting.
WARNING: Risk of electric shock. Do not permit electrical appliances (hair dryer, telephone, radio, etc.) within 
60 inches (1524mm) of this unit.
WARNING: Risk of hyperthermia and possible drowning. People using medications and/or having adverse 
medical history should consult a physician before using this product.
WARNING: Risk of personal injury. Do not overfill unit before entering. Entering tub when filled more than 2/3 
can cause overflow and slippery conditions. Exercise caution when entering and exiting.
WARNING: No Food or Alcoholic Beverages. Use of your bathtub immediately after meals is not 
recommended.  Avoid alcohol consumption before or during bathing. Alcoholic beverages can cause drowsiness or 
hyperthermia resulting in loss of consciousness or even drowning.  
WARNING: Pregnancy. If you are or think you may be pregnant, consult your physician before using the bathtub.
Never drop or insert any object into any opening.
Use this unit only for its intended use as described in this manual. Do not use any attachments not recommended by 
American Standard.
The unit must be connected only to a supply circuit that is properly protected by a ground-fault circuit-interrupter 
(GFCI). Such a GFCI should be provided by the installer and should be tested on a routine basis. To test the GFCI, 
push the test button. The GFCI should interrupt power. Push the reset button. Power should be restored. If the GFCI 
fails to operate in this manner, the GFCI is defective. If the GFCI interrupts power to the bathtub without the test button 
being pushed, a ground current is flowing, indicating the possibility of an electric shock. Do not use this hydromassage 
bathtub. Disconnect the hydromassage bathtub and have the problem corrected by a licensed electrician before using.
IMPORTANT SAFETY 
INSTRUCTIONS
INSTRUCTIONS PERTAINING TO 
A RISK OF FIRE, ELECTRIC SHOCK 
OR INJURY TO PERSONS
READ AND FOLLOW ALL INSTRUCTIONS!

4
754747-100
Each bath arrives ready for installation, completely equipped with the pump and plumbing 
necessary for operation. However, a drain/overflow kit is required for each bath and it is 
not included.
The variety of installations for this bath may require framing procedures other than those shown. 
Locate studs as required. Ensure roughing-in dimensions are proper, plumb, and square. 
Installation and Framing Instructions
Remove the bath from the carton. Retain the shipping carton until satisfactory 
inspection of the product has been made. Do not lift the bath by the plumbing at 
any time; handle by the shell only.
All bath units are factory tested for proper operation and watertight connections 
prior to shipping. Prior to installation and before enclosing with wallboard, tile, 
etc., the bath must be filled with water and operated to check for leaks that may 
have resulted from shipping damage or mishandling.
The sumps of these baths are supported by the feet and no additional sump 
support is required.  Once the bath is in place, the feet should be shimmed and 
secured accordingly so the rim of the bath contacts the stringer or pier but 
supports no weight.
Provisions must be made in all installations for an access opening for servicing the 
bath pump. Unless an access opening of at least 12" x 24" (305mm x 610mm) is 
provided, warranty service will not be performed. It is strongly recommended that an 
additional opening be provided for access to drain components.  
Each bath has a nominal length (L), width (W), and Height (H) along with a rim 
height. Unless otherwise noted in the following rough-in references, assume 
that the nominal tolerances are as much as +/-1/4 inch (6mm). Therefore, it is 
strongly recommended that the installer build the surrounding structure after 
receiving the actual bath. Structural measurements should be verified against 
the actual bath received to ensure proper fit.
!
!
!
!
!
POST INSTALLATION CLEAN-UP
Remove all construction debris from bath.  Tile grout can be removed with a wooden 
popsicle stick or tongue depressor.
Do not use wire brushes or any other metal implement on bath surface.
Post installation clean-up generally can be completed using warm water and liquid 
dishwashing detergent.
Stubborn dirt or stains may be removed using granular Spic and Span® mixed with water.
Painter's naphtha can be used to remove excess adhesives and/or wet oil-base paint.

754747-100
5
ROUGH-IN REFERENCES FOR RECESS TYPE INSTALLATIONS
TILE
TILE
BEAD
STRIP
LEVELING STRINGER 
1" x 4" (25mm x 102mm) not for support
BATH
ADHESIVE
SEALANT
WALLBOARD
NOTE:  Tile bead kit not included and must  
              be purchased separately.
TYPICAL TILE BEAD INSTALLATION
24"
(610 mm)
12"
(305 mm)
C
E
D
W
LEVELING
STRINGERS
ACCESS PANEL MUST BE LOCATED 
ON THE SAME SIDE AS THE MOTOR.
ALLOW OPEN FRAMING ON 
PUMP/MOTOR END FOR SERVICE.
UNLESS AN ACCESS OPENING OF AT LEAST 12" x 24" (305 x 610mm) 
IS PROVIDED, WARRANTY SERVICE WILL NOT BE PERFORMED.
NOTE: 
FRONT EDGE 
OF BATH MUST 
BE SUPPORTED BY 
STUD WALL OR 
ELJER APRON KIT
ACCESS PANELS NOT 
REQUIRED FOR BATH TUBS

6
754747-100
Please note that care must be taken to protect the surface of the tub during all aspects of the installation.
Do not drill or cut the bath deck with the tub directly beneath it as damage to the tub may result.
1.   Install the tub per the installation instructions provided with the unit.
2.   Prepare the bath deck support structure per the local codes. Note - the bath deck must be self supporting.
3.   Cut bath deck to your specifications.
4.   Place the bath deck in position and trace the opening on the tub with a soft pencil. Do not drill or cut the bath 
deck with the tub directly beneath it as damage to the tub may result.
5.   Remove the bath deck and apply a generous bead of waterproof sealant on the outer edge of the traced line.
6.   Replace the bath deck and secure it into place.
7.   Apply additional sealant along the tub and bath deck interface as necessary to ensure a watertight seal.
8.   Remove excess sealant per the manufacturer's instructions.
Finished bath deck surface material must be 
self-supporting and secured per local codes
Tub support structure per installation 
instructions provided with the tub 
Bath deck support material
Bathtub
Waterproof 
Sealant
UNDER DECK MOUNTING INSTRUCTIONS
ROUGH-IN REFERENCES FOR PIER TYPE INSTALLATIONS
AS DESIRED
F
CUTOUT
AS DESIRED
G
CUTOUT
C
24"
(610 mm)
12"
(305 mm)
MOUNTING 
SURFACE
WATERPROOF
 SEALANT
BATH ACCESS PANEL MUST BE LOCATED 
ON THE SAME SIDE AS THE MOTOR.
ALLOW OPEN FRAMING ON 
PUMP/MOTOR END FOR SERVICE.
ACCESS PANELS NOT REQUIRED 
FOR BATH TUBS
UNLESS AN ACCESS OPENING OF AT LEAST 12" X 24" (305 X 610mm) 
IS PROVIDED, WARRANTY SERVICE WILL NOT BE PERFORMED.

754747-100
7
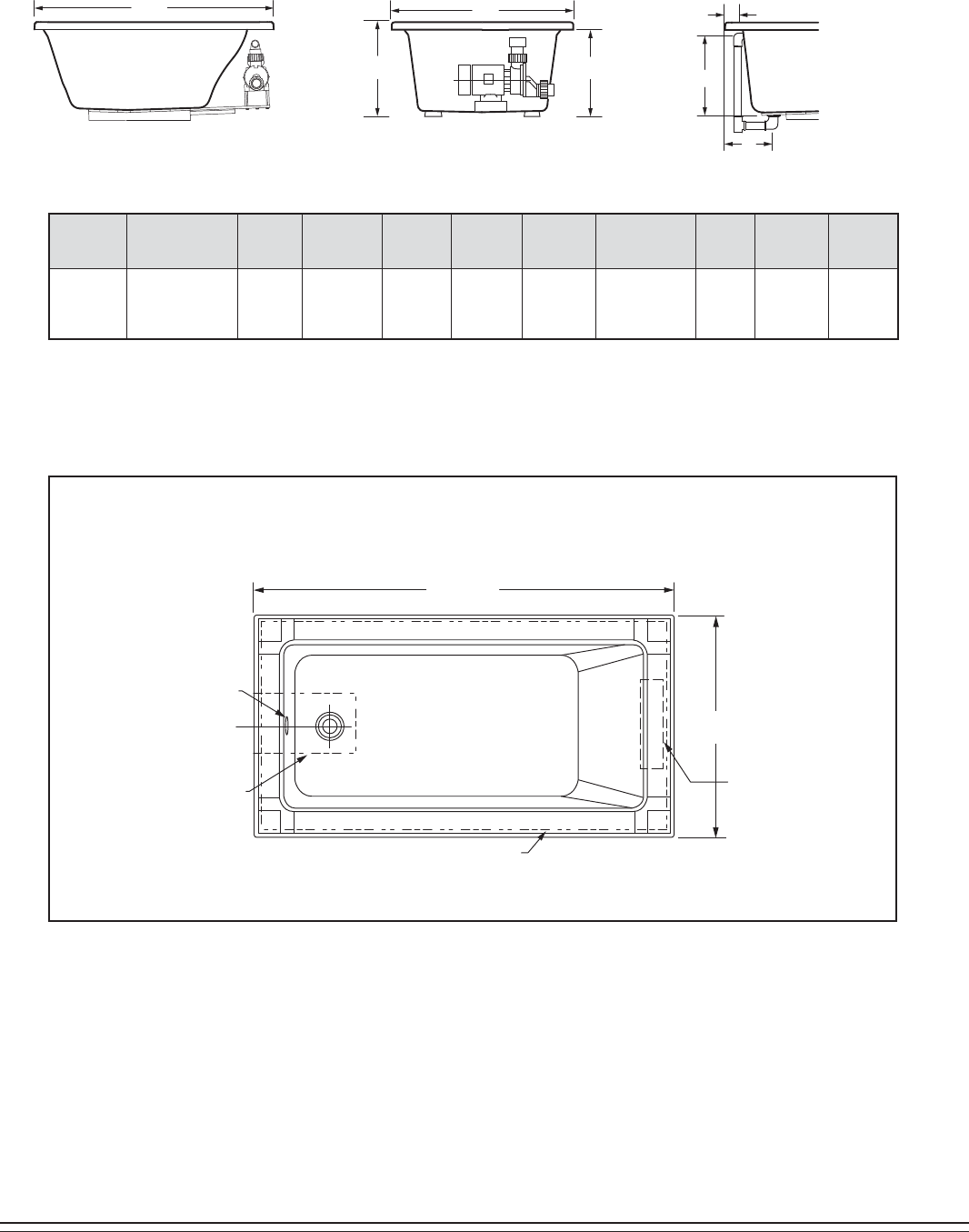
SPECIFICATIONS:
GENERAL SPECIFICATIONS FOR WHIRLPOOLS 
SIDE VIEW DRAIN / OVERFLOW
END VIEW
L
H
W
CA
B
J
3-1/4"
(83mm)
 90 lb.
(198 kg.) 
581 lb. (264 kg)/
44 lb./sq.ft.
(213 kg/sq.m)
50 gal.
(224 l.)
Description Drain /
Overflow
Cut Out
Pier 
G x F
Rough-In
Recess 
E x D
Tub Edge to
Centerline
Overflow: J
Weight with
Water / Floor
Loading
Product
Weight
54 gal.
(205 l.) 
Whirlpool
Operation
Volume
Gallons to
Overflow
Height to
Underside
of Deck: C
Dimensions
L-W-H
A 17-3/4" 
(451mm)
B 10-7/8" 
(276mm)
C 20-1/2" 
(521mm)
58-1/4"
(1480mm) 
x 30-1/4" 
(768mm)
59-15/16"
(1522mm) 
x 30-1/4" 
(768mm)
L  59-3/4" (1518mm) 
W 31-3/4" (806mm) 
H  22-1/2" (572mm) 
2932J048
5' x 32"
Stratus
TABLE 1
MODEL 2932J048
ROUGH-IN REFERENCE
60" NOMINAL
(1524mm)
32" NOMINAL
(813mm)
C/L DRAIN
OUTLINE OF 
CUTOUT
9" x 15"
(229 x 305mm)
DRAIN ASS’Y 
FLOOR CUTOUT
OVERFLOW
PROVIDE ACCESS
TO PUMP
SERVING ON
ALL INSTALLATIONS

8
754747-100
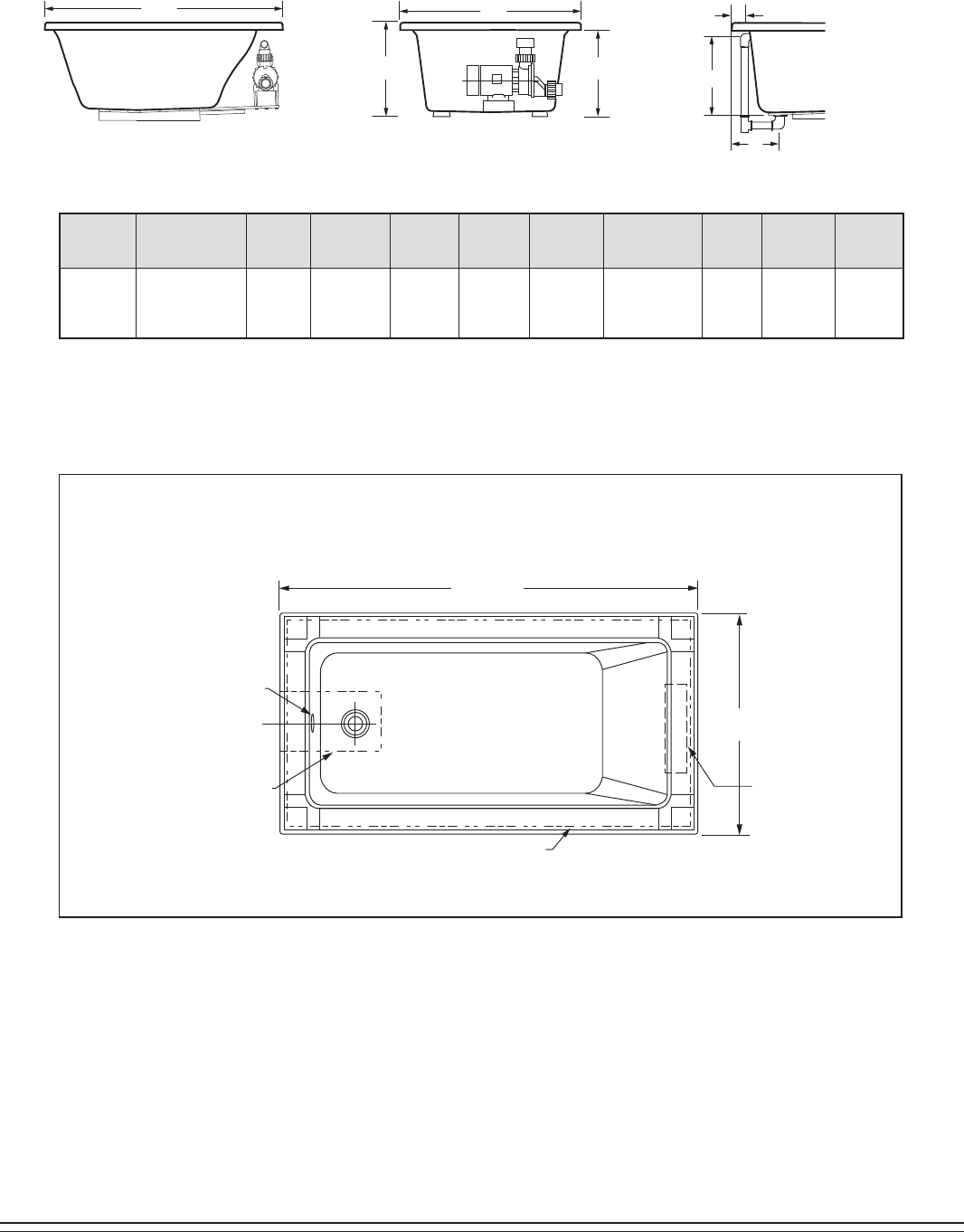
SPECIFICATIONS:
GENERAL SPECIFICATIONS FOR WHIRLPOOLS 
SIDE VIEW DRAIN / OVERFLOW
END VIEW
L
H
W
CA
B
J
3-1/4"
(83mm)
 405 lb.
(231 kg.) 
846 lb. (264 kg)/
47 lb./sq.ft.
(230 kg/sq.m)
89 gal.
(337 l.)
Description Drain /
Overflow
Cut Out
Pier 
G x F
Rough-In
Recess 
E x D
Tub Edge to
Centerline
Overflow: J
Weight with
Water / Floor
Loading
Product
Weight
81 gal.
(307 l.) 
Whirlpool
Operation
Volume
Gallons to
Overflow
Height to
Underside
of Deck: C
Dimensions
L-W-H
A 17-3/4" 
(451mm)
B 10-7/8" 
(276mm)
C 20-1/2" 
(521mm)
70-1/4"
(1784mm) 
x 34-1/4" 
(870mm)
71-15/16"
(1827mm) 
x 34-1/4" 
(870mm)
L  71-3/4" (1822mm) 
W 35-3/4" (908mm) 
H  22-1/2" (572mm) 
2940J048
6' x 36"
Stratus
TABLE 2
MODEL 2940J048
ROUGH-IN REFERENCE
72" NOMINAL
(1524mm)
36" NOMINAL
(813mm)
C/L DRAIN
OUTLINE OF 
CUTOUT
9" x 15"
(229 x 305mm)
DRAIN ASS’Y 
FLOOR CUTOUT
OVERFLOW
PROVIDE ACCESS
TO PUMP
SERVING ON
ALL INSTALLATIONS

754747-100
9
All wiring must be performed by a licensed electrician in accordance with the National Electrical Code and all other applicable codes.
WARNING: When using electrical products, basic precautions should always be observed, including the following:
1.   DANGER:  RISK OF ELECTRIC SHOCK! Connect only to a circuit protected by a ground-fault circuit interrupter.
2.  Grounding is required. The unit should be installed by a licensed electrician and grounded.
3.  Permit access for servicing motor as noted.
4.  All building materials and wiring should be routed away from the pump body and heater (if equipped). 
ELECTRICAL INSTALLATION INSTRUCTIONS
!
Refer to the schematics below for the appropriate bath electrical installation. Dedicated15A circuits with GFCI (Ground 
Fault Circuit Interrupter) protection are required. 
At initial start-up with the power ON, push the GFCI test button. The reset button should pop out. Push this button in to 
reset. If the GFCI fails to operate in this manner, there is a ground fault or malfunction, indicating the possibility of 
electrical shock. Turn of the power and do not use until the source of the problem has been identifed and corrected.
The silentjet™ whirlpool pump housing is plastic. Therefore, the conductor attached to the heater (if installed) must be 
grounded directly to the home’s electrical panel or approved local bonding point.
A SEPARATE 15 AMP MAXIMUM GFCI CIRCUIT IS REQUIRED IF THE OPTIONAL HEATER IS INSTALLED 
(SEE INSTALLATION INSTRUCTIONS SUPPLIED WITH THE HEATER MODEL NUMBER - 494-1000).
120V, 60HZ
15A GFCI
ELECTRICAL
FEED
AIR SWITCH ACTIVATED WHIRLPOOL PUMP
GFCI
WARNING: DO NOT PLUG PUMP DIRECTLY INTO THE GFCI OUTLET. PUMP MUST BE PLUGGED INTO THE OULET 
                  PROVIDED ON THE CONTROL BOX AS PICTURED ABOVE.

10
754747-100
Whirlpool Operation 
BATHING:
•  Fill bath with water at a comfortable bathing temperature - If your whirlpool is equipped with the 
  optional field-installed heater, it will automatically maintain the water temperature. 
•  IMPORTANT: Do NOT fill the whirlpool more than 2/3 full before getting in, as it may overflow.
•  IMPORTANT: Do NOT add bath oils or salts – this will damage the whirlpool pump. 
•  IMPORTANT: Water level must be at least one inch (25mm) above the highest jet before the whirlpool is started.   
  Operating the system without water (dry running) for extended periods will cause pump damage and void the warranty.
•  IMPORTANT: The silentjet™ whirlpool will NOT operate unless the water level is at least one inch above 
                   the highest jet.
STARTING WHIRLPOOL:  
•  Press on/off button to start whirlpool. 
STOPPING WHIRLPOOL:  
•  Press on/off button again to stop whirlpool.
AIR VOLUME CONTROL ADJUSTMENTS:  
•  Water turbulence is determined by the amount of air mixed with the water. Rotate the air volume control
   counterclockwise for more turbulence, and clockwise for less. 
FLOW JET VOLUME ADJUSTMENTS:  
•  Water flow-levels can be adjusted from vigorous to soft by rotating the nozzle counterclockwise for vigorous and    
   clockwise for soft.
•  The water flow to the mini-jets in the lumbar area of bath can be adjusted by turning the mini-jet    
flow control valve open (counterclockwise) or closed (clockwise). The mini-jets themselves are NOT adjustable.
AIR SWITCH

754747-100
11
Fill whirlpool with warm water and add two teaspoons of powdered automatic dishwasher (not laundry) 
detergent and one-half cup of household bleach to filled whirlpool.
Activate whirlpool system in accordance with operating instructions and run system for two minutes.
Drain and refill whirlpool with cold water. Circulate for five minutes.
Drain whirlpool completely after step 3 (above) is completed.
Your Eljer whirlpool is designed to give you many years of pleasure with reasonable care and maintenance.
Your new acrylic bathtub is tough, durable and easy to care for. The colors have been formulated to match other
Eljer fixtures and enhance your choice of bathroom decorations. The high gloss surface will retain its lasting luster with
proper care and maintenance.
CLEANING AND MAINTENANCE:
  •  Always fill the tub with temperate water. Excessively hot water (greater than 130˚ F) may cause surface damage.
  •  Remove bath mat after use and hang to dry. Allowing bath mat to dry in the tub may cause surface damage.
  •  Clean after use with a mild liquid household detergent cleaner. Do not turn on jets when such cleaners are present.
  Do not use: Lestoil® Cleaner; Lysol® Disinfectant (spray or concentrate); or Lysol® Basin, Tub and Tile Cleaner;
  Windex® Cleaner; Mr. Clean® Cleaner; Dow® Disinfectant Bathroom Cleaner*; or other cleaning products in
 aerosol cans.
HARSH CHEMICALS, SHARP AND ABRASIVE OBJECTS 
SHOULD NEVER BE USED ON ACRYLIC SURFACES
• Do not use wire brushes, knives or sharp objects to remove stains or other surface blemishes.
• Use of abrasive cleaners or powders will dull the surface. If the glossy surface loses its sheen, dulled areas can 
be partially restored by rubbing with a white automotive body polishing compound and waxing with a liquid wax. 
    Do not wax surfaces where you walk or stand.
• Do not allow nail polish remover, acetone, dry-cleaning fluid, paint remover, or other solvents to come into contact 
    with the surface.
• Clean the surrounding surface immediately after using caustic drain cleaners. 
    Do not permit drain cleaner to enter circulation system.
• Burning cigarettes will irreparably damage the surface of the whirlpool.
CLEANING/PURGING THE CIRCULATION SYSTEM
Once every month the circulating system must be purged and cleaned.  Follow the steps outlined below:
1.
2.
3.
4.
For Troubleshooting and Repair Parts please log on to www.eljer.com
* Lestoil® is a registered trademark of The Clorox Company.
   Lysol® is a registered trademark of The Linden Company.
   Windex® is a registered trademark of S.C. Johnson and Son, Inc.
   Mr. Clean® is a registered trademark of The Proctor and Gamble Company.
   Dow® is a registered trademark of The Dow Chemical Company.

12
754747-100
AS AMERICA, INC. LIMITED LIFETIME WARRANTY FOR 
ELJER PREMIERE SERIES ACRYLIC TUBS
AS America, Inc. (“American Standard”) warrants to the original consumer purchaser that it will, at its option, repair or replace this 
tub or any of its parts that are found by American Standard, in its sole judgment, to be defective under normal residential use and 
maintenance so long as it is owned by the original consumer purchaser.
This limited warranty does not apply to commercial installations. The warranty for commercial installations is three (3) years.
THIS WARRANTY SHALL BE VOID IF THE ACCESS PANEL TO THE WHIRLPOOL IS COVERED IN ANY MANNER 
CONTRARY TO THE INSTALLATION INSTRUCTIONS.  In no event will American Standard be liable for the cost of repair or 
replacement of any installation materials including but not limited to tiles, marble etc.
This limited warranty DOES NOT COVER the following:
1.   Defects or damages arising from shipping, installation, alterations, accidents, abuse, misuse, lack of proper maintenance and  
      cleaning as directed in the owner’s manual and use of other than genuine American Standard replacement parts, in all cases  
      whether caused by a plumbing contractor, service company, the owner or any other person.
2.   Deterioration through normal wear and tear and the expense of normal maintenance.
3.   Commercial application.
4.   Options and accessories.  American Standard’s limited warranty on these items is lifetime for parts only, two (2) years for the  
      heater and five (5) years on labor. This lifetime limited warranty covers accessories manufactured by American Standard                
      (e.g. aprons, drains, grab bars, trim kits) against defects of material or workmanship.  Warranty coverage begins on the date  
      the accessory was originally purchased by the owner. 
5.   Postage or shipping costs for returning products for repairs or replacement under this limited warranty and labor or other costs  
      incurred in connection with product removal or installation under this limited warranty.
6.   ANY LIABILITY FOR CONSEQUENTIAL OR INCIDENTAL DAMAGES, ALL OF WHICH ARE HEREBY EXPRESSLY      
      DISCLAIMED, OR THE EXTENSION BEYOND THE DURATION OF THIS LIMITED WARRANTY OF ANY IMPLIED      
      WARRANTIES, INCLUDING THOSE OF MERCHANTABILITY OR FITNESS FOR AN INTENDED PURPOSE.  (Some     
      jurisdictions do not allow limitations on how long an implied warranty lasts, or the exclusion or limitation of incidental or     
      consequential damages, so these limitations and exclusions may not apply to you.)
7.   Responsibility for compliance with local code requirements.  (Since local code requirements vary greatly distributors, retailers,  
      dealers, installation contractors and users of plumbing products should determine whether there are any code restrictions on  
      the installation or use of a specific product.) 
This limited warranty gives you specific legal rights. You may have other statutory rights that vary from state to state or province to 
province, in which case this limited warranty does not affect such statutory rights. 
For service under this warranty, it is suggested that a claim be made through the contractor or dealer from or through whom the 
product was purchased, or that a service request (including a description of the product model and of the defect) be sent to the 
following address:
In the United States:
AS America, Inc.
P.O. Box 6820
Piscataway, New Jersey 08855
Attention: Director of Customer Care
For residents of the United States, warranty information 
may also be obtained by calling the following 
toll free number: (800) 442-1902
www.eljer.com
In Canada:
AS Canada, ULC
5900 Avebury Rd.
Mississauga, Ontario 
Canada L5R 3M3
Toll Free:  (800) 387-0369
www.eljer.com
In Mexico:
American Standard B&K Mexico
S. de R.L. de C.V.
Via Morelos #330
Col. Santa Clara
Ecatepec 55540 Edo. Mexico
Toll Free: 01-800-839-1200
www.eljer.com