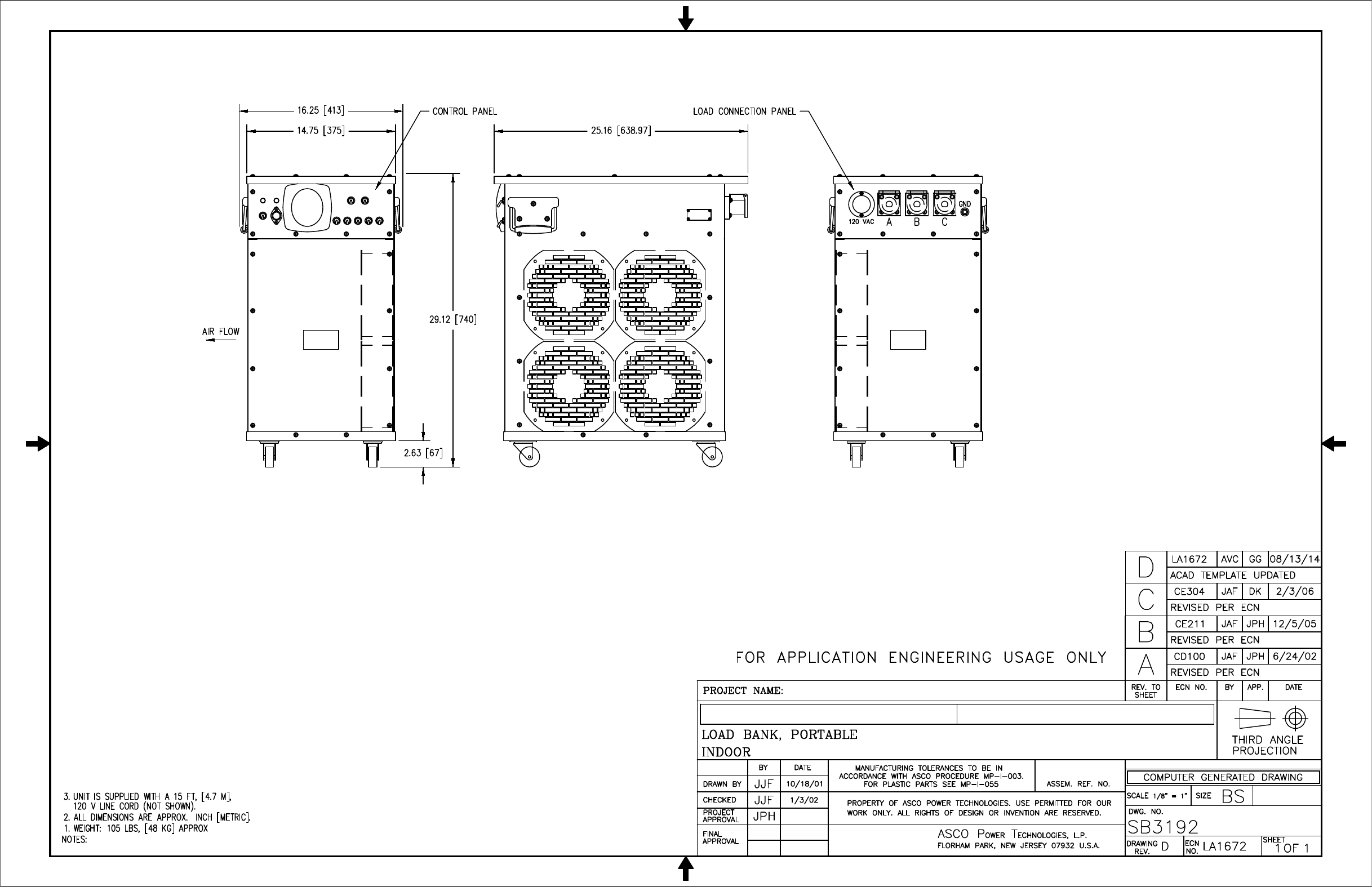
Emerson 100 Kw Lph100 Load Bank Diagrams And Drawings
2015-03-30
: Emerson Emerson-100-Kw-Lph100-Load-Bank-Diagrams-And-Drawings-680334 emerson-100-kw-lph100-load-bank-diagrams-and-drawings-680334 emerson pdf
Open the PDF directly: View PDF
.
Page Count: 1

ASCO