Emerson Ace95 Vapor Saver Tank Blanketing Valve Instruction Manual
2015-03-30
: Emerson Emerson-Ace95-Vapor-Saver-Tank-Blanketing-Valve-Instruction-Manual-681074 emerson-ace95-vapor-saver-tank-blanketing-valve-instruction-manual-681074 emerson pdf
Open the PDF directly: View PDF
.
Page Count: 16

W9133
ACE95 Series
D102775X012
Instruction Manual
Form 5667
May 2010
This instruction manual provides installation, startup,
and maintenance procedures for the ACE95 Series
(Type ACE95 and Type ACE95Sr) tank blanketing
valves. See Figures 1 and 2.
ACE95 Series tank blanketing valves are self-contained,
balanced, pilot operated, and used for accurate pressure
control on gas blanketing systems. These valves
help control emissions and provide protection against
atmospheric contamination. ACE95 Series valves
Figure 2. Type ACE95Sr Tank Blanketing Valve
maintain a positive pressure and thereby reduce
the possibility of tank wall collapse during pump
out operations, in addition to preventing liquid from
vaporizing into the atmosphere.
The following page lists specications and ratings
for ACE95 Series tank blanketing valves. Factory
specications are stamped on a nameplate fastened to
the upper actuator case of the valve.
W8155
Figure 1. Type ACE95 Tank Blanketing Valve

Angled Body*: 3/4 NPT
1 NPT
NPS 1 (DN 25), CL150RF
NPS 1 (DN 25), CL300RF
NPS 1 (DN 25), PN16/25/40RF
NPS 1 (DN 25) Sanitary Flange
In-Line Body: 3/4 NPT
1 NPT
NPS 1 (DN 25), CL150RF
NPS 1 (DN 25), CL300RF
NPS 1 (DN 25), PN16/25/40RF
NPS 1 x 2 (DN 25 x 50), CL150RF
NPS 1 x 2 (DN 25 x 50), PN16/25/40RF
NPS 1 (DN 25), Sanitary Flange
Angled Body*: 2 NPT
NPS 2 (DN 50), CL150RF
NPS 2 (DN 50), CL300RF
200 psig (13,8 bar)
20 psig (1,4 bar)
1.5 psig (0,10 bar)
-5.0-inches w.c. to 1.5 psig (-12 mbar to 0,10 bar)
see Table 1
External
Typically within 0.5-inches w.c. (1 mbar) when
owing 5 to 70 percent of advertised capacities.
Linear
: :
Cv 1 use Cv 1.1 Cv 20 use Cv 22
Cv 2 use Cv 2.2 Cv 45 use Cv 50
Cv 4 use Cv 4.4 Cv 60 use Cv 66
Cv 7.5 use Cv 9.25
Cv 10 use Cv 11
–20° to 180°F (–29° to 82°C)
0° to 212°F (–18° to 100°C)
–20° to 212°F (–29° to 100°C)
–20° to 212°F (–29° to 100°C)
Type ACE95: 40 pounds (18 kg)
Type ACE95Sr: 60 pounds (27 kg)
Table 1. Control Pressure Ranges
-5 to -0.5-inches w.c. (-12 to -1 mbar) Stainless Steel 2.75
0.88
(69,9)
(22,4)(1)
0.080
0.085
(2,03)
(2,16)(1)
-1 to 1-inches w.c. (-2 to 2 mbar) Stainless Steel 2.75
1.60
(69,9)
(40,6)(1)
0.080
0.065
(2,03)
(1,65)(1)
0.5 to 5-inches w.c.
4 to 10-inches w.c.
8 to 15-inches w.c.
0.5 to 1.5 psig
(1 to 12 mbar)
(10 to 25 mbar)
(20 to 37 mbar)
(0,03 to 0,10 bar)
Stainless Steel
Stainless Steel
Stainless Steel
Stainless Steel
2.75
2.00
2.00
2.75
(69,9)
(50,8)
(50,8)
(69,9)
0.080
0.112
0.125
0.225
(2,03)
(2,84)
(3,18)
(5,72)
1. The second spring is located under the diaphragm assembly.
ACE95 Series tank blanketing valves are pilot
operated, activated by the diaphragm, and control the
vapor space pressure over a stored liquid. The unit
is controlled by a very large diaphragm actuator. The
oversized actuator offers high sensitivity to changes
in tank pressure. When a storage tank cools and
tank vapors condense, ACE95 Series valves replace
the condensing vapors with an inert gas to prevent
internal tank pressure from decreasing. Positive tank
pressure prevents outside air from contaminating the
product and reduces the possibility of atmospheric
pressure collapsing the tank. As demand is satised,
the valve closes.
*Various Single Array Manifold (SAM) tank connections are also available. Contact your local Sales Ofce for more information.
ACE95 Series
2

ACE95 Series
3
ACE95 Series valves respond to slight decreases in
internal tank pressure by opening and increasing the
ow rate of inert gas into the tank. When the tank’s
liquid level has been lowered to the desired point and
the vapor pressure setpoint is re-established,
the valve closes.
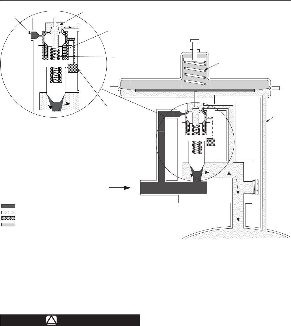
Figure 3. ACE95 Series Operational Schematic (valve open)
INLET PRESSURE
ATMOSPHERIC PRESSURE
TANK PRESSURE
INLET BLEED PRESSURE
!
INLET PRESSURE
ATMOSPHERIC PRESSURE
TANK PRESSURE
INLET BLEED PRESSURE

ACE95 Series
4
This ACE95 Series valve was assembled and preset
to the customer specied pressure and setpoint. The
control pressure range of the valve is stamped on the
nameplate fastened to the upper actuator case. The
gas blanketing setpoint is the only adjustable feature
on this unit.
1. Use qualied personnel when installing, operating,
and maintaining valves. Before installing, inspect
the valve and tubing for any shipment damage or
foreign material that may have collected. Make
certain the body interior is clean and the pipelines
are free of foreign material. Apply pipe compound
only to the male pipe threads with a threaded
body, or use suitable line gaskets and good bolting
practices with a anged body.
2. Inspect the nameplate on the upper actuator case.
It displays the model number, serial number,
a blanketing gas supply pressure range, and
the maximum inlet pressure and set pressure.
These must agree with the system that you are
blanketing. The serial number will be needed in any
communication with your local Sales Ofce.
3. Clean the gas blanketing supply lines of all dirt and
foreign material before connecting them to the
ACE95 Series tank blanketing valve.
4. The valve must be mounted so the actuator case
is horizontal. The valve should be mounted above
the tank. Three connections are required:
a) blanketing gas supply to valve, b) valve outlet to
tank, and c) sensing line to tank.
Inlet Piping
The blanketing gas supply line should be equipped with
a Number 100 mesh strainer to remove dirt and pipe
scale. Inlet piping must be sized to adequately deliver
blanketing gas at the specied inlet pressure under full
ow conditions.
Outlet Piping
Type ACE95 or Type ACE95Sr valve outlet is piped
into the tank vapor space. Outlet piping must be full
size and self-draining to the tank. The valve should
be situated above and as close as possible to the tank
vapor space for best performance.
Figure 4. ACE95 Series Tank Blanketing Valve Installation
E0623

ACE95 Series
5
Sensing Line
The sensing line should be 1/2-inch (13 mm) tubing
or pipe, must slope down toward the tank, and should
not contain low points (or traps) that could catch liquid.
The sensing line must enter the tank above the liquid
level at a point that senses the vapor space pressure
and is free from turbulence associated with tank
nozzles or vents.
®
Gauges and Shutoff Valves
Inlet gas shutoff valves are desirable for servicing.
If this ACE95 Series tank blanketing valve was not
ordered with an inlet pressure gauge, it is advisable to
install a gauge between the inlet shutoff valve and the
blanketing valve.
1. Open shutoff valves between the blanketing valve
and the tank (both sensing and outlet). See Figure 4.
2. Slowly open the supply line shutoff valve (to the
blanketing valve) and leave it fully open.
3. Monitor the tank vapor space pressure.
Figure 5. Spring Case, Adjusting Screw, and Actuator Cap
The setpoint of this unit is factory set. If an adjustment
is to be made, it should be done so in small increments
while the unit is supplying gas to the tank. To change
the setpoint:
1. Unscrew and remove the actuator cap (key 1) from
the top of the spring case (key 7). See Figure 5.
2. Loosen the lock nut (key 3) and turn the adjusting
screw (key 2) clockwise to raise the setpoint.
(Turning the screw counter-clockwise lowers
the setpoint.)
3. Observe the effects of the change.
4. When the adjustment is complete, tighten the lock
nut (key 3) and replace the actuator cap (key 1).
Installation arrangements vary, but in any installation
it is important to open and close valves slowly and to
close the upstream shutoff valve rst when shutting
down the system.
W8160

ACE95 Series
6
Diagnostics are an optional feature of the ACE95 Series
Tank Blanketing valves that aid in evaluating valve
operation. The diagnostic analysis relies on the
relationship of pilot pressure and pressure in the main
valve chambers (see Figure 3). The basic relationships
are as follows:
In order to evaluate a valve, examine the valve
nameplate to determine the Cv and inlet pressure
range main valve spring. The inlet pressure gauge
indicates actual pressure supplied to the valve.
Follow these steps and refer to the diagnostics tables
on the following pages to evaluate a valve under
actual operating conditions:
1. Select the Table (Tables 3 through 8) that
corresponds to the Cv and inlet pressure range of
your valve.
2. Determine the actual valve operating inlet
pressure in the rst column of the diagnostics table.
3. In the second column of the table, determine the
pressure of the pilot as it opens.
4. Determine the diagnostic pressure for the start to
open pressure of the main valve in the third column.
5. The fourth column displays the diagnostic
pressure for the full open pressure of the main valve.
There are four pressures involved in evaluating a
valve: actual inlet pressure, pressure to start opening
pilot valve, pressure to start opening main valve, and
pressure to fully open main valve.
: The gas pressure supplied
to the inlet of the valve. This is the maximum
diagnostic pressure.
: The
diagnostic pressure drops to this value as the valve
senses decreasing tank pressure. The main valve
remains closed at this pressure.
: The
diagnostic pressure drops to this level as the tank
pressure decreases and reaches the valve setpoint.
The pilot is fully open at this pressure.
: At this point,
both the main valve and pilot valve are fully open and
supplying gas to the tank.
Valve parts are subject to normal wear and must be
inspected and replaced as necessary. The frequency
of inspection and replacement of parts depends on the
severity of service conditions and the requirements
of local, state, and federal regulations. Due to the
care Emerson® takes in meeting all manufacturing
requirements, use only replacement parts
manufactured or furnished by Emerson.
All O-rings, gaskets, and seals should be lubricated with
a good grade of general purpose lubricant and installed
gently rather than forced into position. Suggested
lubricant, sealant, and adhesive are as follows:
: Dow Corning® 111 or equivalent
: Loctite® PST #592,
Polytetrauoroethylene (PTFE) Tape or equivalent
: Loctite #222 or equivalent
Be certain that nameplates are updated to accurately
indicate any eld changes in equipment, materials,
service conditions, or pressure settings.
Monthly Maintenance
1. Visually inspect the unit to ensure tight connections,
tight seals, and safe operation.
2. Observe the blanketing pressure.
3. Inspect the inlet pressure for the proper pressure
range (stamped on the valve nameplate).
Annual Maintenance
1. Visually inspect the unit to ensure tight connections,
tight seals, and safe operation.
2. Observe the blanketing pressure.
3. Inspect the inlet pressure for the proper pressure
range (stamped on the valve nameplate).
4. Visually inspect valve for any external wear.
5. If there is evidence of leakage or unstable
internal motion, a rebuild with seal replacement
and relubrication may be in order.
Equal to inlet supply pressure Pilot and main valves are closed.
Tank at or above set pressure.
Slightly below inlet supply pressure
Pilot valve supplies gas to tank.
Tank pressure is just below
set pressure.
Well below inlet supply pressure
Pilot and main valves are both
supplying gas to the tank. Tank
pressure is below setpoint.
Table 2. Diagnostic Analysis Pressure Ranges

ACE95 Series
7
Table 3. Type ACE95 Diagnostics Table: Cv 1 through 4, Inlet Pressure Range Spring 25 to 50 psig (1,7 to 3,4 bar)
25 (1,7) 24 (1,7) 9 (0,62) 2 (0,14)
30 (2,1) 29 (2,0) 13 (0,90) 6 (0,41)
35 (2,4) 34 (2,3) 16 (1,1) 9 (0,62)
40 (2,8) 39 (2,7) 20 (1,4) 13 (0,90)
45 (3,1) 44 (3,0) 24 (1,7) 17 (1,2)
50 (3,4) 49 (3,4) 28 (1,9) 21 (1,4)
Table 4. Type ACE95 Diagnostics Table: Cv 1 through 4, Inlet Pressure Range Spring 51 to 120 psig (3,5 to 8,3 bar)
51 (3,5) 50 (3,4) 29 (2,0) 5 (0,35)
60 (4,1) 59 (4,1) 36 (2,5) 12 (0,83)
70 (4,8) 69 (4,8) 43 (3,0) 19 (1,3)
80 (5,5) 79 (5,4) 51 (3,5) 27 (1,9)
90 (6,2) 89 (6,1) 59 (4,1) 34 (2,3)
100 (6,9) 99 (6,8) 66 (4,6) 42 (2,9)
110 (7,6) 109 (7,5) 74 (5,1) 50 (3,4)
120 (8,3) 119 (8,2) 81 (5,6) 57 (3,9)
It is recommended that all seals and diaphragms be
replaced as a matter of good practice whenever a
valve is disassembled and re-assembled. Parts kits
are available through your local Sales Ofce.
If you are performing disassembly or assembly operations
on a Type ACE95Sr valve, refer to the Parts List and see
Figure 9. If you are working on a Type ACE95 valve, refer
to the Parts List and see Figure 8.
Spring Case Disassembly
1. Remove the actuator cap (key 1) and the spring load
by unthreading the adjusting screw (key 2).
See Figure 5.
2. Unthread the hex-head screws, lock washers,
and nuts (keys 32, 28, and 31) from the upper and
lower actuator cases (keys 33 and 30). Lift the
upper actuator case from the lower actuator case.
3. Remove the spring seat and range spring
(keys 5 and 8).
!

ACE95 Series
8
Table 5. Type ACE95 Diagnostics Table: Cv 1 through 4, Inlet Pressure Range Spring 121 to 200 psig (8,3 to 13,8 bar)
121 (8,3) 120 (8,3) 74 (5,1) 30 (2,1)
130 (9,0) 129 (8,9) 81 (5,6) 37 (2,6)
140 (9,7) 139 (9,6) 88 (6,1) 45 (3,1)
150 (10,3) 149 (10,3) 96 (6,6) 53 (3,7)
160 (11,0) 159 (11,0) 104 (7,2) 60 (4,1)
170 (11,7) 169 (11,7) 111 (7,7) 68 (4,7)
180 (12,4) 179 (12,3) 119 (8,2) 75 (5,2)
190 (13,1) 189 (13,0) 127 (8,8) 83 (5,7)
200 (13,8) 199 (13,7) 134 (9,2) 91 (6,3)
Table 6. Type ACE95 Diagnostics Table: Cv 7.5 and 10, Inlet Pressure Range Spring 25 to 50 psig (1,7 to 3,4 bar)
25 (1,7) 24 (1,7) 11 (0,76) 0 (0,0)
30 (2,1) 29 (2,0) 14 (0,97) 3 (0,21)
35 (2,4) 34 (2,3) 17 (1,2) 6 (0,41)
40 (2,8) 39 (2,7) 21 (1,4) 9 (0,62)
45 (3,1) 44 (3,0) 24 (1,7) 13 (0,90)
50 (3,4) 49 (3,4) 27 (1,9) 16 (1,1)
Actuator/Diaphragm Disassembly
1. Disassemble the diaphragm by unthreading the
diaphragm retaining nut (key 13) from the
diaphragm bolt (key 15).
2. Remove the upper and lower diaphragm plates
(keys 10 and 48) and the diaphragm (key 11).
[The actuator gasket (key 12) sits on top of the
diaphragm.] In cases where the pressure range is
positive, the upper diaphragm plate is larger than
the lower diaphragm plate.
3. Remove the internal bonnet screws and lock
washers (keys 28 and 29) that attach the lower
actuator case (key 30) to the bonnet. Remove the
lower actuator case and the actuator O-ring (key 53,
Type ACE95) or gasket (key 27, Type ACE95Sr).
4. Remove the cap screws and lock washers
(keys 28 and 29, Type ACE95 or keys 50 and 51,
Type ACE95Sr) that attach the bonnet (key 17) to
the body (key 18).
5. Lift the bonnet (key 17) from the body (key 18).
Main Valve Disassembly
1. Remove the main valve (key 25) along with the main
valve spring (key 26), spring shim [key 34, 25
to 50 psig (1,7 to 3,4 bar), Type ACE95 only], and
spring guide (key 49, Type ACE95Sr only) from the
bonnet (key 17).
2. Unthread the screw (key 20) from the main valve.
3. Remove the plug (key 22) from the main valve
(key 25). See Figure 7.
4. Insert wooden dowel rod (or similar blunt tool)
through the bottom of the bonnet bore to remove
the cage (keys 35 and 40) sub-assembly.
Pilot/Cage Disassembly
1. The upper cage (key 40) will readily separate from
the lower cage (key 35). See Figure 6.
2. Gently press the poppet stem (key 42) to remove
the pilot from the upper cage (key 40).
3. Insert a small drill bit into the cross-drilled hole on
the poppet (key 42) to turn and loosen. Unthread
the poppet from the piston (key 37). Remove the
rolling diaphragm (key 38).

ACE95 Series
9
Table 7. Type ACE95 Diagnostics Table: Cv and 10, Inlet Pressure Range Spring 51 to 120 psig (3,5 to 8,3 bar)
51 (3,5) 50 (3,4) 24 (1,7) 3 (0,21)
60 (4,1) 59 (4,1) 30 (2,1) 9 (0,62)
70 (4,8) 69 (4,8) 36 (2,5) 15 (1,0)
80 (5,5) 79 (5,4) 42 (2,9) 22 (1,5)
90 (6,2) 89 (6,1) 49 (3,4) 28 (1,9)
100 (6,9) 99 (6,8) 55 (3,8) 34 (2,3)
110 (7,6) 109 (7,5) 61 (4,2) 41 (2,8)
120 (8,3) 119 (8,2) 68 (4,7) 47 (3,2)
Table 8. Type ACE95 Diagnostics Table: Cv 7.5 and 10, Inlet Pressure Range Spring 121 to 200 psig (8,3 to 13,8 bar)
121 (8,3) 120 (8,3) 63 (4,3) 31 (2,1)
130 (9,0) 129 (8,9) 69 (4,8) 37 (2,6)
140 (9,7) 139 (9,6) 75 (5,2) 43 (3,0)
150 (10,3) 149 (10,3) 82 (5,7) 49 (3,4)
160 (11,0) 159 (11,0) 88 (6,1) 56 (3,9)
170 (11,7) 169 (11,7) 94 (6,5) 62 (4,3)
180 (12,4) 179 (12,3) 101 (7,0) 68 (4,7)
190 (13,1) 189 (13,0) 107 (7,4) 75 (5,2)
200 (13,8) 199 (13,7) 113 (7,8) 81 (5,6)
When assembling the Type ACE95 or Type ACE95Sr
tank blanketing valve, clean all parts, inspect for unusual
wear, and lightly lubricate all O-rings and the groove that
locates the rolling diaphragm bead. See Figures 8 and 9.
Bonnet Sub-Assembly
Prepare the bonnet (key 17) by installing two (2)
internal O-rings (key 16).
Pilot/Cage Sub-Assembly
Refer to Figures 6, 8, and 9 when performing pilot/cage
sub-assembly operations.
1. Apply Loctite® #222 or equivalent to the piston
threads. Place the rolling diaphragm (key 38)
over the threaded portion of the piston (key 37).
Position the bead as shown in Figure 6.
2.Thread the poppet (key 42) onto the piston
(key 37). Use soft-jawed pliers to restrain the
piston so it is not damaged. Do not hold the poppet
by the poppet stem. Insert a small drill bit into the
cross-drilled hole on the poppet stem (key 42) to
turn and tighten.
3. Slide the O-ring (key 39) onto the poppet (key 42).
4. Place the pilot sub-assembly into the upper
cage (key 40).
5. Press the lower cage (key 35) and upper cage
(key 40) together to ensure the groove in the lower
cage engages the bead on the rolling
diaphragm (key 38).
6. Remove the lower cage (key 35).
7. Lubricate the piston (key 37) and lower cage
(key 35) groove.
8. Install the pilot spring (key 36) into the piston
(key 37) and re-install the lower cage (key 35).
9. Hold the pilot sub-assembly together and insert it
into the bonnet (key 17). Press rmly (the bonnet
O-rings will offer resistance).
10. Press the poppet stem. It should freely move up
and down. If it does not, repeat the procedure to
this point to determine the cause.

ACE95 Series
10
Table 9. Type ACE95Sr Diagnostics Table: Cv 20 through 60, Inlet Pressure Range Spring 25 to 50 psig (1,7 to 3,4 bar)
25 (1,7) 24 (1,7) 16 (1,1) 5 (0,35)
30 (2,1) 29 (2,0) 20 (1,4) 9 (0,62)
35 (2,4) 34 (2,3) 24 (1,7) 14 (0,97)
40 (2,8) 39 (2,7) 29 (2,0) 18 (1,2)
45 (3,1) 44 (3,0) 33 (2,3) 23 (1,6)
50 (3,4) 49 (3,4) 38 (2,6) 27 (1,9)
Table 10. Type ACE95Sr Diagnostics Table: Cv 20 through 60, Inlet Pressure Range Spring 51 to 120 psig (3,5 to 8,3 bar)
51 (3,5) 50 (3,4) 39 (2,7) 11 (0,76)
60 (4,1) 59 (4,1) 48 (3,3) 19 (1,3)
70 (4,8) 69 (4,8) 57 (3,9) 28 (1,9)
80 (5,5) 79 (5,4) 66 (4,6) 37 (2,6)
90 (6,2) 89 (6,1) 75 (5,2) 46 (3,2)
100 (6,9) 99 (6,8) 84 (5,8) 55 (3,8)
110 (7,6) 109 (7,5) 93 (6,4) 64 (4,4)
120 (8,3) 119 (8,2) 102 (7,0) 73 (5,0)
®
Main Valve Sub-Assembly
1. Prepare the main piston (key 25) by installing the
plug and O-ring (keys 22 and 23) with the screw
(key 20) and lock washer (key 21). Apply Loctite
#222 or equivalent to the screw threads.
2. Install the main valve spring (key 26), spring shim
[key 34, 25-50 psig (1,7-3,4 bar), Type ACE95
only], and spring guide valve [key 49, 25-50 psig
(1,7-3,4 bar)/51-120 psig (3,5-8,3 bar),
Type ACE95Sr only] into the piston (key 25).
3. Place the main valve sub-assembly [piston, spring,
and plug (keys 25, 26, and 22)] into the body (key 18).
4. Place an O-ring (key 19) into the body (key 18).
Body Sub-Assembly
1. Place the bonnet (key 17) onto the body (key 18)
and main valve (key 25).
2. Press rmly to seat the bonnet O-ring joint. Attach
the bonnet (key 17) to the body (key 18) with four
cap screws and lock washers (keys 28 and 29,
Type ACE95 or keys 50 and 51, Type ACESr).
3. Place the actuator O-ring (key 53, Type ACE95) or
gasket (key 27, Type ACE95Sr) and the lower
actuator case (key 30) onto the bonnet (key 17).
4. Install lock washers (key 28), and hex-head
screws (key 29).
5. Tighten all hex-head screws (key 29) uniformly.
Diaphragm Sub-Assembly
1. Place an O-ring (key 14) into the groove of the
diaphragm bolt (key 15).
2. Build the diaphragm sub-assembly with the lower
diaphragm plate (key 48), diaphragm (key 11), and
upper diaphragm plate (key 10). Fasten the plates
together with the diaphragm bolt (key 15) and the
diaphragm retaining nut (key 13). The diaphragm
retaining nut sits on the upper diaphragm
plate. Apply Loctite #222 or equivalent to the
diaphragm bolt.
3. If you are using a negative spring range, install the
lower range spring (key 162) into the lower
actuator case (key 30).
4. Place the diaphragm sub-assembly into the lower
actuator case (key 30) with the diaphragm
retaining nut (key 13) on top. Place the actuator
gasket (key 12) on top of the diaphragm

ACE95 Series
11
Table 11. Type ACE95Sr Diagnostics Table: Cv 20 through 60, Inlet Pressure Range Spring 121 to 200 psig (8,3 to 13,8 bar)
121 (8,3) 120 (8,3) 103 (7,1) 60 (4,1)
130 (9,0) 129 (8,9) 111 (7,7) 68 (4,7)
140 (9,7) 139 (9,6) 120 (8,3) 77 (5,3)
150 (10,3) 149 (10,3) 129 (8,9) 86 (5,9)
160 (11,0) 159 (11,0) 138 (9,5) 95 (6,6)
170 (11,7) 169 (11,7) 147 (10,1) 104 (7,2)
180 (12,4) 179 (12,3) 156 (10,8) 113 (7,8)
190 (13,1) 189 (13,0) 165 (11,4) 122 (8,4)
200 (13,8) 199 (13,7) 174 (12,0) 134 (9,2)
(key 11) and align the holes with those on the lower
actuator case (key 30).
5. If it was removed, place the spring case gasket
(key 9) between the spring case (key 7) and upper
actuator case (key 33) before attaching the spring
case to the upper actuator case. Attach the spring
case to the upper actuator case with hex-head
screws (key 32).
6. Place the range spring (key 8) and spring seat
(key 5) onto the diaphragm sub-assembly over the
diaphragm retaining nut (key 13).
7. Place the upper actuator case (key 33) over the
range spring (key 8), spring seat (key 5), and the
lower actuator case (key 30).
8. Build the actuator case by installing hex-head
screws, lock washers, and nuts (keys 32, 28, and
31) into the upper and lower actuator cases
(keys 33 and 30). Use a washer (key 47) on
steel cases.
9. Thread the range spring adjusting screw (key 2) in
about halfway.
10. Tighten all nuts (key 31) uniformly.
11. Reinstall the valve according to the instructions in
the Installation section of this manual.
12. Adjust the setpoint according to the instructions
in the Adjustment section.
13. Replace the actuator cap (key 1).
Figure 6. Cage Sub-Assembly
W8162
W8161

ACE95 Series
12
Each ACE95 Series valve is assigned a serial number
printed on the nameplate on the main valve actuator.
Refer to this number when contacting your local Sales
Ofce for assistance, or when ordering replacement
parts. When ordering a replacement part, be sure to
reference the key number for each needed part and
include the complete 11-character part number from the
following parts list.
Parts Kits
Actuator Diaphragm and Gasket Kit
(includes keys 9, 11 and 12)
Types ACE95 and ACE95Sr 10C1273X012
Rolling Diaphragm and Seal Kits (includes
keys 4, 14, 16, 19, 23, 24, 27, 38, 39, 41)
Type ACE95, Cv 1 through 4
Nitrile (NBR) 19B9098X012
Ethylenepropylene (EPDM/FDA) 19B9098X032
Fluorocarbon (FKM) 19B9098X022
Peruoroelastomer (FFKM) 19B9098X042
Type ACE95, Cv 7.5 and 10
Nitrile (NBR) 19B9099X012
Ethylenepropylene (EPDM/FDA) 19B9099X032
Fluorocarbon (FKM) 19B9099X022
Peruoroelastomer (FFKM) 19B9099X042
Type ACE95Sr
Nitrile (NBR) 19B6038X012
Ethylenepropylene (EPDM/FDA) 19B6038X032
Fluorocarbon (FKM) 19B6038X022
Peruoroelastomer (FFKM) 19B6038X042
1 Cap
Stainless Steel GC053301X02
Steel GC053301X32
2 Adjusting Screw
0.5 to 5-inches w.c. (1 to 12 mbar) GC060216X12
4 to 10-inches w.c. (10 to 25 mbar) GC060216X12
8 to 15-inches w.c. (20 to 37 mbar) GC060216X12
0.5 to 1.5 psi (0,03 to 0,10 bar) GC060221X12
-1.0 to 1.0-inches w.c. (-2 to 2 mbar) GC060216X12
-5 to -0.5-inches w.c. (VAC) (-12 to -1 mbar) GC060216X12
3 Lock Nut GC060313X02
4* O-Ring
Nitrile (NBR) 1F463606992
Ethylenepropylene (EPDM/FDA) 1F4636X0082
Fluorocarbon (FKM) 1N571406382
Peruoroelastomer (FFKM) 1F4636X0052
5 Spring Seat GC050502X02
6 Vent (Type Y602-A12) 27A5516X012
7 Spring Case
Stainless Steel GC053101X02
Steel GC053101X32
8 Range Spring
0.5 to 5-inches w.c. (1,2 to 12,4 mbar) GC220701X22
4 to 10-inches w.c. (10 to 25 mbar) GC220702X22
8 to 15-inches w.c. (20 to 37 mbar) GC220703X22
0.5 to 1.5 psi (0,03 to 0,10 bar) GC220708X22
-1.0 to 1.0-inches w.c. (-2 to 2 mbar) GC220701X22
-5 to -0.5-inches w.c. (VAC) (-12 to -1 mbar) GC220701X22
9* Gasket (spring tower) GC070428X02
10 Diaphragm Plate (upper) GC260104X02
11 Diaphragm (main) - FEP GC070234X72
12* Gasket (actuator) GC070427X02
13 Diaphragm Retaining Nut GC053215X02
14* O-Ring
Nitrile (NBR) GC070173X02
Ethylenepropylene (EPDM/FDA) GC070173X52
Fluorocarbon (FKM) GC070173X12
Peruoroelastomer (FFKM) GC070173X62
15 Diaphragm Bolt GC053210X02
16* O-Ring (2 required)
Nitrile (NBR) 1F115306992
Ethylenepropylene (EPDM/FDA) 1F1153X0062
Fluorocarbon (FKM) 1F1153X0022
Peruoroelastomer (FFKM) 1F1153X0032
17 Bonnet
Cv 1 through 4 GC050929X12
Cv 7.5 and 10 GC050929X02
Cv 20 through 60 GC050919X62
18 Body
Cv 1 through 4
3/4 NPT GE02625X012
1 NPT GE02623X012
Cv 7.5 and 10
1 NPT GE02627X012
Cv 20 through 60
2 NPT GC050927X62
19* O-Ring
Type ACE95
Nitrile (NBR) 1C415706992
Ethylenepropylene (EPDM/FDA) 1C4157X0092
Fluorocarbon (FKM) 1C4157X0032
Peruoroelastomer (FFKM) 1C4157X0082
Type ACE95Sr
Nitrile (NBR) 1F3581X0082
Ethylenepropylene (EPDM/FDA) 1F3581X0102
Fluorocarbon (FKM) 1F3581X0022
Peruoroelastomer (FFKM) 1F3581X0092
20 Round-Head Machine Screw
Type ACE95 1A3776X0012
Type ACE95Sr GC060225X02
21 Lock Washer
Type ACE95 GC060903X02
Type ACE95Sr GC060906X02
Figure 7. Typical Main Valve and Spring (Type ACE95Sr shown)
W8160
* Recommended Spare Part

ACE95 Series
13
22 Plug
Type ACE95
Cv 1 GC053206X02
Cv 2 GC053205X02
Cv 4 GC053204X02
Cv 7.5 GC053213X02
Cv 10 GC053212X02
Type ACE95Sr
Cv 20 GC053220X02
Cv 45 GC053221X02
Cv 60 GC053218X02
23* O-Ring
Type ACE95, Cv 1 through 4
Nitrile (NBR) 1D2888X0032
Ethylenepropylene (EPDM/FDA) 1D2888X0042
Fluorocarbon (FKM) 1D2888X0052
Peruoroelastomer (FFKM) 1D2888X0022
Type ACE95, Cv 7.5 and 10
Nitrile (NBR) 18A1088X022
Ethylenepropylene (EPDM/FDA) 18A1088X042
Fluorocarbon (FKM) 18A1088X052
Peruoroelastomer (FFKM) 18A1088X032
Type ACE95Sr Cv 20 through 60
Nitrile (NBR) 1C628006992
Ethylenepropylene (EPDM/FDA) 1C6280X0102
Fluorocarbon (FKM) 1C6280X0012
Peruoroelastomer (FFKM) 1C6280X0092
24* O-Ring
Type ACE95 Cv 1 through 4
Nitrile (NBR) 1C782206992
Ethylenepropylene (EPDM/FDA) 1C7822X0122
Fluorocarbon (FKM) 1C7822X0132
Peruoroelastomer (FFKM) 1C7822X0112
Type ACE95 Cv 7.5 and 10
Nitrile (NBR) 1D2375X0062
Ethylenepropylene (EPDM/FDA) 1D2375X0082
Fluorocarbon (FKM) 1D237506382
Peruoroelastomer (FFKM) 1D2375X0072
Type ACE95Sr Cv 20 through 60
Nitrile (NBR) 1D785306992
Ethylenepropylene (EPDM/FDA) 1D7853X0032
Fluorocarbon (FKM) 1D7853X0042
Peruoroelastomer (FFKM) 1D7853X0012
25 Piston (main valve)
Type ACE95: Cv 1 through 4 GC053203X02
Type ACE95: Cv 7.5 and 10 GC053211X02
Type ACE95Sr: Cv 20 through 60 GC053219X02
26 Spring (main valve)
Type ACE95
Cv 1 through 4, 25 to 50 psig
(1,7 to 3,4 bar) GC220704X22
Cv 1 through 4, 51 to 120 psig
(3,5 to 8,3 bar) GC220705X22
Cv 1 through 4, 121 to 200 psig
(8,3 to 13,8 bar) GC220706X22
Cv 7.5 and 10, 25 to 50 psig
(1,7 to 3,4 bar) GC220705X22
Cv 7.5 and 10, 51 to 120 psig
(3,5 to 8,3 bar) GC220706X22
Cv 7.5 and 10, 121 to 200 psig
(8,3 to 13,8 bar) GC220709X22
Type ACE95Sr
Cv 20 through 60, 25 to 50 psig
(1,7 to 3,4 bar) GC220714X22
Cv 20 through 60, 51 to 120 psig
(3,5 to 8,3 bar) GC220712X22
Cv 20 through 60, 121 to 200 psig
(8,3 to 13,8 bar) GC220713X22
* Recommended Spare Part
27* Gasket (bonnet/actuator) (Type ACE95Sr Only) GC070429X32
28 Lock Washer
Type ACE95 (28 required) GC060906X02
Type ACE95Sr
Actuator Flange (20 required) GC060906X02
Actuator to Bonnet (4 required) GC060905X02
29 Hex-Head Machine Screw
Type ACE95 (8 required) 1A3917X0062
Type ACE95Sr (4 required) GC060224X12
30 Actuator Case (lower)
Stainless Steel GC260105X02
Steel GC260105X32
31 Hex Nut (20 required) 1A3457K0012
32 Hex-Head Machine Screw (24 required) GC060220X02
33 Actuator Case (upper)
Stainless Steel GC260102X02
Steel GC260102X12
34 Spring Shim (Type ACE95 only)
25 to 50 psig (1,7 to 3,4 bar) GC053209X02
35 Lower Cage GC053002X02
36 Spring (cage) GC220707X22
37 Piston (pilot) GC053202X02
38* Rolling Diaphragm
Nitrile (NBR) GC071101X02
Ethylenepropylene (EPDM/FDA) GC071101X22
Fluorocarbon (FKM) GC071101X12
Peruoroelastomer (FFKM) GC071101X32
39* O-ring
Nitrile (NBR) 1D2888X0032
Ethylenepropylene (EPDM/FDA) 1D2888X0042
Fluorocarbon (FKM) 1D2888X0052
Peruoroelastomer (FFKM) 1D2888X0022
40 Cage (upper) GC053001X02
41* O-Ring
Nitrile (NBR) 10A0042X052
Ethylenepropylene (EPDM/FDA) 10A0042X072
Fluorocarbon (FKM) 10A0042X012
Peruoroelastomer (FFKM) 10A0042X062
42 Pilot (poppet) GC053201X02
43 Pilot Filter (optional, not shown)
Aluminum 10C1269X022
Stainless Steel 10C1269X012
48 Diaphragm Plate (lower)
Positive Spring Range
[3-inch (76 mm) - diameter] GC260113X02
Negative Spring Range
[9-inch (229 mm) - diameter] GC260104X02
49 Spring Guide (Type ACE95Sr only)
25 to 50 psig (1,7 to 3,4 bar)/
51 to 120 psig (3,5 to 8,3 bar) GC050505X22
50 Hex Head Cap Screw (4 required) GC060224X12
51 Lock Washer (4 required) GC060905X02
53* O-ring (Type ACE95 Only)
Nitrile (NBR) 1H991206992
Ethylenepropylene (EPDM/FDA) 1R3971X0012
Fluorocarbon (FKM) 1R397106382
Peruoroelastomer (FFKM) 1R3971X0022
138 Hex-Head Pipe Plug (Type ACE95 Only)
NPS 3/4 body 1A771535072
NPS 1 (DN 25) body 1A7947X0022
139 Hex-Head Pipe Plug 1A767535072
162 Lower Range Spring
[neg. pressure range only, used with upper spring (key 8)]
-1.0 to 1.0-inches w.c. (-2 to 2 mbar) GC220717X22
-5 to -0.5-inches w.c. (VAC) (-12 to -1 mbar) GC220710X22
168 Sealant - - - - - - - - - - -
169 Lubricant - - - - - - - - - - -

ACE95 Series
14
Figure 8. Type ACE95 Tank Blanketing Valve
GE03297

ACE95 Series
15
Figure 9. Type ACE95Sr Tank Blanketing Valve
E0625
E0626

ACE95 Series
The Emerson logo is a trademark and service mark of Emerson Electric Co. All other marks are the property of their prospective owners. Fisher is a mark owned by Fisher Controls, Inc., a
business of Emerson Process Management.
The contents of this publication are presented for informational purposes only, and while every effort has been made to ensure their accuracy, they are not to be construed as warranties or
guarantees, express or implied, regarding the products or services described herein or their use or applicability. We reserve the right to modify or improve the designs or specications of such
products at any time without notice.
Emerson Process Management does not assume responsibility for the selection, use or maintenance of any product. Responsibility for proper selection, use and maintenance of any Emerson
Process Management product remains solely with the purchaser.
©Emerson Process Management Regulator Technologies, Inc., 2001, 2010; All Rights Reserved
USA - Headquarters
McKinney, Texas 75069-1872 USA
Tel: 1-800-558-5853
Outside U.S. 1-972-548-3574
Asia-Pacic
Shanghai, China 201206
Tel: +86 21 2892 9000
Europe
Bologna, Italy 40013
Tel: +39 051 4190611
Middle East and Africa
Dubai, United Arab Emirates
Tel: +971 4811 8100
USA - Headquarters
McKinney, Texas 75069-1872 USA
Tel: 1-800-558-5853
Outside U.S. 1-972-548-3574
Asia-Pacic
Singapore, Singapore 128461
Tel: +65 6777 8211
Europe
Bologna, Italy 40013
Tel: +39 051 4190611
Gallardon, France 28320
Tel: +33 (0)2 37 33 47 00
USA - Headquarters
Elk River, Minnesota 55330-2445 USA
Tel: 1-763-241-3238
Europe
Selmsdorf, Germany 23923
Tel: +49 (0) 38823 31 0
For further information visit www.sherregulators.com