Emerson Fisher 2500 Data Sheet D200039X012_Sep14_AQ
2015-03-30
: Emerson Emerson-Fisher-2500-Data-Sheet-681653 emerson-fisher-2500-data-sheet-681653 emerson pdf
Open the PDF directly: View PDF
.
Page Count: 20

www.Fisher.com
Fisherr 249 Sensor, Level Controller, and
Transmitter Dimensions
This bulletin contains dimensional information for
Fisher displacer‐type sensors and for controllers and
transmitters used with these sensors. Dimensions are
subject to change and certified dimensions should be
requested for construction projects. Some of the
abbreviations used in this document are as follows:
NPT = National Pipe Thread, NPS = Nominal Pipe Size,
FF = Flat Face Flange, RF = Raised Face Flange, and
RTJ = Ring Type Joint Flange.
Flange specification references are ASME B16.1 for
CL125 and 250 and ASME 16.5 for CL150, 300, 600,
900, 1500 and 2500.
Contents
Caged Displacer for External Vessel Mounting
249: figure 1 and 2; tables 1, 2, 3, and 4
249B and 249BF: figure 3; tables 5, 6, 7, and 8
249C and 249K: figure 4; tables 9, 10, and 11
249L: figure 5
Cageless Displacer for Internal Vessel Mounting
Top Mounted.
249BP and 249P: figure 6; tables 12 and 13
249CP: figure 7; tables 14 and 15
Side Mounted.
249VS: figure 8, 9, 10, and 11
W8332
W7926
W8334
Cageless Displacer for Mounting on Customer
Supplied Cage or on Top of Vessel
249W: figure 12
Controllers and Transmitters
Fisher 2500 Controller / Transmitter: figure 13
FIELDVUEt DLC3010 / DLC3020f Digital Level
Controller: figure 14
Sensor, Controller, and Transmitter Dimensions
D200039X012
Product Bulletin
34.2:249
September 2014

Sensor, Controller, and Transmitter Dimensions
D200039X012
Product Bulletin
34.2:249
September 2014
2
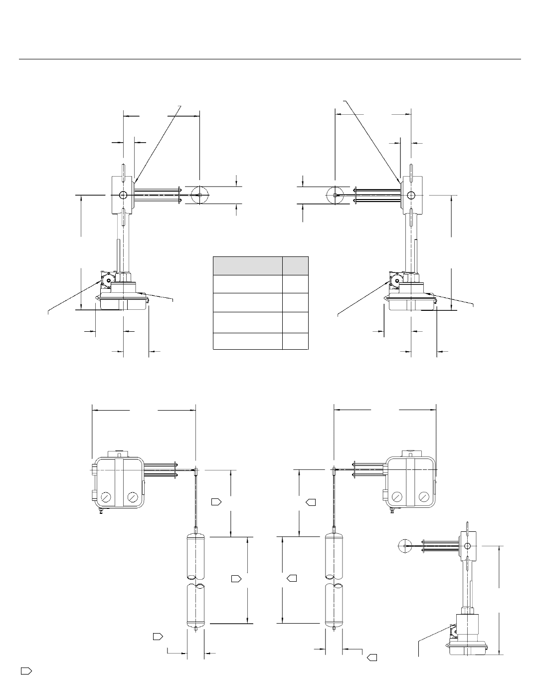
249
Figure 1. Fisher 249 Top View
A1323‐1
241
(9.50)
244
(9.62)
203
(8.00)
297
(11.69)
MATCH LINE (A)
mm
(INCH)
TOP VIEW
Table 1. Fisher 249 Dimensions F, M, and W for S‐1 and F‐1 Connections(1)
S‐1 AND F‐1 CONNECTIONS
Displacer
Length
F M W
CL125 FF Scrd NPT CL250 RF Scrd NPT CL125 FF CL250 RF
mm
356
813
562
1019
495
953
575
1032
241
470
279
508
286
514
406
864
Inches
14
32
22.12
40.12
19.50
37.50
22.62
40.62
9.50
18.50
11.00
20.00
11.25
20.25
16.00
34.00
1. Scrd is 1‐1/2 and 2 NPT. Flanges in NPS 2 only.
Table 2. Fisher 249 Dimensions F, M, and W for S‐2
Connections
S‐2 CONNECTIONS: 1‐1/2 NPT, CL250
Displacer Length F M W
mm Inch mm Inch mm Inch mm Inch
356 14 657 25.88 241 9.50 394 15.5
Table 3. Fisher 249 Dimensions F, M, and W for S‐3
Connections
S‐3 CONNECTIONS: 1‐1/2 NPT, CL250
Displacer Length F M W
mm Inch mm Inch mm Inch mm Inch
356 14 356 14.00 241 9.50 394 15.5
Table 4. Fisher 249 Dimensions F, M, and W for S‐4
Connections
S‐4 CONNECTIONS: 1‐1/2 NPT, CL250
Displacer Length F M W
mm Inch mm Inch mm Inch mm Inch
356 14 445 17.50 241 9.50 394 15.5

Sensor, Controller, and Transmitter Dimensions
D200039X012
Product Bulletin
34.2:249
September 2014
3
Figure 2. Fisher 249 Side View (see tables 1, 2, 3, and 4)
A1324‐1
A1325‐1
A1326‐1
A1327‐1
SIDE VIEW mm
(INCH)
S‐1 AND F‐1
TOP AND BOTTOM CONNECTIONS
MATCH LINE (B)
44
(1.75)
W
F
CL125 ‐ 1/2‐14 NPT
CL250 ‐ 3/4‐14 NPT
F
M
MATCH LINE (B)
CL125 ‐ 1/2‐14 NPT
CL250 ‐ 3/4‐14 NPT
S‐3
UPPER AND LOWER SIDE CONNECTIONS
302
(11.88)
W
44
(1.75)
89
(3.50)
CL125 ‐ 1/2‐14 NPT
CL250 ‐ 3/4‐14 NPT
CL125 ‐ 1/2‐14 NPT
CL250 ‐ 3/4‐14 NPT
MATCH LINE (B) MATCH LINE (B)
44
(1.75)
44
(1.75)
302
(11.88)
W
F
89
(3.50)
M
W
F
M
S‐2
TOP AND LOWER SIDE CONNECTIONS S‐4
UPPER SIDE AND BOTTOM CONNECTIONS
89
(3.50)
M

Sensor, Controller, and Transmitter Dimensions
D200039X012
Product Bulletin
34.2:249
September 2014
4
249B and 249BF (NPS 1‐1/2 and 2 End Connections)
Figure 3. Fisher 249B and 249BF (see tables 5, 6, 7, and 8)
SIDE VIEW
TOP VIEW
A1328‐1
A1329‐1
A1330‐1
A1331‐1
A1332‐1
MATCH LINE (A)
MATCH
LINE (B)
MATCH
LINE (B)
MATCH
LINE (B)
MATCH
LINE (B)
3/4‐14 NPT
3/4‐14 NPT
3/4‐14 NPT
3/4‐14 NPT
S‐2 AND F‐2
TOP AND LOWER SIDE CONNECTIONS
S‐4 AND F‐4
UPPER SIDE AND BOTTOM CONNECTIONS
S‐1 AND F‐1
TOP AND BOTTOM CONNECTIONS
S‐3 AND F‐3
UPPER AND LOWER SIDE CONNECTIONS
1‐1/2 11‐1/2 NPT
421
(16.56)
mm
(INCH)
229
(9.00)
244
(9.62)
297
(11.69)
203
(8.00)
F
G
W
A
A
M
106
(4.19)
103
(4.06)
F
G
W
M
A
F
G
M
103
(4.06)
106
(4.19)
103
(4.06)
F
W
G
M
A
1‐1/2 11‐1/2 NPT
103
(4.06)
421
(16.56)
W

Sensor, Controller, and Transmitter Dimensions
D200039X012
Product Bulletin
34.2:249
September 2014
5
Table 5. Fisher 249B and 249BF S‐1, F‐1, S‐4, and F‐4 Connections
Conn.
Style
Dis‐
placer
Length
F M
Scrd
NPT
CL150 CL300 CL600 Scrd
NPT
CL150 CL300 CL600
RF RTJ RF RTJ RF RTJ RF RTJ RF RTJ RF RTJ
S‐1
and
F‐1
(mm)
356
813
1219
1524
1829
586
1043
1449
1754
2058
662
1119
1526
1830
2135
675
1132
1538
1843
2148
668
1126
1532
1836
2141
684
1141
1548
1853
2157
687
1145
1551
1856
2160
691
1148
1554
1859
2164
284
513
716
866
1021
322
551
754
907
1059
329
557
760
913
1065
325
554
757
910
1062
333
562
765
917
1070
335
564
767
919
1072
337
565
768
921
1073
2134
2438
2743
3048
2364
2669
2973
3278
2440
2745
3050
3354
2453
2757
3062
3367
2446
2751
3056
3361
2462
2767
3072
3377
2465
2770
3075
3380
2469
2773
3078
3383
1173
1326
1478
1630
1211
1364
1516
1669
1218
1370
1522
1675
1214
1367
1519
1672
1222
1375
1527
1679
1224
1376
1529
1681
1226
1378
1530
1683
S‐1
and
F‐1
(Inch)
14
32
48
60
72
23.06
41.06
57.06
69.06
81.06
26.06
44.06
60.06
72.06
84.06
26.56
44.56
60.56
72.56
84.56
26.31
44.31
60.31
72.31
84.31
26.94
44.94
60.94
72.94
84.94
27.06
45.06
61.06
73.06
85.06
27.19
45.19
61.19
73.19
85.19
11.19
20.19
28.19
34.19
40.19
12.69
21.69
29.69
35.69
41.69
12.94
21.94
29.94
35.94
41.94
12.81
21.81
29.81
35.81
41.81
13.12
22.12
30.12
36.12
42.12
13.19
22.19
30.19
36.19
42.19
13.25
22.25
30.25
36.25
42.25
84
96
108
120
93.06
105.06
117.06
129.06
96.06
108.06
120.06
132.06
96.56
108.56
120.56
132.56
96.31
108.31
120.31
132.31
96.94
108.94
120.94
132.94
97.06
109.06
121.06
133.06
97.19
109.19
121.19
133.19
46.19
52.19
58.19
64.19
47.69
53.69
59.69
65.69
47.94
53.94
59.94
65.94
47.81
53.81
59.81
65.81
48.12
54.12
60.12
66.12
48.19
54.19
60.19
66.19
48.25
54.25
60.25
66.25
S‐4
and
F‐4
(mm)
356
813
1219
1524
1829
462
919
1326
1630
1935
500
957
1364
1669
1973
506
964
1370
1675
1980
503
960
1367
1672
1976
511
968
1375
1679
1984
513
970
1376
1681
1986
514
972
1378
1683
1988
284
513
716
866
1021
322
551
754
907
1059
329
557
760
913
1065
325
554
757
910
1062
333
562
765
917
1070
335
564
767
919
1072
337
565
768
921
1073
2134
2438
2743
3048
2240
2545
2850
3154
2278
2583
2888
3193
2284
2589
2894
3199
2281
2586
2891
3196
2288
2593
2899
3203
2291
2596
2900
3265
2292
2597
2902
3267
1173
1326
1478
1630
1211
1364
1516
1669
1218
1370
1522
1675
1214
1367
1519
1672
1222
1375
1527
1679
1224
1376
1529
1681
1226
1378
1530
1683
S‐4
and
F‐4
(Inch)
14
32
48
60
72
18.19
36.19
52.19
64.19
76.19
19.69
37.69
53.69
65.69
77.69
19.94
37.94
53.94
65.94
77.94
19.81
37.81
53.81
65.81
77.81
20.12
38.12
54.12
66.12
78.12
20.19
38.19
54.19
66.19
78.19
20.25
38.25
54.25
66.25
78.25
11.19
20.19
28.19
34.19
40.19
12.69
21.69
29.69
35.69
41.69
12.94
21.94
29.94
35.94
41.94
12.81
21.81
29.81
35.81
41.81
13.12
22.12
30.12
36.12
42.12
13.19
22.19
30.19
36.19
42.19
13.25
22.25
30.25
36.25
42.25
84
96
108
120
88.19
100.19
112.19
124.19
86.69
101.69
113.69
125.69
89.94
101.94
113.94
125.94
89.81
101.81
113.81
125.81
90.12
102.12
114.12
126.12
90.19
102.19
114.19
126.19
90.25
102.25
114.25
126.25
46.19
52.19
58.19
64.19
47.69
53.69
59.69
65.69
47.94
53.94
59.94
65.94
47.81
53.81
59.81
65.81
48.12
54.12
60.12
66.12
48.19
54.19
60.19
66.19
48.25
54.25
60.25
66.25

Sensor, Controller, and Transmitter Dimensions
D200039X012
Product Bulletin
34.2:249
September 2014
6
Table 6. Fisher 249B and 249BF S‐2, F‐2, S‐3, and F‐3 Connections
S‐2 AND F‐2 CONNECTIONS S‐3 AND F‐3
CONNECTIONS
F
M F M
Displacer
Length
Scrd
NPT
CL150 CL300 CL600
RF RTJ RF RTJ RF RTJ
mm mm
356
813
1219
1524
1829
480
937
1343
1648
1953
518
975
1381
1686
1991
524
981
1387
1692
1997
521
978
1384
1689
1994
529
986
1392
1697
2002
530
988
1394
1699
2004
532
989
1395
1700
2005
284
513
716
866
1021
356
813
1219
1524
1829
284
513
716
866
1021
2134
2438
2743
3048
2258
2562
2867
3172
2296
2600
2905
3210
2302
2607
2911
3216
2299
2604
2908
3213
2307
2611
2916
3221
2308
2613
2918
3223
2310
2615
2919
3224
1173
1326
1478
1630
2134
2438
2743
3048
1173
1326
1478
1630
Inches Inches
14
32
48
60
72
18.88
36.88
52.88
64.88
76.88
20.38
38.38
54.38
66.38
78.38
20.62
38.62
54.62
66.62
78.62
20.50
38.50
54.50
66.50
78.50
20.81
38.81
54.81
66.81
78.81
20.88
38.88
54.88
66.88
78.88
20.94
38.94
54.94
66.94
78.94
11.19
20.19
28.19
34.19
40.19
14.00
32.00
48.00
60.00
72.00
11.19
20.19
28.19
34.19
40.19
84
96
108
120
88.88
100.88
112.88
124.88
90.38
102.38
114.38
126.38
90.62
102.62
114.62
126.62
90.50
102.50
114.50
126.50
90.81
102.81
114.81
126.81
90.88
102.88
114.88
126.88
90.94
102.94
114.94
126.94
46.19
52.19
58.19
64.19
84.00
96.00
108.00
120.00
46.19
52.19
58.19
64.19
Table 7. Fisher 249B and 249BF Dimension A
A (COMMON DIMENSION)
Scrd NPT CL150 RF CL150 RTJ CL300 RF CL300 RTJ CL600 RF CL600 RTJ
mm Inch mm Inch mm Inch mm Inch mm Inch mm Inch mm Inch
121 4.75 145 5.69 151 5.94 148 5.81 155 6.12 157 6.19 159 6.25
Table 8. Fisher 249B and 249BF Dimensions W and G
COMMON DIMENSION
Displacer Length W G
mm Inch mm Inch mm Inch
356
813
1219
1524
1829
14
32
48
60
72
394
851
1257
1562
1867
15.50
33.50
49.50
61.50
73.50
197
425
629
781
933
7.75
16.75
24.75
30.75
36.75
2134
2438
2743
3048
84
96
108
120
2172
2477
2781
3086
85.50
97.50
109.50
121.50
1086
1238
1391
1543
42.75
48.75
54.75
60.75

Sensor, Controller, and Transmitter Dimensions
D200039X012
Product Bulletin
34.2:249
September 2014
7
249C and 249K (NPS 1‐1/2 & 2 End Connections)
A1363‐1
249K ONLY
308
(12.12)
402
(15.81)
267
(10.50)
MATCH LINE (A)
Figure 4. Fisher 249C and 249K (see tables 9, 10, and 11)
A1344‐1
A1342‐1
A1340‐1
A1343‐1
249C ONLY
S‐1 AND F‐1
TOP AND BOTTOM CONNECTIONS
S‐2 AND F‐2
TOP AND LOWER SIDE CONNECTIONS
S‐4 AND F‐4
UPPER SIDE AND BOTTOM CONNECTIONS
S‐3 AND F‐3
UPPER AND LOWER SIDE CONNECTIONS
TOP VIEW
168
(6.62) 297
(11.69)
210
(8.25)
57
(2.25)
94
(3.69)
MATCH
LINE (B)
MATCH
LINE (B)
MATCH LINE (A)
MATCH
LINE (B)
MATCH
LINE (B)
213
(8.38)
94
(3.69)
F
M
A
F
M
A
1/2‐14 NPT
F
F
M
A
A
M
1/2‐14 NPT
1‐1/2 11‐1/2 NPT (249C)
2 11‐1/2 NPT (249K)
1
2
Note:
1 389 (15.31) for 249K
2 119 (4.69) for 249K
3 102 (4.00) for 249K
2
213
(8.38)
1
3
3
3
3
1‐1/2 11‐1/2 NPT (249C)
2 11‐1/2 NPT (249K)
57
(2.25)
57
(2.25)
57
(2.25)

Sensor, Controller, and Transmitter Dimensions
D200039X012
Product Bulletin
34.2:249
September 2014
8
Table 9. Fisher 249C and 249K Dimensions F and M, S‐1, F‐1, S‐4, and F‐4 Connections
Conn.
Style
Dis‐
placer
Length
249C 249K
F M F M
Scrd
NPT
CL150 CL300 CL600 Scrd
NPT
CL150 CL300 CL600 NPS
1‐1/2
Flg.
NPS 2
Flg. Flg.
RF RTJ RF RTJ RF RTJ RF RTJ RF RTJ RF RTJ
S‐1
and
F‐1
(mm)
356
813
1219
1524
1829
2134
2438
489
946
1353
1357
1962
‐‐‐
2826
530
988
1394
1699
2004
2308
2613
543
1000
1407
1711
2016
‐‐‐
‐‐‐
546
1003
1410
1715
2019
2324
2781
559
1016
1422
1727
2032
2337
‐‐‐
560
1018
1424
1729
2034
‐‐‐
‐‐‐
560
1018
1424
1729
2034
‐‐‐
‐‐‐
235
464
667
819
972
‐‐‐
127
257
486
689
841
994
1146
1298
264
492
695
848
1000
‐‐‐
‐‐‐
264
492
695
848
1000
1153
1305
270
498
702
854
1006
1159
‐‐‐
272
500
703
856
1008
‐‐‐
‐‐‐
272
500
703
856
1008
‐‐‐
‐‐‐
645
1102
‐‐‐
‐‐‐
‐‐‐
‐‐‐
‐‐‐
654
1111
‐‐‐
‐‐‐
‐‐‐
‐‐‐
‐‐‐
305
533
‐‐‐
‐‐‐
‐‐‐
‐‐‐
‐‐‐
S‐1
and
F‐1
(In.)
14
32
48
60
72
84
96
19.25
37.25
53.25
65.25
77.25
‐‐‐
111.25
20.88
38.88
54.88
66.88
78.88
90.88
102.88
21.38
39.38
55.38
67.38
79.38
‐‐‐
‐‐‐
21.50
39.50
55.50
67.50
79.50
91.50
109.50
22.00
40.00
56.00
68.00
80.00
92.00
‐‐‐
22.06
40.06
56.06
68.06
80.06
‐‐‐
‐‐‐
22.06
40.06
56.06
68.06
80.06
‐‐‐
‐‐‐
9.25
18.25
26.25
32.25
38.25
‐‐‐
50.25
10.12
19.12
27.12
33.12
39.12
45.12
51.12
10.38
19.38
27.38
33.38
39.38
‐‐‐
‐‐‐
10.38
19.38
27.38
33.38
39.38
45.38
51.38
10.62
19.62
27.62
33.62
39.62
45.62
‐‐‐
10.69
19.69
27.69
33.69
39.69
‐‐‐
‐‐‐
10.69
19.69
27.69
33.69
39.69
‐‐‐
‐‐‐
25.38
43.38
‐‐‐
‐‐‐
‐‐‐
‐‐‐
‐‐‐
25.75
43.75
‐‐‐
‐‐‐
‐‐‐
‐‐‐
‐‐‐
12.00
21.00
‐‐‐
‐‐‐
‐‐‐
‐‐‐
‐‐‐
S‐4
and
F‐4
(mm)
356
813
1219
1524
1829
2134
2438
409
867
1273
1518
1883
‐‐‐
‐‐‐
432
889
1295
1600
1905
2210
2515
438
895
1302
1607
1911
‐‐‐
‐‐‐
438
895
1302
1607
1911
‐‐‐
‐‐‐
445
902
1308
1613
1918
‐‐‐
‐‐‐
446
903
1310
1614
1919
‐‐‐
‐‐‐
446
903
1310
1614
1919
‐‐‐
‐‐‐
232
460
667
816
968
‐‐‐
‐‐‐
254
483
686
838
991
1143
1295
260
489
692
845
997
‐‐‐
‐‐‐
260
489
692
845
997
‐‐‐
‐‐‐
267
495
699
851
1003
‐‐‐
‐‐‐
268
497
700
852
1005
‐‐‐
‐‐‐
268
497
700
852
1005
‐‐‐
‐‐‐
483
940
‐‐‐
‐‐‐
‐‐‐
‐‐‐
‐‐‐
483
940
‐‐‐
‐‐‐
‐‐‐
‐‐‐
‐‐‐
305
533
‐‐‐
‐‐‐
‐‐‐
‐‐‐
‐‐‐
S‐4
and
F‐4
(In.)
14
32
48
60
72
84
96
16.12
34.12
50.12
62.12
74.12
‐‐‐
‐‐‐
17.00
35.00
51.00
63.00
75.00
87.00
99.00
17.25
35.25
51.25
63.25
75.25
‐‐‐
‐‐‐
17.25
35.25
51.25
63.25
75.25
‐‐‐
‐‐‐
17.50
35.50
51.50
63.50
75.50
‐‐‐
‐‐‐
17.56
35.56
51.56
63.56
75.56
‐‐‐
‐‐‐
17.56
35.56
51.56
63.56
75.56
‐‐‐
‐‐‐
9.12
18.12
26.12
32.12
38.12
‐‐‐
‐‐‐
10.00
19.00
27.00
33.00
39.00
45.00
51.00
10.25
19.25
27.25
33.25
39.25
‐‐‐
‐‐‐
10.25
19.25
27.25
33.25
39.25
‐‐‐
‐‐‐
10.50
19.50
27.50
33.50
39.50
‐‐‐
‐‐‐
10.56
19.56
27.56
33.56
39.56
‐‐‐
‐‐‐
10.56
19.56
27.56
33.56
39.56
‐‐‐
‐‐‐
19.00
37.00
‐‐‐
‐‐‐
‐‐‐
‐‐‐
‐‐‐
19.00
37.00
‐‐‐
‐‐‐
‐‐‐
‐‐‐
‐‐‐
12.00
21.00
‐‐‐
‐‐‐
‐‐‐
‐‐‐
‐‐‐
Table 10. Fisher 249C and 249K, Dimensions F and M, S‐2, F‐2, S‐3, and F‐3 Connections
S‐2 AND F‐2 CONNECTIONS S‐3 AND F‐3 CONNECTIONS
Dis‐
placer
Length
249C 249K 249C 249K
F
M
F
M F M F M
Scrd
NPT
CL150 CL300 CL600 NPS
1‐1/2
Flg.
NPS 2
Flg.
RF RTJ RF RTJ RF RTJ
mm
356
813
1219
1524
1829
2134
2438
432
889
1295
1600
1905
‐‐‐
‐‐‐
451
908
1314
1619
1924
2229
‐‐‐
457
914
1321
1626
1930
‐‐‐
‐‐‐
460
917
1324
1629
1933
2238
‐‐‐
467
924
1330
1635
1940
‐‐‐
‐‐‐
467
924
1330
1635
1940
‐‐‐
‐‐‐
467
924
1330
1635
1940
‐‐‐
‐‐‐
272
500
703
856
1008
1161
‐‐‐
518
975
‐‐‐
‐‐‐
‐‐‐
‐‐‐
‐‐‐
527
984
‐‐‐
‐‐‐
‐‐‐
‐‐‐
‐‐‐
297
526
‐‐‐
‐‐‐
‐‐‐
‐‐‐
‐‐‐
356
813
1219
1524
1829
2134
2438
272
500
703
856
1008
1161
1313
356
813
‐‐‐
‐‐‐
‐‐‐
‐‐‐
‐‐‐
297
526
‐‐‐
‐‐‐
‐‐‐
‐‐‐
‐‐‐
Inches
14
32
48
60
72
84
96
17.00
35.00
51.00
63.00
75.00
‐‐‐
‐‐‐
17.75
35.75
51.75
63.75
75.75
87.75
‐‐‐
18.00
36.00
52.00
64.00
76.00
‐‐‐
‐‐‐
18.12
36.12
52.12
64.12
76.12
88.12
‐‐‐
18.38
36.38
52.38
64.38
76.38
‐‐‐
‐‐‐
18.38
36.38
52.38
64.38
76.38
‐‐‐
‐‐‐
18.38
36.38
52.38
64.38
76.38
‐‐‐
‐‐‐
10.69
19.69
27.69
33.69
39.69
45.69
‐‐‐
20.38
38.38
‐‐‐
‐‐‐
‐‐‐
‐‐‐
‐‐‐
20.75
38.75
‐‐‐
‐‐‐
‐‐‐
‐‐‐
‐‐‐
11.69
20.69
‐‐‐
‐‐‐
‐‐‐
‐‐‐
‐‐‐
14.00
32.00
48.00
60.00
72.00
84.00
96.00
10.69
19.69
27.69
33.69
39.69
45.69
51.69
14.00
32.00
‐‐‐
‐‐‐
‐‐‐
‐‐‐
‐‐‐
11.69
20.69
‐‐‐
‐‐‐
‐‐‐
‐‐‐
‐‐‐
Table 11. Fisher 249C and 249K Dimension A
END CONNECTION
SIZE
249C
SCREWED
249C
CL150 RF
249C
CL150 RTJ
CL300 RF
249C
CL300 RTJ
249C
CL600 RF or RTJ
249K
CL1500 FLANGES
DN NPS mm Inch mm Inch mm Inch mm Inch mm Inch mm Inch
40
50
1‐1/2
2
102
102
4.00
4.00
111
111
4.38
4.38
117
117
4.62
4.62
122
125
4.81
4.94
125
125
4.94
4.94
148
168
5.81
6.62

Sensor, Controller, and Transmitter Dimensions
D200039X012
Product Bulletin
34.2:249
September 2014
9
249L
Figure 5. Fisher 249L
A1349‐1 A1345‐1 A1348‐1
A1347‐1
A1346‐1 TOP VIEW
F1
TOP AND BOTTOM CONNECTIONS
F2
TOP AND LOWER SIDE CONNECTIONS
F3
UPPER AND LOWER SIDE CONNECTION
(NPS 2 RTJ FLG.)
F4
UPPER SIDE AND BOTTOM CONNECTIONS
(NPS 2 RTJ FLG.)
SIDE VIEW
295
(11.62)
406
(16.00)
MATCH
LINE (B)
90
(3.56)
NPS 2 RTJ FLG.
MATCH LINE (A)
356
(14.00)
230
(9.06)
NPS 1 RTJ FLG.
MATCH
LINE (B)
NPS 1 RTJ FLG.
90
(3.56)
F
MATCH
LINE (B)
673
(26.50)
673
(26.50)
137
(5.38)
137
(5.38)
135
(5.31)
135
(5.31)
1/2 14 NPT
NPS 2 RTJ FLG. 1/2 14 NPT
249
(9.81)
249
(9.81)
249
(9.81)
MATCH
LINE (B)
F
F
F
mm
(INCH)
DISPLACER
LENGTH
DIMENSION F
mm
INCHES
356
813
F‐1(1) F‐2(1) F‐3(1) F‐4(1)
783
1240
629
1086
356
813
510
967
14
32
30.81
48.81
24.75
42.75
14.00
32.00
20.06
38.06
1. 249L Sensor has CL2500 RTJ flanges.

Sensor, Controller, and Transmitter Dimensions
D200039X012
Product Bulletin
34.2:249
September 2014
10
249BP and 249P
Figure 6. Fisher 249BP and 249P (see tables 12 and 13)
A1355‐1
A1358‐1
249P
A1357‐1
A1356‐1
249BP
244
(9.62)
297
(11.69)
203
(8.00)
RR
244
(9.62)
297
(11.69)
203
(6.00)
MATCH LINE (A)
MATCH LINE (A)
44
(1.75)
MATCH
LINE (B)
MATCH
LINE (B)
103
(4.06)
P
G
F
P
G
F
DD
1‐1/2 11‐1/2 NPT 1‐1/2 11‐1/2 NPT THROUGH CL600
2 11‐1/2 NPT FOR CL900 AND CL1500
TOP VIEW TOP VIEW
SIDE VIEW SIDE VIEW
mm
(INCH)
Table 12. Fisher 249BP and 249P Dimension D, F, and G
STANDARD DISPLACER AND STEM COMBINATIONS
D F G(1)
mm Inch mm Inch
76
51
41
38
35
32
29
25
25
3.00
2.00
1.62
1.50
1.38
1.25
1.12
1.00
1.00
356
813
1219
1524
1829
2134
2438
2743
3048
14.00
32.00
48.00
60.00
72.00
84.00
96.00
108.00
120.00
Specify.
Maximum
length is 1372
mm (54 inch)
1. If not specified, G dimension will be 305 mm (12 inches).

Sensor, Controller, and Transmitter Dimensions
D200039X012
Product Bulletin
34.2:249
September 2014
11
Table 13. Fisher 249BP and 249P Dimension P and R
DIMENSION TYPE
NO.
FLANGE
SIZE, NPS
CL125
FF
CL250
RF
CL150 CL300 CL600 CL900 CL1500
RF RTJ RF RTJ RF RTJ RF RTJ RF RTJ
mm
P
249BP
4
6
8
‐‐‐
‐‐‐
‐‐‐
‐‐‐
‐‐‐
‐‐‐
238
240
243
244
‐‐‐
‐‐‐
256
‐‐‐
‐‐‐
270
‐‐‐
‐‐‐
272
‐‐‐
‐‐‐
‐‐‐
‐‐‐
‐‐‐
‐‐‐
‐‐‐
‐‐‐
‐‐‐
‐‐‐
‐‐‐
‐‐‐
‐‐‐
‐‐‐
‐‐‐
‐‐‐
‐‐‐
R
4
6
8
‐‐‐
‐‐‐
‐‐‐
‐‐‐
‐‐‐
‐‐‐
229
279
343
229
‐‐‐
‐‐‐
254
318
381
254
‐‐‐
‐‐‐
273
‐‐‐
‐‐‐
273
‐‐‐
‐‐‐
‐‐‐
‐‐‐
‐‐‐
‐‐‐
‐‐‐
‐‐‐
‐‐‐
‐‐‐
‐‐‐
‐‐‐
‐‐‐
‐‐‐
P
249P
4
6
8
214
216
219
222
227
232
214
216
219
221
‐‐‐
‐‐‐
222
227
232
230
‐‐‐
‐‐‐
‐‐‐
244
‐‐‐
236
‐‐‐
‐‐‐
303
‐‐‐
‐‐‐
305
‐‐‐
‐‐‐
313
‐‐‐
‐‐‐
314
‐‐‐
‐‐‐
R
4
6
8
229
279
343
254
318
381
229
279
343
‐‐‐
‐‐‐
‐‐‐
254
318
381
254
‐‐‐
‐‐‐
‐‐‐
356
‐‐‐
273
‐‐‐
‐‐‐
292
‐‐‐
‐‐‐
292
‐‐‐
‐‐‐
311
‐‐‐
‐‐‐
311
‐‐‐
‐‐‐
DIMENSION TYPE
NO.
FLANGE
SIZE, NPS Inches
P
249BP
4
6
8
‐‐‐
‐‐‐
‐‐‐
‐‐‐
‐‐‐
‐‐‐
9.38
9.44
9.56
9.62
‐‐‐
‐‐‐
9.74
9.94
10.12
10.06
‐‐‐
‐‐‐
10.62
‐‐‐
‐‐‐
10.69
‐‐‐
‐‐‐
‐‐‐
‐‐‐
‐‐‐
‐‐‐
‐‐‐
‐‐‐
‐‐‐
‐‐‐
‐‐‐
‐‐‐
‐‐‐
‐‐‐
R
4
6
8
‐‐‐
‐‐‐
‐‐‐
‐‐‐
‐‐‐
‐‐‐
9.00
11.00
13.50
9.00
‐‐‐
‐‐‐
10.00
12.50
15.00
10.00
‐‐‐
‐‐‐
10.75
‐‐‐
‐‐‐
10.75
‐‐‐
‐‐‐
‐‐‐
‐‐‐
‐‐‐
‐‐‐
‐‐‐
‐‐‐
‐‐‐
‐‐‐
‐‐‐
‐‐‐
‐‐‐
‐‐‐
P
249P
4
6
8
8.44
8.50
8.62
8.75
8.94
9.12
8.44
8.50
8.62
8.69
‐‐‐
‐‐‐
8.75
8.94
9.12
9.06
‐‐‐
‐‐‐
‐‐‐
9.62
‐‐‐
9.31
‐‐‐
‐‐‐
11.94
‐‐‐
‐‐‐
12.00
‐‐‐
‐‐‐
12.31
‐‐‐
‐‐‐
12.38
‐‐‐
‐‐‐
R
4
6
8
9.00
11.00
13.50
10.00
12.50
15.00
9.00
11.00
13.50
9.00
‐‐‐
‐‐‐
10.00
12.50
15.00
10.00
‐‐‐
‐‐‐
‐‐‐
14.00
‐‐‐
10.75
‐‐‐
‐‐‐
11.50
‐‐‐
‐‐‐
11.50
‐‐‐
‐‐‐
12.25
‐‐‐
‐‐‐
12.25
‐‐‐
‐‐‐

Sensor, Controller, and Transmitter Dimensions
D200039X012
Product Bulletin
34.2:249
September 2014
12
249CP (NPS 3 RF Flanged)
Figure 7. Fisher 249CP (see tables 14 and 15)
A1351‐1
A1352‐1
SIDE VIEW
TOP VIEW
MATCH LINE (A)
297
(11.69)
65
(2.56)
MATCH
LINE (B)
168
(6.62)
210
(8.25)
P
G
F
D
mm
(INCH)
Table 14. Fisher 249CP Dimensions D, F, and G
STANDARD DISPLACER AND STEM COMBINATIONS
D F G(1)
mm Inch mm Inch
60
38
32
2.38
1.50
1.25
356
813
1219
14.00
32.00
48.00
Specify.
Maximum
length is 1372
mm (54 inches)
1. If not specified, G dimension will be 305 mm (12 inches).
Table 15. Fisher 249CP Dimension P
P
CL150 RF CL300 RF CL600 RF
mm Inch mm Inch mm Inch
191 7.50 200 7.88 210 8.25

Sensor, Controller, and Transmitter Dimensions
D200039X012
Product Bulletin
34.2:249
September 2014
13
249VS
LEFT‐HAND MOUNT RIGHT‐HAND MOUNT
Notes:
1 Dimension G is customer specified
2 Displacer length illustrated is 14 inches
712.5
(28.05)
HEAT INSULATOR EXTENSION
mm
(INCH)
1
343.6
(13.53)
343.6
(13.53)
76.2
(3.00)
139.7
(5.50) 139.7
(5.50)
606.1
(23.86)
606.1
(23.86)
355.3
(14.00)
77.7
(3.06)
76.2
(3.00)
76.2
(3.00)
355.3
(14.00)
85.1
(3.35)
85.1
(3.35)
59.5
(2.34) 139.4
(5.49) 59.5
(2.34) 139.4
(5.49)
171.5
(6.75) 66
(2.60)
59.5
(2.34)
1/2‐14 NPT
2 PLACES
GE33695
G
G
77.7
(3.06)
59.5
(2.34) 171.5
(6.75)
66
(2.60)
76.2
(3.00)
305
(12.00)
305
(12.00)
1
Figure 8. Fisher 249VS with DLC3010 / DLC3020f Digital Level Controller Controller Envelope Dimensions;
Flanged Connections

Sensor, Controller, and Transmitter Dimensions
D200039X012
Product Bulletin
34.2:249
September 2014
14
Figure 9. Fisher 249VS with DLC3010 / DLC3020f Digital Level Controller Envelope Dimensions; Butt Weld End
Note:
1 Dimension D, F, and G are customer specified mm
(INCH)
1
344
(13.53)
78
(3.06)
403
(15.87)
GE45167‐A
G
G
BUTT WELD END PER CHART
LEFT‐HAND MOUNT RIGHT‐HAND MOUNT
AA
F
F
607
(23.88)
78
(3.06)
j D
BUTT WELD END PER CHART
59
(2.34)
139
(5.49)
344
(13.53)
483
(19.02)
j D
1
1
jj
BUTT WELD END A
2.00
BWE SCHED 40
CL600
BWE SCHED 80
CL900
BWE SCHED 160
CL1500
BWE SCHED XXS
CL2500
2.17
2.57
2.85
607
(23.88)
59
(2.34)
139
(5.49)
DLC3010 / DLC3020f
1/2‐14 NPT
OUTLET CONN (2 PLACES)
DLC3010 / DLC3020f
1/2‐14 NPT
OUTLET CONN (2 PLACES)
OPTIONAL
HEAT
INSULATOR
EXTENSION
713
(28.07)
1
1
1

Sensor, Controller, and Transmitter Dimensions
D200039X012
Product Bulletin
34.2:249
September 2014
15
Figure 10. Fisher 249VS with 2500 Transmitter Envelope Dimensions; Flanged Connections
Notes:
1 Dimension G is customer specified
2 Displacer length illustrated is 14 inches mm
(INCH)
1
343.6
(13.53)
343.6
(13.53)
76.2
(3.00)
76.2
(3.00)
139.7
(5.50)
139.7
(5.50)
521.5
(20.53)
77.7
(3.06)
355.3
(14.00)
77.7
(3.06)
76.2
(3.00)
76.2
(3.00)
355.3
(14.00)
458.7
(18.06)
238.9
(9.41)
231.9
(9.13)
GE33808
G
G
238.9
(9.41)
231.9
(9.13)
467.5
(18.40)
521.5
(20.53)
171.5
(6.75)
171.5
(6.75)
85.1
(3.35)
85.1
(3.35)
LEFT‐HAND MOUNT RIGHT‐HAND MOUNT
305
(12.00)
305
(12.00)
1

Sensor, Controller, and Transmitter Dimensions
D200039X012
Product Bulletin
34.2:249
September 2014
16
Figure 11. Fisher 249VS with 2500 Transmitter Envelope Dimensions; Butt Weld End
Notes:
1 Dimension D, F, and G are customer specified mm
(INCH)
1
344
(13.53)
78
(3.06)
467
(18.41)
GE45166‐A
G
G
522
(20.54)
BUTT WELD END
PER CHART
LEFT‐HAND MOUNT RIGHT‐HAND MOUNT
AA
F
F
522
(20.54)
78
(3.06)
j D
FISHER
67 SERIES
1/4‐18 NPT
SUPPLY CONN
BUTT WELD END
PER CHART
124
(4.87)
115
(4.53)
124
(4.87)
115
(4.53)
344
(13.53)
67 SERIES
1/4‐18 NPT
SUPPLY CONN
459
(18.06)
2500
TRANSMITTER
1/4‐18 NPT
OUTLET CONN
2500
TRANSMITTER
1/4‐18 NPT
OUTLET CONN
j D
1
1
jj
OPTIONAL HEAT
INSULATOR EXTENSION
728
(24.72)
BUTT WELD END A
2.00
BWE SCHED 40
CL600
BWE SCHED 80
CL900
BWE SCHED 160
CL1500
BWE SCHED XXS
CL2500
2.17
2.57
2.85
1
1
1

Sensor, Controller, and Transmitter Dimensions
D200039X012
Product Bulletin
34.2:249
September 2014
17
249W
Figure 12. Fisher 249W Dimensions for Mounting on Customer Supplied Cage
RIGHT HAND MOUNTLEFT HAND MOUNT
Note:
1 Dimensions D, F, and G are customer defined
GE09610‐A
SIZE
NPS 3
NPS 4
A
mm INCHES
127 5.00
157 6.19
CL150, CL300, AND CL600
GG
F
F
j D j D
73
(2.87)
mm
(INCH)
301
(11.84)
203
(8.00)
AA
73
(2.87)
203
(8.00)
301
(11.84)
1 1

Sensor, Controller, and Transmitter Dimensions
D200039X012
Product Bulletin
34.2:249
September 2014
18
Controllers and Transmitters
Figure 13. Controller and Transmitter Dimensions; Fisher 2500 Controller / Transmitter
10A1211‐A
22A9197‐B
A1373‐1
AR5748‐B
22A9197‐B
A1374‐1
MATCH LINE (A)
MATCH LINE (A)
216
(8.50)
WITH HEAT INSULATOR
238
(9.38)
109
(4.31)
TOP VIEW
FRONT VIEW
BACK VIEW
119
(4.69)
59
(2.31)
MATCH LINE (B)
1/4‐14 NPT
SUPPLY CONNECTION
1/4‐14 NPT
OUTPUT
VENT
1/2‐14 NPT
SUPPLY
BACK VIEW
FRONT VIEW
TOP VIEW
1/4‐14 NPT
SUPPLY
MATCH
LINE B
WITH HEAT INSULATOR
MATCH LINE (A)
MATCH LINE (A)
406
(16.00)
216
(8.50)
109
(4.31)
238
(9.38)
119
(4.69)
REMOTE SET
1/4‐14 NPT REMOTE
LEVEL INDICATOR
59
(2.31)
2500 CONTROLLER / TRANSMITTER
2500 CONTROLLER / TRANSMITTER
WITH 2506 OR 2516 RECEIVER‐CONTROLLER mm
(INCH)
232
(9.12)

Sensor, Controller, and Transmitter Dimensions
D200039X012
Product Bulletin
34.2:249
September 2014
19
Figure 14. Controller and Transmitter Dimensions; FIELDVUE DLC3010 / DLC3020f Digital Level Controller
1/2‐14 NPT
CONDUIT CONN
DETAILED FRONT VIEW
125.7
(4.95)
102.6
(4.04)
102.1
(4.02) 73.7
(2.90)
mm
(INCH)
END VIEW OF INSTRUMENT
1/2‐14 NPT
2 PLACES
59
(2.34)
66
(261)
59
(2.34)
139
(5.49)
HEAT INSULATOR EXTENSION
FURNISH ONLY WHEN SPECIFIED
308
(12.13)
WITH HEAT INSULATOR
202.4
(7.97)
WITHOUT
HEAT INSULATOR

Sensor, Controller, and Transmitter Dimensions
D200039X012
Product Bulletin
34.2:249
September 2014
20
Emerson Process Management
Marshalltown, Iowa 50158 USA
Sorocaba, 18087 Brazil
Chatham, Kent ME4 4QZ UK
Dubai, United Arab Emirates
Singapore 128461 Singapore
www.Fisher.com
The contents of this publication are presented for informational purposes only, and while every effort has been made to ensure their accuracy, they are not
to be construed as warranties or guarantees, express or implied, regarding the products or services described herein or their use or applicability. All sales are
governed by our terms and conditions, which are available upon request. We reserve the right to modify or improve the designs or specifications of such
products at any time without notice.
E 1980, 2014 Fisher Controls International LLC. All rights reserved.
Fisher and FIELDVUE are marks owned by one of the companies in the Emerson Process Management business unit of Emerson Electric Co. Emerson Process
Management, Emerson, and the Emerson logo are trademarks and service marks of Emerson Electric Co. All other marks are the property of their respective
owners.
Neither Emerson, Emerson Process Management, nor any of their affiliated entities assumes responsibility for the selection, use or maintenance
of any product. Responsibility for proper selection, use, and maintenance of any product remains solely with the purchaser and end user.