Emerson Fisher 3570 Data Sheet

2015-03-30

: Emerson Emerson-Fisher-3570-Data-Sheet-681657 emerson-fisher-3570-data-sheet-681657 emerson pdf

Open the PDF directly: View PDF PDF.
Page Count: 12

www.Fisher.com
Fisherr480 Series Yokeless Piston Actuators
Fisher 480 Series actuators are yokeless piston
actuators that are used in either throttling or on-off
applications with ball valves, butterfly valves, louvers,
dampers, and rheostats. They require pneumatic
pressure loading from double-acting positioners
(Fisher 3570) or from on-off loading and unloading
devices.
Features
Actuator Versatility–Actuator with or without
positioners and snubbers is available in an
assortment of sizes, stroking speeds, thrusts, and
travels to handle most control requirements.
Compact Design–Yokeless construction permits a
low-profile assembly by allowing close coupling to
the control device; either through a bracket or, with
some versions, by direct mounting on a bonnet
flange.
Wide Range Supply Pressure Capability–The
cylinder (and 3570 positioner if used) can operate
with supply pressures as low as 2.4 bar (35 psig) or
as high as 10.3 bar (150 psig).
Long Stroke–Actuators have maximum rated
travels of up to 206 mm (8.125 inches).
Positioner Versatility–Positioner/actuator action is
easily reversed in the field with no additional parts.
Positioner sensitivity, travel span, and travel starting
point are factory set and need to be reset only if
operating conditions have changed or if the
positioner has been reversed. See figure 1.
Fisher 480-15 Piston Actuator
W1867
Actuator Frequency
Response
Figure 3 shows how various size actuators respond
when the input supply pressure is cycled at small
amplitude (3 to 5 percent) and increasing frequency.
Assume the cycling supply pressure and the
movement of the actuator rod are represented by sine
waves. As the actuator rod is forced to move faster, its
motion begins to fall behind the input in both time
(shown as phase lag) and amplitude (shown as
normalized gain). Both of these parameters are
affected by the inertia of the actuator and,
consequently, changes are more pronounced in the
larger constructions.
480 Series Actuators
D100091X012
Product Bulletin
61.2:480
February 2013
480 Series Actuators
D100091X012
Product Bulletin
61.2:480
February 2013
2
480 Series Actuator Specifications
Available Configurations
See the Actuator Configurations section
Cylinder Pressure
Maximum Allowable:(4) 10.3 bar (150 psig)
Required to Produce a Given Thrust: Seefigure2
Minimum Recommended: Valves with low torque
requirements - (2.4 bar [35 psig]); all other valves -
(3.4 bar [50 psig])
Maximum Supply Source Consumption
With Positioner and Constant Input Signal: 0.54
normal m3/hr(1) (20 scfh(1)) of air at 6.9 bar (100 psig)
Without Positioner: Depends on cylinder volume and
supply pressure
Travel Information
Maximum Rated Travels, All 480 Series actuators with
Linear Output: See table 1
Travel Stops Available for 480 Series actuators with
105 mm (4.125 inch ) Maximum Rated Travels: See
table 1
Thrust Information
Seefigure2
Torque Output
480, 480-15, and 480-16 (for butterfly valves):
Contact your Emerson Process Management sales
office
Stroking Speeds
See table 1
Operative Ambient Temperature(2)
With Nitrile O-Rings: -46 to 80_C(-50to175_F)
With Fluorocarbon O-Rings (Optional):(3)
-18 to 149_C(0to300_F)
Actuator Size and Piston Size
See table 1
Pressure Connections
Standard is 1/4 NPT. For larger sizes, contact your
Emerson Process Management sales office.
Construction Materials
Actuator:
Part Material
Cylinder and Piston Aluminum
Piston Rod Extension SST, Chrome Plated
Cylinder Seal Bushings Brass
O-Rings Nitrile or Fluorocarbon
Linkage Connections and Mounting Information
See figures 7, 8, 9, and 10
Options
J376 Series trip valve system to fail actuator
Jup or Jdown or Jlock in last position
JTopWorxtDXP M21GNEB electrical valve stem
position switch
JMicro-Switch limit switches
1. Normal m3/hr.- normal cubic meters per hour (0_C and 1.01325 bar, absolute); Scfh - standard cubic feet per hour (60_Fand14.7psia).
2. These terms are defined in ANSI/ISA Standard S51.1
3. Without snubber. If this actuator has a snubber, the temperature specification is the same for the nitrile version.
4. The pressure limits in this bulletin and any applicable standard or code limitation for actuator should not be exceeded.
480 Series Actuators
D100091X012
Product Bulletin
61.2:480
February 2013
3
3570 Actuator Specifications
Available Configurations
3570: Valve positioner with two relays and three
pressure gauges for monitoring input signal and
output pressures to the top and underside of the
actuator piston
3570C: Similar to 3570 except that the positioner is
equipped with automotive tire valves instead of
pressure gauges. The valves can be used for clip-on
test pressure gauges. The relay nozzles on these
positioners are locked in place with locknuts to resist
unwanted nozzle movement due to vibration
Input Signal
Standard Ranges: 0.2to1.0bar(3to15psig)or0.4
to 2.0 bar (6 to 30 psig)
Split Ranges: Typically uses one half of standard range
when two control valves are operated by one input
signal from a single controller
Optional Ranges: As required within the limits of the
bellows
Bellows Pressure Rating
Standard Bellows: 3.4 bar (50 psig)
Optional Bellows: 6.2 bar (90 psig)
Supply Pressure
Maximum: 10.3 bar (150 psig)
Minimum: 2.4 bar (35 psig)
Output Signal
Type: Pneumatic pressure as required by the actuator
Action: Field reversible between direct and reverse
(see table 2)
Hysteresis(1,2)
0.15% of total stroke or instrument pressure span
Resolution(1,2)
0.2% of instrument pressure span
Repeatability(1,2)
0.3% of instrument pressure span
Frequency Response(1,2)
Seefigure3
Pressure Connections
Vent: 3/8 NPT
All Others: 1/4 NPT
Pressure Indications
3570C: Tire valves accept standard pressure gauge
chucks
3570: See table below
Type of Indication Number
Used
Standard Gauge Range
bar (psig)
Positioner input signal
gauge 10 to 2.1 (0 to 30) or
0 to 4.1 (0 to 60)
Cylinder supply pressure
gauge 00 to 11.0 (0 to 160)
Static Air Consumption(3)
0.56 normal m3/hr (20 scfh) with 6.9 bar (100 psig)
supply pressure
Operative Ambient Temperature(1,2)
With Nitrile O-Rings: -34 to 79_C(-30to175_F)
With Fluorocarbon O-Rings (Optional):(3) -18 to
149_C(0to300_F)
Construction Materials
Actuator:
Part Material
Base, Cover and Beam
Bellows
Bias and Range Spring
Relay Body
Relay Nozzle(s)
Diaphragm
O-Rings
Aluminum, die cast
Brass
Steel, Plated
Zinc, Die Cast
SST
Nitrile or Fluorocarbon
Nitrile or Fluorocarbon
Options
Fisher SS-52 clip-on chuck (with or without gauge) for
3570C positioners
1. These terms are defined in ANSI/ISA Standard S51.1
2. For actuator with positioner only. Does not apply to other constructions or actuator-valve combination.
3. Normal m3/hr.- normal cubic meters per hour (0_C and 1.01325 bar, absolute); Scfh - standard cubic feet per hour (60_F and 14.7 psia).
480 Series Actuators
D100091X012
Product Bulletin
61.2:480
February 2013
4
Table 1. Size, Piston, Stroking Speed, and Travel Information
ACTUATOR
SIZE
EFFECTIVE
PISTON AREA
PISTON
DIAMETER
STROKING
SPEED(1)
SINGLE-FLANGE TRAVEL STOPS AVAILABLE FOR
ACTUATORS WITH 105 mm
(4.125 INCHES) MAXIMUM
RATED TRAVEL
–16 Versions All Others Except Fisher 487,
487-1(2)
cm2Inch2mm Inch mm/s Inch/s mm Inch mm Inch mm Inch
30 107 16.5 121 4.75 102 4--- --- 105 4.125 89 3.5
40
60
182
258
28.25
55.5
156
216
6.125
8.5
52
33
2.05
1.30 206 8.125 105 4.125 89 3.5
1. For actuators with positioners at 6.9 bar (100 psig) supply pressure and all prestroke conditions satisfied. Stroking speeds for actuators without positioners or with snubbers will depend on
the particular construction involved.
2. See 480 Series Actuators Specifications for these travels.
Table 2. Action Under Normal Operating Conditions
ACTUATOR DESCRIPTION DESIRED PISTON MOTION
Down Up
With Positioner Direct-acting Increasing input signal pressure to bellows(1) Decreasing input signal pressure to bellows(1)
Reverse-acting Decreasing input signal pressure to bellows(1) Increasing input signal pressure to bellows(1)
Without positioner Supply pressure loaded on top of piston,
exhausted from bottom
Supply pressure loaded on bottom of piston,
exhausted from top
1. Supply pressure is routed through relays to piston.
Figure 1. Positioner Simplicity
RANGE SPRING
DETERMINES
TRAVEL SPAN
NOZZLE
DETERMINES
SENSITIVITY
BIAS SPRING
ADJUSTING SCREW
DETERMINES CORRECT
TRAVEL STARTING POINT
W0701-1*
ADJUSTMENTS
AJ1880-A
A1283-1
DIRECT-ACTING POSITION REVERSE-ACTING POSITION
REVERSAL
REMOVAL OF FOUR SCREWS
BEAM
BELLOWS
BASE PEDESTAL
BELLOWS
POSTS BEAM
BELLOWS
BASE
PEDESTAL
Actuator Configurations
480: Yokeless piston actuator with positioner.
481: Yokeless piston actuator without positioner.
Other actuators may be obtained without positioner
by adding -1 to the type number.
Theaboveactuatorscomewithstandardmounting
flange, 105 mm (4.125 inch) maximum rated travel,
and threaded piston rod connection with sizes 30
through 60 for mounting on ball valves, louvers, and
dampers with brackets.
Theseactuatorsmaybeobtainedwiththefollowing
alternate universal mounting flange constructions:
-15 Added to Type Number: Allows butterfly valve
mounting for a standard actuator with 105 mm (4.125
inch) maximum travel and threaded piston rod
connection, and comes in sizes 30 through 60.
-16 Added to Type Number: Provides 206 mm (8.125
inch) maximum travel and threaded piston rod
connection, and comes in sizes 40 through 60.
480 Series Actuators
D100091X012
Product Bulletin
61.2:480
February 2013
5
Figure 2. Supply Pressure and Thrusts
1
Note:
May be increased by 10% for actuators without positioners. Either this thrust, or the maximum allowable loading for the control device
is the limitin
g
factor for usable actuator force.
A5961 1
Thrusts in thousands of pounds (in thousands of newtons)
for actuators with positioners.
SIZE 30
ACTUATOR SIZE 40
ACTUATOR
SIZE 60
ACTUATOR
Figure 3. Frequency Response
A5962
1. SIZE 30- 19mm (0.75 INCH) TRAVEL
2. SIZE 40- 38mm (1.5 INCH) TRAVEL
3. SIZE 60- 38mm (1.5 INCH) TRAVEL
FREQUENCY - HERTZ
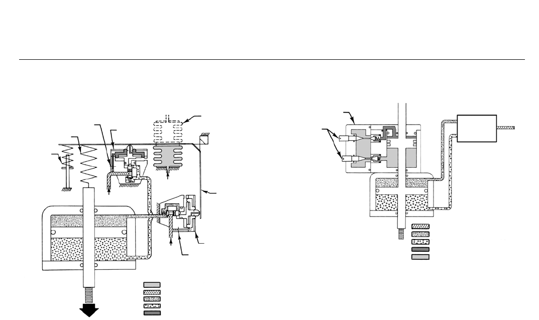
Principle of Operation
Actuator
These actuators react to a pressure unbalance that is
created by loading supply pressure on one side of the
piston and unloading the opposite side. Some type of
switching device is required to shift the supply
pressurefromonesideofthepistontotheother.For
most actuators in the 480 Series, this device is a 3570
positioner. However, a separate loading device must
be provided for actuators without positioners.
For actuators with positioners (figure 4), the
pneumatic output signal from a controller or
instrument is piped to the positioner bellows. As long
as the bellows receives a constant input signal
pressure, the beam remains motionless and allows
supply pressure to bleed throughbothrelaynozzles
such that a constant pressure is maintained between
thenozzleandthefixedorifice.Therelaysarein
equilibrium with their inlet and exhaust valves closed.
480 Series Actuators
D100091X012
Product Bulletin
61.2:480
February 2013
6
Figure 4. Operation of Actuator with Positioner
BJ8256-A
A1286
INSTRUMENT PRESSURE
SUPPLY PRESSURE
TOP CYLINDER PRESSURE
BOTTOM CYLINDER PRESSURE
NOZZLE PRESSURE
FIXED RESTRICTION
RANGE SPRING
BIAS
SPRING
RELAY B
SUPPLY BEAM
SUPPLY FIXED RESTRICTION
RELAY A
BELLOWS
REVERSED
POSITION
INSTRUMENT
Assume that a downward piston motion is required
and the bellows receives a corresponding change in
input signal pressure. This causes the beam to pivot so
that it covers the nozzle on relay A. (Beam movement
is accomplished either by increasing the input signal
pressure on a direct-acting positioner to expand the
bellows, or by decreasing the input signal pressure on
a reverse-acting positioner to contract the bellows.)
The nozzle pressure in relay A increases due to the
restriction created by the beam over the nozzle.
Through relay action, the air pressure to the top of the
piston is increased. At the same time, relay B reacts to
thechangeinbeampositiontodecreasethepressure
to the underside of the piston. Due to the resulting
unbalanced forces acting on the piston, it moves
down, changing the valve plug position.
Piston movement is fed back to the beam by means of
arangespringwhichisconnected to the beam and to
the piston rod extension, applying a force to the beam
opposite to that caused by the expanding or
contracting bellows. This feedback arrangement
prevents overcorrection and ensures a definite
position of the piston and valve plug for a given
instrument signal.
Figure 5. Operation of Actuator with Snubber
32A8303-A
A1287
SUPPLY PRESSURE
TOP CYLINDER PRESSURE
BOTTOM CYLINDER PRESSURE
UPPER SNUBBER PRESSURE
LOWER SNUBBER PRESSURE
SNUBBER
CHECK
VALVES
POSITIONER
SWITCHING
DEVICE
If upward piston motion is required, the beam pivots
over the nozzle on relay B. The result is relay, piston,
and feedback action opposite that for downward
piston motion.
Reversal of positioner action is accomplished simply by
removing four screws, inverting the bellows, and
installing two bellows posts for support it the change is
from direct to reverse action. Bellows posts are stored
in the positioner case and are not used if the change is
from reverse to direct.
Actuator with Snubber
As the actuator piston strokes, the snubber piston
moves inside an oil-filled cylinder, forcing oil from one
side of the piston to the other through two check
valves (see figure 5). The resistance to flow created by
the settings of the check valves and the shock
absorbing quality of the oil combine to damp out any
tendency of the valve plug to jump. The plug of each
check valve is held off its seat by the positioning of the
adjusting screws. Thus, with the adjusting screws
backed off all the way, maximum damping will be
obtained.
Installation
The actuator may be installed in any position, but
normal installation is with the actuator vertical above
the valve. Dimensions are given in figures 6, 7, 8, 9,
and 10.
480 Series Actuators
D100091X012
Product Bulletin
61.2:480
February 2013
7
Ordering Information
When ordering, specify:
1. Type number
a. For actuator, suffix dash numbers of desired
constructions are appropriate.
b. For positioner (if used)
2. Supply Pressure
3. Actuator size and connection size and style desired
4. Input signal range
5. Desired stroking time and direction, if applicable
6. Operative ambient temperature
7. Travel
8. Desired options
9. Application requirements
a. Type, body size, port diameter, stem connection
size,andtheactionofthevalvetobeusedwiththe
actuator.
b. Valve inlet pressure
c. Valve shutoff pressure drop
d. Valve flowing pressure drop
e. Process fluid temperature
480 Series Actuators
D100091X012
Product Bulletin
61.2:480
February 2013
8
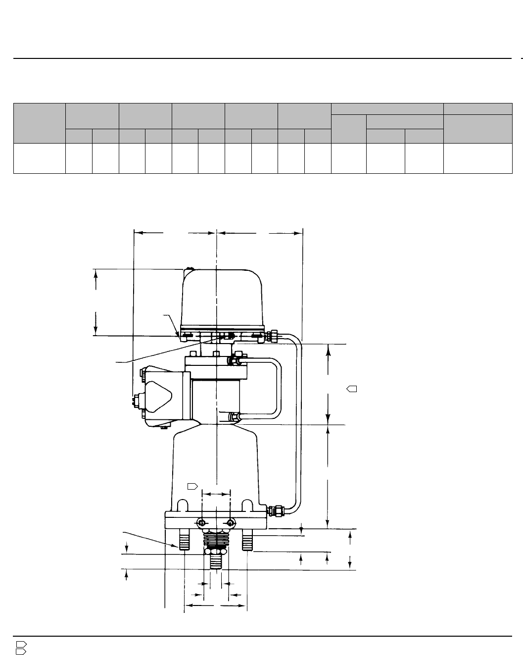
Table 3. Cylinder Diameter and Bolt Center Location, All Actuators
ACTUATOR SIZE CH, DEGREE OF ARC
mm Inch Standard Flange Universal Mounting Flange
30 171 6.75 045
40 206 8.12 45 45
60 267 10.50 22.5 45
Figure 6. Cylinder Diameter and Bolt Center Location, All Actuators (refer to table 3)
BH9452-K
A1290
Figure 7. Dimensions for Actuators with Clevis Connection
1Duplicated on opposite side; each hole is 5/16 inch-18 UNC-2B and tapped 13 (0.50) deep.
BK4109-B
A1295
135
(5.31)
147
(5.81)
155
(6.12)
46 (1.81)
127
(5.00)
73
(2.88)
11
(0.44)
57
(2.25)
mm
(inch)
1/4-18 NPT
SUPPLY CONNECTION
ON BACKSIDE
3/8-18 NPT
VENT CONNECTION
8 (0.31)
DIAMETER BOLT
4-3/8 INCH -16
HOLES TAPPED
22 (0.88) DEEP
480 Series Actuators
D100091X012
Product Bulletin
61.2:480
February 2013
9
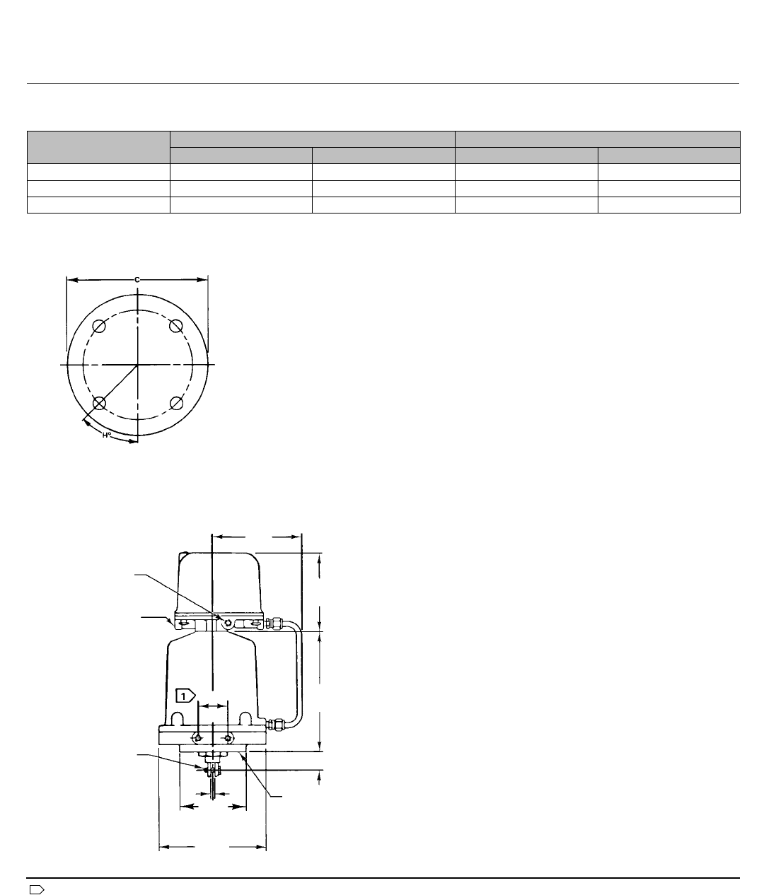
Table 4. Dimensions and Mounting Information for Actuators with Threaded Piston Rod and Standard Mounting
Flange, or Positioner, or Snubber
ACTUATOR
SIZE
A B D F G
IK
Number
Bolt Circle Diameter THREADED PISTON
ROD CONNECTION
UNF-2A
mm Inch mm Inch mm Inch mm Inch mm Inch mm Inch
30
40
60
250
208
211
8.06
8.19
8.31
86
83
79
3.38
3.25
3.12
170
173
203
6.69
6.81
8.00
63
63
63
2.50
2.50
2.50
33
33
33
1.31
1.31
1.31
2
4
8
146
181
241
5.75
7.12
9.50
7/8 inch - 14
Figure 8. Dimensions and Mounting Information for Actuators with Threaded Piston Rod and Standard Mounting
Flange, or Positioner, or Snubber (refer to table 4)
1Duplicated on opposite side; each hole is 5/16 inch-18 UNC-2B and tapped 13 (0.50) deep.
This dimension does not exist if no snubber is used.
2
2
BL1413-B
A1291
1
157
(6.19) D
130
(5.13)
310
(12.19)
A
3/8-18 NPT
VENT
CONN
1/4-18 NPT
SUPPLY CONN
ON BACKSIDE
57
(2.25)
30
(1.19)
44
(1.75)
BOLT CIRCLE
NO. OF STUDS
3/4 INCH-10 UNC-2A
B
G
K
F
I
mm
(inch)
480 Series Actuators
D100091X012
Product Bulletin
61.2:480
February 2013
10
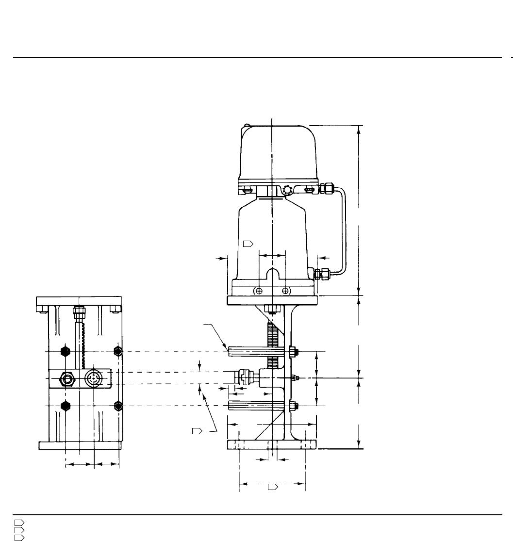
Table 5. Dimensions for Actuators without Positioner, with Long Stroke, or with Threaded Piston Rod and Universal
Mounting Flange
Actuator
Size
A B F G I K
–15
Versions
–16
Versions
–15
Versions
–16
Versions
–15
Versions
–16
Versions
–15
Versions
–16
Versions
Bolt Circle
Diameter Thread
Diameter
Threaded
Piston Rod
Connection
UNF-2A
mm Inch mm Inch mm Inch mm Inch mm Inch mm mm mm Inch mm Inch mm Inch
30
40, 60
222
222
8.75
8.75
--
343
--
13.5
90
90
3.56
3.56
--
108
--
4.25
64
64
2.5
2.5
--
47
--
1.87
33
33
1.31
1.31
--
51
--
2.00
99
99
3.88
3.88
1/2-13
1/2-13
7/8-inch-14
7/8-inch-14
Figure 9. Dimensions for Actuators without Positioner, with Long Stroke, or with Threaded Piston Rod and Universal
Mounting Flange (refer to table 5)
For -16 version only.
Duplicated on opposite side; each hole is 5/16 inch-18 UNC-2B and tapped 13 mm (0.50 inches) deep.
1
2
1
2
1/4-18 NPT
1/4-18 NPT
111
(4.38)
121
(4.75)
4HOLES
TAPPED 22 mm
(0.88 inches) DEEP
A
B
G
K
F
I
(2.25)
57
mm
(inches)
480 Series Actuators
D100091X012
Product Bulletin
61.2:480
February 2013
11
Figure 10. Dimensions for Actuators with Rotary Couplings
Duplicated on opposite side; each hole is 5/16 inch-18 UNC-2B and tapped 13 mm (0.50 inches) deep.
Socketed coupling with setscrew adjustment. 6 mm (0.25 inch), 10 mm (0.38 inch), and 13 mm (0.50 inch) inside diameters.
Four holes total on 140 mm (5.5 inch) bolt circle.
1
2
1
2
154
(6.06)
mm
(inches)
3
BK6785-B
B0662
3
340
(13.38)
146
(5.75)
71
(2.81)
71
(2.81)
57
(2.25)
171
(6.75) DIAMETER
3/8 INCH-16
UNC-2B
13
(0.5)
95
(3.75)
171
(6.75)
DIA
19
(0.75) DIA HOLE
71
(2.81)
71
(2.81)
480 Series Actuators
D100091X012
Product Bulletin
61.2:480
February 2013
12
Emerson Process Management
Marshalltown, Iowa 50158 USA
Sorocaba, 18087 Brazil
Chatham, Kent ME4 4QZ UK
Dubai, United Arab Emirates
Singapore 128461 Singapore
www.Fisher.com
The contents of this publication are presented for informational purposes only, and while every effort has been made to ensure their accuracy, they arenot
to be construed as warranties or guarantees, express or implied, regarding the products or services described herein or their use or applicability. All sales are
governed by our terms and conditions, which are available upon request. We reserve the right to modify or improve the designs or specifications of such
products at any time without notice.
E1991, 2013 Fisher Controls International LLC. All rights reserved.
Fisher and TopWorx are marks owned by one of the companies in the Emerson Process Management business unit of Emerson Electric Co. Emerson Process
Management, Emerson, and the Emerson logo are trademarks and service marks of Emerson Electric Co. All other marks are the property of their respective
owners.
Neither Emerson, Emerson Process Management, nor any of their affiliated entities assumes responsibility for the selection, use or maintenance
of any product. Responsibility for proper selection, use, and maintenance of any product remains solely with the purchaser and end user.

Navigation menu