Emerson Fisher 4194 Instruction Manual
2015-03-30
: Emerson Emerson-Fisher-4194-Instruction-Manual-681838 emerson-fisher-4194-instruction-manual-681838 emerson pdf
Open the PDF directly: View PDF
.
Page Count: 64
- Contents
- Section 1 Introduction1
- Section 2 Installation22‐2‐
- Section 3 Controller Operation33‐3‐
- Section 4 Maintenance44‐4‐
- Troubleshooting
- Changing Controller Action
- Replacing Common Controller Parts
- Process Pressure Scale
- Relay
- Case and Cover
- Gauges
- Pressure Control Block
- Supply Tubing and Positive Feedback Tubing Assemblies
- Proportional Band Knob, Nozzle Pivot, and Set Point Beam Assembly
- Flapper Flexure Pivot Assembly
- Positive Feedback Bellows
- Links
- Long Pivot Assembly
- Short Pivot Assembly
- Process Drive Flexure
- Process Tubing
- Capsular Element Assembly
- Maintenance Calibration
- Flapper Alignment
- Remote Set Point (Option M)
- Auto/Manual (Option E)
- Section 5 Parts Ordering5
- Parts Kits
- Parts List5‐

www.Fisher.com
Fisherr 4194S Differential Pressure Controllers
Contents
1. Introduction 2...............................
Scope of Manual 2.............................
Description 2.................................
Specifications 5...............................
Educational Services 5.........................
2. Installation 7................................
Actuator Mounting 7..........................
Panel Mounting 7.............................
Wall Mounting 7..............................
Pipestand Mounting 7.........................
Pressure Connections 9........................
Process Pressure 9.............................
Supply Pressure 10............................
Vent 10......................................
Remote Set Up Point Pressure (Option M) 10.......
3. Controller Operation 11.......................
Operating Information 11......................
Adjustments 11...........................
Manual Set Point 11........................
Remote Set Point 11.......................
Proportional Band (Differential Gap) 11.......
Changing Controller Action 11...............
Auto/Manual Switching (Option E) 11.........
Prestartup Checks 12.......................
Startup 13................................
Calibration 14................................
Process Zero and Span Adjustment 14........
Remote Set Point Zero and Span
(Option M) 14..........................
Setting Switching Points 15.................
Direct‐Acting Controllers 15.................
Reverse‐Acting Controllers 17...............
Principle of Operation 17.......................
Overall Operation 17.......................
Remote Set Point 19.......................
Auto/Manual Option 19.....................
4. Maintenance 21..............................
Troubleshooting 22............................
Changing Controller Action 23..................
Replacing Controller Parts 24....................
Process Pressure Scale 24...................
Relay 25..................................
Case and Cover 26.........................
Gauges 26................................
Pressure Control Block 26...................
Figure 1‐1. Fisher 4194S Differential Pressure
Controllers
NAMEPLATE
W3613
W5663‐1
Supply Tubing and Positive
Feedback Tubing Assemblies 27...........
Proportional Band Knob, Nozzle
Assembly, and Set Point
Beam Assembly 27......................
Flapper Flexure Pivot Assembly 31............
Positive Feedback Bellows 34................
Links 36..................................
Link Number 1 36.........................
Link Number 2 38.........................
Instruction Manual
D200158X012
4194S Controllers
December 2011

Instruction Manual
D200158X012
4194S Controllers
December 2011
2
Contents (cont'd)
Link Number 3 39.........................
Link Number 4 39.........................
Link Number 5 40.........................
Long Pivot Assembly 40.....................
Short Pivot Assembly 40....................
Process Drive Flexure 41....................
Process Tubing 41.........................
Capsular Element Assembly 41...............
Maintenance Calibration 42.................
Precalibration Procedures 42................
Aligning the Drive Bracket Assembly 42.......
Setting the Travel Stops 42..................
Aligning Linkage 43........................
Zero and Span Adjustment 43...............
Linearity Adjustment 44....................
Flapper Alignment 44..........................
Remote Set Point (Option M) 45.................
Replacing Parts 45.........................
Pivot Assembly A 46........................
Pivot Assembly B 46........................
Drive Flexure 47...........................
Tubing 47................................
Remote Set Point Capsular Element
Assembly 47...........................
Link A 48.................................
Link B 48.................................
Maintenance Calibration 48.................
Precalibration Procedure 48.................
Setting Travel Stops 49.....................
Aligning Linkage 49........................
Zero and Span Adjustment 49...............
Linearity Adjustment 50....................
Auto/Manual (Option E) 50.....................
Replacing the Auto/Manual Station 51........
Disassembly 51...........................
Assembly 51..............................
Replacing the Switch Body Assembly,
Lever O‐Ring, Switch Body O‐Ring,
and Tubing Assembly 51.................
Disassembly 52...........................
Assembly 52..............................
Replacing the Loader Range Spring,
Diaphragm Assembly, Ball Seat,
Tubing, and Ball 53......................
Disassembly 53...........................
Assembly 53..............................
Replacing the Loader Valve Plug and
Valve Plug Spring 54.....................
5. Parts Ordering 55.............................
Parts Kits 55..................................
Parts List 55..................................
General Controller Parts 55..................
Mounting Parts 57.........................
Pipestand Mounting 57....................
Panel Mounting 57........................
Wall Mounting 57.........................
Actuator Casing Mounting 57...............
Actuator Yoke Mounting 57................
Tubing 57...............................
Fittings 57...............................
Section 1 Introduction1
Scope of Manual
This instruction manual provides installation, operating, calibration, maintenance, and parts ordering information for
the 4194S differential pressure indicating controllers. Portions of this manual apply only to specific configurations in
the 4194S product line. These configurations of the controller are indicated by letter suffixes in the type number that
correspond to the mode and option designated in table 1‐2. Refer to table 1‐2 for available 4194S configurations. The
type number of the controller is on the nameplate. Refer to figure 1‐1 for the location of the nameplate.
Description
The controllers described in this manual provide a differential gap output with the options as shown in table 1‐2. The
controller shows process differential pressure and set point on an easy‐to‐read process scale. The controller output is a
pneumatic signal that operates a final control element.
Do not install, operate or maintain a 4194S differential pressure indicating controller without first being fully trained
and qualified in valve, actuator and accessory installation, operation and maintenance. To avoid personal injury or
property damage it is important to carefully read, understand, and follow all of the contents of this manual, including
all safety cautions and warnings. If you have any questions about these instructions, contact your Emerson Process
Management sales office before proceeding.

Instruction Manual
D200158X012
4194S Controllers
December 2011
3
Table 1‐1. Specifications
Available Configurations
See table 1‐2
Sensing Element Range (Input Signal)
Lower and Upper Range Limits: As shown in table 1‐3
Maximum Allowable Pressure: As shown in table 1‐3
Process Scale
Matched to the range of the process differential
pressure as standard. Optional scales available(1)
Process Connections
Standard: 1/4 NPT internal stainless steel (all input
ranges)
Optional: 1/2 NPT internal stainless steel
Output Signal
Differential Gap Range: 0 and 1.4 bar (0 and 20 psig)
or 0 and 2.4 bar (0 and 35 psig)
Action: Field‐reversible between direct (increasing
differential pressure increases output pressure) or
reverse (increasing differential pressure decreases
output pressure).
Supply and Output Connections
1/4 NPT internal
Supply Pressure Requirements
See table 1‐4
Supply Pressure Medium
Air or natural gas
Air: Supply pressure must be clean, dry air that meets
the requirements of ISA Standard 7.0.01. A maximum
40 micrometer particle size in the air system is
acceptable. Further filtration down to 5 micrometer
particle size is recommended. Lubricant content is
not to exceed 1 ppm weight (w/w) or volume (v/v)
basis. Condensation in the air supply should be
minimized.
Natural Gas: Natural gas must be clean, dry, oil‐free,
and noncorrosive. H2S content should not exceed 20
ppm.
Remote Set Point Pressures
0.2 to 1.0 bar (3 to 15 psig) or
0.4 to 2.0 bar (6 to 30 psig)
Controller Adjustments
Differential Gap Control: 5 to 100% of process scale
range
Set Point: Continuously adjustable from 0 to 100% of
the scale range
Steady‐State Air Consumption(2)
0 to 1.4 Bar (0 to 20 Psig) Output: 0.1 m3/hr (3.5 scfh)
0 to 2.4 Bar (0 to 35 Psig) Output: 0.13 m3/hr (5.0 scfh)
Delivery Capacity(2)
0 to 1.4 Bar (0 to 20 Psig) Output: 5.6 m3/hr (210 scfh)
0 to 2.4 Bar (0 to 35 Psig) Output: 9.9 m3/hr (370 scfh)
Exhaust Capacity(2)
0 to 1.4 Bar (0 to 20 Psig) Output: 4.6 m3/hr (170 scfh)
0 to 2.4 Bar (0 to 35 Psig) Output: 7.0 m3/hr (260 scfh)
Operative Ambient Temperature Limits(3)
-40 to 70_C (-40 to 160_F)
Housing
Designed to NEMA 3 (weatherproof) and IEC 529 IP54
specifications
Hazardous Area Classification
4194S differential pressure indicating controllers
comply with the requirements of ATEX Group II
Category 2 Gas and Dust
Mounting
Controller can be mounted on actuator, panel, wall,
or pipestand.
Approximate Weight
4.5 kg (10 pounds)
Declaration of SEP
Fisher Controls International LLC declares this
product to be in compliance with Article 3 paragraph
3 of the Pressure Equipment Directive (PED) 97 / 23 /
EC. It was designed and manufactured in accordance
with Sound Engineering Practice (SEP) and cannot
bear the CE marking related to PED compliance.
However, the product may bear the CE marking to
indicate compliance with other applicable European
Community Directives.
NOTE: Specialized instrument terms are defined in ANSI/ISA Standard 51.1 - Process Instrument Terminology.
1. Consult your Emerson Process Management sales office for additional information.
2. Normal m3/hour - Normal cubic meters per hour at 0_C and 1.01325 bar, absolute. Scfh - Standard cubic feet per hour at 60_F and 14.7 psia
3. Also for transportation and storage limits.

Instruction Manual
D200158X012
4194S Controllers
December 2011
4
Table 1‐2. Available Configurations for Fisher 4194S Controllers
CONTROLLER(1) OPTIONS
Internal Auto/Manual Station, Option E Remote Set Point, Option M
4194S
4194SE
4194SM
4194SME
X
X
X
X
1. Reverse‐acting constructions are designated by an R added to the type number
Table 1‐3. Process Sensor (Capsular Element) Pressure Ratings and Materials
UNITS CAPSULAR
STANDARD RANGES
DIFFERENTIAL SPAN
UNITS
STATIC PRESSURE OPERATING
RANGE OPERATING
LIMIT(3)
STANDARD
MATERIAL
Minimum(1) Maximum(2)
Minimum
Inches of
Mercury (bar)
Maximum
Bar
0 to 4.0
0 to 0.7
0 to 1.4
0 to 2.0
0.2
0.4
0.7
1.0
0.4
0.7
1.4
2.0
Bar
-0.4
-.07
-1.0
-1.0
0.4
0.7
1.4
2.0
0.5
1.0
2.1
3.1 N09902
Psid
0 to 5
0 to 10
0 to 20
0 to 30
2.5
5.0
10.0
15.0
5
10
15
20
Psig
-10
-20
-30
-30
5
10
20
30
7.5
15.0
30.0
45.0
1. Span is adjustable between minimum shown and maximum of the capsular element operating range and can be positioned anywhere within this range. For example, if a 0 to 2.0 bar (0 to 30
psid) capsular element is used and the minimum span of 1.0 bar (15 psid), 1.0 to 2.0 bar (15 to 30 psid), or any value between minimum and maximum value of the operating range.
2. Maximum difference between the two input supply pressures.
3. Capsular element may be pressured to this value (after reaching travel stop at upper range limit) without permanent zero shift or structural damage to controller components.
Table 1‐4. Supply Pressure Data
OUTPUT SIGNAL RANGE NORMAL OPERATING SUPPLY PRESSURE(1) MAXIMUM PRESSURE TO PREVENT INTERNAL DAMAGE(2)
Bar 0 & 1.4 1.4 2.8
0 & 2.4 2.4 2.8
Psig 0 & 20 20 40
0 & 35 35 40
1. If this pressure is exceeded, control stability may be impaired.
2. If this pressure is exceeded, damage to the controller may result.

Instruction Manual
D200158X012
4194S Controllers
December 2011
5
Specifications
WARNING
This product is intended for a specific current range, temperature range and other application specifications. Applying
different current, temperature and other service conditions could result in malfunction of the product, property damage or
personal injury.
Specifications for 4194S controllers are listed in table 1‐1.
Educational Services
For information on available courses for 4194S controllers, as well as a variety of other products, contact:
Emerson Process Management
Educational Services, Registration
P.O. Box 190; 301 S. 1st Ave.
Marshalltown, IA 50158-2823
Phone: 800-338-8158 or
Phone: 641-754-3771
FAX: 641-754-3431
e‐mail: education@emerson.com

Instruction Manual
D200158X012
4194S Controllers
December 2011
6

Instruction Manual
D200158X012
4194S Controllers
December 2011
7
Section 2 Installation22‐2‐
The controllers should be mounted with the housing vertical (as shown in figure 2‐1) so that the vent points down.
WARNING
To avoid personal injury or property damage from sudden release of process pressure:
D Always wear protective clothing, gloves, and eyewear when performing installation and maintenance procedures.
D Personal injury or property damage may result from fire or explosion if natural gas is used as the supply medium and
preventive measures are not taken. Preventive measures may include, but are not limited to, one or more of the
following: Remote venting of the unit, re‐evaluating the hazardous area classification, ensuring adequate ventilation,
and the removal of any ignition sources. For information on remote venting of this controller, refer to page 10.
D Check with your process or safety engineer for any additional measures that must be taken to protect against process
media.
D If installing into an existing application, also refer to the WARNING at the beginning of the Maintenance section in this
instruction manual.
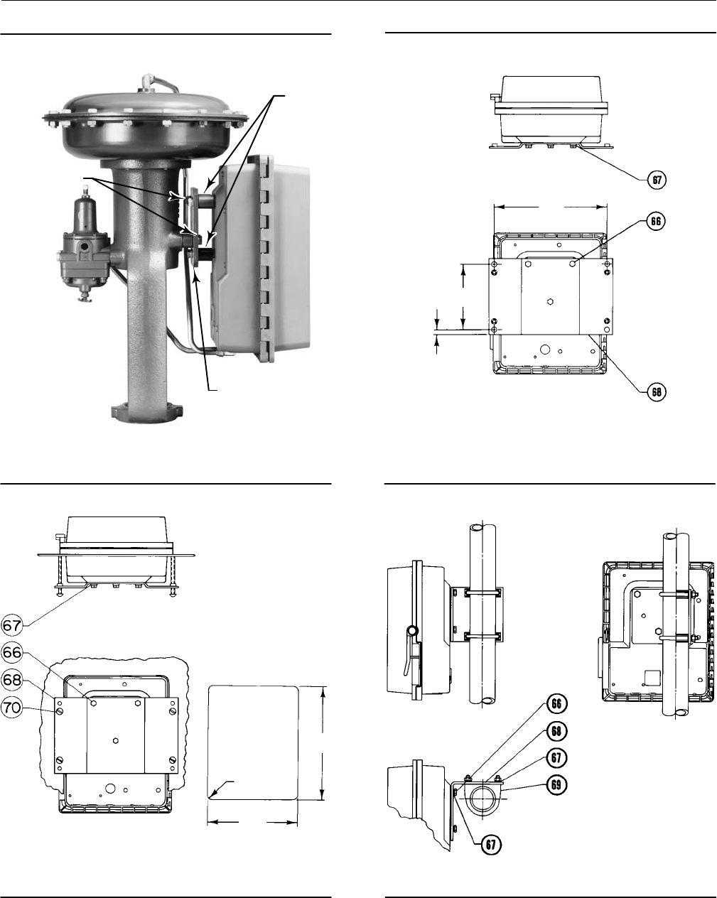
Actuator Mounting
Refer to figure 2‐1. Controllers specified for mounting on a control valve actuator will be mounted at the factory. If the
controller is ordered separately for installation on a control valve actuator, mount the unit as described in this section.
Mounting parts vary for different actuator types.
Attach the mounting bracket to the actuator yoke with cap screws, lock washers, and spacer spools. Attach the
controller to the bracket with cap screws, lock washers, and spacer spools. On some designs,
the mounting bracket is attached to the actuator casing rather than to the yoke.
Panel Mounting
Refer to figure 2‐2. Cut a hole in the panel surface using the dimensions shown in figure 2‐2. Slide the controller into
the hole and attach the bracket (key 68) to the rear of the controller using three cap screws (key 66) and lock washers
(key 67). Tighten the screws (key 70) to draw the case snugly and evenly to the panel surface.
Wall Mounting
Refer to figure 2‐3. Drill holes in the wall (using the dimensions in figure 2‐3) to align with the four holes in the bracket
(key 68). If the process tubing is to run through the wall, drill a hole in the wall large enough to accept the tubing.
Mount the controller to the bracket using three cap screws (key 66) and lock washers (key 67). Attach the bracket to
the wall, using suitable screws or bolts.
Pipestand Mounting
Refer to figure 2‐4. Pipestand mounting parts are provided to mount the controller to an NPS 2 (nominal) pipe. Attach
a bracket (key 68) to the controller with cap screws (key 66) and lock washers (key 67). Attach two clamps (key 69) to
the bracket, and fasten the controller to the pipe.

Instruction Manual
D200158X012
4194S Controllers
December 2011
8
Figure 2‐1. Typical Actuator Mounting
MOUNTING
BRACKET
W5661
SPACER
SPOOLS
CAP SCREWS AND
LOCKWASHERS
Figure 2‐2. Panel Mounting
REAR VIEW
TOP VIEW
DIMENSIONS OF
PANEL CUTOUT
mm
(INCH)
36A9780‐A
A2757‐4
308
(12.06)
14
(0.56)R
236
(9.31)
Figure 2‐3. Wall Mounting
36A9761‐A
A2759‐4 mm
(INCH)
TOP VIEW
REAR VIEW
280
(10.25)
152
(6.00)
13
(0.50)
Figure 2‐4. Pipestand Mounting
36A9758‐A
A2869‐1
SIDE VIEW
HORIZONTAL PIPE
VERTICAL PIPE

Instruction Manual
D200158X012
4194S Controllers
December 2011
9
Pressure Connections
WARNING
Overpressuring any system component, including the capsular sensing element, could result in personal injury or property
damage due to fire and explosion caused by venting or leakage of a hazardous supply pressure medium or process medium.
To avoid such injury or damage, provide suitable pressure‐ relieving or pressure‐limiting devices if supply pressure or
process pressure is capable of exceeding the maximum allowable pressures in tables 1‐3 and 1‐4.
Refer to figure 2‐5. Supply, output, and vent connections are 1/4 NPT. Process pressure connections are 1/4 or 1/2 NPT
(optional).
Figure 2‐5. Location of Connections
46A9765‐A
A3001
REMOTE SET POINT
CONNECTION
SUPPLY PRESSURE
CONTROLLER OUTPUT
PRESSURE
LOW
PRESSURE (A)
HIGH
PRESSURE (B)
VENT
TOP VIEW
BOTTOM VIEW
Process Pressure
Process pressure is piped to the connection marked A and B on the bottom of the case (see figure 2‐5). The high
pressure line is piped to connection B, and the low pressure line connects to A.
When installing process piping, follow accepted practices to ensure accurate transmission of the process pressure to
the controller. Install shutoff valves, vents, drains, or seal systems as needed in the process pressure lines.
If the instrument is located such that the adjacent process pressure line will be approximately horizontal, the line
should slope downward to the instrument for liquid‐filled lines and upward toward the instrument for gas‐filled lines.
This will minimize the possibility of air becoming trapped in the sensor with liquid‐filled lines or of condensate
becoming trapped with gas‐filled lines. The recommended slope is 80 millimeters per meter (1 inch per foot).

Instruction Manual
D200158X012
4194S Controllers
December 2011
10
Supply Pressure
WARNING
Severe personal injury or property damage may occur if the instrument air supply is not clean, dry and oil‐free, or
noncorrosive gas. While use and regular maintenance of a filter that removes particles larger than 40 micrometers in
diameter will suffice in most applications, check with an Emerson Process Management field office and industry instrument
air quality standards for use with corrosive gas or if you are unsure about the proper amount or method of air filtration or
filter maintenance.
Supply pressure must be clean, dry air or noncorrosive gas that meets the requirements of ISA Standard 7.0.01. A
maximum 40 micrometer particle size in the air system is acceptable. Further filtration down to 5 micrometer particle
size is recommended. Lubricant content is not to exceed 1 ppm weight (w/w) or volume (v/v) basis. Condensation in
the air supply should be minimized. Alternatively, natural gas may be used as the supply pressure medium. Gas must
be clean, dry, oil‐free, and noncorrosive. H2S content should not exceed 20 ppm.
Use a suitable supply pressure regulator to reduce the supply pressure source to 1.4 bar (20 psig) for an output signal
range of 0 and 1.4 bar (0 and 20 psig) and to 2.4 bar (35 psig) for an output signal range of 0 and 2.4 bar (0 and 35
psig).
Remote Set Point Pressure (Option M)
If the controller has the remote set point option, connect the remote set point pressure to the top of the controller
case at the location shown in figure 2‐5. Use a clean dry air supply.
Vent
WARNING
Personal injury or property damage could result from fire or explosion of accumulated gas, or from contact with hazardous
gas, if a flammable or hazardous gas is used as the supply pressure medium. Because the controller case and cover
assembly do not form a gas‐tight seal when the assembly is enclosed, a remote vent line, adequate ventilation, and
necessary safety measures should be used to prevent the accumulation of flammable or hazardous gas. However, a remote
vent pipe alone cannot be relied upon to remove all flammable or hazardous gas. Vent line piping should comply with local
and regional codes and should be as short as possible with adequate inside diameter and few bends to reduce case pressure
buildup.
CAUTION
When installing a remote vent pipe, take care not to overtighten the pipe in the vent connection. Excessive torque will
damage the threads in the connection.
If a remote vent is required, the vent line must be as short possible with a minimum number of bends and elbows. Vent
line piping should have a minimum inside diameter of 19 mm (3/4 inches) for runs up to 6.1 m (20 feet) and a
minimum inside diameter of 25 mm (1 inch) for runs from 6.1 to 30.5 m (20 to 100 feet).
If a remote vent is not required, the vent opening (figure 2‐5) must be protected against the entrance of any foreign
material that could plug it. Check the vent periodically to be certain it is not plugged.

Instruction Manual
D200158X012
4194S Controllers
December 2011
11
Section 3 Controller Operation33‐3‐
Operating Information
This section includes descriptions of adjustments and procedures for prostrate and startup procedures. Location of
adjustments are shown in figures 3‐1 and 3‐2. To better understand the adjustments and overall operation of the
controller, refer to the Principle of Operation section and the schematic diagrams, figures 3‐4 and 3‐5.
Adjustments
Manual Set Point
To adjust the set point, open the controller cover and move the set point adjustment until the pointer indicates the
desired value of pressure on the process pressure scale. Move the adjustment to the right to increase the set point, and
to the left to decrease it. Adjusting the set point does not affect the differential gap setting.
Remote Set Point (Option M)
CAUTION
Do not move the set point adjustment manually on controllers with remote set point. Doing so could damage the
controller.
If the controller is equipped with the remote set point option (see figure 3‐2), vary the remote set point pressure to
change the set point. Increase the pressure to increase the set point, and decrease the pressure to decrease the set
point.
Proportional Band (Differential Gap)
The proportional band knob adjusts the width of the gap between switching points. Rotate the proportional band
knob until the desired setting is opposite the line on the proportional band indicator cover.
Changing Controller Action
Controller action can be switched from direct to reverse or vice versa by simply loosening the screws on the
proportional band indicator cover and moving the cover out so the proportional band knob can be rotated to the
desired action. The white portion of the adjustment enables direct controller action; the black portion enables reverse
controller action.
Auto/Manual Switching (Option E)
Refer to figure 5‐4 if the controller has the auto/manual option. Two balance methods are available to equalize the
manual output with the controller pressure. To switch from automatic to manual mode, carefully adjust the loader
knob until the metal ball inside the plastic tube moves into the switching zone. Then move the automatic/manual
switch to MANUAL. Turn the loader knob clockwise to increase the controller output or counter‐clockwise to decrease
it. To switch from manual to automatic mode, adjust the set point manually or with remote set point pressure to move
the ball into the switching zone. Turn the switch to AUTOMATIC, and move the set point adjustment to control the
output.

Instruction Manual
D200158X012
4194S Controllers
December 2011
12
When the automatic/manual switch is in AUTOMATIC, adjusting the loader knob has no effect on the controller
output. When the automatic/manual switch is in MANUAL, changing the set point adjustment has no effect on the
controller output.
Note
Switching the controller between automatic and manual mode without balancing can disturb the process and cause controller
cycling.
Prestartup Checks
When performing the checks, open loop conditions must exist. Refer to figure 3‐1 for location of adjustments.
Note
If the controller has the auto/manual option (option E), be sure the controller is in the automatic mode prior to performing
prestartup checks.
Figure 3‐1. Location of Controller Parts and Adjustments
C0541
38A1731‐B
38A3819‐A
HIGH PRESSURE
CAPSULAR UNIT
INDICATING
ASSEMBLY
LOW PRESSURE
CAPSULAR UNIT
SET POINT
INDICATOR
PROCESS
INDICATOR
PROPORTIONAL
BAND
INDICATOR
COVER
PROPORTIONAL
BAND INDICATOR
LOW
PRESSURE
INPUT
DRIVE LINKAGE
CONNECTING
LINK
SUPPLY
GAUGE
HIGH PRESSURE
INPUT
PROCESS POINTER
SPAN ADJUSTMENT
POINTER ZERO
ADJUSTMENT
OUTPUT
PRESSURE GAUGE
GUIDE
FLEXURE
DRIVE
FLEXURE
LONG
PIVOT
SHORT
PIVOT
LINKS
LINK 1
LINK 2
LINEARITY
ADJUSTMENT
SENSING ELEMENT
FRONT VIEW

Instruction Manual
D200158X012
4194S Controllers
December 2011
13
Figure 3‐1. Location of Controller Parts and Adjustments (continued)
C0541
35A7374‐B
49A0771‐A
PROCESS SPAN
ADJUSTMENT REMOTE SET POINT
SPAN ADJUSTMENT
SCREW 1
SCREW 3
SCREW 2
SIDE VIEW OF
SET POINT/PROCESS
INDICATOR ASSEMBLY SIDE VIEW OF CONTROLLER
SHOWING FLAPPER LEVELING SCREWS
1. Connect supply pressure to the supply pressure regulator, and be sure it is delivering the proper supply pressure to
the controller. Provide a means of measuring the controller output pressure.
2. For controllers with remote set point (option M), connect regulated pressure of 0.2 to 1.0 bar (3 to 15 psig) or 0.4 to
2.1 bar (6 to 30 psig) to the remote set point connection at the top of the controller case.
3. Loosen two screws (key 6), lift off the proportional band cover (key 36), and set the proportional band knob
between DIRECT and REVERSE.
The process indicator should indicate the process differential pressure. For example, with the process differential
pressure at 50 percent of the input span, the process pointer should be at 50 $1.0 percent of its span. Slight
adjustment of the indicator zero screw may be necessary. See figure 3‐1 for zero adjustment and locking screw
location.
4. If desired, the accuracy can be verified at other points on the scale. If the indicator appears to be out of calibration,
refer to the process zero and span adjustment portion of the calibration procedure.
Startup
It is recommended that the controller switching points be set as described in the calibration procedures.
Slowly open the upstream and downstream manual control valves in the pipeline and close the manual bypass valve if
they are used.

Instruction Manual
D200158X012
4194S Controllers
December 2011
14
Calibration
WARNING
To avoid personal injury or property damage resulting from the sudden release of pressure, do not exceed the operating
limits given in this manual.
If the prestartup checks revealed faulty adjustment of the process indicator, perform the calibration procedures. These
procedures are valid for either shop or field calibration, provided that open process loop conditions exist.
Note
If the controller has the auto/manual option, be sure the controller is in the automatic mode prior to performing the calibration
procedure.
Process Zero and Span Adjustment
Note
Any adjustment of the pointer span adjustment screw will require readjustment of the pointer zero adjustment screw.
1. Refer to figure 3‐1 for location of adjustments.
2. Remove the two screws (key 6) and lift off the proportional band indicator cover (key 36).
3. Set the proportional band between DIRECT and REVERSE.
4. Adjust the process differential pressure to the low limit of the input range.
5. Adjust the process pointer to the lowest limit of the input scale by loosening the zero adjustment locking screw and
turning the zero adjustment screw.
6. Adjust the process differential pressure to the upper limit of the input span. Note whether the pointer indication is
above or below the upper limit of the process scale.
7. Adjust the span screw as follows: Clockwise to increase span for a low indication; counterclockwise to decrease span
for a high indication. Adjust the span screw to correct one‐half the error.
8. Repeat steps 4 through 7 until the error is eliminated.
9. Turn the proportional band indicator knob to 400 percent in the desired controller action (either DIRECT or
REVERSE).
10. Install the proportional band indicator cover (key 36) and tighten the two screws (key 6).
Remote Set Point Zero and Span Adjustment (Option M)
Note
Any adjustment of the pointer span adjustment screw will require readjustment of the pointer zero adjustment screw.

Instruction Manual
D200158X012
4194S Controllers
December 2011
15
1. Refer to figures 3‐1 and 3‐2 for location of adjustments.
2. Remove the two screws (key 6) and lift off the proportional band indicator cover (key 36).
3. Set the proportional band between DIRECT and REVERSE.
4. Adjust the set point pressure to the low limit of the input range.
5. Adjust the set point indicator to the lowest limit of the input scale by loosening the zero adjustment locking screw
and turning the zero adjustment screw.
6. Adjust the set point pressure to the upper limit of the input span. Note whether the pointer indication is above or
below the upper limit of the process scale.
7. Adjust the span screw as follows: clockwise to increase span for a low indication; counterclockwise to decrease span
for a high indication. Adjust the span screw to correct one‐half the error.
8. Repeat steps 4 through 7 until the error is eliminated.
9. Replace the proportional band indicator cover (key 36), and tighten the two screws (key 6).
Figure 3‐2. Location of Controller Parts and Adjustments (Remote Set Point Option)
36A9751‐C
B1668‐1
ZERO ADJUSTMENT
LOW PRESSURE
STOP
DRIVE FLEXURE
GUIDE
FLEXURE
MOUNTING
SCREW
ADJUSTMENT
SCREW
LINK B
LINK A
FRONT VIEW SIDE VIEW
MOUNTING
SCREW
HIGH PRESSURE
STOP
PIVOT
ASSEMBLY B
ZERO ADJUSTMENT LOCKING SCREW
LINEARITY
ADJUSTMENT
CAPSULES
TIE BAR
PIVOT
ASSEMBLY A
Setting Switching Points
Direct‐Acting Controllers
The controller output signal will switch from zero pressure to full supply pressure when increasing process pressure
passes the upper switching point.

Instruction Manual
D200158X012
4194S Controllers
December 2011
16
The controller output signal will not return to zero pressure until decreasing process pressure passes the lower
switching point. When making adjustments as described in the following steps, keep in mind that:
D Changing the set point adjustment will move both switching points equally in the direction of adjustment.
D Changing the proportional band adjustment will widen or narrow the differential gap between the two switching
points by moving the position of the lower switching point.
Figure 3‐3 shows the relationship between the percent of sensor range between switching points and the proportional
band setting on the controller. The following example illustrates how to use figure 3‐3.
Example: The sensing element has a range of 30 psi. The lower switching point is to be set at 10 psi and the upper
switching point is to be set at 25 psi.
Proceed as follows:
D Divide the differential gap (the difference between the upper and lower switching points) by the sensing element
range. Multiply the result by 100 as shown in the following equation:
Differential Gap
Sensing Element Range
x 100 = 15 psi
30 psi
x 100 = 50%
D Locate the 50 percent line on figure 3‐3. Move along this line until you intersect the curve. Read the proportional
band setting on the left hand axis. For this example, the setting is approximately 35 percent.
Figure 3‐3. Curve for Determining Proportional Band Setting
A2853‐1
% SENSOR RANGE BETWEEN SWITCHING POINTS
PROPORTIONAL BAND SETTING
1. Using the curve in figure 3‐3, determine the correct proportional band setting for the desired gap (expressed as a
percent of the input span) between the switching points.
2. Set the proportional band knob to the desired setting determined in step 1.
3. Adjust the set point to the desired upper switching point.
4. Increase the process differential pressure until the controller output signal switches from zero pressure to full
supply pressure.
5. Decrease the process differential pressure to the desired switching point at which the controller output signal
switches from full supply pressure to zero pressure.

Instruction Manual
D200158X012
4194S Controllers
December 2011
17
6. Narrow the proportional band slowly until the output signal switches from zero pressure to full supply pressure.
7. Repeat steps 4 through 6 until the controller output switches at the desired points.
8. Observe the process pointer when the output switches at the upper switching point. The process pointer indication
should be within $2 percent of the set point indication. If the output does not snap within $2 percent of set point,
refer to the calibration procedures.
Reverse‐Acting Controllers
The controller output signal will switch from zero pressure to full supply pressure when decreasing process pressure
passes the lower switching point.
The controller output signal will not return to zero pressure until increasing process pressure passes the upper
switching point. When making adjustments as described in the following steps, keep in mind that:
D Changing the set point adjustment will move both switching points equally in the direction of adjustment.
D Changing the proportional band adjustment will widen or narrow the differential gap between the two switching
points by moving the position of the upper switching point.
Figure 3‐3 shows the relationship between the percent of sensor range between switching points and the proportional
band setting on the controller. The following example illustrates how to use figure 3‐3.
Example: The sensing element has a range of 30 psi. The lower switching point is to be set at 10 psi and the upper
switching point is to be set at 25 psi.
Proceed as follows:
D Divide the differential gap (the difference between the upper and lower switching points) by the sensing element
range. Multiply the result by 100 as shown in the following equation.
Differential Gap
Sensing Element Range
x 100 = 15 psi
30 psi
x 100 = 50%
D Locate the 50 percent line on figure 3‐3. Move along this line until you intersect the curve. Read the proportional
band setting on the left hand axis. For this example, the setting is approximately 35 percent.
1. Using the curve in figure 3‐3, determine the correct proportional band setting for the desired gap (expressed as a
percent of the maximum input element span) between the switching points.
2. Set the proportional band knob to the desired setting determined in step 1.
3. Adjust the set point to the desired lower switching point.
4. Carefully adjust the process differential pressure to 100 percent of scale range. Then, decrease the process
differential pressure until the controller output signal switches from zero pressure to full supply pressure.
5. Increase the process differential pressure to the desired switching point at which the controller output signal
switches from full supply pressure to zero pressure.
6. Widen the proportional band slowly until the output signal switches from zero pressure to full supply pressure.
7. Repeat steps 4 through 6 until the controller output switches at desired points.
8. Observe the process pointer when the output switches at the lower switching points. The process pointer indication
should be within $2 percent of the set point indication. If the output does not snap within "2 percent of set point,
refer to the calibration procedures.
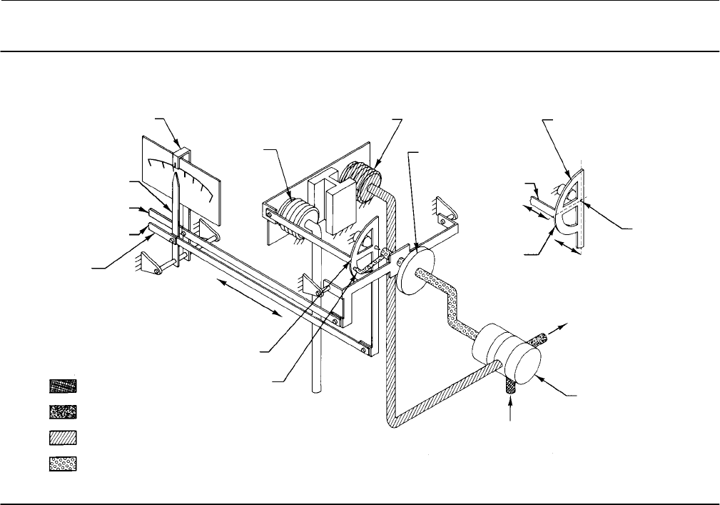
Principle of Operation
Overall Operation
Refer to the schematic diagram in figure 3‐4.

Instruction Manual
D200158X012
4194S Controllers
December 2011
18
Figure 3‐4. Schematic of Operation for Fisher 4195S Controllers
SET POINT
INDICATOR
PROCESS POINTER
REMOTE SET POINT
CONNECTED HERE
INPUT ELEMENT
CONNECTED HERE
CONNECTING
LINK
FLAPPER
NOZZLE
PROPORTIONAL
BELLOWS
(VENTED)
POSITIVE FEEDBACK
BELLOWS
PROPORTIONAL
BAND ADJUSTMENT
SUPPLY
PRESSURE
RELAY
OUTPUT PRESSURE
TO FINAL CONTROL
ELEMENT
REVERSE ACTION
QUADRANT
FLAPPER
PIVOT
FEEDBACK
LINK
FEEDBACK
MOTION
DIRECT ACTION
QUADRANT INPUT MOTION
FLAPPER DETAIL
SUPPLY PRESSURE
OUTPUT PRESSURE
NOZZLE PRESSURE
POSITIVE FEEDBACK PRESSURE
B1546‐2
The input element is connected to the process pointer and to the flapper by connecting links. As the process pressure
increases (in a direct‐acting controller), the flapper moves toward the nozzle, restricting flow through the nozzle and
increasing nozzle pressure. When this occurs, relay action increases the output pressure (delivery) of the controller.
Output pressure is fed back to the positive feedback bellows. The action of this bellows is a positive feedback action
that moves the flapper closer to the nozzle, increasing nozzle pressure, which in turn, increases the relay output.
Output pressure to the final control element switches to full supply pressure.
As the process differential pressure decreases, approaching the lower switching point, the flapper moves away from
the nozzle (in a direct‐acting controller) reducing nozzle pressure. Through relay action, pressure to the positive
feedback bellows is reduced, moving the flapper further away from the nozzle, and further reducing nozzle pressure.
Output pressure to the final control element switches to zero.
The set point adjustment changes the proximity of the nozzle and flapper as does a change in process pressure except
that, when the set point is changed, the nozzle moves with respect to the flapper. The set point adjustment moves
both the upper and lower switching points.
The proportional band knob positions the nozzle on the flapper. Increasing (widening) the proportional band moves
the nozzle away from the input connection. When the proportional band adjustment moves the nozzle across the
feedback connection, the controller action changes between direct and reverse. On a direct‐acting controller,
changing the proportional band adjustment will widen or narrow the differential gap between the two switching
points. This is accomplished by changing the position of the lower switching point. On a reverse‐acting controller,
changing the proportional band adjustment will widen or narrow the differential gap between the two switching
points. This is accomplished by changing the position of the upper switching point.

Instruction Manual
D200158X012
4194S Controllers
December 2011
19
Remote Set Point Option
The capability to adjust the controller set point from a remote location is available with all 4194S controllers. This
option is designated by the letter M in the type number.
Auto/Manual Option
Controllers with the auto/manual option (designated by the letter E in the type number) have piping on the output
side of the relay as shown in figure 3‐5. Supply pressure to the relay is also applied to the manual loader. The manual
loader, functioning as a regulator, applies pressure to one side of the plastic tube and to the auto/manual switch.
Output pressure from the relay registers on the other side of the plastic tube as well as in the auto/manual switch.
When the auto/manual switch is in the MANUAL position, the output of the manual loader is channeled through the
auto/manual switch and becomes the output of the controller. When the auto/manual switch is in the AUTO position,
the output of the relay is channeled through the switch to become the output of the controller.
Before the auto/manual switch is operated, the output of the relay must equal the manual loader output to avoid
bumping the process. Adjusting the set point varies the pressure on the left‐hand side of the plastic tube. Adjusting
the manual loader knob varies the pressure on the right‐hand side. When the pressures are equal, the metal ball is
centered in the tube. Pressure imbalance forces the ball to one end of the tube where it forms a seal, blocking air flow
through the tube.
Figure 3‐5. Schematic of Auto/Manual Option
AUTOMATIC
POSITION
OUTPUT PRESSURE
TO FINAL CONTROL
ELEMENT
SUPPLY
PRESSURE
RELAY
AUTO/MANUAL
SWITCH
MANUAL LOADER
MANUAL
LOADER
KNOB
MANUAL
POSITION
AUTO/MANUAL
SWITCH
OUTPUT PRESSURE
TO FINAL CONTROL
ELEMENT
PLASTIC TUBE
METAL BALL
RELAY OUTPUT PRESSURE
SUPPLY PRESSURE
MANUAL LOADER OUTPUT PRESSURE
48A5230‐A
A2999‐1

Instruction Manual
D200158X012
4194S Controllers
December 2011
20

Instruction Manual
D200158X012
4194S Controllers
December 2011
21
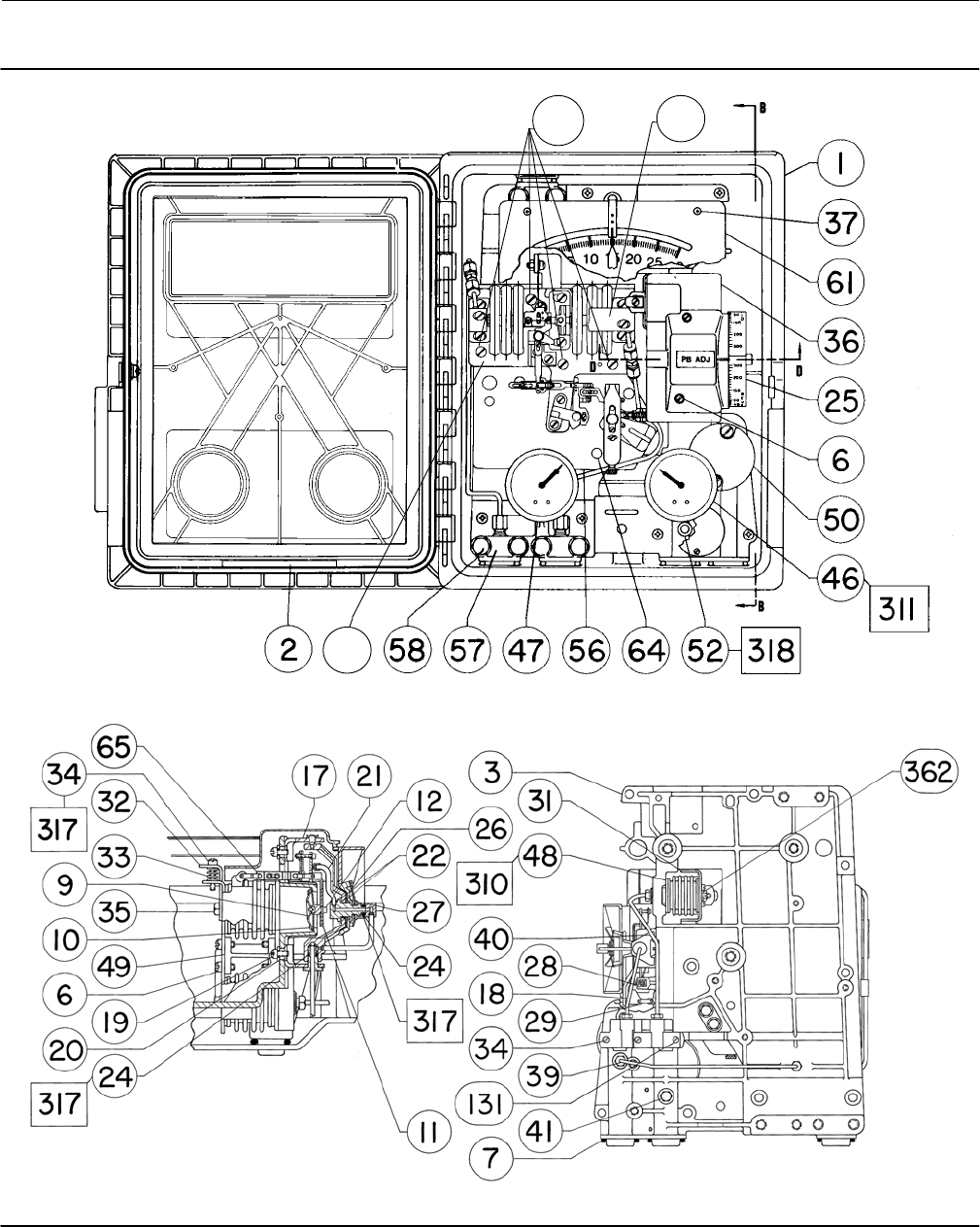
Section 4 Maintenance44‐4‐
Parts are subject to normal wear and must be inspected and replaced as necessary. The frequency of inspection and
parts replacement depends upon the severity of the service conditions. When inspection or repairs are required,
disassemble only those parts necessary to accomplish the job. Figure 4‐1 is a maintenance guide. It summarizes the
information available in the maintenance procedures.
Select the appropriate maintenance procedure, and perform the numbered steps. Each procedure requires that supply
pressure and process pressure be shut off before beginning maintenance.
When maintenance procedures, including Maintenance Calibration and Flapper Alignment, have been completed,
refer to the appropriate prestartup portion in the controller operation procedure.
Note
Unless otherwise noted, key numbers refer to figure 5‐1. Figures 3‐1 and 3‐2 show the location of adjustments and major
components. For maintenance on the indicator assembly, refer to figure 5‐6.
WARNING
The following maintenance procedures require taking the controller out of service. To avoid personal injury and property
damage caused by uncontrolled process pressure, observe the following before performing any maintenance procedures:
D Always wear protective clothing, gloves, and eyewear when performing any maintenance procedures to avoid personal
injury.
D Personal injury or property damage may result from fire or explosion if natural gas is used as the supply medium and
preventive measures are not taken. Preventive measures may include, but are not limited to, one or more of the
following: Remote venting of the unit, re‐evaluating the hazardous area classification, ensuring adequate ventilation,
and the removal of any ignition sources. For information on remote venting of this controller, refer to page 10.
D Provide temporary means of control for the process before taking the controller out of service.
D Shut off the supply pressure to the controller.
D Disconnect any operating lines providing supply air pressure, a process input signal, or other pressure source to the
controller.
D Check with your process or safety engineer for any additional measures that must be taken to protect against process
media.

Instruction Manual
D200158X012
4194S Controllers
December 2011
22
Figure 4‐1. Maintenance Guide
Troubleshooting
If the controller is not operating properly, refer to the
troubleshooting chart (table 4‐1). Then use the
appropriate portions of the Maintenance section.
Replacing Controller Parts
Procedures describe replacement of parts in the
controller and the input element. These procedures
may be performed separately, but, where specified in
the text, must be followed by Maintenance Calibration
for this section and by the Flapper Alignment
procedures.
Remote Set Point (Option M)
Procedures describe replacement of parts in the remote
set point assembly. The procedures may be performed
separately, but must be followed by Maintenance
Calibration.
Flapper Alignment
Procedures align the flapper for both direct and
reverse controller action.
Auto/Manual (Option E)
Procedures describe disassembly and assembly of the
auto/manual station.
Controller Operation
A description of prestartup, startup, and calibration
procedures to return the controller to service.
Troubleshooting
As an aid to troubleshooting, table 4‐1 lists some common operating faults, their probable cause, and suggests
procedures for correcting the fault.

Instruction Manual
D200158X012
4194S Controllers
December 2011
23
Table 4‐1. Troubleshooting Chart
Fault Possible Cause Check Correction
1. Output does not snap when
process pointer and set point
indicator are aligned.
1.1 Flapper out of alignment 1.1 Refer to Flapper Alignment
procedures
1.1 Align flapper as necessary
1.2 Process pointer not calibrated
correctly
1.2 Refer to the Process Zero and
Span Adjustment procedures
1.2 Adjust as necessary
1.3 No supply pressure 1.3 Check supply pressure 1.3 Provide correct supply pressure
1.4 Leak in nozzle or feedback
tubing
1.4 Using a soap solution, check for
leaks
1.4 Repair or replace defective parts
1.5 Leak in relay O‐rings 1.5 Using a soap solution, check for
leaks
1.5 Repair or replace defective
O‐rings
2. Controller output will not snap to
full output pressure
2.1 Output pressure gauge not
functioning
2.1 Check output with external
gauge
2.1 Replace gauge if necessary
2.2 Supply pressure incorrect 2.2 Check with an external source 2.2 Repair or replace pressure
regulator if necessary
2.3 Leak in positive feedback tubing 2.3 Using soap solution, check for
leaks
2.3 Replace defective parts as
necessary
2.4 Leak in nozzle tubing assembly 2.4 Using soap solution, check for
leaks
2.4 Replace defective parts as
necessary
2.5 Sensing element or linkage
failure 2.5 Inspect element or linkage for
damaged parts 2.5 Repair or replace damaged parts
2.6 Relay malfunction 2.6 Manually cap the nozzle output
by pushing the flapper toward the
nozzle. Output should go to supply
pressure.
2.6 If output does not change as
described, remove relay. Replace
O‐rings if necessary. Replace relay if
necessary.
2.7 Switching point has not been
reached
2.7 Refer to the Flapper Alignment
or to the Setting Switching Points
procedure
2.7 Make alignments and
adjustments as necessary
2.8 Link 4 not adjusted correctly ‐ ‐ ‐ 2.8 Refer to the maintenance
procedures for link adjustment
3. Controller output will not snap to
zero pressure
3.1 Flapper out of alignment 3.1 Refer to the Flapper Alignment
procedure
3.1 Align flapper as necessary
3.2 Switching point has not been
reached
3.2 Refer to the Setting Switching
Points procedure 3.2 Adjust switching as necessary
3.3 Sensing element or linkage
failure
3.3 Inspect sensing element and
linkage for damaged parts. Using
soap solution, check for leaks.
3.3 Repair or replace faulty parts
3.4 Links 2, 3, and 4 defective
3.4 Inspect links for loose screws and
improper connections. Ensure links
are not rubbing or catching on other
parts.
3.4 Replace links as necessary
3.5 Relay malfunction or clogged
nozzle
3.5 Manually push the flapper away
from the nozzle. The output should
go to zero.
3.5 Replace the relay. If the output
still does not go to zero, replace the
nozzle pivot assembly
Changing Controller Action
The following steps describe changing controller action from direct (increasing process pressure produces increasing
output pressure) to reverse (increasing process pressure produces decreasing output pressure or vice versa.
1. Loosen two screws (key 6) in the proportional band indicator cover (key 36). The screws need not be removed.
2. Lift the proportional band indicator cover as shown in figure 4‐2.
3. Rotate the proportional band knob (key 25) to the desired controller action.
4. Install the proportional band indicator cover (key 36), and tighten the two screws (key 6).

Instruction Manual
D200158X012
4194S Controllers
December 2011
24
Figure 4‐2. Changing Controller Action
W3439
Replacing Common Controller Parts
WARNING
To avoid personal injury or property damage caused by the uncontrolled release of pressure, be sure any trapped process
pressure is properly vented from the controller. Vent any supply pressure from the controller before disassembly.
WARNING
Refer to the Maintenance WARNING on page 21 before replacing any common controller parts.
Process Pressure Scale
CAUTION
To prevent inaccurate indication and operation, take care not to bend the process indicator or the set point adjustment
while performing the following procedure.
1. Refer to figure 4‐3. Adjust the set point adjustment manually or with the remote set point pressure to 50 percent of
scale.
2. Remove four screws (key 37).
3. Slide the process scale (key 61) so that the top of the slot touches the set point adjustment. Deflect the lower
portion of the slot, and carefully slide the scale upward and off, clearing the set point indicator as shown in
figure 4‐3.

Instruction Manual
D200158X012
4194S Controllers
December 2011
25
4. To install the replacement scale, bend the lower part of the slot slightly so that the scale slides downward over the
set point adjustment and under the process indicator.
5. Install and tighten the four screws on the scale.
6. A slight zero adjustment (see figure 3‐1) may be necessary so that the process indicator aligns with the 0 mark on
the scale. This procedure is described in the Zero and Span Adjustment portion of the Calibration procedures.
Figure 4‐3. Changing the Scale
DEFLECT LOWER PORTION OF THE SLOT
W3440 AND LIFT THE SCALE UP AND OFF
W3492
Relay
1. Loosen the two captive screws that hold the relay (key 50) in place.
2. Tip the relay slightly toward the case to clear the output pressure gauge, and lift out the relay.
3. Make sure the replacement relay has three O‐ring assemblies as shown in figure 4‐4. The fourth port is for exhaust
and does not require an O‐ring.
4. Install the replacement relay, making sure the tabs on the relay (see figure 4‐4), line up with the tab on the frame.
5. Tighten the two screws that hold the relay in place.
Figure 4‐4. Relay Construction
CLEAN‐OUT
WIRE
RELAY
TAB
EXHAUST PORT
(NO O‐RING
USED)
O‐RINGS
RELAY
MOUNTING
SCREWS
W3441

Instruction Manual
D200158X012
4194S Controllers
December 2011
26
Case and Cover
CAUTION
The case and cover are an integral unit; attempting to separate them will damage the hinge. If the cover needs to be
replaced, replace the case also.
1. Remove the supply and output piping from the controller. Bleed away any process pressure, and carefully remove
the process pressure piping from the controller.
2. Remove the controller from its mounting (see the Installation section) to a maintenance area.
3. Remove the nine screws (key 38) from the case (key 1) and lift out the controller assembly.
4. Install the controller assembly in the replacement case.
5. Slide the controller frame down to assure an O‐ring seal at the pressure connections. Hole the frame in place.
6. Install and tighten the nine mounting screws.
7. Remove the blow‐out plug (key 72) from the original case, and install in the replacement case.
8. Mount the controller as described in the Installation section.
9. Connect the supply, output, and process pressure piping to the controller.
Gauges
CAUTION
Before performing this procedure, be sure the replacement gauges are the correct range so that the gauges are not
damaged by overpressure.
1. Unscrew the output gauge (key 46) or the supply gauge (key 47) from the frame (key 3).
2. Before installing the replacement gauge, coat the threads on the gauge with a suitable sealant.
3. Screw the replacement gauge into the frame.
Pressure Control Block
1. Carefully remove the process pressure piping from the controller after bleeding away process pressure.
2. Loosen the nut on that portion of the tubing that connects the pressure sensing element to the pressure control
block (key 57).
3. Remove the two cap screws (key 58) that hold the pressure control block to the frame (key 3), and lift out the
pressure control block.
4. Install the O‐ring (key 7) on the replacement pressure control block.
5. Install the replacement pressure control block to the frame with two screws (key 58).
6. Tighten the nut that was loosened in step 2.
7. Apply the process pressure equal to the maximum value on the process scale, and check for leaks.
8. Connect the process pressure piping to the controller.

Instruction Manual
D200158X012
4194S Controllers
December 2011
27
Supply Tubing and Positive Feedback Tubing Assemblies
Note
The following procedure requires that the controller be removed from the case. Perform steps 1 through 3 of the replacing case
and cover procedure.
1. Remove the nuts that hold the supply gauge tubing assembly (key 39) or the positive feedback tubing assembly
(key 45) to the frame. Remove the tubing.
2. Install the replacement tubing assemblies.
3. Apply the correct supply pressure, and check for leaks.
4. Install the controller assembly in the case. Slide the controller frame down to assure an O‐ring seal at the pressure
connections. Hold the frame in place.
5. Install and tighten the nine self‐tapping screws (key 38) into the frame.
6. Mount the controller as described in the Installation procedure.
7. Connect supply, output, and process pressure piping to controller.
Proportional Band Knob, Nozzle Pivot, and Set Point Beam Assembly
Note
The following procedure requires that the controller be removed from the case. Perform steps 1 through 3 of the replacing case
and cover procedure.
1. Remove the two screws (key 6) and lift off the proportional band indicator cover (key 36)
(figure 4‐2).
2. Disconnect link number 3 from the set point beam assembly (key 23). Refer to figure 4‐12 for location of the link.
3. Remove the set point beam bias spring (key 28). Refer to figure 4‐5 for spring location.
4. Remove the screw and washer (keys 19 and 20) that hold the pivot assembly (key 17) to the frame, and remove the
pivot assembly. Refer to figure 4‐15.
5. Disconnect the nut that holds the relay nozzle tubing (key 18) into to the frame (key 3). Refer to figure 5‐1.
6. While holding the proportional band knob, remove the screw and washer (keys 19 and 20) that hold the relay
nozzle tubing assembly (key 18) to the frame.
7. Remove the proportional band knob nozzle pivot and the set point beam assembly from controller.
8. Remove the relay nozzle tubing assembly (key 18) from the set point beam assembly (key 23).
9. Remove the E‐ring (key 27) from the nozzle assembly (key 21).
10. Remove the nozzle assembly (key 21) from the bottom of the set point beam assembly (key 23).
11. Remove the retaining clip (key 26).
12. Remove the proportional band knob (key 25) from the set point beam assembly (key 23).
13. Inspect the nozzle pivot O‐ring.
14. Inspect the nozzle assembly (key 21), and replace if necessary. Inspect the nozzle orifice, and clean it if necessary.

Instruction Manual
D200158X012
4194S Controllers
December 2011
28
15. Install the proportional band knob (key 25) on the set point beam assembly (key 23).
16. Install the retaining clip (key 26) on the three posts on the proportional band knob.
17. Install the nozzle assembly (key 21) through the set point beam assembly (key 23), the proportional band knob
(key 25), and the retaining clip (key 26) into the cap, aligning the nozzle with the tab on the proportional band knob
(shown in figure 4‐5).
18. While holding the nozzle tubing (key 21) against the set point beam assembly (key 23), depress the retaining clip
(key 26), and install the E‐ring (key 27) into the E‐ring groove on the nozzle tubing assembly (key 18).
19. Inspect the O‐ring on the relay nozzle tubing assembly (key 18) and, replace it if necessary. Apply a suitable
lubricant to the O‐ring.
20. Install the relay nozzle tubing assembly (key 18) into the set point beam assembly.
21. Adjust the proportional band between DIRECT and REVERSE. Do this by aligning the tab on the proportional band
knob with the hole in the set point beam assembly as shown in figure 4‐6.
22. Position the proportional band knob, nozzle pivot and the set point beam assembly on the frame. Install the relay
nozzle tubing nut loosely into frame manifold while positioning the nozzle in the center of the flapper as shown in
figure 4‐7.
23. Insert the screw and washer (keys 19 and 20) into the relay nozzle tubing assembly (key 18). Refer to figure 4‐15.
24. Install the screw (key 19) through the frame (key 3) and into the relay nozzle tubing assembly (key 18). Tighten the
screw and make sure the nozzle remains centered on the flapper with the set point beam assembly snugly against
the relay nozzle tubing assembly.
25. Install the pivot of the set point pivot assembly (key 17) in the hole in the set point beam assembly (key 23).
26. Install the washer (key 20) on the screw (key 19).
27. Install the screw and washer (keys 19 and 20) through the frame (key 3) into the set point pivot assembly (key 23).
Do not tighten.
28. First, slide the beam assembly snugly toward the relay tubing assembly; then, slide the set point pivot assembly
(key 17) toward the set point beam until the cone lightly contacts the set point beam, and tighten the screw. The
proportional band knob should fall freely when the controller is in the upright position. If it does not, reposition the
set point pivot assembly (key 17) until the proportional band knob falls freely.
29. Tighten the nut on the relay nozzle tubing assembly (key 18), apply supply full pressure, and check for leaks.
Disconnect supply pressure.
30. Install the set point beam bias spring (key 28) into the frame bore and onto the spring seat on the set point beam
assembly (see figure 4‐5).
31. Attach link number 3 to the set point assembly (key 23). See figure 4‐12.
32. If the position of the set point beam shoe (see figure 4‐5) was changed relative to the set point beam assembly
(key 23) go to step 33. If the position of the set point beam shoe was not changed, go to step 53.
33. Connect supply pressure and regulated process differential pressure to the controller. Also, provide a means of
measuring controller output pressure.
34. Perform the procedures. Then, proceed as directed by the following note.
Note
For direct‐acting controllers, go to step 35. For reverse‐acting controllers, go to step 44.

Instruction Manual
D200158X012
4194S Controllers
December 2011
29
Figure 4‐5. Proportional Band Adjustment and Set Point Beam Details
SET POINT BEAM ASSEMBLY
SET POINT
BEAM SHOE LINK 3 RELAY NOZZLE
TUBING ASSEMBLY
SET POINT BIAS SPRING
POSITIVE FEEDBACK
TUBING ASSEMBLY
SHOE ADJUSTMENT SCREWS
PROPORTIONAL BAND
ADJUSTMENT KNOB
CAP
E‐RING
RETAINING CLIP
PROPORTIONAL
BAND ADJUSTMENT
SET POINT
PIVOT ASSEMBLY
SET POINT
BEAM ASSEMBLY
SET POINT
BEAM SHOE NOZZLE
O‐RING
NOZZLE
TUBING
ASSEMBLY
CAP (WITH
O‐RING INSIDE)
TAB
E‐RING
RETAINING
CLIP
FLAPPER
W3452‐1
W3852

Instruction Manual
D200158X012
4194S Controllers
December 2011
30
W3761
TAB
HOLE
Figure 4‐6. Proportional Band Adjustment Knob
Setting
Figure 4‐7. Nozzle‐Flapper Positioning
FLAPPER NOZZLE
W3449
35. For direct acting controllers, adjust the proportional band knob to 5 percent direct acting. Adjust the set point
adjustment or with remote set point pressure to 5 percent of the process scale range.
WARNING
In step 36, do not exceed the operating limits of the controller (refer to table 1‐3). Personal injury or equipment damage
may result from overpressure.
36. Slowly increase the process differential pressure from zero until the output pressure snaps to supply pressure. The
output pressure should snap to supply pressure within $2 percent of set point.
37. If the output pressure snaps to supply pressure below 2 percent of set point, adjust flapper leveling screw number 3
clockwise (see figure 3‐1 for location of screw). If the output pressure snaps to supply pressure above 2 percent of
set point, adjust flapper leveling screw number 3 counterclockwise.
38. Repeat steps 36 and 37 until the output pressure snaps within $2 percent. If the tolerance cannot be obtained with
the flapper leveling screw, go to step 42.
39. Adjust the set point manually or with remote set point pressure to 95 percent of the process scale range.
40. If the output pressure is not 0 psi, decrease the process differential pressure until the output pressure snaps to zero.
Then slowly increase the process differential pressure until the output snaps to supply pressure. The output should
snap to supply pressure within $2 percent of set point.
41. If the output pressure snaps to supply pressure within $2 percent of set point, go to step 53. If the output pressure
does not snap to supply pressure within $2 percent of set point, go to step 42.

Instruction Manual
D200158X012
4194S Controllers
December 2011
31
42. If the output pressure snaps to supply pressure below 2 percent of set point, adjust the set point beam shoe
(key 29) slightly toward the center of the nozzle pivot. If the output snaps to supply pressure above 2 percent of set
point, adjust the set point beam shoe slightly away from the center of the pivot.
43. Repeat steps 35 through 42 until the output pressure snaps to supply pressure within $2 percent of set point at 5
and 95 percent on the process scale range. Then go to step 53.
44. For reverse acting controllers, adjust the proportional band knob to 5 percent reverse acting. Adjust the set point
manually or with remote set point pressure to 5 percent of the process scale range.
45. Carefully adjust the process differential pressure to 100 percent of the process scale range. Then, slowly decrease
the process differential pressure until the output pressure snaps to supply pressure. The output should snap to
supply pressure within $2 percent of set point.
46. If the output pressure snaps to supply pressure below 2 percent of set point, adjust flapper leveling screw number 1
counterclockwise (see figure 3‐1 for location of screw). If the output pressure snaps to supply pressure above 2
percent of set point, adjust flapper leveling screw number 1 clockwise.
47. Repeat steps 44 through 46 until the output pressure snaps to supply pressure within $2 percent of set point. If the
tolerance cannot be obtained with the flapper leveling screw, go to step 51.
48. Adjust the set point manually or with remote set point pressure to 95 percent to the process scale range.
WARNING
In step 49, do not exceed the operating limits of the controller (refer to table 1‐3). Personal injury or equipment damage
may result from overpressure.
49. Increase the process differential pressure until the output pressure snaps to zero. Then, slowly decrease the process
differential pressure until the output pressure snaps to supply pressure. The output should snap to supply pressure
within $2 percent of set point.
50. If the output pressure snaps to supply pressure within $2 percent of set point, go to step 53. If the output pressure
does not snap to supply pressure within $2 percent, go to step 51.
51. If the output pressure snaps to supply pressure below 2 percent of set point, adjust the set point beam shoe
(key 29) slightly toward the center of the nozzle pivot. If the output pressure snaps to supply pressure above 2
percent of set point adjust the set point beam shoe slightly away from the center of the nozzle pivot.
52. Repeat steps 44 through 51 until the output pressure snaps to supply pressure within $2 percent of set point at 5
and 95 percent of the process scale range; then go to step 53.
53. Install the controller assembly in the case. Slide the controller frame down to assure an O‐ring seal at the pressure
connections. Hold the frame in place.
54. Install and tighten the nine mounting screws that hold the controller assembly in place.
55. Refer to the Flapper Alignment procedures.
56. Replace the proportional band indicator cover (key 36) and tighten the two screws (key 6).
Flapper Flexure Pivot Assembly
Note
The following procedure requires that the controller be removed from the case. Perform steps 1 through 3 of the replacing case
and cover procedure.

Instruction Manual
D200158X012
4194S Controllers
December 2011
32
1. Remove the two screws (key 6), and lift off the proportional band cover (key 36).
2. Disconnect link number 3 from the set point beam assembly (key 23). Refer to figure 4‐12 for link location.
3. Remove the set point beam bias spring (key 28), refer to figure 4‐5 for spring location.
4. Remove the screw and washer (keys 19 and 20) that hold the adjustable set point pivot assembly (key 17) to the
frame.
5. Remove the set point pivot assembly (key 17).
6. Disconnect the nut that secures the relay nozzle tubing (key 18) into the frame (key 3).
7. While holding the proportional band knob, remove the screw and washer (keys 19 and 20) that hold the relay
nozzle tubing assembly (key 18) to the frame.
8. Remove the proportional band knob nozzle pivot and set point beam assembly from controller.
9. Disconnect link number 2 from the input feedback beam assembly (key 11) shown in figure 4‐8. Refer to figure 4‐12
for location of the link.
Figure 4‐8. Leveling Screw Alignment
W3450
FLAPPER LEVELING
SCREW NUMBER 2
INPUT FEEDBACK BEAM
ASSEMBLY (KEY 11)
FLEXURE PIVOT
ASSEMBLY SCREW
10. Disconnect link number 4 from the bellows bracket (key 31). Refer to figure 4‐12 for location of the link.
11. Remove the screw (key 12) with washer (key 13) from the flexure pivot assembly (key 9). See figure 4‐8 for screw
location.
12. Remove the input feedback assembly as shown in figure 4‐9.
13. Remove the four screws (key 10), shown in figure 4‐9 that hold the flexure pivot assembly to the frame.
14. Remove the flexure pivot assembly (key 9).
15. Install the replacement flexure pivot assembly with the four screws (key 10). Do not tighten the screws.

Instruction Manual
D200158X012
4194S Controllers
December 2011
33
Figure 4‐9. Exploded View of Flexure Pivot Assembly
FOUR SCREWS
(KEY 10)
FLEXURE PIVOT
ASSEMBLY
W3453
INPUT FEEDBACK
BEAM ASSEMBLY
16. Move the flexure pivot assembly toward the relay as far as possible, and tighten the four screws (key 10).
17. Place the input feedback beam assembly (key 11) onto the flexure pivot assembly (key 9) with link 4 through the
square hole in the frame.
18. Install the screw (key 12) with the washer (key 13) through the input feedback beam assembly (key 11) into the
flexure pivot assembly (key 9). Do not tighten the screw.
19. Align flapper leveling screw number 2 (see figure 3‐1 for screw location) with the centerline of the oblong hole in
the frame as shown in figure 4‐8. Tighten the screw (key 12). Make sure link 4 does not touch the frame.
20. Disconnect link number 1 from the pivot assembly,and manually position the process pointer to 100 percent of the
scale. Refer to figure 4‐12 for location of link.
21. Adjust the length of link number 2 by turning the adjustment screw clockwise to increase the length or
counterclockwise to decrease the length, so that the pin on the end of the link is approximately one‐half of its
diameter short of aligning with the hole in the input feedback beam assembly, as shown in figure 4‐10.
22. Connect link number 2 to the input feedback beam assembly.
23. Connect link number 1 to the pivot assembly.
24. Adjust the proportional band between DIRECT and REVERSE. Do this by aligning the tab on the proportional band
knob with the hole in the set point beam assembly as shown in figure 4‐6.
25. Position the proportional band knob nozzle pivot and set point beam assembly on the frame, and install the relay
nozzle tubing fitting loosely into frame manifold while positioning the nozzle in the center of the flapper as shown
in figure 4‐7.
26. Install the screw (key 19) through the frame (key 3) into the set point pivot assembly (key 23). Do not tighten.
27. Slide the set point pivot assembly (key 17) toward the set point beam until the cone lightly contacts the set point
beam, and tighten the screws. The proportional band should fall freely when the controller is in the upright
position. If it does not, reposition the set point pivot assembly (key 17).
28. Tighten the relay nozzle tubing nut (key 18). Apply supply pressure and check for leaks. Disconnect the supply
pressure.
29. Install the washer (key 20) on the screw (key 19).
30. Install the screw (key 19) through the frame (key 3) and into the relay nozzle tubing assembly (key 18). Tighten the
screw. Ensure the nozzle remains centered on the flapper with the set point beam assembly slid snugly towards the
relay nozzle tubing assembly.

Instruction Manual
D200158X012
4194S Controllers
December 2011
34
Figure 4‐10. Link 2 Number Adjustment
W3451
W3476
31. Install the pivot of the set point pivot assembly (key 17) in the hole in the set point beam.
32. Install washer (key 20) on screw (key 19).
33. Install the set point beam bias spring (key 28) into the frame (key 3) bore and onto the spring seat on the set point
beam assembly (key 23).
34. Attach link number 3 to the set point beam assembly.
35. Apply proper supply pressure to the controller, and check for leaks.
36. Adjust the proportional band to 5 percent direct action, and adjust the set point to the maximum value on the
process scale. Controller output should be 0 psig. Remove supply pressure from the controller.
37. With zero pressure in both feedback bellows, loosen the two adjusting screws on link 4, and connect the link to the
bellows bracket assembly, allowing the link to find its free length.
38. Tighten the two adjusting screws.
39. If the position of the set point beam shoe (key 29) was changed during this procedure, perform steps 32 through 52
in the Replacing Proportional Band Knob, Nozzle Pivot, and Set Point Beam Assembly procedure. Otherwise,
perform step 40.
40. Install the controller assembly in the case. Slide the controller frame down to assure an O‐ring seal at the pressure
connections. Hold the frame in place.
41. Install and tighten the nine screws that hold the controller assembly in the case.
42. Refer to the Flapper Alignment procedures.
43. Replace the proportional band cover (key 36), and replace the two screws (key 6).
Positive Feedback Bellows
Note
The following procedure requires that the controller be removed from the case. Perform steps 1 through 3 of the replacing case
and cover procedure. Both bellows need not be removed if only one requires replacement.

Instruction Manual
D200158X012
4194S Controllers
December 2011
35
1. Remove the two screws (key 6), and lift off the proportional band indicator cover (key 36).
2. Disconnect link 4 (key 65) from the bellows bracket (key 31).
3. Remove the screw (key 34), spring (key 33) and bellows adjustment bracket (key 32) from the bellows bracket
(key 31).
4. Refer to figure 4‐11 for locations. Remove two screws (key 35) from the bellows assembly.
Figure 4‐11. Cutaway View of Bellows Assembly
RESET BELLOWS
TWO SCREWS (KEY 35)
BELLOWS BRACKET
FOUR SCREWS (KEY 6)
PROPORTIONAL
BELLOWS
W3448
LINK 4
5. Remove the four screws (key 6) from the bellows beam (key 49), and remove the bellows bracket.
6. Remove the positive feedback tubing assembly (key 45) from the positive feedback bellows.
CAUTION
When removing and replacing positive feedback bellows, keep in mind that the bellows has left‐hand threads.
Overtightening could damage the threads.
7. Unscrew the bellows.
8. Before installing the replacement bellows, coat the threads with a suitable lubricant. Screw in the replacement
bellows until it is finger tight against the frame (key 3).
9. Install the four screws (key 6) through the bellows bracket (key 31) into the bellows beam (key 49).
10. Install the two screws (key 35) through the bellows bracket (key 31) into the bellows. Install the bellows adjustment
bracket (key 32), spring (key 33) and tighten the screw (key 34) until the spring is compressed completely. Tighten
the two screws (key 35). Ensure the bellows bracket (key 31) is installed correctly so it does not rub against the
frame.
11. Replace the positive feedback tubing assembly on the bellows base.

Instruction Manual
D200158X012
4194S Controllers
December 2011
36
12. Apply the correct supply pressure, and check for leaks. Remove the supply pressure.
If the length of link 4 (key 65) was not changed, proceed with step 14.
13. If the length of link 4 (key 65) was changed during this procedure, refer to the replacement procedures for the
flapper flexure pivot assembly. Perform steps 36 through 38 of the procedure.
14. Replace link 4 on the bellows bracket. Make sure the link does not touch the frame. If it does, repeat steps 8
through 12 to straighten the bellows bracket (key 31).
15. Refer to the Flapper Alignment procedures.
16. Remove the supply pressure, the output measurement device, and the regulated differential process pressure
source.
17. Rotate the proportional band knob to the desired controller action. Replace the proportional band indication cover
(key 36), and tighten the two screws (key 6).
18. Install the controller assembly in the case. Slide the controller frame down to assure an O‐ring seal at the pressure
connections. Hold the frame in place.
19. Install and tighten the nine screws that hold the controller assembly in the case.
Links
This section describes the separate replacement of five links in the controller. To clarify the location of each link (see
figure 4‐12), the links are numbered as follows: link number 1 connects short pivot assembly and the process pointer;
link number 2 connects the process pointer and the input feedback beam assembly (key 11); link number 3 connects
the set point adjustment and the set point beam assembly (key 23); link number 4 (key 65) connects the input
feedback assembly and the bellows bracket (key 31). Link number 5 (key 88, figure 5‐2) connects the short pivot
assembly and the long pivot assembly. Figure 4‐12 shows the location of each link.
Link Number 1
1. Remove the two screws (key 6) and lift off the proportional band indicator cover (key 36).
2. Note where the link is connected. Disconnect the link from the pivot arm (see figure 4‐12) and from the process
pointer assembly. Remove the link.
3. Attach the replacement link to the process pointer assembly and pivot arm in the position noted in step 2.
4. Adjust the set point manually or with remote set point pressure to 100 percent of the scale range, and set the
proportional band between DIRECT and REVERSE.
5. The process pointer should be lined up with the pointer subassembly (as shown in figure 4‐13). If not, loosen the
zero adjustment locking screw. Then adjust the fine zero adjustment to align the process pointer and pointer
subassembly.
6. With a regulated air supply, adjust process differential pressure to 50 percent of process scale range. The process
pointer should be at the 50 $1.0 percent position on the scale. If not, loosen the screw (coarse zero adjustment
shown in figure 4‐12) in the link, and move the pointer to 50 percent of process scale, and tighten the screw.
7. Refer to the Maintenance Calibration and Flapper Alignment procedures.
8. Install the proportional band indicator cover (key 36) and tighten the two screws (key 6).

Instruction Manual
D200158X012
4194S Controllers
December 2011
37
Figure 4‐12. Link Location
CAPSULAR ELEMENT CONTROLLERS
W3753‐1
LINK 5 LINK 1 LINK 4 LINK 4 ADJUSTMENT
LINEARITY
ADJUSTMENT
SCREW
LINK 2
LINK 2
ADJUSTMENT
LINK 3
ADJUSTMENT LINK 3
COARSE ZERO ADJUSTMENT
LINK 1
W3721
W3612
LINK 1 LOCATION

Instruction Manual
D200158X012
4194S Controllers
December 2011
38
Figure 4‐13. Process Pointer Alignment
ALIGNED
W3443‐1
MISALIGNED
W3475‐1
FINE ZERO
ADJUSTMENT
ZERO ADJUSTMENT
LOCKING SCREW
Link Number 2
Note
Link number 2 is made of aluminum for temperature compensation purposes. Do not replace it with a link of other material.
1. Remove the two screws (key 6), and lift off the proportional band indicator cover (key 36).
2. Note where the link is connected. Disconnect the link from process pointer assembly and from the input feedback
beam assembly (key 11). Remove the link.
3. Install the replacement link with the screw head nearest the process pointer as shown in figure 4‐12. Connect the
link to the process pointer assembly only, and in the position in step 2.
4. Adjust the set point manually or with the remote set point pressure to 100 percent of the process scale range. Set
the proportional band between DIRECT and REVERSE.
5. Disconnect link number 1 from the pivot arm, manually position the process pointer to 100 percent on the scale.
6. Adjust the length of link number 2 (by turning the adjusting screw clockwise to increase length, counterclockwise
to decrease length) so that the pin on the end of the link is approximately one‐half of its diameter short of aligning
with the hole in the input feedback beam assembly as shown in figure 4‐10.
The adjustment provides the proper tension on the link.
7. Connect the link to the input feedback beam assembly.

Instruction Manual
D200158X012
4194S Controllers
December 2011
39
8. Connect link number 1 to the pivot arm.
9. Refer to the Maintenance Calibration and Flapper Alignment procedures.
10. Replace the proportional band indicator cover (key 36), and tighten two screws (key 6).
Link Number 3
1. Remove the two screws (key 6), and lift off the proportional band indicator cover (key 36).
2. Note where the link is connected. Disconnect link number 3 from set point adjustment assembly and the set point
beam assembly (key 23).
3. Install the replacement link with the screw head toward set point beam assembly as shown in figure 4‐14, and in the
position noted in step 2.
4. Check that set point beam bias spring (key 28) is correctly located in frame bore and spring seat on the set point
beam assembly as shown in figure 4‐5.
5. Adjust the proportional band between DIRECT and REVERSE.
6. Manually move the set point adjustment to 50 percent of scale. Adjust the screw on the link so that the edge of the
proportional band knob is parallel to the set point adjustment as shown in figure 3‐1.
7. Refer to the Maintenance Calibration and the Flapper Alignment procedure.
8. Replace the proportional band indicator cover (key 36), and tighten the two screws (key 6).
Link Number 4
1. Remove the two screws (key 6), and lift off the proportional band indicator cover (key 36).
2. Note where the link is connected. Disconnect the link from the bellows bracket assembly (key 31) and the input
feedback assembly (key 11).
3. Connect the replacement link to the input feedback assembly so that the two adjusting screws on the link are
nearest to the feedback bellows bracket. The screw heads should face the bottom of the controller as shown in
figure 4‐15, and be positioned as noted in step 2.
Figure 4‐14. Link Number 3 Adjustment
W3445‐1
LINK 3
Figure 4‐15. Position of Link Number 4 Adjusting
Screws
W3446
SCREW HEADS SET POINT PIVOT ASSEMBLY
SCREW AND WASHER
(KEYS 19 AND 20) 1
SCREW AND WASHER
(KEYS 19 AND 20) 2
NOTES:
SCREW INSERTED INTO THE SET POINT PIVOT ASSEMBLY.
SCREW INSERTED INTO THE RELAY NOZZLE TUBING ASSEMBLY.
1
2

Instruction Manual
D200158X012
4194S Controllers
December 2011
40
4. Adjust the process differential pressure to 0 psid. Adjust the proportional band to 5 percent direct acting, and move
the set point manually or with the remote set point pressure to 100 percent of process scale range. Controller
output should be 0 psig.
5. With zero pressure in the feedback bellows, loosen the two adjustment screws on the link. Connect the free end of
the link to the bellows bracket assembly, and allow the link to find its free length.
6. Tighten the two adjusting screws on the link.
7. Refer to the Maintenance Calibration and the Flapper Alignment procedure.
8. Replace the proportional band indicator (key 36), and tighten two screws (key 6).
Link Number 5
1. Refer to figure 5‐2 for key number locations.
2. Note where the link is connected. Disconnect both ends of link 5 (key 88) from the lever arms of the two pivot
assemblies.
3. Loosen the adjustment screw on the replacement link, and adjust the length to match the original link. Tighten the
adjustment screw.
4. Attach the replacement link to the two lever arms in the same location as noted in step 2.
5. Refer to the Maintenance Calibration procedure.
Long Pivot Assembly
1. Remove the process pressure from the controller.
2. Remove the tie bar (key 97).
3. Note where the link is connected. Disconnect link 5 (key 88) from the lever arm on the pivot assembly (key 78).
CAUTION
Avoid bending or kinking the drive flexure. Bending or kinking the drive flexure can result in product damage, as well as
impaired performance.
4. Disconnect the drive flexure (key 79) from the adjustment arm of the pivot assembly. Take care not to bend or kink
the drive flexure.
5. Remove the two screws (key 102) attaching the pivot assembly to the mounting plate (key 77).
6. Loosen the screw on the adjustment arm of the replacement pivot assembly, and adjust the arm to the same length
as the arm on the pivot assembly being replaced.
7. Attach the new pivot assembly to the mounting plate with the two mounting screws.
8. Loosely connect the drive flexure to the arm on the new pivot assembly.
9. Apply 75 percent of the input differential pressure range to the capsule. The flexure should be straight and
horizontal. Before tightening the screws, set the pivot in the middle of the bushing end play. Tighten the flexure to
hold the pivot in that position. Adjust the length of the adjustable pivot arm as needed until the flexure is straight.
Take care not to kink or twist the flexure when tightening the screws.
10. Connect the left‐hand end of link 5 (key 88) to the pivot lever arm in the position noted in step 3.
11. Replace the tie bar (key 97).
12. Refer to the Maintenance Calibration procedure.
Short Pivot Assembly
1. Remove the process pressure from the controller.

Instruction Manual
D200158X012
4194S Controllers
December 2011
41
2. Disconnect links 1 and 5 (keys 88 and 90) from the pivot assembly (key 89). Note which holes they connect to.
Remove the two screws (key 102) attaching the pivot assembly to the mounting plate (key 77), and remove the
pivot assembly.
3. Set the linearity adjustment screw to approximately the same location as the old assembly.
4. Insert the replacement pivot assembly on the mounting plate, and attach it with the two mounting screws.
5. Attach links 1 and 5 (keys 88 and 90) in the same position as noted in step 2.
6. Refer to the Maintenance Calibration procedure.
Process Drive Flexure
1. Set the process differential pressure to 75 percent of input span.
2. Remove tie bar (key 97) by removing three screws (key 103) form the capsular assembly.
3. Remove the screws and washers (keys 12 and 13) to disconnect the drive flexure (key 79) from the drive bracket
assembly (key 84) and from the adjustment arm of the pivot assembly (key 78). Remove the drive flexure.
4. Connect the replacement drive flexure in place, making sure it is straight and horizontal.
5. Before tightening the screws (key 12) set the pivot in the center of the bushing end play.
CAUTION
Avoid bending or kinking the drive flexure. Bending or kinking the drive flexure can result in product damage, as well as
impaired performance.
6. Tighten the drive flexure to hold the pivot in position. Take care not to kink or twist the flexure when tightening the
screws.
7. Refer to the Maintenance Calibration procedure.
Process Tubing
1. Remove the process pressure from the controller.
2. Disconnect the pressure tubing (keys 91 or 92) at the pedestal assembly (key 81) and at the bottom of the
controller case.
3. Remove the tubing (keys 91 or 92) from the pressure elements.
4. Install the replacement tubing, and tighten all connections. Check for leaks.
5. Refer to the Maintenance Calibration procedure.
Capsular Element Assembly
Refer to figure 5‐2 for key number location.
1. Remove the process pressure from the controller.
2. Disconnect link 1 (key 90) from the pointer. Note the hole location in the pivot and pointer assembly.
3. Disconnect the process pressure connection (key 93) from the pedestal assembly (key 81).
4. Remove the four mounting screws (key 127) that attach the capsular element to the process/set point indicating
assembly.
CAUTION
In the following step, do not lift out the capsular element by holding the capsular element or linkages. These parts are
easily damaged.

Instruction Manual
D200158X012
4194S Controllers
December 2011
42
5. Lift out the capsular element assembly by holding the plate (key 77), travel stop (key 83), or pedestal (key 81).
6. Align the replacement capsular element assembly over the mounting screw holes. Install and tighten the mounting
screws.
7. Reconnect link 1 (key 90) to the pointer subassembly in the same hole noted in step 3.
8. Reconnect the process pressure connections.
9. Apply process differential pressure to the controller, and check for leaks.
10. Refer to the Maintenance Calibration procedure.
Maintenance Calibration
Note
Perform full maintenance calibration (includes all procedures) upon completion of maintenance procedures. If only zero and span
or linearity adjustments are required, use only those sections. Key numbers are referenced in figures 5‐1 and 5‐2. Adjustments are
shown in figure 3‐1. After Maintenance Calibration, perform the Flapper Alignment procedures if directed to do so. Otherwise, go
to the appropriate prestartup instructions in the controller operation procedures.
WARNING
Refer to the Maintenance WARNING on page 21.
Precalibration Procedures
1. Set the proportional band adjustment to 5 percent direct acting. Adjust the set point to 100 percent of the process
scale range.
2. Remove the tie bar (key 97).
Aligning the Drive Bracket Assembly
1. Loosen the set screw in the hex nut (key 86) of the drive bracket assembly (key 84)
2. Loosen the screw (key 98) that holds the guide flexure to the tab on the mounting plate.
3. Adjust the input pressure to 75 percent of full differential pressure span.
4. Slide the drive bracket assembly (key 84) along the diaphragm capsule extension (key 82) until the guide flexure is
aligned with the center of pivot A (key 78).
5. Tighten the set screw in the hex nut to fasten the drive bracket assembly in that position.
Setting the Travel Stops
1. Loosen the set screw in the travel stop nut (key 86).
CAUTION
Make sure the loose travel stop nut does not bind up on the diaphragm capsule extension when pressurizing the capsules.
Damage to the capsules may result.

Instruction Manual
D200158X012
4194S Controllers
December 2011
43
2. Full span stop—Adjust process differential pressure to 5 percent greater than full span pressure.
Loosen the screws (key 139) mounting the travel stop (key 83) to the mounting plate. Slide the travel stop until it is
just touching the end of the capsule stack. Tighten the travel stop mounting screws to lock it into that position.
3. Zero stop—Adjust pressure input to 0 percent of the full span.
Slide the travel stop nut (key 86), along the diaphragm capsule extension (key 82) until it is approximately 0.4 mm
(1/64‐inch) away from the travel stop. Tighten the set screw to lock the travel stop nut in that position.
Aligning the Linkage
1. Adjust the process differential pressure to 75 percent of the input span. The drive flexure (key 79) should be straight
and horizontal. If it is not, proceed as follows:
a. Loosen the screw on the adjustment arm on the long pivot assembly (key 78) and the two screws mounting the
drive flexure.
b. Adjust the length of the adjustment arm so that the drive flexure is parallel to the centerline of the capsules.
c. Tighten the screw to set the length of the adjustment arm in that position. Before retightening the screws, set
the pivot in the middle of the bushing end play.
d. Tighten the drive flexure to hold the pivot in that position.
2. Tighten the guide flexure to the mounting plate.
3. Set the linearity adjustment screw on the short pivot assembly in the middle of its slot.
4. Make certain that the process pointer and pointer subassembly are aligned (see figure 4‐13). Change the length of
link 1 (key 90) to the middle of its adjustment.
5. The short (bottom) arm on the short pivot assembly (key 89) should be parallel with the process pointer and the
pointer subassembly.
6. Turn the span adjustment screw on the bottom of the process pointer counterclockwise as far as it will go so the
span adjustment bracket will be in its highest position.
7. Adjust the process differential pressure to 50 percent of full input span. Adjust the length of link 5 (key 88) so that
the pivot level arms are as close to parallel as possible.
8. To complete maintenance calibration, the zero and span adjustments must be set. Refer to the following section for
that procedure. If linearity adjustments must also be made, refer to that portion of the procedures.
9. Replace the tie bar (key 97) after the controller is calibrated.
10. Refer to the Flapper Alignment procedures.
Process Zero‐and‐Span Adjustment
1. Remove the two machine screws (key 6) and lift off the proportional band indicator cover (key 36).
2. Set the proportional band between DIRECT and REVERSE.
3. Apply 0 percent of the process differential pressure input span.
4. Loosen the screw on link 5 (key 88) and adjust the length so that the process pointer points to scale zero. Tighten
the screw.
5. Make fine zero adjustments by loosening the zero adjustment locking screw on the process pointer and turning the
zero adjustment screw. Tighten the locking screw.
6. Apply 100 percent of the process pressure input span.
7. To increase the span, proceed as follows:

Instruction Manual
D200158X012
4194S Controllers
December 2011
44
a. Turn the span adjustment screw clockwise. (Adjust the span to correct one‐half the error).
b. To increase the span further than the adjustment will allow, move both ends of link 5 (key 88) down one set of
holes. Refer to figure 4‐12 for link location.
c. Make fine adjustments with the span adjustment screw.
8. To decrease the span, proceed as follows:
a. Turn the span adjustment screw counterclockwise. (adjust span to correct one‐half the error).
b. To decrease the span further than the adjustment will allow, move both ends of link 5 (key 88) up one set of
holes.
c. Make fine adjustments with the span adjustment screw.
9. Repeat the adjustments until zero and span indications are within $1 percent of input span.
10. Check the pointer position at 50 percent of full process pressure input span. If the error is greater than $1 percent
of input span, perform the procedures in the Linearity Adjustment procedure. Remove process pressure from the
controller.
11. Install the proportional band indicator cover (key 36), and tighten the two screws (key 6).
Linearity Adjustment
Adjust the linearity by turning the linearity adjustment screw in the curved slot on the lever arm of the short pivot
assembly (key 89). Adjusting the linearity affects the zero and span.
1. Adjust the process differential pressure to 50 percent of input span. The process pointer should indicate the 50
percent mark on the scale.
2. If the pointer indicates high, turn the linearity screw counterclockwise in the slot. If the pointer indicates low turn
the linearity screw clockwise in the slot.
3. Check the zero and span as described in the Zero‐and‐Span Adjustment procedures and make any necessary
adjustments.
4. Repeat steps 1 through 3 until zero, span, and linearity indications are within $1 percent of input span.
Flapper Alignment
WARNING
Refer to the Maintenance WARNING on page 21.
Leveling screws numbers and adjustments are shown in figure 3‐1. Provide a means of applying process differential
pressure and supply pressure to the controller and a means of measuring output pressure. After flapper alignment, go
to the appropriate prestartup instructions in the controller operation procedures.
1. For controllers with manual set point, move the set point adjustment to 50 percent of the scale range. For
controllers with remote set point (option M), adjust the remote set point pressure until the set point indicator is at
50 percent of the scale range.
2. Remove the two screws (key 6) and lift off the proportional band indicator cover (key 36).
3. Adjust the proportional band adjustment to 5 percent direct acting.

Instruction Manual
D200158X012
4194S Controllers
December 2011
45
WARNING
In step 4, do not exceed the operating limits for the controller (refer to table 1‐3). Personal injury or equipment damage
may result from overpressure.
4. Slowly increase the process differential pressure from zero until the output pressure snaps to supply pressure. The
output pressure should snap to supply pressure within $2 percent of set point.
5. If the output snaps to supply pressure below 2 percent of set point, adjust flapper leveling screw number 3
clockwise. If the output snaps above 2 percent of set point, adjust flapper leveling screw number 3
counterclockwise.
6. Repeat steps 4 and 5 until the output pressure snaps within $2 percent of set point.
7. Adjust the proportional band adjustment between DIRECT and REVERSE.
8. If the output pressure snaps to supply pressure, depress the flapper with a screwdriver so the output pressure snaps
to zero pressure. Slowly release the flapper. If the output snaps to supply pressure, adjust flapper leveling screw
number 2 clockwise until the output does not snap to supply pressure. Then, adjust screw number 2
counterclockwise 1/8 of a turn at a time until the output snaps to supply pressure.
9. Repeat step 8 to recheck the adjustment of flapper leveling screw number 2.
10. Adjust the proportional band adjustment to 5 percent reverse acting.
11. Carefully adjust the process differential pressure to 100 percent of the process scale range. Then, slowly decrease
the process pressure until the output pressure snaps to supply pressure. the output pressure should snap to supply
pressure within $2 percent of set point.
12. If the output pressure snaps to supply pressure below 2 percent of set point, adjust flapper leveling screw number 1
counterclockwise. If the output snaps to supply above 2 percent of set point, adjust flapper leveling screw number 1
clockwise.
13. Repeats steps 11 and 12 until the output pressure snaps within $2 percent of set point.
14. Repeat steps 3 through 13 to recheck adjustments. Continue to adjust flapper leveling screws 1, 2, and 3 as
necessary until no flapper adjustments are required.
15. Set the proportional band adjustment to 400 percent in the desired controller action. Replace the proportional
band indicator cover (key 36), and tighten the two screws (key 6).
Remote Set Point (Option M)
Replacing Parts
WARNING
Refer to the Maintenance WARNING on page 21.
Note
After part replacement, perform the Maintenance Calibration procedures.
Figure 3‐2 shows the location of the parts. Key numbers refer to figure 5‐3.

Instruction Manual
D200158X012
4194S Controllers
December 2011
46
Pivot Assembly A (Key 114)
CAUTION
Avoid bending or kinking the drive flexure during the following procedure. Bending or kinking the drive flexure can result
in product damage, as well as impaired performance.
1. Decrease the remote set point pressure to 0 psig.
2. Remove the tie bar (key 106).
3. Note where link A (key 116) is connected. Disconnect the link from the lever arm on the pivot assembly.
4. Disconnect the drive flexure (key 79) from the adjustment arm of the pivot assembly. Be careful not to bend or kink
the drive flexure.
5. Remove the screw (keys 122), the washer (key 123) and the nut (key 124) that attach the guide flexure to the top of
the pivot assembly.
6. Remove the pivot screw and spring washer (keys 109 and 112) and the mounting screw (key 102) attaching the
pivot assembly to the mounting plate. Lift out the pivot assembly.
7. Loosen the screw (key 118) on the adjustment arm of the replacement pivot assembly, and set the arm to the same
length as the arm on the pivot assembly being replaced. Tighten the screw.
8. To replace the pivot assembly, first put the spring washer on the screw. Then, install the screw through the pivot
assembly into the mounting plate.
9. Connect the guide flexure to the top of the new pivot assembly with the screw (key 122), the washer, and the nut as
it was before.
10. Increase the remote set point pressure to 50 percent of input span.
11. Connect the drive flexure to the arm on the new pivot assembly, making sure it stays straight and horizontal. Before
tightening down the drive flexure, set the pivot in the middle of the bushing end play. Tighten down the drive
flexure to hold the pivot in that position. Do not kink or twist the flexure when tightening the screws. Adjust the
length of the pivot arm if necessary until the flexure is straight.
12. Decrease the remote set point pressure to 0 psig.
13. Connect the end of link A (key 116) to the pivot lever arm in the same position noted in step 3.
14. Replace the tie bar (key 106).
15. Refer to the Maintenance Calibration procedure.
Pivot Assembly B (Key 115)
1. Refer to figure 5‐3 for the key‐numbered assembly.
2. Decrease the remote set point pressure to 0 psig.
3. Note where the links are connected. Disconnect the links (keys 116 and 126) from the arms of pivot assembly
(key 115).
4. Remove the two screws (key 102) attaching the pivot assembly to the mounting plate (key 111). Remove the pivot
assembly.
5. Loosen the linearity adjustment screw on the replacement pivot assembly and set it in the same position as the
adjustment on the original pivot assembly. Tighten the screw.
6. Set the replacement pivot assembly on the mounting plate, and attach it with the two machine screws.
7. Attach the links (keys 116 and 126) to the arms of the new pivot assembly in step 3.

Instruction Manual
D200158X012
4194S Controllers
December 2011
47
8. Refer to the Maintenance Calibration procedure.
Drive Flexure
1. Disconnect the flexure (key 79) from the drive bracket (key 121) and from the adjustment arm of pivot assembly A.
Remove the screws and washer (key 12 and 13); remove the flexure.
2. Set remote set point pressure at 50 percent of input span.
CAUTION
Avoid bending or kinking the drive flexure. Bending or kinking the drive flexure can result in product damage, as well as
impaired performance.
3. Connect the new flexure making sure it stays straight and horizontal. Before tightening the drive flexure, set pivot A
in the middle of the bushing end play. Tighten down the drive flexure to hold the pivot in that position. Do not kink
or twist the flexure when tightening the screws.
4. Decrease the remote set point pressure to 0 psig.
5. Perform the Maintenance Calibration procedure.
Tubing
1. Decrease the remote set point pressure to 0 psig.
2. Disconnect the pressure connection (key 93) into the pedestal assembly (key 105) and the connection to the case
exterior at the top of the case.
3. Remove the tubing.
4. Install the replacement tubing, and reconnect the two pressure connections.
5. Apply full remote set point pressure, and check for leaks.
Remote Set Point Capsular Element Assembly
Note
Remove the supply pressure gauge before attempting to remove the capsular element assembly.
1. Decrease the remote set point pressure to 0 psig.
2. Remove the pressure connection (key 93) at the pedestal assembly (key 105).
3. Disconnect link B (key 126) from the pivot hole on set point indicator assembly.
4. Remove the three mounting screws that attach the capsular element assembly to the process/set point indicator
assembly. See figure 3‐2 for location of screws.
CAUTION
In the following step, do not lift out the capsular element assembly by holding the capsule or the linkages. These parts are
easily damaged.

Instruction Manual
D200158X012
4194S Controllers
December 2011
48
5. Lift out the capsular element assembly by holding the plate (key 111), travel stop (key 83), or pedestal assembly
(key 105).
6. Align the replacement assembly with the mounting screw holes. Replace the mounting screws.
7. Reconnect the process pressure connection union (key 93). Apply remote set point pressure, and check for leaks.
8. Connect the link (key 126) to the pivot hole on the set point indicator assembly.
9. Replace the supply pressure gauge.
10. Refer to the Maintenance Calibration procedure.
Link A
1. Note the holes where link A (key 116) is connected (see figure 5‐3). Disconnect both ends of the link from the lever
arms on the two pivots.
2. Loosen the screw in the replacement link, and adjust the length to match the link being replaced. Tighten the
screw. Refer to figure 5‐3 for correct orientation of the link.
3. Attach the replacement link to the two lever arms in the same position as noted in step 1.
4. Check the zero setting, and adjust if necessary as described in the Zero‐and‐Span Adjustment procedure.
Link B
1. Note the holes where link B (key 126) is connected (see figure 5‐3). Disconnect both ends of the link from the pivot
arm and from the set point indicator assembly.
2. Loosen the screw in the replacement link, and adjust the length to match the link being replaced. Tighten the
screw.
3. Attach both ends of the replacement link. Refer to figure 5‐3 for correct orientation of the link, and position the link
as noted in step 1.
4. Refer to the Maintenance Calibration procedure.
Maintenance Calibration
Note
Perform all Maintenance Calibration procedures upon completion of maintenance. If only zero, span, and linearity adjustments are
required, use only those sections. After Maintenance Calibration, go to the appropriate prestartup instructions in the controller
operation procedures.
WARNING
Refer to the Maintenance WARNING on page 21.
Refer to figure 3‐2 for parts location. Key numbers refer to figure 5‐3.
Precalibration Procedure
1. Set the proportional band adjustment between DIRECT and REVERSE.
2. Remove the tie bar (key 106).

Instruction Manual
D200158X012
4194S Controllers
December 2011
49
3. Apply 50 percent of full span remote set point pressure.
4. The drive flexure (key 79) should be straight. If not, proceed as follows:
a. Loosen the screw on the adjustment arm on pivot assembly A (key 114) and the screws holding the drive flexure.
b. Set the length of the adjustment arm so that the drive flexure is parallel to the centerline of the capsules.
c. Tighten the screw on the adjustment arm.
d. Set pivot A in the middle of the bushing end play.
e. Tighten the screws that hold the drive flexure in place.
5. The guide flexure should also be straight. If not, loosen the screw (key 122) on the end of the flexure that is
attached to the top of pivot A (key 114), and allow the flexure to straighten itself. Tighten screw on the flexure.
Setting the Travel Stops
1. Loosen the set screw in the travel stop nut (key 86).
CAUTION
Make sure the loose travel stop nut does not bind up on the diaphragm capsule extension when pressurizing the capsules.
Damage to the capsules may result.
2. Full span stop—Adjust remote set pressure input to 5 percent greater than full span pressure.
Loosen the two screws mounting the travel stop (key 83) to the mounting plate. Slide the travel stop until it is just
touching the end of the capsule stack. Tighten the travel stop mounting screws to lock it into that position.
3. Zero Stop—Adjust remote set point pressure input to 0 psig.
Slide the travel stop nut (key 86), along the diaphragm capsule extension (key 134) until it is approximately 0.4 mm
(1/64 inch) away from the travel stop (key 83). Tighten the set screw to lock the travel stop nut in that position.
Aligning the Linkage
1. Adjust the remote set point pressure to the capsules to 50 percent of full span.
2. Set the linearity adjustment screw in the center of the slot on the lever arm of pivot clevis assembly B (key 115).
3. Set the length of link B (key 126) in the middle of its adjustment.
4. Set the length of link A (key 116) so that the lever arms of pivots A and B are parallel and that link A is perpendicular
to them.
5. To complete maintenance calibration, the zero and span adjustments must be set. Refer to the following section for
the procedures. If linearity adjustments must also be made, refer to that portion of this section.
6. Replace the tie bar (key 106).
7. Refer to the Flapper Alignment procedure.
Zero and Span Adjustment
1. Decrease remote set point pressure to 0 psig.
2. Loosen the screw on link A (key 116), and adjust the length so that the set point pointer points to scale zero.
Tighten the screw.

Instruction Manual
D200158X012
4194S Controllers
December 2011
50
3. Make fine zero adjustments by loosening the zero adjustment locking screw and turning the zero adjustment screw
(key 108). Tighten the locking screw. Refer to figure 5‐3 for location of the screws.
4. Apply 100 percent of the remote set pressure input span.
5. To increase the span, proceed as follows:
a. Turn the span adjustment screw clockwise. (Adjust span to correct one‐half the error).
b. To increase the span further than the adjustment screw allows, move both ends of link A to the right. Refer to
figure 5‐3 for link location.
c. Make fine adjustments with the span adjustment screw.
6. To decrease the span, proceed as follows:
a. Turn the span adjustment screw counterclockwise. (Adjust span to correct one‐half the error).
b. To decrease the span further than the adjustment screw allows, move both ends of link A to the right. Refer to
figure 5‐3 for link location.
c. Make fine adjustments with the span adjustment screw.
7. Repeat the adjustments until the zero and span indications are within $1 percent of input span.
8. Check the pointer position at 50 percent of full pressure input span. If the error is greater than $1 percent of input
span, perform the Linearity Adjustment procedures.
Linearity Adjustment
Adjust the linearity by rotating the linearity adjustment screw in the curved slot on the lever arm of pivot B (key 115).
Adjusting the linearity affects the zero and span adjustment.
1. Adjust the remote set point pressure to 50 percent of the input span. The set point indicator should indicate the 50
percent mark on the scale.
2. If the pointer indicates high, loosen the linearity screw, and rotate it counterclockwise in the slot. If the pointer
indicates low, rotate the linearity screw clockwise in the slot.
3. Check the zero and span as described in the Zero and Span Adjustment procedures. Make any necessary
adjustments.
4. Repeat steps 1 through 3 until zero, span, and linearity indications are within $1 percent of input span.
Auto/Manual (Option E)
WARNING
Refer to the Maintenance WARNING on page 21.
Note
Each of the following procedures requires that the controller be removed from the case. Perform steps 1 through 3 of the
replacing case and cover procedure.

Instruction Manual
D200158X012
4194S Controllers
December 2011
51
Replacing the Auto/Manual Station
Refer to figures 4‐19, 5‐4, and 5‐5 for key number locations.
Note
This procedure also permits replacement of the switch manifold O‐rings (key 312), the auto/manual tubing assembly (key 138),
and the frame gaskets (keys 4 and 5).
Disassembly
1. Perform steps 1 through 3 of the replacing case and cover procedure.
2. Loosen the screw (key 316) that holds the auto/manual station (key 273) to the controller frame.
3. Loosen the two screws (keys 314 and 315) that hold the auto/manual station to the auto/manual tubing assembly
(key 138).
4. Remove the auto/manual station from the controller frame.
5. Remove the switch manifold O‐rings (key 312).
6. Carefully loosen the nut on the relay nozzle tubing assembly (key 18) where it connects to the auto/manual tubing
assembly (key 138). Loosen three screws (keys 34 and 131) and remove the tubing assembly and frame gaskets
(keys 4 and 5).
7. Inspect the gaskets (keys 4 and 5) and O‐rings (key 312) for wear. Replace if necessary.
Assembly
1. Install the gaskets and tubing assembly to the frame. Start, but do not tighten, the three screws (keys 34 and 131)
and the nut on the relay nozzle tubing assembly (key 18).
2. Install the three O‐rings (key 312), and secure the auto/manual station to the controller frame with the screw
(key 316) and to the tubing assembly (key 138) with the two screws (keys 314 and 315). Do not tighten any screws.
CAUTION
In the next step, take care to tighten the two screws (keys 314 and 315) evenly. Uneven tightening could damage the
tubing assembly.
3. Position the auto/manual station as far down on the frame and toward the scale as possible. Carefully tighten the
two screws (keys 314 and 315) so that the auto/manual station contacts the three pads on the tubing assembly.
4. Carefully tighten the remaining screws and nuts.
5. Apply air pressure to the controller, and check for leaks.
6. Install the controller assembly in the case. Slide the controller frame down to assure an O‐ring seal at the pressure
connections. Hold the frame in place.
7. Install and tighten the nine screws that hold the controller assembly in the case.
8. Refer to the Flapper Alignment procedure.
Replacing the Switch Body Assembly, Lever O‐Ring, Switch Body O‐Ring, and the Tubing
Assembly
Refer to figure 5‐5 for key number location.

Instruction Manual
D200158X012
4194S Controllers
December 2011
52
Disassembly
1. Perform steps 1 through 3 of the replacing case and cover procedure.
2. Remove the auto/manual station from the controller frame as described in steps 1 through 4 of the Replacing the
Auto/Manual Station procedure.
3. Loosen the two screws (key 288) and remove the lever cover plate (key 305).
WARNING
The lever spring (key 302) is under preload. To avoid personal injury or losing parts, carefully disassemble the auto/manual
station.
4. Using a 1.5 mm (0.0625 inch) punch, push the groove pin (key 303) out toward the surface of the lever cover plate.
5. Remove the switch lever (key 304), lever spring (key 302), and lever spring seat (key 301).
6. Remove the tubing assembly (key 309).
WARNING
The switch body springs (key 295) are under preload. To avoid personal injury or losing parts, carefully separate the switch
body assembly from the loader assembly.
7. Loosen the two screws (key 290), and separate the switch body assembly (key 291) from the loader assembly
(key 282).
8. Remove the O‐rings (keys 292, 293, and 294), switch body springs (key 295), and balls (key 296).
9. Loosen two screws (key 308), and remove the closing plate (key 307) and the closing plate gasket (key 306).
10. Pull the clip (key 300) from its engagement with the lever assembly shaft (key 297).
11. Pull the lever assembly from the switch body assembly (key 291) and rocker (key 299).
12. Remove the O‐ring (key 298).
13. Inspect the O‐rings and gaskets for damage or wear; replace if necessary.
Assembly
1. Insert the lever assembly (key 297) into the switch body assembly (key 291) and hold the rocker (key 299) with the
flats on the lever assembly shaft.
2. Insert the clip (key 300) in the groove of the lever assembly shaft to hold the lever assembly (key 297) in the switch
body assembly (key 291).
3. Position the closing plate gasket (key 306) and the closing plate (key 307). Secure with two screws (key 308).
Note
After assembly in step 3, be sure the side of the closing plate marked OUT is visible.
4. Place the balls (key 296), switch body springs (key 295), and O‐rings (keys 292, 293, and 294) in the switch body
assembly (key 291).
Note
In the following step, the ends of the springs must be in the counterbored spring seats before compression.

Instruction Manual
D200158X012
4194S Controllers
December 2011
53
5. Compress the switch body springs with the loader assembly (key 282), and bolt the switch (key 291) to the loader
assembly with the two screws (key 290).
6. Reconnect the tubing assembly (key 309).
7. Locate the lever spring (key 302) and the spring seat (key 301) on the switch lever (key 304) and position these
parts in the opening of the loader assembly (key 282).
8. Push the switch lever down, using the lever spring seat (key 301) and the lever assembly (key 297) to preload the
spring. Make sure the notch of the switch lever engages the pin of the lever assembly.
9. Drive in the groove pin (key 303) to hold the switch lever.
10. Replace the lever cover plate (key 305) and attach with two screws (key 288).
11. Perform the Assembly portion of the Replacing the Auto/Manual Station procedure.
Replacing the Loader Range Spring, Diaphragm Assembly, Ball Seat, Tubing, and Ball
Refer to figure 5‐5 for key number location.
Disassembly
1. Perform steps 1 through 3 of the replacing case and cover procedure.
2. Remove the auto/manual station from the controller as described in steps 1 through 4 of the Replacing the
Auto/Manual Station procedure.
3. Remove the tubing assembly (key 309).
WARNING
To avoid personal injury caused by preload from the range spring (key 282), turn the loader knob (key 287)
counterclockwise (opposite to the arrow) to relieve pressure on the spring.
4. Loosen the four screws (key 289), and separate the upper loader assembly (key 282) and the lower loader assembly
(key 274).
5. Remove the loader range spring (key 283), range spring cup (key 284), and diaphragm assembly (key 281).
6. Remove the tube (key 278), ball seats (key 280) and ball (key 279).
Assembly
1. Turn the loader knob (key 287) counterclockwise to back the spring adjustment screw (key 285) all the way out to
eliminate loading the range spring.
2. Position the range spring cup (key 284), range spring (key 283), and the diaphragm assembly (key 281) on the
upper loader assembly (key 282).
3. Position the ball (key 279), the tube (key 278), and the ball seats (key 280) between the ears of the loader
assemblies (keys 282 and 274); position the diaphragm assembly (key 281) between the main halves of the loader
assemblies.
Note
The tube (key 278) must be well seated in the cups of the ball seats (key 280).

Instruction Manual
D200158X012
4194S Controllers
December 2011
54
4. Bolt the loader assembly halves together using the four screws (key 289).
Note
Be sure that the supply and exhaust seats of the loader are correctly aligned. Misalignment will impair loader performance.
5. Attach the tubing assembly (key 309).
6. Perform the Assembly portion of the Replacing the Auto/Manual Station procedure.
Replacing the Loader Valve Plug and Valve Plug Spring
Refer to figure 5‐5 for key number location.
1. Perform steps 1 through 3 of the replacing case and cover procedure.
2. Loosen the spring seat screw (key 275).
3. Remove the valve plug spring (key 276) and the valve plug (key 277).
4. Inspect the parts, and replace as necessary.
5. Install the valve plug spring and valve plug.
6. Tighten the spring seat screw.
7. Temporarily apply supply pressure and process pressure and check for leaks.
8. Install the controller assembly in the case. Slide the controller frame down to assure on O‐ring seal at the pressure
connections. Hold the frame in place.
9. Install and tighten the nine screws that hold the controller assembly in the case.

Instruction Manual
D200158X012
4194S Controllers
December 2011
55
Section 5 Parts Ordering5
Whenever corresponding with your Emerson Process Management sales office about this equipment, always mention
the controller serial number. When ordering replacement parts, refer to the 11‐character part number of each
required part as found in the following parts list.
WARNING
Use only genuine Fisher replacement parts. Components that are not supplied by Emerson Process Management should
not, under any circumstances, be used in any Fisher instrument. Use of components not supplied by Emerson Process
Management may void your warranty, might adversely affect the performance of the instrument, and could result in
personal injury and property damage.
Parts Kits
Description Part Number
4190 Controller Auto/Manual Retrofit Kit
(see figure 5‐4)
Contains keys 138, 273, 312, 313, 314, 315, 316
SST tubing R4190X00S12
4190 Controller Auto/Manual Repair Kit
(see figure 5‐5)
Contains keys 277, 278, 279, 281,
292, 293, 294, 298, 306, 312 R4190X0AM12
4190 Controller Case Handle Kit
Contains lever and mounting hardware R4190X00H12
4190 Controller Repair Kit
Contains keys 4, 5, 7, 8, 24, 52 R4190X00C12
4190 Controller Pointer and Bracket Repair Kit
Contains pointer and bracket ass'y,
3 machine screws, 3 washers R4190X00P12
4190 Controller Relay Replacement Kit
Contains Relay Assembly, key 50
0.2 to 1.0 bar (3 to 15 psig) RRELAYX83C2
0.4 to 2.0 bar (6 to 30 psig) RRELAYX83D2
Parts List5‐
Key Description Part Number
Note
Part numbers are shown for recommended spares only. For part
numbers not shown, contact your Emerson Process Management sales
office.
General Controller Parts and
Bourdon Tubes (figure 5‐1)
1 Case and cover ass'y
w/o remote set
w/remote set
2 Nameplate, aluminum
3 Frame, aluminum
4* Frame gasket, chloroprene 18A0749X012
5* Gasket, chloroprene 18A0742X012
6 Machine screw, pl steel (9 req'd)
7* O‐Ring, nitrile (specify quantity req'd) 1C376206992
8* O‐Ring, nitrile (3 req'd) 16A6903X012
9 Flexure pivot ass'y, sapphire/SST
10 Machine Screw, pl steel (4 req'd)
11* Input/Feedback Beam Assembly, zn pl steel 29A9518X012
(Flapper Assembly)
12 Machine Screw, stainless steel
17 Set Point Pivot Assembly, stainless steel
18 Relay Nozzle Tubing Assembly, stainless steel
19 Machine Screw, pl steel (2 req'd)
20 Plain Washer, pl brass (2 req'd)
21 Nozzle Assembly, stainless steel
22 Washer (2 req'd)
23 Set Point Beam Assembly, aluminum/stainless steel
25 Proportional Band Knob, polycarbonate
26 Retaining clip, stainless steel
*Recommended spare parts

Instruction Manual
D200158X012
4194S Controllers
December 2011
56
Key Description Part Number
27 E‐ring, pl steel
28 Set Point Beam Bias Spring, zn pl steel
29 Set Point Beam Shoe, zn pl steel
30 Machine Screw, pl steel (2 req'd)
31 Bellows Bracket, aluminum
32 Bellows Adjustment Bracket, zn pl steel
33 Bellows Adjustment Spring, zn pl steel
34 Machine Screw, pl steel (2 req'd)
35 Machine screw, pl steel (2 req'd)
36 Proportional Band Indicator Cover,
polyester/plastic
37 Self‐Tapping Screw, steel (4 req'd)
38 Self‐Self‐Tapping Screw, pl steel (9 req'd)
39 Supply Gauge Tubing Assembly, Stainless steel/ brass
41 Plug, Stainless steel
45 Positive Feedback Tubing Assembly
Stainless steel/brass
46* Output Gauge See following table
47* Supply Gauge See following table
48* Bellows ass'y (2 req'd)
Brass/aluminum 16A6953X012
Stainless steel/aluminum 16A6953X022
49 Bellows Beam, aluminum
0.2 to 1.0 bar (3 to 15 psig)
0.4 to 2.0 bar (6 to 30 psig)
50 Relay Assembly (included in the
Replay Replacement kit)
51 Relief Valve Cover Plate, aluminum
52* O‐ring, nitrile 1C853806992
53 Machine screw, pl steel (2 req'd)
56 Process/Set Point Indicator Assembly
57 Pressure Control Block,
316 stainless steel (2 req'd w/o remote set
3 req'd w/remote set)
58 Cap screw, pl steel (2 req'd w/o remote set; 4 req'd
w/remote set)
59 Hex Reducing Nipple (2 req'd)(use only when specified)
Steel
Stainless steel
60 Reducing Adaptor (2 req'd)(use only when specified)
Steel
Stainless steel
61 Process scale, aluminum
62 Remote set assembly (for 4194SM, and SME only)
N09902 or Stainless Steel
0.2 to 1.0 bar (3 to 15 psig)
0.4 to 2.0 bar (6 to 30 psig)
64 Machine screw, pl steel (4 req'd)
65 Feedback Link Assembly
71 Machine screw, pl steel (4 req'd)
72 Blowout plug, silicone
Key 46*/47*, Pressure Gauge(1)
RANGE GAUGE MATERIAL
Brass SST
Dual Scale Gauge
0 to 30 psig/
0 to 2 kg/cm211B8577X042 11B8583X032
0 to 60 psig/
0 to 4 kg/cm211B8577X052 ‐ ‐ ‐
Triple Scale Gauge
0 to 30 psig/
0 to 200 kPa/
0 to 2 bar
11B8577X012 11B8583X012
0 to 60 psig/
0 to 400 kPa/
0 to 4 bar
11B8577X022 11B8583X022
1. One type of pressure gauge is used for both output pressure and supply pressure
indication.
Key Description
80 Diaphragm Capsule Assembly for 4194SM
and SME only) (not shown)
N09902 or Stainless Steel
0.2 to 1.0 bar (3 to 15 psig)
0.4 to 2.0 bar (6 to 30 psig)
101 Indicator Assembly
113 Capsule Assembly
N09902
0 to 350 mbar (3 to 5 psid)
0 to 0.7 bar (0 to 10 psid)
0 to 1.4 bar (0 to 20 psid)
0 to 2 bar (0 to 30 psid)
120 Machine Screw, pl steel(1) (2 req'd)
(for 4195SM and SME only)
127 Machine Screw,(2) pl steel (4 req'd)
131 Machine Screw, pl steel (2 req'd)
135 Frame Manifold, Aluminum (for 4194S
and SME only)
136 Rate/Reset Manifold, Aluminum
138 Manual/Automatic Tubing Assembly
(for4194SE and SME only)
Aluminum/stainless steel
140 Machine Screw(1), steel (for 4194SM
and SME only)
162 Machine Screw
310 Lithium grease (not furnished with controller)
311 Anti‐seize sealant (not furnished with controller)
317 Silicone‐based lubricant (not furnished with controller)
318 Lubricant, silicone (not furnished with controller)
338 Machine Screw, stainless steel (2 req'd)
362 Washer
*Recommended spare parts
1. Use to mount Remote Set assembly to Process/Set Point indicator assembly.
2. Use to mount Capsular Element assembly to the Process/Set Point Indicator
assembly.

Instruction Manual
D200158X012
4194S Controllers
December 2011
57
Mounting Parts
Key Description
Pipestand Mounting
66 Cap Screw, pl steel (3 req'd)
67 Lock Washer, pl steel (7 req'd)
68 Bracket, pl steel
69 Clamp, pl steel (2 req'd)
Panel Mounting
66 Cap Screw, pl steel (3 req'd)
67 Lock Washer, pl steel (3 req'd)
68 Bracket, pl steel
70 Machine Screw, pl steel (4 req'd)
Wall Mounting
66 Cap Screw, pl steel (3 req'd)
67 Lock Washer, pl steel (3 req'd)
68 Bracket, pl steel
Actuator Casing Mounting
Spacer Spool, steel (3 req'd)
Cap Screw, pl steel (3 req'd)
Lockwasher, pl steel (5 req'd)
Mounting Bracket, pl steel
Cap Screw, pl steel (2 req'd)
Mounting Bracket, pl steel
Cap Screw, pl steel (2 req'd)
Hex Nut, pl steel (2 req'd)
Description
Actuator Yoke Mounting
Spacer Spool, steel (3 req'd)
Cap Screw, pl steel (3 req'd)
Lockwasher, pl steel (5 req'd)
Mounting Bracket, steel
Spacer Spool, steel (2 req'd)
Cap Screw, pl steel (2 req'd)
Note
Specify quantity of fittings and length of tubing required
Tubing
For 1/4 inch O.D., copper
For 3/8 inch O.D., copper
Fittings
For 1/4 inch tubing
Connector, brass
Elbow, brass
For 3/8 inch tubing
Connector, brass
Elbow, brass

Instruction Manual
D200158X012
4194S Controllers
December 2011
58
Figure 5‐1. Controller Assembly Drawing
38A3819‐B
56A9752‐V Sht 1
127 97
113
SECTION D‐D
VIEW C‐C

Instruction Manual
D200158X012
4194S Controllers
December 2011
60
Figure 5‐3. Remote Set Point Assembly Drawing
36A6988‐C
B1760
LINK A
LINK B

Instruction Manual
D200158X012
4194S Controllers
December 2011
61
Figure 5‐4. Auto/Manual Station Parts Location
56A9752‐D
49A0770‐A
C0540
FRONT VIEW
SWITCHING
ZONE INDICATION
AUTOMATIC/
MANUAL SWITCH
LOADER KNOB
PLASTIC TUBE
METAL BALL
SIDE VIEW (COVER REMOVED) BACK VIEW (COVER REMOVED)

Instruction Manual
D200158X012
4194S Controllers
December 2011
62
Figure 5‐5. Auto/Manual Station Assembly Drawing
48A2905‐A Sht 2
48A2905‐A Sht 1
SECTION A‐A
SECTION B‐B
SECTION C‐C

Instruction Manual
D200158X012
4194S Controllers
December 2011
63
Figure 5‐6. Process and Set Point Indicator Assembly (Manual Set Point)
39A1126‐H
381 379 380 382
INDICATOR ASSEMBLY
PROCESS / SET POINT INDICATOR ASSEMBLY
PROCESS / SET POINT INDICATOR
ASSEMBLY WITH BOURDON TUBE
36A6986‐C
32B1532‐A

Instruction Manual
D200158X012
4194S Controllers
December 2011
64
Emerson Process Management
Marshalltown, Iowa 50158 USA
Sorocaba, 18087 Brazil
Chatham, Kent ME4 4QZ UK
Dubai, United Arab Emirates
Singapore 128461 Singapore
www.Fisher.com
The contents of this publication are presented for informational purposes only, and while every effort has been made to ensure their accuracy, they are not
to be construed as warranties or guarantees, express or implied, regarding the products or services described herein or their use or applicability. All sales are
governed by our terms and conditions, which are available upon request. We reserve the right to modify or improve the designs or specifications of such
products at any time without notice.
E 1983, 2011 Fisher Controls International LLC. All rights reserved.
Fisher is a mark owned by one of the companies in the Emerson Process Management business division of Emerson Electric Co. Emerson Process
Management, Emerson, and the Emerson logo are trademarks and service marks of Emerson Electric Co. All other marks are the property of their respective
owners.
Neither Emerson, Emerson Process Management, nor any of their affiliated entities assumes responsibility for the selection, use or maintenance
of any product. Responsibility for proper selection, use, and maintenance of any product remains solely with the purchaser and end user.
