Emerson Fisher 585C Data Sheet
2015-03-30
: Emerson Emerson-Fisher-585C-Data-Sheet-681935 emerson-fisher-585c-data-sheet-681935 emerson pdf
Open the PDF directly: View PDF
.
Page Count: 16

www.Fisher.com
Fisherr585C Piston Actuators
The 585C linear piston actuator is a powerful,
double-acting actuator that provides accurate
throttling or on-off operation for sliding-stem control
valves.
The 585C piston actuator family is available in sizes 25
to130tocoverawiderangeofthrustandtravellength
requirements. It can be used with switching valves for
on-off control, or with the DVC6200 digital valve
controller or 3600 positioner for throttling
applications.
The 585C has a wide-range of supply pressure
capabilities, up to 150 psig. As the 585C is
double-acting, the positioner supplies air to both sides
of the piston, resulting in stiff, precise movement and
control.
Information for the 585CLS long stroke actuator can
be found in Fisher bulletin 61.2:585CLS
(D103792X012).
Features
High Thrust Capability-- With standard air supply,
the Size 130 Fisher 585C can produce up to 111,000
Newtons (25,000 lbs) of force.
Wide Range of Sizes-- The 585C family of actuators
offers a wide range of sizes, with piston areas of 168
sq cm (26 sq in) up to 1,429 sq cm (221.5 sq in).
Rugged Construction-- The 585C standard yoke
material is ductile iron, resulting in robust
construction and increased thrust capability.
Fisher 585C Piston Actuator
with FIELDVUE™ DVC6200 Digital Valve Controller
X0175-1
Broad Travel Capability-- 585C piston actuators
provide standard travel lengths of up to 203 mm (8
inches).
High-Performance Instrumentation-- 585C
actuators are available with a variety of positioners
and accessories, including the FIELDVUE DVC6200
digital valve controller. The 377 trip valve and tank
system are also available for fail-safe action.
585C Actuator
D102086X012
Product Bulletin
61.2:585C
September 2014

585C Actuator
D102086X012
Product Bulletin
61.2:585C
September 2014
2
Figure 1. Fisher 585C Piston Actuator Components
W7447-1
STEM CONNECTOR
YOKE
CAP SCREW
PISTON O-RING
PISTON
CYLINDER
SPRING
(SIZES 25 & 50)
TRAVEL STOP
STEM O-RING
SEAL BUSHING
TRAVEL INDICATOR
ACTUATOR STEM
Contents
Features 1.....................................
Specifications 3................................
Features and Advantages 4.......................
Principle of Operation 4.........................
Instrument and Accessory Selection 6.............
Installation 6..................................
Actuator Data 6................................
Handwheel Specifications 12.....................
Dimensions 13.................................

585C Actuator
D102086X012
Product Bulletin
61.2:585C
September 2014
3
Specifications
Operating Pressure(1)
Sizes 25-50:
Maximum Allowable: 10.3 bar (150 psig)
Minimum Recommended: 1.4 bar (20 psig)
Sizes 60-130:
Maximum Allowable: See table 8.
Minimum Recommended: 2.4 bar (35 psig)
Travel
See table 2
Thrust Capabilities
Seetables4,5,6,7,and8
Stroking Speeds
Varies with actuator size, actuator spring, travel, and
supply pressure. If stroking speed is critical, consult
your Emerson Process Management sales office
Piston Area
See table 8
Cylinder Volumetric Displacement
See table 2
Operative Temperature Limits(1)
For All Sizes:
With Nitrile O
-
Rings: -40 to 80_C(-40to175_F),
standard
With Fluorocarbon O
-
Rings: -18 to 149_C
(0 to 300_F), optional
Yoke Boss and Valve Stem Diameters
See table 3
Pressure Connections
Sizes 25 and 60:
J1/4 NPT internal (standard), or J3/8 NPT internal
(optional)
Size 50:
J1/4 NPT internal (standard), or J1/2 NPT internal
(optional)
Sizes 68-130:
J1/2 NPT internal (standard)
Dimensions
See figures 6 and 7
Construction Materials
Part Material
Yoke Ductile Iron
Piston Aluminum
Cylinder Aluminum
Bolting and Fasteners NCF (non-corroding finish)
Springs(sizes25&50only) Alloy Steel
O-Rings Nitrile (std), Fluorocarbon, or EPDM
Actuator Stem Chrome-plated Steel
Stem Connection Stainless Steel
Travel Indicator Scale Stainless Steel
Paint Polyester Powder
Actuator Stem
(sizes 60-130 only) S41600 (416) SST, Chrome Plate
Cylinder Seal Bushings
(sizes 60-130 only) Brass
Instrument Mounting
Universal NAMUR mounting
Approximate Weights (less positioner and
handwheel)
Size 25:
2-1/8inchyokeboss,7kg(16pounds)
2-13/16 inch yoke boss, 8 kg (17 pounds)
Size 50:
2-13/16 inch yoke boss, 20 kg (45 pounds)
3-9/16 inch yoke boss, 22 kg (48 pounds)
Size 60: 31 kg (68 pounds)
Size 68: 54 kg (120 pounds)
Size 80: 102 kg (225 pounds)
Size 100: 113 kg (250 pounds)
Size 130: 188 kg (415 pounds)
Options
Sizes 25 and 50:
JTop-mounted handwheel, see figures 6 and 7 and
table 9
JCylinder bypass valve JLimit switches JFisher
4200 position transmitter
Sizes 60-130:
JIntegral side-mounted handwheel
Sizes 25-130:
JFIELDVUE mounting options
JFisher 377 trip valve system to fail actuator
JUp or Jdown or Jlock in last position
JTopWorx DXP M21GNEB electrical valve stem
position switch
JMicro-Switch limit switches
1. The pressure/temperature limits in this bulletin and any applicable standard or code limitation for valve should not be exceeded.

585C Actuator
D102086X012
Product Bulletin
61.2:585C
September 2014
4
Features and Advantages
Table 1. Features and Advantages
Features Advantages
High thrust capability With air supply capability of up to 150 psig, the 585C can produce up to 111,000 Newtons (25,000 pounds) thrust to
overcome high valve unbalance.
Stroke Length Capability Depending on size, strokes of up to 203 mm (8 inches) are available.
Wide range of sizes The 585C is available in standard sizes 25, 50, 60, 68, 80, 100, and 130.
Valve mounting capability Depending on size, the 585C can be mounted to yoke boss diameters of 2-1/8 inches through 5-inches, and valve
stem diameters of up to 1-1/4 inch.
Positioner mounting capability Universal NAMUR mounting provides a consistent mounting method for all sizes. This mounting capability provides
vibration resistance per ISA-S75.13.
High frequency response The double acting construction allows quick response to instrument signals.
Stiff construction Pressure on both sides of the piston, plus the relatively small volume of air within the cylinder, results in stiff, precise
positioning.
Handwheels 585C size 25 and 50 actuators are available with a top-mounted handwheel. All other 585C actuator sizes can
accommodate a side-mounted handwheel.
Bias springs
The sizes 25 and 50 are available with bias springs. A bias spring under the piston fully retracts the actuator stem upon
loss of supply air, while a bias spring on top of the piston fully extends the actuator stem. The spring bias mode is
easily reversed without the need for additional parts.
Figure 2. Fisher 585C Piston Actuator Without
Springs
E0409
Principle of Operation
The585Cpistonactuator(figures1and2)usesa
piston that moves inside the actuator cylinder. An
O-ring (see figure 1) provides a seal between the piston
and the cylinder.
From an equilibrium state, the actuator reacts to a
force unbalance that is created by increasing supply
pressure on one side of the piston,and decreasing it on
the other. This moves the piston up or down, and
results in a repositioning of the valve control element.

585C Actuator
D102086X012
Product Bulletin
61.2:585C
September 2014
5
Figure 3. Fisher 585C Piston Actuator with
Handwheel
E0410
Actuator with Handwheel (figures 3
and 6)
The handwheel version can be used to open or close
the valve manually (either during normal operation or
in an emergency), to position the valve at any point in
the stroke, or to act as a travel stop.
Size 25 and 50 actuators use an integral top-mounted
handwheel. See figure 6.
Size 60 to 130 actuators use a side-mounted
handwheel, and come with a spring-loaded ball detent
which prevents vibration from changing the
handwheel setting. Handwheels for most types are
either 203 mm (8 inches) in diameter with beveled
gears or 432 mm (17 inches) in diameter with worm
gears.
Figure 4. Fisher 585C Piston Actuator with Spring
Return
W7447-1
Actuator with Spring Return
(figure 4)
585C size 25 & 50 actuators are available with bias
springs. The 585C actuator with bias spring has the
spring under the piston and fully retracts the actuator
stem upon loss of cylinder pressure. The bias spring in
the 585CR actuator is on top of the piston and fully
extends the actuator stem upon loss of cylinder
pressure. No additional parts are required to convert
from one actuator type to the other.

585C Actuator
D102086X012
Product Bulletin
61.2:585C
September 2014
6
Instrument and Accessory
Selection
An excellent selection of sensitive and accurate
instrumentsandaccessoriesisavailablefor585C
piston actuators. These include FIELDVUE DVC6200
digital valve controllers, 3600 pneumatic (P/P) and
electro-pneumatic (I/P) positioners, TopWorx™ DXP
M21GNEB electrical valve stem position switch, 377
trip valve, 4200 electronic position transmitter, and
limit switches. They are described in separate
publications. Contact your Emerson Process
Management sales office for details.
Installation
The actuator may be installed in any orientation but
normal installation is with the actuator vertical above
the valve. Actuator and positioner dimensions are
showninfigures6,7,and8.
If the supply source is capable of exceeding the
maximum actuator operating pressure or instrument
supply pressure, appropriate steps must be taken
during installation to protect the instrument and all
connected equipment against overpressure.
Actuator Data
See table 2 for piston cylinder clearance volumes, table
3 for yoke boss and valve stem diameters, and tables 4,
5, 6, 7, and 8 for actuator thrust capabilities.
Table 2. Fisher 585C Piston Cylinder Clearance Volumes
PISTON AT TOP OF CYLINDER (SPRINGS BELOW PISTON FOR SIZE 25 AND 50)
Actuator
Size
Piston Area Maximum Actuator Travel Upper Clearance Volume
(figure 5)
Volume Below Piston
(figure 5)
cm2Inches2mm Inches cm3Inches3cm3Inches3
25 168 26 29 1.125 104 6.3 1750 107
50 303 47 51 2330 20 5200 320
60 358 55.5
51 2310 19 2700 163
100 4310 19 4400 270
200 8310 19 8200 500
68 571 88.5
51 21230 75 7500 460
102 41230 75 7500 460
203 81230 75 13300 810
80 571 88.5 102 41230 75 7500 460
203 81230 75 13300 810
100 842 130.5 102 41700 104 10700 650
203 81700 104 19200 1170
130 1430 221.5 102 44600 280 18500 1130
203 84600 280 33000 2000
PISTON AT BOTTOM OF CYLINDER (SPRINGS ABOVE PISTON FOR SIZE 25 AND 50)
Actuator
Size
Piston Area Maximum Actuator Travel Lower Clearance Volume
(figure 5)
Volume Above Piston
(figure 5)
cm2Inches2mm Inches cm3Inches3cm3Inches3
25 168 26 29 1.125 77 4.7 1790 109
50 303 47 51 2350 22 5200 320

585C Actuator
D102086X012
Product Bulletin
61.2:585C
September 2014
7
Table3.YokeBossandValveStemDiameters
ACTUATOR SIZE YOKE BOSS DIAMETER VALVE STEM DIAMETER
mm Inches mm Inches
25 54
71
2-1/8
2-13/16
9.5
12.7
3/8
1/2
50 71
90
2-13/16
3-9/16
12.7
19.1
1/2
3/4
60 90 3-9/16 19.1 3/4
68 90 3-9/16 19.1 3/4
80 127 5, 5H 25.4
31.8
1
1-1/4
100 127 5, 5H 25.4
31.8
1
1-1/4
130 127 5, 5H 25.4
31.8
1
1-1/4
1. Heavy actuator to bonnet bolting.
Figure 5. Clearance Volumes
UPPER
CLEARANCE
VOLUME
VOLUME
BELOW
PISTON
44B7218-C
LOWER
CLEARANCE
VOLUME
VOLUME
ABOVE
PISTON
44B7217-C

585C Actuator
D102086X012
Product Bulletin
61.2:585C
September 2014
8
Actuator Thrust Capabilities
Table 4. Fisher 585C Size 25 and 50 Actuator Thrust Capabilities, U.S. Units (spring retracts stem)
ACTU-
ATOR
SIZE
SPRING
RATE,
lb/in
ACTUATOR
STEM
TRAVEL,
INCHES
SPRING THRUST, POUNDS NET THRUST FOR 585C WITH ACTUATOR STEM FULLY
EXTENDED AT FULL TRAVEL
SPRING
COLOR
Stem
Retracted
Stem
Extended
Operating Pressure, psig(1)
40 50 60 70 80 90 100 110 125 150
Force, Pounds
25
0All 0 0 1040 1300 1560 1820 2080 2340 2600 2860 3250 3900 Springs
Not Used
200
0.5625
0.75
0.875
1.125
200
200
200
200
313
350
375
425
730
690
660
610
990
950
920
870
1250
1210
1180
1130
1510
1470
1440
1390
1760
1730
1700
1650
2020
1990
1960
1910
2280
2250
2220
2170
2540
2510
2480
2430
2930
2900
2870
2820
3580
3550
3520
3470
Gold
400
0.5625
0.75
0.875
1.125
400
400
400
400
625
700
750
850
410
340
290
190
670
600
550
450
930
860
810
710
1190
1120
1070
970
1450
1380
1330
1230
1710
1640
1590
1490
1970
1900
1850
1750
2230
2160
2110
2010
2620
2550
2500
2400
3270
3200
3150
3050
Light
Green
500
0.5625
0.75
0.875
1.125
500
500
500
500
781
875
938
1063
260
160
100
X
520
420
360
240
780
680
620
500
1040
940
880
760
1300
1200
1140
1010
1560
1460
1400
1270
1820
1720
1660
1530
2080
1980
1920
1790
2460
2370
2310
2180
3110
3020
2960
2830
White
700
0.5625
0.75
0.875
1.125
700
700
700
700
1094
1225
1313
1488
X
X
X
X
200
70
X
X
460
330
250
70
720
590
510
330
980
850
760
590
1240
1110
1020
850
1500
1370
1280
1110
1760
1630
1540
1370
2150
2020
1930
1760
2800
2670
2580
2410
Gold &
White
900
0.5625
0.75
0.875
1.125
900
900
900
900
1406
1575
1688
1913
X
X
X
X
X
X
X
X
150
X
X
X
410
240
130
X
670
500
390
160
930
760
650
420
1190
1020
910
680
1450
1280
1170
940
1840
1670
1560
1330
2490
2320
2210
1980
Light Green
&White
50
0All 0 0 1840 2300 2760 3220 3680 4140 4600 5060 5750 6900 Springs
Not Used
330
0.75
0.875
1.125
1.5
2
330
330
330
330
330
578
619
701
825
990
1310
1270
1180
1060
900
1780
1740
1660
1530
1370
2250
2210
2130
2000
1840
2720
2680
2600
2470
2310
3190
3150
3070
2950
2780
3660
3620
3540
3420
3250
4140
4090
4010
3890
3720
4610
4570
4480
4360
4190
5310
5270
5190
5070
4900
6490
6450
6370
6250
6080
Pink
600
0.75
0.875
1.125
1.5
2
600
600
600
600
600
1050
1125
1275
1500
1800
840
760
610
390
90
1310
1230
1080
860
560
1780
1700
1550
1330
1030
2250
2170
2020
1800
1500
2720
2650
2500
2270
1970
3190
3120
2970
2740
2440
3660
3590
3440
3210
2910
4130
4060
3910
3680
3380
4840
4770
4620
4390
4090
6020
5950
5800
5570
5270
Light
Blue
930
0.75
0.875
1.125
1.5
2
930
930
930
930
930
1628
1744
1976
2325
2790
260
140
X
X
X
730
610
380
30
X
1200
1080
850
500
40
1670
1560
1320
970
510
2140
2030
1790
1450
980
2610
2500
2270
1920
1450
3090
2970
2740
2390
1920
3560
3440
3210
2860
2390
4260
4150
3910
3570
3100
5440
5330
5090
4750
4280
Pink &
Light Blue
1550
0.75
0.875
1.125
1.5
2
1550
1550
1550
1550
1550
2710
2906
3294
3875
4650
X
X
X
X
X
X
X
X
X
X
110
X
X
X
X
580
385
X
X
X
1050
855
465
X
X
1520
1325
935
355
X
1990
1795
1405
825
50
2460
2265
1875
1295
520
3165
2970
2580
2000
1225
4345
4150
3760
3180
2405
Green
1880
0.75
0.875
1.125
1.5
2
1880
1880
1880
1880
1880
3290
3525
3995
4700
5640
X
X
X
X
X
X
X
X
X
X
X
X
X
X
X
X
X
X
X
X
470
235
X
X
X
940
705
235
X
X
1410
1175
705
X
X
1880
1645
1175
470
X
2585
2350
1880
1175
235
3765
3530
3060
2355
1415
Pink &
Green
X indicates where the listed supply pressure is not sufficient to overcome the opposing bias spring effect.
1. The maximum design pressure for size 25 and 50 actuator is 150 psig. Maximum rating for applications is 125 psig.

585C Actuator
D102086X012
Product Bulletin
61.2:585C
September 2014
9
Table 5. Fisher 585C Size 25 and 50 Actuator Thrust Capabilities, Metric Units (spring retracts stem)
ACTU-
ATOR
SIZE
SPRING
RATE,
N/mm
ACTU-
ATOR
STEM
TRAVEL,
mm
SPRING
THRUST, N
NETTHRUSTFOR585CWITHACTUATORSTEMFULLY
EXTENDED AT FULL TRAVEL
SPRING
COLOR
Stem
Retracted
Stem
Extended
Operating Pressure, bar(1)
2.8 3.4 4.1 4.8 5.5 6.2 6.9 7.6 8.6 10.3
Force, N
25
0All 0 0 4626 5783 6939 8096 9252 10,409 11,565 12,722 14,457 17,348 Springs
Not Used
35.0
14.3
19.1
22.2
28.6
890
890
890
890
1393
1558
1669
1891
3247
3069
2936
2713
4404
4226
4092
3870
5560
5382
5249
5026
6717
6539
6405
6183
7829
7695
7562
7340
8985
8852
8718
8496
10,142
10,008
9875
9653
11,298
11,165
11,032
10,809
13,033
12,900
12,766
12,544
15,925
15,791
15,658
15,435
Gold
70.1
14.3
19.1
22.2
28.6
1780
1780
1780
1780
2781
3115
3338
3783
1824
1512
1290
845
2980
2669
2447
2002
4137
3825
3603
3158
5293
4982
4760
4315
6450
6139
5916
5471
7606
7295
7073
6628
8763
8452
8229
7784
9919
9608
9386
8941
11,654
11,343
11,121
10,676
14,546
14,234
14,012
13,567
Light
Green
87.6
14.3
19.1
22.2
28.6
2225
2225
2225
2225
3475
3894
4174
4730
1156
712
445
X
2313
1868
1601
1068
3470
3025
2758
2224
4626
4181
3914
3381
5783
5338
5071
4493
6939
6494
6227
5649
8096
7651
7384
6806
9252
8807
8541
7962
10,943
10,542
10,275
9697
13,834
13,434
13,167
12,588
White
122.6
14.3
19.1
22.2
28.6
3115
3115
3115
3115
4868
5451
5843
6622
X
X
X
X
890
311
X
X
2046
1468
1112
311
3203
2624
2269
1468
4359
3781
3381
2624
5516
4938
4537
3781
6672
6094
5694
4938
7829
7251
6850
6094
9564
8985
8585
7829
12,455
11,877
11,476
10,720
Gold &
White
157.7
14.3
19.1
22.2
28.6
4005
4005
4005
4005
6257
7009
7512
8513
X
X
X
X
X
X
X
X
667
X
X
X
1824
1068
578
X
2980
2224
1735
712
4137
3381
2891
1868
5293
4537
4048
3025
6450
5694
5204
4181
8185
7428
6939
5916
11,076
10,320
9831
8807
Light
Green &
White
50
0All 0 0 8180 10,200 12,300 14,300 16,400 18,400 20,500 22,500 25,600 30,700 Springs
Not Used
57.8
19.1
22.2
28.6
38.1
50.8
1468
1468
1468
1468
1468
2571
2753
3118
3670
4404
5827
5649
5249
4715
4003
7918
7740
7384
6806
6094
10,008
9831
9475
8896
8185
12,099
11,921
11,565
10,987
10,275
14,190
14,012
13,656
13,122
12,366
16,280
16,102
15,747
15,213
14,457
18,416
18,193
17,837
17,303
16,547
20,506
20,328
19,928
19,394
18,638
23,620
23,442
23,086
22,552
21,796
28,869
28,691
28,335
27,801
27,045
Pink
105.1
19.1
22.2
28.6
38.1
50.8
2669
2669
2669
2669
2669
4671
5004
5671
6672
8007
3736
3381
2713
1735
400
5827
5471
4804
3825
2491
7918
7562
6895
5916
4582
10,008
9653
8985
8007
6672
12,099
11,788
11,121
10,097
8763
14,190
13,878
13,211
12,188
10,854
16,280
15,969
15,302
14,279
12,944
18,371
18,060
17,392
16,369
15,035
21,529
21,218
20,551
19,528
18,193
26,778
26,467
25,800
24,777
23,442
Light
Blue
162.9
19.1
22.2
28.6
38.1
50.8
4137
4137
4137
4137
4137
7242
7758
8790
10,342
12,410
1157
623
X
X
X
3247
2713
1690
133
X
5338
4804
3781
2224
178
7428
6939
5872
4315
2269
9519
9030
7962
6450
4359
11,610
11,121
10,097
8541
6450
13,745
13,211
12,188
10,631
8541
15,836
15,302
14,279
12,722
10,631
18,949
18,460
17,392
15,880
13,789
24,198
23,709
22,641
21,129
19,038
Pink &
Light Blue
271.4
19.1
22.2
28.6
38.1
50.8
6894
6894
6894
6894
6894
12054
12925
14652
17236
20683
X
X
X
X
X
X
X
X
X
X
489
X
X
X
X
2580
1712
X
X
X
4670
3803
2068
X
X
6761
5894
4159
1579
X
8852
7984
6249
3670
222
10942
10075
8340
5760
2313
14078
13211
11476
8896
5449
19,328
18,460
16,725
14,145
10,698
Green
329.2
19.1
22.2
28.6
38.1
50.8
8362
8362
8362
8362
8362
14634
15679
17770
20906
25087
X
X
X
X
X
X
X
X
X
X
X
X
X
X
X
X
X
X
X
X
2091
1045
X
X
X
4181
3136
1045
X
X
6272
5226
3136
X
X
8362
7317
5226
2091
X
11498
10453
8362
5226
1045
16,748
15,702
13,612
10,476
6294
Pink &
Green
X–Indicates where the listed supply pressure is not sufficient to overcome the opposing bias spring effect.
1. The maximum design pressure for size 25 and 50 actuator is 10.3 bar. Maximum rating for applications is 8.6 bar.

585C Actuator
D102086X012
Product Bulletin
61.2:585C
September 2014
10
Table 6. Fisher 585CR Size 25 and 50 Actuator Thrust Capabilities, U.S. Units (spring extends stem)
ACTUATOR
SIZE
SPRING
RATE,
lb/in
SPRING
THRUST W/
ACTUATOR
STEM
EXTENDED,
POUNDS
TOTAL THRUST FOR 585CR WITH ACTUATOR STEM FULLY
EXTENDED
SPRINGS USED, BY COLOR
Operating Pressure, psig(1)
40 50 60 70 80 90 100 110 125 150
Force, Pounds
25(2)
0 0 1040 1300 1560 1820 2080 2340 2600 2860 3250 3900 Springs Not Used
200 200 1240 1500 1760 2020 2280 2540 2800 3060 3450 XGold
400 400 1440 1700 1960 2220 2480 2740 3000 3260 3650 XLight Green
500 500 1540 1800 2060 2320 2580 2840 3100 3360 3750 XWhite
700 700 1740 2000 2260 2520 2780 3040 3300 3560 X X Gold & White
900 900 1940 2200 2460 2720 2980 3240 3500 3760 X X Light Green & White
50(3)
0 0 1840 2300 2760 3220 3680 4140 4600 5060 5750 6900 Springs Not Used
330 330 2210 2680 3150 3620 4090 4560 5030 5500 6205 XPink
600 600 2480 2950 3420 3890 4360 4830 5300 5770 6475 XLight Blue
930 930 2810 3280 3750 4220 4690 5160 5630 6100 6805 XPink & Light Blue
1550 1550 3430 3900 4370 4840 5310 5780 6250 6720 X X Green
1880 1880 3760 4230 4700 5170 5640 6110 6580 7050 X X Pink & Green
X indicates where the listed supply pressure is not sufficient to overcome the opposing bias spring effect.
1. The maximum design pressure for size 25 and 50 actuator is 150 psig.
2. Maximum thrust is 3900 lbs.
3. Maximum thrust is 6900 lbs.
Table 7. Fisher 585CR Size 25 and 50 Actuator Thrust Capabilities, Metric Units (spring extends stem)
ACTUATOR
SIZE
SPRING
RATE,
N/mm
SPRING
THRUST W/
ACTUATOR
STEM
EXTENDED,
N
TOTAL THRUST FOR 585CR WITH ACTUATOR STEM FULLY
EXTENDED
SPRINGS USED, BY
COLOR
Operating Pressure, bar(1)
2.8 3.4 4.1 4.8 5.5 6.2 6.9 7.6 8.6 10.3
Force, N
25(2)
0 0 4626 5782 6939 8095 9251 10408 11565 12721 14456 17347 Springs Not Used
35.0 890 5516 6672 7828 8985 10141 11298 12454 13610 15346 XGold
70.0 1780 6405 7562 8718 9874 11031 12188 13344 14500 16235 XLight Green
87.6 2225 6850 8006 9163 10319 11476 12632 13789 14945 16680 XWhite
122.6 3115 7740 8896 10052 11209 12365 13655 14678 15835 X X Gold & White
157.6 4005 8629 9786 10942 12099 13255 14412 15568 16724 X X Light Green & White
50(3)
0 0 8180 10200 12300 14300 16400 18400 20500 22500 25600 30700 Springs Not Used
57.8 1468 9830 11921 14011 16102 18192 20282 22373 24464 27600 XPink
105.1 2670 11031 13122 15212 17303 19393 21484 23574 25665 28800 XLight Blue
162.8 4135 12499 14589 16680 18770 20861 22952 25042 27133 30269 XPink & Light Blue
271.4 6894 15256 17347 19438 21528 23619 25709 27800 29891 X X Green
329.2 8362 16724 18815 20906 22996 25087 27177 29268 31358 X X Pink & Green
X indicates where the listed supply pressure is not sufficient to overcome the opposing bias spring effect.
1. The maximum design pressure for size 25 and 50 actuator is 10.3 bar.
2. Maximum thrust is 17347 N.
3. Maximum thrust is 30700 N.

585C Actuator
D102086X012
Product Bulletin
61.2:585C
September 2014
11
Table 8. Fisher 585C Thrust (springless construction)
ACTUATOR
SIZE
PISTON
AREA
TOTAL THRUST FOR 585C(1)
MAXIMUM ALLOWABLE
THRUST
Operating Pressure, bar(3)
2.8 3.4 4.1 4.8 5.5 6.2 6.9 7.6 8.6 10.3
cm2Force, Newtons(2) Newtons
25 168 4630 5780 6940 8100 9260 10400 11600 12700 14500 17300 17300
50 303 8180 10200 12300 14300 16400 18400 20500 22500 25600 30700 31400
60(3) 358 9880 12300 14800 17300 19800 22200 24700 27200 30900 36900 36900
68(3) 571 15700 19700 23600 27600 31500 35400 39400 43300 49200 55600 55600(4)
80(3) 571 15700 19700 23600 27600 31500 35400 39400 43300 49200 58700 58700
100(3) 842 23200 29000 34800 40600 46400 52200 58000 63900 72600 X86700
130(3) 1430 39400 49300 59100 69000 78700 88500 98800 108100 X X 111200
ACTUATOR
SIZE
PISTON
AREA
Operating Pressure, psig(3) MAXIMUM ALLOWABLE
THRUST
40 50 60 70 80 90 100 110 125 150
Inches2Force, Pounds(2) Pounds
25 26 1040 1300 1560 1820 2080 2340 2600 2860 3250 3900 3900
50 47 1840 2300 2760 3220 3680 4140 4600 5060 5750 6900 7050
60(3) 55.5 2220 2780 3330 3890 4440 5000 5550 6110 6940 8300 8300
68(3) 88.5 3540 4430 5310 6200 7080 7970 8850 9740 11100 12500 12500(4)
80(3) 88.5 3540 4430 5310 6200 7080 7970 8850 9740 11100 13200 13200
100(3) 130.5 5220 6530 7830 9140 10440 11700 13100 14400 16300 19500 19500
130(3) 221.5 8860 11100 13300 15500 17700 19900 22200 24300 X X 25000
X indicates where the listed supply pressure will exceed the maximum thrust allowable.
1. The maximum design pressure for size 25 through 100 actuators is 10.3 bar (150 psig). Size 68 and 130 actuators are limited to 9.7 and 7.8 bar (140 and 113psig)respectively.
2. The size 25 and 50 data is for the construction without a bias spring.
3. Minimum operating pressure for sizes 60-130 actuators is 2.4 bar (35 psig).
4. The size 68 actuator with a handwheel is limited to 40000 Newtons (9000 lb) thrust.

585C Actuator
D102086X012
Product Bulletin
61.2:585C
September 2014
12
Handwheel Specifications
Table 9. Fisher 585C Handwheel Specifications
ACTUATOR SIZE HANDWHEEL
MOUNTING
HANDWHEEL
DIAMETER TURNS PER mm
TRAVEL
MAXIMUM RIM
FORCE REQUIRED
HANDWHEEL
OUTPUT FORCE
HANDWHEEL
WEIGHT
mm Newtons Newtons kg
25 Top-Mounted 356 0.5 325 12,810 17
50 482 0.5 445 23,790 20
60(1)
Integral
Side-Mounted
203 0.6 276 40000 28
60(2) 356 0.6 160 40000 30
68(1) 203 0.6 276 40000 30
68(2) 356 0.6 160 40000 33
80 432 0.4 423 50000 35
100 432 0.4 623 75600 94
130 432 0.4 623 75600 123
ACTUATOR SIZE HANDWHEEL
MOUNTING
HANDWHEEL
DIAMETER TURNS PER INCH
TRAVEL
MAXIMUM RIM
FORCE REQUIRED
HANDWHEEL
OUTPUT FORCE
HANDWHEEL
WEIGHT
Inches Pounds Pounds Pounds
25 Top-Mounted 14 12 73 2880 37
50 19 12 100 5350 45
60(1)
Integral
Side-Mounted
816 62 9000 61
60(2) 14 16 36 9000 66
68(1) 816 62 9000 66
68(2) 14 16 36 9000 71
80 17 10 95 11250 77
100 17 10 140 17000 208
130 17 10 140 17000 272
1.2and4inchmaximumtravelconstructions.
2. 8 inch maximum travel construction.

585C Actuator
D102086X012
Product Bulletin
61.2:585C
September 2014
13
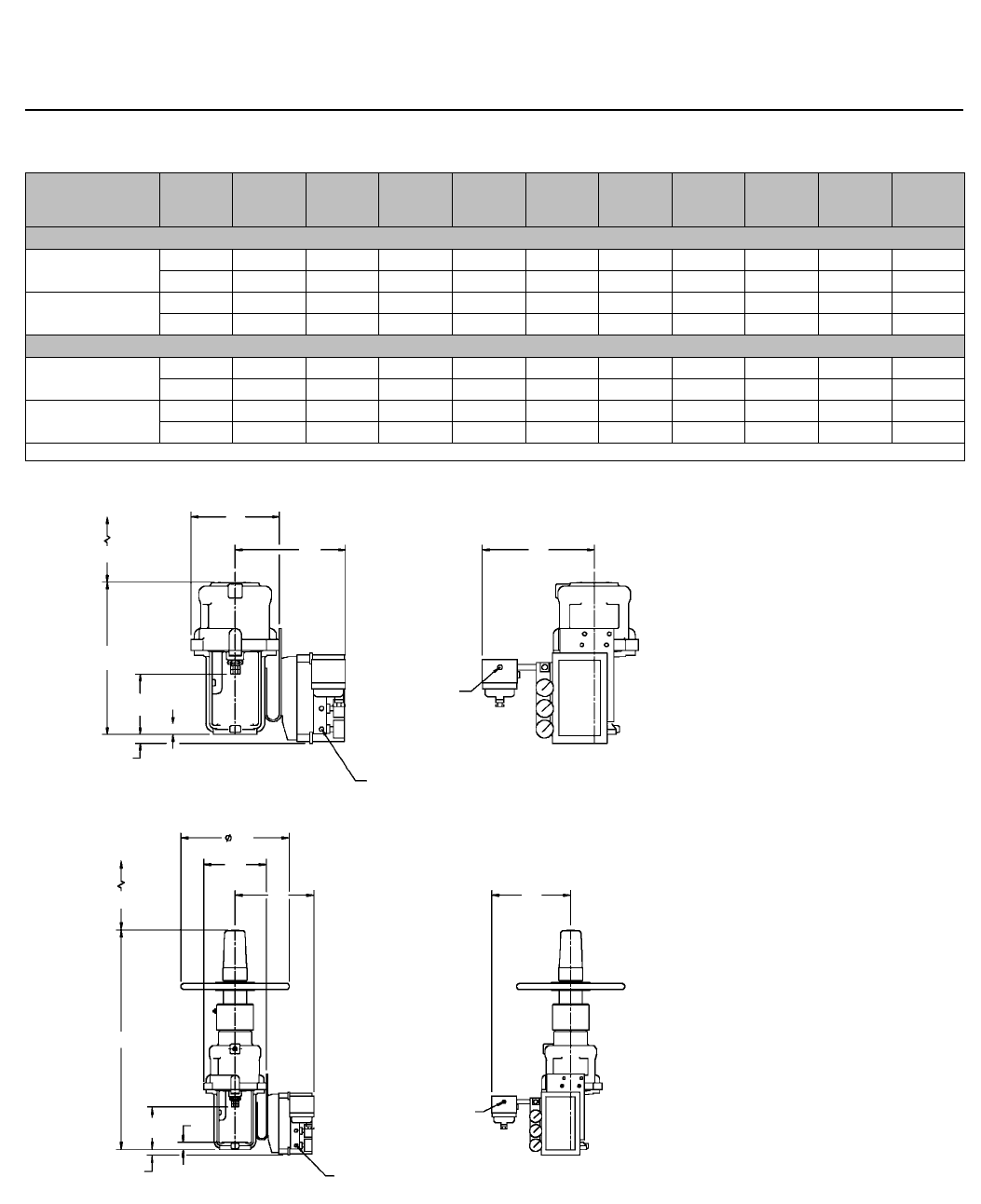
Table 10. Fisher 585C Dimensions–Size 25 and 50 Actuator with 3611 Pneumatic (P/P) Positioner
ACTUATOR SIZE
YOKE
BOSS
SIZE
E H C AR(1) FJc L P T X
mm
25 54.0 324.4 693.7 205.2 127.0 259.6 355.6 47.8 255.8 19.1 114.3
71.4 352.3 720.9 205.2 176.3 259.6 355.6 19.8 255.8 23.9 139.3
50 71.4 464.3 841.5 257.0 176.3 265.4 482.6 13.7 281.7 23.9 152.4
90.5 503.4 881.1 257.0 225.6 265.4 482.6 --- 281.7 35.1 193.5
Inches
25 2-1/8 12.77 27.31 8.08 5.00 10.22 14.00 1.88 10.07 0.75 4.50
2-13/16 13.87 28.38 8.08 6.94 10.22 14.00 0.78 10.07 0.94 5.50
50 2-13/16 18.28 33.13 10.12 6.94 10.45 19.00 0.54 11.09 0.94 6.00
3-9/16 19.82 34.69 10.12 8.88 10.45 19.00 --- 11.09 1.38 7.62
1. Actuator removal clearance
18B5463-A
17B3436-B
H
Figure 6. Fisher 585C Dimensions–Size 25 and 50 Actuator with 3611 Pneumatic (P/P) Positioner (also see table 10)
AR
AR
C
C
P
P
JC
X
X
L
L
T
T
H
E
F
F
FISHER 67AFD
1/4-18 NPT
SUPPLY
CONNECTOR
FISHER 67AFD
1/4-18 NPT
SUPPLY
CONNECTOR
FISHER 3611JP
1/4-18 NPT
INSTRUMENT
CONNECTOR
FISHER 3611JP
1/4-18 NPT
INSTRUMENT
CONNECTOR

585C Actuator
D102086X012
Product Bulletin
61.2:585C
September 2014
14
Table 11. Fisher 585C Dimensions–Size 25 and 50 Actuator with 3621 Electro-Pneumatic (I/P) Positioner
ACTUATOR SIZE YOKE BOSS
SIZE E H C AR(1) FJc L P
mm
25 54.0 322.1 681.0 205.2 127.0 216.7 355.6 96.0 303.5
71.4 350.0 720.9 205.2 176.3 216.7 355.6 68.1 303.5
50 71.4 462.0 836.4 257.0 176.3 222.5 482.6 62.5 329.4
90.5 501.1 875.6 257.0 225.6 222.5 482.6 23.4 329.4
Inches
25 2-1/8 12.68 26.81 8.08 5.00 8.53 14.00 3.78 11.95
2-13/16 13.78 28.38 8.08 6.94 8.53 14.00 2.68 11.95
50 2-13/16 18.19 32.93 10.12 6.94 8.76 19.00 2.46 12.97
3-9/16 19.73 34.47 10.12 8.88 8.76 19.00 0.92 12.97
1. Actuator removal clearance
Figure 7. Fisher 585C Dimensions–Size 25 and 50 Actuator with 3621 Electro-Pneumatic (I/P) Positioner (also see
table 11)
AR
AR
C
C
P
JC
L
L
T
P
H
E
F
F
1/4-18 NPT
SUPPLY
CONNECTOR
1/2-14 NPT
CONDUIT
CONNECTOR
17B3435-B
H
18B6671-A
1/4-18 NPT
SUPPLY
CONNECTOR
1/2-14 NPT
CONDUIT
CONNECTOR

585C Actuator
D102086X012
Product Bulletin
61.2:585C
September 2014
15
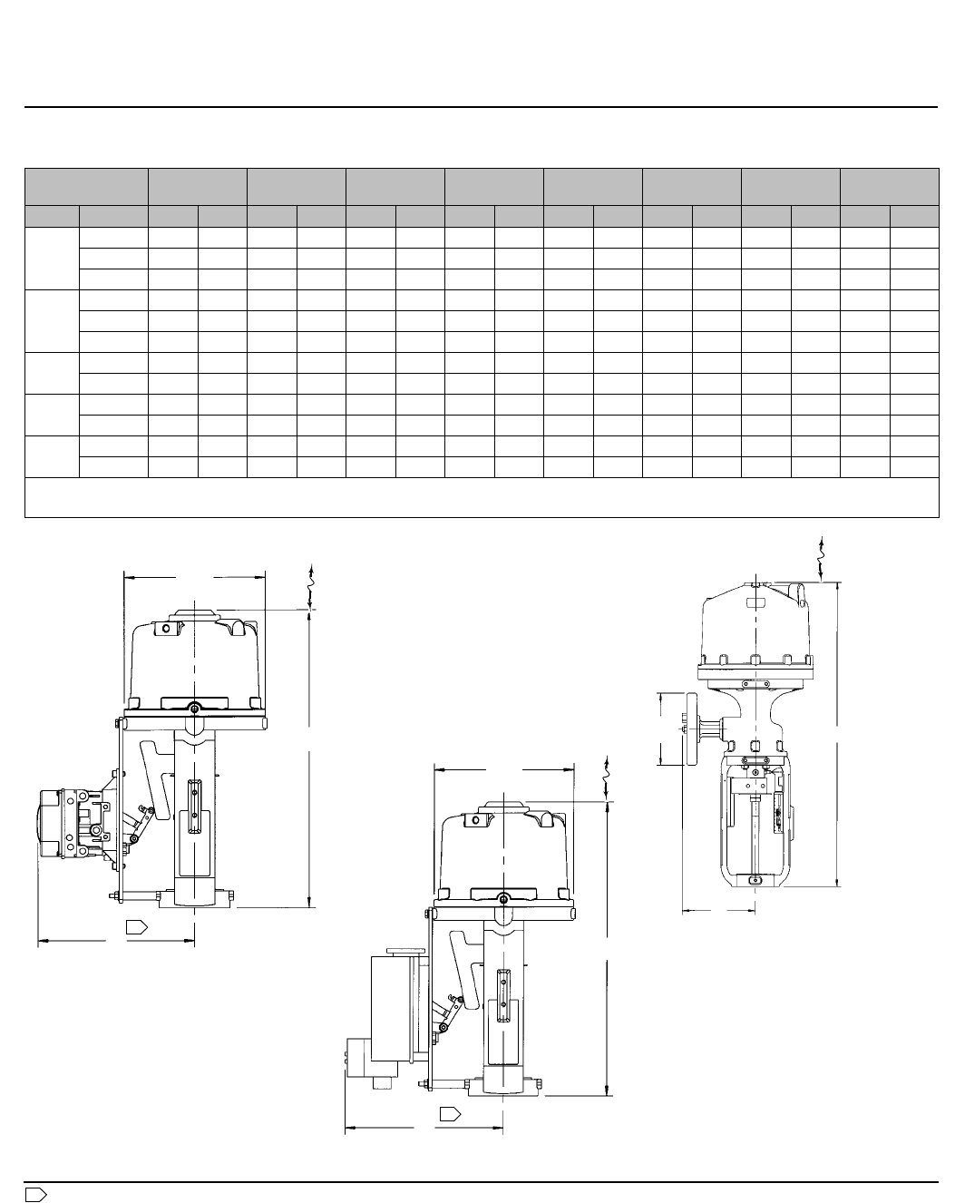
Table 12. Fisher 585C Dimensions–Size 60 to 130 Actuator
ACTUATOR AB
DIAMETER C(1) AR(2) D E F
DIAMETER ARH(2)
SIZE TRAVEL mm Inch mm Inch mm Inch mm Inch mm Inch mm Inch mm Inch mm Inch
60
2462 18.2 267 10.5 305 12.0 232 9.1 734 28.9 206 8.1 203 8.0 232 9.1
4564 22.2 267 10.5 305 12.0 292 11.5 785 30.9 206 8.1 203 8.0 241 9.5
8782 30.8 267 10.5 305 12.0 279 11.0 1074 42.3 206 8.1 356 14.0 279 11.0
68
2597 23.5 325 12.8 330 13.0 232 9.1 853 33.6 206 8.1 203 8.0 232 9.1
4729 28.7 325 12.8 330 13.0 292 11.5 853 33.6 206 8.1 203 8.0 241 9.5
8828 32.6 325 12.8 330 13.0 279 11.0 1143 45.0 206 8.1 356 14.0 279 11.0
80 4714 28.1 325 12.8 330 13.0 321 12.6 1245 49.0 305 12 432 17.0 321 12.6
8965 38.0 325 12.8 330 13.0 406 16.0 1344 52.9 305 12 432 17.0 406 16.0
100 4714 28.1 381 15.0 361 14.2 321 12.6 1245 49.0 305 12 432 17.0 321 12.6
8958 37.7 381 15.0 361 14.2 406 16.0 1346 53.0 305 12 432 17.0 406 16.0
130 4833 32.8 483 19.0 411 16.2 321 12.6 1410 55.5 305 12 432 17.0 321 12.6
81006 39.6 483 19.0 411 16.2 406 16.0 1725 67.9 305 12 432 17.0 406 16.0
1. The C dimension shown is for FIELDVUE DVC6200 digital valve controllers. Add 38.1 mm (1.5 inches) to this dimension for 3620JP positioners.
Subtract 12.7 mm (0.5 inches) from this dimension for 3610JP positioners.
2. Actuator removal clearance.
Figure 8. Fisher 585C Dimensions–Size 60 to 130 Actuator (also see table 12)
1The C dimension listed in the table is for the actuator with the FIELDVUE digital valve controller. Add to this dimension for 3620JP positioners. Subtract from this
dimension for 3610JP positioners. Refer to the footnote in the table.
WITH DVC6200
DIGITAL VALVE CONTROLLER
WITH MANUAL OPERATOR
WITH 3610 OR 3620 POSITIONER
B
A
C
F
E
D
A
C
B
1
1
AR
AR
ARH

585C Actuator
D102086X012
Product Bulletin
61.2:585C
September 2014
16
Emerson Process Management
Marshalltown, Iowa 50158 USA
Sorocaba, 18087 Brazil
Chatham, Kent ME4 4QZ UK
Dubai, United Arab Emirates
Singapore 128461 Singapore
www.Fisher.com
The contents of this publication are presented for informational purposes only, and while every effort has been made to ensure their accuracy, they arenot
to be construed as warranties or guarantees, express or implied, regarding the products or services described herein or their use or applicability. All sales are
governed by our terms and conditions, which are available upon request. We reserve the right to modify or improve the designs or specifications of such
products at any time without notice.
E1994, 2014 Fisher Controls International LLC. All rights reserved.
Fisher, FIELDVUE, and TopWorx are marks owned by one of the companies in the Emerson Process Management business unit of Emerson Electric Co.
Emerson Process Management, Emerson, and the Emerson logo are trademarks and service marks of Emerson Electric Co. All other marks are the property
of their respective owners.
Neither Emerson, Emerson Process Management, nor any of their affiliated entities assumes responsibility for the selection, use or maintenance
of any product. Responsibility for proper selection, use, and maintenance of any product remains solely with the purchaser and end user.