Emerson Fisher Baumann 24000F Instruction Manual
2015-03-30
: Emerson Emerson-Fisher-Baumann-24000F-Instruction-Manual-680709 emerson-fisher-baumann-24000f-instruction-manual-680709 emerson pdf
Open the PDF directly: View PDF
.
Page Count: 16

www.Fisher.com
Baumann™ 24000F Wafer Control Valve
Contents
Introduction 1...................................
Scope of Manual 1.............................
Safety Precautions 2...........................
Maintenance 2.................................
Installation 3..................................
Air Piping 3...................................
Disassembly 4................................
Lapping the Metal Seat 5.......................
Replacing Packing 5...........................
Actuator and Valve Body Reassembly 6...........
Parts Ordering 6................................
Dimensions and Weights 15......................
Figure 1. 24000F Control Valve
24000F with
Baumann 32
Dual-Stop Actuator
24000F with Baumann 32 Actuator
and FIELDVUEtDVC2000
Digital Valve Controller
W9762 W9763
Introduction
The Baumann 24000F Wafer Body Control Valve (figures 1) mates with ASME and EN line flange connections and is
designed to control a wide range of process liquids, gases and vapors. This compact package provides the connection
integrity of flanged body globe valves while being significantly lighter and easier to install.
Scope of Manual
This instruction manual includes installation, maintenance, and parts information for the Baumann 24000F wafer body
control valve.
Do not install, operate, or maintain Baumann 24000F control valves without being fully trained and qualified in valve,
actuator, and accessory installation, operation, and maintenance. To avoid personal injury or property damage, it is
important to carefully read, understand, and follow all the contents of this manual, including all safety cautions and
warnings. If you have any questions about these instructions, contact your Emerson Process Management sales office
before proceeding.
Instruction Manual
D103358X012
24000F Valves
May 2012

Instruction Manual
D103358X012
24000F Valves
May 2012
2
WARNING
Always wear protective gloves, clothing and eyewear when performing any installation operations to avoid personal
injury.
Personal injury or property damage caused by sudden release of pressure or bursting of pressure retaining parts may result
if service conditions exceed those for which the product was intended. To avoid injury or damage, provide a relief valve for
over pressure protection as required by government or accepted industry codes and good engineering practices.
Check with your process or safety engineer for any additional measures that must be taken to protect against process
media.
If installing into an existing application, also refer to the WARNING at the beginning of the Maintenance section in this
instruction manual.
CAUTION
This valve is intended for a specific range of pressures, temperatures and other application specifications. Applying
different pressures and temperatures to the valve could result in parts damage, malfunction of the control valve or loss of
control of the process. Do not expose this product to service conditions or variables other than those for which the product
was intended. If you are not sure what these conditions are you should contact your Emerson Process Management sales
office for more complete specifications. Provide the product serial numbers (shown on the nameplate) and all other
pertinent information.
WARNING
If you move or work on an actuator installed on a valve with loading pressure applied, keep your hands and tools away
from the stem travel path to avoid personal injury. Be especially careful when removing the stem connector to release all
loading on the actuator stem whether it be from air pressure on the diaphragm or compression in the actuator springs.
Likewise take similar care when adjusting or removing any optional travel stop. Refer to the relevant actuator Maintenance
Instructions.
If hoisting the valve, take care to prevent people from being injured in case the hoist or rigging slips. Be sure to use
adequate sized hoists and chains or slings to handle the valve.
WARNING
Personal injury could result from packing leakage. Valve packing is tightened before shipment; however, the packing
might require some readjustment to meet specific service conditions.
Maintenance
WARNING
Avoid personal injury and property damage from sudden release of process pressure or bursting of parts. Before
performing any maintenance operations:

Instruction Manual
D103358X012
24000F Valves
May 2012
3
DDo not remove the actuator from the valve while the valve is still pressurized.
DAlways wear protective gloves, clothing, and eyewear when performing any maintenance operations.
DDisconnect any operating lines providing air pressure, electric power, or a control signal to the actuator. Be sure the
actuator cannot suddenly open or close the valve.
DUse bypass valves or completely shut off the process to isolate the valve from process pressure. Relieve process pressure
on both sides of the valve. Drain the process media from both sides of the valve.
DDepending on the actuator construction, it will be necessary to manage the pneumatic actuator spring
pre-compression. It is essential to refer to the relevant actuator instructions in this manual to perform safe removal of
the actuator from the valve.
DUse lock-out procedures to be sure the above measures stay in effect while you work on the equipment.
DThe valve packing box may contain process fluids that are pressurized, even when the valve has been removed from the
pipeline. Process fluids may spray out under pressure when removing the packing hardware or packing rings, or when
loosening the packing box pipe plug.
DCheck with your process or safety engineer for any additional measures that must be taken to protect against process
media.
Note
Whenever a gasket seal is disturbed by removing or shifting gasketed parts, install a new gasket during reassembly. This provides a
good gasket seal because the used gasket may not seal properly.
WARNING
Avoid personal injury or property damage by thoroughly cleaning the line of all dirt, welding chips, scale, oil or grease, and
other foreign material. Failure to do so could result in damage to the seating and sealing surfaces of the valve and result in
damage to the valve and release of process materials.
Installation
1. Before installing the valve in the pipeline, thoroughly clean the line of all dirt, welding chips, scale, oil or grease, and
other foreign material.
2. Install the valve so the controlled fluid will flow through the valve body in the direction indicated by the arrow cast
on the valve body.
3. Athree-valvebypassmustbeusedtopermitremovalofthecontrolvalvefromthelinewithoutshuttingdownthe
system.
4. In case of a heat-insulated installation, insulate the valve body only, not the bonnet.
WARNING
To avoid personal injury or property damage, do not attempt to do any work on a valve while the system is in operation.
The valve must be isolated 100% from the active system and the isolated line voided of pressure and/or hazardous fluids.
Air Piping
1. For an air-to-extend actuator (air-to-close action), connect the actuating air pressure line to the 1/4 NPT opening in
the upper diaphragm case. For an air-to-retract actuator (air-to-open action) connect the actuating air pressure line
to the 1/4 NPT in the lower diaphragm case.

Instruction Manual
D103358X012
24000F Valves
May 2012
4
2. Use 6.4 mm (1/4 inch) O.D. tubing or equivalent for all air lines. If air line exceeds 8 m (25 ft) in length, 9.5 mm (3/8
inch) tubing is preferred. Air lines must not leak. Air pressure not to exceed 2.5 bar (35 psig).
Disassembly
WARNING
If there is evidence of process fluid under pressure leaking from the joint, retighten the valve body/joint nuts. Return to the
Warning at the beginning of the Maintenance section to ensure proper steps have been taken to isolate the valve and
relieve process pressure.
CAUTION
DWhen assembling or disassembling the valve, do not turn the valve stem while the plug is touching the valve seat. This
will damage the valve's seating surfaces.
DWhen adjusting the valve stem, do not grip the stem directly with pliers or a wrench. This will damage the surface of the
stem, and cause damage to the packing in the valve. Instead, counter-tighten the two locknuts (key 27) on the stem
(key 5). This will allow you to turn the stem by turning the locknuts (key 27) with a wrench.
DWhen placing the valve in a vise, do not clamp the rounded sides of the valve. This will distort the shape of the casting,
and will ruin the valve.
Actuator Removal
Access to the internal components of the valve body can be accomplished with the actuator removed. For actuator
maintenance see the following instruction manual (Baumann Actuator Instructions, D103352X012).
Air-to-Close Actuators
1. Disconnect the air supply to the actuator and remove the air tubing.
2. Loosen the drive nut (key 9) and then remove the plug and stem (keys 4 and 5) assembly by holding the actuator
stem still while unthreading the plug and stem assembly counterclockwise.
3. Remove the stem locknuts (key 27), travel indicator (key 58), and yoke drive nut (key 9).
4. Remove the actuator from the valve.
Air-to-Open Actuators
1. Using flexible tubing, apply sufficient air pressure to the actuator to lift the plug off the seat.
2. Loosen the drive nut (key 9) and then remove the plug and stem (keys 4 and 5) assembly by holding the actuator
stem still while unthreading the plug and stem assembly counterclockwise.
3. Remove the stem locknuts (key 27), travel indicator (key 58), and yoke drive nut (key 9).
4. Remove the actuator from the valve.
5. Disconnect the air supply to the actuator and remove the air tubing.
Valve Body Disassembly
1. After removing the actuator, unscrew the bonnet (key 8), and plug and stem (keys 4 and 5) from valve body (key 1).
A new body gasket (key 49) should be installed each time the valve is disassembled.

Instruction Manual
D103358X012
24000F Valves
May 2012
5
2. Loosen the packing spring load by removing the packing follower (key 10).
Remove the plug and stem assembly by pulling it out through the bottom of the bonnet (key 8) while rotating the
stem (key 5). This will help prevent damage to the packing components.
Note
Handle the parts carefully to avoid damaging the seating and guiding surfaces. Wipe the parts with a clean soft cloth and examine
for signs of wear or damage.
3. To remove the seat ring (key 2), use a 5/8 inch socket wrench. Clean the seat ring thoroughly and examine for signs
of wear or damage.
4. LowFlowTrims:
a. For Baumann 151 trim (figure 5) unscrew the seat subassembly. When reassembling, hand tighten the
subassembly (key 51) and then rotate 1/8 of a turn with the 5/8 inch socket to lock in place.
Note
If changing to Baumann 151 trim, for correct flow characteristics, be sure the valve is reversed in the pipeline so that flow direction
is flow-to-close.
b. For Baumann 177 trim (figure 6) unscrew the retainer nut (key 24) using a 3/4 inch socket wrench. Remove the
gland (key 23) and insert (key 25). Replace the insert (key 25), making sure that the tapered portion faces up. If
replacement of the housing (key 26) is required, use a 5/8 inch socket wrench.
Lapping the Valve Seat
If valve seat leakage becomes excessive, it may be necessary to lap the valve seat.
Lappingistheprocessofmatingthevalveplugtotheseatring,withanabrasivetoproduceaclosefit.Whenvalveseat
leakage becomes excessive, lapping becomes necessary. The plug and seat ring seating surfaces should be free of
largescratchesordentsandthecontactsurfaceoftheseatsshouldbeasnarrowaspossible.
1. Disassemble the valve body and remove the plug and stem assembly (keys 4 and 5) as directed in the previous Valve
Body Disassembly section in this instruction manual.
2. Use a good quality lapping compound with a mixture that contains 280 to 600 grit. Apply at several spots around
the plug seating surface. Replace the plug and stem carefully in the bonnet.
3. Install the bonnet (key 8) into the valve body, without gasket and hand tighten. The bonnet will serve as a guide
during the lapping operation.
4. Lap the valve by applying a slight pressure on the stem and rotate the stem in short oscillating strokes
approximately 8 to 10 times or until you see an even and complete lap line. The plug should be intermittently lifted
and turned 90 degrees while lapping to keep the plug and seat ring concentric.
5. Clean the valve seat and plug (key 4) thoroughly when lapping is complete, removing all traces of lapping
compound.
6. For the NPS 1 integral seat body, inspect internal seatingsurfaceforwearordamageandreplaceifnecessary.
Replacing Packing
Refer to figure 2 and the standard and optional packing constructions (figures 7, 8, and 9) to determine the packing
that has been preinstalled in your valve.

Instruction Manual
D103358X012
24000F Valves
May 2012
6
1. Disassemble the valve as directed earlier. Remove the locknuts (key 27) and indicator disk (key 58), and turn the
plug stem (key 5) out through the packing box. Remove the packing follower (key 10). Push out the old packing
(key 14) by working from the underside of the bonnet (key 8).
2. Standard Spring Loaded PTFE V-Ring Packing (figures 2 and 7): Carefully insert each piece in exact order shown in
figure 7. Turn the packing follower (key 10) until it shoulders on the bonnet (key 8). This will compress the packing
spring (key 6) to enable constant stem sealing throughout packing life.
3. Molded Graphite Ribbon Packing (figure 8): Carefully insert each piece in exact order shown in figure 8. Hand
tighten the packing follower (key 10). Use a wrench to increase tightness by turning the follower an additional 60
degrees.
4. ENVIRO-SEALtPacking (figure 9): Carefully insert each piece in exact order as shown in figure 9. Tighten the
packing follower (key 10) until the Belleville springs are compressed. This will be signaled by a significant increase in
resistance. Back off the follower 1/8 to 1/4 turn. A gap of approximately 1.5 mm (1/16 inch) between the packing
follower and the bonnet will ensure the packing is seated properly.
Actuator and Valve Body Reassembly
1. Insert a new valve body gasket (key 49) and install the bonnet assembly (key 8).
2. Place the actuator yoke over the stem (key 5). While tilting the actuator back, drop the yoke drive nut (key 9) over
the stem (key 5). Run the locknuts (key 27), and the travel indicator (key 58), down as far as possible and counter
tighten the locknuts (key 27) to lock.
3. Carefully position the actuator over the stem (key 5), lift the plug stem (key 5) and turn the plug stem (key 5) into
the actuator stem as far as it will go before adjusting the bench range.
See the following instruction manual (Baumann Actuator Instructions, D103352X012) for reassembly and bench
range adjustment.
CAUTION
When assembling or disassembling the valve, do not turn the valve stem while the plug is in contact with the valve seat.
This can damage the seating surface very quickly.
WARNING
To avoid personal injury or equipment damage due to possible sudden shifting or falling of the valve assembly, do not lift
the valve assembly by the handwheel.
Parts Ordering
When corresponding with your Emerson Process Management sales office about this equipment, always mention the
valve serial number. When ordering replacement parts, also specify the key number, part name, and desired material
using the following parts tables.
WARNING
Use only genuine Fisherrreplacementparts.ComponentsthatarenotsuppliedbyEmersonProcessManagementshould
not, under any circumstances, be used in any Fisher valve, because they may void your warranty, might adversely affect the
performance of the valve, and could cause personal injury and property damage.

Instruction Manual
D103358X012
24000F Valves
May 2012
7
Figure 2. Baumann 24000F Valve Body with Standard Bonnet and NPS 1 Integral Seat
E1278

Instruction Manual
D103358X012
24000F Valves
May 2012
8
Figure 3. Baumann 24000F Valve Body with Extension Bonnet and Screwed-In Seat Ring
E1279

Instruction Manual
D103358X012
24000F Valves
May 2012
9
Table 1. Baumann 24000F Common Parts(1)
KEY
NO. QTY DESCRIPTION REMARKS
VALVE SIZE
DN 15 (NPS 1/2) DN 20 (NPS 3/4) DN 25 (NPS 1)
Part Number Part Number Part Number
1 1 Valve Body Screwed Seat 24511 24518 24524
Integral Seat N/A N/A 24521
4* 1Plug (Metal Seat) See table 2
Plug (Soft Seat) See table 3
8 1 Bonnet Standard 24516-3 24516-3 24522-3
Extension 24856 24856 24529
9 1 Yoke Drive Nut 011757-003-153 011757-003-153 011757-003-153
10 1Packing Follower 24490-1 24490-1 24490-1
14 1Packing Kit (standard) 24494T001
Packing Kit (optional) Seepage13
27 2Lock Nut 971514-002-250 971514-002-250 971514-002-250
49* 1Body Gasket 24513 24513 24156
24513-1 24513-1 24156-1
58 1Travel Indicator 24299 24299 24299
1. Contact your Emerson Process Management sales office for part number, price, and delivery on optional valve and trim materials (N10276, N08020, and N04400)
For Extension Bonnet Construction
Substitute -104 for -101
-105 for -102
*Recommended spare parts

Instruction Manual
D103358X012
24000F Valves
May 2012
10
Table 2. Plug and Seat Ring for Metal Seat
KEY
NO. DESCRIPTION PLUG TYPE PLUG
NO.
ORIFICE
DIAMETER
mm (Inch)
CvKv
VALVE SIZE
DN 15 (NPS 1/2) DN 20 (NPS 3/4) DN 25 (NPS 1)
4* Plug & Stem
Assy
Metal Seat,
Micro Trim
(Linear)
102 6.3 (0.25)
0.02(1) 0.017(1) GE46385X012
0.05(1) 0.043(1) GE46386X012
0.1(1) 0.086 GE46387X012
0.2(1) 0.17(1) GE46388X052
Metal Seat
(Equal %)
548
(416 SST)
6.3 (0.25)
0.2(1) 0.17(1) GE46393X012
0.5(1) 0.43(1) GE46394X012
1.0 0.86 GE46392X012
9.5 (0.375)
1.5 1.29 24634-6-101-548
2.0 1.72 24171-12-101-548 ---
2.5 2.15 --- --- 24171-12-101-548
20.6
(0.8125)
43.44 --- --- 24185-6-101-548
6.5 5.59 --- --- 24061-5-101-548
Metal Seat
(Equal %) 588
6.3 (0.25)
0.2(1) 0.17(1) GE46390X012
0.5(1) 0.43(1) GE46391X012
1.0 0.86 GE46389X012
9.5 (0.375)
1.5 1.29 24634-101-588
2.0 1.72 24171-101-588 ---
2.5 2.15 --- --- 24171-101-588
20.6
(0.8125)
43.44 --- --- 24185-101-588
6.5 5.59 --- --- 24061-101-588
Metal Seat
(Linear)
648
(416 SST)
6.3 (0.25) 0.5 0.43 GE46398X012
1.0 0.86 GE46397X012
9.5 (0.375)
1.5 1.29 24669-1-101-648
2.0 1.72 24671-2-101-648 ---
2.5 2.15 --- --- 24671-2-101-648
20.6
(0.8125)
43.44 --- --- 24757-5-101-648
6.5 5.59 --- --- 24717-3-101-648
Metal Seat
(Linear) 688
6.3 (0.25) 0.5 0.43 GE46396X012
1.0 0.86 GE46395X012
9.5 (0.375)
1.5 1.29 24669-101-688
2.0 1.72 24671-101-688 ---
2.5 2.15 --- --- 24671-101-688
20.6
(0.8125)
43.44 --- --- 24757-101-688
6.5 5.59 --- --- 24717-101-688
2* Seat Ring 9.5 mm (0.375 in) Orifice Diameter, 316 SST 24167
9.5 mm (0.375 in) Orifice Diameter, 416 SST 24167-3
1. Matching seat ring (key 2) must be furnished with replacement plug orders.
*Recommended spare parts

Instruction Manual
D103358X012
24000F Valves
May 2012
11
Table 3. Plug and Seat Ring for Soft Seat
KEY
NO. DESCRIPTION PLUG TYPE PLUG
NO.
ORIFICE
DIAMETER
mm (Inch)
CvKv
VALVE SIZE
DN 15 (NPS 1/2) DN 20 (NPS 3/4) DN 25 (NPS 1)
4* Plug/Stem
PTFE Seat
(Equal %) 577
9.5 (0.375)
1.0 0.86 24893-101-577
1.5 1.29 24796-101-577
2.0 1.72 24609-101-577 ---
2.5 2.15 --- --- 24609-101-577
20.6 (0.8125) 43.4 --- --- 24010-2-101-577
6.5 5.6 --- --- 24010-101-577
PTFE Seat
(Linear) 677 9.5 (0.375)
0.1 0.086 24660-101-677
0.2 0.172 24625-101-677
0.5 0.43 24617-101-677
1.0 0.86 24631-101-677
2.0 1.72 24656-101-677 ---
2.5 2.15 --- --- 24656-101-677
20.6 (0.8125) 43.4 --- --- 24010-1-101-677
2* Seat Ring 6.3 mm (0.25 in) Orifice Diameter 24161
9.5 mm (0.375 in) Orifice Diameter 24167
Figure 4. Baumann 24000F Trims
W9747 W9751 W9748 W9749 W9750
102 Linear
Low Flow Trim
151 Modified Equal %
Low Flow Trim
177 Modified Equal %
Low Flow Trim
548 / 577 / 588
Equal % Trim
648 / 677 / 688
Linear Trim
*Recommended spare parts

Instruction Manual
D103358X012
24000F Valves
May 2012
12
Figure5.Optional151LowFlowTrimAssembly
E1270
Figure 6. Optional 177 Low Flow Trim Assembly
E1271
Table 4. Plug and Seat for Baumann 151 Trim
KEY
NO. DESCRIPTION PLUG TYPE PLUG
SERIES
ORIFICE
DIAMETER
mm (Inch)
CvKv
VALVE SIZE
DN 15 (NPS 1/2) DN 20 (NPS 3/4) DN 25 (NPS 1)
4* Plug & Stem
Assy
Modified
Equal % Low
Flow
151 3.96 (0.156)
0.00013 0.0001 24151-2-101-151
0.00025 0.0002 24151-3-101-151
0.0005 0.0004 24151-4-101-151
0.001 0.0009 24151-5-101-151
0.002 0.0017 24151-6-101-151
0.004 0.003 24151-7-101-151
0.008 0.007 24151-8-101-151
0.015 0.013 24151-9-101-151
0.03 0.026 24151-10-101-151
0.06 0.052 24151-11-101-151
0.1 0.86 24151-12-101-151
0.2 0.17 24151-24-101-151
0.45 0.39 24151-25-101-151
51* Seat Sub-Assembly 24151-20
Table 5. Plug and Seat for Baumann 177 Trim
KEY
NO. DESCRIPTION PLUG TYPE PLUG
SERIES
ORIFICE
DIAMETER
mm (Inch)
CvKv
VALVE SIZE
DN 15 (NPS 1/2) DN 20 (NPS 3/4) DN 25 (NPS 1)
2* Seat Sub-Assembly (See table 6) 24241
4* Plug & Stem
Assy Low Flow 177 7.9 (0.3125)
0.0005 0.0004 24598-101-177
0.001 0.0009 24597-101-177
0.002 0.0017 24594-101-177
0.005 0.004 24595-101-177
0.01 0.009 24596-101-177
0.02 0.017 24621-10-101-177
0.05 0.04 24658-10-101-177
Table 6. Baumann 177 Low Flow Trim
Key No. Description
4* Plug (see table 5)
2a*
23 Gland
Seat Ring Subassembly,
P/N 24241
24 Retainer Nut
25 Insert
26 Housing
*Recommended spare parts

Instruction Manual
D103358X012
24000F Valves
May 2012
13
Figure 7. Spring-Loaded PTFE V-Ring Packing Kit
P/N 24494T001
E1240
Table 7. Spring-Loaded PTFE V-Ring Packing Kit
P/N 24494T001
Key No. Description Material
6* Spring ASTM A313 S30200
14 Packing Set PTFE / carbon-filled PTFE
16 Washer ASTM A240 S31600
20 Spacer J-2000 (filled PTFE)
Figure 8. Molded Graphite (Flexible Graphite)
Packing Kit P/N 24492T001
E1241
Table 8. Molded Graphite (Flexible Graphite) Packing
Kit P/N 24492T001
Key No. Description Material
13 Bushing, qty 2 Carbon - Graphite
14A Packing Ring,
qty 3 Graphite
14B Packing Ring Graphite
Figure 9. ENVIRO-SEAL Packing Kit
P/N 24490T001
E1248
Table 9. ENVIRO-SEAL Packing Kit
P/N 24490T001
Key No. Description Material
13 Bushing, qty 2 Carbon Graphite
14 Packing Set PTFE / carbon-filled PTFE
17 Belleville Spring ASTM B637 N07718
18 Bushing PEEK
19 Washer, qty 2 Modified PTFE
Special ENVIRO-SEAL Packing
Note
The ENVIRO-SEAL PTFE packing system is suitable for
100 ppm environmental applicationsonservicesupto
51.7 barg (750 psig) and process temperatures
ranging from -46 to 232_C(-50to450_F).
For non-environmental applications, this packing
system offers excellent performance at the same
temperature range up to the maximum valve working
pressure.
Temperature limits apply to packing arrangements
only. Complete valve assembly temperature limits may
differ. Refer to appropriate pressure/ temperature
ratings.
Reference Fisher Packing Selection Guidelines for
Sliding-Stem Valves, bulletin 59.1:062, D101986X012.

Instruction Manual
D103358X012
24000F Valves
May 2012
14
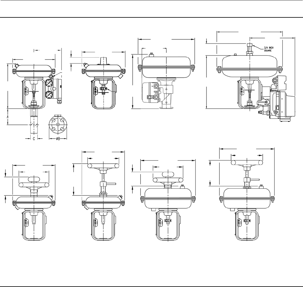
Figure 10. Dimensional Drawings
NOTE: ACTUATOR REMOVAL REQUIRES 115 mm (4.5 INCHES) VERTICAL CLEARANCE.
216
(48.5)
279
(411.0)
333
(413.1)
141
(5.5)
127 (5.0)
276
(10.9)
60
(2.4)
271
(10.7)
229
(9.0)
E1280
229
(9.0)
BAUMANN 32 ACTUATOR with
3660/3661 POSITIONER
BAUMANN 54 ATO/FAIL
CLOSED ACTUATOR w/
HANDWHEEL
BAUMANN 70 ACTUATOR w/
FIELDVUE DVC6010 DIGITAL
VALVE CONTROLLER
BAUMANN 32 ATC/FAIL
OPEN ACTUATOR WITH
HANDWHEEL
BAUMANN 54 ATC / FAIL
OPEN ACTUATOR WITH
HANDWHEEL
160 (46.3)
163 (6.4)
MAX
BAUMANN 32 ACTUATOR
WITH ADJUSTABLE OPEN/
CLOSE DUAL TRAVEL STOPS
160 (46.3)
130 (5.1)
MAX
71 (2.8)
MAX
94
(3.7)
MAX
152 (46.0)
216
(48.5)
31 (1.24)
216
(48.5)
279 (411.0)
279 (411.0)
152 (46.0)
BAUMANN 54 ACTUATOR w/
FIELDVUE DVC2000 DIGITAL
VALVE CONTROLLER
BAUMANN 32 ATO/FAIL
CLOSED ACTUATOR
WITH HANDWHEEL
mm
(inch)
216
(48.5)

Instruction Manual
D103358X012
24000F Valves
May 2012
15
Table 10. Baumann Valve Dimensions
VALVE SIZE A -- BONNET B -- DIAMETER C
Standard Extension
DN NPS mm Inch mm Inch mm Inch mm Inch
15 1/2 81.3 3.2 218.4 8.6 88.9 3.5 38.1 1.5
20 3/4 81.3 3.2 218.4 8.6 107.95 4.25 38.1 1.5
25 178.7 3.1 215.9 8.5 114.3 4.5 50.8 2.0
Table 11. Baumann Valve Assembly Weights
VALVE SIZE WEIGHTS
DN NPS kg lb
15 1/2 1.7 3.8
20 3/4 2.4 5.3
25 13.3 7.3
Table 12. Baumann Actuator Weights
ACTUATOR WEIGHTS
kg lbs
32 4.5 10
54 11.3 25
70 15.4 34
MV1020(1) 10 22
VA1020(1) 14 30
1. Electric actuators, reference electric actuator bulletins for more details (52.1:ECV,
D103347X012 and 52.1:NVACT, D103326X012)

Instruction Manual
D103358X012
24000F Valves
May 2012
16
Emerson Process Management
Marshalltown, Iowa 50158 USA
Sorocaba, 18087 Brazil
Chatham, Kent ME4 4QZ UK
Dubai, United Arab Emirates
Singapore 128461 Singapore
www.Fisher.com
The contents of this publication are presented for informational purposes only, and while every effort has been made to ensure their accuracy, they arenot
to be construed as warranties or guarantees, express or implied, regarding the products or services described herein or their use or applicability. All sales are
governed by our terms and conditions, which are available upon request. We reserve the right to modify or improve the designs or specifications of such
products at any time without notice.
E2009, 2012 Fisher Controls International LLC. All rights reserved.
Baumann, Fisher, FIELDVUE, and ENVIRO-SEAL are marks owned by one of the companies in the Emerson Process Management business unit of Emerson
Electric Co. Emerson Process Management, Emerson, and the Emerson logo are trademarks and service marks of Emerson Electric Co. All other marks are
the property of their respective owners.
Neither Emerson, Emerson Process Management, nor any of their affiliated entities assumes responsibility for the selection, use or maintenance
of any product. Responsibility for proper selection, use, and maintenance of any product remains solely with the purchaser and end user.