Emerson Liebert Mc Microchannel Outdoor Condenser 28 220Kw Users Manual 19536
2015-03-30
: Emerson Emerson-Liebert-Mc-Microchannel-Outdoor-Condenser-28-220Kw-Users-Manual-680444 emerson-liebert-mc-microchannel-outdoor-condenser-28-220kw-users-manual-680444 emerson pdf
Open the PDF directly: View PDF .
Page Count: 68
- Important Safety Guidelines
- Liebert MC Nomenclature
- 1.0 Introduction
- 2.0 Site Preparation
- 2.1 Site Considerations
- 2.2 Dimensions and Weights
- Table 1 Condenser net weights, shipping weights, dimensions and volume, approximate
- Table 2 Condenser net weight addition—taller legs
- Figure 2 Typical footprint dimensions, all units
- Figure 3 Condenser planning dimensional data—MCS028
- Figure 4 Condenser planning dimensions—MCM040, MCM080, MCM160 with/without Liebert Lee-Temp™
- Figure 5 Condenser planning dimensions–MCM120
- Figure 6 Condenser planning dimensions—MCL055, MCL110, MCL165 and MCL220
- Table 3 Condenser leg height and additional weight, MCL055, MCL110, MCL165 and MCK220
- Figure 7 Cabinet and anchor dimensions—MCL055, MCL110, MCL165 and MCL220 with Liebert Lee-Temp™ receiver
- 3.0 Inspection and Installation
- 3.1 Equipment Inspection
- Safety Information
- 3.2 Handling Unit on the Skid
- 3.3 Unit Storage
- 3.4 Unpacking the Condenser—All Unit Sizes
- 3.5 Preparing a Condenser for Moving and Installation—Units with One or Two Fans
- 3.6 Mounting the Condenser
- 4.0 Electrical Connections
- 5.0 Piping
- 5.1 Piping Guidelines
- 5.2 Field Piping Guidelines
- Figure 19 Liebert MC Condenser piping—Single-circuit units
- Table 6 Liebert MC Condenser piping sizes, single-circuit units
- Figure 20 Condenser piping for single-circuit condensers (with Liebert Lee-Temp™)
- Table 7 Condenser piping connection sizes—single-circuit condensers with Liebert Lee-Temp
- Figure 21 Piping: dimensions—dual circuit two-fan and four-fan units
- Table 8 Piping: dimensions—dual-circuit, two-fan and four-fan units
- Figure 22 Piping: dimensional data with Liebert Lee-Temp™—dual circuit condensers
- Table 9 Piping dimensions—dual circuit condensers with Liebert Lee-Temp
- 5.3 Refrigerant Planning Values
- 5.4 Equipment Application Guidelines
- 5.5 Refrigerant Oil Addition Procedures
- 5.6 System Dehydration/Leak Test
- 5.7 Liebert MC Condenser Charging, Units with Liebert Lee-Temp™ Systems
- 5.8 Liebert MC Condenser Charging with Liebert DSE™ Units
- 5.9 Liebert MC Condenser Charging, Units without Liebert Lee-Temp™ Systems
- 6.0 Checklist for Completed Installation
- 7.0 Initial Startup Checks and Commissioning
- 8.0 Control Operation
- 8.1 Premium Efficiency Control Board and Interface
- 8.2 Premium Efficiency Condenser Alarm Codes
- 9.0 System Maintenance
- 10.0 Troubleshooting

Precision Cooling
For Business-Critical Continuity™
Liebert® MC™
User Manual, 60Hz Air-Cooled Microchannel Condensers


i
TABLE OF CONTENTS
IMPORTANT SAFETY GUIDELINES . . . . . . . . . . . . . . . . . . . . . . . . . . . . . . . . . . . . . . . . . . . . . . . . . .1
LIEBERT MC NOMENCLATURE . . . . . . . . . . . . . . . . . . . . . . . . . . . . . . . . . . . . . . . . . . . . . . . . . . . .3
1.0 INTRODUCTION . . . . . . . . . . . . . . . . . . . . . . . . . . . . . . . . . . . . . . . . . . . . . . . . . . . . . . . . . .4
1.1 Control/Fan Types . . . . . . . . . . . . . . . . . . . . . . . . . . . . . . . . . . . . . . . . . . . . . . . . . . . . . . . . . . . 4
1.1.1 Premium Efficiency Control/EC Fan . . . . . . . . . . . . . . . . . . . . . . . . . . . . . . . . . . . . . . . . . . . . . . 4
1.1.2 Liebert Lee-Temp™ Refrigerant Control. . . . . . . . . . . . . . . . . . . . . . . . . . . . . . . . . . . . . . . . . . . 5
1.2 Sound Level . . . . . . . . . . . . . . . . . . . . . . . . . . . . . . . . . . . . . . . . . . . . . . . . . . . . . . . . . . . . . . . . 5
1.2.1 Liebert Quiet-Line Match Up . . . . . . . . . . . . . . . . . . . . . . . . . . . . . . . . . . . . . . . . . . . . . . . . . . . 5
1.3 Surge Protection Device (Optional) . . . . . . . . . . . . . . . . . . . . . . . . . . . . . . . . . . . . . . . . . . . . . . 5
2.0 SITE PREPARATION . . . . . . . . . . . . . . . . . . . . . . . . . . . . . . . . . . . . . . . . . . . . . . . . . . . . . .6
2.1 Site Considerations . . . . . . . . . . . . . . . . . . . . . . . . . . . . . . . . . . . . . . . . . . . . . . . . . . . . . . . . . . 6
2.2 Dimensions and Weights . . . . . . . . . . . . . . . . . . . . . . . . . . . . . . . . . . . . . . . . . . . . . . . . . . . . . . 6
3.0 INSPECTION AND INSTALLATION . . . . . . . . . . . . . . . . . . . . . . . . . . . . . . . . . . . . . . . . . . . .12
3.1 Equipment Inspection . . . . . . . . . . . . . . . . . . . . . . . . . . . . . . . . . . . . . . . . . . . . . . . . . . . . . . . 12
3.1.1 Packing Material . . . . . . . . . . . . . . . . . . . . . . . . . . . . . . . . . . . . . . . . . . . . . . . . . . . . . . . . . . . . 12
3.2 Handling Unit on the Skid. . . . . . . . . . . . . . . . . . . . . . . . . . . . . . . . . . . . . . . . . . . . . . . . . . . . 13
3.3 Unit Storage . . . . . . . . . . . . . . . . . . . . . . . . . . . . . . . . . . . . . . . . . . . . . . . . . . . . . . . . . . . . . . . 13
3.4 Unpacking the Condenser—All Unit Sizes . . . . . . . . . . . . . . . . . . . . . . . . . . . . . . . . . . . . . . . 14
3.5 Preparing a Condenser for Moving and Installation—Units with One or Two Fans. . . . . . 15
3.5.1 Attaching Legs, Removing the Skid and Attaching Slings-Units with One or Two Fans . . . 15
3.6 Mounting the Condenser . . . . . . . . . . . . . . . . . . . . . . . . . . . . . . . . . . . . . . . . . . . . . . . . . . . . . 17
4.0 ELECTRICAL CONNECTIONS . . . . . . . . . . . . . . . . . . . . . . . . . . . . . . . . . . . . . . . . . . . . . . .18
4.1 Line Voltage Wiring . . . . . . . . . . . . . . . . . . . . . . . . . . . . . . . . . . . . . . . . . . . . . . . . . . . . . . . . . 19
4.1.1 Wye vs. Delta Connection Power Supply . . . . . . . . . . . . . . . . . . . . . . . . . . . . . . . . . . . . . . . . . 20
4.2 Low-Voltage Control Wiring—Premium Efficiency Control Condenser . . . . . . . . . . . . . . . . 21
4.2.1 Electrical Field Connection Descriptions . . . . . . . . . . . . . . . . . . . . . . . . . . . . . . . . . . . . . . . . . 22
5.0 PIPING . . . . . . . . . . . . . . . . . . . . . . . . . . . . . . . . . . . . . . . . . . . . . . . . . . . . . . . . . . . . . . .25
5.1 Piping Guidelines . . . . . . . . . . . . . . . . . . . . . . . . . . . . . . . . . . . . . . . . . . . . . . . . . . . . . . . . . . . 25
5.2 Field Piping Guidelines . . . . . . . . . . . . . . . . . . . . . . . . . . . . . . . . . . . . . . . . . . . . . . . . . . . . . . 28
5.3 Refrigerant Planning Values . . . . . . . . . . . . . . . . . . . . . . . . . . . . . . . . . . . . . . . . . . . . . . . . . . 33
5.4 Equipment Application Guidelines . . . . . . . . . . . . . . . . . . . . . . . . . . . . . . . . . . . . . . . . . . . . . 34
5.5 Refrigerant Oil Addition Procedures. . . . . . . . . . . . . . . . . . . . . . . . . . . . . . . . . . . . . . . . . . . . 34
5.6 System Dehydration/Leak Test . . . . . . . . . . . . . . . . . . . . . . . . . . . . . . . . . . . . . . . . . . . . . . . . 34
5.7 Liebert MC Condenser Charging, Units with Liebert Lee-Temp™ Systems . . . . . . . . . . . . 34
5.8 Liebert MC Condenser Charging with Liebert DSE™ Units . . . . . . . . . . . . . . . . . . . . . . . . . 34
5.9 Liebert MC Condenser Charging, Units without Liebert Lee-Temp™ Systems. . . . . . . . . . 35

ii
6.0 CHECKLIST FOR COMPLETED INSTALLATION . . . . . . . . . . . . . . . . . . . . . . . . . . . . . . . . . . .40
6.1 Moving and Placing Equipment . . . . . . . . . . . . . . . . . . . . . . . . . . . . . . . . . . . . . . . . . . . . . . . 40
6.2 Electrical . . . . . . . . . . . . . . . . . . . . . . . . . . . . . . . . . . . . . . . . . . . . . . . . . . . . . . . . . . . . . . . . . 40
6.3 Piping . . . . . . . . . . . . . . . . . . . . . . . . . . . . . . . . . . . . . . . . . . . . . . . . . . . . . . . . . . . . . . . . . . . . 40
6.4 Other . . . . . . . . . . . . . . . . . . . . . . . . . . . . . . . . . . . . . . . . . . . . . . . . . . . . . . . . . . . . . . . . . . . . . 40
7.0 INITIAL STARTUP CHECKS AND COMMISSIONING . . . . . . . . . . . . . . . . . . . . . . . . . . . . . . . .41
7.1 Startup Checklist . . . . . . . . . . . . . . . . . . . . . . . . . . . . . . . . . . . . . . . . . . . . . . . . . . . . . . . . . . . 41
7.2 Initial Startup. . . . . . . . . . . . . . . . . . . . . . . . . . . . . . . . . . . . . . . . . . . . . . . . . . . . . . . . . . . . . . 41
8.0 CONTROL OPERATION . . . . . . . . . . . . . . . . . . . . . . . . . . . . . . . . . . . . . . . . . . . . . . . . . . .42
8.1 Premium Efficiency Control Board and Interface . . . . . . . . . . . . . . . . . . . . . . . . . . . . . . . . . 42
8.1.1 Initial Screen Upon Power-On . . . . . . . . . . . . . . . . . . . . . . . . . . . . . . . . . . . . . . . . . . . . . . . . . . 43
8.1.2 Main Menu Description . . . . . . . . . . . . . . . . . . . . . . . . . . . . . . . . . . . . . . . . . . . . . . . . . . . . . . . 43
8.1.3 Analog Signals Menu Description . . . . . . . . . . . . . . . . . . . . . . . . . . . . . . . . . . . . . . . . . . . . . . . 44
8.2 Premium Efficiency Condenser Alarm Codes . . . . . . . . . . . . . . . . . . . . . . . . . . . . . . . . . . . . . 45
8.2.1 Active Alarms Menu Description. . . . . . . . . . . . . . . . . . . . . . . . . . . . . . . . . . . . . . . . . . . . . . . . 45
8.2.2 History Alarms Menu Description. . . . . . . . . . . . . . . . . . . . . . . . . . . . . . . . . . . . . . . . . . . . . . . 46
9.0 SYSTEM MAINTENANCE . . . . . . . . . . . . . . . . . . . . . . . . . . . . . . . . . . . . . . . . . . . . . . . . . .49
9.1 General Procedures . . . . . . . . . . . . . . . . . . . . . . . . . . . . . . . . . . . . . . . . . . . . . . . . . . . . . . . . . 49
9.2 Condenser Cleaning . . . . . . . . . . . . . . . . . . . . . . . . . . . . . . . . . . . . . . . . . . . . . . . . . . . . . . . . . 49
9.2.1 When to Clean the Condenser Coil . . . . . . . . . . . . . . . . . . . . . . . . . . . . . . . . . . . . . . . . . . . . . . 49
9.2.2 What to Use to Clean the Condenser Coil. . . . . . . . . . . . . . . . . . . . . . . . . . . . . . . . . . . . . . . . . 50
9.2.3 How to Clean the Condenser Coil . . . . . . . . . . . . . . . . . . . . . . . . . . . . . . . . . . . . . . . . . . . . . . . 50
9.3 Fan Replacement . . . . . . . . . . . . . . . . . . . . . . . . . . . . . . . . . . . . . . . . . . . . . . . . . . . . . . . . . . . 51
9.4 Premium Efficiency Control Board Replacement . . . . . . . . . . . . . . . . . . . . . . . . . . . . . . . . . . 56
9.4.1 Replacement Preparation. . . . . . . . . . . . . . . . . . . . . . . . . . . . . . . . . . . . . . . . . . . . . . . . . . . . . . 56
9.4.2 Installation . . . . . . . . . . . . . . . . . . . . . . . . . . . . . . . . . . . . . . . . . . . . . . . . . . . . . . . . . . . . . . . . . 58
9.4.3 Maintenance Inspection Checklist . . . . . . . . . . . . . . . . . . . . . . . . . . . . . . . . . . . . . . . . . . . . . . 59
10.0 TROUBLESHOOTING . . . . . . . . . . . . . . . . . . . . . . . . . . . . . . . . . . . . . . . . . . . . . . . . . . . . .60

iii
FIGURES
Figure 1 Two-fan Liebert MC condenser . . . . . . . . . . . . . . . . . . . . . . . . . . . . . . . . . . . . . . . . . . . . . . . . . . . . . 4
Figure 2 Typical footprint dimensions, all units . . . . . . . . . . . . . . . . . . . . . . . . . . . . . . . . . . . . . . . . . . . . . . . 7
Figure 3 Condenser planning dimensional data—MCS028 . . . . . . . . . . . . . . . . . . . . . . . . . . . . . . . . . . . . . . 7
Figure 4 Condenser planning dimensions—MCM040, MCM080, MCM160 with/without Liebert
Lee-Temp™ . . . . . . . . . . . . . . . . . . . . . . . . . . . . . . . . . . . . . . . . . . . . . . . . . . . . . . . . . . . . . . . . . . . . . 8
Figure 5 Condenser planning dimensions–MCM120. . . . . . . . . . . . . . . . . . . . . . . . . . . . . . . . . . . . . . . . . . . . 9
Figure 6 Condenser planning dimensions—MCL055, MCL110, MCL165 and MCL220. . . . . . . . . . . . . . . 10
Figure 7 Cabinet and anchor dimensions—MCL055, MCL110, MCL165 and MCL220 with Liebert
Lee-Temp™ receiver . . . . . . . . . . . . . . . . . . . . . . . . . . . . . . . . . . . . . . . . . . . . . . . . . . . . . . . . . . . . . 11
Figure 8 Equipment recommended for handling a Liebert condenser . . . . . . . . . . . . . . . . . . . . . . . . . . . . . 13
Figure 9 Forklift position with one-fan or two-fan condensers . . . . . . . . . . . . . . . . . . . . . . . . . . . . . . . . . . 13
Figure 10 Removing protective material . . . . . . . . . . . . . . . . . . . . . . . . . . . . . . . . . . . . . . . . . . . . . . . . . . . . . 14
Figure 11 Attaching legs to one-fan or two fan condensers . . . . . . . . . . . . . . . . . . . . . . . . . . . . . . . . . . . . . . . 15
Figure 12 Securing slings to condensers for lifting off skid. . . . . . . . . . . . . . . . . . . . . . . . . . . . . . . . . . . . . . . 15
Figure 13 Remove skid, set condenser on floor . . . . . . . . . . . . . . . . . . . . . . . . . . . . . . . . . . . . . . . . . . . . . . . . 16
Figure 14 Lifting condensers with one, two, three or four fans . . . . . . . . . . . . . . . . . . . . . . . . . . . . . . . . . . . 17
Figure 15 Wye vs. Delta power supply connection diagram . . . . . . . . . . . . . . . . . . . . . . . . . . . . . . . . . . . . . . 20
Figure 16 Typical connections, Premium Efficiency Control . . . . . . . . . . . . . . . . . . . . . . . . . . . . . . . . . . . . . . . 22
Figure 17 Field configurations and setting adjustments, Premium Efficiency Control . . . . . . . . . . . . . . . . 24
Figure 18 Piping schematic . . . . . . . . . . . . . . . . . . . . . . . . . . . . . . . . . . . . . . . . . . . . . . . . . . . . . . . . . . . . . . . . 27
Figure 19 Liebert MC Condenser piping—Single-circuit units. . . . . . . . . . . . . . . . . . . . . . . . . . . . . . . . . . . . 29
Figure 20 Condenser piping for single-circuit condensers (with Liebert Lee-Temp™) . . . . . . . . . . . . . . . . . 30
Figure 21 Piping: dimensions—dual circuit two-fan and four-fan units . . . . . . . . . . . . . . . . . . . . . . . . . . . . 31
Figure 22 Piping: dimensional data with Liebert Lee-Temp™—dual circuit condensers . . . . . . . . . . . . . . . 32
Figure 23 Premium efficiency fan control board. . . . . . . . . . . . . . . . . . . . . . . . . . . . . . . . . . . . . . . . . . . . . . . . . . 42
Figure 24 Premium Efficiency Control Interface - Human Machine Interface (HMI). . . . . . . . . . . . . . . . . . 43
Figure 25 Initial controller display . . . . . . . . . . . . . . . . . . . . . . . . . . . . . . . . . . . . . . . . . . . . . . . . . . . . . . . . . . 43
Figure 26 Main Menu operation and structure . . . . . . . . . . . . . . . . . . . . . . . . . . . . . . . . . . . . . . . . . . . . . . . . 43
Figure 27 Analog Signals Menu . . . . . . . . . . . . . . . . . . . . . . . . . . . . . . . . . . . . . . . . . . . . . . . . . . . . . . . . . . . . 44
Figure 28 Active alarms menu . . . . . . . . . . . . . . . . . . . . . . . . . . . . . . . . . . . . . . . . . . . . . . . . . . . . . . . . . . . . . 45
Figure 29 History alarms menu . . . . . . . . . . . . . . . . . . . . . . . . . . . . . . . . . . . . . . . . . . . . . . . . . . . . . . . . . . . . 46
Figure 30 EBM small and medium fan, Liebert MC series MCS/MCM . . . . . . . . . . . . . . . . . . . . . . . . . . . . . 55
Figure 31 EBM large fan—Liebert MC series MCL . . . . . . . . . . . . . . . . . . . . . . . . . . . . . . . . . . . . . . . . . . . . 55
Figure 32 Ziehl-Abegg small, medium and large fan, Liebert MC series MCS, MCM and MCL . . . . . . . . . 56
Figure 33 Jumper locations on Control Board . . . . . . . . . . . . . . . . . . . . . . . . . . . . . . . . . . . . . . . . . . . . . . . . . 57

iv
TABLES
Table 1 Condenser net weights, shipping weights, dimensions and volume, approximate . . . . . . . . . . . . . 6
Table 2 Condenser net weight addition—taller legs . . . . . . . . . . . . . . . . . . . . . . . . . . . . . . . . . . . . . . . . . . . 6
Table 3 Condenser leg height and additional weight, MCL055, MCL110, MCL165 and MCK220. . . . . . 10
Table 4 Electrical data, three-phase, 60Hz condenser, Premium Version (EC control). . . . . . . . . . . . . . . 19
Table 5 Electrical data, Liebert Lee-Temp™ receiver, 60Hz . . . . . . . . . . . . . . . . . . . . . . . . . . . . . . . . . . . . 20
Table 6 Liebert MC Condenser piping sizes, single-circuit units . . . . . . . . . . . . . . . . . . . . . . . . . . . . . . . . 29
Table 7 Condenser piping connection sizes—single-circuit condensers with Liebert Lee-Temp. . . . . . . . 30
Table 8 Piping: dimensions—dual-circuit, two-fan and four-fan units . . . . . . . . . . . . . . . . . . . . . . . . . . . . 31
Table 9 Piping dimensions—dual circuit condensers with Liebert Lee-Temp . . . . . . . . . . . . . . . . . . . . . . 32
Table 10 Refrigerant required, R-407C, approximate . . . . . . . . . . . . . . . . . . . . . . . . . . . . . . . . . . . . . . . . . . 33
Table 11 Refrigerant required, R-410A, approximate . . . . . . . . . . . . . . . . . . . . . . . . . . . . . . . . . . . . . . . . . . 33
Table 12 Interconnecting piping refrigerant charge . . . . . . . . . . . . . . . . . . . . . . . . . . . . . . . . . . . . . . . . . . . 34
Table 13 Target subcooling for ambient outdoor temperature . . . . . . . . . . . . . . . . . . . . . . . . . . . . . . . . . . . 36
Table 14 Difference in subcooling measurements—Indoor minus outdoor. . . . . . . . . . . . . . . . . . . . . . . . . . 37
Table 15 Liquid pressure and temperature chart . . . . . . . . . . . . . . . . . . . . . . . . . . . . . . . . . . . . . . . . . . . . . 38
Table 16 Analog signal definitions . . . . . . . . . . . . . . . . . . . . . . . . . . . . . . . . . . . . . . . . . . . . . . . . . . . . . . . . . 44
Table 17 System alarm information . . . . . . . . . . . . . . . . . . . . . . . . . . . . . . . . . . . . . . . . . . . . . . . . . . . . . . . . 47
Table 18 EC Fan alarm information . . . . . . . . . . . . . . . . . . . . . . . . . . . . . . . . . . . . . . . . . . . . . . . . . . . . . . . . 48
Table 19 Troubleshooting. . . . . . . . . . . . . . . . . . . . . . . . . . . . . . . . . . . . . . . . . . . . . . . . . . . . . . . . . . . . . . . . . 60

Important Safety Guidelines
1Liebert
® MC™
IMPORTANT SAFETY GUIDELINES
SAVE THESE INSTRUCTIONS
This manual contains important safety instructions that should be followed during the installation
and maintenance of the Liebert MC. Read this manual thoroughly before attempting to install or
operate this unit.
Only qualified personnel should move, install or service this equipment.
Adhere to all warnings, cautions and installation, operating and safety instructions on the unit and in
this manual. Follow all operating and user instructions.
!
WARNING
Risk of improper handling, installation, and service. Can cause property damage, injury, or
death.
Only trained and qualified personnel should work on this unit. Read all installation,
operation and safety alerts and instructions and wear appropriate protective headgear, safety
glasses, gloves and clothing before installing, operating or servicing this unit.
!
WARNING
Risk of arc flash and electric shock hazard. Disconnect all local and remote electric power
supplies and wear appropriate personal protective equipment per NFPA 70E before working
within the electric control enclosure or the fan motor connection box(es). Failure to comply can
cause serious injury or death.
This unit contains lethal voltage. The line side of the unit disconnect switch remains
energized when the unit disconnect switch is in the “Off” position. Use a voltmeter to verify
that the line side input electric power to the unit disconnect switch is off before working on
any electrical components or connections.
!
WARNING
Risk of high-speed, rotating fan blades. Can cause serious personal injury or death.
Fan blades can automatically start rotating without warning at any time during a cooling
cycle or after power is restored after a power failure. Disconnect all local and remote electric
power supplies and verify with a voltmeter that the power is off and that the fan blades have
stopped rotating before working within the cabinet or servicing fan motors.
!
WARNING
Risk of electric shock. Can cause injury or death.
The variable speed control may contain a stored electrical charge. Disconnect all local and
remote electrical power supplies and wait 10 minutes before working within condenser main
electrical enclosure or fan electrical enclosure.
!
WARNING
Risk of heavy condenser falling or tipping over. Can cause property damage, serious injury or
death.
Confirm that all components of the lifting system are rated for the weight of the condenser by
an OSHA Certified rating organization before attempting to lift and/or move the condenser.
See 2.2 - Dimensions and Weights for the condenser weights.
!
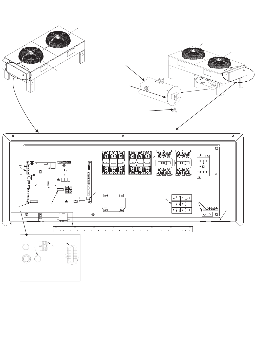
CAUTION
Risk of hot surfaces. Can cause injury.
Fan motors, transformers, piping and other components may become extremely hot during
normal operation. Wear thermally insulated gloves and appropriate protective clothing and
allow time for components to cool when working within the cabinet or electric control
enclosure.

Important Safety Guidelines
Liebert® MC™2
NOTICE
Risk of overhead interference. Can cause unit and/or structure damage.
Refer to the installation plans before moving the unit to verify clearances.
NOTICE
Risk of improper storage. Can cause unit damage.
Keep unit upright and protected from contact damage.
!
CAUTION
Risk of sharp edges, splinters and exposed fasteners. Can cause personal injury.
Only properly trained and qualified personnel wearing appropriate safety headgear, gloves,
shoes, and glasses should attempt to move, lift, remove packaging from or prepare unit for
installation.
!
CAUTION
Risk of explosive discharge of high-pressure gas. Can cause injury.
Relieve system pressure and verify that the indoor and outdoor units are Off before making
piping connections/disconnections.

Liebert MC Nomenclature
3Liebert
® MC™
LIEBERT MC NOMENCLATURE
Model Number – Part 1/2 Model Details Part 2/2
12345678910111213141516171819202122232425
MCM040E1AD0A0VU000000****
1-2. Unit Family; MC = Microchannel Condenser 12. Panel Material
3. Platform Size A = Bright Aluminum
S = Small 13. Connection Pipe Unit of Measurement
M = Medium 0 = Inches (Std. ACR Copper)
L = Large 14. Legs Included
4-6. Nominal Condenser Capacity, kW V = 18" Tall Legs (Std.)
Example: 040 = 40kW @ 95°F(35°C) & 27°R (15°K) ITD X = 36" Tall Legs with Bracing
7. Control/Fan Type Y = 48" Tall Legs with Bracing
E = Premium & EC Fan Z = 60" Tall Legs with Bracing
8. Refrigerant Circuits/System Refrigerant type 15. Agency Certification
1 = Single Refrigerant Circuit, R-410A U = CSA Listed, Marked with CSA c-us logo
2 = Dual Refrigerant Circuit, R-410A 1 = CSA listed, IBC/OSHPD Seismic Certification
7 = Single Refrigerant Circuit, R-407C, R-22 0 = No Agency Listing
8 = Dual Refrigerant Circuit, R-407C, R-22 16. Sound Level
9. Power Supply 0 = Standard Sound
A = 460V / 3ph/60Hz 17. Liebert Lee-Temp™ Configuration
Y = 208/230V/3ph/60Hz 0 = None (Standard)
2 = 380/415V/3ph/60Hz
10. Packaging 1 = Factory Set for Liebert Lee-Temp Kits
D = Domestic, Non-Stackable (Horizontal Airflow Orientation) 18-21. Undefined - Reserved For Future Use
E = Export Crating - Non-Stackable (Horizontal Airflow Orientation) 22-25. Factory Configuration Number
11. Coil Coating
0 = None
E = E-Coat (Epoxy)

Introduction
Liebert® MC™4
1.0 INTRODUCTION
1.1 Product Description and Features
The Liebert MC condenser is a low-profile, direct-drive propeller fan-type air-cooled unit suitable for
mounting outdoors. It provides heat rejection for either one or two separate refrigeration circuits,
matches the heat rejection capacity corresponding with the outdoor ambient temperature, and with
each corresponding compressor heat rejection requirements. Constructed with an aluminum cabinet,
galvanized steel frame and microchannel coil, the unit is quiet and corrosion resistant. The condenser
is quickly and easily installed, because all internal wiring is completed at the factory with only
electrical connections to be made at the job site. All electrical connections and controls are enclosed in
an integral weatherproof section of the condenser.
Figure 1 Two-fan Liebert MC condenser
1.1 Control/Fan Types
1.1.1 Premium Efficiency Control/EC Fan
Premium Efficiency Controls and EC fans are matched to provide superior system energy efficiency.
The premium control board allows CANbus communication with the indoor unit’s Liebert iCOM®
control. This communication feature provides compressor run signals, condenser operating mode
changes, condenser alarm monitoring, simplified system charging procedures and outdoor ambient
temperature monitoring. The EC fan is an integral assembly of an electronically commutated motor,
quiet fan blade assembly and finger/hail guard. The fans are controlled by the premium control board
using pressure transducer signals from the refrigerant circuit and factory programming to control the
refrigerant head pressure.
The premium control board uses inputs from the indoor unit, condenser refrigerant pressures and
temperatures and ambient temperatures to modulate the EC fan motor speed from 0 to 100% RPM,
maintaining refrigerant head pressure setpoints. The control board, EC fan(s) and transducer(s) are
factory-wired. Dual refrigeration circuit condensers adjust fans of each circuit independently to match
each circuit’s head pressure conditions. Multiple fan single refrigeration circuit condensers adjust all
fans to the same RPM to maintain head pressure. The control system provides refrigerant head
pressure control for outdoor ambient temperatures as low as -30°F (-35°C), provided that the total
design range (from minimum to maximum) is 125°F (70°C) or less. Liebert Lee-Temp™ kits are
required only when the design temperature ranges exceed 125°F (70°C) for standard match ups and
115°F (65°C) for Liebert Quiet-Line™ match ups.

Introduction
5Liebert
® MC™
1.1.2 Liebert Lee-Temp™ Refrigerant Control
The Liebert Lee-Temp head pressure control system utilizes head pressure control valve(s), extra
refrigerant and insulated refrigerant receiver(s) with heater pads to assist system starting and to
maintain proper operating head pressures in outdoor ambient temperatures below the rating point of
the Liebert MC control type. The system works by flooding the condenser coil with liquid refrigerant
to a level that balances the system condensing requirements with the condenser coil surface available
to reject the system heat. During the summer, the system requires the entire condenser coil surface
for heat rejection and most of the refrigerant is stored in the receiver. In the winter, the same amount
of heat can be rejected by only a fraction of the coil surface. As head pressure begins to fall, the control
valve restricts the flow of liquid refrigerant existing from the condenser. This extra liquid refrigerant
reduces the effective condenser surface area available for heat transfer. The head pressure control
valve also bypasses hot gas into the receiver to warm the liquid and maintain liquid pressure for
proper operation of the expansion valve. Liebert Lee-Temp kit is optional for condensers and is
field-installed. Condenser control boards are factory-configured for Liebert Lee-Temp if ordered with
Liebert Lee-Temp receivers. They can be field-configured if Liebert Lee-Temp system is added later.
1.2 Sound Level
Liebert MC condensers utilize low air resistance coil(s) and slower speed fan motors to yield the
required heat rejection at significantly lower sound levels. EC fans are designed to yield the same
maximum sound levels at summer design conditions to help your facility meet noise codes with
moderate operating sound levels.
1.2.1 Liebert Quiet-Line Match Up
Special match ups of premium condensers are available for applications needing to meet even lower
governmental sound regulations. Lower sound levels are achieved by oversizing the condenser, which
will decrease the maximum airflow and sound level produced by the condenser at design outdoor air
temperatures. This feature requires special setup of the indoor unit. Liebert Lee-Temp may be
required for these applications.
1.3 Surge Protection Device (Optional)
An optional surge protection device (SPD) can be field-wired to protect the condenser from surges that
threaten sensitive equipment. The condenser’s electrical panel provides a terminal block to allow the
SPD to be wired in parallel with the high-voltage power. An additional low-voltage terminal block is
provided on condensers with Premium Control Boards to allow monitoring of the SPD alarm circuit.
The Liebert PowerSure CM™ surge protection device provides 50kA per mode of surge current
protection. An illuminated green LED indicates the SPD is On and providing full protection. An
illuminated red LED indicates that the device’s protection may have been reduced and may require
replacement.
Both lights extinguished indicates there is no power to the condenser or the condenser disconnect is in
the Off position.

Site Preparation
Liebert® MC™6
2.0 SITE PREPARATION
2.1 Site Considerations
• Condensers should be installed in a location offering maximum security and access for
maintenance.
• Avoid ground-level sites with public access and areas prone to heavy snow or ice accumulations.
• To ensure adequate air supply, Emerson® recommends that condensers be installed in an area
with clean air, away from loose dirt and foreign matter that might clog the coil. In addition,
condensers should be located no closer than 3 feet (1m) from a wall, obstruction or adjacent unit.
• For roof installation, mount the condenser on suitable curbs or other supports in accordance with
local codes.
• Condensers must not be installed in a pit.
• Condensers must be installed on a level surface to ensure proper refrigerant flow.
• Use caution when installing condensers below the indoor unit. Condensers must not be installed
more than 15ft. (4.6m) below the indoor unit. Condensers with Liebert Lee-Temp™ receivers must
be installed at or above the level of the indoor units to maintain proper subcooling.
• Liebert Lee-Temp receiver tanks should be mounted on the condenser legs for proper operation.
Contact Emerson Application Engineering Department for assistance with applications requiring
remote mounting of receivers.
• Condensers must be installed in vertical airflow orientation to maintain the electrical box’s
NEMA 3R rating.
2.2 Dimensions and Weights
Table 1 Condenser net weights, shipping weights, dimensions and volume, approximate
Model #
Number
of Fans
Condenser
Net Weight
lb (kg)
Domestic Packaging Export Packaging
Packaged
Weight
lb (kg)
Dimensions
(LxWxH)
in. (cm)
Volume
ft3 (m3)
Packaged
Weight
lb (kg)
Dimensions
(LxWxH)
in. (cm)
Volume
ft3 (m3)
MCS028 1 154 (70) 335 (152) 76x36x63
(193x91x160) 100 (2.8) 455 (206) 77x37x64
(196x94x163) 106 (3.0)
MCM040 1 231 (105) 410 (186) 76x36x63
(193x91x160) 100 (2.8) 535 (243) 77x37x64
(196x94x163) 106 (3.0)
MCM080 2 441 (200) 750 (340) 136x36x63
(345x91x160) 179 (5.0) 945 (429) 137x37x64
(348x94x163) 188 (5.3)
MCM120 3 672 (305) 1110 (503) 196x36x63
(498x91x160) 257 (7.3) 1380 (626) 197x37x64
(413x66x142) 270 (7.7)
MCM160 4 860 (390) 1425 (646) 256x36x63
(650x91x160) 336 (9.5) 1770 (803) 257x37x64
(653x94x163) 352 (10)
MCL055 1 344 (156) 525 (238) 76x36x63
(193x91x160) 100 (2.8) 645 (293) 77x37x64
(196x94x163) 106 (3.0)
MCL110 2 602 (273) 910 (413) 136x36x63
(345x91x160) 179 (5.0) 1110 (503) 137x37x64
(348x94x163) 188 (5.3)
MCL165 3 891 (404) 1330 (603) 196x36x63
(498x91x160) 257 (7.3) 1600 (726) 197x37x64
(413x66x142) 270 (7.7)
MCL220 4 1186 (538) 1755 (796) 256x36x63
(650x91x160) 336 (9.5) 2095 (950) 257x37x64
(653x94x163) 352 (10)
Net and packaged weights will increase with factory options: legs taller than 18", coated coils and seismic options.
Field-installed receivers also add to net weights. Consult factory for additional information.
Table 2 Condenser net weight addition—taller legs
Leg Height
In. (mm)
Additional Weight by Condenser Model, lb. (kg)
MCS028 MCM040 MCM080 MCM120 MCM160 MCL055 MCL110 MCL165 MCL220
36 (914) 120 120 139 242 236 127 148 222 242
48 (1219) 151 151 171 304 283 159 179 269 289
60 (1524) 183 183 202 367 330 190 210 316 336

Site Preparation
7Liebert
® MC™
Figure 2 Typical footprint dimensions, all units
Figure 3 Condenser planning dimensional data—MCS028
Leg Height
A *, In. (mm)
B
In. (mm)
C
In. (mm)
18 (457) 31-5/8 (803) 39-5/8 (1006
36 (914) 49-5/8 (1260) 57-5/8 (1464)
48 (1219) 61-5/8 (1565) 69-5/8 (1768)
60 (1524) 73-5/8 (1870) 81-5/8 (2073)
* 18" legs standard for all models. Cross-bracing is required for legs longer than 18" (457mm). Number varies according to model and
options.
See Tables 1 and 2 for weights, including added weight for legs of various lengths.
Source: DPN002372, Rev. 2; DPN002373, Rev. 3
3-5/8"
(93mm)
2-1/2" (64mm)
2-1/2"
(64mm)
13/16" (21mm) 3-5/8"
(93mm)
1-7/8" (48mm)
1/2"x1"
(12.7mm x 25.4mm)
Obround
1-7/8" (48mm)
DPN002372
Rev. 2
40-7/8"
(1038mm)
42-1/2"
(1079mm)
35-7/8"
(910mm)
Electric Box End
One-Fan
Condenser
ANCHOR PLAN
51-5/8"
(1310mm)
42-3/4"
(1085mm)
44-1/8"
(1121mm)
Emerson recommends a
clearance of 36" (915mm)
on each side for proper
operation and component
access.
Height to Top
of Fan Guard
C
42-1/2"
(1079mm)
B
A
51-5/8"
(1310mm)
42-3/4"
(1085mm)
44-1/8"
(1121mm)
Height to Top
of Fan Guard
C
15-1/4"
(387mm)
42-1/2"
(1079mm)
B
A
DPN002373
Rev. 3
For typical footprint
dimensions, see Figure 2

Site Preparation
Liebert® MC™8
Figure 4 Condenser planning dimensions—MCM040, MCM080, MCM160 with/without Liebert Lee-Temp™
Liebert
Model #
No.
Fans
A
In. (mm)
B
In. (mm)
C
In. (mm)
D
In. (mm)
E
In. (mm)
Leg
Height
F * In
(mm) G H
MCM040 1 57-3/16 (1453) — 48 (1219) 46-5/16 (1177) — 18 (457) 31-5/8 (803) 39-5/8 (1006
MCM080 2 105-1/4 (2674) — 96-1/16 (2440) 94-7/16 (2398) — 36 (914) 49-5/8 (1260) 57-5/8 (1464)
MCM160 4 202-7/16 (5142) 113-1/2 (2883) 192-1/4 (4883) 94-7/16 (2398) 96-3/16 (2444) 48 (1219) 61-5/8 (1565) 69-5/8 (1768)
Source: DPN002172, Rev. 3; DPN002189, Rev. 4 60 (1524) 73-5/8 (1870) 81-5/8 (2073)
* 18" legs standard for all models. Cross-bracing required for legs longer than 18". Number varies according to model and options.
See Tables 1 and 2 for weights, including added weight for legs of various lengths. Source: DPN002172, Rev. 3; and DPN002189, Rev. 4.
DPN002172, Rev 3
DPN002189, Rev. 4
A
B
C
F
G
H
D
E
46-5/16"
(1177mm)
44-3/8"
(1127mm)
Leg supplied for
each Liebert
Lee-Temp kit on
2- & 4-fan models
Electric Box End
39-5/16"
(999mm)
46"
(1168mm)
46"
(1168mm)
15-1/4"
387mm
15-1/4"
387mm
For dual
circuit only
46-1/4"
(1175mm)
46-1/4"
(1175mm)
Height to Top
of Fan Guard
Height to Top
of Fan Guard
Provided On
Four-Fan Models
Emerson recommends a clearance of
36" (915mm) on each side for proper
operation and component access.
Eyebolts for lifting
condenser provided
on four-fan models
A
B
C
F
G
H
46-5/16"
(1177mm)
44-3/8"
(1127mm)
39-5/16"
(999mm)
One-Fan
Condenser
Electric Box End
ANCHOR PLAN
(One-Fan Condenser)
ANCHOR PLAN
For typical footprint
dimensions, see Figure 2
See table
below for
dimensions
F, G a n d H

Site Preparation
9Liebert
® MC™
Figure 5 Condenser planning dimensions–MCM120
Leg Height
A *, In. (mm)
B
In. (mm)
C
In. (mm)
18 (457) 31-5/8 (803) 39-5/8 (1006
36 (914) 49-5/8 (1260) 57-5/8 (1464)
48 (1219) 61-5/8 (1565) 69-5/8 (1768)
60 (1524) 73-5/8 (1870) 81-5/8 (2073)
* 18" legs standard for all models. Cross-bracing required for legs longer than 18". Number varies according to model and options.
See Tables 1 and 2 for weights, including added weight for legs of various lengths.
Source: DPN002555, Rev. 1
A
Shown with typical 60" legs.
152-3/4"
(3880mm)
46-1/4"
1175mm
B
C
A
144-5/16"
(3666mm)
Liebert DSE receiver adds
8-1/2" (216mm) to the unit
width and may be mounted
on the right or left side.
DETAIL A
Electrical Box End
46"
(1169mm)
Fastener assembly,
fender washer and
hex nuts.
4 each required,
2 places
Spacer
2 each required,
2 places
Emerson recommends a clearance of
36" (915mm) on each end and each side
for proper operation and component access.
46-5/16" (1177mm)
39-5/16"
(999mm)
44-3/8"
(1127mm)
1-7/8"
(48mm)
94-7/16"
(2398mm)
Install two (2) each 1/8"(3.18mm)
leg spacers in each of these
locations (see note below)
NOTE:
Install (2) two condenser leg spacers, part number 304679P1, in two places where shown, between each pair of legs
that adjoin each other.
Use (4) four of part number: 301375G1 (fastener assembly), 301369P1 (washer fender) and 301392P1 (nut hex),
to secure each pair of legs and spacers together. DPN002555
Rev. 1
ANCHOR PLAN
For typical footprint
dimensions, see Figure 2
See table below for
dimensions A, B and C

Site Preparation
Liebert® MC™10
Figure 6 Condenser planning dimensions—MCL055, MCL110, MCL165 and MCL220
Table 3 Condenser leg height and additional weight, MCL055, MCL110, MCL165 and MCK220
Model #
# of
Fans
A
in. (mm)
B
in. (mm)
C
in. (mm)
D
in. (mm)
E
in. (mm)
Leg Height
F * In. (mm)
G
In. (mm)
H
In. (mm)
MCL055 1 68
(1727) —56
(1423)
54-3/8
(1381) — 18 (457) 35-7/8
(911)
43-5/8
(1108)
MCL110 2 124-1/8
(3152) —112-1/8
(2848)
110-1/2
(2806) — 36 (914) 53-7/8
(1368)
61-5/8
(1565)
MCL165 3 180-1/4
(4578)
73-7/16
(1866)
168-1/4
(4274)
110-1/2
(2806)
56-1/8
(1425) 48 (1219) 65-7/8
(1673)
73-5/8
(1870)
MCL220 4 236-5/16
(6003)
129-9/16
(3291)
224-3/8
(5699)
110-1/2
(2806)
112-1/4
(2851) 60 (1524) 77-7/8
(1978)
85-5/8
(2175)
* 18" legs standard for all models. Cross-bracing required for legs longer than 18" (457mm). Number varies according to model and options.
See Tables 1 and 2 for weights, including added weight for legs of various lengths.
Source: DPN002416, Rev. 2
Emerson recommends a clearance of
36" (915mm) on each side for proper
operation and component access.
Eyebolts for lifting condenser
provided on 3&4 fan models
55-5/8"
(1413mm)
55-1/2"
(1409mm)
53-7/8"
(1368mm)
Electric Box End
48-3/4"
(1239mm)
Height to Top
of Fan Guard
DPN002416
Rev. 2
ANCHOR PLAN
Provided on
3- & 4- Fan Models
DE
For typical footprint
dimensions, see Figure 2
See Table 3 for
dimensions F, G and H

Site Preparation
11 Liebert® MC™
Figure 7 Cabinet and anchor dimensions—MCL055, MCL110, MCL165 and MCL220 with Liebert
Lee-Temp™ receiver
Model #
# of
Fans
A
in. (mm)
B
in. (mm)
C
in. (mm)
D
in. (mm)
E
in. (mm)
Leg Height
F *
In. (mm)
G
In. (mm)
H
In. (mm)
MCL055 1 68
(1727) —56
(1423)
54-3/8
(1381) — 18 (457) 35-7/8
(911)
43-5/8
(1108
MCL110 2 124-1/8
(3152) —112-1/8
(2848)
110-1/2
(2806) — 36 (914) 53-7/8
(1368)
61-5/8
(1565)
MCL165 3 180-1/4
(4578)
73-7/16
(1866)
168-1/4
(4274)
110-1/2
(2806)
56-1/8
(1425) 48 (1219) 65-7/8
(1673)
73-5/8
(1870)
MCL220 4 236-5/16
(6003)
129-9/16
(3291)
224-3/8
(5699)
110-1/2
(2806)
112-1/4
(2851) 60 (1524) 77-7/8
(1978)
85-5/8
(2175)
* 18" legs standard for all models. Cross-bracing required for legs longer than 18" (457mm). Number varies according to model and options.
See Tables 1 and 2 for weights, including added weight for legs of various lengths.
Source: DPN002415, Rev. 3
Emerson recommends a clearance of
36" (915mm) on each side for proper
operation and component access.
Eyebolts for lifting condenser
provided on 3&4 fan models
55-1/2"
(1409mm)
53-7/8"
(1368mm)
55-5/8"
(1413mm)
Height
to Top
of Fan
Guard
54-3/8"
(1381mm)
Electric Box End
48-3/4"
(1239mm)
ANCHOR PLAN
(1) leg supplied for
each Liebert
Lee-Temp
kit on 2, 3, & 4
fan models
Provided on
3- & 4- Fan
Models
D
E
DPN002415
Rev. 3
For typical footprint
dimensions, see Figure 2

Inspection and Installation
Liebert® MC™12
3.0 INSPECTION AND INSTALLATION
3.1 Equipment Inspection
Before unpacking the condenser, verify that the labeled equipment matches the bill of lading.
Carefully inspect all items for damage, either visible or concealed. Report any damage immediately to
the carrier and your local Emerson representative. File a damage claim with the carrier and send a
copy to your local Emerson representative.
3.1.1 Packing Material
All material used to package this unit is recyclable. Save it for future use or dispose of the material
appropriately.
SAFETY INFORMATION
NOTICE
Risk of overhead interference. Can cause unit and/or structure damage.
Refer to the installation plans before moving the unit to verify clearances.
NOTICE
Risk of improper forklift handling. Can cause unit damage.
Keep the forklift tines level and at a height that will fit under the skid.
NOTICE
Risk of improper storage. Can cause unit damage.
Keep unit upright and protected from contact damage.
!
WARNING
Risk of improper handling. Can cause equipment damage, injury or death.
Read all of the following instructions before attempting to move, lift, remove packaging from
or preparing unit for installation.
!
WARNING
Risk of heavy condenser falling or tipping over. Can cause property damage, serious injury or
death.
Confirm that all components of the lifting system are rated for the weight of the condenser by
an OSHA Certified rating organization before attempting to lift and/or move the condenser.
See 2.2 - Dimensions and Weights for the condenser weights.
!
CAUTION
Risk of sharp edges, splinters and exposed fasteners. Can cause personal injury.
Only properly trained and qualified personnel wearing appropriate safety headgear, gloves,
shoes, and glasses should attempt to move, lift, remove packaging from or prepare unit for
installation.

Inspection and Installation
13 Liebert® MC™
Figure 8 Equipment recommended for handling a Liebert condenser
3.2 Handling Unit on the Skid
Transport unit using a forklift or a crane with sling and spreader bars.
• If using a fork lift, make sure the forks (if adjustable) are spread to the widest allowable distance
to still fit under the skid.
• Type of fork lift used will be dependent on the terrain the unit to be moved across during
handling.
• Minimum fork lift fork length for use on 1 and 2 fan units to be 48" (1219mm).
• When moving the packaged unit, do not lift the unit any higher than 6"(152mm) off the ground. If
circumstances require the unit to be lifted higher than 6" (152mm), great care must be exercised
and all personnel not involved in moving the unit must be at least 20' (5m) from the lift point of
the unit.
Figure 9 Forklift position with one-fan or two-fan condensers
• When using a forklift to off-load or move for installation, it is recommended to lift one narrow end
off the ground no more than 6" (152mm). Use the forklift to push or pull the unit.
• When using a crane to lift the unit from a flat bed or to move for installation, using slings rated
for the unit weight is recommended.
• Spreader bars are to be used for sling stability and to prevent unit pinching. Make sure spreader
bars are wider than the unit.
• Slings are to be placed near the ends of the unit, under the top deck boards of the skid.
3.3 Unit Storage
• Store the fan in the original shipping packaging in a dry area protected from the weather, or
protect it from dirt and weather until final installation.
• Avoid temperatures below -30°F (-34°C) and above 150°F (65°C).
• Avoid storing the Liebert MC condenser for longer than one year.
Forklift Crane
Lift Beam, Slings
and Spreader Bars
308111
Pg. 1, Rev. 1
308111
Pg. 1, Rev. 1

Inspection and Installation
Liebert® MC™14
3.4 Unpacking the Condenser—All Unit Sizes
To unpack a condenser with one to two fans:
1. Remove the fence for domestic packaging (for export packaging, remove the crate).
2. Remove corner and side foam planks from around the unit.
3. Remove the steel band holding the unit to the skid.
4. Set unit legs aside for use later.
5. Remove corrugated panels covering the Liebert MC’s coil(s).
6. Remove the bolts securing unit to the skid.
Figure 10 Removing protective material
Step 5
Step 1-Domestic Step 1 - Export
Step 2
Detail Area
Unit Legs
(Fasteners in bag
attached to legs)
308111
Rev. 1
Steps 3 and 4
Step 6

Inspection and Installation
15 Liebert® MC™
3.5 Preparing a Condenser for Moving and Installation—Units with One or Two Fans
The following procedure is one recommended method for removing a Liebert condenser from its
shipping skid. Other methods may be used, provided that they are safe for personnel, the condenser
and equipment.
3.5.1 Attaching Legs, Removing the Skid and Attaching Slings-Units with One or Two Fans
1. Attach legs to the unit at indicated locations.
Use the fasteners provided with the legs.
Recommended tools for attachment is a 5/8" socket and ratchet.
More legs may be available for installation than shown. This will depend on the unit type and
number of fans.
Figure 11 Attaching legs to one-fan or two fan condensers
2. Place slings around the unit between the unit and the top deck boards of the skid:
•One-fan and two-fan units: against the inside of the attached legs.
•Three-fan and four-fan units: against the outside of the attached eye bolts.
3. Use spreader bars, a lift beam and a crane to lift the unit off the skid.
NOTICE
Risk of improper lifting. Can cause equipment damage.
Make sure that the spreader bars wider are than the unit. If the spreader bars are too short,
the slings may crush the unit.
Figure 12 Securing slings to condensers for lifting off skid
Detail B
B
308111
Rev. 1
308111
Pg. 2, Rev. 1
Straps go against
legs on one-fan and
two-fan units
Straps or chains go against
eyebolts on three-fan and
four-fan units

Inspection and Installation
Liebert® MC™16
4. Lift the unit 24" (610mm) off the top deck of the skid.
5. Move the skid from under the unit.
6. A mechanized method is preferred, but if not available, uses a minimum of four properly protected
individuals to turn the unit upright so that the legs point down.
Unit legs must be pointing toward the ground.
Figure 13 Remove skid, set condenser on floor
7. Set the upright unit on the ground so the legs support unit weight.
8. Remove the straps from around unit.
9. One-fan and two-fan units: Route the straps through the large holes in the side of the legs.
Spreader bars are still required.
On three-fan and four-fan units: Secure straps or chains to the eyebolts on top of the unit.
Spreader bars are still required.
NOTICE
Risk of improper lifting. Can cause equipment damage.
Make sure that the spreader bars wider are than the unit. If the spreader bars are too short,
the slings may crush the unit.
The unit is ready to be lifted and moved to its installation location.
308111
Pg. 3, Rev. 1

Inspection and Installation
17 Liebert® MC™
Figure 14 Lifting condensers with one, two, three or four fans
3.6 Mounting the Condenser
The condenser must be installed so that it is level within 1/2" (13mm) to ensure proper refrigerant
flow. For roof installation, mount the condenser on suitable curbs or other supports; follow all local
and national codes. Secure the legs to the mounting surface using a field-supplied 1/2" (13mm)
diameter bolt in each of the two 1/2" x 1" (12.7x25.4mm) obround holes in each leg. See Figures 3
through 7 for anchor dimensions.
Spreader Bars
(must be wider
than the
Liebert MC to
prevent crushing
force)
Straps go through holes in legs
on one-fan and two-fan units
Straps or chains go through
eyebolts on three-fan and
four-fan units
308111
Pg. 3, Rev. 1

Electrical Connections
Liebert® MC™18
4.0 ELECTRICAL CONNECTIONS
Line voltage electrical service is required for all models. Refer to equipment nameplate regarding
wire size and circuit protection requirements. Electrical service must conform to national and local
electrical codes. Refer to Figure 16 for electrical service entrances into unit. Refer to electrical
schematic when making connections.
A manual electrical disconnect switch should be installed in accordance with local codes. Consult local
codes for external disconnect requirements.
All internal wiring is completed at the factory.
!
WARNING
Risk of electrical shock. Can cause injury or death.
The variable speed control may contain a stored electrical charge. Disconnect all local and
remote electrical power supplies and wait 10 minutes before working within the condenser’s
main electrical enclosure or fan electrical enclosure.
The Liebert MC contains lethal voltage in some circuits. The line side of the disconnect
remains energized when the condenser unit disconnect is switched to the Off position.
Use a voltmeter to verify that the line-side electrical power is Off before making any electrical
connections or performing any electrical and/or mechanical service and/or maintenance
operations.
!
WARNING
Risk of high-speed, rotating fan blades. Can cause serious injury or death.
Fan blades can automatically start rotating without warning at any time during a cooling
cycle or after power is restored after a power failure. Disconnect all local and remote electric
power supplies and verify with a voltmeter that the power is off and that the fan blades have
stopped rotating before working within the cabinet or servicing fan motors.
Each unit is shipped from the factory with all internal wiring completed. Refer to the
electrical schematic supplied with the condenser when making line voltage supply,
low-voltage indoor unit interlock and any low-voltage alarm connections. All wiring must be
done in accordance with all applicable local, state and national electrical codes.
NOTE
Installation and service of this equipment should be done only by properly trained and
qualified personnel who have been specially trained in the installation of air conditioning
equipment.
NOTE
Use copper wiring only. Make sure that all connections are tightened to the proper torque
mentioned on the component.

Electrical Connections
19 Liebert® MC™
4.1 Line Voltage Wiring
Condenser-rated voltage should be verified with available power supply before installation. Refer to
the unit’s electrical schematic and serial tag for specific electrical requirements.
Line voltage electrical service is required for all condensers at the location of the condenser. The
voltage supply to the condenser may not be the same voltage supply as required by the indoor unit.
Consider using UPS equipment on both data center cooling units and Liebert MC condensers to
maintain uninterrupted cooling capability. Refer to the unit’s serial tag for specific condenser
electrical requirements. A unit disconnect is standard. However, a site disconnect may be required
per local code to isolate the unit for maintenance. Route the supply power to the site disconnect switch
and then to the unit. Route the conduit to the knockout provided in the bottom right end of the
electrical control enclosure. Connect the earth ground wire lead to the marked earth ground
connection terminal provided near the factory-installed disconnect switch (see Figure 16).
!
WARNING
Risk of electrical fire and short circuit. Can cause property damage, injury or death.
Select and install the line side electrical supply wire and overcurrent protection device(s)
according to the specifications on the unit nameplate(s), per the instructions in this manual
and according to the applicable national, state, and local code requirements. Use copper
conductors only.
Make sure all electrical connections are tight. Unit-specific wiring diagrams are provided on
each unit.
NOTE
The Liebert MC Condenser is designed to operate with Wye-connected power. It will not operate
properly with Delta-connected power. Refer to 4.1.1 - Wye vs. Delta Connection Power
Supply.
NOTE
Liebert Lee-Temp™ kits require a separate line voltage electrical supply for the heated receivers.
See Table 5 for power requirements.
Table 4 Electrical data, three-phase, 60Hz condenser, Premium Version (EC control)
Model #
Number
of Fans
Power Requirements
FLA WSA OPD
208/230V 380/415V 460V 208/230V 380/415V 460V 208/230V 380/415V 460V
MCS028 1 3.0 1.4 1.4 3.8 1.8 1.8 15 15 15
MCM040 1 2.3 1.4 1.4 3.2 1.9 1.9 15 15 15
MCM080 2 4.6 2.8 2.8 5.5 3.3 3.3 15 15 15
MCM120 3 6.9 4.2 4.2 7.5 4.6 4.6 15 15 15
MCM160 4 9.2 5.6 5.6 9.8 6.0 6.0 15 15 15
MCL055 1 5.7 2.8 2.8 7.1 3.5 3.5 15 15 15
MCL110 2 11.4 5.6 5.6 12.8 6.3 6.3 15 15 15
MCL165 3 17.1 8.4 8.4 18.5 9.1 9.1 20 15 15
MCL220 4 22.8 11.2 11.2 24.2 11.9 11.9 25 15 15
1. FLA = Full Load Amps; WSA = Wire Size Amps; OPD = Maximum Overcurrent Protection Device.
2. 208V–460V premium models must be connected to Wye 3-phase systems.

Electrical Connections
Liebert® MC™20
4.1.1 Wye vs. Delta Connection Power Supply
Figure 15 Wye vs. Delta power supply connection diagram
Acceptable Power Supplies—208V to 480V Nominal Units
• 208V wye with solidly grounded neutral and 120V line-to-ground
• 380V wye with solidly grounded neutral and 220V line-to-ground
• 480V wye with solidly grounded neutral and 277V line-to-ground
Unacceptable Power Supplies—208V to 480V Nominal Units
• Wye with high-resistance (or impedance) ground
• Delta without ground or with floating ground
• Delta with corner ground
• Delta with grounded center tap
Table 5 Electrical data, Liebert Lee-Temp™ receiver, 60Hz
Rated Voltage - Single-Phase 120 208/230
Watts/Receiver 150 300 150 300
Amps 1.42.80.71.4
Wire Size Amps 1.83.50.91.8
Maximum Overcurrent
Protection Device, Amps 15 15 15 15
The Liebert Lee-Temp receiver requires a separate power feed for heaters. The condenser
is not designed to supply power to the receiver heater pads.
NOTE
The Liebert MC Condenser is designed to operate with Wye-connected power with a solidly
grounded neutral.
The Liebert MC condenser Premium EC Fan Models will not operate properly with
Delta-connected power. A field-supplied isolation transformer or other power solutions will be
needed to for proper condenser function.
NOTE
The electronically commutated motors included in the Liebert MC are suitable for connection to
power supplies with a solidly grounded neutral.
Phase A
Phase B
Phase C
Neutral
Winding
A
Winding
B
Winding
C
Wye Power Supply Connection
Winding
A-B
Winding
C-A
Winding B-C
Phase A
Phase B
Phase C
Delta Power Supply Connection

Electrical Connections
21 Liebert® MC™
4.2 Low-Voltage Control Wiring—Premium Efficiency Control Condenser
NOTICE
Risk of control malfunction. Can cause improper unit operation.
Make sure that all low-voltage electrical wiring has been performed per the schematic
diagram provided and that all low-voltage wiring connections are tight.
Premium Efficiency Control condensers are designed to use CANbus communication between Liebert
MC and Liebert iCOM® control on indoor unit. The CANbus wiring is field-supplied and must be:
• shielded
• 24-18AWG stranded tinned copper
• twisted pair (minimum 8 twists per foot)
• low capacitance (17pf/ft or less)
• plenum rated (NEC type CMP) if required by local codes
• UV and moisture resistant or run within conduit once in an outdoor environment, and must be
temperature and voltage rated for conditions present.
Examples: Belden part number 89207(plenum rated) or Alpha Wire part number 6454 (UV
resistant outdoor rated) category 5, 5e or higher.
Do not run the CANbus cable in the same conduit, raceway or chase used for high-voltage wiring. For
CANbus network lengths greater than 350ft (107m), contact Emerson for assistance. The CANbus
wiring is for communicating directly with future versions of the Liebert iCOM, but is not currently
active. When CANbus wiring is installed, place a jumper between Terminals 70/71/230. Contact
Liebert Precision Cooling Support for additional information relative to availability of iCOM software
versions that communicate directly to the condenser.
Premium Efficiency Control condensers are also designed to operate with Terminals 70 and 71 wired
to indoor unit compressor contactor side switch to indicate compressor on signal. For dual circuit
condensers, also use Terminal 230. These signals are required if CANbus communication with Liebert
iCOM is not used.

Electrical Connections
Liebert® MC™22
4.2.1 Electrical Field Connection Descriptions
Figure 16 Typical connections, Premium Efficiency Control
Fan 2
Without Liebert
Lee-Temp
With Liebert
Lee-Temp
Fan 1
DPN002374
Pg. 1, Rev. 1
DPN002169
Pg. 1, Rev. 2
Liebert Lee-Temp
receiver tank
(1 per circuit)
Electrical connection
box with cover
Electrical service connection.
Pigtails in electric handy box
are factory-wired to Liebert Lee-Temp
heater pads for field-connection
of separate continuous electric
source; wire not by Emerson
Fan 2
Fan 1
5A
5B
75C
8
9
6
42
3
1
10
12
13
70
71
230

Electrical Connections
23 Liebert® MC™
Key Electrical Details—Typical Connections, Premium Efficiency Control
1. Three-Phase Electrical Service—Terminals are on the top of the disconnect switch for one-fan
and two-fan units. Terminals are on the bottom of the disconnect switch for three-fan and four-fan
units. Three-phase service not by Emerson. See 4.1.1 - Wye vs. Delta Connection Power
Supply.
2. Earth Ground—Field lug terminal for earth ground connection. Ground terminal strip for fan
motor ground connection.
3. Primary High-Voltage Entrance—Three 7/8" (22.2mm) diameter knockouts located at the
bottom of the enclosure.
4. SPD Field Connection Terminals—High-voltage surge protection device (SPD) terminals.
SPD is an optional device.
5. CANbus Terminal Connections—Field terminals for CANbus cable connection.
• 5A is the CANbus connectors.
• TB49-1 is the input terminal for CANbus high.
• TB49-3 is the input terminal for CANbus low.
• TB50-1 is the output terminal for CANbus high.
• TB50-3 is the output terminal for CANbus low.
• Each CANbus cable shield is connected to terminal “SH;” see 9 below.
• 5B is the “END OF LINE” jumper.
• 5C is the CANbus “DEVICE ADDRESS DIP SWITCH.” CANbus cable not by Liebert. See
requirements in 4.2 - Low-Voltage Control Wiring—Premium Efficiency Control
Condenser.
6. Remote Unit Shutdown—Replace exiting jumper between Terminals TB38-1 and TB38-2 with
field-supplied normally closed switch having a minimum 75VA 24VAC rating. Use field-supplied
Class 1 wiring.
7. Alarm Terminal Connections
a. Common Alarm Relay indicates when any type of alarm occurs. TB74-1 is common, TB74-2 is
normally open, and TB74-3 is normally closed. 1 Amp 24VAC is the maximum load. Use
field-supplied Class 1 wiring.
b. Shutdown Alarm Relay indicates when condenser loses power, or when a critical alarm has
occurred that shuts down the condenser unit. TB74-4 is common; TB74-5 is normally open;,
and TB74-6 is normally closed. 1 Amp 24VAC is the maximum load. Use field-supplied
Class 1 wiring.
8. Indoor Unit Interlock and SPD Alarm Terminals
a. On any call for compressor operation, normally open contact is closed across Terminals 70 and
71 for Circuit 1, and normally open contact is closed across Terminals 70 and 230 for Circuit 2
from indoor room unit.
b. During SPD alarm, normally open contact is closed across Terminals 12 and 13. SPD is an
optional device.
9. CANbus Shield Terminal—Terminal for field shield connection of the CANbus field-supplied
cables. The shield of CANbus field-supplied cables must not be connected to ground at the
condenser.
10. Primary Low-Voltage Entrance—One 7/8” (22.2mm) diameter knockout that is free for
customer low-voltage wiring.

Electrical Connections
Liebert® MC™24
Figure 17 Field configurations and setting adjustments, Premium Efficiency Control
DPN002374
Pg. 2, Rev. 1

Piping
25 Liebert® MC™
5.0 PIPING
5.1 Piping Guidelines
Indoor units and condensers both ship with holding charges of inert gas. Do not vent the condenser
until all refrigerant piping is in place, ready for connection to indoor unit and condenser.
• Use copper piping with a brazing alloy with a minimum temperature of 1350°F (732°C), such as
Sil-Fos. Avoid soft solders such as 50/50 or 95/5.
• Use a flow of dry nitrogen through the piping during brazing to prevent formation of copper oxide
scale inside the piping. When copper is heated in the presence of air, copper oxide forms. POE oil
will dissolve these oxides from inside the copper pipes and deposit them throughout the system,
clogging filter driers and affecting other system components.
• A pure dry nitrogen flow of 1-3 ft3/min (0.5-1.5 l/s) inside the pipe during brazing is sufficient to
displace the air. Control the flow using a suitable metering device.
• Ensure that the tubing surfaces to be brazed are clean and that the ends of the tubes have been
carefully reamed to remove any burrs.
• Ensure that all loose material has been cleaned from inside the tubing before brazing.
• Protect all refrigerant line components within 18" (460mm) of the brazing site by wrapping them
with wet cloth or suitable heat sink compound.
• Isolate piping from building using vibration isolating supports.
• Refer to the indoor unit’s user manual for appropriate piping sizes.
• Install traps on the hot gas (discharge) lines at the bottom of any rise over 5 feet high. If the rise
exceeds 25 feet (7.5m), then install a trap in 20 foot (6m) increments or evenly divided.
• Pitch horizontal hot gas piping down at a minimum rate of 1/2" per 10 ft. (42mm per 10m) so that
gravity will aid in moving oil in the direction of refrigerant/oil flow.
• Consult factory if Liebert Lee-Temp™ condenser is below the evaporator or if a condenser not
equipped with Liebert Lee-Temp is more than 15 ft (4.6m) below the evaporator.
• Consult factory if piping run exceeds 150 feet (46m) equivalent length on traditional DX units.
!
WARNING
Risk of explosive discharge from high-pressure refrigerant. Can cause equipment damage,
injury or death.
Relieve pressure before working with or cutting into piping.
!
WARNING
Risk of refrigerant system rupture or explosion from overpressurization. Can cause
equipment damage, injury or death.
Local building and plumbing codes may require that a fusible plug or other type of pressure
relief device be installed in the system. Do not install a shutoff valve between the compressor
and the field-installed relief device.
Consult local building and plumbing codes for installation requirements of additional
pressure relief devices when isolation valves are installed as shown in Figure 18. Do not
isolate any refrigerant circuits from overpressurization protection.
NOTE
POE (polyol ester) oil, required with R407C/R410A and used with some R22 systems, is much
more hygroscopic than mineral oils. This means that POE oil absorbs water at a much faster
rate when exposed to air than previously used mineral oils. Because water is the enemy of a
reliable refrigeration system, extreme care must be used when opening systems during
installation or service. If water is absorbed into the POE oil, it will not be easily removed and
will not be removed through the normal evacuation process. If the oil is too wet, it may require
an oil change. POE oils also have a property that makes them act as a solvent in a refrigeration
system. Maintaining system cleanliness is extremely important because the oil will tend to
bring any foreign matter back to the compressor or plug the microchannel coil. Always use a
flow of dry nitrogen when brazing.

Piping
Liebert® MC™26
• Consult factory if piping run exceeds 300 feet (91m) actual length, or 450 feet (137m) equivalent
length on units installed with Liebert EconoPhase units.
• Keep piping clean and dry, especially on units with POE oil (R407C, R410A or R22 refrigerant).
• Avoid piping runs through noise-sensitive areas.
• Do not run piping directly in front of indoor unit discharge airstream.
• Refrigerant oil – do not mix oil types or viscosities. Consult indoor unit for refrigerant type and oil
requirements.
NOTE
Failure to use compressor oils recommended by compressor manufacturer will void compressor
warranty. Consult Emerson or the compressor manufacturer for further recommendations or if
you have questions about compressor oils.
Refer to ASHRAE Refrigeration Handbook for general good practices for refrigeration piping.
The Liebert indoor cooling unit has a factory-installed high-pressure safety switch in the high
side refrigerant circuit. A pressure relief valve is provided with Liebert Lee-Temp™ receivers. A
fusible plug is factory installed in the Liebert DSE™ receivers. Consult local building codes to
determine if condensers without receivers will require field-provided pressure relief devices. A
fusible plug kit is available for field installation.

Piping
27 Liebert® MC™
Figure 18 Piping schematic
Service/Schrader (Access) Connection With Valve Core
NOTES
Single refrigeration circuit shown for clarity.
Schematic representation shown. Do not use for specific connection locations.
* Components are not supplied by
Liebert but are recommended for
proper circuit operation and
maintenance
Refrigerant Piping
Field Piping
Service/Schrader (Access) Connection No Valve Core
Trap at base of risers
over 5ft. (1.5m)*
Condenser
Coil
Condenser
Coil
Liebert Lee-Temp Receiver
Liebert Lee-Temp
Hot Gas Discharge
Liquid Return
For rises over 25ft. (7.6m),
trap every 20ft. (6m) or at
evenly divided distances*
Evaporator
Coil
Liquid
Suction
Compressor
Expansion
Valve Solenoid
Valve
Sight
Glass Filter Drier Liquid Line
Hot Gas Discharge
*Isolation
Valve
*Isolation
Valve
Check
Valve
Field installed relief valve(s) required
for 50Hz EU CE units
Optional Field-Installed
Fusible Plug
Service
Valve
Check Valve
Relief Valve
Service
Valve
Head Pressure
Control Valve
Service
Valve
External
Equalizer
Sensing
Bulb
DPN002188
Rev. 1

Piping
Liebert® MC™28
5.2 Field Piping Guidelines
One discharge line and one liquid line must be field-installed for each circuit of the indoor unit and
the outdoor condenser(s). Dual circuit condensers are available for most dual circuit indoor unit
applications. Refer to Figures 18, through 20 for additional field-installed piping needed at the
condenser. This piping is needed for proper system performance and for installation/interconnecting
receivers and head pressure control valves for Liebert Lee-Temp™ systems.
NOTE
Keep the evaporator unit and condenser closed with their factory charge of inert gas while all
field piping is installed. Keep the field piping clean and dry during installation, and do not
allow it to stand open to the atmosphere.
When all the field interconnecting piping is in place, vent the condenser’s inert gas charge and
connect to the field piping. Finally, vent the evaporator unit’s charge of inert gas and make its
piping connection last.
Follow all proper brazing practices, including a dry nitrogen purge to maintain system
cleanliness.
The condenser connection pipes must be wrapped with a wet cloth to keep the pressure and
temperature sensors cool during any brazing.

Piping
29 Liebert® MC™
Figure 19 Liebert MC Condenser piping—Single-circuit units
Table 6 Liebert MC Condenser piping sizes, single-circuit units
Model No.
Number
of Fans
Connection Sizes, OD, in (mm)
Hot Gas Line Liquid Line
MCS028 1 7/8 5/8
MCM040 1 7/8 5/8
MCM080 2 1-1/8 7/8
MCM120 3 1-3/8 7/8
MCL055 1 1-1/8 7/8
MCL 110 2 1-3/8 1-1/8
MCL 165 3 1-3/8 1-1/8
MCL 220 4 1-5/8 1-3/8
A
Leaving
Liquid
Line
Entering
Hot Gas
Line
Horizontal
Vertical
Optional fusible plug service kit to be brazed into the liquid line(s)
in either the vertical or horizontal position (where required).
Vertical position is preferred; horizontal position is optional. DPN002166
Rev. 1
Field Piping
Fan 1
Fan 2
Note: Inverted traps in
refrigerant lines are internal
to the Liebert MC condenser
and field-installation is not
needed.

Piping
Liebert® MC™30
Figure 20 Condenser piping for single-circuit condensers (with Liebert Lee-Temp™)
Table 7 Condenser piping connection sizes—single-circuit condensers with Liebert Lee-Temp
Model #
Condenser
Connections, OD.In Liebert Lee-Temp Connections
Hot Gas Liquid
Hot Gas Tee
IDS In.
Liquid Line
to Lee-Temp Valve
ODS, In.
Receiver Out
IDS In.
MCS028 7/8 5/8 7/8 5/8 5/8
MCM040 7/8 5/8 7/8 5/8 5/8
MCM080 1-1/8 7/8 1-1/8 7/8 1-1/8
MCL055 1-1/8 7/8 1-1/8 7/8 7/8
MCL110 1-3/8 1-1/8 1-3/8 1-1/8 1-1/8
MCL165 1-3/8 1-1/8 1-3/8 1-1/8 1-1/8
MCL220 1-5/8 1-3/8 1-5/8 1-3/8 1-3/8
Source: DPN002167, Rev. 2
B VIEW
DPN002167
REV 2
NOTE:
1.The following materials are supplied by liebert for each circuit(shipped loose with condenser)for field
installation: insulated Libert Lee-Temp storage tank with sight glasses, head pressure control valve, check valve,
rotalock valve and pressure relief valve. All other piping to be supplied and installed by others.
2. Consult factory for proper line sizing for runs longer than 150ft.(45.7m) equivalent length.
Field Piping
Detail A-A
Isolator
Metal Clamp
Fasten hot gas line to cabinet
using flat surface clamps with
isolators (field-supplied)
See Detail A-A
R-407C 1 and 2 Fan
Piping Assembly
R-410A 1 and 2 Fan MCM
1 Fan MCL
Piping Assembly
R-407C 3 and 4 Fan
Piping Assembly
R-410A 2 and 3 Fan MCL
Piping Assembly
R-410A 4 Fan
Piping Assembly
Hot Gas Line
To Condenser
Entering Hot
Gas Line
Liquid Line
From Condenser
Leaving
Liquid Line
Position Elbow to
Direct Relief Valve
Downward
GENERAL ARRANGEMENT
B
Note: Inverted traps in
refrigerant lines are internal to
the condenser and
field-installation is not needed.

Piping
31 Liebert® MC™
Figure 21 Piping: dimensions—dual circuit two-fan and four-fan units
Table 8 Piping: dimensions—dual-circuit, two-fan and four-fan units
Model #
# of
Fans
Connection Sizes, OD, in
Hot Gas Line Liquid Line
MCM080 2 7/8 5/8
MCL110 2 1-1/8 7/8
MCM160 41-1/8 7/8
MCL220 4 1-3/8 1-1/8
Source: DPN002425, Rev. 3
Optional fusible plug service kit to
be brazed into the liquid line(s) in
either the vertical or horizontal
position. (where required)
(vertical position is preferred,
horizontal position is optional.)
for two circuit systems, one
fusible plug kit will need to
be installed in each circuit.
Circuit #2
Circuit #1
Horizontal
Leaving Liquid
Line
Vertical
Field Piping
Entering Hot
Gas Line
Inverted traps in refrigerant
lines are internal to
the condenser. Do not trap
external to the unit.
DPN002425
Rev. 3

Piping
Liebert® MC™32
Figure 22 Piping: dimensional data with Liebert Lee-Temp™—dual circuit condensers
Table 9 Piping dimensions—dual circuit condensers with Liebert Lee-Temp
Model #
Condenser Connections
ODS, in. Liebert Lee-Temp Connections
Hot Gas Liquid
Hot Gas Tee
IDS, in.
Liquid Line
to Lee-Temp Valve
ODS, In.
Receiver Out
IDS, in.
MCM080 7/8 5/8 7/8 5/8 5/8
MCL110 1-1/8 7/8 1-1/8 7/8 7/8
MCM160 1-1/8 7/8 1-1/8 7/8 1-1/8
MCL220 1-3/8 1-1/8 1-3/8 1-1/8 1-1/8
Source: DPN002426, Rev. 3
Note:
1. The following materials are supplied by Emerson for each circuit (shipped loose with condenser)
for field installation: insulated Liebert Lee-Temp storage tank with sight glasses, head pressure control
valve, check valve, rotalock valve and pressure relief valve. All other piping to be supplied and installed by others.
2. Consult factory for proper line sizing for runs longer than 150ft. (45.7m) equivalent length.
Field Piping
Detail AA
Isolator
Metal Clamp
Fasten hot gas line to cabinet
using flat surface clamps with
isolators (field-supplied)
See Detail A A
Hot Gas Line
To Condenser
Entering Hot
Gas Line
Entering Hot
Gas Line
Liquid Line
From Condenser
Leaving
Liquid Line
Position elbow to
direct relief valve
downward
Position elbow to
direct relief valve
downward
Liquid Line
From Condenser
Leaving
Liquid Line
Hot Gas Line
To Condenser
Inverted traps in refrigerant
lines are internal to
the condenser. Do not trap
external to the unit.
R407C 2 and 4 Fan
Piping Assembly
R410A 2 Fan
Piping Assembly R410A 4 Fan
Piping Assembly
GENERAL ARRANGEMENT
C View
DPN002426
REV. 3
B View

Piping
33 Liebert® MC™
5.3 Refrigerant Planning Values
Planning for the refrigerant requirements of the completed system is the total of the charges from
Indoor Unit, Condenser (including Liebert Lee-Temp™ receiver, if used) and the interconnecting
piping. Tables 10,11 and 12 provide the approximate charge required for the condensers and the
interconnecting piping. Consult indoor unit manuals for indoor unit charge requirements.
These values can be used for obtaining adequate refrigerant for the system, but should not be used for
final charging.
NOTE
Due to the much smaller coil volume, the performance, especially subcooling, of a Liebert MC
condenser is quite sensitive to the amount of refrigerant charge. Ensure that an accurate
amount of refrigerant charge is added.
Table 10 Refrigerant required, R-407C, approximate
Condenser
Models
Single Circuit, lb/circuit (kg/circuit) Dual Circuit, lb/circuit (kg/circuit)
Condensers without
Liebert Lee-Temp
Condensers with
Liebert Lee-Temp
Condensers without
Liebert Lee-Temp
Condensers with
Liebert Lee-Temp
Approximate R-407C Refrigerant Needed
MCS028 2.2 (1.0) 21.0 (9.5) N/A N/A
MCM040 3.0 (1.4) 21.8 (9.9) N/A N/A
MCM080 7.5 (3.4) 44.5 (20.2) 3.0 (1.4) 21.8 (9.9)
MCM120 N/A N/A N/A N/A
MCM160 N/A N/A 7.5 (3.4) 44.5 (20.2)
MCL055 5.0 (2.3) 25.9 (11.7) N/A N/A
MCL110 10.5 (4.8) 52.1 (23.7) 5.1 (2.3) 26.0 (11.8)
MCL165 18.3 (8.3) 84.8 (38.5) N/A N/A
MCL220 27.0 (12.3) 108.9 (49.4) 12.2 (5.6) 53.8 (24.4)
* Model MCM120 is available with Liebert DSE™ receiver; a Liebert Lee-Temp receiver is not available with the unit.
Source: DPN002411, Rev. 3
Table 11 Refrigerant required, R-410A, approximate
Condenser
Models
Single Circuit, lb/circuit (kg/circuit) Dual Circuit, lb/circuit (kg/circuit)
Condensers w/o
Liebert Lee-Temp
Condensers with
Liebert Lee-Temp
Condensers with
Liebert DSE
Condensers w/o
Liebert Lee-Temp
Condensers with
Liebert Lee-Temp
Condensers with
Liebert DSE
MCS028 2.5 (1.2) 18.3 (8.4) N/A N/A N/A N/A
MCM040 3.5 (1.6) 19.3 (8.8) N/A N/A N/A N/A
MCM080 8.5 (3.8) 39.6 (18.1) N/A 3.5 (1.6) 19.3 (8.8) N/A
MCM120 N/A N/A 26.0 (11.8) * N/A N/A N/A
MCM160 N/A N/A N/A 8.5 (3.8) 39.6 (18.1) 13 (5.9)
MCL055 5.0 (2.3) 24.2 (11.0) N/A N/A N/A N/A
MCL110 10.7 (4.9) 49.0 (22.2) N/A 5.2 (2.4) 24.4 (11.1) N/A
MCL165 18.4 (8.4) 79.9 (36.2) 33 (15) N/A N/A N/A
MCL220 27.0 (12.3) 102.9 (46.7) 39 (17.7) 12.3 (5.6) 50.6 (23.0) 18 (8.2)
* Model MCM120 is available with Liebert DSE™ receiver; a Liebert Lee-Temp receiver is not available with the unit.
Source: DPN002411, Rev. 3

Piping
Liebert® MC™34
5.4 Equipment Application Guidelines
Pump-down must be disabled on the indoor unit when using the Liebert MC condenser, due to the
reduced volume in the condenser coil. When applying the Liebert MC condenser to existing Liebert
indoor units, Emerson® recommends adding a discharge line check valve and crankcase heater to
provide suitable compressor protection. Additional liquid line Schrader ports are required at the
indoor unit to properly charge systems with Liebert MC condensers applied.
5.5 Refrigerant Oil Addition Procedures
Consult the user manual for the indoor unit to determine whether additional oil is required for each
circuit. Factors such as compressor, condenser type, piping lengths, and total circuit refrigerant
charge influence this requirement.
5.6 System Dehydration/Leak Test
Procedures for leak check and evacuation of the entire refrigeration system are contained in the
indoor unit’s installation manual. Use the proper manual section corresponding to the winter control
system used on the condenser (with or without Liebert Lee-Temp™ or Liebert DSE™ receivers) and the
refrigerant to be charged into the system.
5.7 Liebert MC Condenser Charging, Units with Liebert Lee-Temp™ Systems
Consult the indoor unit’s manual for charging systems with Liebert Lee-Temp receivers. These
procedures will be identical to systems with fin/tube condenser coils, but the refrigerant volumes will
be much lower. Consult Tables 10 and 11 for condenser with Liebert Lee-Temp refrigerant required.
5.8 Liebert MC Condenser Charging with Liebert DSE™ Units
Consult the Liebert DSE’s manual (SL-18925) for charging Liebert DSE systems. All Liebert DSE
units require installation of a Liebert DSE receiver on each condenser circuit, with or without a
Liebert EconoPhase pump module installed. Consult Table 11 for condenser and receiver refrigerant
requirements.
Table 12 Interconnecting piping refrigerant charge
Line Size
O.D., in.
R-407C, lb/100 ft. (kg/30m) R-410A, lb/100 ft. (kg/30m)
Hot Gas Line Liquid Line Hot Gas Line Liquid Line
3/8 — 3.7 (1.7) — —
1/2 — 6.9 (3.1) — 5.0 (2.1)
5/8 2.2 (1.0) 11.0 (5.0) 1.1 (0.51) 10.0 (4.2)
3/4 3.1 (1.3) 15.7 (7.1) 1.5 (0.67) 13.0 (5.7)
7/8 4.5 (1.9) 23.0 (10.4) 2.3 (1.0) 21.0 (9.5)
1-1/8 7.8 (3.5) 39.3 (17.8) 3.9 (1.8) 34.9 (15.6)
1-3/8 11.8 (5.4) 59.8 (27.1) 5.5 (2.5) 53.2 (23.8)
1-5/8 16.7 (7.6) — — —
Charge based on Type ACR/Type L copper pipe
Source: DPN002411, Rev. 3

Piping
35 Liebert® MC™
5.9 Liebert MC Condenser Charging, Units without Liebert Lee-Temp™ Systems
Liebert MC condensers are charge-sensitive and require accurate calculation of the system charge to
avoid overcharging. To avoid overcharge, additional guidelines are recommended to ensure trouble
free operation.
• When charging system in an outdoor ambient below 50°F (10°C), recheck the subcooling against
Table 13 when the ambient is above 60°F (15.6°C)
• The indoor space should be maintained at 70 to 80°F (21 to 26.7°C) return air before final charge
adjustments are made.
• Charging unit at greater than 80°F (26.7°C) return air may result in the unit being overcharged.
• Charge by subcooling measurement at the indoor unit. See Table 13 for target subcooling
temperatures.
• Pressure and temperature measuring instruments should be capable of measuring to ±10 psig
(103.4kPa) and ± 2°F (1.1°C) for best subcooling measurement.
1. Check indoor nameplate for refrigerant type to be used. Unit control configurations differ
depending on refrigerant type.
2. Refrigerant charging requires unit operation. Refer to the indoor unit’s user manual for details
regarding indoor unit operation and 6.0 - Checklist for Completed Installation for the Liebert
MC condenser operation.
3. Calculate the amount of charge for the system. Refer to the indoor unit user manual, and
condenser and refrigerant line charge data in Tables 10 and 12.
4. Accurately weigh in as much of the system charge as possible before starting the unit. Do not
exceed the calculated charge by more than 0.5 lb (.37kg).
NOTICE
Risk of improper refrigerant charging. Can cause equipment damage.
Refrigerant R-407C and R-410A are blended refrigerants and must be introduced and charged
from the cylinder only as a liquid.
When adding liquid refrigerant to an operating system, it may be necessary to add the
refrigerant through the compressor suction service valve. Care must be exercised to avoid
damage to the compressor. Emerson recommends connecting a sight glass between the
charging hose and the compressor suction service valve. This will permit adjustment of the
cylinder hand valve so that liquid can leave the cylinder while allowing vapor to enter the
compressor.
NOTICE
Risk of refrigerant overcharge. Can cause equipment damage.
Do not use the sight glass as an indicator when charging Liebert MC condenser systems.
5. Turn On the Liebert MC disconnect switch.
6. Turn on the indoor unit disconnect switch. Operate the unit for 30 minutes using the charging
function of the indoor unit control for each circuit of the system. The charging function is in the
diagnostic section of the Liebert iCOM® control (see Liebert iCOM user manual, SL-18835). The
charging function operates the compressor(s) at full capacity and energizes the liquid line
solenoid valve(s). The reheat and humidifier are disabled. Manual operation of the indoor fans
from the diagnostic menu of the Liebert iCOM is required. A minimum 20psig (138kPa) must be
established and maintained for the compressor to operate. The charging function can be reset as
many times as required to complete unit charging.
7. Attach pressure and temperature instruments to the liquid line of the indoor unit. Measure the
initial subcooling and continue to add charge until recommended subcooling for the current
outdoor ambient temperature is reached. See Table 13. The outdoor ambient can be read from
the Liebert MC condenser control menu ID F02.

Piping
Liebert® MC™36
8. Verify the subcooling calculated from measured values at the evaporator against the subcooling
reading of the Liebert MC control [menu ID F50 & F51]. If the subcooling calculated with gauges
differs from the Liebert MC subcooling by more than 3°F (1.7°C), then adjust the charge amount
to achieve the target subcooling per Table 13 based the Liebert MC control subcooling. Failure to
check measured subcooling with refrigerant gauges vs. Liebert MC subcooling may result in an
overcharged system. See Note below and Table 14 for corrections to Liebert MC subcooling that
may be required based on condenser elevation above the indoor evaporator.
NOTE
To determine subcooling measurement, a liquid line pressure reading (at the factory-installed
Schrader tap) needs to be measured along with obtaining a temperature reading on the liquid
line. Convert the liquid line pressure reading into a temperature by utilizing a Pressure-
Temperature Guide or Table 15. The difference between this converted temperature and the
actual temperature will determine the system’s subcooling. For R-407C make sure to use the
saturated liquid temperature to calculate subcooling.
Table 13 Target subcooling for ambient outdoor temperature
Ambient Temp
°F (C°)
Subcooling
°F (C°)
0 (-17.8) 22 (12.0)
10 (-12.2) 22 (12.0)
20 (-6.7) 22 (12.0)
30 (-1.1) 22 (12.0)
40 (4.4) 22 (12.0)
50 (10.0) 21 (11.7)
60 (15.6) 19 (10.8)
70 (21.1) 17 (9.3)
80 (26.7) 13 (7.2)
90 (32.2) 9 (5.0)
95 (35.0) 7 (3.9)
100 (37.8) 5 (2.9)
105 (40.6) 3 (1.8)
110 (43.3) 1 (0.7)
125 (51.7) 0
DPN002411, Rev. 3
NOTE
The evaporator subcooling will be greater than the condenser subcooling when the Liebert MC
is mounted higher than the indoor evaporator. Subcooling adjustment is needed when the
Liebert MC is more than 40 ft. (12m) above evaporator.
NOTE
Subcooling should be viewed at the Liebert MC condenser for a minimum of 1 minute and the
subcooling should be approximately ±2°F before recording subcooling to be compared against
subcooling from the field refrigerant gauges and thermometers.

Piping
37 Liebert® MC™
Sample Calculations
The Liebert MC is 40 ft (12.2m) above the evaporator of an R-407C system. The outdoor ambient
from the Liebert MC condenser control menu ID F02, is 94.8°F (34.9°C). The liquid pressure is
300psig (2068kPa) and 113°F (45°C). The subcooling from the Liebert MC control is 5°F (2.8°C).
Determine the subcooling and verify the calculated subcooling against the reading of the Liebert
MC control [menu ID F50 & F51].
Evaporator Subcooling Calculation
Subtract Line 6 (Measured Line Temperature) from Line 5 (Liquid Pressure converted to
Temperature) to obtain Calculated Subcooling.
Elevation Correction
Subtract Line 3 (Correction for Condenser Elevation above Evaporator) from Line 8 (Calculated
Subcooling) to obtain Corrected Subcooling.
Verification Against MC Condenser
Subtract Line 7 (MC Condenser Subcooling Reading) from Line 9 (Corrected Subcooling) to obtain
Difference.
• If Line 10 (Difference value) is less than ± 3°F (±1.7°C), NO charge adjustment is needed.
• If Line 10 (Difference value) is less than -3°F (-1.7°C), add additional charge.
If Line 10 (Difference value) is greater than +3°F (+1.7°C), the system is overcharged and
some of the charge must be removed.
Refrigerant Type R-407C
1. Ambient Temperature 94.8°F (34.9°C)
2. Condenser Elevation 40 ft (12.2m)
3. Condenser Elevation Temperature Correction 4°F (2.2°C)
4. Liquid Line Pressure 300psig (2068kPa)
5. Liquid Pressure Converted to Temperature 120.3°F (49.0°C)
6. Measured Liquid Line Temperature 113.2°F (45.1°C)
7. MC Condenser Subcooling Reading
(Menu ID F50 for Circuit #1 or
Menu ID F51 for Circuit #2)
5°F (2.8°C)
Line 5 120.3°F (49.0°C)
Line 6 -113.2°F (45.1°C)
8. Calculated Subcooling 7.1°F or 7°F (3.9°C or (4°C)
Line 8 7°F (3.9°C)
Line 3 -4°F - (2.2°C)
9. Corrected Subcooling 3°F (1.7°C)
Line 9 3°F (1.7°C)
Line 7 -5°F -(2.8°C)
10. Difference -2°F (-1.1°C)
Table 14 Difference in subcooling measurements—Indoor minus outdoor
Liebert MC Elevation Above
Evaporator, ft (m)
Subcooling Elevation Correction - °F (°C)
80 (24) 60 (18) 40 (12) 20 (6)
Refrigerant R-407C 10 (5.5) 7 (3.8) 4 (2.2) 1 (0.6)
R-410A 6 (3.3) 4 (2.2) 2 (1.1) 0 (0.0)
* Assumes liquid line is sized for no more than 2°F (1.1°C)pressure drop.
DPN002411, Rev. 3

Piping
Liebert® MC™38
9. As head pressure builds, the variable fan speed controlled condenser fan begins rotating. The fan
will run at full speed when sufficient head pressure is developed.
Table 15 Liquid pressure and temperature chart
Pressure R-407C * R-410A * R-22 *
PSIG Bar °F °C °F °C °F °C
170 11.7 81.5 27.5 59.8 15.4 90.6 32.6
180 12.4 85.1 29.5 63.1 17.3 94.3 34.6
190 13.1 88.6 31.5 66.3 19.1 97.9 36.6
200 13.8 92.0 33.3 69.5 20.8 101.4 38.6
210 14.5 95.2 35.1 72.5 22.5 104.7 40.4
220 15.2 98.3 36.8 75.4 24.1 108.0 42.2
230 15.9 101.4 38.5 78.2 25.7 111.1 44.0
240 16.6 104.3 40.2 80.9 27.2 114.2 45.7
250 17.2 107.2 41.8 83.6 28.7 117.1 47.3
260 17.9 109.9 43.3 86.2 30.1 120.0 48.9
270 18.6 112.6 44.8 88.7 31.5 122.8 50.4
280 19.3 115.3 46.3 91.1 32.8 125.5 52.0
290 20.0 117.8 47.7 93.5 34.2 128.2 53.4
300 20.7 120.3 49.1 95.8 35.5 130.8 54.9
310 21.4 122.8 50.4 98.1 36.7 133.3 56.3
320 22.1 125.2 51.8 100.3 38.0 135.8 57.7
330 22.8 127.5 53.1 102.5 39.2 138.2 59.0
340 23.4 129.8 54.3 104.6 40.3 140.6 60.3
350 24.1 132.1 55.6 106.7 41.5 142.9 61.6
360 24.8 134.3 56.8 108.7 42.6 145.2 62.9
370 25.5 136.4 58.0 110.7 43.7 147.4 64.1
380 26.2 138.6 59.2 112.7 44.8 149.6 65.4
390 26.9 140.6 60.3 114.5 45.9 151.8 66.5
400 27.6 142.7 61.5 116.4 46.9 153.9 67.7
500 34.5 161.3 71.8 133.5 56.4 173.1 78.4
600 41.4 177.4 80.8 148.1 64.5 189.5 87.5
* Values are for saturated liquid
DPN002411, Rev. 3

Piping
39 Liebert® MC™
Evaporator Subcooling Calculation Worksheet
Subtract Line 6 (Measured Line Temperature) from Line 5 (Liquid Pressure converted to
Temperature) to obtain Calculated Subcooling.
Elevation Correction
Subtract Line 3 (Correction for Condenser Elevation above Evaporator) from Line 8 (Calculated
Subcooling) to obtain Corrected Subcooling.
Verification Against MC Condenser
Subtract Line 7 (MC Condenser Subcooling Reading) from Line 9 (Corrected Subcooling) to obtain
Difference.
• If Line 10 (Difference value) is less than ± 3°F, NO charge adjustment is needed.
• If Line 10 (Difference value) is greater than -3°F, add additional charge.
• If Line 10 (Difference value) is greater than +3°F, remove charge.
Circuit 1 Circuit 2
Refrigerant Type
1. Ambient Temperature
2. Condenser Elevation
3. Condenser Elevation Temperature Correction
4. Liquid Line Pressure
5. Liquid Pressure converted to Temperature
6. Measured Liquid Line Temperature
7. MC Condenser Subcooling Reading
(Menu ID F50 for Circuit #1 or
Menu ID F51 for Circuit #2)
Circuit 1 Circuit 2
Line 5
Line 6
8. Calculated Subcooling
Circuit 1 Circuit 2
Line 8
Line 3
9. Corrected Subcooling
Circuit 1 Circuit 2
Line 9
Line 7
10. Difference

Checklist for Completed Installation
Liebert® MC™40
6.0 CHECKLIST FOR COMPLETED INSTALLATION
6.1 Moving and Placing Equipment
___ 1. Unpack and check received material.
___ 2. Proper clearance for service access has been maintained around the equipment.
___ 3. Equipment is level and mounting fasteners are tight.
6.2 Electrical
___ 1. Line voltage connected and matches equipment nameplate.
___ 2. Power line circuit breakers or fuses have proper ratings for equipment installed.
___ 3. Control wiring connections completed between indoor cooling unit and condenser.
___ 4. All internal and external high-voltage and low-voltage wiring connections are tight to the
proper torque ratings shown on the components.
___ 5. Confirm that unit is properly grounded to an earth ground.
___ 6. Electrical service conforms to national and local codes.
___ 7. Monitoring wiring connections completed, when equipped, to indoor cooling unit or external
monitoring panel.
___ 8. Check to confirm Premium EC Fan Condenser is not connected to Delta Power Supply.
___ 9. Check that the CANbus wiring, CANbus “END of Line” jumper position, and the CANbus
“Device Address DIP Switch” setting is correct according to the application at the job site.
___ 10. If Terminals 70, 71 and 230 are used, verify they are properly wired with special attention
paid to systems that use two condensers for one indoor unit.
6.3 Piping
___ 1. Piping is completed to corresponding indoor cooling unit refrigeration circuit.
___ 2. Piping is leak-checked, evacuated, and charged with specified refrigerant.
___ 3. Additional refrigerant oil added, if required, per circuit.
___ 4. Piping is properly sized, sloped, and trapped for proper oil return.
___ 5. Piping is routed to reduce potential of rub-through or chaffing.
___ 6. Hot gas line on Liebert Lee-Temp™ is fastened to the side of the cabinet and isolated for
vibration reduction.
6.4 Other
___ 1. Fans rotate freely and in proper direction. EC fans rotate counterclockwise in operation as
viewed from the fan guard side.
___ 2. Foreign material removed from in and around all equipment installed (construction
materials, construction debris, etc.).
___ 3. Installation materials and tools have been removed from in and around all equipment
(literature, shipping materials, tools, etc.).
___ 4. Blank startup sheet located, ready for completion by installer or start-up technician.

Initial Startup Checks and Commissioning
41 Liebert® MC™
7.0 INITIAL STARTUP CHECKS AND COMMISSIONING
7.1 Startup Checklist
Refer to 6.0 - Checklist for Completed Installation and verify that all installation items have
been completed before beginning to start the condenser.
7.2 Initial Startup
1. Locate Liebert Condensers Warranty Inspection Check Sheet, Document # PSWI-8542-407-CO.
2. Turn the condenser disconnect On.
3. Turn the indoor unit ON and set for cooling to allow operation of condenser.
4. Check the fans for proper rotation: Counterclockwise when viewing the unit from the fan guard
(top) side.
5. Check that air is being drawn through the coil and discharged out the fan assembly.
6. Complete Liebert Condensers Warranty Inspection Check Sheet, Document # PSWI-8542-407-CO.
• Contact your local Emerson sales representative or Emerson Network Power® Liebert Services
support about any questions or problems during unit startup and commissioning.
Local Emerson sales offices and Liebert Precision Cooling support contacts can be found at
www.liebert.com
or by calling 1-800-LIEBERT.
!
WARNING
Risk of electric shock. Can cause injury or death.
Disconnect all local and remote electric power supplies and wait 10 minutes before working
within condenser main electrical enclosure or fan electrical enclosure. Unit contains
potentially lethal electrical voltage. Line side of factory disconnect remains energized when
disconnect is Off. Use a voltmeter to make sure power is turned Off before checking any
electrical connections or functions.
Only properly trained and qualified personnel may perform repair, maintenance, and
cleaning operation.
!
WARNING
Risk of high-speed, rotating fan blades. Can cause injury or death.
Fan blades can start rotating without warning at any time during a cooling cycle or after
power is restored after a power failure. Disconnect all electrical power supplies to the unit,
verify with a voltmeter that the power is Off and verify that all fan blades have stopped
rotating before working on or near the fans.
NOTE
This document must be completed and forwarded to your local Emerson sales office to validate
warranty.

Control Operation
Liebert® MC™42
8.0 CONTROL OPERATION
The Liebert MC Premium Efficiency Control takes approximately 30 seconds to boot up once power is
applied to the condenser. The LED on the Premium Efficiency Control Board reads “888” while the
board is booting up. Once the control has booted up, the display shows “F00” and then the value for
F00. With the control operational, the condenser fan(s) turn in less than 5 seconds after receiving a
signal from the indoor unit that the compressor(s) are On. Consider using UPS equipment on both
data center cooling units and Liebert MC condensers to maintain uninterrupted cooling capability.
For the first 60 seconds of operation after the compressor turns on, the condenser fan(s) will run at a
fixed speed, set at the factory, based on ambient temperature: faster at higher temperatures, slower
at lower temperatures. After 60 seconds, the control adjusts the fan speed based on the liquid
pressure transducer. If the liquid pressure transducer fails, the condenser uses temperature sensors
to control the fan speed based on the liquid line temperature. The condenser fans continue to operate
for approximately 30 seconds after compressors turn Off.
The Liebert MC fans have various alarm conditions, such as loss of voltage and loss of control signal,
that will stop the condenser fans. Once the alarm condition is no longer present the Liebert MC fans
will turn on automatically if compressors are On.
8.1 Premium Efficiency Control Board and Interface
The Liebert MC Premium Efficiency Control board has a stacked board arrangement. There are three
seven-segment LED’s and four keys as human machine interface (see Figure 24).
Figure 23 Premium efficiency fan control board
NOTE
Indicator lights should be on, to indicate signal is present. See Figure 23, #1, 2 and 3.
301471
Pg. 2, Rev. 3
1
1
1
1
1
1
1
1
1
1
1
1
1
11
1
1
1
1
1
1
1
1
Spare Digital
Outputs (Not
Used)
Call for
Cooling
Remote
Shutdown
Fan
Contactor
Output
Mother
Board
24VAC
Earth
Ground
Fan 4
Fan 3
Fan 2
Fan 1
CPU
Board
RS485
Communication
to Fans
Spare Analog
Outputs (Not Used)
Communication
from
indoor unit
Communication
from
indoor unit
CANbus
Service
Pressure
Inputs
Circuit 1
Circuit 2
Circuit 1
Circuit 2
Ambient
Temperature
Inputs
Alarm & Shutdown
Circuits
Ethernet and CANbus addressing
and signal indication
Indicator Lights: ON - Signal Present
Indicator Lights:
ON - Signal
Present
Control Fuses
RS485 Service
Terminal
BAR CODE
24VAC
CAUTION
For Continued Protection Against Risk of Fire,
Replace Only With Same Type and Rating of Fuse
ACM01M1
VER:A02
2010.08.10
BAR CODE
Human
Machine
Interface
(HMI)
Circuit 1
Circuit 2
F3 T3.15A, 250VAC
F2 T3.15A, 250VAC
ACM01U1 VER:A03 2010.08.10
1
1
Fuses are rated to 3A/250V
#1
#3
#2
J5

Control Operation
43 Liebert® MC™
Figure 24 Premium Efficiency Control Interface - Human Machine Interface (HMI)
The Premium Efficiency Controls are factory-configured for refrigerant type and whether the
condenser was sold with a Liebert Lee-Temp™ system. No field-configuration is necessary for proper
and efficient condenser operation.
8.1.1 Initial Screen Upon Power-On
The controller displays the initial screen after it is powered On. The initial screen shows the first item
of analog signals menu. The F00 and value of condenser pressure 1 are displayed alternatively and
F00 means the item ID of condenser pressure 1. The display sequence is shown Figure 25. In the
figure, 16.1 is an example and the value is dependent on the sampling result).
Figure 25 Initial controller display
8.1.2 Main Menu Description
In initial screen, presses ESC key, the LED enters the first menu of the main menu. The main menu
includes four menus:
• Analog Signals Menu
• Active Alarms Menu
• History Alarms Menu
• Configuration Menu
In the Main Menu, press Up and Down keys to switch to different menus, and press the ENT key to
enter the submenus of the current menu. The operation and structure of main menu are shown in the
following figure.
Figure 26 Main Menu operation and structure
NOTICE
Risk of improperly altered configuration menu settings. Can compromise equipment
operation.
Changing the configuration menu settings can cause unanticipated results. These settings
should be changed only by properly trained and qualified personnel or as directed by the
factory.
F00 16.1 F00 16.1
F-------- A-------- H--------0 C--------
Analog Signals
Menu
Active Alarms
Menu
History Alarms
Menu
Configuration
Menu
Down
Up

Control Operation
Liebert® MC™44
8.1.3 Analog Signals Menu Description
In analog signals menu F-----------, press the ENT key to enter its items. The information of analog
signal items includes condenser pressure, temperature and EC Fan actual speed. The display mode is
that the item ID and signal value are displayed alternatively. The operation and item structure of
analog signals menu are shown in the following figure.
Figure 27 Analog Signals Menu
Table 16 Analog signal definitions
Item ID Meaning
Units (C90)
Imperial Metric
F00 Condenser pressure 1 psi bar
F01 Condenser pressure 2 psi bar
F02 Ambient temperature °F °C
F03 Refrigerant temperature 1 °F °C
F04 Refrigerant temperature 2 °F °C
F10 EC Fan 1 actual speed RPM RPM
F11 EC Fan 1 requested speed % %
F20 EC Fan 2 actual speed RPM RPM
F21 EC Fan 2 requested speed % %
F30 EC Fan 3 actual speed RPM RPM
F31 EC Fan 3 requested speed % %
F40 EC Fan 4 actual speed RPM RPM
F41 EC Fan 4 requested speed % %
F50 Subcooling 1 °F °C
F51 Subcooling 2 °F °C
F90 Firmware Version Major
1.02.004F91 Firmware Version Minor —
F92 Firmware Version Build —
F-------
F00
F01
F02
F03
F04
F10
F92
...
16.1
15
0
-15
20
200
000
...
Initial Screen
Up
ESC
Down
ENT

Control Operation
45 Liebert® MC™
8.2 Premium Efficiency Condenser Alarm Codes
The following procedure and chart details the alarm codes that may be displayed from the Active and
History Alarm registers.
8.2.1 Active Alarms Menu Description
In active alarms menu “A——,” press the ENT key to enter its items. The active alarm item displays
all the active alarms of condenser. When there is an active alarm, the alarm information ID will be
directly displayed. When there is no alarm, “---” is displayed. When there are multiple alarms, the
alarm information ID’s will be displayed according to the time sequence (the most-recent alarm will
be displayed first). The operation and items structure of active alarms menu are shown in the
following figure. The meanings of alarm information ID are found in Tables 17 and 18.
Figure 28 Active alarms menu
A-------
--- 001
105
304
210
033
Down
Up
ESC
ENT
or
No Alarm

Control Operation
Liebert® MC™46
8.2.2 History Alarms Menu Description
In history alarms menu “H——?”, press ENT key to enter its items. The history alarm items display
100 history alarm records of the condenser. The item ID is for the sequence number of the history
alarms. The display mode is that the item ID and alarm information ID are displayed alternatively.
When there is no alarm, “---” is displayed. Alarm history can be cleared using the C98 configuration
menu item. The operation and items structure of history alarms menu are shown in the following
figure. The meanings of alarm information ID are given in Tables 17 and 18.
Figure 29 History alarms menu
H-------
H01 001
105
304
---
--
Down
Up
ESC
ENT
or
---
H02
H03
H04
H00
---

Control Operation
47 Liebert® MC™
Table 17 System alarm information
Alarm ID Meaning Possible Cause Handling Method
000 CAN communication failure Communication circuit missing or
damaged
Check communication circuit.
Ignore alarm on condensers
without CAN connections
001 Ethernet communication failure Ethernet hardware or connection
failure
Ignore alarm, Ethernet connection
is not present
002 USB communication failure USB device or file is damaged. Replace USB device or file.
003 Data corruption Memory chip is damaged Replace PCB board
004 System error Internal error Reboot. If reboot fails, consult
factory.
005 Remote shutdown
1. Remote shutdown signal is
available
2. TB38 is not connected
For Cause 1, check the remote
shutdown signal.
For Cause 2, connect TB38.
006 Shutdown due to EC Fan alarm All fans have failed Consult factory
007 SPD alarm SPD damaged Replace SPD
008 Condenser pressure Sensor 2 failure Condenser pressure Sensor 1
damaged
Replace condenser pressure
Sensor 1
009 Condenser pressure Sensor 2 failure Condenser pressure Sensor 2
damaged
Replace condenser pressure
Sensor 2
010 Condenser pressure 1 high alarm
High pressure: Fan failure,
clogged coils.
Low pressure: Loss of charge
High-pressure alarms: Fix fan and
clean coil.
Low-pressure alarms: Check for
refrigerant leak.
011 Condenser pressure 2 high alarm
012 Condenser pressure 1 low alarm
013 Condenser pressure 2 low alarm
014
EC Fan speed mode maximum must
be overridden due to condenser
pressure 1 high
Condenser pressure 1 high No action is needed.
015
EC Fan speed mode maximum must
be overridden due to condenser
pressure 2 high
Condenser pressure 2 high No action is needed.
016 Ambient temperature sensor failure Ambient temperature sensor
damaged
Replace ambient temperature
sensor
017 Ambient temperature high alarm Ambient temperature high No action is needed.
018 Ambient temperature low alarm Ambient temperature low No action is needed.
019 Condenser temperature Sensor 2
failure
Condenser temperature Sensor 2
damaged
Replace condenser temperature
Sensor 1
020 Condenser temperature Sensor 2
failure
Condenser temperature Sensor 2
damaged
Replace condenser temperature
Sensor 2
021 Condenser temperature 1 high alarm
High temperature: Fan failure,
clogged coils.
Low temperature: Consult factory
High-temperature alarms: Fix fan
and clean coils.
Low-temperature alarms: consult
factory.
022 Condenser temperature 2 high alarm
023 Condenser temperature 1 low alarm
024 Condenser temperature 2 low alarm
025
EC Fan speed mode maximum must
be overridden due to refrigerant
temperature 1 high
Refrigerant temperature 1 high No action is needed.
026
EC Fan speed mode maximum must
be overridden due to refrigerant
temperature 2 high
Refrigerant temperature 2 high No action is needed.

Control Operation
Liebert® MC™48
Table 18 EC Fan alarm information
Alarm ID Meaning Possible Cause Handling Method
(1-4) 00 EC Fan high link current 1. EC Fan is locked.
2. EC Fan is damaged.
For cause 1, check if EC Fan is
locked.
For cause 2, replace EC Fan
(1-4) 01 EC Fan drive error EC Fan is damaged. Replace EC Fan
(1-4) 02 EC Fan earth to ground fault EC Fan is damaged. Replace EC Fan
(1-4) 03 EC Fan electronics heat sink thermal
overload
1. EC Fan is locked.
2. EC Fan is damaged.
3. Ambient temperature is too
high
For cause 1, check if EC Fan is
locked.
For cause 2, replace EC Fan
For cause 3, check ambient
temperature.
(1-4) 04 EC Fan Hall failure EC Fan is damaged. Replace EC Fan
(1-4) 05 EC Fan IGBT failure EC Fan is damaged. Replace EC Fan
(1-4) 06 EC Fan line fault Power supply abnormal Check power supply
(1-4) 07 EC Fan motor locked Motor is locked Check if EC Fan is locked.
(1-4) 08 EC Fan motor thermal overload
1. EC Fan is locked.
2. EC Fan is damaged.
3. Ambient temperature is too
high
For cause 1, check if EC Fan is
locked.
For cause 2, replace EC Fan
For cause 3, check ambient
temperature.
(1-4) 09 EC Fan phase failure alarm Phase failure Check power supply
(1-4) 10 EC Fan-specific uncategorized alarm
detected Internal EC Fan issue
Re-boot condenser if fans not
running. If alarm persists and fans
not running, replace fan.
(1-4) 11 EC Fan-specific uncategorized
warning detected
(1-4) 12 EC Fan electronics high-temperature
condition.
1. EC Fan is locked.
2. EC Fan is damaged.
3. Ambient temperature is too
high
For cause 1, check if EC Fan is
locked.
For cause 2, replace EC Fan
For cause 3, check ambient
temperature.
(1-4) 13 EC Fan high link voltage
1. EC Fan input power supply
high voltage
2. EC Fan is damaged. For cause 1, measure power
supply voltage and check if the
voltage is normal
For cause 2, replace EC Fan
(1-4) 14 EC Fan low link voltage
1. EC Fan input power supply low
voltage
2. EC Fan detection error
(1-4) 15 EC Fan 485 communication failure
1. Communication between EC
Fan and PCB board failure
2. EC Fan 485 communication
failure
3. Board has problems
4. EC fan not receiving power
For cause 1, check EC Fan
communication circuit
For cause 2, replace EC Fan
For cause 3, replace PCB board
For cause 4, check fan model is
not set for “0”, check that the
contactor for the particular fan is
energized, and check fan fuses.
NOTE
(1-4) means the EC Fan addresses. For example, (1-4) 00 means 100 for EC Fan1, and means
200 for EC Fan2, and means 300 for EC Fan3, and means 400 for EC Fan4.

System Maintenance
49 Liebert® MC™
9.0 SYSTEM MAINTENANCE
9.1 General Procedures
• Model Number ________________
• Serial Number ________________
• Voltage / Phase / Frequency ________________
Periodic attention is necessary for continued satisfactory operation of your unit. Restricted air flow
through the condenser coil, reduced airflow from non-functioning fans and low refrigerant system
charge levels will reduce the operating efficiency of the unit and can result in high condensing
temperatures and loss of cooling. In winter, do not permit snow to accumulate around the sides or
underneath the condenser coil.
Monthly and semi-annual inspections and maintenance are recommended for proper system
operation. Use copies of 9.4.3 - Maintenance Inspection Checklist for each of these inspections.
If performance or operation problem are detected at anytime, refer to 8.2 - Premium Efficiency
Condenser Alarm Codes for required action.
9.2 Condenser Cleaning
Keeping the outdoor condenser coils clean is an important factor in maintaining peak efficiency,
reliability and long life of the equipment. The unit will operate more efficiently with frequent
cleanings. Delaying cleaning until heavy buildup occurs may create head pressure problems with the
evaporator units.
9.2.1 When to Clean the Condenser Coil
Normal conditions typically dictate cleaning twice a year, spring and fall. On-site or area conditions
such as cottonwood trees, construction, etc., can increase cleaning frequency. On your standard
monthly preventive maintenance schedule, Emerson recommends a visual inspection of the coil to
monitor conditions.
!
WARNING
Risk of electrical shock. Can cause injury or death.
Unit contains potentially lethal voltage in some circuits.
Disconnect all local and remote electric power supplies and wait 10 minutes before working in
the unit. The line side of the unit disconnect switch remains energized when the switch is in
the Off position. Use a voltmeter to make sure power is turned Off before making any
electrical connections.
Only properly trained and qualified personnel may perform repair, maintenance, and
cleaning operations.
!
WARNING
Risk of high-speed, rotating fan blades. Can cause injury or death.
The fan blades can start rotating without warning any time during a cooling cycle or after
power is restored after a power failure. Disconnect all local and remote electrical power
supplies to the unit, wait 10 minutes and verify with a voltmeter that the power is Off and
that all fan blades have stopped rotating before working on or near the fans.
NOTE
When ordering replacement parts for equipment, it is necessary to specify unit model number,
serial number and voltage. Please record those numbers in the spaces below.

System Maintenance
Liebert® MC™50
9.2.2 What to Use to Clean the Condenser Coil
The best overall condenser coil cleaner to use is plain water. If the coil has been maintained and
cleaned at regular intervals, water is sufficient to remove dirt and debris from the fins. Heavy build
up on the exterior of the fins can be removed with a brush. Water pressure from a garden hose and
sprayer usually works well. If a pressure washer is used, make sure the equipment is set to a lower
pressure setting and that the nozzle is set to the fan spray, not stream. Otherwise, damage to the fins
could result. If a cleaner is required, Emerson recommends using a neutral cleaner, neither acidic nor
base. Acid-type cleaners can damage the coil fins and surrounding areas. Many sites do not allow the
use of acidic cleaners for environmental reasons.
9.2.3 How to Clean the Condenser Coil
The Liebert MC coil is accessible for cleaning through the innovative cleaning window design,
allowing you to clean the coil without removing the fans from the unit. First, this requires
disconnecting the power supply before working on the unit and then opening the cleaning window(s)
on the side of the unit by loosing the mounting screws. Then insert a spray nozzle on the end of a
suitable extension and apply the water/cleaning solution, working back and forth across the coil face.
The solution will push the dirt and debris out the bottom of the coil. If you are using a cleaner along
with the spraying process, follow recommended manufacturer instructions and be sure to rinse the
coil thoroughly. Any residue left on the coil can act as a magnet to dirt. Reinstall the cleaning
window(s) and reconnect the power supply to the condenser.
Spraying the coil from the outside repeatedly can push a majority of the dirt to the inner section of the
fins and continue to restrict air flow. Keep in mind you may not have the luxury of shutting the
unit(s) down for an extended time. A scheduled shutdown with the operator may be in order.
NOTICE
Risk of using damaging cleaning agents, including non-base paint solvents. Can cause
equipment damage and damage to property and loss of refrigerant charge.
Using acid-based or sodium hydroxide-based cleaners can damage the Liebert MC condenser
coil and cause a loss of charge. This could cause equipment damage as well as damage to the
surrounding structure.
NOTE
Clean the EC fan with water only when temperatures are greater than 50°F (10°C)
• Make sure that no water gets into the inside of the motor.
• Do not hold the jet spray directly on the motor openings and seals.
• During cleaning work using a jet spray, no guarantee is assumed regarding corrosion
formation/paint adhesion for unpainted/painted fans.

System Maintenance
51 Liebert® MC™
9.3 Fan Replacement
1. Turn off power to the unit using the disconnect. With a voltmeter verify that voltage is no longer
present at the unit. Wait a minimum of 10 minutes to allow the EC Fan capacitors to discharge
before proceeding.
2. Remove fan cover, disconnect electrical connections internal to EC fan and remove cable glands
from EC fan (see Figures 31,32 and 33).
3. Remove hardware that mounts EC fan to condenser body.
4. Reinstall electronic cover. Maximum torque for the fan cover screws is 2.3Nm (20 in-lb).
!
WARNING
Risk of electric shock. Can cause injury or death.
Disconnect all local and remote electric power supplies and wait 10 minutes before working
within condenser main electrical enclosure or fan electrical enclosure. Unit contains
potentially lethal electrical voltage. Line side of factory disconnect remains energized when
disconnect is Off. Use a voltmeter to make sure power is turned Off before checking any
electrical connections or functions.
Only properly trained and qualified personnel may perform repair, maintenance, and
cleaning operation.
!
WARNING
Risk of high-speed, rotating fan blades. Can cause injury or death.
Fan blades can start rotating without warning at any time during a cooling cycle or after
power is restored after a power failure. Disconnect all electrical power supplies to the unit,
verify with a voltmeter that the power is Off and verify that all fan blades have stopped
rotating before working on or near the fans.
!
CAUTION
Risk of contact with hot surface. Can cause injury.
Use proper skin protection when touching the electronics housing or allow time for the
housing to cool before replacing parts. The electronics housing can get hot and can cause
severe burns.
!
CAUTION
Risk of improper moving, lifting and handling. Can cause equipment damage or injury.
Only properly trained and qualified personnel should work on this equipment. Fan modules
for MCL models weigh in excess of 92lb. (40.8kg) each and fan modules for MCS and MCM
models weigh in excess of 40lb. (18.1kg.) each. Use OSHA-approved lifting techniques, proper
body mechanics and extreme caution to avoid injury and dropping of fans during removal and
installation.
NOTE
If at any time a parameter is entered and the display does not show 888 or it displays Err, try
to re-enter the parameter. If the display still shows Err after ENT is pressed, power cycle the
control board by unplugging P24, waiting 15 seconds and plugging P24 back in. Contact the
factory if the parameter still displays Err after ENT is pressed.
NOTE
If replacing a Ziehl-Abegg fan with an EBM fan, the existing ferrule must be removed from the
end of the wires on the communication cable for all fans except the last fan. Twist wires
together before inserting into the terminal block.
Example:
Twist RSA labeled conductor of the input cable to RSA labeled conductor of the output cable.
Insert the wires into the properly marked terminal on the fan, two wires per RSA, RSB, and
GND terminal as shown in detail “A” on EBM MCS/MCM series drawing.

System Maintenance
Liebert® MC™52
5. Install a spreader bar over the EC fan
NOTICE
Risk of improper fan rigging. Can cause equipment damage.
MCL model EC fans weigh over 90lb. (40.8kg) each and MCS and MCM EC fans weigh over
40lb. (18.1kg) each. Make sure that the wire harness is secured out of the way before lifting
the fan.
6. Verify that lifting cable/chains are not coming into contact with fan blades before lifting.
7. Install new fan in unit and connect mounting hardware; connect electrical cable glands. Torque
for cable glands is 2.5Nm (22 in-lb). Make sure fan blades rotate freely when installed in unit.
Reconnect wiring to proper terminals and verify that run jumper is in place. Refer to
Figures 30,31 and 32 for wiring details. Torque for electrical terminals are 1.3Nm (11.5 in-lb).
8. Turn power On.
9. The control board will flash F00 on the display when it has completed its boot cycle. Refer to
Figures 23 and 24.
10. Press the ESC button.
11. Use the Up or Down arrow until C-- is on the display.
12. Press ENT button.
13. Use the Up or Down arrow until C03 is on the display.
14. Press ENT button.
15. Use the Up or Down arrow to select one of three options.
16. Press the ENT button.
17. If the new value was entered into the control board, the display will flash 888.
18. Press the ESC button for C03 to show on the display.
Configuration
Code Fan # Value
C03 Fan 1
0 = No Fan
1 = EBM Papst
2 = Ziehl-Abegg
C04 Fan 2
C05 Fan 3
C06 Fan 4

System Maintenance
53 Liebert® MC™
18. Repeat Steps 11 thru 18 for the remaining fans’ configuration codes, C04, C05 and C06.
19. Unplug all the contactor output plugs except for the fan to be addressed. Plugs listed below.
•P23 = Fan 1
•P27 = Fan 2
•P28 = Fan 3
•P29 = Fan 4
20. Wait 30 seconds.
21. Use the Up or Down arrow to select one of the following parameters.
The correct parameter depends on the supplier of the fan that will be addressed.
• C00—EBM Papst fan
• C01—Ziehl Abegg fan
22. Press the ENT button.
23. Use the Up or Down arrow to the correct fan address number. Fan 1 should be 1 (fan closest to
electric panel end). Fan 2 should be 2, etc.
24. Press ENT button. The display will flash 888 when the command is accepted.
25. Press the ESC button for the parameter to be shown on the display.
26. Repeat Steps 19 through 25 for the rest of the fans that need to be addressed.
27. After the last fan is addressed, unplug the power plug, P24, from the control board.
28. Wait 30 seconds.
29. Plug all the contactor output plugs back into the board in their correct positions.
30. Plug P24 back into the control board.
31. Once the control board has completed its boot cycle and all the contactors are energized, wait
5 seconds.
32. Press the ESC button.
33. Use the Up or Down arrow until A-- is on the display.
34. Press ENT button.
35. Use the Up or Down arrow to see if any of the following errors are shown.
• 115: Unable to communicate with Fan 1.
• 215: Unable to communicate with Fan 2.
• 315: Unable to communicate with Fan 3.
• 415: Unable to communicate with Fan 4.
36. If any of these errors appear, check the communication wiring at the problem fan and the fan
before it.
37. If the wiring is correct and properly wired to the terminal, and none of the errors mentioned in
Step 35 are displayed, press the ESC button.

System Maintenance
Liebert® MC™54
Verify the Fan Address
Verify that each fan has a unique address by:
1. Use the Up or Down arrow until C-- is on the display.
2. Press the ENT button.
3. In the Manual/System Control Selection parameter use the Up or Down arrow until C24 is on the
display.
4. In the Manual Control configuration parameter press ENT button.
5. Use the Up or Down arrow to select 0.
6. Press the ENT button. The display will read 888 if the command was accepted.
7. Press the ESC button for C24 to show on the display.
8. Use the Up or Down arrow until C34 is on the display.
9. Press ENT button.
10. If Fan 1 is currently running, the fans speed should be displayed in terms of percentage of full
speed. If Fan 1 is not running, 0.00 should be displayed.
11. Use the Up or Down arrow to enter 100% speed.
12. Press the ENT button. The display will read 888 if the command was accepted.
13. Fan 1 should speed up to 100% and all the other fans should stay the same.
14. If Fan 1 is not running or any of the other fans also speed up to 100%, the fan-addressing
procedure (Steps 19 through 25) must be repeated.
15. Press the ESC button for the parameter to be shown on the display.
16. Repeat Steps 4 through 9 for the rest of the fans, if present.
•C35: for Fan 2.
• C36:. for Fan 3.
•C37: for Fan 4.
17. All fans should be at 100% speed.
18. 5Use the Up or Down arrow until C24 is on the display.
19. Press the ENT button.
20. In the System Control configuration parameter, use the Up or Down arrow to select 1.
21. Press the ENT button. The display will flash 888 if the command was accepted.
22. Press the ESC button for C24 to be shown on the display.
23. All fans should return to a normal speed based on the pressure input and the state of indoor unit’s
compressor.
PCB Notes
• J4 and J6 are the CANbus termination jumpers. If the condenser is the last device in the CANbus
communication line, the jumper must be placed between pins 1 and 2 of J6, and between pins 2
and 3 on J4. If the condenser is not the last device in the CANbus communication line, then both
jumpers on J4 and J6 must be placed on Pins 2 and 3. If the jumpers are not in the correct
positions, CANbus communication errors may occur.
• A jumper must be present at J2. If no jumper is present, the control board will not boot properly
during power startup

System Maintenance
55 Liebert® MC™
Figure 30 EBM small and medium fan, Liebert MC series MCS/MCM
Figure 31 EBM large fan—Liebert MC series MCL
Connect uninsulated drain wires from
communication cables to ground
connection (GND) as shown below.
The drain wires must be tied together
with cable ties and routed away from
the high-voltage terminals.
NOTE
If replacing a Ziehl-Abegg fan with an
EBM fan, the existing ferrule must be
removed from the end of the wires on
the communication cable for all fans
except the last fan. Twist wires
together before inserting into the
terminal block.
Example:
Twist RSA-labeled conductor of the
input cable to RSA-labeled conductor
of the output cable.
Insert the wires into the properly
marked terminal on the fan, two
wires per RSA, RSB and GND
terminal as shown in Detail A.
Connect uninsulated drain wires from
communication cables to ground
connection (GND) as shown below.
The drain wires must be tied together
with cable ties and routed away from
the high-voltage terminals.
NOTE
If replacing a Ziehl-Abegg fan with
an EBM fan, the existing ferrule
must be removed from the end of
the wires on the communication
cable for all fans except the last
fan. Twist wires together before
inserting into the terminal block.
Example:
Twist RSA-labeled conductor of
the input cable to RSA-labeled
conductor of the output cable.
Insert the wires into the properly
marked terminal on the fan, two
wires per RSA, RSB and GND
terminal as shown in Detail B.

System Maintenance
Liebert® MC™56
Figure 32 Ziehl-Abegg small, medium and large fan, Liebert MC series MCS, MCM and MCL
9.4 Premium Efficiency Control Board Replacement
9.4.1 Replacement Preparation
1. Verify that the following jumpers are installed on the new board (see Figure 33):
• Jumper at J4 and J6 on Pins 2 and 3.
•Jumper on J2.
• Jumper on J5 on Pins 1 and 2.
2. Locate the latest revision of the HMI parameters label, 303847P1, included with new control
board.

System Maintenance
57 Liebert® MC™
Figure 33 Jumper locations on Control Board
301471
Pg. 2, Rev. 3
1
1
1
1
1
1
1
1
1
1
1
1
1
11
1
1
1
1
1
1
1
1
Spare Digital
Outputs (Not
Used)
Call for
Cooling
Remote
Shutdown
Fan
Contactor
Output
Mother
Board
24VAC
Earth
Ground
Fan 4
Fan 3
Fan 2
Fan 1
CPU
Board
RS485
Communication
to Fans
Spare Analog
Outputs (Not Used)
Communication
from
indoor unit
Communication
from
indoor unit
CANbus
Service
Pressure
Inputs
Circuit 1
Circuit 2
Circuit 1
Circuit 2
Ambient
Temperature
Inputs
Alarm & Shutdown
Circuits
Ethernet and CANbus addressing
and signal indication
Indicator Lights: ON - Signal Present
Indicator Lights:
ON - Signal
Present
Control Fuses
RS485 Service
Terminal
BAR CODE
24VAC
CAUTION
For Continued Protection Against Risk of Fire,
Replace Only With Same Type and Rating of Fuse
ACM01M1
VER:A02
2010.08.10
BAR CODE
Human
Machine
Interface
(HMI)
Circuit 1
Circuit 2
F3 T3.15A, 250VAC
F2 T3.15A, 250VAC
ACM01U1 VER:A03 2010.08.10
1
1
Fuses are rated to 3A/250V
#1
#3
#2
J5
J2 J5J6J4

System Maintenance
Liebert® MC™58
9.4.2 Installation
1. Turn Off the disconnect switch on the enclosure cover.
2. Open the control enclosure cover.
3. Manually turn On the disconnect switch. Power is On and a shock hazard exists with exposure to
hazardous voltage components.
4. If the board can still be powered up and has a display, record the parameter settings. To obtain
parameters go to the C-- menu and press the Up or Down button to read and record the values for
C03-09, and C27.
5. Record all of the DIP switch positions for the CANbus dip switch package. Retain these for setting
up the new board.
6. Record positions of the jumpers for J2, J4, J5, and J6 on control board in unit. Retain these for
set-up of new board.
7. Disconnect power from the Liebert MC Condenser unit by turning Off the main disconnect switch.
8. Use a voltmeter to check the unit and ensure that voltage is no longer present in the unit.
9. Remove the plugs and field-installed wires from the old board. Note the polarity for the CANbus
wiring going to P49 and P50, if present.
10. Mark wires P49-1, P49-3, etc, if they are not already marked as such.
11. Remove the mechanical fasteners holding the control board in place and remove the old control
board.
12. Install the new control board using the fasteners removed in Step 11.
13. Reattach the plugs. Reference the hot-stamps on the wire harnesses that correspond to the correct
plug on the board. Verify that the plugs are installed properly.
14. Change the CANbus DIP switch positions so they match the old control board that is being
removed. If the Liebert MC condenser is the second condenser on the CANbus communication
line, set Position 1 of the CANbus DIP switch from On to Off.
15. Change the jumper positions for J2, J4, J5, and J6 to match the old control board. If the Liebert
MC condenser is the last device on the CANbus communication line, move the jumper at J6 from
Pins 2 and 3 to Pins 1 and 2 (see Figure 33).
16. Power up the unit.
17. Change the parameters to match the parameters from the old control board if they can be
obtained from the old board. See Step 18 if parameters were unavailable.
18. If the old board parameters were unavailable, use the new HMI label included in kit to obtain the
proper settings. Parameters C03, C04, C05 and C06 must be programmed with the proper EC fan
supplier used on the unit, then address the fans (refer to 9.3 - Fan Replacement).
19. Compare the HMI label that is on the unit with the latest revision.
If there are differences, clean and dry the surface of the old HMI label; stick the new label on top
of the old label. Completely cover the old label with the new.
20. Verify that the control board is reading pressure and temperature.
21. Verify that there are no communication alarms with the fans or the with the cooling unit the
Liebert MC is serving.
22. Verify proper fan operation by adjusting the cooling unit that this condenser serves so that it calls
for cooling.
!
WARNING
Risk of arc flash and electric shock hazard. Disconnect all local and remote electric power
supplies and wear appropriate personal protective equipment per NFPA 70E before working
within the electric control enclosure or the fan motor connection box(es). Failure to comply can
cause serious injury or death.
This unit contains lethal voltage. The line side of the unit disconnect switch remains
energized when the unit disconnect switch is in the “Off” position. Use a voltmeter to verify
that the line side input electric power to the unit disconnect switch is off before working on
any electrical components or connections.

System Maintenance
59 Liebert® MC™
9.4.3 Maintenance Inspection Checklist
Notes
Date: Prepared By:
Model #: Serial Number:
NOTE
Regular inspections are necessary to ensure that the cooling fins are clean. Should inspection
reveal dirt or corrosion, appropriate cleaning should be performed.
Monthly Semiannually
Condenser
___ 1. Coil surfaces free of debris.
___ 2. Fans free of debris.
___ 3. Fans securely mounted.
___ 4. Motor bearings in good condition.
___ 5. Check all refrigerant lines and capillaries
for vibration isolation. Support as
necessary.
___ 6. No refrigerant leaks.
Surge Protection Device (If Installed)
___ 1. Check SPD protection status indicator
lights.
Condenser
___ 1. Complete all monthly items.
___ 2. Piping in good condition.
___ 3. Inspect refrigerant lines for signs of oil
leaks. Repair leaks as found.
___ 4. Check refrigerant charge level in each
receiver tank (if required), based on
procedures in the indoor unit’s manual.
Continuous system operation required.
___ 5. Wash coil as needed.
___ 6. Repair bent or damaged fins.
Condenser Electrical Panel
___ 1. Check all electrical connections.
___ 2. Check contactors for pitting.
___ 3. Operational sequence/set points.
Fan Motors
___ 1. Motor # 1 amp draw amps
___ 2. Motor # 2 amp draw amps
___ 3. Motor # 3 amp draw amps
___ 4. Motor # 4 amp draw amps
Signature
Make photocopies of this form for your records.

Troubleshooting
Liebert® MC™60
10.0 TROUBLESHOOTING
Table 19 Troubleshooting
Symptom Possible Cause Check or Remedy
Condenser will not start
No power to condenser. Check voltage at input terminal block.
Circuit breaker or fuse for low-voltage
transformer in condenser is tripped.
Locate problem in condenser electrical panel and
repair.
No low-voltage signal to/from indoor
unit. Locate open circuit and repair.
Low discharge pressure Faulty head pressure control valve or
condenser control board (PEC/BEC). Replace if defective.
High discharge pressure
Dirty condenser fins. Clean coil.
Condenser fans not operating. Check for low-voltage signal from indoor unit.
Check fan motors and fuses.
High refrigerant charge Check refrigerant charge.
SPD green and red LEDs
are extinguished
No voltage or improper phasing exists
at condenser. Check voltage at input terminal block.
Electrical connections to SPD are faulty. Locate connection problem and repair.
Condenser disconnect is turned Off. Recheck lights with disconnect switch in the On
position.
SPD red LED is
illuminated
A surge exceeding the rating of the SPD
has occurred.
Replace SPD and inspect other components for
damage and replace them if necessary.
Control Board LEDs do
not light.
Connection to P24 is loose or
disconnected.
Check the connection to P24 to verify that is
connected securely.
Check the connector from the transformer for loose
terminals.
Fuse located next to P24 has blown. Verify that the fuses next to P24 have not blown.
Replace as needed.
24V transformer has failed.
With a voltmeter verify that the output from the
transformer is 24Vac ±10%. If the value exceeds
±10%, verify that the correct primary leads are
being used.
Control Board (PEC/BEC) has failed.
If there is no output voltage, verify that the primary
connections are secure and receiving the correct
voltage. If they are, replace the transformer.
Fan will not run Jumper not installed between 24V and
DIN1 (for Ziehl-Abegg fan motor).
Install jumper between 24V and DIN1 (for Ziehl
Abegg fan motor).

Ensuring The High Availability
Of Mission-Critical Data And Applications.
Emerson Network Power, a business of Emerson (NYSE:EMR),
is the global leader in enabling Business-Critical Continuity
™
from grid to chip for telecommunication networks, data centers,
health care and industrial facilities. Emerson Network Power
provides innovative solutions and expertise in areas including
AC and DC power and precision cooling systems, embedded
computing and power, integrated racks and enclosures,
power switching and controls, infrastructure management,
and connectivity. All solutions are supported globally by local
Emerson Network Power service technicians. Liebert AC power,
precision cooling and monitoring products and services
from Emerson Network Power deliver Efficiency Without
Compromise
™
by helping customers optimize their data center
infrastructure to reduce costs and deliver high availability.
While every precaution has been taken to ensure the accuracy
and completeness of this literature, Liebert Corporation assumes no
responsibility and disclaims all liability for damages resulting from use of
this information or for any errors or omissions.
© 2011 Liebert Corporation
All rights reserved throughout the world. Specifications subject to change
without notice.
® Liebert is a registered trademark of Liebert Corporation.
All names referred to are trademarks
or registered trademarks of their respective owners.
Technical Support / Service
Web Site
www.liebert.com
Monitoring
liebert.monitoring@emerson.com
800-222-5877
Outside North America: +00800 1155 4499
Single-Phase UPS & Server Cabinets
liebert.upstech@emerson.com
800-222-5877
Outside North America: +00800 1155 4499
Three-Phase UPS & Power Systems
800-543-2378
Outside North America: 614-841-6598
Environmental Systems
800-543-2778
Outside the United States: 614-888-0246
Locations
United States
1050 Dearborn Drive
P.O. Box 29186
Columbus, OH 43229
Europe
Via Leonardo Da Vinci 8
Zona Industriale Tognana
35028 Piove Di Sacco (PD) Italy
+39 049 9719 111
Fax: +39 049 5841 257
Asia
29/F, The Orient Square Building
F. Ortigas Jr. Road, Ortigas Center
Pasig City 1605
Philippines
+63 2 687 6615
Fax: +63 2 730 9572
Emerson Network Power.
The global leader in enabling Business-Critical Continuity™
EmersonNetworkPower.com
Emerson, Business-Critical Continuity, Emerson Network Power and the Emerson Network Power logo are trademarks of Emerson Electric Co. or one of its affiliated companies.
©2011 Emerson Electric Co.
AC Power
Connectivity
DC Power
Embedded Computing
Embedded Power
Infrastructure Management & Monitoring
Outside Plant
Power Switching & Controls
Precision Cooling
Racks & Integrated Cabinets
Services
Surge Protection
SL-19536_REV2_02-13