Emerson Multiport Flow Selector I 0168 Service Manual
i0168 8c82ff9a-d6ad-4c1a-8159-91ac87454be4 Emerson Marine Instruments I-0168 User Guide |
2015-01-05
: Emerson Emerson-Multiport-Flow-Selector-I-0168-Service-Manual-165653 emerson-multiport-flow-selector-i-0168-service-manual-165653 emerson pdf
Open the PDF directly: View PDF
.
Page Count: 20

Bettis Canada Ltd.
4112 91A Street
Edmonton, Alberta, Canada T6E 5V2
Tel: (403) 450-3600
Fax: (403) 450-1400
Edmonton
SERVICE MANUAL No. I-0168
MULTIPORT ELECTRONIC CONTROLLER
CUSTOMER:
P.O.#:
W.O.#:
TAG:
DATE:
APPLIES TO OPERATOR MODEL:
DESCRIPTION DWG.NO. PAGE
I INTRODUCTION ......................................................... 2
II ACTUATOR ASSEMBLY................................................... 2
TYPICAL ELECTRICAL ASSEMBLY DRAWING.................. IB0165 ........ 4
III MULTIPORT ELECTRONIC CONTROLLER.................................... 5
ASSEMBLY DRAWING .................................... CB0175 ....... 15
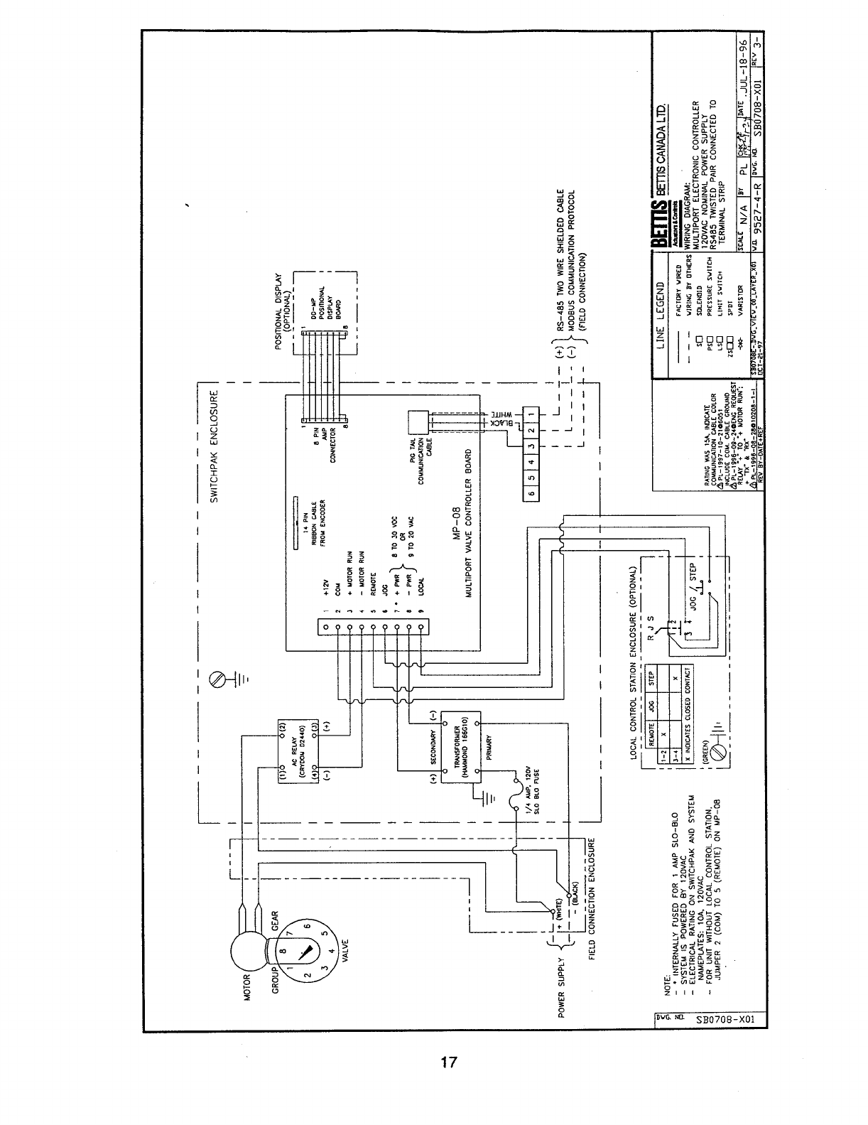
TYPICAL WIRING DIAGRAM, DC SUPPLY ..................... SB0708-X00 .... 16
TYPICAL WIRING DIAGRAM, AC SUPPLY ..................... SB0708-X01 .... 17
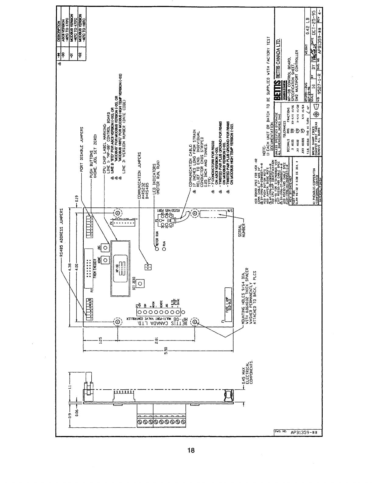
TYPICAL BOARD DIAGRAM................................. APB1359-## .... 18
IV TROUBLESHOOTING..................................................... 19
V NOTES ................................................................ 20
I-0168--.WPD
REV 2: DEC-15-97
2
I INTRODUCTION
The Multiport Electronic Controller (MEC) replaces the SW28 Switchpak, for the Multiport
Selector Valve. This service manual is intended to supersede the SW28 Switchpak information
in Multiport Selector Valve service manuals.
II ACTUATOR ASSEMBLY
A. MULTIPORT ELECTRONIC CONTROLLER (MEC): SWITCHPAK PEDESTAL,
CONNECTOR, SWITCHPAK MODEL SW20N-AM AND ELECTRICAL CONDUIT
(OPTIONAL LOCAL CONTROL STATION AND DIGITAL DISPLAY)
NOTE : For MEC, see the typical actuator assembly drawing on page 4.
1. Install Switchpak pedestal (449) in place and install the six studs (452), washers (453)
and nuts (454).
2. Start threading the setscrew in the Switchpak connector (457) and place on the speed
reducer shaft. Set coupling (455) on top of Switchpak connector.
3. Install adapter (459) on the Switchpak (300) shaft with setscrew (465). Set the
Switchpak SW20N-M in place onto the coupling (455) and install the four bolts (458),
flatwashers (461), and lockwashers (462).
4. Install electrical conduit for the MEC as follows:
a) Standard connections for Switchpak SW20N-AM and motor:
Off the Switchpak, assemble 1 NPT x 3/4 NPT reducer (322), 3/4 NPT close nipple
(310), seal enclosure (315), seal cover (314), 3/4 NPT x 2.75 long nipple (313), field
power supply connection enclosure (334), 3/4 NPT x 2.75 long nipple (313), 3/4 NPT
capped elbow (321), 3/4 NPT x 3.50 long nipple (312), and the 3/4 NPT union (320)
to the motor terminal box. Install 3/4 NPT plugs for the enclosures and 1/2 NPT plug
for the seal cover.
b) Optional connections for local control station:
Off the Switchpak pedestal, assemble the local control station (350), STEP/JOG
pushbutton (356), REMOTE/JOG/STEP 3-position switch (357), 3/4 NPT x 3 long
nipple (318), 3/4 NPT capped elbow (321), 3/4 NPT x 2.50 long nipple (317). Thread
into the seal enclosure (315) until the back of the control station is flush with the
Switchpak pedestal. Loosely install bolt (351), flatwashers (353), lockwashers (354),
and nut (352). Use spacer (358) if required. Install 3/4 NPT plug for the control
station.
c) Optional connections for digital display:
Off the Switchpak pedestal, loosely install the display bracket (506) with bolts (516),
lockwashers (520), flatwashers (522), and nuts (518). Connect digital display
enclosure (500) to seal enclosure (315) with 3/4 NPT x 2 long nipple. Loosely attach
display enclosure to bracket with bolts (508), lockwashers (512), flatwashers (514)
and nuts (510). Install positional display board assembly (502) to enclosure (500)
with standoff (504) and screws (505).
3
ACTUATOR ASSEMBLY continued . . .
5. See the typical drawing for Switchpak SW20N assembly on page 15, and the typical
wiring diagrams on page 16 for DC supply and page 17 for AC supply. Install all wiring
according to the electrical diagram and local regulations.
6. Check shaft alignment of the electronic controller to speed reducer by rotating both
shafts independently, without binding occurring in the connector. Adjust if necessary.
7. With the Switchpak, the optional local control station and/or the digital display aligned on
the Switchpak pedestal, tighten all mounting bolts, nuts and setscrews.
8. Pour seal enclosure (315), or tag.
9. Tag power supply connection wires in enclosure (334), install plug (303) and tag as
power supply field connection point.
10. Install entry plugs (301, 302, 309) in the Switchpak SW20N enclosure (300) and tag as
communication field connection point.


5
III MULTIPORT ELECTRONIC CONTROLLER
A. INTRODUCTION
The Bettis Multiport Electronic Controller (MEC) consists of a motor, Switchpak model
SW20N, optional local control station and position display. It is a microcontroller based
system developed to control and monitor status of the Multiport Selector Valve. It provides
improved accuracy, eliminates mechanical adjustment of cams, and allows digital
communication with one or more Multiport Valves over a single cable.
B. TECHNICAL DESCRIPTION
The MEC uses an optical absolute encoder to read the position of the valve into a 8 bit
microcontroller. The encoder resolution is 1024 readable positions within the 360b rotation
of the valve which results in the plug position being monitored to 0.35b accuracy. The
microcontroller controls the motor on/off relay, and the optional digital display, with input
from an external host device (computer, RTU or PLC) via a digital communication
connection. The inputs from the optional local control station (switch position and
pushbutton sense) are also connected to the microcontroller. The microcontroller utilizes a
memory chip (EEPROM) which retains the home port setting, and ASCII text message for
the valve, even during power failure.
C. ELECTRONIC CONTROLLER SPECIFICATIONS
INPUT VOLTAGE OPTIONS: 1. 120 VAC (50 - 60 Hz)
2. 24 VDC
USES SOLID STATE AC RELAY AND
TRANSFORMER
USES SOLID STATE DC RELAY AND
TRANSFORMER IF REQUIRED
BOARD INPUT VOLTAGE: 8 - 30 VDC OR 9 - 20 VAC
BOARD INPUT CURRENT: 0.5 AMP MAXIMUM
BOARD (MP-08): CONFORMAL COATED
LIGHTING PROTECTED
FUSE: 1 AMP TIME DELAY
TEMPERATURE RATING: -40bC TO +70bC
-40bC TO +85bC OPTIONALLY
SHOCK AND VIBRATION: 10 G's
HUMIDITY: 98% WITHOUT CONDENSATION
PROTOCOLS: 1. ASCII BASED
2. MODBUS RTU
CPU CHIP LABELLED "STD"
CPU CHIP LABELLED "MODBUS"

MULTIPORT ELECTRONIC CONTROLLER continued...
6
D. COMMUNICATIONS
1. ASCII BASED PROTOCOL/RS-232 CONNECTION
The standard communications protocol for the MEC uses a simple ASCII format which
connects the host device (computer, RTU or PLC) through jumper selectable
connection. Refer to board drawing on page 18 for the jumper location, jumper ‘A’ for
RS-232.
The external host device sends commands through a RS-232 cable to the electronic
controller at 1200 baud with 8 bits, no parity and one stop bit. The following is a list of
commands and responses. The CPU chip is labelled "STD".
NOTE: In the following table the '<cr>' is the ASCII character #13 (0x0d).
?<cr> Request status
apo<cr> Response where:
a = 'R' for REMOTE selector setting, or
'J' for JOG selector setting, or
'S' for STEP selector setting
p = position '1' to '8'
o = 'O' for 'on' position, or
'F' for 'off' position
!p<cr> Go to position where:
p = position '1' to '8'
a<cr> Response where:
a = 'R' for REMOTE selector setting, or
'J' for JOG selector setting, or
'S' for STEP selector setting
$pt<cr> Write valve position message where:
t<cr> p = position '1' to '8'
t = text message up to 16 characters
#<cr> Request status using 'text' response
t<cr> Response where:
t = text message for position of valve
@<cr> Request list of disabled positions
dddddddd<cr> Response where:
d = number of active position '1' to '8'
(if a position is disabled, a '-' will be in that
*h<cr> Set the Home position
a<cr> Response where:
a = 'R' for REMOTE selector setting, or
'J' for JOG selector setting, or
'S' for STEP selector setting
Optional software is available for personal computers in DOS, Windows 3.11, or
Windows 95 versions.

MULTIPORT ELECTRONIC CONTROLLER continued...
7
2. MODBUS RTU PROTOCOL/RS-485 CONNECTION
• Modbus RTU mode communications
• Supports unit address 1 to 250
• Two wire RS-485 or five wire RS-232 operation
• Allows 32 MECs network on a communication line
• 9600 baud, 8 data bits, 1 stop bit, no parity
• Uses 120 OHMS 24 AWG twisted pair shielded cable
• Cable example: Belden #9841
• Multidrop configuration
• 4000 feet maximum cable length
• 120 OHMS termination resistor required at the furthest point
• Control board (MP-08) interface uses Linear Technology LTC-485 I.C.
- 70 mV Hysteresis
- -7 Volts to 12 Volts Common Mode Range
- Auto thermo shutdown in case of cable short
- Set address ports as required, and jumper 'B' for RS-485. Refer to board
drawing on page 18 for these jumper locations.
RS-485 network diagram
HOST
DEVICE
(COMPUTER/PLC)
RS-485 120 OHM TWISTED PAIR SHIELDED CABLE 120 OHM
TERMINATING
RESISTOR
BETTIS MEC
ADDRESS PORT 1
BETTIS MEC
ADDRESS PORT 2
UP TO 32 TOTAL
BETTIS MEC
Modbus register definitions
Function 3 Read data from register
Function 6 Write data to register
Register
40001
Write to set Position.
- Setting bits 1 to 8 in this register will move the valve to required
position.
- The bit will be cleared when the position is made.
- If controller is not in REMOTE mode, the motor will not start and the
bit
will be cleared.
- Setting bit 16 while the motor is running will stop the motor
immediately.
Register
40002
Read current position and status.
- Bits 1 to 8 will indicate the position the valve is near (1 = Near or On
Position.)
- Bit 9 set in JOG mode.
- Bit 10 set in STEP mode.
- Bit 11 set in REMOTE mode.
- Bit 12 indicates motor running.
- Bit 13 indicates motor running but no movement (equipment failure.)
- Bit 14 set indicates motor running but cannot find exact valve
location
(equipment failure).
- Bit 16 set will indicate that the valve is exactly on position with bit 1
to 8
indicating position. If bit 16 is not set the valve is near a position.

MULTIPORT ELECTRONIC CONTROLLER continued...
8
Register
40003
Read disable positions.
- Bits 1 to 8 indidacte which positions are disabled.
Register
40004
Read current encoder position.
- 0 to 1023
Register
40005
Write to set home position number.
Read current home position number.
- 1 to 8
RS-232 connections to MP-08 DA-09 connector:
Pin #2 = RX-232 TX to host
Pin #3 = RS-232 RX from host
Pin #5 = Signal ground
Pin #7 = RTS to host
Pin #8 = CTS from host
RS-485 connections to MP-08 DA-09 connector:
Pin #6 = RS-485 -
Pin #9 = RS-485 +
General RS-485 cable specifications are:
- 1 pair twisted shielded
- 120 ohm impedance
- 30 Volt rating
- 24 gauge
- stranded conductors
Example: Belden #9841 with RS-485, maximum distance is 4000 ft. When using
other cable, the terminating resistance may vary from 120 OHM. Contact
the factory for assistance.
Optional software is available for personal computers in DOS, Windows 3.11, and
Windows 95 versions.
E. ELECTRONIC CONTROLLER FEATURES
When a command is sent from the host device to move the valve to a position, the MEC
turns on the motor and monitors the position until the valve is within a few degrees of actual
position. At that time the motor will be turned off to prevent its momentum from
overshooting the required position. If the valve is still not quite on position, the
microcontroller will pulse the motor to slowly move to the exact position. The
microcontroller will also compensate for changes in torque requirements to accurately
position the valve, regardless of the media or valve conditions.
Small pushbuttons on the circuit board allow local control for calibration/maintenance
purposes.
Jumpers on the circuit board will disable any ports on the Multiport Valve which are not
being utilized.
LED's on the circuit board indicate operating status.
9
MULTIPORT ELECTRONIC CONTROLLER continued...
F. OPTIONS
1. The optional digital display will indicate the valve position by port numbers 1 to 8. The
corresponding port number will flash on the display when the valve plug is moving near
or passing by a port, whether by using local controls or remote commands. Once the
movement has stopped, the display will flash the port number that the valve is nearest,
or a solid port number if the valve is exactly on position. The decimal point on the LED
display will flash to indicate that all functions of the MEC are operating normally.
2. The optional local control station contains a 3-position selector switch and a STEP/JOG
pushbutton. The three selector modes are REMOTE (this enables communication with
the host device and disables the pushbutton), JOG (this runs the motor and moves the
valve while the pushbutton is pressed) and STEP (this advances the valve plug to the
next port after the pushbutton is momentarily pressed).
3. Software for personal computers in DOS, Windows 3.11, Windows 95 versions provide a
graphical representation of MEC operation.
G. OPERATION
For MEC without the local control station, the Multiport Selector Valve can be controlled by
the small buttons on the circuit board, or by remote commands received through the
communication port. The control buttons marked on the circuit board are the "SET ZERO"
button for calibrating home port position, the "HOME" button for returning the valve to home
port position automatically (after momentary contact, the MEC takes over), and the "JOG"
button for moving the valve to any desired port position manually (motor runs while button is
pressed). These buttons are always active, and normally used only for calibration and
maintenance purposes. (See item H).
When the MEC includes the optional local control station, the selector switch must be set in
REMOTE mode for remote commands to control the Multiport Valve. If a command is
received through the communication port, the controller will move the valve to the position
specified. The STEP/JOG pushbutton on the control station will be disabled in REMOTE
mode. Setting the selector switch to STEP or JOG allows local control, even if there is no
external host device connected.
When the selector switch is set to JOG mode, the Multiport Valve is controlled manually by
the STEP/JOG pushbutton on the control station. Press and hold the button until the
indicator is aligned over the desired port and then release it.
CAUTION: The valve plug will be moving as long as the control button is depressed, and
will stop at any position when the button is released, whether or not the valve
is exactly on a port position.
NOTE: In the event of communication failure with the host device, or failure of the MEC
electronics, the Multiport Selector Valve can still be locally controlled by selecting
JOG mode and pressing the STEP/JOG button.
When the selector switch is set to STEP mode, the valve plug can be automatically
advanced to the next port by pressing the button momentarily. The MEC will take over to
move the valve plug exactly to the next enabled port position. The control buttons on the
circuit board will still function.
10
MULTIPORT ELECTRONIC CONTROLLER continued...
Any time during the movement of the valve, whether by remote commands in REMOTE
mode, or by the STEP/JOG pushbutton in STEP mode, or by the HOME button on the
circuit board, the valve can be stopped by switching the selector switch to JOG mode on the
control station. In normal operation, the circuit board (MP-08) will be displaying a flashing
RUN LED to indicate the microcontroller is running normally, similar to the flashing decimal
point on the optional digital display. The circuit board also has a MOTOR RUN LED which
will turn on while the motor is running.
The position of the valve plug is shown by the indicator and the indicator plate on top of the
Multiport Selector Valve. The optional digital display shows the port number which where
the valve is at, or near. See details in section for "OPTIONS".
CAUTION: Since the valve can be controlled remotely, make sure power is disconnected
from the entire unit if maintenance is being done on the valve.
H. HOME PORT (POSITION #8) CALIBRATION
CAUTION: Always ground yourself before touching the switch to prevent static discharge.
To calibrate the Multiport Valve to a home port position, remove the top cover to expose the
controller circuit board (MP-08). Use the JOG button on the circuit board to position the
valve plug exactly to the selected home port position.
NOTE: Very brief momentary contact is required for small movements of the valve plug.
It is recommended that the home port blind flange be removed and the plug
position in the valve body be checked visually.
If the optional control station is connected, the valve can be positioned by switching to JOG
mode and pressing the STEP/JOG pushbutton.
NOTE: The correct alignment of the plug seal to the port can be visually checked by
lining up the hex corner of the lower connector with the applicable slot on the
indicator plate.
In the middle of the circuit board there is a small pushbutton marked "SET ZERO". Press
and hold the "SET ZERO" button for 10 seconds and release. If the digital display option is
installed, it will display #0 when the "SET ZERO" button is pressed for 10 seconds, but
change to #8 when calibrated. As well, the RUN LED will flash rapidly for 10 seconds, until
calibration is complete.
The present valve home port position is now calibrated and will be stored in the controller's
memory as position #8. If the optional digital display is connected, the display will first show
'0' when the SET ZERO button is depressed, and then change to show '8' to indicate for
position #8. Further movements of the valve will be referenced to the home port. When
viewed from above, the Multiport Valve rotates counter-clockwise (CCW) only, the first port
CCW relative to the home port (#8) will be position #1. Note that the home position can be
configured with a portable computer to be any port position on the Multiport Valve. The
home port position is stored in EEPROM memory.
NOTE: The factory default home port is always set to #8. If the home port is set to any
other port position (from #1 to #7), then the first port CCW relative to home port in
this case will be the next higher #port (ie. if home is #7, then next port relative to
home is #8).
11
MULTIPORT ELECTRONIC CONTROLLER continued...
I. DISABLING PORT POSITIONS
CAUTION: Always ground yourself before and while touching the jumpers to prevent
static discharge.
A set of 8 jumper pins near the top right of the circuit board marked "DISABLE PORT" are to
allow the installer to disable certain positions of the valve. Installing a shorting plug
between the two pins will disable the specified position. Refer to board drawing on page 18
for jumper location. The positions are marked '1' to '8' on the circuit board. When
advancing in manual STEP mode with the optional control station, the controller will skip
over the disabled position and continue to advance to the next enabled position.
NOTE: When a position is disabled, the controller will not accept a command to go to that
position. The controller will just respond to the command with a 'disable' status.
Using remote RS-485 communication, if a disabled port is selected the MEC
controller will not move to that position.
J. CONTROLLER ADDRESS
CAUTION: Always ground yourself before and while touching the jumpers to prevent
static discharge.
A set of 8 jumper pins near the top left of the circuit board marked "ADDRESS PORT" are
to allow the user to set a unique address for the MEC controller. With power supply off,
setting a jumper across the two pins will set the controller to the specific address (in
decimal). The user can select single or multiple jumpers, the address (in decimal) will be
the sum of all jumpers that have been set (ie. if all 8 jumpers are set, then the controller
address is [1+2+4+8+16+32+64+128] = 255). When power supply is restored, the address
will be set. Refer to MP-08 board drawing on page 18 for the jumpers location.
NOTE: Communication error will occur when two different MEC controllers are set to the
same address.
When operating the MEC controller with the optional MEC software program, the address
jumper '1' must be set.
K. CONTROLLER ASSEMBLY
NOTE : See the typical MEC assembly drawing on page 15.
1. Install two retaining rings (10) into the grooves on shaft (6). Lubricate two washers (9)
and insert a washer (9) over each end of shaft (6) and rest on the retaining rings (10).
Engage setscrew (8) to shaft (6). Lubricate and install o-ring (7) on shaft (6).
2. Lubricate the center bore of housing (1). Insert the shaft (6) assembly into housing (1)
from the top bevelled end.
3. Attach solid state relay (18) to lower bracket (12) using screws (19). Install guide pin
(16) to lower bracket (12) using nut (17).
4. Install two posts (11) in housing (1). Loosely attach the lower bracket (12) assembly
over shaft (6) onto the posts (11) using capscrews (13), washers (14) and lockwashers
(15).
12
MULTIPORT ELECTRONIC CONTROLLER continued...
5. Mount encoder torque plate (21) to optical encoder (20) using screws (22) with the open
slot opposite to the encoder ribbon cable.
6. Insert the shaft of optical encoder (20) into the top end of shaft (6). Align and engage
the guide pin (16) into the slot of the encoder torque plate (21). Tighten setscrew (8)
and capscrews (13) to secure the optical encoder (20) and the lower bracket (12) in
position.
NOTE: The optical encoder (20) is adjusted and tested 100% by Sherrex Systems
Ltd.
7. For MEC using AC supply voltage, install transformer (27) on the upper bracket (23)
using screws (28).
8. Attach MK 3/6 terminal strip (25) to the upper bracket (23) using screws (26). Label the
terminals with terminal numbers (33) 1 - 6.
9. Install fuse holder (36) and fuse (37) on the upper bracket (23).
10. Loosely attach upper bracket (23) assembly to the lower bracket (12) using screws (24).
11. Mount MP-08 control board (29) complete with the fuse (38) to the lower and upper
brackets (12) (23) with screws (30). Install nylon washers (39) in between the brackets
and the control board. Adjust for squareness before tightening screws (24) and (30).
NOTE: The MP-08 control board assembly (29) is supplied and assembled by
Sherrex Systems Ltd. All units supplied by Sherrex have been 100% tested at
factory.
See the typical MP-08 control board (29) assembly drawing on page 18.
CAUTION: Insert the encoder ribbon cable connector to MP-08 control board (29) with
the male tab oriented downward to engage with the female slot in the
mating socket.
12. Prepare and stamp nameplate (4) to install on top of cover (2) using drive screws (5).
13. Install ground terminal (32), ring terminal (34) and screw (35).
14. Lube and install breather-drain (31). Lube and install plugs for all unused entries.
15. Lubricate and install o-ring (3) to cover (2). Apply anti-corrosion spray to cover (2) and
housing (1). Lube threads and install cover (2) to housing (1).
L. OPTIONAL MEC SOFTWARE PROGRAM
The MEC software program requires a minimum 486 DX33 running Windows 3.1 or
Windows 95, with 4Mb of ram and 2Mb of hard disk space.
To install the program place disk 1 into the computer's disk drive. Enter Windows and click
on the Run option. Type in a:\setup (or b:\setup) to launch the MEC setup program. Follow
the on- screen instructions to install the program to a subdirectory and create a program
group and icon.






19
IV TROUBLESHOOTING
A. Actuator does not align plug to port.
1. If alignment is off only at one or two ports but the rest are aligned, then refer to assembly
and adjustment procedures (refer to pages 2 to 4).
2. If alignment is off in the same direction for all ports then:
a) Check the valve/actuator connector for looseness.
b) Check the Switchpak/actuator connector for looseness.
c) Check the motor for stalling or overload.
d) Check the speed reducer for visual leakage or noisy gear.
e) Check the accuracy of the position indicator itself.
f) Check the functions of the Multiport Electronic Controller for the following:
- The RUN LED on the circuit board (MP-08) or the decimal point on the LED
digital display is flashing. If not, turn off power to controller for 10 seconds then
turn on again.
- The MOTOR RUN LED on the circuit board is flashing on constantly while the
motor is pulsing.
- The calibration for the home port position is correct.
- Power supply to the controller is correct.
- All fuses are good.
- All cables are attached and secured.
- All jumpers correctly positioned
3. If electrical motor fails to run:
a) Check motor for correct operation.
b) Check DC relay for correct operation.
NOTE: Refer to assembly drawings, wiring, and board diagrams of the Multiport
Electronic Controller on pages 4, 15, 16, 17, and 18.

(I-0168--.wpd/20 orig:ap/ps-1996-08-13 rev2:dy/ar-1997-12-03 app dist:(EF)O);(SM)P)
V MULTIPORT ELECTRONIC CONTROLLER NOTES