Emerson Type 92S Self Powered Control Valve Data Sheet
2015-03-30
: Emerson Emerson-Type-92S-Self-Powered-Control-Valve-Data-Sheet-681426 emerson-type-92s-self-powered-control-valve-data-sheet-681426 emerson pdf
Open the PDF directly: View PDF
.
Page Count: 16

Bulletin 71.2:92S
D100621X012
December 2011
www. sherregulators.com
Type 92S Pilot-Operated Steam Regulator
Introduction
The Type 92S steam regulator is piston actuated for
high cycle steam service which includes a Type 6492L,
6492H, or 6492HT pilot (see Figure 1). These pilots
have bellows sealed stems to eliminate stem guide
friction. The valve and pilot use lapped seating surfaces
that have been proven to minimize seat leakage.
Features
• Good Shutoff for Low Downstream Build-up—
Type 92S main valve and Types 6492H, 6492L, and
6492HT pilots are machine-lapped seating surfaces
that have been time-proven to minimize seat leakage
when the downstream demand is zero and the
regulator is shutoff.
• Resistance to Piping Stresses—Steel
constructions are available to help resist the piping
stresses commonly encountered in steam applications.
• Ease of Installation—Compact construction
reduces installation space requirements. Supply of
pressure to the pilot is supplied from the inlet side
of the main valve through factory piped tubing;
with a standard pilot, this means no separate pilot
supply pressure is required.
• Increased Sensitivity to Downstream Pressure
Changes—Friction-reducing bellows seal on
the pilot stem and large pilot diaphragm areas
yield good sensitivity.
• Ease of Pilot Maintenance—Pilot valve plug and
seat can be removed for inspection of maintenance
without disassembling piping connections and
without removing the diaphragm. Pilot inlet screen
(Figure 2) is easily removed with the seating
parts for inspection and cleaning. Diaphragm can
be removed without disturbing the seating parts.
• Noise Reduction Capability Without Decrease
in Capacity—A noise attenuation trim is
available for use with NPS 2 / DN 50 and larger
main valve sizes to provide an economical yet
full- ow means for the reduction of noise from high
velocity steam ow. Further noise reduction of
the system can be achieved by the use of a heavier
piping schedule and/or thermal insulation of the
attached piping.
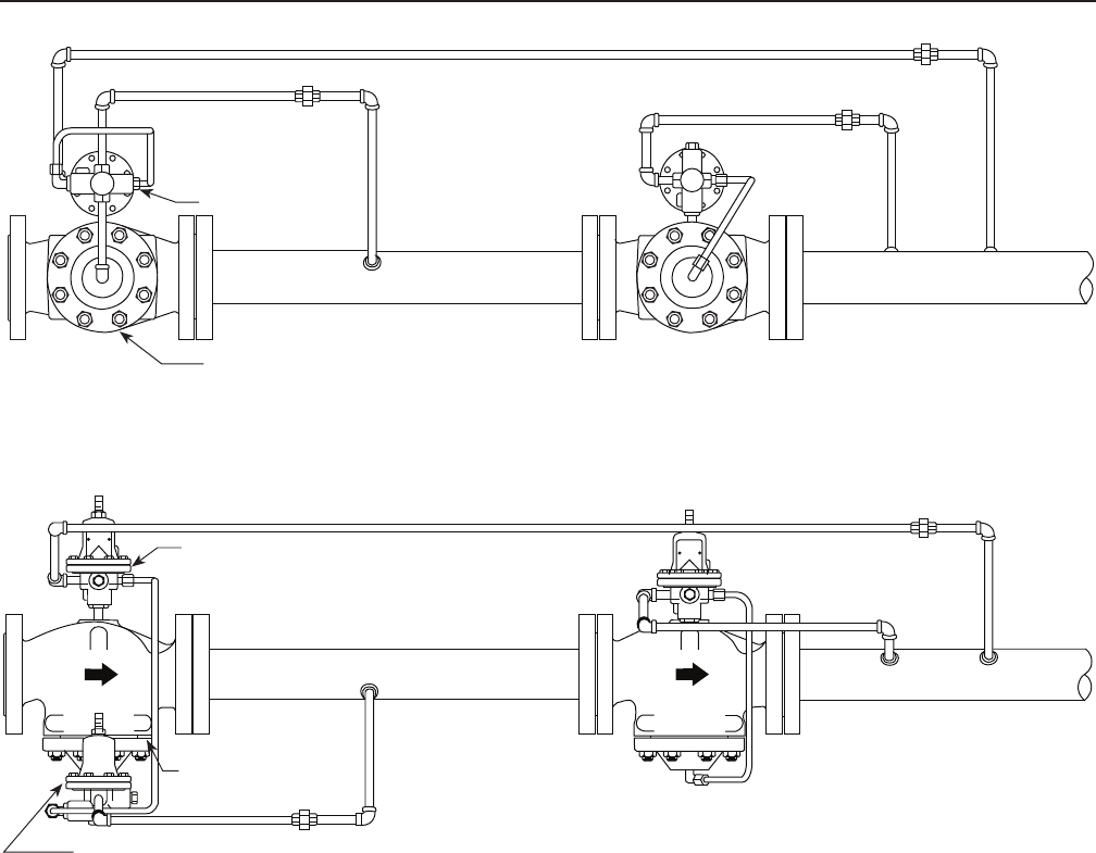
W4086_3
1 NPT STEEL
MAIN VALVE WITH TYPE 6492H OR 6492HT PILOT
W4088_1
NPS 3 / DN 80 FLANGED CAST IRON
MAIN VALVE WITH TYPE 6492L PILOT
Figure 1. Type 92S Pilot-Operated Steam Regulator

Bulletin 71.2:92S
2
Specications
Main Valve Body Sizes and End Connection Styles
BODY SIZES
END CONNECTION STYLES AND RATINGS
Cast Iron Body Steel or
Stainless Steel Body
1, 1-1/2, and 2 NPT NPT or PN 16/25/40
NPS 1, 1-1/2, 2, 2-1/2, 3,
and 4 / DN 25, 40, 50, 65,
80, and 100
CL125 FF or
CL250 RF
CL150 RF, CL300 RF,
CL600 RF, or
PN 16/25/40
NPS 6 x 4 /
DN 150 x 100(2) Not available
CL300 RF,
CL600 RF, or
PN 16/25-40/64/100
Maximum Inlet and Pilot Supply Pressure(1)
Cast Iron Main Valve and Pilot: 250 psig /
17.2 bar or body rating limit, whichever is lower
Steel Main Valve and Pilot: 300 psig / 20.7 bar
or body rating limit, whichever is lower
Minimum and Maximum Differential Pressures(1)
BODY SIZES,
NPS / DN
MINIMUM
DIFFERENTIAL
PRESSURE
MAXIMUM
DIFFERENTIAL
PRESSURE
1, 1-1/2, and 2 /
25, 40, and 50 15 psi / 1.0 bar
200 psi / 13.8 bar or
body rating limit,
whichever is lower
2-1/2, 3, 4, and 6 x 4 /
65, 80,100, and
150 x 100(2)
20 psi / 1.4 bar
175 psi / 12.1 bar or
body rating limit,
whichever is lower
Outlet (Control) Pressure Ranges
See Table 1
Maximum Outlet Pressures(1)
See Table 2
Maximum Allowable Loading Pressure for Pilot
with Tapped Spring Case
Combination of pilot control spring setting and spring
case loading pressure cannot exceed 150 psig /
10.3 bar for Type 6492H pilot or 25 psig / 1.7 bar
for Type 6492L pilot and 250 psig / 17.2 bar for
Type 6492HT
Droop
See Table 5 and Figure 8
Typical Regulating Capacities
See Table 5 and Capacity Information section
Main Valve Orice Sizes and Flow Coefcients
See Table 3
Noise Information
See Table 6 and Noise Abatement Information section
Construction Materials
Main Valve
Body and Body Flange: Cast iron (NPS 1 through 4 /
DN 25 through 100 sizes only), steel or CF8M
Stainless steel (all sizes)
Valve Plug: Heat-treated 17-4PH stainless steel
Cage: Cast iron or Stainless steel
Spiral Wound Gasket: 316L stainless steel
and graphite
Spring, Lower Stem, Retaining Ring, Bolting, and
Cylinder Spacer: Steel or plated steel
Body and Cylinder Gaskets: Copper
Pistons, Seat Ring, and Cylinders: Heat-treated
416 Stainless steel
Piston Ring(s): Polytetrauoroethylene (PTFE)
Piston Ring Retainer(s): 302 Stainless steel
Noise Attenuation Trim (If Used):
Stainless steel
Stem Seal: PTFE/glass
Pilot
Body and Spring Case: Cast iron, Steel, and
Stainless steel
Seat Ring and Stem: Heat-treated
416 Stainless steel
Bellows and Bellows Retainer: Brass
Plug, Plug Guide, Plug Spring, Diaphragms, Bleed
Restriction, and Inlet Screen: Stainless steel
Diaphragm Gasket: Encapsulated ber asbestos
Control Spring, Upper Spring Seat, Adjusting
Screw, Bolting, Pipe Plug, Reducing Bushing,
and (If Used) Diaphragm Plate: Steel
Fittings: Brass
Tubing: Copper
Pipe Nipple: Steel
1. The pressure/temperature limits in this Bulletin and any applicable standard or code limitations, must not be exceeded.
2. The two-number designation indicates line size by trim size.
- continued -

Bulletin 71.2:92S
3
Specications (continued)
Maximum Temperature Capabilities(1)
Cast Iron Main Valve and Pilot: 406°F / 208°C
Steel Main Valve and Pilot: 500°F / 260°C
High Temperature Optional Steel and Stainless
steel Main Valve and Pilot: 650°F / 343°C
Downstream Control Line Connection
NPS 1, 1-1/2, and 2 / DN 25, 40, and 50
Main Valve Sizes: 1/4 NPT in main valve
cylinder spacer
NPS 2-1/2, 3, 4, and 6 x 4 / DN 65, 80, 100, and
150 x 100(2) Main Valve Sizes: 1/4 NPT
in pilot body
Pilot Spring Case Vent
Standard: 1/8-inch / 3.18 mm drilled hole
Optional: 1/4 NPT tapping for pressure loading or
on-off service
Pressure Registration
External through downstream control line
Approximate Weights
BODY SIZE END
CONNECTION STYLE
APPROXIMATE
WEIGHTS
NPS DN Pounds kg
1
1-1/2
25
40
NPT or anged
NPT or anged
32
44
15
20
2 50 NPT
Flanged
55
67
25
30
2-1/2
3
4
65
80
100
Flanged
Flanged
Flanged
90
115
165
41
52
75
6 x 4(2) 150 x 100(2) Flanged CL300 335 152
CL600 435 197
1. The pressure/temperature limits in this Bulletin and any applicable standard or code limitations, must not be exceeded.
2. The two-number designation indicates line size by trim size.
Table 1. Outlet (Control) Pressure Ranges
Table 2. Maximum Inlet and Outlet Pressures
PILOT TYPE
OUTLET PRESSURE
RANGES PART NUMBER COLOR CODE SPRING WIRE DIAMETER SPRING FREE LENGTH
psig bar Inches mm Inches mm
6492L
2 to 6
5 to 15
13 to 25
0.14 to 0.41
0.35 to 1.0
0.90 to 1.7
1E395627022
1D7455T0012
1E395727192
Yellow
Green
Red
0.207
0.234
0.283
5.26
5.94
7.19
2.50
2.62
2.44
63.5
66.6
62.0
6492H
10 to 30
25 to 75
70 to 150
0.69 to 2.1
1.7 to 5.2
4.8 to 10.3
1E395627022
1D7455T0012
1E395727192
Yellow
Green
Red
0.207
0.234
0.283
5.26
5.94
7.19
2.50
2.62
2.44
63.5
66.6
62.0
6492HT 15 to 100
80 to 250
1.0 to 6.9
5.5 to 17.2
14B9943X012
14B9942X012 Unpainted 0.282
0.375
7.16
9.53
2.50
2.50
63.5
63.5
CONSTRUCTION
MAXIMUM ALLOWABLE INLET PRESSURE MAXIMUM
OPERATING OUTLET
PRESSURE
MAXIMUM EMERGENCY OUTLET PRESSURE
Cast Iron Steel and
Stainless Steel Cast Iron Main Valve
and Pilot Body
Steel or Stainless
Steel Main Valve and
Pilot Body
psig bar psig bar psig bar
With Type 6492HT pilot - - - -
300 20.7
250 17.2 - - - -
300 psig / 20.7 bar or
main valve body rating
limit, whichever is lower
With Type 6492H pilot 250 17.2 150 10.3
250 psig / 17.2 bar or
main valve body rating
limit, whichever is lower
300 psig / 20.7 bar or
main valve body rating
limit, whichever is lower
With Type 6492L pilot 25 1.7 100 psig / 6.9 bar 100 psig / 6.9 bar

Bulletin 71.2:92S
4
• Lapped Seats for Tight Shutoff—The valve and
pilot use lapped seating surfaces that have been
proven to minimize seat leakage.
• Application Flexibility—Pilot with optional
tapped spring case is available for use either
with an air loading regulator for remote adjustment
of outlet pressure setting or, when all compression
is removed from the pilot control spring, with a
solenoid or switching valve for on-off service.
Principle of Operation
Pilot supply pressure is piped from the main valve inlet
(Figure 2) to the pilot inlet connection. Downstream
pressure registers on the main valve pistons through the
downstream control line and then on the pilot diaphragm.
When increased downstream demand lowers the
downstream pressure to a value below the setting
of the pilot control spring, this forces the pilot valve
plug to open increasing the loading pressure on the
main valve pistons. At the same time, the increased
demand lowers the downstream pressure on the
main valve piston(s). This opens the main valve plug,
increasing ow to the downstream system to satisfy
the increased demand and to restore downstream
pressure to the setting of the pilot control spring.
Decreased downstream demand increases the
downstream pressure registered on the pilot
diaphragm. The increased pressure overcomes the
force of the pilot control spring and allows the pilot
valve plug spring to close the valve plug. As the pilot
valve plug closes, excess loading pressure bleeds
to the downstream system through the pilot bleed
restriction. At the same time, decreased downstream
demand increases the downstream pressure
registered on the main valve piston(s). This allows
the main valve spring to close the main valve plug,
reducing ow to the downstream system in response
to the decreased demand.
With a pilot for pressure-loaded service (Figure 7), the
operation is the same as for a standard pilot except
that the pilot control spring force on the pilot valve
plug is aided by pneumatic pressure from the loading
device. With a pilot for on-off service, the only force
acting on top of the pilot diaphragm is pneumatic
pressure provided by the solenoid or switching valve.
Installation
The Type 92S regulator should be installed and
used in accordance with governmental codes and
regulations. Although this regulator minimizes
leakage under shutoff conditions, downstream
overpressure protection must be provided by the
user. The pressure and temperature limitations in
the Specications section must be observed and the
downstream equipment protected.
A Type 92S regulator may be installed in any
orientation, but should not be installed in a tall vertical
pipeline where condensate could collect and create
a pressure head affecting regulator performance.
To obtain maximum ow capacities in some instances,
outlet piping will have to be swaged up above the
given body size.
A downstream control line is required but is not
furnished with the Type 92S regulator. Additionally,
an adjustable loading pressure regulator and loading
pressure piping are required for pressure-loading pilot
regulators, while an on-off or solenoid valve is required
for on-off pilot regulators.
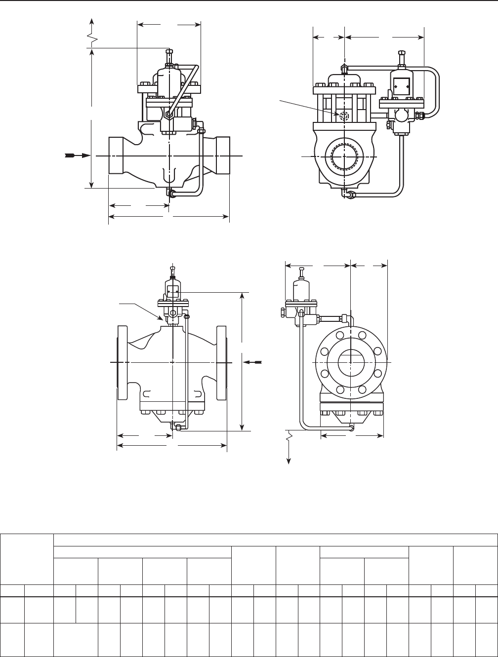
Dimensions are shown in Figure 9.
Table 3. Flow and Sizing Coefcients(1)
BODY SIZE ORIFICE SIZE REGULATING
Cs
WIDE-OPEN Cs FOR
RELIEF SIZING C1Km
IEC SIZE COEFFICIENTS
NPS DN Inches mm XTFDFL
1 25 7/8 22 16 17.5
34
0.62
0.73
0.51
0.791-1/2 40 1-1/8 29 30 33 0.47
2 50 1-29/64 37 48 52 0.48
2-1/2 65 1-5/8 41 74 78
0.71
0.48
0.84
3 80 2-1/16 52 100 110 0.47
4 100 2-3/8 60 140 145 0.46
6 x 4 150 x 100 2-3/8 60 150 155 0.46
1. Cv = Cs x 20 ÷ C1

Bulletin 71.2:92S
5
NPS 1, 1-1/2, OR 2 / DN 25, 40, OR 50
MAIN VALVE BODY AND TYPE 6492H OR 6492HT PILOT
Figure 2. Type 92S Pressure Reducing Regulator Operational Schematics
NPS 2-1/2, 3, 4, OR 6 x 4 / DN 65, 80, 100, OR 150 x 100
MAIN VALVE BODY AND TYPE 6492L PILOT
A6553
Type 92S Self-Powered Control Valve
August 2007 Type 92S
Type 92S 2-1/2 thru 6 x 4-Inch (DN 65 thru 150 x 100)
A6553
INLET PRESSURE
OUTLET PRESSURE
LOADING PRESSURE
ATMOSPHERIC PRESSURE
September 2006 Type 92S
A6552
INLET PRESSURE
OUTLET PRESSURE
ATMOSPHERIC PRESSURE
LOADING PRESSURE
MAIN VALVE
PISTONS
PILOT
SPRING
PILOT VALVE
PLUG
PILOT INLET
SCREEN
MAIN VALVE
PLUG
MAIN VALVE
PLUG
PILOT VALVE
PLUG SPRING
PILOT INLET
SCREEN
MAIN VALVE
PISTON
MAIN VALVE
STEM
MAIN VALVE
SPRING

Bulletin 71.2:92S
6
T
E0402
Figure 3. NPS 1, 1-1/2, and 2 / DN 25, 40, and 50 Type 92S Pilot-Operated Pressure Reducing Regulator with Safety Override
Pilot Operational Schematic
TYPE 6492H PILOT TYPE 6492H PILOT
TYPE 6492HM SAFETY
OVERRIDE PILOT
TYPE 92S MAIN VALVE TYPE 92S MAIN VALVE
E0403
INLET PRESSURE
OUTLET PRESSURE
ATMOSPHERIC PRESSURE
LOADING PRESSURE
INTERMEDIATE PRESSURE
Figure 4. NPS 2-1/2, 3, and 4 / DN 65, 80, and 100 Type 92S Pilot-Operated Pressure Reducing Valve with Safety Override
Pilot Operational Schematic
TYPE 6492H PILOT
TYPE 6492H PILOT
TYPE 6492HM SAFETY
OVERRIDE PILOT
TYPE 92S MAIN VALVE TYPE 92S MAIN VALVE

Bulletin 71.2:92S
7
TYPE SPRING RANGE SPRING COLOR PART NUMBER MINIMUM PRESSURE AT WHICH
MONITORING PILOT CAN BE SET
psig bar
6492HM
10 to 30 0.69 to 2.1 Yellow 1E395627022 5 psig / 0.35 bar over normal distribution pressure
25 to 75 1.7 to 5.2 Green 1D7455T0012
10 psig / 0.69 bar over normal distribution pressure
70 to 150 4.8 to 10.3 Black 1E395727192
6492HTM 15 to 100 1.0 to 6.9 Unpainted 14B9943X012
80 to 250 5.5 to 17.2 14B9942X012
Table 4. Safety Pilot Outlet (Control) Pressure Ranges
Figure 5. NPS 1, 1-1/2, and 2 / DN 25, 40, and 50 Piping Schematics
TYPE 92S MAIN VALVE
TYPE 6492H PILOT
TOP VIEW
TYPE 6492HM SAFETY
OVERRIDE PILOT
TYPE 6492H PILOT
TYPE 92S MAIN VALVE
SIDE VIEW
TYPE 92S MAIN VALVE
TYPE 92S MAIN VALVE
TYPE 6492H PILOT
TYPE 6492H PILOT

Bulletin 71.2:92S
8
Type 92S Pilot-Operated Pressure
Reducing Regulator with Safety
Override Pilot
A Type 6492HM or 6492HTM safety override pilot is
available for the Type 92S. The Type 6492H pilot is
used in a series installation with the Type 6492HM
or 6492HTM safety override pilot installed on the
upstream regulator. The Type 6492HM or 6492HTM
safety override pilot senses pressure downstream
of the second valve, and prevents pressure from
rising above safe operating pressure in the event the
downstream valve fails. This system is approved by
ASME B31.1-1989, 122.14.2.A, and can replace an
ASME safety valve when vent piping is not practical
and Type 92S Pilot-Operated, Pressure Reducing
Regulator with Safety Override Pilot upstream steam
pressure does not exceed 400 psig / 27.6 bar. Local
codes and standards may require approval by an
appropriate authority prior to installation.
Operation
Once placed in operation, the upstream Type 6492H
pilot senses the intermediate pressure between both
valves, and the Type 6492HM or 6492HTM pilot
senses downstream pressure of the second valve. As
demand for ow increases, intermediate pressure will
fall causing the Type 6492H pilot to open. As the
Type 6492H pilot valve opens, loading pressure to the
main valve increases, opening the main valve.
The Type 6492HM or 6492HTM safety override
pilot remains open because its setpoint is above the
setpoint of the downstream valve. In the unlikely event
that the downstream valve fails open, downstream
pressure will rise above the downstream valve’s
setpoint. This pressure is sensed by the
Type 6492HM or 6492HTM safety override pilot. As
downstream pressure increases the safety override
pilot closes, reducing loading pressure to the main
valve, which positions the main valve to maintain
downstream pressure as specied per ASME Boiler
and Pressure Vessel Code, Section VIII.
In the event that the upstream valve fails, the
downstream regulator will prevent downstream
pressure from rising above safe operating levels.
It is recommended to install some type of warning
system, such as a sentinal relief valve, to warn the
operator that a valve has failed in the system. This
will prevent prolonged operation with one valve, which
could cause valve trim wear and noise associated with
operation at high differential pressures.
When operating in most steam systems, valve setpoints
should be in strict accordance to ASME Boiler and
Pressure Vessel Code, Section VIII. The Type 6492HM
or 6492HTM safety override pilot should be set at
10 psig / 0.69 bar or 10% above maximum downstream
operating pressure of the second valve, whichever
pressure is greater. For example, most HVAC systems
operate at 15 psig / 1.0 bar, so the safety override pilot
should be set no higher than 25 psig / 1.7 bar.
Capacity Information
Table 5 gives typical regulating capacities in pounds
per hour / kg/h of saturated steam. Capacities for
regulators with noise attenuation trim are the same as
for regulators without noise attenuation trim. Figure 8
shows a typical performance curve.
To determine regulating capacities at pressure settings
not given in Table 5 or to determine wide-open
capacities for relief sizing at any inlet pressure, use the
following procedure 1 or 2 as appropriate.
1. If the steam is saturated and the pressure drop
across the regulator is critical (absolute outlet
pressure is equal to approximately one-half or less
than one-half of the absolute inlet pressure), use
the equation:
Q = (P1abs) (Cs)
where,
Q = Flow capacity in pounds of saturated steam
per hour
P1abs = Absolute inlet pressure in psia (P1gauge + 14.7)
Cs = Regulating or wide-open steam sizing coefcient
(see Table 3)
2. If the steam is superheated or if the pressure drop
across the regulator is lower than critical (absolute
outlet pressure is greater than approximately one-
half the absolute inlet pressure), use the valve
sizing slide rule or the sizing nomographs
in Catalog 10.
Noise Abatement Information
A noise attenuation trim is available for use with
NPS 2 / DN 50 and larger Type 92S steam regulators
to provide an economical means for the reduction of
noise from high-velocity steam ow. Capacities for a
regulator equipped with a noise attenuation trim are
the same as for a regulator without noise attenuation
trim and are given in Table 5.

Bulletin 71.2:92S
9
Figure 6. NPS 2-1/2, 3, and 4 / DN 65, 80, and 100 Piping Schematics
TYPE 92S MAIN VALVE
TYPE 6492H PILOT
BOTTOM VIEW
Noise level values for a regulator equipped either
with or without a noise attenuation trim are presented
in Table 6. These noise levels are determined at
a point 39-inches / 991 mm downstream of the
regulator outlet and 39-inches / 991 mm from the
piping surface.
For example, consider full-capacity ow of steam
through a NPS 2 / DN 50 Type 92S steam regulator
connected with uninsulated 2-inch / 51 mm Schedule
40 downstream piping (see Table 6). For an inlet
pressure of 250 psig / 17.2 bar and an outlet pressure
of 100 psig / 6.9 bar, P/P1abs is 0.6. Under the
specied service conditions, the noise level for steam
ow through a Type 92S steam regulator without a
noise attenuation trim will be 98 decibels, while the
same regulator equipped with a noise attenuation trim
will have a noise level reduced to 92 decibels.
Noise levels for steam ow through a Type 92S steam
regulator can be reduced further with the use of either
a heavier schedule of pipe or thermal insulation of
the downstream piping. By using thermal insulation,
as much as 15 decibels of noise can be additionally
reduced from the system. Consult the insulation
manufacturer’s specications for the attenuating
capability and application procedures of the specic
insulation required by your system.
TYPE 92S MAIN VALVE
SIDE VIEW
TYPE 6492HM SAFETY
OVERRIDE PILOT
TYPE 6492H PILOT

Bulletin 71.2:92S
10
A3330/IL
OUTLET PRESSURE, psig
FLOW kg/h OF SATURATED STEAM
OUTLET PRESSURE, bar
FLOW, POUNDS/HOUR OF SATURATED STEAM
1000 2000 3000 4000 5000 6000 7000
80
60
40
20
0
5
4
3
2
1
0
0 4000 8000 12,000 16,000
NOTE:
INITIAL OUTLET PRESSURE SETTING IS 60 psig / 4.1 bar
Figure 8. Typical Performance Curve for NPS 2-1/2 / DN 65 Type 92S Pressure Reducing Regulator with Type 6492H Pilot
Figure 7. Typical Pressure-Loaded Pilot Installation
16A7958-B
16A1547-A
A3334
BLOCK VALVES
STRAINER
VENT VALVE
BYPASS LINE
BLOCK
VALVE
CONTROL LINE
SHUTOFF VALVE
CONTROL LINE
CONNECTION
BLEED RESTRICTION (REQUIRED
ONLY IF THE LOADING REGULATOR
DOES NOT HAVE INTERNAL RELIEF)
NEEDLE
VALVE
AIR LOADING
REGULATOR

Bulletin 71.2:92S
11
Table 5. Flow Capacities in Pounds per Hour / kg/h of Saturated Steam
- continued -
OUTLET
PRESSURE
SETTING(1)
PILOT
TYPE
NUMBER
INLET
PRESSURE
MAIN VALVE BODY SIZE, NPS / DN
DROOP1 / 25 1-1/2 / 40 2 / 50 2-1/2 / 65 3 / 80 4 / 100 6 x 4 / 150 x 100
psig bar psig bar lbs/h kg/h lbs/h kg/h lbs/h kg/h lbs/h kg/h lbs/h kg/h lbs/h kg/h lbs/h kg/h
5 0.35 6492L
25
30
50
1.7
2.1
3.5
575
700
950
261
318
431
950
1,150
1,800
431
522
816
1,750
1,880
2,950
794
853
1,338
1,000
1,500
4,180
454
680
1,896
1,225
2,200
6,550
556
998
2,971
2510
4000
8500
1,139
1,814
3,856
2,600
4,100
8,600
1,179
1,860
3,901
1 psi /
0.07 bar
75
100
150
5.2
6.9
10.3
1,350
1,725
1,800
612
782
816
2,375
3,050
4,050
1,077
1,383
1,837
4,100
5,600
6,150
1,860
2,540
2,790
6,000
8,500
11,900
2,722
3,856
5,398
8,400
10,300
16,900
3,810
4,672
7,666
12,600
14,300
23,000
5,715
6,486
10,433
12,900
15,100
23,600
5,851
6,849
10,705
10% of
outlet
pressure
setting
10 0.69 6492H or
6492L
30
50
75
2.1
3.5
5.2
700
1,040
1,440
318
472
653
1,200
1,800
2,600
544
816
1,179
2,050
3,100
4,400
930
1,406
1,996
3,050
4,700
6,000
1,383
2,132
2,722
4,300
6,250
9,000
1,950
2,835
4,082
5800
8920
11,000
2,631
4,046
4,990
5,800
9,200
11,500
2,631
4,173
5,216
100
150
200
6.9
10.3
13.8
1,800
2,350
2,150
816
1066
975
3,300
4,500
5,100
1,497
2,041
2,313
5,600
8,000
9,200
2,540
3,629
4,173
8,600
12,000
3,901
5,443
10,700
17,000
4,854
7,711
16,300
19,600
7,394
8,891
17,100
20,200
7,757
9,163
15 1.0
6492L,
6492H, or
6492HT
35
50
75
2.4
3.5
5.2
710
1,040
1,440
322
472
653
1,300
1,800
2,650
590
816
1,202
2,100
2,950
4,300
953
1,338
1,950
2,300
4,550
6,300
1,043
2,064
2,858
3,200
6,200
8,900
1,452
2,812
4,037
4600
7700
11,900
2,087
3,493
5,398
4,600
8,100
12,200
2,087
3,674
5,534
100
150
200
6.9
10.3
13.8
1,820
2,600
3,400
826
1179
1542
3,400
4,800
6,200
1,542
2,177
2,812
5,450
7,800
10,200
2,472
3,538
4,627
8,100
12,100
3,674
5,489
11,800
16,900
5,352
7,666
16,100
23,100
7,303
10,478
16,800
23,800
7,620
10,796
20 1.4
6492L,
6492H, or
6492HT
50
75
100
150
200
3.5
5.2
6.9
10.3
13.8
1,040
1,440
1,820
2,650
3,450
472
653
826
1202
1565
1,800
2,700
3,450
4,900
6,400
816
1,225
1,565
2,223
2,903
2,950
4,300
5,450
7,950
10,300
1,338
1,950
2,472
3,606
4,672
4,590
6,450
8,650
12,300
2,082
2,926
3,924
5,579
6,250
9,100
11,900
17,150
2,835
4,128
5,398
7,779
7,570
11,000
16,200
23,500
3,434
4,990
7,348
10,660
7,700
11,800
16,900
24,100
3,493
5,352
7,666
10,932
30 2.1 6492H,
6492HT
50
75
100
150
200
3.5
5.2
6.9
10.3
13.8
900
1,440
1,820
2,650
3,450
408
653
826
1202
1565
1,650
2,700
3,450
4,900
6,500
748
1,225
1,565
2,223
2,948
2,700
4,300
5,450
7,950
10,000
1,225
1,950
2,472
3,606
4,536
4,040
6,580
8,400
12,000
15,700
1,833
2,985
3,810
5,443
7,122
5,350
8,800
11,800
17,000
22,100
2,427
3,992
5,352
7,711
10,025
7770
12,000
19,000
23,100
30,100
3,524
5,443
8,618
10,478
13,653
8,100
12,500
19,600
23,800
30,600
3,674
5,670
8,891
10,796
13,880
40 2.8 6492H,
6492HT
60
75
100
150
200
4.1
5.2
6.9
10.3
13.8
1,100
1,440
1,820
2,650
3,450
499
653
826
1202
1565
1,750
2,500
3,450
4,900
6,500
794
1,134
1,565
2,223
2,948
3,300
4,300
5,450
7,950
10,300
1,497
1,950
2,472
3,606
4,672
4,500
6,300
8,500
12,600
16,700
2,041
2,858
3,856
5,715
7,575
6,400
8,350
11,400
17,000
22,650
2,903
3,788
5,171
7,711
10,274
8800
11,300
15,300
23,000
30,600
3,992
5,126
6,940
10,433
13,880
9,000
11,900
16,100
24,000
31,400
4,082
5,398
7,303
10,886
14,243
50 3.5 6492H,
6492HT
75
100
150
200
250
5.2
6.9
10.3
13.8
17.2
1,250
1,820
2,650
3,450
4,300
567
826
1202
1565
1950
2,250
3,200
4,900
6,500
8,000
1,021
1,452
2,223
2,948
3,629
3,750
5,450
7,950
10,300
12,900
1,701
2,472
3,606
4,672
5,851
4,950
8,400
12,200
15,695
2,245
3,810
5,534
7,119
7,950
11,800
17,000
22,100
3,606
5,352
7,711
10,025
10,800
16,100
23,100
30,100
4,899
7,303
10,478
13,653
11,500
17,000
24,000
31,000
5,216
7,711
10,886
14,062
60 4.1 6492H,
6492HT
80
100
150
200
250
5.5
6.9
10.3
13.8
17.2
1,365
1,780
2,650
3,450
4,300
619
807
1202
1565
1950
2,300
3,100
4,900
6,500
8,000
1,043
1,406
2,223
2,948
3,629
4,080
5,300
7,950
10,300
12,900
1,851
2,404
3,606
4,672
5,851
5,500
7,880
12,300
16,400
2,495
3,574
5,579
7,439
7,700
10,600
16,750
22,450
3,493
4,808
7,598
10,183
10,500
14,200
22,700
30,200
4763
6,441
10,297
13,699
11,000
15,000
23,000
31,000
4,990
6,804
10,433
14,062
80 5.5 6492H,
6492HT
100
150
200
250
6.9
10.3
13.8
17.2
1,450
2,600
3,450
4,300
658
1179
1565
1950
2,600
4,650
6,500
8,000
1,179
2,109
2,948
3,629
4,350
7,800
10,300
12,900
1,973
3,538
4,672
5,851
6,270
11,700
15,600
19,300
2,844
5,307
7,076
8,754
9,250
15,850
21,750
27,750
4,196
7,190
9,866
12,587
11,900
21,400
29,600
38,000
5,398
9,707
13,427
17,237
12,300
22,000
30,200
39,000
5,579
9,979
13,699
17,690
100 6.9 6492H,
6492HT
125
150
200
250
300
8.6
10.3
13.8
17.2
20.7
1,900
2,490
3,450
4,300
5,050
862
1129
1565
1950
2291
3,300
4,350
6,250
8,000
9,400
1,497
1,973
2,835
3,629
4,264
5,700
7,450
10,300
12,900
15,100
2,586
3,379
4,672
5,851
6,849
8,470
11,000
15,700
20,100
3,842
4,990
7,122
9,117
11,400
14,900
21,350
26,800
5,171
6,759
9,684
12,156
14,400
19,900
28,700
35,700
6,532
9,027
13,018
16,194
15,200
20,500
29,100
36,500
6,895
9,299
13,200
16,556
1. Standard pilot or combination of setting plus loading pressure or optional pilot.
- shaded areas show where maximum differential pressure is exceeded.

Bulletin 71.2:92S
12
Table 5. Flow Capacities in Pounds per Hour / kg/h of Saturated Steam (continued)
Table 6. Noise Level Data in Decibels with Schedule 40 Downstream Piping and No Insulation(1)
P1PERCENTAGE
OF MAXIMUM
REGULATOR
FLOW RATE
NOISE LEVEL, dBA
NPS 2 / DN 50 Main
Valve Body with
2-inch / 51 mm
Downstream Piping
NPS 2-1/2 / DN 65 Main
Valve Body with
4-inch / 102 mm
Downstream Piping
NPS 3 / DN 80 Main
Valve Body with
4-inch / 102 mm
Downstream Piping
NPS 4 / DN 100 Main
Valve Body with
8-inch / 203 mm
Downstream Piping
psig bar Without
Attenuator
With
Attenuator
Without
Attenuator
With
Attenuator
Without
Attenuator
With
Attenuator
Without
Attenuator
With
Attenuator
50 3.5
0.2 100
30
73
62
72
61
66
59
64
56
72
63
68
60
78
71
76
68
0.3 100
30
79
68
77
66
72
61
68
57
78
65
72
61
83
73
78
70
0.4 100
30
82
71
79
68
76
65
69
61
80
69
74
65
86
76
81
73
0.5 100
30
84
73
80
69
78
67
72
63
82
73
76
67
88
79
83
75
0.6 100
30
87
76
80
70
81
70
75
65
82
74
79
68
90
80
84
76
0.7 100
30
88
78
82
71
84
73
79
69
88
80
83
71
92
83
87
79
100 6.9
0.2 100
30
78
67
77
66
71
64
69
61
77
68
73
65
83
76
81
73
0.3 100
30
84
73
82
71
77
66
73
62
83
70
77
66
88
78
83
75
0.4 100
30
86
76
84
72
81
70
74
66
85
74
79
70
91
80
86
78
0.5 100
30
89
78
85
74
83
72
77
68
87
78
81
72
93
84
88
80
0.6 100
30
92
81
86
75
86
75
80
70
87
79
84
73
95
85
89
81
0.7 100
30
82
93
75
86
78
89
74
84
85
93
76
88
88
97
84
92
1. Overall noise levels determined at a point 39-inches / 991 mm downstream of the regulator outlet and 39-inches / 991 mm from piping surface.
∆P
P1abs
- continued -
OUTLET
PRESSURE
SETTING(1)
PILOT
TYPE
NUMBER
INLET
PRESSURE
MAIN VALVE BODY SIZE, NPS / DN
DROOP1 / 25 1-1/2 / 40 2 / 50 2-1/2 / 65 3 / 80 4 / 100 6 x 4 / 150 x 100
psig bar psig bar lbs/h kg/h lbs/h kg/h lbs/h kg/h lbs/h kg/h lbs/h kg/h lbs/h kg/h lbs/h kg/h
125 8.6 6492H,
6492HT
140
150
200
250
300
9.7
10.3
13.8
17.2
20.7
1,600
1,900
3,150
4,300
5,050
726
862
1,429
1,950
2,291
3,100
3650
5,750
8,000
9,400
1,406
1,656
2,608
3,629
4,264
4,800
5,700
9,450
12,900
15,100
2,177
2,586
4,287
5,851
6,849
9,200
14,600
19,500
23,800
4173
6623
8845
10,796
13,100
19,950
27,000
32,500
5,942
9,049
12,247
14,742
16,400
27,000
37,500
44,300
7,439
12,247
17,010
20,094
16,900
28,000
38,300
45,100
7,666
12,701
17,373
20,457
10% of
outlet
pressure
setting
150 10.3 6492H,
6492HT
175
200
250
300
12.1
13.8
17.2
20.7
2,450
3,050
4,150
5,050
1,111
1,383
1,882
2,291
4,000
5,250
7,400
9,400
1,814
2,381
3,357
4,264
7,300
9,100
12,400
15,100
3,311
4,128
5,625
6,849
10,000
13,400
18,600
23,400
4536
6078
8437
10,614
14,000
18,200
25,750
31,900
6,350
8,256
11,680
14,470
19,100
30,800
34,100
42,900
8,664
13,971
15,468
19,459
20,100
31,000
35,200
43,300
9,117
14,062
15,967
19,641
1. Standard pilot or combination of setting plus loading pressure or optional pilot.
- shaded areas indicate where minimum differential pressure is not attained.

Bulletin 71.2:92S
13
Table 6. Noise Level Data in Decibels with Schedule 40 Downstream Piping and No Insulation(1)(continued)
P1PERCENTAGE
OF MAXIMUM
REGULATOR
FLOW RATE
NOISE LEVEL, dBA
NPS 2 / DN 50 Main
Valve Body with
2-inch / 51 mm
Downstream Piping
NPS 2-1/2 / DN 65 Main
Valve Body with
4-inch / 102 mm
Downstream Piping
NPS 3 / DN 80 Main
Valve Body with
4-inch / 102 mm
Downstream Piping
NPS 4 / DN 100 Main
Valve Body with
8-inch / 203 mm
Downstream Piping
psig bar Without
Attenuator
With
Attenuator
Without
Attenuator
With
Attenuator
Without
Attenuator
With
Attenuator
Without
Attenuator
With
Attenuator
250 17.2
0.2 100
30
84
73
81
71
78
71
76
68
84
75
80
72
90
83
88
80
0.3 100
30
90
80
85
77
84
73
80
69
90
77
84
73
95
85
90
82
0.4 100
30
93
82
88
78
88
77
81
73
92
81
86
77
98
88
93
85
0.5 100
30
95
85
91
80
90
79
84
75
94
85
88
79
100
91
95
87
0.6 100
30
98
88
92
82
93
82
87
77
94
86
91
80
102
92
96
88
0.7 100
30
101
89
94
83
96
85
91
81
100
92
95
83
104
95
99
91
1. Overall noise levels determined at a point 39-inches / 991 mm downstream of the regulator outlet and 39-inches / 991 mm from piping surface.
∆P
P1abs
Construction
Refer to the Specications section on page 2. Review
the descriptions to the right of each specication,
and specify the desired choice wherever there is a
selection to be made. If not otherwise specied,
the pilot control spring is factory-set at the
approximate mid-range.
Be sure to specify the type of regulator desired
(standard pilot or pilot with optional tapped spring case).
Refer to separate bulletins for information on loading
regulators for use with pressure loaded pilots.
Ordering Information
When ordering, specify:
Application
• Range of temperatures
• Range of inlet pressures (maximum, normal, minimum)
• Outlet pressure setting
• Range of ow rates (maximum, normal,
minimum, controlled)
• Body size

Bulletin 71.2:92S
14
1/4 NPT
CONTROL LINE
CONNECTION ON
BACKSIDE
B
E
TRIM
REMOVAL
CLEARANCE
A/2
A
17A8559-A
B1904
R
S
NPS 1, 1-1/2, OR 2 / DN 25, 40, OR 50 MAIN VALVE BODY
Figure 9. Dimensions
1/4 NPT
CONTROL LINE
CONNECTION
17A8560-A
B1904
NPS 2-1/2, 3, 4, OR 6 x 4 / DN 65, 80, 100, OR 150 x 100 MAIN VALVE BODY
A
A/2
E
RS
B
TRIM
REMOVAL
CLEARANCE
MAIN VALVE
BODY SIZE
DIMENSIONS, INCHES / mm
A
BE
(Maximum)
R
S
Trim
Removal
Clearance
NPT
CL125 FF or
CL150 RF
Flanged
CL250 RF or
CL300 RF
Flanged
CL600 RF
Flanged
Types 6492H
and 6492HT
Pilot
Type 6492L
PIlot
NPS DN Inches mm Inches mm Inches mm Inches mm Inches mm Inches mm Inches mm Inches mm Inches mm Inches mm
1
1/2
2
25
40
50
8.25
9.88
11.25
210
251
286
7.25
8.75
10.00
184
222
254
7.75
9.25
10.50
197
235
267
8.25
9.88
11.25
210
251
286
3.88
5.38
5.88
99
137
149
11.69
12.19
13.00
297
310
330
8.50
8.81
9.06
216
224
230
9.88
10.19
10.44
251
259
265
1.94
2.69
2.94
49
68
75
2.75 70
2-1/2
3
4
6 x 4
65
80
100
150 x 100
- - - -
- - - -
- - - -
- - - -
10.88
11.75
13.88
- - - -
276
298
353
- - - -
11.50
12.50
14.50
18.62
292
318
368
473
12.25
13.25
15.50
20.00
311
337
394
508
6.56
7.38
8.62
8.62
167
187
219
219
17.19
18.25
20.44
22.06
437
464
519
560
8.75
8.75
10.38
11.50
222
222
264
292
10.12
10.12
11.75
12.88
257
257
298
327
3.28
3.69
4.31
4.31
83
94
109
109
3.12
3.12
5.00
7.00
79
79
127
178
Table 7. Dimensions

Bulletin 71.2:92S
15
Body Size (Select One)
NPS 1 / DN 25**
NPS 1-1/2 / DN 40**
NPS 2 / DN 50***
NPS 2-1/2 / DN 65*
NPS 3 / DN 80**
NPS 4 / DN 100**
NPS 6 x 4 / DN 150 x 100
(WCC, Steel, or Stainless steel with CL300 RF and
CL600 RF only)*
Body and Body Flange Material and
End Connection Style (Select One)
Cast Iron
NPT***
CL125 FF**
CL250 RF**
WCC Steel
NPT***
CL150 RF**
CL300 RF**
CL600 RF**
PN 16/25/40**
CF8M Stainless Steel
NPT**
CL150 RF*
CL300 RF*
CL600 RF*
PN 16/25/40*
Tubing and Fittings (Select One)
Copper tubing with brass ttings***
Stainless steel tubing and ttings**
Pilot Bellows (Select One)
Brass (standard)***
321 Stainless steel**
Ordering Guide
Steam Specication Worksheet
Application:
Tag Number:
Valve Type: Direct-Operated Pilot-Operated
Pressure Loaded Differential
Body Material: Steel Iron Stainless Steel
Inlet/Outlet End Connection Style:
CL150 RF Flange NPT
CL300 RF Flange CL250 RF Flange
PN 16/25/40 CL600 RF Flange
Inlet/Outlet Pipe Size: Inches / mm
Steam Conditions:
Inlet Pressure (psig/bar)
Inlet Temperature (°F/°C)
Outlet Pressure (psig/bar)
Flow (pounds/h or kg/hr)
Performance Required:
Accuracy Requirements: ≤10% ≤ 2 0 %
≤30% ≤40%
Maximum Normal Minimum
Regulators Quick Order Guide
* * * Readily Available for Shipment
* * Allow Additional Time for Shipment
* Special Order, Constructed from Non-Stocked Parts.
Consult Your local Sales Ofce for Availability.
Availability of the product being ordered is determined by the component
with the longest shipping time for the requested construction.
Outlet Pressure Range (Select One)
Type 6492L Pilot
2 to 6 psig / 0.14 to 0.41 bar, Yellow***
5 to 15 psig / 0.35 to 1.0 bar, Green***
13 to 25 psig / 0.90 to 1.7 bar, Red***
Type 6492H Pilot
10 to 30 psig / 0.69 to 2,1 bar, Yellow***
25 to 75 psig / 1.7 to 5.2 bar, Green***
70 to 150 psig / 4.8 to 10.3 bar, Red***
Type 6492HT Pilot
15 to 100 psig / 1.0 to 6.9 bar, Unpainted***
80 to 250 psig / 5.5 to 17.2 bar, Unpainted***
Noise Attenuation Trim (Optional)
Yes**
Replacement Pilot (Optional)
Yes, send one replacement pilot to match this order.
Main Valve Replacement Parts Kit (Optional)
Yes, send one main valve replacement parts kit to match
this order.
Pilot Replacement Parts Kit (Optional)
Yes, send one pilot replacement parts kit to match
this order.

Bulletin 71.2:92S
©Emerson Process Management Regulator Technologies, Inc., 1984, 2011; All Rights Reserved
The Emerson logo is a trademark and service mark of Emerson Electric Co. All other marks are the property of their prospective owners. Fisher is a mark owned by Fisher Controls International LLC,
a business of Emerson Process Management.
The contents of this publication are presented for informational purposes only, and while every effort has been made to ensure their accuracy, they are not to be construed as warranties or
guarantees, express or implied, regarding the products or services described herein or their use or applicability. We reserve the right to modify or improve the designs or specications of such
products at any time without notice.
Emerson Process Management does not assume responsibility for the selection, use or maintenance of any product. Responsibility for proper selection, use and maintenance of any Emerson
Process Management product remains solely with the purchaser.
Industrial Regulators
Emerson Process Management
Regulator Technologies, Inc.
USA - Headquarters
McKinney, Texas 75069-1872, USA
Tel: +1 800 558 5853
Outside U.S. +1 972 548 3574
Asia-Pacic
Shanghai 201206, China
Tel: +86 21 2892 9000
Europe
Bologna 40013, Italy
Tel: +39 051 419 0611
Middle East and Africa
Dubai, United Arab Emirates
Tel: +971 4811 8100
Natural Gas Technologies
Emerson Process Management
Regulator Technologies, Inc.
USA - Headquarters
McKinney, Texas 75069-1872, USA
Tel: +1 800 558 5853
Outside U.S. +1 972 548 3574
Asia-Pacic
Singapore 128461, Singapore
Tel: +65 6770 8337
Europe
Bologna 40013, Italy
Tel: +39 051 419 0611
Gallardon 28320, France
Tel: +33 2 37 33 47 00
TESCOM
Emerson Process Management
Tescom Corporation
USA - Headquarters
Elk River, Minnesota 55330-2445, USA
Tels: +1 763 241 3238
+1 800 447 1250
Europe
Selmsdorf 23923, Germany
Tel: +49 38823 31 287
Asia-Pacic
Shanghai 201206, China
Tel: +86 21 2892 9499
For further information visit www.sherregulators.com