Englands Stove Works 25 Pdvc 55 Shp10 Shp10L Or Trp10 Owners Manual
2015-04-13
: Englands-Stove-Works Englands-Stove-Works-25-Pdvc-55-Shp10-55-Shp10L-Or-55-Trp10-Owners-Manual-695189 englands-stove-works-25-pdvc-55-shp10-55-shp10l-or-55-trp10-owners-manual-695189 englands-stove-works pdf
Open the PDF directly: View PDF .
Page Count: 19

INSTALLATION AND OPERATION MANUAL
MODEL NUMBERS: 25-PDVC , 55-SHP10 , & 55-TRP10
(NOTE: MANUAL ALSO APPLIES TO “AMERICAN STANDARD”
AND 55-SHP10L PELLET UNITS)
Thank you for purchasing this product from a fine line of heating equipment. We wish
you many years of safe heating pleasure with your new heating appliance.
Save These Instructions.
NOTE: IF YOU HAVE A PROBLEM WITH THIS UNIT DO NOT RETURN IT TO
THE DEALER. CONTACT CUSTOMER SERVICE @ 1-800-245-6489.
Questions? Need Parts or Options? www.englandsstoveworks.com
Please Note the Following Precautionary Statements:
WE DO NOT RECOMMEND PELLET UNITS AS YOUR ONLY SOURCE OF HEAT.
CAUTION: These units must be installed in accordance with the instructions and
comply with your local building and fire codes. Please read this entire manual
before installation and use of this pellet fuel burning room heater.
WARNING: USE OF OUTSIDE AIR IS MANDATORY WITH THIS UNIT.
DO NOT OPERATE UNIT WITH HOPPER OPEN. LID MUST BE SHUT AND SECURED TIGHTLY.
DO NOT OPERATE WITH DOOR OPEN. OPEN DOOR ONLY WHEN LIGHTING.
The freestanding pellet units are approved for mobile home installation with
outside combustion air hook-up. See “Flue System” section of manual.
CAUTION: The structural integrity of the mobile home floor, wall, and ceiling/roof
must be maintained. Do not install in a sleeping room.
Mobile home installation should be in accordance with the Manufactured Home
and Safety Standard (HUD), CFR 3280, Part 24.
→SAFETY NOTICE←
FAILURE TO FOLLOW THESE INSTRUCTIONS COULD RESULT IN PROPERTY DAMAGE, BODILY
INJURY OR EVEN DEATH. FOR YOUR SAFETY AND PROTECTION, FOLLOW ALL THE
INSTALLATION INSTRUCTIONS. CONTACT YOUR LOCAL BUILDING OR FIRE OFFICIALS FOR
RESTRICTIONS AND INSTALLATION INSPECTIONS IN YOUR AREA.
Rev. 11/03
England’s Stove Works highly recommends the use of smoke detectors and Carbon
Monoxide detectors with any hearth product, including this unit. Follow all manufacturer’s
instructions when using smoke or Carbon Monoxide detectors.

IMPORTANT INFORMATION
1. Check local installation codes for your area. Call your Homeowner’s Insurance
representative for inspection of your stove’s installation.
2. Read and comply with the instructions in this manual.
3. This unit should be tested (dry run) before loading pellets for 30 minutes. The stove
should automatically shut itself off after the 30-minute dry run.
4. Your stove is designed to burn Premium Hardwood Pellets. Pellets with a high
ash content will burn dirty and the unit will need cleaning more often.
5. Be sure your pellets are not damp or wet. Keep sawdust out of the unit.
6. Use three-inch (3”) U.L.-approved PELLET VENT TWIST-LOCK PIPE when
installing this unit and follow the manufacturer’s specifications for installation and
clearances (we highly recommend Simpson Dura-Vent pellet twist-lock pipe). Even
though this pipe interlocks, it is advisable to seal all connections with high
temperature silicone. Use at least 3 screws to secure the pipe to the unit’s exhaust
blower. Also, if you do not use U.L.-approved twist-lock pellet pipe, be sure to use
U.L.-approved Pellet Vent pipe, and fasten each joint of the pipe with at least 3
screws.
7. An outside combustion air connection is mandatory for this unit to work properly.
Make this connection using a 1 7/8” I.D. metal pipe (steel, aluminum or copper) and
coupler. Be sure to secure the pipe to the unit with a clamp or aluminum tape. The
outside end should be covered (screened) to prevent any foreign matter from
entering the system. Try to keep the number of bends in the pipe to a minimum.
Our Part Number PU-OAK (Outside Air Kit with flex pipe) can be used. It can be
purchased from your dealer, or by calling (800) 516-3636 or logging on to
www.englandsstoveworks.com . NOTE: If the total run of the connection exceeds
6’, use 3” metal pipe (and coupler) instead.
8. Regularly inspect the burn pot area and, if any crust forms, remove it with a poker.
9. The ash in the burn pot should be removed regularly, depending on your burn rate.
The area to the right and left of the burn pot is for ash storage; keep the air holes in
the burn pot clean for a more efficient burn. Check your exhaust system frequently. I
10. Keep pellets and all other combustible materials a safe distance from the stove.
11. This unit will require floor protection if it is installed on a combustible surface.
The minimum floor protector for this stove is 31” x 32” which should give you at least
one inch (1”) of protection at the rear, four inches (4”) on each side and six inches
(6”) minimum in the front of the unit.

12. Horizontal runs should not exceed four feet (4’) with a max. vertical flue height of
thirty- five feet (35’). At fifteen feet (15’), the pipe should be increased to 4” pellet
vent pipe.
13. This unit should be turned off and allowed to cool prior to cleaning. Any ashes should
be kept in an airtight metal container completely away from all combustibles and
should not be disposed of until they are completely cooled.
14. Read the instructions thoroughly concerning the various settings that are available,
Including the digital read-out control board, and save them for future reference.
15. Do not allow paint, chemicals or construction dust on or near your unit. Do not allow
liquid or ANY foreign materials on or inside your unit. Shut your unit down and cover
it when painting, construction or similar activity is taking place. Wipe and clean your
unit after any construction is done in your home, or if any foreign material gets on or
inside your unit. You may also need to remove the rear and side cover plates to your
unit (unplug unit first) and vacuum and clean the motors and inside of your unit.
16. Improper gasket maintenance, including failure to replace gaskets, can cause air
leaks resulting in smoke-backs.
17. Remember that, as with any appliance, there is user responsibility involved,
including installation, operation and maintenance of this product. Be sure to check
local codes, and call Customer Service at (800) 245-6489 if you have any questions.
18. Be sure to follow the directions of all manufacturers of third party products that you
use, including fire starters or exhaust pipe. Never apply fire starter gel to a hot
surface or hot coals.
Visit our web site at www.englandsstoveworks.com for helpful information,
frequently asked questions, parts/accessory orders and more!
NOTES:

UNIT PREPARATION
1. Attach the spring handle to the door by turning it counterclockwise.
Important: Hopper Latches must be tight so that the top is sealed to prevent
back-burn.
2. Test your 110-volt outlet for current and then plug in the unit. (We highly
recommend a surge protector for our pellet unit, as the control panel is
electronic).
3. It is important to note that this stove is equipped with a dual auger system. The top
auger runs intermittently and drops pellets to the bottom auger; the bottom auger
runs constantly and simply pushes the pellets forward to the burn pot. The control
board (“Heat Range”) setting determines the top auger feed rate.
4. The stove has a digital read-out control board and is started by pressing the “ON”
touch pad. This will start the upper auger, bottom auger and exhaust
blower. (The room air blower will start later as the stove reaches the pre-set blower
temperature – see “Control Board” section for further explanation.)
5. Check to be sure both augers and the exhaust blower are operating before
connecting the unit to the flue system. Be sure to “dry run” your unit for 30 minutes
before connecting it to the flue (it should automatically stop after 30 minutes).
FLUE SYSTEM
Caution: Follow the pipe manufacturer’s installation instructions and directions
for passing through combustible walls and ceilings.
Be sure to check local codes in your area.
1.
If 3” flue pipe exceeds 15’ in length, increase to 4” flue pipe for remaining flue connections.
2. Total flue length should not exceed 35’.
3. Horizontal run not to exceed 4’.
4. Floor protector required: Min. size 31” x 32”.
5. If the total run of outside air connection exceeds 6’, or if more than 2 elbows are used, use 3” metal pipe (and coupler) instead.
6. Outside Air is mandatory for proper safe operation.
Must have minimum
3” adapter before tee
for longer run.
For shorter run (such
as Masonry
Connection below),
tee alone is acceptable.
Masonry Connection
Illustration 1
Our Part AC-3000 is
acceptable for
through-the-wall
installation.
(AC-3100 for 4000
feet+ installations)

This unit is equipped with a negative draft system that pulls air through the burn pot
and pushes the exhaust out of the dwelling. If this unit is connected to a flue system
other than the way explained in this manual, it will not function properly.
Pellet Vent Pipe
The UL approved pellet vent pipe that we recommend is a twist lock system;
however, it is still recommended that high temperature silicone be used at each joint.
England’s Stove Works recommends the use of Simpson Dura-Vent twist-lock pipe (if
you use other pipe, consult your local building codes and/or building inspectors, and
secure each joint with at least three screws—see Important Information, above). Do not
use “B” vent gas pipe or galvanized pipe with this unit. The pellet pipe is designed to
disassemble for cleaning and should be checked several times during the burning
season. Pellet vent pipe is not furnished with the unit and must be purchased separately.
Do not install a flue damper of any kind in this system and do not connect this
unit to a flue system serving another heating appliance.
Through the Wall
To vent the unit through the wall, connect the pipe adapter to the exhaust motor
adapter. If the exhaust adapter is at least eighteen inches (18”) above ground level, a
straight section of pellet vent pipe can be used through the wall. Your dealer or our
factory should be able to provide you with a kit that will handle most of this installation,
which will include a wall thimble that will allow the proper clearance through a
combustible wall. Once outside the structure, a three-inch (3”) clearance should be
maintained to the outside wall and a clean out tee should be placed on the pipe that
extends through the wall. We recommend a minimum of three feet (3’) of vertical pipe
with a 90-degree turn away from the house. At this point a one-foot (1’) section should
be added with a horizontal cap, which would complete the installation (see Illustration 1).
A wall strap should be placed just below the last 90-degree section to make the
system more stable. If you live in an area that has heavy snowfall it is recommended the
installation be taller than three feet (3’) to get above the snowdrift line. This same
installation can be used if your stove is below ground level by simply adding the clean-
out section and vertical pipe inside until ground level is reached. With this installation
you have to be aware of the snowdrift line, dead grass and leaves. We recommend a
three foot (3’) minimum vertical rise on the inside or outside of the house.
The through-the-wall installation is the least expensive and simplest installation. Never
terminate the end vent under a deck, in an alcove, under a window or between two
windows. Call (800) 516-3636 to inquire about our AC-3000 Pellet Vent Kit.
Through the Ceiling
When venting the stove through the ceiling, the pipe is connected the same as
through the wall, except the clean-out tee is always on the inside of the house, and a 3”
adapter is added before the clean-out tee. You must use the proper ceiling support
flanges and roof flashing that are supplied by the pipe manufacturer--follow the pipe
manufacturer’s directions and Illustration 1 in this manual. It is important to note that if
your vertical runs of pipe are more than fifteen feet (15’) at this point, the pellet vent pipe
size should be increased to four inches (4”) in diameter. Do not exceed four feet (4’) of
pipe on a horizontal run, and do attempt to use the least number of elbows for your flue
system. If an offset is used, it is better to install a 45-degree elbow whenever possible.
NOTE: Installing elbows may inhibit your draft by up to 15% per elbow.
Existing Flue System
*
IMPROPER INSTALLATION:
The manufacturer will not be held responsible for damage
caused by the malfunction of a stove due to improper venting or installation. Call
(800-245-6489) and/or consult a professional installer if you have any questions.
NOTE on Mobile Home Installation:
Secure the heater to the floor
using the two holes in the pedestal. If the unit is on a combustible surface, you will need to drill
matching holes in the floor protection that you choose (see Floor Protection section). Do not disturb the structural integrity of
the home, and be sure the unit is permanently electrically grounded to the chassis of your home. Remember that outside
combustion air is mandatory, and not to install the unit in a sleeping room of the home.

If you are replacing a wood stove with a pellet unit the chimney or pipe should be cleaned
thoroughly before proceeding with the installation. The flue system should be either masonry
or a UL approved pre-manufactured Class A flue system. The flue thimble or pipe will be
either six inches (6”) or eight inches (8”) and the proper reducer (6” to 3” or 8” to 3”) and can
be purchased or ordered by your local dealer. Connect a three inch (3”) tee with clean-out to
the pipe adapter -- seal this with a high temperature stove cement, then extend the pipe to
the installed reducer at your thimble. If the thimble is in the ceiling the pipe will go straight up,
but if the thimble is in the wall another 90-degree elbow will be required to make the
connection.
Outside Air Intake
Outside air is mandatory for this unit to operate properly. This unit has been designed
and tested with this connection, because so many homes are airtight and there is not
adequate combustion air available from inside the home. The air intake pipe is located at the
rear of the burn pot and measures one and one half inches (1 ½”) inside diameter (I.D.). This
connection can be made with 1 7/8” I.D. metal pipe and coupler, and should exit through the
wall. Be sure to secure the pipe to the unit with a clamp or aluminum tape. The outside end
of the pipe should be covered (screened) to prevent foreign matter from entering the system.
Our Outside Air Kit (Part Number PU-OAK) can be used. If your unit is located below ground
level, you will need to run the pipe up and then outside the dwelling. NOTE: If the total run
of the connection exceeds 6’, use 3” metal pipe (and coupler) instead.
FLOOR AND WALL PROTECTION
Floor Protection
If your floor is constructed of a non-combustible material such as brick or concrete there
is no need for floor protection. If your floor is constructed of a combustible material such as
hardwood, linoleum or carpet, then you will be required to use floor protection between the
unit and the combustible. The protection that is chosen should be UL approved or equal, and
should be large enough to provide a minimum of one inch (1”) behind and four inches (4”) on
both sides of the stove. The clearance in front of the stove should be at least six inches (6”).
This freestanding pellet unit will need a minimum 31” x 32” floor protector.
Wall Protection
From the rear and sides of the stove only six inches (6”) of clearance is required to
paneling, wallpaper or sheet rock. The pellet vent pipe would require the standard three
inches (3”) clearance, or as recommended by the pipe manufacturer. Normally,
additional wall protection is not required with this unit.
OPERATING INSTRUCTIONS
CAUTION: Do not operate with the door open; open door only when lighting.
Do not burn trash (paper bags, etc.) in this unit.
This stove has an induced draft system and is designed to operate continuously, as
frequent shutdown is not required. The digital control board allows the stove to operate
by a time delay-relay system; this system controls the top auger feed rate by operating
for a predetermined number of seconds, while the bottom auger operates constantly.
The setting of the “Heat Range” touch pad will control the heat output and the amount of
pellets the unit will burn (see Ill. 2). Note: This stove is using solid fuel and will not restart
automatically.

Horizontal Feed System
This unit has a top and a bottom auger that are separated by four inches (4”); a 1-
RPM motor drives each auger. The top auger drops pellets to the bottom auger tube,
and the bottom auger pushes the pellets forward to the burn pot. This assures there is
no build up of fuel in the bottom auger tube. As pellets enter the burn pot the combustion
air is drawn across the fuel.
START- UP PROCEDURE
Note: The operation of this unit should be checked (dry run) prior to this procedure.
1. Verify the hopper is clean and free of foreign matter and there is current at your
outlet (we do recommend a surge protector be used with our unit).
2. Fill the hopper with wood pellets; do not allow any part of the bag or any foreign
material in the hopper, as this may jam the augers. Ensure that all pellet matter is
cleared from the hopper lid gasket. Close the hopper lid and secure the latches.
3. Place a handful of pellets in the burn pot, spread a small amount of fire starter over
the handful of pellets and ignite them. Wait a few minutes before closing the door
and pressing the “ON” touch pad on the control board -- if the door is closed before
the pellets are burning thoroughly, the exhaust blower could put out the fire. If for
some reason the unit does not come on after pressing the “ON” touch pad, the cord
should be disconnected for two to three minutes. After this, the control board should
reset and can be started again. If you still have problems, call our factory.
Recommended fire starter materials: Wax-impregnated wood chips, cardboard
cubes or fire starter gel designed for pellet stoves. Follow the manufacturer’s
directions for these products, and never place gel on any hot surface or hot coals.
Never use gasoline, lantern fuel, kerosene, charcoal lighter fluid, diesel fuel or
any other flammable liquid to start the fire.
4. Check to be sure the flame is sustaining itself and continues to increase. If the flame
goes out, be sure the burn pot is cleaned out and free of hot coals before repeating
the procedure.
First Fire: Adjust the “Heat Range” and “Blower Speed” to a “5” setting and
allow the stove to operate in this manner for approximately three (3) hours (or
more if necessary), allowing the stove to “cure out” as the paint and oils
from the manufacturing process burn off. We recommend that you open doors
and windows in your dwelling during this process.
Subsequent Cold Starts: We recommend that you operate the unit on a “5”
setting until the convection (room air) blower begins to operate.
SHUT DOWN PROCEDURE
WARNING: NEVER SHUT DOWN THIS UNIT BY UNPLUGGING IT FROM THE
POWER SOURCE. Refer to the instructions below.
Press the “OFF” touch pad to put the stove in the shut down mode. At this time the
red light above the pad will illuminate. The instant this is done the top auger will stop
feeding pellets to the bottom auger, but the room air blower, exhaust blower and the
bottom auger will continue to operate. When the internal temperature of the unit drops to
95 degrees the room air blower will stop operating; the exhaust blower and the bottom
auger will cease to operate when the temperature drops to 90 degrees. The red light will
then shut off and the unit will be completely shut down. The hotter the unit is operating
the longer it will take for the stove to complete the shut down cycle.

Note: If the room temperature stays above 70 degrees the unit will remain in the shut
down mode for 54 minutes, regardless of the temperature at the heat sensor. If the stove
stays on this long and you are sure the fire is out, the cord can be unplugged from the outlet.
After approximately 10 seconds the unit can be connected to the power source and the
control board will be reset.
DAILY OPERATION
Refueling the Unit
Always press the “OFF” pad before refueling. This unit has a 40-pound hopper and
should be filled when the hopper level drops to three or four inches (3” or 4”).
Note: The hopper will be warm; therefore, you should always use some type of hand
protection. Never place your hand near the auger while the stove is in operation.
Note: Again, ensure that all pellet matter is cleared from the hopper lid gasket before
closing. Be sure to close hopper securely before re-firing. Do not operate this unit with the
hopper lid open or unsecured.
Power Outage
Important: This stove is equipped with a vacuum safety switch. If the power to your stove
is interrupted for more than three minutes, but less than 18 minutes, the unit will shut down
and an error code will show in the “Heat Range” window of the Control Board. At this point,
you may press the “On” button and the unit will automatically resume operation; however, if
the power is off for more than 18 minutes, the unit will have to be re-started completely (see
“Start-Up Procedure). NOTE: The unit will also shut down in the event of Combustion Blower
failure; if this is the case, the unit will not re-start and you must contact Customer Service at
(800) 245-6489. It is very important for the unit to be vented properly (outside air), as the
natural draft is needed to clear the smoke from the stove. Also, do not open the hopper lid.
This may cause fire to burn in the hopper.
If the power is off for more than 18 minutes, use a poker or a scooper to place burning
pellets in the sides of the firebox and remove them from the burn pot. When power is restored,
press the “ON” button and let the unit run for approximately 5 minutes, then press the “OFF”
button – this will remove any pellets from the upper and lower auger systems. After the unit
has cooled, remove all remaining pellets from the firebox and burn pot area; you may then
restart your unit.
Fire Outage
If the fire in the burn pot goes out, the unit will automatically enter the shut down mode.
Fuel Outage
If the unit should run out of pellets, or the pellets happen to bridge in the hopper, the
temperature of the heat chamber will fall below 90 degrees and the stove will go into the shut
down mode.
Combustion Blower Failure
If the combustion (exhaust) blower should fail on this unit the Vacuum Shut Down Switch
will automatically stop the stove. This will shut your unit completely off, and there will be an
“E” code in the “Heat Range” window on the control board. At this point you will need to
contact Customer Service at (800) 245-6489. NOTE: It is very important for the unit to be
vented properly (outside air hook-up), as the natural draft is needed to clear the smoke from
the stove.
ASH REMOVAL AND DISPOSAL
IMPORTANT: While the amount of ash generated by this unit is not excessive
compared to log-burning woodstoves, keeping the unit clean and free of ash is
essential for peak performance. Too much ash build-up hampers airflow and
reduces the unit’s efficiency, and can cause smoke-back.
Daily Ash Maintenance
If there is fuel in the hopper, press the “OFF” pad and allow the unit to burn for approximately
five (5) minutes in the shut down mode prior to opening the front door. Use a long-handled
screwdriver or a long-handled putty knife to scrape off any build-up or crust in the burn pot area.
This can be pushed to the left or right into the ash storage area.
Weekly Ash Removal
Shut the unit down by pressing the “OFF” pad and allowing the unit to go through the complete
shut down cycle. Allow the unit to completely cool down and remove the ashes with a scoop.
The ashes should be placed in a non- combustible container with an airtight lid and should always
be placed on a non-combustible surface or on the ground until completely cooled and free of hot
cinders. Once the ash is removed, the burn pot should be given a thorough inspection. Remove
and clean the burn pot wear plate (refer to the exploded diagram in the rear of this manual –
Illustration 4), and remove any ash build-up in the area below the wear plate. Check for any
build-up in the front of the burn area. Clean out all air holes (if necessary a 1/8” drill bit can be
used) --these air holes should be kept clean, as they supply combustion air under and around the
pellet fuel. The burn pot assembly should also be thoroughly cleaned, including the burn box.
When replacing the wear plate, ensure that it lies flat in the firebox and no gaps (from ash
residue) are under it.
IMPORTANT: Ash build-up under the wear plate can cause the unit to malfunction.
Monthly Ash Removal
The large baffle plate (12” x 13”) that hangs above and behind the burn pot (refer to the
exploded diagram in the rear of this manual – Illustration 4) should be removed monthly. This can
be done by lifting up the plate and pulling it out. The area behind the plate should then be cleaned
thoroughly, and the plate placed back in the original position. Inspect your flue pipes, and
remove ash buildup from the clean-out tee.
Annual Cleaning
The stove and the flue system should be given a complete cleaning at the end of the heating
season. Remove the burn pot assembly, clean it thoroughly, and re-install it (refer to Illustration
4); this will require new gasket for the burn pot. Be sure to tighten the set screws when you
replace them, but do not over-tighten. In addition to the cleaning mentioned earlier, the exhaust
blower should be removed annually and the blower tube vacuumed of any ash build up. When
cleaning or replacing the blower a new gasket (Part # PU-CBG) should be added between the
blower flange and the steel exhaust tube.
Soot and Fly ash: Formation and Need for Removal – The products of combustion will
contain small particles of fly ash. The fly ash will collect in the exhaust venting system
and restrict the flow of flue gases. Incomplete combustion, such as occurs during startup,
shutdown, or incorrect operation of the room heater will lead to some soot formation
which will collect in the exhaust venting system. The exhaust venting system should be
inspected at least once every year to determine if cleaning is necessary.

MAINTENANCE
CAUTION: UNPLUG THIS UNIT PRIOR TO ANY SERVICE WORK.
SEE EXPLODED DIAGRAM (ILLUSTRATION 4) FOR PARTS REFERENCE
Note: To do any service on this unit the rear steel access panel must be
removed. Eight (8) screws hold this panel to the rear of the stove.
Parts Orders: (800) 516-3636 www.englandsstoveworks.com Questions: (800) 245-6489
Auger Motors
The auger motor and gearbox are one complete assembly (Part #PU-047040) and can be
removed by disconnecting the power leads and loosening the (5/16” head) set bolt in front of the
assembly. This bolt tightens down on the flat side of the gear shaft and locks the gear shaft and
auger shaft together -- once the bolt is loosened, the entire assembly will slide from the locking
collar. There are two motor assemblies on this unit and both rest on a shelf when not in operation.
When replacing a motor, the assembly should always be placed on the shelf prior to starting the
unit.
Auger Bearings and Auger Shafts
The auger bearings (Part #PU-UCF204-12) are a sealed unit and do not require lubrication. To
replace the top auger all the fuel must be removed from the hopper, as well as the top auger
assembly. Once this is done the four bolts that hold in the bearings can be removed. At this time,
the complete auger assembly can be pulled from the stove. Loosen the two (2) set screws with a
1/8” allen wrench, which will disconnect the bearing from the shaft -- the bearing and auger shaft
can be replaced by reversing this procedure. When placing the auger bearing and shaft assembly
back into the unit, always tighten the four bolts in a diagonal pattern to ensure the bearings and
shafts are aligned properly. Follow the same procedure to work on the bottom auger, with the
exception that the pellets do not have to be removed from the hopper.
Convection Blower
The convection blower (room air blower) -- (Part #PU-4C442) is located on the left side of the
unit and can be removed by disconnecting the power leads and removing the four mounting
screws. Once this is done, the blower should slide out the rear of the unit. Reverse this procedure
to install a new room air blower.
Combustion Blower
To clean or replace the combustion (exhaust) blower (Part #PU-076002B), the power leads
and the pellet vent pipe must be disconnected. Next, remove the screws that hold the blower to
the steel exhaust tube and the entire blower should release from the stove. The blower impeller,
blower tube and the steel blower exhaust tube on the unit should be brushed and vacuumed.
When cleaning or replacing the blower a new gasket (Part # PU-CBG) should be added between
the blower flange and the steel exhaust tube.
Vacuum Switch
This unit is equipped with a Vacuum Shut Down Switch (Part # PU-VS), which helps control
various functions of the unit. If an operational error occurs in the unit, the switch will shut the unit
off, and an “E” (denoting “Error”) will appear in the “Heat Range” window of the Control Board.
Situations which could cause this include power failure, combustion blower failure, improper flue
installation, a blocked flue (from rodents, nests, etc.), or “dirty burning” from burning improper fuel
(see “Important Information” at the beginning of the manual).

Gaskets
IMPORTANT: IMPROPER GASKET MAINTENANCE, INCLUDING FAILURE TO REPLACE
GASKETS, CAN CAUSE AIR LEAKS RESULTING IN SMOKE-BACKS. This unit comes with a
3/4” rope gasket around the door, which should be replaced every two years. To replace the door
gasket (Part #AC-DGKC), the old gasket must first be removed entirely -- this may require you to
scrape the old material from the channel before adding the new cement. Once the new gasket
and cement have been added, the door should be closed and latched for twenty-four hours to
allow the adhesive to harden. If you are replacing the window gasket (Part #AC-GGK), the new
gasket will already have adhesive on it. Remove the paper on the adhesive side and place the
gasket around the outside edge of the glass, by forming a “U” with your fingers and placing the
new material around the window. You should also replace the combustion blower gasket (Part #
PU-CBG) whenever you remove or clean the combustion blower.
Finish
This new unit has been painted with 1200 degree Paint (Part #AC-MCSP or AC-MBSP) that
should retain its original look for years. If the unit should get wet and rust spots appear, the spots
can be sanded with plain steel wool and repainted. We recommend this paint, as others may not
adhere to the surface or withstand the high temperatures.
Glass
This unit has a 9” x 9” ceramic glass (Part #AC-G9, comes with gasket) in the viewing door. If
this glass becomes cracked in any area, the unit should be shut down and the window replaced
with this high-temperature g lass.
NOTES:
You may order parts and options on our web site:
www.englandsstoveworks.com
,
or by calling (800) 516-3636.
Our web site also offers service instructions that can be printed or viewed as video.

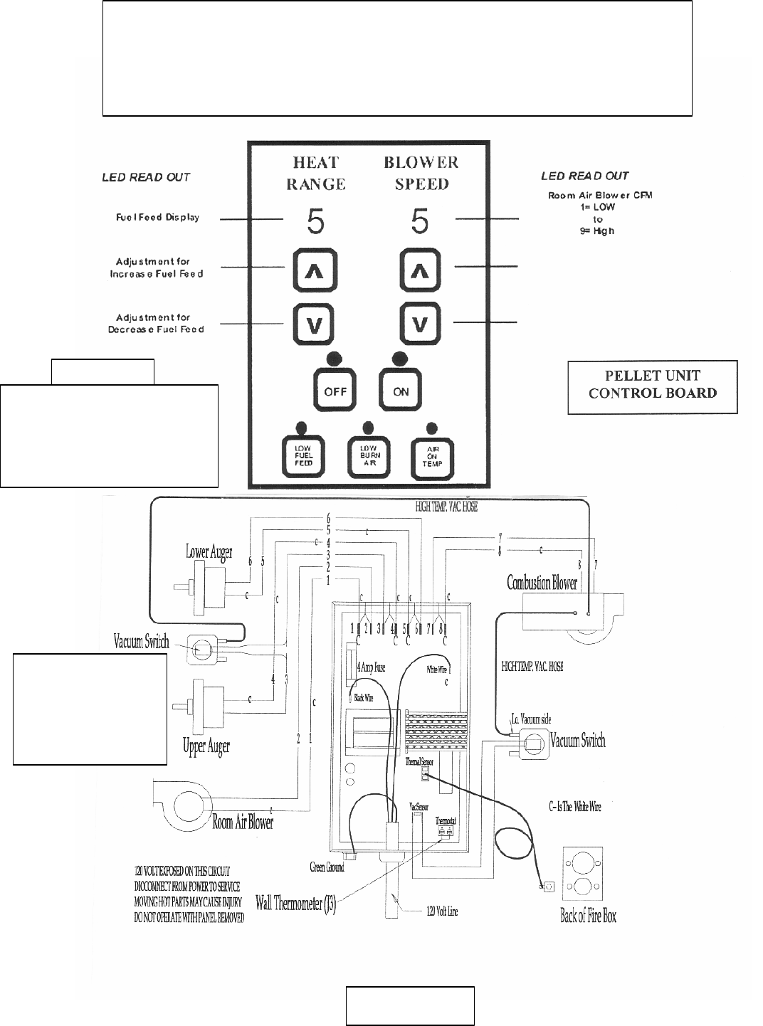
Recommended Heat Ranges
for Pellet Unit Control Board
:
Low Burn: Heat Range setting: 1 Room Air Blower setting: 1
Medium Low: Heat Range setting: 2 – 3 Room Air Blower setting: *
Medium High: Heat Range setting: 5 – 8 Room Air Blower setting: *
High Burn: Heat Range setting: 9 Room Air Blower setting: 9
* NOTE: Blower Speed should match Heat Range setting.
NOTE: The bottom 3 buttons are
pre-set at the factory and do not
need adjustment. Call Service at
(800) 245-6489 if you have
questions or problems.
CAUTION:
Illustration 2
(This Vacuum
Switch only for use
on 25-PDV, 25-PI,
55-SHP22, 55-
SHP20, 55-TRP22
and 55-TRP20)

The control board (PART #PU-CB98) is a digital read-out board. This board offers a
wide variety of settings to operate the unit. The bottom controls are preset at the factory
and should not require any changes on start-up of the unit. This part can be removed
from the unit by loosening the two screws on the outside of the stove, and then pulling it
back to the inside of the stove. The stove’s rear access panel should be removed prior to
removing the control board. A 4-amp fuse is used on this control board.
THERMOSTATS
REMOTE: There is now a Remote Thermostat (Part # AC-3001) available for your
pellet stove. It comes with everything necessary for quick installation, and has many
features to allow remote control of your unit.
WALL: Also, an external wall thermostat (such as our Part # GU-1E30-914) can be
used on our pellet units as long as it is a 24-volt that works with millivolt systems. After
unplugging the unit, locate the jumper wire (J-3) on the bottom of the control panel. The
two screws should then be loosened and the jumper wire removed from the board. Next,
the two thermostat lead wires should be slipped into these openings and the screws
tightened; the jumper wire should be saved for future operation without a thermostat.
The unit will operate differently once the wall thermostat is connected -- we
recommend the stove control board be set at “9” on the Heat Range and Blower Speed
while using the thermostat. Refer to the section on “Start-up Procedure” for information
on cold starts.
Call (800) 516-3636 or log onto www.englandsstoveworks.com to inquire or order these.
HOPPER LID LATCHES
Important
: Hopper Lid Latches must be checked periodically
and kept tight so the top is sealed to prevent back-burn.
Illustration 3 –
Hopper Lid Latches

Have this information on hand if you phone the factory or your dealer regarding this product.
Retain for your files:
Model Number __________________________
Date of Purchase ________________________
Date of Manufacture _________________ Serial #_____________________
LIMITED 5 YEAR WARRANTY FROM THE DATE OF
PURCHASE TO THE ORIGINAL OWNER
The manufacturer extends the following warranties:
Five Year Period:
1. Carbon steel and welded seams in the firebox are covered for 5 years against splitting.
2. The cast iron door and hinges are covered for 5 years against cracking.
Three Year Period:
3. Component parts such as the hopper, auger burn pot, baffle plate, auger shafts,
auger bearings, and fasteners are covered for 3 years against cracking, breakage
and welded seams from separating.
One Year Period:
4. Electrical components, accessory items, glass and the painted surface are covered
for 1 year from the date of purchase.
Conditions and Exclusions:
Damage from over-firing will void your warranty.
This warranty does not apply if damage occurs because of an accident, improper handling,
improper installation, improper operation, abuse, or unauthorized repair made or attempted to be
made.
The manufacturer is not liable for indirect, incidental, or consequential damages in connection
with the product including any cost or expense providing substitute equipment or service during
periods of malfunction or nonuse.
All liability for any consequential damage for breach of any written or implied warranty is
disclaimed and excluded. Some states do not allow the exclusion or limitations of incidental or
consequential damages, so the above may not apply to you.
Procedure:
Purchaser must give notice of claim of defect within the warranty period and pay transportation to
and from a service center designated by the factory. The dealer from which the unit was
purchased or the factory, at our option, will perform the warranty service.
Other Rights:
This warranty gives you specific legal rights, and you may also have other rights, which may vary
from state to state.
NOTE: THIS WARRANTY IS NULL AND VOID IF YOU DO NOT RETURN THE
ATTACHED WARRANTY REGISTRATION WITH A COPY OF THE SALES RECEIPT
WITHIN 30 DAYS FROM THE DATE OF PURCHASE.
WARRANTY IS NOT TRANSFERABLE

Pellet Stove Exploded View
Illustration 4
Dimensions of 25-PDVC/55-SHP10/55-TRP10: 23”W x 28”H x 21”D
(Approx. 13 ½” from floor to center of exhaust)

REPLACEMENT PARTS AND OPTIONS LIST
AC-GGK GLASS GASKET KIT (gasket only, no glass)
AC-DGKC DOOR GASKET KIT (#2 on diagram)
AC-G9 9” X 9” GLASS with Gasket (#3 on diagram)
AC-SH BRASS DOOR SPRING HANDLE
AC-SHN NICKEL DOOR SPRING HANDLE
AC-MCSP HI-TEMPERATURE CHARCOAL PAINT
AC-MBSP HI-TEMPERATURE BLACK PAINT
PU-AMS AUGER MOTOR SUPPORT GASKET
PU-047040 1 R.P.M. AUGER MOTOR (#18 on diagram)
PU-076002B COMBUSTION (Exhaust) BLOWER (includes 3” adapter)
(#’s 8 and 9 on diagram)
PU-4C442 140 CFM CONVECTION BLOWER
(#13 on diagram)
PU-CB98 DIGITAL CONTROL BOARD
(#12 on diagram)
PU-62-40-151-2 Hopper Lid Latch (2002 and later Models;
for earlier models order PU-103-50)
(#25 on diagram)
PU-AF6T TOP AUGER SHAFT W/FLIGHTING
(#14 on diagram)
PU-AF11B BOTTOM AUGER SHAFT W/FLIGHTING
(#14 on diagram)
PU-BP98 BURN POT ASSEMBLY
(#’s 5 and 11 on diagram, call if you need only one part of this 2-piece assembly)
PU-VS VACUUM SHUT DOWN SWITCH (# 24 on diagram)
PU-UCF204-12 AUGER BLOCK BEARING (#16 on diagram)
PU-2X570 ¾” I.D. LOCKING COLLAR (#17 on diagram)
PU-ABG AUGER BEARING GASKET
PU-HLG HOPPER LID GASKET (#22 on diagram)
PU-BPG BURN POT GASKET (#6 on diagram)
PU-CBG COMBUSTION BLOWER GASKET (#10 on diagram)
OPTIONS
PU-OAK OUTSIDE AIR KIT
AC-3000 3” PELLET VENT KIT (Through the Wall)
AC-3100 4” PELLET VENT KIT (For High Altitudes: 4000 ft+ )
AC-106-P/SH-106-P BRASS WINDOW TRIM
AC-106-PBN BRUSHED NICKEL WINDOW TRIM
AC-103 BRASS LIP TRIM FOR ASH APRON
AC-103BN BRUSHED NICKEL LIP TRIM FOR ASH APRON
GU-1E30-914 WALL THERMOSTAT
AC-3001 REMOTE THERMOSTAT
PARTS/OPTIONS ORDERS ONLY: (800) 516-3636
If you have any questions please contact our Customer Service Department:
CUSTOMER SERVICE & TECHNICAL CALLS: (800) 245-6489
Customer Service Department service@englanderstoves.com
P.O. Box 206
Monroe, Va. 24574 (Fax: 434-929-4810)
You may also order parts an
d options, view frequently asked questions and more, on our
web site: www.englandsstoveworks.com

TROUBLE-SHOOTING GUIDE
WARNING: TO AVOID ELECTRICAL SHOCK ALWAYS DISCONNECT THE UNIT FROM THE
POWER SOURCE BEFORE ATTEMPTING ANY REPAIR. IF THIS GUIDE DOES NOT
CORRECT THE PROBLEM CALL YOUR LOCAL DEALER, OR OUR CUSTOMER SERVICE
AT 1-800-245-6489.
. Problem Cause Solution
1. Auger not turning 1. Loose set screw 1. Tighten setscrew on collar
2. Bad gear motor 2. Replace auger motor
3. Foreign matter in auger 3. Remove pellets and object
4. Vacuum sensor (Top Auger) 4. Check exhaust blower
2. Smoke smell or dust in house 1. Improper exhaust connection 1.Check all connections for leaks
especially the exhaust blower
connection; Seal with silicone,
hose clamp or aluminum tape
3. Room air blower not operating 1. Loose sensor 1. Tighten connection on sensor
2. High “ON” temperature 2. Adjust temperature lower
4. Exhaust blower not operating 1. Loose connection 1. Check connection at c/board
2. Bad blower 2. Replace blower
3. Bad vacuum sensor 3. Replace vacuum sensor
5. Lazy fire 1. Control board settings 1. Review board settings
2. Bad exhaust blower 2. Replace blower
3. Excessive pellet moisture 3. Keep pellets inside
4. Excessive ash 4. Remove baffles; Clean unit
5. Low quality pellets 5. Use premium hardwood pellets
6. Blown fuse (4 AMP) 1. Power surge 1. Replace fuse; use surge
protector
2. Exposed wire 2. Check for exposed or frayed
wire and loose connections
3. Electric motor shorting or 3. Check motors and blowers
bound up for obstructions or lock-up
7. High pellet consumption 1. Low quality pellets 1. Use premium hardwood fuel
2. Board out of adjustment 2. Check c/board settings
8. Squeaking noise 1. Build up in tube 1. Remove auger and clean
2. Improper auger alignment 2. Re-align auger
3. Blower noise 3. Remove and oil blower
9. Pinging or rattling noise 1. Foreign material 1. Check blower for material
2. Loose set screw 2. Check impeller blower screw
10. Unit shuts down in 1. Loose heat sensor 1. Check stove connection
30 to 40 minutes
2. Control board settings 2. Check settings; always start
unit on “5” to “9”setting
11. Unit keeps shutting down 1. Blocked flue 1. Check for flue blockage (nests,
(“E” code on control board) rodents, excess soot, etc.)
2. Blower failure 2. Check combustion blower
wires, call Cust. Svc.
3. Improper installation 3. Check for loose flue/pipe
connections
Improper installation may cause a back draft.
*NOTE: Also check for loose or cracked vacuum hose on PU-VS switch (see #24 in Illustration 4).

WARRANTY REGISTRATION
Purchased by (Name) ______________________________________________
Address _________________________________________________________
City ________________________ State __________ Zip _________________
Telephone _______________________________________________________
Email (Optional) ___________________________________________________
DEALER INFORMATION
Purchased From (Dealer) ___________________________________________
Address _________________________________________________________
City ________________________ State __________ Zip _________________
UNIT INFORMATION
Model Number _____________________ Purchase Date* _________________
Serial Number _____________________ Mfg. Date ______________________
*A copy of your store receipt must accompany this registration form.
IMPORTANT NOTICE
THIS REGISTRATION INFORMATION MUST BE ON FILE FOR THIS WARRANTY TO BE
VALID. PLEASE MAIL THIS INFORMATION WITHIN THIRTY (30) DAYS FROM THE DATE OF
PURCHASE.
Mail To:
England’s Stove Works, Inc.
Customer Service Department
P.O. Box 206
Monroe, VA 24574
Or, Fax To:
(434) 929-4810 – 24 hours a day