Faber Perla Users Manual Perlainstall
Perla to the manual 04e2750b-286b-c984-4113-6425e30bf0a1
2015-02-09
: Faber Faber-Perla-Users-Manual-550582 faber-perla-users-manual-550582 faber pdf
Open the PDF directly: View PDF
.
Page Count: 12

Version 9/05 - Page 1
PERLA
Wall Mount Canopy Rangehood
READ AND SAVE THESE INSTRUCTIONS
The Installer must leave these instructions with the homeowner.
The homeowner must keep these instructions for future reference
and for local electrical inspectors' use.
• Installation Instructions
• Use and Care Information
READ THESE INSTRUCTIONS BEFORE YOU START INSTALLING THIS RANGEHOOD
WARNING: - TO REDUCE THE RISK OF A RANGE TOP GREASE FIRE: a) Never leave surface units unattended at high
settings. Boilovers cause smoking and greasy spillovers that may ignite. Heat oils slowly on low or medium setting. b)
Always turn hood ON when cooking at high heat or when flambeing food (i.e. Crepes Suzette, Cherries Jubilee, Pepper-
corn Beef Flambé). c) Clean ventilating fans frequently. Grease should not be allowed to accumulate on fan or filter. d)
Use proper pan size. Always use cookware appropriate for the size of the surface element.
WARNING: - TO REDUCE THE RISK OF INJURY TO PERSONS IN THE EVENT OF A RANGE TOP GREASE FIRE, OBSERVE
THE FOLLOWING: SMOTHER FLAMES with a close-fitting lid, cookie sheet, or metal tray, then turn off the burner. BE
CAREFUL TO PREVENT BURNS. If the flames do not go out immediately EVACUATE AND CALL THE FIRE DEPARTMENT.
NEVER PICK UP A FLAMING PAN - You may be burned. DO NOT USE WATER, including wet dishcloths or towels - a
violent steam explosion will result. Use an extinguisher ONLY if: 1. You know you have a Class ABC extinguisher, and
you already know how to operate it. 2. The fire is small and contained in the area where it started. 3. The fire department
is being called. 4. You can fight the fire with your back to an exit.
ALL WALL AND FLOOR OPENINGS WHERE THE RANGEHOOD IS INSTALLED MUST BE SEALED.
This rangehood requires at least 24" of clearance between the bottom of the rangehood and the cooking surface or countertop.
This minimum clearance may be higher depending on local building code. For example, for gas ranges, a minimum of 30" may
be required. The maximum depth of overhead cabinets is 13". Overhead cabinets on both sides of this unit must be a minimum
of 18" above the cooking surface or countertop. Consult the cooktop or range installation instructions given by the manufacturer
before making any cutouts. MOBILE HOME INSTALLATION The installation of this rangehood must conform to the Manufactured
Home Construction and Safety Standards, Title 24 CFR, Part 3280 (formerly Federal Standard for Mobile Home Construction and
Safety, Title 24, HUD, Part 280). Four wire power supply must be used and the appliance wiring must be revised. See Electrical
Requirements.
LISEZ BIEN CETTE FICHE AVANT D'INSTALLER LA HOTTE
AVERTISSEMENT - POUR MINIMISER LE RISQUE DʼUN FEU DE GRAISSE SUR LA TABLE DE CUISSON : a) Ne jamais laisser
un élément de la table de cuisson fonctionner sans surveillance à la puissance de chauffage maximale; un renversement/
débordement de matière graisseuse pourrait provoquer une inflammation et le génération de fumée. Utiliser toujours une
puissance de chauffage moyenne ou basse pour le chauffage dʼhuile. b) Veiller à toujours faire fonctionner le ventilateur
de la hotte lors dʼune cuisson avec une puissance de chauffage élevée ou lors de la cuisson dʼun mets à flamber (i.e.
Crepes Suzette, Cherries Jubilee, Peppercorn Beef Flambé). c) Nettoyer fréquemment les ventilateurs dʼextraction. Veiller
à ne pas laisser de la graisse sʼaccumuler sur les surfaces du ventilateur ou des filtres. d) Utiliser toujours un ustensile
de taille appropriée. Utiliser toujours un ustensile de taille adapté à la taille de lʼélément chauffant.
AVERTISSEMENT: - POUR PRÉVENIR LES BLESSURES EN CAS DE FEU SUIVRE LES RECOMMANDATIONS SUIVANTES:
ÉTOUFFEZ LE FEU avec un couvercle métallique et fermez le brûleur. Si le feu ne s'éteint pas tout de suite, QUITTEZ
LES LIEUX ET APPELEZ LES POMPIERS. NE TOUCHEZ JAMAIS UNE CASSEROLE EN FLAMMES. N'UTILISEZ JAMAIS
DE L'EAU ou un torchon mouillé pour éteindre le feu - ce qui pourrait causer une explosion de vapeur. N'utilisez un
extincteur que si: 1. Vous avez un modèle ABC et vous connaissez bien son mode d'emploi. 2. Le feu est petit et peu
répandu. 3. Les pompiers sont déjà prévenus. 4. Vous avez une sortie derrière vous.
TOUTE OUVERTURE DANS LE MUR OU LE PLANCHER À PROXIMITÉ DE LA HOTTE DOIT ÊTRE SCELLÉ
Gardez 24 po. de hauteur entre le bas de la hotte et la surface de cuisson. Cette hauteur minimum peut être plus haute suivant le
code municipal. Par exemple, les cuisinières à gaz peuvent requérir 30 po. de hauteur. Les armoires au-dessus ne dépasseront
pas 13 po. de profondeur. Les armoires au-dessus de chaque côté devront être au moins à 18 po. au-dessus de la surface
de cuisson. Consultez la fiche technique avant de découper les armoires. L'installation de cette hotte doit être conforme aux
Réglements de Manufactured Home Construction and Safety Standards, titre 24 CFR, Section 3280 (anciennement Federal
Standard for Mobile Home Construction and Safety Standards, titre 24 CFR, Section 3280 (anciennement Federal Standard for
Mobile Home Construction and Safety, titre 24, HUD, Section 280). Le branchement électrique se fait avec une raccordement à
4 fils. Consultez la fiche technique électrique.

Version 9/05 - Page 2
VENTING REQUIREMENTS
Determine which venting method is best for your application.
Ductwork can extend either through the wall or the roof.
The length of the ductwork and the number of elbows should
be kept to a minimum to provide efficient performance. The
size of the ductwork should be uniform. Do not install two
elbows together. Use duct tape to seal all joints in the ductwork
system. Use caulking to seal exterior wall or floor opening
around the cap.
Flexible ductwork is not recommended. If it is used,
each foot of flexible ductwork used is equivalent to
two feet of straight metal ductwork when calculating
the ductrun length. Thus, a flexible elbow equals two
standard elbows.
Make sure there is proper clearance within the wall or floor
for exhaust duct before making cutouts. Do not cut a joist or
stud unless absolutely necessary. If a joist or stud must be
cut, then a supporting frame must be constructed.
FOR MORE SPECIFIC DUCTWORK INFORMATION, GO
TO PAGE 5.
WARNING - To Reduce The Risk Of Fire, Use Only Metal
Ductwork.
ELECTRICAL REQUIREMENTS
A 120 volt, 60 Hz AC-only electrical supply is required on a
separate 15 amp fused circuit. A time-delay fuse or circuit
breaker is recommended. The fuse must be sized per local
codes in accordance with the electrical rating of this unit as
specified on the serial/rating plate located inside the unit
near the field wiring compartment. THIS UNIT MUST BE
CONNECTED WITH COPPER WIRE ONLY. Wire sizes
must conform to the requirements of the National Electrical
Code, ANSI/NFPA 70 - latest edition, and all local codes and
ordinances. Wire size and connections must conform with the
rating of the appliance. Copies of the standard listed above
may be obtained from:
National Fire Protection Association
Batterymarch Park
Quincy, Massachusetts 02269
• Venting system MUST terminate outside the
home.
• DO NOT terminate the ductwork in an attic or
other enclosed space.
• DO NOT use 4" laundry-type wall caps.
• Flexible-type ductwork is not recommended.
• DO NOT obstruct the flow of combustion and
ventilation air.
• Failure to follow venting requirements may result
in a fire.
This appliance should be connected directly to the fused
disconnect (or circuit breaker) through flexible, armored or
nonmetallic sheathed copper cable. Allow some slack in the
cable so the appliance can be moved if servicing is ever nec-
essary. A UL Listed, 1/2" conduit connector must be provided
at each end of the power supply cable (at the appliance and
at the junction box).
When making the electrical connection, cut a 1 1/4" hole
in the wall. A hole cut through wood must be sanded until
smooth. A hole through metal must have a grommet.
WARNING - TO REDUCE THE RISK OF FIRE OR ELECTRIC
SHOCK, do not use this fan with any solid-state speed
control device.
WARNING - TO REDUCE THE RISK OF FIRE, ELECTRI-
CAL SHOCK, OR INJURY TO PERSONS, OBSERVE THE
FOLLOWING: Use this unit only in the manner intended
by the manufacturer. If you have any questions, contact
the manufacturer.
Before servicing or cleaning unit, switch power off at
service panel and lock the service disconnecting means
to prevent power from being switched on accidentally.
When the service disconnecting means cannot be locked,
securely fasten a prominent warning device, such as a
tag, to the service panel.
CAUTION: For General Ventilating Use Only. Do Not
Use To Exhaust Hazardous or Explosive Materials and
Vapors.
WARNING - TO REDUCE THE RISK OF FIRE, ELECTRI-
CAL SHOCK, OR INJURY TO PERSONS, OBSERVE THE
FOLLOWING: Installation Work And Electrical Wiring Must
Be Done By Qualified Person(s) In Accordance With All
Applicable Codes And Standards, Including Fire-Rated
Construction.
Sufficient air is needed for proper combustion and
exhausting of gases through the flue (chimney) of fuel
burning equipment to prevent backdrafting. Follow the
heating equipment manufacturer's guideline and safety
standards such as those published by the National Fire
Protection Association (NFPA), and the American Society
for Heating, Refrigeration and Air Conditioning Engineers
(ASHRAE), and the local code authorities.
When cutting or drilling into wall or ceiling, do not dam-
age electrical wiring and other hidden utilities.
Ducted fans must always be vented to the outdoors.
WARNING
• Electrical ground is required on this rangehood.
• If cold water pipe is interrupted by plastic,
nonmetallic gaskets or other materials, DO NOT
use for grounding.
• DO NOT ground to a gas pipe.
• DO NOT have a fuse in the neutral or grounding
circuit. A fuse in the neutral or grounding circuit
could result in electrical shock.
• Check with a qualified electrician if you are in doubt
as to whether the rangehood is properly grounded.
• Failure to follow electrical requirements may result
in a fire.
WARNING
For residential use only.
!
!

Version 9/05 - Page 3
RÈGLEMENTS D'ÉVACUATION
Confirmer la sortie d'évacuation - soit par le mur, soit par
le toit.
Utilisez une longueur de tuyauterie minimale avec les moindres
de coudes pour la plus grande efficacité. Le diamètre de
tuyauterie doit être uniforme. N'installez jamais 2 coudes
ensemble. Scellez bien tous les joints avec un ruban adhésif
métallique à l'intérieur et scellez bien le clapet extérieur avec
du calfeutrage.
Utilisez un tuyau d'évacuation rigide lorsque possible.
Un tuyau flexible égale deux fois plus qu'un tuyau rigide,
ce qui réduit la puissance d'évacuation.
Veillez à ce que l'espace pour le tuyau soit ample - ainsi on
n'aurait pas besoin de découper les supports de mur intérieur.
Si ce découpage est nécessaire, veillez bien à ce qu'un
renforcement soit mis en place.
Pour de meilleurs résultats, utilisez un tuyau de transition de
9 pouces dès que possible.
RÈGLEMENTS D'ÉVACUATION ADDITIONELL - PAGE 9.
AVERTISSEMENT - Pour Ne Pas Risquer Un Feu, Utilisez
Seulement Les Matériaux Métalliques.
AVERTISSEMENT - POUR RÉDUIRE LE RISQUE
D'INCENDIE OU DE CHOC ELECTRIQUE, ne pas utiliser
ce ventilateur en conjonction avec un dispositif de réglage
de vitesse à semi-conducteurs.
AVERTISSEMENT – POUR MINIMISER LES RISQUES
DʼINCENDIE, CHOC ÉLECTRIQUE OU DOMMAGES
CORPORELS, OBSERVER LES PRESCRIPTIONS
SUIVANTES: Suivez les recommandations du fabricant
et entre en communication avec lui pour toute
information.
Fermez le courant avant tout entretien et veillez a ce qu'il
reste fermé. Si on ne peut pas verrouiller le panneaux
du service électrique, affichez un avis de danger sur la
porte.
AVIS: Pour L'évacuation Générale - Veillez à Ne Pas
Evacuer Des Matériaux Ou Vapeurs Explosif.
AVERTISSEMENT – POUR MINIMISER LES RISQUES
DʼINCENDIE, CHOC ÉLECTRIQUE OU DOMMAGES
CORPORELS, OBSERVER LES PRESCRIPTIONS
SUIVANTES: L'installation Et Le Raccordement Electrique
Doivent Se Faire Par Un Technicien Qualifié Selon Tous
Les Codes Municipaux.
Afin d'obtenir un rendement maximal en ce qui a trait à la
combustion ainsi qu'à l'évacuation des gaz par la conduite
de cheminée, une bonne aération est nécessaire pour
tous les appareils à combustion. Suivez les conseils et
mesures de sécurité du fournisseur tels que ceux publiés
par l'Association Nationale de la Sauvegarde contre
l'Incendie et l'Association Américaine d'Ingénieurs de
Chauffage, Frigorifaction et Air Climatisé ainsi que les
codes municipaux.
En perçant un mur veillez à ne pas perforer un autre fil
électrique.
Une ventilateur à évacuation extérieure doit être
raccordée à l'extérieur.
AVERTISSEMENT
• Le système d'évacuation DOIT sortir à l'extérieur.
• N'ÉVACUEZ PAS le conduit soit dans une
mansarde soit dans un espace enfermé.
• N'UTILISEZ PAS un clapet de séchoir à 4 pouces.
• N'utilisez pas un conduit flexible.
• N'ENCOMBREZ PAS la circulation d'air.
• Faute de suivre cet avertissement pourrait
occasionner un feu.
FICHE TECHNIQUE ÉLECTRIQUE
Le raccordement électrique doit se faire avec un circuit séparé
de 15 ampères fusible à 120V, 60 Hz, courant alternant. On
recommande un coupe-circuit. La taille du fusible doit se
conformer aux codes municipaux suivant la spécification
électrique sur la plaque intérieure. Le diamètre du fil
devra aussi se conformer aux règlements du code national
électrique, ANSI/NFPA 70 - ainsi qu'aux règlements locaux
et les spécifications de cet appareil. On peut obtenir ces
informations chez:
l'Association Nationale de la Prévention du Feu
Batterymarch Park
Quincy, Massachusetts 02269
Raccordez cet appareil directement au coupe-circuit avec un fil
flexiblle couvert en cuivre en laissant un peu de lâchement dans
le fil pour permettre le déplacement de l'appareil. Veillez a ce
qu'un contact d'un demi-pouce (1/2 po.) soit installé à chaque
bout de fil (soit à l'appareil ainsi qu'à la boite à fusible).
Faites un trou de 1 1/4 po. dans le mur. S'il s'agit d'un trou en
bois - sablez-le bien, tandis qu'un trou passant par le métal
demande un bouche-trou.
• Une prise à terre est nécessaire pout cette hotte.
• N'utilisez pas un tuyau à l'eau froide pour la mise
à terre s'il est branché à un joint plastique, non-
métallique ou autre.
• NE JOIGNEZ PAS la mise à terre à conduit de gaz.
• N'INSTALLEZ PAS un fusible dans le circuit de
mise à terre - ce qui peut causer une secousse
électrique.
• Vérifiez avec un électricien certifié à ce que la hotte
soit bien mise à terre.
• Faute de suivre ces recommandations pourrait
occasionner un feu.
AVERTISSEMENT
Uniquement pour usage menager.
!
!

Version 9/05 - Page 4
(B) 24" high, mounts to the wall beneath the
rangehood for a coordinated look
24” High Backsplash/Dosseret 24 po
30 x 24 Stainless
30 x 24 White
30 x 24 Black
36 x 24 Stainless
36 x 24 White
36 x 24 Black
6098835
6098836
6098837
6098815
6098816
6098817
Includes attachments for mounting to cabinets
on both sides
Wire Rack/Tablette de Rangement
30 Chrome
30 White
30 Black
36 Chrome
36 White
36 Black
For mounting wire rack to back wall if there are
no cabinets to attach rack to.
Wire Rack Hanger Kit (when necessary, for
36 models only)/
Support Pour Tablettes de Rangement
Chrome
White
Black
6099980
6099982
6099981
6095087
6095089
6095088
6099920
6099921
6099922
Ductless Conversion Kit/
Kit Pour Conversion Du Conduit
6097340
6097342
6097341
6093034
High Ceiling Chimney Kit/
Kit D'extension Pour La Cheminée Plafond Haut
One 40” upper chimney (S) to replace 20” upper
chimney (S) that came with hood
6097005
6097006
6097007
(B) 30" high, mounts to the wall beneath the range-
hood for a coordinated look
30 x 30 Stainless
36 x 30 Stainless
620000095
620000096
Stainless
White
Black
Replacement Charcoal Filters/ Filtres au Charbon
Stainless
White
Black
36 wire racks include attachments for mounting to cabinets
on both sides. 30 wire racks include attachments for
mounting to the wall as these racks are not wide enough
to reach the cabinets. If you are installing a 36 wire rack
without cabinets on either side for mounting the rack, you
must purchase the WIRE RACK HANGER KIT.
OPTIONAL ACCESSORIES AVAILABLE/ACCESSOIRES POUR LʼINSTALLATION
30" High Backsplash/Dosseret 30 po
Includes: • Lower Chimney with holes for ducting
• Ductless Diverter • Vent Grates • Two Charcoal Filters

Version 9/05 - Page 5
TOOLS NEEDED FOR INSTALLATION
• Saber Saw or Jig Saw
• Drill
• 1 1/4" Wood Drill Bit
• Pliers
• Phillips Screwdriver
• Flat Blade Screwdriver
• Wire Stripper or Utility Knife
• Metal Snips
• Measuring Tape or Ruler
• Level
• Pencil
• Caulking Gun
• Duct Tape
PARTS SUPPLIED FOR INSTALLATION
• 1 Hardware Package
• 1 Literature Package
PARTS NEEDED FOR INSTALLATION
• 2 Conduit Connectors
• Power Supply Cable
• 1 Wall or Roof Cap
• All Metal Ductwork
FIGURE 1
WARNING
Because of the weight and size of the rangehood canopy, two or
more people are needed to move and safely install the rangehood
canopy. Failure to properly lift rangehood could result in damage
to the product or personal injury.
PERSONAL INJURY HAZARD
PLAN THE INSTALLATION
This rangehood can be installed as either ducted or
ductless. In a ducted application, this rangehood can
be vented through the wall or ceiling. To vent through
a wall, a 90° elbow is used. When installed ductless,
the rangehood vents out of grates on the sides of the
chimney. Ductless installations require a Ductless
Conversion Kit, available from your dealer.
WARNING! BEFORE MAKING ANY CUTS OR
HOLES FOR INSTALLATION, DETERMINE WHICH
VENTING METHOD WILL BE USED AND CAREFULLY
CALCULATE ALL MEASUREMENTS.
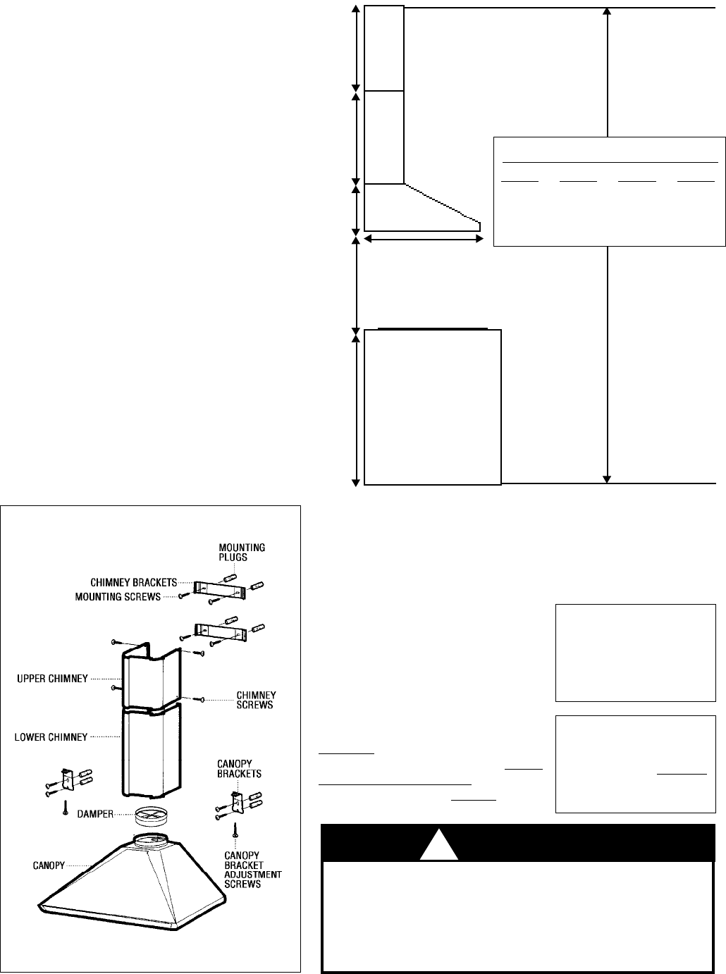
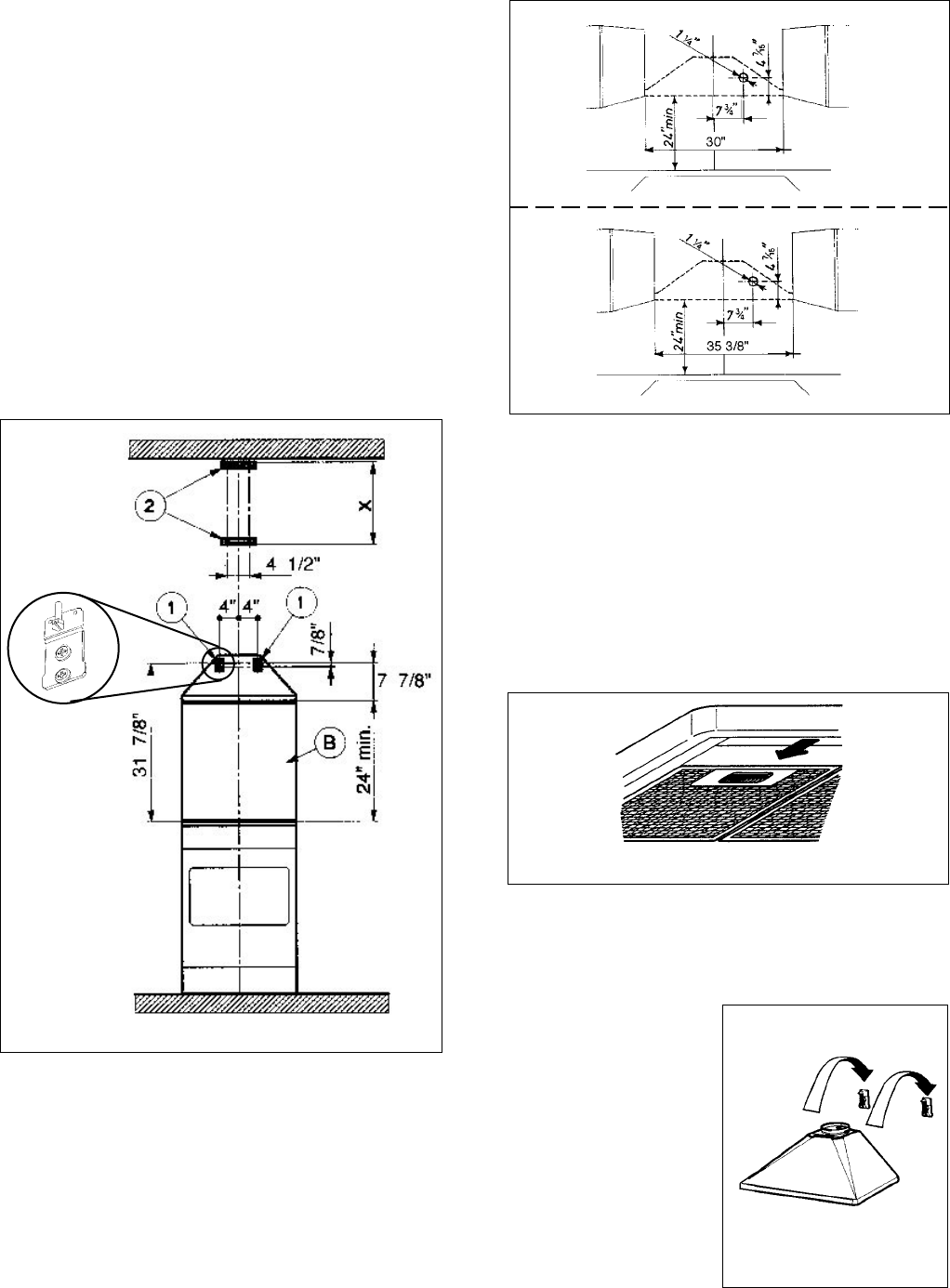
RANGEHOOD ASSEMBLY
PLAN THE INSTALLATION
The Perla chimneys are adjustable and designed to meet varying ceiling
heights as indicated in FIGURE 2. The chimneys can be adjusted for ceil-
ings between 7' 8 1/2" and 9' 9 1/2" depending on the distance between
the bottom of the hood and the cooktop (distance x in FIGURE 2).
For shorter ceilings, have the chimney cover(s) cut at a sheet metal shop.
For higher ceiling installations, the High Ceiling Chimney Kit includes a
new 40” upper chimney which would replace the 20” upper chimney that
came with the hood. (see OPTIONAL ACCESSORIES page 4)
9 Feet Straight Duct
2 - 90˚ Elbows
Wall Cap
Total System
9.0 feet
10.0 feet
0.0 feet
19.0 feet
FIGURE 4
3.0 feet
5.0 feet
12.0 feet
0.0 feet
45˚ Elbow
90˚ Elbow
90˚ Flat Elbow
Wall Cap
FIGURE 3
CALCULATE THE DUCTRUN LENGTH
The ductrun should not exceed 35 equivalent
feet if ducted with the required minimum of
6" round ductwork. Calculate the length of
the ductwork by adding the equivalent feet in
FIGURE 3 for each piece of duct in the system.
An example is given in FIGURE 4.
For best results, use no more than three
90° elbows. Make sure that there is a
minimum of 24" of straight duct between
elbows if more than one is used. Do not
install two elbows together. If you must
elbow right away, do it as far away from the
hood's exhaust opening as possible.
1” min
20” max
22”
9 1/2”
36”
x
also consult cooktop
manufacturer's recommendation
upper
chimney
lower
chimney
canopy
x = distance from hood to cooktop
(varies depending on installation)
min - 24”, suggested max - 30”
cabinet base
FIGURE 2
19 3/8”
min & max ceiling height examples
x = 30"
min
8' 2 1/2"
max
9' 9 1/2"
x = 28"
min
8' 1/2"
max
9' 7 1/2"
x = 26"
min
7' 10 1/2"
max
9' 5 1/2"
x = 24"
min
7' 8 1/2"
max
9' 3 1/2"
!

Version 9/05 - Page 6
PREPARE THE WALL
1. Disconnect and move freestanding range from cabinet
opening to provide easier access to upper cabinet and rear
wall. Put a thick, protective covering over cooktop, set-in
range or countertop to protect from damage or dirt.
2. Determine and clearly mark with a pencil the center line
on the wall where the rangehood will be installed.
3. The canopy attaches to the wall by two mounting brackets
(Item 1 in FIGURE 5). The canopy of the rangehood hangs
on the two brackets which must be mounted with the flanges
on the top of the bracket and pointing away from the wall.
Before installing the brackets, the adjustment screws must be
installed into the bottom of the bracket. These two screws are
provided in the hardware package and have hexagon heads
with a slot for a flat blade screwdriver. The dimensions illustrate
mounting the canopy 24" above the cooking surface.
If a Backsplash is to be used with this rangehood, it must be
installed before the rangehood. Installation instructions for
the Backsplash are supplied in its box. The height of the
Backsplash will determine the bottom edge of the canopy.
6. Determine the proper location for the Power Supply Cable
(FIGURE 6). Use a 1 1/4" Drill Bit to make this hole. Run the
Power Supply Cable. Use caulking to seal around the hole.
DO NOT turn on the power until installation is complete.
FIGURE 7
INSTALL THE RANGEHOOD
1. Remove the unit from the carton and place on a flat sur-
face for assembly. Cover the surface to prevent accidental
damage. Remove all parts including the mounting hardware
before discarding the carton.
2. Remove the grease filters from the unit and set aside.
The grease filters are removed by pressing the handle in
front of the filter (FIGURE 7). When replacing, make sure
that the filters are properly positioned with the handles in
front and visible.
FIGURE 5
4. The chimney mounts by two brackets (Item 2 in FIGURE
5). Note the position of the brackets. The top bracket should
be installed about 1/8" away from the ceiling. The bottom
bracket must be installed at the bottom point of the upper
chimney sleeve.
Determine the proper location for each bracket and install the
brackets on the wall. MAKE SURE THAT THE BRACKETS
ARE SECURELY FASTENED TO THE WALL.
5. Determine and make all necessary cuts in the wall for the
ductwork. Install the ductwork before the rangehood.
3. Remove the cover from the field wiring compartment.
Remove the wiring electrical knockout using a flat-blade
screwdriver. Feed the Power Supply Cable through the
electrical knockout.
FIGURE 6
30 MODELS
36 MODELS
4. Hang the canopy on the
brackets as indicated in
FIGURE 8. There are two
rectangular holes on the rear
of the canopy. The brackets
pass through these holes
and the canopy hangs from
the flanges on the brackets.
Due to the weight of the
canopy, two people should
lift it to avoid injuries. Make
sure that the canopy is se-
cure on the brackets before
releasing.
FIGURE 8

Version 9/05 - Page 7
FIGURE 9
6. Connect the Power Supply Cable to the rangehood. At-
tach the White lead of the power supply to the White lead of
the rangehood with a twist-on type wire connector. Attach
the Black lead of the power supply to the Black lead of the
rangehood with a twist-on type wire connector. Connect
the Green (Green and Yellow) ground wire under the Green
grounding screw.
7. Replace the field wiring compartment cover and the grease
filters
8. For ducted installations, the damper must be attached to
the exhaust opening on the top of the canopy. Connect the
ductwork and seal all connections with duct tape.
FOR DUCTLESS INSTALLATIONS
Do not use the damper for ductless installations. The UPPER
CHIMNEY COVER must be installed first, before the LOWER
CHIMNEY DUCTLESS.
Ductless installations require a Ductless Conversion Kit.
This kit consists of a LOWER CHIMNEY DUCTLESS (A in
FIGURE 10) with holes for the exhaust air, a DUCTLESS
DIVERTER (C), two VENT GRIDS (B) to cover the holes in
the chimney cover, and two CHARCOAL FILTERS (D). The
DUCTLESS DIVERTER must be installed before the LOWER
CHIMNEY DUCTLESS is attached (as indicated by the arrow
in FIGURE 10). The LOWER CHIMNEY COVER without
holes should be discarded.
Once the LOWER CHIMNEY DUCTLESS with holes is
installed, the VENT GRIDS (B) are inserted into the holes
(FIGURE 11).
Attach the CHARCOAL FILTERS to both sides of the blower
(as indicated in FIGURE 12). Install the grease filters.
FIGURE 10
5. Level the canopy.
The height and level
of the canopy can be
adjusted by rotating
the adjustment screws
(Item R in FIGURE
9) on each side of
the blower inside the
rangehood
FIGURE 11
FIGURE 12
9. The chimney must be attached to the body of the rangehood,
as indicated in FIGURE 13. The UPPER CHIMNEY COVER
(C) must be installed first, then the LOWER CHIMNEY
COVER (B) wraps around it. Both sections are secured to
the wall under the CHIMNEY MOUNTING BRACKETS (H).
Secure the UPPER CHIMNEY COVER to the MOUNTING
BRACKETS with the CHIMNEY SCREWS (J). Secure the
LOWER CHIMNEY COVER to the CANOPY (A) by inserting
the flanges at the bottom of the LOWER CHIMNEY COVER
into the holes on the CANOPY.
10. Turn the power supply on. Turn on blower and light. If
the rangehood does not operate, check that the circuit breaker
is not tripped or the house fuse blown. If the unit still does
not operate, disconnect the power supply and check that the
wiring connections have been made properly.
FIGURE 13

Version 9/05 - Page 8
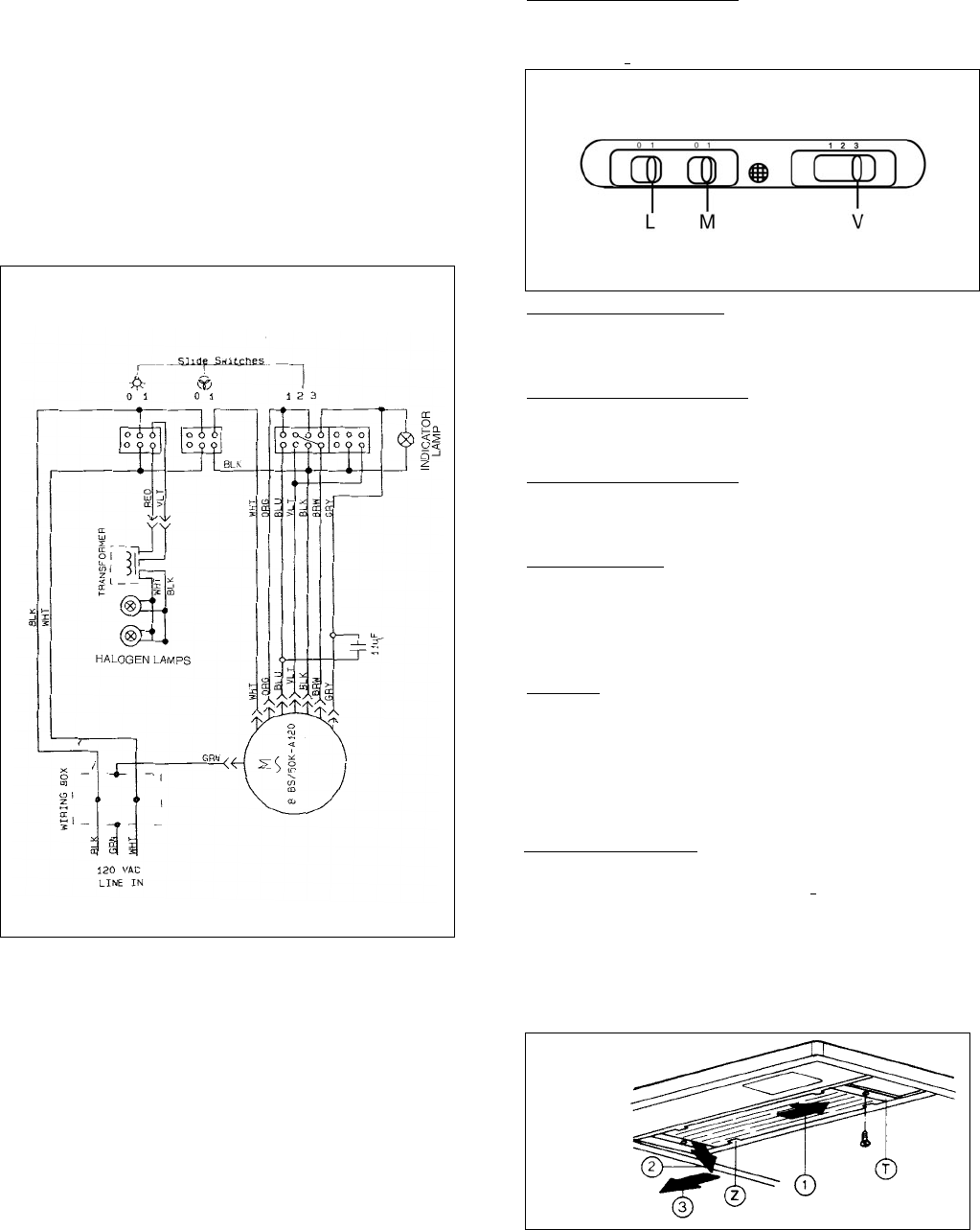
Light On/Off Button ( L )
On/Off switch for the halogen lights. Move the switch to "1"
to turn the light ON and to "0" to turn it OFF.
Blower On/Off Button ( M )
On/Off switch for the blower. Move the switch to "1" to turn
the blower ON and to "0" to turn it OFF.
Blower Speed Button ( V )
Speed control for blower. Move the switch to"1" for LOW
speed, "2" for MEDIUM speed and "3" for HIGH speed.
For Best Results
Start the rangehood several minutes before cooking to develop
proper airflow. Allow the unit to operate for several minutes
after cooking is complete to clear all smoke and odors from
the kitchen.
Cleaning
The metal grease filters should be cleaned frequently in hot
detergent solution or washed in the dishwasher. Clean painted
hoods with hot soapy water. Stainless steel cleaner should
be used on stainless rangehoods. Abrasives and scouring
agents can scratch stainless steel finishes and should not be
used to clean finished surfaces
USE AND CARE INFORMATION
This rangehood system is designed to remove smoke, cooking
vapors and odors from the cooktop area.
Rangehood Control Panel
The control panel, located on the right-hand side under the
canopy. The position and function of each control button are
noted below (FIGURE 14).
FIGURE 14
WARRANTY & SERVICE
All Faber products are warranteed against any defect in ma-
terials or workmanship for the original purchaser for a period
of 1 year from the date of original purchase. This warranty
covers labor and replacement parts. The warranty does not
cover consumable parts such as filters and light bulbs. This
warranty does not apply if this product has been subjected to
faulty installation, misuse, or neglect. This warranty excludes
any consequential expense or damage resulting from any
use or malfunction of the product. All implied warranties are
limited to the duration of this warranty.
To obtain warranty service, contact the dealer from whom you
purchased the rangehood, or the local Faber distributor. If you
cannot identify a local Faber distributor, contact us at (508)
358-5353 for the name of a distributor in your area.
WIRING DIAGRAM
• This rangehood uses 20 watt Halogen Lamps.
Replacing the Lamps
Before replacing a lamp, turn off the lamp switch to prevent
an injury. To replace a halogen lamp (FIGURE 15), remove
the diffuser clips (T) on both ends of the stainless steel lamp
panel. Carefully slide the panel all the way to the right. Lower
the left end of the panel below the support flange (Z), then
remove the panel by sliding it back to the left. Remove the
lamp by pressing the bulb from the rear. Replace the bulb.
Replace the lamp panel by reversing these directions.
FIGURE 15

Version 9/05 - Page 9
ASSEMBLAGE DE LA HOTTE
OUTILS NÉCESSAIRES À LʼINSTALLATION
• Scie sauteuse ou à découper
• Perceuse
• Foret à bois 1 1/4 po
• Pinces
• Tournevis Phillips
• Tournevis à lame plate
• Dénude fil ou couteau tout usage
• Pince coupante à fil métallique
• Ruban à mesurer ou règle
• Niveau
• Crayon
• Outil à calfeutrer
• Ruban à conduit
PIÈCES FOURNIES POUR LʼINSTALLATION
• 1 nécessaire de ferrures
• 1 nécessaire de documentation
PIÈCES NÉCESSAIRES POUR LʼINSTALLATION
• 2 connecteurs de conduit
• Câble dʼalimentation
• 1 capuchon de mur ou de toit
• Conduit en métal
PLAN DE LʼINSTALLATION
Cette hotte peut être installée avec ou sans
conduit. Pour une installation avec conduit,
la ventilation peut sʼeffectuer par le mur ou le
plafond. Pour une ventilation par le mur, un
coude de 90˚ est utilisé. Lorsque installée sans
conduit, la ventilation sʼeffectue par des grilles
sur les côtés de la cheminée. Les installations
sans conduit requièrent un nécessaire approprié
disponible chez le marchand.
AVERTISSEMENT! AVANT DE FAIRE
UNE COUPE OU DES TROUS POUR
LʼINSTALLATION, DÉTERMINER QUELLE
MÉTHODE DE VENTILATION SERA UTILISÉE
ET CALCULER LES MESURES DE FAÇON
PRÉCISE.
9 pi de conduit droit
2 Coudes 90˚
Capuchon de mur
Système total
9,0 pi
10,0 pi
0,0 pi
19,0 pi
FIGURE 4
3,0 pi
5,0 pi
12,0 pi
0,0 pi
Coude 45˚
Coude 90˚
Coude plat 90˚
Capuchon de mur
FIGURE 3
PLAN DʼINSTALLATION
La cheminée Perla est réglable pour différentes hauteurs de plafond, entre 7 pi 8
1/2 po and 9 pi 9 1/2 po (regardez la distance entre la hotte et la table de cuisson
- x en FIGURE 2. Cela sʼaccomplit en utilisant plus ou moins du couvercle de la
cheminé supérieure. Pour plafonds petit, coupez les covercle cheminée(s). Pour
plafonds haut, voire les ACCESSOIRES POUR LʼINSTALLATION page 4.
CALCUL DE LONGUEUR DU CONDUIT
couvercle cheminée
supérieure
couvercle cheminée
inférieure
hotte
x = distance entre la hotte et la
table de cuisson
min - 24 po, suggested max - 30 po
cabinet base
1 po min
20 po max
22 po
9 1/2 po
36 po
FIGURE 2
19 3/8 po
x
La longueur du conduit ne doit jamais excéder 35
pi sʼil sʼagit de conduit rond de 6 po. Calculer la
longueur du conduit en ajoutant lʼéquivalent en
pied de la FIGURE 3 pour chaque pièce du conduit
du système. Un exemple est donné à la FIGURE
4. Pour de meilleurs résultats, ne pas utiliser
plus de trois coudes de 90o. Sʼassurer quʼil y
ait un minimum de 24 po de conduit droit entre
les coudes si lʼon utilise plus dʼun coude. Ne
pas installer deux coudes ensemble.
AVERTISSEMENT
À cause du poids et de la dimension de la hotte, deux ou plusieurs
personnes sont nécessaires pour déplacer et installer la hotte de
façon sécuritaire.
Si la hotte nʼest pas soulevée de façon appropriée, il peut en résulter
des dommages au produit ou des blessures.
RISQUE DE BLESSURE
min & max hauteurs de plafond
x = 28 po
min
8 pi 1/2 po
max
9 pi 7 1/2 po
x = 26 po
min
7 pi 10 1/2 po
max
9 pi 5 1/2 po
x = 24 po
min
7 pi 8 1/2 po
max
9 pi 3 1/2 po
x = 30 po
min
8 pi 2 1/2 po
max
9 pi 9 1/2 po
FIGURE 1
!

Version 9/05 - Page 10
4. La cheminée sʼinstalle au mur par deux fixations (2 de
la FIGURE 5). Noter la position des fixations. La fixation
supérieure doit être installée à environ 1/8 po du plafond.
La fixation inférieure doit être installée au point inférieur du
manchon de la cheminée supérieure.
Déterminer lʼemplacement approprié pour chaque fixation
et les installer au mur. SʼASSURER QUE LES FIXATIONS
SONT BIEN INSTALLÉES AU MUR.
5. Déterminer et faire toutes les coupes nécessaires dans le
mur pour les conduits. Installer les conduits avant la hotte.
FIGURE 7
FIGURE 5
PRÉPARATION DU MUR
1. Débrancher et enlever la cuisinière afin dʼavoir un
meilleur accès aux armoires supérieures et au mur arrière.
Placer un recouvrement épais sur la plaque de cuisson, la
cuisinière encastrée ou le dessus du comptoir pour protéger
des dommages et de la poussière.
2. Déterminer et marquer clairement, à lʼaide dʼun crayon,
la ligne centrale sur le mur où la hotte sera installée.
3. La hotte Perla sʼinstalle au mur avec deux fixations (1 de
la FIGURE 5). La hotte est suspendue par deux fixations qui
doivent être installées avec les collerettes sur le dessus de
la fixation et pointant vers lʼextérieur du mur. Avant dʼinstaller
les fixations, installer les vis de réglage au bas de la fixation.
Ces deux vis sont fournies dans le nécessaire de ferrures
et ont des têtes hexagonales avec une encoche pour un
tournevis à lame plate. Les dimensions à la FIGURE 5 sont
pour lʼinstallation de la hotte à 24 po au-dessus du plan de
travail.
Si un Dosseret est utilisé avec cette hotte, il doit être installé
avant la hotte. Les instructions dʼinstallation sont fournies
avec le Dosseret. La hauteur du Dosseret détermine le
bord inférieur de la hotte.
6. Déterminer lʼemplacement approprié pour le câble
dʼalimentation, tel quʼil est indiqué à la FIGURE 6. Utiliser un foret
de 1 1/4 po pour faire un trou et y passer le câble dʼalimentation.
Utiliser du calfeutrage pour sceller tout autour du trou. NE PAS
mettre en circuit tant que lʼinstallation nʼest pas complétée.
INSTALLATION DE LA HOTTE
1. Retirer lʼappareil de la boîte et le déposer sur une surface
plane pour lʼassemblage. Couvrir la surface pour éviter tout
dommage. Retirer toutes les pièces incluant les ferrures
avant de jeter la boîte.
2. Retirer les filtres pour la graisse de lʼappareil et les mettre
de côté. Retirer les filtres pour la graisse en pressant sur la
poignée à lʼavant du filtre, tel quʼil est illustré à la FIGURE
7. Au moment de les replacer, sʼassurer que les filtres
soient positionnés adéquatement, la poignée vers lʼavant
et visible.
3. Retirer le couvercle du compartiment de câblage. Retirer la
pastille enfonçable de la boîte électrique à lʼaide dʼun tournevis
à lame plate. Passer le câble dʼalimentation par le trou.
FIGURE 6
modèle 30
modèle 36
FIGURE 8
4. Suspendre la hotte aux
fixations (FIGURE 8). Il y a
deux trous rectangulaires
à lʼarrière de la hotte. Les
fixations passent au travers
de ces trous et la hotte est
suspendue aux collerettes
des fixations. À cause du
poids de la hotte, deux
personnes devraient la
soulever fin dʼéviter toute
blessure. Sʼassurer que
la hotte soit en place sur
les fixations, de façon
sécuritaire.

Version 9/05 - Page 11
6. Brancher le câble dʼalimentation sur la hotte. Attacher le fil
blanc du câble dʼalimentation sur le fil blanc de la hotte avec
une cosse. Attacher le fil noir du câble dʼalimentation au fil noir
de la hotte avec une cosse. Brancher le fil de mise à la terre
vert (jaune et vert) sous la vis de mise à la terre verte.
7. Replacer le couvercle du compartiment de câblage et les
filtres pour la graisse.
8. Pour les installations avec conduits, le registre doit être
fixé à lʼouverture dʼévacuation sur le dessus de la hotte.
Brancher les conduits et sceller toutes les connexions avec
du ruban à conduit.
5. Mettre la hotte de
niveau. La hauteur de
la hotte peut être réglée
en tournant les vis (R)
tel quʼil est indiqué à la
FIGURE 9, de chaque
côté du ventilateur.
10. Mettre lʼalimentation en circuit. Mettre en circuit le
ventilateur et la lumière. Si la hotte ne fonctionne pas, vérifier
si le disjoncteur nʼest pas déclenché ou si le fusible nʼest pas
grillé. Si lʼappareil ne fonctionne toujours pas, débrancher
lʼalimentation et vérifier si les connexions ont été effectuées
correctement
FIGURE 9
FIGURE 10
FIGURE 11
FIGURE 12
FIGURE 13
INSTALLATIONS SANS CONDUIT
N'utilisez pas le REGISTRE ROND pour les Installations
sans conduit. La section CHEMINÉE SUPÉRIEURE doit
être installée en premier.
Installations sans conduit requièrent le Kit Pour Conversion
Du Conduit. Ce nécessaire comprend un CHEMINÉE
INFÉRIEURE AVEC TROUS D'ECHAPPEMENT D'AIR (A de
la FIGURE 10), un DÉFLECTEUR SANS CONDUIT (C), deux
GRILLES (B) pour couvrir les trous du couvercle de cheminée
et deux FILTRES AU CHARBON (D). Le DÉFLECTEUR SANS
CONDUIT doit être installé avant le couvercle de la CHEMINÉE
INFÉRIEURE AVEC TROUS, comme à la FIGURE 10. Le
couvercle de CHEMINÉE INFÉRIEURE SANS LES TROUS
doit être mis de côté.
Installer les FILTRES AU CHARBON (FIGURE 12) sur les
côtés du ventilateur. Installer les filtres pour la graisse.
Une fois le couvercle de CHEMINÉE INFÉRIEURE AVEC
TROUS installé, les GRILLES sont insérées dans les trous,
tel quʼil est illustré à la B de la FIGURE 11.
9. La cheminée doit être fixée à la hotte. La section CHEMINÉE
SUPÉRIEURE (C) doit être installée en premier, puis la
section CHEMINÉE INFÉRIEURE (B) . Les deux sections
sont fixées de façon sécuritaire au mur sous les FIXATIONS
DE CHEMINÉE (H), tel quʼil est indiqué à la FIGURE 13.
Attacher la section CHEMINÉE SUPÉRIEURE avec LES VIS
DE CHEMINÉE (J). La CHEMINÉE INFÉRIEURE s'atache
au haut de la HOTTE avec des collerettes sur chaque côté.
S'assurer que la CHEMINÉE INFÉRIEURE s'enclenche au
haut de la HOTTE.

Version 9/05 - Page 12
DIAGRAMME DE CÂBLAGE
• Cette hotte utilise les ampoule halogènes de 20 W.
UTILISATION ET ENTRETIEN
Cette hotte est conçue pour enlever la fumée, les vapeurs
de cuisson et les odeurs de la cuisine.
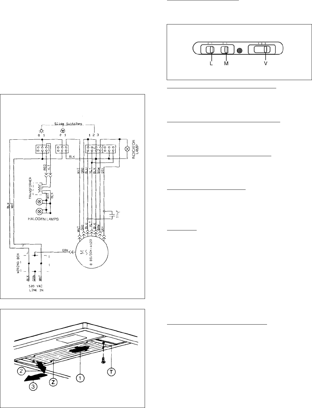
Panneau de commandes
Le panneau de commandes est situé sur le côté droit
sous la hotte. La position et la fonction de chaque bouton
sont indiquées à la FIGURE 14.
Bouton marche-arrêt de la lumière (L)
Interrupteur marche-arrêt pour la lumière. Régler à «
1 » pour mettre en circuit (ON) et à « 0 » pour mettre
hors circuit (OFF).
Bouton marche-arrêt du ventilateur (M)
Interrupteur marche-arrêt pour le ventilateur. Régler à
« 1 » pour mettre en circuit (ON) et à « 0 » pour mettre
hors circuit (OFF).
Bouton de vitesse du ventilateur (V)
Commande de vitesse variable. Régler à « 1 » pour
vitesse basse (LOW), à « 2 » pour vitesse moyenne
(MEDIUM) et à « 3 » pour vitesse élevée (HIGH).
Pour de meilleurs résultats
Mettre la hotte en circuit avant de commencer la cuisson.
Laisser lʼappareil fonctionner quelques minutes après
la cuisson pour éliminer la fumée et les odeurs de la
cuisine.
Nettoyage
Les filtres à graisse en métal devraient être nettoyés
fréquemment dans une solution dʼeau chaude et de
détergent ou mettre au lave-vaisselle. Nettoyer les
surfaces extérieures à lʼeau chaude savonneuse pout
les hottes blanc ou noir. Utiliser un nettoyant pour
lʼacier inoxydable sur les hottes en acier inoxydable.
Ne pas utiliser de produits abrasifs ou de récurants,
car ils peuvent égratigner le fini en acier inoxydable et
ils ne devraient pas être employés pour nettoyer les
surfaces de finition.
Remplacement de la lumière halogène
Avant de remplacer la lumière halogène, mettre la lumière
halogène hors circuit afin d'éviter toute blessure. Pour
remplacer la lumière halogène, (FIGURE 15), enlever les
attaches du diffuseur (T) aux deux extrémités du panneau
de lumière. Prudemment, faire glisser le panneau de lumière
complètement vers la droite. Abaisser le côté gauche du
panneau sous la collerette (Z), enlever ensuite le panneau
en le glissant de nouveau vers la gauche. Retirer l'ampoule
en pressant de l'arrière. Remplacer l'ampoule. Replacer le
panneau en inversant la march à suivre.
GARANTIE ET SERVICE
Faber garantit à lʼutilisateur-acheteur dʼorigine que les produits
Faber vendus neufs par nous sont sans vice de matériel et
de main-dʼoeuvre dʼorigine pour une période dʼun an à partir
de la date dʼachat. La garantie couvre la main-dʼoeuvre et
les pièces de remplacement. Par contre, elle ne couvre pas
les pièces reliées à lʼusure normale de lʼappareil (exemple:
les filtres et les ampoules). La garantie ne sʼapplique pas si
le produit a été mal installé, utilisé dʼune manière inadéquate
ou négligé. Cette garantie exclue toutes les dépenses
consécutives dûes à des dommages résultant dʼun mauvais
fonctionnement du produit. La présente garantie remplace
toutes autres garanties et déclarations expresses.
Afin dʼobtenir un service sous garantie, communiquer avec le
marchand où la hotte a été achetée ou le distributeur Faber
de la région. Si lʼon ne peut trouver de distributeur Faber,
communiquer avec nous au (508) 358-5353 afin dʼobtenir le
nom dʼun distributeur dans la région.
FIGURE 14
FIGURE 15