Fiplex Communications DH7 BI-DIRECTIONAL AMPLIFIER User Manual TETRA User s Manual
Fiplex Communications Inc BI-DIRECTIONAL AMPLIFIER TETRA User s Manual
user manual

English
DH7 Series - Digital Signal Booster
User & Installation Manual

UM-0821 II
Document History
Description
Revision
Date Issued
Original version
001
Feb 17th, 2015
General Revision
002
May 14th, 2015

UM-0821 III
About this manual
This manual describes installation, commissioning, operation and maintenance of Fiplex DH7 Series Digital Signal
Booster, and Fiplex Control Software (FCS). The first part of the manual describes the Signal Booster hardware and the
second part describes the software.
Hardware and software mentioned in this manual are subjected to continuous development and improvement. Consequently,
there may be minor discrepancies between the information in this manual and the performance and design of the hardware
and software. Specifications, dimensions and other statements mentioned in this manual are subject to change without
notice.
This manual or parts of it may not be reproduced without the written permission of Fiplex Communications Inc.
Infringements will be prosecuted. All rights reserved.
Copyright © Fiplex USA, Miami, 2015.

UM-0821 IV
Contents
Part 1 HARDWARE ...................................................................................................... 1
1. Safety ............................................................................................................................................. 1
2. Product Description. ...................................................................................................................... 4
2.1. System Block Diagram. ............................................................................................................... 5
2.2. Product Parts. ............................................................................................................................. 6
2.3. Dimensions ................................................................................................................................. 7
3. Installation ..................................................................................................................................... 8
Mounting ........................................................................................................................................... 8
Opening and Closing the Cabinet ................................................................................................... 11
Use of Liquid Tight Counduit........................................................................................................... 14
4. Commissioning ............................................................................................................................. 16
4.1. Connection step by step ........................................................................................................... 16
5. Starting Operation ....................................................................................................................... 19
Status Indicators ............................................................................................................................. 21
Laboratory Measurements ............................................................................................................. 23
Part 2 SOFTWARE ..................................................................................................... 24
1. Introduction ................................................................................................................................. 24
2. Local Software. Desktop application through USB port .............................................................. 24
2.1. Installation ................................................................................................................................ 24
3. Remote Web Server option ......................................................................................................... 30
3.1. IP Connection ........................................................................................................................... 30
3.2. Web pages description ............................................................................................................. 30
3.3. RF parameters description ....................................................................................................... 34

UM-0821 V
Abbreviations
AGC Automatic Gain Control
AMPS Advanced Mobile Phone Service
ARFCN Absolute Radio Frequency Channel Number
BCCH Broadcast Control Channel (GSM broadcast channel time slot)
BS Base Station, BS antenna = towards the base station
CDMA Code Division Multiple Access
DC Direct Current
DCS Digital Communication System (same as PCN)
DL Downlink signal direction (from base station via Signal Booster to mobile station)
DPLX Duplex filter
EEPROM Electrical Erasable Programmable Read Only Memory
EGSM Extended Global System for Mobile communication
ETACS Extended Total Access Communication System
ETSI European Telecommunications Standard Institute
FCS Fiplex Control Software
GSM Global System for Mobile communication
HW Hardware
LED Light Emitting Diode
LNA Low Noise Amplifier, uplink and downlink
MS Mobile Station, MS antenna = towards the mobile station
OMS Operation and Maintenance System
OL Overload
PA Power Amplifier
PCN Personal Communication Network (same as DCS)
PCS Personal Communication System
PS Power Supply
RF Radio Frequency
RSSI Received Signal Strength Indication
SW Software
UL Uplink signal direction (from mobile station via Signal Booster to base station)
WEEE Waste of Electric and Electronic Equipment

UM-0821 1
Part 1 HARDWARE
1. Safety
Dangerous Voltage Warning
Any personnel involved in installation, operation or service of Fiplex Signal Boosters must understand and
obey the following:
The power supply unit in Signal Boosters supplied from the mains contains dangerous voltage level, which can
cause electric shock. Switch the mains off prior to any work in such a Signal Booster. Any local regulations are
to be followed when servicing Signal Boosters.
Authorized service personnel only are allowed to service Signal Boosters while the main is switched on.
Any Signal Booster, including this Signal Booster, will generate radio signals and thereby give rise to
electromagnetic fields that may be hazardous to the health of any person who is extensively exposed to
the signals at the immediate proximity of the Signal Booster and the Signal Booster antennas.
Radiation Hazard Warning
R&TTE Compliance Statement
This equipment complies with the appropriate essential requirements of Article 3 of the R&TTE Directive
1999/5/EC.
Station Ground
BTS chassis, Signal Booster, feeders, donor antenna, service antenna/s and auxiliary equipment (splitters,
tabs, .etc) are required to be bonded to protective grounding using the bonding stud or screw provided with
each unit.
Electrostatic Discharge
Static electricity means no risk of personal injury but it can severely damage essential parts of the Signal
Booster, if not handled carefully.
Parts on the printed circuit boards as well as other parts in the Signal Booster are sensitive to electrostatic
discharge.
Never touch printed circuit boards or uninsulated conductor surfaces unless absolutely necessary.
If you must handle printed circuit boards or uninsulated conductor surfaces, use ESD protective equipment, or
first touch the Signal Booster chassis with your hand and then do not move your feet on the floor.
Never let your clothes touch printed circuit boards or uninsulated conductor surfaces.
Disposal of Electric and Electronic Waste
Pursuant to the WEEE EU Directive electronic and electrical waste must not be disposed of with unsorted
waste. Please contact your local recycling authority for disposal of this product.

UM-0821 2
FCC Compliance
This is a 90.219 Class B device.
WARNING: This is a 90.219 Class B device. This is NOT a CONSUMER device. It is designed
for installation by FCC LICENSEES and QUALIFIED INSTALLERS. You MUST have an FCC
LICENSE or express consent of an FCC Licensee to operate this device. You MUST register
Class B signal boosters (as defined in 47 CFR 90.219) online at www.fcc.gov/signal-
boosters/registration. Unauthorized use may result in significant forfeiture penalties, including
penalties in excess of $100,000 for each continuing violation. The installation procedure must
result in the signal booster complying with FCC requirements 90.219(d). In order to meet FCC
requirements 90.219(d), it may be necessary for the installer to reduce the UL and/or DL output
power for certain installations.
ATTENTION: This device complies with Part 15 of the FCC rules. Operation is
subject to the following two conditions: (1) this device may not cause harmful
interference and (2) this device must accept any interference received, including
interference that may cause undesired operation.
ATTENTION: FCC regulation mandate that the ERP of type B signal boosters
should not exceed 5W. This Signal Booster has a maximum programmable
composite output power of 5W (+37dBm, and programmable to +30dBm and
+24dBm), therefore the gain of the DL antenna should be of 0dBi or less and
maintain a minimum separation of 45 cm from all persons, and the gain of the UL
antenna should be 13dBi or less and maintain a minimum separation of 45 cm from all persons.
IC Compliance
As per RSS 131 Issue 2:
Nominal passband gain: 80dB max
Nominal bandwidth: 8MHz maximum for Canada market
Rated mean output power: Up to +37dBm maximum, programmable to +30dBm and
+24dBm
Input and Output impedances: 50 ohms
The Manufacturer's rated output power of this equipment is for single carrier operation. For
situations when multiple carrier signals are present, the rating would have to be reduced by 3.5
dB, especially where the output signal is re-radiated and can cause interference to adjacent band
users. This power reduction is to be by means of input power or gain reduction and not by an
attenuator at the output of the device.
RF Exposure Statement for ISED: “This device complies with Health Canada’s Safety Code. The
installer of this device shouldensure that RF radiation is not emitted in excess of the Health
Canada’s requirement. Information can be obtained at http://www.hc-sc.gc.ca/ewh-
semt/pubs/radiation/radio_guide-lignes_direct/index-eng.php”

UM-0821 3
The antenna/s used for this transmitter must be installed to provide a separation of at least 45 cm
in DL and 45 cm in UL from all persons and must not be collocated or operating in conjunction
with any other antenna or transmitter. Changes or modifications not expressly approved by the
party responsible for compliance could void the user’s authority to operate the equipment.
Selon RSS 131 Issue 2:
• Gain de bande passante nominal: 80dB max
• Bande passante nominale: 8MHz maximum pour le marché canadien
• Puissance nominale de sortie moyenne: Jusqu'à + 37dBm maximum, programmable à +30dBm
et à +24dBm.
•Impédances d'entrée et de sortie: 50 ohms
La puissance de sortie nominale du fabricant de cet équipement est pour le fonctionnement d'une
seule porteuse. Pour les situations où plusieurs signaux de porteuse sont présents, la cote
devrait être réduite de 3,5 dB, en particulier lorsque le signal de sortie est ré-irradié et peut
causer des interférences aux utilisateurs de bande adjacents. Cette réduction de puissance doit
se faire au moyen d'une puissance d'entrée ou d'une réduction de gain et non pas par un
atténuateur à la sortie du dispositif.
Déclaration d'exposition RF pour ISED: «Cet appareil est conforme au Code de sécurité de Santé
Canada. L'installateur de cet appareil doit s'assurer que les rayonnements RF ne sont pas émis
au-delà de l'exigence de Santé Canada. Vous pouvez obtenir de l'information à l'adresse
http://www.hc-sc.gc.ca/ewh-semt/pubs/radiation/radio_guide-lignes_direct/index-fra.php.
L'antenne utilisée pour cet émetteur doit être installée de manière à assurer une séparation d'au
moins 45 cm dans DL et 45 cm dans UL de toutes les personnes et ne doit pas être collocée ni
fonctionner avec une autre antenne ou émetteur. Les changements ou modifications non
expressément approuvés par la partie responsable de la conformité pourraient annuler
l'autorisation de l'utilisateur d'utiliser l'équipement.

UM-0821 4
2. Product Description.
The DH7 Signal Booster Series are FPGA based Digital Channel Selective signal boosters that
operates in the downlink frequency of 763-775MHz and in the uplink frequency of 793-805MHz for
United States. For Canada it operates in the downlink frequency of 768-776MHz and in the uplink
frequency of 798-806MHz.
For operations in the Upper 700 MHz PS-BB spectrum(758-768 MHz and the 788-798 MHz bands)
the TX filter shall be set to:
-Downlink Start Frequency shall be greater than 763 MHz
-Downlink End Frequency shall be less than 768 MHz
-Uplink Start Frequency shall be greater than 793 MHz
-Uplink End Frequency shall be less than 798 MHz
This Signal boosters extends the radio coverage into areas inside the Base Station range where
propagation losses prevent reliable communication.
The system receives the UL signal though a Donor antenna to be amplified, filtered and re-radiated
through the Service antennas. The DL signal is received by the Service antennas to be amplified,
filtered and re-radiated through the Donor antenna back to the Base Station. This way, the system
works as a Bidirectional Amplifier.
This signal booster is capable of handling 12 carriers in uplink and 12 carrier in downlink. The
center frequency and BW of each one of the 12 filters can be tuned via a software interface.
The intermediate filtering of this equipment is performed by using FPGA based Digital Signal
Processing that, among many, has the following features:
- High Selectivity vs Low Delay performance selection.
- AGC per channel and per time slot.
- Squelch per channel and per time slot.
- Integrated Spectrum Analyzer.
This Digital Signal Booster has a heavy duty IP67/NEMA4X cabinet for outdoor usage, it is designed
to be wall or pole mounted.

UM-0821 5
2.1. System Block Diagram.
The following image represents a general bock diagram of this Signal
Booster.

UM-0821 6
2.2. Product Parts.

UM-0821 7
2.3. Dimensions

UM-0821 8
3. Installation
Mounting the Signal Booster
Fiplex DH7 Signal Booster is designed for outdoor usage with a weather proof outdoor NEMA4 cabinet
that can be mounted without any kind of shelter from rain, snow or hail.
However, to improve reliability, it is recommended to mount the Digital Signal Booster on a site with shelter
from direct exposure to sun, rain, snow and hailing.
It is not recommended to operate the Signal Booster under bad weather conditions, such as:
- Intense rainfall, snowfall or hail
- Storm or high wind
- Extremely low or high temperature
- High humidity of the air
Mounting
1. Mount the bracket
The Signal Booster can be mounted on a wall or pole. These mounting cases are shown below in Figure 1
and Figure 2. The bracket is provided with the Signal Booster.
Figure 1
Figure 1 shows a bracket attachment to a wall using three fixing screws.
Figure 2
Figure 2 shows a bracket attachment to a pipe using four inox hose clamps (provided with bracket).

UM-0821 9
2. After attaching the bracket hang the Signal Booster as shown in Figure 3.
Figure 3

UM-0821 10
3. Secure the cabinet to the bracket as shown in Figure 4. To attach the Signal Booster’s cabinet to the
bracket use the provided four M6 x 1/2” allen screws.
Figure 4

UM-0821 11
Opening and Closing the Cabinet
To open the cabinet, release the 8 door screws indicated in figure 5 using the provided special
allen key.
A - Release Signal Booster cover.
Figure 5
Use the special allen key N°6

UM-0821 12
B - Open the Signal Booster cover.
Figure 6
C – Close the Signal Booster cover.
Figure 7

UM-0821 13
D - Secure Signal Booster cover.
Figure 8

UM-0821 14
Use of Liquid Tight Counduit
The unit has available a Liquid Tight Conduit Fitting connector for ¾” tubes. The unit as
standard has the connector installed, so if the user requires to use this connector, if available,
the NFPA cables, Ethernet, DC or AC cables can be routed through this connector.
VSWR Repeater
Fail
VSWR Repeater
Fail
Figure 9; AC Routing through cable gland or conduit connector
If the is not going to use Liquid Tight Conduits, then the connector should be replaced by the
provided sealing cup as indicated in Figure 10.
A - Remove the conduit connector

UM-0821 15
B – Install the sealing cup
Figure 10; Replacement of Conduit connector to sealing cup

UM-0821 16
4. Commissioning
4.1. Connection step by step
Figure 11
Figure 11; RF ports and Power Cable Glands location.
1. Connect service antennas to the To Mobile Port. N type female connectors are used in the Signal
Booster.
2. Connect the donor antenna to the To Base RF Port. N type female connectors are used in the Signal
Booster.
3. Once the RF ports of the Signal Booster are properly loaded connect the Main AC power.
If using the AC model, electrical installation must provide differential and thermo-magnetic breaker
elements according to electric safety international regulations.

UM-0821 17
Figure 12
4. If the Signal Booster has the NFPA Option, there is a dedicated cable gland for this purpose (“NFPA”
in figure 11). A multi-conductor cable can be used to connect the NFPA dry contacts to the Fire
Department Control Box.
456123
NC NO NC NO
Repeater
Fail
VSWR
Status of contacts (Alarms Off)
Pin 1 – 2 = VSWR (normally closed contact)
Pin 2 – 3 = VSWR (normally open contact)
Pin 4 – 5 = Repeater Fail (normally closed contact)
Pin 5 – 6 = Repeater Fail (normally open contact)
Figure 13; NFPA Dry Contact connection configuration
VSWR Repeater
Fail
Figure 14; NFPA Dry Contact connection location inside the cabinet

UM-0821 18
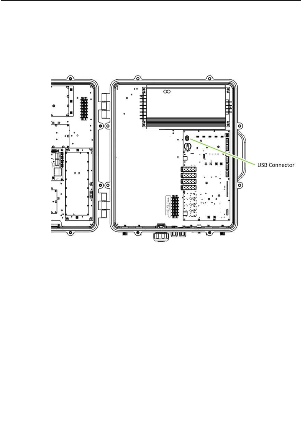
5. Once the Signal Booster is connected to the power source, it takes about 40 seconds to run a booting
routine. After that time, the Signal Booster is ready to be connected via USB cable to a computer
running Fiplex Control Software (FCS) to be properly configured.
Figure 15; USB port location

UM-0821 19
5. Starting Operation
BE SURE THAT “TO MOBILE” AND “TO BASE” PORTS ARE PROPERLY
LOADED EITHER WITH 50 OHMS DUMMY LOADS, OR RADIATING
SYSTEM.
1. Turn on the Digital Signal Booster, connect computer to Signal Booster through USB cable, and run
Fiplex Control Software. It is recommend to turn off the power amplifiers.
2. Setup desired channel frequencies. Since Fiplex Signal Booster is channel selective, user has to know
what frequencies are used in base station.
3. Turn on UL and DL power amplifiers, and check that any alarm indicator is active.

UM-0821 20
4. Setup desired operating gain using FCS. UL and DL chain are independent, so both values must be
set. To set DL band gain is recommended that AGC works around 3 - 6dB in each channel, in this
way, maximum output power is achieved.
5. Set up squelch settings. Controls are independent in UL and DL bands. Typical values for UL are -
110dBm for squelch threshold. For DL, recommended value for squelch threshold is minimum level
received in any active channel minus 10dB.
6. Setup desired filter bandwidth, depending on presence of adjacent channels. In principle,
recommended bandwidth filter is 90KHz due to its low delay, but if adjacent signal is detected, narrow
filters can be used. Spectrum analyzer of FCS can be used to know rejection to undesired signals. It is
recommend that adjacent channels output power be, at least, 10dBc lower than useful carrier.
Next figures, shows how integrated spectrum analyzer can help to select bandwidth
filters:

UM-0821 21
Status Indicators
There is an indicator panel located at bottom of the Signal Boosters door. This led panel works
as a status monitor, in order indicate warning or alarms of Signal Booster.
The LED panel has four LEDs, the first one the power ON indication led, labelled “PWR”.
The Second LED, labelled “STS” summarizes warnings regarding critical operational conditions
of the Signal Booster.

UM-0821 22
The third and fourth LED summarizes operational conditions for uplink “UL” and downlink “DL”
chains.
In general, the LEDs have four states: “off”, “slow blinking”, “fast blinking” and “on”. Table 1
describes alarm and warning conditions for each led state.
Table 1
Indicator Panel
LED indication description
Signal Booster is not powered or fail in power supply
Normal state: Signal Booster is powered on
Normal state
HW fail: digital signal processor is not detected
Board Temperature: very high internal Signal Booster temperature
Base Station Warning: No signal is detected coming from base station
PA UL Status Alarm: alarm based on PA current consumption
RF input overflow: maximum level at RF input is exceeded
Normal state
PA DL Status Alarm: alarm based on PA temperature
PA DL Overflow: PA output level is higher than +40dBm
RF input overflow: maximum level at RF input is exceeded
PA DL Underflow: PA output level is lower than +25dBm
Normal state
Where:
Led OFF
Led slow blinking with period of 2 seconds aprox. WARNING
Led fast blinking with period of 0.5 seconds aprox. ALARM
Led ON

UM-0821 23
Laboratory Measurements
For specific parameters verification and laboratory tests, please contact factory.
Detailed procedures, recommended tests set up, and a knowledge engineering team will bring adequate
support to perform this measurements in a comfortable and safely way.

UM-0821 24
Part 2 SOFTWARE
1. Introduction
Fiplex Signal Booster can be fully configured and monitored in local and remote mode.
Local mode:
o USB port with Windows desktop application
Remote mode:
o Remote Web server
In following section, each control mode (configuration / monitoring) are described.
2. Local Software. Desktop application through USB port
2.1. Installation
The following section will describe the steps to be followed in order to install and use the Fiplex
Control software with your Fiplex Signal Booster.
1. Before connect USB cable between computer and Signal Booster, run the
FiplexControlSoftware.msi File. Next screen will appear…
2. Choose the default installation path “C:\Program Files (x86)\FiplexControlSoftware”. Note that this
can change according to your system configuration (32bits or 64bits), language and Windows
Version.

UM-0821 25
3. The installer will start to copy the necessary files.
4. After installation has completed, a shortcut in user desktop will appear.

UM-0821 26
5. Connect USB cable between computer and Signal Booster, keeping the Signal Booster
powered off. Usually, drivers will be automatically installed, but depending on Windows
version, screen asking for drivers of new device can appear. Drivers can be found in
application folder: C:\Program Files (x86)\FiplexControlSoftware\drivers”.
6. Turn on the Signal Booster
BE SURE THAT “TO MOBILE” AND “TO BASE” PORTS ARE
PROPERLY LOADED EITHER WITH 50 OHMS DUMMY LOADS,
OR RADIATING SYSTEM.
7. Execute the Fiplex Control Software. Next window will appear:

UM-0821 27
User interface controls:
Scan Devices Button: refresh the available COM ports and identify Fiplex devices
Connection Button: connect / disconnect software from Signal Booster
List of available devices: below two buttons, is placed a dropdown list that shows all
available COM ports. Available COM ports not related to Fiplex Signal Boosters will be
shown with its number and “Unknown device” label. COM ports related to Fiplex Signal
Boosters will show a device description.
Embedded Web browser: graphical area where configuration and monitoring
parameters will be shown.
File menu: contains menus to save Signal Booster configuration to a file and load
configuration from file to Signal Booster.
NOTE: if Fiplex Signal Booster is not turned on, related COM port will appear as
“Unknown device”
8. Click “Scan Devices”

UM-0821 28
Now, the Fiplex Digital Signal Booster is shown in the list of available devices, and
connection button is enabled.
NOTE: Fiplex Signal Booster could not appear in list, if COM port number is higher than
COM16, depending on Windows version. COM port number can be forced to arbitrary
number (below COM16) through Device Administrator. In order to change COM
number, click “Properties” pop-up menu:
Click “Advanced Options”

UM-0821 29
Change COM port number
9. Click “Connect”. Fiplex Control Software window will be automatically maximized, and
web browser will show the configuration screen. Application screens are described in the
next section due to these application screens and web pages (in webserver remote
mode) are the same.

UM-0821 30
10. Once Signal Booster is configured, user can disconnect software using connection
button, now labelled “Disconnect”. Initial window will be shown.
If Signal Booster is disconnected or turned off, while Fiplex Control Software is connected
to device, software will go back to initial window. Moreover, if some communication
problem occurs while device is monitored, the software will go back to initial state as well.
3. Remote Web Server option
3.1. IP Connection
Fiplex Signal Boosters use an Ethernet module and 3G Router to give TCP/IP connectivity
(webserver and SNMP Agent). In local mode, user can connect directly a computer to the
Ethernet module using the inside Ethernet cable.
In order to access to web browser, default IP addresses of Ethernet module are detailed in the
next table:
IP Address
192.168.1.10
Network submask
255.255.255.0
Gateway
192.168.1.2
Computer network adapter configuration needs to be set to same network submask and gateway.
IP address can take any value in this IP range (192.168.1.11, for instance). These addresses can
be changed by user.
3.2. Web pages description

UM-0821 31
Once the Ethernet module is properly configured, user can connect to the Signal Booster, writing
IP address in URL toolbar of any web browser available in its computer. Default URL is
http://192.168.1.10.
First screen to appear is Authentication. Default login and password are:
Login
admin
Password
admin
Password can be changed by user, using menu described in next sections.
NOTE: in order to restore password, push the button placed close to USB Connector during 5
seconds.
After authentication, web browser will load the main page of Fiplex Signal Booster showing RF
configuration and monitoring parameters.
At left side of webpage, configuration menus are shown:
Content
Status: whole RF configuration and monitoring parameters are shown. These
parameters are described in the next section.

UM-0821 32
Tag: user can set a tag to ease Signal Booster identification. For modifying the
TAG, write a new value in text field and click over Apply Changes link
IP: At this page, Signal Booster IP address, network submask, gateway address
and IP addresses of SNMP Managers are shown. User can set addresses of two
SNMP Managers (IP where SNMP agent will send TRAP information). To modify,
click over Apply Changes link after writing new values on text fields.
Password: to modify webpage password, old password is required, and new
password needs to be written two times. After clicking on “Apply Changes” link, new
authentication screen appear, where user must write new password.
Downlink Spectrum: this page shows estimation for downlink input and output
spectrum. Estimation for output spectrum takes into account RF input levels, and
gain, bandwidth filters and squelch options programmed by the user, and it can be a
useful tool for users to know how the undesired signals are rejected by the channel
selective Signal Booster. Available spans are 1,2,3,4 and 5MHz. User can change
start and stop frequency modifying text field placed at the page bottom

UM-0821 33
Date and Time: page to modify real time clock. When the Signal Booster is not
powered, this clock runs with a voltage supply provided by a 3V lithium battery,
button type of 20mm (CR2032) with 220mA·h. This suffices for at least half year.
When the Signal Booster is powered, no current is drained from the battery. So,
actual battery life will depend on Signal Booster usage. For battery replacement,
please locate battery holder between USB and Ethernet connectors on main board.
Battery positive side is UP, i.e. on holder clip.
After clicking on “Apply Changes” link, next message will appear, warning the user that
system needs to be rebooted.

UM-0821 34
Configuration
o Apply Changes: as it is said above, this link is used to load changes to the
Signal Booster, in configuration, tag, IP, password and date and time
menus. After any configuration change, web page will show and icon that
allows user to know if configuration has been successfully applied:
o Reload Settings: clicking this link, Signal Booster configuration data is
refreshed.
Version: shows hardware, firmware and software versions of Signal Booster and
serial number.
3.3. RF parameters description
“Status” menu shows whole RF configuration and monitoring data, that are distributed along the
webpage.
The first frame called “CONTROL” is placed in top of webpage, showing general configuration of
Signal Booster. Below this, some frames titled “CHANNEL 1”, “CHANNEL 2”... . There is one for
each active channel, and configuration and status information related to each channel can be
viewed. Next figures show these frames:
General control frame. There are four sub-sections inside this frame:

UM-0821 35
o Frequency control: this section contains fields to modify channel frequencies.
Frequency resolution is 6.25KHz. User can change any channel frequency,
taking into account that uplink and downlink frequencies are always separated
45MHz. Display check-boxes column are used to display each channel control
frame, by default, only active channels will be displayed.
o Main uplink control: RF main parameters regarding to uplink band are contained
in this section: gain, output power limit, squelch threshold, squelch enable, PA
enable control, RF output power indicator, and RF input overflow, PA status
and stability alarms. Next table describes information of this frame:
Parameter
Range
Description
Gain control
60dB to 85dB
Set maximum gain of Signal Booster at UL band
Power limit control
+14dBm to +24dBm
Set maximum output power of Signal Booster at
UL band. System automatically will apply a
correction to share this limit between the active
channels. For instance, +18dBm band limit
means +12dBm maximum output power per
channels for 4 active channels
Squelch enable
control
Enabled / disabled
Enabling this control, Signal Booster does not
transmit in each channel if RF input power do
not exceed the threshold level configured
according to next row
Squelch threshold
control
-110dBm to -70dBm
If squelch is enabled, input levels below this
threshold are not transmitted.
PA enable control
On / off
This control enables / disables PA UL:
Green button and label “ON” means that PA is
enabled, red button and label “OFF” means that
PA is disabled
Rf output power
indicator
---
Shows instantaneous RF output power at UL
band
Input overflow
alarm
---
This alarm indicates that Signal Booster is being
overloaded at UL band, due to very high RF
input level
PA status alarm
---
PA status alarm indication based on current
consumption

UM-0821 36
o Main downlink control: parameters regarding to downlink band. They are almost
equal to uplink band.
Parameter
Range
Description
Gain control
60dB to 85dB
Set maximum gain of Signal Booster at DL band
Power limit control
+20dBm to +30dBm
Set maximum output power of Signal Booster at
DL band. System automatically will apply a
correction to share this limit between the active
channels. For instance, +36dBm band limit
means +30dBm maximum output power per
channels for 4 active channels
Squelch enable
control
Enabled / disabled
Enabling this control, Signal Booster does not
transmit in each channel if RF input power do
not exceed the threshold level configured
according to next row.
Squelch threshold
control
-80dBm to -40dBm
If squelch is enabled, input levels below this
threshold are not transmitted.
PA enable control
On / off
This control enables / disables PA DL:
Green button and label “ON” means that PA is
enabled, red button and label “OFF” means that
PA is disabled
Rf output power
indicator
---
Shows instantaneous RF output power at DL
band
Input overflow
alarm
Grey: normal state /
Red: alarm state
This alarm indicates that Signal Booster is being
overloaded at DL band, due to very high RF
input level
PA status alarm
Grey: normal state /
Red: alarm state
PA status alarm indication based on
temperature
PA overflow
Grey: normal state /
Red: alarm state
Alarm active if output level exceeds +40dBm
o General control
Parameter
Range
Description
Squelch mode
control
Linked / not Linked
If this control is set to “Linked”, DL channels
without input signal (according to DL Squelch
threshold) automatically squelch related UL
channels
RESET
---
Reboots digital signal processor
Temperature
---
Shows internal Signal Booster temperature
Base station
alarm
Grey: normal state /
Red: alarm state
Alarm is active, if signal is not detected in any
DL channel
Hardware fail
alarm
Grey: normal state /
Red: alarm state
Indicates critical malfunctioning in digital signal
processor

UM-0821 37
Channel control frame: shows configuration and monitoring information of each channel.
The frame is divided in two: uplink and downlink. Data showed in each half is
symmetric.
Parameter
Range
Description
Fine gain control
-10dB to 0dB
Each channel gain can be fine adjusted
Fine power limit
control
-10dB to 0dB
Each channel maximum output power can be
fine adjusted
Bandwidth filter
control
90KHz, 45KHz,
30KHz, 20KHz and
15KHz
There are five available filters to adjust the
trade-off between rejection to undesired signals
and delay
RF input power
indicator
---
Shows RF input level for each channel
RF output power
indicator
---
Shows estimation for RF output level for each
channels, according to programmed gain and
AGC control
Gain indicator
---
Shows effective gain applied to each channel.
This value is programmed gain minus the gain
reduction due to AGC
AGC indicator
---
Indicates gain reduction due to power limitation
control.
Signal detection
indicator
Grey: no signal is
detected / Green:
signal detected
With this indicator, system shows if signal is
detected at input, according to squelch threshold