Follett Vu300 Users Manual 00119644_VU300_IOS
2015-02-09
: Follett Follett-Vu300-Users-Manual-551594 follett-vu300-users-manual-551594 follett pdf
Open the PDF directly: View PDF
.
Page Count: 22

Installation, Operation and Service Manual
VU300 Series
Ice and Beverage Dispensers
00119644R02
801 Church Lane • PO Box D, Easton, PA 18044, USA
Toll free (800) 523-9361 • (610) 252-7301
Fax (610) 250-0696 • www.follettice.com
Following installation, please forward this manual
to the appropriate operations person.
Order parts online
www.follettice.com
Service numbers above B50000

Welcome to Follett Corporation
Important cautions
Specifications
Installation
Installing dispenser in counter
Field wiring diagrams
Connecting beverage lines
Installing optional icemaker
Operation
How the dispenser works
Cleaning
Service
Dispense chute cover removal
Auger motor assembly removal
Gate assembly removal
Auger and auger tube removal
Dispenser wheel removal
Wiring diagrams
Troubleshooting
Replacement parts
3
Table of contents
4
4
5
8
8
9
9
10
11
11
12
14
14
14
14
14
14
15
17
19
Follett Corporation
Equipment Return Policy
Follett equipment may be returned for credit under the following conditions:
1. The equipment is new and unused.
2. A return authorization number has been issued by customer service within 30 days after shipment.
3. Follett receives the equipment at the factory in Easton, PA within 30 days after issuance of the return authorization number.
4. The equipment must be returned in Follett packaging. If the packaging has been damaged or discarded, Follett will forward, at the customer’s expense,
new packaging.
Note: Return freight charges are the responsibility of the customer. If equipment is returned and is damaged because of improper packaging,
Follett Corporation will not be held responsible.
Credit will be issued when:
The equipment has been inspected by Follett and deemed suitable to be returned to stock.
Note: A 15% restocking charge will be deducted from the credit. If the cost to return the product to stock exceeds 15%, the actual cost will be deducted.

Welcome to Follett
Follett ice dispensers enjoy a well-deserved reputation for excellent performance, long-term reliability and
outstanding after-the-sale support. To ensure that this dispenser delivers that same degree of service, we ask that
you take a moment to review this manual before beginning the installation of the dispenser. Should you have any
questions or require technical help at any point, please call our technical service group, (800) 523-9361 or
(610) 252-7301.
Before you begin
After uncrating and removing all packing material, inspect the equipment for concealed shipping damage. If
damage is found, notify the shipper immediately and contact Follett Corporation so that we can help in the filing of
a claim, if necessary.
Check your paperwork to determine which model you have. Follett model numbers are designed to provide
information about the type and capacity of Follett ice dispensing equipment. Following is an explanation of the
different model numbers in the VU300 series.
Important cautions
Storage area of dispenser contains mechanical, moving parts. Keep hands and arms clear of
this area at all times. If access to this area is required, power to unit must be
disconnected first.
Ice is slippery. Maintain counters and floors around dispenser in a clean and ice-free condition.
Ice is food. Follow recommended cleaning instructions to maintain cleanliness of delivered ice.
Always disconnect power before cleaning or servicing the dispenser.
Failure to remove all sanitizer may result in health hazard.
Follett manual load dispensers can accommodate most cube/cubelet ices up to 1" square, or Follett
compressed nugget ice. Crushed, flake, bagged, nugget or congealed ice cannot be used. Use of
these ices can jam dispenser and void warranty. Separate any “waffle-like” sections of cubes before
adding to dispenser. For ice compatibility questions, please call Follett customer service at
(800) 523-9361 or (610) 252-7301.
!
4
VU300B8LP
Model series
Beverage cooling
B – Integral beverage cooling
K – Integral beverage cooling with cold carbonation
M – No beverage cooling
Tower side (facing unit)
L – Left hand side
R – Right hand side
D – Dual-sided
Ice and valve actuation
P – Pushbutton
L – Lever
Number of valves
8, 10 or 20

Specifications
Electrical
Each dispenser requires a separate circuit with electrical disconnect within 10 ft (6m). Equipment ground required.
Standard electrical – 115V, 60Hz, 1 phase. Maximum dispenser fuse – 20 amps, maximum icemaker fuse – 20
amps each. Cord and plug provided with each dispenser.
Model Icemaker Dispenser
number amperage amperage
Single-sided models
VU300M series 11.0 amps ea (2) 6.0 amps
VU300B series 11.0 amps ea (2) 7.0 amps
Dual-sided models
VU30020MD series 11.0 amps ea (2) 8.0 amps
Plumbing
Dispenser 3/4" PVC pipe nipple for bin drain
3/4" PVC pipe nipple for drain pan drain
1" ID hose for beverage bath drain
Beverage connections
1/4" ID syrup beverage hose
3/8" ID carbonated water beverage hose
3/8" ID plain water beverage hose
Note: Drains should be hard piped and insulated. Maintain at least 1/4" per foot (6mm per 304mm run)
slope on drain line run.
Water disconnect within 10 feet (3m) of dispenser is suggested for automatic load units.
Follett recommends use of a Follett water filter (part# 00130229) on icemakers connected
to automatic fill dispensers.
Icemaker Refer to detailed specifications in icemaker installation manual
packed with icemaker
5

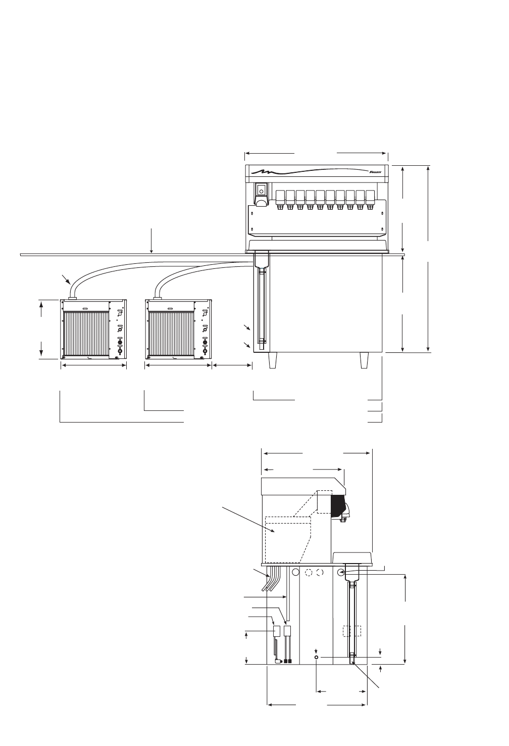
Dimensions and clearances
Single-sided dispensers
Required clearances
60" (1524mm) minimum above counter for installation if dispenser will be dropped into counter
49" (1245mm) minimum above counter for auger removal
12" (305mm) minimum on ice chute side for service
12" (305mm) minimum on side opposite ice chute if ice transport tube enters this side
12" (305mm) minimum between dispenser side(s) and optional icemaker(s)
Front View
Side View
®
(shown with two Chewblet
MC400A auto-fill icemaker kits)
Manual load unit
Dispenser with 1 optional auto-fill icemaker kit(s)
Dispenser with 2 optional auto-fill icemaker kit(s)
40.875
(1039mm)
54.875"
(1394mm)
25.25"
(642mm)
29.625"
(753mm)
disp.
drains
electrical
conn.
6"
min
17"
(432 mm)
18.875"
(479mm)
18.875"
(479mm)
ice transport
tube
12"
min
counter top
24.62"
(626mm)
30"
(762mm)
15"
(381mm)
10"
(254mm)
2"
(51mm)
32.375"
(823mm)
ice waterbath
(VU300B only)
3/4" FPT
drain
8.5"
(216mm)
ice transport
tube entry
27.5"
(699mm)
bin signal
power
3/4" drain
nipple
1/2" ID drain tube
beverage
lines
6

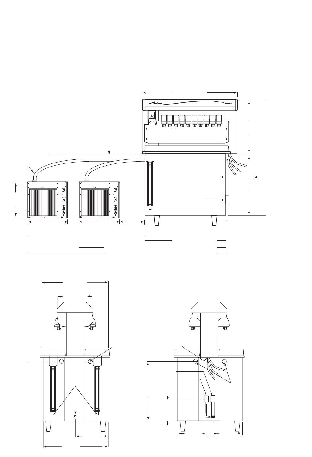
Dual-sided dispensers
Required clearances
60" (1524mm) above counter for installation if dispenser will be dropped into counter
49" (1245mm) above counter for all units after installation for auger cleaning and servicing
12" (305mm) on dispense chute side of all models for connections
12" (305mm) on side opposite dispense chute if ice transport tube enters side opposite chute
12" (305mm) on side opposite dispense chute on all dual-sided dispensers for connections
Front View
Ice dispense chute side view Ice dispense chute opposite side view
Manual load unit
Dispenser with 1 optional auto-fill icemaker kit(s)
Dispenser with 2 optional auto-fill icemaker kit(s)
6"
min
17"
(432 mm)
18.875"
(479mm)
18.875"
(479mm)
ice
transport
tube
12"
min
(shown with two Chewblet
MC400A auto-fill icemaker kits)
®
counter top
43.875
(1115mm)
12" min.
(305mm)
54.875"
(1394mm)
25.25"
(642mm)
29.625"
(753mm)
electrical
connections
beverage lines
exit through
bottom of chase
beverage
lines exit
through bottom
of chase
27.5"
(699mm)
10"
(254mm)
alt. ice
transport
tube
entry
13.25"
(337mm)
13.25"
(337mm)
bin signal
power
16.875"
(429mm)
30"
(762mm)
15"
(318mm)
27.5"
(699mm)
3/4" FPT
drain
ice tube
entry
32.375"
(823mm)
3/4"
drain
nipple
7

Installation
Installing dispenser in counter
Note: All dispensers must be supported from below with supplied 4" – 6" (102 – 153mm) adjustable leg accessory,
or equivalent. Do not hang dispenser on flange.
All dispensers must be installed level in both directions to ensure proper operation.
1. Check that dispenser location meets all requirements in this manual and cut counter as shown.
2. Place support blocks in cabinet to raise dispenser to a height of 12" (305mm).
3. Place dispenser in counter onto support blocks.
4. Attach adjustable legs to dispenser.
5. Remove support blocks and lower dispenser feet to floor.
6. Adjust legs for 1/8" (4mm) clearance between dispenser lip and countertop to verify there is no load on flange.
7. Apply a bead approximately 1/4" (6mm) in diameter of NSF-listed silicone sealant (Dow Corning RTV-732 or
equivalent) around perimeter of dispenser where it meets counter. Smooth sealant to a 1/8" (4mm) radius.
8. Install a PVC drain line with at least a 1/4" per foot (20mm per 1m) slope. Insulate drain line to prevent
condensation.
Note: Do not apply excessive heat if any sweating of fittings is necessary. Heat conduction through metal may
melt threads in plastic drain.
Do not reduce drain line size or tie drains together.
9. Make electrical connections in accordance with applicable wiring diagrams provided. Provide disconnects within
10 ft (3m) of dispenser and icemaker for servicing.
Min.
33"
(839mm)
flat
surface
30.375"
(772mm)
38.5"
(978mm)
42.5"
(1080mm)
11.625"
(296mm)
11.625"
(296mm)
7.125"
(181mm)
Plan View
Dual-sided dispensers
counter cut-out
Min.
33"
(839mm)
flat
surface
Shaded area is additional cut-out required for
slide-in installations only
30.375"
(772mm)
38.5"
(978mm)
Plan View
Single-sided dispensers
counter cut-out
Dual-sided dispensers cannot be slid into counter unless
raised above counter. Call factory for details.
8

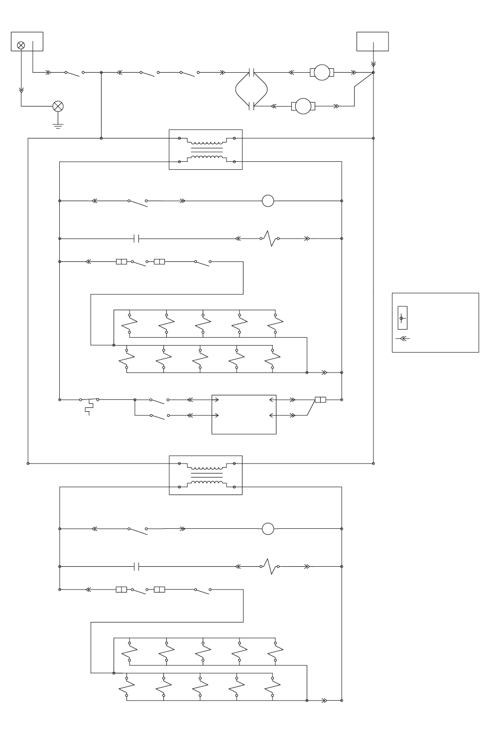
Field wiring diagrams
Note: Field wiring diagrams are intended to aid electricians or technicians in understanding how equipment
works. All field wiring must be installed in accordance with all local and NEC codes.
LEGEND
WIRENUT FIELD
CONNECTIONS
XEQUIPMENT
GROUND
B
W
GRN
BL
Y
DISPENSER
If attaching optional Chewblet MC400A
auto-fill icemaker kit(s)
LEFT JUNCTION BOX RIGHT JUNCTION BOX
BL
Y
RD
W
B
LOWER JUNCTION BOX
ICEMAKER #2
(OPTIONAL)
W
B
X
GND GRN
B
W
LOWER JUNCTION BOX
ICEMAKER #1
(OPTIONAL)
UPPER JUNCTION BOX
BLACK
WHITE
GREEN
BLUE
YELLOW
RD RED
ELECTRIC
POWER
SOURCE
X
GND GRN
B
W
UPPER JUNCTION BOX
ELECTRIC
POWER
SOURCE
Electric
Power
Source
GND
GRN
B
W
9
Connecting beverage lines
1. Connect syrup and water lines. Non-carbonated water line will be labeled “water”. Syrup lines are numbered
and correspond to the valves as shown in drawing(s) below. Valve one is always next to ice tower.
2. The center 4 valves are pre-plumbed to both carbonated and non-carbonated water lines with the
QuickCARB™ beverage manifold. Valves can be individually changed from a carbonated to a non-carbonated
flavor with the flip of a lever (see below).
3. Clean and sanitize beverage lines according to cleaning instructions.
Valve position #1 is always next to ice
tower. Left-hand unit shown.
10987654321
carbonated
non-carbonated
VU300B QuickCARB manifold
(see dispenser for model specific
QuickCARB configuration)
Rear View

Installing optional auto-fill icemaker kit(s)
Correct installation of Satellite-fill icemaker(s) is critical to proper performance of icemaker. Refer to installation
manual packed with icemaker for important details on ice transport tube run, ventilation requirements and other
installation requirements. Failure to comply with instructions may void warranty.
To start and operate dispenser
1. Follow detailed cleaning instructions in service manual before operating dispenser.
2. On units with Follett integral ice water bath beverage cooling (“B” models) only, slowly pour water into ice
water bath area to fill empty bath and submerge coils. Coils are submerged when water starts to flow out
overflow drain. DO NOT SPLASH WATER ON ELECTRICAL BOX. Once filled with water, add ice to bath
until ice covers top of water bath.
3. For manual load units, remove front drain pan or rear lid and fill storage area with approved ice.
Note: Follett manual load dispensers can accommodate most cube/cubelet ices up to 1" square, or Follett
compressed nugget ice. Crushed, flake, bagged, nugget or congealed ice cannot be used. Use of these
ices can jam dispenser and void warranty. Separate any “waffle-like” sections of cubes before adding to
dispenser. For ice compatibility questions, please call Follett customer service at (800) 523-9361
or (610) 252-7301.
4. Turn power switch located on dispenser control box to ON position.
5. For automatic fill units, follow detailed instructions in icemaker installation section of installation manual, then
turn icemaker (bin signal) switch(es) located on dispenser control box to ON position and begin to make ice.
6. When dispenser has at least 6" (153mm) of ice in storage area, test operation.
10

Operation
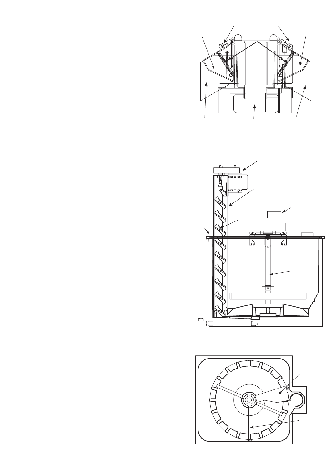
How the dispenser works
Follett’s dispensers may be fed by Follett Satellite-fill icemakers or manually loaded (using ice from another
source).
In all models, ice is stored below the counter in the dispenser storage area. When the dispense lever or button is
pushed, the dispense motors are activated. This causes the wheel assembly in the storage area to turn, moving
ice to the vertical auger assembly, which carries ice up to the dispense chute where it drops by gravity into the
container.
In units used with an optional icemaker accessory, ice is manufactured remotely and may be located up to 20 ft
( away from the dispenser. Extruded ice is transported through a tube and pushed to the storage compartment
of the dispenser. When the bin is filled, a bin thermostat shuts the icemaker off to avoid overfilling the bin. The
icemaker will restart after 20 minutes if the bin is calling for ice.
Units with integral ice water bath beverage cooling are equipped with a water bath timer circuit that activates the
water bath pump for 35 minutes when ice lever or button is activated, or when the ice water bath warms up and
calls for more ice.
Ice movement
11

Cleaning
Using solutions below, clean and sanitize storage area and beverage lines before starting unit and on a routine
basis as noted below.
Note: Always disconnect power before cleaning dispenser.
Do not run plastic parts through a dishwasher.
Solution A: Combine 1 oz (250ml) bleach with 2 gal (8L) hot water or use Ecolab Mikro-chlor Cleaner
per manufacturers instructions.
Solution B: Combine 1/4 oz (50ml) bleach with 2 gal (8L) hot water or use Ecolab Mikro-chlor Cleaner
per manufacturers instructions.
Note: Cleaning solutions temperature must be at 75˚ – 125˚F (24˚ to 52˚C)
Recommended cleaning prior to start up
Cleaning ice storage area before use
1. Refer to disassembly instructions (see Service section) and remove dispense wheel from ice storage area.
2. Remove auger, auger tube and dispense mechanism.
3. Wipe all components and ice storage area with cleaning Solution A.
4. Rinse all components and ice storage area thoroughly with clear, potable water.
5. Wipe all components and ice storage area with sanitizing Solution B.
Cleaning beverage lines
Prepare 6 gallons (23L) of cleaning Solution A. Fill a clean product tank with cleaning solution. Fill a second clean
product tank with potable rinse water.
1. Disconnect all syrup lines from product containers.
2. Connect syrup line #1 to cleaning solution tank, pressurize tank to 20-50 psi, and dispense 1/2
gallon (2L) of solution into a suitable container from valve #1.
3. Connect syrup line #1 to rinse tank, pressurize tank to 20-50 psi, and dispense 3 gallons (11L)
into a suitable container from valve #1.
4. Repeat this cleaning and rinsing for all syrup lines.
5. Remove diffusers and nozzles from valves, soak in cleaning solution, rinse well and reinstall.
Sanitizing beverage lines
Prepare 6 gallons (23L) of sanitizing Solution B. Fill a clean product tank with this solution.
1. Connect one tank to syrup line #1. Dispense 1/2 gallon (2L) from valve #1.
2. Repeat for all remaining syrup lines, allowing sanitizing solution to remain in all circuit lines for
15 minutes.
3. Connect a clean, empty tank (pressurized to 50 psi) to each syrup line and blow out sanitizer by
operating each valve.
4. Remove diffusers and nozzles from valves, soak in sanitizing solution for 15 minutes, rinse well and
reinstall.
5. Reconnect all lines and dispense product through valves to purge any remaining sanitizer.
12

Recommended daily dispenser cleaning
1. Remove all debris from drain pan.
2. Pour 1 gallon (4L) hot water into drain pan to keep drain lines clear.
Recommended weekly dispenser cleaning
1. Remove drain pan and grille and wash with Solution A. Rinse thoroughly.
2. Remove nozzles and diffusers from valves, soak for at least 10 minutes in cleaning Solution A, rinse,
sanitize with Solution B and reinstall.
3. Pour a solution of one cup (8oz/237ml) household bleach mixed with one gallon (3.8L) hot water into
drain pan to help prevent algae growth in drain lines.
Recommended quarterly dispenser cleaning
1. Remove top from dispenser and turn power switch to OFF position.
2. Remove ice from storage area.
3. Remove dispense chute cover, chute, auger motor assembly, auger and auger tube (see Service section).
4. Remove drain pan, grille, dispense wheel, agitator rods, and drive shaft (see Service section).
5. Clean all components and bin storage area with Solution A, rinse thoroughly with clear water and sanitize
with Solution B.
6. Remove nozzles and diffusers from valves, soak for at least 10 minutes in cleaning Solution A, rinse,
sanitize with Solution B and reinstall.
For units with integral ice-water bath beverage cooling only:
1. Remove side access panel next to ice tower with two upper screws and lift out.
2. Disengage service drain tube (on utility connection side of dispenser) from mounting bracket and drain
ice water bath.
3. Use a bottle brush to clean coils with Solution A, rinse and sanitize with Solution B.
4. Reposition ice water bath drain line in up position so water does not drain out.
5. Pour Solution A into ice water bath until it flows out overflow drain.
6. Turn power ON to unit and dispense a small cup of ice to activate pump.
7. Allow pump to run for two minutes to clean pump and pump lines.
8. Turn power OFF.
9. Drain bath and replace drain tube in mounting bracket in up position to avoid siphoning water bath water.
Putting unit back in service after quarterly cleaning
1. On units with integral beverage cooling, fill ice water bath with water until water spills out of
bath overflow drain.
2. Reassemble components.
3. For manual load units, fill unit with an approved ice (see important cautions on page 4).
4. For automatic load units with R400A/W (R404A refrigerant) icemakers, turn bin signal switch(es) and
dispenser power switch to ON position and allow storage area to fill.
5. Push dispense button or lever to test that dispenser is functioning properly.
Recommended quarterly cleaning of optional auto-fill icemaker kit(s).
Units equipped with optional icemakers require cleaning of icemaker system at least every six months, and more
often if local water conditions dictate. Failure to clean icemaker system will result in decreased performance and
potential damage to icemaker. Refer to Icemaker Installation, Operation and Service Manual.
13

Service
Dispense chute cover removal
1. Remove top cover.
2. Remove two screws from top cover and pull cover forward
and down to remove.
3. On push button units, disconnect plug on harness.
Auger motor assembly removal
1. Remove drain pan.
2. Remove thumbscrews from splash guard and remove.
3. Remove thumbscrews from splash panel; lift and pull forward at
base of panel and remove.
4. Unplug auger motor at connector.
5. Remove two 1/4-20 bolts holding auger motor to hold-down
bracket.
6. Remove two thumbscrews from auger motor stabilizer bracket
and set aside.
7. Lift auger motor off.
Gate assembly removal
1. Remove dispense chute cover and auger motor assembly.
2. Remove thumbscrews on each side of clear focus chute and
remove.
3. Remove quick release pin holding dispense gate assembly
and chute.
4. Lift gate up and over hinge tabs, then carefully pull and tilt to
unhook from solenoid link.
5. Pull ice chute toward you to unclip from dimples on chute
mounting bracket.
6. Pull ice chute and gate toward you and out through panel
opening.
7. Lift dispenser mechanism assembly off auger and auger tube.
Auger and auger tube removal
1. Remove dispense chute cover and auger-motor assembly.
2. Remove side panel of tower.
3. Remove screw holding top auger tube ring to lower ring.
4. Lift auger out of auger tube.
5. Lift out auger tube, turning as needed to clear rivnuts on side
auger motor mounting bracket.
Dispenser wheel removal
1. Remove dispenser top and turn power switch OFF.
2. Remove all ice from bin.
3. Remove drain pan and ice bin access cover below it.
4. Remove splash guard and wheel motor access cover.
5. Unplug wheel motor at connector and remove ground wire.
5. Remove wheel motor by
pulling out two quick release pins.
6. Lift drive shaft up through hole in countertop.
7. Lift dispense wheel out through drain pan opening.
auger motor
wheel motor
auger tube
auger
drive
shaft
Dispenser cutaway – front view
Dispense chute assembly
quick release pins
ice chute
gate assembly gate assembly
ice chute
springs
fixed ramped
yoke rod with
bracket (below
rotating drive
bar)
mounting
bracket
auger
tube
ring
Front
fixed yoke
rod with
bracket
14

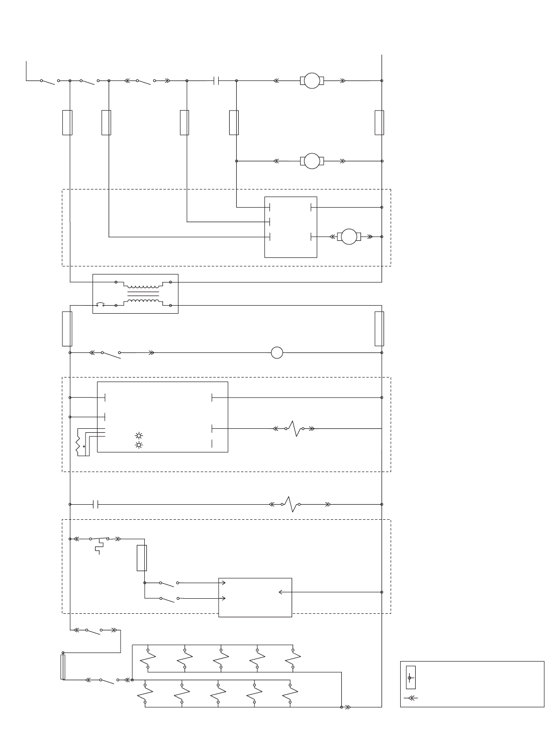
Wiring diagrams
Single-side models
DISPENSE RELAY
BATH CONTROL
BOARD
READY
WHEEL MOTOR
POWER
SWITCH
L1
BLACK
PL1-2PL1-1
POWER
LID
SWITCH
TOP LID
C
BLACK
NO
SWITCH
PA N
DRAIN
GRAY
CNO
R1
DISPENSE
PURPLE
READY
ORANGE
47
MTR
PURPLE
BEVERAGE COOLING OPTION
BLACK
GRAY
SWITCH
DISPENSE
RED
RED
24V RED
PL6-1
C
24 VOLTS
115 VOLTS
T1
BROWN
NO
PL6-3
ORANGE
PURPLE MTR
LID
BROWN
B
R1
PL2-1 PL2-2
AUGER MOTOR
L2
M2
M1
BLK
PL3-2
RED
WHT
BLUE
L2
WHT
PL3-3
WHT
(35 MIN ON DELAY)
BATHPUMP
MOTOR
WHITE
L2
PUMP
PL5-1
BLK
PL5-2
M3
A
YELLOW
YELLOW
24V YEL
TERMINAL STRIP CONNECTION
PIN and SOCKET CONNECTION
LEGEND:
DISPENSE
SOLENOID
(12 SEC ON: 1 MIN OFF)
SOLENOID
BEV HARN
RED
BLUE BLUE
BEVERAGE COOLING OPTION
BATH CONTROL BOARD
STATUS LIGHTS
RED - WARM
GREEN - COLD
TEMP
SENSOR
BATH SOL
24VAC RED
RED
RED
C
T
BIN T'STAT
2
PL6-4
DISPENSE
PL6-2
RED R1
96
RED
1
BROWN
BLUE
T- S TAT
IM_#1
BATH SOL
24VAC YEL
NO
NC
BLUE PL4-2
PL4-3
BLACK
Valve_1
BLACK
RED
BROWN
AUTOFILL
SWITCH
DRAINPAN
NO
PL1-4
PL1-3
BROWN
C
PL7-1
BLUE
IM_#2
SWITCH
KEYSWITCH
Valve_6
Valve_3
ICEMAKER #2
BIN SIGNAL (24V)
ICEMAKER #1
BIN SIGNAL (24V)
Valve_2
24V JUNCTION BOX
Valve_4
Valve_8Valve_7 Valve_9
PL4-1
BATH
YELLOW
YELLOW
PL4-4 YELLOW
Valve_5
BLACK
YELLOW
YELLOW
Valve_10
PL7-2
RED
15

Dual-side models
DISPENSE RELAY
WHEEL MOTOR
POWER
SWITCH
L1
#2
SWITCH
NO
DRAIN PAN
CNO C
R1
DISPENSE
BLK
47
SWITCH #1
DISPENSE
BLUE
PL3
C
24 VOLTS
115 VOLTS
YELLOW
NO
PL3
A
R1
TERMINAL STRIP
CONNECTION
PIN and SOCKET
CONNECTION
PL1
AUGER MOTOR
L2
AM
WM
RED
PL2
BLK
WHT
WHT
PL2
BLUE
B
LEGEND:
DISPENSE
SOLENOID #1
BLUE BLUE
BIN T'STAT
2
DISPENSE
BLUE
R1
96
BLUE
1
BLUE
IM_#1
PL4
BLUE
BLUE
IM_#2
SWITCH
ICEMAKER #2
BIN SIGNAL (24V)
ICEMAKER #1
BIN SIGNAL (24V)
24V JUNCTION BOX
PL4
RED
GND
GREEN
GREEN
WHT
PL1
BLK
PL12
(DP-NO)
BLKBLK
#1
(DP-NO)
DRAIN PAN
SWITCH
BLK
PL12
BLKBLK BLK
PL13
7
4
R2
WHITE
BLACK
C
R
BLUE REDYELLOW
REDBLUE
KEYSWITCH #1
Valve_9Valve_6 Valve_7 Valve_8 Valve_10
PL10
Valve_4
BLACK
Valve_1
PL10
Valve_2 Valve_3
RED
Valve_5
NO
SWITCH
DRAINPAN
#1
C
BLUE BLACK
QC QC
BLACK BLACK
SODA VALVES - SIDE #1
PL7
PL8
BLUE
RED
QC
YEL
YEL
PL8
PL7
RED
RED
R
24 VOLTS
BLACK 115 VOLTS
C
WHITE
DISPENSE
SWITCH #2
RED
SODA VALVES - SIDE #2
BLACK
Valve_3
Valve_7Valve_6 Valve_8
Valve_1 Valve_2
Valve_10Valve_9
PL11
Valve_5Valve_4
BLACK
YELLOW
BLUE
PL11
BLUE
PL5
BLUE
DISPENSE
BLACK
DRAINPAN
BLUE
QCQC
KEYSWITCH #2
C
#2
SWITCH
NO
BLACK
69
R2
DISPENSE SOLENOID #2
PL6
RED
PL6
BLUEYELLOW
CNO
PL5
DISPENSE RELAY
B
R2
A
RED
TRANSFORMER #1
TRANSFORMER #2
PL13
BLK
PL13
WHT
WHT
JUNCTION
BOX
115V
JUNCTION
115V
BOX
BLK
BLK
R1
(6)
TRANS#1
(R)
BIN
S TAT 1
(1)
TRANS#1
(R)
R1
(B)
TRANS#1
(C)
TRANS#1
(C)
TRANS#1
(C)
TB
TB
TB
TB
TBTB
TRANS#2
(R)
R2
(6)
TRANS#2
(R)
R2
(B)
TRANS#2
(C)
TRANS#2
(C)
16

If problems persist after following this basic troubleshooting guide, call Follett’s technical
service department at (800) 523-9361 or (610) 252-7301.
Symptom
Ice does not dispense.
• Auger motor does not run
• Wheel motor does not run
Ice does not dispense.
• Auger motor runs
• Wheel motor runs
• Gate does not open
Ice does not dispense.
• Auger motor does not run
• Wheel motor runs
Ice does not dispense.
• Auger motor runs
• Wheel motor does not run
Warm drinks or soda foaming.
No ice in dispenser.
Possible cause
1. Power switch faulty or in OFF
position; loose connection.
2. Faulty dispense switch.
3. Faulty transformer.
4. Drain pan ajar.
5. Faulty drain pan safety switch.
1. Loose electrical connection.
2. Linkage problem between
solenoid and gate.
3. Faulty solenoid.
1. Loose electrical connection.
2. Faulty auger motor.
3. Faulty run capacitor.
1. Loose electrical connection.
2. Faulty wheel motor.
3. Faulty run capacitor.
1. No ice in storage bin.
2. Water drained out of ice water
bath.
3. Circulating pump not running.
4. Board off on fill error.
1. Power switch in OFF position or
faulty.
2. Bin signal switches in OFF
position or faulty.
3. Faulty bin thermostat.
4. Faulty transformer.
5. Icemaker related problem.
6. Faulty or disconnected wiring.
Solution
1. Turn power switch to ON position;
check connections.
2. Replace switch.
3. Replace transformer.
4. Check pan and reseat.
5. Replace switch.
1. Check connections.
2. Check linkage.
3. Replace solenoid.
1. Check connections.
2. Check auger motor.
3. Check run capacitor.
1. Check connections.
2. Check wheel motor.
3. Check capacitor.
1. Fill storage area with ice or check
icemaker operation.
2. Check that ice water bath drain
tube is in fixed upright position.
3. Check pump and PC board for
output.
4. Cycle power on/off to reset board.
1. Check switch and replace if
necessary.
2. Check switch and replace if
necessary.
3. Replace bin thermostat.
4. Replace transformer.
5. Refer to Icemaker Operation and
Service Manual for diagnosing.
6. Check for power and bin signal on
icemaker PC board.
Dispenser troubleshooting guide
Before calling for service
1. Check that ice is in the dispenser and that congealed cubes are not causing a jam.
2. Check that circuit breaker and switches are in ON position.
3. Check that drain pan and top are on securely. If ajar, dispenser will not operate. When the top is off, auger
does not operate, even though the solenoids do (page 18).
4. Check that all drains are clear.
Note: For units equipped with Follett Chewblet auto-fill icemaker kit(s), see Icemaker Operation and Service
Manual for service and troubleshooting information.
17

Operational Status
The chart below shows the operational status of various parts when certain switches are turned off or accessories
are removed.
Condition Pump Solenoids Auger Wheel Beverage
valves
Top lid off OFF ON OFF OFF ON
Drain pan off ON ON OFF OFF OFF
On/off switch
in OFF position OFF OFF OFF OFF OFF
Beverage
switch in OFF
position ON ON ON ON OFF
Electrical box
Front View
Water bath circuit board operation
The temperature sensor is hard wired directly to the circuit board. The water bath circuit board operates on 24
volts AC. The bath pump will run for 35 minutes whenever ice is dispensed or the bath calls for ice.
Optimal beverage temperature is controlled by the circuit board located in the electrical box. The board monitors
the water bath temperature and holds it to a factory setting. When the Red LED is ON, the bath solenoid, auger
motor, wheel motor and bath pump are energized. Ice will be dispensed into the water bath for 12 seconds, then
stop for 60 seconds. The pump will stay energized, and the circuit board will then monitor the water temperature.
If it is below the set point, the Green LED will come on, the Red LED light will go off, and ice will not dispense
into the water bath. If the temperature of the bath is determined to be above the set point, the Red LED will
remain on. The circuit board has a delay of 60 seconds before more ice is dispensed into the water bath.
LED indicators:
Green – the water bath is at the set temperature.
Red – the bath temperature is above the set temperature and the bath is calling for ice.
Flashing LED indicators:
Flashing Red and Green – the circuit board has gone into an error mode:
Alternate flashing – circuit board has power and is waiting for hopper cover and dispenser top to be
replaced.
Simultaneous flashing – the water bath did not reach set temperature in 40 minutes. Reset this error
mode by turning power off, removing top lid, drain pan or rear lid.
bev. bath
indicator
18
I
0
I
0
I
0
power on/off
switch
#1 #2
icemaker
switches
probe
warm/red LED cold/green LED

Replacement parts
Reference # Description Part #
1 Lid, with graphics, single-sided 00126805
2 Lid, with graphics, dual-sided 00126813
3 Graphics, “Follett”, single-sided 00116780
4 Access panel, tower, single-sided 00108407
5 Access panel, tower, dual-sided 00115246
Not shown Cover, ice opening (below drain pan) 00143685
6 Drain pan assembly and grille 00126862
7 Drain pan, plastic 00108829
Not shown Switch, drain pan safety 502475
8 Grille, drain pan 00108845
9 Chute cover, dispense, push-button with switch 502440
Not shown Chute cover, dispense, lever 502439
10 Splash guard 00121517
11 Thumbscrew, 10/32-1/2, splash guard 501100
Not shown Switch, dispense, PB 502441
Not shown Switch, dispense lever (includes boot and spacer) 501714
Not shown Boot, dispense switch button, lever 501841
Not shown Access cover, wheel motor (behind splash guard) 00114546
Not shown Fitting, drain, drain pan, brass 00143677
Not shown Lip kit (plastic strip bordering ice bin opening and adhesive) 502285
Not shown Insulation, transport tube (sold by the foot) 501176
Not shown Tube, ice transport, 10 ft 502522
Not shown Tube, ice transport, 20 ft 502523
12 Graphics, “Follett”, dual-sided 00117366
13 Drain box 00155218
14 Bracket, drain pan locator 00143693
15 Bracket, drain box and pan locator 00155200
2
3
4
5
6
6
7
8
9
9
1
Plan View
10 10
11
11
11
Single-side dispenser Dual-side dispenser
77
12
19
1
15
13 14
14
15
13

1
2
8
10
3
5
4
6
9
11
12
13
14 countertop
section
4
Top View
lower ring
Top View
auger tube seal
Front View
auger tube
6
Reference # Description Part #
1 Motor, auger (includes capacitor), 100 RPM 00115212
2 Bracket, auger motor hold-down 502047
Not shown Bracket, auger motor stabilizer 00108498
Not shown Seal, shaft, auger motor 501977
3 Auger 00109249
4 Auger tube (includes insulation) 00126870
5 Insulation, auger tube 502099
6 Ring, auger tube, upper 501939
7 Ring, auger tube, lower 502155
8 Motor, wheel, Brother (includes capacitor) 502657
9 Bracket, wheel motor 501981
Not shown Capacitor, wheel motor, Brother 502658
Not shown Gasket, wheel motor bracket 501982
Not shown Pin, quick release, wheel motor (2 required) 502102
10 Drive shaft assembly 00126888
11 Agitator rod, fixed 502629
12 Wheel, dispense 501978
13 Bearing plate, bottom auger 00126896
Not shown Agitator rod, ramped 502628
Not shown Bracket, fixed agitator (2 used per unit) 501974
Not shown Thumbscrew, 10/32 x 3/4, fixed agitator bracket (2 required) 501259
14 Tee, drain 502059
15 Thermostat 500514
16 Bracket, ice hose and wheel motor 00126904
Not shown Leg 00137257
Not shown Coupling, auger top 00109306
Not shown Plug 2 lead, male, bin signal 502333
Not shown Socket 2 lead, female, bin signal 502334
7
5
16
reinforcing
tab
15
20

U300 dispense assembly
Side View
U300 dispense assembly
Top View
2
1
4
1
4
6
3
3
7
Reference # Description Part #
1 Pump, water bath (includes mounting plates and elbow) 00111476
2 Elbow, overflow, 1" (26mm) x 3/4 MPT 502465
Not shown Elbow, clean out, drain, 3/8" (10mm) x 3/8 MPT 502466
3 Syrup coil 00125864
4 QuickCARB, foam pack assembly 00127043
5 Foam pack assembly, 10 valve 00127068
Not shown Foam pack assembly, 8 valve 00127076
6 Coil, carbonated water, 8 valve & 10 valve 00119560
7 Coil, water/carb, 8 valve & 10 valve 00123141
8 Manifold, carbonated water, 8 valve & 10 valve 00207540
9 Manifold, water 8 valve & 10 valve 00123141
10 Guide, ice bath, LH 00127084
Not shown Guide, ice bath, RH 00127092
11 Tubing, vinyl, pump (order by foot – min 3 ft) 501966
Reference # Description Part #
1 Gate, dispense 501955
2 Linkage pin, gate/solenoid 502096
3 Pin, quick release, 3" (77mm), gate and lever 501949
4 Chute, ice 501952
5 Solenoid 501961
Not shown Boot, solenoid 502098
6 Dispense mechanism assembly 501948
7 Spring, dispense mechanism (1 per side) 501950
Not shown Chute, focus 502459
Not shown Lever, dispense 501953
5
21
1
2
3
4
5 5
10
11
9
86
7
7

24VAC (YEL)
NO
NC
24VAC (RED)
C
L2 (WHT)
PUMP
LID
ready
MTR
Beverage bath control
board detail
COLDWARM
BEV. BATH
INDICATOR
000
III
COM
N.O.
(orange)
Reference # Description Part #
1 Transformer, 24V 502058
2 Relay, dispense 501826
3 Strips, terminal 502472
4 Switches (power and icemaker) 502209
5 Board, circuit and probe (one unit) 502473
6 Bracket, probe 00111484
7 Switch, safety 502511
Not shown Switch, safety, drain pan assembly, LH unit 502500
Not shown Switch, safety, drain pan assembly, RH unit 502501
Not shown Switch, dispense, lever 502505
Not shown Bracket, safety switch, drain pan, RH 502609
Not shown Bracket, safety switch, drain pan, LH 502610
Not shown Thermostat, bin level 500514
Electrical components
Top View
Front View
31
45
7
4
4
6
Side View
32
22
5

00119644R02
10/06
801 Church Lane • PO Box D, Easton, PA 18044, USA
Toll free (800) 523-9361 • (610) 252-7301
Fax (610) 250-0696 • www.follettice.com
Chewblet is a registered trademark of Follett Corporation, registered in the US.