FreeFlight Systems RA4XXX Radar Altimeter that measures altitude above ground level User Manual TYPE CERTIFICATION REPORT
FreeFlight Systems Radar Altimeter that measures altitude above ground level TYPE CERTIFICATION REPORT
User Manual
Rhein Tech Laboratories, Inc. Client: FreeFlight Systems
360 Herndon Parkway Model: RA-4000 Series
Suite 1400 FCC ID: T7YRA4XXX
Herndon, VA 20170 Standards: Part 87
www.rheintech.com Report #: 2008233
Appendix G: User Manual
Please refer to the following pages for the manual.
22 of 27

Equipment Installation Manual
RA-4000 Series Radar Altimeters
P/N 84629, Rev F
EQUIPMENT INSTALLATION MANUAL
FOR
FREEFLIGHT SYSTEMS
RA-4000 SERIES RADAR ALTIMETERS
Part Numbers 84560-XX
FreeFlight Systems
3700 Interstate 35 South
Waco, TX 76706-3756 U.S.A.
1 (254) 662-0000
1 (800) 487-4662

Equipment Installation Manual
RA-4000 Series Radar Altimeters
P/N 84629, Rev F
REVISION HISTORY
REV DESCRIPTION DATE
A Initial release 02-Oct-05
B Released per ECN F05032 21-Nov-05
C Released per ECN F06008 11-Sep-06
D Released per SRR #7 20-Sep-07
E Released per ECN F08008 14-Aug-08
F Released per ECN F08030 21-Nov-08

Equipment Installation Manual
RA-4000 Series Radar Altimeters
P/N 84629, Rev F
i
Table of Contents
1 INTRODUCTION.......................................................................................................1-1
1.1 REFERENCE DOCUMENTS.........................................................................................1-2
1.2 TABLE OF ACRONYMS & ABBREVIATIONS...............................................................1-2
2 DESCRIPTION...........................................................................................................2-1
2.1 OPERATIONAL MODES.............................................................................................2-1
2.2 SYSTEM LIMITATIONS..............................................................................................2-2
2.3 SPECIFICATIONS.......................................................................................................2-3
2.4 COMPONENT AND ACCESSORY PART NUMBERS ......................................................2-4
2.5 LICENSE REQUIREMENTS .........................................................................................2-4
3 ELECTRICAL INTERFACE....................................................................................3-1
3.1 GROUND ..................................................................................................................3-1
3.2 POWER IN................................................................................................................3-1
3.3 RESET ......................................................................................................................3-1
3.4 STRUT INPUT............................................................................................................3-2
3.5 NAV TX/RX............................................................................................................3-2
3.6 PGM-EN.................................................................................................................3-2
3.7 NAV-BIAS................................................................................................................3-2
3.8 NAV-COM................................................................................................................3-2
3.9 NAV-TXA/TXB ......................................................................................................3-2
3.10 ARINC-TXA/TXB ...............................................................................................3-2
3.11 ARINC SPEED SELECT ..........................................................................................3-2
4 FUNCTIONAL INTERFACES.................................................................................4-1
4.1 RS-232/422/485 INTERFACE ...................................................................................4-1
4.2 ARINC 429 INTERFACE...........................................................................................4-3
5 MECHANICAL ..........................................................................................................5-1
5.1 RA-4000 MOUNTING...............................................................................................5-1
5.2 CONNECTORS...........................................................................................................5-1
5.3 ANTENNA MOUNTING..............................................................................................5-3
6 INSTALLATION........................................................................................................6-2
6.1 GENERAL INFORMATION..........................................................................................6-2
6.2 UNPACKING AND INSPECTING EQUIPMENT ..............................................................6-2
6.3 EQUIPMENT LIMITATIONS........................................................................................6-2
6.4 ANTENNA INSTALLATION ........................................................................................6-3
6.5 RA-4000 INSTALLATION .........................................................................................6-4
APPENDIX A – ENVIRONMENTAL CATEGORIES.............................................6-1

Equipment Installation Manual
RA-4000 Series Radar Altimeters
P/N 84629, Rev F
ii
List of Figures
Figure 1-1: RA-4000 System Block Diagram .................................................................1-1
Figure 5-1: RA-4000 Installation Drawing......................................................................5-2
Figure 5-2: Antenna (P/N 9-1203-115-00) Installation Drawing ....................................5-3
List of Tables
Table 2-1: System Technical Characteristics...................................................................2-3
Table 2-2: RA-4000 Physical Characteristics..................................................................2-3
Table 2-3: Antenna (P/N 9-1203-115-00) Physical Characteristics ................................2-3
Table 2-4: RA-4000 Install Kit........................................................................................2-4
Table 2-5: Optional FreeFlight Install Kit and Parts .......................................................2-4
Table 2-6: Other Accessories...........................................................................................2-4
Table 3-1: RA-4000 Interface Pin out .............................................................................3-1
Table 4-1: Data Field Definition......................................................................................4-1
Table 4-2: Status Byte Bit Definition ..............................................................................4-2
Table 4-3: Sample Packet at 1000’..................................................................................4-2
Table 5-1: Connector Descriptions..................................................................................5-1
Table 6-1: Propagation Delay and Attenuation of the Antenna Cable ............................6-3
Table 6-2: Typical Antenna Cable Lengths.....................................................................6-3

Equipment Installation Manual
RA-4000 Series Radar Altimeters
P/N 84629, Rev F
1-1
1 Introduction
This manual contains installation data and specifications for the FreeFlight Systems RA-
4000 Series Radar Altimeters (P/N 84560-XX), hereafter referred to as the RA-4000.
The RA-4000 meets the requirements for a TSO-C87 Radar Altimeter with Precision
Equipment output.
The RA-4000 is designed to provide altitude above ground level (AGL) data to an
electronic flight instrument system (EFIS), an integrated Flight Management System
(FMS), or a navigation management system (NMS). Altitude is calculated by assessing
the round trip delay of a signal reflected from the ground.
The system consists of three Line Replaceable Units (LRUs): the RA-4000
Receiver/Transmitter (R/T) Unit and two Antenna Units (refer to section 2.4). Refer to
Figure 1-1 for a system block diagram.
Power In
Strut Switch In
Altitude out:
- Serial RS-485/422
- Serial RS-232C
I/O
RA-4000
Transmit
Receive
Figure 1-1: RA-4000 System Block Diagram

Equipment Installation Manual
RA-4000 Series Radar Altimeters
P/N 84629, Rev F
1-2
1.1 Reference Documents
Document Number Title
RTCA/DO-160E Environmental Conditions and Test Procedures for Airborne Equipment;
29-July-97 (incorporating Change 1 dated 14-Dec-00, Change 2 dated 12-
June-01, and Change 3 dated 05-Dec-02).
RTCA/DO-178B Software Considerations In Airborne Systems And Equipment
Certification; 1-Dec-92.
TSO-C87 AIRBORNE LOW-RANGE RADIO ALTIMETER; 1-Feb-1966.
RTCA/DO-155 Minimum Performance Standards Airborne Low-Range Radar Altimeters;
1-Nov-1974.
ARINC 429 Mark 33 Digital Information Transfer System; May 17, 2004
1.2 Table of Acronyms & Abbreviations
The following acronyms and abbreviations are used throughout this document.
Abbreviation Definition
A Ampere
AGL Above Ground Level
BCD Binary Coded Decimal
dB Decibels
EFIS Electronic Flight Instrument System
FAR Federal Aviation Regulations
FFS FreeFlight Systems
FMCW Frequency Modulated Continuous Wave
FMS Flight Management System
Hz Hertz
LRU Line Replaceable Unit
LSB Least-Significant Bit
MHz Mega-Hertz
ms Milliseconds
NCD No Computed Data
NMS Navigation Management System
ns Nanoseconds
P/N Part Number
R/T Receiver / Transmitter
RX Receive
SDI Source/Destination Indicator
SSM Sign/Status Matrix
TNC Threaded Neill-Concelman [connector]
TSO Technical Standard Order
TX Transmit
VCO Voltage-Controlled Oscillator
VDC Volts Direct Current

Equipment Installation Manual
RA-4000 Series Radar Altimeters
P/N 84629, Rev F
2-1
2 Description
A complete system consists of an RA-4000 R/T unit (P/N 84560-XX) and two antennas
(refer to section 2.4). The RA-4000 provides AGL altitude information from -20 feet up
to 2000 feet maximum via computer interface.
The RA-4000 Radar Altimeter system utilizes a reliable solid-state voltage-controlled
oscillator (VCO) to drive its transmitter. Embedded processors precisely measure the
signal delay, calculate the altitude, and provide a simple to use computer interface.
2.1 Operational Modes
Once the unit has completed a reset, it begins outputting data at a 25 Hz rate. Data
consists of the altitude and a status byte on the RS-232/422/485 interface (refer to section
4 for a description of the protocol) and labels 164, 165, and 377 on the ARINC 429
interface. Following is a description of different modes for the unit.
2.1.1 Power On Self-Test
At power on, the system initializes operation and performs a self-test for approximately
20 seconds. In the self-test, the lock circuitry is tested and a test signal applied to the
receive circuitry. During this time, the unit reports an altitude of 40±3 feet and asserts
the “Self-Test” bit in the status byte (see section 4.1.2.1.4).
2.1.2 Altitude Zero Calibration
When the Altitude Zero Calibration mode is selected during installation, the unit
automatically calibrates the zero altitude point. This automatically compensates for
different cable lengths and different antenna installation heights above the ground that
would otherwise bias the altitude reading.
2.1.3 On Ground Operation
While on the ground, the unit is susceptible to erroneous readings caused by signals
returned from nearby buildings or personnel. Utilization of the strut input allows the unit
to ignore these erroneous signals and report zero feet. The “Strut” bit of the status byte
(see section 4.1.2.1.4) provides an indication of the input signal.
2.1.4 Normal Operation
When the unit detects a locked signal and does not have a strut indication (i.e. – aircraft
in the air), it reports altitude with the “Signal” bit indicating locked. If unusual terrain,
aircraft orientation, or environmental conditions prevent a stable received signal, the
“Signal” bit of the status word indicates unlocked.

Equipment Installation Manual
RA-4000 Series Radar Altimeters
P/N 84629, Rev F
2-2
2.2 System Limitations
2.2.1 Terrain
At altitudes above 1500 feet, terrain with poor reflectivity may cause the unit to unlock.
Examples of unfavorable terrain are dry, loose soil, (e.g. - tilled farmland), or sand.
2.2.2 Excessive Pitch/Roll
An excessive pitch or roll attitude may also cause the system to unlock. This sensitivity
increases with altitude. In general, below 1500 feet a 30 degree bank is tolerated. Above
1500 feet, the aircraft should be maintained within a 20 degree bank for proper operation.
If the unit unlocks due to marginal conditions, it will automatically relock when a signal
sufficient for ranging is detected.
2.2.3 Rapid Descent
In cases of extremely rapid descent, both the response time of the system and pitch of the
aircraft may prevent normal operation. At a descent rate of 1500 feet/minute or less, the
RA-4000 system provides normal operation below 2000 feet.
2.2.4 Response Time
When flying the RA-4000 system over rapidly changing terrain, e.g., a cliff or ravine, the
system is limited by the 100 ms maximum response time of the unit.
Note:
The RA-4000 system surveys ground directly below the aircraft, and should
not be relied on as either a forward looking or warning device.

Equipment Installation Manual
RA-4000 Series Radar Altimeters
P/N 84629, Rev F
2-3
2.3 Specifications
Specifications for the RA-4000 system are listed in Tables 2-1 through 2-3.
Table 2-1: System Technical Characteristics
Parameter Value
Type Dual antenna, FMCW
Compatible Antennas 1) FreeFlight P/N 9-1203-115-00
2) EDO P/N DM PN19-2-1
Altitude Range -20 to 2000 feet
Altitude Accuracy 0 to 100 feet +/- 3 feet
100 to 500 feet +/- 3%
500 to 2000 feet +/- 5%
Frequency Range 100 MHz sweep 4.25 - 4.35 GHz
Sweep Frequency 100 Hz
Input Voltage 20-36 VDC (Internal fuse and reverse
polarity protection)
Input Current 400 mA Max @ 28 VDC (steady-state)
Max. Inrush Current 7 A for 1 ms @ 28 VDC
Altitude Output, Rate 25 Hz
Altitude Latency less than 100 ms (63% of final value)
Operating Temperature -55°C to +70°C
Self-Test / Reset On system power-up
Environmental DO-160E
Certifications TSO-C87, DO-178B Level C
Table 2-2: RA-4000 Physical Characteristics
Parameter Value
Weight 1.9 lb
Height 3.06”
Length
(Including mounting flange) 6.78”
Width 3.15”
Connectors 2 each TNC antenna connectors
1 each 22 pin circular connector
Table 2-3: Antenna (P/N 9-1203-115-00) Physical Characteristics
Parameter Value
Quantity 2
Weight 0.3 lbs (0.6 lbs total)
Dimensions 3.5" W x 3.65" L x .15" H

Equipment Installation Manual
RA-4000 Series Radar Altimeters
P/N 84629, Rev F
2-4
2.4 Component and Accessory Part Numbers
Each RA-4000 unit is shipped individually, as indicated in Table 2-4. Two antennas and
associated wiring are also required for installation. An Installation kit is available from
FreeFlight, as indicated in Table 2-5. The items listed in Table 2-6 are required, but not
supplied by FreeFlight.
Table 2-4: RA-4000 Install Kit
ITEM FREEFLIGHT P/N QUANTITY
RA-4000 R/T Unit 84560-XX 1 required
Table 2-5: Optional FreeFlight Install Kit and Parts
ITEM FREEFLIGHT P/N QUANTITY
Optional Installation Kit 84933-00 1 required
Coax Cable RG-142 B/U (30 ft) 0123-0012-00 1 per kit
Antennas 9-1203-115-00 2 per kit
Connector TNC 0129-0017-00 4 per kit
22 Pin connector RA-4000 Series 84443 1 per kit
Connector Backshell Strain Relief 84444 1 per kit
Note: EDO Corporation’s Radar Altimeter Antenna (EDO P/N PN19-2-1) is also
compatible with FreeFlight Systems RA-4000 Radar Altimeter Unit. These antennas are
not sold by FreeFlight Systems and must be purchased from the manufacturer directly or
from any EDO antenna dealer. Refer to the manufacturer’s documentation for the
specifications for these antennas.
Table 2-6: Other Accessories
ITEM FREEFLIGHT P/N QUANTITY
System Wiring N/A As required
Circuit Breaker N/A 1
System Indicator N/A 1
Mounting Tray for altimeter 1900-3121-X2 1
2.5 License Requirements
As installed in the aircraft, the radar altimeter does not require an FCC operator’s license.
For information, reference FCC 47 CFR Part 87.89 Minimum operator requirements.

Equipment Installation Manual
RA-4000 Series Radar Altimeters
P/N 84629, Rev F
3-1
3 Electrical Interface
Electrical interconnection to the RA-4000 is made via 22-pin connector. Refer to Table
3-1 for a description of the pin out.
Table 3-1: RA-4000 Interface Pin out
Pin Name Function Direction Level
1 Ground Ground - Ground
2 Ground Ground - Ground
3 Power In
Aircraft voltage in In 20-36 VDC
4 Power In
Aircraft voltage in In 20-36 VDC
5 Reset Reserved In NO CONNECT
6 Reserved
7 Reserved
8 Strut Strut (active low) In Ground or open
9 Reserved
10 429 Speed
Select*
ARINC 429 Output Speed Select:
Low Speed (default, pin open)
High Speed (pin to ground) In Ground or open
11 ARINC-TXB*
Navigation Port ARINC 429 Out ARINC 429
12 ARINC-TXA*
Navigation Port ARINC 429 Out ARINC 429
13 Nav-TX Navigation Port RS-232C Transmit Out RS-232C
14 Nav-RX Navigation Port RS-232C Receive In RS-232C
15 PGM-EN Reserved In NO CONNECT
16 Reserved
17 Reserved
18 Nav-Bias RS-485 100 ohm ground connection - RS-485 Ground
19 Nav-Com Navigation Port Ground - Ground
20 Nav-Com Navigation Port Ground - Ground
21 Nav-TXA Navigation Port Serial RS-485/422 Out RS-485/422
22 Nav-TXB Navigation Port Serial RS-485/422 Out RS-485/422
*Only applicable to part number 84560-02.
3.1 Ground
Aircraft ground is connected on two pins.
3.2 Power In
Aircraft power of 20-36 VDC is connected on two pins.
3.3 Reset
This circuit is reserved for factory test purposes only. Do not connect.

Equipment Installation Manual
RA-4000 Series Radar Altimeters
P/N 84629, Rev F
3-2
3.4 Strut Input
The Strut signal is an active low input. That is, the input should be grounded when the
aircraft is on the ground.
3.5 Nav TX/RX
The Nav-TX/RX lines use RS-232C signal levels. The RS-232C Nav-TX output carries
the same data as the RS-485/422 Nav-TXA/TXB pair. The Nav-TX/RX lines are used to
initiate the Altitude Zero Calibration function and to reprogram the unit via serial RS-
232C protocol. Note that it may be advantageous to route these lines to a point which
facilitates shorting them for the Altitude Zero Calibration (see 6.5.1). If this is done, care
should be taken that the lines do not accidentally short during normal flight. During
normal operation after the Zero Calibration has been accomplished, these lines should not
be connected.
3.6 PGM-EN
The Program-Enable input is used to reprogram the unit. Do not connect in normal
operation.
3.7 Nav-Bias
This pin provides a 100 ohm resistive ground connection for the RS-485 communications
circuit.
3.8 Nav-Com
These connections provide a direct ground reference, if desired.
3.9 Nav-TXA/TXB
Used as the primary data interconnect, these pins are driven by an LTC485 device.
3.10 ARINC-TXA/TXB
ARINC 429 labels 164, 165, and 377 are transmitted on this interface at a rate of 25 Hz.
Cabling should shielded twisted pair with shield grounded to aircraft and radar altimeter
chassis.
3.11 ARINC Speed Select
This pin is used to configure the unit to output low-speed (12 kbps) or high-speed (100
kbps) ARINC 429 data. If this pin is left open (default) the system will output low-speed
ARINC data. If the pin is connected to ground, the system will output high-speed ARINC
data.

Equipment Installation Manual
RA-4000 Series Radar Altimeters
P/N 84629, Rev F
4 Functional Interfaces
The FreeFlight Systems Radar Altimeter provides serial RS-232/422/485 interfaces and
an ARINC 429 interface (Part Number 84560-02 only).
The following sections describe the protocols used.
4.1 RS-232/422/485 Interface
4.1.1 Data Rate
Data is transmitted in multi-byte packets at 56,000 baud (LSB first, 8 data bits, one start,
one stop, no parity). System altitude packets are output at a rate of 25 Hz.
4.1.2 Protocol Definition
Note:
The information in this section is intended for engineering personnel and is
not required for installation.
4.1.2.1 Packet Structure
Each packet conforms to the following structure:
Field DLE ID LEN DATA CHECKSUM DLE ETX
Content 0x10 0xDF 0x03 3 bytes 1 byte 0x10 0x03
4.1.2.1.1 DLE (Data Link Escape Character)
Fixed byte = 0x10.
4.1.2.1.2 ID (Identification)
Fixed byte = 0xDF.
4.1.2.1.3 Len (Length)
Fixed byte = 0x03.
4.1.2.1.4 Data
Three data bytes are defined as follows:
Table 4-1: Data Field Definition
Byte Definition
1 Altitude High byte of a 2-byte binary field. (Units: Feet; Range: -20 to 2500)
2 Altitude Low byte of a 2-byte binary field.
3 Status Byte (See Table 4-2)

Equipment Installation Manual
RA-4000 Series Radar Altimeters
P/N 84629, Rev F
Table 4-2: Status Byte Bit Definition
Bit High (1) Indication Low (0) Indication
0 – Altitude Ascending Descending
1 – Self Test Test in progress Normal operation
2 – Status Unit Failure Normal operation
3 – Invalid Unlocked / Invalid output Locked / Valid output
4 – Strut De-asserted (In air) Asserted (On ground)
5 – Reserved
6 – Reserved
7 – Reserved
4.1.2.1.5 Checksum
This is the one-byte 2’s complement of the sum of all the data bytes, including the packet
ID and LEN bytes (i.e. 0xDF03). Refer to Table 4-3 for a sample packet with normal
status (descending, locked, and good status) and an altitude of 1000 feet.
Table 4-3: Sample Packet at 1000’
Byte DLE ID LEN Alt Hi Alt Lo Status Chk DLE ETX
Value 0x10 0xDF 0x03 0x03 0xE8 0x00 0x33 0x10 0x03
4.1.2.1.6 DLE (Data Link Escape Character)
Fixed byte = 0x10.
4.1.2.1.7 ETX (End Of Text Character)
Fixed data byte = 0x03.
4.1.2.2 DLE Stuffing
This protocol requires that an occurrence of the DLE (0x10) character in either the data
or checksum must be followed by another DLE character. The receiver therefore, should
remove, or “unstuff”, the second DLE character when two are received in sequence.
Note that the “unstuffing” should occur prior to calculation of the checksum.

Equipment Installation Manual
RA-4000 Series Radar Altimeters
P/N 84629, Rev F
4.2 ARINC 429 Interface
This section applies to part number 84560-02 only.
4.2.1 Data Rate
All ARINC 429 labels are transmitted at either low or high speed ARINC baud rates as
configured at installation time (see section 3.11) and are transmitted at a rate of 25 Hz.
4.2.2 Protocol Definition
Note:
The information in this section is intended for engineering personnel and is
not required for installation.
4.2.2.1 Parity
The parity bit of all labels is set to odd parity.
4.2.2.2 Source/Destination Indicator (SDI)
The SDI of all labels is set to 00.
4.2.2.3 ARINC 429 Labels
The following labels are transmitted:
SSM Label
(octal) Description Non-Fault Fault
164 Radio Altitude (Binary) NCD/NORM FAIL
165 Radio Altitude (BCD) NCD/NORM N/A*
377 Equipment ID NORM NORM
*In case of a failure, label 165 is not transmitted.

Equipment Installation Manual
RA-4000 Series Radar Altimeters
P/N 84629, Rev F
5 Mechanical
5.1 RA-4000 Mounting
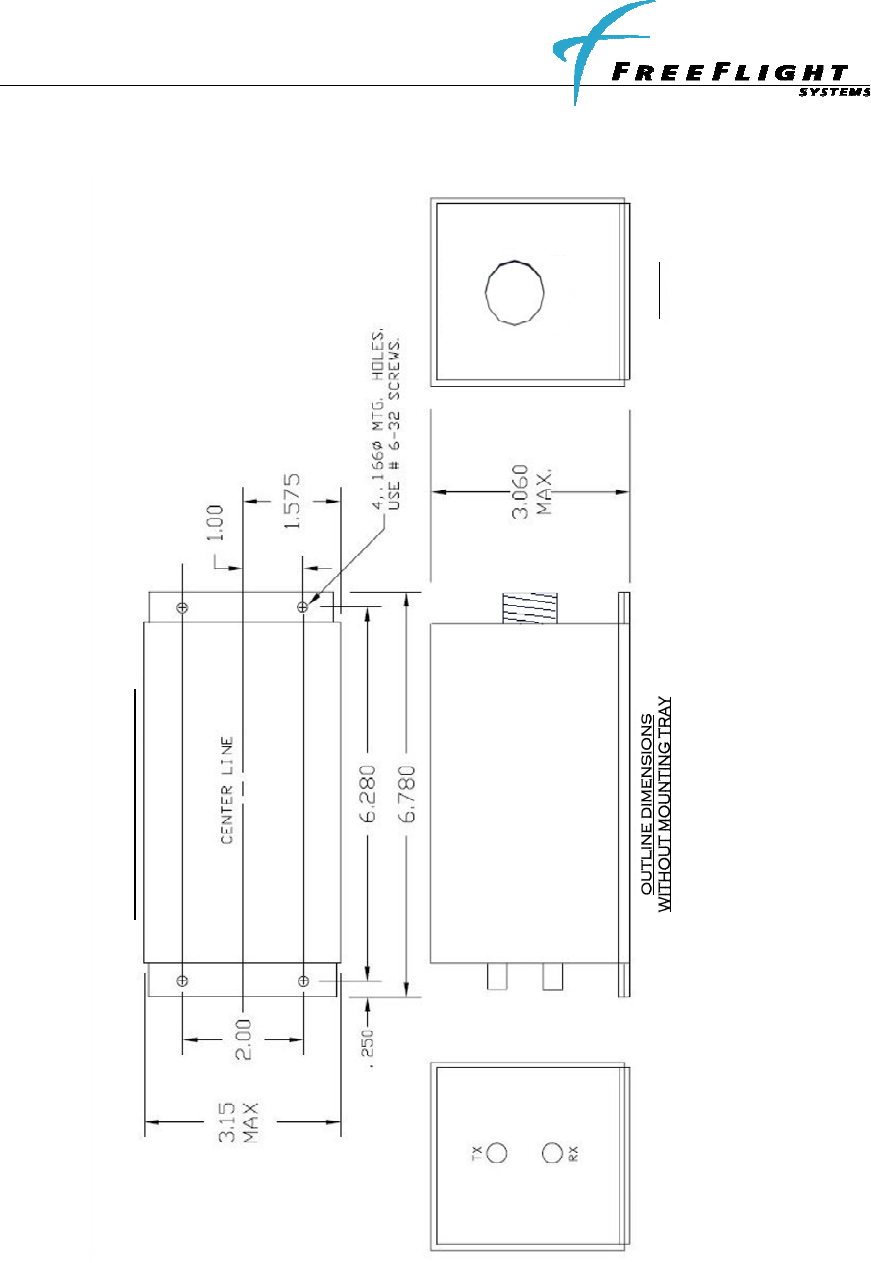
The mounting requirements for the RA-4000 are illustrated in Figure 5-1.
5.2 Connectors
Interfaces to the RA-4000 are provided through three connectors as described below in
Table 5-1.
Table 5-1: Connector Descriptions
Function Description
Aircraft
interconnections This 22-pin circular connector mates with
AMPHENOL P/N 10-565995-231N.
TX Antenna This TNC connector mates with AMPHENOL P/N
225554-6
RX Antenna This TNC connector mates with AMPHENOL P/N
225554-6

Equipment Installation Manual
RA-4000 Series Radar Altimeters
P/N 84629, Rev F
NOTE: NOT TO SCALE
FreeFlight
RA-4000
FRONT
INSTALLATION DIMENSIONS
Figure 5-1: RA-4000 Installation Drawing

Equipment Installation Manual
RA-4000 Series Radar Altimeters
P/N 84629, Rev F
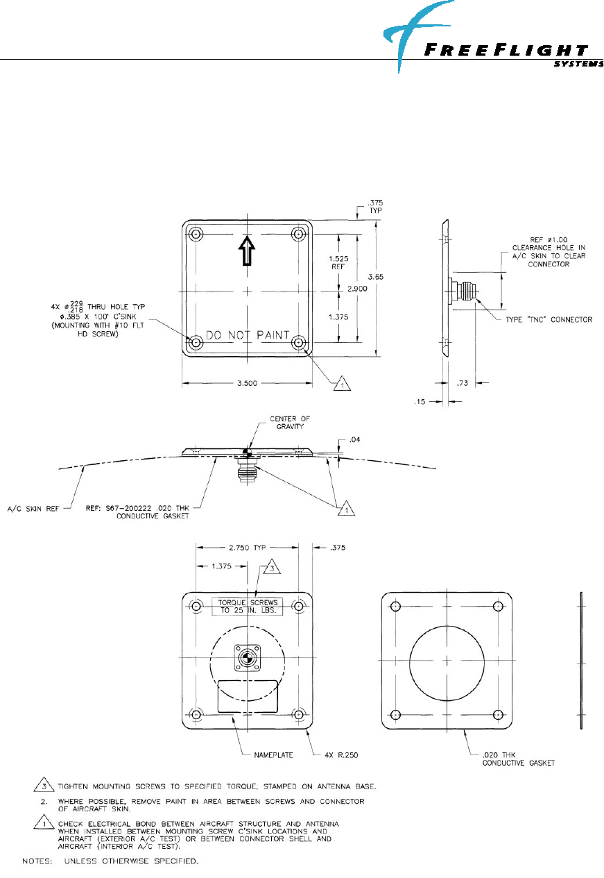
5.3 Antenna Mounting
Refer to Figure 5-2 for mounting information for antenna P/N 9-1203-115-00. All
dimensions are specified in inches.
Figure 5-2: Antenna (P/N 9-1203-115-00) Installation Drawing

Equipment Installation Manual
RA-4000 Series Radar Altimeters
P/N 84629, Rev F
6 Installation
6.1 General Information
This chapter contains suggestions and factors to consider before installing an RA-4000
radar altimeter into an aircraft. Adherence to the suggestions will assure satisfactory
performance from the system.
6.2 Unpacking and Inspecting Equipment
Exercise care when unpacking each unit. Make a visual inspection of each unit for
evidence of damage incurred during shipment. If a claim for damage is to be made, save
the shipping container to substantiate the claim. When all equipment and the installation
kit have been inspected, save the packing material and container in case the unit is to be
stored or reshipped. See paragraph 2.4 for equipment and optional parts supplied.
6.3 Equipment Limitations
For a compliant installation in accordance with the Technical Standard Order (TSO) and
the Federal Aviation Regulations (FAR), the RA-4000 installation must meet the
following requirements:
“The conditions and tests required for TSO approval of this article are minimum
performance standards. It is the responsibility of those desiring to install this
article either on or within a specific type or class of aircraft to determine that the
article, when installed, performs in accordance with the design specifications that
meet this TSO. The article may be installed only if further evaluation by the
applicant documents an acceptable installation and is approved by the
Administrator.”
RA-4000 must be connected to a display in a manner that yields no additional
inaccuracies and with maximum additional latency of 80 ms (TSO-C87 §2.1).
Added display inaccuracies trade with latency at a rate of ±1 ft to 40 ms; i.e., a
display introducing ±1 ft of presentation error requires that the permissible
installation/display component of latency decreases from 80 ms to 40 ms
The display connected to the RA-4000 must utilize a failure warning indicator
plainly discernible under all normal flight conditions (TSO-C87 §2.6b) driven by
the status and the invalid bit of the RA-4000 status byte (see Table 4-2: Status
Byte Bit Definition).
The antenna installation must comply with the specifications in Section 6.4
Antenna Installation.

Equipment Installation Manual
RA-4000 Series Radar Altimeters
P/N 84629, Rev F
6.4 Antenna Installation
6.4.1 Antenna Cable Selection
The antenna cables must have a certain minimum and maximum length for the system to
perform accurately and comply with the TSO. The absolute minimum cable length is
limited by the required minimum signal propagation delay caused by the cable and the
antenna height above the ground when the aircraft is on the ground. The absolute
maximum cable length is limited by the maximum allowable attenuation of the signals
caused by the cable.
Table 6-1: Propagation Delay and Attenuation of the Antenna Cable
Min Total Propagation Delay
(ns) Max Attenuation
(dB)
31 8.5
Table 6-2 shows typical values of propagation velocities, attenuations, and the minimum
bend radius for commonly used cable types. Consult the cable manufacturer’s
specifications for the exact values for the cables used in the installation.
Table 6-2: Typical Antenna Cable Lengths
Cable Min Total
Length1 (ft) Max Total
Length2 (ft) Min Bend
Radius3 (in) Propagation
Velocity (c) Attenuation/100’
(dB) @ 4.35 GHz
RG-142 21.0 28.8 3 69.4 % 29.5
RG-393 21.0 47.8 6 69.4 % 17.8
Note: Total length refers to the combined lengths of the TX and the RX cables.
1 The minimum cable length specified assumes that the antennas are mounted 18”
above the ground, resulting in a 3 ns return delay (The propagation delay in air is
approximately 1 ns per foot). If the manufacturer’s data indicates a different
propagation velocity than the one given in Table 6-2 the minimum cable length
must be recomputed by the installer.
2 If the manufacturer’s data indicates a different attenuation than the one given in
Table 6-2 the maximum cable length must be recomputed by the installer.
3 The manufacturer specified minimum bend radius may differ.
6.4.2 Antenna Mounting Requirements
Refer to Figure 5-2 for mounting instructions. For proper performance and TSO
compliance of the RA-4000, the radar altimeter antennas must be installed according to
the following rules:

Equipment Installation Manual
RA-4000 Series Radar Altimeters
P/N 84629, Rev F
Antennas should be mounted parallel to the ground within a pitch angle of 6°
when the aircraft is in level flight.
Antennas should be mounted with the arrows pointing forward. They may be
mounted side-by-side or in-line.
If the antennas are mounted in-line, which is the preferred configuration, the
transmit antenna should be mounted in front of the receive antenna.
The angle between the pitch of both antennas should not exceed 6°.
The antennas should be mounted such that no protrusion is visible to either
antenna within a 60-degree cone below the aircraft.
Antennas should be mounted at least 18" apart and within 40" of each other.
The antenna height above the ground when the aircraft is on the runway should be
more than the separation distance between the two antennas.
Antennas should be mounted as close to the aerodynamic center of the aircraft as
possible to reduce the effects of aircraft attitude on the altitude measurement.
Antennas should not be mounted closer than 3’ to a DME, transponder, ADF or
VHF antenna.
During installation, avoid locations near high heat sources or where fuel, oil or
excessive moisture may collect. Bond and shield all parts of the aircraft electrical
system such as generators and ignition systems.
6.5 RA-4000 Installation
The RA-4000 unit installation layout is shown in Figure 5-1. Route all data and power
cables away from circuits carrying high current, pulse-transmitting equipment, 400 Hz
circuits and other sources of interference. Do not route with ADF antenna cables.
Note: Aircraft which exhibit electrical noise on the airframe or have surfaces or
panels which are not properly bonded can cause the altimeter to attempt to
"relock" above 2000 feet AGL, thus causing erratic altitude output. Thorough
bonding of all control surfaces, gear doors, access panels, etc. should cure the
symptom, but in certain extreme circumstances, it may be necessary to install an
on/off switch to disable the unit above 2000 feet. This condition is only
noticeable above 2000 feet and does not degrade performance below 2000 feet
AGL.

Equipment Installation Manual
RA-4000 Series Radar Altimeters
P/N 84629, Rev F
6.5.1 Altitude Zero Calibration
The RA-4000 should be calibrated to account for the antenna height above ground when
a zero foot altitude is desired. This procedure should be performed once on initial install
of the unit or after servicing the unit. Reflections due to surrounding obstacles may cause
inaccurate calibration. It is recommended to Zero the RA-4000 in an open area away
from buildings, trees, or other large reflecting surfaces to improve accuracy.
Note: If this procedure is not performed on install, after service, or is improperly
performed, altitude may not be correct.
1. Remove or disable the Strut input to the system.
2. Clear all obstacles from around aircraft (including personnel).
3. Turn unit on and let run for a minimum of 5 minutes to warm up.
4. Turn off unit and all aircraft power.
5. Short together RS-232C navigation port TX and RX pins.
6. Switch power on for approximately 30 seconds.
7. Switch power off and remove the short from the TX and RX lines.
8. Switch power on. After the self-test is complete, the unit should now output 0'
while on ground.
9. Test and repeat as necessary.
10. Restore the Strut input, if necessary.
6.5.2 Pre-Flight Check List
1. Turn on power (after starting engines).
2. Verify the unit self-tests for approximately 20 seconds (during which it displays
40±3 feet and sets the self test flag).
3. After the self-test mode, the unit should output 0 feet while the aircraft is on the
ground.
6.5.3 Final Testing
1. During takeoff observe AGL and verify that it is increasing while the aircraft is
climbing.
2. After aircraft exceeds 2000 feet AGL verify that unit indicates “unlocked”.
3. With the aircraft above 3000 feet AGL in an open area:
a. Put the aircraft into a 500-foot per minute descent.
b. The unit should lock and start outputting valid altitude by 2000 feet AGL.

Equipment Installation Manual
RA-4000 Series Radar Altimeters
P/N 84629, Rev F
Appendix A – Environmental Categories
Refer to Table A-1 for a summary of RA-4000 Test Categories.
Table A-1: DO-160E Test Categories
Environmental Test DO-160E
Section Category Compliance
Method
Temperature and Altitude 4 D2 T
Temperature Variation 5 B T
Humidity 6 B T
Shock/Crash Safety 7 B T
Vibration 8 S Curve C
& U2 T
Explosion Proofness 9 n/a X
Waterproofness 10 W T
Fluids Susceptibility 11 n/a X
Sand and Dust 12 n/a X
Fungus 13 n/a X
Salt Spray 14 n/a X
Magnetic Effect 15 Z T
Power Input 16 B T
Voltage Spike 17 A T
Audio Frequency
Conducted Susceptibility
– Power Inputs
18 B T
Induced Signal
Susceptibility 19 ZC T
Radio Frequency
Susceptibility 20 RR T
Emission of Radio
Frequency Energy 21 M T
Lightning, Induced
Transient Susceptibility 22 A2XXX T
Lightning Direct Effects 23 n/a X
Icing 24 n/a X
Electrostatic Discharge 25 A T
Fire, Flammability 26 C T

FreeFlight Systems
3700 Interstate 35 South
Waco, TX 76706-3756 U.S.A.
1 (254) 662-0000
1 (800) 487-4662