Frigidaire FHWC3655LS User Manual To The F8b67d1f D584 4af4 Abd7 7bc25b145bb7
User Manual: Frigidaire FHWC3655LS to the manual
Open the PDF directly: View PDF
.
Page Count: 13

Use & care guide
Guia de uso y cuidado
Guide d’utilisation et d’entretien
30” and 36” Range Hood
316902443 June 2011FHWC3060LSA + FHWC3660LSA
00-Elux FHWC3060LSA-Range hood-Book-01.indd 1 6/16/11 13:49 PM

2
GB
Table of contents
Please read and save this guide ...................................... 02
Keep a record for quick reference ................................... 02
Important safety instructions ......................................02-04
Electrical requirements ..................................................... 04
Intended use ...................................................................... 05
Parts supplied .................................................................... 05
Installing the hood ........................................................06-10
Operation............................................................................ 11
Cleaning and maintenance...........................................11-12
Technical data .................................................................... 12
Troubleshooting ................................................................. 12
Environmental protection .................................................. 12
Warranty information ........................................................ 13
Please read and save this guide
Thank you for choosing Frigidaire, the new premium
brand in home appliances. This Use & Care Guide
is part of our commitment to customer satisfaction
and product quality throughout the service life of
your new appliance.
We view your purchase as the beginning of a
relationship. To ensure our ability to continue serving
you, please use this page to record important
product information.
Keep a record for quick reference
Purchase date
Model number
Serial number
NOTE
Registering your product with Frigidaire enhances
our ability to serve you. You can register online at
www.frigidaire.com or by dropping your Product
Registration Card in the mail.
Questions?
For toll-free telephone support in the U.S.: 1-800-
944-4044 or Canada: 1-800-265-8352
For online support and Internet production
information visit http://www.frigidaire.com
Important safety instructions
Do not attempt to install or operate this appliance
until you have read the safety instructions in this
manual. Safety items throughout this manual are
labelled with a Danger, Warning, or Caution based
on the risk type.
Definitions
This is the safety alert symbol. It is used to alert
you to potential personal injury hazards. Obey all
safety messages that follow this symbol to avoid
possible injury or death.
DANGER
DANGER indicates an imminently hazardous
situation which, if not avoided, will result in
death or serious injury.
WARNING
WARNING indicates a potentially hazardous
situation which, if not avoided, could result in
death or serious injury.
CAUTION
CAUTION indicates a potentially hazardous
situation which, if not avoided, could result in
minor or moderate injury.
Important safety instructions
Child safety
Packing materials:
• Packingcartonscoveredwithrugs,bedspreads,
plastic sheets, or stretch wrap may become
airtight chambers and can quickly cause
suffocation.
• Remove the protective lm covering
the appliance before putting it into
operation.
• Destroy or recycle the appliance’s
carton, plastic bags, and any other exterior
wrapping material immediately after the product
is unpacked. Children should never play with
these items. Danger of suffocation!
Important safety instructions Finding information
00-Elux FHWC3060LSA-Range hood-Book-01.indd 2 12/8/10 12:43 PM

3
GB
Questions?
For toll-free telephone support in the U.S.: 1-800-
944-4044 or Canada: 1-800-265-8352
For online support and Internet production
information visit http://www.frigidaire.com
Important safety instructions
Do not attempt to install or operate this appliance
until you have read the safety instructions in this
manual. Safety items throughout this manual are
labelled with a Danger, Warning, or Caution based
on the risk type.
Definitions
This is the safety alert symbol. It is used to alert
you to potential personal injury hazards. Obey all
safety messages that follow this symbol to avoid
possible injury or death.
Important safety instructions
IMPORTANT
Indicates installation, operation, or
maintenance information which is important
but not hazard-related.
Child safety
Packing materials:
• Packingcartonscoveredwithrugs,bedspreads,
plastic sheets, or stretch wrap may become
airtight chambers and can quickly cause
suffocation.
• Remove the protective lm covering
the appliance before putting it into
operation.
• Destroy or recycle the appliance’s
carton, plastic bags, and any other exterior
wrapping material immediately after the product
is unpacked. Children should never play with
these items. Danger of suffocation!
IMPORTANT
PLEASE READ THESE INSTRUCTIONS
CAREFULLY BEFORE INSTALLATION AND
USE.
INSTALLATION MUST COMPLY WITH ALL
LOCAL CODES.
IMPORTANT: Save these instructions for the
LocalElectricalInspector’suse.
INSTALLER: Please leave these instructions with
this appliance for the owner.
OWNER: Please retain these instructions for
future reference.
DANGER
Always switch off the electricity supply at the
mains during installation and maintenance
such as for light bulb replacement.
WARNING
To reduce the risk of fire, electric shock, or
injury to persons, observe the following:
• FORRESIDENTIALUSEONLY.
• Use this appliance only in the manner
intended by the manufacturer. If you have
questions, contact the manufacturer.
• Installationworkandelectricalwiringmust
be done by qualified person(s) in accordance
with a ll applicable codes & standards,
including fire-rated construction.
• Sufcient air is needed for proper
combustion and exhausting of gases
through the flue (chimney) of fuel burning
equipment to prevent back-drafting. Follow
the heating equipment manufacturers
guideline and safety standards such
as those published by the National Fire
Protection Association (NFPA), the
American Society for Heating, Refrigeration
and Air Conditioning Engineers (ASHRAE),
and the local code authorities.
• Whencuttingordrillingintowallorceiling,
do not damage electrical wiring and other
hidden utilities (e.g. gas pipes).
• Ductedsystemsmustalwaysbeventedto
the outdoors.
WARNING
• Beforeservicingorcleaningtheunit,switch
power off at service panel and lock service
panel disconnecting means to prevent
power from being switched on accidentally.
When the service disconnecting means
cannot be locked, securely fasten a
prominent warning device, such as a tag,
to the service panel.
CAUTION
For general ventilating use only. DO NOT use to
exhaust hazardous or explosive materials or vapors.
CAUTION
To reduce risk of fire and to properly exhaust
air, be sure to duct air outside – do not vent
exhaust air into spaces within walls, ceilings,
attics, crawl spaces, or garages.
Important safety instructions Finding information
00-Elux FHWC3060LSA-Range hood-Book-01.indd 3 12/8/10 12:43 PM

4
GB
Important safety instructions
WARNING
To reduce the risk of fire, use only metal duct
work. Install this hood in accordance with all
requirements specified.
WARNING
To reduce the risk of fire or electric shock, do
not use this hood with any external solid state
speed control device.
WARNING
To reduce the risk of a cooker top grease fire:
• Never leave surface units unattended at
high settings. Boilovers cause smoking
and greasy spillovers that may ignite. Heat
oils slowly on low or medium settings.
• AlwaysturnhoodONwhencookingathigh
heat or when flambéing food (i.e. Crepes
Suzette, Cherries Jubilee, Peppercorn
Beef Flambé).
WARNING
• Clean ventilating fans frequently. Grease
should not be allowed to accumulate on
fan or filter.
• Do not use the range hood without
the grease filters, or if the filters are
excessively greasy.
• Useproperpansize.Alwaysusecookware
appropriate for the size of the surface
element.
WARNING
NEVER PICK UP A FLAMING PAN - you may
be burned.
WARNING
To reduce the risk of injury to persons, in the
event of a cooker top grease fire, observe the
following:
• Smother ames with a close-tting lid,
cookie sheet, or other metal tray, then turn
off the gas burner or the electric element.
Be careful to prevent burns. If the flames
do not go out immediately, evacuate and
call the fire department.
• Neverpickupaamingpan–youmaybe
burned.
• Donotusewater,includingwetdishcloths
or towels – a violent steam explosion will
result.
• Useanextinguisheronlyif:
- You know you have a class ABC
extinguisher, and you already know
how to operate it.
- The fire is small and contained in the
area where it started.
- The fire department is being called.
- You can fight the fire with your back to
an exit.
CAUTION
Always leave safety grills and filters in place.
Without these components, operating blowers
could catch onto hair, fingers and loose
clothing.
Electrical requirements
IMPORTANT
Observe all governing codes and ordinances.
Itisthecustomer’sresponsibility:
• tocontactaqualiedelectricalinstaller.
• to assure that the electrical installation is
adequate and in conformance with National
Electrical Code, ANSI/NFPA 70 – latest edition*,
or CSA Standards C22.1-94, Canadian Electrical
Code, Part 1 and C22.2 No.0-M91-latest edition**
and all local codes and ordinances.
If codes permit and a separate ground wire is
used,itisrecommendedthataqualiedelectrician
determines that the ground path is adequate.
• Donotgroundtoagaspipe.
• Checkwithaqualiedelectricianifyouarenot
sure range hood is properly grounded.
• Do not have a fuse in the neutral or ground
circuit.
Wire sizes must conform to the requirements of
the National Electrical Code ANSI/NFPA 70 – latest
edition”, or CSA Standards C22.1-94, Canadian
Electrical Code Part 1 and C22.2 No.0-M91 – latest
edition** and all local codes and ordinances.
A U.L.- or C.S.A.-listed conduit connector must be
provided at each end of the power supply conduit (at
the range hood and at the junction box).
Copies of the standards listed may be obtained
from:
* National Fire Protection Association Batterymarch
Park Quincy, Massachusetts 02269
** CSA International 8501 East Pleasant Valley Road
Cleveland, Ohio 44131-5575
Power requirement:
120V~, 60Hz, 15 or 20A branch circuit
Intended use
• Yourrangehoodisintendedforexhaustoperation
only. This range hood is not recommended to be
used over indoor grills. Do not use it to exhaust
hazardous or explosive materials or vapors.
Parts supplied
No. Part Qty.
1 Range hood 1
2 Glass cover 1
Important safety instructions Installing the hood
00-Elux FHWC3060LSA-Range hood-Book-01.indd 4 12/8/10 12:43 PM

5
GB
Electrical requirements
Itisthecustomer’sresponsibility:
• tocontactaqualiedelectricalinstaller.
• to assure that the electrical installation is
adequate and in conformance with National
Electrical Code, ANSI/NFPA 70 – latest edition*,
or CSA Standards C22.1-94, Canadian Electrical
Code, Part 1 and C22.2 No.0-M91-latest edition**
and all local codes and ordinances.
If codes permit and a separate ground wire is
used,itisrecommendedthataqualiedelectrician
determines that the ground path is adequate.
• Donotgroundtoagaspipe.
• Checkwithaqualiedelectricianifyouarenot
sure range hood is properly grounded.
• Do not have a fuse in the neutral or ground
circuit.
IMPORTANT
Save installation instructions for electrical
inspector’suse.
The range hood must be connected with copper
wire only.
The range hood should be connected directly
to the fused disconnect (or circuit breaker) box
through metal electrical conduit.
Wire sizes must conform to the requirements of
the National Electrical Code ANSI/NFPA 70 – latest
edition”, or CSA Standards C22.1-94, Canadian
Electrical Code Part 1 and C22.2 No.0-M91 – latest
edition** and all local codes and ordinances.
A U.L.- or C.S.A.-listed conduit connector must be
provided at each end of the power supply conduit (at
the range hood and at the junction box).
Copies of the standards listed may be obtained
from:
* National Fire Protection Association Batterymarch
Park Quincy, Massachusetts 02269
** CSA International 8501 East Pleasant Valley Road
Cleveland, Ohio 44131-5575
Power requirement:
120V~, 60Hz, 15 or 20A branch circuit
Intended use
• Yourrangehoodisintendedforexhaustoperation
only. This range hood is not recommended to be
used over indoor grills. Do not use it to exhaust
hazardous or explosive materials or vapors.
Parts supplied
No. Part Qty.
1Range hood 1
2Glass cover 1
3Upper and lower
chimney
1
+
1
4Upper bracket 1
5Lower bracket 1
6Collar 1
7
Recirculation kit
(optional
accessories)
-FHWRKT60LS
1
8
Bulb
20W, 120V~, GU10
(pre-assembled)
2
9Bolt, rubber
washer, washer
4
sets
10
Long screw
(4mm x 32mm) 8
11
Wall plug 8
12
Short screw
(4mm x 12mm) 4
13 Allen key 1
14
Wood screw
(4mm x 50mm)
Short screw
(3.5mmx8mm)
4
15
Short screw
(3.5mmx8mm) 2
16
10’extension
chimney kit
(optional
accessories)
FHW10X60LS
1
17 Template
(stencilled)
Assembly template
(stencilled) 1
Important safety instructions Installing the hood
00-Elux FHWC3060LSA-Range hood-Book-01.indd 5 12/8/10 12:43 PM

6
GB
Installing the hood
IMPORTANT
We recommend that two people carry
out the installation. Pay attention to the
procedure described in the assembly
instructions.
Preparation
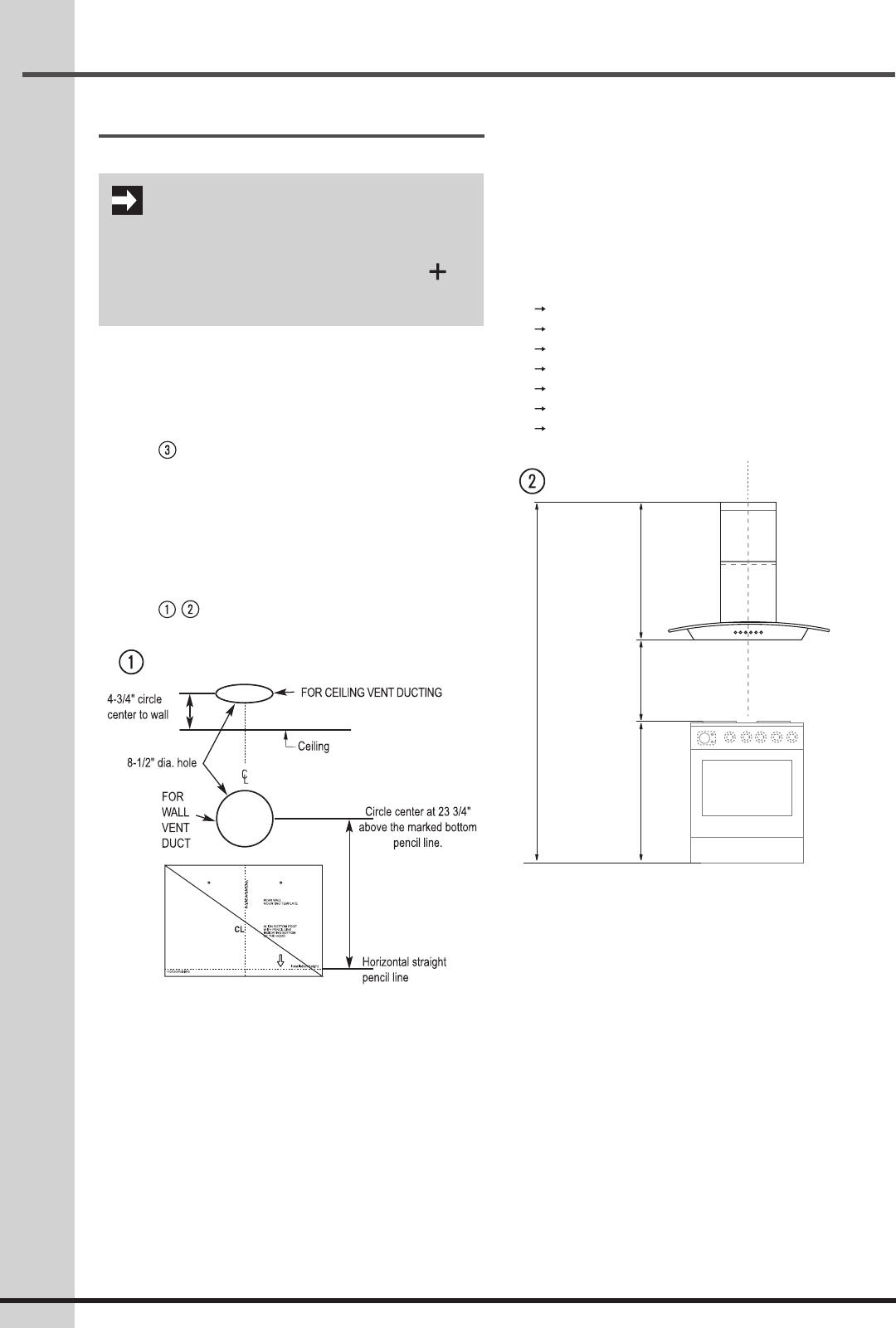
• Determinetheexactlocationoftherangehood.
• Plantherouteforventingexhausttotheoutdoors
(g. ).
• Planthepowerconnectionpriortoinstallationso
that electrical wiring will not be visible afterwards.
• House wiring location: The junction box is
located on the top right side of the hood. Wiring
should enter the back wall at least 20” above
the bottom of the installation height, and within
3-3/8” to 4-3/4” of the right side of the centerline
(g. /).
fig.
• Use the shortest and straightest duct route
possible.
• The wall breakthrough must be carried
out by a professional prior to installing the
range hood. Pay attention to the length of
the exhaust hose when planning the wall
breakthrough. The exhaust hose must reach
the outer edge of the wall without any kinks.
Important! If the exhaust hose leads through an
outer wall, install a wall cap with damper or roof
cap at the exterior opening (not delivered). This
can be installed by the professional that performs
the wall breakthrough.
• Flexiblemetalroundductsshouldonlybeused
when no other duct tting exists. Limit use to
short lengths and do not crush when making
corners.
Examples of possible ducting or air
recirculation
Pipe
Collar
fig.
Installing range hood to the wall
(Exhaust operation)
Install framing for hood support
• If drywall is present, mark the screw hole
locations.
• Cut away enough drywall to expose 2 vertical
studs at the holes location indicated by the
template. Install two horizontal supports at least
1” x 6” between two wall studs at the bottom and
topmountingholesinstallationlocation(g. ).
• The horizontal support must be ush with the
room side of the studs. Use cleats behind both
sides of the support to secure to wall studs.
• Reinstalldrywallandrenish.
• Ifopenreplacesareoperatedinthesameroom,
ask your local chimney sweeper about the local
regulations prior to installation.
• Ifyouarerenting,thenapprovalmustbeobtained
from the owner of the property.
• Attention! In order for the range hood to reach
optimal performance, install it over the middle of
the cooking area.
• Thefollowingaccessoriesarerequiredtomount
the range hood (not included):
Exhaust duct
Power drill with 3/16” and 1/8” bits
Screwdriver
Level
Cable detector
Measuring tape
Duct tape
fig.
Installation
height
8 to 9
ft Center line
36”
Ducting installation guidelines
• Forsafetyreasons,ductingshouldventdirectly
outdoors (not into an attic, underneath the house,
into the garage or into any enclosed space).
• Keepductrunsasshortandstraightaspossible.
• Ductttings(elbowsandtransitions)reduceair
owefciency.
• Backtobackelbowand“S”turnsgiveverypoor
delivery and are not recommended.
• Ashortstraightlengthofductattheinletofthe
remote blower gives the best delivery.
• Transition to duct from the integral blower or
remote duct transition as close to the downdraft
as is possible.
• Useasuitable6”roundduct.
Installing the hood Installing the hood
00-Elux FHWC3060LSA-Range hood-Book-01.indd 6 12/8/10 12:43 PM

7
GB
• Flexiblemetalroundductsshouldonlybeused
when no other duct tting exists. Limit use to
short lengths and do not crush when making
corners.
Examples of possible ducting or air
recirculation
Sidewall cap Recirculator
Roof pitch with
ashingandcap
Pipe
Collar
Pipe Pipe
Collar Collar
fig.
Installing range hood to the wall
(Exhaust operation)
IMPORTANT
This range hood is very heavy. Adequate structure
and support must be provided in all types of
installations.
Install framing for hood support
• If drywall is present, mark the screw hole
locations.
• Cut away enough drywall to expose 2 vertical
studs at the holes location indicated by the
template. Install two horizontal supports at least
1” x 6” between two wall studs at the bottom and
topmountingholesinstallationlocation(g. ).
• The horizontal support must be ush with the
room side of the studs. Use cleats behind both
sides of the support to secure to wall studs.
• Reinstalldrywallandrenish.
• Ifopenreplacesareoperatedinthesameroom,
ask your local chimney sweeper about the local
regulations prior to installation.
• Ifyouarerenting,thenapprovalmustbeobtained
from the owner of the property.
• Attention! In order for the range hood to reach
optimal performance, install it over the middle of
the cooking area.
• Thefollowingaccessoriesarerequiredtomount
the range hood (not included):
Exhaust duct
Power drill with 3/16” and 1/8” bits
Screwdriver
Level
Cable detector
Measuring tape
Duct tape
Ducting installation guidelines
• Forsafetyreasons,ductingshouldventdirectly
outdoors (not into an attic, underneath the house,
into the garage or into any enclosed space).
• Keepductrunsasshortandstraightaspossible.
• Ductttings(elbowsandtransitions)reduceair
owefciency.
• Backtobackelbowand“S”turnsgiveverypoor
delivery and are not recommended.
• Ashortstraightlengthofductattheinletofthe
remote blower gives the best delivery.
• Transition to duct from the integral blower or
remote duct transition as close to the downdraft
as is possible.
• Useasuitable6”roundduct.
fig.
IMPORTANT
Framing must be capable of supporting 100 lbs.
Step 1:
• Makesurethatnocablesorpipeswillbecome
damaged (e.g. electric, gas, water; test the areas
in question with a cable detector).
• Using supplied template (17), mark and drill 8
holes in the wall. Drill the holes according to the
measureddistancesfromthediagram(g. ).
• Upper/Lowerbracket (4,5):Insert 4wall plugs
(11) into the 4 drilled holes.
• Rangehood(1):Installationisdependingonwall
type:
Wall type Required fasteners
Wood No wall plugs (11)
required
Brick/Concrete 4 wall plugs (11)
Installing the hood Installing the hood
00-Elux FHWC3060LSA-Range hood-Book-01.indd 7 12/8/10 12:43 PM

8
GB
fig.
9.8”
9.3”
9.13”
0.9”
Long
screws
Wood
screws 10”
9.8”
7.5”
Ceiling
Wall
Dimension
A
(see table)
Desired range hood distance above a
36” high cook top
Ceiling height
8 Feet 9 Feet 10 Feet *1
A*2A*2A*2
26”*328-3/32”
27”*329-3/32”
28”*330-3/32” 30-3/32”
29”*331-3/32” 31-3/32” 31-3/32”
30”*332-3/32” 32-3/32” 32-3/32”
31”*333-3/32” 33-3/32” 33-3/32”
32”*334-3/32” 34-3/32” 34-3/32”
33” 35-3/32” 35-3/32”
34” 36-3/32” 36-3/32”
35” 37-3/32” 37-3/32”
*1: with 10’ extension chimney kit FHW10X60LS
(16) (not supplied). Please call Frigidaire at
1.800.944.9044 to order this kit.
*2: “Dimension A” in the chart represents the height
from cook top to where the bottom screw mounting
holes would be located.
*3: Recommended mounting height
Step 2:
• Installtherangehood(1)eitherwithwoodscrews
or long screws, depending on the wall type:
Wall type Required screws
Wood 4 wood screws (14)
Brick/Concrete 4 long screws (10)
fig.
Electrical connections
Step 5:
• Loosenthe2shortscrewsfromthejunctionbox
(g. ).
• Connect the incoming positive, neutral and
ground cables to the respective terminals. The
ground cable is already pre-assembled onto the
junctionboxtoprovidegrounding(g. ).
• Insert2screws(10or14)inthetoplocation,but
donotfullyinsertthescrews(g. ). Mount the
range hood (1) to the wall and tighten the screws.
Insert and tighten the 2 remaining screws on the
bottomlocationoftherangehood(g. / ).
• Attachthecollar(6)totherangehood(1).Secure
with2shortscrews(12)(g. ).
0.08”
0.08”
fig.
fig.
fig.fig. fig.
NOTE
Sometimes, sponge tape covers the holes. If the
holes are located behind the sponge tape, simply
insert the screw through the sponge tape.
Step 3:
• Mounttheglasscover(2)ontotherangehood
(1). Use the allen key (13) to secure with 4 sets of
bolts,rubberwashers,andwashers(9)(g. ).
fig.
Step 4:
• Mount upper and lower brackets (4, 5) on the
wall. Secure with the remaining 4 sets of long
screws (10). The notches of the lower bracket
shouldbefacinguptowardstheceiling(g. ).
• Attachtheexhaustduct(g. ).
Installing the hood Installing the hood
00-Elux FHWC3060LSA-Range hood-Book-01.indd 8 12/8/10 12:43 PM

9
GB
fig.fig.
fig.
Electrical connections
DANGER
Danger of electric shock! All fittings must be
installed by a competent person in accordance
with current wiring regulations and local
building regulations. If in doubt, consult a
qualified electrician.
IMPORTANT
Always switch off the electricity supply at
the mains during installation, cleaning and
maintenance. We recommend that the fuse is
withdrawn or circuit breaker switched off at the
distribution board while work is in progress.
Step 5:
• Loosenthe2shortscrewsfromthejunctionbox
(g. ).
fig.fig.
• Connect the incoming positive, neutral and
ground cables to the respective terminals. The
ground cable is already pre-assembled onto the
junctionboxtoprovidegrounding(g. ).
fig.
L (live) = Black
(ground) = Green
N (neutral) = White
L
N
• Mount the junction box onto the range hood
using2shortscrews(15)(g. ).
fig.
Step 6:
• Inserttheupperchimney(3)intothelowerchimney
(3)fromtoptobottom(g. ).
• Mountupperandlowerchimney(3)ontherange
hood (1). Fit the tab, which is bend by 90 degrees,
into the lower bracket notch and mount to the lower
bracket(5)(g. / ).
• Pulltheupperchimney(3)totheupwardpositionto
match the screw hole of the upper bracket. Mount to
theupperbracket(4)with2sidescrews(12)(g. ).
fig.
fig.
fig. fig.
fig.
fig.
• Insert2screws(10or14)inthetoplocation,but
donotfullyinsertthescrews(g. ). Mount the
range hood (1) to the wall and tighten the screws.
Insert and tighten the 2 remaining screws on the
bottomlocationoftherangehood(g. / ).
• Attachthecollar(6)totherangehood(1).Secure
with2shortscrews(12)(g. ).
Step 3:
• Mounttheglasscover(2)ontotherangehood
(1). Use the allen key (13) to secure with 4 sets of
bolts,rubberwashers,andwashers(9)(g. ).
Step 4:
• Mount upper and lower brackets (4, 5) on the
wall. Secure with the remaining 4 sets of long
screws (10). The notches of the lower bracket
shouldbefacinguptowardstheceiling(g. ).
• Attachtheexhaustduct(g. ).
Installing the hood Installing the hood
00-Elux FHWC3060LSA-Range hood-Book-01.indd 9 12/8/10 12:43 PM

10
GB
CAUTION
Danger of injury. The chimney skirts may have
some sharp edges.
Exhaust operation
• During exhaust operation, the range hood
removes air from a room. If other re sources
that require the surrounding air for combustion
are being operated in the same room, (e.g. gas,
oil or coal heaters), the oxygen they require is
taken away. Thus ames could be suffocated
and gas could leak out or the fumes could be
drawn back into the room.
• In order to guarantee a safe operation, there
should be non-closable openings in doors,
windows to ensure a fresh supply of combustion
air. This will prevent the combustion fumes from
being drawn back into the room.
• Whenassessingthemeasuresnecessary,always
take the entire ventilation system of the house
into consideration.
• Never secure the range hood to a ventilation
duct, or a room or exhaust gas chimney! Do
not let the air that is removed from the room be
drawn into a duct where warm air is circulating.
The extracted air should only be drawn outdoors
through a separate ventilating duct that is only
for the extractor hood.
• When in extraction mode, air in the room is
being removed by the range hood. Please make
sure that proper ventilation measures are being
observed. The range hood removes odors from
room but not steam.
• Thereshallbeadequateventilationoftheroom
when the range hood is used at the same time
as appliances burning gas or other fuels (not
applicable to appliances that only discharge the
air back into the room).
• Theairmustnotbedischargedintoauethat
is used for exhausting fumes from appliances
burning gas or other fuels (not applicable to
appliances that only discharge the air back into
the room).
Air recirculation operation
• Recirculated air: Kitchen fumes are removed
and after purication are fed back into the
room through the upper ventilation openings.
The purication takes place via metallic anti-
greaselter.Nowallbreakthroughisrequiredfor
recirculated air operation.
Operation
• Pressoneofthespeed( •/••/•••)buttons
to turn the appliance on.
Button Function
oPress button o to switch the appliance
off (pilot lamp is lit when appliance is
switched on).
•Press button • for low speed.
•• Press button •• for medium speed.
••• Press button ••• for high speed.
Press button to turn on lights. Press
again to switch lights off.
For best performance
• Turnontherangehoodbeforestartingtocook.
• Cleantheltersfrequently(refertoCleaning
and maintenance below).
• Uselowspeedfornormaluseandhigherspeed
for strong odors or fumes.
Cleaning and maintenance
Cleaning
• Cleantheapplianceinthefollowingintervals:
Installing range hood to the wall in
recirculation mode
• For the operation of the range hood with
recirculation mode a recirculator, model no.
FHWRKT60LS, needs to be obtained. Please call
Frigidaire at 1.800.944.9044 to order this kit.
• Followsteps1to4fromFixing range hood to the
wall (with exhaust ducting) chapter.
• To install the recirculator (7), use the template
included in recirculation kit for proper position.
• Placetherecirculator(7)againsttheupperbracket
(4) by using the upper holes with upper bracket in
the wall.
• Fixtherecirculator(7)tothewallwith2setsoflong
screws(10)andwallplugs(11)(g. ).
• Attach the exhaust duct on the bottom of the
recirculator (7).
• Followsteps5to6fromFixing range hood to the
wall (with exhaust ducting) sub-chapter.
Recirculator
Lower bracket
Lower
screw holes
Wall
Upper
bracket
fig.
fig.
• Takeoutthegreaseltersandtcharcoallters
to two lateral sides of the motor blower. Assemble
backthegreaselters.(g. ).
Installing the hood Operation / Cleaning and maintenance
00-Elux FHWC3060LSA-Range hood-Book-01.indd 10 12/8/10 12:43 PM

11
GB
Operation
• Pressoneofthespeed( •/••/•••)buttons
to turn the appliance on.
Button Function
oPress button o to switch the appliance
off (pilot lamp is lit when appliance is
switched on).
•Press button • for low speed.
•• Press button •• for medium speed.
••• Press button ••• for high speed.
Press button to turn on lights. Press
again to switch lights off.
For best performance
NOTE
Continuous use of range hood while cooking helps
keep the kitchen comfortable and less humid.
It also reduces cooking odors and soiling moisture
that create a frequent need for cleaning.
• Turnontherangehoodbeforestartingtocook.
• Cleantheltersfrequently(refertoCleaning
and maintenance below).
• Uselowspeedfornormaluseandhigherspeed
for strong odors or fumes.
Cleaning and maintenance
Cleaning
DANGER
Always switch off the electricity supply at the mains
during installation, cleaning and maintenance such
as for light bulb replacement.
NOTE
Theefciencyoftherangehooddependsonthe
cleanlinessoftheintakeandlters.Greaseshould
notbeallowedtoaccumulateonhoodorlter.
• Cleantheapplianceinthefollowingintervals:
Regularly
Use a soft cloth moistened with hand-warm
mildly soapy water or household cleaning
detergent. Never use metal pads, chemical,
abrasive material or stiff brush to clean the
appliance.
Monthly
Metallic anti-grease filter: Theltercollects
grease,smokeanddustsothelterisdirectly
affecting the efciency of the range hood. If
not cleaned, the grease residue (potential
ammable)willsaturateonthelter.Cleanit
withhouseholdcleaning detergent. Thelter
is dishwasher safe.
Recirculator: clean the ventilation openings
on the top sides.
every 4 - 6 months
Charcoal filters:
• If the model is not vented to the outside, the
air will be recirculated through disposable
charcoal lters that help remove smoke
and odors.
• Thecharcoallterscannotbecleaned,they
must be replaced regularly (depending on
range hood usage).
• NOTE:Donotrinseorputcharcoallters
in a dishwasher.
• NOTE: Charcoal lters are not included
with the range hood. Please call Frigidaire
at 1.800.944.9044 to order this kit. When
calling our customer service center, also
have this range hood’s model number
ready.
IMPORTANT
Cleantheltereverymonthtopreventriskofre.
Maintenance
• User servicing – Do not repair or replace
any part of the appliance unless specically
recommended in the manual. All other servicing
shouldbereferredtoaqualiedtechnician.
Light bulb replacement
• Switch the appliance off and disconnect the
power supply.
• Inordertoreplacethelightbulb(8),themetallic
anti-greaseltershouldbedetachedrst.
• Pullthespringlockdownward(g. ).
• Rotateandpulloneorbothofthelightbulbsfrom
the holders and replace with new light bulb(s) of
thesametype(GU10,20W,120V~)(g. / ).
• Replacethemetallicanti-greaselterandmake
sure it locks in place.
Installing range hood to the wall in
recirculation mode
• For the operation of the range hood with
recirculation mode a recirculator, model no.
FHWRKT60LS, needs to be obtained. Please call
Frigidaire at 1.800.944.9044 to order this kit.
• Followsteps1to4fromFixing range hood to the
wall (with exhaust ducting) chapter.
• To install the recirculator (7), use the template
included in recirculation kit for proper position.
• Placetherecirculator(7)againsttheupperbracket
(4) by using the upper holes with upper bracket in
the wall.
• Fixtherecirculator(7)tothewallwith2setsoflong
screws(10)andwallplugs(11)(g. ).
• Attach the exhaust duct on the bottom of the
recirculator (7).
• Followsteps5to6fromFixing range hood to the
wall (with exhaust ducting) sub-chapter.
• Takeoutthegreaseltersandtcharcoallters
to two lateral sides of the motor blower. Assemble
backthegreaselters.(g. ).
Installing the hood Operation / Cleaning and maintenance
00-Elux FHWC3060LSA-Range hood-Book-01.indd 11 12/8/10 12:43 PM

12
GB
fig.fig.
fig. fig.
Technical data
Power supply : 120V~, 60Hz
Power consumption : 520W
Bulb type : 2x 20W, 120V~
(type: GU10)
Power cable type : 18AWG
(Amer. Wire Gauge)
300V~, 105˚C
Troubleshooting
Problem Cause Solution
Excessive
vibration.
The appliance
isnotxed
properly on the
brackets.
Take down
the appliance
and check it is
properlyxed.
The fan blade
is damaged. Switch off the
appliance.
Repair to be
carried out by
qualiedservice
personnel only.
The fan motor
isnotxed
tightly.
Light on, but
fan does not
work.
The fan blade
is jammed.
The motor is
damaged.
Both light and
fan do not
work.
Light bulb
broken.
Replace with
a bulb with
correct rating.
Problem with
electrical
connection
Check the
electrical
connection with
an electrician.
Suction
performance
is not good.
Distance
between the
appliance and
the cooking
place too
large.
Readjust the
distance (page
7,g. and
table below)
Metallic anti-
greaselteris
dirty.
Clean
lters(see
Cleaning and
maintenance).
Environmental protection
Waste electrical products should not
be disposed of with household waste.
Please recycle where facilities exist.
Check with your Local Authority or retailer
for recycling advice.
Troubleshooting
Warranty information
Your appliance is covered by a one year limited
warranty. For one year from your original date of
purchase, Electrolux will pay all costs for repairing
or replacing any parts of this appliance that prove
to be defective in materials or workmanship when
such appliance is installed, used and maintained in
accordance with the provided instructions.
Exclusions
This warranty does not cover the following:
1. Products with original serial numbers that have
been removed, altered or cannot be readily
determined.
2. Product that has been transferred from its original
owner to another party or removed outside the
USA or Canada.
3. Rust on the interior or exterior of the unit.
4. Productspurchased“as-is”arenotcoveredby
this warranty.
5. Food loss due to any refrigerator or freezer
failures.
6. Products used in a commercial setting.
7. Service calls which do not involve malfunction
or defects in materials or workmanship, or for
appliances not in ordinary household use or
used other than in accordance with the provided
instructions.
8. Service calls to correct the installation of your
appliance or to instruct you how to use your
appliance.
9. Expenses for making the appliance accessible
for servicing, such as removal of trim, cupboards,
shelves, etc., which are not a part of the appliance
when it is shipped from the factory.
10. Service calls to repair or replace appliance light
bulbs,airlters,waterlters,otherconsumables,
or knobs, handles, or other cosmetic parts.
11. Surcharges including, but not limited to, any
after hour, weekend, or holiday service calls,
tolls, ferry trip charges, or mileage expense for
service calls to remote areas, including the state
of Alaska.
12.Damages to the nish of appliance or home
incurred during installation, including but not
limitedtooors,cabinets,walls,etc.
13. Damages caused by: services performed by
unauthorized service companies; use of parts
other than genuine Electrolux parts or parts
obtained from persons other than authorized
service companies; or external causes such
as abuse, misuse, inadequate power supply,
accidents,res,oractsofGod.
Warranty information
USA
1.800.944.9044
Electrolux Major Appliances
North America
10200 David Taylor Drive
Charlotte, NC 28262
00-Elux FHWC3060LSA-Range hood-Book-01.indd 12 12/8/10 12:43 PM

13
GB
Suction
performance
is not good.
Distance
between the
appliance and
the cooking
place too
large.
Readjust the
distance (page
7,g. and
table below)
Metallic anti-
greaselteris
dirty.
Clean
lters(see
Cleaning and
maintenance).
Environmental protection
Waste electrical products should not
be disposed of with household waste.
Please recycle where facilities exist.
Check with your Local Authority or retailer
for recycling advice.
Warranty information
Your appliance is covered by a one year limited
warranty. For one year from your original date of
purchase, Electrolux will pay all costs for repairing
or replacing any parts of this appliance that prove
to be defective in materials or workmanship when
such appliance is installed, used and maintained in
accordance with the provided instructions.
Exclusions
This warranty does not cover the following:
1. Products with original serial numbers that have
been removed, altered or cannot be readily
determined.
2. Product that has been transferred from its original
owner to another party or removed outside the
USA or Canada.
3. Rust on the interior or exterior of the unit.
4. Productspurchased“as-is”arenotcoveredby
this warranty.
5. Food loss due to any refrigerator or freezer
failures.
6. Products used in a commercial setting.
7. Service calls which do not involve malfunction
or defects in materials or workmanship, or for
appliances not in ordinary household use or
used other than in accordance with the provided
instructions.
8. Service calls to correct the installation of your
appliance or to instruct you how to use your
appliance.
9. Expenses for making the appliance accessible
for servicing, such as removal of trim, cupboards,
shelves, etc., which are not a part of the appliance
when it is shipped from the factory.
10. Service calls to repair or replace appliance light
bulbs,airlters,waterlters,otherconsumables,
or knobs, handles, or other cosmetic parts.
11. Surcharges including, but not limited to, any
after hour, weekend, or holiday service calls,
tolls, ferry trip charges, or mileage expense for
service calls to remote areas, including the state
of Alaska.
12.Damages to the nish of appliance or home
incurred during installation, including but not
limitedtooors,cabinets,walls,etc.
13. Damages caused by: services performed by
unauthorized service companies; use of parts
other than genuine Electrolux parts or parts
obtained from persons other than authorized
service companies; or external causes such
as abuse, misuse, inadequate power supply,
accidents,res,oractsofGod.
Warranty information
USA
1.800.944.9044
Electrolux Major Appliances
North America
10200 David Taylor Drive
Charlotte, NC 28262
Canada
1.800.265.8352
Electrolux Canada Corp.
5855 Terry Fox Way
Mississauga, Ontario, Canada
L5V 3E4
DISCLAIMER OF IMPLIED WARRANTIES;
LIMITATION OF REMEDIES
CUSTOMER’S SOLE AND EXCLUSIVE REMEDY
UNDER THIS LIMITED WARRANTY SHALL BE
PRODUCT REPAIR OR REPLACEMENT AS
PROVIDED HEREIN. CLAIMS BASED ON IMPLIED
WARRANTIES, INCLUDING WARRANTIES
OF MERCHANTABILITY OR FITNESS FOR A
PARTICULAR PURPOSE, ARE LIMITED TO ONE
YEAR OR THE SHORTEST PERIOD ALLOWED
BY LAW, BUT NOT LESS THAN ONE YEAR.
ELECTROLUX SHALL NOT BE LIABLE FOR
CONSEQUENTIAL OR INCIDENTAL DAMAGES
SUCH AS PROPERTY DAMAGE AND INCIDENTAL
EXPENSES RESULTING FROM ANY BREACH
OF THIS WRITTEN LIMITED WARRANTY OR
ANY IMPLIED WARRANTY. SOME STATES AND
PROVINCES DO NOT ALLOW THE EXCLUSION OR
LIMITATION OF INCIDENTAL OR CONSEQUENTIAL
DAMAGES, OR LIMITATIONS ON THE DURATION
OF IMPLIED WARRANTIES, SO THESE LIMITATIONS
OR EXCLUSIONS MAY NOT APPLY TO YOU. THIS
WRITTEN WARRANTY GIVES YOU SPECIFIC
LEGAL RIGHTS. YOU MAY ALSO HAVE OTHER
RIGHTS THAT VARY FROM STATE TO STATE.
If You Need Service
Keep your receipt, delivery slip, or some other
appropriate payment record to establish the warranty
period should service be required. If service is
performed, it is in your best interest to obtain and
keep all receipts. Service under this warranty must be
obtained by contacting Electrolux at the addresses or
phone numbers below.
This warranty only applies in the USA and Canada. In
the USA, your appliance is warranted by Electrolux
Major Appliances North America, a division of Electrolux
Home Products, Inc. In Canada, your appliance is
warranted by Electrolux Canada Corp.
Electrolux authorizes no person to change or add to any
obligations under this warranty. Obligations for service
and parts under this warranty must be performed by
Electrolux or an authorized service company. Product
features or specicationsasdescribedor illustrated
are subject to change without notice.
00-Elux FHWC3060LSA-Range hood-Book-01.indd 13 12/8/10 12:43 PM