Futurecom Systems Group ULC DVRS700 MOBEXCOM DVR Vehicular Repeater User Manual Installation Manual
Futurecom Systems Group ULC. MOBEXCOM DVR Vehicular Repeater Installation Manual
Contents
- 1. users manual
 - 2. USERS MANUAL
 - 3. rf exposure booklet
 - 4. revised rf exposure booklet
 - 5. Updated User Manual
 - 6. Updated RF Expo Booklet
 - 7. User Manual
 - 8. RF Safety Booklet
 - 9. Trimmable Antenna
 - 10. User Manual Revised
 - 11. RF Safety Booklet Revised
 - 12. RF Exposure Training and Product Safety Information
 - 13. Installation Manual
 - 14. Product Safety Information
 - 15. Installation Manual for Base Loaded Mobile Antennas
 - 16. Installation Manual for Vehicle Roof-Top Antennas
 
Installation Manual
Title Page
   Spectrum Series™ 
Base Loaded Mobile Antennas 
                                   Installation Manual
6880309C12-F
M
Motorola Inc.
1301 E. Algonquin Rd.,
Schaumburg, IL 60196-1078, U.S.A.

Foreword
This manual applies to mobile radios, unless otherwise specified. It includes instructions for installing antennas in a vehicle 
roof-top configuration.
Product Safety and RF Exposure Compliance
ATTENTION!
This radio is restricted to occupational use only to satisfy FCC RF energy exposure requirements. 
Before using this product, read the RF energy awareness information and operating instructions in the 
Product Safety and RF Exposure booklet enclosed with your radio (Motorola Publication part number 
6881095C99) to ensure compliance with RF energy exposure limits.
For a list of Motorola-approved antennas, batteries, and other accessories, visit the following website: 
http://www.motorola.com/governmentandenterprise
Document Copyrights
No duplication or distribution of this document or any portion thereof shall take place without the express written permission 
of Motorola. No part of this manual may be reproduced, distributed, or transmitted in any form or by any means, electronic 
or mechanical, for any purpose without the express written permission of Motorola.
Disclaimer
The information in this document is carefully examined, and is believed to be entirely reliable. However, no responsibility is 
assumed for inaccuracies. Furthermore, Motorola reserves the right to make changes to any products herein to improve 
readability, function, or design. Motorola does not assume any liability arising out of the applications or use of any product 
or circuit described herein; nor does it cover any license under its patent rights nor the rights of others.
Trademarks
MOTOROLA, the Stylized M logo, and ASTRO are registered in the US Patent & Trademark Office. All other products or 
service names are the property of their respective owners. 
© 2000 – 2010 by Motorola, Inc. 
Before using this product, read the operating instructions 
for safe usage contained in the Product Safety and RF 
Exposure booklet enclosed with your radio.
C a u t i o n

Spectrum™ Series Base Loaded Mobile Antennas
Manufactured by Motorola
• Antenna Installation
• Mounting Instructions
• Cutting Charts 
• Replacement Parts
• Connector Instructions
Introduction
Thank you for selecting the Spectrum mobile antenna. The Spectrum antennas have been designed 
to withstand demanding and rugged environments. During the design phase, the antennas are put 
through extensive Accelerated Life Testing (ALT), which simulates years of in-field service. As a 
result, potential problems are designed out, helping to ensure that the antennas which you receive 
can give you years of dependable performance.
Motorola Communications Part Division 
1313 E. Algonquin Road 
Schaumburg, Illinois 60196 
To order, Call Toll-Free: 1 - 800- 422 - 4210
Before You Start 
Roof Mount Safety Precautions and Problem Prevention – for Motor Vehicle Use only
Safe Antenna Installation
Read all instructions carefully before starting the installation.
Antenna contact with high voltage wires may result in death 
from electrocution.
Since April 3, 1994, the warranty on Spectrum antennas have been 
changed to one year. Motorola manufactured Spectrum antennas are 
warranted to be free from defects in workmanship and materials for a 
period of (1) one year from the date of shipment.
Be sure to mount the antenna on a horizontal surface to keep 
the antenna as vertical as possible, thus preventing the 
antenna from protuding beyond the vehicle and causing 
bodily injury and/or property damage.
Important
DANGER
Important
C a u t i o n

2Introduction
Entering Garages 
Automatic Car Wash 
Installation
Where to Mount the Antenna
General
Motorola recommends that mobile antennas be located as follows:
Select a location for the antenna as near the center of the roof as possible. Probe the headlining with 
your fingers to make sure that all points of obstruction are avoided.
Remove the antenna from the vehicle when entering a garage 
to prevent damage to the vehicle and the antenna whip/ball 
from damaging overhead light fixtures and garage doors.
Remove the entire antenna from the vehicle before entering 
the automatic car wash to prevent damage to the antenna and 
vehicle. The antenna mount contact must be wiped dry to 
prevent moisture from damaging the contact.
  Recommended Antenna Location
Standard Metal Passenger vehicles Recommended Location
Standard metal passenger vehicles Center roof or center trunk lid
Vans, pickups, and other light trucks 
(metal roofs)
Center roof
Heavy duty equipment with metal roofs 
(heavy duty trucks, semi-tractors, heavy 
refuse trucks, cement mixer trucks)
Center cab roof
Specialty vehicles (such as T-roofs, sun 
roofs, or convertibles)
Center trunk lid–recommended only for transmitter 
output of less than 7 W.
Other vehicles Contact your Motorola Field Technical 
Representative. 
C a u t i o n
C a u t i o n

Mobile Antenna Installation 3
Mobile Antenna Installation 
Mobile Radio Operation and EME Exposure
Observe the following caution and electromagnetic energy exposure (EME) statements when 
installing antennas: 
NOTE: For low power mobile radios (7 W or less), there are no antenna type or installation 
restrictions.
To assure optimal radio performance and that human exposure to radio frequency electromagnetic 
energy is within the guidelines references in this document, transmit only when people outside the 
vehicle are at least the minimum distance away from a properly installed, external mounted antenna. 
Table 1 lists the minimum distance from several different ranges of rated radio power.
Selecting an Antenna Site
1. Install the vehicle antenna external to the vehicle and in accordance with the requirements of 
this documents.
2. The best mounting location for the antenna is at the center of a large, flat, conductive surface. 
In almost all vehicles, mounting the antenna in the center of the roof will satisfy these 
requirements. A good alternative location is in the center of the trunk lid. If you use the trunk 
lid, ensure that the trunk lid is grounded by connecting groundling straps between the trunk lid 
and the vehicle chassis.
3. Ensure the antenna cable can be easily routed to the radio. Ensure that the antenna cable is 
routed separately and not in parallel to any other vehicle wiring or mobile radio cable wiring.
4. Check the antenna location for any electrical interference.
NOTE: Any two metal pieces rubbing against each other, such as seat springs, shift levers, trunk and hood lids, 
exhaust pipes etc.) in close proximity to the antenna can cause severe receiver interference.
5. If the vehicle is equipped with an electronic anti-lock braking system (ABS), and the antenna 
will be trunk mounted, then install the antenna on the side opposite to the braking modulator 
box. This minimizes radio interference to the modulator box from the radio.
6. Make sure the mobile radio antenna is installed at least one foot (30.48 cm) away from any 
other antenna on the vehicle.
Use caution when installing antennas with mobile radio 
equipment using transmitter powers in excess of 7 W.
Table 1 Rated Power and Distance
Rated Power of Vehicle-installed 
Mobile Two-Way Radios Minimum Distance from Transmitting Antenna
7 to 15 Watts 1 foot (30.5 cm)
16 to 50 Watts 2 feet (61 cm)
More than 50 Watts 3 feet (91.5 cm)
C a u t i o n

4Mobile Antenna Installation
Antenna Assembly Instructions
If antenna mount has not been installed, refer to the Antenna Mount Installation instructions. 
Assemble the antenna assembly (except the whip) onto the mounting base as shown in Figure 1.
1. Place the lock washer on stud loading coil/base housing.
2. Assemble either the standard duty or heavy duty spring adaptor to the base housing 
assembly by threading onto the housing stud with lock washer already in place.
3. Hand tighten the adaptor until the lock washer is fully compressed. 
4. Press rubber gasket onto the bottom of the coil housing.
5. Do not insert the antenna whip into the antenna adaptor at this time. Refer to the Tuning the 
Antenna section on page 1-12 for further instructions.
Figure 1. 
Standard Duty Whip Adapter
58-80368B32
Lock washer
04-80378B70
Loading Coils/Base housing
01-80358A86 30 – 36 MHz
01-80358A87 36 – 42 MHz
01-80358A88 42 – 50 MHz
01-80358A89 66 – 88 MHz
01-80358A90 136 – 174 MHz
01-80358A91 406 – 512 MHz Heavy Duty Spring
01-80358A92 406 – 512 MHz Standard Duty
Whip
47-80369B56 30 – 174MHz
Set Screw
03-80374B24
Heavy Duty Spring
01-80373B34
Rubber Gasket
32-80369B53
Whip
01-80358A37 406 – 420 MHz
01-80358A38 445 – 470 MHz
01-80358A39 470 – 494 MHz
01-80358A40 494 – 512 MHz

Mobile Antenna Installation 5
Antenna Mount Installation Instructions
Roof (Permanent 3/4” Hole) Mount Instructions
Tools Required:
• Safety glasses
• Hole saw (Motorola part # RPX-4378A)
• 15/16” open-end wrench
• Solder, 60/40 rosin flux
• Crimp tool, Motorola part # 66-80388A26 (Mini-UHF Connector only)
• Electric drill
• Spanner wrench, Motorola part # 66-80371A75
• Soldering iron, 40 – 75 watts
1. Drill a 3/4” hole in the vehicle with antenna hole cutting saw, Motorola part # RPX-4378A, and 
remove all burrs. The antenna hold saw will remove paint in a narrow ring around hole to 
assure good metal contact between vehicle and mount.
2. Apply generous amounts of silicon grease to inner and outer threads of brass lock nut. Feed 
coaxial cable and mount through hole as shown in Figure 2.
Figure 2. 
3. Thread locking nut onto mount and pull up mount base to properly align in hole. While pulling 
up, finger tighten the locking nut against roof top as show in Figure 3.
Figure 3. 
MAEPF-27629-O

6Mobile Antenna Installation
Figure 4. 
4. Insert spanner wrench, part # 66-80371A75 or the tops of a needle nose pliers in bushing 
assembly to prevent mount assembly from slipping. Use a 15/16” open-end wrench to tighten 
locking but firmly against vehicle surface. The locking nut must be in contact with vehicle 
metal to ensure proper antenna radiation. See Figure 4.
Trunk Lid Mount Installation
1. Trunk lid mount may be placed at the center of trunk lid near the rear window, or to the side, 
preventing the antenna from hitting the rear window when raising the trunk lid. Be sure the 
coaxial cable is not pinched under the mount clamp bracket. Refer to  Figure 5. 
Figure 5. Coaxial Cable Insertion
2. Using the allen wrench supplied, tighten the set screws clockwise until the set screws break 
through the paint, creating a good contact.
Car Roof
Holes for holding the Bushing
with Long Nose Pliers
O-Ring
42-83940B01
Bushing Assembly
Cap Insulator
Cable
Paint removed in Ring
Locking Nut
43-83881B01 (Plated)

Mobile Antenna Installation 7
3. Route coaxial cable from the trunk lid to the radio.
Magnet Mount Installation
1. Remove all dirt and grime that will prevent magnet mount from seating securely. 
2. Place magnet mount in final position. Sliding the mount may scratch paint surface. 
3. Route coaxial cable to the radio,. Refer to Figure 6.
Figure 6. Magnetic Mounted Base
Connector Installation
Before installing the connector, cut off any excess length of cable (at the radio end) to avoid 
unnecessary signal loss. When the necessary preparations have been made, install the connector 
using the following steps:
UHF Connector (Motorola part # 28-82021G01)
1. Disassemble the connector as shown in Figure 7A.
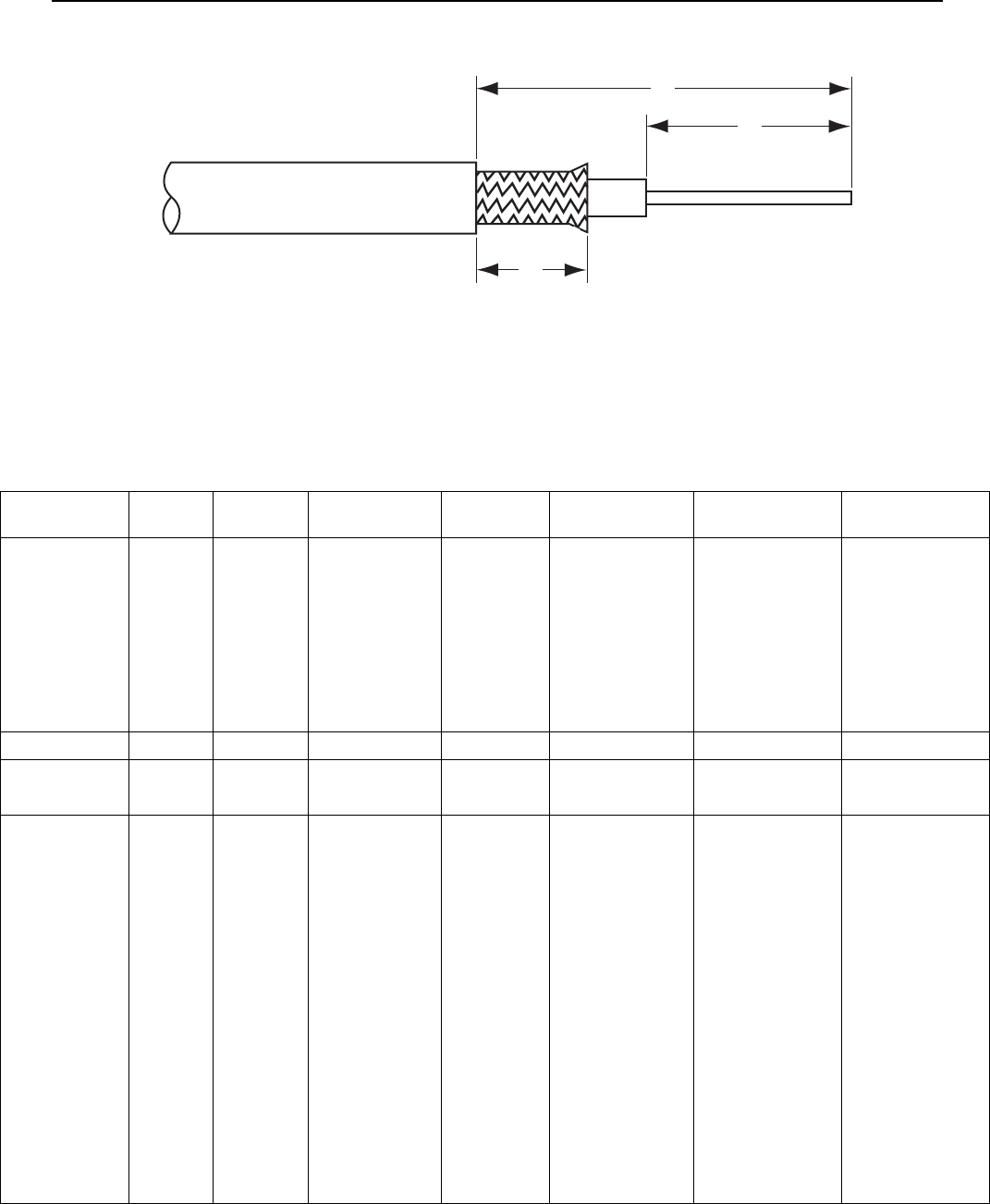
2. Cut off end of cable squarely and remove 3/4” of vinyl jacket. Refer to  Figure 7B.
3. Slide coupling ring and adaptor on cable as in  Figure 7C.
4. Fan braid slightly and fold back as shown in  Figure 7D.
5. Position adaptor to dimension as shown in Figure 7E. Press braid back over body of adaptor 
and trim to 3/8”. Base 5/8” of conductor. Tin exposed center conductor. Add teflon washer for 
470 MHz and higher.
Do not use magnet mount on vinyl roofs, magnet mount will not 
properly hold the antenna on vehicle because holding power is 
reduced. Magnet mount will not “hold on” to aluminum and non-
metallic surfaces.
Use a hot soldering iron. DO NOT USE EXCESSIVE HEAT 
OR SOLDER. Solder quickly to avoid melting surrounding 
insulation.
W A R N I N G
C a u t i o n

8Mobile Antenna Installation
6. Screw adaptor to the body of plug assembly. Solder braid to body of plus assembly through 
holes. Solder center conductor of cable to plug contact of plug assembly. Refer to  Figure 7F.
7. For final assembly, screw coupling on plug assembly.
8. Connect cable to antenna connector on radio set. Tighten coupling ring cross section of final 
assembly as shown in  Figure 7G.
NOTE: Coupling ring and plug sub assembly comprise of Motorola part number: 28-82021G01.
Figure 7. 
A
B
C
D
E
F
G
Coupling
Ring
Adapter
58-854020
Plug
Sub-Assembbly
TEFLON Washer
(470MHZ and higher)
04-84506K01
3”
4
Adapter
3”
4
TEFLON Washer
(470MHZ and higher)
1/8” of Exposed Insulation
for Lower Frequencies
3”
8
5”
8

Mobile Antenna Installation 9
Mini-UHF Connector Installation #28-84606M01 
Installation Instructions
Use Motorola tool part # 66-80388A26 (Refer to Figure 8). 
1. Slip ferrule and collar onto cable. See Figure 10.
2. Prepare cable to strip dimensions as per Figure 11.
3. Insert stripped cable into plug body until conductor is exposed (front end) and dielectric 
bottoms inside body. See Figure 10.
4. Crimp center contact using crimp area C of Figure 8 . Crimp at base of center contact, avoid 
crimping at the tip. Refer to Figure 9.
5. Push collar forward onto plug assembly. Fit cable braid over support sleeve of connector. See  
Figure 10.
6. Push ferrule over braid until flange butts against connector body. Refer to Figure 10. Using 
the correct crimp area of tool, crimp ferrule close to plug body. Crimp ferrule for a second time 
close to cable end.
7. Protuding center conductor should be trimmed with end of center contact.
Figure 8. Motorola Crimping Tool 66-80388A26
.256
.319
.068
.051
.213
A
B
C
D
E
FIVE CRIMP AREAS

10 Mobile Antenna Installation
Figure 9. Coaxial Cable Stripping Dimensions
Figure 10. 
Suggested Crimp Area
Base of Pin
Tip of Pin
2 mm
Flared
Braid
Connector
Body
Collar
Ferrule
Cable Inserted into
Connector Body
Crimp Center
Contact after
Inserting Cable
Protruding
Center
Conductor
Collar Slipped
Forward over
Connector Body
Push Ferrule Forward
over Braid. Flange
Butts against Connector
Body. Crimp Ferrule to
Complete Crimp
MAEPF-27622-O

Mobile Antenna Installation 11
Figure 11. 
Table 2 Spectrum Antennas 
Frequency MHz Gain Duty Max Power 
Watts Antenna Only Roof Mount Kit Trunk Lid Mount Kit Magnet Mount Kit
30 – 36 0 dB Standard 100 RAB-4002A RAB-4002ARA  * * RAB-4002AMA
36 – 42 0 dB Standard 100 RAB-4003A RAB-4003ARA * * RAB-4003AMA
42 – 50 0 dB Standard 100 RAB4004A RAB-4004ARA * * RAB-4004AMA
30 – 36 0 dB Heavy 100 RAB-4012A RAB-4012ARA  * * RAB-4012AMA
36 –42 0 dB Heavy 100 RAB-4013A RAB-4013ARA  * * RAB-4013AMA
42 – 50 0 dB Heavy 100 RAB-4014A RAB-4014ARA  * * RAB-4014AMA
66 – 88 0 dB Standard 100 RAC-4000A RAC-4000ATA * * RAC-4000AMA
140 – 174 3 dB Standard 150 RAD-4000A RAD-4000ARA RAD-400DATA RAD-4000AMA
140 – 174 3 dB Heavy 150 RAD-4010A RAD-4010ARA RAD-401DATA RAD-4010AMA
With RG58 A/U Cable With RG58 A/U Cable With RG58 A/U Cable
406 – 420 5 dB Standard 150 RAE-4002A RAE-4002ARA RAE-4002ATA RAE-4002AMA
445 – 470 5 dB Standard 150 RAE-4004A RAE-4004ARA RAE-4004ATA RAE-4004AMA
470 – 495 5 dB Standard 150 RAE-4005A RAE-4005ARA RAE-4005ATA RAE-4005AMA
495 – 512 5 dB Standard 150 RAE-4006A RAE-4006ARA RAE-4006ATA RAE-4006AMA
With Low Loss Cable With Low Loss Cable
406 – 420 5 dB Heavy 150  * * RAE-4002ARL RAE-4002ATL  * *
450 – 470 5 dB Heavy 150 * * RAE-4004ARL RAE-4004ATL  * *
470 – 496 5 dB Heavy 150  * * RAE-4005ARL RAE-4005ATL  * *
496 – 512 5 dB Heavy 150  * * RAE-4006ARL RAE-4006ATL  * *
With RG58 A/U Cable With RG58 A/U Cable With RG58 A/U Cable
406 – 420 5 dB Heavy 150 RAE-4012A RAE-4012ARA RAE-4012ATA RAE-4012AMA
450 – 470 5 dB Heavy 150 RAE-4014A RAE-4014ARA RAE-4014ATA RAE-4014AMA
470 – 496 5 dB Heavy 150 RAE-4015A RAE-4015ARA RAE-2015ATA RAE-4015AMA
C
A
B
Dim.  A = 15/16"
Dim.  B = 19/32"
Dim.  C = 19/64"
MAEPF-27623-O

12 Mobile Antenna Installation
Tuning the Antenna
NOTE: Tune antenna in an open area at least 12 feet away from any metal objects.
NOTE: Lengths shown on the cutting chart are approximate. Due to antenna variations and mounting 
location effects, we recommend cutting the antenna rod 1 1/2” longer than the chart and then 
cutting 1/2” off at a time until reflected power is minimized.
NOTE: DUE TO ANTENNA INTERACTION WITH VEHICLE, SOME LOW BAND ANTENNA 
MOUNTING LOCATIONS WILL NEVER ACHIEVE 1.5:1 VSWR. In this case, trim the whip 
for minimum reflected power. A simple table for converting the radio of forward power and 
reflected power to VSWR is shown below in Tabl e 3 .
1. Locate the transmitter frequency on the cutting chart. In the case of multiple transmitter 
frequencies, calculate the mid-frequency and locate on cutting chart. Read desired whip 
length from the chart. Cut the whip 1 1/2” longer than this length.
NOTE: Trim the antenna rod (Low and High band) from the bottom only. On the UHF antenna whip, 
trim the whip from the bottom of the rod below the phasing coil.
2. Use the set screw to secure the antenna whip in the whip adaptor assembly.
3. Using the in-line wattmeter, measure forward and reflected power at the desired transmit 
frequency and calculate VSWR using Table  3.
4. If VSWR is >1.5:1, then trim off 1/2” and repeat Step 3.
5. Repeat steps 3 and 4 until minimum VSWR is obtained.
496 – 512 5 dB Heavy 150 RAE-4016A RAE-4016ARA RAE-4016ATA RAE-4016AMA
With Low Loss Cable With Low Loss Cable
406 – 420 5 dB Heavy 150  * * RAE-4012ARL RAE-4012ATL * *
450 – 470 5 dB Heavy 150  * * RAE-4014ARL RAE-4014ATL * *
470 – 496 5 dB Heavy 150  * * RAE-4015-ARL RAE-4015ATL * *
496 – 512 5 dB Heavy 150  * * RAE-4016ARL RAE-4016ATL * *
NOTE: All antenna mount kits include RG58A/U Cable and PL259 Connector, except cable option that is listed otherwise. ** For low and 
Mid Band Trunk lid mount kits, order antenna only and trunk lid mounting kit (01-80356A55) separately.
PART NUMBER ANTENNA MOUNTS
01-80352A03 Roof Mount Kit, RG58A/U Cable, PL259 connector
01-80356A55 Trunk Lid Mount, RG58A/U cable, PL259 connector
01-80356A47 Magnet Mount RG58A/U cable, PL259 connector
01-80371A27 Magnet Mount RG58A/U Cable PL259 connector, low band only
Adjusting the whip length while radio is keyed may cause burns from 
RF radiation.
Table 2 Spectrum Antennas (Continued)
Frequency MHz Gain Duty Max Power 
Watts Antenna Only Roof Mount Kit Trunk Lid Mount Kit Magnet Mount Kit
W A R N I N G

Mobile Antenna Installation 13
6. Use the adjustment range of the whip in the adaptor in order to minimize the VSWR.
7. Insert the shorter part of the allen wrench into the screw and tighten the set screw at tight as 
yo can by hand. If a torque wrench is available, tighten set screw to a torque of 25 – 30 inch-
lbs.
A simple table for converting the ratio of forward power and reflected power to VSWR is given below:
Example: If the forward power (Pfwd) is measured as 100 watts and the reflected power (Pref) is 3 
watts, calculate Pfwd/Pref = 33.3. Since 33.3 is between 25 and 58.8 m, the chart above indicated 
that the VSWR is less than 1.5 : 1.
Table 3 
Pfwd/Pref VSWR
440.6 1.1 : 1 
58.8 1.3 : 1
25.0 1.5 : 1
14.9 1.7 : 1
10.4 1.9 : 1
7.9 2.1 : 1

14 Spectrum™ by Motorola
Spectrum™ by Motorola
Cutting chart lengths are approximate. Whip length will wary with type of vehicle, mount location 
and type of mount. Cut 1-1/2 inches longer than chart length, then trim for minimum reflected power.
Standard (No Spring) Heavy Duty Spring

Spectrum™ by Motorola 15
Standard (No Spring) Heavy Duty Spring

16 Spectrum™ by Motorola
Standard (No Spring) Heavy Duty Spring

Spectrum™ by Motorola 17
Spectrum™ by Motorola
Cutting chart lengths are approximate. Whip length will wary with type of vehicle, mount location 
and type of mount. Cut 1-1/2 inches longer than chart length, then trim for minimum reflected power.
Standard (No Spring) Heavy Duty Spring

18 Spectrum™ by Motorola
Standard (No Spring) Heavy Duty Spring

6880309C12-F
*6880309C12*
Motorola Inc.
1301 E. Algonquin Rd.,
Schaumburg, IL 60196-1078, U.S.A.
MOTOROLA, the Stylized M Logo, and ASTRO are registered in the 
U.S. Patent and Trademark Office. All other product or service names 
are the property of their respective owners.
© 2000 – 2010 by Motorola, Inc.
All rights reserved.
M