GOODMAN Furnace/Heater, Gas Manual L0806733
User Manual: GOODMAN GOODMAN Furnace/Heater, Gas Manual GOODMAN Furnace/Heater, Gas Owner's Manual, GOODMAN Furnace/Heater, Gas installation guides
Open the PDF directly: View PDF
.
Page Count: 32

GMS8, GHS8, GDS8
GAS-FIRED WARM AIR FURNACE
SINGLE STAGE
INSTALLATION INSTRUCTIONS
Installer. Affix all manuals adjacent to the unit.
(CATEGORY 1)
These furnaces comply with requirements
embodied in the American National
Standard /National Standard of Canada
ANSI Z21.47.CSA-2.3 Gas Fired Central
Furnaces.
_lb RECOGNIZE THIS SYMBOL AS A SAFETY PRECAUTION.
ATTENTION INSTALLING PERSONNEL
As a professional installer, you have an obligation to know the product better than the customer.
This includes all safety precautions and related items.
Prior to actual installation, thoroughly familiarize yourself with this Instruction Manual.
Pay special attention to all safety warnings. Often during installation or repair, it is possible to place yourself
in a position which is more hazardous than when the unit is in operation.
Remember, it is your responsibility to install the product safely and to know itwell enough
to be able to instruct a customer in its safe use.
Safety is a matter of common sense...a matter of thinking before acting.
Most dealers have a list of specific, good safety practices...follow them.
The precautions listed in this Installation Manual are intended as supplemental to existing practices.
However, if there is a direct conflict between existing practices and the content of this manual,
the precautions listed here take precedence.
*NOTE: Please contact your distributor
or our website for the applicable product data book
referred to in this manual.
Goodman Manufacturing Comapny, L.R
2550 North Loop West, Suite 400, Houston, TX 77092
www.goodmanmfg.com
@2006 Goodman Manufacturing Company, L.R
IO-294A 8/06

Table of Contents
I. GENERAL INFORMATION ................................................................................................................................................ 4
To THEOWNER............................................................................................................................................................. 4
To THEINSTALLER.......................................................................................................................................................... 4
TRANSPORTATION DAMAGE .................................................................................................................................................. 4
I1.SAFETY ........................................................................................................................................................................... 4
ELECTROSTATIC DISCHARGE (ESD) PRECAUTIONS ................................................................................................................. 5
II1.PRODUCT APPLICATION ............................................................................................................................................... 5
IV. LOCATION REQUIREMENTS AND CONSIDERATIONS .................................................................................................. 6
GENERAL ....................................................................................................................................................................... 6
CLEARANCES AND ACCESSIBILITY ........................................................................................................................................ 7
HORIZONTAL INSTALLATION ................................................................................................................................................. 7
FURNACE SUSPENSION ..................................................................................................................................................... 7
EXISTING FURNACE REMOVAL ............................................................................................................................................. 7
THERMOSTAT LOCATION ..................................................................................................................................................... 8
V. COMBUSTION AND VENTILATION AIR REQUIREMENTS .............................................................................................. 8
VI. CATEGORY I VENTING (VERTICALVENTING) ............................................................................................................ 10
VII. EXTERIOR MASONRY CHIMNEYS -. ........................................................................................................................... 11
CHECKLIST SUMMARY ..................................................................................................................................................... 11
CHECK1- PROPER CHIMNEY TERMINATION ........................................................................................................................ 12
CHECK2 - ANY SOLID OR LIQUID FUEL APPLIANCES VENTED INTO THIS CHIMNEY CHANNEL .......................................................... 12
CHECK3 - CHIMNEY CROWN CONDITION ........................................................................................................................... 12
CHECK4- DEBRIS IN CLEANOUT ..................................................................................................................................... 13
CHECK 5 -LINER CONDITION .......................................................................................................................................... 13
CHECK6 - DILUTIONAIR............................................................................................................................................... 13
CHECK7-COMPLETE THE INSTALLATION ............................................................................................................................ 13
Fix I - LINERTERMINATION............................................................................................................................................. 13
Fix 2-CHANGE VENTING ARRANGEMENTS ............................................................................................................................ 14
Fix 3 - REBUILDTHECROWN.......................................................................................................................................... 14
FIX4 - RELINING.......................................................................................................................................................... 14
VIII. ELECTRICAL CONNECTIONS .................................................................................................................................... 14
WIRING HARNESS ......................................................................................................................................................... 15
115 VOLT LINE CONNECTIONS ........................................................................................................................................ 15
FOSSIL FUIEL APPLICATIONS ........................................................................................................................................... 15
JUNCTIONBOXRELOCATION ............................................................................................................................................ 15
24 VOLT THERMOSTAT WIRING ......................................................................................................................................... 16
SETTING THE HEAT ANTICIPATOR ....................................................................................................................................... 16
24VAC HUM .............................................................................................................................................................. 16
IX. GAS SUPPLYAND PIPING .......................................................................................................................................... 16
GENERAL ..................................................................................................................................................................... 17
HIGH ALTITUDE DERATE .................................................................................................................................................. 17
ALTERNATE HIGH ALTITUDE DERATE .................................................................................................................................. 17
FIRING RATE ................................................................................................................................................................. 17
PROPANE GAS CONVERSION ............................................................................................................................................ 17
GAS PIPING CONNECTIONS ............................................................................................................................................. 18
GENERAL ..................................................................................................................................................................... 18
UPFLOW INSTALLATIONS .................................................................................................................................................. 18
COUNTERFLOW INSTALLATIONS ......................................................................................................................................... 19
GAS PIPING CHECKS ..................................................................................................................................................... 19
PROPANE GAS TANKS AND PIPING.................................................................................................................................... 19
PROPANE GAS PIPING CHARTS ......................................................................................................................................... 19
X. CIRCULATING AIRAND FILTERS ................................................................................................................................. 20
FILTERS - READ THIS SECTION BEFORE INSTALLING THE RETURN AIR DUCTWORK ................................................................... 20
UPRIGHT INSTALLATIONS .................................................................................................................................................. 20
CIRCULATIONAIR FILTERS .............................................................................................................................................. 20
HORIZONTAL INSTALLATIONS ............................................................................................................................................. 20
XI. SEQUENCE OF OPERATION ........................................................................................................................................ 21
POWER UP .................................................................................................................................................................. 21
NORMAL HEATING SEQUENCE ........................................................................................................................................... 21
NORMAL COOLING SEQUENCE ......................................................................................................................................... 21

Table of Contents
FAN ONLY .................................................................................................................................................................... 21
XII. START-UP PROCEDURE AND ADJUSTMENT ............................................................................................................ 21
FURNACE OPERATION ...................................................................................................................................................... 21
FURNACE START-UP ....................................................................................................................................................... 21
FURNACE SHUTDOWN .................................................................................................................................................... 22
GAS SUPPLY PRESSURE MEASUREMENT ............................................................................................................................ 22
WHITE-RODGERS36F22 GAS VALVE ....................................................................................................................... 22
WHITE-RODGERS36G22 GAS VALVE ........................................................................................................................ 22
GAS MANIFOLD PRESSURE MEASUREMENT AND ADJUSTMENT ................................................................................................ 23
WHITE-RODGERS36F22 GAS VALVE ........................................................................................................................ 23
WHITE-RODGERS36G22 GAS VALVE ........................................................................................................................ 23
GAS INPUT RATE MEASUREMENT (NATURAL GAS ONLY) ......................................................................................................... 23
TEMPERATURE RISE........................................................................................................................................................ 24
CIRCULATOR BLOWER SPEED ADJUSTMENT ........................................................................................................................ 24
CIRCULATOR BLOWER FAN TIMING ADJUSTMENT ................................................................................................................. 25
XIII. OPERATIONAL CHECKS ........................................................................................................................................... 25
BURNER FLAME ............................................................................................................................................................ 25
AUXILIARY LIMIT CONTROL .............................................................................................................................................. 25
XIV. SAFETY CIRCUIT DESCRIPTION .............................................................................................................................. 26
GENERAL ..................................................................................................................................................................... 26
INTEGRATED CONTROL MODULE ....................................................................................................................................... 26
PRIMARY LIMIT .............................................................................................................................................................. 26
AUXILIARY LIMIT ............................................................................................................................................................ 26
ROLLOUT LIMITS ........................................................................................................................................................... 26
PRESSURE SWITCHES .................................................................................................................................................... 26
FLAME SENSOR ............................................................................................................................................................. 26
XV. TROUBLESHOOTING .................................................................................................................................................. 26
ELECTROSTATIC DISCHARGE (ESD) PRECAUTIONS ............................................................................................................... 26
DIAGNOSTIC CHART ........................................................................................................................................................ 26
RESETTING FROM LOCKOUT ............................................................................................................................................ 26
XVI. MAINTENANCE .......................................................................................................................................................... 26
ANNUAL INSPECTION ...................................................................................................................................................... 26
FILTERS ....................................................................................................................................................................... 27
FILTER MAINTENANCE ..................................................................................................................................................... 27
FILTER REMOVAL ........................................................................................................................................................... 27
UPRIGHT FILTER REMOVAL .............................................................................................................................................. 27
INDUCED DRAFT AND CIRCULATOR BLOWER MOTORS ........................................................................................................... 27
FLAME SENSOR (QUALIFIED SERVICER ONLY) .................................................................................................................... 27
IGNITER(QUALIFIEDSERVICERONLY)............................................................................................................................... 27
BURNERS .................................................................................................................................................................... 27
XVII. BEFORE LEAVING AN INSTALLATION .................................................................................................................... 28
XVIII. REPAIRAND REPLACEMENT PARTS .................................................................................................................... 28
TROUBLE SHOOTING CHARTS ...................................................................................................................... 29 & 30
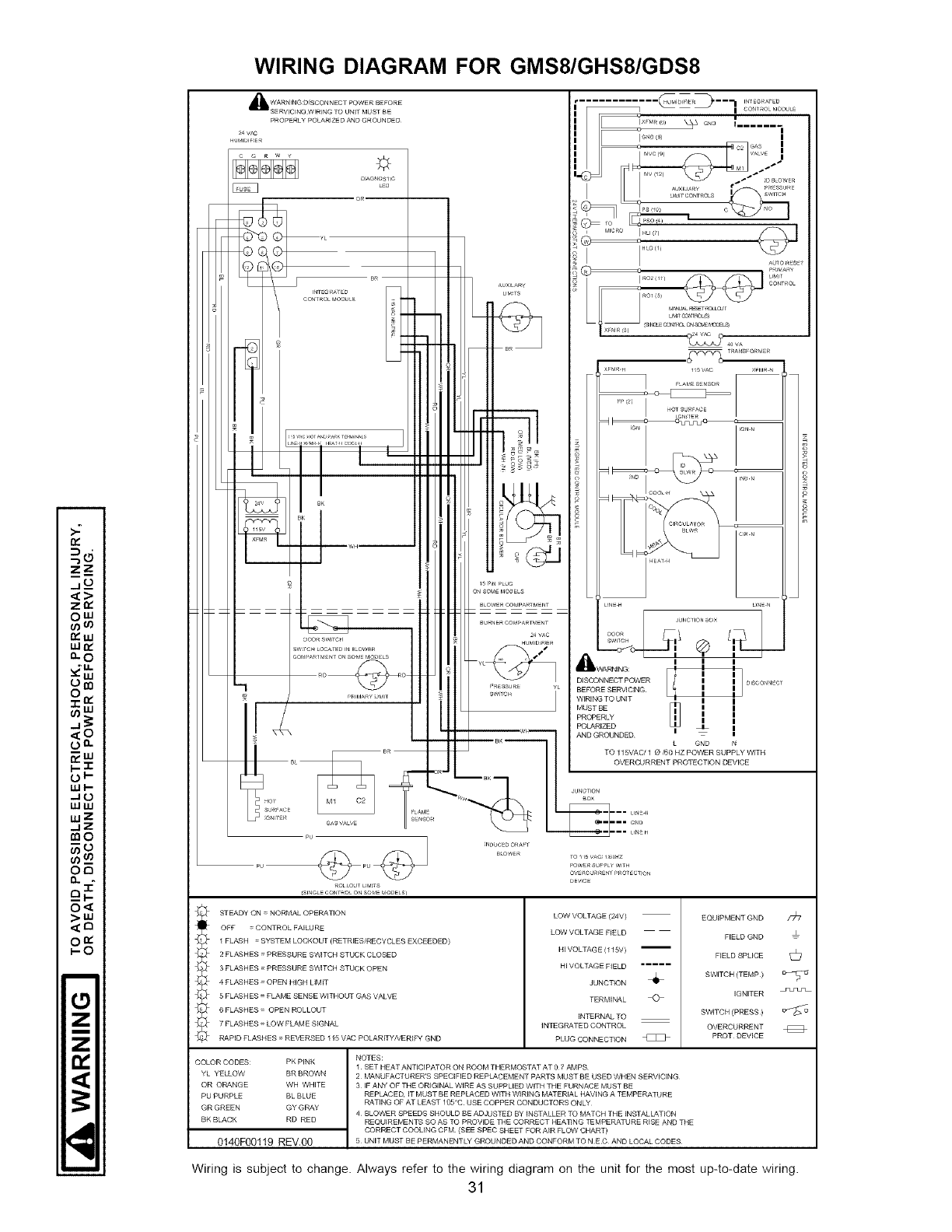
WIRING DIAGRAM .................................................................................................................................................. 31
_. WARNING
GOODMAN WILL NOT BE RESPONSIBLE FOR ANY INJURY OR PROPERTY
DAMAGE ARISING FROM IMPROPER SERVICE OR SERVICE PROCEDURES.
JF YOU INSTALL OR PERFORM SERVICE ON THIS UNIT, YOU ASSUME
RESPONSIBILITY FOR ANY PERSONAL INJURY OR PROPERY DAMAGE WHICH
MAY RESULT. MANY JURISDICTIONS REQUIRE A LICENSE TO INSTALL OR
SERVICE HEATING AND AIR CONDITIONING EQUIPMENT.
WARNING
F THE INFORMATIONIN THESEINSTRUCTIONSIS NOTFOLLOWEDEXACTLY,A
FIRE OR EXPLOSIONMAY RESULTCAUS{NGPROPERTYDAMAGE,PERSONAL
INJURY OR LOSSOFLIFE.
- Do NOTSTOREOR USEGASOLINEOR OTHERFLAMMABLEVAPORSAND
LIQUIDSIN THE VICINITYOF THIS OR ANYOTHERAPPLIANCE
- WHAT TO DO IF YOU SMELL GAS:
• DO NOT TRY TO LIGHT ANY APPLIANCE
• Do NOT TOUCH ANY ELECTRICAL SWITCH; DO NOT USE ANY
PHONE IN YOUR BUILDING
• IMMEDIATELY CALL YOUR GAS SUPPLIER FROM A NEIGHBOR'S
PHONE. FOLLOW THE GAS SUPPLIER'S INSTRUCTIONS
•IF YOU CANNOT REACH YOUR GAS SUPPLIER, CALL THE FIRE
DEPARTMENT
- INSTALLATION AND SERVICE MUST BE PERFORMED BY A QUALIFIED INSTALLER
SERVICE AGENCY OR THE GAS SUPPLIER

I. GENERAL INFORMATION
AWARN,NG J
ISHOULOOVERHEAT,NGOCCURORTHEGASSOPPLYFA,LTOSHOTOFF,TORNI
iM; UALAOE ;: L,ytEXTERNALTOTHEFURNACEBEFOREI
To THE INSTALLER
Before installing this unit, please read this manual thoroughly to
familiarize yourself with specific items which must be adhered to,
including but not limited to: unit maximum external static pressure,
gas pressures, BTU input rating, proper electrical connections,
circulating air temperature rise, minimum or maximum CFM, and
motor speed connections, and venting. These furnaces are
designed for Category I venting only.
CARBON MONOXIDE POISONING HAZARD
Special Warning for Instagation of Furnace or Air Handling Units in
Enclosed Areas such as Garages, Utility Rooms or Parking Areas
Carbon monoxide producing devices (such as an automobile, space
heater, gas water beater, etc.} should not be operated in enclosed areas
such as unventilated garages, utility rooms or parking areas because of
the danger of carbon monoxide (CO) poisoning resulting from the exhaust
emissions. If a furnace or air handler is installed in an enclosed area such
as agarage, utility room or parking area and acarbon monoxide producing
device is operated therein, there must be adequate, direct outside
ventilation.
This ventilation is necessary to avoid the danger of CO poisoning which
can occur ira carbon monoxide producing device continues to operate in
the enclosed area. Carbon monoxide emissions can be (re)circulated
throughout the structure if the furnace or air handler is operating in any
mode.
CO can cause serious illness including permanent brain damage or death
B10259-216
_IbWARNING
To PREVENT PERSONAL INJURY OR DEATH DUE TO IMPROPER INSTALLATION,
ADJUSTMENT, ALTERATION, SERVICE OR MAINTENANCE, REFER TO THIS
MANUAL. FOR ADDITIONAL ASSISTANCE OR INFORMATION, CONSULT A
UALIFIED INSTALLER, SERVICE AGENCY OR THE GAS SUPPLIER.
TO THE OWNER
it is important that you fill out the owner's registration card and
mail it today. This will assist us in contacting you should any
service or warranty information change in the future. When filling
in the registration card, be sure to include the model,
manufacturing, and serial numbers, plus the installation date.
Your warranty certificate is also supplied with the unit. Read the
warranty carefully and note what is covered. Keep the warranty
certificate in a safe location for future reference.
If additional information or operating instructions are required,
contact the dealer where the purchase was made.
Homeowner Notice:
If the residence is left unattended for an extended period of time
(i.e., 4 hours or greater), have your heating system periodically
checked to ensure proper operation. Potential circumstances
beyond our control such as power outages, gas service
interruptions, product installation, or component failures could
result in heating system operational problems.
,_ WARNING
TO PREVENT POSSIBLE PERSONAL INJURY OR DEATH DUE TO ASPHYXIATION,
THIS FURNACE MUST BE CATEGORY I VENTED. DO NOT VENT USING
CATEGORYIII VENTING.
:PROVISIONS MUST BE MADE FOR VENTING COMBUSTION PRODUCTS
)UTDOORS THROUGH A PROPER VENTING SYSTEM. THE LENGTH OF FLUE PIPE
COULD BE A LIMITING FACTOR IN LOCATING THE FURNACE.
TRANSPORTATION DAMAGE
All units are securely packed in shipping containers tested
according to international Safe Transit Association specifications.
The carton must be checked upon arrival for external damage, if
damage is found, a request for inspection by carrier's agent must
be made in writing immediately.
The furnace must be carefully inspected on arrival for damage
and bolts or screws which may have come loose in transit, in the
event of damage the consignee should:
1. Make a notation on delivery receipt of any visible damage
to shipment or container.
2. Notify carrier promptly and request an inspection.
3. With concealed damage, carrier must be notified as soon
as possible - preferably within five days.
4. File the claim with the following support documents within
a nine month statute of limitations.
•Original or certified copy of the Bill of Lading, or indemnity
bond.
• Original paid freight bill or indemnity in lieu thereof.
• Original or certified copy of the invoice, showing trade and
other discounts or reductions.
• Copy of the inspection report issued by carrier's
representative at the time damage is reported to carrier.
The carrier is responsible for making prompt inspection of damage
and for a thorough investigation of each claim. The distributor or
manufacturer will not accept claims from dealers for transportation
damage.
Keep this literature in a safe place for future reference.
II. SAFETY
Adhere to the following warnings and cautions when installing,
adjusting, altering, servicing, or operating the furnace.
_, WARNING
THIS PRODUCT CONTAINS OR PRODUCES A CHEMICAL OR CHEMICALS WHICH
MAY CAUSE SERIOUS ILLNESS OR DEATH AND WHICH ARE KNOWN TO THE
STATE OF CALIFORNIA TO CAUSE CANCER, BIRTH DEFECTS OR OTHER
REPRODUCTIVE HARM.

I_i_ WARNING
To PREVENT POSSIBLE PROPERTY DAMAGE, PERSONAL INJURY OR DEATH
TDHUEE_LOE_ _EICcTARILCCALMSpHoONCEKNTTsH;RFoUMR _vAACTE RMUST BE LOCATED TO PROTECT
_WARNING
HEATING UNIT SHOULD NOT BE UTILIZED WITHOUT REASONABLE, ROUTINE,
INSPECTION, MAINTENANCE AND SUPERVISION. IF THE BUILIDNG IN WHICH ANY
SUCH DEVICE IS LOCATED WILL BE VACANT, CARE SHOULD BE TAKEN THAT
SUCH DEVICE IS ROUTINELY INSPECTED, MAINTAINED AND MONITORED. IN THE
EVENT THAT THE BUILDING MAYBE EXPOSED TO FREEZING TEMPERATURES
AND WILL BE VACANT, ALL WATER-BEARING PIPES SHOULD BE DRAINED, THE
BUILDING SHOULD BE PROPERLY WINTERIZED, AND THE WATER SOURCE
CLOSED. IN THE EVENT THAT THE BUILDING MAY BE EXPOSED TO FREEZING
TEMPERATURES AND WILL BE VACANT, ANY HYDRONIC COIL UNITS SHOULD
BE DRAINED AS WELL AND, IN SUCH CASE, ALTERNATIVE HEAT SOURCES
SHOULD BE UTILIZED.
ADDITIONAL SAFETY CONSIDERATIONS
•This furnace is approved for Category I Venting only.
•Provisions must be made for venting combustion products
outdoors through a proper venting system. The length of
flue pipe could be a limiting factor in locating the furnace.
ELECTROSTATIC DISCHARGE (ESD) PRECAUTIONS
NOTE: Discharge body's static electricity before touching unit. An
electrostatic discharge can adversely affect electrical components.
Use the following precautions during furnace installation and
servicing to protect the integrated control module from damage.
By putting the furnace, the control, and the person at the same
electrostatic potential, these steps will help avoid exposing the
integrated control module to electrostatic discharge. This
procedure is applicable to both installed and non-installed
(ungrounded) furnaces.
1. Disconnect all power to the furnace. Do not touch the
integrated control module or any wire connected to the
control prior to discharging your body's electrostatic
charge to ground.
2. Firmly touch a clean, unpainted, metal surface of the
furnaces near the control Any tools held in a person's
hand during grounding will be discharged.
3. Service integrated control module or connecting wiring
following the discharge process in step 2. Use caution
not to recharge your body with static electricity; (i.e., do not
move or shuffle your feet, do not touch ungrounded objects,
etc.). If you come in contact with an ungrounded object,
repeat step 2 before touching control or wires.
4. Discharge your body to ground before removing a new
control from its container. Follow steps 1through 3if
installing the control on a furnace. Return any old or new
controls to their containers before touching any ungrounded
object.
III, PRODUCT APPLICATION
This furnace is primarily designed for residential home-heating
applications. It is NOT designed or certified for use in mobile
homes, trailers or recreational vehicles. Neither is it designed or
certified for outdoor applications. The furnace must be installed
indoors (i.e., attic space, crawl space, or garage area provided
the garage area is enclosed with an operating door).
This furnace can be used in the following non-industrial
commercial applications:
Schools, Office buildings, Churches, Retail stores,
Nursing homes, Hotels/motels, Common or office areas
In such applications, the furnace must be installed with the
following stipulations:
•It must be installed per the installation instructions provided
and per local and national codes.
• It must be installed indoors in a building constructed on
site.
• It must be part of a ducted system and not used in a free air
delivery application.
• It must not be used as a "make-up" air unit.
• All other warranty exclusions and restrictions apply.
This furnace may be used as a construction site heater ONLY if
the following conditions are met:
• The vent system is permanently installed per these
installation instructions.
• A room thermostat is used to control the furnace. Fixed
jumpers that provide continuous heating CANNOT be used.
• Return air ducts are provided and sealed to the furnace.
• A return air temperature range between 60°F (16°C) and
80°F (27°C) is maintained.
• Air filters are installed in the system and maintained during
construction, replaced as appropriate during construction,
and upon completion of construction are replaced.
• The input rate and temperature rise are set per the furnace
rating plate.
• 100% outside air is provided for combustion air
requirements during construction. Temporary ducting can
be used.
NOTE: Do not connect the temporary duct directly to the
furnace. The duct must be sized according to the
instructions under Section V, Combustion and Ventilation
Air Requirements, Section 5.3.3.
• The furnace heat exchanger, components, duct system,
air filters and evaporator coils are thoroughly cleaned
following final construction clean up.
• All furnace operating conditions (including ignition, input
rate, temperature rise and venting) are verified according
to these installation instructions.
NOTE: The Commonwealth of Massachusetts requires that the
following additional requirements must also be met:
• Gas furnaces must be installed by a licensed plumber or
gas fitter.
• A T-handle gas cock must be used.
• If the unit is to be installed in an attic, the passageway to
and the service area around the unit must have flooring.
To ensure proper installation and operation, thoroughly read this
manual for specifics pertaining to the installation and application
of this product.
_IbWARNING
POSSIBLE PROPERTY DAMAGE, PERSONAL INJURY OR DEATH DUE TO FIRE,
EXPLOSION, SMOKE, SOOT, CONDENSTAION, ELECTRICAL SHOCK OR CARBON
MONOXIDE MAY RESULT FROM IMPROPER INSTALLATION, REPAIR, OPERATION,
OR MAINTENANCE OF THIS PRODUCT.

I i_lb WARNIN G
To PREVENT PROPERTY DAMAGE, PERSONAL INJURY OR DEATH DUE TO FIRE,v EO.cOTINSTALLTH,SFURNACEIRAMOO,LEHOME.TRA,LER.OR D ONAL
To ensure proper furnace operation, install, operate and maintain
the furnace in accordance with these installation and operation
instructions, all local building codes and ordinances. In their
absence, follow the latest edition of the National Fuel Gas Code
(NFPA 54/ANSI Z223.1 ), and/or CAN/CSA B149 Installation Codes,
local plumbing or waste water codes, and other applicable codes.
A copy of the National Fuel Gas Code (NFPA 54/ANSI Z223.1 ) can
be obtained from any of the following:
American National Standards Institute
1430 Broadway
NewYork, NY 10018
National Fire Protection Association
1 Batterymarch Park
Quincy, MA 02269
CSA International
8501 East Pleasant Valley
Cleveland, OH 44131
A copy of the CAN/CSA B149 Installation Codes can also be
obtained from:
CSA International
178 Rexdale Boulevard
Etobicoke, Ontario, Canada M9W 1R3
The rated heating capacity of the furnace should be greater than
or equal to the total heat loss of the area to be heated. The total
heat loss should be calculated by an approved method or in
accordance with "ASHRAE Guide" or "Manual J-Load Calculations"
published by the Air Conditioning Contractors of America.
In the USA, this furnace MUST be installed in accordance with the
latest edition of the ANSI Z223.1 booklet entitled "National Fuel
Gas Code" (NFPA 54), and the requirements or codes of the local
utility or other authority having jurisdiction. In Canada, this furnace
must be installed in accordance with the current CANiCGA-B149.1
& 2 Gas installation Codes, local plumbing or waste water codes
and other applicable codes. Additional helpful publications
available from the NFPA are, NFPA 90A - installation of Air
Conditioning and Ventilating System and NFPA 90B - Warm Air
Heating and Air Conditioning System.
All venting shall be in accordance with PART 7, Venting of
Equipment, of the National Fuel Gas Code, ANSI Z223.1, or
applicable local building and/or air conditioning codes. These
publications are available from:
National Fire Protection Association, Inc.
Batterymarch Park, Quincy, MA 02269
The G*S8X furnaces meet the California NOx emission standards
and California seasonal efficiency standards. ANNUAL
inspections of the furnace and its vent system is strongly
recommended.
IV. LOCATION REQUIREMENTS AND CONSIDERATIONS
GENERAL
Model type determines which installation procedures must be
used. For GMS and GHS models, you must follow instructions for
Horizontal Left, Horizontal Right or Upflow installations only. GMS
and GHS models are not approved for Downflow installations.
6
For GDS models, you must follow instructions for Counterflowl
Downflow installation only. GDS models are not approved for
Horizontal or Upflow installations.
A_ WARNING
POSSIBLE PROPERTY DAMAGE, PERSONAL INJURY OR DEATH DUE TO FIRE,
EXPLOSION, SMOKE, SOOT, CONDENSTAION, ELECTRICAL SHOCK OR CARBON
MONOXIDE MAY RESULT FROM IMPROPER INSTALLATION, REPAIR, OPERATION,
OR MAINTENANCE OF THIS PRODUCT.
i_ WARN IN G
I To PREVENT POSSIBLE EQUIPMENT DAMAGE, PROPERTY DAMAGE, PERSONAL
INJURY OR DEATH, THE FOLLOWING BULLET POINTS MUST BE OBSERVED
WHEN INSTALLING THE UNIT.
Follow the instructions listed below when selecting a furnace
location. Refer also to the guidelines provided in Section V,
Combustion and Ventilation Air Requirements.
• Centrally locate the furnace with respect to the proposed
or existing air distribution system.
• Ensure the temperature of the return air entering the
furnace is between 55°F and 100°F when the furnace is
heating.
• Provisions must be made for venting combustion products
outdoors through a proper venting system. The length of
flue pipe could be a limiting factor in locating the furnace.
• Ensure adequate combustion air is available for the
furnace. Improper or insufficient combustion air can
expose building occupants to gas combustion products
that could include carbon monoxide. Refer to Section V,
Combustion and Ventilation Air Requirements.
• The furnace must be level. If the furnace is to be set on a
floor that may become wet or damp at times, the furnace
should be supported above the floor on a concrete base
sized approximately 1-1/2" larger than the base of the
furnace.
• Ensure upflow or horizontal furnaces are not installed
directly on carpeting, or any other combustible material.
The only combustible material allowed is wood.
• Exposure to contaminated combustion air will result in
safety and performance-related problems. Do not install
the furnace where the combustion air is exposed to the
following substances:
chlorinated waxes or cleaners
chlorine-based swimming pool chemicals
water softening chemicals
deicing salts or chemicals
carbon tetrachloride
halogen type refrigerants
cleaning solutions (such as perchloroethylene)
printing inks
paint removers
varnishes
hydrochloric acid
cements and glues
antistatic fabric softeners for clothes dryers
and masonry acid washing materials
• If the furnace is used in connection with a cooling unit,
install the furnace upstream or in parallel with the cooling
unit coil. Premature heat exchanger failure will result if the
cooling unit coil is placed ahead of the furnace.
• If the furnace is installed in a residential garage, position
the furnace so that the burners and ignition source are

locatednotlessthan18inches(457mm)abovethefloor.
Protectthefurnacefromphysicaldamagebyvehicles.
• If thefurnaceisinstalledhorizontally,thefurnaceaccess
doorsmustbeverticalsothattheburnersfirehorizontally
intotheheatexchanger.Donotinstalltheunitwiththe
accessdoorsonthe"up/top"or"down/bottom"sideofthe
furnace.
• Donotconnectthisfurnacetoachimneyfluethatservesa
separateappliancedesignedtoburnsolidfuel.
• OnCounterflowinstallations,theairconditioningcoilmust
bedownstreamfromtheheatexchangerofthefurnace.
•Counterflow Installation over a noncombustible floor.
Before setting the furnace over the plenum opening, ensure
the surface around the opening is smooth and level. A tight
seal should be made between the furnace base and floor
by using a silicone rubber caulking compound or cement
grout.
•Counterflow Installation over a combustible floor. If
installation over a combustible floor becomes necessary,
use an accessory subbase (see Product Data Book
applicable to your model for details). A special accessory
subbase must be used for upright counterflow unit
installations over any combustible material including wood.
Refer to subbase instructions for installation details.
Follow the instructions with the subbase for proper
installation. Do not install the furnace directly on carpeting,
tile, or other combustible material other than wood flooring.
(Note: The subbase will not be required if an air
conditioning coil is installed between the supply air opening
on the furnace and the floor.)
Vent Pipe Clearance to Combustibles-
6" using Single Wall Connector or 1"
using B-1 vent.
Side
Clearance
Front Clearance - 3"
• Adequate combustion/ventilation air must be supplied to
the closet.
• Furnace must be completely sealed to floor or base.
Combustion/ ventilation air supply pipes must terminate
12" from top of closet and 12" from floor of closet. DO NOT
remove solid base plate for side return.
• Return air ducts must be completely sealed to the furnace
and terminate outside the enclosure surfaces.
CLEARANCES AND ACCESSIBILITY
Unobstructed front clearance of 24" for servicing is
recommended.
VENT SIDES FRONT BACK
BI-VENT I SINGLE1" 6" 1" 3" 0"
Top clearance for horizontal configuration - 1"
TOP
(PLENUM)
I"
HORIZONTAL INSTALLATION
Line contact to framing is permitted when installed in the horizontal
configuration, Line contact is defined as the portion of the cabinet
that is formed by the intersection of the top and side,
ACCESSIBILITY CLEARANCE,WHERE GREATER, SHOULD TAKE
PRECEDENCE OVER MINIMUM FIRE PROTECTION
CLEARANCE. A gas-fired furnace for installation in a residential
garage must be installed so that the ignition source and burners
are located not less than eighteen inches (18") above the floor
and is protected or located to prevent physical damage by vehicles.
A gas furnace must not be installed directly on carpeting, tile, or
other combustible materials other than wood flooring.
FURNACE SUSPENSION
If suspending the furnace from rafters or joist, use 3/8" threaded
rod and 2"x2"x3i8" angle iron as shown below. The length of rod
will depend on the application and the clearances necessary.
PROVIDE 8" MINMUM CLEARANCE BETWEEN
CENTER ROB AND FURNACE CABINET
3/8" DIAMETER
HOL" tTOW
Eu::°tT
2" X 2" X3/8"
ANGLE iRON POSITION AS CLOSE AS POSSIBLE
(3PLACES)TO BLOWER BECK TO ALLOW FOR
CIRCULATOR BLOWER REMVOAL
Suspended Furnace
EXISTING FURNACE REMOVAL
ASSURE FURNACE IS LEVEL FROM
END TO END AND HAS A SLIGHT
FORWARD TILT WITH THE FRONT
OF THE FURNACE 0"-3/4"
BELOW THE BACK OF THE FURNACE
TILT OUTWARD TO ALLOW FOR
DOOR AND CIRCULATOR BLOWER
REMOVAL
NOTE: When an existing furnace is removed from a venting system
serving other appliances, the venting system may be too large to
properly vent the remaining attached appliances.
The following vent testing procedure is reproduced from the
American National Standard/National Standard of Canada for
Gas-Fired Central Furnaces ANSI Z21.47-Latest Edition, CSA-
2.3-Latest Edition Section 1.23.1. The following steps shall be
followed with each appliance connected to the venting system
placed in operation, while any other appliances connected to the
venting system are not in operation:
a. Seal any unused openings in the venting system;
b. inspect the venting system for proper size and horizontal
pitch, as required by the National Fuel Gas Code, ANSI
Z223.1 or the CAN/CSA B149 installation Codes and these
instructions. Determine that there is no blockage or
restriction, leakage, corrosion and other deficiencies which
could cause an unsafe condition;
c. In so far as practical, close all building doors and windows
and all doors between the space in which the appliance(s)
connected to the venting system are located and other
spaces of the building. Turn on clothes dryers and any

appliancenotconnectedto theventingsystem.Turnon
anyexhaust fans, such as range hoods and bathroom
exhausts, so they shall operate at maximum speed. Do not
operate a summer exhaust fan. Close fireplace dampers;
d. Follow the lighting instructions. Place the appliance being
inspected into operation. Adjust thermostat so appliance
shall operate continuously;
e. Test for draft hood equipped appliance spillage at the draft
hood relief opening after 5 minutes of main burner
operation. Use the flame of a match or candle;
f. After it has been determined that each appliance connected
to the venting system properly vents when tested as outlined
above, return doors, windows, exhaust fans, fireplace
dampers and any other gas burning appliance to their
previous conditions of use;
g. If improper venting is observed during any of the above
tests, the common venting system must be corrected.
Corrections must be in accordance with the latest edition of the
National Fuel Gas Code NFPA 54/ANSI Z223.1 and/or CAN/CSA
B149 Installation Codes.
If resizing is required on any portion of the venting system, use the
appropriate table in Appendix G in the latest edition of the National
Fuel Gas Code ANSI Z223.1 and/or CAN/CSA B149 Installation
Codes.
THERMOSTAT LOCATION
In an area having good air circulation, locate the thermostat about
five feet high on a vibration-free inside wall. Do not install the
thermostat where it may be influenced by any of the following:
• Drafts, or dead spots behind doors, in corners, or under
cabinets.
• Hot or cold air from registers.
• Radiant heat from the sun.
• Light fixtures or other appliances.
• Radiant heat from a fireplace.
• Concealed hot or cold water pipes, or chimneys.
• Unconditioned areas behind the thermostat, such as an
outside wall.
Thermostat Influences
Consult the instructions packaged with the thermostat for mounting
instructions and further precautions.
V. COMBUSTION AND VENTILATION AIR REQUIREMENTS
IjlLWARN'NG !
To AVOID PROPERTY DAMAGE, PERSONAL INJURY OR DEATH, SUFFICIENT
"O'2,O°,VE,";',t,AjOE O;L , 2 MUETI
FURNACE AREA. |
Improved construction and additional insulation in buildings have
reduced heat loss by reducing air infiltration and escape around
doors and windows. These changes have helped in reducing
heating/cooling costs but have created a problem supplying
combustion and ventilation air for gas fired and other fuel burning
appliances. Appliances that pull air out of the house (clothes
dryers, exhaust fans, fireplaces, etc.) increase the problem by
starving appliances for air.
House depressurization can cause back drafting or improper
combustion of gas-fired appliances, thereby exposing building
occupants to gas combustion products that could include carbon
monoxide.
If this furnace is to be installed in the same space with other gas
appliances, such as a water heater, ensure there is an adequate
supply of combustion and ventilation air for the other appliances.
Refer to the latest edition of the National Fuel Gas Code NFPA 54/
ANSI Z223.1 (Section 5.3), or CANICSA B149 Installation Codes
(Sections 7.2, 7.3, or 7.4), or applicable provisions of the local
building codes for determining the combustion air requirements
for the appliances.
This furnace must use indoor air for combustion. It cannot be
installed as a direct vent (i.e., sealed combustion) furnace.
Most homes will require outside air be supplied to the furnace
area by means of ventilation grilles or ducts connecting directly to
the outdoors or spaces open to the outdoors such as attics or
crawl spaces.
The following information on air for combustion and ventilation is
reproduced from the National Fuel Gas Code NFPA 54/ANSI
Z223.1 Section 5.3.
5.3.1 General:
(a) The provisions of 5.3 apply to gas utilization equipment
installed in buildings and which require air for combustion,
ventilation and dilution of flue gases from within the building.
They do not apply to (1) direct vent equipment which is
constructed and installed so that all air for combustion is
obtained from the outside atmosphere and all flue gases
are discharged to the outside atmosphere, or (2) enclosed
furnaces which incorporate an integral total enclosure and
use only outside air for combustion and dilution of flue
gases.
(b) Equipment shall be installed in a location in which the
facilities for ventilation permit satisfactory combustion of
gas, proper venting and the maintenance of ambient
temperature at safe limits under normal conditions of use.
Equipment shall be located so as not to interfere with
proper circulation of air. When normal infiltration does not
provide the necessary air, outside air shall be introduced.
(c) In addition to air needed for combustion, process air shall
be provided as required for: cooling of equipment or
material, controlling dew point, heating, drying, oxidation
or dilution, safety exhaust, odor control, and air for
compressors.

(d) In additionto air neededfor combustion,air shallbe
suppliedforventilation,includingallairrequiredforcomfort
andproperworkingconditionsforpersonnel.
(e)Whileallformsofbuildingconstructioncannotbecovered
indetail,air for combustion, ventilation and dilution of flue
gases for gas utilization equipment vented by natural draft
normally may be obtained by application of one of the
methods covered in 5.3.3 and 5.3.4.
(f) Air requirements for the operation of exhaust fans, kitchen
ventilation systems, clothes dryers, and fireplaces shall be
considered in determining the adequacy of a space to
provide combustion air requirements.
5.3.2 Equipment Located in Unconfined Spaces:
In unconfined spaces (see definition below) in buildings,
infiltration may be adequate to provide air for combustion
ventilation and dilution of flue gases. However, in buildings
of tight construction (for example, weather stripping, heavily
insulated, caulked, vapor barrier, etc.), additional air may
need to be provided using the methods described in 5.3.3-
b or 5.3.4.
Space, Unconfined.
For purposes of this Code, a space whose volume is not
less than 50 cubic feet per 1,000 BTU per hour of the
aggregate input rating of all appliances installed in that
space. Rooms communicating directly with the space in
which the appliances are installed through openings not
furnished with doors, are considered a part of the
unconfined space.
5.3.3 Equipment Located in Confined Spaces:
(a) All Air from Inside the Building: The confined space shall
be provided with two permanent openings communicating
directly with an additional room(s) of sufficient volume so
that the combined volume of all spaces meets the criteria
for an unconfined space. The total input of all gas utilization
equipment installed in the combined space shall be
considered in making this determination. Each opening
shall have a minimum free area of 1 square inch per 1,000
BTU per hour of the total input rating of all gas utilization
equipment in the confined space, but not less than 100
square inches. One opening shall be within 12 inches of
the top and one within 12 inches of the bottom of the
enclosure.
NOTE: Each opening must have
afree area of not less than one
square inch per 1000 BTU of
the total input rating of all equip-
ment in the enclosure, but not
less than 100 square inches. ...................................................
Equipment Located in Confined Spaces;
All Air from Inside Building. See 5.3.3-a.
the bottom of the enclosure. The openings shall
communicate directly, or by ducts, with the outdoors or
spaces (crawl or attic) that freely communicate with the
outdoors.
1. When directly communicating with the outdoors, each
opening shall have a minimum free area of 1 square
inch per 4,000 BTU per hour of total input rating of all
equipment in the enclosure.
NOTE: The inlet and outlet air
openings must each have a free
area of not less than one square
inch per 4000 BTU of the
total input rating of all equipment
in the enclosure.
unheated rlawl space
Equipment Located in Confined Spaces; All Air from Outdoors--
Inlet Air from Ventilated Crawl Space and Outlet Air to Ventilated
Attic, See 5.3.3-b
2. When communicating with the outdoors through vertical
ducts, each opening shall have aminimum free area of
1 square inch per 4,000 BTU per hour of total input
rating of all equipment in the enclosure.
_Chim ey or Gas Vent
; Venti a_ on Iouve s
f (each end of attic_
__'_ NOTE: The inlet and outlet air
openings must each have a free
Jl _ II IJ\_. _,1 area of not less than one square
IIi ] II II _ inch per 4000 BTU of the
..................l _ total input rating of all equipment
.........,o,..eoo,o.o..
Heater Inlet air ducl
[ends ft (300 ram)
ve I_r]
Equipment Located in Confined Spaces; All Air from Outdoors
Through Ventilated Attic, See 5.3.3-b.
3. When communicating with the outdoors through
horizontal ducts, each opening shall have a minimum
free area of 1 square inch per 2,000 BTU per hour of
total input rating of all equipment in the enclosure.
(b) AflAirfrem Outdoors: The confined space shall be provided
with two permanent openings, one commencing within 12
inches of the top and one commencing within 12 inches of

LI I Watel
rn_ce I rlea_er
_1_r! _
NOTE: The air duct openings
must have a free area of not
less than one square inch per
2000 BTU of the total input
rating of atl equipment in the
enclosure*.
Equipment Located in Confined Spaces; All Air from Outdoors.
See 5.3.3-b.
*If the appliance room is located against an outside wall and the
air openings communicate directly with the outdoors, each opening
shall have a free area of not less than one square inch per 4,000
BTU per hour of the total input rating of all appliances in the
enclosure.
4. When ducts are used, they shall be of the same cross-
sectional area as the free area of the openings to which
they connect. The minimum dimension of rectangular
air ducts shall not be less than 3 inches.
NOTE: The single opening must have
a free area of not less than one
square inch per 3000 BTU of
the total input rating of all equip-
ment in the enclosure,
the sum of the areas of a!l vent
connectors in the confined space.
Chimney or Gas Vent
Opening
•Altel_ate
Opening
Location
Equipment Located in Confined Spaces; All Air from Outdoors -
Single Air Opening. See 5.3.3-b.
5. One permanent opening may be permitted, provided the
equipment has clearances of at least 1" from the sides
and back and 6" from the front. The opening shall
communicate directly with the outdoors and must be
located within 12" of the top of the enclosure. The
minimum free area of the opening shall be 1 square
inch per 3,000 BTU per hour of total input rating of all
equipment in the enclosure. The minimum free area
shall not be less than the sum of the areas of all vent
connectors in the confined space.
5.3.4 Specially Engineered Installations:
The requirements of 5.3.3 shall not necessarily govern when
special engineering, approved by the authority having
jurisdiction, provides an adequate supply of air for combustion,
ventilation, and dilution of flue gases.
5.3.5 Louvers and Grilles:
In calculating free area in 5.3.3, consideration shall be given
to the blocking effect of louvers, grilles or screens protecting
openings. Screens used shall not be smaller than 1/4 inch
mesh. If the area through a design of louver or grille is known,
it should be used in calculating the size of opening required
to provide the free area specified. If the design and free area
is not known, it may be assumed that wood louvers will have
20-25 percent free area and metal louvers and grilles will
have 60-75 percent free area. Louvers and grilles shall be
fixed in the open position or interlocked with the equipment
so that they are opened automatically during equipment
operation.
5.3.6 Special Conditions Created by Mechanical Exhausting or
Fireplaces:
Operation of exhaust fans, ventilation systems, clothes dryers,
or fireplaces may create conditions requiring special attention
to avoid unsatisfactory operation of installed gas utilization
equipment.
Vl. CATEGORY I VENTING (VERTICAL VENTING)
I AWARN'NG
To PREVENT POSSIBLE PERSONAL INJURY OR DEATH DUE TO ASPHYXIATION,
THIS FURNACE MUST BE CATEGORY I VENTED. Do NOT VENT USING
CATEGORYIII VENTING.
Category I Venting is venting at a non-positive pressure. A furnace
vented as Category I is considered a fan-assisted appliance and
the vent system does not have to be "gas tight." NOTE: Single
stage gas furnaces with induced draft blowers draw products of
combustion through a heat exchanger allowing, in some instances,
common venting with natural draft appliances (i.e. water heaters).
All installations must be vented in accordance with National Fuel
Gas Code NFPA 54/ANSI Z223.1 - latest edition. In Canada, the
furnaces must be vented in accordance with the National Standard
of Canada, CAN/CSA B149.1 and CAN/CSA B149.2 -latest editions
and amendments.
NOTE: The vertical height of the Category I venting system must
be at least as great as the horizontal length of the venting system.
I a,WARN,NG
I To PREVENT POSSIBLE PERSONAL INJURY OR DEATH DUE TO ASPHYXIATION,
I
The minimum vent diameter for the Category I venting system is
as shown:
MODEL
45
7O
90
115
140
MINIMUM VENT
UPFLOW COUNTERFLOW
4 Inch 4 Inch
4 Inch 4 Inch
4 Inch 4 Inch
5 Inch 5 Inch
5 Inch 5 Inch
Under some conditions, larger vents than those shown above
may be required or allowed. When an existing furnace is removed
from a venting system serving other appliances, the venting system
may be too large to properly vent the remaining attached
appliances.
Upflow or Horizontal units are shipped with the induced draft
blower discharging from the top of the furnace. ("Top" is as viewed
for an upflow installation.) The induced draft blower can be rotated
90 degrees for Category I venting. For horizontal installations, a
four inch single wall pipe can be used to extend the induced draft
blower outlet 1/2" beyond the furnace cabinet. Vent the furnace in
10

accordance with the National Fuel Gas Code NFPA 54/ANSI
Z223.1 - latest edition. In Canada, vent the furnace in accordance
with the National Standard of Canada, CAN/CSA B 149.1 and CAN/
CSA B149.2 - latest editions and amendments.
Venting
THIS FURNACE IS NOT DESIGN CERTIFIED TO BE
HORIZONTALLY VENTED.
:Supply Air
Upflow Rotated Induced Draft Blower
To rotate the induced draft blower, proceed as follows:
1. Disconnect electrical power from the furnace.
2. Disconnect the induced draft blower power leads, flue
pipe, and pressure switch tubing.
3. Remove the round cutout from the appropriate side of the
furnace.
4. Remove and save the four screws that hold the induced
draft blower to the flue collector box.
5. Turn the induced draft blower 90 degrees clockwise, or
counterclockwise. The gasket is adhered to the back
plate and will rotate with the blower assembly.
6. Reinstall the induced draft blower on the flue collector
box, using the four screws removed in Step 3. Tighten
screws to provide an airtight seal.
7. Reconnect the induced draft blower power leads. NOTE:
If the wires are not long enough, pull extra wire from the
wire bundle in the blower compartment.
8. Remove and save the screw that holds the pressure
switch to the furnace top panel.
9. Relocate the pressure switch to the same side as the
flue outlet in the hole provided.
10. Reconnect the draft blower power leads, flue pipe, and
pressure switch tubing. Make sure that all wires and the
pressure switch tubing are at least one inch from the flue
pipe, or any other hot surfaces.
11. Restore power to the furnace.
Counterflow units are shipped with the induced draft blower
discharging from the top of the furnace. ("Top" as viewed for a
counterflow installation.) Vent the furnace in accordance with
the National Fuel Gas Code NFPA 54/ANSI Z223.1 -latest edition.
In Canada, vent the furnace in accordance with the National
Standard of Canada, CAN/CSA B149.1 AND CAN/CSA B149.2 -
latest editions and amendments.
WARNING
NEVER ALLOW THE PRODUCTS OF COMBUSTION, INCLUDING CARBON
MONOXIDE, TO ENTER THE RETURN DUCTWORK OR CIRCULATION AIR SUPPLY,
VII. EXTERIOR MASONRY CHIMNEYS -
CATEGORYI FURNACES ONLY
An exterior masonry chimney is defined as a "Masonry chimney
exposed to the outdoors on one or more sides below the roof
line." The ability to use a clay lined masonry chimney depends
on a parameter not associated with interior chimneys. This
variable is the geographic location of the installation.
Researchers have discovered that the winter design
temperatures have a direct impact on the suitability of this type of
venting. In most situations, the existing masonry chimneys will
require a properly sized metallic liner.
_I, WARNING
POSSIBILITY OF PROPERTY DAMAGE, PERSONAL INJURY OR DEATH
DAMAGING CONDENSATION CAN OCCUR INSIDE MASONRY CHIMNEYS WHEN A
SINGLE FAN ASSISTED CATEGORY I APPLIANCE (80% AFUE FURNACE) IS
VENTED WITHOUT ADEQUATE DILUTION AIR, Do NOT CONNECT AN 80%
FURNACE TO A MASONRY CHIMNEY UNLESS THE FURNACE [$COMMONVENTED
WITH A DRAFT HOOD EQUIPPED APPLIANCE OR THE CHIMNEY IS LINED WITH A
METAL LINER OR TYPE SMETAL VENT. ALL INSTALLATIONS USING MASONRY
CHIMNEYS MUST BE SIZED IN ACCORDANCE WITH THE APPROPRIATE VENTING
TABLES. IF AN 80% FURNACE IS COMMON VENTED WITH A DRAFT HOOD
EQUIPPED APPLIANCE, THE POTENTIAL FOR CONDENSATION DAMAGE MAY
STILL EXIST WITH EXTREMELY COLD CONDmONS, LONG VENT CONNECTORS,
EXTERIOR CH[MNEYS_ OR ANY COMBINATION OF THESE CONDmONS. THE
RISK OF CONDENSATION DAMAGE iS BEST AVOIDED BY USING THE MASONRY
CHIMNEY AS A PATHWAY FOR PROPERLY SIZED METAL LINER OR TYPE S
METAL VENT.
Crown _Wash
Roof Line
Clay Tie Size Generally _'
12" x I2" (24" Length) C_ay Tib Sze: 8' x 8" x/2"
(Each x 24' Length)
Attic Floor
i Second Floor
First Floor
Wate_ Heater
ili"*_JFA F Vent ir _L VentConnector
Fan Assisted Natural Dlaft
C can O Forced Air Wate_ Heate_
e
Basement Floor
i
Typical Multiple Flue Clay Tile Chimney
CHECKLIST SUMMARY
This checklist serves as a summary of the items to be checked
before venting an 80+ furnace into a masonry chimney. In addition,
we recommend that a qualified serviceman use this checklist to
perform a yearly inspection of the furnace venting system.
This checklist is only a summary. For detailed information on
each of the procedures mentioned, see the paragraph referenced
with each item.
This inspection is based upon a draft topical report, "Masonry
Chimney inspection and Relining", issued by the Gas Research
Institute. While not yet finalized, we believe this report represents
the best information on this subject which is currently available.
11

Proper Chimney
Termination?
(Check1)
Chimneychannel
free of solidand
liquid fuel
appliances?
Crownin good ileal
condition
(Check 3)
Cleanout free of
debris?
(Check 4)
Liner in good _\1
condition?
(Check 5)
Dilutionair _
available?
(Check 6)
Completethe
installation
(Check 7)
_ Line, terminate with
listed vent cap
(Fix 1)
Change venting
arrangements
(Fix 2)
Rebuild crown
(Fix 3)
and/or Reline
(Fix 4)
Reline
(Fix 4)
Reline
(Fix 4)
Reline
(Fix 4)
CHECK 1-PROPER CHIMNEY TERMINATION.
A masonry chimney used as a vent for gas fired equipment must
extend at least three feet above the highest point where it passes
through the roof. It must extend at least two feet higher than any
portion of a building within a horizontal distance of 10 feet. In
addition, the chimney must terminate at least 3 feet above any
forced air inlet located within 10 feet. The chimney must extend at
least five feet above the highest connected equipment draft hood
outlet or flue collar.
If the chimney does not meet these termination requirements, but
all other requirements in the checklist can be met, it may be
possible for a mason to extend the chimney. If this will not be
practical, see Fix 1.
-10' or Less--_.
_2'%in:! 2' Min_ _ m
T===T = 31! il Min.
:2
10' or Less
Termination 10 Feet Or Less From Ridge, Wall or Parapet
More Than 10'------1_ t
NOTE: No height
above parapet required
Wall or when distance from hi ney
Parapet walls or parapet is
more than 10 feet
Height above any
More than 10' 4_ roof surface within
/_10 feet horizontally.
_10' ----_._"
Termination More Than 10 Feet From Ridge, Wall or Parapet
CHECK2 -ANY SOLID OR LIQUID FUEL APPLIANCES VENTED INTO
THIS CHIMNEY CHANNEL
Solid fuel appliances include fireplaces, wood stoves, coal
furnaces, and incinerators.
Liquid fuel appliances include oil furnaces, oil-fired boilers and
oil-fired water heaters.
Appliances which burn propane (sometimes referred to as LP
(liquefied petroleum)) gas are considered gas-fired appliances.
CHECK3- CHIMNEY CROWN CONDITION.
Damage from condensate usually shows up first in the crown. If
any of the following trouble signs are present, the condition of the
crown is not satisfactory:
a) Crown leaning
b) Bricks missing
12

c) Mortar missing
d) Tile liner cracked
e) No tile liner
f) Salt staining at mortar joints. (White stains, and mortar
becomes sandy and/or erodes.)
For problems a, b, or c, see Fix 3. If problems d, e, or f are
present, see Fix 4. IMPORTANT: It may be necessary to follow
both Fix 3 and Fix 4.
CHECK4 - DEBRIS IN CLEANOUT
A cleanout (dropleg) must be present such that the upper edge
of the cleanout cover is at least 12 inches below the lower edge
of the lowest chimney inlet opening.
A chimney without a cleanout could become partially blocked by
debris. If no cleanout is present, the chimney must be refined
(Fix 4). Remove the cleanout cover, and examine the cleanout for
debris. If significant amounts of any of the following are found:
• Fuel oil residue
• Bricks
• Mortar or sand
• Pieces of the tile liner
• Rusted pieces of the metallic liner - reline the chimney
(Fix4).
CHECK 5 -LINER CONDITION.
If a metal liner is present, it must be checked. It cannot be
assumed that all existing metal liners are correctly installed and
in good condition.
Remove the lowest existing vent connector, and examine the
inside of the elbow or tee at the base of the liner. A small amount
of soot may be considered acceptable, provided the installer
vacuums it away. If rusted pieces of the liner have collected here,
the metal liner must be removed and replaced (Fix 4).
Next, gently tap the inside of the liner with a Phillips screwdriver.
If the screwdriver perforates the liner, or if the tapping does not
sound like metal hitting metal, the liner must be removed and
replaced (Fix 4).
Remember that all appliances must be vented inside the liner.
Venting one appliance inside the liner and another appliance
outside the liner is not acceptable.
Next, use a flashlight and small mirror to sight up the liner. B vent
must be supported so as to not come into direct contact with the
chimney walls or tile liner. If it is not, it can probably be rehung so
as to be acceptable. A thimble or fire stop may be helpful here.
Flexible liners should be hung straight or nearly straight. If it is
spiraled in the chimney and in good condition, it should be
rehung. To do this, break the top seal; pull up and cut off the
excess liner length, and refit the top seal. Use caution when
doing this, as the cut edges of flexible liners may be sharp.
The surfaces of the liner must be physically sound. If gaps or
holes are present, the metal liner must be removed and replaced
(Fix 4). Finally, confirm that the metal liner is the correct size for
the appliances to be installed. Use the GAMA tables and rules.
If a metal liner is not present, a clay tile liner must be present, or
the chimney must be lined (Fix 4).
Use a flashlight and small mirror at the cleanout or vent connector
to inspect the clay tile liner. If any of the following problems are
present:
• Tile sections misaligned
• Tile sections missing
• Gaps between tile sections
• Signs of condensate drainage at the cleanout or vent
connectors
• Mortar protruding from between tile sections
• Use of sewer pipe or drainage pipe rather than an
approved fire clay tile reline the chimney (Fix 4).
Next, measure the size of the liner. It may be possible to do this
from the cleanout. The liner must be at least as large as the
minimum size established by the tables in National Fuel Gas
Code NFPA 54/ANSI Z223.1 - latest edition and in the National
Standard of Canada, CAN/CSA B149.1 and CAN/CSA B149.2 -
latest editions and amendments. If the liner is too small or too
large, then the chimney must be relined (Fix 4).
CHECK 6-DILUTION AIR.
If gas-fired appliances are to be vented into a clay tile liner, a
source of dilution air is required.
Dilution air cannot be obtained through:
• Induced draft appliances
• Natural draft appliances with vent dampers
Sufficient dilution air can ordinarily be obtained through the draft
hood of a natural draft appliance only if the appliance's vent
connector does not include a vent damper. If dilution air will not
be available, the chimney must be relined (Fix 4).
CHECK7-COMPLETE THE INSTALLATION.
If Checks 1 through 6 have been satisfactory, and the liner is an
acceptable size as determined by the tables in National Fuel
Gas Code NFPA 54/ANSI Z223.1 - latest edition and in the National
Standard of Canada, CAN/CSA B149.1 and CAN/CSA B149.2 -
latest editions and amendments, then the clay tile liner can
probably be used as a vent for the gas appliances. However, the
installer must keep in mind the following factors which may
render the tile liner unsuitable for use as a vent:
• Extremely cold weather
• Long vent connectors
• Masonry chimneys with no air gap between the liner and
the bricks. (In practice, this can be difficult to detect.)
• Exterior chimneys (The tables in National Fuel Gas Code
NFPA 54/ANSI Z223.1 - latest edition and in the National
Standard of Canada, CAN/CSA B149.1 and CANiCSA
B149.2 - latest editions and amendments assume interior
chimneys.)
If, in the judgment of the local gas utility, installer, and/or local
codes; one or more of the above factors is likely to present a
problem, the chimney must be relined (Fix 4).
FIX 1-LINER TERMINATION
Any cap or roof assembly used with a liner must be approved by
the liner manufacturer for such use. The liner and caplroof
assembly must then terminate above the roof in accordance
with the manufacturer's instructions.
In some cases, a shorter extension above the roof may be
possible with a liner than would be required with a masonry
chimney.
For further information on relining, see Fix 4.
13

FIx 2 -CHANGE VENTING ARRANGEMENTS
If the masonry chimney has more than one channel, it may be
possible to vent the gas appliances into one channel and vent
the solid or liquid fuel appliance(s) into another channel(s). Do
not vent an 80+ Furnace inside of a metal liner with other
appliances vented outside the liner.
Alternatively, the homeowner may agree to discontinue use of
the fireplace (solid fuel appliance). If so, the tile liner must be
cleaned to remove creosote buildup. The fireplace opening must
then be permanently sealed.
If oil-fired appliance(s) are being replaced by gas-fired
appliance(s), the tile liner must first be cleaned to remove the
fuel oil residue.
If none of the above options is practical, the 80% furnace may
need to be vented vertically with a B Vent.
Under some conditions, a 90%+ furnace could be installed rather
than an 80% furnace. A 90%+ furnace can be vented horizontally
or vertically through PVC pipe.
FIX 3- REBUILD THE CROWN
If the chimney crown is damaged, a qualified mason must repair
it in accordance with nationally recognized building codes or
standards. One such standard which may be referenced is the
Standard for Chimneys, Fireplaces, Vents, and Solid Fuel Burning
Appliances, ANSI/NFPA 211.
Fix 4-RELINING
Relining options include B vent and flexible liners.
If the chimney has diagonal offsets, B vent probably cannot be
used.
If B vent is to be used, it must be supported adequately. Supports
(such as fire stops or thimbles) must be used to prevent the B
vent from coming into direct contact with the tile liner or chimney
walls. Direct contact would result in higher heat loss, with an
increased possibility of poor venting system performance.
It is not acceptable to vent one appliance inside the B vent and
other appliances outside. The excess space between the B vent
and the chimney walls must be covered at the top of the chimney
by a weatherproof, corrosion resistant flashing.
The B vent should then be topped with a listed vent cap. The
listed vent cap will, when installed per the manufacturer's
instructions, prevent problems due to rain, birds, or wind effects.
A B-vent installed as described in this section is considered to
be an enclosed vent system, and the sizing tables in National
Fuel Gas Code NFPA 54/ANSI Z223.1 - latest edition and in the
National Standard of Canada, CANiCSA B149.1 and CANiCSA
B149.2 - latest editions and amendments may be used.
If a flexible liner is to be used, it must be made of the proper
materials:
• For most residential applications, an aluminum liner
should be acceptable.
• If the combustion air supplied to the furnace will be
contaminated with compounds containing chlorine or
fluorine, a liner of AL 29-4C stainless steel should be
used. Common sources of chlorine and fluorine
compounds include indoor swimming pools and chlorine
bleaches, paint strippers, adhesives, paints, varnishes,
sealers, waxes (which are not yet dried) and solvents
used during construction and remodeling. Various
commercial and industrial processes may also be
sources of chlorinetfluorine compounds.
•Heavier gauge 300 and 400 series stainless steel liners
were developed for use with oil or solid fuel appliances.
They are not suitable for use with gas-fired appliances.
Flexible liners specifically intended and tested for gas
applications are listed in the UL "Gas and Oil Equipment
Directory". (UL Standard 1777).
For sizing of flexible liners, see Note 22 and the tables in the
National Fuel Gas Code NFPA 54/ANSI Z223.1 - latest edition
and in the National Standard of Canada, CAN/CSA B149.1 and
CAN/CSA B149.2 - latest editions and amendments.
To install the liner, read and follow the liner manufacturer's
instructions and your local codes. Excess liner length should be
pulled out of the chimney and cut off. Use caution when doing
this, as the cut edges of flexible liners may be sharp. Do not
spiral excess liner inside of the chimney. Support the liner as
recommended by the liner manufacturer.
Some manufacturers of flexible liners offer an insulation sleeve
designed to be added to the liner before it is installed in the
chimney. (Poured insulation, either vermiculite or other materials,
is no longer recommended.) insulation will need to be added to
the flexible liner if:
• It is required by the liner manufacturer's instructions.
• The previous liner was properly sized and installed, and
suffered from condensation damage.
• It is required by your local building codes.
Even if none of those three conditions exist which require
additional liner insulation, the installer may wish to consider it if:
• The local climate is very cold.
• The chimney is very tall.
• The vent connectors used are very long or have a large
number of elbows.
• Local experience indicates that flexible liners installed
without insulation are likely to have condensation
problems.
Insulation must be selected and installed in accordance with the
liner manufacturer's instructions.
Finally, cap the chimney and terminate the liner in accordance
with the liner manufacturer's instructions.
VIII. ELECTRICAL CONNECTIONS
_L, WARNING
To AVOID THE RISK OF ELECTRICAL SHOCK, WIRING TO THE UNIT MUST BE
POLARIZED AND GROUNDED.
I ,WARN,NG
ITo AVOID INJURY, ELECTRICAL SHOCK OR DEATH, DISCONNECT ELECTRICAL
_POWER BEFORE SERVICING OR CHANGING ANY ELECTRICAL WIRING.
i_ CAUTION
LABEL ALL WIRES PRIOR TO DISCONNECTION WHEN SERVICING CONTROLS.
WIRING ERRORS CAN CAUSE IMPROPER AND DANGEROUS OPERATION.
VERIFY PROPER OPERATION AFTER SERVICING.
14

I _ibWARNING
ITo AVOID THE RISK OF ELECTRICAL SHOCK OR THE FURNACE
INJURY, DEATH,
, %IB2L; T:I;ALILY DAN% IH,LO:tLEtT IOR
CODE.
WIRING HARNESS
The wiring harness is an integral part of this furnace. Field
alteration to comply with electrical codes should not be required.
Wires are color coded for identification purposes. Refer to the
wiring diagram for wire routings. If any of the original wire as
supplied with the furnace must be replaced, it must be replaced
with wiring material having a temperature rating of at least 105 ° (3.
Any replacement wiring must be a copper conductor.
115VOLT LINE CONNECTIONS
Before proceeding with electrical connections, ensure that the
supply voltage, frequency, and phase correspond to that specified
on the unit rating plate. Power supply to the furnace must be NE(3
Class 1, and must comply with all applicable codes. The furnace
must be electrically grounded in accordance with local codes or,
in their absence, with the latest edition of The National Electric
Code, ANSI NFPA 70 and/or The Canadian Electric Code (3SA
(322.1.
Use a separate fused branch electrical circuit containing properly
sized wire, and fuse or circuit breaker. The fuse or circuit breaker
must be sized in accordance with the maximum overcurrent
protection specified on the unit rating plate. An electrical disconnect
must be provided at the furnace location.
Line voltage wiring must enter into the junction box provided with
the furnace.
NOTE: Line polarity must be observed when making field
connections.
FOSSIL FUEL APPLICATIONS
This furnace can be used in conjunction with a heat pump in a
fossil fuel application. A fossil fuel application refers to a combined
gas furnace and heat pump installation which uses an outdoor
temperature sensor to determine the most cost efficient means
of heating (heat pump, gas furnace, or both).
A heat pump thermostat with two stages of heat is required to
properly use a furnace in conjunction with a heat pump. Refer to
the fossil fuel kit installation instructions for additional thermostat
requirements.
Strictly follow the wiring guidelines in the fossil fuel kit installation
instructions. All furnace connections must be made to the furnace
integrated control module and the FURNACE terminal strip on the
fossil fuel control board.
JUNCTIONBOX RELOCATION
_IbWARNING
To AVOID THE RISK OF INJURY, ELECTRICAL SHOCK OR DEATH, THE FURNACE
MUST BE ELECTRICALLY GROUNDED IN ACCORDANCE WITH LOCAL CODES OR,
IN THEIR ABSENCE, WITH THE LATEST EDITION OF THE NATIONAL ELECTRIC
CODE.
I _WARNING
lEDGES OF SHEET METAL HOLES MAY BE SHARP, GLOVES AS A PRE-
USE
CAUTION WHEN REMOVING HOLE PLUGS.
Line voltage connections can be made through either the right or
left side panel. The furnace is shipped configured for a left side
electrical connection. To make electrical connections through the
opposite side of the furnace, the junction box must be relocated to
the left side prior to making electrical connections. To relocate
the junction box, perform the following steps.
_IbWARNING
TO PREVENT PERSONAL INJURY OR DEATH DUE TO ELECTRIC SHOCK,
DISCONNECT ELECTRICAL POWER.
1. Remove both doors from the furnace.
2. Remove and save the screws holding the junction box to
the left side of the furnace.
3. Models that have the juction box located in the blower
compartment will need to rotate the junction box 180
degrees. Models that have the junction box located in the
burner compartment will need to move the juction box
directly over.
4. Attach the junction box to the right side of the furnace, using
the screws removed in step 2.
5. Check the location of the wiring. Confirm that it will not be
damaged by heat from the burners or by the rotation of the
fan. Also confirm that wiring location will not interfere with
filter removal or other maintenance.
After the junction box is in the desired location, use washers to
connect field-supplied conduit to the junction box in accordance
with NEC and local codes. Connect hot, neutral, and ground wires
as shown in the furnace wiring diagram. The wires and ground
screw are located in the furnace junction box.
Low voltage wires may be connected to the terminal strip.
IMPORTANT NOTE: To avoid possible equipment malfunction,
route the low voltage wires to avoid interference with filter removal
or other maintenance.
Integrated Ignition Control
I_WARNING
ToAVOID THE RISK OF INJURY, ELECTRICAL SHOCK OR DEATH, THE FURNACE
MUST BE ELECTRICALLY GROUNDED IN ACCORDANCE WITH LOCAL CODES OR,
INTHEIRABSENCE,WITHTHE LATESTEDITIONOF THE NATIONALELECTRIC
CODE.
To ensure proper unit grounding, the ground wire should run from
the furnace ground screw located inside the furnace junction box
all the way back to the electrical panel. NOTE: Do not use gas
piping as an electrical ground. To confirm proper unit grounding,
turn off the electrical power and perform the following check.
1
15

1. Measure resistance between the neutral (white)
connection and one of the burners.
2. Resistance should measure 10 ohms or less.
This furnace is equipped with a blower door interlock switch
which interrupts unit voltage when the blower door is opened for
servicing. Do not defeat this switch.
24 VOLT THERMOSTAT WIRING
Reconnect the yellow wire to the "piggyback" terminal on the
brown jumper and then connect the 24 VAC line of the humidifier
to the stripped end of the brown wire. Using a wire nut or a field-
supplied quick connect terminal can make this connection. The
wiring must conform to all local and national codes. Connect the
COM side of the humidifier to the B/C terminal on the furnace
control board (or to the COM side of the 24 VAC transformer). DO
NOT CONNECT 115V HUMIDIFIER TO THESE TERMINALS.
NOTE: Wire routing must not interfere with circulator blower
operation, filter removal, or routine maintenance.
Low voltage connections can be made through either the right or
left side panel. Thermostat wiring entrance holes are located in
the blower compartment. The following figure shows
connections for a "heat only" system and "heat/cool system".
Heating Heating/Cooling
Room Thermostat Room Thermostat
Furnace Furnace Unit
Control Control
Typical Field Wiring (24 VAC Control Circuit)
This furnace is equipped with a 40 VA transformer to facilitate
use with most cooling equipment. Consult the wiring diagram,
located on the blower compartment door, for further details of
115 Volt and 24 Volt wiring.
A single-stage thermostat with only one heating stage can be
used to control this furnace.
SETTING THE HEAT ANTICIPATOR
The following method should be used in measuring the amp
draw of the control circuit to assure proper adjustment of the
thermostat heat anticipator
• Wrap the "R" leg around a clip-on ammeter 10 times.
• Energize the furnace in the heat mode.
• Record the reading.
• Divide this reading by 10.
• Set the heat anticipator on the thermostat to match this
reading.
Example: If the reading on the ammeter is "4", divide this by 10.
The anticipator setting will be .4 amps.
24 VOLT HUMIDIFIER
The yellow wire connected to the I.D. Blower pressure switch is
powered anytime the pressure switch is closed and provides 24
VAC humidifier control. Remove the yellow wire and connect the
supplied brown jumper wire to the pressure switch terminal.
IX. GAS SUPPLY AND PIPING
GENERAL
The furnace rating plate includes the approved furnace gas input
rating and gas types. The furnace must be equipped to operate
on the type of gas applied. This includes any conversion kits
required for alternate fuels and/or high altitude.
_i_ CAUTION
ITo PREVENT UNRELIABLE OPERATION OR EQUIPMENT DAMAGE, THE INLET
G AT: :UPLPLYNPRRE:SUuR:NMUL.CT ::tSIRSEFDEC_;IptDA:NETHEpUNIRTTRI:'iGING PLATE
Inlet gas supply pressures must be maintained within the ranges
specified in the following table. The supply pressure must be
constant and available with all other household gas fired
appliances operating. The minimum gas supply pressure must
be maintained to prevent unreliable ignition. The maximum must
not be exceeded to prevent unit overfiring.
Inlet Gas Supply Pressure
Natural Gas IMinimum: 5.0" w.c. Maximum:10.0"w.c.
i"
Propane Gas IMinimum: 11.0"w.c. Maximum:13.0"w.c.
NOTE: Adjusting the minimum supply pressure below the limits
in the above table could lead to unreliable ignition. Gas input to
the burners must not exceed the rated input shown on the rating
plate. Overfiring of the furnace can result in premature heat
exchanger failure. Gas pressures in excess of 13 inches water
column can also cause permanent damage to the gas valve.
At all altitudes, the manifold pressure must be within 0.3 inches
w.c. of that listed in the Product Data Book applicable to your
model for the fuel used. At all altitudes and with either fuel, the air
temperature rise must be within the range listed on the furnace
nameplate. Should this appliance be converted to LP, refer to the
instructions included in the factory authorized LP conversion kit.
HIGH ALTITUDE DERATE
IMPORTANT NOTE: The furnace will naturally derate itself with
altitude. Do not attempt to increase the firing rate by changing
orifices or increasing the manifold pressure. This can cause
poor combustion and equipment failure.
When this furnace is installed at high altitude, the appropriate
High Altitude orifice kit must be applied. The furnace is supplied
with orifices sized for natural gas at altitudes up to 4,500 feet
using a heating value of approximately 1,000 Btu/hr, and should
not normally require change. Most cases will not require a change
at altitudes up to 7,500 feet. For use at altitudes in excess of
4,500 feet, refer to the following table for maximum input rates
based on altitude. Contact your local gas utility for the heating
value of the gas. Refer to National Fuel Gas Code ANSI Z223.1
and the following section to calculate firing rates.
16

Altitude
(R) 140
5,000 117,000
7,500 105,000
10,000 92,400
Maximium Firing Rates AtAItitude
Model(Kbtu/hr)
45 70 90 115
39,000 58,500 78,000 97,500
35,000 52,500 70,000 87,500
34,000 51,000 88,000 77,000
Firing rates may be lower than listed in table
It is important to check and adjust the input rate of the furnace to
prevent an overfiring situation. Overfiring can cause premature
heat exchanger failure. The input is controlled by the supply
pressure, orifice size, manifold pressure and heating (calorific)
value of the gas.
The supply pressure must be measured with this and all other
gas burning appliances in operation. The supply pressure must
be adjusted to the pressure range stated on the rating plate.
Applications for altitudes in excess of 4,500 feet usually require
an orifice change.
ALTERNATE HIGH ALTITUDE DERATE
Alternately standard derate for altitude from National Fuel Gas
Code ANSI Z223.1 of 4% per 1000' may be taken. Refer to the
most recent version of ASNI Z223.1 for correct gas orifice. The
orifices must be selected using the table below. The furnace
derate is 4% for each 1,000 feet above sea level. This table is
based upon a heating value of approximately 1,000 Btu/ft 3
NAT. GAS
ALTITUDE ORIFICE SIZE
0 - 2,000 #43
3,000 #44
4,000 #44
5,000 #45
6,000 #45
7,000 #46
The input to the furnace must be checked AFTER reorificing.
For altitudes above 4,500 feet, refer to appropriate section of the
National Fuel Gas Code, ANSI Z223.1. To calculate the input of
the furnace for installations in altitudes over 7,000 feet, use the
following formula:
Corrected Input = Rating Plate input - (Altitude X .04) X (Rating
Plate input /1000)
Example:
Corrected input for a 90,000 Btu/hr. appliance installed at an
altitude of 6,000 ft. utilizing natural gas with a heating value of
1,000 Btu/ft 3 is determined by-
Corrected input = 90,000 - (6,000 X .04) X (90,000 /1,000)
Corrected input = 90,000 - (240 X 90)
Corrected input = 90,000 - 21,600
Corrected Input = 68,400
FIRING RATE
Using the orifices sized as shown in the table for 6,000 feet
(#45), a meter time of 52.6 seconds is measured. The actual
firing rate of the furnace is:
Input = 1,000 (heating value of the gas) X 3600 (constant) /52.6
(meter time for 1 ft3of gas)
Input = 3,600,000 /52.6
Input = 68,400 Btu/h
Meter Time In Minutes and Seconds For Normal Input Rating of
Furnaces Equipped For Use With Natural Gas
INPUT METER HEAT HEAT HEAT HEAT
SIZE VALUE VALUE VALUE VALUE
Btu/hr FT 3 900 1,000 1040 t.100
MiN. SEC. MiN SEC MIN SEC MiN SEC
40,000 1 1 21 1 30 1 33 1 39
10 13 30 15 00 15 36 16 30
60,000 1 0 54 1 00 1 03 1 06
10 9 00 10 10 10 24 11 00
80,000 1 0 41 0 45 0 47 0 50
10 6 45 7 30 7 48 8 15
100,000 1 0 32 0 36 0 37 0 40
10 5 24 6 00 6 14 6 36
120,000 1 0 27 0 30 0 31 0 33
10 4 30 5 00 5 12 5 30
In Canada, the rating plate input for the furnace apply to
installations up to 4,500 feet (1370m) above sea level. Canadian
certification applies to the installations of up to 4,500 feet above
sea level, installations above 4,500 feet are subject to acceptance
by the local authorities having jurisdiction.
Do not derate the furnace by adjusting the manifold pressure to
a lower pressure than specified on the furnace rating plate. The
combination of the lower air density and a lower manifold
pressure will prohibit the burner orifice from drawing the proper
amount of air into the burner. This may cause incomplete
combustion, flashback, and possible yellow tipping.
In some areas the gas supplier may artificially derate the gas in
an effort to compensate for the effects of altitude. If the gas is
artificially derated, the appropriate orifice size must be determined
based upon the BTU/ft 3content of the derated gas and the altitude.
Refer to the National Fuel Gas Code, N FPA 54/ANSI Z223.1, and
information provided by the gas supplier to determine the proper
orifice size.
Some models require a pressure switch change due to the
reduced air density above certain altitudes. Refer to the following
table to determine proper pressure switch settings for your
application.
A different pressure switch may be required at high altitude
regardless of the BTU/ft 3 content of the fuel used. Contact your
distributor for appropriate altitude ranges and pressure switch
kits.
Pressure Switch Changes
Furnace input Kbtu/hr Altitude (ft) Switch Setting (inches w.c.)
45 8000' 0.55
70 NR
90* 8000' 0.60
115 NR
140 NR
904BNA does not require a switch change
PROPANE GAS CONVERSION
_, WARNING
POSSIBLE PROPERTY DAMAGE, PERSONAL INJURY OR DEATH MAY OCCUR IF
THE CORRECT CONVERSION KITS ARE NOT INSTALLED, THE APPROPRIATE KIT=
MUST BE APPLIED TO INSURE SAFE AND PROPER FURNACE OPERATION. ALL
CONVERSIONS MUST BE PERFORMED BY A QUALIFIED INSTALLER OR SERVICE
AGENCY.
This unit is configured for natural gas. The appropriate
manufacturer's propane gas conversion kit, must be applied for
propane gas installations. Refer to the "Propane Gas and/or
High Altitude installations" section for details.
Contact your distributor for a tabular listing of appropriate
manufacturer's kits for propane gas andlor high altitude
installations. The indicated kits must be used to insure safe and
proper furnace operation. All conversions must be performed by
a qualified installer, or service agency.
17

GAS PIPING CONNECTIONS
GENERAL
_CAUTION
To AVOID POSSIBLE UNSATISFACTORY OPERATION OR EQUIPMENT DAMAGE
DUE TO UNDERFIRING OF EQUIPMENT, USE THE PROPER SIZE OF
NATURAL/PROPANE GAS PIPING NEEDED WHEN RUNNING PIPE FROM THE
METERITANK TO THE FURNACE.
When sizing a trunk line, be sure to include all appliances which
will operate simultaneously.
The gas piping supplying the furnace must be properly sized based
on the gas flow required, specific gravity of the gas, and length of
the run. The gas line installation must comply with local codes, or
in their absence, with the latest edition of the National Fuel Gas
Code, NFPA54/ANSI Z223.1.
Natural Gas Capacity of Pipe
In Cubic Feet of Gas Per Hour (CFH)
Length of Nominal Black Rpe Size
Rpe in Feet 112" 314" 1" 1 1/4" 1 1/2"
10 132 278 520 1050 1600
20 92 190 350 730 1100
30 73 152 285 590 980
40 63 130 245 500 760
50 56 115 215 440 670
60 50 105 195 400 610
70 46 96 180 370 560
80 43 90 170 350 530
90 40 84 160 320 490
100 38 79 150 305 460
Pressure 0.5 psig or tess and pressure drop of 0.3" WC.; Based on
060 Specific Gravity Gas)
CFH= BTUHFurnaceInput
HeatingValue of Gas (BTU/CubicFoot)
To connect the furnace to the building's gas piping, the installer
must supply a ground joint union, drip leg, manual shutoff valve,
and line and fittings to connect to gas valve. In some cases, the
installer may also need to supply a transition piece from 1/2" pipe
to a larger pipe size.
The following stipulations apply when connecting gas piping.
• Use black iron or steel pipe and fittings for the building
piping.
• Use pipe joint compound on male threads only. Pipe joint
compound must be resistant to the action of the fuel used.
• Use ground joint unions.
• install a drip leg to trap dirt and moisture before it can enter
the gas valve. The drip leg must be a minimum of three
inches long.
• install a 1/8" NPT pipe plug fitting, accessible for test gage
connection, immediately upstream of the gas supply
connection to the furnace.
• Use two pipe wrenches when making connection to the
gas valve to keep it from turning. The orientation of the gas
valve on the manifold must be maintained as shipped from
the factory.
• install a manual shutoff valve between the gas meter and
unit within six feet of the unit. If a union is installed, the
union must be downstream of the manual shutoff valve,
between the shutoff valve and the furnace.
• Tighten all joints securely.
• Connect the furnace to the building piping by one of the
following methods:
-- Rigid metallic pipe and fittings.
-- Semi-rigid metallic tubing and metallic fittings.
Aluminum alloy tubing must not be used in exterior
locations.
-- Use listed gas appliance connectors in accordance
with their instructions. Connectors must be fully in
the same room as the furnace.
-- Protect connectors and semi-rigid tubing against
physical and thermal damage when installed. Ensure
aluminum-alloy tubing and connectors are coated to
protect against external corrosion when in contact with
masonry, plaster, or insulation, or subjected to
repeated wetting by liquids such as water (except rain
water), detergents, or sewage.
Location of Manual VaIve
(InstalIed Ahead of _ t
Ground Joint Pipe Union)
Height Required
By Local Code
Ground Joint Pipe Union
To Be installed Ahead of n\
Gas Valve
Drip Leg m-.
Reducing Coupling _
1/2" x 1/8" with 1/8"
Pipe Plug To Measure
Line Gas Pressure
General Furnace La _ut
UPFLOW INSTALLATIONS
When the gas piping enters through the right side of the furnace,
the installer must supply the following fittings (starting from the
gas valve):
• 90 degree elbows (2).
• Close nipple.
• Straight pipe to reach the exterior of the furnace.
A ground joint union, drip leg, and manual shutoff valve must also
be supplied by the installer. In some cases, the installer may also
need to supply a transition piece from 1/2" to another pipe size.
When the gas piping enters through the left side of the furnace,
the installer must supply the following fittings (starting from the
gas valve):
• Straight pipe to reach the exterior of the furnace.
• A ground joint union, drip leg, and manual shutoff valve
must also be supplied by the installer. In some cases, the
installer may also need to supply a transition piece from 1/
2 inch to another pipe size.
18

COUNTERFLOW INSTALLATIONS
When the gas piping enters through the left side of the furnace,
the installer must supply a straight pipe to reach the exterior of the
furnace.
A ground joint union, drip leg, and manual shutoff valve must also
be supplied by the installer, in some cases, the installer may also
need to supply a transition piece from 1/2" to another pipe size.
When the gas piping enters through the right side of the furnace,
the installer must supply the following fittings (starting at the gas
valve):
• 90 degree elbow.
• Close nipple.
• 90 degree elbow.
• Straight pipe to reach exterior of furnace.
GAS PIPING CHECKS
Before placing unit in operation, leak test the unit and gas
connections.
AwA..,.G t
To AVOID THE POSSIBILITY OF EXPLOSION OR FIRE, NEVER USE A MATCH OR
OPEN FLAME TO TEST FOR LEAKS.
Check for leaks using an approved chloride-free soap and water
solution, an electronic combustible gas detector, or other approved
testing methods.
_ CAUTION
To PREVENT PROPERTY DAMAGE OR PERSONAL INJURY DUE TO FIRE, THE
FOLLOWING INSTRUCTIONS MUST BE PERFORMED REGARDING GAS
CONNECTIONS, PRESSURE TESTING, LOCATION OF SHUTOFF VALVE AND
INSTALLATION OF GAS PiPiNG.
NOTE: Never exceed specified pressures for testing. Higher
pressure may damage the gas valve and cause subsequent
overfiring, resulting in heat exchanger failure.
Disconnect this unit and shutoff valve from the gas supply piping
system before pressure testing the supply piping system with
pressures in excess of 1/2 psig (3.48 kPa).
This unit must be isolated from the gas supply system by closing
its manual shutoff valve before pressure testing of gas supply
piping system with test pressures equal to or less than 1/2 psig
(3.48 kPa).
PROPANE GAS TANKS AND PIPING
_IbWARNING
IF THE GAS FURNACE IS INSTALLED IN A BASEMENT, AN EXCAVATED
AREA OR A CONFINED SPACE, IT IS STRONGLY RECOMMENDEDTO
CONTACT A PROPANE SUPPLIER TO INSTALL A GAS DETECTING
WARNING DEVICE IN CASE OF A GAB LEAK.
•SINCE PROPANE GAS IS HEAVIER THAN AIR, ANY LEAKING GAS CAN
SETTLE IN ANY LOW AREAS OR CONFINED SPACES.
•PROPANE GAS ODORANT MAY FADE, MAKING THE GAS UNDETECTABLE
EXCEPT WITH A WARNING DEVICE.
A gas detecting warning system is the only reliable way to detect a
propane gas leak. Rust can reduce the level of odorant in propane
gas. Do not rely on your sense of smell. Contact a local propane
gas supplier about installing a gas detecting warning system. If
the presence of gas is suspected, follow the instructions on Page
3 of this manual.
All propane gas equipment must conform to the safety standards
of the National Board of Fire Underwriters, NBFU Manual 58.
For satisfactory operation, propane gas pressure must be 11 inch
WC at the furnace manifold with all gas appliances in operation.
Maintaining proper gas pressure depends on three main factors:
1. Vaporization rate, depending on temperature of the liquid,
and "wetted surface" area of the container or containers.
2. Proper pressure regulation. (Two-stage regulation is
recommended for both cost and efficiency).
3. Pressure drop in lines between regulators, and between
second stage regulator and the appliance. Pipe size will
depend on length of pipe run and total load of all
appliances.
Complete information regarding tank sizing for vaporization,
recommended regulator settings, and pipe sizing is available
from most regulator manufacturers and propane gas suppliers.
Since propane gas will quickly dissolve white lead and most
standard commercial compounds, special pipe dope must be
used. Shellac-based compounds resistant to the actions of
liquefied petroleum gases such as Gasolac ®, Stalactic ®, Clyde's ®
or John Crane ® are satisfactory.
Refer to the following illustration for typical propane gas
installations and piping.
5to 15 PS]G
First Stage
Reg_J (20 PSIG Max') Conti11......W.C.
- 200 PSIG _ Second Stage
Maximum
! i
Propane Gas Installation (Typ.)
19

PROPANE GAS PIPING CHARTS
Sizing Between First and Second Stage Regulator*
Maximum Propane Capacifes listed are based on 2 psig pressure drop at 10 psJg setfng
3aciSes in 1,000 BTU/hour
Pipe or
Tubing Tubing Size, O.D. Type L Nominal Pipe Size
Length, Schedule 40
Feet 3/8" 1/2" 5/8" 3/4" 7/8" 1/2" 3/4"
10 730 1,708 3,280 5,300 8,300 3,280 7,500
28 500 1,108 2,280 3,700 5,800 2,280 4,200
38 400 920 2,080 2,900 4,700 1,880 4,000
48 370 850 1,780 2,700 4,100 1,680 3,700
58 330 770 1,580 2,400 3,700 1,580 3,400
60 300 700 1,300 2,200 3,300 1,300 310
80 260 610 1,200 1,900 2,900 1,200 2,600
100 220 540 1,000 1,700 2,800 1,000 2,300
125 200 490 900 1,400 2,300 900 2,100
150 190 430 830 1,300 2,100 830 1,900
175 170 400 780 1,200 1,900 770 1,700
200 160 380 730 1,100 1,800 720 1,500
Sizing Between Firstand Second Stage Regulator*
Maximum Propane Capacitieslisted are based on 2 psig pressure drop at10 psig setting
BTU/hour
Pipe or Tubing Size, OD. Type L Nominal Pipe Size
Tubing Schedule 46
Length,
Feet 3/8" 1/2" 5/8" 3/4" 7/8" 1-I/8" 1/2" 3/4" 1" 1-1/4" 1-1/2"
10 39 92 199 329 501 935 275 567 1.971 2,295 3,307
20 26 62 I31 216 346 630 189 393 732 1,496 2,299
30 21 59 I67 I81 277 596 152 315 590 1,212 1,858
40 19 41 96 145 233 427 129 267 504 1,039 1,559
50 18 37 79 I3I 198 376 114 237 448 91 1,417
60 16 35 72 t21 187 349 103 217 409 834 1,275
80 13 29 62 I04 155 289 89 185 346 724 1,066
100 11 26 55 99 138 255 78 162 307 630 976
125 10 24 48 81 122 224 69 I46 275 567 866
150 9 21 43 72 109 292 63 132 252 511 787
260 8 19 39 66 106 187 54 I12 209 439 665
250 8 17 36 60 93 172 48 t00 185 390 599
X. CIRCULATING AIR AND FILTERS
Ductwork - Air
I_WARNING
NEVER ALLOW THE PRODUCTS OF COMBUSTION, INCLUDING CARBON
MONOXIDE, TO ENTER THE RETURN DUCTWORK OR CIRCULATION AIR SUPPLY.
Duct systems and register sizes must be properly designed for
the CFM and external static pressure rating of the furnace.
Ductwork should be designed in accordance with the
recommended methods of "Air Conditioning Contractors of
America" Manual D.
A duct system must be installed in accordance with Standards of
the National Board of Fire Underwriters for the installation of Air
Conditioning, Warm Air Heating and Ventilating Systems.
Pamphlets No. 90A and 90B.
A closed return duct system must be used, with the return duct
connected to the furnace. NOTE: Ductwork must never be attached
to the back of the furnace. Supply and return connections to the
furnace may be made with flexible joints to reduce noise
transmission. To prevent the blower from interfering with
combustion air or draft when a central return is used, a connecting
duct must be installed between the unit and the utility room wall.
A room, closet, or alcove must not be used as a return air chamber.
When the furnace is used in connection with a cooling unit, the
furnace should be installed in parallel with or on the upstream
side of the cooling unit to avoid condensation in the heating
element. With a parallel flow arrangement, the dampers or other
means used to control the flow of air must be adequate to prevent
chilled air from entering the furnace and, if manually operated,
must be equipped with means to prevent operation of either unit
unless the damper is in the full heat or cool position.
When the furnace is installed without a cooling coil, it is
recommended that a removable access panel be provided in the
outlet air duct. This opening shall be accessible when the furnace
is installed and shall be of such a size that the heat exchanger
can be viewed for visual light inspection or such that a sampling
probe can be inserted into the airstream. The access panel must
be made to prevent air leaks when the furnace is in operation.
When the furnace is heating, the temperature of the return air
entering the furnace must be between 55°F and 100°R
When a furnace is installed so that supply ducts carry air circulated
by the furnace to areas outside the space containing the furnace,
the return air shall also be handled by a duct sealed to the furnace
casing and terminating outside the space containing the furnace.
FILTERS - READ THIS SECTION BEFORE INSTALLING THE
RETURN AIR DUCTWORK
Filters must be used with this furnace. Discuss filter maintenance
with the building owner. Filters do not ship with this furnace, but
must be provided by the installer. Filters must comply with ULg00
or CANIULCS111 standards. If the furnace is installed without
filters, the warranty will be voided.
NOTE: An undersized opening will cause reduced airflow. The
bottom return is set up as a knock out.
UPRIGHT INSTALLATIONS
Depending on the installation and/or customer preference,
differing filter arrangements can be applied. Filters can be
installed in the central return register or a side panel external filter
rack kit (upflows), or the ductwork above a counterflow furnace. As
an alternative, a media air filter or electronic air cleaner can be
used as the requested filter.
CIRCULATION AIR FILTERS
One of the most common causes of a problem in a forced air
heating system is a blocked or dirty filter. Circulating air filters
must be inspected monthly for dirt accumulation and replaced if
necessary. Failure to maintain clean filters can cause premature
heat exchanger failure.
A new home may require more frequent replacement until all
construction dust and dirt is removed. Circulating air filters are to
be installed in the return air duct external to the furnace cabinet.
MINIMUM FILTER SIZES
FURNACE INPUT FILTER SIZE TYPE
45M 160 in2 permanent
70M 24! in2 permanent
90M 320 in2 permanent
115M 400 in2 permanent
140M 370 in2 permanent
45M 320 in2 disposable
70M 483 in2 disposable
90M 640 in2 disposable
115M 800 in2 disposable
140M 7_6 iiq2 disposable
PERMANENT: NOMINAL 600 FM. FACE VELOCITY
DISPOSABLE: NOMINAL 300 F.M. FACE VELOCITY
HORIZONTAL INSTALLATIONS
Filters must be installed in either the central return register or in
the return air duct work.
2O

POWER UP
Xl. SEQUENCE OF OPERATION
(INTEGRATED IGNITION CONTROL)
115 VAC power applied to furnace.
integrated ignition control performs internal checks.
integrated ignition LED will light.
integrated ignition control monitors safety circuits
continuously.
• Furnace awaits call from thermostat.
NORMAL HEATING SEQUENCE
The normal operational sequence in heating mode is as follows:
• R and W thermostat contacts close, initiating a call for heat.
• integrated control module performs safety circuit checks.
• induced draft blower is energized for 15 second prepurge
period causing pressure switch contacts to close.
• igniter warm up begins after 15 second prepurge expires.
• Gas valve opens at end of igniter warm up period,
delivering gas to burners and establishing flame.
• integrated control module monitors flame presence. Gas
valve will remain open only if flame is sensed.
• Circulator blower is energized on heat speed following a
fixed thirty second blower on delay.
• Furnace runs, integrated control module monitors safety
circuits continuously.
• R and W thermostat contacts open, completing the call for
heat.
• Gas valve closes, extinguishing flame.
• induced draft blower is de-energized following a fifteen
second post purge.
• Circulator blower is de-energized following the heat off
delay period (fixed 150 seconds).
• Furnace awaits next call from thermostat.
NORMAL COOLING SEQUENCE
• Thermostat calls for cooling.
• Integrated control module performs safety circuit checks.
• Outdoor fan and compressor are energized.
• Circulator blower is energized on cool speed following a
fixed five second on delay.
• Furnace circulator blower and outdoor cooling unit run,
integrated control module monitors safety circuits
continuously.
• R and Y thermostat contacts open, completing the call for
cool.
• Outdoor fan and compressor are de-energized.
• Circulator blower is de-energized following a fixed forty-
five second cool off delay period.
• Furnace awaits the next call from the thermostat.
FAN ONLY MODE
The normal operational sequence in fan only mode is as follows:
• R and G thermostat contacts close, initiating a call for fan.
• Integrated control module performs safety circuit checks.
• Circulator blower is energized on heat speed.
• Circulator blower runs, integrated control module monitors
safety circuits continuously.
• R and G thermostat contacts open, completing the call for
fan.
• Circulator blower is de-energized.
• Furnace awaits next call from thermostat.
Xll. START-UP PROCEDURE AND ADJUSTMENT
Furnace must have a 115 VAC power supply properly connected
and grounded. Proper polarity must be maintained for correct
operation. An interlock switch prevents furnace operation if the
blower door is not in place. Keep the blower access door in place
except for inspection and maintenance.
This furnace is also equipped with a self-diagnosing electronic
control module. In the event a furnace component is not operating
properly, the control module LED will flash on and off in a factory-
programmed sequence, depending on the problem encountered.
This light can be viewed through the observation window in the
blower access door. Refer to the Troubleshooting Chartfor further
explanation of the lighting codes.
Follow the start-up and adjustment items, refer to further
information in Section XIII, Operational Checks.
FURNACE OPERATION
Purge gas lines of air prior to start-up. Do not purge lines into an
enclosed burner compartment.
Check for leaks using an approved chloride-free soap and water
solution, an electronic combustible gas detector, or other approved
method. Verify that all required kits (propane gas, high altitude,
etc.) have been appropriately installed.
NOTE: An interlock switch prevents furnace operation if the blower
door is not in place. Keep the blower access doors in place
except for inspection and maintenance.
FURNACE START-UP
1. Close the manual gas shutoff valve external to the furnace.
2. Turn off the electrical power to the furnace.
3. Set the room thermostat to the lowest possible setting.
4. Remove the burner compartment door.
NOTE: This furnace is equipped with an ignition device which
automatically lights the burner. Do not try to light the burner by
hand.
5. White-Rodgers Models 36F22/36G22: Push the switch to
the OFF position.
6. Wait five minutes to clear out any gas. Then smell for gas,
including near the floor.
21

7. If gas can be smelled following the five minute waiting
period in Step 6, immediately follow the instructions on
Page 3 of this manual. If you do not smell gas after five
minutes:
White-Rodgers Models 36F22/36G22: Push the switch to
the ON position.
8. Replace the door on the front of the furnace.
9. Open the manual gas valve external to the furnace.
10. Turn on the electrical power supply to the furnace.
11. Set the room thermostat to the desired temperature.
NOTE: There is an approximate 20 second delay between
thermostat energizing and burner firing.
FURNACE SHUTDOWN
1. Set the thermostat to lowest setting.
2. Turn off the electrical power supply to the furnace.
3. White-Rodgers Models 36F22/36G22: Push switch to the
OFF position.
4. Close manual gas shutoff valve external to the furnace.
5. Replace the door on the unit.
Gas Valve _ ....._" I, _m_(I
.5,
Selector
Switch
INLE OUTLET
Inlet Pressure Tap J
(Side of Valve) Pressure Regulator Outlet (Manifold)
Adjustment Pressure Tap
(Under Cap Screw)
White-Rodgers Model 36F22
PressureRegulator
Outlet Pressure _ Adjustment
Cap Screw)
Inlet Pressure
Tap !_Gas Valve
On/Off
Selector
Switch
White-Rodgers Model 36G22
GAS SUPPLY PRESSURE MEASUREMENT
IA CAUT,O.
To PREVENT UNRELIABLE OPERATION OR EQUIPMENT DAMAGE, THE INLET
PLATE
WHITE-RODGERS36F22 GAS VALVE
The line pressure supplied to the gas valve must be within the
range specified below. The supply pressure can be measured at
the gas valve inlet pressure tap or at a hose fitting installed in the
gas piping drip leg. The supply pressure must be measured with
the burners operating. To measure the gas supply pressure, use
the following procedure.
With Power and Gas Off.
1. Connect a water manometer or adequate gauge to the
"inlet pressure tap" of the gas valve.
As an alternative method, inlet gas pressure can also be
measured by removing the cap from the drip leg and
installing a predrilled cap with a hose fitting.
With Power and Gas On:
2. Put furnace into heating cycle and turn on all other gas
consuming appliances.
If operating pressures differ from the Inlet Gas Supply Pressure
table, make necessary pressure regulator adjustments, check
piping size, etc., and/or consult with local utility.
Gas [
Shutoff
Ve_ve
[
Gas Line
To Fumace
Dlip Leg Cap
With Ftt_ng
Ma
Manome,el
Measuring Inlet Gas Pressure (Alternate Method)
Inlet Gas Supply Pressure
Natural Gas IMinimum: 5.0" w.c. Maximum:10.0" w.c.
¥
Propane Gas /Minimum: 11.0" w.c. Maximum: 13.0" w.c.
If supply pressure differs from table, make the necessary
adjustments to pressure regulator, gas piping size, etc., and/or
consult with local gas utility.
3. Turn OFF gas to furnace at the manual shutoff valve and
disconnect manometer. Reinstall plug before turning on
gas to furnace.
4. Turn OFF any unnecessary gas appliances started in step
2.
WHITE-RODGERS36G22 GAS VALVE
The line pressure supplied to the gas valve must be within the
range specified below. The supply pressure can be measured at
the gas valve inlet pressure tap or at a hose fitting installed in the
gas piping drip leg. The supply pressure must be measured with
the burners operating. To measure inlet pressure, use the
following procedure.
22

Gas Valve
On/Off
Selector
Switch Inlet Pressure
=_//._/_ Tap
r/ \Out,etPresso,ePressure Regulator
Adjustment _ Tap
(UnderCap Screw)
White-Rodgers Model 36G22
1. Turn OFF gas to furnace at the manual gas shutoff valve
external to the furnace.
2. Using 3/32 hex wrench, loosen inlet pressure tap screw
one turn.
3. Connect a 5/16 inch hose and calibrated water manometer
to the gas valve inlet pressure tap. The hose should overlap
the tap by 3/8 inch.
4. Turn ON the gas supply and operate the furnace
5. Leak test. Using a leak detection solution or non-chlorine
soap suds, check for leaks at hose connection. Bubbles
forming indicate a leak. SHUT OFF GAS AND FIXALL LEAKS
IMMEDIATELY BEFORE PROCEEDING TO NEXT STEP!
6. Measure furnace gas supply pressure. Supply pressure
must be within the range specified in the Inlet Gas Supply
Pressure table.
If supply pressure reading differs from the table, make
necessary adjustments to pressure regulator, gas piping
size, etc., and/or consult with local gas utility.
Inlet Gas Supply Pressure I
Natural Gas Minimum: 5.0" w.c. Maximum:10.0" w.c. I
Propane Gas Minimum: 11.0" w.c. Maximum:13.0" w.c.
7. Turn OFF gas to furnace at the manual shutoff valve and
disconnect manometer and hose. Reinstall plug before
turning on gas to furnace.
8. Seal pressure port. Tighten inlet pressure tap screw
clockwise 7 in-lbs, minimum.
9. Retest for leaks. If bubbles form, shut down gas and fix
leaks immediately.
10. Turn valve switch ON.
GAS MANIFOLD PRESSURE MEASUREMENT AND ADJUSTMENT
CAUTION
TO PREVENT UNRELIABLE OPERATION OR EQUIPMENT DAMAGE, THE GAS
MANIFOLD PRESSURE MUST BE AS SPECIFIED ON THE UNIT RATING PLATE.
ONLY MINOR ADJUSTMENTS SHOULD BE MADE BY ADJUSTING THE GAS VALVE
PRESSURE REGULATOR.
WHITE-RODGERS36F22 GAS VALVE
Only small variations in gas pressure should be made by adjusting
the gas valve pressure regulator. The manifold pressure must be
measured with the burners operating. To measure and adjust
the manifold pressure, use the following procedure.
1. Turn OFF gas to furnace at the manual gas shutoff valve
external to the furnace.
2. Connect a calibrated water manometer (or appropriate gas
pressure gauge) at the gas valve outlet pressure tap (refer
to gas valve figure in previous section).
3. Turn ON the gas supply and operate the furnace.
4. Measure gas manifold pressure with burners firing. Adjust
manifold pressure according to the Manifold Gas Pressure
table:
Manifold Gas Pressure
Gas Range Nominal
Natural 3.2 - 3.8" w.c. 3.5" w.c.
Propane 9.7 - 10.3" w.c. 10.0" w.c.
The final manifold pressure must not vary more than 0.3 " w.c.
from the above specified pressures. Any necessary major changes
in gas flow rate should be made by changing the size of the burner
orifice.
5. To adjust the gas valve pressure regulator, remove the
regulator cap.
6. Turn the adjustment screw clockwise to increase the
pressure, or counterclockwise to decrease the pressure.
7. Securely replace the regulator cap.
8. Turn OFF gas to furnace at the manual shutoff valve and
disconnect manometer.
9. Reinstall gas valve outlet pressure tap plug before turning
on gas to furnace.
WHITE-RODGERS36G22 GAS VALVE
This valve is shipped from the factory with the regulator preset
(see control label).
Consult the appliance rating plate to ensure burner manifold
pressure is as specified. If another outlet pressure is required,
follow these steps.
1. Turn OFF all electrical power to the system.
2. Using a 3/32 inch hex wrench, loosen outlet pressure tap
screw one turn. Do not remove screw.
3. Connect a calibrated water manometer and 5/16 inch hose
to the gas valve outlet pressure tap. Hose should overlap
tap by 318 inch.
4. Turn ON system power and set thermostat to a call for
heat.
5. Using a leak detection solution or non-chlorine soap suds,
check for leaks at hose connection. Bubbles forming
indicate a leak. SHUT OFF GAS AND FIX ALL LEAKS
IMMEDIATELY!
6. Remove regulator screw cover. Turn regulator screw either
clockwise to increase pressure or counterclockwise to
decrease. Always adjust regulator to provide the correct
pressure according to the original equipment manufacturer
specifications listed on the appliance rating plate.
7. Replace regulator screw cover and finger-tighten securely.
8. Turn OFF all electrical power to the system.
9. Remove manometer and hose from outlet pressure tap.
10. Tighten outlet pressure tap clockwise 7 in-lbs minimum to
seal port.
11. Turn ON system power and set thermostat to call for heat.
12. Using a leak detection solution or non-chlorine soap suds,
check for leaks at hose connection. Bubbles forming
indicate a leak. SHUT OFF GAS AND FIX ALL LEAKS
IMMEDIATELY!
23

Measure gas manifold pressure with burners firing. Adjust
manifold pressure per the Manifold Gas Pressure table.
Manifold Gas Pressure
Gas Range Nominal
Natural 3.2-3.8" w.c. 3.5"w.c.
Propane 9.7 - 10.3" w.c. 10.0" w.c.
The final manifold pressure must not vary more than _+0.3 w.c.
from specified manifold pressure.
Any necessary major changes in gas flow rate should be made by
changing the size of the burner orifice.
GAS INPUT RATE MEASUREMENT (NATURAL GAS ONLY)
The gas input rate to the furnace must never be greater than that
specified on the unit rating plate. To measure natural gas input
using the gas meter, use the following procedure.
1. Turn OFF the gas supply to all other gas-burning
appliances except the furnace.
2. While the furnace is operating, time and record one
complete revolution of the smallest gas meter dial.
3. Calculate the number of seconds per cubic foot (sec/ft 3) of
gas being delivered to the furnace. If the dial is a one cubic
foot dial, divide the number of seconds recorded in step 2
by one. If the dial is a two cubic foot dial, divide the number
of seconds recorded in step 2 by two.
4. Calculate the furnace input in BTUs per hour (BTU/ hr).
Input equals the installation's gas heating value multiplied
by a conversion factor (hours to seconds) divided by the
number of seconds per cubic foot. The measured input
must not be greater than the input indicated on the unit
rating plate.
EXAMPLE:
Installation's gas heating (HTG) value: 1,0go BTU/ft 3
(Obtained from gas supplier)
Installation's seconds per cubic foot: 34 sec/ft 3
Conversion Factor (hours to seconds): 3600 sec/hr
Input = (Htg. value x 3600) + seconds per cubic foot
Input = (1 ,O00 BTUift 3 x 3600 sec/hr) + 34 sec/ft 3
Input = 106,000 BTU/hr
This measured input must not be greater than the input
indicated on the unit rating plate.
5. Turn ON gas and relight appliances turned off in step 1.
Ensure all the appliances are functioning properly and that
all pilot burners are operating.
TEMPERATURE RISE
Air temperature rise is the temperature difference between supply
and return air. The proper amount of temperature rise is usually
obtained when the unit is operated at the rated input with the "as
shipped" blower speed. If the correct amount of temperature rise
is not obtained, it may be necessary to change the blower speed.
An incorrect temperature rise can cause condensing in or
overheating of the heat exchanger. Determine and adjust the
temperature rise as follows. The temperature rise must be within
the range specified on the rating plate or Product Data Book
applicable to your model. (Please contact your distributor or visit
our website for the appficable Product Data Book referred to in
this manual.)
HEAT EXCHANGER
RADIATION "LINE OF SIGHT"
\
_'_ iTsuP_Ly
B m
R_SE = Tsu_ _ TRETURN
Temperature Rise Measurement
1. Operate furnace with burners firing approximately 15
minutes. Ensure all registers are open and all duct
dampers are in their final (fully or partially open) position.
2. Place thermometers in the return and supply ducts as
close to the furnace as possible. Thermometers must not
be influenced by radiant heat by being able to "see" the
heat exchanger.
3. Subtract the return air temperature from the supply air
temperature to determine the air temperature rise. Allow
adequate time for thermometer readings to stabilize.
4. Adjust temperature rise by adjusting the circulator blower
speed. Increase blower speed to reduce temperature rise.
Decrease blower speed to increase temperature rise.
Refer to the following section for speed changing details.
CIRCULATOR BLOWER SPEED ADJUSTMENT
_IbWARNING
TO AVOID PERSONAL INJURY OR DEATH DUE TO ELECTRICAL SHOCK, TURN
OFF POWER TO THE FURNACE BEFORE CHANGING SPEED TAPS.
This furnace is equipped with a PSC circulator blower motor. This
blower provides ease in adjusting blower speeds. The Product
Data Book applicable to your model provides an airflow table
showing the relationship between airflow (CFM) and external static
pressure (E.S.P.) and a table for the proper selection of heating
and cooling speeds. The cooling blower speed is shipped set on
HIGH. High heat ships on MEDIUM andlow heat is shipped on
MEDIUM-LO. These blower speeds should be adjusted by the
installer to match the installation requirements so as to provide
the correct heating temperature rise and the correct cooling CFM.
24

To adjust the circulator blower speed, proceed as follows:
1. Turn OFF power to the furnace.
2. Select the heating and cooling blower speeds that match
the installation requirements from the airflow table in the
Product Data Book applicable to your model.
3. Relocate desired motor leads to the circulator blower heat
and cool speed terminals on the integrated control module.
(Terminals are identified as HEAT and COOL (hot)). If
heating and cooling blower speeds are the same, a jumper
wire must be used between the heat and cool terminals.
4. Connect all unused blower motor leads to the "PARK"
terminals on the integrated control module. Any leads not
connected to the "PARK" terminals must be taped.
5. Turn ON power to furnace.
6. Verify proper temperature rise as outlined in Temperature
Rise section.
CIRCULATOR BLOWER FAN TIMING ADJUSTMENT
NOTE: Items in this section refer to the air circulator blower fan,
NOT to the induced draft blower. The induced draft blower timing
sequence is not adjustable. The circulator blower fan timing is
adjustable only on models with optional "heatinq fan OFF delay"
adiustment Dins or switches. It is NOT adjustable in any other
circumstances.
As shipped, the circulator blower fan will remain on for 150
seconds after the gas valve closes. When a call for cooling occurs,
the circulator fan comes on and remains on for 45 seconds after
the call for cooling ends. During normal heating operation, the
circulator fan will come on approximately 34 seconds after the
gas valve opens.
90
SECOND _
DELAY ZI=
o
t50 "{"-
SECOND
DELAY Z I=
o
Switches viewed in
120 _"
SECOND
DELAY ZII
0 "
0
180 _"
SECOND
DELAY Z I=
O "
O
an upflow installation.
Adjustment Switches -(Not present on all models)
XlII. OPERATIONAL CHECKS
_k, WARNING
To AVOID PERSONAL INJURY OR DEATH, DO NOT REMOVE ANY INTERNAL
COMPARTMENT COVERS OR ATTEMPT ANY ADJUSTMENT. ELECTRICAL
COMPONENTS ARE CONTAINED IN BOTH COMPARTMENTS. CONTACT A
QUALIFIED SERVICE AGENT AT ONCE IF AN ABNORMAL FLAME APPEARANCE
SHOULD DEVELOP.
BURNER FLAME
The burner flames should be inspected with the burner
compartment door installed. Flames should be stable, quiet,
soft, and blue (dust may cause orange tips but they must not be
yellow). Flames should extend directly outward from the burners
without curling, floating, or lifting off. Flames must not impinge on
the sides of the heat exchanger firing tubes.
1Good adjustment
2Stable, soft and blue
3 Not curling, floating, or Jffting off
Burner Flame
AUXILIARY LIMIT CONTROL
Auto reset limits are located on or near the blower. To access this
auxiliary limit, disconnect the electrical power and remove the
blower door. The auxiliary limit control is designed to prevent
furnace operation in case of main blower failure on horizontal and
counterfiow installations. It may also open if the power supply is
interrupted while the furnace is firing. The auxiliary limit control is
suitable for both horizontal right and horizontal left installations.
Regardless of airflow direction, it does not need to be relocated.
_WARNING
To PREVENT PERSONAL INJURY OR DEATH, DO NOT REMOVE ANY INTERNAL
COMPARTMENT COVERS OR ATTEMPT ANY ADJUSTMENT. ELECTRICAL
COMPONENTS ARE CONTAINED IN BOTH COMPARTMENTS. CONTACT A
QUALIFIED SERVICE AGENT AT ONCE IF AN ABNORMAL FLAME APPEARANCE
SHOULD DEVELOP.
25

XIV. SAFETY CIRCUIT DESCRIPTION
GENERAL
A number of safety circuits are employed to ensure safe and proper
furnace operation. These circuits serve to control any potential
safety hazards and serve as inputs in the monitoring and diagnosis
of abnormal function. These circuits are continuously monitored
during furnace operation by the integrated control module.
INTEGRATED CONTROL MODULE
The integrated control module is an electronic device which
controls all furnace operations. Responding to the thermostat,
the module initiates and controls normal furnace operation, and
monitors and addresses all safety circuits. If a potential safety
concern is detected, the module will take the necessary
precautions and provide diagnostic information through an LED.
PRIMARY LIMIT
The primary limit control is located on the partition panel and
monitors heat exchanger compartment temperatures. It is an
automatic reset, temperature sensor. The limit guards against
the overheating resulting from insufficient air passing over the
heat exchanger.
AUXILIARY LIMIT
The auxiliary limit control is located either on or near the circulator
blower and monitors heat exchanger compartment temperatures.
The control is a temperature sensor. It guards against overheating
resulting from insufficient air passing over the heat exchanger.
ROLLOUT LIMITS
The rollout limit controls are mounted on the burner/manifold
assembly and monitor the burner flame. They are manual-reset,
temperature sensors. This limit guards against burner flames
not being properly drawn into the heat exchanger.
PRESSURE SWITCHES
The pressure switches are normally-open, negative air pressure-
activated switches. They monitor the airflow (combustion air and
flue products) through the heat exchanger via pressure taps located
on the induced draft blower. These switches guard against
insufficient airflow (combustion air and flue products) through the
heat exchanger.
FLAME SENSOR
The flame sensor is a probe mounted to the burner/manifold
assembly which uses the principle of flame rectification to
determine the presence or absence of flame.
XV. TROUBLESHOOTING
ELECTROSTATIC DISCHARGE (ESD) PRECAUTIONS
NOTE: Discharge body's static electricity before touching unit. An
electrostatic discharge can adversely affect electrical components.
Use the following precautions during furnace installation and
servicing to protect the integrated control module from damage.
By putting the furnace, the control, and the person at the same
electrostatic potential, these steps will help avoid exposing the
integrated control module to electrostatic discharge. This
procedure is applicable to both installed and uninstalled
(ungrounded) furnaces.
1. Disconnect all power to the furnace. Do not touch the
integrated control module or any wire connected to the
control prior to discharging your body's electrostatic
charge to ground.
2. Firmly touch a clean, unpainted, metal surface of the
furnace away from the control. Any tools held in a person's
hand during grounding will be discharged.
3. Service integrated control module or connecting wiring
following the discharge process in step 2. Use caution
not to recharge your body with static electricity; (i.e., do not
move or shuffle your feet, do not touch ungrounded objects,
etc.). If you come in contact with an ungrounded object,
repeat step 2 before touching control or wires.
4. Discharge your body to ground before removing a new
control from its container. Follow steps 1 through 3 if
installing the control on a furnace. Return any old or new
controls to their containers before touching any ungrounded
object.
DIAGNOSTIC CHART
Refer to the troubleshooting chart on the following pages for
assistance in determining the source of unit operational problems.
The red diagnostic LED blinks to assist in troubleshooting the
unit. The number of blinks refer to a specific code.
RESETTING FROM LOCKOUT
Furnace lockout results when a furnace is unable to achieve
ignition after three attempts. It is characterized by a non-functioning
furnace and a one flash diagnostic LED code from the red LED. If
the furnace is in "lockout", it will (or can be) reset in any of the
following ways.
1. Automatic reset. The integrated control module will
automatically reset itself and attempt to resume normal
operations following a one hour lockout period.
2. Manual power interruption, interrupt 115 volt power to the
furnace for 1 - 20 seconds.
3. Manual thermostat cycle. Lower the thermostat so that
there is no longer a call for heat for 1 - 20 seconds then
reset to previous setting.
NOTE: If the condition which originally caused the lockout still
exists, the control will return to lockout. Refer to the Diagnostic
Chart for aid in determining the cause.
XVI. MAINTENANCE
_WARNING
TO AVOID ELECTRICAL SHOCK, INJURY OR DEATH, DISCONNECT ELECTRICAL
POWER BEFORE PERFORMING ANY MAINTENANCE. IF YOU MUST HANDLE THE
IGNITER, HANDLE WITH CARE. TOUCHING THE IGNITER ELEMENT WITH BARE
FINGERS, ROUGH HANDLING, OR VIBRATION COULD DAMAGE THE IGNITER
RESULTING IN PREMATURE FAILURE. ONLY A QUALIFIED SERVICER SHOULD
EVER HANDLE THE IGNITER.
ANNUAL INSPECTION
The furnace should be inspected by a qualified installer, or service
agency at least once per year. This check should be performed at
the beginning of the heating season. This will ensure that all
furnace components are in proper working order and that the
heating system functions appropriately. Pay particular attention to
the following items. Repair or service as necessary.
26

• Flue pipe system. Check for blockage and/or leakage.
Check the outside termination and the connections at and
internal to the furnace.
• Heat exchanger. Check for corrosion and/or buildup within
the heat exchanger passageways.
• Burners. Check for proper ignition, burner flame, and flame
sense.
• Wiring. Check electrical connections for tightness and/or
corrosion. Check wires for damage.
• Filters.
FILTERS
i_lb WARNING
To AVOID PROPERTY DAMAGE, PERSONAL INJURY OR DEATH, DISCONNECT
ELECTRICAL POWER BEFORE REMOVING FILTERS. NEVER OPERATE FURNACE
WITHOUT A FILTER INSTALLED BECAUSE DUST AND LINT WILL BUILD UP ON
INTERNAL PARTS RESULTING IN LOSS OF EFFICIENCY, EQUIPMENT DAMAGE
AND POSSIBLE FIRE.
A return air filter is not supplied with this furnace; however, there
must be a means of filtering all of the return air. The installer will
supply filter(s) at the time of installation.
FILTER MAINTENANCE
Improper filter maintenance is the most common cause of
inadequate heating or cooling performance. Filters should be
cleaned (permanent) or replaced (disposable) every two months
or as required. When replacing a filter, it must be replaced with a
filter of the same type and size.
,_ WARNING
To PREVENT PROPERTY DAMAGE, PERSONAL INJURY OR DEATH DUE TO
ELECTRICAL SHOCK, DISCONNECT ELECTRICAL POWER TO THE FURNACE
BEFORE REMOVING THE FILTER OR PERFORMING ANY OTHER MAINTENANCE.
Become familiar with filter location and procedures for removal,
cleaning and replacing them. If help is needed, contact the installer
of the furnace or a qualified servicer.
FILTER REMOVAL
Depending on the installation, differing filter arrangements can
be applied. Filters can be installed in either the central return
register or a side panel external filter rack (upfiow only). A media
air filter or electronic air cleaner can be used as an alternate filter.
Follow the filter sizes given in the Recommended Minimum Filter
size table to ensure proper unit performance.
To remove filters from an external filter rack in an upright upfiow
installation, follow the directions provided with external filter rack
kit. Internal filters are an accessory item and are not included with
your furnace. For further details, see your distributor.
U PRIGHT FILTER REMOVAL
To remove filters from an external filter rack in an upright upfiow
installation, follow the directions provided with external filter rack
kit.
Clean, wash and dry a permanent filter. When using a permanent
filter, both sides should be sprayed with a dust adhesive as
recommended on the adhesive container. Spray adhesives for
use with permanent filters can be found at some hardware stores.
BE SUREAIRFLOW DIRECTIONARROW POINTS TOWARDS THE
BLOWER.
Inspect filter. If your dirty filter is the disposable type, replace dirty
filter with the same type and size filter. If your dirty filter is a
permanent filter, clean as follows:
• Wash, rinse, and dry the permanent filters. Both sides
should then be sprayed with a filter adhesive as is
recommended on the adhesive container. Many hardware
stores stock spray adhesives for use with permanent filters.
• if badly torn or uncleanable, these filters must be replaced
by equal size permanent, high velocity filters. Throwaway
filters must not be used as replacement for permanent
filters. Under normal use, permanent filters should last for
several years.
INDUCED DRAFT AND CIRCULATOR BLOWER MOTORS
The bearings in the induced draft blower and circulator blower
motors are permanently lubricated by the manufacturer. No further
lubrication is required. Check motor windings for accumulation
of dust which may cause overheating. Clean as necessary.
FLAME SENSOR (QUALIFIED SERVICER ONLY)
Under some conditions, the fuel or air supply can create a nearly
invisible coating on the flame sensor. This coating acts as an
insulator causing a drop in the flame sense signal. If the flame
sense signal drops too low, the furnace will not sense flame and
will lock out. The flame sensor should be carefully cleaned by a
qualified servicer using emery cloth or steel wool. Following
cleaning, the flame sense signal should be 1 to 6 microamps at
115 volts.
IGNITER (QUALIFIED SERVICER ONLY)
If the igniter and the surrounding air are at about 70°F and the
igniter wires are not connected to any other electrical components,
the resistance of the igniter should not exceed 200 ohms. If it
does, the igniter should be replaced.
BURNERS
I_IbWARNING
To PREVENT PERSONAL INJURY OR DEATH, DO NOT REMOVE ANY INTERNAL
COMPARTMENT COVERS OR ATTEMPT ANY ADJUSTMENT. ELECTRICAL
COMPONENTS ARE CONTAINED IN BOTH COMPARTMENTS. CONTACT A
QUALIFIED SERVICE AGENT AT ONCE IF AN ABNORMAL FLAME APPEARANCE
SHOULD DEVELOP.
Periodically during the heating season, make a visual check of
the burner flames. Turn the furnace on at the thermostat. Wait a
few minutes, since any dislodged dust will alter the normal flame
appearance. Flames should be stable, quiet, soft and blue with
slightly orange tips. They should not be yellow. They should
extend directly outward from the burner ports without curling
downward, floating or lifting off the ports.
27

CLEANING (QUALIFIED SERVICER ONL Y)
1. Shut off electric power and gas supply to the furnace.
2. Disconnect the rollout limit wires, flame sensor wire, and
disconnect the igniter plug.
_[_ CAUTION
LABEL ALL WIRES PRIOR TO DISCONNECTION WHEN SERVICING CONTROLS,
WIRING ERRORS CAN CAUSE IMPROPER AND DANGEROUS OPERATION.
VERIFY PROPER OPERATION AFTER SERVICING.
3. Remove four (4) screws securing the burner box top.
CAUTION
THE IGNITER IS FRAGILE AND CAN BE EASILY DAMAGED. USE EXTREME
CAUTION WHEN REMOVING THE BURNER BOX TOP.
4. Remove the screws securing the burners to the burner
bracket. Remove the burners.
5. Use bottle brush to clean burner insert and inside of burner.
6. Replace burner (opposite of removal). Ensure burners
are fully seated on burner bracket. Re-connect wiring.
_[_ CAUTION
LABEL ALL WIRES PRIOR TO DISCONNECTION WHEN SERVICING CONTROLS.
WIRING ERRORS CAN CAUSE IMPROPER AND DANGEROUS OPERATION.
VERIFY PROPER OPERATION AFTER SERVICING.
7. Turn on electric power and gas supply to the furnace.
8. Check furnace for proper operation. Refer to "Operational
Checks" section to verify burner flame characteristics.
XVII. BEFORE LEAVING AN INSTALLATION
• Cycle the furnace with the thermostat at least three times.
Verify cooling and fan only operation.
• Review the Owner's Manual with the homeowner and
discuss proper furnace operation and maintenance.
• Leave literature packet near furnace.
XVlll. REPAIR AND REPLACEMENT PARTS
• When ordering any of the listed functional parts, be sure to
provide the furnace model, manufacturing, and serial
numbers with the order.
• Although only functional parts are shown in the parts list,
all sheet metal parts, doors, etc. may be ordered by
description.
• Parts are available from your distributor.
Functional Parts List-
Single Stage Gas Valve
Natural Gas Orifice
Propane Gas Orifice
Burner
Hot Surface igniter
Flame Sensor
Gas Manifold
Ignition Control
Blower Mounting Bracket
Pressure Switch
Pressure Switch Hose
Induced Draft Blower
Collector Box
Blower/Collector Box Gasket
Primary Limit Switch
Rollout Limit Switch
Auxiliary Limit Switch
Heat Exchanger
Door Switch
Transformer
Blower Wheel
Blower Housing
Blower Cutoff
Blower Motor
Motor Mount Bracket
Capacitor
28

TROUBLESHOOTING CHART
• Furnace fails to operate
• Integrated control
module diagnostic LED
)rovides no signal.
Furnace fails to operate
• Furnace fails to operate
• Integrated control
module diagnostic LED
is flashing ONE (1)
flash.
• Furnace fails to operate
• Integrated control
module diagnostic LED
is flashing TWO (2)
flashes.
• Induced draft blower
runs continuously with
no further furnace
operation.
• Integrated control
module diagnostic LED
is flashing THREE (3)
flashes.
NONE • No 115 volt power
to furnace, or no 24
volt power to
integrated control
module.
• Manual disconnect switch
OFF, door switch open, or
24 volt wires improperly
connected or loose.
÷
1 FLASH
÷
2 FLASHES
÷
3 FLASHES
• Blown fuse or
circuit breaker.
•Integrated control
module has an
internal fault.
• Furnace lockout due
to an excessive
number of ignition
attempts. (3 total) _
• Auxiliary Limit Open
• Pressure switch
circuit is closed.
• Induced draft
blower is not
operating.
• Pressure switch
circuit not closed.
• Induced draft
blower is operating.
• Blown fuse or circuit
breaker.
Integrated controi module
has an internal fault.
• Failure to establish flame.
Cause may be no gas to
burners, bad igniter or
igniter alignment, improper
orifices, or coated/
oxidized or improperly
connected flame sensor.
• Loss of flame after
establishment. Cause may
be interrupted gas supply,
lazy burner flames
(improper gas pressure
or restriction in flue or
improper induced draft
blower performance.
• Insufficient conditioned air
over the heat exchanger.
Blocked filters, restrictive
ductwork, improper
circulator blower speed,
or failed circulator blower.
• Induced draft blower
pressure switch contacts
sticking.
• Shorts in pressure switch
circuit.
• Pressure switch hose
blocked, pinched or
connected improperly.
• Blocked flue or weak
induced draft blower.
• Incorrect pressure switch
setpoint or malfunctioning
switch contacts.
• Loose or improperly
connected wiring.
• Assure 115 and 24 volt
power to furnace
integrated control
module.
• Check integrated control
module fuse (3A).
Replace if necessary.
• Check for possible
shorts in 115 and 24 volt
circuits. Repair as
necessary.
• Replace bad integrated
control module.
• Locate and correct
gas interruption.
• Replace or realign
igniter.
• Check flame sense
signal. Sand sensor
if coated and/or
oxidized.
• Check flue piping for
blockage, proper
length, elbows, and
termination.
• Verify proper
induced draft blower
performance.
• Check circulator
blower speed and
performance.
Correct speed or
replace blower if
necessary.
• Replace induced
draft blower
pressure switch.
• Repair short.
• Inspect pressure
switch hose. Repair,
if necessary,
• Inspect flue for
blockage, proper
length, elbows, and
termination.
• Correct pressure
switch setpoint or
contact motion.
• Tighten or correct
wiring connection.
• Turn power OFF
prior to repair.
• Replace integrated
control module
fuse with 3A
automotive fuse.
Turn power OFF
prior to repair.
Read precautions
in "Electrostatic
Discharge" section
of manual.
• Turn power OFF
prior to repair.
• Igniter is fragile,
handle with care.
• Clean flame
sensor with steel
wool.
• See "Combustion
and Ventilation Air
Requirements" and
"Category I
Venting (Vertical
Venting)" section
for details.
• See Product Data
Bulletin for
allowable rise
range and proper
circulator speed.
• Turn power OFF
prior to repair.
• Replace pressure
switch with
proper
replacement part.
• Turn power OFF
prior to repair.
• See "Combustion
and Ventilation
Air
Requirements"
and "Category I
Venting (Vertical
Venting)" section
for details.
• Replace
pressure switch
with proper
replacement part.
1 integrated control module will automatically attempt to reset from lockout after one hour.
2 LED Flash code will cease if power to the control module is interrupted through the disconnect or door switch.
29

TROUBLESHOOTING CHART
•Circulator blower runs
continuously. No furnace
operation.
• Integrated control module
diagnostic LED is flashing
FOUR (4) flashes.
, Induced draft blower and
circulator blower runs
continuously. No furnace
operation.
, Integrated control module
diagnostic LED is flashing
FIVE (5) flashes.
• Furnace fails to operate.
• Integrated control module
diagnostic LED is flashing
SIX (6) flashes.
• Normal furnace
operation.
• Integrated control
module diagnostic LED
is flashing SEVEN (7)
flashes.
• Induced draft blower runs
continuously. No furnace
operation.
• Integrated control module
diagnostic LED is flashing
continuously.
÷
4 FLASHES
÷
5 FLASHES
6 FLASHES
7 FLASHES
÷
CONTINUOUS
FLASHING
• Primary limit
circuit is open.
• Flame sensed
with no call
for heat.
• Rollout limit open.
Flame sense
microamp signal is
low.
• Polarity of 115
or 24 volt
power is
reversed.
• Faulty primary limit
switch.
• Insufficient conditioned
air over the heat
exchanger. Blocked
filters, restrictive
ductwork, improper
circulator blower speed,
or failed circulator
blower.
• Loose or improperly
connected wiring.
• Short to ground in flame
sense circuit.
• Flame rollout.
• MisaIigned burners,
blocked flue or failed
induced draft blower.
• Loose or improperly
connected wiring.
•Faulty rolIout limit.
• Flame sensor is coated/
oxidized.
• Flame sensor incorrectly
positioned in burner
flame.
• Lazy burner flame due to
improper gas pressure
or combustion air.
• Polarity of 115 volt AC
power to furnace or
integrated control module
is reversed.
• Red and blue wires to
transformer are
reversed.
• Poor unit ground.
• LED is steady on STEADY • Normal operation.
ON
• Check primary limit.
Replace if necessary.
• Check filters and
ductwork for
blockage. Clean filters
or remove obstruction.
• Check circulator
blower speed and
performance. Correct
speed or replace
blower if necessary.
• Tighten or correct
wiring connection.
• Correct short at flame
sensor or in flame
sensor wiring
• Check burners for
proper alignment.
• Check flue and air inlet
piping for blockage,
proper length, elbows,
and termination.
Correct as necessary.
• Check roIIout limit.
Replace if necessary.
• Check induced draft
blower for proper
performance.
Replace, if necessary.
• Tighten or correct
wiring connection.
• Sand flame sensor.
• Inspect for proper sensor
alignment.
• Compare current gas
pressure to rating plate
info. Adjust as needed.
• Review wiring diagram to
correct polarity.
• Verify proper ground.
Correct if necessary.
• Reverse red and blue
wires connected to
transformer.
2 LED Flash code will cease if power to the control module is interrupted through the disconnect or door switch.
3O
• Turn power OFF
prior to repair.
• Replace primary
limit with proper
replacement part.
• Replace blower
with correct
replacement part.
• Turn power
OFF prior to
repair.
• See "Vent/Flue
Pipe" section for
piping details.
• Replace induced
draft blower
with proper
replacement part.
• Replace roIIout
limit with correct
replacement part.
• Turn power OFF
prior to repair.
• Clean flame
sensor with steel
wool.
• See "Vent!Flue
Pipe" section for
piping details.
• See rating plate
for proper gas
pressure.
• Turn power OFF
prior to repair.

>-
rt
zz
z_
0w
wn*
a. 0
_LIJ
_m
-_nJ
WF-
J_
WW
wz
.,,JZ
mO
oa
0., •
>w
On,,
_0
Z
Z
A
WIRING DIAGRAM FOR GMS8/GHS8/GDS8
PROPERLY POLARIZEDANDGROUNDED
24VAC
_UMiDIRER
÷
_ La_
DISCONNECT PC_bLER I_ DISCONNECT
BEFORE SERVIC_NG _
WIRING TO UNIT
MUST BE [[] I i
PROPERLY L_ I I
POLARIZED II I
AND GROUNDED II
OVERCURRENT PROTECTION DEVICE
JUNCTION
_OX
PU
ROL_O_TL_M_TS
i STEADY ON =NORMALOPERAT]ON
OFF =CONTROL FAILURE
1 FLASH =SYSTEMLOCKOUT(RETRIES/RECYCLESEXCEEDED)
2 FLASHES =PRESSURE SWITCH STUCK CLOSED
3 FLASHES = PRESSURE SWITCH STUCK OPEN
4FLASHES = OPEN H_GH LIMIT
5 FLASHES =FLAME SENSE WITHOUT GAS VALVE
6 FLASHES =OPEN ROLLQUT
7 FLASHES LOWFLAME SIGNAL
RAPID FLASHES = REVERSED 115 VAC POLARITY/VERIFY GND
TO 1I_ V_C,¸ I_0HZ
OW_CURRE_ PROT_CT_O_
LOW VOLTAGE (24V)
LOW VOLTAGE FIELD
HI VOLTAGE (115V)
HI VOLTAGE FIELD .....
JUNCTION
TERMINAL
INTERNAL TO
iNTEGRATED CONTROL
PLUG CONNECTION
COLOR CODES: PK PiNK
YL YELLOW BR BROWN
OR ORANGE WH WHITE
PU PURPLE BL BLUE
GR GREEN GY GRAY
BK BLACK RD RED
0140F00119 REV, O0
NOTES:
1 SET HEAT ANTICIPATOR ON ROOM THERMOSTAT AT 0 7/_MPS
2 MANUFACTURER'S SPECIFIE D REPLACEMENT PARTS MUST BE USED WHEN SERVICING
3 IF ANY OF THE ORIGINAL WIRE AS SUPPLIED WITH THE FURNACE MUST BE
REPLACED, IT MUST BE REPLACED WITH WIRING MATERIAL HAVING A TEMPERATURE
RATING OF AT LEAST 105C USE COPPER CONDUCTORS ON LY
4 BLOWER SPEEDS SHOULD BE ADJUSTED BY INSTALLER TO MATCH THE INSTALLATION
FdEQU_REMENTS SO AS TO PROVIDE THE CORRECT HEATING TEMPERATURE RISE AND THE
CORRECT COOLING CFM (SEE SPEC SHEET FOR AIR FLOW CHART)
5 UNIT MUST BE PERMANENTLY GROUNDED AND CONFORM TO N E C AND LOCAL CODES
EQUIPMENT GND /77
FIELD GND ±
FIELD SPLICE
SWITCH (TEMP)
IGNITER
SWITCH (PRESS) °_
OVERCURRENT
PROT DEVICE
Wiring is subject to change. Always refer to the wiring diagram on the unit for the most up-to-date wiring.
31

NOTE: SPECIFICATIONS AND PERFORMANCE DATA LISTED HEREIN
ARE SUBJECT TO CHANGE WITHOUT NOTICE
Quality Makes the Difference!
All of our systems are designed and manufactured with the same high quality standards regardless of size or
efficiency. We have designed these units to significantly reduce the most frequent causes of product failure.
They are simple to service and forgiving to operate. We use quality materials and components. Finally, every
unit is run tested before it leaves the factory. That's why we know... There's No Better Quality.
Visit our website at wwwx oodmanmfq.com or www.amana-hac.com for information on:
Products
Warranties
Customer Services
Parts
Contractor Programs and Training
Financing Options
Goodman Manufacturing Company, L.P.
2550 North Loop West, Suite 400, Houston, TX 77092
www.qoodmanmfq.com
© 2006 Goodman Manufacturing Company, LP.
32