Ge Appliances E4 Users Manual OSMONICS E4, E4LE, EZ4 SERIES
EZ4 to the manual 83b355f3-23df-4807-b990-eb3f562e5046
2015-01-23
: Ge-Appliances Ge-Appliances-E4-Users-Manual-258604 ge-appliances-e4-users-manual-258604 ge-appliances pdf
Open the PDF directly: View PDF
.
Page Count: 33

OSMONICS
E4, E4LE, EZ4 SERIESTM
WATER PURIFICATION
MACHINES
INSTALLATION, OPERATION,
AND MAINTENANCE
MANUAL
GE Infrastructure
Water & Process Technologies


INSTALLATION, OPERATION AND
MAINTENANCE MANUAL
E4, E4LE, AND EZ4 SERIES
WATER PURIFICATION MACHINES
TABLE OF CONTENTS
Page
2.0 INSTALLATION 1
2.1 Mounting the Unit 1
2.2 Plumbing 1
2.3 Installing Clean-In-Place Valves 2
2.4 Concentrate Outlet Connections 2
2.5 Feed Water Requirements 2
2.6 Transporting Pure Water (Permeate) to Point-of-Use 3
2.7 Pressure Correction Factors 4
2.8 Electrical 5
2.8.1 Single-Phase Electrical 5
2.8.2 Three-Phase Electrical 5
2.9 Machine Control 6
2.9.1 Economy Model 6
2.9.2 Deluxe Model 6
2.10 Pretreatment for Water Purification 7
2.11 Machine Start-Up Preparation 7
2.12 Machine Start-Up 7
2.13 Temperature Correction Factors 9
2.14 Recovery 10
2.15 Autoflush Timer 11
2.15.1 Programming the Autoflush Timer 11
2.15.2 Setting-Up the Autoflush Timer Clock 11
2.15.3 Programming the Autoflush Timer Clock 12
2.15.4 Programming Twenty-Four Hour or Seven Day Schedules 13
2.15.5 Changing a Program 13
2.15.6 Deleting a Program 13
2.15.7 Troubleshooting the Autoflush Timer 14
2.16 Calibrating the Conductivity Probe 15

Page
2.17 Operation and Maintenance 16
2.17.1 Daily Flushing for the Economy Model 16
2.17.2 Daily Flushing for the Deluxe Model 16
2.18 Pre-Filter Cartridge 17
2.19 Membrane Element Cleaning 17
2.19.1 Step Wise Cleaning 17
2.19.2 Procedure to Clean with a CIP Pump 17
2.20 Suction Cleaning 19
2.21 Changing Out Membrane Elements 20
2.22 Troubleshooting 22
LIST OF FIGURES
Figure Description
2.1 Three-Phase Allen Bradley Motor Starter 6
2.2 Setting-Up the Correct Time on the Autoflush Timer 11
2.3 Programming the Timer 13
2.4 Conductivity Probe Display 15
2.5 Clean-In-Place Pump and Tank Hook-Up 18
LIST OF TABLES
Table Description
2.1 Connections 1
2.2 E-Series Feed Water Requirements 3
2.3 Pressure Correction Factors 4
2.4 Flow Specifications for E4-Series Machines 10


1
2.0 INSTALLATION
2.1 Mounting the Unit
When installing your new GE Infrastructure Water & Process Technologies reverse
osmosis (RO) machine, allow at least 45-inches (114 cm) above the machine for mem-
brane element removal and loading. If space is not available, the entire membrane
element housing can be removed for membrane element change outs. If the mem-
brane element housings are to be removed to change out the membrane elements,
at least 6-inches (15.2 cm) is required at the end of each membrane element housing
and 24-inches (61 cm) behind the machine.
2.2 Plumbing
The feed water source must be able to provide water quantity and pressures to main-
tain an operating feed water pressure of 30 - 60 psig (2.1 - 4.1 barg). If the feed water
pressure with the machine is in excess of 60 psig (4.1 barg) or fluctuates by more than
5 psig (0.34 barg) a pressure regulator should be installed up stream of the machine
Inlet. If proper water pressure cannot be maintained to the RO, a booster pump may
need to be installed in front of the pretreatment to provide the proper water quantity
and pressure for the operation of the machine.
Table 2.1
Connections
* Low Energy Membrane Elements
INLET
inches (cm)
0.75 (1.90)
0.75 (1.90)
0.75 (1.90)
0.75 (1.90)
0.75 (1.90)
0.75 (1.90)
E4/EZ4/E4LE*
MACHINE
2200
4400
6600
8800
11000
13200
PERMEATE
inches (cm)
0.50 (1.27)
0.50 (1.27)
0.50 (1.27)
0.75 (1.90)
0.75 (1.90)
0.75 (1.90)
CONCENTRATE
inches (cm)
0.50 (1.27)
0.50 (1.27)
0.50 (1.27)
0.75 (1.90)
0.75 (1.90)
0.75 (1.90)

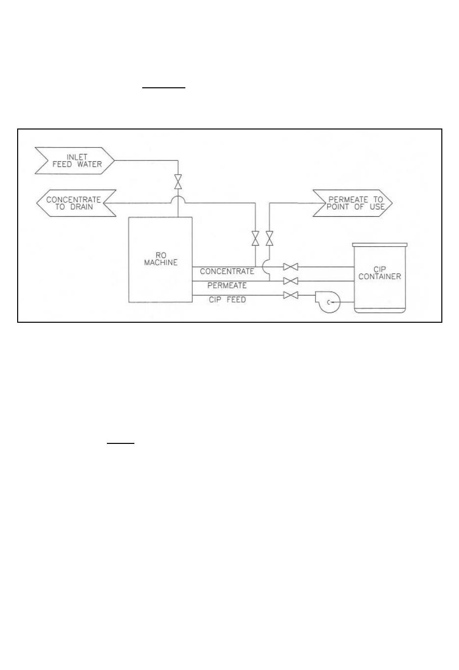
2.3 Installing Clean-In-Place Valves
NOTE: Clean-In-Place (CIP) valves are not included with the machine. The CIP
valves must be purchased and installed by the customer.
When installing the CIP valves, a three-way valve should be installed in the inlet feed
stream of the machine. The tees on the permeate and concentrate lines should be
installed with two-way valves. All valves should be installed in a manner that will
allow circulation of the cleaning chemicals through the machine and back to the CIP
container during cleaning.
CAUTION: If CIP valves are not installed when machine is installed, provisions
must be made to bypass permeate and concentrate to drain for flush-
ing at start-up.
WARNING: NEVER OPERATE THE MACHINE WITH THE CONCENTRATE OR PER-
MEATE LINES BLOCKED. SEVERE DAMAGE TO THE UNIT MAY RESULT.
2.4 Concentrate Outlet Connections
Connect proper size drain line to the concentrate outlet (Table 2.1) and run to an open
drain. The drain capacity needs to be large enough to properly drain the feed water
flow of the RO. The maximum concentrate back pressure is 60 psig (4.1 barg) for the
RO machine.
CAUTION: Operation above 60 psig (4.1 barg) concentrate back pressure may
damage the machine.
2.5 Feed Water Requirements
The following feed water requirements must be met before installing your new E4
machine to ensure quality permeate and extended membrane element life. Refer to
Table 2.2 (E-Series Feed Water Requirements) for feed water information.
2

Table 2.2
E-Series
Feed Water Requirements
* American Standard for Testing Materials
2.6 Transporting Pure Water (Permeate) to Point-of-Use
The pure water, or permeate, is in an aggressive state and should only be transport-
ed from the machine to the point-of-use in food grade flexible nylon, stainless steel
(SS) tubing, or polyvinyl chloride (PVC) material for the inlet, permeate, and concen-
trate piping sizes. Refer to Connections (Table 2.1) for inlet, permeate, and concen-
trate piping sizes.
WARNING: MACHINE DAMAGE MAY OCCUR IF PERMEATE BACK PRESSURE
EXCEEDS 60 PSIG (4.1 BARG) DURING OPERATION.
3
Temperature
Inlet Pressure
Chlorine
(continuous feed)
Operating pH
Silt Density
Index (SDI)
Typical: 50° - 85°F (10° - 29°C)
Limits: 33° - 104°F (0.16° - 40°C)
Minimum: 30 psig (2.1 barg)
Maximum: 60 psig (4.1 barg)
0 parts per million (ppm)
5.5 - 8.5
Less than or equal to 5 to minimize
membrane element fouling and
extend cleaning intervals.
Refer to ASTM* standard D4189.

2.7 Pressure Correction Factors
It is often necessary to operate RO machines with permeate back pressure. Permeate
back pressure will decrease permeate production. See Table 2.3 (Pressure Correction
Factors) to calculate loss of permeate.
Table 2.3
Pressure Correction
Factors
WARNING: IF PERMEATE BACK PRESSURE EXCEEDS 60 PSIG (4.1 BARG)
MACHINE DAMAGE MAY OCCUR.
WARNING: INSTALLING A CHECK VALVE WILL PREVENT REVERSE FLOW
THROUGH THE MEMBRANE ELEMENT WHEN THE MACHINE IS NOT
IN OPERATION. REVERSE FLOW, WHEN THE MACHINE IS NOT IN
OPERATION, CAN SEVERELY DAMAGE THE MEMBRANE ELEMENTS.
4
BACK PRESSURE
10 psig (0.7 barg)
20 psig (1.4 barg)
30 psig (2.0 barg)
40 psig (2.7 barg)
50 psig (3.4 barg)
60 psig (4.1 barg)
% LOSS OF
PERMEATE FLOW
E4/EZ4 E4LE
5% 10%
10% 20%
15% 30%
20% 40%
25% 50%
30% 60%
PRESSURE
CORRECTION
FACTOR (PCF)
E4/EZ4 E4LE
0.95 0.90
0.90 0.80
0.80 0.70
0.70 0.60
0.60 0.50
0.50 0.40

2.8 Electrical
This RO machine requires two supply voltages; the control voltage and the
pump motor voltage.
2.8.1 Single-Phase Electrical
The control voltage can be connected to either a 115 VAC, 60 Hertz or
220 VAC, 50 Hertz single-phase power supply. The RO control circuit
should always be installed on at least a 15 Amp, single-phase dedi-
cated circuit. Reverse osmosis machines with 115 VAC, single-phase
control voltage include an eight-foot (2.4 m) cord which plugs into a
three-prong grounded receptacle. All machines shipped with a
220 VAC, single-phase control circuit are shipped with an eight-foot
electrical cord, but customers must provide electrical plug.
2.8.2 Three-Phase Electrical
The three-phase pump motor requires a 15 AMP dedicated circuit.
Always verify correct voltage and Amp rating by checking voltage tag
on the starter box or by checking electrical specifications on the
pump. The motor is wired for 460 Volts, 60 Hertz, three-phase voltage
from the factory (Figure 2.1, Three-Phase Allen Bradley Motor Starter).
The pump motor can be rewired to 208 or 230 Volts. If this is done, a
wiring change must be made internally in the pump motor and a
higher amperage relay and starter may need to be installed. All field
wiring must comply with applicable local and national electrical
codes.
After checking the voltage tag on the motor starter to ensure the
available voltage and amperage are correct, connect the provided
three-phase power to the motor starter (Figure 2.1). This can be done
by connecting the three phase power to the top of the starter relay
terminals: L1, L2, and L3. A separate, fused disconnect for the motor
wiring with proper protection for the Horsepower and Amp draw of
the motor is recommended. All field wiring must comply with applic-
able local and national electrical codes. See Figure 2.1 for three-
phase Allen Bradley Starter Hook-Up.
5

Figure 2.1
Three-Phase
Allen Bradley Motor Starter
2.9 Machine Control
2.9.1 Economy Model
To remotely control the Economy Model (ECN) with float switches and/or pre-
treatment lockout, remove the jumper between terminals 4 and 5 and wire in
the float switches or pretreatment components in series. After all field wiring
is complete and complies with local and national electrical codes, move onto
Section 2.10 (Pretreatment for Water Purification).
NOTE: External control contacts are normally closed, dry contacts.
2.9.2 Deluxe Model
To remotely control the Deluxe Model (DLX), with float switches and/or pre-
treatment lockout, remove the jumper between terminals 2 and 3 and wire in
the float switches and pretreatment in series. After all field wiring is complete
6

7
and complies with local and national electrical codes, move onto Section 2.10
(Pretreatment for Water Purification).
NOTE: External control contacts are normally closed, dry contacts.
2.10 Pretreatment for Water Purification
A water analysis of your feed water should have been performed, as part of the plan-
ning and engineering that went into developing your RO system.
The water analysis will provide information on what type of pretreatment may be
required and what recovery the machine can be run at on the feed water provided. If
the machine is moved to a different water source, a new water analysis should be
taken before operating the machine.
Your RO is designed to operate on tap feed water with an SDI) of 5 or less. The pH
should be in a range of 5.5 - 8.5. Exposure to any levels of chlorine may cause irre-
versible damage to the Thin-layer composite (TLC) polyamide (PA) membrane ele-
ments in your machine. Daily water checks are recommended to ensure the integri-
ty of your pretreatment and RO system.
2.11 Machine Start-Up Preparation
Check the function and integrity of your pretreatment equipment. Ensure that your
water softener and activated carbon filters have been leaked checked and properly
flushed, before starting up your RO machine.
CAUTION: Improperly flushed pretreatment may cause serious RO machine
problems at start-up.
2.12 Machine Start-Up
STEPS
1. Turn the feed water supply ON, while checking for leaks in the pretreatment
and inlet feed water lines.
2. Check to ensure power to the motor is de-energized and the ON/OFF button
on the machine is in the OFF position.
3. Plug in the factory-supplied power for the control voltage.
4. For initial start-up, redirect the permeate and concentrate lines to the drain.
5. Open the concentrate and recycle flow control valves two complete turns.
These valves are positioned on the flow control plumbing in the top right rear
section of the machine.

6. Turn the ON/OFF button on the machine ON. System will open allowing water
to flow through the machine to the drain through the permeate and concen-
trate CIP valves.
Let the machine run to drain for 5 - 10 minutes. This provides a wet start-up
of the pump and removes any air in the system.
7. Turn the ON/OFF button on the machine to the OFF position.
8. Re-energize the pump power and trigger the ON/OFF button on the machine
to check rotation of the pump motor. Observing from the back of the pump
motor, pump rotation should be clockwise. If rotation is wrong, de-energize
the pump voltage from the source and switch any two of the three-phase
wires coming in on top of the three-phase starter. Re-energize the pump volt-
age and re-check, to ensure correct rotation for the start-up and operation of
your machine.
WARNING: IF THE RO PUMP IS STARTED WITH INCORRECT ROTATION
(i.e., BACKWARDS), A NOTICEABLE DROP IN FLOWS AND
PRESSURES WILL RESULT. IF PUMP MOTOR OPERATES BACK-
WARDS FOR ANY LENGTH OF TIME, PUMP DAMAGE MAY
RESULT.
After correct rotation has been verified, you are now ready to start the
machine and set the flows and pressures.
9. With the recycle and concentrate orifices still two (2) turns open and ade-
quate feed water available, start the machine by turning the ON/OFF button
to the ON position.
10. As the pump starts to build pressure, begin to adjust the orifices in the follow-
ing manner: start by slowly closing the concentrate orifice while slowly open-
ing the recycle valve.
Primary Pressure for Normal Operation at 77°F (25°C)
E4-Series: 220 psi (15.2 bar) at 77°F (25°C)
EZ4/E4LE-Series: 115 psi (7.9 bar) at 77°F (25°C)
While you are doing these valve adjustments, to obtain correct flows and
pressures, observe the primary or pump pressure. The pump pressure, while
adjusting the orifices, should never operate outside of these ranges:
E4-Series Range: 190 - 275 psi (13.1 - 19.0 bar)
EZ4/E4LE-Series Range: 100 - 140 psi (6.9 - 9.6 bar)
8

The concentrate valve is drilled, and when completely closed the machine is
running at the correct concentrate flow for a 75% recovery (Table 2.4, Flow
Specifications for E4-Series Machines).
If the temperature of the inlet feed water is not 77°F (25°C) use the
Temperature Correction Factor Table (Technote 113). The proper adjustment
of the recycle and concentrate valves are critical to the correct operation of
the machine.
CAUTION: Optimum recovery will vary according to water quality.
2.13 Temperature Correction Factor
If the temperature of the inlet feed water is not 77°F (25°C), refer to Technote 113 for
Temperature Correction Factors.
NOTE: Optimum recovery will vary according to water quality.
9

2.14 Recovery
The machine flow specifications listed below are based on 25°C (77°F).
Table 2.4
Flow Specifications for
E4-Series Machines
10
2200
50-75%
LPM/GPM
5.8/11.6
5.8/11.6
1.9/0.5
11.5/3.0
7.7/2.0
4400
50-75%
LPM/GPM
11.6/3.06
11.6/3.06
3.9/1.0
23.2/6.1
15.4/4.1
E4-Series
Recovery
Units
Permeate Rate
Concentrate
Rate
(50%)
Concentrate
Rate
(75%)
Feed Rate
(50%)
Feed Rate
(75%)
6600
50-75%
LPM/GPM
17.3/4.6
17.3/4.6
5.8/1.5
34.7/9.2
23.1/6.1
8800
50-75%
LPM/GPM
23.1/6.1
23.1/6.1
7.7/2.0
46.2/12.2
30.8/8.2
11000
50-75%
LPM/GPM
28.9/7.6
28.9/7.6
9.6/2.5
57.8/15.3
38.5/10.2
13200
50-75%
LPM/GPM
34.7/9.2
34.7/9.2
11.6/3.06
69.4/18.3
46.2/12.2

11
2.15 Autoflush Timer
2.15.1 Programming the Autoflush Timer
The Autoflush timer clock operates and displays in real time, but the Autoflush
feature will only work when the RO machine is operating. When the machine
is operating in the Autoflush Mode, the total flow through the machine is
increased. This provides extra cross flow which flushes the loose foulants
from the surface of the membrane elements. When the machine is operating
in the Autoflush Mode a slight drop in permeate production, as well as a
decrease in the primary and final pressures may be observed. An ideal way
to set the timer up is to program ten Autoflush sequences, with a 10 to 15
minute duration, per 24 hours. To do this, follow the procedure below.
2.15.2 Setting Up the Autoflush Timer Clock
IMPORTANT: Before proceeding with setting the timer and programming
the unit, press the RESET KEY to clear all data. After press-
ing the RESET KEY, the display may show A.M., this is in mili-
tary time mode.
If the machine is in Military Time, do the following:
Figure 2.2
Setting-Up the Correct Time
on the Autoflush Timer
SELECTING AM/PM OR MILITARY TIME
After pressing reset, the display may show
A.M.(right). The numbered day symbols will be flash-
ing ON and OFF.
If the display does not show A.M., it is in military time
mode (24:00 hr.). To change to A.M./P.M. mode, press
and hold the hKey and press the
± 1h Key once, A.M. will appear in the display.
If display is in A.M.. mode and military mode is
desired, press and hold the hKey, press the
± 1h Key once.

STEPS
1. While holding down the Clock Key (⊗), press the hkey to advance to
the current minute.
2. While holding down the Clock Key (⊗), press the hkey to advance to
the current minute.
3. While holding down the Clock Key (⊗), press the hkey to advance to
the current minute.
NOTE: If the hand mkeys are held down for longer than 2 seconds,
the numbers will advance rapidly.
If the days are flashing, it indicates the day of the week was not set
when setting the time. The timer cannot be programmed unless the
day of the week is entered. Each year, in the spring, press the Button
to advance the time one hour (Daylight Savings Time). In the fall,
press the button to set the timer back one hour (Daylight Savings
Time).
2.15.3 Programming the Autoflush Timer Clock
This timer will accept up to 20 programs. Each program consists of the fol-
lowing:
1. ON/OFF Command
2. Time of Day (hours and minutes)
3. Single day or multiple days
IMPORTANT: The current time of day and day of the week must be set
prior to programming the timer. See Section 2.15.3 (Setting
Up the Autoflush Timer).
12

2.15.4 Programming Twenty-Four Hour or Seven Day Schedules
NOTE: It is helpful to write out the program schedules before programming
the time.
Example:
Figure 2.3
Programming the Timer
2.15.5 Changing a Program
Select the program to be changed with the Prog. Key. A new set of days may
be selected with the Day Key just as in the initial programming. Hour and
minute can be changed with the hand mKeys.
2.15.6 Deleting a Program
To delete one or a few programs: Press the Prog. Key until the desired pro-
gram is displayed:
1. Press the mKey to :59 and press once again to blank out.
2. Press hKey to 11 P.M. and press once again to blank out.
3. Press the Clock Key, (⊗) display will flash for several seconds and then
enter the Run Mode.
4. Using the Reset Key will delete ALL programs, the time of day, and day
of the week.
13

2.15.7 Troubleshooting the Autoflush Timer
14
PROBLEM: Days are flashing, pressing any Key does nothing except
“Hand” Key turns output ON and OFF.
SOLUTION: Time of Day and Day of Week have not been set.
See Section 2.15.3 (Setting-Up the Autoflush Timer Clock).
PROBLEM: Time of day was set while holding the Clock Key down, but
days are still flashing.
SOLUTION: Current day of week was not set while holding down
the Clock Key. See Setting-Up the Autoflush Timer Clock
(Section 2.15.2).
PROBLEM: It is 10 A.M. and a ON program for 8 A.M. was entered, but
the output is not ON.
SOLUTION: The ON or OFF was not entered as part of the program.
ON or OFF must be selected.

2.16 Calibrating the Conductivity Probe
STEPS
1. Make sure the calibration meter is in Measure Mode (with the MEAS LED
light ON).
2. Immerse the Conductivity Probe in a 13.00 microSiemens (mS) prepared solu-
tion.
3. Immerse and agitate Conductivity Probe, and wait for the reading to stabilize.
4. Calibrate the meter by adjusting the CAL adjustment screw until the Liquid
Crystal Display (LCD) display reads 13 mS of the solution.
The meter is now calibrated
NOTE: The alarm function on the conductivity meter is not used on E4/EZ4/E4LE-
Series machines.
Figure 2.4
Conductivity Probe Display
15

2.17 Operation and Maintenance
The operation and maintenance of an E-Series RO machine requires regular data
recording and routine preventative maintenance. It cannot be emphasized enough
the importance of filling out the Daily Log Sheet (Technote 106) during each operat-
ing shift. A Start-Up Data Sheet (Technote 105) should have been completed at start-
up containing pertinent facts on the operation of your machine. These two records
are invaluable in diagnosing the performance of the equipment, and must be kept for
reference. If you have questions concerning the operation of your machine or the
method of data recording, contact the manufacturer.
Three preventative maintenance procedures, which must be done on a regular basis,
are as follows:
1. Change the pre-filter cartridges as needed. Pressure drop across the pre-fil-
ters should not exceed 8 psi (0.6 bar).
2. Clean the RO membrane elements with approved cleaners at least quarterly,
depending on feed water quality.
3. Flush the RO machine daily.
2.17.1 Daily Flushing for the Economy Model
If your E4-Series machine is an ECN Model it needs to be manually flushed
daily. The DLX E4-Series machine is equipped with an Autoflush Timer
(Section 2.15, Autoflush Timer). A daily manual flush must be performed. To
flush the machine:
1. With the machine running, open the concentrate valve 1/2 - 3/4 turn.
NOTE: During flushing procedure, the machine must be running.
2. Allow the machine to operate with the concentrate valve open (Step 1)
for 10 - 15 minutes.
3. After 10 - 15 minutes, return the concentrate valve to its previous set-
ting, and return to normal operation.
CAUTION: When opening the concentrate valve, never allow the
machine’s primary pressure to drop more than 10%
below normal operating pressure.
2.17.2 Daily Flushing for the Deluxe Model
The DLX Model machine includes an Autoflush Timer Option. The Autoflush
Timer Option automatically flushes the machine at preset
intervals.
16

2.18 Pre-filter Cartridge
A 5 micron pre-filter cartridge is factory installed to protect the membrane elements
and valves from particles, which may be in the feed water. To order replacements,
see the Spare Parts List (Technote 118, P/N 1233377).
A pressure drop across the filter of 8 psi (0.55 bar) or more during operation indicates
that the pre-filters cartridge(s) need changing. Use only GE approved filters rated for
5 microns or less. Do not attempt to clean used filters.
IMPORTANT NOTE: Failure to change the pre-filter cartridge according to these
requirements will void machine warranty.
2.19 Membrane Element Cleaning
GE recommends that you clean your RO every quarter, depending on the quality of
your feed water. Cleaning of the membrane elements is vital because contaminants
can build up on the membrane element surfaces, reducing the permeate flow rate
and affecting the quality of the permeate.
2.19.1 Step Wise Cleaning
This RO machine and many others have a centrifugal pump on them.
Centrifugal pumps are not designed to draw water. They are designed to
operate with flooded suction only. The manufacturer recommends using a
Clean-In-Place (CIP), or booster pump, to provide water pressure and flow to
the RO machine pump from the CIP container.
2.19.2 Procedure to Clean with a CIP Pump
STEPS
1. With the machine running, open the CIP permeate valve, close the
permeate service valve and fill the CIP tank with permeate water.
When the container is filled to desired level, turn machine OFF.
2. Add and mix up the cleaners in the CIP container. Please use only
PA membrane element compatible cleaners.
3. Close the inlet feed water supply valve to the machine and open the
CIP inlet feed water to the CIP container.
4. Close the permeate valve to point of use and also the concentrate
valve drain.
5. Open the CIP valves, allowing permeate and concentrate to return to
the CIP container.
17

When set properly, the RO machine, the CIP pump, and the CIP con-
tainer should be assembled in a loop configuration to recirculate the
water through the machine and back to the container during clean-
ing. The size of the CIP container should be a minimum of three times
the permeate rate.
CAUTION GE recommends the use of a CIP or booster pump to
provide the proper feed water pressure and quantity
to the RO machine during cleaning.
Figure 2.5
Clean-In-Place Pump
and Tank Hook-Up
With the machine set-up in the CIP configuration and the cleaning solution
mixed in the container, you are now ready to start the CIP process. Follow the
Steps below.
STEPS
1. Check to ensure that the feed, permeate, and concentrate valves and
line are open and unrestricted in the tank loop.
2. Start the CIP and RO machine pumps together. As they start up,
observe all RO machine pressures and flows.
3. Recycle the cleaning solution for about 15 minutes. Damage may
result to membrane elements if the temperature of the CIP solution
exceeds 105°F (40°C). If the water temperature exceeds 100°F (38°C),
place bags of ice into the CIP container to absorb the extra heat.
4. After recirculating the cleaner for 15 minutes, shut down the RO and
the CIP pump.
18

5. Let the CIP solution dwell in the machine for 20 minutes.
6. After the 20 minute dwell time, start the CIP recirculation process
again for 10 minutes.
7. After the 10 minute recirculation time is complete, de-energize the
machine. Then, open the inlet water line and route the concentrate
and permeate lines to the drain.
8. Start the RO machine and flush to drain for 20 minutes. Verify the per-
meate quality is good before returning to normal operation.
9. After permeate quality is verified as good, route the permeate to point
of use and concentrate to drain. You are now ready for normal oper-
ation.
2.20 Suction Cleaning
GE does not recommend the suction cleaning method to clean the E4-Series RO
machine. If using suction cleaning, reference cleaning with a CIP pump above
(Section 2.19.2, Procedure to Clean with a CIP Pump).
STEPS
1. Arrange the RO and the CIP container in a closed loop situation with the
cleaning solution, reference Section 2.19 (Membrane Element Cleaning).
2. Move the L1 and L2 wires on the pressure switch across to the motor termi-
nals (Figure 2.1, Three Phase Allan Bradley Motor Starter). The wires can also
be temporally jumped.
3. Open the inlet feed valve.
4. Start the RO machine
5. As the machine starts up on inlet feed water, slowly close the inlet feed water
valve while slowing opening the feed water valve to the CIP tank.
You will begin to hear the RO pump draw the CIP solution into the machine
and circulate it back into the CIP tank. After achieving prime, observe the RO
closely to ensure that you do not loose pump prime, which may result in
pump damage.
6. Refer to the CIP cleaning procedure (Section 2.19.2) for cleaning steps.
WARNING: LOSS OF PRIME DURING SUCTION CLEANING MAY RESULT IN
SERIOUS DAMAGE TO THE PUMP.
19

20
NOTE: As previously mentioned, the manufacturer recommends use
of a CIP or booster pump to circulate the cleaning solution
during membrane element cleaning.
7. After suction cleaning cycle is complete, reopen inlet water and flush machine
to drain for twenty minutes.
8. After permeate quality is verified as good, return machine to normal opera-
tion mode.
2.21 Changing Out Membrane Elements
CAUTION: Replacement membrane elements are shipped from the factory in a
plastic bag with a small amount of bactericide solution to prevent bio-
logical growth. When installing the membrane elements, always pro-
vide adequate ventilation and wear gloves while handling the mem-
brane elements as recommended. The membrane elements must be
kept moist at all times in to prevent possible damage to the mem-
brane element material.
STEPS
1. Remove the top end caps and clamps from the membrane element housings.
Lubricate all O-rings and brine seals, and the PVC membrane element stems
(stingers) with a non-petroleum based lubricate (i.e., glycerin or poly water).
2. Load the down flow membrane elements first, by inserting the membrane
element into the membrane element housing with the brine seal end of the
membrane element up. Slowly turn the membrane element as you lower it
into the membrane element housing. As you reach the bottom of the hous-
ing slowly guide the PVC stem or stinger on the end of the membrane element
into the head of the end cap. As the membrane element slides into the hous-
ing the brine seal will be on the top.
3. Next, load the up flow membrane elements, by lubricating all brine seals, O-
rings, and the membrane element stingers. With the up flow membrane ele-
ment and the brine seal will be on the bottom of the membrane element. Turn
the membrane element slowly as you lower it down into the housing. As with
the down flow membrane element, one must slowly guide the PVC stinger on
the end of the membrane element into the end cap.
4. Reinstall the end caps by using non-petroleum based lubricant to lubricate
the O-ring inside the end cap. Reinstall the end cap on the membrane ele-
ment by first, aligning the stinger into the hole in the end cap and then turn
the end cap slowly clockwise, as you push it down into the membrane ele-
ment housing.

21
5. Reattach the housing clamp and tighten.
6. Next reconnect the permeate and concentrate lines.
The machine is ready for start-up.

2.22 Troubleshooting
This troubleshooting guide can assist you in identifying common operating problems you
may experience with your machine. Many of these problems can be easily corrected by the
operator, however, for those that persist or are not understood, you should contact the
GE Customer Support Center. Have the following information available when calling the
Customer Support Center:
1. Machine installation date
2. Model number
3. Serial number
4. Weekly log sheets
5. Detailed description of problem.
22
POSSIBLE CAUSE
Insufficient feed water pressure
or flow
Clogged pre-filter
High flow rates
Dirty or fouled membrane
elements
Solenoid valve not opening
PROBLEM
Low Operating
Pressure
SOLUTION
Open the feed pressure, open the
feed water valve, check for
restrictions
Replace the cartridge.
Close the concentrate valve, check
the permeate and concentrate flow
rates and adjust if necessary.
Excessive permeate flow may indi-
cate a damaged O-ring.
Flush and clean the membrane
elements.
Clean or replace the solenoid valve.
TROUBLESHOOTING GUIDE

23
POSSIBLE CAUSE
Pump rotating backwards
(three-phase power only)
Insufficient electrical power
Pump not operating correctly
Low operating pressure
Dirty or fouled membrane
elements
Operating on cold water less
than 55°F (13°C)
Membrane elements installed
backwards or damaged
concentrate seal
Flow meter inaccurate
PROBLEM
Low Operating
(continued)
Low Permeate Flow
Rate
SOLUTION
Switch any two of the three-phase
leads to the motor starter.
Check the fuses or circuit breaker,
measure the voltage.
See pump instructions.
See possible causes for low
pressure.
Flush and clean membrane
elements
Install a hot/cold feed water tem-
pering valve if more permeate flow
is needed. Operate with a feedwa-
ter temperature of 72° - 75°F
(22° - 25°C).
Install membrane elements in the
direction of fluid flow. Flush and
clean the machine immediately.
Membrane elements with damaged
concentrate seals should be
cleaned and may be returned for
repair.
Check the flow rate manually with a
stop watch and calibrated
container.
TROUBLESHOOTING GUIDE

24
POSSIBLE CAUSE
Concentrate valve plugged
Concentrate outlet line
restricted
Flow meter inaccurate
Dirty concentrate valve
Recycle or concentrate valve
plugged
Inaccurate pressure gauge
Restricted or reduced
permeate flow rate
Restricted flow after
pump outlet
PROBLEM
Low concentrate flow
rate, normal or higher
than normal pressure
High operating pressure
Excessive pressure drop
[over 50 psig (3.0 barg)]
(high primary pressure -
low final pressure)
SOLUTION
Remove the concentrate valve step
and/or disassemble the plumbing.
Clean the valve
Examine the concentrate line for
obstructions or kinks, repair or
replace the tubing.
Check the flow rate manually with a
stop watch and calibrated
container.
Disassemble and clean the
plumbing to the valve
Disassemble the plumbing to the
recycle valve and remove foreign
particles. Check the concentrate
valve stem.
Replace or calibrate the gauge as
required.
See possible causes for low
permeate rate.
Check for blockage of the concen-
trate flow at the inlets and outlets of
the membrane element housings.
TROUBLESHOOTING GUIDE

25
POSSIBLE CAUSE
Telescoped membrane element
covering membrane element
housing outlet port
Severely fouled or dirty
membrane elements
Inlet solenoid valve not closing
or seating properly
Dirty or fouled membrane
elements
O-ring seal broken or damaged
Change in incoming water
quality
Inaccurate conductivity monitor
or fouled probe
PROBLEM
Excessive pressure drop
[over 50 psig (3.0 barg)]
(high primary pressure -
low final pressure)
(continued)
Water flowing when
machine is turned OFF
Declining rejection
(high permeate
conductivity)
SOLUTION
Flush and clean the membrane
elements
Flush the machine then clean it with
detergent.
Clean or replace the valve. Clean
the membrane elements with deter-
gent immediately. Water must not
pass through the inlet when the
machine is OFF.
Flush and clean the membrane
elements
Replace the O-ring, check the seal-
ing surfaces on the O-ring groove,
interconnectors and end caps.
Replace the damaged parts.
Open the concentrate valve and
flush. Test the water for pH, hard-
ness, TDS and iron content. A water
analysis should be sent to GE
Infrastructure for review.
Calibrate the monitor with a DS
standard solution or check the
readings with another conductivity
meter. Replace or clean the probe.
Check the connections between the
probe and monitor.
TROUBLESHOOTING GUIDE

26
POSSIBLE CAUSE
Pressurized storage switch or
float switch has cut power to
machine
Fluid temperature higher than
100F (38C) or thermal overload
in motor
No power to machine
Motor and/or pump not
operating properly
Alarm condition has turned
machine OFF
Motor starter overloaded, heater
tripped
Timing relay defective/burned
out
PROBLEM
Switch ON, unit not
operating
Deluxe (DLX) electrical
machine shutdown
SOLUTION
Check the permeate back pressure
or position of float in the storage
tank.
Allow the machine to cool; check
the feed water supply and/or amp
draw to the motor.
Check the fuses or circuit breakers,
measure the voltage.
See the pump instructions. Contact
GE Infrastructure for possible repair
or replacement.
Restart the machine by pushing the
alarm bypass. Check all possible
alarm conditions: inlet pressure or
motor starter overload
Turn the switch OFF. Rest the
heater(s). Check the motor amp
draw and the line voltage.
Replace the relay.
TROUBLESHOOTING GUIDE


For more information call 952-933-2277 or 800-848-1750 in the U.S., or visit www.gewater.com.
© 2005, General Electric Company. All rights reserved.
P/N 1161875 Rev. D
North American Sales Euro/Africa Sales Asia/Pacific Sales
5951 Clearwater Drive 230 rue Robert Schurman 1044/8 SOI 44/2
Minnetonka, MN ZA des Uselles Sukhumvit Road Parkanog
55343-8995 77350 Le Mée sur Seine Bangkok 10110
USA FRANCE THAILAND
(952) 933-2277 Phone +33 1 64 10 2000 Phone +66 2 38 14213 Phone
(952) 933-0141 Fax +33 1 64 10 3747 Fax +66 2 39 18183 Fax
GE Infrastructure
Water & Process Technologies