Generac Power Systems Liquid Cooled Gas Engine Generator Sets Qt027 Users Manual
QT027 to the manual 39b04bf3-c6b1-4d06-9a7f-a69b689cb082
2015-02-09
: Generac-Power-Systems Generac-Power-Systems-Generac-Liquid-Cooled-Gas-Engine-Generator-Sets-Qt027-Users-Manual-559923 generac-power-systems-generac-liquid-cooled-gas-engine-generator-sets-qt027-users-manual-559923 generac-power-systems pdf
Open the PDF directly: View PDF
.
Page Count: 4

QT027
GENERAC 2.4L ENGINE
• Allinputconnectionsinonesinglearea
• Highcoolanttemperatureshutdown
• Lowoilpressureshutdown
• Lowcoolantlevelautomaticshutdown
• Overspeedautomaticshutdown
• Cranktimer
• Exercisetimer
• Oildrainextension
• Coolflowradiator
• Closedcoolantrecoverysystem
• UV/Ozoneresistanthoses
• Watertightstateoftheartelectricalconnectors
• Mainlinecircuitbreaker
• Radiatordrainextension
• Batterychargealternator
• 2Ampstaticbatterycharger
• Batterycables
• Batteryrack
• Fanandbeltguards
• Isochronousgovernor
• Flexfuelline
• Hourmeter
STANDARD EQUIPMENT
Liquid Cooled Gas Engine Generator Sets
Standby Power Rating
27 kW 60 Hz
Naturally Aspirated
Gaseous Fueled
Meets 2009 EPA Emission Regulations
• Innovativedesignandfullyprototypetested
• UL2200Listed
• Solidstatefrequencycompensated
voltageregulator
• Dynamicandstaticbatterycharger
• Soundattenuatedacousticallydesignedenclosure
• Quiettestforlownoiselevelexercise
• Acousticallydesignedenginecoolingsystem
• Highflowlownoisefactoryengineeredexhaustsystem
• State of the art digital control system with R100 digital
controlpanel
• Watertightelectricalconnectors
• Rodentproofconstruction
• High efficiency, low distortion Generac designed
alternator
• Vibrationisolatedfrommountingbase
• Matching Generac transfer switches engineered and
testedtoworkasasystem
• Allcomponentseasilyaccessibleformaintenance
• Electrostaticallyappliedpowderpaint
FEATURES

APPLICATION
& ENGINEERING DATA
Rating definitions - Standby: Applicable for supplying emergency power for the duration of the utility power outage. No overload capability is available for this rating. (All ratings in accordance with
BS5514, ISO3046, ISO8528 and DIN6271).
QT027
GENERATOR SPECIFICATIONS
TYPE ...........................................................................................................Synchronous
ROTOR INSULATION .......................................................................................... Class H
STATOR INSULATION .........................................................................................Class H
TOTAL HARMONIC DISTORTION ........................................................................... <5%
TELEPHONE INTERFERENCE FACTOR (TIF) ........................................................<50
ALTERNATOR OUTPUT LEADS 3 PHASE ...........................................................4 wire
BEARINGS .................................................................................................... Sealed Ball
COUPLING .................................................................................................. Flexible Disc
LOAD CAPACITY (STANDBY RATING) ................................................................ 27 kW
EXCITATION SYSTEM ........................................................................................... Direct
NOTE: Generator rating and performance in accordance with
ISO8528-5, BS5514, SAE J1349, ISO3046, and DIN6271 standards.
GENERATOR FEATURES
Revolving field heavy duty generator
Directly connected to the engine
Operating temperature rise 120 °C above a 40 °C ambient
Insulation is Class H rated at 150 °C rise
All models are fully prototyped tested
VOLTAGE REGULATOR
TYPE ................................................................................................................Electronic
SENSING ................................................................................................... Single Phase
REGULATION .......................................................................................................... ± 1%
FEATURES ............................................................................................... V/F Adjustable
Adjustable Voltage and Gain
LED Indicators
CONTROL PANEL FEATURES
SEVEN LED INDICATOR LIGHTS ADDITIONAL FUNCTIONS
•Systemready •Utilitysensing
•Lowfuelpressure •Delayonutilityfailureforenginestart
•Lowbattery •Enginewarm-upbeforetransfer
•Lowoilpressure •Delaytoretransfertoutility
•Highcoolanttemp/lowcoolanttemp •Enginecooldowntimer
•Overspeed •Exercisernotset
•Overcrank •Hourmeter
INTERNAL FUNCTIONS:
•3 position switch (auto, off and manual)
•2wirestartforanytransferswitch
•CommunicateswiththeGeneracRTStransferswitch
•Built-in7dayexerciser
•Selectableenginespeedatexercise
•Governorcontrollerisbuiltintothemastercontrolboard
•Temperaturerange-40°C to 70 °C
ENGINE SPECIFICATIONS
MAKE ................................................................................................................ Generac
MODEL ................................................................................................................. Inline 4
CYLINDERS ...................................................................................................................4
DISPLACEMENT .................................................................................................2.4 Liter
BORE ........................................................................................................................3.41
STROKE ....................................................................................................................3.94
COMPRESSION RATIO ...........................................................................................8.5:1
INTAKE AIR SYSTEM ....................................................................... Naturally Aspirated
VALVE SEATS ..................................................................................................Hardened
LIFTER TYPE ....................................................................................................Hydraulic
GOVERNOR SPECIFICATIONS
TYPE ................................................................................................................Electronic
FREQUENCY REGULATION ....................................................................... Isochronous
STEADY STATE REGULATION ..............................................................................± 0.25
ADJUSTMENTS FOR:
Speed ..................................................................................................... Yes
Droop ......................................................................................................Yes
ENGINE LUBRICATION SYSTEM
OIL PUMP ................................................................................................................Gear
OIL FILTER ............................................................................. Full flow spin-on cartridge
CRANKCASE CAPACITY ...................................................................................4 Quarts
ENGINE COOLING SYSTEM
TYPE .....................................................................................................................Closed
WATER PUMP .................................................................................................Belt driven
FAN SPEED .............................................................................................................1980
FAN DIAMETER .......................................................................................... 17.75 inches
FAN MODE ........................................................................................................... Pusher
FUEL SYSTEM
FUEL TYPE .......................................................................... Natural gas, propane vapor
CARBURETOR...............................................................................................Down Draft
SECONDARY FUEL REGULATOR ................................................................... Standard
FUEL SHUT OFF SOLENOID .......................................................................... Standard
OPERATING FUEL PRESSURE ..................................................................5” - 14” H2O
ELECTRICAL SYSTEM
BATTERY CHARGE ALTERNATOR .............................................................12V 30 Amp
STATIC BATTERY CHARGER .............................................................................. 2 Amp
RECOMMENDED BATTERY ............................................................Group 26, 525CCA
SYSTEM VOLTAGE .............................................................................................12 Volts

QT027
KW RATING 27
ENGINE SIZE 2.4LiterInline4
GENERATOR OUTPUT VOLTAGE/KW - 60Hz KW Nat. Gas AMP KW LPG AMP CB Size (Both)
120/240V,1-phase,1.0pf 25 104 27 112 125
120/208V,3-phase,0.8pf 25 87 27 94 100
120/240V,3-phase,0.8pf 25 75 27 81 90
GENERATOR LOCKED ROTOR KVA
AVAILABLE @ VOLTAGE DIP OF 35%
Singlephaseor2083-phase 43
ENGINE FUEL CONSUMPTION (Natural Gas) (Propane) Natural Gas (25 kW)Propane (27 kW)
(ft3/hr.) (gal/hr.) cuft/hr
Exercisecycle 42 0.44 16
25%ofratedload 108 1.2 44
50%ofratedload 197 2.2 81
75%ofratedload 287 3.2 118
100%ofratedload 359 4.1 147
ENGINE COOLING
Airflow(inlet air including alternator and combustion air) ft3/min. 2,400
Systemcoolantcapacity USgal. 2.5
Heatrejectiontocoolant BTU/hr. 120,000
Max.operatingairtemp.onradiator °C(°F) 60(150)
Max.ambienttemperature °C(°F) 50(140)
COMBUSTION AIR REQUIREMENTS
Flowatratedpower60Hz cfm 68
SOUND EMISSIONS IN DBA
Exercisingat7meters 62
Normaloperationat7meters 75
EXHAUST
Exhaustflowatratedoutput60Hzcfm 130
Exhausttemp.atmuffleroutlet °F 900
ENGINE PARAMETERS
RatedsynchronousRPM 60Hz 1800
HPatratedKW 60Hz 40
POWER ADJUSTMENT FOR AMBIENT CONDITIONS
TemperatureDeration
3%forevery10°Cabove-°C 25
1.65%forevery10°Fabove-°F 77
AltitudeDeration
1%forevery100mabove-m 183
3%forevery1000ft.above-ft. 600
ENCLOSURE
Material Aluminum
Color PMS422(Bisque)
OPERATING DATA
QT027
RATING: Allthreephasesunitsareratedat0.8powerfactor.Allsinglephaseunitsareratedat1.0powerfactor.STANDBYRATING:Standbyratings
applytoinstallationsservedbyareliableutilitysource.Thestandbyratingisapplicabletovaryingloadsforthedurationofapoweroutage.Thereis
nooverloadcapabilityforthisrating.RatingsareinaccordancewithISO-3046-1.Designandspecificationsaresubjecttochangewithoutnotice.

QT027
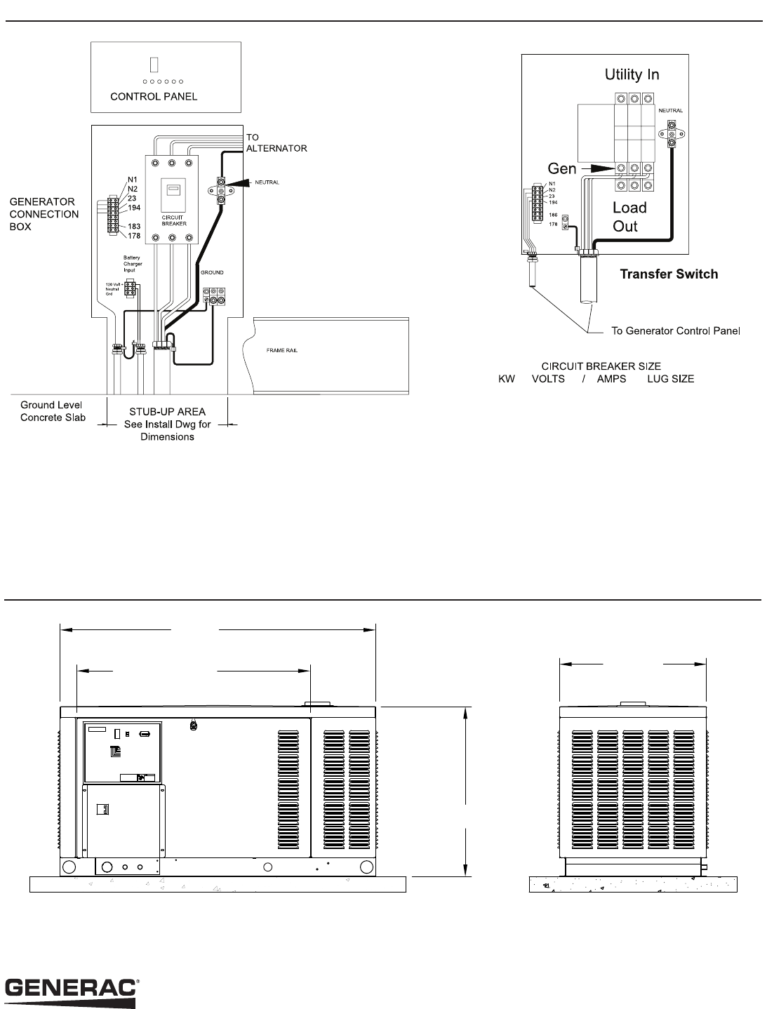
INTERCONNECTIONS
27 240 1 Ø 125 #2 to 1/0
27 208 3 Ø 100 #4 to 1/0
27 240 3 Ø 90 #4 to 1/0
INSTALLATION LAYOUT
INSIDE
LOCATED High voltage.
may result in personal
Contact with terminals
injury or death.
HI COOLANT TEMPERATURE
LOW OIL PRESSURE
LOW FUEL PRESSURE
LOW BATTERY
SYSTEM READY
FUSES
AUTO
MANUAL
OFF
OFF
ON
TIME
SET
EXERCISE
LOW COOLANT LEVEL
OVER SPEED
OVER CRANK
DANGER
28.98
FRONT VIEW
62.2
46.02
DOOR TYP
33.5
SEE INSTALL DWG 0G9370 FOR DETAILS
HOURS
1/10
QUARTZ
InstallationDrawingRef.No.0G0325
Generac Power Systems, Inc. • S45 W29290 HWY. 59, Waukesha, WI 53189 • generac.com
©2009 Generac Power Systems, Inc. All rights reserved. All specifications are subject to change without notice. Bulletin 0177710SBY/Printed in U.S.A. 05.08, rev: 03.09
WEIGHT: 891 lbs.