Generac 04077 01 04109 1 04079 00789 00844 Owners Manual Guardian 6, 8 & 10kW Air Cooled Standby Generators Owner's C4219
04077-1, 04109-1, 04079-1, 00789-1, 00844-1 to the manual 16111795-9402-4507-bb65-9bfa6f49bb36
2015-01-05
: Generac Generac-04077-01-04109-1-04079-1-00789-1-00844-1-Owners-Manual-166136 generac-04077-01-04109-1-04079-1-00789-1-00844-1-owners-manual-166136 generac pdf
Open the PDF directly: View PDF
.
Page Count: 32

POWER SYSTEMS, INC.
®
Installation, Start-up
and Adjustment Manual
Air-cooled, Prepackaged
Standby Generators
Models:
Nonsound Attenuated (Non-SA)
04077-1 (6 kW)
04109-1 (8 kW)
04079-1 (10 kW)
Sound Attenuated (SA)
00789-1 (8 kW)
00844-1 (8 kW)
ONLY QUALIFIED ELECTRICIANS OR CONTRACTORS
SHOULD ATTEMPT INSTALLATION!!

Generac®Power Systems, Inc.
INTRODUCTION
Thank you for purchasing a model of the Guardian
product line by Generac Power Systems Inc. These
models are compact, high performance, air-cooled,
engine-driven generators designed to automatically
supply electrical power to operate critical loads dur-
ing a utility power failure.
This unit is factory installed in an all-weather, metal
enclosure that is intended exclusively for outdoor
installation. This generator will operate using either
vapor withdrawn liquid propane (LP) or
natural gas (NG).
READ THIS MANUAL THOROUGHLY
If you do not understand any portion of this manual,
contact Generac or your nearest Generac/Guardian
Authorized Dealer for starting, operating and
servicing procedures.
Throughout this publication, and on tags and
decals affixed to the generator, DANGER, WARNING,
CAUTION and NOTE blocks are used to alert you to
special instructions about a particular operation that
may be hazardous if performed incorrectly or care-
lessly. Observe them carefully. Their definitions are
as follows:
After this heading, you can read instructions that,
if not strictly complied with, will result in personal
injury or property damage.
After this heading, you can read instructions that,
if not strictly complied with, may result in personal
injury or property damage.
After this heading, you can read instructions that, if
not strictly complied with, could result in damage to
equipment and/or property.
NOTE:
After this heading, you can read explanatory
statements that require special emphasis.
These safety warnings cannot eliminate the hazards
that they indicate. Common sense and strict compli-
ance with the special instructions while performing the
service are essential to preventing accidents.
Four commonly used safety symbols accompany the
DANGER, WARNING and CAUTION blocks. The type
of information each indicates follows:
This symbol points out important safety informa-
tion that, if not followed, could endanger personal
safety and/or property of you and others.
This symbol points out potential explosion hazard.
This symbol points out potential fire hazard.
This symbol points out potential electrical shock
hazard.
The operator is responsible for proper and safe use
of the equipment. We strongly recommend that the
operator read the Owner's Manual and thoroughly
understand all instructions before using this equip-
ment. We also strongly recommend instructing other
users to properly start and operate the unit. This pre-
pares them if they need to operate the equipment in
an emergency.
OPERATION AND MAINTENANCE
It is the operator's responsibility to perform all safe-
ty checks, to make sure that all maintenance for safe
operation is performed promptly, and to have the
equipment checked periodically by a
Generac/Guardian Authorized Dealer. Normal main-
tenance service and replacement of parts are the
responsibility of the owner/operator and, as such, are
not considered defects in materials or workmanship
within the terms of the warranty. Individual operating
habits and usage contribute to the need for mainte-
nance service.
Proper maintenance and care of your generator
ensure a minimum number of problems and keep
operating expenses at a minimum. See your
Generac/Guardian Authorized Dealer for service aids
and accessories.
HOW TO OBTAIN SERVICE
When your generator requires servicing or repairs,
simply contact a Generac/Guardian Authorized
Dealer for assistance. Service technicians are factory-
trained and are capable of handling all of your
service needs.
When contacting a Generac/Guardian Authorized
Dealer or the factory about parts and service, always
supply the complete model number and serial num-
ber of your unit as given on its data decal, which is
located on the generator’s engine.
◆
◆
◆
AUTHORIZED
DEALER LOCATION
To locate the GENERAC/GUARDIAN AUTHORIZED
DEALER nearest you, please call this number:
1-800-747-1530
DEALER LOCATION INFORMATION
CAN BE OBTAINED AT THIS NUMBER.

Table of Contents
Guardian Air-cooled Generators
Generac® Power Systems, Inc. 1
Introduction ......................Inside Front Cover
Read This Manual Thoroughly ......................IFC
Operation and Maintenance............................IFC
How to Obtain Service....................................IFC
Authorized Dealer Location Number..................IFC
Safety Rules ......................................................2
Section 1 – Installation ..................................4
1.1 Introduction to Installation ..........................4
1.1.1 Installation Assistance......................4
1.1.2 Standards Index ..............................4
1.2 Unpacking....................................................4
1.2.1 Precautions ......................................4
1.2.2 Inspection ........................................4
1.3 Before Installation........................................5
1.4 Lifting the Generator....................................5
1.5 Engine Oil Recommendations ......................5
1.6 Gaseous Fuel System ..................................5
1.6.1 Fuel System Requirements
and Recommendations ....................5
1.6.2 Fuel Consumption ............................6
1.6.3 Fuel Pipe Sizing................................6
1.6.4 Reconfiguring the Fuel System ........6
1.7 Location and Mounting ................................7
1.7.1 Generator ........................................7
1.7.1.1 6 kW, 8 kW and
10 kW Units (Non-SA) ......7
1.7.1.2
Sound Attenuated Units
....7
1.7.2 Transfer Switch................................7
1.7.2.1 6 Kw, 8 kW and
10 kW Units (Non-SA) ......7
1.7.2.2 Sound Attenuated Units ....7
1.8 Emergency Circuit Isolation Method ..........11
1.9 Total Circuit Isolation Method....................11
1.10 Generator AC Connection System ..............12
1.11 Wiring Interconnections ..............................12
1.11.1 6 kW, 8 kW and
10 kW Units (Non-SA) ....................12
1.11.2 Sound Attenuated Units ................12
1.12 Generators and GTS Transfer Switches ....14
1.13 Control Circuit Interconnections................14
1.14 Adapting Three-phase Transfer Switch ......15
1.15 Control Board Configuration......................15
1.16 Grounding the Generator ..........................15
1.17 The Battery.................................................16
1.17.1 Battery Installation ........................17
1.18 The Fuse.............. ......................................17
1.19 Post Installation Inspection ........................17
Section 2 – Operation ..................................18
2.1 Using the Auto/Off/Manual Switch..............18
2.1.1 “Auto” Position................................18
2.1.2 “Off” Position..................................18
2.1.3 “Manual” Position ..........................18
2.2 Automatic Transfer Operation....................18
2.3 Sequence of Automatic Operation ..............19
2.4 Manual Transfer Operation........................19
2.4.1 Transfer to Generator
Power Source ..................................19
2.4.2 Transfer Back to Utility
Power Source ..................................20
2.5 Protection Systems ....................................20
2.5.1 Low Oil Pressure Switch ................20
2.5.2 High Temperature Switch ..............20
2.5.3 Overcrank ......................................20
2.5.3.1 Approximate Crank
Cycle Times ....................21
2.5.4 Overspeed ......................................21
2.6 Additional Generator Features ..................21
2.6.1 6 kW, 8 kW and
10 kW Units (Non-SA) ....................21
2.6.2 Sound Attenuated Units ................21
Section 3 – Post-installation Start-up
Adjustments..............................22
3.1 Before Initial Start-up ................................22
3.2 Check Transfer Switch Operation ..............22
3.3 Electrical Checks ......................................22
3.4 Generator Tests Under Load ......................22
3.5 Checking Automatic Operation ..................23
3.6 Adjusting the Load Block ..........................23
3.7 Engine Governor Adjustment ....................24
3.7.1 6 kW Units (Non-SA)......................24
3.7.2 8 kW and 10 kW Units (Non-SA)....24
3.7.3 Sound Attenuated Units ................25
3.8 Voltage Regulator Adjustment ....................25
3.9 Overspeed Calibration................................25
3.9.1 6 kW, 8 kW and
10 kW Units (Non-SA) ....................26
3.9.2 Sound Attenuated Units ................26
3.10 Setting the Exercise Timer ........................26
3.10.1 6 kW, 8 kW and
10 kW Units (Non-SA) ....................26
3.10.2 Sound Attenuated Units ................26
Section 4 – Troubleshooting ......................27
4.1 Troubleshooting Guide ..............................27
4.2 Installation Checklist ................................28
Section 5 – Notes ..........................................29

2 Generac®Power Systems, Inc.
Study these SAFETY RULES carefully before
installing, operating or servicing this equipment.
Become familiar with this Installation, Start-up and
Adjustment Manual and with the unit. The generator
can operate safely, efficiently and reliably only if it is
properly installed, operated and maintained. Many
accidents are caused by failing to follow simple and
fundamental rules or precautions.
Generac cannot possibly anticipate every possible cir
cumstance that might involve a hazard. The warn-
ings in this manual, and on tags and decals
affixed to the unit are, therefore, not all-inclusive. If
you use a procedure, work method or operating tech-
nique Generac does not specifically recommend, you
must satisfy yourself that it is safe for you and others.
You also must make sure the procedure, work
method or operating technique that you choose does
not render the generator unsafe.
Despite the safe design of this generator,
operating this equipment imprudently, neglecting
its maintenance or being careless can cause
possible injury or death. Permit only responsible
and capable persons to operate or maintain this
equipment.
Potentially lethal voltages are generated by
these machines. Ensure all steps are taken to
render the machine safe before attempting to
work on the generator.
Parts of the generator are rotating and/or hot
during operation. Exercise care near running
generators.
GENERAL HAZARDS
• For safety reasons, Generac recommends
that the installation, initial start-up and mainte-
nance of this equipment is carried out by a
Generac/Guardian Authorized Dealer.
• The engine exhaust fumes contain carbon monox-
ide, which can be DEADLY. This dangerous gas, if
breathed in sufficient concentrations, can cause
unconsciousness or even death. This exhaust sys-
tem must be installed properly, in strict compli-
ance with applicable codes and standards.
Following installation, you must do nothing that
might render the system unsafe or in noncompli-
ance with such codes and standards.
• Keep hands, feet, clothing, etc., away from drive
belts, fans, and other moving or hot parts. Never
remove any drive belt or fan guard while the unit is
operating.
• Adequate, unobstructed flow of cooling and venti-
lating air is critical to correct generator operation.
Do not alter the installation or permit even partial
blockage of ventilation provisions, as this can seri-
ously affect safe operation of the generator. The
generator MUST be installed outdoors.
• When working on this equipment, remain alert at
all times. Never work on the equipment when you
are physically or mentally fatigued.
• Inspect the generator regularly, and contact your
nearest Generac/Guardian Authorized Dealer for
parts needing repair or replacement.
• Before performing any maintenance on the genera-
tor, disconnect its battery cables to prevent acci-
dental start up. Disconnect the cable from the bat-
tery post indicated by a NEGATIVE, NEG or (–)
first. Reconnect that cable last.
• Never use the generator or any of its parts as a
step. Stepping on the unit can stress and break
parts, and may result in dangerous operating con-
ditions from leaking exhaust gases, fuel leakage,
oil leakage, etc.
Important Safety Instructions
Guardian Air-cooled Generators
SAVE THESE INSTRUCTIONS – The manufacturer suggests that these rules for safe
operation be copied and posted near the unit’s installation site. Safety should be stressed to
all operators and potential operators of this equipment.
The engine exhaust from this product
contains chemicals known to the state
of California to cause cancer, birth
defects or other reproductive harm.
WARNING:

Generac®Power Systems, Inc. 3
ELECTRICAL HAZARDS
• All generators covered by this manual produce
dangerous electrical voltages and can cause fatal
electrical shock. Utility power delivers extremely
high and dangerous voltages to the transfer switch
as does the standby generator when it is in opera-
tion. Avoid contact with bare wires, terminals, con-
nections, etc., while the unit is running. Ensure all
appropriate covers, guards and barriers are in
place before operating the generator. If you must
work around an operating unit, stand on an insu-
lated, dry surface to reduce shock hazard.
• Do not handle any kind of electrical device while
standing in water, while barefoot, or while hands
or feet are wet. DANGEROUS ELECTRICAL
SHOCK WILL RESULT.
• The National Electrical Code (NEC) requires the
frame and external electrically conductive parts of
the generator to be connected to an approved earth
ground. Local electrical codes also may require
proper grounding of the generator electrical sys-
tem.
• After installing this home standby electrical sys-
tem, the generator may crank and start at any time
without warning. When this occurs, load circuits
are transferred to the STANDBY (generator) power
source. To prevent possible injury if such a start
and transfer occur, always set the generator’s
Auto/Off/Manual switch to its OFF position before
working on equipment and remove the fuse.
• In case of accident caused by electric shock, imme-
diately shut down the source of electrical power. If
this is not possible, attempt to free the victim from
the live conductor. AVOID DIRECT CONTACT
WITH THE VICTIM. Use a nonconducting imple-
ment, such as a rope or board, to free the victim
from the live conductor. If the victim is uncon-
scious, apply first aid and get immediate medical
help.
• Never wear jewelry when working on this equip-
ment. Jewelry can conduct electricity resulting in
electric shock, or may get caught in moving com-
ponents causing injury.
FIRE HAZARDS
• For fire safety, the generator must be installed and
maintained properly. Installation always must
comply with applicable codes, standards, laws and
regulations. Adhere strictly to local, state and
national electrical and building codes. Comply
with regulations the Occupational Safety and
Health Administration (OSHA) has established.
Also, ensure that the generator is installed in
accordance with the manufacturer’s instructions
and recommendations. Following proper installa-
tion, do nothing that might alter a safe installation
and render the unit in noncompliance with the
aforementioned codes, standards, laws and regu-
lations.
• Keep a fire extinguisher near the generator at all
times. Extinguishers rated “ABC” by the National
Fire Protection Association are appropriate for use
on the standby electric system. Keep the extin-
guisher properly charged and be familiar with its
use. If you have any question pertaining to fire
extinguishers, consult your local fire department.
EXPLOSION HAZARDS
• Do not smoke around the generator. Wipe up any
fuel or oil spills immediately. Ensure that no com-
bustible materials are left in the generator com-
partment, or on or near the generator, as FIRE or
EXPLOSION may result. Keep the area surround-
ing the generator clean and free from debris.
• Gaseous fluids such as natural gas and liquid
propane (LP) gas are extremely EXPLOSIVE.
Install the fuel supply system according to applica-
ble fuel-gas codes. Before placing the home stand-
by electric system into service, fuel system lines
must be properly purged and leak tested according
to applicable code. After installation, you must
inspect the fuel system periodically for leaks. No
leakage is permitted.
Important Safety Instructions
Guardian Air-cooled Generators

1.1 INTRODUCTION TO INSTALLATION
NOTE:
Read the entire manual before starting the installa-
tion. Ensure that the model number of the unit
being installed matches a model on the front cover.
Generac cannot possibly know of and advise the home
standby trade of all conceivable procedures and meth-
ods by which installation of this equipment might be
achieved. Neither can Generac know of possible hazards
and/or results of each method or procedure. We have
not undertaken any such wide evaluation.
1.1.1 INSTALLATION ASSISTANCE
1. For the Homeowner or Business Owner: You need
to have a certified electrician or contractor to
install this product. To arrange for proper installa-
tion, contact one of the following sources:
• Generac/Guardian Authorized Dealer: Look for
“Generac” or “Guardian” in your local Yellow
Pages under the classification “Generators –
Electric.”
• Heating and A/C Contractors: Look in your local
Yellow Pages under the classifications “Heating
Contractors” or “Air Conditioning Contractors.”
• Call us direct at (262) 544-4811 between the
hours of 8 a.m. and 5 p.m. CST. We will gladly
assist you in finding a local qualified installer.
2. For the Installing Dealer/Contractor: This manual
contains all the information required to properly
install and start a Guardian Power Systems gen-
erator in most applications. If you do need more
information, contact us directly at
(262) 544-4811, between the hours of 8 a.m. and
5 p.m., CST.
1.1.2 STANDARDS INDEX
In the absence of pertinent standards, codes, regula-
tions and laws, the published information listed
below may be used as installation guide for this
equipment.
1. NFPA No. 37, STATIONARY COMBUSTION
ENGINES AND GAS TURBINES, available from
the National Fire Protection Association, 470
Atlantic Avenue, Boston, MA 02210.
2. NFPA No. 76A, ESSENTIAL ELECTRICAL SYS-
TEMS FOR HEALTH CARE FACILITIES, available
same as Item 1.
3. NFPA No. 54, NATIONAL FUEL GAS CODE, avail-
able same as Item 1.
4. NFPA No. 58, AMERICAN NATIONAL STANDARD
FOR STORAGE AND HANDLING OF LIQUEFIED
PETROLEUM GAS, available same as Item 1.
5. NFPA No. 70, NFPA HANDBOOK OF NATIONAL
ELECTRIC CODE, available same as Item 1.
6. Article X, NATIONAL BUILDING CODE, available
from the American Insurance Association, 85
John Street, New York, N.Y. 10038.
7. AGRICULTURAL WIRING HANDBOOK, available
from the Food and Energy Council, 909 University
Avenue, Columbia, MO 65201.
8. ASAE EP-3634, INSTALLATION AND MAINTE-
NANCE OF FARM STANDBY ELECTRICAL SYS-
TEMS, available from the American Society of
Agricultural Engineers, 2950 Niles Road, St.
Joseph, MI 49085.
9. NFPA No. 30, FLAMMABLE AND COMBUSTIBLE
LIQUIDS CODE, available same as Item 1.
1.2 UNPACKING
1.2.1 PRECAUTIONS
Handle shipping cartons and crates with care. Use
care to avoid damage from dropping, bumping, colli-
sion, etc. Store and unpack crates and cartons with
the proper side up, as noted on the shipping carton.
1.2.2 INSPECTION
After unpacking, carefully inspect the contents
for damage that may have occurred during shipment
• This standby generator set has been factory sup-
plied with a weather protective enclosure that is
intended for outdoor installation only.
• The 6 kW, 8 kW and 10 kW standby generator sets
are packaged with an automatic transfer switch.
• This UL listed, two-pole switch is rated at 100 AC
amperes at 250 volts maximum. This transfer
switch is for indoor use only.
• All sound attenuated models have a built-in trans-
fer switch.
If this generator is used to power electrical load
circuits normally powered by a utility power
source, you are required by code to install a trans-
fer switch. The transfer switch must effectively iso-
late the electrical system from the utility distribu-
tion system when the generator is operating (NEC
701). Failure to isolate an electrical system by such
means will result in damage to the generator and
also may result in injury or death to utility power
workers due to backfeed of electrical energy.
If any loss or damage is noted at time of delivery, have
the person(s) making the delivery note all damage on
the freight bill or affix his or her signature under the
consignor's memo of loss or damage.
If you note loss or damage after delivery, separate the
damaged materials and contact the carrier for claim
procedures.
“Concealed damage” is understood to mean damage
to the contents of a package that is not in evidence at
the time of delivery, but is discovered later.
◆
◆
◆
◆
Section 1 — Installation
Guardian Air-cooled Generators
Only qualified electricians or contractors
should attempt such installations, which
must comply strictly with applicable
codes, standards and regulations.
DANGER:
4 Generac®Power Systems, Inc.

1.3 BEFORE INSTALLATION
Before installing this equipment, check the ratings of both
the generator and the transfer switch. Read “Emergency
Circuit Isolation Method” and “Total Circuit Isolation
Method” in Sections 1.8 and 1.9 (Page 11) carefully.
The generator's rated wattage/amperage capacity
must be adequate to handle all electrical loads that
the unit will power. You may have to group the criti-
cal (essential) electrical loads together and wire them
into a separate emergency distribution panel.
NOTE:
In some areas, you may need to acquire electrical
permits for installing an emergency system, build-
ing permits for installing gas lines, and permits for
noise allowances. Check your local codes before
installing the unit.
1.4 LIFTING THE GENERATOR
To lift a nonsound attenuated generator, insert pipe
having sufficient strength and diameter through the lift-
ing holes (lifting brackets are provided with sound
attenuated units), which are located near the unit’s base
(see Figure 1.1). You also may lift the unit using a hook
and hoist method provided you use a spreader bar to
ensure that the lines clear the roof.
Figure 1.1 – Location of Lifting Holes/Brackets
When lifting or hoisting equipment is used, be
careful not to touch overhead power lines.
The generator’s weight of more than 300
pounds requires proper tools and equipment,
and qualified personnel to be used in all phases
of handling and unpacking.
Exercise caution when lifting the unit
manually as it may shift on lifting pipes during
transportation, which may result in injury.
The generator was not designed to be lifted by
its roof. Use the lifting holes or brackets provided
near the base of the unit. If using a hook and
hoist lifting method, you must employ a spreader
bar to prevent from crushing the roof.
1.5 ENGINE OIL RECOMMENDATIONS
Use oil of American Petroleum Institute (API) Service
Class SG, SH or SJ. Select the viscosity based on the
air temperature at the time of operation. See the fol-
lowing chart:
*Organic break-in oil is required before using synthetic oil.
Any attempt to crank or start the engine before
it has been properly serviced with the recom-
mended oil may result in an engine failure.
1.6 GASEOUS FUEL SYSTEM
NOTE:
The following information pertaining to gaseous
fuel systems is provided to assist gaseous fuel
technicians in planning installations. In no way
should this information be interpreted to conflict
with applicable fuel gas codes. Consult with your
local fuel supplier or fire marshall if questions or
problems arise.
1.6.1 FUEL SYSTEM REQUIREMENTS
AND RECOMMENDATIONS
When installing the fuel system, install a flexible
length of line between the generator fuel connec-
tion and the rigid piping. The flexible hose must
be approved for use with gaseous fuels. It is rec-
ommended that an emergency manual fuel shutoff
valve be placed in-line.
◆
LIFTING BRACKET
Section 1 — Installation
Guardian Air-cooled Generators
Generac®Power Systems, Inc. 5
Temperature Oil Grade (Recommended)
Above -7º C (20º F) SAE 10W-30 or SAE 30
Below -7º C (20º F) SAE 5W-20 or 5W-30
All Seasons SAE 5W-30 Synthetic*
(6 kW, 8 kW and 10 kW)
(Sound Attenuated)

6 Generac®Power Systems, Inc.
With LP gas, use only the vapor withdrawal system.
This type of system uses the vapors formed above the liq-
uid fuel in the storage tank.
The engine has been fitted with a fuel carburetion sys-
tem that meets the specifications of the 1997 California
Air Resources Board for tamper-proof dual fuel sys-
tems. The unit will run on natural gas or LP gas, but it
has been factory set to run on natural gas. Should the
primary fuel need to be changed to LP gas, the fuel sys-
tem needs to be reconfigured. See Section 1.6.4 (Page
6) for instructions on reconfiguration of the fuel system.
Recommended fuels should have a Btu content of at
least 1,000 Btus per cubic foot for natural gas; or at
least 2,520 Btus per cubic foot for LP gas. Ask your fuel
supplier for the Btu content of your fuel.
Fuel pressure for both natural gas and liquid propane
(LP) vapor set ups MUST be 11 inches to 14 inches of
water column (0.6 psi) at all load ranges.
1.6.2 FUEL CONSUMPTION
See the following chart for fuel supply requirements at
half and full load for both natural gas and LP vapor.
*Natural gas is in cubic feet per hour.
**LP is in gallons per hour/cubic feet per hour.
Gaseous fuels such as natural gas and liquid
propane (LP) gas are highly explosive. Even the
slightest spark can ignite such fuels and cause
an explosion. No leakage of fuel is permitted.
Natural gas, which is lighter than air, tends to
collect in high areas. LP gas is heavier than air
and tends to settle in low areas.
1.6.3 FUEL PIPE SIZING
See the following chart for proper sizing of fuel supply
piping. Insufficient fuel pipe size can cause hard start-
ing, poor engine performance and inability to carry
load.
NG and LP Vapor Pipe Sizing Chart:
1.6.4 RECONFIGURING THE FUEL SYSTEM
To reconfigure the fuel system from NG to LP,
follow these steps:
1. Remove the carburetor fuel hose from the natural
gas port of the fuel load block and the brass fit-
ting (Figure 1.2).
2. Remove the blanking plug from the LP port of the
load block (Figure 1.2).
Figure 1.2 – Natural Gas Setup`
◆
◆
◆
Section 1 — Installation
Guardian Air-cooled Generators
Model # Nat. Gas (*) LP Vapor (**)
1/2 Load Full Load 1/2 Load Full Load
6 kW 74.1 105.3 0.86/31.30 1.08/39.30
8 kW 79.7 140.0 1.07/38.94 1.56/56.77
10 kW 100.8 177.9 1.16/42.21 2.15/78.24
Sound Attn. 84.6 126.6 1.06/38.57 1.7/61.86
Length of Pipe Iron Pipe Size (IPS Inches)
½" ¾" 1" 1 ¼" 1 ½" 2"
15' 76 172 345 750 1,220 2,480
30' 52 120 241 535 850 1,780
45' 43 99 199 435 700 1,475
60' 38 86 173 380 610 1,290
75' 77 155 345 545 1,120
90' 70 141 310 490 1,000
105 65 131 285 450 920
120 120 270 420 860
150 109 242 380 780
180 100 225 350 720
210 92 205 320 660
240 190 300 620
270 178 285 580
300 170 270 545
450 140 226 450
600 119 192 390
Consumption in
Cubic Feet Per Hour

Generac®Power Systems, Inc. 7
3. Refit the fitting and hose to the LP port and
the blanking plug to the natural gas port
(Figure 1.3).
4. Reverse the procedure to convert back to
natural gas.
NOTE:
The natural gas adjustment screw is preset during
installation and should not need any further
adjustment.
Figure 1.3 – LP Gas Setup
1.7 LOCATION AND MOUNTING
1.7.1 GENERATOR
Install the generator set, in its protective enclosure,
outdoors, where adequate cooling and ventilating air
always is available. Consider these factors:
• Install the unit where air inlet and outlet openings
will not become obstructed by leaves, grass, snow,
etc. If prevailing winds will cause blowing or drift-
ing, you may need to consider using a windbreak
to protect the unit.
• Install the generator on high ground where water
levels will not rise and endanger it.
• Allow sufficient room on all sides of the generator
for maintenance and servicing. A good rule is to
allow 3 feet of space on all sides.
• Where strong prevailing winds blow from one
direction, face the generator air inlet openings into
the prevailing winds.
• Install the generator as close as possible to the
transfer switch. This reduces the length of wiring
and conduit.
• Install the generator as close as possible to the fuel
supply, to reduce the length of piping. HOWEVER,
REMEMBER THAT LAWS OR CODES MAY REG-
ULATE THE DISTANCE.
1.7.1.1 6 kW, 8 kW and 10 kW Units (Non-SA)
These Guardian units are supplied with their own
mounting pads and DO NOT require a concrete pad.
Remove the packing material from the unit and unbolt
the two 4-inch by 4-inch wooden blocks from the
underside of the mounting base. Plug the holes with the
plugs provided. Prepare the installation site to accept
the mounting base. Provide adequate substrate to give
sufficient drainage, i.e., a 3-inch deep section of pea
gravel scattered under the mounting base.
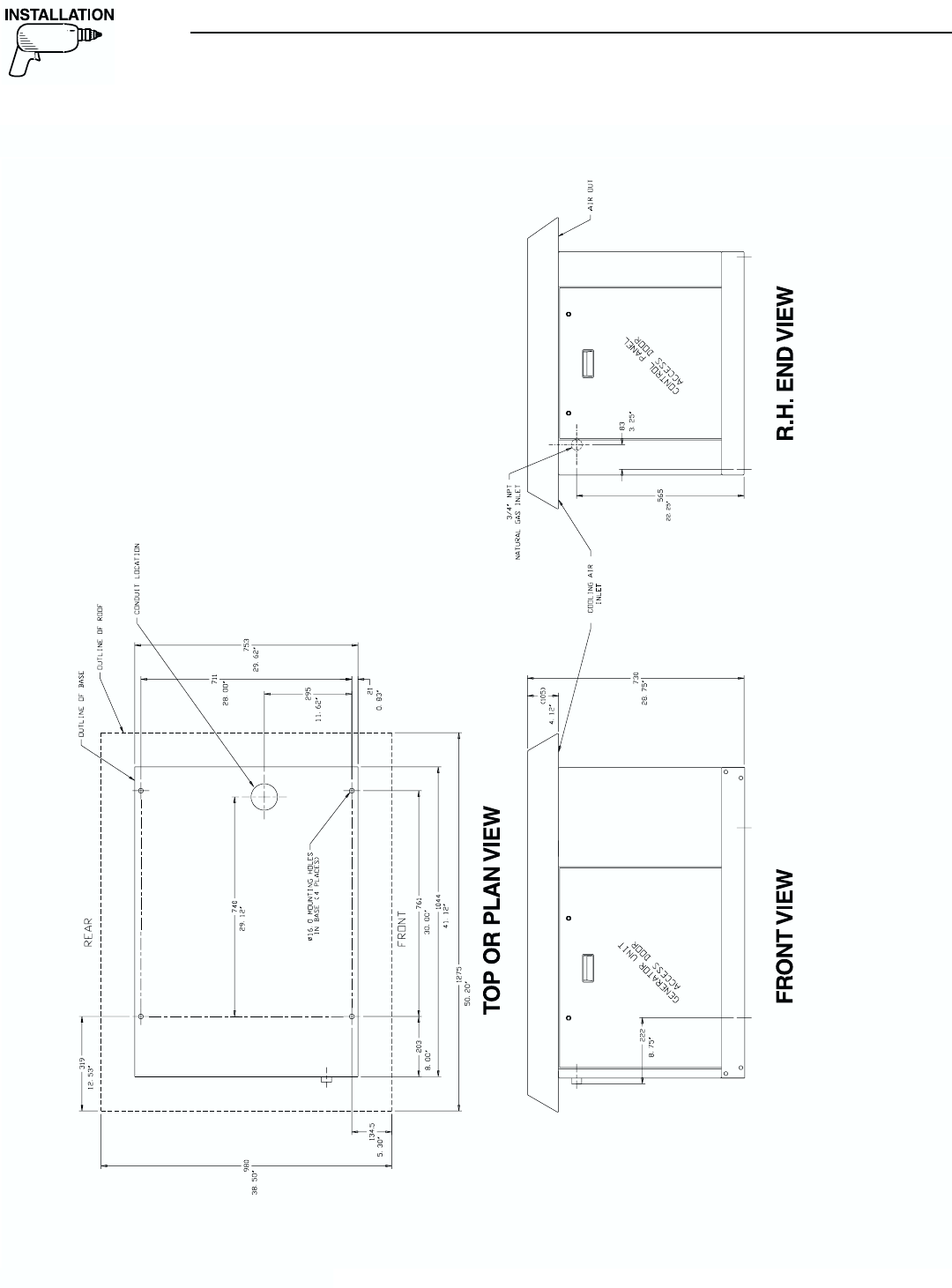
See Figure 1.4 (Pages 8-9) for generator and transfer
switch major dimensions.
1.7.1.2 Sound Attenuated Units
Retain the generator compartment to a concrete slab
with 1/4-inch masonry type anchor bolts. Be sure the
bolts are long enough to retain the compartment. The
slab should be at least 3 inches thick and should
extend beyond the enclosure to a distance of at least
3 inches on all sides.
See Figure 1.5 (Page 10) for generator major
dimensions.
1.7.2 TRANSFER SWITCH
1.7.2.1 6 kW, 8 kW and 10 kW Units (Non-SA)
The transfer switch shipped with this generator is
enclosed in a NEMA 1 enclosure. This type of enclo-
sure is intended for indoor use only. Follow these
rules:
• Install the transfer switch indoors on a firm, stur-
dy supporting structure.
• To prevent switch distortion, level the switch
if necessary. This can be done by placing
washers between the switch enclosure and
mounting surface.
• Never install the switch where water or any corro-
sive substance might drip onto the enclosure.
• Protect the switch at all times against excessive
moisture, dust, dirt, lint, construction grit and
corrosive vapors.
1.7.2.2 Sound Attenuated Units
All sound attenuated models have a transfer switch
built into the enclosure and do not require a separate
switch attachment.
◆
◆
Section 1 — Installation
Guardian Air-cooled Generators

8 Generac®Power Systems, Inc.
Figure 1.4 – Generator and Transfer Switch Mounting Dimensions (6 kW, 8 kW and 10 kW Non-SA)
Section 1 — Installation
Guardian Air-cooled Generators

Generac®Power Systems, Inc. 9
Figure 1.4 (Continued)
Section 1 — Installation
Guardian Air-cooled Generators

10 Generac®Power Systems, Inc.
Figure 1.5 – Generator Mounting Dimensions (Sound Attenuated)
Section 1 — Installation
Guardian Air-cooled Generators

Generac®Power Systems, Inc. 11
1.8 EMERGENCY CIRCUIT
ISOLATION METHOD
One effective way of preventing the generator from
being overloaded is to use the “Emergency Circuit
Isolation Method” (Figure 1.6).
Essential electrical loads are grouped together and
wired into a separate emergency distribution panel.
Load circuits fed by the emergency distribution panel
must be within the unit's rated wattage capacity. The
following apply to this type of isolation system:
• The transfer switch is installed between the main
and the emergency distribution panels as shown.
• The transfer switch must have an ampere rating
equal to the ampere rating of the emergency circuit.
Figure 1.6 – Emergency Circuit Isolation Method
* Ampere rating must equal or exceed the ampere
rating of the emergency distribution system.
** Ampere capacity is not to exceed the alternator
rating. Only these items will be powered by the
standby alternator. If the electrician sizes the load
properly, the alternator cannot be overloaded.
All wiring must conform to the National Electrical
Code, and all state and local codes. Consult a quali-
fied, licensed electrician.
The above illustration assumes the utility is supply-
ing 120/240-volt, single-phase electrical service.
1.9 TOTAL CIRCUIT
ISOLATION METHOD
If essential electrical loads cannot be grouped togeth-
er and wired into an emergency distribution panel,
you will have to select load circuits that the generator
will power during a utility power outage.
Be careful to avoid overloading the generator. The fol-
lowing apply to the “Total Circuit Isolation Method”
(Figure 1.7):
• The transfer switch is installed between the utility
service entrance and the distribution panel.
• The transfer switch ampere rating must be equal to
the main electrical service entrance rating.
Figure 1.7 – Total Circuit Isolation Method
* Ampere rating is equal to or larger than main (nor-
mal) power source.
** Use caution with this system to prevent overload of
the alternator during utility power failure. All load
items in the distribution panel must be individual-
ly turned off. Only certain items can be turned
back on during alternator operation. These items
should be specified by your electrician so as not to
overload the alternator.
All wiring must conform to the National Electrical
Code, and all state and local codes. Consult a quali-
fied, licensed electrician.
The above illustration assumes the utility is supply-
ing 120/240-volt, single-phase electrical service.
Service Disconnect
Section 1 — Installation
Guardian Air-cooled Generators

12 Generac®Power Systems, Inc.
1.10 GENERATOR AC
CONNECTION SYSTEM
Figure 1.8 represents a single-phase, three-wire gen-
erator AC connection system. The stator assembly in
this system consists of a pair of stationary windings
with two leads brought out of each winding. Each sin-
gle winding can supply a 120-volt, 60-Hertz AC out-
put. When the two windings are connected in series,
a 240-volt, 60-Hertz AC output results. Stator AC out-
put leads 11 and 44 are the two “hot” leads; the junc-
tion of leads 22 and 33 forms the neutral lead.
Figure 1.8 – Generator AC Connection System
1.11 WIRING INTERCONNECTIONS
This generator uses an UNGROUNDED neutral
line consisting of the junction of stator leads 22
and 33. Figure 1.9 and Figure 1.10 (Page 13) are
interconnection diagrams of home standby
electrical systems. Power voltage leads and
transfer switch “signal” leads must be run in
separate conduit.
All wiring must be the proper size, properly support-
ed, of approved insulative qualities, and protected by
NEC approved conduit. Use a length of flexible conduit
between the generator and any rigid conduit.
NOTE:
See also “Emergency Circuit Isolation Method,”
Section 1.8, and “Total Circuit Isolation Method,”
Section 1.9, on Page 11.
1.11.1 6 KW, 8 KW AND 10 KW UNITS (NON-SA)
Complete the following AC power lead connections
for single-phase units (Figure 1.9, Page 13):
1. Connect utility power supply leads to transfer
switch terminals N1, N2 and the neutral lug.
2. Connect generator AC output leads from the gen-
erator’s main circuit breaker (CB1) and the gen-
erator neutral lug to transfer switch terminals
E1, E2 and the neutral lug.
3. Connect circuit load leads to customer load,
and to transfer switch terminals T1, T2 and the
neutral lug.
1.11.2 SOUND ATTENUATED UNITS
The sound attenuated unit utilizes an internal
100-amp “V”-type transfer switch. The control and
generator AC wires are prewired from the factory.
Complete the following AC power lead connections
for single-phase units (Figure 1.10, Page 13):
1. Connect utility power supply leads to transfer
switch terminals N1, N2 and the neutral lug.
2. Connect circuit load leads to customer load,
and to transfer switch terminals T1, T2 and the
neutral lug.
◆
◆
Section 1 — Installation
Guardian Air-cooled Generators

Generac®Power Systems, Inc. 13
Section 1 — Installation
Guardian Air-cooled Generators
Figure 1.10 – Interconnection Diagram for Single-Phase Power System (Sound Attenuated)
Figure 1.9 – Interconnection Diagram for Single-Phase Power System (6 kW, 8 kW and 10 kW Non-SA)

14 Generac®Power Systems, Inc.
1.12 GENERATORS AND GTS
TRANSFER SWITCHES
Guardian generators (this DOES NOT APPLY to single-
phase sound attenuated units) may be installed with
either a prepackaged transfer switch or with a stan-
dard GTS-type automatic transfer switch (Figure
1.11). You can do this by connecting generator control
console terminals 178 and 183 to identically num-
bered terminals in the GTS switch. Turn dip switch #2
“Remote Not Auto” to the ON position on the generator
control printed circuit board.
NOTE:
The enclosure roof will need to be removed to gain
access to the printed circuit board.
When a Guardian generator is installed with a stan-
dard GTS-type switch, solid-state circuit boards in
the transfer switch control automatic operation.
For automatic operating sequences, parameters
and timing, refer to the appropriate GTS transfer
switch manual.
Automatic operation for Guardian generators
installed with prepackaged transfer switches is
controlled by a control module circuit board in the
control panel. Refer to the “Operation” section of
this manual.
1.13 CONTROL CIRCUIT
INTERCONNECTIONS
For 6 kw, 8 kW and 10 kW units (not including
sound attenuated), these interconnections consist
of “Utility” and leads 23 and 194 (see Figure 1.9,
Page 13). These four leads must be routed in con-
duit that is separate from the generator AC power
leads. Control lead functions may be briefly
described as follows:
1. Utility 1 and Utility 2: Deliver utility source power
to the generator's logic circuit board.
2. Leads 23 and 194: After the generator starts, the
logic circuit board in control panel delivers a
“transfer” signal via these two leads.
• When logic circuit board action closes this circuit,
it causes transfer switch main contacts to activate
and connect load circuits to generator output.
• When utility source voltage is restored, logic board
opens leads 23 and 194 circuit. Loads are then
transferred back to utility circuit.
NOTE:
Recommended size of control circuit leads (Utility
1 and 2, and 23 and 194) is No. 14 AWG stranded
copper wire.
Section 1 — Installation
Guardian Air-cooled Generators
Figure 1.11 – Interconnection With GTS Transfer Switch (100A, y-type)

Generac®Power Systems, Inc. 15
1.14 ADAPTING THREE-PHASE
TRANSFER SWITCH
The generator you are installing may include a
prepackaged transfer switch configured for three-
phase loads. If you want to adapt this kind of transfer
switch for single-phase loads, proceed as follows:
1. Discard the three-phase power monitor (PM)
found inside the enclosure. You will not use it
with a single-phase system.
2. Locate the eight-pin octal relay socket in the lower
left corner of the transfer switch enclosure.
3. Move Wire N1A from Terminal 8 to Terminal 1 by
cutting the lug off of N1A , stripping wire 5/16"
from end, and inserting the wire under screw of
Terminal 1.
NOTE:
Moving N1A from Terminal 8 to Terminal 1 takes
the three-phase voltage monitor out of the sensing
circuit. Now, the control circuit board in the con-
trol module assembly (CMA) senses utility voltage.
4. Now, connect the control wires as follows:
• Connect Utility Supply to lugs N1 and N2.
• Connect the Customer Load lugs T1 and T2.
• Connect the Standby Supply to lugs E1 and E2.
1.15 CONTROL BOARD CONFIGURATION
The control board for the 6 kW, 8 kW and 10 kw has
four dip switches (see Figure 1.12), which may be set
up differently during installation.
1. Dip switch 1: When in the ON position, the board
requires 20 Vac from the step down transformer
to the control board to determine if utility is
present. This switch is factory preset and should
not need to be changed. This switch should be set
in the OFF position.
2. Dip switch 2: When in the ON position, it will
disable the automatic starting of these units.
This should be set when utility is not present at
the installation location. This is the only switch
that may need to be set to the ON position for
these models.
3. Dip switch 3: It will allow for 50 Hertz opera-
tion and is not applicable to these models. This
switch is factory preset and should not need to
be changed. This switch should be set in the
OFF position.
4. Dip switch 4: It has no function at this time.
Figure 1.12 – Control Board Configuration
1.16 GROUNDING THE GENERATOR
Generally, connecting a No. 12 AWG stranded copper
wire to the grounding lug (Figure 1.13) and to an earth-
driven copper or brass grounding rod (electrode) will
adequately ground the generator. However, local codes
may vary widely. Consult with a local electrician for
grounding requirements in your area.
Figure 1.13 – Grounding the Generator
Section 1 — Installation
Guardian Air-cooled Generators

16 Generac®Power Systems, Inc.
1.17 THE BATTERY
Servicing of the battery is to be performed or super-
vised by personnel knowledgeable of batteries and
the required precautions. Keep unauthorized person-
nel away from batteries.
When replacing the battery, use the following type of
battery: Group 26/26R 12-volt battery with a rating of
350 cold-cranking amps at -17.8º C (0º F) minimum.
When using a maintenance-free battery, it is not nec-
essary to check the specific gravity or electrolyte level.
Have these procedures performed at the intervals
specified in the Owner’s Manual “Service Schedule.”
A negative ground system is used. Battery connec-
tions are shown on the wiring diagrams. Make sure
the battery is correctly connected and terminals are
tight. Observe battery polarity when connecting the
battery to the generator set.
NOTE:
Damage will result if the battery connections are
made in reverse.
Your generator is equipped with a battery trickle
charger that is active when your unit is set up for
automatic operation. The trickle charger is
designed to help extend the life of your battery by
maintaining the battery when the unit is
not running.
Do not dispose of the battery in a fire. The
battery is capable of exploding.
A battery presents a risk of electrical shock
and high short circuit current. The following
precautions are to be observed when working
on batteries:
• Remove watches, rings or other metal objects;
• Use tools with insulated handles;
• Wear rubber gloves and boots;
• Do not lay tools or metal parts on top of the
battery; and
• Disconnect charging source prior to connecting or dis-
connecting battery terminals.
Do not open or mutilate the battery. Released
electrolyte has been known to be harmful to
the skin and eyes, and to be toxic.
The electrolyte is a dilute sulfuric acid that is
harmful to the skin and eyes. It is electrically
conductive and corrosive. The following
procedures are to be observed:
• Wear full eye protection and protective clothing;
• Where electrolyte contacts the skin, wash it off
immediately with water;
• Where electrolyte contacts the eyes, flush
thoroughly and immediately with water and seek
medical attention; and
• Spilled electrolyte is to be washed down with an
acid neutralizing agent. A common practice is to
use a solution of 1 pound (500 grams) bicarbonate
of soda to 1 gallon (4 liters) or water. The bicar-
bonate of soda solution is to be added until the
evidence of reaction (foaming) has ceased. The
resulting liquid is to be flushed with water and the
area dried.
Lead-acid batteries present a risk of fire
because they generate hydrogen gas. The
following procedures are to be followed:
• DO NOT SMOKE when near the battery;
• DO NOT cause flame or spark in battery area; and
• Discharge static electricity from your body before
touching the battery by first touching a grounded
metal surface.
Be sure the Auto/Off/Manual switch is set to
the OFF position before connecting the battery
cables. If the switch is set to AUTO or MANUAL,
the generator can crank and start as soon as
the battery cables are connected.
Be sure the utility power supply is turned off,
or sparking may occur at the battery posts as
you attach the cables and cause an explosion.
Section 1 — Installation
Guardian Air-cooled Generators

Generac®Power Systems, Inc. 17
1.17.1 BATTERY INSTALLATION
Fill the battery with the proper electrolyte fluid if nec-
essary and have the battery fully charged before
installing it.
Before installing and connecting the battery, complete
the following steps:
1. Set the generator's Auto/Off/Manual switch
to OFF.
2. Turn off utility power supply to the transfer
switch.
If the Auto/Off/Manual switch is not set to its
OFF position, the generator can crank and start
as soon as the battery cables are connected. If
the utility power supply is not turned off,
sparking can occur at the battery posts and
cause an explosion.
Battery cables were factory connected at the genera-
tor (Figure 1.14). Connect cables to battery posts as
follows:
1. Connect the red battery cable (from starter con-
tactor) to the battery post indicated by a positive,
POS or (+).
2. Connect the black battery cable (from frame
ground) to the battery post indicated by a nega-
tive, NEG or (—).
Figure 1.14 – Battery Cable Connections
NOTE:
With the battery installed and utility power source
voltage available to the transfer switch, the battery
receives a trickle charge while the engine is not
running, to prevent self-discharge. The trickle
charge feature cannot be used to recharge a dis-
charged battery.
1.18 THE FUSE
The generator panel’s 15-amp fuse protects the DC
control circuit against overload. The fuse is wired in
series with the battery output lead to the panel. If the
fuse element has melted open, you cannot crank or
start the engine. You should replace the fuse using
only an identical 15-amp replacement.
1.19 POST INSTALLATION INSPECTION
Before placing the home standby electrical system
into service, inspect the entire installation carefully.
Some areas may require that an inspection be per-
formed by a building or electrical inspector.
◆
Section 1 — Installation
Guardian Air-cooled Generators
Figure 1.15 – Typical Emergency Power System

18 Generac®Power Systems, Inc.
NOTE:
Throughout the “Operation” section, differences
in procedures specific to sound attenuated units
will be denoted as follows: (SA = information).
2.1 USING THE AUTO/OFF/MANUAL
SWITCH (FIGURE 2.1/2.2)
2.1.1 “AUTO” POSITION
Selecting this switch position activates fully automat-
ic system operation. It also allows you to start and
exercise the engine every seven days with the setting
of the exercise timer (see Section 3.10, Page 26). This
position also is used for remote starting, when it is
set up.
2.1.2 “OFF” POSITION
This switch position shuts down the engine. This
position also prevents automatic operation.
2.1.3 “MANUAL” POSITION
Set the switch to MANUAL to crank and start the
engine. Transfer to standby power will not occur
unless there is a utility failure.
With the switch set to AUTO, the engine may
crank and start at any time without warning.
Such automatic starting normally occurs when
utility power source voltage drops below a
preset level or during the normal exercise cycle.
To prevent possible injury that might be caused
by such sudden starts, always set the switch to
OFF and remove the fuse before working on or
around the generator or transfer switch. Then,
place a “Do Not Operate” tag on the generator
panel and on the transfer switch.
Figure 2.1 – Generator Control Panel
(6 kW, 8 kW, 10 kW Non-SA)
Figure 2.2 – Generator Control Panel
(Sound Attenuated)
2.2 AUTOMATIC TRANSFER
OPERATION
To select automatic operation, do the following:
1. Make sure the transfer switch main contacts are
set to their “Utility” position, i.e., loads connected
to the utility power source (Figure 2.3, Page 19).
2. Be sure that normal utility power source voltage is
available to transfer switch terminal lugs N1 and N2.
3. Set the generator’s Auto/Off/Manual switch to
AUTO.
4. Set the generator’s main circuit breaker to its ON
(or closed) position.
With the preceding steps complete, the generator will
start automatically when utility source voltage drops
below a preset level. After the unit starts, loads are
transferred to the standby power source. Refer to
“Sequence of Automatic Operation.”
◆
◆
◆
Section 2 — Operation
Guardian Air-cooled Generators

Generac®Power Systems, Inc. 19
2.3 SEQUENCE OF
AUTOMATIC OPERATION
The generator’s control panel houses a control logic
circuit board. This board constantly monitors utili-
ty power source voltage. Should that voltage drop
below a preset level, circuit board action will signal
the engine to crank and start. After the engine
starts, the circuit board signals the transfer switch
to activate and connect load circuits to the standby
power supply (load terminal lugs T1/T2 connect to
terminal lugs E1/E2).
Upon restoration of utility source voltage above a
preset level, generator circuit board action signals
the transfer switch to transfer loads back to that
power supply. After retransfer, the engine is signalled
to shut down.
The actual sequence of operation is controlled by
sensors and timers on a control logic circuit board,
as follows:
A.Utility Voltage Dropout Sensor
• This sensor monitors utility source voltage.
• If utility source voltage drops below about 60 per-
cent of the nominal supply voltage, the sensor
energizes a 15-second (SA = six-second) timer.
• Once the timer has expired, the engine will crank
and start.
B.Engine Warm-up Time Delay
• This mechanism lets the engine warm up for
about 10 (SA = 15) seconds before the load is
transferred to a standby source.
C.Standby Voltage Sensor
• This sensor monitors generator AC output volt-
age. When the voltage has reached 50 percent of
the nominal rated voltage, transfer to standby
can occur.
D.Utility Voltage Pickup Sensor
• This sensor monitors utility power supply volt-
age. When that voltage is restored above 80 per-
cent of the nominal source voltage, a retransfer
time delay starts timing.
E.Retransfer Time Delay
• This timer runs for about 15 (SA = six) seconds.
• At end of a 15-second (SA = six-second) delay,
circuit board action de-energizes transfer relay in
the transfer switch.
• Retransfer to utility power source then occurs.
F. Engine Cool-down Timer
• When the load is transferred back to utility power
source, the engine cool-down timer starts timing.
• The timer will run for about one minute, and the
generator will then shut down.
NOTE:
Sound attenuated units have a control module
assembly (CMA) board that reads frequency sig-
nals from the stator battery charge windings and
relates them to engine speed or rpm. When AC fre-
quency reaches about 30 Hertz, cranking is termi-
nated and an engine warmup timer goes ON, run-
ning for approximately 15 seconds.
2.4 MANUAL TRANSFER OPERATION
2.4.1 TRANSFER TO GENERATOR
POWER SOURCE
To start the generator and activate the transfer switch
manually, proceed as follows:
1. Set the generator’s Auto/Off/Manual switch to
OFF.
2. Set the generator’s main circuit breaker to its
OFF (or open) position.
3. Turn OFF the utility power supply to the transfer
switch using the means provided (such as a
utility main line circuit breaker).
Do not attempt to activate the transfer switch
manually until all power voltage supplies
to the switch have been positively turned off.
Failure to turn off all power voltage supplies
may result in extremely hazardous and possibly
fatal electrical shock.
Figure 2.3 – Manual Transfer Switch Operation
4. Use the manual transfer handle inside the trans-
fer switch to move the main contacts to their
“Standby” position, i.e., loads connected to the
standby power source (Figure 2.3).
5. Turn ON the utility power supply to the transfer
switch using the means provided (such as a
utility main line circuit breaker).
◆
Section 2 — Operation
Guardian Air-cooled Generators

20 Generac®Power Systems, Inc.
6. To crank and start the engine, set the
Auto/Off/Manual switch to MANUAL.
7. Let the engine stabilize and warm up for a few
minutes.
8. Set the generator’s main circuit breaker to its ON
(or closed) position. The standby power source
now powers the loads.
2.4.2 TRANSFER BACK TO UTILITY
POWER SOURCE
When utility power has been restored, you will want
to transfer back to that source and shut down the
generator. This can be accomplished as follows:
1. Set the generator’s main circuit breaker to its
OFF (or open) position.
2. Let the engine run for a minute or two at no-load
to stabilize the internal temperatures.
3. Set the generator’s Auto/Off/Manual switch to
its OFF (or open) position. The engine should
shut down.
4. Check that utility power supply to the transfer
switch is turned OFF.
Do not attempt to activate the transfer switch
manually until all power voltage supplies
to the switch have been positively turned off.
Failure to turn off all power voltage supplies
may result in extremely hazardous and possibly
fatal electrical shock.
5. Use the manual transfer handle inside the trans-
fer switch to move the main contacts back to their
“Utility” position, i.e., loads connected to the util-
ity power source (Figure 2.3, Page 19).
6. Turn ON the utility power supply to the transfer
switch using the means provided.
7. Set the system to automatic operation as
outlined in “Automatic Transfer Operation,”
Section 2.2 (Page 18).
2.5 PROTECTION SYSTEMS
Unlike an automobile engine, the generator may have
to run for long periods of time with no operator pres-
ent to monitor engine conditions. For that reason, the
engine is equipped with the following systems that
protect it against potentially damaging conditions:
1. Low Oil Pressure Sensor
2. High Temperature Sensor
3. Overcrank
4. Overspeed
On sound attenuated models, there are LED read-
outs on the control panel to notify you that one of
these faults has occurred. There is also a “System
Set” LED that is lit when all of the following condi-
tions are true:
1. The Auto/Off/Manual switch is set to the AUTO
position.
2. The “Not In Auto” dip switch is set to the OFF
position on the control board.
3. No alarms are present.
2.5.1 LOW OIL PRESSURE SWITCH
This switch (Figure 2.4) has normally closed contacts
that are held open by engine oil pressure during
cranking and operating. Should oil pressure drop
below the 8 psi range, switch contacts close, and the
engine shuts down. The unit should not
be restarted until oil is added, and the
Auto/Off/Manual switch must be turned to OFF and
then back to AUTO.
2.5.2 HIGH TEMPERATURE SWITCH
This switch’s (Figure 2.4) contacts close if the tem-
perature should exceed approximately 140º C (284º
F), initiating an engine shutdown. Your generator will
automatically restart and the LED will reset once the
temperature has returned to a safe operating level.
Figure 2.4 – Low Oil Pressure and
High Temperature Switches
2.5.3 OVERCRANK
This feature prevents the generator from damaging itself
when it continually attempts to start and another prob-
lem, such as no fuel supply, prevents it from starting.
The unit will crank and rest for a preset time limit.
Then, it will stop cranking, and the LED will light indi-
cating an overcrank failure. The Auto/ Off/Manual switch
will need to be set to OFF and then back to AUTO to
reset the generator control board.
NOTE:
If the fault is not repaired, the overcrank feature
will continue to activate.
◆
◆
◆
◆
Section 2 — Operation
Guardian Air-cooled Generators

2.5.3.1 Approximate Crank Cycle Times
• 15 seconds ON
• 15 seconds OFF
• 7 seconds ON
• 7 seconds OFF
• Repeat for 45 seconds
Approximately 90 seconds total
2.5.4 OVERSPEED
This feature protects the generator from damage by
shutting it down if it happens to run faster than the pre-
set limit. This protection also prevents the generator
from supplying an output that could potentially damage
appliances connected to the generator circuit. The over-
speed feature will activate as follows:
1. If the generator runs at 72 Hertz for five seconds,
the generator will shut down.
2. If the generator reaches 75 Hertz, it will shut
down instantly.
2.6 ADDITIONAL GENERATOR
FEATURES
2.6.1 6 KW, 8 KW AND 10 KW UNITS (NON-SA)
The standard 6 kW, 8 kW and 10 kW air-cooled
Guardians offer additional features that are not
factory preset:
1. Remote Start – This allows for remote starting of
the generator by means of the #183 (common)
and #178 (normally open) lines with the
Auto/Off/Manual switch set to AUTO. Closure of
the circuit starts the unit; opening of the circuit
stops the unit. See Figure 2.5.
NOTE:
This function will work ONLY with the unit in the
AUTO mode.
Figure 2.5 – Remote Start/Alarm Options
–Type 14 AWG wire is recommended.
–These options should be wired to the unit by a qualified electrician or
Generac/Guardian Authorized Dealer.
2. Remote/Common Alarm – This allows for an
alarm, light, horn, etc., to activate when any fault
has occurred. Lines #210 (common) and #211
(normally open) provide a “closure” on common
fault, which can be used for 120 volts, 10 amps
maximum. See Figure 2.5.
3. Remote Not Auto – The generator will not auto-
matically start during a utility failure.
2.6.2 SOUND ATTENUATED UNITS
Model 00844 of the sound attenuated air-cooled
Guardians offers additional features that are not factory
preset (see Figure 2.6):
1. Remote Start – This allows for remote starting of the
generator by means of the #183 and #178 lines with
the Auto/Off/Manual switch set to AUTO.
2. Engine Run Signal – The engine run signal is con-
trolled by the #14 line. The “volt free” engine run
signal relay closes when the #14 line is “hot.”
3. Automatic Transfer Switch (ATS) in Emergency –
For this to be active, a microswitch on the transfer
switch sends a signal along the #231 line to close
the “volt free” contact relay.
4. Shutdown Fault – This signal is controlled by the
main printed circuit board along the #229 line.
When a common fault occurs (low oil pressure,
high temperature, overspeed, overcrank), the
control board will send a signal along the #229
line to close the "volt free" contact relay.
Figure 2.6 – Remote Alarms
◆
◆
◆
Section 2 — Operation
Guardian Air-cooled Generators
Generac®Power Systems, Inc. 21

22 Generac®Power Systems, Inc.
3.1 BEFORE INITIAL START-UP
Before starting, complete the following:
1. Set the generator's Auto/Off/Manual switch to the
OFF position.
2. Turn OFF the utility power supply to the transfer
switch using the means provided (such as the
utility main line circuit breaker).
3. Check the engine crankcase oil level and, if neces-
sary, fill to the dipstick FULL mark with the rec-
ommended oil. Do not fill above the FULL mark.
4. Check the fuel supply. Gaseous fuel lines must
have been properly purged and leak tested in
accordance with applicable fuel-gas codes. All
fuel shutoff valves in the fuel supply lines must
be open.
Never operate the engine with the oil level
below the “Add” mark on the dipstick. Doing
this could damage the engine.
3.2 CHECK TRANSFER
SWITCH OPERATION
Refer to Section 2.4 (Page 19) for manual operation
procedures.
Do not attempt manual transfer switch
operation until all power voltage supplies to
the transfer switch have been positively turned
off. Failure to turn off all power voltage
supplies will result in extremely hazardous
and possibly fatal electrical shock.
3.3 ELECTRICAL CHECKS
Complete electrical checks as follows:
1. Turn on the utility power supply to the transfer
switch using the means provided (such as a utili-
ty main line circuit breaker).
The transfer switch is now electrically “hot.”
Contact with “hot” parts will result in extremely
hazardous and possibly fatal electrical shock.
Proceed with caution.
2. Use an accurate AC voltmeter to check utility
power source voltage across terminals N1 and
N2. Nominal line-to-line voltage should be 240
volts AC.
3. Check utility power source voltage across termi-
nals N1 and the transfer switch neutral lug; then
across terminal N2 and neutral. Nominal line-to-
neutral voltage should be 120 volts AC.
4. When certain that utility supply voltage is com-
patible with transfer switch and load circuit rat-
ings, turn OFF the utility power supply to the
transfer switch.
5. Set the generator's main circuit breaker to its
OFF (or open) position. Initial tests will be con-
ducted at no-load condition.
6. On the generator panel, set the Auto/Off/Manual
switch to MANUAL. The engine should crank
and start.
7. Let the engine warm up for about five minutes to
allow internal temperatures to stabilize. Then, set
the generator’s main circuit breaker to its ON (or
closed) position.
Proceed with caution! Generator power voltage
is now supplied to the transfer switch. Contact
with live transfer switch parts will result in
dangerous and possibly fatal electrical shock.
8. Connect an accurate AC voltmeter and an AC fre-
quency meter across transfer switch terminal
lugs E1 and E2. Voltage should be 242-252 volts;
frequency should read about 61-63 Hertz.
9. Connect the AC voltmeter test leads across termi-
nal lug E1 and neutral; then across E2 and neu-
tral. In both cases, voltage reading should be 121-
126 volts AC.
10. Set the generator’s main circuit breaker to its
OFF (or open) position. Let the engine run at no-
load for a few minutes to stabilize internal engine
generator temperatures.
11. Set the generator's Auto/Off/Manual switch to
OFF. The engine should shut down.
NOTE:
It is important that you DO NOT proceed until you
are certain that generator AC voltage and frequen-
cy are correct and within the stated limits.
Generally, if both AC frequency and voltage are
high or low, the engine governor requires adjust-
ment. If frequency is correct, but voltage is high or
low, the generator’s voltage regulator requires
adjustment.
3.4 GENERATOR TESTS UNDER LOAD
To test the generator set with electrical loads applied,
proceed as follows:
1. Set generator’s main circuit breaker to its OFF
(or open) position.
2. Set the generator's Auto/Off/Manual switch
to OFF.
3. Turn OFF the utility power supply to the transfer
switch, using the means provided (such as a util-
ity main line circuit breaker).
Section 3 — Post-installation Start-up Adjustments
Guardian Air-cooled Generators

Generac®Power Systems, Inc. 23
Do not attempt manual transfer switch
operation until all power voltage supplies to
the transfer switch have been positively turned
off. Failure to turn off all power voltage
supplies will result in extremely hazardous
and possibly fatal electrical shock.
4. Manually set the transfer switch to the STANDBY
position, i.e., load terminals connected to the
generator's E1/E2 terminals. The transfer switch
operating lever should be down.
5. Set the generator's Auto/Off/Manual switch to
MANUAL. The engine should crank and start
immediately.
6. Let the engine stabilize and warm up for a few
minutes.
7. Set the generator’s main circuit breaker to its ON
(or closed) position. Loads are now powered by
the standby generator.
8. Turn ON electrical loads. Apply an electrical load
equal to the full rated wattage/amperage capacity
of the installed generator.
9. Connect an accurate AC frequency meter across
terminal lugs E1 and E2. Voltage should be
greater than 230 volts; frequency should be
greater than 58 Hertz.
10. Let the generator run at full rated load for 20-30
minutes. Listen for unusual noises, vibration or
other indications of abnormal operation. Check
for oil leaks, evidence of overheating, etc.
11. When testing under load is complete, turn OFF
electrical loads.
12. Set the generator's main circuit breakers to their
OFF (or open) positions.
13. Let the engine run at no-load for a few minutes.
14. Set the Auto/Off/Manual switch to OFF. The
engine should shut down.
3.5 CHECKING AUTOMATIC
OPERATION
To check the system for proper automatic operation,
proceed as follows:
1. Check that the Auto/Off/Manual switch is set
to OFF.
2. Manually set the transfer switch to the UTILITY
position, i.e., load terminals connected to the util-
ity power source side.
3. Turn ON the utility power supply to the transfer
switch, using the means provided (such as a util-
ity main line circuit breaker).
4. Set the Auto/Off/Manual switch to AUTO. The sys-
tem is now ready for automatic operation.
5. Turn OFF the utility power supply to the transfer
switch.
With the Auto/Off/Manual switch at AUTO, the engine
should crank and start when the utility source power
is turned OFF. After starting, the transfer switch
should connect load circuits to the standby side. Let
the system go through its entire automatic sequence
of operation.
With the generator running and loads powered by
generator AC output, turn ON the utility power sup-
ply to the transfer switch. The following should
occur:
• After about six seconds, the switch should transfer
loads back to the utility power source.
• About one minute after retransfer, the engine
should shut down.
3.6 ADJUSTING THE LOAD BLOCK
When the natural gas system is being used, the load
block is fitted with an adjustment screw that has
been calibrated to provide maximum power.
However, because of variations in the Btu content of
natural gas across the country, it may be necessary to
readjust the load block.
• Connect a frequency meter to the output of the
generator.
• Start the unit and apply full load according to the
following chart:
• Allow the unit to stabilize; then, turn the adjust-
ment screw slowly clockwise or counterclockwise
and watch the frequency.
• When the highest frequency is reached, turn the
adjustment screw counterclockwise 1/4 turn.
• The fuel system is now set.
• For LP gas operations, the hose and blanking plug
must be reconfigured as shown in Figure 1.3, Page
7. The unit is set to provide maximum power
using LP gas.
Do not make any unnecessary adjustments.
Factory settings are correct for most applica-
tions. However, when making adjustments, be
careful to avoid overspeeding the engine.
Section 3 — Post-installation Start-up Adjustments
Guardian Air-cooled Generators
Unit 120 Volts 240 Volts
6 kW (Non-SA): 50 amps 25 amps
8 kW (Non-SA): 66.7 amps 33.3 amps
10 kW (Non-SA): 83.3 amps 41.6 amps
Sound Attn.: 66.7 amps 33.3 amps

24 Generac®Power Systems, Inc.
3.7 ENGINE GOVERNOR ADJUSTMENT
If both AC frequency and voltage are correspondingly
high or low, adjust the engine governor as follows:
3.7.1 6 KW UNITS (NON-SA)
1. Loosen the governor clamp bolt (Figure 3.1).
2. Push the spring end of the governor lever clock-
wise to the wide open throttle position of
the lever.
• Hold the governor lever at wide open throttle and,
with a pair of pliers, rotate the governor shaft
fully clockwise.
• While holding the governor shaft fully clockwise
and the governor lever at wide open throttle,
tighten the governor clamp bolt to 70 inch-
pounds (8 N-m).
3. Start the engine; let it stabilize and warm up at
no-load.
4. Turn the adjuster nut to obtain a frequency read-
ing of 62 Hertz.
5. Determine if the governor spring is properly
located in the slot of the governor lever as
follows:
• If droop is excessive, move the governor spring
down one slot on the lever.
• For greater stability, move the governor spring up
one slot on the lever.
6. After repositioning the spring on a lever slot,
recheck the frequency reading and, if necessary,
readjust the adjuster nut to obtain 62 Hertz at
no-load.
7. When frequency is correct at no-load, check the
AC voltage reading. If voltage is incorrect, the volt-
age regulator may require adjustment.
Figure 3.1 – 6 kW
Engine Governor Adjustment
3.7.2 8 KW AND 10 KW UNITS (NON-SA)
1. Loosen the governor clamp bolt (Figure 3.2).
2. Push the spring end of the governor lever clock-
wise to the wide open throttle position of
the lever.
• Hold the governor lever at wide open throttle
and, with a screwdriver, rotate the governor
shaft fully clockwise.
• Before tightening, verify that the governor lever is
pushed all the way onto the governor shaft.
• While holding the governor shaft fully clockwise
and the governor lever at wide open throttle,
tighten the governor clamp bolt to 70 inch-
pounds (8 N-m).
3. Start the engine; let it stabilize and warm up at
no-load.
4. Turn the speed adjust nut to obtain a frequency
reading of 62 Hertz.
5. When frequency is correct at no-load, check the
AC voltage reading. If voltage is incorrect, the volt-
age regulator may require adjustment.
Figure 3.2 – 8 kW and 10 kW
Engine Governor Adjustment
NOTE:
If the engine continues to run fast, use a pair of
pliers to bend the bend tab clockwise to release
tension on the lower governor spring.
◆
◆
Section 3 — Post-installation Start-up Adjustments
Guardian Air-cooled Generators

Generac®Power Systems, Inc. 25
3.7.3 SOUND ATTENUATED UNITS
1. Carefully inspect the governor anti-lash
spring (Figure 3.3). Be sure it is not broken
or disengaged.
2. Loosen the governor clamp nut. Then, push the
spring end of the governor lever all the way up
(wide open throttle).
3. Hold the governor lever at wide open throttle and
insert the tip of a screwdriver into the slotted end
of the governor shaft.
• Hold the governor lever at wide open throttle and
rotate the governor shaft fully counterclockwise.
• Hold the governor shaft fully counterclockwise
and tighten the governor clamp nut to 70 inch-
pounds (8 N-m) torque.
Figure 3.3 – Sound Attenuated
Engine Governor Adjustment
3.8 VOLTAGE REGULATOR
ADJUSTMENT
With the frequency between 61-62 Hertz, slowly turn
the slotted potentiometer (Figure 3.4) until line volt-
age reads 244-252 volts.
NOTE:
You must remove the roof to adjust the voltage
regulator on nonsound attenuated units.
Figure 3.4 – Voltage Adjustment Potentiometer
NOTE:
The voltage regulator is housed in the generator's
control panel. The regulator maintains
a voltage in direct proportion to frequency at a 2-
to-1 ratio. For example, at 62 Hertz, line-to-neu-
tral voltage will be 124 volts.
3.9 OVERSPEED ADJUSTMENT
3.9.1 6 KW, 8 KW AND 10 KW UNITS (NON-SA)
See item 3 of Section 1.15 on Page 15 for overspeed
adjustment information for these units.
3.9.2 SOUND ATTENUATED UNITS
Use the following overspeed adjustment procedure:
1. For initial setting, turn the potentiometer fully
clockwise.*
2. Start the engine and increase the governed
speed setting to 72 Hertz (62 Hertz for 50 Hertz
rated units).
*NOTE:
If immediate shutdown occurs when the engine
starts, reverse the potentiometer setting done
in item 1.
3. Turn the adjustment potentiometer slowly until
the engine shuts down.
4. Readjust the governor to the rated speed.
◆
◆
◆
Section 3 — Post-installation Start-up Adjustments
Guardian Air-cooled Generators

26 Generac®Power Systems, Inc.
3.10 SETTING THE EXERCISE TIMER
3.10.1 6 KW, 8 KW AND 10 KW UNITS (NON-SA)
Your generator is equipped with an exercise timer.
Once it is set, the generator will start and exercise
once every seven days, on the day of the week and at
the time of day you complete the following sequence.
During this exercise period, the unit runs for approx-
imately 12 minutes and then shuts down. Transfer of
loads to the generator output does not occur during
the exercise cycle.
A switch on the control panel (see Figure 2.1, Page
18) allows you to select the day and time for system
exercise. To select the desired day and time of day,
proceed as follows:
1. Verify that the Auto/Off/Manual switch is set
to AUTO.
2. Hold down the Set Exercise Timer switch until
the generator starts (approximately 10 seconds)
and then release.
3. The generator will start and run for approximate-
ly 12 minutes and then shut down on its own.
The exerciser will then be set to run at that time
of day every week.
NOTE:
The exerciser will only work in the AUTO mode
and will not work unless this procedure is per-
formed. The exerciser will need to be reset every
time the 12-volt battery is disconnected and then
reconnected. The exerciser WILL NOT work if dip
switch 2 (Remote Not Auto) is ON.
3.10.2 SOUND ATTENUATED UNITS
The generator will start and exercise once every
seven days. During this weekly exercise, the unit
runs for about 20 minutes and shuts down.
Transfer of loads to generator output does not occur
during the exercise.
A switch on the control panel (see Figure 2.2, Page
18) permits the day and time of day for system exer-
cise to be selected. To select the desired day and time
of day, proceed as follows:
1. Set the Auto/Off/Manual switch to OFF.
2. Set the generator’s main circuit breaker to its
OFF (or open) position.
3. On the control panel, locate the rocker switch
identified with the words “Set Exercise Time.”
4. Hold the “Set Exercise Time” switch in the ON
(downward) position for 20 to 30 seconds. The
switch springs back into its original position
when released.
5. Wait about 30 seconds before setting the
Auto/Off/Manual switch to AUTO.
If you reset the Auto/Off/Manual switch too
soon, the engine may start. If engine does
start, it shuts off automatically in two minutes.
6. Set the generator’s main circuit breaker to
its ON (or closed) position. The generator will
start and exercise every seven days thereafter,
on the day and at the time of day you pressed
the switch.
◆
◆
Section 3 — Post-installation Start-up Adjustments
Guardian Air-cooled Generators

Generac®Power Systems, Inc. 27
4.1 TROUBLESHOOTING GUIDE
PROBLEM CAUSE CORRECTION
The engine will not crank. 1. Fuse blown 1. Replace fuse.
2. Loose, corroded or defective 2. Tighten, clean or replace
battery cables as necessary.
3. Defective starter contactor 3. Replace starter contactor.
4. Defective starter motor 4. Replace starter motor.
5. Dead battery 5. Charge or replace battery.
The engine cranks but 1. Out of fuel 1. Replenish fuel.
will not start. 2. Defective fuel solenoid (FS) 2. Replace fuel solenoid.
3. Open #14 wire from 3. Check connections and
engine control board insulation of #14 wires.
4. Defective spark plug(s) 4. Clean, re-gap or replace plug(s).
The engine starts hard 1. Air cleaner 1. Check, clean or replace
and runs rough. plugged or damaged air cleaner.
2. Defective spark plug(s) 2. Clean, re-gap or replace plug(s).
The engine starts but shuts 1. Engine oil level low 1. Check oil and add oil as needed.
down immediately. 2. Defective low oil 2. Replace pressure switch.
pressure switch
3. Defective high temperature 3. Replace temperature switch.
switch
4. Defective control board 4. Replace control board.
The Auto/Off/Manual switch 1. Defective Auto/Off/Manual 1. Replace switch.
is set to OFF, but the engine switch
continues to run. 2. Auto/Off/Manual switch 2. Check wiring and connections.
wired incorrectly
3. Defective control board 3. Replace control board.
There is no AC output from 1. Main line circuit breaker open 1. Reset circuit breaker
the generator. to ON (closed) position.
2. Generator internal failure 2. Contact an Authorized
Dealer.
There is no transfer to 1. Defective transfer switch coil 1. Replace transfer switch coil.
standby after utility 2. Defective transfer relay 2. Replace transfer relay.
source failure. 3. Transfer relay circuit open 3. Close transfer relay circuit.
4. Defective control logic board 4. Replace control logic board.
Unit starts automatically when 1. Utility not present. 1. Switch dip switch 2 on control
switched to the AUTO position. board if utility is not available.
Check all connections if utility
should be present.
2. Defective Auto/Off/Manual 2. Replace switch.
switch
System Set LED is not lit when 1. Failure present, i.e., low oil 1. Correct failure.
switched to the AUTO position. pressure
2. Dip switch 2 set to the ON 2. Switch to the OFF position if
position desired.
Section 4 — Troubleshooting
Guardian Air-cooled Generators

28 Generac®Power Systems, Inc.
Section 4 — Troubleshooting
Guardian Air-cooled Generators
4.2 INSTALLATION CHECKLIST
BATTERY INSTALLATION
❏Battery is connected properly.
❏Recommended battery is installed.
❏Cables are clean and tight.
❏Terminals are coated with anti-corrosion grease,
and terminal covers are positioned.
FUEL SYSTEM
❏Complies with local and NFPA codes.
❏Fuel is connected and checked for leaks.
❏Correct fuel pressure (11-14 inches of water
(0.6 psi) at all load ranges).
❏Load block adjusted for maximum power for
natural gas fuel.
LOCATION
❏Unit is fastened to the appropriate mounting pad.
❏Louvers are free from obstruction.
❏Exhaust is clear of flammable objects and debris.
ELECTRICAL CONNECTIONS
❏Complies with local code requirements and all
National Electrical Codes.
❏Utility is connected and present.
❏Transfer switch is connected.
❏All wires running outside of the generator are in
NEC-approved conduit. *Note: Utility wires and
transfer switch control wires must be in separate
conduit.
❏Unit is grounded to an approved earth ground.
COOLING AND VENTILATING
❏All inlets and outlets are free from obstruction.
See Figure 1.4 and Figure 1.5.
OTHER
❏Verify that the unit is filled to the proper level with
the proper break-in oil. Adjust as required.
❏Notify owner that the “Break-in Procedure” should
be performed. Refer the owner to the Owner’s
Manual shipped with the unit.
OPTIONS AND ACCESSORIES
❏Control board is configured properly. See
Section 1.15.
❏Remote alarm is installed if desired. See
Section 2.6.
❏Remote start is installed if desired. See
Section 2.6.
◆
◆
◆
◆
◆
◆
◆

Generac®Power Systems, Inc. 29
Section 5 — Notes
Guardian Air-cooled Generators

Part No. C4219
GENERAC®POWER SYSTEMS, INC.
P.O. BOX 8
WAUKESHA, WI 53187
Revision * (12/13/99) Printed in U.S.A.